Revista Mandu'a - #498 - Octubre 2024

Page 1


INFORMACIÓN, OPINIÓN Y CULTURA AL SERVICIO DE LA CONSTRUCCIÓN

EDICIÓN OFICINAS Y BIENESTAR / OFICINAS NORDESTE - MÍNIMO COMÚN ARQUITECTURA / GUÍAS DE PRECIOS

COLORES DE LA LINEA EUROPEA

Mandu’a es la Revista de la construcción más leída del Paraguay. Mensualmente ofrece noticias, tendencias, notas técnicas y guías de precios de materiales, mano de obra, costeo de obra y proveedores de la construcción. La suscripción es gratuita para los profesionales de la construcción de todo el país.

Editorial

No hay seguridad en las rutas

Notas

Oficinas y bienestar

Proyecto nacional

Oficinas Nordeste

Proyecto internacional

Atelier Gardens Haus 1

Contacto

Ramón I. Cardozo c/ Andrés Gill Lambaré - Paraguay (021) 905 100 / (0981) 917 683 mandua@mandua.com.py www.mandua.com.py

Industria & innovación Espumas de Poliuretano

Pisos sobre elevados Steelfloor®

Guías de precios de la construcción

EQUIPO - Gerencia: Estela Villalba. Dirección editorial: Yerutí Arza. Administración: Estela Villalba. Costeo: Carlos Gómez. Publicidad: Víctor Hugo Franco. Sofía Franco. Néstor Raimondo. Rubén Cabrera Impresión: Artes Gráficas Castillo S.A. - Fundador: Mauri Arza.

NO HAY SEGURIDAD EN LAS RUTAS

La seguridad tiene varias aristas. Atañe a las personas físicas y sus bienes. Y al Estado que arbitra los medios para que se pueda vivir con tranquilidad. Sus ámbitos son los espacios privado y público.

La seguridad tiene varias aristas. Atañe a las personas físicas y sus bienes. Y al Estado que arbitra los medios para que se pueda vivir con tranquilidad. Sus ámbitos son los espacios privado y público.

Cuando se habla de la seguridad ciudadana, lo inmediato es referirse a la posibilidad real de que las personas transiten libremente por nuestro territorio sin que sean asaltadas, asesinadas o violentadas físicamente. Y que haya una sensación de estar libre de riesgos.

Cuando se habla de la seguridad ciudadana, lo inmediato es referirse a la posibilidad real de que las personas transiten libremente por nuestro territorio sin que sean asaltadas, asesinadas o violentadas físicamente. Y que haya una sensación de estar libre de riesgos.

Un aspecto no abordado por lo general en los medios de información, las redes sociales las conversaciones cotidianas es la inseguridad en las rutas.

Un aspecto no abordado por lo general en los medios de información, las redes sociales, conversaciones cotidianas es la inseguridad en las rutas.

Los últimos gobiernos se han empeñado en construir rutas y ampliar largamente la cantidad de vías asfaltadas. Esa acción es positiva puesto que la economía de un país se moviliza en transportes que facilitan y aceleran los accesos a los distintos lugares del país.

Los últimos gobiernos se han empeñado en construir rutas y ampliar la cantidad de vías asfaltadas. Esa acción es positiva puesto que la economía de un país se moviliza en transportes que facilitan y aceleran los accesos a los distintos lugares del país.

Es necesario, sin embargo, señalar que aun cuando haya más rutas y éstas estén señalizadas, algunas de ellas cuenten con dos carriles para la ida y para la vuelta evitando los cruces que se dan en calzadas de doble día y los vehículos se desplacen sin obstáculos hacia su destino, hay inseguridad en nuestras flamantes rutas: los accidentes y los asaltos son las evidencias diarias.

Es necesario, sin embargo, señalar que aun cuando haya más rutas y éstas estén señalizadas, algunas de ellas cuenten con dos carriles para la ida y para la vuelta evitando los cruces que se dan en calzadas de doble vía y los vehículos se desplacen sin obstáculos hacia su destino, hay inseguridad en nuestras flamantes rutas: los accidentes y los asaltos son las evidencias diarias.

Ello se da porque no se han tomado suficientes medidas de seguridad para proteger la vida y los bienes de las personas que circulan sobre los asfaltos. No hay que olvidar que el factor humano, personal, juega un rol trascendente en este tema, pero ello no quita que los principales responsables de mantener seguras las rutas son instituciones públicas.

Ello se da porque no se han tomado suficientes medidas de seguridad para proteger la vida y los bienes de las personas que circulan sobre el asfalto. No hay que olvidar que el factor humano, personal, juega un rol trascendente en este tema, pero ello no quita que los principales responsables de mantener seguras las rutas son las instituciones públicas.

El accidente ocurrido hace poco en el cerro Caacupé donde un camión transportador de ganado, salió de su carril reglamentario, perdió el freno y se estrelló contra algunos vehículos que se encontraban en su trayectoria ocasionando la muerte de seis personas muestra una dura realidad.

El accidente ocurrido hace poco en el cerro Caacupé donde un camión transportador de ganado, salió de su carril reglamentario, perdió el freno y se estrelló contra algunos vehículos que se encontraban en su trayectoria ocasionando la muerte de seis personas muestra una dura realidad.

Por otro lado, a menudo, las cajas de caudales son asaltadas en las rutas. No solo eso, también personas particulares.

Por otro lado, a menudo, las cajas de caudales son asaltadas en las rutas. No solo eso, también personas particulares.

Esos episodios son las réplicas de hechos similares que se dan en todo el país. Lo evidente es que la Patrulla Caminera no controla con eficiencia o controla y no sanciona por lo que los infractores ponen en manos de sus agentes. Tampoco la inspección técnica vehicular funciona. Los municipios reparten licencias de conducir y habilitaciones solo con pagar. Y la Policía Nacional no ofrece seguridad rutera por complicidad -explícita o implícita- con los delincuentes.

Esos episodios son las réplicas de hechos similares que se dan en todo el país. Lo evidente es que la Patrulla Caminera no controla con eficiencia o controla y no sanciona por lo que los infractores ponen en manos de sus agentes. Tampoco la inspección técnica vehicular funciona. Los municipios reparten licencias de conducir y habilitaciones solo con pagar. Y la Policía Nacional no ofrece seguridad rutera por complicidad -explícita o implícita- con los delincuentes.

El Ministerio del Interior, en definitiva, es el gran responsable de la inseguridad rutera. Es urgente que cumpla su rol a cabalidad porque las magníficas rutas asfaltadas, para ser completas, tienen que ofrecer seguridad a los que transitan por ellas.

El Ministerio del Interior, en definitiva, es el gran responsable de la inseguridad rutera. Es urgente que cumpla su rol a cabalidad porque las rutas asfaltadas, para ser completas, tienen que ofrecer seguridad a los que transitan por ellas.

OFICINAS Y BIENESTAR

El diseño de oficinas está evolucionando para priorizar el bienestar de los empleados. Este enfoque no solo mejora la calidad de vida, sino que también impulsa la productividad y rentabilidad empresarial. Invertir en espacios de trabajo saludables es una estrategia que está transformando la manera en que las empresas operan, ofreciendo beneficios tangibles tanto para los empleados como para la compañía.

- Revista Mandu’a

En la última década, las empresas han comenzado a replantearse cómo los espacios físicos afectan a sus empleados. Si bien en el pasado se enfocaban en la eficiencia operativa, la tendencia actual pone en primer plano el bienestar físico y mental de los trabajadores. Estudios recientes han demostrado que los espacios de trabajo saludables no solo son esenciales para la satisfacción de los empleados, sino que también impulsan la productividad y, en consecuencia, los beneficios económicos de la empresa.

El entorno laboral ideal debe ser un lugar donde los empleados puedan rendir al máximo de su capacidad sin sacrificar su bienestar. La idea de que el bienestar y la productividad están estrechamente vinculados está ganando terreno, y las empresas que invierten en la creación de espacios más saludables están viendo un retorno positivo en su inversión. Esto ha dado lugar a una nueva forma de pensar en el diseño de oficinas, donde se priorizan elementos que influyen directamente en la salud, como la calidad del aire, la luz natural, la ergonomía del mobiliario y la acústica.

Uno de los estándares más conocidos en la actualidad para medir y promover espacios saludables es la certificación WELL, un sistema que se enfoca en mejorar la salud y el bienestar de las personas en los edificios. Desarrollado por el International WELL Building Institute (IWBI), esta certificación evalúa varios factores que afectan la calidad del espacio, incluyendo el aire, el agua, la luz, el confort térmico, el sonido y los materiales. Las oficinas certificadas bajo el estándar WELL han demostrado ser altamente eficaces en la mejora del bienestar general de los empleados, lo que, a su vez, influye positivamente en su rendimiento.

FACTORES CLAVE PARA EL BIENESTAR

Uno de los principales factores que se ha identificado como crucial para el bienestar de los empleados es la calidad del aire. Los estudios indican que la ventilación adecuada y el aire limpio pueden mejorar significativamente la cognición y la productividad de los empleados. Las oficinas que integran sistemas avanzados de filtración y monitoreo de calidad del aire no solo reducen la propagación de enfermedades, sino que también permiten a los empleados trabajar de manera más efectiva y concentrada.

Otro aspecto importante es la luz natural. Diversas investigaciones han mostrado que la exposición a la luz natural durante el día tiene un impacto positivo en el estado de ánimo y la energía de los empleados. Además, la iluminación artificial bien diseñada, que imita los ritmos circadianos, puede ayudar a mejorar el bienestar emocional y físico en los espacios de trabajo, lo que reduce el cansancio y mejora la productividad.

El diseño ergonómico del mobiliario es también un componente esencial. Las oficinas tradicionales con mobiliario rígido y anticuado a menudo contribuyen a problemas de salud, como el dolor de espalda y el estrés. En cambio, los espacios que adoptan muebles ajustables y ergonómicos promueven una postura saludable y reducen las molestias físicas, lo que permite a los empleados trabajar durante más tiempo sin experimentar fatiga.

Además, el control del ruido es un factor clave que a menudo se pasa por alto. En un entorno laboral ruidoso, los empleados pueden distraerse fácilmente, lo que disminuye la productividad. Incluir medidas como el uso de materiales absorbentes de sonido y la creación de áreas de trabajo tranquilas puede hacer una gran diferencia en la concentración de los empleados.

RETORNO DE INVERSIÓN EN ESPACIOS DE TRABAJO SALUDABLES

Invertir en un espacio de trabajo que promueva el bienestar tiene implicaciones claras para la rentabilidad de una empresa. Las compañías que implementan medidas para mejorar la salud y el confort de sus empleados observan un aumento en la retención de talento, una reducción en los niveles de absentismo y un incremento en el rendimiento general de sus equipos. Los espacios de trabajo que se alinean con los principios de WELL han demostrado ser un poderoso incentivo para atraer y retener a los empleados, quienes valoran cada vez más su bienestar físico y mental.

La pandemia de COVID-19 ha acelerado la adopción de espacios de trabajo más saludables. En un entorno post-pandemia, donde la salud y la seguridad han cobrado mayor relevancia, las empresas están prestando más atención a cómo sus oficinas pueden contribuir a la salud a largo plazo. Aquellas que no adapten sus espacios a estos nuevos estándares de bienestar corren el riesgo de perder competitividad frente a otras que prioricen estos aspectos.

Un ejemplo claro de los beneficios de los espacios de trabajo saludables se observa en los estudios que muestran que un entorno más saludable puede mejorar la productividad hasta en un 20%. Si bien esto puede variar dependiendo del tipo de industria, el mensaje es claro: cuando los empleados se sienten mejor, trabajan mejor.

EL FUTURO DEL DISEÑO DE OFICINAS

A medida que avanzamos hacia el futuro, es evidente que la inversión en bienestar en los espacios de trabajo será clave para las empresas que quieran destacarse en el mercado competitivo actual. El diseño de oficinas centrado en el bienestar no es solo una tendencia temporal, sino un cambio fundamental en la forma en que las organizaciones valoran a su personal. Las oficinas del futuro no solo serán más eficientes, sino también más humanas, donde el bienestar de los empleados estará en el centro de cada decisión de diseño.

En definitiva, la creación de espacios de trabajo saludables no solo mejora la calidad de vida de los empleados, sino que también impulsa los beneficios económicos de la empresa. Es una inversión que tiene múltiples retornos, tanto a nivel personal como profesional, y que seguramente marcará el futuro del diseño en el sector de la construcción.

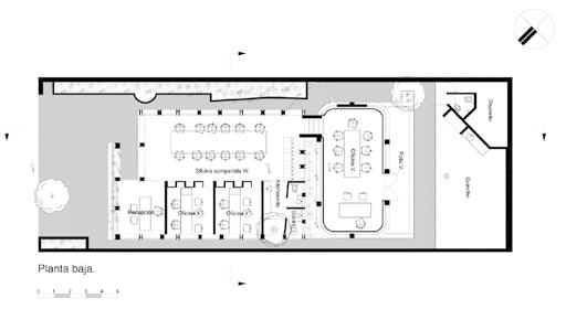
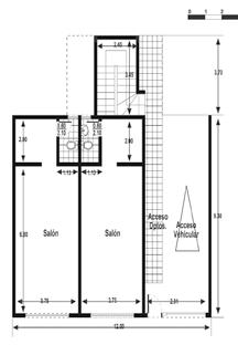
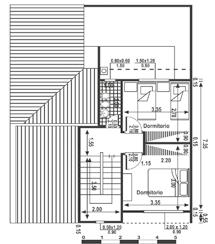
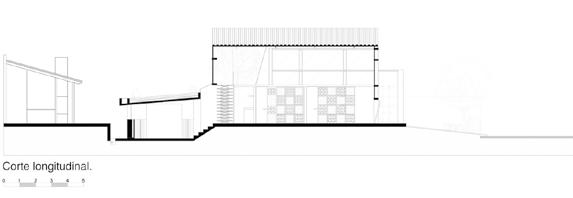
OFICINAS NORDESTE

Proyecto: Mínimo Común Arquitectura.

Arquitectos a cargo: Verónica Villate, Solanito Benítez, Sergei Jermolieff.

Colaboradores: Osvaldo Aguilera, Juan Salvare.

Ingeniería: Jaime Olmedo.

Fotografías: Federico Cairoli.

Superficie: 182 m².

Año: 2018.

Ubicación: Mariano Roque Alonso.

Descripción elaborada por el equipo del proyecto.

El primer acercamiento al aprendizaje se da a través del juego. Mediante un método heurístico nos aproximamos a la geometría, descubrimos formas, las asociamos con tamaños, colores y de esta manera entendemos las diferencias. Ignorando reglas, principios y al azar desarrollamos habilidades como herencia de nuestros antepasados.

Mientras nos moldean y enseñan las leyes del azar, preferimos armar castillos con naipes que son incapaces de sostenerse pero que agrupados en conjunto desafían la gravedad, y que se levantan y fortalecen apoyados unos a otros.

“Nordeste” no se aleja de esta realidad descrita, en la que las experiencias previas de ensayo y error servirán de base para levantar los naipes, en donde un ladrillo trabaja junto al otro para conformar paneles y el conjunto de éstos armarán la estructura, los muros, estantes y sin algunas de las partes no se podría constituir el todo. Un patio, un quincho en el fondo del terreno, una piscina y un sendero de vegetación en el lindero izquierdo se suman a los árboles que dibujaban el emplazamiento. Utilizamos la estructura existente de la piscina para los pilares de una losa jardín aprovechando la inercia térmica de estar enterrados para lo que quedo como la oficina presidencial.

La intervención nueva se eleva de la manera menos invasiva posible; separamos el volumen de ambos linderos dejando el izquierdo como un acceso lateral y el derecho como pasillo técnico. De esta manera la espacialidad interior del volumen se deja descubrir por la doble altura que se refuerza aún más por el árbol del Carambola.

Una platea de hormigón y unos pilares metálicos que soportan el techo de vigas metálicas tensadas, construido para dar cobijo y sombra a los obreros desde el inicio de la obra, servirán para albergar un gran espacio de trabajo compartido y oficinas privadas en planta baja, el entrepiso albergará una oficina con conexión a la losa

Como cerramiento lateral aparecen unos paños de vidrio de metro y medio de alto, lo suficiente para generar iluminación, ventilación y vistas a cuerpo completo de una persona sentada. A continuación, se levantan los muros de ladrillos de canto de 5 cm de espesor, 2,5 m de alto y 11 m de largo plegados cuidadosamente a manera de zigzag construidos con tutor. Dichas paredes distribuyen sus esfuerzos sobre paneles de ladrillos prefabricados, que arriostran la estructura y envuelven todo el espacio.

Los muros de las oficinas privadas, de paneles de ladrillos prefabricados, se conjugan para generar cubos separan las oficinas privadas del gran espacio común y sirven de apoyo para la losa de viguetas prefabricadas alivianada con ladrillo para una mejor terminación y reducción de la cantidad de viguetas y hormigón extremando el esfuerzo estructural de la losa.

Finalmente, como remate de las oficinas aparece un brisoleil que combina paneles cerámicos con paños de vidrio. Retornar al proceso de aprendizaje, las sucesiones de prueba y error… variar los modelos y métodos tradicionales… destruir y construir, generar nuevos conceptos… son premisas empleadas para este proyecto.

ATELIER GARDENS HAUS 1

Proyecto: Hirschmüller Schindele

Architekten, MVRDV.

Fotografías: Schnepp Renou, Lukas Drobny.

Superficie: 2.575 m².

Año: 2023.

Ubicación: Berlín, Alemania.

- Revista Mandu’a

Descripción elaborada por el equipo del proyecto.

Junto con los coarquitectos HS-Architekten, MVRDV ha convertido un antiguo edificio de oficinas de los años noventa en un llamativo marcador de entrada para Atelier Gardens en Berlín. Ahora de color amarillo brillante, el edificio se completa con una nueva cubierta vegetal, un pabellón de madera sostenible y una terraza a la que se accede a través de una gran escalera exterior.

HAUS 1 es el segundo proyecto realizado por MVRDV en Atelier Gardens, tras la reapertura el año pasado de TON 1, un histórico estudio cinematográfico construido en los años veinte. Situado en el extremo sur del aeropuerto berlinés de Tempelhof, el plan maestro transforma el campus de la Berliner Union Film Ateliers (BUFA) como parte de una visión para ampliar la base de usuarios del sitio más allá de los cineastas para abarcar todas las formas de “creadores de cambio”, incluidas las organizaciones de impacto y los individuos con un enfoque en el activismo climático y justicia social.

Planta Baja. Primer Piso.
Segundo Piso. Tercer Piso.
Cuarto Piso. Quinto Piso. - Revista Mandu’a

Mientras que TON 1 requería una renovación más delicada, HAUS 1 exigía un toque más atrevido. Construido originalmente en 1997, el edificio de oficinas contribuía poco al carácter del campus. Dada su ubicación junto a la entrada de Atelier Gardens, así como su altura que lo hace visible desde el antiguo aeródromo de Tempelhof, se tomó la decisión de transformar el edificio en una presencia icónica en la vecina Oberlandstraße y en un símbolo emblemático de la transformación del campus de BUFA.

El signo más evidente de este cambio es el color del proyecto. El edificio, que antes era blanco, es ahora amarillo brillante, lo que atrae la atención hacia el campus desde cerca y desde lejos. Una vez que los visitantes entran en el campus, se encuentran de inmediato con otra señal clara: un zigzagueante paisaje de escaleras amarillas, salpicado de asientos y miradores que enmarcan las vistas de Tempelhofer Feld y el perfil de Berlín, conduce directamente a la azotea de HAUS 1. “Desde la azotea se puede contemplar todo el perfil del paisaje urbano de Berlín, con Tempelhofer Feld como patio delantero”, destaca Van Rijs.

-OFICINAS -BAÑOS -DEPÓSITOS -DORMITORIOS

(0982) 620 227 modular.comercial@tecnimet.com

(0986) 802 098 div.comercial@tecnimet.com

TECNIPANELES

-Paneles con núcleo de PIR -Núcleo de 40kg/m3 -Paneles Trapezoidales y machihembrados.

Allí se ha ampliado el edificio con un pabellón de módulos prefabricados de madera, con materiales de origen biológico y acabados saludables, como un techo de arcilla. Un tejado vivo de plantas autóctonas completa la nueva azotea accesible, que ahora también sirve para recoger el agua de lluvia, alimentando un plan integral de retención de agua implantado in situ.

Este paisajismo verde, el nuevo aislamiento del techo y los parasoles en las dos fachadas de vidrio reducen la ganancia de calor en el verano, mejorando la resistencia climática del edificio, mientras que la calefacción por suelo radiante de baja temperatura modera el clima interior en los meses fríos. Todas las luces se han convertido en sistemas LED eficientes en energía y los accesorios sanitarios son eficientes en el uso del agua, incluidos los inodoros de bajo consumo que se limpiarán con agua de lluvia reciclada procedente de la próxima fase del sistema de recogida de aguas pluviales del campus.

Internamente, HAUS 1 albergará espacios de trabajo y reunión adaptables en cuatro plantas, incluida la sede de Atelier Gardens y una cafetería. Los planos de planta se han modificado para maximizar la flexibilidad del edificio, simplificando futuros cambios de uso o distribución y prolongando así su vida útil.

Al centrarse en la reutilización de la mayor parte posible de la estructura y dar preferencia a materiales duraderos y reciclables con una baja huella medioambiental siempre que se necesitara material nuevo, HAUS 1 demuestra cómo las transformaciones de edificios pueden hacer más con menos.

ESPUMAS DE POLIURETANO

Soluciones eficientes para juntas, refuerzos y aislamiento.

Eureka, comprometida con ofrecer productos de alta calidad al mercado de la construcción, pone a disposición soluciones técnicas de espumas de poliuretano ignífugas, adhesivas y expansivas.

Estas espumas, disponibles en formatos de 750 ml, están diseñadas para el rellenado de juntas, refuerzo de marcos de puertas y ventanas, proporcionando aislamiento térmico y acústico, además de resistencia al fuego en su versión ignífuga.

RECOMENDACIONES

1. El sustrato debe estar limpio, firme y libre de polvo, grasa o aceite para asegurar una correcta adherencia.

2. Humedecer la zona antes de la aplicación mejora la expansión del producto.

3. Agitar vigorosamente la lata al menos 30 veces antes de usar.

4. Aplique con el envase invertido para garantizar una distribución uniforme.

5. Deje un margen de 2-3 cm del borde para permitir una expansión homogénea.

6. En superficies verticales, inicie la aplicación desde la parte inferior.

7. Una vez fraguada la espuma, el exceso puede ser recortado.

8. Las espumas pueden recubrirse con yeso, masilla o pintura según los requerimientos del proyecto.

Para más información, comuníquese al WhatsApp 0983 481 777 o visite www.eureka.com.py.

PISOS SOBRE ELEVADOS STEELFLOOR® INDUSTRIA &

Solución Modular para Espacios Modernos.

Steelfloor®️ ofrece una solución innovadora para la gestión eficiente del espacio en oficinas y centros de datos.

Este sistema de pisos elevados crea un segundo nivel sobre el piso existente, permitiendo una instalación ordenada de cableado y conductos, sin necesidad de realizar cambios estructurales importantes. Además, combina funcionalidad, estética y adaptabilidad.

CARACTERÍSTICAS TÉCNICAS

- Estructura metálica: Hecho de acero zincado, con altura ajustable de 15 a 30 cm, lo que asegura estabilidad.

- Relleno cementicio: Proporciona resistencia y durabilidad.

- Acabado: La superficie superior es melamínica y lisa, mientras que los bordes están protegidos con PVC negro para mejorar la estética y la protección.

- Sistema modular: Los paneles pueden ser removidos fácilmente, facilitando el acceso a cables y sistemas.

- Revista Mandu’a

- Espacio intersticial: Bajo el piso elevado se pueden instalar redes eléctricas, de telecomunicaciones y conductos de aire acondicionado, optimizando la gestión de infraestructuras.

INSTALACIÓN Y MANTENIMIENTO

Steelfloor®️ se instala sin afectar la estructura del edificio. La modularidad del sistema facilita el mantenimiento, permitiendo remover y reemplazar los paneles sin interrupciones mayores.

La implementación de pisos elevados

Steelfloor®️ optimiza el uso del espacio, facilita el mantenimiento de infraestructuras y mantiene un entorno estético y ordenado, ideal para edificios modernos.

Para más información, visite

ShoppinGlass en Itapé 216 c/ Solar Guaraní, Lambaré, o comuníquese al (021) 906-951/2. También puede visitar la web www.shoppinglass.com.py.

MANO DE OBRA

MANO DE OBRA

Trabajos preliminares Demoliciones

De mampostería con recuperación

1 De 0,45 m

2 De 0,30 m

3 De 0,15 m

De mampostería sin recuperación

1 De 0,45 m

2 De 0,30 m

3 De 0,15 m

Demoliciones varias

1 De techo de teja con recuperación

2 De techo de teja sin recuperación

3 De techo de chapa

4 De techo bovedilla

5 De cielorraso armado (desmontar)

6 De losa de Hº Aº

7 De piso/revoque/revestimiento

8 De contrapiso (cuando no hay piso)

9 Sacar zócalo

10 Sacar azulejos

8.000 11 Sacar artefactos sanitarios

39.000 12 Sacar marcos y balancines

13 Sacar mamparas (Durlock, Duratec, etc.)

14 Sacar Aire Acondicionado

14 Desmontar electricidad (boca) un 5.000

15

16 Abrir

Preparacion de obra

1 Limpieza de terreno (no incluye corte ni destronque de árboles)

Destronque de árboles

1 Árbol chico

4000

2 Árbol mediano un 352.000

3 Árbol grande un 528.000

4 Árbol extragrande

1

Casilla de obrador

cercos,

2

3

4

(sueltos, cuando no hay losa)

Losas

1 Losa sola

2 Losa + columna + viga

3 Losarap montaje y hormigonado

4 Pre Losa montaje y hormigonado

Cadenas

1 Cadena 13x30 PB m 77.000

2 Cadena 20x40 PB

ESCALERAS

1 Tramo compensado a=1.20 m c/ escalón

2 Tramo recto a= 1.20 m cada escalón, un

PISOS

1 Piso rodillado espesor 12 cm

2 Piso rodillado espesor 10 cm

3 Piso rodillado espesor 08 cm

4 Piso allanado espesor 15 cm (Incluye Alquiler máquina)

5 Piso allanado espesor 12 cm (Incluye Alquiler máquina)

6 Piso allanado espesor 10 cm (Incluye Alquiler máquina)

7 Piso allanado espesor 08 cm (Incluye Alquiler máquina)

Fundaciones

1 Cimiento PBC sin excavación

2 Hormigón ciclópeo sin excavación

Mamposteria y muros

Nivelación con ladrillo común

1 De 0,15

2 De 0,30

3 De 0,30 m armada

4 De 0,45 m

Panderete

1 De 0,07 - 0,10 m

Elevación 0,15 m con ladrillo común

1 De 0,15 m

2 De 0,15 m armada

3 De 0,15 m,1 cara vista

4 De 0,15 m,1 cara vista y lijada

5 De 0,15 m,1 cara vista con ladrillo laminado

Elevación 0,20 m con ladrillo común

1 De 0,20 m

2 De 0,20 m,1 cara vista y lijada

3 De 0,20 m,1 cara vista con ladrillo laminado

Elevación 0,30 m con ladrillo común

1 De

2 De 0,30 m armada

3 De 0,30 m,1 cara vista

4 De

5 De

6 De 0,30 m, 2 caras vistas con ladrillo

MANO DE OBRA

con ladrillos huecos

Elevación estructural con ladrillo portante

De 0,15

Servicios para mampostería

Lijada de mampostería para visto

Lijada de

hidrófuga Horizontal sin asfalto (1:3), sin alisada

De 0,15

en “U” con asfalto

Hidrófuga

MANO DE OBRA

Dinteles

1 En mampostería c/ 2 varillas m 11.000

2 Sobre aberturas c/4 varillas m 15.000

3 Colocación de dintel prefabricado m 15.000

4 Dintel zuncho de bloque m 31.000

5 Colocación de perfil de hierro m 15.000

Contrapisos (no incluye alisada)

1 Apisonado de Hº cascotes 8 cm m² 15.000

2 Apisonado de Hº cascotes 10 cm m² 18.000

3 Apisonado de Hº cascotes 10 cm, c/ pendiente m² 21.000

4 Apisonado de Hº cascotes 20 cm m² 26.000

5 Apisonado sobre losa Hº Aº e=7cm m² 14.000

6 Apisonado sobre losa Hº Aº e=6cm m² 13.000

7 Apisonado de Hº cascotes con varilla m² 21.000

8 Hº Aº e=7cm

Revoque de paredes

Revoques

1 Común, fratachado o peinado m² 22.000

2 Común, fratachado y filtrado

3 Común, fratachado y filtrado; h=+5.00 m

30.000

4 Común, fratachado o peinado; h=+5.00 m m² 30.000

5 Fino o filtrado sobre revoque peinado existente m² 11.000

6 A 2 capas (grueso + fino)

30.000

7 A la lona o bolseado m² 13.000

8 Salpicado m² 22.000

9 Base para revestidos m² 22.000

Azotadas hidrófugas para adherencia:

10 Espesor = 1 cm x ladrillo m² 10.000

11 Espesor = 0,5 cm x ladrillo m² 7.000

12 Espesor = 0,5 cm x ladrillo en h=+ 5,00 m

13 Espesor = 1 cm x ladrillo en h=+ 5,00 m exterior

10.000

13.000

14 Azotada p/ impermeable m² 10.000

Revoque de cielorrasos

1 Azotada para adherencia por losa de Hº Aº, 0,5 cm

8.000

2 A 1 capa fratazado y filtrado sin azotada m² 33.000

3 A 1 capa fratazado y filtrado con azotada

4 A 2 capas (grueso + fino),con azotada

5 A 2 capas sin azotada

6 Azotada o base planchada de metal desplegado

Revoque de vigas/pilares/aristas

1 Revoque de arista o canto

8 De vigas de Hº Aº de 20x40 ó 30x50 cm (incluye azotada + aristas) por cara m

9 Revoque de pilares 4 caras y aristas

10 Revoque de pilares 3 caras y aristas

1 De teja española con tejuelón; incluye: maderamen, aislante, caballete y bocateja

2 Idem anterior con limatón

3 De teja española con tejuelita incluye: maderamen, aislante, caballete y bocateja

4 De teja española sobre machimbre: maderamen, aislante, caballete y bocateja

5 De teja francesa sobre machimbre m² 79.000

6 De teja francesa vana m² 53.000

7 De chapa galv. s/ estruc. de tirantes 2x6”

8 De chapa de fibrocemento acanalada

9 De chapa de fibrocemento acanalada autoportante

y hormigón pobre

Montaje de maderamen c/ tirantes 2x5” o 2x6” cepillados

15 Techo metálico (tinglado), preparación y montaje

13.000

10.000

2 Revoque de babetas o buñas m 15.000

3 De mochetas con 2 aristas (0,15x0,15) m 21.000

4 De goterón en alero

5 De losa de Hº Aº

6 De ductos

7 De vigas de Hº Aº de 15x20 ó 20x30 cm (incluye azotada + aristas)

24.000

Cielorrasos (incluye armazón de madera) 1

11 Piedra arenisca blanca o roja pulida en PA

Piedra laja aserrada

Sobre carpeta existente

1 Cerámica esmaltada P I 5 m² 34.000

2 Cerámica esmaltada en baño m² 31.000

3 Cerámica esmaltada en escalón m 39.000

4 Cerámica porcellanato m² 37.000

5 Piso calcareo m² 26.000

Carpeta o base

1 Para alfombra o cerámica e=2cm m² 18.000

2 Alisada de cemento e=3cm m² 24.000

3 Para alfombra o cerámica en escalones un 18.000

4 Regleado rústico m² s/c

5 Alisada sobre contrapiso m² 7.500

6 Banquina p/ placard (contrapiso + carpeta hidrófuga) m 33.000

7 Baldosa calcárea o canto rodado m² 26.000

8 Mosaico granítico m² 26.000

9 Pulido de mosaico granítico

10 Layota nacional o esmaltada

26.000

11 Veredita calcárea m² 26.000

12 Ladrillo común

13 Tejuelita

21.000

22.000

14 Baldosones de hormigón, 40x40 cm m² 26.000

15 Piso de HºAº rodillado de 12 cm m² 36.000

16 Plancha de granito o mármol

44.000

17 Plancha de mosaico granitico m² 39.000

18 Parquet a bastón roto o tipo colonial clavado

53.000

19 Parquet de lapacho tarugado m² 59.000

20 Parquet de machimbre curupa’y, 1 x 3” pulido y lustrado m² 67.000

21 Piso de madera rasqueteado y encerado m² 60.000

22 Alfombra multipiso m² 18.000

20 Piso vinílico 30x30

21 Piedra losa rompecabeza con junta tomada

22 Piedra losa rectangular

23 Piedra losa 30x30, 30x40 y 40x40

23.000

39.000

39.000

39.000

24 Piedra ardosia m² 39.000

25 Piedra laja m² 39.000

26 Piedra rústica roja Misiones m² 39.000

27 Piedra triturada esparcida a mano m² 7.000

28 Adoquín de piedra

Varios

1 Colocación tapa metálica en cámara de inspección un 44.000 2 Colocación rejilla en cámara de inspección un

MANO DE OBRA

Zócalos

1 Cemento alisado

8.000 2 Calcáreo o granítico

Mármol o granito natural m 26.000 6 Parquet m

Desagües

Registro desengrasador con tapa de metal un

Cámara de drenaje 60x60 cm un 132.000

Cámara séptica (1,00x1,60x1,20 m) con excavación un 990.500

25 Pozo absorvente (Ø: 1.50 m x altura 3,00 m) con excavación un 1.650.000 Desagües para baño

1 Baño completo standard un 317.000

2 Baño completo con bañera un 380.000

3 Baño de servicio un 222.000

4 Baño social un 159.000

5 Para pileta de lavar y lavarropas un 159.000

6 Para pileta de cocina (incluye desengrasador y caja sifonada) un 126.000

Agua corriente 1 Caño PVC 1” (incluye excavación, colocación y protección) m 16.000 2 Idem anterior de 3/4 m 13.000 3 Idem anterior de ½ m 8.000 4 Instalación de canilla de patio, + 5 ml de cañería un 64.000 Instalación agua fría

Para baño completo un 412.000

Para baño de servicio un 286.000

Para baño social un 159.000

4 Para pileta de lavar un 191.000

5 Para pileta de cocina un 126.000

Instalación agua caliente y fría

1 Para pileta de cocina un 254.000

2 Para baño completo un 697.000

Colocación de artefactos

Sanitarios y Grifería

1 Baño completo 115,500 x 4 un 462.000

2 Baño de servicio 100.500 x 2 un 234.000

3 Baño social 117.000 x 2 un 234.000

4 Pileta de cocina un 122.000

5 Pileta de lavar un 122.000

6 Bañera común un 314.000

7 Bañera hidromasaje un 524.000

8 Accesorios de baño (jabonera, percha, etc) un 22.000

9 Colocación de calefón un 175.000

9 Colocación de ducha eléctrica un 33.000

Instalación eléctrica

1 Boca de luz un 53.000

Trabajo de Albañilería

1 Pilar de mampostería para medidor de 0,45x0,45x1,70 m no incluye cimiento ni nivelación un 480.000

2 Registro eléctrico c/ drenaje y tapa de 30x30x40 cm un 105.000

3 Idem anterior 40x40x70 cm un 131.000

4 Colocación caja aire acondicionado un 72.000

Puesto de medición provisorio 1

1 Monofásico 12 bocas

2 Trifásico 14 bocas

Puesto de medición definitivo 2

1 Monofásico 14 bocas

2 Trifásico hasta 3A 18 bocas

Tablero principal o seccional

1 Colocación de caja embutida en mampostería hasta 40x50 cm 3 bocas

2 Disyuntor TM de corte principal o seccional o de circuito unipolar 2 bocas

3 Idem anterior tripolar 3 bocas

4 Instalación de interruptor diferencial 6 bocas

Líneas subterráneas

(Incluye excavación a una profundidad de 0,50 m en tierra firme y sin piedra, instalación de eléctroducto con protección mecánica y cableado)

1 Monofásica de 4 a 10 mm m 7.000

2 Trifásica de 4 a 10 mm m 13.000

3 Trifásica de 16 a 25 mm m 21.000

Línea embutida en mampostería

(incluye colocación de electroducto y cableado)

1 Monofásica de 4 mm m 7.000

2 Monofásica de 6 mm m 7.000

3 Monofásica de 10 mm m 8.000

4 Trifásica de 4 a 10 mm m 11.000

5 Trifásica de 16 a 25 mm m 13.000

Líneas aéreas

1 Monofásica de 4 a 10 mm m 3.000

2 Trifásica de 4 a 10 mm m 7.000

3 Trifásica de 16 a 25 mm m 9.000

Electroductos embutidos en mampostería sin cableado

1 De 5/8” m 3.000

2 De 1/2” m 3.000

3 De 3/4” m 3.000

4 De 1” m 3.000

Lámparas y tomas de corriente (Embutidos en mampostería hasta 5m del tablero)

1 Una lampara con su interruptor 1 boca

2 Una lámp. c/ 2 llaves de comb. de escalera 2 bocas

3 Una Toma corriente 1 bocas

4 Por llave de 4 vías o intermedia adicional 1 boca

Circuitos independientes

1

Circuito para aire acondicionado sin montaje de aparato ni abertura de mampostería hasta 5 m del tablero (mismo que recorran cañerías con otros circuitos) 4 bocas

2 Circuito p/ calefón o ducha eléctrica idem anterior 4 bocas

3 Circuito monof. p/ motobomba c/ cable de 4mm hasta 5 m del tablero 4 bocas

Colocaciones

1 Aire acondicionado un 230.000

2 Ventilador de techo un 95.000

3 Tubo fluorecente doble un 16.200

4 Apliques y arañas un 16.200 Carpinteria de aluminio Colocación de premarco de aluminio:

1 Chico 1 m² un 64.000

2 Mediano 3m² un 92.000

3 Grande 4 m² un 125.000

4 Extra grande 5 m² un 150.000

Carpintería de madera

Colocaciones de:

1 De marco mayor de 1,00 m un 111.000

2 De marco menor de 1,00 m un 83.000

3 Puerta placa un 92.000

4 Puerta persiana o vidriera chica hoja 46.000

5 Puerta tablero un 96.000

6 Puerta tablero principal incluye hoja, manijón y visor un 128.000

7 Ventana persiana o vidriera 0,65 x 1,00 mt hoja 36.000

8 Ventana balancín un 40.000

9 Contramarco m 10.000 10 Pergolado m² 83.000

Carpintería metálica

Colocaciones de:

1 De marco de chapa doblada de 0,80x2,10 m un 66.000

2 De marco de chapa doblada de 1,50x1,20 m un 88.000

3 De marco de chapa doblada con relleno un 88.000

4 De marco metálico - ángulo un 66.000

5 De guías metálicas y taparrollo p/ cortina de enrollar un 264.000

6 De reja de hierro entre marcos un 44.000

7 De reja de hierro aplicada a la pared un 61.000

8 Portón de hierro 1,00x1,50 m un 106.000

9 Balancín chico 40x40 cm sin revoque un 44.000

10 Balancín mediano 1,00x1,50 m sin revoque un 77.000

11 Balancín grande 2,00x1,80 m sin revoque un 98.000

12 Portón cochera de 3,00x1,50 m un 185.000

13 Baranda de escaleras

14 Pasamanos,}

15 Escalera metálica

23.000

16 Puerta metálica corta fuego un 175.000

17 Puerta metálica mosquitera un 106.000

18 Tinglado, preparación y montaje

Pintura de pared

1 A la cal blanca

2 A la cal color

3

55.000

Pintura

5 Al látex exterior con enduido en altura

6 Al látex exterior sin enduido en altura

7 Al esmalte sintético interior/ exterior con enduido m² 23.000

Repintado de pared

1 Al látex interior o exterior

9.000

2 Al látex interior o exterior altura + de 5m m² 11.000 Enduído

1 De pared m² 12.000

2 De abertura de madera m² 15.000

Techo

1 Tejuelita a la cal y maderamem c/ esmalte sintético m² 17.000

2 Tejuelón y maderamem barnizado m² 17.000

3 Tejuelita o tejuelón barnizado y maderamem con esmalte sintético m² 17.000

4 Pintura de alero de 0,60 m m 20.000

Cielorrasos

1 Al látex con fijador sin enduido m² 13.000

2 Al látex con enduido

3 A la cal

4 Barnizado de machimbre

Aberturas de madera

1 Marco y hoja con esmalte sintético

2 Marco y hoja con barniz

27.000

10.000

15.000

MANO DE OBRA

Aberturas metálicas

1 Marco y hoja c/ cromato y esmalte sintético

2 Rejas, barandas y balancines c/ cromato y esmalte sint

3 Tejido de metal

Canaletas y bajadas

17.000

1 Con base p/ galvanizado y esmalte sintético m 10.000

Ladrillo visto, hormigón y piedra

1 Limpieza, curado y siliconado o barnizado m² 15.000

2 Limpieza, curado y siliconado o barnizado en altura m² 17.000

3 Limpieza, curado y pintura a la cal m² 12.000

4 Pintura texturada m² 24.000

Pintura en silleta

1 Hasta 30 m de altura

2 Desde 30 a 70 m de altura m² 35.000 Varios

1 Moldura doble m 63.000

2 Moldura sencilla m 49.000

3 Estufa con boca 1,00 m un 1.849.000

4 Parrilla con boca 1,00 m, un 1.980.000

5 Colocación balaustre sencillo m s/c

6 Tanque de fibra de vidrio 500 l un s/c

7 Tanque de fibra de vidrio 1000 l un s/c

8 Limpieza final de obra m2 3.000 Jornal de mercado

1 Capataz - día 208,800 h 31.375

2 Oficial - día 167,000 h 26.000

3 Medio oficial - día 135,700 h 20.875

4 Ayudante - día 94,000 h 14.875 Honorario técnicos

01 Dibujante h 28.000

02 Dibujante por lámina un 418.000 03 Calculista

Cómputo métrico

05 Presupuesto de obra m2 8.000 06 Copias Plotter por lámina un 11.000

SALARIO MÍNIMO

DECRETO N° 1909/2024

POR EL CUAL SE DISPONE EL REAJUSTE DE LOS SUELDOS Y JORNALES MÍNIMOS DE TRABAJADORES DEL SECTOR PRIVADO.

Art. 1°, Dispónese el reajuste del salario mínimo legal del trabajador del sector privado en cuatro coma cuatro por ciento (4,4 IP/o) con relación al establecido según Decreto N° 9584 del 29 de junio de 2023, que regirá a partir del 1 de julio de 2024, en las actividades expresamente previstas, escalafonadas y las diversas no especificadas. Art. 2°.- Establécese el salario mínimo legal vigente a partir del 1 de julio de 2024 en dos millones setecientos noventa y ocho mil trescientos nueve guaraníes (G. 2.798.309.-) y el jornal mínimo en ciento siete mil seiscientos veintisiete guaraníes (G. 107.627.T), de conformidad con el artículo 10 de este decreto.

COSTEO DE OBRA

COSTEO DE OBRA

TRABAJOS PRELIMINARES

Relleno y Compactación

Tierra gorda, m3 1,00

Mano de obra, m3 1,00 44.000 44.000

Total por: m3

Cartel de Obra (de 1.40x2.80m con marco metálico y lona. A retirar y sin colocación)

Cartel de obra, un

Total por: un

Vallado de Obra

Chapa cincalum Nº 28, un 0,50

2.44x0,90,

Puntal de eucalipto pulg/

Clavo con cabeza de un

plomo,

Zapata fck=18 MPa

Columna fck=21 MPa

Viga fck=21MPa

Losa fck=21MPa

Encadenado Inferior 13x20 en PB

Encadenado 13x30 cm

Escalera de HºAº fck=21MPa15 escalones de 0.30x1.10m y 1 descanso

Cemento tipo 1, kg 350 1.100 385.000 Arena lavada, m3 0,70 65.000 45.500

Piedra triturada de IV, tn 1,40 120.000 168.000 Varilla conformada, kg 110 10.0001.100.000 Alambre negro de atar, kg 5 25.000 125.000

Clavo 1” a 7”, kg 0,40 18.000 7.200

COSTEO DE OBRA

FUNDACIONES

Cimiento PBC con cal (1/2:1:4)

Piedra bruta blanca, m3 1,20 150.000 180.000

Cemento tipo 1, kg 46 1.100 50.600

Cal triturada, kg 30 1.225 36.750

Arena lavada, m3 0,30 65.000 19.500 Mano de obra PBC, m3 1

Losa Rap h=12+5=17cm, luz hasta 4,70m (1:2:3,5)

Cemento tipo 1, kg 22,8 1.100 25.080

lavada, m3 0,04 65.000 2.600

Piedra triturada de V, tn 0,09 120.000 10.800 Varilla conformada, kg 1,80 10.000 18.000

Alambre negro de atar, kg 0,06 25.000 1.500 Viguetas y ladrillos, m2 1 78.500 78.500 Mano de obra, m2 1 80.000

Losa Rap h=20+4=24cm, luz mayor a 4,70 m (1:2:3,5)

Cemento

triturada de

obra,

Losa Listalosa

Cemento tipo 1, kg 18 1.100 19.800

Piedra triturada de V, tn 0,08 120.000 9.600

Arena lavada, m3 0,03 65.000 2.145 Varilla conformada, kg 1,87 10.000 18.700 Vigueta listalosa, m2 1 125.000 125.000

m2

Piso HºAº fck=21MPa - Tráfico ligero 10 cm

Piedra triturada de IV, tn

Cimiento PBC sin cal (1:12) m3 353.920

Cimiento de H° de Cascotes - Tierra Gorda

Tierra gorda, m3 0,60 64.000 38.400 Cemento tipo 1, kg 80 1.100

cerámico, m3

Cimiento de H° de Cascotes - Arena Lavada Arena lavada, m3 0,60 65.000 39.000

Hormigón Ciclópeo (1:3:6)

Piedra bruta blanca, m3 0,40 150.000 60.000 Cemento tipo 1. kg 225, 1.100 247.500 Arena lavada, m3

MAMPOSTERIAS

De Nivelación

Con ladrillo común y junta de 2 cm

De 0.30 m de ancho (1:2:8) con cemento Tipo 1

Ladrillo común, un 122 700 85.400

Cemento tipo 1, kg 14,1 1.100 15.510 Cal triturada, kg 13,3 1.225 16.293

De 0.30 m armada (1:4) con cemento Tipo 1

Ladrillo común, un 122 700 85.400

Cemento tipo 1, kg 16,0 1.100 17.600

Arena lavada, m3 0,10 65.000 6.500

Varilla conformada, kg 1,60 10.000 16.000 Mano de obra, m2 1,00 53.000 53.000 Total por: m2

COSTEO DE OBRA

De 0.45 m de ancho (1:2:8) con cemento Tipo 1

Ladrillo común, un 187

De Elevación

Con ladrllo común y junta de 2 cm

De 0.15 m (1:2:10) con cemento tipo 1

Ladrillo común,

De 0.15 m (1:2:10) con cemento tipo 1 - A la vista

Ladrillo

De 0.20 m (1:2:10) con cemento tipo 1

Ladrillo

De 0.20 m (1:2:10) con cemento tipo 1 - A la vista Ladrillo

De Elevación

Con Ladrillos Cerámicos Huecos y junta de 1,5 cm

De 0.15 m (1:2:8) con cemento tipo 1

Ladrillo 6 tubos de 1ra, un

1.298 25.960 12x18x25 cm Ita Yby, Cemento tipo

De 0.30 m (1:2:10) con cemento tipo 1

Ladrillo

De 0.07 m (1:2:10) con cemento tipo 1 y junta de 1.5 cm Ladrillo

De 0.15 m (1:2:8) 1 cara vista con cemento tipo 1

Ladrillo 6 tubos de 1ra, un

12x18x25 cm Ita Yby, Cemento

De 0.20 m (1:2:8) m con cemento tipo 1

Ladrillo

18x18x25 Ita Yby

De 0.20 m (1:2:8) con cemento tipo 1

8x18x25 cm Ita Yby

De Elevación a la Vista

Con ladrilllo cerámico laminado y junta de 1,5 cm

De 0.15 m (1:2:8) con cemento tipo 1

Ladrillo de 1ra A, un

6x12x25 cm Ita Yby,

Elevaciones

Varias

Sardinel de Ladrillos Comunes

Ladrillo común, un

tipo

Sardinel de Ladrillos Laminados

Ladrillo laminado Ita Yby un

1ra A, 6x12x25 cm Cemento tipo 1,

Ladrillo Convocó

Ladrillo convocó recto un

de 1ra, 19x19x10 cm Yoayu Cemento tipo 1,

Muro de Piedra Bruta de 30 cm (1/2:1:4)

Piedra bruta blanca, m3 0,30

de obra, m2 1,00

Pilar de Ladrillo Común 30x30 (1:1:6)

Ladrillo común, un 35,0 700 24.500

Cemento tipo 1, kg 10,0 1.100

Pilar de Ladrillo Común 30x30 (1:1:6) - A la vista Ladrillo

Muralla de Ladrillo Común (e=0.15m, h=2.00m, con pilares de 0.30 x 0.30 cada 2.00m)

de 0,15 m con m2

ladrillo común a la vista Pilar

AISLACION

Horizontal 0.30 con asfalto Cemento tipo 1,

Horizontal 0.15 con asfalto

con Panderete 0.15 m

De Losa con Piso de Tejuelita Prensada

COSTEO DE OBRA

De Losa Para Baño

Azotada Impermeable (1:3), Espesor 0.5 cm

DINTELES

De Varilla Sobre Abertura

De Cielorrasos (1:4:12)

De Hormigón Prefabricado Dintel

CONTRAPISOS

De 7 cm (1/4:1:4:6)

De 10 cm (1/4:1:4:6)

De 20 cm en Losa Sanitaria

TECHOS

Teja Española sobre Tejuelón c/ Madera de Ybyrapyta

De Paredes

A 1 Capa, Espesor 1.5 cm (1:4:16) con hidrófugo Cemento tipo

Teja Francesa, Marsellesa o Romana s/ Machimbre Teja francesa de 1ra A

Yoayu

38.850 ybyrapyta de 1x3”, Tirante 2x5” Ybyrapyta

cedro 1x1”, ml 2,50 5.000 12.500

(1:3)

Chapa N° 28 s/ estructura de caños metálicos

Caño 30 x 50 x 1,20 mm ml 1 11.500 11.500

Caño 20 x 30 x 1,20 mm ml 1 7.250 7.250

Tornillo autoroscante 2” un 4 366 1.464

Chapa No 28 0,90 x 1 metro un 1 27.000 27.000

Mano de obra m2

Gs:

Chapa N° 28 s/ Estructura de Varillas torsionadas

Varilla torsionada, kg 6,00 11.000 66.000

Chapa Nº 28, 2.44x0,90 mun 0,50 109.000 54.500

Gancho para tinglado, un 3,00 1.000 3.000 Electrodo, kg 0,07 32.000 2.240

Pintura

Chapa de Fibrocemento Ondulada 6 mm

Chapa, un 0,40 96.000 38.400

Tirante 2x5”

Entrepiso de Madera

TECHO METÁLICO CON CHAPA TRAPEZOIDAL

Separación entre correas 1,20 m

Varios incluye pintura, electrodo, aguarras, discos

Chapa trapezoidal N°27 0.40 mm 1.05 x 1 (ancho util 0.98)

U 100x40 1.8 mm

TECHO METÁLICO CON CHAPA TERMOACUSTICA

Con cabriada de 40 x 12 cm. No incluye pilares. Chapa con isopor 30

de 12x2”

Ángulo de 1 1/4

Mano de obra (fabricacion y montaje)

PISOS

Baldosa Calcárea

Baldosa base gris 20x20,m2 1,05

Cemento tipo 1, kg 4,00

Mosaico Granítico (base gris 30x30cm)

Mosaico Graníto Lavado (para exterior 30x30cm)

COSTEO DE OBRA

COSTEO DE OBRA

Ceramica 45x45cm Piso

Porcelanato 60x60cm

Layota 28x28cm

Layota 28x28cm

Plancha para Revestido de Escalera Plancha

Plancha para Revestido de Escalera Plancha

Piedra Losa Rompecabeza

Piedra Losa Rompecabeza

Piedra

Piedra losa Blanca Cuadrada Pulida

Piedra losa Blanca Cuadrada Pulida

Piedra losa blanca m2 1,00 95.000 95.000 cuadrada pulida,

Alfombra (2mm sin carpeta)

Alfombra (2mm sin carpeta)

Alfombra multipiso,

Solvente 700 cc, un 0,10 12.000 1.200 Mano de obra, m2 1,00 18.000 18.000

Total por: m2 38.100

Empedrado

Alisada de Cemento

Alisada de Cemento

Baldosones de Hormigón (40x40x3cm)

Baldosón

Baldosones de Hormigón (40x40x3cm) Baldosón

Piedra bruta

Empedrado

Piedra

ZOCALOS

ZOCALOS

Cemento Alisado

Cemento

Calcáreo Base Gris

Calcáreo Base Gris

Madera 3/4 x 3”,

Madera 3/4 x 3”, Zocalo de cedro,

Alfombra

Cerámica Esmaltada

Cerámica Esmaltada Cecafi 32x57

Cecafi 32x57
Mezcla adhesiva, Mano de obra,

Mosaico Granítico (base blanca pulido 10x30cm)

Zócalo granítico, m2 1,05

tipo 1,

Mano de obra pulido, m2

COSTEO DE OBRA

Piedra Laja Fina (1 a 2 cm de espesor)

Boca Desagüe Abierta 20x20x20cm

Layota 28x10cm

Boca Desagüe Abierta 30x30x30cm

CIELORRASO

De machimbre c/ armazón de madera, no incluye corniza

Liston de cedro 1x2”, ml

Boca Desagüe Abierta 40x40x40cm

REVESTIDOS

“No incluye la base previa”

Piso Pared Cecafi

Cecafi 32 x57cm m2 1,05

Mezcla adhesiva, kg 3,50 1.198 4.193

Pastina base blanca, kg 0,20

Porcelanato 60 x 60 cm

Porcelanato 60 x 60 cm, m2 1,05 105.000 110.250 Mezcla adhesiva, kg 3,50 1.198 4.193 Pastina base blanca, kg 0,20 6.000 1.200 Mano de obra, m2 1,00 32.000 32.000 Total por: m2

Piso Pared 31 x 31 cm

Forte Habana 31 x 31

Ladrillejo

Registro 30x30x30cm

Registro 40x40x40cm

COSTEO DE OBRA

Cal triturada, kg 14,0 1.225 17.150

Arena lavada, m3 0,10 65.000 6.500

Tapa Hº 60x60x4 cm, un 1,00 85.000 85.000

Mano de obra, un 1,00 156.600 156.600

Total por: un 417.150

Caño PVC 40mm

Caño

Caño PVC 50mm

Caño

Total por: ml 25.250

Caño PVC 100mm

Caño

Total por: ml 49.000

Caño de Hormigón 50cm, Roto Comprimido

Caño

Caño de Hormigón 60cm, Roto Comprimido

Caño

Caño de 80cm Hº Aº Vibrado Simple - Macho/Hembra

Caño

Pozo Ciego (Diámetro=1.50 m y h=3.00 m)

Ladrillo

Cámara Séptica (1x1.60x1.20m)

Ladrillo común,

Cemento

Cal triturada,

Rejilla de Piso Sifonada

Caja sifonada cuadrada un

nº 25, 150x150x50mm

Mano de obra, un 1,00 69.000 69.000

Total

Desagüe Cloacal p/ Baño Completo (hasta el primer registro) Caño

Caño de PVC 50 mm, ml

Codo 90º p/ desagüe 100mm un 1,00 11.150 11.150

Codo 90º p/ desagüe , buje largo 40mm, un 2,00 1.550 3.100

Codo 45º p/ desagüe un 2,00 1.600 3.200 secundario 40mm, Caja sifonada

150x150x50mm, un 2,00 72.000 144.000 c/ rejilla aluminio

Adhesivo

Desagüe Cloacal p/ Baño de Servicio

(hasta el primer registro)

Caño

Caño

Caño

primario 100mm,

Codo 45º p/ desagüe un

primario 100mm,

Codo 45º p/ desagüe un

primario 50mm, Codo 90º p/ desagüe un

secundario, buje largo 40mm

Codo 45º p/ desagüe un

3.200 secundario 40mm,

Ramal de reducción 45º un

simple p/ desagüe primario 100x50mm, Caja sifonada cuadrada un

72.000 nº 25, 150x150x50mm, Prolongador un

150x150mm p/ caja

Anillo de sellado p/ un 3,00 5.000 15.000 desagüe 100 mm, Anillo de sellado p/ desague 50mm un 2,00 2.900 5.800 Adhesivo 75 gr, un 1,00 9.200 9.200 Limpiador 200 cc, un 1,00 27.000 27.000 Mano de obra, un 1,00

Total por: un 466.400

Desagüe Cloacal Para Baño Social

(hasta el primer registro)

Caño 100 mm, ml 2,00 14.000 28.000

Caño PVC 50 mm, ml 1,00 11.250 11.250

Caño PVC 40 mm, ml 2,00 7.450 14.900

Codo 90º p/ desagüe un 1,00 11.150 11.150 primario 100mm,

Codo 45º p/ desagüe un 1,00

primario 100mm,

Codo 45º p/ desagüe un 1,00 4.000

primario 50mm,

Codo 90º p/ desagüe un 1,00 1.550 1.550 secundario, buje largo 40mm

Codo 45º p/ desagüe un 2,00 1.600 3.200 secundario 40mm,

Ramal de reducción 45º un 1,00

simple p/ desagüe primario 100x50mm,

Caja sifonada cuadrada un 1,00

nº 25, 150x150x50mm, Anillo de sellado p/ un 2,00

desagüe 50 mm, Anillo de sellado p/ un 3,00

desagüe 100 mm,

Adhesivo 75 gr, un

por: un

Desagüe para Pileta de Lavar y Lavarropas

Caño

Codo 90º p/ desagüe un 2,00 1.550 3.100 secundario, buje largo 40mm

Codo 45º p/ desagüe un 2,00

secundario 40mm,

Caja sifonada cuadrada un

nº 25, 150x150x50mm,

Adhesivo 75 gr, un 0,50 9.200 4.600

Limpiador 200 cc, un 0,50 27.000 13.500

Mano de obra, un 1,00 159.000 159.000

Total por: un 300.250

Desagüe para Pileta de Cocina

Caño PVC 50

Codo 90º p/ desagüe un 2,00 4.500 9.000 primario 50mm, Ramal de reducción 45º un 1,00 16.500 16.500 simple p/ desagüe primario 100x50mm,

Desengrasador redondo un

nº 70, 250x172x50, Adhesivo 75 gr, un

Mano de obra, un

por: un

AGUA CORRIENTE

Caño PVC de 1” Caño PVC

Caño PVC de 3/4”

Caño PVC roscable ml 1,00

de obra,

Caño PVC de 1/2” Caño PVC roscable, ml

de

Instalación Agua Fría en Baño Completo

Caño 1/2” roscable, ml

Codo 90º roscable, 1/2”, un 6,00

Llave de paso de 1/2”

cromada FV Linea Clásica

Instalación Agua Caliente y Fría en Baño Completo

Instalación Agua Fría en Baño de Servicio

Caño 1/2” roscable, ml

COSTEO DE OBRA

Tapón roscable macho ½” un 4,00 690 2.760

Llave de paso 1/2” un 2,00 58.000 116.000 bronce sin campana,

Adhesivo 75gr, un 0,40 9.200 3.680

Cinta teflon 18mmx25m, un 1,00 9.600 9.600

Mano de obra, un 1,00 286.000 286.000 Total por: un 521.975

Instalación Agua Fría en Baño Social

Caño 1/2” roscable, ml 4,00 9.850 39.400

Codo 90º roscable, 1/2”, un 6,00 1.660 9.960

Alma doble roscable un 4,00 875 3.500

Tee 90º p/ desagüe un 2,00 4.000 8.000 secundario, 40mm,

Tapón roscable macho ½”un 2,00 690

Llave de paso 1/2” FV un 1,00 87.700 87.700

Linea Clásica,

Adhesivo 75gr, un 0,20 9.200 1.840

Cinta teflon 18mmx25m, un

Instalación Agua Fría en Baño Social - FV Allegro

Instalación Agua Fría p/ Pileta de Lavar y Lavarropas

Caño 1/2” roscable, ml 3,00 9.850 29.550

Codo 90º roscable, 1/2”, un 3,00 1.660 4.980

Tee 90º p/ desagüe un 1,00 4.000

secundario, 40mm, Tapon

Llave de paso de 3/4” un 1,00 84.000 84.000 bronce sin campana,

Adhesivo 75gr, un 0,20 9.200 1.840

Cinta teflon 18mmx25m, un 1,00 9.600 9.600

Mano de obra, un 1,00 191.000 191.000

Total por: un 326.350

Instalación Agua Fría para Pileta de Cocina

Caño 1/2” roscable, ml 2,00 9.850 19.700

Codo 90º roscable, 1/2”, un 3,00 1.660 4.980

Tapón roscable macho ½”un 1,00 690 690

Llave de paso 1/2” un 1,00 58.000 58.000 bronce sin campana,

Adhesivo 75gr, un 0,20 9.200 1.840

Cinta teflón 18mmx25m, un 1,00 9.600 9.600

Mano de obra, un 1,00 126.000 126.000

Total por: un 220.810

Instalación Agua Caliente y Fría p/ Pileta de Cocina

Caño

Codo de 1/2” galv,

Prolongador FV 1/2”x1 un 1,00

38.000 cromo sin campana,

Sellador

COLOCACION DE ARTEFACTOS SANITARIOS

Baño Completo - Frío y Caliente - No incluye bañera

Juego con cisterna bajajuego 1,00

Deca Ravena Crema, Griferia FV Linea Clásica juego

(Ducha, bidet y lavatorio)

Termocalefón 80 lt, un 1,00 1.650.000 1.650.000

Soporte para calefón, par 2,00 4.040 8.080 Botiquin 44x58x11cm un 1,00 560.000 560.000

Conexión cromada ½”x30un 7,00 37.000

fijar artefactos,

Baño Completo con Bañera Común Instalación de baño

7.604.143 completo sin bañera, Bañera

Baño Completo con Bañera Hidromasaje Instalación

Baño Completo - Frío solo Juego p/ baño

c/ cisterna alta Deca Ravena

Tubo

COSTEO DE OBRA

Sopapa cromo FV p/ lavatorio, un 2,00

Bajada p/ lavatorio, un 2,00 17.300 34.600

Griferia FV p/ bidet agua fria un 1,00 370.000 370.000

Canilla p/ lavatorio FV econo un 1,00 45.000 45.000

Canilla 1/2” cromo p/ un 1,00

bajo ducha FV, Conexión cromada 1/2x3 cm, un

fijar artefactos,

Baño de Servicio

Juego para baño con juego 1,00

cisterna alta,

Tubo de bajada de un 1,00

13.500 embutir p/ cisterna nº 4, Botiquín Astra,

Baño Social - Superior Total por: un 2.530.183

Pileta de Cocina - Acero Inoxidable - Frío Solo

lavatorio

Bajada p/ lavatorio, un

p/ lavatorio FV un

Canilla de 1/2” cromo un 1,00 30.000

para bajo ducha FV, Conexión cromo ½ x 30 cmun

fijar artefactos,

Mano de obra, un

Total por: un 1.372.863

Baño Social - Standard

Juego para

con cisterna alta Deca Ravena,

Imperatriz,

fijar artefactos,

Pileta de Cocina - Acero Inoxidable - Frío y Caliente

Pileta 2 bachas, un 1,00 485.000 485.000 Griferia externa FV, un

Pileta de Lavar y Lavarropas

Pileta granítica 1 bacha un

1,20x0,60 m,

Canilla 1/2” bronce FV, un

p7 pileta granito un

de obra,

Mesada de Granito para Cocina

Mesada de Mármol para Baño Social (0.70x0.60m) Mármol blanco, m2

Mesada de Mármol para Baño Completo (1.00x0.60m)

Mármol blanco, m2 0,60 680.000 408.000 Moldura pecho paloma, ml 2,20 50.000

COSTEO DE OBRA

INSTALACION ELECTRICA

Pilar de Mampostería 0.45x0.45x1.70m

No incluye cimiento y nivelación

Ladrillo común, un 170, 700 119.000

Cemento tipo 1, kg 30,0 1.100 33.000

Cal triturada, kg 60,0 1.225 73.500

Arena lavada, m3 0,25 65.000 16.250

Mano

Registro eléctrico 30x30x70cm

Ladrillo común, un 50,0 700 35.000

Cemento tipo 1, kg 6,00 1.100 6.600

Cal triturada, kg 12,0 1.225 14.700

Arena

Registro eléctrico 40x40x70cm

Ladrillo común,

Tapa

Puesto de Medición Provisorio

Monofásico con limitadora hasta 40 A

Nicho monofásico, un 1,00 9.240 9.240

Poste de caranday 6 m, un 1,00 120.000 120.000

Curva galvanizada 1”, un 4,00 24.970 99.880

Caño acero 3/4”x3m ml 2,00 8.500 17.000

Bulón 3/8x4”, un 4,00 900 3.600

Pipeta de 1”, un 2,00 1.200 2.400

Jabalina de cobre 5/8 x 2mun 1,00 27.000 27.000

Abrazadera p/ jabalina un 1,00 3.000 3.000

Caja precintable, un 1,00 14.500 14.500

Disyuntor

Pipeta de 1” un 2,00 1.200 2.400

Jabalina cobre 5/8 x 2m un 1,00

Abrazadera p/ jabalina un 1,00 3.000 3.000

Caja precintable, un 1,00 14.500

Trifásico con limitadora hasta 45 A

Nicho trifasico un 1,00 10.010 10.010 Poste de caranday 6 mt un 1,00 120.000 120.000

Curva galvanizada 1 un 4,00 24.970 99.880

Caño acero

por: un 1.666.310

Puesto de Medición Definitivo (Con línea subterránea o embutido en mampostería)

Monofásico c/ acometida 3m y limitadora hasta 40 A

Caño galvanizado un 1,00

Trifásico c/ acometida de 3m y limitadora hasta 45 A

Caño

Línea Subterránea

Monofásica con cable de 4 a 10mm

Caño negro plástico ml 1,00 750 750

de 4 mm, ml 2,00 5.964

común, un 5,00

tipo 1, kg 0,50 1.100

Mano de obra, un 1,00 7.000 7.000

Trifásica con cable de 4 a 10mm

Caño

Línea Monofásica Embutida en Mampostería con

Cable de 4 a 10 mm

Caño

Tablero Principal con 6 llaves TM

Caja p/ tablero principal un 1,00

12 TM Steck,

Disyuntor TM 1x50A un 1,00

colocación caja un 1,00

embutida, MO colocación llaves, 6,00 204.000 Total por: un 549.700

Tablero principal con 6 llaves TM (llaves europeas) Total por: un 643.200

Bocas de Lámparas y Tomas de Corriente

(Incluye colocación de electroducto y cableado hasta 5m del tablero principal)

Una Lámpara con su Interruptor

Caja

Una Lámpara con 2 Llaves de Combinación

Caja de llave plástica, un 2,00

Caja metálica conexión un

Circuitos Independientes

(Hasta 5m del tablero principal en cañerías ya instaladas para otros circuitos)

Circuito para Calefón/AA/Ducha Eléctrica

Línea Embutida para AA sin cableado

Circuitos de Comunicación (Incluye colocación de electroducto y cableado hasta 5m del tablero) Línea de teléfono con su toma

por: un

Línea de Timbre con su pulsador

Toma para Antena de TV o Audio

COSTEO DE OBRA

CARPINTERIA DE MADERA

Marco Recto (de 0.15cm p/ puerta de 2.10m de alto)

De Ybyrapyta de 0.70 m de ancho

Marco de ybyrapyta,

De Ybyrapyta de 0.80 m de ancho un

De Ybyrapyta de 1.50 m de ancho un 450.120

Marco Recto (de 0.15cm p/ ventana de 1.20m de alto)

De Ybyrapyta de 1.50 m de ancho

Marco

Total por: un

De Ybyrapyta de 2.00 m de ancho un 499.620

Puerta de 2.10 m de alto

Placa de eucalipto (0.80x2.10m)

Puerta placa, un 1,00 180.000 180.000

Ficha 5 agujeros, par 1,50 10.000 15.000

Tornillo 1x7, un 30,0 150 4.500

Cerradura externa

Placa c/ cerradura para baño (0.80 x 2.10m)

Puerta placa de eucalipto un 1,00 180.000 180.000

Ficha 5 agujeros, par 1,50 10.000 15.000

Tornillo 1x7, un 30,0 150 4.500

Cerradura p/ baño c/manija un 1,00 45.000 45.000

Mano de obra, c/hoja 1,00 92.000 92.000

Total por: un 336.500

Tablero (0.80x2.10m)

Puerta tablero común, un 1,00 950.000 950.000

Ficha 5 agujeros, par 1,50 10.000 15.000

Tornillo 1x7, un 30,0 150 4.500

Cerradura externa c/ manijaun 1,00 120.000 120.000

Mano de obra, c/hoja 1,00 96.000 96.000

Total por: un 1.185.500

Tablero - Punta Diamante (0.80x2.10m)

Puerta de cedro c/ molduras un 1,00 1.550.000 1.550.000

Ficha 5 agujeros, par 1,50 10.000 15.000

Tornillo 1x7, un 30,0 150 4.500

Cerradura p/ puerta de entrada un 1,00 190.000 190.000

Mano de obra, c/hoja 1,00

Vidriera Sencilla (1.50x2.10m - 3 hojas de abrir)

Puerta vidriera, m2 3,15 300.000 945.000

Ficha 5 agujeros, par 3,00 10.000 30.000

Tornillo 1x7, un 60,0 150 9.000

Falleba de arrimar un 1,00 25.500 25.500

Pasador 150 mm un 2,00 18.000 36.000

Varilla p/ falleba 1.20 un 2,00 24.500 49.000

Mano de obra, c/hoja 3,00 46.000 138.000

Total por: un 1.232.500

Persiana (1.50x2.10m - 3 hojas de abrir)

Puerta (varilla 45 cm) m2 3,15 450.0001.417.500

Ficha 5 agujeros par 3,00 10.000 30.000

Tornillo 1x7, un 60,0 150 9.000

Falleba de arrimar un 1,00 25.500 25.500 Pasador 150 mm un 2,00 18.000 36.000 Varilla p/ falleba 1.20 un 2,00 24.500 49.000 Mano de obra, c/hoja 3,00 46.000 138.000

por: un 1.705.000

Ventana de 1.20 m de alto

Vidriera (1.50x1.20m - 3 hojas de abrir)

Ventana vidriera m2 1,80

Varilla p/ falleba 1.20 un 1,00 24.500 24.500

Mano de obra, c/hoja 3,00 36.000

Total por: un 626.800

Vidriera (2.00x1.20m - 4 hojas de abrir) Total por: un 841.600

Vidriera (1.00x0.80m)

Total por: un 324.000

Persiana (1.50x1.20m - 3 hojas de abrir)

Ventana persiana fija, m2 1,80 450.000 810.000

Ficha 5 agujeros, par 2,00 10.000 20.000

Ficha 3 agujeros, un 1,00 9.000 9.000

Tornillo 1x7, un 52,0 150 7.800

Falleba de arrimar un 1,00 25.500 25.500 Pasador de 150 mm cromoun 2,00 18.000 36.000

Varilla p/ falleba 1.20 un 1,00 24.500 24.500 Mano de obra, c/hoja 3,00 36.000 108.000

Total por: un 1.040.800

Persiana (2.00x1.20m - 4 hojas de abrir)

Total por: un 1.393.600

Colocación de Contramarco

Contramarco cedro 45 mmml 1,00 6.000 6.000

Clavo 1/2” o 3/4”, kg 0,10 25.000 2.500

Mano de obra, ml 1,00 10.000 10.000 Total por: ml 18.500

COSTEO DE OBRA

CARPINTERIA METALICA

Balancín hasta 1 m2

Balancín fabricado con m2 1,00 180.000 180.000

ángulo de 5/8 y T 3/4x1/8”,

Cemento tipo 1, kg 1,00

lavada, m3 0,01 65.000

Mano de obra, un 1,00

por: un 258.750

Balancín más de 2 m2 , m2

Balancín de 0.60x0.60 m un

Balancín de 0.60x1.10 m un

Balancín de 1.00x0.80 m un

Puerta Metálica Tipo Reja (0.80x2.10 m)

Puerta, marco y herrajes, un 1,00 530.000

Cemento tipo 1,

Cortina Metálica (2.40x2.60 m)

Total por: un 4.346.000

Reja de Hierro Artística Sencilla (1.50x1,20 m)

Reja artística sencilla, m2 1,80 250.000 450.000

Cemento tipo 1, kg 3,00 1.100

PINTURAS

Pintura de Pared a la Cal

Pintura de Cielorraso a la Cal Cal triturada, kg

Al Látex Interior con Enduido Lijas,

Al Látex Exterior con Enduido

Baranda Metálica de Escalera ml 299.750

Portón Metálico (1.00x1.50 m)

Portón de rejas, m2 1,50 280.000 420.000

Cemento tipo 1, kg 2,00 1.100 2.200

Arena lavada, m3 0,03 65.000 1.950 Mano de obra, un 1,00 106.000 106.000

Total por: un 530.150

Portón Cochera (3.00x2.00 m)

Portón con cerradura, m2 6,00 270.0001.620.000

Cemento tipo 1, kg 5,00 1.100 5.500

Arena lavada, m3 0,03 65.000 1.950

Mano de obra, c/ hoja 2,00 200.000 400.000

Total por: un 2.027.450

Portón Cochera (4.40x4.00 m) Portón

Tejuela o Tejuelón al Barniz

Tejuela a la Cal y Maderamen con Esmalte Sintético

Escalera Metálica Recta Escalera

COSTEO DE OBRA

Barnizado de Machimbre

Abertura de Madera con Esmalte

Estufa (Boca de 1.00 m)

Ladrillo común, un

Ladrillo refractario, un

Cemento tipo 1,

Arena lavada, m3 1,00 65.000 65.000

Arena refractaria, kg 3,00 3.000 9.000

Varilla conformada,

Mano de obra,

Total por: un 3.043.840

Parrilla (boca de 1.00 m)

Ladrillo común, un 750,

Abertura de Madera con Barníz Aceite

Abertura Metálica con Esmalte

carbonera y cenicero graduable, Mano de

Balaustre Sencillo Balaustre

Canalata y Bajada con Esmalte Sintético

Tanque de Agua en Fibra de Vidrio

Tratamiento de Ladrillo Visto

Tanque de Agua en Fibra de Vidrio 500 lt

VARIOS

Moldura Doble

Moldura Sencilla

PROYECTOS MANDU’A

Descripción general:

Todas las construcciones se realizan en Asunción o alrededores sobre un terreno seco con una capacidad portante de 3 Kg/cm2, que no requiere movimiento de suelo. El análisis de costo incluye los gastos generales (10%) y beneficio de la empresa (15%). Se excluyen los gastos complementarios correspondientes a los Honorarios Profesionales por Proyecto y Dirección de Obras. No se consideran los gastos por Permiso Municipal, de conexión y consumo por servicios de

agua y eléctricidad. Tampoco se considera el valor del predio. Los precios de materiales y de mano de obra corresponden a los publicados por nuestra revista, en cuya guía de costeo de obra se desarrolla cada uno de los ítems. Los precios de mano de obra se basan en consultas realizadas con contratistas y profesionales de construcción. No incluyen cargas sociales, seguro de accidentes, etc.

Casa Mandu’a - Vivienda Modelo 1

Descripción: Vivienda económica con una superficie de 67,7 m2

Desarrollo de la Obra

• Fundación: Piedra bruta colocada. Nivelación: Mampostería de 0,30 con ladrillos comunes. • Aislación: Horizontal de muros realizada en cajón con asfalto sólido diluido en caliente. • Mampostería de elevación: Ladrillo hueco de 6 agujeros. En baños y paredes con instalación hidráulica, de ladrillo común. • Dinteles: Envarillado continuo de 2 varillas y de 4 varillas sobre aberturas. • Techo: Tejas españolas prensadas 1ª B, con tejuelones, maderamen de yvyrapyta, aislación con cartón asfáltico, con terminación de boca teja, mojinete y tapa doble. • Carpintería de madera: Marcos de yvyrapyta, aberturas de madera de guatambú, mueble de cocina revestido con laminado plástico. • Revestidos: Azulejos esmaltados lisos 15x15, en cocina, lavadero y baños, con una altura de 1,80 m. • Revoques: Base con azotada impermeable de 0,5 cm y revoque con aditivo hidrófugo, en interior a 1 capa y exterior en la faja perimetral de 0,50 m. Incluye vértice de mampostería y borde de aberturas. • Instalación eléctrica: Monofásica, llaves termomagnéticas brasileñas, Placas, picos de luz y tomas argentinas. Sin artefactos. • Instalación sanitaria: Cañería hidráulica de agua fría, cloacal y pluvial, de PVC. Loza de baño brasileña, con cisterna alta. Pileta de lavar de granito reconstituido.

MODELO 1 - VIVIENDA PLANILLA DE COSTOS

0.15 m con ladrillo hueco 6

Elevación 0.15m con ladrillo hueco 6 tubos, 1

Techo: teja española, tejuelón, aislante,

Limpieza final y retiro de escombros

y roturas (3 %)

Pileta de cocina de acero inoxidable, 1 bacha. Las canaletas y bajadas, de chapa galvanizada Nº 26. • Pintura: Interior y exterior a la cal con fijador y color. Mampostería a la vista con protección a base de silicona, previa limpieza con ácido muriático. Carpintería de madera y maderamen de techo al barniz. Carpintería metálica y canaletas con esmalte sintético.

Dúplex Mandu’a Vivienda Modelo 2

Descripción: Conjunto de 3 viviendas, cada una de 121,5 m2, con estructura de losa prefabricada con paredes portantes y disminuyendo pilares y zapatas.

Desarrollo de la Obra

• Fundación: De piedra bruta colocada, con encadenado inferior de HºAº y zapatas de Hº Aº como base de pilares.

• Estructura: Losa cerámica a la vista que se apoya en paredes portantes, con algunos pilares y vigas de HºAº. Nivelación y Dinteles sobre aberturas y techo. • Revestidos: Idem modelo 1. • Aislación: Horizontal idem modelo 1. De baño en planta alta con alisada e impermeabilizante de base asfáltica. • Mampostería de elevación: Ladrillo laminado a la vista en fachada; ladrillo común en baños, área de servicio y paredes con instalación hidráulica; ladrillo hueco de 6 agujeros en interiores y medianeras. • Carpintería de Madera: Marcos de yvyrapyta, aberturas de cedro, placard de guatambú, mueble de cocina revestido con laminado plástico. • Carpintería Metálica: Balancines de ángulos, rejas artísticas sencillas y portón de cochera de chapa doblada. • Pisos: Contrapiso de cascotes, baldosa calcárea de base gris en área de servicio, layota nacional en cochera y parrilla. Cerámica esmaltada sobre carpeta alisada de 30x30 en planta baja, área social, escalera y cocina. De 20x20 en baños. Veredita tipo ka’a. Alfombra de 5 mm sobre carpeta de base en planta alta. • Zócalos: Calcáreo, cerámica esmaltada, layotas, en su caso y madera donde lleva alfombra. • Revoques: Común filtrado por ladrillos comunes con azotado de adherencia en ladrillhidrófugo en exteriores y áreas húmedas. • Instalación eléctrica: Monofásica, llaves TM brasileñas, placas, picos de luz y tomas argentinas.

PROYECTOS MANDU’A

PLANILLA DE COSTOS

Revoque 1 capa , 1.5 cm sin

Revoque 1 capa con hidrófugo en exteriores

: teja española

tejuelón, vigas y

Sin artefactos. • Instalación Sanitaria: Cañería para agua fría, cloacal y pluvial de PVC, para agua caliente de polipropileno, loza de baño brasileña, cisterna baja en baño social y en planta alta, alta en baño de servicio, pileta de lavar de granito reconstituido y de acero inoxidable de 2 bachas en la cocina. Canaletas y bajadas de chapa Nº 26. • Pintura: Mampostería a la vista con protección a base de silicona, previa limpieza con ácido muriático. Area de servicio y exteriores revocados a la cal con color. Paredes interiores al latex. Carpintería de madera, techo de tejas y losa con cerámica a la vista al barniz. Carpintería metálica y canaletas con esmalte sintético. os huecos, con azotada impermeable (0,5 cm) y común filtrado con aditivo .

Planta Baja
Planta Alta

Dúplex Mandu’a - Vivienda Modelo 3

Descripción: 2 viviendas iguales en Duplex, cada una de 150,3 m2

Sistema constructivo y materiales

Estructura: La losa prefabricada utilizada es de una marca del mercado, utilizada con el mismo criterio adoptado en el Modelo 2.

Desarrollo de la Obra

• Fundación: Idem modelo 2. • Estructura: Se utiliza el sistema Listalosa con cielorraso ranurado a la vista, sin revoque, que descansa sobre paredes portantes, reforzados con algunos pilares y vigas de Hº Aº. • Fundación, nivelación, aislación, mampostería, dinteles, techos, revoques, Instalación Sanitaria y

Pintura: Idem al modelo 2. • Carpintería de Madera: Marcos de lapacho, aberturas, placards y mueble de cocina de cedro, éste último con puertas tablero; mesada de granito natural.

• Carpintería Metálica: Balancines metálicos. Rejas artísticas y portón de cochera de chapa doblada y varillas. • Pisos: Contrapiso de Hº de cascotes, baldosa calcárea de base gris en área de servicio, layota nacional en cochera y parrilla. Granito reconstituído pulido de base gris en área social, estudio y planta alta, y en planchas en la escalera. Cerámica esmaltada sobre carpeta alisada en cocina y baños. Vereda de mosaicos de canto rodado de color 30x30. • Zócalos: Calcáreo, cerámica esmaltada, cerámica roja y granito reconstituido. • Revestidos: Azulejo esmaltado liso 20x30 en baños y cocina. De 15x15 en lavadero y baño de servicio. • Instalación Eléctrica: Monofásica, llaves TM europeas, placas, picos de luz y tomas de procedencia uruguaya. Sin artefactos.

MODELO 3 / VIVIENDA DUPLEX, SUPERFICIE 150,30 m²

PLANILLA DE COSTOS

Aislación horizontal 0.15 con hidrófugo y

Dintel sobre aberturas / envarillado de manpostería

Revoque 1 capa sin hidrófugo ( 1:4:16 ) interiores

Revoque 1 capa con hidrófugo ( 1:4:16 ) exteriores

Azotada impermeable 0.5

Techo : teja española , tejuelón, vigas y tirantes de Ybyrapyta

Cámara

Edificio para la Renta Vivienda Modelo 4

Descripción: Edificio de 2 plantas que puede ampliarse a 3, comprende 2 departamentos en Planta Alta, cada uno de 60 m2 y con 2 dormitorios. En planta baja 2 salones comerciales de 34,30 m2 de área interior. Entrada vehicular cubierta.

Desarrollo de la obra

• Fundación: Se utilizan Zapatas de Hº Aº donde actúan cargas puntuales y bajo las paredes, vigas del mismo material. • Estructura: De Hº Aº tipo tradicional, las losas descansan sobre vigas y pilares del mismo ancho que las paredes. En planta alta se utiliza un encadenado general a la altura de asiento de tirantes. • Aislación, mampostería de elevación, dinteles, techo y carpintería de madera, pisos, zócalos, revestidos, revoques, instalación sanitaria: idem al modelo 2. • Carpintería Metálica: Cortina de enrollar de tablillas metálicas con puerta de escape. Balancines, portones de acceso peatonal y de cochera de chapa doblada. Baranda sencilla de escalera. • Instalación

Eléctrica: Idem. modelo 3. • Pintura: Paredes interiores y exteriores del frente y contrafrente al latex. Paredes exteriores medianeras y cielorraso a la cal. Abertura de madera, maderamen y tejuelones del techo al barniz. Carpintería metálica con esmalte sintético.

Planta Baja
Planta Alta

PROYECTOS MANDU’A

PLANILLA DE COSTOS

Aislación

Revoque 1 capa sin hidrófugo en

Revoque 1 capa con hidrófugo en exteriores

impermeable 0.5

Techo : teja española , tejuelón, vigas y tirantes Yvyrapyta

Baldosa calcárea base gris 20 x 20

Casa Mandua 4 básica

Limpieza final y retiro de escombros (0.8 %)

mermas y roturas (3%)

Planta Baja
Planta Alta

Galpón tipo tinglado - Vivienda Modelo 5

Descripción: Galpón tipo tinglado, con una superficie de 268,8 m2, con oficina y vestuario. La oficina incluye un baño privado y el vestuario dos boxes de baño, para ducha e inodoro, respectivamente. Consta de patio posterior y retiro en el frente, cumpliendo la norma municipal que exige un 25% de superficie sin construir.

La obra está prevista para un terreno plano y limpio de 12x30 m situado entre linderos.

Desarrollo de la Obra

• Fundación: Pilares asentados sobre zapatas de hormigón ciclópeo y cimiento corrido de P.B.C para asiento de paredes. • Estructura: Realizada con pilares de HºAº y vigas encadenadas conformando 2 anillos de unión. • Aislación, mampostería de elevación, dinteles, carpintería de Madera: Idem. modelo 1. • Techo: Tipo tinglado parabólico, estructura metálica reticulada fabricada de varillas torsionadas pintadas con antióxido. Cubierta de chapa galvanizada ondulada, aireada con extractores eólicos. • Carpintería Metálica: Balancines metálicos de ángulos y perfiles “T”. Portones de chapa doblada en el acceso vehicular y la salida al patio. Escalera metálica recta de acceso al entrepiso de madera. • Pisos: En el patio del frente y dentro del depósito, donde pueden circular vehículos, el piso es de hormigón armado con juntas de dilatación. En la oficina se utilizan baldosa calcárea de base gris y cerámica esmaltada sobre una carpeta alisada, en baños y vestuarios. Vereda de baldosita calcárea tipo ka’a con ranuras antideslizantes. Contrapiso de hormigón de cascotes. • Zócalos: Calcáreo en la oficina. • Revestidos: Azulejo esmaltado liso 15x15 en baños y vestuario. • Revoques: Sobre ladrillos huecos, azotada de adherencia con hidrófugo y revoque común filtrado y sobre ladrillos comunes sólo este último. Las paredes perimetrales llevan revoque a un solo lado.

• Instalación Eléctrica: Trifásica, llaves termomagnéticas europeas, placas, picos

MODELO 5 / GALPON TIPO TINGLADO,

PLANILLA DE COSTOS

PROYECTOS MANDU’A

de luz y tomas uruguayos, sin artefactos. Instalación Sanitaria: Cañería hidráulica de agua fría, cloacal y pluvial, lozas de baño, canaletas y bajadas idem modelo 1. Cisterna baja en baño de oficina y alta en el vestuario. • Pintura: Paredes revocadas, interiores o exteriores, a la cal. Paredes de ladrillo hueco a la vista con tratamiento correspondiente para el efecto. Carpintería de madera y entrepiso de machimbre pintadas con barniz. Carpintería metálica y caños de bajada con esmalte sintético.

Bolsa de subcontratistas

* La Bolsa de Subcontratistas es una colaboración de la revista con los profesionales y trabajadores de la construcción, teniendo un pequeño costo los anuncios en recuadro. La calidad del servicio, así como la relación contractual, escapa a nuestro compromiso con los apreciados lectores.

Agrimensura

Aire acondicionado

Instalación / Reparación

Bracho, Javier 0981 879749 / 0985 464491

Brítez, Santiago 0981 117524

González, Pedro 644661 / 0982 450866

Maciel, Pablo 0971 939890 / 0981 651205

Ojeda, Hugo 623766 / 0981 868289

Solis, Gabriel 0981 486233

Velázquez, Santiago 0981 843738

Aislación térmica

Duarte, Eleno 0983 338939

Marín, Dionisio 0983 731450

Alambrados

Bentrom, Román 991255

Riveros, Mario 0992 993007 / 0985 887621

Albañilería

Julio Cristaldo Cel.: 0986 188 514

Benítez, Ramón 0982 370231

Bogarín, Lidio 0971 947177

Bruno, Alejandro 0994 314460

Cabral, Andrés 0982 896561

Cáceres, Carlos 0982 132349

Cazal, Alexis 0981 343423

Esquivel, Rogelio 0981 456697

Fernández, Antonio 515629 / 0981 465940

Garcete, Palermo 0981 965660

Gill, Enrique 642559 / 0981 303974

Giménez, Pablo 0981 951645

Godoy, Eladio 0983 333622

González, Aníbal 0985 222147

González, Benito 0982 248256

Jara, Vidal 0981 434787 / 0981 876489

Jiménez, Antonio 514989 / 0981 660190

López, Osvaldo 0981 836904

Maidana, Sinforiano 0983 380486

Marín, Dionisio 0983 731450

Moreno, Ramón 0981 785546

Ocampos, Higinio 0984 926892

Ortega, Mildesis 0984 369 652 / 0981 594 893

Paniagua, Derlis 0981 182465

Peralta, Raúl 0981 501323

Rando, Gerardo 0985 766 650

Ramírez, Amado 374276 / 0981 485609

Riveros, Carlos 0981 521771

Rojas, Juan 0971 950157

Ruiz, Saturnino 0984 273997

Sosa, Edgar 0984 928914

Vera, Néstor 0981 103889

Animación y perspectiva

Abbate, Alejandra 0982 886227

González, Jorge 0986 552 000 / 0991 880 133

Pérez, Rafael 0981 476743

Aprobación de planos municipales

Benítez, Oscar 0971 340345

Chaparro, Miguel 0961 586457

Fernández, María 0981 932043

Rolón, Oscar 0981 445601

Robledo, Gustavo 0981 939512

Azulejos - colocación

Armando, José 0995 639335

Benitez, Alfredo 0981 520214

Benitez, Antonio 0981 945353

Ferreira, Gustavo 285663 / 0981 881211

Figueredo, Miguel 0981 479221

Godoy, Eladio 0983 333622

González, Benito 0982 248256

Jiménez, Antonio 514989 / 0981 660190

Medina, Antonio 0983 247516

Moragas, Carmelo 0985 268 497 / 0981 547 754

Noguera, Higinio 0981 564472

Ortíz, Vidal 509475

Palacios, Leonardo 0983 207676

Vázquez, Ever 0981 655799

Canaletas

Altamirano, Vicente 0981 851077

Arzamendia, Hugo 0981 126471

Canto

rodado (carga en obra)

Figueredo, Catalino 0981 763438

Figueredo, Miguel 0981 479221

Carpintería

Aquino, Miguel 0986 858685

Bordón, Marcial 0971 277041

Franco, Marcos 0982 279166

Olmedo, Miguel 0981 526079

Carpinteros de obra / techistas

Benítez, Aniano 0984 478256

Cáceres, Carlos 0982 132349

González, Aníbal 0985 222147

Jara, Oscar 780642 / 0981 184687

Mora, Pascual 0981 963459

Sosa, Carlos 0992 299951

Valdovinos, Pedro 0981 234113 Cascadas

Acevedo, Patricio 0981 412542

Aguilera, Gabriel 0985 101795

Cepillado en obra

Jara, Oscar 780642 / 0981

Circuito cerrado

Cabrera, Arnaldo

Colocación de aberturas

Marcos

Colocación de empapelados

Coronel,

Colocación de Losarap

Alarcón, Julio 501130 /0983 367 697

Gill, Enrique 642559 / 0981 303974

Cielorrasos - Durlock/PVC/Yeso

Agüero, Benjamín 0985 740977

Agüero, Jorge 0985 417456

Bentolilla, Esteban 480203 / 0981 385207

Careaga, Víctor 373410 / 0971 936858

Colocación de Parquet

García, Juan 0981 571424

Sosa, Carlos 0992 299951

Colocación de Piedra revestidos / molduras

Aveiro, Gerónimo 0985 242563

Figueredo, Miguel 0981 479221

Martínez, Diego 0984 560 841

Ortíz, Eduardo 0971 379011

Quiñónez, Expédito 0983 356501

Ríos, Francisco 0981 417309

Rojas, Juan 0971 950157

BOLSA DE SUBCONTRATISTAS

Colocacion de Pisos vinílicos / alfombras

Careaga, Víctor 373410 / 0971 936858

Coronel, Derlis 295479 / 0981 154662

Coronel, Julián 295479 / 0984 580876

Pavón, César 327 6331 / 0982 354987

Sánchez, Alberto 443477 / 0981 503266

Cómputo métrico

Benítez, Oscar 0971 340345

González, Jorge Arq 0986 552000 / 0991 880133

Nuñez, Andrea 0982 170442

Russo, Walter Ing 0991 789561

Vallejos S, Cristina Arq 0982 975371 / 0981 561645

Constructores de obra

Acosta Riveros, Jorge A 0984 557649

Agüero, Teófilo 524755 / 0983 942516

Añazco, Carlos 0981 457301

Benítez, Aniano 0984 478256

Benítez, Juan 751724 / 0981 488904

Benítez, Ramón 0982 370231

Caballero, Oscar 0972 131247

Cabral, Andrés 0982 896 561

Cáceres, Carlos 0982 132349

Cantero, Domingo 0981 244946

Dávalos,Hermes 0981 942718

Escobar, Gustavo 0981 163551

Espinoza, Mauricio 0982 781445

Fernández, Antonio 515629 / 0981 465940

Ferreira, Wilfrido 0981 400128 / 0981 786614

Figueredo, Miguel 0981 479221

Garcete, Palermo 0981 965660

Gill, Enrique 642559 / 0981 303974

Giménez, Leonardo 0981 530453

González, Aníbal 0985 222147

González, Miguel H 0961 889646

González, Rumildo 0971 350004

Gutiérrez, De los Santos 0981 390538

Hucedo, Carlos 0982 178592

Jara, Vidal 0981 434787 / 0981 876489

Jiménez, Antonio 514989 / 0981 660190

Maciel, Milciades 0981 943482

Maidana,Sinforiano 0983 380486

Meza, Esteban 0992 383232

Moreno, Ramón 0981 785546

Narváez, Arsenio 0981 939452

Noguera, Higinio 0981 564472

Ortiz Barrios, César 642239 / 0983 358854

Ortíz, Vidal 509475 / 0971 720887

Oviedo, Richard 0981 291070

Paniagua, Derlis 0981 182465

Quiñónez, Expedito 0983 356501

Quiroga, Pedro 0985 938774

Rando, Gerardo 0985 766 650

Recalde, César 0981 170159

Riveros, Carlos 0981 521771

Riveros, Mario 0992 993007 / 0985 887621

Robledo,Gustavo 0981 939512

Rodríguez, Buenaventura 0972 509828

Rojas, Bernardo 302692 / 0981 531143

Rojas, Juan 0971 950157

Romero, Melchor 0983 470631

Ruiz, Saturnino 0984 273997

Sánchez, Benito 0983 488540

Sánchez, Ricardo 0981 145907

Sánchez, Yisenia 0976 123426 / 0985 297794

Sosa, Edgar 0984 928914

Valdovinos, Pedro 0981 234113

Vega, Augusto 310352 / 0971 972699

Velázquez, Jorge 0983 507243

Velázquez, Santiago 0981 843738

Vera, Néstor 0981 103889

Contratistas de hormigón

Acosta Riveros, Jorge A 0984 557649

Arévalos, Guillermo 752601 / 0981 485307

Benítez, Oscar 0971 340345

Cabral, Andrés 0982 896561

Esquivel, Rogelio 0981 456697

Fernández, Antonio 515629 / 0981 465940

Fernández, Silvino 755284 / 0981 549523

Figueredo, Miguel 0981 479221

Garcete, Palermo 0981 965660

Giménez, Leonardo 0981 530453

González, Aníbal 0985 222147

González, Miguel H 0961 889646

González, Rumildo 0971 350004

Maidana, Sinforiano 0983 380486

Meza, Esteban 0992 383232

Ocampos, Higinio 0984 926892

Olmedo, Julio 0981 652772

Ortega, Mildesis 0984 369652 / 0981 594893

Paniagua, Derlis 0981 182465

Peralta, Raúl 0981 501323

Recalde, César 0981 170159

Torres, Arístides 0981 865518

Velázquez, Santiago 0981 843738

Vera, Néstor 0981 103889

Cortinas

Aguilera, Gabriel 0985 101795

Ayala, Ever 0983 711979

Maldonado, María Estela 0981 561631

Urbieta, Mónica 0981 476743

Demolición

Caballero, Oscar 0972 131247

Herrera, Cristino 0981 976488 / 0984 894128

Vallejos, Cándido 0991 233001

Villalba, Javier 0985 491498

Destronque de árboles

Herrera, Cristino 0981 976488 / 0984 894128

Vera, Néstor 0981 103889

Dibujantes técnicos

Arnedo, Ana Arq 0981 655014

Jacobo, Nora 0971 534417

Maidana, María B. 0991 988215

Martínez, Francisco 0786 230619 / 0975 681680

Montiel, Gustavo 586343 / 0982 488928

Rodriguez, Buenaventura 0972 509828

Rolón, Manuel 0986 909404

Rolón, Oscar 0981 445601

Digitalización de planos

Abbate, Alejandra 0982 886227

Aponte, Andrea 0971 190781

Arnedo, Ana Arq 0981 655014

Arza, Andrea Arq 0981 966786

Coronel, Renzo 0971 362856 / 0986 656577

Escobar, Gustavo 0981 163551

Ferreira, José 0981 915492

González, Jorge 0986 552 000 / 0991 880133

Maidana, María B. 0991 988215

Montiel, Gustavo 586343 / 0982 488928

Nuñez, Andrea 0982 170442

Nuñez, Miguel 0982 634026

Quintana, Jorge 290680 / 0981 426037

Robledo, Gustavo 0981 939512

Rolón, Manuel 0986 909404

Rolón, Oscar 0981 445601

Sánchez, Yisenia 0976 123426 / 0985 297794

Toledo, Milena 0981 201561

Divisorias interiores / Mamparas

Bentolilla, Esteban 480203 / 0981 385207

Careaga, Víctor 373410 / 0971 936858

Pavón, César 327 6331 / 0982 354987

Dorado a la hoja

Chávez, Ada 0981 838274

Drenaje

Caballero, Rodrigo 0981 257702

Velázquez, Santiago 0981 843738

Electricistas

Aquino, Roberto 521610/ 0971 313847

Benítez, Cándido 0981 496207

Bracho, Javier 0981 879749 0985 464491

Brítez, Santiago 0981 117524

Cáceres, Isidro 0981 927945

Chaparro, Miguel 0961 586457

Castillo, Marco 0981 578068

Coronel, Derlis 295479 / 0984 580876

Coronel, Julián 295479 / 0981 154662 Ever Pereira 0983 460 494

Delgadillo, Alberto 0981 844429

Delgadillo, Francisco 0982 335870

Díaz, Carlos 572156 / 0982 464967

Duarte, Gustavo 0983 191182

Esquivel, Rogelio 0981 456697

Galarza, Ramón 0981 230273

Garcete, Palermo 0981 965660

Giménez, Carlos 0981 741087

Giménez, Flaminio 0971 227480 / 0983 841240

González, Pedro 644661 / 0982 450866

Hucedo, Carlos 0982 178592

León, Cañete 0983 800938 / 0981 561409

Maciel, Pablo 0971 939890 / 0981 651205

Martínez, Gerardo 0981 493190

Montanía, Ylber 0981 474025

Núñez, Cayo 0983 404670

Otello Roa, Félix 780691 / 0972 822577

Paniagua, Derlis 0981 182465

Parini, Fernando 0983 657565

Ramírez, Dario 0992 863100 / 0991 677208

Ramírez, Roberto 944740 / 0981 494624

Rolón, Carlos 0982 751296

Ruiz, Carlos 0981 896430

Sanabria, Jorge 0984 154375

Sartorio, Jorge 0981 939172

Solis, Gabriel 0981 486233

Toñánez, Sebastián 0981 912516

Valenzuela, Luis 0982 127968 / 0985 942676

Vallejos, Cándido 0991 233001

Villaverde, Silvino 0992 396855

Empedrados y adoquinados

Santacruz, Pablo Ing 0981 105004

Fumigación

Herrera, Cristino 0981 976488 / 0984 894128

Herrería / estructuras metálicas

Arzamendia, Hugo 0981 126471

Bordón, Marcial 0971 277041

Bracho, Javier 0981 879749 / 0985 464491

Cazal, Mario 0982 878501

Delvalle, Christian 0981 853884

Garcete, Palermo 0981 965660

Herrera, Edgar 0982 272468

Maldonado, María Estela 0981 561631

Orrego, Cándido 0984 958981

Hojalatero

Cazal, Alexis 0981 343423

Impermeabilización

Duarte, Eleno 0983 338939

López, Ramón 0981 569767

Marín, Dionisio 0983 731450

Martínez, Braulio 0981 193232

Ramírez, Amado 374276 / 0981 485609

Ruffinelli, Miguel 0981 449955

Velázquez, Santiago 0981 843738

Jardineros

Aguilera, Gabriel 0985 101795

Basualdo, Javier 0982 311208

Duarte, Tomás 0985 941909

Villaverde, Silvino 0992 396855

Limpieza

de patios

Bentrom, Román 991255

Herrera, Cristino 0981 976488 / 0984 894128

Riveros, Mario 0985 887621

Mesadas de cocina / bañoMarmolería

Jimenez, Miguel Angel 0981 541146

Montaje

de transformadores y motores

Benítez, Genaro 0981 496837

Díaz, Carlos 572156 / 0982 464967

Mancuello, Fernando 0991 201918 Morales, Gustavo 0981 893881

Motoserrista

/ poda de

árboles

Basualdo, Javier 0982 311208

Bentrom, Román 991255

Duarte, Tomás 0985 941909

Riveros, Mario 0992 993007 / 0985 887621

Muros verdes / jardines verticales

Arzamendia,

Pintores

Ángel 942329 /

Bogarín, Héctor 0985 959921

Borja, Francisco 0991 820078

Bruno, Alejandro 0994 314460

Careaga, Víctor 373410 / 0971 936858

Cazal, Alexis 0981 343423

Garcete, Palermo 0981 965660

Gauto, Miguel 0981 938415

Giménez, Hernando 0981 419674

Giménez, José 0993 353888 / 0981 604638

Giménez, Leonardo 0981 530453

Godoy, Pedro 0981 596914

González, Aníbal 0985 222147

Herrera, Edgar 0982 272468

Ibarra, Jorge 0961 842883

López, Ramón 0981 569767

Marín, Dionisio 0983 731450

Martínez, Diego 0984 560 841

Medina, Germán 0982 320250

Mereles, Néstor 0985 653204

Miranda, Félix 0981 514763

Morínigo, Miguel 973372 / 0981 474261

Noguera, Higinio 0981 564472

Ojeda, Darío 0971 223440

Oviedo, Richard 0981 291070

Paniagua, Derlis 0981 182465

Ramírez, Amado 374276 / 0981 485609

Ramírez, Ladislao 0981 766680

Reyes, Luis 0981 231612

Riveros G., Carlos 0981 521771

Riveros, Mario 0992 993007 / 0985 887621

Rojas, Bernardo 302692 / 0981 531143

Romero, Melchor 0983 470631

Sosa, Edgar 0984 928914 Vallejos, Cándido 0991 233001

Pintura texturada

Arévalos, Alberto 0971 208038 Giménez, Hernando 0981 419674

López, Ramón 0981 569767

Morínigo, Miguel 973372 / 0981 474261

Piris, Crispín 0982 360759

Piscinas - Construcción

y reparación

Urbieta, Mónica 0981 476743

Piscinas

- Limpieza y Mantenimiento

Piseros

BOLSA DE SUBCONTRATISTAS

Caballero, Rodrigo 0981 257702

Fernández, José 0982 627836

Giménez, Leonardo 0981 530453

Godoy, Eladio 0983 333622

González, Benito 0982 248256

Jiménez, Antonio 0981 660190

Maciel, Milciades 0981 943482

Martínez, Diego 0984 560 841

Medina, Antonio 0983 247516

Moragas, Carmelo 0985 268497

Noguera, Higinio 0981 564472

Palacios, Leonardo 0983 207676

Rando, Gerardo 0985 766 650

Riveros, Carlos 0981 521771

Rojas, Juan 0971 950157

Samaniego,Jorge 0982 986 757 0994 759925

Pisos técnicos (sobre elevados)

Agüero, Benjamín 0985 740977 Plomeros

Agüero, Benjamín 0985 740977

Aguilera, Gabriel 0985 101795

Alcaráz, Andrés 0971 956096

Altamirano, Vicente 0981 851077

Báez, Raimundo 0981 609001

Bracho, Javier 0985 464491

Caje, Rodolfo A. 0984 234423

Cazal, Mario 0982 878501

Chávez, Jorge 0981 823284

Escobar, Carlos 0971 357473

Fariña, Antonio 0971 231175

Ferreira, Gustavo 0981 881211

Garcete, Palermo 0981 965660

Giménez, Pablo 0981 951645

Herrera, Edgar 0982 272468

Hucedo, Carlos 0982 178592

López, Víctor M. 0971 760390

Medina, Alfredo 0981 468756

Medina, Germán 0982 320250

Moragas, Carmelo 0985 268497

Moragas, Victorino 0981 892513

Noguera, Higinio 0981 564472

Núñez, Cayo 0983 404670

Ortiz, Vidal 509475

Paniagua, Derlis 0981 182465

Rando, Gerardo 0985 766 650

Riveros G., Carlos 0981 521771

Riveros, Mario 0992 993007

Romero, Melchor 0983 470631

Ruíz, Carlos 0981 896430

Vallejos, Cándido 0991 233001

Villalba, Javier 0985 491498

Villaverde, Silvino 0992 396855

Ploteo de planos

Coronel, Renzo 0986 656577

Prevención contra incendios

Caje, Rodolfo A. 0984 234423

Manchini, César 0981 245725

Proyecto arquitectónico

Abbate, Alejandra 0982 886227

Aponte, Andrea 0971 190781

Arnedo, Ana Arq 0981 655014

Coronel, Renzo 0971 362856

Fernández, María Arq 0981 932043

Martínez, Liz Arq 0981 926697

Nuñez, Andrea 0982 170442

Pérez, Rafael 0981 476743

Pulidor de parquet

Fernández, José 0982 627836

Pulidor de piso granítico y de H˚

Caballero, Rodrigo 0981 257702

Fernández, José 0982 627836

Refrigeración / AA / camaras frigorificas/heladeras

Brítez, Santiago 0981 117524

Galarza, Ramón 0981 230273

Hucedo, Carlos 0982 178592

León, Cañete 0983 800938

Ruiz, Carlos 0981 896430

Sartorio, Jorge 0981 939172

Reparación / instalación de electrobombas para pozos

Escobar, Carlos 644497 / 0971 357473 Moragas, Carmelo 0985 268497

Restauración de muebles

Aparici, Mari 0981 500065 Montanía, Higinio 0981 530480

Seguridad

Seguridad ocupacional

López, Angélica 0981 129715 Mendoza, Ludwin 0982 568046

Servicios informáticos Compra

Guillén,

Trabajos en autocad

Ferreira, José 0981 915492

Jacobo, Nora 0971 534417

Maciel, Shirley 0981 249598

Maidana, María B. 0991 988215

Martínez, Liz Arq 0981 926697

Montiel, Gustavo 0982 488928

Navarro, Eduardo 0972 265312

Quintana, Jorge 0981 426037

Recalde, César 0981 170159

Robledo, Gustavo 0981 939512 Toledo, Milena 0981 201561

Ventilación industrial

Ojeda, Hugo 0981 868289

Vidriero y polarizados

Laneri, Gabriel 0981 787717

Vitrales

Astigarraga, M. Teresa 0981 460109

Mandu’ara

*Lista de precios de materiales y servicios de la construcción ordenada por orden alfabético. Los precios incluyen el I.V.A. Todos los valores incluidos en esta edición son meramente indicativos, siendo los mismos resultando de un análisis de los precios los vigentes en el mercado. Mandu’a no se hace responsable de los mismos.

INDICE

65 - ABERTURAS

66 - ACONDICIONADORES DE AIRE

66 - ALAMBRES

66 - ALQUILER Y VENTA

66 - DE EQUIPOS Y MÁQUINAS

70 - AISLANTES ACÚSTICOS

70 - AISLANTES TÉRMICOS

70 - ARENA Y TIERRA

70 - ASCENSORES

70 - BIODIGESTORES

70 - CAL

71 - CÁLCULO ESTRUCTURAL

71 - CAÑOS Y ACCESORIOS

72 - CARPINTERÍA DE ALUMINIO

72 - CEMENTO BLANCO

72 - CEMENTO GRIS

72 - CARPINTERIA DE PVC

73 - CERÁMICA ROJA

73 - CERCO ELÉCTRICO

73 - CONDUCTORES ELÉCTRICOS

74 - CONSTRUCCIÓN EN SECO

74 - CORTINAS

74 - CHAPAS

74 - CIELORRASOS

75 - DEPOSITOS DE MADERA

76 - DEPÓSITOS DE MATERIALES

78 - DIVISORIAS SANITARIAS

78 - DRENAJES

ABERTURAS

Madera

Puerta placa

De 0,60 - 0,70 y 0,80 m

78 - ELECTRICIDAD

79 - ESTRUCTURAS

79 - FALLA DE PAVIMENTOS

79 - FERRETERÍA

79 - FUMIGACIONES

79 - FUNDACIONES

80 - GAVIONES

80 - HERRERÍA

80 - HERRAJES

80 - HIDRÓFUGOS

81 - HIERROS

81 - HORMIGÓN

81 - HOJALATERIA

81 - IMPERMEABILIZANTES

82 - LABORATORIO DE ENSAYOS

82 - LOSA PREFABRICADA

82 - MÁRMOL Y GRANITO

82 - MAMPARAS

82 - MALLA ELECTRO SOLDADA

83 - MALLA DE FIBRA DE VIDRIO

83 - MEMBRANAS ASFÁLTICAS

83 - MEMBRANA LIQUIDA

83 - OBRADORES

83 - PERFILES

83 - PERFORACIÓN DE POZOS

83 - PIEDRAS

84 - PILOTES

84 - PINTURAS

De cedro un

De eucalipto/cupay un

De 0,90 m

De cedro

De eucalipto un 220.000

Puertas con cabezal recto

Tablero standard de eucalipto un

Persiana fija

Vidriera cuadrille

Vidriera sencilla

Tablero, punta diamante moldura c/ cedro de 1ra

Ventanas

Persiana fija

vidriera cuadrille

vidriera sencilla

85 - PISOS Y REVESTIMIENTOS

86 - PISOS SOBREELEVADOS

86 - PISOS VINÍLICOS

86 - PORTONES A CONTROL

86 - REMOTO

87 - PREFABRICADOS

DE HORMIGON

87 - PREVENCIÓN DE INCENDIOS

87 - REVESTIMIENTOS ACÚSTICOS

88 - SANITARIOS

89 - SEGUROS

89 - SELLADORES

89 - TERCIADAS

89 - TERMOCALEFONES

89 - TOPOGRAFÍA

89 - VARILLAS

89 - VIDRIOS

90 - PLANOS

Marco de yvyrapyta : cepillado, lijado y con 1 rebaje

De 15 cm, recto

Metálicas

Puerta ciega 2.10m de alto

De 0.80 m

De 0.90 m

Puerta placa 2.10m de alto

De 0.80 m un 430.000

De 0.90 m un

Ventana corrediza con reja 1.10m de alto

De 1.20 m ancho un

De 150 m ancho un 515.000

Ventana corrediza con reja 0.76m de alto De 1.20 m ancho

0.60 x 0.40m

ADHESIVOS

Brascola/Casarino

Brascoflex

ALAMBRES

Liso

01 Acerado Nº 17/15, rollo 1000m un 780.000

02 Galvanizado Nº 9, 12, 14 kg 17.000

03 Galvanizado Nº 20 kg 16.800

04 Negro de atar Nº 18 kg 18.000

De púa

01 Nº 16, rollo de 400 un 300.000

Tejido de Alambre Romboidal x m2

Postes de madera

Yvyrapyta - Altura 2,20 m

01 De 2x3” un 14.850

02 De 3x3” un 17.820

Postes de hormigón (ver rubro Prefabricados)

Y VENTA DE EQUIPOS Y MÁQUINAS

Equipos

02 Amoladora o cortadoras para cerámica de 9” (Bosch)

03 Andamio ER (alt. 1,50 largo 1.80 - ancho 1.10 mts )

04 Andamio Acrow (alt. 1,85 largo 2.50 - ancho 1.20 mts )

Calidad y garantía en todos nuestros servicios

Asesoramiento profesional personalizado

Excelente atención al cliente

Corochiré 4065 c/Cap Jow Von Sastrow (Zona Multiplaza Km 5) As Py

Andamios Martillete Vallados

Arcilla Expandida

CÁLCULO ESTRUCTURAL

CAÑOS Y ACCESORIOS

PVC - Tubos de 6 m

Tubo liviano para desague (blanco)

De 40 mm un 44.700

De 50 mm un 67.500

De 75 mm un 144.000

De 100 mm un 155.000

De 150 mm un 363.500

Tubo cloacal blanco

De 100 mm un 84.000

De 150 mm un 294.000

Tubo roscable blanco agua fría

De 1” un 167.000

De 3/4” un 77.000

De 1/2” un 59.000

Tubo soldable p/ 10kg

De 32 mm, un 57.000

De 25 mm, un 30.000

De 20 mm, un 21.000

Tubo para agua caliente, roscable, 4 capas

De 1/2” un 62.000

CODOS PVC

Codo PVC para desagüe primario

De 50 mm x 45° un 4.000

De 50 mm x 90° un 4.500

De 100 mm x 45° un 9.450

De 100 mm x 90° un 11.150

Codo PVC para el desagüe secundario

De 40 mm x 45° un 1.600

De 40 mm x 90° (buje largo) un 1.550

Caja sifonada cuadrada con rejilla inox

Anillo de sellado p/ desague 50mm un 2.900

Anillo de sellado p/ desague 75mm un 4.600

Anillo de sellado p/ desague 100mm un 5.000 Buje largo reducción p/ desague 50x40 mm un 2.450

Buje corto soldable 50x40 mm un 4.170 Codo 90° roscable 1/2” un 1.660

Codo reducción 90° roscable 3/4”x 1/2” un 3.350

Desengrasador 250 mm salida 50 un

Desengrasador 250 mm salida 75 un

Prolongador p/desengrasador 250x200 mm un 39.000

Prolongador p/caja sifonada 150x150 mm un 7.950 Ramal Y 40 x 45 p/desague secundario un

Ramal “Y” 100x50 mm p/desague un

“Y” 100x100 mm un

Tapon macho roscab p/desague secund de 1/2” un

150 x 185 x 75 mm un

Accesorios PVC Alma doble roscable 1/2” un 875

de descarga embutida ASTRA p/ cisterna un 15.300

Tubo desague plástico Astra p/ lavatorio un

Tubo descarga externa Astra p/ lavatorio un

Union sencilla roscable 1/2” un 1.700

Hierro galvanizado - caños de 6ml

De 1/2” un

De 3/4” un

De 1” un 342.000

De 1 1/4” un 392.000

De 1 1/2”, un 482.000 De 2” un 670.000

De 2 1/2”, un 827.000

Accesorios hierro galvanizado Alma doble 1/2”, un 7.700 Alma doble 3/4”, un 10.000

Buje 3/4” x 1/2”, un 8.100 Buje 1/2” x3/8”, un 7.740

Codo 1/2” x 90° MH, un 7.700

Codo reducción 3/4”x 1/2”, un 9.800

Curva transposición 1/2”x 1/2” un 18.000

Tapón macho 1/2”, un 7.000

Tee 1/2” x 90°, un 6.150

Tee reducción 3/4” x 1/2”, un 18.610

Unión doble plana 1/2”, un 19.700

Unión reducción 1/2 x 3/8” un 10.700

Unión sencilla 1/2”, un 8.530

CERCO ELÉCTRICO

Cerco eléctrico de 4 hilos con hastes de hierro 5/8”

01 De alambre de 0,70 mm ml 12.000

02 De cabo de acero de 1,6 mm ml 24.000

Cerco de cuchillas galvanizadas colocado

01 Tipo medialuna

02 Tipo circular 8 puntas diam. 30

03 Idem anterior de diam 45

04 Electrificador: incluye central, batería, control remoto, sirena, con instalación un

CERÁMICA ROJA

CONDUCTORES ELÉCTRICOS

Conductores flexibles con hilos de cobre electrolítico blando Aislación en PVC antillama 70oC

TECNIPANELES

CORTINAS

Persianas & Cortinas

TEL.: 021 906 951 - CEL.: 0971 543 246

Chapa

(021) 906 951/2 - (021) 328 0572/3

Chapa

CEL 0971 543 246

CDE: 061 570 501

CHAPAS

(0986) 802 098 div.comercial@tecnimet.com

-Paneles con núcleo de PIR -Núcleo de 40kg/m3

-Paneles Trapezoidales y machihembrados.

ZINC Aluminizada de 0,90 cm ancho (Cincalum)

Chapa Ondulada No 28

(021) 906 951/2 (021) 328 0572/3 CEL 0971 543 246

TEL.: 021 906 951 CEL.: 0971 543 246 CDE: 061 570 501

+(595) 974 502 500 +(595) 986 174225

CHAPAS TERMOACÚSTICAS

CHAPAS TRAPEZOIDALES

CHAPAS ONDULADAS

CHAPAS COLONIALES ÁNGULOS

CHAPAS LISAS

www.mvaceros.com.py

CIELORRASOS

5,0 - 5,9 m pulg/m 3.800

6,0 - 6,9 m pulg/m 4.200

Machimbres

TEL.: 021 906 951

(021) 906 951/2

CEL.: 0971 543 246

(021) 328 0572/3

pino 1/2 x 4”

CEL 0971 543 246

CDE: 061 570 501

CONTENEDORES

eucalipto 1 x 4”

DEPOSITOS DE MADERA

Alfajias , cepilladas

Ybyrapyta hasta 2 m de largo ml 10.000

Eucalipto hasta 2 m de largo ml 7.000

Vigas pulg2/m - De ybyrapyta

1,0 - 1,9 m pulg/m 4.500

2,0 - 2,9 m pulg/m 4.500

3,0 - 3,9 m pulg/m 4.700

4,0 - 4,9 m pulg/m 5.000

5,0 - 5,9 m pulg/m 5.500

6,0 - 6,9 m pulg/m

Tabla y puntales para encofrado

Tabla de eucalipto de 1” pulg/m 600

Puntal de eucalipto de 3x3” pulg/m 650

Tirantesde ybyrapyta / kurupa’y

1,0 -1,9 m pulg/m 2.800

2,0 -2,9 m pulg/m 2.900

3,0 - 3,9 m pulg/m 3.400

4,0 - 4,4 m pulg/m 3.500

4,5 - 4,9 m pulg/m 3.700

Laminado Yoayu de 1a un 1265

Yoayu laminadito 5x11 x 23 cm un 949

Prensado 3 agujeros Yoayu de 1a, 5x11,5x23,5 cm un 1.044

Ladrillo hueco

De 6x12x25 cm, 2 caras vistas, 3 tubos, 52 un x m2,

Yoayu de 1ra A, un 904

Ita Yvy de 1ra A, un 1.012

Ita yvy de 1ra B, un 792

De 8x18x25 cm, 6 tubos, 20 x m2

Ita Yvy de 1ra A, un 1.177

De 12x18 x25 cm, 6 tubos, 19 o 28 un x m2

Ita yvy de 1ra A un 1.298

Ita Yvy de 1ra B un 1.254

Yoayu de 1ra un 1.404

Yoayu de 1ra requemado un 1.278

De 18x18x25 cm, 9 tubos , 20 un x m2

Ita Yvy de 1ra A un 2.200

Ita Yvy de 1ra B un 1.716

Ladrillo estructural

Ita Yvy 14x19x14 cm un 1.661

Ladrillo sapp de 1a - H5- 12 un x m2 -

7x30x25 cm

Ita Yby un 1.606 Yoayu un 1.860

Ladrillo laminado recto - 6x12x25 cm, 52 un x m2

Irene 1ra A un 1.155

Yoayu laminadito 5x11x25 cm un 949

Ladrillo laminado curvo, 15 un x ml

Irene de 1ra un 1.950

Yoayu de 1ra B un 2.169

Ladrillo convoco, recto o inclinado 25un x m2

Ita Yvy 19x19x11 cm un 2.013

Irene, 18x18x12 cm un 2.650

Irene, 25x25x12 cm un 4.555

Yoayu 19x19x10 cm un 2.644

Ladrillejos 52 un x m2

Yoayu 1ra un 765

Yoayu 2da un 626

Ladrillo refractario 30 un x m2 , 6x12x25 cm

Ita Yvy de 1ra un 5.071

Yoayu 1ra un 6.148

Ladrillo klinker 44 un x m2 , 10x20x3,5 cm

Ita Yvy de 1ra un 1.804

Yoayu 1ra un 2.397

TEJAS

Teja española prensada de 1ra

DEPÓSITOS DE MATERIALES

Ladrillos

Ladrillo común

Tobatí, un 650

Prensado 3 agujeros Ita yvy de 1a, 5x11,5x23,5 cm un 946

Laminado rústico Ita yvy de 1a, 5x11,5x23,5 cm un 825

- Revista Mandu’a

Yoayu-26 un x m2

De 1ra A un 1.809

De 1ra B un 1.682

De 1ra fogueada un 1.455

De 1ra requemada un 1.328

De 2da un 1.328

De 1ra A extrusada un 1.303

Teja ROMANA o portuguesa Yoayu-

De 1ra A un 2.277

De 1ra B un 2.024

Teja FRANCESA Yoayu-

De 1ra B un 2.720

De 2DA un 1.898

Tejuelones - 9 un x m2

Yoayu de 1ra A un 2.574

Yoayu de 1ra B un 2.321

Ita Yvy de 1ra A un 2.288

Ita Yvy de 1ra B un 2.046

Tejuelitas - 30 un x m2

Ita Yvy de 1ra B un 473

Yoayu 1ra B un 658

Layotas

De 18x18 cm, 28 un x m2

Yoayu 1ra un 582

De 30x30 cm, lisa, 10 un x m2 un

Ita Yvy de 1ra un 1.914

Ita Yvy de 1ra B un 1.760

De 30x30 cm, rugosa, 12 un x m2 un

Ita Yvy de 1ra un 1.969

Ita Yvy de 1ra B un 1.826

De 28x28 cm, lisa, 12 un x m2

Yoayu de 1ra A un 1.666

Yoayu de 1ra B un 1.540

Ita Yvy de 1ra un 1.573

Ita Yvy de 1ra B un 1.452

De 28x28 cm, rugosa, 12 un x m2

Yoayu de 1ra A un 1.666 Yoayu de 1ra B antideslizante un 1.540

Ita Yvy de 1ra un 1639

Ita Yvy de 1ra B un 1.518

Zocalos de layota de 1ra A -10 cm de ancho

Yoayu de 28 cm un 2.530

Ita Yvy de 1ra - 28 cm un 2.233

Ita Yvy de 1ra B- 28 cm un 1.507

Varios

Plástico para techo 200 micrones

Pileta granÍtica - 1 bacha 1,00x0,50 m un 95.000

Pileta granÍtica - 2 bacha 1,40x0,50 m un 125.000

Cascotillo cerámico m3 Asfalto para aislación 3,6 lt un 60.000 Poste de Karanday un 120.000

DIVISORIAS SANITARIAS

ELECTRICIDAD

Columna de entrada (Materiales varios)

01 Aislador roldana B.T. 72x72mm, un 3.000

01 Aislador retención 0,50 un 3.500

02 Bulón p/ madera 3/8 x 3” un 1.000

03 Caño de acero ¾” x 3 m, un 8.500

04 Caño de acero 1” x 3 m, un 15.000

05 Caño galvanizado 2” x 5,8 m, un 125.000

06 Caño galvanizado 2 ½” x 5,8m, un 210.000

07 Cruceta p/ pre emsamblado 2” monofásica un 3.000

08 Cruceta p/ pre emsamblado 2 ½” Trifásica. un 3.500

09 Curva galvanizada 1 ¼”, un 8.500 10 Fondo de madera monofásico, un 6.000 11 Fondo de madera trifásico, un 6.000 12 Tapa monofásica Ande, un 8.500 13 Tapa trifásica Ande, un 10.000 14 Unión reducción 2” x 1”, un

Cinta aisladora

TEL.: 021 906 951 CEL.: 0971 543 246

0971 543 246

061 570 501 (021) 906 951/2 (021) 328 0572/3

Llaves

Caño

05 Caja de llave metal 4x2, un 1.450

06 Caja común americana p/ 1 TM, un 8.850

07 Caja común americana p/ 3 TM, un 14.500

08 Caja c/ riel Nº 1, un 8.850

09 Caja c/ riel Nº 3, un 14.500

10 Cinta nylon 30m (pasa cable), un 19.800

11 Jabalina cobre 5/8x2,00 m, un 25.000

12 Abrazadera p/jabalina 5/8 reforzado, un 5.000

13 Tapa ciega 4x4 llave doble blanca un 2.000

14 Tapa ciega p/ conexión blanca, un 1.000

15 Chicharra externa 220V Perlex, un 12.500

16 Interruptor diferencial 4x40A, un 95.000

17 Llave PANAN 25A p/ calefón un 10.000

ESTRUCTURAS

01

TInglado

15 m a 20 m de luz,

04 De 20 m a 25 m de luz,

Tinglado de HoAo

Fono: 595 981 410 190

FERRETERÍA

01 Balde albañil de plástico, un

02 Cemento de contacto,

Masilla común

Solvente para cemento de contacto,

FUMIGACIONES

01 Fenoina, insecticida y fungicida p/maderas (Casarino) LT. 32.000

FUNDACIONES

HERRERÍA

Aberturas

Barandas de balcón

01 De hierro sencilla 1,00m, pasamanos de 60x25mm en chapa doblada Nº14 colocación incluida dentro del radio urbano de Asunción

02

Balancines sin colocación - A partir de 1 m2

01 Balancín fabricado con ángulo 5/8 y T 3/4x1/8, hoja de 0,20 m,

02 Balancín fabricado con ángulo 3/4 y T 7/8 x 1/8,

Cortinas metálicas de enrollar - A partir de 10 m2

01 Fabricación y montaje de cortinas

02 Fabricación y montaje de cortinas manuales

01 Caracol diámetro 1,20 m, estructura de hierro con baranda, peldaños, con 1 mano antióxido y colocación incluida, por metro de altura,

01 Parrilla graduable de hierro enlozada con cenicero y carbonera de 1,20x0,50 m con tapa calor,

Campana de 1,20x0,60 m para parrilla con colocación,

Reja para ventana

01 Reja artística sencilla, con marco de ángulo de 3/4 x 1/8”, varilla de 10mm y dibujo rombo con planchuela de 3/4 x 3/16, m2

02 Idem anterior reja artística dibujada, m2

Portones (ver Portón a control remoto)

HERRAJES

Varios

01 Falleba de arrimar cromada, un 25.500

02 Ficha de 3 agujeros brasileña, reforzada, par 9.000

03 Ficha de 5 agujeros brasileña, reforzada, par 10.000

04 Pasador a palanca de embutir cromado de 150 mm un 18.000

05 Pasador a palanca de embutir cromado de 200 mm, un 25.000

06 Tirafondo galvanizado de 3/8x5”, un 1.500

07 Tornillo 1x7” caja de 144, un 150

08 Varilla de hierro para falleba de 1,20 m, un 24.500

09 Varilla de hierro para falleba de 1,50 m, un 30.000

HIDRÓFUGOS

HIERROS

HORMIGÓN

Hormigón Elaborado

* Comprende elaboración, transporte, bombeo, toma de muestras y rotura en laboratorio. Precios al contado

1

2

3

4

5

6

7

8

9

HOJALATERIA

Chapa galvanizada Canaleta embutida N° 24

Chapa N° 24

Canaleta moldurada 33 cm

Chapa N° 26

Chapa N° 28

IMPERMEABILIZANTES

Casarino

1 Secomur (silicona transparente) Lt.

2 Emulsión asfáltica Novasfalt, 20 Lt. un

3 Tapagoteras 4 kg un

4 Cementicio bi-componente, 25kg un

LOSA PREFABRICADA

Vigueta de Hº pretensado y ladrillo (Losa Rap)Puesto en obra

Y GRANITO

PreLosa pretensada y ladrillo Rap (PreRap 0,12x1,20 m) - Puesto en obra

01 Largo hasta 5,2 m

Vigueta de cerámica armada con cielo raso de hormigón visto incluido, a retirar de fábrica. (Listalosa)

Ancho = 20 cm / Altura = 10 cm

MALLA DE FIBRA DE VIDRIO

Casarino

Para refuerzo de revoques en rollo de 50 m²

5mm x 5mm x 75gr/m2

5mm x 5mm x 110gr/m2

10mm x 10mm x 110gr/m2

3,17mm x 3,17mm x 55g/m2

Tela tramada de poliester P/ refuerzo de pintura y cementicios

Tela tramada 1m x 50m

MEMBRANAS ASFÁLTICAS

Casarino

Casarino con Aluminio

1 De 3 mm

2 De 4 mm

Casarino sin Aluminio

1 De 4 mm

2 Bitumex base para membranas

Super Flex con aluminio, Casarino

1 De 36 kg

MEMBRANA LIQUIDA

OBRADORES

PERFILES

PIEDRAS

Para fundaciones y hormigón

Para carpinteria

3,6 l

01 Laja fina, espesor 1 a 2 cm m2 95.000

02 Laja gruesa (lajón), espesor 2 a 3 cm m2 95.000 03 Wasmosy, trabajada m2 65.000

Piedras para pisos

01 Losa blanca rompecabeza m2 33.000

02 Losa roja cuadrada rústica m2 120.000

PILOTES

PISOS Y REVESTIMIENTOS

Baldosas Calcáreas

Base Gris

01 De 20x20, 15x30 o 25x25 cm, m2 40.000

03 Zócalo 10x30 cm ml 19.000

Base Blanca

01 De 20x20, 15x30 o 25x25 cm, m2 40.000

03 Zócalo 10x30 cm ml 20.000

Mosaico granítico para interior

Base Gris semi pulido

01 De 30x30 cm

03 Zócalo 10x30 cm

04 Plancha o escalones

Base Blanca semi pulido

01 De 30x30 cm

02 De 40x40 cm

03 Zócalo 10x30 cm

04 Plancha o escalones

Mosaicos para exterior

Granito lavado

01 De 30x30 cm, blanco

02 De 30x30 cm, negro

03 Cargado en obra,

Mosaico granítico anti deslizante

40.000

1 Oxido rojo/amarillo,

01 De 30x30 cm gris m2 68.000

02 De 40x40 cm gris

03 De 30x30 cm colores

Canto rodado

01 De 30x30 cm, liso, amarillo/rojo m2 40.000

02 Zócalo 10x30 15x30 cm

03 Cargado en obra,

Alto Tránsito - Antideslizante para exterior - Equipa

01 De 30x30 cm, gris m2 65.000

02 De 40x40 cm, gris

03 De 30x30 cm, rojo ocre

04 De 40x40 cm, rojo ocre

Vereditas

01 Vainilla 20x20, Ka’a, roja, negra, gris

Baldosones de Hormigón - Linea Gris

01 De 40x40x2,5 cm,

De

03 De 40x40x4 cm, armada

Bordes

Varios

Equipa

Piso Para Deck Ecológico Wpc

01 Tabla 2,20 X 0,14m Un490.000. 02

Ripado Para Revestido

01 De 0,21 X 2,20 M Un180.000

02 De 0,21 X 3 M Un250.000

Bordes atérmicos para Piscina

01 De 40x40 (redondeado) ml 60.000

02 De 40x50 (pecho paloma) ml 75.000

03 Cargados en obra ml 85.000

PISOS SOBREELEVADOS

TEL.: 021 906 951

TEL.: 021 906 951

CEL.: 0971 543 246

(021) 906 951/2 (021) 328 0572/3

CEL 0971 543 246

CDE: 061 570 501

Incluye: motor, placa, mecanismo, accesorios, 2 x control remoto y colocación.

Para portón corredizo 01

Portones

Portón fabricado en chapa plegada Nº 20 y caño cuadrado 30x30 con pasador portacandado, cerradura y 1 mano

(021) 906 951/2 (021) 328 0572/3

CEL.: 0971 543 246

CDE: 061 570 501

CEL 0971 543 246

Hormigón pretensado, *Garelli puesto en obra Dinteles Garelli

De

De

Postes Garelli

Tirantes 2 x 5” con cola de pato Garelli De

Tirantes 2 x 5 recto Garelli De 1,00

PUERTAS AUTOMÁTICAS

SANITARIOS

Cerámicos Piso/Pared

Cecafi 32x57 cm, Tellus Alba m2 34.000

Cecafi 45x45 cm, Provence m2 40.600

Cecafi 45x45 cm, Estocolmo m2 42.600

Forte Havana white 31x31 cm, m2 44.400

Forte Havana white plus 31x31 cm, m2 47.000

Cecafi 38x75 cm, Catena beige m2 51.300

Porcelanato 60x60 cm, desde m2 105.000

Adhesivos para azulejos, ceramica y pisos

Pennsylvania impermeable.(B/20kg) kg 1.198

Pennsylvania porcelanato flexible.(B/20kg) kg 2.575

Pastina

Pennsylvania univ.Siliconada castaño (1kg) kg 9.702

Pennsylvania univ.Siliconada blanco (1kg) kg 10.050

Piletas de acero inoxidable

Tramontina

De 0,80x0,50 m , 1 bacha, lado derecho un 210.000

De 1,00x0,50x0,13 m , 1 bacha, lado derecho un 276.000

De 1,00x0,50x0,13 m , 1 bacha central un 371.000

De 1,20 x 0,50x0,13m , 2 bachas, un 485.000

Sopapa Astra, un

Bañeras

De 1,60 x 0,70 x 0.40 m, acrílica, un 1.400.000

De 1,70 x 0,70 x 0.40 m, acrílica, un 1.600.000

De 1,80 x 0,80 m con hidro, ASTRA un 9.200.000

De 1,70 m, italiana con hidro, un 7.000.000

Botiquín

Astra embutido blanco A33-BR1 un 200.000

Astra de sobreponer, A34 - BR1 un 220.000

ASTRA 44 x 58 x 11 cm - colgante un 560.000

Astra Brasilia LB12/S1 un 400.000

Grifería

Para baño

FV - Linea Allegro cromo

Ducha, 103/15, un 1.050.000

Bidet , 295/15 un 884.000

Lavatorio, 207/15 un 765.000

FV - Clásica 20

Ducha, 103/20 un 811.000

Bidet, 293/20 un 639.000

Lavatorio, 207/20 un 636.000

FV - linea 61 - plus

Ducha, 103/61 un 958.000

Bidet, 295/61 un 829.000

Lavatorio, 207/61, un 760.000

Llave de paso con campana de 1/2” FV

Línea clásica 479/20, un 87.700

Linea 479/61, un 120.000

Linea Allegro 479/15, un 129.000

Para cocina / agua fria y caliente FVEmbutida

Línea clásica, 403/20 jgo 479.000

Externa

Línea clásica , 409/20 jgo 850.000 - Revista Mandu’a

Línea 61, 409/61 jgo 935.000

Línea clásica , 416/20 jgo

De mesada

Línea 61, 416/61 jgo 775.000

Línea clásica , 416/20 pico alto jgo 714.000

Llave de paso FV

De 1/2” , cromo sin campana 475/13, un 66.500

De 1/2” , cromo con campana 479/20, un

De 3/4” , cromo sin campana 475/19, un 101.000

De 3/4” , cromo con campana 479/20, un 130.000 FV bronce 1/2” 471 un 58.000 FV bronce 3/4” 471 un 84.000

Para agua fría - Para lavatorio - canilla FV

cromo : Pico alto 221 un 115.000 226/15 un 235.000 226/61, un 271.000

Para bidet

Linea clásica FV 295/20 un 370.000

Para patio

Canilla FV 1/2”

Bronce 430, 1/2” un 49.000

Cromo sin pico 432, un 106.000

Bronce pico manguera 437 , un 124.500

Idem bronce un 107.000

Varios

Adhesivo plástico p/ PVC , pomo 75 cc, un 9.200

Idem anterior 850 cc, un 62.600

Brazo metal p/ ducha eléctrica un 12.500

Cinta teflon 3/4 x 25 m, un 5.950

Cinta teflon 3/4 x 50 m, un 9.600

Cisterna plastica (blanco y colores), un

Conexión cromo 1/2” x 0,40 cm, MH, FV, un 40.800

Idem 1/2’ x 0,30 cm, MH, un 37.000

Conexión plastica 0,30 m un 7.000

Conexión plastica 0,40 m un 7.500

Ducha electrica Lorenzzeti Maxi 5400 w, un 127.500

Ducha teléfono DUCHAMATIC FV 119, un 810.000

Enchufe de plástico externo p/ inodoro un

Pasta lubricante 400 g un 29.700

Prolongador FV cromo 1/2 x1, un 38.000

Prolongador FV cromo 1/2 x2, un 46.500

Roseta FV cromo 1/2” - 452/13 un 6.400

Sellador p/ caño cuatricapa , 125 cc , un 45.900

Sella rosca , 125 cc un 40.000

Solucion limpiadora , frasco 200 cc , un 27.000

Sopapa p/ pileta Astra un 34.000

sopapa p/ lavatorio FV cromo 7/8” 246.01 un 66.700

Sopapa FV cromo p/ bañera un 164.000

Soporte gancho p/ calefón un 2.150

Soporte con tarugo p/ calefón un 9000

Tapa p/inodoro TPQ Orion un 37.000

Tapa p/inodoro TPK Orion un 75.000

Tarugo plástico 10 mm un 675

Toallero aro cromo 162/33 FV, un 117.409

Tornillo de bronce p/ fijar artefactos un 5.700

SEGUROS

SELLADORES

Casarino

Tapagoteras 1kg un 40.500

Tapagoteras 4kg un 140.000

Pu 40 multiuso 400gr Negro, Gris un 37.000

PU universal 80gr un 14.000

Mapeflex pu 600ml Gris un 96.500 Mapeflex MS Crystal Transparente un 98.500

TERCIADAS

TERMOCALEFONES

Termotanques de acero James 1 De 20 l

VARILLAS

1 Alambrón 4,2 mm x 12 m, un 20.000

2 Varilla conformada AP 420, kg s/ cotiz.

3 Varilla conformada AP 500, Kg 10.000

4 Varilla torsionada, kg s/ cotiz.

5 Varilla lisa, kg 11.500

VARILLAS

1 Alambrón 4,2 mm x 12 m, un 20.000

2 Varilla conformada AP 420, kg s/ cotiz.

3 Varilla conformada AP 500, Kg 10.000

4 Varilla torsionada, kg s/ cotiz.

5 Varilla lisa, kg 11.500

Puerta perfiles

VIDRIOS

TERMINACIÓN DE OBRA

TEL.: 021 906 951

(021) 906 951/2

CEL.: 0971 543 246

(021) 328 0572/3

CEL 0971 543 246

CDE: 061 570 501

PLANOS

Turn static files into dynamic content formats.

Create a flipbook
Issuu converts static files into: digital portfolios, online yearbooks, online catalogs, digital photo albums and more. Sign up and create your flipbook.