ANALISIS URBANO DE PACHACAMAC Parte 3

Page 1

REFERENTES ARQUITECTONICOS

|ANALISIS ENCONTRADOS|

Campus Agronómico Bella Vista en Bolivia

El centro vocacional brinda una perspectiva a los jóvenes de familias extremadamente pobres en Bolivia.

Este también es un proyecto interdisciplinario a largo plazo en el pueblo andino de Bella Vista, Bolivia, con el objetivo de desarrollar soluciones locales contra la pobreza y encontrar soluciones a problemas globales como como el aumento de la urbanización y la despoblación rural.

DATOS GENERALES

UBICACION : Cochabamba, BOLIVIA

ARQUITECTOS: Ralf Pasel / TU Berlín

AÑO: 2018

AREA:7500 m2

Seccion 1

PLANTA SECTOR 2

AXONOMETRÍA SECTOR 2

FACULTAD DE ARQUITECTURA Y DISEÑO

DOCENTES:

CICLO: 2023-1

1

INTEGRANTES:

2

PRIVADO

PUBLICO

UPN UNIVERSIDAD PRIVADA DEL NORTE
ARQ. OMAR WINCHO CHILQUILLO ARQ. GIOVANNA ROSADA DAVIRAN
ANALISIS URBANO GRAFICO - TECNICO TRABAJO GENERAL: INVESTIGACION ARQUITECTONICA CURSO: TALLER DE DISEÑO VI G R U P O 4 L-39
ALLISON, HUAMANI CATACORA YADIRA, CAMARGO ORIHUELA HENRY, RAMIREZ CUSTODIO JOSE,BADILLO ASTOCONDOR OSCAR,CARDOZA YALAN
LAMINA:
VISUALES DEL EXTERIOR
39
REFERENTE
VISUAL DEL INTERIOR

Centro de desarrollo agrícola de Izmir - Sasalı

Biolab / Mert Uslu Architecture

Esta construcción de forma lineal, permite a los usuarios aprender y experimentar la mecánica operativa del instituto durante su visita

La entrada principal es por el extremo norte Los espacios educativos y los espacios con actividades agrícolas (como invernaderos y jardines verticales) divergen entre sí con la creación del Eco bazar que se genera a través de la ampliación de la columna vertebral de circulación. El recorrido por el proyecto termina en los campos agrícolas experimentales situados en el extremo sur del recinto.

DATOS GENERALES

UBICACION : Sasallı Merkez, TURQUIA

ARQUITECTOS: Mert Uslu Architecture

AÑO: 2021

AREA: 8000 m2

FACULTAD DE ARQUITECTURA Y DISEÑO DOCENTES:

INTEGRANTES:

CICLO: 2023-1

MASTER PLAN

VISUALES DEL EXTERIOR

UPN UNIVERSIDAD PRIVADA DEL NORTE
ARQ. OMAR WINCHO
ARQ. GIOVANNA
DAVIRAN
YALAN
ANALISIS URBANO GRAFICO - TECNICO
GENERAL: INVESTIGACION ARQUITECTONICA CURSO: TALLER DE DISEÑO VI G R U P O 4 L-40
CHILQUILLO
ROSADA
ALLISON, HUAMANI CATACORA YADIRA, CAMARGO ORIHUELA HENRY, RAMIREZ CUSTODIO JOSE,BADILLO ASTOCONDOR OSCAR,CARDOZA
LAMINA:
TRABAJO
40
REFERENTE

41Instituto Nacional de Biotecnología / Chyutin Architects

El edificio NIBN se compone de cuatro niveles tres para laboratorios y oficinas de los investigadores, se eleva por encima una planta baja transparente para las funciones públicas generales, tales como vestíbulo, sala de profesores, auditorio, cafetería y sala de reuniones. Estas últimas operaciones permiten una mayor interacción entre los investigadores, mejorando de este modo el intercambio de conocimientos y el fortalecimiento de los lazos académicos en todas las disciplinas

DATOS GENERALES

UBICACION : ISRAEL

ARQUITECTOS: Chyutin Architects; Chyutin Architects

AÑO: 2015

AREA: 8200 m2

FACULTAD DE ARQUITECTURA Y DISEÑO

DOCENTES:

CICLO: 2023-1

INTEGRANTES:

UPN UNIVERSIDAD PRIVADA DEL NORTE
ARQ. OMAR WINCHO CHILQUILLO ARQ. GIOVANNA ROSADA DAVIRAN
LAMINA: ANALISIS URBANO GRAFICO - TECNICO TRABAJO GENERAL: INVESTIGACION ARQUITECTONICA CURSO: TALLER DE DISEÑO VI G R U P O 4 L-41
ALLISON, HUAMANI CATACORA YADIRA, CAMARGO ORIHUELA HENRY, RAMIREZ CUSTODIO JOSE,BADILLO ASTOCONDOR OSCAR,CARDOZA YALAN
REFERENTE
VISUALES DEL EXTERIOR

PROPUESTAS DE TERRENOS

|TERRENOS PROPUESTOS|

PROPUESTA 1°

DEFICION DE TERRENO

El terreno propuesto se encuentra ubicado en el punto medio de varios equipamientos donde se puede realizar diversos tipos de funcionamientos, en este caso un instituto y asi poder satisfacer la necesidad educativa estudiantil.

VISTAS DEL TERRENO

ÁREA DEL TERRENO:

9,444.92 m²

ZONIFICACION:

RDM

TOPOGRAFIA:

BAJA:

CALLE LOS FRUTALES

PSJ. PEDRO PAULET

CALLE 21

FACULTAD DE ARQUITECTURA Y DISEÑO

DOCENTES:

CALLE 21

CICLO: 2023-1

UPN UNIVERSIDAD PRIVADA DEL NORTE
ARQ. OMAR
ARQ.
ALLISON,
OSCAR,CARDOZA YALAN LAMINA: ANALISIS URBANO GRAFICO - TECNICO TRABAJO GENERAL: INVESTIGACION ARQUITECTONICA CURSO: TALLER DE DISEÑO VI G R U P O 4 L-42 INTEGRANTES: 42
WINCHO CHILQUILLO
GIOVANNA ROSADA DAVIRAN
HUAMANI CATACORA YADIRA, CAMARGO ORIHUELA HENRY, RAMIREZ CUSTODIO JOSE,BADILLO ASTOCONDOR
PERÚ LIMA METROPOLITANA PACHACAMAC
VISTA POSTERIOR VISTA FRONTAL
INGRESO
N
ALTA:
COMPLEJO DEPORTIVO CAMPO COOP LA UNION COLEGIO RAYITOS DE LUZ N TERRENO ELEGIDO
EQUIPAMIENTO URBANO

ÁREA DEL

10,000m²

ZONIFICACION: RDM

TOPOGRAFIA:

BAJA: 327 m

ALTA: 3228m

PROPUESTA 2°

VISTAS DEL TERRENO DEFICION DE TERRENO

El terreno propuesto se encuentra en la zonificacion

RDM, ya que a sus alrededores tiene diversas áreas verdes y podrian ser muy bien utilizadas para el usuario teniendo un punto ideal del terreno dado.

UPN UNIVERSIDAD PRIVADA DEL NORTE
FACULTAD DE ARQUITECTURA Y DISEÑO
ARQ. OMAR WINCHO CHILQUILLO ARQ. GIOVANNA ROSADA DAVIRAN ALLISON, HUAMANI CATACORA YADIRA, CAMARGO ORIHUELA HENRY, RAMIREZ CUSTODIO JOSE,BADILLO ASTOCONDOR OSCAR,CARDOZA YALAN LAMINA: ANALISIS URBANO GRAFICO - TECNICO TRABAJO GENERAL: INVESTIGACION ARQUITECTONICA CURSO: TALLER DE DISEÑO VI G R U P O 4 L-43 INTEGRANTES: 43 N
DOCENTES: CICLO: 2023-1
PACHACAMAC
EQUIPAMIENTO URBANO
DEL TERRENO PERÚ LIMA METROPOLITANA VISTA POSTERIOR VISTA FRONTAL INGRESO LAS CASUARINAS
UBICACION
1 LAS CASUARINAS
PSJ
TERRENO:
LOMAS CASA DE CAMPO TERRENO ELEGIDO CRIADERO DE TOROS CASA Y CAMPO
LAS

PROPUESTA 3°

VISTAS DEL TERRENO DEFICION DE TERRENO

El terreno propuesto se encuentra en la zonificacion

RDM, ya que a sus alrededores tiene diversas áreas verdes y podrian ser muy bien utilizadas para el usuario teniendo un punto ideal del terreno dado.

ÁREA DEL TERRENO: 10,034m²

ZONIFICACION:

RDM

TOPOGRAFIA:

BAJA: 327 m

ALTA: 3228m

CALLE PRINCIPAL

CALLE LOS CLAVELES

FACULTAD DE ARQUITECTURA Y DISEÑO

DOCENTES:

CICLO: 2023-1

44 UPN UNIVERSIDAD PRIVADA DEL NORTE
ARQ. OMAR WINCHO CHILQUILLO ARQ.
DAVIRAN ALLISON,
OSCAR,CARDOZA YALAN LAMINA: ANALISIS URBANO GRAFICO - TECNICO TRABAJO GENERAL: INVESTIGACION ARQUITECTONICA CURSO: TALLER DE DISEÑO VI G R U P O 4 L-44
N
GIOVANNA ROSADA
HUAMANI CATACORA YADIRA, CAMARGO ORIHUELA HENRY, RAMIREZ CUSTODIO JOSE,BADILLO ASTOCONDOR
INTEGRANTES:
PACHACAMAC
PERÚ LIMA METROPOLITANA
POSTERIOR VISTA FRONTAL VISTA SATELITAL
EQUIPAMIENTO URBANO
UBICACION DEL TERRENO
VISTA
AMERICA TELEVISION
MANUEL VALLE
MATAMOROS
TERRENO ELEGIDO
AV
AV
COLISEO DE GALLOS CASA CAMPO SAN JOSE

CRITERIOS DE ELECCIÓN DEL TERRENO

TABLA DE PONDERACIONES

PERÚ LIMA METROPOLITANA PACHACAMAC

PROPUESTA ELEGIDA: PROPUESTA 03

ACCESOS

AVENIDA PRINCIPAL

AV. MANUEL VALLE

AVENIDA SECUNDARIA

LOS CLAVELES LAS PALMERAS

CUATRO BOCAS

FACULTAD DE ARQUITECTURA Y DISEÑO

DOCENTES:

CICLO: 2023-1

ARQ. OMAR WINCHO CHILQUILLO ARQ. GIOVANNA ROSADA DAVIRAN

INTEGRANTES:

PERFIL TOPOGRÁFICO DE LA PROPUESTA 03

ÁREA DEL TERRENO 10 035 m²

PERÍMETRO 423 7 M

LATITUD: 12°13'48 25"S

LONGITUD: 76°51'55 28"O

ALLISON, HUAMANI CATACORA YADIRA, CAMARGO ORIHUELA HENRY, RAMIREZ CUSTODIO JOSE,BADILLO ASTOCONDOR OSCAR,CARDOZA YALAN

LAMINA: ANALISIS URBANO GRAFICO - TECNICO

TRABAJO GENERAL: INVESTIGACION ARQUITECTONICA

CURSO:

TALLER DE DISEÑO VI

UPN UNIVERSIDAD PRIVADA DEL NORTE
G R U P O 4
L-45
45

MICRO ANÁLISIS

|PROPUESTAS ELEGIDAS|

MICRO ANALISIS

CARACTERÍSTICAS VIALES

CORTE A-A / CALLE LOS CLAVELES

Esta avenida parte de la av Manuel Valle y se dirige por toda la parte lateral del terreno A

PERÙ-LIMA

LIMA-PACHACAMAC

El terreno ofrece un amplio espacio de 10035m² para poder desarrollar una un instituto especializado en Ingeniera Agrónoma y Economía Agrónoma

CORTE B-B / AVENIDA PRINCIPAL: AV MANUEL DEL VALLE

Esta avenida parte de la antigua Panamericana Sur y se dirige por toda la parte lateral del terreno B

PACHACAMAC

ÁREA DEL TERRENO: 10035m²

PERÍMETRO: 430 m ZONIFICACIÓN: OU

TOPOGRAFÍA

ZONA MÁS BAJA: 167m

ZONA MÁS ALTA: 177m

LÍMITES DE TERRENO

NORTE: AV MATAMOROS

SUR: AV. MANUAL VALLE

ESTE: LAS MAGNOLIAS

OESTE: CA. CUATRO BOCAS

UPN UNIVERSIDAD PRIVADA DEL NORTE
DOCENTES: ARQ.
FACULTAD DE ARQUITECTURA Y DISEÑO
OMAR WINCHO CHILQUILLO ARQ. GIOVANNA ROSADA DAVIRAN
TALLER DE DISEÑO VI P O 4 L-46
HENRY, RAMIREZ CUSTODIO JOSE,BADILLO ASTOCONDOR OSCAR,CARDOZA YALAN TRABAJO GENERAL: INVESTIGACION ARQUITECTONICA
46
12°13'51.7"S 76°51'56.3"W
COORDENADAS
PACHACAMAC - URB CASA BLANCA VISTA FRONTAL VISTA LATERAL IZQUIERDA VISTA LATERAL DERECHA

TERRENO

PACHACAMAC - URB. CASA BLANCA

Equipamientos urbanos para el área de Zona de reglamentación especial

Equipamiento urabano, la vivienda taller es de las segundas tipologías que más asertada.

DOCENTES:

UNIVERSIDAD ALAS PERUANAS I.E VIRGEN DEL CARMEN

Equipamientos urbanos para el área eligida, dado en avenidas importantes

EXCURSIONES PERRUNAS

ARQ. OMAR WINCHO CHILQUILLO ARQ. GIOVANNA ROSADA DAVIRAN ALLISON, HUAMANI CATACORA YADIRA, CAMARGO ORIHUELA HENRY, RAMIREZ CUSTODIO JOSE,BADILLO ASTOCONDOR OSCAR,CARDOZA YALAN

LAMINA:

EDUCACION 47 MICRO
1 COM. VEC 2 VIV. TALLER 3 4 COM.ZONAL 5 COM.ZONAL C O M V E C V I V T A L E D U C A CI C O M Z O I N D U S T
ANALISIS
ANIMAL HEALTH UPN UNIVERSIDAD PRIVADA DEL NORTE
FACULTAD DE ARQUITECTURA Y DISEÑO
ANALISIS URBANO GRAFICO - TECNICO TRABAJO GENERAL: INVESTIGACION ARQUITECTONICA CURSO: TALLER DE DISEÑO VI G R U P O 4 L-47
CICLO: 2023-1
INTEGRANTES:

ANALISIS - VIABILIDAD DE LA URB. CASA BLANCA

flujos generales

TERRENO

1 CALLES 2 PASAJES 3

LOS CLAVELES PRINCIPAL MATAMOROS

LAS PALMERAS LOS GUANABANOS. MAMÀ CICILIA LIMA

AVENIDAS

MANUEL VALLE FERNANDO REUSCHE

TERRENO PEATONAL N VEHICULAR N CICLO VIA N

DIVISIÓN PREDIAL REGULAR TRAZADO URBANO REGULAR TRAMA DE LA ZONA URBANA EN CUADRICULA

FACULTAD DE ARQUITECTURA Y DISEÑO

INTEGRANTES:

CICLO: 2023-1 ALLISON, HUAMANI CATACORA YADIRA, CAMARGO ORIHUELA HENRY, RAMIREZ CUSTODIO JOSE,BADILLO ASTOCONDOR OSCAR,CARDOZA YALAN

N

LAMINA: ANALISIS URBANO GRAFICO - TECNICO TRABAJO GENERAL: INVESTIGACION ARQUITECTONICA

CURSO: TALLER DE DISEÑO VI

G R U P O 4

L-48

UPN UNIVERSIDAD PRIVADA DEL NORTE
DOCENTES: ARQ. OMAR WINCHO CHILQUILLO ARQ. GIOVANNA ROSADA DAVIRAN
48 MICRO
N
PACHACAMAC - URB. CASA BLANCA
DIVISIÓN PREDIAL IRREGULAR TRAZADO URBANO REGULAR TRAMA DE LA ZONA URBANA MIXTA

ANALISIS - MATRICES DE ANÁLISIS

FORTALEZAS OPORTUNIDADES DEBILIDADES AMENAZAS

FORTALEZAS

Clima adecuado para la producción agrícola en el sector 1 y sector 2.

Existencias de establecimientos de recreación para el público local y visitantes alrededor del valle Pachacamac.

El río Lurín es favorable para el regadío de las zonas agrícolas y los valles Diversidad de ecosistemas

Cada sector cuenta con puntos de turismo y/o recreación

Territorio con capacidades para albergar múltiples usos con proyectos de gran inversión privada Incremento del turismo en las zonas naturales de Pachacamac (Lomas de lúcumo, Valles...) Aprovechamiento de las riveras del tio Lurin para su desarrollo agrícola.

DEBILIDADES

Falta de conexión entre todos los sectores consolidados como el pueblo de Pachacamac, Manchay y sectores pequeños Picapiedra, guayabo, quebrada verde)

El crecimiento desarticulado trans- forma las zonas colindantes al valle en un conjunto de viviendas comercio

AMENAZAS

El desborde del río es una amenaza constante Falta de identidad cultural en el sector de Manchay

Alta contaminación de residuos sólidos en el sector 1 ya que se encuentra cerca a la vía Manuel Vallelvía principal).

Mala demarcación de límites de Pachacamac

FACULTAD DE ARQUITECTURA Y DISEÑO

INTEGRANTES:

CICLO: 2023-1

UPN UNIVERSIDAD PRIVADA DEL NORTE
DOCENTES:
ARQ. OMAR WINCHO CHILQUILLO ARQ. GIOVANNA ROSADA DAVIRAN ALLISON,
JOSE,BADILLO ASTOCONDOR OSCAR,CARDOZA YALAN LAMINA: ANALISIS URBANO GRAFICO - TECNICO TRABAJO GENERAL: INVESTIGACION ARQUITECTONICA CURSO: TALLER DE DISEÑO VI R U P O 4 L-49
HUAMANI CATACORA YADIRA, CAMARGO ORIHUELA HENRY, RAMIREZ CUSTODIO
49 MICRO
F
O
D
A
OPORTUNIDADES
VIVIENDA COLECTIVA CASAS INDEPENDIENTES VIVIENDA IMPROVISADA DEPARTAMENTO 75% 11% 5% 9% ALTURAS TERRENO 5.40m Aprox. 8 10m Aprox 10.80m Aprox.

PROGRAMA ARQUITECTONICO

|PROPUESTA ELEGIDA|

PROGRAMA ARQUITECTÓNICO

FACULTAD DE ARQUITECTURA Y DISEÑO

DOCENTES:

CICLO: 2023-1

INTEGRANTES:

UPN UNIVERSIDAD PRIVADA DEL NORTE
OSCAR,CARDOZA YALAN
GENERAL: INVESTIGACION ARQUITECTONICA CURSO: TALLER DE DISEÑO VI G R U P O 4 L-50
ARQ. OMAR WINCHO CHILQUILLO ARQ. GIOVANNA ROSADA DAVIRAN ALLISON, HUAMANI CATACORA YADIRA, CAMARGO ORIHUELA HENRY, RAMIREZ CUSTODIO JOSE,BADILLO ASTOCONDOR
LAMINA: ANALISIS URBANO GRAFICO - TECNICO TRABAJO
50

ARQUITECTÓNICO

FACULTAD DE ARQUITECTURA Y DISEÑO

DOCENTES:

CICLO: 2023-1

UPN UNIVERSIDAD PRIVADA DEL NORTE
ARQ. OMAR
ARQ.
DAVIRAN ALLISON,
YADIRA,
HENRY, RAMIREZ CUSTODIO JOSE,BADILLO ASTOCONDOR OSCAR,CARDOZA YALAN LAMINA: ANALISIS URBANO GRAFICO - TECNICO TRABAJO GENERAL: INVESTIGACION ARQUITECTONICA CURSO: TALLER DE DISEÑO VI G R U P O 4 L-51
WINCHO CHILQUILLO
GIOVANNA ROSADA
HUAMANI CATACORA
CAMARGO ORIHUELA
INTEGRANTES: 51 PROGRAMA

PROGRAMA ARQUITECTÓNICO

FACULTAD DE ARQUITECTURA Y DISEÑO

DOCENTES:

CICLO: 2023-1

OMAR WINCHO CHILQUILLO ARQ. GIOVANNA ROSADA DAVIRAN

INTEGRANTES:

LAMINA: ANALISIS URBANO GRAFICO - TECNICO

ALLISON, HUAMANI CATACORA YADIRA, CAMARGO ORIHUELA HENRY, RAMIREZ CUSTODIO JOSE,BADILLO ASTOCONDOR OSCAR,CARDOZA YALAN

CURSO: G R U P O 4

TALLER L-52

52 UPN UNIVERSIDAD PRIVADA DEL NORTE
ARQ.
TRABAJO GENERAL: INVESTIGACION ARQUITECTONICA DE DISEÑO VI

ARQUITECTÓNICO

FACULTAD DE ARQUITECTURA Y DISEÑO

DOCENTES:

CICLO: 2023-1

INTEGRANTES:

UPN UNIVERSIDAD PRIVADA DEL NORTE
OSCAR,CARDOZA
GENERAL: INVESTIGACION ARQUITECTONICA CURSO: TALLER DE DISEÑO VI G R U P O 4 L-53
ARQ.
OMAR WINCHO CHILQUILLO ARQ. GIOVANNA ROSADA DAVIRAN
ALLISON,
HUAMANI CATACORA YADIRA, CAMARGO ORIHUELA HENRY, RAMIREZ CUSTODIO JOSE,BADILLO ASTOCONDOR
YALAN LAMINA: ANALISIS URBANO GRAFICO - TECNICO TRABAJO
53 PROGRAMA

CRITERIO DE DISEÑO |PROPUESTA

ELEGIDA|

FACULTAD DE ARQUITECTURA Y DISEÑO

DOCENTES:

CICLO: 2023-1

INTEGRANTES:

LAMINA: ANALISIS URBANO GRAFICO - TECNICO

TRABAJO

UPN UNIVERSIDAD PRIVADA DEL NORTE
ARQ. OMAR WINCHO CHILQUILLO ARQ. GIOVANNA ROSADA DAVIRAN ALLISON, HUAMANI CATACORA YADIRA, CAMARGO ORIHUELA HENRY, RAMIREZ CUSTODIO JOSE,BADILLO ASTOCONDOR OSCAR,CARDOZA YALAN
TALLER DE DISEÑO VI G R U P O 4 L-54
GENERAL: INVESTIGACION ARQUITECTONICA CURSO:
54
CRITERIO DE DISEÑO

ADMINISTRACION

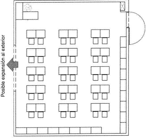
Es necesario que la propuesta de diseño del sector de la gestión administrativa y pedagógica presente unos ambientes abiertos, que no oculten nada, muy bien ventilados y con espacios distinguidos o diferenciados por su propio mobiliario. Cuidarse de no producir espacios restringidos o planteados como encierros.

LABORATORIOS CON MESAS DE TRABAJO FIJAS O MOVILES

Area aprox 125 m2(02 modulos de 8x8 )

Las líneas segmentadas representan el área ocupada según análisis de la funciones a realizarse. No todas representan divisiones físicas, aun así cuando éstas sean necesarias se sugiere que su altura no sean mayor a 1 50m

FACULTAD DE ARQUITECTURA Y DISEÑO

DOCENTES:

CICLO: 2023-1

INTEGRANTES:

UPN UNIVERSIDAD PRIVADA DEL NORTE
ARQ. OMAR WINCHO CHILQUILLO ARQ. GIOVANNA ROSADA DAVIRAN
LAMINA: ANALISIS URBANO GRAFICO - TECNICO TRABAJO GENERAL: INVESTIGACION ARQUITECTONICA CURSO: TALLER DE DISEÑO VI G R U P O 4 L-55
ALLISON, HUAMANI CATACORA YADIRA, CAMARGO ORIHUELA HENRY, RAMIREZ CUSTODIO JOSE,BADILLO ASTOCONDOR OSCAR,CARDOZA YALAN
55 CRITERIO DE DISEÑO
2. 3. 4. 5. 6.
Secretaria- Sala de espera Sala de Reuniones Dirección Coordinación Administrativa Archivo Coordinación Pedagógica 1.

DESARROLLO ESPACIAL

El I.O de 2.00 m2 y el área de 60.00m2 considera la flexibilidad del ambiente tomando en cuenta la cantidad de 30 estudiantes y la utilización del mobiliario perimetral en dos lados del ambiente.

Las aulas deben ser ambientes flexibles que permitan distintas configuraciones para la realización de actividades como trabajo colaborativo, autonomo,asamblea entre otros.

Condiciones espaciales

FACULTAD DE ARQUITECTURA Y DISEÑO

DOCENTES:

CICLO: 2023-1

UPN UNIVERSIDAD PRIVADA DEL NORTE
ARQ.
OSCAR,CARDOZA YALAN LAMINA: ANALISIS URBANO GRAFICO - TECNICO TRABAJO GENERAL: INVESTIGACION ARQUITECTONICA CURSO: TALLER DE DISEÑO VI G R U P O 4 L-56
56 CRITERIO
AULA
OMAR WINCHO CHILQUILLO ARQ. GIOVANNA ROSADA DAVIRAN ALLISON, HUAMANI CATACORA YADIRA, CAMARGO ORIHUELA HENRY, RAMIREZ CUSTODIO JOSE,BADILLO ASTOCONDOR
INTEGRANTES:
DE DISEÑO

57 CRITERIO DE DISEÑO

DOTACION BASICA REFERENCIAL

30 mesas individuales (0.50 m x0.60m)

30 sillas individuales(0.40 m x 0.45 m )

01 mesa ,para el docente(0.50m x 1.00m)

01 silla para el docente (0.45m x 0.40m)

01 pizarra (4.20m x 1.20m)

Estanterías

FACULTAD DE ARQUITECTURA Y DISEÑO

DOCENTES:

CICLO: 2023-1

INTEGRANTES:

UPN UNIVERSIDAD PRIVADA DEL NORTE
ARQ. OMAR WINCHO CHILQUILLO ARQ. GIOVANNA ROSADA DAVIRAN ALLISON, HUAMANI CATACORA YADIRA, CAMARGO ORIHUELA HENRY, RAMIREZ CUSTODIO JOSE,BADILLO ASTOCONDOR OSCAR,CARDOZA YALAN
GENERAL: INVESTIGACION ARQUITECTONICA CURSO: TALLER DE DISEÑO VI G R U P O 4 L-57
LAMINA: ANALISIS URBANO GRAFICO - TECNICO TRABAJO
1. 2. 3. 4. 5. 6.

AULAS

DESARROLLO ESPACIAL

- Todos son emisores y receptores.

- Contenidos formales e informales

- Ambiente único y amplio con mesas de trabajo (fijas o móviles) para 06 personas como máximo

- La diversidad de agrupaciones determina las proporciones del espacio y la forma final.

- Potenciar la posibilidad de actividades distintas y simultáneas.

LABORATORIOS CON MESAS DE TRABAJO FIJAS O MOVILES

FACULTAD DE ARQUITECTURA Y DISEÑO

DOCENTES:

- Pensar en un espacio con equipamiento flexible y multifuncional. En los laboratorios deben concentrarse muebles fijos (con instalaciones) en la parte perimetral, liberando el espacio central para flexibilizar su uso, ya que en este puede darse el trabajo en grupos, exposiciones o demostraciones paralelas, clases expositivas, así como trabajos individuales.

LABORATORIOS CON MESAS DE TRABAJO FIJAS

LABORATORIOS CON MESAS DE TRABAJO MOVILES

INTEGRANTES:

CICLO: 2023-1

UPN UNIVERSIDAD PRIVADA DEL NORTE
ARQ. OMAR
ARQ.
LAMINA: ANALISIS URBANO GRAFICO - TECNICO TRABAJO GENERAL: INVESTIGACION ARQUITECTONICA CURSO: TALLER DE DISEÑO VI G R U P O 4 L-58
WINCHO CHILQUILLO
GIOVANNA ROSADA DAVIRAN
ALLISON, HUAMANI CATACORA YADIRA, CAMARGO ORIHUELA HENRY, RAMIREZ CUSTODIO JOSE,BADILLO ASTOCONDOR OSCAR,CARDOZA
YALAN
58
CRITERIO DE DISEÑO

BIBLIOTECA

TIPO 1

30 secciones(1000 estudiantes aprox.)

Capacidad 30 estudiantes

I.O:2.50 m2

Area:75 m2 + 25 % de deposito

MOBIIARIO

Estanteria modulo 0.80 x 0.30 Mesa para computadora(1.00x0.70)

Mesas para consulta (0.80x1.20)

Estante para almacén de libros(0.30 x largo variable) Silla para estudiantes.

EQUIPO

04 computadora impresora

TIPO 2

Entre 31 y 48 secciones

Capacidad 45 estudiantes

I.O:2.00 m2

Area:91 m2 + 25 % de deposito

INTEGRANTES:

UPN UNIVERSIDAD PRIVADA DEL NORTE
DE ARQUITECTURA Y
DOCENTES:
ARQ. OMAR
ARQ.
DAVIRAN ALLISON,
OSCAR,CARDOZA YALAN LAMINA: ANALISIS URBANO GRAFICO - TECNICO TRABAJO GENERAL: INVESTIGACION ARQUITECTONICA CURSO: TALLER DE DISEÑO VI G R U P O 4 L-59
FACULTAD
DISEÑO
CICLO: 2023-1
WINCHO CHILQUILLO
GIOVANNA ROSADA
HUAMANI CATACORA YADIRA, CAMARGO ORIHUELA HENRY, RAMIREZ CUSTODIO JOSE,BADILLO ASTOCONDOR
59
CRITERIO DE DISEÑO

TIPO 3

Mas de 40 secciones

Capacidad 60 estudiantes

I.O:2.00 m2

Area:122 m2 + 25 % de deposito

FACULTAD DE ARQUITECTURA Y DISEÑO

DOCENTES:

CICLO: 2023-1

UPN UNIVERSIDAD PRIVADA DEL NORTE
ARQ.
ALLISON,
OSCAR,CARDOZA YALAN LAMINA: ANALISIS URBANO GRAFICO - TECNICO TRABAJO GENERAL: INVESTIGACION ARQUITECTONICA CURSO: TALLER DE DISEÑO VI G R U P O 4 L-60 INTEGRANTES: 60
OMAR WINCHO CHILQUILLO ARQ. GIOVANNA ROSADA DAVIRAN
HUAMANI CATACORA YADIRA, CAMARGO ORIHUELA HENRY, RAMIREZ CUSTODIO JOSE,BADILLO ASTOCONDOR
CRITERIO DE DISEÑO

61 CRITERIO DE DISEÑO

FACULTAD DE ARQUITECTURA Y DISEÑO

DOCENTES:

CICLO: 2023-1

INTEGRANTES:

LAMINA: ANALISIS URBANO GRAFICO - TECNICO

ALLISON,

OSCAR,CARDOZA YALAN

CURSO: G R U P O 4

L-61

UPN UNIVERSIDAD PRIVADA DEL NORTE
ARQ. OMAR WINCHO CHILQUILLO ARQ. GIOVANNA ROSADA DAVIRAN HUAMANI CATACORA YADIRA, CAMARGO ORIHUELA HENRY, RAMIREZ CUSTODIO JOSE,BADILLO ASTOCONDOR
TRABAJO GENERAL: INVESTIGACION ARQUITECTONICA TALLER DE DISEÑO VI

62

FACULTAD DE ARQUITECTURA Y DISEÑO

DOCENTES:

CICLO: 2023-1

INTEGRANTES:

LAMINA: ANALISIS URBANO GRAFICO - TECNICO

ALLISON,

OSCAR,CARDOZA YALAN

CURSO: G R U P O 4

L-62

UPN UNIVERSIDAD PRIVADA DEL NORTE
ARQ. OMAR WINCHO CHILQUILLO ARQ. GIOVANNA ROSADA DAVIRAN HUAMANI CATACORA YADIRA, CAMARGO ORIHUELA HENRY, RAMIREZ CUSTODIO JOSE,BADILLO ASTOCONDOR
TRABAJO GENERAL: INVESTIGACION ARQUITECTONICA TALLER DE DISEÑO VI
CRITERIO DE DISEÑO

63

FACULTAD DE ARQUITECTURA Y DISEÑO

DOCENTES:

CICLO: 2023-1

INTEGRANTES:

LAMINA: ANALISIS URBANO GRAFICO - TECNICO

ALLISON,

CURSO: G R U P O 4

L-63

UPN UNIVERSIDAD PRIVADA DEL NORTE
ARQ. OMAR WINCHO CHILQUILLO ARQ. GIOVANNA ROSADA DAVIRAN HUAMANI CATACORA YADIRA, CAMARGO ORIHUELA HENRY, RAMIREZ CUSTODIO JOSE,BADILLO ASTOCONDOR OSCAR,CARDOZA YALAN
TRABAJO GENERAL: INVESTIGACION ARQUITECTONICA TALLER DE DISEÑO VI
CRITERIO DE DISEÑO

64

FACULTAD DE ARQUITECTURA Y DISEÑO

DOCENTES:

CICLO: 2023-1

INTEGRANTES:

LAMINA: ANALISIS URBANO GRAFICO - TECNICO

ALLISON,

CURSO: G R U P O 4

L-64

UPN UNIVERSIDAD PRIVADA DEL NORTE
ARQ. OMAR WINCHO CHILQUILLO ARQ. GIOVANNA ROSADA DAVIRAN HUAMANI CATACORA YADIRA, CAMARGO ORIHUELA HENRY, RAMIREZ CUSTODIO JOSE,BADILLO ASTOCONDOR OSCAR,CARDOZA YALAN
TRABAJO GENERAL: INVESTIGACION ARQUITECTONICA TALLER DE DISEÑO VI
CRITERIO DE DISEÑO

FACULTAD DE ARQUITECTURA Y DISEÑO

DOCENTES:

Con respecto a todo el análisis del distrito hemos encontrado que uno de los principales problemas en Pachacamac es la falta de infraestructura adecuada. Se necesita mejorar las carreteras y caminos, así como la construcción de más puentes y pasarelas. Además, la expansión de los servicios de agua potable y alcantarillado es necesaria para mejorar la calidad de vida de los residentes.

En definitiva Pachacamac cuenta con muchos recursos naturales, como la agricultura y el turismo, que podrían ser explotados para el desarrollo económico. Sin embargo, es necesario invertir en la capacitación y educación de los residentes en estas áreas, así como en la promoción de la inversión privada y el desarrollo de pequeñas y medianas empresas.

Un instituto especializado en agricultura en el distrito de Pachacamac podría tener un impacto positivo en la economía local, ya que podría atraer inversiones y generar empleo en la región. Además, el conocimiento y la tecnología adquiridos en el instituto podrían ser transferidos a los agricultores locales, lo que les permitiría mejorar sus prácticas agrícolas y aumentar sus ingresos.

INTEGRANTES:

CICLO: 2023-1

En conclusión el distrito de Pachacamac tiene varias áreas en las que se necesita mejorar para potenciar la calidad de vida de los residentes y promover el desarrollo sostenible del distrito.

UPN UNIVERSIDAD PRIVADA DEL NORTE
ARQ. OMAR WINCHO CHILQUILLO ARQ. GIOVANNA ROSADA DAVIRAN
ANALISIS URBANO GRAFICO - TECNICO
GENERAL: INVESTIGACION ARQUITECTONICA CURSO: TALLER DE DISEÑO VI G R U P O 4 L-65
ALLISON, HUAMANI CATACORA YADIRA, CAMARGO ORIHUELA HENRY, RAMIREZ CUSTODIO JOSE,BADILLO ASTOCONDOR OSCAR,CARDOZA YALAN
LAMINA:
TRABAJO
CONCLUSIONES
65

REFERENCIAS66

INEI

https://www.gob.pe/inei/ MINISTERIO DE TRABAJO

https://www.gob.pe/mtpe

MINISTERIO DE VIVIENDA, Construcción y Saneamiento

https://www.gob.pe/vivienda

MINISTERIO DE CULTURA

https://pachacamac.cultura.pe/bienvenidos-al-santuario-arqueologico-depachacamac#:~:text=Pachacamac%20fue%20el%20principal%20santuario,los%20movi mientos%20de%20la%20tierra.

Municipalidad Distrital de Pachacámac

https://www.gob.pe/munipachacamac

https://www.archdaily.pe/pe/02-12344/colegio-gerardo-molina-giancarlo-mazzanti? utm medium=website&utm source=archdaily.pe

https://www.archdaily.com/997216/aiko-educational-institution-taisei-designplanners-architects-and-engineers?ad source=search&ad medium=projects tab

https://www.archdaily.pe/pe/627793/colegio-antonio-derka-santo-domingo-savioobranegra-arquitectos

https://www.google.com/maps/place/Pachacamac

PACHACAMAC

UBICACION:

El distrito de Pachacámac esta ubicado al sur de la ciudad de Lima Limita al Norte con el distrito de Ate ,por el Sur con el distrito de Lurín Al Oeste con el distrito de Villa María del Triunfo YalEstelimitaconeldistritodeCieneguilla

DEPARTAMENTO:Lima DISTRTITO:Pachacamac AREA:16023km2 ALTITUD:73msnm DENSIDAD:68696hab/km2
PACHACAMAC PERÚ LIMA METROPOLITANA
DATOS GENERALES 75 523 H 77666 M POBLACION TOTAL:153 189 hab PORCENTAJEDEEDADES 20a64 625% 0a19 284% 65a+ 91% ACTVOSNACTIVO 60% 40% 20% 0% 517% 483% ECONOMIA OBESIDAD 146% CAVDAD BUCAL 27% NFV RESPRATORIA 371% ANEMA 96% NF INTESTNAL 117% SALUD 16.2% NOCUENTACONACCESOA SERVICIOSDESALUD 64% Analfabetsmo EDUCACIÓN LAMAYORIADELASZONASNO CUENTANCONVEREDAS NOHAYCRUCESPEATONALES HAYZONASQUENOCUENTAN CONVIASVEHCULARES 353% EL3528%DELAS VASESTA ASFALTADO EL6472%DELAS VASNOESTA ASFALTADA DEMOGRAFIA 72% EL72%DE PARADEROSES FORMAL EL28%DE PARADEROSES INFORMALY PRESENTANUNGRAN PELIGROPARALA POBLACIÓN 163% 46% 791% REDPUBLCADENTRODE LAVIVIENDA(AGUA POTABLE) POZOSSUBTERRANEOS ROSYACEQUIAS CAMONCISTERNAU OTROS TIPOSDEABASTECIMIENTODEAGUA 945% 764% 52% TIPOSDEABASTECIMIENTODEELECTRICIDAD CONCOBERTURADE ELCTRCDADPOR REDPUBLCA CUENTANCON ALUMBRADOPÚBLCO VELAUOTROS 454% 223% 576% TELEFONIAYTELECOMUNICACIONES CALIDADDISTRITALDE REDMÓVIL CUENTANCON ACCESOACONEXIÓN DEINTERNET CUENTANCON ACCESOATVPOR CABLEOSATELITAL SERVICIOSBÁSICOS CONDICIONESNATURALESYMEDIOAMBIENTALES Z5 ARENOSO Z4 Z3 ARCLLOSO Z2 Z1 LMO-ARCILLOSOS LIMOSO ARCLLOSO ALTITUDMNMA:0m ALTITUDMÁXMA:3228m ALTITUDMEDIA:327m Zonacrtcadedesizamiento derocasymasaspormoivos deluvas Zonacrtcapormotvode nundaconesuvasoporel fenómenodelnño E S W N DISTRITOPACHACAMAC >19 >12 >28 >38 >5 TOPOGRAFIA CARTASOLAR TIPODESUELO LEYENDADERIESGO ROSADEVIENTOS TEMPERATURAMEDIASYPRECIPITACIONES SISTEMAVIAL EQUIPACIÓNURBANA ZR ZRB ZRB ZONARESDENCAL 62% ZONARDEDENSDADBAJA 8% RB ZONARDEDENSIDADMEDA 10% ZONARDEDENSDADALTA 20% EDUCACIONBASCA E 70% EDUCACIONSUPERIORTECNOLOGCA E2 5% EDUCACONSUPERIOR UNVERSTARA E3 25% EQUIPAMIENTORESIDENCIAL EQUIPAMIENTOEDUCACION H2 80% PUESTODESALUD P3 15% POLICLNCO P1 5% CENTRODESALUD COMERCOVECNAL CV 10% COMERCIOZONAL CZ 80% EQUIPAMIENTOSALUD EQUIPAMIENTOCOMERCIO

PACHACAMAC

UBICACION:

El distrito de Pachacámac esta ubicado al sur de la ciudad de Lima Limita al Norte con el distrito de Ate ,por el Sur con el distrito de Lurín Al Oeste con el distrito de Villa María del Triunfo Y al Este limita con el distritodeCieneguilla

DEPARTAMENTO:Lima

PROPUESTA 2°

UBICACION DEL TERRENO

LASCASUARINAS

ÁREADELTERRENO: 10,000m²

ZONIFICACION: RDM

TOPOGRAFIA:

BAJA:327m

ALTA:3228m

VISTAFRONTAL

EQUIPAMIENTO URBANO

DISTRTITO:Pachacamac AREA:16023km2 ALTITUD:73msnm
DENSIDAD:68696hab/km2
PERÚ LIMA METROPOLITANA
PACHACAMAC
DATOS GENERALES 75 523 H 77666 M POBLACION TOTAL:153 189 hab N
PSJ1
DECAMPO TERRENOELEGIDO
DETOROS
LASLOMASCASA
CRIADERO
CASAYCAMPO
VISTAS DEL TERRENO VISTAPOSTERIOR INGRESO LASCASUARINAS

Turn static files into dynamic content formats.

Create a flipbook
Issuu converts static files into: digital portfolios, online yearbooks, online catalogs, digital photo albums and more. Sign up and create your flipbook.