CENTRO HISTORICO DEL RIMAC

XIMENA ARACELLI CABRERA LLAUCE
ARQ. ANDUJANO MONTALVO,EDGAR MAXIMO
ARQ. HUACACOLQUI HUARAJARE,JACK MAYER
JHORDAN ALEXANDER CHAPOÑAN LLONTOP U 19217535
MARIA CRISTINA GALVEZ MOROCHO
MIRANDA MARIA RAMIREZ QUISPE 1623100 U 19208373
DANITZA GRACIELA TIMOTEO CAMPOS U 18308414 U 19221578
-UBICACIÓN Y ACCESIBILIDAD -ASOLAMIENTO Y CLIMA -ANÁLISIS DE USUARIOS -ZONIFICACIÓN Y USOS DE SUELO
-PLANO DE ALTURAS Y PERFILES --NODOS E HITOS
-FLUJO VEHICULAR Y PEATONAL -PLANO SINTESIS
-REFERENTE -PROBLEMÁTICAS Y SOLUCIONES
-TOMA DE PARTIDA -MÁSTER PLAN PROPUESTO -USO DE SUELOS PROPUESTA Y COMPARACIÓN -ANÁLISIS DE VÍAS Y CORTES VIALES
-PERFIL ACTUAL Y PROPUESTO -MOBILIARIO URBANO PROPUESTO -MATERIALIDAD PROPUESTA -VEGETACIÓN PROPUESTA -DETALLES DE ZONAS DEL MÁSTER PLAN
-NORMATIVA
-DATOS GENERALES -ANÁLISIS VOLUMÉTRICO -PLANOS, CORTES Y ELEVACIONES -ESTADO DE CONSERVACIÓN -PROBLEMÁTICAS Y ÁREA DE AMPLIACIÓN -PUBLICO OBJETIVO -PROGRAMA TENTATIVO -ZONIFICACIÓN -CIRCULACIÓN
-DIAGRAMAS ISOMÉTRICOS -PLANO DE INTERVENCIÓN Y REUSO
Elaccesoalas2preexistencias,sedantanto por vias peatonales como por vias vehiculares
VIA PEATONAL VIA VEHICULAR
Trujillo
Jr. Casma Jr. Cajamarca
Jr. Viru/ Jr. La Libertad Ca. Paita Jr. Chiclayo
VIA
Respecto a la temperatura, en el transcurso del año, varia generalmente de 15°C y rara vez baja a menos de 14°C o sube a mas de 29°C
Prexistencia vivienda 401
Prexistencia vivienda 300
Hitos importanes
El sol sale por el este a las 6:00 am y se pone a las 18:00 pm.
La direccion de vientos de da de sur a norte con una velocidad que varia de 11 a 16 km/h y tiene variaciones estacionales leves en el transcurso del año.
-REALIZAR COMPRAS -CAMINAR -TRABAJAR -ACTIVIDAD FISICA -CONVERSAR EN LA CALLE
EDADES
-TRANSITAR A SU CENTRO DE ESTUDIOS O TRABAJOS -CAMINAR -REALIZAR COMPRAS
-CAMINAR -ACTIVIDAD FÍSICA -IR A SU CENTRO DE ESTUDIOS
-TRABAJAR -OFRECER SUS PRODUCTOS -TRANSITAR
EDADES VARIAS
-CAMINAR -VISITAR -TOMAR FOTOGRAFIAS -COMPRAR RECUERDOS -ACTIVIDAD FISICA -CONVERSAR EN LA CALLE
EDADES 50+
-TRANSITAR A SU CENTRO DE ESTUDIOS O TRABAJOS -CAMINAR -REALIZAR COMPRAS
-CAMINAR -DESCANSAR -DEAMBULAR
EDADES VARIAS
-PANDILLAJE -DELINQUIR -DELITOS CONTRA EL PATRIMONIO
LEYENDA
AMBAS EDIFICACIONES SEGÚN LA ZONIFICACIÓN SON ZONAS DE TRATAMIENTOESPECIALTIPO2
Prexistencia vivienda 401
Prexistencia vivienda 300
ZTE-2: ZONADE TRATAMIENTOESPECIAL2
ZTE-3: ZONADE TRATAMIENTOESPECIAL3
OTROSUSOS
ZRP ZONADERECREACIÓN PÚBLICA
EN EL ÁREA A INTERVENIR (JR. TRUJULLO) ES PREDOMINANTE EL USO DE RESIDENCIAL Y RESIDENCIAL COMERCIAL
Prexistencia vivienda 401
Prexistencia vivienda 300
RESIDENCIAL- COMERCIAL COMERCIO
OTROSUSOS
Prexistencia vivienda
Prexistencia vivienda
Altura Zona Patrimonio de la Humanidad, 9 m de altura máxima;
Altura fuera de la zona Patrimonio de la Humanidad, 11 m,
Corredores de Uso Especializado, 22 m de altura máxima.
Prexistencia vivienda
Prexistencia vivienda
SE HA IDENTIFICADO 3 TIPOS DE FLUJOS VEHICULARES, EN DONDE EL MÁS FRECUENTADO ES POR LA VIA EVITAMIENTO POR SU MAYOR RAPIDEZ A LOS PUNTOS DE LLEGADA. SIN EMBARGO EL FLUJO MEDIO ES QUE TIENE MAYOR PORCENTAJE DE FRECUENCIA.
LEYENDA
VARIAN DEPENDIENDO EL LUGAR Y EL TIPO DE EDIFiCIOS QUE LO RODEAN, COMO COMERCIOS, CULTURALES Y TURISTICOS. EN ESTE SECTOR PREDOMINA EL FUJO PEATONAL ALTO, PUESTO POR LA VARIEDAD DE EDFICIOS ALAMEDAS Y GRANDES CALLES PEATONALES.
Gran parte de las casonas del sector delimitado se encuentran deterioradas y algunos monumentosnoestanrevaloradas
Asfaltado en mal estado en vias colectoras.
Calles con falta de limpieza y mantenimiento. Dimensiones de veredas minimas paraelflujopeatonal.
Gran porcentaje de viviendas, son deusoresidencial-comercial. Predominan viviendas de 2 niveles yrematesrectos.
Carencia de equipamientos de recreacionysalud.
Gran presencia de hitos alrededor de las zona, dandole un valor recreacional,turisticoehistorico.
CREACIÓN DE CALLES VIALES COMPARTIDAS PARA LA CIRCULACIÓN EN ARMONIA TANTO DE VEHICULOS COMO DE PEATONES
COMO PARTE DE LA INTERVENCIÓN SE PINTO DIVERSAS FORMAS DE DISTINTOS COLORES Y TAMAÑOS PARA PODER ESTABLCER UN LIMITE ENTRE LO PEATONAL Y LO VEHICULAR. Y TRAER ARMONIA Y ESTETICA AL PROYECTO.
PISTAS Y CALLES PINTADAS
SEGÚN EL ESTUDIO DEL PROYECTO EL ÁREA INTERVENIDA PRESENTA UNA TRAMAIRREGULAR,SINEMBARGOESTA TRAMA SE ADAPTA AL ESPACIO EN EL QUESEENCUENTRAUBICADA.
COMO ES UNA INTERVENCIÓN AL ESPACIO PÚBLICO PEATONAL Y VEHICULAR LA MORFOLOGIA FUE TOMADA EN CUENTA EN MENOR PORCENTAJE.
EN ALGUNAS ZONAS INTERVENIDAS SE IMPLANTARONNUEVAS ÁREAS VERDES PARA LA CONCIENTIZACIÓNDESUCUIDADO. SEIMPLEMENTARONMACETEROSDE PLANTASSILVESTRES.
REGENERACIÓN DE CALLES PARA LOS PEATONES
CON EL PROYECTO SE BUSCA LA INTEGRACIÓN DE LA SOCIEDAD A TRAVES DE LA CULTURA,ELARTEYLAMÚSICA.
CONVIENCIA SOCIAL Y REVALORACIÓN DEL PATRIMONIO CULTURAL DE LA CIUDAD
OLUCIONAR LAS PROBLEMATICAS DE ESTA ZONA SE PLANTEARON MOBILIARIOS DENTRO DE LAS CALLES PARA VOLVERLAS UN PUNTODEDESCANSOOENCUENTROPREEXISTENCIA
CASONA 401
PREEXISTENCIA
CASONA 300
PLAZA DE LA INTEGRACIÓN EN MAL ESTADO
PLAZUELA DEL BARATILLO EN MAL ESTADO
CASAS DETERIORADAS
FACHADAS SIN MANTENIMIENTO
PISTAS EN MAL ESTADO
CAMINOS PEATONALES EN MAL ESTADO
Se idenfico un malestadode las casonas monumentalees dentrodelazona.
Rimac monumental no es muy reconocido por sus patrimonios puesto que la municipalidad no impulsa el turismoenestazona.
CALLES SIN ILUMINACIÓN
ACUMULACIÓN DE BASURA
PREEXISTENCIA
CASONA 401
PREEXISTENCIA
CASONA 300
RECUPERACIÓN PLAZA DE LA INTEGRACIÓN EN MAL ESTADO
RECUPERACIÓNPLAZUELA DEL BARATILLO EN MAL ESTADO
EL PUENTE DE PIEDRA PERMITIRA LA UNIÓN DE LOS DOS DISTRITOS, DONDE NOSE VEA LA DISTINCIÓNOCAMBIODE UNDISTRITOAOTRO.
CONECTIVIDAD
MEJORA DE
PEATONAL
MEJORA DE VIAS
RESTAURAR PATRIMONIOS E INMUEBLES
RECUPERAR Y CONSERVAR EL PATRIMONIO INMUBLE DEL RIMAC
SE PLANTEA LA RECUPERACIÓN DE LAS VVIIENDAS Y CASONAS. COMOELDELASFACHAS DENTRO DEL CENTRO HISTÓRICO, DE ESTA MANERA,SEDESARROLLA IDENTIDAD Y ORGULLO DEPERTENENCIA.
MEJORA Y TRATAMIENTOS PLAZAS EXISTENTES
UNA SOLUCIÓN A LA FALTADEEQUIPAMIENTO DE RECREACIÓN Y ARBOLADO PUBLICO, ES LA MEJORA Y RECUPERACIÓN DE LAS PLAZASEXISTENTESENLA ZONA.
MEJORA DE VIAS PEATONALES Y VEHICULARES EN LA ZONA
EXISTE UN CAMINO PEATONAL EN JR TRUJILLO QUE HA PERDIDO SU VALOR HISTORICOPORLAFALTA DE MANTENIMIENTO. EN CUANTO A LAS VIAS VEHICULARES TAMBIEN SE OBSERVA FALTA DE ASFALTO, VEREDAS ANGOSTAS,ETC.
Vincular hitos y generarVincular hitos y generar actividad actividad
Puente es el nexo que permitePuente es el nexo que permite integrar el proyecto con la ciudadintegrar el proyecto con la ciudad
EN EL JR. TUJILLO SE PLANTEA UN PASEO PEATONAL QUE CONECTA EL RIMAC CON CERCADO DE LIMA SIENDO EL NEXO EL PUENTE DE PIEDRA, ADEMÁS QUE HAY PRESENCIA DE CASONAS QUE SON PATRIMONIOS. ENCUANTO JR. LORETO ESTE PASEO CONECTARA LOS EQUIPAMIENTOS DEL MERCADO BARATILLO Y EL COMPLEJODEPORTIVOSOLIDARIDADDELRIMAC.
SE PRETENDE EN ESTAS AVENIDAS UNA INTERVENCIÓN DUAL, TANTO VIAL Y PEATONAL CON LA FINALIDAD DE GENERAR UN EJE COMERCIAL DEBIDO A QUE UNE EQUIPAMIENTOS IMPORTANTE DE COMERCIO Y VIVIENDAS COMERCIO. A SU VEZ INTEGRAR Y RECUPERAR LAS ÁREAS RECREATIVAS PARA EL DISFRUTEDELPEATÓN.
EJE TURISTICO MONUMENTAL
EJE COMERCIAL RECREATIVO
EJE DE RECUPERACIÓN VIAL
AV. FRANCISCO PIZARRO - PAITA
SE PRETENDE EN ESTAS AVENIDAS UNA INTERVENCIÓN DE RECUPERACIÓN VIAL ,YA QUE CARECE DE LOS MOBILIARIOSURBANOSNECESARIOS.
LOS PUNTOS IDENTIFCADOS SON ESTRATEGICOS PARA PODER CONECTAR EL CERCADO DE LIMA, UNA ZONA MUYFRECUENTADA CON RIMAC MONUMENTAL, UNA ZONA PELIGROSA Y SOLITARIA. APLICANDO ESTRATEGIAS DE CONECTIVIDAD DE HITOS, CONECTIVIDAD Y RECUPERACIÓN DE AREAS RECREATIVAS ,ACTIVACIÓN DEL ESPACIO PÚBLICO Y REVALORACIÓNDELPATRIMONIO.
PREEXISTENCIA CASONA 300
RECUPERACIÓN PLAZA DE LA INTEGRACIÓN
PUENTE DE PIEDRA
MERCADO DEL BARATILLO PREEXISTENCIA CASONA 401
PROPUESTA EXPANSIÓN MERCADO DEL BARATILLO PROPUESTA CENTRO DE SALUD
RECUPERACIÓN PLAZA DE ARMAS DEL RIMAC
RECUPERACIÓN PLAZUELA DEL BARATILLO
ALAMEDA CHABUCA GRANDA
IGLESIA SAN LAZARO COMPLEJO DEPORTIVO SOLIDARIDAD
PREEXISTENCIA CASONA 401
PREEXISTENCIA CASONA 300
PROPUESTA EXPANSIÓN MERCADO DEL BARATILLO
PROPUESTA CENTRO DE SALUD
RECUPERACIÓN PLAZA DE LA INTEGRACIÓN
RECUPERACIÓN PLAZUELA DEL BARATILLORECUPERACIÓN PLAZA DE ARMAS DEL RIMAC
PROPUESTA VIA DUAL CASMA - JR. CHICLAYO
MERCADO DEL BARATILLO PUENTE DE PIEDRA
ALAMEDA CHABUCA GRANDA
COMPLEJO DEPORTIVO SOLIDARIDAD
IGLESIA SAN LAZARO
MUNICIPALIDAD DEL RIMAC
Prexistencia vivienda 300 LEYENDA
Prexistencia vivienda 401
VIVIENDA COMERCIO COMERCIO
OTROS USOS
En la zona solo el jr, Trujillo llas viviendas colindantes son vivienda comercio, Mientras que las otros jirones son solamente de viviendas. CONCLUSION
VIVIENDA
Se plantea un uso de suelo mixto donde la vivienda-comercio tiene mayor presencia, Con el objetivo de reactivar la zona a través del comercio y turismo. Sin dejar de lado la vivienda.
Jr. Trujillo
Jr. Loreto
Jr. Trujillo
Jr. Marañon Jr. CasmaSe le implementaron, mobiliarios urbanos como postes de luz cada 10m de distancia entre ellos, paneles de informacion del distrito monumental, bancas y entre otros.
CORTE PLAZA DE LA INTEGRACIÓNSe le implementaron una plaza en un sector sin uso, brindando un punto se encuentro social, de recreacion, descanso, incluyendo mobiliarios urbanos, como iluminacion, bancas, arbolado, etc.
Esta via, se convirtio netamente en peatonal, dandol los residentes un espacio donde puedan transitar con seguridad y tambien dandoles un punto de encuentro social.
CORTE PLAZUELA DEL BARATILLOLa plaza el Baratillo, se rehabilito, implementando mobiliario urbano, se arreglaron los pavimentos de dicha plaza, y se incluyo el arbolado.
BLa plaza de armas del distrito del Rimac, no contaba con el mantenimiento adecuado que deberia, por ser un hito del sector, se le implementaron distintos tipos de arbolado, iluminacion, bancas y entre otros, para que pueda ser un punto de encuentro social,
Poyos de concreto pulido
Masetero Decorativo con base d epiedra
Bolas de luz de plastico y vidrio
Panel informmativo metalico
Muro delimitador de piedra
Banquitas de madera pino con metal
Macetero delimitador con base de piedra
Bolardos de acero
Poste de luz republicano metalico
BasureroConcreto pulido presente en las veredas renovadas
Cesped natural presente en las pazas recuperadas
Adoquines de concreto presente en los caminos peatonales
Adoquines con cesped en las plazas recuperadas
Asfalto presente en las nuevas pistas
Piedra ´resente en los muros delimitadores
Metal oscuro presente en los mobiliarios y bolardos
Esta ruta turística peatonal ayudara alpeatón recorrer y reconocer la zonade Rímac monumental. Es un lugarrecreativo
lugar de exposiciones Monumento recreativo
lugar de descanso
poyos
poyos deconcreto pulido Macetero delimitador
Poste de luz republicano
Este camino peatonal ayudara alpeaton al recorrer y reconocer lazona de rimac munmental. Es un lugar recreativo
lugar de descanso
Monumento recreativo
Macetero delimitador Panel informativo
Poste de luz republicano
Arbolado incluido
lugar de descanso
Las vias, se restauraron y rediseñaron,dandole seguridad y un espacio segurode circulacion al peaton,implementando mobiliarios urbanoscomo postes para iluminacion, bancas yarbolado que estaba escazo en estesector.
Poste de luz republicano
Banca de madera con soporte de concreto
Esta plazuela,se encuentrafrente al la entrada principal delmercado baratillo, es un puntode encuentro y descanso en la zona.
punto de encuentro
Zona de recreación Zona de recreación
Zona de recreación
Este camino peatonal ayudara alpeaton al recorrer y reconocer lazona de rimac munmental. Es un lugar recreativo
Poste de luz republicano
punto de encuentro
punto de encuentro
La recuperación de la plaza de armas del rimaces significativa, puesto que es un area recreativaque permite que rimac monumental seaconocido.
Poste de luz republicano
RECREATIVO
Masetero Decorativo Basurero Banquitas MATERIALIDAD Adoquines de concreto Punto de encuentro Arbol molle costeño Ceibo MOBILIARIO Zona de recreaciónEl puente de piedraes la conexión entre ambos distritos , poreso e simportante supresencia en nuestromaster plan y poresa razón hemos implementado mobilairios de acuerdo con nuestra propuesta.
SON BIENES CULTURALES INMUEBLE INTEGRANTES DEL PATRIMONIO CULTURAL DE LA NACIÓN, LOS EDIFICIOS, OBRAS DE INFRAESTRUCTURA, AMBIENTES Y CONJUNTOS MONUMENTALES CENTROS HISTÓRICOS Y DEMÁS CONSTRUCCIONES O EVIDENCIAS MATERIALES RESULTANTES DE LA VIDA Y ACTIVIDAD HUMANA URBANOS Y/O RURALES, AUNQUE ESTÉN CONSTITUIDOS POR BIENES DE DIVERSA ANTIGÜEDAD O DESTINO Y TENGAN VALOR ARQUEOLÓGICO, ARQUITECTÓNICO, HISTÓRICO, RELIGIOSO, ETNOLÓGICO, ARTÍSTICO, ANTROPOLÓGICO, PALEONTOLÓGICO, TRADICIONAL, CIENTÍFICO O TECNOLÓGICO, SUENTORNOPAISAJÍSTICOYLOSSUMERGIDOSENESPACIOSACUÁTICOSDELTERRITORIONACIONAL.
ESPACIO PÚBLICO, COMO PLAZAS, PLAZUELAS, CALLES, ETC., CUYA FISONOMÍA Y ELEMENTOS QUE LO CONFORMAN, POSEEN VALOR URBANÍSTICO DE CONJUNTO. TAMBIÉN SE DENOMINA ASÍ AL ESPACIO QUE COMPRENDE A UN MONUMENTO HISTÓRICO Y A SU RESPECTIVA ÁREA DE APOYO MONUMENTAL.
ZONA MONUMENTAL: ÁREA DE VALOR CULTURAL (HISTÓRICO, URBANÍSTICO, ARQUITECTÓNICO) Y SOCIAL, QUE CONSTITUYE EL ÁREA ORIGINARIA DE AGLOMERACIONES URBANAS DE ANTIGUA FUNDACIÓN O CONFORMACIÓN Y QUE HAN EXPERIMENTADO EL IMPACTO DE LA URBANIZACIÓN.
ESTA NOCIÓN COMPRENDE LA CREACIÓN ARQUITECTÓNICA AISLADA ASÍ COMO EL CONJUNTO URBANO O RURAL QUE ES TESTIMONIO DE UNA CIVILIZACIÓN PARTICULAR, DE UNA EVOLUCIÓN SIGNIFICATIVA, O DE UN ACONTECIMIENTO HISTÓRICO.
PUEBLO O CIUDAD HISTÓRICA: ES TODO GRUPO DE EDIFICIOS Y ESPACIOS DEL QUE CONSTEN LOS ASENTAMIENTOS HUMANOS, Y CUYA UNIDAD E INTEGRACIÓN CON EL PAISAJE LE OTORGUE UN VALOR ARQUEOLÓGICO, HISTÓRICO, ARTÍSTICO, ARQUITECTÓNICO, URBANÍSTICO O CIENTÍFICO,
TIPOLOGÍA DE BIENES CULTURALES INMUEBLES, ES LA SIGUIENTE:
ÁREA DEL TERRENO
ÁREA CONSTRUIDA:
ÁREA TECHADA:
FILIACIÓN CULTURAL:
TIPO GENÉRICO:
TIPO ESPECÍFICO:
NOMBRE DEL MONUMENTO:
EslacallemásantiguadeldistritodelRímac.Lleva ese nombre porque por ahí se iniciaba el viaje de Lima a Trujillo, ciudad de la costa norte del Perú. Está conectada al Centro de Lima por el viejo Puente de Piedra, construido en la etapa colonial.
En el jirón Trujillo se pueden apreciar hermosas construcciones virreinales y republicanas, y dos iglesias de más de cuatro siglos de antigüedad. También alberga varios restaurantes, farmacias,
Se encuentra delimitado por edificaciones en su mayoría republicanas de 2 pisos, muchas de las cualesaúnconservansusbalconesdecajón.Junto a ellas la pequeña Capilla del Puente integra al
FUENTE:HTTP://ARQUITECTURALIMAREPUBLICANA.BLOGSPOT.COM/2012/0 8/3229-VIVIENDA-EN-JR-TRUJILLO-300.HTML
LEYENDA
BALCONES ABIERTOS
VENTANAS CON CARPINTERIA DE MADERA
ORNAMENTOS DE MADERA
BALCONES DE MADERA
TIPO ABIERTOS
VENTANAS CON CARPINTERIA DE MADERA
Principio ordenador en la fachada SIMETRIA, este es presente tanto en balcones y ventanas
FOTO ACTUALDESPINTADO Y DESPRENDIMIENTO DEL MATERIAL CONSTRUCTIVO DE LOS MUROS, PRODUCTO DE LA HUMEDAD Y DEL POCO
ESCALERA SE CONSERVA EN BUEN ESTADO A EXCEPCION DE BARANDAS. AÚN SE SIGUE UTILIZANDO.
ESTOS DOS AMBIENTES FUNCIONAN COMO LOCALCOMERCIAL,PEROPORELMOMENTONO SE ENCUENTRAN EN USO, ES POR ELLO, LA PRESENCIADEAMBULANTESENSUEXTERIOR.
DESPINTADO Y DESPRENDIMIENTO DEL MATERIAL CONSTRUCTIVO DE LOS MUROS, PRODUCTO DE LA HUMEDAD Y DEL POCO MANTENIMIENTODADO.
ESTOS AMBIENTES, ACTUALMENTE SE ENCUENTRAN EN USO DE ALMACÉN, POR LOS DUEÑOS DE LA CASONA, NO SE TIENE INFORMACION EXACTA DEL ESTADO DE CONSERVACIÓN.
DESPINTADO Y DESPRENDIMIENTO DEL MATERIAL CONSTRUCTIVO DE LOS MUROS, PRODUCTO DE LA HUMEDAD Y DEL POCO MANTENIMIENTODADO.
ESCALERA SE CONSERVA EN UN ESTADO MEDIO, A EXCEPCION DE LAS BARANDAS Y MUROS QUE SE ENCUENTRAN CON DESPRENDIMIENTO Y DESPINTADO, PRODUCTO DE LA HUMEDAD Y FALTA DE MANTENIMIENTO, AUNSEMANTIENEENUSO.
ÁREAS DEL PRIMER NIVEL, FUNCIONAN COMO COMERCIO, EN SU MAYORÍA SE ENCUENTRAN EN BUEN ESTADO, SOLO SE TIENE QUE REALIZARELMANTENIMIENTOADECUADO.
DESPINTADO Y DESPRENDIMIENTO MINIMOS, DELMATERIALCONSTRUCTIVODELOSMUROS, PRODUCTO DE LA HUMEDAD Y DEL POCO MANTENIMIENTODADO.
FALTA DE MANTENIMIENTO EN LOS BALCONES
FALTA DE MANTENIMIENTO EN LAS ESCALERAS Y PASAMANOS. SE ENCUENTRANENDETERIORO
CREACIÓN DE NUEVOS ESPACIOS CON DRAYWALL, COMO LOS S.S.H.H, ALMACENESYDORMITORIOS
EL ESTADO ACTUAL DE LA VIVIENDA, EN EL PRIMER NIVEL ES USADO DE FORMA COMERCIAL PARA EL ABASTECIMIENTO DE LA ZONA
PREDOMINAN LAS VIVIENDAS,DE DE DOBLE ALTURA DE DOS PISOS, SIENDO UNA ZONA DE COMERCIO EN EL PRIMER PISO.
LAS VIVIENDAS DEL ENTORNO ESTAN EN MAL ESTADO Y MUCHAS DEBERIAN SER RESTAURADAS POR EL ESTADO.
MUROS INTERIORES DEL SEGUNDO NIVEL SE ENCUENTRAN EN UN ESTADO DE DETERIORO Y CON PRESENCIA DE PAREDES AGRIETADAS
EN EL JIRON TRUJILLO SE EVIDENCIO QUE HACE FALTA LA RENOVACION CULTURAL ADEMAS NO CUENTA CON ESPACIOSDERECREACION O TAMBIEN DE EXPRESION ARTISTICA PARA LOS JOVENES.
EN LA VISITA AL LUGAR PUDIMOS OBSERVAR CIERTA ÁREA PARA EXPANDIRNOS, YA QUE ESTE TERRENO ESTA DESTINO A ESTACIONAMIENTO. NOSOTROS PODEMOS TENER ESE MISMO USO Y TENER MÁS ÁREA PARA VENTILAR E ILUMINAR.
ES UNA ASOCIACIÓN SIN FINES DE LUCRO QUE BUSCA LA RECUPERACIÓN DEL CENTRO HISTÓRICO DEL RIMAC.
"SOMOS PERSONAS, QUE BUSCAMOS MOVILIZAR, INVOLUCRAR Y COMPROMETER A TODOS PARA LOGRAR LA RECUPERACIÓN, CONSERVACIÓN Y PUESTA EN VALOR DEL CENTRO HISTÓRICO DEL DISTRITO."
RECUPERAR,CONSERVAR Y POMER EN VALOR DEL CENTRO HISTÓRICO DEL RIMA. GESTIONAR ANTE LAS AUTORIDADES COMPETENTES Y CIUDADANIA GENERAL DE LA EJECUCIÓN D ENUEVOS PROYECTOS. CINTRIBUIR EN EL DORTALECIMIENTO DE INCLUSIÓN E IDENTIDAD LOCAL IMPULSAR LA APRTICIPACION DE PERSONAS E INSTITUCIONES EN OBRAS BENEFICAS.
MINISTERIO DE TURISMO MINISTERIO DE CULTURA WORLD MONUMENTS FUND PLAN COPESCO NACIONAL ,MUNICIPALIDAD DEL RÍMAC COORDINADORA DE VIVIENDAS DEL CENTRO HISTÓRICO DEL RIMAC.
PLAZUELA DE LA PRESA EJE DE ALAMEDAS RESTAURACIÓN DE LA IGLESIA SAN LAZARO
UNA ORGANIZACIÓN NO GUBERNAMENTAL (ONG) ES CUALQUIER GRUPO NO LUCRATIVO DE CIUDADANOS VOLUNTARIOS, QUE ESTÁ ORGANIZADA A NIVEL LOCAL, NACIONAL O INTERNACIONAL. CON TAREAS ORIENTADAS Y DIRIGIDAS POR PERSONAS CON UN INTERÉS COMÚN, LAS ONG REALIZAN UNA VARIEDAD DE SERVICIOS Y FUNCIONES HUMANITARIAS, LLEVAN LOS PROBLEMAS DE LOS CIUDADANOS A LOS GOBIERNOS
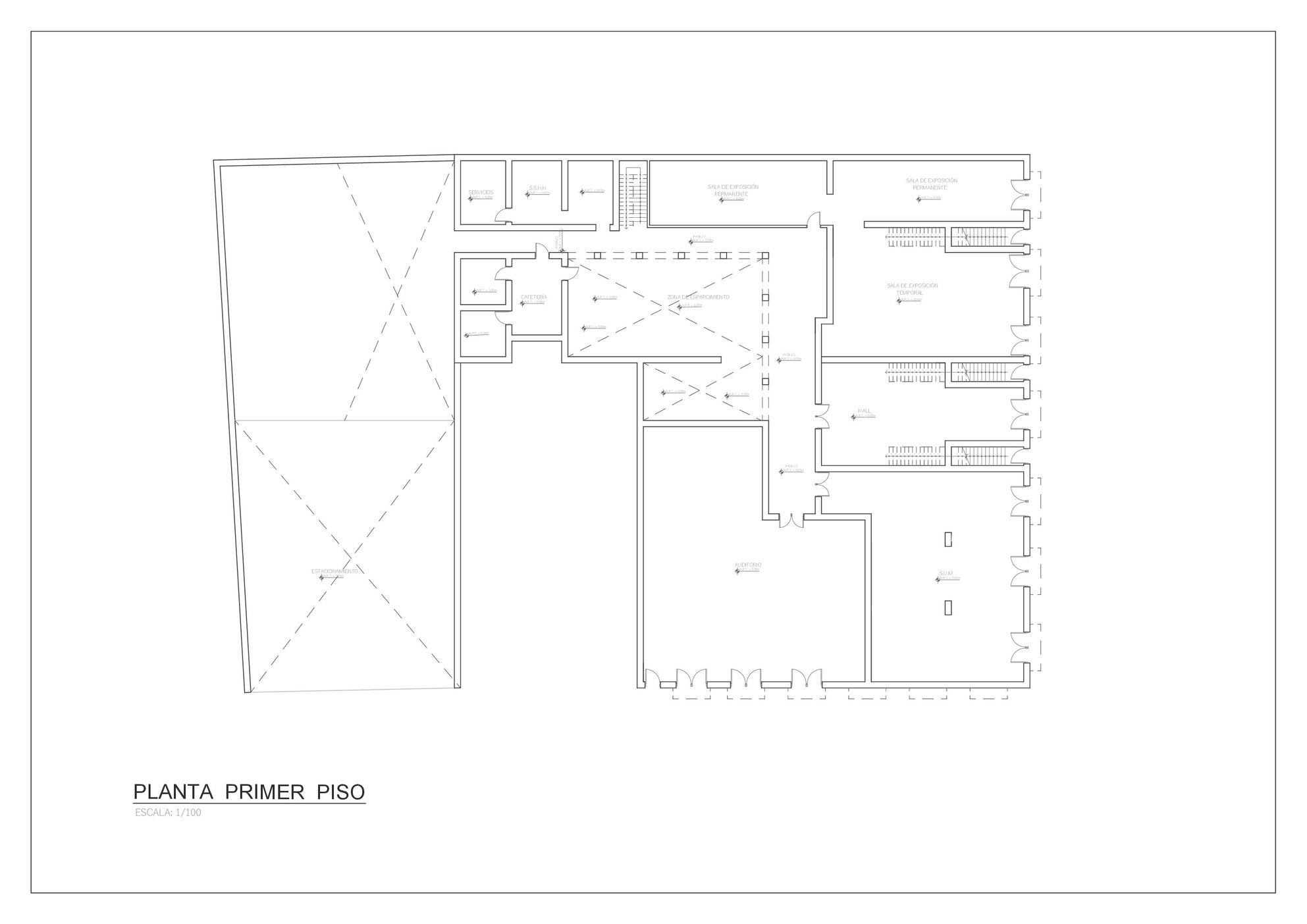
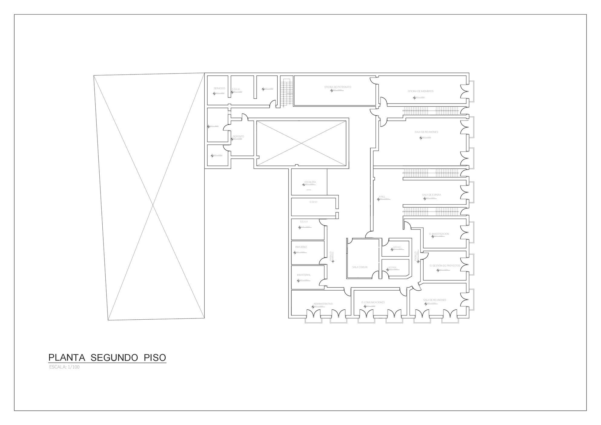
RECEPCIÓN
SALA DE ESPERA
USO ACTUAL: COMERCIO - VIVIENDA
USO A FUTURO: INSTITUCIONAL - CENTRO
DEL PATRONATO D RIMAC
ÁREA TERRENO: 1,009.04 M2
OF. DE INVESTIGACIÓN DE PROYECTOS
OF. DE GESTIÓN DE PROYECTOS
SALA DE REUNIONES
OF. COMUNICACIONES Y MARQUE
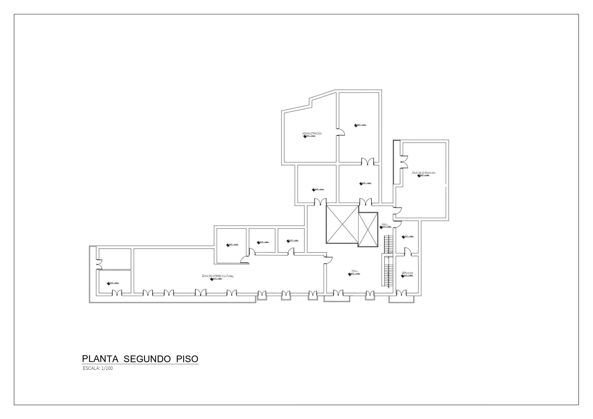
ADMINISTRACIÓN
DIR. PATRIMONIO INMATERIAL DIR. PATRIMONIO INMUEBLE
CRITERIOS:
EL SECTOR TIENE
MUCHA HISTORIA, POR LO CUAL SE BUSCA REVALORAR HISTORIA, CULTURA Y LOS PATRIMONIOS DE ESTA ZONA
EL ÀREA QUE PRESENTA ESTA CASONA ES AMPLIA, POR LO QUE SE APORVECHARA PARA PODER INSTALAR LAS OIFCINAS Y SALAS DE REUNIONES DEL PATRONA. TAMBIEN SE IMPLEMENTARA UN AUDITORIO Y SALAS DE EXPOCISIONES PARA REVALORAR Y DIFUNDIR LOS PATRIMONIOS E HISTORIA DEL CENTRO HISTORICO DEL RIMAC. SE OBSERVO .QUE CASONAS DE LA EPOCA REPUBLICANA ESTAN EN MAL ESTADO Y ABANDONADOS POR ESTADO Y EL MINISTERIO DE CULTURA.
ACTUALMENTE EL PATRONATO DEL RIMAC NO CUENTA CON UNA SEDE PARA PODER DIFUNDIR REVALORAR Y RECUPERAR LOS PATRIMONIOS DEL CENTRO HISTORICO DEL RIMAC
TAMBIEN SE OBSERVA QUE CERCA DE LA ZONA DE INTERVENCIÒN NO EXISTEN ÀREAS VERDES NI DE RECREACIÒN
SUM
ZONA DE ESPARCIMIENTO
SALA COMUN KITCHENET ARCHIVO
SS.HH VARONES
SS.HH MUJERES
OFICINA DEL PATRONATO + SSHH
SECRETARIA
OFICINA DE LOS MIEMBROS 35.00 M2 10.00 M2 47.00 M2
SALA DE REUNIONES
SS.HH VARONES
SS.HH MUJERES
TOTAL 25.00 M2 22.00 M2 35.00 M2 24.00 M2 34.00 M2 32.00 M2 25.00 M2 25.00 M2 18.00 M2 18.00 M2 9.00 M2 9.00 M2 32.00 M2 15.00 M2 15.00 M2 15.00 M2 15.00 M2 10.00 M2 350 M2
FOYER BUTACAS SERVICIOS
SALA PERMANENTE 1 SALA PERMANENTE 2 SALA TEMPORAL
DEPOSITO
ZONA DE ESPARCIMIENTO
ESCENARIO
FOYER DEPOSITO BUTACAS
SS.HH VARONES
SS.HH MUJERES 50.00 M2 50.00 M2 10.00 M2 100 M2 12.00 M2 12.00 M2
SALA DE RECUPERACIÓN 70.00 M2 80.00 M2 70.00 M2
SUM SALA DE USOS MULTIPLES
SALA DE USOS MULTIPLES 150.00 M2 200.00 M2 250 M2 150 M2 220 M2 300 M2 200 M2
SALA HISTORIOGRAFICA CUADROS Y FOTOGRAFIAS
ÁREA DE MESAS COCINA DEPOSITO SS.HH VARONES SS.HH MUJERES 120.00 M2 25.00 M2 10.00 M2 15.00 M2 15.00 M2 185 M2
CUARTO DE LIMPIEZA SS.HH GENERALES DEPOSITO GENERAL 10.00 M2 50.00 M2 20.00 80 M2
ESTACIONAMIENTO ESTACIONAMIENTO PARQUEO DE AUTOS 250 M2 250 M2
ÁREA VERDE ÁREA VERDE ÁREA VERDE 150 M2 150M2 2,200 M2
PERSONAL ADMINISTRATIVO
M2
PRESENTACION
PROFESIONALES ESPECIALISTAS
JOVENES Y ESTUDIANTES
VECINOS Y VISITANTES
TRABAJADORES DE LIMPIEZA
M2
M2
ÁREAVERDE S.S.H.H
ESTACIONAMIENTO ZONADE MESAS
AUDITORIO
S.U.M. HALLDEINGRESO PRINCIPAL ZONADE ESPARCIMIENTO SALA DE EXPOSICION PERMANENTE SERVICIOS Y MANTENIMIENTO
SALADEEXPOSICON TEMPORAL
CAFETERIA ESTACIONAMIENTO
ÁREADEEXPANSIÓN ESCALERA PROPUESTA
SALADEESPERA HALL ESCALERA PROPUESTA
OF.PRESIDENTEDEL PATRONATO
OF, MIEMBROS DEL PATRONATO
SALADEREUNIONES
OF. GESTIÓN DE PROYECTOS
OF. NVESTIGACIÓN DEPROYECTOS
LEYENDA OF. COMUNICACIONES YMARKETING
ADMINISTRACIÓN ZONADECOMUN DIR.PATRIMONIO INMATERIAL
DIR.PATRIMONIO INMUEBLE
SS.HH KITCHENET ARCHIVO MANTEMIENTO
S.S.H.H
ÁREAVERDE
ZONADE MESAS
HALLDEINGRESO PRINCIPAL ZONADE ESPARCIMIENTO
S.U.M.
SALA DE EXPOSICION PERMANENTE
SERVICIOS Y MANTENIMIENTO
SALADEEXPOSICON TEMPORAL ESTACIONAMIENTO
CAFETERIA
ESTACIONAMIENTO
OF.PRESIDENTEDEL PATRONATO SALADEESPERA
OF, MIEMBROS DEL PATRONATO
SALADEREUNIONES
OF. GESTIÓN DE PROYECTOS
OF. NVESTIGACIÓN DEPROYECTOS
OF. COMUNICACIONES YMARKETING ADMINISTRACIÓN
ZONADECOMUN
HALL
KITCHENETDIR.PATRIMONIO INMUEBLE
DIR.PATRIMONIO INMATERIAL
SS.HH
ARCHIVO MANTEMIENTO
SE DERRIBO UN MURO DAÑADO POR LA HUMEDAD Y Y SE DERRIBARON OTROS PARA MAYOR AMPLIACION EN LOS AMBIENTES DESTINADOSASALASDEEXPOSICIÓN
SE TECHARA ESTAS ABERTURAS DE ILUMINACION DEBIDOAQUEENELSEGUNDO NIVELSERVIRADEPASILLO
ESCALERA EN MAL ESTADO Y ADEMAS ES UNA AUTOCONSTRUCCIÓN POR PARTE DE LOS QUE RESIDIERON ENLAVIVIENDA
SSE EXTIENDE,LA APERTURA DEL VACIO PARA PERMITIR UN VENTILACION E ILUMINACIÓN MAS OPTIMA EN LA CASONA, A SU VEZ SERA REFORZADO POR COLUMNAS AS SU AKREDEDOR PASANDOHACERUTILIZADOUNAMBIENTEDEESPARCIMIENTO
SE DERRIBO UN MURO DAÑADO POR LA HUMEDAD Y Y SE DERRIBARON OTROS PARA MAYORAMPLIACIONENELAMBIENTEDELHALL PRINCIPAL
SE DERRIBO UN MURO DAÑADO POR LA HUMEDAD Y Y SE DERRIBARON OTROS PARA MAYOR AMPLIACION EN EL AMBIENTE DE FUTURASALADEUSOSMULTIPLES.
MURO CONSERVAR
MUROADEMOLER LEYENDA
MURONUEVO
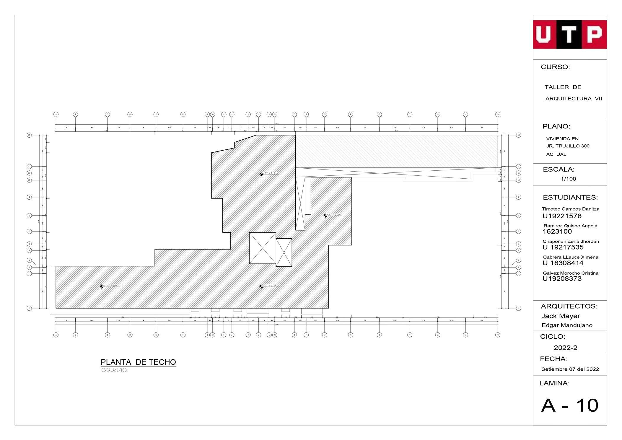
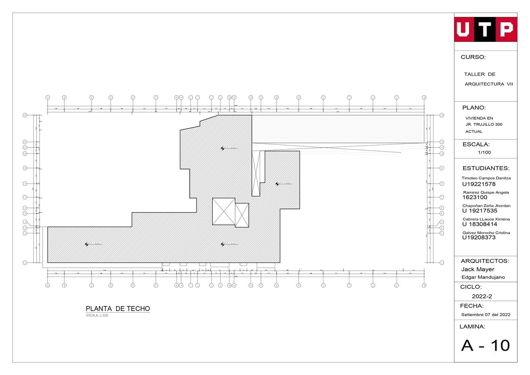
ÁREA DEL TERRENO 1,670.00 m2
ÁREA CONSTRUID A: 1,566.00 m2
ÁREA TECHADA: 2,067.00 m2
TIPO GENÉRICO: VIVIENDA
EslacallemásantiguadeldistritodelRímac.
Lleva ese nombre porque por ahí se iniciaba el viaje de Lima a Trujillo, ciudad de la costa norte del Perú. Está conectada al Centro de Lima por el viejo Puente de Piedra, construido en la etapa colonial. En el jirón Trujillo se pueden apreciar hermosas construcciones virreinales y republicanas, y dos iglesias de más de cuatro siglos de antigüedad. También alberga varios restaurantes, farmacias, bodegas y hospedajes.
BALCONES CORRIDOS
VENTANAS CON CARPINTERIA DE MADERA
BALCONES CAJÓN
BALCONES ABIERTOS
BALCONES DE MADERA
DERIVAN DE LAS GALERÍAS VOLADAS DE LOS ANTIGUOS PATIOS DE LIMA, DIFERENCIÁNDOSE EN EL CERRAMIENTO TOTAL.
NO CONTAMOS CON LOS DETALLES DE ESTOS AMBIENTES, PERO NOS INFORMARON QUE SIRVECOMODEPÓSITOSYENALGUNASÁREAS NO HAY NADA. SE CONSIDERA QUE PRESENTARÍANPISOSCONIRREGULARIDADES YPRESENCIADEHUMEDAD.
ESTA AREA PRESENTA CIERTAS IRREGULARIDADESYDESNIVELESEN EL PISO ALGUNAS ZONAS SE VE LA PRESENCIA DE ADOQUINES ROJOS DESGASTADOS Y EN OTRO PARQUE SOLOCONCRETO.
ALGUNAS ÁREAS FUNCIONAN COMO HABITACIONES PARA ALQUILAR PERO EN SU MAYORÍA ESTÁN ABANDONADAS. SE CONSIDERA QUE PRESENTA IGUAL DESGASTEENLOSPISOS.
EL PASILLO PRESENTA CIERTAS IRREGULARIDADES Y DESNIVELES EN EL PISO ALGUNAS ZONAS DONDE EL CONCRETO ESTÁ DESGASTADO CON PRESENCIADEBACHESYGRIETAS.
DESPINTADO Y DESPRENDIMIENTO DEL MATERIAL CONSTRUCTIVO DE LOS MUROS,PRODUCTODELAHUMEDADY DELPOCOMANTENIMIENTODADO.
ESCALERA DETERIORADA Y EN MAL ESTADO. AÚN SE SIGUE UTILIZANDO.
DESPINTADO Y DESPRENDIMIENTO DEL MATERIAL CONSTRUCTIVO DE LOS MUROS, PRODUCTO DE LA HUMEDAD Y DEL POCO MANTENIMIENTODADO.
DESPINTADO Y DESPRENDIMIENTO DEL MATERIAL CONSTRUCTIVO DE LOS MUROS, PRODUCTO DE LA HUMEDADYDELPOCOMANTENIMIENTODADO,ASIMISMO, SON MUROS QUE NO PRESENTAN CUBIERTA, SIENDO MÁS VULNERABLES.
SEGÚN LA INFORMAICÓN QUE RECOLECTAMOS. LOGRAMOS ENTRAR A ALGUNOS DORMITORIOS, EN DONDE SE PUEDE OBSERVAR LEL DETERIORO DE LAS APREDESYCOLUMNAS.
EN CUANTO A LOS BALCONES SE OBSERVOQUEELMATERIALDEQUE ESTA ECHO (MADERA), ESTA DETERIORADO Y LA BARANDILLA ES SOSTENIDA CON ALAMBRE PARA QUENOSEDESPLOME.
CABE RESALTAR QUE ÁUN LOS CUARTOS MÁS ANTIGUOS Y EN MAL ESTADO AÚN SE UTILIZAN COMO VIVIENDASOALQUILERDECUARTO. SIN EMBARGO EN ALGUNAS HABITACIONES LAS VIGAS DE LOS TECHOS FUERON REMODELADAS POR LOS MISMOSHABITANTES.
SE OBSERVO EL DESPRENDIMIENTO DE LAS PAREDES Y PINTURA POR LA HUMEDADYMALOS CUIDADOS,
ESCALERA DETERIORADA Y EN MAL ESTADO. AÚN SE SIGUE UTILIZANDO PERO ES MUY PELIGROSO, PUESTO QUE LA MADERA SE ESTA QUEBRANDO POCOAPOCO,
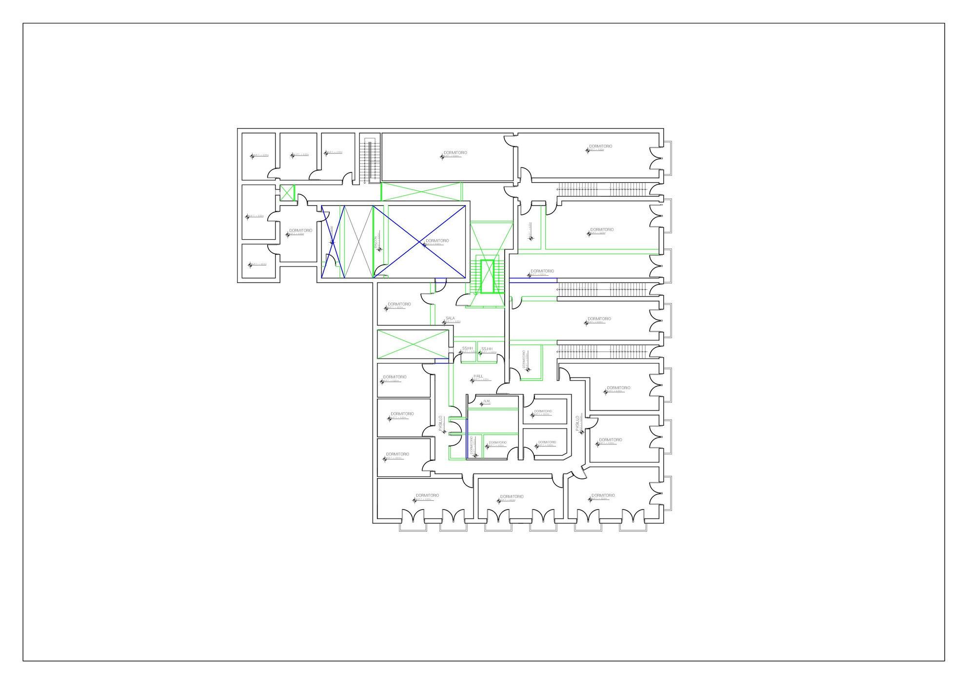
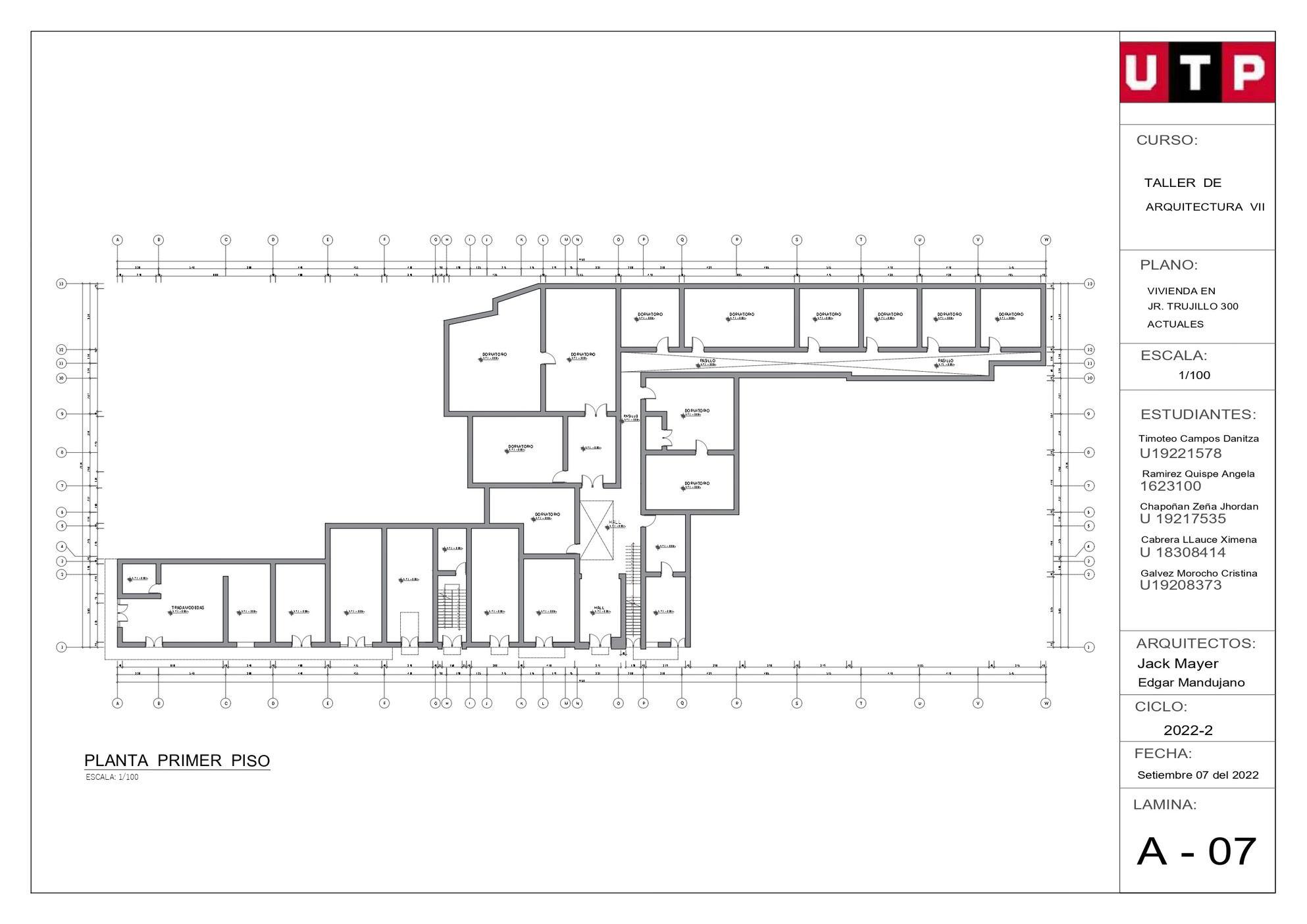
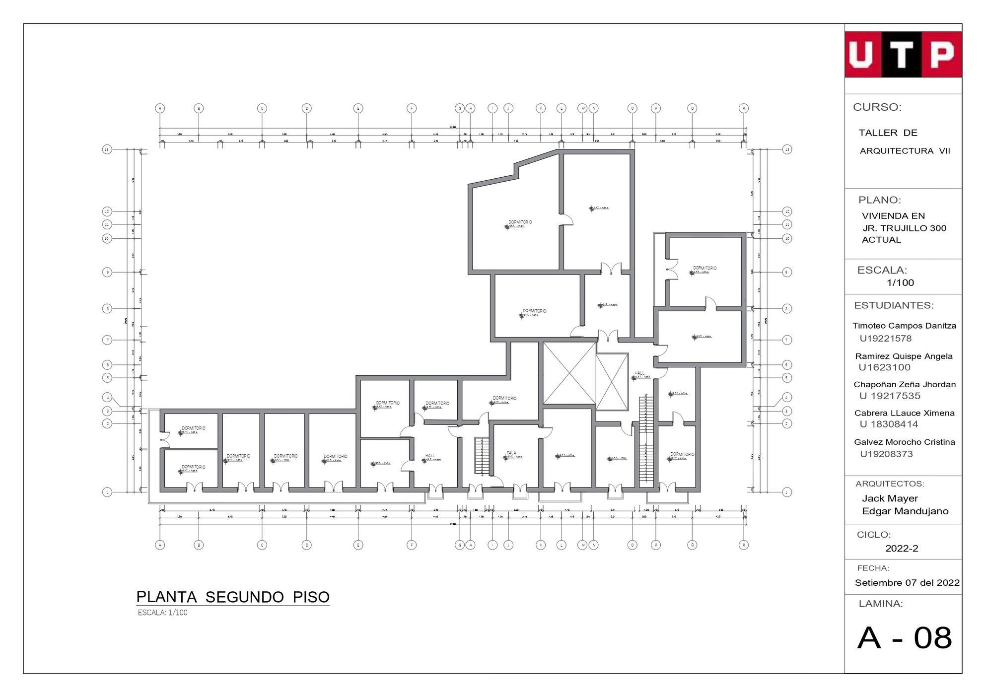
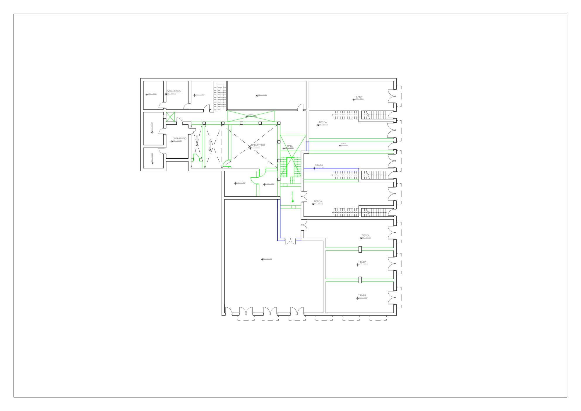
LA VIVIENDA MULTIFAMILIAR EN JR. TRUJILLO 300, TIPO DE VVIENDA COLECTIVA DE DOS NIVELES, EL PRIMERO BÁSICAMENTE PARA USO COMERCIAL Y EL SEGUNDO NIVEL SE INDEPENDIZA CON DOS ESCALERAS A LAS QUE SE ACCEDE DESDE EL EXTERIOR.
LA CASONA SE ENCUENTRA EN UN ESTADO DE COONSERVACION, EN LA ACTUALIDAD EL PRIMER PISO DUNCIONA COMO TIENDAS DE COMERCIO PARA LA ZONA
SI BIEN EL EDIFICIO SE ENCUENTRA CONSERVADA, EN SU INTERIOR SE OBSERVAN PAREDES AGRIETADAS, ESCALERAS DETERIORADAS
PREDOMINAN LAS VIVIENDAS DE DOS A TRES NIVELS,
EN LA ZONA SE EVIDENCIO QUE HACE FALTA LA RENOVACION CULTURAL, ADEMAS NO CUENTA CON ESPACIOS DE RECREACION , O TAMBIEN DE EXPRESION ARTISTICAPARALOSJOVENES.
M2
EN LA IMAGEN PODEMOS OBSERVAR EL TERRENO ESOCGIDO PARA LA AMPLIACIÓN, ESTE TERRENO ESTABA SIN COSNTRUIR Y ABANDONADO, AVEECS FUNCIONA COMO COCHERA PRIVADA, Y ESE ES EL USO QUE NOSOTROS LE QUEREMOS DAR AL MOMENTO DE EXPANDIRLO, ADEMÁS QUE NOS AYDUARA A MEJORAR LA ILUMINACIÓN Y VENTILACIÓN
EN LA ACTUALIDAD AUN MANTIENE SU VALOR HISTORICO , FORMANDO PARTE DEL PATRIMONIO CULTURAL ESCALERA INTERIOR MUROS INTERIOR JR. TRUJILLOZONASSUB ZONAS AMBIENTES ÀREA APROX.(M2)
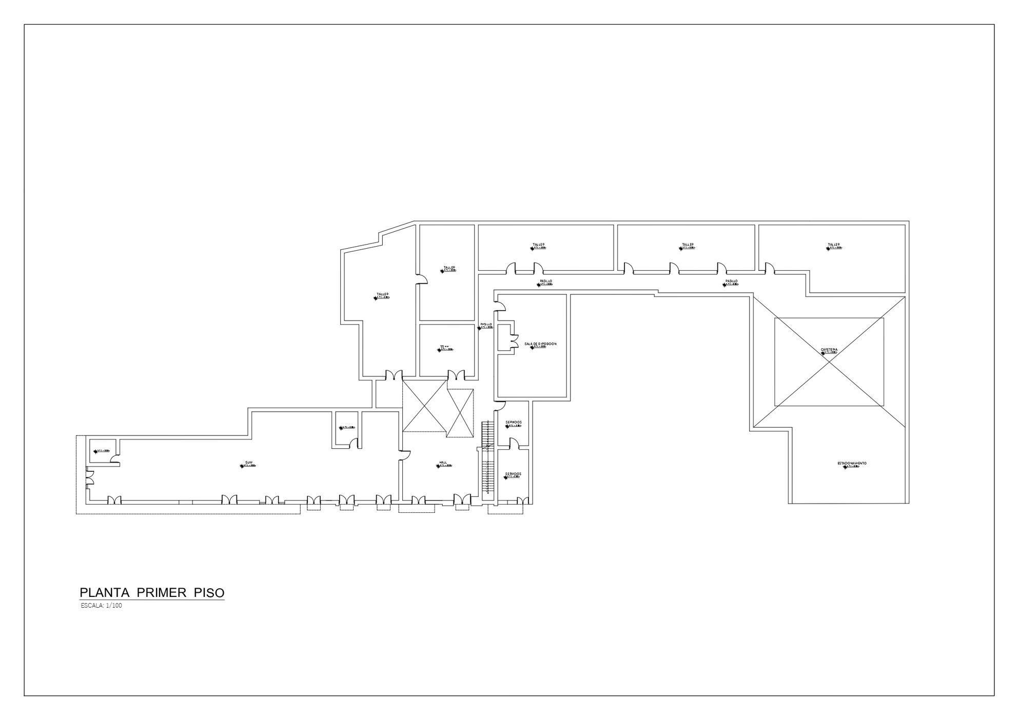
USO ACTUAL: COMERCIO - VIVIENDA USO A FUTURO: USO CULTURAL ÁREA DEL TERRENO: 1 017.47M2
ZONA UBICADA EN EL CENTRO HISTORICO DEL RIMAC, EN DONDE LA HISTORIA Y EL ARTE SE CONECTAN
EL ÀREA QUE TIENE LA CASONA
SE OBSERVO QUE EN LA ZONA INTERVENIDA NO EXISTE ESPACIOS PARA LA EXPRESIÒN ARTISTICA CULTURAL.
EL SECTOR
ESCOGIDO TIENE MUCHA HISTORIA, POR LO CUAL SE BUSCA REVALORAR HISTORIA, CULTURA Y ARTE DE ESTA ZONA
A INTERVENIR ES DE GRAN DIMENSIÒN POR LO CUAL UN CENTRO CULTURAL CON TALLER RECREATIVOS, SALAS DE EXPOSICIONES Y SALAS DE DIFUSIONES CULTURALES SERÀ UNA GRAN IMPLEMENTACIÒN.
TAMBIEN SE OBSERVA QUE CERCA DE LA ZONA DE INTERVENCIÒN NO EXISTEN ÀREAS VERDES NI DE RECREACIÒN
TEATRO - DANZA
PINTURAESCULTURA
CERAMICAMUSICA
SERVICIOS
PERMANENTE
RECEPCIÓN LOBBY
SS.HH VARONES
SS.HH MUJERES 18.00 M2 18.00 M2
DIRECCIÒN GENERAL + SS.HH
SECRETARIA
SALA DE ESPERA
ADMINISTRACIÒN
SS.HH VARONES
SS.HH MUJERES
SALA DE REUNIONES
TALLER DE DANZA + DEPOSITO
TALLER DE TEATRO + DEPOSITO
TALLER DE PINTURA + DEPOSITO
TALLER DE ESCULTURA + DEPOSITO
TALLER DE CERAMICA + DEPOSITO
TALLER DE MUSICA + DEPOSITO
SS.HH VARONES
SS.HH MUJERES
HALL - RECEPCIÒN
SALA HISTORIOGRAFICA
PINTURAS
ESCULTURAS Y CERAMICAS
TOTAL 18.00 M2 4.00 M2 25.00 M2 12.00 M2 9.00 M2 9.00 M2 30.00 M2 70.00 M2 70.00 M2 70.00 M2 70.00 M2 70.00 M2 70.00 M2 14.00 M2 14.00 M2 25.00 M2 60.00 M2 60.00 M2 60.00 M2 107 M2 434 M2 SUM SUM
RECEPCIÓN SUM
PROYECCIÓN ILUMINACIÓN, SONIDO
DEPOSITO
SS.HH VARONES
SS.HH MUJERES 12.00 M2 12.00 M2
VESTIBULO
SECRETARIA
SS.HH GENERAL VIDEOTECA VIDEOTECA DEPOSITO Y MANTENIMIENTO 15.00 M2 200.00 M2 20.00 M2 10.00 M2
HALL 70.00 M2 40.00 M2 20.00 M2 167 M2 20.00 M2 20.00 M2 4.00 M2 150.00 M2 50.00 M2 5.00 M2 12.00 M2 30.00 M2 9.00 M2 474 M2 280 M2
SALA DE LECTURA ATENCIÓN Y DEPOSITO DE LIBROS DEPOSITO
ÁREA DE MESAS COCINA DEPOSITO
SS.HH MUJERES 35.00 M2 20.00 M2 9.00 M2 9.00 M2 9.00 M2 100 M2
SS.HH VARONES
CUARTO DE LIMPIEZA
SS.HH GENERALES
DEPOSITO GENERAL 11.00 M2 20.00 M2 10.00 M2 60 M2
ÁREA VERDE ÁREA LIBRE ÁREA LIBRE 100 M2 100 M2 200 M2 1922 M2
PERSONAL ADMINISTRATIVO
PERSONA COMUNES
TRABAJADORES DE LIMPIEZA
PRESENTACION
ZONARECEPCION
S.U.M. SS.HH. TALLERES SALA DE EXPOSICION
SERVICIOS Y MANTENIMIENTO
CAFETERIA ESTACIONAMIENTO AMPLIACION
LEYENDA
ZONA DE INTERES CULTURAL
ZNA ADMINISTRATIVA
SS.HH. HALL SALA DE EXPOSICION
SERVICIOS Y MANTENIMIENTO
LEYENDA
ZONA DE INTERES CULTURAL
ZNA ADMINISTRATIVA SS.HH.
HALL
MANTENIMIENTO
MURONUEVO MURO CONSERVAR
NO CONTAMOS CON LOS DETALLES DE ESTOS AMBIENTES, PERO NOS INFORMARON QUE SIRVECOMODEPÓSITOSYENALGUNASÁREAS NO HAY NADA. SE CONSIDERA QUE PRESENTARÍANPISOSCONIRREGULARIDADES YPRESENCIADEHUMEDAD.
SE DERRIBO UN MURO DAÑADO POR LA HUMEDAD Y SE IMPLEMENTO UN MURO PARA AMPLIZAR EL AMBIENTE QE SE ADAPTARAPARASERVICIOSHIGIENICOS
SE DERRIBO UN MURO DAÑADO POR LA HUMEDAD Y Y SE DERRIBARON OTROS PARA MAYOR AMPLIACION EN LOS AMBIENTESDESTINADOSATALLERES
ALGUNAS ÁREAS FUNCIONAN COMO HABITACIONES PARA ALQUILAR PERO EN SU MAYORÍA ESTÁN ABANDONADAS. SE CONSIDERA QUE PRESENTA IGUAL DESGASTE ENLOSPISOS.
ESCALERA DETERIORADA YENMALESTADO.
SE DERRIBARON MUROS DE DRYWALL PARA PODER AMPLIAR MAS EL AREA DESTINADAALAZONARECEPTIVA
SE DERRIBO MURO PARA MAYOR AMPLIACION EN LOS AMBIENTES DESTINADOSASALADEEXPOSICION
SEGÚN LA INFORMAICÓN QUE RECOLECTAMOS. LOGRAMOS ENTRAR A ALGUNOS DORMITORIOS, EN DONDE SE PUEDE OBSERVAR LEL DETERIORO DE LAS APREDESYCOLUMNAS.
SE OBSERVO EL DESPRENDIMIENTO DE LAS PAREDES Y PINTURA POR LA HUMEDADYMALOSCUIDADOS,
SE DERRIBO UN MURO DAÑADO POR LA HUMEDAD Y SE IMPLEMENTO UN MURO PARA AMPLIZAR EL AMBIENTE QE SE ADAPTARAPARASERVICIOSHIGIENICOS
SE DERRIBO MURO PARA MAYOR AMPLIACION EN LOS AMBIENTES DESTINADOSASALADEEXPOSICION
SE DERRIBARON MUROS PARA PODER AMPLIAR MAS EL AREA DESTINADA A LAZONARECEPTIVA
ESCALERA DETERIORADA YENMALESTADO.