Barnes, Gavin

Page 1

2024 Portfolio - Gavin Barnes 2020 Portfolio First Name Surname i
Barnes 2024 Portfolio BA(Hons) Architecture
and
Gavin
Liverpool School of Art
Design

About me -

Born and raised in Manchester in 2002, one of my earliest memories is of my mother taking myself and my sister to one of the construction sites that my father was working on, Beetham Tower, as electirican. As we stood at the bottom of the tower we looked up to see our father waving down to us from a height so high that it seemed to graze Heaven. It has always been a point of pride in my family that he has worked on such impressive projects and has, in his own way, contributed to something that will stand the test of time. This has inspired me to do the same through my love for art and design.

Gavin Barnes - 2024 Portfolio 2024 Portfolio - Gavin Barnes
Contents BA Level 6 Semester 2: Integrated Design 3: Comprehensive Design Project: H2O 1-4 BA Level 6 Semester 1: Integrated Design 2: Weather or not and selected supporting studies 5-8 BA Level 5 Semester 2: Explorative Project: Temples of Convinience 9-12 BA Level 5 Semester 2: BIM Study 13-16 Curriculum Vitae 17-18

Comprehensive Design Project H2O

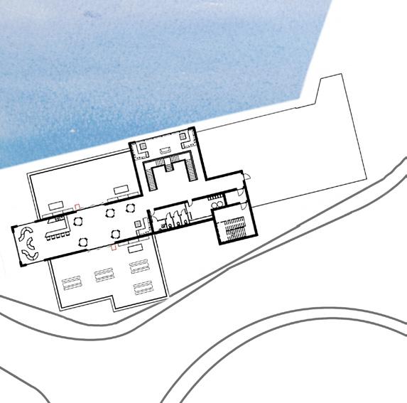
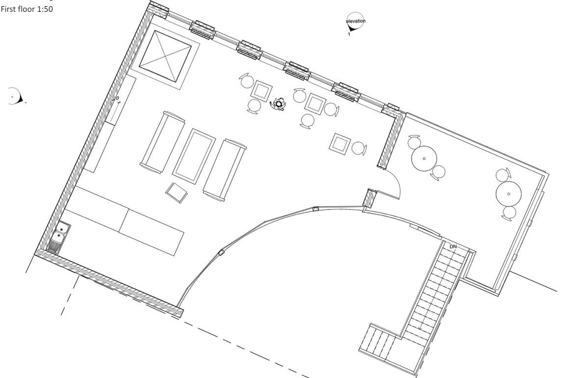
The aim of this project was to imagine a wellness centre that revolved around sensory experiences including water. The location of the site is located on Princess Parade centered between Princess Dock and Prince’s Hald Tide Dock. For this project I was accutley aware of the buildings adjecent to the site being high rise residential apartments with their property values directly being assossiated to the views and the importance of designing a structure that was not so high as to block these for the residents.

The structure includes many wellness activities with every state of H2O -

Solid - Ice Baths

Liquid - Swimming pools

Gas - Saunas in conjunction with a dry gym, reading nook and cafeteria pavillion which promote the nurture of the occupant in mind, body and soul.

Gavin Barnes - 2024 Portfolio 2024 Portfolio - Gavin Barnes
1 2
Gavin Barnes - 2024 Portfolio 2024 Portfolio - Gavin Barnes 3 4

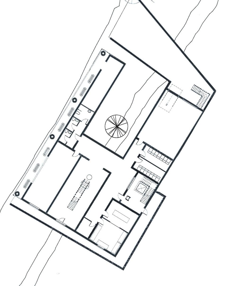
Weather or Not‘Skipping Stones’

The aim of “Weather or Not” was to design a weather observatory centre which inspired the consideration of the natural world and climate change, integrating experiences to promote this and incorporating this theme within every aspect of the design stage including passive heating and cooling, rainwater collection, energy and so on. Located in the lake District, Cumbria.

The design proposed by myself includes a free standing cafeteria with one hundred and eighty degree views of the landscape and Lake Windermere, a classroom which can be hired by primary, secondary and higher education schools for geography classes along with an extensive two story library and science lab to name a few ; all centred around a central glass atrium housing an existing tree. 64mm sq image 64mm sq image

Gavin Barnes - 2024 Portfolio 2024 Portfolio - Gavin Barnes
5 6
Gavin Barnes - 2024 Portfolio 2024 Portfolio - Gavin Barnes 7 8

The aim of “Temples of Convenience” was to create a space within an urban context which was multi-purpose. Located in Birkenhead, my design was comprised of public use toilets on the lower half and a book cafe on the upper. tasked with creating a design which fit the language of the existing context, my design was to be crafted from lime stone with a colonade.

Gavin Barnes - 2024 Portfolio 2024 Portfolio - Gavin Barnes Temples of
Convinience
9 10
Gavin Barnes - 2024 Portfolio 2024 Portfolio - Gavin Barnes 11 12

During the BIM study the aim was to design a modern office building on an industrial site in liverpool using REVIT. once the building was designed we were to run an analysis on the building and see how daylight factors and solar radiation impacted the comfort of those within and adapt the design accordingly by adding shades and moving windows etc.

Gavin Barnes - 2024 Portfolio 2024 Portfolio - Gavin Barnes BIM Study
14 13
Gavin Barnes - 2024 Portfolio 2024 Portfolio - Gavin Barnes 15 16
Gavin Barnes - 2024 Portfolio 2024 Portfolio - Gavin Barnes 17 18
Gavin Barnes - 2024 Portfolio

Turn static files into dynamic content formats.

Create a flipbook
Issuu converts static files into: digital portfolios, online yearbooks, online catalogs, digital photo albums and more. Sign up and create your flipbook.