Griffiths, Guto

Page 1

Liverpool School of Art and Design

2020 Portfolio First Name Surname i
Guto Griffiths 2024 Portfolio
BA(Hons) Architecture

BA Year 3 Semester 2:

Comprehensive Design Project

The Della Robbia Museum 2 - 12

BA Year 3 Semester 1:

Weather of Not RiverStone 13 - 20

ii First Name Surname 2020 Portfolio
Contents
Guto Griffiths 2024 Portfolio 1

Model

**Images will be uploaded following completion of Model**

2020 Portfolio First Name Surname iii Guto Griffiths 2024 Portfolio 2

The Della Robbia Museum

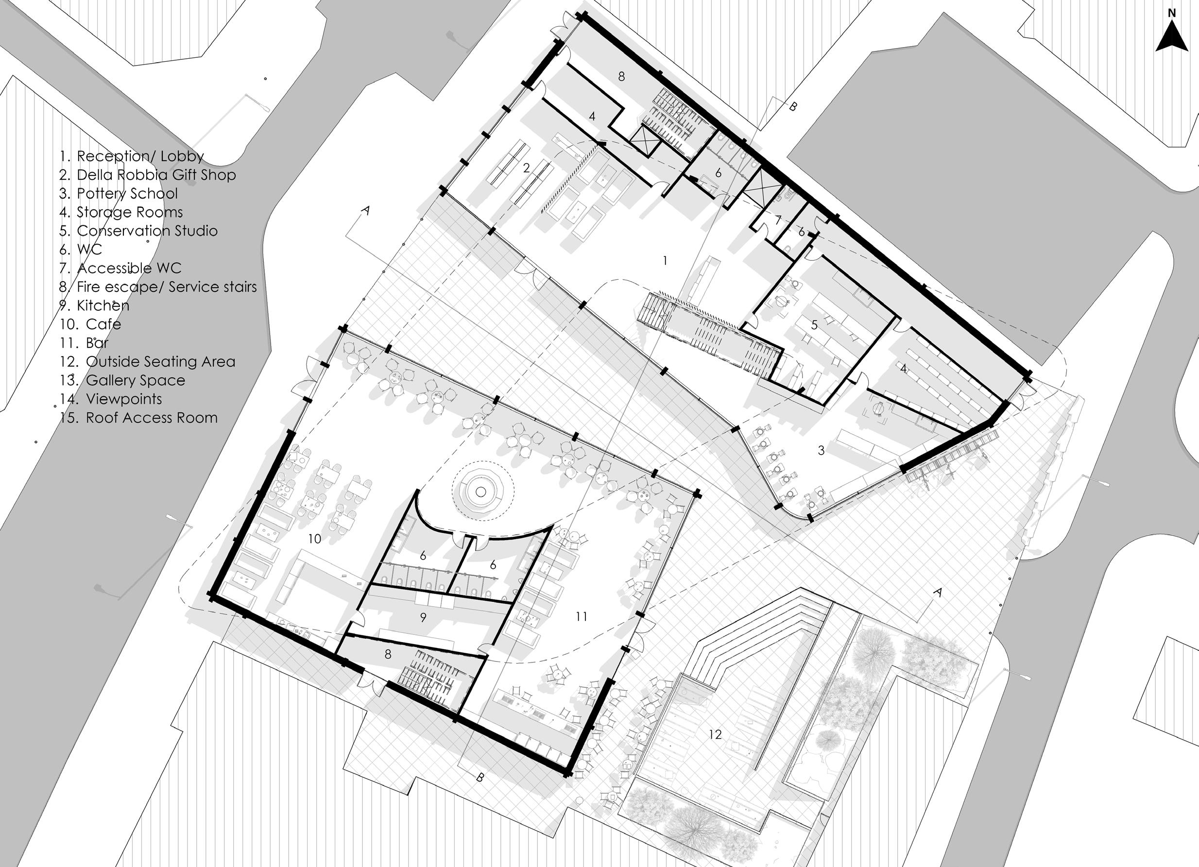
The Della Robbia Museum is distinctive pottery museum located in Birkenhead, near the historic Hamilton Square. Inspired by its surroundings, the museum seamlessly integrates into the local street-scape with its thoughtful use of sand stone, while also making a bold modern statement with its unique form and ceramic cladding. This architectural approach not only respects the area’s heritage but also enhances it by introducing a contemporary public realm. The buildings design is carefully crafted around strategic viewpoints, ensuring that each glance offers a connection to both the art within and outside.

Guto Griffiths 2024 Portfolio 3

Exploded Axonometric

Guto Griffiths 2024 Portfolio 4
2024 Portfolio 5
Diagrams Guto Griffiths
Ground Floor Plan

Concepts

Guto Griffiths 2024 Portfolio 6
1st Floor Plan

Perspective Section BB

North-West Elevation

Guto Griffiths 2024 Portfolio 7
AA
Section
Guto Griffiths 2024 Portfolio 8 Sketches

Visualizations

View of Stairs leading to gallery above

of outside seating area

View of Atrium

Guto Griffiths 2024 Portfolio 9
View
Guto Griffiths 2024 Portfolio 10
View of gallery View of main gallery space

Structural Detail

8 First Name Surname 2020 Portfolio Guto Griffiths 2024 Portfolio 11
Structural Axonometric
2020 Portfolio First Name Surname 9 Guto Griffiths 2024 Portfolio 12
Detail
Construction

Riverstone

The building will host climate change classes and provide areas for showcasing artwork or holding exhibitions. This is achieved by identifying the found conditions of the site and incorporating stone prominently in the design. The integration of stone is blended with a slender, lightweight steel structure resulting in a modern elegant aesthetic that contrasts with the substantial weight of the stone elements. The use of stone establishes a connection with the local community, whilst the lightweight elements create a new look to the area.

10 First Name Surname 2020 Portfolio
Guto Griffiths 2024 Portfolio 13

Using Stone against the elements

2020 Portfolio First Name Surname 11 Guto Griffiths 2024 Portfolio 14
found
3D Site Section - Identifying the
conditions of the site
the river
Fallen Tree/ Log Step in
Demolished Stone Walls Steep Topography Trees on Site Large Rocks

Ground Floor Plan

Lower Floor Plan

1. Path to acsess building 2. Lobby/ entrance 3. Office 4. Storage room

12 First Name Surname 2020 Portfolio Guto Griffiths 2024 Portfolio 15
Exploded Axonometric
8.
5
& 6. Toilets
7.
Kitchen Cafe
9.
Small Classroom
10.
Gallery/ Exhibition Space
11.
Roof of Classroom

Structural Exploded Axonometric

2020 Portfolio First Name Surname 13 Guto Griffiths 2024 Portfolio 16

Concepts

Guto
2024 Portfolio 17
Griffiths
Section AA North East Elevation
Guto Griffiths 2024 Portfolio 18

Visualizations

2024 Portfolio 19
Guto Griffiths
View of Cafe View of Large Classroom View from the River

of Exhibition Space View of Courtyard

Guto Griffiths 2024 Portfolio 20
View
18 First Name Surname 2020 Portfolio Contacts Email : gutosion02@gmail.com Telephone : 07771989837
: https://www.linkedin.com/in/Guto-Sion-Griffiths/
LinkedIn

Turn static files into dynamic content formats.

Create a flipbook
Issuu converts static files into: digital portfolios, online yearbooks, online catalogs, digital photo albums and more. Sign up and create your flipbook.