Architettiverona 134

Page 1

CONSIGLIO DELL’ORDINE

Presidente

Matteo Faustini

• VicePresidenti

Paola Bonuzzi

Cesare Benedetti

• Segretario

Chiara Tenca

• Tesoriere

Leonardo Modenese

• Consiglieri

Andrea Alban, Michele De Mori, Andrea Galliazzo, Roberta Organo, Fabio Pasqualini, Francesca Piantavigna, Leopoldo Tinazzi, Enrico Savoia, Alberto Vignolo

Rivista trimestrale di architettura e cultura del progetto fondata nel 1959

Terza edizione • anno XXXI n. 3 • Luglio/Settembre 2023

rivista.architettiverona.it

DIRETTORE RESPONSABILE

Matteo Faustini

EDITORE

Ordine degli Architetti Pianificatori Paesaggisti e Conservatori della provincia di Verona

Via Santa Teresa 2 — 37135 Verona

T. 045 8034959 — F. 045 592319 architetti@verona.archiworld.it

https://architettiverona.it/rivista/

DIRETTORE

Alberto Vignolo

REDAZIONE

Federica Guerra, Angela Lion, Luisella Zeri, Damiano Capuzzo, Filippo Romano, Leopoldo Tinazzi, Laura Bonadiman, Giorgia Negri, Marzia Guastella, Nicolò Olivieri, Federico Morati, Luca Ottoboni, Alice Lonardi rivista@architettiverona.it

DISTRIBUZIONE

La rivista è distribuita gratuitamente agli iscritti all’Ordine degli Architetti Pianificatori Paesaggisti e Conservatori della Provincia di Verona e a quanti ne facciano richiesta all’indirizzo https://architettiverona.it/distribuzione/

CONCESSIONARIA ESCLUSIVA PER LA PUBBLICITÀ

Cierre Grafica

Paolo Pavan: T. 348 530 2853 info@promoprintverona.it

STAMPA

Cierre Grafica www.cierrenet.it

ART DIRECTION, DESIGN & ILLUSTRATION

Happycentro

www.happycentro.it

CONTRIBUTI A QUESTO NUMERO

Alba Di Lieto, Luciano Cenna, Paola Fornasa, Federica Goffi, Michela Morgante, Fabrizio Rossini

CONTRIBUTI FOTOGRAFICI

Lorenzo Linthout

SI RINGRAZIANO

Anna Braioni, Paola Frascari, Marilì Menato

L’etichetta FSC ® garantisce che il materiale utilizzato per questa pubblicazione proviene da fonti gestite in maniera responsabile e da altre fonti controllate.

Gli articoli e le note firmate esprimono l’opinione degli autori, e non impegnano l’editore e la redazione del periodico. La rivista è aperta a quanti, architetti e non, intendano offrire la loro collaborazione. La riproduzione di testi e immagini è consentita citando la fonte.

134
21

024 EDITORIALE Cinquanta Special di Alberto Vignolo

038

PROGETTO Progetti di confine di Marzia Guastella, Luisella Zeri

060

PROGETTO

In cima alla montagna di Filippo Romano

050

PROGETTO Il racconto della luce di Damiano Capuzzo

028

PROGETTO Patio sul campo di Federico Morati

056

PROGETTO Capitolare in nuova luce di Angela Lion

068

STORIA & PROGETTO

Alla scuola del mattone di Michela Morgante

2023 #03

076

INTERIORS

Per tutti i sensi di Laura Bonadiman

092

100

084

ODEON Da Mantova a Verona, dagli Stati Uniti al Canada di Alba Di Lieto

080

INTERIORS

Una ricetta ben riuscita di Alice Lonardi

087

ODEON Il dettaglio che rivela una storia di Federica Goffi

ODEON Disegni e pensieri: i quaderni di Nicola di Luca Ottoboni

ODEON

Una vita (lessinica) in vacanza di Alberto Vignolo

112

QUASI ARCHITETTI Architettura effimera e monumentale di Leopoldo Tinazzi

095

ODEON Ci mette il becco LC Apparenza e sostanza di Luciano Cenna

096

ODEON Carlo’s Angelo di Luisella Zeri

102 TERRITORIO Alta cantierabilità di Federica Guerra, Alberto Vignolo

118

STUDIOVISIT OFF Georgia on my mind di Paola Fornasa

098

ODEON Marco Lucat 1934—2023 di Fabrizio Rossini

23
134

Cinquanta Special

Vuole la consuetudine che un editoriale affronti questioni di carattere generale, auspicabilmente in maniera intelligente ed edificante o quanto meno con l’obiettivo di suscitare una riflessione, che si condividano gli spunti suggeriti o meno. Obiettivo certo non sempre raggiunto.

Dal generale però questa volta resteremo lontani, concentrandoci su quel particolare piccolo piccolo rappresentato dalla nostra stessa rivista. L’occasione è data dalla constatazione amichevole che queste righe rappresentano la cinquantesima volta da parte di chi scrive nel cimentarsi in questo compito: e si sa che le cifre tonde sono sempre occasione succulenta per riflessioni, bilanci e tentativi di sguardi in prospettiva, per quanto lontano si riesca a guardare.

E forse non è del tutto inutile un piccolo riassunto, a mo’ di autoreferenziale sguardo storiografico, su ciò che è stato, che è e che continuerà a essere – chissà – il percorso di «ArchitettiVerona».

Fu senza dubbio un coraggioso azzardo quello dei gloriosi “padri fondatori” del 1959, anche se in realtà quella stagione eroica e mitizzata durò solo quattro anni, seguita da una nuova fiammata d’orgoglio

quindici anni dopo con la seconda serie (1977-1986), sempre all’insegna di quel caratterizzante formato “quasi quadrato” che ha rappresentato una cifra distintiva quasi continua. Un nuovo stop e la ripartenza con la terza serie nel 1992 nell’era del giornale in formato A4 che è durata fino al 2006, quando con il numero 76 il ritorno al “quasi quadrato” accompagna la nuova linea editoriale incentrata sul progetto. Chi scrive ha iniziato la propria avventura proprio in quel momento, rispondendo quasi per caso a una mail da parte dell’Ordine che richiedeva volontari disposti a far parte del gruppo “rivista”, per ritrovarsi dopo un po’ col numero 85 ad assumere la direzione semplicemente per aver imparato a condurre il mezzo, in mancanza di qualcun altro disposto a mettersi al volante. È stata un’andatura a volte scoppiettante, prendendo qualche buca ma filando sempre dritti, affinando sempre più le tecniche di conduzione della rivista, che si è fatta via via più veloce, affidabile, puntuale.

Tra le tappe più significative, ricordo il passaggio dalle tre alle quattro uscite l’anno, il fondamentale apporto creativo e tecnico di Happycentro per la messa a punto dell’identità grafica dal 2014,

le entusiasmanti ma estenuanti edizioni del Premio ArchitettiVerona dal 2009, il lancio del sito (che sarebbe a dire il vero da ripensare); la completa digitalizzazione di tutte le annate della rivista ora disponibili integralmente online, la presenza crescente sulla piattaforma Instagram.

Oggi «ArchitettiVerona» è una realtà consolidata: i quattro numeri annui escono con precisione grazie al digitale, mentre il buon vecchio cartaceo arranca un pochino – sul servizio postale non possiamo certo mettere la mano sul fuoco – ma al dunque arriva col suo profumo di inchiostro ancora fresco. La raccolta pubblicitaria va bene, e grazie agli inserzionisti il contributo da parte dell’Ordine è stabilizzato, consentendo di mantenere gli standard qualitativi della rivista. L’ultima creatura del gruppo redazionale, gli incontri di AV al cubo, è diventata a sua volta una realtà solida, dopo otto puntate che hanno visto un elevato interesse e partecipazione di pubblico. Tutto molto bello ed entusiasmante, dunque. Ma come è possibile che ciò avvenga? La macchina è talmente rodata ed efficace che viene il sospetto si dia tutto per scontato e dovuto. Non è per nulla così.

24
Testo: Alberto Vignolo
2023 #03
Una ricorrenza tutta interna è occasione di uno sguardo autoreferenziale sulla rivista e sulle sue dinamiche, in prospettiva

Il primo fondamentale motivo alla base di questi risultati è la libertà di cui il gruppo redazionale ha sempre goduto da parte dell’editore, alias il Consiglio dell’Ordine. La rivendicazione di tale indipendenza non è un capriccio, ma è la condizione necessaria a far sì che il lavoro svolto abbia un taglio culturale e non meramente burocratico. Questo non vuol dire che tutto quanto attiene alla vita dell’Ordine non abbia diritto di cittadinanza: sarebbe anzi opportuno un lavoro sistematico sugli strumenti e sui modi con cui veicolare tali aspetti, ma è un compito che non può spettare all’impegno spontaneo di chi fa parte della redazione, in maniera più o meno continuativa.

Già, la redazione, cuore pulsante della rivista: tutto passa attraverso questo gruppo che è decisamente mobile per composizione e dinamiche. Ci sono alcuni aficionados che tenacemente continuano a farvi parte da parecchi anni, ma c’è anche un continuo ricambio volutamente indirizzato a coinvolgere i colleghi più giovani ed entusiasti. Fondamentali sono anche gli apporti degli autori dei vari contributi che arricchiscono ciascun numero. Scorrendo le annate, viene fuori così un elenco di oltre

trecento nomi, ognuno dei quali è stato fondamentale per far sì che «ArchitettiVerona» sia ciò che è oggi. La struttura editoriale della rivista è consolidata e ben rodata, tanto da rendere “facile” la sua composizione. Una facilità relativa, sia chiaro, perché ogni numero che esce è in realtà un piccolo miracolo fatto di ipotesi, verifiche, slittamenti, corteggiamenti, inseguimenti, affanni, solleciti. La ricerca di un mix

equilibrato tra progetti e rubriche dà luogo a una rassegna ricca e varia, sulla quale i riscontri sono spesso positivi. Poche le critiche, e questo è sicuramente un limite: vale dunque l’autocritica.

Non ci nascondiamo che talvolta i progetti sono selezionati sulla base della loro “fotogenia”, pur sapendo che non può essere di per sé un indice della qualità architettonica. L’attenzione per il singolo oggetto

architettonico porta a trascurare le dinamiche a monte della sua realizzazione, da quelle urbanistiche a quelle ambientali, perché questi aspetti richiedono sforzi di approfondimento spesso superiori alle forze disponibili. Lo stesso vale per le dinamiche urbane e territoriali, convitati di pietra di un banchetto che si nutre sostanzialmente di begli oggetti. Qualcuno insiste a dire che «ArchitettiVerona» pubblica soltanto “i soliti noti”, mentre al contrario spesso viene privilegiato l’autore mai pubblicato o il luogo più trascurato, a prescindere. L’aspetto tecnico della costruzione rimane in secondo piano, figli come siamo di una civiltà dell’immagine fotografica. I disegni nel nostro piccolo formato cartaceo hanno poca forza incisiva, e nel digitale ancora meno. Eccetera. Certo, a quanto pare c’è anche qualche pregio.

Questo per quanto attiene l’oggi. Ma quali sono le prospettive future, nel breve e nel lungo periodo?

Qualcuno potrebbe dire che è giunto il momento di cambiare quanto meno guida, e il sottoscritto non può che essere pienamente d’accordo per via di una saturazione che ha preso via via il posto del piacere necessario a fare il giornaletto della nostra piccola parrocchia architettonica di

provincia. Resta vivo però il DNA di «ArchitettiVerona», rivista nata per iniziativa e fatta materialmente da architetti, con i pregi e i limiti che questo comporta: il coinvolgimento diretto nella materia si scontra con i limiti di disponibilità temporale per questo piacevole hobby, e di professionalità richiesta dal lavoro editoriale.

Resta infine l’obiettivo primario di alimentare il dibattito sulla città e il territorio veronese, dando voce alla categoria non in termini sindacali, ma rivendicando senso critico e spirito di servizio, verso un’idea di architettura non prona al potere di turno – economico o politico che sia – ma aperta alla contemporaneità, pur consapevole del passato e dei suoi valori. Un’idea di architettura incentrata sulla cultura del progetto in tutte le sue espressioni, di cui la rivista ha voluto rappresentare in piccolo solamente le declinazioni veronesi per non disperdersi in inutili generalismi, dando così anche senso alla missione territoriale dell’Ordine. Obiettivi alti, che nel momento in cui vengono riformulati costringono a gettare uno sguardo critico su tutto quanto fatto, e ad alzare ulteriormente l’asticella per il futuro. Come farlo e con chi farlo, è ancora tutto da scrivere. •

25
134
« Queste righe rappresentano la cinquantesima volta da parte di chi scrive nel cimentarsi in questo compito »

AMAA , On Topograpy: lavorare sulla sezione attraverso il modello (foto di Elena Pellizzer).

Cfr. pp. 60-67

02

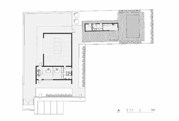
Patio sul campo

Una casa improntata a uno schema tipologico di antica tradizione si inserisce con naturalezza in un contesto di campagna antropizzata accogliendo l’idea di abitare della committenza

Progetto: arch. Alberto Pizzoli

Testo: Federico Morati

Foto: Lorenzo Linthout

2023 #03 PROGETTO
01
Villafranca di Verona

Lungo una tranquilla strada di campagna ai margini dell’abitato di Rosegaferro, tra frutteti, prati, capannoni e qualche villetta, ci imbattiamo a un tratto in un edificio che sorprende per il contrasto con l’intorno, quasi fosse un’entità sorta accidentalmente in questo contesto. L’aspetto materico contribuisce all’alterità di questo elemento: un cemento a vista che però, a sua volta, già al primo sguardo appare diverso da quello di un qualunque prefabbricato. Tutto intorno, il dinamismo della vegetazione e i colori dei campi coltivati.

Questo oggetto misterioso altro non è che una residenza progettata dall’architetto Alberto Pizzoli per la famiglia di un agricoltore locale. Un volume basso a un solo piano fuori terra, in cui prevale la forte orizzontalità dei prospetti che sembrano sottolineare l’andamento del piano di campagna come una sorta di linea parallela rotta dal solo movimento di alcune porzioni della copertura, prevalentemente piana.

L’ampiezza del volume apparente è in realtà esito della scelta tipologica che ha caratterizzato sin dall’inizio lo sviluppo progettuale. Il perimetro

sizione di volumi che avvolge uno spazio privato, il recinto, l’ingresso, una parte residenziale e una parte di annessi. Essenzialmente gli stessi elementi di questa abitazione, distribuiti a partire dall’ingresso sulla strada, anche se non è certo un fronte urbano ma una delle vie parallele che intessono la trama agricola di questo territorio.

Da qui si riconosce un elemento distintivo e caratterizzante, il timpano vetrato posizionato al centro del fronte stradale, il quale ha lo scopo di conferire un carattere domestico all’edificio, oltre che arric-

02. Assonometria dell’edificio.

03. Veduta zenitale dell’edificio.

04. Dall’alto,

dell’edificio, semplicemente appoggiato sulle distanze minime regolamentari dai confini del lotto, è definito da tre lati costruiti e da un muro sul quarto a racchiudere un ampio patio.

La casa a patio, archetipo che nella storia dell’architettura ritroviamo dall’età romana a tutta la tradizione mediterranea e in moltissimi altri esempi, nel pieno della campagna veronese è una soluzione generalmente poco adottata, eppure come idea tipologica di base non si discosta dalla tradizionale corte rurale. Certo, la corte rurale era pensata per una vita comunitaria, dove la stessa corte era luogo di incontro e lavoro; eppure sintetizzando gli elementi di base riconosciamo sempre una dispo-

134 29
01. Il fronte di accesso dalla strada con al centro il timpano vetrato.
02
il rapporto tra edificio e contesto agricolo dell’intorno.
03 04
« Per percepire lo spirito dell’intero progetto basta rimanere immersi nella serenità trasmessa dallo spazio del patio »

chire di luce l’area della cucina. L’ingresso si apre direttamente sulla zona giorno, che occupa tutto il volume parallelo alla strada, ed è posto in asse con il corridoio distributivo di camere e servizi posti lungo il corpo perpendicolare. Sul fondo, la corte è definita dall’ampia zona degli annessi, prescritta dalla normativa di riferimento per le residenze in zona agricola. Questa parte dell’edificio è facilmente riconoscibile per la falda inclinata rivestita in lamiera metallica, funzionale anche alla posa dell’impianto fotovoltaico. L’ampio locale dal soffitto a falda è un ambiente conviviale con annessi servizi, collegato direttamente sia con gli spazi aperti del patio che con l’ampio garage. Il quarto lato della corte è chiuso da un semplice muro traforato, uno degli elementi più iconici del progetto. Un susseguirsi di tagli verticali, analoghi per ritmo e dimensioni alla trama muraria del fronte verso il patio del volume di fondo, permette un riscontro d’aria che, passando per la piscina, attraversa sull’altro versante il portico tra la zona residenziale e quella degli annessi: un’ottima forma di controllo del comfort ambientale degli spazi del

2023 #03 PROGETTO 30 05 05.
Patio sul
Il fronte laterale dell’edificio visto dal piano di campagna. 06. Planimetria generale di progetto.
campo
06

07. Il percorso interno al patio è coperto dallo sporto di gronda. 08. L’ingresso all’edificio posizionato sul fronte strada.

COMMITTENTE Privato

PROGETTO ARCHITETTONICO

E DIREZIONE LAVORI

arch. Alberto Pizzoli

CONSULENTI

ing. Niccolò Ottoboni (strutture)

IMPRESE E FORNITORI

Riccardo Peroni (opere edili), CG Edilservice (strutture in legno), SEAL Serramenti (finestre in alluminio), TGF di Alessandro Turrina (impianti elettrici), Bonfante Interior Contractor (arredi su misura), REL-LUX (piscina), Vivai Progetto Natura (giardino)

CRONOLOGIA

Progetto: 2018-2021

Realizzazione: 2021-2022

134 31 08
07

patio. Nella veduta prospettica dalla zona giorno, i vuoti dei tagli nel muro perimetrale non sono percepibili: la sensazione è quella di una piena chiusura e riservatezza e di controllo delle introspezioni.

Al rigore della definizione spaziale corrisponde la scelta di un monomateriale costruttivo per tutte le murature in elevazione. Si tratta di un calcestruzzo a vista realizzato utilizzando per le casserature pannelli di OSB appositamente trattati. La finitura che ne deriva è tutt’altro che casuale, essendo stata accompagnata da una maniacale attenzione allo studio della posa dei pannelli stessi e al posizionamento di ogni singolo giunto. La texture superficiale ricorda un materiale naturale, quasi delle venature lapidee, in dialogo con il contesto di natura antropizzata della campagna circostante.

Gli ambienti interni sono invece dominati dal candore delle pareti e dai toni chiari e morbidi del legno utilizzato sia per i pavimenti che per le coperture. Le travi binate in lamellare del solaio di copertura rappresentano il vero elemento regolatore della pianta: la loro precisa misura scandisce la profondità e la dimensione di ciascun ambiente.

2023 #03 PROGETTO 32 10 09
11 Patio sul campo

Nato a Villafranca di Verona (VR) nel 1988, studia architettura al Politecnico di Milano dove si laurea nel 2013 dopo esperienze formative a Brno (Repubblica Ceca) e presso l’Atelier Mendini a Milano. Nel 2014 consegue un Master in Museografia, Architettura e Archeologia presso l’Accademia Adrianea e nel 2022 il MADI X, Master in Digital Architecture allo IUAV. Tra le esperienze lavorative, quelle con ABC Studio a Villafranca (2013-2016), la collaborazione con il Pastificio Rana per gli uffici a San Giovanni Lupatoto (cfr. «AV») e per una fabbrica a Chicago (2016), il lavoro come freelance a Valencia nel 2018 e nei due anni successivi come Project Manager presso David Bers Architecture a New York. Suoi lavori sono pubblicati su «AV» 101 (pp. 24-27) e 126 (pp. 60-63).

www.albertopizzoli.it

10-11.

12-13.

134 33
09. Infilata sul corridoio di distribuzione alle camere e servizi. La zona cucina-pranzo con gli arredi su disegno è valorizzata dalla luce proveniente dal timpano fronte strada. Campo e controcampo sul portico a separazione tra zona giorno e annessi, in asse con la piscina. ALBERTO PIZZOLI
13 12

L’utilizzo del sistema binato permette inoltre interassi più ampi, conferendo una sensazione di maggior ampiezza ai locali; lo stretto spazio tra le travi affiancate è usato per inserire l’illuminazione artificiale, che appare come fosse integrata nel soffitto stesso.

Gli arredi della cucina e del living sono realizzati su disegno come elementi stessi dell’architettura, entro un controllo rigoroso degli spazi e di tutti gli elementi di finitura interna, compresi i terminali degli impianti elettrici e di controllo microclimatico. Alla generosa luce naturale fornita dalle grandi vetrate aperte sul patio nella zona giorno e da quelle allineate in sequenza nella zona notte concorre una serie puntuale di lucernari nella copertura piana in corrispondenza dei locali di servizio. Per percepire lo spirito dell’intero progetto basta rimanere immersi nella serenità trasmessa dallo spazio del patio. All’interno del recinto costruito, dove dove anche il cielo sembra essere incorniciato, godiamo con un solo colpo d’occhio dell’armonica relazione tra architettura e paesaggio, tra interno ed esterno, tra cemento e verde naturale, ma anche

2023 #03 PROGETTO 34
15 16 14
14. Sul retro, il volume coperto a falda è rivestito su tutti i lati in lamiera grecata. 15. Interno di uno dei locali destinato ad annesso rustico. 16. Sezione con spaccato assonometrico in corrispondenza della cucina. Patio sul campo

della raffinatezza dell’elemento semicilindrico del camino che fuoriesce verso la corte e del suo svettante comignolo, elementi che rompono lo schema di linee rette che governa l’insieme. Questo progetto ha avuto la forza di vincere la diffidenza della comunità locale, passando dall’iniziale ostilità all’attuale curiosità e stupore. Con grande soddisfazione dei proprietari che ora godono della loro casa con grande passione, arricchendola inoltre con originali e azzeccatissimi pezzi di arredo di design.

134 35
17-18. Particolari della muratura in calcestruzzo a vista con i tagli della parete di chiusura del patio e l’adiacente parete cieca del volume destinato ad annessi rustici.
17 18
2023 #03 PROGETTO 36 20
19. Veduta notturna dal patio verso la zona giorno (foto A. Pizzoli).
19 Patio sul campo
20. Veduta di insieme del patio: sulla parete di fondo il volume semicircolare aggettante del camino e la svettante canna fumaria.
134 37

Progetti di confine

Due progetti dalla differente natura, un’abitazione nel tessuto storico e un magazzino in ambito residenziale, sono accomunati dall’appartenenza al medesimo territorio e dal carattere

Progetto 2. Magazzino: arch. Federica Provoli

Testo: Marzia Guastella, Luisella Zeri

Foto Magazzino: Lorenzo Linthout

2023 #03 PROGETTO
01
Progetto 1. Casa: arch. Laura Zamboni Arcole

“Terra dell’asparago e del vino” cita l’epigrafe ai piedi del leone alato posto davanti al municipio di Arcole. Una descrizione fin troppo didascalica per «ArchitettiVerona», che già nel numero 129 si era addentrata nei meandri del territorio, scoprendo una storia dove acqua, riso e tabacco incontrano le più celebri battaglie napoleoniche, trasformando progressivamente il paesaggio di pianura in un luogo fertile di prodotti e di storia. Di tutto questo oggi restano tracce sparse lungo la Strada provinciale 18, dove emerge piuttosto una più contemporanea conversione al terziario che punteggia il territorio di prefabbricati, edifici residenziali e pochi campi coltivati superstiti, il tutto senza soluzione di continuità.

A distanza di un anno, siamo tornati ad Arcole per raccontare due progetti di natura completamente diversa, a conferma di quella eterogeneità di caratteri di cui oggi è costituito il territorio, dimostrando che sotto l’apparente appiattimento di provincia è possibile praticare scelte progettuali interessanti e tecniche costruttive all’avanguardia, rivelando uno spirito audace, quasi atipico per un piccolo centro come questo.

Nel centro del paese è possibile notare, dietro alla recinzione posta sul confine dell’area, un gruppo di tre edifici che in un evocativo albero genealogico di malta e mattoni se ne stanno in fila – nonno, padre e figlio – raccontando una storia che ha radici lontane. A catturare l’attenzione è l’intervento più recente, ma vale la pena di tratteggiare le vicende di quella che, nata come corte agricola, ha molto da narrare rispetto alle trasformazioni del territorio della bassa veronese.

Realizzata nel XV secolo da un ramo della famiglia Pellegrini e poi trasformata in tipica corte da riso a seguito delle campagne di bonifica che hanno salvato il territorio dalle rotte dell’Alpone, negli anni ha mutato denominazione, seguendo le alterne fortune dei suoi proprietari. Costruita in una posizione defilata rispetto al cuore dell’abitato, all’epoca sviluppato attorno alla chiesa, la corte era formata originariamente da una casa padronale e da una stalla. Fra Seicento e Ottocento le dimensioni dalla proprietà

e del costruito aumentarono proporzionalmente alle ricchezze prima dei Maffei e poi degli Ottolini. Questi ultimi, committenti della omonima barchessa poco lontana, con essa completarono la cosiddetta “aia da risi” che occupava lo spazio dell’attuale Piazza Poggi. Dopo la caduta in disgrazia dei proprietari e le battaglie napoleoniche, a inizio Novecento la vocazione agricola virò sulla lavorazione del tabacco.

Grazie all’istituzione delle “Concessioni manifesto” gli agricoltori, fortemente caldeggiati dallo Stato, costruirono e convertirono gli edifici già esistenti a un nuovo tipo di economia, che contribuì ulteriormente alla trasformazione del paesaggio fra essiccatoi e campi coltivati (cfr. l’itinerario in «AV» 97).

La corte è giunta fino all’epoca contemporanea completamente convertita all’uso residenziale, con dimensioni decisamente ridotte rispetto alle origini e un costruito confuso fra storia e superfetazioni. Solo negli ultimi cinquant’anni ha subito un progressivo

01. La corte vista da via Roma e il fronte principale dell’edificio recuperato.

02. L’area di progetto localizzata su una porzione della mappa di Arcole.

03. Veduta generale della corte con l’allineamento degli edifici in sequenza temporale: al centro la casa bifamiliare realizzata negli anni Settanta.

04. Lo spazio antistante all’edificio è stato liberato dalle superfetazioni del tempo.

134 39 02
03 04
1. Casa

riordino. Oggi nell’area incastonata fra piazza Poggi, via Roma e piazza Marconi, da ovest verso est, troviamo la casa padronale delle origini, restaurata e ancora utilizzata come abitazione, in sequenza una residenza bifamiliare costruita negli anni Settanta in luogo di alcuni fabbricati senza valore storico e da ultimo, sul confine di proprietà, l’edificio progettato dall’architetto Laura Zamboni fra il 2019 e il 2022. Il progetto interviene su un edificio preesistente non sottoposto a vincoli di alcun tipo, che faceva sempre parte della corte ma che nel tempo è stato nascosto da costruzioni prive di carattere testimoniale. Progettista e committenza hanno quindi deciso di sposare una scelta filologica chiara: demolire la volumetria esistente priva di valore, rinunciando a saturare il volume che legittimamente sarebbe stato corrisposto con una ricostruzione in sagoma, liberando così la corte e riordinandone l’allineamento storico già in parte realizzato dalla casa cinquecentesca e dalla costruzione degli anni Settanta. L’edificio così svelato, arretrato di trenta metri dalla strada, torna a mostrare la sagoma rigorosa; la pianta dagli ampi spazi originariamente destinati a ma-

gazzini e uffici diventano oggi i garage al piano terra e l’abitazione al piano primo.

Lo studio dei prospetti ha richiesto un’attenzione particolare. Se la facciata a nord rivolta verso l’interno della corte mantiene la scansione delle finestre preesistenti con l’inserimento al piano terra dei portoni dei garage, il prospetto principale a sud, rimasto nascosto per anni, è stato rimodulato al fine di convertire per adattare l’edificio agricolo-industriale in senso abitativo. La richiesta normativa di una proporzione rettangolare verticale delle aperture ne ha dettato la scansione distributiva. Le ampie aperture dell’abitazione al primo piano – portefinestre con parapetti in parte opachi e in parte trasparenti, per ovviare all’impossibilità di realizzare balconi –impongono la dimensione alle porte del piano terra, con una integrazione muraria inclinata che consente una dimensione standard di serramenti. Il prospetto nel complesso risulta simmetrico e ritmico, conferendo un’impronta contemporanea ben ancorata al nostro tempo: un nuovo tassello che va a completare la corte e guarda al futuro con lo sguardo fisso al passato. (L.Z.)

2023 #03 PROGETTO 40
05. Pianta dei piani terra e primo. 06-07. Alcune immagini degli interni dell’alloggio: la cucina e uno dei bagni. 08. Scorcio del prospetto affacciato sulla corte con in evidenza le strategie progettuali messe in atto per creare ritmo e simmetria.
Progetti di confine 07
09. Particolare della nuova recinzione su via Roma.
05 06

COMMITTENTE Privato

PROGETTO ARCHITETTONICO E DIREZIONE LAVORI

arch. Laura Zamboni

CONSULENTI

ing. Giulio Zamboni (progetto energetico e impianti) ing. Giovanni Dani (strutture) arch. Ivone Zamboni (preventivazione e contabilità) geom. Claudio Soprana (ricerche storiche)

IMPRESE E FORNITORI

Mancassola e Zendron (opere edili), Finex (serramenti), Danilo Ceramiche (pavimenti e rivestiment), CTA Termoidraulica (opere idrauliche), Edildecor (tinteggiature), LMD di Danieli Matteo (carpenteria metallica), Franco Scevaroli (impianti elettrici), Soluzioni Energetiche (impianto fotovoltaico), Fab Arredamenti su misura (cucina)

CRONOLOGIA

Progetto e Realizzazione: 2019-2022

134 41 09 08
2023 #03 PROGETTO 42 11 10
10. Dettaglio del corpo scale. 11. Particolare di una finestra sul prospetto principale. Progetti di confine

Nata a Soave (1983), studia architettura al Politecnico di Milano dove si laurea nel 2008. Negli anni successivi collabora alla docenza al Politecnico con con Angelo Lorenzi (fino al 2010) e con Giancarlo Consonni (fino al 2012). Dal 2008 al 2012 svolge attività professionale con lo studio milanese Basement15; parallelamente dal 2009 apre il proprio studio. Tra i lavori realizzati, «AV» ha presentato il progetto di un parcheggiogiardino ad Arcole nel numero 87 (p. 63) e il Parco del Santuario di Santa Maria dell’Anzana, sempre ad Arcole (n. 96, pp. 34-35).

www.laurazamboniarchitetto.it

134 43
LAURA ZAMBONI

Non molto distante dalla zona produttiva di Arcole, un singolare edificio sembra quasi essere sfuggito al recente sviluppo dell’area artigianale che si estende a nord dell’abitato.

Quasi nascosto fra le abitazioni di un’area prettamente residenziale, si insinua fra le pieghe del costruito (e del regolamento edilizio) per garantire un naturale e corretto inserimento nel contesto. Black Box è il nome in codice assegnato dall’architetto Federica Provoli a questo intervento, che riflette perfettamente la sua visione del progetto: costruzioni durature nel tempo, vantaggiose per leggerezza strutturale e rapidità di posa, con un equilibrato aspetto compositivo e progettuale in grado di rendere architettonicamente apprezzabili anche semplici scatole in carpenteria metallica verniciata come quelle qui realizzate.

Il plurale non è un caso: il progetto comprende, infatti, due edifici che si configurano con geometrie e tratti lineari ma, allo stesso tempo, presentano dimensioni, caratteri e funzioni differenti –

una artigianale e l’altra residenziale. Il volume più ampio ospita un magazzino al quale si affianca un corpo uffici. La struttura è costituita da pannelli sandwich con finitura micro-diamantata che conferisce una texture leggera e vibrante. Le modiche aperture consentono una continuità del materiale, rendendo l’edificio un elemento unitario di colore antracite; la scelta cromatica non è casuale e deriva dalla volontà di ottenere un netto contrasto tra l’esterno e l’interno, dove l’uso del bianco ben si adatta agli ambienti di lavoro. Il colore chiaro è utilizzato anche per interrompere l’elegante tessitura scura dell’esterno accentuando il fronte incavato degli uffici e attribuendo un ruolo significativo all’elemento aggettante della pensilina che affianca il magazzino su due lati e garantisce l’illuminazione serale per mezzo di faretti. La copertura del magazzino è in pannelli grecati isolati e presenta un grande lucernario centrale. Rispetto al magazzino, il corpo uffici è costituito da pareti a secco a tamponamento della carpenteria con uno spessore maggiore entro il quale sono stati inseriti isolanti ad alta densità per conferire una massa elevata alla struttura.

2023 #03 PROGETTO 44
12. Assonometria generale di progetto. 13-14. Vedute del magazzino con gli uffici sul fronte principale.
14 13 12 Progetti di confine
2. Magazzino
134 45 15 16
15. Il fronte con l’ingresso agli uffici. 16. Lo spazio inteno del magazzino.
17
17. Dettaglio del lucernario centrale.

18. Il volume residenziale con il rivestimento in doghe di alluminio color beige.

19. L’area esterna coperta dal brise-soleil metallico.

2023 #03 PROGETTO 46
18 19 20 Progetti di confine
20. Planimetria generale di progetto.

COMMITTENTE

Nicola Fabbro

PROGETTO ARCHITETTONICO

E DIREZIONE LAVORI

arch. Federica Provoli

COLLABORATORI

arch. Marianna Valente ing. Mariano Corrà (prog. strutture) Studio Associato Quattrina (progetto impianti)

IMPRESE E FORNITORI

Ecosteel (general contractor, carpenteria e finiture), Impresa Provoli geom. Maurizio (opere edili), Filitech (impianti elettrici), ZS Impianti (impianti meccanici)

CRONOLOGIA

Progetto e Realizzazione: 2020-2021

Una recinzione in lamiera stirata separa il magazzino dal volume residenziale, costituito da pannelli sandwich coibentati e rivestiti con doghe in alluminio color beige; ancora una volta, il colore è un elemento caratterizzante nel linguaggio progettuale e definisce, in questo caso, una funzione differente. Il volume ospita un locale con accesso diretto alla piscina e all’area coperta dal pergolato metallico bianco e alcuni spazi di servizio. All’interno, è stata utilizzata una pavimentazione in resina, così come negli uffici; nel magazzino, invece, si è optato per un pavimento industriale in cemento che si estende anche all’esterno, definendo percorsi perdonali e carrabili tra le aree sistemate a verde dove si alternano essenze arboree di diversa altezza per garantire un po’ di privacy intorno alla piscina e impreziosire il contesto della residenza e degli uffici.

Il punto di forza dell’intervento sta nell’approccio progettuale caratterizzato dall’uso di forme minimali, alle quali si aggiunge un importante contenuto tecnologico e l’uso consapevole della carpenteria metallica, sfruttandone il potenziale e ottimizzando così le risorse economiche ed energetiche. (M.G.) •

134 47 21
21. L’uso del colore chiaro enfatizza lo sfondato del volume sul lato degli uffici.
22
22. Dettaglio della lattoneria metallica di finitura.
2023 #03 PROGETTO 48 24
23. Taglio di luce su un dettaglio materico.
23 Progetti di confine
24. La finitura micro-diamantata del rivestimento metallico conferisce una texture vibrante e uniforme.

FEDERICA PROVOLI

Nata a San Bonifacio nel 1976, si laurea nel 2003 a Venezia con Alberto Cecchetto e Giovanni Campeol con una tesi per la riqualificazione di una porzione di lungofiume della città di Rijeka (Croazia). Fino al 2008 svolge attività professionale a Venezia in collaborazione con gli studi di Carlo Palazzolo e Beppe Camporini. Tornata a Verona, lavora in forma individuale fino al 2021, quando con Tommaso Marchi avvia il progetto ROA Architettura con sede a Vicenza. ROA si occupa di progettazione e direzione lavori in ambito residenziale e industriale sia per interventi di ristrutturazione che di nuova costruzione, cercando di privilegiare la costruzione con sistemi a secco. Tra i lavori in corso, la ristrutturazione di Palazzo Tea a Vicenza e Casa M. a San Bonifacio.

www.roadesign.it

134 49

Il racconto della luce

Il progetto per la nuova illuminazione esterna del Castello Scaligero di Malcesine interpreta la creazione dello scenario cromatico come occasione di lettura consapevole della storia

Progetto: LA Lucearchitettura

Testo: Damiano Capuzzo

Foto: Lorenzo Linthout

2023 #03 PROGETTO
01
Malcesine

L’intervento sul patrimonio storico, soprattutto quando adottato dalla comunità di appartenenza di un bene, si presenta denso di enfasi ma carico della tensione derivante dalla necessità di garantire un’interpretazione fedele ai canoni propri dell’opera stessa e altrettanto capace di risanarne la fruibilità e il godimento, prerogative necessarie al mantenimento di un ruolo comunitario (e turistico) attivo. Il tema della luce porta con sé poi quella componente effimera che veste la forma, trasformandola in qualcosa di vibrante ed empatico; così nel caso specifico – lo studio di scenari di illuminazione notturna – non si tratta solo di illuminare l’architettura, ma di realizzare l’architettura della luce, rendendola strumento per la percezione e la narrazione.

La nuova illuminazione del Castello di Malcesine, a cura dello studio LA Lucearchitettura di Lorella Marconi e Cinzia Todeschini, nasce ancor prima che dall’osservazione del manufatto dalla ricerca volta a comprenderne l’evoluzione storica, a partire dall’insediamento del nucleo più antico sulla collina detta Lacaòr e fino ai più recenti interventi austriaci, attraversando un periodo di circa 1.200 anni.

Il progetto ha preso in considerazione la possibilità di affiancare alle necessarie ricerche emozionali e tecniche, utili a garantire scenari accattivanti nel rispetto di specifici standard, un approccio teso al racconto, dove la luce realizza un equilibrio di toni e sfumature in accordo con l’identificazione delle fasi costruttive. La storia, come il progetto, trova il proprio centro nel Mastio, attingendo a fonti del 590 d.C., quando una piccola roccaforte venne distrutta dai Franchi per essere poi dagli stessi riedificata con una torre di cui si conserva la pianta

pentagonale con angolo acuto ad est, a testimonianza del maggiore controllo degli attacchi da terra. Con il periodo scaligero (1277-1387) il Castello diviene presidio dei confini a nord, ed è interessato da un notevole ampliamento con la realizzazione delle mura di terra, della residenza antistante la Torre, dei cortili interni del Rivellino e della fascia difensiva verso il lago. Il periodo veneziano (14051798) rappresenta una nuova epoca di sostanziali rimaneggiamenti rivolti a una maggiore accessibilità all’acqua; tra questi la creazione di Porta Posterla, ingresso sul quale è possibile scorgere il Leone di San Marco, della Casermetta adibita a funzioni militari e di alcune migliorie alle postazioni difensive affacciate sul lago.

02. Le pavimentazioni del cortile mantengono un diffuso effetto chiaroscurale mentre il camminamento sulle mura scaligere è illuminato da profili lineari incassati nel parapetto.

03. L’illuminazione bottom-up ai lati della Porta Posterla rende drammatico il gioco d’ombre tra le palle di cannone incastonate nella muratura.

134 51
01. Veduta da sud-est del Castello dalla Chiesa di Santo Stefano.
03
02
« Interpretando la sintesi storica, nasce l’idea di assegnare ai successivi ampliamenti dell’antico nucleo diverse tonalità di luce bianca »

Dopo la breve incursione napoleonica, è il periodo austriaco (1798-1866) a mettere in cantiere gli ultimi significativi riadattamenti, tali da portare a compimento la conformazione architettonica ad oggi visibile. Il sistema d’ingresso viene modificato con l’introduzione della controporta, del fossato e della passerella di legno; vengono introdotte feritoie e modificati i merli di origine ghibellina e realizzata una polveriera (oggi Sala Goethe) sopra la quale è costruito un secondo Rivellino, collegato al giardino del secondo livello tramite una scalinata oggi panoramica. Nel 1902 il Castello Scaligero è dichiarato Monumento Nazionale, e con la fine della Prima Guerra Mondiale, cessa ogni funzione difensiva. Interpretando la sintesi storica, nasce l’idea di assegnare ai successivi ampliamenti dell’antico nucleo diverse

tonalità di luce bianca, che partendo dal cuore del complesso con sfumature molto calde virano verso sensazioni leggermente più fredde nei volumi di epoche più tarde. Il Mastio è pennellato da una luce morbida definita dalle sfumature giallo aranciate di sorgenti luminose da 2.200 gradi Kelvin (scala di temperatura colore), mentre per la porzione di epoca scaligera è stata scelta una temperatura colore di 3.000 K, per passare infine alla tonalità del bianco freddo (4.000 K) per i manufatti di epoca veneziana, anche ripensando ai bianchi riflessi della luna sul vicino specchio d’acqua. Gli ambiti del progetto sono sostanzialmente identificabili nell’illuminazione monumentale statica e nell’illuminazione dei percorsi interni, con approfondimenti di dettaglio sottesi a mascherare la percezione dei proiettori restituendo un’illumi-

2023 #03 PROGETTO 52
04. Veduta della scalinata medioevale il cui passo è scandito da spotlights alla base del parapetto. 05. Dettaglio del camminamento illuminato da profili lineari incassati nei parapetti. 06. Planimetria generale con posizionamento e puntamento dei corpi illuminanti.
04 05 Il racconto della luce 06

08

COMMITTENTE

Comune di Malcesine

R.U.P.: ing. Francesco Misdaris assistente al R.U.P.: geom. Emiliano Colombo

PROGETTO

LA Lucearchitettura

arch. Lorella Marconi

arch. Cinzia Todeschini

CONSULENTI

per. ind. Daniele Morena - SET

Studio Energia Territorio (impianti elettrici)

IMPRESE E FORNITORI

ElettroM2 (impianto elettrico), Vallecos di Leonardi Claudio (opere murarie), Luce&Light (corpi illuminanti), BEGA (corpi illuminanti), Helvar (sistema di gestione dell’impianto di illuminazione), Elettroservice (programmazione impianto), Video Systems Broadcast (videoproiettori)

CRONOLOGIA

Progetto: 2021

Realizzazione: 2022-2023

134 53
07
07. Una luce continua accompagna la salita a Porta Pusterla, mentre proiettori su picchetto nascosti nella vegetazione mettono in risalto la roccia. 08. Scorcio della terrazza sopra la sala Goethe con vista del lago verso nord-ovest.

09. Veduta generale dal lungolago a nord: in evidenza il gradiente di colorazione della luce in funzione delle diverse epoche costruttive.

10. Una delle possibili scenografie cromatiche ottenute attraverso fonti RGB e di video proiezione (veduta dalla collina del Lacaor).

nazione suggestiva ma impalpabile. Le pavimentazioni in quota hanno previsto l’utilizzo dei parapetti, opportunamente modificati per l’inserimento di micro proiettori con funzione di segnapasso, totalmente celati alla vista anche nelle ore diurne. L’illuminazione radente delle pavimentazioni restituisce la matericità delle superfici lapidee scongiurando possibili abbagliamenti, mentre puntuali spot bottom-up disegnano complessi chiaroscuri sulle chiome degli alberi; particolare attenzione è stata dedicata alla valorizzazione dei due affreschi religiosi presenti nei cortili interni. L’alternanza tra disegno e prove in sito, componente necessaria del metodo di progetto di Lucearchitettura, definisce il posizionamento dei corpi illuminanti, non solo per assicurare la resa estetica già verificata da software specialistici, ma a garanzia del minimo abbagliamento e inquinamento luminoso possibili, restituendo scenografie quasi totalmente ripulite dalle sorgenti.

A integrazione dell’illuminazione di base, il progetto ha previsto un sistema integrato di luci rgb e di video proiezione, quest’ultima limitata a due facciate del Mastio, in risposta a scenari di particolare effetto da utilizzarsi in occasione di eventi tematici; si tratta di un layout previsto

per le porzioni più alte del complesso, sia per una migliore visibilità che per mantenere un effetto chiaroscurale in grado di assicurare profondità allo scenario e che interessa i prospetti sud e la porzione nord-est, ambiti maggiormente visibili dal centro cittadino e dalla funivia del Monte Baldo.

L’interpretazione del progetto per Malcesine di Lucearchitettura riesce nell’intento di vestire l’opera monumentale di un velo educato senza rinunciare all’oggettivo appeal introdotto dai gradienti di tonalità; un gioco di alternanze la cui percezione appare mutevole in funzione della visuale sul complesso, ma che rimane in equilibro arricchendo i volumi architettonici di intensità e lasciando alle sfumature d’ombra il ruolo di definire un passaggio morbido con le tonalità della notte.

Il ritorno all’oscurità annulla lo spazio riportando con se l’intero contenuto emotivo, in attesa del sorgere del sole. •

2023 #03 PROGETTO 54
09 Il racconto della luce

LUCEARCHITETTURA

Lo studio LuceArchitettura nasce dalla pluriennale esperienza di Cinzia Todeschini (laureata al Politecnico di Milano nel 2002, dove ha collaborato con il prof. Lorenzino Cremonini) e di Lorella Marconi (laureata allo IUAV nel 1999, attiva inizialmente nel mondo industriale dello sviluppo del prodotto). Le collaborazioni con i colleghi progettisti architettonici sono molteplici e riguardano tutti i settori, dal residenziale al museale al terziario. Con il progetto di illuminazione dell’ipogeo di Santa Maria in Stelle (verona) si aggiudicano il Premio ArchitettiVerona 2021 per la categoria Allestimento e interni (cfr. «AV» 127, pp. 28-35). www.lucearchitettura.it

134 55
10

Capitolare in nuova luce

La nuova illuminazione del salone monumentale dedicato all’Arcidiacono Pacifico all’interno della storica Biblioteca Capitolare di Verona prelude a un progetto generale per l’intero complesso

2023 #03 PROGETTO
01
Progetto: Studio SCR Testo: Angela Lion Foto: Ivan Rossi Verona

Assieme ai monumenti più noti a livello nazionale e internazionale, il patrimonio culturale e artistico di Verona può vantarne altri sui quali è ancora possibile, anzi doveroso, “fare luce”. La metafora è d’obbligo presentando un progetto illuminotecnico recentemente realizzato, che è parte di un disegno più vasto che riguarda la Biblioteca Capitolare, un gioiello non solo per i testi custoditi bensì per l’architettura e la storia dei luoghi all’interno di cui sono custoditi.

A occuparsene è a partire dal 2019 la Fondazione Biblioteca Capitolare di Verona (FBC), istituita con lo scopo di “garantire alla Biblioteca più antica al mondo ancora in attività una gestione efficiente e dinamica, in grado di supportarne una ennesima fase di trasformazione assicurandone la continuità nel lungo periodo”.

Per realizzare i propri obiettivi, FBC ha sviluppato un Piano Strategico 2022-2026 sulla base di un masterplan redatto con la consulenza della Fondazione Museo delle Antichità Egizie di Torino. Questo è quanto ci racconta Timoty Leonardi, project manager della Fondazione, all’interno di una delle sale più suggestive della Capitolare contenete i testi più antichi. La missione della conservazione dello straordinario patrimonio librario – 1280 manoscritti, 100.000 libri a stampa antichi e moderni, 11.000 pergamene, oltre agli oggetti artistici – vuole aprirsi a una fruizione più ampia possibile, costituendo un polo di ricerca e di “produzione” del sapere, come la Biblioteca è stata per secoli.

Alle attività di inventariazione e catalogazione di tale patrimonio e a una campagna di digitalizzazione, strate-

134 57
03
01. Il salone Arcidiacono Pacifico con il nuovo impianto d’illuminazione. 02. Veduta dell’accesso alla Biblioteca Capitolare. 03. Dettaglio dell’illuminazione della volta in una delle sale affrescate.
02 04
04. Planimetrie generali del complesso della Biblioteca.

gica anche per quanto riguarda la sicurezza, si affianca una riflessione di ampio respiro, che va dal lancio del brand “La Capitolare” a un piano generale riguardante gli edifici.

Il complesso della Capitolare, sorto nel cuore della Verona antica nell’area dove nel XII secolo venne edificata la Cattedrale, ha subito nei secoli diversi interventi di restauro e adattamento, da ultimo la ricostruzione nel dopoguerra dopo il bombardamento americano del 1945 a seguito del quale il salone monumentale, dedicato all’Arcidiacono Pacifico, con le sue imponenti librerie lignee settecentesche, andò perduto.

La struttura dell’edificio della Capitolare è eterogenea, varia da murature e solai in pietra, laterizio e legno di origine alto-medievale sino al calcestruzzo armato e laterocemento delle ricostruzioni post-belliche. Negli ultimi decenni il complesso è stato solo parzialmente adeguato ai nuovi standard impiantistici, funzionali, conservativi e di sicurezza e in diversi casi è evidente l’urgenza di interventi. Per poter agire organicamente sul

complesso, nel febbraio 2022 è stato realizzato un rilievo laser scanner dell’intero edificio (interni ed esterni) per l’elaborazione di un modello HBIM (Historical BIM). Assieme ad alcuni interventi impiantistici d’urgenza, al restauro delle facciate e alla creazione di una sala conferenze al piano terra, è in fase di elaborazione un progetto architettonico unitario per il recupero dell’intero complesso,

individuando le aree funzionali future, interventi strutturali e impiantistici e di restauro.

All’interno di questo disegno si colloca la nuova illuminazione del salone monumentale dedicato all’Arcidiacono Pacifico, ambiente chiave della Biblioteca. Elaborato dallo studio Ca-

2023 #03 PROGETTO 58 07
Capitolare
06
in nuova luce
« II progetto enfatizza gli splendidi arredi e soprattutto il prezioso contenuto librario in essi archiviato »
05. Elaborato di progetto per la collocazione dei nuovi corpi illuminanti.
05
06-07. Dettagli della collocazione dei punti luce.

sali Roveda assieme ad altri interventi relativi al controllo climatico della sala - per garantire livelli di temperatura e umidità il più possibile costanti in tutte le stagioni e comunque adeguati e compatibili per la conservazione del materiale librario esposto -, il progetto illuminotecnico deriva dall’analisi delle caratteristiche architettoniche e dalle condizioni d’uso dello spazio. In questo luogo tradizionalmente vengono svolte attività come conferenze, visite e didattica per gruppi.

II progetto enfatizza gli splendidi arredi e soprattutto il prezioso contenuto librario in essi archiviato. La scelta delle apparecchiature e dei materiali per la realizzazione del progetto illuminotecnico si spinge verso una valutazione estetica e tecnica optando per apparecchi il più possibile integrati all’arredo della sala. I nuovi cor-

pi illuminanti sono posizionati sopra e sotto il ballatoio in legno posta in mezzeria alle grandi librerie perimetrali, utilizzato così come una sorta di “ponte tecnologico”. Questa collocazione garantisce una grande discrezionalità d’installazione e versatilità d’uso. Grazie ai proiettori delle famiglie Pluriel e Museo di Exenia, ditta specializzata facente parte del gruppo Lumenplus, si è ottenuto un risultato eccellente in quanto a intensità, uniformità, resa cromatica e temperatura colore.

Il progetto realizzato garantisce così un elevato comfort visivo: massima prestazione con il minore impatto estetico, con soluzioni tecniche all’avanguardia che esaltano e rispettano il delicato ambiente storico. •

COMMITTENTE

COLLABORATORI

CRONOLOGIA

134 59 08
Fondazione Biblioteca Capitolare di Verona PROGETTO ARCHITETTONICO Studio SCR arch. Massimo Casali arch. Riccardo Roveda arch. Anna Roveda, arch. Andrea Lobbia, interior design Damiano Sala IMPRESE E FORNITORI Exenia (light consultant: Matteo Trentanove) Formediluce Progetto e realizzazione: 2021-2022 08. Particolare del ballatoio ligneo utilizzato a supporto dei nuovi corpi illuminanti.
09
09. L’effetto della luce prodotta dal nuovo impianto sui volumi antichi.

In cima alla montagna

Il progetto per il recupero architettonico e morfologico della ex base di Monte Calvarina a Roncà in mostra alla Biennale di Venezia nell’installazione curata dagli stessi autori

Progetto: AMAA Collaborative Architecture Office For Research And Development

Testo: Filippo Romano

01
2023 #03 PROGETTO
Roncà

In occasione della 18. Mostra Internazionale di architettura della Biennale di Venezia, lo studio AMAA, fondato da Marcello Galiotto e Alessandra Rampazzo – giovani architetti attivi fra Venezia e Arzignano che negli ultimi anni hanno ottenuto numerosi riconoscimenti a livello nazionale e internazionale – presenta un inedito progetto per il recupero dell’ex base NATO di Monte Calvarina, situata tra le valli di Vicenza e Verona nel territorio del comune di Roncà.

L’installazione intitolata It’s Kind of a Circular Story riflette la visione della rassegna The Laboratory of the Future curata da Lesley Lokko, che approfondisce il tema della decarbonizzazione come pratica e strumento per un futuro sostenibile. Il lavoro promuove il concetto di riutilizzo come l’approccio più efficace per raggiungere interventi a impatto zero, e racconta un esempio di conversione delle strutture militari ad alta emissione di carbonio in nuovi centri per l’innovazione.

Al centro dell’installazione, un iconico frammento sospeso in calcestruzzo rappresenta uno degli elementi della base militare, letteralmente sradicato dal sito ed esibito come una sorta di manifesto dell’importanza del riutilizzo del patrimonio costruito. Questo concetto è di fatto radicato nel circolo virtuoso del “restituire la terra alla natura e ai cittadini, evitando lo spreco di terreni, edifici e memoria”.

Grazie a una scala di ferro posta frontalmente al percorso nelle Corderie dell’Arsenale, i visitatori possono salire e accedere a un foro attraverso il quale viene proiettato un filmato che racconta il viaggio di questo elemento da Roncà fino a Venezia. Alle spalle del muro sospeso troviamo un modello architettonico, anch’esso in calcestruzzo, poggiato su un tavolo realizzato con fogli di ottone destina-

ti allo smaltimento, materiali di scarto dell’azienda De Castelli. Il modello rappresenta una sezione trasversale del sito, rivelando la presenza di un maestoso complesso di origine vulcanica, formatosi nel Cenozoico a causa di trasformazioni geologiche e in seguito modellato dall’erosione meteorica e dall’intervento umano, introducendo la tettonica radicale del Monte Calvarina e svelando il progetto di trasformazione della struttura militare.

La base NATO Calvarina, costruita nel 1959 durante la Guerra Fredda come parte del sistema di difesa dell’Alleanza Atlantica, forniva una vista strategica della regione circostante per individuare potenziali minacce. Organizzata in quattro strutture funzionali per il sistema missilistico terra-aria, la struttura è stata abbandonata nel 1995 e da allora è caduta in uno stato di abbandono e degrado.

01-02. Vedute dell’installazione

AMAA. It’s Kind of a Circular Stor y all’interno della sezione Dangerous Liaisons, 18. Mostra Internazionale di ArchitetturaLa Biennale di Venezia curata da Lesley Lokko. Foto © Mikael Olsson.

03. Schizzo di Marcello Galiotto del progetto di allestimento.

134 61 02
03
«
Il progetto si concentra di fatto su una nuova topografia immaginata: un lavoro di ricucitura antropizzando il vuoto lasciato dagli edifici esistenti »

Il processo di recupero e riqualificazione è iniziato nel 2021, quando la gestione della base militare è stata affidata alla Fondazione SAFE (Security and Freedom for Europe), un ente indipendente senza scopo di lucro fondato all’inizio del 2018 impegnato nella promozione di progetti e attività di ricerca e sviluppo nel settore della sicurezza. L’obiettivo è trasformare questa complessa area di circa 10.000 metri quadrati, dove riecheggiano ancora le tracce delle strutture militari, in un nuovo centro di eccellenza per la formazione, la simulazione per la risposta alle emergenze e la sperimentazione di tecnologie innovative. Questo ambizioso progetto è reso possibile anche grazie alla particolare conformazione del sito, che sembra ben adattarsi all’esigenza di un ambiente protetto e controllato per le attività di test e sicurezza.

2023 #03 PROGETTO 62
06 In cima alla montagna 05
04-06. Particolari dell’installazione: cavalletti metallici sono un’interpretazione dei tradizionali cavalletti da carpentiere; il piano realizzato con pezzi di ottone di recupero è frutto del dialogo e confronto con l’artista Arcangelo Sassolino. Foto © Mikael Olsson.
04

Da queste premesse nasce l’idea di reinterpretare un luogo di natura militare, trasformandolo secondo una logica continuità funzionale in un “Laboratorio del futuro” per l’innovazione e la sicurezza, rendendolo altresì accessibile al pubblico. L’operazione prevede, infatti, la rimozione della recinzione che delimita la zona militare: un primo atto di apertura con l’intento di dare la possibilità alla comunità locale di riappropriarsi della cima della montagna e restituire un luogo che storicamente ha avuto un’importante valenza nella memoria collettiva di questo territorio. La fase progettuale ha avuto inizio con un’analisi approfondita della complessa topografia del terreno, resa possibile grazie alla proficua collaborazione con il Politecnico di Torino, che, utilizzando il laser scanning, ha restituito in maniera precisa le informazioni riguardanti il sito. Il progetto si concentra di fatto su una nuova topografia immaginata , da cui deriva il titolo On Topography : un lavoro di ricucitura antropizzando il vuoto lasciato dagli edifici esistenti e insediando all’interno di questo nuovo sedime tutte le funzioni necessarie alle attività.

Unica costruzione in elevazione che emerge come un nuovo riferimento nel paesaggio è una torre prevista a nord-ovest del lotto. Questa nuova elegante architettura, priva di funzione propria, diventa importante nella costruzione di un impianto

134 63 09 07
08
07. Inquadramento con evidenziata la ex base NATO sul Monte Calvarina. In basso, l’abitato di Roncà. 08-09. Due immagini dalle opere originali di Ernesta Caviola e di blaaUniverse, tra gli artisti coinvolti nell’installazione veneziana.
2023 #03 PROGETTO 64 10 In cima alla montagna

planimetrico regolare, che al contrario si fonde con le curve del terreno esistente, quasi a ristabilire una nuova simbiotica relazione con il paesaggio.

A sud il progetto prevede il riutilizzo di 80.000 metri cubi di terra, che permetterà di realizzare la nuova topografia e di assorbire gran parte della CO2 prodotta grazie alla piantumazione di circa un ettaro di alberi. La sensibilità per un approccio ecologico si manifesta anche nella scelta di recuperare la terra proveniente dagli scavi delle linee ferroviarie per l’alta velocità, trasformando ciò che sarebbe diventato rifiuto in una risorsa utile per la costruzione.

Il risultato è un progetto logico e coerente, capace di adattarsi e rendersi flessibile nel tempo in un piano strategico in evoluzione, strettamente legato all’analisi delle opportunità economiche che definiranno il programma funzionale.

Questo progetto sembra offrire un’importante opportunità per dare nuova vita a un’area oggi dismessa, e dimostra come l’architettura possa essere uno strumento importante, capace di restituire valore e significato a luoghi dimenticati. •

architettonico di progetto (foto di Francesca Vinci).

12. Vista tridimensionale dell’accesso alla struttura (render: Framax).

IT’S KIND OF A CIRCULAR STORY

Dangerous Liaisons

Corderie dell’Arsenale, Venezia

18. Mostra Internazionale di Architettura

PROGETTO

AMAA Collaborative Architecture

Office For Research And Development (Marcello Galiotto, Alessandra Rampazzo) con

Nero/Alessandro Neretti, Ernesta Caviola, Davide Faedo, Eros Rossetto (blaaUniverse Studio), Lorenzo Mason Studio, Harry Thaler

ON TOPOGRAPHY

PROGETTO

AMAA Collaborative Architecture

Office For Research And Development (Marcello Galiotto, Alessandra Rampazzo) cllaboratrice: arch. Francesca Fasiol

COMMITTENTE

Fondazione SAFE

134 65
11
10. Sezioni verticali e orizzontali relative ai principali livelli altimetrici, che mostrano lo stretto legame del progetto con la topografia del luogo. 11. Modello
12
2023 #03 PROGETTO 66 14 13 15 In cima alla montagna

Fondato nel 2012 a Venezia da Marcello Galiotto e Alessandra Rampazzo, dal 2015 stabilisce anche AMAA Workshop ad Arzignano (VI). L’attività professionale è accompagnata da un costante lavoro di ricerca che coinvolge il mondo accademico. Lo studio ottiene numerosi riconoscimenti a livello nazionale e internazionale. Nel 2022 il restauro della galleria d’arte contemporanea Atipografia, ‘Threshold and Treasure’, è pubblicato in «Area» 185 e «Domus» 1074 e selezionato quale progetto finalista per il Premio Italiano di Architettura MAXXI/Triennale 2023. Il progetto per il Teatro Verdi di Terni è stato esposto in “10 architetture italiane” a cura di Ghidoni, Molteni e Pizzigoni presso la stessa Triennale di Milano. AMAA è invitato alla Biennale Architettura 2023 curata da Lesley Lokko.

www.amaa.studio

13-14. Schizzo progettuale di Marcello Galiotto e vista tridimensionale dello spazio centrale nell’edificio a sud dell’area, caratterizzato da una volta a botte ispirata ai disegni di E.L. Boullée.

15. Alcune maquette della sezione di progetto (foto di Elena Pellizzer).

16. Lo spazio pubblico esterno e lo stretto rapporto fra l’edificio e il paesaggio.

16. La torre proposta come nuova architettura e riferimento nel paesaggio. (Render: Framax)

134 67
17
AMAA
16

ALLA SCUOLA DEL MATTONE

L’edificio dell’Istituto don Bosco portò a Verona un modernismo non futuribile ma solo astrattamente storicista, mutuato dal contesto nordico

STORIA & PROGETTO 68 2023 #03
Testo: Michela Morgante
01
Verona

Si impone visivamente a chiunque percorra via Provolo, sul lato destro per chi provenga dalle Regaste: per la lunghezza del fronte, la qualità del dettaglio, l’anomalia stilistica nel panorama edilizio veronese. L’Istituto don Bosco può dirsi un vero e proprio unicum, un tassello modernista innestato su un tessuto di antico impianto. Un inserto sfuggito alla mimesi abituale nel centro storico scaligero. La facciata è scandita da specchiature intonacate, alternate a lesene in mattone che inquadrano finestroni tripartiti, di sapore protoindustriale. L’andamento è orizzontale, per i corsi in pietra chiara che tagliano le lesene, il fregio superiore in cotto a motivi triangolari, la doppia sequenza di abbaini sul tetto dell’ala sinistra. Il tutto è dominato da un’essenzialità decorativa tendente al geometrico. L’edificio – dichiarato di interesse culturale nel 2014 – ci parla di un modernismo non futuribile ma solo astrattamente storicista, con chiari rimandi a modelli tedeschi, inglesi, austriaci. La razionalità strutturale è dichiarata, ma addolcita dall’uso dei materiali tradizionali.

I prospetti sono infatti giocati sul ritmo del mattone in funzione decorativa – quel paramano o laterizio a giorno piuttosto diffuso nell’edilizia degli anni Venti, su particolare impulso del Politecnico torinese1

Poco in comune, dunque, con il romanico goticheggiante delle chiese veronesi, o il neo-romanico delle fabbriche

militari austriache (né tanto meno con un eclettismo pompier alla

01. Particolare del corpo aggiunto alla fine degli anni Cinquanta su Stradone Antonio Provolo (foto di Lorenzo Linthout).

02. Il corpo d’ingresso prima della realizzazione dell’ala destra (collezione Silvano Morando).

03. L’area con gli edifici di fine Ottocento (cappella, teatro, corpo lineare porticato) nel Catasto d’impianto.

04. Veduta aerea del complesso negli anni Novanta (collezione Silvano Morando).

69 134
02 04 03

Fagiuoli o il novecentismo di Banterle). Il linguaggio dell’Istituto don Bosco è ascrivibile all’architetto Mario Ceradini (1864-1940), qui nella sua fase matura. La genesi va dunque ricercata lontano ed è innanzitutto nel solco della copiosa, globalmente ramificata, vicenda di committenze impartite dai salesiani per l’avviamento dei ragazzi poveri alla carriera tecnico-professionale. Pur senza imporre un’omologazione stilistica l’Opera religiosa fece della propria immagine architettonica, tra Ottocento e Novecento, una cifra distinta e riconoscibile nel mondo, fin dalla casa madre di Torino, alla cui progettazione la figura di Ceradini fu, almeno in una certa fase, diretto partecipe2 .

Veneziano di nascita e di formazione (alla scuola di Giacomo Franco) l’architetto insegna però lungamente – dirigendola negli anni che ci interessano – la torinese Accademia Albertina. È coetaneo di Sommaruga, Basile, d’Aronco e Moretti, collabora a «L’Architettura italiana» e vede i suoi progetti (fra tutti, il villino “La

STORIA & PROGETTO 70 2023 #03
05. Il corpo centrale, con l’altana panoramica; in primo piano il giardino votivo (collezione Silvano Morando). 06. Fronte del corpo interno, con gli archi ribassati; a sinistra il passaggio alla terrazza dell’infermeria (collezione Silvano Morando).
05 07
07. Planimetria del progetto Ceradini («L’Architettura italiana», 1926).
06

Montanina”, per lo scrittore Antonio Fogazzaro) pubblicati su riviste come «Emporium» e «Edilizia moderna». Ceradini partecipa insomma a pieno titolo al clima fecondo dell’Art Nouveau italiano, in una chiave personale di studiata sobrietà decorativa. La sua è una ricerca sospesa, per dirla con lo studioso Marco Spesso che gli ha dedicato recentemente una monografia, tra passato e “rinnovamento internazionale tecnologico e formale”3 . Perché Ceradini è al servizio dell’Opera salesiana in svariati centri della cultura mitteleuropea (Vienna, Oswiecim, Lubiana) dove realizza, ai primi del Novecento, complessi analoghi a quello veronese. Dal contesto nordico l’architetto distilla un approccio alle arti applicate che lui stesso sintetizza nel 1896: “arte aristocratica in società democratica”4 Peraltro, lo sviluppo del vasto complesso scolastico a San Bernardino – quasi due ettari – precedeva di oltre un ventennio la sua entrata in scena e sarà frutto di 60 anni di interventi, con svariati progettisti, locali e non. L’Istituto era sorto nel 1893, nella porzione superiore dell’ambito, riadattando gli ambienti dell’ex convento agostiniano alla Beverara (per via della presenza di una grande ruota idrovora), in declino dalla soppressione napoleonica. L’accesso alle scuole, con relativo convitto, avveniva dunque inizialmente dalle regaste san Zeno, al civico 23. All’epoca, stando al Sormani Moretti, venivano istruiti “66 artigianelli” più circa altrettanti alunni di scuola elementare”5. Inizialmente erano ammessi solo gli orfani, molti dei quali instradati ai mestieri artigianali come sarti, calzolai e falegnami. Alla iniziale sistemazione dell’esistente venne dapprima aggiunto un corpo di fattura tradizionale, intonacato, su portico ad arconi, ad un solo piano, oltre a una cappella e un teatrino 6 . Nessuna ambizione architettonica, dunque, e laboratori che gli ispettori del Capitolo Superiore giudicheranno, ai primo del Novecento, insufficienti “per luce e ampiezza” 7 .

Le aree verso via Provolo mantenute a orti, vigna e frutteto.

Data al 1914 il primo atto di espansione

71 134 08
08. Il “rosone” in corrispondenza dell’ingresso principale, particolare (foto di Lorenzo Linthout).
09
09. Veduta d’insieme del progetto Ceradini nel contesto cittadino: si notino il retro dell’infermeria, il giardino votivo e gli shed del laboratorio per apprendisti fabbri (collezione Silvano Morando).

11.

verso sud, ovvero la costruzione del volume dell’infermeria, lungo il confine con l’Istituto Provolo dei Sordomuti. Un piccolo edificio di disegno aggraziato e concezione “moderna”, rimasto in uso fino a quando, negli anni Sessanta, i salesiani cessano le funzioni di accoglienza residenziale. L’ornato, così come l’ossatura in cemento armato secondo il brevetto di solai in laterocemento duplex 8 , sono a cura dell’ingegnere conte Lorenzo Priuli Bon, progettista oggi dimenticato ma peculiare nella storia della cultura tecnica veneta 9. Cultore nel campo del restauro monumentale, dinamico conferenziere e firma autorevole su «Madonna Verona», è fiduciario della torinese Calcestruzzi Porcheddu. E per i salesiani firma, negli stessi anni in cui opera sul complesso veronese, la cappella di Maria Ausiliatrice a Mogliano, di gusto neoromanico.

Durante la Prima guerra mondiale le scuole di via Provolo vengono occupate dalle autorità militari e adibite a ospedale da campo, mentre parallelamente si continua a garantire l’assistenza agli orfani di guerra. Cessate le ostilità, parte degli orti diventa giardino, in

STORIA & PROGETTO 72 2023 #03
10. Dettaglio dell’ingresso principale (foto di Lorenzo Linthout). Dettaglio dell’ingresso principale («L’Architettura italiana», 1926).
10 11 12
12. Chiesa di San Giovanni Bosco, disegno di Enea Ronca (collezione Silvano Morando).

corrispondenza della citata infermeria, con la piantumazione di cedri e abeti per fungere da adeguata cornice alla statua della Madonna, su colonna, prima patrona dell’Ordine. Quando la domanda di istruzione tecnico-industriale, nel dopoguerra, aumenta sensibilmente e si rende evidente l’insufficienza del nucleo originario sulle regaste, si affida al citato Ceradini quel programma edificatorio pluriennale che porterà – sostanzialmente – alla fisionomia attuale del complesso. Il processo è avviato nel 1921 con la realizzazione del nuovo laboratorio per fabbri, un padiglione lineare con copertura a shed, addossato alla palazzina dell’infermeria. Il nuovo corpo consente di triplicare il numero degli apprendisti nelle lavorazioni metallurgiche, rispetto alla quindicina consentiti dalle strutture ottocentesche. Sempre alto rimane il controllo formale garantito dal progettista sugli ampliamenti funzionali. La facciatina del laboratorio, tuttora visibile dall’ingresso carrabile, è caratterizzata dalla sagoma della fornace per la forgia10, esibita con evidente intento decorativo.

Ed eccoci dunque nuovamente all’edificio con il lungo affaccio su via Provolo, attualmente occupato dalle Superiori, inaugurato alla presenza delle autorità cittadine nel luglio 192311. L’intervento viene all’epoca

recensito su «L’Architettura italiana» con un commento a dire il vero abbastanza severo, che lo definisce “opera non delle maggiori” tra quelle del progettista12 . A posteriori lo storico Marco Spesso vi intravede invece una “programmatica ripresa delle stesse orditure disegnative e gli stessi materiali della scuola di Testaccio, tuttavia con una maggiore minuzia di dettaglio (…)”13 . Di certo va riconosciuta a Ceradini l’abilità di una variata composizione unitaria. Le tavole conservate di progetto, datate 1924 e attualmente custodite all’Archivio salesiano centrale a Roma, includono tra l’altro una notevole rappresentazione a volo d’uccello con cui si insiste retoricamente sulla contestualizzazione del complesso nell’ambiente cittadino. Cartoline e descrizioni dell’epoca sottolineano il paesaggio mozzafiato offerto dall’altana del direttore, da dove “lo sguardo spazia su Verona, si spinge fino ai colli ridenti, e contempla, oltre l’Adige, la pianura ubertosa”14 . Un aspetto ancor oggi commerciabile, e riproposto sulle pagine di Tripadvisor che pubblicizzano la “Casa per ferie don Bosco”.

13-14. Scuole professionali: porticato per la ricreazione ed esposizione dei lavori dei fabbri-meccanici nella sala studio degli artigiani (collezione Silvano Morando) .

15. Schema della sezione del solaio Duplex (da un catalogo del 1934).

73 134
14
13
15

16. Schema assonometrico con il progetto della nuova palestra (arch. G. Ugolini, 2012).

17. I prospetti disegnati da Ceradini sul cortile della scuola

professionale, secondo dopoguerra (collezione Silvano Morando).

18. Il corpo aggiunto alla fine degli anni Cinquanta (collezione Silvano Morando).

Quanto al prospetto esterno principale, diversamente dalla soluzione attuale, in origine non si presentava simmetrico, nel senso che da progetto si limitava al corpo elevato d’ingresso, con arcone sovrastato da rosone geometrico, più la sola ala di sinistra (quella con gli abbaini).

Nel 1926 la parte su strada viene completata a L con il terzo corpo previsto15, quello ruotato di novanta gradi verso l’interno, opposto al padiglione fabbri, che viene destinato agli uffici della direzione e a una infilata di aule e camerate. Al piano terra il blocco poggia su un porticato ad archi ribassati, contribuendo a conformare quel sistema differenziato di passaggi coperti e cortili per la ricreazione (più interne al lotto le aree di pertinenza per studenti medi e superiori, verso strada quelle per gli aspiranti artigiani, con il filtro del giardino votivo in mezzo) in ossequio alla pedagogia degli spazi aperti prevista dal metodo educativo salesiano16. I prospetti interni disegnati da Ceradini sono una interessante rielaborazione semplificata del tema del fronte

principale d’ingresso, con l’ordine a paraste giganti e la elaborata grammatica strutturaldecorativa in laterizio.

Un ulteriore ciclo costruttivo ha impulso, successivamente, con la canonizzazione di don Bosco a metà anni Trenta, mentre apprendisti e studenti sono giunti a quota seicento e saranno legalmente riconosciuti all’alba della seconda guerra mondiale. È in questa stagione che il fronte su via Provolo viene prolungato con l’ala destra (1937), mantenendo la sostanziale continuità stilistica, ma ricavando un ulteriore piano calpestabile a livello di sottotetto. La nuova ala, necessaria per espandere l’offerta formativa ad un comparto che nell’ultimo dopoguerra darà grande lustro ai salesiani veronesi – la tipografia – sarà successivamente trasformata in auditorium17

Ma soprattutto, nel 1938, il complesso si dota della prima vera chiesa, su progetto di Enea

Ronca, ex allievo dei salesiani, per i quali l’ingegnere disegna nello stesso decennio i templi di Fano e di Nave (BS), accanto alle numerose altre opere di sua firma, anche non religiose18 . Impostato su navata unica e presbiterio a croce greca, l’edificio dedicato al santo fondatore viene addossato al blocco aule-camerate degli anni Venti, in modo da risultare simbolicamente “a cavaliere dei due cortili degli studenti e degli artigiani”19. In questo caso la progettazione torna a tecnologie e linguaggi di chiara matrice tradizionale: muratura di pietrame e mattoni, adozione di un apparato neoromanico di maniera all’esterno, lombardesco all’interno. I pavimenti, la decorazione parietale e l’altar maggiore (un

STORIA & PROGETTO 74 2023 #03
16
18
17

altare laterale è “dono del comm. Tiberghien”) mostrano un grande dispendio di marmi policromi.

Anno 1958: ultimo atto (o quasi, se si tralascia la palestra di 1000 mq, costruita su progetto di Giorgio Ugolini nel 2012, un paio d’anni in anticipo sul vincolo). Il ministro veronese Gonella inaugura l’anno scolastico professionale all’ombra della nuova imponente ala, eretta a nord del nucleo ottocentesco originario. Stecca a L di cinque piani, finestre seriali dotate di tapparelle dietro cui si celano cucine, refettori, ulteriori aule, due grandi sale studio, un laboratorio di disegno, spazi di ricreazione, dormitori. Il progettista non è

noto (un ing. Ronca con la mano sinistra?), ma il linguaggio è ormai quello di un ruspante International style che si limita a riprendere da Ceradini l’alternanza tra specchiature intonacate e reticolo strutturale, segnalato in facciata dalla presenza del paramano. Le professioni si aggiornano, gli apprendisti del nuovo laboratorio “Macchine da Ufficio” affrontano l’elettronica con la supercalcolatrice elettronica Olivetti 20. Mentre l’architettura locale segna il passo. •

19. Veduta attuale del fronte principale su Stradone Antonio Provolo (foto di Lorenzo Linthout).

1 Cfr. A. Carena, L’industria dei laterizi. Tecnologia ed impianti, Hoepli, 1922.

2 Nel 1925 co-progetta l’ampliamento della Basilica di Santa Maria Ausiliatrice a Torino. Cfr. M. Spesso, Mario Ceradini. Diffusione internazionale dell’architettura modernista italiana, Genova University Press, 2021, pp- 64-66.

3 Ibidem, p. 33.

4 Pubblicato in occasione della prima Esposizione triennale di Belle Arti in Torino, 1896.

5 L. Sormani Moretti, La provincia di Verona. Monografia statistica economica amministrativa, III, p. 322, 1898-1904.

6 L’Istituto don Bosco in Verona, «Bollettino salesiano», gennaio 1894, p. 12.

7 J. M. Prellezo, L’educazione salesiana dal 1880 al 1922, LAS Roma, s.d., p. 72.

8 Solai a travetti incrociati in cemento armato e laterizi forati , c fr. B. Signorelli, Inventario dell’archivio dell’ing. Carlo Maria Zuccarelli, Biblioteca Giuseppe Grosso, Torino, s.a.

9 Veneziano, progetta nel 1923 la ricostruzione della chiesa di S. Maria Assunta a Monastier (TV) distrutta dalla prima guerra. Fuori dal Veneto firma la fontana della Regina Vittoria a Firenze (1897).

10 “L’ufficio municipale del lavoro. Bollettino mensile”, vol. 4, giugno 1921, p. 218.

11 Il nuovo palazzo delle Scuole professionali ‘Don Bosco’, «Bollettino

salesiano», settembre 1924, pp. 250-251.

12 Pietro Betta, Casa per gli Artigiani dell’Istituto don Bosco in Verona, in «L’Architettura italiana», vol. 21, fasc. 3, marzo 1926, pp. 26-29.

13 M. Spesso, cit., p. 64.

14 Inaugurazione delle nuove Scuole Professionali salesiane a Verona, “Bolletino salesiano”, agosto 1926, pp. 222-223.

15 Relazione storicoartistica allegata al decreto di vincolo del bene, Direzione regionale per i Beni culturali e paesaggistici del Veneto, 2014.

16 F. Bonamico, E. Moncalvo, Architetture salesiane per la formazione e per la produzione, «Bollettino della società piemontese di archeologia e belle arti», LXVI-II, 201011, p. 255.

17 J. M. Prellezo, Scuole Professionali Salesiane. Momenti della loro storia (1853-1953), CNOS-FAP, 2013.

18 F. Guerra, I sepolcri. Enea Ronca, in «ArchitettiVerona» 116, 2019, p. 71.

19 Verona. Benedizione della chiesa dedicata a S. Giovanni Bosco, «Bollettino salesiano», febbraio 1939, pp. 37-38.

20 «Bollettino salesiano», febbraio 1959, p. 52.

75 134
19

Per tutti i sensi

Testo: Laura Bonadiman

Un’architettura degli interni che esalta l’aspetto sensoriale legato ai prodotti delle rispettive attività è ciò che accomuna due progetti di Nicolò Sandri, entrambi di recente realizzazione, riguardanti il restyling di due spazi commerciali a Verona, differenti per contesto urbano e per le specifiche esigenze d’uso di ciascuno. La pasticceria Gloria in via Albere deriva dalla riconversione di una struttura di ristorazione etnica, ripensata integralmente a partire dai rituali legati all’arte dolciaria e alla sua preparazione. Un po’ salotto e un po’ laboratorio, l’idea di fondo è stata quella di ricreare un ambiente che non fosse solo una pasticceria, ma fondesse al suo interno anche la caffetteria.

Partendo da questo presupposto, lo spazio esistente ha offerto due sale distinte divise da un muro portante: da un lato lo spazio vendita, uno showroom con l’esposizione dei prodotti e la vista sul laboratorio sul fondo, dall’altra una sala degustazione come spazio conviviale.

I materiali utilizzati sono molto crudi e naturali: il pavimento in cemento crea una base omogenea, da cui scaturisce una doppia anima caratterizzata da differenti atmosfere. Lo spazio vendita restituisce una percezione molto fredda, data dalle pitture sui toni del grigio e dalla fortissima pre-

senza del bancone monolitico rivestito in vetro nero, che diventa non solo punto di appoggio, ma elemento tecnico fatto a misura con funzione di frigo per i prodotti esposti.

Il colore scuro accoglie, facendoli risaltare, dolci e pasticcini dalle vivaci tonalità posti al suo interno. È una struttura imponente ma allo stesso tempo leggera grazie agli sbalzi alle due estremità, e crea un forte asse visivo con il laboratorio in fondo al locale.

Separato solamente da una parete vetrata, il laboratorio è la vera e propria vetrina della pasticceria. Visibile sin dall’ingresso, catalizza l’attenzione di chi entra con le attrezzature e i macchinari da lavoro, esposti per esaltare la natura artigianale dell’attività.

La sala degustazione esprime l’altra anima del locale: qui l’atmosfera è decisamente più calda, grazie alla preziosità del rivestimento in marmo orobico alle pareti, alle panche in legno e alle lampade in ottone – le candele di Vals di Peter Zumthor – a illuminare i tavolini.

2023 #03 INTERIORS 76
Progetto: Studio Nico Sandri
01
«
Il progetto di interni si pone così al servizio di nuovi spazi moderni e funzionali di lavoro e di uso collettivo »
L’esaltazione dell’aspetto sensoriale accomuna due progetti di spazi commerciali dai differenti caratteri e necessità

COMMITTENTE

Gloria Pasticceria

PROGETTO ARCHITETTONICO

arch. Nicolò Sandri

IMPRESE E FORNITORI

All Black (impresa generale)

SAT Arredamenti (bancone, interior contract)

La Val (opere di falegnameria)

Dimex (impianto elettrico)

Thermotek (impianto idraulico)

Sonia Schiavone (illuminazione)

CRONOLOGIA

Progetto e realizzazione: 2021-2022

DATI DIMENSIONALI

Superficie: 200 mq

Pasticceria Gloria 01. Veduta d’insieme dello spazio vendita.

02. Il bancone per l’esposizione dei prodotti crea un forte asse visivo con il laboratorio a vista sul fondo.

03. La sala degustazione è uno spazio conviviale caratterizzato da un’atmosfera più calda. 04. Pianta di progetto.

134 77
03
04 02

Una sorta di shock cromatico attende invece i clienti che usufruiscono del bagno: le pareti sui toni del rosa nella loro semplicità diventano un elemento di rottura rispetto alla serietà dell’ambiente. Nel disimpegno, una luce RGB sui toni dell’azzurro contamina lo spazio antistante, grazie alle trasparenze della porta di accesso in vetro fumé.

Di tutt’altra natura l’altro progetto di Sandri, la profumeria Perfume Room in via San Rocchetto. Situata in pieno centro storico, affida ai prodotti in vendita la sua immagine: come una scatola al cui interno si svelino i profumi. La percezione che si ha entrando nell’unico vano del negozio è quella di uno spazio intimo e raccolto, un piccolo salotto, grazie al legno a pavimento e al divano posto centralmente e illuminato da una grande lampada circolare a soffitto di forte impatto.

2023 #03 INTERIORS 78
05. Dettaglio della luce RGB sui toni dell’azzurro posta nel disimpegno. 06. Il bancone monolitico rivestito in vetro nero, punto di appoggio ed elemento tecnico, risulta leggero grazie agli sbalzi alle due estremità.
05 Per tutti i sensi 07
07. Il laboratorio è separato solo da una parete vetrata e diventa così vetrina per attrezzature e macchinari da lavoro.
06

Nell’atmosfera soffusa spicca, in prossimità dell’ingresso, il bancone realizzato con un prezioso marmo Sky Jade bianco con venatura gialla e nera; frontalmente troviamo una grande parete attrezzata con mensole in acciaio e vetro opalino retro-illuminate per l’esposizione dei profumi, che grazie ai vivaci colori risaltano rispetto all’atmosfera generale dell’ambiente. Il soffitto e le restanti pareti sono dipinte con un tono di blu scuro su cui si innesta a contrasto una divertente composizione di mensole rosse, dalle forme morbide.

Con queste due realizzazioni, l’architetto Nicolò Sandri ha saputo cogliere le occasioni che l’evoluzione del tessuto commerciale della città offre; il progetto di interni si pone così, tra tecnica e creatività, al servizio di nuovi spazi moderni e funzionali di lavoro e di uso collettivo. •

PROGETTO ARCHITETTONICO arch. Nicolò

IMPRESE E FORNITORI

11

CRONOLOGIA

Progetto e realizzazione: 2022

DATI DIMENSIONALI

Superficie: 50 mq

134 79
Perfume Room 08. Veduta dall’ingresso con il bancone e frontalmente la parete-espositore dei profumi.
09. Il “salotto” con al centro un divano illuminato dalla grande lampada circolare. 08 09
10. Pianta di progetto. 11. Dettaglio del bancone in marmo Sky Jade bianco con venatura gialla e nera. 10 COMMITTENTE Perfume Room di Andrea Fanini Sandri Erre B Color (cartongessi e tinteggiature), Officina Spezia (lavorazioni in acciaio), Antolini Luigi & C. (lavorazioni in marmo), SAT Arredamenti (lavorazioni falegnameria), SM Arredamenti (fornitura arredi), Michele Garzon (pavimento in legno), Artusi s.n.c. (elettricista), Forme Di Luce (illuminazione))

Una ricetta ben riuscita

Progetto: Reverse

Testo: Alice Lonardi

Una realtà che si contraddistingue per “delle scelte, dei modi di vivere, dei mondi più piccoli, ma più coraggiosi”. Reverse infatti è molto di più di un “semplice” studio, Reverse è una cooperativa impresa sociale che coinvolge soci, dipendenti e collaboratori che mettono in campo molteplici e differenti competenze. Oltre allo studio di progettazione, l’impresa gestisce una falegnameria artigianale che ha sede nello spazio di coworking Canarin in zona Porta Vescovo, lavora in sinergia con artigiani a km 0 e dal 2016 gestisce un progetto di economia carceraria all’interno della Casa Circondariale di Montorio. Questo laboratorio di artigianato inclusivo diventa luogo di formazione e di lavoro e strumento di coesione sociale, dove le persone coinvolte acquisiscono consapevolezza di se, dignità e competenze tecniche per dare vita ad arredi unici e su misura o a piccole serie limitate di prodotti. È infatti proprio per la componente etica ed umana che si differenziano, garantendo un linguaggio estetico contemporaneo e allo stesso tempo un approccio concreto al progetto che rimane sempre in costante ascolto delle necessità funzionali e i desideri del cliente.

Questo modus operandi si può evincere da uno degli ultimi progetti: De-

gustì, una piccola gelateria artigianale aperta a San Martino Buon Albergo, che per la cura nella selezione delle materie prime ben si sposa con i principi di Reverse. La gelateria è stata ricavata al piano terra di un condominio di edilizia popolare degli anni Sessanta, un immobile di nessun particolare valore.

La ricerca progettuale, curata dagli architetti Nicola Gastaldo ed Emi-

lia Quattrina, è quindi partita da una forte sinergia e coordinamento con l’agenzia di comunicazione si è occupata della brand identity di Degustì, a partire dalla scelta effettuata assieme ai clienti dei toni e degli abbinamenti cromatici. Il risultato rappresenta questo giovane brand che punta su un’immagine nuova e fresca, ma che soprattutto vuole raccontare i propri gelati, le materie prime, i produttori locali e la loro storia.

A livello di spazi, i locali a disposizione, originariamente dei ga-

2023 #03 INTERIORS 80
L’allestimento di una piccola gelateria artigianale mescola con cura l’approccio etico e concreto al progetto e la collaborazione tra i soggetti coinvolti
01
« Elemento caratterizzante del progetto è il bancone color corallo, che vibra di una texture materica in listelli di legno »

rage poi adibiti ad uso commerciale, presentano due altezze differenti le quali hanno determinato anche lo sviluppo del layout. Le differenze d’altezza si sono rivelate elemento generatore per l’organizzazione degli spazi, suddivisi tra laboratorio – un ambito più tecnico che necessitava di dispensa per lo stoccaggio – e l’area vendita, scenica e di impatto visivo. Proprio in questo ambiente si trova l’elemento caratterizzante del progetto: il bancone color corallo, che vibra di una texture materica in listelli di legno. Il suo ruolo centrale viene esaltato grazie alle pareti attrezzate beige su tutte le superfici perimetrali opache, uno sfondo che non ruba la scena e che accoglie coppette gelato e dolciumi. Questo fondale neutro gioca a contrasto sia con il “coperchio” blu intenso del soffitto e delle pareti, sia

con le vetrate sui fronti strada, che portano luce e visibilità dall’esterno. Questa contrapposizione opaco-trasparente va a sua volta a esaltare le componenti decorative: la texture del bancone in listelli, il legno degli arredi ma anche quella del pavimento.

L’idea dei progettisti infatti è stata quella di giocare sui contrasti, non solo a livello cromatico e materico, ma anche per quanto riguarda l’integrazione tra elementi conservati, come il pavimento in marmette di graniglia, e i nuovi arredi su misura che raccontano invece un progetto contemporaneo.

Ogni angolo di questa piccola gelateria è studiato per soddisfare le esigenze di preparazione, vendita e stoccaggio. Un allestimento che è sicuramente una ricetta ben riuscita, frutto di ingredienti genuini come la cura progettuale di chi l’ha realizzato. •

COMMITTENTE

Gelateria Degustì

PROGETTO

Reverse Cooperativa sociale

Impresa sociale arch. Nicola Gastaldo arch. Emilia Quattrina

REALIZZAZIONE

Reverse impresa sociale

CRONOLOGIA

Progetto e realizzazione: 2022-2023

134 81
01-03. Alcune vedute della gelateria imperniate sulll’elemento caratterizzante del bancone. 04. Pianta del locale di vendita.
02
04 03
2023 #03
Foto di Vincenzo Pavan (cfr. pp. 100-101).

84. Da Mantova a Verona, dagli Stati Uniti al Canada

A dieci anni dalla scomparsa di Marco Frascari, veronese d’adozione per molti anni, un profilo dell’architetto, studioso e docente dalla ricca carriera accademica nordamericana

87. Il dettaglio che rivela una storia

L’eredità culturale di Marco Frascari (1945-2013) attraverso uno dei suoi scritti più significativi

92.

Disegni e pensieri: i quaderni di Nicola

Una mostra pensata e realizzata dai colleghi di un giovane architetto veronese a ricordo della sua troppo breve carriera

95.

Ci mette il becco LC Apparenza e sostanza

Una riflessione sulla proposta per un’Isola di Giulietta, tra scetticismo e qualche ironica provocazione

96.

Carlo’s Angelo

Un manipolo di devoti cultori dell’opera scarpiana ritorna al Museo di Castelvecchio con la guida d’eccezione del geometra Angelo Rudella, testimone diretto dei lavori

98.

Marco Lucat 1934—2023

Un ricordo dell’urbanista veronese legato fin dagli esordi all’avventura editoriale di «ArchitettiVerona»

100.

Una vita (lessinica) in vacanza

Il resoconto flash dell’incontro sull’Architettura di vacanza promosso da «ArchitettiVerona» nell’ambito del Film Festival della Lessinia a Bosco Chiesanuova

ODEON 83 134

Da Mantova a Verona, dagli Stati Uniti al Canada

A dieci anni dalla scomparsa di Marco Frascari, veronese d’adozione per molti anni, un profilo dell’architetto, studioso e docente dalla ricca carriera accademica nordamericana

84 2023 #03
Testo: Alba Di Lieto

Verona ha rappresentato solo una tappa, sia pure significativa, del percorso professionale e di vita di Marco Frascari, architetto ancora poco conosciuto in Italia ma noto oltreoceano, grazie a un profondo lascito intellettuale come studioso e docente universitario. Marco Frascari (Mantova, 29 marzo 1945-Ottawa, Canada, 2 giugno 2013) nasce a Mantova un mese prima della fine della guerra. Figlio di Maria Bolza, professoressa di matematica, e di Alberto Frascari, uno dei primi informatici, deve le sue passioni alla nonna Rosa con la quale durante l’infanzia trascorre molto tempo e che lo stimola nel disegno. Per seguire le sue attitudini frequenta l’Accademia Cignaroli a Verona e quella di Belle Arti a Venezia; in seguito si iscrive all’Istituto Universitario di Architettura di Venezia dove negli anni caldi del 1969 si laurea (con lode) con Arrigo Rudi (1929-2007), entrando fin da subito nel gruppo dei giovani assistenti di Carlo Scarpa (1906-1978).

Fin dai primi anni Settanta si iscrive all’Ordine degli Architetti di Verona al numero 135 – resterà iscritto fino al 2001 – e inizia a collaborare prima con Arrigo Rudi, partecipando ai rilievi del Museo di Castelvecchio (testimonianza orale di Paola Vaccari Frascari del maggio 2023), in seguito con gli architetti Adriano Mason (1971-1972) e Caterina Boschini (1972-1976) progettando soprattutto sistemazioni di interni di appartamenti.

Esperienze che si rivelano fondanti per la sua formazione professionale; difatti l’insegnamento di Scarpa e l’interpretazione della sua opera sovente emergono negli scritti di Frascari.

Con la moglie Paola Vaccari, incontrata negli anni veneziani dell’università, nel 1971 si trasferisce a Verona, in Piazzetta Pescheria sopra alla Trattoria al “Cristo”, e nel 1975 insieme iniziano una straordinaria avventura americana. Dopo aver conseguito il titolo di Master of Science of Architecture all’Università di Cincinnati, ottiene il Doctor of Philosophy in Architecture all’Università della Pennsylvania e inizia la carriera accademica in prestigiose scuole di architettura degli Stati Uniti: all’Università della Pennsylvania (1980-1986 e 1988-1997), alla Georgia Tech

(1986-1988), alla Virginia Tech WashingtonAlexandria Architecture Center (1997-2005), alla Harvard University (1993) e alla Columbia (1986), concludendo il suo percorso in Canada alla Azrieli School of Architecture and Urbanism della Carleton University (2005-2013). In tutte le sedi universitarie dove Marco Frascari ha insegnato ha lasciato un segno concreto della sua eredità intellettuale, sia attraverso i suoi libri – quattromila volumi che oggi si trovano alla Marco Frascari Library Collection alla WAAC Washington-Alexandria Architecture Center – sia con il corpus di circa trecento disegni e modelli conservati agli Archivi di Architettura dell’Università della Pennsylvania insieme a centoventiquattro taccuini fitti di schizzi e appunti; ma soprattutto formando generazioni di architetti e studiosi che, a dieci anni dalla sua scomparsa, lo ricordano e ne trasmettono il legato intellettuale. Tra i suoi allievi vi è Federica Goffi, professore ordinario di Architettura alla Azrieli School of Architecture and Urbanism alla Carleton University a Ottawa, in Canada, che dal

01. Frenologia della testa dell’architetto. Disegno di Marco Frascari per il suo libro Eleven Exercises in the Art of Architectural Drawing (Routledge 2013, p. 65).

02. L’architetto non triviale (a sinistra) e l’architetto triviale (a destra).

M. Frascari, Eleven Exercises..., pp. 9-10.

03. Ritratto di Marco Frascari realizzato da Arrigo Rudi.

ODEON 85 134
02 03

IL MESTIERE DELL’ARCHITETTO

Mantova, Casa del Mantegna

23 giugno 2023

In occasione dei dieci anni di MantovArchitettura il Politecnico di Milano - Polo territoriale di Mantova in collaborazione con l’Ordine degli Architetti PPC di Mantova ha organizzato un incontro dedicato a Marco Frascari (1945-2013), architetto cresciuto all’ombra di Leon Battista Alberti. Ne ha parlato Federica Goffi, professore ordinario di architettura alla Azrieli School of Architecture and Urbanism alla Carleton University a Ottawa, in Canada, introdotta da Alba Di Lieto, docente del Politecnico, ricordando la figura e l’opera del suo maestro a dieci anni

04. Esercizio di disegno di grandi dimensioni per una sezione. Eseguito su un muro. M. Frascari, Eleven Exercises..., p. 108).

dalla scomparsa.

Federica Goffi si è laureata all’Università di Genova, la sua formazione si è completata negli Stati Uniti dove ha conseguito il dottorato con la supervisione di Marco Frascari nel periodo in cui insegnava al Washington-Alexandria Architecture Center. Goffi ha proseguito la carriera accademica insegnando nella prestigiosa Rhode Island School of Design.

Fulcro del sua ricerca è il disegno architettonico nei suoi molteplici aspetti, tema che ha esplorato e approfondito nel volume Time Matters. Invention and Re-Imagination Built Conservation (2013) e nella sua ultima pubblicazione The Routledge Companion to Architectural Drawings and Models: From Translating to Archiving, Collecting and Displaying (2022) colmando una lacuna in questo campo. Il libro tratta infatti della vita dei disegni e dei modelli di architettura in fase di progetto, durante la costruzione e dopo che l’edificio è stato completato quando i disegni si trasformano in documenti d’archivio e oggetti da collezione. Il disegno è interpretato qui come luogo di costruzione di conoscenza e di memoria; la vita segreta dei disegni di architettura è esposta con attenzione a varie tipologie di archivio, dalla casa-archivio, all’ufficio-archivio, all’edificio-archivio, agli archivi pubblici, etc. Un ringraziamento va al prof. Frediano Sessi e all’arch. Claudio Sgarbi che hanno suggerito l’iniziativa e al prorettore prof. Federico Bucci che l’ha accolta e al suo staff che l’ha realizzata (ADL).

2021 fino a dicembre 2022 gli è succeduta nella eccellente direzione della Scuola.

Insieme a Paul Emmons della Virginia Tech e alla moglie Paola Vaccari Frascari, Goffi è tra i principali animatori di una pagina web creata per gli accademici, i professionisti e gli studenti. Il sito (https://www.marcofrascaridreamhouse. com/) diffonde l’eredità culturale di Frascari, coltivata soprattutto attraverso i Frascari Symposia, convegni internazionali che hanno luogo ogni due anni presso prestigiose università nordamericane e inglesi (Carleton University and University of Manitoba in Canada, Virginia Tech negli Stati Uniti, Kingston University, in Inghilterra).

Ma chi era Marco Frascari? Architetto, mentore per generazioni di studiosi, insegnante dedicated , straordinario storyteller e sognatore, eccellente disegnatore, critico e teorico dell’architettura e progettista. Un architetto dalla preparazione multiforme, simile a quella degli antichi, le cui conoscenze spaziavano dai trattati d’architettura, da Vitruvio al Rinascimento, alla speculazione filosofica, alla pittura, sempre con grande freschezza e trasversalità e al tempo stesso profondità, creatività, ironia e curiosità. Studioso prolifico, Marco ha scritto di teoria, storia, rappresentazione e tettonica dell’architettura; i pilastri delle sue pubblicazioni sono sicuramente gli Eleven Exercises in the Art of Architectural Drawings: Slow Food for the Architect’s Imagination (2011) e Monsters of Architecture (1991), Una Pillola per sognare… una casa (1996), The Tell-The-Tale Detail (1981).

La complessità del suo pensiero viene comunicata non solo attraverso gli scritti ma con la rappresentazione grafica, con disegni d’immaginazione architettonica: “disegni-mito, disegni-simbolo, disegni-dedica, disegni speranza” (Arrigo Rudi, introduzione al catalogo della mostra Marco Frascari Architetto, Tecnorama, Cisano di Bardolino, Verona 10 novembre 1989-1 gennaio 1990).

La centralità del disegno indica la via dell’Architettura, dove “disegno e costruzione non sono delle entità distinte” (Marco Frascari, Ibidem , 1990). •

86 2023 #03
04

Il dettaglio che rivela una storia

Marco Frascari è stato un autore originale e prolifico. Uno dei suoi scritti più significativi è l’articolo del 1981 intitolato Il Dettaglio che rivela la storia (The Tell-the-Tale Detail ), pubblicato sulla rivista «VIA» dell’Università della Pennsylvania. L’articolo è stato ripubblicato nel 1996 da Kate Nesbit in una collezione dedicata agli articoli più influenti degli anni Ottanta e Novanta e tradotto in diverse lingue, dallo spagnolo al giapponese al cinese, ed è stato ristampato nuovamente nel 2018 all’interno di una raccolta di scritti sulla tettonica in architettura edito da Isak Worre Foged e Marie Frier Hvejsel (Reader. Tectonics in Architecture, Aalborg University Press). In questo testo Frascari sottolinea il ruolo del dettaglio come generatore del progetto, un ruolo che di solito è attribuito alla pianta.

Secondo Frascari progettare dal dettaglio comporta il capovolgimento dell’approccio progettuale tradizionale, dove i dettagli sono l’ultimo passo di un processo il cui punto di partenza è l’organizzazione dello spazio, ovvero il disegno della pianta. Questo tipo di approccio si basa sull’idea che la qualità di un progetto risieda nella realizzazione di buoni dettagli architettonici. L’impiego di questo metodo progettuale permette di esplorare il ruolo del dettaglio come generatore di significato ed esperienza. Pensare nel dettaglio sin dall’inizio significa mantenere un dialogo costante tra i dettagli, gli edifici e i luoghi durante il processo di progettazione. Frascari scrive: “I dettagli sono molto più che elementi subordinati; possono essere considerati come le unità minime di significazione nella produzione architettonica. Queste unità sono individuate in celle spaziali o in elementi di composizione, in moduli o in misure, nell’alternanza di vuoti e

ODEON 87 134
L’eredità culturale di Marco Frascari (1945-2013) attraverso uno dei suoi scritti più significativi
01
Testo: Federica Goffi 01. Confronti seminali tra dettagli che attraversano una finestra lodoliana. Marco Frascari, Teatri di tecne e logos, Libreria Einaudi, Mantova, 1984.

pieni, o nel rapporto tra dentro e fuori. La suggestione che il dettaglio sia l’unità minima di produzione è particolarmente fruttuosa per via del ruolo della tecnologia, che unifica il tangibile e l’intangibile dell’architettura”1.

In uno scritto pubblicato dalla Libreria Einaudi di Mantova, intitolato Teatri di tecne e logos (1984), Frascari traccia la genesi delle idee trattate nell’articolo sul dettaglio architettonico dell’81, offrendo una visione del chiasmo

formativo tra i materiali da costruzione e il processo immaginativo. I dettagli architettonici sono per Frascari dei “teatri” in cui si rivela il chiasmo tra la tecnologia e il pensiero. I caratteri distintivi delle idee e dei materiali, e le loro reciproche trasformazioni, si manifestano in dettagli tangibili creati attraverso un processo d’ideazione, realizzazione, e revisione che merita letture ravvicinate.

Frascari scrive: “La storia inizia nel tessuto verbale ed entrando e uscendo da porte e finestre termina nel costruito” 2 . Qui Frascari fa riferimento alla concezione dei corsi e ricorsi storici di Giambattista Vico (1668-1744), che lui spiega come un movimento che non è né progressivo né regressivo ma concentrico, che si allontana ma anche ritorna a una origine mitica. Nel pensiero di Frascari i dettagli si sviluppano attraverso un processo storico non lineare. Citando lo scrittore irlandese James Joyce (1882-1941) Frascari riafferma che “La strada di Vico gira e rigira per congiungersi là dove i termini hanno inizio ” (Finnegans Wake, 1939). Inizi e nuove fini si incontrano in Vico attraverso i suoi studi etimologici (Della Antichissima Sapienza degli Italiani, 1710)3. Frascari si é ispirato allo storico dell’arte George Kubler (1912-1996) che ha sostituito nel campo della storia dell’arte l’idea di un’organizzazione dei manufatti umani nella continuità del tempo storico-critico con quella di una serie disgiunta di eventi temporali collegati attraverso fili narrativi e concettuali. Quello che sembrava essere un tessuto lineare di manufatti organizzati nella continuità del

88 2023 #03
02
02. “The Tell-the-Tale Detail”, disegno di Marco Frascari, 1982 © Architectural Archives, University of Pennsylvania.

tempo storico-critico diventa così una serie disgiunta di eventi temporali che occasionalmente riaffiorano nel presente fornendo una nuova definizione a un racconto esistente. Frascari legge nei dettagli gli indizi ordinari, straordinari, e infra-ordinari (alla maniera di George Perec 1936-1982), e seguendo una forma kubleriana del tempo nella ricerca di fili narrativi, svela e illumina la storia e la teoria dell’architettura.

Il titolo dell’articolo The-Tell-the-Tale Detail è inspirato dalla storia breve dello scrittore americano Edgar Allan Poe (1809-1849), intitolata The Tell-Tale Heart (Il Cuore Rivelatore, 1843). La nozione di accessibilità della trama ispirata dallo scrittore americano suggerisce che un limite auto imposto circa la lunghezza delle opere letterarie è auspicabile.

Secondo Poe l’efficacia (piuttosto che l’efficienza) del racconto si basa sul fatto che questo possa essere letto in un breve evento di lettura ininterrotto. Gli articoli di Frascari sono in questo senso riflessioni condensate attraverso un profondo sguardo storico e immaginifico. I confronti seminali tra i dettagli diventano visibili in una finestra lodoliana disegnata da Frascari (Teatri di tecne e logos, 1984), attraverso la quale altre storie entrano ed escono, operando confronti e riflessioni tra i diversi elementi costruttivi. I dettagli architettonici hanno un rapporto fertile l’uno con l’altro, e sono in una relazione che va da un particolare a un altro.

Questi confronti tra i dettagli danno luogo a ri-concezioni immaginative. Ogni dettaglio è il risultato di una reiterazione, di un’alterazione, a volte

di una semplice copia all’interno della tradizione, oppure di una re-immaginazione o anche di una sostituzione lodoliana.

Frascari non si è limitato a scrivere le sue teorie, le ha anche disegnate. Un altro disegno di Frascari del 1982 anch’esso intitolato “The Tell-theTale Detail,” rappresenta il dettaglio di una finestra della Banca Popolare di Verona progettata da Carlo Scarpa (1906-1978) e Arrigo Rudi (19292007). Si tratta di un disegno analitico contenente altri disegni – la facciata diventa il dettaglio più minuto in un’inversione di scala in rapporto alla finestra. Pensare nei

dettagli significa mantenere un dialogo tra gli elementi costituenti e l’architettura, durante la progettazione.

Frascari sosteneva anche che la storia dell’architettura dovrebbe essere insegnata ridisegnando i dettagli per una comprensione profonda del fare architettonico e del pensiero costruito. Per quanto si possa pensare ai dettagli come a un mezzo pratico per tradurre idee progettuali negli edifici, è importante indagare il ruolo dei dettagli come un laboratorio aperto per l’immaginazione architettonica.

Ciò può essere utile in una

condizione di sovra codificazione, in cui la pratica offre meno opportunità di riflessione. Gli svantaggi di una pratica troppo codificata contribuiscono a uno stallo dell’immaginazione. Tuttavia, la codificazione delle pratiche costruttive cambia parallelamente alle tecniche di costruzione, ai cambiamenti culturali, ai valori sociali e all’economia. La pressione imposta dagli enti che accreditano le scuole di architettura in Nord America spesso non permette di approfondire i progetti a livello di

ODEON 89 134
03. “Architect as storyteller, disegno di Marco Frascari, 5 Dicembre 2008 © Architectural Archives, University of Pennsylvania.
03
« Il lavoro di Marco Frascari rientra in una categoria a sé stante come scrittore, pensatore e architetto originale, immerso in una profonda tradizione architettonica »

dettaglio, con il rischio che anziché realizzare veri progetti di architettura si finisca per progettare immagini bidimensionali. Al di là della proliferazione di codici di sicurezza e di costruzione, calcoli energetici e prestazionali, costituenti un sistema esaustivo di norme e regolamenti, si pone l’immaginazione delle linee materiche come attiva stesura del dettaglio che intreccia materialità e cultura. La rilettura dei dettagli è un passo essenziale verso un’attenta considerazione critica delle sovra codificazioni che tendono a ridurre il ruolo dell’architetto all’applicazione di regole.

Un’altra fonte per l’articolo The Tell-the-Tale Detail di Frascari è il libro curato dal semiologo e filosofo Thomas Sebeok (1920-2001)

intitolato The Tell-Tale Sign: A Survey of Semiotics (Il Segno Rivelatore: un’Indagine sulla Semiotica) in cui Umberto Eco (1932-2016) spiega che per passare da un “rispetto del codice” alla “creazione di nuove codificazioni” è necessario creare un nuovo discorso che come dice Eco “annunci un possibile codice, che produca una nuova articolazione della cultura”4. Quindi, per rinnovare il rapporto tra segno e significato è necessario avere consapevolezza della continua ri-concezione dell’architettura come forma fluida dell’immaginazione attraverso atti materiali. La ridefinizione critica nel tempo del dettaglio si basa su una consapevolezza delle trasformazioni storiche, culturali e materiali, dei metodi di costruzione presenti e passati e del loro rapporto con l’attività edilizia 5. Secondo Frascari:

“I manuali che descrivono come leggere e produrre rendering, elaborati, e disegni

tecnici forniscono le banalità grafiche più insidiose che possono essere applicate nei disegni architettonici come mezzi presumibilmente efficaci di progettazione e comunicazione che offrono una panacea per la carenza d’immaginazione architettonica, diffondendo formule facili e cliché già pronti [...].”6

La ricerca sui meccanismi dell’immaginazione architettonica costituisce un interesse primario per Frascari, che nella primavera del 1998 tenne un corso al WashingtonAlexandria Architecture Center (Virginia Tech) intitolato “Esercizi d’immaginazione architettonica”. Le idee introdotte nel corso sono state successivamente sviluppate nel suo ultimo libro – Eleven Exercises in the Art of Architectural Drawing, Routledge 2011). Frascari sostiene che la disciplina dell’immaginazione architettonica non è insegnata nelle scuole di architettura anche se è praticata nei corsi di progettazione, criticando questa assenza come una lacuna nell’educazione all’architettura. Il libro indica la consapevolezza della necessità di stimolare la fantasia dell’architetto, e promuovere le teorie dell’immaginazione.

Secondo Frascari l’architetto è uno storyteller che disegna e racconta parlando per figure, ricercando un’unione tra testo e immagine. Il linguaggio assume un ruolo di attivazione del dettaglio e dell’architettura a livello culturale.

Il libro Marco Frascari’s Dream House: A Theory of Imagination uscito postumo nel 2017 condensa la sua teoria dell’immaginazione architettonica basata sul concetto dei sogni come massima espressione dell’immaginazione. Frascari

90 2023 #03 04
04. L’appartamento del Master della casa degli studenti, House of 1925. Campus dell’ Università della Pennsylvania, Philadephia, PA, USA. Progetto di Marco Frascari © Sam Ridgeway.

05-06. Pianta e veduta interna della Arthur Ross Gallery, Università della Pennsylvania, Philadephia, PA, USA, rinnovata nel 1982-83 da Marco Frascari © Fotografia di Prakash Patel.

classifica i tipi di disegni come tipi di sogni. Secondo Frascari, un sogno è il primo passo verso la comprensione dell’invisibile poiché nel progettare l’architetto non disegna il visibile, ma evoca l’invisibile.

Frascari ha affermato che oggi “non si insegna né si comprende ancora la disciplina dell’immaginazione architettonica” 7, e indica la necessità di una scienza emergente, fondata attraverso letture interdisciplinari in campi della conoscenza che potrebbero consentire di approfondire i processi di concezione architettonica.

L’architetto australiano Sam Ridgway ha scritto un libro intitolato Architectural Projects of Marco Frascari: The Pleasure of a Demonstration , Ashgate 2015) con l’intento di studiare i progetti di Frascari per capire come le sue teorie si leghino alla pratica. In copertina si vede il progetto House of 1925, realizzato da Frascari nel campus dell’Università della Pennsylvania, in Philadephia, PA, USA, dove lui ha insegnato per molti anni e dove oggi si trovano conservati nei loro Archivi di Architettura i suoi disegni e scritti. L’archivio diretto dall’architetto Bill Whitaker, che fu studente di Frascari, mette a disposizione importanti collezioni

1 Traduzione di Federica Goffi dall’articolo di Frascari The Tell-the-Tale-Detail («VIA», 1981).

2 Marco Frascari, Teatri di tecne e logos, Mantova, Libreria Einaudi, 1984.

3 Ibid

4 Umberto Eco, Looking for a Logic of Culture, in Thomas Sebeok (a cura di), The Tell-Tale Sign, Peter De Rider Press, 1975, pp. 9-17. Sia il testo di Eco che la storia di Poe non sono citati nell’articolo di Frascari del 1981. Penso che siano però testi fondamentali il cui ruolo è svelato dall’effetto specchiante delle parole gemelle dei titoli. Frascari possedeva una copia del testo di Sebeok.

originali come quelle di Louis Kahn (1901-1974), Robert Venturi (1925-2018) e Denise Scott-Brown. Nello stesso edificio dove si trova l’Archivio di Architettura della Pennsylvania si trova la Arthur Ross Gallery rinnovata da Frascari nel 1982-83. La soglia della galleria costituisce un giunto formale tra due stanze come spazio di transizione. Io penso che Frascari abbia scelto questo archivio per i suoi materiali non solo perché insegnò per diciassette anni in questa scuola ma perché nello stesso edificio si può passare dai materiali d’archivio alla Galleria da lui rinnovata, e cioè dal disegno al fatto costruito. La storia dell’articolo The Tell-theTale-Detail del 1981 inizia però molti anni prima, quando Frascari studiava all’Istituto Universitario di Architettura di Venezia, dove fu studente di Scarpa. Il lavoro di Marco Frascari rientra in una categoria a sé stante come scrittore, pensatore e architetto originale, immerso in una profonda tradizione architettonica. •

5 Marco Frascari, The Eleven Excercises in the Art of Architectural Drawing, Routledge, 2011, p. 69.

6 Marco Frascari, Jonathan Hale e Bradley Starkey, From Models to Drawings.

7

ODEON 91 134
05 06
Imagination and Representation in Architecture, Routledge, 2010, pp. 1-2. Traduzione di Federica Goffi. Marco Frascari, The Eleven... cit., p. 93.

Disegni e pensieri: i quaderni di Nicola

Una

Mantovarchitettura è un progetto culturale ideato e organizzato dal Polo Territoriale di Mantova del Politecnico di Milano, nell’ambito delle attività della Cattedra Unesco in Pianificazione e tutela architettonica nelle città patrimonio mondiale dell’umanità, avviato nel 2012 con una serie di importanti conferenze internazionali. A chi si occupa o si interessa di architettura e dintorni la manifestazione propone ogni anno, tra maggio e giugno, un ricco programma di mostre, workshop, convegni e incontri che portano molto fermento nella città dei Gonzaga, trasformandola in una capitale dell’Architettura.

In questo contesto, tra gli incontri con i maestri dell’architettura e accademici di lungo corso, nell’edizione 2023 sono state proposte anche alcune mostre promosse e curate da studenti ed ex-studenti del Polo di Mantova; in una di queste, in particolare, sono stati esposti i lavori di Nicola Piacentini, un giovane collega di Verona scomparso il 1 maggio 2022 in seguito a un incidente stradale.

Nicola Piacentini ha frequentato il Polo di Mantova dell’ateneo milanese dal 2012 al 2015, completando successivamente gli studi al corso magistrale presso lo Iuav di Venezia; si è laureato presentando una tesi dal titolo «Identità, futuro, tradizione: Sacca Fisola 2.0», sulla densificazione e sul completamento urbano dell’isola di Sacca Fisola in Venezia, che ha ottenuto il massimo punteggio ed è stata nominata miglior tesi della sessione, nonché candidata come miglior tesi dell’anno accademico 2016-2017.

Dopo le prime esperienze in alcuni studi di

architettura di Verona e provincia, la passione per il lavoro e l’entusiasmo lo portarono nel 2020 a fondare una società con uno studio di progettazione con sede a Villafranca di Verona, capitalizzando in tal modo l’esperienza maturata fino al quel momento.

Il suo lascito professionale, oltre che da diversi progetti realizzati e non, è costituito da decine di quaderni fitti di schizzi e annotazioni sui quali era solito ragionare: disegni, appunti e pensieri che raccontano la sua curiosità, la passione per gli studi e l’esperienza universitaria e professionale, che delineano una figura di architetto apparentemente desueta ma che in realtà costituisce un modello da ammirare e da seguire.

La mostra è stata anche l’occasione per ribadire l’importanza del disegno manuale come

strumento di progetto, conoscenza e sintesi; in una professione in continuo e rapido mutamento governato dai progressi tecnologici, con la figura e l’opera di Nicola Piacentini si riscopre il valore di un metodo di lavoro rigoroso, che richiede tempo e pazienza, a testimonianza di come il processo di apprendimento, conoscenza e rielaborazione possa essere supportato con l’abitudine costante di fissare sulla carta appunti, informazioni e ragionamenti attraverso le parole, i segni, i disegni.

I disegni di Nicola, analizzati, selezionati e scansionati, sono stati esposti dal 1 al 30 giugno 2023 in uno spazio del polo di Mantova del Politecnico di Milano divisi in dieci quaderni ognuno su una tematica specifica.

Analizzando il materiale esposto risulta chiaro come il metodo utilizzato concepisse il disegno

92 2023 #03 01
mostra pensata e realizzata dai colleghi di un giovane architetto veronese a ricordo della sua troppo breve carriera

con due distinte finalità: come strumento di sintesi per fissare e interiorizzare concetti di ricerca e studio, ma anche elementi emersi da sopralluoghi di cantiere o durante un viaggio, e il disegno come strumento attivo di progettazione utile per verificare proporzioni e rendere via via concreta ciò che inizialmente è solo un’idea.

La peculiarità degli schizzi di Nicola è la resa grafica quasi drammatica, eseguita con un tratto molto marcato della matita o dell’inseparabile penna multicolore. Numerosi sono gli appunti compilati nel corso dei suoi viaggi di studio in diverse città del nord Europa: Vienna, Potsdam, Berlino, Bratislava, Rotterdam, Amsterdam. In un quaderno sono riportati schizzi e annotazioni relativi a due visite a Pompei effettuate nel 2016 e nel 2017, in gran parte planimetrie delle famose ville con lo studio dei percorsi interni, che Nicola ha eseguito sul posto. Alle viste a volo d’uccello dei luoghi che visitava, Nicola accostava i dettagli soffermandosi ora sui particolari di una finestra, ora sul capitello di una colonna, sui gradini di una scala, sul busto di una statua marmorea, ecc.; talvolta inseriva nei suoi schizzi delle figure antropomorfe, spesso sovrapposte al disegno in sé, non tanto allo scopo di stabilire delle proporzioni quanto per sottolineare l’interazione tra l’uomo e l’opera architettonica.

Un altro elemento caratteristico che troviamo tra le pagine dei suoi quaderni sono le riflessioni personali, spesso intimistiche, e le numerose citazioni di versi poetici o di brani di canzoni inserite accanto al segno grafico.

La mostra di Mantova è stata arricchita da tre cortometraggi che

restituiscono il fine ultimo del metodo presentato, illustrando tre dei progetti più significativi di Piacentini. Si tratta dello studio di un recupero edilizio affrontato nel periodo universitario, mentre gli altri due sono progetti più recenti frutto della sua breve attività professionale in Villafranca di Verona: la proposta di recupero di un complesso edilizio residenziale e il progetto dell’innesto di un nuovo corpo di fabbrica in una corte storica, quest’ultimo poi effettivamente realizzato.

Tale intervento si inserisce in uno dei nuclei urbani fondativi della frazione di Dossobuono del comune di Villafranca di Verona, e ha previsto la demolizione e il rifacimento della porzione di testa di questa cortina storica. Posto al limite tra l’edificato e la campagna, l’edificio si pone come elemento di intermediazione tra le due condizioni: da un lato

DISEGNI

I QUADERNI DI NICOLA

MOSTRA nell’ambito di Mantovarchitettura 2023

Politecnico di Milano

Polo territoriale di Mantova 1-30 giugno 2023

CURA E ALLESTIMENTO

Veronica Castellani

Sara Negrelli

Francesco Varesano con

CON IL SOSTEGNO DI

Carlo Peraboni

Filippo Bricolo

ODEON 93 134
02 03
01. Schizzo a penna di Nicola Piacentini utilizzato per il manifesto della mostra. 02. I totem in osb usati per l’allestimento con sullo sfondo i tre video relativi ai progetti. 03. Layout dell’allestimento (1. Introduzione, 2.Dieci quaderni, 3. Tre video-Tre progetti, 4.Pensieri, 5.Lascia un tuo pensiero). E PENSIERI Alessandra Isolan, Mattia Messori, Luca Ottoboni, Ilaria Ponzin, Camilla Pozzani, Marco Torresani
« Le riflessioni personali, talvolta piene di incertezza, di un giovane architetto appena affacciatosi sulla quotidianità della professione »

UN AMICO APPASSIONATO E GENEROSO

Con Nicola, il Piace per gli amici, ho condiviso buona parte della mia strada: entrambi nati nel 1993, ci incontrammo la prima volta a sei anni all’allenamento di calcio dei “pulcini” dell’Olimpica Dossobuno; in classi diverse alle scuole elementari e medie, ci siamo ritrovati negli stessi banchi dell’Istituto tecnico Cangrande della Scala e poi nelle aule della sede di Mantova del Politecnico di Milano, frequentando il corso di Scienze dell’Architettura.

Non so dire come sia nata in lui la passione per l’architettura, ma so di certo dire quando. In quell’età in cui da bambini troviamo ogni giorno un nuovo lavoro dei sogni, era già convinto del suo tanto che alla domanda dell’insegnante: “E tu Nicola cosa vuoi fare da grande?” rispondeva “Io disegnerò case, Maestra”.

È sempre stato uno studente modello, di sicuro affidamento sia per ripetere assieme concetti sfuggiti alla maggioranza dei compagni sia per la nozione mancante durante le tanto temute verifiche. Talvolta anche i professori si affidavano a Nicola per qualche problema al quale non riuscivano a trovare soluzione.

La passione di Nicola era generosa perché contagiosa, non si poteva rimanere indifferenti e non c’era volta che ci si congedasse senza aver imparato qualcosa di nuovo dai suoi racconti. Amava ciò che faceva e passava il tempo a disposizione per migliorarsi continuamente studiando con rigore le decine di libri che compongono la sua invidiabile libreria. Se non leggeva, sottolineando con l’evidenziatore giallo, disegnava sui quaderni neri con la sua immancabile penna Bic a quattro colori, probabilmente non proprio professionale ma certamente generosa come Nicola. ( L.O.)

il tessuto storico a cortina affacciante sulla strada carrabile di accesso determina una condizione di appartenenza urbana, dall’altro l’ampia zona verde, ancora non edificata, innesca rapporti di maggiore apertura.

Sulla dualità tra il fronte urbano e il retrostante fronte verde è stato impostato il progetto e la doppia natura del contesto si riflette nei linguaggi diametralmente opposti dei fronti che cercano di risolvere questa contraddizione. Il fronte urbano relazionandosi con l’esistente rimane compatto e complanare seguendo l’asse del costruito, mentre il prospetto retrostante accoglie due volumi che, staccandosi dal fronte, si confrontano con la dimensione più ampia del paesaggio. Le aperture sulla strada sono puntuali e ritmate e proseguono riprendendo la partitura dell’esistente, sul retro raddoppiano in dimensione e svincolandosi da allineamenti storici si posizionano per incorniciare il verde e portarlo dentro lo spazio dell’abitato. La diversa identità dei fronti è ribadita dalla scelta dei materiali usati: intonaco e pietra per il fronte strada, doghe di legno per rivestire il lato interno dei volumi aggettanti del prospetto retrostante. L’intervento è un efficace esempio di integrazione all’interno di un contesto storico riportando residenti in un’area che altrimenti sarebbe rimasta in stato di degrado, con l’obiettivo di innescare un processo virtuoso che possa portare al totale recupero di questa porzione di tessuto urbano. Per descrivere compiutamente la figura

dell’architetto Nicola Piacentini, a corollario della mostra di Mantova sono stati esposti diversi suoi pensieri e citazioni scaturite dalla lettura delle opere dei grandi maestri, ma anche le riflessioni personali, talvolta piene di incertezza, di un giovane architetto appena affacciatosi sulla quotidianità della professione. •

04 05 07 94 2023 #03

Apparenza e sostanza

Una riflessione sulla proposta per un’Isola di Giulietta, tra scetticismo e qualche ironica provocazione

La lettura dell’ampio servizio a più mani sul numero 133 di «AV» sul tema “Casa di Giulietta”, mi ha convinto: non c’è niente da fare, ho sbagliato nel pensare che si commetta peccato nel fare il falso, specie in questo periodo storico dove conta l’apparenza e poco o niente la sostanza. Purtroppo non posso fare nulla per rimediare al mio errore, salvo pentirmene, ma non chiedetemelo! Non lo farei. Resterò tutta la vita con questo cruccio – non il solo: dover ammettere che, come dice l’articolo di «AV», Avena sia stato geniale che, detto meglio, vuol dire che era un genio. Farò fatica a prendere in considerazione questa eventualità. Tuttavia mi aspetto grandi sviluppi per Verona dalla celebrazione del mito, del tipo: fastoso matrimonio con partecipazione di immancabili influencer, tra Giulietta e un qualche personaggio alla moda e altrettanto famoso, per esempio Romeo, in modo da alimentare la Favola (ho detto favola, non farsa). Permettetemi di ricordarvi la faccia che farebbe Scarpa, autore

con Magagnato del Museo di Castelvecchio, ricordando, come li ricordiamo in molti, cos’erano i saloni espositivi di Avena prima del loro intervento e di cui c’è ancora memoria nella Prefettura e nella sede della Provincia in Piazza Dante. Ma, lasciando a parte questi frammenti di facile ironia, e venendo invece a fare proposte serie, anche in funzione di interessanti sviluppi futuri dell’imprenditoria locale, perché qualcuno più adatto di me non prende occasione per fare rientrare Giulietta tra i beni dell’Umanità, o almeno nel Made in Italy (vedi centro del food agli ex Magazzini generali)? Tutto sommato una pizza al taglio chiamata Giulietta, con tanto pepe nella versione Romeo per incoraggiare i maschi italiani se demotivati, potrebbe trovare ancora successo, seppure solo in pizzeria. Eppoi il filone potrebbe trovare sfogo e luminoso futuro in un premio che veda impegnati, oltre i pizzaioli, i pasticceri, non solo con il già esistente bacio di Giulietta, molto casto, ma con una sua versione “lingua in bocca”, non porno, ma senza dubbio osé e aggiornata. E, presoci gusto, andare oltre e, perché no, illuminare il cortile della casa di Giulietta con un flusso di luce di colore rosa carico. Proprio quel colore sfacciato che piace tanto agli americani perché simboleggia il massimo del cattivo gusto. •

04-05. Edificio residenziale a Dossobuono. Schizzi di progetto: analisi del contesto e studio di inserimento dell’edificio. 06. Assonometria generale dell’intervento. 07. Veduta nel contesto dell’edificio realizzato.
Ci mette il becco LC
06 ODEON 95 134
Testo: Luciano Cenna

Carlo’s Angelo

Un manipolo di devoti cultori dell’opera scarpiana ritorna al Museo di Castelvecchio con la guida d’eccezione del geometra Angelo Rudella, testimone diretto dei lavori

96 2023 #03 01
Testo: Luisella Zeri

Nei mesi scorsi abbiamo colto con entusiasmo la proposta di poter accedere a Castelvecchio accompagnati da una guida d’eccezione, Angelo Rudella, il geometra che dal 1958 al 1974 collaborò con Carlo Scarpa prima in qualità di tecnico di cantiere dell’impresa che stava eseguendo i lavori di restauro, e poi per alcuni anni come funzionario del museo. Questa fortunata proposta è arrivata da un gruppo di appassionati, ex collaboratori e allievi devoti, che con ammirazione quasi sacra si ritrovano periodicamente per organizzare e partecipare a eventi culturali che riguardano Carlo Scarpa e le sue

opere. A rendere ancora più speciale la visita è stata la possibilità di poter vedere da vicino alcuni dei disegni originali conservati all’interno del museo. Qui, infatti, insieme al nucleo originario dei materiali relativi al progetto veronese, che comprende anche l’archivio storico fotografico e gli elaborati relativi ai lavori eseguiti negli anni successivi – come le opere di conservazione e il recupero delle torri – , sono conservati preziosi documenti grafici legati alla figura di Scarpa, raccolti da collezioni private e imprese artigiane attraverso la campagna di acquisizione portata avanti dalla Regione Veneto a partire dal 2002.

Sotto l’occhio vigile di Ketty Bertolaso, responsabile dellArchivio Scarpa, il nostro viaggio attraverso i ricordi di Rudella è iniziato dall’esame di alcune selezionate tavole. Se l’elaborato riguardante le sistemazioni esterne del museo e quello inerente il sostegno della statua di Cangrande hanno destato un naturale interesse, il maggior dibattito lo ha sollevato la tavola su cui è raffigurato il disegno con lo schema delle tessere in pietra che compongono il prospetto esterno del cosiddetto Sacello. I più intraprendenti fra i devoti hanno avuto modo di dire la propria sul procedimento seguito da Scarpa per comporre la distribuzione, estraendo pagine di studi, teorie matematiche e codici criptici mentre Rudella, fra il divertito e il pragmatico, ha nicchiato mantenendo il segreto per sé: facendo intendere che, forse, non è detto che ci sia qualcosa da svelare. Mentre emerge passo dopo passo la quotidianità del farsi di quel lavoro che oggi ci appare mitico. Scarpa era presente in cantiere solo il venerdì e il sabato e durante quel limitato tempo a disposizione condensava tutte le informazioni necessarie per far progredire i lavori. Rudella per parte sua aveva il compito di rendere esecutivi disegni e indicazioni impartiti dal Maestro, preparando le basi di quelle stesse tavole che sarebbero diventate, arricchite di ulteriori elaborazioni, di dettagli, dei colori e delle scritte, dei pezzi da museo. Ancora oggi, in barba ai rigidi protocolli archivistici che prevedono che i materiali cartacei possano essere movimentati solo con guanti in cotone, la nostra guida ha snodato il suo racconto indicando e sfiorando ogni foglio, perché,

ODEON 97 134
01. Angelo Rudella nel corso della visita guidata a Castelvecchio. 02. Uno dei preziosi disegni autografi di Carlo Scarpa sotto stretta osservazione.
03 04
03. Assieme a Guido Pietropoli nella Galleria delle Sculture.
« Il cantiere di Castelvecchio dai racconti di Rudella assume i tratti di una formidabile avventura »

nonostante siano passati sessant’anni, gli elaborati prima che opere d’arte restano per lui strumenti di lavoro che sono passati per le sue mani. Il cantiere di Castelvecchio dai racconti di Rudella assume i tratti di una formidabile avventura, sia per la personalità di Scarpa che procedeva quasi a braccio nello scegliere le parti di museo su cui lavorare, sia per il fatto che gli interventi erano portati avanti contemporaneamente al reperimento di fondi. Proprio davanti alla statua di Cangrande è stata ricordata la difficoltà di eseguire il getto, rigorosamente realizzato in economia, e poi effettuato in due fasi. I distanziatori dei casseri erano delle assicelle di legno ancorate con fil di ferro che venivano tolte di volta in volta per non lasciare traccia sulla superficie in calcestruzzo; un procedimento che ha fatto sospirare tutti i presenti pensando al modus operandi attuale.

Se poi pensiamo al “fattaccio” che ha riguardato la parete dei bagni nella galleria delle sculture, possiamo mettere tranquilli i nostri animi di professionisti-perfezionisti. Rudella, che era in viaggio di nozze durante la messa in opera del suddetto muro, si rese conto solo al suo ritorno che il tramezzo era stato tracciato parallelamente al verso dell’Adige, mentre avrebbe dovuto seguire la coerenza geometrica con il sistema delle nuove opere e la direzione della facciata verso il giardino. Quando il geometra lo fece notare a Scarpa, dopo un tira e molla con l’impresa

per individuare le responsabilità, il professore si rassegnò, scegliendo di non correggere l’errore perché una volta entrati nei bagni, con il solaio di copertura a correggere l’effetto ottico, non si sarebbe notato alcunché. Oggi è ancora possibile percepire il lievissimo disassamento, ma lo si nota solo se si è a conoscenza del retroscena che lo ha riguardato. A conclusione della visita, Rudella ha anche affrontato il tema degli interventi postumi, ovvero tutte quelle operazioni attuate successivamente al restauro e finalizzate principalmente alla messa a norma di alcune parti della costruzione. L’attenzione si è fermata in particolar modo sui parapetti, identificando i pezzi originali rispetto alle porzioni integrate, raddoppiate o rialzate con altri profili metallici, che, ci ha svelato, se il Maestro avesse potuto scegliere, avrebbe fatto fare in semplici lastre di vetro. Una soluzione architettonica molto lontana dagli stilemi di Scarpa che ha stupito e meravigliato anche i fedelissimi, ma che ha confermato, se mai ce ne fosse stato bisogno, che anche i progetti dei grandi, rivestiti della sacralità che si deve al loro genio, sono stati segnati da imprevisti, errori e dalle stesse difficoltà che toccano a noi, professionisti dell’anno 2023. Se anche voi volete provare a respirare un po’ dell’atmosfera del cantiere di Castelvecchio, potete consultare l’archivio Scarpa sul web all’indirizzo www. archiviocarloscarpa.it. •

Marco Lucat 1934—2023

Un ricordo dell’urbanista legato fin dagli esordi all’avventura editoriale di «ArchitettiVerona»

Testo: Fabrizio Rossini

Marco Lucat, dell’architetto, secondo la concezione romantica e di molti, aveva tutto: una grande cordialità espressa a battute, a sorrisi, a movimenti di accoglienza delle sue mani e, in questo, il suo fisico di larga impronta lo aiutava e lo sorreggeva, una cartella di cuoio sempre al traino e un pacco di giornali e carte sotto al braccio, con il suo camminare un po’ sbilenco e strascicato.

Amava la vita e ne sapeva cogliere, appena poteva, ogni aspetto: di relazione, di impegno professionale

e culturale e finanche politico, di piacere e di svago, e in questo suo darsi e dare, per la generosità innata che lo distingueva, era ben aiutato dalla sua forza e resistenza fisica. Il suo bagaglio professionale, sperimentato fin dall’inizio della sua attività nel campo dell’urbanistica, era solido e profondo, allargato costantemente ai grandi problemi d’area più che all’intervento localizzato e puntuale, formato con la partecipazione attiva e costante alle iniziative di indagine sulla città di Verona e sul territorio della provincia, presente fin dai primi numeri all’elaborazione di informazione e di cultura

98 2023 #03
01

professionale che la rivista dell’Ordine «ArchitettiVerona» promuoveva per la tutela e, nel contempo, lo sviluppo della città. Poco dopo la laurea, nella prima metà degli anni Sessanta, iniziò con un incarico strano e di prestigio nello stesso tempo, coautore a Caracas, tramite il Ministero degli Esteri italiano nel quadro di collaborazioni di sostegno internazionale, del Piano Nazionale per lo Sviluppo Turistico del Venezuela; lì conobbe l’architetto Eleonora Masi che divenne poi, rientrati in Italia, sua moglie e partecipe attiva della sua attività professionale.

in collaborazione soprattutto con Roberto Pasini, dei PRG di Castelnuovo del Garda e di Bardolino e prestò costantemente la sua collaborazione, in funzione specifica di consulente del partito cui era iscritto, a molte realtà dell’area sud del Lago di Garda e, in generale, della Provincia di Verona divenendo profondo conoscitore delle sue tematiche.

La sua visione, sempre allargata oltre i confini fisici dei Comuni e degli incarichi, ha condotto la sua ricerca fino alla stesura del “Piano d’area delle Valli Veronesi” per proporne il recupero e la rivitalizzazione oltre i

canali consolidati attestati lungo il percorso est-ovest della A4. Conclusa l’esperienza dello studio Lucat-Padovani, con la moglie Nora iniziò un nuovo percorso nell’ufficio aperto in un’ala del Palazzo Giusti, a contatto diretto del giardino cinquecentesco, curando tra i diversi incarichi una fase del recupero del Teatro Salieri a Legnago. È stato un sognatore che ha saputo calare, nella complessità delle relazioni tra le qualità del territorio da tutelare e le spinte molto forti dello sviluppo dell’economia provinciale e padana, un segno non solo di mediazione, ma di propulsione e di avvio al futuro. •

01. Morfologia dei luoghi e individuazione di aree territoriali caratterizzate la logiche unitarie. Illustrazione a corredo dell’articolo di Marco Lucat Verona e la Padania. La Direttrice Medio-Padana: un’occasione da non sprecare, in «AV» 10, 1994. pp. 11-15.

02. L’interpretazione “estensiva del Corridoio plurimodale pedemontano. In rosso è evidenziato il bordo inferiore, oggetto della proposta. In Lucat, cit. 03. Marco Lucat negli anni recenti.

Verso la fine degli anni Sessanta scelse di abitare a Verona e poco dopo, nel 1969, costituì con l’architetto Bruno Padovani lo studio che in breve si collocò tra i più noti in città e per circa quindici anni operò intensamente nel campo della progettazione architettonica e urbanistica. Fu anche in quell’anno che il Sindaco Gozzi lo nominò Presidente del neonato aeroporto di Verona, incarico che ben si addiceva alla sua indole aperta e alla sua cultura propositiva e senza steccati. In quel periodo Lucat fu autore,

ODEON 99 134 03 02
« Il suo bagaglio professionale era solido e profondo, allargato costantemente ai grandi problemi d’area »

Una vita (lessinica) in vacanza

Il resoconto flash dell’incontro sull’Architettura di vacanza promosso da «ArchitettiVerona» nell’ambito del Film Festival della Lessinia a Bosco Chiesanuova

Lessinia, dove eravamo rimasti? Dopo l’incontro dello scorso anno dedicato al Costruire in Lessinia che ha aperto la collaborazione di «ArchitettiVerona» con il Film Festival della Lessinia, di cui abbiamo dato conto riportando i contributi nel Dossier nel numero 131 (pp. 62-83), la tradizione ancora freschissima si è rinnovata quest’anno. Le condizioni al contorno sono propizie: fine agosto, stagione di ritorno al lavoro ma concedendosi ancora qualche piacevole trasgressione; la temperatura gradevole sempre garantita a Bosco Chiesanuova rispetto alle code della calura in pianura, l’esca dei crediti formativi professionali e una curiosità comunque diffusa sul tema hanno portato anche quest’anno un nutrito pubblico di architetti a mescolarci a quello abituale dei frequentatori del festival nella mattinata in cui si è tenuta l’attesa seconda puntata dell’appuntamento organizzato da «AV». Quest’anno abbiamo accolto l’invito del Festival –giunto alla sua 29esima edizione, che come sostiene il suo direttore artistico Alessandro Anderloni non ha mai tradito la sua missione ispiratrice di valorizzazione, grazie al cinema, di una terra di montagna che è stata approdo di popolazioni, culture, lingue e laboratorio di un’originalissima e solida identità nel panorama alpino - a dedicarci allo sguardo tematico 2023, ovvero alla “villeggiatura in montagna”.

Vincenzo Pavan ha messo in evidenza i modelli di riferimento delle ville, di gusto eclettico e poco attente alla cultura locale se non per quanto riguarda materiali e tecniche di costruzione.

Il rango delle famiglie trova infatti espressione in un gusto austro-germanico – da cui l’immagine

del castello – oltre che da riferimenti alla stagione del Liberty. Con Ettore Fagiuoli, architetto di riferimento delle famiglie benestanti veronesi, a inizio Novecento i modelli si semplificano e il dialogo con il vernacolo locale è ridotto a livello di citazione di singoli elementi.

Nel secondo dopoguerra, come messo in luce da Federica Guerra, la costruzione della nuova strada provinciale genera un fenomeno duplice, lo spopolamento della Lessinia da parte di chi scende in città in cerca di nuovi sbocchi lavorativi,

ma contemporaneamente la forte espansione del turismo con la realizzazione di seconde case comodamente accessibili. Un fenomeno che, fuori da una pianificazione urbanistica complessiva – il primo PRG entra in vigore solo nel 1977 –arriva alla costruzione di condomini ed edifici multipiano, simbolo di uno sfruttamento del territorio di cui rimangono ben visibili gli esiti. Da Bosco Chiesanuova queste dinamiche si allargano da metà degli anni Sessanta a Cerro Veronese, anche per effetto di una fama sempre

100 2023 #03 01

più ampia sull’onda dei trionfi canori di un’illustre concittadina (G. Cinquetti). Entro questo quadro generale, gli episodi architettonici di rilevo presentati da Alberto Vignolo sono riferibili alle figure di spicco tra i professionisti veronesi, a partire da Libero Cecchini. Il suo repertorio di realizzazioni lessiniche, oltre a diverse opere pubbliche (cfr. «AV» 96, pp. 92-99), si compone di alcune seconde case a partire da quella costruita per la propria famiglia nel 1961 in Contrada Croce a Bosco, sorta di prototipo a partire dal quale derivano variazioni e adattamenti tra architettura e paesaggio. A fronte di questo corpus consistente, un unicum è invece rappresentato dalla casa costruita nel 1968 a Cerro da Calcagni e Cenna, ispirata a riferimenti modernisti (cfr. «AV» 81, pp. 54-61) in parallelo alla contemporanea ricerca dei suoi autori. Sempre a Cerro negli stessi anni viene realizzato su progetto di Italo Tartaglia l’Albergo La Pineta, unico edificio ricettivo a mantenere a tutt’oggi un ruolo di riferimento urbano.

01. Cartolina con una delle ville costruite a Bosco Chiesanuova a fine Ottocento.

02. Albergo La Pineta, Cerro Veronese. Progetto: ing. Italo Tartaglia, 1969.

03. Campo Levà di Sotto, Malga San Giorgio (Bosco Chiesanuova): il fronte corto di uno dei tre edifici. Progetto: arch. Arrigo Rudi, 1974-79.

04. La locandina del 29. Film Festival della Lessinia.

Ma l’intervento più rilevante, se non altro per la sua notevole consistenza, è quello di Malga San Giorgio, insediamento esclusivamente turistico sorto tra la fine degli anni Sessanta e i primi anni Ottanta sull’onda dello sviluppo dell’omonima stazione sciistica. Dal punto di vista architettonico, gli edifici realizzati vedono la presenza di diversi progettisti (Ugo Mercanti, Alberto Guizzardi, Carlo Vanzetti); per l’ultimo tassello dell’intero complesso, a Campo Levà di Sotto Arrigo Rudi porta un’idea di architettura di montagna esplicitata dalla geometria alla base degli edifici di cui è autore, che risaltano per originalità e freschezza compositiva a fronte della semplice riproposizione per gli altri casi di modelli

immobiliari standard, tutt’al più “accessoriati” con qualche elemento della tradizione, . A fare da contraltare a questi racconti in chiave locale, l’intervento di Gerardo Semprebon ha portato alcuni esempi di strategia di sviluppo applicate in aree rurali cinesi, attraverso progetti destinati sì a una prospettiva turistica, ma attorno ai quali si sviluppa una una serie di attività che vanno a ricadere su chi abita in quegli stessi territori. Infine Luca Gibello ha posato il suo sguardo sulla capacità (o incapacità) di guardare la

montagna senza la la pretesa dell’esperienza a tutti i costi o senza punti di vista predefiniti da qualcun’altro, come l’esperienza contemporanea spesso suggerisce.

Di questa breve sintesi sarà necessario dare conto in maniera più approfondita. Così come appare altrettanto necessario uno sguardo su quanto le nuove forme di turismo prevalentemente estivo in Lessinia stanno proponendo, in particolare in termini di recupero nelle contrade. Appuntamento dunque alla prossima edizione del FFDL! •

ODEON 101 134 03 04
02
« Quest’anno abbiamo accolto l’invito del Festival a dedicarci allo sguardo tematico 2023, ovvero alla “villeggiatura in montagna” »

Alta cantierabilità

I progetti per la realizzazione di una grande infrastruttura ferroviaria qual è l’Alta Velocità tra i molti cantieri avviati nel territorio veronese e le prospettive ancora sulla carta per il suo completamento

Territorio Territorio 2023 #03 102
01
Testo: Federica Guerra, Alberto Vignolo

Se ne parlava da decenni – la convenzione per la progettazione e realizzazione dell’Alta Velocità ferroviaria sull’asse Milano-Venezia data a ottobre 1991 – tanto che quando finalmente nel corso del 2020 i cantieri sono entrati nel vivo, dapprima con l’identificazione delle aree con chilometri di reti da cantiere arancioni, poi con l’inizio dei movimenti di terra, la sorpresa ha soppiantato la rassegnazione per l’italica-trenitalica lentezza di ogni opera pubblica. L’intero territorio della provincia, da Peschiera del Garda a Monteforte d’Alpone sui due versanti opposti, è a tutt’oggi un gigantesco cantiere, o meglio la sommatoria di moltissimi cantieri divisi tra differenti General Contractor e lotti funzionali.

Dopo gli imponenti lavori sottotraccia – i consolidamenti, gli scavi, gli spostamenti delle reti – alcuni dei manufatti dell’opera iniziano a mostrare il loro volto, punteggiando il territorio di tratti di linea in trincea o in rilevato, ponti e viadotti, sottopassi e cavalcavia. Si manifesta così, tassello dopo tassello, la grandissima rilevanza di un’opera infrastrutturale come non se ne costruivano più da decenni nel nostro paese. Il dibattito che a monte si è interrogato sulla necessità o meno dell’opera e sulle alternative di tracciato lascia oggi necessariamente il passo all’evidenza del suo farsi, assieme agli inevitabili disagi delle fasi di cantiere senza che ancora si possano cogliere i benefici, certo non immediati e il cui giudizio andrà lasciato, come si suol dire, ai posteri. In questo frangente, ciò che possiamo osservare e documentare sono le profondissime trasformazioni degli ambiti urbani e territoriali interessati dall’opera. Lo stato attuale dei cantieri può già dare conto del peso in-

sediativo della nuova infrastruttura e delle ricadute sia nell’ambito urbano di Verona che nel territorio della provincia, ove si limita il nostro sguardo. Rimane invece ancora sulla carta il punto nodale del sistema, quella nuova stazione da realizzarsi a Porta Nuova specularmente all’attuale, a sud dei binari, in dialogo con quello che dovrà essere il sistema urbano del parco dell’ex scalo merci: che però, nonostante sia stata effettuata una gara per la cessione delle aree che ha visto l’individuazione di un promotore immobiliare e di un concept di progetto, rimane inspiegabilmente escluso dal dibattito pubblico.

Il tratto veronese della nuova linea in arrivo da Brescia comprende la realizzazione di due binari per la maggior parte in parallelo al tracciato autostradale, correndo sul versante sud dopo aver attraversato – ancora in territorio bresciano – la grande galleria Lonato-Desenzano, l’opera più imponente dell’intera tratta, lunga 4,7 chilometri. Scavalca-

to il Mincio a Peschiera del Garda con un viadotto in prossimità del casello della A4, il tracciato prosegue con tratti in galleria artificiale, in trincea e in rilevato da Castelnuovo del Garda fino a a San Giorgio in Salici, nel comune di Sona, dove con una nuova galleria torna in affiancamento a nord dell’autostrada per andare a ricongiungersi, in avvicinamento a Verona, al sedime ferroviario storico in corrispondenza del bivio di Verona

erritorio 134 103
01. Pilastri in attesa dell’impalcato del viadotto sul fiume Mincio, in aderenza al tracciato autostradale. 02. Quadro generale del tracciato della linea Brescia-VeronaVicenza-Padova.
02 03
03. Veduta aerea del cantiere per l’attraversamento del Mincio a Peschiera del Garda.
Verona ovest

04. Il cantiere per l’attraversamento in galleria della A4, all’altezza di Sona.

05. Verso San Massimo: l’incrocio delle linee e la realizzazione degli svincoli.

06. Sezione trasversale della galleria di Sona.

Ovest. Tra Sona e Sommacampagna si distacca inoltre una nuova linea indipendente dedicata al trasporto merci proveniente dal Brennero, posta a nord sia della linea storica sia della linea AV/AC, sotto attraversate grazie a due brevi tratti di galleria artificiale per consentire il collegamento tra questa linea e il Quadrante Europa. Si rende così possibile, grazie a questo svincolo ferroviario, la suddivisione dei flussi tra treni merci, alta velocità e media-lunga percorrenza, con la previsione di un incremento del traffico sia passeggeri che merci. Nell’avvicinamento alla città, la realizzazione delle nuove linee comporta l’adeguamento di tutte le opere infrastrutturali esistenti, ovvero il prolungamento di alcuni sottopassi (Via Cason, Via Albere e Tangenziale Ovest) e, tra le opere più rilevanti, un nuovo cavalcaferrovia dell’autostrada A22, la nuova viabilità di Via Carnia e il rifacimento del cavalcavia di via Fenilon. L’innesto dei nuovi binari nel sistema della stazione di Verona Porta Nuova ne prevede la razionalizzazione e il potenziamento, con modifiche e am-

pliamenti di binari, marciapiedi e sottopassi, oltre al potenziamento di tutti gli apparati tecnologici e la costruzione di una palazzina uffici-servizi. La gara per la progettazione esecutiva e la realizzazione di quest’ultimo tratto è stata aggiudicata a metà luglio 2023.

Verona nord

A valle della realizzazione del nuovo traforo del Brennero e delle relative opere in ambito altoatesino e trentino, il progetto per il quadruplicamento della linea ferroviaria nord-sud prevede una significativa variante, in ambito veronese, da Pescantina al Bivio di San Massimo per un totale di circa 9,5 km. Superato l’Adige su un nuovo ponte (viadotto Nassar) immediatamente a nord dell’aeroporto di Boscomantico, la linea segue da qui un nuovo percorso fino alla stazione di Parona, con una galleria di circa 800 metri tra l’aeroporto e l’ex Forte Parona. Una ulteriore galleria di circa 2

Territorio Territorio 2023 #03 104
04 05
06

chilometri permetterà l’interramento dei quattro binari tra i quartieri di San Massimo e Borgo Milano. In questo modo, la vecchia sede ferroviaria si rende disponibile a una ricucitura del tessuto urbano, con percorsi ciclopedonali e aree verdi per le quali è stato redatto un Masterplan dagli uffici tecnici del Comune di Verona, presentato a ottobre 2021. Novità sostanziale è anche la nuova fermata denominata San Massimo,

con la realizzazione di una stazione in galleria all’altezza di Corso Milano, con due accessi in corrispondenza di Via Lorenzo Fava, verso Chievo, e Via del Fortino (nei pressi del supermercato Rossetto), che si pone l’obiettivo di riconnettere le due porzioni di territorio attualmente divise dalla ferrovia, valorizzando l’area verde (Parco dell’Amicizia) a servizio del quartiere San Massimo.

erritorio 134 105
07. Il tracciato della nuova linea del Brennero in avvicinamento a Verona da nord con la variante prevista. 08. Sezione del nuovo viadotto sull’Adige all’altezza di Pescantina. 09-10. Render della stazione e planimetria con l’inquadramento della nuova fermata di Verona San Massimo.
07 08 10 09

A est di Porta Nuova, la nuova linea AV/AC viene realizzata prevalentemente in affiancamento al sedime del tracciato storico della Milano-Venezia. I due nuovi binari affiancano il cavalcavia esistente all’imbocco di viale Piave, all’altezza di via Fedrigoni, per andare ad attraversare il fiume Adige con un nuovo ponte, opera impegnativa sia dal punto di vista architettonico che ingegneristico, realizzato in adiacenza e analogia morfologica col ponte preesistente.

Il percorso raggiunge la stazione di Porta Vescovo, per la quale è definito un progetto di riqualificazione integrale con la riorganizzazione degli spazi di attesa e di transito e l’adeguamento dell’accessibilità ai marciapiedi ferroviari, oltre alla riforma del piazzale antistante in funzione delle aree di sosta e pedonali e l’inserimento di parcheggi nella zona dello scalo.

Da Porta Vescovo il tracciato prosegue in direzione est in stretto affiancamento alla linea storica, nel tratto iniziale a una quota altimetrica più bassa allo scopo di minimizzare gli

impatti sul contesto urbanizzato, per poi raggiungere poi un rilevato complanare all’esistente. Successivamente, approssimandosi a San Martino Buon Albergo, la nuova linea curva verso sud per affiancarsi al raccordo viario in direzione del casello autostradale di Verona Est, sottopassando tramite una galleria artificiale di quasi due chilometri il nuovo svincolo tra Verona Est, l’autostrada A4 e la Tangenziale Sud di Verona. In seguito la nuova linea riemerge e prosegue in superficie su un tracciato che procede – con un’alternanza di rilevati e viadotti – attraversando i comuni di Zevio, Caldiero, Belfiore, San Bonifacio, Arcole e Monteforte d’Alpone, fino al confine con la provincia di Vicenza.

Territorio Territorio 2023 #03 106
11. Veduta di un cantiere per il passaggio della nuova linea AV/AC in prossimità dell’abitato di San Michele Extra. 12. Prospetto e render del raddoppio del ponte ferroviario sull’Adige.
11 14
13-14. Lavori in corso all’altezza di San Martino Buon Albergo in prossimità del casello autostradale di Verona Est.
13 12
Verona est

Rappresenta il cuore nevralgico dell’intero sistema “Alta Velocità Verona” oltre che l’ambito maggiormente soggetto alla trasformazione urbana, dal momento che l’intera operazione è strettamente correlata alla riconversione dell’ex Scalo Merci. L’inserimento della linea AV/AC si pone infatti lungo il fronte sud del fascio dei binari della stazione Porta Nuova, rendendo incompatibile l’attuale allaccio con lo scalo merci, di conseguenza destinato alla dismissione. In parallelo allo sviluppo del nodo di Porta Nuova viene pertanto realizzato un nuovo fascio merci di tre binari in località Cason, a nord del Quadrante Europa, assieme alle necessarie opere di interconnessione e di svincolo del traffico merci da quello passeggeri. La nuova stazione nasce pertanto con un ruolo di caposaldo urbano di un comparto ancora ampiamente da definire. A prescindere da tali considerazioni strategiche, il progetto architettonico sfrutta il versante altimetrico esistente, che consente l’inserimento di un volume su due livel-

li, uno dei quali ipogeo e attestato alla quota degli attuali sottopassi di attraversamento dei binari. Su tale quota – a circa 4,5 metri al di sotto del piano del ferro, in continuità con la quota della città storica – si apre il nuovo fronte per l’accesso da sud connesso al futuro contesto di parco urbano; il volume superiore si pone come un landmark di attraversamento e riconnessione degli spazi pubblici previsti fin dal masterplan generale.

Il nuovo fabbricato viaggiatori è destinato ad ospitare le funzioni di accoglienza dei viaggiatori, di accessibilità, orientamento, circolazione, servizi primari e ristoro oltre al ticketing e alle attese.

Il sottopasso esistente a est viene prolungato fino ad assumere il ruolo di ingresso al nodo AV/AC di Verona, mantenendo l’attuale carattere di percorso urbano ciclo-pedonale e connettendo il fabbricato viaggiatori esistente con l’ambito di sviluppo del Masterplan.

Verona Porta Verde si presenta al livello di progettazione di fattibilità tecnico economica, sviluppato dalla struttura tecnica di RFI.

erritorio 134 107 15
15. Mappa d’insieme del nodo AV/AC di Verona comprendente gli ingressi ovest ed est alla città. 16-17. Stazione di Porta Vescovo: render della riqualificazione del piazzale e planimetria generale con il percorso di connessione all’università.
16 17
Verona Porta Nuova

Un bilancio dell’operazione Alta Velocità nella provincia di Verona è prematuro, tuttavia mentre i cantieri avanzano si possono fare alcune considerazioni provvisorie e soggette ad aggiornamento. Innanzi tutto vale la pena di sottolineare come l’impatto dell’infrastruttura sul territorio extraurbano sia ben diverso tra il tratto Brescia-Vicenza e quello sulla direttrice del Brennero, per ragioni che si riferiscono da un lato alla natura stessa delle opere e dall’altro alla morfologia dei territori attraversati. Così, se da un lato a ovest della città il nuovo fascio di binari corre per lo più in affiancamento al tracciato delle altre infrastrutture – autostrada e linea ferroviaria storica – esso va comunque a interessare brani di territorio di alto pregio, come l’attraversamento di Peschiera e delle colline moreniche tra Sommacampagna e Sona. I tratti in galleria che qui si stanno realizzando hanno l’obiettivo di minimizzare un impatto che rimane comunque di un certo rilievo. Non così nel tratto extraurbano a est, dove le aree a sud della linea autostradale sono caratterizzate da un susseguirsi fitto di zone industriali oltre che dalla Strada Porcilana, a cui la linea AV-AC andrà per lo più in aderenza. Ciò non toglie che qui la linea attraverserà anche brani di territorio ad uso prevalentemente agricolo, intercettando corti rurali e piccoli fabbricati che verranno soppressi, con una prevedibile e inevitabile modificazione della percezione dei luoghi.

Ma è quando si verifica l’impatto delle nuove linee sul tessuto minuto della città che risulta necessaria qualche valutazione, a partire dagli snodi in prossimità del Quadrante Europa.

Territorio Territorio 2023 #03 108
Impatti
18. Planimetria generale dell’area della stazione di Porta Nuova con l’inserimento del nuovo fabbricato viaggiatori per la linea AV/AC.
18 19
19. Render del fronte verso i binari della nuova stazione Verona Porta Verde.

Qui, in un contesto già di elevatissima infrastrutturazione tra gli incroci della Milano-Venezia con l’Autobrennero, la tangenziale e le linee ferroviarie storiche, le opere in via di realizzazione sono coerentemente finalizzate ad agevolare il funzionamento del trasporto su ferro, senza però modifiche sostanziali dell’attuale assetto viabilistico. In particolare, ad est del Quadrante Europa, l’intersezione tra i fasci viabilistici interessa da vicino un’area marginale ma densamente popolata e già fortemente penalizzata: la nuova viabilità di via

Carnia, tramite un sottoattraversamento, permette un collegamento diretto tra la tangenziale nord e le aree industriali a sud, ma è proprio questo snellimento a trasformare le aree contermini in un corridoio per il traffico pesante, facendone perdere completamente la fisionomia urbana. E ancora, il progetto della due gallerie ferroviarie (Galleria Europa I e Galleria Europa II) risolve il difficoltoso scambio tra la linea nord-sud ed est-ovest, ma il traffico veicolare reste in superficie aggravando una situazione di fatto già complessa.

20-21. Veduta interna e fronte fronte sud della nuova stazione. Il concept di progetto è stato sviluppato dalla struttura Ingegneria Stazioni della Direzione Stazioni di RFI; su questa base è stato redatto il PFTE dalla società VIA Ingegneria srl.

22. Il fronte dell’attuale stazione di Porta Nuova con gli interventi di riqualificazione previsti.

23. Render del nuovo fabbricato manutenzione e uffici attestato sui binari a ovest della stazione di Verona Porta Nuova.

erritorio 134 109
21 22 20 23

Forse anche in questo caso, al di là degli evidenti costi realizzativi, si sarebbe potuto pensare a una razionalizzazione delle diverse infrastrutture tramite il loro interramento, come si prevede di fare per l’altro importante tratto che avrebbe avuto interferenze significative col tessuto abitativo, e cioè la Galleria San Massimo. Proseguendo verso est, l’altro nodo di forte criticità per la viabilità urbana è l’incrocio di via Albere. Il sottopassasso esistente, che già crea congestioni quotidiane del traffico, non verrà modificato se non con l’aggiunta di un ulteriore portale: un’occasione comunque perduta, anche in relazione

alla questione del nuovo sottopasso tra via Albere e Stradone Santa Lucia in attraversamento dell’intero fascio di binari e dell’ex scalo merci, da realizzarsi come opera compensativa ai lavori del nodo Porta Nuova. Diventato oggetto di acceso dibattito politico, il sottopasso rimane ancora di incerta realizzazione, e irrisolta la strozzatura viabilistica tra Verona Sud e il centro città.

Oltrepassata Porta Nuova, il fascio dei binari prosegue verso est in parallelo alla linea storica, toccando i quartieri di Porto San Pancrazio e Madonna di Campagna, aggravando così notevolmente il già esistente problema di inquinamento acustico. Gli interventi di mitigazione, consistenti sostan-

zialmente nella realizzazione di barriere antirumore alte fino a 6 metri, potranno solo parzialmente risolvere la questione se, come rileva uno studio relativo alla tratta Verona BivioVicenza1, “su un totale di n. 1.290 edifici che risultavano impattati nella situazione post operam, con le barriere proposte sono riscontrati in facciata livelli superiori ai limiti di norma in corrispondenza di 546 ricettori” 2

È evidente come la realizzazione della nuova linea comporti situazioni critiche per la vivibilità del territorio, non solo per gli abitanti ma anche per la percezione che si avrà di questa parte di città, sezionata dal resto del tessuto urbano da alte barriere che, se preservano acusticamente, al contempo dividono visivamente, accentuando la percezione di questi quartieri come “altra cosa” dalla città 3

Si prospetta d’altra natura invece l’intervento lungo la linea del Brennero all’altezza dei quartieri di Borgo Milano e San Massimo, da sempre separati dalla ferrovia. In questo caso una lunghissima galleria in variante riunirà nel sottosuolo i binari della linea storica e quelli dell’Alta Velocità, migliorando non solo il clima acustico dei due quartieri ma anche la vivibilità: sul sedime della vecchia ferrovia

Territorio Territorio 2023 #03 110
24 25
« Lo stato attuale dei cantieri può già dare conto del peso insediativo della nuova infrastruttura »

è prevista una “greenway con piste ciclabile, aree verdi, passerelle pedonali, interconnessioni dedicate alla mobilità dolce”.

Discorso a parte merita poi il progetto per Porta Nuova. Il ribaltamento verso sud del fronte della nuova stazione, denominata “Verona Porta Verde” è al tempo stesso causa ed effetto sia del ruolo assunto da tempo dal quadrante meridionale della città – anche in funzione dell’accessibilità dal casello autostradale – sia delle potenzialità edificatorie dell’ex scalo merci e delle funzioni urbane o metropolitane che qui si potranno insediare. Dopo la definizione di un masterplan per i 450 mila metri quadri dell’area a seguito di un protocollo di intesa sottoscritto nel 2019 da Regione Veneto, Comune di Verona, FS Sistemi Urbani, Rete Ferroviaria Italiana e Mercitalia Logistics (cfr. «AV» 125, pp. 80-91), a fine 2021 è stata espletata una gara sulla base di un concept progettuale e di un’offerta economica. All’aggiudicatario della procedura – Signa Group, la più grande società immobiliare privata

dell’Austria fondata dall’imprenditore tirolese René Benko – spetta il compito di redigere la documentazione necessaria a completare l’iter di variante urbanistica per realizzare le opere; allo stesso soggetto viene garantito un diritto di prelazione sull’acquisto delle aree. Da allora ad oggi, però, nulla è ancora stato reso pubblico circa gli sviluppi dell’iniziativa.

24. Nodo AV-AC di Verona: mappa delle opere principali per l’ingresso ovest dal Quadrante Europa a Porta Nuova.

25. Mappa dei principali interventi connessi al tratto tra le stazioni di Porta Nuova e Porta Vescovo.

26. La proposta risultata vincitrice nel 2019 della gara per l’ex Scalo Merci (Signa Group).

27. Masterplan redatto dal Comune di Verona per il riutilizzo del tracciato storico della linea del Brennero a seguito della variante in galleria.

Come era prevedibile fin dal lontano 1977, quando venne inaugurato il primo tratto della “Direttissima” tra Roma e Città della Pieve, in anticipo sul quasi contemporaneo TGV francese, la realizzazione di questo faraonico progetto comporta modificazioni importanti del paesaggio italiano, cosa che puntualmente si sta verificando tra le lamentele dei detrattori e le seduzioni del mito della velocità come parametro estetico della modernità. Certo è che Verona, per morfologia e per il ruolo storico di snodo di traffico nord-sud ed estovest, più di altri territori sta soffrendo la “fatica” di questo adeguamento alla contemporaneità, che è tuttavia inarrestabile per una città di tale ruolo nel panorama europeo. Tutto si gioca – o meglio si è giocato, è il caso di dire – nella contrattazione delle famose “opere compensative”, alle quali è affidato il ruolo di riequilibrio delle inevitabili sofferenze che il territorio sta subendo e di cui si potrà fare un’esatta valutazione alla fine dei cantieri. •

Prospettive

1 Studio effettuato da Bonifica per il consorzio Iricav2.

2 Altre misure mitigative previste sono la sostituzione degli infissi e la predisposizione di aeratori per gli edifici con livelli più alti di inquinamento. Nei casi in cui l’impatto acustico non rientri comunque nei limiti di legge, si prevede un indennizzo per gli abitanti lesi.

3 La stessa situazione si ripeterà nei comuni di San Martino Buon Albergo, Belfiore, San Bonifacio e Arcole.

erritorio 134 111
27
26

Architettura effimera e monumentale

Un “Laboratorio Verona” ha coinvolto cinque scuole di architettura con l’obiettivo di aprire un processo criticointerpretativo sul bastione di Santo Spirito e il tratto di mura compreso tra Porta Palio e via Città di Nimes

112 2023 #03 QUASI ARCHITETTI
01
Testo: Leopoldo Tinazzi

Quale futuro per il bastione di Santo Spirito e l’ampio tratto di mura magistrali compreso tra Porta Palio e via Città di Nimes? Per rispondere a questa domanda il Comune di Verona ha affidato nel 2021 all’Università IUAV di Venezia l’incarico di organizzare un laboratorio di ricerca finalizzato ad aprire un processo critico-interpretativo sul compendio monumentale.

Il gruppo di studio, guidato dalla docente Sara Marini affiancata dai ricercatori Alberto Petracchin e Luca Zilio, ha coinvolto cinque scuole di architettura italiane e straniere – oltre allo stesso IUAV, l’Università degli Studi di Firenze, l’Università degli Studi di Genova, l’Università degli Studi di Udine e la Berlin International University of Applied Science – impostando il lavoro su due

piani di approfondimento paralleli. Una prima indagine ha riguardato il ruolo dei concorsi e delle mostre di architettura come strumenti della progettazione. Qual è il senso e quale è stata l’influenza di questi mezzi nell’approccio ai grandi temi urbanoarchitettonici nel dibattito nazionale e internazionale dello scorso secolo, âge d’or, soprattutto in Italia, della riflessione sulle grandi trasformazioni della città? Attraverso una disamina critica, è emerso che gli episodi salienti di questa stagione hanno spesso

visto dei vincitori morali a discapito dei reali assegnatari dei premi delle giurie, nel caso dei concorsi, e che per quanto riguarda le mostre non c’è scenario migliore per poter inglobare nella pratica progettuale i frutti di un’esposizione diretta al confronto con la società. Il senso, dunque, giace forse nell’opportunità data da queste due vie di essere fondazioni instabili per un ragionamento sulle possibilità del progetto.

La seconda fase della ricerca si è concretizzata in un seminario di progettazione finalizzato alla definizione di proposte per il recupero del bastione di Santo Spirito, nell’ottica di riallacciarne un futuro utilizzo all’ultima delle sue molteplici trasformazioni ovvero la destinazione a zoo comunale (dal 1969 al 1989).

I temi guida su cui è stato impostato il lavoro sono quelli del rapporto con

113 134
01. L’interno di Porta Palio trasformato in giardino selvaggio per la mostra sui risultati del seminario di progettazione (foto di Luca Zilio). 02. Planimetria dell’area di progetto. 03-04. Alcuni scorci dell’area di progetto. Foto di Sissi Cesira Roselli, Ex-Zoo. Laboratorio Verona, 2022.
02 03 04
« Ne è risultata una serie di suggestioni progettuali accomunate dal ripensamento del bastione attraverso plug-in eterogenei »

il monumento (la storia, l’architettura) e della memoria collettiva (le storie, lo zoo). Ne è risultata una serie di suggestioni progettuali accomunate dal ripensamento del bastione attraverso plug-in eterogenei, che si articolano principalmente tra nuovi e vecchi percorsi, con in particolare un focus sul recupero dei tre edifici dell’ex zoo (biglietteria, rettilario e bar).

La necessaria scelta dell’effimero, determinata tanto dall’adesione a una comune e consolidata sensibilità conservativa quanto dalla ovvia impossibilità di trasformazione degli apparati murari del patrimonio Unesco, ha portato a una serie di risultati diversi e stimolanti. I riferimenti sono tanti: arte, architettura, letteratura, filosofia, religione, cinema, musica. Anche le tecniche di rappresentazione sono

114 2023 #03 QUASI ARCHITETTI
05. Aria!, Università IUAV di Venezia: Sara Marini, Michele Anelli-Monti, Giulia Bersani, Davide Zaupa.
05
06-08. Fiori blu, Università IUAV di Venezia: Sara Marini, Sebastiano Ciminari, Elisa Monaci, Alberto Petracchin, Luca Zilio.
07 06

CONCORSO COME

LABORATORIO DEL PROGETTO

Conferenza con Sara Marini, Pippo Ciorra, Simone Gobbo

Sala convegno M15

Ordine Architetti PPC di Verona

30 aprile 2022

IL RITORNO DEL MONUMENTO

Mostra a cura di Alberto Petracchin, Luca Zilio

Porta Palio - Verona

1-17 giugno 2023

ARCHITETTURA EFFIMERA

E MONUMENTALE.

LABORATORIO VERONA

Convegno a cura di Sara Marini

Porta Palio - Verona

14 giugno 2023

Interventi di Alessandro Rocca, Luigi Latini, Paolo Ceccon, Alessandro Brodini

115 134
08

09. Bones and All, Università degli Studi di Genova: Alberto Bertagna, Egidio Cutillo, Andrea Pastorello con Sergio Barbieri, Maddalena Caviglia, Samuele Ciocchetti, Federico Medda, Jacopo Peri, Giulia Pesce.

10. Zoo-rona, Università degli Studi di Firenze: Michelangelo Pivetta, Giacomo Razzolini, Mattia Baldini, Mikhail Fabiani.

molto diverse: assonometrie, collage, rendering e computer graphic, riflettendo in maniera diretta il contenuto più o meno astratto delle varie proposte.

Se per i due progetti a firma IUAV ( Aria e Fiori Blu , il cui trait d’union è l’opera di Yves Klein), pur partendo da presupposti artistici e letterari, l’architettura è presente e può essere costruita, in altri casi, come per

il progetto dell’Università di Udine Pareidolie e per quello dell’Università di Genova Mainboard , a prendere il largo è una prospettiva tecnologico-fantascientifica, producendo delle visioni più che delle vere e proprie strutture.

Sempre del gruppo Genova è la proposta Bones and All che si pone a metà tra questi due approcci; mentre da un lato il disegno restituisce nel detta-

glio un affascinante edificio-ponte realizzabile con elementi modulari, dall’altro la destinazione d’uso prevista è quella di un distopico macello, dove gli animali sono liberi di pascolare all’interno della cinta muraria e vengono prelevati per essere offerti al consumo degli affamati avventori del Mura Festival.

Rimarca il tema radical-animalista anche la visione dell’Università di

116 2023 #03 QUASI ARCHITETTI
09 10

Firenze con il progetto Zoo-rona , il cui proponimento è quello di lasciare lo spazio del bastione al sopravvento della vegetazione e intervenire con alcuni innesti puntuali di riattivazione delle strutture esistenti, in modo da creare uno scenario esperienziale in cui uomini e animali di plastica possano ritrovare la dimensione di uno stupore terrificante all’interno di un contemporaneo bosco sacro.

Questi sono solo alcuni estratti delle tante suggestioni emerse dal seminario progettuale, un lavoro che ha riacceso i riflettori su un tema importante per la nostra realtà cittadina, trovando probabilmente il giusto calibro con cui misurare l’entità della questione ovvero la dimensione dell’effimero.

Entrambe le fasi di lavoro – ricerca e progetto – hanno visto l’organizza-

zione di due convegni e una mostra, in collaborazione con l’Ordine degli Architetti PPC di Verona: il primo convegno dal titolo “Concorso come laboratorio del progetto” si è tenuto ad aprile 2022, mentre la mostraconvegno con l’esposizione dei risultati dei seminari di progettazione ha avuto luogo a giugno 2023 all’interno dell’androne centrale di Porta Palio, opportunamente trasforma-

to in un giardino selvaggio dall’allestimento di Michelangelo Pivetta, capogruppo del progetto Zoo-rona . Tutte le proposte sviluppate, con relative relazioni di approfondimento, sono state raccolte nel volume a cura di Sara Marini, Alberto Petracchin, Luca Zilio Architettura Effimera e monumentale. Laboratorio Verona , edito da Libria, a corredo e compendio dell’intera esperienza. •

117 134

Georgia on my mind

Nel corso degli ultimi due anni Paola Fornasa, co-founder dello studio Ardielli Fornasa Associati di Verona, ha frequentato a lungo la Georgia, repubblica ex sovietica posta a cerniera tra Europa e Asia.

L’occasione iniziale è stata quella di un concorso per la redazione di un Concept Plan per la città di Tskaltubo, che ha visto la vittoria del team guidato dallo studio di Tbilisi Baudesign assieme a esperti e consulenti locali e internazionali, con Ardielli Fornasa nel ruolo di Head of the Project team .

Da allora l’avventura georgiana è proseguita con gli sviluppi del progetto per Tskaltubo, e nuove tappe ancora in divenire.

Da Tbilisi a Tskaltubo

Atterrando a Tbilisi, la prima immagine della città è avvolta nell’oscurità della notte. La maggior parte dei voli da e per Tbilisi è, infatti, programmata nelle ore notturne. Questo aspetto rende il tragitto che collega l’aeroporto al centro città un esercizio visivo dove riconoscere nel silenzio cittadino, animato solo dai giochi di luci e ombre, emergenze architettoniche, sculture totemiche, enormi cartelloni pubblicitari e centri commerciali su cui spiccano i loghi di noti brand internazionali. Il resto della città sembra dormire nell’oscurità; i condomini residenziali, che spaziano dalle recenti costruzioni alle

2023 #03 118
01
Architetti veronesi raccontano la loro esperienza professionale “fuori dalle mura”
Il contributo italiano alla progettazione urbana a livello internazionale attraverso il racconto in presa diretta dell’esperienza georgiana dello studio
Ardielli Fornasa
Testo: Paola Fornasa

testimonianze di epoca sovietica, si riconoscono appena nella penombra, creando una scena dai contorni indefiniti. Raggiunto il fiume Kura, si intravedono, sulla riva opposta, le luci tenui del nucleo antico. Uno sguardo panoramico offre una vista dei progetti iconici made in Italy degli architetti De Lucchi e Fuksas, simboli figli della Rivoluzione delle Rose dei primi anni Duemila. Una luce più discreta valorizza la statua del re Vakhtang Gorgasali che, di fronte alla chiesa di Metekhi, richiama le radici cristiane ortodosse e dalla cui posizione domina le cupole di bagni sulfurei della città antica. Dall’altro lato, la maestosa statua Kartlis Deda, la madre Georgia, funge da richiamo al passato millenario glorioso e, contemporaneamente, da monito di benvenuto e rispetto.

Di giorno, mentre si percorre via Rustaveli, il principale boulevard urbano che attraversa la città da nord a sud, si ha l’impressione di trovarsi in una capitale europea, un intrigante connubio tra Parigi, Barcellona e Milano. Gli edifici neoclassici moderni con accenti pseudo-moreschi creano una scenografia monumentale e vivace, arricchita da abbondanti decorazioni e sculture in bronzo. Addentrandosi nelle vie laterali, basta percorrere poche decine di metri sobbalzando sui masegni dalle forme estremamente arrotondate per entrare in una atmosfera molto diversa,

01. Rappresentazione schematica del patrimonio immobiliare di Tskaltubo. A lato: ritratto di Paola Fornasa.

02. Veduta notturna di Tbilisi dal Parco Rike.

03. Le statue di re Vakhtang Gorgasali e Kartlis Deda.

04. Fotografia storica d’insieme del resort sovietico di Tskaltubo.

05. Medea, uno degli edifici simbolo di Tskaltubo, allo stato attuale.

134 119 05
02 03 04

dove le facciate ornamentali cedono il passo a cortili dalla dimensione domestica e dal fascino decadente. Questa transizione è rimarcata dal verde urbano: dal viale alberato ordinato di Rustaveli si passa alle strade laterali dove le aiuole assomigliano a giardini privati, e non è raro ritrovarsi in vicoli coperti da pergolati di antiche viti. Soltanto proseguendo verso nord ci si rende conto dell’estensione di Tbilisi, che oggi supera un milione di abitanti. L’espansione moderna è punteggiata da architetture sovietiche brutaliste, imponenti e spesso ricoperte da mosaici colorati e vivaci. Il risultato è un insieme affascinante in cui tradizione e modernità si intrecciano in maniera singolare, mantenendo però una atmosfera stranamente domestica. Lasciando la città, è necessario percorrere cinque ore in auto per raggiungere Tskaltubo, la mia destinazione in Georgia. Il viaggio regala un altro frammento di questo paese in rapida trasformazione, in cui i cantieri delle nuove infrastrutture viabilistiche avanzano in modo frenetico. Queste opere fanno parte di un ampio programma di sviluppo infrastrutturale della Georgia per un valore di oltre 3,5 miliardi di dollari, che collegherà le principali città georgiane: da Tbilisi a Kutaisi fino ad arrivare a Batumi, in prossimità del confine turco. Lunghi tratti di autostrada recentemente completati da

aziende asiatiche, riconoscibili dagli imponenti cartelli con caratteri cinesi a bordo strada, sono intervallati da strade disconnesse e tortuose che richiedono una guida lenta e attenta. Qui, lungo il percorso, resistono numerose bancarelle che vendono prodotti artigianali e alimentari locali, esercizi commerciali che dipendono dal flusso di automobili che si muovono lentamente verso il Mar Nero. Sarà interessante osservare come queste trasformazioni infrastrutturali influenzeranno il tessuto sociale di quest’area geografica, che finora ha basato la propria economia sulla lentezza del ritmo di percorrenza.

Tskaltubo e la valorizzazione del patrimonio immobiliare statale

Tskaltubo è oggi una delle ghost town più visitate al mondo, in cui la natura rigogliosa ha trasformato quello che era un palinsesto completo dell’architettura sovietica in un luogo surreale, dove le architetture neoclassiche e brutaliste galleggiano in una dimensione in cui il tempo si è fermato. Difficile immaginare che meno di un secolo fa questa era una delle località termali più visitate dell’ex Unione Sovietica, e rappresentava uno dei principali progetti promossi da Stalin nel suo paese d’origine.

2023 #03 120
06. Le vasche utilizzate per i trattamenti balneologici nella Bathhouse N.8. 07. Veduta aerea della Bathhouse N.8 all’interno del parco centrale.
06
08. Corpo laterale dell’edificio Medea.
07 08

A partire dagli anni Trenta sono stati costruiti numerosi sanatori, edifici per cure mediche e termali, laboratori di ricerca all’interno di un enorme parco centrale, il più grande parco urbano della Georgia. Più di 6.000 visitatori (con una potenzialità massima di 12.000) arrivavano a Tskaltubo ogni giorno con collegamenti ferroviari diretti da e per Mosca. A seguito dell’indipendenza della Georgia, la mancanza di flussi organizzati del governo centrale ha lentamente portato al disuso di questo luogo. Il graduale abbandono delle strutture dei sanatori, unito all’occupazione degli edifici da parte di migliaia di rifugiati dall’Abkhazia all’inizio degli anni Novanta, ha portato alla completa scomparsa di Tskaltubo come località turistica intorno al Duemila. Il risultato oggi è un luogo in cui contrasti, monumentalità e decadenza, grande scala e riappropriazione umana del luogo coesistono in un equilibrio delicato. Nel 2020 il governo georgiano, nello specifico il Ministero delle Infrastrutture e dello Sviluppo Regionale della Georgia, poi il Ministero dell’Economia e dello Sviluppo Sostenibile

134 121 09
11
09-11. Alcuni estratti del libro Development Plan di Tskaltubo
10

della Georgia, ha avviato un processo di valorizzazione di tali immobili. Il problema non riguarda soltanto Tskaltubo, ma si estende a diverse località georgiane in cui è presente un vasto patrimonio immobiliare di proprietà statale (resort ed edifici abbandonati) che non è pensabile recuperare esclusivamente con fondi statali. È necessario quindi assegnare un valore economico di riferimento agli immobili in modo che possano essere messi sul mercato e sviluppati da investitori privati. L’attribuzione di valore agli immobili trascende il semplice concetto di proprietà, in quanto essi diventano rappresentativi e contribuenti all’ambiente urbano in cui sono collocati. Pertanto per determinare tale valore è fondamentale non solo stabilire criteri oggettivi di valutazione, ma valutare le potenziali opportunità di sviluppo e riqualificazione dell’intero contesto in cui questi immobili sono inseriti e pertanto le linee guida che gli stessi soggetti privati dovranno seguire affinché la trasformazione dei singoli immobili rappresenti un arricchimento dell’intero tessuto cittadino.

Concept Plan e Development Plan

Partendo da tali presupposti, il governo georgiano ha promosso un concorso volto alla stesura di un Concept Plan per la città di Tskaltubo, con l’obiettivo di valorizzare le proprietà immobiliari attraverso l’individuazione delle potenzialità di sviluppo dell’intero centro di Tskaltubo. Il concorso internazionale è stato vinto da un team di esperti e consulenti locali e internazionali, guidato dallo studio di Tbilisi Baudesign (Misha Balishvili, Ana Natsvlishvili). Il nostro studio ArdielliFornasa Associati è stato chiamato a far parte del gruppo di lavoro come Head of the Project team.

La prima fase del lavoro ha riguardato la redazione del Concept Plan. In questa fase il nostro studio si è occupato della definizione della vision generale, dell’individuazione delle strategie urbane generali per lo sviluppo dell’intera città, che sono state tradotte dallo studio e dagli esperti locali attraverso la zonizzazione, i parametri di sviluppo e la definizione del valore delle singole proprietà da mettere sul mercato.

Nella seconda fase, oggetto di un successivo concorso vinto nuovamente da Baudesign insieme al nostro studio, è stato redatto il Development Plan per le aree centrali di Tskaltubo; in questa fase, conclusasi all’inizio di quest’anno, ci siamo occupati dello sviluppo progettuale dei luoghi centrali più rappresentativi.

Il contributo italiano

Il lavoro svolto ha avuto un ampio respiro temporale, estendendosi su un arco di due anni. Non potendo offrire una panoramica completa in un breve testo, vorrei mettere in evidenza due aspetti del contributo che il nostro studio ha dato questo lavoro.

Il primo contributo riguarda la definizione strategica iniziale. Questa fase, cruciale nei processi di trasformazione urbana come all’interno di qualsiasi processo progettuale, riveste un ruolo di fondamentale importanza, poiché costituisce il solido fondamento su cui si baseranno tutte le successive decisioni e azioni e determinerà la

2023 #03 122
12. Il gruppo di lavoro davanti a uno dei mosaici che impreziosiscono gli edifici di Tskaltubo.
13 18 12
13. Dettaglio della planimetria generale del Development Plan.

capacità della vision di attrarre investitori sia pubblici che privati e di catalizzare gli investimenti necessari per realizzare la trasformazione pianificata.

Nel Concept Plan, la visione strategica è stata sviluppata a partire dal potenziamento del parco termale per renderlo il fulcro strutturale della città di Tskaltubo, dallo sviluppo del city center come luogo privilegiato per la comunità locale attraverso la rifunzionalizzazione dell’intero territorio cittadino, dalla conservazione della

memoria del luogo attraverso la valorizzazione del ricco patrimonio architettonico esistente, dal rafforzamento del rapporto con la città di Kutaisi e con il suo aeroporto internazionale. Queste strategie sono state declinate all’interno di un progetto urbano complessivo, realizzabile per fasi, in cui ogni tassello contribuisce all’evoluzione di Tskaltubo da località turistica sovietica a meta turistica internazionale della Georgia legata alla cura.

poi attuare il piano stesso (politici, cittadini, stakeholders). È importante sottolineare che questo approccio non sostituisce la pianificazione stessa (la zonizzazione o la regolamentazione normativa), ma è fondamentale per completarla e renderla condivisibile riuscendo a costruire un consenso ampio attorno al progetto di trasformazione della città.

Una questione di linguaggio

Il secondo contributo da parte del nostro studio riguarda lo sviluppo del masterplan dell’area centrale della cittadina: il city center, l’area del mercato, il collegamento con il parco centrale. Abbiamo presentato il lavoro attraverso un libro che narra sotto forma di racconto testuale e visivo il masterplan urbano, traducendo le strategie e le proposte progettuali in modo chiaro e comprensibile per coloro che non sono tecnici o esperti del settore ma che dovranno

Per il nostro studio, l’esperienza di Tskaltubo si è rivelata estremamente positiva sia sotto il profilo professionale che personale. Questo è in gran parte dovuto alla stretta collaborazione instaurata con lo studio Baudesign. Inoltre, questa esperienza ha segnato l’avvio di promettenti opportunità di cooperazione con altri studi professionali locali, che abbiamo avuto modo di conoscere nel corso di questi due anni. È proprio per questa ragione che, all’inizio di quest’anno, abbiamo aperto

” (Ardielli Fornasa), il nostro studio in Georgia. Siamo fiduciosi che nei prossimi mesi ci saranno numerosi altri atterraggi notturni a Tbilisi! •

134 123
არდიელი ფორნაზა
14. Fotoinserimento del Concept Plan. 15. Modello di studio del City Center.
15 16 14
16. Copertina del libro Development Plan di Tskaltubo.

Impronta è un’azienda specializzata nella produzione di serramenti di design nata dallo spirito imprenditoriale e dall’unione di storie e talenti di un gruppo di artigiani nella storica cittadina di Treviso. Una realtà che si è sviluppata negli anni, grazie all’impegno e alla passione di un team che conta più di 60 persone.

Modernità e tradizione si fondono in un’anima art-industriale, lo spirito artigiano si affianca alla tecnologia e all’innovazione dei processi produttivi.

Un’anima che mira ad esaltare l’architettura contemporanea attraverso soluzioni che lasciano spazio alla luce riducendo l’impatto del serramento grazie a profili minimal dagli elevati standard tecnici.

La costante voglia di migliorarci e di progettare soluzioni sempre più innovative ci ha permesso di collaborare con alcuni dei migliori studi di architettura italiani: Mide, Didonè e Comacchio Architects, Damilano studio e DDBA, che ci hanno scelti per incorniciare le proprie visioni architettoniche.

Con la Divisione international valorizziamo invece il serramento Made in Italy in progetti internazionali, dal Medio Oriente agli USA.

Living. Space. Future

Presentiamo al mercato soluzioni tailormade, declinabili a seconda dell’utilizzo dei materiali e della struttura architettonica scelta: legno, materia calda, icona di un’architettura più classica, senza tempo; legno minimal, contemporaneità con profili essenziali in abete, larice, red grandis, rovere o teak; alluminio, adatto a visioni moderne e dal design raffinato; legnoalluminio, connubio sinergico dei due materiali.

Le collezioni si fondano sui 5 elementi di Impronta: design, luce, silenzio, benessere e sicurezza valorizzati in ogni nostro progetto per creare la cornice perfetta.

Gli Atelier Impronta di Desenzano del Garda e Treviso sono il cuore delle collaborazioni con i progettisti e della consulenza ai clienti. Spazi aperti e poliedrici in cui vivere l’Impronta Experience, spaziare con la mente e immaginare sempre nuovi progetti e differenti soluzioni perfette per i nostri clienti.

Sempre orientata al futuro, Impronta collabora con lo IED, Istituto Europeo di Design, insieme agli studenti del Master in Interior Design per un progetto dedicato alla finestra del futuro, tracciando nuove strade senza limiti di visione.

Nelle immagini:

HOUSE NF

Didonè Comacchio Architects

Serramenti Impronta collezioni

Aluxima, Xtravision

Foto: Alberto Sinigaglia

LA BACHECA DI AV 2023 #03 124 #publiredazionale IMPRONTA S.R.L. VIA MANTOVA 4Q 25017 LONATO DEL GARDA (BS) T +39 0422 6066 WWW.IMPRONTAHOME.COM DESENZANO@IMPRONTA.INFO
Impronta

La

Fondato nel 2002, Tom Dixon è un marchio britannico di design di lusso specializzato in illuminazione, mobili ed accessori. Con un’estetica intrinsecamente ispirata alle radici britanniche del marchio, i prodotti sono riconosciuti e apprezzati a livello internazionale per l’uso pionieristico di materiali e tecniche di produzione. Il fondatore e direttore creativo Tom Dixon è un instancabile innovatore, salito alla ribalta a metà degli anni Ottanta come designer anticonformista e senza alcuna formazione, con una linea di mobili di art design. Per Cappellini, ha disegnato l’iconica “S” Chair. Alla fine degli anni Novanta, Tom diventa direttore creativo di Habitat e ringiovanisce il marchio mantenendo la visione di Terence Conran di arricchire la vita quotidiana attraverso un design semplice e moderno. Nel 2001 viene omaggiato da Sua Maestà la Regina d’Inghilterra con il titolo OBE per i servizi resi al design britannico. Nel 2014 viene premiato “Designer dell’anno” a Maison & Objet, Parigi, e nel 2019 riceve la prestigiosa London Design Medal ai British

Land Celebration of Design Awards. Tom è uno dei designer britannici più apprezzati ed è riconosciuto a livello internazionale come un talento originale. Design immediatamente riconoscibili come Beat, Melt, S-Chair e Wingback hanno ottenuto un ampio riconoscimento e sono stati acquisiti dai musei quali il Victoria & Albert Museum di Londra, il MOMA di New York e il Centre Pompidou di Parigi. Quest’anno il marchio ha presentato e aggiunto alla propria collezione una vasta gamma di nuovi prodotti, inaugurando l’anno CHOICE (scelta). Tra questi, la nuova sospensione PUFF, una nuova gamma di luci ricaricabili ispirate alle iconiche famiglie MELT, STONE e BELL, CONE, una nuova base per luci da terra o da tavolo incredibilmente versatile, ed ampliato significativamente la scelta di colori e tessuti disponibili per le collezione di imbottiti FAT e WINGBACK.

“Vogliamo di più, molto di più. Più colori, più variazioni, più combinazioni inaspettate nelle lampade da terra e nei lampadari,

piani da tavolo e tessuti per dare ai nostri appassionati di design una tavolozza più ampia e profonda di opportunità per aiutare a costruire interni perfetti. Una maggiore flessibilità nei luoghi e nelle modalità di illuminazione: ecco perché quest’anno si chiama CHOICE. L’abilità essenziale nella costruzione di spazi speciali richiede scelte giudiziarie, quindi abbiamo lavorato e lavorato per aprire la collezione a questa serie di possibilità inaspettatamente vasta” (Tom Dixon).

125 134 #publiredazionale
Tom Dixon instancabile innovatore presenta l’anno CHOICE
scelta delle luci del brand di
britannico presso lo showroom Formediluce a Verona Corso Milano, 140 - Verona - formediluceverona.it ADREM studioVR ILLUMINAZIONE E DESIGN FORME DI LUCE SRL CORSO MILANO 140 37138 VERONA TEL +39 045 810 1138 WWW.FORMEDILUCEVERONA.IT INFO@FORMEDILUCEVERONA.IT Corso Milano, 140 - Verona - formediluceverona.it ILLUMINAZIONE E DESIGN
design

Sezionali - Basculanti - Serramenti - Carpenteria

Berti snc da oltre un secolo è l’eccellenza nella produzione di basculanti, sezionali e serramenti su misura.

Con il suo brevetto risponde ai più severi standard di sicurezza oggi in vigore. Grazie alla conoscenza dei materiali e alla costante ricerca della perfezione offriamo una vasta gamma di soluzioni personalizzate per ogni cliente.

L’azienda propone realizzazioni anche nell’ambito delle facciate residenziali, commerciali e industriali produce serramenti e infissi in alluminio affidabili e sicuri.

L’estetica inoltre per Berti non è da meno. Importante per l’azienda è infatti creare un design d’impatto ed esclusivo in linea con le attuali tendenze dell’architettura.

LA BACHECA DI AV 2023 #03 126 #publiredazionale BERTI SNC DI BERTI STEFANO VIA I MAGGIO 34 37012 BUSSOLENGO (VR) TEL +39 045 7150689 TEL +39 328 986 9051 WWW.BERTIVERONA.IT INFO@BERTIVERONA.IT
Dal 1890
EXCLUSIVE – CONCEPT – DESIGN

Casa Capra falegnameria dal 1950

Falegnami figli di falegnami: un nome una garanzia da sempre

Siamo una storica e significativa azienda ne mercato artigianale veronese di finestre, porte, strutture per la casa e l’arredo su misura d’interni.

La prima falegnameria nasceva al Chievo nel 1950 per iniziativa di Ettore Capra; 28 anni più tardi inizia il mestiere di falegname anche il figlio Giorgio, che in pochi anni prende in mano le redini della azienda e che nel 1994 apre, con la moglie Nicoletta, il negozio in via Croce Bianca 31. Qui nasce il marchio Casa Capra.

Negli anni successivi l’azienda si allarga, nuovi dipendenti entrano nello staff e con loro i tre figli di Giorgio. Nel 2016 la richiesta sempre maggiore di clienti desiderosi di affidarci tutti i lavori di casa spinge l’azienda ad ampliare ulteriormente i propri servizi: Casa Capra diventa “ristrutturazioni chiavi in mano”.

La nostra azienda grazie alla competenza, professionalità, accuratezza del capostipite, del figlio e ora anche dei nipoti si è sempre più fatta strada nel panorama edilizio e nella positiva considerazione che tutti i nostri cari clienti ci hanno sempre dimostrato.

04

Forniamo un’ampia gamma di opere personalizzate: finestre e serramenti, porte interne e blindate, oscuranti e zanzariere, divisori d’arredo e porte in vetro, inferriate e opere di falegnameria, tutte garantite da certificate aziende del panorama internazionale.

Casa Capra Falegnameria a Verona è presenza significativa nel mercato artigianale fin dal 1950, nata dall’esperienza, affidabilità, accuratezza e competenza di falegnami e figli di falegnami.

In armonia con le esigenze della vasta clientela e in collaborazione con architetti e studi tecnici, progettiamo e realizziamo strutture per ogni ambiente, avvalendoci del nostro personale qualificato, per poter garantire nel tempo ottime rifiniture sia per i prodotti di nostra realizzazione che di marchi prestigiosi.

Ci occupiamo con attenzione delle esigenze dei nostri clienti fin dalla fase di progettazione, successivamente nella fase di realizzazione e montaggio e infine con l’assistenza post-vendita.

Con orgoglio valutiamo il buon “passaparola” come uno dei motivi principali della positiva crescita in tutti questi anni.

Casa Capra rappresenta una delle aziende leader in Verona e provincia nella vendita di strutture per casa.

01-02. Il capostipite, Ettore Capra, e lo staff attuale.

03. Porta blindata motorizzata, classe 4, con pannello esterno in alluminio.

04. Ante battenti a tutto vetro per uno stile industrale minimalista.

05. Arredo su misura realizzato dalla nostra falegnameria.

CASA CAPRA STRUTTURE PER LA CASA VIA CROCE BIANCA 31A 37139 VERONA TEL +39 045 890 1997 WWW.CASACAPRA.IT CASACAPRA@TISCALI.IT
01 02 03
05

Turn static files into dynamic content formats.

Create a flipbook
Issuu converts static files into: digital portfolios, online yearbooks, online catalogs, digital photo albums and more. Sign up and create your flipbook.