AN January/February 2025

Page 1


The Architect's Newspaper

Dennis Crompton, Archigram’s archival “keeper of the flame,” dies at 89 page 8 AN heads to the San Francisco Bay Area to visit Sidell Pakravan Architects page 16

SEEKING HOME IN AMERICA

The housing crisis shapes how we live today. Across this issue, AN covers a variety of topics—policy, single-stair code reform, office-toresidential conversions, affordable housing, ADUs, duplexes, and more—in search of solutions.

After City of Yes, What’s Next?

It’s a good time to be a New York architect, potentially. The 2025 mayoral race is heat ing up, and housing is expected to dominate the debate stage given the city’s affordability crisis. If the candidates are to be believed, tens or even hundreds of thousands of new units will begin construction under their watch, should they be elected.

The numbers are eye-catching in a city beset by bureaucratic stumbling blocks to creating new housing and updating old stock. Mayor Eric Adams set the tone with his City of Yes series of zoning changes, which were modified and then approved by the city council in December of last year. City of Yes aims to deliver 82,000 new homes by 2040, said Adams, who is cam paigning on this and other promises to improve access to affordable housing while also making it easier to build and complete residential projects.

Pitch Perfect in NoBo

His competition is stumping on housing issues too. continued on page 10

Our inaugural list celebrates rising residential architecture design talent in New York. Read on page 27.

Los Angeles faces a huge housing crunch, with thousands of people living on the streets and numerous low-income workers unable to afford market-rate rentals or mortgages. Absent a large-scale housing program, dedicated developers and designers are piecing together residential solutions on infill sites that model high ideals. They often confront complex financial and political challenges, along with resistance from neighbors. To allay concerns, explain challenges, and elevate appreciation for affordable housing in Los Angeles, Friends of Residential Treasures Los Angeles (FORT: LA) and Frances Anderton created Awesome and Affordable: Great Housing Now, a multiplatform project that includes an explainer about L.A.’s housing unaffordability and ways to tackle it (The Case for Great Housing); a Housing Terminology Playbook , written by David Kersh, that unpacks the policies, laws, and players underlying continued on page 21

WORKac’s North Boulder Library opens in Colorado. Read on page 12. Architects share how they design shared spaces within multifamily projects. Read on page 24.

Case studies and products. Read on page 51.

CHASE DANIEL
BRUCE DAMONTE
ROBERT DEITCHLER

TWO CULINARY ICONS

A Paradise Built in Hell

One of my favorite corners of early-1990s New York dance music is a trio of releases by N.Y. House’n Authority. It is one of many aliases used by Rheji Burrell, a musician and producer from Queens who worked closely with his twin brother, Ronald, or “Rhano,” to craft some of the greatest underground hits of the era—if you haven’t heard it, seek out the Club Mix of Bäs Noir’s “My Love Is Magic.” With N.Y. House’n Authority, the instrumental vibe is more stripped down and introspective, even spatial. The titling reinforces the sensibility: There is an EP of housing projects (“Dyckman House,” “Tilden House”) and one of apartments (“Apt. 3A” is my personal favorite). On Renovation & Restoration, Burrell’s numbers read like a to-do list for an NYCHA super: “New Elevators,” “Adequate Lighting,” “Landscaping.” I like the music because it cultivates a bouncy but reflective mood to inhabit when thinking about the spaces where we live. It’s a fitting soundtrack to this issue, because, from its news to its reviews, AN considers the urgent topic of housing and home.

To start, we send love to our friends in Los Angeles, where the worst fires in California’s history have devastated parts of the city. “Climate change has arrived in our living rooms, imploring us to take to the streets to repair our neighborhoods, keep a watchful eye over those who stand to profit from it, and stand better prepared for whatever happens next,” Shane Reiner-Roth wrote in a moving online piece for AN about his experience during the first week of blazes, accompanied by photographs of Altadena by Tag Christof, one of which is included above.

The loss of life, stability, architectural heritage, and property is serious, but it is heartening to see the architecture and design community’s response. In AN ’s online coverage, we’ve gathered leads on folks looking to help. One resource is Design for LA, a “free and public directory of architects, designers, landscape architects, contractors, engineers and other experts related to the building process, particularly in Southern California.”

The conversation about how and where to rebuild is an urgent one, as Los Angeles will continue to face fire dangers as the effects of climate change intensify, and it is in the throes of a housing crisis. See page 21 for an interview with Frances Anderton and Russell Brown that addresses this confluence while reflecting on their work highlighting low-cost multifamily buildings through their Awesome and Affordable campaign. Development in California (and elsewhere) has expanded into the wildland–urban interface, which has put more people and properties at risk, a condition we covered in a 2022 feature story

Homes ought to be places of safety and repose, but they are also a part of our economy. Comprising about 4 percent of the country’s gross domestic product for both single- and multifamily projects, the home-building industry is fast at work, though due to decades of low output, a serious deficit remains: Last year, Zillow estimated the country is short 4.5 million homes

Here, we collect some responsive efforts.

On page 22, Emily Conklin surveys Gensler’s efforts in office-to-residential conversions and SROs as ways to deliver units. On page 10, AN’s news editor, Dan Roche, assesses the housing plans of New York City mayoral candidates in the wake of City of Yes, passed last December. It was advertised as the “most ambitious” update to the city’s zoning code since 1961 and includes a variety of proposals that address the housing shortage “by making it possible to build a little more housing in every neighborhood.” And, beginning on page 51, our Focus section about home construction surveys a quintet of diverse home types from across the continent by creative architects, along with notable new products.

Turn to page 24 to read my story about architects who design amenity spaces. I was interested in how these spaces shape the lives of their residents. In some ways, the convenience of amenity-rich buildings reduces the need to seek services in our neighborhoods. It reminds me of society’s wider consolidations, like the concentration of actions collapsed into our smartphones (Remember film cameras and wristwatches?).

Dwellings are sites of cultural memory and political action: Read Marianela D’Aprile’s review of Making Home , the Smithsonian Design Triennial at Cooper Hewitt, Smithsonian Design Museum on page 80, and next door see Peter Sealy’s assessment of To Build Law at the Canadian Centre for Architecture, an exhibition about the campaign to launch HouseEurope!, which advocates for “new EU laws to make renovation and transformation more easy, affordable, and social.” And in their manifesto (page 82), Viren Brahmbhatt and Richard Plunz share seven steps the new Trump administration can take to make a dent in the housing crisis.

The issue is not all doom and gloom. I’m excited to share AN’s inaugural Twenty to Watch list, which recognizes rising residential architecture design talent in New York (page 27). We will celebrate their promise—and, more generally, the optimistic power of design to create a better world—at New York’s A&D Building on March 6. See you there. Jack Murphy

CEO/Creative Director

Diana Darling

Executive Editor

Jack Murphy

Art Director

Ian Searcy

Managing Editor

Richard Martin

Web Editor

Kristine Klein

Design Editor

Kelly Pau

News Editor

Daniel Jonas Roche

Associate Editor

Paige Davidson

Copy Editor

Don Armstrong

Proofreader

Joanne Camas

Vice President of Brand Partnerships (Southwest, West, Europe)

Dionne Darling

Director of Brand Partnerships (East, Mid-Atlantic, Southeast, Asia)

Tara Newton

Sales Manager

Heather Peters

Audience Development Manager

Samuel Granato

Vice President of Events Marketing and Programming

Marty Wood

Senior Program Associate

Trevor Schillaci

Program Assistant

Izzy Rosado

Events Marketing Manager

Andrea Parsons

Charlotte Barnard

Business Office Manager

Katherine Ross

Design Manager

Dennis Rose

Graphic Designer

Carissa Tsien

Associate Marketing Manager

Sultan Mashriqi

Marketing Associate

Anna Hogan

Media Marketing Assistant

Mika Rivera

General Information: info@archpaper.com

Editorial: editors@archpaper.com

Advertising: ddarling@archpaper.com

Subscription: subscribe@archpaper.com

Vol. 23, Issue 1 | January/February 2025

The Architect’s Newspaper (ISSN 1552-8081) is published 7 times per year by The Architect’s Newspaper, LLC, 25 Park Place, 2nd Floor, New York, NY 10007.

Presort-standard postage paid in New York, NY. Postmaster, send address changes to: 25 Park Place, 2nd Floor, New York, NY 10007.

For subscriber service, email subscribe@archpaper.com.

$6.95/copy, $50/year; institutional $189/year.

Entire contents copyright 2025 by The Architect’s Newspaper, LLC. All rights reserved.

Please notify us if you are receiving duplicate copies.

The views of our writers do not necessarily reflect those of the staff or advisers of The Architect’s Newspaper

TAG CHRISTOF
A house in Altadena aflame during the Eaton Fire in Southern California on January 10

6 News

Highway capping project gets green light in Detroit, following design studies from AECOM

A project that would cap over sections of a sunken freeway in Detroit hit a milestone after getting approved for $2 million in funding. The money from the U.S. Department of Transportation (DOT) and Michigan DOT will help finalize the design for a shovel-ready proposal atop Detroit’s I-75. The highway capping will provide pedestrian overpasses with connections for Brush Park, Downtown, and Midtown. The project now leaves the conceptual and visualization phase and structural design and community planning phases can begin. It will require significant federal funding for completion.

Jonas Roche

Los Angeles looks to the future after appointing Steve Soboroff chief recovery officer

More than 12,300 structures have been destroyed and at least 25 people were killed in the Southern California fires. Several homes by Richard Neutra, Eric Owen Moss, and other prolific architects in L.A. were lost. Architects have played an important role in the disaster relief effort: Zeina Koreitem, Dori Tunstall, and others have started mutual aid groups and helped with conservation. Steve Soboroff, a developer and civic leader, was appointed chief recovery officer by Mayor Karen Bass. DJR

Walmart global headquarters by Gensler and SWA opens in Arkansas

The new “Home Office,” and its 350-acre Walmart headquarters in Bentonville, Arkansas, was designed to offer all of the comforts workers enjoy at home in a centralized corporate location, an attempt at luring employees back to the office after the pandemic. SWA was the landscape architect on the project, and Gensler was the executive architect of the Home Office, which formally opened in mid-January. DJR

LPC approves gate for Greenwich Village row house popularized on Sex and the City

Is New York City’s most famous stoop at 66 Perry Street? The townhouse made its debut on Sex and the City as the exterior of protagonist Carrie Bradshaw’s residence 30 years ago. Today, visitors make pilgrimages to the site to snap selfies at the black iron railings. Now, the residence’s longtime owner has earned the right from the New York City Landmarks Preservation Commission to add a gate to the front of the stoop to keep overeager fans from trespassing. KK

Trump administration issues executive order to promote “beautiful federal civic architecture”

In one of his many executive orders from January 20, President Trump requested recommendations that would “advance the policy that Federal public buildings […] be visually identifiable as civic buildings and respect regional, traditional, and classical architectural heritage in order to uplift and beautify public spaces and ennoble the United States and our system of self-government.” The General Services Administration now has 60 days to deliver a road map to POTUS for promoting “beautiful federal civic architecture.” DJR

Ethel Cain’s new EP invokes French neoclassicist ÉtienneLouis Boullée

Perverts was released by songwriter Ethel Cain on January 8. The follow-up to her hit album Preacher’s Daughter , Perverts trades storytelling for space-making. “By resurrecting Boullée and invoking a negative sublime via the death rattle hums of southwestern Pennsylvania’s industrial behemoths, Cain delivers a project very much in line with the technoclassical aesthetic of Douglas Darden’s Condemned Buildings from 1993,” Adrienne Economos Miller said in her review of the EP for AN Adrienne Economos Miller

UT Austin names architecture and planning school library after John Chase, the U.S. South’s first licensed African American architect

John Chase was a man of firsts. The first licensed African American architect in the U.S. South, he was also the first Black member of the U.S. Commission of Fine Arts and the first Black graduate from the University of Texas at Austin School of Architecture. To recognize Chase and his achievements, the UT Austin School of Architecture library is now named after him. The John S. Chase Architecture and Planning Library was made possible thanks to a gift and pledge from Chase’s son, Tony Chase, and daughter-in-law Dina Al-Sowayel. DJR

Dennis Maher of Assembly House 150 partners with Buffalo civic leaders to address the loss of historic buildings

Architects such as H. H. Richardson, Louis Sullivan, and Frank Lloyd Wright contributed to the urban fabric of Buffalo, New York. Today, a new historic preservation program led by University of Buffalo architecture professor Dennis Maher seeks to tap into the city’s radical legacy. His Assembly House 150, and the City of Buffalo and Buffalo History Museum’s Melissa Brown have teamed up for an initiative that will result in a “framework to salvage and repurpose meaningful elements from significant buildings.” DJR

RIOS shares more renderings and details of master plan to revamp area around Chicago’s United Center

With basketball and hockey seasons fully underway, Chicago’s United Center—home to the Chicago Bulls and Chicago Blackhawks—is already a bustling place. A $7 billion vision to redevelop the area surrounding the sports arena and Chicago’s West Side was revealed last summer, and in January, new renderings emerged as the first phase of the proposed seven-phase project was given the green light by the Chicago Plan Commission. Kristine Klein

Sixers scrap master plan by Gensler for Philadelphia Chinatown stadium, opting to remain in South Philly

The master plan for a $1.3 billion mixed-use stadium project in Center City, Philadelphia, by Gensler was scrapped after city officials and business leaders came together to chart a different path forward. Instead of building 76 Place, the Sixers will remain in the South Philadelphia stadium district. Wells Fargo Center will be demolished and a new purpose-built home for the Sixers and Flyers will be built in its place. The stadium could also be home to a future WNBA team pending a successful bid for one, Philadelphia Mayor Cherelle L. Parker said. DJR

David Lynch, who inhabited the haunted house of the American psyche, dies at 78

Revered filmmaker David Lynch died of complications from emphysema on January 15. The artist behind classic films like Mulholland Drive and Eraserhead and the groundbreaking TV series Twin Peaks influenced many architects. Writing for AN, Enrique Ramirez, an art and architecture historian, said: “Lynch understood something fundamental about architecture that can elude even the best filmmakers: Spaces aren’t neutral containers for action—they’re active participants in our psychodrama.” Enrique Ramirez

Congestion pricing happened in New York City. Is Boston next?

Boston has notoriously bad traffic, but does it have to? Massachusetts planners, politicians, and economists are closely monitoring the new congestion pricing that went into effect in Manhattan in January. The encouraging early results in New York’s program, which will ultimately help fund improvements to subways, are making a congestion toll attractive to Bostonians like Chris Dempsey, a Boston planner and partner at Speck Dempsey who previously helmed Transportation for Massachusetts. “I think Greater Boston is about ten years from a congestion pricing system,” Dempsey told AN DJR

Daniel
DOWNTOWN DETROIT PARTNERSHIP
© WALMART
COURTESY UT AUSTIN
WIKIMEDIA COMMONS

James Turrell skyspace to open on February 15 at the Keith House in Fort Worth, Texas

FXCollaborative to reimagine the Bronx’s Kingsbridge Armory

Blackstone, Cushman & Wakefield and other landlords accused of rental price fixing by U.S. Department of Justice

Faulty urban planning played role in New Orleans terrorist attack

Artist James Turrell is set to unveil the latest of his famed “skyspace” installations. Another one of his immersive, light-centric pieces will open in Fort Worth , Texas, in February. The work was commissioned for the Keith House, an event space for nonprofits operated by the Meta Alice Keith Bratten Foundation. Known as Come to Good, the installation follows the typical prescriptions of a Turrell work—a retractable segment of the roof moves to reveal a skyward opening that enhances the spatial quality of the large meeting room beneath it. Trevor

The winning proposal for Kingsbridge Armory’s reimagination was named in January by New York city and state leaders. The announcement comes after a Request for Proposal was shared for the armory in August 2023, and WXY led a lengthy community outreach process. Leading the development team for Kingsbridge Armory’s revitalization is 8th Regiment Partners, and FXCollaborative will be the project architect. The full plan is laid out in a document titled Together for Kingsbridge Vision Plan DJR

Allied Works to design new art museum at Middlebury College

Allied Works has been selected to design a new $50 million art museum at Middlebury College in Vermont. The Portland- and Brooklyn-based firm was chosen by the Middlebury Board of Trustees to ideate the future building on the campus’s north side. Renderings show a low-lying volume clad in a striated material that meshes well with the stately, historic architecture that makes up much of Middlebury’s campus. A large void in the block opens to the main entrance, and rectilinear apertures puncture the facade. Allied Works said it’s conceiving the museum as a “beacon signaling the importance of the arts on campus.” DJR

Dattner Architects designs congestion pricing devices in New York

Congestion pricing, or congestion relief, was a project 20 years in the making in New York. And, on January 5, the network finally went into effect. Passenger vehicles are now charged $9 to enter Manhattan below 60th Street, whether they arrive from New Jersey, Connecticut, or Long Island. Dattner Architects worked under Parsons to design the equipment needed to make the program function. Dattner ideated the boxes that register vehicle numbers and automatically charge motorists, sending money back to the MTA for capital improvements. DJR

Lakisha Woods to step down from her role as AIA EVP/CEO in February 2025

Lakisha Woods, EVP/CEO of AIA, announced in December that she will step down from her role effective February 2025, according to an AIA press statement. Stephen Ayers, 11th Architect of the Capitol, will serve as interim EVP/ CEO until Woods’s successor is identified. In the announcement of Woods’s departure, AIA touted her passion for empowering women and minority leaders. AIA also pointed to the major accomplishments Woods earned during her tenure as EVP/CEO of the AIA. Woods has served in the role since January 2022. DJR

Germane Barnes revises classical architecture to tell stories about the African diaspora

The Art Institute of Chicago hosted a major exhibition by Germane Barnes, an architect from Chicago who now teaches at the University of Miami. Columnar Disorder was reviewed for AN by Anjulie Rao. “The column, and all its baggage, registers one’s icky allegiance to tradition,” Rao said. “Instead, Columnar Disorder , curated by Irene Sunwoo, John H. Bryan Chair and Curator of Architecture and Design, considers the African diaspora as a foundational history of Western European civilization.” Anjulie Rao

Netflix’s plans for new East Coast flagship in New Jersey approved by state

A former military base in Monmouth County, New Jersey, will soon host a massive Netflix film studio. Plans for the 289-acre, $903 million campus were approved by the New Jersey Economic Development Authority (NJEDA) Board on December 19, 2024. The plant’s working name is Netflix Studios Fort Monmouth. The architects designing the campus were not named by NJEDA. The site Netflix chose is Oceanport. Soon the Jersey Shore locale will house Netflix offices, 12 soundstages, back lots, and other filmmaking essentials. DJR

Six of the country’s most powerful landlords were named in a lawsuit brought by the U.S. Department of Justice. Blackstone, Cushman & Wakefield; Greystar; Camden; Pinnacle; Willow Bridge; and Cortland were all implicated. These six landlords cumulatively control 1.3 million units in 43 states and Washington, D.C. They stand accused of participating “in a scheme to set their rents using each other’s competitively sensitive information through common pricing algorithms,” the Justice Department said. DJR

Alvar Aalto’s Finlandia Hall reopens after renovation by Arkkitehdit NRT

Finlandia Hall, a 1971 concert venue designed by Alvar Aalto on the banks of Töölönlahti Bay in Helsinki, has reopened to the public. The ribbon-cutting comes after a three-year renovation helmed by Arkkitehdit NRT, a local office. The new and improved Finlandia Hall has features it previously did not: a restaurant and wine cafe, exhibition space, a design shop, and even two hotel rooms open for booking by tourists and Finnish citizens alike. DJR

GM and Bedrock reveal master plan for John Portman’s Renaissance Center by Gensler and Field Operations

John Portman’s General Motors Renaissance Center has cast shadows over Downtown Detroit for decades. Since 1976, the five towers, replete with quintessential Portmanian atria and stacked atop a gargantuan base, have enticed praise, debate, and criticism in Michigan’s largest city. A new plan by GM, Bedrock, Gensler’s Detroit office, and Field Operations would tear down two of the Renaissance Center’s original towers and replace them with three new smaller ones filled with “a mix of hospitality and housing,” according to the developers. DJR

Renzo Piano Building Workshop delivers a shiplike residential building in Monaco

Per capita, Monaco was the wealthiest country on earth last year. The country is a fascinating and dense fabric of older villas, resort-style slab towers, and increasingly swank recent developments by Zaha Hadid Architects, Foster + Partners, and Studio Fuksas, slotted into whatever square meters of steep slope can be spared. A new large residential structure by Renzo Piano Building Workshop opened this January, with public space designed by Michel Desvigne Paysagiste. Anthony Paletta

It’s been a month since a heavy truck rammed through a crowd on Bourbon Street in New Orleans, killing 14 people and injuring many more. Not long after the catastrophe, reporters found that the new bollards planned for Bourbon Street, scheduled to be installed by February ahead of the Super Bowl, wouldn’t have been strong enough to thwart the driver’s Ford F-150, which weighed approximately 6,000 pounds, sparking concerns for many. The older bollards— manufactured by a British company, Heald—were stronger than the ones being installed on the street for the Super Bowl. DJR

FXCollaborative to design new purposebuilt home for the Climate Museum at Hudson Yards

FXCollaborative’s new home for the Climate Museum, at 418 11th Avenue in Manhattan, is the first institution in the U.S. dedicated to telling the past, present, and future of global warming. The space will be 24,000 square feet and located on the ground floor of a new 2-tower development underway at Hudson Yards, a $1.35 billion development called Hudson, or HDSN for short. HDSN will be at Site K, an undeveloped plot between West 35th and 36th streets. DJR

TUOMAS UUSHEIMO

Eavesdrop

Things That Go Bang in the Night

Dennis Crompton of the influential architecture group Archigram dies at 89.

Dennis Crompton, cofounder of Archigram, died on January 20. He was 89. News of his passing was confirmed by his daughter Catherine and his friend and collaborator Sir Peter Cook, who called Crompton the “Archigram keeper of the Flame.”

Few architects influenced more late-20thcentury imaginations than Archigram, an ethos Crompton helped sustain as the group’s archivist. Its techno-obsessed antics inspired generations of architects, and without the group’s countercultural provocations, there would be no gizmo-fancying folks like Norman Foster, Rem Koolhaas, and Richard Rogers.

Crompton was a friend of The Architect’s Newspaper cofounders Bill Menking and Diana Darling. Crompton and Menking met in London decades ago. Menking later contributed to Concerning Archigram, a title that was edited by Crompton and published in 1999.

Diana Darling, CEO/creative director of AN Media Group, shared, “As I reflect on the more than 30 years of knowing Dennis and the Archigram crew, families, and friends, the memories come flooding back. I remember the historical times spent with Dennis in London and in the U.S. It was fun to work with him each year on the Archigram Best of Design print that we distributed to our top design winners. He was a kind, patient man who held the group together and kept them organized all of these years.”

“Dennis Crompton’s allegiance was first and foremost to the group: the Archigram Group,” Michael Webb, an Archigram cofounder, said.

Finding the “Archigram Guys”

Crompton was born on June 29, 1935, in the northern England city of Blackpool. He enrolled in the architecture program at the University of Manchester before working for the planning wing of the London County Council (LCC) on the South Bank development. There, he met Ron Herron, who introduced him to Warren Chalk. It was at the LCC where, Crompton said, he started thinking about concepts like total planning and systems design.

He cofounded a magazine called Archigram in 1961 with Cook, Herron, Chalk, Webb, and David Greene. The first issue was raw: It was two pages long and created in part using an electric typewriter.

That magazine eventually became the architecture group Archigram. “We decided something had to be said about the terrible state of English architecture at that time,” Crompton

noted. “We eventually became known as the ‘Archigram guys.’”

“He was the tech chappie of the group,” Webb told AN , in describing Crompton. “The electronic whiz. Whenever the group set up to deliver a lecture, there would be Dennis tinkering around before curtain-up. I seem to remember a special test slide that my memory persuades me was able to indicate whether the projector was absolutely level. The rest of us were more of the catastrophic-slides-dropping-out-of-the-tray school.”

At the age of 30, Crompton started teaching at the Architectural Association (AA) in London, where he worked closely with Alvin Boyarsky in the communications department. Later, Crompton would teach at institutions like the Bartlett School of Architecture.

“His daily work schedule was brutal,” Webb added. “The day began for Dennis at 8:30 a.m. At 9:30 off to the AA, to return home at, say, 8:00 p.m. Supper, then a noisy nap in front of the TV followed by, yes, a return to work. Finally, bedtime at 3:15 a.m.”

Archigram won its first competition in 1969 for a project in Monte Carlo, which required the formation of an official office. The group set up shop at 53 Endell Street in London. Among their best known works was the Plug-In City and contraptions, dubbed “things that go bang in the night.”

Archival Fever

In 1975, Crompton left Archigram and established the Archigram Archives.

Chalk died in 1988. Herron and Crompton curated an Archigram retrospective in Vienna in 1994, and Herron died later that year.

Simon Sadler’s Archigram: Architecture Without Architecture was published in 2005 by The MIT Press.

Later, Crompton digitized Archigram’s archives. Menking remained a close friend, so when the group launched the online version of its archive in 2010, Webb and Crompton did so from Menking’s Tribeca loft

“Once, when I was attempting to hang a show of my own contribution to the group’s work at the Architecture League in New York City, with much work yet to be hung and precious little time to hang it, suddenly in through the door walks Dennis, that inveterate Londoner, carrying his tool bag,” Webb shared. “No advance notice of his intentions… He must have booked at the last minute a daytime transatlantic flight from Heathrow, sensing that help was desperately needed on the other side of the puddle, as indeed it was.”

Crompton also edited Archigram: The Book, which was published in 2018.

Archigram Ten

Archigram’s archive was ultimately sold in 2019 to M+ in Hong Kong . Aric Chen, a former AN columnist who went on to serve as M+’s lead curator for design and architecture from 2012 to 2018, was a key figure in securing this purchase. He shared: “My impression was of Dennis as both an agent and documenter of Archigram—both an insider and objective observer, a true believer who understood the significance of its work and shared it with both modesty and generosity.”

Archigram’s editions were numbered like comic books. After issue nine, published in 1970, there was a half-issue in 1974 and then silence. Until now: Archigram Ten was just released in January.

Crompton is survived by his wife, Betty, and two children, Catherine and Daniel. DJR/JM

Dueling Tabloids

What’s the deal with Of the Moment, a new publication about architecture in Los Angeles?

Architecture publications come and go, but lately it seems more of the latter. The phenomenon is particularly true in Los Angeles, where titles like L.A. Architect and the L.A. Forum’s newsletter ceased and, more recently, critics like Christopher Hawthorne and Carolina A. Miranda departed The Los Angeles Times . So it was a pleasant surprise to receive Of the Moment ( OTM ), a new effort instigated by Thom Mayne, edited by Dora Epstein Jones and Frances Anderton, and supported by the A&D Museum.

The publication is a folded newsprint item printed in black ink with a trim size of roughly 10.5 inches by 16.5 inches. It is mostly useful, content-rich interviews that lean academic with a host of architects, educators, and students chiming in. In between, individual projects are presented in write-ups with supporting photos, renderings, drawings, and diagrams. There are excursions to Santa Barbara (Robin Donaldson’s impressive Hill House) and Argentina (a home designed by Florencia Pita and Hernán Diaz Alonso). And across the top, a Greek chorus—Barbara Bestor, Greg Lynn, and Joe Day—offers running commentary. The issue “was a real labor of love for the city of L.A. and its current architecture scene,” Epstein Jones shared via email.

Despite its useful record of local concerns, OTM lands as indulgent, as Mayne instigated it out of spite. Last year, the New York Review of Architecture ( NYRA ) decamped to Los Angeles for its inaugural issue of the Los Angeles Review of Architecture ( LARA ), guest-edited by AN contributor Mimi Zeiger. (Samuel Medina, AN ’s prior executive editor, edits the ’ RA s.) Mayne and his wife, Blythe Alison-Mayne, financially supported the effort, and NYRA ’s publisher, Nicolas Kemper stayed with them when in town to launch LARA.

But upon thumbing through its green-tinted pages (which were nearly matched by OTM ’s dimensions), Mayne found that his enthusiasm had dimmed. LARA “missed the point,” he said on a recent phone call. “It was kind of snarky, and, frankly, I don’t think they understood L.A.” Perhaps he was personally offended: In the issue, Zeiger, a longtime Angeleno, pans his M 3 as a “relentless, I-Ching of disciplinary thought that’s generally unreadable.”

For Mayne, the point of OTM is dialogue, not single voices—and certainly not the whiny takes of downer naysayers: “Architecture doesn’t need critics right now. It’s hard enough.” And he’s not above a clap back: OTM ends with Mayne’s tribute to Antoine Predock, who is shown flipping off the camera. (Sources say Mayne wanted to put this photo on the cover to send a message to the haters but later changed his tune.) Mayne also came to the rescue of his friend Eric Owen Moss’s (W)rapper building, which was savaged by critics, including Ryan Scavnicky writing for AN and Oliver Wainwright in The Guardian . In a country that loves freedom, why pan a building that so proudly embodies the ideal? That ain’t right.

On the phone, Mayne widened his complaint: The U.S. is a “very difficult place to practice architecture. It’s just not interested in the culture of architecture. And if you look at especially experimental work, there’s just about nothing coming out of this country right now. It’s totally amazing. [It’s] the richest country in the world, and if you talk to anybody that’s interested in innovation, all the work will be in China and the Middle East.” Mayne would know: Morphosis, the office he founded, works around the world. It contributed to The Line at NEOM, though it reportedly stepped away last summer after the project was scaled back and news emerged about the high number of worker deaths across the Saudi Vision 2030 initiative

Mayne rightly said American culture is obsessed with private space. When it comes to civic grandeur, “forget it. It’s hard to get money to build a reasonable public building today.” These days, he believes, “the press” [moi?!] is interested in being negative instead of supporting architects. A thin skin does one no favors: If architects can’t tolerate the jabs of those who encourage practitioners to do better, how are they going to survive in the mean wider world of culture?

OTM debuted back in September at an event at the A&D Museum with regular tickets priced at $200. Since then, there has been some feedback. Hawthorne, in a short note in the latest issue of NYRA , summed up OTM as “intermittently enlightening if rambling conversations among talented L.A. architects” before lamenting Mayne’s demolition of Ray Bradbury’s home to build his own compound. Mark Lamster, Alexandra Lange, and Miranda, in their year-end fake awards roundup, gave it the X-Acto of Doom Award, because “pesky critics have a habit of getting in the way.”

Are L.A. architects allergic to criticism? Julie Eizenberg told Kemper that “architects do not come to L.A. to be part of a village—they want to do their own thing.” LARA , in Kemper’s view, demonstrated that the metropolis “might be ready to have a proper town square, a bastion of reported and critical pieces written by working writers deeply in tune to the city.” He continued, “I think [Mayne’s] work building up architecture institutions, most notably SCI-Arc, demonstrates that he really understands that building the town square benefits all architects, even if he may not agree with everything that is said in it.”

What’s next for OTM? Mayne said he is looking for someone else to steer the ship. Meanwhile Epstein Jones, who teaches at The University of Texas at Austin after a stint at Texas Tech, wants to take OTM on the road—Chicago? Detroit? Miami?—provided there’s financial support.

Mayne, who instigates from his Culver City venue called the Stray Dog Café, comes across as a swaggering outsider despite his starchitect status. OTM collects valuable discourse but even though it was organized by a Pritzker Prize winner, the effort scans as an amateur publication, like an inky 1990s alt-weekly. Maybe in addition to paying writers it should invest in a proper graphic designer?

If OTM can squeak out another screenshot of the L.A. zeitgeist, it will face competition: NYRA has fundraised $20,000 to support its next issue of LARA, due out later this year. Kemper shared, “I hope OTM publishes a second issue, too, and look forward to reading it.” Same. JM

KATHY DEWITT/ALAMY STOCK PHOTO

9 Open

Bar Etoile

632 North Western Avenue, Los Angeles, CA 90004

Lovers Unite

Warm and cool tones inform the wine bar and French restaurant

Bar Etoile, from Jill Bernheimer of popular natural wine shop Domaine LA, chef Travis Hayden, and Julian Kurland. On one half of the Melrose Hill space, the bistrolike space is clad in dark brown wood panels set against rounded blue banquettes. Lovers Unite continues the paneling toward the wine coolers with fridges framed in blue. The other half of the space inverts this tonal setup with white walls and brown, linear banquettes to pair with dark blue chairs. The contrasting colors are finished by the curving bar counter that anchors the space in the middle. The metallic bar continues the warm and cool duality, set beneath a rounded soffit that’s metallic on its underside, with wood on its exterior. Vintage frames and warm pendants tie the scheme together for a moody, timeless ambience.

1004 2nd Avenue, New York, NY 10022

A fluted facade composed of handmade Kinney Block greets diners upon arrival at the Mexican restaurant Ánimo! It sets the tone for the playful sophistication that awaits. Jordana Maisie Design Studio looked to the curvature in Mexican architecture to inform the interior. The winding millwork captures this, both on the ceiling and on the ground to create banquettes. The banquettes continue the millwork’s light green in their leather upholstery. It falls alongside texture, from tiles that clad the banquettes to the terrazzo counter that tops it. Across, another curving volume—this time clad in red tiles for a colorful departure—serves as the sales and display counter. A rounded archway leading to the kitchen and the built-in shelving along the back wall drive home the motif.

June’s Pizza

2408 Mandela Parkway, Oakland, CA 94607

alex spatzier architects

The kitchen is reimagined as a factory line at June’s Pizza, aptly housed in an industrial building. Alex spatzier architects makes the kitchen’s work—from fermenting dough and rolling it out to topping and cooking it—the central stage of the pizza restaurant from founder Craig Murli. Set beneath the ceiling’s exposed rafters and pipes, the restaurant houses the kitchen and counter along the length of the space where the architects’ interventions are located. Like a pavilion within the building, the open kitchen’s tiled walls and glossy canopy swoop out to reveal the cooks at work. Seating points toward this white box, namely at the plywood counter. From this neutral base, the yellow-tiled oven lies at the heart, merging the industrial style with warmth and color.

Andrea’s Cookies

1632 Bloor Street West, Toronto, ON MP6 1A7 StudioAC

Sleek, futuristic shop Andrea’s Cookies is a small grab-and-go bakery from founder and baker Andrea Mears. StudioAC makes effective use of the compact space, starting with its interior’s circular gesture. The pink plywood counter acts as a beacon to gather interest from passersby on the street while choreographing the flow of customers, who begin on one end where they order and slide along the counter to the other to pick up. The pink is juxtaposed with stainless steel on the countertops, a pairing mirrored in the above bulwark to better frame the order area. The space is lit with a spherical pendant, continuing the counter’s rounded theme. Behind the service area, the shop’s own product is displayed on shelving matching the pink color gradient of the plywood.

Wildweed

1301 Walnut Street, Cincinnati, OH 45202

Team B Architecture & Design

For Wildweed, a 60-seat restaurant from chef David Jackman, Team B translates the menu’s playful spin on conventional dishes into an approachable interior with unexpected moments. The architects first choreographed the floorplan as it tightly wound around the different seating areas, chef’s table, bar, and wine stand. Cutting through the neutral base of wood floors and white walls, a cerulean-colored mesh lighting trough connects the various zones, running through walls. Underneath, banquettes with quirky wooden spheres craftily store plates and lamps—and conceal the ductwork. The designers used millwork to divide the space into its distinct zones that offer delightful elements, like the tile-clad wine cooler, built into a curving piece of millwork that also creates the corridor to the bathroom. Here, where there’s play, there’s practicality.

Capital City Diner

1709 Western Avenue, Albany, NY 12203

Parts and Labor Design

Parts and Labor Design puts a sophisticated spin on the classic diner space for Albany’s Capital City Diner. The studio reinterprets elements like leather booths, checkered floors, and swiveling barstools with a celebration of material and texture. Rosso Levanto marble meets fluted black and white tiles along the walls, oak planks on the floors, red leather for the booths, glass block abutting windows, and lots of chrome. The ceiling complements the interior’s burgundy and chrome color palette with its barreled wood and milky glass fins. Lighting and furniture are light references to the 1960s and 1970s, featuring pyramidal pendants, cylindrical table lamps, and bulb-filled chandeliers. The result makes for recognizable diner aesthetics, rendered in a fresh, contemporary iteration. Kelly Pau

Ánimo!
Jordana Maisie Design Studio
KORT HAVENS
SETH CAPLAN
ALEX SPATZIER
SCOTT WALSH
RYAN BACK
MATT KISIDAY

10 News Coming in Hot

The 2025 New York City mayoral race has candidates proposing a wide, sometimes wild, range of solutions to the housing shortage.

rate and affordable housing, which contrasts with Lander’s pledge of 100 percent social housing on public sites.

More than 130,000 New Yorkers sleep either on the streets or in shelters every night, according to the Coalition for the Homeless, a New York City advocacy group. To tackle that problem, Myrie has proposed reallocating funds away from new shelter construction toward new, permanent supportive housing. Rebuild NYC also emphasizes renter protections, namely the need to pass the Housing Access Voucher Program; fully funding Right to Counsel for renters who face eviction; and appointing Rent Guidelines Board members. Another important component in Myrie’s housing plan is what he calls building a Mega Midtown, which entails adding 85,000 new homes in Manhattan’s Central Business District. (Already, as a state legislator, Myrie has increased the FAR cap, which limits the aount of floor area that can be built on a zoning lot in New York City, allowing that to happen, he said.) Myrie said his administration would prioritize converting office space into housing, given the massive vacancy rate in Midtown today. Rebuild NYC mentions the plan for Fulton and Elliott-Chelsea Houses by Related Companies, Essence Development, PAU, ILA, and COOKFOX as a model that could scale across New York for upgrading NYCHA properties.

weeks. But so far, Mamdani is the first mayoral hopeful committed to freezing rent for all 2.5 million rent-stabilized tenants in New York City. Under Adams, rent-stabilized apartments saw massive rent increases every year; Mamdani has pledged to stop that if he’s put in charge of the mayor-controlled Rent Guidelines Board. Mamdani has also been highly critical of Governor Kathy Hochul and her close ties to the Real Estate Board of New York.

Last year, Mamdani joined state legislators in Albany in proposing a new state agency, the Social Housing Development Authority, that would deliver government-backed affordable housing free from private developers. Mamdani, at 33, the mayoral race’s youngest candidate, has also proposed building cityowned grocery stores to help New Yorkers frustrated by inflation and rising food costs, and he has advocated for expanding New York’s fare-free bus pilot program.

Scott Stringer’s “The Robin Hood Housing Plan”

continued from cover Candidates including Assemblymember Zellner Myrie, Comptroller Brad Lander, and Scott Stringer, a former comptroller and assemblyman, have promised to build tens of thousands of new homes every year to meet pent-up demand. Assemblymember Zohran Mamdani, the Democratic Socialists of America’s candidate, has promoted rent freezes, fare-free bus service, municipal grocery stores, and a new state authority tasked with government-backed housing construction. Assemblymember Jessica Ramos, the New York State Senate labor chair, is centering her campaign on tenants’ rights.

“Housing is the number one issue in this election,” Christopher Marte, a New York City Council member who represents the Lower East Side and Chinatown, told AN. “It’s important for every single candidate to have a well-thought-out housing platform that we can hold accountable, because if you’re not going to address the crisis of the moment, then why are you running for mayor?”

How is New York City’s housing crisis shaping the 2025 mayoral campaign? And what will happen if the Trump administration hinders affordable housing construction, given its commitment to “small government” and slashing subsidies? Here, AN takes a look at several candidates’ housing plans in the run-up to the November 4 election.

Brad Lander’s Plan: “Housing as a Public Good”

New York City Comptroller Brad Lander has a multifaceted plan that promises a massive amount of housing production: 582,000 homes by 2040. He also has policy panache that has the wonks humming. The plan by Lander would generate capital for permanent supportive housing without help from Washington or Albany by creating not-forprofit land banks to “take control of, and redevelop, vacant or abandoned properties

to better serve the public interest,” as defined by the Empire State Development Corporation. Under Lander’s plan, the city would seize foreclosed hotels and put them into the land bank. Annually, $100 million would be used to convert former hotel rooms into supportive housing. This would be made possible thanks to legislation Lander himself authored in 2018, City Council Introduction 118

Lander has pledged $4 billion per year as part of the United for Housing coalition for the New York City Housing Authority (NYCHA), vouchers, preservation, and new social housing construction. If he’s elected, he said, any housing built on city-owned land will be 100 percent social housing, as opposed to a mix of market rate and affordable housing, like much of what’s been built under Adams. While Lander’s land bank represents new thinking, there are ample instruments at our disposal already for boosting affordable housing construction, but not all those means may be possible during the second Trump administration. So if New York City is to operate autonomously from Washington and even Albany, creative reclamation strategies like those proposed by Lander may be critical these next few years.

Zellner Myrie’s Plan: “Rebuild NYC”

Zellner Myrie, a state senator who represents Central Brooklyn, has a housing plan, “Rebuild NYC,” that he says would deliver one million homes. “The number-one constituent complaint I’ve received as a state senator, and what I have been hearing as a mayoral candidate, is that the city is just too expensive and that people cannot find a place to live,” Myrie told AN. “We have to build more in order to strike at the heart of this affordability crisis, and we can do that with the creation and preservation of one million homes over the next decade.” Myrie also said it’s essential to build homes “of all types,” including market

With Rebuild NYC, Myrie aims to build a total 95,000 new units at NYCHA sites across the city and upgrade an additional 150,000 existing NYCHA units, either using RAD/PACT (a program that converts federal Section 9 public housing into privately-operated Section 8 subsidized housing) or the Public Housing Preservation Trust, pending resident approval. “I used to represent 23 NYCHA developments when I had Brownsville, and I walked those hallways. I’ve been in those apartments. I’ve dealt with NYCHA to expedite repairs,” Myrie added. “People have a lot to say about the current conditions but have little to say about a real solution to that problem. I think we have an opportunity now to generate revenue that is badly needed, but also to help with repair and revitalization. No NYCHA tenant would be displaced under our plan. No NYCHA resident would have to pay more than 30 percent of their income. That would not change. What would change is new public amenities and, in some instances, brand-new units and a revitalized neighborhood that they can all be proud to be a part of, which is what they truly deserve.”

Jessica Ramos’s Platform

Mayoral candidate Jessica Ramos, a state senator from Queens whose district includes Citi Field and the development underway there, told a tenants’ advocate she does not support RAD/PACT, which has led to evictions by private management companies, the comptroller’s office recently reported. Ramos is an advocate for universal rent control. Ramos has proposed legislation in Albany to boost employment opportunities in the construction industry and tackle the housing crisis. Her Jobs and Housing Act’s goal is to create a pilot program for affordable housing construction; it’s currently under review by the New York State Senate Finance Committee.

Zohran Mamdani’s Platform

Assemblymember Zohran Mamdani’s district in Queens, which includes Astoria, is just west of Jessica Ramos’s base. A spokesperson for Mamdani told AN that he will release a more detailed housing plan in the coming

Scott Stringer, one of the front-runners in polls (along with Lander and former Governor Andrew Cuomo, should he decide to join the race), has a plan that revolves around creating “Mitchell-Lama 2.0,” an upgrade to the 1955 law that provides affordable rental and cooperative housing to moderate- and middle-income families. Stringer’s housing platform is predicated on four pillars, one of which he calls his “Robin Hood Housing Plan.” The pillars are utilizing public land, holding negligent landlords accountable, providing loans for building neighborhood-focused housing projects, and revitalizing NYCHA. Stringer said he will increase tenant oversight of NYCHA properties and secure $40 billion in funding to upgrade NYCHA flats. He said the $40 billion will come from leveraging “federal and state funding opportunities,” though the appropriation strategy isn’t concretely spelled out in his plan. He also didn’t say whether or not he would lean on RAD/ PACT or the Preservation Trust for NYCHA upgrades.

Unlike Lander and Myrie, Stringer hasn’t specified the amount of homes he aims to deliver. He said he hopes to build “at least” 50 percent affordable housing on city-owned land and that he would use eminent domain to seize properties owned by landlords who fail to meet basic safety and housing standards. The landlords would be “compensated fairly,” but then the flats would be transferred over to “responsible developers with a proven track record of creating affordable housing.” Lastly, Stringer said he would secure a $500 million revolving fund that would empower nonprofits and minority- and woman-owned business enterprises (MWBEs) to build affordable housing.

Watch This Space

Will voters opt for a local, decentralized approach along the lines of what Stringer is offering, where a network of nongovernmental organizations and MWBEs work to resolve the affordability problem? Or will the electorate pursue a more statist approach, with a new robust authority tasked with housing construction powers, similar to what Mamdani proposes? Or should New York City let the free market run its course? Only time will tell, but it’s clear that architects and builders may be fielding more calls when the next administration gets to work in January 2026. DJR

The East River Housing Corporation in Manhattan’s Coop Village was designed by George W. Springstein and Herman Jessor. Completed in 1956, it has 1,672 units across four towers.
ZARA PFEIFER

Create lasting moments.

12 News

Peak Space

WORKac references the high desert landscape of Boulder, Colorado, for a new branch library.

The community had a lot of demands for the recently completed North Boulder Library, designed by the New York–based practice WORKac: It had to be accessible, accommodate the local Spanish-speaking population, and respond to the neighborhood’s recent growth and development. Plus, it had to be available to community groups and add a pollinator garden and makerspace kitchen in addition to hosting bookshelves and play spaces. The three-year process was “the most extensive community engagement we’ve ever done,” WORKac principal Amale Andraos told AN during an interview at the practice’s office on the Lower East Side. The result is a library that is playful, colorful, and responsive.

WORKac, which Andraos has led with Dan Wood since its founding in 2003, was selected for the job through an RFP issued in 2018. At the time, the firm had recently completed its first library, a facility for Kew Gardens Hills in Queens, New York, and it has since completed a new branch location for the Brooklyn Public Library in Dumbo

The library for “NoBo” has been 25 years in the making, as residents were anticipating its arrival for decades before the RFP was issued. Its constituents had divergent opinions about its potential. For the occupants of the apartment complexes across the street, a library would mean increased traffic, blocked views, and less recreation space. For an immigrant population living in the adjacent mobilehome community, it could offer a place to learn and practice English.

Though the brief called for architects to create an “iconic” building, Andraos and Wood approached the idea through sustainability and community engagement. This meant beginning from these concerns as the origin of the design process.

A few years into the project, pandemic strictures threatened key aspects of the library’s design. The green roof was cut; cladding materials were swapped for more cost-effective alternatives; and library and community initiatives, like the garden, were cut back. Still, the project survived, and the building opened to the public in June 2024.

“In the end, it was the planning process and the community engagement that saved the project,” Andraos reflected. “The city ended up putting in a little bit more money, and the project was able to keep most of its features.”

The building, a pentagon in plan, is located on a triangular site close to Broadway, a main thoroughfare. New apartments have been built to the north, the mobile-home community is to the east, and picturesque views of the Boulder Flatirons are to the south. The site required more than just architecture: Dead-end streets abutting the site were connected, and a new roadway enables fire access. The main entrance to the library faces north, and a path was added that allows access on foot from the mobile-home community.

Wood explained how North Boulder Library’s polygonal geometries recall the high desert landscape and the mountain ranges on the horizon. To avoid interfering with the views of the residences lining the north end of the site, the “peak” of the building was positioned to align with 13th Street. Cedar lines the north and east elevations of the library, and a contrasting standing seam metal cladding wraps its south elevation and roof.

Like other freestanding buildings by WORKac, there is a formal attempt at landscape integration: Here, the single-story portion of the building on its north side is capped by a sloping roof with a walkway. An interactive art piece from Daily tous les jours , a Montreal-based design studio, installed on the ramp turns footsteps into a symphony of musical notes. (In a nice bit of synergy, the studio, which won a competition for the public art commission, was cofounded by Mounda Andraos, sister of WORKac’s principal.) On the mountain-facing south facade, a yellow spiral slide hints at the forthcoming installation of a larger playground.

Inside, private workspaces and community meeting rooms were placed to the north against the street, and reading rooms were given views of the mountains. Additional community spaces, including offices and classrooms for the Boulder Reads program, are located on the second floor.

The long reading room tapers in plan and section, which gives the space a sense of forced perspective. On the ceiling, the ductwork was left exposed and painted white. Color is used selectively and appears via linoleum floors and bathroom tiling. A staircase is bent at a sharp angle in plan, a nod to the area’s geography, and its inside sports a green toile wallpaper design from graphic designer Andrew Freeman, who referenced archival images of Boulder to draw the scenes depicted in the pattern. Throughout, the Kawneer windows are shaped to mimic and frame the nearby peaks.

The library is open and bustling, but it is still a work in progress. Boulder Public Library director David Farnan has raised funds for the completion of the playground and makerspace plaza and is working to bring back other proposed features, including the green roof. In the meantime, the community has arrived to browse books, take courses, and, of course, use the slide.

“There’s something about libraries that is immediately clear that it’s for the community,” Wood said. “Whether you’re a kid or an immigrant or someone who has lived there their whole life, it’s very clear that this is theirs, and there is an immediate takeover.” KK

Top: A yellow spiral slide emerges from the mountain-facing facade, part of a future playground. Center: WORKac positioned the library’s reading rooms with views of the mountains. Above: Throughout the library, Kawneer windows frame the landscape.
BRUCE DAMONTE
BRUCE DAMONTE BRUCE DAMONTE

MINIMAL SLIDING GLASS WALLS

Easy Operation: The large panels smoothly glide to their open or closed position. Motorization option available.

Superior Performance: Exceptional resistance against wind-driven rain. Energy-efficient panels keep extreme weather out. Air, water, structural, and forced entry tested.

Design Options: Large panel sizes up to 15’, customizable configurations including open corners and pocketing. Multiple sill, glazing, and 50 standard color choices.

Glass Wall: NanaWall CERO

14 Profile Agent

Provocateur

Nestled in the red clay of central Virginia, the town of Farmville sits at the intersection of Revolutionary War, Civil War, and Civil Rights Movement histories. For transdisciplinary designer, artist, and educator Curry J. Hackett, who operates a practice called Wayside Studio, that history is personal. Hackett attended county schools where his mother, artist Penny Stiff Hackett, taught art and whose practices were part of the landmark Supreme Court case Brown v. Board of Education. “It was important for Curry to understand the land that his great-grandfather purchased many, many, many, many, many years ago,” she told AN . “Whenever we visited my grandmother, I would take Curry outside and I would walk through the woods, and I would talk to him about the significance of this and what it means for a Black person or Black people to own land. And once you get it, you just don’t sell it. Because it’s hard for us to come by.”

Hackett’s Black Virginian worldview is on full display in Wayside’s offerings. His father even played a role in the studio’s moniker: The name comes from his time as a civil engineer for Norfolk Southern Railroad and signifies equipment located at a grade crossing. Whether at the Harvard Graduate School of Design (from which he

graduated with a master’s, cheekily referring to the school afterward as the “White Howard”) or through public art projects like the Howard Theatre Walk of Fame, Hackett credits his mother’s kin-keeping for helping him formulate his vision of Black futurity grounded not in ancient Egyptian iconography or Wakanda-like escapism but instead in the practices that sustained his ancestors.

“When I think about my future, I tend to think, ‘How do I get back to the kind of agency that the last eight generations had?’” Hackett said.

Up the road in Washington, D.C., Hackett’s experience in the undergraduate program at Howard University helped solidify this worldview. At Howard, Hackett played trombone in the marching band, even marching in President Obama’s first inaugural parade. He credits former dean of the architecture school Harry Robinson, who also served as his academic adviser, with fostering his interest in urban design and the relationship of people, culture, and life to the street and streetscape.

Bradford Grant, Howard’s interim chair of the Department of Architecture, taught Hackett and served alongside him as an instructor when Hackett joined the faculty as an adjunct professor and critic.

Hackett “had this really rich kind of [mix] of creative impulses that he took advantage of at Howard,” Grant said. “And I think that really shaped some of his directions now that he’s doing more professional and artistic work.”

Sticking around in D.C. after college led to a position working with DC Water’s Clean Rivers Project, which fostered his interest in the intersections of infrastructure and public art. Two years into that venture he shifted from a staff position to working as a graphic design contractor for the project’s public engagement team. He describes that shift, which provided him with the ability to pursue commissions like the Howard Walk of Fame project, as the first day of the rest of his life.

The diversity of Black experiences Hackett encountered at Howard helped him realize the uniqueness of his family’s generational relationship with their land. This in part inspired AI Black History, the informal Instagram series that Hackett is perhaps best known for in the digital realm.

Using Midjourney, Hackett portrays scenes

Triennial can see one of his AI pieces on CRT television that displays a mixture of AI-generated material and archival video. His family roots anchor the exhibition: A commissioned painting by his mother serves as the emotional and philosophical centerpiece of the installation.

Hackett’s speculative visions keep him busy. He spent the first two weeks of the year in Veracruz, Mexico, as part of ongoing research into how Black populations in the Americas “make and remake cities on their own terms.” The trip was the longest stretch he’s been abroad. Upon his return, he began a second semester of teaching at the City College of New York as part of the Mellon Foundation’s Place, Memory, Culture incubator.

Work will also bring him closer to home in Washington, D.C., as a public art strategist on the team behind the New Pennsylvania Avenue Plan, led by David Rubin Land Collective in collaboration with HR&A Advisors, where he’ll once again unite infrastructure and the arts. The plan’s com-

of speculative Black realities like a Black family gathered for a portrait beneath a giant collard green plant and bathtubs-turnedplanters on Harlem sidewalks. For Hackett, the interface offers an opportunity to share provocations, alternative visions of Black life that could exist with present-day technology and grounded in works by Black feminist artists and scholars like Stephanie Dinkins, Badia Ahad-Legardy, and Katherine McKittrick.

“I’ve just been having fun folding Afrodescendant culture from various regions in the States in on themselves or cross-pollinating so-called Northern narratives with so-called South and Southern narratives,” Hackett said.

The artistic use of Midjourney has its critics, who point either to Midjourney’s unsanctioned use of artists’ copyrighted material to train its model—which, a recent lawsuit alleges, is not without merit—or the energy-intensive nature of generative AI. Hackett put it this way: “I think people are uncomfortable with a tool that they are already uncomfortable with that [is] being used to render Black bodies and faces.”

Visitors to Hackett’s So that You All Won’t Forget: Speculations on a Black Home in Rural Virginia at Making Home—Smithsonian Design

mission was announced last fall, and it is expected to be completed in 2017.

“For David Rubin Land Collective, the fact that I lived in D.C. for 12 years was a kind of boon,” Hackett said. “The project is also one of the first examples where I’m able to bring all of my experience to bear on a single project.”

Irene Vázquez is a queer Black Mexican American poet, translator, and journalist.

Curry J. Hackett has a vision for Black futurity that drives his work in art, design, and urban planning.
Top left: The transdisciplinary designer, artist, and educator Curry J. Hackett
Above: Diasflora (2020) in Washington, D.C.
Left: Ugly Beauties (2024) by Curry J. Hackett of Wayside Studio with lighting design by Jelisa Blumburg, commissioned by Van Alen Institute
GARY WILLIAMS
COURTESY LAB
CAMERON BLAYLOCK

16 Studio Visit

Form and Feeling

Sidell Pakravan reexamines models of architecture and design for the current moment.

Walking between the oaks, sequoias, and flowering magnolias in Berkeley, California, where Sidell Pakravan Architects is based, is a reminder of the city’s heritage within Bay Regional design: Homes and civic buildings by Bernard Maybeck, Julia Morgan, Christopher Alexander, William Wurster, and Daniel Liebermann, among others, create a local vernacular and support a distinctive lifestyle.

Given the rising cost of construction, the need to densify, and the predominance of functional—if not purely economic—criteria for what gets built, it seems almost nostalgic or hoity-toity to expect the sensibilities of the past to persist. And yet if we want architecture to embody a view of life as a reality formed from intersections between economic, societal, and material complexities and constraints, then it’s imperative to recognize

that these areas of overlap are what give rise to good buildings, Kristen Sidell, founding principal of Sidell Pakravan, told AN on a recent visit to the firm’s office, which numbers eight people. As cities grapple with people’s aversion to change on the one hand and state-mandated, often out-of-scale growth on the other, finding a middle ground will require us to reexamine our models, added Rudabeh Pakravan, her business partner Sidell and Pakravan met in graduate school at the University of Pennsylvania at a time when parametric design was popular, before starting their practice in 2014. Despite this digital frenzy, physical models have remained the basis of their work. They both see architecture as a material engagement with the world around us, an encounter that focuses on “the intersection of form and emotion, the made object and the lived experience, and the ability of architecture to shape that experience,” Sidell explained. Behind the blue entry doors of their West Berkeley office, one encounters an abundance of foamcore models; these explore variations in volume, orientation, and openings. By centering their design process on models and architecture’s physicality, they can take an idea and push it against different constraints to get unanticipated outcomes. Those threads of investigation then

inform how to proceed with the design. “For us, it’s about pondering the physical plan and getting to know the client, then projecting the different pathways,” Pakravan said.

At every scale, “our work’s formal simplicity serves the complexity of people’s spatial experiences,” Sidell observed. “We believe in the physicality of architecture as an act of social engagement. The spatial relationships that emerge from the models we make are spaces for people to enjoy their lives and interact.”

“In mediating between reality and ideas, models allow for speculation and the unexpected,” said Pakravan, who also teaches at UC Berkeley. Sidell added that these surprises “help us understand constraints so we can push against them.” Their bold, simple forms define an architecture that supports life’s unfolding, inside and out.

Elizabeth Snowden is a writer based in the San Francisco Bay Area, where she also runs the Pallas Gallery.
COURTESY SIDELL PAKRAVAN

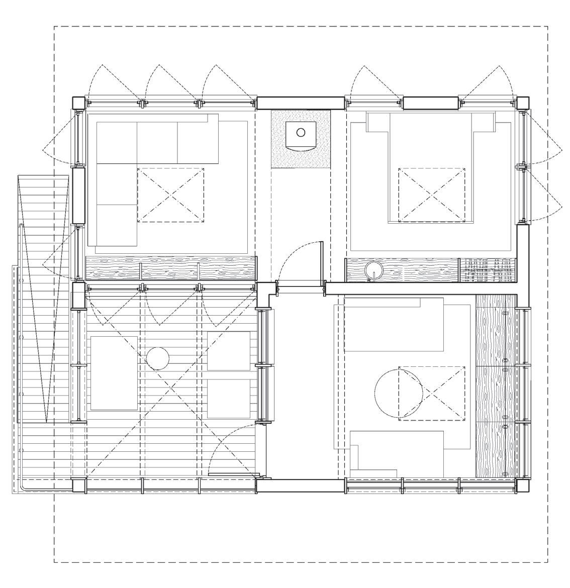
1 Alcatraz ADU 2021

Affordable housing is an urgent topic for architects. Soon after the Neighborhood Homes Investment Act was passed in 2021, providing a federal tax credit for the development and renovation of one-to-four-family homes in distressed neighborhoods, Sidell Pakravan considered how to apply the legislation to ADUs. This ADU, a true tiny house, transforms an existing North Oakland garage—294 square feet of underused space— into an efficient quadrant of bedroom, kitchen,

shower, and bath. Light spills in from a skylight at the roof ridge and the walls are open at their tops, which allows the light to bounce off the ceiling above the exposed beams and across the cozy interior. ADUs are the subtlest way to densify communities, as they are typically hidden from street frontages.

3 Ohlone Greenway Extension 2022–

The Ohlone Greenway is a 5.3-mile-long pedestrian and bicycle path that cuts diagonally through Berkeley, leaving a ragged edge of empty lots. The city recently allocated $5 million to extend it. Building on that vision, Sidell Pakravan proposed the addition of housing and community spaces along the new portion of the Greenway, with bike and walking paths, and pocket parks. The mid-density housing includes space for work, gathering, shared gardens,

and a bicycle workshop. Inverting the pattern of nearby neighborhoods, the design uses volume, light, and space to blur the building edges and envelopes. New construction is booming, but neighborhood sensitivity is often an afterthought. “We want to help the community and its leaders understand why they matter and show them that they can get better housing that’s still affordable,” Pakravan said.

2 Northwesterly House 2024

The Northwesterly House on Spencer Creek in rural Napa County overlooks 10 acres of oaks and chaparral. Its design emerged from a series of models that set up a rhythm of monoliths, which helps to navigate the large site. Five walls create a formal organizational strategy that explores the relationships between framed and shifting views of the surrounding landscape and the indeterminate interior. The house seems solid and monumental, but upon approach,

the individual walls delaminate. They form in-between spaces, with interior partitions defining the living, dining, and sleeping zones. Inside, the concrete walls create a softer atmosphere. Oversized glazed doors on the west facade give it transparency and capture the summer breeze. The house plays on its orientation to create an array of constantly revealing spatial experiences.

4 Lake Chabot Golf Course Clubhouse 2024–

One of Oakland’s treasured landmarks, Lake Chabot Golf Course, founded in 1923, has a rich history of golfing legends. The original Mission Revival–style clubhouse, a remnant of the 1940 Works Progress Administration program, was a vibrant center of community life until a kitchen fire badly damaged the structure in June 2023. The municipal golf course has been a home to PGA champions, Black golfing pioneers, and successive generations of young East Bay

golfers. Sidell Pakravan’s new design reflects the aesthetics and materials of the original building, which dates from 1940, while creating a modern, inclusive setting that aims to honor the clubhouse’s history and resonate with the community. A restaurant with panoramic golf course views supports the Lake Chabot area’s revitalization.

MIKIKO KIKUYAMA
COURTESY SIDELL PAKRAVAN
COURTESY SIDELL PAKRAVAN
COURTESY SIDELL PAKRAVAN

Hanover’s NEW concrete Vertical Bricks offer numerous performance benefits such as fire resistance, mold resistance, energy efficiency, and durability. Unlike more natural masonry, they are consistent in size and readily available. Available in two sizes and several finishes, they are an ideal choice for architects and designers seeking both form and function, delivering high performance without compromising on aesthetics.

Utility Brick with Natural Finish
Modular Brick with Tumbled Finish
Utility Brick with Tudor® Finish
Size & Color: 4” x 2¼” x 8” Modular Brick, VB91003, VB91004, Natural Finish; 4” x 4” x 12” Utility Brick, VB91002, Natural Finish

HOUSING FOR ALL

The U.S. housing crisis affects everyone. Last year, a full-time (40 hours per week) worker needed to earn an hourly wage of $32.11 to afford a modest, two-bedroom rental home, according to Out of Reach, the annual report prepared by the National Low Income Housing Coalition. Today the federal minimum wage remains just $7.25 an hour, as it has been since 2009. Many states have legislated a higher rate, but none come close to what is needed. The budget for the Department of Housing and Urban Development was slashed under President Ronald Reagan in the early 1980s, and the nation has underdelivered both housing and entry-level starter homes since the late 1970s. Since then, nearly a half century ago, the crisis has worsened. The problem is not just affordability but about futures: The high cost of housing contributes to the delay in young people getting married, having kids, or taking risks to innovate in all parts of society.

Across the country, architects are responding to this problem through policy, research, the design of low-cost structures, and the creation of affordable housing. In this section, Patrick Sisson (p. 20) reports on the fight to update building codes to allow single-stair building cores in lowrise complexes, Frances Anderton (p. 21) shares her chronicling of affordable housing in Los Angeles, Emily Conklin (p. 22) checks in with Gensler’s efforts on office-toresidential conversions, and Jack Murphy (p. 24) explores the psychology of the amenity spaces that accompany most new, market-rate apartment and condominium developments.

AN ARCHITECT’S OFFICE BUILDING RARELY becomes a tourist attraction. But just east of Seattle’s downtown, the offices of Schemata Workshop, built in 2016, draw national and international visitors.

That’s because the overall project, Capitol Hill Urban Cohousing (CHUC), represents a rare contemporary example of single-stair architecture. The term refers to structures above 4 stories with a single stairway, meaning they have one means of egress. But a combination of zoning codes, fire safety concerns, and financial pressures have made single-stair construction impossible to build across roughly 97 percent of the United States. CHUC, which includes ground-floor offices and 4 stories of housing, has become an aspirational model of this building type and a symbol for efforts to legalize it across North America.

“I do a monthly tour with legislators and building officials because there’s been so much interest,” said Mike Mariano, cofounder and principal at Schemata.

Since gaining more widespread attention in 2021 due to then-emerging social media discourse on the subject, the campaign to legalize single-stair development has activated a growing cadre of architects and advocates interested in code reform. Last year’s AIA Conference on Architecture featured a panel on the topic, while Denver architecture firm SAR+ recently held a single-stair design contest. According to the Single-Stair Tracker, which chronicles this movement’s legislative and regulatory efforts, 21 states, cities, and provinces across North America have instituted some form of reform, or more commonly, commissioned safety and code studies to pursue future reform. In Canada, there are proposals to change the national code, while British Columbia updated its code last August to allow single-stair residences up to 6 stories tall.

Grassroots support is “something the building code world often does not see,” said Stephen Smith, executive director of the Center for Building in North America, which runs the tracker. “The YIMBY movement has become interested in codes and standards in a way [building code decision makers] haven’t seen before, and there’s a big culture clash.”

The repercussions of such a shift mean much more than simply eliminating a stairway. Coming at a time when many designers have pushed for buildings to better respond to current crises, such as housing affordability and sustainability, the single-stair crusade shows architects becoming more engaged in building code and zoning reform.

need to democratize decision-making around what and how we build. “Nobody in the U.S. really talks about the interface between the building code and the zoning code and the built environment,” he observed. “But if we want more highquality spaces, these conversations need to happen more often.”

The nonprofit International Building Code, which forms the basis for most state and local U.S. building codes, mandates that buildings over 3 stories have two separate staircases for fire safety, resulting in larger, chunkier apartments with double-loaded corridors. These requirements began entering local building codes in the late 19th and early 20th centuries in response to large urban fires and safety concerns.

Single-stair projects, also called point-access blocks, exist around the globe and provide a type of small-building living

ONE STEP FORWARD

Single-stair reform has energized North American architects. But efforts to update the building code show how slow-moving our bureaucracies can be.

Architect and author Mike Eliason, principal of Seattle’s Larch Lab, author of the recent book Building for People, and an early and influential single-stair advocate, argues that pushback by code and fire-safety officials highlights the

experience and community that isn’t achievable here, as just a handful of jurisdictions in urban North America permit them, including Seattle, New York City, and Honolulu.

Single-stair reform’s potential shouldn’t be seen as a “silver bullet” to solve larger housing issues, said Conrad Speckert, a Canadian intern architect who has written extensively on the topic and submitted national single-stair changes to building codes. It can help affordability—Pew Trusts data shows single-stair designs can lower apartment costs by 6 to 13 percent compared with standard construction.

Freeing space taken up by a stairway allows for exciting design and development possibilities and opens thin urban lots that would otherwise be financially infeasible. Subtracting a second form of egress—which Speckert estimates can cost up to $300,000 for a small building—would also allow funds and square footage that could be used for a small elevator for ADA access; this strategy is seen in European versions of single-stair buildings. The move also creates the chance for two- and three-bedroom units to have improved daylighting and airflow, as layouts can span the full depth of a block versus being aggregated on either side of a double-loaded corridor. Schemata’s CHUC, for instance, was able to incorporate all manner of passive ventilation and daylighting strategies in the building’s eight housing units, including more shared social space.

In Austin, Councilmember José “Chito” Vela, who represents a district with a sizable apartment-dwelling population, sponsored the city’s single-stair resolution, which passed last May. He believes that legalizing these kinds of buildings can add more “fine-grained” apartment projects. “Single-stair development can help push the unit price down to an ownership price point,” Vela said.

His stance speaks to the evolving political support around this shift in building codes. Vela believes that even if the fire department has some objections, the current pro-housing council could ultimately vote in favor of the change.

Most of the existing single-stair efforts have resulted in mandated study periods to gauge how single-stair projects would impact fire safety and existing codes, most of these studies will be completed by 2026. Vela hopes that in Austin, where single-stair reform is now being debated by the city council, fire officials won’t let “the perfect be the enemy of the good.”

The National Fire Protection Association (NFPA), which has substantial impact on building safety codes, held a symposium on the single-stair effort in September 2024, inviting a range of fire safety officials, regulators, and advocates like Smith. It’s clear the group has felt pressure from the grassroots push; its own publication noted last August that fire officials were “blindsided” by the speed of reform initiatives, with some fire chiefs stating that “we must do all we can to defeat these misguided efforts.”

In the organization’s November report summarizing the symposium and its findings, the NFPA didn’t quash the single-stair concept, but it did push for adherence to the traditional process it oversees. “When this process is substituted by uninformed legislative action, special interests, or misguided local policy decisions, there is great risk to the protection and safety of people and property,” the summary reads.

As more jurisdictions embark on single-stair reform and currently authorized studies get completed and published, advocates seek to maintain the pressure by mandating objective research and studies, advocating for code reforms and ideally using the results of these studies to push for rapid change to the building codes.

Existing evidence suggests single-stair buildings don’t have a significantly worse safety record than traditional buildings. New York City records show only three serious fire incidents in the city’s 4,400 single-stair buildings since 2012. The overall fire safety record in the U.S. remains worse than in peer countries, despite our mandate for more stairways. The British Columbia government’s June 2024 report on single-stair safety found that just 8 to 10 percent of fires in apartments start in egress routes, and those that do are mostly small trash fires, which rarely spread beyond the room of origin.

The doubts about safety recall the recent movement to legalize mass timber in the U.S., which also required extensive efforts at code reform and testing to allay material safety concerns. Now the structural system is safely being used across the country.

Fire and code officials weren’t happy that the debate wasn’t confined to the normal processes. “I suspect that if it hadn’t been for all the legislation, [single-stair] wouldn’t have been taken as seriously as it was in the code world,” said Smith.

As the reform process plays out and more and more jurisdictions embrace or explore the idea of single-stair buildings, advocates hope these forthcoming changes unlock a tool for better housing design and improved affordability.

Patrick Sisson is a Chicago expat living in Los Angeles who covers design, policy, and the trends that shape our cities.
Single-stair apartment buildings on Greene Avenue in Brooklyn, built in 2010
The Capitol Hill Urban Cohousing project represents a rare contemporary example of single-stair architecture.
ANDRESSA RANDIS FOR THE CENTER FOR BUILDING IN NORTH AMERICA

continued from cover the maintenance and production of affordable homes; and 12 “awesome” projects, selected over the course of 2024. These are linked together on a trail that is accessible by using a QR code. An edited excerpt of the accompanying interview with FORT founder Russell Brown and Anderton follows below.

In early January, Los Angeles was beset by the devastating Palisades, Eaton, and other fires. This tragedy has put huge pressure on L.A.’s housing supply, as thousands of evacuees rush to secure new homes, causing massive price gouging in the rental market and further squeezing the area’s limited housing supply.

Obviously, keeping people safe and housed is the first priority, and that comes with many challenges. Next comes rebuilding, and of course the architecture community stands ready with strategies for building back better in vulnerable areas. Long term, however, residents, politicians, and planners might ask if, after a century of runaway residential development in the fire-prone mountain ranges, it is time to reconsider our development patterns and perhaps disincentivize urban sprawl in the danger zones. This would go hand in hand with emphasizing denser residential development in the safer flatlands near downtowns and adjacent lowrise neighborhoods close to mass transit.

Plenty of talented architects and developers are showing that this kind of infill can be done with great allure and at all income levels, as evidenced in this project and Anderton’s 2022 book Common Ground: Multifamily Housing in Los Angeles. Unfortunately, the pressure is on to rebuild just as before. Before embers had cooled, California Governor Gavin Newsom signed an executive order temporarily suspending the permitting and review requirements under the California Environmental Quality Act and the California Coastal Act, which will speed up rebuilding in Los Angeles County wildfire zones. This was easy short-term politics but questionable long-term leadership.

occupancy approvals for 1,400 housing units that are near completion. It may be harder now for communities to thwart apartment construction, at all income levels. And hopefully the projects shown in Awesome and Affordable, along with many other inventive multifamily buildings by L.A. architects, will make a powerful case for denser development and a more equitable city.

Awesome and Affordable is just one of several collaborations between FORT: LA and Anderton. In late January, they coproduced, with Helms Bakery District, a public event to address the fires and recovery. They are cohosting quarterly gatherings, combined with wine tastings, at the historic Barnsdall Art Park. Later this year they will publish Golden Years in the Golden State: Tales From the Senior City, an exploration into how older Angelenos are choosing to live. Additionally, FORT: LA and Anderton are collaborating on a documentary about the influential architects who began their careers in Venice in the 1970s, including Thom Mayne, Eric Owen Moss, Craig Hodgetts, Coy Howard, and Fred Fisher, bringing the story full circle with a re-creation of the famed 1980 Venice Beach photo taken by Ave Pildas.

Did any human stories from the project resonate with you personally?

One of the projects we included was Jordan Downs, a famous public housing estate in Watts that started out as wartime housing. Over the years it suffered from a concentration of poverty, a lack of economic opportunity in the area, and it became beset with social problems—so much so that the Housing Authority of the City of Los Angeles stepped in and entered into a deal, somewhat controversially, with private affordable housing developers to have them take over the management of the building. They embarked on a massive overhaul involving a rolling program of demolition of the existing buildings and the construction of new structures within a master plan established by a firm called Mithun/Solomon, led by Daniel Solomon and John Ellis.

This is a very sensitive development because, despite all of its problems, it was home for a lot of people who were nervous about the transition in ownership and the changes in their lives that were going to happen.

AWESOME AND AFFORDABLE

A collaborative effort by FORT: LA and Frances Anderton studies the housing crisis in Los Angeles.

Meanwhile voters have shown high resistance to intensifying development in downtown areas. In the last two years, Los Angeles elected officials, under pressure from stakeholders including homeowners, have already stymied directives and policy measures aimed at promoting denser housing. This means the two-thirds of residential land long zoned single family only remains at very low density (with the addition of ADUs), while multifamily buildings are mostly consigned to the thoroughfares.

At the same time, confusingly, voters passed Measure A, a half-cent sales tax to support the construction of affordable housing. This is one of several funding measures passed in recent years by voters, aimed at resolving homelessness. Yet, when a real project is presented for a site, it becomes a much harder nut to crack, exemplified in the bitter political and legal struggle over an affordable complex designed for Venice Community Housing by Eric Owen Moss. The nonprofit developers have won the latest round but have switched architects.

The devastation may, however, bring some winds of change. Los Angeles Mayor Karen Bass has issued a new executive order calling for city agencies to expedite temporary

What has been the most rewarding part of working on the Awesome and Affordable project this past year?

It’s always inspiring to see great new architecture—and it’s exciting to realize that there are endless new solutions to the challenge of providing affordable housing. Some of L.A.’s most creative architects are putting their minds to that problem.

In the past year, what have we seen? The extraordinary Isla Intersections designed by Lorcan O’Herlihy Architects, which takes public land at an uninviting site at the intersection of the 105 and the 110 freeways and Broadway and turns lemons into lemonade with a very creative design utilizing shipping containers repurposed into a courtyard complex in a triangular arrangement that has layered terraces and a shady, quiet place for the residents to sit inside a courtyard area, as well as a new, landscaped paseo alongside the building.

We also saw The Journey, on Lincoln Boulevard at Venice, another uninviting place to live that has been turned into something special by the architects at Studio One Eleven. They figured out how to turn a dense development for people who were formerly living on the streets or transitioning out of foster care into a complex of airy little studios and one-bedroom dwellings, opening onto stacked open terraces that offer residents a view toward the sea. From the same nonprofit developer, for a similar demographic as The Journey, comes Rose Apartments, a stunning complex designed by Brooks + Scarpa, which mixes up ground-level offices and studios in wings around two stepped courtyards with a lustrous glitter stucco facade.

We also got to see retrofits of older buildings, like St. Andrews Court, a bungalow court which was acquired and beautifully restored by Hollywood Community Housing in the 1990s. Also in Hollywood, we have the Castle Argyle, which, when it was built in the 1920s, was pretty fancy rental apartments for people who were hoping to make it in the movie business. Over the years, it fell into disrepair and it is now senior housing, lovingly repurposed by Bell Design Group, with a new outdoor plaza, showing that affordable housing doesn’t have to be a negative experience or a negatively perceived experience. Those are some of the highlights of this year. It’s been a really wonderful journey, and my only regret is not being able to shine a light on even more of the projects out there.

Now, of course, in one visit, I can’t say that I came away with a full picture of what’s going on there, but I did run into a resident who had moved from one of the older buildings, where people were particularly skeptical of what was coming, into a new section of the development that was designed by a terrific firm, FSY Architects, that also designed our January “awesome,” the Vista Ballona. They are creative with producing unpretentious, light-filled, modest dwellings that have a sense of calm. The resident told me that he loved his new place. He liked some of the new features, like air-conditioning. He talked about how restful he found his new dwelling.

Was there anything that jumped out at you that you would like to change?

Well, it relates to the airconditioning mentioned above. I heard that at Jordan Downs not everybody was happy about the newly added air-conditioning because it added to their electricity bills. And one of the things I noticed on my travels around L.A.’s affordable housing was how several new developments were configured around an open courtyard, for social reasons, and yet they did not have windows in the wall of the unit that faced the courtyard, thereby denying the lovely natural light and cross-ventilation enabled by that open space. It seems that there are various reasons for this, from fire codes to privacy to costs, but this seems like a huge missed opportunity for affordability and enhanced livability.

Do you have any advice for emerging architects who might be interested in building affordable housing?

Building affordable housing is not simply about designing housing; it’s also about navigating tremendously complex rules and limitations. Affordable housing is borne of complex legislation at the city, county, and state levels because the free market doesn’t produce affordable housing. The free market, by definition, produces housing that is aimed at what the market will bear, and what the market will bear is very high priced, because there are enough people in L.A. earning high enough salaries. So the market simply doesn’t provide for the lower-middle and very-low-income people. And yet, the backbone of L.A.’s economy is those workers, whether it’s in the service industry, teachers, people working in hospitals, and so on.

Around 8,000 people joined the list for the Vista Ballona and only 50 applicants were housed. Every project is piecemeal and can take years. That’s not really solving a problem; it’s making a teeny dent in a problem. At a certain point, one has to ask: Is this viable? Can we not do something at scale that really expedites the process?

So architects, these days, have to don another hat. They must help push for policy changes. That might mean speaking up at community meetings or council meetings and making the case for this housing, or it might mean getting involved in pushing for legislative change. It’s a brave new world for architects. Affordable housing is the new frontier. It’s essential right now in L.A. and in many cities in the world, and architects ought to engage with it and, ideally, do it well.

A ROOM OF ONE’S OWN

Gensler takes on the hot topics of office-to-residential conversions and single-room occupancy units.

“SHE WAS BORN IN 1898 IN A BARN. SHE DIED ON THE 37th FLOOR OF A SKYSCRAPER. SHE’S AN ASTRONAUT.”

—Bert Cooper, Mad Men, season 4, episode 9, “The

IN 1983, GOLDMAN SACHS OPENED its own skyscraper at 85 Broad Street in New York City, which cemented the investment bank’s presence in the city’s financial district. This was the era of the open-plan office, lauded for its flexibility and adaptability—it facilitated the modern way of working, at the time.

But what the open plan couldn’t have taken into account was the radical change in the way we have worked since the development of the internet and, most importantly, postpandemic. Today we can take meetings from our cell phones, email while doomscrolling in bed, and conduct research 35,000 feet in the air from an airplane’s middle seat. Why does the modern office worker need an office?

Unfortunately, we previously sunk many billions of dollars and millions of tons of extracted material into building temples to old ways of working. The structures we erected to facilitate the flow of global capital turned out to have a shorter shelf life than we imagined: Goldman Sachs moved into its 1.1 million–square-foot headquarters at 85 Broad in 1983. It moved out in 2010, just 27 years later, trading up to 200 West Street, a new building designed by Pei Cobb Freed & Partners—less than a mile from Goldman Sachs’s old home.

As of Q4 2024, the commercial real estate company Avison Young reported that New York City has 99.1 million square feet of vacant office space, a record high. In contrast, the city is also breaking records regarding rental vacancy: As reported in the most recent New York City Housing and Vacancy Survey, it’s at 1.4 percent, a multidecade low. And most New Yorkers spend more than 30 percent of their income on housing, which qualifies them as rent-burdened. Many politicians, architects, and policymakers are asking the obvious question: Why can’t we turn our vacant office stock into housing?

Demolishing millions of square feet of steel, glass, and concrete is expensive in terms of dollars—and carbon footprint. What if we could save a lot of that material from landfill? Today’s office-to-residential conversions—or O2R, if you’re in the business—have been a hot design topic since the dawn of the pandemic.

In New York, Metro Loft is a name nearly synonymous with the O2R movement. Starting in 2003 with 63 Wall Street, the developer has pioneered the conversion method. Helmed by Nathan Berman, Metro Loft has taken on the incredible risks associated with converting big buildings. While earlier projects like 63 Wall and 71 Leonard converted older, prewar structures, starting in 2017 the firm was tackling more challenging midcentury office towers. Its most recent conversion has taken shape at 55 Broad. Millions of dollars were needed to acquire the property and millions more to cut shafts for ventilation and light through its inner core. In some midcentury buildings, floor plates can be as deep as 60 feet, meaning that sunlight in these monoliths rarely reaches the inmost parts of the interior. Once illuminated, the floors were divided into dozens of oddly shaped apartments to maximize rentable square footage, with each requiring new plumbing cores to add bathrooms in what used to be a shared per-floor amenity.

These improvements are needed to make old offices palatable to luxury renters, but it can work: What the industry first deemed “crazy” has now earned Berman the title King of FiDi. With the help of architects at CetraRuddy, he transformed 55 Broad’s warren of cubicles into a maze of 535 apartments.

For others, the tough reality is that making housing out of office stock is a lot like sticking a square peg in a round hole. The complex entanglement of legislative red tape, habitable versus occupiable unit code standards, and developer ROI have made this “commonsense” move hard to stomach for many developers and landlords. And perhaps understandably so: Office towers that sold for over $300 million just a few years ago have changed hands for as little as $8.5 million in 2024. Is O2R the Hail Mary commercial real estate owners are holding their breath for?

Two options have emerged in the attempt to save these increasingly obsolete office spaces, the wallets of developers, and the planet: market-rate O2R conversions and single-room occupancy (SRO) programs. Interestingly, both options are being studied and implemented by Gensler.

Beautiful Girls”
MICHAEL YOUNG

Making O2R a Reality

Robert Fuller and Peter Wang, two designers in Gensler’s New York office, have become leaders in the emergent field of conversions. Gensler developed software called Conversions+ that generates a “scorecard” for office buildings whose owners are considering O2R action. Context, building form, location, floor plate size, and local regulations all factor into the score. “Creativity and budget can make any building a successful conversion,” Fuller explained, “but [out of a possible 100 points] it’s viewed as most ‘eligible’ if it scores in the 70s or 80s.”

Conversions+ was first tested in the fall of 2020 as part of a collaboration with Calgary Economic Development, a nonprofit entity in the Canadian city. The algorithm was used to score 6 million square feet of vacant offices in downtown Calgary, and the partnership has resulted in five ongoing conversions, with ten more in the pipeline.

But the firm’s most recent completion of Pearl House, the world’s largest O2R conversion to date at 160 Water, is turning heads as it takes on the legislative labyrinth—and high real estate valuations—of New York City. Originally designed by New York–based firm Hausman & Rosenberg in 1973, the tower used to house offices for AIG. Gensler worked with development partner Vanbarton Group to turn the 525,000-square-foot office tower into 588 new apartments. By cutting blind shafts, creating new rooftop green spaces, and optimizing the building’s envelope for efficiency and operability, the developers have been able to nearly sell out. Beyond the allure of the amenities, Pearl House has set a new standard for O2R methods as well as more sustainable development in New York City.

Still, these units—and Berman’s and others, designed by firms like Sasaki—are all market rate: As of this writing, the most economical studio unit in Pearl House starts at around $3,700 per month. Are there cheaper solutions?

SROs: Radical or Retrograde?

Fear not: Gensler has also been involved in a very different type of O2R conversion. Once a popular and affordable living option across U.S. cities, SROs came under fire as real estate prices soared. The often-neglected buildings housing these units were sold and demolished so the land could be redeveloped into more profitable typologies. In Gensler’s coauthored report with the Pew Charitable Trusts, which was published last October, the authors, quoting a 2018 piece in Bloomberg by Ariel Aberg-Riger, write that “between the 1970s and the 1990s alone, the United States lost one million SRO units to conversions and demolitions.” But through regulatory reform and the reintroduction of lower-cost residential typologies, the supply of SRO-style housing can be increased to meet the current needs of renters. The question is: Is this a good thing?

Three cities were examined for this first iteration of the study. Denver, Minneapolis, and Seattle were selected based on (1) high median rent, (2) high rate of homelessness and housing insecurity, (3) high downtown office vacancy rate, and (4) lack of significant regulatory barriers that would impact the feasibility of the concept.

What would an SRO look like today? Well, a lot like a college dorm. This is a typology that prioritizes affordability by making kitchens, bathrooms, and workspaces communal amenities rather than keeping them in private rooms. The SRO results in a small personal space that doesn’t sacrifice the essentials. (Maybe you are familiar with YouTuber Van Neistat, who in 2022 recorded a video ode to his SRO in New York, which was 144 square feet, 12 feet on a side. “Every square inch was accounted for. Every possession that was in there was important,” he told the camera.) While, historically, SROs have done heavy lifting to make cities affordable to new residents, low-income and working-class people, and artists and students, there has been pushback over whether this limited dwelling unit is a good fit for contemporary cities. Reconsidering the SRO invites revisiting feminist and collective visions for city planning and domestic life rather than the modern obsession with convenience and individual consumerism.

In the report, Gensler test-fit SRO scenarios in the three regional markets. It found that 1,232 SRO units would fit in a standard, midcentury Denver office tower that has 31 floors. Each unit was set against the fully glazed curtain-wall facade and would include one twin XL bed, a desk and nightstand,

a mini fridge, and a microwave. A proposed plan included in the report shows the SRO room as being 7 feet 6 inches wide and 20 feet long, or 150 square feet. This is shown in contrast to a “standard” studio layout, which includes a full kitchen and bathroom and measures 14 feet by 31 feet, or 434 square feet.

A core tenet of co-living and SROs—which are two different housing configurations but are seemingly combined in the report—is shared resources. Kitchens, bathrooms, and laundry are still available, but you must leave your room. In Denver, four shared kitchens, two living rooms, laundry, and storage are proposed for every floor, each of which has about 40 SRO units. Bathrooms are included too, of course: There are to be two restrooms with three toilets and two sinks each in addition to four single-occupant bathrooms and a central shower facility.

Floor plates are often measured in terms of residential efficiency: How much space is given over to individual units? The result of Gensler’s Denver test-fit is an efficiency of nearly 71 percent, with the remaining 29 percent of the gross floor area dedicated to shared facilities and the building’s core and interior circulation.

The big question: How much will it cost? The report estimates between $500 and $1,000, based on the resident’s income, which is targeted to be between 30 and 40 percent of AMI in Denver for a single person. Adjusting for New York City AMI, these numbers would be $750 to $1,250. Living alone in an old office building could either cost $750 or $3,700. The difference is whether you share a shower, couch, and cooktop with your neighbors.

The promise of O2R and SRO conversions is the opportunity to reduce one’s carbon footprint and rent burden. We shouldn’t keep constructing new buildings when so many sturdy ones sit empty, and our lives shouldn’t be weighed down by the artificial scarcity of the real estate market. If you could pay less than $1,000 for a decent apartment in Manhattan, what other things would you do with your one wild and precious life?

Emily Conklin, formerly AN’s managing editor, is a design historian and critic based in Manhattan.
Opposite: Gensler’s Pearl House in Manhattan is the largest office-to-residential conversion in New York City to date.
Below: A bedroom inside a model unit at Pearl House
Bottom: A view of the project from above at dusk showcases the newly constructed rooftop green spaces.
Gensler test-fit SRO scenarios to see how to convert an office building in Denver.
VANBARTON GROUP
ROBERT DEITCHLER

AMENITIZE THIS

The drive for postpandemic perks to attract buyers and renters challenges architects to create buzzy shared spaces. How’s it going?

LATE LAST YEAR, I TOURED Bergen , a 105-unit condominium building in Brooklyn’s Boerum Hill neighborhood. The project, developed by Avdoo & Partners, includes architecture by Taller Frida Escobedo, master planning and landscape by DXA Studio and Patrick Cullina, and interior design by Workstead. The units, set behind brick screens on the sawtooth street frontage, will be luxurious. They’re also pricey: As of this writing, the cheapest unit is a 472-square-foot studio listed for $750,000

Still, ownership comes with benefits. After my tour, I kept thinking about the long list of spaces that will be available across the complex, from a lower-level suite to a central, glassy great room to the rooftop terraces. Residents will have access to a lounge, spa, fitness and yoga studios, a screening room, podcast and video conference spaces, a chef’s kitchen, and more, reflecting a desire for developers to attract buyers or renters with every sort of amenity imaginable, checking boxes such as wellness, creative, fitness, and entertainment needs—all trendy aspects for real estate marketing in the postpandemic era.

It would be too easy to parody this level of service for soon-to-be-pampered Brooklynites. Instead, Bergen’s offerings demonstrate the importance of these extended sets of activities beyond the footprint of one’s own unit for contemporary buyers. Amenities are increasingly how developments attract interest, especially in New York, where living quarters are small and market pressures control the size of new units.

These spaces—and their potential to become something like the highly sought-after third spaces —support activities that were once distributed across the neighborhood.

Rather than venturing too far from home, we can log in from a coworking lounge, exercise in the gym, swim in the pool, socialize, and drop off the kids for child care without leaving the premises.

Americans feel lonelier than ever , so these gathering spaces have a purpose: Shared rooms can be beneficial for young people who just moved to a new city or families with children or older folks looking to stay social. The pandemic accelerated the desire for these options, as the strictures of office life were relaxed for many professionals and demand for hospitality offerings surged across many project sectors. In response, a certain profile of adept architects has emerged with the expertise to work across the domains of architecture, interior architecture, interior design, furniture design, wayfinding, graphic design, and event programming to design these spaces.

AN spoke with architects who design these spaces and developers who fund them to understand how and why these spaces are changing—and what those changes mean for architects who deliver new multifamily residential projects.

The Developer’s Perspective

Though amenity offerings vary, “two trends are universal,” Frank Frallicciardi, senior vice president at Brookfield, told AN . “First, tenants expect more and better amenities, and they play an outsized role in attracting prospective residents. Second, the amenity spaces, be it high-end gyms, pools, or just beautiful sitting rooms, are used far more by residents than they used to be.”

The attraction of amenities existed before the pandemic,

but the crisis amplified “the demand for those spaces, making them more essential than ever,” Simeon E. Maleh, executive vice president of development, at Gotham, said. Gotham develops, owns, and operates a portfolio of residential buildings. Beyond physical spaces, Gotham also offers off-property programming, like “wine tastings, apple picking, and sailing trips.”

Wellness and fitness suites are must-have checklist items, but so are “multifunctional spaces that accommodate diverse needs—spaces that seamlessly blend work, leisure, and community,” Maleh said. This is important for socialization, especially for younger residents. Good communal space “might be as simple as a welcoming and well-designed game room to host friends or even just to read a book or write emails but within a shared space and in the presence of others,” Frallicciardi offered.

A common refrain is that residents increasingly rely on these spaces for both everyday activities and special events. With for-purchase units, “people are making a substantial investment of money, and because of that, we’re very aware that their home is like their sanctuary,” Brad Stein, president of Intracorp Texas, told me. His company develops housing in Austin and across California, Washington, and Canada. The design of the home is important, but so too is the design of the common spaces: “Those spaces need to interact with each other; [residents shouldn’t] feel like two separate people designed them or that they’re not consistent with each other.”

Third-Space Specialists

One difference in approach is in the mission of a developer who aims to sell the building upon completion of its sales or leasing campaign versus an owner who will hold on to it long term, Adam Rolston, senior founding partner of INC Architecture & Design, observed. At their worst, amenities become thirst-trap clickbait for buyers who are lured in by the lifestyle fantasy. “There has been an emphasis in the condo world for beautifully designed spaces, without thinking about the stuff that doesn’t have anything to do with [architects], which is the programming and the creation of a life there,” Rolston said.

INC has designed both high-end condos for purchase and apartments for rent in New York. “What's missing in the context of the condo is that there is no lively, transient, evolving population” like in a hotel, Rolston said. The Anagram, a rental building (123 units), was more successful because it has built-in turnover and its resident spaces are overseen by a general manager of sorts. (When the property was written up in The New York Times in 2023, Kevin Torres, its lifestyle manager, was featured.)

INC often begins with a list of desired uses from an advisory company and a gut check about how much square footage a developer is willing to dedicate to amenities, which is often space on lower levels, on ground floors, and in basements that can’t be used for units. “Then it’s about us trying to figure out what the right adjacencies are to create activity and good experiences in those spaces,” Rolston shared. Sometimes gyms and community rooms get pushed around the project until the right placement locks in. This search benefits from INC being both the architect and the interior architect, as its designers are “a bit hobbled” when handed a plan, told a program, and asked to “just dress it.” It’s always better to start discussions about amenity design early on, as it gets harder to make changes once walls and columns are locked in place.

For decades, hospitality brands have experimented to determine what sort of aspirational environment works for their desired clientele, and this mindset is now seeping into office and multifamily design, which has formed a Bermuda Triangle of cozy spaces between what were once distinct typologies. But the goal is to create a choose-your-own-adventure playing field, where different activities can be handled across a lobbylandschaft of possibility.

“In my more elevated moments, I like to think of INC as focusing on the third place as designers,” Rolston reflected. “That really excites me.” When he entered architecture school and was asked “Why are you here?” he replied, “‘Because I want to make beautiful things for lots of people.’ So this idea of the third place, where people can come together and enjoy a space—and enjoy each other in that space—is what gets me going.”

A New Approach Inside and Out

At Eagle + West in Greenpoint (745 units), Marmol Radziner contributed amenity interiors and landscape architecture within an overall architecture designed by OMA New York. Delivering “wonderful outdoor areas that could be used at least six months out of the year was a big driver,” Matt Jackson, principal and studio director of the firm’s New York office, said. Designers, working pre-COVID, already started with the assumption that residents would work everywhere, Ashley Nath, associate and studio director of interiors,

recalled. Power was amply supplied with the idea that room usage would change over time, so flexibility is key.

Jackson recalled visiting Eagle + West when its lofty, reservable “test kitchen” was in use for a dinner party. What’s the cultural distinction between having to have everything all in your own 10,000-square-foot home versus having access to a space like that? Choosing the latter is “attractive to a lot of people,” he wagered. Of course, there are big differences like subcontractors and budget: It’s hard to achieve a highly coordinated level of finish on a multifamily project with limited dollars.

Market demands change quickly. Jackson said the firm is now repositioning a building lobby in Williamsburg from 2015 to make it more WFH-friendly by creating smaller seating groups and getting rid of the massive, showy sofa. “I think that a lot of what we’re seeing now is a reflection of listening to the rental community and seeing how they want to live,” Jackson said. While some of the hype is developers oneupping each other, “in a bigger-picture way this is more about a change in lifestyle.”

Southwestern Living

For Michael Hsu Office of Architecture (MHOA), amenities consist not only of “the interior spaces that are controlled by the residents but also the public realm and the extension of building to the city,” Maija Kreishman, a principal of the practice, said. From its offices in Austin and Houston, the studio brings its experience in custom residential and hospitality projects to these commissions. Layering and art are important, and the office regularly handles custom fixtures or art services.

For decades, hospitality brands have experimented to determine what aspirational environment works for their desired clientele. This mindset is now seeping into office and multifamily design too.

Because these are not private homes subject to a single client’s taste, the design can be more intense with color and furniture to give the spaces a memorable identity. There may be over a dozen “zones” across the project, so the goal is establishing cohesion while having “something that everyone can go to at multiple times in their week and get a different experience.”

Market demographics vary. In Austin, unit sizes are generally larger, and residents are interested in being active outdoors and socializing. Having a lobby coffee spot or an enticing pool area is useful, in addition to a calendar of activities. In Phoenix, within a building designed by Shepley Bulfinch, MHOA also recently completed an amenities project for Moontower (326 units) for a younger crowd, so the feel is clubbier; the pool is more central and easily accessible through large operable windows. And, as in every project, doggos get pampered: There is a pet spa for pup washing, a dog run, and even an indoor space where people can watch their pooches romp.

Flexible, multifunctional rooms are the core of durable amenity suites. At Intracorp’s 44 East in Austin (322 units), a building designed by Page on Rainey Street downtown, MHOA designed a room for kids, with the anticipation of families moving in or empty nesters purchasing units and hosting grandchildren in the building. This didn’t happen, so residents found other uses for it—like a make-out spot, Stein recalled. The lesson? Don’t be so specific.

Intracorp also brings in HOA management companies early to get feedback about amenity usage and programming. Leland, an Intracorp condo development on a parcel along South Congress (265 units), was designed by MHOA postpandemic and is anticipated to open in 2027 with a host of wellness and gathering spaces. Instead of having one person camp out in a big conference room all day, which is inefficient, Leland will include many small private areas for remote work. Then larger spaces can be reconfigurable for that spectrum of activity between work and play: A library can be hot-desked by day and host a chef-prepared private dinner by night.

Kreishman thinks these lessons aren’t exclusive to luxury developments. MHOA recently completed an affordable housing complex in Austin for Project Transitions (61 units), which provides support for people living with HIV and AIDS. The shared spaces, including a porch and community garden, attempt to provide comfort and support without forcing interaction.

Architectural Imperatives

“I’m very interested in this idea of what an interior architect does versus what an architect does,” Jean-Gabriel Neukomm, founding principal of JG Neukomm Architecture, told me. His practice has completed three residential projects for Gotham: The latest, The Suffolk on the Lower East Side (378 units), opened in 2023. Neukomm, when first meeting Gotham CEO David Pickett some 15 years ago, was impressed with his attitude: New York is lonely for newcomers, people work crazy hours, and the rents are what they are, but “a lot of young people live in these buildings, and it’s brutal for them to meet people,” Neukomm recalled Pickett saying. The goal was to create a space where they can hang out, meet, talk, make friends, and collaborate.

Whereas previously the activity was mostly nocturnal, Neukomm said postpandemic amenity use is now an allday affair. At The Suffolk, the shared floor is split into lower, loungy stagings on the south side and two long library tables with more upright seating on the north. You can use a laptop in both zones, but the difference is your posture. There are several small rooms for private meetings or calls. In the middle an open stair, with stone-clad risers, leads to an outdoor area, and an open kitchen is a good spot for a midday snack or an EOD happy hour.

Neukomm’s scope also included the lobby, an elegant space with terrazzo floors, custom furniture designed by his office, a wainscot of light stone, and a vaulted plaster ceiling. The Suffolk, in his view, uses the complexity of the city—its nuance, color, and texture—as a springboard for a design that builds a bridge to the neighborhood: It’s an interesting place for a resident, so “we want to bring some of that in and encourage you to go outside.”

The feeling one has upon entering the front door is “probably the most important thing we design,” Neukomm said. “It’s a little bit like dating: You have a pretty good sense within 30 seconds as to how it’s going to go. You walk in through the door, and if you don’t feel it’s right, then it’s going to be a tough sell.”

Generally, interior architecture can be “fantastically difficult,” Neukomm admitted, and the intricacy of dealing with existing structures doesn’t get the respect it deserves. Neukomm said, “I'd like for the general industry to get better and for people to create these spaces in a better way. Sometimes the budget isn’t there, but even on a budget you can be a little more thoughtful about it.” Interior architecture “should be respected more as a thing that creates durable community spaces and social cohesion.”

His advice for improvement? “Don’t do any weird shit. Just do basic things that are a little bit more universal and do them super well.”

In Real Life

Often, architects who are committed to delivering good design face the real-world constraints of budgets and timelines. Last month, my girlfriend and I toured a recently finished building of market-rate apartments in Brooklyn (169 units). It was the first time we had seriously considered living in one of these developments, and while the units had brand-new appliances, in-unit laundry, and nice views, we couldn’t shake the awkwardness of the shared spaces. Fake plants drooped over the mailboxes in the lobby, and the Astroturf slid slickly under our feet on the rooftop chill space. Everything was brand-new, but it was hard for us to visualize how our lives would unfold there. Maybe another place would hit the spot.

With the nation facing a combined affordability crisis plus a loneliness epidemic, it feels imperative to prioritize spaces where people can feel comfortable and connect with one another. Amenity areas fall flat when they’re ignored as another check box on a pro forma or they reinforce an indulgent lifestyle of on-demand satisfaction. But in the hands of thoughtful designers working with amenable clients, they become bridges—among residents, but also between a building and the city. JM

JG Neukomm Architecture designed The Suffolk’s resident lounge for active day and night use. It has a loungy side, pictured above, and a more upright side with two library tables.
Eagle + West’s interior spaces were designed by Marmol Radziner. Beyond shared lounges, amenities include a “crash pad” for celebrations, children’s room, and workshop.
At 44 East in Austin, Michael Hsu Office of Architecture brings its experience in hospitality to bear in a residential project. Here a circular, textured wall complements a custom wood island.
WILLIAM JESS LAIRD
SCOTT FRANCES
CHASE DANIEL

Join us at the A&D Building to celebrate AN’s inaugural Twenty to Watch list, which recognizes rising residential architecture design talent in New York!

Thursday, March 6

6:00–8:00 p.m.

The A&D Building

150 East 58th Street

New York, NY 10155

This free special event is presented by The Architect’s Newspaper and the A&D Building. At participating showrooms, guests can enjoy food and drinks and get to know the inaugural set of architects honored in Twenty to Watch. Don’t miss this chance to engage with New York’s design community. Sign up using the QR code below.

A N EXCITING N I G TH OFDES IGN

Participating showrooms

Artistic Tile

Bakes & Kropp Fine Cabinetry

BauTeam German Kitchen Tailors

Bilotta Kitchen & Home

Carlisle Wide Plank Floors

Dacor Kitchen Theater

Drummonds Bathrooms

Eggersmann Kitchens | Home Living

Fantini USA

Ferguson Bath, Kitchen & Lighting Gallery

Gaggenau

Hans Krug Fine European Cabinetry

MandiCasa

Nolte Küchen

Scavolini USA

SieMatic

Tania Bulhões Tabletop | Home Scents

Thermador Design Center

True Residential

West | Wood Architectural Surfaces

THE ARCHITECT’S NEWSPAPER

T WENTY TOWATCH

With this list, AN’s editors recognize rising residential architecture design talent in New York. The Big Apple offers all manner of opportunities, but it can be difficult to find one’s way: From landing commissions to surviving permitting drama to preserving design vision to documenting the space and telling its story—it’s a lot! The following small firms show us where to look for inspiration and fresh design sensibilities. Some have previously appeared on AN Interior’s Top 50 list or have been in business for a bit, while others are relative newcomers to the scene. They are talented architects, so be sure to follow along. Congratulations to all.

Principals Emily Abruzzo and Gerald Bodziak lead this acclaimed New York– and Connecticut-based office, which earned a 2024 AIA Connecticut Merit Award for a reimagined row house in Brooklyn.

aba.nyc

Cofounders Anthony Gagliardi and Dorian Booth established this design practice in 2018, bringing a mix of playfulness, innovation, and experimentation to urban and rural residential projects. almost.studio

This NYC-based architecture firm led by principal David Bench has executed a wide range of residential projects, from a glassencased Hamptons house to a contemporary transformation of a Brooklyn townhouse.

bencharchitecture.com

Partners Noam Dvir and Daniel Rauchwerger founded this full-service design firm known for bold, eye-catching choices in its residential projects, whether a Fire Island beach house or a Manhattan loft. bond-ny.com

Julie Tran and Khoi Nguyen cofounded this architecture and interior design firm, an AN Best of Design Editor’s Pick. Their residential work focuses on personality-driven design, leading to an eclectic and beguiling portfolio. futureprojects.com

This boutique architecture, planning, and interior design practice headed by Rebecca Garnett and Peter DePasquale has become known for striking works on Long Island’s North Fork and in the Hamptons, among a range of other projects.

gdp.work

T A Brooklyn-based architectural design practice from Tony-Saba Shiber and Zach Cohen, commoncraft creates imaginative single- and multifamily residential projects in urban and rural environments. commoncraft.nyc Led by partners Deirdre McDermott and Nicholas McDermott, Future Expansion’s residential work reflects a desire to reimagine spaces, resulting in thoughtful, envelopepushing renovations. future-expansion.com

JEOMETRICA design Luca Nichetto

Founded in 2021 and based in New York City’s Chinatown, this studio from third-generation architect Jacob Esocoff and Henry Ng, a Yaletrained architect, has earned acclaim for its residential projects, including in AN Interior and The New York Times Style Magazine

ioo.studio

Taking its name from the Greek word for “thing founded,” this practice from architectural principal Jonathan Chesley and Alexandra Donati, landscape principal, tackles diverse residential projects throughout the U.S. and in Europe.

ktismastudio.com

Led by Shane Neufeld, this Brooklyn-based studio lives up to its name, with high-end residential projects that emphasize the interplay between natural light and the built environment, often to stunning effect.

landa-arch.com

Founded a decade ago by Andrew Heid, this critically acclaimed New York City practice aims to create harmony between nature and architecture. Its residential projects around the world demonstrate a firm commitment to this ideal. noarchitecture.com

at fergusonshowrooms.com.

A 2024 AN Best of Design winner for retail, Office JDY’s residential practice excels at elegant minimalism, whether in a New York City apartment or townhouse renovation, or further afield in a rural new construction project. officejdy.com

This New York–based architecture studio is “committed to an optimistic view of the world.” Cofounders Davis Owen and Irene Chung, along with Francis Aguillard, put this into practice with playful designs and use of color and materials.

o-n.us

Devin O’Neil and Faith Rose lead this Brooklynbased firm, which excels at connecting its architectural projects to the environment surrounding them, whether in an urban neighborhood or a rural setting.

oneillrosearchitects.com

Founded by architect Matthew Ransom in 2018, Overhead took form under the same roof as an artist-led construction company. The firm is currently working on a range of Brooklyn townhouse projects with pragmatism and material intelligence.

overhead.nyc

in

Originally launched in Spain, this firm from partners Amanda Schachter and Alexander Levi is now based in the cofounders’ native New York City. SLO Architecture’s residential projects have been attention-grabbers. AN Interior called a recent project “electrifying.” sloarchitecture.com

The full-service architecture and design practice from principal Ian Starling brings an eloquent minimalist style to its residential projects, from a dark, wood-clad beach house to light-filled townhouse renovations in New York City, and others.

starlingarchitecture.com

vondalwig.com

The Architects & Designers Building offers the best in kitchen, bath, and fine furnishings.

At the A&D Building you can shop 40 showrooms to create the perfect environment for residential and commercial projects—from a single kitchen, a complete home, or a signature high-rise to a boutique hotel or a new restaurant—all under one roof. Discover the world’s leading brands where luxury design defies expectations.

↓ Bakes & Kropp Fine Cabinetry

FLOOR 4 bakesandkropp.com

Defining

FLOOR 9 bauteamnewyork.com

↓ Carlisle Wide Plank Floors

FLOOR 5 wideplankflooring.com

For over 50 years, Carlisle Wide Plank Floors has handcrafted the finest wood floors in America—each one reflecting the natural beauty of the highest-quality raw materials available. Carlisle takes pride in its time-honored processes, from sourcing reliable timber grown in America’s forests to embracing craftsmanship.

FLOOR 9 bilotta.com

Bilotta is a family-owned company specializing in custom cabinetry for kitchens, bathrooms, libraries, and more. Founded in 1985, this U.S.-based company has created thousands of projects worldwide with designs ranging from traditional to contemporary, and all styles in between.

FLOOR 3 cosentino.com

The Cosentino Group is a global, family-owned Spanish company that produces and distributes innovative, sustainable, and highvalue surfaces for the world of architecture and design. Working with customers and partners, Cosentino delivers inspiring solutions while sourcing responsibly and acting transparently.

Bosch

↓ Cuzine Kitchen

FLOOR 4 cuzine.com

Cuzine strives to be a global leader in the furniture sector, offering a range of solutions for kitchen, bath, and closet. The company aims to achieve sustainable growth by embracing change, fostering innovation, and expanding into new markets and communities, creating value not just for clients but for society as a whole.

↓ Dacor Kitchen Theater

FLOOR 6 dacor.com

Since its founding in California in 1965, Dacor’s aim has been clear: to create distinctive appliances rooted in style and driven by innovation. Today, that mission still powers everything Dacor does. Designed with exceptional materials, Dacor appliances deliver heightened experiences to make homes truly unique.

FLOOR 8 drummonds-uk.com

Drummonds was founded in 1988 by Drummond Shaw, who was restoring his period house and finding it difficult to source authentic architectural antiques. Today, the company operates three factories that manufacture cast-iron baths, brass fittings, and china sanitary ware, all incomparable in quality and design.

FLOOR 11 edwardfields.com

Edward Fields Carpet Makers is a vanguard of American design and has been creating bespoke luxury carpets and rugs for eight decades. In 2005, Edward Fields joined the House of Tai Ping, continuing the brand’s legacy and modernist aesthetic and collaborating with design giants.

↑ Eggersmann Kitchens | Home Living

FLOOR 10 eggersmannusa.com

Founded in 1908 by a carpenter turned cabinetmaker, eggersman provides innovative solutions—executed with precision German engineering—that offer functionality and a modern aesthetic. Its designs are timeless, drawing from key Bauhaus architectural elements—smooth surfaces, cubic shapes, and open floorplans.

↓ Fantini USA

FLOOR 8 fantini.it

Founded in 1946, Fantini has always been a force of creative intensity that combines hand-craftsmanship with industrial technology. Fantini produces innovative kitchen and bathroom products with a deep concern for ethics in manufacturing and production methods, inspired by the form, qualities, and applications of water.

↑ Ferguson Bath, Kitchen & Lighting Gallery

FLOORS 11 & 12 ferguson.com

With friendly, knowledgeable product experts and the latest selection of bath, kitchen, appliance, and lighting products, Ferguson helps make dream homes a reality. This showroom provides the largest offering of quality brands, a symphony of ideas, and dedicated consultants to coordinate kitchen and bath projects.

FLOOR 3 fisherpaykel.com

Florense Kitchens | Closets | Furniture

FLOOR 3 florenseusa.com

This Brazilian company is positioned among the best cabinetry and furniture manufacturers in the world, offering a wide range of products and services for residential, commercial, and hospitality. Florense’s extensive product line includes kitchens, closets, sofas, dining rooms, home offices, and more.

↓ Hans Krug Fine European Cabinetry

FLOOR 9 hanskrug.com

Hans Krug brings the latest in style, functionality, and design through a comprehensive solution for home interiors. The company offers a wide variety of cabinet options with a multitude of finishes and material combinations to provide flexibility in home design, for bathroom vanities to kitchens and more.

Bath Collection

FLOOR 10 hastingsbathcollection.com

At the forefront of design sourcing, with the most distinctive tile, kitchen, and bath products, Hastings brings innovative and functional selections to architects and designers in the United States. It is the exclusive U.S. importer and distributor of the iconic Arne Jacobsen–designed, award-winning VOLA line.

FLOOR 7 gaggenau.com

At every stage of Gaggenau’s appliances production, a craftsperson examines their work using hand and eye, seeking imperfections. This constant quality control protects an exceptional reputation built by hand. Gaggenau appliances are designed to perform exceptionally, inspiring the home chef to create masterpieces.

Holly Hunt NY

FLOORS 1 & 2 hollyhunt.com

↑ Middleby Residential | Viking | La Cornue

FLOOR 10 middlebyresidential.com

Middleby Residential has a passion for taste—a taste for creative ingenuity and innovation, and most of all, a taste for an authentic culinary story. The growing portfolio of global indoor and outdoor brands is so much more than a collection of legends—it’s a gathering of people, their tastes, and their stories.

Known for a look that is consistently at the forefront of style and quality, Holly Hunt’s showroom and collections lead the industry in luxury home furnishings. The company designs, produces, and showcases custom-made products including indoor and outdoor furniture, lighting, rugs, textiles, and leathers.

↓ JennAir Luxury Appliances

FLOOR 4 jennair.com

JennAir is focused on defying the status quo. The showroom serves as a destination for designers to witness the new era of luxury come to life through beautiful design and the deeply integrated digital backbone of JennAir products, which include cooktops, dishwashers, refrigeration, ovens and ranges, and more.

FLOOR 9 mieleusa.com

Miele design represents innovation, value, and timeless elegance. It shapes the user experience—meeting expectations, facilitating handling, and creating trust. Miele appliances, whether for laundry care, vacuuming, or in the kitchen, are subjected to the strictest stress and endurance tests before their market launch.

FLOOR 8 mandicasa.com

MandiCasa offers a curated selection of made-in-Italy designs, including modern kitchens, bathrooms, closets, and interior doors. Developed by Dario Snaidero, MandiCasa features first-to-market exclusive collections alongside top-quality products from a range of premium Italian suppliers.

↓ Nolte Küchen

FLOOR 10 noltenyc.com

This German brand provides over 500 finishes and great service, offering a smooth experience from design to installation. Everything comes straight from the factory, allowing Nolte to present high-quality products for exceptionally competitive prices. Nolte believes that the kitchen is at the heart of every home.

Ornare

FLOOR 4 ornare.com

One of the most prestigious brands in high-end furniture, Ornare has constantly been evolving since its inception in 1986 in São Paulo. The brand develops wall panels designed for the whole house: closets, kitchens, bathrooms, and home offices. Recognized for impeccable quality, Ornare is a leader in its field.

↑ Paris Ceramics

FLOOR 3 parisceramicsusa.com

Established in 1982, Paris Ceramics has emerged as the luxury supplier of European handmade painted ceramic tiles and a pioneer for the reclamation of European antique stone and terra cotta. The company has also developed a reputation for rare collections of stone, tile, mosaic, and wood surfaces, as well as bespoke design services.

FLOOR 1 poggenpohl.com

Poggenpohl has been designing and producing luxury kitchens at its factory in Herford, Germany, for over 120 years, making it the world’s longest-established and most renowned kitchen brand. Highly skilled designers create customized, high-end kitchens delivered to more than 70 countries.

↑ Poliform

FLOOR 6 poliform.it

Poliform is the Italian cabinetry, furniture, and interior design firm located near Lake Como. Since the 1970s, it has produced handcrafted products where unparalleled quality meets attention to detail. Poliform provides systems and furnishings, including closets, kitchens, tables, chairs, sofas, and beds.

↓ SieMatic

FLOOR 8 siematic.com

Since it was established in 1929, SieMatic has been making kitchens that fit into creative living, wherever it is happening. SieMatic is synonymous with production quality, planning competency, and innovation. This is how individual and extraordinary designs are created, effortlessly combining color and form.

↓ SMEG

FLOOR 7 smeg.com

SMEG is an Italian domestic appliance brand, producing distinctive, beautiful products that combine technology and style for consumers who follow design and its evolution. SMEG expresses “Made in Italy” style by flawlessly combining design, performance, and attention to detail.

FLOOR 5 scavolini.com

The Italian company Scavolini has been making kitchens for more than 60 years, and it has evolved into a manufacturer of exquisite furniture, cabinetry, countertops, and faucets for kitchen, bath, and dining rooms. This legendary brand has expanded into storage with its “walk-in” wardrobe, continuing a tradition of innovation.

↑ Sub-Zero | Wolf | Cove

FLOOR 5 subzero-wolf.com

Icons of design and paragons of performance, Sub-Zero, Wolf, and Cove are the refrigeration, cooking, and dishwashing specialists found in the world’s most luxurious homes. The brands are dedicated to creating functional, flexible, and beautiful dream kitchens.

↓ True Residential

FLOOR 6 true-residential.com

Recognized worldwide as the leading manufacturer of commercial refrigerators and freezers for the food service and soft drink industries, True makes products that are featured in the world’s most prestigious hotels and restaurants. Since 2008, True Residential has brought the quality of commercial refrigeration to the home.

↓ Thermador Design Center

FLOOR 7 thermador.com

From groundbreaking technological advancements to setting must-have kitchen trends to creating completely new appliance categories, Thermador continues to challenge the norms of the time. It has set the standard for superior craftsmanship, innovation, and design, with cooktops, dishwashers, ovens, ranges, refrigeration, and more.

FLOOR 9 taniab.com

Tania Bulhões began painting porcelain as a young girl in the Brazilian countryside. Today, her name is synonymous with inspirational design. Her dinnerware collections are inspired by art, nature, stories, and places, bringing beauty and joy. Her designs allow anyone to create tablescapes that surprise and delight.

FLOOR 7 westflooring.com

West | Wood creates hardwood wide-plank flooring, wall finishes, tables, moldings, and other architectural surfaces. The company sources the most exceptional raw materials from points around the world and finishes them in a Long Island facility, controlling every aspect of creation, from first draft to final production to installation.

by Dario Snaidero
YOTA KITCHEN

Home Construction

In this section, visit a stellar lineup of smaller residences, from a demountable cabin in Canada by Anya Moryoussef Architect to a low-cost duplex in Providence by Ultramoderne and a beachfront home by STRANG. Plus, tour a stand-alone home in Austin by Hunt Architecture and an ADU in Los Angeles by First Office. Also, check out our product pages for new items to use in your next residential commission.

52 Case Study

Growing Gains

Hunt Architecture delivers an ambitious Austin home expansion with personal and professional benefits.

Architect: Hunt Architecture

Landscape design: Studio Balcones

Interior design: Hunt Architecture

Structural engineer: RDHammond Consulting & Engineering

General contractor: Enve Builders

Windows: Marvin Elevate, Sierra Pacific

Doors: Precision Steel, Sierra Pacific

Roofing: Precision Roofing

Fixtures: J&L Hardware

Appliances: Fisher & Paykel

Husband-and-wife architects Nick and Brittany Hunt know about living small. In 2018, they purchased a 1940s bungalow in Austin’s storied Bryker Woods neighborhood, but the 1,275-square-foot home began to feel tight as their family and business grew. Instead of moving, they built a light-filled 400-square-foot ADU in the backyard, now home to Hunt Architecture, their shared design practice. Three years later, the Hunts took on a new challenge: replacing their main house.

“We had done different iterations of how to add on, but it wasn’t a smart move to put more money into it,” especially given the home’s faulty foundation, Nick said. Committed to reusing the structure, the couple arranged for the original bungalow to be relocated and reassembled through the nonprofit The ReUse People, which found a buyer in nearby Smithville, Texas.

The Hunts then designed a ground-up, 2,040-square-foot home for the property. It was completed in November 2023. The site drops 6 feet from front to back, which presented a challenge. The new house mediates the grade change, Nick explained. Now, the transition to the ADU, accessed through a lushly landscaped yard, feels cohesive.

Inside the new home, the 3-bedroom, 2-bath layout is organized using a spine of circulation that sorts public and private space: A combined kitchen–dining room–living room on one side, and bedrooms, bathrooms, a playroom, and a mud room on the other. High ceilings—10 feet in the kitchen and dining area and, down four steps, 12.5 feet in the living room—give the house a feeling of airiness. “When you walk in,

January/February 2025

Above: The Hunts replaced the original main house and designed a new 2,040-square-foot home for the property.
Right: The plan sorts public rooms to the left of a hall and private rooms to the right.
Far right: The rear of the house opens to a deck that steps down to the ADU, where Hunt Architecture offices.

Enhance the everyday with the brilliance of a Dacor kitchen. From the seamless integration of technology in a wine column to the handcrafted details of our knurled range knob, every sensation, every interaction, every touch is an inspiration.

Dacor. Life and Luxury, Connected

54 Case Study

continued from page 52

it looks like every other house in terms of scale, but it’s much more gracious,” Brittany said.

Natural light was top-of-mind. The main house is flooded with light, largely thanks to a series of three carved-out skylights that runs atop the central walkway above articulated beams. Another move, a “shower cathedral” in the primary bathroom, includes “sculpted plaster walls that lead up to a skylight,” Nick said. “It’s a very peaceful place to be, with the way the light hits the plaster when it’s lit by the moon.”

The design also attempts to eliminate wasted space, and throughout, clever storage solutions discourage clutter. “We planned where everything would go, down to the kids’ art supplies and Christmas wrapping,” she said. The home’s built-in features, such as the sofa that doubles as a divider and side table, also save space. “In a house this small, every element has to work overtime,” Brittany said. “It’s fun to try things we’ve never done before and show clients how they can think outside the box.”

By designing and building their home and office, the Hunts were able to create spaces that not only reflect their passion and breadth of work but inspire visiting clients to embrace bolder choices, something Brittany has called an unexpected delight. “By using our home as a teaching tool, we’re showing what’s possible when you push the limits of residential architecture,” she said.

The project showcases the Hunts’ commitment to honest materials like limestone, castin-place concrete, and marble accents, which establish a timeless, tactile quality. Facade finishes like brick from Old Texas Brick and clear vertical cedar siding, delivered raw and stained on site, add warmth, while custom steel windows on the ADU are visual connectors to the large openings in the main house. “We didn’t design the back house to influence the front, but they are related in a less obvious way—more like cousins than siblings,” Brittany explained. For Nick, maintaining a connection to the historic neighborhood was essential. “We felt a significant responsibility to design something that both fit seamlessly into the neighborhood and reflected our own aesthetic,” he said.

Ultimately, the Hunts’ compound reflects their lifestyle and their unified architectural approach. “People joke that building a house together is a test,” Nick said. “But we do this all day for clients, so it was easier for us. We’re aligned on design, furnishings, and what’s important.” Brittany added: “For us, this project wasn’t just about creating a house. It was about making a home that works for how we live.”

January/February 2025

Lauren Jones is a Texas-based architecture and interiors journalist.
Above: The combined kitchen and dining room inside the main house.
Right: The kitchen features 10-foot ceilings. Far right: The living room, along with the kitchen and dining room, are kept separate
LINDSAY BROWN
LINDSAY BROWN
LINDSAY BROWN

DESIGN WITHOUT LIMITS.

As a Master Distributor, Hanover® is thrilled to announce the arrival of Optimum Surfaces Porcelain Slabs, the largest porcelain slabs on the market. Measuring an impressive 72.5” x 130”, these extra-large slabs offer design without limits — creating limitless design possibilities for a wide range of surfaces, from kitchens and bathrooms to wall coverings, tables, and outdoor spaces.

Calacatta Matarazzo
Concrete Graphite

56 Case Study

Hi, Neighbor

A duplex by Ultramoderne in Providence, Rhode Island, offers a contemporary take on “cheapskate architecture.”

Design architect: Ultramoderne

Architect of record: Ultramoderne

Structural engineer: Boulay Consulting

Civil engineer: MJF Engineering Associates

General contractor: BSPVL Construction

Windows: Doorwin

Glass: ACRYLITE Resist

Architecture and design firm Ultramoderne recently asked the question: What would Frank Gehry’s 1980s concept of “cheapskate architecture” look like right now? Coprincipal Yasmin Vobis elaborated: “With construction as expensive as it is today, how can standard construction methods be at the core of a progressive approach to architecture? And how can this attitude allow architecture to be more generally accessible to the public at large?” The studio provides one answer with its latest two-family residential project, Friendship. Ultramoderne applied ingenuity and enlisted community collaboration in the development of a new sustainable blueprint that can be used toward future projects.

The 4,300-square-foot duplex occupies a previously vacant lot next to I-95 on Friendship Street in central Providence. Although similar in size to the area’s surrounding triple-decker homes, Friendship grabs the attention of

Friendship’s

Below: Ultramoderne created a loosely symmetrical layout for the two homes, as seen in the long section.

Above:
black corrugated metal facade, with a peek at the pink insulation
COURTESY

wideplankflooring.com

58 Case Study

continued from page 56

passersby with its black corrugated-metal facade. The sleek exterior is a quiet base on which the windows and light monitors are placed across the building. The latter offer a unique anatomical view of the building’s structural bones as they exhibit the wood framing behind translucent acrylic panels. In one location, the device is used to reveal a hint of the bright pink fiberglass to the street. These touches offer a playful, abstract sensibility to Friendship while also contributing to the building’s high R-value.

Ultramoderne coprincipal Aaron Forrest shared with AN that Friendship began when he received a tip from the project builder that the design team could obtain discarded materials from local construction projects and use them for Friendship. Although Forrest was initially skeptical, this idea ultimately spurred the project’s success. “In the end, all of the wood flooring, tile, and skylights were sourced this way, and it allowed us to get a much higher level of finish in the project than the budget would otherwise have allowed,” he explained. The newly gained experience and strategy from Friendship will be used for future endeavors, Forrest added, including a new 12-unit multifamily project with the same developer.

Vobis—who teaches at UC Berkeley, as does Forrest—reflected that the process of creating Friendship changed how Ultramoderne designs. “We had to reexamine the basic ingredients of architecture—its organization and typical construction methods in this city—in order to find a generosity in the spatial design while also keeping things as cost effective as possible,” she said. “This challenge and constant exchange with the client was ultimately also the most rewarding part of the project and has made us rethink the way we approach projects in the future.” Ultramoderne, with structural engineer Brett Schneider, also explored the creative potential of mixed-material architecture through studio courses, and the results were recently published by Birkhaüser in the book Heterogeneous Constructions

All over Providence, the phrase “What Cheer” can be found in businesses and on government paraphernalia like the city’s seal. It stems from the original greeting—“What Cheer, Netop!”—extended from the Narragansett Native Americans to city founder Roger Williams in the early 1600s. Translated from Narragansett and English, it means, “Hi, neighbor” or “Greetings, friend.” Ultramoderne’s Friendship takes up the kind part of this ethos. The sensibility is even formal, as seen in the loosely symmetrical layout of the two homes mirrored across a demising wall. Below, they share a garage, and above, a rooftop terrace, which encourages engagement among residents.

Like the future neighbors of this Friendship project who might encounter each other on the outdoor deck, sometimes we need a nudge to make things happen. In the case of Friendship, a little push in a different direction went a long way and ultimately answered Ultramoderne’s initial question: Innovative architecture is still possible in today’s economic climate—it just requires a new approach. Paige Davidson

Above left: The duplex occupies a previously vacant lot next to I-95.
Above right: The team used discarded material for skylights, wood floors, and more.
Right: Translucent acrylic panels offer a glimpse of the wood framing.
COURTESY ULTRAMODERNE
COURTESY ULTRAMODERNE
COURTESY ULTRAMODERNE January/February

60 Products

Envelope

From roofing to siding and facades, these finishes help create sustainable, strong, and stylish envelopes for homes. KP

62 Products

Doors & Windows

Versailles | Maison Janneau maison-janneau.com

64 Products Hardware

These locks, pulls, and handles offer diverse styles, ranging from pop-art references to seamless invisibility. KP

Thom Filicia for Accurate | Accurate Lock & Hardware accuratelockandhardware.com

Designed to be mixed and matched, interior designer Thom Filicia’s series is inspired by architecture and art for a sculptural and contemporary hardware look.

Empire Series | Belwith Keeler belwith-keeler.com

Including 10 collections of solid brass bars, the Empire Series is united by stately sophistication, and an array of knurled and hand-hammered textures.

American Rhapsody | Modern Matter modern-matter.com

Made in collaboration with Doug Meyer, the “Kiss and Hug” collection draws from design movements throughout American history, including pop art influence in these “X” and “O” shapes.

J95 | Sugatsune sugatsune.com

The J95 is a heavy-duty, concealed hinge for cabinets featuring a three-way function and 95-degree opening. January/February

Mama Collection | Petra petrahardware.com
Interiors firm Parts and Labor Design has released its first hardware line, Mama, a collaboration with Petra that sculpturally celebrates women’s bodies.

66 Case Study

Wild Accommodations

Anya Moryoussef Architect assembles a modular sleeping cabin in a lush, secluded Ontario preserve.

Architect: AMA/Anya Moryoussef Architect

Interior design: AMA/Anya Moryoussef Architect

Structural engineer: Kieffer Engineering

General contractor: Smoke Creek Construction

Facade system: Douglas Fir ACX Plywood— Richmond Plywood Corporation

Decking: Thermory USA

Windows and doors: Marvin

Waterproofing: Henry’s Blueskin

Fixtures: Sink: Balux Canada; Faucet: Delta; Door Hardware: Emtek

Skylights: Velux

Millwork: Bowmantree Woodworking & Construction

Algonquin Park, a 3,000-square-mile expanse of forests and lakes, is one of Canada’s most famous stretches of wilderness. Or, to be more exact, semiwilderness: After being logged in the 19th century, the place has become a preserve for a thousand species of plants, old-growth forests, and people from the Toronto region looking to spend some time in the woods.

A lucky few stay there in private cabins on leased land. For one such resident, a landscape architect with an existing cottage, Toronto’s Anya Moryoussef Architect designed a 600-squarefoot cabin whose ingredients—timber, light, and shadow—seem drawn from the site itself.

The sleeping cabin, known colloquially as a “bunkie,” rests in a stand of conifers on a steep hillside overlooking the park’s Smoke Lake. It’s clad in cedar shingles and Douglas fir plywood, which are mostly concealed by a coat of black stain—except on an open-air corner porch, where the fir reveals its color and is washed by sunlight from above.

Architect Moryoussef, who led the design with project architect James Swain, says that the form was driven by the park’s tight

restrictions on any new architecture. “We decided not to fight the constraints, which were giving us a basic box with a symmetrical gabled roof,” Moryoussef said. “Instead, we decided to do what we can to subvert that.”

The result is a Monopoly-house form with an uncommonly rigorous interior. Moryoussef’s design splits the plan into four quarters: the porch, then a living room, then through a door to another bedroom, and a sitting area. While the porch opens to the west, where its clear-coated walls catch the light of dusk, the sleeping area occupies the east side, where dawn light “just sneaks in through the trees,” Moryoussef explained. The prospects from the house are divided by the columns. “I can look from the porch into one of the interior spaces and then again out into the landscape,” she added. “You get layers of frames that reflect the verticality of the forest.”

The three rooms and the porch are of equal size, and the elevations and plan all hew to an insistent 1-meter module. On the outer walls, windows and fir panels evoke Miesian curtain-wall construction, expressed in the honey-hued language of softwood. The black shade on the exterior likewise seems a modernist trope, but in fact it’s the local vernacular. Black and near-black hues have been the standard choice for cottage exteriors here since the 1950s.

The cabin’s geometric precision is not just rhetorical: The entire building is made of prefabricated sections, which a local contractor made in his shop, brought across the lake on a small barge, and then winched up the hill. That process can be reversed in 20 years, when the land lease is set to expire. “Every piece of the building has to be removable,” Moryoussef said, “so that there’s no trace that it was ever there.”

Alex Bozikovic is the architecture critic of The Globe and Mail and the author of books including 305 Lost Buildings of Canada

Below: The floorplan depicts the rigorous design, with three rooms and a porch.
Above right: The cabin, or “bunkie,” is perched on a hillside amid conifers.
Right and below right: The light interior textures contrast from the dark exterior.

68 Case Study

Hillside Ad Hoc

First Office and Alex Robinson collaborate on a muted home addition in the Los Angeles hills.

Design architect: First Office

Architect of record: First Office, Andrew Atwood

Color consultant: Alex Spatzier

Landscape architect: Double Iris

Interior design: Work + Sea

Structural engineer: Nous Engineering

General contractor: Double Iris

Cladding: James Hardie

Windows and doors: Marvin

Flooring: Forbo, Angel City Lumber

Tiling: Lecesse, Zia Tile

Fixtures: California Faucets

Andrew Atwood uses plain language to describe an ADU he designed as an attachment to a small 1910 craftsman-style home in Mount Washington, a historic neighborhood in northeast Los Angeles. “It’s meant to sort of blend in with the other houses in the area,” he told AN , pointing to its pitched roof. “But it’s not meant to be read as one house, because doing that is both expensive and wasteful. So, really, it’s just like a house built next to another house.”

Atwood, cofounder of Los Angeles–based firm First Office, shares this philosophy against excess with his client and longtime friend Alex Robinson, a landscape architect who teaches at the University of Southern California. The two worked together on the project, which over time, became a design-build effort, with some decisions made on the spot. Robinson acted as the general contractor, with the goal of completing the addition with the lowest possible amount of material waste, cost, and disruption to the living situation with his cat and wife, the artist Sarah Smiley. The two married while the ADU was under construction.

The resourceful nature of the addition slowly reveals itself while one is walking its perimeter, along with the diverse updates Robinson made throughout the property. Many of the scraps from the construction of the ADU were used to construct two unfussy structures in the backyard—a sauna and a woodshop clad in leftover siding painted black.

Cisterns line the site, following the natural slope of the terrain to collect rainwater for later use. Native plants smelling of sage and bubblegum share the backyard with trees bearing lemons, berries, and avocados. Robinson additionally used his passion for landscaping in a 2-acre community plot lower in the canyon, where he placed 150 native plants to rehabilitate the local ecosystem.

The ADU’s earthy-green horizontal siding is adorned with a couple of awnings and a lattice for vines, all of which can be removed or replaced using simple tools. The irregularly shaped stepping stones beneath its exterior doors are remnants from another part of the property. One set is composed of loose bricks and pavers. “The steps were initially a temporary measure during construction, a kind of a joke,” said Atwood. “But Alex and Sarah grew to like them and were slowly convinced to keep them as the house neared completion.”

Though the vintage details of the original home were largely left as is, the transition into the addition is whisper quiet when one passes

through the new butter-yellow entryway that angles off to the right upon arrival. The passage is later announced more prominently by a long bookshelf that Robinson built just a few feet away in his new woodshop, along with pocket doors and other woodworking projects that appear throughout the interior.

The couple’s separate workspaces on the ground floor reveal unmistakable differences in their creative preferences. Smiley’s is an airy art studio equipped with a slop bucket and a double-hinged door for ventilation. It’s regularly flooded with light from a large picture window framing the Angeles National Forest and Mount Baldy in the distance. Robinson likens his own

office—a narrow, table-lined room roughly onethird the size of Smiley’s—to a “ship’s cabin,” with the same unbeatable view of the northern mountain range, where hawks can often be spotted searching for prey. It is already packed with what seems like a lifetime’s worth of books, drawings, and stationery.

The “one big splurge” in the home’s construction, according to Atwood, is the wood from a ponderosa pine used for the stairs and flooring of the upstairs bedroom suite, purchased from Angel City Lumber, a local sawmill that uses only felled trees within Los Angeles County.

The bedroom marks the exterior roof pitch with a ceiling beam installed by Robinson, one of the final touches of the design/build process. The bed, of course, faces a large north-facing picture window.

Shane Reiner-Roth is a writer and lecturer on architecture and urbanism.

The addition, with its pitched roof, is

ERIC STAUDENMAIER
SIGURD WIDENFALK

70 Products

Flooring

Dolcissima | Nemo Tile + Stone nemotile.com Hygienic,
porcelain slab collection that

72 Case Study

A Tropical Outpost

STRANG builds a resilient family residence to withstand storms while making the case for environmental modernism.

Architect: STRANG

Landscape design: STRANG

Interior design: Slokkers Design

Structural engineer: G2 Consulting

MEP engineer: JWL (electrical)

General contractor: Tri-Tech Construction

Windows and doors: ES Windows

Roofing: Kemper

Lighting: Coastal Systems (exterior)

Appliances: Gaggenau

Fixtures: Plumbing fixtures by CEA, toilets by Duravit

Max Strang had a distinct advantage when designing this single-family residence in the northern Florida Keys. The secluded 2-acre site is surrounded on three sides by beach and tropical forest, with the Atlantic Ocean glistening from the shoreline. “Privacy was not a concern at all,” the architect, principal of Florida-based STRANG, told AN . “Every now and then you get some boats through there, but it’s wide open.”

The location, and lack of constraints, allowed Strang to flex the principles of what he calls environmental modernism, a site-driven, climate-conscious approach with a reliance on local materials where appropriate. For this project, the philosophy invited the use of coral rock along the base and an abundance of windows to connect the built and natural environments. It also prompted elevating the 2-story house 10 feet above the sands on cylindrical concrete columns, creating pathways for storm surges with the intention of preventing damage in the event of sea level rise and from the increasingly powerful hurricanes that regularly threaten the region. The structure and property necessitate a focus on resiliency.

“What drives it—and what drives a lot of our work—are the passive design features and keeping the house very narrow,” Strang said. “You can maximize the daylighting, the crossventilation, and the connection to the outdoors.” The house also features a curvature that Strang said is “unusual” for his firm but operates “in response to the site and the prime views.”

The Van der Vlugt Residence, built as a primary residence for a family whose children attended the same school as Strang’s, is a 5,800-square-foot, 3-bedroom, 2-office showcase of the architect’s philosophies. Its somewhat austere aesthetic represents design choices, including sly references to the famed Sarasota School of Paul Rudolph and Gene Leedy, such as using the space beneath the house as a covered outdoor living area. Strang described the house as “pretty raw aesthetically,” because of the exposed concrete, though he noted that the board-formed treatment provides texture; the feature is used throughout the interior as well, complementing the minimalist design by Dutch designer Loes Slokkers.

The breezeway, or “outdoor foyer,” as Strang called it, serves as the main entry to an openair spiral staircase finished in microcement that ascends into the main level. “About halfway up the lower portion of the stairs, there is the door that takes you inside the house itself,” Strang said. “That puts you in the great room; the staircase actually divides the living room

January/February 2025

positioned the house on cylindrical concrete columns 10 feet above the sand to account for sea level rise and storm surges.

Right: A spiral staircase finished in microcement acts as a sort of joint connector for the home’s curvature.

Below: Floor to ceiling impact windows showcase the tropical views while providing a buffer from high winds.

from the kitchen and dining room.” Past the living room, on the main floor, is an owner’s suite with a bathroom placed at the end of the house, a counterintuitive move, according to Strang. This allowed for the bed to be placed centrally, offering panoramic views of the Florida Straits.

“It’s a really sexy master bedroom,” Strang said.

Upstairs, the second level features two children’s bedrooms and a main office with a covered terrace and spectacular ocean views.

The impact of these views would have been lessened had the house been built at ground level with less sturdy materials. Strang addressed the need for Florida architects to account for sea level rise and storm surge at an Archtober event with AN executive editor Jack Murphy at DOM Interiors last fall. It was also an urgent topic in his 2023 monograph Subtropic: The Architecture of [STRANG], in which he wrote, “The rewards for building higher clearly outweigh all the upfront costs.”

Heat and sunshine are other factors that influenced the design and materials at the Van der Vlugt Residence. Louvered screens and overhangs throughout the exterior help with shading and cooling, while the floor-to-ceiling windows are impact glass built to withstand hurricane-force winds; for particularly exposed windows, wood slats offer extra protection.

“This is not your typical Keys house,” Strang said, alluding to the traditional beach shack look of much of the regional architecture. “This one’s going to be here a lot longer.” Richard Martin

KRIS TAMBURELLO
KRIS TAMBURELLO
Above: STRANG

74 Products

Stairs & Guards

Stairs and railings offer more than protection and mobility; they’re also design statements, as shown by this roundup of varying styles. KP

76 Resources

Doors & Windows

Arcadia arcadiacustom.com

Cascadia Windows & Doors

cascadiawindows.com

CRL

crlaurence.com

Doorwin doorwinwindows.com

ES Windows eswindows.com

Glass Flooring Systems glassflooringsystems.com

Goldbrecht goldbrecht.com

Hawa hawa.com

Heroal

heroal.de/en Kawneer kawneer.com

Kingspan Light + Air kingspan.com

Kolbe Windows & Doors kolbewindows.com

Maiden Door maidensteel.com

Maison Janneau maison-janneau.com

Marvin marvin.com

McKEON Door Company mckeondoor.com

Milgard Windows and Doors milgard.com

NanaWall nanawall.com

ODL

odl.com

Panoramic Doors panoramicdoors.com

PK-30 System pk30system.com

PPG ppgresidentialglass.com

Precision Roofing precisionroofinginc.com

Precision Steel Windows and Doors precisionsteelwindowsanddoors. com

Quaker Windows quakerwindows.com

RAM ramwindows.com

Reynears reynears.com

Rimadesio rimadesio.it

Sierra Pacific Windows sierrapacificwindows.com

Steelcraft steelcraft.com

Total Door Systems totaldoor.com

TruStile trustile.com

Velux veluxusa.com Venster vensterwindows.com

Western Window Systems westernwindowsystems.com

YKK ykkap.com

Envelope

CertainTeed certainteed.com

CUPA PIZARRAS cupapizarras.com

Dupont dupont.com

GAF

gaf.com

Hanover® Architectural Products hanoverpavers.com

James Hardie jameshardie.com

Kemper System kemper-system.com

LP Building Solutions lpcorp.com

Richmond Plywood richply.com

ROCKWOOL rockwool.com

Siplast siplast.com

Tamlyn tamlyn.com

Flooring

Angel City Lumber angelcitylumber.com

Ceramica Fiorense fioranese.it

Clé cletile.com

Cosentino cosentino.com

Crossville crossville.com

Daltile Daltile.com

Fine Floors finefloorscorp.com

Forbo forbo.com

Havwoods havwoods.com

La Nova Tile lanovatile.com

Legno Bastone legnobastone.com

Nemo Tile + Stone nemotile.com

PID Floors pidfloors.com

Porcelanosa porcelanosa.com

Schotten & Hansen schotten-hansen.com

Walker Zanger walkerzanger.com

WOW Design wowdesigneu.com

Hardware

Accurate Lock & Hardware accuratelockandhardware.com

Allegion us.allegion.com

Assa Abloy assaabloy.com

Baldwin Hardware baldwinhardware.com

Belwith Keeler belwith-keeler.com

Bridgeport bridgeportworldwide.com

Buster + Punch busterandpunch.com

California Faucet calfaucets.com

CEADESIGN ceadesign.it

Delta Faucet deltafaucet.com DnD dndhandles.it/en/ Elmes elmesworld.com Emtek emtek.com Ento ento.it

ADVERTISING INDEX

Inox inoxproducts.com

J&L Hardware jlhardwareatx.com

Johnson johnsonhardware.com

Keeler Brass Company keelerbrasscompany.com

Modern Matter modern-matter.com

Petra petrahardware.com

Rocky Mountain Hardware rockymountainhardware.com

Schlage schlage.com

Stanley stanleydoorproducts.com

Sugatsune sugatsune.com

Trimco trimcohardware.com

Von Duprin vonduprin.com

Yale yalehome.com

Stairs & Guards

AGS Stainless agsstainless.com

Feeney feeneyinc.com

Q-railing q-railing.com

Sightline Commercial Solutions sightlinecommercial.com

Vista Railings vistarailings.com

Bringing together the world’s most productive building professionals where you can network, learn, and earn CEUs. Our presentations and panels examine the fast-paced evolution of facade technology, address new perspectives on building skins, and explore innovative, sustainable design practices. Spec your projects at the Methods + Materials Expo with

Washington DC

March 12

Atlanta

March 21

New York City

April 3 + 4

Houston

April 24

Orlando

April 30

Vancouver

May 6

San Diego

May 22

Kansas City

July 22

78 Marketplace

Sahar Coston-Hardy esto.com

summit 2025

let’s build a more humane future

thursday, march 27 at grace farms register for the summit

Join leading experts across sectors working to eradicate forced and child labor from the built environment.

365 lukes wood road, new canaan, ct
@ Melani Lust

80 Review

Making Home

Smithsonian Design Triennial

Cooper Hewitt, Smithsonian Design Museum 2 East 91st Street, New York On view through August 10

Triennials have to cover a lot of ground. They only happen every three years, so the pressure is on. They attempt to distill the mood and happenings of the time into something digestible, and they must say something about what’s to come. When they resonate, whatever they proclaim is often taken as a trustworthy prediction. Curators are aware of themselves as readers who encapsulate a moment, so exhibition themes are chosen with these dynamics in mind as much as anything else. At Cooper Hewitt, Smithsonian Design Museum, Making Home , though its initial conception began prepandemic, seems to draw from our cooped-up recent past. We are still reckoning with the sense that we’ve all spent much more time at home in the last three years than we did before or will in the future and that this has scrambled our relationship to home itself, and to ourselves. As a premise, this is amply resonant—I was captivated before I even walked in.

Of course, Cooper Hewitt occupies the Andrew and Louise Carnegie Mansion, so when I arrived, I entered what was once a home, though one decidedly different from any I’ve ever lived in. (Walking up the stairs I couldn’t help thinking they took up more space than my entire living room.) The triennial, curated by Alexandra Cunningham Cameron and Christina L. De León of Cooper Hewitt, and Michelle Joan Wilkinson of the National Museum of African American History, is divided into three sections: “Going Home” on the ground and first floors, “Seeking Home” on the second floor, and “Building Home” on the third floor.

In the first of these three, artists took advantage of the subtle disorientation created by the enormous mansion—both hemmed in and emphasized by Johnston Marklee’s exhibition design, which brought contributions into transitional spaces like stairs and hallway ceilings and opened the typically closed windows to allow natural light into the galleries—to varied, and mostly fascinating, effects. For example: Upon entering, visitors will find Joe Baker and the Lenape Center’s Welcome to Territory, a set of three feather capes hanging from the ceiling and facing the main entrance, a stirring evocation of the specter of colonization. The rooms along this row contain an embarrassment of riches. In the next room, Living Room, Orlean, Virginia, by Davóne Tines, Hugh Hayden, and Zack Winokur, sets Tines’s grandparents’ living room furniture arrangement, low-pile beige carpet included, on a rocking plinth and pipes in the sounds of home: a humming grandmother, sizzling bacon, doors opening and closing. Photo frames that appear inlaid with silver paper actually contain images that can only be discovered when viewed at the right angle and suggest impermanence, the impossibility of returning home, and the fleeting, imperfect nature of its memory.

Other rooms conjure similarly huge ideas. Ebb + Flow, at the easternmost end of the enfilade and organized by Artists in Residence in Everglades, plays through headphones into an otherwise empty and quiet glass-enclosed room—and a cold one, on the days I visited, which created an interesting contrast. Oral histories of the area, deftly incorporating the enormity of climate-change catastrophe with its effects on individual lives, filled my ears. In the other direction, Vues/ Views, by multimedia artist Amie Siegel, explores the legacy of 19th-century French panoramic wallpapers, popular in homes belonging to members of the U.S. ruling class, that depicted scenic tableaux to exoticizing and voyeuristic effects. Vues/ Views is a double work shown on the same medium: On one side of a hanging projection screen, a film explores the uses of panoramic wallpaper—it takes viewers, for example, into Andrew Jackson’s Hermitage home—and on the other, Siegel has assembled a composition from found rolls of the paper whose gaps highlight the inherently mythologizing nature of the decorative material. The film side of the screen faces a blind wall, and the room is kept dark—smart curatorial choices that allow for full immersion in the work.

On the other side of that blind wall, Liam Lee and Tommy Mishima’s Game Room traces the many influences of Andrew

Carnegie on nearly every facet of American life via a series of obsessive flowcharts by Mishima connecting Carnegie’s philanthropies to universities, banks, foundations, and other similarly society-shaping institutions. In the center of the room, a game derived from Monopoly turns these connections into clever entertainment, and around the perimeter, Lee’s pieces of meticulously needle-felted furniture in nearneon shades of lavender, lime green, and hot pink draw a stark formal contrast with the room’s deep, rich shades of wood, producing an unsettling effect befitting the room’s themes.

Walking out of Game Room , I felt I had seen enough. There was substantive critique and self-awareness of the fact and implications of the Carnegie connection; there were nontokenizing contributions by artists from historically marginalized communities; but most of all, there was a sense of the complex and unfinished nature of home, the way that it draws us in only for us to take flight, the impossibility of both return and remembrance, and—because this is Cooper Hewitt, after all—how design complicates all of the above.

I couldn’t escape a sense of disappointment, then, walking through the second and third floors and feeling like those ideas were starting to become diluted. In Curry J. Hackett and Wayside Studio’s So That You All Won’t Forget: Speculations on a Black Home in Rural Virginia , I felt pleasantly assaulted by the smell of dried tobacco hanging from the walls of the small room and then un pleasantly assaulted by the AI–generated videos looped on a small TV mounted among the leaves: I couldn’t shake the feeling of an unwelcome inhuman presence within a highly personal work.

The second floor also houses perhaps the most ambitious and research-informed works in the show. Patterns of Life, by Mona Chalabi and SITU Research, consists of models of homes destroyed by domicide using U.S.-manufactured

weapons in Manbij, Syria; Mosul, Iraq; and Gaza, Palestine. They were developed in collaboration with the people forcibly displaced from these homes. Birthing in Alabama: Designing Spaces for Reproduction , by Lori A. Brown, Trish Cafferky, and Dr. Yashica Robinson, presents exhaustive histories of birth in Alabama as well as design proposals for improving the experience. The sprawling Unruly Subjects, assembled by Sofía Gallisá Muriente, Natalia Lassalle-Morillo, and Carlos J. Soto, brings together video, archival materials, and archaeological artifacts to question and reimagine the role of “the Smithsonian Institution as a home for Puerto Rican cultural heritage.” And Heather Dewey-Hagborg’s Is a Biobank a Home?, with its rows upon countless rows of vials of unconvincing fake blood, dares to ask, though not necessarily answer, its huge titular question.

There is so much here, and even more as one scales the last set of stairs to witness works addressing reentry from incarceration, sustainable desert living, and aging—the latter felt more like an advertisement for a living arrangement for my parents or, sometime down the line, for myself. I noticed that I couldn’t find mention of refugees or homeless people, nor of the issue of housing affordability. The fact of these omissions, amid such thematic abundance, leaves the curators vulnerable to critique: The inclusion of these topics wouldn’t have necessarily made Making Home better, but the sheer volume of pieces lends a sense of diffused attention and also raises questions about why certain topics are missing.

Still, this triennial’s vastness manages to help it capture something ephemeral: the simultaneous specificity and universality of the idea of home, a sense of excess tangled up perfectly and inextricably with one of insufficiency.

Marianela D’Aprile is a writer in Brooklyn.

Installation view of Fahara: Chicago in View by Robert Earle Paige in Making Home—Smithsonian Design Triennial at Cooper Hewitt, Smithsonian Design Museum

81 Review

To Build Law

Canadian Centre for Architecture

1920 Baile Street, Montreal

On view through May 25

What do architects do? At the risk of eliding the many other forms of labor involved, the easy answer is to say that they “make” buildings. Whether through physical or intellectual effort, the production of new buildings has been at the center of architecture’s disciplinary focus for centuries. Given the burning need to address climate change and other matters of pressing ecological concern, the Canadian Centre for Architecture (CCA) in Montreal has commissioned Groundwork, a series of three film-based exhibitions presenting the work of architects whose modes of practice shift their focus from completed buildings onto the processes of the buildings’ becoming.

The highly compelling and fiercely urgent second chapter in this trilogy is now on display at the CCA. To Build Law presents Berlin-based bplus.xyz (b+)’s campaign to use direct democracy within the European Union’s governance structures to apply political pressure in favor of renovation and against demolition. Spearheaded by Arno Brandlhuber (b+), Olaf Grawert (b+), and Alina Ana Kolar (station+), the idea is straightforward: Given the embodied carbon and other material outlays present in Europe’s existing building stock, to demolish extant structures and replace them with new builds seems wholly incompatible with existing emissions-reduction commitments and public opinion. Fittingly, b+ is correctly and judiciously seeking to change the series of financial and regulatory norms that favor new builds on cleared sites.

To do so, b+ has partnered with station+ (s+, a teaching and research platform at ETH Zürich that uses film and television as narrative tools) and others to found HouseEurope!, an NGO gathering collaborators from several European countries to launch the European Citizens’ Initiative. If they can gather over one million signatures from EU citizens during a 12-month period, the European Commission will be obliged to consider their proposal, which calls for three changes: (1) to boost renovation markets with tax incentives, (2) to institute fair and harmonized standards for renovation, and (3) to apply intemporal life cycle assessments in the building sector.

The current iteration of the office founded by Brandlhuber in 2006, b+ has demonstrated the ecological value (and photogenic appeal) of adaptive reuse through well-known projects such as Brunnenstraße 9 and San Gimignano Lichtenberg. The challenges that made these sites unappealing for speculative development created the very conditions that have allowed b+ to successfully intervene. Often, b+ has introduced ecological arguments where aesthetic appeals have previously failed—for example the successful campaign to prevent the demolition of Berlin’s Brutalist Mäusebunker, a former animal testing laboratory.

Conceptually, To Build Law is divided chronologically into three parts. The first, presented across two galleries, covers the period 2007–23 and gives a project-based history of b+’s practice. In addition to the works mentioned above, b+’s incipient attempts at political activism are featured, such as its 2011 intervention in the Berlin state elections, in which it critiqued all major parties’ failure to address housing concerns. With Archipel, a 2012 exhibition, b+ reflected on the danger that its adaptive reuse projects were in fact contributing to the homogenization of Berlin. As with many recent CCA exhibitions, the materials illustrating b+’s biography are presented horizontally on tables in a nonhierarchical fashion, leaving the visitor free to choose which items are worthy of more concentrated attention.

Turning to the near present, To Build Law presents a 50minute film directed by Joshua Frank that follows Brandlhuber, Grawert, and Kolar as they plan HouseEurope!’s European Citizens' Initiative. Viewers follow these principals through a series of meetings, lectures, and planning sessions. While the consequences of what they propose are radical—nothing less than the fundamental redirection of the European building industry and its laborers away from new construction toward adaptive reuse—their methods are presented as banal. Slow and thoughtful work within existing systems is central

to their vision of activism, which is illustrated by the amount of time Frank’s camera spends on the setting up for and putting away of chairs after meetings. These gatherings are well lit, everyone speaks clearly, and disagreements lead to dialectical synthesis: Should “Stop Demolition!” or “Ready for Renovation” be the movement’s slogan? The answer is simple: It will be a combination of both.

The same aesthetic smoothness present in b+’s projects guides its attempts to influence the European political system. This is not a revolution from below, and hints of (West) Berlin’s radical politics and environmentalism of the 1970s and ’80s are few and far between in To Build Law. Reuse is not a matter of squatting in neglected structures; instead, we follow Grawert and Kolar as they meet with a Swiss consultant who advises them how to market their campaign. Berlin’s history of ground-up activism on spatial issues offers, however, a clear prehistory for the initiative. To Build Law concludes with an assembly at the former Tempelhof Airport, an immense urban structure frequently at the heart of debates over what kind of city Berlin should become.

If architecture is to follow b+ and HouseEurope!’s lead, what are its chances of success? If the needed signatures are gathered, will the European Commission enact new laws? Globally, it seems doubtful, with President Donald Trump back in the White House, Canada’s own carbon tax unlikely to survive the outcome of its next federal election, and Europe’s political-industrial consensus still shaken by rising energy prices caused by Russia’s invasion of Ukraine.

Here the film gets across two crucial points. The first is that any political coalition in favor of adaptive reuse will be heterodox. As Grawert observes, many small-town conservatives unconvinced by modernist architecture already oppose new construction that will alter their picturesque townscapes. (But what happens when such people block new constructions to densify existing cities? The film does not answer this question, and viewers are left to suppose that all new building is in fact wasteful.)

The second is that campaigns for adaptive reuse will necessarily excite some portion of the public more than other parts. Whereas measures favoring housing abundance and cost limitation may appeal to renters, subsidies for renovation are principally directed toward current homeowners. Generational unease also comes into play: While middle-aged professors (perhaps inspired by the specter of May 1968 and the 1973 oil crisis) may be convinced of the need for adaptive reuse, the younger generation, especially those 18 to 24 years old, is not. For Grawert, it is up to today’s architecture students to convince their friends. All in all, we are left with

the sense that architecture, which so often reifies the status quo, is not always an easy ally for “progress,” however it is defined.

To Build Law exemplifies two overlapping tendencies in recent CCA exhibitions. Firstly, the use of film as a medium to reach new publics, both in terms of age and geographic location. CCA director Giovanna Borasi’s recent series of three films (2019–23) exploring new modes of living in the 21st century and curator Francesco Garutti’s projects, which include Misleading Innocence: (tracing what a bridge can do) (2014), have put film at the forefront of the CCA’s project. Secondly, many recent CCA exhibitions have sought to redefine architecture as a fundamentally ecological concern, one in which political and not technological solutions must rise to the fore. One example: 1973: Sorry, Out of Gas (2007) presented the 1973 oil crisis as an antecedent to our present moment and reminded visitors of the panoply of low-tech solutions popularized then and still available for use today. It’s All Happening So Fast (2017) recast Canadian history as an unfolding series of ecological catastrophes. At the juncture of these, To Build Law once again invites architects and the wider public to rethink what architecture should be and how it can act as an ethical force.

To begin to answer this question, Grawert and Kolar organized a roundtable on Canadian policy and regulations at the CCA. “Tear Down or Repair” featured three young Canadian professionals, each charting their own course: Juliette Cook (Ha/f Climate Design), Alexandre Landry (L’Ensemble), and Conrad Speckert (LGA Architectural Partners). While each of these three talented designers has adopted a different approach (from material reuse to changing building codes), what is most impressive is the fact that each identified a failing in the way architecture is conceived and set to work to ameliorate it.

The final chronological chapter of this story looms over the exhibition: The drive to gather signatures opened on February 1.

Meanwhile in Montreal, having begun with Chinese architect Xu Tiantian’s Into the Island (2024), Groundwork will conclude in the second half of 2025 with Carla Juaçaba’s practice in Brazil.

Peter Sealy is an architectural historian and assistant professor at the University of Toronto, where he directs the undergraduate architectural studies program. Previously, he held fellowships at the Canadian Centre for Architecture from the Power Corporation of Canada (2006) and the Mellon Foundation (2016–17) at CCA, where he also worked as a research assistant from 2007 to 2010.

Still of HouseEurope! assembly at Tempelhof Airport, Berlin, 2024, from the documentary film To Build Law

82 Comment

Seven Points for Housing Action

Two scholars deliver a manifesto with notes for the new federal administration.

Beyond question, the housing crisis in the United States is a deeply entrenched issue that affects millions of Americans. From rising rents and mortgage costs to the increasing scarcity of affordable housing, the struggle to secure stable, dignified housing has reached critical levels. At the center of this debate are varying political ideologies on how to address these challenges. On one hand, President Donald Trump’s first administration housing policies emphasized reducing federal intervention and promoting homeownership. On the other hand, a progressive manifesto calls for bold, sweeping reforms designed to address housing as a fundamental human right, advocating for increased investment, zoning reforms, and innovative solutions to the housing shortage.

The second Trump administration’s housing policy is expected to maintain a focus on limiting federal housing assistance and rethinking the role of public housing. During his first term, Trump proposed changes to programs like Section 8, particularly targeting noncitizens in households receiving assistance, and was focused on reducing immigration-related use of public housing vouchers. While he tried to distance himself from Project 2025, the policy playbook created by the Heritage Foundation will remain an influence on his vision. It is likely that Trump will push for tighter restrictions on housing assistance, prioritize single-family homeownership over affordable rental programs, and limit the availability of public housing vouchers, despite the widespread support they receive in red states.

For housing supply, Trump’s policies are expected to prioritize single-family homes in suburban areas, reflecting his version of the American Dream. This approach will conflict with the broader need for multifamily housing to address the nation’s housing crisis, especially in growing urban areas. The push to avoid adding affordable housing in suburbs stands to worsen housing shortages in high-demand regions. Trump’s administration may also revisit tax policies that impact housing, for example limiting state and local tax deductions, which hurts residents in high-tax states like New York. It may change the structure of programs like the low-income housing tax credit (LIHTC), which supports affordable rental housing construction nationwide.

For cities like New York, Trump’s housing policies could lead to significant new challenges. Cuts to federal funding for HUD programs, such as Section 8 or the Community Development Block Grant, will force local governments to absorb the financial burden. Additionally, changes to fair housing laws will reduce federal oversight of segregation and discriminatory housing practices, potentially undermining efforts to address racial disparities in housing. While there could be benefits to less federal intervention and more local control, such changes would likely weaken the ability to implement progressive housing reforms and address the housing needs of low-income and immigrant communities.

In effect, the new administration’s housing policies will likely continue the trends from his previous administration. Efforts to scale back zoning laws and regulations on housing development could increase supply and lower prices. While large-scale affordable-housing programs may remain limited, private-sector incentives might encourage more development. The administration may extend tax benefits to real estate developers and homebuyers and support homeownership through programs like Opportunity Zones. Past policies, such as rolling back fair housing rules and pushing for housing finance reform, may continue, potentially reducing government involvement and promoting private sector solutions to housing issues. However, the caveat remains that such approaches contribute to affordability challenges, particularly for low-income and minority communities. The success of future policies will depend on broader economic considerations within the political landscape.

Potential housing policies under a second term of President Donald Trump will likely focus on reducing zoning laws, increasing tax incentives for developers, and fostering public–private partnerships to encourage more private sector involvement in housing construction. However, these policies often risk prioritizing profit motives over actual affordability. The use of subsidies, like the LIHTC, can lead to the construction of higher-end or mixed-income units instead of truly affordable housing, as developers are incentivized to build where they can achieve the highest return. This profit-driven approach can exacerbate housing inequality. Additionally, it can lead to shortterm affordability at best, with rents rising once subsidies or tax breaks expire. While the goal of increasing housing supply is important, relying heavily on the private sector without sufficient safeguards to ensure long-term affordability could ultimately perpetuate the housing crisis rather than alleviate it. In the face of a deepening housing crisis that leaves millions without access to safe, affordable homes, the time has come for bold, comprehensive action. Housing must be recognized as a fundamental human right, not a commodity or privilege. This manifesto outlines seven key areas of action to build a housing future that is equitable, sustainable, and inclusive for all Americans.

STREAMLINE ZONING TO UNLOCK HOUSING POTENTIAL

We must tear down the barriers to housing development by reforming zoning laws that restrict growth and perpetuate inequality. Federal leadership should push cities to adopt “byright” zoning, removing unnecessary bureaucratic hurdles that stymie housing production. Policies must encourage higher-density housing, especially near public transit hubs, and incentivize municipalities to eliminate outdated regulations like minimum lot sizes and parking requirements. By empowering cities to build more housing where it’s most needed, we can alleviate the pressure on urban housing markets and create more inclusive communities.

INCREASE FUNDING FOR AFFORDABLE HOUSING

The federal government must make an unprecedented investment in affordable housing. By significantly increasing funding for programs like the LIHTC and introducing new grants for local governments, we can address the overwhelming demand for affordable units in underserved communities. The goal is clear: to ensure that every American, no matter their income, has access to affordable, dignified housing. This funding should prioritize communities historically excluded from housing opportunities, ensuring equity in all new development.

5

SUPPORT COMMUNITY LAND TRUSTS FOR PERMANENT AFFORDABILITY

Community Land Trusts (CLTs) offer a sustainable model for creating and maintaining affordable housing. The federal government should provide both technical support and funding to help communities establish CLTs, ensuring that residents have control over their housing futures. By matching local funds for CLT projects, we can amplify community-led efforts to acquire and develop land for affordable housing. This model preserves affordability for generations, protecting communities from gentrification and displacement.

6

PRESERVE PUBLIC HOUSING AND PREVENT DISPLACEMENT

The preservation of public housing is an essential part of the solution to the housing crisis. Section 9 of the U.S. Housing Act must be fully supported, with increased funding to maintain and rehabilitate existing public housing units. These investments should focus on preventing the deterioration of affordable units and protecting residents from displacement, especially as neighborhoods gentrify. Federal policy must ensure that tenants have strong protections during renovations, guaranteeing their right to stay in their homes while improvements are made.

REINVIGORATE DESIGN INNOVATION TO MEET HOUSING NEEDS

Housing is not just about bricks and mortar—it’s about creating spaces that enhance the quality of life. The federal government must champion innovative housing design that incorporates human-centered principles, sustainability, and resilience. This includes exploring adaptable housing models like micro apartments, cohousing, and adaptive reuse of underutilized buildings. Federal housing initiatives should prioritize designs that promote community building and social integration, while also incorporating green technologies to reduce environmental impact. By creating flexible, scalable housing solutions, we can address the housing crisis at both the local and the national level.

A FUTURE FOR HOUSING AS A RIGHT, NOT A LUXURY

CHAMPION INNOVATIVE, COSTEFFECTIVE HOUSING SOLUTIONS

To tackle the housing crisis, we must embrace innovation in construction. Modular and prefabricated housing offers a promising solution, reducing both construction costs and timelines. The federal government should partner with developers to launch pilot programs that demonstrate the potential of these methods. Tax incentives and grants should be provided to companies producing affordable modular units, and permitting processes should be streamlined to encourage rapid deployment. By fostering these innovations, we can deliver more affordable homes faster and more efficiently.

3

7 !

The national housing crisis is a challenge we cannot afford to ignore. Through a combination of bold policy reforms, increased investment, and a commitment to innovation, we must create a future where housing is accessible to all. Every American deserves a safe, affordable place to call home, and it is the responsibility of our federal government to make this a reality. Let us take these seven points of action to heart, work together with communities, and build a housing system that serves the needs of all people, not just the privileged few.

Viren Brahmbhatt is an architect, an urban designer, and the founder of de.Sign Studio in New York City. He is also an adjunct professor at CCNY’s The Bernard and Anne Spitzer School of Architecture and formerly worked in the NYC Housing Authority’s Design Department.

EXPAND HOUSING FIRST INITIATIVES

We must prioritize solutions that directly address homelessness with a housing-first approach. This means providing stable housing to individuals without preconditions—no strings attached. By investing more heavily in Housing First programs, we can help those experiencing homelessness secure stable shelter while supporting them with essential services like mental health care, job training, and addiction treatment. This holistic approach not only addresses immediate needs but also empowers individuals to regain stability and dignity.

4

Richard Plunz is emeritus professor of architecture, planning and preservation at Columbia University. His study A History of Housing in New York City remains an important resource in the field.

Turn static files into dynamic content formats.

Create a flipbook
Issuu converts static files into: digital portfolios, online yearbooks, online catalogs, digital photo albums and more. Sign up and create your flipbook.