

ki tchen and ba th studio DG










photographed by David Christensen Interior design by Judy Bentley
&
BEDROOM
McLean Interiors, Inc.
BATHROOM & CLOSETS
Beck Design
Bradley Interiors
HALL, UPSTAIRS
ROOM & HALLWAY
Corder Interiors
LOUNGE
Masters
& BATHROOM #1
House Interiors
& BATHROOM #2
árd
& BATHROOM #3
& BATHROOM #4
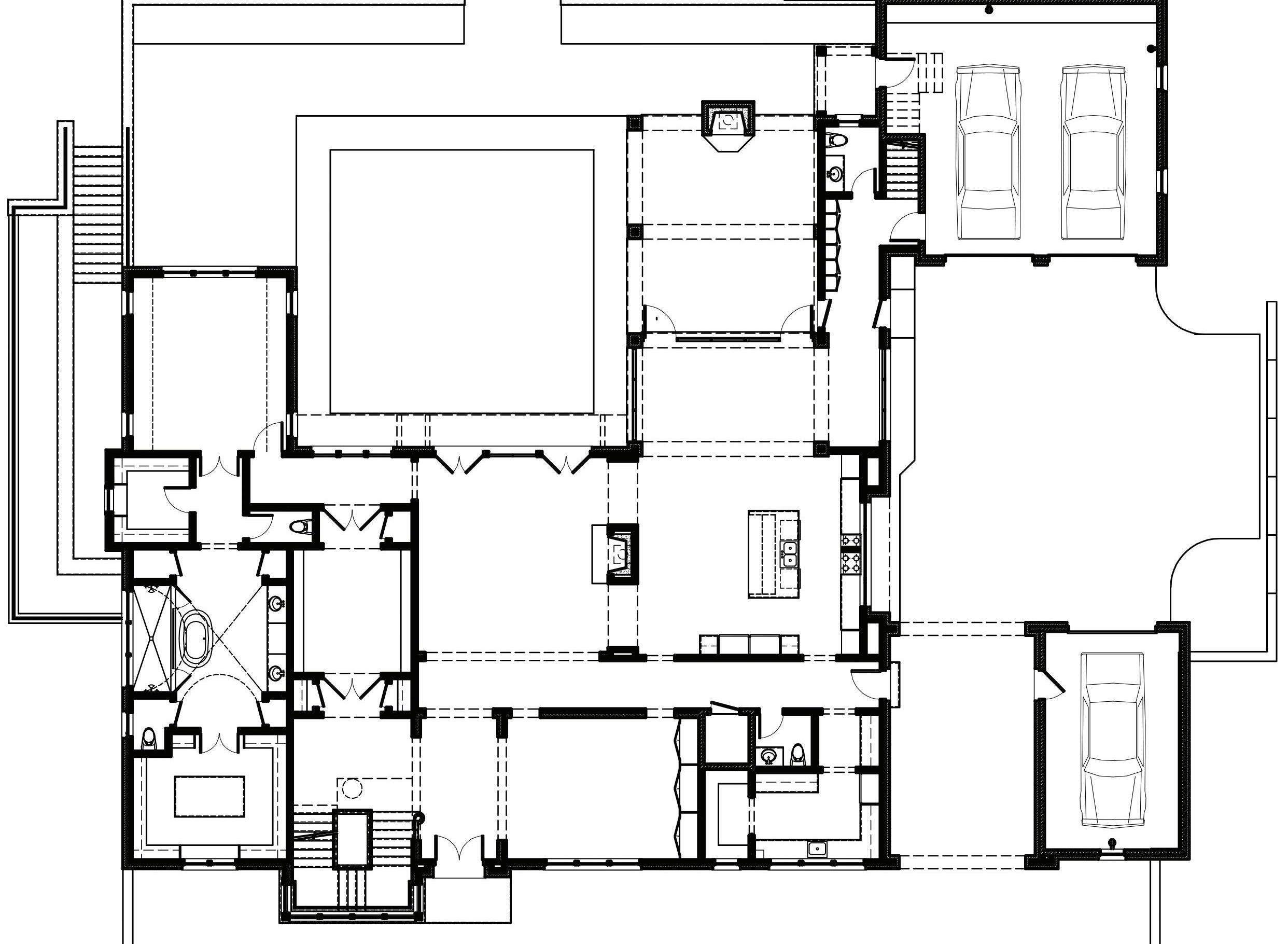
HARRISON DESIGN AND KBD CONSTRUCTION’S contemporary take on an English estate serves as the 2022 Home for the Holidays Designer Showhouse & Marketplace in the heart of Buckhead. The 14th annual showhouse, situated on one acre with a finished basement, is the second collaboration between the respected architecture firm and developer for an Atlanta Homes & Lifestyles signature event.
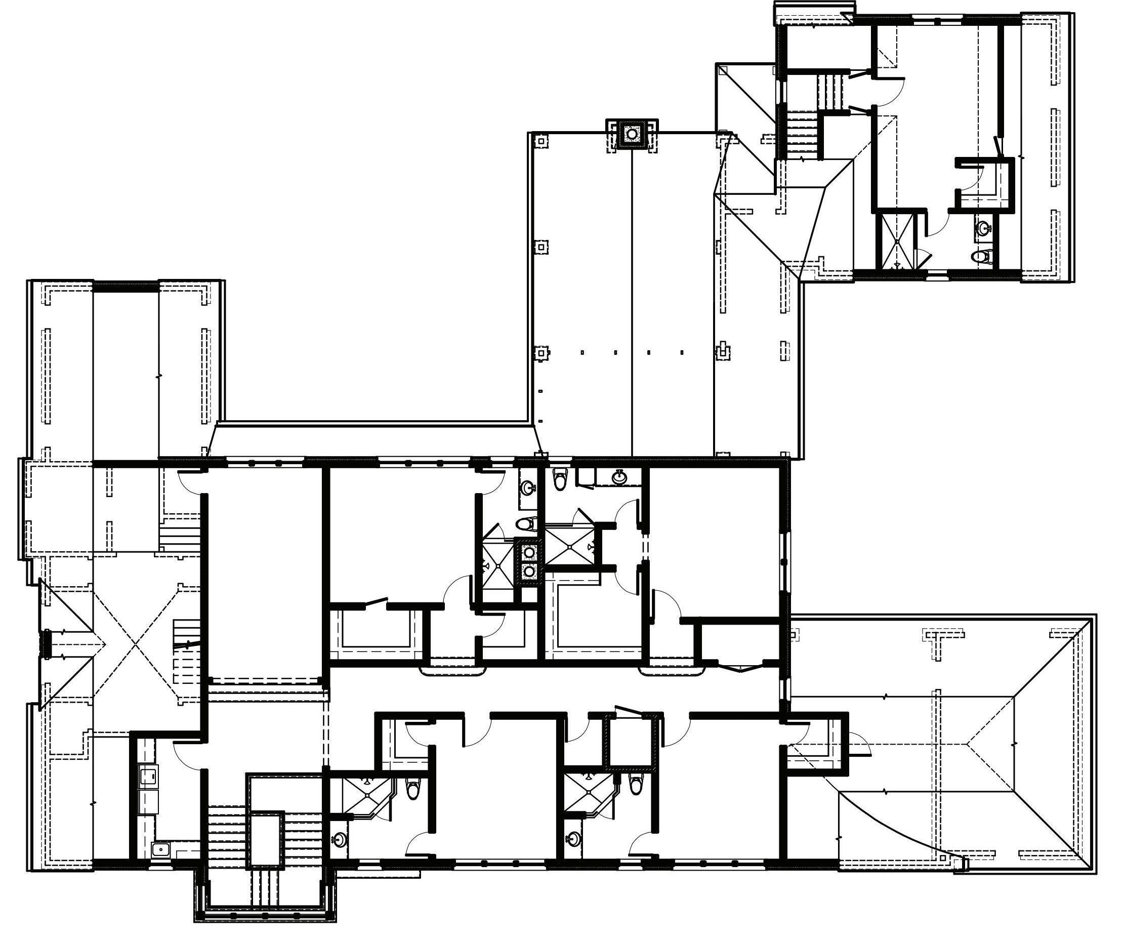
With more than 10,500 square feet, the home features five bedrooms, six full baths and three half baths on three levels. The design is modeled after the style of English architect C.F.A. (Charles Francis Annesley) Voysey from the late 1890s and early 1900s with details such as oversized arches, generous gables and swooping pitches. The home’s free-flowing design casts a romantic air and lets in light through expected and unexpected choices.
A stucco exterior and simplified interior trim present timeless, clean-lined design. Traditional fittings blend with updated finishes, such as solid French white oak flooring, custom cabinets by Kingdom Woodworks, Wolf and Sub-Zero appliances, and O’Neil Ruppel plumbing fixtures through Renaissance Tile & Bath.
An emphasis on daylight is evident in its abundant windows and doors, as well as signature features. A barrel vault ceiling spans from the keeping room to the loggia and the fireside covered porch to create connectivity and a sense of airiness. The spaces were designed for easy flow and pool views as Atlantans recognize the importance of backyards and oasis-like getaways at home. In the
open kitchen, an arched window behind the stove serves as a way for homeowners to soak up the light and views as the seasons change. The openness of those spaces contrasts with the privacy of other areas, such as the fireside living room and library. Upon entering the home, guests find the dining room situated off the foyer, which then flows to the kitchen and its accompanying scullery and pantry for functionality and storage.
On the other side of the foyer, a floating staircase leads to the second floor, where the hallway’s long spine—reminiscent of the design team’s previous showhouse collaboration—links the ensuite bedrooms and creates vestibules for artwork.
The main level features a substantial primary suite where a groin vault ceiling in the bathroom plays off the arched window in the shower, maximizing the sunlight. The suite’s design accommodates hers and his water closets and walk-in closets.
For the utmost in access, amenities include an elevator. With guests in mind, the home includes a suite with a vaulted ceiling above the two-car garage. A mudroom is ready to serve homeowners and guests maneuvering in and out of the residence’s porte cochere, motor court and pool.
KBD Development & Construction partnered with Floralis Garden Design for the landscape architecture and Lauren Davenport Imber of Davenport Designs Ltd. for the interior specifications. The showhouse features the talents of the Southeast’s top interior designers for a multi-generational holiday tradition. —Lori Johnston
914 BUCKINGHAM CIRCLE NW, ATLANTA, GA 30327
OPENS TO THE PUBLIC | Thursday, November 17 CLOSES | Sunday, December 11 CLOSED MONDAY, TUESDAY, WEDNESDAY & THANKSGIVING DAY
THURSDAY through SATURDAY, 10 a.m.–4 p.m. SUNDAY, 1–4 p.m.
$40 General Admission Groups of 10 or more, $30 each
No parking is available on Buckingham Circle.
Parking and door-to-door shuttle service is available two streets east of the Showhouse on Regency Road.
For questions, please call (404) 965-4555 or email info@atlantaholidayhome.com atlantaholidayhome.com
Atlanta Homes & Lifestyles is delighted to present the 14th-annual Home for the Holidays Designer Showhouse benefiting Children’s Healthcare of Atlanta. Every year, the most esteemed design talents come together in this wintertime tradition as we celebrate the magic and warmth of the holiday season.
Dan Belman and Randy Korando of Boxwoods Gardens & Gifts serve as our 2022 honorary cochairs, and we are also honored to partner once again with our beneficiary, Children’s Healthcare of Atlanta, to support their commitment to provide specialized healthcare for children.
During the run of showhouse, don’t miss a lineup of inspiring holiday events, including pop-up shops and floral demonstrations, candlelight tours and more. As you tour the showhouse, we encourage you to take inspiration and holiday spirit from the Atlanta design community’s incomparable talent.
Children’s Healthcare of Atlanta has been 100% dedicated to kids for more than 100 years. A not-for-profit organization, our specialized care helps children get better faster and live healthier lives. Managing more than a million patient visits annually at three hospitals, Marcus Autism Center and 28 neighborhood locations, Children’s is the largest healthcare provider for children in Georgia and one of the largest pediatric clinical care providers in the country. Children’s offers access to more than 60 pediatric specialties and programs and is ranked among the top children’s hospitals in the country. With generous philanthropic and volunteer support since 1915, Children’s has impacted the lives of children in Georgia, the United States and throughout the world.
Visit choa.org for more information.
Every day we provide specialized pediatric care to local kids and teens, so they can get back to just being kids. When you donate to Children’s Healthcare of Atlanta, you are not only changing lives, but supporting the future of your community for years to come. Give today at choa.org/donate
It is our extreme pleasure to welcome you to the 2022 Home for the Holidays Designer Showhouse & Marketplace.
This incredible 10,505-square-foot home, featuring five bedrooms and six full bathrooms, is light, bright and beautifully decorated by a roster of the most talented designers in the Southeast.
It truly takes a village to create such a magnificent residence, starting with the extraordinary collaboration between Harrison Design, KBD Development & Construction, Floralis Garden Design and Davenport Designs Ltd. With a host of other highly talented artisans, tradespeople and designers, this stunning home stands as a testament to outstanding design.
We feel privileged and humbled to be named as honorary co-chairs of this year’s event, and especially pleased that it benefits a most worthy cause in supporting Children’s Healthcare of Atlanta. On behalf of Atlanta Homes & Lifestyles, we invite you to enjoy visiting this exceptional home and wishing you a most wonderful holiday season!
—Dan Belman & Randy KorandoCANDLELIGHT FRIDAY 5PM - 9PM
Experience the living history of Madison while strolling through a selection of one-of-a-kind homes all dressed up for the holidays!
For pricing and tour information, please scan the code or visit our website: www.mmcc-arts.org
434 S. Main St. Madison, GA 30650
342-4743
627-0723 toll-free www.mmcc-arts.org
WEDNESDAY, NOVEMBER 16, 6–8:30 P.M.
Don’t miss this exclusive first look at the 2022 Home for the Holidays Designer Showhouse & Marketplace! Enjoy signature cocktails and light bites by AVENUE CATERING at the Showhouse the night before it opens to the public, and toast to our honorary chairs DAN BELMAN and RANDY KORANDO of BOXWOODS GARDENS & GIFTS as well as our beneficiary, CHILDREN’S HEALTHCARE OF ATLANTA
21 years of age and older; tickets are non-refundable. $175; purchase tickets at AtlantaHolidayHome.com
*Events are included with admission unless otherwise noted. Programming is subject to change. For updated information, visit AtlantaHolidayHome.com
Pick up gifts for everyone on your list! Shop high-end decor, home accessories, garden goods and other fun finds from our BOXWOODS GARDENS & GIFTS pop-up show, which is always a highlight of Home for the Holidays. Take some time to explore the boutique’s festive furnishings, goodies and gifts as you exit the house. Admission is complimentary with a general admission ticket. Visit AtlantaHolidayHome.com
FRIDAY, NOVEMBER 18, 10 A.M.–3 P.M.
Did you know? BROWN & CO. is a family-owned jeweler that has provided unparalleled service to the city of Atlanta for nearly 50 years. At this exclusive Home for the Holidays pop-up shop, don’t miss the opportunity to purchase high-end gifts for every jewelry aficionado on your list. Admission is complimentary with a general admission ticket. Visit AtlantaHolidayHome.com
FRIDAY, NOVEMBER 18, 11 A.M.–12 P.M. Join KATHRYN DAVENPORT DRENNAN, owner and principal designer of FORAGE AND FLOWER, for a hands-on floral design workshop where guests will learn to create a festive but lowmaintenance tabletop arrangement to last through the holiday season. Davenport Drennan, the leader of the Serenbe-based floral and event design company, has been bringing the holidays into her clients’ homes and to their tables for years. Workshop includes all materials for the take-home centerpiece. Space is limited and preregistration is required. $95; visit AtlantaHolidayHome.com
SATURDAY, NOVEMBER 19, 10:30–11:30 A.M.
Learn the “art of entertaining” just in time for the most wonderful time of the year! If you are hosting family and friends this holiday season, don’t miss LAUREN DAVENPORT IMBER of DAVENPORT DESIGNS LTD. as she demonstrates how a combination of heirloom pieces, single-use tableware and everyday basics will set the tone for a memorable meal with a backdrop of tradition, a nod to the present and an appreciation for the future. Admission is complimentary with a general admission ticket. Visit AtlantaHolidayHome.com
Thank you
FRIDAY, NOVEMBER 25, 11 A.M.–12 P.M. Gearing up for a big day of Black Friday shopping? Energize your morning with REN DOUGHTY of DANCING GOATS
COFFEE. Doughty will share tips on how to brew the best possible coffee in the comfort of your home and will answer all of your coffee-brewing questions. He’ll even have recipes for delicious, holiday-themed coffee drinks, both hot and cold! Admission is complimentary with a general admission ticket. Visit AtlantaHolidayHome.com
SATURDAY, NOVEMBER 26, 11–11:30 A.M. Scored all the best gifts, but not up for the task of wrapping? SWOOZIE it up while getting a complimentary “’tis the season” gift wrapping Swoo-torial! Attendees will learn several simple and easy ways to wrap your prized gifts for the season and demonstrate easy-to-follow tips for making bows—and, of course, inspiration on how to add the perfect dose of pizzazz. If ultimately you’re still not a wrapper, we’re here for you—at Swoozie’s, they wrap for free! Admission is complimentary with a general admission ticket. Visit AtlantaHolidayHome.com
SATURDAY, NOVEMBER 26, 1–2 P.M. Whether embellishing a gift or accenting your home’s holiday decor, handcrafted bows add the perfect finishing touch. In this hands-on workshop, join Showhouse Operations & Special Events Manager LORI HOJNOWSKI and SHANNON PAIGE EVENTS co-owner ALYSSA DEBORD to learn how to make gorgeous bows and gift tags. Space is limited and advance ticket purchase is required. $65; includes workshop, all materials and general admission. Tickets are non-refundable. Register at AtlantaHolidayHome.com
THURSDAY, DECEMBER 1, 8:15–10 A.M.
Relax and unwind with KATE LIPTON, a Yoga-Alliance-certified yoga instructor, at this private yoga class among the twinkling holiday lights inside the Showhouse. Following the class, enjoy a private exploration of the Showhouse, accompanied by prosecco and pastries. Session is limited to 10 guests; must bring own yoga mat. $60; register at AtlantaHolidayHome.com
FRIDAY, DECEMBER 1 , 6 8 P.M.
Enjoy a festive evening tour of the Showhouse. The night will begin with TITO’S-based seasonal cocktails and festive wine, as well as light bites from AVENUE CATERING and event design by SHANNON PAIGE EVENTS, followed by self-guided tours of this year’s Home for the Holidays. 21 years of age and older; advance ticket purchase required and attendance is limited to 90 guests. $80; visit AtlantaHolidayHome.com
FRIDAY, DECEMBER 2 , 6 8 P.M.
Join us for girls night! A festive charcuterie and grazing board class taught by SHANNON PAIGE EVENTS. Owners LORI HOJNOWSKI and ALYSSA DEBORD will teach you how to build with holiday accoutrements just in time for seasonal entertaining, and guests will try their hand at creating their own boards before indulging. Includes signature beverage and board. This event is sponsored by Heirloom 21 years of age and older; advance ticket purchase required to attend and limited to 20 guests. $110; register at AtlantaHolidayHome.com.
a personalized experience with the benefits of design services and samples at your fingertips. The showroom features our unbeatable selection that you know and love.
top-quality
wood, stone & more.
SATURDAY, DECEMBER 3, 10 A.M.–4 P.M.
Check everything off your holiday shopping list at our all-day stocking stuffer event! Whether it’s trinkets for the children or festive gifts for family and friends, our participating retailers—including Swoozies, Bauble Stockings, Audrey Allman Designs, LAKE Pajamas, Peachtree Park Monograms, Gracious Home and Heirloom—will supply fabulous items to fulfill all of your holiday wants and wishes. Admission is complimentary with a general admission ticket. Visit AtlantaHolidayHome.com
SUNDAY, DECEMBER 4, 10:30 A.M.–1 2:30 P.M.
Back by popular demand, it’s Sunday brunch at the Showhouse with SHANNON PAIGE EVENTS and catering by AVENUE CATERING Choose from a chilled mimosa or Bloody Mary featuring SQUARE ONE ORGANIC SPIRITS. Enjoy a delicious traditional brunch buffet with a whimsical holiday twist, then stay to tour the home before it opens to the public. 21 years of age and older only; advance ticket purchase required and attendance is limited. $80; register at AtlantaHolidayHome.com
THURSDAY, DECEMBER 8, 6 8 P.M.
Don’t miss this holiday tradition—enjoy this unique opportunity to experience the house decked out for the holidays at night! The intimate evening will begin with a festive seasonal signature cocktail by SQUARE ONE ORGANIC SPIRITS, as well as light bites provided by AVENUE CATERING and event design by SHANNON PAIGE EVENTS, followed by self-guided tours of this year’s Home for the Holidays. 21 years of age and older; advance ticket purchase required and attendance is limited to 90 guests. $80; register at AtlantaHolidayHome.com
FRIDAY, DECEMBER 9, 8:15 10 A.M.
Relax and unwind with KATE LIPTON, a Yoga-Alliance-certified yoga instructor, at this private yoga class among the twinkling holiday lights inside the Showhouse. Following the class, enjoy a private exploration of the Showhouse, accompanied by prosecco and pastries. Session is limited to 10 guests; must bring own yoga mat. $60; register at AtlantaHolidayHome.com
FRIDAY, DECEMBER 9, 6–8 P.M.
Back by popular demand! Grab your significant other and join us for a couples cheese and charcuterie board class taught by SHANNON PAIGE EVENTS. Owners LORI HOJNOWSKI and ALYSSA DEBORD will teach you how to build a board with holiday accoutrements just in time for seasonal entertaining, and guests will try their hand at creating their own platters before indulging. Includes signature beverage and board. This event is sponsored by Heirloom. 21 years of age and older; advance registration required and is limited to 20 guests. $110; register at AtlantaHolidayHome.com
SATURDAY, DECEMBER 10, 10:30–11:30 A.M. Gather ’round! Join Atlanta designer LAUREN DELOACH who specializes in fresh, traditional residential design that marries comfort with a sense of history—as she demonstrates four tabletop designs to freshen up a classic holiday place setting, creating the perfect backdrop for holiday traditions experienced around the table. Admission is complimentary with a general admission ticket. Visit AtlantaHolidayHome.com
SATURDAY, DECEMBER 10, 12 12:30 P.M. Bring your children for a Christmas story reading by Mrs. Claus herself while you peruse the Showhouse! After the reading, your children will have the opportunity to get in the holiday spirit by personally creating ornaments to bestow on your Christmas tree. Mrs. Claus will begin reading at noon for 30 minutes with ornament making to immediately follow. This event is for children ages 8 and under. Admission is complimentary with a general admission ticket. Visit AtlantaHolidayHome.com
FOR COMPLETE, UP-TO-DATE INFORMATION ON HOME FOR THE HOLIDAYS, VISIT: atlantaholidayhome.com
Don’t miss our exclusive “resources” tab on the website. Here, you’ll find details on each room, from the ceiling trim colors to the rugs underfoot.
Join the Conversation! Share your Home for the Holidays experiences using #ATLHOLIDAYHOME on Facebook, Twitter, Instagram and Pinterest. facebook.com/AtlantaHolidayHome instagram.com/AtlantaHolidayHome pinterest.com/ATLHolidayHome twitter.com/ATLHolidayHome
Questions? Call (404) 965-4555
Email info@atlantaholidayhome.com
KBD DEVELOPMENT & CONSTRUCTION is a boutique home building and real estate development firm o ering custom and spec residential homes for the luxury market in Atlanta. Owner and founder of KBD Development, Chris J. Davis graduated from Clemson University with a degree in civil engineering. Before starting KBD, he worked for seven years in operations and project management for a national commercial general contractor where he managed numerous commercial projects ranging from draw bridges to hospitals to high-rise luxury condos. Subsequent to his commercial construction and engineering background, Chris has 10-plus years experience building high-end luxury custom homes and residential developments in the Atlanta market.
(404) 597-9478
kbddevelopment.com
HARRISON DESIGN specializes in high-end residential architecture, interior design and landscape architecture for clients throughout the U.S. and abroad. From traditional to modern, the firm’s body of work represents the full spectrum of scale and style. Their international network of artisans, builders and suppliers ensures that the quality of the design is matched by the caliber of the material and workmanship. Principal Rick Hatch designed this year’s Showhouse as a contemporary take on an English estate. Known for his strong construction background and acute awareness in incorporating site and architecture, he has been with the firm for more than 20 years.
(404) 365-7760 harrisondesign.com
KINGDOM WOODWORKS is iconic for designing and creating luxury fitted cabinetry that is proudly made in America. They have been creating, manufacturing and installing awardwinning kitchens, closets and baths since 1999. The Atlantabased firm is recognized locally and nationally in the luxury residential design and construction circles as a trendsetting giant of fresh design ideas and original engineering. The KW team of designers, engineers, craftsmen, installers and finishers is stacked with talent from across the world. Kingdom Woodworks has an impeccable reputation for unparalleled craftsmanship, innovative design and superior white glove client service. We invite you to visit Kingdom Woodworks’ manufacturing facility and showroom in Atlanta for a first-hand experience.
Atlanta Showroom: 2402 Tech Center Parkway, Suite 500 Lawrenceville, GA 30043
FLORALIS GARDEN DESIGN is a landscape architecture and garden design firm founded by Lucinda Bray that serves Atlanta and its surrounding areas. The company specializes in a wide range of landscape architecture services including residential landscape design, containers, pool and outdoor living design and project management services. The mission of Floralis is to create environments representing creative, fresh ideas, recognized for their quality and unparalleled attention to detail. This mission carries over into each project that Floralis is a part of. Projects around Atlanta have included various residential new construction design projects, several renovation and area-specific designs, as well as garden installations and full-service garden maintenance.
Floralis’ focus is on developing a customized solution which fits the need of each individual client. There is no one-size-fits-all solution. This attention to detail, innovative design approach and project management expertise is what differentiates Floralis from other firms.
(404) 549-6745
floralisdesign.com
Spend the holidays in town. Visit the 2022 Holiday House from November 17December 11, where you will find design inspiration. The spectacular house is nestled in Atlanta and features a curated collection of MSI’s finest quartz.
Visit our designer’s showroom in Atlanta, located just outside the perimeter. We will help you source all the surfacing needs for your next project.
MSI ATLANTA 7950 Troon Circle • Austell, GA 30168 (678) 803-0800
For more information, visit msisurfaces.com.
After graduating with a degree in interior design from American Intercontinental University in Atlanta, Lauren Davenport Imber founded her design firm, DAVENPORT DESIGNS LTD., in 2003. Specializing in commission of both high-end residential and commercial projects, she strives for a collaborative design process by combining solid business practices, open lines of communication and attention to detail. She is committed to guiding clients through the construction and renovation process, as well as the decoration of their spaces. Her philosophy, “the space is only successful if it represents those living in it,” has allowed her to be recognized by her clients for her endless dedication, timeless style and the ability to create e ortless and comfortable spaces.
(404) 405-1788 davenportdesignsltd.com
SHANNON PAIGE EVENTS is an Atlanta-based event planning company founded by Lori Hojnowski and Alyssa DeBord. The two have been involved in many showhouses and events throughout the years, however, it wasn’t until after an early-fall wedding that they decided to formally create Shannon Paige Events. Their unique approach and blending of styles have made them the perfect team for any occasion. The mother-daughter duo specializes in creating one-of-akind experiences that reflect the style and personalities of their clients.
Alyssa: (985) 718-8896 Lori: (678) 899-7339 shannonpaigeevents.com
boxwoodsonline.com @boxwoodsatlanta (404) 233-3400
An Atlanta favorite since opening in 1995, Boxwoods Gardens & Gifts o ers a variety of contemporary and vintage furnishings, decorative accessories, a superbly curated woman’s department and a vast selection of gifts—all complimented by an amazing interior and exterior plant department. Boxwoods Home features an entire floor of unique vintage and antique pieces sourced from the best antique markets in Europe and throughout the U.S. as well as a full floor of true to life permanent botanicals. Located in the heart of Buckhead’s West Village, Boxwoods is truly a shop no visitor should miss. The Boxwoods exterior landscape department has been responsible for designing and installing specialty gardens in and around Atlanta for over 25 years. Dan Cleveland, Alvin Laws and David Boswell, along with landscape designer and Boxwoods co-owner Randy Korando, work together to make Atlanta even more beautiful, one garden at a time.
A round cast stone table anchors a pool lounge, while upholstered seating in lightweight fabric tempts swimmers to take a break. See “California Cool” at atlantahomesmag.com
Atlanta native, Lauren DeLoach embraces timeless Southern design with a fresh approach. Finding inspiration in architecture, antiques and art, Lauren combines comfortable with classic to bring her updated traditional style to residences across the country. A sense of history in a home is a key element to Lauren’s philosophy. She works hand in hand with clients, architects and homebuilders to reflect this idea and make each project truly one-of-a-kind.
Amber Guyton blessedlittlebungalow.com @blessedlittlebungalow amber@blessedlittlebungalow.com
BLESSED LITTLE BUNGALOW
Amber Guyton is the owner of Blessed Little Bungalow, an interior design firm based in Atlanta. Amber has served dozens of clients across the country designing colorful, affordable and aesthetically pleasing residential and commercial projects. She founded BLB in 2016 after decorating her entire renovated 1948 San Antonio, Texas bungalow in less than a week. Since then, Amber’s blog and social media following quickly grew and transformed her former hobby and side hustle into a nationally known brand and business. In 2021, she left her fintech marketing career to pursue this dream and take BLB full-time. As an interior designer, content creator and influencer, Amber has been featured and recognized by notable organizations and publications. Outside of design and entrepreneurship, Amber enjoys traveling, exploring new cuisines, volunteering and spending quality time with her loved ones at home in South Carolina.
Playful pops of pattern and color abound in a bedroom that’s both moody and sophisticated.
DAVENPORT DESIGNS LTD. davenportdesignsltd.com @davenportdesignsltd (404) 405-1788
Davenport Imber is the owner of Davenport Designs Ltd. After graduating with a degree in interior design from American Intercontinental University in Atlanta, she founded her design firm in 2003. Specializing in commission of both high-end residential and commercial projects, she strives for a collaborative design process by combining solid business practices, open lines of communication and attention to detail. She is committed to guiding clients through the construction and renovation process, as well as the decoration of their spaces. Her philosophy, “the space is only successful if it represents those living in it,” has allowed her to be recognized by her clients for her endless dedication, timeless style and the ability to create effortless and comfortable spaces. Davenport Imber was named by Atlanta Homes & Lifestyles as a Young Gun in 2017.
Sunny, a miniature horse, makes an entrance in a breakfast room, where an extra long table o ers the perfect spot for both meals and game nights. See “Going Country” at atlantahomesmag.com
B.D. JEFFRIES
bdjeffries.com @katileehardwick (404) 231-3004
more than two decades B.D. Jeffries has been the premier lifestyle and home decor destination in Atlanta. Originating as the quality source for fine alligator and crocodile accessories, the business is now multifaceted and has evolved to epitomize stylish living. B.D. Jeffries’ carefully curated collection of refined home furnishings, mixed with one-of-a-kind accessories and antiques, is ever-changing and always inspiring. Old and new, local and exotic, rustic and refined are blended together into an eclectic combination sure to complement every style. In-house designer Kati Hardwick translates the B.D. Jeffries aesthetic in a seamless and flawless fashion in her clients’ homes. Design services and in-home consultations are available for any size project—from one room to whole house.
An upstairs loft features floating furnishings in the center of the room as well as ample lounging spaces and reading nooks. See “California Cool” at atlantahomesmag.com
Bring your vision to life with our custom and modified stainless steel sinks and sink tops. It’s where form meets function to create a space worth celebrating.
Life of the party. That’s
Morethan a decade after opening Huff Harrington Fine Art and Huff Harrington Home, we founded Huff Harrington Design, a full-service interior design firm that is deep-rooted with a passion for beautiful furnishings and chic, classic interior design. We’ve always been inspired by timeless interiors that embody a magical mix of old and new, elegant elements and rich textures. We love rooms that appeal to all the senses and that marry beauty with function. We love rooms where 18th century heirlooms sit right next to midcentury modern pieces —and mostly, we love rooms where memories are made. We offer everything from design consultation to full project management (including new construction and renovations), procurement and installation.
Trudy Stump, Heather Parker and Wren Caples make up our inspired design team—and we’re delighted to say they are dedicated to perfecting a vision, obsessing over the details, taking the guesswork and stress out of the process and designing perfect, luxurious and bespoke spaces that always leave us in awe of their collective talent.
An elegant combination of upholstery, textiles and fine art results in a redefined space that spares the usual tropes of outdoor living. See “Mix Masters” at atlantahomesmag.com
With professional experience in real estate law, finance, investment and marketing, our talented team educates, guides, and advises you though every phase of the real estate purchase or sale process. We are uniquely qualified to make great things happen for you!
graysonprattinteriors.com
@graysonprattinteriors (404) 316-3768
universalfurniture.com
@universalfurn
Foras long as designer Grayson Pratt can remember, she has had a passion for interior design. Growing up in a family filled with interior designers and artists, she always appreciated the elegance of a well-designed home. Grayson believes there is more to a home than its beauty. A home should reflect the unique personality and lifestyle of each client. She has a talent for creating classic, comfortable designs that mix styles, color and pattern.
Grayson Pratt Interiors opened in 2014 as a full-service interior design firm based in Atlanta. Grayson has been awarded Best Interior Designer by My Vinings/Smyrna magazine and My Buckhead magazine. She has previously participated in the Cashiers Designer Showhouse and the 2019 Home for The Holidays Showhouse. Grayson is excited to again be a part of a wonderful holiday tradition. Happy Holidays!
Blue, white and beloved patterns like chinoiserie create a peaceful space for morning co ee in an upstairs reading loft. See “Character Driven” at atlantahomesmag.com
designer Janie Wilburn prides herself on helping clients live more gracefully in the spaces she’s personalized for them. A deep appreciation for beauty, both visually and in literature, led her to study history and architecture at England’s Oxford University. Having grown up in Europe, her studies cemented her love of timeless design. Janie went on to work with top industry luminaries at Suzanne Kasler Interiors and Wolf Design Group before founding The Jane Group, a full-service interior design firm with offices in ADAC, in 2008. From her Atlanta office, she works with clients around the Southeast and beyond, both on individual residences and large multi-family projects for major developers. Every space tells a story, and whether a home calls for grand traditional or bold contemporary touches, Janie’s approach is both pragmatic and creative, with an eye for understanding her clients’ needs. Her design team has a passion for incorporating custom furnishings, special collections, objects and curated art to infuse her interiors with personality and elegance.
Inside a kitchen, the inspiration for the blue cabinets came from the swirls of blue and gray in the Calacatta Lucina marble countertops and backsplash. See “With a Twist” at atlantahomesmag.com
PATRICIA MCLEAN INTERIORS, INC.
mcleaninteriors.com @patriciamcleaninteriorsin (404) 266-9772
by Patricia McLean in 1985, Patricia McLean Interiors, Inc. is located in Atlanta in the heart of Buckhead. Considered a true traditional designer, Patricia specializes in the customization of paint colors, finishes and fabrics and layering of antiques and accessories. Guiding clients architecturally through construction to ensure the “bones” are correct for furniture placement and flow is paramount to her design philosophy. She is known for her classic style and thoughtful, polished designs that are elegant yet inviting. She takes an organic approach to the design process bringing her refined taste, fresh approach, vast resources and joie de vivre to each project. Patricia McLean Interiors has been published in various books including Scalamandré Haute Décor, Christmas by Design, Southern Spaces and more.
Inside a cozy and classic living room, nature’s palette is unveiled in the green and blue tones in the fabrics as well as the contemporary scenic painting. See “With a Twist” at atlantahomesmag.com
Kathy Bowman, Helen S. Carlos, Ann Rankin Cowan, Elaine & John Carlos, The Foxworthy Family, Joy & Alan N. Greenberg, In memory of Randall Grenadier, Bonnie Harris, Lila & Doug Hertz, Anne Hipp, J.J. Radding, Patty & Doug Ried, Kristy and Michael Robison, Kristine & David Rudolph, Jean & Will Underwood
Carol & Kevin Cleveland, Melinda Dabbiere, Linda Davis, Nan Easterline, Janine Franco, Tuba Malinowski, Kathleen McNarma, Barbara Ramsay, Cynthia Reid, T. Blake Segars Architecture and Landscapes
Cynthia Carnes, Mr. & Mrs. Clay Nalley, Robin Friedrich, Wit & Donna Hall, Jill Henke, MD, Laura Henry, Lisa Heynor, Ellen Holland, Leslie McLeod, Mindi Miller, Valerie & Bill Needle, Cynthia L. Ott, Will & Shirley Powell, JJ and Ryan Radding, Amy & Jeffrey
Samuels, Kate & Brad Spickert, Beth G Sugarman
Thank you to our patronS
Thank you to our sponsors
Based in Atlanta, Sande Beck Design is an ASID-certified, full-service design firm specializing in timeless yet eclectic interiors. The firm enjoys layering traditional and sophisticated pieces and has completed projects throughout the Southeast and Washington D.C. Sande Beck Design has participated in four previous showhouses, the 2018 Cashiers Designer Showhouse, the 2019 Southeastern Designer Showhouse and Gardens and the 2020 and 2021 Home For the Holidays Designer Showhouse. With a natural draw toward all things beautiful, Sande Beck, Associate ASID, and her mother, Peggy Storey, founded Sande Beck Design in 2008. Her love of design translates into spaces that are comfortable, balanced and welcoming. When she is not designing, Sande enjoys spending time with her husband, keeping up with her four sons and drawing inspiration from her everyday life.
Designed as a winter-white paradise, a guest suite features shades
that
against the tranquil curtains and
See “Graceful Grandeur” at
Thanks to KBD Development, Harrison Design and Davenport Designs for choosing MTI Baths for the tubs and sinks in the 2022 Home for the Holidays Christmas House.
Made in Georgia
When you walk into your home, what is the first thing you want to feel? Comfort? Calm? Connection?
Jessica Bradley understands that a home is an oasis, a sanctuary, a place of refuge from today’s fast paced and ever-changing world. This mindful idea is the basis for every project Jessica and her team strive to achieve. Her goal is to capture the essence of what home feels like to each client, using their inspirations and lifestyle to provide the cornerstone for each exciting new collaboration. Whether that’s modern luxury, classic comfort or a cozy retreat, Jessica breathes life, beauty and functionality into every space. Since 2004, Jessica Bradley Interiors has been curating lovely homes throughout Atlanta, expanding their reach as north as Nantucket and as south as Naples. From ground-up new construction, full-scale renovations, or an interior refresh, Jessica and her talented team focus keenly on the details. When asked what sets her apart, Jessica says, “My instincts and my ability to listen and connect with my clients’ vision.”
@crystal.corder.interiors (770) 356-3795
Georgia native Crystal Corder began her design career at the University of Georgia where she received her degree in interior design. Over the past 10 years in the industry, she has developed a love for space planning and architectural details throughout the home, but especially in kitchen and bathrooms. She has always loved design and transforming houses into homes where clients’ visions are fully realized in renovations or new construction builds. Crystal appreciates both hard and soft finishes, but is passionate about space planning and interior architectural details being the foundation of her designs. Crystal launched her eponymous full-service design firm—Crystal Corder Interiors—in 2022.
A renovation project strived to open up the kitchen area to create a bright and timeless aura. Textures were layered to contrast the clean lines of the metal windows and linear millwork.
TaviaForbes and Monet Masters are the founders of the acclaimed Atlanta-based interior design firm Forbes Masters. Together, they confidently blend an eclectic range of modern and natural elements, creating custom residential and commercial spaces designed to amplify their clients’ personalities and lifestyles in new and unexpected ways. Tavia and Monet help their clients push beyond the ordinary, exploring ideas that reference the past and embrace the future in memorable and enduring ways. Their work possesses an energy of assurance and strength, where bold choices are not based on trends but rather on their vast knowledge of design, history, art and fashion, and how that applies to the story of each project. Since opening in 2017, they have been featured regularly in Architectural Digest, House Beautiful, Essence, and Business of Home. They are honored to make their debut appearance at this year’s Home for the Holidays Showhouse.
Ideal for a chic business woman, an array of textural beauty can be found inside this home o ce.
As a homeowner, your vision is to create a home that represents your individual personality. At Windsor Windows & Doors, our passion is to build a versatile line of window and door products that exceeds your expectations and inspires your imagination. Regardless of your architectural style, Windsor’s products provide a wide array of window and door options – each with the quality craftsmanship for which we are known. Make Windsor Windows & Doors part of your design.
Call today for a quote and discover how our professionals can help you nd the perfect solution for your next project. Or download a FREE product guide at SucceedWithWindsor.com
Kerry Howard is a 1999 graduate of Anderson University where he received a BA in art with a concentration in interior design. Kerry previously lived in Atlanta where he is a past president of ASID Georgia. His design aesthetic is more transitional in nature where he loves combining texture and color to create casual space for everyday living. He is thrilled to be a part of the 2022 Home for the Holidays Showhouse in Atlanta where his career began almost 20 years ago.
Deadline for entries is Friday, April 7th at 5 p.m. Winners will be featured in our July 2023 issue; visit our website to enter.
with love for creativity from an early age, Evan Millard pursued studies in graphic design at Oral Roberts University. Yearning for more within the creative realm, Evan went on to receive his BFA in interior design at O’More College of Architecture and Design of Belmont University. With luxury residential and commercial design experience in Nashville and Chicago, Evan returned to Music City in 2017 to form Modern Remains with two dear friends. While part of this dynamic design trio, Evan worked with clients from coast to coast creating environments reflecting his clients and their zeal for life. Over a decade later, coupling his love for clients and color, Evan debuted his solo career focusing on creating jewel-box-like experiences that bring joy and excitement to his clients’ lives. Evan is currently designing high-end residential projects located in Nashville, Atlanta, Richmond, Virginia, and Alys Beach. When not immersed in the world of design, Evan enjoys the bustling local food scene and resides in downtown Nashville with his French bulldog, Sophia Marie.
A
COMTESSE XL OFFSET CHANDELIER IN HAND-RUBBED ANTIQUE BRASS DESIGNER: PALOMA CONTRERAS
With a degree in interior design and more than 20 years of industry experience, Chris Holt opened his eponymous design firm in 2001, focusing on both commercial and residential design. Holt Interiors’ style is traditional and classic but with a fresh sensibility. Holt integrates this design theory into every project while keeping the client’s specific needs and expectations at the forefront. With every design, Holt maintains his roots with a fresh, modern take on traditional Southern charm.
A sofa covered in a green velvet fabric takes center stage in a library that boasts contemporary flair. See “Blank Canvas” at atlantahomesmag.com
ChristopherCollection is a unique collection of timeless decor curated by the team at Christopher Architecture & Interiors. Known for their intuitive and timeless designs, Christopher Architecture & Interiors is a full-service firm engaging in bespoke projects from conception to completion. Christopher Collection is an accessible avenue for classic home furnishings that give Christopher homes their reputation, character and distinction. Led by creativity, passion, and appreciation for design, Christopher Collection is a space where customers can transform their environment with functional, yet fine pieces. Offering high-end art, furniture, upholstery, lighting, bedding, antiques, accessories and more, the flagship store is located at 2913 Linden Avenue in downtown Homewood, Alabama, and available online at christophercollection.com.
Games has roots that go as far back as the Roaring ’20s when shuffleboard began in the United States. Elizabeth, with husband Christopher, are second generation owners, taking the helm more than 10 years ago. The decision was made to shift from making game tables to creating pieces that will become part of the design of the space, not just sit in it. Each new model designed since 2011 has focused on style trends within the furniture industry, classic architectural design influences and expanding the imagination of what a game room can—and should—be. As the design director, Elizabeth oversees every aspect and creation of each table model, focusing on fit and finish to maximize the design of each new piece. Venture Games’ end goal is to evolve the game room from a space with little design and forethought to a mainstay in the design process. The driving force is to create spaces that bring people together and create opportunities for real and meaningful connection through play.
Square One Organic Spirits is a female-founded boutique spirits company created with the sole mission of crafting innovative organic and clean label spirits with an eco-conscious ethos. Our award-winning organic vodka and botanical spirits are made from 100% certified organic American rye, pristine water from the Teton Mountain watershed and all organic and natural botanicals.