DESIGN PORTFOLIO
ARCHITECTURE & INTERIOR DESIGN
PROJECTS
+ IMPLEMENTATION WORKS
BAKRI
JULAILTI
PRESENTED BY MSC. ARCH

SELECTED WORKS PERIOD 2017 / 2025
TOP 20 PROJECTS INVOLVED IN.

ARCHITECTURE & INTERIOR DESIGN
+ IMPLEMENTATION WORKS
PRESENTED BY MSC. ARCH
SELECTED WORKS PERIOD 2017 / 2025
TOP 20 PROJECTS INVOLVED IN.
A rchitectural thinking is his passion, with +7 years of experience he have designed and contributed to many different types of projects including Hospitality, Residential, Commercial, Entertainment centers & F&B projects. a wide knowledge expanded in architecture concept and schematic design practice, including all coordination measures taken with all participants to preparation of architectural packages for client and authorities, in addition, leading design team throughout all initial stages likewise in concept design, sketches, 3D modeling, rendering, material selection up to the final drawings reflecting all Dubai building codes regulations.
BUILDING CODES FAMILIAR WITH
2020 - 2021
Master of Science in Architecture
Eastern Mediterranean University
2013 - 2017
Bachelor’s degree in Architecture
Eastern Mediterranean University
ARCHITECT
ADDRESS : Majan - Skyline 12
Dubai, United Arab Emirates
EMAIL : bakri.bj@gmail.com
PHONE : +971 50 760 64 15
CAR & LICENSE : Valid
Architect
Technical
Designer
Architect
Architect
Architect
APR 2024 - PRESENT ARCHITECTONICA
Confidential Projects
SEP 2022 - APR 2024
KLING CONSULT GMBH & CO.
DEC 2021 - SEP 2022
HBA/HIRSCH BEDNER ASSOCIATES
APR 2020 - DEC 2021
DYNAMIX DESIGN STUDIO
JUN 2017 - MAY 2020
UZUN GROUP CONSTRUCTION
2025
LEED GA (Green Associate) Certification Training - in Progress
2021
Master Thesis: “Bio-mimetic Design as a Tool for Sustainable Architecture” High Honor
2017
Faculty First Ranking Graduate of the year High Honor
ARABIC
SOFTWARE / BIM
Revit - Naviswork - ArchiCAD - AutoCAD
SOFTWARE / MODELING
Rhino - SketchUp
SOFTWARE / VISUALIZATION
Lumion - Enscape - D5 Render
SOFTWARE / EDITING
PhotoShop - InDesign - MS office
SUSTAINABILITY DESIGN
REAL ESTATE
BUSINESS & PROJECT DEVELOPMENT
PHOTOGRAPHY
AUTOMOTIVE DESIGN
GOLDEN TRIANGLE
BINDAWOOD TOWERS
URUBAH DEVELOPMENT
ART BAY RESIDENCE
ENBD MEYDAN DEVELOPMENT
TRAINING CENTER OF ETHIOPIA
CLOVER MALL
NOVA APARTMENT
LIBRA TOWERS
LONG RESIDENCE TOWERS
HALLAK APARTMENT
RESIDENTIAL PROJECT OF ETHIOPIA
DANUBE TWIN TOWERS
Situated on the vibrant Tahlia Road in Jeddah, Saudi Arabia, this visionary project features four striking towers, seamlessly blending mixed-use spaces and luxury hospitality. The development will introduce two high-end hotels, elevating the city’s accommodations. Amenities, including pools and leisure facilities, are strategically placed on the upper floors, offering breathtaking panoramic views of Jeddah. At ground level, a bustling boulevard lined with stores and cafes enlivens the frontage, fostering a dynamic connection to adjacent entertainment projects. Designed to captivate both tourists and locals, this project promises a unique urban experience at the heart of Jeddah.
LOCATION
JEDDAH, KSA AREA
CLIENT 172,000 M 2
WORKS COVERED:
• Coordination with all Sub's
• Architectural concept idea
• Space planning
• Design the exterior facade
Pre-concept
Concept Stages
The project entails designing a world-class Residential towers for a prestigious luxury mixed-use development located in Jeddah, Saudi Arabia. the aminites and showrooms will serve as the primary touchpoint for potential buyers and investors, showcasing the project’s unique offerings, including highend residences, commercial spaces, and lifestyle amenities. This space will not only communicate the development’s vision and value but also create a lasting impression that reflects the brand’s sophistication and exclusivity with innovative displays and sense of community.
LOCATION
JEDDAH, KSA
AREA
CLIENT 146,000 M 2
BINDAWOOD
WORKS COVERED:
• Coordination with Engineers
• Architectural design
• Design the exterior facade
• Materials selection
• Space planning
Concept
Starting Schemtic soon
LOCATION
RIYADH, KSA
AREA
CLIENT 63,000 M 2
URUBAH INVESTMENTS
CO.
WORKS COVERED:
• Coordination with Engineers
• Architectural design
• Design the exterior facade
• Materials selection
• Space planning
Concept Starting Schemtic soon
Situated next to Riyadh metro line on one of the most populated roads in the city, this distinguished project by Urubah Developers is set to redefine multipurpose residential living and high end offices. The development comprises two adjacent buildings featuring iconic trophyshaped towers with wavy facade rpresenting movement towards the sky to challange the limits. seamlessly integrating with the city's streetscape, while the interior offers a private sanctuary. This enclosed space fosters a cozy, intimate atmosphere, framed by private balconies and views that evoke the elegance of Saudi modern architecture.
LOCATION
RIYADH, KSA
CLIENT CONFIDENTIAL
WORKS COVERED:
• Coordinating deliverables between client and design team
• Concept design
• 3D Modeling
King Salman Park is built on more than 16km2 to become the largest urban park in the world offering a wide range of options and quality activities for the city’s residents and visitors. It will include a 7.2km pedestrian walkway (loop), and a “valley” area in the middle of the park surrounded with art and water features. The Park will contribute significantly to increasing the vegetation in the region and green buildings, which will have a direct and positive impact on the quality of the environment and the climate.
This prestigious development project is located along the Creek shoreline of Al-Jaddaf Waterfrontis a multipurpose development project located in Dubai, United Arab Emirates. Ellington Properties intends to develop a multi story residential building with a distinct design and has unique character at the waterfront development, the project include two plots consists of two C shaped towers. it's used in two different scales. The outside of the C defines the city, street facade and the inside of the C shape creates a more private space, Cozy, intimate, private, framed views & private balconies with a sense of modern mashrabia
LOCATION
AL-JADDAF CULTURAL VILLAGE - DUBAI
AREA
CLIENT 51,542 M 2
WORKS COVERED:
• Full Coordination with all Sub-Consultant and Client
• Architectural concept idea
• Space planning
• Design the exterior facade
• DBC complying design
• Materials selection
Pre-concept
Concept
Schematic
Detailed Design Stages
LOCATION
NAD AL-SHIBA 1 - DUBAI
AREA
CLIENT 5,563 M 2
ENBD BANK
WORKS COVERED:
• Coordination with all Sub's
• Architectural concept idea
• Space planning
• Design the exterior facade
• DBC complying design
• Materials selection
Pre-concept
Concept
Schematic
Detailed Design Stages
The development of the Emirates NBD’s building aimed to connect four existing buildings which are currently operational as their headquarters in Nedd Al Sheba, Dubai, UAE. The proposed project represents a visionary transformation of an existing podium-level parking area into a multifunctional space comprising a diverse range of enclosed amenities. These amenities include food courts, Halls, a technologically advanced digital branch, offices, and an outdoor stage, the design seeks to create a valuable and transformative urban space that meets the evolving needs and aspirations of its stakeholders.
A Training Centre is proposed by COOP Bank integrating smart architecture and human centred design. The project will provide international luxury comforts with contemporary and dynamic architecture. our primary goal is to ensure that the building falls in historic place and complies with the existing context, the designer is carefully created a pallate that is inspired by ethiopia’s existing context.
LOCATION
ADDIS ABABA
ETHIOPIA
AREA
CLIENT 10,740 M 2
COOB BANK
WORKS COVERED:
• Coordination with all Sub's
• Architectural concept idea
• Space planning
• Design the exterior facade
Pre-concept
Concept Stages
Located in inshaat district, the exterior design intent is to reflect locals' thoughts towards a better future where all opportunities must be taken, once inside, the interior design lines & flow will guild you to your desired destination. The building has two entrances, includes two underground car parking, first basement floor has the biggest Supermarket in the city (2.700m2), rest of floors are stores with different properties, 4th floor has F&B and food court areas.
LOCATION HOMS, SYRIA
AREA CLIENT
BETON
WORKS COVERED: 12,000 M 2 POWER
• Coordination with Engineers
• Architectural + Interior Design
• Design the exterior facade
• Design all Interiors
• Materials selection
• Space planning
Pre-Concept
Concept
Schematic stages
With the special architectural design and a perfect location close to the coastline, the building offers you a serene environment with sea and mountain views, the concept is to emphasize the strength of Cyprus society, especially in Iskele where many foreigners gather and live together in peace, rectangular wholes represent the transparency to grow up and connect with others whatever their backgrounds are, on the ground floor it include Uzun company sales office and two stores for rent, The area of the studio apartment (55m2), 1+1 around (81m2), 2+1 around (115m2).
LOCATION
ISKELE, NORTH CYPRUS
AREA
CLIENT 1,700 M 2
UZUN GROUP
WORKS COVERED:
• Coordination with Engineers
• Architectural & Interior design
• Design the exterior facade
• Materials selection
• Space planning
• Uzun Office interior design
• 3D Modeling & Rendering
Concept
Schemtic
Detailed Design
LOCATION
ISKELE, NORTH CYPRUS
AREA
CLIENT 3,400 M 2
WORKS COVERED:
• Coordination with Engineers
• Architectural & Interior Design
• Materials selection
• 3D Modeling & Rendering
Concept
Schemtic
Detailed Design
Libra Towers consists of 2 blocks, A and B. Each block has 2 shops, 22 flats with 1 + 1 flat (65m2) and 2 + 1 (85m2) apartments, the concept of Libra towers design is to demonstrate the need for equality for everyone in the community within the neighborhood where everyone shares the same valuable views and quality of common spaces like Sea and mountain views, mini-pool, mini -market, gym, private barbecue areas with beautiful landscaping. The pool of Libra Tower can be used by all Zodiac City residents. The city center is within walking distance.
LOCATION
FAMAGUSTA, NORTH CYPRUS AREA
CLIENT 13,000 M 2
WORKS COVERED:
• Coordination with Engineers
• Architectural & Interior Design
• Drawing Documentation
• Materials selection
• Space planning
• 3D Modeling & Rendering
Concept
Schemtic
Detailed Design
Located next to the main highway at the entry of Famagusta city, the two elegant towers are shaped and inspired by flamingo birds which the city is famous for during Spring season, the building consists of towers A & B, the first one on the left with 18 floors and second as 16 floors, with a set of different block per floor, however first floor has Gym, swimming pool, and Spa, where the ground floor has 8 retail shops, two floors underground for car parking. this building is expected to be one of the landmarks of Famagusta city by the year 2025.
Where modern architecture meets functional details, combining design with luxury and comfort. the design intent of Rimas apartment is to have a conservative, moderate, and modern impression from the exteriors and reflected on the interior design theme, in terms of simplicity, material selection, and lighting design. The first 4 floors include 4 flats each, with 1 + 1 flat (55m2) and 2 + 1 (68m2), however, the last 5th floor has two Penthouse with a wide terrace and jacuzzi side facing the forest natural view of Famagusta.
LOCATION
FAMAGUSTA, NORTH CYPRUS
AREA
CLIENT 1,380 M 2
WORKS COVERED:
• Coordination with Engineers
• Architectural & Interior Design
• Lighting design
• Materials selection
• kitchen Design
• 3D Modeling & Rendering
• Implementation works
Concept Schemtic
Detailed Design
PARK HYAAT HOTEL
MARSA AL-ARAB
SHERATON HOTEL
EXIT-10 RIYADH
AL-NUZHA JEDDAH
JOVANI CAFE
NAZ KAN BAKERY STORE
LOCATION
DUBAI, UAE
WORKS COVERED:
• Coordinating deliverables between client, operator, and design team
• DD Packages preparation
• Materials specifications
• Furniture specifications
The refurbished Park Hyatt Dubai guest rooms and suites will define a signature aesthetic, tailored and timeless appearing effortless and nonchalant. Blending past and present, Classical proportions and techniques coupled with refined contemporary principles of simplicity, freshness, and culture, a prominent residential influence should be apparent throughout. Versatile spaces for entertaining dining and working sophisticated furnishings apparent in the finish, residential detail, and materiality of craft and texture, carefully defining the Liveable Luxury experience.
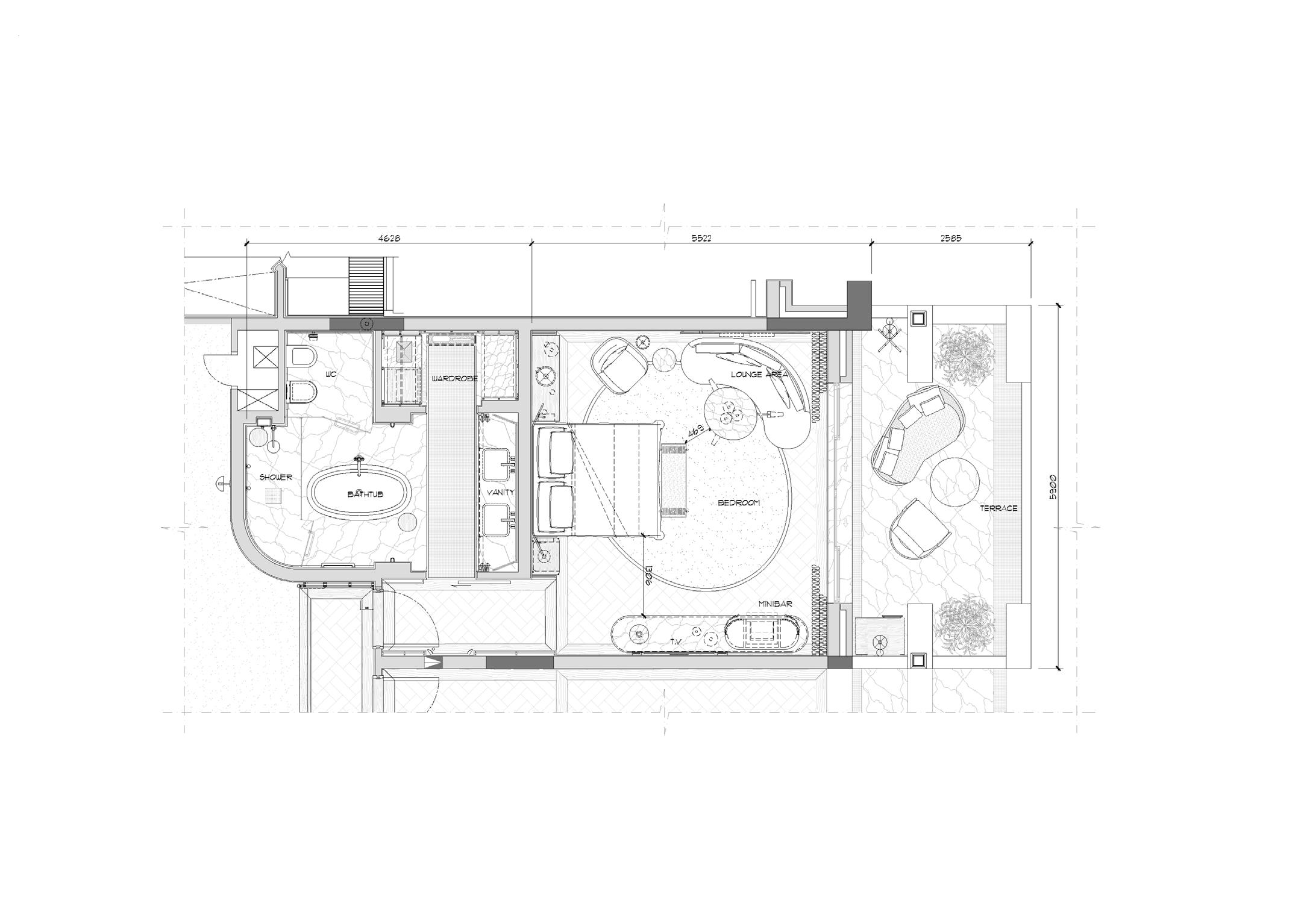
Overall Layout For King Room … Option 1
The design narrative revolves around this thought process of Dubai being the catalyst for the cultural shift, a symbol of future and it connects to its past, the design intends to create a seamless transition, so the guest can experience a pause from the city’s pace while being at the heart of it. Curated art and styling inspired by our location along the waterside a narrative of Dubai’s culture.
LOCATION
JUMEIRAH - DUBAI, UAE
WORKS COVERED:
• Coordinating deliverables between client, operator, and design team
• DD Packages preparation
• Materials specifications
• Furniture specifications
The interior design collection draws light on the Beauty of Madinah city as the cultural heritage, a fast-paced city that it is, which, at its core, remains to be the heart of remarkable culture, welcoming generations, old and new, to the same plot of land that it welcomed people throughout centuries, a familiar curated sense of place with character and pure atmosphere.
LOCATION
MADINAH, KSA
• Coordinating deliverables between client, operator, and design team
• DD Packages preparation
• Coordinating BIM deliverables
• Materials specifications
• Furniture specifications
LOCATION
RIYADH, KSA
WORKS COVERED:
• Coordinating deliverables between client, operator, and design team
• Concept design
• Coordinating BIM deliverables
• 3D Modeling & Rendering
Five different shades of poured in terrazzo flooring characterized the public space
the narrative of this project is that the spark is landing with such tremendous force, that shock waves are felt across the Kingdom, Shattering into a new beginning, opening a multiverse, a unique fabric in the universe, where elements of entertainment appear from all over known space and time, where Traveling thrill seekers come from far and wide to experience the wonders of these other worlds in a space unlike any other, the organic shapes and lighting design allow the guest to feel and live an unexpected experiences outside earth.
Expressive of Nature – a selective palate based on warm tones and textures, contrasted with accents more vivid and expressive, an interior guided by the recipe of luxurious residential aesthetic, a familiar curated sense of place with theme and atmosphere starting from materials, colors, and textures, in addition, the furniture selection with colors inspired from Saudi nature, however, bronze brass used to reflect the authenticity of Saudi desert within a frame of contemporary settings.
LOCATION
JEDDAH, KSA
AREA
CLIENT 125 M 2
WORKS COVERED:
• Interior design
• Lighting design
• Furniture selection
• Materials selection
• 3D Modeling & Rendering
The idea gently celebrates the fondness of island nights spent with friends in the countryside of the city, with deliberate allusions to industrialism to give it a youthful edge, where the designer built the whole brand around his target demographic, combining edgy graphics with bold décor to complement the ArabicTurkish cuisine, the lighting design was given the goal of establishing a contemporary and minimalist design and feel. The brand identity had to have a sophisticated edge that alluded to space and the cosmos in a subtle way.
LOCATION
FAMAGUSTA, NORTH CYPRUS
WORKS COVERED:
• Coordination with Engineers
• Interiors design
• Lighting design
• Materials selection
• Furniture design
• 3D Modeling & Rendering
• Implementation works
LOCATION
FAMAGUSTA, NORTH CYPRUS
WORKS COVERED:
• Interiors design
• Lighting design
• Materials selection
• 3D Modeling & Rendering
• Implementation works
The focus has shifted away from the old look of the original store toward a brand new bakery prevalent across the region. With this in mind, the design evolved to a more raw finish that was matched by a warm light that engulfed the space.
EMAIL : bakri.bj@gmail.com PHONE : +971 507 606415