Tesis Lennin Amaya, PUCE, Arquitectura

Page 1

RECICLAJE DE INFRAESTRUCTURAS ARQUITECTÓNICAS INACABADAS. CENTRO ARTÍSTICO COMUNITARIO "LA MARISCAL".

MEMORIA ARQUITECTÓNICOS CONSTRUCTIVOS Y DETALLES ESTRUCTURAL SOSTENIBILIDAD PAISAJISMO MAQUETA LA OBSESIÓN - LO INACABADO CONEXIÓN INCONCLUSO - ABANDONADO EL PREDIO - INTERVENCIÓN PROCESO DE RECICLAJE EN LA PREEXISTENCIA LA EXOESTRUCTURA MÓDULO CONTENEDOR DE ESPACIO CIRCULACIÓN Y CONFIGURACIÓN ESPACIAL RECICLAJE Y MEMORIA - PROYECTO EL ABANDONO EN LA CIUDAD DE QUITO EL SECTOR E INTERVENCIÓN INTERVENCIÓN ZONIFICACIÓN ZONIFICACIÓN UBICACIÓN IMPLANTACIÓN PLANTAS PLANTAS PLANTAS PLANTAS PLANTAS CORTE B-B CORTE A-A VISTA FRONTAL VISTA LATERAL DERECHA VISTA POSTERIOR VISTA LATERAL IZQUIERDA PLANTA DE CIMIENTOS CORTE POR MURO DETALLE DE CUBIERTA DETALLE DE VENTANA 3D ANÁLISIS BIOCLIMÁTICO SOLEAMIENTO ESTRATEGIAS DE SOMBRA ILUMINACIÓN NATURAL VENTILACIÓN TERRAZA VERDE PLAN DE INTERVENCIÓN MATRIZ DE ESTRATEGIAS INTERVENCIÓN MOBILIARIO URBANO CORTES PLANTA BAJA VISTA FRONTAL VISTA POSTERIOR 38 39 40 41 42 43 44 45 46 47 48 49 50 51 52 53 54 55 56 PLANTAS CONSTRUCTIVAS FACHADA CONSTRUCTIVA CORTE CONSTRUCTIVO CORTE POR MURO REPLANTEO PLANTAS DETALLE DE GRADA DETALLE PROPIO DETALLE DE VENTANA DETALLE DE BAÑO DETALLE DE PUERTA

LA OBSESIÓN

Existe un proceso creativo diferente en cada arquitecto ya que cada uno percibe a la arquitectura en base a su conocimiento teó rico, pero también, este puede ser influen ciado en base a vivencias, experiencias y aficiones personales. El poder expresar estas situaciones en arquitectura, le brinda al proyecto un carácter personal y un sello único el cual nace de interpretar estas afi ciones.

En el taller permitió desvelar una obsesión o interés personal que se enfoca en las condi ciones espaciales y sensoriales de las edifi caciones que quedan en estado inconcluso o inacabado y el cómo reciclarlas sin perder estas singularidades.

LO INACABADO Y SU INTERPRETE

La adaptabilidad del concepto inacabado es “la clave para una nueva forma de proyectar figuras emergentes de un objeto existente siempre imperfecto o inconcluso” (Munta ñola, 1974), se deduce que algo inacabado es algo preexistente que quedó estático en el tiempo donde un intérprete puede proyec tar su finalización y ser parte de su desarro llo final.

“Los proyectos nunca se acaban, sino que entran en fases sucesivas, en las que quizá ya no tengamos control directo sobre ellos, o quizá se reencarnen en otros proyectos” (Miralles, 2004), esto hace referencia a las edificaciones como entes cambiantes y que nunca se terminan, pues a través del tiempo su uso puede ser reprogramado y pueden emerger de una preexistencia inconclusa o abandonada.

DE FIN DE
TRABAJO
CARRERA
M LÁMINA: 01 FECHA: 18/09/2019 ESC A1: INDICADA CONTENIDO: MEMORIA ALUMNO: BLOQUE: LENNIN ISRAEL AMAYA Q. 1 QUITO - JERÓNIMO CARRIÓN Y JUAN LEÓN MERA PONTIFICIA
FACULTAD
DISEÑO
ARTES
PROYECTO: CENTRO ARTÍSTICO COMUNITARIO: LA MARISCAL DIRECTOR TT: ARQ. SEBASTIÁN CALERO NOTAS TÉCNICAS: CELLOS Y FIRMAS DE APROBACIÓN:UBICACIÓN:
UNIVERSIDAD CATÓLICA DEL ECUADOR
DE ARQUITECTURA,
Y

Como definición según (Habermas, 2008) “lo inacabado indica un estado cuando algo con un propósito a finalizar o en desarrollo queda inconcluso o estático en el tiempo” y del texto de Andrade (2010) se puede de finir a los objetos arquitectónicos incon clusos como infraestructuras vacías, des nudas o en desuso han quedado varadas en el tiempo sin un uso específico y no man tienen un carácter o trascendencia históri ca, más bien son el resultado de factores sociales que influyen en abandono de las mismas.

El abandono de edificaciones en un entor no urbano se desarrolla “por un complejo sistema interconectado de problemáticas sociales, económicas, ambientales y de estructura urbana, exacerbados por una baja participación social, estos elementos en conjunto generan percepciones negati vas en los residentes y en el resto de los habitantes de la ciudad” (Schiappacasse, 2008).

Estas problemáticas se traducen en im portantes transformaciones urbanas, falta de identidad y el progresivo abandono de edificaciones de todo tipo en un sector.

LO
TRABAJO DE FIN DE CARRERA PROYECTO: CENTRO ARTÍSTICO COMUNITARIO: LA MARISCAL DIRECTOR TT: ARQ. SEBASTIÁN CALERO NOTAS TÉCNICAS: CELLOS Y FIRMAS DE APROBACIÓN:UBICACIÓN: M LÁMINA: 02 FECHA: 18/09/2019 ESC A1: INDICADA CONTENIDO: MEMORIA ALUMNO: BLOQUE: LENNIN ISRAEL AMAYA Q. 1 QUITO - JERÓNIMO CARRIÓN Y JUAN LEÓN MERA PONTIFICIA UNIVERSIDAD CATÓLICA DEL ECUADOR FACULTAD DE ARQUITECTURA, DISEÑO Y ARTES
CONEXION ENTRE
INCONCLUSO Y EL ABANDONO

MEMORIA

Se entiende que el material a ser reciclado tuvo un ciclo en el espacio y una duración en el tiempo, por lo que podría ser recordado por al guien en su memoria. Desde la medicina se “entiende el término memoria como la facul tad mental que permite reconocer, almacenar y evocar sentimientos, ideas, imágenes, entre otras experiencias, además, nos permite reco nocerlas como propias” (Raffino, 2019). Dedu cimos que si reciclamos un objeto para darle un nuevo ciclo de vida podríamos mantener su memoria en el tiempo y espacio.

Reciclar arquitectura es algo más complejo que hablar de una reforma o renovación pues estas difieren del concepto reciclaje, donde la incidencia de la intervención sobre el objeto arquitectónico a es totalitaria, reciclar no es volverlo a su estado inicial de construcción sino proyectar sobre este objeto preexistente una nueva edificación emergente que se adapte a las condiciones espaciales o estruc turales del mismo, y modificar la función de un edificio en una nueva realidad.

El proyecto arranca con el interés en el recicla je de estructuras inconclusas o abandonadas para darles una nueva vida y que estas estruc turas puedan “ejercer como células regenera doras dentro de la ciudad. Ya que la ciudad tiende a acumular espacios como éstos, sin reparar en la posible dilatación del ciclo de vida de los mismos” (Genovés, 2013).

Estos objetos arquitectónicos preexistentes necesitan de la visión de alguien que pueda brindarle una segunda oportunidad, “actual mente, en las urbes aparecen lugares de opor tunidad para llevar a cabo tal objetivo, demos pues un cambio revitalizante a estas ruinas contemporáneas” (Genovés, 2013). De esta forma se intenta demostrar el compromiso por reusar los vestigios de las edificaciones incon clusas o abandonadas y superar los esquemas de algo ya existente y aparentemente inservi ble.

EL RECICLAJE Y LA
TRABAJO DE FIN DE CARRERA PROYECTO: CENTRO ARTÍSTICO COMUNITARIO: LA MARISCAL DIRECTOR TT: ARQ. SEBASTIÁN CALERO NOTAS TÉCNICAS: CELLOS Y FIRMAS DE APROBACIÓN:UBICACIÓN: M LÁMINA: 03 FECHA: 18/09/2019 ESC A1: INDICADA CONTENIDO: MEMORIA ALUMNO: BLOQUE: LENNIN ISRAEL AMAYA Q. 1 QUITO - JERÓNIMO CARRIÓN Y JUAN LEÓN MERA PONTIFICIA UNIVERSIDAD CATÓLICA DEL ECUADOR FACULTAD DE ARQUITECTURA, DISEÑO Y ARTES
EL PROYECTO
TRABAJO DE FIN DE CARRERA PROYECTO: CENTRO ARTÍSTICO COMUNITARIO: LA MARISCAL DIRECTOR TT: ARQ. SEBASTIÁN CALERO NOTAS TÉCNICAS: CELLOS Y FIRMAS DE APROBACIÓN:UBICACIÓN: A LÁMINA: 14 FECHA: 18/09/2019 ESC A1: INDICADA CONTENIDO: UBICACIÓN ALUMNO: BLOQUE: LENNIN ISRAEL AMAYA Q. 1 QUITO - JERÓNIMO CARRIÓN Y JUAN LEÓN MERA PONTIFICIA UNIVERSIDAD CATÓLICA DEL ECUADOR FACULTAD DE ARQUITECTURA, DISEÑO Y ARTES
TRABAJO DE FIN DE CARRERA PROYECTO: CENTRO ARTÍSTICO COMUNITARIO: LA MARISCAL DIRECTOR TT: ARQ. SEBASTIÁN CALERO NOTAS TÉCNICAS: CELLOS Y FIRMAS DE APROBACIÓN:UBICACIÓN: A LÁMINA: 15 FECHA: 18/09/2019 ESC A1: INDICADA CONTENIDO: IMPLANTACIÓN ALUMNO: BLOQUE: LENNIN ISRAEL AMAYA Q. 1 QUITO - JERÓNIMO CARRIÓN Y JUAN LEÓN MERA PONTIFICIA UNIVERSIDAD CATÓLICA DEL ECUADOR FACULTAD DE ARQUITECTURA, DISEÑO Y ARTES
TRABAJO DE FIN DE CARRERA PROYECTO: CENTRO ARTÍSTICO COMUNITARIO: LA MARISCAL DIRECTOR TT: ARQ. SEBASTIÁN CALERO NOTAS TÉCNICAS: CELLOS Y FIRMAS DE APROBACIÓN:UBICACIÓN: A LÁMINA: 16 FECHA: 18/09/2019 ESC A1: INDICADA CONTENIDO: PLANTAS ALUMNO: BLOQUE: LENNIN ISRAEL AMAYA Q. 1 QUITO - JERÓNIMO CARRIÓN Y JUAN LEÓN MERA PONTIFICIA UNIVERSIDAD CATÓLICA DEL ECUADOR FACULTAD DE ARQUITECTURA, DISEÑO Y ARTES
TRABAJO DE FIN DE CARRERA PROYECTO: CENTRO ARTÍSTICO COMUNITARIO: LA MARISCAL DIRECTOR TT: ARQ. SEBASTIÁN CALERO NOTAS TÉCNICAS: CELLOS Y FIRMAS DE APROBACIÓN:UBICACIÓN: A LÁMINA: 17 FECHA: 18/09/2019 ESC A1: INDICADA CONTENIDO: PLANTAS ALUMNO: BLOQUE: LENNIN ISRAEL AMAYA Q. 1 QUITO - JERÓNIMO CARRIÓN Y JUAN LEÓN MERA PONTIFICIA UNIVERSIDAD CATÓLICA DEL ECUADOR FACULTAD DE ARQUITECTURA, DISEÑO Y ARTES
TRABAJO DE FIN DE CARRERA PROYECTO: CENTRO ARTÍSTICO COMUNITARIO: LA MARISCAL DIRECTOR TT: ARQ. SEBASTIÁN CALERO NOTAS TÉCNICAS: CELLOS Y FIRMAS DE APROBACIÓN:UBICACIÓN: A LÁMINA: 18 FECHA: 18/09/2019 ESC A1: INDICADA CONTENIDO: PLANTAS ALUMNO: BLOQUE: LENNIN ISRAEL AMAYA Q. 1 QUITO - JERÓNIMO CARRIÓN Y JUAN LEÓN MERA PONTIFICIA UNIVERSIDAD CATÓLICA DEL ECUADOR FACULTAD DE ARQUITECTURA, DISEÑO Y ARTES
TRABAJO DE FIN DE CARRERA PROYECTO: CENTRO ARTÍSTICO COMUNITARIO: LA MARISCAL DIRECTOR TT: ARQ. SEBASTIÁN CALERO NOTAS TÉCNICAS: CELLOS Y FIRMAS DE APROBACIÓN:UBICACIÓN: A LÁMINA: 19 FECHA: 18/09/2019 ESC A1: INDICADA CONTENIDO: PLANTAS ALUMNO: BLOQUE: LENNIN ISRAEL AMAYA Q. 1 QUITO - JERÓNIMO CARRIÓN Y JUAN LEÓN MERA PONTIFICIA UNIVERSIDAD CATÓLICA DEL ECUADOR FACULTAD DE ARQUITECTURA, DISEÑO Y ARTES
TRABAJO DE FIN DE CARRERA PROYECTO: CENTRO ARTÍSTICO COMUNITARIO: LA MARISCAL DIRECTOR TT: ARQ. SEBASTIÁN CALERO NOTAS TÉCNICAS: CELLOS Y FIRMAS DE APROBACIÓN:UBICACIÓN: A LÁMINA: 20 FECHA: 18/09/2019 ESC A1: INDICADA CONTENIDO: PLANTAS ALUMNO: BLOQUE: LENNIN ISRAEL AMAYA Q. 1 QUITO - JERÓNIMO CARRIÓN Y JUAN LEÓN MERA PONTIFICIA UNIVERSIDAD CATÓLICA DEL ECUADOR FACULTAD DE ARQUITECTURA, DISEÑO Y ARTES
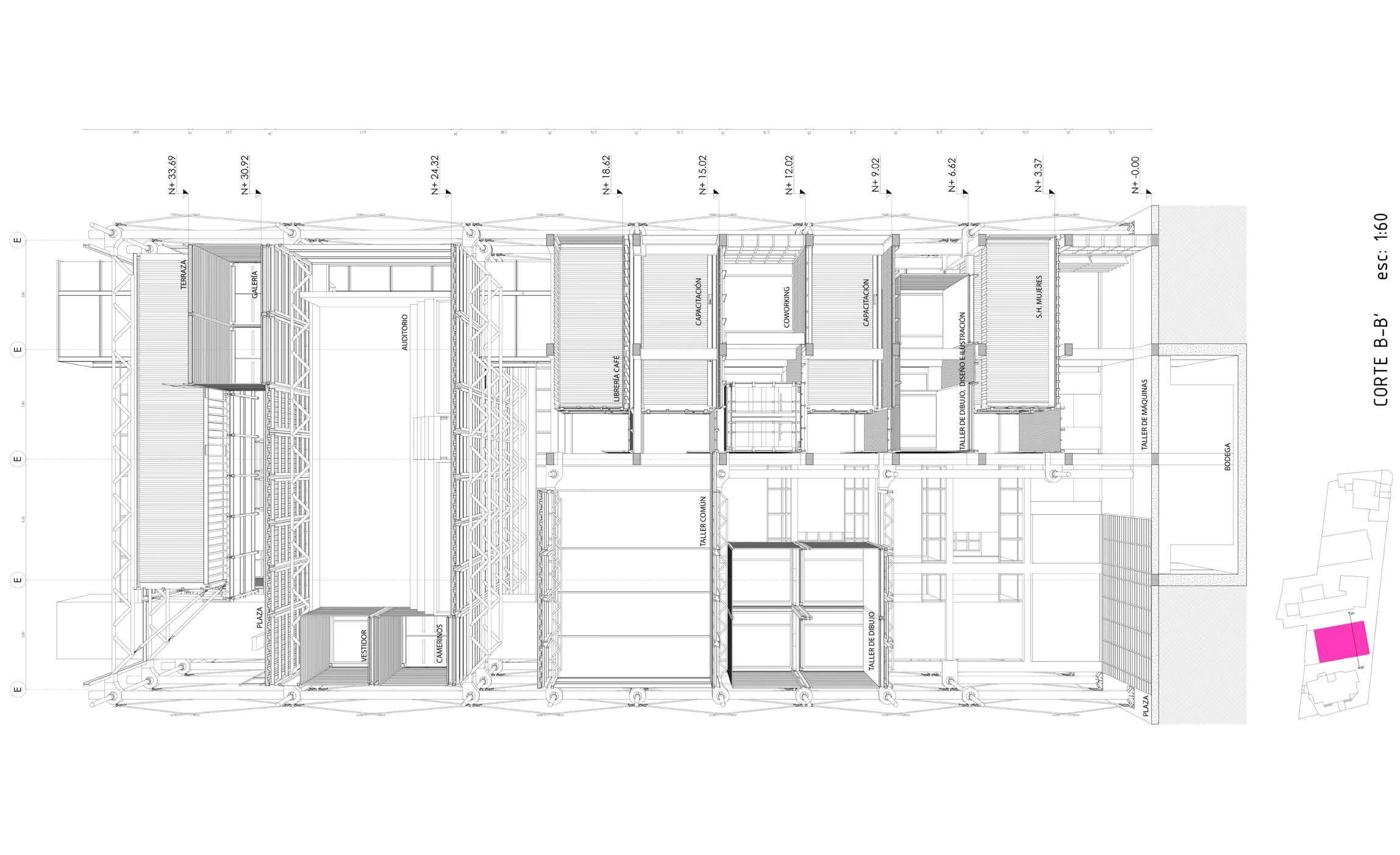
TRABAJO DE FIN DE CARRERA PROYECTO: CENTRO ARTÍSTICO COMUNITARIO: LA MARISCAL DIRECTOR TT: ARQ. SEBASTIÁN CALERO NOTAS TÉCNICAS: CELLOS Y FIRMAS DE APROBACIÓN:UBICACIÓN: A LÁMINA: 21 FECHA: 18/09/2019 ESC A1: INDICADA CONTENIDO: CORTE B-B ALUMNO: BLOQUE: LENNIN ISRAEL AMAYA Q. 1 QUITO - JERÓNIMO CARRIÓN Y JUAN LEÓN MERA PONTIFICIA UNIVERSIDAD CATÓLICA DEL ECUADOR FACULTAD DE ARQUITECTURA, DISEÑO Y ARTES
TRABAJO DE FIN DE CARRERA PROYECTO: CENTRO ARTÍSTICO COMUNITARIO: LA MARISCAL DIRECTOR TT: ARQ. SEBASTIÁN CALERO NOTAS TÉCNICAS: CELLOS Y FIRMAS DE APROBACIÓN:UBICACIÓN: A LÁMINA: 22 FECHA: 18/09/2019 ESC A1: INDICADA CONTENIDO: CORTE A-A ALUMNO: BLOQUE: LENNIN ISRAEL AMAYA Q. 1 QUITO - JERÓNIMO CARRIÓN Y JUAN LEÓN MERA PONTIFICIA UNIVERSIDAD CATÓLICA DEL ECUADOR FACULTAD DE ARQUITECTURA, DISEÑO Y ARTES
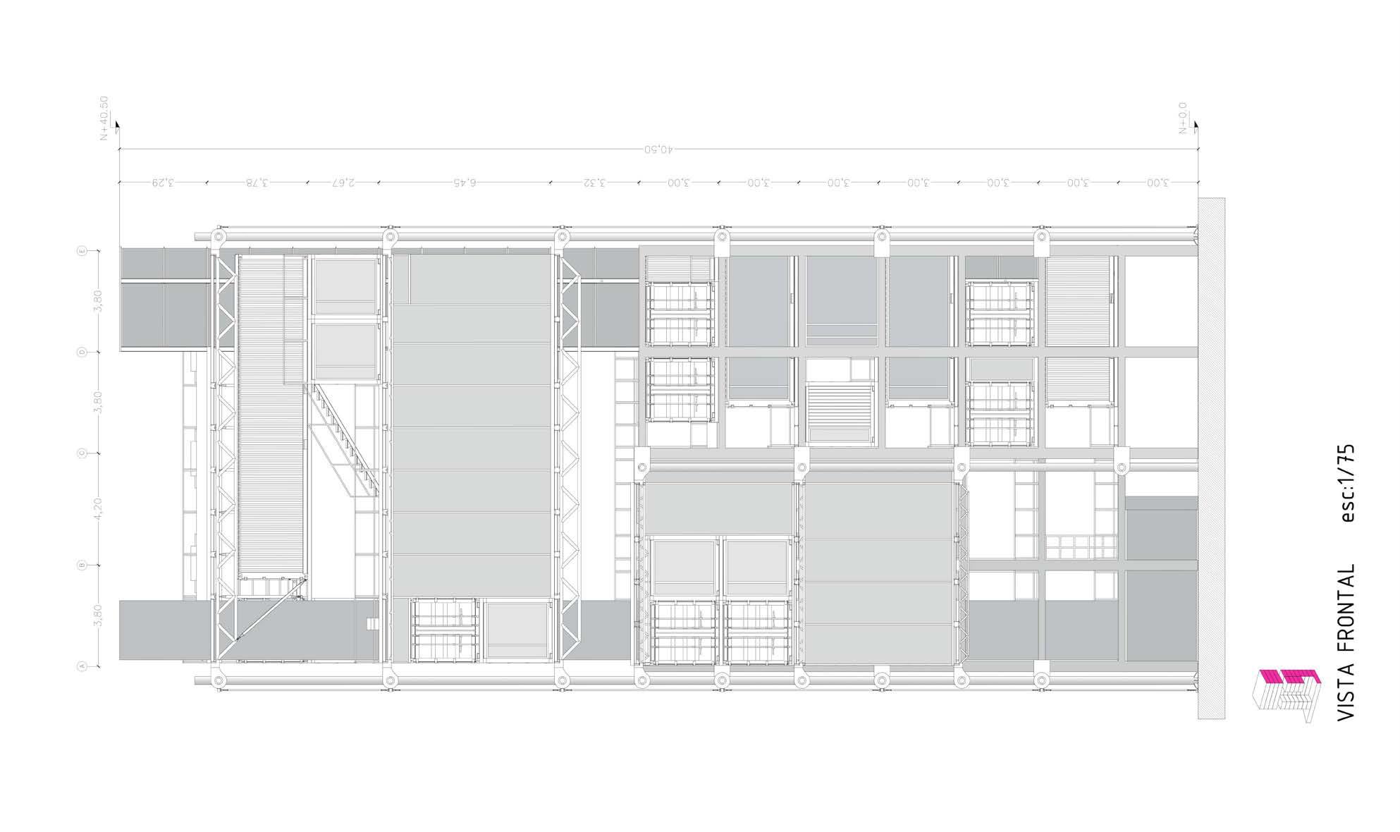
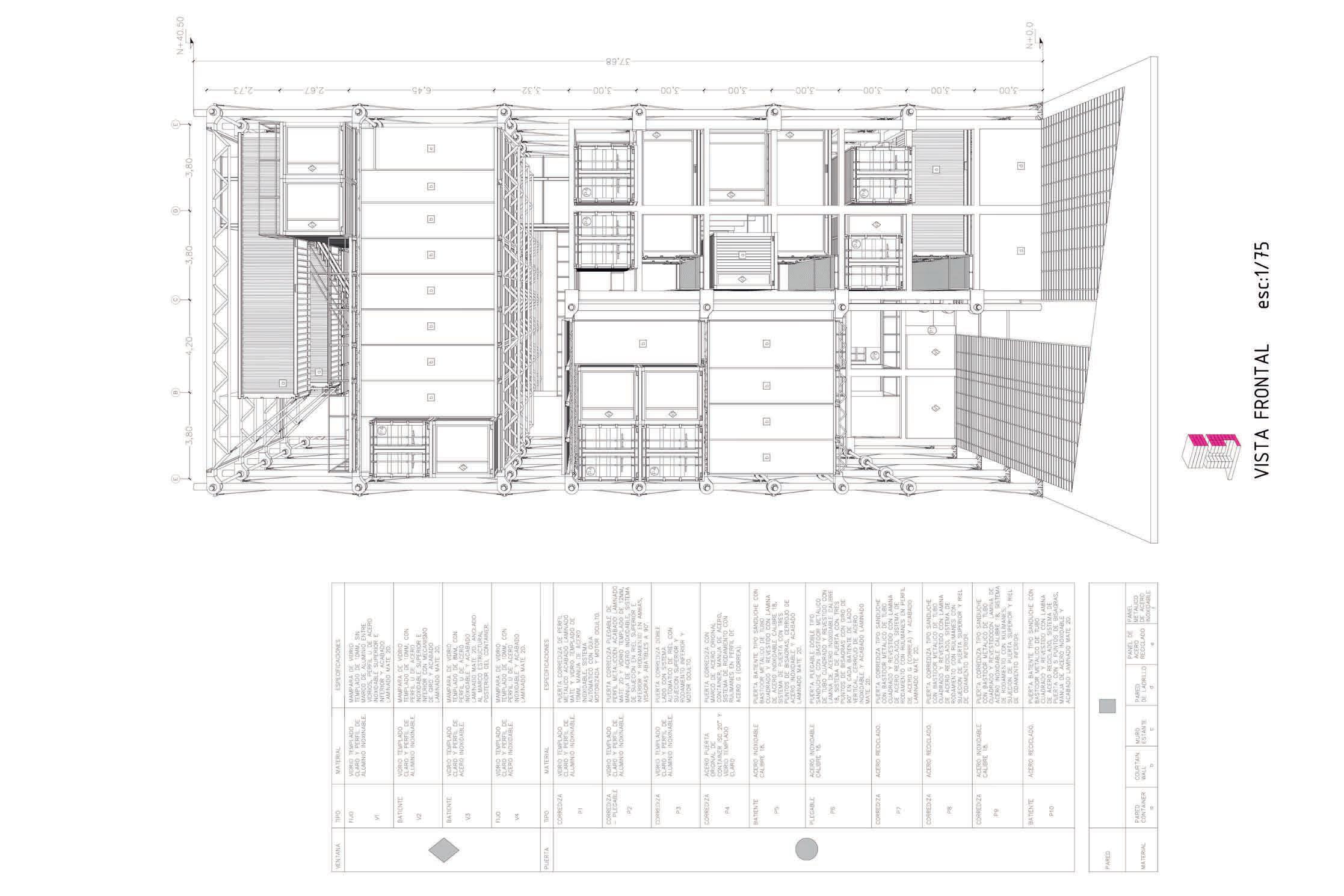
TRABAJO DE FIN DE CARRERA PROYECTO: CENTRO ARTÍSTICO COMUNITARIO: LA MARISCAL DIRECTOR TT: ARQ. SEBASTIÁN CALERO NOTAS TÉCNICAS: CELLOS Y FIRMAS DE APROBACIÓN:UBICACIÓN: A LÁMINA: 23 FECHA: 18/09/2019 ESC A1: INDICADA CONTENIDO: VISTA FRONTAL ALUMNO: BLOQUE: LENNIN ISRAEL AMAYA Q. 1 QUITO - JERÓNIMO CARRIÓN Y JUAN LEÓN MERA PONTIFICIA UNIVERSIDAD CATÓLICA DEL ECUADOR FACULTAD DE ARQUITECTURA, DISEÑO Y ARTES
TRABAJO DE FIN DE CARRERA PROYECTO: CENTRO ARTÍSTICO COMUNITARIO: LA MARISCAL DIRECTOR TT: ARQ. SEBASTIÁN CALERO NOTAS TÉCNICAS: CELLOS Y FIRMAS DE APROBACIÓN:UBICACIÓN: A LÁMINA: 24 FECHA: 18/09/2019 ESC A1: INDICADA CONTENIDO: VISTA LATERAL DERECHA ALUMNO: BLOQUE: LENNIN ISRAEL AMAYA Q. 1 QUITO - JERÓNIMO CARRIÓN Y JUAN LEÓN MERA PONTIFICIA UNIVERSIDAD CATÓLICA DEL ECUADOR FACULTAD DE ARQUITECTURA, DISEÑO Y ARTES
TRABAJO DE FIN DE CARRERA PROYECTO: CENTRO ARTÍSTICO COMUNITARIO: LA MARISCAL DIRECTOR TT: ARQ. SEBASTIÁN CALERO NOTAS TÉCNICAS: CELLOS Y FIRMAS DE APROBACIÓN:UBICACIÓN: A LÁMINA: 25 FECHA: 18/09/2019 ESC A1: INDICADA CONTENIDO: VISTA POSTERIOR ALUMNO: BLOQUE: LENNIN ISRAEL AMAYA Q. 1 QUITO - JERÓNIMO CARRIÓN Y JUAN LEÓN MERA PONTIFICIA UNIVERSIDAD CATÓLICA DEL ECUADOR FACULTAD DE ARQUITECTURA, DISEÑO Y ARTES
TRABAJO DE FIN DE CARRERA PROYECTO: CENTRO ARTÍSTICO COMUNITARIO: LA MARISCAL DIRECTOR TT: ARQ. SEBASTIÁN CALERO NOTAS TÉCNICAS: CELLOS Y FIRMAS DE APROBACIÓN:UBICACIÓN: A LÁMINA: 26 FECHA: 18/09/2019 ESC A1: INDICADA CONTENIDO: VISTA LATERAL IZQUIERDA ALUMNO: BLOQUE: LENNIN ISRAEL AMAYA Q. 1 QUITO - JERÓNIMO CARRIÓN Y JUAN LEÓN MERA PONTIFICIA UNIVERSIDAD CATÓLICA DEL ECUADOR FACULTAD DE ARQUITECTURA, DISEÑO Y ARTES
TRABAJO DE FIN DE CARRERA PROYECTO: CENTRO ARTÍSTICO COMUNITARIO: LA MARISCAL DIRECTOR TT: ARQ. SEBASTIÁN CALERO NOTAS TÉCNICAS: CELLOS Y FIRMAS DE APROBACIÓN:UBICACIÓN: C LÁMINA: 27 FECHA: 18/09/2019 ESC A1: INDICADA CONTENIDO: PLANTAS CONSTRUCTIVAS ALUMNO: BLOQUE: LENNIN ISRAEL AMAYA Q. 1 QUITO - JERÓNIMO CARRIÓN Y JUAN LEÓN MERA PONTIFICIA UNIVERSIDAD CATÓLICA DEL ECUADOR FACULTAD DE ARQUITECTURA, DISEÑO Y ARTES
TRABAJO DE FIN DE CARRERA PROYECTO: CENTRO ARTÍSTICO COMUNITARIO: LA MARISCAL DIRECTOR TT: ARQ. SEBASTIÁN CALERO NOTAS TÉCNICAS: CELLOS Y FIRMAS DE APROBACIÓN:UBICACIÓN: C LÁMINA: 28 FECHA: 18/09/2019 ESC A1: INDICADA CONTENIDO: FACHADA CONSTRUCTIVA ALUMNO: BLOQUE: LENNIN ISRAEL AMAYA Q. 1 QUITO - JERÓNIMO CARRIÓN Y JUAN LEÓN MERA PONTIFICIA UNIVERSIDAD CATÓLICA DEL ECUADOR FACULTAD DE ARQUITECTURA, DISEÑO Y ARTES
TRABAJO DE FIN DE CARRERA PROYECTO: CENTRO ARTÍSTICO COMUNITARIO: LA MARISCAL DIRECTOR TT: ARQ. SEBASTIÁN CALERO NOTAS TÉCNICAS: CELLOS Y FIRMAS DE APROBACIÓN:UBICACIÓN: C LÁMINA: 29 FECHA: 18/09/2019 ESC A1: INDICADA CONTENIDO: CORTE CONSTRUCTIVO ALUMNO: BLOQUE: LENNIN ISRAEL AMAYA Q. 1 QUITO - JERÓNIMO CARRIÓN Y JUAN LEÓN MERA PONTIFICIA UNIVERSIDAD CATÓLICA DEL ECUADOR FACULTAD DE ARQUITECTURA, DISEÑO Y ARTES
TRABAJO DE FIN DE CARRERA PROYECTO: CENTRO ARTÍSTICO COMUNITARIO: LA MARISCAL DIRECTOR TT: ARQ. SEBASTIÁN CALERO NOTAS TÉCNICAS: CELLOS Y FIRMAS DE APROBACIÓN:UBICACIÓN: C LÁMINA: 30 FECHA: 18/09/2019 ESC A1: INDICADA CONTENIDO: CORTE POR MURO ALUMNO: BLOQUE: LENNIN ISRAEL AMAYA Q. 1 QUITO - JERÓNIMO CARRIÓN Y JUAN LEÓN MERA PONTIFICIA UNIVERSIDAD CATÓLICA DEL ECUADOR FACULTAD DE ARQUITECTURA, DISEÑO Y ARTES

DISTANCIA VM - P (m)

VM1-P1 8,80 P4-P5 11,95

VM1-P3 9,60 VM3-P2 9,05

VM1-P9 17,30 VM3-P10 9,70

VM1-P8 14,90 VM3-P6 4,40

VM1-V4 34,35 VM3-VM4 18,10

P1-P3 5,50 P2-P10 5,80 P3-P9 11,95 P10-P6 7,60

P9-P8 8,00 P6-P5 11,85

VM2-P1 9,80 VM4-P2 9,05

VM2-P3 11,95 VM4-P10 11,65

VM2-P4 8,30 VM4-P7 7,40

VM2-VM3 36,55 P10-P7 8,00

P3-P4 7,60 P7-P8 11,85

DISTANCIA VM - P (m)

VM1-P1 8,80 VM3-P2 9,05

VM1-P´3 3,15 VM3-P´6 4,45

VM1-V4 34,35 VM3-VM4 18,10

P1-P´3 9,65 P2-P´6 10,25

P1-P´4 10,50 P2-P´7 10,25

P´3-P´4 16,70 VM4-P´7 7,50

VM2-P1 9,80 P´3-P´4 16,70

VM2-P´4 8,40 P´8-P´5 16,70

VM2-VM3 36,55 P´7-P´6 16,70

8

3,8 8 11,8 15,6

11,85 14,9 17,3 8,8 9,8

3,8 8 11,8 15,6

19,95

16,1

3,8 8 11,8 15,6

9,05 9,05 34,35 36,55

11,95

19,95

16,1

23,8 4,15

11,95

3,8 7,6

7,95

3,8 8 11,8 15,6 3,95

7,95

3,8 7,6

7,4 11,65 9,75 8,5 9,7 4,4 9,7 3,8 7,6

23,8 3,95

9,6 5,5 11,95 8,3

TRABAJO DE FIN DE CARRERA
CENTRO
C LÁMINA: 31 FECHA: 18/09/2019 ESC A1: INDICADA CONTENIDO: REPLANTEO ALUMNO: BLOQUE: LENNIN ISRAEL AMAYA Q. 1 QUITO
Y JUAN LEÓN MERA
UNIVERSIDAD CATÓLICA DEL ECUADOR FACULTAD DE ARQUITECTURA, DISEÑO Y ARTES
PROYECTO:
ARTÍSTICO COMUNITARIO: LA MARISCAL DIRECTOR TT: ARQ. SEBASTIÁN CALERO NOTAS TÉCNICAS: CELLOS Y FIRMAS DE APROBACIÓN:UBICACIÓN:
- JERÓNIMO CARRIÓN
PONTIFICIA
TRABAJO DE FIN DE CARRERA PROYECTO: CENTRO ARTÍSTICO COMUNITARIO: LA MARISCAL DIRECTOR TT: ARQ. SEBASTIÁN CALERO NOTAS TÉCNICAS: CELLOS Y FIRMAS DE APROBACIÓN:UBICACIÓN: D LÁMINA: 32 FECHA: 18/09/2019 ESC A1: INDICADA CONTENIDO: DETALLE DE GRADA ALUMNO: BLOQUE: LENNIN ISRAEL AMAYA Q. 1 QUITO - JERÓNIMO CARRIÓN Y JUAN LEÓN MERA PONTIFICIA UNIVERSIDAD CATÓLICA DEL ECUADOR FACULTAD DE ARQUITECTURA, DISEÑO Y ARTES
TRABAJO DE FIN DE CARRERA PROYECTO: CENTRO ARTÍSTICO COMUNITARIO: LA MARISCAL DIRECTOR TT: ARQ. SEBASTIÁN CALERO NOTAS TÉCNICAS: CELLOS Y FIRMAS DE APROBACIÓN:UBICACIÓN: D LÁMINA: 33 FECHA: 18/09/2019 ESC A1: INDICADA CONTENIDO: DETALLE PROPIO ALUMNO: BLOQUE: LENNIN ISRAEL AMAYA Q. 1 QUITO - JERÓNIMO CARRIÓN Y JUAN LEÓN MERA PONTIFICIA UNIVERSIDAD CATÓLICA DEL ECUADOR FACULTAD DE ARQUITECTURA, DISEÑO Y ARTES
TRABAJO DE FIN DE CARRERA PROYECTO: CENTRO ARTÍSTICO COMUNITARIO: LA MARISCAL DIRECTOR TT: ARQ. SEBASTIÁN CALERO NOTAS TÉCNICAS: CELLOS Y FIRMAS DE APROBACIÓN:UBICACIÓN: D LÁMINA: 34 FECHA: 18/09/2019 ESC A1: INDICADA CONTENIDO: DETALLE DE VENTANA ALUMNO: BLOQUE: LENNIN ISRAEL AMAYA Q. 1 QUITO - JERÓNIMO CARRIÓN Y JUAN LEÓN MERA PONTIFICIA UNIVERSIDAD CATÓLICA DEL ECUADOR FACULTAD DE ARQUITECTURA, DISEÑO Y ARTES
TRABAJO DE FIN DE CARRERA PROYECTO: CENTRO ARTÍSTICO COMUNITARIO: LA MARISCAL DIRECTOR TT: ARQ. SEBASTIÁN CALERO NOTAS TÉCNICAS: CELLOS Y FIRMAS DE APROBACIÓN:UBICACIÓN: D LÁMINA: 35 FECHA: 18/09/2019 ESC A1: INDICADA CONTENIDO: DETALLE DE BAÑO ALUMNO: BLOQUE: LENNIN ISRAEL AMAYA Q. 1 QUITO - JERÓNIMO CARRIÓN Y JUAN LEÓN MERA PONTIFICIA UNIVERSIDAD CATÓLICA DEL ECUADOR FACULTAD DE ARQUITECTURA, DISEÑO Y ARTES
TRABAJO DE FIN DE CARRERA PROYECTO: CENTRO ARTÍSTICO COMUNITARIO: LA MARISCAL DIRECTOR TT: ARQ. SEBASTIÁN CALERO NOTAS TÉCNICAS: CELLOS Y FIRMAS DE APROBACIÓN:UBICACIÓN: D LÁMINA: 36 FECHA: 18/09/2019 ESC A1: INDICADA CONTENIDO: DETALLE DE PUERTA ALUMNO: BLOQUE: LENNIN ISRAEL AMAYA Q. 1 QUITO - JERÓNIMO CARRIÓN Y JUAN LEÓN MERA PONTIFICIA UNIVERSIDAD CATÓLICA DEL ECUADOR FACULTAD DE ARQUITECTURA, DISEÑO Y ARTES
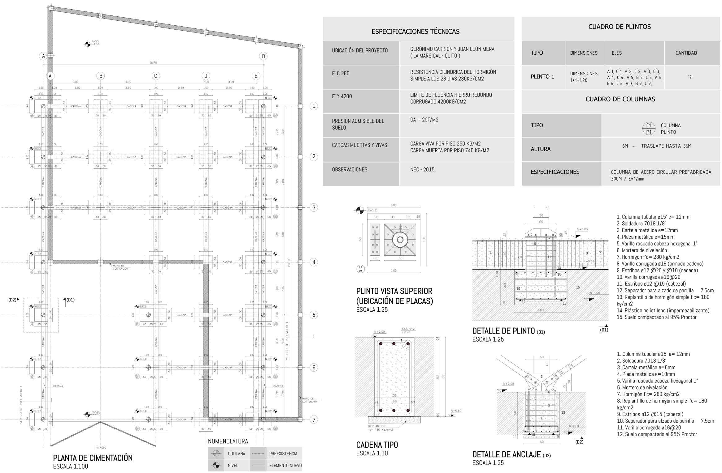
TRABAJO DE FIN DE CARRERA PROYECTO: CENTRO ARTÍSTICO COMUNITARIO: LA MARISCAL DIRECTOR TT: ARQ. SEBASTIÁN CALERO NOTAS TÉCNICAS: CELLOS Y FIRMAS DE APROBACIÓN:UBICACIÓN: E LÁMINA: 38 FECHA: 18/09/2019 ESC A1: INDICADA CONTENIDO: PLANTA DE CIMIENTOS ALUMNO: BLOQUE: LENNIN ISRAEL AMAYA Q. 1 QUITO - JERÓNIMO CARRIÓN Y JUAN LEÓN MERA PONTIFICIA UNIVERSIDAD CATÓLICA DEL ECUADOR FACULTAD DE ARQUITECTURA, DISEÑO Y ARTES
TRABAJO DE FIN DE CARRERA PROYECTO: CENTRO ARTÍSTICO COMUNITARIO: LA MARISCAL DIRECTOR TT: ARQ. SEBASTIÁN CALERO NOTAS TÉCNICAS: CELLOS Y FIRMAS DE APROBACIÓN:UBICACIÓN: E LÁMINA: 39 FECHA: 18/09/2019 ESC A1: INDICADA CONTENIDO: CORTE POR MURO ALUMNO: BLOQUE: LENNIN ISRAEL AMAYA Q. 1 QUITO - JERÓNIMO CARRIÓN Y JUAN LEÓN MERA PONTIFICIA UNIVERSIDAD CATÓLICA DEL ECUADOR FACULTAD DE ARQUITECTURA, DISEÑO Y ARTES
TRABAJO DE FIN DE CARRERA PROYECTO: CENTRO ARTÍSTICO COMUNITARIO: LA MARISCAL DIRECTOR TT: ARQ. SEBASTIÁN CALERO NOTAS TÉCNICAS: CELLOS Y FIRMAS DE APROBACIÓN:UBICACIÓN: E LÁMINA: 40 FECHA: 18/09/2019 ESC A1: INDICADA CONTENIDO: DETALLE DE CUBIERTA ALUMNO: BLOQUE: LENNIN ISRAEL AMAYA Q. 1 QUITO - JERÓNIMO CARRIÓN Y JUAN LEÓN MERA PONTIFICIA UNIVERSIDAD CATÓLICA DEL ECUADOR FACULTAD DE ARQUITECTURA, DISEÑO Y ARTES
TRABAJO DE FIN DE CARRERA PROYECTO: CENTRO ARTÍSTICO COMUNITARIO: LA MARISCAL DIRECTOR TT: ARQ. SEBASTIÁN CALERO NOTAS TÉCNICAS: CELLOS Y FIRMAS DE APROBACIÓN:UBICACIÓN: E LÁMINA: 41 FECHA: 18/09/2019 ESC A1: INDICADA CONTENIDO: DETALLE DE VENTANA ALUMNO: BLOQUE: LENNIN ISRAEL AMAYA Q. 1 QUITO - JERÓNIMO CARRIÓN Y JUAN LEÓN MERA PONTIFICIA UNIVERSIDAD CATÓLICA DEL ECUADOR FACULTAD DE ARQUITECTURA, DISEÑO Y ARTES
TRABAJO DE FIN DE CARRERA PROYECTO: CENTRO ARTÍSTICO COMUNITARIO: LA MARISCAL DIRECTOR TT: ARQ. SEBASTIÁN CALERO NOTAS TÉCNICAS: CELLOS Y FIRMAS DE APROBACIÓN:UBICACIÓN: E LÁMINA: 42 FECHA: 18/09/2019 ESC A1: INDICADA CONTENIDO: 3D ALUMNO: BLOQUE: LENNIN ISRAEL AMAYA Q. 1 QUITO - JERÓNIMO CARRIÓN Y JUAN LEÓN MERA PONTIFICIA UNIVERSIDAD CATÓLICA DEL ECUADOR FACULTAD DE ARQUITECTURA, DISEÑO Y ARTES
TRABAJO DE FIN DE CARRERA PROYECTO: CENTRO ARTÍSTICO COMUNITARIO: LA MARISCAL DIRECTOR TT: ARQ. SEBASTIÁN CALERO NOTAS TÉCNICAS: CELLOS Y FIRMAS DE APROBACIÓN:UBICACIÓN: S LÁMINA: 43 FECHA: 18/09/2019 ESC A1: INDICADA CONTENIDO: ANÁLISIS BIOCLIMÁTICO ALUMNO: BLOQUE: LENNIN ISRAEL AMAYA Q. 1 QUITO - JERÓNIMO CARRIÓN Y JUAN LEÓN MERA PONTIFICIA UNIVERSIDAD CATÓLICA DEL ECUADOR FACULTAD DE ARQUITECTURA, DISEÑO Y ARTES
TRABAJO DE FIN DE CARRERA PROYECTO: CENTRO ARTÍSTICO COMUNITARIO: LA MARISCAL DIRECTOR TT: ARQ. SEBASTIÁN CALERO NOTAS TÉCNICAS: CELLOS Y FIRMAS DE APROBACIÓN:UBICACIÓN: S LÁMINA: 44 FECHA: 18/09/2019 ESC A1: INDICADA CONTENIDO: SOLEAMIENTO ALUMNO: BLOQUE: LENNIN ISRAEL AMAYA Q. 1 QUITO - JERÓNIMO CARRIÓN Y JUAN LEÓN MERA PONTIFICIA UNIVERSIDAD CATÓLICA DEL ECUADOR FACULTAD DE ARQUITECTURA, DISEÑO Y ARTES
TRABAJO DE FIN DE CARRERA PROYECTO: CENTRO ARTÍSTICO COMUNITARIO: LA MARISCAL DIRECTOR TT: ARQ. SEBASTIÁN CALERO NOTAS TÉCNICAS: CELLOS Y FIRMAS DE APROBACIÓN:UBICACIÓN: S LÁMINA: 45 FECHA: 18/09/2019 ESC A1: INDICADA CONTENIDO: ESTRATEGIAS DE SOMBRA ALUMNO: BLOQUE: LENNIN ISRAEL AMAYA Q. 1 QUITO - JERÓNIMO CARRIÓN Y JUAN LEÓN MERA PONTIFICIA UNIVERSIDAD CATÓLICA DEL ECUADOR FACULTAD DE ARQUITECTURA, DISEÑO Y ARTES
TRABAJO DE FIN DE CARRERA PROYECTO: CENTRO ARTÍSTICO COMUNITARIO: LA MARISCAL DIRECTOR TT: ARQ. SEBASTIÁN CALERO NOTAS TÉCNICAS: CELLOS Y FIRMAS DE APROBACIÓN:UBICACIÓN: S LÁMINA: 46 FECHA: 18/09/2019 ESC A1: INDICADA CONTENIDO: ILUMINACIÓN NATURAL ALUMNO: BLOQUE: LENNIN ISRAEL AMAYA Q. 1 QUITO - JERÓNIMO CARRIÓN Y JUAN LEÓN MERA PONTIFICIA UNIVERSIDAD CATÓLICA DEL ECUADOR FACULTAD DE ARQUITECTURA, DISEÑO Y ARTES
TRABAJO DE FIN DE CARRERA PROYECTO: CENTRO ARTÍSTICO COMUNITARIO: LA MARISCAL DIRECTOR TT: ARQ. SEBASTIÁN CALERO NOTAS TÉCNICAS: CELLOS Y FIRMAS DE APROBACIÓN:UBICACIÓN: S LÁMINA: 47 FECHA: 18/09/2019 ESC A1: INDICADA CONTENIDO: VENTILACIÓN ALUMNO: BLOQUE: LENNIN ISRAEL AMAYA Q. 1 QUITO - JERÓNIMO CARRIÓN Y JUAN LEÓN MERA PONTIFICIA UNIVERSIDAD CATÓLICA DEL ECUADOR FACULTAD DE ARQUITECTURA, DISEÑO Y ARTES
TRABAJO DE FIN DE CARRERA PROYECTO: CENTRO ARTÍSTICO COMUNITARIO: LA MARISCAL DIRECTOR TT: ARQ. SEBASTIÁN CALERO NOTAS TÉCNICAS: CELLOS Y FIRMAS DE APROBACIÓN:UBICACIÓN: S LÁMINA: 48 FECHA: 18/09/2019 ESC A1: INDICADA CONTENIDO: TERRAZA VERDE ALUMNO: BLOQUE: LENNIN ISRAEL AMAYA Q. 1 QUITO - JERÓNIMO CARRIÓN Y JUAN LEÓN MERA PONTIFICIA UNIVERSIDAD CATÓLICA DEL ECUADOR FACULTAD DE ARQUITECTURA, DISEÑO Y ARTES
TRABAJO DE FIN DE CARRERA PROYECTO: CENTRO ARTÍSTICO COMUNITARIO: LA MARISCAL DIRECTOR TT: ARQ. SEBASTIÁN CALERO NOTAS TÉCNICAS: CELLOS Y FIRMAS DE APROBACIÓN:UBICACIÓN: P LÁMINA: 49 FECHA: 18/09/2019 ESC A1: INDICADA CONTENIDO: PLAN DE INTERVENCIÓN ALUMNO: BLOQUE: LENNIN ISRAEL AMAYA Q. 1 QUITO - JERÓNIMO CARRIÓN Y JUAN LEÓN MERA PONTIFICIA UNIVERSIDAD CATÓLICA DEL ECUADOR FACULTAD DE ARQUITECTURA, DISEÑO Y ARTES
TRABAJO DE FIN DE CARRERA PROYECTO: CENTRO ARTÍSTICO COMUNITARIO: LA MARISCAL DIRECTOR TT: ARQ. SEBASTIÁN CALERO NOTAS TÉCNICAS: CELLOS Y FIRMAS DE APROBACIÓN:UBICACIÓN: P LÁMINA: 50 FECHA: 18/09/2019 ESC A1: INDICADA CONTENIDO: MATRIZ DE ESTRATEGIAS ALUMNO: BLOQUE: LENNIN ISRAEL AMAYA Q. 1 QUITO - JERÓNIMO CARRIÓN Y JUAN LEÓN MERA PONTIFICIA UNIVERSIDAD CATÓLICA DEL ECUADOR FACULTAD DE ARQUITECTURA, DISEÑO Y ARTES
TRABAJO DE FIN DE CARRERA PROYECTO: CENTRO ARTÍSTICO COMUNITARIO: LA MARISCAL DIRECTOR TT: ARQ. SEBASTIÁN CALERO NOTAS TÉCNICAS: CELLOS Y FIRMAS DE APROBACIÓN:UBICACIÓN: P LÁMINA: 51 FECHA: 18/09/2019 ESC A1: INDICADA CONTENIDO: INTERVENCIÓN ALUMNO: BLOQUE: LENNIN ISRAEL AMAYA Q. 1 QUITO - JERÓNIMO CARRIÓN Y JUAN LEÓN MERA PONTIFICIA UNIVERSIDAD CATÓLICA DEL ECUADOR FACULTAD DE ARQUITECTURA, DISEÑO Y ARTES
TRABAJO DE FIN DE CARRERA PROYECTO: CENTRO ARTÍSTICO COMUNITARIO: LA MARISCAL DIRECTOR TT: ARQ. SEBASTIÁN CALERO NOTAS TÉCNICAS: CELLOS Y FIRMAS DE APROBACIÓN:UBICACIÓN: P LÁMINA: 52 FECHA: 18/09/2019 ESC A1: INDICADA CONTENIDO: MOBILIARIO URBANO ALUMNO: BLOQUE: LENNIN ISRAEL AMAYA Q. 1 QUITO - JERÓNIMO CARRIÓN Y JUAN LEÓN MERA PONTIFICIA UNIVERSIDAD CATÓLICA DEL ECUADOR FACULTAD DE ARQUITECTURA, DISEÑO Y ARTES
TRABAJO DE FIN DE CARRERA PROYECTO: CENTRO ARTÍSTICO COMUNITARIO: LA MARISCAL DIRECTOR TT: ARQ. SEBASTIÁN CALERO NOTAS TÉCNICAS: CELLOS Y FIRMAS DE APROBACIÓN:UBICACIÓN: P LÁMINA: 53 FECHA: 18/09/2019 ESC A1: INDICADA CONTENIDO: CORTES ALUMNO: BLOQUE: LENNIN ISRAEL AMAYA Q. 1 QUITO - JERÓNIMO CARRIÓN Y JUAN LEÓN MERA PONTIFICIA UNIVERSIDAD CATÓLICA DEL ECUADOR FACULTAD DE ARQUITECTURA, DISEÑO Y ARTES
TRABAJO DE FIN DE CARRERA PROYECTO: CENTRO ARTÍSTICO COMUNITARIO: LA MARISCAL DIRECTOR TT: ARQ. SEBASTIÁN CALERO NOTAS TÉCNICAS: CELLOS Y FIRMAS DE APROBACIÓN:UBICACIÓN: P LÁMINA: 54 FECHA: 18/09/2019 ESC A1: INDICADA CONTENIDO: PLANTAS BAJA ALUMNO: BLOQUE: LENNIN ISRAEL AMAYA Q. 1 QUITO - JERÓNIMO CARRIÓN Y JUAN LEÓN MERA PONTIFICIA UNIVERSIDAD CATÓLICA DEL ECUADOR FACULTAD DE ARQUITECTURA, DISEÑO Y ARTES
TRABAJO DE FIN DE CARRERA PROYECTO: CENTRO ARTÍSTICO COMUNITARIO: LA MARISCAL DIRECTOR TT: ARQ. SEBASTIÁN CALERO NOTAS TÉCNICAS: CELLOS Y FIRMAS DE APROBACIÓN:UBICACIÓN: M LÁMINA: 55 FECHA: 18/09/2019 ESC A1: INDICADA CONTENIDO: MAQUETA ALUMNO: BLOQUE: LENNIN ISRAEL AMAYA Q. 1 QUITO - JERÓNIMO CARRIÓN Y JUAN LEÓN MERA PONTIFICIA UNIVERSIDAD CATÓLICA DEL ECUADOR FACULTAD DE ARQUITECTURA, DISEÑO Y ARTES
TRABAJO DE FIN DE CARRERA PROYECTO: CENTRO ARTÍSTICO COMUNITARIO: LA MARISCAL DIRECTOR TT: ARQ. SEBASTIÁN CALERO NOTAS TÉCNICAS: CELLOS Y FIRMAS DE APROBACIÓN:UBICACIÓN: M LÁMINA: 56 FECHA: 18/09/2019 ESC A1: INDICADA CONTENIDO: MAQUETA ALUMNO: BLOQUE: LENNIN ISRAEL AMAYA Q. 1 QUITO - JERÓNIMO CARRIÓN Y JUAN LEÓN MERA PONTIFICIA UNIVERSIDAD CATÓLICA DEL ECUADOR FACULTAD DE ARQUITECTURA, DISEÑO Y ARTES

Turn static files into dynamic content formats.

Create a flipbook
Issuu converts static files into: digital portfolios, online yearbooks, online catalogs, digital photo albums and more. Sign up and create your flipbook.