Basics Climate-Smart Design and Construction

Page 1

Climate-Smart Design and Construction

Bert Bielefeld

Bert Bielefeld

Bert Bielefeld - Sebastian El Khouli

Entwurfsidee

Climate-Smart

Design and Construction

Birkhäuser

BIRKHÄUSER

Basel

BASEL

FOREWORD _7

INTRODUCTION _9

CLIMATE CHANGE _11

Factors impacting the climate _11

Key targets _12

Transformation to climate neutrality _16

The risk of global warming _18

RESOURCE AND ENERGY CONSUMPTION _20

Energy and resource consumption in buildings _20

Primary energy _24

Gray energy _25

Fossil and renewable energy _26

EVALUATION METHODS _28

CO2 footprint / CO2 balancing _28

Eco-balancing and material flow analysis _29

Other evaluation methods _29

Certification _30

CLIMATE-SMART STRATEGIES _32

Use of existing buildings _32

Value of existing buildings _34

Circular construction _36

Recyclability and reuse _38

Urban mining _40

Simple construction _40

Reduction _42

Construction method _46

Choice of materials _51

Use of technical installations _57

APPROACHES TO THE DESIGN PROCESS _61

Town planning approaches _61

Project development and space requirement planning _64

Analysis of existing buildings _66

Design process _70

Construction process _73

Consideration of the use phase _74

Contents

SUMMARY _76

APPENDICES _77

References _77

Source references for figures _78

About the author _79

Introduction

The world’s resources are being used up at a frightening pace. This simple statement reflects the progressive overexploitation of natural resources over two centuries of industrialization, leading to anthropogenic or man-made climate change. Climate change will alter many existing structures, even leading in part to the destruction of the earth’s climate, ecosystems, weather systems, basic food supplies, and ultimately our entire way of life. For this reason, all of humanity – and in particular the populations of affluent nations – must engage in a transformation process that needs to start immediately. Specifically, we must decarbonize key sectors of the economy in order to mitigate the effects of climate change.

A key sector in this context is the construction industry and, generally, the operation of buildings, because this sector accounts for 40 to 50 percent of worldwide CO2 emissions. A paradigm shift in construction, building conversion, and the use and operation of buildings can be a key driver of climate protection alongside general consumption, manufacturing industries, and transportation. This requires an enormous effort and fundamental questioning of many established habits and structures. “Business as usual” is no longer a viable option.

It is important to note that the objective cannot be achieved with one single concept. Rather, it is necessary to make use of various approaches in order to reduce greenhouse gas emissions and resource consumption as much as possible. Moreover, this must be considered during the design

9
average
CO 2 concentration in the atmosphere (ppm) Temperature deviation (°C) Temperature deviation from the average temperature in the years 1850 to 1900 1850 1880 1910 1940 1970 2000 2021 200 250 300 350 400 0 0.45 –0.45 0.9 1.35
1850
1900
Fig.
1: Relationship between CO2 concentration and deviations of
temperature from the long-term baseline
The baseline refers to the average temperature from
to
CO²-concentration

process, starting with the definition of framework conditions and continuing through to completion.

In the chapters below, we will cover a range of aspects and approaches. After explaining the basic issues related to climate change, we will look at the emissions and energy consumption of buildings. Taking into account the lifecycle of new and existing buildings, we will then consider the basis for various instruments and strategies for climate- sensitive construction. Finally, we will consider the process, describing all design stages – from development of the brief through to implementation – of climate-appropriate design and construction.

10

Climate change

FACTORS IMPACTING THE CLIMATE

Our climate is determined by the solar radiation that reaches the earth. In part, solar radiation is reflected back into space by the water vapor in clouds, by various gases in the air, and by the earth’s surface. In order to achieve a balanced climate on earth, the amount of solar radiation that is retained in the atmosphere must be equal that of the overall loss of radiated heat from the earth. If this equation is no longer equal, the earth’s heat balance changes, upsetting its highly complex climate systems.

In addition to cyclical adaptations such as variations in solar radiation and changes in the earth’s orbit around the sun, mankind has been increasingly disturbing the balance in radiation since industrialization. The composition of our atmosphere has changed largely due to the increase in the burning of fossil fuels for energy over the last 100 years, resulting in an increasing accumulation of greenhouse gases. We have seen a rapid increase in the net emissions of greenhouse gases such as carbon dioxide and methane, especially over the last 30 years > Fig. 2 Greenhouse gases reduce the amount of heat radiated into space, reflecting it back to earth instead, which is why the earth is becoming steadily warmer.

Some of the systems that are important for maintaining the global climatic balance initially remain stable. However, as soon as a tipping point is reached, they quickly become unstable or shift entirely. This can lead to sustained and irreparable changes in the climate system. Examples of tipping points include the loss of ice caps at the South and North Poles, ocean current circulation, the melting of boreal permafrost soils, worldwide coral die-off, the loss of mountain glaciers, and extensive changes in vegetation, such as in the Amazon rainforest.

◯ Note : Long-term and supra-regional climate data cannot be compared with local weather phenomena or variations in weather patterns. Climate research deals with changes over long periods of at least 30 years and uses measurement data to establish statistical evaluations and prognoses. Changes in certain regions or over periods of time, as well as extreme events, can be caused by changes in the world’s complex climate systems but can also be based on normal variations in the weather.

● Example : Global warming causes melting in the polar regions and successive thawing of permafrost soils. This releases greenhouse gases that are currently trapped there and, in addition, accelerates global warming. At the same time, it is possible for cold zones to arise, for example when the Gulf Stream decreases in strength and eventually no longer delivers sufficient heat to Europe. This causes many systems to become imbalanced, which can have a variety of consequences.

11
Earth’s atmosphere
Tipping points

CIRCULAR CONSTRUCTION

In addition to using existing buildings, it is generally important in the design process to focus on using resources and the associated material flows, which have to be massively reduced compared to existing approaches to design and construction. Since industrialization and the start of mass production, consumption patterns have changed drastically. Rather than using resources, materials, and products for as long as possible and reusing them elsewhere when they become redundant, a linear use pattern has been established in which the intervals between production, use, and disposal become shorter and shorter > Fig. 23 . Products are no longer discarded because they no longer function or can no longer be repaired but because newer and better alternatives are available. The emphasis has shifted from providing for genuine needs to generating and serving status-induced needs. This way of life, referred to as hyper-con-

36
Raw materials Linear economy Design Production Distribution Use Disposal Rohstoffe Distribution Use Reuse Repair Collection Production Sustainable design Circular economy - less raw materials, less waste, less emissions Residual waste Waste treatment Raw materials
Fig. 23: Linear consumption and circular use

sumerism, is not aligned with basic social needs but focuses on the available purchasing power of people and the socially accepted idea of success.

As a society, we need to counter this phenomenon with new values to bring about a paradigm shift in resource wastage in everyday life. Buildings make an important contribution in this context because – as described above – they represent a dominant proportion of resource use. For this reason, we will discuss the principles of the circular construction industry below.

To avoid having to constantly rely on new resources and materials, it is imperative to think of construction in the future as a circular economy. In this context, a crucial principle should be to abandon the assumption of limitless materials and resource availability. Instead, we must prioritize exploring possibilities for sourcing and reusing existing resources > Fig. 24 Given that the production of new materials and substances used in construction contribute significantly to ongoing climate change, newly produced building materials should preferably be used only when no existing or recycled resources are available. When selecting newly manufactured building materials, it makes sense to choose materials that prioritize resource efficiency in the manufacturing processes. In addition, these materials should be used in a manner that facilitates reuse in the future.

37
Circular economy Fig. 24: Principle of a circular construction economy
Design of conversion Demolition Demolition Disposal Burning CoRecyclingntinueduseProcessing Use and operation Completion, maintenance, refurbishment, end of service life Construction Production of building material and components Emissions Primary raw materials Planning/ design Return to the material cycle RecyclingDowncycling Partial demolition Demolition
Rohstoffe

Downcycling/ upcycling

RECYCLABILITY AND REUSE

For some decades efforts have been made, using various approaches, to achieve consistent recyclability of building materials and constructions.

Unfortunately, most construction projects are based on exactly the opposite principle. For energy efficiency, buildings have been constructed using adhesives, sealants, foils, and increasingly complex layered compounds to achieve maximum airtightness, which necessitated further technical solutions, such as controlled ventilation. With more recent buildings in particular, it tends to be challenging to correctly sort materials during demolition, which means that recycling these materials is difficult and expensive.

Since many of the building components used in existing structures were not initially designed for recyclability, it is difficult to achieve a circular economy. This is because many of these components cannot be reused in the same manner as before, often leading to a situation where materials are simply discarded as waste rather than used as a resource. Instead, the aim should be to reuse materials in a function of equal or increased value, a process known as upcycling. Where it is not possible to reuse a material in an equivalent function, it may be possible to use it in a less valuable form, referred to as downcycling.

Obstacles to recycling

It is usually not that easy to use recycling material (RC). Instead, a dedicated effort is often required, and complications may also be encountered. Where upcycled materials such as doors or windows are planned, one cannot always be certain that these components will be available at the time of construction. Therefore, it is important to keep one’s design processes appropriately flexible.

In addition, the official regulations in many countries stipulate that only new or certified material may be used in construction, which means that recycling material must be tested and certified before it can be used. In many cases, building components in their original condition no longer comply with current regulations or building physics specifications, so a creative approach is needed when reusing them. Another issue is liability;

● Example : Various certificates, such as Cradle to Cradle, are based on using only materials that can be reintegrated into the cycle at the end of the use phase. However, owing to the progressively changing climate, we are now in a situation in which we must intervene in the cycle earlier and limit the amount of new building materials we use.

◼ Tip : With new buildings, it is important to use construction techniques that do not require the permanent bonding of building materials. This is the only way to ensure that, in the future, these materials can be reused individually or that any defective materials can be removed and sorted correctly.

38
● ◼

the circle of liability: return of goods to producers

25: Standardized circular economy in construction

it is not always clear who is responsible for guaranteeing the suitability for purpose and functional capability of used building materials. Certification makes it easier to determine where building products are reprocessed by the building material industry. > Fig. 25

● Example : Broken-down mineral material from brick walls or concrete components is often used as recycling material (RC), for example, in the substructure of buildings or roads. Alternatively, this material can be used as aggregate in new reinforced concrete components. This is a typical example of downcycling.

◼ Tip : At the local level, one can find various building component and recycling centers, and there are many online suppliers and platforms available (such as www.rotordc.com, www.concular.com, www.restado.de, www.madaster.com). The market for used building materials is still relatively small but will grow considerably in the future and spawn new forms of trading.

39
Sale
End
use
Use of products Innovative Return/ dismantling of raw materials Production Producers Owners Users legislation
Closing
of products
of
phase
Fig.

Many building components need to be dealt with creatively. For example, old windows no longer comply with current energy conservation and airtightness standards. However, if they are installed as a secondary element in a box-type window, it may be possible to meet current regulations even with old windows > Fig. 26 .

A fundamental principle in using building materials should be that discarded material is not considered waste unless it is no longer usable.

URBAN MINING

If we look beyond the resources involved in the design of a single building and extend our focus to include entire cities and regions, there is a huge amount of potentially available building material, which can and should be used as the basis of a circular economy in construction. This course of action, referred to as urban mining, aims to use existing resources and establish a second-hand culture in the construction industry.

SIMPLE CONSTRUCTION

The analysis of the construction methods used in historical buildings of certain regions (also referred to as vernacular architecture) reveals that, as a rule, they were effective at coping with the respective climate

◯ Note : Existing waste tips, formerly used as depositories for waste material and considered unavoidable hazards, are increasingly considered storage places of [usable] resources. It remains to be seen whether it will be possible to mine existing waste tips and process the materials as a viable alternative to the extraction of raw materials.

40
Vernacular architecture Fig. 26: Upcycling old window frames
Additional frame fitted Original condition Insulating glazing Construction of box window

of the area using simple construction details and clear jointing principles. This is not to say that these construction methods meet current functional requirements or that they can simply be re-adopted without further consideration. However, in many cases, adopting the basic principles of vernacular architecture is possible. Using an external wall as an example > Fig. 27 , we see that such a structurally optimized wall with an external thermal insulating composite system (ETICS) may consist of ten different layers or construction elements, all optimized for a specific location and mostly bonded together. However, the same thermal insulation properties can be achieved in a single layer of mineral-based, porous insulation material or with timber components and layers of clay. These alternatives offer considerable advantages in terms of building physics properties, recyclability, resilience to installation inaccuracies, and the ability to separate them into distinct source materials during demolition.

One may, therefore, choose to focus on simple construction as a strategy. The objective here is to comply with current requirements for thermal insulation, comfort levels, etc., using simple building materials and simple construction details. There is no doubt that, in principle, this is feasible; however, simple construction solutions are not always the most cost-effective. In many cases, the technical optimization of building materials leads to shortened installation periods, reduced drying

Brickwork

Adhesive with dowels

Insulation

Leveling coat

Mortar for reinforcement

Reinforcement mesh

Reinforcement render/ bonding coat

Topcoat render

Facade paint

41
Simple construction Fig. 27: Layers of an external wall

Furthermore, current research focuses on fast-growing plants such as bamboo, paulownia, miscanthus, and algae to be able to provide large quantities of building materials after short cultivation periods > Fig. 42 .

Innovative construction methods

Many new and innovative construction methods are also under development. Examples are growing structural systems that consist of living plants like espalier trees or replacing bonded building components with dry-jointed components such as brickwork without mortar, pallet houses, or straw bale buildings. Digital design instruments, such as parametric design, also develop exceptionally lightweight and dismantlable construction.

Lastly, it is important to renew efforts to apply experimental approaches to building construction to find new solutions to climate change challenges.

60
Fig. 43: Examples of innovative construction methods

Approaches to the design process

The effort to achieve climate-smart design is intrinsic in all design phases and design areas of a building. This process, which can last several years, determines the entire lifecycle as well as the parameters of how a building can be used and the effect of future changes, through to the demolition. For this reason, architects must not only focus on the current design and construction phase and the immediate result following completion but also consider relevant issues pertinent to the entire lifecycle.

This means that it is important to reach an agreement with all specialist engineers and the building owner regarding climate protection goals and continually discuss new improvements. Below, we will address various approaches and control mechanisms employed within the design process.

TOWN PLANNING APPROACHES

At the level of town planning, several issues need to be considered in conjunction. For example, at the scale of individual buildings, existing situations should be used for as long as possible because every change involves the emission of greenhouse gases and the consumption of resources. However, the retention of urban quarters and social structures may also require intervention; for example, when changing needs must be met, adverse developments averted, or structures modified because they simply are no longer appropriate. There is also the fact that many of the world’s regions are under enormous pressure to provide housing and infrastructure due to growing populations and demographic changes.

Climate change has given rise to phenomena that require a new orientation in town planning. Some towns and cities can no longer cope with rapidly changing – and sometimes extreme – weather events, such as heat waves, heavy rain, flooding, or storms, which means that, to cope with these events, they must be made resilient.

For example, it is possible to counteract the effect of heat events by planting on and around buildings and urban spaces, installing shading devices, providing places of respite for people, and creating fresh air avenues that allow cooler air into the city.

◼ Tip : Cities are usually significantly hotter than rural areas. To retain the residential and functional attractiveness of cities, it is very important to ensure that a contribution is made to the urban climate, not just in the context of town planning but with each project. This can be achieved by greening roofs and facades, reducing heat-storing items in the open, ensuring that soil sealing is avoided where possible, and reducing heat emission, for example, from air-conditioning systems.

consequences in the city

61
Climate

In addition to effective sewer systems with the capacity to drain large quantities of water, heavy rain events can be dealt with by removing surfaces that seal the soil so that rainwater can drain into the ground where it occurs and by establishing retention facilities for the temporary retention and gradual release of water. Such facilities can take the form of specially constructed flood control basins, infiltration blocks inserted in the ground, swales for the deliberate retention of flood water, or extensive planting.

Beyond the considerations relating to the urban climate, it is important to look at mobility concepts and plan the introduction of new forms of mobility in cities. Transport systems heavily dependent on private cars need large areas of land for traffic and parking, leading to the sealing of soil; these systems also cause heavy pollution and push out other forms of mobility and leisure activities from the public space. Hence, it is important to create high-quality leisure and green spaces as well as

◯ Note : During heavy rain events, it is imperative that the amount of water does not exceed the capacity of the sewer system and that it is fed into the system with a delay. By creating green roofs and ensuring there are open areas where the soil is not sealed, it is possible to reduce the amount of rainwater run-off considerably. The term “sponge city” has been coined in the context of planning the resilience of urban areas to heavy rain events.

62
◯ Mobility concepts Groundwater Green roof Facade greenin g Unsealed external ground Retention swales Rainwater retention basin
Infiltration Infiltration Retention and evaporation Storage and reuse reservoir p
Cisterns
Fig. 44: Options for retaining flood water in sponge cities

convenient and climate-friendly mobility spaces for pedestrians, cyclists, and local public transport systems. Another critical issue in town planning is the organization of delivery logistics. Existing urban situations must accommodate the needs of all types of transport while also providing high-quality public urban areas beyond the space taken up by private cars.

When aiming to bring about change in a city, all stakeholders must engage in open dialog and possibly try out proposed measures for short periods for the purpose of evaluation because, often, the complexity of the different needs can only be grasped in a process that allows open discourse. At the same time, the background and objective of the intended urban transformation must be communicated in an open process, with sufficient flexibility regarding perceived problems, to achieve a high degree of acceptance. Sometimes, it makes sense to implement measures for a short period and then examine the effects on the urban fabric and society > Fig. 46 .

63
Participation
Fig. 45: Transformation of urban spaces in Barcelona Fig. 46: Examples of ad hoc measures in cities

Project development

PROJECT DEVELOPMENT AND SPACE REQUIREMENT PLANNING

Before work on the design begins, all essential parameters are clarified in the project development phase. At this stage, a building plot or existing building must be found, the list of requirements compiled, and funding secured. As the key project aims are defined at this stage, it is possible to clarify many parameters relating to the climate-appropriateness of the building; these will influence design and climate-related decisions in the right way from the beginning. Decisions may be made about CO2 emissions, the consumption of resources, operating conditions (e.g. climate-neutral operation), and targets to be met for certification.

Space requirement planning

An essential process in the quest to minimize the consumption of resources is to critically review and specify space requirements. It is common practice to adopt space requirements based on previously completed projects, reference projects, and statistics data without adjusting them to the space actually needed in the respective project. An accurate analysis of the space required in a particular project, considering the principle of sufficiency, may well find that less space is required. This, in turn, will significantly reduce greenhouse gas emissions and resource investment because the provision of built space is always associated with them.

Examples of questions to be asked:

How much space is really needed?

Is there a difference between how much space is needed and how much space could be provided when making maximum use of the budget?

What functions are to take place in a room?

Will the room be used continuously or only temporarily?

Is it possible to reduce the space requirement with the help of multifunctional utilization?

How should rooms be designed when the reduction in space is not to be perceived as a limitation but as added value for its users? Is the design of spaces and rooms flexible enough to allow other uses?

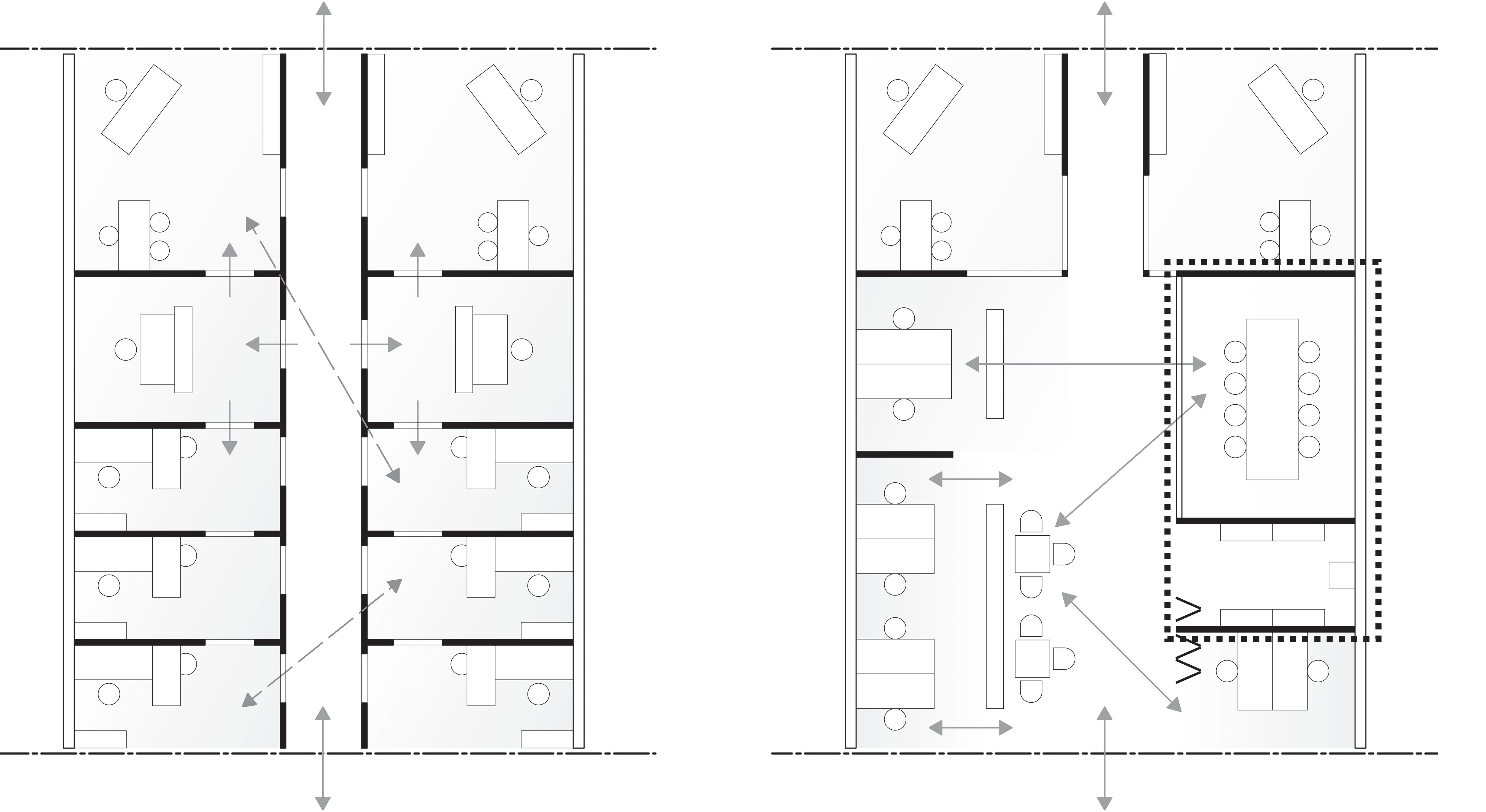
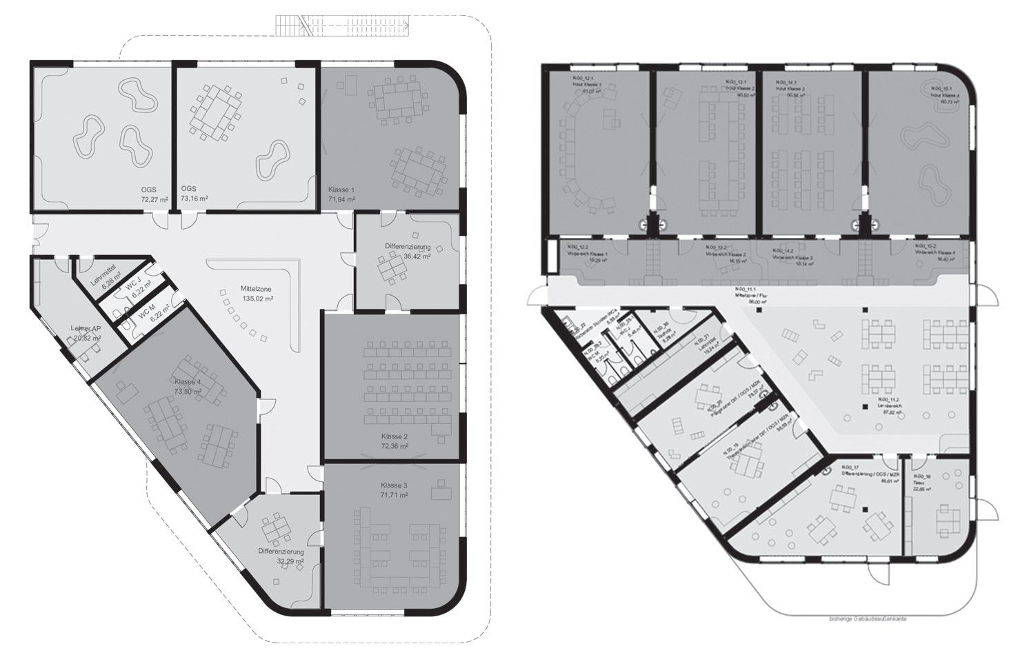
When one succeeds in reducing adjoining spaces used only temporarily, good sufficiency with respect to the rooms is usually possible > Figs. 47–48 .

64

47: Change of a cellular office layout to create multifunctional office areas

48: Optimized layout of a school floor plan using shared learning areas

65
Fig. Fig.

Turn static files into dynamic content formats.

Create a flipbook
Issuu converts static files into: digital portfolios, online yearbooks, online catalogs, digital photo albums and more. Sign up and create your flipbook.