The Preserve on Lot 833 Finishes Book

Page 1

The Preserve

833
FREDERICKSBUR G, TEX AS ™

The Preserve 833

HOME HIGHLIGHTS

Inspired by its natural Hill Country setting, The Preserve 833 is paired with modern functionality and sophisticated natural finishes making it the ultimate wine country escape. The home features oversized metal wood clad windows & doors, and an open floor plan to take in the 180 degree views and natural light. This home is a dream for the home cook, featuring a chef’s kitchen with top of the line appliances by Wolf and Sub Zero, and custom white oak millwork built by local craftsman. Along with white oak flooring throughout the home, you will find other natural finishes such as Iron, Brass, Limestone, porcelain, roman clay and Marble.

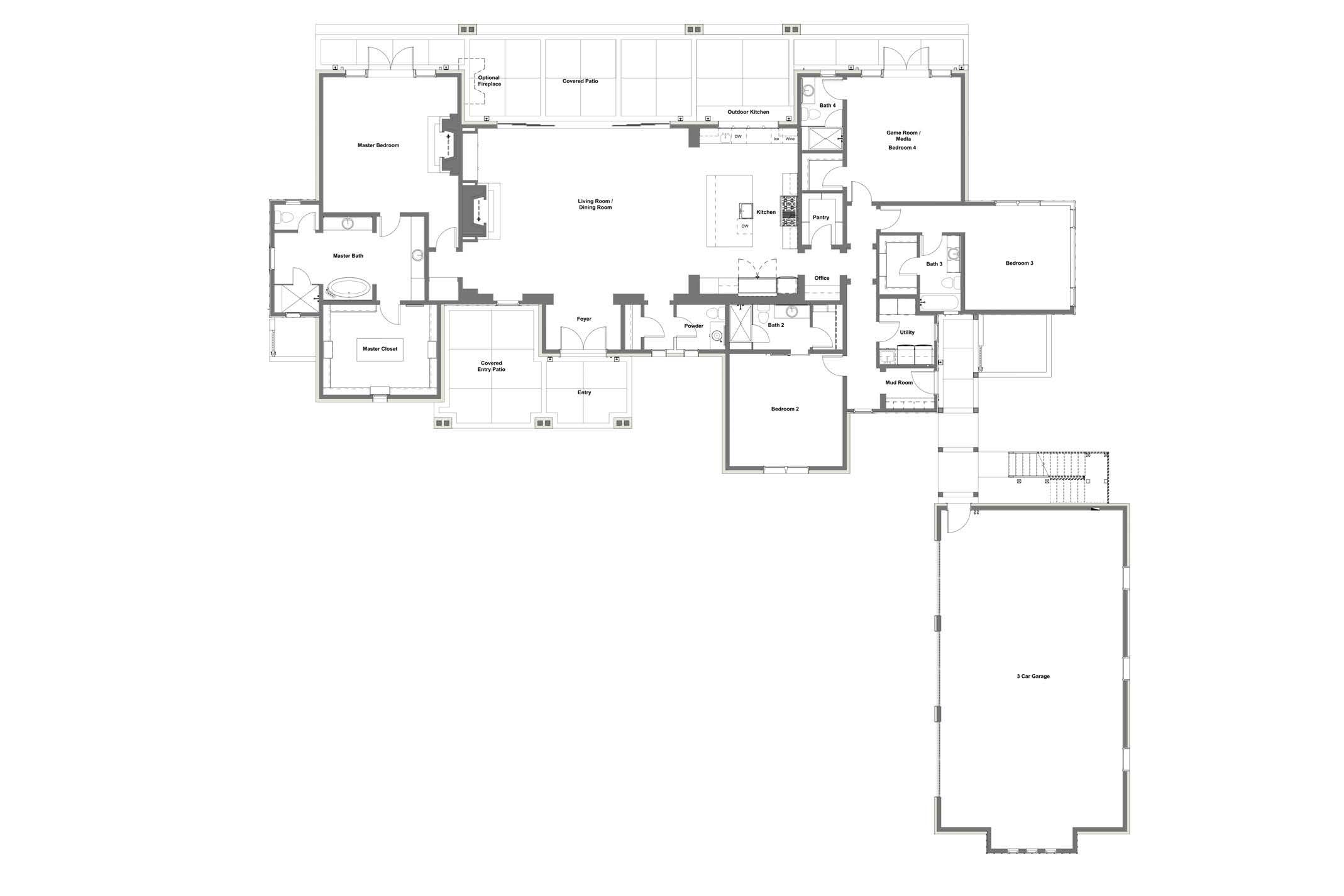
The Preserve is situated on a 3.28 acre site with a 180 degree view looking over a 100 acre wild life conservation area. This 4 bedroom 4.5 bath single level home with spacious open living, dining, kitchen which has 20 foot high ceilings. The full 3 car garage has the option to include a 848 sf second level guest suite or office and the site has been prepared for the option of a detached 1,034 sf Casita and pool.

- 5,760 Total Sq Ft

- 3,636 Livable Sq Ft, 3 Car Garage - 1,161 Sq Ft

- Brand New Construction, built by Centurian Construction who has built 50 plus home in Boot Ranch

- Optional Guest Suite, 848 Sq Ft and detached Casita, 1034 Sf Ft

The Preserve 833 Images are a representation of products and therefore may not be exact.
INSPIRATION

The Preserve 833

EXTERIOR RENDINGS

EXTERIOR

The Preserve 833 offers a stunning 180-degree view of the Boot Ranch wildlife preserve, surrounded by native grasses, shrubs, and oak trees. This property beautifully showcases its natural surroundings and provides ample outdoor living and entertainment areas. Thanks to its size, landscape design, and elevated position on a knoll overlooking the surrounding roads and properties, it offers unparalleled privacy.

- Metal Wood Clad Low E glass Windows and Doors

- 30 Year Concrete Shingle Roof

- Standing Seam Metal Roofing

- Autin White Limestone

- 23 Foot Wide 6 Panel Sliding Door

The Preserve 833 Images are a representation of products and therefore may not be exact.

The Preserve 833

The Preserve 833 Images are a representation of products and therefore may not be exact.
EXTERIOR RENDINGS

The Preserve 833

The Preserve 833 Images are a representation of products and therefore may not be exact.
EXTERIOR RENDINGS

The Preserve 833

PROJECT HIGHLIGHTS

This tranquil Hill Country home blends a serene atmosphere with functionality, boasting a spacious floor plan and premium materials, textures, and finishes. Featuring expansive architectural glass windows and French doors, the home offers uninterrupted views of the property and seamless indoor/outdoor entertainment opportunities.

The interior boasts lofty ceilings, including soaring 20’ ceilings in the main living areas and 10’ ceilings elsewhere. The kitchen stands out with its professional chef’s setup, complete with Wolf and Sub Zero appliances, and a generous 12’ island providing ample seating and storage. Additional pantry space, cabinetry, and built-ins throughout ensure plenty of storage options. Whether you’re an avid entertainer or simply seeking a peaceful retreat, this residence caters to both lifestyles effortlessly.

- 20 Ft Ceilings in Great Room / Kitchen and 10 Ft Ceiling in All Other Rooms

- 23 Foot Wide Custom Sliding Door to Outdoor Living Area

- Custom White Oak and Painted Shaker Cabinetry

- White Oak Pre-Engineered Hardwood Flooring

- Wolf Cooking Appliance Package

- Sub Zero Refrigeration Appliance Package With 60 Inch Refrigerator / Freezer

- Wine Refrigerator and Under Counter Ice Machine

- Cove Dishwasher

- Prewired CAT 6 Ethernet and R-11 Coaxial Cable

- Interior Mounted Tankless Water Heater to protect from Extreme Freeze

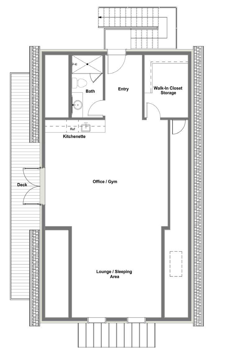
- Utility Subs for Optional Guest Suite, Casita and Pool

PROJECT SPECIFICATIONS Interior Living Space 3,636 sf Outdoor Covered Living 959 sf Garage 1,161 sf Total 5,696 sf OPTIONAL SQUARE FOOTAGE Casita 1034 sf Outdoor Covered Living 255 sf Total 1,289sf Guest Suite / Office 848 sf
FLOOR PLAN

The Preserve 833

EXTERIOR FINISHES

The Preserve 833 Images are a representation of products and therefore may not be exact.
EXTERIOR WOOD SIDING Board & Batten Black EXTERIOR STONE Texas Supply Stone Austin White Limstone GARAGE DOOR Clear Coat Cedar METAL ROOFING Charcoal Gray WOOD EXTERIOR Clear Coat Cedar SHINGLE ROOFING Boral Madera Weatherwood Concrete Roof

The Preserve 833

EXTERIOR LIGHTING

Hinkley Coen 22” -Black Dark Sky Compliant

EXTERIOR LIGHTING

Rejuvenation Carson 12”

Polished Copper

ENTRY DOORS

Metal Doors - Black

EXTERIOR FINISHES

ENTRY DOORBELL

Baldwin 4863 Contemporary - Venetian Bronze

ENTRY DOOR HARDWARE

Baldwin Seattle Multipoint

190 - Satin Black

WINDOW FRAME BM Black Satin - 2131-10

WINDOW DESIGN

Caseless Windows Plus Sill Black Aluminum Clad with Horizontal Grids

The Preserve 833 Images are a representation of products and therefore may not be exact.

The Preserve 833

2024 Benjamin Moore Farmhouse Paint Colors

GENERAL INTERIOR FINISHES

The Preserve 833 Images are a representation of products and therefore may not be exact.
BASE P2 PAINT Paint Grade 1” x 6”
P2
Paint Grade 3 Panel
TS3000 1-3/4” Square
Senior
INTERIOR DOORS -
PAINT
TruStile
Stick w/
Bevel
Hinge 4”
INTERIOR DOORS HINGES
Baldwin Square Corner
Satin Black
LEVER Baldwin
5”
Baldwin
7”
BM
INTERIOR DOORS
Square Reserve
- Satin Black INTERIOR DOORS BUMPER
Black WOOD FLOOR
White Oak Distressed
P2 PAINT COLOR
Gray Owl OC-52
BM
P1 PAINT COLOR
Simply White OC-117
BM
P5 PAINT COLOR Black Satin - 2131-10
P3
BM Revere Pewter - HC-172 P4
BM Sea Haze 2137-50
PAINT COLOR
PAINT COLOR
INTERIOR WOOD BEAMS Clear Coat Cedar

The Preserve 833

The Preserve 833 Images are a representation of products and therefore may not be exact.
FOYER
FOYER FOYER LIGHTING Hinkley Rhodes Brushed Graphite FOYER INSPIRATION

The Preserve 833

DINING CHANDELIER

Visual Comfort - Brianna 15 Aged Bronze

GREAT ROOM CEILING Rustin Beams with P1 T&G Ceiling

Interior

GREAT ROOM FIREPLACE

a
of products
may
exact.
The Preserve 833 Images are
representation
and therefore
not be
FIREPLACE BRICK Black FIREPLACE SURROUND LImewash Plaster BM Revere Pewter FIREPLACE STONE White Limstone - Smooth 4” Deep WALL SCONCE Visual Comfort Signoret 10” - Burnished Brass GREAT ROOM INSPIRATION CABINET WOOD Rift White Oak

KITCHEN ISLAND ELEVATIONS

The Preserve 833

KITCHEN ISLAND

KITCHEN PENDANT Visual Comfort - Norman 15” - Satin Brass

The Preserve 833 Images are a representation of products and therefore may not be exact.
KITCHEN SINK Kohler WhitehavenWhite Tall Apron KITCHEN SINK FAUCET Kohler Graze Vibrant Brushed Brass KITCHEN ISLAND CABINETS Rift White Oak KITCHEN INSPIRATION KITCHEN COUNTERTOPS Calcatta Miraggio Quartz

The Preserve 833

The Preserve 833 Images are a representation of products and therefore may not be exact.
KITCHEN COOKTOP KITCEHN COOKING ELEVATION KITCHEN BACKSPLASH Caesarstone 511 Smokestone P3 PAINT COLOR CABINETS BM Revere Pewter - HC-172 KITCHEN COUNTERTOPS Calcatta Miraggio Quartz KITCHEN INSPIRATION KITCHEN HOOD Rift White Oak

KITCHEN BAR ELEVATION

The Preserve 833

KITCHEN BAR

KITCHEN LIGHTING Visual Comfort Wellfleet 15” Midnight Black / Brass

KITCHEN BAR FAUCET Kohler Graze Bar Vibrant Brushed Brass

KITCHEN BAR SINK Kohler Strive 15”x15”

CABINET PULLS

Top Knobs - Ascendra 5” - Honey Bronze Include matching 18” Appliance Pull & 1 1/8” Square Knob per elevations

KITCHEN MILLWORK GLASS Seeded Glass

The Preserve 833 Images are a representation of products and therefore may not be exact.

FREEZER

Sub Zero - 30” Designer Column Freezer w/ Ice Maker Panel Ready - IC-30FI

The Preserve 833

KITCHEN REFIGERATION

REFRIGERATOR

Sub Zero 30” Designer Column Ref. Panel Ready IC-30RID

ICE MAKER

Sub Zero - 15” Ice Maker Panel Ready - UC-15I

WINE STORAGE

Sub Zero 24” Undercounter Wine Storage Panel Ready DEU2450W

The Preserve 833 Images are a representation of products and therefore may not be exact.

The Preserve 833

KITCHEN COOKING & CLEANING

The Preserve 833 Images are a representation of products and therefore may not be exact.
DOUBLE OVEN Wolf 30” E Series - DO3050TE/ S/T DISHWASHER Cove 24” Panel ReadyDW2450 COOKTOP Wolf - 48” 6 Burner and Griddle SRT486G MICROWAVE Wolf - 30” Trasitional Drawer MD30TE/S HOOD Wolf - 52” Pro Hood Liner PL522212 COFFEE MACHINE Wolf - 30” E Series Professional EC3050PE/S

The Preserve 833

The Preserve 833 Images are a representation of products and therefore may not be exact.
BBQ
PATIO
BBQ
DCS - 36” Outdoor Gas Grill BH1-36RL EXTERIOR PATIO FLOORING Daltile Legacy - Calgary 12x24 Pavers KITCHEN BACKSPLACE Caesarstone 511 Smokestone KITCHEN INSPIRATION OUTDOOR KITCHEN CABINETS Trex - KeyWest - Sandstone CEILING FAN Minka Aire Simple 52”Coal

The Preserve 833

MUD ROOM

MUD

The
833 Images are a representation of products
may not be exact.
Preserve
and therefore
ROOM INSPIRATION FLOOR TILE Daltile - Portfolio Charcoal 6x24 - Harringbone 6” boarder CABINET COLOR BM Simply White - OC-117 CABINET PULLS & KNOBS Top Knobs - Bar Pulls 6”Honey Bronze WOOD SEAT / BASE Rift White Oak Grout Custom #644 Shadow

The Preserve 833

UTILITY ROOM

The Preserve 833 Images are a representation of products and therefore may not be exact.
SERVICE SINK Kohler Whitehaven 23”Tall Apron - White FAUCET Kohler Crue Vibrant Stainless BACKSPLASH Daltile Raine - Stratus White Hexagon FLOOR TILE Daltile - Portfolio - Charcoal 12 x24 WALL & CABINET COLOR
BM
Simply White OC-117 MUD ROOM INSPIRATION COUNTERTOP
MSI
Artic White CABINET PULLS & KNOBS Top Knobs Bar Pulls 6”Honey Bronze Grout Custom #644 Shadow Grout - Custom #546 Cape Gray

The Preserve 833

CABINET PULLS

SINKS

Kohler Verticyl White All Bathrooms

Kohler - Castia by MaGeeSeagrove - Brass

Kohler Castia by MaGee

Transitional - Brass

BATH ACCESSORIES

Kohler Castia by MaGee

Acces Package 24” - Brass

WALL SCONCE

FAUCET

Kohler - Castia Brass

Kohler Castia by MaGee

Kernen - Brass

BM

POWDER ROOM

The
of products
exact.
Preserve 833 Images are a representation
and therefore may not be
POWDER ROOM INSPIRATION WALL Daltile Marble Slab Calacatta Gold TOILET Kohler - San Souci - White COUNTERTOP MSI - Artic White WALL & CABINET COLOR Simply White - OC-117 MIRROR

The Preserve 833

PATIO

BEDROOM

MASTER BEDROOM

The Preserve 833 Images are a representation of products and therefore may not be exact.
MASTER
PLAN
BATH CLOSET
SUITE
Black
FIREPLACE BRICK Interior
LImewash
BM
FIREPLACE SURROUND Plaster Revere Pewter
P2 PAINT COLOR TRIM BM Gray Owl OC-52 P1 PAINT COLOR - WALLS BM Simply White - OC-117 CEILING FAN Minka Aire Simple 52” Coal
FIREPLACE
STONE White Limstone Smooth 4” Deep BEDROOM 2 INSPIRATION

SINKS

All Bathrooms UNO

The Preserve 833

MASTER BATHROOM

The
Images
a representation of products
exact.
Preserve 833
are
and therefore may not be
MASTER BATH INSPIRATION COUNTERTOP Daltile - Marble SlabCalacatta Gold WALL SCONCE Mitzi by Hundson Valley Olivia 1 Brass BATH ACCESSORIES Kohler Purist - Black Kohler Verticyl White TOILET Kohler Corbelle White All Bathrooms UNO FAUCET Kohler Purist Black CABINET WOOD Rift White Oak FLOOR TILE Daltile Marble Empyrean Ice 12x24 CABINET PULLS Top Knobs Serene 5” - Honey Bronze MAKEUP MIRROR Kohler - Verdera - 24x33 Grout- Custom-#381 Bright White

The Preserve 833

MASTER BATHROOM SHOWER

DALTILE WITH MICROBAN ELMINATES 99% OF BACTERIA

833 Images are a representation of products
therefore may not be exact.
The Preserve
and
SHOWER WALLS Daltile Nova Divinium 3x12 Rectangle SHOWER FLOOR Daltile - Nova - Divinium Basketweave MASTER SHOWER INSPIRATION SHOWER Kohler - Purist Shower Package - Black SHOWER WALLS Daltile Nova Divinium 1x6 Straight Joint NICHE SHELF Caesarstone - 511 Smokestone Grout - Custom #543 Driftwood Grout - Custom #543 Driftwood Grout Custom #543 Driftwood

The Preserve 833

MASTER BATHROOM

The Preserve 833 Images are a representation of products and therefore may not be exact.
TUB FILLER Kohler Purist Black SOAKING TUB Kohler - Evok 66” TUB WALL Texas Supply StoneAustin White Limstone MASTER BATH TUB & SHOWER ELEVATION

The Preserve 833

BATH CL

BEDROOM

BEDROOM 2 SUITE

The Preserve 833 Images are a representation of products and therefore may not be exact.
BEDROOM 2 INSPIRATION
P2 PAINT COLOR TRIM BM Gray Owl OC-52 P1 PAINT COLOR - WALLS BM Simply White - OC-117 CEILING FAN Minka Aire Simple 52” Coal
BEDROOM
2 SUITE PLAN

The Preserve 833

BATHROOM 2 SUITE

The Preserve 833 Images are a representation of products and therefore may not be exact.
SHOWER
WALLS Daltile - Mythology Wave Crest Santorini 4x12
BATH ACCESSORIES Kohler Purist - Black FAUCET Kohler - Purist - Black SHOWER FAUCET
SHOWER
Kohler - Purist - Black PULL Kohler - Door Pull COUNTERTOP & 6” SPLASH
Frost
BM
Satin
Daltile - One Quartz - Morning
P5 PAINT COLOR CABINET
Black
- 2131-10
Mitzi
Olivia
WALL SCONCE
by Hundson Valley
1 Old Bronze
CABINET PULLS
Retro Matte Artic
-
Top Knobs Serene 5” - Honey Bronze SHOWER FLOOR
Daltile Color Wheel
White
Arabesque
TILE
Daltile Color
Retro Matte Artic White - Arabesque Grout Custom #381 BrightWhite Grout - Custom #546 Cape Gray Grout Custom #546 Cape Gray
BATHROOM 2 INSPIRATION
FLOOR
Wheel

BATH CL

The Preserve 833

BEDROOM 3 SUITE PLAN

BEDROOM

BEDROOM 3 SUITE

BEDROOM 2 INSPIRATION

The Preserve 833 Images are a representation of products and therefore may not be exact.
P2 PAINT COLOR TRIM BM Gray Owl OC-52 P1 PAINT COLOR - WALLS BM Simply White - OC-117 CEILING FAN Minka Aire Simple 52” Coal

The Preserve 833

CABINET PULLS

SHOWER FAUCET

BATH ACCESSORIES

Kohler - Purist - Chrome VANITY LIGHT Hundson Valley - Trinity 3Chrome

Knobs - Serene 5” Chrome FLOOR TILE

Purist Polished Chrome

BATHROOM 3 SUITE

BATHROOM 3 INSPIRATION

The
Preserve 833 Images are a representation of products and therefore may not be exact.
FAUCET
Kohler Kohler Purist Polished Chrome
TUB
Kohler Door Pull COUNTERTOP
BM
Daltile - One Quartz - Stone Look - Pulsar
P1 PAINT COLOR - CABINET
Simply White - OC-117 SHOWER WALLS
Daltile - Annapolis - Sail Top Daltile - Perpetuo - Brilliant White Polished - 12x24 SHOWER NICHE Daltile - Perpetuo Brilliant White Matte Hexagon 1.5
TUB
BrightWhite Grout - Custom
Cape
Grout - Custom
Cape
Kohler
- Archer 66x32 White Grout - Custom #381
#546
Gray
#546
Gray

The Preserve 833

GAME ROOM / BEDROOM 4

GAME ROOM / BEDROOM 4 SUITE

The Preserve 833 Images are a representation of products and therefore may not be exact.
GAME ROOM / BEDROOM 4 SUITE INSPIRATION BEDROOM 4 SUITE PLAN
P2 PAINT COLOR TRIM BM Gray Owl OC-52 P1 PAINT COLOR - WALLS BM Simply White - OC-117 CEILING FAN Minka Aire Simple 52” Coal
BATH CL
PATIO

The Preserve 833

BATHROOM 4 SUITE

The Preserve 833 Images are a representation of products and therefore may not be exact.
BATH ACCESSORIES
Kohler - Purist Black SHOWER FAUCET Kohler - Purist Black SHOWER PULL
6”
Kohler - Door Pull
COUNTERTOP &
SPLASH
WALLS Daltile - Annapolis -
FLOOR TILE Daltile Perpetuo - Brilliant
Polished -
FLOOR Daltile Perpetuo Brilliant
-
1.5 P2 PAINT COLOR CABINET BM Gray Owl OC-52
Daltile - One Quartz - Morning Frost SHOWER
Sail
White
12x24 SHOWER
White Matte
Hexagon
FAUCET
Mitzi
Olivia
Top
Serene 5” - Honey Bronze
Kohler - Purist Black
WALL SCONCE
by Hundson Valley
1 - Old Bronze CABINET PULLS
Knobs
Grout Custom #381 BrightWhite Grout - Custom #546 Cape Gray Grout Custom #546 Cape Gray
BATHROOM 4 INSPIRATION

The Preserve 833

NOTES: Guest Suite wood floor, doors, door hardware and paint colors to reflect the main house selections unless noted below.

OPTIONAL - GUEST SUITE

The Preserve 833 Images are a representation of products and therefore may not be exact.
GUEST
SUITE PLAN
BM
P2 PAINT COLOR - TRIM Gray Owl - OC-52
BM
P1 PAINT COLOR - WALLS Simply White - OC-117 GUEST SUITE INSPIRATION
BM
P5 PAINT COLOR - T&G Black Satin - 2131-10 EXTERIOR LIGHTING Rejuvenation - Carson 12” Polished Copper LIVING ROOM LIGHTING Jonathan Y Lighting - Eldora 5 Light 30” Wide

The Preserve 833

OPTIONAL - GUEST SUITE KITCHETTE

The Preserve 833 Images are a representation of products and therefore may not be exact.
KITCHEN BAR SINK Kohler - Strive 15”x15” KITCHEN SINK FAUCET Kohler - Crue - Black
Sub
DEU2450CI
KITCHEN REF / FREZ
Zero with Ice Machine
- Panel Ready
COUNTERTOP & 6” SPLASH Daltile One Quartz - Morning Frost
GUEST SUITE KITCHEN INSPIRATION P5 PAINT COLOR T&G BM Black Satin - 2131-10 CABINET PULLS Top Knobs - Serene 5” Honey Bronze
BM
GUEST SUITE KITCHEN ELEVATION
WALL
PANELING Black Satin 2131-10 6” Wide ShipLap

The Preserve 833

OPTIONAL - GUEST SUITE

The Preserve 833 Images are a representation of products and therefore may not be exact.
BATH
ACCESSORIES
FAUCET
Kohler - Purist Black
Kohler Purist - Gold
SHOWER FAUCET
SHOWER
& 6” SPLASH
Frost P5 PAINT COLOR CABINET BM Black Satin - 2131-10
Mitzi
Olivia
Top
Serene 5”
Honey Bronze
Daltile Color
Retro
Matte
FLOOR TILE Daltile - Median -
12”x24” Polished
Daltile Mythology Wave Crest Santorini 4x12 Grout Custom #381 BrightWhite Grout - Custom #546 Cape Gray Grout Custom #11 Snow White
Kohler - Purist Black
PULL Kohler - Door Pull COUNTERTOP
Daltile - One Quartz - Morning
WALL SCONCE
by Hundson Valley
1 - Old Bronze CABINET PULLS
Knobs
-
SHOWER FLOOR
Wheel
-
Artic White - Arabesque GUEST SUITE BATHROOM INSPIRATION
White
SHOWER WALLS

The Preserve 833

OPTIONAL - POOL OUTDOOR SHOWER

The Preserve 833 Images are a representation of products and therefore may not be exact.
SHOWER WING WALLS Texas Supply StoneAustin White Limstone POOL SHOWER ELEVATION POOL SHOWER PLAN SHOWER FAUCET Kohler - Purist Black FLOOR TILE / BOARDER Daltile - Menoir - Petal Black FIELD WALL TILE Cement Tile Shop Pacific White 8x8 Grout Custom #11 SnowWhite Grout Custom #11 SnowWhite

The Preserve 833

The Preserve 833 Images are a representation of products and therefore may not be exact.
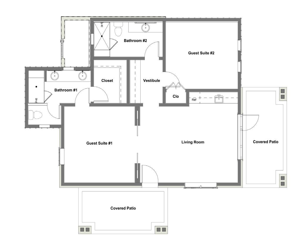
CASITA
OPTIONAL -
ENTRY DOOR
ENTRY EXTERIOR LIGHTING
Aluminum Door Black Rejuvenation - Carson 12”
NOTES EXTERIOR FINISHES TO MATCH MAIN HOUSE P2 PAINT COLOR TRIM BM Gray Owl - OC-52 P1 PAINT COLOR - WALLS BM Simply White - OC-117
Polished Copper HARDWOOD FLOOR Monarch Vinland Walnut Light Rustic LIVING ROOM LIGHTING Capital Lighting Pearson 12 Light 48” Black Iron GREAT ROOM CEILING Rustin Beams with P1 T&G Ceiling

The Preserve 833

OPTIONAL - CASITA KITCHEN

The Preserve 833 Images are a representation of products
therefore may not be exact.
and
KITCHEN INSPIRATION KITCHEN ELEVATION KITCHEN COUNTERTOPS Calcatta Miraggio Quartz KITCHEN LIGHTING Visual Comfort Wellfleet 15” Midnight Black / Brass KITCHEN BAR SINK Kohler - Strive 15”x15” KITCHEN SINK FAUCET Kohler - Crue - Black CABINET PULLS Top Knobs - Serene 5” Honey Bronze KITCHEN REF / FREZ Sub Zero with Ice Machine DEU2450CI - Panel Ready CABINET WOOD Rift White Oak

BEDROOM 1 SUITE

The Preserve 833

BEDROOM 1 SUITE PLAN

OPTIONAL - CASITA BEDROOM 1

BEDROOM INSPIRATION

The Preserve 833 Images are a representation of products and therefore may not be exact.
CL
BATH
8”
P2 PAINT COLOR TRIM BM Gray Owl OC-52 P1 PAINT COLOR - WALLS BM Simply White - OC-117 CEILING FAN Minka Aire Simple 52” Coal
WALL & CEILING PANELING Wide ShipLap

The Preserve 833

OPTIONAL - CASITA BATHROOM 1

The Preserve 833 Images are a representation of products and therefore may not be exact.
BATHROOM INSPIRATION COUNTERTOP & 6” SPLASH Daltile - One Quartz - Morning Frost
Brilliant White
-
Daltile Perpetuo - Brilliant
Matte - Hexagon 1.5 FAUCET Kohler Purist Polished Chrome TUB
-
SHOWER WALLS Daltile - Annapolis Sail FLOOR TILE Daltile - Perpetuo
Polished
12x24 SHOWER FLOOR
White
Kohler
Door Pull BATH ACCESSORIES Kohler - Purist - Chrome
Top
5”
CABINET PULLS
Knobs Serene
- Black
SHOWER FAUCET
Chrome
Kohler - Purist Polished
Rift
WALL PANELING BM Black Satin 2131-10 6” Wide ShipLap VANITY LIGHTING Visual Comfort - Sayward 2 14”Chrome Grout Custom #381 BrightWhite Grout Custom #546 Cape Gray Grout - Custom #546 Cape Gray
CABINET WOOD
White Oak

BEDROOM 2

The Preserve 833

OPTIONAL - CASITA BEDROOM 2

BEDROOM 2 INSPIRATION

The Preserve 833 Images are a representation of products and therefore may not be exact.
CL
BATH
BEDROOM 2 PLAN
BEDROOM BRICK WALL P2 PAINT COLOR TRIM BM Gray Owl OC-52 P1 PAINT COLOR - WALLS BM Simply White - OC-117 CEILING FAN Minka Aire Simple 52” Coal
WOOD BEAMS Dark Brown Stain
WALL
ACCENT
Studio BW01
Daltile Brickwork

The Preserve 833

OPTIONAL - CASITA BATHROOM 2

The Preserve 833 Images are a representation of products and therefore may not be exact.
BATHROOM INSPIRATION COUNTERTOP & 6” SPLASH Daltile - One Quartz - Morning Frost CABINET WOOD Rift White Oak SHOWER WALLS Daltile - Annapolis Sail
Matte
TILE
SHOWER FLOOR Daltile Color Wheel Retro
Artic White - Arabesque FLOOR
12”x24”
Daltile - Median
-
White
Polished
BATH ACCESSORIES Kohler - Purist Black SHOWER FAUCET Kohler - Purist Black SHOWER PULL Kohler - Door Pull WALL SCONCE Mitzi by Hundson Valley Olivia 1 Old Bronze FAUCET Kohler - Purist Black CABINET PULLS Top Knobs Dakota Cup - Black ACCENT WALL
Grout Custom #381 BrightWhite Grout - Custom #546 Cape Gray
Daltile - Brickwork Studio BW01 FREDERICKSBUR G, TEX AS ™
THANK YOU

Turn static files into dynamic content formats.

Create a flipbook
Issuu converts static files into: digital portfolios, online yearbooks, online catalogs, digital photo albums and more. Sign up and create your flipbook.