Paris Proof stations

Page 1


Paris Proof Stations

Ontwerpend onderzoek naar materiaalgebonden

CO2-emissies in de ontwerpfase

Opgave 1 | Stations en perrons

Beeld voorblad Station Ede-Wageningen Foto: Ronald Tilleman

Schema Inzicht krijgen, Inzicht toepassen Grondhouding in het ontwerpend onderzoek naar Paris Proof stations: vanuit verkregen inzicht worden nieuwe ontwerpoplossingen toegepast om opnieuw te kunnen toetsen.

Inleiding

De Klimaatwet stelt duidelijke en bindende doelen voor de beperking van CO 2 -uitstoot: 55% minder CO 2 -uitstoot in 2030 ten opzichte van 1990 en 95% minder CO 2 -uitstoot in 2050. Daarnaast is het de ambitie van het ministerie van IenW om al in 2030 klimaatneutrale infrastructuur te ontwerpen en realiseren. De spoorsector heeft de doelstellingen vertaald in eigen ambities en werkt samen met de overheid aan het realiseren hiervan.

Om die reden stelt Bureau Spoorbouwmeester zich - samen met ProRail en NS - met dit onderzoek tot doel inzicht te krijgen in de CO 2 -footprint en benodigde CO 2 -budgetten voor stations. Een benadering die het mogelijk moet maken om de uitstoot van de stations op termijn binnen de grenzen van het Klimaatakkoord van Parijs te houden: Paris Proof Stations - Ontwerpend onderzoek naar materiaalgebonden CO 2 -emissies in de ontwerpfase.

Inleiding

Paris Proof Stations

Onderzoek

Urgentie

ProRail en NS hebben inzicht in en sturen op verlaging van de operationele emissies. Maar op dit moment is er geen concreet inzicht in de stand van zaken wat betreft de materiaalgebonden CO 2 -emissies die gepaard gaan met de ontwikkelambities van stations. Daarbij is er ook geen duidelijk inzicht in de te nemen stappen om die CO 2 -uitstoot te verminderen. Om de doelen met betrekking tot de verlaging van CO 2uitstoot te halen is aanvullend onderzoek en instrumentarium nodig.

De lange ontwikkeltijd -soms wel 10 jaarvan stationsopgaven zorgt ervoor dat we morgen al concrete actie moeten nemen in de planvorming van projecten willen we deze doelstellingen halen. Veel plannen die nu op de tekentafel liggen zullen namelijk pas na 2030 in uitvoering komen.

Doelstelling

Dit ontwerpende onderzoek kan een eerste stap zijn in het ontwikkelen van een CO 2 -budgetgerichte benadering. We onderscheiden daarin twee verschillende opgaven met een toenemende CO 2 -reductie noodzaak:

• Opgave 1: Stations en perrons

• Opgave 2: OV-knopen en spoorinfra

Het voorliggende onderzoek is gericht op opgave 1. In de volgende stap van het onderzoek wordt ook opgave 2 onderzocht, waarbij de realisatietijdlijn opschuift naar 2040.

Voor het ontwerpend onderzoek hebben we samenvattend de volgende doelstellingen gedefinieerd:

1. Inzicht in de CO 2 -footprint van de verschillende onderdelen van een station

2. Inzicht in de impact: waar zit de grootste uitstoot en impact in het station?

3. Inzicht in de wijze van rapporteren c.q. rapporteer je op basis van domeinen, componenten, bouwlagen of per m2, c.q. per reiziger.

4. Inzicht in de impact van ontwerpkeuzes op de CO 2 -footprint door middel van casestudies, van materiaalaanpassingen en innovaties tot herontwerp van configuratie van het station.

5. Inzicht in geschikte rekenmethodes, referentiegetallen voor CO 2budgetten en omgang met data.

Opgave 1 Stations en perrons

Onderhoud Nieuwbouw Verbouw

Programma’s Tunnel en passerelle Configuratie

Opgave 2 OV-knoop en spoorinfra

Programma’s / PHS

Middelgrote nieuw-/verbouw Stapeling Configuratie

Opgave 3 Stationskwartier

Verstedelijking

Verdichting en stapeling

Verknoping station en stad Grootschalige nieuw-/verbouw Klimaatneutrale infra

Vanwege de lange ontwikkeltijd van stationsopgaven is het belangrijk om kennis over de CO 2- opgave op lange termijn nu al naar voren te halen in het ontwerpproces.

emissies in bouwsector

Huidig traject: CO2 budget in 2028 opgebruikt Nationale emissies in Mt CO2/jaar in de

huidige traject: CO2 budget in 2028 opgebruikt

Huidigtraject

huidigetraject

resterend CO2 budget voor 1.5°C

Resterend budget voor 1.5 C

> bron: https://www.cobouw.nl/300234/opinie-75-procent-co2-besparing-in-2030-er-is-geen-keus

Reductiescenario’s materiaalgebonden CO 2 in kg CO 2 eq./m2 Dutch Green Building Council en NIBE 2021. Bij doorgaan op het huidige traject is de CO 2 in 2028 op, dit vraagt om een reductiestrategie die het budget over meer jaren verdeelt.

emissions from new developments:

emissions from new developments:

operationele CO2: 70%

operationele CO2: 70%

materiaalgebonden CO2: 30%

materiaalgebonden CO2: 30%

levensduur gebouw

70% van de emissies van bestaande gebouwen door energie en onderhoud (operationele CO2 )

70% van de emissies van bestaande gebouwen door energie en onderhoud (operationele CO2)*

70% van de emissies van bestaande gebouwen door energie en onderhoud (operationele CO2)*

operationele CO2: 15%

operationele CO2: 15%

materiaalgebonden CO2: 85%

materiaalgebonden CO2: 85%

levensduur gebouw

levensduur gebouw

85% van de emissies van nieuwe gebouwen in NL door materialen (materiaalgebonden CO2 )

85% van de emissies van nieuwe gebouwen in NL door materialen (materiaalgebonden CO2)**

85% van de emissies van nieuwe gebouwen in NL door materialen (materiaalgebonden CO2)**

Verschuiving van de urgentie in de gebouwde omgeving van energieneutraal naar materiaalgebonden CO 2- emissies.

Strategie onderzoek

Er is in de spoorsector behoefte aan inzicht en manieren om te sturen op CO 2 in stations

Een van de mogelijkheden is het hanteren van een CO 2 -budget met plafondwaarden. Een CO 2 -budget kan werken als katalysator en als verbindende schakel tussen de ontwikkeling van OV-knopen binnen gestelde duurzaamheidsdoelen. Zo’n budget is nu nog niet voorhanden voor stations. Ook is nog niet bekend of het toepassen van CO 2 -budgetten haalbaar is voor de spoorsector, hiervoor zal in samenspraak met de overheid een strategie moeten worden ontwikkeld.

De voordelen van een CO 2 -budget zijn:

• CO 2 -budgetten maken duurzaamheid concreet, meetbaar en stuurbaar.

• CO 2 -budgetten maken afwegingen mogelijk: bij ieder project kunnen er op maat gemaakte ingrepen worden ingezet om het budget zo slim mogelijk te besteden.

• CO 2 -budgetstrategie is nodig voor de aanstaande verdeling van schaarse CO 2 -budgetten.

A anpak

Van een viertal reeds ontworpen en deels gebouwde stations (Ede-Wageningen, Harderwijk, Uitgeest en Alkmaar-Noord) is een zogenaamde nulmeting gemaakt en zijn de materiaalgebonden CO 2emissies van het hele station of van een aantal bouwstenen berekend. Deze uitgebreide en actuele CO 2 -data zijn tot nu toe van geen enkel station in Nederland beschikbaar en alleen daarom al waardevol. Ze geven inzicht in de grootte van de CO 2 -footprint op detailniveau en inzicht waar de grootste impact zit.

De materialen van deze projecten, vastgelegd in digitale gebouwmodellen, zijn middels gecertificeerde software gekoppeld aan recente, onafhankelijk geverifieerde, klimaatdata waarin de materiaalgebonden emissies en biogene opslag (de opslag van CO 2 in biobased materialen) zijn geregistreerd. Zodoende geven ze een betrouwbaar en accuraat beeld.

Er is separaat in beeld gebracht wat de biogene opslag is van de projecten, omdat dit bijdraagt aan CO 2 -neutraliteit. Vervolgens is een reductiestrategie in meerdere stappen onderzocht. Daarbij is bekeken welke verlaging van de materiaalgebonden CO 2 haalbaar is door stations te herontwerpen, hetzij met andere materialen, hetzij met materiaalinnovaties of aanpassingen in de opzet of configuratie van het ontwerp.

55% reductie van C O2 in 2030 over scope 1, 2 en 3 t.o.v. 2015 in 2030

• 100% reductie van CO 2 in 2050

• Fossielvrij energieverbruik in 2040

• Paris Proof operationeel energieverbruik in 2045

• Circulair inkopen in 2030

• Afvalvrij station in 2040

• Net-zero voor scope 1 en 2 in 2040 en voor scope 3 in 2050

ProRail
Duurzaamheidsambities spoorsector NS

Station Ede-Wageningen

Station Harderwijk

Onderzoeksobjecten: twee gehele stations en twee stationsbouwstenen

Aanbesteed in 2015 Gerealiseerd in 2024

CO 2 is een echte gamechanger: een station als Ede-Wageningen moet in 2030 en in 2040 met een aanzienlijk kleinere (-70% en -82%) CO 2-voetafdruk (Paris Proof GWPa) gerealiseerd worden. In 2050 is het doel 0. (-100%).

Perronkap Alkmaar Noord
Passerelle Uitgeest
Nu Straks

Begrippen

Paris Proof

Wat bedoelen we in deze studie met een Paris Proof Station?

Een station waarvan (door het te bouwen) de materiaalgebonden CO 2 -emissies vallen binnen het resterende materiaalgebonden CO 2 -budget van de Nederlandse bouwsector, om binnen de 1.5 graden Celsius temperatuurstijging van het Parijs Akkoord (2015) te blijven. De operationele emissies zijn buiten beschouwing gelaten.

In dit onderzoek is het gemiddelde in de CO 2 -grenswaarden van NIBE/DGBC genomen van gebouwtypes Kantoor (158), Retail (164) en Industrie (151) en afgerond naar boven naar het ronde getal 160 kg CO 2 eq./m2 BVO.

Deze gebouwtypes samen vertegenwoordigen de schaal en complexiteit van stations met een vergelijkbare gebouwtypologie, vaak vallend in de categorie van halte, basis of plusstation.

Klimaatneutraal

Een klimaatneutraal gebouw is een gebouw dat netto nul CO 2 -emissie als resultaat heeft: Er wordt net zoveel CO 2 verwijderd uit de atmosfeer als dat er wordt uitgestoten. Paris Proof zoals hiervoor toegelicht is een strategie om de CO 2 -footprint tussen 2021 en 2050 naar beneden te brengen. Bij ontwerpen en bouwen volgens de Paris Proof waardes wordt er dus hoe dan ook materiaalgebonden CO 2 uitgestoten en dus neemt daarmee de hoeveelheid CO 2 in de atmosfeer toe. Deze CO 2 blijft dertig tot honderden jaren in de atmosfeer aanwezig.

We spreken van een klimaatpositief proces als er meer CO 2 uit de atmosfeer wordt verwijderd dan er gedurende het proces wordt uitgestoten. Hierbij valt te denken aan groei van vegetatie (omzetting van CO 2 in plantaardige vezels met behulp van zonlicht, bladgroen en water), mineralisatie (omzetting van CO 2 in steen) en bijvoorbeeld de toepassing van hout in gebouwen.

Door CO 2 op te slaan in bouwmaterialen kunnen gebouwen dus meer CO 2 opslaan dan ze in het productie en bouwproces uitstoten.

Paris Proof grenswaarden voor nieuwbouw door het DGBC. De onderste drie categorieën zijn qua technische complexiteit vergelijkbaar met stations. Dit onderzoek werkt met de afgeronde gemiddelden van de blauwe cellen voor 2030 en 2040: 160 kg

Basiskennis

Materiaalgebonden CO2

Wat is materiaalgebonden CO 2 -emissie?

Het is het totaal aan CO 2 dat wordt uitgestoten gedurende het productieproces van de materialen tot en met de bouw van een object: het delven van grondstoffen, transport naar verwerkingsfabrieken, opwerken van grondstoffen tot (half-)fabricaten, transport van (half-)fabricaten naar materiaalproducenten, omzetten halffabricaten tot bouwproducten, transport van bouwproducten naar bouwplaatsen, assemblage van de bouwproducten tot een (stations)gebouw. Materiaalgebonden emissie is dus een cumulatieve waarde, genaamd GWPa (Global Warming Potential) van modules A1 t/m 5 in een materialen-productkaart, uitgedrukt in kg CO 2 eq./m2 BVO. Daarom kunnen we ook naar de materiaalgebonden emissie verwijzen als de GWPa. De GWPa is onderdeel van de door onder andere ProRail gehanteerde MKIa (Milieukosten Indicator). De GWPa is een grote indicator binnen de MKIa.

CO2-budget

Om de doelstelling van Parijs te halen - maximaal 1,5 graden opwarming- is er nog maar beperkt ruimte om CO 2 uit te stoten. We hebben, in andere woorden, een CO 2 -budget dat we nog kunnen besteden voor we het doel definitief voorbijstreven. Materiaalgebonden emissies zijn verantwoordelijk voor 11% van de CO 2uitstoot in Nederland. Binnen het scenario voor 1.5 °C graden opwarming hebben we wereldwijd nog een emissiebudget van 400 Gt CO 2 -equivalent. Als we het budget toewijzen op basis van inwonersaantal, komen we voor Nederland uit op 909 Mt CO 2 Afgaand op het aandeel van de materiaalgebonden emissies, laat dit ruimte voor 100 Mt embodied CO 2budget voor de Nederlandse bouwopgave (inclusief GWW). Uit dit budget zal budgetruimte voor individuele projecten moeten volgen. Zonder reductie is het budget nog ruim voor 2030 op.

A1 - A3
Cradle to Gate Cradle to Grave
‘Cradle to Cradle’

Basiskennis

Biobased materialen

Biobased bouwmaterialen zijn bouwmaterialen die afkomstig zijn uit de levende natuur.

In dit ontwerpend onderzoek is vooral gekeken naar plantaardige materialen in verband met beschikbaarheid van materialen, data en toepasbaarheid in stations.

Hout is inmiddels een breed toepasbaar en steeds gangbaarder materiaal voor de draagstructuur en allerlei afwerkingen. Maar ook vlas, hennep, olifantsgras en vele andere vezelgewassen worden verwerkt tot toepasbare producten zoals plaatmaterialen, isolatiematerialen en afwerkingen.

Biogene opslag

Door het gebruik van biobased bouwmaterialen wordt CO 2 opgeslagen: de CO 2 die zo wordt vastgelegd in bouwmaterialen noemen we biogene opslag. Deze vastlegging wordt algemeen beschouwd als op korte termijn (komende 30 jaar) zeer positief voor het tegengaan van klimaatverandering. Daarom achten we deze opslag van belang voor de hele bouwsector en daarmee ook voor deze studie.

Gedurende de oogst en productie van biobased materialen wordt ook materiaalgebonden CO 2 (GWP) uitgestoten. In de MPG/MKI-berekeningen (waar GWPaberekeningen onderdeel van uitmaken) worden deze emissies meegerekend. De biogene opslag daarentegen wordt nu niet meegenomen. Ook in de materiaalgebonden CO 2 -budgetten (GWPa getallen) van de DGBC worden deze getallen niet meegenomen. De aanname is dat biobased materialen aan het einde van hun levensduur worden weggegooid of worden verbrand, en dat daarmee de biogene CO 2 die er in is opgeslagen weer wordt uitgestoten en bijdraagt aan opwarming van de aarde. Er is een debat gaande in binnen- en buitenland over deze aanname. Binnen Nederland is het rijksbeleid om in 2050 een volledig circulaire en klimaatneutrale economie te hebben bereikt. In een volledig circulaire economie worden biobased materialen naar verwachting niet weggegooid of verbrand maar hergebruikt of herverwerkt voor nieuwe toepassingen. Daarom brengen we deze biogene opslag in deze studie als apart getal in beeld.

Plafondwaarden

Voor dit onderzoek gebruiken we de strategie van DGBC (zie pagina 10) van Paris Proof grens- of plafondwaarden voor de CO 2 -uitstoot.

Om een totaalbudget voor CO 2 voor de spoorsector slim te gebruiken zou je het budget kunnen vertalen naar jaarlijkse plafondwaarden: maximale uitstootwaarden per vierkante meter BVO (Bruto Vloer Oppervlak) voor een bepaald type project. Deze plafondwaarden kunnen met de jaren stapsgewijs worden verlaagd. Op deze manier kan het budget over meer jaren worden uitgesmeerd dan wanneer het jaarlijks gelijk wordt verbruikt. Gradueel afschalen is wenselijk omdat er anders van het ene op het andere moment geen budget meer beschikbaar is en projecten stil zouden kunnen komen te liggen. Gradueel afschalen is bovendien realistisch omdat er met de jaren steeds meer mogelijk zal zijn op het gebied van duurzame bouwmaterialen en -methoden en omdat de kennis hierover zich zal verspreiden.

Meeteenheid

Gedurende het onderzoek is meerdere keren besproken of er ook een materiaalgebonden CO 2 -eenheid denkbaar is die goed bij de specifieke stationsopgave past. Zo is onderzocht of een eenheid per reiziger of per perron zinvol is. Dit om te zien of dat meerwaarde zou kunnen opleveren in de gesprekken van NS en Prorail met specifieke belanghebbenden.

De eenheid kg CO2/reiziger toont dat de materiaalgebonden CO 2emissies per reiziger met toenemende reizigersaantallen afnemen. Maar de emissies zijn grotendeels eenmalig (bouw). Dus wanneer na tien jaar de reizigersaantallen zijn toegenomen of afgenomen, zijn de feitelijke emissies die in de atmosfeer gekomen dezelfde. De eenheid kg CO 2 /perron toont aan dat de materiaalgebonden CO 2 -emissies per reiziger met toenemende perronaantallen afnemen. De feitelijke emissies die in de atmosfeer zijn gekomen zijn dezelfde, aangevuld met de emissies nodig om een extra perron te realiseren.

De voorlopige conclusie in dit onderzoek is: Hanteer in de berekeningen in de basis de al geldende en door betrokken partijen gedeelde eenheid van kg CO 2 eq./m2

Rekenmethode

BVO station

Ieder station is uniek. De definities van station, gebouw, domeinen, bouwstenen en lagen van Stewart Brand overlappen elkaar soms, en per station op een eigen wijze. Voor het berekenen van de materiaalgebonden CO 2 kan dat verwarrend zijn.

Zo is een fietsenstalling in Ede-Wageningen onderdeel van het gebouwensemble, maar valt formeel in het omgevingsdomein. Bij Station Harderwijk is de fietsenstalling een op zichzelf staand gebouw, maar valt ook onder omgevingsdomein.

Toch zijn het in beide gevallen gebouwen, en zouden daarmee voor de bouwsector onder de definitie m2 BVO (Bruto Vloer Oppervlak) vallen. Om de eenheid kg CO 2 eq./m2 BVO die gangbaar is in de bouwsector specifiek op stations toe te passen is daarom een ‘BVO Station’ gedefinieerd.

Onder ‘BVO station’ vallen alle vierkante meters van het station die:

• zich onder een dak bevinden en/of

• zich in een tunnel bevinden om toegang tot perrons te verschaffen, en/of het in- en uitstappen mogelijk maken.

Alle spoorinfra waaronder rails en bovenleidingen die zich binnen deze afbakening bevinden zijn niet meegerekend.

Bijvoorbeeld, bij station Ede-Wageningen betekent dat: de sporenkap en alles wat zich daaronder bevindt, inclusief de voetgangerstunnel en alles wat zich daaronder bevindt, inclusief de fietsenstalling met dak en gevel, plus de perrons inclusief de ruimte nodig voor treinen tijdens het in- en uitstappen.

BIM + milieudata + rekentool

Op basis van door de respectievelijke architectenbureaus aangeleverde BIMmodellen van referentieprojecten zijn alle toegepaste materialen gekoppeld aan actuele data van de EPD (Environmental Product Declarations). Zo is per gebouw vastgesteld wat de materiaalgebonden CO 2 -emissie (GWPa), wat de biogene opslag, en wat de netto materiaalgebonden uitstoot (GWPa –biogene opslag) is.

De onderliggende data voor de GWPaberekeningen komen zoals gezegd uit de EPD’s. Deze geven van een aantal indicatoren aan wat de milieu-impact is van een bouwproduct. Indicatoren zijn onder andere: landgebruik nodig voor de realisatie van het product, watergebruik, toxiciteit, en ook GWPa. Deze milieu-indicatoren worden in beeld gebracht volgens een aantal modules die de levensduur van producten weergeven. In Nederland worden de EPD-data beheerd door de Nederlandse Milieu database (NMD). Deze database biedt op moment van dit onderzoek te weinig data om goed geïnformeerde berekeningen te kunnen maken. Data zijn vaak gedateerd en/of incompleet. Daarom is voor dit onderzoek (gedurende 2023/2024) gebruik gemaakt van Oneclick LCA software. Hierin worden buitengewoon complete Duitse, Franse, Belgische databases gecombineerd met de (hoewel sinds 1 januari 2024 tijdelijk niet geüpdatete) NMD.

Omgeving

BVO station

Schematische weergave van het onderscheid tussen BVO station en omgeving in station Ede-Wageningen. De omgeving valt in dit onderzoek niet onder BVO station.

Nulmeting

Toelichting resultaatweergave: bruto en netto GWPa

Voor de resultaatweergave is er in dit rapport voor gekozen om drie scores te tonen:

1. GWPa (bruto uitstoot)

2. Biogene opslag

3. Netto GWPa (netto totaal)

Dat doen we omdat er nog geen officiële en industriebreed gehanteerde standaard is voor het verrekenen van de biogene CO 2 - opslag in biobased materialen. Die biogene opslag doet er echter wel degelijk toe. Daarom kiezen wij er voor om GWPa (bruto uitstoot) en opslag als aparte waarden weer te geven en om een netto totaal te tonen waarin de opslag, zoals ook eerder toegelicht, volledig is verrekend. Zo kan er transparant inzicht verkregen worden in alle relevante uitstootwaarden.

Toelichting resultaatweergave: materialen per bouwsteen

Deze studie verdeelt referentiestations onder volgens de domeinen die gangbaar zijn binnen NS en Prorail: omgevingsdomein, ontvangstdomein (inclusief verblijfsdomein) en reisdomein. Het vastgoeddomein is in deze studie nog buiten beschouwing gelaten. De domeinen zijn vervolgens onderverdeeld in bouwstenen als perronkap, perron, fietsenstalling, tunnel, commercie en ondersteunende functies. In deze studie projecteren we de CO 2resultaten op verschillende manieren op een onderverdeling van de stations: per bouwsteen als geheel, per S-laag (volgens de Steward Brand verdeling van materialen) voor elke bouwsteen, en per materiaal voor elke bouwsteen. In deze samenvatting is gekozen voor de resultaatprojectie: emissie per materiaal per bouwsteen. Deze weergave geeft het best inzicht in de relatieve impact van verschillende materialen op elke bouwsteen.

Sporenkap

Fietsenstalling

Commercie

Ondersteunend

Klokkentoren

Perron

Oosttunnel

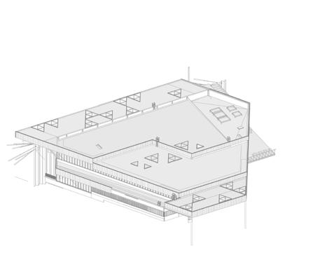
Exploded view van station Ede-Wageningen waarin de verschillende bouwstenen onderscheiden worden.

Resultaten

Ede-Wageningen

Conceptontwerp: Mecanoo/Movares

Definitief ontwerp: RHDHV

Uitvoeringsontwerp: Vakwerk architecten

Het nieuwe verkeersknooppunt is meer dan alleen een nieuw station. Het bestaat onder andere uit een langzaamverkeersbrug aan de oostzijde, nieuwe perrons inclusief overkapping en een nieuwe voetgangerspassage, een nieuw stationsgebouw met fietsenstalling en commerciële ruimtes en een fietstunnel ter hoogte van de huidige voetgangerspassage. Er is een nieuw busstation en diverse andere overstappunten zoals een kiss & ride en meerder fietsenstallingen. Van grote afstand is het station herkenbaar aan de 40 meter hoge stationstoren. De sporenkap bestaat uit 23 driehoeken van gelamineerde vuren houten liggers van 27 meter lang, 2 meter hoog en 30 centimeter breed. in de grote driehoeken bevinden zich kleinere houten driehoeken. In de sporenkap zijn driehoekige daklichten opgenomen. Deze zijn willekeurig over de kap geplaatst om daglicht op het perron en in de voetgangerstunnel te laten vallen. Zelfs deze willekeurig geplaatste daklichten zijn weer opgebouwd uit kleinere driehoeken. (tekst: Vakwerk architecten)

betonmix geprefabriceerd beton inclusief wapening kalkzandsteen, betonnen metselblokken leisteen / composietsteen / natuursteen cement dekvloer, betontegels, mortel glas zand, grond, aggregaten kruislagerhout (CLT) & gelamineerd hout (GLT) hout divers houtlook (rockpanel)

isolatie: PIR, rockwool, XPS, EPS geschilderd constructief staalprofielen wapeningstaal gepeodercoat, gegalvaniseerd, roestvast staal aluminium zink roltrappen

plastic (PVC, Pex, afdichtingen) plastic folies / coating / verf kabels & kanalen (XLPE / koper / Data..) verlichtingsarmaturen en gerelateerd overig < 15.000 kg CO2

BVO Station

GWPa totaal

Biogene opslag totaal - 1.900.800 kg

Netto GWPa totaal

Biogene opslag

kg CO2 eq.

Fietsenstalling

Uitstoot GWPa

Biogene Opslag

Sporenkap

Uitstoot/GWPa en biogene opslag (per bouwsteen, per materiaaltoepassing)

Station

Harderwijk

Architect: GROUPA

Stationsgebied Harderwijk is volledig getransformeerd als gevolg van de inpassing van het Randstadspoor en mogelijke intercity stop. De voormalige gelijkvloerse kruising tussen sporen en hoofdverkeersstructuur is vervangen door een ongelijkvloerse kruising op een nieuwe plek. De nieuwe tunnel vormt nu de interwijkverbinding voor auto’s, fietsers en voetgangers en biedt tevens toegang tot de treinperrons.

De markante luifel van het stationsgebouw vormt een centrale wachtruimte.

De nieuwe tunnel vormt nu de interwijkverbinding en de nieuwe toegang tot de treinperrons. De bestaande kappen op de perrons zijn voor 70% hergebruikt. Het ontvangstdomein is ontworpen als een ruime en lichte passage voor voetgangers, fietsers en auto’s. De oude, gelijkvloerse, kruising tussen sporen en hoofdverkeersstructuur is gesloten en vervangen. Aan de noordzijde zijn het nieuwe stationsplein, busstation, stationsgebouw met luifel en de gebouwde fietsenstalling als één samenhangend geheel ingepast tussen de sporen en bestaande bebouwing. De nieuwe parkomgeving, nieuwe fietsroute met fietsbrug en fietsenstalling zijn aan de zuidzijde ingepast. Hierdoor sluit het nieuwe station aan beide zijden van het spoor op een logische manier op elkaar aan.

(tekst: Group A architecten)

betonmix geprefabriceerd beton inclusief wapening kalkzandsteen, betonnen metselblokken leisteen / composietsteen / natuursteen cement dekvloer, betontegels, mortel glas zand, grond, aggregaten kruislagerhout (CLT) & gelamineerd hout (GLT) hout divers houtlook (rockpanel) isolatie: PIR, rockwool, XPS, EPS geschilderd constructief staalprofielen wapeningstaal gepeodercoat, gegalvaniseerd, roestvast staal aluminium zink roltrappen plastic (PVC, Pex, afdichtingen) plastic folies / coating / verf kabels & kanalen (XLPE / koper / Data..) verlichtingsarmaturen en gerelateerd overig < 15.000 kg CO2

BVO Station

GWPa totaal

8.490 m2

3.268.650 kg

Biogene opslag totaal - 33.960 kg

Netto GWPa totaal

3.234.690 kg

Biogene opslag

Biogene Opslag kg CO2 eq.

Uitstoot GWPa

Uitstoot/GWPa en biogene opslag (per bouwsteen, per materiaaltoepassing)

Netto GWPa

Bouwsteen

Perronkap Alkmaar Noord

Architect: VenhoevenCS

Station Alkmaar Noord heeft in 2021 een volledige metamorfose gekregen. Het ontwerp is geïnspireerd op station Alkmaar. Dat zie je terug in het materiaalen kleurgebruik.

Onderdeel van het vernieuwde Alkmaar Noord zijn de royale perronoverkappingen met daaronder glazen wachtruimtes. Die bieden beschutting voor reizigers. De perronkappen zijn van staal en voorzien van houten plafonds. Op het dak zijn zonnepanelen geplaatst, waarmee station Alkmaar Noord nagenoeg energieneutraal is. De zonnepanelen wekken ruim negentig procent van het jaarlijkse verbruik van dit station op. In het stationsgebouw en de perrontunnel is energiezuinige ledverlichting geplaatst. De nieuwe trappen en twee glazen liften verbinden de tunnel met de perrons. Op deze manier is het station volledig toegankelijk voor álle reizigers. (tekst: ProRail)

betonmix geprefabriceerd beton incl.wapening glas kruislagerhout (CLT) & (GLT) hout divers isolatie: rockwool, XPS, EPS constructief staalprofielen wapeningstaal aluminium verlichtingsarmaturen overig < 15.000 kg CO2

Perronkap

totaal

Netto GWPa totaal 146.530 kg

/m2 Biogene opslag

NB: Dit betreft de berekening van een bouwsteen. Niet van een heel station. Deze waardes zijn daarmee niet te vergelijken met de berekening van de hele referentiestations Ede-Wageningen en Harderwijk.

Bouwsteen

Bouwsteen

Passerelle Uitgeest

Architect: Studio SK

In het kader van het programma hoogfrequent spoor (PHS) wordt station Uitgeest vernieuwd.

StudioSK heeft een ontwerp gemaakt voor de nieuwe passerelle om de bestaande perrons en een nieuw perroneiland te ontsluiten. Vanwege comfort wilde ProRail de passerelle overdekken en voorzien van gevels. De huidige stationstunnel wordt opgeknapt en in de toekomst alleen nog gebruikt als langzaamverkeersverbinding. Alleen de bouwsteen passerelle is berekend voor dit ontwerpend onderzoek.

In de nieuwe plannen voor het stationsgebied wordt ingezet op het groene karakter van Uitgeest. In het ontwerp van de passerelle wordt gebruik gemaakt van natuurlijke materialen. De grote overspanningen en het dak worden gerealiseerd met houten liggers, een duurzaam materiaal met een lange levensduur dat voordeliger is dan staal. De kolommen zijn wel uitgevoerd in staal om zo veel mogelijk ruimte op het perron vrij te spelen voor zicht en afwikkeling van transfer.

De voorpleinen worden zo groen mogelijk ingericht zodat regenwater opgevangen kan worden in de grond. Door verhoogde groenbakken met zitranden op de voorpleinen te laten terugkomen ontstaat een uitnodigende, hoogwaardige openbare ruimte waar het prettig wachten is. (tekst:StudioSK)

/m2

Biogene opslag

Netto GWPa

NB: Dit betreft de berekening van een bouwsteen. Niet van een heel station. Deze waardes zijn daarmee niet te vergelijken met de berekening van de hele referentiestations Ede-Wageningen en Harderwijk.

Uitstoot GWPa

Biogene Opslag

Bouwsteen Passerelle
Passerelle

Stappenplan

Stap 1-4

1. Voor alle referentieprojecten is een nulmeting verricht: Wat is de materiaalgebonden CO 2 -emissie van ieder project zoals het ontworpen en gematerialiseerd is? Om deze getallen te kunnen duiden zijn deze vergeleken met de streefgetallen van DGBC. De nulmetingen hebben zo een basis verschaft aan de hand waarvan onderzoek kon worden verricht naar GWPa-reductiescenario’s.

2. Zonder de uitgevoerde ontwerpen aan te passen en zonder materialen te vervangen door andere types materialen is eerst bekeken welke materialen geoptimaliseerd konden worden en wat daarvan het effect was op de GWPa. Concreet betekent dit dat voor beton, staal en aluminium is bekeken wat het effect is van het verhogen van de recyclingcomponent.

3. Aanvullend op Stap 2: Zonder de uitgevoerde ontwerpen aan te passen maar door materialen waar mogelijk te vervangen door andere types materialen is bekeken welke materialen geoptimaliseerd konden worden en wat daarvan het effect was op de GWPa.

4. Aanvullend op Stap 3 is voor de belangrijkste onderdelen die toch in beton moeten worden uitgevoerd (bijvoorbeeld tunnels) uitgerekend wat het effect is van toepassing van maximaal circulair beton. Dit beton is samengesteld uit gerecycled granulaat, gerecycled staal, hergebruikt zand, hergebruikt cement en chemicaliën. Daarmee wordt de GWPa-waarde ten opzichte van nieuw beton tot 80% procent lager. Omdat dit circulaire beton nog beperkt op de markt is, is dit in de berekeningen alleen toegepast voor onderdelen die echt niet anders dan met beton kunnen worden uitgevoerd, zoals tunnels.

Stap 5: Herconfiguratie

In stap 1-4 is veel inzicht opgedaan over de GWPa van de stations in de ordening van bouwstenen zoals ontworpen en gebouwd. Gebaseerd op deze inzichten is voor station Ede-Wageningen en voor station Harderwijk onderzocht welke mogelijkheden er zijn om GWPa te verlagen en biogene opslag te verhogen door andere ontwerpbeslissingen te nemen.

Zo kan je de configuratie (opzet en ordening) van een stations bijvoorbeeld aanpassen door te kiezen voor een passerelle of een tunnel of door een fietsenstalling op maaiveld in plaats van een gebouwde stalling.

Het herontwerp door herconfiguratie is steeds op twee manieren met het oorspronkelijke ontwerp vergeleken:

1. Op basis van materialisering zoals in het oorspronkelijke ontwerp, dus volgens stap 1 nulmeting.

2. Op basis van materialisering met minimalisering GWPa en maximalisering biogene opslag, dus volgens stap 4.

Zo kan het materiaalgebonden CO 2 -effect worden getoetst volgens het uitgevoerde ontwerp en volgens de best haalbare materiaalgebonden CO 2 -score.

Stap 1: Nulmeting

Stap 2: Materiaalinnovatie (gerecyclede materialen)

stap 3: Materiaalvervanging (waar mogelijk: biobased)

Stap 4: Waar toch beton > maximaal circulair beton

Stap 5: Herconfiguratie: gebaseerd op lessen uit stap 1-4 zijn de bouwstenen van stations opnieuw geconfigureerd.

Stappenplan huidig onderzoek

1 2 3 4 5

Aanpak Paris Proof ontwerpproces

Reductiestrategie Paris Proof Stations

Resultaten

Station Ede-Wageningen

Stap 1

Nulmeting

Zwaartepunt GWPa:

• Beton in tunnel

• Stalen delen draagconstructie

Zwaartepunt biogene opslag: Houten delen draagconstructie

Stap 2

Materiaalinnovatie

Zwaartepunt GWPa minimalisatie: Maximaal gerecycled staal, aluminium en beton

Zwaartepunt biogene opslag maximalisatie:

• Geen verschil

Stap 3

Materiaalvervanging

Zwaartepunt GWPa minimalisatie:

• Stalen kolommen vervangen door hout zorgt voor enige verdere verlaging van GWPa.

Zwaartepunt biogene opslag:

• Stalen kolommen sporenkap vervangen door hout

Isolatie biobased

• Overige gevelafwerkingen biobased

Stap 4

Circulair beton tunnel

Zwaartepunt GWPa minimalisatie:

• Maximaal gerecycled staal, aluminium en beton

Zwaartepunt biogene opslag maximalisatie:

• Geen verschil

Paris Proof 2030

/m2

kg CO2eq /m2 Klimaatneutraal

Ede-Wageningen

_ Niveau 1 _ Floor area: 21600

Stap 5 Herconfiguratie

Herconfiguratie A

Uitgangspunt bij dit strategisch herontwerpscenario is dat de bouwsteen Tunnel grote impact heeft. Wanneer er wordt uitgegaan van de reeds bestaande Albertstunnel en die wordt uitgebreid hoeft er niet een compleet nieuwe tunnel te worden aangelegd.

Resultaat A

Het volledig doorlopen van dit herconfiguratieontwerp exclusief de materiaaloptimalisaties van stap 2-4 zorgt voor een GWPa reductie van 14%, inclusief de optimalisaties is het 59% en een flinke biogene opslag toename van 280%. Het station is daarmee nog niet GWPa Paris Proof 2030 maar wel klimaatpositief.

Herconfiguratie B

Huidige station renoveren met zoveel mogelijk hergebruik en aanpassing structuur alleen waar capaciteit vergroot dient te worden. Faseringsvraagstukken zijn niet meegenomen in het scenario, denk hierbij aan een tijdelijke fietsenstalling.

Resultaat B

Het volledig doorlopen van dit herconfiguratieontwerp exclusief de materiaaloptimalisaties van stap 2-4 zorgt voor een GWPa reductie van 24%, inclusief de optimalisaties is het 63% en een flinke biogene opslag toename van 280%. Het station is daarmee nog niet GWPa Paris Proof 2030 maar wel klimaatpositief.

Albertstunnel

5A: Uitbreiden bestaande tunnel levert een reductie op van 14 %

5B: Zoveel mogelijk hergebruik bestaande station levert een reductie op van 24%.

Station Harderwijk

Stap 1

Nulmeting

Zwaartepunt GWPa:

• Beton in tunnel

• Stalen delen draagconstructie

Zwaartepunt biogene opslag: Geen

Stap 2

Materiaalinnovatie

Zwaartepunt GWPa minimalisatie:

Maximaal gerecycled staal, aluminium en beton

Zwaartepunt biogene opslag maximalisatie:

• Geen verschil

Stap 3

Materiaalvervanging

Zwaartepunt GWPa minimalisatie:

• Alle draagstructuur bovengronds vervangen door hout

Zwaartepunt biogene opslag:

• Alle draagstructuur bovengronds vervangen door hout

• Isolatie biobased Overige gevelafwerkingen biobased

Stap 4

Circulair beton tunnel

Zwaartepunt GWPa minimalisatie:

Maximaal gerecycled beton in de tunnel

Zwaartepunt biogene opslag maximalisatie:

• Geen verschil

Paris Proof 2030

<160 kg CO2eq /m2

Klimaatneutraal

GWPa <0 kg CO2eq /m2

Harderwijk _ Niveau 1 _ Floor area: 8490

Station Harderwijk _ Niveau 1 _ Floor area: 8490 m2

_ Station Harderwijk _ Niveau 1 _ Floor area: 8490 m2

+ SECONDARY CEMENT BIOBASED MATERIALS

BIOBASED + SECONDARY CEMENT BIOBASED MATERIALS

STAP 5

Herconfiguratie

Herconfiguratie A

Uitgangspunt bij dit strategisch herontwerpscenario is dat de bouwsteen Tunnel grote impact heeft, daarom wordt in dit scenario de tunnel vervangen door een passerelle. Uiteraard heeft dit impact op de aansluiting op de stad maar dient het functioneel hetzelfde doel.

Resultaat A

Het volledig doorlopen van dit herconfiguratieontwerp exclusief de materiaaloptimalisaties van stap 2-4 zorgt voor een GWPa reductie van 11%, inclusief de optimalisaties is het 28% en een flinke biogene opslag toename van 3.725%. Het station is daarmee nog niet GWPa Paris Proof 2030 en ook niet klimaatneutraal.

Herconfiguratie B

Uitgangspunt bij dit strategisch herontwerpscenario is dat de bouwsteen tunnel vervangen wordt voor een open passerelle (zonder dak en gevel, met balustrade) en dat de commerciële ruimtes worden opgenomen onder de passerelle. Zo kan het dak van het stationsgebouw verkleind worden.

Resultaat B

Het volledig doorlopen van dit herconfiguratieontwerp exclusief de materiaaloptimalisaties van stap 2-4 zorgt voor een GWPa reductie van 47%, en inclusief de optimalisaties 56% en een flinke biogene opslag toename van 4.275%. Het station is daarmee vrijwel GWPa Paris Proof 2030 en zelfs klimaatpositief. De GWPa zit zo dicht bij de Paris Proof 2030 definitie dat het aannemelijk is dat deze met enige extra inspanning bij installaties en outillage gehaald zou kunnen worden.

5A. Tunnel vervangen door gesloten passerelle

5B. Tunnel vervangen door open passerelle

Bouwsteen Perronkap Alkmaar Noord

Stap 1 Nulmeting

Zwaartepunt GWPa:

• Stalen draagconstructie en betonnen funderingspalen

Zwaartepunt biogene opslag: Houten afwerking plafonds

Stap 2

Materiaalinnovatie

Zwaartepunt GWPa minimalisatie: Maximaal gerecycled staal, aluminium en beton

Zwaartepunt biogene opslag maximalisatie:

• Geen verschil

Stap 3

Materiaalvervanging

Zwaartepunt GWPa minimalisatie:

• Alle draagstructuur bovengronds vervangen door hout

Zwaartepunt biogene opslag:

• Alle draagstructuur bovengronds vervangen door hout

• Overige gevelafwerkingen biobased

Paris Proof 2030

<160 kg CO2eq /m2

GWPa

<0 kg CO2eq /m2 Klimaatneutraal

Uitstoot

Uitstoot

GWPa

GWPa

Biogene Opslag

Biogene Opslag

Bouwsteen Passerelle Uitgeest

Stap X Conventioneel gebouwd

Zwaartepunt GWPa:

• Beton in vloerdelen en fundering

• Stalen delen draagconstructie

Stap 1

Nulmeting huidig ontwerp

Zwaartepunt GWPa:

• Beton in fundering

• Stalen delen draagconstructie Delen gevel en trappen

Zwaartepunt biogene opslag:

• Houten delen draagconstructie

Stap 2

Materiaalinnovatie

Zwaartepunt GWPa minimalisatie:

• Maximaal gerecycled staal, aluminium en beton

Zwaartepunt biogene opslag maximalisatie:

• Geen verschil

Stap 3

Materiaalvervanging

Zwaartepunt GWPa minimalisatie:

• Alle draagstructuur bovengronds vervangen door hout

Zwaartepunt biogene opslag: Alle draagstructuur bovengronds vervangen door hout

• Alle gevelafwerking biobased, behalve glas

Paris Proof 2030

STAP X conventioneel gebouwd

STAP 1 nulmeting als gebouwd

1 nulmeting als

STAP 2 materiaalverbetering STAP 3 materiaalvervanging

2 materiaalverbetering

3 materiaalvervanging

Uitstoot

Uitstoot

GWPa

GWPa

Biogene Opslag

Biogene Opslag

STAP 1 > 3 Reductiepotentieel

Biogene opslag +193%

Stap X: Specifiek voor de passerelle is een stap X toegevoegd. Dit omdat de passerelle zoals ontworpen en gebouwd al een behoorlijke component CLT/Kruislagerhout kent. Om meer inzicht te verkrijgen in de verschillende waardes is daarom ‘Stap X Conventioneel Gebouwd’ toegevoegd: Een ontwerpvariant waarin alleen staal en beton in de draagstructuur is gebruikt.

Vergelijking bouwstenen

Tunnel versus passerelle

In dit onderzoek zijn projecten op verschillende schaalniveaus bekeken: twee gehele stations en twee bouwstenen van stations. Een al te vluchtige blik op de resultaten kan daardoor tot de verkeerde conclusies leiden. We kunnen niet simpelweg de totaalscore per vierkante meter van een station vergelijken met die van een bouwsteen. Het betreft geheel verschillende gebouwde oppervlaktes en bovendien hebben verschillende bouwstenen een totaal ander aandeel in het totaal.

Bijvoorbeeld: de totaalscore per vierkante meter van station met tunnel EdeWageningen komt lager uit dan die van een deels houten en bovengrondse passerelle in Uitgeest. We zouden natuurlijk het tegenovergestelde verwachten, omdat een ondergrondse constructie beton- en

staalintensief is en omdat in de passerelle een substantieel aandeel biobased materiaal is toegepast. Duiken we echter dieper in de resultaten, dan kunnen we deze twee functioneel soortgelijke bouwstenen individueel vergelijken en krijgen we een betekenisvolle blik op de situatie. Dan zien we dat de tunnel in Ede-Wageningen wel degelijk slechter scoort dan de passerelle. We zien de stevige impact die beton en staal maken op het totaal en de bijdrage die de houten constructie van de passerelle speelt in het verlagen van de totale voetafdruk. En we zien dat er in een passerelle meer mogelijkheden zijn om de uitstoot te verkleinen. Wel of geen tunnel maken is in elke opgave dus een belangrijke overweging met grote impact op de totale voetafdruk van het station.

Passerelle Uitgeest

betonmix geprefabriceerd beton incl.wapening glas kruislagerhout (CLT) & (GLT) hout divers isolatie: rockwool, XPS, EPS constructief staalprofielen wapeningstaal aluminium verlichtingsarmaturen overig < 15.000 kg CO2

Perronkap nieuw versus hergebruikt

Een goede algemene stelregel voor duurzaam bouwen is: niet bouwen heeft altijd een lagere voetafdruk dan duurzaam bouwen.

Dat zien we goed in de vergelijking van twee perronkappen, waarvan één helemaal nieuw gebouwd en de ander met een aandeel hergebruikte kap van 70%. De onderstaande vergelijking van resultaten toont de grote impact van het hergebruiken van bestaande materialen. In lijn met deze observatie is de conclusie dat hergebruik en renovatie

Stap 1

van vastgoed een belangrijke bijdrage kan leveren aan het behalen van de duurzaamheidsdoelstellingen van ProRail en NS.

Tegenover de impact van hergebruik staat ook duidelijk de impact van het toepassen van biobased materialen in de nieuw gebouwde delen: omdat in de volledig nieuw gebouwde perronkap van Alkmaar Noord in theorie een groter aandeel hout kan worden toegepast kan deze dus ook netto op een veel lagere totaalscore uitkomen.

Stap 2

Stap 3

Perronkap versus sporenkap

Een ander goed voorbeeld van de regel dat niet bouwen beter is dan duurzaam nieuw bouwen, is de vergelijking tussen de kleinere perronkap van station Alkmaar Noord en de grotere sporenkap van EdeWageningen.

Als we uitsluitend kijken naar de totaalscores per vierkante meter BVO, dan valt op dat de sporenkap van EdeWageningen dankzij het uitvoerige gebruik van hout en grote oppervlak een lagere totaalscore heeft dan de perronkap van Alkmaar-Noord. Het effect van de gebouwde vierkante meters is significant. De sporenkap is meer dan tien maal groter.

Perronkap Alkmaar-Noord.

Oppervlakte: 662 m2

Totale uitstoot: 170.000 kg CO2

Daardoor is de uitstoot per vierkante meter kleiner, maar is de totale absolute uitstoot vele malen hoger, ongeveer een negenvoud.

Geen rekening houden met de totale gebouwde vierkante meters is echter niet handig. Het kan tot de conclusie leiden dat het slim is om zoveel mogelijk houten overkappingen te maken, om daarmee de uitstoot van andere bouwstenen, zoals bijvoorbeeld een tunnel, te compenseren. Hoewel deels correct, gaat dit ook grotendeels voorbij aan het uiteindelijke doel: de totale voetafdruk verkleinen.

Perronkap Alkmaar-Noord

Sporenkap Ede-Wageningen.

Oppervlakte: 7.790 m2

Totale uitstoot: 1.600.000 kg CO2

Sporenkap Ede-Wageningen

ALKMAAR_662 M2

Conclusies

CO2 is een gamechanger

Een eerste observatie op basis van deze inventarisatie is dat de wettelijke CO 2reductie opgave haalbaar is en Paris Proof stations in 2030 mogelijk zijn. Maar de opgave is wel zodanig groot dat deze invloed zal hebben op fundamentele PvE-, materiaal- en ontwerpkeuzes, maar ook op kosten als CO 2 in de toekomst wordt beprijsd: CO 2 is een echte gamechanger.

In de casestudies hebben zowel de nulmetingen van de bestaande stations als de herontworpen stations veel inzicht gegeven in de CO 2 -footprint van het station als totaal, maar ook in die van de verschillende bouwdelen zoals perrons of overkappingen.

Duidelijk is dat al in een vroege fase sleutelbesluiten genomen dienen te worden waarmee Paris Proof stations mogelijk zijn, zoals: kan een bestaand gebouw behouden blijven en worden uitgebreid, of moet er sloop en nieuwbouw plaatsvinden? Is een tunnel nodig of kan er ook met een passerelle gewerkt worden? Is een sporenkap noodzakelijk of wordt een vergelijkbaar comfort geboden met perronkappen?

CO2-budgetten zijn effectief

Dit ontwerpend onderzoek toont aan dat werken met CO 2 -budgetten een krachtig middel is om in vroege ontwerpfases inzicht te krijgen en te sturen op duurzaamheid. Dat kan dan per bouwdeel of met een budget van het station als geheel. Dit ontwerpend onderzoek laat zien dat deze werkwijze goed mogelijk is. Bijkomend voordeel is dat met deze budgetwerkwijze, naast een positieve invloed op CO 2 -beprijzing in toekomst, ook automatisch meer biobased en gerecyclede materialen worden toegepast. Dit heeft een positieve invloed op beleving en gezondheid van omgeving en reiziger.

Grootste impact maak je aan het begin

Plan- en ontwerpkeuzes in het begin van een ontwikkeling hebben relatief de grootste impact op de daadwerkelijke emissie van het project. Hoe later in het ontwikkel-, ontwerp- of zelfs bouwproces een keuze gericht op het verlagen van de materiaalgebonden emissie wordt gemaakt, hoe kleiner de impact, aangezien de beweegruimte om grootschalige of zelfs fundamentele aanpassingen te kunnen maken steeds kleiner wordt. Het is daarom belangrijk dat al voorafgaand aan het ontwerpproces vanuit de PvE’s en uitvragen plafondwaarden meegegeven worden waarmee rekening gehouden moet worden. Maar ook daarna in het begin van het ontwerpproces blijft sturing op CO 2 nodig. Zo kunnen alle betrokken partijen impactvolle afwegingen goed motiveren op het moment dat deze nog echt gemaakt kunnen worden.

Materiaalinnovatie van invloed

Dit onderzoek is een momentopname van de huidige stand van kennis met betrekking tot materiaalinformatie. Regels, inzichten en kennis nemen snel toe en hebben invloed op getallen. Zo gaan de ontwikkelingen in betoninnovatie snel en wordt er steeds meer bekend over de precieze omstandigheden (en daarmee biogene opslag) van biobased materialen. Er komen ook in snel tempo veel biobased materialen bij en de komende jaren zullen alle huidige EPD’s worden vervangen door nieuwe, waardoor van alle producten biogene opslag bekend wordt. Het is aannemelijk dat tussen nu en 2030 innovaties plaats zullen vinden. Zowel transport als de machines op de bouwplaats elektrificeren snel, en de elektriciteitsopwekking waarmee al deze machines aangedreven worden vergroend snel. De fabrieken waarin grondstoffen worden verwerkt zullen ook in toenemende mate energiezuiniger worden en in toenemende mate zal deze energie duurzaam worden opgewekt. Daarnaast zal materiaalinnovatie plaatsvinden. Producten zullen steeds grotere hoeveelheden gerecycled materiaal als grondstof hebben en er zullen steeds meer en steeds betere biobased materialen op de markt beschikbaar komen. Al deze factoren zullen doorwerken in de GWP en biogene opslagwaardes in EPD’s die de basis vormen voor de rekendata van deze studie.

Ambities materiaalgebonden CO2 te realiseren?

Nu de resultaten van het Ontwerpend Onderzoek naar Paris Proof Stations bekend zijn, is het interessant deze aan te leggen tegen de ambities van ProRail en het Rijksbeleid van de overheid.

Uit dit ontwerpend onderzoek blijkt dat het mogelijk is om met een reeks stevige ontwerpingrepen op niveau van materiaalkeuze en bouwsteenconfiguratie een stationsontwikkeling zodanig aan te passen dat deze gerealiseerd kan worden binnen de gestelde reductiedoelstelling van 55% in 2030.

Dit geldt voor beide onderzochte stations, zelfs wanneer alleen gekeken wordt naar de bruto CO 2 -emissie (GWPa), dus zonder verrekening van de biogene opslag.

Dit geldt niet voor de doelstelling van 100% reductie in 2050. Deze wordt met de kennis en rekenmethoden van dit moment niet gehaald, wanneer we alleen kijken naar de bruto emissie. Conclusie

Ambitie ProRail

/m2

Ede-Wageningen

Nulmeting

/m2

Harderwijk

Nulmeting

/m2

Ambitie

De ambities van ProRal voor Ede-Wageningen en Harderwijk voor 2030 zijn mogelijk (zie ook herontwerpen op p.31 en 35). Maar de opgave is wel zodanig groot dat deze invloed zal hebben op het PvE en materiaal- en ontwerpkeuzes.

Configuratie

Hergebruik

Biobased

Innovatie & & &

Reflecties van betrokken ontwerpers

Vakwerk architecten:

Ede-Wageningen

De nulmeting van station Ede-Wageningen heeft ons waardevolle inzichten gegeven in de CO 2 -footprint. Het werd duidelijk dat er nog grote stappen nodig zijn om de transitie naar een CO 2 -arme spoorinfrastructuur te versnellen. Wat vooral opviel, was de impact van materiaalkeuzes en uitvoeringsmethodes tijdens de “design, engineer en construct”-fase. Hoewel de CO 2 -bijdrage van betonnen elementen verwacht was, bleek de footprint van commerciële ruimtes en de fietsenstalling groter dan gedacht. De houten kap verminderde de footprint minder dan verwacht. In toekomstige projecten willen we milieuimpact sterker koppelen aan esthetiek, uitvoering, prijs en tijd. Dit werd bij EdeWageningen wel overwogen, maar in de latere fase niet met cijfers onderbouwd, wat invloed had kunnen hebben op de besluitvorming.

Voor toekomstige berekeningen zou het nuttig zijn de CO 2 -uitstoot per vierkante meter van elk element te kwantificeren voor vergelijkingen. De grootste kansen om de CO 2 -footprint te verlagen liggen in materiaalkeuze en uitvoering, zonder functionaliteit te verliezen. Soms kan een langere buitendienststelling gunstig zijn voor de CO 2 -footprint. Het ontwerpen van een station met een Paris Proof-budget zou duurzame oplossingen beter integreren en lagere footprints realiseren, wat bijdraagt aan duurzame besluitvorming tijdens het gehele traject.

Het toevoegen van de CO 2 -footprint als ontwerpinstrument en dit koppelen aan het realisatiebudget voelt als een logische stap in de goede richting. Een regeling als deze geeft extra kansen in het ontwerptraject om duurzame oplossingen te onderzoeken en toe te passen en geeft naar de uitvoering van een project ook de slagkracht om uitgangspunten en ontwerpbeslissingen overeind te houden.

Group A architecten: Harderwijk

Wat de nulmeting van Harderwijk aantoont is dat de GWPa van stations van deze schaal redelijk in de buurt van de waardes van grotere andere gebouwtypes lijkt te liggen. Onze verwachting dat bij stations het zwaartepunt van de GWPa ligt bij materialen als staal en beton werd bevestigd. Waar we vooraf niet bij hadden stilgestaan is dat dit zelfs meer dan 80% van het geheel uitmaakt. Het viel op dat iets sympathieks als een fietsenstalling best veel gewicht in de schaal legt. Van de betonnen tunnel hadden we dat vooraf wel verwacht, maar een fietsenstalling associeer je toch minder met GWPa. Het is dus interessant bij het ontwerp van nieuwe stations om heel integraal te kijken naar de opgave: als de fietsen binnen gestald gaan worden, wordt dat dan een apart gebouw of deel je deze functie met andere ingrepen die toch al gedaan moeten worden? Hetzelfde geldt voor tunnels: Deze zorgen voor veel reizigerscomfort, maar wellicht is een bovengrondse passerelle een even zo comfortabel alternatief?

Paris Proof Stations van deze schaal ontwerpen en bouwen kan alleen als je alles doet wat je tot je beschikking hebt: Integraal ontwerpen van de verschillende onderdelen, alles dat bovengronds kan ook bovengronds doen, dat maximaal biobased uitvoeren, en als beton en staal dan toch ergens nodig zijn deze maximaal circulair uitvoeren. De echte besluiten worden in de vroege ontwerpfases genomen. Voor ons station Harderwijk was een ontwerp waarin een open houten passerelle zou zijn uitgevoerd in plaats van een voetgangerstunnel een variant die Paris Proof zou zijn geweest. Hadden we het station met de kennis van nu zijn gaan ontwerpen dan zou dat dus een goed uitgangspunt geweest zijn.

De positieve boodschap in deze tijd van urgentie is dan ook: Het moet, maar het kan ook!

VenhoevenCS:

Alkmaar Noord

Dit rapport geeft op een overzichtelijke manier inzicht, tot op bouwsteenniveau, in de meest effectieve maatregelen om de impact van onze gebouwen te reduceren. Door de perronkappen van Alkmaar Noord als bouwsteen eruit te lichten is de berekening van de nulmeting helder en kunnen resultaten vergeleken worden. Wat opvalt in de berekeningen -en benoemd in de rapportage- is het vertekende beeld tussen GWPa per m2 BVO Station in relatie tot GWPa per m2 Bouwsteen. In vervolgstudies zal nog preciezer naar de m2 BVO-definities van de verschillende bouwstenen gekeken kunnen worden. De conclusie dat met materiaalverbetering en materiaalvervanging (meer biobased materialen) grote stappen richting Paris Proof stations en klimaatpositieve stations te maken zijn onderschrijven wij uiteraard volledig. Zo zou door gebruik te maken van een groter aandeel hout in de constructie een significant lagere totaalscore mogelijk geweest zijn. Uiteraard hebben we in het ontwerpproces draagconstructies in hout onderzocht. In de realiteit van projecten spelen naast het materiaalgebonden CO 2 -emissies echter nog tal van andere duurzaamheidsambities én financiële, constructieve en uitvoeringsaspecten. In het geval van Alkmaar Noord heeft dit geleid tot de keuze voor de stalen draagconstructie. Bureau Spoorbouwmeester benadrukt met deze rapportage het belang van materiaalgebonden CO 2 -emissies als cruciaal aspect binnen het geheel aan criteria waar we in projecten mee te maken hebben. Door de kennis via deze rapportage verwachten wij dat in de volledige keten het besef zal groeien dat een beperking van CO 2 niet leidt tot een beperking van architectonische mogelijkheden, integendeel!

Wij zouden het dan ook toejuichen wanneer een ambitieus CO2-budget vanaf nu als harde voorwaarde meegegeven wordt in de uitgangspunten van alle toekomstige (spoor)projecten.

StudioSK : Uitgeest

De resultaten stroken met onze verwachting. Het is gelukt om ongeveer de helft van de constructie in hout uit te voeren, en daarvan zien we het effect in de cijfers: bijna een halvering van de voetafdruk van de constructie.

Een belangrijke kanttekening die wij willen plaatsen is dat de definitie van BVO bij elk project gelijkgetrokken dient te worden om een eerlijke vergelijking te kunnen maken.

Het moet ook niet gestimuleerd worden om zomaar veel houtbouw aan je project toe te voegen om op deze manier CO 2 -opslag te realiseren. Dan krijg je bijvoorbeeld een betonnen tunnel en daarover een overdreven groot houten dak om zo je CO 2 op te kunnen slaan. Dat is natuurlijk onnodig materiaal toepassen en niet duurzaam maar komt dan wel positief uit de berekeningen.

Daarnaast zien we dat er nu geen vergelijking is gemaakt tussen verschillende projecten van dezelfde typologie. Om een volledig beeld te krijgen wil je bijvoorbeeld een grotere hoeveelheid traversen met elkaar vergelijken. Een soort database zou daarin handig zijn.

De prikkel om Paris Proof te bouwen moet net zo belangrijk worden als tijd en geld. De belangrijkste indicatoren zijn tot dusver nog steeds tijd en geld - de prikkel duurzaamheid komt vaak uit de intrinsieke motivatie van de projectteamleden.

Het helpt dus zeker om een budget voor de footprint mee te krijgen en zo samen te ontwerpen aan het duurzame station van de toekomst!

Aanbevelingen

Meest impactvolle acties

Uit het onderzoek is gebleken dat onderstaande acties de meest impactvolle zijn en voor veel CO 2 -reductie zorgen:

• Hergebruik gebouwen

• Minimaliseer de ingreep

• Neem de tijd voor een gedegen afweging over de configuratie van bouwstenen

• Voorkom tunnels en ondergronds bouwen

• Minimaliseer installaties

• Voorkom gebruik van beton, staal en aluminium

• Waar toch beton nodig: maak gebruik van maximaal circulair beton

• Maak houten draagconstructies

• Maak biobased gevelpakketten

• Doe de afbouw met biobased materialen

• Maak maximaal gebruik van gerecyclede materialen

Ontwikkel en onderzoek CO2-budgetten

Een algemene aanbeveling is om sturing op CO 2 verder te ontwikkelen. Als onderdeel daarvan kan een CO 2budget voor stations met plafondwaarden helpen om te sturen op duurzaamheid: zowel landelijk, strategisch als projectspecifiek.

In deze studie is onderzocht welke plafondwaarden voor stations of bouwstenen haalbaar zijn. Mede op basis daarvan kan begonnen worden met het verder uitwerken van de aanpak en toepassing in projecten en het bepalen en vastleggen van specifieke plafondwaarden. In een eerste vervolgstudie in opdracht van ProRail is dit al gedaan voor de nieuwe OVS (Ontwerpvoorschrift) van de perronkappen. Zie het voorbeeld hiernaast.

Voorbeeld toepassing: plafondwaarden perronkappen

Om voor de nieuwe OVS-perronkappen ambitieuze maar haalbare palfondwaarden voor te schrijven is onderzoek gedaan naar een aantal recente perron- en sporenkappen. Hierbij is onderscheid gemaakt tussen nieuwbouw en renovatie/ transformatie van perronkappen, omdat daarvoor aparte materiaalintensiteit en daarmee aparte waardes gelden. Het onderzoek in stappen heeft geresulteerd in concreet advies voor de plafondwaarden voor MKIa volgens Set A1, GWPa (materiaalgebonden CO 2 ) en Set A2, GWPa netto (materiaalgebonden CO 2 minus biogene CO 2 -opslag).

Met het vastleggen van plafondwaarden in de OVS wordt de bouwsector uitgedaagd om vanaf het begin het ontwerp en engineeringsproces sterk rekening te houden met de MKIa en GWPa.

Jaar van inschrijving

Nieuwbouw Bestaande bouw

Colofon

Ontwerpend onderzoek in opdracht van ProRail, NS Stations en Bureau Spoorbouwmeester

Samenvatting in opdracht van en door Bureau Spoorbouwmeester

Uitgave van Bureau Spoorbouwmeester

Ontwerpend onderzoek GROUPA

Redactie samenvatting Bureau Spoorbouwmeester, Marianne Loof en Liesbeth Boeter

Vormgeving Bureau Spoorbouwmeester

Tekeningen, teksten en beelden GROUPA, Bureau Spoorbouwmeester

Beeldrecht

Bureau Spoorbouwmeester.

Pagina 1/18, Bron: Vakwerk, Fotograaf: Ronald Tilleman

Pagina 8/24/38, Bron: Bureau Spoorbouwmeester, Fotograaf: Jannes Linders.

Pagina 15, Bron: GROUPA, Fotograaf: Ossip van Duivenbode

Pagina 15/22, Bron: GROUPA, Fotograaf: Ossip van Duivenbode

Pagina 20/30, Bron: Vakwerk, Fotograaf: Ronald Tilleman

Pagina 25/40, Bron: StudioSK

Pagina 26/34, Bron: GROUPA, Fotograaf: Ossip van Duivenbode

Pagina 51, Bron: Vakwerk, Fotograaf: Ronald Tilleman Foto’s en illustraties zijn van genoemde partijen, organisaties en fotografen, tenzij anders vermeld. Op afbeeldingen berust beeldrecht. Wij zijn ons dit terdege bewust en hebben met grote zorg gepoogd rechthebbenden te achterhalen. We vragen de rechthebbenden die wij niet hebben kunnen bereiken, zich te melden.

Contact en meer informatie www.spoorbeeld.nl www.stations.nl

Het Spoorbeeld beschrijft het ontwerp- en vormgevingsbeleid van de spoorsector. Aan de hand hiervan stimuleert Bureau Spoorbouwmeester ruimtelijke kwaliteit, identiteit, beleving en ontwerpkwaliteit op en rondom het spoor.

Bureau Spoorbouwmeester is een samenwerkingsverband van ProRail en NS.

©2024

Met dank aan:

NS Stations

Katelijn van den Berg

Murkje Kingma

Carolien Kollau

ProRail

Jorien Maltha

Gerald Olde Monnikhof

Frank van Schadewijk

GROUPA

Willem van Genugten

Hala Abi Saad

Bailey Gardien

Folkert van Hagen

Chris Woltjes

De architectenbureaus voor het aanleveren van de BIM-modellen en het geven van input:

Vakwerk architecten

Rikkert van Bellen

Studio SK

Iris van Huijstee

GROUPA

Willem van Genugten

VenhoevenCS

Danny Esselman

Turn static files into dynamic content formats.

Create a flipbook
Issuu converts static files into: digital portfolios, online yearbooks, online catalogs, digital photo albums and more. Sign up and create your flipbook.