Portfolio-2025-Chun-Wang

Page 1


Institution Studio: Extreme Sports Activity Center

Situation

Form Studio: Building New Types of Communities In Detroit

Design

01 The HUB: Skate Out Of The Screen

To regenerate the west side of downtown Ann Arbor, the HUB provides extreme sports enthusiasts with indoor skatepark, rock climbing walls, and theaters for audience to watch on-going activities or documented games.

Year: 2024 Fall Institution Studio

Location: Ann Arbor, MI

Type: Academic

Instructor: Jonathan Rule

Downtown Ann Arbor is the heart of the community’s artistic and cultural life, home to Ann Arbor public library, independent theaters, art galleries, unique shops, and a wide variety of restaurants. Surrounded by the University of Michigan’s central campus and other educational institutions, the area also serves as a vibrant gathering spot for youth and students.

This project envisions an indoor extreme sports center with integrated theaters for people to watch games. The HUB aims to provide a year-round facility for extreme sports enthusiasts while encouraging the broader community to engage with and experience the energy of extreme sports culture.

Inspired by Alfred Hitchcock’s film Rear Window, the design incorporates a unique feature: a “rear window” for the theater. When the theater is not in use, the screen can be raised, allowing audiences to observe athletes participating in activities like rock climbing and skateboarding. This innovative spatial arrangement fosters a closer connection between audiences and extreme sports, embedding the culture of extreme sports into daily life.

By situating the extreme sports center in downtown Ann Arbor, the project seeks to infuse new energy into the city, attract young people, and celebrate the spirit of courage and self-challenge. This dynamic space will inspire different groups to embrace the excitement and determination inherent in extreme sports.

Site Analysis

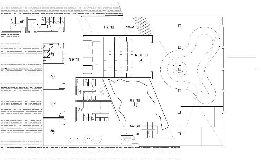
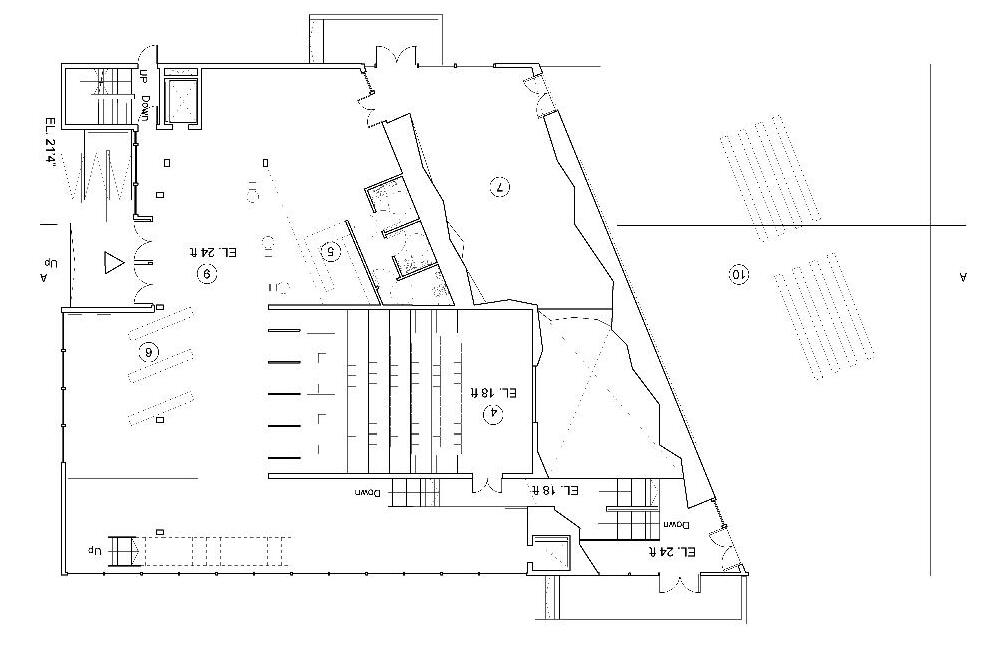
Located on the west side of downtown Ann Arbor, the site is home to numerous theaters and cinemas. With the presence of University of Michigan, the area attracts sports enthusiasts, such as skateboarders and cyclists.

Programs

This project proposes an indoor extreme sports center featuring theaters for audience to watch games, encouraging community engagement with the vibrant culture of extreme sports.

Design Concept

Inspired by the movie “Rear Window” directed by Hitchcock, the design concept starts with creating a rear window for the theater. When the theater is not in use, the screen goes up and the audience can look through the rear window to watch athletes’ rock-climbing or skateboarding.

Theater interior design with an opening to a courtyard

The site has a height different of 24ft, with the higher side towards downtown commercial street interface. Rock climbing walls are set as the core, dividing the HUB into 3 sections – indoor skatepark, rock climbing walls, cafe and stores. Outdoor skatepark is situated at the lower side, away from major crowds.

Street View from Ashley St. showing the main entrance of the HUB
Park view from First St. showing the connection of indoor and outdoor skate park

02 CleveLand Toolbox

The project aims at designing a wood maker space in Cleveland, Ohio. Cross-laminated Timber is chosen as the major construction material.

Year: 2024 Winter Situation Studio

Location: Cleveland, OH

Type: Academic

Instructor: Meredith L. Miller, Peter Halquist

Cross laminated wood has been a popular sustainable material currently, and I would like to display to the visitors the massiveness of engineered wood and the end-of-life usage of wood itself. The goal is to let visitors understand the process of making CLT through exhibitions, manufacture display, and hands-on workshop experience.

Through the process of making CLT from reclaimed wood waste, I found that making engineered wood is a useful way to recycle and reuse old hard wood products. However, there are labor intensive testing processes involved to categorize old wood parts, lying them with efficient configuration, and testing the strength. I also made the movable CLT wall system, because in this way those CLT panels can be reused again without any destruction of the parts themselves. In the next phase, I would like to find more ways to address the end-of-life stage of CLT.

Cleveland, Ohio’s Industrial Valley is a historically significant area located along the Cuyahoga River. It has long been a hub for manufacturing and heavy industry, thanks to its proximity to waterways, railroads, and major highways. The valley played a key role in Cleveland’s growth during the 19th and 20th centuries, contributing to the city’s reputation as an industrial powerhouse. Today, the city is trying to revitalize this area, and one potential business is to produce crosslaminated timber products for pre-fabricated houses.

Material Study of Cross-laminated Timber

Cross-laminated timber (CLT) is a sustainable, engineered wood product made by layering and gluing boards in perpendicular directions to create strong, lightweight panels for construction.

Elevation Drawing

03 STRIKE HOUSING

Strike housing project proposes a worker community that fosters and supports strikes by caring of workers on strike and advertising ongoing strikes.

Year: 2023

Location: Detroit, MI

Type: Form Studio

Instructor: Adam Fure, Kevin Bernard Moultrie Daye

Strikes usually end not because the workers obtain better working treatments, but because the workers cannot afford their livings during strikes. Strike housing proposes a worker community that fosters and supports strikes by caring of workers on strike and advertising ongoing strikes.

The project site is located in Detroit, and there are several existing houses and small commercial buildings on the site. The existing residential buildings are modified and utilized as temporary housing for worker families who are on strike and for those who have just relocated to the city. Permanent houses for labor union members who run the community are arranged near to each temporary housing facility. In such way, union members may provide helps and care for worker families living in temporary housing. To advertise ongoing strike movements and to create opportunities for other people to support the community, a series of programs are established along the street, such as gallery, broadcast room, donation booth, open stage for speeches, etc. Between the public advertising programs and the residential housing is a corridor to stimulate communications between worker’s community and people outside the community. The corridor meanders around the whole community, joining people together.

History of Labor Union and Strikes in the United States

Oblique Drawing of Strike Housing Community Layout

Plan and Section Drawings of Selected Area of the Community

Physical Model Photos

04 UNDER THE BRIDGE

The construction of highway bridges connects people with further places, but takes away nearby public spaces. By introducing new curved structure under the bridge, the design intends to build a human-scale delightful and intriguing leisure space along the street.

Year: 2022

Location: Shanghai, China

Type: Individual Work

Instructor: Finn Lam

The city street space has been increasingly occupied by transportation and its supporting infrastructures, making the streets less welcoming. The residual space under highway bridges is hardly occupied as an active space other than parking lots. One main reason is that the giant infrastructural structure scale makes people feel distant. Therefore, the design intends to introduce a new curved structural type to re-shape the space underneath several spans of a Metro bridge in Shanghai.

Inspired by a bridge structural design by Sergio Musmeci, I started my design by a form study of different types of minimal surface. The prototype of Gyroid with curvature in three dimensions was chosen for its porosity and openness. Preliminary transformations of the prototype was operated to discover potential spatial qualities of this strucural type. Meanwhile, on-site observation was done to research the site condition and different groups of people around the site. After identifying potential user groups and the programs needed, further operations of the form were carried out considering the function and scale. The final design attempted to create a leisure space along with a street park/square that could provide local citizens with joy and fascination. Moreover, the ultimate goal is to increase urban vitality by drawing different groups of people coming to the open space in the city. Though the built highway bridges invade our street space, we could still come up with design solutions to make use of the under space building new street views.

Beneath the Metro-Bridge: No-Man’s Land or New Urban Public Spaces

The highway and Metro bridges occupied a fairly large amount of streets in Metropolitan cities such as Shanghai. Those spaces underneath are usually used as parking lots or inserted with electricity sustations and public lavatories. How can we make use of those residual spaces to create a public space that attracts people to stay and relax.

Space Relationship of Bridge and Street

The Study of Mininal Surface and Gyroid

“A minimal surface is the surface of minimal area between any given boundaries. In nature such shapes result from an equilibrium of homogeneous tension, e.g. in a soap film.” By analyzing how a gyroid is created by the rotation of the same minimal surface, the potential divided spaces and passages are identified.

Spatial Qualities of a Gyroid

The gyroid structure blurs the boundary of vertical and horizontal elements. Such continuity is achieved with symmetrical geometric characteristics. Studying the 3-D Printed Physical model lead to the discover of difference degrees of openness at various parts of the gyroid.

The site is located under the Metro bridge near Dabaishu railway station. The space has been formed passively from the construction of the bridge above. However, it can be utilized to create more activities along with the open space near the street.
3-D Printed Gyroid Prototype in a 20 x 20 x 20 cm scale

Preliminary Transformation

Operation Based on Program and Scale

Preliminary transformations of the prototype was operated to discover potential spatial qualities of this strucural type. After identifying potential user groups and the programs needed, further operations of the form were carried out considering the function and scale.

3-D Printed Models of the final transformed forms based on programs and human scales.

Design Representations from a local citizen’s view

Getting out of the Metro Station, one will be caught by the curved space with openings to the street square. Walking towards the space, one will find food stalls selling local dimsum for breakfast and snacks. and people sit under the bridge playing cards and chatting with each other.

05 CHEF’S HOME RESTAURANT

“ We are what we eat.” By displaying the process of cooking to the customers and the street, the design intend to build more connections between different groups of people, especially the cook and the customers.

Year: 2022

Location: Chengdu, China

Type: Individual Work

Instructor: Suri Yuan

(Preliminary Design during 2021 Winter Workshop with Prof. Camilo Rebelo )

The experience of the COVID-19 lockdown not only provides people an opportunity to redefine what kind of living space is suitable for human in this virtual era, but also stimulates people to think about the value of interacting with others face to face in physical spaces. During the pandemic, what people miss the most is dining out with friends in local restaurants. Sharing food is an old common tradition for diverse cultures. People could have a balanced diet and gain more nutrition when eating together, and they share about their thoughts and experiences on table enjoying the blast of joy both from food and from their interactions with others.

On the other hand, restaurant owners have been suffering a lot from the lockdown, both economically and mentally. Their daily routines have been changed dramatically, and some of them even have to get another job to make a living. Therefore, I intend to design a house and restaurant for a chef in Chengdu and delve into the question how to build the connection between chef and customers through the chef’s restaurant space. By analyzing the local street market and food stands, I decided to use kitchen as the key connection among home, restaurant, and the city street. The attempt to expose the kitchen to customers and people on the street makes the service space as an exhibiting space, showing people how the ingredients are processed before served on their table. From the chef’s view, his working space is no longer hide from his customers, providing him opportunities to gain the state of fulfillment from observing customers enjoying his dishes.

Food Related Mapping Kitchen’s History

The prototype of kitchen as a space can be traced back to the use of fire. Starting from then, cooking and eating have become the main social activity of human beings. The evolution of kitchen typology not only depends on technological innovations, but also shapes people’s social behaviors and relationships.

The site is located on the riverside surrounded by residential buildings. This mapping analyzes the location and quantity of different types of commercial spaces selling food. Four major types are marked: food

and restaurant.

The Chef’s Daily Routine

The Chef of Four Table Hotpot Restaurant, named Lao Liu, has a family of three, but most of his time is dedicated to his restaurant. By analyzing his daily routine, a series of functional rooms and the relationship between these rooms are defined.

Design Concept

The research of Chengdu local street culture shows that the local people enjoys sitting by the street while having tea or eating local special street food. Tea art performance and food making craftmanship both bring people visual enjoyment and increase the vitality of Chengdu streets. Therefore, showing the process of preparing raw ingredients and hotpot base and spices in this design is the main method to increase encounters of customers, staff, local people and the chef.

Restaurant Working Flow

Analyzing the everyday working process of the chef’s original restaurant leads to the discover of the key steps that suit for showing to the customer and the local people passby, namely making local snacks and drinks, slicing fresh meat, stirfrying the spices for the hotpotbase.

Exploded Diagram

Selecting Qualified Ingredient
Preprocessing Ingredients 2. Unloading Ingredients
Preparing Soup for the Hotpot
Selling Snacks
Making Cold Dishes
Cleaning used pots
Cleaning garbage
Serving Guests
Cuting meat for orders
Making hotpot Base
Customers’ Observation of the Chef’s Stirfrying Spices
Customers’ First View at the Restaurant Entrance
When sitting around the table, they can see how the traditional spicy hot pot base is cooked.
When entering the interior, customers can observe how the raw ingredients are processed.

Dining Area with River View

There are a dining section by the riverside. The outdoor area can also serve as dining space during good weather.

Home Plan

The master room is on the second floor facing the river view. A shaded deck provide a leisure space for one to relax.

06 SITE GUARDIAN: ELEMENT’U

We want our pavilion to be both a man-made geometric block and a natural thing integrated into the mountain: both serious and interesting; both as a shelter of human in nature, and as a stage for people to feel, touch and embrace the nature.

Year: 2022

Location: Zecha Stone Forest, Gannan, Gansu Province, China

Type: Group Design-Build Project

Team Role: Communication group leader assigning tasks, organizing group discussions, presenting design progress while participating in each design stage and on-site construction.

Instructor: Professor Camilo Rebelo, Jiani Huang

Other Team Members: Li Chunman, Zhu Yanchen, Tao Zhenduo, Cao Binbin, Shen Yihe, Ou Yangshuo, Che Yuxin, Liang Yuxian, Tao Yusi, Zhang Peiyi, Zheng Yuting, Chen Shiyu, Zhai Xuechen

The design-build project intended to build a pavilion in a national preserved natural park in Gannan, Sichuan Province. Impressed by the various natural resources and unique geology in Gannan area, we aimed to establish a relationship between human and the nature, appealing both visitors and locals to concern the environment by using the local material for our construction. The area is dominated by seasonal precipitation. We set up a pool which can hold water in the raining season, presenting another kind of element from the nature while providing the wild animals a drinking place.

The building will be aside the hiking route in the mountain. By introducing a variety of spaces, we intended to provide both the villagers and the travelers to rest and enjoy the scenery. The pavilion would be a new public space in the natural evironment arising relaxing atmosphere among people.

Conceptual Design

Considering the design intent and local environment, four elements had been extracted and integrated together at different part of the pavillion. We were divided into groups to develop the design of each elements by taking scale, material, lights and accessibility into consideration.

Preliminary design responding to the extracted elements

On-site Construction Process

Due to the unexpected weather and the change of construction material suppliant, our design changed the main construction material from local stone to wood members. However, the original form and concept has been realized. As a member of the student group, I took part in the beginning of construction: locating the specific site and laying concrete foundation.

Conceptual Sketch by Chun Wang
Exploded Axonmetric Drawing
View from the upper mountain level
Bird eyeview of the pavilion growing from the site
Interior of the triangular shelter for solitude

Turn static files into dynamic content formats.

Create a flipbook
Issuu converts static files into: digital portfolios, online yearbooks, online catalogs, digital photo albums and more. Sign up and create your flipbook.