
Prepared by
City of Independence, MO
June 26, 2025
Ordinance Number #19685
Prepared by
City of Independence, MO
June 26, 2025
Ordinance Number #19685
AP-05 Executive Summary - 24 CFR 91.200(c), 91.220(b)
1. Introduction
The City of Independence, Missouri is an entitlement grantee that receives annual Community Development Block Grant (CDBG) and Home Investment Partnerships (HOME) funds from the U.S. Department of Housing and Urban Development (HUD). These funds support efforts to create strong, sustainable, and inclusive communities while expanding access to quality, affordable housing.
As a condition of receiving these funds, the City is required to develop and submit a Five-Year Consolidated Plan to HUD. This plan assesses local needs, incorporates citizen feedback, and serves as both an application for funding and a strategic guide for federally funded programs. The City’s current 2022-2026 Consolidated Plan, approved in 2022, outlines key priorities and funding strategies for this period.
Each year, the City develops an Annual Action Plan (AAP) to outline planned activities and funding allocations for the upcoming program year. The FY25 AAP, covering July 1, 2025 – June 30, 2026, marks the fourth year of the 2022-2026 Consolidated Plan. Guided by citizen participation, this plan details how CDBG and HOME funds will be used to address community needs and local priorities.
The FY25 AAP identifies funding sources, planned projects, and implementation strategies for the program year. All funded activities are aligned with the 2022-2026 Consolidated Plan, ensuring resources are effectively allocated to support community development and housing initiatives.
2. Summarize the objectives and outcomes identified in the Plan
This could be a restatement of items or a table listed elsewhere in the plan or a reference to another location. It may also contain any essential items from the housing and homeless needs assessment, the housing market analysis or the strategic plan.
The FY25 Annual Action Plan (AAP) will address high-priority community needs by implementing key affordable housing and community development strategies outlined in the 2022-2026 Consolidated Plan. These strategies focus on expanding affordable housing opportunities, providing homeless assistance, and enhancing supportive services, including:
1. Housing – Increase the supply of new housing and rehabilitate existing housing stock to ensure affordability for low-income qualified individuals.
2. Supportive Services – Continue supporting nonprofit applications from social service agencies to expand essential services for homeless individuals, non-homeless populations, elderly and individuals with a disability.
3. Quality of Life Improvements – Promote the well-being of low-income residents, seniors, and individuals with disabilities through support services and minor home repairs.
4. Code Enforcement – Restore neighborhoods and preserve property values by removing blighting conditions and enhancing community safety.
Each of these strategies aligns with the City’s long-term commitment to building stronger, more inclusive communities through targeted federal funding and local partnerships.
This is an evaluation of past performance that helped lead the grantee to choose its goals or projects.
The City has made significant progress toward the goals and objectives outlined in the 2022-2026 Consolidated Plan. During the 2024-25 Program Year, CDBG and HOME Program funding was utilized for administration and oversight, code enforcement, and public service programs that support critical community needs. These programs provided meals, transitional and emergency shelter, child abuse prevention services, rent and utility assistance, and affordable housing development. Additionally, funding was allocated for public facilities and infrastructure improvements to enhance the quality of life for residents.
4. Summary of Citizen Participation Process and consultation process
Summary from citizen participation section of plan.
To further engage the public, the City held two public hearings on November 13, 2024, and February 20, 2025, providing opportunities for residents to share input on housing and community development needs ensuring transparent and inclusive public engagement throughout the planning process.
The City adhered to its adopted Citizens Participation Plan (CPP) as part of the 2022-2026 Consolidated Plan. To encourage citizen participation, City staff provided public notices through multiple channels. In addition to publishing announcements in The Examiner, the City directly notified organizations and individuals interested in housing and community development needs for low-income, homeless, and special needs populations.
The public meetings were also advertised on the City’s website, inviting residents to submit ideas and feedback via email. Notices included information on free language interpretation and accessibility support to ensure broad community participation. The City also conducted consultations with local
community development corporations, neighborhood associations, and organizations dedicated to improving housing, services, and economic opportunities for low-income residents.
This could be a brief narrative summary or reference an attached document from the Citizen Participation section of the Con Plan.
During the two public meetings held in November 2024 & February 2025, attendees highlighted several critical community needs, particularly regarding housing, homelessness, and supportive services. Key concerns raised included:
Growing need for rental & utility assistance with many expressing that existing programs are inaccessible to those who need them most.
Food insecurity (lack of access to safe and nutritious food), particularly in areas where residents have limited or no transportation to reach food pantries.
Increased demand for critical and minor home repair programs, especially for seniors, who also face transportation barriers in accessing assistance.
Code enforcement efforts to address blight and deteriorating properties in neighborhoods.
The need for safe, affordable housing, as well as emergency housing and homeless shelters.
Limited emergency shelter options for individuals requiring medical assistance or support for daily living activities and individuals with disabilities .
A significant shortage of emergency shelters for domestic violence victims, despite the urgent need.
These concerns will help shape the City’s housing and community development strategies to better address these pressing issues.
6. Summary of comments or views not accepted and the reasons for not accepting them
The public comment period was open from March 25 through April 24. All comments received during this time have been reviewed and incorporated into the Annual Action Plan.
7. Summary
The City of Independence’s 2022-2026 Consolidated Plan outlines goals, objectives, and strategies to address the community’s housing and development needs. These priorities were identified through a
comprehensive citizen participation process, engaging residents, service providers, and community partners.
The Consolidated Plan serves as a guide for the allocation of CDBG and HOME Program resources, ensuring that safe and decent housing, a suitable living environment, and expanded economic opportunities are accessible to low- and moderate-income residents.
As the City enters the fourth year of its Consolidated Plan, it remains committed to these goals by funding and supporting:
• New construction (HOME) to revitalize the neighborhoods
• Services for non-homeless, elderly and special needs populations
• Neighborhood stabilization and public improvements
• Partnerships with public and homeless service providers
The accomplishments achieved to date reflect the growing demand for these resources and the City’s ongoing efforts to meet the community’s needs.
– 91.200(b)
1. Agency/entity responsible for preparing/administering the Consolidated Plan
Describe the agency/entity responsible for preparing the Consolidated Plan and those responsible for administration of each grant program and funding source.
Agency Role
CDBG Administrator INDEPENDENCE
HOME Administrator INDEPENDENCE
Table 1 – Responsible Agencies
Community Development Department
Community Development Department
Narrative (optional)
The lead agency responsible for the development of this Action Plan 2025-2026 is the City’s Community Development Department. The Community Development staff is also responsible for the administration of the City’s CDBG and HOME funds.
Consolidated Plan Public Contact Information
Community Development Department
City of Independence
111 E. Maple Ave. Independence, Mo 64050
816-325-7398
cdbg@indepmo.org
Office Hours: M-F 8:00 a.m.-5:00 p.m.
Control No: 2506-0117 (exp. 09/30/2021)
Consultation – 91.100, 91.200(b), 91.215(l)
1. Introduction
The 2025-26 Annual Action Plan was developed by the Community Development Department in collaboration with Independence residents. The plan’s priorities were shaped by community feedback gathered through an extensive engagement process in alignment with the 2022-26 Citizen Participation Plan.
Throughout the year, the City’s departments engage with local agencies and regional planning organizations on matters related to the Comprehensive Plan and Annual Action Plan. One key partner, the Mid-America Regional Council (MARC), facilitates discussions on regional challenges such as transportation, homelessness, and public health. Independence’s involvement in MARC’s First Suburbs Coalition and Community for All Ages programs provides valuable insights that contribute to the 202526 Action Plan.
Additionally, the City consults with organizations like the Greater Kansas City Coalition to End Homelessness (HUD Continuum of Care) and the Independence Housing Authority. During the development of the 2022-26 Consolidated Plan, the City analyzed housing needs and conditions using data from sources such as the American Community Survey, U.S. Census, Comprehensive Housing Affordability Strategy (CHAS), Housing Authority of Independence, Independence Council for Economic Development, the Continuum of Care, and Local Investment Commission (LINC).
This data-driven approach ensures the Annual Action Plan effectively addresses housing and special population needs within the community.
Provide a concise summary of the jurisdiction’s activities to enhance coordination between public and assisted housing providers and private and governmental health, mental health and service agencies (91.215(l))
The City of Independence benefits from a mature network of regional public and assisted housing providers and private and governmental health, mental health and service agencies that are connected in the delivery of services and programs through the use of Case-worthy (formerly MAACLink) a Homeless Management Information System (HMIS) and social service software suite developed and maintained by the Mid-America Regional Council, serving as the lead agency. The system contains vital information regarding services provided to individuals throughout the community. Access to this information helps service agencies manage limited resources more efficiently by: Minimizing duplication of services; Capturing information about unmet community needs; and Identifying households that could benefit from more comprehensive case management or support services.
The Regions' service coordination is further enhanced through local agency participation in the Kansas City region’s Continuum of Care that focuses on serving the unmet housing and social service needs of our regions' homeless and at-risk homeless populations.
Finally, the Kansas City Metropolitan Area Emergency Support Function (ESF-6) is designed to:
• Facilitate the exchange of information among jurisdictions during incidents of a regional nature involving mass care, emergency assistance, temporary housing and human services activities.
• Assist the jurisdictions in the metropolitan area in considering multi-jurisdictional issues when accomplishing local mass care, emergency assistance, temporary housing and human services activities.
• Promote a coordinated regional approach to providing mass care, emergency assistance, temporary housing and human services assistance when the needs of the event impact, tax or overwhelm existing local capabilities.
The Temporary Housing component of ESF-6 provides short-term temporary housing to those affected by the incident. Temporary housing options include rental, repair and loan assistance; replacement; factory-built housing; semi-permanent construction; referrals; identification and provision of safe, secure, functional and physically accessible housing; and access to other sources of temporary housing assistance. The Human Services component provides other victim related recovery efforts such as crisis counseling, ongoing support for special populations, and coordinating the provision of local, state and federal disaster assistance.
Describe coordination with the Continuum of Care and efforts to address the needs of homeless persons (particularly chronically homeless individuals and families, families with children, veterans, and unaccompanied youth) and persons at risk of homelessness.
The City of Independence is a participating member in the Greater Kansas City Coalition to End Homelessness (GKCCEH) which encompasses Kansas City, Independence, Lee’s Summit and all unincorporated portions of Jackson County, MO. Coordination of efforts to identify and address the needs of the homeless and at risk homeless is an ongoing effort involving a broad network of local and regional nonprofit and government agencies who are charged with serving the region's homeless. Activities of the CoC include regular membership meetings, planning sessions, plan development, training, service events, funding applications, and completion of the annual Point in Time count that collects information about the regional homeless population that will help to more accurately define the nature and extent of homelessness in the community. Agencies awarded funding through the CoC are called to implement projects and programs that will assist the region in carrying out its coordinated strategy for ending homelessness.
Describe consultation with the Continuum(s) of Care that serves the jurisdiction's area in determining how to allocate ESG funds, develop performance standards for and evaluate
outcomes of projects and activities assisted by ESG funds, and develop funding, policies and procedures for the operation and administration of HMIS
The City of Independence does not receive or administer ESG funding. The City participates in the GKCCEH membership meetings, which include planning sessions, service events and funding application evaluation for ESG funds.
2. Describe Agencies, groups, organizations and others who participated in the process and describe the jurisdiction’s consultations with housing, social service agencies and other entities
Table 2 – Agencies, groups, organizations who participated
1 Agency/Group/Organization
Housing Authority of Independence
Agency/Group/Organization Type PHA
What section of the Plan was addressed by Consultation?
Briefly describe how the Agency/Group/Organization was consulted. What are the anticipated outcomes of the consultation or areas for improved coordination?
Housing Need Assessment
Public Housing Needs
Homeless Needs - Families with children
During consultations with the Independence Housing Authority (IHA) Executive Director, Ms. Tina Barlett, the most pressing unmet need identified was the lack of quality affordable housing. Ms. Barlett emphasized the need for more familyoriented affordable housing options, rather than a focus solely on housing for older adults, including developments under the Low-Income Housing Tax Credit (LIHTC) program. At the time of consultation, the IHAs Section 8 waiting list had approximately 2,500 applicants, while the Public Housing waiting list exceeded 400 applicants. The IHA has been unable to fully address the public housing waitlist for over a decade. Rising housing costs have further exacerbated the problem, with many landlords selling their rental properties, and new owners opting not to accept Section 8 vouchers, instead renting at market rates. However, the IHA is beginning to see a slow shift, with more landlords reconsidering Section 8 participation. To address these challenges, all public housing units in Independence are scheduled for a full remodel, ensuring that tenants will have access to updated, quality housing in the near future.
2 Agency/Group/Organization
Agency/Group/Organization Type
What section of the Plan was addressed by Consultation?
Truman Heritage Habitat for Humanity
Services - Housing
Housing Need Assessment
Non-Homeless Special Needs
Briefly describe how the Agency/Group/Organization was consulted. What are the anticipated outcomes of the consultation or areas for improved coordination?
Input from Paul Raddant (Construction Director), Marikate Sears (Home Preservation Program Manager), and Crystal Martinez (Family Services Director) provided valuable insight into the current challenges and future considerations surrounding affordable housing, homelessness, and special needs issues in Independence. Key challenges discussed included: 1. Difficulty securing affordable land for residential development. 2. Rising property taxes and insurance costs, further impacting housing affordability. 3. Increased costs for new construction and rehabilitation, making development and renovation more difficult. 4. The need for expanded homebuyer counseling programs to support low-income buyers from the initial purchase through the first 3-5 years of homeownership. Truman Heritage Habitat for Humanity (THHFH) has seen a growing demand for minor home repairs, largely due to the city's aging housing stock and financial constraints faced by low-income homeowners. Paul mentioned that he would like to see more programs similar to Kansas City neighborhood where the vacant, abandoned homes are not demolished but instead the Homeowner will donate the home to a nonprofit, and in turn they will rehab the home and sell to low income homebuyers. Looking ahead, Truman plans to build two new homes this year, which will be available for purchase by qualified low-income buyers, helping to address some of the demand for affordable housing in the community.
3 Agency/Group/Organization
City of Independence Health Department
Agency/Group/Organization Type
What section of the Plan was addressed by Consultation?
Briefly describe how the Agency/Group/Organization was consulted. What are the anticipated outcomes of the consultation or areas for improved coordination?
Services - Housing
Services-Children
Services-Elderly Persons
Services-Persons with Disabilities
Services-Victims of Domestic Violence
Services-homeless
Services-Health
Services-Education
Services-Employment
Services - Victims
Homeless Needs - Families with children
Non-Homeless Special Needs
City staff facilitates a community collaboration to address gaps in shelter, services, and housing for individuals and families experiencing homelessness. This effort focuses on those unable to secure stable housing due to mental and behavioral health challenges (including substance abuse), chronic health conditions, disabilities, aging-related needs, and medical conditions requiring assistance with daily living. These meetings bring together agencies from multiple towns to share resources, coordinate services, and develop solutions to better support the most vulnerable populations. Through this collaborative approach, the City works to expand access to shelter, healthcare, and long-term housing options for those in need
What section of the Plan was addressed by Consultation?
Briefly describe how the Agency/Group/Organization was consulted. What are the anticipated outcomes of the consultation or areas for improved coordination?
5 Agency/Group/Organization
Agency/Group/Organization Type
What section of the Plan was addressed by Consultation?
Homeless Needs - Chronically homeless
Homeless Needs - Families with children
Homelessness Strategy
Economic Development
Affordable Housing, Home Repair, Code Enforcement
Input received from Becky Hake. Southwest District 4, There is a need for resources to assist new homeowners who can afford to purchase a home but lack the funds for necessary repairs to pass inspections. Support programs should be available to help cover the cost of essential improvements, such as roof replacements or minor repairs, to bring homes up to code. Additionally, assistance should be provided for seniors to help them age in place safely. Funding for home modifications, including ramps, roof repairs, and other minor improvements, would allow elderly homeowners to remain in their homes while ensuring their safety and accessibility. Expanding these resources would help stabilize homeownership and improve housing conditions for those in need.
HOPE HOUSE
Services-Children
Services-Victims of Domestic Violence
Services-homeless
Services-Employment
Services - Victims
Homeless Needs - Families with children
Non-Homeless Special Needs
Briefly describe how the Agency/Group/Organization was consulted. What are the anticipated outcomes of the consultation or areas for improved coordination?
Direct contact with Brandie Bair, Director of Grants & Compliance, related to issues on the urgent need for an emergency shelter for women and children escaping domestic violence situations. By providing emergency support, staff are able to provide a safe place for survivors to transition into permanent housing. Staff provide support, resources and referrals to assist survivors in overcoming their barriers and achieving their goals.
6
Agency/Group/Organization
Agency/Group/Organization Type
What section of the Plan was addressed by Consultation?
Mid America Regional Council
Services - Housing
Services-Children
Services-Elderly Persons
Services-Education
Services-Employment
Service-Fair Housing
Services - Broadband Internet Service Providers
Publicly Funded Institution/System of Care
Regional organization
Planning organization
Homeless Needs - Chronically homeless
Homeless Needs - Families with children
Homelessness Strategy
Non-Homeless Special Needs
Briefly describe how the Agency/Group/Organization was consulted. What are the anticipated outcomes of the consultation or areas for improved coordination?
The Mid-America Regional Council is a nonprofit association of city and county governments and the metropolitan planning organization for the bistate Kansas City region. Governed by a Board of Directors made up of local elected officials, we serve nine counties and 119 cities. They provide a forum for the region to work together to advance social, economic and environmental progress. MARC convenes partners and coordinates planning efforts on a wide range of issues that are important to communities in the metro, including aging services, early learning, health care, community development, homeland security, emergency services, the regional 911 system and much more. They work with cities, counties and other entities to identify common objectives and achieve our collective goals. The City participates in several different committees discussing aging and health, environmental, broadband and digital connectivity, transportation and economic focus areas.
7 Agency/Group/Organization
Agency/Group/Organization Type
What section of the Plan was addressed by Consultation?
Briefly describe how the Agency/Group/Organization was consulted. What are the anticipated outcomes of the consultation or areas for improved coordination?
8 Agency/Group/Organization
Agency/Group/Organization Type
Xfinity by Comcast - Now Mobile
Services - Wireless Phone Providers
Housing Need Assessment
City staff consulted with representatives at Xfinity by Comcast regarding issues related to providing wireless services to low- to moderate-income individuals. Xfinity by Comcast offers affordable pre-paid plans through NOW Mobile available at $25.00 per month for unlimited Talk & text for up to 5 lines. This would give low-to-moderate income households a reliable cell phone service. The City is mostly covered by their service but there are some areas where services were lagging.
Xfinity by Comcast
Services - Broadband Internet Service Providers
What section of the Plan was addressed by Consultation?
Briefly describe how the Agency/Group/Organization was consulted. What are the anticipated outcomes of the consultation or areas for improved coordination?
Broadband Internet Service Provider
City staff consulted with Xfinity internet service representatives regarding the need for affordable Broadband internet services for low income households. Currently, Xfinity is offering their internet Essentials plan for $14.95 a month for up to 75 Mbps, or Internet Essentials Plus at $29.95 for up to 100Mbps. This plan is available to individuals that participate in assistance plans like the Public Housing assistance, National School Lunch program/Head Start, VA Pension, Medicaid, SNAP, and other government plans. The City is mostly covered by this service, but there are some areas where service is lacking. Xfinity is also offering a low cost cell phone plan with the internet plan ($25.00 per month for unlimited Talk & text for 2 phones) and low cost laptops. Their goal is to offer fast, reliable & affordable service for all families to work, learn and stream from home.
Agency/Group/Organization
Agency/Group/Organization Type
What section of the Plan was addressed by Consultation?
Services-homeless
Services - Pregnant/Parenting young women
Homeless Needs - Families with children
Briefly describe how the Agency/Group/Organization was consulted. What are the anticipated outcomes of the consultation or areas for improved coordination?
Input from Kelsi Green provided valuable insight into affordable housing, community development, homelessness, and support for pregnant and parenting young women in Independence, along with key considerations for the future. Discussions highlighted several critical needs, including: Employment and job training programs to help young mothers achieve financial stability. Shortand medium-term financial assistance to address immediate economic challenges. Credit assistance services to support financial literacy and long-term stability. Childcare assistance programs to enable young mothers to work or continue their education. Continued support for homeless shelters and housing initiatives, ensuring that vulnerable populations have access to safe and stable living conditions. The need for transitional apartments for mothers and their babies up to age five, providing a structured and supportive environment for early childhood development. Additionally, Mothers Refuge is currently in the process of converting a building into apartments for new mothers, which will serve as a vital resource for young women in need of stable housing and support services. This initiative aims to create a sustainable pathway for mothers to transition into independent living while ensuring their children have a secure foundation.
10 Agency/Group/Organization
Agency/Group/Organization Type
What section of the Plan was addressed by Consultation?
Greater Kansas City Coalition to End Homelessness
Services-homeless
Continuum of Care
Homeless Needs - Chronically homeless
Homeless Needs - Families with children
Homelessness Needs - Veterans
Homelessness Needs - Unaccompanied youth
Homelessness Strategy
Non-Homeless Special Needs
Briefly describe how the Agency/Group/Organization was consulted. What are the anticipated outcomes of the consultation or areas for improved coordination?
The Greater Kansas City Coalition to End Homelessness (GKCCEH) is the HUD Continuum of Care (CoC) Lead Agency for Jackson County, Missouri and Wyandotte County, Kansas (CoC MO-604). City of Independence attends the monthly Greater Kansas City Homeless Coalition meeting to glean from training opportunities that help us to serve the needs of homeless and underserved residents throughout the region. Our efforts to collaborate with this group foster grant making opportunities and data analysis. Meetings are held every third Wednesday of the month.
Agency/Group/Organization Type
What section of the Plan was addressed by Consultation?
Briefly describe how the Agency/Group/Organization was consulted. What are the anticipated outcomes of the consultation or areas for improved coordination?
Agency - Managing Flood Prone Areas
Agency - Management of Public Land or Water Resources
Agency - Emergency Management
Housing Need Assessment
Public Housing Needs
Homeless Needs - Chronically homeless
Homeless Needs - Families with children
Homelessness Strategy
Non-Homeless Special Needs
Market Analysis
Economic Development
Staff from various City agencies provided insights, planning documents, and other information to create various sections of the plan. The City has officials across the City looking to address the needs of the City. City Council holds meetings and hearings to address public needs and input on various matters.
12 Agency/Group/Organization Independence Economic Development Corporation
Agency/Group/Organization Type Services - Housing Services-Education Services-Employment
What section of the Plan was addressed by Consultation?
Briefly describe how the Agency/Group/Organization was consulted. What are the anticipated outcomes of the consultation or areas for improved coordination?
Housing Need Assessment Market Analysis
The Independence Chamber of Commerce represents a partnership of more than 700 member businesses and professionals dedicated to promoting the economic growth of Independence. The City participates in policy development and goal setting. The Chamber recently formed a Housing subcommittee focusing on addressing housing needs throughout the community
Identify any Agency Types not consulted and provide rationale for not consulting
All applicable agency types are in the process of being consulted.
Other local/regional/state/federal planning efforts considered when preparing the Plan
Name of Plan Lead Organization
Continuum of Care
The Greater Kansas City Coalition to End Homelessness (GKCCEH)
Capital Improvement Program 2024-2030 City of Independence
How do the goals of your Strategic Plan overlap with the goals of each plan?
Plan goals established to serve the unmet needs of the homeless and at-risk homeless in Independence strive to support the regional strategy of the Continuum of Care.
Where feasible, Plan goals are established to supplement and complement the goals of the City's Capital Improvement Program.
Name of Plan Lead Organization
PHA Annual Plan
Independence Housing Authority
Community for All Ages
Imagine Independence Comprehensive Plan
City of Independence
City of Independence
CityWide Housing Study
City of Independence
2025-26
Independence Annual Action Plan
City of Independence
How do the goals of your Strategic Plan overlap with the goals of each plan?
Similar to the ConPlan, the IHA's Annual Plan outlines the Public Housing Authority's measurable goals and objectives for a five-year period. Aligning with the purposes of the CDBG and HOME Programs, the Housing Authority's primary mission is to provide safe, decent, and affordable housing for low- and moderate-income families, including seniors and individuals with disabilities, while also supporting programs that promote economic self-sufficiency.
Since 2018, the City has maintained its Community for All Ages Gold Level recognition from the Mid-America Regional Council. This initiative ensures that older adults are valued, respected, and actively involved in shaping and sustaining a high quality of life in their communities. It integrates aging-related opportunities and challenges into all aspects of community life, including infrastructure, programs, services, workforce development, and civic engagement. The City continues to incorporate these principles into its projects, services, and development efforts.
The General Plan and Community Plans create a vision for future development activities. The planning process provides an opportunity for residents and stakeholders to participate in creating a vision for the future and sharing their ideas.
Independence's City-Wide Housing Study was undertaken to create a baseline understanding of what the city's housing needs and challenges are, both currently and for the foreseeable future. The ultimate goal of this study is to help City staff, elected officials, housing partners, and community members understand key aspects of the housing market, as well as housing issues that impact the overall health of the City. It is also intended to serve as the basis for future strategies and policy decisions a basis for formulating community specific housing priorities, policy alternatives, and intervention strategies.
The Independence City Council developed their newest set of strategic priorities to guide future policy and funding decisions. Considerable effort has been made to develop a strategic plan that includes a purpose, purpose statements, and action items that are based on input following months of collaborative discussions from a wide cross-section of the community.
Table 3 – Other local / regional / federal planning efforts
Narrative (optional)
The City of Independence is focused on providing a wide variety of opportunities for residents to participate in the City's Consolidated Planning and Annual Action Plan process.
1. Summary of citizen participation process/Efforts made to broaden citizen participation
Summarize citizen participation process and how it impacted goal-setting
The City recognizes the importance of citizen participation in the development and implementation of the 2025-26 Annual Action Plan (AAP). To ensure broad community engagement, the City followed its adopted Citizen Participation Plan, which aligns with the Housing and Community Development Act.
During the AAP planning process, the City encouraged public involvement through multiple outreach methods, including:
• Public meetings held on November 13, 2024, and February 20, 2025
• Email outreach and City Website
• Local newspaper advertisements
Public notices were published in The Examiner in both English and Spanish, informing residents about the public meetings and opportunities to submit comments. Additionally, the City made interpretation services available upon request to ensure accessibility for all community members.
Copies of the Annual Action Plan in both English and Spanish were available at several community locations for the purpose of public view during the public comment period (March 25th – April 24th). These locations included the Public Housing Authority of Independence, Mid-Continent Public Library Independence Branches (3), Palmer Senior Center, and the Fairmont Community Center as well as the City’s website.
Citizen Participation Outreach
Sort Ord er Mode of Outre ach
Target of Outre ach
1 Internet Outreach Minorities Non-English SpeakingSpecify other language: Spanish Nontargeted/broad community
Summary of response/attenda nce
All Public Meeting and information are posted on the City website. The 25-26 Annual Action Plan was posted to the city website in both English and Spanish during the entirety of their respective public comment periods according to the City's 22-26 Citizen Participation
Summary of comments recei ved
Summary of comm ents not accepted and reasons
URL (If applicable)
No Public comments were received
All comments received were considered in the Annual Action Plan independencemo.gov/cdbghom egrants
Sort Ord er
Mode of Outre ach
Target of Outre ach
2 Public Distribution of Plan
Minorities
Non-English SpeakingSpecify other language: Spanish
Persons with disabilities
Nontargeted/broad community
Residents of Public and Assisted Housing
Summary of response/attenda nce
Copies of both the Annual Action Plan in both English and Spanish will be available at several community locations for the purpose of public view during the public comment period. These locations included the Public Housing Authority of Independence, Mid-Continent Public Library Independence Branches (3), Palmer Senior Center, and the Fairmont Community Center.
Summary of comments recei ved
Summary of comm ents not accepted and reasons
URL (If applicable)
No Public comments were received
All comments received were considered in the Annual Action Plan.
Sort Ord er Mode of Outre ach
Target of Outre ach
Summary of response/attenda nce
Summary of comments recei ved
Summary of comm ents not accepted and reasons
URL (If applicable)
3 Public Meeting Nontargeted/broad community
General meetings to discuss the Annual Action Plan and needs of the Independence Community were held both virtually/in person at City Hall on November 13, 2024 and February 20, 2025
Topics discussed transportation barriers in accessing assistance. Increased demand for critical and minor home repair programs, especially for seniors and individuals with disabilities, need for rental, utility, food, & medical assistance, with many expressing that existing programs are inaccessible to those who need them most. Shortage of shelters for domestic violence victims, emergency housing & homeless shelter, despite the urgent need.
All comments received were considered in the Annual Action Plan
Sort Ord er Mode of Outre ach
Target of Outre ach
4 Newspaper Ad Non-English SpeakingSpecify other language: Spanish Nontargeted/broad community
Summary of response/attenda nce
A Public Notice was published in The Examiner, a newspaper of general circulation, on March 8, 2025, to publicize the 30day public comment period for the proposed 2025-2026 Annual Action Plan. The public comment period began on March 25, 2025, and concluded on April 24, 2025.
Summary of comments recei ved
Summary of comm ents not accepted and reasons
URL (If applicable)
Public Comment period closed on April 24, 2025No Public Comments were received.
Sort Ord er
Mode of Outre ach
Target of Outre ach
5 Newspaper Ad Non-English SpeakingSpecify other language: Spanish Nontargeted/broad community
Summary of response/attenda nce
A Public Notice was published in The Examiner, a newspaper of general circulation on October 29, 2024 and February 1, 2025 to publicize and inform the public of an Annual Action Plan Public Meeting held virtually and at City Hall on November 13, 2024 and February 20, 2025.
Summary of comments recei ved
Summary of comm ents not accepted and reasons
URL (If applicable)
No comments received
Table 4 – Citizen Participation Outreach
AP-15 Expected Resources – 91.220(c)(1,2)
Introduction
The City of Independence receives federal funding from the U.S. Department of Housing and Urban Development (HUD) through its primary allocation programs, CDBG and HOME. Over the five-year Consolidated Plan period (2022-2026), the City expects to allocate approximately $6.75 million through these programs. This Annual Action Plan represents the fourth year of that five-year plan.
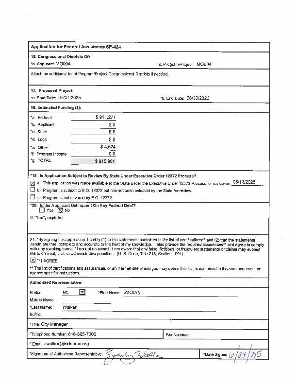
The Annual Action Plan details the federal, state, local, and private resources expected to be available to Independence to address priority needs and strategic objectives. For the 2025-26 program year, the City has been awarded $911,277.00 in CDBG funding for a total available of $915,900.70 ($911.277.00 in 2025-26 CDBG Funding Allocation and $4,623.70 reallocation from 2023-24 program year) and $527,798.18 in HOME funding. The SP35 will indicate project funding levels from the allocation amounts.
CDBG funds will support community development activities, including code enforcement, minor home repairs, public services, and program administration. HOME funds will be used to develop affordable housing for low- to moderate-income households.
This section provides an overview of the HOME and CDBG resources available to Independence for FY 2022-26 Consolidated Plan and outlines the funding framework for the upcoming program year.
Anticipated Resources
For the 2025-26 program year, the City has been awarded $911,277.00 in CDBG funding for a total available of $915,900.70 ($911.277.00 in 2025-26 CDBG Funding Allocation and $4,623.70 reallocation from 2023-24 program year). The SP35 will indicate project funding levels from the allocation amounts. This funding will be invested in preservation of affordable housing units, Minor Home repair, and public services.
Multifamily
Multifamily rental rehab
For the 2025-26 program year, the City has been awarded $527,798.18 in HOME funding allocations. The SP35 will indicate project funding levels from the allocation amounts. This funding will be invested in the development and/or rehabilitation of single family and/or multi-family rental housing.
Explain how federal funds will leverage those additional resources (private, state and local funds), including a description of how matching requirements will be satisfied
HOME and CDBG funds are leveraged with City general funds and other local financial resources. Agencies that receive CDBG and HOME funds must provide leverage with other local, state, and federal sources. Target area Code Enforcement includes matching funds from the City’s General Fund. Public service activities leverage CDBG funds with a mix of agency funds, grants, state funds, and private foundations as well as donation funding. On average over the last program year, each HUD dollar leveraged approximately $20.79 in other federal, state, local, and
private funds.
The HOME Program requires participating jurisdictions to provide a 25 percent match on most HOME entitlement funds expended each program year. This match is a permanent contribution to affordable housing of non-federal funds. Applicants for HOME-CHDO set-aside funds are encouraged to demonstrate matching funds. Matching funds are reported and approved by the City’s Community Development Department annually.
If appropriate, describe publically owned land or property located within the jurisdiction that may be used to address the needs identified in the plan
While the City does own a number of properties, not all properties are suitable for housing projects. The City maintains available city real estate on the City’s website and has received interest from private parties. In addition, the Land Trust of Jackson County is a governmental corporation established by state law to sell properties within Jackson County that have failed to sell on the courthouse steps to satisfy unpaid taxes. Land Trust maintains on their website an interactive map showing the location of all available lots in Independence as well as purchase procedure information. Over the last few years, the Land Trust has sold some properties. In addition, the City has worked with a few housing developers who have expressed interest in Land Trust properties in Independence.
The City will collaborate with local service provider agencies to enhance its affordable housing and supportive service delivery. The goal of this effort will be maximizing available resources in the leveraging of additional private, local, state, or federal funding sources. The City will continue to use HUD and local funding sources to support a variety of eligible projects to meet high priority needs and goals.
Summary Information
1
Commercial
Economic
Emergency/Transitional
Subsistence
Businesses assisted: 0
Businesses Assisted
Descriptions
1 Goal Name Community Code Enforcement and Blight Removal
Goal Description Residential code complaint investigation, inspection, and enforcement in deteriorating areas; addressing blighting conditions in low to moderate income neighborhoods. Strengthen residential code enforcement and blight removal in Independence to foster neighborhood revitalization.
2 Goal Name Single & Multi Family Residential Rehabilitation
Goal Description Strengthen housing quality via single- or multi- family rehabilitation with or without acquisition. Clients assisted will be lowand moderate- income persons, homeless persons or persons with special needs. Congregate housing is included in this category for residential use purposes.
3 Goal Name Community Infrastructure Support
Goal Description Sidewalk and public facility improvements in low to moderate income neighborhoods and areas to improve access to basic services, public facilities and public transportation.
4 Goal Name Community Facilities Support
Goal Description Execute targeted public and community facilities support in CDBG eligible tracts and governmentally designated redevelopment areas.
5 Goal Name Community Public Services For All Types Of Clients
Goal Description Enhance the availability of public services for lower income residents that improve their livability and access to basic needs. Such service may also assist homeless and special needs clients.
6 Goal Name Economic Development
Goal Description Strengthen the creation, retention and expansion of targeted business opportunities in the community.
7 Goal Name Development Of New Affordable Housing & Facilities
Goal Description Expand community affordable housing opportunities through new single- or multi- family construction with or without acquisition and/or demolition. Congregate care housing is also included as are homeless facilities and facilities for clients with special needs.
8 Goal Name Homeownership Support
Goal Description Foster targeted homeownership opportunities through direct financial assistance.
9 Goal Name Capacity Support
Goal Description Strengthen the design, delivery and implementation capacity of public, private and/or non-profit affordable housing, neighborhood revitalization, community and economic development, homeless and special needs endeavors in the community.
Introduction
Projects for the 2025-26 program year have been selected based on data from the 2022-26 Consolidated Plan, public meetings, and consultations. These projects aim to expand affordable homeownership opportunities in Independence, support community organizations, address blight in low- to moderateincome neighborhoods, and enhance the quality of life for low-income residents, including seniors and individuals with disabilities.
CDBG funds will support program administration, minor home repairs, code enforcement in eligible areas, and public service programs for nonprofit organizations serving low- and moderate-income residents. HOME funds will be used for program administration, CHDO capacity building, and singlefamily and multi-family housing projects developed by qualified CHDOs.
The administration of the minor home repair program and all public service projects will follow a competitive Request for Proposal (RFP) process. Funding opportunities for CDBG and HOME will be advertised through the City’s website, local newspapers, partner networks, and social media. Applications will be evaluated based on alignment with Consolidated Plan goals, city policies, organizational capacity, financial stability, feasibility, and other qualifications before funds are awarded.
Projects
(CHDO) Operating Funds
8 FY 2025-26 HOME Single & Multi Family Residential Rehabilitation Homeowner Support Table 7 - Project Information
Describe the reasons for allocation priorities and any obstacles to addressing underserved needs
With the limited funding available, addressing all community needs remains a challenge. However, the
City prioritizes allocating resources to assist as many residents as possible, including domestic violence victims, seniors, individuals experiencing homelessness, and people with disabilities. Providing essential services such as food, mental health care, and supportive programs ensures that critical needs are met.
Additionally, a focus is placed on expanding access to services for underserved populations who face barriers to obtaining basic necessities due to transportation challenges.
AP-38 Project Summary
Project Summary Information
1
2
Project Name
FY 2025-26 CDBG Project Administration
Target Area City-wide
Goals Supported
Community Code Enforcement and Blight Removal
Single & Multi Family Residential Rehabilitation
Community Public Services For All Types Of Clients
Needs Addressed
Capacity Building
Code enforcement and blight removal
Rehabilitation and Energy Efficient Improvements
Community Infrastructure
Community Facilities
Vacant Property Re-Use
Homebuyer Assistance
Emergency/Transitional Shelter Support + Services
Special Needs Housing & Services
Subsistence Housing & Utility Support
Public Services
Fair Housing Support
Funding
Description
CDBG: $182,255.40
CDBG Administration budget will use 20% of CDBG funds necessary for the successful administration of the grant program and to ensure compliance with federal regulations.
Target Date 6/30/2026
Estimate the number and type of families that will benefit from the proposed activities
Administration expenses support all beneficiaries of the program reported throughout the 2025-26 Annual Action Plan.
Location Description CityWide administration of the CDBG program.
Planned Activities Staff salaries, planning, general administration.
Project Name
Target Area
FY 2025-26 CDBG Minor Home Repair Program
CDBG Eligible Area Census Tracts City-wide
Goals Supported Single & Multi Family Residential Rehabilitation
Needs Addressed
Rehabilitation and Energy Efficient Improvements
Fair Housing Support
Funding
Description
CDBG: $401,953.75
The City funds a Minor Home Repair Program to assist eligible low-income homeowners in addressing health and safety deficiencies. This program provides grant assistance of up to $25,000 to cover critical repairs, ensuring homes are safe, sanitary, and code-compliant. The goal is to help homeowners maintain secure and healthy living conditions while preserving the community's housing stock and allowing elderly homeowners to age in place. This activity includes $397,330.05 in 2025-26 CDBG funding and $4,623.70 of prior year CDBG funds reallocated from 2023-24 for a total of $401,953.75 funding available.
Target Date 6/30/2026
Estimate the number and type of families that will benefit from the proposed activities
It is estimated at least (10) low-moderate income homeowners will benefit from the proposed activity during the 2025-2026 program year
Location Description CDBG Eligible Area Census Tracts City-wide
Planned Activities
3
Owner occupied housing Minor Home rehab addressing critical health and safety deficiencies ensuring homes are safe, sanitary, and code-compliant.
Project Name FY 2025-26 CDBG Public Services Program Assistance
Target Area City-wide
Goals Supported Community Public Services For All Types Of Clients
Needs Addressed
Capacity Building
Emergency/Transitional Shelter Support + Services
Special Needs Housing & Services
Subsistence Housing & Utility Support
Crime Reduction
Public Services
Fair Housing Support
Funding CDBG: $136,691.55
Description
Funding support for local nonprofit service providers offering public services to low- to moderate-income residents and special needs populations, including homeless services and senior support programs.
Target Date 6/30/2026
4
Estimate the number and type of families that will benefit from the proposed activities
Approximately 6,000 families below the poverty line will be assisted by the network of non-profit public service organizations in the City of Independence.
Location Description City Wide
Planned Activities
Public service programs will offer community-based and home-delivered meals for seniors, safe shelter and support for domestic abuse victims, rent and utility assistance, homeless prevention services, case management, emergency and transitional housing support, and initiatives focused on child abuse prevention and domestic violence intervention.
Project Name FY 2025-26 CDBG Housing Code Enforcement
Target Area City-wide
Goals Supported Community Code Enforcement and Blight Removal
Needs Addressed Code enforcement and blight removal
Funding CDBG: $195,000.00
Description Residential code complaint investigation, inspection, and enforcement in deteriorating areas; addressing blighting conditions in low to moderate income neighborhoods
Target Date 6/30/2026
Estimate the number and type of families that will benefit from the proposed activities
Approximately 1,700 housing units will be inspected, violations addressed and re-inspected for compliance with housing property maintenance codes
Location Description Focus will be in Council Districts 1, 2 and 4 where the highest concentration of low-mod income census tracts exists. This is the central, northwest, northeast and southwestern areas of Independence in low to moderate income Census Tracts only.
Planned Activities Property Maintenance regulation compliance
5 Project Name FY 2025-26 HOME Administration
Target Area City-wide
Goals Supported Single & Multi Family Residential Rehabilitation Homeownership Support
6
Needs Addressed
Capacity Building
Rehabilitation and Energy Efficient Improvements
Vacant Property Re-Use
Homebuyer Assistance
Fair Housing Support
Funding
Description
HOME: $52,779.81
HOME Administration budget will use 10% of HOME funds necessary for the successful administration of the grant program and to ensure compliance with federal regulations. General administration costs for the HOME Affordable Housing Partnership, including staff salaries, planning efforts as well as consulting benefits.
Target Date 6/30/2026
Estimate the number and type of families that will benefit from the proposed activities
HOME Administration expenses support all beneficiaries reported throughout the Annual Action Plan.
Location Description City Wide
Planned Activities Administration of HOME program.
Project Name FY 2025-26 HOME Community Housing Development Corporations (CHDO Projects)
Target Area City-wide
Goals Supported Single & Multi Family Residential Rehabilitation Homeownership Support
Needs Addressed
Capacity Building
Rehabilitation and Energy Efficient Improvements
Community Facilities
Vacant Property Re-Use
Homebuyer Assistance
Fair Housing Support
Funding
Description
HOME: $79,169.72
Affordable housing development by eligible Community Development Housing Organizations (CHDO) with a focus on Englewood and Council District 4.
Target Date 6/30/2026
Estimate the number and type of families that will benefit from the proposed activities
It is estimated that two (2) low- to moderate-income families will gain access to safe, quality, and affordable housing through this initiative. These housing opportunities aim to provide stability and improve living conditions for families in need.
Planned Activities
The HOME Program provides funding for the acquisition, rehabilitation, and new construction of rental housing, as well as the acquisition, rehabilitation, and new construction of homebuyer properties. Additionally, it offers direct financial assistance to purchasers of HOMEassisted housing units.
Projects receiving HOME Program funding are selected through a competitive RFP process. This funding supports the development of affordable housing opportunities for low-to-moderate income households across the City while also strengthening the capacity of local Community Housing Development Organizations (CHDOs).
7 Project Name FY 2025-26 HOME Community Housing Development Corporations (CHDO) Operating Funds
Target Area City-wide
Goals Supported Single & Multi Family Residential Rehabilitation Homeownership Support
Needs Addressed Capacity Building
Rehabilitation and Energy Efficient Improvements
Vacant Property Re-Use
Public Services
Fair Housing Support
Funding HOME: $26,389.90
Description Support will be provided to Community Housing Development Organizations (CHDOs) to help establish and maintain the required staffing and capacity. Five percent (5%) of the total HOME funding is allocated to this effort, ensuring CHDOs can effectively develop and manage affordable housing initiatives.
Target Date 6/30/2026
Estimate the number and type of families that will benefit from the proposed activities
It is estimated that two (2) ow- to moderate-income families will gain access to safe, quality, and affordable housing through this initiative. These housing opportunities aim to provide stability and improve living conditions for families in need.
Location Description City-wide
Planned Activities
Support will be provided to new or expanding Community Housing Development Organizations (CHDOs) to help establish and maintain the required staffing and capacity. Five percent (5%) of the total HOME funding is allocated to this effort, ensuring CHDOs can effectively develop and manage affordable housing initiatives. Projects receiving HOME Program funding are selected through a competitive RFP process. This funding supports the development of affordable housing opportunities for low-to-moderate income households across the City while also strengthening the capacity of local Community Housing Development Organizations (CHDOs).
8 Project Name FY 2025-26 HOME Single & Multi Family Residential Rehabilitation Homeowner Support
Target Area City-wide
Goals Supported Single & Multi Family Residential Rehabilitation Homeownership Support
Needs Addressed
Rehabilitation and Energy Efficient Improvements Vacant Property Re-Use Homebuyer Assistance Fair Housing Support
Funding HOME: $369,458.75
Description The HOME Program provides funding for acquisition, rehabilitation, and new construction of homebuyer properties. Focus is placed on Council Districts 1 and 4 to coordinate housing investment with other targeted investments.
Target Date 6/30/2026
Estimate the number and type of families that will benefit from the proposed activities
It is estimated that two (2) low- to moderate-income families will gain access to safe, quality, and affordable housing through this initiative. These housing opportunities aim to provide stability and improve living conditions for families in need.
Location Description City-wide
Planned Activities
The City is anticipating two (2) new single family homes to be completed by the end of FY2026. This will allow low- to moderate-income families to gain access to safe, quality, and affordable housing through this initiative. These housing opportunities aim to provide stability and improve living conditions for families in need.
Description of the geographic areas of the entitlement (including areas of low-income and minority concentration) where assistance will be directed
The City does not allocate goals and strategies in this Plan based on geography. Instead, funds are distributed according to identified needs and priorities outlined in the 2022-2026 Consolidated Plan.
For FY 2025-26, 40% of CDBG and HOME resources will be allocated, in part, to CDBG-eligible geographic tracts, as detailed in SP-10 of the Consolidated Plan. These areas include neighborhoods where more than 50% of residents are low- to moderate-income.
The City of Independence collaborates with local leaders, service providers, and community advocates to identify urgent community needs and strategically direct investments that promote accessibility, improve public health, and support housing stability for at-risk residents.
While funding decisions do not require service providers to operate within specific neighborhoods, geographic location is considered in relation to existing service gaps, community conditions, and the organization's demonstrated commitment to serving the City's most vulnerable populations.
The City will not operate any programs that violate any applicable federal anti-discrimination laws, including Title VI of the Civil Rights Act of 1964.” The City agrees that its compliance in all respects with all applicable Federal anti discrimination laws is material to the U.S. Government’s payment decisions for purposes of Section 3729(b)(4) of Title 31, United States Code.
Geographic Distribution
Table 8 - Geographic Distribution
The basis for allocating investments is to focus on deteriorated neighborhoods and areas of private disinvestment. This is determined by census data, identified property value decline and vacancy rates as well as applicable sections of the City’s 2022-26 Consolidated Plan
Discussion
The City supports the development of affordable housing in areas that benefit low- to moderate-income residents while avoiding concentration, exclusion, or segregation. HOME-funded affordable housing projects will be considered citywide to affirmatively further fair housing and serve all qualifying households.
CDBG Public service projects selected for funding will directly benefit low- to moderate-income residents across the City. Assistance is targeted to individuals and families earning below 80% of the area median income, including those experiencing homelessness within city limits.
Code enforcement and minor home repair efforts will focus on low- to moderate-income census tracts to address blight and improve neighborhood conditions. Funding priorities are based on citizen participation feedback and the 2022-2026 Consolidated Plan, which emphasizes a strategic, data-driven approach to resource allocation, particularly in the hardest-hit areas.
The City ensures a fair and transparent funding process through policies such as underwriting standards for housing projects, review committees for CDBG and HOME applications, and citizen participation opportunities. Code enforcement efforts are paired with public and private improvements, rehabilitation projects, and essential services to help stabilize and revitalize struggling neighborhoods.
Introduction
The one-year goals for the City of Independence are based on key indicators and the scope of this year’s projects. The City will continue to invest in new housing development and preserve existing housing through the CDBG Minor Home Program and the HOME Program. These efforts aim to support low- to moderate-income households in achieving homeownership and maintaining safe, stable housing. One
Table
-
The City’s low- to moderate-income neighborhoods primarily consist of older single-family homes on narrow lots, with a mix of moderate- and high-density low-rise multi-family housing and scattered-site rentals, often created through single-family home conversions. Many of these neighborhoods also contain vacant infill lots where housing units once stood.
To address housing needs, the City, in partnership with certified Community Housing Development Organizations (CHDOs), will develop two (2) new construction affordable single family houses . Vacant and abandoned properties will be acquired, rehabilitated, and returned to the market reducing blight, increasing property values, and restoring these homes to the tax rolls. All funded projects will incorporate Universal Design best practices to support aging in place and improve accessibility for individuals with disabilities.
Through the CDBG Minor Home Repair Program, the City expects to assist approximately ten (10) lowto moderate-income homeowners in addressing health and safety deficiencies and code violations, ensuring their homes remain safe, sanitary, and compliant.
Additionally, the City will continue its building permit fee waiver program, eliminating fees for new single-family home construction and substantial rehabilitation in low- to moderate-income neighborhoods. The program aims to:
• Encourage infill and redevelopment in distressed areas
• Reduce neighborhood blight
• Promote high-quality, planned redevelopment
These initiatives align with HUD-defined program goals, guiding the allocation of HUD funds to support homelessness prevention, housing stability for low-income households, expansion of affordable and accessible housing, and assistance for first-time low-income homebuyers.
During the FY 2025-26 program year, the City will continue its efforts to implement the public housing portion of the Strategic Plan in partnership with the Independence Housing Authority (IHA). The IHA is responsible for managing public housing operations and administering funds in compliance with state laws and federal regulations established by the U.S. Department of Housing and Urban Development (HUD). The IHA will utilize operating and capital funds allocated by HUD, as well as Housing Choice Voucher (HCV) Section 8 funding, to achieve its strategic goals.
The IHA remains committed to executing its Five Year Action Plan, which focuses on addressing the needs of low-income, very low-income, and extremely low-income families. Key objectives include:
• Preserving and increasing the availability of decent, safe, and affordable housing.
• Enhancing community quality of life and economic vitality.
• Promoting self-sufficiency and asset development for families and individuals.
• Ensuring equal housing opportunities in accordance with federal anti-discrimination laws.
• Improving living conditions while maintaining rent affordability. by rehabilitation of all units in the IHA properties.
• Operating a socially and financially sound public housing program that upholds safety and sanitation standards.
• Ensuring compliance with all applicable federal laws and regulations, including Title VI of the Civil Rights Act of 1964 and Section 504 of the Rehabilitation Act of 1973.
To further these goals, IHA will implement the following strategies throughout the fiscal year:
• Maintaining a system of checks and balances to safeguard subsidized housing and protect residents.
• Organizing and funding resident engagement opportunities to encourage community participation and peer collaboration.
• Expanding employment opportunities for residents to improve financial stability.
• Strengthening partnerships with local service providers to enhance residents’ access to education, job training, healthcare, childcare, and homeownership assistance.
Through these actions, the IHA will continue to support the community’s most vulnerable populations while fostering an environment of economic empowerment and long-term housing stability.
Actions planned during the next year to address the needs to public housing
In the upcoming fiscal year, IHA will implement a variety of strategies to address the shortage of affordable housing. IHA’s strategies emanate from the Agency’s 5-Year Plan goals and objectives and are aligned with HUD’s strategic framework. IHA’s Plan is also consistent with the City of Independence’s Consolidated Plan and the State of Missouri Consolidated Plan.
Core strategies include: maximizing affordable housing opportunities through continuous program improvements and management efficiencies; leveraging additional resources to replace public housing units and implement mixed-finance, mixed-income redevelopment; and generating new housing opportunities by applying for additional vouchers should they become available – including special purpose vouchers for targeted groups such as the elderly, disabled, veterans, homeless and foster youth.
IHA plans to revise its preferences to include a local preference for applicants who live, work or attend educational or job training in Jackson County. Current preferences for Elderly or Disabled, Homeless, Veteran and Displaced by Natural Disaster will not be removed.
IHA has restarted the Resident Opportunity and Self-Sufficiency program utilizing the remainder of the previous grant. The agency has hired a full-time ROSS Coordinator and is trying to garner additional funding through an upcoming grant that will also cover the position into the RAD Conversion.
Actions to encourage public housing residents to become more involved in management and participate in homeownership
The Community Services League (CSL), a HUD-Certified Housing Counseling Agency and a key partner of the City of Independence, offers various programs designed to assist low- to moderate-income families with the potential for homeownership. Through these services, CSL provides valuable educational resources to help families navigate the path to becoming new homeowners. The agency’s educational services include:
• Pre-purchase counseling
• Financial management and budget counseling
• Homebuyer education workshops
• Fair housing pre-purchase workshops
These programs are available to all low- to moderate-income families and individuals, including those residing in public housing.
In addition to CSL’s efforts, the Independence Housing Authority (IHA) continues to administer the HUD Job Plus program for local public housing residents. This program offers a variety of support services, including onsite job search assistance, resume workshops, multi-community agency collaboration, and
access to local banking services. IHA also provides financial education opportunities, such as budgeting classes and first-time homebuyer workshops.
To further engage residents, IHA hosts several events designed to encourage greater involvement in the management of their housing facilities, fostering a sense of community and empowerment among residents.
If the PHA is designated as troubled, describe the manner in which financial assistance will be provided or other assistance
The PHA is not designated as troubled.
Discussion
The City and IHA will continue to work together as opportunities arise through the consolidated planning and citizen participation process to identify unmet needs and priority objectives; and to leverage resources to the benefit of Independence very low-income community.
91.220(i)
Introduction
The City of Independence, while not a direct service provider, actively collaborates with numerous organizations dedicated to addressing and preventing homelessness. Many of these organizations are members of the Greater Kansas City Coalition to End Homelessness (GKCCEH). Through the Continuum of Care, these groups meet regularly to discuss community challenges, develop collaborative solutions, and allocate funding to combat homelessness. By prioritizing CDBG Public Service funding, the City ensures that funded projects and programs work in tandem, complementing one another and covering all critical eligible services without gaps.
Describe the jurisdictions one-year goals and actions for reducing and ending homelessness including
Reaching out to homeless persons (especially unsheltered persons) and assessing their individual needs
The City of Independence is an active member of the Greater Kansas City Coalition to End Homelessness (GKCCEH) and remains committed to supporting efforts to reduce and ultimately end homelessness in the community. GKCCEH is dedicated to eliminating homelessness across the Greater Kansas City area and serves as the HUD-designated Continuum of Care (CoC) Lead Agency for Jackson County, Missouri. As a CoC membership organization, the City of Independence collaborates closely with GKCCEH, participating in various initiatives designed to combat homelessness and provide comprehensive wraparound services to individuals in need.
The City will continue to engage in the National Point-in-Time Homeless Count, conducted in January and July. During this initiative, volunteers visit libraries, encampments, transit hubs, and other locations to identify individuals and families experiencing homelessness. These efforts enable data collection, interviews, and referrals to essential services.
Since 2023, the City of Independence has supported the Alternative Response for Community Health (ARCH) program, an interdepartmental initiative designed to provide a more tailored response to community health needs. ARCH is a specialized 911 response unit that pairs community paramedics with clinical social workers, operating alongside and sometimes in place of traditional first responders.
ARCH Program Highlights:
• Connects individuals to appropriate resources and services.
• Provides crisis intervention and mental health assessments on-site.
• Offers immediate support and crisis mitigation with a focus on long-term solutions.
• Conducts follow-up visits to ensure continued care and support.
ARCH serves community members experiencing:
• Homelessness
• Mental health crises
• Economic hardship
By bridging gaps in care, ARCH enhances community health and ensures that essential services reach those who need them most.
Since 2023, the City of Independence and Community Services League (CSL) launched a strategic partnership to help individuals experiencing homelessness transition into stable employment and housing. This pilot program provides meaningful job opportunities, offering temporary employment as a stepping stone toward financial stability.
Key program features:
• Workers earn a minimum wage of $15/hour, with $3/hour deposited into a housing support account.
• CSL provides coaching, job training, and assistance in securing full-time employment.
• Participants are connected to mainstream benefits, resources, and permanent housing opportunities.
This program has been renewed for 2025-26, reinforcing the City's commitment to addressing homelessness through employment and economic empowerment.
By centering the voices of individuals with lived experience and using data-driven program outcomes, the City of Independence continues to build public awareness and inform local policy to better support those experiencing homelessness, disabilities, and aging-related challenges.
The City of Independence will provide CDBG Public Service funding assistance to support critical programs addressing the emergency shelter and transitional housing needs of individuals and families experiencing homelessness. These efforts aim to ensure access to essential services, prevent homelessness, and facilitate long-term stability.
Funded Programs and Objectives:
Community Services League (CSL) delivers vital outreach, financial assistance, and wraparound support services to address the root causes of homelessness and transition individuals into sustainable housing. This program provides:
• Food, shelter, hygiene kits, and transportation for individuals experiencing homelessness.
• Outreach to unsheltered individuals and families, connecting them to emergency shelter, housing, or critical services.
• Immediate, non-facility-based care for those unable or unwilling to access traditional emergency shelters or healthcare facilities.
Salvation Army Crossroads Emergency Family Shelter - As the only family emergency shelter in Eastern Jackson County, the Crossroads Emergency Family Shelter serves families seeking refuge from homelessness, by offering private apartments for families to have a safe space of their own while receiving the assistance that they need. This program provides stable, temporary housing while connecting families to long-term solutions through their Permanent Supportive Housing programs.
The Salvation Army EA program works to prevent homelessness by assisting program participants with:
• Utility disconnections and rental assistance to prevent eviction.
• Crisis case management with Pathway of Hope to ensure long-term stability and prevent recurring emergencies by working with residents to remove roadblocks to success.
• Ongoing Regional Collaboration with several area agencies
The City of Independence will continue its active participation in the Greater Kansas City Coalition to End Homelessness (GKCCEH), providing a staff liaison for monthly meetings. This engagement ensures the City remains informed about available funding opportunities, contributes to regional policy and program development, and strengthens collaborative efforts to address homelessness effectively.
Through these initiatives, the City reaffirms its commitment to supporting individuals and families in crisis, preventing homelessness, and fostering sustainable housing solutions.
Helping homeless persons (especially chronically homeless individuals and families, families with children, veterans and their families, and unaccompanied youth) make the transition to permanent housing and independent living, including shortening the period of time that individuals and families experience homelessness, facilitating access for homeless individuals and families to affordable housing units, and preventing individuals and families who were recently homeless from becoming homeless again
The City supports organizations that offer supportive services such as counseling and case management to help individuals experiencing homelessness make the transition from shelter to safe and stable housing CDBG funds. These are made available annually through a competitive grant application process.
• Community Service League’s Homeless Outreach & Prevention Program addresses emergency and transitional housing needs, helping homeless persons (especially chronically homeless individuals and families, families, families with children, veterans and their families, and unaccompanied youth) connect to housing resources, and helping low-income individuals and families avoid becoming homeless. This program addresses this priority by working with police on the streets to locate, identify and connect with the growing population of homeless.
• Mother’s Refuge provides a shelter and support for homeless, pregnant, and parenting young women, between the ages of 12 and 21, along with their babies. Many of the individuals served come from extremely dysfunctional family environments and have experienced abuse or neglect by family members or partners. Residents are required to participate in a range of in-house educational classes covering topics such as personal development, pregnancy and parenting, health and nutrition, and financial and career planning. Additionally, the young women engage in job readiness training, including interview preparation and résumé building.
• Metro Lutheran Ministries Housing and Emergency Assistance Program assists approximately 100 Independence residents with rent and or utility assistance each year. This program will provide preventative assistance for those in danger of losing their homes in the form of rent or utility assistance, combined with case management, food pantry and employment counselling during the program year
• Hope House provides comprehensive supportive services to survivors of domestic abuse. An integral part of this support is healthy and nutritious meals for survivors and their dependents who reside at Hope House’s residential shelter facilities as well as off-site placement as needed.
Helping low-income individuals and families avoid becoming homeless, especially extremely low-income individuals and families and those who are: being discharged from publicly funded institutions and systems of care (such as health care facilities, mental health facilities, foster care and other youth facilities, and corrections programs and institutions); or, receiving assistance from public or private agencies that address housing, health, social services, employment, education, or youth needs.
The City of Independence remains committed to working with community partners to develop a strong, effective system that meets the needs of individuals experiencing homelessness. To support these efforts, the City will provide CDBG funding assistance for programs that help homeless and at-risk
individuals transition into and sustain permanent, affordable housing.
The City will allocate CDBG Public Service funding to eligible public service providers through a competitive grant application process. Proposals will be reviewed and scored by the CDBG Grant Advisory Committee to ensure funding supports impactful and effective programs.
Funded Service Providers:
• Hope House, Meals on Wheels, Child Abuse Prevention Association, ReStart Housing, Mother's Refuge, and Salvation Army Crossroads Family Shelter – Each organization serves a distinct target population, including homeless individuals, families, and those with disabilities.
• Community Services League, Metro Lutheran Ministries, and Salvation Army – These organizations provide homeless prevention services, including case management, rental and utility assistance, food support, and job training or referrals.
The City will provide gap funding for affordable housing development through its HOME allocation. Eligible Community Development Housing Organizations (CHDOs) can apply for funding through a competitive process to:
• Develop affordable single-family housing for homeownership opportunities targeted to families earning below 80% of the area median income (AMI) for the Kansas City metro.
• Support rehabilitation or new construction of single-family homes, expanding homeownership opportunities for families earning up to 50% AMI.
In addition to these efforts, the City will partner with Community Services League (CSL) and Metro Lutheran Ministries to implement the HOME-ARP Allocation Plan. This initiative aims to prevent lowincome individuals and families from experiencing homelessness by providing essential support services and housing assistance.
Through these strategic partnerships and targeted funding efforts, the City continues to prioritize longterm housing stability, homelessness prevention, and essential community services for those most in need.
Discussion
– 91.220(j)
Introduction:
The City of Independence is committed to identifying and addressing regulatory barriers that may hinder the development of affordable housing. By proactively evaluating challenges and implementing strategic solutions, the City aims to increase the supply of affordable housing opportunities and improve access for residents in need.
Actions it planned to remove or ameliorate the negative effects of public policies that serve as barriers to affordable housing such as land use controls, tax policies affecting land, zoning ordinances, building codes, fees and charges, growth limitations, and policies affecting the return on residential investment
The City of Independence remains dedicated to expanding affordable housing opportunities and reducing regulatory barriers. Through targeted programs and policy updates, the City continues to foster sustainable, inclusive neighborhoods.
Building Permit Fee Waiver Program & Infill Housing, in 2022, the City launched the Building Permit Fee Waiver Program to encourage infill housing and significant rehabilitation projects in low- to moderateincome neighborhoods. Building on this initiative, the City will:
• Implement additional incentives and fee waivers where applicable.
• Expand in-fill housing programs.
• Collaborate with neighboring communities to address regional housing barriers.
• Enforce building codes and update zoning codes as needed.
Regulatory Updates & Zoning Reforms, in 2023, the City revised the Unified Development Ordinance (UDO) to update regulations for homeless shelters and transitional housing. Developed in consultation with shelter operators, these amendments streamline and modernize permitting processes.
In 2024, the City continued its City-Initiated Rezonings initiative, identifying and correcting mis-zoned properties in low- to moderate-income neighborhoods. By aligning zoning with actual residential use, this effort helps stabilize communities and protect existing housing.
Ongoing Efforts to Support Affordable Housing, the City is committed to comprehensive strategies that expand affordable housing access, including:
• Amending the Unified Development Ordinance (UDO) to reflect recommendations from the Analysis of Impediments to Fair Housing report.
• Implementing the Independence Comprehensive Plan and City-Wide Housing Study to guide long-term housing strategies.
• Supporting affordable housing development through CDBG and HOME programs, including the creation and preservation of affordable housing units.
• Partnering with tenant advocacy groups to resolve disputes and enhance tenant protections.
• Issuing Certificates of Consistency for Low-Income Housing Tax Credit (LIHTC) applications and other incentives that align with the City’s Consolidated Plan and contribute to affordable housing production.
• Expanding residential rehabilitation and property tax abatement programs to promote quality housing choices in established neighborhoods.
• Funding and operating the Independence city-wide public transportation system, ensuring accessibility and connectivity to the larger Kansas City metro system, supporting a diverse range of affordable housing options.
Through these efforts, the City remains committed to fostering an inclusive housing market, ensuring affordability, and improving the overall quality of life for its residents.
Discussion:
The City will remain proactive in identifying and addressing barriers to affordable housing, ensuring that vulnerable communities receive the support they need during their most criteical times.
Introduction:
This section outlines the actions the City will undertake during the FY 2025-2026 Annual Action Plan to enhance housing and community development efforts. These actions will focus on:
• Addressing underserved needs by supporting programs and initiatives that assist vulnerable populations.
• Fostering and preserving affordable housing through rehabilitation programs, new construction, and homebuyer assistance.
• Reducing lead-based paint hazards to ensure safe and healthy living conditions.
• Reducing the number of poverty-level families by investing in economic development, job training, and supportive services.
Through these efforts, the City aims to promote sustainable growth, enhance quality of life, and ensure fair access to resources for all residents.
Actions planned to address obstacles to meeting underserved needs
The City of Independence recognizes the significant challenges in addressing the housing needs of underserved residents. Key obstacles include:
• Lack of Livable Wages – Many residents struggle to afford housing due to stagnant wages that do not keep pace with the rising cost of living.
• Rising Housing Costs – The cost of housing has surged, making affordable housing increasingly scarce.
• Housing Market Constraints – A limited housing supply has driven up prices, making it difficult for residents to afford rent, purchase a home, or maintain existing housing.
To address these challenges, the City will:
• Apply for and support partner agency applications for grants and funding opportunities from private, state, and federal sources to advance housing and community development initiatives.
• Continue partnerships with local Community Housing Development Organizations (CHDOs) to rehabilitate existing housing stock and develop new affordable housing for income-eligible buyers.
• Publicize and expand the Building Permit Fee Waiver Program to encourage housing development in low- to moderate-income neighborhoods.
• Explore new CDBG-funded homeownership programs in collaboration with local nonprofit agencies to increase homeownership opportunities.
• Continue City-initiated rezonings to correct zoning inconsistencies in low- to moderate-income neighborhoods, fostering neighborhood stability.
• Amend the Unified Development Ordinance (UDO) to eliminate barriers to affordable housing development.
• Administer residential redevelopment tax abatement programs in areas of greatest need to stimulate investment in multi-family and single-family housing, including both rental and owner-occupied units.
• Enforce the Rental Ready Program, ensuring landlords complete city-approved inspections for basic health and safety compliance when renewing business licenses.
• Maintain enforcement of the Vacant Structure Registration Program to accelerate rehabilitation and re-occupation of vacant properties, reducing neighborhood blight.
• Administer Chapter 353 tax abatement programs to encourage private investment in housing and community development projects.
• Foster collaborative partnerships between City departments, local service providers, and nonprofit housing development agencies to maximize CDBG and HOME program investments while avoiding duplication of efforts.
Through these actions, the City is committed to increasing affordable housing opportunities, stabilizing neighborhoods, and supporting underserved residents in securing safe and sustainable housing.
To sustain and promote affordable housing, the City will continue collaborating with local CHDOs to rehabilitate existing housing and construct new affordable homes for income-eligible buyers. Additionally, the City will:
• Continue promoting the Building Permit Fee Waiver Program to incentivize development in lowand moderate-income neighborhoods.
• Advance City-initiated rezonings to ensure that the zoning in these neighborhoods aligns with current housing needs.
• Amend the Unified Development Ordinance (UDO) to eliminate barriers to affordable housing development.
• Administer residential redevelopment tax abatement incentive programs in areas with the greatest need, encouraging reinvestment in both multi-family and single-family homes, including rental and owner-occupied units.
• Maintain the Rental Ready Program, requiring landlords to hire city-approved inspectors for basic health and safety assessments when renewing their business licenses.
• Enforce the Vacant Structure Registration Program to expedite the rehabilitation and reoccupation of vacant properties.
Through these initiatives, the City aims to continue enhancing the availability of affordable housing and
ensuring the long-term stability of neighborhoods.
The City of Independence will continue to comply with all lead-based paint (LBP) requirements imposed by HUD and will continue to direct resources to eliminate lead-paint in its housing. The city will approach all pre-1978 units with a presumption of lead-paint hazards and contract with Environmental Protection Agency (EPA) certified lead paint firms for assessment and abatement activities as/if needed. The city will follow the procedures articulated in section SP-65 (LBP Hazards) and the endeavors noted below.
1. All housing programs (rental and owner occupied) funded by the City, including emergency home repair programs, require that the funded housing stock be evaluated for the presence of lead paint hazards and that appropriate action is taken as required by the federal Lead-based Paint Regulation.
2. The City has developed a proactive plan with regard to the Independence HOME Program and lead based paint hazards. This includes a pre-inspection letter to the seller and/or seller’s agent advising them of the LBP regulations and that the HQS inspection to follow will be looking specifically for deteriorated paint surfaces. They are also advised that if deteriorated paint surfaces are discovered the owner will be required to correct the deficiencies using lead safe work practices and/or be required to provide testing indicating that the surface is free of LBP. In any case the City will provide occupants and prospective occupants/purchasers of income qualified housing units of potential lead paint hazards and appropriate methods for lead hazard reduction.
3. All housing projects/programs and contracts administered by the City and contracts/projects with sub recipients funded through CDBG or HOME will be in compliance with sections 1012 and 1013 of the Residential Lead-Based Paint Hazard Reduction Act of 1992, which is Title X (ten) of the Housing and Community Development Act of 1992, and with regulations as they appear within Title 24 part 35. The City will continue to monitor and evaluate the lead based paint requirements for housing rehabilitation and the activities necessary to reduce LBP hazards and, as new requirements are identified, the city will continue to integrate these into our housing policies and programs.
4. The City will continue to provide general information to landlords, residents, and businesses regarding the hazards of lead-based paint. Efforts to this end include: information in the Landlord-Tenant Guide, posting the EPA's "Protect Your Family From Lead in Your Home" brochure; dissemination of educational materials through public service agencies and community partners.
In addition, Independence will continue to execute the following actions:
• Ensure compliance with applicable provisions of the Lead Safe Housing Rule in administration of the
City’s Affordable Housing Investment Plan.
• Distribution of Lead Hazard information to all landlords upon licensing with the City. A Landlord/Tenant Guide, which includes the HUD’s lead brochure, is required to be given by landlords to all tenants upon lease.
• Training of CDBG and HOME Programs staff on the Lead Safe Housing Rule and EPA’s Repair Renovate and Paint Rule to assist with administration of CDBG & HOME funded housing rehabilitation activities subject to lead hazard assessment and treatment.
• The City offers tax abatement in exchange for rehabilitation, including lead abatement, of residential properties located in target redevelopment areas of the City. These neighborhoods have been targeted for reinvestment in part due to their aging and deteriorated housing stock and growing low-income rental population.
The City of Independence is committed to promoting economic independence for assisted households in alignment with the Independence Public Housing Agency Plan. Through the strategic investment of CDBG public service resources, the City aims to:
• Reduce poverty by supporting programs that promote economic self-sufficiency.
• Invest in homelessness prevention and rapid re-housing initiatives.
• Sustain commitments to assisted housing and preserve the existing affordable housing supply.
• Execute targeted neighborhood revitalization and redevelopment efforts to create employment opportunities for low- and moderate-income workers.
• Strengthen the economic vitality of key neighborhoods through strategic public investments in infrastructure, facilities, and community improvements.
The City will continue prioritizing CDBG and HOME funds to serve the most vulnerable populations seniors, individuals with disabilities, domestic violence victims and very low-income households through the following initiatives:
• CDBG Public Services: Funding will be awarded to programs that provide wraparound services and case management, helping clients increase income, achieve financial stability, and secure permanent housing.
• CDBG Affordable Housing:
• Rehabilitation of homes for low-income homeowners to improve health and safety while
preventing displacement. Partnership with local nonprofits to preserve existing multifamily housing as affordable, ensuring long-term safety and stability for residents.
The City's affordable housing and community development programs are implemented through written agreements with local non-profit housing organizations and subrecipients. These agencies play a crucial role in delivering supportive services to low- and moderate-income residents, including those below the poverty line.
Partner organizations provide a comprehensive range of services, including:
• Housing counseling and financial education to prepare residents for sustainable homeownership.
• Emergency financial assistance to prevent evictions and utility shutoffs.
• Community center programs that support workforce development and financial stability.
• Economic development initiatives designed to create job opportunities and enhance community resilience.
Through these strategic investments, partnerships, and targeted initiatives, the City will continue working to expand affordable housing, prevent homelessness, and promote long-term economic stability for its most vulnerable residents.
To enhance the City's ability to address housing and community development needs, the following actions will be implemented:
• Support Neighborhood and Community Organizations: Provide technical assistance and resources to grassroots organizations serving low- and moderate-income areas, helping them effectively address community needs.
• Enhance Nonprofit and Service Provider Capacity: Offer technical support to new and existing service providers and nonprofit housing agencies that collaborate with the City in implementing CDBG and HOME program objectives.
• Invest in Professional Development: Pursue ongoing training opportunities for CDBG, HOME, and community development staff to ensure the efficient and effective administration of program resources.
• Develop New City Programs and Incentives: Encourage the creation of innovative City-led initiatives that address unmet community needs and strengthen local housing and economic development efforts.
Through these actions, the City aims to foster a responsive, well-coordinated institutional structure that
effectively supports housing affordability, neighborhood revitalization, and community well-being.
Actions planned to enhance coordination between public and private housing and social service agencies
The City of Independence, along with other Kansas City-area jurisdictions, benefits from a wellestablished network of regional public and assisted housing providers, health agencies, and social service organizations. These partnerships ensure a coordinated approach to delivering essential services and housing programs to residents in need.
To further strengthen these efforts, the City will:
• Expand Regional Partnerships: Continue collaborating with housing providers, service agencies, and local jurisdictions to enhance neighborhood development and long-term community sustainability.
• Provide Technical Assistance: Offer guidance and resources to community organizations and agencies engaged in housing and neighborhood revitalization efforts.
• Increase Affordable Homeownership Opportunities: Support housing rehabilitation and new construction initiatives aimed at expanding homeownership for income-eligible buyers.
By fostering strong partnerships and investing in housing programs, the City aims to enhance neighborhood stability, improve access to affordable housing, and ensure long-term community resilience
Discussion:
On an ongoing basis, the City of Independence will continue implementing the initiatives outlined herein throughout the FY 2025-26 Action Plan period. These efforts are designed to address critical housing and community development needs, ensuring that resources are effectively allocated to support vulnerable populations, enhance neighborhood stability, and promote economic opportunity.
All of these initiatives align with and reinforce the goals and policies established in the City’s 2022-2026 Consolidated Plan, demonstrating the City’s continued commitment to sustainable community development, affordable housing, and homelessness prevention.
AP-90 Program Specific Requirements – 91.220(l)(1,2,4)
Introduction:
Enclosed find the program specific requirements requested, and after, attachments to the 2025-26 Annual Action Plan. The following table identifies program income that is available for use that is included in projects to be carried out. The City does not currently have a balance of program income. The City does not plan to receive program income in FY 2025/2026.
Reference 24 CFR 91.220(l)(1)
Projects planned with all CDBG funds expected to be available during the year are identified in the Projects Table. The following identifies program income that is available for use that is included in projects to be carried out.
1. The total amount of program income that will have been received before the start of the next program year and that has not yet been reprogrammed
2. The amount of proceeds from section 108 loan guarantees that will be used during the year to address the priority needs and specific objectives identified in the grantee's strategic plan. 0
3. The amount of surplus funds from urban renewal settlements
4. The amount of any grant funds returned to the line of credit for which the planned use has not been included in a prior statement or plan
5. The amount of income from float-funded activities
1. The amount of urgent need activities
2. The estimated percentage of CDBG funds that will be used for activities that benefit persons of low and moderate income. Overall Benefit - A consecutive period of one, two or three years may be used to determine that a minimum overall benefit of 70% of CDBG funds is used to benefit persons of low and moderate income. Specify the years covered that include this Annual Action Plan. 70.00%
Reference 24 CFR 91.220(l)(2)
1. A description of other forms of investment being used beyond those identified in Section 92.205 is as follows:
HOME funds will not be used for items not described in § 92.205(b).
2. A description of the guidelines that will be used for resale or recapture of HOME funds when used for homebuyer activities as required in 92.254, is as follows:
If the HOME-assisted housing is transferred, whether voluntarily or involuntarily, during the affordability period, such sale or disposition of the property during the affordability period triggers repayment of the direct HOME subsidy the buyer received when first purchasing the property. Recapture is triggered even if the sale or transfer is to another income eligible household.
If the original homeowner sells their HOME-assisted housing during the affordability period, the amount of HOME assistance recaptured by the city will be based on a pro rata basis, calculated by the length of time the housing was occupied versus the length of the affordability period. The reduction in the amount due will occur annually on the anniversary of the closing of the loan. The annual reduction will be calculated by dividing one by the number of years in the affordability period and reducing the award amount by that amount every year for the term of the loan.
If the City only provides HOME assistance to develop the unit and HOME funds are not used to lower the purchase price from fair market value to an affordable price, a resale provision will be used. The resale provisions will be consistent with the HOME requirements established at 92.254(a)(5)(i). The resale provision will be enforced through the use of a deed restriction that runs with the land.
3. A description of the guidelines for resale or recapture that ensures the affordability of units acquired with HOME funds? See 24 CFR 92.254(a)(4) are as follows:
The following will serve as the guidelines that will be used for resale or recapture of HOME funds when used to acquire units for affordable housing as required by 24 CFR 92.254(a)(4).
Same as above. The long term affordability of units acquired with HOME funds under a redevelopment agreement with the City, whether for rental or development of homebuyer opportunities, will be immediately secured through a deed restriction, covenant running with the land, or other HUD-approved mechanism filed with Jackson County Recorder of Deeds in order to insure a minimum Affordability Period required by the HOME Program. The minimum Affordability
Period for acquired properties is determined by the level of HOME assistance provided per unit as follows:
• 5 years when the per unit HOME investment is under $15,000
• 10 years when the per unit HOME investment is $15,000-40,000
• 15 years when the per unit HOME investment exceeds $40,000
• 20 years for new construction of rental housing
Recapture requirements shall be enforced by an executed agreement between the City and homebuyer. The requirements within shall be triggered upon sale or transfer of the HOME-assisted property, or determination that the HOME-assisted property is out of compliance with requirements for long term affordability.
4. Plans for using HOME funds to refinance existing debt secured by multifamily housing that is rehabilitated with HOME funds along with a description of the refinancing guidelines required that will be used under 24 CFR 92.206(b), are as follows:
HOME funds will not be used to refinance existing debt secured by multifamily housing that is rehabilitated with HOME funds.
5. If applicable to a planned HOME TBRA activity, a description of the preference for persons with special needs or disabilities. (See 24 CFR 92.209(c)(2)(i) and CFR 91.220(l)(2)(vii)).
N/A
6. If applicable to a planned HOME TBRA activity, a description of how the preference for a specific category of individuals with disabilities (e.g. persons with HIV/AIDS or chronic mental illness) will narrow the gap in benefits and the preference is needed to narrow the gap in benefits and services received by such persons. (See 24 CFR 92.209(c)(2)(ii) and 91.220(l)(2)(vii)).
N/A
7. If applicable, a description of any preference or limitation for rental housing projects. (See 24 CFR 92.253(d)(3) and CFR 91.220(l)(2)(vii)). Note: Preferences cannot be administered in a manner that limits the opportunities of persons on any basis prohibited by the laws listed under 24 CFR 5.105(a).
N/A
The City utilizes a competitive Request for Proposal (RFP) process in soliciting HOME Program Affordable Housing Rehabilitation/Development Projects. To facilitate this process, the City is requesting proposals that align with our housing development objectives delineated by the City’s Consolidated Five Year Action Plan, the City’s Comprehensive Plan, City’s Strategic Plan, input received from community meetings, and the City’s Housing Study. Housing objectives include housing preservation that will arrest the deterioration of existing housing stock and newly developed affordable for-sale housing units. Applicants that wish to submit a proposal must comply with the HOME Investment Partnerships Program regulations found at, the 24 Code of Federal Regulations, Part92. For profit, non-profit organizations, and Community Housing Development Organizations (CHDO) are encouraged to submit a proposal.
First, the City holds a Citizen Planning and Participation Public Meeting that allows for comments regarding the use of HOME funds. After this Public Meeting, City staff develops the HOME Program Affordable Housing Rehabilitation/Development Projects RFP. The City publishes a Public Notice of Availability of Home Investment Partnerships Program Funds for the development of affordable housing units at or below 80% of the area median income.
Next, the City publishes the HOME RFP application package. This outlines the Scope of Services (includes available funding for specific activities, HOME Program mandates, application guidelines, and target development areas), includes the detailed application, outlines the Evaluation Criteria, outlines the detailed submission requirements, the Evaluation Process and Contract Award. As part of the RFP process, holds a pre-proposal HOME Funding Terms and Conditions Q&A Workshop for interested parties. After the RFP has closed, an evaluation team will review and rank all proposals individually according to the criteria established in this RFP. The team may contact the proposers if any clarification is needed on the proposal.
Control No: 2506-0117 (exp. 09/30/2021)
Grantee SF-424's and Certification(s)