Commodore Homes of Indiana Landmark Ultra Grand

Page 1


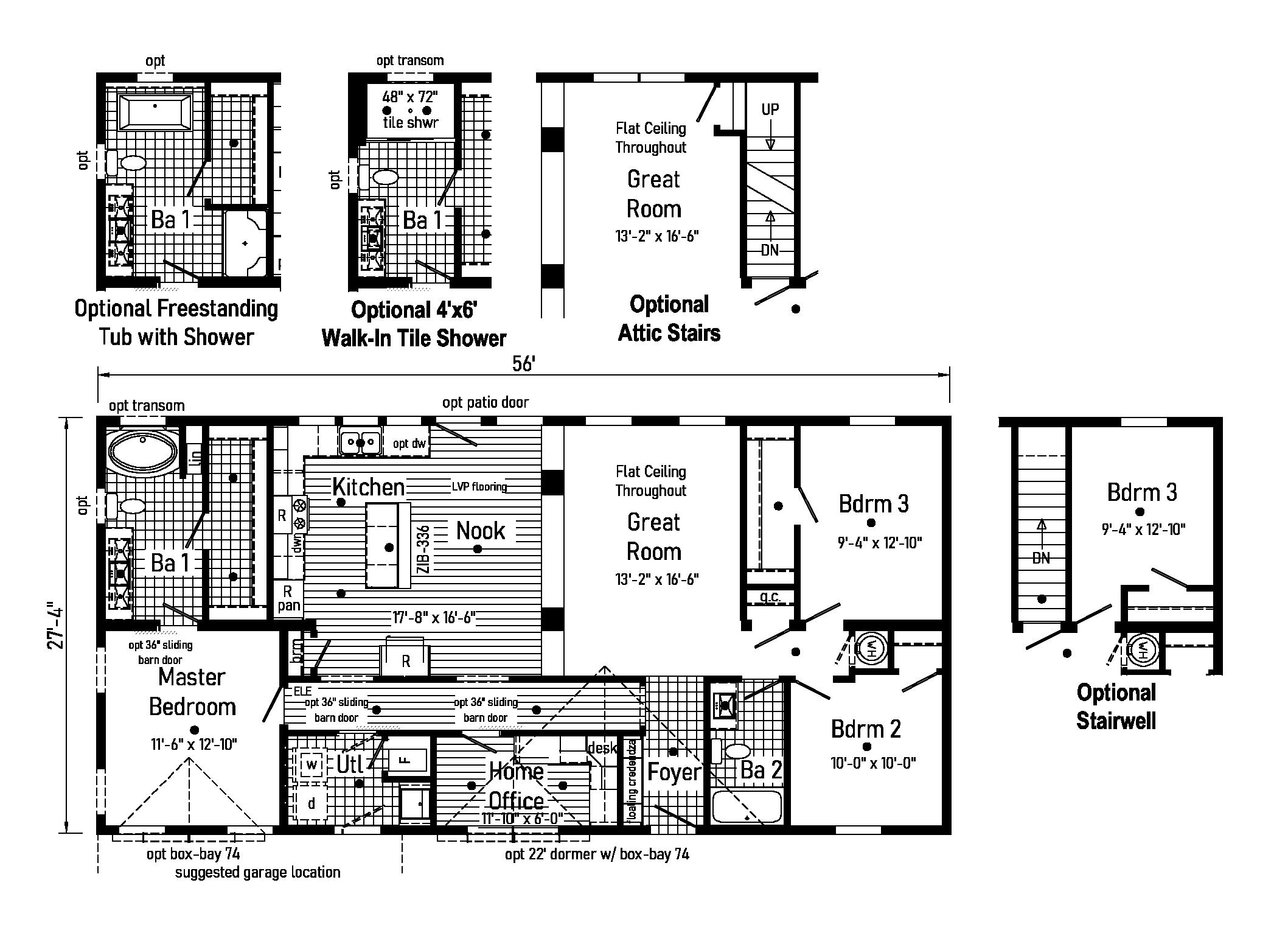
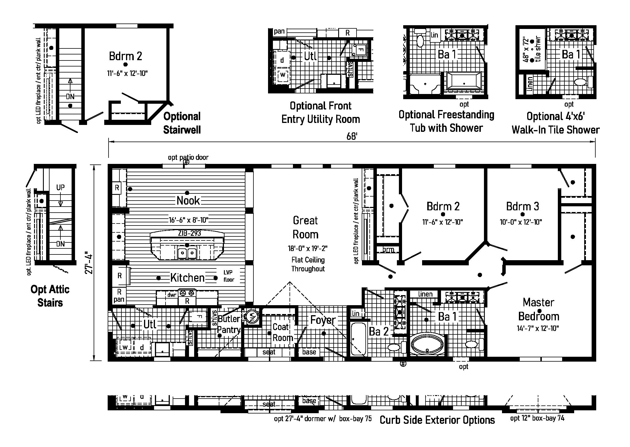
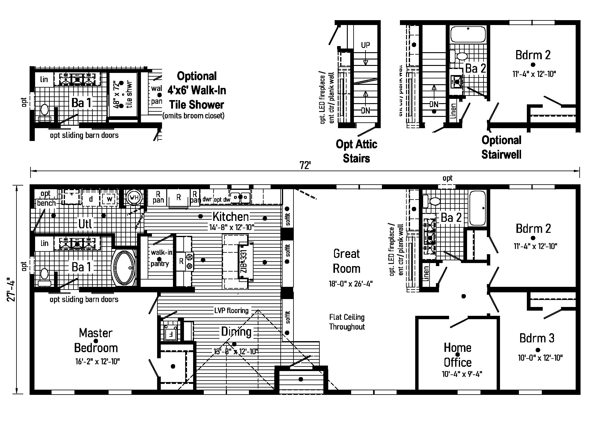
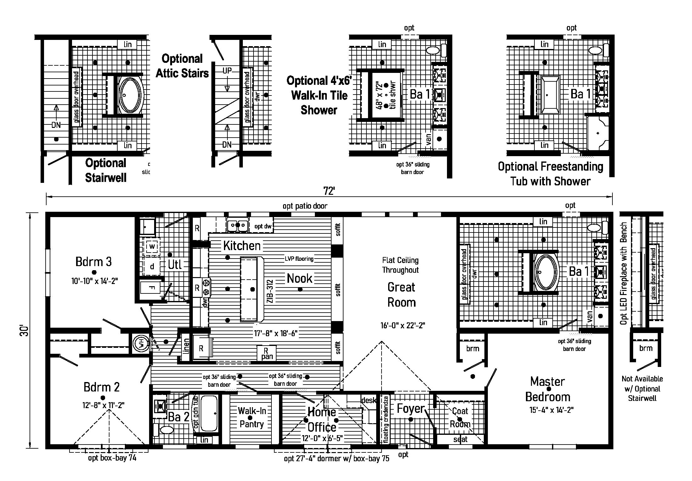
LANDMARK Ultra Grand

COMMODORE HOMES INDIANA

Turn static files into dynamic content formats.

Create a flipbook
Issuu converts static files into: digital portfolios, online yearbooks, online catalogs, digital photo albums and more. Sign up and create your flipbook.
Commodore Homes of Indiana Landmark Ultra Grand by Commodore Homes, LLC - Issuu