






















MU Architecture presenta The Mountain Cove, una lujosa residencia ubicada en el prestigioso sector Mont-Royal Mountain del distrito Outremont de Montreal. Situada cerca de Mount Royal Park y terminada en 2023, la vivienda de 4265 pies cuadrados adorna una de las últimas parcelas baldías en el área, brindando a sus propietarios una oportunidad única de desarrollar una casa moderna y elegante.
Desde el inicio del proyecto, éste enfrentó desafíos únicos. La fuerte pendiente del terreno, sumada a la proximidad de un nuevo desarrollo multivivienda, complicó el proceso de integración. Además, los esfuerzos de excavación sacaron a la luz la presencia de rocas de granito y un curso de agua, lo que requirió una meticulosa voladura y el diseño de cimientos impermeables. A pesar de estas limitaciones, The Mountain Cove emerge como un logro arquitectónico audaz.
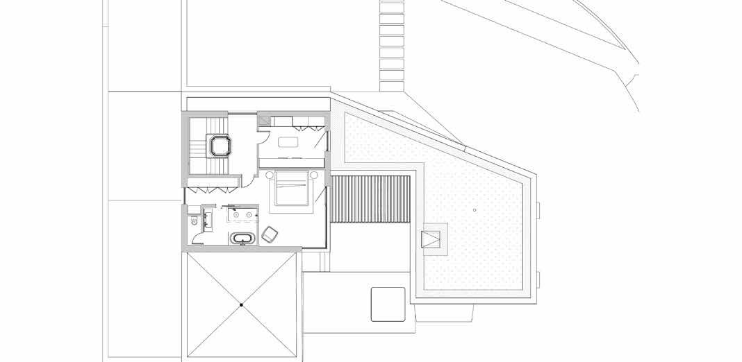
La volumetría conceptual de esta construcción se despliega con elegancia, dando forma a la esencia misma de esta residencia de alto nivel. Los ángulos sutiles tanto en la volumetría como en el techo no son elementos meramente estéticos, sino opciones bien pensadas que crean una entrada protegida desde el lado de la calle. Este diseño cuidadosamente diseñado promueve una perfecta integración de la residencia en su sitio, caracterizado por una forma trapezoidal irregular.
Situada en la esquina de la calle, la residencia adopta una postura más opaca en el exterior, alejándose del bullicio urbano para abrirse hacia el oeste, ofreciendo impresionantes vistas de la ciudad y las montañas Laurentianas. Una pasarela interior acristalada conecta los volúmenes de la planta baja, creando una sutil separación entre los espacios dedicados a los maestros, los invitados y el ocio, además de formar un puente luminoso entre la parte delantera y trasera de la propiedad.
Montreal Canadá MU ArquitecturaEl apilamiento de volúmenes rectangulares forma una firma arquitectónica distintiva. Este enfoque crea un juego de sólidos y vacíos a lo largo de las fachadas, revelando espacios habitables llenos de luz estratégicamente orientados hacia el sol y las vistas panorámicas. Las terrazas al aire libre hábilmente integradas amplían esta disposición, ofreciendo espacios exteriores ajardinados que combinan perfectamente con los volúmenes interiores. Inundada de luz natural a través de generosas ventanas que dan a un patio interior en dos niveles, la residencia ofrece un espacio privado al aire libre, protegido de los elementos y de la luz solar mediante sombrillas ajustables. El entrelazado animado de estos volúmenes en las fachadas exteriores también sirve para maximizar la altura de los techos. Con una altura libre de casi 12 pies en los espacios habitables y 9 pies en los dormitorios y habitaciones relacionadas, este diseño arquitectónico brinda una sensación de espacio y grandeza, al tiempo que preserva la privacidad.
La abundante fenestración es posible mediante puertas y ventanas con marcos de aluminio, rotura de puente térmico y película de baja emisividad. Combinados con persianas motorizadas y suelo cerámico, permiten controlar la ganancia de calor, preservando al mismo tiempo las vistas panorámicas.
Desde el camino de entrada en suave pendiente en el lado este de la calle, el sótano revela un espacioso garaje para cuatro coches, discretamente oculto. Un generoso vestíbulo da la bienvenida a los residentes y proporciona un paso suave hacia la casa. A partir de ahí, la sala de máquinas y el lavadero, equipado con una pequeña ducha para perros, se vuelven accesibles combinando funcionalidad y sofisticación.
El ascenso al nivel superior, orquestado por una escalera central y un ascensor, ofrece una elegante transición a la planta baja. Este último, abierto en un volumen principal, impresiona por sus techos altos y su pared de cristal que fusiona el interior con el exterior. La abundante luz natural inunda este espacio minimalista, donde se ha prestado una meticulosa atención a la integración de elementos técnicos. Un techo en capas oculta la ventilación y la iluminación ambiental indirecta, incorporando cajas de cortinas que integran ingeniosamente retornos y difusores de aire.
La cocina, pieza central en mármol Nero Marquina y Fenix negro, crea un sorprendente contraste con las paredes y techos blancos. Compuesto por dos islas de diferentes tamaños y orientaciones, garantiza no sólo comodidad y funcionalidad, sino también convivencia durante las reuniones. La isla principal incluye un lavabo e invita a la relajación, mientras que la segunda sirve como área de servicio, barra con su sello de hielo integrado y, en ocasiones, incluso mesa de DJ. El salón, centrado en torno a un mueble de televisión con chimenea de gas y repisa de Fenix negro, desprende una calidez homogénea y agradable. Los paneles de roble blanco que lo adornan crean armonía visual, al tiempo que acentúan la calidez del espacio.
En la entrada, un módulo de madera incluye el guardarropa y la bodega. También hay un pequeño baño sutilmente oculto, una auténtica estancia negra, como un capullo que ofrece una experiencia de contraste con la blancura y la luminosidad del resto de la casa. La pasarela de cristal conduce al ala de invitados, donde la topografía del terreno influye en el diseño de un piso y medio. Un dormitorio de invitados, un baño, un simulador de golf, un espacio de trabajo y un rincón de lectura suspendido forman este espacio único. Este último toma la forma de un marco que sobresale hacia afuera.
La planta superior está dedicada a los dueños de la casa. Un vestidor y una suite completa con un gran ventanal en esquina ofrecen impresionantes vistas a la montaña. Envuelta en paneles de roble blanco que aportan un toque adicional de comodidad, la espaciosa y luminosa suite principal ofrece un verdadero santuario para los residentes.
Fundada en Montreal en 2010 por Charles Côté y Jean-Sébastien Herr, MU Architecture es reconocida por sus elegantes residencias contemporáneas, sus espacios de oficinas creativos y orientados al ser humano, y sus proyectos de vanguardia a gran escala. Aprovechando su experiencia en varios estudios de arquitectura de renombre mundial, los fundadores de MU Arquitectura han podido enriquecer su experiencia con los más altos estándares en Montreal, Viena, Barcelona y Dubaï.
Firmemente posicionada como uno de los líderes de su generación, MU Arquitectura, asistida por las últimas tecnologías de diseño, da forma a espacios y estructuras para crear una experiencia única e infinita. Su estilo refinado y luminoso adquiere una nueva forma con cada proyecto.
MU Arquitectura, distinguida por su enfoque humano y su énfasis en la comunicación, maneja la elegancia y la creatividad. Al defender valores ecológicos específicos de su generación, la agencia promueve un equilibrio entre la arquitectura icónica y la preservación de los ecosistemas.
Talentosos y apasionados, los miembros del equipo de MU Architecture han visto su trabajo publicado numerosas veces en el escenario mundial, y su visión audaz les ha valido varios premios internacionales.
cortesía V2com
Una combinación de innovación arquitectónica y lujo contemporáneo.
El interior minimalista de The Mountain Cove encarna lujo y refinamiento. Una escalera central de acero termolacado, peldaños de arce y pasamanos de vidrio contribuyen a la grandiosidad del lugar. Mientras tanto, un ascensor residencial panorámico Savaria Vuelift garantiza la accesibilidad universal a todos los niveles de la casa. La forma octogonal única y los paneles de vidrio en un hueco de acero integrado y autoportante permiten que la luz pase a través del ascensor hacia la escalera y los espacios habitables contiguos. El techo con vegetación, expuesto a la vista de los ocupantes, crea una quinta fachada de la propiedad. Este jardín suspendido, poblado de plantas nativas, ayuda a mitigar las islas de calor, al tiempo que ofrece una vista relajante desde el interior que refleja un compromiso con la sostenibilidad y la conexión con la naturaleza.
The Mountain Cove no sólo respeta el tejido urbano existente, sino que también se integra de manera justa y delicada entre las lujosas residencias del barrio. Entre la calidad de los materiales, el confort de los residentes y la integración armoniosa en el sitio, esta residencia se inspira en el estilo californiano de mediados de siglo, reinterpretado para adaptarse al clima de Quebec.
Nombre del proyecto: La Cala de la Montaña
Ubicación: Outremont, Quebec, Canadá
Cliente: N/A
Arquitectos/diseñadores: MU Architecture, Equipo: Jean-Sébastien Herr, Charles Côté, Magda Telenga, Maude Hébert, Andrée-Anne Godin, Sakiko Watatani
Ebanista: Élément Bois
Estructural: GenieX
Contratista: Lexa Construcción
Ascensor: Savaria
Ventanas: Aluminio
Pérgola: Bellon Prestige
Persianas: Store Urbain
Finalización: noviembre de 2023
Fotos: Nanne Springer Área: 4 625 pies cuadrados.
LP SmartSide Lap es un tinglado que pertenece a la familia de productos LP SmartSide, basados en la tecnología del OSB, con adhesivos y aditivos que le otorgan gran resistencia a los impactos, extrema durabilidad para una construcción fácil, atractiva y económica, con largos de 4,88 metros que permiten menos uniones en fachadas, mayor rendimiento por pieza y menor pérdida por manipulación.
Como revestimiento exterior, está orientado a la construcción de viviendas, tanto en obra gruesa como en terminaciones, entregando belleza y durabilidad a fachadas, al presentar una cara de terminación con textura natural tipo cedro. Son muy resistentes
Largo 4,88 m
Producto Espesor (mm)
Peso x unidad (unid.)
LP SmartSide Lap 200 mm 9,5 6,40
DESCARGUE LA FICHA TÉCNICA
a las condiciones climáticas, tales como el sol, viento, lluvia y nieve. Es incluso resistente a los impactos. Son fáciles de instalar y pintar, con excelente terminación exterior y extremadamente durables.
Por los incomparables atributos del tinglado LP SmartSide Lap , este producto simplifica los cumplimientos del Programa de Descontaminación y Acondicionamiento Térmico (PDA), y las exigencias establecidas por la Ordenanza General de Urbanización y Construcción (OGUC), normativas vigentes que regulan el comportamiento térmico de los materiales para la construcción de viviendas.
Los productos LP SmartSide están basados en la tecnología OSB, con adhesivos resistentes a la humedad y aditivos que entregan protección contra termitas y pudrición por hongos. Son la solución inteligente para revestir la vivienda, especialmente diseñados para uso exterior.
Impermeabilizantes, Selladores. el.: ( 1) 289-6000
LOGOS S.R.L. INGENIERÍA
Tel/Fax.: 445 - 269 445 - 667 mail: clopez@logos.com.py / www.logos.com.py
TECSAL S.A.
Proyectos y obras de arquitectura e ingeniería. director@asunegocios.com
Pancha Garmendia 6230 - Mcal Estigarribia 0981 405147
Mail: inatec@py.sika.com
GEOC A D C ONSULTOR A TOP OG R Á FIC A Y A MBIENT E A L
Consultoría GEOCAD, Ing. Jorge Daniel Quintana Topografía, mensuras administrativas y judiciales, fraccionamientos y loteamientos, Aerofotogrametría, ortofotomosaicos, modelamiento 3D, volumetría para canteras, excavaciones o rellenos, curvas de nivel. Agrimensura con Drones. Trabajamos en todo el país. Elaboración plan genérico, estudio de disposición de efluentes, estudio de impacto ambiental preliminar, auditoría ambiental, Servicios ambientales
Calle Alberdi e/calle 5ta y calle 6ta – rotonda Area 1 –CDE- Alto Paraná (0983) 660168 – (061) 572 905
TECNOSIPLAN SA: ING JUAN MANUEL LOPEZ
Perito Agrimensor y Avaluador, acreditaciones del M.O.P.C., C.S.J. y B.C.P.: Trabajos integral de Topografía & Agrimensura en todo el País: Mensura Administrativa y Judicial, Planos Geo para presentación a Catastro, Planos de Subdivisión de Ctas–Régimen de Copropiedad para Dúplex, Pericia de Inmuebles para Juicios, Proyectos de Loteamientos y Amojonamientos, Relevamientos para Proyectos Agro Ganaderos, Tasación de Inmuebles Urbanos y Rurales Consultas en Barrio San Pablo-Asunción – (0981)433-805
PENNSYLVANIA S.A.
Hidrófugo CERESITA, Industria Nacional, Contra la humedad, Agua, salistre Cel.: (0991) 859-787
Dir: Avda. San José - Piquete Cué - Limpio Mail: ventas@pennsylvania.com.py
SIKA PARAGUAY S.A. - INATEC
Aditivos para hormigón, membranas aislantes, pisos y tratamientos, adhesivos para cerámicos, impermeabilizantes, selladores. Tel.: (021) 289-6000 | Mail: inatec@py.sika.com
BALLASCH INTERNACIONAL S.A.
Aisladores de H°, compactadoras, retroexcavadoras, compresores, vibradores de H°, contenedores. Mail: ballasch-sa@tigo.com.py - Tel/Fax: 674 031/2
VECTOR S.R.L.
Servicio de Operación de Grúas y transporte de equipos. Empresa con la certificación ISO 9001 2015 SGS. Tel.: (021) 640-039 | (021) 640-040 | (0981) 601-245 (0981) 600-953 | vector@vectorsrl.com.py
TECNIMETAL
Cerco eléctrico perimetral, cuchillas tipo arpón circulares y medialuna. | Tel.: (021) 640-205 (0982) 500 225 www.tecnimetal.com.py
ARQ. JORGE SANZ & ING. ELÍAS SANZ
Construcciones, Cálculos Ho Ao Tasaciones Estructuras Metálicas - Pir ib ebu y N° 6 36 c / 15 de A go s to Tel/F a x: (+5 95 21) 4 9 0 -74 3 | Cel.: (0 981) 429 -515 - ar qs anz5 4 @hotmail c om
RESTAURACIÓN. CONSERVACIÓN DE EDIFICIOS Y MONUMENTOS.
Arq. Norma Medina, Magister en restauración conservativa de edificios y monumentos de carácter patrimonial. Proyectos, Dirección y fiscalización de obras, elaboración de protocolos de intervención. Relevamiento, Análisis, Diagnostico y recomendaciones. Contamos con un equipo multidisciplinario con experiencias en restauración. Cel: 0981558145
ARQ. GRACIELA FORNERA
C ap Nudelmann 24 3 e s quina B o ggiani | A sunción (+5 95 981) 421- 013 | (+5 95 981) 981-352
AM DISEÑOS ARQUITECTÓNICOS
Cel:(0 975) 617- 6 9 6 Mail: aleje susmr 98@gmail.com
3D ARQUITECTURA - ARQ DEISY BENITEZ
Construcciones civiles en Gral. Proyecto, dirección y construcción de obras Elaboración de proyectos y presupuestos Planos Municipales - Tasaciones urbanas y rurales Plotteo de planos. Cel: 0973 536680 deimary79@ hotmail.com Km 7 Guyra Campana c/ Av. San José Ciudad del Este Py
ARQ. ENRIQUE GRANDE EDWARDS
P r oye c to s y dir e c ción de obr as - C DE | Tel : (0 61) 513- 4 38 | 514 -212 | enr ique gr ande@gmail c om
ARQ. MARGARITA FIGUEREDO arte, herencia y arquitectura Arquitectura- Patrimonio- Interiorismo. Proyecto, construcción y dirección de obras. Tel.: +595981-119-788
email.: arq.margaritafigueredo@gmail.com
CONCRETO - ARQUITECTURA
A r quite c tur a, P r oye c to s , C ons tr uc cione s Civ ile s , Dis eño de Inter iore s | mar77@hotmail c om | Cel : (0 985) 732-212 | Guiller mo C lo s s y Dre s Z adof f, C olonia Hohenau - It apúa
ARQ. RAQUEL ORTELLADO
P r oye c to, dir e c ción y eje cución de obr as | (0 21) 301-58 4 | (0 981) 5 82-5 35 | Dir e c ción: C apit án Br aulio L e zc ano 1381 - A sunción
E- mail: r aquel or tellado@hotmail e s
ARQ. LIZ MARLENE ESCOBAR LEZCANO
C ons tr uc ción, r e f ac ción y ampliación de c as as , br indando un ase s or amiento de s de el inicio has t a la mater ializ ación de su ho gar | (0 981) 525 - 8 9 4 | e s c ob ar liz@gmail c om | ww w lize s c ob ar ar q
MCA - ARQUITECTURA
Dis tr ibuidor oficial AT RIM , p er file s , ter minacione s p/ pis o s y r e ve s timiento s , guar dac anto s , v ar illas en L y más Cel.: (0993) 462-212 / Mail: inf o@ nmter minacione s c om
ARQ. LILIANA GUSTAFSON. Proyectos ,dirección y construcción de obras. Diseño y equipamiento interior. Cel 0981 434490 lggustafson@gmail.com
LDV CONSTRUCTORA
Proyectos arquitectónicos, construcción y dirección de obras. Impresión de planos. DIRECCION: Matriz: Área 4, Ciudad del Este. Suc.: Fdo de la Mora Zona Norte. CELULAR: (0983)627934 (0981)558257 CORREO: ldvconstructora@hotmail.com Instagram y Facebook: LDV Constructora
ARQS. RUIZ DIAZ - COLLAR
P r oye c to s , c ons tr uc ción, t as acione s , c ar pinter ía
Tel: (0 21) 6 82 - 185 / Cel: (0 971) 924 - 574 (0 971) 9 4 8 - 8 39
Dir: Cnel Duar te 918 c / C lemente Romer o E- mail: imotep aa@y ahoo c om ar q gr is eldac ollar@gmail c om
DE&CA CONSTRUCTORA
A r quite c tur a, Dis eño de Inter iore s , G as tr onómic o
C omer cial - A moblamiento s , C álculo s y P re supue s to s Cel: 0 9 81 504 - 449 b ae z ac ons tr uc cione s@outlo ok c om
ARQ. CRISTINA VELÁZQUEZ
Diseños arquitectónicos, proyectos y direcciones de obras, tasaciones urbanas, rurales, inmuebles, presupuestos, planos municipales, fiscalización de obras, refacciones. | Direc: Centro. Av. Dr Eusebio Ayala/ calle pampliega - Ciudad del este PY CEL: (0983) 620-921/(0983) 544-187 E-MAIL: cdetravels@gmail.com
ATEMPO ARQUITECTURA Anteproyectos, proyectos ejecutivos, gerenciamiento, administración, construcción y fiscalización de obras, planos con presentaciones municipales Cel:0981 114489 - atempo.arquitec@gmail.com Dir: Gral. Caballero esquina capitán bosano- Mariano Roque Alonso
RG ELEVADORES
Vent a de as c ens ore s Mont ac ar gas , e s c aler as mec ánic as , Impor t ación de c omp onente s par a
GEOC A D C ONS A Y
A MBIEN TA L
Tas acione s , agrimensur a, e st acione s ambient ale s , pericias y mensur as judiciale s , loteamiento | C DE |
Tel: (0 61) 572 9 05 / (0 4 6 4) 20 18 0 |
e-mail: geoc ad@geoc ad c om py
METALÚRGICA VERA
C álculo, dis eño, f abr ic ación y mont aje de e s tr uc tur as met álic as p ar a to do tip o de pr oye c to s
Proyec tos E str uc tur ale s de Edificios en Altur a, L oc ale s Comer ciale s y V iviendas
E-mail: ingmuniz aga@ingmuniz aga c om
Tel.: (0 961) 426 - 307 - Web: ww w ingmuniz aga c om
GQ INGENIERIA - Ing. Gerardo Quintana
C álculos E str uc tur ale s de Hor migón A r mado y Postens ado. | C astelar N º 6 85 | (0 985) 336 -5 0 0
Mail: gquint anaovelar@gmail c om ww w linkedin c om/in/gaqoy
TECNIMETAL Cer c o eléc tric o perimetr al cuchillas tipo arpón cir culare s y medialuna. | Tel.: (021) 6 4 0 -205 (0 982) 5 0 0 225 ww w tecnimet al c om py
EQUIPA S.R.L. Pis os de alto tr ansito, gr anito interior, mos aic os gr anític os , po dot ac tile s , atér mic os , p olipropilenos , c é sped sintétic o y wpc ec ologic | L illo 14 6 0 e/ Dr
Roque Gaona - V illa Morr a | (021) 6 05 -5 333 | (0 98 3) 879 - 00 0 | equipa1@equipa c om py ww w equipa c om py
SHOPPINGLASS
Aberturas, pisso, cielo rasos, revestimientos.
Tel.: 906 951/3. www.shoppinglass.com.py
DECO MUEBLES
Mantenimiento en Gral. Colocación de alfombras, pisos vinilicos, mamparas, aberturas, puertas, tapicería, herrería. Dirección: Aca Yuasa c/ Capitán Figari Tel: 021 373 410 - 0971 936 858 decomuebles@gmail.com
BOGGIANO CONSTRUCCIONES S. A Contenedores, arena lavada, piedra triturada, escombro, relleno. Tel: 021 338 7939
Cel: 0984 996 991 - Av. Luis María Argaña 1097 c/ Las Palmas.
CONSULTORÍA AMBIENTAL
E-mail: boggianoconstruccionesoficina@gmail.com
Ing R Glad y s Silguero de Miere s Elabor ación de E studios de Impac to A mbient al F is c aliz ación A mbient al ESTUDIOS GEOTÉCNICOS PARA OBRAS
CIVILES Y VIALES.
Tel.: (021) 6 8 0 - 852 / Cel.: (0 981) 55 4 -372
E-mail: ingglad ys silguero@gmail c om
GRUPO GAIA S.A.
Diseño, fiscalización y ejecución de obras civiles. Con departamentos especializados en edificación, instalaciones eléctricas, energías renovables, energía solar, seguridad y eficiencia energética| www.grupogaia.com | +595 (0)21 672 048 | +595 (0)985 138 451 | gaiapy@grupogaia.com
Seguridad, Salud, Calidad y Medio Ambiente en el Trabajo & Wellness Gestión de Riesgos Consultoría Asesoramiento Capacitaciones Relevamientos Diseño Implementación Evaluacion y/o Auditoría en Sistema de Gestión Proveedor de EPIs +595 991418330 eco56jel@gmail.com
ALAR CONSTRUCTORA
Subcontratos de mano de obra, hormigón, cimientos, albañilería y terminaciones, elaboración de cómputo métrico y presupuestos. Tel.: (021) 662-389 www.alarconstructora.com.py
A1 CONTRUCCIONES E INGENIERÍA
Proyecto de obras civiles, industriales y viales. cálculos estructurales. Construcciones Civiles en gral. y de estructuras de hormigón armado. Impresión de planos| Tel: (0971) 356 - 876 Mail: claudio.bogado@a1ci.com / imprimir@a1ci.com
ANDERSON ARQUITECTOS E INGENIEROS
Construcción de Edificios, Arquitectura, Ingeniería (021) 507 815 | (0971) 559 877 anderson.arq.ing@gmail.com
Avda. Pirizal N° 1755 San Lorenzo - Paraguay
TOLEDO CONSTRUCTORA
Diseño arquitectónico y construcción en general, piscinas, casas, duplex, tinglados, depósitos, departamentos, etc.
Cel: 0986 228593
Mail: toledoconstructorasa@gmail.com
C A A P ROY EC TO Y C O N S T RU C C IÓ N
A r q C ar lo s Ac e ve do Dir e c ción: Tob ati c / Ac ahayV illa Elis a Tel : (0 21) 310 25 6 / (0 981) 4 4 9 0 5 5
Mail: c aapr oye c@hotmail c om
C O N S T R U PA R S A
C ons tr uc ción v ial, ci v il y s anit ar io s Tel : 6 6 2 9 4 8 / 6 6 2 95 4 - Dir e c ción: Q ue s ada 4 4 93 e / Guiller mo S ar av i - Mail: c ontr up ar s a@c ons tr up ar c om py
CRISTAL CONSTRUCCIONES
Fabricación y ventas de tubos de hormigón, alcantarillacelular, viguetas, tirantes de hormigón, postes de hormigón, cordones para empedrado, tejidos baldosones proyecto y ejecución de obras. Web: www.cristalconstrucciones.com.py | Mail: info@cristalconstrucciones.com.py | Tel: As (0973) 890 025/6 - Itá (0973)890 027 - Yaguarón: (0973) 890 040 Paraguari: (0973) 890 041
NSA CONSTRUCTORA S.A.
Diseño de Anteproyecto. Proyecto Ejecutivo y Municipal. Tasaciones de inmuebles urbanos, rurales e industriales, silos, rodados y maquinarias agrícolas. Constucciones de viviendas unifamiliares, edificios, duplex, salones comerciales y tinglados. Remodelaciones. Emai\: nsa@nsaconstructora.com.py
Cel: 0983 610852 - 061-574 444 /574 119
ACOSTA TORRES CONSTRUCTORA
Diseño de Anteproyecto. Proyecto Ejecutivo. Remodelaciones. Elaboración de presupuestos. Consultoría. Tasación de inmuebles. Planos de habilitación de establecimientos de salud y afines. Cálculos estructurales de Hormigón Armado y Metal. Diseño y construcción de piscinas. Construcciones en general
Email: atconstructora.py@gmail.com
Cel: 0975913460 - Instagram: @atconstructorapy
Construcción y Mantenimiento de Líneas y Redes Eléctricas; Instalaciones Eléctricas Industriales; Fabricación y Montaje de Estructuras Metálicas (tinglados, techos, pasarelas peatonales, etc.); Fabricación y Montaje de Tanques Metálicos; Prefabricados de Hormigón Armado. (021)642-850 Ext. 227 / tie@tie.com.py / www.tie.com.py / Campo Vía esq. Los Arbolitos - Luque Paraguay
WA C O N S T RU C C I ONE S S A
Tel : (0 21) 6 6 3- 0 4 4 | Dir.: Emeter io Mir anda 18 9 c / Guido Sp ano | C or r e o: adminis tr acion@wa c om py Dir e c tor: Ing G er ar do Wasmo s y
IN G G U S TAVO G IA NNIN O TO C ons tr uc cione s ci v ile s e indus tr iale s
Tel : (0 981) 10 0 -8 38 | Mail: ingggianninoto@gmail c om | Dir : S an F r ancis c o 276 c / Sir ia - A sunción
MAFADO SA
Auditores del Chaco 169 c/ Santísima Trinidad Asunción (021) 284-050/1 info@mafado.com.py www.mafado.com.py
CONCREMAQ SRL
Construcciones en general, alquiler de maquinarias, movimiento de suelo.
+595 981 194353 - +595 981 835001+595 981 280450 Tte. 1° Angel Velázco 2565, entre Obispo Basilio López y Tte. 2° Eladio Escobar, Asunción, Paraguay
ING. HUGO DE JESUS CANO ROLON
Construcciones civiles - Fundaciones profundas
Pilotes - Gerenciamiento & Direccion & Fiscalización
Obras - Consultoría Cálculos Estructurales
Teléf: (0985) 780 104 Mail: inghcano@hotmail.com
NID CONSTRUCTORA
Estructura de hormigón armado, albañilería general, confección de planos municipales, diseños de proyectos, ante proyectos, compra venta de materiales, financiación - E-mail: nidconstructora @ gmail.com | 021 338 - 992 Cel: (0982) 261 - 878
C onstrucciones civiles e industriales | Tte. Felix Ayala
N° 942 c/ Tte. Alcorta | (021) 560-589 | intesa@ intesaconstructora.com.py | Asunción - Paraguay
P ED RO C OL M A N - C ONT R AT I S TA
C ons tr uc cione s en gener al, c olo c ación de pis o s y s er v icio s de pintur as | (0 21) 331-113 | (0 981) 4139 4 3 | pe dr o c olman@hotmail c om | Dir: Dionisio Jar a
4 6 52 C O N S T RU C TO R A G R U P O N A R AN JA S . R . L . P r oye c to, dir e c ción y eje cución de obr as Cel : (0 981) 916 -286 | Dir : Tte Mar c o Núñe z 8 4 9 e / P adr e C ar dozo y Washington, A suncion Mail: es emidei@ gr up onar anjasr l c om
C O PE S A C O N S T RU C C IO NE S S A
C ons tr uc cione s ci v ile s e indus tr iale s Dir e c ción: L omas Valentinas 1372 (4to pis o B) | Tel/F a x: 2128 4 6 | Mail: c ons tr uc tor a@c op e s a c om py
C A B A LL ERO VA ZQU E Z S R L
P r oye c to s de ar quite c tur a e ingenier ía, sup er v isión, dir e c ción de c ontr ol de obr as (C DE ) - Tel: 571 5 96 / (0 98 3) 6 6 3 00 0 - Mail: r ob er tc ab aller opy@gmail
GMASP
Desarrollo-Proyecto-Contrucción-Fiscalización de obra Fortin Toledo Nº 547 casi Peru
TEL: 021-234315
MAIL: recepcion@gparquitectos.com.py
Email:
Proyectos, Construcción y Dirección de Obras Civiles, Viales y Sanitarias.Tel: 0972 648 - 254
Mail: atc.desingsa@gmail.com Dir: Manuel Ortiz
Guerrero N° 1840 c/ Capitán Lombardo - San Lorenzo
MULTISERVIS
Construcción civil - Herrería - ElectricidadRefrigeración - PCI - Cámaras de seguridad. Servicios de asesoría, estudios, diseños, intervención, montaje, mantenimiento correctivo y preventivo, reparación e intervención de obras. Fulgencio Yegros c/ Cacique Lambaré
Cel: 0985 153785 - tito_vera84@hotmail.com
GRECO GREGOR & CUBILLA CONSTRUCTORA Construcciones Civiles en General. Proyectos, Cálculos, Dirección y ejecución de obras.
Telf.: 021- 556120/1 – 0986-751112
Correo: info@ggyc.com.py - www.ggyc.com.py
IME X PA SR L Construcciones en general, equipamientos y aislaciones. Dir. Bernardino Caballero 967 c/ Teodoro S. Mongelós Tel. 021 200 796 - 0981 430 498 | Email: diferro2002@hotmail.com
M AT C ONS T RUC C IONE S
Trabajos de viviendas públicas y privadas, oficinas corporativas, locales comerciales, edificios privados y piscinas. Desagüe pluviales y cloacales. | (0992) 400459 | miguel.thompson.construcciones@gmail.com
A LV EMA R C O N S T RUC C IO NE S Trabajo de albañileria, H°A°, revestidos, diseño de proyectos, planos municipales y administracion de obras. Arq. Monica Vera | Tel.: 961-490 | (0981) 454306 | (0986) 147-932 | alvemarconstrucciones@ hotmail.com
C L A RQ U I T EC T U R A + C O N S T RUC C IÓ N
Empre s a e spe cializ ada en la c ons tr uc ción y r ealiz ación de pr oye c to s inmobiliar io s A ntepr oye c to s , pr oye c to s eje cuti vo s , r e f or mas de v i v iendas , dir e c ción y eje cución de obr as
A r quite c tur a c or p or ati v a e indus tr ial | (0 972) 21225 8 | Mail: inf o@clar quite c tur a c om py | ww w clar quite c tur a c om py
C O N S T RU C TO R A HEI SEC K E S A O br as v iale s , ci v ile s y s anit ar ias , vent a de pie dr as tr itur adas y me zclas as f áltic as | (0 21) 6 4 5 - 6 97
Autopis t a y C ór dob a | heis e cke@cheis e cke c om py JA M
I A
A
I
T U R A S R L C ons tr uc cione s ci v ile s , e spe cializ ado s en tiendas , c omer cio s y e s t acione s de s er v icio, e s tr uc tur as de
H°A° y e s tr uc tur as met alic as | (0 985) 8 4 5 - 474 |
(0 9 91) 76 5 -5 0 8 | jam ingenier iapy@gmail c om
C ONS T RUC TOR A JA R A TA L AV ER A
Proyec tos , dir ec ción y ejecución de obr as A r q Mar c os Jar a
ARYES PARAGUAY
Empresa de instalaciones electromecánicas para estaciones de servicio, fabricación, venta instalación y servicios para estaciones de servicios, proyecto y diseño de instalaciones para combustibles y eléctricas, proyectos llave en mano, obras civiles y asociadas. T 0985-460888 - Show room Republica Argentina y Domingo Martínez de Irala, Asuncion
DIBEC C ONS T RUC C IONE S
Constr uc cione s y obr as en gener al | adm@dibec c om py | Cel: (0 986) 519 - 86 6 | ww w dibec c om py & JA R A S A FERREIR A
Dr Alejandro Davalos 4 45 e s q L af r anc oni - Barrio
Rec olet a - A sunción | (0 986) 6 55 -5 93/4
c ont ac tos@f err eir ajar a c om py | ww w f err eir ajar a c om py
VZ CONSTRUCCIONES
Diseño y Construcción, Especialidad en Proyectos Sustemtables, Refacciones, Fiscalizacion de Obras, Planos Municipales, Asesoramiento Profesional, Tratamiento de Patologías Constructivas.
Mail: vzconstrucciones@live.com
Cel: 0983 601 - 078 - Web: wwwvzconstrucciones.com
ML ARQUITECTURA Y CONSTRUCCIÓN
Proyecto, presupuesto y Construcción obras civiles. Mejoramiento y ampliaciones. Tel: 0972 828 228
Mail: marcoslopezarquitecto@gmail.com
TECINCI SRL CONSTRUCCIONES CIVILES
Avda. Mcal Lopez 4877 entre Gumersindo Sosa y Herminio Maldonado. ASUNCIÓN Tel +595 981 590 000 MAIL: secretaria@tecinci.com.py
AV M A RQUI T EC T UR A - C ONS T RUC TOR A
A r q V ic tor Mir anda Dis eño, Constr uc ción y
Ger enciamento de Obr as Cómputo métric o, Dis eño 3D, Tas ación de Inmueble s vamir andar q@gmail c om (0 971) 742- 676 | C aaguazú
C O N S T RU C TO R A TA P Y TA S R L
O br as de ingenier ía civ il | Dir e c ción: Ayolas 1367 |
Tel : (0 21) 393 4 31 | (0 981) 9 07 122 | Mail: a c anale@ t apy t a c om py
RENOVA R T E - P ROY EC TOS & DISEÑOS
Constr uc cion, dir ec ción y ejecución de obr as Dis eños per s onaliz ados interior y f achadas
A moblamientos , proyec tos de vivienda y c omer ciale s | A r q Eliz abeth Duar te | (0 972) 922-911 | (0 972) 58 4 -322 | (021) 677-114 | ar q mely@outloock e s | Rigober to C aballero 211 - A sunción
anteproyectos, proyectos ejecutivos, construcción de viviendas y comercios, planos municipales, fiscalización de obras, computo y presupuestos, instalación de paneles solares
Tel: 021223300 Cel: 0981440699
INSTAGRAM: @jiramconstructorasa jiramsociedadanonima@gmail.com
GR CONSTRUCTORA S.A.
Estudio de Factibilidad, Desarrollo de Proyectos, Gerenciamiento, Fiscalización, Dirección y Ejecución de Obras Civiles. | (0993) 300-957 - 021 326 0112 info@grconstructora. com.py | www.grconstructora.com.py
Cap. Andrés Insfrán, 2342, Luque - Paraguay
RAHI CONSTRUCCIONES
Proyectos y Construcciones Industriales y Comerciales
Mail: proyectos@rahi.com.py - web: www.rahi.com.py
Tel: (0986) 518 600
FISCREA S.A.
Gerenciamiento y Fiscalización de obras. | (021) 728-9635 | info@fiscrea.com.py | www.fiscrea.com.py
Avda. Molas López 985 casi Pastor Filartiga.
CCB - SERVICIOS DE INGENIERIA
Construcciones civiles e industriales, proyectos, cálculos, dirección y ejecución de obras. Ing. Carlos César Benítez. (0973) 867-105 | ccb_constructora@yahoo.com | San Francisco 1720 esq. Ettiene - Fdo. de la Mora - Paraguay
QUINTUS S.R.L. - CONSTRUCTORA
Arq. Goffredo Corina - Dirección: Tte Núñez 964 c/ Padre Cardozo. Tel.: 221 - 476 / Cel.: (0981) 402 - 590
Z&ZARZA CONSTRUCTORA S.R.L.
Construcciones Civiles, metalúrgicos, montajes industriales y medicinales. | O ficina: Juan Sil v ano G o doy c / Tte B eníte z | Met alúr gic a: Ma Aux iliador a y B enjamín F r ank lin - S an L or enzo (0 21) 573 - 0 67 (0 9 9 4) 28 8 - 0 34 | z z ar z ac ons tr uc tor a@gmail c om ww w z y z ar z ac ons tr uc tor asr l c om py
G-CON S.A. GRUPO CONSTRUCTOR
Proyectos de arquitectura Construcción de obras, +59521553941/554223 Cel: 0981144300, arqhalley@gmail.com
SILVER CONSTRUCCIONES ARQ E ING
Vivienda, refacciones, Const en Gral - Piso industrial de H. A. - Servicio Tec. en obras
Cel 0985.123.171 - 0991.852.128 silverconstrucciones@hotmail.com
CONSTRUTEC INGENIERIA
Construcciones civiles en general. Cálculos estructurales. Elaboración de Proyectos. Gerenciamiento de Obras. Cel: 0981434005 - inge.construtec@gmail.com @construtec
MIA CONSTRUCTORA S.A.
CEO Mgtr. Ing. Miguel Arévalos
Servicios: Anteproyecto. Diseño Arquitectónico. Proyecto y Ejecución. Gestión de crédito AFD para la vivienda. Fiscalización. Gerenciamiento de obras. Refacciones en obras. Prefabricados de muros de hormigón.Cel. +595 975 193943 Mail miguel@miavpy.com Web. www.miavpy.com
ETCHEGARAY- CONTINI
de Ing. Mirta Contini de Etchegaray Reinaldo Etchegaray
Proyectos y Construcciones Civiles Carpintería de Madera y Metálica 11 de setiembre 1051 c/ Arasa. Valle Ybate. Lambare Cel: 0981 800245 Tel: 0081 800764
ME TA LÚRG IC A V ER A
C álculo, dis eño, f abric ación y mont aje de e str uc tur as
met álic as par a to do tip o de pr oyec tos
Tel. +5 95 21 328 324 0 - 986 28 0 30 0
Mail: info@met alur gic aver a c om py ww w met alur gic aver a c om py
T EC NOF UND - Te c nología en Fundac ión
ING. GUSTAVO MEDINA / INGENIERÍA - INMOBILIARIA
Premoldados - Proyectos y Construcciones. Asesoría, Compra, Venta y Alquiler de Bienes Raíces. Fabricación de Premoldados. gustavmedina0150@gmail.com 0971 155 025 / Pedro Juan Caballero.
TECNOSUR - INGENIERÍA APLICADA
JG SERVICIOS GENERALES
Mantenimientos en general y multiservicios para el hogar, oficinas y depósitos. Mantenimientos, Edilicios en Gral. mampostería, remodelaciones, demoliciones, plomería, pinturas, herrería, fabricación de rejas y portones, estructuras para tinglados o quinchos, carpintería, cerrajería, colocación de alfombras, montaje de estructuras de vidrio, mantenimiento de puertas Blindex,corredizas biométricas, mantenimientos eléctricos y de acondicionadores de aire - preventivos y correctivos, fletes, jardinería, mantenimiento de piscinas y paisajismo. Cel. 0981 429 543 Email: julio.garciaduarte30@gmail.com - Dirección 12 de octubre 001 casi Ramón Elías - Capiatá
WHITE CONSTRUCTORA
Construcciones civiles, residenciales, industriales, proyectos arquitectónicos, cálculo estructural. Teléfono: (0993) 297078 Dir: Av. Marsical Lopez, area 8- Ciudad del este Mail: white.constructora@gmail.com
L IC . J UA N G . AN T ÚNE Z A . Cont abilidad gener al, auditorías Pericias: c ont able, auditoría t as acione s par ticione s - Tel.: 4 82 918 (0 981) 423 377 - Mail: juangregorioantunez@gmail c om py - Dir ec ción: N° 144 4 e/ C arlos A L ópe z y C ap Gw y nn (S ajonia)
OGATEE PY
A r quite c tur a y C ons tr uc ción
P r oye c to s ar quite c tónic o s , de s arr ollo eje cuti vo de to do s lo s r ubr o s , c ons tr uc cione s , r emo delacione s en gener al Dis eño s de inter ior y e x ter ior Rele v amiento y digit aliz ación, c ómputo métr ic o y pre supue s to s
Tas acione s , me dicione s top o gr áfic as y ge o dé sic as
0 9 819 4 925 6 - 0 9 8119 0715 S an L or enzo F ac ebo ok: O gate e - Ins t agr am: @o gate ep y
E.M.A - ARQ. ENRIQUE MARÍN ABENTE
Diseño, anteproyectos, fiscalizacion de obras, planos y carpeta municipal, asesoramiento integral para construir| (0984) 296-084 | Mail: enrique. marinabente@gmail.com | en Inst agr am: @ marin_abente_arquitectos | en Facebook: Estudio de Arquitectura Marin Abente
Estudio Arquitectónico - Anteproyecto - Planos municipales - Plano de construcción - Planos de instalación hidrosanitaria - Planos de instalación eléctrica (monofásica y trifásica) - Proyecto ejecutivo Dirección y fiscalización de Obra
Cel: 0981 363809 - 0983 128100 ideasconstructoraparaguay@gmail.com
Leandro Cacavellos e/ Poetas Paraguayos-Asunción
COVARQ STUDIO
Arquitectura, Diseño, Reforma E Interiorismo. Obras Civiles y Proyectos.
Cel: 0992 310 936 | Correo: info@covarqstudio.com www.covarqstudio.com
E.M.A. FISCALIZACIÓN DE OBRAS/ ASESORAMIENTO constructivo/ presupuestos y control/ diseño y planos municipales al 0981-296084. Arq. Enrique Marín Abente (enrique.marinabente@gmail.com)
C EH A S A
Rut a 2 Mc al E stigar ribia K m 32, 5 - It auguá | Tel: (029 4) 222-224 / (029 4) 220 -5 33 | Cel: (0 981) 4 4 86 36 - Mail: info@c eha c om py | vent as@c eha c om py
ME TA LURG IC A L A S OLUC ION
Una empre s a del Gr up o Tecnoedil S A E xc avación de pilote s gr an diámetr o Tel.: (021) 2919 47 Mail: tecnoedil@tecnoedil c om py ww w tecnoedil c om py
P ERF OR AC IÓN DE P ILOT E S PA R A C IMEN TAC IÓN Y
F UNDAC IONE S
P ar a edificios , silos , dep ósitos y puente s , t ambien tubulone s , movimiento de suelo o alquiler de equip os par a la c onstr uc ción
Cel (0 981) 231- 0 4 0
GF F UNDAC IONE S
F abric ación de pilote s per for ados S er vicio de Ingeniería Ytor or ó N° 17 c / S an Mar tín - L uque
Tel.: (0 985) 751 4 4 6 Mail: jos e gene z@gf c om py
BISSOPERALTA FUNDACIONES
somos una empresa dedicada a la perforacion de pilotes, prestamos servicios en todo el territorio nacional. cel: 0971 816607 email:bissoperalta@gmail.com su consulta no molesta!
C EH
Rut a 2 Mc al E stigar ribia K m 32 5 - It auguá | Tel: (029 4) 222-224 | (029 4) 220 -5 33 | Cel: (0 981) 4 4 86 36 | Mail: info@ h | t @c eha c om py
HERRERÍA
HERRERÍA DANI
Estructura metálicas / Rejas / Barandas / Puertas / Cortinas / Tinglados / Automatización de portones Cel: 0981115625 - Tel: 021574396 herr.dani03@gmail.com
Saturio Ríos c/ Manuel Ortiz Guerrero - San Lorenzo
ME TA M
Por tone s bas culante s , r ejas , bar andas , e s c aler as de c ar ac ol, balancine s | Dir.: 13 Pr oyec t adas c / ColónTel.: 4 8 0 6 20 Email: met amc amino@hotmail c om
A RQUI T EC T UR A + INGENIERÍ A S R L Concr eter a - Pr oyec tos y Constr uc ción
E-mail: ar quitec tur aingenieria@hotmail c om
Tel.: (071) 20 0 - 6 0 0 - Dir.: Juan L eón Mallor quín 1520
IMCOPAR S.A. (021) 225-600 | (021) 660-444 (0982) 282-078|svaliente@imcopar.com.py www.imcopar.com.py | José A. Flores 3530 - Asunción
PRODUCTORA INMOBILIARIA
Terrenos para edificios y condominios 0983 225 555 Productorainmobiliaria.py@ gmail.com Productorainmobiliaria.com
Av. Japón casi Fénix Bogado - Asunción
SIK A PA R AGUAY S . A – IN AT EC
Aditivos p/ hor migón, Membr anas A islante s , Pis os y Tr at amientos Adhe sivos p/ Cer ámic os imper meabiliz ante s , S elladore s - Tel: (021) 289 6 00 0Mail: inatec@ ik
ALTA INGENIERÍA SRL
Paso de patria 1012, c/ vista al río - San Antonio TEL: 021 339 5199 - www.alta.com.py
Servicio de Automatización Industrial GCA SA - Servicio de Ingeniería Integral
C ar pinteria met alic a, e str uc tur as y her r eria en gener al | Cel: (0 981) 5 91) -195 | Email: met alur gic a las olucion@hotmail c om | F do de la Mor a - P ar aguay
Instalación y mantenimiento de maquinarias de todo tipo Instalaciones Eléctricas (En baja y media tensión, iluminación - tableros eléctricostransformadores - Banco de capacitoresacometida - instalación de motores - gestiones de ANDE - instalaciones y mantenimiento de A. A-ha Cámara Frigorífica.) Tel:021960336 Cel:0981930848
Contactos: ing.gcasa@gmail.com - administración @gcasa.com.py - areatecnica@gcasa.com.py
Celulares: 0985738555 - 0985744840
T.I.S.A
Obras civiles, industriales y portuarias. Tel. 0225 952356 Cel. 0981281174 mail: jose.baez@tisa.com.py - Villeta - Paraguay
GOBBI CONSTRUCTORA S.A
Proyectos y ejecución de obras en todos los estilos. Entrega con llave en mano. Tel: 0644 20093 / 0983
989 - 807 - Dir: Av. Rio Paraná y Gral. Bernardino Caballero - Minga Guazú gobbi_constructora@hotmail.com
CALDETEC INGENIERIA S.R.L
Ejecución de obras Civiles, Viales y Electromecánicas
Dirección: Avda. Ita Ybate 1907 c/ Avda. José Félix Bogado - Tel: 302 470/2| Mail: caldetec@rieder.net.py INTERMEL DEL ING. ALEJANDRO ACOSTA N. Provisión, instalación y mantenimiento de sistemas de aire acondicionado. Proyectos y montajes de instalaciones electromecánicas y eléctricas.
Dirección: Guido Spano km 4 1/2 B° San José. CDE. Tel.:(061) 573-672 / (0983) 621-348
Mail: ingaran@hotmail.es
SANTA MÓNICA INGENIERÍA Y SERVICIOS S.A
Montaje Electromecánico Extensión de Líneas MT y BT Instalaciones Eléctricas Elaboración de Proyectos Civiles y Arquitectónicos Proyecto de Ejecución de Obras Civiles Planos Arquitectónicos y Eléctricos Otros Servicios: Instalaciones, Reparaciones y Mantenimientos de Aires Acondicionados Servicios de Albañilería, Plomería y Pintura Limpieza en Obras
Ventas: Ascensores Trafo Generadores www.sanmis. com.py Santa Mónica Ingeniería y Servicios S.A (0982) 970 344 santamonica@sanmis.com.py
OMEGA INGENIERÍA
Proyecto, dirección y ejecución de montajes y mantenimientos electromecánicos, generadores, reparación y venta - KM 16 1/2 B° San Isidro - CDE - Tel: (061) 576-342 - Cel: (0983) 345 - 004 - (0983) 238 - 799
Mail: omega@omega.com.py
INTECH SRL
Solución en trabajos electromecánicos. Instalaciones electromecánicas, montajes, automatización, proyectos de ingeniería, mantenimiento preventivo y correctivo de generadores. Dirección: Emiliano R. Fernández 3403 c/ Juana María de Lara, Asunción. Tel: (021) 676 509 Mail: intechasu@gmail.com
DI TAL
De s arr ollo de cur s os abier tos e in c ompany, implement ación, ase s oría y ge stión de pr oyec tos BIM, de s arr ollo de pr oyec tos | Email: cur s os@dit alento c om py | www.ditalento.com.py | (0 98 4) 75 9 - 0 6 3 | Dir: Defensa Nacional 952 c/ Gral. Santos, barrio Las Mercedes - Asunción
MADERA Y METAL S.R.L
Cartelería, Señalética, Grabados y Letras Corpóreas. Caballero 691 Esq Herrera. www.maderaymetal.com.py Whatsap (0981) 208-308
DECO MUEBLES
Mantenimiento en Gral. Colocación de alfombras, pisos vinilicos, mamparas, aberturas, puertas, tapicería, herrería.
Dirección: Aca Yuasa c/ Capitán Figari
Tel: 021 373 410 - 0971 936 858
Vent a de materiales de construcción en gral. Sanitarios, pisos y azulejos, art. de electricidad, iluminación, plomería, pinturas, ferretería, hierros, varillas. Instagram: @deliaelisasa E-mail: deliaelisas @gmail.com Web: www.deliaelisa.com.py Tel: (0522) 42548 (0984) 900145 Caaguazú
C ONS T RUC C IONE S I TA C OT Y S . A .
Venta de todo tipo de materiales de construcción. Servicio de contenedores y bobcats| Avda. Félix
Bogado 1590 - Asunción | Tel.: 021 311-713 / 021 373-585 | (0981)503-692
C EH A S A
Rut a 2 Mc al E stigar ribia K m 32, 5 - It aguá
Tel.: (029 4) 222-224 | (029 4) 220 5 33
Cel.: (0 981) 4 4 8 6 36 Mail: info@ c eha c om pyvent as@c eha c om py
INDUB A L – MOS A IC OS BL A NG INO
Mos aic os interiore s y e x teriore s , L os et as , Ac c e s orios
Tel: 291 937 | Cel.: 0 981 9 9 0 0 0 9 | Jos e Gome z
Brizuela 1225 e s q Tte A lvar enga - B ar rio Mbur ucuy á ww w blangino c om ar
EQUIPA S.R.L.
Pisos de alto transito, granito interior, mosaicos graníticos, podotactiles, atérmicos, polipropilenos, césped sintético y wpc ecologic. Bordes y Pisos Atermicos, Granito interior y exterior, Pisos WPC para Deck y Perfiles WPC - Lillo 1460 e/ Dr. Roque Gaona - Villa Morra | (021) 605-5333 (0983)879-000 | equipa1@equipa.com.py | www.equipa.com.py
AC S A INGENIERI A S A
Obr as civile s y viale s , eléc tric as e hir áulic as , alquiler de maquinas pe s adas , movimiento de suelos , tr ansp or te de maquinaria | (0 98 4) 5 38 - 0 4 6 | ww w ac s aingenieria c om py acsapy@gmail.com
ITAL CASA
Constructora, arquitectura, reformas, plomeria, albañilería, electricidad, carpintería, limpieza y decoración. Construimos tus sueños, con llave en mano. Cel: 0976488186 mail:pierluigimelillo82@gmail.com
Air Control - Ing. Mario Ballasch
Aire Acondicionado-Proyectos e Instalacion marioballasch@hotmail.com- 0981 410654
PCI.COM.PY
TERMOCALEFÓN MANCHINI
Modelos de 30 a 200 litros.Posición vertical y horizontal. Teléfonos 021 674193. -0971948344 3 años de garantía, service y repuestos
T EC NIME
F abric ación de techos y toldos de p olic ar bonato y chapa tr aslúcida Tel.: (021) 6 4 0 -205 (0 982) 5 0 0 -225 ww w tecnimet al c om py
Instalaciones Hidráulicas, Electrónicas convencionales e inteligentes, Bocas de Incendio, Siamesas, Puertos de Control, Válvulas de Flujo, Motores, Tableros, Tanques de Agua de todos los tamaños y tipos, Señalética, Luces de Emergencia, Planos, Proyectos y adecuaciones, Asesoramiento, Fiscalización, Obras y Construc.
Cámaras CCTV e Instalaciones Eléctricas.
TECNIMETAL
Fabricación, reparación y automatización de portones basculantes, pivotantes y corredizos. | Tel.: (021) 640205 | (0982) 500-225 www.tecnimetal.com.py
SPA SECURITY
Distribuidor de motor para porton automático y equipo de seguridad. Marcas SPA y Compatec. | Avda. Mcal. López c/ Waldino R. Lovera - Fdo. de la Mora |
MOBIL I A , DISEÑO Y FA BRIC ACION DE MUEBL ES A
MEDIDA
S olucione s c or p or ativas par a el mundo inmobiliario (0 974) 6 26 -10 0 | info@mobilia c om py | ww w mobilia c om py | Avda Eus ebio Ay ala 88 0 e/ Gr al S antos - B o Pinoz a, A suncion Rede s S ociale s: mobilia py
YPAKARAI MUEBLES
Diseño y ejecución de muebles a medida. Muebles rústicos, industrial, equipamiento para quincho entre otros. Ypacarai - Ruta 2 km 42. Tel: 0981 - 120 - 744 @ypakaraimuebles
SHOP P INGL A S S
Aber tur as Pis os Cielo Ras os Reve stimientos
Tel: (021) 9 0 6 -951/3 | ww w shoppinglas s c om py
PISOS
LA MADERA PISOS DE PARQUET
Listonados, lamparquet colocación, pulido, plastificación encerado, revestidos |Cel: 0981 432 022 - Gral Miranda 3070
DECO MUEBLES
Mantenimiento en Gral. Colocación de alfombras, pisos vinilicos, mamparas, aberturas, puertas, tapicería, herrería.
Dirección: Aca Yuasa c/ Capitán Figari
Tel: 021 373 410 - 0971 936 858 decomuebles@gmail.com
POOL SERVICE PARAGUAY
Diseño de piscinas, construcción, fiscalizaciones , mantenimiento de piscinas, mantenimiento de equipos de piscinas (filtros,bombas,luces, cañerias, etc), colocacion de pisos atermicos y porcelanatos. Diseño y Construcción de quinchos ideales con tu piscina. infopoolservicepy@gmail.com
Instagram: @poolservicepy 0961810385/0983427189
Madame Lync c/Natalicio Talavera, San Lorenzo
EQUIPA S.R.L.
Pisos de alto transito, granito interior, mosaicos graníticos, podotactiles, atérmicos, polipropilenos, césped sintético y wpc ecologic. Bordes y Pisos Atermicos, Granito interior y exterior, Pisos WPC para Deck y Perfiles WPC Lillo 1460 e/ Dr. Roque Gaona - Villa Morra | (021) 605-5333 | (0983)879-000 | equipa1@equipa.com.py | www.equipa.com.py
Puertas Cortafuego de una y doble hoja con Certificación UL de Resistencia al Fuego
Tel. +595 982 345004
Mail: info@metalurgicavera.com.py www.metalurgicavera.com.py
Mantenimientos Programados. Llegamos a todo el país
Tel: 021 233 - 191 y 0981 484 - 340 Mail: info@pci.com.py / info@sti.com.py
MA RDE S A
Materiale s de Constr uc ción en Gener al | Tel: 513 392/4 - 5 01 6 52/55 (R A) int 10 4 /105 en A sunción | (0 61) 572-231/3 en C DE | Mail: materiale s dec onstr uc cion@ mar de s a c om py
SIK A PA R AGUAY S A – IN AT EC
Aditivos p/ hor migón, Membr anas Aislante s , Pis os y Tr at amientos Adhe sivos p/ Cer ámic os imper meabiliz ante s , S elladore s Tel: (021) 289 6 00 0 inatec@py sik a c om
NEGRITA
Carteles pvc, señalizacion
grabado láser en madera, cuero, acero, sublimación, merchandising, uniformes, regalos empresariales Negrita _ instagram:@ negrita.py WhatsApp 0994760350
V I VA BIEN S A A horr o e Inver sión en m2
GEOC A D C ONSULTOR A TOP OG R Á FIC A Y A MBIENT E A L
Consultoría GEOCAD, Ing. Jorge Daniel Quintana Tasaciones, rurales, urbanas, industriales, silos. Maquinarias y Vehículos. Para todo el Pais.
Elaboración de plan genérico, estudio de disposición de efluentes, estudio de impacto ambiental preliminar, auditoría ambiental, Servicios ambientales
Calle Alberdi e/calle 5ta y calle 6ta – rotonda Area 1 –CDE- Alto Paraná (0983) 660165 – (061) 572 905.
TASACIONES - ARQ. MATEO NAKAYAMA
Perito tasador BCP y CSJ - arquitectura
Tel 0981 475 282 Manuel talavera casi Antolin Irala barrio herrera planta baja - www.nakayamastudio.com
PROF. ING ROGELIO A. ESPINOLA
R.D. Master Internacional en Avaluos Propios y Catastro Multiproposito.Avaluaciones de Propiedades Urbanas, Rurales, Industriales y Maquinarias, Vehículos y Empresas (Normas Internacionales) Avaluador Panamericano. Reg. 480.- BCP 0005/2021. Perito Judicial Matricula 2387. CSJ.
Tel.: (021) 683-195 | (0994) 256-726 | comercial@ spa-security.com.py
Propiedades Urbanas, Rurales, Industriales y Maquinarias, Vehículos y Empresas (Normas Internacionales) Avaluador Panamericano. Reg. 480.- BCP 0005/2021. Perito Judicial Matricula 2387. CSJ.
ARQUITECTURA + INGENIERÍA S.R.L.
Concretera - Proyectos y Construcción. E-mail:arquitecturaingenieria@hotmail.com
Tel.: (071) 200 - 600
Dir.: Juan León Mallorquín 1525 / Oficina 1520 .
GONZÁLEZ JACQUES CONSULTORES.
Tasaciones rurales y urbanas. Asesoría ambiental y del SENAVE. San Alberto. Alto Paraná. Cel 0983 531682
AG C ONS T RUC C IONE S
Tas acione s ur banas y r ur ale s , pericias técnic as y judiciale s , fianz as Tel 021 20 6 - 6 91 | 0 98 3 167-55 4 | r ubendarioaguiler a@gmail c om
PROF. ING ROGELIO A. ESPINOLA R.D.
Master Internacional en Avaluos Propios y Catastro Multiproposito.Avaluaciones de Propiedades Urbanas, Rurales, Industriales y Maquinarias, Vehículos y Empresas (Normas Internacionales) Avaluador Panamericano. Reg. 480.- BCP 0005/2021. Perito Judicial Matricula 2387. CSJ. 0981405867 rogelio@rieder.net.py
GRUPO LAS CUMBRES S.A.
Especialistas en techos verdes, Instalación de Biodigestores y obras con terminación y diseño de interiores de calidad.
Email: coorgeneral@grupolascumbres.com
Tel: (021) 508 998
Dir: Hipolito Medina 7441, Asunción Web: www.grupolascumbres.com
NM
Distribuidor oficial
|
Mail:info@nmter minacione s c om
TRAFOP
Dirección: Corrales 888, Zona Norte - Fndo. de la Mora Tel.: (+59521) 500-162 / (+59521) 500-771 / (+595981) 559-595 | Mail: ventas@trafopar.com.py | www.trafopar.com.py
C RY S TA L HOUSE V idrios laminados y templados , crist ale s , e spejos , boxe s , e smerilados A se s or amiento y c oloc
VILUX S.A. - Procesamiento de vidrios, comercialización de carpinteria de aluminio y construcción en seco - Tel. (021) 518 8000 - Pitiantuta 638, Zona Sur - Fernando de la Mora - recepcion@vilux.com.py