
“Holly
“Holly
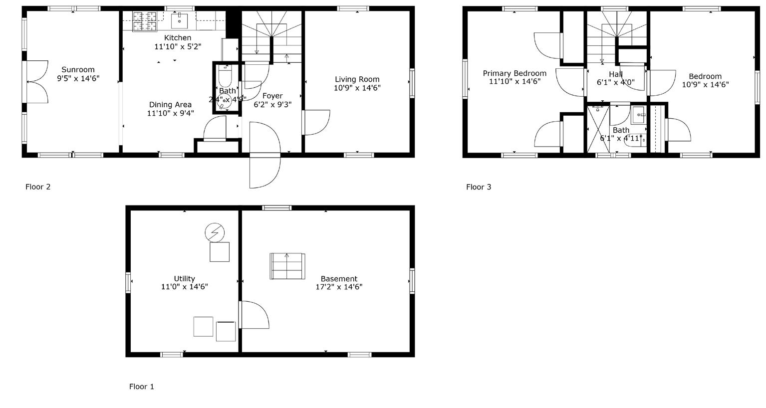
Cottage One
• Kitchen with four burner Beko gas stove
• Sunroom with French doors to private terrace
• Half bath on main floor
• Living room with two windows letting in sunlight
Second Level
• Two bedrooms
• One full bath with shower
• Washer and dryer on lower level
Cottage Two
• Open floor plan with living room/dining room combination
• Kitchen with granite counter, six burner stove, farm sink and dishwasher
• Primary bedroom with full bath
• Pool room/sunroom off kitchen
• Two bedroom upstairs with full bath and shower
• Washer and dryer in basement