PORTAFOLIO
ARQUITECTURA
2022-2025

ANTEPROYECTO
PORTAFOLIO
ARQUITECTURA
2022-2025
ANTEPROYECTO
Me considero una persona objetiva, crativa, activa y organizada con capacidad de liderazgo y trabajo en equipo multidiscplinario.
Arquitecta en proceso de tesis, año 2025, en busca de inserción y formación laboral, para ampliar y poner en práctica conocimientos. He tenido experiencia realizando proyectos universitarios arquitectónicos y de intervención urbanística Predisposición y posibilidad de ajustar horario a conveniencia.
ACADÉMICOS
Universidad Nacional de Asunción
Carrera de Arquitectura | Proceso de Tes s
Diplomatura en Diseño de Interiores
Universidad Tecnológ ca Nacional de Buenos Aires - Id l ca
Deco
Actual
DIplomatura en Apreciación de las Artes Visuales
Instituto Superior de Arte “Dr. Olga Blinder”(ISA)
Agosto - D ciembre 2023
HABILIDADES
Desarrollo de Proyectos Ejecutivos de Obra - Énfasis en
Representación 2D - Autocad nivel Avanzado.
Desarrollo de Proyectos BIM - Representación 2D y 3D -
Archicad nivel Medio.
Desarrollo de Proyectos varios - Representación 3D -
SketchUp nivel Medio.
Renderizado de Proyectos varios - Vray y D5 nivel Medio.
Edición de imágenes, planos y presentaciones -
Photoshop nivel Medio.
Paquete Office nivel Avanzado.
Realización de presupuesto y cómputo métrico.
PROYECTOS
DESTACADOS
Relevamiento y digitalización en edificios arquitectónicos y espacios públicos en la Facultad de Ciencias Agrarias, campus UNA.
Proyecto de Enseñanza Universitaria - Proyecto:
Apoyando a mis pares - Voluntariado.
Proyecto Universitario - Propuesta de Masterplan e intervención urbanística Barrio Sajonia.
Proyecto Universitario - Propuesta de Masterplan, intervención urbanística y Anteproyecto de Complejo Habitacional Avda. Artigas.
andreaort zquevedo@gma l com Fernado de la Mora - Zona Norte
Castellano y Portugués Nativo Inglés Medio
Guaraní Básico
CURRICULUM VITAE
PROYECTO
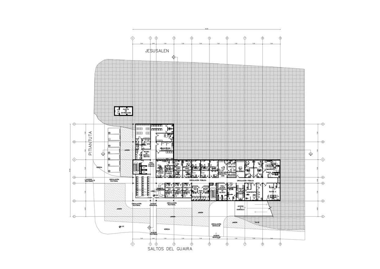
HOSPITAL DISTRITAL 2023
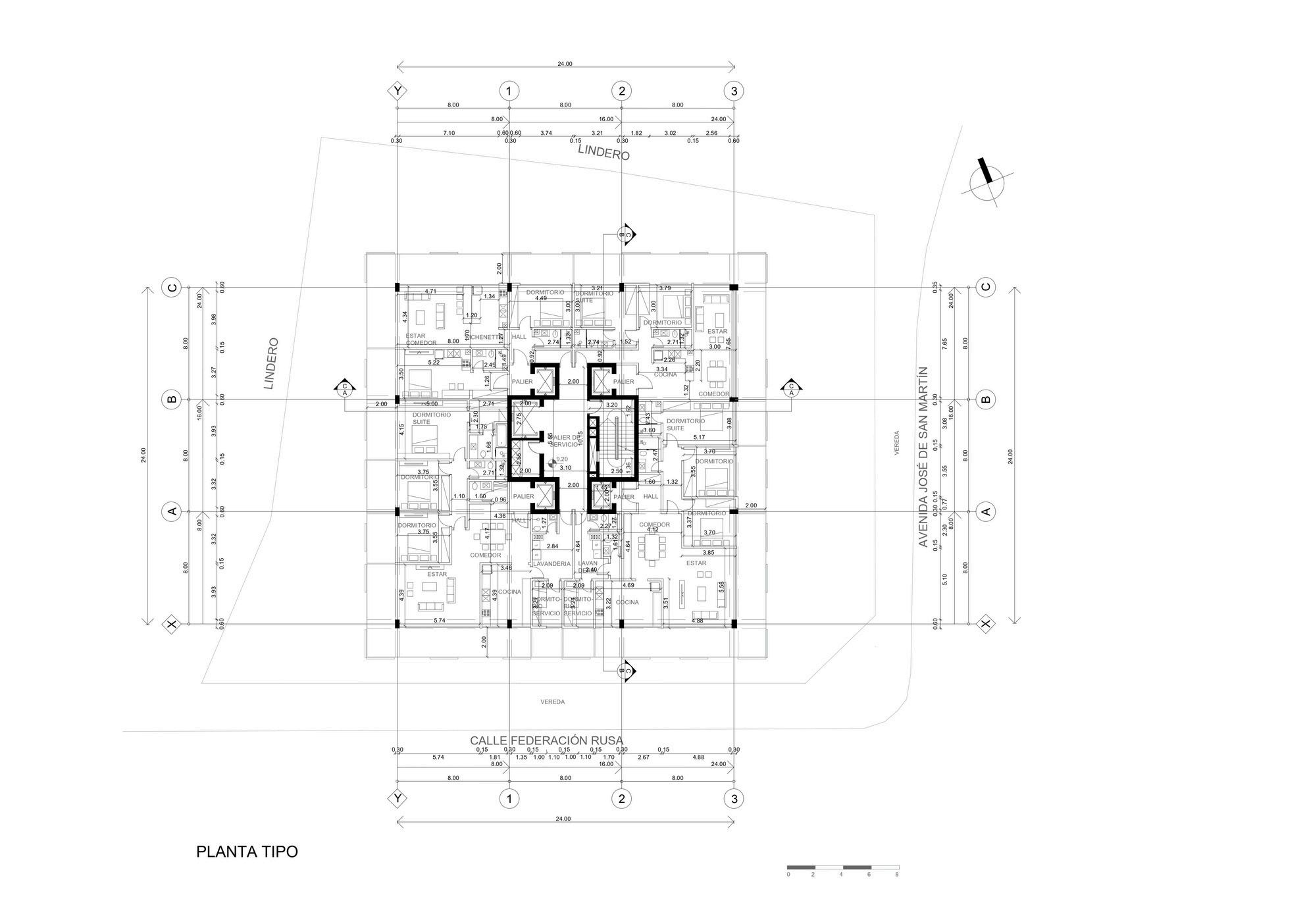
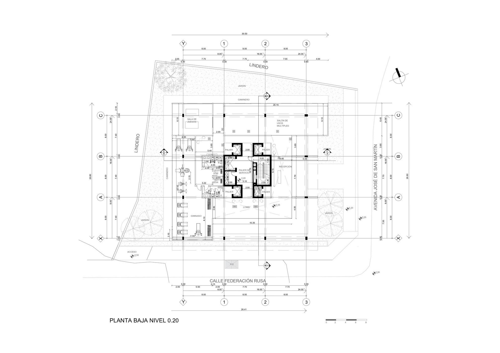
PROYECTO EDIFICIO RESIDENCIAL 2022
REPRESENTACIÓN 3D
REALIZADO EN EL AÑO 2023, ANTEPROYECTO DE HOSPITAL DISTRITAL EN FERNANDO DE LA MORA-ZONA SUR, CON
DE SERVICIOS, CONSULTORIOS, QUIROFANOS, PROYECTO DE APROXIMADAMENTE 1400M2
REALIZADO EN EL AÑO 2022, EDIFICO EN ALTURA, DISEÑADO SOBRE EJE HABITACIONA L, CON DOS NIVELES DE AMENITES Y 20 NIVELES DE DESARROLLO DE DEPARTAMENTO DE 1 A 2 HABITACIONES
REALIZADO EN EL AÑO 2022, EDIFICO EN ALTURA, DISEÑADO SOBRE EJE HABITACIONA L, CON DOS NIVELES DE AMENITES Y 20 NIVELES DE DESARROLLO DE DEPARTAMENTO DE 1 A 2 HABITACIONES