
2 GESCHAKELDE VILLA’S
2 GESCHAKELDE VILLA’S
13.1 & 13.2
De bijzonder ontwerpen van O5B Architecten zijn mooi gedetailleerd en verrassend compleet. Met stijlvol lichtblauw, witte hekjes, houten gevels en intieme buitenruimtes. Zo ben je het hele jaar voorbereid op de zon. De pasteltinten, het vele hout en de natuurlijke materialen vormen een zomerse eenheid.
Of stop na 150 m. wandelen voor een drankje bij het Paviljoen van De Krijgsman.
De unieke ligging van De Krijgsman is te danken aan de nabijheid van de oude Zuiderzee en het industriële verleden. Aan de noordkant ligt Het Kruitbos met de acht meest exclusieve plangebieden. Twee daarvan zijn Erf 13.1 & 13.2. Zonnig gelegen tussen het bos en het karakteristieke Muiden met al zijn voorzieningen.
Vanaf je voordeur wandel je straks zo naar de nog ruige oevers en intieme strandjes van het IJmeer waar je heerlijk kunt zwemmen, surfen of picknicken.
Boodschappen doen met de boot. Borrelen bij de sluis. Een broodje eten op de steiger. Varen langs historische plekken. Zeilen op het IJmeer. Met de sloep naar Amsterdam. Overnachten in een haven. IJsjes eten aan de kade. Schommelen aan de waterkant.
Varen door de grachten. Of je nu een liefhebber bent van windkracht 5 of liever dobbert, geen weekend zal ooit meer hetzelfde zijn.
plint. Board and batten en metselwerk spelen met het
De charme van de kust… zwarte dakpannen contrasteren met lichte gevels.
De gevelbekleding wordt met verduurzaamd hout en baksteen
Rijke buitenruimtes, zowel aan de voor- als achterzijde van de woning.
Ruimte voor persoonlijke wensen. Er zijn meerdere opties beschikbaar om de woning
Band 600 mm koppelt woningen
Iets terugliggend
13.2
Gemetselde steunberen
Houten hekwerk om patio af te sluiten (deze is eventueel te openen naar Strandpad)
Pad richting entree
Uitbouw optioneel
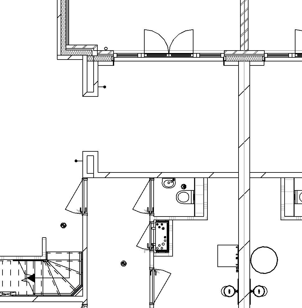
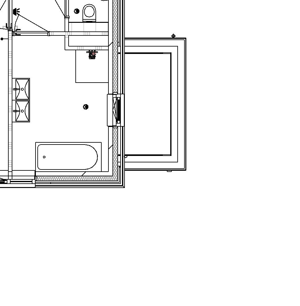
De slimme positionering van de entree, de trap en het toilet is de volledige breedte aan zowel de voor- als achterzijde als leefruimte beschikbaar. Bovendien is er
2
ca. 4250m
Bespreek de verkoop opties van deze woningen met uw makelaar.
Overloop
1
Wasruimte
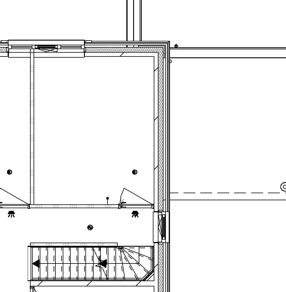
Hobbyruimte Overloop
EERSTE VERDIEPING
Hobbyruimte
Techniek
TWEEDE VERDIEPING
HALF VRIJSTAAND
Woonkamer Woonkamer
RUIM EN LICHT
• Woonoppervlakte van ca. 235 m 2
• Perceeloppervlakte van ca 837 m 2
Bespreek de verkoop opties van deze woningen met uw makelaar.
3 Slaapkamer 2
Overloop
1
EERSTE VERDIEPING
Overloop
Techniek
TWEEDE VERDIEPING
Noordoost gevel Zuidwest gevel
Duurzaam wonen: Verhuis naar uw nieuwe huis en rijd een jaar lang in onze 100% elektrische deelauto’s.
Kostenbesparing: Bespaar op autokosten met 12 maanden gratis toegang tot het Vloto Pro-abonnement bij de aankoop van uw huis. Raadpleeg vloto.nl voor de gebruikerskosten.
Gebruiksgemak: Ervaar de luxe van een premium deelauto voor een heel jaar, direct beschikbaar via onze handige app.
Gemeenschapsgevoel: Verbind met uw nieuwe buurt en deel comfortabele, elektrische auto’s met uw buren.
Parkeren: geniet van volledig gratis parkeren in Amsterdam!
Toegang tot een gevarieerde vloot: Kies uit verschillende elektrische modellen die passen bij uw behoeften.
www.vloto.nl
DISCLAIMER:
Deze uitgave is met zorg samengesteld, onder voorbehoud van onvolkomenheden en/of foutieve informatie. Het doel van deze uitgave is geïnteresseerden te informeren over de woonmogelijkheden in de Erven 13 (onderdeel van De Krijgsman Muiden). Er kunnen op geen enkele wijze rechten aan worden ontleend. De in deze uitgave opgenomen ‘artist impressions’, (plattegrond) tekeningen en schetsen, geven een globale impressie van de woningen. Niets uit deze uitgave mag zonder toestemming van de ontwikkelaar worden overgenomen of gekopieerd. Copyright juli 2024.
Branding & design: KNSF Vastgoed.
KOM LANGS VOOR DE ULTIEME KRIJGSMAN EXPERIENCE
DE KRIJGSMAN MUIDEN is een ontwikkeling van KNSF Vastgoed
De Krijgsman Muiden is een ontwikkeling van KNSF Vastgoed
Informatiehuis | De Krijgsman Muiden Kruitpad 14 1398 CP Muiden 0294-466608
Informatiehuis | De Krijgsman Muiden Kruitpad 15 1398 CP Muiden 0294 466608
VERKOOPINFORMATIE:
Verkoopinformatie:
Eefje Voogd Makelaardij 020 - 30 50 560
Brockhoff Makelaars 020 - 54 37 375
Brockhoff Makelaars
Eefje Voogd Makelaardij 020 - 30 50 560