Dearq 34. Agua y espacio construido / Water and Built Environment

Page 1

Agua y espacio construido De arq 34

investigación
$40.000 COP 9 77201 13 18009

AGUA Y ESPACIO CONSTRUIDO WATER AND BUILT ENVIRONMENT

Septiembre de 2022

Juan Calatrava

Francisco A. García Pérez

Editores invitados

Manuela Tafur Victoria Gestora editorial

Adriana Páramo Urrea

Coordinadora de publicaciones

Manuela Tafur Victoria

Arte y diagramación

Carolina Rodríguez Traducción

Ella Suárez, Tiziana Laudano Corrección de estilo

Isabel Navarrete Astorquiza Susana Linares Betancourt Monitoras

Carolina Caycedo. Intervención de: Llanura aluvial del río Paraná, Argentina © NASA Imagen de carátula

Ansel Adams

OMA Archives Imágenes de postales

La Imprenta Editores S.A. Impresión

Dearq Universidad de los Andes Facultad de Arquitectura y Diseño Departamento de Arquitectura Carrera 1 Este # 18A-12, Bloque C, Piso 5 Tel. +(571) 339 4949, Ext. 2456 Bogotá, Colombia https://revistas.uniandes.edu.co/journal/dearq dearq@uniandes.edu.co E-ISSN 2215-969X

Precio por unidad: $40.000 pesos (Colombia) Ediciones Uniandes Carrera 1a # 18A-12, Bloque Tm Tel. +(571) 339 4949, Ext. 2274

Bogotá, Colombia http://ediciones.uniandes.edu.co ediciones@uniandes.edu.co

Distribución, ventas y suscripciones Tienda Uniandes https://tienda.uniandes.edu.co

Nota legal

La revista no realiza cobros a los autores por la sumi sión de artículos, evaluación por pares, corrección de estilo o publicación. La versión impresa de la revista tiene un precio y puede adquirirse en los puntos autorizados para la venta y comercialización.Todos los contenidos de la revista Dearq, a menos de que se indique lo contrario, están bajo la licencia de Creative Commons Attribution License*

*Atribución: Esta licencia es la más restrictiva de las seis licencias principales, sólo permite que otros puedan descargar las obras y compartirlas con otras personas, siempre que se reconozca su autoría, pero no se pueden cambiar de ninguna manera ni se pue den utilizar comercialmente.

Universidad de los Andes | Vigilada Mineducación

Reconocimiento como Universidad: Decreto 1297 del 30 de mayo de 1964. Reconocimiento personería jurídica: Resolución 28 del 23 de febrero de 1949 Minjusticia. Acreditación institucional de alta calidad, 10 años: Resolución 582 del 9 de enero del 2015, Mineducación

Dearq 34
Raquel Bernal Salazar Rectora Universidad de los Andes Rafael Hernando Barragán Romero Decano Facultad de Arquitectura y Diseño Claudia Mejía Ortiz Directora Departamento de Arquitectura Camilo Salazar Ferro Director Lucas
E-ISSN 2215-969X Revista de Arquitectura de la Universidad de los Andes

Dearq es una revista cuatrimestral (enero-abril, mayo-agosto y septiembre-diciembre), que publica al inicio de cada período, creada en el 2007 por el Departamento de Arquitectura de la Universidad de los Andes (Colombia). Su objetivo es contribuir a la difusión de análisis, investigaciones, reflexiones y opiniones críticas que la comunidad científica nacional e internacional elaboren sobre la arquitectura, la ciudad y sus áreas afines. La revista recibe contenidos inéditos y originales, sin postulación simultánea, en español y en inglés.

Está dirigida a una comunidad científica que incluye investigadores, profesionales, estudiantes e interesados en contribuir con el diálogo y el intercambio de ideas basadas en las discusiones y problemáticas abordadas por la revista.

La estructura editorial de la revista Dearq se divide en secciones:

La Editorial está a cargo del Equipo Editorial que introduce la temática del número.

La sección Investigación reúne un conjunto de documentos que abordan el tema específico del número mediante la exposición de avances o resultados de investigaciones con una perspectiva crítica y analítica.

La sección Proyectos presenta una selección de obras arquitectónicas y urbanas recientes y/o significativas, que complementan el tema específico de cada número.

La sección Creación expone trabajos creativos que desde disciplinas distintas a la arquitectura abordan temas de naturaleza espacial o urbana.

Dearq is a quarterly publication (January-April, May-August and September-December), that is published at the beginning of each of these periods, created in 2007 by the Department of Architecture of the Universidad de los Andes (Colombia). Its objective is to contribute to the dissemination of the research, analyses and opinions that the national and international academic community elaborates on architecture, urbanism and related areas. The journal receives previously unpublished and original contents in Spanish and English.

It is aimed for a scientific community that includes researchers, professionals, students and other interested in contributing with the dialog and the exchange of ideas based on the discussions and issues proposed by the journal. The structure of the Dearq journal is divided in sections: The Editorial section is in charge of the editorial team, who introduces the issue's thematic. The Research section integrates a series of documents and content about a specific topic proposed by the journal. They must present advances in or results of research, or thematic reviews from a critical and analytical perspective.

The Project section presents a recent and/or meaningful selection of architectural and urban built projects that illustrate and complement the issue’s theme.

The Creation section exhibits creative works that address spatial or urban topics through disciplines different from architecture.

Fe de erratas: En la revista número 33, "Espacios abiertos en la ciudad latinoamericana", la información referente a los créditos del proyecto Parque Prado Centro es incorrecta (págs. 83 y 98). El proyecto es resultado del diseño del arquitecto Edgar Mazo, al interior de la Dirección de Proyectos Urbanos Estratégicos de la Secretaría de Infraestructura de la Alcaldía de Medellín.

Fe de erratas: In issue number 33, "Open Spaces in the Latin American City," the information regarding the credits for the project Parque Prado Centro are incorrect (pp. 83 and 98). The project is the result of the design by architect Edgar Mazo, within the Dirección de Proyectos Urbanos Estratégicos from the Secretaría de Infraestructura, Alcaldía de Medellín.

Editores Invitados - Guest Editors

Juan Calatrava, Universidad de Granada, España

Francisco A. García Pérez, Universidad de Las Palmas de Gran Canaria, España

Comité Editorial - Editorial Committee

Andrés Burbano Valdes, Universidad de los Andes, Colombia

Daniel Cardoso Llach, Carnegie Mellon University, Estados Unidos

Francisco A. García Pérez, Universidad de Las Palmas de Gran Canaria, España

Daniel Huertas Nadal, Universidad de los Andes, Colombia

Hugo Mondragón López, Universidad Católica de Chile, Chile

Sandra Reina Mendoza, Universidad Nacional de Colombia, Colombia

Carolina Rodríguez Bernal, Universidad Piloto de Colombia, Colombia

Diego A. Rodríguez Lozano, Tecnológico de Monterrey, México

Denise Helena Silva Duarte, Universidade de São Paulo, Brasil

Comité Científico - Scientific Committee

Rodolfo Manuel Barragán Delgado, Tecnológico de Monterrey, México

Ricardo Castro, McGill University, Canada

Pilar Chías Navarro, Universidad de Alcalá de Henares, España

Fernando Lara, University of Texas at Austin, Estados Unidos

Juan José Lahuerta, Universitat Politècnica de Catalunya, España

Jorge Francisco Liernur, Universidad Torcuato di Tella, Argentina

Ángel Martín Ramos, Universidad Politécnica de Cataluña, España

Catalina Mejia Moreno, SSoA University of Sheffield, Reino Unido

Ton Salvadó Cabré, Universitat Politècnica de Catalunya, España

Marta Sequeira, Universidade de Évora, Portugal

Tatiana Urrea Uyabán, Universidad Nacional de Colombia, Colombia

Sheila Walbe Ornstein, Universidade de São Paulo, Brasil

Evaluadores - Peer Reviewers

La revista Dearq agradece la colaboración de las siguientes personas que cumplieron el rol de pares evaluadores de este número: Dearq journal acknowledges the collaboration of the following people who fulfilled the role of peer evaluators of this issue:

Belén Butragueño Diaz-Guerra, Cuesta College

Javier Arias Madero, Universidad de Valladolid Diego Guillermo Bermúdez Obregón, Universidad de los Andes Nataly Montoya Restrepo, Universidad EAFIT

Julián Sobrino Simal, Universidad de Sevilla Enrique Larive Lopez, Universidad de Sevilla Ana Igareta, Universidad Nacional de La Plata (UNLP), CONICET

Diana Catalina Acosta Parsons, Independiente Edith González Afanador, Universidad Nacional de Colombia

Juan Esteban Santa Zuluaga, Universidad de Antioquia Monica Arzoz Canalizo, Independiente Claire Doussard, UMR AUSser 3329 CNRS

Indexación, bases de datos y repositorios - Indexation, databases and repositories

• Actualidad Iberoamericana, Centro de Información Tecnológica (Chile), desde 2011

• ARLA - Asociación de Revistas Latinoamericanas de Arquitectura (Latinoamérica), desde 2012

• Art & Architecture Complete. EBSCO Research Databases (Estados Unidos), desde 2007

• Art & Architecture Source. EBSCO Research Databases (Estados Unidos), desde 2007

• Art Abstracts (H.W. Wilson). EBSCO Research Databases (Estados Unidos), desde 2010

• Art Full Text (H.W. Wilson). EBSCO Research Databases (Estados Unidos), desde 2008

• Art Index (H.W. Wilson). EBSCO Research Databases (Estados Unidos), desde 2008

• Avery Index to Architectural Periodicals & Avery Architectural and Fine Arts Library. Columbia University Libraries (Estados Unidos), desde 2010

• ANVUR, Agenzia Nazionale di Valutazione del Sistema Universitario e della Ricerca (Italia), desde 2018

• CARHUS Plus+, Revistes Científiques de Ciènces Socials I Humanitats (España)

• CLASE, Citas Latinoamericanas en Ciencias Sociales y Humanidades (México), desde 2018

• CINECA, Consultor Informático en Italia. Ministerio de Educación (Italia), desde 2017

• DAAI, Design and Applied Arts Index. Proquest (Estados Unidos), desde 2011

• DOAJ - Dictionary of Open Access Journals. Infrastructure Services for Open Access (Reino Unido), desde 2017

• Dialnet - Difusión de Alertas en la Red. Universidad de La Rioja (España), desde 2007

• EBSCO HOST (Estados Unidos), desde 2011

• Electronic Journals Library. Uneserität Regensburg (Alemania), desde 2010

• ESCI - Emerging Source Citation Index. Thomson Reuters (Estados Unidos), desde 2016

• ERIHPLUS - European Reference Index for the Humanities and the Social Sciences (Noruega), desde 2017

• Gale Cengage, Database Title List (Estados Unidos), desde 2010

• Google Académico, desde 2010

• HAPI - Hispanic American Periodicals Index. University of Califonia (Estados Unidos), desde 2012

• LATINDEX - Sistema Regional de Información en Línea Para Revistas Científicas de América Latina, el Caribe, España y Portugal (México), desde 2010

• LatinREV - Red Latinoamericana de Revistas Académicas en Ciencias Sociales y Humanidades. FLASCO (Argentina), desde 2018

• MIAR - Information Matrix for the Analysis of Journals. Universitat de Barcelona (España), desde 2012

• Ocenet - Editorial OCEANO (España), desde 2011

• Periódicos CAPES/MEC (Brasil), desde 2014

• Publindex. Colciencias (Colombia), desde 2021

• Redalyc - Red de Revistas Científicas de América Latina, el Caribe, España y Portugal. UAEM (México), desde 2011

• REDIB - Red Iberoamericana de Innovación y Conocimiento Científico (España), desde 2010

• ROAD - Directory of Open Access Scholarly Resources. ISSN International Centre (Francia), desde 2018

• Socolar - CEPIEC - China Educational Publications Import and Export Corporation (China), desde 2010

• Ulrich’s Periodicals Directory. Proquest (Estados Unidos), desde 2011

• Urban Studies Abstract. EBSCO Research Databases (Estados Unidos), desde 2007

• SCOPUS - Elsevier (Paises Bajos), desde 2022

Note:

Due to their expertise in research matters, the Guest Editors provide a thematic issue for the journal. These Editors propose the call for papers and participate, along with the Editorial Team, in a preliminary evaluation of submitted content and supervision of the review process of the articles.

The Editorial Committee establishes the editorial policy and safeguards its compliance; guides the editorial process in order to guarantee maximum quality, based on criteria established by the databases and evaluation systems of national and international journals; it ensures compliance with the ethical standards of publication in accordance with international standards and validates strategic lines of interest for the launching of new issues, as well as its publication schedule.

The Scientific Committee contributes in the national and international academic media to the dissemination of the journal, its numbers, international calls and events and also establishes links with recognized researchers and other academic and investigative bodies to identify possible collaborators , as peer reviewers, guest editors and columnists, among others.

Nota:

Por su experiencia en investigación, los Editores Invitados postulan una temática para un número de la revista. Dentro de sus compromisos está la propuesta de la convocatoria para recibir artículos, la participación, junto con el Equipo Editorial, en la revisión preliminar del contenido recibido y la supervisión del proceso de evaluación por pares de los artículos.

El Comité Editorial de la revista establece la política editorial de esta y salvaguarda su cumplimiento; orienta el proceso editorial con la finalidad de garantizar la máxima calidad, en función de criterios establecidos por las bases de datos y sistemas de evaluación de revistas nacionales e internacionales; vela por el cumplimiento de las normas éticas de publicación conforme estándares internacionales y valida líneas estratégicas de interés para el lanzamiento de nuevos números, así como su agenda de publicación.

El Comité Científico de la revista contribuye en el medio académico nacional e internacional a la divulgación de la revista, sus números, convocatorias y eventos internacionales y además, establece vínculos con reconocidos investigadores y con otras instancias académicas e investigativas para la identificación de posibles colaboradores, como pares evaluadores, editores invitados y articulistas, entre otros.

34 De arq Agua y espacio construido

RESEARCH

Water and built environment Juan Calatrava, Francisco A. García Pérez

Hygiene and ritual in OMA’s domestic architecture Luis Burriel Bielza

Designing with water in three periods of transformation in Medellín’s infrastructure and public space David Vélez Santamaría, Germán Darío Tamayo Osorio

Enveloping the marsh. Reflections on interventions in fragile landscapes.

The case of the Odiel Marshes Luis Miguel Cortés Sánchez, Javier López Rivera, Ramón Pico Valimaña

Agua y arquitectura. Poder y poesía en Keushu Daniel Vargas Torres

Venice. Water and Architecture Francesco Dal Co

PROJECTS

Blue-green infrastructure and the intermediate scale Manuela Guzmán Ramírez, Viviana Andrea Díaz Correa Can Cortada Roberto Soto Fernández

Maiporé Andrés Martínez Água Carioca Ooze

CREATION

The Fishing Net and the Golpan Carolina Caycedo

4

INVESTIGACIÓN

Agua y espacio construido Juan Calatrava, Francisco A. García Pérez

Higiene y ritual en la arquitectura doméstica de OMA Luis Burriel Bielza

27 37 48 60 66

16 96

Tres momentos del agua en la infraestructura y el espacio público de Medellín David Vélez Santamaría, Germán Darío Tamayo Osorio

Envolviendo la marisma. Reflexiones en torno a intervenciones en paisajes frágiles. El caso de las Marismas del Odiel Luis Miguel Cortés Sánchez, Javier López Rivera, Ramón Pico Valimaña

Agua y arquitectura. Poder y poesía en Keushu Daniel Vargas Torres

Venecia. Agua y arquitectura Francesco Dal Co

PROYECTOS

Infraestructura verde-azul y la escala intermedia Manuela Guzmán Ramírez, Viviana Andrea Díaz Correa Can Cortada Roberto Soto Fernández Maiporé Andrés Martínez Água Carioca Ooze

CREACIÓN

Atarraya y Batea Carolina Caycedo

Water and Built Environment 2 – 3

Agua y espacio construido

Water and built environment

Cómo citar: Calatrava, Juan y Francisco A. García Pérez. "Agua y espacio construido". Dearq no. 34 (2022): 4-15.

DOI: https://doi.org/10.18389/dearq34.2022.01

El artículo describe la relación entre el agua y el espacio construi do por el hombre, desde las primeras civilizaciones urbanas hasta nuestros días, y desde el objeto arquitectónico al territorio, por me dio de una serie de temas clave que permiten en parte desgranar este complejo y variable, aunque permanente vínculo: el simbolis mo, la catástrofe acuática y su domesticación, el diseño del jardín, la higiene y el ocio, el bioclimatismo y la sostenibilidad.

Palabras clave: agua, arquitectura, símbolo, catástrofe, jardín, higiene, sostenibilidad.

This article describes the relationship between water and hu man-built space, from early urban civilisations to the present time, and from the architectural object to the territory. This is carried out through the study of central topics that partly allow uncovering complex and variable (although permanent) links between symbol ism, water catastrophes and water taming, garden design, hygiene and leisure, bioclimatic design, and sustainability.

Keywords: water, architecture, symbol, catastrophe, garden, hygiene, sustainability.

Juan Calatrava jcalatra@ugr.es Universidad de Granada Francisco A. García Pérez fagp77@gmail.com Universidad de Las Palmas de Gran Canaria

Editores Invitados - Guest Editors

DOI: https://doi.org/10.18389/dearq34.2022.01

Dearq 34

La relación entre arquitectura y agua ha sido y es tan variable y fluida como esta última. Ofrece una amplísima diversidad de aproximaciones, problemas y reflexiones, en un abanico que va desde los aspectos simbólicos, cosmológicos o religiosos a la pura técnica de las instalaciones, pasando por la historia de la arquitectura y el urbanismo, la ingeniería, las cuestiones constructivas o la pro pia proyectación arquitectónica. No deja de ser una paradoja llamativa el hecho de que la firmitas, postulada por Vitruvio como uno de los tres ejes esenciales de la arquitectura, haya tenido y siga teniendo que confrontarse siempre —en positivo y en negativo— con la omnipresencia de ese elemento lábil que ya He ráclito identificó como la esencia de un mundo cambiante y ajeno a toda idea de permanencia.

Le Corbusier comprendió muy bien hasta qué punto el trabajo del arquitecto encontraba toda su razón de ser en las numerosas ramificaciones de ese en cuentro esencial entre lo sólido y permanente y lo fluido y fugaz. Cuando en 1955 publicó la que consideraba como síntesis definitiva de su pensamiento cosmológico, El poema del ángulo recto dejó en claro que la labor del creador (y, entre ellos, el arquitecto) no era otra que tender puentes entre los extremos de un mundo irremediablemente demediado. El ángulo recto al que elevaba un poema no era la abstracción geométrica de los 90 grados, sino el ángulo que se formaba entre el hombre erguido y el plano formado por el acuerdo siempre variable entre la tierra y el agua: era de ese ángulo natural del que derivaba toda posibilidad de acción humana (fig. 1).

investigación 4 – 5
Figura 1_ Le Corbusier, “El fluir del agua”, litografía 25 de Le Poème de l’Angle Droit, 1955.

Casi setenta años después de estas reflexiones de Le Corbusier, tan filosóficas como arquitectónicas, en un mundo hipertecnificado pero sumido en una co yuntura en la que cada día resultan más evidentes las grietas del relato triun falista de la modernidad, quizás no resulte ocioso volver a pensar sobre esa relación agua-arquitectura que nos vuelve a remitir una y otra vez a nuestro ser primigenio.

agua y simbología

Al igual que sus tres acompañantes (tierra, aire y fuego) en la teoría ancestral de los cuatro elementos, el agua soporta una densa carga de simbolismo acumula da a lo largo de milenios, como ya destacó Gaston Bachelard. Su imagen real y la que evoca es casi coincidente. Cuando se piensa en agua, y se hace el esfuerzo por desligarla de su contenedor, afloran imágenes imprecisas y ambiguas que nos remiten a lo que no tiene una forma concreta. Esta indeterminación la liga con lo primigenio. De hecho, en los mitos cosmogónicos de la mayoría de las culturas, es el elemento a partir del cual se origina el mundo habitado por el hombre: de la masa acuática primigenia germina la forma, que, en última instan cia, tiene su representación más sintética en la propia idea de ciudad. La prime ra, según la tradición sumeria, fue Eridu, construida por el dios Marduk cuando todas las tierras eran mar; la ciudad de Babilonia había sido erigida sobre la Puerta de Apsu, el dios que encarnaba las aguas del caos anterior a la creación; el Templo de Jerusalén se encontraba sobre el Tehom, que en la tradición he braica era el océano subterráneo remanente de las aguas primordiales, donde aún hoy se reconoce la roca sagrada que cierra la boca del espacio precósmico.

La comunión semántica entre el agua y lo originario es lo que permitió, desde tiempos arcaicos, identificarla con la realidad trascendente a la esfera de lo terrenal y, por lo tanto, a los límites de lo mundano. Como elemento liminal, el agua es origen y destino final de la vida, líquido amniótico o corriente atrave sada por Caronte. Asociada a los paraísos originarios o a los existentes más allá de la muerte, se convierte en un elemento estructural de sus recreaciones en la tierra, que toman forma en los jardines que remiten al Edén del Génesis hebraico y cristiano o en aquellos que reproducen el destino paradisíaco de los justos coránicos, estructurado por los cuatro ríos que fluyen hacia el Más Allá. Pero también el agua aparece virtualmente presente en los surcos de arena blanca del jardín zen, que hunde sus raíces en el vacío de la tradición taoísta.

Dearq 34
Figura 2_ Ambrogio Brambilla y Claudio Duchetti, Vista de la Isla Tiberina representada como un barco, 1580-1585. Fuente: imagen de dominio público, de la colección del Metropolitan Museum of Art de Nueva York, disponible en Wikimedia Commons.

La relación simbólica entre las aguas y el espacio construido por el hombre se hace especialmente elocuente en los ritos de fundación urbana. En el etrusco, el sulcus primigenius constituía la traza del futuro recinto amurallado, que limitaba y a su vez posibilitaba el paso a través de sus puertas de lo que no era ciudad: los espacios exteriores, no fundados. Si se establece una analogía entre la simbóli ca indefinición formal de los espacios extramuros y el agua, la ciudad amuralla da compartiría la misma naturaleza que la isla. De hecho, el terreno circundado por las aguas ha sido históricamente propicio al establecimiento urbano —basta solo recordar que el germen de Roma y París se estableció en el seno de sus dos ríos, en la Isla Tiberina y la Isla de la Cité, respectivamente (fig. 2)— pero, tam bién, las ciudades asentadas en islas comparten con ellas la condición de ser “otro” lugar, aquel espacio que se desliga de la cotidianeidad de lo conocido para adentrarse en el terreno de lo ignoto. Una condición de lejanía existencial que les viene conferida por la naturaleza del elemento acuático que las cerca. Así, la isla de Pascua, la del Sol en el lago Titicaca, Mont-Saint-Michel, las islas Borromeas, la abrupta Capri, Roosvelt Island, San Borondón en Canarias o la mítica Atlántida, han sido históricamente objeto de una extensa imaginería relacionada con lo originario y germinal, con la unicidad, el misterio y lo oculto.

En las imágenes acuáticas del espacio construido se reconoce una cierta ambi valencia, característica de la articulación semántica propia de los símbolos, que tiene su origen en la naturaleza material del elemento. Vitruvio lo demostraba pragmáticamente en su Diez libros de arquitectura, al recomendar evitar la cer canía a las lagunas y a los lugares junto al mar por parte de mediodía o poniente a la hora de fundar una ciudad, pero defender, por otro lado, la conveniencia de que fuese fácil conseguir agua dulce. Alberti, en su Re Aedificatoria, atesti guaba la ambivalencia simbólica al recoger anécdotas sobre las propiedades

investigación 6 – 7
Figura 3_ Maestro del panel del día de Santa Isabel, La inundación del día de Santa Isabel, 1490-1495, Rijksmuseum Amsterdam. Fuente: imagen de dominio público del Rijksmuseum Amsterdam, disponible en Wikipedia.

maravillosas del agua. Señalaba, por ejemplo, aquella que brotaba del manan tial de Debris, que de día era fría y de noche era caliente; la fuente sagrada Épiro, que apagaba las llamas de lo que se introducía en ella pero hacía arder lo apa gado, y también al indicar que en las proximidades del estanque de Gelonio existía un manantial que hacía estériles a las mujeres y otro que las fertilizaba. Gaston Bachelard la reconocía asimismo desde la imaginación material, al esta blecer que el agua puede actuar como germen y vehículo tanto del bien como del mal. Esta riqueza semántica del símbolo ha perdido en gran medida su anti gua elocuencia, al quedar solapada y confundida entre la gran variedad de imá genes sobre las que se constituye la sociedad contemporánea. Sin embargo, el símbolo no ha desaparecido. Mircea Eliade argumentaba su permanencia en cualquier situación existencial del hombre en el cosmos y Jung lo localizaba en el inconsciente colectivo en forma de arquetipo. Entre todos los fenóme nos que posibilitan la manifestación actual de esta carga ancestral es quizás la catástrofe, entendida como la disolución repentina de la forma (construida), lo que la hace aflorar con más evidencia.

del agua catastrófica a la domesticación del caos

Desde sus orígenes, la relación del agua con el mundo construido por el hom bre ha sido ambivalente. Por un lado, el agua no solo es el elemento primario para la vida, sino también ingrediente que interviene necesariamente en la fa bricación de esos materiales de construcción primigenios que son el adobe y el ladrillo, y es significativo que, para que estos cumplan su función, sea necesaria una operación previa de desecación de la materia: en el combate entre el sol y el agua se abre el intersticio en el que nace la arquitectura.

Pero, desde el principio de las sociedades humanas, la humedad es tan in dispensable como amenazadora: su exceso o su defecto causan problemas y amenazas a la supervivencia, que no son sino síntomas de la precariedad de los artificios humanos y de la continua necesidad de arbitrar remedios fren te a esta precariedad. La posibilidad de la catástrofe hidráulica está siempre presente, ya sea en forma de sequía, de inundación o de tempestad. El mito del Diluvio universal (no solo bíblico, sino presente también en numerosas culturas) inaugura la larga tradición premoderna de atribuir las catástrofes a venganzas o advertencias por parte de divinidades enojadas por la actuación de los humanos y a las que hay que apaciguar con ofrendas o ceremonias de todo tipo.

Dearq 34
Figura 4_ Henry-Charles Emmery de Sept-Fontaines, Mapa estadístico de las alcantarillas de París, 1861. Fuente: imagen de dominio público, de la David Rumsey Historical Map Collection, disponible en Wikimedia Commons.

En las sociedades antiguas, en cuyo surgimiento mismo tanta importancia tuvo el control del agua, las intervenciones técnicas hidráulicas aparecen siempre revestidas por el discurso de lo sagrado: en Mesopotamia, Egipto, India o Chi na se excavan canales o se construyen presas con ciencia avanzada, pero im plorando al mismo tiempo la benevolencia de los dioses. La ingeniería romana marca, sin embargo, un claro hiato en esta historia: sus acueductos, sifones, puentes, presas, depósitos o fuentes denotan un grado de control del caos acuático que no volvió a ser alcanzado hasta nuestros días (e incluso en algu nos aspectos ni tan siquiera hoy: es bien sabido que un habitante de la Roma del siglo I disponía de más abastecimiento hídrico per capita que el romano del siglo XXI). La Cloaca Máxima no vuelve a tener igual hasta el gran colector de Asnières, construido en el París de Haussmann (fig. 4).

La consideración de lo hidráulico desde los parámetros de la sacralidad domi nante resurgió con fuerza en la Edad Media. No es casual que, como estudió magistralmente Jacques Le Goff, las leyendas de algunos de los grandes santos medievales estén asociadas con operaciones de desecación de marismas para su puesta en valor agrícola, como es el caso de la historia de san Marcelo y el dragón en París. Por un lado, el control de la fuerza del agua constituyó una de las principales fuentes de energía en el Medioevo (para molinos, batanes, he rrerías…); por otro, se acentuó la tendencia, pertinaz hasta el propio umbral de la modernidad y aun hoy no desaparecida, a considerar todo desastre acuático desde la idea del castigo divino: las rogativas, procesiones o votos eran, desde la mentalidad medieval, más importantes que la ingeniería.

Más tarde, en el mundo del Renacimiento y el Barroco, el agua asume nuevas valencias arquitectónicas y urbanísticas en jardines, fuentes y nuevos usos fes tivos de los cursos de agua. Los papas de la Roma barroca, desde Sixto V a Alejandro VII, revistieron la prosaica problemática del abastecimiento con los ropajes del milagro y poblaron la ciudad con fuentes que en algunos casos re cuperaban los viejos puntos de llegada de los acueductos romanos. En Versa lles, el esplendor del Rey Sol dependía de ingentes obras hidráulicas que ase guraban el funcionamiento de las fuentes y la dinámica de la puesta en escena de la monarquía.

El gran quiebro adviene, como en tantos otros ámbitos, primero con el pensa miento de las Luces y después con la Revolución Industrial, cuando las socie dades modernas se confían ya sin reparos en la técnica, despojada de todo

investigación 8 – 9
Figura 5_ Presa Pickwick, un proyecto del Tennessee Valley Authority, ca. 1938. Fuente: Tennessee Valley Authority, Creative Commons 2.0, disponible en Wikimedia Commons.

residuo sagrado, y creen —por supuesto, erróneamente— haber desterrado el mito a los archivos de la historia premoderna. Desde finales del siglo XVIII, las ciudades occidentales comenzaron a dotarse de nuevos sistemas de abas tecimiento y de evacuación de aguas. Las alcantarillas de Sabatini en Madrid sustituyeron al viejo “¡Agua va!” y Victor Hugo convirtió las cloacas de París en protagonista de uno de los más famosos capítulos de Les Misérables, casi cien años antes de que Carol Reed condensara, en El tercer hombre, toda la poética cinematográfica de ese mundo subterráneo.

Igualmente radicales fueron las transformaciones en la relación de los hom bres con los ríos. En 1743, fue el propio papa Benedicto XIV quien encargó un estudio científico del curso del Tíber y de su régimen fluvial (representado en un espléndido grabado de Carlo Nolli y Giambattista Piranesi) para prevenir inundaciones y mejorar la navegación. Y en 1858, el plano hidrográfico de París elaborado con motivo de los grands travaux del barón Haussmann incluía ya una representación de las áreas inundables en caso de crecida del Sena. Del mismo modo, cambió la relación de la vida urbana con el río, y así se generali zaron encauzamientos duros que constituían barreras físicas entre el agua y los ciudadanos y que desterraron para siempre las actividades tradicionalmente ligadas a las orillas fluviales. La nostalgia por el viejo tipo de interacción entre río y ciudad resurge, sin embargo, tanto en recientes proyectos urbanos, que proponen la renaturalización de los cauces, como en proyectos de orden patri monial, que buscan la recuperación de esa memoria (por ejemplo, el museo de los Molinos del Segura, de Juan Navarro Baldeweg).

En adelante, la dimensión territorial, a nivel de enteras cuencas hidrográfi cas, la dimensión urbana y la arquitectura del agua quedaban definitivamente entrelazadas. Ejemplos clamorosos de ello son el gigantesco proyecto de la Tennessee Valley Authority, pieza esencial del New Deal de Roosevelt (fig. 5), o las grandes obras hidráulicas de los Planes Quinquenales de Stalin. Es en este contexto en el que surgen obras importantes de la arquitectura contem poránea, como los edificios ligados al control del Danubio de Otto Wagner o la esclusa de Kembs-Niefer de Le Corbusier.

Pero si hay una ciudad que simbolice todo este recorrido histórico es, sin duda, Venecia. En perpetua lucha contra la Laguna desde su misma creación, siempre amenazada (y cada vez más) por el acqua alta, la historia veneciana es un compendio de la complejidad de esa relación agua-arquitectura-ciu dad, desde la propia construcción sobre postes hincados en el fondo fango so, pasando por el diseño de los pozos que centran los campi, hasta la sutil relación entre agua y ambiente construido en los proyectos de Carlo Scarpa

Dearq 34
Figura 6_ Plaza de San Marco durante la inundación del 4 de noviembre de 1966. Autor desconocido. Fuente: imagen de dominio público, tomada de Mose Venezia y publicada en Wikimedia Commons.

o la llegada de las infraestructuras modernas, cuyo más reciente avatar es el titánico Proyecto Mosè. Y también Venecia ejemplifica, por último, un nuevo e inesperado fenómeno ligado a su condición acuática: los usos y abusos del turismo de masas (fig. 6).

agua y jardín

El agua es el elemento básico que posibilita la existencia del jardín, un espacio construido que desde la Antigüedad responde a la necesidad del hombre por disfrutar de un entorno agradable que complemente su hogar. Jardín es el dimi nutivo del francés antiguo jart “huerto”, y este del franco *gard “cercado”. Las aguas que posibilitan la creación de este mundo aparte, el huerto cercado en el que se potencia el placer estético, tienen un papel vertebrador en su configura ción tanto desde punto de vista práctico como simbólico, y se han manifestado a lo largo de la historia en múltiples formas que evolucionaron conforme lo hizo la propia idea de jardín.

Desviada del Nilo, del Éufrates y del Tigris para su distribución y almacena miento, el agua hizo posible primero el cultivo y posteriormente la creación de los primeros espacios ajardinados. En forma de recintos simétricos en el an tiguo Egipto y estructurados en terrazas escalonadas en Mesopotamia, cuyo más famoso ejemplo lo encontramos en los jardines colgantes de Babilonia, la verdadera historia de la jardinería se inicia con el hortus romano, que sobre el siglo I a. C. adquirió una dimensión ornamental, según reflejan las recomenda ciones de Varrón en su tratado De re rustica. Dos casos extremos evidencian la relación del jardín romano con respecto al agua: el templo de Vesta en Tívoli (27 a. C.), situado en un saliente rocoso sobre el río Aniene, y las residencias de Pompeya, en las que fuentes y pilas se localizaban en el centro de los peque ños jardines rodeados de hermosas columnatas; pero es en la Villa Adriana (s. II d. C.) donde el agua se manifiesta en todo su esplendor, como el elemento estructurante de todo el amplio complejo ajardinado. La caída del Imperio y el confinamiento de la Edad Media interrumpieron esta tradición, que llega sin embargo al Renacimiento gracias a continuidad que representa el Islam: a me diados del siglo VIII, irrumpe en el sur de España, donde hace florecer la amplia

investigación 10 – 11
Figura 7_ Jardín de Sennefer, ca. 1400 a. C., en Ippolito Rosellini, 1834. I monumenti dell'Egitto e della Nubia. Pisa: Capurro. Fuente: Heidelberg historic literature–digitized.

tradición de aprovechamiento hídrico y simbolismo acuático acumulada en su itinerario de expansión desde las secas tierras de Oriente Medio. El jardín his pano-musulmán celebra la abundancia, en una rica simbiosis entre vegetación, arquitectura y la omnipresente agua, tanto en los patios domésticos como en los palaciegos de la Alhambra, donde, además, se organiza intencionadamente para convertirse en recreaciones terrestres del paraíso celestial.

Las aguas del jardín renacentista se impregnan del vigor y de la confianza ar tística e intelectual del espíritu que renace tras la oscura Edad Media. Se ma nifiestan en movimiento y, concretamente, a través de la fuente. El control, y al mismo tiempo la espectacularidad de los juegos acuáticos, hace hincapié en la superioridad del hombre sobre el orden natural. Se produce una progresión en tre los primeros jardines, punteados por fuentes escultóricas, ninfeos y grutas, y la controlada vitalidad y energía del agua, desde la Villa d’Este (1573) hasta la exuberancia barroca de la Villa Garzoni de Collodi (1652). A principios del siglo XVII, la influencia de la jardinería italiana se difundió por toda Europa, sobre todo en Francia. En los jardines de Versalles, Chantilly o Vaux-le-Vicomte, el ímpetu de las aguas transalpinas se transforma en evocación de poder —emanado del absolutismo monárquico—, y queda expresado a través de la gran escala de los componentes acuáticos y la geometría de los trazados. Muy diferente a la concepción pintoresquista del jardín inglés, que tuvo su momento culminante a mediados del siglo XVIII, en la que el riachuelo y el estanque fueron los ele mentos preferidos para reproducir de forma fidedigna la naturaleza y, a su vez, escenarios concretos de la mitología clásica. Tales recreaciones se acometen a una escala moderada y en conjunción con templetes neoclásicos, puentes y modestos embarcaderos en los jardines pioneros, como el de Chiswick House (1738) o el de Stourhead (1741-80); pero también en los extensos diseños de Capability Brown, en los que se impuso el lago de imponentes dimensiones. El jardín inglés se convirtió en el estilo favorito de los nuevos parques públicos urbanos a medida que avanzaba el siglo XIX y las aguas en ellos contenidas contribuían a materializar las razones de higiene y de recreo que justificaban su implantación. El más influyente fue Birkenhead Park (1843-1847), diseñado por Joseph Paxton cerca de Liverpool, que sirvió, además, de puente entre Europa y América, al tomarse como referencia en el diseño de Joseph Olmsted para el Central Park neoyorkino, iniciado en 1857.

A lo largo del siglo XX emerge la disciplina del paisajismo, en la que el agua tiene un papel vital: muchas veces como elemento integrador de complejos proyec tos que abarcan la escala doméstica, urbana y territorial —la obra de Roberto Burle Marx en Brasil fue una muestra pionera de ello, al dotar de la vitalidad orgánica el espacio público resultante de las duras líneas de la arquitectura moderna— y otras tantas como recurso clave en la consecución de objetivos

Fuente: Biblioteca Nacional de

Figura 8_ Jean Laurent, Alhambra, Patio de los Arrayanes, 1871. Granada, Patronato de la Alhambra y Generalife.
Dearq 34
España.

de sostenibilidad ambiental y de participación ciudadana. En este sentido, son relevantes los proyectos que, contrarios a la postura también contemporánea de derroche que se impone en el diseño de los parques acuáticos y los campos de golf, proponen la recuperación de cauces fluviales soterrados y de frentes marítimos obsoletos, propios de la ciudad industrial, como nuevos ejes urbanos que potencian el equilibrio social, económico y medioambiental.

agua limpiadora, agua placentera: entre la higiene y el ocio

Que el agua ejerce una función limpiadora tanto del cuerpo como del alma es algo que la mayor parte de las culturas históricas han asumido en sus aspectos míticos (el bautismo cristiano o la ablución islámica no son más que los dos ejemplos más conocidos de una amplísima variedad de ritos sagrados acuáti cos) y en los relacionados con las prácticas higiénicas. El desarrollo de los ba ños públicos como pieza esencial del equipamiento urbano es uno de los rasgos más conocidos de las civilizaciones antiguas, y en especial de la grecorromana. En el gran mosaico de ciudades que constituyó el imperio romano, las termas eran uno de los elementos esenciales definitorios de la condición misma de lo urbano. El gigantismo de las termas imperiales de Roma (Trajano, Caracalla, Diocleciano…) no es más que el punto culminante de un largo proceso histórico en el que el ritual del baño terminó por articular a su alrededor otras muchas funciones de relación social en torno al papel central del agua.

La Edad Media significó, en este sentido, una ruptura radical. La crisis de la vida urbana en la Europa cristiana hasta el siglo XII se aunó a la desconfianza ecle siástica hacia los cuerpos para reducir al mínimo la presencia de lo acuático en unas ciudades en las que el abastecimiento hídrico era casi la única preocupa ción, con un abandono absoluto de la higiene urbana. Por el contrario, cuando la cultura medieval islámica cancela el concepto clásico de ciudadano y toda la idea de polis o urbs a este unida, prácticamente el único equipamiento público de la ciudad antigua que conoce una nueva vida es precisamente el baño, reci clado como hamman en el marco de una visión espiritualista de la relación entre el hombre y el agua. La Alhambra de Granada representa, sin duda, el punto culminante de la integración del agua en la arquitectura islámica, como acertó a señalar Luis Barragán al exaltar sus valores contemporáneos (fig. 8).

Tras los cambios ya aludidos en el Renacimiento y el Barroco, la segunda mitad del siglo XVIII significa, como en tantos otros ámbitos, un giro radical en esta problemática: el surgimiento del higienismo moderno. La cultura de las Luces eleva al primer rango de sus prioridades la exigencia de limpieza (en todos los sentidos) del entorno de la vida del hombre. Se inicia así un proceso complejo

investigación 12 – 13
Figura 9_ Jean-Léon Gérôme, La gran piscina de Bursa, 1885. Fuente: imagen de dominio público del Museo Khanenko, disponible en Wikimedia Commons.

en el que las propias nociones de “limpieza” y “suciedad” son constructos inte lectuales que tienen su propia historia, como han demostrado, por ejemplo, los estudios de Georges Vigarello o Alain Corbin. Sin duda su aspecto más novedo so es la creciente penetración del agua en las viviendas y en la vida doméstica de las masas urbanas. La generalización del baño y del lavado trae consigo, como es bien sabido, cambios radicales en la arquitectura de las viviendas y los edificios colectivos, con un protagonismo de las instalaciones hidráulicas hasta entonces nunca visto en la historia de la arquitectura (recordemos, por ejemplo, el gesto radicalmente moderno de los Smithson en los lavabos de la escuela Hunstanton), así como la necesidad de nuevas infraestructuras urba nas y territoriales a gran escala.

El moderno higienismo se vio acompañado, sin embargo, de otro fenómeno paralelo y en muchos casos indisociable: el de los usos arquitectónicos y ur banos del agua en las arquitecturas ligadas al nuevo fenómeno metropolitano del ocio de masas. La conjunción entre la preocupación estatal por la salud pública y la necesidad de proveer equipamientos para el disfrute de un tiempo libre —que por primera vez en la historia era masivo— dio lugar, desde fina les del siglo XIX, a nuevas vías de encuentro entre agua, arquitectura y ciudad. Piscinas, baños públicos, gimnasios, estanques de recreo en los parques urba nos, equipamientos para deportes acuáticos, establecimientos termales, etc., asumen en la arquitectura contemporánea un protagonismo en muchos casos ligado también a la reflexión paisajística.

Por citar tan solo una de las múltiples historias parciales que se entrelazan en el agua contemporánea, recordamos aquí las vicisitudes del termalismo contem poráneo. La segunda mitad del siglo XIX contempla el surgimiento del moderno balneario como un tipo edilicio muy particular en el que se dan la mano la proble mática de la salud (la palabra spa, tan frecuente hoy, no es sino la sigla del latín salus per aquam) y las exigencias representativas de una sociabilidad de élite (como supo ver muy bien Guy de Maupassant en su gran novela Mont-Oriol). La arquitectura de estos complejos era a menudo neoislámica, para acentuar la evo cación de la voluptuosidad oriental del hamman. Sin embargo, las declinaciones contemporáneas del baño termal han podido originar recientemente obras maes tras de la arquitectura contemporánea como las termas de Vals de Peter Zumthor.

agua, bioclimatismo y sostenibilidad

Como se ha visto, el agua tiene un papel protagonista en el espacio construi do por el hombre. Esta relevancia no se debe exclusivamente a su presencia como elemento integrante de la forma del espacio antrópico, sino también a que es esencial tanto en las operaciones que garantizan la propia construcción como en el mantenimiento de los espacios creados. Interviene activamente en diferentes fases y escalas del proceso constructivo: responsable material de la ruina montium romana, hoy día contribuye a la compactación artificial de te rrenos o al curado de las estructuras de hormigón en una medida justa; forma parte integrante de los sistemas de instalaciones de humectación, refrigeración y calefacción, y es el objeto de las de almacenamiento, distribución y sanea miento. Entre tanto, a nivel microscópico, interviene en la fabricación del propio material constructivo, al ser un indispensable componente en la confección del adobe y el ladrillo de las primeras civilizaciones urbanas, en la fabricación del hormigón desde la época romana y al actuar como reactivo fundamental en muchos de los materiales aglutinantes contemporáneos.

En un mundo amenazado por el cambio climático y por el agotamiento de los recursos naturales, la omnipresencia del agua en el hecho construido la fuer za a desempeñar un papel fundamental en el diseño de sistemas energética mente eficientes y ambientalmente sostenibles. A escala territorial y urbana, se hace necesario ajustar y optimizar su uso para conseguir la adecuada re siliencia de los espacios humanos. Todo ello requiere la puesta en práctica de diferentes estrategias, referidas, por ejemplo, a la captación hídrica —como

Dearq 34
La relación simbólica entre las aguas y el espacio construido por el hombre se hace especialmente elocuente en los ritos de fundación urbana.

la utilización de aguas subterráneas y la consiguiente recarga artificial de los acuíferos, o la desalación de aguas marinas—, a la aplicación de políticas de ahorro que garanticen la reducción de su consumo —mediante la reutilización de las aguas residuales tratadas en las ciudades— o a la utilización de sistemas urbanos de drenaje sostenible.

Además de representar un recurso inestimable en la producción energética, es un elemento que puede garantizar asimismo el bajo consumo y, por ende, la reducción de la huella ecológica, si desde el diseño se explota su potencialidad como elemento pasivo dentro de sistemas bioclimáticos aplicados a la arquitec tura. Ejemplos de ello son las recientes roof-ponds o los termosifones solares —fundamentados en su inercia térmica y calor específico— y, sobre todo, las organizaciones espaciales que en los climas secos y cálidos tradicionalmente han introducido el agua en los ambientes interiores como elemento refrigerante y humectante.

El objetivo 6 de la Agenda 2030 de la Organización de las Naciones Unidas para el Desarrollo Sostenible se titula “Agua limpia y saneamiento”. Se pretende lo grar tanto un acceso universal y equitativo al agua potable y a servicios de sa neamiento e higiene adecuados como mejorar la calidad del agua global. En la actualidad, más de un tercio de la población mundial vive en zonas con escasez hídrica y se estima que para el año 2030 setecientos millones de personas se verán forzadas a desplazarse por este motivo. Además, la mala gestión de la eliminación de los desechos humanos, las aguas residuales procedentes de la industria y las prácticas agrícolas suponen un incremento progresivo de su contaminación. Todo ello deriva en un gran impacto en términos económicos y ambientales, además de sociales y humanitarios, al que se debe dar, al menos, la perspectiva de una solución. Desde la planificación territorial, urbana y el di seño de la propia arquitectura se ha de asumir este reto, dirigido principalmen te a las nuevas generaciones, que tienen la posibilidad de poner los cimientos para dar un nuevo y ajustado paso en la evolución de la compleja relación entre agua y espacio construido.

investigación 14 – 15
Figura 10_ Karl Friedrich Schinkel, Pegaso sobre una ciudad industrial, 1837. Fuente: imagen de dominio público tomada del Kupferstichkabinett, Staatliche Museen zu Berlin, disponible en Wikimedia Commons.

Higiene y ritual en la arquitectura doméstica de OMA

Hygiene and ritual in OMA’s domestic architecture

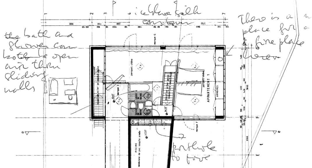
Entre 1984 y 1998, OMA desarrolla una serie de proyectos de peque ña escala relacionados con el programa doméstico. Rem Koolhaas utiliza estas viviendas como útil de reflexión capaz de vehicular una exploración en torno a la “dimensión hedonista” propia de la arqui tectura del movimiento moderno. Entre los espacios que destacan en este linaje que lo conecta con los grandes maestros, el cuarto de baño constituye un universo extremadamente rico. El agua se inscribe en el centro de un trabajo continuo que busca trascender la faceta estrictamente higienista y funcional para llegar a definir un verdadero ritual, al servicio del cual se deciden dimensiones, rela ciones perceptivas, recorridos y materiales.

Palabras clave: OMA, Rem Koolhaas, baño, ritual, doméstico, hedonismo, habitar.

Between 1984 and 1998, OMA produced a series of small-scale do mestic projects. Rem Koolhaas uses ces maison as a tool for reflec tion, allowing him to explore the ‘hedonistic dimension’ that char acterises the architecture of the Modern Movement. Among the spaces that stand out in this lineage connecting the Dutch architect to the great masters, the bathroom is a particularly rich universe. In the work of Koolhaas, water is the central focus in the ongoing research intended to transcend strictly hygienic, functional consid erations to define a genuine ritual choice of dimensions, perceptive relations, circulation paths and materials.

Keywords: OMA, Rem Koolhaas, bathroom, ritual, domestic, hedonism, dwelling.

Recibido: 27 de octubre de 2021

Aceptado: 24 de abril de 2022 Cómo citar: Burriel Bielza, Luis. "Higiene y ritual en la arquitectura doméstica de OMA ". Dearq no. 34 (2022): 16-26. DOI: https://doi.org/ 10.18389/dearq34.2022.02

DOI: https://doi.org/10.18389/dearq34.2022.02

Luis Burriel Bielza lburri76@gmail.com École Nationale Supérieure d’Architecture Paris-Belleville – Laboratorio de Investigación IPRAUS
Dearq 34

1.

Texto de introducción para el proyecto Casa Gimnasio, archivos OMA (XVII Trienal de Milán 1986). Todos los textos originales han sido traducidos por el autor.

2. Ignasi de Solà-Morales, Cristian Cirici y Fernando Ramos.

casa gimnasio, 1986

“En los ataques recientes, la arquitectura moderna siempre se presenta como sin vida, puritana, vacía y deshabitada. Sin embargo, nuestra intuición nos ha indicado que la arquitectura moderna es en sí misma un movimiento hedonista, que su severidad, abstracción y rigor son de hecho tramas para crear el escena rio más provocativo para el experimento que es la vida moderna”.1

Con estas palabras, OMA introduce su propuesta en la exposición Il Proget to Domestico La casa dell'uomo: archetipi e prototipi, en el marco de la XVII Trienal de Milán de 1986. Comisariada por Marco Bellini, en colaboración con George Teyssot, cuenta con una prestigiosa serie de historiadores (Marco de Michelis, Robin Middleton, Monique Mosser o Anthony Vidler) que, acompaña dos por una treintena de arquitectos, tratan de responder al futuro próximo del espacio doméstico. A modo de provocadora respuesta, la bautizada como Casa Gimnasio, de Rem Koolhaas, recupera un proyecto legendario del Movimiento Moderno, el Pabellón de Barcelona de Mies van der Rohe, desmontado al tér mino de la Exposición Internacional de 1929. No en vano, entre 1983 y 1986, tres profesores de la Escuela Técnica Superior de Arquitectura de Barcelona (ETSAB)2 se embarcan en su reconstrucción idéntica, un episodio que suscita un intenso debate. Las palabras del historiador Francesco Moschini (1986) revelan la verdadera naturaleza de la instalación del arquitecto holandés: “la operación que realiza OMA sobre la casa gimnasio es íntegramente de tipo conceptual, ampliando, profanando y tratando como pura materia, como puro subterfugio, un texto sagrado para la arquitectura moderna como es el pabellón de Barcelo na de Mies van der Rohe” (1986, p. 17).

El proyecto original fue sometido a un conjunto de manipulaciones, con un do ble objetivo. Por un lado, revelar la tumultuosa historia acaecida a partir de su desmontaje, una narración mitológica de episodios ficticios construida por Rem Koolhaas. Por otro, poner de manifiesto esa verdadera dimensión “hedonista” de la arquitectura del Movimiento Moderno a la que se OMA hace referencia en su texto introductorio. La denominación “casa-gimnasio” alude a una serie de escenas donde actores profesionales (fig. 1) se apropian de esta arquitectura “sagrada” y desarrollan acciones ya descritas en Delirious New York, concreta mente, en los vestuarios del Downtown Athletic Club, definidos como “incuba dora para adultos” (Koolhaas 2004, 157). Este trabajo de desacralización busca participar en la discusión sobre el posmodernismo; pero, sobre todo, constituye una vía de experimentación que toma la obra de Mies, y sus casas patio de los años treinta, como herramienta de reflexión sobre el acto de habitar, una cues tión a la que el arquitecto holandés dedica toda su energía.

Figura 1_ Instalación de OMA en la Trienal de Milán. Fuente: Archivos OMA
investigación 16 – 17

Gracias al marco teórico en el que se desarrolla, la Casa Gimnasio (1984-1985) se transforma en un proyecto manifiesto, un terreno de juego extremadamente ra dical que encuentra una continuidad en la Villa Linthorst (Patio-Villa, 1984-1988), obra construida en un contexto urbano de baja densidad. La gran distancia entre las promesas de los primeros croquis y el proyecto definitivo resultante nos per mite inferir las dificultades surgidas en el curso de los intercambios con el cliente. La Villa Dall’Ava es coetánea (1984-1991), pero mientras el proyecto básico se desarrolla con una rapidez inusitada, los cuatro años que discurren entre la peti ción de la licencia y el proyecto de ejecución permiten a Rem Koolhaas (1995a) establecer una mirada crítica y depurar la versión final.3 En la Villa Lemoine (19941998), el arquitecto —reconocido dentro de la disciplina y fuera de ella— disfruta de una mayor cantidad de medios y de la plena confianza de su futuro propietario. Estas condiciones favorables le permiten retomar soluciones e hipótesis sobre las que ya había trabajado en el pasado, pero que se habían quedado en el tintero. En la entrevista realizada por el autor de este artículo a su antiguo colaborador Xa veer de Geyter en el marco de la investigación sobre la Villa Dall’Ava, nos confiaba:

[…] en esa época, Rem dedicaba mucha atención a los proyectos de pequeña es cala. […] A pesar de que hubiera cosas mucho más urgentes, se tomaba todo el tiempo, siempre. No solo para esta Villa, sino también para la de Rotterdam, lo mismo ocurre con Burdeos. Siempre ha tenido un interés muy particular por las pequeñas cuestiones domésticas de una vivienda unifamiliar.4

La dimensión “hedonista” de la casa-gimnasio se transforma en el motor de proyecto, y está en el origen de una serie de estrategias arquitectónicas com partidas entre estas tres “villas”: Linhorst, Dall’Ava y Lemoine.5 La relación entre el agua y el cuerpo, a la vez higiene y ritual, es una cuestión crucial. Esta se de sarrolla a través de la iteración de dispositivos que se circunscriben al ámbito del cuarto de baño, estancia fetiche del Movimiento Moderno, en una suerte de linaje donde OMA busca integrarse. A la hora de plantear esta reflexión en torno al ritual del baño, nos parece necesario focalizarnos en la Villa Dall’Ava como centro de gravedad, para viajar después en el tiempo en las dos direcciones. La fotógenica piscina sobre la cubierta es un dispositivo cuyas interacciones con textuales se desarrollan a diferentes escalas, incluida una dimensión mitológi ca que se inscribe en la propia historia de OMA. Si su posición es una prueba manifiesta del interés de Koolhaas por la dimensión hedonista (Gargiani 2004),

3. “The long wait was bad in some ways, but good in allowing endless revision: it began as a beginner’s house: strident, colorful, etc.; il became a record of our own growing up”.

4. Entrevista del autor a Xaveer de Geyter. Bruselas, 14 de agosto de 2019.

5. Como colofón de esta reflexión de OMA sobre el programa doméstico, la exposición Living / Vivre / Leben, del Centre d’Architecture Arc en Rêve (Burdeos, febrero-mayo de 1998) se estructura en torno a cinco proyectos de pequeña escala, incluyendo el conjunto de viviendas Nexus en Fukuoka.

Figura 2_ Planta primera anotada por Rem Koolhaas. Fuente: S, M, L, XL (1995a).

Dearq 34

6.

Las plantas corresponden al proyecto de Licencia de Obra (1985), con la intención de no desvelar las modificaciones posteriores, que finalmente se admiten como legales tras cuatro años de juicio.

7.

El archivo de OMA no está digitalizado, no es accesible a los investigadores y tampoco posee un espacio o medios específicos. Su principal objetivo es la conservación del material producido en cada concurso, así como su préstamo a diferentes instituciones en relación con las exposiciones.

8.

Hans Werleman, miembro y fundador del colectivo Utopía. Gracias a su amistad con Rem Koolhaas, es el fotógrafo habitual de los primeros proyectos de OMA. Una publicación traza la historia de esta organización artística autofinanciada: Utopia, 40 Jaar (2019).

9.

Dibujos realizados a partir de una modelización en 3D, en el marco de la investigación propia a la obtención de la “Habilitation à Diriger des Recherches”, acreditación necesaria para dirigir tesis doctorales en Francia.

su peso (literal y figurado) ha relegado a un segundo lugar otros espacios ínti mamente relacionados con el agua. En concreto, me refiero al baño principal del matrimonio Boudet, colindante con ese volumen, y que se ha omitido de todos los análisis de este proyecto.

A esta ausencia de interés contribuye el hecho de que las plantas integradas en S, M, L, XL (fig. 2) no recojan la versión definitiva.6 Con la idea de paliar esta deficiencia, Koolhaas redibuja al lado y en rojo la distribución ejecutada. En su aparente sencillez, este espacio no revela la complejidad que se desprende del gran número de reflexiones que se integran en su definición. Los documen tos encontrados en los archivos de OMA7 evidencian la importante cantidad de tiempo dedicada a la resolución de esta estancia, así como la radicalidad de las propuestas intermedias. En este artículo vamos a cruzar tres fuentes diferentes: fotos de Hans Werleman8 o del autor a partir de una visita de la casa, croquis del archivo de OMA y una serie de dibujos realizados por el autor.9 Esta primera axonométrica transcribe la versión construida (fig. 3). La eliminación del muro colindante con la piscina nos permitirá entender con claridad las dife rentes relaciones contextuales.

En relación con el tamaño del apartamento de M. y Mme. Boudet, el baño no destaca precisamente por su amplitud, sino por la complejidad de la experiencia espacial, la cual obedece a un desarrollo que se realiza desde varios niveles per ceptivos, enriquecida, potenciada y modulada a través de la articulación de va rios parámetros: la cuidada implantación de los aparatos sanitarios, su relación dentro de un campo de fuerzas y, sobre todo, los acabados de las superficies que lo delimitan, cuya naturaleza varía en función de tres condiciones que se desarrollan entre polos diferenciados. Una primera transición de la opacidad a la transparencia, donde los elementos translúcidos desempeñan un papel vital.

Figura 3_ Vista axonométrica del proyecto construido. Fuente: autor.
ÁREA
DE TRABAJO
ESCALERA TERRAZA >PISCINA MURO - ESPEJO ÁREA DE DESCANSO ACCESO ESCALERA ÓCULO PISCINA MURO P.1
investigación 18 – 19
ESCALERA JARDÍN> TERRAZA MURO P.2

Una segunda, ligada al movimiento, que gravita entre dispositivos fijos/estáticos y otros móviles/inestables (batientes o correderos). Y una tercera, que juega con grados de reflexión variables (a la vez, luz e imagen), que van desde el blanco mate, pasando por el hormigón hasta las superficies de espejo. Si el perímetro de cada ámbito parece delineado con claridad en planta, en el momento en que los habitamos, los límites se difuminan en un recorrido ininterrumpido con gra dos de permeabilidad variables. El suelo de madera recubre la práctica totalidad de la superficie, contribuyendo a la indeterminación/inestabilidad programática y funcional. Al retomar estrategias ya utilizadas por Le Corbusier en la planta baja de las Casas Jaoul, la (dis)continuidad del material constituye un nuevo pa rámetro en la gestión de usos y rituales.

conexiones físicas

Todos los espacios principales de la Villa se enhebran en un bucle continuo y disfrutan de una doble condición: estancia y paso. Pese a su carácter íntimo ha bitual, el baño, también se inscribe en esta lógica. Es un espacio de higiene y de ritual, pero también de transición. Comunica la terraza, la escalera a la piscina, el acceso a la planta baja, el área de descanso y la de trabajo. Sus paramentos están sujetos a diferentes modos de traslación: deslizante, batiente y pivotante, estructurando estos recorridos con tres puntos de articulación que son, a la vez, umbral y conexión. Al ascender desde el salón, la apertura de la puerta bloquea el paso al dormitorio, al igual que aquella del apartamento de Marcel Duchamp en la calle Larrey, que alternativamente distribuía baño o dormitorio. Abierta, alcanzamos la terraza a través del baño, sin pasar por el dormitorio. Cerrada, libera un recorrido circular en torno a la escalera que conecta todas las piezas del apartamento. Esta lógica se retoma en la Dutch House (1992-1995), home naje a Mies por excelencia. El acceso al apartamento de los padres, situado en el corazón del prisma acristalado, solo es posible si el puente levadizo que cubre la escalera se encuentra en posición horizontal (fig. 4). Una vez elevado, el Sancta Sanctorum queda protegido. Solo podemos rodearlo, sin saber que, en su interior, un patio inunda de luz la estancia.

En la Villa Dall’Ava, a la derecha del desembarco, un paño translúcido matiza la presencia a contraluz del inodoro. Si giramos 180º, nos damos cuenta de que ya estamos dentro del baño. A nuestra derecha, la pared que delimita con la

Figura 4_ Sección transversal por el acceso al apartamento de los padres. Dutch Villa. Fuente: Archivos OMA

Figura 5_ Vista del baño principal. Hans Werleman. Fuente: Archivos OMA

Figura 6_ Vista del baño principal. Hans Werleman. Fuente: Archivos OMA

Dearq 34

escalera es un enorme espejo (fig. 5). El lienzo negro que se dibuja al fondo nos conduce al área de trabajo. El muro de enfrente también está forrado en espejo, desdoblando el espacio y multiplicando el número de conexiones visuales que se contradicen con las físicas (fig. 6). Esa partición funciona como un diafragma cuyo extremo se transforma en una puerta pivotante que conecta el área de trabajo con la terraza. Los dos planos móviles (abatible y pivotante) se tratan como fragmentos de un lienzo (fig. 7). Ni goznes ni picaporte, ningún elemento desvela su estatus. En las anotaciones de Koolhaas en S, M, L, XL (1995a), la pri mera puerta se define como “pared abisagrada” y la segunda, como un “simple plano pivotante” (p. 184), negando en ambos casos su condición de “puerta”. De hecho, tienen el mismo espesor que el resto de la partición (ocho centímetros). Una vez cerrado, todo queda en el mismo plano. Hacia la habitación, la ausencia de rodapiés en todo su alzado le aporta una condición diferente al del resto de las particiones.

Una columna de vidrio esmerilado contribuye a estructurar el recorrido (fig. 8). La ausencia de empuñadura refuerza su carácter abstracto, al tiempo que su superficie, como un velo vaporoso, deja entrever su interior. Como parte de esta puesta en escena, todos los elementos destinados a la higiene asumen un rol principal y revelan aquello que sirve a este espacio y a los diferentes rituales. Frascos, botes y toallas, casi en levitación, pero también todas las instalaciones necesarias (evacuación de aguas pluviales de la cubierta, ven tilación y electricidad). Una especie de oda a los flujos necesarios para ali mentar y mantener la higiene de la casa y de sus habitantes. Si en la planta baja todos ellos desaparecen integrados en la estructura, en la primera, su velada presencia afianza su importancia. En la terraza sur, la columna adosada a la piscina adopta la misma estrategia: revela la evacuación y los equipos de

Figura 7_ Vista axonométrica del proyecto construido.
COLUMNA INSTALACIONES
Fuente: Autor.
ÓCULO PISCINA ÁREA DE DESCANSO
ESCALERA SALÓN > M&Mme BOUDET HINGED WALL ÁREA DE TRABAJO PIVOTING PLANE ESCALERA TERRAZA >PISCINA
investigación 20 – 21
ESCALERA JARDÍN> TERRAZA

bombeo y filtrado, así como las ventilaciones forzadas. Si el dibujo de Madelon Vriesendorp, publicado en Delirio de Nueva York (Koolhaas 2004, 234), ponía de manifiesto las canalizaciones del subsuelo de Manhattan que permitían la existencia de la trama infinita, en la Villa Dall’Ava, esas mismas conducciones son la verdadera expresión del proyecto.

conexiones visuales

La naturaleza de los desplazamientos físicos ya evocados, así como las relacio nes espaciales, se ve profundamente modificada en función de los acabados. Gracias a los diferentes tipos de traslación de los paramentos, el usuario es capaz de modular un gradiente de privacidad variable y proteiforme, donde las conexio nes visuales y las físicas a veces se superponen, se cruzan, se contradicen o se refuerzan. En complemento, la luz desempeña un papel crucial, con contrastes entre exterior / interior y juegos de luz natural / artificial que enriquecen estas ar ticulaciones. La piscina seduce por una particular contradicción. Si bien se sitúa en el punto culminante del recorrido, su presencia desde el exterior pasa com pletamente desapercibida, así como su sistema de acceso. La única escalera se esconde en el espesor de la caja de M. y Mme. Boudet (fig. 7). La pendiente del fondo no se traduce en ninguna de las fachadas. El único punto de contacto vi sual directo se encuentra en la primera planta, en un espacio privado al que solo accede el matrimonio (figs. 3 y 7). Al tomar la escalera que sube desde el salón y abrir la puerta situada al fondo, pasamos del universo terrenal del jardín, vergel suburbano repleto de luz, al desembarco, que vagamente iluminado por el óculo (fig. 9) nos invita a descubrir este universo acuático. Atravesando el volumen de agua, un dulce fulgor azulado se filtra ahora hacia el interior de la escalera.

Figura 8_ Vista del baño principal. Hans Werleman. Fuente: Archivos OMA

Figura 9_ Vista de la piscina desde el óculo. Hans Werleman. Fuente: Archivos OMA

Figura 11_ Planta primera. Versión presentada a licencia en mayo de 1985. Fuente: Archivos OMA

Figura 13_ Planta primera. Anteproyecto. Fuente: Archivos HNI

Dearq 34

Figura 10_ Vista axonométrica del anteproyecto. Fuente: Autor.

Figura 12_ Perspectiva desde el sur. Fuente: Archivos OMA

El diedro que desdibuja los límites del baño principal está cubierto de espe jo, un verdadero trompe-l'œil. El plano que limita con la escalera es oblicuo, lo que contribuye aún más a la confusión, al tiempo que aumenta el campo visual desde la bañera. Recostados en esta, la mirada vaga más allá de este espacio, extendiéndose al área de trabajo y al jardín trasero. Pero si entreabrimos las puertas correderas de vidrio esmerilado laterales, el reflejo nos permite obser var en la dirección contraria, hacia la terraza, y aún más lejos, hacia la enorme ventana del apartamento de la hija. En S, M, L, XL, Rem Koolhaas anota “ambos paneles se deslizan para generar un baño o una ducha al aire libre” (1995a, 182). Esta conexión visual directa resulta chocante, pues desde una pieza ligada a un ritual íntimo somos a la vez observador y observado, poniendo en valor su dimensión hedonista. La bañera cuenta con dos cabeceras, para que podamos situarnos en ambos extremos. Elevada sobre unos soportes ligeros claramente visibles, no se presenta como un volumen anclado al suelo, sino como un ele mento que podemos desplazar, pero ¿a dónde? La respuesta la encontramos en dos croquis de una versión intermedia. En el primero (fig. 12), la bañera se trata como un elemento móvil, a la búsqueda de sol que ilumina la terraza sur. Esa orientación “óptima” expone el ritual del baño a miradas indiscretas, que si bien se inscriben en el ámbito de la familia, no dejan de ser otra forma de exhibicionismo.

El segundo dibujo es un fragmento de la primera planta de la versión presentada a licencia (fig. 11). La bañera se sitúa en la prolongación de la terraza, bloquean do la conexión física con el área de trabajo, pero de lleno en el eje visual, y así se transforma en el centro de gravedad de todos los espacios, que pasan a or bitar en torno a ella. La reconstrucción en axonométrica nos permite comparar

investigación 22 – 23

las consecuencias de esta posición estratégica con las de la opción finalmente ejecutada (fig. 10). El juego de espejos de la versión final trata de recuperar esta centralidad, duplicando el exiguo espacio existente y emplazando la bañera en el centro de un nuevo ámbito virtual. Esta lógica se desarrolla antes de Villa Dall’Ava y después de ella. En la Patio Villa, una versión intermedia explora las posibilidades de un cuarto de baño —a la vez estancia de ritual y de paso— y conecta el estar con los dos dormitorios (fig. 13). La versión construida abando na esta opción, pero las superficies translúcidas, y, sobre todo, las superficies de espejo aparecen de nuevo (fig. 14). La presentación en S, M, L, XL abre con una foto de este baño (Koolhaas 1995a). Al lado, el glosario propone la noción de “Cuerpo: […] Concentrarse cada noche en una sola zona de su cuerpo le per mitió llevar a cabo la tarea de limpiarlo y preservarlo con mayor minuciosidad y atención al detalle” (Koolhaas 1995a, 66).

La Villa Lemoine explota al máximo estas experimentaciones (fig. 15). A la iz quierda, una enorme superficie espejada. De nuevo, un espacio húmedo que funciona como estancia ritual y elemento de conexión entre el área de M. Lemoine y la de Mme. Lemoine. La bañera, que en la versión intermedia de la Villa Dall’Ava se trabaja como un elemento autónomo que se puede desplazar, reaparece aquí en una versión construida. Su alimentación y evacuación limitan obviamente su traslación, pero se sitúa en un espacio ambiguo, a la vez perte neciente al universo femenino, pero visible desde la ducha (fig. 16), inscrita en un universo masculino ligada a la silla de ruedas. Los dos personajes escenifi can el mismo ritual, separados físicamente, pero conectados visualmente, en un juego de seducción. Dada la reducida anchura de este baño-pasillo, los vidrios que limitan con el patio funcionan como espejos, un dispositivo sobre el que el arquitecto ya ha trabajado en la Patio-Villa. En esta, Rem Koolhaas se focaliza en los diferentes tipos de vidrio, y sus propiedades reflectantes, que varían según la posición del espectador y las condiciones de luz: “varios tipos de vidrio com prenden la elevación sur de la casa. A través del vidrio translúcido, transparente, teñido de verde y de alambre, se producen los efectos alternos de transparen cia, oscuridad y reflexión” (1998, 172).10 Los efectos se declinan de dos formas: con las superficies de espejo o con las superficies vidriadas, cuya capacidad de reflexión y transparencia se modula a lo largo de la jornada.

En la Villa Dall’Ava, la estrecha terraza mantiene el estatuto doble, espacio de uso y espacio de comunicación con el apartamento de la hija (fig. 17). Las super ficies de vidrio al ácido que velaban los rituales de la ducha y el baño funcionan con el mismo principio, ya sea en el interior de la estancia, ya sea en el exterior.

10.

Una

descripción casi idéntica aparece en el libro S, M, L, XL (Koolhaas 1995a, 67). Figura 14_ Patio Villa. Vista del baño principal. Fuente: Archivos OMA
Dearq 34
Figura 15_ Villa Lemoine. Vista del baño principal hacia el área de Mme. Lemoine. Fuente: Autor.

Figura 16_ Villa Lemoine. Vista del baño principal hacia el área de M. Lemoine. Fuente: Autor.

Figura 17_ Vista de la terraza desde el apartamento de M. y Mme. Boudet. Hans Werleman. Fuente: Archivos OMA

La porción que sirve como prolongación exterior del baño queda en penumbra, lo que transforma los lienzos de vidrio es superficies reflectantes que duplican la dimensión de la fachada situada al frente y nos reenvían a ese imaginario le corbusieriano. Esta sensación se refuerza con la puerta pivotante a nuestra derecha. En la partición que articula el cuarto de baño y el área de trabajo, los elementos móviles anteriormente citados (hinged wall y pivoting plane) están pintados en negro satinado. En condiciones de luz concretas, estas superficies también reflejan el espacio que nos rodea. Incluso el hormigón de la ducha, al contacto con el agua, se transforma en una superficie reflectante.

conclusión

En primera instancia, las piezas húmedas del programa doméstico en OMA pa recen determinadas por una función estrictamente relacionada con la higiene. Sin embargo, un análisis preciso demuestra que han sido concebidas como un medio para explorar y explotar el carácter hedonista inherente al espacio mo derno que señala Rem Koolhaas. Los orígenes se sitúan mucho más allá de la revisión crítica aquí aludida del pabellón de Barcelona a través de la Casa Gim nasio. Las células del área de baños de la propuesta Exodus or The Voluntary Prisoners of Architecture, de 1972, ya “están equipadas para fomentar la indul gencia y facilitar la realización de fantasías e invenciones sociales; invitan a to das las formas de interacción e intercambio” (Koolhaas 1972, 328). No en vano, las imágenes del collage realizado provienen del largometraje De Blanke Slavin (1969), escrito por Koolhaas en colaboración con su amigo de infancia, Rene Daalder, punta de lanza del cine holandés de liberación sexual (Cfr. Lootsma 2001). El ojo de buey de la piscina de la Villa Dall’Ava articula la relación entre nadadores “exhibicionistas” y habitantes “espectadores”, una estrategia que ya incluía el proyecto de 1976, evocado en The Story of the Pool, cuyos vestíbulos situados en los extremos (fig. 18) estaban limitados por dos superficies acris taladas a través de las cuales: “uno veía las saludables, a veces excitantes ac tividades subacuáticas de la piscina” (Koolhaas 1972, 356). A diferencia de las propuestas aquí citadas, los miembros de la familia Boudet intercambian unos papeles que son reversibles. Son a la vez sujeto activo y sujeto pasivo, haciendo que esta jerarquía participe de la noción de inestabilidad (programática, funcio nal, estructural o urbana), un concepto koolhaasiano por excelencia.

investigación 24 – 25

Este artículo revela la gran inteligencia y complejidad del trabajo de OMA en cualquier escala, así como el modo en el que una cuestión plenamente con temporánea constituye la base de una sólida exploración arquitectónica, con estrategias y dispositivos desarrollados de manera sistemática a través de una serie de ensayos que se repiten, se declinan y se ponen a prueba durante veinte años. Estas experimentaciones barren un gran espectro de medios y herramientas, incluyendo proyectos teóricos, manifiestos y obras construidas. Al mismo tiempo, esta producción busca inscribirse en un linaje de viviendas del siglo XX11 que funcionan a la vez como referencia y fuente de introspección. Este “material genético” del pasado incorpora, en el caso del Pabellón de Bar celona, programas completamente ajenos en términos funcionales. A través de la subversión y de la manipulación de estas obras esenciales, el arquitecto construye una posición integrada en el contexto actual. La relación entre el agua y el cuerpo trasciende lo estrictamente funcional proponiendo un espa cio ritual, donde las conexiones físicas y visuales se cruzan para ofrecer una experiencia rica en extremo en lo perceptivo y lo social. Las tensiones entre lo individual y lo colectivo, entre lo público y lo privado, entre lo íntimo y lo lúdico, funcionan como motor de proyecto, creando situaciones ambiguas que reve lan las complejidades de la vida doméstica, con un intercambio constante de roles. Una estrategia que se traslada a proyectos de gran escala, como el ZKM en Karlsruhe, el Centro de Artes Escénicas en Miami o la Casa da Música en Oporto. Al servicio de esta inestabilidad de jerarquías, la utilización y la combi nación de diferentes acabados cobra una nueva dimensión para desarrollar en futuras investigaciones. Más allá de las lógicas de collage, a menudo identifi cadas en los análisis críticos de la obra de OMA, este texto demuestra la nece sidad de estudiar los materiales desde su capacidad para modular, modificar e intensificar relaciones sociales y espaciales, creando potentes campos de fuerzas capaces de subvertir una inicial distribución programática.

Figura 18_ Planta de la piscina, publicada en Architectural Design. n.º 5, 1977.

11. “Casa Farnsworth (MvdR), Casa de Cristal (PJ), Villa Savoye (LC)”, citadas en Koolhaas (1995b).

bibliografía

1. AA VV. 1998. OMA-Rem Koolhaas: Living Vivre Leben. Berlin: Birkäuser.

2. AA VV. 2009. OMA Villa Dall’Ava/Maison à Bordeaux. Tokyo: GA

3. Chaslin, François. 2001. Deux conversations avec Rem Koolhaas et caetera. Paris: Sens & Tonka.

4. Fromonot, Françoise. 2014. “The house of Doctor Koolhaas”. AA Files, n.º 8: 68-85.

5. Gargiani, Roberto. 2008. Rem Koolhaas/OMA: The Construction of Merveilles Lausanne: EPFL Press.

6. Gargiani, Roberto. 2004. “Rem Koolhaas et le mythe de la Floating Swimming Pool“. Matières, no. 7 : 7485

7. Lootsma, Bart. 1985. “The strategies of OMA”. Forum, n.º 3: 124-130

8. Lootsma, Bart. 2001. “Le film à l’envers: Les années 60 de Rem Koolhaas”. Le Visiteur, n.º 7: 90-111.

9. The Chicago Tapes Transcript of the Conference at the University of Illinois at Chicago. New York: Rizzoli, 1987.

10. Koolhaas, Rem y Bruce Mau. 1995a. S, M, L, XL. New York: The Monacelli Press.

11. Koolhaas, Rem. 1995b. Entrevista en “Villa Dall’Ava”, filmado, escrito y dirigido por Richard Copans. Paris: Centre Pompidou.

12. Koolhaas, Rem. 1998. OMA/ Rem Koolhaas 1987-1998 Madrid: El Croquis.

13. Koolhaas, Rem. 2004. Delirio de Nueva York Barcelona: Gustavo Gili.

14. Koolhaas, Rem, Elia Zenghelis, y Madelon Vriesendorp. 1977. “Exodus/1972”. Architectural Design, n.º 5: 328-329.

15. Moneo, José Rafael. 2003. Inquietud teórica y estrategia proyectual en la obra de ocho arquitectos contemporáneos: James Stirling, Robert Venturi, Aldo Rossi, Peter Eisenman, Álvaro Siza, Frank Gehry, Rem Koolhaas, Herzog & De Meuron. Barcelona: Actar Publishers.

16. Moschini, Francesco. 1986. “L'avventura della casa”. Rinascita. 8 de febrero, 17. https:// www.researchgate.net/ publication/311009308_ Il_progetto_domestico_ alla_XVII_Triennale__l'avventura_della_casa_ Francesco_Moschini

17. Stellweg, Carl, Peter de Vette and Tara Lewis. 2019. Utopia Rotterdam 40 jaar Rotterdam: Utopia

Dearq 34

Recibido: 31 de octubre de 2021

Aceptado: 24 de abril de 2022 Cómo citar: Vélez Santamaría, David y Germán Darío Tamayo Osorio. "Tres momentos del agua en la infraestructura y el espacio público de Medellín". Dearq no. 34 (2022): 27-36. DOI: https://doi.org/10.18389/dearq34.2022.03

Germán Darío Tamayo Osorio ger.tamayo89@gmail.com

Empresa de Desarrollo Urbano, Colombia

DOI: https://doi.org/10.18389/dearq34.2022.03

Tres momentos del agua en la infraestructura y el espacio público de Medellín

Designing with water in three periods of transformation in Medellín’s infrastructure and public space

En este artículo se revisan algunos usos del agua en infraestructu ras y espacios públicos de Medellín (Colombia). Para este fin, los proyectos se presentan según tres momentos de ciudad: 1) entre las décadas de 1960 y 1970, con algunas fuentes ornamentales como complemento a la infraestructura vial de la época; 2) entre las décadas de 1980 y 1990, durante la construcción del metro, y 3) entre 2012 y 2015, cuando los proyectos de las unidades de vida articulada se comenzaron a usar para la interacción directa con el agua. Así, se identifican los cambios que han permeado la arqui tectura y el urbanismo de Medellín en cuanto al uso del agua en la ciudad.

Palabras clave: fuentes de agua, espacio público, Medellín, recurso hídrico, relacionamiento con el agua.

This article reviews the use of water within infrastructure and pub lic space in Medellín (Colombia). It presents projects grouped into three periods in the city’s history: 1) between the 1960s and 1970s, when water was used in ornamental fountains as a complement to road infrastructure; 2) between the 1980s and 1990s, within the construction of the Metro system; and 3) between 2012 and 2015, when Articulated Life Unit projects offered direct interaction with water. It identifies the changes in terms of how water is used that have permeated Medellín’s architecture and urbanism.

Keywords: water fountains, public space, Medellín, water resource, relationship with water.

David Vélez Santamaría david.velezsa@upb.edu.co Universidad Pontificia Bolivariana
26 – 27

Las fuentes urbanas son un tipo de objeto arquitectónico que usa el agua como elemento activo en los espacios públicos. Históricamente, la fundación y el desarrollo de las ciudades se han dado en compañía de estos suministros, y aunque en la actualidad no cumplen con su función original de abastecimiento, han pasado de ser parte de la infraestructura de servicios a ser componentes para la recreación y la ornamentación de estas. En la ciudad contemporánea, las fuentes se utilizan cada vez con mayor frecuencia para consolidar una ima gen determinada de ciudad o acompañar el paisaje urbano.

En Medellín (Colombia), al igual que en muchas ciudades latinoamericanas regidas directa o indirectamente por las Leyes de Indias, las fuentes estaban destinadas al aprovisionamiento de agua para las necesidades cotidianas y se emplazaron estratégicamente para abastecer los primeros asentamientos urbanos por medio de las quebradas. El valle de Aburrá, en el que se ubica Medellín, está determinado por un sinnúmero de quebradas que confluyen en el río. Desde los primeros asentamientos en este territorio, se establecieron vínculos directos con los afluentes, como las fuentes de agua; sin embargo, el deseo de modernidad y la transformación de villa a ciudad cambiaron estas relaciones y declararon el río y sus condicionantes como un obstáculo para el crecimiento urbano.

Desde los años cincuenta del siglo XX, la planeación moderna orientó el desa rrollo de Medellín desde dos prioridades: la organización de los usos o zonifica ción y la conectividad vial metropolitana. Para este fin, una de las apuestas más importantes consistió en finalizar las obras de canalización y rectificación del río Medellín y algunos de sus afluentes.1 Si bien con el plan Piloto de Wiener y Sert resulta evidente la importancia del crecimiento de la ciudad en torno a sus quebradas, las disposiciones de planificación trazadas en los años setenta, con el Plano Director aprobado por el municipio, se enfocaron en el establecimiento y regularización de la malla vial y la disminución de las zonas verdes.

Como lo indica María Perfetti en su investigación sobre las transformaciones de la estructura urbana de Medellín para la década de 1970, “la oficina de va lorización margina las prácticas y los ideales del urbanismo, actúa construyen do obras de infraestructura, con vías, con muchas vías” (Perfetti 2005, 409). Tal priorización del sistema de movilidad vehicular y trazado urbano supuso dejar de lado los estructurantes naturales, como el río y las quebradas, lo que deven dría en la imposibilidad tanto de aprovechar el valor paisajístico y ambiental de estos como de tejer una relación de los ciudadanos con los afluentes hídricos.

Sin embargo, mientras la ciudad ha negado el río y sus quebradas por motivos funcionales, se han construido o reubicado fuentes de agua para integrar de alguna manera este elemento con las infraestructuras y los espacios públicos de la ciudad, por lo que es necesario preguntarse: ¿cuál ha sido la relación y uso de las fuentes de agua con Medellín y sus espacios urbanos durante los últimos cincuenta años?

Este trabajo se enfoca en revisar algunos casos paradigmáticos de fuentes de agua que han determinado la imagen y la experiencia en el espacio público de la ciudad de Medellín en los últimos cincuenta años. Si bien estos objetos se pueden datar desde el origen de Medellín como parte de las necesidades fundacionales o de embellecimiento que se han mencionado, el estudio se delimita temporalmente entre 1967 y 2014, periodo de construcción y consoli dación de tres tipos de infraestructura representativa en tres momentos de la ciudad y su urbanismo.

En primer lugar, está el momento de consolidación de la ciudad para el vehículo, en el que el desarrollo de la infraestructura vial fue prioritario y las fuentes se vincularon como elementos urbanos para la contemplación desde el automóvil; en segundo lugar, el momento de una gran operación urbana: la construcción

1.

Las obras de rectificación y canalización del río Medellín comenzaron en 1908, por iniciativa de la Sociedad de Mejoras Públicas, y culminaron hacia 1970, entre las calles 10 y 85 (Restrepo Uribe 1981, “Canalización y rectificación”).

introducción
Dearq 34
Mientras la ciudad ha negado el río y sus quebradas por motivos funcionales, se han construido o reubicado fuentes de agua para integrar de alguna manera este elemento con las infraestructuras y los espacios públicos de la ciudad.

2.

Obra del arquitecto Nel Rodríguez Hausler, ejecutado entre 1955 y 1967, con los dineros donados por el filántropo Pablo Tobón Uribe (Restrepo Uribe 1981: “Teatros”).

3.

Su construcción fue aprobada en 1968, según acta de la Junta de Planeación Municipal y Servicios Técnicos. Se nombra de esta manera debido a la escultura de la madre tierra que fue elaborada por el escultor José Horacio Betancur.

4.

Oficina de arquitectura y construcción fundada desde 1955 por Eduardo Caputi y Rafael Uribe, arquitectos egresados de la Universidad Pontificia Bolivariana. Entre 1955 y 1990, Caputi & Uribe diseñaron y construyeron gran cantidad de fuentes urbanas en el país.

5.

Se refiere a la forma de Diente de león, un tipo de surtidor común desde los años sesenta en varias fuentes de ciudades norteamericanas (Hirst 2012).

de la infraestructura de transporte masivo (Metro), en el que las fuentes se inclu yeron como elementos de dinamización del nuevo espacio público de las esta ciones, y en tercer lugar, el momento reciente de la resignificación de espacios residuales a escala barrial, de las infraestructuras de abastecimiento de agua que facilitan una experiencia directa con el agua como estrategia de integración y recreación activa.

Los tres momentos se contextualizan al considerar el tratamiento que tenían los afluentes naturales de agua durante la época en la ciudad y el encargo de los proyectos que se desarrollaron con fuentes urbanas. Las diferentes obras y fuentes se seleccionaron con base en la revisión del material que arrojó la investigación documental de origen primario con planos, mapas, fotografías y entrevistas, y de origen secundario, como artículos de divulgación científica, artículos y libros. Se utilizó el estudio de caso como método de análisis de las fuentes encontradas, y se realizó un estudio comparativo entre los diversos mo mentos en que fueron agrupadas y organizadas de acuerdo con sus caracterís ticas arquitectónicas, su relación con la ciudad y, en especial, su uso dentro del espacio público.

Con esta información es posible acercarse a los aspectos formales, técnicos y estéticos que caracterizan las fuentes de agua en su ubicación, lo que orienta una interpretación hacia su valor como elemento urbano en la historia de la ciu dad, así como su pertinencia en el espacio público. Finalmente, se reflexiona en torno a la transformación del uso de las fuentes de agua como parte del espacio público, para aportar al debate sobre el significado ciudadano del contacto con el agua y su necesidad en la ciudad contemporánea.

el agua como ornamentación en la ciudad máquina

Desde finales de la década de 1920, Medellín afrontó un gran número de obras de infraestructura vinculadas con el manejo de sus afluentes hídricos (quebradas y río), la mayoría de estas con el propósito de facilitar la edificación en ciertas áreas, la construcción de nuevas avenidas vehiculares y, en general, funciones básicas en torno a la producción, que privilegiaron la movilidad en automóvil y limitaron el disfrute paisajístico y ambiental del recurso hídrico durante las décadas subsiguientes. Uno de los proyectos viales precedentes con los que se limitó la relación de la ciudad y sus afluentes fue el de la cobertura de la que brada Santa Elena, en el centro de la ciudad (González 2018). El propósito fue trazar una avenida vehicular para mejorar la movilidad en carro y evitar los malos olores producidos por las aguas negras que desembocaban en la quebrada.

Con la cobertura desde los años veinte hasta los cincuenta, la avenida La Playa se determinó como un paseo con edificaciones importantes y se remató hacia el oriente con la construcción del Teatro Pablo Tobón Uribe2 y una glorieta de intercambio vehicular que sirve como antesala al edificio. Esta rotonda fue ador nada con una fuente urbana en 1968, hoy conocida como La Bachué.3

El proyecto de esta fuente luminosa estuvo a cargo de la oficina Caputi & Uri be,4 arquitectos que también diseñaron en ese mismo año la fuente luminosa del parque Bolívar (fig. 1). El diseño de la fuente de La Bachué consistió en tres cuencas escalonadas de concreto, cada una de nueve, once y siete metros de diámetro, esta última coronada por la escultura de La Bachué (fig. 2). Las cuen cas son irrigadas principalmente por tres aspersores dandelion 5

Originalmente, la rotonda contaba con dos pasarelas para apreciar de cerca la fuente de agua; sin embargo, la inseguridad y el deterioro del sector obligaron a cercarla. Al estar encerrada desde la década de 1980, la relación con la fuente se limitó a ser netamente contemplativa para los vehículos. Solo hasta 2018, con el plan de recuperación del centro, el parque rotonda pudo ser cruzado por los transeúntes y la fuente se apreció de cerca nuevamente.

investigación 28 – 29

La administración de estas fuentes ha estado a cargo de las Empresas Públicas de Medellín (EPM), en alianza con el municipio. Al tiempo, en 1973, EPM patro cinó con la textilera Fabricato la construcción de la fuente de la glorieta San Diego, diseñada igualmente por Caputi & Uribe (fig. 3).6 Con la extensión de la calle 33 hacia el oriente y la conexión con la carretera Las Palmas, se definió un intercambio vial en el sector de la Asomadera.7

La fuente consistió en una base floriforme con seis pétalos, de treinta metros de diámetro y una cuenca elevada por un montículo de siete metros de diámetro. El agua era expulsada verticalmente sobre la cuenca superior, y gracias a algunas gárgolas, esta desembocaba en la base para ser bombeada de nuevo. Destaca ba también el diseño de vegetación que complementó la glorieta.

La fuente Fabricato se construyó como un monumento industrial que pudiera observarse desde los vehículos al transitar alrededor de la glorieta de San Die go (fig. 4). Por sus dimensiones y ubicación, sirvió como punto de referencia durante años, aunque en 19878 se ensanchó la vía que conectaba la aveni da Oriental con la carrera de El Poblado y un puente se posó sobre esta. Por último, en 2019 se demolió la fuente para completar la calle 33 hacia la ave nida Las Palmas y descongestionar el intercambio. Esta misma suerte corrió la fuente del intercambio de la avenida del Ferrocarril con la calle Colombia, construida en 1972 para el disfrute de los automovilistas (fig. 5). En 1980, las obras del puente del río eliminaron la glorieta para construir otro intercambio más ambicioso.

Otras fuentes ubicadas en las glorietas de Medellín son las del Aeropuerto Ola ya Herrera, en el intercambio de la calle 14 con la carrera 65 (1964), también diseñada por Caputi & Uribe, y hoy en día inoperante; como también la de la glo rieta de la calle 30 con la avenida de El Poblado construida en los años setenta por las empresas Enka, la cual incluye una escultura-cascada contemporánea diseñada por Óscar Mejía, Ramiro Henao y Fernando Botero (fig. 6).

Las fuentes en las glorietas que se han descrito hacen referencia indirecta a los principios de la ciudad barroca, en la que los paseos, los bulevares, las rotondas o los jardines, adornados con fuentes que fueron populares durante los siglos XVIII y XIX. Aunque el modelo estadounidense de autopistas para la circulación rápida se posicionó con bastante fuerza en Medellín desde los años cuaren ta, las glorietas adornadas se construyen hasta los años ochenta, a manera de monumento (Botero 1996, 156 y 157). Como Lewis Mumford (1967) lo indica, si bien la gran avenida se convirtió en una autopista, y la gran rotonda se transfor mó en un “trébol”, mucha parte del urbanismo moderno se realizó con espíritu barroco. En Medellín, esta aplicación osciló entre la necesidad de construir una ciudad funcional y proyectar una imagen de poder, progreso y modernidad.

Figura 1_ Javier Uribe. Empresas Públicas de Medellín. Planos para la fuente luminosa en el parque Bolívar, 1968. Archivo de la Facultad de Arquitectura, Universidad Nacional de Colombia. Fotografía registro de los autores.

Figura 2_ Luis Guillermo Gómez. Departamento Administrativo de Planeación de Medellín. Fuente La Bachué, 1997. Imágenes de acceso abierto para uso no comercial. Archivo Biblioteca Pública Piloto. Fotografía registro de los autores.

6. Se solicitó su construcción en homenaje a los cincuenta años de la textilera Fabricato. Archivo Histórico de Medellín (AHM), Fondo Alcaldía de Medellín, Departamento de Planeación, plano 490475.

7. Según el plan vial regulador de 1956, la extensión de la calle 33 ya estaba trazada para entonces. La vía Las Palmas se define con el plan vial de 1970 (Restrepo Uribe 1981: “Plan regulador”).

8. AHM, Fondo Alcaldía de Medellín, Departamento de Planeación, obra 358.

Dearq 34

Figura 3_ Javier Uribe. Empresas Públicas de Medellín. Planos para la fuente luminosa frente al Teatro Pablo Tobón Uribe, 1968. Archivo Facultad de Arquitectura, Universidad Nacional de Colombia. Fotografía registro de los autores.

Figura 4_ Gabriel Carvajal Pérez. Fuente Fabricato glorieta de San Diego, 1973. Imagen para uso no comercial, Archivo Biblioteca Pública Piloto.

el agua como dinamizadora en una gran operación urbana

Desde los años cincuenta se había establecido que los corredores viales para lelos al río deberían tener un retiro y una sección suficientemente amplios como para permitir la construcción de una línea de transporte masivo (Restrepo Uribe 1981). Así fue como en 1984 comenzó en Medellín la construcción del sistema Metro, proyecto que se convirtió en una de las obras de mayor trascendencia desde el punto de vista urbano en la ciudad.

El proyecto definitivo se trazó con dos líneas: la principal (línea A), que apro vechó parte del retiro, siguió el río Medellín de sur a norte, entró al centro de la ciudad por la carrera Bolívar y fue inaugurada en 1995, y la segunda línea (línea B), que bordeó la quebrada La Hueso, conectó el centro tradicional con las zonas de habitación en el área occidental y fue inaugurada en 1996. La cons trucción de los viaductos elevados y carrileras a nivel anularon la posibilidad de tejer nuevamente una relación con el río Medellín, y eliminaron el potencial de la quebrada La Hueso como corredor ambiental.

El diseño de las estaciones del Metro estuvo a cargo de dos reconocidos pro yectistas que lideraron gran parte de la producción edilicia de la ciudad durante los años ochenta. Los arquitectos Nagui Sabet9 y Laureano Forero proyectaron las estaciones considerando no solo la resolución estructural según el trazado de los viaductos y carrileras, sino también el emplazamiento para solucionar los accesos a estas. Sin embargo, los diseños del espacio público estuvieron a cargo de otras firmas de arquitectura local y de la misma empresa del Metro. De las veintiún estaciones iniciales del Metro, las cinco ubicadas en el centro fueron las que contemplaron mayor compromiso con la cicatrización del tejido urbano, debido a la necesidad de realizar algunas demoliciones, y en especial a causa de la abrupta aparición del viaducto elevado dentro de la malla urbana del centro de la ciudad (fig. 7).

En este sentido, en las estaciones de la línea A: San Antonio, Parque Berrío y Prado, y de la línea B: Estadio, Floresta y Suramericana, fueron incluidas fuentes de agua de propulsión vertical que rebosaban en rejillas, las cuales se localiza ron en las amplias plazoletas y zonas duras de acceso a las estaciones. Estos diseños fueron ejecutados por Caputi & Vieira,10 asociación derivada de la ofici na original Caputi & Uribe.

9. El portafolio con la obra representativa de Sabet hasta 2004 está disponible en Sabet (2015).

10.

Liderada por Luis Carlos Vieira, yerno de Rafael Uribe, fundador de la firma Caputi & Vieira. Luis Carlos Vieira Pardo, entrevista directa, grabación de octubre de 2021.

Al tiempo que las fuentes se integraron de manera similar en la mayor parte de las plazoletas, es decir, como elementos de apreciación y disfrute, estas trascendieron la vocación decorativa de aquellas de los años sesenta y se tenta, ubicadas en las glorietas viales, y permitieron una interacción más cer cana con el agua. Por un lado, se trató de rememorar la presencia del agua, debido a que la línea B se construyó cubriendo algunos tramos de la quebra da La Hueso; por otro, se convirtieron en elementos que contribuyeron a la

investigación 30 – 31

habitabilidad, confort y estancia de los transeúntes a lo largo del día, al bajar las altas temperaturas incrementadas por la aridez de las nuevas plazuelas de acceso al metro (figs. 8 y 9).

En la actualidad, debido a los requerimientos técnicos, al igual que a los cos tos vinculados a su operación, en todas las estaciones se han desactivado las fuentes de agua (estaciones Prado, Suramericana, Floresta y Estadio),11 y una de ellas (estación San Antonio) fue demolida en 2017, para ejecutar las obras correspondientes al paseo de la carrera Bolívar.

el agua como elemento resignificador de infraestructuras en la periferia urbana

A comienzos del siglo XXI, nuevos proyectos comenzaron a hacer uso del agua dentro del espacio público como un elemento para el juego o la interacción di recta. Obras como el Parque de los Pies Descalzos12 (2004) y el Parque de los Deseos13 (2008) evidenciaron un amplio interés de la ciudadanía por el disfrute activo del agua a través del juego, y de los diseñadores por la inclusión del agua como elemento rector dentro de los proyectos urbanos.

Posterior a estas obras, en 2011 se buscó llevar espacios de interacción con el agua a barrios con grandes carencias de espacio público y limitadas áreas para su ejecución, por lo que se optó por la utilización de los lotes y cubiertas de diversas infraestructuras de almacenamiento de agua localizadas en las partes altas de la ciudad. Estas nuevas edificaciones y sus espacios públicos fueron llamadas unidades de vida articuladas (UVA), equipamientos públicos que hicie ron parte de la iniciativa de la empresa de servicios públicos de la ciudad (EPM) y que, en alianza con la alcaldía de Medellín, buscó reintegrar estas infraestruc turas al tejido urbano (Valencia Corrales 2016).

La intervención urbana fue concebida por el Departamento de Intervenciones Urbanas Sostenibles (DIUS) de EPM, liderado por el arquitecto Horacio Valencia. Este departamento, a su vez, estuvo encargado de la priorización y el diseño de la mayoría de las UVA. Inicialmente, se analizaron 144 tanques localizados en la ciudad, pero fueron los “aspectos de área útil, densidad poblacional y necesi dades de las comunidades colindantes, restricciones geológicas, expansión del servicio de acueducto y su entorno” (Valencia Corrales 2019) los que definieron los tanques que se iban a intervenir. Así es como entre 2012 y 2015 se constru yeron catorce UVA14 en diferentes tanques, especialmente en la periferia de la ciudad (fig. 10).

Figura 5_ Caputi & Uribe. Planos para la fuente luminosa BIC, glorieta: calle Colombia con avenida del Ferrocarril, 1972. Archivo Facultad de Arquitectura, Universidad Nacional de Colombia. Fotografía registro de los autores. Figura 6_ Departamento Administrativo de Planeación. Estudio del plan vial para el intercambio entre la calle Colombia y la avenida del Ferrocarril, 1970. Imagen para uso no comercial, Archivo Histórico de Medellín.

11.

Edison Escobar Osorno, entrevista directa, grabación marzo de 2022 (29:35).

12.

Diseñado por las arquitectas Ana Elvira Vélez y Giovanna Spera.

13.

Diseñado por los arquitectos Felipe Uribe de Bedout, Gerardo Olave y Jheny Nieto.

14. Doce de ellas en Medellín, y las dos restantes en los municipios de Bello e Itagüí.

Dearq 34

Figura 7_ Departamento Administrativo de Planeación. Fuente Enka en el intercambio de la calle 30 con la avenida El Poblado, 1986. Imágenes de acceso abierto para uso no comercial. Archivo Biblioteca Pública Piloto.

Figura 8_ María Bustamante y Edison Escobar. Plano con los diseños para la estación San Antonio de la línea A del Metro. Cortesía del Archivo del Metro de Medellín.

Figura 9_ Arquitectura seglar: Juan Carlos Londoño M. Plano con los diseños para la estación Floresta de la línea B del Metro. Cortesía del Archivo del Metro de Medellín.

Dentro de los análisis iniciales para la formulación del proyecto de las UVA, se consideraron los espacios de infraestructura que estaban causando “la pro blemática más grave de violencia en la ciudad de Medellín” (Valencia Corrales 2019), y que a su vez fueran áreas disponibles para entretejer barrios y territo rios. Muchas de estas infraestructuras fragmentaban el tejido urbano y gene raban espacios abandonados o en desuso, con un amplio potencial debido a su localización en los sectores más densos de la ciudad. Las intervenciones partieron de tres premisas fundamentales: el respeto por la infraestructura exis tente (los tanques de agua), el diseño del espacio público considerando princi palmente la topografía con sus altas pendientes y un programa arquitectónico mínimo elaborado por la comunidad circundante.

Una de las primeras unidades en entrar en funcionamiento fue la UVA de Los Sueños (2014), localizada en el Tanque Versalles, en la comuna 3 de Medellín (fig. 11). Esta obra es muestra de gran parte de los objetivos trazados en esta estrategia de intervención urbana: la articulación con el entorno inmediato, la creación de estancias y zonas de encuentro, la dinamización mediante el uso del agua y la luz, y la consolidación de una oferta de servicios de acuerdo con los requerimientos de cada sector.

La UVA de Los Sueños se implanta en una topografía inclinada, por lo que me diante el terraceo y la contención logra conectar diferentes espacios. El agua aparece como elemento organizador del nuevo espacio público, pues en la pla za principal que rodea el tanque de abastecimiento, se ubican un par de fuentes con propulsores de agua vertical y una línea adicional que rodea el tanque, ele mentos acompañados por un amplio mirador de ciudad.

La inclusión del agua en el diseño de las UVA deja a un lado su carga como objeto meramente contemplativo dentro del espacio público; ahora los diseños convierten el agua en catalizadora y organizadora tanto de las espacialidades y estancias urbanas como en generadora de nuevas actividades de disfrute acti vo de los visitantes mediante la interacción directa con esta.

En la UVA La Esperanza, ubicada en el Tanque Moscú, en la comuna 1 de Me dellín, se usan estrategias similares a las de la mayoría de proyectos. El trabajo topográfico de escalonamiento mediante senderos y contenciones, así como un espacio central en el que la conjugación de la iluminación colorida y juegos de agua generan un espacio de esparcimiento y lúdica en el que el agua se hace protagonista, representa un vínculo claro con la infraestructura donde se implanta (fig. 12).

investigación 32 – 33

Por otro lado, la UVA La Armonía, localizada en el Tanque La Tablaza, en la co muna 3, presenta como elemento distintivo un gran espejo de agua, el cual es el tanque en sí mismo. Sobre este se extienden senderos que cruzan y rodean. Este gran espejo de agua se complementa con dos potentes columnas de agua que constituyen elementos de atracción y focalización dentro del proyecto. La iluminación enfatiza los recorridos mediante luces bajas, pues el uso del color no se hace presente (fig. 13).

Dentro de los proyectos construidos ha sido ampliamente destacada y difundi da la UVA de La Imaginación15 (antiguamente llamada Orfelinato), la única de sarrollada mediante concurso público de arquitectura y reconocida con varios premios, incluyendo el LafargeHolcim Awards, en 2015. Se destaca dentro de la obra “la flexibilidad y continuidad a los espacios del parque”, así como “los juegos lúdicos al interior con el agua como referente” (González Escobar 2020).

En la UVA La Imaginación, el agua se convierte en el elemento caracterizador de cada uno de los espacios. En esta obra se usan geometrías circulares retoma das del tanque existente, que con la inclusión de un espejo de agua y un corre dor profundo que lo atraviesan permite tocar el agua y acercarse. En las áreas más abiertas del proyecto son los propulsores de agua vertical los que generan un espacio de juegos donde el movimiento del agua invita a la interacción.

En general, las UVA consiguieron en corto tiempo una gran apropiación ciuda dana y lograron acercar a las personas y las fuentes de agua en cada uno de los territorios donde fueron insertadas. Finalmente, en un contexto urbano, las UVA contribuyeron a mejorar el acceso de ciertos sectores periurbanos a es pacios públicos dotados de fuentes de aguas; sin embargo, resulta contradic torio que precisamente barrios como Villa Hermosa, donde se ubica la UVA La Libertad, tengan actualmente un 21 % de los hogares sin acceso al acueducto de la ciudad; incluso, con excepción de la comuna 14-El Poblado, donde se encuentra la UVA Ilusión Verde, todas las demás comunas donde se localizan estas intervenciones poseen población sin acceso al agua potable (Medellín cómo vamos 2019).

conclusiones

A lo largo del desarrollo urbano de Medellín, la relación con los afluentes hídri cos ha sido conflictiva. Existe una importante deuda de la ciudad con las que bradas y el río, que comprende desde su visibilización, pasando por la conserva ción de sus condiciones medioambientales, hasta su plena articulación dentro de la infraestructura verde y natural de la ciudad, que los posicione nuevamente como potenciadores ambientales, así como desde lo urbano y su relación con los ciudadanos.

Figura 10_ Luis Guillermo Gómez. Departamento Administrativo de Planeación. Estación Suramericana en construcción, 1996. Imágenes de acceso abierto para uso no comercial. Archivo Biblioteca Pública Piloto.

Figura 11_ EPM. Vista general de la unidad de vida articulada Los Sueños, 2014.

15. Colectivo 720, Luis Tombé y Mario Camargo. Equipo: Julián Mejía, César Aragón, Guillermo Buitrago, Diana Marcela Medina, Andrés Felipe Álvarez, Stephanny Fiat, Isabela Hincapié, Juan Pablo Orozco y Fiorela Gómez-Silva.

Dearq 34

Figura 12_ EPM. Vista nocturna con iluminación especial de la unidad de vida articulada La Esperanza, 2014.

Figura 13_ EPM. Espejo de agua y vista desde la unidad de vida articulada La Armonía, 2014.

Con los casos revisados se da cuenta de este conflicto, ya que las diferentes intervenciones que se relacionan con la infraestructura de la ciudad durante los dos primeros momentos demuestran posturas e implementaciones contras tantes del agua. En el primer momento, el que resulta de la noción de ciudad maquínica, el agua se utiliza de manera contradictoria. Las fuentes urbanas que se describieron configuraron intersecciones monumentales de ejes viales, lo que no permitió en su momento un acercamiento orgánico de la ciudadanía con estos. Por lo menos no en el sentido de lo que se consideraría higiénico o civilizado; este distanciamiento o utilización ornamental comparte los mismos motivos por los que una quebrada como la Santa Elena fuera cubierta.

Así mismo, estas intervenciones tienden a desaparecer debido a las mismas fuerzas que las originaron en puntos estratégicos de la ciudad. La movilidad vehicular supera el carácter estético o la posibilidad de contemplación que fue impulsada por las élites empresariales de la segunda mitad del siglo pasado, y nuevas ampliaciones de vías hacen necesaria su demolición.

Para el segundo momento, el que deriva de la abrupta implantación del Metro sobre el centro, el río y las quebradas, el agua aparece como elemento dinámico en el espacio público. Este tipo de fuentes son las que comienzan a acercar a la ciudadanía a una sensibilización más cotidiana con el agua. Los cuerpos en movimiento hacen parte de las rutinas alrededor de algunas estaciones del Me tro y de su funcionamiento.

Sin embargo, se han desactivado estas fuentes, pues los procesos de apropia ción ciudadana revelaron una tendencia que no resultaba sostenible para la ad ministración de los espacios. La presencia de habitantes de calle o la idea de un gasto innecesario de agua lleva al control extremo de estos espacios con vigilancia y, finalmente, a su clausura como puntos de encuentro con el agua.

En el tercer momento, las UVA denotan un panorama positivo para los espacios de interacción ciudadana con el agua. La concepción de estas plataformas de espacio público, desde la resignificación del recurso hídrico y su alegoría con el reciclaje de los tanques, ha traído dinámicas benéficas tanto para las comu nidades que residen en los territorios circundantes, como para el resto de la ciudadanía, y han consolidado un sistema cuyo común denominador es justa mente la red de acueducto.

Finalmente, es notorio desde el punto de vista técnico cómo las primeras ex ploraciones limitadas a algunos efectos como las columnas dieron paso a la experimentación con cortinas de agua, vaporizadores y propulsores con movi miento e iluminación, espejos, y un amplio abanico de opciones y oportunida des de diseño con el agua en el espacio público.

investigación 34 – 35

bibliografía

1. Baratta & Aravena. 2016. Biennale Architettura 2016. Google Arts & Culture. https:// artsandculture.google. com/u/0/project/biennalearchitettura-2016

2. Botero, Fernando. 1996. Medellín 1890-1950: Historia urbana y juego de intereses. Medellín: Universidad de Antioquia.

3. Bullaro, Luca. 2019. “Unidades de vida articulada (UVA), Medellín, Colombia”. Ciudad y Territorio Estudios Territoriales 51 (200): 429434. https://recyt.fecyt.es/ index.php/CyTET/article/ view/76744

4. Escobar, Alberto. 2006. Guías Elarqa de arquitectura de Medellín Bogotá: Gamma.

5. González, Luis Fernando. 2006a. “La fisiología de la ciudad: Médicos, e ingenieros en el Medellín de hace un siglo”. Iatreia 19, n.º 1: 77-94.

6. González, Luis Fernando. 2006b. Medellín, los orígenes y la transición a la modernidad: Crecimiento y modelos urbanos 1775-1932 Medellín: Universidad Nacional de Colombia, Escuela del Hábitat.

7. González, Luis Fernando. 2018. Ensayos inútiles sobre historia urbana de Medellín. Medellín: Ediciones UNAULA

8. González, Luis Fernando. 2020. Ciudad y arquitectura urbana en Colombia, 1980-2017 Medellín: Universidad de Antioquia.

9. Hirst, Bryan. 2012. “Fountains”. Trabajo de grado, Kingston University, Inglaterra.

10. Medellín cómo vamos. 2019. Informe de calidad de vida de Medellín, 2018 Vivienda y servicios públicos. Medellín: Pregón. https://www. medellincomovamos.org/ informe-de-calidad-devida-de-medellin-2018

11. Melo, Jorge Orlando, dir. 1996. Historia de Medellín Medellín: Compañía Suramericana de Seguros.

12. Mumford, Lewis. 1967. The City in History. Nueva York: Harcourt, Brace and World.

13. Olano, Ricardo y Angélica Morales Pamplona. 2006. Medellín en la memoria de Ricardo Olano, vol. 23. Medellín: ITM

14. Vélez Ortiz, Cristina, Diego López Chalarca, Mauricio Gaviria Restrepo y Nathalie Montoya Arango. 2010. Arquitectura moderna en Medellín 1947-1970 Medellín: Universidad Nacional de Colombia.

15. Perfetti, María. 2005. “Las transformaciones de la estructura urbana de Medellín: La Colonia, el ensanche y el plan regulador”. Tesis doctoral, Universidad Politécnica de Madrid, España. https:// doi.org/10.20868/UPM thesis.13745

16. Restrepo Uribe, Jorge. 1981. Medellín, su origen, progreso y desarrollo Medellín: Servigráficas.

17. Sabet, Nagui. 2015. “Arquitectura Nagui Sabet”. https://naguisabet.com/ portafolio/

18. Schnitter Castellanos, Patricia. 2002. “José Luis Sert y Colombia: De la Carta de Atenas a una carta del hábitat”. Tesis doctoral, Universitat Politècnica de Catalunya, España.

19. Valencia Corrales, Horacio. 2019. “Infraestructura de servicios públicos: Una herramienta para la generación de una sociedad más equitativa”. En CITI AEC 2019, Guadalajara, México. https://youtu.be/fLiL62frow

20. Valencia Corrales, Horacio. 2016. “Tanques de agua como parques públicos”. En Memorias del Proyecto ganador internacional Categoría Diseño Urbano y Arquitectura del paisaje. XX Bienal de Arquitectura Panamericana (BAQ).

Fuentes de consulta:

Archivo Histórico de Medellín Archivo Digital de la Biblioteca Pública Piloto Archivo del Metro de Medellín

Dearq 34

Recibido: 30 de octubre de 2021

Aceptado: 21 de abril de 2022 Cómo citar: Cortés Sánchez, Luis Miguel, Javier López Rivera, y Ramón Pico Valimaña. "Envolviendo la marisma. Reflexiones en torno a intervenciones en paisajes frágiles. El caso de las Marismas del Odiel". Dearq no. 34 (2022): 37-47. DOI: https://doi.org/10.18389/dearq34.2022.04

Luis Miguel Cortés Sánchez lcsanchez@us.es Departamento de Historia, Teoría y Composición Arquitectónica. Escuela Técnica Superior de Arquitectura, Universidad de Sevilla

Javier López Rivera lrivera@us.es Departamento de Expresión Gráfica. Escuela Técnica Superior de Arquitectura, Universidad de Sevilla

Ramón Pico Valimaña rpico@us.es Departamento de Historia, Teoría y Composición Arquitectónica. Escuela Técnica Superior de Arquitectura, Universidad de Sevilla

DOI: https://doi.org/10.18389/dearq34.2022.04

Marismas del Odiel

Enveloping the marsh. Reflections on interventions in fragile landscapes. The case of the Odiel Marshes

Este artículo se plantea desde la reconciliación de los territorios de marisma del sur de Europa con la naturaleza y el hombre, recu perando la energía que los convirtió en motores de las economías locales y transformándolos en espacios de oportunidad y en fér tiles productores de ecologías contemporáneas. En un momento en que la sociedad reclama una nueva gestión de sus paisajes, se pretende contribuir utilizando como hilo conductor el trazado de una infraestructura verde en uno de estos paisajes acuosos cultu rales de las marismas del Odiel, estableciendo un itinerario a tra vés de territorios, escalas, esencias y materiales, que culmina con reflexiones acerca de la memoria, el tiempo y la identidad como materiales de proyecto.

Palabras clave: paisaje litoral, paisaje postindustrial, infraes tructura verde, urbanismo ecológico, marismas, agua, territorio.

This article is based on a reconciliation between the marshlands of southern Europe and nature and man, recovering the energy that made them the engines of local economies and turning them into spaces of opportunity and fertile producers of contemporary ecol ogies. At a time when society is calling for a new approach to the management of its landscapes, the aim is to contribute by using the layout of a green infrastructure in one of these cultural waterscapes of the Odiel marshes as a guiding thread. To this end, an itinerary is established through territories, scales, essences and materials, culminating in reflections on memory, time, and identity as project materials.

Keywords: coastal landscape, postindustrial landscape, green infrastructure, ecological urbanism, marshes, water, territory.

Envolviendo la marisma. Reflexiones en torno a intervenciones en paisajes frágiles. El caso de las
36 – 37

No hay vida sin agua. El agua es un tesoro indispensable para toda actividad humana. (La Carta Europea del Agua 1968)

El pasado de los territorios de marisma está ligado a la hostilidad y a su condi ción de territorios servidores no adecuados para el desarrollo de asentamientos humanos. Las antiguas cartografías militares reconocen caminos entre tierras fangosas plagadas de mosquitos, en las que personas o animales desaparecían sin dejar rastro. El paisaje del desinterés.

Poco a poco, el hombre fue domesticando la marisma. Mientras en las vetas de tierra firme las ciudades tomaban cuerpo como crisol de convivencia, las zonas inundadas se fueron transformando en fértiles territorios productivos: salinas (lugares expuestos al viento), molienda (molinos de mareas), canteras (extrac ción de piedra ostionera), esteros (desarrollando sistemas de pesca controlada), jabonerías (empleando almarjos) e incluso huertos.

La quiebra de los procesos artesanales que provocó la Revolución Industrial condenó las marismas al abandono, incapaces de competir con las eficaces factorías modernas (fig. 1). Sus terrenos, vacantes, se convirtieron en golosos escenarios de oportunidad para el desarrollismo del siglo XX. Pasaron a ser un papel en blanco válido para casi cualquier uso: aeropuertos, regadíos, refine rías, polígonos y, sobre todo, zonas de expansión turística litoral.

Afortunadamente, el desarrollo de la conciencia ambiental de la década de los ochenta puso en jaque muchos de estos planes, pero resolvió el sistema con una ecuación simple: la de la declaración de espacios naturales protegidos, au ténticos museos contemporáneos del territorio, ajenos a su antigua vitalidad.

El futuro se plantea incierto. El cambio climático se ha convertido en una tesis ve rosímil que condiciona nuestras actuaciones. Como anunciaba Cuvier, cada ci clo histórico ha debido enfrentar su particular catástrofe, y la nuestra está ya con nosotros. La cara del Antropoceno, esa que retrata magistralmente Burtynsky, resulta tan plásticamente agraciada como sobrecogedoramente previsible, y ya ni siquiera para Trump caben dudas de que el cambio climático no es un engaño y cambiará definitivamente la superficie del planeta, tal y como la conocemos.

La sociedad está reclamando una nueva gestión de sus paisajes, y el trabajo que analizamos en este artículo pretende, modestamente, acercarse a ella. Así, utilizando como hilo conductor la oportunidad de materializar y desarrollar el trazado de una infraestructura verde en uno de estos paisajes acuosos del sur de Europa, planteamos un compromiso en la reconciliación de estos territorios con la naturaleza y el hombre, a fin de recuperar la energía que los convirtió en motores de las economías locales y transformándolos en espacios de opor tunidad y en fértiles productores de ecologías contemporáneas. Para que un

Dearq 34
Figura 1_ Basurero sobre parte de una antigua salina. Puerto Real (Cádiz). Fuente: AA. VV. Salinas de Andalucía. Sevilla: Consejería de Medio Ambiente, Junta de Andalucía, 2004.

Figura 2_ Vistas aéreas del proceso de transformación de las salinas de Cardeñas. Huelva, 1956-1978-1981-2019. Fuente: elaboración propia sobre Google Earth.

paisaje se mantenga vivo debe seguir funcionalmente activo, tanto en sus as pectos naturales como en los económicos y sociales (fig. 2). Se busca potenciar el carácter de la vía verde a un nivel superior, no solo atendiendo a la movilidad, sino en el que la propia infraestructura se convierta en el elemento que reactive el ámbito de actuación.

sobre el lugar: el estuario del río odiel (huelva, españa)

Al paisaje de esta realidad que se abre al tercer milenio le faltan aún autores que la entiendan en todos sus valores, que incorporen la modernidad sin asumir pa trones globales homogéneos y superficiales y que sigan viendo en el Río, en toda la complejidad que ha adquirido durante siglos, el misterioso lugar donde empezó todo. (Peral López 2017)

No existe el paisaje sin la mirada humana y la mirada siempre está condiciona da por la cultura. Así lo señala el Convenio Europeo del Paisaje de 2000, en su artículo 1: “Por paisaje se entenderá cualquier parte del territorio tal como la percibe la población, cuyo carácter sea el resultado de la acción y la interac ción de factores naturales y/o humanos”. El paisaje constituye, por tanto, una realidad dinámica. Los paisajes no se detienen en el tiempo, pues el cambio es su principal atributo. En algunos casos, los cambios se suceden siguiendo los ritmos de la naturaleza, que son, por lo general, bastante pausados. Pero hay otros casos en los que predominan los ritmos sociales, que pueden llegar a ser sumamente rápidos.

El caso que nos ocupa es un claro ejemplo de dinamismo y cambio. Bajo la influencia lunar, el agua colmaba todo el estuario de las marismas del Odiel dos veces al día y se retiraba otras dos, en una machacona serie que se repite a diario cada seis horas (fig. 3). Todo ello crea un ambiente movedizo e indefi nido, menguante y creciente a un tiempo: un lugar de mudanzas por influjo de las mareas.

La actuación proyectada en el estuario norte pretende descongestionar la in tensa utilización de la zona sur y bascular hacia el norte parte de ese interés, para ofrecer a los habitantes de Huelva, Gibraleón y Aljaraque un nuevo atrac tivo de escala territorial, un nuevo espacio para adentrarse en él, desconocido para la gran mayoría, y con un grado de antropización bajo comparado con otros territorios fluviales cercanos como el Guadalquivir, que lo hace, si cabe, más interesante (fig. 4).

Estamos ante uno de esos lugares del olvido y el abandono tan frecuentes en la ciudad contemporánea. Un lugar que paradójicamente, gracias a esto, cons tituye hoy un gran depósito de espacios de oportunidad, un territorio donde se

investigación 38 – 39

introducirán pequeñas operaciones de acupuntura que pauten los usos proyec tados, de manera que en los años venideros otros sean capaces de sembrar en ellos nuevas semillas a modo de iniciativas de futuro. El interés sobre este ámbito quedó reflejado en la publicación multidisciplinar que llevó a cabo como editor Juan Manuel Campos, bajo el título El patrimonio histórico y cultural en el paraje natural marismas del Odiel: un enfoque diacrónico y transdisciplinar, en 2016, donde se explora un acercamiento al lugar desde puntos diversos y, a su vez, complementarios. El interés en este lugar hace que las preocupaciones en torno a las marismas del Odiel no se queden únicamente en investigaciones teóricas, sino que la Consejería de Medio Ambiente y Ordenación del Territorio de la Junta de Andalucía saca a licitación la redacción del proyecto de obras y restauración ambiental y paisajística del itinerario paisajístico y de recualifica ción de bordes urbanos en el estuario norte del Odiel, en la provincia de Huelva, marco en el que se engloba la reflexión aquí planteada.

Tras el gran éxito público de algunas operaciones urbanas cercanas, como el Paseo de la Ría, en el estuario sur, no se trataba ahora de anteponer la identidad territorial a la urbana, sino tan solo de intentar conciliar urbe y naturaleza, dos conceptos que en la ciudad tradicional han sido antitéticos. Quizás esto no sea difícil en el caso de Huelva, ciudad con pocos atractivos urbanos, pero rodeada de una provincia con una naturaleza privilegiada.3 Si entendemos el estuario norte del Odiel como un enorme trozo de naturaleza insertado entre la trama metropolitana formada por Huelva, Gibraleón y Aljaraque, nos encontraríamos con un caso similar a los citados por las teorías urbanas norteamericanas, don de “La ciudad es una agregación de grumos edificados débilmente cohesio nados entre sí por un inmenso bosque urbano” (García Vázquez 2009, 173). Ojalá ocurra en este lugar aquello que García Vázquez describe en el caso de Alburqueque: que el paisaje intermedio-estuario norte acabe convirtiéndose en la seña de identidad de la ciudad. Para ello, y según cuenta el mismo autor a raíz de un relato de V. B. Price, la naturaleza no debería sentirse “más allá de”, sino “dentro de”. De eso trata esta actuación: de abrir un nuevo paisaje a nuestra mirada, y no hacia la marisma, sino desde ella, desde dentro. El punto de partida es una vía verde, pero el objetivo final va más allá, trata de recuperar esa mirada, ese conocimiento y ese sentimiento de identidad.

sobre cómo intervenir: mirada, acceso y derecho al paisaje

La obra de arte es siempre una construcción compleja en que se reconocen los elementos que la forman. Solo a través del sabio manejo de lo elemental estamos en condiciones de obtener lo complejo. (Martí Arís 1999)

Figura 3_ Pleamar y bajamar en el Sendero del Pinar de la Algaida, 2002. Autores del proyecto: Ramón Pico y Javier López (Arquitectura, Ciudad y Territorio Andaluz). El Puerto de Santa María (Cádiz). Fuente: Fernando Alda, fotógrafo.

Dearq 34

La transformación de la naturaleza —como casi toda obra humana— debe trascender de la mera funcionalidad para enriquecerse con actuaciones que incorporen la estética y el significado simbólico para sus usuarios. En este caso, el reconocimiento como Reserva de la Biosfera, de las marismas del Odiel, en 1989, altera notablemente la relación de las poblaciones del estuario del Odiel con este territorio marismeño, en un proceso que reclamaba claramente la aportación de nuevas funcionalidades, pero también de otros valores, nuevas identidades y significados renovados.

Ese nombramiento institucionalizaba un proceso de mutación definitivo: la ma risma pasaba de villana a heroína; se convertía en una gran joya, en el nuevo corazón encargado de dar vida a un sistema urbano enfermo. Detectada la im portancia, comienza el proceso de conformación de aquello que se revela como espacio único, con tres componentes indispensables: devolver la mirada de un sistema urbano que se había esforzado en negarla en épocas recientes, garanti zar el acceso (en un sentido amplio, mucho más allá de lo físico) de los habitan tes y especies que habitan su entorno y construir un sistema que garantizara el derecho al paisaje, a su disfrute perceptivo y activo.

Respecto a la primera, es preciso entender que normalmente en estos territo rios marismeños el abandono de la actividad ha provocado una clara negación por parte de los espacios urbanos que las rodean, que terminan dándole la es palda y construyendo dramáticas traseras. Así, una primera actuación obligada consistía en devolverles su carácter de fachadas litorales a los bordes urba nos-rurales degradados, integrándolos además en el entorno inmediato como parte de un patrimonio natural y cultural, por suerte reconocido hoy en día. En este sentido, el borde del estuario norte del Odiel se identifica como un corre dor visual y enclave estratégico de importancia, por constituirse en un gigantes co mirador panorámico desde el suelo rural: de lo metropolitano y urbano, del litoral, de las relaciones campo-puerto-ciudad y de un espacio protegido con alto valor natural. El carácter ribereño de los tres municipios y su vinculación con las vías de acceso en el perímetro del entorno de esta reserva de la biosfera posibilitaban una actuación supramunicipal, tendente a la mejora de la imagen de este lugar, que contribuyera a restablecer la identificación cultural del ám bito, así como a proponer un nuevo modelo de relaciones de su sociedad con el espacio natural, que pusiera especial cuidado en recuperar infraestructuras territoriales identitarias que habían caído en desuso y en reinventar su funcio nalidad y su capacidad de recualificar los bordes de las periferias asociadas.

Además, y como segunda acción, la construcción del paisaje contemporáneo planteaba el acceso como un objetivo irrenunciable. Para lograrlo en términos físicos, el elemento más habitual en el urbanismo ecológico actual suele ser una

investigación 40 – 41
Figura 4_ Ángel de Saavedra. Plano geográfico del estuario de los ríos Tinto y el Odiel (Huelva), 1810. Fuente: Barranco (1998).

gran infraestructura verde accesible a todos los públicos. En este caso, se trata ría de encontrar un trazado de unos 30 kilómetros de longitud, capaz de conec tar a las poblaciones de los tres municipios citados (unos 180.000 habitantes en total), y acercarlos a la gran riqueza medioambiental, paisajística, botánica, zoológica, cultural, arqueológica, patrimonial y turística que engloba el vasto espacio natural protegido de las marismas del Odiel que les rodea (7185 hec táreas) (fig. 5). En encontrar ese trazado y en definir su viabilidad, su capacidad de transformación y las oportunidades que brinde, reside la clave del éxito del proyecto, y para ello el equipo transdisciplinar de técnicos que lo aborden debe armarse de paciencia, rigurosa información y actitud exploratoria.

En este caso, gran parte del itinerario utiliza antiguas vías férreas mineras en desuso, así como vías pecuarias deslindadas y un terreno desbrozado; pero será en las conexiones entre ellas y en los puntos críticos, donde se entrecruzan balsas de marisma abandonada o rotondas de circulación hiperactivas, precisa mente las mejores sorpresas y oportunidades, que dotarán la infraestructura de un valor añadido.

Más allá de garantizar el acceso físico, el proceso debe además esforzarse por buscar relaciones que permitan ampliar las conexiones mentales, identitarias y culturales con el lugar, y para ello resulta tremendamente eficaz identificar elementos que propongan exploraciones más allá de la delgada (en términos territoriales) líneas de la infraestructura, plantando semillas que estimulen a vi sitantes o usuarios remotos y que propongan, en definitiva, nuevas conexiones de futuro, tanto físicas como mentales.

La filosofía del proyecto nace de la consideración de que los ciudadanos del siglo XXI ya no habitan en ciudades, pueblos o lugares concretos —aunque residan en ellos—, sin apenas relación con los vecinos de otros municipios cer canos. ¿Dónde empiezan y dónde acaban hoy las ciudades? ¿Cuáles son real mente sus límites? ¿Pertenecen hoy los ciudadanos a una sola ciudad? O, bien,

Figura 5_ Territorio del agua. Estuarios de los ríos Tinto y Odiel (Huelva) y trazado definitivo del Itinerario, 2019. Fuente: elaboración propia a través de sistema SIG

Figura 6_ Axonometría despiezada del ámbito de ejecución y el trazado definitivo del itinerario del estuario norte del Odiel (Huelva), 2019. Fuente: elaboración propia.

Dearq 34

la mayoría trabajan en un lugar diferente del que habitan, diferente a su vez al del colegio de sus hijos y distinto del de sus lugares de ocio. ¿Cuáles son sus espa cios de encuentro y ocio? ¿Tienen las ciudades espacios disponibles para acti vidades productivas, de ocio y de oportunidad, ligadas a la contemporaneidad?

Sin duda, todas estas y otras cuestiones nos remiten al concepto de territo rio (natural, cultural y construido), como espacio donde se desarrolla la vida contemporánea —trabajo, residencia, ocio y relación social—, mucho más allá del concepto de ciudad tradicional e incluso más allá de conceptos adminis trativos como aglomeración urbana. Y, al menos desde la aparición del informe Brundtland de 1987 —casi coetáneo a la declaración de Marismas del Odiel—, bajo parámetros de desarrollo que satisfagan las necesidades del presente sin comprometer las necesidades de las futuras generaciones.

Por tanto, la posibilidad de crear recorridos, espacios y actividades que unan los territorios y las partes que los componen supone una oportunidad de oro para adecuarnos a los tiempos cambiantes que vivimos y para, en definitiva, ser capaces de enlazar paisaje natural y vida, lo que define el objetivo general de la propuesta, desglosada en cinco objetivos particulares:

• Establecer redes de comunicación y tránsito operativas en el territorio.

• Proteger el borde de la marisma norte del Odiel en sus contactos con los núcleos habitados, entendida como parte indivisible con el sur del estuario.

• Convertir este lugar en un espacio de aprendizaje y recreo para la pobla ción, compatible con su protección.

• Reactivar las opciones de producción del territorio de la marisma, en térmi nos sostenibles y de calidad.

• Promover este territorio como símbolo de identidad del lugar, mitigando el actual desconocimiento de gran parte de la población y estimulando su oferta turística.

Desde una perspectiva dinámica del proyecto, la colección de propuestas plan teadas se divide en tres categorías: lazo (recorrido base), injertos (nodos posi bles) y semillas (iniciativas de futuro). Partiendo de un proyecto de infraestruc turas y comunicaciones, que tiene origen en la licitación convocada en 2018 por la Consejería de Medio Ambiente y Ordenación del Territorio de la Junta de Andalucía, que comentábamos anteriormente, pretendemos dar liebre por gato y, con pequeñas intervenciones estratégicamente situadas, dar un valor añadi do a la intervención para convertirla en un futuro parque equipado. Se trata de aprovechar una operación en forma de lazo para reflexionar sobre el desarrollo a largo plazo de todo el territorio que envuelve (fig. 6).

sobre escalas y materiales; s, m, l, xl. propuestas de acupuntura territorial

Un edificio singular puede fabricar una imagen urbana puntual, pero rara vez construye un paisaje urbano, cuya génesis procede de la suma de pequeñas de cisiones. (Mármol 2017)

En la construcción del paisaje, tanto el trabajo previo de reconocimiento del lugar como el de elaboración del proyecto en sí se alejan de los métodos y escalas usuales en el oficio de arquitecto. Si habitualmente la visita de reconocimiento de un solar o de una edificación nos puede llevar unas horas, en este caso fueron necesarias al menos dos jornadas completas para completar el reconocimiento de este vasto territorio, que recorrimos a pie (22 kilómetros), en cada una de ellas. Frente a los metros y centímetros de fachada o fondo, hemos utilizado como uni dad de medida la hectárea (9 es el área total intervenida) o el kilómetro (30 son los kilómetros del itinerario). Tres municipios frente a uno solo; multitud de normati vas frente a un único planeamiento municipal; un amplio listado de contactos en las distintas administraciones frente al solitario arquitecto municipal.

investigación 42 – 43

El recorrido planteado parte de los seis tramos propuestos en el concurso para finalmente dividirse en catorce tramos que responden a características terri toriales y paisajísticas comunes, y que sirven para estructurar y domesticar — operativamente hablando— el lazo completo. Pero ello no es suficiente: al igual que cualquier texto, necesita los signos de puntuación para ser legible; nuestro itinerario se jalona de una serie de elementos —propuestas arquitectónico-es cultóricas de acupuntura territorial estratégicamente situadas— que responden a los hitos del lugar que se van descubriendo a nuestro paso y que contribuyen a pautar el recorrido, a marcar los ritmos y a hacer legible el territorio (fig. 7).

La estrategia seguida para definir su morfología y elegir los materiales trata de recordar el rico patrimonio natural y cultural del territorio y pasa, sin duda, por mantener las esencias de estos lugares: su carácter ribereño, minero y ferrovia rio; su concepción de gran mirador escénico desde el suelo rural; su posición intermedia entre lo rural y lo urbano, y su vinculación con el vasto espacio de marismas del Odiel al que rodean.

Todo ello se concreta con el uso de formas curvas, naturales y orgánicas, las mismas que la naturaleza intermareal nos muestra en los caños de la marisma, en aquellas intervenciones más cercanas al agua (fig. 8). En el territorio más interior, de carácter más rural, se recurre a la geometría, como históricamente fue utilizada en los asentamientos y tipologías agrícolas andaluzas en territorios sin apenas referentes.

En terrenos acuosos se emplean escolleras de canteras cercanas, muros de fango y compuertas en salinas, tablestacas metálicas, hincado de palos de eucalipto, maderas sin tratar que se empastan con el ambiente con el paso del tiempo y pasos de agua en terrenos inundables, reinterpretados con los huecos de placas alveolares de hormigón. Por otro lado, las huellas del rico

Figura 7_ Sección del área de descanso embarcadero del Fraile. Itinerario del estuario norte del Odiel (Huelva), 2019. Fuente: elaboración propia.

Figura 8_ Visualización de la actuación en el Paseo Marítimo de Huelva. Itinerario del estuario norte del Odiel (Huelva), 2019. Fuente: elaboración propia.

Dearq 34

pasado minero-ferroviario tienen su traslación en el empleo de materiales me tálicos como el acero y la chapa perforada, con que se proyectan el puente, las pérgolas o el mirador, definidos como híbridos entre arquitecturas y esculturas varadas en el territorio.

El proyecto se contamina voluntariamente de otras muchas disciplinas, más allá de la puramente arquitectónica, ya presentes de una u otra manera en el territo rio de trabajo mucho antes de que unos modestos y entusiastas arquitectos arri báramos a él. Y, así, la intervención —además de arquitectura— es ingeniería (puentes y escolleras), hidráulica (compuertas y tablestacas), infraestructura (caminos y ferrovías), paisaje (miradores), cultura (muelle-cargadero de Tharsis), patrimonio (polvorín), arqueología (yacimientos diversos), etnografía (molinos de mareas y salinas), ecología (espacios con máxima protección ambiental y huertos urbanos), vegetación (25.000 ejemplares nuevos plantados), biología (láminas de agua para estancias de aves), geología (áridos utilizados de can teras cercanas), deporte (embarcaderos para piraguas y pesca) y hasta salud pública (fomento de la movilidad no motorizada).

sobre el tiempo como material de proyecto

Hay que dibujar una arquitectura que el tiempo ayude a sedimentar. Hay que dejar que el tiempo también dibuje; que el tiempo contribuya, que no destruya, sino que auxilie. Ya no se dibuja para la eternidad, se acabó esa idea de lo eterno. La per manencia en la arquitectura ya no es física, es cultural; las arquitecturas de hoy permanecerán como ideas, no físicamente. (Tuñón Álvarez 2016)

Zigmunt Bauman, el filósofo polaco que acuñó términos como modernidad líquida o amor líquido, fijaba arbitrariamente el origen de la modernidad en el terremoto de Lisboa de 1755, al que siguió un tsunami que afectó intensa mente la costa onubense. El ser humano, a partir de entonces y a la vista de la enorme catástrofe provocada por la naturaleza, quiso construir algo resistente para siempre. Era el tiempo de la modernidad sólida. Hoy, por el contrario, los tiempos han cambiado. La vida que nos toca vivir es, ante todo, cambiante, y avanza a un ritmo vertiginoso. Todo es líquido, pasajero, desde el amor hasta el trabajo.

Otro tanto ocurre en la construcción: las obras nunca concluyen totalmente en una anularidad perfecta; siempre quedan abiertas a la acción del tiempo. Toda obra es abierta. Tanto el tiempo como la memoria son estados fluidos. La arquitectura, como cualquier expresión creativa, es efímera, perecede ra. El suelo sobre el que actuamos se ha creado por la erosión de las rocas,

investigación 44 – 45
Figura 9_ Le Corbusier. Surcos en la bahía de Arcachón (Francia), 1936. Fuente: Benton (2013).

los ríos arrastran sus partículas y las depositan y sedimentan en otros lugares. El mundo es un proceso de erosión y sedimentación constante. Así lo plasmó Le Corbusier, documentando fotográficamente las geografías provocadas por el mar sobre la playa (fig. 9).

Gran parte de este carácter fue asimilado y expresado por autores como Ro bert Smithson. Al igual que hacía él, nuestro objetivo es crear una obra que no sea “natural”, pero que sea capaz de revelar la naturaleza y el tiempo. Su len gua de tierra basáltica Spiral Jetty continúa, hoy día, expuesta al ciclo natural del agua del Gran Lago Salado, “como una escultura en el tiempo, inacabada, abierta, sometida también a la entropía de la visita de muchos admiradores” (Martínez García-Posada y Blázquez Jesús 2020, 17). Algo similar observamos en su Partially Buried Woodshed, en la que el territorio aparece como como un agente activo de transformación constante e implacable. Gordon Matta-Clark se sorprendía de que “nadie se dedique a algo más que conservar la propie dad, a realizar modificaciones intrínsecas de su casa, simplemente desha ciendo lo que está hecho”. Estos y otros autores de land-art impresionaron a Miralles-Pinós durante su estancia en Columbia: “Con esta gente descubri mos, por primera vez, lo que son las arquitecturas que reinterpretan un lugar” (Blázquez Jesús 2020, 17).

Según lo relatado, si bien la obra de arte puede mostrar el tiempo, la arquitec tura ha de hacerlo. Por ello, una parte importante de las reflexiones en torno al tiempo vertidas en párrafos anteriores son de aplicación directa al ejemplo que nos ocupa, como las fechas de inicio y final de esta aventura. El proyecto no empezará en el acto burocrático del acta de replanteo ni tampoco en la fe cha de presentación del concurso. El proyecto seguramente comenzó a bullir en nuestras mentes cuando correteábamos de niños por aquellas marismas — abandonadas y llenas de mosquitos— del golfo de Cádiz. Y, ¿cuándo acabará?

Dearq 34
Figura 10_ Ansel Adams, Atardecer sobre el lago McDonald, en el Parque Nacional de los Glaciares (Estados Unidos), 1942. Fuente: Adams (2000).

Probablemente no cuando se visite por última vez la obra o se firme su liquida ción. Será la propia naturaleza, las inclemencias meteorológicas y el paso de las estaciones los que lo vayan configurando día a día. Nosotros solo hemos puesto un granito de arena en el proceso, pasando de puntillas y hasta renunciando a ser arquitectos (García Solera 2004, 11). O, como expresan Moneo Vallés y Blázquez Jesús: “Nuestra recompensa radica en experimentar esta distancia cuando vemos nuestro pensamiento soportado por una realidad que ya no nos pertenece. Y aún más: una obra de arquitectura, si tiene éxito, acaba por hacer desaparecer al arquitecto” (2020, 184).

Por último, no hay que olvidar que todo proyecto de paisaje es un camino de lar go recorrido, un proceso paciente, al que hemos intentado responder, en este caso, desde la perspectiva de un plan de actuaciones versátil y adaptable. Se trata, sin duda, de un proceso a largo plazo, necesariamente dinámico, con ca pacidad de ir adaptándose al tiempo y a las circunstancias (fig. 10).

Y recordad que, “para la buena arquitectura, su mejor día nunca fue el primero” (Jerez Abajo y Orusco 2018, 85).

Aún ven mis ojos las salinas de sonrosadas aguas, los leves molinos de viento y aquellos menudos cuerpos oscuros, parsimoniosamente móviles, junto a los bueyes fulvos, transportando los lunáticos bloques de sal sobre las vagonetas, tristes como todo lo que pertenece a los trabajos de la tierra, hasta las anchas barcas resbaladizas sobre el pecho del mar. Quien podría vivir en la tierra si no fuera por el mar. (Cernuda 1998)

bibliografía

1. Adams, Ansel. 2000. Photographs from The National Park Services Archive. Rochester: Grange Books.

2. Barranco Molina, Fernando. 1998. Recóndita Huelva (recorrido históricogeográfico y sentimental por la provincia de Huelva) Huelva: Caja Rural de Huelva, 1998.

3. Benton, Tim. 2013. Le Corbusier: Secret Photographer. Zürich: Lars Müller Publishers.

4. Blázquez Jesús, Pablo. 2020. “Ruinas en movimiento”. En La obra abierta: La idea de tiempo en las obras de arquitectura y arte en el territorio, coordinado por Ángel Martínez GarcíaPosada y Pablo Blázquez Jesús, 57-88. Málaga: Recolectores Urbanos.

5. Campos Carrasco, Juan Manuel. 2016. El patrimonio histórico y cultural en el paraje natural marismas del Odiel: Un enfoque diacrónico y transdisciplinar. Huelva: Editorial Universidad de Huelva.

6. Cernuda, Luis, 1998. La realidad y el deseo (19241962). Madrid: Alianza.

7. La Carta Europea del Agua (1968), Artículo 1, Estrasburgo.

8. Fernández Palacios Carmona, José María, y Alejandro Pérez Hurtado de Mendoza. 2004. Salinas de Andalucía. Sevilla: Junta de Andalucía, Consejería de Medio Ambiente, Universidad de Cádiz.

9. García Solera, Javier. 2004. “Desaparecer”. En Catálogo de los premios Torres Clavé, editado por la Consejería de Medio Ambiente, 11. Sevilla: Junta de Andalucía, Consejería de Medio Ambiente, Universidad de Cádiz.

10. García Vázquez, Carlos. 2009. “La desmaterialización de la ciudad contemporánea: El caso del Sunbelt”. En La materia de la arquitectura: I Congreso Internacional de Arquitectura de la Fundación Miguel Fisac, Almagro 17, 18 y 19 Octubre 2007, 169-178. Ciudad Real: Fundación Miguel Fisac.

11. Jerez Abajo, Enrique, y Eduardo Delgado Orusco. 2018. Paisaje y artificio: El mausoleo para Félix Rodríguez de la Fuente en Burgos. Buenos Aires: Diseño.

12. Ley 12/1984, de 19 de octubre, reguladora de las marismas del Odiel como paraje natural y de la Isla de Enmedio y la marisma de Burro como reservas integrales. Boletín Oficial del Estado, 24941, de 10 de noviembre de 1984. Referencia: BOE-A-1984-24941, https://www.boe.es/eli/esan/l/1984/10/19/12

13. Mármol, Carlos. 2017. “La Cartuja: La asignatura pendiente de la Expo 92”. El Mundo, 20 de abril. https://www.elmundo.es/ andalucia/2017/04/20/ 58f7a3c7268e3ef8408b4 5e7.html

14. Martí Arís, Carlos. 1999. Silencios elocuentes Barcelona: Ediciones UPC

15. Martínez García-Posada, Ángel y Pablo Blázquez Jesús, coords. 2020. La obra abierta: La idea de tiempo en las obras de arquitectura y arte en el territorio. Málaga: Recolectores Urbanos.

16. Moneo Vallés, José Rafael, y Pablo Blázquez Jesús. 2020. “La soledad de los edificios”. En La obra abierta: La idea de tiempo en las obras de arquitectura y arte en el territorio, coordinado por Ángel Martínez GarcíaPosada y Pablo Blázquez Jesús, 179-86. Málaga: Recolectores Urbanos.

17. Peral López, José Francisco. 2017. Guadalquivir: Mapas y relatos de un río. Imagen y mirada. Sevilla: Editorial Universidad de Sevilla.

18. Tuñón Álvarez, Emilio. 2016. “Una conversación con Manuel y Francisco Aires Mateus”. Croquis, n.º 186: 10-33.

19. World Commissionon Environment and Development. 1987. Informe Brundtland (Our Common Future). Oxford University Press.

investigación 46 – 47

Agua y arquitectura. Poder y poesía en Keushu*

Water and architecture: power and poetry in Keushu

La relación entre agua y espacio construido en la laguna antrópica de Keushu, al norte del Perú, pone en evidencia, por un lado, las características detrás de la arquitectura funeraria andina y su di mensión simbólica en relación con el paisaje; por otro, el valor del agua entendida como recurso económico, social y simbólico. Se pretende dar a conocer la arquitectura poética prehispánica andi na como aquella capaz de revelar mediante gestos constructivos, la importancia de los ancestros en relación con el agua y el paisaje, y de integrar el simbolismo sagrado del territorio con los asuntos sociales, culturales y económicos de las comunidades que allí ha bitaban.

Palabras clave: arquitectura prehispánica, arquitectura andina, arquitectura funeraria, chullpa, arquitectura poética, simbólico.

The relationship between water and the built environment at the an thropic lagoon of Keushu in northern Peru, evinces, on one hand, the characteristics behind funerary architecture and their symbolic dimension bound to the landscape, and on the other, the value of water understood as an economic, social, and symbolic resource. The intention is to present this poetical pre-Hispanic Andean archi tecture as one capable of revealing, through constructive gestures, the importance of the ancestors in relationship with water and land scape, and of integrating the territory's sacred symbolism with the social, cultural, and economic affairs of the communities residing around Keushu.

Keywords: prehispanic architecture, andean architecture, funer ary architecture, chullpa, poetic architecture, symbolic.

Daniel Vargas Torres da.vargas154@gmail.com Universidad de los Andes DOI: https://doi.org/10.18389/dearq34.2022.05

* Este artículo es el resultado del proyecto de investigación arqueológico Wanduy (PIAW), lide rado por el antropólogo Alexander Herrera, y de mi investigación y análisis personal en el sitio de estudio.

Recibido: 30
octubre
2021 Aceptado: 17
2022
y
Dearq
dearq34.2022.05
de
de
de mayo de
Cómo citar: Vargas Torres, Daniel. "Agua y arquitectura: poder
poesía en Keushu".
no. 33 (2022): 48-59. DOI: https://doi.org/10.18389/
Dearq 34

introducción

Alrededor de la laguna antrópica de Keushu, al norte del Perú, yacen hoy las ruinas de estructuras funerarias y ceremoniales levantadas por culturas pre hispánicas a lo largo de casi 1500 años para albergar y honrar a sus ancestros; pero también para que ellos, sus antepasados, vigilaran y ejercieran desde es tos espacios su poder y derecho sobre la tierra, sus recursos y, más importante aún: sobre el agua.

El objetivo de este artículo es presentar y dar a conocer la compleja y rica re lación entre el agua como elemento sagrado y económico del paisaje y la ar quitectura funeraria prehispánica en el norte del Perú. Además, el artículo pre tende establecer un espacio de reflexión, al presentar una arquitectura cuyos gestos poéticos, como veremos en el texto, contrastan con las decisiones que conforman nuestro entorno construido actual.

Entender aspectos de la arquitectura prehispánica y su relación con el entor no nos invita como arquitectos a repensar los paradigmas de diseño desde los cuales nos movemos actualmente y, sobre todo, a repensar el alcance de la ar quitectura misma como herramienta para entender y darle significado al mundo que nos rodea.

Si bien este articulo no presenta la basta complejidad de una cultura tan ale jada y opuesta en el tiempo a la nuestra, conocer que existió una arquitectura que, gracias a los muertos y con la ayuda de los dioses del paisaje, custodiaba y protegía un recurso tan valioso económica y socialmente como el agua, nos permite entender una cultura única con una compleja cosmovisión que inte graba los aspectos sociales, culturales, económicos y espirituales de la vida.

Así entonces, el análisis de las estructuras funerarias en la laguna de Keushu pasa primero por entender las características del paisaje simbólico que las ro deaba, entendiendo la dimensión sagrada de las montañas, rocas, ríos y lagos del territorio donde se erigían las estructuras funerarias que construyeron las relaciones de poder y derecho frente al agua como recurso económico. Más adelante, veremos la relación entre la arquitectura mortuoria y el agua en el contexto andino prehispánico, estudiando los cambios tipológicos de su arqui tectura en el tiempo, para entender luego la relevancia de características pun tuales, como la orientación o la visibilidad de estas estructuras en relación con el territorio.

La conexión entre paisaje sagrado, tipologías ubicación, orientación y visibilidad, nos revelan una compleja y rica arquitectura con aspectos poéticos capaz de integrar no solo los símbolos y dioses del paisaje, sino también las actividades diarias de las comunidades vinculadas con ella.

investigación 48 – 49
Figura 1_ Nevado Huascarán, a 6768 m s. n. m. Fotografía del autor.

la cosmovisión en los pueblos andinos

Todo cuanto existe en la naturaleza está lleno de vida [...] Los nevados, los cerros, la tierra, los árboles, el mar, las lagunas, los ríos, las estrellas del cielo, forman un conjunto de energías vivientes llamadas colectivamente Kawsay. (Barrionuevo 2011, 23)

Las culturas prehispánicas en la región andina eran comunidades con una cos movisión y un sistema de creencias complejo, animista y sumamente simbólico. El territorio natural donde habitaban contenía en gran medida los elementos que les permitían ordenar y concebir el universo a su alrededor, por lo que a sus componentes (las rocas, las montañas o el agua) se les otorgaban carac terísticas simbólicas que se vinculaban no solo con figuras divinas, sino con los ancestros más importantes de la comunidad, cuya energía habitaba en los diferentes elementos del territorio sagrado.

Los relatos de la conquista española, los registros arqueológicos y la tradición oral a lo largo de los años describen una relación estrecha entre las prácticas funerarias y el paisaje natural en las culturas prehispánicas andinas; relación que además demostraba los lazos entre los ancestros y los recursos más impor tantes en el territorio (Valverde 2008). Las grandes montañas, origen y fuente del agua que alimenta la región, eran los llamados apus o apukunas, señores guardianes de todo aquello que se extiende frente a ellos y donde además ha bitaban los antepasados más importantes de la comunidad (Allen 1988, 41). El Huandoy o el Huascarán, picos nevados visibles desde la ciudadela de Keus hu, eran probablemente considerados dos de los principales apus de la región, vistos ya sea como deidades o como ancestros comunes de gran importancia que vigilaban todo lo que se extendía en su horizonte (fig. 1).

Los apus representaban la energía masculina de la naturaleza, que se comple mentaba con la energía femenina de la Pachamama, diosa de la tierra y uno de los seres más poderosos en el sistema de creencias andino prehispánico y actual. Apus, Pachamama y muchos de los elementos sagrados del paisaje eran considerados seres con un carácter y personalidad definidos que interac tuaban continuamente con los mortales que constantemente buscaban recibir sus favores y bendiciones (Barrionuevo 2011).

Del agua que brota de los apus se nutren los lagos y las lagunas; entendidos en algunos casos como Pacarinas, lugares de origen de las almas de los hombres y donde al morir regresaban para retornar a la unidad primordial de donde nacie ron. Decía Mircea Eliade (1961): volver al agua es volver al “modo indiferenciado Figura 2_

Dearq 34
Laguna Keushu. Fotografía del autor.

de la vida”; retornar al origen del que todos venimos. El simbolismo de las paca rinas y su relación con el agua parece estar estrechamente ligada en el contexto prehispánico con el paso y ciclo de los muertos en la tierra física y simbólica de los vivos. El arqueólogo norteamericano George Lau (2016) entiende el interior de las tumbas como Pacarinas que “protegían y cultivaban la vitalidad de los ancestros”, y de donde emergían y se originaban los grupos en la comunidad.

Si consideramos que las tumbas que albergaban a los ancestros momificados en pequeños bultos, o mallki, se ubicaban junto a ríos, lagunas, o terrenos de cultivo, no parece coincidencia que fuesen considerados semillas alimentaban la tierra adonde retornaban.

Conocer estos elementos sagrados en el paisaje, los apus, las pacarinas, la Pachamama y los mallkis, contextualiza y da sentido a las decisiones arquitec tónicas en el paisaje construido y simbólico prehispánico que estudiaremos a continuación, ya que estos elementos fueron referentes continuos en el te rritorio y actores fundamentales a la hora de entender su influencia sobre la arquitectura mortuoria (fig. 2).

el agua y el espacio funerario construido

Las prácticas funerarias en el contexto prehispánico tenían una importancia simbólica, económica y social, fundamental tanto en el fortalecimiento de la memoria colectiva en el tiempo como en las actividades diarias de obtención y apropiación de recursos en el territorio. (Herrera 2005). según los registros ar queológicos y relatos de conquistadores y extirpadores de idolatrías españoles, no solo eran comunes las prácticas donde los ancestros momificados hacían parte de rituales donde eran extraídos de sus tumbas como un acto ceremonial simbólico y de construcción social y cultural de la memoria, sino también como un sistema de demostración de poder y apropiación de recursos valiosos que eran reclamados a partir del levantamiento de las tumbas que albergaban a los mallki en lugares estratégicos del territorio (Herrera 2007; Valverde 2008).

En esta segunda parte veremos cómo la arquitectura funeraria en la cultura prehispánica andina se enlazaba estrechamente con la apropiación y obten ción del agua en el paisaje a partir de dos estrategias principales: primero, la transformación tipológica de las estructuras arquitectónicas en el tiempo en relación con su visibilidad y presencia en el paisaje, y segundo, la orientación y ubicación de las tumbas con respecto a elementos hídricos en el territorio como ríos, lagunas o picos nevados.

La aparición de las chullpas

Tanto en Keushu como en la región central y norte andina del Perú encontra mos tres principales tipologías de arquitectura mortuoria que fueron erigidas en periodos diferentes y que permiten entrever la intención detrás de los cam bios en su estructura. Como veremos, el paso de estructuras funerarias excava das bajo tierra a torres elevadas sobre la tierra visibles en el paisaje se relacio na con estrategias sistemáticas tanto para vincular simbólicamente al paisaje como para mostrar poderío y soberanía sobre un recurso. Veamos entonces las características principales de estas tipologías.

Las tumbas subterráneas suponen la tipología más antigua de todas; se ubi can cronológicamente en el Horizonte Temprano y en los primeros años del Horizonte Intermedio, entre los años 0 y 600 d. C. (Valverde 2008; Herrera 2005; Lau 2011). Son espacios construidos bajo tierra, con largas galerías de acceso excavadas de hasta tres metros de largo, en algunos casos, y con un ancho menor a un metro, recubiertas a sus lados por rocas pequeñas y por las cuales se accedía a varias cámaras pequeñas laterales donde habitaban los ancestros de la comunidad (fig. 3).

investigación 50 – 51

Las tumbas bajo roca se ubicaban, como lo indica su nombre, bajo rocas de grandes proporciones que llegaban a medir hasta tres metros de altura y que custodiaban, a diferencia de las tumbas subterráneas, un único espacio se mienterrado con áreas de hasta siete metros cuadrados, en el caso de Keushu. Las rocas sobre las tumbas eran, y son, todavía muy visibles en el paisaje pero fácilmente mimetizables con otras tumbas del mismo tipo a su alrededor (fig. 4).

Finalmente, encontramos las chullpas, estructuras construidas con lajas pe queñas, medianas y grandes de roca superpuestas una sobre la otra que alcan zaban, en algunos casos, dos o hasta tres pisos de altura. Tienen uno o varios accesos principales y su interior está generalmente dividido por muros en mam postería que encierran las diferentes cámaras mortuorias. En la región central y norte del callejón de Huaylas, las chullpas suelen tener una base rectangular (Herrera 2005); sin embargo, en otras zonas de Latinoamérica es posible en contrar chullpas de base circular o semicircular, adosadas a montañas o a otras superficies rocosas (Rivet 2021). En Keushu, por ejemplo (fig. 5), largas lajas de piedra ubicadas en el sentido más corto de las chullpas de planta rectangular estructuran las bases para levantar los pisos superiores y sus respectivos mu ros internos. La cubierta de las chullpas puede tener forma a dos aguas, ligera mente abombada o plana (Mantha y Malca 2004), para rematar una estructura que, además, suele estar levantada sobre montículos naturales o artificiales de tierra (fig. 6), un gesto proveniente de la influencia wari en la región, como argu menta el arqueólogo peruano Juan Olvera (2016).

La mayoría de las chullpas en la región de Ancash fueron construidas durante el Horizonte Medio (700-1200 d. C.), y su aparición supone un hito importante en la arquitectura andina al indicar un cambio de estrategia a la hora de erigir es tructuras funerarias; hecho que al día de hoy ha generado diferentes y variadas hipótesis acerca de su incursión en la arquitectura prehispánica (Herrera 2007; Valverde 2008). Sin embargo, son muchas las teorías que coinciden en que las chullpas aparecen como un mecanismo para acentuar la apropiación sobre el territorio y sobre su recurso más valioso: el agua (Herrera 2005, 2007; Lau 2002; Valverde 2008).

Tanto en Chinchawas como en la región del Callejón de Huaylas, las chullpas surgen como la tipología arquitectónica predominante hacia el año 800 d. C., su giriendo esto que su aparición surge a partir de la necesidad de visibilizar los monumentos construidos para los ancestros como un medio de delimitación y apropiación del territorio ante la presión de fenómenos externos (Lau 2002; Herrera 2005). Lau (2002) evidenció, por ejemplo, cambios en los patrones ce remoniales y arquitectónicos, mediante el análisis de restos cerámicos o pie zas de piedra antropomórficas, atados a la llegada de la guerrerista cultura wari

Figura 3_ Tumba subterránea. Fotografía del autor.

Figura 4_ Tumba bajo Roca. Fotografía del autor.

Dearq 34

durante el Horizonte Medio. Así, el autor argumenta la necesidad de hacer más visibles las estructuras funerarias para reclamar el derecho sobre recursos y tie rra cada vez más vitales ante la amenaza de la llegada Wari (fig. 7).

De este modo, el cambio de paradigma arquitectónico en los pueblos andinos, que buscaban visibilizar cada vez más el hogar de sus antepasados, nos revela un interés creciente por empoderar a sus ancestros y demostrar su capacidad de apropiación sobre recursos que cada vez se hacían más escasos y valiosos. Las tumbas subterráneas y bajo roca dieron paso a las chullpas, estructuras visibles para los vivos, pero también erigidas para el habitar de los muertos en lugares estratégicos que ampliaban su rango de visión sobre la tierra y el agua.

Paisaje y arquitectura

En 1970, el antropólogo Arthur Saxe planteó ocho hipótesis acerca de las prác ticas funerarias de varias culturas alrededor del mundo,(Saxe, 1970) Quizás la que más ha resonado en el mundo de la antropología y arqueología es la hipó tesis ocho: donde plantea que la disposición de las estructuras funerarias en el espacio “legitiman, por medio de la descendencia lineal de los muertos”, la apropiación de recursos “cruciales pero restringidos” en el territorio. Saxe basó su reflexión en el estudio de la disposición de los muertos en culturas lejanas a nuestro caso de estudio como los papuanos o los ashanti al occidente de África.

Lau (2015) demostró, a través de sus estudios acerca de la cultura Recuay, que la hipótesis planteada por Saxe aplica también a las comunidades andinas prehis pánicas, al entender claramente en este caso lo que Saxe llamaba la apropia ción de recursos cruciales pero restringidos, como el vínculo de la arquitectura funeraria con el agua y la agricultura en la región.

Así mismo, Lau (2015) explicó de qué forma los ancestros seguían teniendo un rol activo en el día a día de los vivos; afectando asuntos cotidianos como el pas toreo, la irrigación o los procesos de cultivo. La palabra mallki, por ejemplo, ade más de nombrar a los ancestros momificados en pequeños bultos, significaba también semilla, huevo, planta joven o árbol, por lo que su ubicación en las tum bas ubicadas junto a los terrenos de cultivo mejoraba física y simbólicamente la fertilidad de los campos.

Al ser el agropastoreo la principal actividad económica de la región (Valverde 2008; Herrera 2005), el agua resultaba indispensable y de gran valor para la vida en el callejón de Huaylas, donde resultaba escasa en los lugares montañosos más elevados y donde factores externos, como la llegada de los wari o las con diciones climáticas durante algunos meses del año, le otorgó un valor vital que debía ser protegido tanto por los vivos como por sus ancestros.

investigación 52 – 53
Figura 5_ Chullpa en Keushu. Fotografía del autor.

Citando a los antropólogos e historiadores británicos Maurice Bloch y Jonathan Parry, Lau escribe que “las prácticas funerarias se enfocan en aquel recurso que es culturalmente concebido como el más esencial en la reproducción del orden social” (2016, 175), y explica entonces de qué manera en lugares de la región de Ancash (Chinchawas, Pueblo Viejo o Nuevo Tambo, por ejemplo) las chullpas están siempre orientadas hacia los campos de cultivo y el sistema de irrigación que los alimenta, y ubicadas usualmente en zonas rocosas donde el agua puede ser escasa y difícil de distribuir, en lugar de levantarse en locacio nes periféricas, donde su presencia pudo haber demarcado más claramente los límites del territorio frente a otras culturas que pusieran en riesgo su sobe ranía (fig. 8).

Herrera (2007) reforzó esta tesis con su estudio acerca de agrupaciones chu llparias en el Callejón de Huaylas, donde la mayor cantidad de estructuras se encuentran en el costado occidental del Callejón, sobre la cordillera Blanca, de cuyos picos nevados nacen los ríos y acequias que irrigan la cordillera en diferentes puntos. Allí, las principales necrópolis: Keushu, que veremos en de talle más adelante, Awkismarka y Colltapac, están directamente relacionadas y orientadas hacia arroyos y corrientes de agua alimentadas por el nevado Huan doy. Por otro lado, en la más seca cordillera Negra, aunque Herrera identificó una menor cantidad de grupos de chullpas, estas estaban siempre orientadas hacia los principales cuerpos de agua de la cordillera. En Kunkash, por ejemplo, halló un grupo de 26 chullpas agrupadas alrededor de la zona agrícola del valle Acolló, orientadas además hacia el valle observando desde sus accesos el tra yecto del río Washka.

Si levantar chullpas visibles en el espacio instauraba la presencia de una co munidad adscrita a sus antepasados comunes sobre el territorio, orientarlas hacia los recursos y a puntos sagrados en el horizonte permitía a los ancestros y a los dioses del paisaje ejercer su presencia sobre los asuntos cotidianos de los vivos. En las comunidades de la región norte de Perú estos dioses y ances tros estaban siempre, de una u otra forma, vinculados con el agua que permitía la vida y el desarrollo de sus descendientes.

Figura 6_ Axonometría de una chullpa. Fotografía del autor.

Figura 7_ Chullpa TB1 sobre un montículo de tierra. Elaboración propia.

Figura 8_ Chullpa orientada hacia el lago y al horizonte montañoso. Fotografía del autor.

Dearq 34

Figura 9_

Figura 10_ Montaña, agua y roca en Keushu. Fotografía del autor.

Veamos finalmente cómo las estrategias espaciales mencionadas se materiali zan en el paisaje sagrado de Keushu, donde las estructuras funerarias se orga nizan alrededor de una laguna construida y planeada por los mismos habitantes del sector para facilitar el riego y la distribución del agua sobre los terrenos cultivables a su alrededor, y que están siempre en relación directa con los neva dos Huandoy y Huascarán, apus vigilantes y protectores de la laguna y la región.

keushu

El sitio arqueológico de Keushu se ubica en la región de Ancash, al norte del Perú y sobre el callejón de Huaylas, conformado por la cordillera Negra al orien te, que se levanta hasta los 4000 m s. n. m., y la cordillera Blanca al occidente, que gracias a sus picos nevados alcanza los 6760 m s. n. m. (fig. 9). El agua que alimenta la laguna central y los campos de siembra y pastoreo proviene de los ya mencionados nevados Huandoy (6395 m s. n. m.) y Huascarán (6768 m s. n. m.).

La laguna se ubica en la región geográfica Suni, comprendida entre los 3000 y los 4000 m s. n. m. y se caracteriza por su topografía montañosa y por una alta cantidad de rocas de gran tamaño movidas durante la última era glaciar, hace más de cien mil años. Allí, durante los primeros meses del año, el clima es hú medo y lluvioso y puede llegar a temperaturas de −1 °C; mientras que los últimos meses del año son secos y calurosos, con temperaturas que oscilan entre los 10 y los 20 °C. El agua, por lo tanto, es escasa durante algunas temporadas, y al es tar el sector alejado del valle y el río Santa, principal cuerpo de agua del callejón de Huaylas, se complejiza su acceso y distribución, por lo que el agua se con vierte en un recurso importante y valioso en las regiones más elevadas (fig. 10).

Investigación y resultados

El complejo arqueológico de Keushu se divide en siete sectores (A-G) que facili tan su estudio y clasificación. Allí se distribuyen estructuras residenciales, pro ductivas, ceremoniales y mortuorias, clasificadas entre tumbas subterráneas, tumbas bajo roca y chullpas (figs. 11 y 12).

Región de Ancash, norte del Perú. Fuente: mapa de libre uso con licencia CC BY-SA 3.0, 2009, tomada de https://es.wikipedia.org/wiki/Departamento_ de_%C3%81ncash
0km 200km investigación 54 – 55
Sector B TBR Sector A Chullpa Sector B Chullpa Sector C Chullpa Sector D Chullpa Sector C TBR Sector D TBR Laguna Río A Río B VISIBLE NO VISIBLE Nevados Cadena de Montañas Sector D Chullpa Mayor Dearq 34

Figura 14_ Chullpa mayor en Keushu-TB1. Fotografía del autor.

Figura 16_ Tumbas bajo roca en Keushu. Fotografía del autor.

Durante la investigación en el lugar, se analizaron la orientación, visibilidad y ti pología de las estructuras funerariasentre otros factores que, enmarcados en el contexto que presentamos en la primera parte de este artículo, nos permitieron entender el estrecho vínculo entre las tumbas más visibles y elaboradas y su orientación con respecto a los elementos sagrados más importantes del paisaje vinculados a su vez con el agua y su ciclo en el tiempo (fig. 13).

La figura 13 muestra el resultado del análisis de orientación de 90 de las 105 tumbas de Keushu. Se excluyeron las tumbas subterráneas debido a que su ac ceso, al ser principalmente vertical, impedía la medición de direccionamiento y orientación.

Los resultados nos muestran que la mayoría de las tumbas, independiente mente de su tipología, están orientadas hacia los nevados en el horizonte los ríos, o hacia la laguna central del complejo. Sin embargo, esto se debe en gran medida a la geografía única del lugar, ya que la mayoría de las laderas donde se encuentran las tumbas bajo roca, por ejemplo, rodean la laguna y los ríos, orientando hacia los puntos más relevantes del paisaje las estructuras y sus accesos. Por ese motivo, es posible ver también una gran heterogeneidad en la orientación de las tumbas bajo roca: algunas observan los nevados; otras, las acequias, y otras, la laguna central.

Las estructuras cuya orientación podía ser manipulada y diseñada (las chull pas) presentan, por otro lado, un mayor rigor y claridad en la orientación de sus accesos, que se dirigen en la gran mayoría de los casos hacia el horizonte montañoso, donde se levantan los apus Huandoy y Huascarán (fig. 14).

Figura 11_ Plano de Keushu con tratamiento de suelos.

Fuente: tomado del archivo del Proyecto de Investigación Arqueológico Wanduy.

Figura 12_ Sectores de Keushu. Fuente: tomado del archivo del Proyecto de Investigación Arqueológico Wanduy.

Figura 13_ Orientación de las estructuras funerarias en Keushu. Fuente: elaboración propia.

Figura 15_ Cuencas visuales en Keushu. Fuente: elaboración propia.

Trece de las diecisiete chullpas analizadas se orientaban hacia los picos ne vados en el horizonte, sin importar en qué sector o ubicación del complejo se encontraran. En este grupo de trece chullpas, la chullpa TB1 sobresale como la más grande y elevada tumba del sector, y cuyo volumen es visible desde prác ticamente cualquier perspectiva en Keushu, al estar elevada además sobre un alto montículo de tierra (fig. 12).

Al realizar un análisis de visibilidad (fig.15), y dada la particularidad geográfica de Keushu, tanto las tumbas bajo roca, ubicadas en su mayoría en laderas rodeando la laguna, como las chullpas son muy visibles desde la perspectiva de los vivos en el paisaje. Las chullpas se diferencian, sin embargo, en que su tipología resal ta y contrasta con las tumbas bajo roca que se mimetizan fácilmente en el paisaje montañoso del territorio (fig. 16).

investigación 56 – 57

Los resultados de los estudios de orientación y visibilidad nos demuestran, en conclusión, que las estructuras funerarias con tipología de Chullpa fueron construidas principalmente para orientarse directamente hacia los principales cuerpos hídricos del paisaje, como la laguna, las acequias, los ríos, o los Apu, y para erigirse como tumbas visibles desde casi cualquier perspectiva en Keushu, dejando clara espacialmente la intención de apropiarse y proteger el sistema hídrico que alimentaba las tierras y cosechas vitales para la comunidad que habitaba este lugar. Estas decisiones establecieron una arquitectura poética cuyo diseño se basaba en la relación entre los vivos, los muertos, el paisaje, y los dioses que allí habitaban.

arquitectura poética

Al iniciar hablábamos acerca de la arquitectura poética, como aquella que logra integrar y naturalizar los aspectos cotidianos, sociales y culturales de un pue blo, con la dimensión sagrada y primordial que todos albergamos como parte inherente de nuestra humanidad. Una arquitectura que gracias a su relación con el agua fue capaz de revelar el poder de los muertos y los símbolos de la naturaleza ocultos en el paisaje.

La palabra poesía viene del griego poiesis o poiein, que significaba hacer o re velar. Este hacer es descubrir la aletheia, o verdad para los griegos clásicos, que es aquello que nos conecta a los seres humanos con nuestra realidad pri mordial, con nuestro origen; aquello que es de cierto modo nuestra esencia y la esencia de las cosas que nos rodean, que originalmente es la misma (Zambrano 1993). El gesto poético ocurre en el plano físico sobre el que habitamos, por lo que hablar de origen o de dimensión simbólica no es excluir la realidad material construida y natural que nos rodea. Es necesaria en este caso tanto el agua como la arquitectura para que ocurra.

La arquitectura en Keushu era entonces poética, porque revelaba la dimensión sagrada y oculta de las cosas que la rodeaban, de los picos nevados, de los la gos, los ríos y de los dioses y ancestros cuya energía allí habitaba (Barrionuevo 2011). Poética porque gracias a las tumbas erigidas en el Callejón de Huaylas entendemos parte de la cosmovisión de un pueblo que veía en el agua un recur so valioso y estratégico económica y socialmente; un elemento tan importante que debía ser custodiado por los antepasados que salvaguardaban la soberanía y supervivencia de sus descendientes. En resumen, poética porque un gesto constructivo y espacial logró conectar cultura, paisaje, economía, mortales, ancestros y dioses, a partir del vínculo entre agua y arquitectura (fig. 17).

Gesto constructivos como la tipología, visibilidad, ubicación y orientación con respecto al agua, establecieron una arquitectura que permitió a las comunidades prehispánicas conectarse con el mundo y darle sentido al universo que les ro deaba. ¿Cómo nos permite la arquitectura hoy en día entender nuestro universo, nuestro mundo y los recursos que lo conforman?

Figura 17_ El agua y el espacio construido en Keushu. Fotografía del autor.

Figura 18_ Chullpa frente a la laguna central. Fotografía del autor.

Dearq 34

Vale la pena reflexionar acerca de los paradigmas y parámetros arquitectónicos que rigen hoy en día nuestro entorno construido, quizás más fríos en compara ción, con dioses ausentes y símbolos ilegibles; volcado en muchos casos hacia la búsqueda de resultados económicos, agotando los recursos y olvidando una parte fundamental del hombre que Heidegger (1971b) definía en su cuadratura como el habitar poético y armónico del hombre sobre la tierra, como mortal, bajo el cielo y ante los dioses (figs. 18 y 19).

bibliografía

1. Allen, Catherine J. 1988. The Hold Life has: Coca and Cultural Identity in an Andean Community Washington: Smithsonian Institution Press.

2. Barrionuevo, Alfonsina. 2011. Hablando con los Apus: Poder en los Andes. La fuerza de los cerros Lima: Bellido.

3. Dean, Carolyn. 2014. “Men who would be Rocks: The Inka wank’a”. En The Archaeology of Wak’as: Explorations of the Sacred in the pre-Columbian Andes, editado por Tamara Bray, 213-238. Boulder: University Press of Colorado.

4. Eliade, Mircea. 1961. The Sacred and the Profane, The Nature of Religion Nueva York: Harcourt, Brace & World.

5. García, Francisco Gil. 2002. “Acontecimientos y regularidades chullparias: Más allá de las tipologías. Reflexiones en torno a la construcción del paisaje chullpario”. Revista Española de Antropología Americana, n.º 32: 207241.

6. Heidegger, Martin. 1971a. “Building, Dwelling, Thinking”. En Poetry, Language, Thought por Martin Heidegger. Traducido por Albert Hofstadter. Nueva York: Harper Perennial.

7. Heidegger, Martin. 1971b. ““…Poetically Man Dwells…””. En Poetry, Language, Thought por Martin Heidegger. Traducido por Albert Hofstadter. Nueva York: Harper Perennial.

8. Herrera, Alexander. 2005. “Territory and Identity in the Pre-Columbian Andes of Northern Perú”. Tesis de doctorado, Universidad de Cambridge.

9. Herrera, Alexander. 2007. “Social Landscapes and Community Identity: The Social Organization of Space in the North-Central Andes of Peru”. En Defining Social Complexity: Approaches to Power and Interaction in the Archaeological Record, editado por S. Kohring y S. Wynne-Jones, 161-185. Oxford: Oxbow.

10. Herrera, Alexander, Alejandro Amaya y Miguel Aguilar. 2014. “Una aproximación tipológica y funcional a la arquitectura indígena de los siglos IX al XVI en la Sierra de Ancash”. En Arquitectura prehispánica tardía: Construcción y poder en los Andes centrales, editado por Kevin Lane y Milton Lujan, 165-273.

Lima: Fondo Editorial de la Universidad Católica Sedes Sapientiae.

11. Lau, George. 2002. “Feasting and Ancestor Veneration at Chinchawas, North Highlands of Ancash, Peru”. Latin American Antiquity 13 (3): 279-304. https://doi. org/10.2307/972112

12. Lau, George. 2011. Andean Expressions: Art and Archaeology of the Recuay Culture. Iowa: University of Iowa Press.

13. Lau, George. 2016. “Different Kinds of Dead: Presencing Andean Expired Beings”. En Death Rituals, Social Order and the Archaeology of Immortality in the Ancient World, editado por Colin Renfrew, Michael Boyd e Iain Morley, 168-186. Cambridge: Cambridge University Press.

14. Mantha, Alexis y Hernando Malca. 2004. “El sitio de Rapayán y su diversidad arquitectónica durante los periodos tardíos de la prehistoria andina”. En Arqueología de la sierra de Ancash: Perspectivas y propuestas, editado por Bebel Ibarra Asencios, 468-488. Lima: Instituto Cultural RVNA

15. Olvera, Juan Paredes. 2016. “Ichic Willkawain y el callejón de Huaylas: Un enclave provincial Wari en la sierra norte del Perú”. En Arqueología de la sierra de Ancash: Población y

territorio, editado por Bebel Ibarra Asencios, 137-165. Lima: Instituto Cultural RVNA

16. Paz, Octavio. 1972. El arco y la lira. Madrid: Fondo de Cultura Económica.

17. Rivet, Carolina. 2020. “Análisis de las elecciones técnicas usadas en la arquitectura chullparia durante el Período Intermedio Tardío en la Puna de Jujuy”. Comechingoia, 25 (1): 101120. http://www.scielo.org. ar/scielo.php?script=sci_ abstract&pid=S185100272021000100101

18. Saxe, Arthur. 1970. Social Dimensions of Mortuary Practices. Michigan: University of Michigan.

19. Valverde, Alejandra María. 2008. “¿Dónde están los ancestros? Estructuras funerarias de la Cordillera Blanca, Perú”. Tesis de maestría. Universidad de los Andes, Colombia.

20. Vargas, Daniel. 2018. “Arquitectura y poesía: El complejo sagrado de Keushu y las termas de Vals”. Tesis de maestría, Universidad de los Andes, Colombia.

21. Zambrano, María. 1993. Filosofía y poesía. Madrid: Biblioteca Premios Cervantes.

investigación 58 – 59
Figura 19_ Chullpa sobre montículo de tierra. Fotografía del autor.

*

Venecia. Agua y arquitectura*

Venice. Water and Architecture

IUAV

DOI: https://doi.org/10.18389/dearq34.2022.06

Los editores invitados de este número, Francisco A. García Pérez y Juan Calatrava, propusieron al profesor Francesco Dal Co la publicación de una entrevista sobre diversos aspectos de la relación agua-espacio construido. Tras su amable acepta ción y el correspondiente envío del cuestionario, el profesor Dal Co prefirió, en lugar de responder a cada una de las preguntas planteadas, redactar un texto unificado, que es el aquí se publica. Los editores desean manifestarle su agradecimiento por su contribución. La traducción del original en italiano al español la llevó a cabo Alessandra Vignotto.

Cómo citar: Dal Co, Francesco. "Venecia. Agua y arquitectura". Dearq no. 34 (2022): 60-64.

DOI: https://doi.org/10.18389/dearq34.2022.06 Artículo Invitado

venecia

La forma de Venecia es la de la relación antinatural entre el agua y la arquitectu ra y, al mismo tiempo, la de su implicación. Lejos de ser un organismo concluido o —por utilizar la expresión de Alois Riegl— “un monumento no intencionado” generado por un crecimiento orgánico, “natural”, consentido por el tranquilo paso del tiempo, Venecia es un “monumento”, si se puede decir así, que vive del y en el perenne conflicto entre la necesidad y la voluntad, el mismo que configu ra la relación agua-arquitectura, es decir, la unidad de la forma y la consunción de la forma. La forma de Venecia, y su propia historia, coincide con las maneras en que se ha gobernado este conflicto, como observó Francesco Petrarca ya en 1300. Al escribir que Venecia era el “puerto único donde se refugian las naves de los hombres”, utilizando la analogía marina hombres-naves, Petrarca perci bió la homología entre “la firme e inamovible concordia”, que hacía segura la ciudad, y “la firmeza de los mármoles”, sobre los que se funda. Este pasaje tan tas veces citado nos recuerda que la disposición de las piedras sobre las que se construyó Venecia es el resultado de una voluntad ejercida con “prudente sabi duría” para contrarrestar el elemento sobre el que están colocadas: el agua, que “por naturaleza tiende a bajar (aquam natura petere ima)” y que “cuanto más te esfuerzas en impedir que dé rienda suelta a su fuerza, más tenazmente se re siste y presiona (et suis quo magis uti prohjbeas viribus, eo cuntumatius illuctari adversum atque inniti)”, como escribió Leon Battista Alberti en el libro décimo del De re aedificatoria. Además, como el agua “ama estar sola consigo misma […] y su superficie superior está perfectamente alineada al mismo nivel que los bordes extremos (sedibus sese tantum contentam esse; […] superficiemque summam sese ad coaequatam altitudinis parilitatem limbo extremisque labris collibrare)”, continúa Alberti, la arquitectura y la ciudad no pueden sino violar su estatus. De esta profanación, Venecia es una representación consumada y, al mismo tiempo, la imagen actual de la resistencia que hay que oponer a “la con centración del tiempo en el círculo de la necesidad” (Hermann Broch).

También los mitos ligados al origen de Venecia deben interpretarse como eta pas de la renovación continua del supuesto que unifica diversos ritos de funda ción, para los que el reconocimiento de la sacralidad del agua es una condición constitutiva. Anita Seppilli, en su libro Sacralità dell’acqua e sacrilegio dei ponti, identifica el ejemplo más elocuente en Los persas de Esquilo, que aclara, a su vez, el significado de las palabras violación y profanación utilizadas antes. El destino de Jerjes, del Gran Rey derrotado en Salamina (“las naves los guiaron,

Dearq 34

las naves los arruinaron” [Los persas, 560]), estuvo marcado por “una culpa fatal que hay que expiar”, la construcción del puente que, como describió He ródoto, permitió a su inmenso ejército cruzar el estrecho de los Dardanelos, el Helesponto. Jerjes fue víctima de la hýbris, lo contrario de la “prudente sabi duría”, que le había llevado a atreverse a “esclavizar el sagrado Helesponto, a encadenar esa agua sagrada, la divina corriente del Bósforo. Y del vado hizo un camino […]. Él, un mortal, se creía más poderoso incluso que los dioses —¡qué idea insensata!— más poderoso que el propio Poseidón” (Los persas, 745-750). Poseidón, el dios del agua, Υαιήοχος, que significa “el que circunda la tierra”, “el que fecunda y agita la tierra”.

catástrofe

En general, los ritos de fundación revelan que los dos significados de los tér minos creación y construcción tienden a solaparse y no pocas veces coinci den. En cuanto ritos, su fin es el de propiciar la composición de la historia he cha por el hombre con los cambios de la naturaleza. Por una parte, son ritos de expiación: pretenden apaciguar a los espíritus que todo acto de fundación perturba, y aquí, un poco a la ligera, podríamos imaginarlos como precursoras manifestaciones de lo que Petrarca describió humanísticamente en 1321 como la prudente sabiduría, que hizo firmes incluso las piedras sobre las que se fun da Venecia. Por otra parte, como enseñan los estudiosos de la historia de las religiones, esto comporta la identificación de la divinidad de la creación, el dios del agua, con el protector de las construcciones (Alberti define como tutor a Neptuno-Poseidón). Puesto que el agua separa, el dios que ostenta su poder es también el dios de las construcciones: toda construcción, en efecto, coincide con un asentamiento, con la separación “del medio, totius soli” de “un área, una porción de espacio exactamente delimitada y circundada por muros (area vero erit certum quodam loci prescriptuom spacium, quod quidem muro ad usus utilitatem ambiatur)” (De re aedificatoria I, 2). De esta coincidencia, de la doble naturaleza de este dios, se derivan muchas definiciones del trabajo del arqui tecto, como las que destaca Stella Kramrisch al explicar el significado de la pa labra Staphati, “el maestro de lo que permanece”, en las prácticas constructivas hindúes. Estos escasos indicios deberían inducir a replantearse la coincidencia de la divinidad del dios del agua y del dios de la arquitectura, incluso cuando se trata de la cultura moderna. Para confirmarlo, volvamos al libro décimo de

investigación 60 – 61

Vitruvio se ocupa del agua, tan necesaria para la vida como los otros tres elementos primordiales: el aire, el fuego y la tierra. Pero es con la fuerza del agua, con su energeia, como reiterará Alberti, con la que la arquitectura debe saber armonizar, como un poder que dialoga y se enfrenta con otro poder.

De re aedificatoria. En este, Alberti recuerda cómo en “todo tipo de ceremonia utilizamos, según una costumbre antiquísima, agua (in nuptiis in expiationibus ac ferme omnibus denique in sacris vetustissimo ritu aquam adhibemus)”. La razón por la que esta costumbre es antiquísima pero actual la explica Alberti al principio del segundo capítulo: “el agua, según Tales de Mileto, sería el principio de todas las cosas y de la comunidad entre los hombres (aquam Milesius Tales principium essererum y humanae coniunctionis dixit)”. Estas afirmaciones no son originales y demuestran la deuda de Alberti con Vitruvio. Sin entrar en este argumento, podemos limitarnos a señalar cómo también Vitruvio, basándose en su conocimiento de las creencias y los rituales antiguos, consideraba que el agua era el elemento fundador de toda práctica constructiva. El octavo libro de De architectura está dedicado a los mirabilia aquarum. Tras situar en el centro de los libros segundo a séptimo el uso de los materiales y las técnicas edificato rias (II), los órdenes y los distintos tipos de edificios (III-VII), Vitruvio se ocupa del agua, tan necesaria para la vida como los otros tres elementos primordiales: el aire, el fuego y la tierra. Pero es con la fuerza del agua, con su energeia, como re iterará Alberti, con la que la arquitectura debe saber armonizar, como un poder que dialoga y se enfrenta con otro poder, porque “los que ejercen la dignidad sa cerdotal según el rito egipcio demuestran que en la base de todo está la fuerza del elemento líquido (ex eo etiam qui sacerdotia gerunt moribus Aegyptiorum, ostendunt omnes res e liquoris potestate consistere)” y es “opinión tanto de los filósofos de la naturaleza como de los sacerdotes que en la base de todas las cosas se encuentra el poder del agua (cum ergo et physicis et philophis et ab sacerdotibus idudicetur ex potestate acquae res constare)”.

Dicho esto, demos un paso atrás y volvamos a Poseidón. Poseidón es el dios de las aguas y los terremotos. Un dios fértil y terrible. ¿Fértil porque terrible? Desafiarlo, como hizo el Gran Rey de los persas, significa exponerse a la catás trofe. Heródoto cuenta que Jerjes ordenó azotar el Helesponto para castigar su “agua arrogante”, cuando el primer puente que había construido fue destruido “por una violenta tormenta”. Las “palabras bárbaras e insolentes” (Heródoto) que pronunció al emitir esta orden preludian aquellas con las que, al concluir la guerra iniciada con la construcción del puente, derrotado y desnudo como lo describe Eurípides, Jerjes “que había osado encadenar hasta el mar” (Heródoto) reconoció: “la ruina de mi país, soy yo” (Los persas, 934). Si buscáramos una demostración de que todo gran esfuerzo constructivo implica la inmanencia de la catástrofe, creo que podríamos encontrarla en estas páginas de Heródoto. Pero, trasladándonos a tiempos más cercanos, ¿no es Alberti quien nos recuer da, de nuevo en el décimo libro, que “numerosos accidentes extraordinarios, imprevisibles, impensables (inaudita insperata incredibilia, tres palabras que escribió sin separaciones), provocados por la prodigiosa fuerza de la naturale za, son capaces de dañar y alterar de un día para otro cualquier concepción ar quitectónica bien ordenada? (et quae multa in dies prodigiosa naturae vis possit afferre, quibus omnis bene deducta ratio architecti vitietur atque disturbetur)”. Por esta razón, no basta con leer a Kant, Voltaire o Leopardi y estudiar cómo también ellos reaccionaron ante el terremoto que en 1755 puso en manos de un gran constructor de ciudades, el marqués de Pombal, las ruinas de Lisboa, para concluir que es imposible abordar la historia sin pensar en ella como la his toria de las catástrofes, sabiendo que “de la destruction la nature est l’empire” (Voltaire, Poëme sur le désastre de Lisbonne, 1756), como especialmente en nuestra época sería oportuno recordar.

agua y arquitectura y la utilidad del mito

Como se puede leer en Lo demoníaco de Paul Tillich, “el mito remite las gran des catástrofes del acontecer cósmico a las luchas entre dioses y demonios”. De aquí debemos partir para explicar mejor cómo la relación agua-arquitectura consiste en una violación, comporta un sacrilegio, del que se derivan las nocio nes de crear y construir a la que he aludido. El mito demuestra cuán extendida estaba la percepción de que construir implica el peligro de que se desaten fuer zas oscuras. Es un peligro que incluso hoy en día se percibe, con una impre cisión solo igualada por la determinación con la que se ejerce. Todavía en la

Dearq 34

época humanista era bastante habitual repetir el exorcismo de colocar mone das de oro en los cimientos de las construcciones más representativas. Era una forma de congraciarse con la benevolencia del dios de las construcciones y de enmendar una violación.

¿Realmente estamos seguros de que las justificaciones que solemos dar a las obras que construimos están desprovistas incluso del eco de este tipo de exor cismo? En la variada parafernalia retórica que solemos emplear para justificar nuestras construcciones, en cuyos extremos se encuentran la necesidad y la celebración, ¿no cumple un papel cada vez más importante la percepción de estar violando, ante todo y en su sentido más amplio, el equilibrio natural, lo que induce a pensar hoy día de forma generalizada que no perturbar es el propósito de la arquitectura, praxis desprovista de pathos, cuyo objetivo es el “retorno” de “le bonheur du monde”, pues, en todo caso, “D'autres mains vont bâtir vos palais embrasés, / D'autres peuples naîtront dans vos murs écrasés” (Voltaire, Poëme...)?

La magnitud del sacrilegio que supone construir se explicita especialmente al percibir el carácter numinoso de las construcciones que violentan el poder de separación del agua. Esa percepción genera miedo, y los puentes son, de todas las construcciones, las más inquietantes. Heródoto describió cómo, tras el primer fracaso, el puente que cruzaba el Helesponto lo construyeron las ex pertas manos de los carpinteros contratados por Jerjes en Egipto y Fenicia, te niendo cuidado de proteger también sus flancos “para que los animales y los caballos no se asustaran al ver el mar bajo ellos”. “Caminar sobre las aguas” no solo asusta a los animales. Para entender la razón, debemos preguntarnos cómo interpretar el significado del término puente. ¿Puente significa camino o totalidad? Seppilli responde a esta cuestión citando a Judith Hallett: “un pons proporciona una vía que permite enfrentarse y competir con las potencias numinosas; el constructor de puentes debía haberse ganado inicialmente el respeto de sus conciudadanos como resultado de su capacidad para crear un artefacto concreto y tangible que permitiera enfrentarse a situaciones peligro sas, inciertas, sobrenaturales” (Alberti, como hemos visto, también utilizaba tres palabras: inaudita insperata incredibilia).

Esta capacidad de evitar el peligro mediante la construcción de artefactos le fue reconocida en Roma al pontifex, “el constructor sagrado de una via varcante l’acqua”. A los pontífices les eran colectivamente atribuidas las funciones del rex. Tal hecho se justificaba por la capacidad que debían tener no solo para in terpretar los prodigia, sino también para mantener el Pons Sublicius, el puente sobre postes que cruzaba el Tíber, construido según la tradición, en el siglo VII a. C. Julio César también ocupó el cargo de pontifex maximus antes de dirigir la campaña militar que lo llevó a la desembocadura del Rin (55 a. C.). Cabe pre guntarse si la “pericia ingenieril” de la que hizo gala al construir el puente sobre el Rin modificando la estructura del Puente Sublicio no fue más que una con secuencia de su condición de “especialista en ciencias rituales”. Esto se des prende del pasaje de De bello Gallico (IV, 17), en el que César describe cómo los postes de madera se clavaron en el lecho del Rin “no en posición vertical (non sublicae modo), sino oblicuos e inclinados, de modo que se orientaran hacia la corriente (ut secumdum naturam fluminis procumberent)” y luego trabados en una estructura, cuyas partes “cuanto más crecía el ímpetu de la corriente tanto más estrechamente se encajaban entre sí”.

Dicho esto, uno se pregunta, ¿no demostró también con ello César su cono cimiento del poder oracular de las aguas, esto es, su erudición sobre lo que la corriente con su fuerza obligaba a hacer al constructor? La función del pontifex maximus pasó a identificarse cada vez más con la custodia del puente, pero lo cierto es que la importancia concedida a los rituales asociados con su cons trucción y mantenimiento ha estado siempre vinculada, no solo en Roma, con la percepción del peligro que representaba la violación del poder numinoso del agua. El puente es “un sendero hacia los dioses” —otro de los significados de la palabra—; pero, a su vez, un lugar diabólico.

investigación 62 – 63
La magnitud del sacrilegio que supone construir se explicita especialmente al percibir el carácter numinoso de las construcciones que violentan el poder de separación del agua.

Innumerables son las leyendas surgidas en cada rincón del mundo que cuentan cómo el mismísimo diablo fue convocado para construir puentes. Los puentes del diablo se encuentran en todos los países de Europa. Incluso Venecia tiene uno, y aunque la leyenda que le dio nombre se refiere a un hecho reciente, igual mente evoca que la osadía de construir un puente es diabólica y que su peligro requiere la intervención de un gran taumaturgo —César, por ejemplo—. “Todo esto demuestra que la obra (el puente) es entendida o lo fue, hasta un pasado no muy lejano, como sagradamente temeraria”, concluye Anita Seppilli. Pero inclu so la presencia del diablo y del taumaturgo, que requieren las construcciones más osadas y aterradoras, no hacen más que confirmar el origen sacrílego de toda construcción en la que toma forma “la tensión entre creación y destruc ción sobre la que se fundamenta lo demoníaco”. Sin embargo, lo demoníaco, explicó Paul Tillich, no debe confundirse con lo satánico. En lo satánico “la des trucción se concibe sin creación”; lo demoníaco, en cambio, es “la unión de la profundidad y el abismo”, es “la fuerza positiva que continuamente fuerza a salir de la condición de inocencia y que puede convertirse en tentación única mente porque es la fuerza de la creatividad”. Quien se dedica a la historia de la arquitectura, en particular, debe enfrentarse continuamente a esta fuerza, a su energía, a su complejidad y a su indefinible naturaleza. Para ello, hay que utilizar muchas y diversas herramientas, entre las que están, como he tratado de decir, los libros a los que he hecho referencia. En el caso de Vitruvio o Alberti, por po ner un ejemplo, el debate que anima la cultura arquitectónica se suele referir a ellos como a una tradición que ya es incapaz de hablarnos. Pero si no seguimos dialogando con esta tradición, esto solo significa que somos nosotros los que ya no sabemos dialogar entre nosotros.

Al hacer referencia a los libros relacionados con el vínculo agua-arquitectura, he tratado de decir que estos, pero también los mitos, y quizá más cuando los mitos transmigran en el tiempo de la historia como vemos en Heródoto, ofrecen extraordinarias lecciones para entender nuestro presente y vivir en él desente rrando sus raíces. Esta convicción se encuentra, asimismo, en La filosofía en la época trágica de los griegos, donde Nietzsche escribe: “en general, para vivir, hay que ver la propia existencia, tal como se presenta, en un espejo transfigurador”. Los mitos, primero, y la historia, después.

Dearq 34

Agua y espacio construido

Water and Built Environment

Proyectos

Água Carioca, Río das Pedras © Ooze

Cómo citar: Charum, Memet, Jorge Mejía y Klaske Havik. "Una y tres arquitecturas abiertas". Dearq no. 33 (2022): 80-106. DOI: https://doi.org/10.18389/dearq33.2022.08

Viviana Andrea Díaz Correa trazonativo@gmail.com DOI: https://doi.org/10.18389/dearq34.2022.07

Este artículo presenta tres casos de proyectos urbanos (Urbani zación Can Cortada, España; Maiporé, Colombia, y Água Carioca, Brasil), construidos entre 2008 y 2017, que se evalúan según el grado de cumplimiento de los tres pilares de las ciudades sensi bles al agua: 1) las estrategias de diseño para manejar el agua, 2) la capacidad del proyecto para prestar servicios ecosistémicos y 3) la vinculación de la comunidad en el proceso de diseño, imple mentación y mantenimiento. Los proyectos plantean una visión al ternativa al manejo del agua e indagan sobre nuevos paradigmas de diseño capaces de reducir el impacto de la urbanización en el ciclo del agua.

Palabras clave: drenaje urbano, infraestructura verde-azul, escala intermedia, paisajismo, proyecto urbano, diseño urbano, normativa sostenible.

This article presents three case studies of urban projects (Urban ización Can Cortada in Spain; Maiporé in Colombia, and Água Car ioca in Brazil) built between 2008 and 2017. These are evaluated according to the compliance regarding three pillars of water-sen sitive cities: 1) design strategies to manage water, 2) the project's capacity to provide ecosystem services, and 3) community involve ment in the design, implementation, and maintenance processes. The projects propose an alternative vision for water management and investigate new design paradigms capable of reducing the im pact of urbanisation on the water cycle.

Keywords: urban drainage, blue-green infrastructure, interme diate scale, landscaping, urban project, urban design, sustainable regulations.

Manuela Guzmán Ramírez mguzmanr@uniandes.edu.co Universidad de los Andes
Recibido: 25
de 2022 Aceptado: 5
de 2022 Cómo citar:
y Viviana
"Infraestructura verde-azul
Dearq
proyectos 66 – 67 Blue-green infrastructure and the intermediate scale Infraestructura verde-azul y la escala intermedia
de enero
de julio
Guzmán Ramírez, Manuela
Andrea Díaz Correa.
y la escala intermedia".
no. 34 (2022): 66-94. DOI: https://doi.org/10.18389/dearq34.2022.07

Desde épocas antiguas, el manejo del agua ha determinado la forma de habitar el territorio tanto en áreas rurales como en urbanas. El manejo del agua, y específicamente la ingeniería hidráulica, ha sido parte de la planeación del territorio desde la Edad Media hasta hoy. Este manejo fue determinante en la colonización de América y es determinante en la actualidad, debido a los retos impuestos por el incremento de eventos cli máticos extremos. Actualmente, las ciudades se desarrollan sobre sistemas subterráneos que inyectan y evacuan el agua a partir de una infraestructura gris que intenta acelerar el paso del recurso en su paso por la ciudad. Esta infraestructura, com puesta por tubos y otros componentes de cemento u otros ma teriales impermeables, implementa una visión monofuncional del recurso. Esta visión privilegia la cantidad y la calidad del agua sobre los valores sistémicos inherentes a la función eco lógica del agua.

No es una novedad el manejo del agua basado en una visión sistémica. Por ejemplo, en la sabana de Bogotá, los asenta mientos indígenas habitaban el territorio basándose en el ma nejo del agua (Rodríguez Gallo 2019). El adecuado manejo del recurso hídrico permitía la alimentación de la población y, por lo tanto, era la base de la subsistencia de los asentamientos prehispánicos. En Europa, desde el medioevo y hasta el siglo XVIII, el manejo del agua también mantuvo una dimensión sis témica en su resolución técnica. Las infraestructuras hidráuli cas trabajaban siempre como parte de un sistema compues to de canales, reservorios y otras construcciones necesarias para conducir el agua. Antoine Picon (2015) cita el diccionario de arquitectura de Charles D’Aviler Dictionnaire d'architecture civile et hydraulique, donde la ingeniería hidráulica aparece como una especialización de la arquitectura.

El diálogo entre arquitectos e ingenieros ha sido determinante para moldear el espacio urbano. Durante la última década los ingenieros han sido quienes han liderado el campo de la inno vación en el manejo del agua, a partir del estudio de nuevas infraestructuras de manejo utilizando un enfoque holístico y

sistémico llamado ciudades sensibles al agua (Wong y Brown 2009). De forma gradual, esta aproximación al manejo del agua ha permeado la planeación e implementación de proyectos de sistemas urbanos de drenaje sostenible (SUDS) y otras in fraestructuras verde-azules de algunas ciudades en Australia (Department of Water 2005), Estados Unidos (Philadelphia Water Department 2019; Dylewski et al. 2014), Reino Unido (Construction Industry Research and Information Association y Woods Ballard 2015) y España (Comissió de SUDS de l’Ajun tament de Barcelona 2020). Sin embargo, todavía es incipiente la implementación en el mundo y aún más en el contexto lati noamericano. Con más frecuencia se identifican SUDS en par ques o en espacios asociados con la infraestructura vial, como andenes, separadores y alcorques (Mostafavi y Doherty 2016; Castro-Fresno et al. 2013); pero es poco común encontrar proyectos urbanos de desarrollo, renovación o mejoramiento urbano que involucren un manejo del agua alternativo a las in fraestructuras grises.

En los últimos treinta años, la intensidad y frecuencia de la llu via ha aumentado sobre todo en los entornos urbanos (Zhang 2020), y ello repercute directamente en el número de eventos de inundación, causados en parte por la impermeabilización de los suelos urbanos. Dicha impermeabilización resulta en un in cremento de la velocidad de la escorrentía e impide la filtración del agua al subsuelo, a medida que se acrecienta la erosión (Arnold y Gibbons 1996).

En un entorno no urbanizado, el 50 % del agua se infiltra, el 40 % del agua se evapora y el 10 % se vuelve escorrentía. En los entornos urbanos, estos porcentajes se reducen drástica mente a un 15 % de infiltración, un 30 % de evaporación y un 55 % de escorrentía (Philadelphia Water Department 2019). La cantidad de agua de escorrentía de un entorno urbaniza do es un 45 % mayor a la de un área sin urbanizar. Desde esta perspectiva, los cada vez más recurrentes eventos de lluvias extremas impactan con mayor intensidad en las ciudades, ya que las áreas urbanizadas son más propensas a inundarse.

Dearq 34

El paradigma de diseño de nuestras ciudades pretende eva cuar el agua de los espacios que habitamos para expulsarla al recipiente o cuerpo de agua más cercano. El agua que co rre por calles, plazas, andenes y cubiertas de nuestras ciuda des es conducida por la infraestructura gris hacia cuerpos de agua a cielo abierto. Muchas veces, esta conducción ocurre en cauces canalizados.

Los principios de las ciudades sensibles al agua responden a esta problemática. Sus objetivos son planear la ciudad a partir de la articulación con la cuenca hidrográfica donde se ubica, plantear un manejo del agua que maximice la provisión de ser vicios ecosistémicos e incluir el manejo del agua como parte de la vida de las comunidades (Wong y Brown 2009). Además, otros autores resaltan la necesidad de reducir el riesgo de po sibles afectaciones a la salud pública, mitigar posibles efectos causados por inundaciones y mantener los valores culturales presentes en el entorno que se va a intervenir (Department of Water 2005). En ciudades como Bogotá y Ciudad de México se ha identificado que el enfoque de ciudades sensibles al agua es beneficioso para un manejo alternativo del agua, debido a su inclusión de estrategias técnicas, ecosistémicas y de rela ción con la comunidad (De Urbanisten & Autoridad del Espacio Público 2015; Torres et al. 2019).

En este artículo se comparten tres experiencias de proyectos urbanos de escala intermedia que implementan una estrate gia de manejo del agua basada en SUDS. Esta selección fue posterior a la revisión de 89 proyectos distribuidos entre Ar gentina, Brasil, Chile, Perú, Colombia, México, India, Indone sia, Vietnam y España. Los tres casos, además, tienen alguna relación con un conjunto de edificaciones arquitectónicas. Se procuró optar por el máximo de proyectos latinoamericanos, pues se busca que los resultados de la investigación puedan aplicarse a este contexto.

Los tres proyectos son de escala intermedia, pues esta permi te la implementación de trenes de tratamiento o tipologías de

[Los objetivos de las ciudades sensibles al agua] son planear la ciudad a partir de la articulación con la cuenca hidrográfica donde se ubica, plantear un manejo del agua que maximice la provisión de servicios ecosistémicos e incluir el manejo del agua como parte de la vida de las comunidades.

(Wong y Brown 2009)

SUDS que trabajan en conjunto para conducir, retener, filtrar o tratar el agua. La escala exige la resolución espacial y técni ca de las relaciones entre el edificio, la infraestructura vial, el espacio público, además del servicio de abastecimiento y sa neamiento del agua. En la resolución del diseño, los autores de los proyectos propendieron a maximizar la multifuncionali dad de las infraestructuras del manejo del agua, para que estas cumplieran funciones adicionales y funcionaran como espacio público, áreas de conectividad ecológica y como proveedoras de servicios ecosistémicos. En uno de los proyectos se llegó a involucrar a la comunidad como parte de la formulación de un

Alcorques inundables

Se utilizan para el control y tratamiento de escorrentía pluvial dentro de los contenedores de raíces de los árboles o arbustos que se ubican en suelos cubiertos con pavimentos.

Cuenca seca de drenaje exten dido (CSDE)

Cunetas verdes

Permite el almacenamiento temporal de un volumen de escorrentía a través de una depresión en el suelo que permite la infiltración del agua al subsuelo. Se utiliza para amortiguar los picos de escorrentía y reducirla cantidad de sólidos suspendidos y contaminantes del agua pluvial.

Recolecta o conduce escorrentía a partir de canales linea les poco profundos cubiertos por vegetación.

Pavimento permeable Reduce la generación de escorrentía a partir de superficies semi duras que permiten el paso del agua al subsuelo.

Tanque de almacenamiento

Zanjas de infiltración

Zonas de bio-retención

Retiene y almacena agua de escorrentía en un recipiente hermético.

Transportan, almacenan, infiltran y mejoran la calidad del agua de escorrentía. Cada zanja consiste en una excavación lineal y rectangular rellenada con material granular o geoceldas, que sirve de filtro de sedimentos y partículas gruesas.

Detiene, infiltra y evacua lentamente la escorrentía almace nada. Su estructura general se compone de una depresión del suelo, en la que se incorpora cobertura vegetal, sobre una capa orgánica y un sustrato.

Tabla 1_ Tipologías de los sistemas urbanos de drenaje sostenible. Fuente: elaboración propia con base en Empresa de Acueducto y Alcantarillado de Bogotá (2018).

68 – 69 proyectos

proyecto estratégico marco de la intervención. Adicionalmen te, son proyectos innovadores, dada su comprensión multies calar comprendida desde la cuenca hasta la propuesta técnica de manejo del agua in situ.

Con este análisis se busca comprender si es posible reducir los efectos de la urbanización en el ciclo del agua utilizando nuevas estrategias de diseño urbano y arquitectónico que sean aplica bles al contexto latinoamericano. En general, se busca identi ficar si la escala intermedia es adecuada para aplicar dichas estrategias de diseño y cuáles son sus condiciones espaciales.

La implementación de infraestructura verde-azul es aún inci piente en Latinoamérica. Esta condición resulta de la escasa integración que presentan el diseño y la planeación urbana con las responsabilidades ecosistémicas y de construcción de comunidad. Esta independencia se refleja en el poco cono cimiento del gremio sobre tecnologías alternativas de manejo del agua y regulaciones generales o incompletas sobre el tema.

A continuación, se presentan los conceptos de infraestructu ra verde, SUDS y escala intermedia. Posteriormente, se expo nen los tres casos de estudio, que serán analizados según su acercamiento a los principios fundamentales de las ciudades sensibles al agua y a las estrategias espaciales que utilizan. Finalmente, se plantean las conclusiones.

Infraestructura verde-azul

Los proyectos presentados en el artículo son un ejemplo de la implementación de lo que se conoce como infraestructura ver de-azul, necesaria para conseguir ciudades sensibles al agua. Este tipo de infraestructura es una alternativa a la denominada infraestructura gris, que maneja el agua con elementos tipo tu berías, muros y cajas construidos en cemento o concreto. La in fraestructura verde-azul se caracteriza por manejar el recurso hí drico a partir de elementos naturales tipo gravillas y vegetación.

Según Fletcher (2015), la infraestructura verde-azul supone un manejo del recurso hídrico descentralizado y sistémico. El ob jetivo principal es manejar el agua de forma sostenible, a la vez que se beneficia la conectividad ecológica, se maximiza la pres tación de servicios ecosistémicos y se construye comunidad.

Entre las soluciones técnicas identificadas como infraestructu ra verde-azul están aquellas infraestructuras verdes que tam bién cumplen una función en el manejo del agua, pero no se limitan a esta, por ejemplo, las cubiertas verdes, las superficies permeables, los jardines de lluvia o zonas de biorretención y los humedales artificiales. Muchas de estas soluciones técni cas se catalogan como SUDS; sin embargo, para que un SUDS sea catalogado como infraestructura verde-azul es necesario que esta solución técnica cuente con una función de conecti vidad ecológica, prestación de servicios ecosistémicos y cons trucción de comunidad.

Sistemas urbanos de drenaje sostenible

El objetivo de los SUDS es aportar al régimen hidrológico de un sitio, a partir de regular la cantidad y calidad del agua, la ame nidad y la biodiversidad (Construction Industry Research and

Information Association & Woods Ballard 2015). Frecuente mente, estos sistemas se proyectan como complementos de la infraestructura gris, mediante el uso de técnicas que infiltran, filtran, almacenan y evaporan el agua.

Dada la variedad de términos utilizados para la denomina ción de los conceptos relacionados con los SUDS, se aclara aquí que se utilizó la definición de SUDS de la Norma Técnica Colombiana NS166 de 2018. En esta definición se especifica que los SUDS “son el conjunto de soluciones que se adoptan en un sistema de drenaje urbano con el objeto de retener el mayor tiempo posible las aguas lluvias en su punto de origen sin generar problemas de inundación, minimizando los impac tos del desarrollo urbanístico en cuanto a la cantidad y calidad de la escorrentía” (Empresa de Acueducto y Alcantarillado de Bogotá 2018, 5). Las tipologías de SUDS establecidas en esta norma son las presentadas en la tabla 1.

Adicional a las siete tipologías mencionadas establecidas en la norma NS166, se reconoce la tipología de los humedales artifi ciales, implementados en algunos de los proyectos analizados. De acuerdo con el artículo 1 de la Convención Ramsar: “Los humedales son las extensiones de marismas, pantanos y tur beras, o superficies cubiertas de aguas, sean éstas de régimen natural o artificial, permanentes o temporales, estancadas o co rrientes, dulces, salobres o saladas, incluidas las extensiones de agua marina cuya profundidad en marea baja no exceda de seis metros” (Secretaría de la Convención de Ramsar 2016, 9). Los humedales artificiales son SUDS que imitan el funciona miento de un humedal natural.

Escala intermedia

La escala intermedia se refiere a intervenciones de escala urba na que comprenden tiempos de ejecución de mediano plazo. Frecuentemente, supone una relación con lo que se conoce como proyecto urbano, el cual, según Manuel de Solá-Morales Rubio (1987), transforma el trazado viario y el tejido edificatorio al mismo tiempo que traduce la esencia del lugar donde se inserta. Según Solá-Morales Rubio, un proyecto urbano se define a partir de cinco puntos: 1) cuentan con un impacto que supe ra su ámbito de intervención; 2) los usos, usuarios y tipos de espacios comunales propuestos presentan complejidad y va riedad; 3) corresponden con una escala de implementación de mediano plazo; 4) priorizan la construcción de ciudad sobre la construcción del objeto arquitectónico, y 5) se asocian de algu na forma con el sector público, que participa en la inversión o los usos colectivos propuestos. Para este artículo se entiende que un proyecto de escala intermedia cuenta con, al menos, cuatro de los cinco puntos planteados por Solà-Morales Rubio. Se excluye la necesidad de la relación con el sector público, ya que se encontraron proyectos de origen privado o no guberna mental que cumplen con las características fundamentales del proyecto urbano.

A continuación, se muestra cómo tres proyectos urbanos de escala intermedia cumplen con cuatro de los cinco puntos, al mismo tiempo que involucran una propuesta de infraes tructura verde-azul. En los casos expuestos, la infraestructura verde-azul complementa la composición tradicional del traza do o del tejido de los proyectos urbanos en los que se inserta.

Dearq 34

can cortada

Localización

El proyecto se ubica en un área de borde de la ciudad de Bar celona (España). Esta zona se compone de suelo urbano no consolidado, donde aplican actuaciones de transformación o regeneración urbana. Nace de una iniciativa 100 % pública que plantea la creación de un complejo residencial de 200 viviendas. Comprende un área de 2,64 ha aproximadamente (26.400 m²), donde se involucran SUDS como tecnología de manejo del agua pluvial proveniente de andenes, plazas y vías. El espacio público y los SUDS fueron diseñados por el arquitecto Roberto Soto Fernández. El edificio de viviendas fue proyectado por el despacho Martí-Miralles, Arquitectes (fig. 1).

Descripción espacial

A partir de una estrategia de movimientos de tierra, que gene ran cuencos y montañas, se propone una superficie fácilmente caminable, con posibilidades de múltiples recorridos, rodea dos de jardines. Las calles propuestas no son corredores mo nótonos de árboles dispuestos de forma lineal; al contrario, son espacios donde aparecen árboles y jardines de forma dinámica (fig. 4). Las superficies peatonales y la totalidad de los jardines y alcorques son multifuncionales. Estas proveen espacios de sombra y contemplación al mismo tiempo que retienen, detie nen e infiltran el agua (fig. 6). El espacio público propuesto fun ciona como una infraestructura verde-azul apoyada por SUDS

Descripción del manejo de agua

A partir de la implementación de cuencas de infiltración, pa vimentos permeables, alcorques inundables y cunetas verdes, el diseño propuesto consigue que la mayoría de los recorridos

de las aguas pluviales ocurra en la superficie. El uso de esta estrategia reduce significativamente la construcción de redes subterráneas. Según los autores del proyecto, las medidas im plementadas logran una reducción del 50 % en el caudal pico de entrada a la red de saneamiento. También se consigue una reducción del 44 % en el volumen de agua inyectado al alcanta rillado (Perales Momparler y Soto Fernández 2004).

La mayoría de los jardines son cuencas de infiltración. Estas de presiones se encargan de alojar el agua de escorrentía de las áreas impermeables circundantes. En condiciones normales, la tipología implementada permite infiltrar el agua al subsuelo, a

Figura 1_ Planta del proyecto de Can Cortada. Plano cortesía de Roberto Soto Fernández.

Figura 2_ Resumen del manejo del agua. Fuente: elaboración propia con el apoyo de Sofía Gómez.

Cuencas de infiltración Pavimentos permeables Escorrentía Aguas pluviales de la edificación Aguas grises de la edificación Rebose a sistema convencional Aguas residuales de la edificación Entrada de agua Infraestructura utilizada Infiltración Aprovechamiento Retención y conducción 70 – 71 proyectos

través de un pozo drenante. En condiciones de lluvias extremas o presencia de excesos de agua, el sistema prevé un sumidero que permite el rebose al sistema de alcantarillado tradicional. Las cuencas funcionan en red. Así es como cuencas peque ñas pueden rebosar a una cuenca de mayor tamaño, de manera que no existen tipologías de funcionamiento aislado.

La calidad del agua infiltrada o rebosada también se tuvo en cuenta. El diseño constructivo de cada cuenca consta de una capa de grava reciclada que es la primera capa en contacto con el terreno natural; encima contiene otra capa del mismo mate rial, solo que envuelto en un material geotextil. Finalmente, las capas reciben una capa de gravillas grises y en algunas áreas una capa de sustrato vegetal que da soporte a una cobertura vegetal (figs. 5 y 2).

Normativa

La implementación de esta infraestructura verde fue posible gracias a los avances normativos ocurridos en la Unión Euro pea, España y la Comunidad Autónoma de Cataluña. De acuer do con Castro-Fresno et al. (2013), desde la Unión Europea se formuló el Marco del Agua 2000/60/CE (Parlamento Europeo y Consejo de la Unión Europea 2000), con el objetivo de me jorar la calidad del recurso. También desde esta escala conti nental se acordó la creación de la Directiva sobre Inundaciones EU 2007/60/CE (Parlamento Europeo y Consejo de la Unión Europea 2007), en la cual se establecen criterios para la eva luación y gestión de los riesgos de inundación. A la escala del país, España cuenta con el Decreto Real 1620/2007 (Ministerio de la Presidencia 2007), donde se define el régimen jurídico de

la reutilización de las aguas depuradas, y con el Decreto Real 400/2013 (Ministerio de Agricultura 2013), donde se regula la planificación a partir de la comprensión de cuenca. Finalmente, en la escala local existe el Código de Urbanismo de Cataluña (Comunidad Autónoma de Cataluña 2021) y el Decreto 21/2006 de la Generalitat Catalana (2006), donde se determinan pautas de diseño arquitectónico basadas en la sostenibilidad ambien tal. Las normas expuestas representan la constante evolución de la planeación y regulación necesarias para mejorar la inte gración entre el agua, la urbanización, entre otros procesos.

Es evidente que el proyecto imita las funciones hídricas previas a la urbanización; también se resalta su capacidad para gene rar espacios multifuncionales de permanencia y hábitat para la fauna local. Sin embargo, no se identificaron actuaciones enca minadas a la construcción de comunidades sensibles al agua, ni estrategias didácticas dentro del proyecto o una estrategia de manejo social que permitiera a las personas conocer las funciones de estos espacios, más allá de su función de disfrute y paisajística. No obstante, demuestra tanto la posibilidad de implementación de este tipo de proyectos dentro de la norma tividad catalana como que la voluntad del diseñador puede ser la semilla de proyectos urbanos que tengan un impacto menor en el ciclo del agua.

Figura 3_ Cuenca de infiltración en Can Cortada. Fotografía de José Hevia.

Figura 4_ Circulaciones peatonales con pavimentos permeables en Can Cortada. Fotografía de José Hevia.

Figura 5_ Vista general de las cuencas de infiltración y pavimentos permeables en Can Cortada. Foto cortesía de Roberto Soto Fernández.

Figura 6_ Diagrama de flujo del agua en Can Cortada. Fuente: elaboración propia con el apoyo de Sofía Gómez.

Dearq 34

maiporé

Localización

Maiporé se ubica en un área de borde del sur del municipio de Soacha. Este municipio se encuentra conurbado con el suroc cidente de la ciudad de Bogotá (Colombia). Maiporé surgió de una iniciativa privada gestionada por la promotora y construc tora Fernando Mazuera & Cía. El proyecto comprende un área de 183 ha destinadas a la construcción de aproximadamente 18.000 nuevas unidades de vivienda. Contiene también cole gios, centros médicos, centros comerciales y un centro cultu ral. Utiliza zonas de biorretención para el manejo de la totalidad de las aguas pluviales del proyecto. Esta infraestructura ocupa aprox. 19 ha de la totalidad del área. El diseño urbano es autoría del arquitecto Andrés Martínez (fig. 7).

Descripción espacial

Maiporé plantea una estructura urbana sustentada por una variedad de espacios vegetados que parecen bosques para el peatón. Estos espacios vegetados, que invitan a ser etiqueta dos como parques o zonas verdes, son en realidad zonas de biorretención que filtran, infiltran y conducen el agua pluvial de las vías y otras áreas impermeables del proyecto. En oca siones, se encuentran adosados a equipamientos deportivos o educativos; en otras, se disminuye su proporción para dar paso a pavimentos necesarios para crear parques y lugares de en cuentro. Se destaca dentro de esta red de espacios vegetados el humedal Maiporé, una preexistencia del lugar que fue respe tada e integrada al proyecto urbano. Este humedal recibe las aguas provenientes de las zonas de biorretención de forma que el funcionamiento del ciclo del agua es similar a la condición previa a la urbanización (figs. 10 y 12).

Descripción del manejo de agua

Según el autor del proyecto, el diseño propuesto permite rete ner el 100 % del volumen de agua de escorrentía proveniente de vías, andenes y de los cerros que limitan el proyecto por el costado oriental. De este volumen, se infiltra el 40 %, y el 60 % restante se descarga al humedal. La capacidad del sistema co rresponde a 3620 m³ en hora pico de escorrentía.

Las zonas de biorretención conforman una estructura continua que recibe las aguas superficiales que bajan de los cerros y la escorrentía de vías y andenes del proyecto. Esta agua se retie ne temporalmente y se filtra gradualmente, gracias a procesos biológicos realizados por la vegetación ubicada en la capa su perior. El agua que no es posible infiltrar es conducida al hume dal, donde se infiltra o rebosa al río Bogotá.

Las zonas de biorretención se encuentran rodeadas de gavio nes de piedra que funcionan como filtro y como límite del área destinada al agua. Esta área acuática se compone de un le cho de grava y una composición granular que permite infiltrar y almacenar agua de forma permanente. Encima de esta capa se encuentra la vegetación compuesta por árboles, arbustos y especies gramíneas. Los suelos del humedal preexistente no se modificaron. Su funcionamiento es similar al estado previo a la urbanización (figs. 11 y 8).

Normativa

A escala nacional, proyectos como Maiporé deben cumplir el Decreto 2811 de 1974 (Presidencia de la República de Co lombia 1974), el cual regula el manejo y aprovechamiento del agua. En esta norma se especifican las condiciones en las que es permitido realizar descargas en cuerpos de agua naturales, los derechos de uso del agua y los requerimientos de abaste cimiento y alcantarillado de agua para urbanizaciones nuevas. En el caso particular de la descarga a un humedal, la ley co lombiana cuenta con el Decreto 1076 de 2015 (Ministerio de Ambiente y Desarrollo Sostenible 2015), que regula el manejo de las áreas protegidas del país, incluidos lagunas y humedales. Adicionalmente, se deben seguir las recomendaciones del

Figura 7_ Planta de zonas de biorretención y humedal artificial en Maiporé. Fuente: base suministrada por Andrés Martínez. Edición gráfica de Sofia Gómez. Figura 8_ Resumen del manejo del agua. Fuente: elaboración propia con el apoyo de Sofía Gómez.

Escorrentía Aguas pluviales de la edificación Aguas grises de la edificación Rebose a sistema convencional Aguas residuales de la edificación Entrada de agua Infraestructura utilizada Infiltración Aprovechamiento Retención y conducción Zonas de biorretención Pavimentos permeables Humedal natural 72 – 73 proyectos

Reglamento Técnico del Sector de Agua Potable y Saneamiento Básico (Ministerio de Vivienda 2017), que estipula los requisitos técnicos que debe cumplir la infraestructura encargada del ma nejo del agua. Esta es la única normativa que hace referencia directa a SUDS, pues en el documento se exige la implementa ción de esta tecnología para nuevos desarrollos urbanos donde se modifique la cobertura del suelo. Finalmente, se debe tener en cuenta la Política Nacional del Cambio Climático (Ministerio de Ambiente y Desarrollo Sostenible 2017), que provee linea mientos de articulación entre diversos entes territoriales para conseguir una adaptación al cambio climático que involucre acciones multiescalares.

Siguiendo un orden descendente, la siguiente escala adminis trativa a la cual deben responder los proyectos localizados en Soacha corresponde al documento de planeación de la cuenca a la que pertenece la totalidad del territorio del municipio, es decir, al Plan de Ordenación y Manejo del Río Bogotá (POMCA). Esta normativa articula diversos entes gubernamentales y re gulaciones que afecten el futuro de la cuenca del río Bogotá. El POMCA propone una visión a futuro del río que requiere la im plementación de programas e incentivos de diversas escalas, localizados en varios municipios, incluidos Soacha y Bogotá (Corporación Autónoma Regional 2019).

Los proyectos y lineamientos planteados en el POMCA deben verse reflejados en el Plan de Ordenamiento Territorial (POT) de cada uno de los municipios de la cuenca. En el caso de Soacha, el POT corresponde con el Acuerdo 46 de 2020 (Alcaldía de Soacha 2000). Este plan no cuenta con ninguna exigencia específica de manejo del agua con tecnologías alternativas ni de prevención de la inundación o mejoramiento de la calidad de la escorrentía.

En otras palabras, el caso colombiano enfrenta un incipiente surgimiento de lineamientos para la implementación de SUDS y otras infraestructuras verde-azules del país. Sin embargo, no hay políticas claras de implementación en la legislación local. En este contexto, Maiporé sobresale en su contexto, porque implementa un sistema de manejo de escorrentía alternativo al tradicional, el cual no es exigido por la legislación local. En pri mer lugar, sobresale por la implementación de un sistema de infraestructura verde-azul a la escala de un proyecto urbano de escala intermedia. En segundo lugar, resalta que no se utiliza ninguna infraestructura gris para el manejo del agua.

Similar al caso de Can Cortada, son incipientes las estrategias de construcción de comunidad y aumento de la conciencia sobre el ciclo del agua. A pesar de que Maiporé cuenta con señalización explicativa sobre el ciclo, esta se encuentra van dalizada, según una visita que se realizó al proyecto en febrero de 2022. Se entiende que, dada la magnitud de la intervención, la estrategia social debe atenderse desde diversos frentes incluyendo, además de la estrategia de comunicación visual, una estrategia participativa y de divulgación mayor. Puede que esto se cumpla en las fases siguientes del proyecto. Este caso demuestra que es posible implementar soluciones de manejo del agua alternativas, a pesar de la falta de regulación local al respecto. Eso es esperanzador para el contexto colombiano.

Figura 9_ Zonas de biorretención en Maiporé. Foto de Manuela Guzmán Ramírez.

Figura 10_ Zonas de biorretención en Maiporé. Foto de Manuela Guzmán Ramírez.

Figura 11_ Vegetación de la zona de biorretención. Foto de Manuela Guzmán Ramírez.

Figura 12_ Flujo del agua en Maiporé. Fuente: elaboración propia con el apoyo de Sofía Gómez.

Dearq 34

água carioca

Localización

Água Carioca es un proyecto de investigación y diseño sobre el tratamiento y gestión del agua residual de la bahía de Gua nabara, la cual comprende varias municipalidades, incluida la ciudad de Río de Janeiro (Brasil). Esta bahía se encuentra muy contaminada, debido a la descarga directa de aguas residuales desde diversas formas de urbanización, entre ellas favelas o barrios informales de esta ciudad.

La firma Ooze, en cabezada por Eva Pfannes y Sylvain Harten berg, aporta una visión multiescalar y descentralizada del sa neamiento básico del agua residual. La propuesta comprende la escala de la edificación individual y la escala del barrio para finalmente consolidar una estrategia de cuenca. Con una vi sión casi utópica de limpiar la bahía de Guanabara, el proyecto especifica las áreas de humedal artificial necesarias para tratar las aguas residuales de un colegio (1800 m² aprox.), un conjun to de 15 casas (1500 m² aprox.) y, finalmente, la totalidad de la bahía (6 km² aprox.). Además, con el apoyo de la municipalidad de Río de Janeiro y del Creative Industries Fund NL, el proyecto cuenta con la implementación de un piloto en el Jardín Botáni co del Sitio Burle Marx. Dicho piloto demuestra la factibilidad técnica del proyecto, así como las diversas dimensiones cultu rales asociadas con este (fig. 15).

Descripción espacial

La propuesta de descentralización parte de la recolección, tra tamiento y reúso del agua residual para una unidad de vivienda de cuatro habitantes. En esta unidad se propone un sistema de tratamiento basado en un tanque séptico, un humedal artificial y un tanque de almacenamiento donde se filtra, trata y almacena el agua residual antes de ser reutilizada o evacuada a la bahía.

Esta unidad puede funcionar de forma independiente o en forma de clúster, de modo que varias viviendas compartan el mismo humedal artificial. El tamaño de cada humedal cambia según la cantidad de viviendas integradas. Utilizando la vivien da como unidad básica, la firma Ooze realiza tres ejercicios teóricos de implementación a diferentes escalas, en tres fave las diferentes ubicadas alrededor de la bahía Guanabara: 150 casas en la favela de montaña Morro do Salgueiro, 600 casas en la favela de Morro da Formiga y 20.000 casas en la favela de Rio das Pedras. Cada ejercicio de implementación responde a las condiciones topográficas y morfológicas del lugar: Morro do Salgueiro y Morro da Formiga se encuentran en terrenos inclinados; entre tanto, Rio das Pedras se encuentra en un te rreno plano.

A pesar de estas diferencias topográficas, las tres propues tas proporcionan espacios de disfrute humano en las mismas áreas donde se proveen las infraestructuras de manejo del agua. En Morro do Salgueiro es posible caminar y permanecer en calles que parecen parques lineales, donde los senderos y los jardines se entrelazan para darles espacio tanto a las per sonas como a la vegetación y al agua. En Morro da Formiga, el espacio de disfrute y encuentro de la población se vuelca ha cia las quebradas y ríos naturales, los cuales cuentan con agua limpia, gracias al tratamiento previo que ocurre en humedales artificiales. En Rio das Pedras se propone un parque lineal a lo largo de la desembocadura de un río y una matriz de humeda les públicos, dispuestos de forma lineal. En las tres propuestas, el humedal artificial deja de ser un elemento aislado, de escala pequeña, para convertirse en un elemento de escala variable que configura el paisaje y el espacio público.

La visibilidad y educación sobre el manejo del agua es un componente clave en este proyecto. En la implementación del piloto, se proponen elementos didácticos que explican los procesos y estados del agua que contienen. Se utiliza el color e información gráfica para mostrar los procesos a un público no especializado. Adicional a la definición de las formas y co lores de los elementos del proyecto, el piloto se expuso en compañía de la estrategia de manejo de las aguas residuales de la totalidad de la bahía Guanabara. La exposición se llevó a cabo dentro del mismo Sitio Burle Marx y contó con actores

Figura 13_ Aproximación incremental al saneamiento de la Bahía Guanabara. Fotomontaje de la firma Ooze.

Figura 14_ Resumen del manejo del agua. Fuente: elaboración propia con el apoyo de Sofía Gómez.

Escorrentía Aguas pluviales de la edificación Aguas grises de la edificación Rebose a sistema convencional Aguas residuales de la edificación Entrada de agua Infraestructura utilizada Infiltración Aprovechamiento Retención y conducción Humedal Artificial 74 – 75 proyectos

académicos, públicos y de la comunidad (fig. 16). En paralelo, el proyecto cuenta con una página web que contiene sus dife rentes fases y elementos (Ooze 2017).

Descripción del manejo del agua

El piloto construido en el Sitio Burle Marx es la implementación de la unidad inicial del ciclo de tratamiento del agua necesa rio para sanear la bahía Guanabara. La unidad cuenta con dos tanques de almacenamiento de agua, un pozo séptico y un humedal artificial. Permite recolectar aguas pluviales de las cubiertas y utilizar el agua potable proveniente de un sistema de alcantarillado tradicional. El agua recogida en las cubiertas se almacena en un tanque exterior conectado a un sistema de riego o al humedal artificial. El agua del acueducto se conecta a los grifos de agua potable del edificio. El sistema de desagüe de los sanitarios se conecta a un pozo séptico que ofrece un primer tratamiento a las aguas, previo a la conducción de es tas al humedal artificial. En el humedal artificial, mediante un proceso biológico de remoción de contaminantes, el agua re sultante cuenta con la calidad suficiente para ser reutilizada en inodoros, riego o rebose a cuerpos de agua naturales.

Un humedal artificial consiste en una construcción capaz de contener un espejo de agua constante en un área vegetada con especies capaces de aguantar este medio húmedo. Gracias a este medio acuático, se permite la presencia de oxígeno, algas y bacterias, capaces de remover los compuestos orgánicos en descomposición presentes en el agua. La construcción propues ta para el piloto consiste en una capa de gravilla recubierta de un geotextil, ubicada debajo de una capa de arena que funciona como medio para el crecimiento de las raíces de la vegetación,

la cual a su vez crece en medio de una capa de gravilla suelta. El equipo diseñador estimó que se requiere de 1,5 a 2 m² de humedal artificial para tratar las aguas residuales de una per sona (fig. 17). Así, las propuestas Morro do Salgueiro, Morro da Formiga y Rio das Pedras se basaron en esta estimación.

En Morro do Salgueiro se propone una disposición ramificada de los humedales artificiales que agrupan el tratamiento de las aguas de un grupo de 15 viviendas en promedio. En esta favela se trata el agua de aproximadamente 750 personas. En Morro da Formiga, el sistema de humedales es similar al ya descrito; sin embargo, el eje central de la ramificación de los humedales artificiales corresponde a cuerpos de agua naturales. El siste ma del Morro da Formiga tiene capacidad para 2.700 habitan tes (figs. 18 y 14). En Rio das Pedras, la agrupación de los hume dales es más evidente, pues están dispuestos por franjas en las áreas periféricas del barrio. Se estima que este sistema puede tratar las aguas residuales de 90.000 habitantes.

Normativa

En el caso de Brasil, se encontró regulación nacional con respec to al manejo sostenible del agua. A escala estatal o de municipa lidad, no se identificaron detalles de las determinantes de imple mentación de los parámetros nacionales. Según Gomes-Miguez y Pires-Veról (2017), el precedente de la regulación de SUDS en Brasil es el Acto Federal 6766 de 1979 (Presidência da República do Brasil 1979). En esta ley se disponen los parámetros básicos para el desarrollo urbano, como las condiciones necesarias para permitir la urbanización, la infraestructura mínima para el desarrollo urbano, las directrices de localización fuera de área de riesgo por inundación, entre otras. Posterior a esta ley, los

Dearq 34

autores identifican la ley del estatuto de la ciudad (Presidência da República do Brasil 2001), donde se establecen parámetros de urbanización generales que parten del derecho de cada habi tante por una ciudad accesible, sana, productiva y recreativa. En la norma se referencian de forma específica los requerimientos normativos que promuevan el mejoramiento de las condiciones ambientales de la ciudad, la protección de bienes ambientales y los instrumentos normativos que cada municipio debe imple mentar. Posteriormente, Gomes-Miguez y Pires-Veról (2017) se refieren al Manual de drenaje urbano sostenible, publicado en 2004 por el Ministerio de las Ciudades, donde se especifican por primera vez los principios fundamentales de un manejo al ternativo del drenaje de la ciudad, así como el requerimiento de un plan de manejo de aguas pluviales para la financiación de proyectos. Finalmente, se reconoce la Ley 11445 de 2007, que determina las directrices nacionales para el saneamiento bási co. La visión del manejo del agua en esta ley inauguró un nuevo rol para el sistema de drenaje sostenible, ya que integra nocio nes de retención, detención y tratamiento del agua como parte de un mismo sistema (Presidência da República do Brasil 2007).

De acuerdo con los autores de Água Carioca, el proyecto no par tió del conocimiento de las regulaciones halladas por Gomes-Mi guez & Pires-Veról, lo que demuestra un vínculo débil entre las regulaciones nacional y municipal. A pesar de este vacío, en adi ción al proyecto presentado aquí, Gomes-Miguez & Pires-Veról identifican otros proyectos de implementación de SUDS, entre los que se destaca uno ubicado en la bahía Guanabara.

Es evidente el esfuerzo de integración de los factores am bientales, de diseño y de construcción de comunidad en este proyecto. Resulta llamativo que un precedente de este tipo

no se haya capitalizado en un cambio en la normativa de Río de Janeiro que incentive la implementación de estrategias de manejo descentralizado del agua como una medida de mejo ramiento de la calidad ambiental de la bahía Guanabara. Sin embargo, existe una esperanza para que arquitectos urbanos y paisajistas implementen estrategias similares, a pesar del va cío en la reglamentación local.

análisis desde ciudades sensibles al agua

A continuación, se presenta la relación de los casos de estudio con los tres principios de las ciudades sensibles al agua: ciu dades articuladas con su cuenca hidrográfica, ciudades que proveen servicios ecosistémicos y ciudades que comprenden comunidades sensibles al agua (Wong y Brown 2009). En la tabla 2 se resume el cumplimiento de cada proyecto con los pi lares y las estrategias de diseño utilizadas por los diseñadores para conseguir este cumplimiento.

Los tres casos se articulan con su cuenca hidrográfica. En Can Cortada se retiene e infiltra el agua lluvia de forma similar al estado previo a la urbanización. La implementación de este con cepto se logra a partir de la integración del manejo del recurso en los andenes y el sistema vial. En Maiporé también se recrean

Figura 15_ Vista aérea de la ciudad desde Salgueiro. Foto de la firma Ooze.

Figura 16_ Apertura y demostración del piloto construido en el Sitio Burle Marx. Foto de la firma Ooze.

Figura 17_ Humedal artificial. Limpieza del agua basada en vegetación. Ilustración de la firma Ooze.

Figura 18_ Diagrama de flujo de agua. Fuente: elaboración propia basada en Ooze, con el apoyo de Sofía Gómez.

76 – 77 proyectos

las condiciones previas a la urbanización, ya que el agua sigue conduciéndose desde los cerros circundantes hasta el hume dal natural por zonas que permiten la retención, la filtración y la infiltración. Água Carioca parte de la concepción de la cuenca a partir de una estrategia multiescalar, cuya finalidad es mejorar la calidad de agua del receptor final (la bahía Guanabara).

La provisión de servicios ecosistémicos también es una cons tante en los tres proyectos. Can Cortada presta servicios de so porte, provisión, regulación y culturales. Las cuencas suminis tran servicios de disfrute de las personas de diversas maneras sutiles, generan espacios de circulación heterogéneos, permi ten la permanencia con vistas agradables y, además, aumentan la cantidad de áreas vegetadas. Esta vegetación aporta a la re gulación del clima y provee alimento para la fauna local. Maiporé aumenta la provisión de servicios ecosistémicos, gracias a la generación de nuevas áreas vegetadas, correspondientes a las zonas de biorretención, y de permitir una conexión peatonal con el cerro. Água Carioca ofrece servicios ecosistémicos de provisión y culturales, ya que incrementa la cantidad de área vegetada y crea un valor estético adicional. También presta ser vicios culturales a través de la cualidad educativa del diseño y de su articulación con la comunidad.

En cuanto al aporte en la construcción de comunidades sensi bles al agua, Água Carioca se destaca por la relación periódica que mantuvo con la comunidad y otros actores (fig. 19). Esta relación contó con entrevistas y trabajo en equipo que resul taron en la formulación de un proyecto didáctico. El proyecto enseña al visitante el proceso de recolección y tratamiento del agua a partir de gráficos y colores pintados sobre las estructu ras de manejo del agua (Holcim Foundation 2017; Ooze 2017). Así mismo, se logró determinar a los responsables del mante nimiento del proyecto, quienes hacen parte de la comunidad. Este proyecto también cuenta con una página web que explica la relación del piloto con la visión propuesta para el saneamien to de la bahía Guanabara. Esta página demuestra la capacidad de diálogo del proyecto con actores diversos en un tiempo pro longado (Ooze 2017).

En Can Cortada y Maiporé, la relación con la comunidad ocurre en la fase de uso del proyecto terminado. Maiporé cuenta con señales que explican el funcionamiento de una zona de biorre tención; pero no se identificaron actividades de participación de los vecinos, en las cuales se explique la función de estas infraestructuras y sus beneficios (fig. 20).

conclusiones

La escala intermedia es adecuada para construir ciudades sensibles al agua, pues cuenta con las dimensiones sufi cientes para: 1) la implementación de diversas tipologías de infraestructura verde-azul, 2) articular un proyecto con su cuenca hidrográfica, 3) presentar espacios diversos para pro veer servicios ecosistémicos y 4) facilitar la articulación de las comunidades en la formulación desarrollo, implementación y mantenimiento de los proyectos.

La escala de Can Cortada, Maiporé y Água Carioca está com puesta por sistemas de diversas tipologías de SUDS, articula das en forma de tren. Por ejemplo, en Maiporé, las zonas de biorretención que acompañan a las vías del proyecto se conec tan con un humedal existente. Can Cortada implementa pavi mentos permeables, alcorques inundables y cunetas verdes que se articulan de acuerdo con las necesidades hidráulicas. Água Carioca construye humedales artificiales y tanques de almacenamiento que permiten el reúso del agua residual. La escala intermedia también es flexible para plantear zonas de manejo del agua de dimensión suficiente, a efectos de crear un proyecto de paisaje o un área multifuncional que disfruten las personas. Sobre este tema, se destaca el impacto paisajístico que tiene la zona de biorretención del proyecto Maiporé, los jardines hundidos de Can Cortada y los humedales artificiales del proyecto Água Carioca.

Es también en la escala intermedia donde aparece la necesaria integración con la comunidad. El caso de Água Carioca demues tra con claridad sus mecanismos y beneficios. En este caso, se destaca especialmente la cualidad didáctica del proyecto en su formulación, diseño, divulgación y posterior implementación en el piloto. En Can Cortada y Maiporé no es tan evidente dicha in teracción. Sin embargo, en países como Colombia, la implemen tación de proyectos de escala intermedia —catalogados como planes parciales— requieren una socialización e integración con las comunidades receptoras. Estos espacios podrían ser los escenarios de enseñanza del ciclo del agua y las funciones de la infraestructura verde-azul dentro de este ciclo. En este es pacio se podrían construir los primeros pasos para transformar el paradigma de la relación con el agua en el entorno urbano.

También es en esta escala donde la comunidad se puede in volucrar en estrategias de manejo y mantenimiento. La comu nidad puede vigilar y prender alarmas tempranas sobre mal funcionamiento o requerimientos de la infraestructura. Tal vez, son las asociaciones de vecinos las que podrían ser el mejor canal de comunicación con los encargados del mantenimiento de los espacios urbanos consolidados, ya sean estas entida des públicas, la misma comunidad o entes privados.

Las infraestructuras verde-azules que comprenden los SUDS se presentan como una estrategia de diseño que puede fun cionar como bisagra entre diversas disciplinas, necesaria para conseguir ciudades más permeables que transformen la rela ción entre urbanización y ciclo hídrico. Esta sería una apuesta por lograr un cambio de escala de una ciudad entera, a partir de una transformación de tipo celular.

Dearq 34
Figura 19_ Señalización humedal artificial en Água Carioca. Foto de la firma Ooze. Figura 20_ Señalización del biorretenedor en Maiporé. Foto de la autora

Pilares de las Ciudades Sensibles al Agua (Wong, Brown, 2009)

Principio 1. Ciudades articuladas con su cuenca hidrográfica

Cuencas de infiltración

Zonas de bioretención

Pavimentos permeables

Tanques de almacenamiento

Estrategia de diseño

Humedales artificiales

Principio 2. Ciudades que proveen servicios ecosistemicos

Conectividad con otros ecosistemas (humedales, cerros, entre otros)

Siembra de plantas y árboles adicionales a los requeridos para el manejo del agua

Espacios de permanencia (multifuncionalidad)

Principio 3. Ciudades que comprenden comunidades sensibles al agua

Visibilidad del ciclo del agua / capacidad didáctica del diseño

Participación de la comunidad en la formulación, implementación y mantenimiento del proyecto

DIVERSIFICAR SOBREPONER USOS

ENSEÑAR INVITAR

Tabla 2_ Comparación de las estrategias de diseño utilizadas y su relación con los pilares de las ciudades sensibles al agua. Fuente: elaboración propia a partir de Wong y Brown (2009).

Can Cortada Maiporé Agua Carioca

UNDIR UNDIR REPONER DIVERSIFICAR PERFORAR ALMACENAR HUMEDALIZAR ACERCAR
78 – 79 proyectos

bibliografía

1. Alcaldía de Soacha. 2000. “Acuerdo 46 de 2000, por medio del cual se adopta el Plan de Ordenamiento Territorial del Municipio de Soacha”. http://201.184.190.109:50 930/index.php/nuestraalcaldia/normatividad/ normatividad-vigente/ file/2893-acuerdo-046-de2000-pot.html

2. Arnold, Chester L. y C. James Gibbons. 1996. “Impervious Surface Coverage: The Emergence of a Key Environmental Indicator”. Journal of the American Planning Association 62, n.º 2: 243-258. https://doi. org/10.1080/01944369608 975688

3. Castro-Fresno, Daniel, Valerio Carlo AndrésValeri, Luis Ángel SañudoFontaneda y Jorge Rodríguez-Hernández. 2013. “Sustainable Drainage Practices in Spain, Specially focused on Pervious Pavements”. Water 5, n.º 1: 67-93. https://doi.org/10.3390/ w5010067

4. Comissió de SUDS de l’Ajuntament de Barcelona. 2020. Guia tècnica per al disseny de Sistemes de Drenatge Urbá Sostenible SUDS. https:// ajuntament.barcelona. cat/ecologiaurbana/ sites/default/files/ PlecPrescripcions TecniquesDrenatge_Guia. pdf.

5. Comunidad Autónoma de Cataluña. 2021. Código de urbanismo de Cataluña. Agencia Estatal Boletín Oficial del Estado. https:// www.boe.es/biblioteca_ juridica/codigos/codigo. php?id=079_Codigo_ de_Urbanismo_de_ Cataluna&modo=2

6. Construction Industry Research and Information Association, & Bridget Woods Ballard. 2015. The SuDS manual. s. l.: CIRIA

7. Corporación Autónoma Regional. 2019. “Ajuste del plan de ordenación y manejo de la cuenca del río Bogotá”. https://www.car. gov.co/vercontenido/3691

8. De Urbanisten y Autoridad del Espacio Público. 2015. “Hacia una ciudad de México sensible al agua”. https://agua.org. mx/biblioteca/hacia-unaciudad-mexico-sensible-alagua/

9. Department of Water, Government of Western Australia. 2005.

Stormwater Management Manual for Western Australia

10. Dylewski Katie L., Jessica T. R. Brown, Charlene M. LeBleu, Eve F. Brantley. 2014. Low Impact Development Handbook Alabama Department for the State of Alabama. Alabama: Alabama Department of Environmental Management-Alabama Cooperative Extension System-Auburn University.

11. Empresa de Acueducto y Alcantarillado de Bogotá. 2018. “Criterios para diseño y construcción de Sistemas Urbanos de Drenaje Sostenible (SUDS)”. https://www.cccs. org.co/wp/download/1ns-166-criteriospara-dise%C3%B1o-yconstruccion-de-sistemasurbanos-de-drenajesostenible-pdf/?wpdmdl=1 5970&refresh=61845d39b cc991636064569

12. Fletcher, Tim D., William Shuster, William F. Hunt, Richard Ashley, David Butler, Scott Arthur, Sam Trowsdale, Sylvie Barraud, Annette Semadeni-Davies, JeanLuc Bertrand-Krajewski, Peter Steen Mikkelsen, Gilles Rivard, Mathias Uhl, Danielle Dagenais y Maria Viklander. 2015. “SUDS, LID, BMPs, WSUD and More: The Evolution and Application of Terminology Surrounding Urban Drainage”. Urban Water Journal 12, n.º 7: 525-542. https://doi. org/10.1080/1573062X.20 14.916314

13. Generalidad de Cataluña. 2006. “Decreto 21/2006, de 14 de febrero, por el que se regula la adopción de criterios ambientales y de ecoeficiencia en los edificios”. http://www. gencat.cat/mediamb/ binlegis/20062093e.pdf

14. Gomes-Miguez, Marcelo y Aline Pires-Veról. 2017. “Sustainable Drainage Systems in Brazil”. En Sustainable Surface Water Management: A Handbook for SuDS, editado por Susanne M. Charlesworth y Colin A. Booth, 315-327. Filadelfia: John Wiley & Sons.

15. Holcim Foundation. 2017. “Urban Circulatory System”. https://www. holcimfoundation.org/ projects/urban-circulatorysystem

16. Ministerio de Agricultura, Alimentación y Medio Ambiente. 2013. “Real Decreto 400/2013, de 7 de junio, por el que se aprueba el Plan Hidrológico de la parte española de la Demarcación Hidrográfica del Cantábrico Oriental”. Boletín Oficial del Estado n.º 137. https://www.boe. es/boe/dias/2013/06/08/ pdfs/BOE A-2013-6078.pdf

17. Ministerio de Ambiente y Desarrollo Sostenible. 2015. “Decreto 1076 de 2015, 26 de mayo, sector ambiente y desarrollo sostenible”. https://www. funcionpublica.gov.co/eva/ gestornormativo/norma. php?i=78153

18. Ministerio de Ambiente y Desarrollo Sostenible. 2017. Política Nacional de Cambio Climático. Bogotá. https://www.minambiente. gov.co/documentoentidad/politica-nacionalde-cambio-climatico/

Dearq 34

19. Ministerio de la Presidencia. 2007. “Real Decreto 1620/2007, de 7 de diciembre, por el que se establece el régimen jurídico de la reutilización de las aguas depuradas”. Boletín Oficial del Estado n.º 294. https://www.boe. es/buscar/pdf/2007/BOE A 2007-21092-consolidado. pdf

20. Ministerio de Vivienda, Ciudad y Territorio. 2017. “Resolución 0330 del 2017, 8 de junio, por la cual se adopta el Reglamento Técnico para el Sector de Agua Potable y Saneamiento BásicoRAS y se derogan las resoluciones 1096, 0424, 0668, 1459, 1447 y 2320”. https://www.minvivienda. gov.co/sites/default/files/ documentos/0330-2017. pdf

21. Mostafavi, Mohsen y Gareth Doherty. 2016. “Ecological Urbanism in Latin America”. Urbe: Revista Brasileira de Gestão Urbana 8, n.º 1. https://doi. org/10.1590/21753369.008.001.SE07

22. Ooze. 2017. “Água Carioca”. http://www.aguacarioca. org/

23. Parlamento Europeo y Consejo de la Unión Europea. 2000. “Directive 2000/60/EC of the European Parliament and of the Council of 23 October 2000 establishing a framework for Community action in the field of water policy”. https://eur-lex.europa.eu/ legal-content/ ENTXT/?uri=CELEX:32000L 0060

24. Parlamento Europeo y Consejo de la Unión Europea. 2007. “Directiva 2007/60/CE del Parlamento Europeo y del Consejo”. https:// eur-lex.europa.eu/ legal-content/ES/TXT/ PDF/?uri=CELEX:32007L00 60&from=EN

25. Perales Momparler, Sara y Roberto Soto Fernández. 2004. “La integración de la gestión de las escorrentías en el paisaje de Barcelona: Actuaciones de regeneración urbana. (C. Agua y ciudad), (B. Hidrología y gestión del agua)”. http://www. ingenieriadelagua. com/2004/JIA/Jia2013/pdf/ c19.pdf

26. Philadelphia Water Department. 2019. “The Philadelphia Stormwater Management Guidance Manual”. https://www. pwdplanreview.org/ manual/introduction#

27. Picon, Antoine. 2015. “Water Technology and Society a Historical Overview”. En Out of Water: Design Solutions for Arid Regions, 29-39. Basel: Birkhouser Verlag.

28. Presidência da República do Brasil. 1979. “Lei No 6.766, de 19 de Decembro de 1979”. http://www. planalto.gov.br/ccivil_03/ leis/l6766.htm

29. Presidência da República do Brasil. 2001. “El estatuto de la ciudad. Ley No 10.257, del 10 de julio de 2001”. https://www.hlrn. org/img/documents/elestatuto-de-la-ciudad %20 sp.pdf

30. Presidência da República do Brasil. 2007. “Lei No 11.445 de 5 de janeiro de 2007”. http://www. planalto.gov.br/ccivil_03/_ Ato2007-2010/2007/Lei/ L11445compilado.htm

31. Presidencia de la República de Colombia. 1974. “Decreto 2811 de 1974, de 18 de diciembre”. https:// www.funcionpublica.gov. co/eva/gestornormativo/ norma.php?i=1551

32. Rodríguez Gallo, Lorena. 2019. “The Construction of the pre-Hispanic Agricultural Landscape in the Colombian Andes: The Case of the Sabana de Bogotá”. SPAL 28, n.º 1: 193-215. https://doi. org/10.12795/spal.2019. i28.09

33. Secretaría de la Convención de Ramsar. 2016. Introducción a la convención sobre los humedales. 5.ª ed. Gland, Suiza. http:// www.chmhonduras. org/index.php/acerca/ documentacion/ file/325-introduccion-ala-convencion-sobre-loshumedales

34. Solà-Morales Rubió, Manuel de. 1987. “La segunda historia del proyecto urbano”. Revista UR 5.

35. Torres, Andrés, Sandra Galarza-Molina y Luis Fernando Molina-Prieto. 2019. “Bogotá, una ciudad sensible al agua: Elementos de reflexión”. Cuadernos de Vivienda y Urbanismo 22, n.º 33: 1-23. https://doi.org/10.11144/ Javeriana.cvu12-23.bcsa

36. Wong, T. H. F. y R. R. Brown. 2009. “The Water Sensitive City: Principles for Practice”. Water Science and Technology 60, n.º 3: 673-682. https://doi.org/ http://dx.doi.org/10.2166/ wst.2009.436

37. Zhang, Da-Lin. 2020. “Rapid Urbanization and More Extreme Rainfall Events”. Science Bulletin 65, n.º 7: 516-518. https://doi.org/ https://doi.org/10.1016/j. scib.2020.02.002

80 – 81 proyectos

Proyecto: CAN CORTADA

Oficina: Roberto Soto Fernández

Año: 2008—2013

Lugar: Barcelona, España

Fotografía: Roberto Soto Fernández, José Hevia

Superficie (semi)Permeable

Superficie Permeable (taludes)

Superficie Permeable

Superficie Impermeable

Superficie Edificios

Estanque de Detención

Pozos de Infiltración

Colectores Pluviales

Tubo Drenaje

Colectores Unitarios

Drenes Filtrantes

1.387,54 m2 3.006,07 m2 6.257,12 m2 17.107,92 m2 4.871,86 m2 448,88 m2

(4,19 %) (9,10 %) (18,92 %) (51,72 %) (14,73 %) (1,36 %)

Figura 21_ Planta de drenaje de los pavimentos de andén.

Figura 22_ Senderos y jardines sobre topografía elevada.

Dearq 34

Figura 23_ Cuenca de infiltración ajardinada.

PAVIMENTO HORMIGÓN LISO PARQUEADERO PAVIMENTO HORMIGÓN

PAVIMENTO HORMIGÓN ADOQUÍN

Figura 24_ Corte transversal integración de SUDS con edificio.

Figura 25_ Cuenca de infiltración arborizada.

PARQUEADERO RESTAURANTE CAN CORTADA GRAVA PAVIMENTO HORMIGÓN
Dearq 34
Figura 26_ Sendero entre cuencas de infiltración.
84 – 85 proyectos
PAVIMENTO HORMIGÓN
PAVIMENTO HORMIGÓN LISO TALUD
AJARDINADO
TERRENO ACTUAL CÉSPED TALUD ADOQUÍN PAVIMENTO HORMIGÓN LISO PAVIMENTO HORMIGÓN

Proyecto: MAIPORÉ

Oficina: Andrés Martínez

Año: 2010

Lugar: Soacha, Colombia

Fotografía: Andrés Martínez, Manuela Gúzman

Figura 27_ Sistema de drenaje hacia SUDS
Dearq 34
Figura 28_ Vegetación y detalle contorno zona de bio-retención. Figura 29_ Zona de bio-retención y andén.

borde en concreto

borde en concreto adoquines

borde prefab ricado desagüe

flujo flujo

biorretenedor andén flujo flujo flujo flujo

Figura 30_ Planta tipo de biorretenedor de andén

borde en concreto adoquines drenaje entre bordillo bordillo en concreto prefabricado

relleno compactado

flujo flujo flujo

crear punto bajo en el desagüe que permita un drenaje positivo en el biorretenedor

flujo calle de vegetación

cama de arbustos (especies por determinar) valla a lo largo del límite de desarrollo

lote de dasarrollo privado calle

valla a lo largo del límite de desarrollo

estandar municipal

0.5% pendiente

vegetación autóctona grava o piedra de 50 a 10 mm geotextil, hacer perforaciones donde se ubique la vegetación pendiente 1:11 (45 grados) relleno limpio de suelo orgánico nativo base drenable continua en grava calle andén

biorretenedor

Figura 31_ Sección tipo de biorretenedor de andén

Dearq 34

Figura 32_ Corte transversal conceptual sobre el humedal.

Figura 33_ Corte transversal alameda.

camino peatonal 30 m

Figura 34_ Detalle corte transversal alameda.

arborización sobre
mercado
sur 88 – 89 proyectos
alameda norte swale
gravilla
sobre pavimento permeable alameda

Proyecto: ÁGUA CARIOCA

Oficina: Ooze

Año: 2012—2017

Lugar: Río de Janeiro, Brasil

Fotografía: Ooze, Raul Corrêa-Smith

Figura 35_ Sistema de saneamiento del agua del baño de los jardineros y casa de huéspedes.
Dearq 34
Figuras 36 y 37_ Evento de apertura del piloto y sus componentes en el Sitio Burle Marx. Figura 38_ Red de circulación del agua en Salgueiro.
Dearq 34
Figura 39_ Sistema de filtración y pabellón comunal en Salgueiro. Figura 40_ Red de circulación del agua en Formiga.
92 – 93 proyectos
Figura 41_ Espacio público alrededor de quebrada y pabellón comunal en Formiga. Figura 42_ Red de saneamiento asociado al Río das Pedras.
Dearq 34
Figura 43_ Transformación del Río das Pedras.

Agua

y espacio construido Water and Built Environment

Creación

Atarraya y Batea*

The Fishing Net and the Goldpan

DOI: https://doi.org/10.18389/dearq34.2022.08

Cómo citar: Caycedo, Carolina. "Atarraya y Batea". Dearq no. 34 (2022): 96-98 . DOI: https://doi.org/ 10.18389/dearq33.2022.09

Corrientes de aire, partículas, lluvias y radiación conectan las cuencas del Yuma y del Cauca en Colombia al río de Los Ángeles en California, al río Xingú en la Amazonia brasileña y al río Yaqui en el desierto de Sonora. Dicen los mamos de la Sierra Nevada de Santa Marta que todos los cuerpos de agua están conectados. La ciencia la llama hidrosfera global. Pero la ciencia y la academia, por lo general, toman una distancia critica de sus objetos de estudio y a nosotros, en cambio, nos llama la atención otro tipo de generación de conocimiento, que conlleva un involucramiento intenso: el de pensar con el cuer po, el de sentipensar. Este es un conocimiento pluriversal que contrasta con el conocimiento universal establecido que nos enseñan la academia y el patriarcado.

Y es que cuando duele el cuerpo, cuando el cuerpo está se diento y hambriento, cuando es expropiado y desplazado, exi liado, violado y mutilado por una motosierra, es imposible no involucrarse. Involucrarse significa dejar de considerar la na turaleza como objeto de estudio científico, o como simple ob jeto de contemplación estética, como algo externo a nosotros. Involucrarse es entender que uno está adentro y que hace parte de la diversidad biocultural, de la “hidrosfera global” que es la matriz en la que se despliega la actividad humana y en donde nacen las infinitas relaciones entre lo humano y lo extrahumano.

Cuando, sin que se nos haya consultado, nuestra casa es de clarada bien de utilidad pública para dar paso a un megapro yecto, entonces un gesto tan sencillo como quedarse en la casa y cultivar el huerto se vuelve un gesto de oposición. Cuan do la subienda se ha visto afectada por la construcción de una represa, pescar en un río en donde apenas se saca pescado se convierte en un gesto de resistencia. Cuando a nuestros terri torios llegan agentes armados a desalojarnos o desplazarnos, entonces seguir recorriendo y trabajando el territorio se con vierte en un gesto rebelde.

No es un gesto terco, es un gesto político que dice: NO esta mos de acuerdo con la forma de vida que nos imponen. Son gestos que tejen nuestra conexión con la tierra, con los ríos y

con el bosque y fortalecen nuestro deseo de permanecer en el territorio. Tirar una atarraya, barequear, arriar mulas o cultivar son acciones que reafirman el río, las playas, el bosque o los cañones como espacios públicos y bienes comunes.

Estos oficios ancestrales y artesanales, coreografías cotidia nas intrínsecas a la geografía que habitamos, íntimamente relacionados a un territorio y a un ecosistema, son lo que lla mamos geocoreografía. Una geocoreografía es un acto político que revierte el uso del cuerpo como herramienta para generar una nueva grafía, que imprime una imagen viva en el territorio. Una geocoreografía redibuja y redefine nuestro cuerpo y nues tros ecosistemas, produciendo un movimiento expansivo del cuerpo. Expandir el cuerpo contrarresta el miedo y el despla zamiento físico y psicológico producido por el desarrollo y por los conflictos armados generados por intereses desarrollistas.

La atarraya y la batea son una conexión entre lo humano y lo extrahumano. Mientras una represa corta el río en dos dete niendo la corriente, el río fluye libre por los huecos de la ata rraya y por la superficie de la batea. En oposición a la pared de una represa que es impermeable, infranqueable y sólida, la atarraya es un objeto poroso, permeable, de estructura malea ble y flexible. Mientras una represa es construida por transna cionales, sujetos corporativos, máquinas y esclavos del capital, la atarraya y la batea son tejidas y talladas una a una, a mano, por una persona.

"Batea" viene del árabe batihah, que quiere decir lugar llano, también es probable que sea un vocablo heredado de nuestros ancestros indígenas. En nuestros territorios, las bateas se ta llan de árboles del bosque seco tropical como la ceiba, el ore jero, el samán o el cedro. La usamos principalmente para lavar minerales que nos trae el río, sobre todo oro, pero también sirve para amasar las arepas, mezclar harina de yuca o lavar la ropa.

"Atarraya" también viene del árabe atarráha, que significa arrojar. En diferentes partes de Colombia se le llama "rayo", "espe", "red de pesca", "manta", "charrasco", "chile", "chilón". Tejer una atarraya es atar-una-raya, es dibujar haciendo nudos.

Dearq 34

Es construir a partir de enlaces. Una atarraya contiene la sabi duría del tejido. A través de la atarraya las pescadoras y pesca dores encarnan el conocimiento de los tiempos del río, de sus crecientes y corrientes, de las migraciones de los peces.

En este sentido una atarraya nos puede servir como guía para un tejido social más horizontal, dinámico y equitativo.

El acto de tejer una atarraya a mano puede tomar entre diez y veinte días, depende del tamaño. Se tejen con una aguja de guadua hecha a mano también. Las medidas las da el grosor de los dedos del pescador: dos puntas, dos dedos. Las pesas son plomos fundidos de las baterías viejas de los carros. Se hierve el plomo en una olla de hierro y se vacía con un embu do hecho de latas de salchicha en unos cartuchos de hojas de cuaderno, incrustadas en una greda húmeda. Se clava un palillo de pincho engrasado en la mitad del cartucho. Cuando el plomo escurre en el cartucho se empieza a cuajar con el frío de la greda. En la atarraya siempre se pone un peso recubierto de cobre, los pescadores usan este peso de cobre para evitar pescar las malas energías que quieran hacer ahogar al pesca dor. El cobre ahuyenta los malos espíritus.

La mula, el huerto, la atarraya y la batea equivalen a las sobera nías alimentaria, energética e hídrica y, por tanto, a la soberanía económica de nuestras comunidades rurales. Tejer y lanzar la atarraya, o lavar oro en la batea, implica un conocimiento ances tral heredado, que no se aprende en los salones de clases, o en libros como este, sino que se transmite por generaciones, de abuelas a madres a hijas a nietas. Esta transmisión de saberes está ligada a una memoria muscular, física, corporal. Estas he rencias tienen que ver con la forma en que realizamos nuestros oficios y varían de acuerdo a cada familia. Algunas personas, por ejemplo, cogen la atarraya con la boca, otros se la ponen en el hombro o en el antebrazo. Algunos mueven la batea con una velocidad específica, otros mientras están sentados y otros de cuclillas a la orilla del río. Pero los cuerpos son vaciados, poco a poco, de estos gestos ancestrales, autónomos y emancipato rios, al igual que los minerales y el petróleo son drenados de la tierra por las economías extractivas.

*

Este texto hace parte del Libro Río Serpiente (2017) de Carolina Caycedo. Un libro-arte de 72 páginas plegadas en acordeón que combina imágenes de archivo, mapas, poemas, letras de canciones, fotos satelitales, con imágenes y textos propios de la artista sobre la biodiversidad cultural de los ríos.

La publicación, fluctuante, es capaz de enmarcar muchas narrativas: como libro puede abrirse, plegarse y leerse en muchas direcciones, también tiene un potencial performativo al funcionar como partitura o como herramienta de taller.

El Libro Río Serpiente, un largo y serpenteante collage, reúne material visual y escrito compilado por la artista durante su trabajo en comunidades colombianas, brasileñas y mexicanas afectadas por la industrialización y la privatización de los sistemas fluviales.

El libro forma parte del corpus de la obra en curso Be Dammed, la cual investiga los efectos del extractivismo en paisajes naturales y sociales, explorando las dinámicas de poder asociadas a la privatización y la destrucción de recursos hídricos.

Nota_ Las imágenes de esta sección corresponden a páginas extraídas del Libro Río Serpiente (2017) a excepción de "Maligna", "Medula", "Wanaawna" y "Simulacrum" que hacen parte de Retratos del Agua (desde 2015). Esta serie de impresiones sobre lienzo también forma parte del corpus de la obra Be Dammed

creación 96 – 97
No recibimos ninguna regalía del complejo Soy Cecilia Torres, pescadora del puente del construir Hidrosogamoso se acabó el pescado, las Ríos Sogamoso Chucurí. del río Cauca, en Ituango. Hago parte de Asociaci de V ctimas Afectados por sido reparada. ahora por Empresas Públicas de Medellín su Soy ibil, Guarea Trich ilioides árbol sombra que vivía aya Yuma has que una motosi me m en río Magdalena. He sido desplazada dos veces por Mi nombre es Zoila Ninco. Vengo de La Jagua, soy pescadora artesanal afectada por la represa V g d M Meu nome Djanira Cardoso, sou pescadora garimpeira do rio quando estourou barragem de Fundão de propriedade da Samarco (Vale BHP Billinton) em Bento Rodrigues, Atingidos por Barragens, que queremos es recuperar o direito de trabalhar, pescar, retirar ouro, minha felicidade era todos os R b P g d e M e A dgMoR
del mundo. Y mientras Cerro Matoso, de propiedad de BHP Billiton, es una mina rica que produce 50.000 toneladas anuales de ferroní Soy mi abuelo Miguel, que me enseñó cruzar el río Coello dejándome llevar por la autoridad legal para detener un megaproyecto que no cumpla con licencia ambiental. Mi papá mi abuelo fueron pescadores, me enseñaron tejer mis propias redes, pescar soy endémico del río Magdalena. Desde la construcción de represa de Betania, en peligro de extinción. d S a mi t a mb a m d óSyA

Me llamo Kimy Pernía, del pueblo embera katío, del Alto Sinú. Me opuse al Proyecto Hidroléctrico Urrá 1, caminé con la Gran Marcha Embera, de Karagabí a Bogotá, 700 kilómetros en noviembre de 1999.

Me llamo Kimy Pernía, del pueblo embera katío, del Alto Sinú. Me opuse al Proyecto Hidroléctrico Urrá 1, caminé con la Gran Marcha Embera, de Karagabí a Bogotá, 700 kilómetros en noviembre de 1999.

Me llamo Kimy Pernía, del pueblo embera katío, del Alto Sinú. Me opuse al Proyecto Hidroléctrico Urrá 1, caminé con la Gran Marcha Embera, de Karagabí a Bogotá, 700 kilómetros en noviembre de 1999.

Pernía, pueblo embera del Alto Sinú. Me opuse Proyecto Hidroléctrico Urrá 1, caminé Marcha de 700

Permanecimos frente al Ministerio del Medio Ambiente hasta el 26 de abril del 2000. El 2 de junio de 2001 las AUC me desaparecieron. Mis restos fueron arrojados al río Sinú. Hoy estoy aquí.

Permanecimos frente al Ministerio del Medio Ambiente hasta el 26 de abril del 2000. El 2 de junio de 2001 las AUC me desaparecieron. Mis restos fueron arrojados al río Sinú. Hoy estoy aquí.

Permanecimos frente al Ministerio del Medio Ambiente hasta el 26 de abril del 2000. El 2 de junio de 2001 las AUC me desaparecieron. Mis restos fueron arrojados al río Sinú. Hoy estoy aquí.

Permanecimos frente del 26 de del 2000. El de junio 2001 las AUC desaparecieron. Mis restos fueron arrojados al río estoy aquí.

Soyla yu c a soyeltab a c o s solsomo coc o s y ayahatipal r o j a

Figuras

Figuras pág.

pág. 100_ Socialización del Libro Río Serpiente en el Main Museum y LACMA en Los Ángeles (arriba e izquierda); y con las comunidades del Cañon del Río Cauca en Antioquia (medio) y la Vereda Paraguay en Huila (abajo), afectadas respectivamente por las represas de Hidroituango y Oporapa (en planeación). 101_ Carolina Caycedo, Libro Río Serpiente (2017). Fotografía de instalación, A Universal History of Infamy, Los Angeles County Museum of Art, 20 de agosto, 2017–19 de febrero, 2018, foto: David de Rozas © Museum Associates/LACMA Simulacrum, 2015 Medula, 2016. Wanaawna, 2019

Índice Anual

Dearq 32

Investigación en urbanismo Research in Urban Planning

Enero 2022

INVESTIGACIÓN

Cómo podemos aprender con las favelas: metodologías de investigación y aprendizaje para urbanismos.

Valentín Arechaga.

Psicogeografía de la ciudad sin tiempo y sin horario convencional. Cronos y el territorio de la noche. Juan Camilo Restrepo.

San Luis y El Campín, memorias de barrio. Una apuesta más allá de lo formal.

Daniela Aguilar Torres, Jorge Enrique Uricoechea Florez, Eduardo Meza Cuesta, Omar Daniel Cantor Carpintero.

Registros del paisaje. Lectura de cartografías históricas en los Esteros del Iberá (Argentina). Virginia Romero Dapozo.

La trama del metro. Patrones de transformación en torno a las estaciones del Metro de Santiago (Chile). Rocío Hidalgo.

Sopesando las formas en el fragmento residencial. El barrio de Achupallas en Viña del Mar (Chile). Francisca Vilches Valenzuela.

Proyectar en paisajes culturales: análisis del Programa de Ordenamiento Territorial para la Quebrada de Humahuaca (Argentina). Sofía Mollinedo.

PROYECTOS

Ciudad, territorio y paisaje: intersecciones concretas. María Luisa Vela.

CREACIÓN

Melting Traces. Roberto Uribe Castro.

Dearq 33

Espacios abiertos en la ciudad latinoamericana Open Spaces in the Latin American City Mayo 2022

INVESTIGACIÓN

Del centro cívico a los centros administrativos. Una idea de lo público en la arquitectura gubernamental en Colombia, 1960-1975.

William García Ramírez, Mateo Franco Grimaldo.

Espacios comunitarios, espacios políticos.

La Central Nacional Provivienda y la construcción de los espacios abiertos en su modelo de ocupación en Bogotá.

Katherin Triana Urrego, Diego Romero Sánchez.

Pasajes, vacíos y arquitecturas extraviadas. Un caso abierto de abandono, apropiación y prospectiva en la frontera norte de México. Alejandro Peimbert Duarte.

Parque Bicentenario. Un gran vacío en la construcción del Proyecto Urbano. Antonio José Salvador.

Paisajes urbanos recuperados. Reacciones arquitectónicas que replantean la infraestructura. Mariana Wilderom.

Historias entrelazadas. Una conversación sobre aquitecturas abiertas con Esra Akcan. Jorge Mejía, Klaske Havik, Memet Charum.

PROYECTOS

Una y tres arquitecturas abiertas. Memet Charum, Jorge Mejía, Klaske Havik.

CREACIÓN

Callejeando por la Caracas. Escenas para la sátira, la tragedia y la comedia. Diego A. Buitrago Ruiz

Dearq 34

Agua y espacio construido Water and Built Environment Septiembre 2022

INVESTIGACIÓN

Agua y espacio construido.

Juan Calatrava, Francisco A. García Pérez. Higiene y ritual en la arquitectura doméstica de OMA.

Luis Burriel Bielza.

Tres momentos del agua en la infraestructura y el espacio público de Medellín.

David Vélez Santamaría, Germán Darío Tamayo Osorio.

Envolviendo la marisma. Reflexiones en torno a intervenciones en paisajes frágiles. El caso de las Marismas del Odiel.

Luis Miguel Cortés Sánchez, Javier López Rivera, Ramón Pico Valimaña.

Agua y arquitectura. Poder y poesía en Keshu. Daniel Vargas Torres.

Venecia. Agua y arquitectura. Francesco Dal Co.

PROYECTOS

Infraestructura verde-azul y la escala intermedia.

Manuela Guzmán Ramírez, Viviana Andrea Díaz Correa.

CREACIÓN

Atarraya y Batea. Carolina Caycedo.

Índice Autores

Índice Temático

Aguilar Torres, Daniela (No. 32)

Arechaga, Valentín (No. 32)

Ariza Parrado, Lucas (No. 32)

Buitrago Ruiz, Diego A. (No. 33)

Burriel Bielza, Luis (No. 34)

Calatrava, Juan (No. 34)

Cantor Carpintero, Omar Daniel (No. 32)

Caycedo, Carolina (No. 34)

Charum, Memet (No. 33)

Cortés Sánchez, Luis Miguel (No. 34)

Dal Co, Francesco (No. 34)

Díaz Correa, Viviana Andrea (No. 34)

Franco Grimaldo, Mateo (No. 33)

García Pérez, Francisco A. (No. 34)

García Ramírez, William (No. 33)

Guzmán Ramírez, Manuela (No. 34)

Havik, Klaske (No. 33)

Hidalgo, Roció (No. 32)

López Rivera, Javier (No. 34)

Mejía, Jorge (No. 33)

Meza Cuesta, Eduardo (No. 32)

Mollinedo, Sofía (No. 32)

Peimbert Duarte, Alejandro (No. 33)

Pico Valimaña, Ramón (No. 34)

Restrepo, Juan Camilo (No. 32)

Romero Dapozo, Virginia (No. 32)

Romero Sánchez, Diego (No. 33)

Salazar Ferro, Camilo (No. 32)

Salvador, Antonio José (No. 33)

Tamayo Osorio, Germán Darío (No. 34)

Triana Urrego, Katherin (No. 33)

Uribe Castro, Roberto (No. 32)

Uricoechea Florez, Jorge Enrique (No. 32)

Vargas Torres, Daniel (No. 34)

Vela, María Luisa (No. 32)

Vélez Santamaría, David (No. 34)

Vilches Valenzuela, Francisca (No. 32) Wilderom, Mariana (No. 33)

Agua (Calatrava y García Pérez, No. 34); Agua (Vélez Santamaría y Tamayo Osorio, No. 34); Análisis urbano (Restrepo, No. 32); Apropiación (Peimbert Duarte, No. 33); Arquitectura (Calatrava y García Pérez, No. 34); Arquitectura (Vela, No. 32); Arquitectura andina (Vargas Torres, No. 34); Arquitectura contemporánea (Wilderom, No. 33); Arquitectura funeraria (Vargas Torres, No. 34); Arquitectura gubernamental (García Ramírez y Franco Grimaldo, No.33) ; Arquitectura moderna (García Ramírez y Franco Grimaldo, No.33); Arquitectura prehispánica (Vargas Torres, No. 34)

Baño (Burriel Bielza, No. 34); Barrio Policarpa Salavarrieta (Triana Urrego y Romero Sánchez, No. 33) Cartografía histórica (Romero Dapozo, No. 32); Catástrofe (Calatrava y García Pérez, No. 34); Central Nacional Provivienda (Triana Urrego y Romero Sánchez, No. 33); Centros administrativos (García Ramírez y Franco Grimaldo, No.33); Centros cívicos (García Ramírez y Franco Grimaldo, No.33); Chullpa (Vargas Torres, No. 34); Ciudad (Vela, No. 32); Ciudad contemporánea (Salvador, No. 33); Ciudad fronteriza (Peimbert Duarte, No. 33); Colombia (García Ramírez y Franco Grimaldo, No.33); Comunidad (Aguilar Torres, Uricoechea Florez, Meza Cuesta y Cantor Carpintero, No. 32)

Deriva (Restrepo, No. 32); Desarrollo urbano sostenible (Hidalgo, No. 32); Diseño urbano (Guzmán Ramírez, No. 34); Diseño urbano (Wilderom, No. 33); División del suelo (Vilches Valenzuela, No. 32); Doméstico (Burriel Bielza, No. 34); Drenaje urbano (Guzmán Ramírez, No. 34) Escala intermedia (Guzmán Ramírez, No. 34); Espacio (Restrepo, No. 32); Espacio abierto (Triana Urrego y Romero Sánchez, No. 33); Espacio cívico (Peimbert Duarte, No. 33); Espacio comunitario (Triana Urrego y Romero Sánchez, No. 33); Espacio político (Triana Urrego y Romero Sánchez, No. 33); Espacio público (García Ramírez y Franco Grimaldo, No.33); Espacio público (Hidalgo, No. 32); Espacio público (Salvador, No. 33); Espacio público (Vélez Santamaría y Tamayo Osorio, No. 34); Espacio público (Wilderom, No. 33); Esteros del Iberá (Romero Dapozo, No. 32); Estrategias de diseño (Wilderom, No.33); Estudiantes (Arechaga, No. 32) Favela (Arechaga, No. 32); Forma urbana (Vilches Valenzuela, No. 32); Fragmentos residenciales (Vilches Valenzuela, No. 32); Fuentes de agua (Vélez Santamaría y Tamayo Osorio, No. 34)

Grandes proyectos urbanos (Salvador, No. 33)

Habitar (Aguilar Torres, Uricoechea Florez, Meza Cuesta y Cantor Carpintero, No. 32); Habitar (Burriel Bielza, No. 34); Hedonismo (Burriel Bielza, No. 34); Higiene (Calatrava y García Pérez, No. 34); Historia de Bogotá (Aguilar Torres, Uricoechea Florez, Meza Cuesta y Cantor Carpintero, No. 32); Historia de la arquitectura (García Ramírez y Franco Grimaldo, No.33); Historia urbana (Aguilar Torres, Uricoechea Florez, Meza Cuesta y Cantor Carpintero, No. 32); Historia urbana (Peimbert Duarte, No. 33)

Informalidad (Triana Urrego y Romero Sánchez, No. 33); Infraestructura urbana (Wilderom, No. 33); Infraestructura verde (Vélez Santamaría y Tamayo Osorio, No. 34); Infraestructura verde-azul (Guzmán Ramírez, No. 34); Intersticios (Peimbert Duarte, No. 33); Investigación (Vela, No. 32); Investigación acción participativa (Restrepo, No. 32)

Jardín (Calatrava y García Pérez, No. 34) Línea 1 (Hidalgo, No. 32); Línea 3 (Hidalgo, No. 32)

Mapa psicogeográfico (Restrepo, No. 32); Marismas (Vélez Santamaría y Tamayo Osorio, No. 34); Metodología abierta (Aguilar Torres, Uricoechea Florez, Meza Cuesta y Cantor Carpintero, No. 32); Medellín (Vélez Santamaría y Tamayo Osorio, No. 34); Medellín (Wilderom, No. 33); Morfologías urbanas (Vilches Valenzuela, No. 32); Morfología urbana (Hidalgo, No. 32) Noche urbana (Restrepo, No. 32); Normativa sostenible (Guzmán Ramírez, No. 34) OMA (Burriel Bielza, No. 34)

Paisaje postindustrial (Vélez Santamaría y Tamayo Osorio, No. 34); Paisaje (Vela, No. 32); Paisaje cultural (Mollinedo, No. 32); Paisaje litoral (Cortés Sánchez, López Rivera y Pico Valimaña, No. 34); Paisajes culturales (Romero Dapozo, No. 32); Paisajismo (Guzmán Ramírez, No. 34); Participación (Aguilar Torres, Uricoechea Florez, Meza Cuesta y Cantor Carpintero, No. 32); Planificación moderna (Peimbert Duarte, No. 33); Proyecto (Arechaga, No. 32); Proyecto territorial (Mollinedo, No. 32); Proyecto urbano (Guzmán Ramírez, No. 34); Proyecto urbano (Hidalgo, No. 32); Proyecto urbano (Salvador, No. 33); Proyecto urbano (Vela, No. 32) Quebrada de Humahuaca (Mollinedo, No. 32)

Recurso hídrico (Vélez Santamaría y Tamayo Osorio, No. 34); Regeneración urbana (Salvador, No. 33); Relacionamiento con el agua (Vélez Santamaría y Tamayo Osorio, No. 34); Rem Koolhaas (Burriel Bielza, No. 34); Representación (Arechaga, No. 32); Rio de Janeiro (Arechaga, No. 32); Ritual (Burriel Bielza, No. 34)

São Paulo (Wilderom, No. 33); Simbólico (Vargas Torres, No. 34); Símbolo (Calatrava y García Pérez, No. 34); Sostenibilidad (Calatrava y García Pérez, No. 34)

Territorio (Vela, No. 32); Territorio (Vélez Santamaría y Tamayo Osorio, No. 34); Transecto metropolitano (Hidalgo, No. 32)

Universidad (Arechaga, No. 32); Urbanismo ecológico (Vélez Santamaría y Tamayo Osorio, No. 34)

Vacíos urbanos (Peimbert Duarte, No. 33)

Proceso Editorial

Dearq es una revista cuatrimestral (enero-abril, mayo-agosto y sep tiembre-diciembre), que publica al inicio de cada período. Su objeti vo es contribuir a la difusión de análisis, investigaciones, reflexiones y opiniones críticas que la comunidad científica nacional e interna cional elaboren sobre la arquitectura, la ciudad y sus áreas afines.

La revista no realiza cobros a los autores por la sumisión de artí culos, evaluación por pares, corrección de estilo o publicación; no cobra cargos monetarios ni de ninguna especie por páginas o cobros de color. La versión impresa de la revista tiene un precio y puede ad quirirse en los puntos autorizados para la venta y comercialización.

Los autores interesados en someter un artículo a la revista Dearq, acceden a la plataforma de gestión de contenidos a través de la sec ción Enviar un Artículo, se registran como usuarios de la misma y finalizan el proceso de envío de su manuscrito. A la recepción de un artículo, se notifica al autor y el Equipo Editorial revisa el cumpli miento de los requisitos básicos descritos en las Normas de Publi cación y se somete a control de plagio. En caso de detectar plagio o auto-plagio, se rechaza el texto y se notifica a los autores el motivo. En esta primera etapa, el Equipo Editorial evalúa los artículos, pudien do rechazar manuscritos en base a los siguientes criterios:

• Cumplimiento de las normas de publicación.

Pertinencia y calidad del documento en relación con las convo catorias.

Coherencia y claridad de la argumentación.

• Relevancia bibliográfica y soporte investigativo.

Claridad en la redacción.

Generación de nuevo conocimiento.

Todo documento que supera esta primera etapa, es sometido a un proceso de evaluación bajo la modalidad doble ciego.

Evaluación de Pares

Durante la evaluación, tanto los nombres de los autores como los de los evaluadores se mantienen en el anonimato. Los resultados de la evaluación se informan al autor en un plazo máximo de seis meses. Estos son notificados a través del correo electrónico, por el Editor, quien emite uno de los siguientes conceptos:

Aceptar la publicación del documento sin modificaciones.

• Aceptar la publicación del documento siempre que se realicen co rrecciones según los comentarios y observaciones realizadas.

Rechazar la publicación del documento.

Los autores deberán realizar los ajustes solicitados. Si en una se gunda revisión se observa que los cambios no han sido incorporados en la fecha acordada, el Equipo Editorial puede tomar la decisión de no publicar el artículo. La revista se reserva la última palabra sobre la publicación de los artículos, el número en el que se incluyen y el derecho de hacer correcciones menores de estilo, asimismo de ajus tar el resumen o las palabras claves. Se sugiere al autor verificar el Formato de Evaluación antes de someter su artículo.

Una vez el texto ha superado el proceso de evaluación y es aprobado para publicación, es deber del autor gestionar la traducción al inglés o al español - en función del idioma original del texto sometido - y enviar el documento acorde al plazo establecido por el Editor. Durante el proceso de edición, los autores podrán ser contactados por el Editor para resolver inquietudes. La plataforma de gestión de contenidos será el medio de comunicación principal entre la revista y los autores durante el proceso de evaluación, edición y publicación. Nota: Los pares evaluadores se seleccionan conforme a su trayec toria académica, conocimiento y producción en la temática del do cumento a evaluar. Un porcentaje mayor de los pares evaluadores serán externos a la Universidad de los Andes.

Tipologías

La revista Dearq acepta las siguientes tipologías de documentos: Artículo de investigación: Documento que presenta de manera de tallada los resultados originales de investigaciones concluidas. Su estructura consta por lo general de cuatro apartes: Introducción, metodología, resultados y conclusiones. Extensión máxima: 4000 palabras.

Artículo de reflexión: Documento que presenta los resultados de una investigación terminada desde una perspectiva analítica, in terpretativa o crítica, recurriendo a fuentes originales. Extensión máxima: 4000 palabras.

• Entrevista: Transcripción editada que presenta la postura de los/ las entrevistado/a(s) acerca de un tema relevante. El registro debe contemplar referencias y bibliografía pertinente. Extensión máxi ma: 4000 palabras.

Normas de Publicación

La redacción de documentos debe atender a las siguientes indica ciones. El documento que no cumpla con estas condiciones será devuelto al autor y no podrá participar en el proceso de evaluación.

Los artículos se deben presentar en documento Word, fuente Times New Roman, 12 puntos e interlineado doble, con márgenes de 2,5 x 2,5 x 2,5 x 2,5 cm, y sin datos de autoría o nombre(s) de autor(es) en el cuerpo del documento.

La estructura del documento deberá constar de:

Título: Si el título requiere alguna aclaración adicional deberá con signarse en la primera página, en nota al pie, mediante el uso de un asterisco al final del título.

Información adicional: En caso de que el artículo sea resultado de una investigación, se debe incluir la información del proyecto del que hace parte y el nombre de la institución financiadora.

• Resumen: Debe indicar el propósito de la investigación, los princi pales resultados y las principales conclusiones. Texto de máximo 100 palabras.

Palabras claves: Siete palabras clave. Las palabras clave deben refljar el contenido del documento. Es necesario que señalen las temáticas precisas del artículo, las áreas de conocimiento en las que se inscribe y los principales conceptos.

• Texto del artículo: Se debe indicar el lugar de inserción del mate rial gráfico y sus respectivos pies de figura y créditos.

Bibliografía: Estilo Chicago. Consiste en la información bibliográ fica completa del texto. Cuando los contenidos utilizados tengan un número de identificación DOI, debe incluirse en el listado de referencias.

Nota: La extensión total del documento no debe exceder las 4.000 palabras.

Tablas y Figuras

La información gráfica que acompaña al manuscrito debe estar refe renciada en el texto con su pie de figura correspondiente. En el caso de las tablas, deberán presentarse precedidas por la pala bra “Tabla” y el número consecutivo que le corresponda. Debajo de la tabla se debe indicar la fuente de la información presentada. Para el caso de las figuras (diagramas, fotografías o imágenes), de berán presentarse precedidas de la palabra “Figura” y el número con secutivo que le corresponda. Se debe indicar el nombre de la imagen y la fuente de dónde se obtuvo o declarar si es creación propia. Para el caso de figuras múltiples, cada una debe estar referenciada. Las tablas y figuras se publican en blanco y negro. La resolución mí nima de las figuras varía según la tipología del manuscrito. Para los artículos de investigación, reflexión y entrevista las figuras deben estar como mínimo en resolución de 300 dpi en formato de 9x13 cm. El número máximo de figuras será 20. Para compatibilidad con el sistema de evaluación de pares, las pie zas gráficas (tablas y figuras) deberán enviarse en una carpeta adi cional e independiente del texto, en formato JPEG o TIFF. Los nom bres de los archivos deben ser correspondientes al tipo y número: FIG1, FIG2, FIG3, etc. o TAB1, TAB2, TAB3, etc.

Referencias bibliográficas

Las referencias bibliográficas deben seguir el manual de estilo Chi cago. En el texto se deben usar referencias en nota al pie usando la forma corta de citación y al final del texto se debe incluir una biblio grafía que reúna la información bibliográfica completa de las fuentes referenciadas. La bibliografía debe estar organizada alfabéticamente según el apellido del primer autor. Publicaciones del mismo autor de ben estar ordenadas cronológicamente.

Para mayor información sobre el modelo de citación, puede consul tar la Guía de Citación.

Envío de material y correspondencia

Durante el proceso de evaluación y de edición, el medio de comuni cación con los autores y evaluadores es la plataforma de gestión de contenidos a través del vínculo: Enviar un Artículo Para casos particulares pueden dirigirse al correo electrónico: dearq@uniandes.edu.co

Política editorial 104 – 105

Publicación y auditoría

La revista Dearq se encuentra adscrita al Departamento de Arquitec tura de la Facultad de Arquitectura y Diseño de la Universidad de los Andes, la cual se encarga del soporte financiero de la publicación.

Cuenta con la siguiente estructura: un Equipo Editorial compuesto por un Director, un Editor, Gestor(es) Editorial(es) y Monitor(es); un Comité Editorial y un Comité Científico cuyos miembros son eva luados cada dos años en función de su aporte a la publicación, de su reconocimiento en el área y de su producción académica visible en otras revistas nacionales e internacionales indexadas; y un Equipo de Apoyo que se encarga de la diagramación, soporte, corrección de estilo y traducción.

Los artículos presentados a la revista Dearq deben ser originales e inéditos y no deben estar simultáneamente en proceso de evalua ción ni tener compromisos editoriales con ninguna otra publicación. En caso de que un artículo incluido en el contenido de la revista quiera utilizarse en otra revista o publicación, el autor y/o la revista deben solicitar la autorización del Equipo Editorial y la publicación tiene que señalar con claridad y visibilidad los datos de la publica ción original en la revista Dearq. Asimismo, cuando el Equipo Edi torial tenga interés en traducir y/o publicar un artículo que ha sido previamente publicado se compromete a pedir la autorización y rea lizar la declaración correspondiente a la revista que realizó la prime ra publicación.

Responsabilidades del autor

Los autores deben remitir sus artículos a través de la sección Para Autores en el sitio web de la revista Dearq durante las fechas esta blecidas por la convocatoria vigente.

La revista Dearq ofrece indicaciones y pautas específicas para la presentación de los textos, así como reglas de edición. Esta infor mación se puede consultar en español y en inglés en la sección de Políticas Editoriales, apartado ‘Normas de Publicación’ en la versión digital e impresa de la revista.

En el envío de un artículo el autor debe diligenciar un formato de información personal y académica, aceptar las condiciones de ori ginalidad del texto, declarar el artículo como inédito, sin previas pu blicaciones en otras revistas, ni estar otros procesos de evaluación paralelos a la revista Dearq, o con compromisos de publicación en otras revistas de investigación. El envío del "Certificado de Origina lidad" es obligatorio.

Si bien el Equipo Editorial aprueba los artículos con base en los requisitos básicos de calidad, rigurosidad investigativa y criterios de evaluación, los autores serán los únicos responsables de las ideas allí expresadas, así como de la idoneidad ética del artículo. Los autores deben hacer explícito que el texto es de su autoría y que en el mismo se respetan los derechos de propiedad intelectual de terceros.

Igualmente, es deber de los autores disponer a la revista la "Autori zación para el Uso, Reproducción, Impresión y Publicación"del mate rial que no sea de su propiedad o autoría (planos, cuadros, gráficas, mapas, diagramas, fotografías, etc). A su vez, deberán autorizar la utilización de los derechos patrimoniales del autor (reproducción, comunicación pública, transformación y distribución), mediante la firma del “Documento de Autorización de Uso de Derechos de Pro piedad Intelectual” a la Universidad de los Andes - Departamento de Arquitectura para incluir su escrito o artículo en la revista Dearq. Los autores aceptan someter sus textos a las evaluaciones anóni mas de dos pares evaluadores y se comprometen a tener en cuenta las observaciones de los evaluadores, así como los ajustes solicita dos por el Equipo Editorial. Estas modificaciones y correcciones al manuscrito deberán ser realizadas por el autor en el plazo que le sea indicado por el Equipo Editorial. Una vez que la revista Dearq reciba el artículo modificado, se le in formará al autor acerca de la decisión tomada. Si el texto es apro bado, es deber del autor gestionar la traducción al inglés o al espa ñol - en función del idioma original del texto sometido - y enviar el documento dentro del plazo establecido por el Editor para su debida inclusión en la publicación.

Responsabilidad de los evaluadores

La revista Dearq cuenta con un formato de evaluación descargable en el sitio web que contiene preguntas con criterios definidos, que el evaluador debe responder sobre el artículo objeto de evaluación. A su vez, tienen la responsabilidad de aceptar, rechazar o aprobar con modificaciones y/o sugerencias el documento arbitrado y declarar que no existen conflictos de interés. Durante la evaluación, los nom bres de los autores y los de los evaluadores serán mantenidos en completo anonimato.

Responsabilidades del equipo editorial

El Equipo Editorial es responsable de definir las Políticas Editoriales y Éticas para que la revista cumpla con los estándares que permiten su posicionamiento como una reconocida publicación científica. De igual manera, cumple las exigencias de divulgación y publicación di gital y física de la revista mediante la actualización de plataformas de gestión editorial y canales activos para la divulgación de conte nidos.

La selección y escogencia de los artículos está siempre basada en la calidad y relevancia de los mismos, en su originalidad y contribución al conocimiento de los campos de la arquitectura y la ciudad. En este sentido, cuando un artículo es rechazado la justificación brindada al autor se orienta hacia estos aspectos.

El Equipo Editorial vigila y cumple en su totalidad las normas es tablecidas por el Committee on Publication Ethics (COPE). Durante todo el proceso editorial, aplica mecanismos de confidencialidad, de control de plagio y de evaluación que permiten decidir la publicación o el rechazo de los manuscritos recibidos.

Cuando la revista Dearq recibe quejas de cualquier tipo, el Equipo Editorial debe responder y, en caso de que el reclamo lo amerite, debe asegurarse de que se lleve a cabo la adecuada investigación tendiente a la resolución del problema y publicar correcciones, acla raciones, rectificaciones o dar justificaciones.

En el caso de que un artículo publicado, presente errores de fon do detectados por el autor y que atente contra la calidad científica, podrá solicitar el retiro o corrección. Si se detecta por un tercero, plagio, publicación previa, conducta no ética o error, es obligación y responsabilidad del autor retractarse públicamente, con lo cual se procederá de inmediato al retiro o corrección pública. La corrección o retractación pública se realizará en el siguiente número impreso de la revista, así como en su versión digital.

Tan pronto un número de la revista Dearq salga publicado, el Equipo Editorial tiene la responsabilidad de su difusión entre los colabora dores, evaluadores y las entidades con las que se hayan establecido acuerdos de intercambio, así como la actualización de contenidos en los repositorios y sistemas de indexación nacionales e interna cionales.

Política ética

Editorial Process

Dearq is a quarterly publication (January-April, May-August and Sep tember-December), that is published at the beginning of each of these periods. Its objective is to contribute to the dissemination of the research, analyses and opinions that the national and internatio nal academic community elaborates on architecture, urbanism and related areas.

The journal does not charge authors for the editorial process in cluding article processing charges (APCs), article submission, peer evaluation process, style correction and publication; either, page charges, colour charges or any instance where money is required to complete the publication process. The printed version has a cost and can be purchased at authorized stores.

Authors who are interested in submitting an article for publication in Dearq should access the content management platform throu gh the Submit an Article section. They should register as users and then send their manuscript. When the article is received, the author will be notified and the editorial team will review compliance with the basic requirements described in the Publication Guidelines and submit it through plagiarism control. In case of detecting plagiarism or auto-plagiarism, the text will be rejected and the author will be notified.

In this preliminary phase, the editorial team will evaluate the arti cles. They may reject manuscripts based on the following criteria: Not fulfilling the publication guidelines.

• Relevance and quality of the article regarding the calls for papers.

Coherence and quality of argumentation.

• Bibliographic relevance and investigative support.

Clarity in the writing.

• Generation of new knowledge.

Every article that passes this first phase will be submitted to a dou ble-blind evaluation process.

Peer Evaluation

During the evaluation, both the names of the authors and the evalua tors will be kept anonymous. The results from the evaluation will be communicated to the author within a maximum period of six mon ths. The authors are notified via email, by the Editor, who issues one of the following concepts:

Publish the document with no modifications required.

• Publish the document after corrections have been made based on the comments and observations.

• Do not publish the document.

The authors must make the requested adjustments. If in a second review it is observed that the changes have not been incorporated on the agreed date, the Editorial Team can make the decision not to publish the article. Dearq reserves the last word on the publica tion of the articles, the issue in which they will appear and the right to make minor style correctios, as well as to adjust the abstract or keywords. We suggest that the author checks the Evaluation Form before submitting the article.

Once the text has passed the evaluation process and is approved for publication, it is the author's duty to translate it into English or Spanish - depending on the text’s original language - and send the document according to the deadline established by the editor.

During the evaluation process, the authors may be contacted by the editor to resolve any inquiries. The content management platform will be the main communication channel between the journal and the authors during the evaluation, editing, and, publication process.

Note: The peer evaluators are selected based on their academic tra jectory, knowledge and cientific production within the evaluated do cument's thematic. A higher percentage of the peer evaluators will be external researchers from Universidad de los Andes.

Types of Articles

Dearq accepts the following types of articles:

Research article: An article that presents, in a detailed manner, the original results from completed research. The structure, in gene ral, consist of four sections: introduction, methodology, results, and conclusions. Maximum length: 4000 words

Reflection paper: This article presents the results from comple ted research in an analytical, interpretative, or critical manner and draws on original sources. Maximum length: 4000 words

Interview: An edited transcript that presents the position of the interviewees on a relevant topic. It should include references and a relevant bibliography. Maximum length: 4000 words

Publication Guidelines

The documents must meet the following indications. If it does not meet these conditions, it will be returned to the author and may not participate in the evaluation process. Articles should be sent in Word format using Times New Roman size 12, should be double spaced with the following margins: 2.5 x 2.5 x 2.5 x 2.5 cm, and should not include the author's name and or authorship data.

The structure of the document should include:

Title: If the title needs to include any additional clarification, this should be placed on the first page in a footnote using an asterisk at the end of the title.

Additional information: If the article is part of a research project, the project information should be included as well as the finan cing institution.

• Abstract: This should include the purpose of the research as well as the principal results and conclusions. Maximum length: 100 words

• Key words: Seven key words. The key words should reflect the content of the document. It is necessary to indicate the precise topics of the article and highlight the area of knowledge in which the main concepts are located.

• Text: This should indicate where visual material should be placed as well as figure captions and titles.

Bibliography: Chicago Style. This should include all the bibliogra phic information included in the text. When the contents used have a DOI identification number, it must be included in the list of references.

Note: The total length of the document should not exceed 4.000 words.

Tables and Figures

Any visual information that compliments a manuscript should be re ferenced in the text with a corresponding image caption.

The word “Table” should come before all the tables as well as its corresponding consecutive number. The source of the information should be presented under the table.

The word “Figures” (diagrams, photographs, and images) should come before all the figures as well as the corresponding consecuti ve number. The author must indicate the name of the image and the source from where it was obtained or declare if it is his own creation. In the case of multiple figures, each one must be referenced.

Tables and figures are published in black and white. The minimum resolution of the figures varies according to the typology of the ma nuscript. For research, reflection and interview articles, the figures must be at least 300 dpi resolution in 9x13 cm format. The maxi mum number of figures will be 20.

In order to be compatible with the peer evaluation system, the gra phic material (tables and figures) should be sent in an individual fol der that is separate from the text in either JPEG or TIFF format. The file´s names should correspond to the type and number: FIG1- FIG2FIG3, etc. or TAB1-TAB2-TAB3, etc.

Bibliographic references

The Chicago Manual of Style should be used. In the body of the text, citation should be made using footnotes, and a bibliography should be included at the end of the text that includes complete bibliogra phic information from the sources cited. The bibliography should be organized alphabetically according to the first author´s surname. Pu blications from the same author should be ordered chronologically. For more information on how to reference, please follow the link to the Citaton Guide.

Sending material and correspondence

The content management platform will be used for communication with authors and evaluators during the evaluation and editorial pro cess. It can be accessed via the following link: Submit an Article In specific cases, inqueries can be answered via the following email: dearq@uniandes.edu.co

Editorial Policy 106 – 107

Publication and authorship

Dearq is a journal ascribed to the Department of Architecture, School of Architecture and Design at Universidad de los Andes, which finan ces its publication.

The structure of its organization is as follows: An Editorial Team con formed by Director, Editor, Editorial Manager(s) and Assistant(s); an Editorial Committee and a Scientific Committee whose members are evaluated every two years based on their contribution to the publication, their recognition in the area and their visible academic production in other national and international indexed journals; and a Support Team that is in charge of layout, support, style correction and translation.

The articles submitted to Dearq journal must be original, previously unpublished and must not be in an evaluation process or have an editorial commitment with any other publication.

In the event that an article included in the content of the Dearq wants to be published in another journal or publication, the author and / or magazine must request authorization from the Editorial Team, and the publication must clearly and visibly indicate the data of the original publication in Dearq. Likewise, when the Editorial Team is interested in translating and/or publishing an article that has been previously published, it commits to request the corresponding authorization and to indicate the data of the original publication.

Author responsibilities

Authors should submit their articles through the section For Authors at the home page of Dearq's website on the dates established by the call for papers.

Dearq offers specific guidelines for the submission of the texts, as well as editing rules. This information can be consulted in Spanish and English in the Editorial Policies section, in the segment 'Publica tion Norms' in the digital and printed version of the journal.

When submitting an article, the author must complete a form of per sonal and academic information, manifest that the text they present is of their own authorship, unpublished and that they are not in a parallel evaluation process or have an editorial commitment to any other research journal. The "Certificate of Originality" is mandatory to send it.

Even though the Editorial Team approves articles based on the basic requirements of quality, research rigor and evaluation criteria, the authors will be solely responsible for the ideas expressed therein, as well as for its ethical suitability. Authors should manifest that the text they present is of their own authorship and that they respect the intellectual property rights of third parties.

Likewise, it is the author’s responsibility to obtain and provide to the journal the "Authorization for the Use, Reproduction, Printing and Pu blication" of all of the additional material which is not of their proper ty or authorship (plans, tables, graphs, maps, diagrams, photographs, etc). Also, they must authorize the use of the author’s patrimonial rights (reproduction, public communication, transformation and distribution), by signing the “Authorization Document for the Use of Intellectual Property Rights” to the Universidad de los Andes- School of Architecture, in order to include the text in Dearq.

Authors agree to submit their texts to anonymous evaluations of two peer reviewers and to take into account their observations, as well as the adjustments requested by the Editorial Team. These mo difications and corrections to the manuscript must be made by the author within the period stablished by the Editorial Team.

Once Dearq receives the modified article, the author will be infor med of the final decision. If the text is approved, the author must translate it into English or Spanish - depending on the text’s original language - and send it according to the deadline established by the Editor.

Reviewers responsibilities

Dearq has a downloadable evaluation format on its website, that contains questions with defined criteria, which the evaluator must answer regarding the article under evaluation. Likewise, they have the responsibility to accept, reject or approve with modifications and/or suggestions the arbitrated document and declare that there are no conflicts of interest. During the evaluation, both the names of the author(s) and the evaluators will be kept in complete anonymity.

Editorial Team responsibilities

The Editorial Team is responsible for defining the editorial and ethi cal policies so that the journal complies with the standards of a re nowned academic publication. Likewise, it covers the requirements of dissemination of digital and physical publications through the up dating of editorial management platforms and active channels for the dissemination of content.

The selection of the articles is founded on the quality and relevance of the article, as well as its originality and contributions to the field of Architecture and urbanism. In this sense, when an article is rejec ted, the justification given to the author is oriented through these aspects.

The Editorial Team oversees and fully complies with the standards established by the Committee on Publication Ethics (COPE). Throu ghout the editorial process, it applies confidentiality, plagiarism control and evaluation mechanisms that make it possible to decide whether to publish or reject a manuscript.

When the Dearq journal receives complaints of any kind, the Edito rial Team must respond, and in case the claim warrants it, it must ensure that the appropriate investigation is carried out to resolve the problem. It must also publish corrections, clarifications, rectifi cations or give justifications.

In the event that a published article presents substantive errors de tected by the author and that threatens the scientific quality, he may request the removal or correction. If a third party detects plagiarism, previous publication, unethical conduct or error, it is the obligation and responsibility of the author to retract publicly, which will pro ceed immediately to the removal or public correction. The correc tion or public retraction will be made in the next printed issue of the journal as well as in its digital version.

As soon as a volume of the journal is published the Editorial Team has the responsibility of its diffusion among the contributors, re viewers and institutions with whom exchange agreements have been established, as well as the content actualization in national and international repositories and indexation systems.

Ethical Policy

*Este valor está en pesos colombianos y no incluye gastos de envío.

El precio de la suscripción es de $200.000*

La revista se pondrá en contacto con usted.

obtener la suscripción, envíe un correo electrónico a dearq@uniandes.edu.co

Durante 2 años reciba 6 ejemplares de la revista Dearq. Si tiene interés en

SUSCRIPCIÓN

INVESTIGACIÓN

Dearq 34 INVESTIGACIÓN

__ Agua y espacio construido

__ Agua y espacio construido

__ Higiene y ritual en la arquitectura doméstica de OMA

__ Higiene y ritual en la arquitectura doméstica de OMA

__ Tres momentos del agua en la infraestructura y el espacio público de Medellín

__ Tres momentos del agua en la infraestructura y el espacio público de Medellín

__ Envolviendo la marisma. Reflexiones en torno a intervenciones en paisajes frágiles. El caso de las Marismas del Odiel

__ Agua y arquitectura. Poder y poesía en Keushu

__ Agua y arquitectura. Poder y poesía en Keushu

__ Venecia. Agua y arquitectura

__ Venecia. Agua y arquitectura

__ Envolviendo la marisma. Reflexiones en torno a intervenciones en paisajes frágiles. El caso de las Marismas del Odiel

PROYECTOS

PROYECTOS

__ Infraestructura verde-azul y la escala intermedia

__ Infraestructura verde-azul y la escala intermedia

Can Cortada Maiporé Água Carioca

Can Cortada Maiporé Água Carioca

CREACIÓN

CREACIÓN

Atarraya y Batea

Atarraya y Batea

2022
De arq 34 AGUA Y
CONSTRUIDO WATER AND BUILT ENVIRONMENT
ESPACIO

Turn static files into dynamic content formats.

Create a flipbook
Issuu converts static files into: digital portfolios, online yearbooks, online catalogs, digital photo albums and more. Sign up and create your flipbook.