Show submenu for "Read" sectionRead
Articles
Browse short-form content that's perfect for a quick read
Issuu Store
Purchase your next favourite publication
Categories
Arts and Entertainment
Religion and Spirituality
Business
Science
Education
Society
Family and Parenting
Sports
Food and Drink
Style and Fashion
Health and Fitness
Technology
Hobbies
Travel
Home and Garden
Vehicles
Pets
All Categories
Show submenu for "Features" sectionFeatures
Flipbooks
Transform any piece of content into a page-turning experience.
Fullscreen Sharing
Deliver a distraction-free reading experience with a simple link.
Embed
Host your publication on your website or blog with just a few clicks.
Get discovered by sharing your best content as bite-sized articles.
Statistics
Make data-driven decisions to drive reader engagement, subscriptions, and campaigns.
Teams
Enable groups of users to work together to streamline your digital publishing.
Social Posts
Create on-brand social posts and Articles in minutes.
GIFs
Highlight your latest work via email or social media with custom GIFs.
Add Links
Send readers directly to specific items or pages with shopping and web links.
Video
Say more by seamlessly including video within your publication.
Digital Sales
Sell your publications commission-free as single issues or ongoing subscriptions.
QR Codes
Generate QR Codes for your digital content.
More Features
Integrations
Canva
Create professional content with Canva, including presentations, catalogs, and more.
HubSpot
Embed, gate, and track Issuu content in HubSpot marketing campaigns.
Adobe Express
Go from Adobe Express creation to Issuu publication.
Adobe InDesign
Design pixel-perfect content like flyers, magazines and more with Adobe InDesign.
Show submenu for "Use Cases" sectionUse Cases
Industry
Art, Architecture, and Design
Internal Communications
Marketing and PR
Nonprofits
Publishing
Real Estate
Retail and Wholesale
Travel and Tourism
More Industries
Role
Content Marketers
Designers
Publishers
Salespeople
Social Media Managers
Content Type
Flipbook
Portfolio
Digital Magazine
Digital Flipbook
PDF to Flipbook
Newspaper
Digital Book
Digital Lookbook
More Content Types
Show submenu for "Learn" sectionLearn
Blog
Welcome to Issuu’s blog: home to product news, tips, resources, interviews (and more) related to content marketing and publishing.
Help Center
Here you'll find an answer to your question.
Webinars
Free Live Webinars and Workshops.
Resources
Dive into our extensive resources on the topic that interests you. It's like a masterclass to be explored at your own pace.
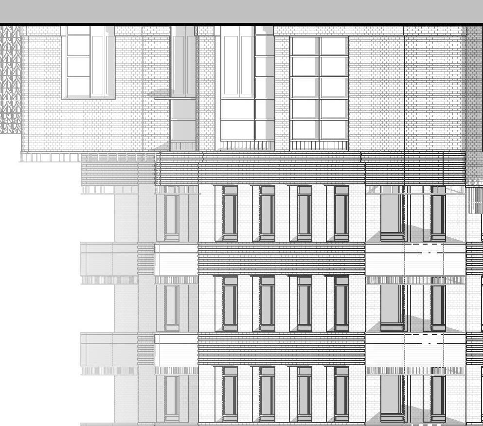
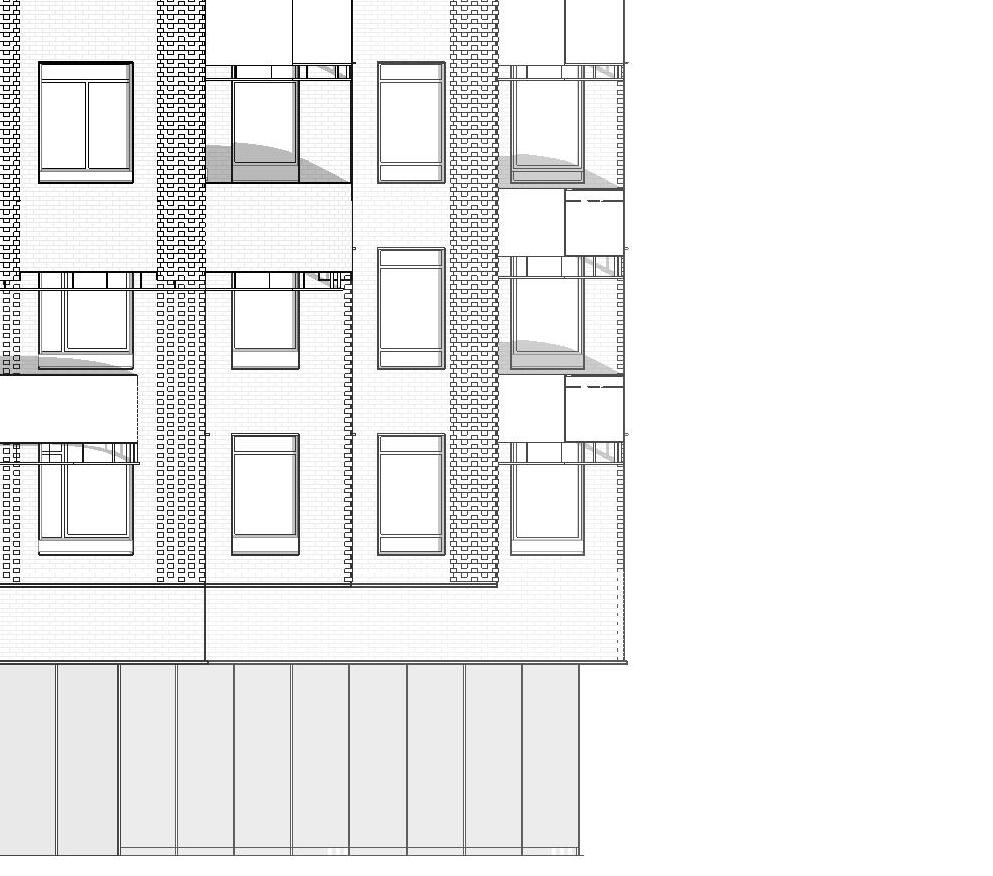
dRMM
EC.LBHF.01C-01 July 2025
Level
Turn static files into dynamic content formats.