Energy Strategy Addendum Sept 2025

Page 1


Energy Strategy: Addendum

Hoare Lea EC.PA.22-A

July 2025

1a.0Executive Summary3 8a.0‘Be Lean’ – Energy Efficient Design4 9a.0‘Be Clean’ – Energy Networks6

11a.0‘Be Clean’ – Carbon Performance16

12a.0‘Be Green’ – Renewable Energy Generation17

14a.0‘Be Seen’ – Energy Monitoring18

Appendix A – Energy Network plant datasheets19

Appendix B - Roof Plans Detailing PV Provision23

Appendix C – Safeguarded Heat Network routes to future connection points24

Appendix D – UKPN offer letter26

Appendix E – GLA comments and responses29

Appendix F – RBKC comments and responses30

Appendix G – LBHF comments and responses31

1a.0 Executive Summary

This Energy Strategy Addendum has been prepared by Hoare Lea to supplement the previously submitted EC.PA.22 Earls Court Development: Energy Strategy, Issue 06, July 2024 to take account of amendments to the Proposed Development and respond to feedback in relation to Energy Strategy comments received from the Royal Borough of Kensington and Chelsea (“RBKC”), London Borough of Hammersmith and Fulham (“LBHF”) and the GLA.

Since the submission of the Hybrid Planning Applications, post-submission consultation has been undertaken with LBHF, RBKC and relevant statutory and non-statutory consultees. As a result of the consultation feedback, amendments have been made to the Proposed Development.

These amendments can be summarised as follows:

 Amendments to Parameter Plans to reduce height of EC03 by one storey, refine massing of WK02 and other incidental modifications.

 Minor design updates to Development Plots within the RBKC Detailed Component (Plots EC05 and EC06) and LBHF Detailed Component (Plots WB03, WB04 and WB05).

 Inclusion of additional and updated codes within the Design Code.

 Development Specification updates to reflect the above amendments.

 LBHF minimum residential unit number increased from 1,600 to 2,000 (proposed to be secured by an appropriately worded planning condition).

This Addendum is structured to follow the chapter titles and numbering within EC.PA.22 Earls Court Development: Energy Strategy, Issue 06, dated July 2024 to enable cross referencing with the content of the previously submitted version. It has been prepared to address the following key points of feedback that have been received:

 Updated ‘Be Lean’ regulated carbon emissions reductions following design changes made to the RBKC and LBHF Detailed Components to take account of ‘BS 9991:2024 Fire safety in the design, management and use of residential buildings, Code of practice’. This is addressed in Section 8a.0 –11a.0 of this addendum. The hybrid planning applications (PP/24/05187 & 2024/01942/COMB) were based on BS 9991:2015.

 Further commentary as to the reasons for not providing waste water heat recovery in the Detailed Component. This is addressed in Section 8a.2 of this addendum.

 Further information to support the site-wide peak load assessment, including:

o Provision of site-wide peak energy assessment, including methodology and profiles used for assessing peak electrical demands

o Further commentary on measures to achieve demand reduction

o Initial appraisal of battery storage technology on-site

This is addressed in Section 9a.0 of this addendum.

 Supporting information for Photo Voltaic (“PV”) energy generation (reference Section 12.4 of the original report). This is addressed in Section 12a.0 of this addendum.

 Further information provided to demonstrate the ability to connect the heat network to future external networks (reference Sections 9.15 and 9.16 of the original report). This is addressed in Section 9a.0 of this addendum.

 Data sheets to support plant data (reference Section 9.31 of the original report). This is addressed in Appendix A of this addendum.

8a.0 ‘Be Lean’ – Energy Efficient Design

8a.1‘Be Lean’. [To be read in conjunction with Section 8.2 of the July 2024 Energy Strategy.]

‘Be Lean’ Results – By Plot.

The following is an appraisal of the anticipated CO2 emissions of the Earls Court Development, following BS 9991:2024 fire safety design updates (November 2024), across the building typologies. Impacts of BS 9991:2024 updates include reconfiguration and increase of cores to accommodate additional escape stairs and lifts, and additional fire separation between escape lobbies, which had a subsequent impact on the apartment layouts.

The Earls Court Development Detailed Component (July 2024 submission) was anticipated to achieve up to a 24% reduction in annual regulated CO2 emissions beyond the gas boiler baseline via passive design and energy efficiency measures (i.e. before any benefit from low or zero carbon technologies), utilising SAP10.2 carbon factors.

Following this addendum update, the Earls Court Development Detailed Component is now anticipated to achieve up to a 28% reduction in annual regulated CO2 emissions. This slight improvement is a result of reconfigured apartment layouts which resulted in a reduction in energy demand overall.

The following results for the ‘Be Lean’ assessment demonstrate the percentage variance against Approved Document ‘Part L1A’ and ‘Part L2A’ for the Earls Court Development. Residential

Table 1, Table 2 and Table 3 present the updated anticipated residential CO2 emissions, fabric efficiency and primary energy for Development Plots in the Detailed Component. Note that results for WB03 have not been provided here as this is not classified as a residential building based on the ‘Part L’ methodology.

*Plot WB05 results have not been updated within this addendum as the impact from BS 9991:2024 updates had no material impacts on the cores and apartment layouts of this plot.

Non-Residential

For non-residential results, refer to Page 36 of the ‘EC.PA.22 Energy Strategy’ document. Non-residential elements for Detailed and Outline Components have not been impacted by addendum updates and therefore results are unchanged.

Table
Table 2: ‘Be Lean’ residential Fabric Energy Efficiency improvements.
Table 3: ‘Be Lean’ residential regulated primary energy reduction.

8a.2Further commentary on waste-water heat recovery systems. [To be read in conjunction with Section 8.2 of the July 2024 Energy Strategy.]

In the development of the design for the Detailed Component, waste-water heat recovery (WWHR) systems were considered but deemed impractical to incorporate due to spatial fit and impact on internal layouts and building height. This impacted the viability and feasibility of the design and therefore was not pursued.

Whilst WWHR systems provide a benefit to the Part L assessment and can provide a reasonable level of heat recovery, in practice the following issues are often encountered in high rise apartment buildings:

– Length of straight drainage pipe required to achieve heat transfer may not be achievable given bathroom layouts.

– Given shower floors are generally installed at the same level as the bathroom floor level, the floor buildup is generally not sufficient to retain entirely within the bathroom floor buildup, often resulting in the heat recovery device being located in the ceiling void on the floor below. For private developments, this presents an issue with gaining access into another occupant’s property for maintenance. Even with Build to Rent properties, this imposes an additional burden for maintenance.

For the buildings in the Detailed Component, other measures were explored and implemented for the ‘Be Lean’ portion of the Part L assessment. These measures included improved fabric performance, highly efficient lighting and mechanical ventilation with heat recovery. This has resulted in the overall achievement of the 10% target improvement for Be Lean, without the use of WWHR.

As future buildings are brought forward, use of WWHR will be evaluated as part of the Energy Strategy to be submitted under Reserved Matters Applications.

9a.0‘Be Clean’ – Energy Networks

The following sections are a direct response to comments raised by LPAs in post-Hybrid Application submission consultation feedback.

9a.1Estimated site wide peak energy demands [To be read in conjunction with Section 9.29 of the July 2024 Energy Strategy.]

The information provided in the masterplan Energy Strategy sets out the overall heat demand, the basis for deriving this and how thermal storage is proposed to reduce peak load. Refer to the masterplan Energy Strategy, section 9.29.

The information below supplements this and explains the basis of calculation for the electrical systems. Storage and demand reduction is also discussed below.

Electrical peak demand assessments have been undertaken using the Earls Court Development typologies and area schedules.

The actual peak demand for the Detailed and Outline Components will vary depending on specific tenancies and operations. To accommodate this variability, three peak electrical loading scenarios and modelling methodologies were considered and reported in the Utilities Services Infrastructure planning report (document reference EC.PA.38). These estimates are based on the Illustrative Masterplan and detailed design development will be assessed at RMA stage.

For the purpose of reporting using the standard GLA table (Table 4), the ‘high base load estimation’ has been used as this represents the estimated peak demand across the Development, including buildings within the Detailed and Outline Components.

* note: based on storage depletion time of 4 hours. Likely used to offset peak cooling load in offices and residential buildings.

Table 4: Summary of site-wide peak demand, capacity and flexibility potential.

(no existing network) Early engagement with the DNO or Independent Distribution Network Operator (IDNO) to establish available

Modelling of flexibility using demand profiles and thermal storage

Revision to peak demand considering available capacity, engagement with third parties and flexibility potential

Calculations from flexibility potential as a proportion of peak demand

Sections 11.6 and 11.7 of the ‘'GLA Energy Assessment Guidance’ requests the applicant to report the peak demand calculation and summarise the results in tabular form. Section 9a.1 of this addendum demonstrates compliance against this policy guidance.

9a.2Assessment of electrical demand [To be read in conjunction with Section 9.29 of the July 2024 Energy Strategy.]

The electrical demand calculation has been based on dynamic load analysis, utilising peak demands and half-hourly electricity consumption profiles over the course of a year. These profiles are standardised according to building use classes, reflecting their specific consumption patterns.

The estimated peak demand was modelled on the peak load allowances set out in table Table 5 (W/m2), which are based on industry standards. It should be noted that this table contains non-diversified peak demand factors for buildings only, with the exclusion of ambient loop and DHW loads. An additional diversity of 0.8 has been applied to residential units.

The electrical demand calculation includes the diversity factors and assumptions set out in Table

Notes:

1 Back of House is assumed to include spaces, such as lobbies, corridors, bin rooms

2 Excludes diversity

Average residential unit size 70m2

Additional allowance for domestic hot water (DHW) 15% of overall load

Based on the following:

– Electrical boost for in-apartment heat pumps to elevate water temperatures from mid 40°C to 60°C,

– Assuming a complete cold start (no pre-charged water storage vessels),

– Taking into account substantial diversity of 0.036 across the development, as not all occupants will need hot water at the same time,

– Inclusion of point of use water heaters in the office WCs.

Ancillary loads (i.e. external lighting, lifts and CCTV monitoring)

EV charging

- These are assumed to be marginal loads and have therefore been diversified into the overall load.

Allowance for accessible parking spaces

As the development is designed to be car-lite, no allowance has been made for wholesale residential and commercial EV charging.

Ambient loop network Loads included Allowances include the electrical loads required to operate the site wide ambient loop, including the network heat pumps required. The power consumption of heat pumps within individual buildings are included in the building.

Half-hourly consumption profiles are based on data from National Grid ‘Distribution Future Energy Scenarios 2024’ report (DFES). For the purpose of calculating the estimated peak demand, ‘unabated’ domestic energy demand was used as shown in figures 1 to 10.

6.
Table 5: Diversity factors and assumptions.
Table 6: Electrical peak load allowances per use class.
Figure 1: Representative unabated domestic profile (source: DFES 2024, page 42)
Figure 2: Shops and retail profile (source DFES 2024, page 48)
Figure 3: Eating and drinking establishments profile (source DFES 2024, page 48)
Figure 4: Office profile (source DFES 2024, page 49)
Figure 5: Storage and distribution profile (source DFES 2024, page 50)
Figure 6: Hotel profile (source DFES 2024, page 50)
Figure 7: Residential institutions profile (source DFES 2024, page 51)
Figure 8: Non-residential institutions profile (source DFES 2024, page 51)

Sections 11.7 and 11.8 of the ‘'GLA Energy Assessment Guidance’ requests the applicant to demonstrate the demand profiles in graphics, and consider diversity factors in the energy assessment. Section 9a.2 of this addendum demonstrates compliance against this policy guidance.

9a.3Available capacity [To be read in conjunction with Section 9.29 of the July 2024 Energy Strategy.]

25,500kVA of available capacity has been formally secured at the most local UKPN primary substation; Old Brompton Road Primary Substation on Lillie Road. The extended build programme identifies that this supply location exceeds the electrical capacity necessary to support the areas submitted under the Detailed Component and presents an opportunity to support the entire Earls Court Development when using the approaches identified in the ‘Low Base Load Estimation’ (refer to document reference EC.PA.38 UTILITIES AND SERVICES INFRASTRUCTURE STRATEGY).

Confirmation of the available capacity at the Old Brompton Road Primary Substation has been obtained from UKPN and is included in ‘Appendix D – UKPN offer letter’.

An independent ICP/IDNO (Power On) has been contracted to manage the interfaces between UKPN and deliver the on-Site infrastructure.

The final Earls Court Development peak demand requirements will be established actively through the delivery period of the Earls Court Development over which time technology will develop, operational data will be captured and the DNO and IDNO’s invest in their network infrastructure.

Should future loading projections require additional electrical capacity to be brought to Site, spatial provision for a new primary substation has been identified within the Earls Court Development located on West Cromwell Road to facilitate the provision of a new 132kV/11kV primary substation. The proposed infrastructure in this location would be suitable to accommodate the additional capacity required under all peak electrical demand summaries.

At this stage the provisional location has been identified only with UKPN to undertake a space proving exercise. Should the need for additional capacity be identified, further consultation would be undertaken with the relevant stakeholders for technical and spatial considerations, including UKPN. TfL and other utility providers in the area.

Sections 11.8 and 11.9 of the ‘'GLA Energy Assessment Guidance’ requests the applicant to engage with the DNO or iDNO and provide evidence of correspondence. Section 9a.3 of this addendum demonstrates compliance against this policy guidance.

Figure 9: Assembly and leisure profile (source DFES 2024, page 52)
Figure 10: Sui Generis profile (source DFES 2024, page 52)

9a.4Flexibility potential and revised peak demand [To be read in conjunction with Section 9.29 of the July 2024 Energy Strategy.]

Table 7 sets out the potential for reducing peak demands. Given the extended period over which the development will be designed and constructed, this list is not exhaustive and will be continually reviewed as phases are brought forward. These interventions are considerations only at this stage.

9a.5Consideration of energy storage technologies [To be read in conjunction with Section 9.24 of the July 2024 Energy Strategy.]

The proposals and information below set out how the systems have been designed to be flexible and able to reduce or shift peak energy demand, in accordance with the GLA guidance.

As explained in Section 14.9 of the Energy Strategy, the Applicant commits to implement best practice across the development. These approaches will be reviewed as each phase is brought forward for development.

Demand side flexibility/electrical storage summary

Electrical energy storage (kWh) capacity Yes

Heat energy storage (kWh) capacity

Yes

Renewable energy generation (load matching)

Gateway to enable automated demand response

Smart systems integration (e.g. smart charge points for EV, gateway etc.)

Yes

An initial Power Demand Assessment has been undertaken and a summary is provided below. To be reviewed as utility providers are procured and the development is built out.

Energy Services Company (ESCo) to be appointed to explore opportunities for greater thermal storage, including consideration of new and emerging technologies across the design life span of the development.

Energy generated through renewables to be allocated to the ambient loop network in the first instance.

Yes

Yes

Other initiative

Yes

To be developed by the ESCo as part of the overall control of the ambient loop network.

Overall strategy to be developed as each phase is brought forward, to include expertise from the ESCo and utility providers, once appointed.

Extent of integration within buildings to be established as the design progresses.

The Applicant is committed to exploring innovative and emerging technologies throughout the design of the entire development. Technologies will need to be understood and reviewed with spatial and embodied carbon implications considered.

Connection to neighbouring heat networks that may be developed in the future would also be considered as a method of reducing peak demand.

Section 11.10 of the ‘'GLA Energy Assessment Guidance’ requests the applicant to determine the potential to reduce peak demands. Section 9a.4 of this addendum demonstrates compliance against this policy guidance.

The Applicant has carried out an initial Power Demand Assessment which is summarised below. The Applicant will continue to explore the potential for Demand Side Flexibility for future plots in the Outline Component, which includes the potential provision of battery storage. Various spaces in the Outline Component have been identified that could potentially serve as suitable locations for technologies such as battery storage.

There are various regulatory and statutory hurdles associated with electrical battery storage, particularly when serving residential buildings. These issues will be considered with specialist input from the successful utility provider, the ESCo, the Applicant and their Consultant.

The sitewide approach to PV is set out in the masterplan Energy Strategy under section 12.4, responding to LP Policy SI 9.2.2 (“opportunities to maximise renewable electricity generation”).

Any electrical storage introduced would also need to be coordinated with the approach to thermal demand. The ESCo tender issued is set up in a series of ‘lots’ to allow for a multi service approach to be offered by tenderers that have this capability and that would support these overall aims.

Within the Detailed Component, there is not sufficient space outside the red line boundaries of each development zone to allocate battery storage. As noted above, space for potential installations is being considered in the Outline Component.

Initial Power Demand Assessment

Using the inputs and profiles set out above, the power demand for the overall development was modelled using EnergyPro software.

The results show that the Earls Court Development is estimated to require between 35.9 and 37.9MVA based on the current development proposals. The secured import capacity would be sufficient until Phase 4 (July 2037) / Phase 6 (July 2038) depending on the electrical demand scenario. Battery storage could reduce the total requirement to 32.4MVA, ensuring the currently secured capacity is sufficient until (Phase 8) (July 2043) is energised.

It is important to consider the following factors regarding the implementation of a battery system:

– Space: Currently a battery of this size would require space for 18 containers, each measuring 15m2. The total indicative footprint of battery storage containers is therefore 270m2. These units could be stacked or distributed across the development site. However, advancements in market technology over the next few years could potentially reduce this requirement to just 5 containers of the same size. Information from a discussion with a major BESS manufacturer, CATL, revealed plans to release high-capacity density BESS with utility grade in 2025/2026. However, the proposed rollout for high-capacity density BESS for commercial and industrial has not been confirmed.

Table 7: Summary of interventions for achieving flexibility.

Currently there is not sufficient space in the Detailed Component to accommodate this installation.

– Costs: The installation of a battery system involves significant capital costs, which include not only the battery capacity itself but also the necessary supporting equipment. Typical costs for storage system only are ~£400/kWh. For the system estimated in this report, this is a capital cost of ~£10m + additional costs for additional equipment and infrastructure.

– Carbon: The embodied carbon footprint associated with battery systems is substantial and is rarely recovered over the battery's lifetime. It may be expected that with advancement in battery technology and potential use of alternative materials, the embodied carbon may reduce to a reasonable level.

For these reasons, battery storage is not currently proposed but remains an area of research and ongoing development.

Renewable energy generation

The masterplan Energy Strategy section 12 contains a clear analysis of the options for producing and using renewable energy within the site. It also contains consideration of technologies that are not feasible for this site.

Within the masterplan Energy Strategy, sections 9.34, 9.35 and 9.36 contain a summary of future heat generation and capture opportunities, such as ground source, to be considered at the next stage of design.

Thermal storage

Within the masterplan Energy Strategy, section 9.24 sets out a summary of the thermal storage provisions made to date. These will be reviewed at RMA stage once an ESCo has been appointed and further design development will take place to refine the thermal storage installations.

The requirements of London Plan Policy SI 2 and 3 (’minimising both annual and peak energy demand’) has been presented in detail through the 'Be Lean’ section of the masterplan Energy Strategy and backed up by the data in the strategies of the Detailed Component. These measures will reduce the peak and annual thermal energy demand.

Reduction in peak energy consumption, and its direct correlation to electrical demand, will be realised partly through the use of thermal stores, which are presented in the following sections of the masterplan Energy Strategy:

-9.24 - Thermal Storage Provision – this section sets out the size and capacity of thermal stores planned for the central plantrooms.

-9.26 - Optimising the Network – this sets out the likely operation of the network to reduce peak demand.

-14.6 – Heat Metering Arrangements – showing how electrical and heat energy will be metered and billed.

-14.9 – sets out a framework for best practice, including implementation of smart controls and network optimisations.

This will result in reducing peak demand through:

-Thermal stores enabling shifting of peak network load away from general hours of peak electrical loading.

-Control strategies to govern this and the overall network performance to be developed by the successful ESCo as they develop the design (e.g. potential for an ESCo to control in-apartment heat pumps to maximise network efficiency).

-As operational data becomes available, this will be used to further optimise the system.

In addition, the uninsulated pipework installed in the ground can be used to seasonally store and absorb energy. This will be reviewed further by the specialist designer once an ESCo has been appointed and will act as an additional source of thermal storage.

Smart systems gateway and integration

The Applicant will consider the following smart systems as design progresses and once an ESCo and utility provider have been appointed.

– The masterplan energy systems will be integrated between plots and potentially within plots, depending on ownership models. Systems that will be considered for integration and smart control include landlord (owner) systems, tenant (occupants) depending on legal and commercial arrangements, electric vehicle charging points, security systems etc.

– As the masterplan design progresses, provision of a configurable gateway will be investigated that allows automated Demand Side Response (DSR) to dynamic pricing signals and integration with micro-grids and energy networks. Development of this will be carried out in conjunction with an ESCo and utility provider.

– The ability to provide secure, remote access to data which occupants and building owners can access will be implemented as each plot is brought forward. The granting of access will be determined based on legal and commercial considerations but with a clear intent to share data to benefit overall performance.

– Provision of secure, remote communication of consumption data between the meter and the supplier

– Provision of metering points that will be compliant with relevant pattern approval and Measuring Instruments Directive (MID) standards for fiscal billing

– The Applicant intends to provide an open protocol that allows devices to be connected without having to use proprietary systems. The development of this will need to consider the length of the design period across the entire development and will require expert technical input from ESCo and utility providers.

Sections 11.11 and 11.12 of the ‘'GLA Energy Assessment Guidance’ requests the applicant to consider energy storage and renewables generation. Section 9a.5 of this addendum demonstrates compliance against this policy guidance.

9a.6Safeguarded pipe routes to connection points with future external networks. [To be read in conjunction with Section 9.16 & 9.17 of the July 2024 Energy Strategy.]

As explained in section 9.16 and 9.17 of the masterplan Energy Strategy, there is potential for future interfaces with neighbouring networks, as and when these are developed.

In ‘Appendix C – Safeguarded Heat Network routes to future connection points’ of this addendum, the site wide network drawing ECD-SW-ZZ-HLE-60-XX-DR-M-600130 has been updated to show locations of the safeguarded routes to allow for future connection to external heat networks.

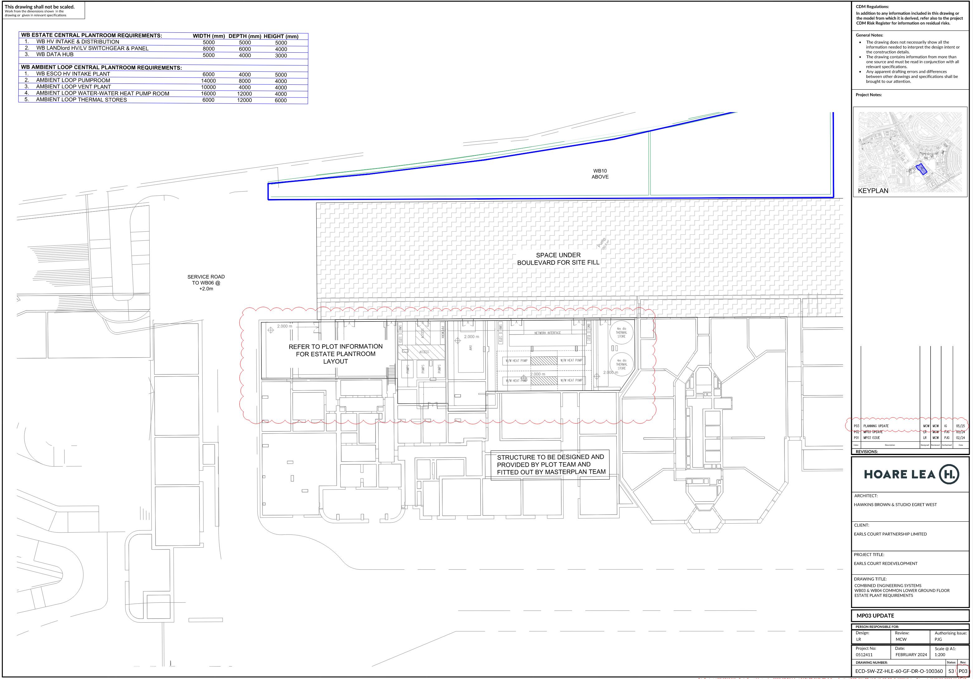
The form of connection between networks will be a set of heat exchangers to be located within the ambient loop network plantrooms, as explained and shown diagrammatically in section 9.23 of the Energy Strategy. Safeguarded space to accommodate this plant within the LBHF ambient loop plantroom has been shown in Drawing ECD-SW-ZZ-HLE-60-GF-DR-O-100360, also available in ‘Appendix C – Safeguarded Heat Network routes to future connection points’ and is in the location highlighted yellow in Figure 11.

Figure 11: Safeguarded space in ambient loop plantroom for connection to future external heat networks

The design is intended to permit connection of other heat networks to the Earls Court ambient loop which will be progressed in further detail at the appropriate time. As part of the tender for an ESCo, this potential flexibility is being requested as part of their technical services brief.

Section 9.31 of the ‘'GLA Energy Assessment Guidance’ requests the applicant to demonstrate a safeguarded route for a single point connection to the district heat network. Section 9a.6 of this addendum demonstrates compliance against this policy guidance.

9a.7Heat Network plant data sheets [To be read in conjunction with Section 9.31 of the July 2024 Energy Strategy.]

Individual plant efficiency data as used in the energy model is set out in Section 9.31 of the EC.PA.22 Energy Strategy (July 2024 submission). For further information please refer to the datasheets in ‘Appendix A – Energy Network plant datasheets’ in this addendum.

Section 10.9 of the ‘'GLA Energy Assessment Guidance’ requests the applicant to provide manufacturers datasheets for the energy network plant. Section 9a.7 of this addendum demonstrates compliance against this policy guidance.

9a.8Cost of Heat to Consumer [To be read in conjunction with Section 9.33 of the July 2024 Energy Strategy.]

The heating only comparison that has been added to this table has been based on a 5th generation network providing a heat only connection to each residential building and a heating and cooling connection to each commercial building.

Due to noise from aircraft regularly passing overhead, from trains passing through the site and from the surrounding roads around the site it is considered very unlikely that any of the apartment buildings will be able to rely solely upon openable windows in order to pass theTM59 overheating tests. As a result, whilst the ambient noise levels remain high, it is highly likely that some level of air tempering would be required to each apartment.

For the purpose of providing a cost comparison, a ‘cooling pack’ would be added to the MVHR unit in each apartment. The cooling pack comprises an air source heat pump that rejects heat via the exhaust air stream from the MVHR. The cooling pack provides sufficient cooling capacity to reduce the supply air temperature sufficiently in order to pass the TM59 overheating tests. For the purpose of this exercise, a Zehnder Comfocool system has been assumed. Data and costs relating to this product have been provided below. A water/water heat pump has also been assumed within each apartment to generate hot water and space heating.

As requested, a ‘heating only’ cost comparison has been added to the original information provided in Section 9.33 of the 2024 Energy Strategy (original reference Table 48). The additional data provided in Table 8 has been shaded light grey.

In the table above, it can be seen that ‘heating only’ comparison is the most expensive option to residents for the following reasons:

– As heat is delivered via the network and the hot water load is greater than the cooling load, there would be a minimal reduction in the unit cost of electricity required to serve the network.

– Providing decentralised cooling within each apartment for air tempering would dramatically reduce the level of heat recovery available from cooling processes across the development. Consequently the cost of heat increases as less energy is being recovered and more electricity is required to maintain stable operation of the network.

– The cost of cooling (‘coolth unit’) is greater than the full 5th generation system as the cooling pack would have a defined COP/EER without any opportunity to recover energy from heating processes.

– A heat network standing charge is still required due to energy for domestic hot water and space heating being derived from the 5th generation network.

– As a cooling pack would be required to the MVHR unit, as well as a heat pump for hot water and space heating, installation costs and insurance and repair costs would be required for both units, rather than just the single unit under the 5th generation heat network option.

Table 8: Cost to consumer – numeric data

Costs for the heating only option have been developed as set out in Table 9.

Zendher Comfocool Q600 unit with ComfoClime kit (standard unit)

Zendher Comfocool Q600 unit

Cost uplift for cooling pack

Cost uplift for cooling pack - with assumed contractor discount

Cost per year (over 15 years) for cooling pack

WSHP Equipment Installation (15 years life)

Service plan cost for Zendher = £39.99 per month (full plan)

Service plan cost for Zendher = £39.99 per month (full plan) - with assumed discount

WSHP Insurance and Repair

£10,289.00

£5,344.00

Cost of combined MVHR and cooling pack. Costs obtained from https://bpcventilation.com/collections/mvhr -units-1/products/

Cost of MVHR unit only, used to obtain cost of cooling pack, also obtained from the BPC Ventilation website.

£4,945.00 Resulting cost of cooling pack.

£2,967.00 Assuming a 40% contractor/trade discount.

£197.80

£200.00 As shown in original Energy Strategy.

£479.88 Costs based on service plan available from Earthwise Construction, “MVHR Complete Care” plan that includes an annual service and support.

£335.92 Assumption that a discount on the service plan could be negogiated on behalf of the residents of a large residential building. 30% discount assumed.

£420.00 As shown in original Energy Strategy.

Figure 12 provides a datasheet setting out the minimum COP/EER for the combined MVHR unit with integrated cooling pack. The COP/EER assumed in the calculations above are based on 35C external dry bulb temperature.

Figure 12: Product data sheet for the MVHR unit and cooling pack
Table 9: Basis of cost data for heating only comparison.

11a.0‘Be Clean’ – Carbon Performance

‘Be Clean’ Results – by Development Plot.

The following is an appraisal of the anticipated CO2 emissions of the Earls Court Development, following BS 9991:2024 fire safety design updates (November 2024), across the building typologies. Impacts of BS 9991:2024 updates include reconfiguration and increase of cores to accommodate additional escape stairs and lifts, and additional fire separation between escape lobbies, which had a subsequent impact on the apartment layouts.

The Earls Court Development (July 2024 submission) was anticipated to achieve up to a 71.6% reduction in annual regulated CO2 emissions beyond the baseline via combustion minimising measures (i.e. before any benefit from low or zero carbon technologies), utilising SAP10.2 carbon factors.

Following this addendum update, the Earls Court Development is now anticipated to achieve up to a 71.7% reduction in annual regulated CO2 emissions

The results detailed below for the ‘Be Lean’ assessment demonstrate the percentage variance against Approved Document ‘Part L1A’ and ‘Part L2A’ for the Earls Court Development.

Residential.

The following tables outline the updated anticipated residential

and fabric

for the Earls Court Development:

*Plot WB05 results have not been updated within this addendum as the impact from BS 9991:2024 updates had no material impacts on the cores and apartment layouts of this plot.

Non-Residential

For non-residential results, refer to Page 77 of the ‘EC.PA.22 Energy Strategy’ document. Non-residential elements for Detailed and Outline Components have not been impacted by addendum updates and therefore results are unchanged.

Table 10: ‘Be
Table 11: ‘Be Clean’ residential regulated primary energy reduction.

12a.0‘Be Green’ – Renewable Energy

Generation

The following sections are a direct response to comments raised by LPAs in post-Hybrid Application submission consultation feedback

Technology Considerations.

12a.1Further commentary on PV panels [To be read in conjunction with Section 12.4 of the July 2024 Energy Strategy.]

Whilst PV panels have been incorporated into the overall sitewide strategy, none are proposed within the Detailed Component due to very little roofspace being suitable for installation of panels.

A markup of each roof across the Detailed and Outline Components has been provided in ‘Appendix BRoof Plans Detailing PV Provision’. This is based on the source information as shown on the markup. The markup shows the allocation of rooftop spaces to the folllowing uses:

– Plant (both serving plots and the ambient loop network)

– Accessible green roofs (i.e. areas of landscaping for people to move around in)

– Accessible podium roofs (areas designated for people)

– Green roof with PV panels installed above the planting (refer to the masterplan Energy Strategy for examples of systems that can be used)

As each plot in the Outline component is brought forward, the provision of PV will need to be considered as part of the Reserved Matters Application submission and balance generation of renewable energy with space required for other uses as detailed above along with facade access systems.

Façade access systems have not been shown on the markup as these are subject to development as each plot is brought forward into design.

Section 10.10 of the ‘'GLA Energy Assessment Guidance’ requests the applicant to provide detailed drawings showing the amount of roof space available for PVs. Section 12a.1 of this addendum demonstrates compliance against this policy guidance.

14a.0 ‘Be Seen’ – Energy Monitoring

The following sections are a direct response to comments raised by LPAs in post-Hybrid Application submission consultation feedback

14a.1“Unclear if Be Seen webform submission yet made” [To be read in conjunction with Section 14.1 of the July 2024 Energy Strategy.]

Please refer to the following files included in the planning submission:

‘EARLS COURT_be_seen_spreadsheet (2024-01942-COMB)’

‘EARLS COURT_be_seen_spreadsheet (PP-24-05187)’

Appendix A – Energy Network plant datasheets

Development Plot cooling

(evaporator: fluid entering at 20⁰C, leaving at 15⁰C. Condenser: fluid entering at 35⁰C and leaving at 40⁰C)

Trane CXAF 165 heat XLN EC R454B (evaporator: fluid entering at 20⁰C, leaving at 30⁰C. Outdoor dry bulb temperature 9⁰C @ 90% RH)

1762B

(evaporator (Plot side): fluid entering at 12⁰C, leaving at 7⁰C. Condenser (network side): fluid entering at 20⁰C and leaving at 25⁰C) Development Plot heating Water cooled chiller using network as heat source/sink 4.18 - 3.47 Carrier 61XWH-03ZE (evaporator (network side): fluid entering at 20⁰C, leaving at 15⁰C. Condenser (Plot side): fluid entering at 55⁰C and leaving at 60⁰C)

Development Plot simultaneous heating and cooling

cooled chiller in simultaneous mode 3.60 - 3.47 Carrier 61XWH-03ZE (evaporator: fluid entering at 12⁰C, leaving at 7⁰C. Condenser: fluid entering at 55⁰C and leaving at 60⁰C)

Appendix B - Roof Plans Detailing PV Provision

Appendix C – Safeguarded Heat Network routes to future connection points

Appendix D – UKPN offer letter

The following was received from UKPN on 20th May 2021 and remains current. This is the offer letter relating to the securing of 25.9MVA for the development.

Appendix E – GLA comments and responses

Earls Court Masterplan. Initial Applicant Response of GLA Stage 1 Comments.

Purpose

This document contains an initial applicant response of the Stage 1 Comments provided by the GLA, dated 11th November 2024 (refs: Planning report GLA/2024/0499/S1 and GLA/2024/0500/S1) and proposes actions in response. Comments within the GLA report make reference to ‘technical memos’ which have also been provided. Note – this latest version includes responses to LBHF comments on the ‘technical memos’, which are similar in nature to the RBKC responses.

GLA Stage 1 Report

Comment

Energy strategy

221. Nevertheless, the proposed detailed component developments within both boroughs falls short of the net zero-carbon target in Policy SI2, although it meets the minimum 35% reduction on site required by policy. As such, a carbon offset payment is required to be secured. This should be calculated based on a net-zero carbon target using the GLA’s recommended carbon offset price (£95/tonne) or, where a local price has been set, the borough’s carbon offset price. The draft s106 agreement should be submitted when available to evidence the agreement with the boroughs.

Energy strategy compliance 222. An energy statement has been submitted with the applications. The energy statement does not yet comply with the London Plan. The applicant is required to further refine the energy strategy and submit further information to fully comply with London Plan requirements. Full details have been provided to the Council and applicant in a technical memo that should be responded to in full;

Initial Applicant Response

This is as expected.

[see review of energy technical memo later in this document]

Proposed Action

Production of a ‘Sustainability Governance Framework’ to be referenced by the S106 Agreement.

BeLean

GLA to confirm what specifically is considered to be missing.

Managing heat risk

This is detailed in the Overheating Risk and Thermal Comfort Strategy which is a stand-alone document?

BeClean

Figures 34 and 41 in the Energy Strategy provide drawings of the proposed energy network

Energy strategy addendum to be produced responding to comments and technical memos, where relevant.

Comment

however outstanding policy requirements include:

 BeLean– Further evidencing of energy efficiency measures for the domestic/ nondomestic element;

 Managingheatrisk– Further details to demonstrate the cooling hierarchy has been followed.

 BeClean– Provision of sitespecific schematics and drawings to demonstrate future-proofing for connection to a District Heating Network, should one become available in future;

 BeGreen– Demonstration that renewable energy has been maximised, including roof layouts showing the extent of PV provision;

 BeSeen– Confirmation of compliance with this element of policy has been secured within the S106 agreement;

 Energyinfrastructure– Further details on the design of the district heating network connection is required, and the future connection to this network must be secured by condition or obligation.

Whole life-cycle carbon

225. The applicant has submitted a whole life-cycle carbon assessment. The WLC assessment largely accords with GLA guidance does not yet fully comply, subject to confirmation of outstanding items. Further information is required on material quantity, assumptions and building end-of-life scenarios. A technical memo has been provided to the applicant and the Council.

Circular economy

228. The applicant has submitted a Circular Economy Statement. The Circular Economy Statement is largely compliant with GLA

Initial Applicant Response Proposed Action

distribution routes and potential points of connection to a wider heat network.

BeGreen

Figure 81 in the Energy Strategy provides an indicative layout for potential PV.

PV has not been included in Phase 1 due to constraints on roof layouts. The Renewable Technology Appraisal contained within the plot Sustainability Statements demonstrates this point.

EnergyInfrastructure

Clarification required on what additional detail is requested.

[see review of energy technical memo later in this document]

[see review of whole life carbon technical memo later in this document]

[see review of circular economy technical memo later in this document]

Whole life carbon strategy addendum to be produced responding to comments and technical memos.

Circular economy strategy addendum to be produced responding to comments and technical memos.

Comment

guidance subject to confirmation of outstanding items. A technical memo has been provided to the applicant and the Council.

Initial Applicant Response

Proposed Action

Urban greening and biodiversity 230. … Opportunities for biosolar roofing should be explored further.

Page 35 of the Sustainability Strategy includes the following commitment:

“Implement Solar PV (or other renewables) on selected, appropriate green roofs (bio-solar roofs) across the Proposed Development, providing at least 280kWp of installed capacity, generating enough energy annually for >65 homes.”

Note, Solar PV is not possible in the Detailed Component for reasons outlined in the plot specific Sustainability Statements. However, appropriate condition wording could be agreed to require its provision to be explored further at RMA stage for the Outline Components.

Relevant condition wording to be agreed with boroughs / GLA for Outline Components.

Technical Memos

Technical memos have been provided by the GLA to each borough relating to energy, whole life carbon, and circular economy.

Energy

Borough Comment

RBKC 3. The applicant does not appear to have submitted an energy statement for the detailed element of the scheme for RBKC - this covers buildings ECO5/ECO6. The applicant should provide the relevant energy statement/statements including the individual overheating reports as they have done for LBHF with regards to WBO3/4/5.

The below statements are based off the submitted information within the centralised energy strategy for the whole site and the carbon reporting spreadsheets, however will be adjusted accordingly following the submission of the energy strategy for ECO5/ECO6. Any comments that can be addressed before submission of the ECO5/ECO6 energy strategy should be done so to help speed up the consultation process.

4. The applicant has submitted the GLA’s Carbon Emission Reporting spreadsheet in excel format. The applicant should ensure that all tabs are completed as per methodology on Introduction tab.

5. The applicant should provide an outline carbon emissions spreadsheet as they have done for the detailed element.

HL Initial Review

Plot Sustainability Statements for EC05 and EC06 have been submitted, and are evident in the RBKC website.

These documents contain the relevant information on energy strategy and overheating risk assessment.

Proposed Action

ECDCP re-saved all Sustainability and Energy Documentation, including the Plot Sustainability Statements to the GLA’s SharePoint folder on 9 December 2024 to ensure GLA has the relevant submission documents.

Please can the GLA advise what information is considered to be missing / requires update?

Updated Carbon Emissions Reporting spreadsheet, if required.

The Carbon Emissions Reporting spreadsheets have been completed for the detailed plots as these are the plots for which detailed modelling has been undertaken. The energy strategy document also contains estimated energy

Discussion with GLA/Boroughs on what is required and potentially provide Carbon Emissions Reporting spreadsheet for outline elements.

Borough Comment

6. … The applicant should submit the Full be lean/clean/green SAP worksheets to verify these claims for both detailed elements of the scheme. These could not be located within the submission.

The applicant is proposing bespoke thermal bridging values. The applicant should confirm the construction type proposed for the residential building and confirm that the psi values assumed is achievable, detailing previous experience delivering the assumed level of thermal bridging performance for a similar construction type.

7. … The applicant should submit the full detailed BRUKLS (no pages left out) for the be lean/ clean/ green stages.

The applicant should note that the London Plan includes a target of a minimum 15% improvement on 2021 Building Regulations from energy efficiency which applicants should target. The applicant

HL Initial Review

and carbon data for the outline component, based on suitable benchmarks applied to the development area. There is not an energy reporting spreadsheet for the outline component as detailed modelling hasn’t yet been undertaken.

As these plots come forward for Reserved Matters Applications in future, modelling would be undertaken at that time and the reporting spreadsheet completed & submitted.

SAP worksheets for EC05 and EC06 have been provided.

Proposed Action

The thermal bridging values contained in the plot Sustainability Statements are the Part L ‘notional values’. The team engaged with the façade consultant (FMDC) to test these according to the construction details under development. Further design development work is required at Stage 3.

Summaries of the BRUKL reports were included in plot Sustainability Statements for Be Lean and Be Green stages. Note there is no difference between Be Clean and Be Green stages hence there is no need to provide both sets of BRUKLs.

ECDCP re-saved all Sustainability and Energy Documentation, including the SAP worksheets for EC05 and EC06 to the GLA’s SharePoint folder on 9 December 2024 to ensure GLA has the relevant submission documents.

It is proposed to agree an appropriately worded condition that requires submission, on a plot-by-plot basis, an Energy Statement to confirm the final energy and carbon performance of the plot, based on Stage 3 / Stage 4 design detail.

Packaged set of complete BRUKL reports for submission.

It is proposed to agree an appropriately worded condition that requires submission, on a plot-by-plot basis, an Energy Statement to confirm the final energy and carbon performance of the plot, based on Stage 3 / Stage 4 design detail.

Borough Comment

should therefore consider modelling additional energy efficiency measures to meet the EE target.

8. … The applicant should quantify the number of units that will require temperature lopping and the expected cooling load associated. The applicant should provide details on the set point and control strategy, to ensure that the system will not be used for comfort cooling.

The applicant has submitted a general overheating assessment for the whole site. They should submit the detailed results for ECO5/6 confirming the overheating strategy and tested scenarios. This should include the shown closed and open window scenario shown in the table

HL Initial Review

Proposed Action

9. The area weighted average (MJ/m2) and total (MJ/year) cooling demand for the actual and notional building has been provided and the applicant should demonstrate that the actual building’s cooling demand is lower than the notional.

The applicant should consider further passive measures such as a reduced non-domestic glazing ratio in order to reduce the cooling demand below the notional.

The following statemen is included in plot Sustainability Statements in section 8.4 Tempered Cooling:

“Air tempering operates automatically with no user temperature control function. It has limited capacity of up to ~2kW. The cooling is introduced via the home ventilation system. It is only capable of reducing temperatures by a few degrees below ambient temperatures, in order to provide relief on hot summer days when outside temperatures are very warm and reduce the risk of overheating.”

In addition to the ‘Overheating Risk and Thermal Comfort Strategy’ submitted for the whole site, there is also an ‘Overheating Risk’ section in each of the plot Sustainability Statements. This provides detailed modelling / results at the plot level.

Further passive measures will be considered through the RMA / construction process for each plot.

GLA/Boroughs to review information submitted and advise if anything further is required.

It is proposed to agree an appropriately worded condition that requires submission, on a plot-by-plot basis, an Energy Statement to confirm the final energy and carbon performance of the plot, based on Stage 3 / Stage 4 design detail.

10. The applicant is proposing their own 5th generation heat network and has undertaken a full masterplan to assess connection points and potential local buildings which could connect including the Mayors Office for Policing and Crime which is set to connect in the future.

While integration with neighbouring heat loads is welcomed, the applicant must first demonstrate that connection to existing or proposed heat networks has been fully investigated in line with the London Heat Hierarchy.

The applicant should also provide full details of the site phasing.

11. .. They [sic] applicant should outline the benefits on the efficiencies and distribution loss factor of this configuration and compare this with an ASHP ambient loop system.

A drawing/schematic showing the route of the heat network/networks linking all buildings/uses on the site should be provided for sites ECO5/ECO6 alongside a drawing indicating the floor area, internal layout and location of the energy centre/centres.

The applicant has provided a commitment that the development is designed to allow future connection to a district heating network. This should include a single point of connection to the district heating network. Drawings should be provided demonstrating space for heat

Information on phasing is provided in section 2.7 of the submitted Energy Strategy.

Section 5.4 of the submitted Energy Strategy confirms that:

“There are currently no feasible existing or proposed district heat networks in proximity to the Site.”

Section 9.14 of the submitted Energy Strategy provides details of the investigation of existing and potential heat networks, including maps taken from the ‘cross-borough energy masterplan’.

Details of phasing are also included in the delivery section of the submitted site wide DAS.

The submitted Energy Strategy provides significant detail on the proposed ambient loop network and options assessed in Sections 9.0 and 10.0.

Figures 34 and 41 in the Energy Strategy provide drawings of the proposed energy network distribution routes and potential points of connection to a wider heat network.

GLA to confirm what additional information is required.

Indicative drawings for the energy hubs and plot intake rooms can be provided.

Borough Comment

exchangers in the energy centre/centres in ECO5/ECO6, and a safe-guarded pipe route to the site boundary, and sufficient space in cross section for primary district heating pipes where proposed routes are through utility corridors. This requirement is to be secured through a suitable condition or legal wording.

12. It is unclear how much PV is proposed for ECO5 and ECO6.

A detailed roof layout should be provided demonstrating that the roof’s potential for a PV installation has been maximised and clearly outlining any constraints to the provision of further PV, such as plant space or solar insolation levels. The applicant is expected to situate PV on any green/brown roof areas using biosolar arrangement and should indicate how PV can be integrated with any amenity areas.

The on-site savings from renewable energy technologies should be maximised regardless of the London Plan targets having been met.

The applicant should provide the capacity (kWp), total net area (m2) and annual output (kWh) of the proposed PV array.

13. The applicant should detail the amount of PV proposed for the outline part of the scheme in this borough and provide the detailed roof drawings of these buildings for review.

The applicant should provide the capacity (kWp), total net area (m2) and annual output

Section 5.8 of the plot Sustainability Statements provides a roof layout and confirmation of PV provision.

No PV is proposed for EC05/06.

No action proposed.

Section 12.4 of the submitted Energy Strategy provides information on the quantum of PV that could be included across the outline component.

Appropriate condition wording could be agreed to require Solar PV provision to be explored further at RMA stage for the Outline Components.

Borough Comment

(kWh) of the proposed PV array.

15. … Once the planning stage CO2 emissions have been agreed with GLA, the applicant should confirm that the planning stage data has been submitted to GLA.

Borough Comment

3. The applicant has submitted the GLA’s Carbon Emission Reporting spreadsheet in excel format. The applicant should ensure that all tabs are completed as per methodology on Introduction tab.

4. The applicant should provide an outline carbon emissions spreadsheet as they have done for the detailed element.

HL Initial Review

Proposed Action

Webforms to be submitted once Energy Strategy is approved.

HL Initial Review

All tabs have been completed. Please can the GLA clarify what information is missing.

Proposed Action

GLA to confirm what additional information is required.

The Carbon Emissions Reporting spreadsheets have been completed for the detailed plots as these are the plots for which detailed modelling has been undertaken. The energy strategy document also contains estimated energy and carbon data for the outline component, based on suitable benchmarks applied to the development area. There is not an energy reporting spreadsheet for the outline component as detailed modelling hasn’t yet been undertaken.

As these plots come forward for Reserved Matters Applications in future, modelling would be undertaken at that time and the reporting spreadsheet completed & submitted.

5. … The applicant should submit the Full be lean/clean/green SAP worksheets to verify these claims for both detailed elements of the scheme. These SAP worksheets for WB04 and WB05 have been provided.

Discussion with GLA/Boroughs on what is required and potentially provide Carbon Emissions Reporting spreadsheet for outline elements.

GLA to confirm what additional information is required.

LBHF

Borough Comment

could not be located within the submission.

The applicant is proposing bespoke thermal bridging values. The applicant should confirm the construction type proposed for the residential building and confirm that the psi values assumed is achievable, detailing previous experience delivering the assumed level of thermal bridging performance for a similar construction type.

6. … The applicant should submit the full detailed BRUKLS (no pages left out) for the be lean/ clean/ green stages.

The applicant should note that the London Plan includes a target of a minimum 15% improvement on 2021 Building Regulations from energy efficiency which applicants should target. The applicant should therefore consider modelling additional energy efficiency measures to meet the EE target.

7. … The applicant should quantify the number of units that will require temperature lopping and the expected cooling load associated. The applicant should provide details on the set point and control strategy, to ensure that the system will not be used for comfort cooling.

HL Initial Review

Proposed Action

The thermal bridging values contained in the plot Sustainability Statements are the Part L ‘notional values’. The team engaged with the façade consultant to test these according to the construction details under development. Further design development work is required at Stage 3.

It is proposed to agree an appropriately worded condition that requires submission, on a plot-by-plot basis, an Energy Statement to confirm the final energy and carbon performance of the plot, based on Stage 3 / Stage 4 design detail.

Summaries of the BRUKL reports were included in plot Sustainability Statements for Be Lean and Be Green stages. Note there is no difference between Be Clean and Be Green stages hence there is no need to provide both sets of BRUKLs.

Packaged set of complete BRUKL reports for submission.

It is proposed to agree an appropriately worded condition that requires submission, on a plot-by-plot basis, an Energy Statement to confirm the final energy and carbon performance of the plot, based on Stage 3 / Stage 4 design detail.

The following statemen is included in plot Sustainability Statements in section 8.4 Tempered Cooling:

“Air tempering operates automatically with no user temperature control function. It has limited capacity of up to ~2kW. The cooling is introduced via the home ventilation system. It is only capable of reducing temperatures by a few degrees below ambient temperatures, in order to provide relief on hot summer days when outside temperatures are very warm and reduce the risk of overheating.”

GLA/Boroughs to review information submitted and advise if anything further is required.

Borough Comment

The applicant is showing failures for the open window scenario for WBO3. The applicant should address this and consider further passive measures in order to show compliance.

The applicant is also showing a significant number of failures under DSY 2, 3 for WBO 3, 4 and 5. The applicant should demonstrate that the risk of overheating has been reduced further and maximise compliance as far as practical and that all passive measures have been explored, including reduced glazing and increased external shading. The applicant should commit to providing guidance to occupants on future minimising future dwelling overheating risk in line with the cooling hierarchy.

8. The area weighted average (MJ/m2) and total (MJ/year) cooling demand for the actual and notional building has been provided and the applicant should demonstrate that the actual building’s cooling demand is lower than the notional.

The applicant should consider further passive measures such as a reduced non-domestic glazing ratio in order to reduce the cooling demand below the notional.

9. The applicant is proposing their own 5th generation heat network and has undertaken a full masterplan to assess connection points and potential local buildings which could connect including the Mayors Office for Policing and Crime which is set to connect in the future.

HL Initial Review

The WB03 failures in the open window scenario are related to the cluster kitchens, not the sleeping areas. Passive measures are detailed in Section 10.0 of site-wide Thermal Comfort strategy.

Proposed Action

Further passive measures will be considered through the RMA / construction process for each plot.

It is proposed to agree an appropriately worded condition that requires submission, on a plot-by-plot basis, an Energy Statement to confirm the final energy and carbon performance of the plot, based on Stage 3 / Stage 4 design detail.

Information on phasing is provided in section 2.7 of the submitted Energy Strategy.

Section 5.4 of the submitted Energy Strategy confirms that:

“There are currently no feasible existing or proposed district heat networks in proximity to the Site.”

GLA to confirm what additional information is required.

Borough Comment

While integration with neighbouring heat loads is welcomed, the applicant must first demonstrate that connection to existing or proposed heat networks has been fully investigated in line with the London Heat Hierarchy.

The applicant should also provide full details of the site phasing.

10. .. They [sic] applicant should outline the benefits on the efficiencies and distribution loss factor of this configuration and compare this with an ASHP ambient loop system.

A drawing/schematic showing the route of the heat network/networks linking all buildings/uses on the site should be provided for sites WB03/4/5 alongside a drawing indicating the floor area, internal layout and location of the energy centre/centres.

The applicant has provided a commitment that the development is designed to allow future connection to a district heating network. This should include a single point of connection to the district heating network. Drawings should be provided demonstrating space for heat exchangers in the energy centre/centres in WB03/4/5, and a safe-guarded pipe route to the site boundary, and sufficient space in cross section for primary district heating pipes where proposed routes are through utility corridors. This requirement is to be secured through a suitable condition or legal wording.

HL Initial Review

Section 9.14 of the submitted Energy Strategy provides details of the investigation of existing and potential heat networks, including maps taken from the ‘cross-borough energy masterplan’.

Details of phasing are also included in the delivery section of the submitted site wide DAS.

The submitted Energy Strategy provides significant detail on the proposed ambient loop network and options assessed in Sections 9.0 and 10.0.

Figures 34 and 41 in the Energy Strategy provide drawings of the proposed energy network distribution routes and potential points of connection to a wider heat network.

Proposed Action

Indicative drawings for the energy hubs and plot intake rooms can be provided.

Borough Comment

11. The applicant is not proposing to install any PV on WBO 3/4/5. The applicant should re-consider their proposal.

A more detailed roof layout should be provided demonstrating that the roof’s potential for a PV installation has been maximised and clearly outlining any constraints to the provision of further PV, such as plant space or solar insolation levels. The applicant is expected to situate PV on any green/brown roof areas using biosolar arrangement and should indicate how PV can be integrated with any amenity areas.

The on-site savings from renewable energy technologies should be maximised regardless of the London Plan targets having been met.

The applicant should provide the capacity (kWp), total net area (m2) and annual output (kWh) of the proposed PV array.

12. The applicant should detail the amount of PV proposed for the outline part of the scheme in this borough and provide the detailed roof drawings of these buildings for review.

The applicant should provide the capacity (kWp), total net area (m2) and annual output (kWh) of the proposed PV array.

14. … Once the planning stage CO2 emissions have been agreed with GLA, the applicant should confirm that the planning stage data has been submitted to GLA.

HL Initial Review

Section 5.8 of the plot Sustainability Statements provides a roof layout and confirmation of PV provision.

No PV is proposed for WBO 3/4/5.

Proposed Action

No action proposed.

Section 12.4 of the submitted Energy Strategy provides information on the quantum of PV that could be included across the outline component.

Appropriate condition wording could be agreed to require Solar PV provision to be explored further at RMA stage for the Outline Components.

Webforms to be submitted once Energy Strategy is approved.

Whole

Carbon

3. The applicant has confirmed that the operational modelling methodology for Module B6 results follows SAP for the residential buildings. The applicant should confirm that the operational modelling methodology for Module B6 follows TM54 for the nonresidential buildings.

7. The applicant has confirmed that 95% of the cost allocated to each building element category has been accounted for in the assessment. The applicant should provide details/evidence of the review process undertaken to confirm that 95% of the cost per building element category has been modelled.

19. All material types and quantities should be provided for all the applicable building element categories and align with the Assessment table. The applicant should provide the following:

-External & Internal walls: Mortar for the brick and concrete block wall should be included. Please clarify.

-Finishes: all adhesives used for vinyl, carpet etc. should be included in the template. Please clarify.

-MEP: please confirm if there will be any renewable technology systems (PV, etc.).

20. Assumptions made with respect to maintenance, repair and replacement cycles (Module B) should be stated in line with the Indicative component lifespans in the RICs guidance.

Section 13.3 of the Whole Life Carbon and Circular Economy Strategy sets out the approach and appendix N, section 20.1 provides energy use benchmark data and source of information. No proposed action.

Our WLC modelling process is in-line with RICS methodology v1, which is a minimum of 95%.

WLC & CE strategy addendum to be produced responding to comments and technical memos.

Our general view is these requests add a layer of detail/complexity that is unhelpful and does not change the result.

Our EPD selections for this category make allowance for mortar based on typical UK quantities. We will need to review the detail of EPDs used to evaluate the proportion of adhesives.

It is confirmed in the plot performance statement that EC06/EC06 include Air Source Heat Pumps.

Appendix P, tables 39 and 40 of the submitted WLC & CE strategy provide a schedule of assumptions made in respect of maintenance, repair and replacement cycles.

WLC & CE strategy addendum to be produced responding to comments and technical memos.

WLC & CE strategy addendum to be produced responding to comments and technical memos.

3. The applicant has confirmed that the operational modelling methodology for Module B6 results follows SAP for the residential buildings. The applicant should confirm that the operational modelling methodology for Module B6 follows TM54 for the nonresidential buildings.

7. The applicant has confirmed that 95% of the cost allocated to each building element category has been accounted for in the assessment. The applicant should provide details/evidence of the review process undertaken to confirm that 95% of the cost per building element category has been modelled.

15. The applicant should provide details of the main actions with the biggest impacts which have informed this stage of the assessment. The results provided for Module A1-A5 would indicate that further key actions have been taken to achieve such a lower score. The applicant should ensure all key actions have been included in the template.

19. All material types and quantities should be provided for all the applicable building element categories and align with the Assessment table. The applicant should provide the following:

-External & Internal walls: Mortar for the brick and concrete block wall should be included. Please clarify.

-Finishes: all adhesives used for vinyl, carpet etc. should be included in the template. Please clarify.

Section 13.3 of the Whole Life Carbon and Circular Economy Strategy sets out the approach and appendix N, section 20.1 provides energy use benchmark data and source of information. No proposed action.

Our WLC modelling process is in-line with RICS methodology v1, which is a minimum of 95%.

WLC & CE strategy addendum to be produced responding to comments and technical memos.

This information is included in the WLCA template sheets.

GLA to confirm what additional information is required.

Our general view is these requests add a layer of detail/complexity that is unhelpful and does not change the result.

Our EPD selections for this category make allowance for mortar based on typical UK quantities. We will need to review the detail of EPDs used to evaluate the proportion of adhesives.

WLC & CE strategy addendum to be produced responding to comments and technical memos.

LBHF

Borough Comment

20. Assumptions made with respect to maintenance, repair and replacement cycles (Module B) should be stated in line with the Indicative component lifespans in the RICs guidance.

22. The applicant should provide an estimated mass (kg) of reusable and recyclable materials for each building element category.

23. The applicant should provide details of the refrigerants (name, charge, annual leakage rate, GWP, end of life recovery rate).

Circular Economy (Both Boroughs)

Component

Outline 1. Whilst it is acknowledged that the outline element is based on parameter plans at the current stage, the Applicant should provide some additional information with respect to the extent of any retention within the outline element, expected massings [sic] and use classes / types.

HL Initial Review

Appendix P, tables 39 and 40 of the submitted WLC & CE strategy provide a schedule of assumptions made in respect of maintenance, repair and replacement cycles.

This information is included in the WLCA template sheets.

Proposed Action

WLC & CE strategy addendum to be produced responding to comments and technical memos.

2-1. Per the comment in Row 30 [item 3-1], there are some existing buildings where the Applicant has identified further studies are required. The Applicant should provide clarification with respect to the redevelopment scenarios proposed with respect to these.

Per the comment in Row 31 [item 3-2], the Applicant should further explore specific opportunities for reuse and recycling.

This information will be considered through the RMA / construction process for each plot.

GLA to confirm what additional information is required.

Sections 6.6 to 6.10 and table 8 of the submitted Whole Life Carbon and Circular Economy Strategy provide information on potential retention.

No proposed action.

See responses to items 3-1 and 3-2 below.

The comment highlighted in yellow is ambiguous – GLA to be specific / provide clarity on what is being requested.

Officers to review submitted information. Precise uses are not confirmed at this outline stage. Illustrative information is provided on Illustrative Masterplan drawings that form part of the submitted site wide DAS, but this is indicative and not information submitted for approval.

Officers to provide specific feedback.

Component Comment

2-2. The Applicant should note that the lower part of the Design Approach table relates to the new development. The Applicant should demonstrate further consideration accordingly with respect to relocation.

3-1. Where it is understood that retention is proposed in some areas, the Applicant should also provide information to cover these elements.

The areas where the Applicant has identified the need for further studies and examination are welcomed where these relate to the following:

-Ashfield House -9 Beaumont Avenue -1 Cluny Mews -Empress Place / Lillie Road Properties

The Applicant should provide clarification as to which scenario is proposed to be adopted with respect to each of these.

As far as possible, the Applicant should prioritise the retention of these assets. Where the Applicant has identified technical challenges with respect to the redevelopment scenarios, the Applicant should provide additional evidence to demonstrate that these could not feasibly be addressed by a scheme with a greater degree of retention.

3-2 The Applicant should: •Provide an explanation of considerations for developing the site and provide justification for

HL Initial Review

The comment is ambiguous –GLA to be specific / provide clarity on what is being requested.

The illustrative masterplan presents which buildings are likely to be retained and which are likely to be demolished.

Demolition of all assets is proposed, with the potential exception of the Table, Empress Place facades, train shed walls and properties next to West Kensington station. Submitted information explains the options explored and process undertaken to reach reasoned conclusions in support of demolition over repurpose / retention.

At relevant RMA stages, further details pertaining to the properties listed would be provided.

Proposed Action

Officers to provide specific feedback.

This requires a broad conversation with planners on the design intent of the masterplan.

Further meeting to discuss each asset in detail.

Component Comment

the proposed demolition in line with the strategy set out in the Design Approach table of the template. - Please refer to Row 30 [item 3-1] above.

•Provide an assessment of the embodied carbon impacts of demolition and explain how any negative impacts will be mitigated and offset.

•Further consider components and materials on the site including whether there are items suitable for reclamation. It is noted that reuse is currently limited to stone. The Applicant should consider specific opportunities for reuse and recycling of materials either within the proposed development or off-site nearby/locally or further afield, in line with the Circular Economy and Waste Hierarchies.

4. The Applicant should consider key circular economy commitments that go beyond standard practice which are to be explored up to RMA. Given the scale and profile of the proposals, the Applicant is strongly encouraged to consider responding to the pioneering items of the LPG.

The Applicant should further consider opportunities with respect to the existing buildings and materials.

5-1. The Applicant should ensure that the Bill of Materials presented in the GLA CE template is aligned with the information provided in the WLCA per Section 1.2.1

HL Initial Review

Proposed Action

Section 7 of the submitted WLC & CE strategy provides evaluation of the carbon impacts of demolition (see figs. 28, 37, 44, 53, 61).

Pre-demolition audits have been completed and submitted for 9 Beaumont Ave, Ashfield House, Empress Place, Carpenters Workshop / Points Manufacturing Shed, Transplant House / Ultrasonic Equipment Stores, TDU Project Offices, Lillie Bridge Depot, 1 Cluny Mews, Community Hub, Properties adjacent to WK Station. These are included at Appendices DM of the submitted WLC & CE strategy.

Pre-commencement WLC & CE statement per plot confirming approach to materials.

Please can the GLA advise specifically which pioneering items of the LPG are referred to here, which are not already covered by the WLC & CE statement.

WLC & CE strategy addendum to be produced responding to comments and technical memos, where relevant.

Please can the GLA advise where misalignment has occurred such that we can review and take action.

WLC & CE strategy addendum to be produced responding to comments and technical memos, where relevant.

Component Comment

of the GLA guidance, the Applicant should ensure that any updates are reflected across both reporting submissions. It is noted that the material intensity reported with respect to the outline components of the development is very low.

The Applicant should ensure that details are also provided with respect to external works, where appropriate.

The Applicant is strongly encouraged to complete the Module B Construction Waste Factors based on the Module A inputs. The Applicant should demonstrate consideration of 'Design for Disassembly' in the Bill of Materials. It would generally be expected that the windows, doors and services be designed for disassembly for ease of maintenance and replacement. The Applicant is encouraged to review the endof-life scenarios proposed to demonstrate that 95% diversion from landfill can be achieved at end-of-life.

5-2. It is welcomed that the Applicant has provided a commitment to the policy target in the Circular Economy Targets table and has begun to explore reused and recycled content (by mass and by value) in the Bill of Materials. The Applicant should provide supporting calculations in line with the methodology in Appendix 3 of the GLA guidance.

6. It is noted that there is no demolition waste noted to be associated with the outline component. The Application

HL Initial Review

Proposed Action

Please can the GLA advise the specific calculations requested. WLC & CE strategy addendum to be produced responding to comments and technical memos, where relevant.

Further clarification to be provided.

WLC & CE strategy addendum to be produced responding to comments and technical memos, where relevant.

Component Comment

should provide clarification (where this has also not been accommodated in the detailed element estimates), including revision as necessary.

The excavation waste estimate provided is very low, and it is unclear how this has been translated from the CWMP. The Applicant should review and provide clarification, including revision as necessary.

7-1. In the written report, the Applicant notes that the "20% target for recycled content will be based on the top 10 most costly building elements" however the Applicant should note that the target applies across the whole building and calculations should represent at least 80% by value. The Applicant should review and provide clarification, including revision as necessary.

In the written report, that Applicant references that the targets by volume, however the Applicant should note that the targets apply by tonnage per the LPG.

In the Construction Site Waste Management Plan and Circular Economy Statement report, Applicant references targets as a diversion from landfill. However, the Applicant should make reference to the London Plan Policy SI 7 wording where these are largely reuse and recycling targets.

7-2. The Applicant should consider how the recommendations in the PreDemolition Audits will be implemented. The Applicant

HL Initial Review

Further clarification to be provided.

Proposed Action

No references to ‘Brent’ are included in the submitted WLC & CE strategy –clarification required.

WLC & CE strategy addendum to be produced responding to comments and technical memos, where relevant.

No proposed action.

Component Comment

should also provide clarification with respect to the implementation of operational waste where it is noted that a detailed strategy is not yet developed and located outside of Brent.

9. The provision of this information [Supporting Documentation] is welcomed.

Please refer to the comments in Row 30 and Row 31 [items 3-1, 3-2] above with respect to pre-redevelopment and pre-demolition items.

It is strongly encouraged that the Applicant provide the following additional supporting information as a minimum:

•Cut and fill calculations and/or ExcavatedMaterials Options Assessment - Please also refer to the comment in Row 39 [item 6-2].

•Reused or recycled content calculationsPlease also refer to the comment in Row 37.

Detailed 0. The Applicant has provided a separate GLA CE template for each of the individual elements of the components submitted in detail: -EC05 -EC06 -WB03 & WB04 Podium -WB03 -WB04 -WB05

The Applicant should note that it is expected that a single Detailed Application Stage tab of the GLA CE template be completed for each HPA.

HL Initial Review

Row 39 [item 6-2] notes ‘nothing further is required’.

Proposed Action

Row 37 has no content –clarity required.

WLC & CE strategy addendum to be produced responding to comments and technical memos, where relevant.

Noted.

WLC & CE strategy addendum to be produced responding to comments and technical memos, where relevant.

Component Comment

1-1. The Applicant should provide some additional description of the development proposals to convey scale and massing, including at least one image and typical plans to illustrate.

1-2. The Applicant should indicate the use classes / types in the Project Details section of the GLA CE template for WB05.

2. The Applicant has indicated that there are no existing buildings on the areas of the site onto which the detailed development is to be delivered. Please refer to the comment in Row 30 [item 31].

3-1. Per the comment in Row 27 [item 2] above, the Applicant should provide additional distinction with respect to the areas of the site onto which the detailed plots are to be delivered. The Applicant should provide description, plans and images to illustrate. The Applicant should also clarify whether demolition across the site falls into the scope of the detailed element.

3-2. Per the comment in Row 30 [item 3-1], the Applicant should provide additional description of the site to ensure that the whole site is accounted for.

4. The Applicant should consider key circular economy commitments that go beyond standard practice which are to be explored through detailed

HL Initial Review

Please refer to the DAS / wider planning application.

Further clarification to be provided.

Proposed Action

Correct – no buildings to be demolished on the Detailed Component land.

WLC & CE strategy addendum to be produced responding to comments and technical memos, where relevant.

No proposed action.

Please refer to the DAS / wider planning application and parameter plans where Detailed Component land is clearly identified.

Please refer to the DAS / wider planning application.

Please can the GLA advise specifically which pioneering items of the LPG are referred to here, which are not already

WLC & CE strategy addendum to be produced responding to comments and technical memos, where relevant.

Component Comment

design. Given the scale and profile of the proposals, the Applicant is strongly encouraged to consider responding to the pioneering items of the LPG.

5-1. The way the reporting has been split for different elements of WB03 and WB04 does not allow an indicative impression of the material efficiency of the proposed development. As far as possible, it is requested that this is combined per the comment in Row 20 [item 0]. Generally however it is noted that the material intensity of the frame is very high and similarly for the internal walls (up to ~10 times the median set out in the LPG).

Similarly the material intensity of WB05 internal walls is very high. For both EC05 and EC06 it is noted that the material intensity of the frame is high and for EC06 for the internal walls is also high.

The Applicant should ensure that details are also provided with respect to external works, where appropriate.

The Applicant is strongly encouraged to complete the Module B Construction Waste Factors based on the Module A inputs. The Applicant should demonstrate consideration of 'Design for Disassembly' in the Bill of Materials. It would generally be expected that the windows, doors and services be designed for disassembly for ease of maintenance and replacement. The Applicant is encouraged to review the endof-life scenarios proposed to

HL Initial Review

covered by the WLC & CE statement.

Further clarification to be provided.

Proposed Action

WLC & CE strategy addendum to be produced responding to comments and technical memos, where relevant.

Component Comment

demonstrate that 95% diversion from landfill can be achieved at end-of-life.

5-2. It is welcomed that the Applicant has provided a commitment to the policy target in the Circular Economy Targets table and has begun to explore reused and recycled content (by mass and by value) in the Bill of Materials. The Applicant should provide supporting calculations in line with the methodology in Appendix 3 of the GLA guidance.

6-1. It is noted that there is no demolition waste noted to be associated with the outline component. The Application should provide clarification (where this has also not been accommodated in the detailed element estimates), including revision as necessary. The Applicant should note that

The excavation waste estimate provided is very low, and it is unclear how this has been translated from the CWMP. The Applicant should review and provide clarification, including revision as necessary.

It is noted that the Recycling and Waste Reporting table is largely incomplete for WB05. The Applicant should ensure this information is provided.

6-2. Whilst is welcomed that the breakdown of the expected waste management routes for each of the waste streams demonstrate compliance with London Plan Policy SI 7 targets as a

HL Initial Review

Further clarification to be provided.

Proposed Action

Further clarification to be provided.

WLC & CE strategy addendum to be produced responding to comments and technical memos, where relevant.

Further clarification to be provided.

WLC & CE strategy addendum to be produced responding to comments and technical memos, where relevant.

WLC & CE strategy addendum to be produced responding to comments and technical memos, where relevant.

Component Comment HL Initial Review

minimum. However, the Applicant is strongly encouraged to further explore the breakdown of waste management routes to demonstrate how residual value will be maximised in line with the Circular Economy and Waste Hierarchies.

7. The following comments apply to both the strategy submitted for the LBHF plots and for the RBKC plots:

•Provide evidence to demonstrate that the development supports the separate collection of dry recyclable streams (at least card, paper, mixed plastics, metals and glass), food waste and other waste. - Where the collection of mixed dry recyclables (MDR) is proposed, the Applicant should clarify which individual waste streams this is expected to accommodate. This should include at least card, paper, mixed plastics, metals and glass where these are not already to be collected separately.

•Provide evidence to demonstrate how operational performance will be monitored and reported.

•Provide evidence that the application of consolidated, smart logistics and communityled waste minimisation schemes has been explored.

8-1. It is noted that the Applicant has not provided a commitment to the demolition waste target with respect to

Further clarification to be provided.

Further clarification to be provided.

WLC & CE strategy addendum to be produced responding to comments and technical memos, where relevant.

WLC & CE strategy addendum to be produced responding to comments and technical memos, where relevant.

Component Comment

any of the detailed plots. The Applicant should review and provide clarification with respect to demolition phasing, and provide a commitment in the Circular Economy Targets table.

In the written report, the Applicant notes that the "20% target for recycled content will be based on the top 10 most costly building elements" however the Applicant should note that the target applies across the whole building and calculations should represent at least 80% by value. The Applicant should review and provide clarification, including revision as necessary.

In the written report, that Applicant references that the targets by volume, however the Applicant should note that the targets apply by tonnage per the LPG.

In the Construction Site Waste Management Plan and Circular Economy Statement report, Applicant references targets as a diversion from landfill. However, the Applicant should make reference to the London Plan Policy SI 7 wording where these are largely reuse and recycling targets.

8-2. The Applicant should consider how the recommendations in the PreDemolition Audits will be implemented. The Applicant should also provide clarification with respect to the implementation of operational waste where it is noted that a detailed strategy is not yet developed and located outside of Brent.

HL Initial Review

Proposed Action

Further clarification to be provided. WLC & CE strategy addendum to be produced responding to comments and technical memos, where relevant.

Component Comment

10. The Applicant should demonstrate consideration of the end-of-life scenarios of key elements, components and materials, including how these will be facilitated by the design to maximise reuse and recycling.

Further clarification to be provided.

Proposed Action

WLC & CE strategy addendum to be produced responding to comments and technical memos, where relevant.

11. The provision of this information [Supporting Documentation] is welcomed.

Please refer to the comments in Row 30 [item 3-1] and Row 31 [item 3-2] above with respect to pre-redevelopment and pre-demolition items.

It is strongly encouraged that the Applicant provide the following additional supporting information as a minimum:

•Cut and fill calculations and/or ExcavatedMaterials Options Assessment - Please refer to the comment in Row 39 above.

•Reused or recycled content calculationsPlease refer to the comment in Row 37 above.

•Scenario modelling demonstrating adaptability

Row 37 has no content –clarification required.

WLC & CE strategy addendum to be produced responding to comments and technical memos, where relevant.

Meeting

Project: Earls Court

Subject: GLA WLC & CE comments

Date: 06 February 2025 11:00 AM

Held at: MS Teams

Notes

Outline

3-2 The Applicant should:

• Provide an explanation of considerations for developing the site and provide justification for the proposed demolition in line with the strategy set out in the Design Approach table of the template.Please refer to Row 30 [item 3-1] above.

• Provide an assessment of the embodied carbon impacts of demolition and explain how any negative impacts will be mitigated and offset.

• Further consider components and materials on the site including whether there are items suitable for reclamation. It is noted that reuse is currently limited to stone. The Applicant should consider specific opportunities for reuse and recycling of materials either within the proposed development or off-site nearby/locally or further afield, in line with the Circular Economy and Waste Hierarchies.

5-1. The Applicant should ensure that the Bill of Materials presented in the GLA CE template is aligned

This was discussed at length during the meeting and this information has been provided for each building in Section 7.0.

GLA to review Section 7.0 and provide specific examples of where further information is required.

The Circular Economy templates per plot. The 47 million kg is relating to EC05, Additional supporting

MN-5600027-03-BL-20250505-GLA comments-P02.docx

Description Response / Justification

with the information provided in the WLCA per Section 1.2.1 of the GLA guidance, the Applicant should ensure that any updates are reflected across both reporting submissions. It is noted that the material intensity reported with respect to the outline components of the development is very low.

The Applicant should ensure that details are also provided with respect to external works, where appropriate.

The Applicant is strongly encouraged to complete the Module B Construction Waste Factors based on the Module A inputs. The Applicant should demonstrate consideration of Design for Disassembly' in the Bill of Materials. It would generally be expected that the windows, doors and services be designed for disassembly for ease of maintenance and replacement. The Applicant is encouraged to review the end-of-life scenarios proposed to demonstrate that 95% diversion from landfill can be achieved at endof-life.

whereas the 943 million kg in the WLCA is the outline WLCA.

There is a minor difference in the total quantities reported between the WLC and CE detailed sheet (now revised to match WLCA) but this is likely due to the sheet rounding and an error with a locked cell.

The Circular Economy and Whole Life Carbon detailed reporting templates for the plots have been updated to ensure cohesive reporting.

Proposed action

information enclosed.

GLA to review CE and WLC sheets.

The total quantity of materials reported in the Bill of Materials in the GLA CE template differs from the total quantity of materials reported in the WLCA. A total of 943,803,955kg is reported in the WLCA compared to 47,489,193kg in the CES.

5-2. It is welcomed that the Applicant has provided a commitment to the policy target in the Circular Economy Targets table and has begun to explore reused and recycled content (by mass and by

Recycled content by mass and value have been reported in excel sheets based off OneClick data.

Additional supporting information enclosed.

Description Response / Justification

value) in the Bill of Materials. The Applicant should provide supporting calculations in line with the methodology in Appendix 3 of the GLA guidance.

7-2. The Applicant should consider how the recommendations in the Pre-Demolition Audits will be implemented. The Applicant should also provide clarification with respect to the implementation of operational waste where it is noted that a detailed strategy is not yet developed and located outside of Brent.

Detailed

5-2. It is welcomed that the Applicant has provided a commitment to the policy target in the Circular Economy Targets table and has begun to explore reused and recycled content (by mass and by value) in the Bill of Materials. The Applicant should provide supporting calculations in line with the methodology in Appendix 3 of the GLA guidance.

8-2. The Applicant should consider how the recommendations in the Pre-Demolition Audits will be implemented. The Applicant should also provide clarification with respect to the implementation of operational waste where it is noted that a detailed strategy is not yet developed and located outside of Brent.

Please see column K for recycled content by mass and column M for recycled content by value in enclosed excel reporting.

Proposed action

GLA to review reporting sheets.

This is provided in detail in Appendices D-M. GLA to review signposted information and provide explicit references in what (if anything) is required to close this comment.

Recycled content by mass and value have been reported in excel sheets based off OneClick data.

Please see column K for recycled content by mass and column M for recycled content by value in enclosed excel reporting.

Additional supporting information enclosed.

GLA to review reporting sheets.

This is provided in detail in Appendices D-M. GLA to review signposted information and provide explicit references in what (if anything) is required to close this comment.

Appendix F – RBKC comments and responses

Meeting

Project: Earls Court

Subject: RBKC comments

Date: 20 March 2025 15:00 PM

Held at: MS Teams

Notes

Description GLA EAG / RBKC policy / London Plan CES reference Response /

1.Governance Framework

1.1Carbon budget approach rejected by RBKC. Further discussion required to agree approach in Governance Framework.

1.2Carbon offsetting via local community projects is welcomed. To be detailed in Governance Framework.

2.Energy and Sustainability

2.1No electrical storage has

GLA EAG 3.3

Sustainability Governance Framework is in progress with anticipated issued date to GLA and boroughs in mid-May. The framework will include mechanisms on how carbon is offset along with gateway timelines.

Sustainability Governance Framework to be issued in mid-May.

GLA EAG 3.3 & 6.5

RBKC

GB4(D) As 1.1. above.

GLA EAG 10.1

GLAEnergyGuidance10.1-Energyassessments shouldexplainhowtheopportunitiesforproducing, GLA Energy Assessment

MN-5600027-03-KWY-20250324-RBKC comments-P02.docx

Description GLA EAG / RBKC policy / London Plan CES reference

Response / Justification

Proposed action been designed in.

Justification to be provided. This is to include detailed and outline plots.

storingandusingrenewableenergyon-sitewillbe maximised,inlinewithPolicySI2oftheLondon Plan.Withinthemainbodyoftheenergy assessment,detailedsitespecificanalysisshouldonly beprovidedforthoserenewableenergy technologiesconsideredfeasible.Site-specific analysisforthosetechnologiesnotconsidered feasibleshouldbeincludedinanappendix.

The proposals and information below set out how the systems have been designed to be flexible and able to reduce or shift peak energy demand, in accordance with the GLA guidance.

Demand side flexibility/electrical storage Section 14.9 includes a clear commitment from ECDC to implement best practice across the development, including the implementation of the energy networks.

ECDC will explore the potential for Demand Side Flexibility for future plots in the Outline Component, which includes the potential provision of battery storage. Hoare Lea and ECDC have identified various spaces in the Outline Component that could potentially serve as suitable locations for technologies such as battery storage.

There are various regulatory and statutory hurdles associated with electrical battery storage, particularly when serving residential buildings. These issues will be considered with specialist input from the successful utility provider, ESCO and ECDC. Hoare Lea also have a range of in-house tools to assist with developing a technical and economic case for battery storage.

The sitewide approach to PV is set out in section 12.4 that responds to LP Policy SI 9.2.2 (“opportunities to maximise renewable electricity generation”). As discussed in point 2.3 below, there are no opportunities to install PV panels on the roof of EC05 and EC06 due to space constraints.

Guidance, Section 11.6, Table 9 to be provided as part of the Addendum in mid-May.

RMA Energy Statements will consider the feasibility of battery storage again at the detailed design stage.

RBKC/ Hodkinson to confirm this information is sufficient to address this point.

Description GLA EAG / RBKC policy / London Plan CES reference

Response / Justification

Any electrical storage introduced would also need to be coordinated with the approach to thermal demand. The ESCo tender issued is set up in a series of ‘lots’ to allow for a multi service approach to be offered by tenderers that have this capability and that would support these overall aims.

Renewable Energy

The Energy Strategy section 12 contains a clear analysis of the options for producing and using renewable energy within the site. It also contains consideration of technologies that are not feasible for this site.

Sections 9.34, 9.35 and 9.36 contain a summary of future heat generation and capture opportunities, such as ground source, to be considered at the next stage of design.

Thermal storage

Section 9.24 sets out a summary of the thermal storage provisions made to date. This will be reviewed at RMA stage once an ESCo has been appointed and further design development will take place to refine the thermal storage installations.

The requirements of London Plan Policy SI 2 and 3 (’minimising both annual and peak energy demand’) has been presented in detail through the 'Be Lean’ section of the masterplan Energy Strategy and backed up by the data in the strategies of the Detailed Component. These measures will reduce the peak and annual thermal energy demand.

Reduction in peak energy consumption, and its direct correlation to electrical demand, will be realised partly through the use of thermal stores, which are presented in the following sections of the masterplan Energy Strategy: - 9.24 - Thermal Storage Provision – this section sets out the size and capacity of thermal stores planned for the central plantrooms.

Proposed action

Description

GLA EAG / RBKC policy / London Plan CES reference

Response / Justification

2.2GLA 15% ‘Be Lean’ target for nonresidential has not been achieved. This is a known challenge from GLA.

Justification to be provided.

GLA EAG 1.7 & 7.1

- 9.26 - Optimising the Network – this sets out the likely operation of the network to reduce peak demand.

- 14.6 – Heat Metering Arrangements –showing how electrical and heat energy will be metered and billed.

- 14.9 – sets out a framework for best practice, including implementation of smart controls and network optimisations.

This will result in reducing peak demand through:

- Thermal stores enabling shifting of peak network load away from general hours of peak electrical loading.

- Control strategies to govern this and the overall network performance to be developed by the successful ESCo as they develop the design (e.g. potential for an ESCo to control in-apartment heat pumps to maximise network efficiency).

- As operational data becomes available, this will be used to further optimise the system.

In addition, the uninsulated pipework installed in the ground (refer to figure 49) can be used to seasonally store and absorb energy. This will be reviewed further by the specialist designer once an ESCo has been appointed and will act as an additional source of thermal storage.

The GLA recognises within their ‘PartL2021and theEnergyAssessmentGuidance2022–cover note’that this is challenging.

As the comment acknowledges, it is a ‘known challenge’ for non-residential use classes to achieve this target.

As demonstrated in the submitted Energy Strategy (section 8.2), modelling undertaken for plots in the detailed component demonstrates a range of performance at the Be Lean stage, up to 7.15%. Please refer to section 13.2 of the submitted Energy Strategy which indicates that overall, the nonresidential element achieves a 6.76% reduction at the Be Lean stage.

Proposed action

RBKC / Hodkinson to confirm this response is sufficient to address this point.

Description

GLA EAG / RBKC policy / London Plan CES reference

Response / Justification

2.3PVs have not been included in the detailed plots. Clearly marked roof drawings indicating space constraints to be provided.

GLA EAG 10.10

The building fabric and system performance values assigned to non-residential element reflect those used in the residential element, which achieved 24% at the Be Lean stage. This difference in performance between elements is due to the prescribed modelling methodology for Part L assessments.

Given that at the Be Clean stage, residential elements are achieving 71% reduction beyond the baseline and non-residential elements are achieving 59.9% beyond the baseline, both significantly exceeding the on-site 35% target, our view is the energy strategy is optimised to minimise, as far as is practically achievable, the on-site emissions.

The roof spaces on EC05 and 06 are particularly constrained by the form and elevation of these particular buildings. Available roof space has been allocated for use by sitewide plant that is required to enable the early phase operation of the ambient loop as well as plot plant including air handling units and smoke extract fans. Therefore more roof plant space than would usually be expected for residential buildings is required. In addition, building maintenance units are required for window cleaning and façade maintenance. Plant screens, that would shade PV panels, are provided around the perimeter of each plant zone for architectural and aesthetic reasons. Therefore on these particular plots there is no space for a PV installation.

There is a clear commitment to the use of PV across the site in the Outline Component, as explained in section 12.4.

The masterplan rooftop plan (ECD-SW-ZZ-HBS-02ZZ-DR-A-101026) shows the extent of masterplan roof plant required along with plot plant required. This has been taken from the plot designs in the Detailed Component and estimated for the plots in the Outline Component. This is to be read in conjunction with the plan provided in Appendix G of the Energy Strategy, showing extent of green roofs

Proposed action

Additional supporting information enclosed.

RBKC / Hodkinson to confirm this response is sufficient to address this point.

Description

GLA EAG / RBKC policy / London Plan CES reference

Response / Justification

Proposed action

2.4Include peak energy demands from EC.PA.38 (Utilities Services Infrastructure) document into Energy Strategy to avoid crossreferencing.

GLA EAG 11.5 - 11.11

and Table 35 that shows the overall amount of PV to be provided across the development, including RBKC plots.

Drawing ECD-SW-ZZ-HBS-02-XX-DR-L-105005 shows the illustrative uses of each roof space across the development. This drawing has been used to inform the urban greening factor calculations and development of outdoor spaces for nature and people to mix. As can be seen, extensive areas of roof are allocated to accessible spaces on both commercial and residential buildings. As these spaces are intended to be occupied, PV panels cannot be installed in the majority of these zones. Provision of these spaces is part of a strong nature based design philosophy described in detail within the Sustainability documents.

Where spaces for PV installation are shown, PV panels will be installed above the green roof zones using a mounting detail such as provided by Bauder or similar (as explained in the Energy Strategy).

Refer to attached excerpts from the Plot Energy Strategies along with 3D renderings showing how the roof spaces are arranged and the height of the plant screens which will shade the plant areas.

The peak electrical loads for the masterplan have been extracted from the Masterplan ‘Utilities and Services Infrastructure Strategy’ and enclosed in this response. These demonstrate an estimated load based on a high, moderate and low loading scenario.

Also attached is a copy of the UKPN offer letter confirming the 25,900kVA availability to serve the Detailed and Outline Component in the EC and WB development areas. The availability has been secured and is being monitored by our utilities team.

GLA Tables 9 and 10 will be completed and provided in the Addendum.

Additional supporting information enclosed.

GLA Tables 9 and 10 to be provided as part of the Addendum in mid-May.

RBKC / Hodkinson to confirm this

Description

GLA EAG / RBKC policy / London Plan CES reference

2.5Submit ‘Be Seen’ webforms. Target dates will be TBC.

2.6Results tables to be provided in Exec Summary of Site-wide and Plot reports.

Be Seen 3.1.2 (LP Policy SI2 A4)

GLA EAG 5.2 – 5.3

Response / Justification

2.7Full BRUKL documents to be provided.

2.8Mark up of assessed dwellings to be provided.

RBKC GB4(A)

GLA EAG 6.13 & 7.6

HL will submit ‘Be Seen’ webforms and provide evidence of submission.

Proposed action response is sufficient to address this point.

HL to submit ‘Be Seen’ webforms and provide evidence by mid-May

An addendum will be provided with an Exec Summary which will address this comment.

2.9Demand reduction measures (i.e. fabric performance) to be provided for outline plots.

GLA EAG 7.6

RBKC GB4(A)

HL have enclosed full BRUKL documents for each area in EC05 and EC06 in this response. Refer to folder 2.7 – BRUKLS.

HL to provide mark up of assessed dwellings along with indicative psi values.

HL will provide an addendum with an Exec Summary which will address this comment. Target midMay.

Full BRUKL documents have been enclosed.

HL to provide mark up of assessed dwellings and psi values in addendum. Target midMay.

As is the nature of outline applications, the detail of fabric performance and demand reduction measures have not been designed for the outline plots. This information will follow at RMA stage.

The demand reduction measures for the detailed plots will be used as a baseline for the outline plots.

RBKC / Hodkinson to confirm this response is sufficient to address this point.

Description GLA EAG / RBKC policy / London Plan CES reference Response

2.10Glazing % to be provided for detailed plots.

GLA EAG 7.6

2.11Waste water heat recovery has not been designed into detailed plots. Justification to be provided.

GLA EAG 7.11

HL to provide glazing % in addendum. HL to provide glazing % in detailed plots in addendum. Target midMay.

A WWHR system was deemed impractical to incorporate due to spatial fit and impact on internal layouts and building height. This impacted the viability and feasibility of the design and therefore was not pursued.

Under Be Lean, other measures such as improved fabric performance, highly efficient lighting, mechanical ventilation with heat recovery have been incorporated, which results in the overall achievement of the 10% target improvement for Be Lean.

RBKC / Hodkinson to confirm this response is sufficient to address this point.

2.12Provide further detail on energy costs estimates for heat-only comparisons and based on worst case building technology (i.e. LTHW heating).

GLA EAG 7.16 / 7.19

GLAEnergyGuidance7.16-Applicantswillbe expectedtoconsidertheestimatedcoststo occupantsoftheenergyassessmentandoutlinehow theyarecommittedtoprotectingtheconsumerfrom highprices.Inlinewiththeenergyhierarchy, applicantsshouldprioritiseenergydemand reduction.Energyefficiencymeasuresshould thereforebetheprimaryfactorofconsideration beforeproceedingwithaselectionoftheenergy system.

Extent of ambient loop system

The proposal is for an ambientloopinthe masterplantoconnecttoeachplot/block , regardless of the internal system choices made by plot design teams. This has formed the basis of our energy modelling and estimated cost to consumers. Plot teams can choose to use either an ambient loop or separate LTHW/chilled water systems within the plot. The choice would be based on a variety of factors. The likelihood of a ‘heating only’ residential building with natural ventilation is discussed below.

RBKC / Hodkinson to confirm this response is sufficient to address this point.

Description GLA EAG / RBKC policy / London Plan CES reference

Response / Justification

Schematic drawings have been provided to show the concept connection detail for both types of system (refer to drawings ECD-SW-ZZ-HLE-03-XX-SC-M600321 and ECD-SW-ZZ-HLE-03-XX-SC-M600322 enclosed with this response).

As shown on schematic ECD-SW-ZZ-HLE-03-XXSC-M-600322, in the case of the separate LTHW and chilled water systems, these would connect to the sitewide ambient loop via heat exchangers and water to water heat pumps. The connection arrangement shown on the schematic would allow for cool water from the heating heat pump to be used in the cooling heat pump and retained on-plot before being rejected to the sitewide ambient loop if there was an excess.

Even if there was a net increase in cool water being rejected to the sitewide network, this would then be used to provide cooling to workplace plots.

Heat only cost comparison

For the reasons set out below we do not agree that the overall energy calculations need to be updated to include for LTHW only in the outline plots.

(a)Basisofheatingandcoolingloadcalculations: Within the energy network calculations, reasonable assumptions have been made for Outline residential plots heating, hot water and cooling loads. These have been based on the Passivhaus approach as described in section 7.7. The domestic hot water has been diversified using industry standard diversity curves. The plot loads included in the energy modelling are the same regardless of the type of system generating space heating, hot water and cooling.

The loads from the Detailed plots have been used within the energy calculations.

The Detailed heating and cooling load calculations are slightly lower than the estimated Outline plot loads. Therefore overall performance will only be

Proposed action

Description GLA EAG / RBKC policy / London Plan CES reference

Response / Justification

improved compared to the baseline presented in the energy strategy.

(b)Discussionofa‘heatonly’design: Whilst flexibility has been provided in the design of the ambient loop network to allow developers/designers to investigate an on-plot LTHW heating solution if they wish to, they would need to pass the Overheating tests as set out in TM59 and to demonstrate this in their RMA.

Part of the TM59 test is to consider external noise levels in order to avoid exposing residents to excessive noise levels which have been found to contribute to discomfort, stress etc. The site is located in a noisy area, with high ambient noise levels. Our masterplan acoustic report included commentary on the suitability for natural ventilation for residential buildings. An excerpt from this has been enclosed as part of this response (refer to the extract from “ECD-SW-ZZ-HLE-XX-XX-RP-X100026_Ver1" p15-17).

Figure 8 from this document shows that natural ventilation is at best, only a potential solution. There are no buildings where natural ventilation could be used based on the prevailing noise levels.

Whilst there are various ways to provide passive mitigation of overheating, it is unlikely that a purely passive approach would be sufficient. Therefore a minimal level of cooling is likely to be required across all of the residential buildings.

Whilst plots are provided with an engineering option to use either an ambient loop or conventional LTHW systems internally for heating and hot water, where cooling for air tempering is required it is likely that an ambient loop style system would be used.

Therefore, we are not convinced that using a LTHW heating solution and relying on natural ventilation alone would pass TM59.

Proposed action

Description GLA EAG / RBKC policy / London Plan CES reference

Response / Justification

2.13Provide detail for pumping energy of ambient loop.

LP SI2(E)

There are other solutions that can reduce the risk of overheating which have been implemented, such as using the shading provided by balconies in EC05, and low g-value glazing. Other potential measures, such as external shading, exposed thermal mass etc could either adversely affect the aesthetics of the plot or impact on onerous operational and maintenance requirements.

Cost estimates

As the Outline plots are developed, each design team would need to explore passive measures and provide justification in the RMA as to their design approach.

As part of design development prior to submission of RMA’s, plot teams will assess the cost of both design approaches to determine the best approach for their plot. Cost estimates will consider initial capital expenditure as well as operational costs to maintain the system.

In addition, cost estimates will include liaison and negotiation with the ESCo to determine the extent of any ESCo contribution to the plot heating and cooling systems, connection charges and tariffs.

Regardless of which approach is deemed appropriate for each plot, the performance of the plot systems will be an improvement compared to the baseline in the Energy Strategy.

As stated in the masterplan Energy Strategy, pump energy “is estimated to be ca. 90.5MWh, based on a conservative estimate for 5th generation ‘ambient loop’ energy networks with distributed pumping of 2% of the network heating and cooling demand (it can be as low as 0.5%).”

We carried out an indicative sizing of the pumps and approximate pressure loss, to derive a peak duty value. EON used this to advise on an overall figure of around 2% based on their experience of these networks in operation.

Proposed action

RBKC / Hodkinson to confirm this response is sufficient to address this point.

Description

GLA EAG / RBKC policy / London Plan CES reference

Response / Justification

2.14Show a safeguarded route to a single connection point on the boundary for future connection to other networks.

2.15Provide further detail for Table 26 ‘Plant Efficiencies’.

GLA EAG 9.8

The energy consumption of the pumps is low as the pumps are decentralised and located within the interface plantroom of each plot. Whilst the pumps are sized to allow for pumping water all the way back to the thermal stores, this isn’t always required. Depending on how adjacent plots are operating and whether they are in a net heating or cooling scenario would potentially allow for water to be pumped between plots.

The hydraulic design and control system will be developed at the next stage of design, likely with either a specialist ESCO leading the development of this or with significant input from an ESCO.

Masterplan network drawing to be updated to show this information.

Proposed action

HL to provide updated drawing in Addendum. Target midMay.

GLA EAG 10.9

2.16Operational energy use for outline plots

GLA EAG 7.13

RBKC

GB4(H)

Enclosed is an excerpt of the masterplan and plot plant specifications that have been used in the Energy Strategy. Also enclosed are the data sheets for the masterplan plot to demonstrate the source of the efficiency data set out in section 9.31 of the masterplan Energy Strategy. These were used in the energy modelling and the results included in the Energy Strategy.

As is the nature of outline applications, an operational energy assessment has not been produced for the outline plots. This information will follow at RMA stage.

The operational energy performance of the detailed plots, alongside the GLA targets, will be used as a baseline for the outline plots.

RBKC / Hodkinson to confirm this response is sufficient to address this point.

RBKC / Hodkinson to confirm this response is sufficient to address this point.

Description

2.17Provide full BREEAM preassessments

RBKC GB4(I) As agreed with the GLA and as is the nature of outline applications, a full BREEAM Pre-assessment has not been produced for the outline plots. However, this information will follow at RMA stage for each plot, affording those design teams the opportunity to select credits which are appropriate to their specific context

Please also note that full BREEAM pre-assessment for detailed plots are attached.

It is also worth noting in our Sustainability Strategy that the applicant has committed to delivering BREEAM Excellent in non-residential elements with an aspiration to achieve Outstanding.

RBKC / Hodkinson to confirm this response is sufficient to address this point.

2.18Split residential & non-residential carbon performance for outline component (tonnes & %)

2.19GLA excel still required for outline component

GLA EAG 3.9 & 1.7

GLA EAG 6.2

As per previous responses, this is provided in Tables 38 & 39. The first row is residential and the following rows are all the non-residential components. Table 38 reports the tonnes CO2 and Table 39 reports the % savings.

Please can RBKC confirm what specifically is noncompliant with this format.

As is the nature of outline applications, a detailed carbon emissions calculation has not been produced for the outline plots. However, this information will follow at RMA stage for each plot.

The performance of the detailed plots will be used as a benchmark for the outline plots.

RBKC / Hodkinson to confirm this response is sufficient to address this point.

RBKC / Hodkinson to confirm this response is sufficient to address this point.

2.20No commitment to use of green leases to secure performance

2.21Section 9.22 calculates heat losses, which are low due to

GLA EAG 6.14

ECDC are committed to providing green leases to tenants.

GLA EAG 9.46

Heat losses on the ambient loop network have been discussed in the Energy Strategy in section 9.22 and, due to the low fluid temperatures, are very low. For masterplan calculation purposes, overall plot heating

RBKC / Hodkinson to confirm this response is sufficient to address this point.

RBKC / Hodkinson to confirm this

Description

GLA EAG / RBKC policy / London Plan CES reference

the nature of ambient networks.

2.22Confirm if ESCO to be appointed. If this isn't committed to then items contingent on it should be altered.

2.23GB4(A) Reducing Energy Demand

1.Required in outline documents too 2.RM energy statements required with RM submission, not delayed until precommencement

3.Provide full BRUKL documents, without last page deleted.

2.24GB4(D) Identify local measures

GLA EAG 7.18

Response / Justification

Proposed action

RBKC

GB4(A)

and cooling loads include heat loss within a W/m2 allowance.

Each plot will be responsible for calculating heat losses within their building. This information to be provided in RMA documents as each plot is brought forward. response is sufficient to address this point.

As per previous response, an ESCO will be appointed with the capability to design, operate and maintain the network.

Design of the network will be in accordance with industry targets, guides and recommendations as appropriate and where applicable to 5G networks. The commitments listed in 7.18 will form part of the scope and tender documents for the ESCO.

1.Refer to 2.9 above.

2.Agreed

3.Refer to 2.17 above.

RBKC / Hodkinson to confirm this response is sufficient to address this point.

RBKC / Hodkinson to confirm this response is sufficient to address this point.

RBKC GB4(D)

This will be addressed in the Sustainability Governance Framework as per 1.1 above.

RBKC / Hodkinson to confirm this response is sufficient to address this point.

Description

EAG / RBKC policy / London Plan CES reference

2.25GB4(H/I) RBKC GB4(I) Refer to 2.16 and 2.17 above.

3.Overheating

3.1Mark up of assessed dwellings to be provided.

GLA EAG 8.5

RBKC / Hodkinson to confirm this response is sufficient to address this point.

HL to provide mark up of assessed dwellings. HL to provide mark up of assessed dwellings in addendum.

Target midMay.

3.2Provide justification for nonresidential areas to meet ‘exceptional circumstances’ and demonstrate cooling demand has been minimised.

3.3Provide results of corridor overheating TM52 assessment.

GLA EAG 8.7

3.4Provide further explanation of overheating

GLA EAG 8.10

The non-residential areas include workspaces and small F&B units, which are recognised as ‘exceptional circumstances’ under GLA Energy Assessment Guidance 8.18. However, the cooling hierarchy has still been applied with passive measure such as awnings provided with a high performing glazing gvalue of 0.28.

RBKC / Hodkinson to confirm this response is sufficient to address this point.

GLA EAG

8.6, 8.10, 8.13-8.15, 8.20

HL to provide corridor overheating assessment.

These were not originally provided as the ambient loop installation in the Detailed plots would not increase the space temperature in the corridors due to operating at temperatures between 15-25C. HL to provide corridor overheating assessment in addendum. Target midMay.

GLA Energy Assessment Guidance 8.10 stipulates that where noise concerns pose limitations to opening windows, windows open (adaptive) and windows closed (fixed) assessment are to be

RBKC / Hodkinson to confirm this

Description GLA EAG / RBKC policy / London Plan CES reference

results tables, detailing which scenario is adopted and demonstrate compliance with cooling hierarchy.

4.Whole Life Carbon and Circular Economy

4.1RBKC / Hodkinson to provide specific responses to items highlighted in the agenda.

London Plan Guidance

CES 2.3.3, 2.5.1, 3.2.2, 3.4.1, 3.4.2

Response / Justification

Proposed action

provided to demonstrate compliance with the cooling hierarchy. In the results tables, Run 4 is the windows open assessment which demonstrates a high pass rate (97% for EC05; 100% for EC06) without cooling. Run 5 is the proposed design which includes tempered air with windows closed due to the acoustic constraints. Run 5 demonstrates 100% compliance for EC05 and EC06.

response is sufficient to address this point.

Post meeting note: RBKC provided further responses. The queries mimic the ones raised during the GLA meeting. HL are preparing a detailed response to GLA comments which will also address these raised by RBKC. HL to respond to GLA WLC/CE comments and also forward to RBKC. Target midMay.

Appendix G – LBHF comments and responses

Statutory Consultation Process - Schedule of Applicant's Responses to

Comments Received from LBHF

Date: 27/02/2025

Comments received from Principal Environment Officer

Date received 25/11/2024 26/11/2024 02/06/2024

Format Email Subject Energy

ID COMMENT RESPONSE

1.0 Executive Summary

Reference to carbon offset payments being required and creating “a double benefit by agreeing with both Boroughs that any carbon offsetting funding is used to facilitate retrofit/decarbonisation projects across LBHF and RBKC as first preference”.

Comments

 This is generally in line with the draft proposals discussed at pre-application stage, although there seems to be some changes to the heat network arrangements.

Whilst further development of the design of the loop has taken place since the pre-application meetings, the overall concept is the same.

1.2

 Assume that the ambient loop heating system approach is policy compliant by the GLA? Has this been agreed? It is not a typical heat network system and been assessed against other options. Is this the best option?

 With regards to Passivhaus, Council needs to understand why it is not possible to go for full PH accreditation on any of the residential buildings. Has this considered?

The ambient loop system has been discussed and agreed with the GLA (during meeting on 06/02/25)

Within the planning submission, evidence has been provided to show that alternatives to a 5th gen ambient loop network were reviewed and the reasons for proposing the ambient loop approach are clearly laid out.

Full Passivhaus accreditation will be considered at later stages. At this stage, Passivhaus principles have been

 Welcome the fact that consideration is being given to how the energy network could expand beyond the scheme’s boundaries as there are sites nearby which could benefit from connecting in the future. Further clarification required.

 The headline figure of 65% CO2 reduction is declared to be policy compliant. The Council however need to see a breakdown of how this figure is achieved in terms of the residential and non-residential elements on each plot and also see how they perform in terms of CO2 savings through energy efficiency measures alone. Also need to make sure that the % reductions are being measured against the correct baselines. Please clarify.

 The residential blocks will be expected to meet the GLA’s benchmark of at least a 50% overall reduction in CO2 through onsite emissions.

 Inclusion of PV panels is welcomed. We however want to see use of renewables maximised. Are there any other renewable technologies that would be feasible or other locations where PV’s could be expanded?

applied to allow full accreditation later.

We have undertaken PHPP calculations and as noted, all of the residential has been designed with PH principles. However, given the scale of the plots and all of the wider planning and design considerations, there will always need to be a balance.

One of the key benefits of an ambient loop system is its ability to expand and reject / absorb heat from other networks.

This information is provided in the plot specific Sustainability Statements.

This information is provided in the plot specific Sustainability Statements.

PVs are the most viable renewable technology for this site. PV has been incorporated where feasible. However, roof space is very limited with other functions competing. Roof plans have been included in the Detailed Plot submissions that show where PV has been possible. For nondetail plots, these will come forward as part of the RMAs in due course. Others have been considered (See

 Are there any local secondary sources of heat that could be used?

 With regards to cooling, we will need to be clear about which elements of the scheme are being provided with active cooling as we would only want this included where absolutely necessary once passive measures have been maximised

 Noted separate assessments on Whole Lifecyle Carbon Emissions and the Circular Economy have been provided.

section 12.0) and ultimately deemed not suitable.

Consideration has been given to extend a connection to the adjacent MOPAC building.

In addition, we are in dialogue with TfL about the possibility of extracting heat from the tube network. TfL themselves are looking at the feasibility and efficiency of this. Apart from the difficulty in directly accessing the tube tunnels, the greater heat is found in the deeper tunnels. The four District line tunnels crossing the site are virtually at the surface and so are not that warm; the Piccadilly line tunnels sit nearly ten metres directly below two of the district line tunnels and so accessing them is extremely difficult technically and very expensive. That said, we intend to continue to explore options with TfL and LUL in later stages.

Regarding the sewers, again this could come later. The are no sewage tunnels crossing the site and so would need to be linked in at the perimeters. However, again this may require connections not on the site and would be expensive. For both we would need to analyse the embodied carbon of the infrastructure build of the connections and pipework and compare it to the carbon saving, to see if it justifies the carbon expenditure.

This information is provided in the plot specific Sustainability Statements.

Comments from the GLA will be considered to ensure compliance with their benchmarks

 The comment above about the carbon offset arrangement is unclear. Does ECDC propose offset payments to be used jointly across the 2 boroughs? Expect each borough will seek to retain any offset payments associated with their particular applications in their borough and for their own use.

 The local cost of carbon off set payment is currently under review and is likely to change in the near future and before the determination of this application. The figure of £95/tonne in the London Plan should therefore not be taken as the final agreed calculation and will need to be taken into consideration for both the detailed plots and the outline components if and when they come forward for the RMA application. This will need to be captured via the S106 obligations

2.0 1. Strategy Summary

 It is anticipated that Site-wide, the proposals will achieve up to a 24% reduction in CO2 emissions at the ‘Be Lean’ stage”.

It is anticipated that offset payments will be specific for each borough.

2.1

o This is welcomed overall, but we will need breakdowns of the figures for each plot and for the residential and non-residential elements so we can assess compliance with the London Plan’s 10% and 15% energy efficiency targets for residential and non-residential developments.

 The proposals are for an all-electric, lowtemperature 5th generation energy network to satisfy the heating, hot water,

Please provide anticipated timescales for the carbon offset payment review and change envisaged. The approach to carbon offset payment calculation will be discussed as part of the S106 negotiation process.

This information is provided in the plot specific Sustainability Statements.

We are in dialogue with TfL about the possibility of extracting heat from the tube network. TfL themselves are

2.2

and cooling demands. Very efficient with low heat losses. The system will be able to recover and share energy between buildings

o Will there be use of “secondary heat” sources?

2.3

 “Connections to neighbours and wider area energy networks are being explored”

o Further details will need to be provided for the Council to consider this approach. How will potential future connections be factored into the capacity and network layout?

looking at the feasibility and efficiency of this. Apart from the difficulty in directly accessing the tube tunnels, the greater heat is found in the deeper tunnels. The four District line tunnels crossing the site are virtually at the surface and so are not that warm; the Piccadilly line tunnels sit nearly ten metres directly below two of the district line tunnels and so accessing them is extremely difficult technically and very expensive. That said, we intend to continue to explore options with TfL and LUL in later stages. Regarding the sewers, again this could come later. The are no sewage tunnels crossing the site and so would need to be linked in at the perimeters. However, again this may require connections not on the site and would be expensive.

For both we would need to analyse the embodied carbon of the infrastructure build of the connections and pipework and compare it to the carbon saving, to see if it justifies the carbon expenditure.

We are also looking at the feasibility of GSHP; we need to analyse the carbon and financial paybacks to take these forward. This will be done post planning.

We are exploring other sources of heat in the vicinity, including the MOPAC tower, and neighbouring borough networks. We have allowed for future connections to other networks in our infrastructure.

Consideration has been given to extend a connection to the adjacent MOPAC building to share heating/cooling.

Details are provided in section 9.16/17, including a draft schematic arrangement showing connections between the Earls Court 5th gen

network and high temperature 4th gen networks.

Potential connection points to external networks and the viability of these are discussed in section 9.15.

HL to engage with cross borough networks as agreed in meeting with the GLA.

2.4

 “It is anticipated that the Earls Court Development will achieve an 65% reduction in CO2 emissions on-Site, exceeding the London Plan SI 2 policy target by 30%”.

o With regards to the overall targets for CO2 reduction, is the 65% based on the correct baselines for residential and nonresidential assessments, as they are different.

o There is a 50% CO2 reduction GLA benchmark target, so we will need the residential and non-residential figures separated out, so we see if this is being achieved.

3.0 2. Introduction

 There will be 8 main phases of development over approx. 19 years. Due to possible complications with vacating of Lillie Bridge Depot (LBD), 2 phasing options have been considered, one which covers all phases of the site being developed and another one classified as “early phases” which excludes the LBD.

This information is provided in the plot specific Sustainability Statements.

3.1

o Are there any implications from the Energy Strategy point of view if only the ”Early Phase” scenario goes ahead?

o Can the Early Phase element “stand alone” and operate independently from the remaining development that would take place under the “All Phases” proposals?

Two ambient loop networks will be enabled in the early phases and will operate as standalone networks until the interconnecting links can be installed, which depends on the phasing of the development.

The network serving the LBD land can also be standalone with a connection made to the first two networks at a point that suits the development programme.

Once all three networks are complete, the intent is that each would be capable of sharing energy.

4.0 3. Documents and Structure

3.3 No comments on this section

5.0

5.1

4. Planning Policy Context

 Key Documents for LBHF noted as being the Local Plan and Climate Change SPD

o Should also reference Planning Guidance 2018 SPD? Should be noted that H&F are currently reviewing their local cost of carbon offset payment and this is likely to increase in the near future

6.0 5. Energy Strategy Overview

6.1

6.2

 Noted that “For the residential component, the energy demands are calculated using a representative sample of dwelling units”

o Can this be clarified? What units including numbers have been used for the modelling of energy demands?

 “Be Lean” – the 10% (residential) and 15% (non-residential) targets for CO2 reductions through energy efficiency measures alone is referenced and it is noted that in broad terms passive design and energy efficiency measures will be used to achieve “Be Lean” reductions in CO2. Performance parameters relating to improved insulation levels, reduced air leakage and high-performance glazing will also reduce CO2 emissions.

o

6.3

 “Be Clean” – there are no existing or proposed district heating networks that the development could feasibly connect into to supply its heat demand and the plan is to include an all-electric low temperature energy network to serve the site. It is stated that “Three energy networks are proposed with a network allocated to each Development Zone”

o This needs to be defined. Doesn’t seem to match up with the

Noted. No response required.

LBHF Planning Guidance 2018 SPD energy policies refers to the London Plan guidance. Therefore the London Plan 2021 effectively supersedes this.

Please provide anticipated timescales for the carbon offset payment review and change envisaged. The approach to carbon offset payment calculation will be discussed as part of the S106 negotiation process

This information is provided in the plot specific Sustainability Statements.

Noted. No response required.

This is described in section 9.13. Temporary plant locations may be required, which could be secured by condition or S106 obligation

6.4

6.5

6.6

8.1

number of Development Phases referenced in the Introduction. Why 3 energy networks have been selected? Are they interconnected across the H&F/K&C boundary? Needs some clarification on these points.

o

 “Be Green” – the energy network will be served by Air Source Heat Pumps and solar PV panels will also be installed

o We assume that all buildings will have roof mounted PVs – this needs to be expanded.

o

 “Be Seen” – energy use will be metered and reported to the GLA (first 5 years of occupation)

o This needs to be covered through s106 Agreement

Not all buildings will have PV. On some buildings this is not possible due to co-located plant, building amenities, access etc.

Dry air coolers may also be used instead of air source heat pumps, to increase system efficiency. The design allows for both items of plant to be used. The decision will come from detailed modelling at the next stage of design.

o Noted.

 Offsetting

o As noted above, H&F are reviewing their local cost of carbon, and it is likely to be increasing.

 London Policy

o This should include reference to the GLA’s 50% CO2 reduction target benchmark through onsite measures for major residential schemes

To be agreed under S106.

Noted. Beyond 50% is already targeted.

 Reference to the scheme comprising of a number of Development Zones, each containing a set of Development Plots. We also had reference to Phases as well in the Introduction.

The development will come forward in a series of phases (these are identified for EIA purposes), but the development itself is arranged as a series of Development Zones to

7.0 6. Policy & Regulation Drivers
8.0 7. Modelling Approach

8.2

o Complicated/confusing in terms of being able to understand how Zones, plots and phases relate to each other. Phases have been set out earlier. Zones need to clarified in respect to the energy strategy.

identify different parts of the site. Each Zone comprises a number of Development Plots within which buildings and areas of public realm will be delivered. Further detail on this is provided in the Application User Guide, DAS, Dev Spec and Design Code and the zones / plots are shown on Parameter Plans.

8.3

 In depth energy modelling carried out for the detailed component proposals i.e. in H&F that means WB03/04 and 05. For the outline component, an illustrative approach to energy and carbon emissions has been taken to show policy compliance etc. Benchmark approach taken to estimate and set targets for carbon emissions

o All future phases/plots will need to submit detailed Energy Strategies to demonstrate compliance

Assessments

 Residential Uses – it says that for H&F, the detailed component consists of WB04, WB05 T1 and WB05 T2…3 residential blocks with commercial space at ground floor level

 31 dwellings in a 39 storey building used for the assessment of WB04. 24 used for the other 2 buildings.

o Is use of 31 units sufficient to assess 39 storeys? Why has 29 storeys been selected. Assessment seems low for a building of this size and height.

 Passivhaus standard used for the design on the residential blocks

o Although Passivhaus criteria is set out, it is not clear if all elements achieved. Also, was there no scope for achieving full accreditation?

 Non-Residential Uses – With regards to occupancy patterns and operational profiles for the non-residential buildings, it is stated that “The assumptions are detailed in Section 4 and it is

Noted. It is anticipated that these will be submitted in support of RMAs.

This is a sufficient representative sample as many of the floors are repetitive. Detail provided in plot specific Sustainability Statements.

PHPP assessment results is provided in plot specific Sustainability Statements.

Full accreditation will be considered in later stages.

9.1

9.2

recommended that the client/end-users review these for accuracy”.

o Have these been reviewed for accuracy? Do they need updating?

 Also noted that stand alone office buildings will aspire to achieve NABERS rating of 5*. This requires very good Energy Use Intensity performance levels.

o Is it just offices that this relates to? Are there other nonresidential uses that should be included?

 For the detailed plots in H&F, nonresidential buildings include student accommodation in WB03, podium shared by WB03 and WB04 and WB05 ground floor use.

o What energy use will the podium have?

These are accurate at the time of submission.

 “Fabric first” approach taken to reduce energy use and CO2 emissions. Also seeking to benefit from natural daylighting and use of passive solar heating while limiting summertime gains to reduce need for cooling. Low space heating demand achieved through low fabric U values and glazing G values. Thermal bridge heat loss minimised. Mechanical ventilation and heat recovery units included in residential blocks.

o Can we have the U values etc provided here alongside comparisons with the Building Regulation minimum standard requirements so we can see how far beyond minimum Building Regulations the design is going?

 Natural ventilation promoted where possible for the non-residential units, but similar mechanical ventilation with heat recovery units also included. Space heating arrangements are described differently for resi and non-resi…i.e. dwellings “will be connected to central

NABERS could be applied to other non-residential uses such as Retail.

This information is provided in the plot specific Sustainability Statements.

This information is provided in the plot specific Sustainability Statements.

9.0 8. Be Lean

9.3

9.4

plant via efficient plate heat exchanger technology. Space heating demands will be met by smart radiators”…commercial offices, retail, leisure facilities “will be connected to an energy network”…

o No reference here in this section to PassivHaus design elements?

o Where would natural ventilation be used in the non-residential uses? Is this also available for residential units?

o Are the heating system arrangements different for residential and non-residential blocks or are they all connected up to one system?

Passivhaus elements described in the plot specific Sustainability Statements.

Non-residential areas without high occupancy will benefit from natural ventilation. Residential units will have openable windows for natural ventilation.

Both residential and non-residential areas are connected to the ambient loop system.

 Cooling – window opening for residential units will be limited due to noise and air quality issues…”therefore, a level of cooling will be required in all dwellings”. Cooling provision also provided for in the non-residential uses.

o Is the referenced “high efficiency fan coil unit” part of the communal energy system or separate?

 Noted that water efficient fixtures and fittings will be used in the residential units and the non- residential uses

o This section references the Building Regulations Part G, but we need a better standard than that to meet H&F Local Plan Policy CC3 requirements (e.g. no more than 105 litres per person per day for resi. units). Our Climate Change SPD seeks even better performance than this , down to 80 l/day/person if possible. Also, what is the standard aimed for for the nonresi. uses? BREEAM Excellent standard for water use?

Fan coil units will be connected to the ambient loop network via water sourced heat pumps.

This information is provided in the plot specific Sustainability Statements.

9.5

9.6

 Based on indicative assessments, it is calculated that the “Be Lean” measures are anticipated to reduce CO2 by 24% for the residential elements across the site. For the H&F blocks, performance is 27.23% (WB04) and 22.74% (WB05)

o The London Plan target (10%) is met for this residential element of the scheme

 For the non-residential uses, the reduction in CO2 across the whole scheme is calculated to be 6.76%. For the H&F elements, the improvements are 0.26% (WB03), 0.89% (WB04) and 6.71% (WB05).

o The London Plan target of 15% is not met and is missed by some way.

o This is not explained fully in the supporting text in this section and should be explained.

o We will need to see the data on this as, although we know this target is challenging, the reported performance is low so are there any options for boosting the energy efficiency “Be Lean” measures further?

Noted.

10.1

 Noted that Figure 24 includes “sewage network heat capture”, “substation heat capture” and “underground rail heat capture”.

o Are these sources of secondary heat actually included in the strategy? Consideration does need to be given to their inclusion for policy compliance reasons, but it is unclear whether they are viable and if they are, then how they will be incorporated…

Further detail is provided in the plot specific Sustainability Statements.

This is a challenging target, particularly for developments with small nonresidential uses at the base of tall residential towers.

The fabric performance is already improved over the notional building.

These are examples of proposed future network connections, but not currently included, as deemed to not be currently viable, however this may change in the future.

10.0 9. Be Clean

10.2

10.3

 It also shows ground source heat pumps and open loop to aquifer system

o Are these also included as not seen reference to these until this point in the strategy?

 5th Generation ambient loop proposed for the site which operates at lower temperatures than the “traditional” 4th generation heat network. Provides benefits such as no combustion emissions at source; all electric so low carbon as electricity from the grid is decarbonising; can re-use energy rejected from one plot in another where it is required; lower heat losses and more efficient

o Para 9.3 reference to the report is missing.

o As mentioned above, the proposed system is different to those typically brought forward but it is assumed that this would still pass the London Plan policy requirements? Please clarify.

Network Proposal

 3 energy networks proposed, 2 in H&F

 Seems to be a lot of roof top heat rejection units

o When would these heat rejection units need to operate and are so many required?

o Raise the question of whether a lot of heat is being wasted through venting to the air?

These are examples of proposed future network connections, but not currently included.

10.4

o The London Plan says that “If active cooling systems, such as air conditioning systems, are unavoidable, these should be designed to reuse the waste heat they produce”. Has this been demonstrated?

 Noted that the Cross Borough Energy Masterplan has been referenced which includes areas identified for potential future heat network development in H&F and K&C and there could be opportunities in the future for connection of networks. Even where other networks may be higher temperature 4th gen systems, they

This is supposed to be in reference to Figure 26 opposite.

Yes, carbon factors have been agreed with potential ESCOs and applied in the Energy Strategy (See Appendix B).

The number of units shown relates to satisfying the peak loads for plots, however more detailed modelling at the next stage of design, along with operational data from the early phases, may result in the number of units being reduced.

These units would operate to balance the network temperature, i.e. when the ambient loop water temperature is tending towards the upper or lower limits.

Heat is only rejected when ambient loop does not require it.

The ambient loop system utilises waste heat from the buildings and has thermal stores to reduce the time that the rooftop units need to operate.

can connect to the 5th generation low temperature system.

 Possible that neighbouring Empress State Building could connect.

o Bit unclear if this connection option needs to be included as part of the application?

o This needs to be discussed further with housing colleagues.

 Neighbouring Gibbs Green Estate could be provided with a connection. However, it is stated that “It is understood that as the estate is within the scope of a wider energy network [that] a connection from the Earls Court Development network may not be required.

o Is this the case? Need further clarification and confirmation to understand if this statement is correct.

 System Design

o Figures 60-64 are difficult to read as the legend/key for the lines is difficult to tell the difference between lines on the graph so can that be made clearer?

o Also graphs timeline should probably go beyond 2040 if possible as the scheme will still be being built out in 2040, so go to 2045?

o Residential cooling – are there really different demands for cooling according to whether or not a resi. unit is “affordable” or “market”? Is it necessary to provide “enhanced cooling”? How many units or what proportion would be proposed to get this?

 Cost Estimates – “The cost to end users, at this early stage of design, is shown to be equivalent to comparable heating and cooling systems”

o Are there any further details/figures on this to demonstrate that the costs have been minimised through energy efficient design?

This is a potential connection that is currently being explored with MOPAC, as part of their decarbonisation exercises for their building.

Bayonne Estate DHN is proposed nearby. It may be that Gibbs Green can connect to that instead of Earls Court.

Noted. Will be updated in addendum.

Noted. Will be updated in addendum.

The development is Part O compliant, but there may be a ‘market’ expectation to provide enhanced cooling.

The Plot Performance Statements demonstrate that the early phase buildings are being designed to reduce energy consumption in the first place. Throughout the energy statement, recovery of energy and reuse between buildings, along with potentially

transferring heat to the ground along the route of the uninsulated pipes, are further methods of increasing the efficiency of the design by relying less on the operation of the rooftop units.

Additionally, the system works with de-centralised pumps so water is only moved around the system when required, unlike in 4th gen networks where the water is continually pumped through the entire network.

11.1

 Future Heat Sources – noted that Ground Source Heat Pumps will be explored further for use as they may be possible in some locations. Use of heat recovery from wastewater and waste heat from a new substation will be explored in greater detail.

o Welcomed, although there is no reference to use of waste heat from tube lines or sewers which are mentioned earlier on in the document.

o In terms of following the GLA heating hierarchy, local secondary heat sources are one of the prioritised measures, so should be included if feasible. How would these be integrated if feasible?

This is not proposed. This is an example of a possible future connection.

Local DHN can feed into the proposed Earls Court ambient loop network.

11.2

 Residential – anticipated to achieve a 71% CO2 reduction through the “Be Lean” and “Be Clean” measures. For H&F elements, WB04 and WB05, overall CO2 improvements provided are 71.87% and 75.66%.

o The GLA 50% benchmark target is achieved

o Unclear if the 71% figure is site wide or just for the detailed plots

 Non-residential – this includes student accommodation, community uses and leisure facilities – provide a 59.91% CO2 reduction overall, For H&F, WB03

Site wide (for EC05, EC06, WB04, WB05)

Site wide (for EC05, EC06, WB03, WB04, WB05)

11.0 10. Be Clean – Systems Comparison

provides 60.56% CO2 reduction, WB04, 59.92% and WB05, 64.54%.

o The GLA 35% minimum CO2 reduction through on-site measures is met. As for resi info, unclear if the average figure is site wide or just for the detailed plot developments? Please clarify.

12.0 11. Be Clean – Carbon Performance

12.1

12.2

 Residential – anticipated to achieve a 71% CO2 reduction through the “Be Lean” and “Be Clean” measures. For H&F elements, WB04 and WB05, overall CO2 improvements provided are 71.87% and 75.66%.

o The GLA 50% benchmark target is achieved

o Unclear if the 71% figure is site wide or just for the detailed plots

 Non-residential – this includes student accommodation, community uses and leisure facilities – provide a 59.91% CO2 reduction overall, For H&F, WB03 provides 60.56% CO2 reduction, WB04, 59.92% and WB05, 64.54%.

o The GLA 35% minimum CO2 reduction through on-site measures is met. As for resi info, unclear if the average figure is site wide or just for the detailed plot developments? Please clarify.

Site wide (for EC05, EC06, WB04, WB05)

13.0

12. Be Green

 Ground source heat pumps considered but the site has complicated subterranean ground conditions so would be difficult to establish the required number of GSHPs to run the proposed heat network.

Site wide (for EC05, EC06, WB03, WB04, WB05)

13.1

o Despite this, and as mentioned earlier, there may be some locations where GSHPs could be feasible. Need to consider how this option will be acknowledged and addressed here.

GSHP feasibility study to be reviewed in next stage.

13.2

13.3

 Water Source Heat Pumps not considered to be viable given distance from water (River Thames). There are subterranean tributaries but these are not considered suitable to use for the basis of a heat network.

o Accept that WSHPs are not included

 Air Source Heat Pumps will be the primary source of energy for the network

o Use of ASHPs as the main renewable energy source is accepted

 PVs and solar Water Heating – PVs will be included but solar water heating systems are not considered to be as compatible for the scheme due to the use of the Heat Pump network to provide hot water demand. Para 12.4 includes some brief information on some of issues relating to limited space being available on some roofs for inclusion of PVs.

Noted.

13.4

o Approach accepted in principle (i.e. suitability of PV uses in the scheme) but we will want to see further evidence how roof space use maximises use of PVs where feasible. For example, where plant is proposed there may still be scope to include PVs mounted above these (subject to other considerations such as access etc).

Noted, although dry air coolers may be used instead to increase the efficiency of the system. The physical space requirements and constraints are similar to ASHP’s and will be determined at the next stage of design.

o The Roof Plan provided in Appendix G shows no PVs on WB03/WB04 or WB05 as well as other buildings on the H&F side of the development. We will need to be looked at again before confirming there is no scope at all for PVs on these buildings.

Solar PV is not possible in the Detailed Component for reasons outlined in the plot specific Sustainability Statements. However, appropriate condition wording could be agreed to require its provision to be explored further at RMA stage for the Outline Components.

There is no spare roof space available due to a combination of roof top plant, tapering of the crown/top of the buildings and use as amenity.

13.5

13.6

 Turbines – not proposed. Wind profile unlikely to be suitable in this location. Also possible noise and vibration issues.

o Approach accepted.

 Biomass – not proposed for a number of reasons.

o Approach accepted.

 Be Green Results – 71.45% total CO2 reduction on average for the residential elements when including contribution from renewables such as PVs (including 71.87% for WB04 and 75.66% for WB05 in H&F). For non-residential units, the CO2 savings are lower on average at 59.91% (60.56% for WB03 / 59.92% for WB04 and 64.54% for WB05).

o Noted that these are the same result reported under “Be Clean”? Are there separate figures for renewable contribution only?

o Nevertheless, the scheme is meeting the overall CO2 reduction target minimums through on-site measures.

14.0 13. Site wide CO2 Emissions

 As reported through the other chapters –residential element is meeting all London Plan CO2 reduction targets. The nonresidential elements do not meet the energy efficiency target (6.8% achieved compared to a target of 15%), but the overall CO2 reduction target is achieved.

Noted.

14.1

o These are not really “Site wide emissions” though – these figures relate to CO2 emissions reductions from the detailed plots.

o As mentioned above, it would help if we had some explanatory text on the reasons for the energy efficiency target being missed and consideration of what would be necessary to improve the non-residential building performance in this respect.

Noted.

There are no further reductions under ‘Be Clean’ as we are not connecting to a local DHN (nor proposing CHP). Therefore, the proposed ambient loop network contributes to the ‘Be Green’ saving.

Note. Further clarification required, whilst noting GLAs acknowledgement that this is a challenging target.

14.2

14.3

 However, some additional information is provided across various land use types which gives a broader indication of likely CO2 savings for all intended uses in the scheme. Most of these meet the overall CO2 reduction target, although the “storage and distribution” and “ancillary” uses are projected to fail (and fail on the energy efficiency target).

o It would help if we had some explanatory text on why these specific uses will not achieve the targets.

 Site wide emissions have been factored in so that figures have been produced for the early phases and all phases on site.

o On the basis of the figures provided (Figure 88), the site achieves the overall CO2 reduction target (64%).

Carbon Offsetting

13.4

 With regards to the CO2 emissions that will require offsetting, Table 43 shows that for H&F, there are 295 tonnes for the detailed plot phases and a total of 356 for the remaining early phases and 883 tonnes for All outline phases…coming to a total of 1,534 tonnes to be offset. If we calculate the offset payment using £95 per tonne for 1,534, the total offset payment required would be £4,370,000£840,000 for the detailed plots; £1,015,000 for the outline early phases and £2,515,000 for completion of all phases.

o Applicant needs to consider that our carbon offset price may be changing in the near future. At this stage the Council will no agree to fixing the offset payment for the whole scheme at £95/tonne.

These are taken from benchmark data. Further modelling will be considered in the RMA process to address this.

Noted.

To be agreed in S106.

15.0 14. Be Seen

 A monitoring strategy will be used as part of the building services systems so that data can be collected for reporting to the GLA. Heat and electrical metering will be done separately.

 Efficient smart user controls will be provided

15.1

15.2

 Noted that a new substation can be provided if required in later phases

o When would it be known if the substation is required? This will need to be capture via a condition or S106 obligation?

o Monitoring and reporting of energy use to the GLA will be required via s106 Agreement

In terms of the potential for off-site connections to the ECDC network, officers will need further information on what the requirements are likely to be for the neighbouring sites to be able to connect into the ECDC ambient loop system. Information such as additional plant requirements, space needed, and potential costs would be of assistance. The Council will need to understand the benefits of this proposal and if a feasible option, given the costs and plant requirements versus the more conventional heat networks.

This will not be known until later phases are designed out.

15.3

I expect we will need to have a follow up meeting in due course to discuss the energy strategy for the proposal and the points highlighted above once they have been taken into consideration by your consultants.

Noted. No response required.

Noted. No response required.

16.0 Energy hierarchy and carbon reductions – 26/11/2024

16.1 Are the various regulated emissions reductions figures stated relative to 2021 part L (the latest GLA guidance implies applicants should state savings vs 2021 regs - min 35%, 50% for resi for whole energy hierarchy; 10% for be lean)? Part L was updated in to be more ambitious in 2023, and it would be useful to know the reductions relative to 2023 Part L amendments as well as vs 2021.

These are relative to Part 2021 (with 2023 amendments).

Further details on benchmarks are provided in the plot specific Sustainability Statements.

16.2

Stated emissions reductions include a total residential site regulated emissions reduction of 24.22% at Be Lean stage (p35) and a non resi Be Lean total site reduction of 6.76% (p36), which seems unambitious, and total energy hierarchy reductions of 71.45% for resi (p76) and 59.91% for non resi (p77). There appears to be little detail in the application on benchmarks used beyond a sentence on p87.

I would prefer that minimum reductions were specified rather than maximum ‘up to’ reductions, e.g. ‘up to 24% reduction’ on p34, ‘up to’ 71.6%’ reduction for the whole energy hierarchy and the whole site (p75). What is the minimum ambition? It would also be good to state the position relative to the latest 2023 Part L update, and to give EUI metrics.

16.3 As per GLA comments, SAP calculation sheets are needed to evidence the emissions reductions.

17.0 Ambient Loop Energy Network

17.1 Will the energy network satisfy 100% of heating and cooling demands for the whole site? I think this is implied by zero on site emissions but good to check that there will there be no backup fossil fuel heating or cooling, and also no gas cooking equipment (including for restaurants) and no gas connection for the site. How do the backup diesel generators referenced in the AQ strategy fit in and how will their use be minimised?

These are relative to Part 2021 (with 2023 amendments).

Further details on benchmarks is provided in the plot specific Sustainability Statements, included EUI performance.

These have been provided.

17.2

17.3

Can the application be more specific on where connection points and heat exchangers will be provided for expansion and interconnection to neighbouring heat loads and heat sources, e.g. for Gibbs Green and West Ken estates, including pipe routes to the site boundary and space in plant rooms?

Can the application be more specific on where connection points and heat exchangers will be provided for expansion and interconnection to neighbouring heat loads and heat sources, e.g. for Gibbs Green and West Ken estates, including pipe

No fossil fuel heating/cooling or gas cooking proposed.

Generators required for life safety operation only, and therefore will only run when necessary. The intention is to move away from fossil fuelled generators when alternative technologies become available and are acceptable are use and have proven to be reliable in life safety systems.

Proposed connection points indicated on Figure 41. Heat exchangers will be located in plant rooms within connecting sites.

Proposed connection points indicated on Figure 41. Heat exchangers will be located in plant rooms within connecting sites.

routes to the site boundary and space in plant rooms?

17.4

How has the sizing for the thermal stores been calculated? Ideally these would consistently enable the use of lower carbon and cheaper electricity at times of low demand, and should be part of the overall net zero strategy for the site. How many hours of storage are provided? Are there thermal stores for heat as well as cooling? Has the potential for flexibility service provision been discussed with UKPN?

Thermal stores have been sized based on 30 mins of peak storage to all of the plots with each phase. However this does not include heat exchange between buildings and the energy contained within the pipe network, as well as the energy exchange within buildings. Including these would provide more than 30mins peak storage.

The thermal stores are provided to the network to balance the ‘hot’ and ‘cold’ pipe. There is no separate heating or cooling distribution.

Discussion are ongoing about the potential to form a ‘smart grid’ and to use thermal storage to shift loads away from peak times.

18.0 AOB

18.1

Is it justifiable to provide less cooling to the affordable housing units? The inhabitants of said units may well be more vulnerable to heat.

18.2 Also, is projecting forward to 2040 enough – the development will be in use well beyond that date.

All units comply with Part O, with the utilisation of tempered air units.

In what context? 19.0 Whole Life Carbon and Circular Economy – 2 December 2024

 Clarifications required in relation to the methodology

Please can LBHF confirm what needs clarifying?

20.1

 Noted the GLA have requested that the percentage estimates of the new building development be provided which will be made up of existing elements

Precise uses are not confirmed at this outline stage. Illustrative information is provided on Illustrative Masterplan drawings that form part of the submitted site wide DAS, but this is indicative and not information submitted for approval.

20.2

20.3

 Additional information is required on some of the material types and quantities and also maintenance/repair/replacement cycle assumptions.

Address GLA podium comments

 Further information requested on the review process for the cost allocation per building element category

 The applicant has been asked to provide further details on the main actions with the biggest impacts in terms of carbon emissions

 Material type and quantity information should be provided for all elements including external walls and finishes

 Further information should also be provided on the estimated mass of reusable and recyclable materials for each building element category

 Information on refrigerant use is also required

 It appears that the template on GWP (Global Warming Potential) has not yet been fully completed and some values need clarifying

WB03 comments

 Further information is requested on the review process for the cost allocation per building element category

 Further details should be provided on the main actions with the biggest impacts in terms of carbon emissions

 Material type and quantity information should be provided for all elements including internal and external walls

WB04 comments:

20.4

 Further details should be provided on the main actions with the biggest impacts in terms of carbon emissions

 Material type and quantity information should be provided for all elements including internal and external walls

Please refer to Appendix N for details of inputs and assumptions.

Please refer to our response to GLA Stage 1 comments.

These have been provided in the worksheets and signposted during the meeting with the GLA on 06/02/25.

Please refer to section 6.5 where actions/ options are provided based on impact to carbon emissions.

Please refer to GLA reporting excel for material quantities per type and RICS category.

2.05

WB05 comments:

 Similarly, for WB04, the WB05 assessment requires the same additional information

 Further details should be provided on the main actions with the biggest impacts in terms of carbon emissions

 Material type and quantity information should be provided for all elements including internal and external walls

21.1 Circular Economy Statement

22.1

23.1

There are a lot of areas where additional information is required. Noted the GLA has requested a revised version of the Circular Economy Statement to be submitted.

Outline Application:

 Additional information is requested on the development details such as a more detailed description of the development including information on the extent of any retention of buildings, expected massing and uses,(although it is accepted that the outline element of the scheme is based on “parameter plans”)

 Noted that there are some existing buildings where further assessment is required e.g. about potential retention – clarifications required on these with regards to redevelopment scenarios, exploring opportunities for re-use and recycling

 The completed “Design Approach” table needs some further consideration in relation to relocation –this point needs clarification – assume in relation to relocation of infrastructure and existing building uses?

 The Pre-Development Audit information is considered to be only partially complete. Further clarifications are requested on certain sites including Ashfield House, 9 Beaumont Avenue, 1 Cluny Mews,

Please refer to section 6.5 where actions/ options are provided based on impact to carbon emissions.

Please refer to GLA reporting excel for material quantities per type and RICS category.

Noted. An addendum is proposed, where required.

Sections 6.6 to 6.10 and table 8 of the submitted Whole Life Carbon and Circular Economy Strategy provide information on potential retention.

These have been provided in the worksheets and signposted during the meeting with the GLA on 06/02/25.

Empress Place and Lillie Road Properties with regards to retention of buildings which should be prioritised where possible. If there are reasons for not being able to retain buildings, then additional evidence should be provided on these challenges and why they could not be addressed

 A Pre-Demolition Audit has been provided but further information is required on certain areas such as embodied carbon impacts of demolition with explanation of how any negative impacts will be mitigated/offset. Also noted that re-use options are limited to stone components and further consideration is needed on re-use/recycling opportunities for other materials either within the site or off-site locally etc

 The applicant is strongly encouraged to go beyond standard good practice and consider the “pioneering” measures that are set out in the GLA’s planning guidance on Circular Economy Statements

 As required, the Bill of Materials has been provided but it has only partially been completed so this needs further work as there are a number of areas which need further work which are identified in the GLA comments. It is also flagged up that the information presented in the Circular Economy Statement should be consistent with the information presented in the Whole Lifecycle Carbon Assessment, including where updates are carried out as these need to be reflected in both sets of assessments

 Further supporting calculations are requested in relation to the targets to be achieved on re-used or recycled content of materials.

 The excavation waste estimates appear to be low. This information needs to be reviewed and revised

This was discussed during the meeting with the GLA on 06/02/25, with explanation of design scenarios explored for each building.

This was discussed and signposted during the meeting with the GLA on 06/02/25. Pioneering measures have been considered.

Please can LBHF advise where misalignment has occurred such that we can review and take action.

Please can LBHF advise the specific calculations requested.

where necessary. Also, no demolition waste has been associated with the outline component of the application which should be clarified and revised where necessary

 Commitments on targets for demolition waste, excavation waste, construction waste, municipal waste and recycled/reused content are only partial and in some respects look to have been based on incorrect assessments that have not followed the guidance – e.g. it is highlighted that some targets have been assessed by volume when they should be based on weight (tonnages) and recycled content assessment is based on the top 10 most costly building elements rather than the whole building. Therefore, a review of these is required and clarifications and revisions provided.

 Further consideration is required on how recommendations in the predemolition audits will be implemented and clarifications provided on the implementation of operational waste as a detailed Strategy has not yet been developed (There is a reference to “Brent” in this particular set of comments which is not understood…)

 Finally, the applicant is encouraged to provide additional supporting information including “Cut and Fill” calculations and/or “Excavated Materials Options Assessment” as well as further reused or recycled content calculations.

Detailed Application:

 Separate submissions made for each of the detailed application plots. Seems the GLA want the Circular Economy Statement template to be completed as a single submission for the Detailed Application.

 Additional description information for the scheme is requested along with

Please can LBHF elaborate on why these waste estimates appear low.

Please can LBHF elaborate on why these targets are based on incorrect assessments. Also refer waste management strategy provided as part of application.

No references to ‘Brent’ are included in the submitted WLC & CE strategy –clarification required.

Row 39 [item 6-2] notes ‘nothing further is required’.

Row 37 has no content – clarity required.

typical plans and images. Use class information should also be provided, particularly for site WB05.

 Clarification is required on the issue of whether or not there are any existing buildings on the site areas proposed for redevelopment in the detailed application

 For the Pre-Redevelopment Audit, further information should be provided on whether there will be any demolition activity in these phases

 On Pre-Demolition Audit issues, this has not been provided so clarification needs to be provided (as mentioned above) on demolition requirements for this part of the scheme

 The applicant is strongly encouraged to go beyond standard good practice and consider the “pioneering” measures that are set out in the GLA’s planning guidance on Circular Economy Statements

 Although a Bill of Materials has been provided the reporting method has split out buildings such as WB03 and WB04 which does not help when assessing material efficiency. A request is made for information to be combined. A comment is made here about the material intensity of the frame and also internal walls being very high and needing further explanation. This is also the case for WB05. Information should also be provided on external works where this is appropriate. Further consideration of “Designing for Disassembly” should be provided in the Bill of Materials so it is demonstrated that particular elements such as windows and doors etc can be easily maintained/replaced. End of life scenarios should also be reviewed with a view to showing that 95% diversion from landfill can be achieved.

 Some information has been provided, but further supporting calculations are requested in relation to the targets to be achieved on re-used or recycled

No buildings to be demolished on the Detailed Component land.

This was discussed and signposted during the meeting with the GLA on 06/02/25. Pioneering measures have been considered.

WLC & CE strategy addendum to be produced responding to comments and technical memos, where relevant.

content of materials (by mass and by value).

 With regards to the “Recycling and Waste Reporting” comments, these mention the Outline Application rather than the Detailed Application. Needs to be clarified with the GLA. Noted the information is not complete for WB05, so this needs additional information to be added.

 Expected waste management routes information has been provided to demonstrate compliance with London Plan Policy SI7, but the applicant is encouraged to break this information down further.

 With regards, to Operational Waste, evidence is required to show separate collection of dry recyclables, food waste and other waste can be provided. If the intention is for dry recyclables to collected as ‘mixed’ then it needs to be clear which materials are included. Monitoring and reporting information should also be provided. Information on matters such as ‘smart logistics and community led waste minimisation schemes should also be provided.

 In terms of demolition targets, there’s no commitment to the demolition waste target for the detailed application plots. This issue has been raised several times in the comments and may be because the initial plots do not involve demolition. Please clarify and confirm.

 As for the outline scheme, commitments on targets for demolition waste, excavation waste, construction waste, municipal waste and recycled/reused content are only partial and in some respects look to have been based on incorrect assessments that have not followed the guidance – e.g. it is highlighted that some targets have been assessed by volume when they should be based on weight (tonnages) and recycled content assessment is based on the top 10 most costly building elements

WLC & CE strategy addendum to be produced responding to comments and technical memos, where relevant.

WLC & CE strategy addendum to be produced responding to comments and technical memos, where relevant.

WLC & CE strategy addendum to be produced responding to comments and technical memos, where relevant.

rather than the whole building. In other places references are made to achieving certain performances on diverting material from landfill when it is re-use/recycling of materials that should be reported on. Therefore, a review of these issues is required and clarifications and revisions provided.

 Further consideration is required on how recommendations in the predemolition audits will be implemented and clarifications provided on the implementation of operational waste as a detailed Strategy has not yet been developed. Clarification to the reference to “Brent” is not understood.

 End of life scenarios should be demonstrated for key elements of the sites including materials and components – i.e. how can the designs facilitate maximum re-use and recycling

 The applicant is encouraged to provide additional supporting information including “Cut and Fill” calculations and/or “Excavated Materials Options Assessment” as well as further reused or recycled content calculations.

No references to ‘Brent’ are included in the submitted WLC & CE strategy –clarification required.

Statutory Consultation Process - Schedule of Applicant's

Responses to Comments Received from LBHF

Date: 05/02/2025

Comments received from Climate Change / Place Department Circular Economy Lead

1.0 Circular Economy/Sustainability.

1.1

1.2

Date received 3 December 2024

Circular Economy / Sustainability

1.3

H&F's SPD recommends reducing the embodied carbon to LETI standards. However, the RIBA and GLA embodied carbon targets should be considered where they are more ambitious.

There is no reference to CLT or mass timber frames in the sustainability strategy. Low carbon structures are difficult to achieve for residential developments but has CLT or mass timber been considered for any planned community or commercial developments?

Sustainability Strategy: 8.0 Circular Resource Us

p.57- "Use materials in the Proposed Development which minimise carbon impacts, targeting 20% of materials that are reused and/or contain recycled content"

 The Site includes buildings and structures which could be technically feasible to retain, provides an opportunity to reuse

Comparison against LETI, RIBA and GLA targets is provided. Please refer to Figure 11 in the plot specific sustainability statements.

CLT has been considered for the commercial plots, but have been dismissed in the residential detailed plots for technical viability reasons. To be further explored at RMA stage. It should also be noted that NHBC does not recommend use of mass timber in buildings exceeding 18m in height.

Please refer to the site-wide strategy detailing technical feasibility studies into reuse of existing buildings and materials to be implemented across all phases of development.

In terms of digital hubs, we are looking at sites such as the

existing materials and resources. Has the use of digital reuse hubs (example here) been considered to reduce the embodied carbon of resources and materials used for redevelopment and construction onsite?

Pre-development and pre-demolition audits for retention or demolition should contain a list of the items found on the different sites and include the following information: location, length, width, height, thickness, tonnage, volume, condition, and other information if relevant.

1.4 The application does note that 'no specific embodied/whole life carbon targets are set within policy from the GLA, LBHF or RBKC, unlike operational carbon'. The Council will consider including embodied carbon targets alongside operational carbon targets in the strategy refresh.

Construction Waste Portal and other similar ones for potential sourcing of materials but also offering waste materials too.

Pre-demolition audits are provided in the Appendices of the site wider WLC and CE strategy.

Noted.

Hoare Lea EC.PA.22-A July 2025

Turn static files into dynamic content formats.

Create a flipbook
Issuu converts static files into: digital portfolios, online yearbooks, online catalogs, digital photo albums and more. Sign up and create your flipbook.