2022-23 Sender Berlin

Page 1

ESALA 2023

Master of Architecture

SENDER BERLIN:

DATA, NATURE AND COLLECTIVE LIFE IN THE URBAN MILIEU

Miguel

Andrew Brooks

Andrea Faed

Paredes Maldonado
BERLIN
SENDER

This catalogue is part of a collection published by the Edinburgh School of Architecture and Landscape Architecture (ESALA), Edinburgh College of Art, University of Edinburgh. It documents student design work produced in the Master of Architecture (MArch) programme in 2022-23. Each catalogue describes one of the following six design studios in the MArch programme. The full collection is available to view online at issuu.com/eca.march.

Catalogues 2022-23:

BRNO: Building Belvederes.

Edge Effects: Derry/Londonderry.

Grounding Naples.

island territories viii: Scapeland Ávila.

Sender Berlin.

The Panamá Projects.

ESALA, Minto House, 20-22 Chambers Street, Edinburgh, EH1 1JZ.

Sender Berlin.

ISBN 978-1-912669-52-3

ESALA 2023

Master of Architecture

SENDER BERLIN: DATA, NATURE AND COLLECTIVE LIFE IN THE URBAN MILIEU

BERLIN
SENDER
- SENDER BERLIN: EXPERIMENTS WITH DATA, NATURE AND COLLECTIVE LIFE IN THE URBAN MILIEU MIGUEL PAREDES MALDONADO | ANDREW BROOKS | ANDREA FAED 1 CONTENTS 05 SURFACE TO SUBSTRATE EDWARD HAINES 58 ORGANIPONIK: ARCHITECTURES OF RECONSTRUCTION 56 ACKNOWLEDGEMENTS 144147 BIBLIOGRAPHY & IMAGE REFERENCES 02 SKY HABITATION: A VERTICAL COEXISTENCE YUNFANG XU 44 01 SKY HABITATION CHANGHUAN XU 40 03 SKY HABITATION: COEXISTENCE IN THE SKY XIAOWEI XUE 48 04 VERTICAL HABITATION: COLLECTIVE LIVING JINNI ZHANG 52 THE FADING EDGE: NATURAL/SOCIAL RIBBON 38 SOLAR DEVICE 16 SURFACE TEXTURE DEVICE 18 AMPHIBIOUS DEVICE 20 3D SCANNING DEVICE 22 SOIL DEVICE 24 AIR DEVICE 26 URBAN SENSORY DEVICE 28 QUADRANT 30 ANTHROPOLOGICAL SENSING DEVICE 32 SENSING INSTRUMENTS 14 REMOTE DEVICE 34
06 FRAMING FIELDS OF BERLIN GUS NICHOLDS 62 07 INHABITING A POST-CARBON CITY JOEL PACINI 66 08 EINBAHN-HÖFE AUGUSTUS WRAY 70 09 VILLA VERDE LULWA ALSHARHAN 76 10 WASSER, WASSER, GARTEN MINYOUNG CHOI 80 11 WATERSCAPE: A PERMEABLE MOMENT MARI HELLAND 84 12 WATERSCAPE ALICE REED 88 WATERSCAPE 74 13 DIE BRACHEN BRÜCKE MYLES ALBON-CROUCH 94 14 BETWEEN THE S[CAR]RED EDGE ROBIN FORTUNATO 98 15 ISLES OF BRACHEN ISAAC SHERRIFF 102 16 NATURA URBANA REVIVAL ZHAOYI YAN 106 GREENING S[CAR]RED SPACES 92 18 BREATHING STRIPES YUDONG LIU 116 19 SCHLANGENBADER’S GIFTS TIANYU WANG 120 17 BUILDING SLICE BAIYANG HOU SILING ZHU 112 MICROCLIMATE STRIPE 110 20 IN RECIPROCITY SUE YEN CHONG 126 21 INTERPLANTING ABUNDANCE ANELIYA KAVRAKOVA 130 22 NURTURING WITH NATURE MARY LEE 134 23 GROUNDING BERLIN DIENU AMIRZA PRIHARTADI 138 BERLIN’S URBAN BIO-LOOP 124

SENDER BERLIN EXPERIMENTS WITH DATA, NATURE AND COLLECTIVE LIFE IN THE URBAN MILIEU

“Not to find one’s way around a city does not mean much. But to lose one’s way in a city, as one loses one’s way in a forest, requires some schooling”.1

TECHNOSTRUCTURES AND THE URBAN FIELD

In his collection of essays on the phenomenon of technification, philosopher Gernot Böhme argued that technology has historically held the power to transform the nature of society at a fundamental level. By way of an example, the invention of novel optical apparatuses—such as the telescope, the microscope or the photographic camera—led on each occasion to a radical transformation of our collective culture of vision. Likewise, aural cultures were also remodelled by successive waves of technification. For instance, the invention of telephone communications in the late 19th century radically altered our collective understanding of the act of ‘conversation.’ 2

Böhme also explained how both technology and its attendant technical modes of knowledge had become the chief infrastructural platforms that shape both our social field and our cultural landscape, forming what he referred to as the ‘technostructure of society.’ Building on Böhme’s ideas, the Sender Berlin studio investigated a key contemporary component of this technostructure: the ubiquitous layer of data-driven technologies and computational processes that nowadays shape our built environment across

1 Walter Benjamin, ‘Tiergarten’, in Berlin Childhood Around 1900 (Cambridge: Harvard University Press, 2006), 53.

2 Gernot Böhme, Invasive Technification: Critical Essays in the Philosophy of Technology (Bloomsbury, 2012), 49.

1

all scales. As Böhme noted, ‘the greater the amount of social regulation that takes place via data management and data processing, the more people and things only count as part of society to the extent that they can be defined in terms of data.’

The studio was framed around a series of critical questions pertaining to contemporary urban technification: What novel modalities of urban knowledge can be unpacked by tapping into data-driven technostructures? How are contemporary urban cultures transformed by pervasive computational platforms? How can designers meaningfully tap into these technical layers to better articulate the spaces of collectivity in the city?

CRITICAL ZONES — CONTACT ZONES

This enquiry into urban technification was used as a vehicle for the studio to address what is, arguably, the most pressing issue of our times: The planetary-scale climate emergency, and our increased collective awareness of the entangled fragility of our earthly ecosystem.

As a key contribution to recent intellectual debates on this matter, the studio paid special attention to Bruno Latour’s narrative of the ‘Critical Zone.’ Originally coined within the scientific disciplinary realm, the term highlights the fact that all forms of life on Earth (human and nonhuman alike) coexist within a comparatively thin layer of the planet’s atmosphere— the area near the surface of the Earth where life can be sustained. Latour elaborated on the implications of such a ‘tight’ coexistence, noting that human and nonhuman organisms are intimately enmeshed and codependent within this shared ‘zone’—their living environments are cogenerated and interrelated, and thus cannot be extricated from one another. Critically, Latour foregrounded that such environments—encompassing ecosystems such as forests and lakes but also urban neighbourhoods and brownfields—are not static: they emerge from the interactions of many different living beings over time, eventually making it impossible to draw a line between a particular organism and the biotope that surrounds it. 3

Latour’s Critical Zone narrative entails a radical change of perspective in regards to what constitutes ‘collective life’ in an urban ecosystem, running

3 MIGUEL
MALDONADO
& ANDREA FAED | SENDER BERLIN
3 Bruno Latour, After Lockdown: A Metamorphosis (Polity, 2021), 13, 47, 124.
PAREDES
& ANDREW BROOKS

contrary to well-established anthropocentric readings of the city as an entirely human construction. For the Sender Berlin studio, it seems clear that human and nonhuman beings are equally deserving agents in the making of this collectivity, inasmuch as they are inextricably entangled and must coexist productively to build their joint urban environment together.

Leveraging this new perspectival scenario, where encounters between humans and nonhumans open up new potentials for the production of urban space, the studio framed its design outputs as extensions of what Donna Haraway referred to as ‘Contact Zones.’ For Haraway, these are boundaries between domains inhabited by different subjects—usually from different species. Contact Zones are not just spatial boundaries, but also encompass the new relationships and forms of communication that may emerge between the subjects at stake. In building Contact Zones, all participating subjects develop adaptations and predispositions, raising opportunities for mutual encounter. As Haraway noted, Contact Zones manifest the interdependence between species and their ability to shape one another over time, as well as the role of technology as both an agent of mediation in this relational framework and a subject on its own merit.4

You want me to land on Earth? Why?— Because you’re hanging in midair, heading for a crash.—How is it down there?—Pretty tense.—A war zone?—Close: A Critical Zone, a few kilometres thick, where everything happens.—Is it habitable?—Depends on your chosen science.—Will I survive down there?—Depends on your politics.5

SENSING INSTRUMENTS AND FIELD STATIONS

During the first semester, the studio worked with the vast public urban landscapes of Berlin as testing grounds to explore the intertwining of social life and natural life in the city. From a methodological perspective, this exploration was framed through a particular subset of the contemporary urban technostructure: the computational processes and platforms of Digital Urban Sensing. This refers to the collective, distributed and systematic collection of data pertaining to social, infrastructural and environmental conditions in the city, and the insights that can be unpacked from the resulting repositories of digital urban knowledge.

4 Donna Haraway, When Species Meet (University of Minnesota Press, 2007), 218–20. 5 Bruno Latour and Peter Weibel, eds., Critical Zones: The Science and Politics of Landing on Earth (MIT Press, 2020).

Contrary to the prevalent, top-down narratives of urban sensing (exemplified, for instance, by the managerial problem-solving structures of the Smart City paradigm) data-driven sensing practices in the studio sought to highlight ‘coexistence’ rather than ‘performance,’ thus seeking ‘knowledge’ rather than ‘optimisation.’ To that extent, investigations into digitally mediated sensing drew from the theories of Urban Hacking (the creative use of digital media to ‘open up urban institutions and infrastructures to systemic change in the public interest’)6 and Critical Making (a pragmatic pursuit of critical thinking through actions of goalbased physical making)7.

In practice, this entailed deploying the Arduino digital prototyping platform to build ten portable fieldwork instruments: DIY urban sensing devices capable of digitally capturing and recording a range of sensory and environmental data during the Semester 1 studio trip to Berlin. Conceptualised as hybrid digital-analogue mechanisms engineered as adaptations to the urban landscapes in which they operate, the physical architecture of the instruments helped filter, focus or extend their range of digital sensing. The orientation of sensors, the configuration of their envelopes, the articulation of different components and the mechanisms for placing or mounting the instruments on site was as important as their digital sensing capabilities.

Working with these DIY devices, students surveyed the fringes of small natural spaces in the city of Berlin, tuning-in to the non-human entities that inhabit its urban milieu by capturing visual, sonic and environmental data streams outside the ranges of human attention and perception. Upon return to Edinburgh, the task shifted to synthesising and translating the body of data-driven field work into contextual visual and sonic installations in the space of the studio. In so doing, data was articulated as a form of urban infrastructure, capable of acting as an interface between human and nonhuman domains in the city. This, in turn, outlined potential avenues for transformation in the natural public spaces of Berlin, paving the way for the development of a series of distributed interventions that constituted the final outputs of the first semester. Conceptualised as ‘Urban Field Stations,’

6 Cristina Ampatzidou et al., The Hackable City: A Research Manifesto and Design Toolkit (Amsterdam: Amsterdam Creative Industries Publishing, 2015).

7 Carl DiSalvo, “Critical Making as Materializing the Politics of Design,” The Information Society 30, no. 2 (March 1, 2014): 96–105, https://doi.org/10.1080/01972243.2014.875770.

5 MIGUEL PAREDES MALDONADO & ANDREW BROOKS &
FAED | SENDER BERLIN
ANDREA

these interventions were small architectural devices that tapped into the digital infrastructural platform of the city to build productive interactions with urban ecosystems in the public realm.

URBAN FRINGES IN A POST-CARBON CITY

(…) But to really understand the strange limbo that is the outskirts, the city limits, the land that’s ‘just waiting’, I’d suggest taking the route covered by the tram, and its environs. In this problematic zone, the transition between city and countryside is rarely as gradual as in a village or small town.8

The studio started the second semester by participating in the AIV SchinkelPreis 2023, an international architectural competition set in the outer fringes of the Berlin-Wilmersdorf district. The context of the proposed intervention was a long stretch of the A104 motorway, planned and built by the Senate of West Berlin throughout the 1970s as part of a much broader motorway network. A large, elevated structure, the A104 emerged within a historical context of car-centric urban planning, compounded by a lack of development space in what was, effectively, the walled urban enclave of West Berlin. Part of this effort included the 600-metre-long housing megastructure of Schlangenbader Straße, a major housing development atop the urban motorway that is still unique in Germany and has been listed as a protected monument since 2018.

As part of ongoing efforts by the current Senate to scale back Berlin’s motoring infrastructure, the A104 will be decommissioned in the near future. This will, in turn, open up an enormous opportunity to radically transform what was, up until the 1930s, a large peri-urban landscape of productive garden allotments with a focus on small-scale food growth. The studio regarded the scenario unfolded by the potential dismantling or conversion of the A104 infrastructure as a chance to scale up and redeploy the notions of radical human and nonhuman coexistence that were rehearsed during the first semester.

To that extent, and embracing the fast-paced rhythm imposed by the competition deadlines, students were prompted to draw from the designs,

8 Franz Hessel, Walking in Berlin: A Flaneur in the Capital (Brunswick, Victoria: Scribe Publications, 2016), 112–13.

insights and strategies produced during the first semester and adjust, expand and redeploy them to respond to the challenges posed by the competition brief. Working on an open architectural competition within an academic context provided a means to cultivate a critical, reflective engagement with contemporary professional practice. Running counter to calls for academic education to ‘train’ students to work in professional practice, the studio leveraged the competition format as an opportunity to develop handson, investigative, collective design reflections that could translate their critical value to the realm of the profession. This approach appeared to gain validation through the outcome of the AIV Schinkel-Preis competition: two entries produced in the studio were awarded first prize and third prize, respectively, and another two entries were ranked as finalists by the judging panel.9

HYBRID URBAN ASSEMBLIES

The six competition projects (each produced by a team of four students) were carried into the final stage of the studio sequence for further programmatic and tectonic development. The focus of this stage was on building meaningful conversations between housing, public space, and urban nature in Berlin. Thus, and working individually for the remainder of the semester, students identified a fragment of their competition entry as the site of an expanded design proposition that responded to the themes of inhabitation, coexistence, and hybridization in the urban field. This required addressing the social, cultural, infrastructural, and environmental conditions that were collectively identified throughout the year, mobilizing them to activate complex architectural assemblages that opened up new opportunities for the intertwining of social life and natural life in Berlin-Wilmersdorf.

In line with the overarching thematic preoccupations of the Sender Berlin studio, key vectors of enquiry during this final stage included the coexistence of human and nonhuman forms of life in the city, the integration of natural life and social life in the urban public realm, and the opportunities (and risks) afforded by the technification of our built environment across all scales—exemplified by our extended engagement with both physical and digital urban infrastructures. On a more general level, the final stages of the studio explicitly sought to address the question of contemporary urban

9 See: https://www.aiv-berlin-brandenburg.de/wp-content/uploads/2023/03/AIV_SW_23_online_2.pdf

7 MIGUEL PAREDES MALDONADO & ANDREW BROOKS & ANDREA FAED | SENDER BERLIN

inhabitation: In a context of planetary environmental crisis, how can we establish meaningful forms of collective life in a large European metropolis such as Berlin?

Whilst all proposals incorporated an element of urban housing into their programmatic configuration, the brief asked students to adopt an open, expanded approach to what ‘urban housing’ could mean. Responses ranged from more normative forms of urban living to other alternative, emerging forms of urban inhabitation. These included (but were not restricted to) cooperative housing models, the creative integration of living and working activities, the inhabitation of productive landscapes, and a focus on the needs of transient human populations (refugees, students, nomads by choice or by circumstance) and those of other non-human transient ‘agents’ in the urban milieu (such as weeds, seeds, or moss, and ants, birds, or bees).

SOME NOTES ON BERLIN

The prevalent socio-political commentary on the city of Berlin, championed by contemporary philosophers such as Peter Sloterdijk and Jürgen Habermas (who published the aptly titled collection of essays ‘A Berlin Republic’ in 1997)10 often revolves around the construction and the identity of the modern German state in relation to the historical events of 20th Century Europe. These narratives tend to highlight how Berlin carries both the symbolic and the physical marks of its convoluted recent past, whilst gradually consolidating itself as the locus of political and economic power in the European Union. To a large extent, public discourse appears dominated by different takes on the same question: How does history move forward for Berlin, and by extension, for Germany?

In approaching this question, the studio took the opportunity to investigate how the focus of urban debate appears to have gradually shifted from the Cold War and Post-Wall narratives of the city to contemporary environmental concerns and their attendant effects on urban societies.

In 21st century Germany, such concerns appear to crystallise as a strong aspiration to develop socially and ecologically sustainable forms of collective life. As Henri Lefebvre prefigured in his 1967 book ‘Le Droit à la ville’ (The Right to the City) for the citizens of Berlin this aspiration

9 MIGUEL PAREDES MALDONADO
ANDREW BROOKS & ANDREA FAED | SENDER BERLIN
10 Jürgen Habermas, A Berlin Republic: Writings on Germany (Cambridge: Polity Press, 1998).
&

is nowadays materialising through the pursuit of social and environmental justice in the urban field. In this evolving intellectual context, Berlin emerges as a highly tensioned urban scenario. It exemplifies the urgency to redefine contemporary urbanity in an age of environmental crisis, the value of adaptation and reuse as an architectural ethos, the pursuit of meaningful conversations with history and heritage, and the imperative to foster social integration and multiculturalism through design.

CLOSE ENCOUNTERS

Throughout the arc of the academic year, the Sender Berlin studio sought to operate at the intersection of pressing technological, infrastructural and environmental concerns in the contemporary city: pervasive digitalisation, algorithmic governance, threatened biodiversity and the major transformations to both urban mobility and urban material cultures brought about by an unavoidable post-carbon future.

This posited important challenges: First, identifying where such an intersection of concerns may lie, and how it might be framed in the studio context. Second, imagining how it could be meaningfully manifested in order to foster productive design conversations around it. Third, rehearsing how the productive paradigms emerging from this process of enquiry could be mobilised through the tools and spatial ambitions of the architectural discipline.

In light of this overarching framework, it is not surprising that the body of work produced throughout the year tended to privilege a strategic approach to design questions. Encouraged by both the studio briefs and the studio tutors, most projects appealed to systematic rather than formal means to articulate and resolve architectural problems. At the core of all of them is a drive to formulate novel forms of collective existence, which make amends with the city of yesteryear whilst preparing us for a forthcoming post-carbon world. In so doing, they draw a (no longer utopian) future for a radically upturned urban field, ripe for fostering and mediating ‘close encounters’ between a multiplicity of species, objects and entities—human and non-human alike.

Miguel Paredes Maldonado and Andrew Brooks and Andrea Faed
11 MIGUEL PAREDES MALDONADO & ANDREW BROOKS & ANDREA FAED | SENDER BERLIN
13

1. Solar Device. Mari Helland, Alice Reed

2. Surface Texture Device. Changhuan Xu, Yunfang Xu, Xiaowei Xue

3. Amphibious Device. Lulwa AlSharhan, Minyoung Choi, Adam Mitchell

4. 3D Scanning Device. Myles Albon-Crouch, Robin Fortunato, Isaac Sherriff

5. Soil Device. Sue Yen Chong, Aneliya Kavrakova, Mary Lee, Dienu Amirza Prihartadi

6. Air Device. Sue Yen Chong, Aneliya Kavrakova, Mary Lee, Dienu Amirza Prihartadi

7. Urban Sensory Device. Edward Haines, Joel Pacini

8. Quadrant. Baiyang Hou, Yudong Liu, Siling Zhu

9. Anthropological Sensing Device. Gus Nicholds, Augustus Wray

10. Remote Device. Tianyu Wang, Zhaoyi Yan, Jinni Zhang

SENSING INSTRUMENTS

1 2 4 3
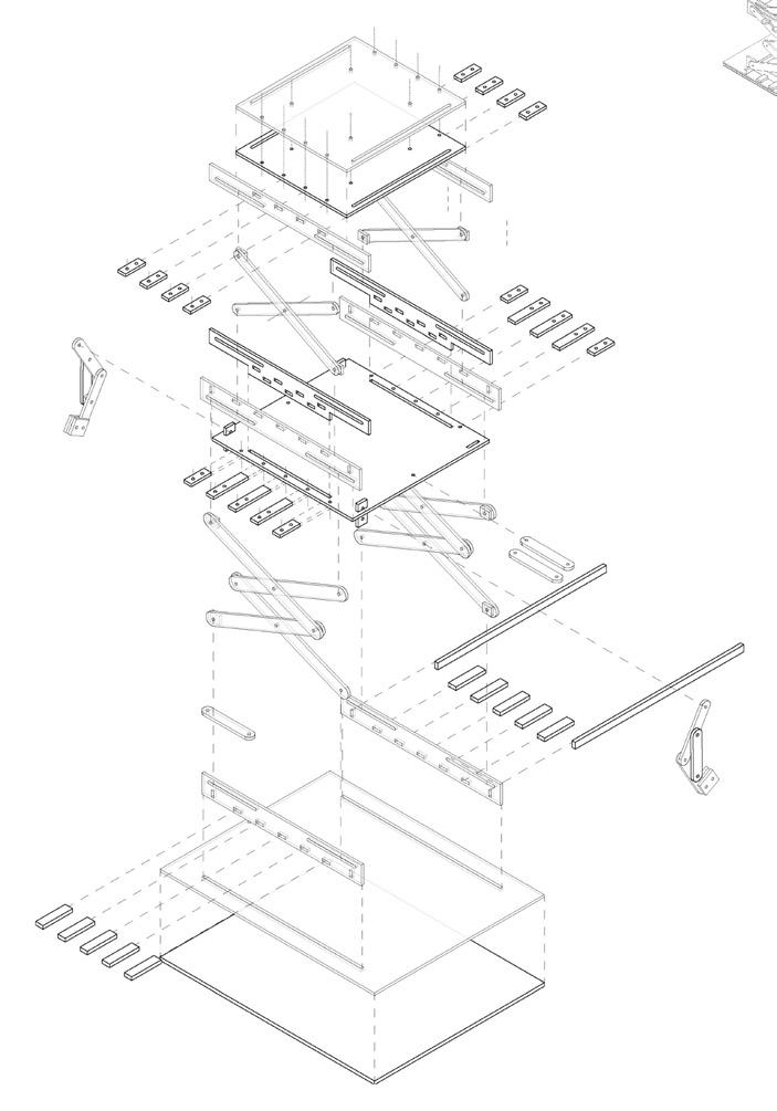
20 / 87 21 / 87 GROUNDING BERLIN: HOME FOR A MAKER Figure 26-28. A study through the soil device, made to puncture into the ground and scoop soil samples whilst similarly analysing the moisture within the ground. THROUGH THE CITY 10 8 6 9 7 5 15

SOLAR DEVICE

MARI HELLAND ALICE REED Sunprints - Analogue Data Collection. Cyano-type photo reactive paper (above) Solar Device Axonometrics. Assembly and Deployment (below) Tiergarten Survey (right and inset)
17

SURFACE TEXTURE DEVICE

CHANGHUAN XU

YUNFANG XU

XIAOWEI XUE

Interactive Device Display. Video still (above)

Instrument Assembly. Axonometric (below left)

Parts and Assembly Taxonomy (below right)

Phone Fitting. Video still (right top)

Device in Use, Tempelhofer Feld. Video still (right bottom)

19

AMPHIBIOUS DEVICE

LULWA ALSHARHAN MINYOUNG CHOI ADAM MITCHELL

Sensing Water - Tiergarten (above)

Drawings: Elevation and perspective (below)

Sensing Land - Tiergarten (right)

21

3D SCANNING DEVICE

MYLES ALBON-CROUCH ROBIN FORTUNATO ISAAC SHERRIFF

3D Scanning Device. Photographic elevation (below) Measuring Stadtteilgarten Schillerkiez, Tempelhofer Feld. In-use photos (right)
23

SOIL DEVICE

SUE YEN CHONG ANELIYA KAVRAKOVA

MARY LEE

DIENU AMIRZA PRIHARTADI

Drawings. Exploded Axonometric, Plan and Section (below) Sensing Atmosphere & Sampling Soil. In-use photos (right)
25

AIR DEVICE

SUE YEN CHONG

ANELIYA KAVRAKOVA

MARY LEE

DIENU AMIRZA PRIHARTADI

Photographic Elevation (above) Drawings. In use elevation, assembly (below) Device Testing. Minto House, Edinburgh (right top) Atmospheric Survey, Tempelhofer Feld (right bottom)
27

URBAN SENSORY DEVICE

EDWARD

Drawings: Plan and Section, and Axonometrics (below)

Surveying Tempelhofer Feld. (right bottom)

Surveying The Berlin Wall. (right top)

HAINES JOEL PACINI
29
QUADRANT BAIYANG HOU YUDONG LIU SILING ZHU
Device Sensor Photo - Tiergarten (above) Fold out Axonometric (below) In-use photo - Tiergarten (right)
31

ANTHROPOLOGICAL SENSING DEVICE

GUS NICHOLDS

AUGUSTUS WRAY

Uncovering Architectures - Six Sites. Survey sites data collation (above)

Device Deployment (below middle)

Sensing in Tempelhofer Feld. In-use photo (bottom)

Device Sensing - Voices, Sound and Colour. Exploded axonometric (right)

[volume 2 | I | collecting]
33

REMOTE DEVICE

TIANYU WANG ZHAOYI YAN JINNI ZHANG

Drawings. Axonometric and in-use elevation (below) Sensing Surroundings. In-use photos (right)

35

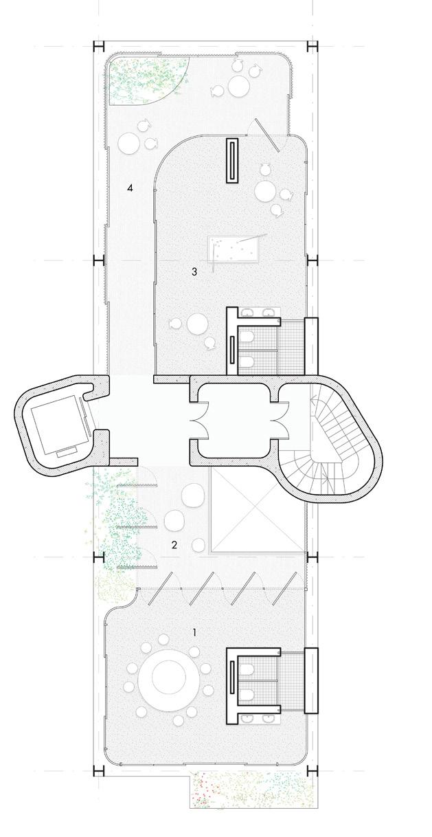
THE FADING EDGE

The proposal aims to integrate the social and natural domains in the city by providing a communal activity space and a nature park, encouraging social engagement and urban coexistence. Using a circulation “ribbon” as a tool to weave the edges emerging around the A104 and connect fragments across it, the proposal blurs the boundaries between the motorway and the surrounding buildings, the interior and exterior, the natural and the artificial landscape.

The intervention is articulated around four social themes—performance, art, reading, and sports—which are distributed in relation to the existing surrounding programmes. The spatial requirements of each function determine the form of the “ribbon” and develop a route alongside it. Functional programmes are fitted into series of small rooms along the ‘ribbon’, interacting with the open space around it. The rooms establish visual connections between the interior and exterior. The architecture is no longer a shelter separating humans from the existing environment, but a space for undisturbed connections with the surroundings.

A natural park is set on top of the motorway. It is made of rubble reclaimed from the partial dismantling of the structure and left to rewild without human intervention. The plants will flourish on it over time, allowing wildlife species to colonise it.

CHANGHUAN
YUNFANG
XIAOWEI
JINNI
NATURAL / SOCIAL RIBBON
XU
XU
XUE
ZHANG
39
Competition Panel Thumbnails. (adjacent top left) Sky Habitation Masterplan (left) Actions of Intervention - Sky Habitation (top right) Site Analysis - Function, Species and Transportation (middle right) Fading Edge Section (bottom)

01

SKY HABITATION

CHANGHUAN XU

Located in Berlin-Wilmersdorf, the site is a motorway structure cutting through a residential area. The proposal is aiming to create a vertical living system for both human and non-human inhabitants.

The design develops from a circulation ribbon that connects a series of “hobby rooms”, creating a collective urban living enclosure that encourages social engagement. Several towers formed as extrusions of the ground develop growing levels of intimacy. The lower levels provide collective living areas where the residents have minimal private space. All other spaces and facilities are shared and divided by movable partitions. The upper levels are more private, providing the living areas contained within each unit. The polycarbonate and glazing panels create different thermal conditions and visual effects, tailored to a variety of uses.

The top of the motorway is left to re-wild without human access or intervention. The plants flourish on top and provide conditions for urban biological coexistence: a green corridor connecting other green spaces in Berlin. This green space extends itself through the timber trellis, the exposed structure, and the terraces on each level, providing habitats for plants and wildlife. The towers act as vertical forests for different types of species to thrive in this high density residential area.

41

Interior views (previous top far left)

Ground Floor Plan (previous top left)

A104 Level Plan (previous left middle)

Cross Section (previous bottom)

Plan progression (top)

Natural Habitats, model photos (left)

Long Section (bottom)

Structural Axonometric (adjacent top right)

cHANGHUAN XU | SKY HABITATION 43

SKY HABITATION A VERTICAL COEXISTENCE

The site is located in Berlin-Wilmersdorf, in the area currently occupied by the A104 motorway. Planning for the future decommissioning of this infrastructure, this proposal aims to create a vertical structure for humans and other species in Berlin by merging public communal space and nonhuman habitat walls into private living space. It encourages collective living and urban coexistence.

Guided by the idea of hobby rooms, the jointly developed group masterplan provides public space for local residents to gather. In addition, the proposal provides three residential towers. Other communal spaces to be shared by residents living in the tower were designed. By sharing facilities and foregrounding modes of collective living, the tower becomes a space regardless of class, age and gender.

An “untouchable” landscape is set on the A104, left to rewild by excluding any human activities. A “walkable ribbon” is used as a tool to allow researchers to survey the motorway from a distance. Additionally, the proposal considered how the species live within the tower: habitat walls were designed to provide nesting areas. All these efforts make the proposal not only a living space for human beings but also a habitat for other species.

02 YUNFANG XU
45

A Vertical Coexistence - Three Towers (previous)

Shadow Analysis - Ground Floor (top right)

Structural Model (left)

North East Sectional Perspective (bottom)

Structural Assembly (opposite top)

North-East Section (opposite bottom)

YUNFANG XU | SKY HABITATION 47

SKY HABITATION COEXISTENCE IN THE SKY

XIAOWEI XUE

The post-war ruins of Berlin provided the city with a unique testing ground for the development of natural life: species would grow and thrive in the wasteland, resulting in a rich biodiversity. The decommissioning of the A104 motorway provides an opportunity to re-iterate this unique urban environment: the abandoned structure will develop into a new habitat for wildlife and serve as a bridge connecting biological habitats across distant city areas.

Next to the ruined garden and the “ribbon” built with reclaimed fragments of the motorway, a group of collective living towers combine hobby rooms and living spaces, expanding the community activity space of the city into the sky. The building is targeted to single people, minimizing private space while maximizing a more ample, comfortable space for public life. Inside the large shared spaces, movable “bed boxes” and sunshades make the layout and lighting in the room change according to the varying needs of its occupants. In parallel to this, the structure allows the nonhuman biological habitat to expand vertically whilst remaining protected from direct human intervention. Timber is used as a material for the prefabricated walls and floors in the tower, ensuring a low carbon footprint and blurring the boundaries between man and nature.

03
49

Wildlife Habitat Perspective (previous far left)

Coexistence in the Sky, site axonometric (previous)

Habitat Distribution Plan - wind and sun orientation (right)

Room Axonometric with Bed Box (middle)

Section and Elevation (bottom)

Structural and Environmental Strategies (opposite)

Structural and Facade Inhabitation Model Photos (opposite bottom)

XIAOWEI XUE | SKY HABITATION 51

VERTICAL HABITATION COEXISTENCE THROUGH COMMUNAL LIVING

By combining housing, studio spaces and nature, this project is a vertical habitation section that transforms the decommissioned A104 motorway into a system for both social engagement and urban coexistence.

The A104 is considered as 2 layers – an untouchable wild landscape and an open public ground. A“walkable ribbon” with four functional themes (performance, art, reading, sport) is set along it to soften the edges between the layers and provides opportunities for an ever-changing social and natural experience.

As a third vertical layer to in this system, a structure is designed as collective housing and studios for artists. It is located within the area corresponding to the “art” theme, with ground levels devoted to art markets and exhibition spaces. Two programmes are integrated together with contrasting spatial qualities. For dwellings, minimal rooms and shared spaces are set to reduce the cost of living and encourage social connections. For studios, various open spaces are designed to respond to different functional requirements.

A natural habitat structure covers the gap between the dwellings and studios. Here, plants will naturally thrive, creating a vertical expanding living area for scenes of interspecies coexistence.

04
53

Plant growth in elevation (previous far left) Habitational Assemblage (previous) Central section opposite (top) Neighbourhood of Coexistence (spread)

JINNI ZHANG | VERTICAL HABITATION
55

ORGANIPONIK ARCHITECTURES OF RECONSTRUCTION

The physical fabric of Autobahn 104 is regenerated from a system that propagates the auto-life into a new series of interventions, walkways, cycle paths, and allotments for the local community, the horticultural and agricultural institute, and for Berlin.

Our thesis behind this project is a restoration of the area of Die Autobahnüberbauung Schlangenbader Straße to its historic state of a region of allotments. This low-carbon intervention proposes the transformation of the existing autobahn structure on the site to a new model of regeneration.

With the removal of auto traffic, one of the two structural lanes of the posttensioned concrete motorway is carefully de-constructed and catalogued in a new material hub in the mouth of the tunnel under the superstructure, as a series of components; ranging from large slabs to rubble, suitable for filling gabion cages. These components are reintroduced to the site in a range of configurations and built from to introduce a series of new architectures. The remaining motorway is reinterpreted as a raised garden, with cycle and walking paths. The support pylons are retrofitted with new programmes.

Competition Panel Thumbnails. (adjacent top left) Organiponik Masterplan (left). Deconstruction Kit (middle) Agricultural Institute (top right) Cafe / Kiosk (middle top right) Composter / Greenhouse / Cafe (middle bottom right)
57
Micro Brewery (bottom right)

SURFACE TO SUBSTRATE RECLAMATION, REGENERATION, REMEDIATION EDWARD HAINES

Grounded in three presiding concerns - Reclamation, Regeneration and Remediation – this project looks to re-contextualise the Autobahnüberbauung Schlangenbader Straße. Disassembling one of the two Autobahn bridges, re-activating the de-constructed road elements, re-orientating their structural attributes and turning them into new Architectures. Drawing on four key threads — Regeneration and Reflection, Reorientation and Re-contextualisation, Embedded Memory and Disassembly and Reassembly – and with an underlying interest in surface, the project addresses contemporary contextual and global issues, keeping the environment, ecology and the natural world at its core.

The scheme reactivates the area’s ties with agriculture, horticulture and plant sciences, proposing a new Institute for Urban Regenerative Agriculture. This institution aims to establish, practice and teach successful techniques of Regenerative Urban Farming, regenerating urban areas by turning them into productive landscapes. As much of the soil in urban and post-industrial areas is polluted or contaminated, an integral part of the Institution will be a centre for Soil Remediation and top-soil manufacture; cleaning and building-up ecologically rich, carbon-sequestering soil, enabling the successful practice of Regenerative Agriculture; ultimately importing contaminated bio-mass and exporting healthy soil. The scheme is thus threefold; Reclaiming [the Road], Regenerating [the urban land] and Remediating [the soil].

05
59

Section Model (previous far left)

Reclamation Structures: Site axonometric and section (previous)

Capturing, Activating, Re-Contextualising (top)

Concrete road reclamation (bottom left)

Transporting Reed, East Facade (adjacent bottom right)

EDWARD HAINES | SURFACE TO SUBSTRATE 61

FRAMING FIELDS OF BERLIN

REIMAGINING THE GARDEN COLONY GUS NICHOLDS

Scattered throughout the urban fringes of Berlin, an assemblage of garden houses and allotments occupy unwanted gap conditions in the urban field. These are Berlin’s Kleingartens. Emerging from a desire to reconnect the urban youth with nature after rapid industrialisation in the 19th century, Kleingartens are a staple part of German culture. In the suburban district of Wilmersdorf, they were once a dominant feature before they were cleared to make way of the A104 Autobahn.

In the hypothetical decommissioning of the A104, “framing fields of Berlin” proposes the reintroduction of Kleingartens into once familiar territory. The scheme incorporates a horticultural institute and associated student accommodation that keys into the nearby “Gartenarbeitschule” [gardening school]. 14 students of the horticultural institute live, work and study within this productive landscape. The proposal suggests a reimagining of “garden colonies”- not just as territories of recreation but as places for living.

The scheme draws from the concept of “Nachverdichtung”, a method of densifying urban centres by building within gaps in the urban fabric. One half of the motorway is disassembled, and the resulting monolithic concrete slabs are transposed to embed themselves in the spaces left behind. In-between these stones in the landscape, programmes of inhabitation propagate, resulting in a garden colony born from the rubble of the Autobahn.

06
63

Site inhabitation maquette (previous far left)

Framing Fields of Berlin, exploded axonometric (previous)

Structural connections (top left)

Communal Kitchens, exploded axonometric (right)

Circulatory Space Section through 4 bed Kleingartenhaus (bottom)

4 bed Kleingartenhaus section with model (opposite top)

Kleingartenhaus model (opposite middle)

Field Lines Landscape, model (far opposite middle)

Kleingarten Colony, isometric (opposite bottom)

[volume 2 | IV | framing] [148] SUDs Horticultural Institute Circulation Stair Allotments [149] gus nicholds | design report
Allotments left| short section throigh circulatory space and 4 bed kleingartenhaus
4 Bed Kleingartenhaus
GUS NICHOLDS | FRAMING FIELDS OF BERLIN 65

INHABITING A POST-CARBON CITY

INTEGRATED LIVING & FOOD PRODUCTION COM MUNITY

The project is situated in the context of a shifted balance from carbonreliant economies to a future minimal-to-zero-carbon modus operandi. The proposal presents a row of apartment towers, a typology which can be multiplied across the wider city neighbourhood, with the first phase set upon redundant space created by the decommission of the 1970s autobahn flyover. An integrated fresh food supply strategy, consisting of allotments, is inspired by those which had occupied the site before the construction of the “autobahn” and reduces the apartments’ reliance on supply chains with a more localised distribution network.

The productive growing landscape is supported by a pair of heated glasshouses and invites a cooperative growing effort from the apartment community to operate a grassroots food hub for the local area. The unique spatial condition beneath the structure of a second road platform is retained to provide space for the fresh produce of the land to be organised and distributed to the cafés, greengrocer, and residents’ kitchen at ground level. The upper motorway level offers a frontage of pop-up units and workshops, where preserves and crafts are traded along a new thoroughfare. The re-purposed structure provides a walking route and bicycle expressway to re-connect sub-urban residential neighbourhoods with the city centre.

07
67

Structural and site maquettes (previous far left)

Allotment Elevation (previous top)

Greenhouse Sectional Perspective (previous)

Neighbourhood Perspective (opposite top)

Residential and Communal Section (opposite bottom)

Ground and Bridge level plans (top)

Bridge Threshold Perspective (middle left)

Residential Section (middle right)

Eastern Perspective (bottom)

JOEL PACINI | INHABITING A POST-CARBON CITY
69

EINBAHN-H Ö FE ARCHITECTURES OF TRANSFIGURATION AND FRACTURE AUGUSTUS WRAY

The proposal exists not as a continuation of the AIV Schinkel competition, but rather as a transfiguration.

The competition’s forms - the re-used concrete slabs and pylons of the obsolete Autobahn 104 - are re-purposed for a new site. There is a new lease of life for the physical body, and a semiotic interpretation of the original, with a new form derived through projection, overlaying, and reconfigurative collage.

Appropriate elements of the previous project - the concrete, the framework, the fractuation - were recreated as planar images and physical models, to then be imaged through the light of Berlin as a field of culture, texture, and memory, and distorted and layered as a series of photograms. The original elements are transformed twice: once, as cut and shattered bodies, and another, as deformed and distorted, yet ontologically whole, projections of the original Forms.

The housing begins as the typical Berliner courtyard housing typology, replete with contemporary interpretations of the “Berliner Zimmer”. The photogram-collage proceeds to splinter through, breaking and remaking the homes as fractured spaces. The splintering forms deep wells of light that penetrate through the massive, reused concrete, providing opportunities for flowering and growth. The dead motorway becomes a haven for human and non-human life to take root.

08
71

Photogram & Digital Drawing Collage (previous far left)

Multiplicities, multiple exposure layered photographs (previous)

Masterplan (top)

Plans Series (left)

Section with mesh detail (top right)

Structural strategy (right middle)

Unwrapped courtyard internal elevation render (bottom)

Einbahn-Höfe undercroft and slabs (opposite middle left)

Slab-courtyard glass arrangement (opposite middle right)

AUGUSTUS WRAY | EINBAHN-HÖFE
73

WATERSCAPE

Waterscape reflects the changing landscapes of Berlin in the face of the climate emergency and the city’s housing crisis. The project prepares for the coming climate of dichotomies—one of increased rain and dry spells—through the creation of a waterscape for water collection, filtration and storage.

Waterscape re-imagines the motorway into a blue lung of the city offering both residential and commercial space. The project works with the top of the existing motorway structure, proposing a residential area with a series of landscaped water filtration systems and public pools that leak into a reservoir at the end of the tunnel. A canal system collects, filters and stores precipitation and wastewater for reuse in its proposed residential buildings. Water is led through a system of hydroponic pools, each with a specific biological set-up that filters the water. Plants and reed beds in the gardens function as a biofilter, eliminating contaminants including heavy metals, organic pollutants, and nutrients.

The tunnel reservoir provides inhabitants with an immersive experience by incorporating various spaces with shifting levels of temperatures and activities. The transition from outdoor to indoor pools is intended as a reflection of the passing seasons, creating a connection with the natural environment and providing locals a means to take advantage of the shifting weather.

LULWA ALSHARHAN MINYOUNG CHOI MARI HELLAND ALICE REED Third Prize (3.Diesing-Preis), AIV-Schinkel-Wettbewerb 2023 “Stadt statt A-104”

Competition Panel Thumbnails. (opposite top left) A104 Perspective (opposite top right) Berlin Bodies of Water (top left) Waterscape Masterplan (top right) Cross Section with ‘Schlanger’ structure (middle) Waterscape Section (bottom)r

75

VILLA VERDE

A POETIC ODE TO WATER IN URBAN LIVING

Offering a unique glimpse into the harmonious interplay between humanity and nature, the design proposal suggests a socially responsible dwelling complex located along the edge of a bustling motorway in Berlin. The design concept revolves around the beauty and fluidity of water, tracing the journey of a droplet through various scales of space. The housing units, poised to overhang the motorway, collect rainwater through a sculptural gutter system that filters into a series of cascading pools and creates a striking visual contrast to the industrial landscape. This natural purification process yields water that flows into an urban wetland garden, transforming the space into a verdant sanctuary amid an industrial landscape.

The dwelling units have been meticulously designed to foster a culture of sharing and communal living, offering a range of villa types to cater to the needs of individuals and families complete with a shared green roof. The shared green roof is a space for cultivating community food alongside the landscaped allotments further promoting biodiversity and food security. The scheme is a testament to the power of poetic sensibility and sustainable design, creating a harmonious and environmentally conscious dwelling space for people and nature alike.

09
77
LULWA ALSHARHAN | VILLA VERDE
Villa Verde Masterplan (previous) Environmental Atlas - Bodies of Water Berlin (spread) Model photo (inset top left) Roof plan (middle left)
79
Cross Section through A-104 (bottom)

WASSER, WASSER, GARTEN

Our competition entry re-envisioned the motorway tunnel of Schlangenbader Straße into a structure that tackles both the climatic and housing crises of Berlin. The proposal incorporated a series of rainwater and greywater collection points with water filtration systems, whilst simultaneously developing novel public and private residential spaces.

My proposal focused on re-purposing the ‘mouth’ at the southern end of the tunnel. Carrying forward the principles of systematic recycling of water and the coexistence of public and private functions, I developed the site into a semi-private residential complex garden.

Two sets of towers, each comprised of prismatic glue-laminated timber frames with ‘box’ modules - CLT and glulam composite - cantilevered on top of them, provide both private residential functions for human inhabitants and well as opportunities for non-human intervention. At Upper Ground Level is a garden space, open to the public by principle but not visible to pedestrians at lower levels, giving it a semi-private quality.

At the top of each tower is a non-structural canopy where rainwater is collected and subsequently transferred down into the box modules for household use. Afterwards, this greywater is fed into the previously developed water filtration and recycling system at Lower Ground Level.

10
MINYOUNG CHOI
81

Data Visualisation - Tiergarten Survey (previous far left) Wasser, Wasser, Garten Section (previous)

Masterplan (left)

Plan Sequence (opposite left)

Exploded Structural Axonometric (opposite right)

MINYOUNG CHOI | WASSER, WASSER, GARTEN 83

WATERSCAPE A PERMEABLE MOMENT MARI HELLAND

Conceived from an ambition to bridge a gap between the world we live in and the world we live off, the project blends the urban and natural landscapes of Berlin into a pseudo ‘critical zone’. This approach challenges well-established beliefs of the anthropocentric city by re-imagining the way we inhabit it, reorganizing its waterscape to promote synchronicity between human and non-human counterparts.

Catalysed by intensified climatic changes, the masterplan questions existing infrastructures and offers a proposal for a climate of dichotomies, for periods of increased rain and drought. The motorways of Berlin offer a suitable real estate for this novel infrastructure; the waterscape connects existing rainwater catchment areas, offering natural filtration and vital storage, enabling the city to mediate changes in precipitation patterns.

A residential building for people under 30 seeks to relieve the housing crisis for both human and nonhuman populations. Its habitable skin, composed of planting beds, birds, insects, and bat habitats, promotes coexistence, offering a moment of respite from the flight of non-human species away from the city. Recognising water as life-giving, the building is imagined as a vessel for liquid circulation: Droplets are caught to replenish the ground beneath, feeding the building’s thriving greenery in the process.

11
85

Developmental Sketch (previous)

Cohabitation Planting Bed, fragment model (previous far left) Water Section (below)

A-104 Motorway Perspective (left)

Cohabitation Planting Bed Sectional Perspective (opposite top)

Third Floor Plan (opposite middle)

A-104 Motorway Platform Plan (opposite bottom)

MARI HELLAND | WATERSCAPE 87

WATERSCAPE

ALICE REED

Amidst the increasingly dynamic landscapes of Berlin, Waterscape is a response to changing precipitation patterns, and investigates solutions to re-imagine inhabiting the city.

The 1970’s Schlangenbader Straße complex encompassed a time in which the metropolis was built around the automobile, initiating the separation of humans, transportation and nature. By decommissioning the motorway, we now seek to reverse the effects of the industrial age by minimising emissions and preserving green spaces.

To accommodate Berlin’s housing crisis, the proposal provides apartments for a mixed demographic, promoting intergenerational living and habitual sharing culture. The blocks invert the form of the ‘schlange’ creating a valley for the co-existence between humans and non-humans. A series of landscaped water filtration canals and public pools leak into a reservoir at the end of the tunnel. Below the motorway level is a public park that works alongside a seed library and community café, where residents can learn and connect with nature and people.

Rain and grey water are fed through pipes down the dwelling façade into cascading hydroponic terraces, taking in and breaking down environmental contaminants. The biologically filtered water then enters natural swimming pools enclosed within a microclimatic courtyard which reflect the temperature transition of the passing seasons.

12
89

Exploded Structural Axonometric (previous) Sectional Strategy (top)

Waterscape Sectional Perspective (bottom)

Undercroft Plan with progressing plans (opposite top)

ALICE REED | WATERSCAPE 91

GREENING S[CAR]RED SPACES

The goal is to re-discover and adapt urban spaces that were lost to the motorcar by creating green links throughout the area. Isolated “islands” exist along Dillenburger Straße under the bridge, underused and disconnected from the surrounding urban fabric. By decommissioning the suspended motorway, we can make use of this north-south axis and transform it into an open-air park. The potential for the upper level is to become a “promenade” with different temporary and rotating uses: cafés, restaurants, open air cinemas, temporary exhibition spaces, markets, sport and leisure activities. The lower level takes advantage of the “protection” given by the motorway that becomes a “roof” for many outdoors activities. While the upper level is treated as a natural park, the lower level is treated as a 15-minute city. The cutting and opening of the motorway structure allows for a new series of three-story residential buildings to be introduced on the west side of the hanging. The remaining space at the north node is opened and a landscape feature is introduced. A new auditorium makes use of the existing sound proof qualities of the motorway structure inside the existing housing block.

MYLES ALBON-CROUCH ROBIN FORTUNATO ISAAC SHERRIFF ZHAOYI YAN
93
Competition Panel Thumbnails. (opposite top left) Schlangenbader Straße Collage (top) Greening S[car]red Spaces Masterplan (middle) Site Section (bottom)

DIE BRACHEN BR Ü CKE

STUDENT CO-LIVING AND NEW PUBLIC HIGHWAY MYLES ALBON-CROUCH

‘Die Brachen Brücke’ is a new complex of co-op living aimed at students living and working in the heart of Berlin. The programme of the motorway structure remains the same but changes in every other way. It still acts as the main artery connecting the north and south but removes the herds of automobiles and floods of fumes, replacing them with a natural growth highway. At first, this will only exist in the form of a weaving cycle path, allowing space for other elements, such as market stalls, tiny parks or “Brachen” to develop naturally over time.

This new green-highway is connected directly to the communal areas of the new student co-op living space. The focus here is on communal spaces, which each room connects directly. These spaces are left to develop with the needs of the student inhabitants, rather than leaving useless spaces untouched.

The building is designed with the communal spaces built from concrete, drawn up to match the level of the bridge and surrounding buildings, and tall CLT towers growing out of it. It aims to invoke ideas of a new, more natural Berlin that does not destroy the existing but instead grows out of it.

13
95

Building model fragment (previous far left) Die Brachen Brücke - Student Living, sections (previous) Timber towers construction (opposite) A-104 Motorway level plan (top) Site Propagation Model (bottom)

MYLES ALBON CROUCH | DIE BRACHEN BRÜCKE
97

BETWEEN THE S[CAR]RED EDGE

As defined within the competition, the ‘S[car]red Edge’ represents the mutilation of Breitenbachplatz caused by Autobahn 104. This project builds in between this ‘Scar’ to mend it. The colossal, elevated motorway, built to promote the cars of a bygone era, has suffocated a prominent urban hub. Vagrant ghosts of sheared boulevards have formed its voids, while surrounding gardens have all contracted, and nature has been lost in this combustion turmoil. This is the ‘In-Between’ we are interested in inhabiting.

By building within voids, an attractive core is developed; a galleria that connects cold and enclosed workshops, and opens onto courtyards and public markets. Newly established vertical connections enable functional programmatic, whilst an ‘In-Between’ space collects and connects — a magical procession of ground, water, and sky.

This urban patchwork borrows from building methods of earth masonry. Materials are chosen according to life cycles: A building is made from the ground and will eventually return to it. Above the motorway, a residential framework for a new growing cooperative is built. Voids are formed to become gradually in-filled over the years — a philosophy of ‘In-Between’ material and time. By bridging communal allotments, workshops, markets, and residential areas, Breitenbachplatz becomes a nucleus for nature and shared internal resonance.

14
ROBIN FORTUNATO
99

Masterplan model (previous far left)

Context Cross Section (previous top)

Material Drift, Year 80 - Internal Elevation (previous bottom)

A Growing Cooperative - Site Arrangement (top)

A-104 Motorway Level Perspective (previous)

ROBIN FORTUNATO | BETWEEN THE S[CAR]RED EDGE
101
Material and Servicing Strategy (top) Cross Section (bottom)

ISLES OF BRACHEN

ISAAC SHERRIFF

The Isles of Brachen are a place of refuge for the adventive: A place for those who arrive — people, flora and fauna alike.

Berlin is facing a crisis of identification — of those who are welcome and those who are not. Where cost of living and housing crisis have become a tough reality faced by all, the easy option would be to follow suit with other Westernised countries and use refugees as a scapegoat for their woes. In contrast to this, the primary objective is to elevate the status of refugees within Berlin — seeing these people for the valuable members of society they could be if governments allowed.

Flaws in post war housing like the Schlangenbader Straße flats lie in the political failures to implement the necessary infrastructure to negate systems of poverty. This project provides an architectural framework that provides refugees with space to find their socioeconomic roots within the city, alongside safe community housing. The lower levels have been allocated to the Department for Education, but are designed with the potential for installing wider civic functions upon further propagation of the scheme.

Simultaneously, the project provides a home for the Brachen of Berlin, creating biodiversity in a landscape scarred by the motorway.

15
103

Movement Through Radiality, conception model (previous far left)

Exploded Axonometric (previous)

South West Perspective (top)

The Isles of Brachen, hand drawn section (bottom)

Towers model (opposite top)

Site plan (opposite bottom)

ISAAC SHERRIFF | THE ISLES OF BRACHEN 105

NATURA URBANA REVIVAL

This project explores the present and possible future of a former parking lot in Berlin-Wilmersdorf, using it as a testing ground to initiate communication with the surrounding parks and residential areas.

New residents are being guided to restore building facilities using simple, transparent, and sustainable materials and methods. The design outcome is not a final product but a gradual transformation process. This proposal allows something to dissipate over time while building a new foundation for humans and other living beings to coexist with mutual respect.

The plan aims to maximize the connection between humans and nature while ensuring residential density. The ground floor serves as a bridge between the existing landscaped garden to the north and the newly built garden in the southern part of the new site. The inserted residential modules come in two different sizes: single-person units and family units, measuring 40 square meters and 80 square meters, respectively. Additionally, a small theatre with a capacity of 100 people can be added to the ground floor to meet the daily needs of community residents. The newly built lightweight wooden frame, which uses the modulation of the concrete frame as its structural template, is used to rebuild the roof garden and integrate it into the residential design.

16
ZHAOYI YAN
107

Model Section (previous far left)

Apartment Facade Perspective - south west (previous)

A Garden Building - site arrangement (top left)

Sectional Model (top left)

Section through Main Courtyard Atrium (bottom)

Schlangenbaderstrasse Perspective (opposite top)

Garden Perspective (opposite middle)

Atrium Perspective (opposite bottom)

ZHAOYI YAN | NATURA URBANA REVIVAL 109

MICROCLIMATE STRIPE

Starting from a study of the microclimate around the motorway, the proposal puts forward six stripes with different climate characteristics. By overlaying several prototype devices that can adjust local microclimate to the existing functional and climatic organisation of the site, the original motorway structure is transformed into an urban stripe with a rich array of activities.

The “Wind Path” device promotes the northwards flow of air in the tunnel, whilst also ameliorating the effects of overly strong winds. The “Water Courtyard” collects the water vapour in the air, developing a reservoir of processed, clean water.

Through the “Light Tube” device, sunlight is refracted reflective surfaces to increase illumination under the bridge and provide diffuse reflection. The perforations in the tiny structure attached to the “Louvre” device dissipate heat and make use of the circulation of airflow.

The end of the motorway structure and the mouth of the tunnel are redeveloped as a transportation centre with retail and catering programmes, providing parking for private cars and bicycles. A Water Park aims to create a bathing space, divided into an indoor bathing area, swimming park, diving platform and sunbathing.

BAIYANG HOU YUDONG LIU TIANYU WANG SILING ZHU

Competition Panel Thumbnails. (opposite top left)

Microclimate Stripe Masterplan (opposite)

Inhabited motorway perspective (top)

Climate Control Strategies (bottom)

111

BUILDING SLICE

RETOOLING THE ‘SCHLANGE’ RESIDENTIAL COMPLEX BAIYANG HOU SILING ZHU

The Autobahnüberbauung Schlangenbader Straße, a relic from the early 1980s, stands tall and proud, a monument to the city and a testament to its time. Yet, as the years passed, its living conditions decayed, calling for a solution to breathe new life into it.

And so, the slices came to be – light-transmitting marvels of steel and wood, breathing fresh life into the complex’s core. Sunlight dances through their transparent frames, caressing the green oasis within, nourishing agriculture and cultivation with solar energy harnessed from above. Rainwater, once forgotten, now finds purpose, collected and treated as a gift for irrigation and flushing. Heat and wind craft three distinct environments – unenclosed and unheated, enclosed and unheated, and enclosed and heated – tailored to each function’s needs.

The viaduct, once dormant and forgotten, now blooms as a vibrant shopping street – a mosaic of shops, urban agriculture, and fishery – inviting visitors to wander and explore, to indulge in the richness of spatial wonders.

Sustainability appears as guiding principle throughout: Two cycles of natural production intertwine in a harmonious dance, with materials flowing and energies interweaving. Organic matter from fishing nurtures the soil, plant leaves sustain the fish within, and visitors become custodians of this perpetual cycle.

17
113

Rooftop Greenhouse, model (previous far left)

Entrance Park Perspective (previous)

Internal Forest Perspective (above left)

Internal Street Perspective (above right)

Sport Slice, axonometric (left)

‘Schlage’ Structure Axonometric (below)

BAIYANG HOU | SILING ZHU | BUILDING SLICE
Ground Floor Plan (above)
115
Structure Insert Model (right) Strategic Section (below)

BREATHING STRIPES

A COLLECTIVE URBAN RENEWAL YUDONG LIU

Once the decommissioning of Berlin’s A104 motorway takes place, its abandoned concrete structure will demand an urgent transformation amidst a context of high living costs and housing difficulties. The proposed design seeks to revitalize this forgotten urban space and create new urban landscapes that encourage spontaneous public participation in social activities and revive the community’s historical context.

By leveraging the site’s microclimate, passive, and energy-efficient housing can be seamlessly integrated onto the motorway platform, while the space underneath the structure can continue to function as a transit and activity hub. The motorway and its surroundings are segmented into multiple strips, each infused with three themes: greenery, sports and communal activities. Meanwhile, the urban landscapes take on diverse forms, responding to variations in terrain height on the platform and beneath the motorway.

In this proposal A104 motorway is no longer a cold, divisive concrete barrier, but an all-inclusive space drawing the public to engage in various activities. Walking on the bridge, one can experience the harmonious blend of nature and humanity, each function exudes a unique vibrancy. Moreover, the prefabricated CLT housing, which can be quickly assembled and dismantled, holds potential for propagation onto other neglected urban landscapes in Berlin.

18
117
Breathing Stripes, ground floor plan (previous) Sectional Model (above) Activated Sections (left) Residential Section (below)

Motorway Level Inhabitation (right)

Active Undercroft Perspective (middle)

Motorway Inhabitation Perspective (bottom)

YUDONG LIU | BREATHING STRIPES
119

SCHLANGENBADER’S GIFTS

ECOLOGICAL INTEGRATION IN BREITENBACHPLATZ TIANYU WANG

In the preliminary investigation of the Breitenbachplatz in Berlin, I found that the main function of the area before urbanization was farmland, and it faced problems such as floods during the wet seasons. In keeping with this, my goal is to make local functions suitable for ecological and human habitation by means of microclimate regulation.

I made a preliminary plan for a comprehensive community, which includes farmland on the ground and on the viaduct, drawing from the historical roots of the site while also restoring local ecology and creating agricultural value. The project combines a swimming pool with the farmland to create a water circulation system which addresses the local flooding problem. This system purifies rainwater in wet seasons and stores it in the pool and water tank. This reserve can then be using to irrigate the crops and supply the residents during dry seasons. Thanks to the relatively large land area of the farmland and the extended summer daylight hours, the soil can potentially reach high temperatures. To seize this, I integrated geothermal heat pumps into the scheme, which would regulate the adjacent residential buildings. Likewise, thermodynamic strategies were deployed to regulate ventilation in the denser buildings.

19
121

Scheme, Terrace House & Apartment Block, model details (previous far left)

Schlagenbader’s Gift, axonometric and sections (previous)

Farmland and Terrace Perspective (opposite top)

Apartment Block, section and model (opposite bottom)

Communal Pool (above)

Growth Strategy Scheme Model with Response Mechanism Underlay (right)

Growth Landscape, section (below)

TIANYU WANG | SCHLANGENBADER’S GIFTS
123

BERLIN’S URBAN BIO-LOOP

THE CIRCULAR ECONOMY OF SIX LANDSCAPES

SUE YEN CHONG ANELIYA KAVRAKOVA MARY LEE DIENU AMIRZA PRIHARTADI

Berlin’s Urban Bio-Loop is a project addressing the predicaments and opportunities of both the conversion of the A104 section of the Autobahn as well as living in an age of population growth and food mismanagement.

The proposal largely retains the existing structure of both the Autobahn and the tunnel. A critical shift is made on the biophysical focus of the site from its anthropocentric and car-centric past, to one of a broader understanding of the living world. The Autobahn becomes a testing ground for a circular economy and reciprocal practices of agriculture. The Urban Bio-Loop is a system of six productive landscapes ranging from high-tech to human-independent ecologies, which, through the waste processing operated on site, become mutually reinforced. The active involvement of scientists, locals, passers-by, consumers and producers is supported through a staged and diverse programme of uses including a makerspace, nursery, community centre and a supermarket. The provision of dwellings is suggested and there are opportunities for their typologies to vary and emerge over time according to the shifting local and global needs of housing. The organisation of the landscapes is dictated by the existing conditions on the site as well as these varying, and sometimes dividing, practices on how we approach agricultural and horticultural developments.

First Prize, AIV-Schinkel-Wettbewerb 2023 “Stadt statt A-104” Travel Award, Hans-Joachim Pysall-Stiftung
125
Competition Panel Thumbnails. (opposite top left) Six Productive Landscapes (top) Precision Crop and Communal Living (middle) Berlin’s Urban Bio-Loop Masterplan (bottom)

IN RECIPROCITY

LESSONS OF CO-EXISTENCE FROM THE THREE SISTERS SUE YEN CHONG

Corn, beans, and squash planted together form The Three Sisters. The corn’s compact form leaves room for the others to grow, whilst supporting the climbing beans. In return, the beans nourish the soil with nutrients. The squash’s large low-lying leaves keeps weeds out and moisture in.

Learning from these lessons, this proposal builds an alternative narrative of coexistence between the diverse beings who call urban Berlin home, rooted in reciprocity, respect, and care.

Set within a ruin garden on the reclaimed A104 motorway, a Baugruppe housing cooperative is proposed, keeping investment properties out whilst giving agency of the land to its multi-species community. Designed for nuclear and non-nuclear households, the architecture embraces the mess and performativity born out of the Baugruppen’s collective domestic practices. Generous communal spaces, a community hub, and a reuse workshop trail up the scheme, creating spaces of negotiations. A lowcarbon material language threads throughout the scheme, with a timber structure supporting a hemp and biomaterial skin.

An architecture of interdependence emerges, challenging conventional definitions of urban collectivity and ownership. In learning to live in reciprocity with one another, beginning with species of the same kind, we learn to live with other forms of kin and neighbours.

20
127

Initial Site Response, card and hardwood model (previous far left)

The Three Sisters, Circulation and community functions (previous)

Oblique Axonometric, Circulation Cores and Wet Risers (opposite top)

In Reciprocity, Scheme Overview (opposite bottom)

Massing model in context (top right)

Facade Elevation and Section (bottom)

SUE YEN CHONG | IN RECIPROCITY
129

INTERPLANTING ABUNDANCE

BERLIN’S PANTRY ANELIYA KAVRAKOVA

The narrative ascribed to our ecosystem is one of fragility and scarcity. Interplanting Abundance focuses on the opposite - the excess, the leftovers, the plenty. As food and buildings go to waste, the inefficiency of our current urban systems is manifested. This proposal makes visible the physical labour and space required to shelter and feed our cities.

The thesis traces the development of urban settlements back to food storage and the seasonal aspects of food production which give us all food pickled, cured, dried and fermented. The wider scheme focuses on creating a testing bed for different agricultural and waste management practices possible within Berlin, and this part of it proposes ways to ensure that all that can be eaten - is.

The proposal for Berlin’s Pantry shelters up to fifty workers and a ton of food. Practices of interplanting crops — the “three sisters” —sit south to the proposal: Similarly to a fermentation process, they require human intervention only at the preparation and harvest stages. Labour is materially manifested in the hand-pressed clay tiles, the exposed hempcrete blocks, hemp fibre panels, and handmade bricks.

As a response to a myriad of social and environmental predicaments, Interplanting Abundance speaks of the joy in slowness and imperfection, the hand-crafted and the left-alone, a plenitude in slow reciprocity.

21
131

Four Ways, Concept Model (previous far left)

Isometric and study models (previous)

Harvesting Corn, perspective (left)

Hemp Panel, material study (right)

Long Section (bottom)

Motorway level occupation plan, design development (top) Material Fragment, Clay Tile and Hemp Panels (middle left) Brick Core Pantry (middle) Clay and Polycarbonate Elevation (middle right)

ANELIYA KAVRAKOVA | INTERPLANTING ABUNDANCE
133

NURTURING WITH NATURE

Allotments or ‘schrebergärten’ are deeply embedded in Germany’s urban development. Initially introduced as outdoor play areas in undesirable pockets of the city for children, the land was eventually taken over by their parents to cultivate fresh produce. The schrebergärten type has transformed into a modern-day community garden, where food and flowers can flourish throughout the city. Today, they continue to play a vital role in the fabric of urban life in Berlin, enabling city dwellers to stay in touch with nature and supply additional nutrition to its inhabitants.

‘Nurturing with Nature’ bridges the gap between generations by providing accessible opportunities for social interaction through the schrebergärten. Establishing a close connection to nature through its use of hemp and timber, a Montessori nursery and senior housing are proposed. A community kitchen ties the programs, where the young and old can coexist, taking positive steps away from social isolation. There, different communities are brought together, making visible the collective effort of growing, harvesting and cooking the produce.

The scheme is a multi-generational exchange of knowledge, where one can experience and engage in processes of growing, while providing a chance for Berlin’s inhabitants to nurture and give back to the land they inhabit.

22
135

Massing Model (previous far left)

Nurturing with Nature Scheme Axonometric (previous)

Daily Encounters, Entrance Courtyard Perspective (above left)

Nursery Allotments Perspective (above right)

East Elevation (middle below)

Long Section (bottom)

MARY LEE | NURTURING WITH NATURE
Scheme Axonometric (above left) Roof plan, integration into A-104 platform (above right)
137
Internal Playground Perspective (below left) Greenhouse Allotments Perspective (below right)

GROUNDING BERLIN

HOME FOR A MAKER DIENU AMIRZA PRIHARTADI

Food continues to be a valuable part of our lives. We focus on food as a daily source of nutrition, yet we overlook its implications within a larger scale, particularly its production and waste. As a part of a larger scheme, Grounding Berlin is a co-housing community that integrates the industrial typology of a makerspace with the everyday life of Berlin’s urban residents. The proposal seeks to revitalise the Autobahn 104, playing a pivotal role in addressing food waste and to further develop a circular economy.

Located by the tunnel of the Autobahn, Grounding Berlin utilises its undulating site to connect its architecture to everyday life, introducing pockets of conversation between its residents and the urban public. The architecture implements a series of four housing units with their own respective studios, and a separate Open Workshop to accommodate heavier forms of industrial production. With the aim of giving back to the city of Berlin, food waste is gathered in the architecture’s Material Research Lab to allow its users to research and develop potential methods of up-cycling, and new forms of biomaterials. The proposal is designed to house curious individuals to hone and develop their craftsmanship alongside a sustainable and creative community.

23
139

Three Sisters, Architecture of Reciprocity (previous far left)

Grounding Berlin, exploded axonometric (previous)

Grounding Berlin within the Urban Bio-Loop (main spread)

Ground and Motorway plans (inset left) Western Elevation (bottom)

DIENU AMIRZA PRIHARTADI | GROUNDING BERLIN
141
143

BIBLIOGRAPHY

Ampatzidou, Cristina, Matthijs Bouw, Froukje van de Klundert, Michiel de Lande, and Martijn de Waal. The Hackable City: A Research Manifesto and Design Toolkit. Amsterdam: Amsterdam Creative Industries Publishing, 2015.

Bartoli, Sandra, and Jörg Stollmann, eds. Tiergarten—Landscape of Transgression (This Obscure Object of Desire). Zurich: Park Nooks, 2019.

Benjamin, Walter. Berlin Childhood Around 1900. Cambridge: Harvard University Press, 2006.

Böhme, Gernot. Invasive Technification: Critical Essays in the Philosophy of Technology. Bloomsbury, 2012.

DiSalvo, Carl. “Critical Making as Materializing the Politics of Design.” The Information Society 30, no. 2 (March 1, 2014): 96–105.

Gandy, Matthew. Natura Urbana Ecological Constellations in Urban Space. Cambridge, Massachusetts: The MIT Press, 2022.

Gandy, Matthew. Natura Urbana: The Brachen of Berlin (2017) (Film)

Haraway, Donna. When Species Meet. University of Minnesota Press, 2007.

Hessel, Franz. Walking in Berlin: A Flaneur in the Capital. Brunswick, Victoria: Scribe Publications, 2016.

Latour, Bruno. After Lockdown: A Metamorphosis. Polity, 2021.

Latour, Bruno, and Peter Weibel, eds. Critical Zones: The Science and Politics of Landing on Earth. MIT Press, 2020.

Mattern, Shannon. Code + Clay . . . Data + Dirt: Five Thousand Years of Urban Media. Minneapolis: University of Minnesota Press, 2017.

Monchaux, Nicholas De. Local Code: 3,659 Proposals about Data, Design & the Nature of Cities. New York: Princeton Architectural Press, 2016.

Paredes Maldonado, Miguel. “Counter-Hegemonic Sensory Practices in the City and a Collective Remaking of the Data-Based Urban Commons.” In Sensing Collectives: Aesthetic and Political Practices Intertwined, edited by J-P. Voß, N. Rigamonti, M. Suárez, and J. Watson, 145–64. Bielefeld: Transcript Verlag, 2023.

IMAGE REFERENCES

Cover

- Species Distribution, Changhuan Xu, Yunfang Xu, Xiaowei Xue.

Prologue

- Combined Visualized Data, Lulwa AlSharhan, Minyoung Choi.

- Surface Texture Device Capture – Tempelhof. Photo, Changhuan Xu, Yunfang Xu, Xiaowei Xue.

Sender Berlin: Experiments with Data, Nature and Collective Life in the Urban Milieu.

1 Windsock, Tempelhof. Photo, Miguel Paredes Maldonado.

2 Overgrown rail tracks, Siemensstadt Settlement. Photo, Miguel Paredes Maldonado.

8 A-104 Undercroft, Breitenbachplatz. Photo, Miguel Paredes Maldonado.

11 Plus/Minus, Hans Baluschek Site Samples, Soil. Sue Yen Chong, Aneliya Kavrakova, Mary Lee, Dienu Amirza Prihartadi.

12-13 Berlin Mapping- Green Space, Species Distribution, Human Public Activity Range. Changhuan Xu, Yunfang Xu, Xiaowei Xue.

36-37 Plus/Minus - Tempelhofer Feld, Urban Research Field Stations. Sue Yen Chong, Aneliya Kavrakova, Mary Lee, Dienu Amirza Prihartadi.

Epilogue

142-143 Surface Texture Device Capture – Tempelhof. Photo, Changhuan Xu, Yunfang Xu, Xiaowei Xue.

144 A Changing Landscape, Tiergarten 5 Year Plan. Mari Helland, Alice Reed

- Plus/Minus – Soil and Air Devices on Site. Sue Yen Chong, Aneliya Kavrakova, Mary Lee, Dienu Amirza Prihartadi.

145

ACKNOWLEDGEMENTS

Tutors

Miguel Paredes Maldonado

Andrea Faed

Andrew Brooks

Visitors

Richard Anderson, Ana Bonet Miró, Moa Carlsson, Maeve Dolan, Simone Ferracina, Derek Fraser, Adrian Hawker, Francisca Lima, Alex Lidell

Digital Prototyping Support

Matthew Hamilton

Consultants

Katie Hood and Anna Naughton (David Narro Associates)

Heather Dyer and Andrew Leiper (Max Fordham)

Technicians

Paul Charlton, Rachel Collie, Malcolm Cruickshank, Paul Diamond

Special Thanks

Sandra Bartoli (Büros für Konstruktivismus)

Michelle Howard (constructconcept)

Bianca Strauch (Mjam Mjam Design)

Fabian Burns, Gesche Gerber, Ernst Wolf Abée (Architekten- und Ingenieurverein zu Berlin-Brandenburg)

Sender Berlin edited by Andrew Brooks and Miguel Paredes Maldonado

The format of this catalogue has developed annually, evolving from the inaugural catalogue series produced for the ESALA MArch studios 2017-18, designed by Emma Bennett and Rachel Braude.

Thomson Colour Printers Ltd., Glasgow
Printed by J
147
Snapshots from Awards Ceremony, Konzertsaal Universität der Künste Berlin AIV-Schinkel-Wettbewerb 2023 “Stadt statt A-104”

Turn static files into dynamic content formats.

Create a flipbook
Issuu converts static files into: digital portfolios, online yearbooks, online catalogs, digital photo albums and more. Sign up and create your flipbook.
2022-23 Sender Berlin by ESALA.ECA - Issuu