













Como habitualmente sucede en Wideprint, en esta edición compartimos obras diversas en sus usos y procedencias. Nos gusta ver —ya con cierta familiaridad— estilos de diseñadores que resultan muy ajenos a nosotros, ya sea por la distancia que nos separa de sus países, como también por la diferencia de culturas y situaciones geopolíticas. Países que han estado ocultos a nuestros ojos occidentales y que, inesperadamente, nos muestran un desarrollo estético y técnico sorprendente.
Aún hoy después de 5 años de Wideprint sigo asombrado por las obras que nos llegan desde China, o de países como República Checa, alguna vez oculta detrás de una “cortina de hierro”.
Como en otras oportunidades, donde hemos tenido obras de la India, esta vez fue el turno de La casa de los arcos, del estudio Sanjay Puri Architects. Y me detengo acá observando esas curvas, recorriendo toda la casa, y pienso que difícilmente me haya podido tocar fotografiar algo así. Lo mismo me sucede con las orgánicas curvas de Diamante negro, de AD Architecture, obra que ilustra nuestra tapa y que me costó mucho entender. Me maravilló la idea de estar en un lugar así, casi una evolución de la arquitectura antroposófica, según creo.
Curvas, vistas extensas y museos extraños, una oportunidad de vislumbrar cosas que no nos son familiares, pero que podrían empezar a formar parte de nuestra vida. “La arquitectura como una escultura para ser habitada”, frase que alguna vez traje a cuento. Habitar esas curvas, esas expansiones visuales, y sentir una profunda sensación. Gente que logró que un ladrillo tomara forma e hiciera lo suyo.
Eugenio Valentini Director general (Septiembre 2022)DIRECTOR GENERAL
Eugenio Valentini
eugenio@wideprint.com.ar
DIRECTORA EJECUTIVA
Lic. Victoria Rico victoria@wideprint.com.ar
DIRECTORA EDITORIAL
Arq. Paula Herrero
DISEÑO EDITORIAL
DG. Lorena Taibo lorena@wideprint.com.ar
DIRECCIÓN COMERCIAL
Jorge Isorna jorge.estudioisorna@gmail.com
EJECUTIVA DE CUENTAS
Iara Fedrigo Lotito cuentas@wideprint.com.ar
ADMINISTRACIÓN GENERAL
Estudio Isorna y Asociados
MARKETING DIGITAL
Lic. Mariano Crescentini
ASESOR DE ARTE
Jorge Sarsale
ASESOR DE DISEÑO INDUSTRIAL
D.I. Cristián Mohaded
ASESORA COLOR REVIEW
Dir. de arte Marina Christe
COLABORADORES
Arq. Juan Frigerio Santiago Río
EDITORIAL
Bauness 2031, C.A.B.A CONTACTOS
Producción: C. +54 9 11 6375 7111 C. +54 9 11 6370 9552 hola@wideprint.com.ar store@wideprint.com.ar
Impresión: Akian Grafica Editora S.A., Clay 2992, C.A.B.A. www.akiangrafica.com |
Puntos de venta en Buenos Aires: CP67 Librería técnica, Florida 683 / FADU UBA C.A.B.A. | Puntos de venta en Ciudad de Córdoba: Amerindia Libros: Caseros 253. | Distribución en kioscos de C.A.B.A. e interior: Distribuidora Figueroa, C.A.B.A. | Domicilio legal: Bauness 2031 2ºA, C.A.B.A. www.wideprint.com.ar | Dirección del derecho de autor: Nº en trámite. Los artículos firmados no expresan necesariamente la opinión de la revista. Ninguna parte de esta publicación puede reproducirse sin previa autorización de Wide Online S.A.
EDICIÓN #28: ALFOMBRAS DISEÑADAS POR ZAHA HADID ARCHITECTS | OCTUBRE 2022
Diamante negro | AD Architecture
esté architekti, Kohlerstraumann, AMOO Aureli Mora + Omar Ornaque Martins, Afonso atelier de design, Sanjay Puri Architects, Vermilion Zhou Design Group, llabb, Tinker imagineers, Kevin Hviid, Atmosphere Architects, Grau Architects, Aulík Fišer architekti.
EDICIÓN #27: DIÁLOGO CON CRISTIÁN MOHADED | SEPTIEMBRE 2022
Residencias arqueadas en la isla de Santorini | iraisynn attinom studio
Barrionuevo Sierchuk Arqtas., 02A Studio, KOGAA Studio, LUO studio, VSHD Design, Palette Architecture, destilat design studio, Larose Guyon, Zhijian Workshop, mf+arquitetos, ecoLogicStudio.
SUSCRIBITE A WIDEPRINT y recibila en tu domicilio por correo privado www.wideprint.com.ar/suscribite
Este dúplex de los años 30 fue restaurado llenando sus espacios de vitalidad a través de la incorporación de colores y piezas de arte distintivas.
UBICACIÓN
Praga, República Checa
Studio Flusser
Memoria de autor
Apartir de la simple asignación de pequeños ajustes en la distribución para facilitar el funcionamiento de la familia propietaria de este proyecto, el lavado de cara global del piso cristalizó durante el diseño y la preparación. La primera reconstrucción tuvo lugar junto con la compra de una parte del edificio que data de finales de los años 30, hace varios años. A partir de ese momento, la solución se basó en el principio de una disposición abierta de la parte inferior del piso alrededor de la pared central de la chimenea. Los pisos estaban conectados por una escalera recta de acero con una baranda parcialmente de cristal. El dormitorio superior estaba conectado por un cuello empotrado en el tejado, desde el que se puede acceder a la terraza orientada al oeste del patio.
Las distintas personalidades y temperamentos de los propietarios reflejan no solo las pinturas e instalaciones de color que han ido llenando su espacio vital, sino también el concepto elegido de ajustes y movimientos interiores. En la variedad y la relativa habitabilidad se han incorporado nuevos materiales y otros colores ocultos en la carpintería de armarios y roperos. Así, el color del interior cambia constantemente con su uso diario. Se han conservado las soleras de hormigón originales de las paredes y los suelos de parqué de roble, que se han renovado con tonos en natural. La cocina, por su parte, fue modernizada.
Todas las demás zonas y elementos se han simplificado, iluminado y armonizado al máximo, de modo que el espacio elevado de la distribución abierta siempre quede resaltado y los colores de los cuadros y muebles añadidos dominen sobre el fondo de las paredes limpias, con mínimos detalles. Por ello, las hojas de las puertas interiores con marcos ocultos se han realizado en un esquema de pintura blanca repintada de las paredes adyacentes. El vestíbulo de entrada está cerrado por una gran pared de espejos con puertas integradas para el baño y el aseo.
La galería exterior separada y original que daba al patio se ha acristalado en la parte delantera, creando un nicho iluminado que prolonga el pasillo con asientos tapizados y, al mismo tiempo, otro espacio de exposición. Los acentos de color se cierran con una paleta de cemento gris claro y oscuro en el baño, con una pequeña ducha de mosaico antracita. •
Estudio checo que percibe el espacio y el mundo circundante a través de su potencial, moviendo así cada tarea. Ya sea un proyecto de vivienda, público o comercial, siempre basa el proceso de diseño en el contacto cercano y la participación del cliente junto al equipo de diseñadores y los proveedores.
Inspirada en la filosofía wabi sabi, el estudio diseñó sus propias oficinas, reflejando en cada detalle su lenguaje de diseño.
de autor
KOHLERSTRAUMANN diseñó su propio espacio de trabajo. Fue concebido como un lugar tranquilo, modesto, minimalista y brillante. De este modo, la obra refleja sus lenguajes de diseño. En este entorno son capaces de crear proyectos de cualquier envergadura, y para cualquier lugar del mundo.
El diseño se inspiró en wabi sabi, una antigua filosofía estética arraigada en el budismo zen, en particular la ceremonia del té, un ritual de pureza y sencillez en el que los maestros valoraban los cuencos hechos a mano y de forma irregular, con esmalte desigual, grietas y una belleza perversa en su deliberada imperfección. •
El estudio suizo nace de una amistad entre Aaron Kohler y Marc Straumann cuya relación se remonta al comienzo de sus carreras hace 20 años. Marc y Aaron construyen un equipo de arquitectos perfectamente equilibrado gracias a sus personalidades jóvenes, dinámicas y enfocadas. Creen que cada acto arquitectónico tiene su propio propósito. Aaron y Marc trabajan con un enfoque sensible según el contexto, el potencial de los materiales y las construcciones, en función de la experiencia y la atmósfera del entorno que lo rodea y las necesidades de las personas que están conectadas con él.
El estudio a cargo de la obra hizo un intento experimental, que subvierte la forma espacial convencional de los restaurantes occidentales. El diseño enfatiza la incorporación de experiencias conductuales y emocionales en el entorno gastronómico en lugar de la forma espacial.
World Park City está ubicado en Manfu New Area, condado chino de Nanbu. Es el primer complejo de turismo cultural que integra las funciones de cultura, turismo, comercio, negocios y residencia en el condado, posicionado para ser un centro que brinda calidad de vida, experiencia cultural, oficina de negocios, incubación de industrias, entretenimiento y servicios educativos en el futuro. Diamante negro es un restaurante francés ubicado dentro de un edificio frente al mar en el centro de World Park City.
El espacio presenta una sensación de incertidumbre. La fusión y separación de diferentes áreas dan lugar a emociones enredadas. La combinación de geometría y arco, plano libre y arco quebrado constituyen una escena espacial fluida. Con forma suspendida y estructura inclinada, el espacio produce una sensación de ligereza y elegancia, llena de diversión.
Al acercarse a este proyecto, AD ARCHITECTURE hizo un intento experimental, que subvierte la forma espacial convencional de los restaurantes occidentales, pero sigue manteniendo la elegancia y el romance francés. El diseño enfatiza la incorporación de experiencias conductuales y emocionales en el entorno gastronómico francés, en lugar de la forma espacial.
Todas las geometrías, texturas de materiales naturales, iluminación tenue y música se combinan de manera elaborada para responder a las elegantes demandas emocionales de los huéspedes. La emoción espacial se puede sentir y tocar.
La zona de la barra se sitúa en el centro del restaurante, convirtiéndose en el primer foco visual. Puede servir a todas las mesas, realizando la funcionalidad deseada y acentuando una emoción espacial romántica también. A diferencia de muchos bares emocionantes y de alto perfil, es tranquilo y relajado.
El espacio está semicerrado, lo que no solo mejora la privacidad, sino que también permite a los huéspedes disfrutar de diferentes escenas. El entorno de iluminación tenue destaca al protagonista del espacio: las personas, interpretando sutilmente un nuevo tipo de hedonismo.
Se emplean técnicas artificiales para imitar texturas naturales. La estética estructural y los materiales naturales chocan entre sí. El espacio está unificado por tonos cálidos, mostrando una actitud armoniosa y gentil. A través de un enfoque innovador, la pintura hecha a mano está dotada de la textura mate de los materiales metálicos. Contrasta llamativamente con el suelo de madera, dando al espacio un toque cálido pero futurista.
La escalera repleta de arte es otro punto visual culminante del espacio. Con la forma de una escultura de arte, hace que el espacio general sea más artístico e intrigante, estimula el deseo de exploración y desempeña un papel de transición al guiar a las personas al segundo piso misterioso y privado.
Formada por estructuras, la luz se transforma en un elemento interior. La estructura, como creadora de la luz, se conecta con un mundo abstracto inconmensurable, que emerge con la luz del día. La relación interactiva entre estructura, luz y personas está llena de poesía. A través de la exploración espacial, el equipo de diseño creó una experiencia ilusoria a través de estructuras reales. Las líneas libres generan romance e ilusión “inciertos”, llevando al cliente a un viaje romántico, onírico, ambiguo, tranquilo y ritual.
La quintaesencia oriental se incorpora al espacio, que va más allá de los elementos superficiales. Expresiones estructurales libres restringidas recorren todo el espacio, destacando luces y sombras encantadoras. La estética y el espíritu orientales se mezclan a la perfección con la misteriosa atmósfera espacial, evocando experiencias gastronómicas desencadenadas, tranquilas o apartadas. •
Estudio: AD Architecture
Diseñador en jefe: Xie Peihe
Equipo de diseño: AD Architecture
Cliente: Sichuan Laimeng Lishe Hospitality Management Co., Ltd.
Consultor de iluminación: Hesper Lighting Design (Guangzhou) Co., Ltd.
Constructora: GOLD MANTIS
Superficie: 700 m²
Inicio de obra: septiembre 2020
Finalización de obra: septiembre 2021
Estudio de China que realiza arquitectura y diseño interior con una actitud exploratoria que busca crear interacción entre humanos y objetos.
Las obras de AD ARCHITECTURE han sido ampliamente reconocidas en todo el mundo y han ganado numerosos premios de diseño.
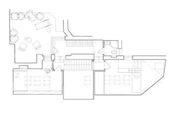
En este proyecto la estructura existente fue reutilizada para dar lugar a una residencia que se abre completamente al océano, creando escenas que en sus distintos ambientes invitan a la calma y la contemplación.
n esta casa, el espacio habitable se revela a través de vistas que cambian con los vientos y las mareas, como una postal viva que respira. El proyecto surge a través de estos momentos capturados, donde cada nuevo fragmento arquitectónico se imprime en su contexto.
Firmemente anclada a la orilla del mar, esta casa tradicional se abre completamente al océano. Con un entorno fuerte, el desafío de esta renovación fue crear un nuevo espacio habitable utilizando una estructura existente envejecida pero con un potencial increíble.
Los propietarios querían reformar la casa para hacerla más adecuada a su forma de vida, más cómoda y, sobre todo, adaptada a sus gustos. El proyecto se basó en una renovación completa del interior de la casa y en una redefinición de las aberturas.
La conexión entre los espacios interiores y exteriores forma el corazón del proyecto, cambiando y reforzando la forma de ver todo el espacio habitado. En el interior las instalaciones adquirieron nuevas identidades, construyendo relaciones privilegiadas con el exterior. Este trabajo de secuenciación está definido y subrayado por la implementación de la madera, contrastando con un suelo mineral. Estos materiales constituyen el hilo conductor entre las diferentes estancias de la casa, y aseguran la continuidad hacia el exterior.
La casa fue concebida para una pareja, pero también fue diseñada para ser un lugar relajante y agradable para visitas familiares. Con ese objetivo en mente, el área de relajación en el corazón de la casa conecta el comedor, la cocina, la sala y los dormitorios a través de un revestimiento de roble. Los dormitorios, ocultos tras este revestimiento, se sustraen al predominio de la casa. La sensación que se proyecta es que se trata de un hogar que se puede adaptar fácilmente a cualquier estilo de vida.
Algunos pasillos y áreas de almacenamiento están ocultos, formando parte integral de las unidades amuebladas, incluidos los baños a los que se puede acceder desde la unidad de sala de estar, o una sala tipo lavadero, oculta detrás de puertas de espejo en la parte trasera de la oficina.
Con ese mismo espíritu, se concibió una escalera para dar acceso a una cama suplementaria en uno de los dormitorios, pensada con un juego de volúmenes, con escalones japoneses para limitar su alcance, y creando espacios de almacenamiento debajo de cada escalera. Se implementó una segunda escalera con una baranda de listones de madera, detrás de la cual se oculta el almacenamiento adicional.
Numerosos detalles marcan estos espacios limpios, compuestos por líneas matizadas con blanco, a veces mate, satinado o incluso brillante. Estos detalles son resaltados por materiales como el granito y por el uso cuidadoso del roble, evidenciado en la creación de sub-puertas y puertas corredizas, junto con juntas huecas que hacen que el diálogo con la estructura original sea más sutil.
El dormitorio principal representa y resume el resultado conceptual adaptado al uso de un espacio restringido por parte de los clientes. Esta habitación es una secuencia de planos, vistas y espacios ocultos, comenzando con la entrada, antes de las instalaciones generales de almacenamiento y los baños. En el centro del dormitorio, la cabecera se sienta entronizada como una estela esculpida. Detrás, una gran ducha es accesible desde ambos lados y conduce a una vista al mar. Una nueva capa encierra este espacio de bienestar. Una amplia pared de vidrio separa la ducha de las bachas.
Como una producción teatral, otros detalles acentúan los espacios y resaltan sus usos. Un baño más pequeño y más privado, completamente diseñado con mosaico blanco y matizado con nácar, crea un ambiente tranquilo con atención al detalle en sus formas curvas.
La isla central de la cocina es una de las obras maestras de la casa, como una escultura realizada en granito negro y metal envejecido. Crea una articulación entre el área de la cocina, el comedor y la sala de estar. El bloque, anclado en los muebles de la sala, se alarga en el vacío, en pie gracias únicamente a un marco de vidrio. Este llamativo contraste de ver un bloque de piedra frente a la noción de ligereza sorprende tanto como impresiona, y el ensamblaje y los tratamientos biselados del granito que dan la bienvenida a las puertas de metal refuerzan este aspecto macizo.
Todo fue concebido con atención al detalle para que cada elemento arquitectónico pudiera encontrar su espacio. El océano se invita a sí mismo a cada habitación y crea una escena que invita a la calma y la contemplación.
Este estudio francés fue creado por Mickaël Martins Afonso en 2016 y es el reflejo de una carrera multidisciplinar, signada por estudios en artes visuales, artes aplicadas, diseño de espacios y arquitectura. El estudio trabaja en diferentes formas y escalas de diseño, incluido el diseño interior y de muebles. Cada proyecto responde con precisión a las solicitudes específicas de cada cliente para crear lugares singulares a la medida de sus necesidades y deseos.
Hechas a mano con lanas y sedas del Himalaya, las alfombras diseñadas por el estudio Zaha Hadid Architects (ZHA) destacan el proceso artesanal de tejido conjugado con la manipulación de la perspectiva, la forma y el espacio propio de la arquitectura de ZHA.
Cortesía Zaha Hadid Architects
TEXTO
Memoria de autor
H echas a mano con lanas y sedas del Himalaya, las nuevas colecciones de alfombras de Zaha Hadid Architects (ZHA) transmiten la intrincada artesanía de los materiales totalmente naturales y el proceso de tejido de ILLULIAN junto con la manipulación de la perspectiva, la forma y el espacio dentro de la arquitectura de ZHA.
Al ser convocado para este proyecto, ZHA exploró la materialidad de las alfombras de ILLULIAN. Los hilos de seda entretejidos crean un brillo que interactúa con el mate de la lana del Himalaya para generar interacciones dinámicas que se alteran con las condiciones de luz y los puntos de vista cambiantes. Minúsculas diferencias de grosor también expresan una jerarquía entre los elementos de diseño.
Las colecciones resultantes han evolucionado a partir de la investigación y la práctica arquitectónica de ZHA, así como de sus investigaciones sobre los materiales y el proceso de fabricación de las alfombras hechas a mano de ILLULIAN.
La colección Natural Field reinterpreta el viaje de la lana y la seda del Himalaya, desde la fibra cruda hasta el hilado y la alfombra tejida, un proceso llevado a cabo por hábiles artesanos. ILLULIAN describe esta metamorfosis como la transformación de "un aglomerado caótico de fibras en arte puro". Los diseños de ZHA surgen de esta adaptación, manifestándose como una serie de patrones que emulan redes densas y ondulantes evidentes en la naturaleza.
La colección Architectural emplea múltiples perspectivas ampliadas, explorando la fisicalidad del proceso de tejido (anudar, empujar, tirar, estirar) para definir en última instancia cada composición. Los diseños articulan estas perspectivas e incorporan relieve para mejorar la ilusión de tridimensionalidad. •
Estudio creado por Zaha Hadid (1950-2016), quien nació en Bagdad, Irak, y comenzó sus estudios universitarios en la Universidad Americana de Beirut en el campo de las matemáticas. Se mudó a Londres en 1972 para estudiar arquitectura en la Architectural Association y, al graduarse en 1977, se unió a la Oficina de Arquitectura Metropolitana (OMA). También enseñó en la Architectural Association (AA) con los colaboradores de OMA Rem Koolhaas y Elia Zenghelis.
Comenzó su propia práctica en Londres en 1980. La pintura y el dibujo, especialmente en su etapa inicial, son importantes técnicas de investigación para su trabajo de diseño. Conocida como una arquitecta que empujó constantemente los límites de la arquitectura y el diseño urbano, su trabajo experimenta con nuevos conceptos espaciales que intensifican los paisajes urbanos existentes y abarcan todos los campos del diseño, desde la escala urbana hasta los interiores y el mobiliario.
Residencia escultórica y sensible a su entorno y clima. El proyecto comprende un juego de volúmenes, espacios abiertos, cerrados y semicerrados en todos sus niveles energéticamente eficientes.
Bhilwara, India
Mr. Dinesh Mehta
TEXTO Memoria de autor
D iseñada en un lote en esquina de 622 metros cuadrados, Mirai es una casa cuyo programa responde al clima cálido del desierto de Rajasthan, India. Los lados sur y este tienen un espacio abierto mínimo, con villas adyacentes donde en un futuro se construirá. Los lados norte y oeste, ubicados frente a un cruce de autopistas, tienen más espacios abiertos con áreas de jardín y árboles.
Pensada para una familia de 3 generaciones viviendo juntas, la casa tiene 3 niveles con 4 habitaciones, 2 salas de estar, gimnasio y estudio. Seccionalmente, las alturas internas son variadas, con un interesante juego de volúmenes en cada parte de la casa: dormitorios de altura simple, área de comedor de doble altura, y un área de estar de altura intermedia. Una envolvente curvilínea rodea la casa, creando espacios intersticiales semiabiertos a lo largo del perímetro con huecos más profundos en los lados que dan al jardín. Esta envolvente reduce sustancialmente la ganancia de calor al mismo tiempo que proporciona espacios abiertos y protegidos para cada habitación.
Esta casa escultórica es contextual a su entorno, el clima y las necesidades del propietario, creando un interesante juego de volúmenes, espacios abiertos, cerrados y semicerrados en todos los niveles. El diseño crea espacios energéticamente eficientes con reducción del calor e ingreso de luz natural indirecta en cada parte de la casa.
En colaboración con artesanos locales y mano de obra contratada de las inmediaciones, la casa se construyó con ladrillos, piedra arenisca y cal de origen local, e incluye tecnologías para el reciclaje de agua, la recolección de agua de lluvia y paneles solares para la generación de energía. La casa está construida para ser autosustentable, sensible al clima. •
Año de finalización: 2022
Contratista: Anupam Buildtech
Arquitectos: Sanjay Puri, Nina Puri
Equipo de diseño: Ishveen Bhasin, Shreiya Kumar, Nilesh Patel, Kalpesh
Kacha,Tanya Puri
Consultor de diseño interior: Nina Puri Architects
Consultor estructural: Vijay Tech Consultants
Consultor de mecánica y electricidad: Shreshtha Consultants
Estudio indio reconocido como uno de los mejores del mundo. Ha ganado un total de 306 premios: 207 internacionales y 99 premios nacionales en India. Sanjay Puri se desempeñó como juez del Festival Mundial de Arquitectura (WAF) en Barcelona, Ámsterdam, Singapur y Berlín. También ha formado parte del jurado de Architectural Review Awards, Londres, The Plan Awards, Venecia y los Inde Awards, Australia, y ha sido ponente en múltiples convenciones de arquitectura en todo el mundo.
Para la renovación de este restaurante se priorizó utilizar el espacio de manera más eficiente, modificando la paleta hacia tonos verdes y azules.
UBICACIÓN Shenzhen, China
FOTOGRAFÍA Vincent Wu
TEXTO Memoria de autor
L a visión del espacio fresco transmite la preocupación de la marca por los ingredientes, y la reforma más grande en el diseño del espacio es la actualización modular.
Se optimizaron los espacios para mejorar la eficiencia del servicio y se eligieron tonos visualmente más suaves. La mejora del restaurante se combinó con la asistencia tecnológica evolutiva de la marca para la seguridad alimentaria, destacando la inmersión en una experiencia gastronómica diferente.
Ya no solo se consideran escenarios de comidas para varias personas, sino que también se puede disfrutar de lugares para una sola persona, con tranquilidad y comodidad. El diseño del módulo se puede combinar y cambiar de manera flexible de acuerdo con las diferentes condiciones de volumen de la tienda.
En la paleta de colores, el degradado de tonos azules y verdes reproduce la imaginación sobre el futuro. •
Director creativo: Kuang Ming (Ray) Chou
Diseño de concepto: Ting Ho, Ming Shi
Diseño interior: Garvin Hong, Xudong Wang, Yuqin Chou,
Dandan Guo, Jing Wu, Zihao Yao, Yuxuan Li, Changsong Li
Diseño de iluminación: Vera Chu, Chia Huang Liao
Diseño de mobiliario: Ping Xue, Ruiping He
Estudio fundado en 2002 por Kuang Ming (Ray) Chou y Vera Chu, en Shanghái. Más tarde, en 2009, se unió Garvin Hung. Vermilion Zhou Design Group ha completado más de 800 proyectos en países de AsiaPacífico, desde espacios públicos, espacios residenciales hasta espacios comerciales como hoteles, oficinas y restaurantes.
El estilo de vida oriental moderno es sobre lo que se basan sus diseños. Para lograr un buen equilibrio entre las funciones y la estética en el diseño, el equipo está formado por mentes creativas con experiencia en arquitectura, interiores, iluminación y diseño de productos para obtener diferentes perspectivas en cada proyecto. Su objetivo final es tener éxito en la creación de diseños altamente funcionales.
Inspirándose en las casas de té y cabañas japonesas que se encuentran en los bosques escandinavos, el proyecto explora una idea original de espacio y entorno.
Valle de Trebbia, Italia
Anna Positano, Gaia Cambiaggi, Studio Campo
TEXTO
Memoria de autor
E ste proyecto nació de la experimentación con un sistema simple y modular, hecho completamente de madera, que responde a las necesidades ambientales y sociales a partir de una vida minimalista y en relación con la naturaleza. Fue diseñado como un espacio de contemplación e introspección al mismo tiempo. Un entorno que elabora temas modernistas en busca de flexibilidad: puede ser un estudio, un retiro, un salón de té o una casa de huéspedes.
El proyecto recuerda la experiencia artesanal de los socios fundadores de llabb. Antes de iniciar su estudio de arquitectura, Luca Scardulla y Federico Robbiano comenzaron su práctica en un taller de carpintería, instalado en un garaje en Génova, Italia.
Se encuentra ubicado en el Valle de Trebbia en Italia, en el corazón de los Apeninos entre Liguria y Emilia, en una tierra alejada de todo, desconocida y salvaje. Aquí, sobre las huellas de antiguas terrazas empinadas, todo el estudio ha construido durante dos semanas, en un taller inusual, una estructura de madera, completamente montada en seco y separada de cualquier red de servicios públicos. Inspirándose en las casas de té y cabañas japonesas que se encuentran en los bosques escandinavos, el proyecto explora una idea original de espacio y entorno.
El volumen rectangular, que sobresale del suelo y se sitúa perpendicular a la fuerte pendiente, se capta primero en la parte trasera orientada al noroeste. Aquí solo se ve la puerta de entrada, marcada por un pronunciado entablado y accesible a través de una pasarela.
Los muros que definen la cabina y que la cierran por tres lados están revestidos con tableros de madera contrachapada dispuestos horizontalmente. El cuarto lado que mira al sureste se abre al valle. Aquí, el espacio interior se extiende hacia una terraza separada por cuatro paneles acristalados de altura completa, uno de los cuales se puede abrir. La ventana sigue la modularidad del brise-soleil que remata la terraza, que a su vez continúa la estructura del techo. En el lado suroeste aparece una pequeña ventana longitudinal. Los tableros de los tres muros exteriores están montados de manera que dejan un hueco que a ambos lados de la entrada y al lado este de la terraza produce un efecto de filtro. Allí donde los muros encierran el espacio interior, este hueco se rellena con perfiles delgados y ligeramente salientes, de forma que determinan en las fachadas un juego de sombras que enfatiza el patrón horizontal.
A nivel del suelo y en la parte superior del edificio discurren ininterrumpidamente altas cornisas que sobresalen de los muros y delimitan la composición. La construcción se sustenta sobre cuatro ménsulas metálicas, provistas de amplias bases de 60x60 centímetros, que descansan sobre lechos de arenisca. Las 4 patas, compuestas por elementos de madera, erigen la estructura hacia arriba, haciéndola volar por encima del suelo.
La simple modularidad de la estructura la hace fácilmente escalable y adaptable a diferentes composiciones. La sencillez de la construcción, el mínimo impacto en el terreno y el uso de materiales naturales obtenidos localmente permiten una instalación respetuosa en contextos naturales. Este proyecto vuelve a poner al ser humano en contacto con la naturaleza aligerando la carga de antropización que marca toda actividad constructiva.
Al ingresar a esta cabaña, inmediatamente se ofrece la vista del valle de abajo, mediada por una serie de características que articulan el espacio interior en tres niveles diferentes. El nivel de entrada cuenta con una encimera que recorre toda la pared derecha y, al guiar la mirada del visitante hacia el exterior, sirve como asiento, escritorio y espacio de almacenamiento. El tercer y último nivel, al que se desciende tras atravesar la entrada, es el que define la mayor superficie, que se prolonga hasta la terraza. La pared que encierra el diminuto baño alberga una cama plegable que, cuando está abierta, se cierne sobre el sofá. El sol de verano produce una variedad de patrones de luces y sombras en el interior en diferentes momentos del día.
Se prestó especial atención al diseño del espacio interior. Mínimo y flexible, con la amplia pared de vidrio frente a la terraza, el espacio se siente ligero y contemplativo. La interacción entre los diferentes niveles ofrece la posibilidad de gestionar mejor los espacios de almacenamiento y compartimentos técnicos, mientras contribuye a la definición de una atmósfera agraciada.
Las paredes, el suelo y el techo han sido pre-montados y están compuestos por paneles de madera contrachapada de Okoumè, elegida por su resistencia a la intemperie. Las fachadas se montan sobre listones distanciadores para crear un espacio de aire entre la fachada y los muros, lo que mejora el rendimiento del aislamiento. El techo es de chapa ondulada. Sobre ella se instalan dos paneles fotovoltaicos, conectados a un acumulador. El prototipo está diseñado para estar totalmente aislado de la red, ya que hay un inodoro compostable y tanques de agua.
Estudio: llabb
Equipo de proyecto: Federico Robbiano y Luca Scardulla con Alberto Righetti y Simone Camera
Diseño de proyecto: Abril – Julio 2021
Período de construcción: 1° de agosto al 15 de agosto de 2021
Superficie cubierta: 10.5 m²
Terraza: 4 m²
Altura exterior: 3 m
Altura interior: 2.4 m
Altura de la terraza desde el suelo: 3 m
Ancho: 3.15 m
Largo: 5.5 m
Materiales: 70 paneles de contrachapado de Okoumè de espesor variable (15 mm, 20 mm, 30 mm), aprox. 2 toneladas de madera Agencia de prensa: Cultivar
El estudio de arquitectura fue fundado en Génova, Italia, en 2013, por Luca Scardulla y Federico Robbiano. Originalmente constituido en forma de taller de carpintería, dedicado a experimentar con elementos de mobiliario personalizados y diseño de objetos, llabb ahora está establecido profesionalmente con numerosos proyectos arquitectónicos y obras de construcción en Italia, Inglaterra y Marruecos. Con el tiempo, la escala de sus proyectos ha crecido, pero el enfoque de llabb en la artesanía permite que la empresa continúe experimentando en contacto directo con una variedad de profesionales y artesanos.
En un edificio de 1939 se desarrolló un innovador concepto de museo que exhibe todas las facetas del pasado minero de la región, a través de una experiencia inmersiva.
Heerlen, Países Bajos
FOTOGRAFÍA
Mike Bink
TEXTO
Memoria de autor
El edificio, ubicado al sur de los Países Bajos, alberga el nuevo Museo Holandés de Minería. Fue construido en 1939 por el renombrado arquitecto Frits Peutz, y se lo conoce como el "Pequeño Palacio de Cristal".
En colaboración con la junta del museo, Tinker Imagineers desarrolló un innovador concepto de museo en el que los visitantes pueden imaginarse a sí mismos en los grandes almacenes de antaño e ir de compras. La exposición cuenta la historia única del auge, los días de gloria y el declive de la minería del carbón en el sur de Limburg, y de su impacto en la sociedad. Con este nuevo museo, una parte de la historia que se ha mantenido oculta durante mucho tiempo finalmente ve la luz del día.
El museo muestra todas las facetas del pasado minero, comenzando con el carbón. El visitante vive las historias olvidadas del arduo trabajo, los éxitos, la solidaridad y el lado oscuro de esta exhaustiva industria. Cada uno de los cuatro pisos tiene sus propios temas basados en colores. Los visitantes comienzan en Black, donde exploran la historia del carbón.
El segundo piso, Gold, refleja casi tangiblemente la prosperidad que la industria del carbón trajo al área minera. El tercer piso es Grey, y muestra la otra cara aterradora de la industria minera, como las condiciones de trabajo insalubres y las desastrosas consecuencias sociales del cierre de la mina. Por último, la última planta se denomina Colour. Aquí, el visitante es introducido a la transición y el colorido futuro de la región minera.
El diseño exhibitivo es obra de Tinker imagineers, en colaboración con Peter Beckers. El resultado no es un museo en el sentido tradicional de la palabra, ya que la atención se centra en las muchas historias de un pasado que va mucho más allá de la ciudad y la región. •
El estudio diseña experiencias inmersivas que dan vida a las ideas en exposiciones, centros y teatros de todo el mundo. Sirven a una amplia gama de clientes, particularmente en países europeos como Dinamarca, Austria y Suiza. El estudio fue fundado en 1991 y está ubicado en Utrecht, Países Bajos.
Los profesionales de Tinker se encargan de la investigación, el desarrollo de proyectos, el diseño, los proyectos audiovisuales y multimedia, así como de la producción. En 2018, los fundadores Erik Bär y Stan Boshouwers publicaron su visión en un libro sobre diseño de experiencias inmersivas, donde detallan el arte de crear espacios que cuentan una historia.
Este diseño es parte de una colección que busca desdibujar el límite entre el mobiliario y la arquitectura. Fue concebida como un tributo icónico y contemporáneo a los padres de las sillas danesas.
Copenhague, Dinamarca
Inês Silva
TEXTO
Memoria de autor
La visión detrás de la silla de comedor Cocoon ha sido crear un tributo icónico y contemporáneo a los padres de las sillas danesas. Se trata de un diseño ambicioso y sin concesiones que combina una visión de diseño sostenible con una artesanía virtuosa.
Este diseño es la segunda incorporación a la familia Cocoon, colección que desdibuja el límite entre el mobiliario y la arquitectura. Está inspirado en el modernismo orgánico de los años 60, donde las formas suaves y esculturales se fusionan. La misión ha sido crear nuevos iconos, diseños atemporales pero divertidos que encajan tanto en casa como fuera de ella.
Diseñar una silla de madera de formas redondeadas y circulares es un proyecto ambicioso. Producirlo de manera eficiente y duradera se suma al desafío. •
Diseñador:
Acabdos
Arquitecto nacido en Dinamarca que vive y trabaja en Copenhague en proyectos interdisciplinarios a través del arte, el diseño y la arquitectura. La fuerza motriz de su trabajo es una pasión experimental por el diseño arquitectónico, un enfoque lúdico hacia la forma y una afición por lo inesperado. A través de proyectos interdisciplinarios utiliza la creatividad como herramienta de innovación y cambio, cuestionando tradiciones arraigadas, creando espacio para nuevas formas de pensar y actuar.
través de una propuesta solemne y concisa,
y misteriosa, se crearon dos espacios
en las dos plantas de esta boutique
autor
E ste proyecto comprende el diseño de la boutique HUG, para la diseñadora de moda Uma Wang. El espacio se inspiró en la colección de verano del 2020, diseñada en relación a la evocadora ciudad de Pompeya destruida por una erupción del Vesubio. El proyecto se propone recuperar metafóricamente las raíces de aquella pujante ciudad romana. A través de una propuesta solemne y concisa, primitiva y misteriosa, se crearon dos espacios diferenciados en las dos plantas de esta boutique
En la planta inferior se proyectó una sala de exposiciones para los conjuntos de la nueva temporada, un pequeño recibidor y la escalera de acceso a la primera planta, referenciando la historia cotidiana de aquel tiempo a través de una organización anular acentuada por un anillo de ladrillos en el suelo, acompañados de materiales ocres, elementos de madera, los probadores bajo las cortinas y el tono rojo que recuerda la erupción volcánica. La luz superior penetra en la sala desde arriba y cae sobre las plantas verdes en medio del suelo, como metáfora de la llegada de la esperanza tras las ruinas.
Al subir los escalones a lo largo de la escalera giratoria, la luz cambia de oscura a brillante y el espacio cambia en consecuencia. A diferencia de la atmósfera primitiva y misteriosa de abajo, el espacio de arriba dominado por plata y blanco de repente abre el límite de la visión. El concepto de tiempo y espacio tiene una expresión más multidimensional aquí, donde los sentidos chocan y se cruzan, dando al espacio un sistema de lenguaje único. El marco de exhibición de riel de acero inoxidable circular y lineal es una línea móvil visual que conecta todo el espacio de manera ordenada. La aplicación de elementos de superficie curva hasta cierto punto neutraliza la frialdad que aporta la plata, y el azul de la marca HUG se entrelaza con ella. •
Estudio: ATMOSPHERE Architects
Superficie: 485 m²
Año de proyecto: 2020
Diseñador en jefe: Tommy Yu
Equipo de diseño: April Lo, Deniel Hwang
Diseño animado: Vivi Lee
Diseño gráfico: YiMoDuo Design
Proveedor de mobiliario: YEPOM, Hodays
Iluminación: ArtLuci, Mario Tsai
Artista: Uma Wang, Ziggy Chen, Xander Zhou, SHAW STUDIO, OUDE WAAG
FICHA TÉCNICAEstudio chino de arquitectura y diseño interior, dedicado a la investigación y la práctica a través de una perspectiva global. El equipo está compuesto por arquitectos y diseñadores de alto nivel, graduados de las mejores universidades nacionales y extranjeras, dedicados a explorar la relación entre la arquitectura contemporánea y el espacio de una manera reflexiva y lógica. Su trabajo incluye diseño arquitectónico, diseño de espacios interiores, instalación y obras de arte, video contemporáneo y producción multimedia, siendo el objetivo final liderar la estética y las ideas modernas.
El concepto de este spa se basa en una combinación minimalista de elementos para crear un espacio urbano que busca operar como un templo para el cuerpo.
UBICACIÓN
TEXTO
autor
Al diseñar el spa en medio del centro histórico de Bratislava, el estudio partió de la necesidad de liberar a sus huéspedes del ciclo diario, para encontrar la calma.
Este espacio es un escondite meditativo del mundo exterior. Se construyó el concepto de un spa urbano sobre las percepciones del espacio como un templo para el cuerpo.
A través de una entrada oculta desde la calle Grösslingova, es posible sumergirse en el sótano de un edificio histórico a través de la escalera de piedra original. En las antiguas bodegas se conservó la bóveda de ladrillo original, y se construyó todo el concepto sobre objetos incrustados y una combinación de materiales como la madera, terrazo, ladrillo y cobalto. Estos objetos definen el espacio intermedio que serpentea libremente alrededor de todo el spa.
La luz natural entra por huecos de ventanas existentes o claraboyas y es dinámica durante el día. La experiencia es única en cada momento y época. El beneficio del espacio es también una terraza al aire libre en el patio, donde se encuentra un sauna móvil con reposeras. •
Estudio de arquitectura con sede en Bratislava, Eslovaquia, fundado en 2014, dirigido por Andrej Olah y Filip Marčák. GRAU trabaja en diferentes escalas de proyectos, desde interiores hasta edificios públicos. El estudio trabaja con materiales y enfoques honestos, desde el todo hasta el detalle, desde la visión hasta la realización, buscando constantemente la conexión entre el interior y el exterior.
La modificación de esta vivienda situada en un edificio de Barcelona implicó cambios en su distribución y una paleta material y cromática que refleja la luz natural.
UBICACIÓN Barcelona, España FOTOGRAFÍA José Hevia
TEXTO Memoria de autor
La vivienda se sitúa en el segundo nivel de un edificio construido en 1950, ubicado en el barrio de la Nova Esquerra del Eixample de Barcelona. La estructura es de muros de carga, con 6 vanos paralelos a la calle, incluyendo las 4 fachadas: las dos principales y las dos del patio interior. Los pisos quedan divididos en 2 por el muro de carga central, al que se une un pequeño patio de instalaciones. A la vivienda se accede por un extremo y su fachada principal da al pulmón de manzana. Consta de estar-comedor, cocina, dos habitaciones y baño, en un espacio convencional y repartido.
El proyecto tiene como objetivo eliminar la distribución especulativa y, suprimiendo una de sus habitaciones, recurre al pequeño patio de ventilación central como núcleo alrededor del cual girar. La estrategia que se ve truncada por la negativa vecinal a realizar cualquier tipo de intervención estructural por mínima que sea, obliga a dar la vuelta al proyecto sin perder la esencia. El inconveniente no impide dar solución al programa habitual, así como también a características únicas del proyecto: concretamente, a dar cabida a la colección de más de 1400 CD’s y 1200 vinilos del propietario, razón por la que se diseñan muebles integrados ad hoc.
A nivel material y cromático, la orientación noreste de la única fachada exterior dirige la elección del piso hacia una superficie clara que permita reflejar la escasa luz entrante, mientras que se utiliza el color del cielorraso como elemento de calidez y confort. Este tono se extiende al volumen poligonal del baño, suavizando sus aristas y contrastándolo con un tono azulado que emerge de su interior y se extiende a puntos concretos. Elementos metalizados contrastan y matizan el ambiente de la vivienda. •
Estudio:
Año
Período
Colaboradores:
Superficie:
Estudio con sede en Barcelona, formado por Aureli Mora y Omar Ornaque. En todos sus proyectos conjugan disciplinas como la arquitectura, el diseño de producto y el diseño gráfico. El resultado va directamente vinculado a la naturaleza de los encargos y a sus necesidades, y se abordan siempre desde una perspectiva integradora pero ecléctica, sin condicionarse por su envergadura. Los referentes del estudio son a la vez todos y ninguno, planteando una conjunción entre la sabiduría de la tradición, la espontaneidad de la invención y la realidad necesaria de la contemporaneidad.
El diseño de este proyecto se planteó desde un lugar de absoluta consciencia respecto del contexto urbano y, al mismo tiempo, sensible al desarrollo circundante. La mejora del espacio público, las vías de acceso peatonal, el diseño urbano y el paisajismo se enfatizaron como aspectos principales de un proyecto ambicioso.
El proyecto se configura con cuatro volúmenes que se elevan desde un basamento común de dos plantas, cuya forma responde a la estrechez e irregularidad del terreno. El nuevo edificio cuenta con un programa amplio que comprende tiendas, oficinas, restaurantes y estacionamiento en el subsuelo.
El sitio está ubicado directamente sobre una estación de subte, justo al lado de una de las principales autopistas radiales de la ciudad, Evropská, que conecta el centro de la ciudad con el aeropuerto. El sitio tiene una diferencia de elevación que va desde los 7 hasta los 14 metros.
El cliente imaginó un estrecho vínculo funcional entre la arquitectura y el espacio público, sirviendo tanto a los ciudadanos locales como a los visitantes. La mejora del espacio público, las vías de acceso peatonal, el diseño urbano y el paisajismo se enfatizaron como aspectos principales de una solución exitosa.
La tarea principal del estudio de arquitectura era aprovechar la topografía existente, y hacerlo de tal manera que se creara un pequeño centro comercial local en la parte subterránea del proyecto. Luego se agregarían varios volúmenes individuales sobre esta plataforma, proporcionando espacio para oficinas.
Al estudiar los mapas históricos disponibles, el estudio notó que la forma irregular del sitio de construcción, que se asemeja a un triángulo alargado, es en realidad un registro de los antiguos caminos que conducían al Castillo de Praga. Se usó la geometría existente, desarrollándola más para reabrir el paso a través del sitio. Luego se subdividió el sitio en segmentos fractales similares.
Los cuatro volúmenes individuales del edificio tienen forma de acuerdo con el principio de autosimilitud fractal y se derivan de la geometría del sitio existente. Este enfoque generó una forma de edificio sensible que cambiaba con el carácter y la elevación de las calles perimetrales. Cada uno de los cuatro volúmenes es similar a los demás, y todos están plantados en una sola composición.
El alcance del diseño fue más allá de la estética de los edificios individuales y el diseño racional: el espacio alrededor y entre los edificios era igualmente importante. Los cuatro volúmenes se levantan sobre un basamento bajo de dos pisos. La finalidad de este basamento es atender los diferentes alzados de las calles vecinas. Calles estrechas y pequeños espacios abiertos se forman entre los volúmenes, que recuerdan los espacios públicos típicos de los centros históricos compactos de las ciudades.
El diseño también introduce una pequeña " piazzetta ", ubicada en el sitio de una plaza histórica preexistente similar. La piazzetta también proporciona acceso sin barreras a todo el complejo de edificios y al vestíbulo de la estación de subte.
El sistema de fachada completamente acristalada representó la mejor opción para expresar formalmente la composición del bloque. La especificación de las características de transmisión de luz a través del vidrio utilizado en el proyecto permitió al observador exterior captar la compleja geometría de los edificios, evitando, en gran medida, los fuertes reflejos o el deslumbramiento del sol, indeseables en el contexto urbano dado. El diseño final logra un delicado equilibrio entre la solución técnica y el énfasis en la iluminación natural.
En su mayor parte, los nuevos espacios públicos reciben abundante luz natural y están suficientemente protegidos del ruido de la autopista radial Evropská. Los edificios individuales están ubicados en jardines verdes escalonados, sus vestíbulos de entrada y patios están llenos de vegetación exuberante, con enredaderas que crecen a través de los edificios. Para este proyecto se diseñó una forma experimental de vegetación interior, muy diferente a la típica pared verde. Se erigieron varias estructuras tridimensionales grandes a partir de postes de madera toscamente tallados para transportar plantas epífitas. A continuación, se diseñó un parque verde abierto con árboles crecidos en la parte este del sitio, equilibrando las superficies construidas y los espacios verdes. La epífita forma el punto focal, al que se llegó después de una búsqueda exhaustiva de una forma única de utilizar las plantas de interior.
La singularidad de esta solución está en la forma de la instalación en sí, pero también en su estrecha conexión con la arquitectura. No es solo vegetación, sino una obra de arte viva y cambiante.
Desde el principio, los arquitectos del Centro Bo ř islavka imaginaron varias intervenciones artísticas únicas como partes integrales del concepto de diseño. Las obras de arte expresarían libremente la visión de los artistas, lo único que especificaron los arquitectos fue su ubicación. Sin embargo, todas las esculturas finalmente se concibieron como estrechamente relacionadas con los principios naturales básicos, manifestando así una sinergia no intencional, pero aún más notable, entre los artistas y el entorno.
Por su solución de gestión de agua de lluvia, cubiertas verdes extensivas y el sistema de gestión de energía del edificio (recuperación de energía de ascensores, intercambiador de calor), entre otras cosas, el complejo de edificios ha sido galardonado con el certificado ambiental LEED Gold reconocido internacionalmente. •
Estudio: Aulík Fiš er architekti
Coautores: Jan Aulík, Leoš Horák
Coautor: Jakub Fišer, Jakub Hemzal, Gabriela Králová, David Zalabák, Alena Sedláková, Petra Coufal Skalická, Eva Mašková, Jan Dluhoš
Equipo de diseño: Ondřej Černý, Petra Měrková, Oleksandr Nebozhenko, Vojtěch Štamberg, Kristýna Zámostná
Año de proyecto: 2012-2018
Año de construcción: 2018-2021
Superficie construida: 10.780 m²
Cliente: KKCG Real Estate Group
Administración: Petr Pujman (CEO), Otto Koval (gerente de negocios), Patrik Skála (gerente técnico), Petr Pleskač (gerente de proyecto)
Colaboradores: Zdeněk Sendler (paisajismo), Matouš Hydroponie
Epífita (plantas de interior): Zdeněk Sendler, Jan Aulík, Leoš Horák, David
Zalabák and Radka Táborová
Gestión de costos: Jan Hrubeš MDA
Gestión de construcción: Ruby Project Management
Contratista: Zakládání staveb, Feri, Metrostav
Diseño interior: PBW Group, Novecon Diseño de sala de juntas: Michal Froněk, Jan Němeček (Olgoj Chorchoj)
Obras de arte: Studio Federico Díaz, Jan Aulík, Leoš Horák, David Zalabák, Pavel Filip, Maxim Velčovský, Proudění, Jan Poupě, Pavel Roučka, František Hodonský, Jan Kovářík, Milan Houser
Objetos de vidrio: Noční obloha, Studna přání, Jan Aulík, Leoš Horák, David Zalabák, BOMMA, AURA: Sans Souci
Diseño de imagen: Toman Design
Asesor de mobiliario: Studio Perspektiv
Restaurante: Basepoint
Con sede en Praga, el estudio se centra en la planificación de grandes áreas de desarrollo urbano y el diseño de complejos proyectos residenciales y de oficinas. Desde su fundación en 2007, el estudio ha trabajado para desarrolladores, instituciones y clientes privados por igual. Sus proyectos son reconocidos y publicados en medios checos e internacionales. Sus dos directores, Jan Aulík y Jakub Fišer, son activos en la comunidad cultural y profesional.
potencia el diseño, la arquitectura interior y el arte. En la búsqueda permanente de crear espacios sofisticados,
El Design & Art Center
presenta en esta edición su cocina Gofratto 2022, en su ver sión laqueado brillante: un nuevo concepto estético de cocina atemporal. Un diseño capaz de enlazar lo suntuoso y refinado con lo contemporáneo y vanguardista. La mixtura de materiales, donde se destaca la calidez de la madera, permite adaptarse a diferentes contextos arquitectónicos con aires de clasicismo o de modernidad.
En paralelo presenta un espacio denominado “Vestidor polivalente”, de la mano de los arquitectos José Segarra e Ignacio Sanczuk, del equipo de Arquitectura Comercial de Johnson. La propuesta integra un espacio de vestidor con estar íntimo y mobiliario versátil. Las líneas de Johnson actualizan las características de un buen vestidor con soluciones integrales persona lizadas. Las dosis adecuadas de cada material recrean una atmósfera íntima y contemporánea, propicia para una experiencia diaria confortable.
La muestra se puede visitar en el showroom del Design & Art Center de la Fundación Patagonia Flooring. Av. Córdoba 3942, CABA.
Fontenla presenta Brera, una propuesta de muebles de exterior, inspirada conceptualmente en el barrio homónimo ubicado en la ciudad italiana de Milán. Brera, de líneas simples y definidas, consta de un conjunto de living para exterior con sillón individual, sofá de dos cuerpos, sofá de tres cuerpos, mesa lateral, mesa de centro y camastro.
Las estructuras son de aluminio soldado microtexturado doble, en terminación color negro. Para los asientos y respaldos se empleó un género fibra de poliéster tejida con recubrimiento de PVC. La malla de poliéster fue cubierta con policloruro de vinilo (PVC). Las telas de los almohadones son suaves al tacto y a la vez resistentes.
En todos los muebles outdoor de la nueva colección Brera by Fontenla, la línea, el plano y el color —los tres elementos formales del lenguaje visual—, configuran cada pieza.
Desde lo visual, los ítems de la colección expresan sensaciones de relax, tranquilidad, orden, ligereza, son muebles para disfrutar del tiempo libre en una atmósfera relajada.
La colección ya se encuentra exhibida en el Fontenla Design Mall y en todas las tiendas de Fontenla distribuidas en C.A.B.A., Gran Bs. As., Córdoba, Rosario y próximamente Nordelta.
www.fontenlastore.com
ILVA reinventó el concepto de la tradicional piedra, manteniendo su nobleza y elegancia. La nueva línea Matrix es una piedra cálida que combina versatilidad y robustez, con la ventaja de un diseño innovador que se adapta a distintos estilos. Resultado que se obtiene dada la posibilidad de combinar sus superficies in-out, logrando continuar de forma orgánica una armonía estética desde el interior de la vivienda, hacia el exterior de la misma.
Con los formatos de 60 cm por 120 cm y 45 cm por 90 cm, la serie Matrix se presenta en su línea interior con una superficie satinada y ligera estructura, creando una estética elegante y aportando un resultado multifacético atemporal.
Mientras que las líneas de exterior se presentan únicamente en el formato de 60 cm por 120 cm, donde se destacan notablemente dado que su coeficiente dinámico de fricción es inferior al 0.63, presentando una gran resistencia al deslizamiento.
La serie Matrix presenta 4 colores en modelos de interior y dos en modelos de exterior. Cabe destacar, que todos sus colores tienen una ligera variación de destonalizacion (V2), pero con el exclusivo diseño de lienzo de impresión, se alcanza una apariencia mucho más homogénea y uniforme, logrando abarcar 18 m2 sin repetición.
Con más de 30 años produciendo porcellanatos y atentos a las últimas tendencias, ILVA se posiciona como referente de diseño, innovación y calidad en el sector.
www.ilva.com.ar | marketing@ilva.com.ar
Las griferías de diseño son un complemento necesario en cualquier obra de arquitectura, aportando un valor diferencial. En Navarro Ache se ofrecen distintas alternativas y colecciones exclusivas de marcas que son tendencia. Todos los diseños son concebidos y desarrollados en todos sus detalles.
Cada colección complementa las griferías con su línea de accesorios, permitiendo así una armonía estética en la ambientación de cada espacio, vistiendo con elegancia cuartos de baño, cocinas, asadores y patios. Se tienen en cuenta todos los aspectos para poder aplicar un detalle imponente o sutil, dependiendo del estilo deseado.
Los diseños pueden ir desde un estilo tipo vintage a estilos clásicos o modernos, contemporáneos y/o atemporales, minimalistas o industriales.
En todos los locales de Navarro Ache se pueden apreciar productos exclusivos que se distinguen por su elegancia y la armonía de sus líneas.