












Restaurante Dante's | SALONE DEL SALON Fotografía: Ziyang Cui

Restaurante Dante's | SALONE DEL SALON Fotografía: Ziyang Cui
En este número, de una manera absolutamente casual y para nada intencional, se fueron seleccionando obras que contienen una característica particular: la responsabilidad enorme de los profesionales de la arquitectura y el diseño cuando son convocados para realizar un nexo entre el pasado de un lugar y su presente.
En estos casos, la comprensión del espacio existente y el respeto merecido a la hora de generar una modificación o un cambio de uso, se vuelve la tarea más crítica, que requiere un pensamiento profundo y minucioso: qué se deja, qué se cambia, qué materiales nuevos convivirán con aquellos que estuvieron ahí por décadas.
Tal es el caso de la nota realizada en el espacio n° 12 de Casa FOA 2022, que en esta oportunidad se realizó en un edificio de 1920, que además resistió no solo el paso del tiempo sino también la cercanía de un atentado sufrido en Buenos Aires en los años 90. La conservación de los pisos originales y sus aberturas dentro de un proyecto actual nos muestra ese respeto por la convivencia.
La otra nota que pone de manifiesto la responsabilidad que asume un profesional, en este caso el arquitecto Cristian O’Connor, es “Desde la trastienda”. Aquí se tuvo que intervenir en una casa de los años 30, ubicada dentro del casco histórico de San Isidro. Crear una galería de arte, más una trastienda en la casa donde vive la galerista, Clara Martínez, cuyo deseo original era un simple galpón en el jardín. Pero el arquitecto propone asumir el enorme riesgo de hacer una excavación para que la galería sea subterránea y conviva a través de escaleras, sin modificar la fachada y los añosos ejemplares del jardín.
Lo mismo sucede en la primera nota de este número, un hotel de 1931 situado en un barrio de Helsinki, Finlandia, donde el interiorismo y sus cambios de layout dejan viva la esencia de un lugar icónico visitado desde siempre por personas influyentes de la cultura finlandesa.
Para no redundar en ejemplos y que puedan ir directamente a disfrutar de las notas como “The West Residence” o “Kabelovna”, quiero terminar poniendo de manifiesto una vez más mi admiración por estas mentes creativas, imaginativas y arriesgadas, que crean nuestros espacios habitables. Sin ellos tendríamos casas comunes, edificios sombríos y poca belleza.
Eugenio Valentini Director general (Noviembre 2022)Arquitectura:
Port de la Selva Marià Castelló + José Antonio Molina
EDITORIAL · por Eugenio Valentini. 12
STAFF DE WIDEPRINT 26
28
INTERIORISMO · Hotel Torni · Renovación del diseño interior a través de elementos que respetan la arquitectura original de un edificio de 1931.
40
INTERIORISMO · Cocina Comedor El espacio ganador de la Medalla de Oro Casa FOA 2022.
ARTE · Festival de Arquitectura Viva · Exposición arquitectónica realizada en Montpellier, Francia. 54
ARQUITECTURA · The West Residence Club Un edificio situado en el centro cosmopolita de Nueva York.
ARTE · Desde la trastienda · Sobre los orígenes y el presente de la galería de arte Jacques Martínez.
90
ARQUITECTURA · Port de la Selva · Vivienda ubicada en un pequeño asentamiento litoral de la Costa Brava española.
104
DISEÑO · STACKLAB: diseño innovador de mobiliario · Con ayuda de algoritmos y robótica, el sistema reduce la huella de carbono en la producción de muebles.
114
126
INTERIORISMO · Estudios Kabelovna · Un nuevo concepto en espacios de grabación y postproducción musical.
ARTE · Matriz de columnas · Obra de arte creada con paneles de acero tallados y soldados como enredaderas.
Arquitectura: Once cabañas de retiro en el bosque Summary
138
INTERIORISMO · Restaurante Dante's May Travel Fusion · Inspirado en la Divina Comedia y caracterizado por la simplicidad en el diseño.
150
160
ARTE · Nuevo suprematismo · Instalación en Rusia que brinda una inmersión en un mundo infinito de geometría lineal.
ARQUITECTURA · Centro de servicio Camp-de-Touage · Resolución arquitectónica en armonía con su entorno natural.
172
ARQUITECTURA · Once cabañas de retiro en el bosque · Un programa que fusiona alojamientos turísticos con viviendas de tiempo completo.
PRODUCTOS Y MATERIALES DE DISEÑO 184
Arte:
Desde la trastienda
Diseño: STACKLAB 76
Jacques Martínez
DIRECTOR GENERAL
Eugenio Valentini eugenio@wideprint.com.ar
DIRECTORA EJECUTIVA
Lic. Victoria Rico victoria@wideprint.com.ar
DIRECTORA EDITORIAL
Arq. Paula Herrero
DISEÑO EDITORIAL
DG. Lorena Taibo lorena@wideprint.com.ar
DIRECCIÓN COMERCIAL
Jorge Isorna jorge.estudioisorna@gmail.com
EJECUTIVA DE CUENTAS
Iara Fedrigo Lotito cuentas@wideprint.com.ar
ADMINISTRACIÓN GENERAL
Estudio Isorna y Asociados
MARKETING DIGITAL
Lic. Mariano Crescentini
ASESOR DE ARTE
Jorge Sarsale
ASESOR DE DISEÑO INDUSTRIAL
D.I. Cristián Mohaded
ASESORA COLOR REVIEW
Dir. de arte Marina Christe
COLABORADORES
Arq. Juan Frigerio
Santiago Río
EDITORIAL
Bauness 2031, C.A.B.A
CONTACTOS
Producción: C. +54 9 11 6375 7111
C. +54 9 11 6370 9552 hola@wideprint.com.ar store@wideprint.com.ar
Impresión: Akian Grafica Editora S.A., Clay 2992, C.A.B.A. www.akiangrafica.com | Puntos de venta en Buenos Aires: CP67 Librería técnica, Florida 683 / FADU UBA C.A.B.A. | Puntos de venta en Ciudad de Córdoba: Amerindia Libros: Caseros 253. | Distribución en kioscos de C.A.B.A. e interior: Distribuidora Figueroa, C.A.B.A. | Domicilio legal: Bauness 2031 2ºA, C.A.B.A. www.wideprint.com.ar | Dirección del derecho de autor: Nº en trámite. Los artículos firmados no expresan necesariamente la opinión de la revista. Ninguna parte de esta publicación puede reproducirse sin previa autorización de Wide Online S.A.
EDICIÓN #29: DICIEMBRE 2022 | Festival de Arquitectura Viva
EDICIÓN #28: ALFOMBRAS DISEÑADAS POR ZAHA HADID ARCHITECTS | OCTUBRE 2022
Diamante negro | AD Architecture
FYRA, MeMo Arqs. & Daniel Germani Designs, concrete, Cristian O’Connor Marià Castelló + José Antonio Molina STACKLAB, B2 Architecture, Field Conforming Studio, Blouin Tardif Arch. & arq. Éric Painchaud, SALONE DEL SALON, Maxim Kashin Architects, Summary.
esté architekti, Kohlerstraumann, AMOO Aureli Mora + Omar Ornaque Martins, Afonso atelier de design, Sanjay Puri Architects, Vermilion Zhou Design Group, llabb, Tinker imagineers, Kevin Hviid, Atmosphere Architects, Grau Architects, Aulík Fišer architekti.
ISSN 2591-2836
El estudio FYRA estuvo a cargo de la renovación del diseño interior de este edificio construido en 1931. El objetivo fue incorporar elementos sorprendentes pero elegantes que respetaran la arquitectura original y los valores históricos del edificio.
UBICACIÓN
Helsinki, Finlandia
FOTOGRAFÍA
Riikka Kantinkoski
TEXTO
Memoria de autor
Las 13 plantas del Hotel Torni lo han convertido en un hito destacado de la ciudad de Helsinki desde su creación en 1931. En 2018, el hotel se sometió a una renovación integral, siendo Fyra el estudio responsable del diseño interior del restaurante, los bares y la zona de recepción.
La historia del edificio icónico guió la formación del concepto de diseño. El objetivo era crear elementos sorprendentes pero elegantes que respetaran la arquitectura original y los valores históricos del edificio. Como resultado, los espacios de bar y restaurante deleitan con atmósferas individuales y distintivas.
La historia de Torni como lugar de encuentro de varias personas influyentes de la cultura finlandesa se refleja en el ambiente bohemio de los bares y el restaurante. En un proyecto de arte realizado junto con la renovación, se agregaron nuevas obras de arte a la colección del hotel, mezclando diversos estilos de diferentes períodos de tiempo.
En el piso 13 del hotel, al final de una estrecha escalera caracol, se encuentra el Ateljee Bar, que ofrece vistas en cuatro direcciones diferentes sobre los tejados de Helsinki. El Ateljee Bar se amplió durante la renovación al espacio de gabinetes del piso 12 con conexión de ascensor, aumentando la accesibilidad de la barra en su conjunto y aumentando la cantidad de asientos para los clientes. Los materiales para el bar de la azotea se eligieron no para competir con las impresionantes vistas, sino para maximizarlas a través de superficies espejadas.
El restaurante OR, ubicado en el nivel de calle del edificio, presenta una superposición de diferentes estilos y un uso audaz del color, creando una atmósfera bohemia con arte en el centro. El American Bar fue restaurado a su ubicación original bajo la cúpula en el centro del hotel, cuya forma se refleja en la nueva barra del bar. El ambiente oscuro y elegante del bar se ve realzado por las lámparas de Paavo Tynell.
Arquitectos: Jung & Jung (original 1931), ARCO (renovación 2022)
Diseño interior: Fyra (restaurante, bares y área de recepción), Studio Joanna Laajisto (habitaciones del hotel)
Equipo de diseño de Fyra: Emma Keränen, Silja Kantokorpi, Eva-Marie Eriksson
Finalización de proyecto: abril 2022
Cliente: Sokotel
Fundado en 2010, Fyra es uno de los estudios de diseño interior líderes en Finlandia. Especializado en entornos de trabajo, espacios de retail, hotelería y restauración, así como en diferentes conceptos y proyectos transversales, Fyra se ha posicionado como un actor responsable y proactivo en la industria, creando entornos de alta calidad que mejoran el bienestar humano. Ha recibido múltiples premios a nivel nacional e internacional.
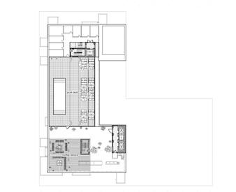
Este proyecto diseñado en el espacio 12 de Casa FOA 2022 fue realizado en conjunto con la empresa de cocinas y vestidores De Otro Tiempo, obteniendo la Medalla de Oro entregada por la icónica muestra de interiorismo de Buenos Aires.
Buenos Aires, Argentina
UBICACIÓN FOTOGRAFÍA Eugenio Valentini TEXTO Memoria de autorEl desarrollo de este proyecto de cocina-comedor parte del relevamiento histórico de un edificio que presenció uno de los eventos más trágicos de la historia de la ciudad de Buenos Aires. Desde este lugar de respeto por el edificio, su historia y el trabajo de recuperación que se hizo en los años 90, MeMo Arquitectas y Daniel Germani —junto a De Otro Tiempo— se acercaron al diseño de un espacio austero en su estética, pero muy actual en su funcionalidad. La premisa de los diseñadores fue captar el espíritu de De Otro Tiempo: calidad, calidez, elegancia, y atención al detalle. Para eso desarrollaron los muebles de la cocina en madera de incienso natural, con frentes enmarcados en listones de madera maciza, interiores de gris grafito, guías Grass con freno en el mismo tono, y mesada Dekton Bergen: un guiño a los muebles de antes, con una estética más contemporánea.
Para pensar el espacio se partió de la arquitectura original del edificio, respetando sus muros con techos altos, la verticalidad de las ventanas, acentuándolas con jambas de madera y sus pisos de mosaico granítico, haciendo un trabajo de recuperación del mismo. Un espacio que mira al futuro con optimismo y que se beneficia y aprende de los cambios generados no solo por la tecnología sino por los efectos de la pandemia.
La inclusión de la tecnología y de diversas experiencias sensoriales ayudan a transformar un espacio que carece de terrazas o grandes ventanales en un lugar conectado con la naturaleza y el afuera. La idea de sostenibilidad presente en el uso de iluminación LED, una zona de compostaje, un jardín de invierno donde cultivar hierbas y vegetales y, por sobre todo, la reutilización y revalorización de lo existente.
El espacio recibe con un foyer donde el jardín de invierno es el gran protagonista. Una vez dentro del espacio, de un lado se sitúa la zona de comedor y del otro lado el sector de cocina, preparación y lavado. Una isla con los cuatro lados abiertos se transforma en el corazón del espacio, donde el cocinar es una actividad que se puede hacer en familia.
Un espacio que fluye y que permite compartir momentos íntimos o con amigos. En el sector de comedor se genera una zona de relax, donde la banqueta tradicional se transforma en una “cama” donde leer, relajarse o simplemente estar.
La idea fue combinar nuevas tecnologías y visiones aplicándolas a un espacio determinado para poder crear una sensación completamente nueva, aprovechando al máximo cada recurso, ya sea nuevo o existente, sin dejar de lado la estética y funcionalidad. ·
Estudio: MeMo Arquitectas, Daniel Germani Designs
Exposición: Casa FOA Retiro – 2022
Espacio: 12 – Cocina Comedor
Sponsor: De Otro Tiempo
Premio: Medalla de Oro
Dirección de arte: Silvina Bidabehere
Cuadros de la cocina: Natural Arts
Cuadros del comedor: Connie Valdez Rojas
Fotografía del patio: José Pereyra Lucena
Patricia Mezzadra y Carola Moris, compañeras y amigas desde la facultad de arquitectura, comienzan a trabajar juntas en el año 2013, en proyectos de pequeña escala, fundando MeMo. El estudio se desempeña desde entonces en diversas labores de arquitectura que abarcan proyecto, dirección y gerenciamiento de obra, reformas e interiorismo, y diseño de muebles a medida. En el año 2015, en la feria Puro Diseño, lanzan su propia línea de utilitarios en cerámica: MeMo [cerámica de autor], que nace como un nexo entre su labor profesional como arquitectas y su amor por la cerámica.
DANIEL GERMANI DESIGNS
Estudio de diseño multidisciplinario especializado en diseño de producto, consultoría de diseño, interiorismo y restauración arquitectónica. Después de obtener su título de arquitecto en su país, Argentina, Daniel pasó casi una década en Europa trabajando en varios emprendimientos creativos y empresariales. Si bien su empresa tiene su sede en Phoenix, Arizona, Daniel viaja por el mundo realizando trabajos de diseño en colaboración con marcas mundiales líderes. Ha dictado conferencias y dirigido talleres en varias ferias internacionales de diseño, además de formar parte de jurados en una variedad de concursos internacionales de diseño. Actualmente imparte clases de diseño industrial en el prestigioso IED (Instituto Europeo del Design).
Empresa fundada en 1982, dedicada al diseño y fabricación de muebles de cocinas y vestidores. Brindan a sus clientes asesoramiento profesional e ideas innovadoras para la realización de muebles a medida.
Un nuevo año de la exposición arquitectónica que se lleva a cabo en la ciudad histórica de Montpellier en Francia. Sus instalaciones permiten a los visitantes descubrir hitos históricos que no son accesibles durante el resto del año.
UBICACIÓN
Montpellier, Francia
FOTOGRAFÍA
Cortesía Festival des Architectures Vives
TEXTO Memoria de autor
Durante seis días de junio de 2022 se celebró, en el centro histórico de Montpellier, Francia, un nuevo año del Festival de Arquitectura Viva, donde cada uno de los 10 equipos seleccionados para participar realizó una instalación basada en el tema de la “impermanencia”.
Estas instalaciones resaltaron el trabajo de una generación más joven que está inventando, experimentando y explorando nuevos diseños ambientales. El festival tuvo como locaciones el corazón de prestigiosos y notables campos y mansiones. Allí cada instalación abrió un diálogo entre el patrimonio y la arquitectura contemporánea. ·
Exposición arquitectónica pública que se lleva a cabo en Montpellier, Francia, desde 2006. Allí los visitantes pueden descubrir o redescubrir los hitos históricos de la ciudad, a través de un recorrido por las diferentes instalaciones que se crean año tras año. En esta ciudad histórica hay un camino que conecta mansiones y patios, en su mayoría privados, que normalmente no son accesibles para los visitantes.
La fachada de la base de este edificio fue creada con ladrillos diseñados a medida y hechos a mano específicamente para el proyecto. El muro de ladrillo en sí mismo es una mezcla de 260.000 kilos de escombros de construcción recuperados, mezclados con arcilla cruda extraída en los Países Bajos.
Este proyecto comprende un edificio residencial único, con un total de 222 departamentos. Algunos fueron diseñados tipo loft, con una base de ladrillo reciclado, y otros fueron creados como penthouses. La parte superior abierta y luminosa del edificio aprovecha las vistas sobre el río Hudson y el horizonte cosmopolita de Nueva York. Concrete es responsable de la arquitectura, el interiorismo y el paisajismo del proyecto.
The West Residence Club está ubicado en Hell's Kitchen, uno de los barrios más florecientes de Manhattan. Es conocido por su carácter industrial y su historia única, que se combinan para crear una mística inconfundible. Su mezcla única de residencias, empresas, tiendas independientes y pequeños restaurantes lo ha convertido en un barrio muy dinámico.
The West Residence Club está diseñado para quienes desean vivir en un edificio que refleje la historia y el carácter del distrito de Hell's Kitchen. Introduce una nueva forma de vivir: una combinación de estudios, departamentos de 1, 2 o más ambientes, inteligentemente diseñados desde adentro hacia afuera para crear la mejor experiencia residencial, realzada por amplios espacios comunes y áreas al aire libre. La base del edificio ofrece una experiencia tipo loft, con una robusta fachada de ladrillo. Los departamentos súper amplios y luminosos en los pisos superiores están diseñados para aprovechar al máximo las vistas que se ofrecen sobre el horizonte de Manhattan y el río Hudson.
Tanto los ladrillos como sus patrones fueron diseñados a medida y hechos a mano específicamente para The West Residence Club, en colaboración con la empresa de reciclaje StoneCycling, una firma holandesa comprometida con la fabricación sostenible de ladrillos reciclados. El muro de ladrillo en sí mismo es una mezcla de escombros de construcción recuperados, mezclados con arcilla cruda extraída en los Países Bajos. Se han reciclado más de 260.000 kilos de residuos para los ladrillos del edificio. Se requirió un total de cuarenta formas y tamaños de ladrillo diferentes para el proyecto, y cada pieza se cepilló a mano individualmente con un esmalte de vidrio sutilmente reflectante antes de cocerse en fábrica. El esmalte de vidrio único crea una variedad de tonos y brillo durante el día, lo que da como resultado una lectura diferente del edificio cada vez que uno lo ve.
El ladrillo, combinado con grandes ventanales industriales, da como resultado la creación de estudios tipo loft típicos de Nueva York orientados a la calle, y departamentos de un dormitorio en los pisos inferiores.
La entrada principal del edificio está formada por una pequeña plaza que forma una transición suave entre la calle y el edificio. La plaza tiene diferentes asientos que abarcan un árbol central.
Las cajas de vidrio entran y salen del edificio, creando vistas y orientaciones únicas en cada departamento, y brindando a cada unidad una gran terraza privada. Esto da como resultado una arquitectura liviana y transparente, que refleja la experiencia única que ofrece cada uno de los departamentos.
El edificio posee también áreas específicas para trabajar, un gimnasio con doble altura, una sala de juegos para niños y dos habitaciones tipo hotel que se pueden reservar para los visitantes. Además cuenta con azotea, piscina, solarium y parrillas. ·
Estudio de los Países Bajos, que comprende un equipo de 50 personas curiosas, provenientes de una amplia gama de campos creativos. concrete desarrolla conceptos en arquitectura, diseño de interiores, diseño urbano, branding y programación conceptual.
En esta conversación la arquitecta Paula Herrero y el artista Jorge Sarsale indagaron sobre los orígenes, los procesos y el devenir del proyecto de la galería de arte Jacques Martínez en su actual morada de San Isidro, una casa proyectada en los años 30, por los arquitectos Sánchez, Lagos y de la Torre. Los protagonistas de este viaje: la anfitriona y galerista Clara Martínez, y el artífice del proyecto, el arquitecto Cristian O'Connor.
UBICACIÓN
Buenos Aires, Argentina
FOTOGRAFÍA
Eugenio Valentini
TEXTO
Paula Herrero
Paula Herrero: Lo primero que me gustaría que nos cuenten es cómo se arma este espacio —que era tu casa, Clara–, que tenía su historia, con la arquitectura original de Sánchez, Lagos y de la Torre. ¿Cómo es la aparición de Cristian?, ¿cómo se arma esta galería con lo que es hoy?
Cristian O’Connor: Hay toda una cosa previa, que es lo que sabe Clara, lo que significa la historia de la galería Jacques Martínez, desde la calle Florida. Me acuerdo de la época en la que yo trabajaba en el estudio de Katzenstein, donde hablaban de la galería, luego el espacio de Av. de Mayo, y luego zona norte.
Clara Martínez: Lo interesante es que no sabemos lo que estamos haciendo, lo vamos haciendo con confianza, y es permitiendo las múltiples disciplinas que solo enriquecen. Y acá quiero hablar de la importancia de la participación de Cristian en la materialización de este espacio. Hay una cosa muy importante que es lo que él dio desde su disciplina.
Cristian O’Connor: Todo empezó con una charla muy desarmada que fue en una salida a navegar con nuestro amigo en común Juan. Bajamos y nos quedamos conversando con un vino más, y cada uno habló de lo que quiso, sin ninguna especulación de lo que podía salir, lindísimo. No había ninguna encomienda, y en ese devenir, apareció la necesidad y el proyecto.
Clara Martínez: En el momento del vino yo conté que la casa había sido proyectada por Sánchez, Lagos y de la Torre. Entonces Cristian quiso venir a ver la casa, porque Lagos era su tío. La escena fue así: Cristian caminaba y miraba todo, y yo iba como un gorrión atrás. Cuando ves que a alguien le gusta lo que vos tenés, vos vas toda entusiasmada y le querés contar cosas, entonces fue ahí donde conté que yo tenía la idea de traer la trastienda de la galería para acá. Y Cristian me paró en seco y me preguntó: “¿Y dónde la vas a poner?”. Yo le mostré el jardín al frente y le dije: “Por ahí…”. La respuesta de Cristian fue inmediata: “Si vos hacés eso, tu casa va a valer doscientos mil dólares menos”.
Cristian O’Connor: Yo haciendo de agente inmobiliario quise ser lo más malo posible para que le quede claro.
Clara Martínez: Puñal clavado. Acto seguido le pregunto: “Y vos, ¿qué harías?”. Y Cristian me contesta: “La haría subte-
rránea”. A los cinco minutos le dije que estaba contratado, aunque no sabía bien a quién estaba contratando.
Cristian O’Connor: La casa tenía un tremendo patio de entrada orientado hacia el sudoeste, estaban ya dadas las condiciones. No fue un pozo en el medio del jardín, era un lateral que ya estaba vacante, no tenía árboles, era el lugar de los autos. Una propuesta cero invasiva, el terreno seguía absorbiendo el agua, no se sacaban árboles para poner una losa. El lugar lo pedía, estaba completamente consolidado, porque el lugar de atrás —que nosotros luego denominamos Gallery West, complementando la Gallery East de acá— era un camino que iba de la entrada al garaje.
Clara Martínez: Cristian habló de la permeabilidad del suelo, de no perder una sola planta.
Cristian O’Connor: De hecho, mantuvimos el cactus protagonista, a costa de tener menos galería. La pared subterránea de la galería se fue formateando para dejarle su espacio al cactus, que sufrió, pero ahora está con brotes de nuevo. Toda la gente que pasa caminando por la calle Roque Sáenz Peña lo ve. Este cactus es parte de la huella de las vistas de San Isidro. Es la “Casa del Cactus”. Si a esta casa le sacás el cactus, la arruinás, porque tiene cerca de 80 años. La casa es la casa más el árbol, es un todo.
Clara Martínez: Cuando vos ya vivís en un lugar, y de pronto llega una persona y te habla de ese medio ambiente desde un lugar de respeto a toda esa preexistencia, va un poco más allá de una propuesta estándar. Para mí es importante transmitir ese comienzo como yo lo recuerdo.
Paula Herrero: Clara, contanos ahora cómo es esto de haber traído esa trastienda luego de toda la historia de la galería: Av. de Mayo, Florida, la historia de tu papá galerista, cómo Jacques Martínez viene a tu casa. Y cómo es específicamente esta cuestión de la trastienda tal como la entendés vos en esta nueva etapa de la galería, donde uno se sienta en este banco maravilloso diseñado por Sergio Rodrígues, y las obras de la trastienda pasan a ser protagonistas. Hay una interacción propuesta entre espectador, espacio y obra.
Clara Martínez: Primero hubo una cuestión de tiempo. Mi papá insistía en que trajera la galería a mi casa. Yo no soy una galerista de alma. Yo soy hija de un galerista, bisnieta de un
galerista. A mí el arte me ha pasado más por cómo vivía yo cuando era chica, cómo crecía y lo que veía a mi alrededor. Yo viviendo en San Isidro y teniendo una galería en Av. de Mayo: dicho sea de paso, era una belleza, en un edificio de 1898, con una reforma de Clorindo Testa. Era un espacio que era una belleza, pero papá ya no venía; Av. de Mayo se había empezado a complicar mucho. Lo que pasó es que en 11 años de galería, solo 3 personas habían pedido mirar la trastienda. Demasiado poco. La sensación era que había un montón de cosas que no las podíamos mostrar.
Cristian O’Connor: Yo aprendí aquí, obviamente, un montón de arte y de otras cosas… Viniendo acá y viendo todo lo que tiene Clara, porque no es solamente lo que ves. La galería tiene un montón de cosas de su propiedad. Es como un pequeño museo. Entonces, abriendo los cajones de las planeras, mirando todo lo que tienen —serigrafías de Deira, de Clorindo, de este, del otro— mi sensación era que, si eso no se mostraba de manera cómoda y accesible, era como si no existiera. ¿De qué sirve una lámina de Deira en un cajón?
Ahora yo tengo una en mi casa que Clara me regaló. Se casaba un hijo de un amigo mío en Bucarest, y me pregunté qué podía llevarle de regalo: una lámina de Deira. Cuando me la llevé, Clara vio que me gustó y me regaló una. ¿Qué pasa entonces? Ahora hay una colgada en Houston y otra colgada en mi casa, la gente la mira, y ahí está el tema. Porque, sino, ¿de qué sirve? Las galerías tienen que ser dinámicas; la gente tiene que poder entrar y no sentir que tiene que comprar ni mucho menos, pero sí mirar.
Jorge Sarsale: Para mí la diferencia es, Clara, que vos venís de una familia de galeristas y que, a su vez, vos estás conviviendo permanentemente con el arte, y eso es una mirada muy diferente. Creo que se plantea algo que a mí me parece muy interesante de la galería, que es esta idea de mantener vivo el acervo, que eso no esté guardado. Lo que pasa en la mayoría de las galerías es que uno va a ver la muestra que está, y no decís “quiero ver tal cosa”. En cambio, vos estás planteando lo opuesto: desde la trastienda te llevo a la galería. Enunciás “yo tengo todo esto”.
Clara Martínez: Pero ahí es donde tal vez uno no se da cuenta de lo que hace. El tema es que a mí las galerías me gustan impolutas. Yo con eso nací, eso es el modernismo, y todo blanco. Para mí fue muy difícil esta decisión, lo había hablado mucho con papá, yo lo sabía muy bien: yo quería una trastienda de lujo. Yo tenía esa claridad, pero Cristian lo entendió de una manera que fue más allá de lo que yo misma entendía. Y aún estoy jugando con el resultado, porque el cambio empieza a ser todavía mucho mayor.
Hay cosas acá a las cuales Cristian prestó mucha atención, especialmente la decisión de conectarla, al principio en contra de mi voluntad. Yo estaba satisfecha con la galería abajo, allá, separada. Cristian hizo a la galería parte de la casa.
Cristian O’Connor: Yo me imaginé, por ejemplo, una noche de lluvia de invierno, Clara recibiendo gente. Si la casa fuese de un caballero, bajarían a fumar habanos, a tomar un vino y jugar al pool. Hay otras actividades también: la señora baja con sus amigos a su galería y les muestra el arte. No tenés
que agarrar el paraguas y salir, es parte de ella la galería. Es parte del mundo de Clara. Y otra cosa maravillosa que sucede, es que cuando hay muestras y está todo abierto, se produce una especie de cinta de Moebius: la gente baja por una escalera y sube por la otra. Se hace como un ocho, no sabés muy bien dónde estás, pero pasás de un lugar a otro de manera muy natural.
Paula Herrero: A mí esto que vos decís, Cristian, me recuerda a la descripción que hace Juhanni Pallasma —arquitecto y ensayista finlandés exquisito—, cuando se provoca esta alquimia entre arquitecto y cliente, citando el caso de Alvar Aalto y su cliente de Villa Mairea, en el cual el resultado es mucho más de lo que tanto el cliente como el arquitecto imaginaron por separado. Y tomando tu metáfora de la cinta de Moebius, acá se juntan: la historia de la casa proyectada por Sánchez, Lagos y de la Torre, la historia de todo este jardín con sus especies vegetales, este pulmón de manzana en San Isidro, la historia de la galería, y las visiones de cliente y arquitecto.
Cristian O’Connor: Hablando del tema del aire y los jardines linderos, vos sos testigo, Clara, de que cuando tiramos ese lateral ampliado que no era natural, la araucaria del vecino del fondo empezó a tener ramas por debajo. Porque, si vos acorralás a los árboles con construcciones, no están muy contentos. Y eso es lo que pasa con la mayoría de las casas que son mal ampliadas.
Jorge Sarsale: Yo creo que aquí hay una síntesis muy interesante en este vínculo de cliente-arquitecto, donde se entiende lo que la casa y la trastienda significaban para Clara. Mientras los escuchaba pensaba en que este lugar es, además, tu casa.
Clara Martínez: Exacto. Es complejo eso. Ahora creo que vivo en una galería. Esa es la última visión que tengo.
Cristian O’Connor: Aclaremos que, después de la charla, el vinito, la navegada donde nos conocimos, la obra empezó como un año y medio después. Hubo un proceso que fue ge-
nial que existiese. Hubo un tiempo sin apuros. Conversaciones sin tiempo. El proyecto se fue desarrollando pausado. La escalera, por ejemplo, en una escala del 1 al 10, apareció en el momento 8, con la obra comenzada, donde empezabas a ver el potencial de este “bicho” soterrado. El tema del baño fue interesante: al desaparecer el toilette para hacer la escalera, hubo que poner un toilette abajo del rulo de la escalera, que está muy bien porque, en vez de estar en el hall de entrada, te lleva a moverte un poco y salirte del circuito.
Clara Martínez: Hay otro lugar que es especial: cuando Cristian tira abajo la parte de atrás, tuvimos una conversación donde yo le pedí tener un bar. Y Cristian me preguntó si quería un pantry ; sentí que era exactamente eso. Ahora ese lugar es glorioso.
Cristian O’Connor: Al tirar toda una construcción que había allí, que era el garaje —una zona oscura— se repitieron las arcadas, que de una pasaron a ser cuatro. Y ese lugar mira a un nuevo jardín que tiene sol a la tarde y es un lugar
lindísimo para estar. Y todos contentos: tenemos un jardincito triangular, la araucaria tiene ramas, yo lo hice para mí. Pienso como hacían en la edad media: le voy a entregar todos mis bienes a Clara, y me vengo a vivir acá al Gallery West. Un sillón de terciopelo, un gato, y estar ahí toda la tarde tomando sol.
Clara Martínez: Lo que tiene de maravilloso ahora, con toda la envolvente transparente, es que es como si fuera una pecera. Cuando viene la gente va directo ahí, y luego baja a la galería por la escalera original del proyecto, la rajadura en la tierra. Y luego sale por la escalera caracol y llega a este espacio.
Cristian O’Connor: Lo que tienen esos lugares es que no les podés poner un nombre como programa de arquitectura, pero como decía Baliero: “lo más difícil es hacer algo lindo”. Las cosas tienen que ser lindas, no importa el nombre, si se llama pantry, bar, pool, playroom … es un lugar lindísimo donde te da ganas de estar.
Paula Herrero: Lo que decís me hace acordar a la situación que contó Glenn Murcutt cuando asistí a su masterclass en Australia: fuimos a ver la casa proyectada por él en las Blue Mountains, y nos contó que, luego de veinte años de haber hecho la casa, un día fue a visitarlo la dueña recién viuda, y le preguntó: “Glenn, ¿qué tanto te gusta esta casa?”. Él le respondió que era uno de sus proyectos preferidos y ella terminó donándole la casa.
Cristian O’Connor: Bueno Clara, yo no pido tanto.
Clara Martínez: ¡Veremos quién sobrevive a quién!
Paula Herrero: Lo maravilloso es que cuando suceden estas simbiosis entre arquitecto y cliente, a partir de allí pasan cosas bellísimas. No solo está el tiempo lento previo de proceso, sino que también hay un tiempo posterior a la obra que trasciende, donde suceden cosas inesperadas. Lo que es claro es que la posibilidad aparece cuando no hay urgencias en el desarrollo del proyecto y la obra.
Cristian O’Connor: La urgencia es fatal para la arquitectura. La urgencia es un absurdo.
Clara Martínez: Aquí tuvimos un momento ríspido con el tema tiempo. Fue cuando Cristian me dijo que iba a estar listo más o menos en un mes. Y yo organicé un evento de inauguración, mucha gente, medios, y nadie me creía que llegábamos.
Cristian O’Connor: Los últimos días, como siempre, los clientes dialogan directo con los gremios, la palabra de un electricista o de un capataz pasa a tener más peso que la del arquitecto. En ese momento el arquitecto se convierte en un estorbo. Y así, como en todas las obras, llegamos a puerto. Como dice Gigli: “las obras no se terminan, se abandonan”.
Paula Herrero: ¿Cómo sigue el proyecto? Saliendo de la obra de arquitectura y ahora haciendo foco en la galería. ¿Cómo es hoy?
Clara Martínez: Vino la pandemia a los cinco meses, de los cuales dos habían sido vacaciones. Entonces fueron casi dos años en los cuales yo estuve sola aquí. Quedé avasallada. Había quedado una cosa tan lujosa, no es un lujo que se ve. Pero algo había cambiado profundamente con la intervención de Cristian. Me fui acostumbrando. Me pasó estar abajo en las noches de lluvia sentada sola, y mirar, era una cosa como que me quitaba el aliento. El espacio tiene linda acústica, me iba a veces a tocar la flauta. Y luego hubo que salir de eso, después tuve que acostumbrarme de vuelta a que era una galería y que empezaba a venir gente.
Y ahora contraté tres jóvenes para sacarle el jugo a la trastienda. Todo lo que hicimos de archivo, ahora lo estamos pudiendo comunicar. Usamos Instagram no como red social, sino para exposiciones virtuales que duran un mes. Por otro lado, creo que hay todavía cosas ya hechas para potenciar, ejemplo el tema del bar.
Cristian O’Connor: Hay un ADN acá, que es una inteligencia de la casa que tiene el proyecto de Sánchez, Lagos y de la Torre, porque la casa no tiene lugares gigantes. Son todos lugares que contemplan al ser humano. La galería enterrada lo único que hizo fue tomar nota de eso. Es una sucesión de otro lugar más, dentro de una sucesión de lugares a escala humana. Hoy se entiende que, si las cosas son más grandes, son mejores, y no necesariamente es así. Terminan siendo espacios fríos, imposibles de amoblar. Y el otro tema es la proporción de las ventanas. Hay una cosa que siempre te explican en los primeros años de la facultad y es que el hombre construye, y la arquitectura apareció para refugiarse de los elementos. Y los elementos siguen estando: el frío, el calor, la lluvia. Para mí el adentro tiene que ser adentro, y el afuera tiene que ser afuera, porque, sino, no existe la arquitectura.
Paula Herrero: Cristian, vos estas planteando un tema que a mí me resuena especialmente. Si mirás la comunidad de arquitectos, podríamos decir que solo un 5% todavía creemos en el muro y el vano. Lo mismo con respecto a lo que planteás del problema de la escala de los espacios, para que exista la posibilidad de que te alberguen, te contengan, te den refugio. Creo que es una discusión completamente contemporánea.
Cristian O’Connor: Totalmente. Por ejemplo, nadie discute la belleza de la Casa del Desierto de Richard Neutra. Pero quizás sea para el desierto y como una especie de manifiesto, y hecha con maestría. Ahora, pensar que tenés un ángulo de vidrio como solo elemento, no aplica a otros contextos.
Jorge Sarsale: Me acordaba de la casa que hizo Clorindo Testa para Josefina Robirosa. En un reportaje le preguntaron a Clorindo por qué no le había hecho ventanas más grandes, y él respondió: “porque si yo quiero ver afuera, me voy afuera”.
Paula Herrero: Y a eso se suma el tema del frame, del encuadre. Me encantó, Cristian, que vos metiste el tema del muro en la discusión de este lugar; por ejemplo aquí donde yo estoy sentada, el cactus es lo que es porque está encuadrado. Lo que yo estoy viendo es que toda la ventana es el cactus. Si la pared fuera completamente de vidrio, se vería otra cosa. La presencia del vano te permite decidir qué es lo que se ve del afuera y cómo es esa interacción entre un adentro y un afuera. Cómo hay un adentro, una transición —que es un antepecho, un umbral, una cortina— y luego hay un afuera. Y eso permite un sinnúmero de situaciones de uso a lo largo de las distintas estaciones del año.
Cristian O’Connor: El adentro es más adentro y el afuera es más afuera. Esta casa es del año 30 y tiene una vigencia increíble.
Jorge Sarsale: Es la misma relación que cuando ves un cuadro. Esta relación que decís, por aquella ventana miro aquello, por esta ventana miro esto. Si no existe la posibilidad de colgar obra, tampoco se establece relación.
Cristian O’Connor: El tema de establecer relaciones: si es todo vidrio, paradójicamente el espacio se vuelve chico.
Paula Herrero: Exacto. Es el muro el que hace explotar el espacio. Y, pensando en el exterior, también el jardín tiene una espalda, un adentro y un afuera. Es como el muro de la línea municipal, que es todo un tema para discutir. Si aquí no estuviera ese muro, este jardín no existe.
Cristian O’Connor: Ahora, esas cosas estuvieron siempre pensadas por los clásicos. Ejemplo: la casa de Neutra tiene la envolvente de vidrio porque en frente tiene la inmensidad del
desierto increíble, rocas, el amanecer, el atardecer. Pero, por ejemplo, la casa de Philip Johnson en realidad es un cuadrado de un patio con la casita adentro. Philip Johnson ya lo estaba pensando, hace toda la envolvente de vidrio porque da a ese patio que es completamente privado. Envuelve el terreno entero con una pared para hacer la operación del vidrio. Y así hace explotar el espacio.
Jorge Sarsale: Volviendo al tema de la galería, ¿cómo era la idea de la galería en esos años sobre Av. de Mayo, y cómo es ahora en este espacio? ¿Cómo es la relación acá, que es tu casa, respecto de allí que significaba “ir” a la galería?
Clara Martínez: Por empezar a mí me importaba especialmente que fuera en Av. de Mayo. Yo había vivido catorce años en Brasil, y abrir la galería con papá fue el proyecto de mi vuelta a la Argentina, porque yo sentía que no tenía ninguna raíz. El lugar me parecía icónico de la ciudad. Y respecto a este espacio nuevo hay mucho que aún no sé. Hay un tema importante que hace tiempo me pregunto: “¿para qué sirve una galería?”. En este momento global hay un panorama donde el artista se vende directo, los curadores se han vuelto más importantes que las galerías e incluso que los artistas, los museos ahora exponen todo. Entonces ya casi no queda espacio para las galerías. En cambio, en este lugar, así como está concebido, la gente goza. Pasa a cobrar un sentido sagrado. Que la gente goce el arte. Y, después, hay otra cosa: la gente piensa que aquí hay una generosidad de dejar entrar, y no. No es generosidad. Es algo que está yendo solo, yo no sé si esto va a terminar siendo casi un club…
Jorge Sarsale: Cuando hablabas del bar me acordaba de ese espacio en las afueras de Nueva York, Dia Beacon. Yo tuve la sensación de que uno puede venir acá, mirar la obra, tomar algo en el barcito, te sentás en el jardín, pasás el día, bajás a la trastienda. En ese sentido de club, paso el día, paso unas horas, un goce.
Clara Martínez: Exacto. Yo sé que está la herramienta, y me está llevando mucha energía desarrollarla y ver.
Jorge Sarsale: Yo veo que hay una cosa que surge naturalmente de la calidad de los espacios y su sucesión. Llegás a la galería, abajo, y hay una concentración en la obra, el espacio es contundente. Luego subís la escalera y llegás acá, visualizás cómo sería la obra puesta en tu casa. Es distinto a lo que sucede a veces, cuando la galería expulsa como espacio al
público general. Es un lugar duro, donde parece que tenés que comprar o que tenés que saber… En cambio, acá, llegás, no sabés nada y te invita. No necesitás ser erudito. Hay un cambio de concepto. No sé si lo llamaría galería.
Clara Martínez: Yo quiero que se siga llamando galería para reivindicarla, porque nos gusta la palabra. La galería de arte es algo clásico. Y que sea vital, un laboratorio. Por ejemplo, una cosa que hicimos el año pasado fue hacer un horario de verano de 7 a 10 de la noche, y la gente podía venir con su grupo de amigos, y traerse su vino y algo para picar. Y quedarse. También lo hicimos a mediodía, la gente venía con su canastita a pasar la tarde.
Paula Herrero: Eso de venir con tu canastita y disfrutar el arte y el jardín es muy Dia Beacon. Lo interesante que dispara eso también es el vínculo del público general con el arte. Qué propone este espacio. Cómo se incentiva la convivencia del público no erudito con el arte.
Clara Martínez: El tema es que hoy en esto hay una cultura dominada por el curador. Entrás a un museo y primero tenés que leer el texto del curador, lo cual es un absurdo: primero leer y recién luego sentir el arte.
Paula Herrero: Eso es exactamente lo que a mí me parece que Jacques Martínez pone en jaque, y por eso es tan interesante. Para cerrar, mutando de la discusión de arquitectura y parados de lleno en la galería, ¿cómo es el vínculo que vos proponés desde este espacio entre público y arte? ¿Cuál es el objetivo del arte? En definitiva es conmover, venerar, eso que no está atravesado por el intelecto.
Clara Martínez: Así fue históricamente, la obra de arte la completaba el espectador. Y yo creo que en Jacques Martínez nosotros seguimos pensando en eso. Nos encanta la pintura, y la obra no necesita un manual de instrucciones para interpretarla. Rescatemos la palabra galería. La galería te permite relacionarte con la obra del artista a lo largo del tiempo. No te deja huérfano como espectador.
Jorge Sarsale: La propuesta de galería es tan radical, que inclusive la arquitectura aporta a eso.
Clara Martínez: Hay otra cosa también importante: la concepción del espacio es bien O’Connor. No grita. Por eso es radical. Porque hay una cosa hecha a escala humana para los humanos. Un silencio. ·
Jacques Martínez comenzó su actividad como director de la Galería Carmen Waugh en abril de 1974. En 1977, Jacques pasó a ser el dueño del espacio que primero llevó el nombre La Galería (en sociedad con Osvaldo Scuderi) y luego solo llevando su nombre. Jacques Martínez Arte Contemporáneo funcionó hasta el final de los años 80. En julio de 2008, Jacques y su hija Clara reabrieron la Galería en una sede en la Avenida de Mayo 1130. Ya sabiendo que iba a ser distinta, la llamaron Galería Jacques Martinez y allí trabajaron juntos durante 10 años. Desde el 13 de julio de 2019 la galería funciona en Roque Sáenz Peña 267, en San Isidro.
Graduado de arquitectura en 1985, en sus inicios trabajó con los arquitectos Baliero y Katzenstein. Fue docente en la Universidad de Buenos Aires por 20 años, y profesor de la Universidad Di Tella durante cinco años. Fue asesor del IMNBA entre 2009 y 2012.
Actualmente desarrolla obras nuevas, refacciones de casas tanto en Argentina como en Uruguay, desarrollos de vivienda colectiva, así como también edificios medianos de propiedad horizontal.
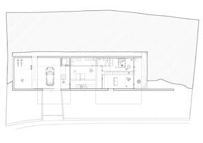
La tensión entre la óptima orientación solar y las profundas visuales panorámicas comprime el programa de la vivienda en un nivel inferior incrustado en el lecho rocoso y un nivel superior fragmentado en dos volúmenes. Esta combinación de estrategias permite reducir el volumen aparente de la intervención y mejorar su integración en el paisaje.
UBICACIÓN
Port de la Selva, España
FOTOGRAFÍA Marià Castelló TEXTO Memoria de autorPort de la Selva es un pequeño asentamiento litoral en la parte más septentrional de la Costa Brava española. La intervención se ubica en una parcela de la urbanización
“La Tamariua” en la ladera norte del Puig Gros, un pequeño promontorio que envuelve y protege el puerto del pueblo. La topografía presenta una acusada pendiente hacia el mar con abundante afloramiento de pórfido, una roca oscura y de gran dureza que caracteriza la geología de origen volcánico del lugar. Las condiciones climáticas son las propias del clima mediterráneo, aunque en ocasiones se tornan extremas, con fuertes vientos de componente norte (Tramontana) que azotan con frecuencia la costa.
La tensión entre la óptima orientación solar y las profundas visuales panorámicas comprime el programa de una vivienda para una familia con cuatro hijos en dos niveles: el inferior incrustado en el lecho rocoso y el superior, fragmentado en dos volúmenes. Esta combinación de estrategias permite reducir el volumen aparente de la intervención y mejorar su integración en el paisaje, así como generar diferentes patios que aportan calidez, iluminación y ventilación en puntos estratégicos. Los intersticios entre la matriz rocosa de pórfido y la arquitectura se convierten en los momentos más líricos de la propuesta y donde más apetece estar.
Mientras en el nivel inferior, casi a nivel de la calle, se establecen relaciones más íntimas con el exterior mediante patios, en el nivel superior los dos volúmenes se abren frontalmente al paisaje y el horizonte marino. También en el nivel superior se generan relaciones más introvertidas entre los volúmenes y el sustrato rocoso que los rodea. Así el nexo acristalado, que conecta los dos cuerpos y contiene la comunicación vertical, actúa como una pantalla contra el viento y genera un espacio de relación exterior resguardado del viento predominante pero permeable visualmente hacia el mar. A su vez es capaz de recibir un correcto asoleamiento durante los meses de invierno, al orientarse también al sur.
Desde el punto de vista tectónico el hormigón es el material predominante tanto en exterior como en el interior, dado que su naturaleza pétrea establece un intenso diálogo con el sustrato rocoso del lugar. Asimismo, su resistencia a las inclemencias de la intemperie (vientos fuertes y ambiente marino) lo convierten en una de las opciones más duraderas, con poco mantenimiento y, por lo tanto, más sostenibles.
También en el exterior, se ha utilizado grava de pórfido proveniente del vaciado de la excavación como acabado de las cubiertas y de los patios intersticiales entre la intervención y el lecho rocoso. Para compensar las cualidades intrínsecas del hormigón, se ha escogido la madera de roble para materializar las carpinterías exteriores, algunos revestimientos y mobiliario realizado a medida, dotando al conjunto de calidez y armonía. ·
// Detalle constructivo
// Corte en perspectiva
//
// Planta azoteaArquitectos: Marià Castelló + José Antonio Molina
Dirección de obra: José Antonio Molina, Lorena Ruzafa, Marià Castelló
Arquitecto técnico: Joan Noguer
Estructura: Think Enginyeria SLP
Instalaciones: QS Enginyeria i Associats SLP
Equipo de diseño: Lorena Ruzafa y Marga Ferrer
Constructor: Construccions Pòrfit
Proyecto: 2016-19
Obra: 2019-2021
Superficie: 310 m²
El estudio fue creado en 2002 con los primeros proyectos de iniciativa pública y privada en Formentera. La conexión, el respeto y el compromiso con la cultura, el paisaje y el territorio de la menor de las islas Pitiüsas fue determinante en la orientación profesional y personal elegida. La paz, la austeridad, la serenidad, la precisión, la humildad, el equilibrio, la armonía, la sostenibilidad, el orden, la contención y el ingenio del carácter original de la isla inspiran y tiñen el trabajo del estudio.
Sistema ideado para diseñar muebles personalizados sin ocasionar desperdicios. Con la ayuda de algoritmos y robótica, aprovecha los recursos regionales existentes y reduce la huella de carbono.
Stackabl es una creación del estudio de diseño multidisciplinario con sede en Toronto, STACKLAB, y su socio con sede en Nueva York, Maison Gerard.
La reutilización creativa ha dado forma a la cultura durante siglos. Desde la rica herencia del coleccionismo de antigüedades hasta las innovaciones recientes en tecnología de reciclaje, volver a imaginar lo que es posible con lo que ya existe presenta un desafío emocionante para la comunidad de diseño. Es esta pasión compartida la que se encuentra en el corazón de Stackabl.
Stackabl es un sistema innovador para diseñar muebles personalizados sin desperdicios. Desarrollado en estrecha colaboración con los fabricantes regionales, con la ayuda de algoritmos y robótica, el sistema identifica su inventario remanente, lo devuelve a través de sus propias máquinas y lo pone en manos de sus propios expertos. Al aprovechar los recursos regionales existentes, empodera las economías locales y reduce la huella de carbono.
Un configurador simple integra a la perfección al diseñador en el proceso. Su interfaz fácil de usar permite a los usuarios convertir recortes de alta calidad en muebles personalizados de acuerdo con sus elecciones, desde colores y patrones hasta dimensiones y densidades. Las visualizaciones en tiempo real en 2D y 3D, así como la retroalimentación instantánea de precios, crean una experiencia intuitiva y transparente que libera la imaginación y abre las puertas a un mundo de posibilidades.
La colección inaugural de Stacklab es un conjunto de muebles donde cada pieza fue construida por especialistas regionales de acuerdo a los recursos disponibles. En respuesta a los colores, dimensiones y acabados seleccionados por el usuario final, las capas de restos de fieltro Merino de alta calidad se identifican mediante algoritmos y se cortan con la ayuda de la robótica.
Seis diseñadores de Nueva York fueron convocados para realizar sus propias piezas. Esto dio como resultado una sorprendente variedad de obras llenas de carácter, desde una silla simple hasta un extravagante diván. La colección de lámparas colgantes también fue realizada con fieltro y aluminio reciclados, y con potentes LED que ahorran energía. Con la ayuda de Anthony Frank Keeler, anteriormente de Rich Brilliant Willing y AvroKO, Stackabl adoptó un enfoque holístico, diseñando los elementos internos y externos de las lámparas en torno al sistema original, reutilizando la mayoría de los mismos componentes que se encuentran en la colección de muebles y utilizando la misma red de proveedores y fabricantes regionales. Ligeras, regulables, respetuosas con el medio ambiente, totalmente personalizables y con precios competitivos, las lámparas colgantes son ideales para innumerables entornos. ·
Estudio multidisciplinario de diseño con sede en Toronto, Canadá. Fue fundado por Jeff Forrest en 2013 y es conocido por su innovadora combinación de diseño, tecnología y fabricación circular. Con una pasión particular por los desafíos que enfrenta la fabricación regional, el estudio cree que la clave para una vida más inteligente, más eficiente y mejor para el medio ambiente es su enfoque característico basado en sistemas. Con la ayuda de un algoritmo, cada paso se optimiza para garantizar que haga lo máximo con lo mínimo, abriendo oportunidades para el reciclaje de materiales, la reducción de residuos y escenarios alternativos para la reutilización.
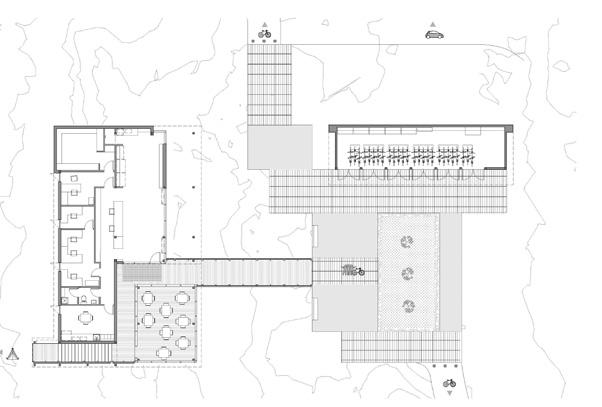
Este proyecto presenta un nuevo concepto en espacios de grabación y postproducción musical. Las luces de neón, diseñadas por los arquitectos, en forma de ondas de sonido, dominan el espacio y acentúan la atmósfera de un hogar confortable, inesperadamente ambientado en un marco industrial crudo con un toque de alta tecnología.
Los estudios Kabelovna están ubicados en una antigua fábrica de cables eléctricos en el distrito de Holesovice, en el corazón de Praga, República Checa. La instalación, que fue construida en 1908, es parte de la colonia de trabajadores de Praga desde la década de 1870. Desde entonces, la zona se ha desarrollado en torno a la antigua fábrica, conservando el ambiente industrial que existe dentro de la manzana que la alberga. La sala en la que se encuentran los estudios reúne a varias entidades artísticas: un diseñador de moda, un pintor, una empresa de producción de serigrafía y, por último, los estudios de grabación, creando así un entorno creativo vibrante.
Estudio: : B² Architecture
Autora: Barbara Bencova
Año de proyecto: 2021 - 2022
Año de finalización: 2022
Superficie total: 250 m2
Cliente: Kabelovna Studios
Este es un nuevo concepto de lo que podría ser el entorno de postproducción y grabación de música: estudios que conectan una auténtica estética industrial con elementos naturales de luz que se proyectan a través de grandes tragaluces y mamparas de vidrio bien ubicadas. Todo mientras las paredes de ladrillo restauradas de esta antigua fábrica no solo funcionan a la perfección con los requisitos acústicos de un estudio de grabación moderno, sino que completan el espacio a la perfección. Sin mencionar que estas paredes se complementan con las propiedades difusoras de los paneles acústicos y los techos inclinados de cinco metros de altura.
Fascinados por el carácter fuerte del lugar, los arquitectos decidieron resaltarlo tanto como fuera posible. Un nuevo suelo del mineral anhidrita beige unifica el espacio y permite que las paredes y otras texturas y elementos existentes se conviertan en el punto focal. El negro se utilizó para las nuevas inserciones modernas, como las puertas o el equipamiento técnico, pero también como fondo para los muebles más antiguos y las lámparas diseñadas a medida.
La organización espacial es simple e intuitiva. Comienza con una gran sala de reuniones, o mejor dicho, la sala de estar del estudio que se encuentra en la zona más alta del salón. Da la bienvenida a los invitados con una mesa de recepción, una zona de descanso y una línea de cocina, mientras que se puede acceder a los estudios de grabación detrás de puertas parcialmente acristaladas.
La sala de estar está dominada por un candelabro Bomma Orbital que flota sobre una mesa de madera maciza que mejora aún más la sensación de altura en el espacio. Las plantas, que se establecen libremente sobre las paredes negras, separan la recepción del resto de los habitantes de la sala y se alojan cuidadosamente disimuladas. Cada estudio de grabación está equipado con su propia cabina blanca de locución.
El mobiliario renovado y la composición general del espacio crean un ambiente inspirador pero acogedor. Los asientos son una combinación de piezas de cuero reciclado y sillones de cuero negro de la década de 1970. Los asientos plegables, utilizados anteriormente en un teatro real, se colocan en la sala de estar del estudio para alentar a más invitados a ser parte de las inevitables fiestas.
Las luces de neón, diseñadas por los arquitectos, también son un guiño a la función del estudio. Una imagen de las grandes y cálidas ondas de sonido que dominan los techos de los estudios de grabación y cambian constantemente a medida que se mueven por el espacio. ·
Estudio de arquitectura y diseño centrado en el diseño innovador con una fuerte conciencia de la coexistencia sutil entre formas y materiales. B2 Architecture fue fundado por Barbara Bencova en 2012 después de su experiencia laboral previa en Praga (Atelier 8000), Londres (BFLS) y París (Renzo Piano Building Workshop - RPBW). Comenzó a colaborar con Zuzana Bartasova en el 2021 debido a su gusto visual compartido y su pasión por correr. El estudio está trabajando actualmente en numerosos proyectos residenciales y comerciales en la República Checa y en el extranjero. Ha ganado numerosos premios nacionales e internacionales.
Para que esta obra realizada en acero presentara una sensación de cotidianidad y afinidad, se decidió dar a los paneles un aspecto cálido, transparente y ligero. Con ese fin, fueron convertidos en texturas de enredaderas mediante un proceso de tallado y soldadura con láser.
UBICACIÓN China
FOTOGRAFÍA Jin Weiqi
Esta es una obra creada para la exhibición en el Festival de Arte de Escultura de Acero en Tangshan. El sitio donde se erige esta obra se denomina Delong Steel Art Park, y es un lugar amplio y plano. Cerca del mar de Bohai, originalmente era un humedal de marea baja, con condiciones de suelo que no eran propicias para el crecimiento de árboles. Sin embargo, hay varias áreas de agua dentro del parque, que proporcionan recursos favorables para que habiten las aves. Mientras tanto, el parque forma un fuerte contraste con las altas y espectaculares instalaciones industriales en la zona de producción de acero en su lado norte. Sus secciones este y oeste son largas pero expansivas, y se conectan con bosques de protección.
La zona sur del parque proporcionaba originalmente una vista directa al mar, que se ve interrumpida por un nuevo desarrollo inmobiliario compuesto por hileras de torres. El parque es extenso pero tiene un terreno plano, por lo que el desarrollo de la propiedad aparece como una gran pantalla justo en frente, que controla el horizonte y genera una sensación opresiva en el parque. La intención de diseño de este trabajo fue crear un "punto de referencia" en el parque, para contrarrestar y mitigar la sensación opresiva y la brusquedad visual del gran desarrollo inmobiliario, o al menos crear una relación espacial visualmente progresiva en la zona sur del parque para fortalecer su profundidad visual. Para ello, los volúmenes de la obra necesitan extenderse hacia arriba y al mismo tiempo formar un racimo, para asegurar tanto la altura como el volumen espacial. Esta es la lógica detrás de este trabajo de diseño.
El plan original era encontrar un área relativamente más alta dentro de la zona sur del parque de arte y establecer una matriz de columnas erectas para crear el punto más alto del parque, de modo que confrontara los edificios de la torre del desarrollo inmobiliario en la distancia. La matriz cuadrada consta de 9 columnas huecas, cada una de las cuales fue realizada en paneles de acero que se planificaron con una altura de 7.2 metros y un ancho de 2.2 metros. Y la distancia entre columnas se fijó en 1.5 metros. El número de columnas y la distancia entre ellas se determinó con base en un proceso de deducción a través de modelos, con el propósito de lograr una fuerte sensación de bloques agrupados. Sin embargo, durante la construcción, la altura de cada columna se redujo de 7.2 metros a 6 metros, para ahorrar costos. Esto inevitablemente redujo la altura total de la matriz de columnas, pero afortunadamente su impacto en la masa total fue aceptable ya que no afectó la atmósfera espacial.
Según el equipo de diseño, una obra de arte pública necesita "expresiones" y tiene que "contar" y transmitir mensajes. Sus expresiones y narrativas deben evocar la interacción, y los mensajes que transmite deben resonar con la experiencia y las emociones diarias de las personas. La relación entre la obra y el sitio es importante, y la forma espacial de la obra misma también es esencial, pero lo más importante es la interacción entre la obra y las personas. En la creación de obras de arte público, esos tres aspectos están entrelazados y, por lo tanto, deben considerarse de manera holística.
Para dotar a este trabajo de "expresiones" y permitirle "decir" y transmitir mensajes, el diseñador Hu Quanchun puso énfasis en los materiales. Pensó en cómo utilizar los paneles de acero y qué mensajes transmitir a través de este material neutro, que depende en gran medida de las nociones y necesidades de los usuarios. El acero es, sin duda, un símbolo de la civilización industrial moderna, pero los paneles de acero a menudo dan a las personas una impresión de frialdad, solidez y pesadez. Para que el trabajo presentara una sensación de cotidianidad y afinidad, decidió dar a los paneles de acero una sensación cálida, transparente y ligera.
Con ese fin, Hu Quanchun convirtió paneles de acero sólido en texturas de enredaderas para encerrar el espacio de la columna. Para lograr ese efecto, los paneles de acero se trataron mediante un proceso de tallado y soldadura con láser. A primera vista, el patrón en forma de enredadera puede parecer un poco abrupto en el sitio. Sin embargo, en realidad su verdadera intención no es la decorativa, sino la de dar a entender la existencia de una posible entidad espacial.
El concepto de enredaderas se exploró en los trabajos de diseño anteriores de Hu Quanchun. La escena en que las enredaderas se extienden sobre la arquitectura se ve con mucha frecuencia en la vida cotidiana. Al separar el cuerpo arquitectónico, el estado creciente de las enredaderas aún puede reflejar la forma del antiguo espacio arquitectónico. Tal memoria y ambigüedad que lleva la enredadera y la imagen de ruinas que evoca es lo que le interesa a Hu Quanchun. Este trabajo expresa el estado de las enredaderas que crecen libremente en las columnas. El diseñador "desprendió" las columnas densas y sólidas y dejó texturas de enredaderas para delinear la silueta del espacio de la columna original y llevar su memoria.
El proceso de tallado con láser mejoró la transparencia de los paneles de acero. Los giros, vueltas y uniones de "vides" producen ricas capas espaciales. Rutas de circulación clasificadas y líneas de visión. Al ingresar al espacio de la columna, los visitantes se sumergen en un reino espacial inundado de luces y sombras. Al mirarlo desde la distancia, se destaca en el sitio con sus densos volúmenes que desdibujan lo real y lo virtual. Presenta diferentes efectos visuales cuando se ve desde diferentes direcciones o ángulos, brindando a los visitantes experiencias variadas.
¿Las texturas y los símbolos de las enredaderas introducidas en el sitio son realmente abruptos? Como el humedal de marea baja no es propicio para el crecimiento de árboles debido a su suelo salino, la introducción de la matriz de columnas crea una escena fuerte y surrealista de enredaderas que crecen libremente hacia arriba, lo que difumina lo real y lo virtual. Por lo tanto, los patrones de vid que encierran el espacio de la columna son en realidad una respuesta y un eco del sitio. ·
Estudio de diseño: Field Conforming Studio
Diseñador en jefe: Hu Quanchun
Equipo de diseño: Xiang Yu, Chen Songlin, Yuan Hang, Lu Bowen, Guo Chunzhi, Zhong Chengzhi, Bai Yumeng
Comisionista: Ding Zehua
Instrucción académica: Sui Jianguo
Curador de la exhibición: Tang Yao
Planeamiento de la exhibición: Li Kefei
Coordinador de la exhibición: Zhang Yu
Tamaño: 9.6 m × 9.6 m × 6 m
Material: acero resistente a la intemperie
Fecha de inicio de obra: abril 2021
Fecha de finalización de obra: junio 2021
Estudio chino de diseño interdisciplinario fundado por Hu Quanchun y dedicado a la creación de arte público y la investigación del diseño del espacio público. Orientado por la investigación de problemas, el equipo enfatiza el estudio de las características del sitio durante la creación del diseño, en un intento de responder al lugar y construir una conexión entre el trabajo y las personas, así como el sitio.
En este espacio inspirado en la Divina Comedia, el poder de la simplicidad del diseño es un punto importante para hacer que toda la escena se vuelva vívida.
La inspiración para el proyecto provino de la Divina Comedia y buscó crear una expresión figurativa en el espacio. Romper el orden espacial es una forma de reconstruir el espacio original, también es una idea audaz para fusionar la experiencia de comida, moda y arte en un solo espacio.
Llama, triángulo, rojo, renacimiento y conflicto visual son los elementos clave. La iluminación roja crea la atmósfera del lugar. La interacción entre la luz y la estructura de la geometría otorga un fuerte efecto de visión.
La selección de materiales y la expresión del diseño reaccionan entre sí, y la estética de la simetría, la estructura estable triangular y la relación de perspectiva son capturadas completamente por los ojos.
El comedor está compuesto por un orden minimalista, y la geometría del arco semicerrado da origen a la interacción y el ritmo del diseño. El color también es un punto significativo para mostrar el espacio, especialmente el tejido del papel tapiz aporta una vitalidad vigorosa.
La inspiración y los elementos se introducen continuamente desde la Divina Comedia, expresando el conflicto y el progreso de crear la estructura con una construcción diferente en el diseño. En diferentes experiencias espaciales, la solemnidad entrelazada y la estética geométrica brindan una experiencia sensorial progresiva.
El poder de la simplicidad del diseño es un punto importante para hacer que toda la escena se vuelva vívida. La línea aerodinámica de la iluminación, el tallado artístico, la sensación nebulosa de la pantalla de gasa crean una escena maravillosa en el entorno. La expresión perceptiva y racional, la nada y la lógica, la imaginación y el orden se reúnen en la atmósfera del diseño. ·
Estudio: Salone del Salon
Equipo: Weibang Zheng, Lingfeng Li, Xue Liang, Qunyang Yue, Tianyi Zhao, Jing Yang, Yike Song, Chaojie Yang
Superficie: 505 m²
Fecha de proyecto: agosto 2021
Estudio chino que representa la herencia de una familia en el rubro del diseño, así como también la integración de la tradición y la nueva generación. Salone del Salon combina la lógica espacial tradicional con conceptos espaciales conceptuales y narrativos.
La instalación presenta un patrón geométrico y figuras de espejos geométricos simples que brindan una inmersión en un mundo infinito no objetivo, formado por geometría lineal pura.
UBICACIÓN
Moscú, Rusia
FOTOGRAFÍA
Dmitry Chebanenko
TEXTO
Memoria de autor
N uevo suprematismo es una instalación que ofrece una mirada al futuro a través de la geometría. Combinados en un reflejo infinito, un patrón geométrico y figuras de espejos geométricos simples brindan una inmersión en un mundo infinito no objetivo, formado por geometría lineal pura que abre un nuevo espacio tridimensional suprematista.
“La idea del suprematismo se basa en la superioridad de la geometría pura y el color sobre las ideas establecidas de la forma y el espacio”, explica Maxim Kashin. “Formas cuadradas y elementales, como círculos, líneas y cruces, forman la base de las composiciones suprematistas”.
Una nueva lectura de los fundamentos de la ideología del suprematismo se centra en el entretejido de figuras lineales y la creación de un patrón suprematista sin fin. Conceptualmente, la instalación presenta un espacio infinito a través de dos cuadrados negros, creados al volver a reflejar un patrón y volúmenes geométricos simples en las paredes de los espejos, con una referencia a las composiciones lineales. La composición entre los dos espacios reflejados representa, por tanto, la salida de la lectura moderna de la geometría del suprematismo.
La instalación toma la forma de un volumen rectangular, con planos de espejos cuadrantes ubicados uno frente al otro. El reflejo interminable de este último identifica la base de la vanguardia rusa de principios del siglo XX: el cuadrado negro. Este efecto se conoce como Mise, una técnica artística recursiva conocida como “imagen en imagen”.
Un patrón geométrico identifica el infinito en el plano, configurando la dinámica y destacando la influencia de las líneas en la percepción de formas y volúmenes geométricos simples. ·
Estudio: Maxim Kashin Architects
Arquitecto: Maxim Kashin
Diseñadores: Daria Sosnovskaya, Ulyana Poslavskaya
Artista 3D: Arina Krisanova
Superficie: 50 m²
FICHA TÉCNICA // AxonométricaEstudio ruso de diseño de interiores y arquitectura que crea una simbiosis de la geometría del espacio y el funcionalismo. El estudio ha creado espacios para muchas marcas y empresas: bares y restaurantes, oficinas, interiores públicos, pabellones de exhibición y exposiciones, así como interiores privados conceptuales.
UBICACIÓN
Quebec, Canadá
FOTOGRAFÍA
Stéphane Groleau
TEXTO
Memoria de autor
Este proyecto combina una resolución arquitectónica coherente y poética con su entorno natural. El sistema de circulación exterior por pasarelas estimula el descubrimiento del entorno por parte del usuario.
Los arquitectos tienen una responsabilidad determinante cuando se trata de construir sobre el entorno natural. Desde el principio, la oportunidad de magnificar un territorio único fue la motivación que impulsó la misión de la Sociedad de Establecimientos al Aire Libre de Quebec de desarrollar los territorios y bienes públicos para conectar a las personas con la naturaleza.
El sitio se remonta a la época en que la desembocadura del río Saguenay, formada por las islas de Lac Saint Jean, se utilizaba como estación de remolque para troncos. Por lo tanto, la pluma, una estructura emblemática utilizada anteriormente para la conducción de troncos y la tala, forma la columna vertebral del proyecto.
La fragmentación del programa permite la creación de un área de recepción central para todos los usuarios del parque. Los pabellones enmarcan un área de recepción, mientras filtran el acceso desde los distintos puntos de entrada. Esta estrategia de pabellones también favorece la adaptación a la topografía del sitio y la preservación de una cubierta vegetal cerca de los edificios.
// CorteEl uso del espacio exterior para el sistema de circulación proporciona una verdadera experiencia al aire libre. Guiado por una pasarela, imprescindible al comienzo de la experiencia, el recorrido del visitante serpentea por los diferentes espacios accesibles. Desde el puente de madera se accede a la recepción, la boutique, el área de alquiler de equipos, la terraza y las áreas de servicio para los campistas. Una pasarela elevada finalmente se convierte en una escalera para un enlace más directo con el área de la caravana a continuación. Además de ser económica para un proyecto donde los presupuestos públicos son limitados, esta estrategia de externalización de la circulación estimula el descubrimiento del entorno por parte del usuario.
Por un lado, la articulación de una cubierta con grandes voladizos expresa una jerarquía entre las diferentes funciones, mientras que por otro asegura la permanencia y el desarrollo de la madera protegida. Este dosel envolvente forma zonas de amortiguamiento protegidas para reuniones y relajación, al mismo tiempo que genera enlaces visuales de interés a través de aberturas que enmarcan el paisaje. Los ensamblajes, la ventana y las proyecciones del techo están calibrados e integran los principios de calefacción y ventilación pasiva.
El Centro de Servicios Camp de Touage combina una resolución arquitectónica coherente y poética con su entorno natural. ·
Estudio: Blouin Tardif Architectes en asociación con arq. Éric Painchaud
Directores de proyecto: Isabelle Beauchamp (Blouin Tardif Architectes), Sonia Simard (Éric Painchaud Architecte et Associés)
Equipo: Isabelle Beauchamp, Magalie Meunier, Véronique Rivest (Blouin Tardif Architectes), Sonia Simard, Camille Lavoie, Joanie Lapointe (Éric Painchaud Architecte et Associés)
Inicio de proyecto: mayo 2021
Cliente: Sociedad de Establecimientos al Aire Libre de Quebec
Construcción: Construction J & R Savard Ltée
Ingeniería: WSP Chicoutimi
Paisajismo: Ext Conseil inc.
Estudio canadiense de arquitectura que reúne a un equipo de profesionales motivados por desarrollar una arquitectura sostenible. La firma adopta y enfatiza la innovación, la creatividad y el desarrollo sostenible para las generaciones futuras. Su trabajo abarca desde la planificación maestra hasta edificios institucionales, el diseño residencial y comercial de unidades múltiples, y proyectos de salud y resorts. Muchos de estos trabajos han recibido certificaciones ambientales, premios y menciones.
Estudio canadiense con 30 años de trayectoria. Han integrado su ADN e identidad en espacios públicos y privados entregando proyectos personalizados que superan las expectativas de sus clientes. La transparencia, la información en tiempo real, el respeto del presupuesto y los plazos han forjado su reputación.
La mezcla de dos programas diferentes —alojamientos turísticos y viviendas— garantiza que el complejo pueda estar habitado todo el año, favoreciendo el mantenimiento y la seguridad de la zona.
Teniendo en cuenta la aspereza y la lejanía de este terreno, recurrir a estructuras prefabricadas no era solo una opción, sino la única eficiente para simplificar el proceso de construcción en tales condiciones. El encargo inicial fue distribuir varias habitaciones por el terreno. Sin embargo, el estudio propuso además la construcción de casas pequeñas para que algunas de ellas pudieran funcionar como viviendas a tiempo completo. La mezcla de estos dos programas diferentes —alojamientos turísticos y viviendas— garantiza que el complejo pueda estar habitado todo el año, favoreciendo el mantenimiento y la seguridad de la zona.
En cada casa, las instalaciones de agua, electricidad y climatización se concentraron en un solo módulo y se extendieron a los otros modelos externamente. Este procedimiento se repitió de forma estándar en todo el proyecto, acelerando su proceso de producción/montaje.
El proyecto está compuesto por once cabañas pequeñas que incluyen cuatro tipologías diferentes, desde 28 m2 hasta 58 m2. Se distribuyen en la parcela según la configuración natural del terreno, alterándolo lo menos posible. Se conservaron los viejos muros de piedra y los árboles existentes; las casas se colocaron cuidadosamente a su alrededor. La combinación de este posicionamiento aparentemente arbitrario con diferentes orientaciones permitió que las casas no bloquearan la vista de las demás. Desde los balcones, detrás de las lamas de madera, se puede ver el bosque y, en algunos casos, el río. ·
Estudio: Summary
Líder de proyecto: Samuel Gonçalves
Equipo de proyecto: Inês Vieira Rodrigues
Año: 2021
SUMMARY
Estudio de arquitectura con sede en el Parque Científico y Tecnológico de la Universidad de Oporto, en Portugal. Buscando el equilibrio entre pragmatismo y experimentalismo, SUMMARY desarrolla sistemas constructivos asumiendo la optimización del tiempo y los recursos físicos como eje central de su práctica.
En un edificio emblemático como lo es el Palacio Alcorta, el estudio Montes Iturrioz realizó el proyecto de refacción de un loft, donde las cortinas horizontales de madera natural de Hunter Douglas son protagonistas del espacio.
El leitmotiv de la refacción se inspiró no solo en la historia del edificio —antigua sede de Chrysler— sino en el estilo de vida del propietario de la vivienda: un joven cosmopolita, masculino y amante de los autos. En el proyecto todas las decisiones apuntaron a optimizar al máximo las visuales y la doble altura del espacio.
Al ser un espacio muy luminoso, existía la necesidad de poder establecer una relación controlada entre el espacio interior y exterior. Por otro lado, el loft debía ser minimalista, con una reducida paleta de materiales, para lo cual se realizó una envolvente oscura de madera. De este modo, las cortinas horizontales de madera Hunter Douglas se fusionan perfectamente con el revestimiento de las paredes, contribuyendo con la estética buscada, cálida y amaderada, y permitiendo tanto la apertura hacia el exterior como la privacidad.
Las cortinas horizontales de madera de Hunter Douglas —con una estética de líneas puras, moderna y renovada— fueron utilizadas en todos los ambientes de la casa, enfatizando el concepto de loft y contribuyendo a agrandar el espacio a nivel visual. Además, todo el sistema de cortinas fue automatizado para lograr mayor comodidad y agilidad a la hora de configurar distintas escenas, ya que según la posición de sus láminas permite mantener las visuales hacia el exterior u obtener distintos grados de privacidad.
CONTACTO
hunterdouglas.com.ar marketing-arq@hdlao.com
WhatsApp: +54 9 11 6971 3832
Las bañeras han pasado de ser un simple elemento funcional a tener un papel importante en un cuarto de baño, en la actualidad es un complemento esencial en el diseño de este espacio. La última tendencia es transformarlo en un espacio de relax y descanso, un spa dentro de la casa.
Se pueden encontrar diseños clásicos o modernos, siempre se debe tener en cuenta antes de comenzar a diseñar, los espacios y dimensiones que ocupan, no es lo mismo incorporar una bañera exenta o de empotrar.
Además de los espacios para colocarlas, es muy importante el tipo de grifería a utilizar, pueden ser griferías incorporadas en la pared, en la misma bañera o también se utiliza un pedestal, donde la instalación se la realiza desde el piso.
Otra consideración en estos casos es tener en cuenta la dimensión del baño, si es un baño pequeño o mediano lo recomendable es usar una bañera de empotrar y colocarla en alguna esquina o en un extremo que quede como punto focal. Si el baño es de mediano a grande se pueden colocar bañeras exentas, en estos casos tienen un papel protagónico.
Otro concepto de las bañeras exentas es colocarlas en el dormitorio, al incorporarlas como un elemento de spa lo ideal es que esté junto a una ventana, luego de un baño relajante aprovechando las vistas se puede pasar al descanso y comodidad de la cama.
navarroache.com | info@navarroache.com | IG. @navarroache
Sucursales: Palermo, Martínez, Nordelta, Pilar, Córdoba
Fontenla abrió una nueva tienda en Nordelta, con un concepto novedoso, y una estética depurada y distinguida. El local se encuentra ubicado en Av. Del Puerto 240, Bahía Grande, y cuenta con 500 metros cuadrados distribuidos en dos plantas, y un deck con vista a la bahía donde se exhiben todas las propuestas que la firma de mobiliario y diseño de lujo tiene para esta nueva temporada. Luego de una reciente y exitosa apertura en Rosario —además de la inauguración en la provincia de Córdoba— una impactante tienda se sumó al crecimiento de la firma.
Fontenla llegó a esta apertura con una apuesta mucho más fuerte y de gran impacto, no solo por la tienda sino también por el mobiliario exhibido. Allí están disponibles sus principales colecciones (indoor/outdoor), sus líneas de iluminación y complementos decorativos, así como también la cápsula “Pampita by Fontenla”, realizada en conjunto con Carolina “Pampita” Ardohain. Además, están presentes las colecciones de outdoor Mood, Alma y Brera, así como también Gunta, una colección diseñada junto al estudio de arquitectura Leone Loray. También se presenta oficialmente Curva y Coco, dos propuestas totalmente innovadoras.
Entre los próximos lanzamientos de la marca se encontrarán las líneas de fragancias personales y carteras de la más alta calidad. La marca argentina sigue innovando y sorprendiendo con su capacidad creativa y productiva en diseño de alta gama.
Johnson presenta en Casa FOA Estación Cocina. El desafío fue reinventar el corazón del hogar en sintonía con las épocas por venir, donde los vínculos se horizontalizan y la vida es en comunidad.
Johnson investiga las tendencias en los modos de habitar. Este escenario a modo de trama liga orgánicamente tecnología, naturaleza, arte y artesanía. Un concepto holístico que inaugura una etapa en la historia del diseño de interiores. En sintonía con la biofilia, es una manera de sentir la arquitectura en armonía con la vida. Una mudanza conceptual hacia una tecnología humanizada al servicio del planeta.
Estación Cocina fue concebida como un bloque central. A modo de mesada envolvente, de bucle, propicia un uso de 360°, ampliando la percepción de quienes van ocupando ese centro y la comunicación con sus comensales.
Además, este año en Casa FOA JOHNSON ACERO participa como sponsor oficial de las piletas de acero para cocinas, empleadas en cuatro espacios centrales de la muestra: Espacio 3 “Vivienda flexible”, de Hugo Di Marco; Espacio 8, “Estación Cocina”, de María Delia Zaccagnini; Espacio 12 “Cocina Comedor”, de Carola Moris, Patricia Mezzadra y Daniel Germani y Espacio 14, “Bar”, de Carla Barconte, Carolina Estelles y Mariana Paccieri.
CONTACTO
johnsonacero.com | info@johnsonacero.com
Tel: 0-810-55-5646766
Casa Matriz: Av. Almafuerte 3658 (3100), Paraná, Argentina | Tel. +54-343-426 1000
La empresa de muebles de diseño y accesorios para el hogar presenta una mesa ideal para los encuentros de fin de año, creada para reuniones de 8 a 10 comensales.La mesa Galgo se caracteriza por sus materiales nobles, su generosa superficie y sus líneas estilizadas. Sus patas se encastran a mano y sobresalen de manera sutil. Está construida en madera hoveña, con tonos y vetas orgánicas. Para hacer todo mucho más fácil al momento de la entrega del producto, un equipo especialista se encarga del armado y de brindar asesoramiento para encontrar la mejor ubicación en el comedor. La mesa está disponible en dos medidas: 2,20 x 1,10 mts. y 2,60 x 1,20 mts. Wood Market realiza envíos a todo el país y cuenta con pagos en seis cuotas sin interés.
@woodmarketfurniture
www.woodmarket.com.ar
Vicente López, Av. del Libertador 1948
Pilar, KM 42, Salida Las Camelias
Lunes a sábados de 11 a 19:30 hs