Portafolio de proyectos

Page 1


Leal Escobar Arquitectos y Asociados es una oficina de Arquitectura, Diseño y Construcción, brindamos el acompañamiento idóneo a cada proyecto.

Para la oficina cada solución arquitectónica es el resultado del análisis en los diferentes campos del conocimiento y del entorno.

Fernando Leal Escobar es arquitecto egresado de la Facultad de Estudios Superiores Aragón de la UNAM. Encabeza LEAA realizando proyectos privados y públicos bajo premisas y contextos singulares.

Portafolio

Proyectos

Mayatl

Karen Jessica

Hospital General de 90 camas “Tláhuac Sur”

Deportivo San Lorenzo Tezonco

Espacio San Lorenzo Tezonco

Nazas

Allori 41

Calle 19

Emilio Carranza

Odesa 326

Santa Ana 321

Allende 4

Calle 10

Mercado Benito Juárez

Estado
Vivienda
Estado de México
Cultura, centro comunitario y oficinas Ciudad de México 2019
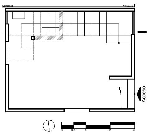
Espacio San Lorenzo Tezonco

Sobre un espacio en la sierra alta de Puebla se proyecta una casa de descanso, aprovechando la naturaleza se intenta entrar y depositar una obra con espacios amplios, funcionales y cómodos.

En el primer nivel se desarrolla la cocina, estancia, patio y sanitario, en el nivel superior se encuentra la recámara con baño completo. Diferentes ejes diagonales permiten cualquier disposición de los espacios además de que en cada uno se logra abrir y conectar visualmente hacia el exterior.

Vivienda Año: 2022 Área: 70.00 m² Puebla, México

Planta baja
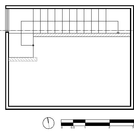
Emilio Carranza
Planta alta
Planta de azotea

El proyecto se aloja dentro de un predio con una vivienda existente en una zona residencial, el objetivo es crear un local comercial y de servicio al público interesado en el cuidado a la salud, el esquema es de venta en planta baja y atención personalizada en el nivel superior.

La intervención busca la comunión entre lo privado y lo público, la exigencia de los propietarios hacen que los terminados y el mobiliario sean de alta gama además de transmitir la calidad del servicio y atención en cada detalle.

O d e s a 3 2 6

Comercio 2022 40.00 m² Ciudad de México
Planta baja
Planta alta

A cada uno, gracias.

Turn static files into dynamic content formats.

Create a flipbook
Issuu converts static files into: digital portfolios, online yearbooks, online catalogs, digital photo albums and more. Sign up and create your flipbook.