Russell Custom Residence in Palmetto Bluff

Page 1

Lot5848,PalmettoBluff 25WintercressRoad

generalnotes

ContactInformation:

1.Contractortoverifyalldimensionsandconditionsatthe projectsitepriortocommencementofthework,andshallnotify ClarkeDesignGroupimmediatelyofanydiscrpanciesand/orany existingsiteconditionsthatareinconsistentwiththedrawings.

2.Alldrawingsshallbeusedinconjunctionwithallother drawingsrelatedtootherdisciplines.Thegeneralcontractor shallcheckandcoordinatedimensionsandclearanceswiththe workofalltrades.

4.Dimensionsaretofaceofstudu.n.o.

Site&BuildingNotes

3.Thedrawingshereinaregraphicinnatureandarenot intendedtoconveyallinformationnecessaryforconstruction. Contractorshallcoordinatesystemsinstallation requirements,rough-inconnections,andmaterialsrequirements forinstallation. FloodZone: AE8

ClarkeDesignGroup 1000JohnnieDoddsBlvd,Ste103-194 MountPleasant,SC29464 843-329-0667 phil@clarkedesigngroup.com Setbacks: InConformance,SeeSheetA101forplans

ScopeofWork: newconstructionofnewsinglefamilyhomewith2storygarage

SiteCoverageCalculations

SheetIndex: PropertySurvey A101aSitePlan A101bSitePlan A101cStreetscapeSitePlan A101dStreetscapeElevation A101eStakeSitePlan A102SlabPlan A103FirstFloorPlan A104SecondFloorPlan A105RoofPlan A106Window/DoorSchedule A107Window/DoorSchedule A108Window/DoorSchedule A109Window/DoorSchedule A201Elevations A202Elevations A3013DPerspectives A3023DPerspectives A401Sections A402Sections A403Sections A404Sections A405Sections A451Details A452Details A453Details A454Details A455Details A456Details A457Details A458Details A601Colors/Fixtures E103ElectricalPlan E104ElectricalPlan
nottoscale RussellResidence VicinityMap LotCoverage TotalLot: 45,636sqft HouseFootprint: 5,596sqft Drive,Walks,paths: 676.5sqft TotalCoverage: 6,272.5sqft Coverage%: 13.7% clarke design group 1000 Johnnie Dodds Blvd. Ste. 103-194 Mt. Pleasant, SC 29464 843-329-0667 Russell Residence25 Wintercress RoadBluffton, SC DRAWINGS AND SPECIFICATIONS ARE THE PROPERTY OF CLARKE DESIGN GROUP, LLC AND SHALL NOT BE COPIED, RE-USED, OR MODIFIED WITHOUT WRITTEN CONSENT PermitSet: 8.17.22 page of34 A100 CoverSheet 1

TMS#R61405200002630000

clarke design group 1000 Johnnie Dodds Blvd. Ste. 103-194 Mt. Pleasant, SC 29464 843-329-0667 Russell Residence25 Wintercress RoadBluffton, SC DRAWINGS AND SPECIFICATIONS ARE THE PROPERTY OF CLARKE DESIGN GROUP, LLC AND SHALL NOT BE COPIED, RE-USED, OR MODIFIED WITHOUT WRITTEN CONSENT PermitSet: 8.17.22 page of34
WINTERCRESS ROAD 50' R/W N/F
LOT5848
MAYRIVERFORESTLLC.
LOT5847
SitePlan scale:1/16"=1' A101a SitePlan 2 DeepPorch Kitchen Family 14' DeepPorch Foyer Mudroom WideBreezeway Garage Patio Master Laundry Office Office 18'Porch Side Sitting ServiceYard

NOTE:SedimentControlRequiredonAll Sides@PropertyLine.Maximum20'-0" AccessPointAllowedalongStreet.

NOTE:SeeLandscapeplansforFinal DrainageRequirements.

NOTE:TreeProtectionrequiredat allprotectedtrees.Installper TownofBlufftonguidelines.

NOTE:PropertyislocatedinFlood ZoneX,perFIRMCommunityPanel

NOTE:Finalgradinganddrainage shallnotimpactadjacentproperties

Note

RefertoLandscapeArchitectPlansfor FinalLotCoverageCalculations.

LOT5848

NOTE:Wetlandandsiltfence barrier.ClarkeDesignGroup,LLCis notresponsiblefortheupkeepof siltfence,treeprotectionor Wetlandbarriers.General contractoristaskedwiththeduty ofmanagingallsiteconditions includingtheabovebutnotlimited tomaterialstorage,containmentof trashandwindblowndebris.

CodeApplicability(SeeStructural Sheets)

1)Allworktobeinaccordancewith currentapplicablecodes&standards

2)Exterioropeningsarerequiredto meetIRC2021guidelinesfordesign pressure&impactresistance.

clarke design group 1000 Johnnie Dodds Blvd. Ste. 103-194 Mt. Pleasant, SC 29464 843-329-0667 Russell Residence25 Wintercress RoadBluffton, SC DRAWINGS AND SPECIFICATIONS ARE THE PROPERTY OF CLARKE DESIGN GROUP, LLC AND SHALL NOT BE COPIED, RE-USED, OR MODIFIED WITHOUT WRITTEN CONSENT PermitSet: 8.17.22 page of34 SitePlan scale:1/8"=1' 15'-11" 16'-5 1/4" 20'-11 22'-117/8" 1/2" 35'-2 3/4" 7'-10" 6'-10 5/8" 26'-6 7/8" 49'-0"
A101b SitePlan LotCoverage TotalLot: 45,636sqft HouseFootprint: 5,596sqft Drive,Walks,paths: 676.5sqft TotalCoverage: 6,272.5sqft Coverage%: 13.7% 14'-6 1/8" 11'-5 1/8" 3 9' DeepPorch Kitchen Family 14' DeepPorch Foyer Mudroom 9' WideBreezeway Garage Dining Scullery RaisedPatio Master Bar Laundry HisOffice HerOffice Pantry 20' x 18'Porch bluestone w/bluestone Side Entry bluestone bluestone w/ border Sitting Nook tabby border tabbybluestone Sitting of elev. deep ServiceYard gal.90 trash hvac unit hvac unit gal.90 trash

TMS#R61405200002630000

clarke design group 1000 Johnnie Dodds Blvd. Ste. 103-194 Mt. Pleasant, SC 29464 843-329-0667 Russell Residence25 Wintercress RoadBluffton, SC DRAWINGS AND SPECIFICATIONS ARE THE PROPERTY OF CLARKE DESIGN GROUP, LLC AND SHALL NOT BE COPIED, RE-USED, OR MODIFIED WITHOUT WRITTEN CONSENT PermitSet: 8.17.22 page of34
WINTERCRESS ROAD 50' R/W N/F
LOT5848
MAYRIVERFORESTLLC.
LOT5847
SitePlan scale:1/16"=1' A101c SitePlan 4 DeepPorch Kitchen Family 14' DeepPorch Foyer Mudroom WideBreezeway Garage Patio Master Laundry Office Office 18'Porch Side Sitting ServiceYard
clarke design group 1000 Johnnie Dodds Blvd. Ste. 103-194 Mt. Pleasant, SC 29464 843-329-0667 Russell Residence25 Wintercress RoadBluffton, SC DRAWINGS AND SPECIFICATIONS ARE THE PROPERTY OF CLARKE DESIGN GROUP, LLC AND SHALL NOT BE COPIED, RE-USED, OR MODIFIED WITHOUT WRITTEN CONSENT PermitSet: 8.17.22 page of34 StreetscapeElevation scale:1/16"=1' 25WintercressRoad scale:3/16" Lot5847 scale:3/16" A101d Streetscape Elevation 5
clarke design group 1000 Johnnie Dodds Blvd. Ste. 103-194 Mt. Pleasant, SC 29464 843-329-0667 Russell Residence25 Wintercress RoadBluffton, SC DRAWINGS AND SPECIFICATIONS ARE THE PROPERTY OF CLARKE DESIGN GROUP, LLC AND SHALL NOT BE COPIED, RE-USED, OR MODIFIED WITHOUT WRITTEN CONSENT PermitSet: 8.17.22 page of34 StakeSitePlan scale:1/8"=1' A101e Stake SitePlan 15'-11" 16'-5 1/4" 20'-11 22'-117/8" 1/2" 35'-2 3/4" 7'-10" 6'-10 5/8" 26'-6 7/8" 49'-0" 14'-6 1/8" 6
LOT5848

TopofFinish PorchFloor atHouse: elev.14'-81/2" slopeawayfrom houseat1/8"per1'-0"

TopofHouseSlab:elev.15-0" TopofHouseSlab: elev.15-0" TopofFinish PorchFloor atHouse: elev.14'-81/2" slopeawayfrom houseat1/8"per1'-0"

TopofFinish PorchFloor atHouse: elev.14'-81/2" slopeawayfrom houseat1/8"per1'-0" TopofFinish PorchFloor atHouse: elev.14'-81/2" slopeawayfrom houseat1/8"per1'-0"

SlabHeightPlan scale:3/16"=1'

TopofHouseSlab: elev.15-0"

TopofFinish DeckFloor atHouse: elev.13'-61/2" slopeawayfrom houseat1/8"per1'-0" TopofFinish BreezewayFloor atHouse: elev.13'-61/2" slopeawayfrom houseat1/8"per1'-0" A102 SlabPlan 7

TopofGarageSlab:elev.12'-9"

clarke design group 1000 Johnnie Dodds Blvd. Ste. 103-194 Mt. Pleasant, SC 29464 843-329-0667 Russell Residence25 Wintercress RoadBluffton, SC DRAWINGS AND SPECIFICATIONS ARE THE PROPERTY OF CLARKE DESIGN GROUP, LLC AND SHALL NOT BE COPIED, RE-USED, OR MODIFIED WITHOUT WRITTEN CONSENT PermitSet: 8.17.22 page of34
TopofHouseSlab:elev.15-0" TopofHouseSlab: elev.15-0"
9'Deep Porch Kitchen Family 14'Deep Porch Foyer Mudroom 9'Wide Breezeway Garage Dining Scullery Raised Patio Master Bar Laundry His Office Her Office
scale:3/16"=1' Pantry 30" ref 30" frz dwor trash dwor trash tallflatceiling 20'x18' Porch 48"range 10'-5 1/2" bluestonew/bluestoneborder SideEntry bluestonew/bluestoneborder bluestonew/bluestoneborder 19risers@9/16" w/11"deeptreads SittingNook 14"deepshelvesbottlestorage 24"deepbar accessstorageundershelves tabbyw/bluestoneborder tabbyw/ bluestoneborder 9'-2" 7'-6" ice maker built-insbookshelves storage under stairs Sitting 9080garagedoor 9080garagedoor 6080garagedoor steelandglasswall 10'-0" 7'-0" 115'-3 3/8" 98'-13/8" A103 FloorPlan 8'-0" 1'-0" 6'-0" 1'-0" 16'-0" 24'-0" 8'-0" 8'-0" 6'-9" 10'-6" 6'-9" 24'-0" 5'-0" 1'-0" 12'-4" 3'-8" 1'-0" 24'-0" 16'-0" 6'-0" 5'-9" 10'-6" 5'-9" 1'-0" 8'-0" 4'-2" 3'-10" 22'-0" 37'-0" 37'-0" 1'-0" 5'-0" 5'-8" 10'-4" 5'-0" 6'-61/4" 2'-111/2" 6'-61/4" 16'-0" 15'-8" 4'-61/4" 2'-9" 4'-83/4"2'-0" 12'-0" 40'-0" 19'-0 3/4" 2'-11" 11'-2 3/4" 9'-4 5/8" 2'-11/8" 7'-0"3'-31/4"1'-75/8" 1'-7" 3'-5" 3'-5" 1'-7" 2'-11/8" 3'-31/4"1'-75/8" 42'-7 1/8" 4'-7" 7'-81/8" 7'-87/8" 7'-87/8" 7'-81/8" 4'-7" 5'-1 1/4" 2'-11 1/4"4'-93/4" 4'-93/4" 9'-4" 8'-15/8" 7'-81/8" 7'-91/2" 7'-81/8" 8'-15/8" 9'-4" 4'-0" 4'-5" 5'-119'-71/2" 1/2" 3'-7" 3'-7" 5'-11 1/2" 7'-2"19'-1" 9'-71/2" 4'-11 1/2" 4'-11 1/2" 4'-63/4" 2'-11" 4'-23/4" 9'-11" 11'-81/2" 2'-81/2" 4'-3" 4'-3" 2'-81/2" 13'-11" 9'-71/2" 8'-0 1/2" 8'-5" 4'-5" 14'-4" 4'-51/8" 4'-6" 2'-113/4" 6'-01/2" 2'-113/4" 12'-23/4" 11'-91/4" 6'-8 1/2" 7'-2" 8'-111/8" 12'-0" 24'-0" 13'-10 1/2" 6'-7 1/2" 3'-0" 20'-0" 6'-45/8" 5'-3" 6'-43/8" 18'-0" 5 1/2" 2'-0" 12'-5 1/2" 47'-61/2" 20'-2" 1'-71/2" 14'-01/2" 11'-81/2" 1'-0" 1'-0" 61'-4 7/8" 7'-10 1/2" 7'-11 5/8" 7'-7" 9'-0" 18'-6" 10'-6" 9'-51/2" 8'-61/2" 9'-0" 7'-10 1/2" 7'-11 5/8" 7'-7" 31/2" 31/2" 9'-51/2" 8'-61/2" 18'-0" 9'-11" 8'-1" 4'-8 1/2" TopofGarageSlab:elev.12'-9" 17risers 5/16" w/11"deeptreads 24'-0" 32'-0" 7'-101/4" 8'-13/4" 9'-4" 6'-8" 1'-3"1'-8" 3'-9" 6'-21/2" 12'-51/2" 7'-21/2" 16'-91/2" 5'-65/8" 1'-53/8" 9'-0" 1'-3" 17'-5" 24'-0" 4'-11/2" 4'-111/2" 6'-51/2" 10'-1" 15'-61/2" 12'-51/2" 4'-51/2" 8'-0" 24'-51/2" 15'-61/2" 2'-73/4" 9'-1" 19'-8 1/2" 5'-3 1/2" 8'-0" 5'-3 1/2" 1'-8" 1'-11 1/2" 18'-7" 8'-5 1/2" 2'-11" 12'-5" 6'-6" 5'-1" 9'-0" 6'-6" 7'-0" 6'-0 1/2" 5'-5 1/2" 11'-0" 14'-4" 13'-51/2" 12'-2" 9'-11" 1'-51/2" 2'-1" 4'-4" 10'-0 1/2" 3'-1 3/4" 4'-3 1/2" 6'-11 1/4" 3'-63/8" 3'-1 1/4" 7'-0" 12"sq. cedar column 12"sq. cedar column 12"sq. cedar 12"sq. cedar column 12"sq. cedar column 12"sq. cedar column 12"sq. column 12"sq. cedar column 12"sq. column 12"sq. cedar column 12"sq. cedar 12"sq. cedar column 12"sq. column 12"sq. column 12"sq. column 12"sq. column 12"sq. column 12"sq. column 3"DeepPilaster,TrimTo MatchColumns,Shaft toAlignw/BeamAbove 3"DeepPilaster,TrimTo MatchColumns,Shaft toAlignw/BeamAbove 3"DeepPilaster,TrimTo MatchColumns,Shaft toAlignw/BeamAbove 3"DeepPilaster,TrimTo MatchColumns,Shaft toAlignw/BeamAbove 3"DeepPilaster,TrimTo MatchColumns,Shaft toAlignw/BeamAbove 3"DeepPilaster,TrimTo MatchColumns,Shaft toAlignw/BeamAbove 66" freestanding tub 4brickrisers @5/8" w/13"deep bluestonetreads 4brickrisers@5/8" w/13"deep bluestonetreads brickrisers@65/8" w/13"deep bluestonetreads brickrisers@7" w/13"deep bluestonetreads Service Yard 90 gal. trash can hvacunit hvacunit 90 gal. trash can concrete 5'-10" 10'-1 1/8" 10'-1 1/8" 6090frenchdoors 3080 A B E G H J J A M M N 3080 3080c.o. 2480 3080c.o. 3080pkt 2880 2880 3080c.o. 4080c.o. 3080 3080 3080 2480 3080dbl pkt 3080dbl Q Q 3080 1 2 3 4 4 clarke design group 1000 Johnnie Dodds Blvd. Ste. 103-194 Mt. Pleasant, SC 29464 843-329-0667 Russell Residence25 Wintercress RoadBluffton, SC DRAWINGS AND SPECIFICATIONS ARE THE PROPERTY OF CLARKE DESIGN GROUP, LLC AND SHALL NOT BE COPIED, RE-USED, OR MODIFIED WITHOUT WRITTEN CONSENT PermitSet: 8.17.22 page of348 4
FirstFloorPlan

SecondFloorPlan

Gameroom Bedroom#2 Bedroom#3 Bedroom#4 6'-8"kneewall 9'-11/2"clghgt 6'-8"kneewall 9'-11/2"clghgt 6'-8" knee wall 9'-11/2" clghgt 6'-8" knee wall 9'-11/2" clghgt 6'-8" knee wall 9'-11/2" clghgt 6'-8" knee wall 9'-11/2" clghgt opentobelow 9'-1 1/2" 7'-4"kneewall 9'-1 1/2" clg hgt 7'-4"knee 9'-1 1/2" clg hgt Storage Loft Flex Room
scale:3/16"=1' clarke design group 1000 Johnnie Dodds Blvd. Ste. 103-194 Mt. Pleasant, SC 29464 843-329-0667 Russell Residence25 Wintercress RoadBluffton, SC DRAWINGS AND SPECIFICATIONS ARE THE PROPERTY OF CLARKE DESIGN GROUP, LLC AND SHALL NOT BE COPIED, RE-USED, OR MODIFIED WITHOUT WRITTEN CONSENT PermitSet: 8.17.22 page of34 5'tubshower 7'-4"knee 9'-1 1/2" clg hgt 8"Deep Porch A104 FloorPlan 40'-0" 7'-07/8" 2'-9" 8'-95/8" 2'-9" 8'-101/4" 2'-9" 7'-01/4" 36'-0" 6'-1" 29'-11" 40'-0" 4'-31/4" 2'-9" 2'-9" 7'-53/4" 2'-9" 2'-9" 7'-53/4" 2'-9" 2'-9" 4'-31/4" 36'-0" 19risers 9/16" w/11"deeptreads 13'-7" 12'-61/2" 13'-101/2" 5'-0" 8'-31/2" 3'-41/2" 6'-41/2" 3'-41/2" 6'-5" 7'-2" 6'-101/2" 16'-2" 16'-111/2" 14'-21/2" 8'-10" 5'-31/2" 11'-8" 11'-23/8" 11'-101/8" 14'-3" 5'-3 1/2" 5'-5 1/2" 8'-4" 2'-8" 5'-9 1/2" 4'-0" 4'-0" 14'-3" 5'-3 1/2" 16'-5 1/2" 4'-5 1/2" 2'-3 1/2" 9'-8 1/2" 37'-0" 8'-0" 24'-0" 5'-0" 2'-2" 3'-4" 2'-6" 9'-1" 2'-11" 2'-11" 9'-1" 37'-0" 8'-0" 24'-0" 5'-0" 2'-2" 3'-4" 2'-6" 18'-0" 1'-0"2'-2" 11'-8" 2'-2"1'-0" 15'-1" 7'-61/2" 7'-61/2" 18'-0" 1'-0" 16'-0" 1'-0" 8'-0" 8'-0" 5'-8" 10'-4" 3'-61/2" 6'-0" 2'-71/2" 5'-10" 5'-0" 5'-5 1/2" 18'-6 1/2" 17risers@5/16" w/11"deeptreads texturedwaterprooffinish R V V T T T T T 2480 3080 2480pkt 2480 2480 3080 3080 2480 3080 3080dbl 5080frenchdoors X X Y Y Y 2480pkt 2480pkt 9
RoofPlan scale:3/16"=1' 1'-3" 1'-3" 10" 1'-6" 6" 1'-3" 1'-21/2" 1'-7 1/2" 1'-9 1/2" 1'-21/2" 1'-7 1/2" 1'-3" 1'-3" 10" 1'-6" 12:12 12:12 6:12 6:12 6:12 9:12 9:12 9:12 9:12 9:12 9:12 6:12 6:12 6:12 12:12 12:12 12:12 12:12 3:12 3:12 3:12 3:12 3:12 3:12 3:12 3:12 3:12 3:12 3:12 3:12 3:12 chimney cap chimney cap 3:12 4:12 3:12 3:12 3:12 3:12 3:12 3:12 3:12 3:12 6:12 6:12 6:12 12:12 12:12 12:12 12:12 12:12 12:12 12:12 6:12 6:12 12:12 12:12 3:12 3:12 3:12 1'-3" 1'-3" 1'-3" 1'-3" 1'-21/2"1'-7 1/2" 1'-9 1/2" 1'-6" 8" 1'-41/2" 10" 1'-41/2" 1'-7" 1'-7" 1'-41/2" 10" 1'-7" 1'-41/2" 10" clarke design group 1000 Johnnie Dodds Blvd. Ste. 103-194 Mt. Pleasant, SC 29464 843-329-0667 Russell Residence25 Wintercress RoadBluffton, SC DRAWINGS AND SPECIFICATIONS ARE THE PROPERTY OF CLARKE DESIGN GROUP, LLC AND SHALL NOT BE COPIED, RE-USED, OR MODIFIED WITHOUT WRITTEN CONSENT PermitSet: 8.17.22 page of34 A105 RoofPlan 10

note:allwindowstomeet dpandcoastalimpact rating

note:Contractorto ProvideShopDrawingsto ClarkeDesignGroupfor Review.

SquareFootage

FirstFloorHeated: 3,072sqft

FrontPorch: 353sqft

RearPorch: 780sqft

Patio/Breezeway: 619sqft

GarageHeated: 80sqft

Garage: 692sqft

TotalFirstFloor: 5,596sqft

SecondFloorHeated: 1,314sqft

FlexSpace(heated): 432sqft

FlexSpacePorch: 66sqft

TotalSecondFloor: 1,812sqft

TotalHeated: 4,898sqft

TotalPorches: 1,818sqft

TotalGarage: 692sqft

TotalSQFT: 7,408sqft

NOTES

1.VerifyAllFoundationDetailsper LocalCodesand/orProfessional Engineer.

2.VerifyAllFramingDetailsper LocalCodesand/orProfessional Engineer.

3.VerifyAllHolddown/Shearwall DetailsperLocalCodesand/or ProfessionalEngineer.

4.ContractorResponsibleforAll WaterproofingandWaterManagement Details.

Note:VerifyallGlazingrequirementsonwindowsandDoorsadhereto"WindBlownDebrisProtection"IRCR301.2.1.2by using"ImpactRated"glazingorprovidingappliedpanelsoveropeningspercodeapprovedinstallationdetails.

Note:VerifyallGlazingrequirementsonwindowsandDoorsadhereto"WindBlownDebrisProtection"IRCR301.2.1.2by using"ImpactRated"glazingorprovidingappliedpanelsoveropeningspercodeapprovedinstallationdetails.

3'0"x6'6" 8'-0" Casement 8'-0" 8'-0"
9'-0"
8'-0" clarke design group 1000 Johnnie Dodds Blvd. Ste. 103-194 Mt. Pleasant, SC 29464 843-329-0667 Russell Residence25 Wintercress RoadBluffton, SC DRAWINGS AND SPECIFICATIONS ARE THE PROPERTY OF CLARKE DESIGN GROUP, LLC AND SHALL NOT BE COPIED, RE-USED, OR MODIFIED WITHOUT WRITTEN CONSENT PermitSet: 8.17.22 page of34
Label FrameSizeManufacturer Finished HeadHeight Type Notes
A C MarvinUltimate 10'-3"clght. B 2'8"x5'0" 6'0"x6'0" 2'8"x5'6" 2'0"x5'0" 10'-3"clght. windowtositoncountertop. D 10'-3"clght. 2'8"x5'6" E 8'-0"
F G 4'0"x8'0" 9'-0" H 2'8"x6'6" 8'-0" J 3'0"x9'0" 9'-0" 2'0"x9'0" 9'-0" K 4'3"x9'0" 9'-0" L 2'8"x6'6" 8'-0" M 2'8"x6'6" 8'-0" N 2'8"x5'0" 8'-0" P 1 ByBuilder asreq'd.per Manufacturer Mahogany 2 ByBuilder asreq'd.per Manufacturer Slider 6'-0"x9'-0" 3 ByBuilder asreq'd.per Manufacturer A106 Window/Door Schedule 2'8"x5'6" 8'-0" Q Casement Casement Casement Casement Casement Casement Fixed Fixed Fixed Fixed Fixed Fixed Fixed Fixed 10'-3"clght. 10'-3"clght. 10'-3"clght. 10'-3"clght. 10'-3"clght. 10'-3"clght. 9'-11/2"clght. 10'-3"clght. windowtositoncountertop. 10'-3"clght. tempered. 10'-3"clght. tempered. 10'-3"clght. tempered. 10'-3"clght. bumpoutwindowtositon countertop. MarvinUltimate MarvinUltimate MarvinUltimate MarvinUltimate MarvinUltimate MarvinUltimate MarvinUltimate MarvinUltimate MarvinUltimate MarvinUltimate MarvinUltimate MarvinUltimate MarvinUltimate MarvinUltimate 2'6"x5'6" R Casement 9'-11/2"clght. doubledormer. MarvinUltimate 2'8"x5'6" S Casement 9'-11/2"clght. MarvinUltimate 2'6"x5'0" T Casement 9'-11/2"clght. tripledormer. MarvinUltimate 2'8"x5'6" U Fixed 21'-11/4"clght. stairwindow. MarvinUltimate 2'6"x5'6" V Fixed MarvinUltimate 8'-0" 8'-0" 8'-0" 19'-113/4" 2'8"x3'6" W Fixed MarvinUltimate 18'-41/4" 2'8"x5'6" X Casement 9'-11/2"clght. dormer. MarvinUltimate 8'-0" 2'8"x5'6" Y Casement MarvinUltimate 8'-0" 9'-11/2"clght.
21'-11/4"clght.
19'-113/4" 19'-53/4"clght.
3'-6"x9'-0"
1'-6x9'-0"full
12'-0"x9'-0" FrenchDoors Label FrameSize Manufacturer Finished HeadHeight Type Notes
tripledormer.
stairwindow.tripledormer.
stairwindow.
solidwooddoorw/
glasssidelites
11
2'-8"x8'-0" 4 ByBuilder asreq'd.per
Manufacturer
Glasstomatch windowsadjacent withpanelunder. 3/4glass
clarke design group 1000 Johnnie Dodds Blvd. Ste. 103-194 Mt. Pleasant, SC 29464 843-329-0667 Russell Residence25 Wintercress RoadBluffton, SC DRAWINGS AND SPECIFICATIONS ARE THE PROPERTY OF CLARKE DESIGN GROUP, LLC AND SHALL NOT BE COPIED, RE-USED, OR MODIFIED WITHOUT WRITTEN CONSENT PermitSet: 8.17.22 page of34 clgheight 10'-3" finishedfloor 3'-0" 8'-0"6'-6" A clgheight 10'-3" finishedfloor 2'-8" 5'-0" 8'-0" B clgheight 10'-3" finishedfloor 2'-0" 5'-0" 8'-0" C counterheight clgheight finishedfloor 6'-0" 6'-0" 9'-0" 10'-3" D clgheight 10'-3" finishedfloor 2'-8" 5'-6" 8'-0" E tempered clgheight finishedfloor F F 2'-8" 5'-6" 8'-0" 10'-3" G G G finishedfloor clgheight 4'-0" 9'-0"8'-0" 10'-3" clgheight 10'-3" finishedfloor 2'-8" 8'-0"6'-6" H tempered clgheight finishedfloor J J 2'-8" 9'-0" 10'-3" K L K finishedfloor clgheight 2'-0" 9'-0" 10'-3" 4'-3" clgheight finishedfloor M M 2'-8" 8'-0"6'-6" 10'-3" tempered clgheight finishedfloor N N 2'-8" 8'-0"6'-6" 10'-3" clgheight finishedfloor P P 2'-8" 5'-0" 8'-0" 10'-3" counterheight A107 Window/Door Schedule 12
clarke design group 1000 Johnnie Dodds Blvd. Ste. 103-194 Mt. Pleasant, SC 29464 843-329-0667 Russell Residence25 Wintercress RoadBluffton, SC DRAWINGS AND SPECIFICATIONS ARE THE PROPERTY OF CLARKE DESIGN GROUP, LLC AND SHALL NOT BE COPIED, RE-USED, OR MODIFIED WITHOUT WRITTEN CONSENT PermitSet: 8.17.22 page of34 clgheight 9'-1 1/2" topofgarageslab 2'-8" 5'-6" 8'-0" Q clgheight finishedfloor R R 2'-6" 5'-6" 8'-0" 9'-1 1/2" wallheight 6'-8" clgheight 9'-1 1/2" finishedfloor 2'-8" 5'-6" 8'-0" S clgheight finishedfloor wallheight 2'-6" 5'-0" 8'-0" 9'-1 1/2" 6'-8" T T T clgheight 21'-1 1/4" 2'-8" 5'-6" 19'-11 3/4" U finishedfloor clgheight V V 2'-6" 5'-6" 8'-0" 9'-1 1/2" wallheight 6'-8" finishedfloor finishedfloor finishedfloor clgheight 19'-5 3/4" finishedfloor 2'-8" 3'-6" 18'-4 1/4" W clgheight 9'-1 1/2" finishedfloor 2'-8" 5'-6" 8'-0" X wallheight clgheight finishedfloor wallheight 2'-8" 5'-6" 8'-0" 9'-1 1/2" 6'-8" Y Y Y A108 Window/Door Schedule 13
clarke design group 1000 Johnnie Dodds Blvd. Ste. 103-194 Mt. Pleasant, SC 29464 843-329-0667 Russell Residence25 Wintercress RoadBluffton, SC DRAWINGS AND SPECIFICATIONS ARE THE PROPERTY OF CLARKE DESIGN GROUP, LLC AND SHALL NOT BE COPIED, RE-USED, OR MODIFIED WITHOUT WRITTEN CONSENT PermitSet: 8.17.22 page of34 1 2 3 3'-6" 1'-6" 1'-6" 9'-0" 12'-0" 9'-0" 6'-0" 9'-0" A109 Window/Door Schedule 14 4 H H 2'-8" 8'-0"

TabbyChimneywithcustommetalcap

FlushNickelGapSiding@3"Exposure

clarke design group 1000 Johnnie Dodds Blvd. Ste. 103-194 Mt. Pleasant, SC 29464 843-329-0667 Russell Residence25 Wintercress RoadBluffton, SC DRAWINGS AND SPECIFICATIONS ARE THE PROPERTY OF CLARKE DESIGN GROUP, LLC AND SHALL NOT BE COPIED, RE-USED, OR MODIFIED WITHOUT WRITTEN CONSENT PermitSet: 8.17.22 page of34 Elev.12'-6"ProposedFinalGrade Elev.15'-0"TopofSlab 10'-3"Wall 20"OpenWebTruss TopofSubfloor 6'-8"KneeWall FrontElevation scale:3/16"=1' RightSideElevation scale:3/16"=1' 35'-1 7/8" FlushNickelGapSiding@9"Exposure SeeHouseBandDetail PaintedBrickFoundation SeeCorniceDetail MetalRoof@12:12pitch FlushNickelGapSiding@9"Exposure SeeGarageBandDetail PaintedBrickFoundation SeePorchBandDetail HorizontalMetalCableRail SeeCorniceDetail MetalRoof@6:12pitch MetalRoof@12:12pitch SeeCorniceDetail MetalRoof@9:12pitch SeeCorniceDetail MetalRoof@6:12pitch FlushNickelGapSiding@9"Exposure SeeGarageBandDetail
HorizontalMetalCableRail
PaintedBrick SeeCorniceDetail MetalRoof@6:12pitch SeeCorniceDetail MetalRoof@9:12pitch
CedarColumn CedarBeam
PaintedBrick
PaintedBrickFoundation SeePorchBandDetail
SeeCorniceDetail MetalRoof@6:12pitch MetalRoof@12:12pitch
MetalRoof@6:12pitch MetalRoof@9:12pitch SeeCorniceDetail PaintedBrick
MetalRoof@4:12pitch
SeeCorniceDetail MetalRoof@9:12pitch SeeCorniceDetail
MetalRoof@6:12pitch MetalRoof@3:12pitch CedarRafterTails
CedarColumn
12"squarecolumn
A201 Elevations
FixedLouverShutters
MetalRoof@3:12pitch SeeCorniceDetail SeePorchBandDetail PaintedBrickFoundation DecorativeRecessedBrick
FlushNickelGapSiding@3"Exposure
15

TabbyChimneywithcustommetalcap

MetalRoof@3:12pitch

SeeCorniceDetail

ExposedRafterTails 12"squarecolumn

MetalRoof@6:12pitch

SeeCorniceDetail

MetalRoof@9:12pitch

SeeCorniceDetail

PaintedBrick

TabbyChimneywithcustommetalcap

MetalRoof@9:12pitch

MetalRoof@6:12pitch

PaintedBrick

SeeCorniceDetail

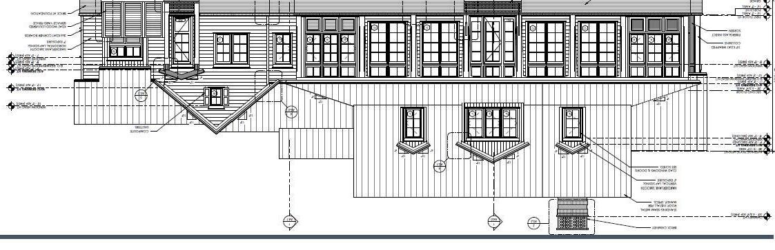
RearElevation scale:3/16"=1'

MetalRoof@9:12pitch

MetalRoof@6:12pitch

PaintedBrick

SeeCorniceDetail

TabbyChimneywithcustommetalcap

MetalRoof@6:12pitch

SeeCorniceDetail

MetalRoof@9:12pitch

SeeCorniceDetail

MetalRoof@4:12pitch

MetalRoof@12:12pitch

SeePorchBandDetail

PaintedBrickFoundation

RecessedDecorativeBrick

LeftSideElevation scale:3/16"=1'

MetalRoof@12:12pitch

SeeCorniceDetail

FlushNickelGapSiding@9"Exposure

SeeHouseBandDetail

PaintedBrickFoundation

SeeCorniceDetail

FlushNickelGapSiding@9"Exposure

SeeHouseBandDetail

PaintedBrickFoundation

A202 Elevations clarke design group 1000 Johnnie Dodds Blvd. Ste. 103-194 Mt. Pleasant, SC 29464 843-329-0667 Russell Residence25 Wintercress RoadBluffton, SC DRAWINGS AND SPECIFICATIONS ARE THE PROPERTY OF CLARKE DESIGN GROUP, LLC AND SHALL NOT BE COPIED, RE-USED, OR MODIFIED WITHOUT WRITTEN CONSENT PermitSet: 8.17.22 page of3416
clarke design group 1000 Johnnie Dodds Blvd. Ste. 103-194 Mt. Pleasant, SC 29464 843-329-0667 Russell Residence25 Wintercress RoadBluffton, SC DRAWINGS AND SPECIFICATIONS ARE THE PROPERTY OF CLARKE DESIGN GROUP, LLC AND SHALL NOT BE COPIED, RE-USED, OR MODIFIED WITHOUT WRITTEN CONSENT PermitSet: 8.17.22 page of34 A301 3D Perspectives 17
A302 3D Perspectives clarke design group 1000 Johnnie Dodds Blvd. Ste. 103-194 Mt. Pleasant, SC 29464 843-329-0667 Russell Residence25 Wintercress RoadBluffton, SC DRAWINGS AND SPECIFICATIONS ARE THE PROPERTY OF CLARKE DESIGN GROUP, LLC AND SHALL NOT BE COPIED, RE-USED, OR MODIFIED WITHOUT WRITTEN CONSENT PermitSet: 8.17.22 page of3418

*NOTE:REFERTOSTRUCTURAL DRAWINGSFORFINALFOUNDATION DETAILSANDDIMENSIONS.

*NOTE:REFERTOSTRUCTURAL DRAWINGSFORALLUPLIFTAND SHEARCONNECTIONS.

*NOTE:REFERTOSTRUCTURAL DRAWINGSFORFINALFRAMING DETAILSANDDIMENSIONS.

*NOTE:CONTRACTORRESPONSIBLE FORALLPROPERFLASHINGDETAILS ANDWATERPROOFING.

*NOTE:ALLEXTERIORTRIMTOBE PRE-PRIMEDONALLSIXSIDES. FIELDPRIMEALLCUTSPRIORTO INSTALLATION.

**AllExteriorTrimtobe

Pre-PrimedEliteTreated Pineunlessnoted otherwise**

20"OpenWebTruss

20"OpenWebTruss

SectionatDormers

Elev.12'-6"-ProposedFinalGrade Elev.15'-0"-TopofSlab 10'-3"Wall TopofSubfloor 6'-8"KneeWall Elev.12'-6"-ProposedFinalGrade Elev.15'-0"-TopofSlab 10'-3"Wall TopofSubfloor 9'-11/2"Wall
scale:1/2"=1'
a451 see 3 a451 see a451 see 2 a451 see clarke design group 1000 Johnnie Dodds Blvd. Ste. 103-194 Mt. Pleasant, SC 29464 843-329-0667 Russell Residence25 Wintercress RoadBluffton, SC DRAWINGS AND SPECIFICATIONS ARE THE PROPERTY OF CLARKE DESIGN GROUP, LLC AND SHALL NOT BE COPIED, RE-USED, OR MODIFIED WITHOUT WRITTEN CONSENT PermitSet: 8.17.22 page of34 A401 Sections
TwoStorySection scale:1/2"=1'
19

*NOTE:REFERTOSTRUCTURAL DRAWINGSFORFINALFOUNDATION DETAILSANDDIMENSIONS.

*NOTE:REFERTOSTRUCTURAL DRAWINGSFORALLUPLIFTAND SHEARCONNECTIONS.

*NOTE:REFERTOSTRUCTURAL DRAWINGSFORFINALFRAMING DETAILSANDDIMENSIONS.

*NOTE:CONTRACTORRESPONSIBLE FORALLPROPERFLASHINGDETAILS ANDWATERPROOFING.

*NOTE:ALLEXTERIORTRIMTOBE PRE-PRIMEDONALLSIXSIDES. FIELDPRIMEALLCUTSPRIORTO INSTALLATION.

**AllExteriorTrimtobe Pre-PrimedEliteTreated Pineunlessnoted otherwise**

OneStorySectionat12:12 scale:1/2"=1' OneStorySectionat4:12 scale:1/2"=1' Elev.12'-6"ProposedFinalGrade Elev.15'-0"TopofSlab 10'-3"Wall Elev.12'-6"ProposedFinalGrade Elev.15'-0"TopofSlab 10'-3"Wall 4 a451 see 2 a452 see a452 see 3 a452 see clarke design group 1000 Johnnie Dodds Blvd. Ste. 103-194 Mt. Pleasant, SC 29464 843-329-0667 Russell Residence25 Wintercress RoadBluffton, SC DRAWINGS AND SPECIFICATIONS ARE THE PROPERTY OF CLARKE DESIGN GROUP, LLC AND SHALL NOT BE COPIED, RE-USED, OR MODIFIED WITHOUT WRITTEN CONSENT PermitSet: 8.17.22 page of34 A402 Sections
Elev.12'-6"ProposedFinalGrade Elev.15'-0"TopofSlab 10'-3"Wall 20"OpenWebTruss TopofSubfloor SectionatKitchenBumpout scale:1/2"=1' 4 a452 see a453 see 20

*NOTE:REFERTOSTRUCTURAL DRAWINGSFORFINALFOUNDATION DETAILSANDDIMENSIONS.

*NOTE:REFERTOSTRUCTURAL DRAWINGSFORALLUPLIFTAND SHEARCONNECTIONS.

*NOTE:REFERTOSTRUCTURAL DRAWINGSFORFINALFRAMING DETAILSANDDIMENSIONS.

*NOTE:CONTRACTORRESPONSIBLE FORALLPROPERFLASHINGDETAILS ANDWATERPROOFING.

*NOTE:ALLEXTERIORTRIMTOBE PRE-PRIMEDONALLSIXSIDES. FIELDPRIMEALLCUTSPRIORTO INSTALLATION.

**AllExteriorTrimtobe Pre-PrimedEliteTreated Pineunlessnoted otherwise**

porchtobeno greaterthan30" belowporchfloor.

Note:gradeat porchtobeno greaterthan30" belowporchfloor.

10'-0"
10'-0"
Note:gradeat
scale:1/2"=1'
SectionatFrontPorch
scale:1/2"=1' 2 a453 see a454 see a453 see 2 a454 see clarke design group 1000 Johnnie Dodds Blvd. Ste. 103-194 Mt. Pleasant, SC 29464 843-329-0667 Russell Residence25 Wintercress RoadBluffton, SC DRAWINGS AND SPECIFICATIONS ARE THE PROPERTY OF CLARKE DESIGN GROUP, LLC AND SHALL NOT BE COPIED, RE-USED, OR MODIFIED WITHOUT WRITTEN CONSENT PermitSet: 8.17.22 page of34 A403 Sections
SectionatRearPorch
Elev.12'-6"-
10'-0"
scale:1/2"=1' a453 see 4 a453 see
21
ProposedFinalGrade Elev.12'-6"ProposedFinalGrade
SectionatBreezeway
Elev.12'-6"ProposedFinalGrade

*NOTE:REFERTOSTRUCTURAL DRAWINGSFORFINALFOUNDATION DETAILSANDDIMENSIONS.

*NOTE:REFERTOSTRUCTURAL DRAWINGSFORALLUPLIFTAND SHEARCONNECTIONS.

*NOTE:REFERTOSTRUCTURAL DRAWINGSFORFINALFRAMING DETAILSANDDIMENSIONS.

*NOTE:CONTRACTORRESPONSIBLE FORALLPROPERFLASHINGDETAILS ANDWATERPROOFING.

*NOTE:ALLEXTERIORTRIMTOBE PRE-PRIMEDONALLSIXSIDES. FIELDPRIMEALLCUTSPRIORTO INSTALLATION.

**AllExteriorTrimtobe Pre-PrimedEliteTreated Pineunlessnoted otherwise**

Note:gradeat porchtobeno greaterthan30" belowporchfloor.

SectionatInfillPorch

SectionatGarageDormers

9'-11/2"Wall
TwoStorySectionatGarage scale:1/2"=1' Elev.12'-9"-TopofSlab 9'-1 1/2" 1'-0" 8'-1 1/2" TopofSubfloor 7'-4"KneeWall 7'-4"
Elev.12'-6"-FinalGrade
scale:1/2"=1' 9'-1 1/2" 1'-0" 8'-1 1/2" 9'-1 1/2" 14"tji 5/8"TypeX Sheetrock 5/8"TypeX Sheetrock 9'-11/2"Wall
TopofSubfloor 14"tji 9'-11/2"Wall a455 see 3 a455 see 10'-0"
Elev.12'-6"-FinalGrade Elev.12'-9"-TopofSlab
scale:1/2"=1' Elev.12'-6"ProposedFinalGrade Elev.15'-0"TopofSlab 10'-3"Wall 3 a454 see 4 a454 see clarke design group 1000 Johnnie Dodds Blvd. Ste. 103-194 Mt. Pleasant, SC 29464 843-329-0667 Russell Residence25 Wintercress RoadBluffton, SC DRAWINGS AND SPECIFICATIONS ARE THE PROPERTY OF CLARKE DESIGN GROUP, LLC AND SHALL NOT BE COPIED, RE-USED, OR MODIFIED WITHOUT WRITTEN CONSENT PermitSet: 8.17.22 page of34 A404 Sections
2 a455 see a455 see 22

*NOTE:REFERTOSTRUCTURAL DRAWINGSFORFINALFOUNDATION DETAILSANDDIMENSIONS.

*NOTE:REFERTOSTRUCTURAL DRAWINGSFORALLUPLIFTAND SHEARCONNECTIONS.

*NOTE:REFERTOSTRUCTURAL DRAWINGSFORFINALFRAMING DETAILSANDDIMENSIONS.

*NOTE:CONTRACTORRESPONSIBLE FORALLPROPERFLASHINGDETAILS ANDWATERPROOFING.

*NOTE:ALLEXTERIORTRIMTOBE PRE-PRIMEDONALLSIXSIDES. FIELDPRIMEALLCUTSPRIORTO INSTALLATION.

**AllExteriorTrimtobe Pre-PrimedEliteTreated Pineunlessnoted otherwise**

2xplateforrafterbearing

OneStorySectionatGarage

SectionatGaragePorch

1'-0" 8'-1 1/2"
scale:1/2"=1' 2x8cj
9'-11/2"Wall Elev.12'-6"-FinalGrade Elev.12'-9"-TopofSlab 4 a455 see clarke design group 1000 Johnnie Dodds Blvd. Ste. 103-194 Mt. Pleasant, SC 29464 843-329-0667 Russell Residence25 Wintercress RoadBluffton, SC DRAWINGS AND SPECIFICATIONS ARE THE PROPERTY OF CLARKE DESIGN GROUP, LLC AND SHALL NOT BE COPIED, RE-USED, OR MODIFIED WITHOUT WRITTEN CONSENT PermitSet: 8.17.22 page of34 A405 Sections
9'-11/2"Wall Elev.12'-6"-FinalGrade
scale:1/2"=1' Elev.12'-9"-TopofSlab 9'-1 1/2" 1'-0" 8'-1 1/2" TopofSubfloor 7'-83/4"KneeWall 10"floorsystem 5/8"TypeX Sheetrock 9'-1 1/2" 1'-0" 8'-1 1/2" 5/8"TypeX Sheetrock a455 see textured waterproof finishover1/2" advantech 9'-6 1/4" a456 see 2 a455 see 23

1 a451 CorniceDetailatTwoStory scale:11/2"=1'

note:allexteriortrim

tobeBoral,Hardie,or EliteTreatedwith properpre-primingand fieldprimeatallcuts

Note:Verifyallframingmembersand connectiondetailswithstructuralplans

MetalRoofoverPealnSealover 1/2"Advantechover2xrafter@9:12

Pitch

2xBlocking

1'-71/2"Overhangfromfaceof AdvantechSheathingtoTipof Trim

2 a451 TypicalHouseBandDetail scale:11/2"=1'

Code Compliant Insulation

Note:Verifyallframingmembersand connectiondetailswithstructuralplans

1"airgapbetweenplywood andbrick

CellFoam Insulation

EntireRoof Insulation

Code Compliant

Note:BrickVeneerw/Flashing,Weep Holes,andTieBacks.Follow Manufacturer'sInstallationManual& EngineeringSheetsforProper Installationdetails.

3 a451 CorniceDetailatDormers scale:11/2"=1'

note:allexteriortrim

tobeBoral,Hardie,or EliteTreatedwith properpre-primingand fieldprimeatallcuts

CellFoam

Code Compliant

5/4x8dropped1"

1/4"reveal

1x6V-RusticSoffit

5/4xrippedto21/4"

brickveneer

5/4x4w/CopperFlashing Over 1"airgapbetweenAdvantechandbrick

2x6Wallw/1/2"Advantech sheathing.CompleteBenjamin Obdykewallsystemtobeused undersidingandatallopenings.

Note:Verifyallframingmembersand connectiondetailswithstructuralplans

MetalRoofoverPealnSealover 1/2"Advantechover2xrafter@6:12 Pitch

Doubleplatew/ bottommembertobe treated

Finishedfloorover moisturebarrierover slab

4"ConcreteSlab

95°

note:allexteriortrim tobeBoral,Hardie,or EliteTreatedwith properpre-primingand fieldprimeatallcuts

Note:BrickVeneerw/Flashing,Weep Holes,andTieBacks.Follow Manufacturer'sInstallationManual& EngineeringSheetsforProper Installationdetails.

4 a451 CorniceDetailatOneStory12:12Pitch scale:11/2"=1'

note:allexteriortrim

2x6Wallw/1/2"Advantech sheathing.CompleteBenjamin Obdykewallsystemtobeused undersidingandatallopenings.

brickrowlock,alignbottomw/ bottomofhouseband

Contbeadacousticalsealant below/ontopofsillsealer

brickveneer

8"CMUBlockfoundation, seeengineering

Note:Verifyallframingmembersand connectiondetailswithstructuralplans

MetalRoofoverPealnSealover 1/2"Advantechover2xrafter@12:12 Pitch

2xBlocking

1'-91/2"Overhangfromfaceof AdvantechSheathingtoTipof Trim

2xBlocking 5/4x4w/CopperFlashing Over 5/4x8dropped1"

1/4"reveal

1x6V-RusticSoffit

5/4xrippedto7"

2x6Wallw/1/2"Advantech sheathing.CompleteBenjamin Obdykewallsystemtobeused undersidingandatallopenings.

tobeBoral,Hardie,or EliteTreatedwith properpre-primingand fieldprimeatallcuts

1'-6"Overhangfromfaceof AdvantechSheathingtoTipof Trim

5/4x4w/CopperFlashing Over

5/4x8dropped1"

1/4"reveal

1x6V-RusticSoffit

Code Compliant

CellFoam Insulation EntireRoof Insulation

1x4 2x8

BoralorHardieFlushNickelGap Siding@9"Exposureover Hydrogap

2x6Wallw/1/2"Advantech sheathing.CompleteBenjamin Obdykewallsystemtobeused undersidingandatallopenings.

clarke design group 1000 Johnnie Dodds Blvd. Ste. 103-194 Mt. Pleasant, SC 29464 843-329-0667 Russell Residence25 Wintercress RoadBluffton, SC DRAWINGS AND SPECIFICATIONS ARE THE PROPERTY OF CLARKE DESIGN GROUP, LLC AND SHALL NOT BE COPIED, RE-USED, OR MODIFIED WITHOUT WRITTEN CONSENT PermitSet: 8.17.22 page of34
A451 Details
Insulation EntireRoof Insulation
24

Note:Verifyallframingmembersand connectiondetailswithstructuralplans

1 a452

BandDetailatNickelGapSiding scale:11/2"=1'

Code Compliant Insulation

BoralorHardieFlushNickelGap Siding@9"Exposureover

Hydrogap

2 a452 CorniceDetailat4:12Pitch scale:11/2"=1'

note:allexteriortrim tobeBoral,Hardie,or EliteTreatedwith properpre-primingand fieldprimeatallcuts

Note:Verifyallframingmembersand connectiondetailswithstructuralplans

MetalRoofoverPealnSealover 1/2"Advantechover2xrafter @4:12Pitch

Finishedfloorover moisturebarrierover slab

4"ConcreteSlab

Doubleplatew/ bottommembertobe treated note:allexteriortrim tobeBoral,Hardie,or EliteTreatedwith properpre-primingand fieldprimeatallcuts

Note:BrickVeneerw/Flashing,Weep Holes,andTieBacks.Follow Manufacturer'sInstallationManual& EngineeringSheetsforProper Installationdetails.

3 a452 BandDetailat4:12Pitch scale:11/2"=1'

Code Compliant Insulation

95°

2x6Wallw/1/2"Advantech sheathing.CompleteBenjamin Obdykewallsystemtobeused undersidingandatallopenings.

brickrowlock,alignbottomw/ bottomofhouseband

Contbeadacousticalsealant below/ontopofsillsealer

brickveneer

8"CMUBlockfoundation, seeengineering

Note:Verifyallframingmembersand connectiondetailswithstructuralplans

BoralorHardieFlushNickelGap Siding@3"Exposureover Hydrogap

CellFoam Insulation EntireRoof Insulation

Code Compliant

4 a452 scale:11/2"=1'

CorniceDetailatKitchenBumpout

note:allexteriortrim tobeBoral,Hardie,or EliteTreatedwith properpre-primingand fieldprimeatallcuts

Finishedfloorover moisturebarrierover slab

4"ConcreteSlab

Doubleplatew/ bottommembertobe treated note:allexteriortrim tobeBoral,Hardie,or EliteTreatedwith properpre-primingand fieldprimeatallcuts

Note:BrickVeneerw/Flashing,Weep Holes,andTieBacks.Follow Manufacturer'sInstallationManual& EngineeringSheetsforProper Installationdetails.

95°

2x6Wallw/1/2"Advantech sheathing.CompleteBenjamin Obdykewallsystemtobeused undersidingandatallopenings.

brickrowlock,alignbottomw/ bottomofhouseband

Contbeadacousticalsealant below/ontopofsillsealer

brickveneer

8"CMUBlockfoundation, seeengineering

brickveneer angleiron flashing

CellFoam Insulation EntireRoof Insulation

Code Compliant

1'-6"Overhangfromfaceof AdvantechSheathingtoTipof Trim

2xBlocking 5/4x4w/CopperFlashing Over

5/4x8dropped1" 1/4"reveal

1x6V-RusticSoffit

2x8

BoralorHardieFlushNickelGap Siding@9"Exposureover

Hydrogap

2x6Wallw/1/2"Advantech sheathing.CompleteBenjamin Obdykewallsystemtobeused undersidingandatallopenings.

Note:Verifyallframingmembersand connectiondetailswithstructuralplans

Note:BrickVeneerw/Flashing,Weep Holes,andTieBacks.Follow Manufacturer'sInstallationManual& EngineeringSheetsforProper Installationdetails.

MetalRoofoverPealnSealover 1/2"Advantechover2xrafter@6:12 Pitch

2xBlocking

1'-91/2"Overhangfromfaceof AdvantechSheathingtoTipof Trim

5/4x4w/CopperFlashing Over 5/4x8dropped1" 1/4"reveal

1x6V-RusticSoffit

2xrippedaswindowheader

2x6Wallw/1/2"Advantech sheathing.CompleteBenjamin Obdykewallsystemtobeused undersidingandatallopenings.

clarke design group 1000 Johnnie Dodds Blvd. Ste. 103-194 Mt. Pleasant, SC 29464 843-329-0667 Russell Residence25 Wintercress RoadBluffton, SC DRAWINGS AND SPECIFICATIONS ARE THE PROPERTY OF CLARKE DESIGN GROUP, LLC AND SHALL NOT BE COPIED, RE-USED, OR MODIFIED WITHOUT WRITTEN CONSENT PermitSet: 8.17.22 page of34
A452 Details
25

Note:Verifyallframingmembersand connectiondetailswithstructuralplans

1 a453

Note:Verifyallframingmembersand connectiondetailswithstructuralplans

note:allexteriortrim

tobeBoral,Hardie,or EliteTreatedwith properpre-primingand fieldprimeatallcuts

4x4w/45DegreeCut

Doubleplatew/ bottommembertobe treated

Finishedfloorover moisturebarrierover slab

3 a453

CorniceDetailatFrontPorch/Breezeway scale:11/2"=1'

4"ConcreteSlab

2 a453

scale:11/2"=1'

note:allexteriortrim tobeBoral,Hardie,or EliteTreatedwith properpre-primingand fieldprimeatallcuts

MetalRoofoverPeal&Sealover 1/2"Advantechover2xrafter@ 3:12Pitch

1-3"overhangfromFaceof BeamtotipofTrim

2xripped

@1.75"BackandDrip KerfalongBottom Code Compliant Insulation

1x6V-RusticCeiling

2x6Wallw/1/2"Advantech sheathing.CompleteBenjamin Obdykewallsystemtobeused undersidingandatallopenings.

brickveneer 95°

brickrowlock,alignbottomw/ bottomofhouseband

1x6V-RusticCeiling 1x4

Note:Verifyallframingmembersand connectiondetailswithstructuralplans

BandDetailatFrontPorch/Breezeway

note:allexteriortrim

tobeBoral,Hardie,or EliteTreatedwith properpre-primingand fieldprimeatallcuts

1x6V-RusticSoffit

5/4x4w/FlashingOver exposed3x8cedarraftertail cedarbeam 1x4

12"Sq.CedarColumn

Note:Verifyallframingmembersand connectiondetailswithstructuralplans

BandDetailatBreezeway scale:11/2"=1'

Note:BrickVeneerw/Flashing,Weep Holes,andTieBacks.Follow Manufacturer'sInstallationManual& EngineeringSheetsforProper Installationdetails.

4 a453 scale:11/2"=1'

note:allexteriortrim tobeBoral,Hardie,or EliteTreatedwith properpre-primingand fieldprimeatallcuts

12"SquareCedarColumn

Note:BrickVeneerw/Flashing,Weep Holes,andTieBacks.Follow Manufacturer'sInstallationManual& EngineeringSheetsforProper Installationdetails.

12"SquareCedarColumn

appliedbrickband

Bluestonew/BluestoneBorder, slope1/8"perfoot,minimum brickveneer

BluestoneCap brickveneer

appliedbrickband

8"CMUBlock, SeeEngineering

TAbbyw/Bluestone Border,slope1/8" perfoot,minimum overslab

8"CMUBlock, SeeEngineering

BandDetailatKitchenBumpout 26

clarke design group 1000 Johnnie Dodds Blvd. Ste. 103-194 Mt. Pleasant, SC 29464 843-329-0667 Russell Residence25 Wintercress RoadBluffton, SC DRAWINGS AND SPECIFICATIONS ARE THE PROPERTY OF CLARKE DESIGN GROUP, LLC AND SHALL NOT BE COPIED, RE-USED, OR MODIFIED WITHOUT WRITTEN CONSENT PermitSet: 8.17.22 page of34
A453 Details
8"CMUBlockfoundation, seeengineering
Note:BrickVeneerw/Flashing,Weep Holes,andTieBacks.Follow Manufacturer'sInstallationManual& EngineeringSheetsforProper Installationdetails.

1 a454

CorniceDetailatRearPorch

scale:11/2"=1'

note:allexteriortrim

tobeBoral,Hardie,or EliteTreatedwith properpre-primingand fieldprimeatallcuts

1x6V-RusticCeiling

1x4

Note:Verifyallframingmembersand connectiondetailswithstructuralplans

MetalRoofoverPeal&Sealover

1/2"Advantechover2xrafter@

3:12Pitch

1-3"overhangfromFaceof BeamtotipofTrim

5/4x4w/FlashingOver

exposed3x8raftertail

1x6V-RusticSoffit

1x4

2x12

structuralbeam,seeengineering

5/4xrippedtocenteroncolumn

12"Sq.Column

2 a454 scale:11/2"=1'

BandDetailatRearPorch

note:allexteriortrim tobeBoral,Hardie,or EliteTreatedwith properpre-primingand fieldprimeatallcuts

Note:Verifyallframingmembersand connectiondetailswithstructuralplans

Note:BrickVeneerw/Flashing,Weep Holes,andTieBacks.Follow Manufacturer'sInstallationManual& EngineeringSheetsforProper Installationdetails.

12"SquareColumn

Note:Verifyallframingmembersand connectiondetailswithstructuralplans

3 a454

CorniceDetailatInfillPorch scale:11/2"=1'

MetalRoofoverPeal&Sealover

note:allexteriortrim

tobeBoral,Hardie,or EliteTreatedwith properpre-primingand fieldprimeatallcuts

1/2"Advantechover2xrafter@ 3:12Pitch

1-3"overhangfromFaceof BeamtotipofTrim

5/4x4w/FlashingOver exposed3x8raftertail

1x6V-RusticSoffit

4 a454 scale:11/2"=1'

Code Compliant Insulation

Doubleplatew/ bottommembertobe treated

Finishedfloorover moisturebarrierover slab

4"ConcreteSlab

appliedbrickband

Bluestonew/BluestoneBorder, slope1/8"perfoot,minimum brickveneer

8"CMUBlock, SeeEngineering

Note:Verifyallframingmembersand connectiondetailswithstructuralplans

Note:BrickVeneerw/Flashing,Weep Holes,andTieBacks.Follow Manufacturer'sInstallationManual& EngineeringSheetsforProper Installationdetails.

12"x3"SquarePilaster Bluestonew/BluestoneBorder, slope1/8"perfoot,minimum

2x6Wallw/1/2"Advantech sheathing.CompleteBenjamin Obdykewallsystemtobeused undersidingandatallopenings.

CellFoam Insulation EntireRoof Insulation

Code Compliant

2x12

5/4xrippedtocenteroncolumn

1x4 12"x3"Sq.Pilaster

2x6Wallw/1/2"Advantech sheathing.CompleteBenjamin Obdykewallsystemtobeused undersidingandatallopenings.

note:allexteriortrim tobeBoral,Hardie,or EliteTreatedwith properpre-primingand fieldprimeatallcuts

appliedbrickband

brickveneer

Contbeadacousticalsealant below/ontopofsillsealer

8"CMUBlock, SeeEngineering

clarke design group 1000 Johnnie Dodds Blvd. Ste. 103-194 Mt. Pleasant, SC 29464 843-329-0667 Russell Residence25 Wintercress RoadBluffton, SC DRAWINGS AND SPECIFICATIONS ARE THE PROPERTY OF CLARKE DESIGN GROUP, LLC AND SHALL NOT BE COPIED, RE-USED, OR MODIFIED WITHOUT WRITTEN CONSENT PermitSet: 8.17.22 page of34 A454 Details
CorniceDetailatInfillPorch
27

1 a455

CorniceDetailatGarage12:12Pitch

scale:11/2"=1'

note:allexteriortrim

tobeBoral,Hardie,or EliteTreatedwith properpre-primingand fieldprimeatallcuts

Note:Verifyallframingmembersand connectiondetailswithstructuralplans

MetalRoofoverPealnSealover

1/2"Advantechover2xrafter@12:12

Pitch

2 a455 scale:11/2"=1'

BandDetailatGarage

Note:Verifyallframingmembersand connectiondetailswithstructuralplans

Note:BrickVeneerw/Flashing,Weep Holes,andTieBacks.Follow Manufacturer'sInstallationManual& EngineeringSheetsforProper Installationdetails.

CellFoam Insulation

EntireRoof Insulation

3 a455

Code Compliant

1'-41/2"Overhangfromfaceof AdvantechSheathingtoTipof Trim

2xBlocking 5/4x4w/CopperFlashing Over 5/4x8dropped1" 1/4"reveal

1x6V-RusticSoffit

note:allexteriortrim tobeBoral,Hardie,or EliteTreatedwith properpre-primingand fieldprimeatallcuts

Doubleplatew/ bottommembertobe treated

2x6Wallw/1/2"Advantech sheathing.CompleteBenjamin Obdykewallsystemtobeusedunder sidingandatallopenings.

BoralorHardieFlushNickelGap Siding@9"Exposureover Hydrogap

brickrowlock,alignw/brick rowlockathouse

BoralorHardieFlushNickelGap Siding@9"Exposureover Hydrogap

1x4 2x8 2x6Wallw/1/2"Advantech sheathing.CompleteBenjamin Obdykewallsystemtobeused undersidingandatallopenings.

Note:Verifyallframingmembersand connectiondetailswithstructuralplans

brickveneer 95°

Contbeadacousticalsealant below/ontopofsillsealer

Note:Verifyallframingmembersand connectiondetailswithstructuralplans

CorniceDetailatGarageDormers

note:allexteriortrim

tobeBoral,Hardie,or EliteTreatedwith properpre-primingand fieldprimeatallcuts

MetalRoofoverPealnSealover 1/2"Advantechover2xrafter@6:12

Pitch

2xBlocking

1'-7"Overhangfromfaceof AdvantechSheathingtoTipof Trim

5/4x4w/CopperFlashing Over 5/4x8dropped1"

1/4"reveal

1x6V-RusticSoffit

Code Compliant

CellFoam Insulation EntireRoof Insulation

CorniceDetailatOneStoryGarage scale:11/2"=1'

2xrippedaswindowheader

2x6Wallw/1/2"Advantech sheathing.CompleteBenjamin Obdykewallsystemtobeused undersidingandatallopenings.

4 a455 scale:11/2"=1'

note:allexteriortrim tobeBoral,Hardie,or EliteTreatedwith properpre-primingand fieldprimeatallcuts

MetalRoofoverPealnSealover 1/2"Advantechover2xrafter @3:12Pitch

2xBlocking

1'-41/2"Overhangfromfaceof AdvantechSheathingtoTipof Trim

5/4x4w/CopperFlashing Over 5/4x8dropped1" 1/4"reveal

1x6V-RusticSoffit

2x8

BoralorHardieFlushNickelGap Siding@9"Exposureover Hydrogap

2x6Wallw/1/2"Advantech sheathing.CompleteBenjamin Obdykewallsystemtobeused undersidingandatallopenings.

28

clarke design group 1000 Johnnie Dodds Blvd. Ste. 103-194 Mt. Pleasant, SC 29464 843-329-0667 Russell Residence25 Wintercress RoadBluffton, SC DRAWINGS AND SPECIFICATIONS ARE THE PROPERTY OF CLARKE DESIGN GROUP, LLC AND SHALL NOT BE COPIED, RE-USED, OR MODIFIED WITHOUT WRITTEN CONSENT PermitSet: 8.17.22 page of34 A455 Details
8"CMUBlockfoundation, seeengineering
1x4

1 a456

CorniceDetailatGaragePorch

scale:11/2"=1'

note:allexteriortrim

tobeBoral,Hardie,or EliteTreatedwith properpre-primingand fieldprimeatallcuts

1x6V-RusticCeiling 2x8

BoralorHardie

FlushNickelGap Siding@9" Exposureover Hydrogap

Note:Verifyallframingmembersand connectiondetailswithstructuralplans

MetalRoofoverPealnSealover

1/2"Advantechover2xrafter@12:12

Pitch

2xBlocking

1'-41/2"Overhangfromfaceof AdvantechSheathingtoTipof Trim

5/4x4w/CopperFlashing Over

5/4x8dropped1" 1/4"reveal

1x6V-RusticSoffit

2 a456 scale:11/2"=1'

WindowTrimDetail

note:allexteriortrim tobeBoral,Hardie,or EliteTreatedwith properpre-primingand fieldprimeatallcuts

3 a456 scale:11/2"=1'

ChimneyCapDetail

note:allexteriortrim

tobeBoral,Hardie,or EliteTreatedwith properpre-primingand fieldprimeatallcuts

2'-7 1/2"

Note:Verifyallframingmembersand connectiondetailswithstructuralplans

Note:BrickVeneerw/Flashing,Weep Holes,andTieBacks.Follow Manufacturer'sInstallationManual& EngineeringSheetsforProper Installationdetails.

brickveneer

1"airgapbetweenplywood andbrick

3x8appliedipeorcedarheader

BoralorHardieFlushNickelGap Siding@9"Exposureover Hydrogap

1x4 2x8 2x6Wallw/1/2"Advantech sheathingonallsides.Complete BenjaminObdykewallsystemto beusedundersidingandatall openings.

Note:Verifyallframingmembersand connectiondetailswithstructuralplans

lintel flashing

FormedMetalCap tomatchroofing

TabbyBand

TabbyBand

TabbyChimney

95° MP1jointw/copperflashing

brickveneer/windowsill

brickveneer

1"airgapbetweenplywood andbrick

clarke design group 1000 Johnnie Dodds Blvd. Ste. 103-194 Mt. Pleasant, SC 29464 843-329-0667 Russell Residence25 Wintercress RoadBluffton, SC DRAWINGS AND SPECIFICATIONS ARE THE PROPERTY OF CLARKE DESIGN GROUP, LLC AND SHALL NOT BE COPIED, RE-USED, OR MODIFIED WITHOUT WRITTEN CONSENT PermitSet: 8.17.22 page of34 A456 Details
29

Note:Verifyallframingmembersand connectiondetailswithstructuralplans note:allexteriortrim tobeBoral,Hardie,or EliteTreatedwith properpre-primingand fieldprimeatallcuts

FrontandRearStairsBluestoneStep.BrickRiser

Note:BrickVeneerw/Flashing,Weep Holes,andTieBacks.Follow Manufacturer'sInstallationManual& EngineeringSheetsforProper Installationdetails.

BluestoneTreads

IronRail BrickRisersbelow.

1"treadoverhang

NOTES

1.VerifyAllFoundationDetailsperLocalCodesand/ orProfessionalEngineer.

2.VerifyAllFramingDetailsperLocalCodesand/or ProfessionalEngineer.

3.VerifyAllHolddown/ShearwallDetailsperLocal Codesand/orProfessionalEngineer.

4.ContractorResponsibleforAllWaterproofingand WaterManagementDetails.

5.RefertoStructuralDrawingforAllFramingDetails andDimensions.

1 a457 StairDetail scale:11/2"=1' clarke design group 1000 Johnnie Dodds Blvd. Ste. 103-194 Mt. Pleasant, SC 29464 843-329-0667 Russell Residence25 Wintercress RoadBluffton, SC DRAWINGS AND SPECIFICATIONS ARE THE PROPERTY OF CLARKE DESIGN GROUP, LLC AND SHALL NOT BE COPIED, RE-USED, OR MODIFIED WITHOUT WRITTEN CONSENT PermitSet: 8.17.22 page of34
A457 Details 30

Note:Verifyallframingmembersand connectiondetailswithstructuralplans

Service Yard

90gal. trashcan hvac unit hvac unit 90gal. trashcan electric meter 3050 gate 3050 gate concrete 1 a458 scale:3/4"=1' clarke design group 1000 Johnnie Dodds Blvd. Ste. 103-194 Mt. Pleasant, SC 29464 843-329-0667 Russell Residence25 Wintercress RoadBluffton, SC DRAWINGS AND SPECIFICATIONS ARE THE PROPERTY OF CLARKE DESIGN GROUP, LLC AND SHALL NOT BE COPIED, RE-USED, OR MODIFIED WITHOUT WRITTEN CONSENT PermitSet: 8.17.22 page of34
ServiceYard 16"SquarePaintedBrickColumn 5 4"x6"IPEHorizontalSlatFencewith Gatesw/stainlesssteelconcealedhinges 6'-0" 3050 gate 3050 gate squareposttoattachgate A458 Details 31

DCR102QUILL-tobe cut95%to5%quill foundation,brick,trim.

SherwinWilliamstricornblack Handrails

ContempoCopper

Lantern

GalvalumeSilver MetalRoof

PorchFan

A601 Colors/ Materials clarke design group 1000 Johnnie Dodds Blvd. Ste. 103-194 Mt. Pleasant, SC 29464 843-329-0667 Russell Residence25 Wintercress RoadBluffton, SC DRAWINGS AND SPECIFICATIONS ARE THE PROPERTY OF CLARKE DESIGN GROUP, LLC AND SHALL NOT BE COPIED, RE-USED, OR MODIFIED WITHOUT WRITTEN CONSENT PermitSet: 8.17.22 page of34
GarageLights
32

GFI GFI GFI GFI

DETERMINEFINALLOCATIONS. GFI GFI GFI GFI GFI

WIRINGANDACCESSORIES. CO WP WP

CarbonMonoxideDetector GFI GFI GFI GFI

2.ALLWORKSHALLBEDONEINSTRICT

ELECTRICALCONTRACTORWHOSHALLBE CODE,LATESTEDITION,BYALICENSED ACCORDANCEWITHNATIONALELECTRIC

SIZINGOFALLELECTRICALEQUIPMENT,

3.PROVIDECIRCUITSFORFRONTREAR

GFI 33

scale:3/16"=1' clarke design group 1000 Johnnie Dodds Blvd. Ste. 103-194 Mt. Pleasant, SC 29464 843-329-0667 Russell Residence25 Wintercress RoadBluffton, SC DRAWINGS AND SPECIFICATIONS ARE THE PROPERTY OF CLARKE DESIGN GROUP, LLC AND SHALL NOT BE COPIED, RE-USED, OR MODIFIED WITHOUT WRITTEN CONSENT PermitSet: 8.17.22 page of34 E103 FloorPlan PENDANTLIGHTFIXTURE 4" STEPLIGHTINGSYST. CEILINGFANW/LIGHT TRACKLIGHTINGSYST. CEILINGFAN FLOODLIGHTS SECURITYKEYPAD SECURITYPANEL THERMOSTAT A/CSUPPLY PUSHBUTTON SEC. K.P. AC 120VDUPLEXOUTLET SINKDISPOSALUNIT DIMMERSWITCH SPECIALTYDIRECTWIRE SWITCH 120VDUPLEXOUTLET 120VDUPLEXOUTLET 220VSPECIALTYOUTLET GROUNDFAULTINTERCEPTER WITHWATERPROOFCOVER DISCONECTFORA/C 120VDUPLEXFLOOROUTLET ABOVECOUNTERTOP@44"AFF 120VDUPLEX(SWITCHED)OUTLET 120VDUPLEXOUTLET MECHANICAL,HEATING/AIR CABLETVJACK ELECTRICALPANEL PHONEJACK RECESSCANFIXTUREDIRECTIONAL,4" INDICATESWATERPROOFCOVER) FLOURESCENTFIXTURE-LAMPS RECESSCANFIXTURE("WP" WALLMOUNTFIXTURE CEILINGMOUNTFIXTURE EXHAUSTFAN GASLANTERN SMOKEDETECTOR WATERHEATER UNDERCABINETLIGHT (ORABOVEDOORHEAD) 4"CAN TV PH WP MECH WH 220V WP GFI CT EXHAUSTFANW/LIGHT TEL/CABLE 2/2WIRING 5"U.N.O. G D
RESPONSIBLEFORTHEINSTALLATIONAND PURPOSEONLY.FINALWALKTHROUGHWILL
EXTERIORLANDSCAPELIGHTINGAND
FirstFloorPlan
4.LOCATIONANDTYPEOFEXTERIORLIGHTING
TOBESELECTEDWITHINARBGUIDLINES.
NOTES: CO
1.ELECTRICALPLANISINTENDEDFORBID IRRIGATIONSYSTEMS. ArtLight

SecondFloorPlan

scale:3/16"=1'

WP WP WP

GFI

GFI

DETERMINEFINALLOCATIONS. CO CO

2.ALLWORKSHALLBEDONEINSTRICT

ELECTRICALCONTRACTORWHOSHALLBE CODE,LATESTEDITION,BYALICENSED ACCORDANCEWITHNATIONALELECTRIC

SIZINGOFALLELECTRICALEQUIPMENT,

WIRINGANDACCESSORIES. CO CarbonMonoxideDetector ArtLight

3.PROVIDECIRCUITSFORFRONTREAR

GFI GFI WP 34

clarke design group 1000 Johnnie Dodds Blvd. Ste. 103-194 Mt. Pleasant, SC 29464 843-329-0667 Russell Residence25 Wintercress RoadBluffton, SC DRAWINGS AND SPECIFICATIONS ARE THE PROPERTY OF CLARKE DESIGN GROUP, LLC AND SHALL NOT BE COPIED, RE-USED, OR MODIFIED WITHOUT WRITTEN CONSENT PermitSet: 8.17.22 page of34 E104 FloorPlan PENDANTLIGHTFIXTURE 4" STEPLIGHTINGSYST. CEILINGFANW/LIGHT TRACKLIGHTINGSYST. CEILINGFAN FLOODLIGHTS SECURITYKEYPAD SECURITYPANEL THERMOSTAT A/CSUPPLY PUSHBUTTON SEC. K.P. AC 120VDUPLEXOUTLET SINKDISPOSALUNIT DIMMERSWITCH SPECIALTYDIRECTWIRE SWITCH 120VDUPLEXOUTLET 120VDUPLEXOUTLET 220VSPECIALTYOUTLET GROUNDFAULTINTERCEPTER WITHWATERPROOFCOVER DISCONECTFORA/C 120VDUPLEXFLOOROUTLET ABOVECOUNTERTOP@44"AFF 120VDUPLEX(SWITCHED)OUTLET 120VDUPLEXOUTLET MECHANICAL,HEATING/AIR CABLETVJACK ELECTRICALPANEL PHONEJACK RECESSCANFIXTUREDIRECTIONAL,4" INDICATESWATERPROOFCOVER) FLOURESCENTFIXTURE-LAMPS RECESSCANFIXTURE("WP" WALLMOUNTFIXTURE CEILINGMOUNTFIXTURE EXHAUSTFAN GASLANTERN SMOKEDETECTOR WATERHEATER UNDERCABINETLIGHT (ORABOVEDOORHEAD) 4"CAN TV PH WP MECH WH 220V WP GFI CT EXHAUSTFANW/LIGHT TEL/CABLE 2/2WIRING 5"U.N.O. G D
RESPONSIBLEFORTHEINSTALLATIONAND PURPOSEONLY.FINALWALKTHROUGHWILL
EXTERIORLANDSCAPELIGHTINGAND
4.LOCATIONANDTYPEOFEXTERIORLIGHTING
TOBESELECTEDWITHINARBGUIDLINES.
1.ELECTRICALPLANISINTENDEDFORBID IRRIGATIONSYSTEMS. NOTES:

Turn static files into dynamic content formats.

Create a flipbook
Issuu converts static files into: digital portfolios, online yearbooks, online catalogs, digital photo albums and more. Sign up and create your flipbook.