Ατμόσφαιρα | Χώρος. Μια διαλεκτική της σχέσης.

Page 1

ΑΤΜΟΣΦΑΙΡΑ | ΧΩΡΟΣ ΜΙΑ ΔΙΑΛΕΚΤΙΚΗ ΤΗΣ ΣΧΕΣΗΣ Η περίπτωση του Μουσείου Βυζαντινού Πολιτισμού Θεσσαλονίκης

ΑΤΜΟΣΦΑΙΡΑ | ΧΩΡΟΣ

ΜΙΑ ΔΙΑΛΕΚΤΙΚΗ ΤΗΣ ΣΧΕΣΗΣ Η περίπτωση του Μουσείου Βυζαντινού Πολιτισμού Θεσσαλονίκης

ATMOSPHERE | SPACE

A DIALECTIC OF THE RELATIONSHIP

The case of the Museum of Byzantine Culture of Thessaloniki

Διπλωματική Ερευνητική Εργασία

Επιμέλεια: Κωτάκης Στυλιανός (ΑΕΜ: 8764)

Επιβλέπων Καθηγητής: Κονταξάκης Δημήτρης

Αριστοτέλειο Πανεπιστήμιο Θεσσαλονίκης

Πολυτεχνική Σχολή

Τμήμα Αρχιτεκτόνων Μηχανικών

Ιούλιος 2022

ΑΤΜΟΣΦΑΙΡΑ | ΧΩΡΟΣ ΜΙΑ ΔΙΑΛΕΚΤΙΚΗ ΤΗΣ ΣΧΕΣΗΣ Η περίπτωση του Μουσείου Βυζαντινού Πολιτισμού Θεσσαλονίκης Διπλωματική Ερευνητική Εργασία Κωτάκης Στυλιανός Επιβλέπων Καθηγητής: Κονταξάκης Δημήτρης Αριστοτέλειο Πανεπιστήμιο Θεσσαλονίκης Πολυτεχνική Σχολή Τμήμα Αρχιτεκτόνων Μηχανικών Ιούλιος 2022
Ευχαριστώ θερμά τον καθηγητή μου, Κονταξάκη Δημήτρη για την πολύτιμη βοήθεια του.

ΠΕΡΙΕΧΟΜΕΝΑ

Περίληψη 12 Abstract 14 1. Εισαγωγή 18 2. Ερμηνείες 2.1 Φαινομενολογία 24 2.2 Η οντολογική ύπαρξη του ανθρώπου 29 2.3 H έννοια του κατοικείν 32 3. Περί πνεύματος του τόπου 3.1 Genius Loci- Το πνεύμα του τόπου 40 3.2 Ο τόπος και ο χώρος 45 4. Για μια Ατμόσφαιρα 4.1 Ορισμός 50 4.2 Η αντίληψη της ατμόσφαιρας 57 4.3.1 Η έννοια του χώρου 62 4.3.2 Χώρος και βίωμα 66 4.4.1 Το σωματικό σχήμα 70 4.4.2 Η ενσώματη εμπειρία του χώρου 73 70 8 ΑΤΜΟΣΦΑΙΡΑ | ΧΩΡΟΣ • ΜΙΑ ΔΙΑΛΕΚΤΙΚΗ ΤΗΣ ΣΧΕΣΗΣ
5. Μουσείο Βυζαντινού Πολιτισμού 5.1 Εισαγωγή 76 5.2 Παρουσίαση κτιρίου 78 5.3 Μεθοδολογία 80 5.4 Προσωπική αφήγηση 84 5.5 Συνθετικά εργαλεία- Ανάλυση 88 5.6 Συμπεράσματα ανάλυσης 114 6. Επίλογος 120 Παράρτημα 126 Βιβλιογραφία 136 9 ΑΤΜΟΣΦΑΙΡΑ | ΧΩΡΟΣ • ΜΙΑ ΔΙΑΛΕΚΤΙΚΗ ΤΗΣ ΣΧΕΣΗΣ
εικ. 01. Bruder Klaus Field Chapel, 2007/ Mechernich, Germany Peter Zumthor

ΠΕΡΙΛΗΨΗ

Η παρούσα ερευνητική εργασία επιχειρεί να προσεγγίσει τον τρόπο με

τον οποίο δημιουργείται η αρχιτεκτονική ατμόσφαιρα στον δομημένο χώρο

και πως ενυπάρχει και αναγνωρίζεται σε αυτόν. Η ατμόσφαιρα αποτελεί ένα

από τα σημαντικότερα θέματα συζήτησης, όχι μόνο στην αρχιτεκτονική, αλλά

και στην φιλοσοφία. Η σχέση αρχιτεκτονικής και ατμόσφαιρας έχει αναλυθεί

πολλάκις στο πέρασμα των χρόνων, με πολλούς τρόπους και διαφορετικές

οπτικές σκοπιές, με σκοπό την ανάδειξη των αποτελεσμάτων της συνύπαρξης

και αλληλεπίδρασης τους. Υπάρχει μια ιδιαίτερη σχέση ανάμεσα στον άνθρωπο

και τον χώρο, είναι μια σχέση αμφίδρομη.

Με βάση τις φαινομενολογικές θεωρήσεις του Martin Heidegger1 η αντίληψη

του χώρου αποτελεί μια υποκειμενική διαδικασία, καθώς ο κάθε άνθρωπος την αντιλαμβάνεταιαναλόγωςταβιώματακαιτιςπροσλαμβάνουσεςπουέχει.Οκάθετόπος

έχει τον δικό του μοναδικό χαρακτήρα, που τον ορίζει και τον κάνει συγκεκριμένο, ο

οποίος αποτελεί την πηγή των βιωμάτων και των συναισθημάτων του ανθρώπου. Θα μπορούσε να ειπωθεί πως η ατμόσφαιρα του κάθε χώρου αποτελεί μια μικρογραφία

του χαρακτήρα του τόπου.

Η αρχιτεκτονική είναι απτή και κρίνεται μέσα από την εμπειρία των

χρηστών της, από την διαδικασία δηλαδή που το βίωμα δημιουργεί εμπειρία

στον χρήστη. Η ατμόσφαιρα μπορεί να έχει πρωταγωνιστικό ρόλο σε μια

αρχιτεκτονική που σκοπό έχει να αφυπνίσει όλες τις αισθήσεις. Αυτός ο

στόχος κατά την συνθετική διαδικασία μπορεί να εκτιμηθεί από τον χρήστη

και να τον συγκινήσει, καθώς ο άνθρωπος είναι ένα πολυαισθητηριακό ον. Η

συναισθηματική διάσταση του χώρου αποτελεί μια έννοια υποκειμενική, άυλη και μη μετρήσιμη.

Μέσα από αυτή την θεώρηση τίθενται μια σειρά από ερευνητικά

1.ΟMartinHeidegger(1889-1976)ήτανΓερμανόςφιλόσοφος,συγκαταλέγεταιστουςκύριουςεκφραστέςτουυπαρξισμού. Το πρωτοποριακό του έργο στην οντολογία και στη μεταφυσική καθόρισε την πορεία της φιλοσοφίας του 20ού αιώνα

στην ευρωπαϊκή ήπειρο και άσκησε τεράστια επιρροή σε σχεδόν κάθε άλλο ανθρωπιστικό κλάδο, συμπεριλαμβανομένης

της λογοτεχνικής κριτικής, της ερμηνευτικής, της ψυχολογίας και της θεολογίας.

12 ΠΕΡΙΛΗΨΗ

ερωτήματα που επιχειρούνται να απαντηθούν, ορίζοντας και το θεωρητικό

πλαίσιο της εργασίας. Πως ένας αρχιτέκτονας μπορεί να σχεδιάσει ατμόσφαιρα;

-μια έννοια τόσο ευρεία και υποκειμενική; Πώς το πνεύμα του τόπου καθορίζει

την ατμόσφαιρα σε έναν δομημένο χώρο; -η σχέση του κτιρίου με τον τόπο

είναι καθοριστική; Πως συμβάλλουν τα υλικά στην δημιουργία ατμόσφαιρας;

-και κατά πόσο η μεταξύ τους σχέση είναι καθοριστική. H σχέση του κτιρίου με το φυσικό φως καθορίζει την ατμόσφαιρα του; -και αν ναι πως επιτυγχάνεται; Μπορεί ο αρχιτέκτονας να επηρεάσει συναισθηματικά τον χρήστη, μέσω της αρχιτεκτονικής σύνθεσης; - και αν ναι, με ποιό τρόπο ένα κτίριο μπορεί να συμβάλλει σε αυτό; Προκειμένου να απαντηθούν αυτά τα ερωτήματα, θα γίνει μια προσπάθεια να οριστούν τα στοιχεία αυτά που αποτελούν την ατμόσφαιρα και

να μελετηθούν μέσα από το παράδειγμα, του Μουσείου Βυζαντινού Πολιτισμού στην Θεσσαλονίκη, του αρχιτέκτονα Κυριάκου Κρόκου2. Στο πλαίσιο της μελέτης αυτού του παραδείγματος, θα γίνει μια προσπάθεια αποσύνθεσης και ανάλυσης των στοιχείων αυτών τα οποία αποτελούν εργαλεία της συνθετικής

διαδικασίας της ατμόσφαιρας. Εργαλεία όπως η σύνδεση με τον τόπο, η σχέση

του εσωτερικού χώρου με τον εξωτερικό, η κλίμακα, οι αναλογίες, τα υλικά

και οι υφές είναι αυτά που συνθέτουν κάθε φορά την ατμόσφαιρα. Η διάκριση

αυτών των εργαλείων και η αναλογική σχέση αυτών αποτελεί μια παραδοχή,

πως η δημιουργία της ατμόσφαιρας δεν αποτελεί κάποιου είδους εξίσωση και

σε κάθε περίπτωση λειτουργούν μεμονωμένα, αλλά και ταυτόχρονα σαν ένα αδιαίρετο σύνολο.

Λέξεις κλειδιά: ατμόσφαιρα, χώρος, βίωμα, τόπος, φαινομενολογία, εμπειρία

2. Ο Κυριάκος Κρόκος (1941-1998) ήταν σημαντικός Έλληνας αρχιτέκτονας και ζωγράφος. Αντιπροσωπευτικά δείγματα του αρχιτεκτονικού έργου του είναι το Μουσείο Βυζαντινού Πολιτισμού Θεσσαλονίκης, το Μουσείο Αλέκου Φασιανού στην Αθήνα, το Θέατρο της οδού Κυκλάδων κλπ. To 1996 εκπροσώπησε την Ελλάδα στην 6η Διεθνή Μπιενάλε Αρχιτεκτονικής της Βενετίας.

13
ΑΤΜΟΣΦΑΙΡΑ | ΧΩΡΟΣ • ΜΙΑ ΔΙΑΛΕΚΤΙΚΗ ΤΗΣ ΣΧΕΣΗΣ

This research project attempts to approach the way in which the architectural atmosphere is created in the built space and how it is inherent and recognized in it. Atmosphere is one of the most important topics of discussion, not only in architecture, but also in philosophy. The relationship between architecture and atmosphere has been analyzed many times over the years, in many ways and different perspectives, in order to highlight the results of their coexistence and interaction. There is a special relationship between man and space, it is a two-way relationship.

Based on the phenomenological views of Martin Heidegger the perception of space is a subjective process, since each person perceives it according to the experiences and the recruits they have. Each place has its own unique character, which defines it and makes it specific, which is the source of human experiences and emotions. It could be said that the atmosphere of each space is a miniature of the character of the place. The Architecture is tangible and is judged through the experience of its users; namely, the process where the the life creates an experience for the user. The experience can play a leading role in an Architecture that aims to awaken all the senses. This target in the synthetic process can be appreciated by the user and move him, as man is a multi-sensory being. The emotional dimension of space is a subjective, intangible and immeasurable concept. Through this view, a series of research questions are posed that seek for answers, defining the theoretical framework of the work. How can an architect design an atmosphere?-a concept so broad and subjective. How does the spirit of the place define the atmosphere in a structured space?-is the relationship of the building with the place decisive? How do materials contribute to the creation an atmosphere?-and whether the relationship between them is decisive. Does the building's relationship with natural light determine its atmosphere?-and if so, how is it achieved? Can the architect affect the user emotionally, through

14 ABSTRACT
ABSTRACT

the architectural composition?- and if so, how can a building contribute to it? In order to answer these questions, an attempt will be made to define these elements that constitute the atmosphere and analyze them through the example of the Museum of Byzantine Culture in Thessaloniki, by the architect Kyriakos Krokos. In the context of this example’s study, an attempt will be made to decompose and analyze these elements which are tools of the atmosphere’s synthetic process. Tools such as the connection with the place, the relationship of the interior space with the exterior, the scale, the proportions, the materials and the textures, all these compose the atmosphere every time. The distinction of these tools and their analogical relationship is an assumption that the creation of the atmosphere is not a kind of equation and in each case they function individually, but also at the same time as an indivisible whole.

Keywords: atmosphere, space, life, place, phenomenology, experience

15 ΑΤΜΟΣΦΑΙΡΑ | ΧΩΡΟΣ • ΜΙΑ ΔΙΑΛΕΚΤΙΚΗ ΤΗΣ ΣΧΕΣΗΣ
εικ. 02. the tree: a view of filicudi on a misty day, 2021 / Alicudi, Italy Marita Madio
1
ΕΙΣΑΓΩΓΗ

Η σύγχρονη εποχή χαρακτηρίζεται από την επικράτηση και κυριαρχία της

όρασης, έναντι των υπόλοιπων αισθήσεων. Αυτό το φαινόμενο ξεκίνησε σταδιακά

από την βιομηχανική επανάσταση και κορυφώθηκε ραγδαία με την ανάπτυξη της

τεχνολογίας, ιδίως στις χώρες του δυτικού κόσμου. Τις τελευταίες δεκαετίες και ενώ

βρίσκεται στο απόγειο του και συνδυαστικά με την εξέλιξη της τεχνολογίας έχει αλλάξει ριζικά και τον τρόπο επικοινωνίας των ανθρώπων και το πως ο άνθρωπος βιώνει τον

κόσμο γύρω του. Είναι ένα φαινόμενο το οποίο στο πέρασμα του χρόνου διογκώνεται, επιφέρει σημαντικές κοινωνικές αλλαγές και υποβάλλει την ανθρωπότητα σε συνεχή

προσαρμογή. Η διάσταση αυτού του φαινόμενου έχει απασχολήσει πολύ ένα μεγάλο αριθμό αρχιτεκτόνων και θεωρητικών αρχιτεκτονικής, ενώ ήδη από τα μέσα του προηγούμενουαιώναείχανξεκινήσειοισυζητήσειςκαιοιαναφορέςσεαυτό. Έναςαπό

τους σημαντικότερους αρχιτέκτονες της γενιάς του και ερευνητής, ο Juhanni Pallasmaa3 εμβαθύνει

εκτενώςαναλύονταςτιςαιτίεςκαιτιςσυνέπειες.ΚατάτονPallasmaa«ηαπεικόνισημέσω τουηλεκτρονικούυπολογιστήτείνειναισοπεδώσειτηνυπεροχήτηςφαντασίας»καθώς

θεωρείπωςμεαυτόντοντρόποηδιαδικασίασχεδιασμούλειτουργείπαθητικάμέσωτης οπτικής

Ηεξέλιξητηςτεχνολογίαςσχετίζεταιμετιςαλλαγέςπουέχουνεπέλθειστηνχωρική

Pallasmaaπωςένααρχιτεκτονικόέργοδενβιώνεταιωςσειράαπόμεμονωμένεςεικόνες, αλλάμεβάσητοπλήρεςκαιενσωματωμένουλικότου,στηνενσαρκωμένηκαιπνευματική

ουσία5.Στηνπραγματικότηταημοναδικήαίσθησηπουμπορείνασυμβαδίσειμεαυτούς

4.

5.

3. Ο Juhani Pallasmaa (14 Σεπτεμβρίου 1936) είναι Φινλανδός αρχιτέκτονας και πρώην καθηγητής αρχιτεκτονικής και κοσμήτορας στο Τεχνολογικό Πανεπιστήμιο του Ελσίνκι. Έχει καθιερωθεί ως μία από τις σημαίνουσες μορφές στο πεδίο της αρχιτεκτονική πράξης και θεωρίας.
J. Pallasmaa , The eyes of the skin, σελ .13
J. Pallasmaa, ο.π. σελ .13-14 18
σε αυτό το φαινόμενο και στο βιβλίο του ‘’The eyes of the skin” αναφέρεται
.
χειραγώγησης4
και χρονική εμπειρία και στον τρόπο που βιώνεται ένα αρχιτεκτονικό έργο. Αναφέρει ο
τους ρυθμούς εξέλιξης είναι η όραση. Σε ένα επίπεδο η όραση έχει ‘’ασθενήσει’’ καθώς έχει μετατραπεί σε παρατήρηση. Ο άνθρωπος από υποκείμενο του κόσμου βρέθηκε να είναι ένας απλός παρατηρητής, χωρίς να συμμετέχει και χωρίς να τον βιώνει6 ΕΙΣΑΓΩΓΗ

πραγματικότητα, επηρεάζει

Ως αποτέλεσμα

μιαμονοδιάστατηπροσέγγισηκαιτηνανάγκηγιαεντυπωσιασμό.ΟPallasmaaαναφέρει αυτότοείδοςαρχιτεκτονικήςωςναρκισσιστικήκαιμηδενιστική,καθώςπροσφέρειμόνο

Η ηγεμονική ματιά αναζητά την κυριαρχία σε όλα τα πεδία της πολιτισμικής

έκφρασηςκαιφαίνεταινααποδυναμώνειτηνικανότητατηςενσυναίσθησηςκαι

αλληλεπίδρασηςμετονκόσμο.Ηναρκισσιστικήματιάθεωρείτηναρχιτεκτονική

αποκλειστικά μια ατομική έκφραση και ένα

παιχνίδι

ανεξάρτητο από μια ουσιώδη πνευματική και κοινωνική σύνδεση, καθόσον

η μηδενιστική ματιά σκόπιμα προωθεί την αισθητηριακή και πνευματική

αδιαφορία και αποξένωση.7

σχεδιασμού, αποκόβει τον χρήστη από την ολοκλήρωση ενός βιώματος, που σκοπό έχει να συνθέσει

μια εμπειρία του χώρου, καθώς παραμένει μόνο στην εικόνα.

19
6. J. Pallasmaa, ο.π. σελ .14 7. J. Pallasmaa, ο.π. σελ .14
Καθώς η αρχιτεκτονική είναι βαθιά συνδεδεμένη με την κοινωνική
πολλά παραδείγματα αρχιτεκτονικής
οπτική εμπειρία και χαρακτηριστικά λέει: Η εμμονή στον οπτικό εντυπωσιασμό ως αποτέλεσμα του αρχιτεκτονιού
και επηρεάζεται από αυτό το φαινόμενο.
αυτού του φαινομένου υπάρχουν
που μαρτυρούν
εικ. 03. Kolumba Museum, 2007 /Cologne, Germany Peter Zumthor
νοητικό-καλλιτεχνικό
ΑΤΜΟΣΦΑΙΡΑ | ΧΩΡΟΣ • ΜΙΑ ΔΙΑΛΕΚΤΙΚΗ ΤΗΣ ΣΧΕΣΗΣ

Στον αντίποδα αυτού του φαινομένου υπάρχουν αρχιτέκτονες που έχουν

καταφέρει να αντισταθούν σε αυτή την τάση. Είναι αυτοί που ονειρεύονται μια

αρχιτεκτονική η οποία κατά την διάρκεια της συνθετικής διαδικασίας έχει τον άνθρωπο

στο κέντρο της, τον τρόπο που αυτός θα βιώσει τον χώρο με όλες του τις αισθήσεις

και θα αλληλεπιδράσει με αυτόν. Μια αρχιτεκτονική που αποσκοπεί στην δημιουργία

εμπειρίας. Υπάρχουν πολλοί αρχιτέκτονες που προσπαθούν να σχεδιάσουν τον χώρο

καθ’ αυτόν τον τρόπο, ώστε δυνητικά να μπορέσει ο χρήστης να αποκομίσει εμπειρία, και γι’ αυτόν τον λόγο στρέφουν την αναζήτηση τους στην δημιουργία ατμόσφαιρας.

Καθώς η ατμόσφαιρα αποτελεί μια άυλη διάσταση του χώρου και ο κάθε χρήστης την βιώνει διαφορετικά, είναι ιδιαίτερα δύσκολο να δοθούν επακριβώς τα στοιχεία αυτά που την συνθέτουν, διότι διαφέρουν από χώρο σε χώρο. Στόχος της παρούσης ερευνητικής εργασίας είναι η μετατόπιση του

βλέμματος προς την ουσία των πραγμάτων, που πολλές φορές επικαλύπτεται

από τον εντυπωσιασμό της εικόνας και των αναπαραστάσεων, μέσα στην προσκαιρότητα της σύγχρονης εποχής. Η εξέταση της ουσίας που χαρακτηρίζει

την φαινομενολογία και η αναζήτηση της στον πυρήνα του αρχιτεκτονικού

σχεδιασμού,είναιικανήώστεναστρέψουμετηνπροσοχήπροςμιααρχιτεκτονική

που θα έχει ώς στόχο την πολυαισθητηριακή εμπειρία, ώστε μελλοντικά να

αναπτύξουμε ένα μοτίβο σχεδιασμού που θα επικεντρώνεται περισσότερο στην

ουσία και λιγότερο στον ενυπωσιασμό.

ΕΙΣΑΓΩΓΗ 20
21
ΑΤΜΟΣΦΑΙΡΑ | ΧΩΡΟΣ • ΜΙΑ ΔΙΑΛΕΚΤΙΚΗ ΤΗΣ ΣΧΕΣΗΣ
εικ. 04. Nordic Pavillion, 1958-1962 / Venice Biennalle,Italy Sverre Fehn εικ. 05. Tomba Brion, 1967-1978 / Altivole, Italy Carlo Scarpa
2
ΕΡΜΗΝΕΙΕΣ

2.1 ΦΑΙΝΟΜΕΝΟΛΟΓΙΑ

Ως κλάδος της υπαρξιακής φιλοσοφίας, η Φαινομενολογία είναι η μελέτη

των «φαινομένων» - η εμφάνιση των πραγμάτων, οι τρόποι που τα βιώνουμε,

και η σημασία που έχουν στην εμπειρία μας - μέσω της εντατικοποιημένης

όρασης και αίσθησης. Όπως αναφέρει ο Maurice Merlau Ponty8 στο βιβλίο του

«Η Φαινομενολογία της Αντίληψης»:

[…]φαινομενολογία είναι η μελέτη των ουσιών. Είναι μια φιλοσοφία η οποία

επανατοποθετεί τις ουσίες μέσα στην ύπαρξη και θεωρεί ότι η αφετηρία για

να κατανοήσουμε τον άνθρωπο και τον κόσμο δεν μπορεί να είναι άλλη από την γεγονότητα του.9

Επιπλέον,τηνχαρακτηρίζειωςμιααπόπειραγιαναπεριγραφείάμεσαηεμπειρία μας έτσι όπως είναι χωρίς να

καθόλου υπόψη η ψυχολογική της γένεση

και οι ενδεχόμενες αιτιώδεις εξηγήσεις της εκ μέρους του επιστήμονα. Η φαινομενολογία είναι ένα φιλοσοφικό κίνημα το οποίο βασίζεται στην διερεύνηση των φαινομένων, δηλαδή των πραγμάτων αυτών που γίνονται αντιληπτά ενσυνείδητα, και όχι στην ύπαρξη οποιουδήποτε πράγματος αυτό

καθ’ εαυτό, που βρίσκεται πέρα από τα όρια της ανθρώπινης συνειδητότητας.

Έχει ως σημείο εκκίνησης την εμπειρία των φαινομένων, δηλαδή την συνειδητή

εμπειρία, επιχειρεί να εξάγει τα θεμελιώδη χαρακτηριστικά της αντιληπτικής

διαδικασίας και της οντότητας των εμπειριών μας.10Η αφετηρία της ξεκινά στον

20ο αιώνα και θεμελιωτής της είναι ο Edmund Husserl.11 Αρχικά λειτουργεί ως

ένα άτυπο και υποκειμενικό ιδεαλιστικό ρεύμα στους κόλπους της φιλοσοφίας, που προτείνει την μελέτη και περιγραφή των φαινομένων της συνείδησης, με

τον πιο απλό τρόπο, ακριβώς όπως εμφανίζονται και εκδηλώνονται. Θεωρεί

8. Ο Maurice Jean Jacques Merleau-Ponty(1908- 1961) ήταν Γάλλος φαινομενολόγος φιλόσοφος. Έγραψε για την αντίληψη, την τέχνη, την πολιτική, τη θρησκεία, τη βιολογία, την ψυχολογία, την ψυχανάλυση, τη γλώσσα, τη φύση και την ιστορία.

9. M. Merlau Ponty, Η Φαινομενολογία της Αντίληψης, σελ. 15

10. https://el.wikipedia.org/wiki/Φαινομενολογία

11. Ο Edmund Gustav Albrecht Husserl (1859- 1938) ήταν Γερμανός φιλόσοφος και μαθηματικός που ίδρυσε τη σχολή της φαινομενολογίας.

ληφθεί
ΕΡΜΗΝΕΙΕΣ • ΦΑΙΝΟΜΕΝΟΛΟΓΙ Α
24

πως ο κόσμος είναι αυτό το οποίο γίνεται αντιληπτό μέσω της συνείδησης του

ατόμου και ερμηνεύεται μέσω των προσωπικών του εμπειριών. Θεωρεί δηλαδή

την διαίσθηση, την εμπειρία και το βίωμα του κάθε ανθρώπου ως ικανά και

επαρκή μέσα για την φαινομενολογική γνώση. Γι’ αυτό τον λόγο ο Husserl ορίζει

την μελέτη των φαινομένων της συνείδησης ως υποκειμενική εμπειρία, η οποία

υπό την καθοδήγηση της επιστήμης της ψυχολογίας μπορεί να αποτελέσει

μέθοδο μελέτης για την ανάλυση διαφορετικών παθολογιών.12

Περίπου στα μέσα της δεκαετίας του 1970 η φαινομενολογία εμφανίζεται

και στην αρχιτεκτονική με έντονες επιρροές από τις θεωρίες του E. Husserl και τον Μ. Heidegger.13 Την εποχή εκείνη μια νέα γενιά αρχιτεκτόνων όπως ο Juhani Pallasmaa, ο Christian Norberg- Schultz14 και ο Daniel Libeskind15 ενστερνίζονται

τις αρχές της φαινομενολογίας. Η φαινομενολογία από την εποχή εκείνη και έπειτα έχει επηρεάσει αρκετά την αρχιτεκτονική, καθώς ασχολείται με την διερεύνηση των φαινομένων, δηλαδή το πως γίνονται αντιληπτά το φως, η σκιά, τα υλικά και γενικά οι ποιότητες ενός χώρου. Σκοπός της δηλαδή είναι να κάνει γνωστά τα χαρακτηριστικά της αντιληπτικής διαδικασίας, αναλύοντας και εξηγώντας την εμπειρία των φαινομένων. Όπως αναφέρει και ο M. Merlau-

Ponty:

[...]ηφαινομενολογίαπροσπαθείναδώσειμιαευθείαπεριγραφήτηςεμπειρίας όπως είναι, χωρίς να λαμβάνει υπόψιν την ψυχολογική της γένεση και τις

αιτιώδεις ερμηνείες τις οποίες ο επιστήμονας, ο ιστορικός ή ο κοινωνιολόγος

μπορούν να παρέχουν.16

12. https://gr.encyclopedia-titanica.com/significado-de-fenomenolog

13. Ο Martin Heidegger (1889 – 1976) ήταν Γερμανός φιλόσοφος που είναι περισσότερο γνωστός για τη συμβολή του στη φαινομενολογία, την ερμηνευτική και τον υπαρξισμό. Είναι από τους σημαντικότερους και πιο σημαντικούς φιλοσόφους του 20ού αιώνα.

14. Ο Christian Norberg-Schulz (1926 – 2000) ήταν Νορβηγός αρχιτέκτονας, συγγραφέας, εκπαιδευτικός και θεωρητικός της αρχιτεκτονικής. Ο Norberg-Schulz ήταν υποστηρικτής του Μοντέρνου Κινήματος στην αρχιτεκτονική και συνδέθηκε με την αρχιτεκτονική φαινομενολογία.

15. Ο Daniel Libeskind (1946) είναι Πολωνοαμερικανός αρχιτέκτονας, καλλιτέχνης, καθηγητής και σκηνογράφος. Είναι γνωστός για το σχεδιασμό και την ολοκλήρωση του Εβραϊκού Μουσείου στο Βερολίνο της Γερμανίας, που άνοιξε το 2001, όπως και για άλλα Εβραϊκά Μουσεία σε άλλες χώρες. 16. Maurice Merleau-Ponty & Ted Toadvin, The Merleau-Ponty Reader, σελ. 55

25
ΑΤΜΟΣΦΑΙΡΑ | ΧΩΡΟΣ • ΜΙΑ ΔΙΑΛΕΚΤΙΚΗ ΤΗΣ ΣΧΕΣΗΣ

Η φιλοσοφική σκέψη της φαινομενολογίας αποτέλεσε εναρκτήρια

δύναμη για την ανάπτυξη των χωρικών θεωριών που συνέδεσαν τον χώρο

με την αντίληψη και την εμπειρία. Λαμβάνει υπόψιν της το ανθρώπινο σώμα

κατά την διάρκεια μια χωρικής εμπειρίας και προτείνει μια νέα προσέγγιση

της αρχιτεκτονικής και του χώρου, η οποία είναι πιο σωματική, καθώς

πρωταγωνιστούν οι αισθήσεις και το σωματικό σχήμα. Ο έως τώρα αφηρημένος

και γεωμετρικός χώρος παραχωρεί την θέση του στον βιωμένο χώρο, στο

ανθρώπινο σώμα, τα συναισθήματα, τις εμπειρίες και στην μοναδικότητα του τόπου.

Στις φαινομενολογικές προσεγγίσεις ο τόπος είναι αυτός που διαδραματίζει πολύ σημαντικό ρόλο, καθώς αποτελεί το περιβάλλον που φιλοξενείτοβίωμα.Οκάθετόποςέχεικάποιασταθεράχαρακτηριστικά,αλλάκαι κάποια μεταβλητά, όπως είναι τα πολιτισμικά και τα ιστορικά, ενώ ταυτόχρονα

έχει και τα οντολογικά, καθώς αποκτά άλλη χροιά από το ανθρώπινο βίωμα, είναι γεμάτος από εμπειρίες και συναισθήματα από τους ανθρώπους που τον

βιώνουν ή που τον βίωσαν στο παρελθόν. Η έμφαση που δίνει η φαινομενολογία

στην εμπειρία του χώρου σχετίζεται με τις αισθητικές και κινητικές δυνατότητες

του κάθε χρήστη, σε σχέση με το πως αντιλαμβάνεται τον δομημένο χώρο σε

συνάρτηση με τον χρόνο. Η σταδιακή ανακάλυψη του δομημένου χώρου από

εικ. 06. Underground,1995/ Serbia

Emir Kusturica

26
ΕΡΜΗΝΕΙΕΣ • ΦΑΙΝΟΜΕΝΟΛΟΓΙΑ

«Μόνον οι σκέψεις και

οι εμπειρίες καθιερώνουν

τις ανθρώπινες αξίες. Στην

ονειροπόληση ανήκουν αξίες

που σημαδεύουν τον άνθρωπο

μέσα στα βάθη του»17

Gaston Bachelard

το υποκείμενο , μέσω της κίνησης του σε αυτόν, δημιουργεί στον χώρο και την

τέταρτη διάσταση και σε αλληλεπίδραση με τα άλλα υποκείμενα, ορίζει ένα

σύνολο από πραγματικό- αντικειμενικό χώρο.

Καθώς οι φαινομενολογικές θεωρίες δίνουν το έναυσμα και ξεκινά η

διαδικασία αλλαγής στον τρόπο που αντιμετωπίζεται και γίνεται αντιληπτός

ο χώρος και η εστίαση μετατοπίζεται στην πολυαισθητηριακή εμπειρία της

αντίληψης, το σώμα, η εμπειρία και το συναίσθημα παίζουν σημαντικό ρόλο

και έρχονται στο προσκήνιο. Σημαντικό προς αυτόν την φορά θεωρείται και το

έργο του Gaston Bachelard18, που παρόλο που βασίζεται κυρίως στο έργο του

17. G. Bachelard, Η ποιητική του χώρου, σελ

18. Ο Gaston Bachelard (1884- 1962)ήταν Γάλλος φιλόσοφος. Συνείσφερε στους τομείς της ποιητικής και της φιλοσοφίας της επιστήμης. Εισήγαγε τις έννοιες του γνωσιολογικού εμποδίου και της επιστημολογικής ρήξης και επηρέασε πολλούς μετέπειτα Γάλλους φιλοσόφους, μεταξύ των οποίων ο Michel Foucault, ο Louis Althusser κ.α. Από τα πιο γνωατά του έργα ειναι το βιβλίο "Η ποιητική του χώρου".

27 ΑΤΜΟΣΦΑΙΡΑ | ΧΩΡΟΣ • ΜΙΑ ΔΙΑΛΕΚΤΙΚΗ ΤΗΣ ΣΧΕΣΗΣ
εικ. 07. Therme Vals, 1996 / Vals, Switzerland Peter Zumthor

Husserl και του Heidegger, διαφοροποιείται σε σχέση με την σκοπιά από την

οποία αναλύει και εστιάζει στα κείμενα του, δείχνοντας μεγάλο ενδιαφέρον

για τις ψυχολογικές και πνευματικές διαδικασίες που βοηθούν στην περιγραφή της χωρικής εμπειρίας. Στο έργο του ασχολείται και αυτός με τον βιωμένο, υπαρξιακό τόπο και τον τρόπο με τον οποίο αυτός προηγείται του γεωμετρικού, ορθολογικού χώρου. Στο έργο του «Η Ποιητική του Χώρου», στο οποίο αγγίζει το θέμα της αρχιτεκτονικής και του χώρου, είναι γραμμένο με μία ποιητική διάθεση που φανερώνει τις ευαισθησίες του ως προς τον χώρο. Σύμφωνα με

τον Bachelard, κάθε άτομο είτε με τη φαντασία είτε με τις πράξεις του, «χτίζει»

ξανά, τελειοποιεί μέσω της ονειροπόλησης του, κατοικεί και κάθε τέτοια κίνηση

γίνεται ανάμνηση και ριζώνει μες στο χώρο.

ΕΡΜΗΝΕΙΕΣ • ΦΑΙΝΟΜΕΝΟΛΟΓΙΑ
28
εικ.08. Capilla de las Capuchinas,1952-1959/ Tlalpan, Mexico Luis Barragán

Ο Νικόλαος-Ίων Τερζόγλου19 στο βιβλίο «Ιδέες του χώρου στον 20ο

αιώνα» αναλύει την διαφορά μεταξύ του Heidegger και του Husserl, ως προς

την ύπαρξη του ανθρώπου και την σχέση του κόσμου με το υποκείμενο. Ενώ ο

Husserl θεωρεί πως το υποκείμενο «γεννά» τον κόσμο, με βάση την Καντιανή

προσέγγιση, ο Heidegger θεωρεί πως ο κόσμος ή το μεταφυσικό δεδομένο

του «Είναι» επιτρέπει σε ένα γεγονός σαν το υποκείμενο να τον σκοπεύει. Η

διαφορά τους δηλαδή σε αυτή την θεώρηση συνοψίζεται στην αντίθεση του

ιδεαλισμού με τον πραγματισμό.

Σ’ αυτό το σημείο ο Heidegger χρησιμοποιεί τον όρο Dasein για να

περιγράψει την προβληματική της ύπαρξης. Το Dasein περιγράφει τον άνθρωπο που βρίσκεται και υπάρχει «εδώ να». Ο όρος Dasein είναι το στοιχείο μιας

ύπαρξης που αποδεικνύεται μέσω των πράξεων. Σύμφωνα με την ανάλυση του

Heidegger το Dasein έχει ως βασικό στοιχείο το μες-στον-κόσμον-Είναι, που ως φορέας της μέριμνας διασπάται σε τρεις τρόπους του Είναι του Dasein, σε τρία

δηλαδή χαρακτηριστικά, την κοσμικότητα ή Παρείναι, το Ενείναι και το Συνείναι.

Το Ενείναι εκφράζει την σύσταση του Είναι του Dasein και όπως το εξηγεί ο

Heidegger προέρχεται από το «...ρήμα inhan-που σημαίνει: κατοικώ, habitare, διαμένω an σημαίνει: έχω συνηθίσει, είμαι οικείος με…., έχω συνήθεια να...».

Το Ενείναι θεωρείται το σημείο στο οποίο ο άνθρωπος αντιλαμβάνεται την ύπαρξη του κόσμου, όχι αφηρημένα, αλλά ως εμπράγματη ύπαρξη εντός του

κόσμου. Το Παρείναι υποδηλώνει την απορρόφηση του Dasein μες-στον-κόσμο, αυτό το Είναι-παρά του κόσμου.20

Ο M. Heidegger στην διάλεξη του «Κτίζειν, Κατοικείν, Σκέπτεσθαι»21 θέτει

19.Ο Νικόλαος-Ίων Τερζόγλου είναι Επίκουρος Καθηγητής στη Σχολή Αρχιτεκτόνων Μηχανικών του Εθνικού Μετσόβιου Πολυτεχνείου, με γνωστικό αντικείμενο Έννοιες και Θεωρίες για την Οργάνωση και τον Σχεδιασμό του Αρχιτεκτονικού Χώρου.

20. Νικόλαος-Ίων Τερζόγλου, Ιδέες του Χώρου στον 20ο αιώνα, σελ. 260-261

21. Η διάλεξη "Κτίζειν κατοικείν σκέπτεσθαι" εκφωνήθηκε στις 5 Αυγούστου του 1951 στο πλαίσιο ενός κύκλου συνομιλιών που διεξήχθησαν στην γερμανική πόλη Ντάρμσταντ με κεντρικό θέμα τη σχέση ανθρώπου και χώρου.

Το κοινό στο οποίο απευθυνόταν απαρτιζόταν κυρίως από αρχιτέκτονες. Δημοσιεύθηκε για πρώτη φορά το 1952 στα πρακτικά των συζητήσεων, ενώ το 1954 περιλήφθηκε στη συλλογή "Διαλέξεις και δοκίμια".

29 ΑΤΜΌΣΦΑΙΡΑ | ΧΩΡΌΣ • ΜΙΑ ΔΙΑΛΕΚΤΙΚΗ ΤΗΣ ΣΧΕΣΗΣ
2.2 Η ΟΝΤΟΛΟΓΙΚΗ ΥΠΑΡΞΗ ΤΟΥ ΑΝΘΡΩΠΟΥ

το ζήτημα της κατοίκησης και του τόπου, επαναπροσδιορίζοντας το με νέες

βάσεις. Ο ίδιος καταλήγει σε μια σειρά συμπερασμάτων, αλληλένδετα μεταξύ

τους, στα οποία το «κτίζειν» σχετίζεται με το «κατοικείν» το οποίο αποβλέπει

στην εξερεύνηση του «είναι» μας και στον τρόπο με τον οποίο οι άνθρωποι

πρέπει να κατοικούμε. Θεωρεί πως το «κατοικείν», το «κτίζειν» και το «είναι»

βρίσκονται σ’ αυτόν τον κόσμο άρρηκτα συνδεδεμένα. Για τον Heidegger το «κατοικείν» δεν είναι μια απλή δραστηριότητα, είναι ο τρόπος με τον οποίο

ο άνθρωπος υπάρχει εντός του κόσμου. Το «κατοικείν» παίρνει μεγαλύτερες

διαστάσεις στα κείμενα του καθώς το ταυτίζει με την ύπαρξη του ανθρώπου

στην γη. Χαρακτηριστικά αναφέρει: «...το ανθρώπινο είναι συνίσταται στο

κατοικείν και μάλιστα υπό την έννοια της διαμονής των θνητών στην γη».22 Ο τρόπος με τον οποίο ο άνθρωπος υπάρχει, δηλαδή «κατοικείν» δίνει υπόσταση στον χώρο και μετατρέπεται αυτόματα σε υπαρξιακό τόπο. Ο υπαρξιακός τόπος είναι ανώτερος και σημαντικότερος από τον χώρο, καθώς περιλαμβάνει την οντολογική λειτουργία. Στην πραγματικότητα, δηλώνει πως

χωρίς τον άνθρωπο δεν υφίσταται τόπος, όπως επίσης και ο άνθρωπος δεν μπορεί να υπάρξει χωρίς τόπο για αν κατοικήσει. Ο συνδετικός κρίκος μεταξύ

των δύο είναι μόνο ο άνθρωπος. Η Δήμητρα Χατζησάββα23 , στην διδακτορική της

διατριβή, αναφέρεται στο «κατοικείν» που μετατρέπει ένα χώρο σε υπαρξιακό τόπο, λέγοντας: «...πρόκειται για ένα κατοικείν ριζωμένο και ουσιολογικό….

Της ζωντανής εμπειρίας του ανθρώπου» .24 Το στοιχείο εκείνο στο κατοικείν που

μετατρέπει έναν χώρο σε υπαρξιακό τόπο είναι η έννοια της εμπειρίας, η οποία εμπεριέχει και την έννοια του βιώματος, στην οποία βασίζεται και η ανάλυση

του M. Heidegger.

22. M. Heidegger, «Κτίζειν, Kατοικέιν, Σκέπτεσθαι», σελ. 35 23. Η Δήμητρα Χατζησάββα Δρ. Αρχιτέκτων είναι Επίκουρη καθηγήτρια στη Σχολή Αρχιτεκτόνων Μηχανικών του Πολυτεχνείου Κρήτης και διδάσκει αρχιτεκτονική θεωρία και αρχιτεκτονικό και αστικό σχεδιασμό.

24. Δ.Χατζησάββα, δ.δ. Η έννοια του τόπου στις αρχιτεκτονικές θεωρίες και πρακτικές, σελ. 86

ΕΡΜΗΝΕΙΕΣ • Η ΟΝΤΟΛΟΓΙΚΗ ΥΠΑΡΞΗ ΤΟΥ ΑΝΘΡΩΠΟΥ
30
31 ΑΤΜΌΣΦΑΙΡΑ | ΧΩΡΌΣ • ΜΙΑ ΔΙΑΛΕΚΤΙΚΗ ΤΗΣ ΣΧΕΣΗΣ
εικ. 09. Nostalghia, 1983 Andrei Tarkovsky

2.3

Για τον Heidegger η διάκριση ανάμεσα στο «κτίζειν» και στο «κατοικείν»

θεωρείται αναγκαία και η ξεκάθαρη τοποθέτηση τους, στους αντίστοιχους

ρόλους τους, ως μέσο και σκοπός αντίστοιχα, τις μετατρέπει αυτόματα σε

διακεκριμένες μεταξύ τους λειτουργίες, με ξεκάθαρους ρόλους, αποβάλλοντας

με αυτόν τον τρόπο τους μεταξύ τους συσχετισμούς. Μέσα από την διάλεξη «Κτίζειν, Κατοικείν, Σκέπτεσθαι» ο Heidegger συνδέει την έννοια της κατοίκησης

με τον τόπο. Σύμφωνα με τον ίδιο το «κτίζειν» και το «κατοικείν» περιγράφουν

δύο διαφορετικές έννοιες, οι οποίες έχουν την σχέση μέσου και σκοπού, αλλά βρίσκονται σε στενή σχέση μεταξύ τους.

Αναλύοντας την ετυμολογία των γερμανικών λέξεων “bauen” και “buan”,

όπου η πρώτη σημαίνει κτίζω και η δεύτερη κατοικώ, ενώ πολύ παλιότερα είχε

την έννοια του κτίζω, γίνεται αντιληπτό πως στο πέρασμα των χρόνων υπήρξε

μια έντονη σύνδεση αυτών των λέξεων και των σημασιών τους. Επίσης, η

λέξη “bin” που σημαίνει “είμαι” προέρχεται από την λέξη “bauen”. Με αυτή

την έννοια το “ich bin, du bist” κλπ μεταφράζεται και ως “εγώ κατοικώ, εσύ

κατοικείς” κλπ. Δηλαδή, ο τρόπος με τον οποίο οι άνθρωποι είμαστε επάνω στην γη προέρχεται από το “buan”, δηλαδή το “κατοικείν”. Επιπλέον, ο Heidegger διαχωρίζει και το «κατοικείν» από το απλό «στεγάζει». Θεωρεί πως η έννοια

του «κατοικείν» προϋποθέτει μία σύνδεση με τον τόπο, μια σχέση με βαθιά θεμέλια και υπαρξιακή σύνδεση. Αντιθέτως, το «στεγάζειν» σχετίζεται με μια

προσωρινή κατοίκηση η οποία δεν στηρίζεται σε βαθιά σχέση με τον τόπο.26

25. M. Heidegger, «Κτίζειν, Kατοικέιν, Σκέπτεσθαι», σελ. 25 26. M. Heidegger ο.π. σελ. 27-29

ΕΡΜΗΝΕΙΕΣ • Η ΕΝΝΟΙΑ ΤΟΥ ΚΑΤΟΙΚΕΙΝ 32
«Το κτίζειν δεν είναι απλός μέσον και οδός προς το κατοικείν, το κτίζειν είναι ήδη εν εαυτώ κατοικείν.»25
Η ΕΝΝΟΙΑ ΤΟΥ ΚΑΤΟΙΚΕΙΝ

«...να είναι κανείς άνθρωπος σημαίνει

να είναι επάνω στην γη ως θνητός: ση-

μαίνει να κατοικεί.»28

Martin Heidegger

Επιπροσθέτως, βασιζόμενος στην αντίθεση των εννοιών «κατοικείν» και «στεγάζειν» θεμελιώνει την έννοια της “ανεστιότητας”27 του ανθρώπου. Με

αυτό τον τρόπο αποδοκιμάζει την υποβάθμιση του «αρχιτεκτονείν», το οποίο πλέον αποσκοπεί κυρίως στην οικοδομική δραστηριότητα και στο τεχνικό

κομμάτι μόνο, με απλοϊκούς τρόπους. Επίσης, κατακρίνει τον περιορισμό της

εργασίας του αρχιτέκτονα μόνο στο αισθητικό κομμάτι ενός κτιρίου. Θεωρεί πως ο άνθρωπος δεν μπορεί να κατοικήσει “ποιητικά” σε τέτοιου είδους κτίρια, γιατί δεν μπορεί να ταυτισθεί με αυτά, κυρίως γιατί πρόκειται για απλούς δομημένους χώρους.

«οι άνθωποι ως θνητοί πρέπει να αναζητούν συνεχώς και αδιαλείπτως την

ουσίατουκατοικείν.[…]Μόνοότανοάνθρωποςανταποκρίνεταιστοκάλεσμα

να στοχαστεί τι σημαίνει «κατοικείν» είναισεθέση ναεπιστρέψειστον εαυτό

του και να βρεί εκεί την πατρίδα του».30

27. M. Heidegger ο.π. σελ. 75

28. M.Heidegger ο.π. σελ. 29

29. M.Heidegger ο.π. σελ. 73

30. M. Heidegger ο.π. σελ. 33

33 ΑΤΜΌΣΦΑΙΡΑ | ΧΩΡΌΣ • ΜΙΑ ΔΙΑΛΕΚΤΙΚΗ ΤΗΣ ΣΧΕΣΗΣ
εικ. 10. Nivola House-Garden Wall 1949-1950/ Amagansett, New York Bernard Rudofsky & Costantino Nivola

Στηνσυνέχεια τηςομιλίας του ο Heidegger κάνει αναφορά και στην έννοια

του «σκέπτεσθαι» η οποία μαζί με το «κτίζειν» και το «κατοικείν» έρχεται να

γεφυρώσει το κενό στην σχέση του ανθρώπου με τον τόπο.31 Όταν ο άνθρωπος καταφέρει να κατακτήσει το «σκέπτεσθαι», τότε θα καταφέρει

ένα δίπολο αντιθέσεων. Από την μία ο άνθρωπος έχει δημιουργήσει την ανάγκη

της στέγασης και μέσα από αυτή την συνθήκη νιώθει ασφάλεια. Από την άλλη

όμως η ανεστιότητα αποτελεί ένα σημαντικό κομμάτι της οντολογικής ύπαρξης του ανθρώπου. Σύμφωνα με τον Γ. Ξηροπαϊδη32, ο οποίος μετέφρασε το «Κτίζειν, Κατοικείν, Σκέπτεσθαι», σχολιάζει στην Εισαγωγή του, ότι ο Heidegger στο βιβλίο του “Είναι και Χρόνος” αναφέρει:

[...] αντιτάσσει στον εφησυχασμό και τις βεβαιότητες της αναυθεντικής

καθημερινής ύπαρξης την αγωνία, η οποία πληρεί την ύπαρξή μας με την

αίσθηση της ριζικής ανεστιότητας. Η ανεστιότητα είναι η συνθήκη αυτή που

επιτρέπει στον άνθρωπο να αφεθεί στην ελευθερία του και ανακαλύψει τον

τρόπονακατοικείποιητικά.[…]Σκεπτόμαστεδιότιπουθενάδεννιώθουμεότι

είμαστε στο σπίτι μας παρά μόνο όταν είμαστε καθόδόν προς το είναι μας[…]

είμαστε ως θνητοί ξένοι πάνω στη γή, χωρίς πατρίδα, και γι’αυτό μας είναι

αναγκαίο να σκεπτόμαστε, ή ακριβέστερα να κατοικούμε ως σκεπτόμενοι.33

31. M.Heidegger ο.π. σελ. 45-51 32. Ο Γιώργος Ξηροπαΐδης, (1958), είναι Έλληνας, καθηγητής ιστορίας των φιλοσοφικών και αισθητικών ιδεών στο τμήμα Πολιτικής Επιστήμης και Ιστορίας του Παντείου Πανεπιστημίου. Σπούδασε φιλοσοφία καθώς επίσης γερμανική και κλασική

και εκπόνησε τη

φιλοσοφία της γλώσσας του ύστερου Χάιντεγκερ. 33. Γ. Ξηροπαΐδης, εισ. Κτίζειν, Κατοικείν, Σκέπτεσθαι, σελ. 17

ΕΡΜΗΝΕΙΕΣ • Η ΕΝΝΟΙΑ ΤΟΥ ΚΑΤΟΙΚΕΙΝ 34
φιλολογία
διδακτορική του διατριβή με θέμα πάνω στη
να βρει τον τρόπο με τον οποίο πρέπει να «κτίζει» και να «κατοικεί», συνεπώςκαιναεπικοινωνείμετοντόπο.Ηέννοιατης“ανεστιότητας”εμπεριέχει

«Ενωμένοι να είμαστε, τούτο είναι θείο και ορθό. Από πού, λοιπόν, αυτή η μανία του ανθρώπου, να υπάρχει μόνος Ένας και Ένα μόνο;»

Christian Norberg- Schulz

35 ΑΤΜΌΣΦΑΙΡΑ | ΧΩΡΌΣ • ΜΙΑ ΔΙΑΛΕΚΤΙΚΗ ΤΗΣ ΣΧΕΣΗΣ
11. Κάστρο, Σίφνος, 1920

Ο Heidegger παρουσιάζει την ανεστιότητα ως μια δυνατότητα του

ανθρώπου να μπορέσει να ανακαλύψει τον τρόπο που θα του επιτρέψει να κατοικήσει “ποιητικά”. Είναι ένας τρόπος να δώσει στον άνθρωπο το έναυσμα

να αναζητήσει την ουσία των πραγμάτων και μέσω αυτής του εαυτού του.

Σε τι κατάσταση βρίσκεται το κατοικείν στην επισφαλή εποχή μας;

και απαντά:

[…] η καθαυτό ανάγκη εν σχέση προς το κατοικείν δεν συνίσταται

πρωταρχικά στην έλλειψη κατοικιών. […] είναι επίσης παλαιότερη από

τους παγκόσμιους πολέμους και τις καταστροφές […] συνίσταται στο

γεγονός ότι οι θνητοί πρέπει να αναζητούν πάντοτε εξαρχής την ουσία

του κατοικείν, στο γεγονός ότι πρέπει πρώτα να μάθουν να κατοικούν.

[…] Αφ’ης στιγμής όμως ο άνθρωπος σκέπτεται την ανεστιότητα, αυτή

δεν συνιστά πλέον άθλια κατάσταση. Εάν την σκεφτούμε ορθώς και

τη διαφυλάξουμε καλά στο νου, τότε η ανεστιότητα είναι η μοναδική

προσαγόρευση η οποία καλεί τους θνητούς να εισέλθουν στον χώρο

του κατοικείν.34

και κλείνει την διάλεξη του με μία ακόμη ερώτηση:

Τι θα συνέβαινε άραγε εάν η ανεστιότητα του ανθρώπου συνίστατο στο

γεγονός ότι ο άνθρωπος δεν σκέπτεται ακόμη την καθαυτό [ιδιάζουσα, προσίδια] ανάγκη εν σχέσει προς το κατοικείν ως την ανάγκη;35

34. M. Heidegger ο.π. σελ. 75

35. M. Heidegger ο.π. σελ. 75

ΕΡΜΗΝΕΙΕΣ • Η ΕΝΝΟΙΑ ΤΟΥ ΚΑΤΟΙΚΕΙΝ 36

«Το να κατοικείς σ’ ένα σπίτι σημαίνει, λοιπόν, να ενοικείς στον κόσμο».

Christian Norberg- Schulz

Ο άνθρωπος κατοικεί όταν μπορεί να προσανατολίζετε σε ένα περιβάλλον

και να ταυτίζεται με αυτό ή, εν συντομία, όταν αισθάνεται ότι το περιβάλλον

φέρει νοήματα. Κατοικία λοιπόν σημαίνει κάτι περισσότερο από στέγη. Σημαίνει

ότι οι χώροι στους οποίους εκτυλίσσεται η ζωή είναι τόποι, με την πραγματική

έννοια του όρου.36 Η κατοικία, λοιπόν, προσδιορίζει τη συνολική σχέση

ανθρώπου-τόπου, ενώ ο υπαρξιακός σκοπός της αρχιτεκτονικής συνίσταται στο

να την ενεργοποιήσει μέσω του κτισίματος Ο Heidegger θα πει:

Τα γνήσια κτίσματα αφήνουν το αποτύπωμά τους στο κατοικείν άγοντας το στην ουσία του και στεγάζοντας την ουσία αυτή.37

Genius Loci: Το πνεύμα του τόπου, σελ. 22 37. M.

36.

«Κτίζειν, Kατοικέιν, Σκέπτεσθαι», σελ. 67

37 ΑΤΜΌΣΦΑΙΡΑ | ΧΩΡΌΣ • ΜΙΑ ΔΙΑΛΕΚΤΙΚΗ ΤΗΣ ΣΧΕΣΗΣ
C. Norberg- Schulz, Heidegger, εικ. 12. Πάρος, 1962 Ιωάννης Λάμπρος εικ. 13 Δήλος Herber List
3 ΠΕΡΙ ΠΝΕΥΜΑΤΟΣ ΤΟΥ ΤΟΠΟΥ

3.1 GENIUS LOCI: "ΤΟ ΠΝΕΥΜΑ

Ταυτόχρονα με τις αναζητήσεις περί χώρου και ατμόσφαιρας, εξελίχθηκε

και η αναζήτηση μιας ερμηνείας σχετικά με τον τόπο. Κατά τον Norberg- Schulz, ο οποίος φανερά επηρεασμένος από τα κείμενα του Heidegger, αναφέρει στο

βιβλίο του “Genius Loci: Το πνεύμα του τόπου”, ότι ο τόπος είναι ένας χώρος

που έχει ξεχωριστό χαρακτήρα.38 Από τα αρχαία χρόνια το "genius loci'' ή αλλιώς

"το πνεύμα του τόπου" αναγνωρίζεται ως η συγκεκριμένη πραγματικότητα

που ο άνθρωπος αντιμετωπίζει και στην οποία πρέπει να προσαρμοστεί στην

καθημερινή ζωή του. Η αρχιτεκτονική είναι η φανέρωση του genius loci και

το έργο του αρχιτέκτονα είναι να δημιουργήσει τόπους με νόημα, μέσω των

οποίων βοηθά τον άνθρωπο να κατοικήσει.

Με την λέξη τόπος εννοούμε κάτι περισσότερο από μια αφηρημένη

τοποθεσία.Είναιένασύνολοπραγμάτωνμευλικήυπόσταση,γεωμετρικόσχήμα, υφή και χρώμα. Όλα αυτά τα στοιχεία μαζί αποτελούν τον “περιβαλλοντικό χαρακτήρα”, που είναι η ουσία ενός τόπου. Επιπροσθέτως, θα μπορούσε να

ειπωθεί πως ένας τόπος είναι ένα σύνολο που αναδίδει ένα χαρακτήρα ή μία “ατμόσφαιρα”. Κατά τον Norberg- Schulz ο τόπος είναι ένα ποιοτικό, “ολικό”

φαινόμενο, που δεν μπορούμε να το περιορίσουμε σε καμία από τις επιμέρους

ιδιότητες του, όπως για παράδειγμα τις χωρικές σχέσεις που ενυπάρχουν σ’

αυτόν, χωρίς να μας διαφύγει η συγκεκριμένη φύση του. Το “genius loci” είναι

ρωμαϊκή έννοια, όπως αναφέρει ο Norberg- Schulz:

[...] σύμφωνα με τις αρχαίες ρωμαϊκές δοξασίες κάθε ανεξάρτητο ον

έχει το δικό του δαιμόνιο (genius), το πνεύμα- φύλακα του. Το πνεύμα

αυτό δίνει ζωή στους ανθρώπους και τους τόπους, τους συνοδεύει

από την ζωή μέχρι τον θάνατο και καθορίζει τα χαρακτηριστικά ή την

ουσία του.39

38. C. Norberg-Schulz, Genius Loci: Το πνεύμα του τόπου, σελ.7 39. C. Norberg-Schulz, ο.π. σελ.7

ΠΕΡΙ ΠΝΕΥΜΑΤΟΣ ΤΟΥ ΤΟΠΟΥ • GENIUS LOCI: ΤΟ ΠΝΕΥΜΑ ΤΟΥ ΤΟΠΟΥ 40
ΤΟΥ ΤΟΠΟΥ"

«...ο τόπος αντιπροσωπεύει το μερίδιο της αρχιτεκτονικής στην αλήθεια.»

Ο άνθρωπος από την αρχαιότητα

βίωνε το περιβάλλον, έχοντας δεδομένο

πως αυτό έχει κάποιες ιδιότητες. Ήταν

πολύ σημαντικό και προσπαθούσαν να

συμφιλιωθούνμε το geniusτηςτοποθεσίας

στην οποία ζούσαν, καθώς η επιβίωση

τους εξαρτιόταν από την καλή σχέση με

τον τόπο, τόσο από φυσική όσο και από

ψυχική άποψη. Γίνεται φανερό, μέσα από

κείμενα και την τέχνη, πως στην διάρκεια

του χρόνου το genius loci παραμένει μια

ζωντανή πραγματικότητα. Οι καλλιτέχνες

και οι συγγραφείς πάντοτε εμπνέονταν από

τον τόπο και το περιβάλλον, μεταφέροντας

στο έργο τους βιώματα, συναισθήματα

και τα φαινόμενα της καθημερινής ζωής

που κάθε τόπος έχει. Στην εκτενή ανάλυση

του σχετικά με το πνεύμα του τόπου ο Nor-

berg- Schulz αναφέρει, πως η ταυτότητα

του τόπου είναι αυτή η οποία βοηθά στην

δημιουργία και ύπαρξη της ανθρώπινης

ταυτότητας.40 Κατά τον Heidegger είναι

σημαντικό το περιβάλλον μας, όχι μόνο

να διαθέτει μια δομή του χώρου που να

διευκολύνει τον προσανατολισμό, αλλά

και να αποτελείται από συγκεκριμένα

αντικείμενα με τα οποία να μπορεί κάποιος

να ταυτιστεί.41(`πηγή σελ 24)

40. C. Norberg-Schulz, ο.π. σελ.24

41. M. Heidegger, «Κτίζειν, Kατοικέιν, Σκέπτεσθαι», σελ. 24

41 ΑΤΜΌΣΦΑΙΡΑ | ΧΩΡΌΣ • ΜΙΑ ΔΙΑΛΕΚΤΙΚΗ ΤΗΣ ΣΧΕΣΗΣ
εικ. 14. Ναός Ποσειδώνα/ Σούνιο, Αττική

Στην πραγματικότητα η ταυτότητα ενός ανθρώπου καθορίζεται από τον

τόπο τον οποίο γεννήθηκε και μεγάλωσε και αυτόν στον οποίο διαμένει, έχοντας

ο κάθε τόπος συγκεκριμένα περιβαλλοντικά και πολιτισμικά χαρακτηριστικά, απευθείας κάποιος που τα γνωρίζει μπορεί να τα αντιληφθεί και να θεωρήσει

πως κάποια από αυτά μπορεί να έχουν επηρεάσει τον άνθρωπο και να τον

ακολουθούν στην ζωή του ως και σήμερα. Ο Norberg-

από τον Heidegger στον Koolhaas”:

[...] ο Noberg-Schulz

Για να καταστήσει σαφή την θέση του χρησιμοποίησε τον όρο genius lociτοπνεύματουτόπου-έναλατινικόόροπουσήμαινεαρχικάτον«δαίμονα»του τόπου,τιςπροσωποποιημένεςαόρατεςδυνάμειςπουενοικούσανσεδάση,σε

ποτάμια, σε βουνοκορφές, τους φύλακες- αγγέλους κτιρίων και πόλεων.43

Κατά τον 20ο αιώνα η σημασία του genius loci άλλαξε και αποδόθηκε από

τον Noberg- Schulz ως «μια συγκεκριμένη πραγματικότητα» στην οποία υπάρχει ο άνθρωπος.44 To genius loci λειτουργεί ως ένας μηχανισμός υπενθύμισης στα φυσικά

περιβάλλοντα, καλώντας τους ανθρώπους να σεβαστούν τα ιδιαίτερα χαρακτηριστικά

του εκάστοτε τόπου, και να εκτιμήσουν τα πολιτιστικά περιβάλλοντα. Κάθε τόπος

έχει χαρακτηριστικά και αυτά είναι που δημιουργούν το «πνεύμα». Επιπλέον, ο ίδιος αναφέρει πως η ταυτότητα αυτή του τόπου μένει σταθερή στον χρόνο, καθώς αυτά τα χαρακτηριστικά που συμβάλλουν στην δημιουργία

41. Christian Norberg-Schulz, Genius Loci: Το πνεύμα του τόπου, σελ.24

42. Ο Παύλος Λέφας (1955) είναι καθηγητής Ιστορίας και Θεωρίας του τμήματος Αρχιτεκτόνων

43. Π. Λέφας, Αρχιτεκτονική και κατοίκηση: από τον Heidegger στον Koolhaas, σελ. 135 44. C. Norberg-Schulz, Genius Loci: Το πνεύμα του τόπου, σελ.5

Schulz λέει: «...το να αναφερθεί κάποιος στον τόπο του όταν θέλει να πει ποιος είναι, είναι πιο σημαντικό από το να αναφερθεί
Όπως
στην ιδιότητα του ή στο επάγγελμα του.»41
αναφέρει και ο Παύλος Λέφας42 στο “Αρχιτεκτονική και κατοίκηση:
τόπου ΠΕΡΙ ΠΝΕΥΜΑΤΟΣ ΤΟΥ ΤΟΠΟΥ • GENIUS LOCI: ΤΟ ΠΝΕΥΜΑ ΤΟΥ ΤΟΠΟΥ 42
του πνεύματος του
Μηχανικών του Πανεπιστημίου Πατρών. Έχει γράψει και επιμεληθεί πολλά βιβλία αρχιτεκτονικής θεωρίας.
υποστήριξε ότι για να είναι τόπος ένας χώρος οφείλει να έχει κάποια διακριτά φυσικά ή πολιτιστικά χαρακτηριστικά.

είναι αμετάβλητα. Αντίθετος σε αυτή την άποψη είναι ο Andrew John Herbertson45 , ο οποίος πιστεύει πως το πνεύμα του τόπου είναι συνδεδεμένο με

το πνεύμα της εποχής και αυτό αλλάζει όποτε αλλάζει το πνεύμα της εποχής, επηρεάζεταικαιαλλάζειδηλαδήμετηνσχέσητουανθρώπουπροςτηνπεριοχή.46

Μεταγράφοντας την θέση του Heidegger ο Noberg-Schulz αναφέρει:

Έτσι,οτόποςείναιέναποιοτικό,“συνολικό”φαινόμενο,πουδενμπορούμενα τοαναγάγουμεσεκαμιάαπότιςιδιότητεςτου,όπωςείναιοιχωρικέςσχέσεις, χωρίς να χάσουμε τη συγκεκριμένη του φύση από τα μάτια μας.47

του τόπου, σελ.8

εικ. 15. Πλακόστρωτο Φιλοπάππου 1954-1957

Αθήνα

Δημήτρης Πικιώνης

σελ. 153

43 ΑΤΜΌΣΦΑΙΡΑ | ΧΩΡΌΣ • ΜΙΑ ΔΙΑΛΕΚΤΙΚΗ ΤΗΣ ΣΧΕΣΗΣ
ήταν ο πρώτος καθηγητής Γεωγραφίας της Οξφόρδης το 1905 και μέλος της Βασιλικής Μετεωρολογικής
45. Andrew John Herbertson(1865-1915)
Εταιρείας.
46. Andrew John Herbertson, «Regional Environment, Heredity and Consciousness»,The Geographical Teacher, 47. C. Norberg-Schulz, Genius Loci: Το πνεύμα
«Πού πέφτει το κύριο βάρος στο εκεί ή στο είναι; Στο εκεί θα ‘κανα να πω εδώ – πρέπει σε πρώτη φάση το είναι μου; είναι μου θα βρω πρώτα τη εδραίωσής μου σ’ ένα εδώ;» (“Η ποιητική του χώρου”, σελ. «Πού πέφτει το κύριο βάρος του εκεί είναι, στο εκεί ή στο είναι; Στο εκεί – που καλύτερα θα ‘κανα να πω εδώ – πρέπει ν’ αναζητήσω σε πρώτη φάση το είναι μου; Ή μήπως στο είναι μου θα βρω πρώτα τη βεβαιότητα της εδραίωσής μου σ’ ένα εδώ;» Gaston Bachelard

βάρος του εκεί είναι, – που καλύτερα πρέπει ν’ αναζητήσω μου; Ή μήπως στο βεβαιότητα της

3.2 Ο ΤΟΠΟΣ ΚΑΙ Ο ΧΩΡΟΣ

Η έννοια της λέξης “χώρος” συνδέεται σκόπιμα

με την αρχιτεκτονική και αποκτά βαθύτερη ανάλυση

του όρου, στα τέλη του 19ου αιώνα καθώς συμβαδίζει

μεέναπλαίσιοκοινωνικών,οικονομικώνκαιπολιτικών αλλαγών. Η διαδικασία όμως αυτή της ώσμωσης

μεταξύ των τεχνολογικών, φυσικών και κοινωνικών

επιστημών σε συνδυασμό με την φιλοσοφική σκέψη, που είχε οδηγήσει στην γέννηση της έννοιας του χώρου, ξεκινά από πολύ παλιότερα, στην εποχή της Αναγέννησης, όπου πολλά δεδομένα έως τότε

ανατράπηκαν και σηματοδοτήθηκε η αφετηρία μιας

νέας εποχής στην ανθρώπινη κοινωνία, αφήνοντας

πίσω την σκοτεινή εποχή του Μεσαίωνα.

Από την φιλοσοφία ήδη η έννοια του χώρου

είναι συνυφασμένη με αυτή του τόπου και έχει στο

ενεργητικό της πολλές ερμηνείες. Ο Merlau- Ponty στο έργο του "Η Φαινομενολογία της Αντίληψης"

θεμελιώνει με βάση την ψυχολογία, την ψυχιατρική, αλλά και την φιλοσοφία την διάκριση ανάμεσα στον “γεωμετρικό χώρο” και τον “ανθρωπολογικό χώρο”.

Ως ανθρωπολογικός χώρος ορίζεται ο “ανθρώπινος, ο υπαρξιακός χώρος” ο χώρος αυτός στον οποίο ένα ον βιώνει μια εμπειρία και βρίσκεται κυριολεκτικά μέσα στον κόσμο.48

48. Παύλος Λέφας, Αρχιτεκτονική και κατοίκηση, σελ. 153

εδώ;» σελ.
238 )
45 ΑΤΜΌΣΦΑΙΡΑ | ΧΩΡΌΣ • ΜΙΑ ΔΙΑΛΕΚΤΙΚΗ ΤΗΣ ΣΧΕΣΗΣ
εικ. 16. Arsenale 2021/ Venice Biennale, Italy

Με βάση τον Heidegger στο «Κτίζειν, Κατοικείν, Σκέπτεσθαι» ο οποίος

αναφέρει ότι η σχέση του ανθρώπου με τον χώρο “χτίζεται” μεταφορικά και

κυριολεκτικά, ο Noberg- Schulz επισημαίνει πως το ενδιαφέρον του ανθρώπου

για τον χώρο έχει υπαρξιακές ρίζες και συνεχίζει αναφερόμενος στο έργο του

Heidegger, βασιζόμενος στην «ανάγκη να δημιουργήσει ζωτικές σχέσεις στο

περιβάλλον του, να φέρει νόημα και τάξη σε ένα κόσμο εικόνων και γεγονότων»49

Ο Noberg- Schulz θεωρεί πως ο χώρος δεν έχει μόνο μία ταυτότητα, ακόμη

και ο ‘’υπαρξιακός, ο “ανθρώπινος χώρος” είναι μία σύνθεση πολλών χώρων.

Είναι ο χώρος στον οποίο ο άνθρωπος καλύπτει τις βιολογικές του ανάγκες

και του επιτρέπει να ζει, είναι ο αντιληπτικός χώρος τον οποίο ο άνθρωπος

κατανοεί μέσω των αισθήσεων του. Η διαδικασία αντίληψης αυτού του χώρου γίνεται σταδιακά, καθώς και ο ίδιος ο χώρος διαμορφώνεται παράλληλα με

την αντιληπτική διαδικασία του ίδιου του ανθρώπου, μπορεί να είναι για παράδειγμα συλλογικός χώρος ο οποίος να βρίσκεται σε μια συνεχή εξέλιξη

και διαμόρφωση. Όπως αναφέρει ο Noberg- Schulz αυτή ξεκινά πριν αρχίσει ο

άνθρωπος να οικοδομεί, δηλαδή ξεκινά με την οικειοποίηση του χώρου μέσω

της αντίληψης. Η σχέση του ανθρώπου με τον χώρο εμπεριέχει αρχικά την

διαδικασία αφομοίωσης με βάση τα δικά του αντιληπτικά πρότυπα και στην

πορεία να μεταφράσει αυτά σε αρχιτεκτονικές δομές.Σε αυτό το σημείο όμως

δημιουργείται ένας αντίλογος μεταξύ των λεγόμενων του Noberg- Schulz και

της μοντέρνας αρχιτεκτονικής, η οποία διακήρυττε πως θέλει η μορφή των

κτιρίων να εξαρτάται μόνο από την λειτουργία. Αυτή η θέση έρχεται αντίθετη

στην ανθρώπινη φύση και δεν αφήνει περιθώρια στην επέμβαση του ανθρώπου,

μέσω της οικειοποίησης του χώρου, με βάση τα δικά του αντιληπτικά πρότυπα.50

ΠΕΡΙ ΠΝΕΥΜΑΤΟΣ ΤΟΥ ΤΟΠΟΥ • Ο ΤΟΠΟΣ ΚΑΙ Ο ΧΩΡΟΣ 46 49. Π.
50.
Λέφας, ο.π. σελ. 153
Π. Λέφας, ο.π. σελ. 153-155

Ο Kenneth Frampton51 στο άρθρο του «On reading Heidegger» επισήμανε

ότι η έννοια του χώρου εμπεριέχει μια αφαιρετική σκέψη, ενώ αυτή του

τόπου βιωματική αντίληψη. Είναι ένα άρθρο με κριτική διάθεση ως προς την

αρχιτεκτονική των δεκαετιών του 60’ και 70’, καθώς την εποχή εκείνη η έντονη

ανοικοδόμηση δημιούργησε χώρους δυνητικά αφιλόξενους που δεν μπορούσαν

να βιωθούν, δηλαδή «μη- τόπους». Η έννοια του μη- τόπου είναι ένας όρος

«Μες στις χιλιάδες κυψέλες του

ο χώρος κρατά συμπυκνωμένο το

χρόνο. Σ’ αυτό χρησιμεύει ο χώρος.»53

Gaston Bachelard

εικ. 17. Το Σπίτι με τις Καρυάτιδες / Ψυρρή, Αθήνα Ιωάννης Καρακατσάνης

51. Ο Kenneth Frampton (1930) είναι Βρετανός αρχιτέκτονας, κριτικός και

τηςμοντερνιστικήςαρχιτεκτονικής στον κόσμο.

52. Π. Λέφας, ο.π. σελ. 159

53. G. Bachelard, Η Ποιητική του Χώρου 2014, σελ.35

με αρνητική χροιά,
για
των σύγχρονων
52 47 ΑΤΜΌΣΦΑΙΡΑ | ΧΩΡΌΣ • ΜΙΑ ΔΙΑΛΕΚΤΙΚΗ ΤΗΣ ΣΧΕΣΗΣ
καθώς δημιουργήθηκε
να περιγράψει την εικόνα
αφιλόξενων πόλεων.
ιστορικός. Είναι καθηγητής Αρχιτεκτονικής στο ColumbiaUniversityτηςΝέαςΥόρκης.Θεωρείταιέναςαπότουςκορυφαίουςιστορικούς
εικ. 18. Bruder Klaus Field Chapel, 2007 / Mechernich, Germany Peter Zumthor
4 ΓΙΑ ΜΙΑ ΑΤΜΟΣΦΑΙΡΑ

Η έννοια της ατμόσφαιρας μπορεί να ερμηνευτεί με πολλούς τρόπους

και από διαφορετικές οπτικές, ενώ παράλληλα, μένει ασαφής και αρκετά υποκειμενική, καθώς ο τρόπος με τον οποίο βιώνεται από το κάθε υποκείμενο είναι τελειώς διαφορετικός και εξαρτάται από τα βιώματα και τις εμπειρίες του.

Ο όρος έχει αφετηρία την μετεωρολογία και χαρακτηρίζει την περιβαλλοντική ποιότητα που προσδιορίζει τα στοιχεία της φύσης (την ποιότητα του αέρα, το κλίμα, το νέφος κλπ). Η έννοια της ατμόσφαιρας αφορά και την χωρική και σωματική αίσθηση της αύρας του περιβάλλοντος (η ατμόσφαιρα ενός τόπου, μιας πόλης, μιας κατάστασης κλπ). Όταν γίνεται λόγος για την ατμόσφαιρα, ως

η αρχιτεκτονική,αναδύεταιαπότονχώροκαιμεταβάλλεταιμέσωτηςκαθημερινής

χρήσης του, η οποία επιφέρει φθορά. Είναι αυτό το στοιχείο του χώρου το οποίο επηρεάζει όλους τους χρήστες και γεφυρώνει το κενό μεταξύ υποκειμένου και

χώρου. Η ατμόσφαιρα είναι αυτή που καταφέρνει να χαράξει στην μνήμη μας

τα αισθήματα και τις εικόνες από έναν βιωμένο χώρο, ακόμη και αν σταματήσει

να υφίσταται. Είναι αυτή που συμβάλει μέσω της αντιληπτικής διαδικασίας

στην δημιουργία μιας βιωματικής εμπειρίας. Γι ’αυτό τον λόγο ο Pallasmaa την

θεωρεί ως την έκτη αίσθηση.54

Ο Mark Wigley55 ξεκινά το άρθρο του «Η Αρχιτεκτονική της Ατμόσφαιρας»

λέγοντας πως: «η ατμόσφαιρα ξεκινά ακριβώς σε εκείνο το σημείο όπου τελειώνει η κατασκευή» και περιβάλλει το κτήριο με τον ίδιο τρόπο που περιβάλλουν τα αέρια σώματα τη γη. Είναι ο ήχος, το φως, η σκιά, η ζέστη, η

53. G. Böhme, G. Urban Atmospheres: Charting New Directions for Architecture and Urban Planning . Στο C. Borch, Architectural Atmospheres: On the Experience and Politics of Architecture, σ. 42-59

54. J. Pallasmaa, Questions of Perception: Phenomenology of Architecture, σελ. 30

55. Ο Mark Antony Wigley (1956)είναι αρχιτέκτονας και συγγραφέας από τη Νέα Ζηλανδία. Από το 2004 έως το 2014, ήταν Κοσμήτορας της Μεταπτυχιακής Σχολής Αρχιτεκτονικής, Σχεδιασμού και Συντήρησης του Πανεπιστημίου Κολούμπια.

αισθητική αντίληψη, τότε είναι σκόπιμο να ορίζεται μέσα από την σχέση της με άλλες έννοιες
τους συσχετισμούς που δημιουργεί με τα αισθητήρια όργανα.53 Η ατμόσφαιρα στον δομημένο χώρο υπάρχει όπου υπάρχει και
και
ΓΙΑ ΜΙΑ ΑΤΜΟΣΦΑΙΡΑ • ΟΡΙΣΜΟΣ 50
4.1 ΟΡΙΣΜΟΣ ΑΤΜΟΣΦΑΙΡΑΣ

μυρωδιά και η υγρασία του χώρου, «ένα στροβιλίζον κλίμα απροσδιόριστων αποτελεσμάτων, που παράγεται από ένα στατικό αντικείμενο». Εμπεριέχεται

Εμπεριέχεται στο χώρο, ανάμεσα στο κτήριο και το περιεχόμενό του, ή ακόμα

καλύτερα «η ατμόσφαιρα είναι ακριβώς η έννοια η οποία προσδιορίζει τον χώρο», αναφέρει στο ίδιο κείμενο.Χρησιμοποιώντας την έννοια της εκ φύσεως

διαίσθησης μάλιστα, αναφέρει, πως «η ατμόσφαιρας είναι μέρος αυτού που

αποκαλούμε κοινή λογική: γνώση και εμπειρία ενσωματωμένη σε μια ευρέα κοινωνία, ικανή να μοιραστεί και να ανταλλαχθεί.»

51 ΑΤΜΌΣΦΑΙΡΑ | ΧΩΡΌΣ • ΜΙΑ ΔΙΑΛΕΚΤΙΚΗ ΤΗΣ ΣΧΕΣΗΣ
56
56.. M. Wigley, The architecture of the atmosphere: constructing atmospheres, σελ. 68 εικ. 19. Jatiyo Sangshad Bhaban/ Dhaka, Bangladesh Louis Kahn εικ. 20. Tomba Brion, 1967-1978 / Altivole, Italy Carlo Scarpa

Ο Pallasmaa, με βάση τα κείμενα του Μ. Wigley, αναφέρει πως «Η

ποιότητα ενός χώρου ή τόπου δεν είναι απλώς μια ποιότητα οπτικής αντίληψης, όπως συχνά αναφέρεται. Η κριτική του χαρακτήρα ενός περιβάλλοντος είναι

ένα σύστημα πολλαπλών λειτουργιών αμέτρητων παραγόντων, το οποίο άμεσα

και συνθετικά γίνεται αντιληπτό ως μια συνολική ατμόσφαιρα, συναίσθημα, διάθεση ή κλίμα».57 Ο Zumthor στο βιβλίο του “Atmospheres”, αναγνωρίζει κάποια στοιχεία που παίζουν ρόλο στην κατασκευή αρχιτεκτονικής ατμόσφαιρας

στα έργα του, όπως «η συμβατότητα του υλικού», «ο ήχος του χώρου», «η θερμοκρασία του χώρου», «τα επίπεδα οικειότητας» και την «αρχιτεκτονική ως περιβάλλον».58

57. J. Pallasmaa, ‘Space, Place and Atmosphere’ διάλεξη: The Hague: Royal Academy of Art/ Stroom

58. P. Zumthor, Atmospheres: Architectural Environments- Surrounding Objects

ΓΙΑ ΜΙΑ ΑΤΜΟΣΦΑΙΡΑ • ΟΡΙΣΜΟΣ 52
εικ. 21. Therme Vals, 1996 / Vals, Switzerland Peter Zumthor

0 Peter Zumthor περιέγραψε από τι αποτελείται πραγματικά μία αρχιτε-

κτονική ατμόσφαιρα. Είναι: «η ιδιόμορφη αυτή πυκνότητα και διάθεση, αυτό

το αίσθημα της παρουσίας, της ευημερίας, της αρμονίας, της ομορφιάς [...]

στο πλαίσιο των οποίων βιώνω αυτό που διαφορετικά δεν θα βίωνα ακριβώς με

αυτόν τον τρόπο.»59 Όπως γράφει και ο Pallasmaa, «καθώς εισερχόμαστε σε ένα

χώρο, ο χώρος εισέρχεται σε εμάς».60 Συνεπώς, η ατμόσφαιρα του χώρου είναι

κάτι πνευματικό, μια βιωματική ιδιοκτησία ή ένα χαρακτηριστικό που αιωρείται

μεταξύ του αντικειμένου και του υποκειμένου, είναι μια υποκειμενική συνθήκη

που το εκάστοτε υποκείμενο την βιώνει εντελώς διαφορετικά, με βάση τις προσλαμβάνουσες του και τα βιώματα του.

«[...] η ατμόσφαιρα είναι μια σύζευξη προσωπικών και συναισθηματικών

εντυπώσεν του χώρου, αλλά αυτή η

σύζευξη αναπαράγεται με την αντικειμενική συνάθροιση υλικοτήτων, χωρικών αναλογιών, ιχνών του χρόνου στις υλικότητες, σχέσεων μεταξύ των υλι-

κών και του χώρου ή των κτιρίων, του

ρυθμού ή του φωτός.»61

Juhani Palasmaa

53 ΑΤΜΌΣΦΑΙΡΑ | ΧΩΡΌΣ • ΜΙΑ ΔΙΑΛΕΚΤΙΚΗ ΤΗΣ ΣΧΕΣΗΣ
59. P. Zumthor Thinking architecture 60. J. Pallasmaa, Space, Place, and Atmosphere: Peripheral Perception in Existential Experience, σελ. 18-41 61. J. Pallasmaa, ο.π.
εικ. 22. Kimbell Art Museum, 1972/ Fort Worth, Texas Louis Kahn

Γίνεται αντιληπτό ότι αυτή η έννοια, η οποία ξεκίνησε τις τελευταίες

δεκαετίες να απασχολεί τους αρχιτέκτονες, περιέχει μια διάχυτη ασάφεια ως

προς τον καθορισμό της. Είναι φανερό πως δεν μπορεί να καταγραφεί με ομόφωνη ακρίβεια από αρχιτέκτονες και θεωρητικούς της αρχιτεκτονικής, ούτε

μέσα από τα κείμενα και τα σχέδια τους, ούτε μέσα από τις προσωπικές τους εμπειρίες. Το στοιχείο της υποκειμενικότητας που την περιβάλλει, είναι τόσο έντονο που οποιαδήποτε απόλυτη ερμηνεία θα στερούνταν ακρίβειας και πληρότητας, καθώς μπορούμε μέχρι ενός σημείου να πλαισιώσουμε την ερμηνεία του ορισμού και να περιγράψουμε κάποια βασικά στοιχεία που συμβάλλουν

στην δημιουργία της, όπως τα υλικά, η θέση του κτιρίου, η σχέση με τον τόπο

και το πολιτισμικό υπόβαθρο, ο ήχος, η θερμοκρασία κ.α. Τα υπόλοιπα στοιχεία

που συμπληρώνουν την ερμηνεία της είναι αποτέλεσμα της σχέσης υποκειμέ-

νου και αντικειμένου, μιας σχέσης που ενέχει ασαφή όρια, καθώς σε αυτήν εμπλέκονται το ανθρώπινο σώμα, η αντίληψη, η φαντασία και το υπόβαθρο του υποκειμένου, με τα βιώματα, τις μνήμες και τις εμπειρίες του. Το συνονθύλευ-

μα όλων αυτών των μοναδικών και υποκειμενικών στοιχείων, που συμβάλλουν

στην αντίληψη της ατμόσφαιρας είναι αυτό που, όπως αναφέρθηκε και προηγουμένως, ο Pallasmaa αποκαλεί «έκτη αίσθηση».

«Τι εννοούμε όταν μιλάμε για αρχιτεκτονική ποιότητα; Ποιότητα στην

αρχιτεκτονική είναι για μένα αυτό που έχει ένα κτήριο και καταφέρνει

να σε συγκινήσει. Τι είναι αυτό που

καταφέρνει να με συγκινεί; Πώς

μπορώ να το βάλω στα έργα μου; ...πως γίνεται κάποιος να σχεδιάζει

πράγματα με μια τόσο όμορφη, φυσική παρουσία, πράγματα που σε συγκινούν κάθε φορά. Μια λέξη γι’ αυτό είναι ατμόσφαιρα.»

. Wigley, The architecture of the atmospher

62. P. Zumthor, Atmospheres, σελ. 11

ΓΙΑ ΜΙΑ ΑΤΜΟΣΦΑΙΡΑ • ΟΡΙΣΜΟΣ 54
62
55 ΑΤΜΌΣΦΑΙΡΑ | ΧΩΡΌΣ • ΜΙΑ ΔΙΑΛΕΚΤΙΚΗ ΤΗΣ ΣΧΕΣΗΣ
εικ. 23. Al-Irsyad Mosque, 2010/ Padalarang, West Java – Indonesia Urbane

εικ.

4.2 Η ΔΙΑΔΙΚΑΣΙΑ ΤΗΣ ΑΝΤΙΛΗΨΗΣ

Για να γίνει σαφής ο τρόπος με τον οποίο ο άνθρωπος αντιλαμβάνεται την ατμόσφαιρα, θα είναι χρήσιμο πρώτα να επεξηγηθεί η διαδικασία της αντιληπτικής λειτουργίας. Η ανάπτυξη της αντιληπτικής

λειτουργίας είναι μια συνεχόμενη και σύνθετη διαδικασία η οποία στο πέρασμα του χρόνου αυξάνει συνεχώςτηνικανότητατουανθρώπουνααντιλαμβάνεται και να καταγράφει τον χώρο. Πρόκειται για την σύνθεση των ποικίλων αισθητηριακών, μνημονικών και συγκινησιακών δεδομένων. Είναι μια ανθρώπινη ικανότητα που συνεχώς διευρύνεται, εμπλουτιζόμενη

με καινούργιες σχέσεις και παραστάσεις, οξύνεται και νοητικοποιείται, συγκροτώντας τελικά ανώτερες μορφές συνειδησιακής ζωής.63

Με βάση τις φαινομενολογικές αναλύσεις η

αντίληψηενόςχώρουείναιαλληλένδετημετοσωματικό σχήμακαιτοντρόπουπουοάνθρωποςβιώνειένανχώρο.

Με βάση τον Heidegger, ο Merlau-Ponty επιχειρεί μια περιγραφή των πρωτογενών εμπειριών της ενσώματης

ανθρώπινης ύπαρξης, ασκώντας με αυτόν τον τρόπο κριτική στον ορθολογισμό.64 Αναπτύσσει την έννοια του σωματικού σχήματος για να δείξει ότι το σώμα αποτελεί έναν αυθύπαρκτο χώρο , έχει δηλαδή μια χωρικότητα, την οποία το υποκείμενο αντιλαμβάνεται ως κάτι ενιαίο και όχι ως χωριστά μέρη. Η έννοια της

63. Σ. Κονταράτος, Η εμπειρία του αρχιτεκτονημένου χώρου και το σωματικό σχήμα, Κεφ.1 Εισαγωγή 64. Ν.-Ι. Τερζόγλου, Ιδέες του χώρου στον εικοστό αιώνα, σελ. 277-281

57 ΑΤΜΌΣΦΑΙΡΑ | ΧΩΡΌΣ • ΜΙΑ ΔΙΑΛΕΚΤΙΚΗ ΤΗΣ ΣΧΕΣΗΣ
24. School Library 2012/ Gando, Burkina Faso Francis Kéré

χωρικότητας του σώματος αποτελεί ένα πολύ σημαντικό στάδιο προκειμένου να

κατανοηθεί με επιτυχία η μελέτη του Merleau-Ponty στην ολότητά της.65 Αυτό

που τον ενδιαφέρει, είναι να αναδείξει την οργανική εμπλοκή του σώματος με

τον αντιληπτό κόσμο, να τονίσει τον άρρηκτο δεσμό πνεύματος, σώματος και

κόσμου. Η αντιληπτική διαδικασία για τον Merlau- Ponty, δεν εξαντλείται στην

σκέψη για τον κόσμο, αλλά προϋποθέτει και το σώμα. Το πνεύμα που αντιλαμβάνεται βρίσκεται σε αμφίσημη σχέση με το σώμα του, καθώς και με τα πράγματα που το περιβάλλουν.66 Το κάθε σώμα έχει ένα πνεύμα το οποία βρίσκεται σε άμεση σχέση με αυτό. Έχει μια εσωτερικότητα που καθορίζει τον τρόπο συσχετισμού με τον κόσμο και η διαδικασία της αντίληψης και κατανόησης

αυτού βασίζεται στον

Ο κόσμος είναι γεμάτος σημάδια και πληροφορίες, που σημαίνουν

κάτι το οποίο κανένας δεν καταλαβαίνει εξ’ ολοκλήρου επειδή ακόμη

και αυτό φαίνεται να είναι απλώς σημάδι για κάτι άλλο. Παρ’ όλα

αυτά η ουσία παραμένει κρυμμένη. Κανένας ποτέ δεν καταφέρνει

να τη δει. Ωστόσο, είμαι πεπεισμένος ότι η ουσία των πραγμάτων

υπάρχει, όσο κι αν βρίσκεται υπό εξαφάνιση. Είναι η γη και το νερό,

το φως του ήλιου, τα τοπία και η βλάστηση∙ και είναι τα αντικείμενα,

φτιαγμένα από τον άνθρωπο, όπως οι μηχανές, τα εργαλεία ή τα

μουσικά όργανα, τα οποία είναι αυτό που είναι, τα οποία δεν είναι

απλά μέσα ενός καλλιτεχνικού μηνύματος, και των οποίων η παρουσία

είναι αυτονόητη.67

65. M. Merleau- Ponty, Η αμφιβολία του Σεζάν. Το μάτι και το πνεύμα, σελ.10

66. Σ. Κονταράτος, ο.π. σελ.69

67. P. Zumthor, Thinking Architecture, sel. 16

τρόπο με τον οποίο υπάρχει και κινείται στον κόσμο. Στο βιβλίο του
Zumthor
“Thinking Architecture”, ο
γράφει:
ΓΙΑ ΜΙΑ ΑΤΜΟΣΦΑΙΡΑ • Η ΔΙΑΔΙΚΑΣΙΑ ΤΗΣ ΑΝΤΙΛΗΨΗΣ 58

Επιπλέον, ο Zumthor στο βιβλίο του “Atmospheres: architectural environments, surrounding objects” αναφέρει ότι:

Αντιλαμβανόμαστε την ατμόσφαιρα μέσω της συναισθηματικής μας

ευαισθησίας- μία μορφή αντίληψης απίστευτα γρήγορη η οποία

συμβαίνει στιγμιαία και ασυναίσθητα αναγκαία για την επιβίωση μας.

Δε μας εξασφαλίζει κάθε κατάσταση χρόνο για να αποφασίσουμε το αν

μας αρέσει κάτι ή όχι ή αν θα ήταν καλύτερο να κατευθυνθούμε προς

την αντίθετη κατεύθυνση. Είμαστε ικανοί μίας άμεσης εκτίμησης, μίας

αυθόρμητης συναισθηματικής απάντησης να απορρίπτουμε πράγματα

στη στιγμή.68

59 ΑΤΜΌΣΦΑΙΡΑ | ΧΩΡΌΣ • ΜΙΑ ΔΙΑΛΕΚΤΙΚΗ ΤΗΣ ΣΧΕΣΗΣ
68. P. Zumthor, tmospheres:architectural environments, surrounding objects, σελ. 13 εικ. 25. Therme Vals 1995/ / Vals, Switzerland Peter Zumthor

Ο Pallasmaa στο "Questions of Perception, Phenomenology of Architecture", θεωρεί πως η αντίληψη ενός χώρου δεν προκύπτει μόνο μέσω της όρασης και πως ο σκοπός της αρχιτεκτονικής είναι να κεντρίσει όλες τις αισθήσεις του ανθρώπου για να του γεννήσει συναισθήματα και να δημιουργηθούν

εμπειρίες μέσω της περιήγησης του στον χώρο. Ο άνθρωπος αντιλαμβάνεται το

κτίριο ταυτόχρονα με όλες του τις αισθήσεις, γι’ αυτό τον λόγο πιστεύει πως

το κάθε κτίριο πρέπει να αποτελεί πηγή δημιουργίας εμπειριών για τον κάθε

άνθρωπο.69 Η Αλέκα Μουρίκη στην Εισαγωγή του βιβλίου του Merlau-Ponty “Η

αμφιβολία του Σεζάν" αναφέρει:

Η αντιληπτική μας συμπεριφορά δεν μπορεί να θεωρηθεί ούτε απλό αποτέλεσμα της επενέργειας των εξωτερικών πραγμάτων πάνω στο σώμα (καθαρή εξωτερικότητα) ούτε εξαρτάται αποκλειστικά και μόνο

από την δραστηριότητα ενός γνωρίζοντος υποκειμένου, μιας καθαρής

συνείδησης (καθαρή εσωτερικότητα). Αναδύεται μάλλον μέσα από

τις σχέσεις που το συγκεκριμένο υποκείμενο (σωματικό εγώ και

σκεπτόμενο ον ταυτοχρόνως) συνάπτει με τον κόσμο και τα πράγματα

γύρω του. Υποκείμενο, σώμα και κόσμος είναι λοιπόν οι βασικοί άξονες

γύρω από τους οποίους στρέφεται η μερλωποντιακή φαινομενολογία

της αντίληψης.70

Συμπεραίνουμε, πως η αντίληψη της ατμόσφαιρας γίνεται ασυνείδητα

και ακαριαία και αυτό επιβεβαιώνει την ύπαρξη ενός ασυνείδητου μηχανισμού

αντίληψης. Ενώ έχουμε την πεποίθηση πως αντιλαμβανόμαστε τα πάντα με ακρίβεια και απόλυτο έλεγχο, αυτό είναι μια εσφαλμένη αντίληψη που έχουμε, καθώς είναι κατακερματισμένη. Η εικόνα που σχηματίζουμε για τον κόσμο γύρω μας συγκρατείται ενιαία, επειδή οι αισθήσεις μας, λόγω της κίνησης και της μετάφρασης των έμφυτων αντιληπτικών μηχανισμών που έχουμε, εργάζονται διαρκώς για να δεχθούν τα ερεθίσματα.

69. J. Pallasmaa, Questions of Perception, Phenomenology of Architecture, σελ.35 70. Αλέκα Μουρίκη, Η αμφιβολία του Σεζάν, εισαγωγή, σελ. 10

ΓΙΑ ΜΙΑ ΑΤΜΟΣΦΑΙΡΑ • Η ΔΙΑΔΙΚΑΣΙΑ ΤΗΣ ΑΝΤΙΛΗΨΗΣ 60

«Οκόσμοςόπωςτοναντιλαμβανόμαστε,τέλος,ούτεκαιαυτόςαποτελεί

ένα συμπαγές αντικείμενο πάνω στο οποίο η σκέψη κυριαρχεί.

Μολονότι, αποτελεί ένα είδος συνεκτικού ιστού όλων των όντων που

συμμετέχουν σ'αυτόν και τα συναρμόζει, ωστόσο δεν μπορούμε να

τον θεωρήσουμε έργο περατωμένο, υποκείμενο στον απόλυτο έλεγχο

μας.»71

71. Αλέκα Μουρίκη, Η αμφιβολία του Σεζάν, εισαγωγή, σελ. 11

61 ΑΤΜΌΣΦΑΙΡΑ | ΧΩΡΌΣ • ΜΙΑ ΔΙΑΛΕΚΤΙΚΗ ΤΗΣ ΣΧΕΣΗΣ

ΓΙΑ

4.3.1 Η ΕΝΝΟΙΑ ΤΟΥ ΧΩΡΟΥ

Ο Rudolf Arnheim72 στο «Η δυναμική της αρχιτεκτονικής μορφής»

επιχειρεί να αναλύσει και να δώσει έναν ορισμό σχετικά με την έννοια του χώρου. Ξεκινά την ανάλυση του λέγοντας πως υπάρχουν δύο θεωρίες σχετικά

με τον ορισμό του χώρου. Η μία είναι αυτή που θεωρεί τον χώρο ως αυτοτελή

οντότητα , άπειρη και ως ένα κενό όχημα έτοιμο να πληρούται με πράγματα.

Στην πορεία παραθέτει κάποια από τα γραφόμενα του Πλάτων στον Τίμαιος ο

ανέφερε τον χώρο ως «μητέρα και δοχείο όλων των δημιουργημάτων και των ορατών και με οποιοδήποτε τρόπο αισθητών πραγμάτων». Τον θεώρησε

[...]την οικουμενική φύση που δέχεται όλα τα σώματα- η οποία πρέπει

πάντοτε να αποκαλείται με τον ίδιο τρόπο· διότι, ενώ είναι δέκτης

όλων των πραγμάτων, ποτέ δεν απομακρύνεται από την φύση της

και ποτέ δεν απομακρύνεται από τη φύση της και ποτέ με κανένα

τρόπο ή σε καμιά στιγμή δεν λαμβάνει μορφή παρόμοια με αυτή των

πραγμάτων τα οποία εισέρχονται σε αυτήν· είναι ο φυσικός αποδέκτης

όλων των εντυπώσεων και διεγείρεται και διαποτίζεται από αυτές και

εμφανίζεται διαφορετική κατά καιρούς εξαιτίας τους.73

με

τα οποία μπορεί να συνορεύει. Χώρος από μόνος του δεν μπορεί να υπάρξει,

είναι αποτέλεσμα ενός συμπλέγματος φυσικών και τεχνητών στοιχείων, στο οποίο συνεισφέρει ο αρχιτέκτονας. Η δεύτερη θεωρία σχετικά με την έννοια

του χώρου, προσεγγίζεται από ψυχολογική άποψη. Με βάση αυτή την θεώρηση

72. Ο Rudolf Arnheim (1904 – 2007)

73. R. Arnheim, Η δυναμική της αρχιτεκτονικής μορφής, σελ.25

74. R. Arnheim, ο.π. σελ. 25-34

Από φυσική άποψη ο χώρος ορίζεται
τα υλικά ή
πεδία
οποίος
ως:
από
από άλλα φυσικά
ΜΙΑ ΑΤΜΟΣΦΑΙΡΑ • Η ΕΝΝΟΙΑ ΤΟΥ ΧΩΡΟΥ 62
ο χώρος είναι ένα ψυχολογικό πλαίσιο, το οποίο μπορεί να γίνει αντιληπτό μόνο μέσα από την σχέση του με τα αντικείμενα και αφότου βιωθεί από το υποκείμενο.74 ήταν Γερμανός συγγραφέας, θεωρητικός της τέχνης
και του κινηματογράφου και ψυχολόγος της αντίληψης.
63 ΑΤΜΌΣΦΑΙΡΑ | ΧΩΡΌΣ • ΜΙΑ ΔΙΑΛΕΚΤΙΚΗ ΤΗΣ ΣΧΕΣΗΣ
εικ. 26. Koshino House, 1984/ Ashiya-Shi, Japan Tadao Ando

Οχώροςαποτελείέναβασικόστοιχείοτηςκοινωνικήςζωήςτουανθρώπου,

από την απαρχή του κόσμου, και αποτελεί έκφραση του ανθρώπινου πολιτισμού

σε κάθε εποχή. Η αρχιτεκτονική είναι η επιστήμη η οποία διαπραγματεύεται

την δημιουργία και την εξέλιξη του. Καθώς η έννοια του χώρου διαθέτει

μεγάλη ερευνητική δυνατότητα, για τον λόγο αυτό αποτελεί βασικό θέμα

αναλύσεων από αρχιτέκτονες, πολεοδόμους, κοινωνιολόγους, ανθρωπολόγους, ανθρωπογεωγράφους, ψυχολόγους, ιστορικούς και φιλοσόφους. Η ιδέα του

χώρου είναι ένα σύνθετο ζήτημα το οποίο δημιουργεί πολλαπλά ερωτήματα. Ο Τερζόγλου στο «Ιδέες του χώρου στον 20ο αιώνα» αναφέρει:

Ο χώρος δεν συνδέεται απλώς με την συγκρότηση και την

νοηματοδότηση του κόσμου, των εξωτερικών, υλικών αντικειμένων

και με την εποπτική κατανόηση των σχέσεων τους από τον ανθρώπινο

νου, αλλά αναφέρεται εξίσου στον συνολικό τρόπο ζωής του ανθρώπου

στα πλαίσια του πολιτισμού.75

Ο χώρος έχει διαφορετικά χαρακτηριστικά, ανάλογα με την εποχή, το κοινωνικό και πολιτισμικό υπόβαθρο που τον διέπει. Το αίσθημα της

δημιουργίας χώρου έχει εκδηλωθεί με διαφορετικό τρόπο ανά εποχή, κοινωνία

και πολιτισμό, μεταφέροντας με διαφορετικό τρόπο κάθε φορά τις εκάστοτε

ανάγκες, ιδεολογίες, ιδανικά και νοοτροπίες. Ο Τερζόγλου αναφέρει πως οι

δομές του χώρου, είτε νοητού είτε πραγματικού, συνδιαλέγοντας διαλεκτικά

με τις δομές συγκρότησης, κατανόησης και νοηματοδότησης του ανθρώπινου

υποκειμένου και συμβολίζουν το σύστημα των αξιών που διαμορφώνει

την σκέψη του στα πλαίσια ενός ευρύτερου κοινωνικού και αρχιτεκτονικού περιβάλλοντος.76

75. Ν.-Ι. Τερζόγλου, Ιδέες

ΓΙΑ ΜΙΑ ΑΤΜΟΣΦΑΙΡΑ • Η ΕΝΝΟΙΑ ΤΟΥ ΧΩΡΟΥ 64
του χώρου στον 20ο αιώνα, σελ. 26 76. Ν.-Ι. Τερζόγλου, ο.π. σελ. 27 77. G. Bachelard, Η Ποιητική του Χώρου, σελ.36

«Εδώ ο χώρος είναι το παν γιατί ο χρόνος δεν

εμψυχώνειπιατηνμνήμη.Ημνήμη-τιπερίεργο πράγμα!- δεν καταγράφει την συγκεκριμένη

διάρκεια, την διάρκει κατά την Μπερξονική

έννοια, δεν μπορούμε να ξαναζήσουμε διάρκειες που έχουν παραγραφεί. Μόνο να

τις σκεφτούμε μπορούμε, να τις σκεφτούμε

πάνω στην γραμμή ενός αφηρημένου

χρόνου, στερημένου από οποιοδήποτε

βάθος. Μόνο μέσα από τον χώρο και μέσα στον χώρο μπορούμε να βρούμε τα ωραία απολιθώματα της διάρκειας που έχουν στερεοποιηθεί από μακροχρόνιες παραμονές. Το ασυνείδητο λιμνάζει. Οι αναμνήσεις παραμένουν αμετακίνητες, τόσο πιο στερεές όσο περισσότερο έχουν ριζώσει μέσα στον χώρο.»77

65 ΑΤΜΌΣΦΑΙΡΑ | ΧΩΡΌΣ • ΜΙΑ ΔΙΑΛΕΚΤΙΚΗ ΤΗΣ ΣΧΕΣΗΣ
Gaston Bachelard εικ. 27 Saya Park, 2018/ Padalarang, South Korea Álvaro Siza Vieira, Carlos Castanheira

4.3.2 ΧΩΡΟΣ ΚΑΙ ΒΙΩΜΑ

Ο Noberg- Schulz προσπαθώντας να αναλύσει

το φαινόμενο του Τόπου και την δομή του, καταλήγει να αναλύει πρώτα τον χώρο, καθώς αποτελεί μια

από τις δύο κατηγορίες του τόπου, μαζί με τον “χαρακτήρα”. Ο χώρος δηλώνει την τρισδιάστατη οργάνωση των στοιχείων που συνθέτουν έναν τόπο, ενώ ο χαρακτήρας δηλώνει την γενική ατμόσφαιρα, η οποία είναι και η πλέον καθοριστική ιδιότητα

οποιουδήποτε τόπου. Αντί του διαχωρισμού μεταξύ χώρου και χαρακτήρα θα ήταν βέβαια δυνατό να χρησιμοποιήσουμε μια συνολική έννοια, όπως εκείνη του “βιωμένου χώρου”.78

Ο Merlau- Ponty αναφερόμενος στον Καντ εξηγεί πως προσπάθησε να θέσει μια αυστηρή

διαχωριστική γραμμή ανάμεσα στον χώρο ως μορφή της εξωτερικής εμπειρίας και τα πράγματα

που δίνονται μέσα σε αυτήν την εμπειρία.79Δεν την αναφέρει ως σχέση περιέχοντος και περιεχόμενου, καθώς δεν αναφερόμαστε σε αντικείμενο, αλλά ούτε

και για σχέση λογικής συμπερίληψης, σαν εκείνη

που υπάρχει ανάμεσα στο άτομο και την κοινωνική

τάξη. Αναφέρει ο Merlau- Ponty: «[...]οχώροςδεν

είναι το (πραγματικό ή λογικό) περιβάλλον μέσα

στο οποίο διατάσσονται τα πράγματα, αλλά το

μέσοδιάτουοποίουκαθίσταταιδυνατήηθέσητων πραγμάτων.»80

78. C. Norberg- Schulz, Genius Loci: Το πνεύμα του τόπου, σελ. 13

79. M. Merleau- Ponty, Η Φαινομενολογία της Αντίληψης, σελ.419

80. M. Merleau- Ponty, ο.π. σελ. 420

ΓΙΑ ΜΙΑ ΑΤΜΟΣΦΑΙΡΑ • ΧΩΡΟΣ ΚΑΙ ΒΙΩΜΑ 66
εικ. 28.
Ronchamp, France Le
«Το σωματικό μου είναι, κάθε άλλο παρά συνιστά για μένα απλώς ένα θραύσμα του χώρου. Ο χώρος δε θα υπήρχε για μένα αν δεν είχα σώμα.» Maurice Merlau- Ponty
Notre Dame du Haut' 1950/
Corbusier

Ο κάθε χώρος έχει κάποια μορφή, σχήμα και χαρακτηριστικά τα οποία

του προσδίδουν ένα χαρακτήρα. Η επαφή του ανθρώπου με τον οποιοδήποτε

χώρο αποτελεί μία βιωματική διαδικασία, καθώς προυποθέτει την καθολική

συμμετοχή όλων των αισθήσεων. Αυτή η διαδικασία συντίθεται από μια

αλληλουχία αντιληπτικών διαδικασιών, οι οποίες μεταφέρονται μέσω του ανθρώπινου σώματος και ερμηνεύονται από τον ανθρώπινο εγκέφαλο. Ο Merlau-Pontyαναφέρει:«[...]οχώροςείναιτοθέατρομιαςβιωματικήςεμπειρίαςπου συντίθεταιαπόμιασειράαντιληπτικώνδιαδικασιών,οιοποίεςκαθοδηγούνται απότηνπαρουσίακαιτηνκίνησητουανθρώπουσώματος.»81

Όταν ο άνθρωπος εισέρχεται

ξεκινά η αντιληπτική διαδικασία. Η αρχιτεκτονική δεν αφορά μόνο την όραση, είναι μια επιστήμη που απευθύνεται σε όλες τις αισθήσεις του ανθρώπου και κρίνεται για

τον λόγο αυτό, κατά πόσο δηλαδή επιτυγχάνει να τις ενεργοποιήσει. Το φυσικό

φως, τα υλικά, οι αναλογίες, τα χρώματα, η κλίμακα, οι υφές και η σύνθεση των

χώρων αποτελούν τα βασικά στοιχεία μιας αρχιτεκτονικής που έχει στόχο να

αφυπνά τις ανθρώπινες αισθήσεις και να τις καθηλώνει. Είναι αυτά τα στοιχεία

που θεωρούνται αναπόσπαστο κομμάτι της αρχιτεκτονικής σύνθεσης και κάθε

αρχιτέκτονας οφείλει να τα λαμβάνει υπόψιν του. Ο τρόπος που θα τα χειριστεί,

ο βαθμός που θα τα χρησιμοποιήσει και οι σχέσεις που θα δημιουργήσει με όλα

αυτά τα στοιχεία, αποτελούν την συνθετική διαδικασία η οποία περιλαμβάνει

και άλλα δεδομένα, όπως είναι τα σταθερά χαρακτηριστικά, π.χ ο τόπος, τα

κλιματικά δεδομένα, η ιστορία του τόπου και το πολιτισμικό υπόβαθρο στον

οποίο το κτίριο επρόκειτο να χωροθετηθεί.

81. M. Merleau- Ponty, Phenomenology of Perception, σελ 150

σε έναν δομημένο χώρο οι αισθήσεις του διεγείρονται από τα στοιχεία που τον συνθέτουν και στην συνέχεια
ΓΙΑ
ΑΤΜΟΣΦΑΙΡΑ • ΧΩΡΟΣ ΚΑΙ ΒΙΩΜΑ 68
ΜΙΑ

Οι σχέσεις των υλικών, το ‘’πάντρεμα’’ αυτών και οι αναλογίες τους, η αναλογία φωτός και οι εντάσεις των χρωμάτων, μπορούν πολύ εύκολα να

καθοδηγήσουν το ανθρώπινο σώμα για να εισέλθει σε μια διαδικασία αντίληψης.

Όλα αυτά τα στοιχεία επικοινωνούν με τον άνθρωπο, είναι γνώριμα και μπορούν

ταυτόχρονα να του διεγείρουν τις αισθήσεις. «Οιαισθήσειςαλληλοεπικοινωνούν ότανανοίγονταιπροςτηνεσωτερικήδομήενόςαντικειμένου», υποστηρίζει

ο Merlau-Ponty. Καθώς ο χώρος δίνει το έναυσμα για την σύνθεση όλων των

αισθήσεων,η αρχιτεκτονική καλείται να “παίξει” τον πιο σημαντικό ρόλο.

O Maurice Merleau- Ponty συνδέει το υπαρξιακό ‘’είναι’’ με την έννοια του

βιώματος

και την αλληλεπίδραση του ανθρώπου στον χώρο. Θεωρεί πως το σώμα μας είναι το μέσο με το οποίο εκφραζόμαστε στον χώρο.82 69 ΑΤΜΌΣΦΑΙΡΑ | ΧΩΡΌΣ • ΜΙΑ ΔΙΑΛΕΚΤΙΚΗ ΤΗΣ ΣΧΕΣΗΣ 82. M.
Merleau- Ponty, Phenomenology of Perception, σελ 266 εικ. 29. Sainte Marie de La Tourette, 1960 / Lyon, France Le Corbusier

4.4.1 ΤΟ ΣΩΜΑΤΙΚΟ ΣΧΗΜΑ

αλληλένδετηκαιεξαρτάταιαπότοσωματικόσχήμα.Στηριζόμενοςστηνφαινομενολογική προσέγγισητουHeidegger,οMerlau-Pontyαναλύειενδελεχώςτηνπρωτογενήεμπειρία

επιστημονισμό και την αντικειμενικότητα του ορθολογισμού.83 Εισήγαγε την έννοια του

σωματικού σχήματος για να καταστήσει φανερό πως το πνεύμα είναι βαθιά ριζωμένο

στο σώμα και στον κόσμο, και ότι και το πνεύμα που συμβάλλει στην αντιληπτική διαδικασία, είναι ένα ενσαρκωμένο πνεύμα το οποίο βρίσκεται σε δίσημη σχέση με το σώμα του και τα πράγματα

πρωταγωνιστικόρόλοστηναντιληπτικήδιαδικασίακαινατονίσειτηνβαθιάαυτήσχέση

συμπεριφοράδενείναιαποτέλεσμαμόνοτηςεπενέργειαςτωνεξωτερικώνερεθισμάτων προς το

Αντιθέτως,αναδύεταιαπότηνσχέσηαυτώντωνδύο,δηλαδήαπότηνσχέσηπουσυνάπτει

το υποκείμενο με το εγώ και τον κόσμο γύρω του. Βασικοί άξονες της θεώρησης αυτής

του Merlau-Ponty είναι το υποκείμενο, το σώμα και ο κόσμος. Μέσω του σώματος το

οποίο θεωρείται η οικία του πνεύματος, αντιλαμβανόμαστε τα πράγματα και τον κόσμο

γύρω μας.

83. Ν.-Ι. Τερζόγλου,Ιδέες του χώρου στον 20ο αιώνα, σελ 277-281

Με βάση τις φαινομενολογικές προσεγγίσεις η αντίληψη του χώρου είναι
της ενσώματης ανθρώπινης ύπαρξης και με αυτό τον τρόπο άσκησε κριτική στον
που το περιβάλλουν. Σκοπός του να δείξει πως το σώμα έχει
σώματος, πνεύματος και κόσμου. Κάνει σαφές και διαχωρίζει πως η αντιληπτική μας
ούτε εξαρτάται μόνο από την δραστηριότητα
σώμα, αλλά
της συνείδησης.
ΓΙΑ ΜΙΑ ΑΤΜΟΣΦΑΙΡΑ •ΤΟ ΣΩΜΑΤΙΚΟ ΣΧΗΜΑ 70
71 ΑΤΜΌΣΦΑΙΡΑ | ΧΩΡΌΣ • ΜΙΑ ΔΙΑΛΕΚΤΙΚΗ ΤΗΣ ΣΧΕΣΗΣ εικ. 30. performance: garment district 2013 Bart Hess «Τοσωματικόμουείναι,κάθεάλλοπαράσυνιστά γιαμένααπλώςέναθραύσματουχώρου.Οχώρος δε θα υπήρχε για μένα αν δεν είχα σώμα.»84 Maurice Merleau- Ponty 84. M. Merleau- Ponty, Phenomenology of Perception, σελ. 14

4.4.2 Η ΕΝΣΩΜΑΤΗ ΕΜΠΕΙΡΙΑ ΤΟΥ ΧΩΡΟΥ

εμπειρία του χώρου. Ο Merlau- Ponty στο Phenomenology of perception, αναφέρει πως: «oχώροςείναιτο

πλαίσιομιαςβιωμένηςεμπειρίαςηοποίασυντίθεται απόμιασειράαντιληπτικώνδιαδικασιών,οιοποίες καθοδηγούνταιαπότηνκίνησητουσώματος.»85 Όταν το

συναισθηματική, δηλαδή στο πως αναπαριστάται κάτι. Βγαίνει δηλαδή από το πλαίσιο της εικόνας και μεταφέρεται σε αυτό της αίσθησης. Ο χώρος εδώ αποκτά άλλο ρόλο και από πομπός εικόνων, γίνεται χωρικός αναμεταδότης διαθέσεων.86

Μέσω της κατάστασης και της θέσης του σώματος μας [...] μας προσφέρει άμεση

πρόσβαση στο χώρο μέσα στον οποίο κατοικούμε και μετακινούμαστε. Το σώμα

αποτελεί κάτι πολύ περισσότερο από ένα μέσο ή ένα όργανο: «είναι η έκφραση μας

μέσα στον κόσμο, η ορατή μορφή των προθέσεων μας». Μέσω του σώματος

και των κινητικών και συγκινησιακών

λειτουργιών του διαμορφώνεται η αντίληψη μας των πραγμάτων.87

85. Merlau- Ponty στο Phenomenology of perception, σελ. 150

86. Gernot Böhme, Atmosphere as an Aesthetic Concept, σελ. 17 87. Α. Μουρίκη, εισαγωγή, M. Merlau-Ponty, Η αμφιβολία του Σεζάν, σελ. 10

Η
αντίληψη της ατμόσφαιρας προϋποθέτει την
κινείται στον χώρο ισχυροποιείται η αντιληπτική διαδικασία και επιπλέον το ενδιαφέρον του μεταφέρεται
αντίληψη στην
73 ΑΤΜΌΣΦΑΙΡΑ | ΧΩΡΌΣ • ΜΙΑ ΔΙΑΛΕΚΤΙΚΗ ΤΗΣ ΣΧΕΣΗΣ
υποκείμενο
από την οπτική
εικ. 31. Therme Vals 1995 / Vals, Switzerland Peter Zumthor εικ. 32 Μουσείο Βυζαντινού Πολιτισμού Θεσσαλονίκης Κυριάκος Κρόκος
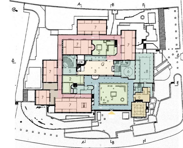
5 ΜΟΥΣΕΙΟ ΒΥΖΑΝΤΙΝΟΥ ΠΟΛΙΤΙΣΜΟΥ

5.1 ΕΙΣΑΓΩΓΗ

Προκειμένουναμελετηθούνεκτενέστεραοιέννοιεςοιοποίεςαναλύθηκαν στα προηγούμενα κεφάλαια, επιλέχθηκε για ανάλυση ένα ιδιαίτερα σημαντικού

κτίριο, για να μπορέσει να πραγματοποιηθεί και επιτόπια έρευνα για να υπάρξει

δυνατότητα βιωματικής εμπειρίας και καταγραφής, αυτό είναι το Μουσείο

Βυζαντινού Πολιτισμού Θεσσαλονίκης του αρχιτέκτονα Κυριάκου Κρόκου. Η

επιλογή αυτού του παραδείγματος γίνεται με γνώμονα, ότι ο αρχιτέκτονας υιοθετεί όλα αυτά τα στοιχεία τα οποία συνθέτουν μια πολυαισθητηριακή εμπειρία. Σκοπός, είναι να διερευνηθεί πως προσαρμόζονται οι αναλογίες

όλων αυτών των μεταβλητών στοιχείων κατά την διάρκεια της συνθετικής

διαδικασίας, ώστε να δημιουργήσουν ατμόσφαιρα και χωρικές ποιότητες

ιδανικές ώστε ο χώρος να συμβάλει αποτελεσματικά στην δημιουργία μιας βιωματικής εμπειρίας. Επιπροσθέτως, στην επιλογή του, συνέβαλε και το γεγονός ότι είναι ένα δημόσιο κτίριο και δεν έχει κάποια ειδική λειτουργία, που να καθιστά την πρόσβαση σε αυτό δύσκολη.

Παρότι ο Κρόκος δεν πρόλαβε να αποκτήσει, λόγω του πρόωρου θανάτου

του, διεθνή αναγνώριση, αν και

τα σύνορα της χώρας, θεωρείται ένας από τους πιο σημαντικούς Έλληνες

αρχιτέκτονες του προηγούμενου αιώνα, με σπουδαίο αρχιτεκτονικό έργο

δημόσιου και ιδιωτικού χαρακτήρα. Για πολλούς θεωρείται εκφραστής του

«Κριτικού Τοπικισμού»88 που υπερέβη το μοντέρνο κίνημα, ενώ αποδέχθηκε την σημασία του, αλλά το θεώρησε δογματικό, εκφραστικά στείρο και σε ένα

βαθμό περιοριστικό για να μπορέσει να εκφράσει το πολιτισμικό υπόβαθρο, τα

ιδιώματα και τα χαρακτηριστικά του ελληνικού τοπίου. Για τον Κρόκο η μνήμη

88. Ο «κριτικός τοπικισμός» είναι μια προσέγγιση για την αρχιτεκτονική που προσπαθεί να αντιμετωπίσει την απουσία τοπικής αναφοράς και την έλλειψη ταυτότητας στη σύγχρονη αρχιτεκτονική, με τη χρήση γεωγραφικών αναφορών σχετικών με το πλαίσιο του εκάστοτε κτιρίου. Ο όρος χρησιμοποιήθηκε για πρώτη φορά από τον Alexander Tzonis και Liane Lefaivre και από τον Kenneth Frampton.

συμμετείχε στην Μπιενάλε της Βενετίας το 1996 που θεωρείται πως ήταν το έναυσμα για την προβολή του έργου του πέρα από
ΒΥΖΑΝΤΙΝΟΥ
76
ΜΟΥΣΕΙΟ
ΠΟΛΙΤΙΣΜΟΥ• ΕΙΣΑΓΩΓΗ

και το τοπικό στοιχείο είναι πρωτεύουσες σημασίες στο έργο του. Παρόλα αυτά

κρατάει από το μοντέρνο κάποια μορφολογικά και τυπολογικά στοιχεία και τα

ενσωματώνει με το ήθος που διέπει τον νεοκλασικισμό, την ανάγκη για ένταξη

στο ελληνικό τοπίο και τον σεβασμό και την ευαισθησία προς την επεξεργασία

και την χρήση των υλικών. Όπως αναφέρει και ο Ανδρέας Γιακουμάτος στο

άρθρο «Η μοναδικότητα του Κυριάκου Κρόκου»:

[…] η αρχιτεκτονική του αναδίδει μια πνευματικότητα που υπερβαίνει τα στιλ και

τις καθιερωμένες εκφραστικές διατυπώσεις [….] είναι μια αρχιτεκτονική ελληνική

όπως καμιά άλλη δεν κατάφερε να είναι στην ιστορία της νεότερης ελληνικής

αρχιτεκτονικής. Πρόκειται για μια αρχιτεκτονική της μνήμης, «création de l'esprit»

όπως θα έλεγε και ο Le Corbusier, που ενσωματώνει εντός της όχι μόνο τη νεότερη

αλλά την κλασική και την αρχαϊκή παράδοση, μέσω μιας διαδικασίας αφαίρεσης

όπου τίποτα δεν αποτελεί απευθείας μορφολογική ή στιλιστική αναφορά, ενώ όλα

γίνονται αντικείμενο επεξεργασίας με τα εργαλεία της εποχής, με την αντίληψη του

ΗαρχιτεκτονικήτουΚρόκουχαρακτηρίζεταιαπό τηνσυμμετρίατόσοσεεπίπεδο

κάτοψης όσο και σε επίπεδο όψης. Ενσωματώνει στον σχεδιασμό του στοιχεία από τις

αρχαικές κατοικίες, την ανώνυμη μεσογειακή κατοικία, τις λαικές κατασκευές, αλλά

και από τα λιτά κτίσματα του νεοκλασικισμού ανά την Ελλάδα. Προσπαθεί με αυτά

τα στοιχεία να ταυτίσει τον χαρακτήρα της παράδοσης, την ισορροπία της φύσης και

το μεσογειακό κλίμα και να τα αποδώσει με σύγχρονο τρόπο σε μια νέα προσωπική

προσέγγιση της αρχιτεκτονικής.90

δημιουργού του 20ου αιώνα.89 89. Α. Γιακουμάτος, Η μοναδικότητα του Κυριάκου Κρόκου [online] 90. Α. Γιακουμάτος, ο.π.

77 ΑΤΜΌΣΦΑΙΡΑ | ΧΩΡΌΣ • ΜΙΑ ΔΙΑΛΕΚΤΙΚΗ ΤΗΣ ΣΧΕΣΗΣ

5.2 ΠΑΡΟΥΣΙΑΣΗ ΚΤΙΡΙΟΥ

ΜΟΥΣΕΙΟ 78

Η ιδέα για την ίδρυση του Μουσείο Βυζαντινού Πολιτισμού ξεκινά

πολλές δεκαετίες πριν την λειτουργία του, στις αρχές του 20ου αιώνα και

συγκεκριμένα το 1913, ένα χρόνο μετά την απελευθέρωση της πόλης. Το 1913

συντάσσεται διάταγμα από τον Γενικό Διοικητή της Μακεδονίας Στέφανο

Δραγούμη για την ίδρυση ενός ‘’Κεντρικού Βυζαντινού Μουσείου”, με τον ναό

της Αχειροποίητου να προτείνεται ως χώρος στέγασης του. Η απόφαση αυτή

τελικά δεν υλοποιήθηκε και ένας μεγάλος αριθμός αντικειμένων μεταφέρθηκε

στο Βυζαντινό- Χριστιανικό Μουσείο της Αθήνας, όπου παρέμειναν μέχρι

το 1994, το έτος έναρξης λειτουργίας του. Στο πέρασμα των δεκαετιών

υπάρχει μια παύση σχετικά με την ίδρυση του και το 1977 προκηρύσσεται πανελλήνιος αρχιτεκτονικός διαγωνισμός, στον οποίο βραβεύτηκε η πρόταση

του αρχιτέκτονα και ζωγράφου Κυριάκου Κρόκου, στον οποίο στην πορεία

ανατέθηκε και η σύνταξη των τελικών μελετών της πρότασης του. Η πρώτη

φάση της μελέτης ολοκληρώθηκε το 1978-79, ενώ η δεύτερη το 1985-87 σε συνεργασία με τον αρχιτέκτονα Γιώργο Μακρή.91 Το κτίριο θεμελιώθηκε στις 28 Φεβρουαρίου 1989 από την Μελίνα Μερκούρη92 Υπουργό Πολιτισμού εκείνη

την περίοδο και τελικώς εγκαινιάζεται στις 11 Σεπτεμβρίου 1994. Η θέση του

είναι στην γωνία των οδών Λεωφόρου Στρατού 2 και Γ’ Σεπτεμβρίου, πριν το Αρχαιολογικό Μουσείο, το Συνεδριακό Κέντρο Ι. Βελλίδης και την Διεθνή

Έκθεση Θεεσαλονίκης, με κατεύθυνση προς το κέντρο της πόλης και πριν το

Δημαρχειακό Μέγαρο Θεσσαλονίκης, με κατεύθυνση το παραλιακό μέτωπο.

Το Μουσείο Βυζαντινού Πολιτισμού θεωρείται ένα από τα πιο σημαντικά

δημόσια κτίρια της Θεσσαλονίκης και ένα σπουδαίο δείγμα της σύγχρονης

αρχιτεκτονικής της χώρας. Το 2000 έλαβε ειδική διάκριση στον διαγωνισμό

91. Ο Γιώργος Μακρής (1946) είναι Έλληνας Αρχιτέκτονας και Ομότιμος Καθηγητής της Αρχιτεκτονικής Σχολής του ΕΜΠ.

92. Η Μελίνα Μερκούρη (1920-1994) ήταν Ελληνίδα ηθοποιός και πολιτικός. Διετέλεσε Υπουργός Πολιτισμού κατά το 1981-1989 και 1993-1994.

“Βραβεία 2000” του Ελληνικού Ινστιτούτου Αρχιτεκτονικής, ως “υποδειγματικό ΒΥΖΑΝΤΙΝΟΥ ΠΟΛΙΤΙΣΜΟΥ• ΠΑΡΟΥΣΙΑΣΗ ΚΤΙΡΙΟΥ

στο είδος του και άξιο παράδειγμα μεγάλου δημόσιου κτιρίου” και το 2001

κηρύχθηκε από το Υπουργείο Πολιτισμού, ιστορικό διατηρητέο μνημείο και

έργο τέχνης.93

Τοκτίριοέχειεπιφάνεια11.500τ.μ.καιησυνολικήκάλυψητουοικοπέδου

είναι περίπου το 1/3 του. Από τα 11.500 τ.μ. τα 2.726 τ.μ. καταλαμβάνει η

μόνιμη έκθεση, ενώ τα υπόλοιπα μοιράζονται στους χώρους υποδοχής, τα γραφεία διοίκησης, σε εργαστήρια, αποθήκες και άλλους βοηθητικούς χώρους.

Επιπλέον, στον χώρο του μουσείου υπάρχει ανεξάρτητη πτέρυγα περιοδικών

εκθέσεων 4.211τ.μ., αίθουσα για εκπαιδευτικά προγράμματα, αμφιθέατρο 62 θέσεων, καφέ- εστιατόριο και στον χώρο του κτιρίου διοίκησης υπάρχει ακόμη ένα αμφιθέατρο 167 θέσεων.94

εικ. 34. Μουσείο Βυζαντινού Πολιτισμού Θεσσαλονίκης

Κάτοψη Α΄στάθμης

Κυριάκος Κρόκος

93. Πληροφορίες από την ιστοσελίδα του Μουσείο Βυζαντινού Πολιτισμού Θεσσαλονίκης στο https://www.mbp.gr/el/ ιστορία-ίδρυσης 94. ο.π.

79 ΑΤΜΌΣΦΑΙΡΑ | ΧΩΡΌΣ • ΜΙΑ ΔΙΑΛΕΚΤΙΚΗ ΤΗΣ ΣΧΕΣΗΣ

εικ. 35 Μουσείο Βυζαντινού Πολιτισμού Θεσσαλονίκης Τομές Α-Α΄ Β-Β΄ Γ-Γ΄ Δ-Δ΄ Κυριάκος Κρόκος

ΜΟΥΣΕΙΟ ΒΥΖΑΝΤΙΝΟΥ ΠΟΛΙΤΙΣΜΟΥ• ΠΑΡΟΥΣΙΑΣΗ ΚΤΙΡΙΟΥ 80

εικ. 36. Μουσείο Βυζαντινού Πολιτισμού Θεσσαλονίκης

Κάτοψη Β΄στάθμης

Κυριάκος Κρόκος

εικ. 37. Μουσείο Βυζαντινού Πολιτισμού Θεσσαλονίκης

Σκίτσα τελικής μελέτης-Εσωτερική κλίμακα και διάδρομους

Κυριάκος Κρόκος

81 ΑΤΜΌΣΦΑΙΡΑ | ΧΩΡΌΣ • ΜΙΑ ΔΙΑΛΕΚΤΙΚΗ ΤΗΣ ΣΧΕΣΗΣ

5.3 ΜΕΘΟΔΟΛΟΓΙΑ

εικ. 33 Μουσείο Βυζαντινού Πολιτισμού Θεσσαλονίκης

Κυριάκος Κρόκος

Έχοντας δυνατότητα επίσκεψης στο Μουσείο Βυζαντινού Πολιτισμού και με σκοπόότιαυτήηεπίσκεψηγίνεταιμετονρόλοτουπαρατηρητή-αρχιτέκτονα,πέρααπό τηναποτύπωση,τηνφωτογράφισηκαιτηνπαρατήρησηεντόςαυτού,ηδημιουργίαενός ερωτηματολογίου, κρίθηκε ιδιαίτερα βοηθητική. Το ερωτηματολόγιο αυτό αποτελείται από δώδεκα ερωτήσεις, τις οποίες ο επισκέπτης μπορεί να απαντήσει ακόμη και

μονολεκτικά,προκειμένουναπεριγράψειτηναπάντησητου.Προκειμένουναοργανωθεί

μεθοδολογία με την οποία θα προσεγγιστεί και θα αποτυπωθεί η εμπειρία στο κτίριο, περιγράφονται παρακάτω τα στάδια της παρατήρησης και της καταγραφής. Η ανάλυση του κτιρίου βασίστηκε σε δύο σκέλη και σε μία σειρά από προσωπικές παρατηρήσεις κατά την επίσκεψη σε αυτό και στην πορεία πραγματοποιήθηκαν συνεντεύξεις με τους

επισκέπτες και τους χρήστες για την απάντηση του ερωτηματολογίου. Η προσωπική

παρατήρησηξεκινάμετηνμορφήπεριήγησηςκαικαταγραφήςσκέψεων,παρατηρήσεων, σκίτσων και

η
φωτογραφιών. Στην πορεία οι επισκέψεις λειτούργησαν και αντίστροφα, πέρα από το εσωτερικό του κτιρίου, η ανάλυση εστίασε και στην σχέση του κτιρίου με τηνπόλη,στηνσχέσημετοναστικόιστόκαικατάπόσοαποτελείσυνέχειατουήόχι.Ποια χαρακτηριστικά έχει ο περιβάλλοντας χώρος του κτιρίου και πως επηρεάζεται από την ΜΟΥΣΕΙΟ ΒΥΖΑΝΤΙΝΟΥ ΠΟΛΙΤΙΣΜΟΥ• ΜΕΘΟΔΟΛΟΓΙΑ 82

γειτνίασημεένανπολυσύχναστοδρόμο,καιπωςεπηρεάζουνόλααυτάτηνατμόσφαιρα του.

Ένα επιπρόσθετο στοιχείο που συμβάλλει στην δημιουργία ατμόσφαιρας και εντείνειτηνεμπειρίαείναιοιημι-υπαίθριοιχώροι,ησχέσητουμέσαμετοέξωκαιπως

γίνεται η μετάβαση σε αυτούς. Σχετικά με τις προσβάσεις επιχειρείται να αποτυπωθεί

η κίνηση τόσο στο εσωτερικό όσο και στο εξωτερικό και κατά πόσο αυτές οι κινήσεις

είναι ελεύθερες ή προκαθορισμένες. Στην συνέχεια η ανάλυση επικεντρώνεται στο ίδιο

το κτίριο. Στην κάτοψη του, στις όψεις του, τις επιφάνειες, τα υλικά, τα ανοίγματα και ο τρόπος που όλα αυτά συνδέονται και συμβάλουν στην ατμόσφαιρα του χώρου.

Επιπροσθέτως, μελετάται και η κλίμακα του, τόσο στην γενική άποψη των

χώρων,όσοκαισεαυτήτωνυλικώνκαιτωνλεπτομερειώντου.Αντοκτίριοβοηθάειστην δημιουργία

και κατά πόσο αυτό μπορεί να ήταν στόχος κατά την συνθετική διαδικασία.

ακολουθείηκαταγραφήτηςκίνησηςκαιτηςστάσης.Κατάπόσοαυτάκαθορίζονταιήείναι

η στάση. Ποια είναι η αίσθηση της θερμοκρασίας

εντός του κτιρίου και αν υπάρχει θερμική άνεση.

τωνανοιγμάτωνκαικατάπόσοοτεχνητόςφωτισμόςμπορείναεπηρεάσειήναβοηθήσει στον σκοπό του αρχικού σχεδιασμού.

Τέλος, η αλληλεπίδραση με τους επισκέπτες οι οποίοι με τις απαντήσεις τους

στο ερωτηματολόγιο βοήθησαν στην έρευνα , ήταν από τα πιο σημαντικά στοιχεία και τις πιο ενδιαφέρουσες στιγμές αυτής της διαδικασίας. Συζητήθηκαν οι προσωπικές

απόψεις, σκέψεις και παρατηρήσεις ακόμη και εκτός ερωτηματολογίου. Όλες αυτές οι παρατηρήσεις αποδίδονται με διαγράμματα, φωτογραφίες, σκίτσα και σκαριφήματα.

του αισθήματος της οικειότητας μεταξύ αυτού και του χρήστη- επισκέπτη
Στην πορεία
ελεύθερα και με ποιο τρόπο γίνεται
επαφή με την πόλη ή με τον περιβάλλοντα χώρου του κτιρίου; Ιδιαίτερη έμφαση δόθηκε στον φωτισμό του κτιρίου και τα ανοίγματα του, τόσο στον φυσικό όσο και στον τεχνητό, την τυπολογία
Υπάρχει ηχητική
83 ΑΤΜΌΣΦΑΙΡΑ | ΧΩΡΌΣ • ΜΙΑ ΔΙΑΛΕΚΤΙΚΗ ΤΗΣ ΣΧΕΣΗΣ

5.4 ΠΡΟΣΩΠΙΚΗ ΑΦΗΓΗΣΗ

Η προσωπική αφήγηση για το Μ.Β.Π. έχει διαμορφωθεί από πολλές επισκέψεις στο πέρασμα του χρόνου, αν και η πρώτη ήταν περίπου το 2008, στα πρώτα χρόνια των σπουδών μου. Στα πλαίσια της παρούσης Ερευνητικής εργασίας πραγματοποιήθηκαν πολλές επισκέψεις, ακολουθώντας κάθε φορά διαφορετικές διαδρομές, με σκοπό την παρατήρηση της θέσης του, από διαφορετική οπτική γωνία, μέσα σε ένα σύνολο δημοσίων κτιρίων με τα οποία

γειτνιάζει και αποτελεί μια νησίδα πολιτισμού εντός του αστικού τοπίου.

Γίνεται άμεσα αντιληπτό πως κάτι ενδιαφέρον συμβαίνει σε αυτό το τμήμα της

πόλης, καθώς ο δημόσιος χώρος γίνεται πιο φιλικός για τον πεζό, με φαρδιά

πεζοδρόμια και πιο έντονη βλάστηση. Καθώς πλησιάζεις στην συμβολή των

δύο οδών, γίνονται αντιληπτές οι δύο όψεις του κτιρίου, οι οποίες επί το πλείστον είναι χωρίς ανοίγματα, όγκοι από οπτόπλινθους και ένα μορφολογικό συνονθύλευμα προς τα υψηλότερα σημεία, τα οποία μαγνητίζουν την προσοχή

του πεζού- παρατηρητή. Το φαρδύ πεζοδρόμιο της Λεωφόρου Στρατού

οδηγεί 84 ΜΟΥΣΕΙΟ ΒΥΖΑΝΤΙΝΟΥ ΠΟΛΙΤΙΣΜΟΥ• ΠΡΟΣΩΠΙΚΗ ΑΦΗΓΗΣΗ
εικ. 38. Αίθουσα Υποδοχής

σε ένα πλάτωμα μπροστά από τον ψηλό πέτρινο τοίχο, στον οποίο υπάρχει μία

μόνο είσοδος. Οι τρεις αναβαθμοί, οι οποίοι οριοθετούν το πεζοδρόμιο από

το πλάτωμα, βρίσκονται σε τέτοιο σημείο που οριακά διακρίνεται το αίθριο, καθώς δεν βρίσκονται στον άξονα του ανοίγματος.

Περνώντας το κατώφλι της εξώθυρας ανοίγεται μπροστά μας το κεντρικό

αίθριο με την περιμετρική στοά. Ο πέτρινος τοίχος λειτουργεί ως σύνορο μεταξύ μουσείου και αστικού τοπίου, κυρίως όμως ως οπτικό εμπόδιο, καθώς

ο θόρυβος της πόλης μειώνεται, αλλά συνεχίζει να είναι παρών. Σε αυτό το

σημείο μια στάση για παρατήρηση, σχεδόν, επιβάλλεται, ενώ σταδιακά αποκαλύπτεται η μορφολογική σύνθεση του κτιρίου, τα χρώματα και τα υλικά, τα οποία επιζητούν λίγο χρόνο από τον επισκέπτη. Η αίθουσα υποδοχής βρίσκεται στην απέναντι μεγάλη πλευρά του αίθριου, έκκεντρη σε σχέση με το

αίθριο και την εξώθυρα του, πάλι για λόγους αποκοπής με την πόλη. Επιπλέον, η θέση της εισόδου σε αυτό το σημείο, αναγκάζει τον επισκέπτη να κινηθεί

περιμετρικά του αιθρίου και εντός της στοάς. Η αίθουσα υποδοχής, ανάμεσα

σε δύο αίθρια, ευρύχωρη και φωτεινή σε υποδέχεται με έναν μοναδικό τρόπο.

Τα υλικά που χρησιμοποιούνται, το ανεπίχρηστο σκυρόδεμα στην οροφή και

τα υποστυλώματα, προϊδεάζουν για αυτό που επρόκειτο ο επισκέπτης να δει

και να βιώσει εντός του κτιρίου. Τα μεγάλα υαλοστάσια προς τα δύο αίθρια

λειτουργούν αμφίδρομα ως συνέχεια του χώρου υποδοχής και των αιθρίων, γίνεται φανερή η διάθεση ενοποίησης του μέσα με το έξω.

Ξεκινώνταςτηνπεριήγησηεντόςτωνεκθεσιακώνχώρωνγίνεταιαντιληπτό

πως είναι απομονωμένοι από τον κεντρικό διάδρομο, καθώς όλες, εκτός από

μία, διαθέτουν ένα μόνο άνοιγμα, το οποίο λειτουργεί ως είσοδος και έξοδος

προς αυτές. Κάθε αίθουσα αποτελεί έναν αυτόνομο χώρο και δεν επικοινωνεί

με κάποιον άλλον, παρά μόνο με τον κεντρικό διάδρομο, αυτό εξυπηρετεί

και τις ανάγκες του μουσειολογικού αφηγήματος. Ένα επιπλέον στοιχείο που

χαρακτηρίζει την αρχιτεκτονική σύνθεση είναι ο κεντρικός διάδρομος, ο οποίος

έχει σπειροειδές σχήμα και αποτελεί το ενδιάμεσο πεδίο μεταξύ εκθεσιακών

85 ΑΤΜΌΣΦΑΙΡΑ | ΧΩΡΌΣ • ΜΙΑ ΔΙΑΛΕΚΤΙΚΗ ΤΗΣ ΣΧΕΣΗΣ

χώρων και αιθρίων. Η πρώτη αίθουσα, η πιο ανοιχτή προς τα αίθριο, διαθέτει

δύο ανοίγματα και είναι αυτή που λαμβάνει το περισσότερο φυσικό φως, ενώ

έχει και ανοίγματα στην οροφή, όπως και οι υπόλοιπες. Όσο προχωράμε προς

το εσωτερικό του μουσείου, το φως ακολουθεί τις ανάγκες της μουσειολογικής

αφήγησης και λιγοστεύει. Πηγή φυσικού φωτός σε αυτές τις αίθουσες

αποτελούν οι τετράγωνες μικρές οπές με χρωματιστά τζάμια και κάποιοι

φεγγίτες με θολά. Παρατηρώντας όλες αυτές τις χειρονομίες στον σχεδιασμό,

γίνεται αντιληπτή η σύνδεση με την ατμόσφαιρα ενός βυζαντινού ναού. Σ’ αυτή

την διαπίστωση, πέρα από τα ανοίγματα και η σχέση με το αίθριο, συμβάλλουν

και οι κόγχες. Ο τρόπος με τον οποίο ο κεντρικός διάδρομος αρθρώνεται

πέριξ του αιθρίου, και λειτουργεί σαν ράμπα αναλαμβάνοντας τον ρόλο του ξεναγού στον επισκέπτη, θυμίζει έντονα την μοναστηριακή αρχιτεκτονική. Όσο συνεχίζεται η περιήγηση στο μουσείο, τόσο μειώνεται ο προσανατολισμός του επισκέπτη εντός του. Πλέον, η προσοχή στρέφεται στα εκθέματα, τα υλικά, τους χρωματισμούς και την ατμόσφαιρα που δημιουργούν. Σε κάθε πλευρά

του σπειροειδούς διαδρόμου υπάρχει και μια τεχνοτροπία- τέχνασμα του

αρχιτέκτονα, είτε για στάση, είτε για παρατήρηση από τα ανοίγματα προς τα αίθρια.

Καθώς η περιήγηση φτάνει στο τέλος της, ο σπειροειδής διάδρομος μας οδηγεί σε ένα μαρμάρινο κλιμακοστάσιο το οποίο καταλήγει στην αίθουσα υποδοχής. Η αίσθηση του χρόνου, κατά την διάρκεια αυτής της εμπειρίας, χάνεται. Όλα επανέρχονται εκεί που τα αφήσαμε όταν καταλήγουμε στην αίθουσα υποδοχής. Χρειάζεται λίγος χρόνος και μια στάση, πριν αφήσεις πίσω σου την αίθουσα υποδοχής και μεταφερθείς στο κεντρικό αίθριο, εκεί που, σταδιακά, ξεκινά η σύνδεση με το αστικό τοπίο.

Η σχέση του μουσείου με την πόλη είναι ιδιαίτερη. Η αρχιτεκτονική

σύνθεσηκαταφέρνειναδημιουργήσειστονεπισκέπτηένααίσθημααπομόνωσης, ενώ ταυτόχρονα αυτό αποτελεί και συνδετικό στοιχείο με την βυζαντινή μοναστηριακή αρχιτεκτονική. Η ανάγκη ένταξης στο τοπίο είναι έκδηλη. Τα

86 ΜΟΥΣΕΙΟ
ΒΥΖΑΝΤΙΝΟΥ ΠΟΛΙΤΙΣΜΟΥ• ΠΡΟΣΩΠΙΚΗ ΑΦΗΓΗΣΗ

ελάχιστα και μικρά ανοίγματα που βρίσκονται κοντά στην οροφή, αρκετά πιο

πάνω από το ύψος του ανθρώπου, λειτουργούν ως φεγγίτες και καθιστούν

αδύνατη την οπτική επαφή του χρήστη με το έξω, ενώ ταυτόχρονα αποτελούν

βασικό μορφολογικό στοιχείο του κτιρίου που εξυπηρετεί τις ανάγκες φυσικού

φωτισμού.

Σεόλοτοκτίριουπάρχουντρίαμόνοανοίγματα,απόταοποίοοεπισκέπτης

μπορεί να έχει οπτική επαφή με το αστικό περιβάλλον, και βρίσκονται στον διάδρομο. Παλαιότερα, ένα από αυτά προσέφερε και θέα προς το θαλάσσιο μέτωπο, πλέον όμως βλέπει το νέο Δημαρχείο της πόλης. Δεν είναι τυχαίο πως

το μοναδικό άνοιγμα είχε θέα προς την θάλασσα, καθώς κάνει φανερή την διάθεση του Κρόκου να δημιουργήσει στον επισκέπτη ένα αίσθημα ηρεμίας, μέσω της παρατήρησης της.

Ο τρόπος με τον οποίο το μουσείο σε υποδέχεται, σταδιακά σε ωθεί

στο εσωτερικό του και στην πορεία η ατμόσφαιρα του σε ”αγκαλιάζει”, για να βιώσεις μια μοναδική εμπειρία, θυμίζει αρκετά το μυστήριο που επικρατεί

στην μοναστηριακή αρχιτεκτονική, στην οποία πρωταγωνιστικό ρόλο έχει μόνο

η ζωή, εντός αυτής. Το ίδιο συμβαίνει και στο Μ.Β.Π. με την απομόνωση του

εσωτερικού χώρου από το αστικό περιβάλλον. Στην ερώτηση “πως νιώθετε

ότι σας υποδέχεται το μουσείο από την πόλη και από το αίθριο στην αίθουσα

υποδοχής;” κάποιοι επισκέπτες απάντησαν “σταδιακά και με ηρεμία” και σε

σχόλια που ακολούθησαν “ότι βοηθά τον επισκέπτη να απομονώσει την σκέψη

του και να επικεντρωθεί στο περιεχόμενο του μουσείου”.

87 ΑΤΜΌΣΦΑΙΡΑ | ΧΩΡΌΣ • ΜΙΑ ΔΙΑΛΕΚΤΙΚΗ ΤΗΣ ΣΧΕΣΗΣ

5.5 ΣΥΝΘΕΤΙΚΑ ΕΡΓΑΛΕΙΑ

εικ. 39 Μουσείο Βυζαντινού Πολιτισμού Θεσσαλονίκης Πρόπλασμα

ΗσυνθετικήδομήτουΜ.Β.Π.βασίζεταιστηνκατάτμηση τουλειτουργικού

του προγράμματος, η οποία έχει ως αποτέλεσμα την ελεύθερη διάταξη των όγκων, χωρίς την ύπαρξη έντονης γραμμικής κίνησης. Αυτή η χειρονομία της διάσπασης των όγκων, επιτρέπει την δημιουργία αιθρίων για φυσικό φωτισμό

και την δημιουργία μιας διαφορετικής περιήγησης. Ο Κρόκος θεωρεί πως τα

κτίρια σήμερα χαρακτηρίζονται από την «αρχή της ωφέλειας», δηλαδή των αναγκών του σώματος, γι’ αυτό σχεδιάζονται επίπεδα χωρίς να σέβονται την φύση, ενώ θα έπρεπε να την υμνούν.95 Θεωρεί πως μέσω του επιμερισμού του ενιαίου όγκου ενός κτιρίου, βοηθά στην ομαλότερη ένταξη του στο τοπίο, σεβόμεναπάντοτετηνφύση.Αυτότουτοσκεπτικόσυμβάλεικαισεμιασυνθετική ελευθερία, την οποία διακρίνουμε στην κάτοψη του μουσείου. Αυτή η ανάγκη

για επιμερισμό της μάζας, συνδέεται και με την ανάγκη της άρθρωσης των

επιμέρους όγκων, την δημιουργία ενδιάμεσων χώρων και χωρικών ποιοτήτων, ικανές να συμβάλλουν στην εμπειρία του επισκέπτη. Η ελευθερία της σύνθεσης

που παρατηρείται και η αίσθηση του ατελείωτου που

88 ΜΟΥΣΕΙΟ ΒΥΖΑΝΤΙΝΟΥ ΠΟΛΙΤΙΣΜΟΥ• ΣΥΝΘΕΤΙΚΑ ΕΡΓΑΛΕΙΑ
ΕΛΕΥΘΕΡΙΑ ΣΥΝΘΕΣΗΣ 95. Αρχιτεκτονικά θέματα, σελ. 120
Κρόκος
Κυριάκος

δημιουργεί αυτή η χειρονομία, δίνουν μια αίσθηση συνέχειας- πιθανής

επέκτασης, ακανόνιστου, έλλειψης ορίου και μη προβλέψιμου, είναι βασικά

στοιχείατηςμοναστηριακήςαρχιτεκτονικής.Αυτήηελευθερίαχαρακτήριζετόσο

την άρθρωση του κτιρίου,

και

89 ΑΤΜΌΣΦΑΙΡΑ | ΧΩΡΌΣ • ΜΙΑ ΔΙΑΛΕΚΤΙΚΗ ΤΗΣ ΣΧΕΣΗΣ Διάγραμμα πλήρες- κενό. Διαγράμματα αναγνώρισης Διάγραμμα διάσπασης όγκων
όσο και την κατασκευή, γεγονός που παρατηρείται στην αρχιτεκτονική του Κρόκου.

Η εσωστρέφεια που χαρακτηρίζει την προσωπικότητα του Κρόκου

διαγράφεται και στην αρχιτεκτονική του. Λόγος γι’ αυτή του την εσωστρέφεια

υπήρξε η αναζήτηση της “αληθινής ουσίας” και αποτέλεσε την αφορμή για την

ανάδυση του στο παρελθόν και στις παιδικές μνήμες από τα χρόνια στη Σάμο.

Όλη αυτή η αναζήτηση της ουσίας, μέσα από τα παιδικά βιώματα και τις αξίες

του τόπου και της παράδοσης, τον οδηγούν στην λαϊκή παράδοση του τόπου

του, όπου το φως του Αιγαίου έχει πρωταγωνιστικό ρόλο. Το φως πλέον θα

αποτελέσει βασική αρχή στην σύνθεση του. Μέσω του φωτός και της σκιάς θα προσπαθήσει να αναδείξει τα υλικά και την δομή. Επιδιώκει μια αλήθεια στην αρχιτεκτονική του που μεταφέρεται μέσω των υλικών, ΄των χρωμάτων και της σύνδεσης τους. Η εσωστρέφεια στην δομή του μουσείου είναι και αποτέλεσμα

της άμεσης γειτνίασης του με το αστικό τοπίο. Επιλέγει να επεκταθεί σχεδόν

στο μισό της έκτασης του οικοπέδου και να μοιράσει τον ελεύθερο χώρο, εντός και εκτός του κτιριακού συνόλου, ένα τμήμα του κενού χώρου πλέον

χρησιμοποιείται για τον επισκέπτη εντός του μουσείου. Η χειρονομία αυτή συμβάλλει επιπλέον στον εμπλουτισμό μιας εσωστρεφούς χωρικής εμπειρίας.

Εσωτερικός διάδρομος Διάγραμμα σχέσης διαδρόμου- αίθρια

ΕΣΩΣΤΡΕΦΕΙΑ Αίθρια

90 ΜΟΥΣΕΙΟ ΒΥΖΑΝΤΙΝΟΥ ΠΟΛΙΤΙΣΜΟΥ• ΣΥΝΘΕΤΙΚΑ ΕΡΓΑΛΕΙΑ

Διάγραμμα μουσειακής πορείας

Διαγράμματα αναγνωρισης

εικ.40 Εσωτερικό αίθριο

91 ΑΤΜΌΣΦΑΙΡΑ | ΧΩΡΌΣ • ΜΙΑ ΔΙΑΛΕΚΤΙΚΗ ΤΗΣ ΣΧΕΣΗΣ

Παρά την μεγάλη του έκταση με τα 11.500 τ.μ., επειδή αρθρώνεται σε 2 επίπεδα η κλίμακα του καταφέρνει να παραμείνει φιλική προς τον επισκέπτη, δημιουργώντας ένα αίσθημα ασφάλειας και οικειότητας. Οι απαντήσεις των επισκεπτών στο ερωτηματολόγιο θα λέγαμε πως είναι περίπου στην μέση, σχετικά με το ερώτημα “Σχετικά με την κλίμακα, θεωρείται πως είναι κοντά στην ανθρώπινη;”. Σκοπός της ερώτησης δεν ήταν για να αναλωθούμε στο δίπολο

αν είναι κοντά ή όχι, αλλά να γίνουν αντιληπτά τα αισθήματα που προκαλεί

συνολικά και πως το βιώνει ο επισκέπτης. Το ύψος του διαδρόμου, κοντά στην ανθρώπινη κλίμακα εντείνει το αίσθημα της οικειότητας. Επιπλέον, συμβάλλει και το γεγονός πως το ύψος της οροφής στο κέντρο κάθε αίθουσας μειώνεται. Ο επιμερισμός των όγκων επιτρέπει την μεταβολή του ύψους σε κάθε αίθουσα. Ο τριμερής διαχωρισμός της οροφής στις αίθουσες και τα επίπεδα που υπάρχουν

εντός, βοηθούν τον επισκέπτη να αισθανθεί πιο οικεία. Ακόμη και εδώ, στον

τρόπο που χειρίζεται την κλίμακα, εντοπίζονται στοιχεία που παραπέμπουν

στο βυζαντινό ύφος και ναοδομία, τα οποία με τους κατάλληλους χειρισμούς, έχουν καταφέρει να αποτελέσουν ένα ακόμη συνδετικό στοιχείο του κτιρίου με

τον τόπο. Επιπροσθέτως, οι εσωτερικοί εξώστες- πατάρια, παραπέμπουν στον

γυναικωνίτη, ενώ ταυτόχρονα αυξάνουν και το αίσθημα της οικειότητας. Ο

διάδρομος με τα σημεία στάσης, όπως δημιουργούνται στις εσοχές των τοίχων

πλήρωσης, θυμίζουν έντονα τα στασίδια ενός ναού. Γίνεται αντιληπτό, πως

ακόμη και μέσω των χειρισμών του, για μια κλίμακα πιο κοντά στην ανθρώπινη, καταφέρνει να την αξιοποιήσει με τέτοιο τρόπο, ώστε οι βυζαντινές αναφορές

να συμβάλουν στην ατμόσφαιρα του κτιρίου.

92 ΜΟΥΣΕΙΟ ΒΥΖΑΝΤΙΝΟΥ ΠΟΛΙΤΙΣΜΟΥ• ΣΥΝΘΕΤΙΚΑ ΕΡΓΑΛΕΙΑ ΚΛΙΜΑΚΑ

41 Μουσείο Βυζαντινού Πολιτισμού Θεσσαλονίκης

Κρόκος

93 ΑΤΜΌΣΦΑΙΡΑ | ΧΩΡΌΣ • ΜΙΑ ΔΙΑΛΕΚΤΙΚΗ ΤΗΣ ΣΧΕΣΗΣ Σκίτσο Κλίμακας_ Αίθουσα 1 εικ.
Τομή
Κυριάκος
Ε-Ε'

ΠΕΡΙΗΓΗΣΗ

Όπως έχει αναφερθεί και παραπάνω ο τρόπος

με τον οποίο πραγματοποιείται η κίνηση εντός του

μουσείου, αποτελεί ένα χαρακτηριστικό γνώρισμα της

σύνθεσης του Κρόκου, το οποίο την συνδέει αυτόματα

με την μοναστηριακή αρχιτεκτονική. Ο σχεδιασμός

της κίνησης, μέσω του σπειροειδούς διαδρόμου,

φανερώνει τον αφηγηματικό χαρακτήρα που θέλει να

έχει η ροή και συνδέεται άρρηκτα με την λειτουργία

και την χρήση του κτιρίου. Ο σχεδιασμός της κίνησης σε ένα κτίριο, από τον περιβάλλοντα χώρο μέχρι την ολοκλήρωση της επίσκεψης και την έξοδο, αποτελεί

ένα από τα πιο σημαντικά στοιχεία της αρχιτεκτονικής

πρότασης. Ο τρόπος με τον οποίο ο αρχιτέκτονας θα επιλέξει το πως θα κινηθεί ο χρήστης εντός του κτιρίου

συμβάλλει άμεσα στην διαμόρφωση της εμπειρίας

που πρόκειται να βιώσει, μπορεί και να την καθορίσει, κάτι που συμβαίνει και στο Μ.Β.Π. Η κλίση που έχει

ο διάδρομος, ανεβάζει κάθε φορά και 1 μέτρο την στάθμη. Αυτή η ανοδική πορεία ξεκινά μετά την πρώτη

αίθουσα και καταλήγει στο κλιμακοστάσιο που οδηγεί στην αίθουσα υποδοχής. Αυτού του είδους η κίνηση ενοποιεί το κτίριο, παρότι είναι χωρισμένο σε επίπεδα.

Η οριοθέτηση μεταξύ διαδρόμου και εκθεσιακών χώρων, γίνεται αντιληπτή και από τα υλικά του δαπέδου. Θα μπορούσε να ειπωθεί πως η περιήγηση εντός του μουσείου, χαρακτηρίζεται από μια συνέχεια

και πως εκτυλίσσεται πολύ φυσικά, ενώ ταυτόχρονα συμβάλει στην ομαλή μετάβαση σε κάθε αίθουσα.

94 ΜΟΥΣΕΙΟ ΒΥΖΑΝΤΙΝΟΥ ΠΟΛΙΤΙΣΜΟΥ• ΣΥΝΘΕΤΙΚΑ ΕΡΓΑΛΕΙΑ
εικ.42 Αίθουσα 1- Αίθριο

Αίθουσα υποδοχής

Αίθρια

Αίθουσες εκθεμάτων

Μουσειακή πορεία

Διάγραμμα χρήσεων Α' στάθμης Διάγραμμα μουσειακής πορείας και χώρων επιβράδυνσης

Σημεία κεκλιμένου δαπέδου

Σημείο αλλαγής προσανατολισμού

έναρξης και λήξης

96 ΜΟΥΣΕΙΟ ΒΥΖΑΝΤΙΝΟΥ ΠΟΛΙΤΙΣΜΟΥ• ΣΥΝΘΕΤΙΚΑ ΕΡΓΑΛΕΙΑ
Περιμετρική
Ενδιάμεσος χώρος
Βοηθητικοί χώροι Ανεξάρτητη πτέρυγα
Αίθρια Μουσειακή
Σημεία
στοά αιθρίου
κίνησης
εκθέσεων
πορεία
μουσειακής πορείας
97 ΑΤΜΌΣΦΑΙΡΑ | ΧΩΡΌΣ • ΜΙΑ ΔΙΑΛΕΚΤΙΚΗ ΤΗΣ ΣΧΕΣΗΣ Διάγραμμα μουσειακής πορείας Διάγραμμα χώρων στάσης Εκθεσιακοί χώροι Διάδρομος Σημεία στάσης

του

ΚΑΤΑΣΚΕΥΑΣΤΙΚΗ ΔΟΜΗ

Η κατασκευαστική δομή

Μ.Β.Π. παρουσιάζει ιδιαίτερο

ενδιαφέρον, καθώς οι τεχνοτροπίες

που εντοπίζονται είναι αποτέλεσμα

των αναγκών που πρέπει καλυφθούν.

Εύκολα μπορεί κανείς να διαπιστώσει

πως ο εμφανής φέρον οργανισμός του

είναι ένα χαρακτηριστικό της μοντέρνας

αρχιτεκτονικής, αλλά ταυτόχρονα

πηγάζει και από την λαϊκή παράδοση

που τόσο έχει επηρεαστεί ο Κ. Κρόκος.

Ο κάνναβος που δημιουργείται 6x 12, ακολουθείτιςανάγκεςτουκτιριολογικού προγράμματος. Τρία διαφορετικά είδη

οπτόπλινθων θα χρησιμοποιηθούν

για την πλήρωση της τοιχοποιίας, οι

οποίοι αναλόγως το είδος έχουν και

συγκεκριμένο ρυθμό τοποθέτησης. Η

σύνδεση με την πόλη και τα μνημεία

της γίνεται και σε αυτό το στάδιο, οι

διαστάσεις των τούβλων, καθώς και

οι διαστάσεις της αρμολόγησης, είναι

αποτέλεσμα μελέτης οπτοπλινθοδομών

από μνημεία της πόλης. Κάθε ρυθμός

έχει την δική του πλέξη και διάταξη.

Το χρώμα των υλικών είναι από τις

βασικότερες συνδέσεις του κτιρίου με

την βυζαντινή αρχιτεκτονική.

εικ. 43 Αίθουσα υποδοχής

98 ΜΟΥΣΕΙΟ ΒΥΖΑΝΤΙΝΟΥ ΠΟΛΙΤΙΣΜΟΥ• ΣΥΝΘΕΤΙΚΑ ΕΡΓΑΛΕΙΑ

εικ. 44 Άποψη κόγχης Αίθουσας 3

εικ. 45 Άποψη κόγχης Ι.Ν. Αχειροποιήτου

Σκίτσο πλέξης οπτόπλινθων, νότια εσωτερική όψη του κεντρικού αιθρίου

Σκίτσο πλέξης οπτόπλινθων, στο σημείο

ένωσης με το πρέκι του ανοίγματος

99 ΑΤΜΌΣΦΑΙΡΑ | ΧΩΡΌΣ • ΜΙΑ ΔΙΑΛΕΚΤΙΚΗ ΤΗΣ ΣΧΕΣΗΣ

Ένα ακόμη στοιχείο, ιδιαίτερα

σημαντικό γι’ αυτή την σύνδεση, είναι το στηθαίο του. Ο τρόπος με

τον οποίο γίνεται η πλήρωση του

στηθαίου, δημιουργεί ένα κενό

σταυροειδούς σχήματος. Είναι χαρακτηριστικός ο τρόπος με τον

οποίο γίνεται η πλέξη των πλίνθων

καιαποτελείστοιχείοτηςαναζήτησης

του αρχιτέκτονα, προκειμένου να

συνδυάσει τον τρόπο πλήρωσης από

το εσωτερικό, ώστε να μεταφέρει

αυτή την σύνδεση με το χριστιανικό

στοιχείο και στην όψη του μουσείου.

Ο τρόπος που διαχειρίζεται ο

Κρόκος αυτό το στάδιο κατασκευής

υπενθυμίζει την ανάγκη του για την

γνώση της κατασκευής και το μεράκι

που έχει γι’ αυτή την διαδικασία.

εικ. 46 Άποψη πλήρωσης

στηθαίου εσωτερικού αιθρίου

Σκίτσο ανάλυσης της δομής του

στηθαίου

100 ΜΟΥΣΕΙΟ ΒΥΖΑΝΤΙΝΟΥ ΠΟΛΙΤΙΣΜΟΥ• ΣΥΝΘΕΤΙΚΑ ΕΡΓΑΛΕΙΑ

εικ. 48 Άποψη πλάγιας ζώνης πλήρωσης εξωτερικής τοιχοποιίας

εικ. 49 Άποψη κάθετης ζώνης πλήρωσης εξωτερικής τοιχοποίας

εικ.

Ο πειραματισμός του αυτός, με τα υλικά και τις συνδέσεις, γίνεται φανερός και στο εσωτερικό του μουσείου, όταν η τοιχοποιία πλησιάζει

να συναντήσει την δοκό, σε εκείνο το σημείοορυθμόςαλλάζεικαιδημιουργεί μία νέα ζώνη, σχηματίζοντας κατ’ αυτό

τον τρόπο συνολικά τρεις διακριτές

ζώνες στην τοιχοποιία. Αυτή η νέα ζώνη, που βρίσκεται στο κέντρο των τριών, χαρακτηρίζεται από την λοξή ή κάθετητοποθέτησηπλίνθων.Σεκάποιες περιπτώσεις διατάσσεται προς τον φέροντα οργανισμό- υποστυλώματα, με σκοπό τον τονισμό της κατασκευαστικής δομής. Αποτελεί μια κατασκευαστική

λύση την οποία χρησιμοποιεί και στις εξωτερικές τοιχοποιίες και κάθε φορά

με κάποιες μικρές παραλλαγές.

101 ΑΤΜΌΣΦΑΙΡΑ | ΧΩΡΌΣ • ΜΙΑ ΔΙΑΛΕΚΤΙΚΗ ΤΗΣ ΣΧΕΣΗΣ
πλάγιας ζώνης πλήρωσης εσωτερικά του
47 Άποψη

εικ. 50 Αίθουσα Υποδοχής- Ξυλότυπος οροφής

Οεμφανήςξυλότυποςείναιέναακόμηχαρακτηριστικότηςκατασκευαστικής δομής του μουσείου. Η απόφαση του να αναδείξει το οπλισμένο σκυρόδεμα,

διατηρώντας το ανεπίχρηστο, είναι μια επιλογή που τον φέρνει πολύ κοντά στις

κλασικές αρχές της κατασκευής. Με αυτό τον τρόπο καταφέρνει να τονίσει και

την σχέση μεταξύ των δομικών στοιχείων. Παρά το γεγονός ότι χρησιμοποιεί

μόνο δύο υλικά στην κατασκευή- σκυρόδεμα και οπτόπλινθο- καταφέρνει

μέσω της σύνδεσης τους και των τεχνοτροπιών πλήρωσης, να τα αναδείξει.

Οι διαφορετικοί τρόποι επεξεργασίας του σκυροδέματος κρίνονται αναγκαίοι, καθώς χρησιμοποιείται σε πολλά στοιχεία της κατασκευής, όπως στον φέροντα

οργανισμό, στο κλιμακοστάσιο, στο σενάζ, στις ποδιές των παραθύρων, στα πρέκια, στα πλαίσια ανοιγμάτων, στο στηθαίο και στις διαμορφώσεις

του περιβάλλοντα χώρου. Οι διαφορές που εντοπίζονται είναι κυρίως στην

κοκκομετρία και στα επίπεδα τραχύτητας. Αυτοί οι διαφορετικοί τρόποι

επεξεργασίας, συμβάλλουν και στην ανάδειξη του ίδιου του υλικού, πέρα από την συνολική κατασκευή.

102 ΜΟΥΣΕΙΟ ΒΥΖΑΝΤΙΝΟΥ ΠΟΛΙΤΙΣΜΟΥ• ΣΥΝΘΕΤΙΚΑ ΕΡΓΑΛΕΙΑ

Οι επεξεργασίες των υλικών είναι

αποτέλεσμα αποφάσεων που πάρθηκαν

επί τόπου, στο εργοτάξιο, καθώς ο

Κρόκος συνέβαλε ουσιαστικά με την

παρουσίατουσεαυτάταστάδια.Σχετικά

με τα υλικά και τις κατασκευαστικές

τεχνοτροπίες, θα μπορούσε να ειπωθεί,

πως κυριαρχεί μια μοντέρνα αντίληψη

στον τρόπο με τον οποίο τα χειρίζεται

και αποφασίζει τον τρόπο σύνδεσης και

κατασκευής. Παρόλα αυτά η σύνδεση

τους με την βυζαντινή αρχιτεκτονική

δεν παύει, καθώς αυτές οι επιλογές του την έκαναν ιδιαίτερα επιτυχημένη.

εικ. 21 Κορμός και στέψη από τον χώρο εισόδου της αίθουσας υποδοχής

εικ. 52 Κορμός και στέψη, περιστύλιο της κεντρικής εισόδου

εικ. 53 Χώρος στάσης στον εσωτερικό διάδρομο

103 ΑΤΜΌΣΦΑΙΡΑ | ΧΩΡΌΣ • ΜΙΑ ΔΙΑΛΕΚΤΙΚΗ ΤΗΣ ΣΧΕΣΗΣ

Η πλάγια ζώνη πλήρωσης της

τοιχοποιίας

Το σενάζ στο εξωτερικό κλιμακοστάσιο

του κεντρικού αιθρίου

104 ΜΟΥΣΕΙΟ ΒΥΖΑΝΤΙΝΟΥ ΠΟΛΙΤΙΣΜΟΥ• ΣΥΝΘΕΤΙΚΑ ΕΡΓΑΛΕΙΑ
Ακουαρέλες μελέτης υλικών και τεχνοτροπιών [προσωπική επεξεργασία]
105 ΑΤΜΌΣΦΑΙΡΑ | ΧΩΡΌΣ • ΜΙΑ ΔΙΑΛΕΚΤΙΚΗ ΤΗΣ ΣΧΕΣΗΣ Το δάπεδο στο αίθριο μετά την αίθουσα υποδοχής Ο τοίχος πλήρωσης του διαδρόμου

Η ξυλοδεσιά της οροφής του διαδρόμου Η κεντρική εξώθυρα του μουσείου

106 ΜΟΥΣΕΙΟ ΒΥΖΑΝΤΙΝΟΥ ΠΟΛΙΤΙΣΜΟΥ• ΣΥΝΘΕΤΙΚΑ ΕΡΓΑΛΕΙΑ
107 ΑΤΜΌΣΦΑΙΡΑ | ΧΩΡΌΣ • ΜΙΑ ΔΙΑΛΕΚΤΙΚΗ ΤΗΣ ΣΧΕΣΗΣ Η πέτρα στο δάπεδο του μεγάλου αιθρίου Ο πέτρινος τοίχος του αιθρίου

ΦΩΣ

Τοφυσικόφωςαποτελείένα

από τα σημαντικότερα στοιχεία

που ο αρχιτέκτονας λαμβάνει

υπόψιν του κατά την συνθετική

διαδικασία. Στην περίπτωση

του Μ.Β.Π. η διαχείριση του

φωτός γίνεται με τρόπο, ώστε

να συνεισφέρει ταυτόχρονα και

στις ανάγκες του μουσειολογικού

αφηγήματος. Το ελάχιστο φυσικό

φως που επιτρέπεται να περάσει

σε κάποιες αίθουσες από τα μικρά

ανοίγματα, που βρίσκονται αρκετά

ψηλά, αποτελεί χαρακτηριστικό

συνθετικό στοιχείο της

ατμόσφαιρας του. Ο τρόπος με

τον οποίο οι εκθεσιακοί χώροι

φωτίζονται δεν είναι τυχαίος

και ταυτίζεται έντονα με αυτόν

ενός ναού. Η ατμόσφαιρα που

δημιουργείται από του χειρισμούς

του φυσικού φωτός, προσδίδει

έναν χαρακτήρα μυστικιστικό και

συμβάλλει στο να μεταφέρει τον

επισκέπτη σε μια συνθήκη, όπου η

εμπειρία του θα προέρχεται, πέρα

από τα εκθέματα, και από την

περιήγηση εντός των αιθουσών.

εικ.54 Φεγγίτης στην αίθουσα 10

εικ. 55 Άνοιγμα στον κεντρικό διάδρομο

Σκοπός είναι αυτές οι δύο συνθήκες που

βιώνονται παράλληλα από τον χρήστη,

να του δημιουργήσουν συναισθήματα

και να τον μεταφέρουν νοητά σε μέρος

το οποίο χαρακτηρίζεται από κάτι ιερό.

Είναι ευδιάκριτο το γεγονός πως

η ποσότητα του φωτός από αίθουσα

σε αίθουσα αλλάζει ανάλογα με την

θεματική της περίοδο. Ακόμη και αυτή

η εναλλαγή του φωτισμού έχει κάτι

το μυσταγωγικό. Παρά το γεγονός

πως ο κεντρικός διάδρομος φωτίζεται

πλήρως από τα ανοίγματα του, μόνο

οι αίθουσες 1, 2 και 5 έχουν ανοίγματα

στον άξονα της εισόδους τους.

εικ. 56 Ο κεντρικός διάδρομος

109 ΑΤΜΌΣΦΑΙΡΑ | ΧΩΡΌΣ • ΜΙΑ ΔΙΑΛΕΚΤΙΚΗ ΤΗΣ ΣΧΕΣΗΣ

Διάγραμμα σχέσης ανοιγμάτων

με τις εισόδους των εκθεσιακών χώρων

Εκθεσιακοί χώροι

Φυσικό φως

Ανοίγματα που γειτνιάζουν με τις εισόδουων στους εκθεσιακούς χώρους

Διάγραμμα οπτικών φυγών από

τον διάδρομο

προς

110 ΜΟΥΣΕΙΟ ΒΥΖΑΝΤΙΝΟΥ ΠΟΛΙΤΙΣΜΟΥ• ΣΥΝΘΕΤΙΚΑ ΕΡΓΑΛΕΙΑ
τους εκθεσιακούς χώρους
προς
τα αίθρια
το αστικό τοπίο
προς

Όσο προχωράμε προς τις τελευταίες αίθουσες, εκεί που εκτίθενται

αντικείμενα από την βυζαντινή τέχνη (εικόνες, ιερά αντικείμενα ναών κλπ)

παρατηρείται έντονη μείωση του φυσικού φωτός. Ο φωτισμός είναι τόσο

στοχευμένος στα εκθέματα, που γίνεται με τεχνητό φωτισμό. Η προσοχή

όλη επικεντρώνεται στο έκθεμα το οποίο, μέσω του φωτισμού, διεκδικεί την μοναδικότητα του στον χώρο.

Η έντονη αντίθεση του φωτισμού στον διάδρομο δραματοποιεί την

εμπειρία εντός του εκθεσιακού χώρου. Κατά την είσοδο στην αίθουσα, καθώς

ο επισκέπτης αφήνει πίσω του την πηγή του φωτός ολοένα και περισσότερο για

να εισέλθει μεταφέρει αρκετά την εμπειρία της εισόδου σε έναν ναό, καθώς

το φως όλο και λιγοστεύει, όσο απομακρυνόμαστε από την είσοδο. Αυτή η εναλλαγή του φωτισμού, που χαρακτηρίζει το μουσείο, από τις αίθουσες στον διάδρομο και έπειτα στον χώρο υποδοχής που το φως είναι άπλετο, λειτουργεί σαν μια χειρονομία η οποία προετοιμάζει τον επισκέπτη να μεταβεί από την μία συνθήκη στην άλλη και να τον οδηγήσει ξανά στην ένταση της πόλης.

111 ΑΤΜΌΣΦΑΙΡΑ | ΧΩΡΌΣ • ΜΙΑ ΔΙΑΛΕΚΤΙΚΗ ΤΗΣ ΣΧΕΣΗΣ
εικ. 57 Αίθουσα 8

Ο τρόπος με τον οποίο διαμορφώνονται τα ηχητικά περιβάλλοντα εντός

τουμουσείουκαθορίζεταικυρίωςαπόταυλικά.Ηεσωστρέφειαπουχαρακτηρίζει

το κτίριο και η απουσία ανοιγμάτων προς το αστικό τοπίο, επιτρέπουν

την δημιουργία ενός ουδέτερου ηχητικά χώρου, ο οποίος θα μπορέσει να

διαμορφώσει το ηχοτόπιο του ανάλογα με τις εκάστοτε συνθήκες. Ήδη από το

αίθριο ο ήχος της πόλης σταδιακά μειώνεται, λόγω του ψηλού πέτρινου τοίχου.

Φτάνοντας στην αίθουσα υποδοχής αντιληπτοί γίνονται μόνο οι ήχοι από την

ζωή εντός του κτιρίου. Στις αίθουσες και στον κεντρικό διάδρομο οι συνθήκες

αλλάζουν και επικρατεί σχεδόν απόλυτη ησυχία στους εκθεσιακούς χώρους. Ο χαμηλός φωτισμός εντός των αιθουσών ωθεί τον επισκέπτη αυτόματα να είναι πιο προσεκτικός και να διατηρήσει την παρουσία του όσο πιο αθόρυβη γίνεται.

Κανένας εξωτερικός παράγοντας δεν παρεμβάλλει στην εμπειρία του επισκέπτη, παρά μόνο οι ήχοι από τις χαμηλόφωνες ομιλίες και τους βηματισμούς. Στον διάδρομο επικρατεί το ίδιο μοτίβο, καθώς οι οπτόπλινθοι απορροφούν ένα ποσοστό από τους ήχους και λόγω της κλίσης του δαπέδου, ο βηματισμός του επισκέπτη δεν είναι έντονος.

εικ. 58 Αίθουσα 6- Κλιμακοστάσιο που οδηγεί σε εσωτερικό εξώστη

112 ΜΟΥΣΕΙΟ ΒΥΖΑΝΤΙΝΟΥ ΠΟΛΙΤΙΣΜΟΥ• ΣΥΝΘΕΤΙΚΑ ΕΡΓΑΛΕΙΑ ΗΧΟΣ

ΘΕΡΜΟΚΡΑΣΙΑ

Η θερμική άνεση ορίζεται ως η κατάσταση κατά την οποία ένα άτομο δεν

επιθυμεί καμία θερμική αλλαγή στο περιβάλλον. Αυτό το γεγονός μπορεί να

αποτελείυποκειμενικήκατάστασηκαιναδιαφέρειαπόάνθρωποσεάνθρωπο.Το γεγονός πως το μουσείο έχει ελάχιστα και μικρά ανοίγματα στους εκθεσιακούς

χώρους, βοηθά ιδιαίτερα στην διατήρηση μια ισορροπίας στην θερμοκρασία του

χώρου. Παρά την ύπαρξη μεγάλων ανοιγμάτων στον διάδρομο και στην αίθουσα υποδοχής, η αίσθηση δροσιάς συνεχίζει να υπάρχει. Προφανώς η δροσιά

που επικρατεί είναι αποτέλεσμα σε μεγάλο ποσοστό και από την λειτουργία κλιματισμού, αλλά σίγουρα ο σχεδιασμός του κτιρίου βοηθά επιπλέον στο καλύτερο αποτέλεσμα. Επιπροσθέτως, τα υλικά είναι ένας ακόμη παράγοντας

που εντείνει αυτή την αίσθηση. Το αίσθημα της δροσιάς που κατακλύζει τον χώρο, θα μπορούσε να παρομοιαστεί με αυτό, όταν εισέρχεται κάποιος σε ένα

παρεκκλήσι, ένας συσχετισμός που αποτελεί ακόμη μία σύνδεση του με την ατμόσφαιρα και την αρχιτεκτονική των ναών.

εικ. 59 Ο κεντρικός διάδρομοςεικ. 60 Φεγγίτες του διαδρόμου

113 ΑΤΜΌΣΦΑΙΡΑ | ΧΩΡΌΣ • ΜΙΑ ΔΙΑΛΕΚΤΙΚΗ ΤΗΣ ΣΧΕΣΗΣ

Η ανάλυση των επιμέρους στοιχείων του Μ.Β.Π. από τις συνθετικές

αρχές ως τις κατασκευαστικές τεχνοτροπίες, υποδηλώνει έναν αρχιτέκτονα που

ο τρόπος σκέψης του ήταν ιδιαίτερα μοντέρνος, με επιρροές από την λαϊκή

αρχιτεκτονική και με μια ιδιαίτερη ανάγκη για σεβασμού και εναρμόνισης με

τον τόπο. Η συνθετική του λογική καταδεικνύει την ανάγκη για την δημιουργία

μιας ατμόσφαιρας, η οποία θα οδηγεί τον επισκέπτη στην απόκτηση ενός βιώματος. Παράλληλα, μέσω αυτών των χειρισμών καταφέρνει και μια ιδιαίτερα πετυχημένη σύνδεση με το βυζαντινό στοιχείο.Ο τρόπος με τον οποίο ο επισκέπτης εισέρχεται στο αίθριο και απομονώνεται από το αστικό περιβάλλον, μέσω του ψηλού πέτρινου τοίχου, και η οπτική απομόνωση που δημιουργείται στο αίθριο, είναι στοιχεία που πλέκουν την κατάλληλη συνθήκη

για μια βιωματική εμπειρία, αλλά ταυτόχρονα έχουν και ένα έντονο θρησκευτικό στοιχείο, το οποίο παραπέμπει στις κλειστές μοναστηριακές αυλές. Αυτό το

ενδιάμεσο στοιχείο, σηματοδοτεί την έναρξη μιας εσωστρεφούς συνθήκης, η οποία ξεδιπλώνεται σταδιακά όσο ο επισκέπτης εισέρχεται στο μουσείο. Ακόμη

και η θέση των αναβαθμών που οδηγούν στο πλάτωμα, πριν την είσοδο στο

αίθριο, η θέση της εισόδου στον πέτρινο τοίχο και η θέση της εισόδου στην

αίθουσα υποδοχής, που είναι έκκεντρες μεταξύ τους και όχι σε κάποιον άξονα, συμβάλλουν στην ομαλή υποδοχή του επισκέπτη από την πόλη στο μουσείο.

Ο

σπειροειδής διάδρομος είναι από τα βασικότερα στοιχεία της σύνθεσης

και η σχέση που δημιουργεί με τους εκθεσιακούς χώρους και τον εξωτερικό

χώρο, του δίνουν τον ρόλο του ξεναγού. Επιπλέον, το γεγονός ότι λειτουργεί

ως ένας ενδιάμεσος χώρος που φιλτράρει το φυσικό φως, πριν εισχωρήσει στις

αίθουσες, η κλίμακα του και τα υλικά, δημιουργούν μια συνθήκη ιδιαίτερα

ευχάριστη και μεταφέρουν στον επισκέπτη ένα αίσθημα ασφάλειας και ελευθερίας, τα οποία του επιτρέπουν να αφεθεί και να βιώσει στο μέγιστο την εμπειρία της επίσκεψης. Θα μπορούσε να ειπωθεί πως ο τρόπος με τον οποίο 114 ΜΟΥΣΕΙΟ ΒΥΖΑΝΤΙΝΟΥ ΠΟΛΙΤΙΣΜΟΥ• ΣΥΜΠΕΡΑΣΜΑΤΑ ΑΝΑΛΥΣΗΣ 5.6 ΣΥΜΠΕΡΑΣΜΑΤΑ ΑΝΑΛΥΣΗΣ

ο διάδρομος ξεδιπλώνεται, γύρω από το μουσείο και από τα αίθρια του, έχει

ένα έντονο στοιχείο ανακάλυψης, καθώς σε κάθε αλλαγή πορείας το δάπεδο

γίνεται επικληνές και σε οδηγεί ένα μέτρο ψηλότερα. Η εναλλαγή των επιπέδων

και η τμηματική επικλινής πορεία του δημιουργούν στον επισκέπτη αυτό το

συναίσθημα. Η αρχιτεκτονική σύνθεση καταφέρνει να μεταδώσει ένα αίσθημα γαλήνης και ηρεμίας, τα οποία συνδέονται άμεσα με την ατμόσφαιρα ενός ναού.

Το αποτέλεσμα αυτής της συνθήκης πέρα από την σύνδεση με το βυζαντινό στοιχείο, επιτυγχάνει και την αντίστοιχη ατμόσφαιρα η οποία αποτελεί βασικό ζητούμενο.

Ο Κρόκος καταφέρνει να συσχετίσει το Μ.Β.Π. με το πνεύμα του τόπου, την ιστορία της πόλης, να μεταφέρει τις μνήμες της στο παρόν και να δώσει μια

συνέχεια σε αυτήν. Ο τρόπος που μελέτησε τα χαρακτηριστικά της πόλης και

της ιστορίας του βυζαντινού πολιτισμού, τον οδήγησαν στην δημιουργία ενός

κτιρίου ορόσημο, τόσο για τον ίδιο, όσο και για την πόλη της Θεσσαλονίκης.

Το μουσείο ανταποκρίνεται πλήρως στα ζητούμενα του αρχιτεκτονικού

διαγωνισμού, για την σύνδεση του με το βυζαντινό στοιχείο και μεταφέρει την

ατμόσφαιρα ενός μοναστηριού ή μιας εκκλησίας, σε όλη την περιήγηση. Στοιχεία από το καθένα μεταφέρονται σε κάθε σημείο του μουσείου, είτε για τον σχεδιασμό του κτιρίου είτε της ατμόσφαιρας του. Η διαχείριση του φυσικού

φωτός είναι από τα σημαντικότερα στοιχεία που λαμβάνονται υπόψιν για την

δημιουργία αρχιτεκτονικής ατμόσφαιρας, καθώς αποτελεί και ένα ισχυρό συνθετικό εργαλείο. Η εισχώρηση του φωτός από ψηλά στις αίθουσες, με τους

φεγγίτες και τις χρωματιστές τετράγωνες οπές που θυμίζουν βιτρό ναών, είναι στοιχεία της ναοδομίας, ενώ ταυτόχρονα συμβάλλουν στην ατμόσφαιρα του χώρου και στην διαδικασία του μουσειολογικού αφηγήματος.

Η επιλογή των συγκεκριμένων υλικών και ο τρόπος που τα χρησιμοποιεί μόνο τυχαίος δεν είναι. Είναι αποτέλεσμα βαθιάς αναζήτησης στις παιδικές

115 ΑΤΜΌΣΦΑΙΡΑ | ΧΩΡΌΣ • ΜΙΑ ΔΙΑΛΕΚΤΙΚΗ ΤΗΣ ΣΧΕΣΗΣ

μνήμες από την λαϊκή αρχιτεκτονική της Σάμου και στον ίδιο του τον τόπο. Ο

τρόπος που χρησιμοποιεί το ανεπίχρηστο σκυρόδεμα, με τα έντονα σημάδια

από τον ξυλότυπο, η πυκνότητα που επιλέγει να έχει αναλόγως την χρήση του,

οι οπτόπλινθοι και ο τρόπος σύνδεσης του κατά την πλήρωση, είναι κάποια

από τα στοιχεία που παραπέμπουν στην αναζήτηση της καθαρής μορφής, της

ειλικρίνειας που έχει το κάθε υλικό με σκοπό την δημιουργία αρχιτεκτονικής

ατμόσφαιρας και την συσχέτιση με το βυζαντινό στοιχείο της πόλης. Εν κατακλείδι, η συνθετική του λογική θέτει ως στόχο την δημιουργία

ατμόσφαιρας, μέσω της σύνδεσης με την βυζαντινή ιστορία και τον τόπο, και την απόκτηση μιας πολυαισθητηριακής εμπειρίας από τον επισκέπτη. Η σύνθεση

του παράγει χωρικές ποιότητες που καταφέρνουν να δημιουργήσουν μια ισχυρή

σχέση μεταξύ επισκέπτη και αρχιτεκτονικής. Μια αρχιτεκτονική που θέτει στο

κέντρο του σχεδιασμού της τον άνθρωπο και οραματίζεται την δημιουργία

ιδανικών συνθηκών για την σύνθεση του βιώματος του. Τούτων δοθέντων, γίνεται αντιληπτό πως όλες αυτές οι χειρονομίες του Κρόκου συμβάλουν στην δημιουργία μιας ενιαίας και αδιάσπαστης αρχιτεκτονικής ατμόσφαιρας.

116 ΜΟΥΣΕΙΟ ΒΥΖΑΝΤΙΝΟΥ ΠΟΛΙΤΙΣΜΟΥ• ΣΥΜΠΕΡΑΣΜΑΤΑ ΑΝΑΛΥΣΗΣ

εικ. 61 Διακοσμητικό στοιχείο στο πρέκι

εξώθυρας του αιθρίου

«Ήθελα ένα χώρο που η κίνηση μέσα σ' αυτόν να δίνει ένα αίσθημα

ελευθερίας ανακινώντας τις αισθήσεις και όπου το έκθεμα θα ήταν

η έκπληξη μέσα στην κίνηση. Ήθελα ν' αποφύγω τον καταναγκασμό

του μουσείου που επιβάλλει να δεις ένα σωρό έργα στη σειρά, γιατί

θυμόμαστε το σκίρτημα απ' το εσωτερικό ενός ξωκλησιού αλλά

ξεχνάμε συνήθως τα έργα που βλέπουμε στα μουσεία.»

Κυριάκος Κρόκος, 1989

117 ΑΤΜΌΣΦΑΙΡΑ | ΧΩΡΌΣ • ΜΙΑ ΔΙΑΛΕΚΤΙΚΗ ΤΗΣ ΣΧΕΣΗΣ
εικ. 62 Μουσείο Βυζαντινού Πολιτισμού Θεσσαλονίκης Κυριάκος Κρόκος
6 ΕΠΙΛΟΓΟΣ

ΕΠΙΛΟΓΟΣ

Ο δομημένος χώρος για να αποκτήσει ατμόσφαιρα και να μπορέσει να συμβάλλει στην απόκτηση εμπειρίας, πέρα από τα σταθερά του στοιχεία, έχει ανάγκη και τα μεταβαλλόμενα. Ως σταθερά στοιχεία ορίζονται η αρχιτεκτονική

σύνθεση, τα υλικά, οι επιφάνειες και το κέλυφος του. Από την άλλη, ως μεταβαλλόμενα, ορίζονται το φυσικό φως, οι ήχοι και η ανθρώπινη ύπαρξη, στοιχεία που δεν έχουν μόνο ένα συγκεκριμένο τρόπο έκφρασης. Ο αρχιτέκτονας

μέσω του σχεδιασμού του, είναι αυτός που μπορεί να καθοδηγήσει την έκφραση και να εντάξει τα μεταβαλλόμενα στοιχεία, για να αποκτήσουν πιο συγκεκριμένη

έκφραση στον χώρο.

Οι ερμηνείες που δόθηκαν στα πρώτα κεφάλαια και η ανάλυση βασικών εννοιών που αναπτύχθηκαν για να αποτελέσουν το θεωρητικό σχήμα της παρούσης Ερευνητικής Διπλωματικής εργασίας, συμπληρώθηκαν από το Μουσείο Βυζαντινό Πολιτισμού με κυριότερο σκοπό να εντοπιστεί ο τρόπος

με τον οποίο αυτές εφαρμόσθηκαν στο έργο του Κυριάκου Κρόκου. Μέσω

της επισκόπησης του θεωρητικού υποβάθρου της φαινομενολογίας στην αρχιτεκτονική με την ανάλυση βασικών εννοιών, όπως του “πνεύματος του

τόπου”, της ατμόσφαιρας, του βιωμένου χώρου και των υπολοίπων εννοιών, σε συνδυασμό με την ανάλυση των Μουσείου Βυζαντινού Πολιτισμού, αντιλαμβανόμαστε τον τρόπο με τον οποίο η φαινομενολογική προσέγγιση

μπορεί να παράξει χώρους με ατμόσφαιρα και ικανούς να προσφέρουν την εμπειρία του βιώματος στον χρήστη.

Η εμπειρία της ανάλυσης του Μ.Β.Π. υπήρξε καθοριστική για την

εξέλιξη του ερευνητικού έργου, καθώς αποτελεί το σημαντικότερο έργο του ίδιου, αλλά και ένα από τα σημαντικότερα σύγχρονα κτίρια της Θεσσαλονίκης.

Ο τρόπος με τον οποίο αποκωδικοποιήθηκαν τα συνθετικά στοιχεία και οι χειρονομίες του αρχιτέκτονα, έδωσαν πολλές απαντήσεις σε ερωτήματα που διαπραγματεύονταν κυρίως την ατμόσφαιρα, τα συναισθήματα που δημιουργεί,

120

αλλά και τι αίσθηση μεταφέρουν τα υλικά του κτιρίου. Το παράδειγμα του Μ.Β.Π. λειτούργησε διδακτικά καθώς προσδιορίστηκαν τα στοιχεία αυτά που συνθέτουν την ατμόσφαιρα ενός χώρου, συμβάλλουν στην χωρική εμπειρία και

έχουν ως αποτέλεσμα την απόκτηση βιώματος.

Συνοψίζοντας τα παραπάνω, η σύνθεση της ατμόσφαιρας σε ένα κτίριο σχετίζεται με την ικανότητα του αρχιτέκτονα να μπορέσει να μεταφέρει μια συγκινησιακή κατάσταση και να προσεγγίσει με σχεδιαστικές χειρονομίες τον χαρακτήρα του κτρίου. Η ατμόσφαιρα είναι αυτή η άυλη διάσταση του χώρου, που ξεκινά μόλις ολοκληρωθεί η κατασκευή του, και μεταθέτει το κέντρο βάρους από την οπτική αντίληψη στην συναισθηματική. Είναι το αποτέλεσμα

της σχέσης και της συναρμολόγησης των στοιχείων του χώρου, η οποία προσλαμβάνεται από το υποκείμενο μέσω της ενσώματης εμπειρίας του και καταγράφεται στην μνήμη του. Η ικανότητα του αρχιτέκτονα να αποδώσει

την ατμόσφαιρα, είναι αποτέλεσμα μιας συνεχούς προσπάθειας, αναζήτησης

και εμπλουτίζεται από τα προσωπικά του βιώματα. Ο αρχιτέκτονας που θέτει

την δημιουργία ατμόσφαιρας, ως βασικό στοιχείο στην σύνθεση του, πρέπει

να κατανοεί και να φαντάζεται την συναισθηματική φόρτιση που μπορεί να μεταδώσει ο χώρος και να μπορεί να ερμηνεύσει τις σχέσεις των στοιχείων.

Απόόσααναλύθηκαν,συνεπάγεταιτοσυμπέρασμαπωςηατμόσφαιρακαι

ο χώρος είναι δύο έννοιες με πολλά χαρακτηριστικά, ερμηνείες και αναλύσεις.

Και οι δύο αναλύονται υπό το πρίσμα μιας υποκειμενικής εννοιολογικής

απόδοσης, η οποία επηρεάζεται από τον τρόπο που βιώνεται από το εκάστοτε

υποκείμενο. Η σχέση του κτιρίου με την ατμόσφαιρα του είναι αλληλένδετη και

αδιάσπαστη, είναι αυτή που μετατρέπει ένα δομημένο χώρο σε χώρο ικανό να αφυπνίζει αισθήσεις και συναισθήματα ικανά να προσδώσουν εμπειρίες στο

και
121 ΑΤΜΌΣΦΑΙΡΑ | ΧΩΡΌΣ • ΜΙΑ ΔΙΑΛΕΚΤΙΚΗ ΤΗΣ ΣΧΕΣΗΣ
χρήστη. Είναι αυτή που καταφέρνει να χαράξει στην μνήμη μας τα αισθήματα
τις εικόνες από έναν βιωμένο χώρο, ακόμη και αν σταματήσει να υφίσταται.

Στον αντίποδα της εποχής που ζούμε, η οποία χαρακτηρίζεται από την κυριαρχία της εικόνας και της ψηφιακής πραγματικότητας, η προσπάθεια ανάδειξης μια αρχιτεκτονικής που συμβάλει, μέσω της αντιληπτικής διαδικασίας, στην αφύπνιση των αισθήσεων και στην δημιουργία μιας βιωματικής εμπειρίας είναι επιτακτική ανάγκη. Η αρχιτεκτονική που θέτει ως στόχο την

ατμόσφαιρα και το βίωμα, είναι αυτή που προϋποθέτει την στενή σχέση με τα υλικά. Η απόδοση όλων αυτών των στοιχείων είναι αποτέλεσμα της σχέσης του αρχιτέκτονα με τα υλικά και τις κατασκευαστικές τεχνοτροπίες. Αυτή η υλική έκφραση της αρχιτεκτονικής, έναντι της οπτικοκεντρικής, δημιουργεί εμπειρίες, συναισθήματα και αναμνήσεις. Η ύλη εντείνει την απτική εμπειρία και μέσω της ατμόσφαιρας την μεταφέρει στην σφαίρα της αιωνιότητας. Κάθε

αρχιτεκτόνημα πλάθετε μέσα στον χρόνο, μεταβάλλεται και εξελίσσεται, ορίζει μια τελεία, τίποτα μετά από αυτό δεν θα είναι το ίδιο.

122
ΕΠΙΛΟΓΟΣ

[...] κύρια υλικά το μπετόν και το τούβλο- είναι μια εικόνα που έχω απ' τις

πολυκατοικίες πριν σοβατιστούν, όταν δείχνουν τη μικρή τους αλήθεια. Αυτό

είδα σαν δυνατότητα και θέλησα να δοκιμάσω πόση τάξη μπορώ να βάλω

με τα «κοινά» υλικά του καιρού μου. Δέχτηκα την πρόκληση τους. Κάνοντας

κάτι αληθινό ένιωσα πως μπορεί να βρισκόμουνα πιο κοντά στο πνευματικό

κέντροπουτολένεπαράδοση.Δενυπάρχειπρόβλημαυλικού,μπετόνήπέτρα, αλουμίνιο ή ξύλο. Το πρόβλημα είναι

96. «Κυριάκος Κρόκος», Αρχιτεκτονικά Θέματα, τ. 23/1989, σελ. 120

θεωρήσουμε
στη
-ομόλογη ή αντιθετική-
ΚΥΡΙΑΚΟΣ ΚΡΟΚΟΣ [...] Η έμφυτη ανάγκη του ανθρώπου για ομορφιά δικαιώνει τους ψεύτικους σοβάδες και τους κάνει να φαίνονται αληθινοί. ΚΥΡΙΑΚΟΣ ΚΡΟΚΟΣ 123 ΑΤΜΌΣΦΑΙΡΑ | ΧΩΡΌΣ • ΜΙΑ ΔΙΑΛΕΚΤΙΚΗ ΤΗΣ ΣΧΕΣΗΣ
να
τις σχέσεις των υλικών
σύνθεση τους
με τη φύση.95

ΠΑΡΑΡΤΗΜΑ

1. Επισκέπτεστε πρώτη φορά το Μουσείο Βυζαντινού Πολιτισμού;

2. Πώς νιώσατε όταν εισήλθατε εντός του μουσείου;

3. Πιστεύετε πως το κτίριο σας προϊδεάζει γι’ αυτό που πρόκειται να δείτε στο εσωτερικό του;

ΕΡΩΤΗΜΑΤΟΛΟΓΙΟ 126 ΠΑΡΑΡΤΗΜΑ
Όχι Δέος Γαλήνη Όχι Ναι Ηρεμία Ναι
127 ΑΤΜΌΣΦΑΙΡΑ | ΧΩΡΌΣ • ΜΙΑ ΔΙΑΛΕΚΤΙΚΗ ΤΗΣ ΣΧΕΣΗΣ
Πώς νιώθετε ότι σας υποδέχεται το μουσείο από την πόλη και από το αίθριο στον χώρο υποδοχής;
4.
Πώς
μουσείου;
5.
αισθάνεστε την ατμόσφαιρα του
κτιρίου; Σταδιακά Απόκοσμη Επιβλητική Ψυχρή Μελαγχολική Γήινη Ψυχρή Όμαλά Μυσταγωγική Ήρεμη Γαλήνια Θερμή
6. Τι αίσθηση σας δίνουν τα υλικά του
128 ΠΑΡΑΡΤΗΜΑ 7. Ποια είναι η γνώμη σας για τον φωτισμό του κτιρίου κατά την περιήγηση σας; 8. Θεωρείτε πως είναι ένα φιλόξενο κτίριο; 9. Σε επίπεδο κλίμακας θεωρείται πως είναι κοντά στην ανθρώπινη; Κατάλληλος- Ιδανικος Αρκετά Αρκετά Όχι Όχι Ανεπαρκής Ναι Ναι
129 ΑΤΜΌΣΦΑΙΡΑ | ΧΩΡΌΣ • ΜΙΑ ΔΙΑΛΕΚΤΙΚΗ ΤΗΣ ΣΧΕΣΗΣ 10. Περιγράψτε με 1-2 λέξεις την αίσθηση που σας αφήνει στο σύνολο του. 11. Θα συστήνατε σε κάποιον άλλον να επισκεφθεί το μουσείο με κύριο σκοπό να δει και το κτίριο; 12. Έχετε κάποια σχέση με την αρχιτεκτονική, εάν ναι τι είδους σχέση; Εντυπωσιασμός Μονοτονία Περιπλοκότητα Ηρεμία Ικανοποίηση Επιβλητικότητα Ναι Ναι Όχι

[...] Τισημαίνει,κύριεΚρόκο,«υγιήςαρχιτεκτονικήλεπτομέρεια»;

Δεν είναι εύκολο να δώσει κανείς μια απάντηση σ' αυτό με δύο κουβέντες. Θα μπορούσαμε όμως να πούμε τι είναι αρχιτεκτονική και τι δεν είναι. Τι σημαίνει «χτίζω» και τι «οικοδομώ». Γιατί ανάμεσα σ' αυτά τα δύο ρήματα υπάρχει κάποια διαφορά.

Μεγαλούτσικηυποψιάζομαι.

Οικοδμώσημαίνεισυναρμολογώστοιχείαομοιογενή.Χτίζωσημαίνειδένω στοιχεία ετερογενή. Υπάρχει ένας αφορισμός του Μπρακ, που μου αρέσει να τον επαναλμβάνω γιατί διατυπώνει τέλεια την τεράστια αυτή διαφορά: Το χτίζω είναι συνθετική εργασία, ενώ το οικοδομώ δεν είναι. Το χτίσιμο απαιτεί τεχνίτη, το οικοδόμημα εργολάβο. Χτίζοντας συνθέτω, οικοδομώντας παραγεμίζω.

Και«παραγεμίζω»τιπάειναπει;

Παραγεμίζω σημαίνει κάνω στα γρήγορα ένα σκελετό από μπετόν αρμέ

και μετά τον γεμίζω, τον «κουκουλώνω», αν θέλετε. Ασχολούμαι, δηλαδή, με την επιφάνεια, δεν κάνω ορθή άρθρωση των πραγμάτων. Τα χτισμένα πράγματα

και σαν ερείπια ακόμη έχουν ενδιαφέρον. Κάθε τους κομμάτι έχει τη δική του αυτονομία, το βλέπεις και το ξαναβλέπεις, κι είναι φορές που θέλεις να σκύψεις

να το πάρεις. Σκεφτείτε όλα τα συγκλονιστικά ερείπια του παρελθόντος. Τον

ναό της Αφαίας στην Αίγινα ας πούμε, αλλά και τ' απομεινάρια ενός κάποτε καλοχτισμένου, ταπεινού καλυβιού. Πόσα εναρμονίζονται μέσα στη φύση. και

το καλύβι παλιά έπρεπε να καλοχτιστεί, αλλιώς θα΄ πεφτε να σε πλακώσει. Στο χτίσιμο ψέμα δεν χωράει. Το χτίσιμο είναι σύνθεση, ήταν - μια φορά κι έναν καιρό- σωστή σύνθεση.

ΔΕΝ ΦΤΑΙΝΕ ΤΑ ΥΛΙΚΑ 95. Λ. Αρβανίτη-Κρόκου (επιμ.)Κυριάκος Κρόκος(1941-1998), σελ 368-373

130 ΠΑΡΑΡΤΗΜΑ Συνέντευξη
Κρόκου στον ποιητή Σωτήρη Κακίση95
του Κυριάκου

Ενώσήμερα;

Ενώ σήμερα, με γτα παραγεμίσματα και τα κουκουλώματα με τον αδρανή

σοβά ή τις φλούδες του μαρμάρου να σκεπάζουν αναξέλεγκτα τα δρώντα μέρη

του κτιρίου, τον σκελετό του μπετόν αρμέ, δεν μπορείς να πεις πως υπάρχει

καμία συνθετική αξία στα σπίτια ή στις πολυκατοικίες μας. Υπάρχουν βέβαια

και οι εξαιρέσεις, με τις «υγιείς» αρχιτεκτονικές λεπτομέρεις.

Όπωςγιαπαράδειγμα;

Όπως για παράδειγμα τα έργα του Άρη Κωνσταντινίδη. Εκεί φαίνεται το «χτίσιμο». Δείχνει ξεκάθαρα τον σκελετό και πως έγινε το καθετί σε σχέση μ' αυτόν. Ο Κωνσταντινίδης, ναι, «έκτισε». Σήμερα, στο σήμερα.

[...] Τιφταίει,λοιπόν;Τιμαςφταίεικαιστηναρχιτεκτονική,λέτε;

Είπαμε: Δεν φταίνε τα τσιμέντα και τα γυαλιά από μόνα τους, σαν υλικά. Οπωσδήποτε, το τσιμέντο τα μπέρδεψε πολύ τα πράγματα. Γιατί παλιά το χτίσιμο άρχιζε από κάτω. Κάναμε οι άνθρωποι τους τοίχους και μετά κάναμε μια στέγη ν' ακουμπήσει πάνω τους. Ενώ, τώρα, ξεκινάμε από πάνω προς τα κάτω. Ανεβάζουμε τις κολόνες, ρίχνουμε την πλάκα και μετά σκεπτόμαστε το υπόλοιπο κτίριο. Λέμε: «Έριξα πλάκα!». Και το θεωρούμε φοβερό και τρομερό.

Λεςκαιπάειτελείωσετοσπίτι!

Ναι. Κι αρχίζουμε μετά το «παραγέμισμα», το «τάπωμα». Η δυνατότητα, λοιπόν, αυτού του υλικού μας έχει αποπροσανατολίσει. Το μπετόν αρμέ είναι «σκοτεινό υλικό» με κρυμμένη δύναμη. Δεν είναι αμιγές, όπως το μάρμαρο ή η πέτρα. Γεφυρώνει από δω απέναντι, με την δύναμη του μεταλλικού οπλισμού του. Το μπετόν, με τις δυνατότητες που προσφέρει, έγινε και παγίδα για την αρχιτεκτονική.

131 ΑΤΜΌΣΦΑΙΡΑ | ΧΩΡΌΣ • ΜΙΑ ΔΙΑΛΕΚΤΙΚΗ ΤΗΣ ΣΧΕΣΗΣ

Όπωςόλα,άλλωστε,τασύγχρονα,εύκολααλλάύποπταταυτόχρονα,μέσα.

Για τους ευαίσθητους , τους δημιουργικούς, το τσιμέντο έγινε κι

αυτό ένα εργαλείο της δουλειάς τους. Αλλά για τους «πονηρούς» έγινε το καταφύγιο της ευκολίας τους, της έκπτωσης τους. Το σίδερο κρατάει, τα «μπετά» κρατάνε, δεν σου΄ρχεται εύκολα στο κεφάλι, άρα «βουρ»! Ενώ, αν έχτιζες με πέτρες στο άρπα-κόλλα, έπεφτε και σε πλάκωνε το καλύβι. Κιούτετογυαλίείναιοένοχος.

Ούτε το γυαλί. Μπορούν να γίνου υπέροχα έργα με γυαλί και τσιμέντο.

Ναούς, ιερά μπορείς να σκεφτείς με γυαλί και τσιμέντο. Δεν φταίνε τα υλικά.

Η σχέση μεταξύ τους μετράει, αυτή έχει σημασία. Τα πράγματα από μόνα τους

δεν φταίνε. Φταίνε οι άνθρωποι και η μη καλή χρήση των υλικών. Το τσιμέντο

είναι υλικό με προβλήματα.

Το «χτίζω» είναι συνθετική εργασία, ενώ το «οικοδομώ» δεν είναι. Το χτίσιμο απαιτεί τεχνίτη, το οικοδόμημα εργολάβο.

Μεδυνάμεις.

Με δυνάμεις. Κι απαιτεί κι αυτό, όπως όλα, την κατάλληλη μεταχείριση, την ανάλογη «ανάδειξη». Στις πλαστικές τέχνες τα πράγμα δεν υπάρχουν από

μόνα τους, αναδεικνύονται μέσα από τις σχέσεις τους. Πολλές φορε΄ς στη

ζωγραφική δεν διορθώνουμε ένα χρώμα με το διπλανό του. Στην αρχιτεκτονική

ακόμη περισσότερο. Μέσα από τη σωστή σχέση το ένα υλικό αναδεικνύει το άλλο. Αν αυτή η σχέση δεν βρεθεί, τα υλικά σβήνουν, πεθαίνουν. Μένουν βουβά ή μοιάζουν παράταιρα.

Δενέχουμεπιακιεσωτερικέςαυλές,οάσειςκρυφέςστιςπόλεις,πηγέςκαιανάσες.

Τις εσωτερικές αυλές τις αντικαταστήσαμε με λουτροκαμπινέδες και ιταλικά πλακάκια, εκεί έβαλε όλο το μεράκι ο νεοέλληνας.

132 ΠΑΡΑΡΤΗΜΑ
Τα σπίτια σ' αυτόν τον τόπο, μ' αυτό το κλίμα, αναπτύσσονταν πάντα γύρω από μια αυλή. Εκεί ήταν το κέντρο της ζωής, όλο τον χρόνο σχεδόν. Σήμερα, στις πόλεις μας, ο υπαίθριος βίος έγινε κλειστός και παρά φύσιν.

ΟΠικιώνηςκάτιπρόλαβενασώσει.

Αυτό που έκανε εδώ γύρω από την Ακρόπολη και του Φιλοπάππου ο

Πικιώνης είναι το μεγάλο αρχιτεκτόνημα της σύγχρονης Ελλάδος.

[..] ΣανέρωταςμουμοιάζειεμέναησχέσησαςμετονΠικιώνηκαιτοέργοτου.

Δεν ξέρω τι είναι. Αυτό που ξέρω είναι οως θα' πρεπε να φυλάμε το

έργο του ως κόρην οφθαλμού. Δείτε πως αντιμετωπίζουν το έργο του Gaudi οι Ισπανοί. Με πόση ευλάβεια.

[...] Μπορούνναγίνουν«εστίεςαντίστασης»ταγιαπιά;

Εγώ έτσι δουλεύω. Γιατί έτσι μπορώ. Αν θέλετε, πείτε το κι αντίσταση. Πάντως, δεν έχω μεγάλη αισιοδοξία. Δεν πιστεύω πως το περιβάλλον μπορεί πιο εύκολα ν' αλλάξει. Ίσως στο μέλλον να γίνουν κι οργανωμένα ενδιαφέροντα

πράγματα αλλά δεν νομίζω πως μπορεί πια να υπάρξει σημαντική αλλαγή κι αναγέννηση. Να ξαναδούμε ξαφνικά ένα καλό περιβάλλον, μια ωραία πόλη, έναν ωραίο τόπο πάλι.

Μιακαιδεν«έχουμεμιασωριασμένηπολιτεία»...

Μόνο τίποτα «βολέματα», μερικά «μπαλώματα» θα συνεχίσουν να γίνονται. Ένα «πάμε πιο γρήγορα», κάνα κομμάτι μετρό, τέτοια. Η ζωή μας δεν γεννάει καλό περιβάλλον. Πως θα' χουμε πόλεις όταν οι ίδιες οι αισθήσεις μας είναι κατακερματισμένες; Εσείς πως αισθάνεστε; Αισθανεστε μια χαρά;

Ελαφρώς...κατακερματισμένοςαισθάνομαικιεγώπροσωπικά

Οι αισθήσεις σας, τ' αυτί σας, τα μάτια σας πώς είναι; Καμιά φορά κυκλοφορώντας, δεν θέλεις ούτε ν' ακούς ούτε να βλέπεις. Που πήγε εκείνο το αεράκιτοευεργετικό,πουμαςκαθάριζετομυαλόστονδρόμοότανπερπατάγαμε; Που' μπαινε μέσα μας και μας στήλωνε. Που μας έκανε να νιώθουμε πως κάτι γίνεται, κάτι κάνουμε.

133 ΑΤΜΌΣΦΑΙΡΑ | ΧΩΡΌΣ • ΜΙΑ ΔΙΑΛΕΚΤΙΚΗ ΤΗΣ ΣΧΕΣΗΣ

Να,λοιπόν,ηπιο«ασθενήςαρχιτεκτονικήλεπτομέρεια»απ'όλες:Αρχιτεκτονική καλήχωρίςκαλήζωήδενγίνεται.

Ούτε χωρίς «ρυθμική ζωή» θα 'λεγα. Άλλαξε ο ρυθμός, οι ρυθμοί μας πια. Τι να κάνουμε; Πρέπει να βρούμε τον τρόπο να δουλέψουμε μέσα στην βουή του καιρού μας. Σκέφτομαι καμιά φορά πως εγώ έζησα το πέρασμα από ησιόδειο άροτρο, απ' τ' αλώνι, στην αλωνιστική μηχανή. Θυμάμαι όταν ήρθε στην πατρίδα μου, τη Σάμο, αυτό το μηχάνημα και όλοι το υποδέχτηκαν σαν λυτρωτή. Κι όταν ήρθανε και τ' άλλα τα μηχανήματα κι άρχισαν να φτιάχνουν δρόμους με βίαιο τρόπο. Τότε άλλαξε οριστικά ο ρυθμός της ζωής μας.

Σταματήσαμεοριστικάναδίνουμεσημασίαστηνλεπτομέρεια.

Ναι. Αρχίσαμε, μάλιστα, να κάνουμε ακριβώς το αντίθετο: Να μισούμε τη λεπτομέρεια. Να προχωράμε γρήφορα και σαρωτικά. Θυμάμαι και την αγωνία που είχα πάλι από μικρός, κι έχω πάντα, όταν στμάτησα σιγά σιγά να βλέπω αρμονικά καλλιεργημένα χωράφια. Που οι πόλεις μεγαλώνανε τελείως

ανεξέλεγκτα, που πέφτανε τα ωραία, λαϊκά νεοκλασικά, το ένα μετά το άλλο.

Που καθετί μικρό κι όμορφο υποχωρούσε μπροστά στα μεγάλα κι άσχημα, συνήθως, πράγματα.

Άρα:

Άρα, με τον νεοκλασικισμό εμείς είχαμε πάει καλά. Ενώ δεν μας πήγε

το μοντέρνο κίνημα, μας μπέρδεψε. Δεν το είχαμε φαίνεται ανάγκη, δεν είχαμε κουραστεί από τα βαριά γύψινα και τα ψεύτικα στολίδια, όπως οι Δυτικοί με το μπαρόκ. Έγιναν βέβαια, με βάση τις αρχές του σύγχρονου κινήματος, ορισμένα πράγματα με ενδιαφέρον.

Πείτεμαςένακτίριοαπότακαινούργιαπουσαςαρέσει.

Ένα κτίριο που έχει αρχιτεκτονική καθαρότητα ως προς το σχήμα του, ως προς την μορφή του, κι έναν ενδιαφέροντα οριζόντιο άξονα είναι το Ωδείο

134 ΠΑΡΑΡΤΗΜΑ

Αθηνών του Ιωάννη Δεσποτόπουλου, όπως το βλέπει κανείς από τη Βασιλέως

Κωνσταντίνου. Έχει μια λιτότητα κι είναι όμορφο έτσι, με τα δέντρα μπροστά

του.

ΥπάρχεικανένακτίριοστηνΑθήναπουθαγκρεμίζατεχωρίςτύψεις,κύριεΚρόκο;

από τη σημερινή Αθήνα που δεν θα μπορούσα ποτέ να συγκεντρωθώ

ένα και μόνο κτίριο. Δεν έχω χρόνο πια για τόσο πάθος.

συνέντευξη δημοσιεύθηκε στο περιοδικό «Έψιλον» της Ελευθεροτυπίας, 29. 03. 1995

135 ΑΤΜΌΣΦΑΙΡΑ | ΧΩΡΌΣ • ΜΙΑ ΔΙΑΛΕΚΤΙΚΗ ΤΗΣ ΣΧΕΣΗΣ
Δεν έχω τόσο πάθος για να γκρεμίσω ένα και μόνο άσχημο κτίριο. Θέλει κανείς να εξαφανίσει τόσα πολλά πράγματα
σ'
Η

ΒΙΒΛΙΟΓΡΑΦΙΑ

ΕΛΛΗΝΙΚΗ ΒΙΒΛΙΟΓΡΑΦΙΑ

• Αρβανίτη-Κρόκου Λ. (επιμ.) (2008) Κυριάκος Κρόκος(1941-1998), Αθήνα, εκδ. Μουσείο Μπενάκη

• Κονταράτος Σ. (1983) Η εμπειρία του αρχιτεκτονημένου χώρου και το σωματικό σχήμα, Αθήνα, εκδ. ΙΔΙΩΤΙΚΗ

• Κρόκος Κ. (2012) Συλλογικό έργο Μουσείο Μπενάκη, Αθήνα, εκδ. Μουσείο Μπενάκη

• Κωνσταντινίδης Ά. (2013) Η αρχιτεκτονική της αρχιτεκτονικής, Ηράκλειο Κρήτης, Πανεπιστημιακές εκδόσεις Κρήτης

• Κωνσταντινίδης Ά. (2011) Για την αρχιτεκτονική, ανατύπωση 2ης έκδοσης, Ηράκλειο Κρήτης, Πανεπιστημιακές εκδόσεις Κρήτης

• Μπούρας Χ. (2001) Βυζαντινή και Μεταβυζαντινή αρχιτεκτονική στην Ελλάδα, Αθήνα, εκδ. Μέλισσα

• Νιάρχος Θ., Χρόνης Β. επιμ. (2019) Φασιανός Αλέκος Το μάτι του ζωγράφου, Αθήνα, εκδ. Καστανιώτη

• Ποταμιάνος Ι. (2015) Αντίληψη, Μορφή και Φως, Ραφήνα Αττική, εκδ. Αντιύλη

• Σταυρίδης Στ. (1990) Η συμβολική σχέση με το χώρο, Αθήνα, εκδ. Κάλβος

• Τερζόγλου Ν.- Ι. (2009) Ιδέες του χώρου στον εικοστό αιώνα, Αθήνα, εκδ. ΝΗΣΟΣ

• Φατούρος Δ. (2009) Ίχνη Μετάβασης, Αθήνα, εκδ. Καστανιώτη

136 ΒΙΒΛΙΟΓΡΑΦΙΑ

ΞΕΝΟΓΛΩΣΣΗ ΒΙΒΛΙΟΓΡΑΦΙΑ

• Arnheim Rudolf (2003) Η δυναμική της αρχιτεκτονικής μορφής, μτφρ. Ποταμιάνος Ιάκωβος, Θεσσαλονίκη, εκδ. University Studio Press

• Bachelard Gaston (1982) Η ποιητική του χώρου (7η έκδοση), μτφρ. Βέλτσου Ελένη, Χατζηνικολή Ιωάννα, Αθήνα, εκδ. Χατζηνικολή

• Baudrillard Jean, Nouvel Jean (2005) Τα μοναδικά αντικείμενα, μτφρ. Ηλιάδης Νίκος, Αθήνα, εκδ. Futura

• Böhme Gernot (2014) Urban Atmospheres: Charting New Directions for Architecture and Urban Planning . Στο C. Borch, Architectural Atmospheres: On the Experience and Politics of Architecture. Βασιλεία, Ελβετία : Birkhäuser

• Ching Francis (2017) Αρχιτεκτονική, Μορφή, Χώρος & Διάταξη, Αγία Παρασκευή Αττική, εκδ. Utopia

• Frampton Kenneth (2009) Μοντέρνα Αρχιτεκτονική, Ιστορία και Κριτική, μτφρ. Ανδρουλάκης Θεόδωρος, Παγκάλου Μαρία, Αθήνα, εκδ. Θεμέλιο

• Herbertson Α., Regional Environment, Heredity and Consciousnes, The Geographical Teacher

• Heidegger M. (2009) Κτίζειν, κατοικείν , σκέπτεσθαι, μτφρ Ξηροπαϊδης Γιώργος, Αθήνα, εκδ. ΠΛΕΘΡΟΝ

• Heidegger M. (2008) “...Ποιητικά κατοικεί ο άνθρωπος...” μτφρ. Αβραμίδου Ιωάννα, Αθήνα, εκδ. ΠΛΕΘΡΟΝ

• Holl S., Pallasmaa J., Pérez-Gómez A. (1994), Questions of Perception: Phenomenology of Architecture, William Stout Publishers

137 ΑΤΜΌΣΦΑΙΡΑ | ΧΩΡΌΣ • ΜΙΑ ΔΙΑΛΕΚΤΙΚΗ ΤΗΣ ΣΧΕΣΗΣ

• Le Corbusier (Charles Edouard Jeanneret) (2005) Για μια αρχιτεκτονική, μτφρ. Τουρνικιώτης Παναγιώτης., Αθήνα, εκδ. Εκκρεμές

•Merleau-PontyM.(2016)ΗΦαινομενολογίατηςΑντίληψης, μτφρ.Καψαμπέλη Κική, Αθήνα, εκδ. ΝΗΣΟΣ

• Merleau- Ponty M. (1991) Η αμφιβολία του Σεζάν.Το μάτι και το πνεύμα. μτφρ. Μουρίκη Αλέκα, Αθήνα, εκδ. ΝΕΦΕΛΗ

• Norberg-Schulz C. (2009) Genius Loci: Το πνεύμα του τόπου. Για μια φαινομενολογία της αρχιτεκτονικής, Αθήνα, Πανεπιστημιακές Εκδόσεις ΕΜΠ

• Pallasmaa J (2012) The eyes of the skin, Architecture and the senses, N. Jersey USA, Willey publishing

• Pallasmaa J. (2014) Space, Place, and Atmosphere: Peripheral Perception in Existential Experience. Στο C. Borch, Archi- tectural Atmospheres: On the Experience and Politics of Architecture, Basel, Switzerland: Birkhäuser Verlag GmbH

• Pallasmaa J. (2006) Questions of Perception: Phenomenology of Architecture, San Francisco, William Stout Publishers

• Pallasmaa J. (2021) Δώδεκα δοκίμια για τον Άνθρωπο, την Τέχνη και την Αρχιτεκτονική 1980-2018, μτφρ. Λαδά Αναστασία- Σάσα, Ξανθόπουλος

Κωνσταντίνος, Ηράκλειο Κρήτης, Πανεπιστημιακές εκδόσεις Κρήτης

•Tanizaki J. (2016) Το εγκώμιο της σκιάς (4η ανατύπωση), μτφρ. Ευαγγελίδης Παναγιώτης, Αθήνα, εκδ. Άγρα

• Zumthor P. (2006) Atmospheres: Architectural Environments- Surrounding Objects, Basel, Birkhauser - Publishers for Architecture

138 ΒΙΒΛΙΟΓΡΑΦΙΑ

• Αρβανίτη – Κρόκου Λ. (2016) Το ξάφνιασμα στην πόλη, από το αφιέρωμα στο περιοδικό "Θεσσαλονικέων Πόλις" με τίτλο "Κυριάκος Κρόκος Ίχνος Ανεξίτηλο" 21/6/2016 [online] Διαθέσιμο στο: http://triantafylloug.blogspot.com [τελευταία πρόσβαση 06/04/2022]

• Γιακουμακάτος Α. (χ.χ.) Η μοναδικότητα του Κυριάκου Κρόκου. [online] Διαθέσιμο στο: https://www.culturalsociety.gr/thessalonikeon-polis/diavazoymearthra/i-monadikotita-toy-kyriakoy-krokoy/ [τελευταία πρόσβαση 22/04/2022]

• Κυριάκος Κρόκος, Αρχιτεκτονικά θέματα, 13/1989

• Λαδά Α.- Σ. (2019) Η αρχιτεκτονική ως μια φαινομενολογική εμπειρία, Archetype [online], Διαθέσιμο στο: H αρχιτεκτονική ως μια φαινομενολογική εμπειρία (archetype.gr) [τελευταία πρόσβαση 04/05/2022

• Σταυριανοπούλου Σ. (2020) Ύλη και φως. Ένα κτήριο-αρχιτεκτονικό τεκμήριο μιας ασυγκράτητης εποχής, του αρχιτέκτονα και ζωγράφου Κυριάκου Κρόκου. [online] Διαθέσιμο στο: https://www.inexarchia.gr/story/think/uli-kai-fos-enaktirio-arhitektoniko-tekmirio-mias-asygkratitis-epohis-toy-arhitektona [τελευταία πρόσβαση 04/04/2022]

•Χατζησάββα Δ. (2009) Η έννοια του τόπου στις αρχιτεκτονικές

Μηχανικών, Διαθέσιμο στο: https://www.didaktorika.gr/ eadd/handle/10442/30841 [τελευταία πρόσβαση 24/02/2022]

και πρακτικές: σχέσεις φιλοσοφίας και αρχιτεκτονικής στον
αιώνα, Θεσσαλονίκη, Τμ.
ΚΕΙΜΕΝΑ -ΑΡΘΡΑ ΔΙΔΑΚΤΟΡΙΚΕΣ ΔΙΑΤΡΙΒΕΣ 139 ΑΤΜΌΣΦΑΙΡΑ | ΧΩΡΌΣ • ΜΙΑ ΔΙΑΛΕΚΤΙΚΗ ΤΗΣ ΣΧΕΣΗΣ
θεωρίες
20ο
Αρχιτεκτόνων

•ΝταγκούμαΣ.(2017)ΑτμόσφαιραστηνΑρχιτεκτονική,Θεσσαλονίκη,Τμ.Αρχιτεκτόνων Μηχανικών ΑΠΘ, Διαθέσιμο στο: http://ikee.lib.auth.gr/record/335896 [τελευταία πρόσβαση 08/03/22]

• Κουβελά Σοφία-Αγγελική Νικολάου (2017) Κατοικώντας τόπους: μία προσέγγιση της έννοιας του τόπου μέσα από τις θεωρίες της φαινομενολογίας και του κριτικού τοπικισμού, Θεσσαλονίκη, Τμ. Αρχιτεκτόνων Μηχανικών ΑΠΘ, Διαθέσιμο στο: http://ikee.lib.auth.gr/record/335942 [τελευταία πρόσβαση 02/03/22]

• Παπακωνσταντίνου Αλεξία (2015) Βίωμα και χώρος: σε σύγχρονες τάσεις της αρχιτεκτονικής, Θεσσαλονίκη, Τμ. Αρχιτεκτόνων Μηχανικών ΑΠΘ, Διαθέσιμο

στο: http://ikee.lib.auth.gr/record/338164 [τελευταία πρόσβαση 29/11/21]

• Ραβάνη Δ. (2014) Κατασκευάζοντας ατμόσφαιρες, Πάτρα, Τμ. Αρχιτεκτόνων

Μηχανικών ΠΠ, Διαθέσιμο στο: https://www.greekarchitects.gr/site_parts/ doc_files/156.15.01.pdf [τελευταία πρόσβαση 04/03/22]

ΔΙΑΛΕΞΕΙΣ

• Γιαννούτσος Γ., Μπασούκος Χ. (2016) «Μουσείο Βυζαντινού Πολιτισμού Θεσσαλονίκης», Δομές [online] Διαθέσιμο στο: https://vimeo.com/181937029, [τελευταία πρόσβαση 04/04/22]

140
ΕΡΕΥΝΗΤΙΚΕΣ ΕΡΓΑΣΙΕΣ
ΒΙΒΛΙΟΓΡΑΦΙΑ

ΙΣΤΟΤΟΠΟΙ

•https://el.wikipedia.org/wiki/Φαινομενολογία [τελευταία πρόσβαση 01/03/2022]

•https://gr.encyclopedia-titanica.com/significado-de-fenomenolog[τελευταία πρόσβαση 01/03/2022]

•https://www.mbp.gr/el/%CE%B9%CF%83%CF%84%CE%BF%CF%81%CE%AF% CE%B1-%CE%AF%CE%B4%CF%81%CF%85%CF%83%CE%B7%CF%82 [τελευταία πρόσβαση 01/04/2022]

•ΤριτσιμπίδαςΓ. (2012)ΒίντεοαπότηναναδρομικήέκθεσητουΚ.ΚρόκουστοΜουσείο Μπενάκη, 18’ [online] Διαθέσιμο στο: https://vimeo.com/39617669?fbclid=IwAR1H

QCE5NLqAKc50AHj7IFKCbJcJa1LjKmqtKYPC_cotJ2hk-lVGlIH1x-Q [τελευταία πρόσβαση 15/05/22]

1.https://www.archdaily.com/798340/peter-zumthors-bruder-klaus-field-chapelthrough-the-lens-of-aldo-amoretti

2.https://www.designboom.com/art/marita-madio-digital-art-of-sicilianisland-04-10-2021/

3.https://divisare.com/projects/349228-peter-zumthor-rasmus-hjortshoj-kolumbamuseum

4. https://www.archdaily.com/784536/ad-classics-nordic-pavilion-in-venice-sverre-fehn

5.https://divisare.com/projects/410348-carlo-scarpa-ivo-stani-tomba-brion therm vals

ΠΗΓΕΣ ΕΙΚΟΝΩΝ 141 ΑΤΜΌΣΦΑΙΡΑ | ΧΩΡΌΣ • ΜΙΑ ΔΙΑΛΕΚΤΙΚΗ ΤΗΣ ΣΧΕΣΗΣ ΟΠΤΙΚΟΑΚΟΥΣΤΙΚΟ ΥΛΙΚΟ

6. https://www.simbasible.com/underground-movie-review/

7. https://www.archdaily.com/13358/the-therme-vals

8 .https://architectuul.com/architecture/capilla-de-las-capuchinas

9. https://twi-ny.com/2015/08/12/andrei-tarkovsky-sculpting-in-time-nostalghia/

10. https://www.valentinasolano.it/bernard-rudofsky/

11. https://www.fractalart.gr/sifnos-to-kastro-1920/

12. https://1-2.gr/2018/03/06/h-aiglh-toy-protoyristikoy-aigaioy-paros/Herber List

13. https://www.travelling-greece.com/herbert-list/kleopatras-house-delos-1938/

14.https://www.discovergreece.com/el/experiences/visit-magical-temple-poseidonsounion

15. https://www.benaki.org/index.php?option=com_collectionitems&view=collectionite m&id=160167&Itemid=&lang=el

16. Προσωπικό αρχείο

17. https://www.benaki.org/index.php?option=com_collectionitems&view=collectionite m&id=131555&Itemid=&lang=en#

18.https://www.archdaily.com/798340/peter-zumthors-bruder-klaus-field-chapelthrough-the-lens-of-aldo-amoretti

19. https://www.bsf.org.bd/bangladesh-an-overview/national-parliament-house/

https://www.archdaily.com/798360/peter-zumthors-therme-vals-through-the-lens-offernando-guerra

20. https://divisare.com/projects/410348-carlo-scarpa-ivo-stani-tomba-brion

21.https://www.archdaily.com/798360/peter-zumthors-therme-vals-through-the-lensof-fernando-guerra

22. louis kahn museum http://figure-ground.com/kimbell/

23. https://www.archdaily.com/87587/al-irsyad-mosque-urbane

24.https://www.archdaily.com/262012/in-progress-school-library-gando-kerearchitecture

25.https://www.archdaily.com/798360/peter-zumthors-therme-vals-through-the-lens-

142 ΒΙΒΛΙΟΓΡΑΦΙΑ

of-fernando-guerra

26. https://www.behance.net/gallery/1333427/Koshino-House-Tadao-Ando

27. https://www.archdaily.com/905540/saya-park-alvaro-siza-plus-carlos-castanheira

28. http://www.coffeewithanarchitect.com/2010/05/01/architecture-light/

29. https://archeyes.com/sainte-marie-de-la-tourette-le-corbusier/

30. https://www.metalocus.es/en/news/digital-artefacts-bart-hess

31.https://www.archdaily.com/798360/peter-zumthors-therme-vals-through-the-lensof-fernando-guerra

32. Προσωπικό αρχείο

33. Προσωπικό αρχείο

34. https://www.ktirio.gr/el/κτιρια/κτιρια-δημοσια-εκπαιδευσης-υγειας/μουσείο-βυζαντινού-πολιτισμού-στη-θεσσαλονίκη

35. Αρβανίτη-Κρόκου Λ. (επιμ.) (2008) Κυριάκος Κρόκος(1941-1998), Αθήνα, εκδ. Μουσείο

Μπενάκη

36. https://www.ktirio.gr/el/κτιρια/κτιρια-δημοσια-εκπαιδευσης-υγειας/μουσείο-βυζαντινού-πολιτισμού-στη-θεσσαλονίκη

https://www.mbp.gr/el/%CE%B9%CF%83%CF%84%CE%BF%CF%81%CE%AF%CE%B1%CE%AF%CE%B4%CF%81%CF%85%CF%83%CE%B7%CF%82

37. Αρβανίτη-Κρόκου Λ. (επιμ.) (2008) Κυριάκος Κρόκος(1941-1998), Αθήνα, εκδ. Μουσείο Μπενάκη

38. Προσωπικό αρχείο

39.https://www.mbp.gr/el/%CE%B9%CF%83%CF%84%CE%BF%CF%81%CE%AF%CE%B1%CE%AF%CE%B4%CF%81%CF%85%CF%83%CE%B7%CF%82

40. Προσωπικό αρχείο

41. Αρβανίτη-Κρόκου Λ. (επιμ.) (2008) Κυριάκος Κρόκος(1941-1998), Αθήνα, εκδ. Μουσείο Μπενάκη

42. Προσωπικό αρχείο

43. Προσωπικό αρχείο

143 ΑΤΜΌΣΦΑΙΡΑ | ΧΩΡΌΣ • ΜΙΑ ΔΙΑΛΕΚΤΙΚΗ ΤΗΣ ΣΧΕΣΗΣ

44. Προσωπικό αρχείο

45. Προσωπικό αρχείο

46. Προσωπικό αρχείο

47. Προσωπικό αρχείο

48. Προσωπικό αρχείο

49. Προσωπικό αρχείο

50. Προσωπικό αρχείο

51. Προσωπικό αρχείο

52. Προσωπικό αρχείο

53. Προσωπικό αρχείο

54. Προσωπικό αρχείο

55. Προσωπικό αρχείο

56. Προσωπικό αρχείο

57. Προσωπικό αρχείο

58. Προσωπικό αρχείο

59. Προσωπικό αρχείο

60. Προσωπικό αρχείο

61. Προσωπικό αρχείο

62. Προσωπικό αρχείο

144 ΒΙΒΛΙΟΓΡΑΦΙΑ

Turn static files into dynamic content formats.

Create a flipbook
Issuu converts static files into: digital portfolios, online yearbooks, online catalogs, digital photo albums and more. Sign up and create your flipbook.