Φως και Σκιά, δύο ρυθμιστές του υπερβατικού στον αρχιτεκτονικό χώρο

Page 1

ΦΩ Σ ΚΙΑ Δύο Ρύθμιστέσ τού ύπέΡβατικού στον αΡχιτέκτονικο χώΡο Φοιτητές | Γκικοπούλού πολύξένη Ζαχαριαδης αριςτοΦανης έπιβλέπων καθηΓητης | τΖομπανακης αλέξιος Σ Σ
Πολυτεχνείο Κρήτης | Τμήμα Αρχιτεκτόνων Μηχανικών Ερευνητική Εργασία | Μάρτιος 2023 « Σκιάς όναρ άνθρωπος » - Πίνδαρος
_ Eυχαριστίες, θερμές Στον επιβλέποντα καθηγητή μας Αλέξιο Τζομπανάκη. Μας συνόδευσε με κατανόηση και υποστήριξη καθ’ όλο το ταξίδι της εργασίας μας. Στους γονείς μας. Μας χορήγησαν τις σπουδές, την υπομονή και την υποστήριξή τους. Στους φίλους μας. Μας άντεξαν και μας αντέχουν, από την πρώτη κιόλας μεταξύ μας συνεργασία. Στην Μαρία Ι., στην Στέφη Ν., στην Άννα Π., στον Γιώργο Π.
Λέξεις κλειδιά _ Φως και Σκιά | Σκοτάδι Ύλη | Τομή | Κλίμακα Υπερβατικό | ιερός Χώρος Χωρική Ποιότητα και Χαρακτήρας Αισθήσεις, Αντίληψη | Εμπειρία, Βίωμα Η κατανόηση της σχέσης Φωτός - Σκιάς στην απόδοση υπερβατικής χωρικής ατμόσφαιρας. Οι περιπτώσεις τεσσάρων ιερών χώρων στην μεταπολεμική ευρωπαϊκή Αρχιτεκτονική.

Περιεχόμενα.

Περίληψη.

Αντί προλόγου.

Εισαγωγή.

Α’ ενότητα: Χώρος, Φως-Σκιά, Υπερβατικό.

I. Από τον Χώρο στον Τόπο.

1. Θεωρία Gestalt : Αισθήσεις και Αντίληψη.

2. Θεωρίες του (αρχιτεκτονικού) Χώρου.

3. Φαινομενολογία: Τόπος = Χώρος + Χαρακτήρας.

II. Από τη Φύση στο Υπερβατικό διαμέσου του Φωτός

1. Από τη Φύση στο Φυσικό Τόπο.

2. Φως - Σκιά: Χαρακτηριστικό γνώρισμα του Τόπου.

3. Ο Υπερβατικός χαρακτήρας της Φύσης μέσω του Σχεδιασμού.

III. Υπερβατικό: η χωρική μετάφραση μέσω του Φωτός.

1. Υπέρβαση, η - Υπερβατικό, το.

2. Εκφράσεις του Υπερβατικού στην Αρχιτεκτονική.

3. Οι υπαινιγμοί ενός (εσωτερικού) χώρου, απ’το Φως στο Σκοτάδι.

i. Ο εσωτερικός χώρος

ii. To Φως, το Ημίφως, το Σκοτάδι.

B’ ενότητα: Μηχανισμοί Σύνθεσης, υπερβατική Αρχιτεκτονική, Εμπειρία του χώρου.

I. Η Σύνθεση, ένας συνδυασμός ύλης, τομής και κλίμακας.

II. Τέσσερις προτάσεις υπερβατικής Αρχιτεκτονικής.

III. Κατανόηση των μηχανισμών σύνθεσης υπερβατικής Αρχιτεκτονικής.

1. Le Corbusier: το ημίφως στη χωρική μυσταγωγία.

2. Zumthor και Utzon: Αντιπαραθέσεις στην Ένταση.

Γ’ ενότητα: Συμπεράσματα.

Ι. Φως και Σκιά, Ύλη.

ΙΙ. Φως και Σκιά, Τομή.

ΙΙΙ. Φως και Σκιά, Κλίμακα.

IV. Φως και Σκιά, ο επίλογος.

Δ’ ενότητα: Βιβλιογραφία.

Ι. Συγγράμματα.

ΙΙ. Ηλεκτρονική Βιβλιογραφία.

ΙΙΙ. Κατάλογος εικόνων.

6
8 9 14 28 31 35 37 40 46 47 50 61 73 75 77 79 82 83 15 19 22 25 10

« Αντιλαμβανόμαστε τον χώρο μέσω της ταυτόχρονης δράσης της ψυχής, του νου και του σώματος.

Μία αντίστοιχη συγκέντρωση όλων των δυνάμεων είναι απαραίτητη για να τον μορφοποιήσουμε.

Μέσω της ενόρασής του, μέσω των μεταφυσικών του δυνάμεων, ο άνθρωπος ανακαλύπτει τον άυλο χώρο της εσωτερικής του όρασης και έμπνευσης.»

[Δ0] 7

Περίληψη.

Η εν λόγω ερευνητική εργασία εστιάζει στη διερεύνηση του Φωτός και της Σκιάς ως βασικά συνθετικά αρχιτεκτονικά εργαλεία, η διαχείριση των οποίων έχει ως στόχο τη χωρική απόδοση του Υπερβατικού. Για τη βέλτιστη κατανόηση όσων πραγματεύονται σε αυτήν, ορίζονται έννοιες όπως είναι οι αισθήσεις και η αντίληψη, ενώ παράλληλα παρατίθενται ορισμένες θεωρίες του (αρχιτεκτονικού) Χώρου. Ο χώρος γίνεται ορατός

λόγω της ύπαρξης του φωτός. Το φως είναι ένα στοιχείο αλληλένδετο με το φυσικό περιβάλλον -στο οποίο εντάσσεται το εκάστοτε αρχιτεκτονικό έργο- και έχει την ικανότητα να δημιουργεί ιδιαίτερες χωρικές ποιότητες και ατμόσφαιρες. Με αφορμή τη σχέση του φωτός και της σκιάς ερμηνεύεται ο υπερβατικός χαρακτήρας της φύσης με αποτέλεσμα την ένταξη της έννοιας του υπερβατικού στο πλαίσιο διερεύνησης της παρούσας. Στην συνέχεια, αναπτύσσεται η έννοια του «Υπερβατικού» και ορίζονται έννοιες όπως είναι το «Υψηλό», το «Ιερό», το «Μεταφυσικό», το «Άγνωστο» και το «Θείο». Η εκτενέστερη ανάλυση της έννοιας αυτής οδήγησε στην επιλογή τεσσάρων (4) ιερών χώρων, η μελέτη των οποίων πρόκειται να γίνει στην δεύτερη ενότητα. Στους ιερούς χώρους η ιδιάζουσα αρχιτεκτονική διαχείριση του φωτός αναδεικνύει το ρόλο της σκιάς. Βασικό κριτήριο στη διεξαγωγή των συμπερασμάτων θα αποτελέσει η ανάλυση των παραδειγμάτων βάσει ορισμένων σχεδιαστικών «εργαλείων». Βασικά συνθετικά εργαλεία, όπως αναφέρεται και παραπάνω, αποτελούν

το φως και η σκιά τα οποία μελετώνται σε αλληλεξάρτηση με την ύλη,

την τομή και την κλίμακα. Είναι εμφανής ο συσχετισμός που επιδιώκεται

μεταξύ των άυλων αυτών στοιχείων (φως και σκιά) με τα άλλα που διαμορφώνουν το δομημένο περιβάλλον (ύλη, τομή, κλίμακα). Τα παραπάνω χρησιμοποιούνται από τον αρχιτέκτονα είτε συνδυαστικά είτε μη, και έχουν ως αποτέλεσμα τη δημιουργία χώρων αρχιτεκτονικού ενδιαφέροντος με διαφορετικές ποιότητες και χαρακτήρα. Οι σχέσεις των «εργαλείων» και η σχεδιαστική απόδοσή τους σε ιερούς χώρους που διακρίνονται από τον υπερβατικό τους χαρακτήρα διερευνώνται στην εργασία.

[Δ1] 8

Αντί προλόγου.

Το φως, η σκιά, το σκοτάδι οργανώνουν και δομούν τη καθημερινότητά μας. Η ανατολή του ηλίου ορίζει την έναρξη της ημέρας. Η δύση προοικονομεί το επερχόμενο σκοτάδι. Το παιχνίδι της σκιάς, που αποτελεί παράγωγο των δύο παραπάνω, κάνει ενδιαφέρουσα τη καθημερινότητά μας με τις εναλλαγές του. Η ύπαρξη των παραπάνω λαμβάνεται ως δεδομένη στην καθημερινή ζωή. Πώς, όμως τα άυλα αυτά στοιχεία έχουν

την ικανότητα να ενισχύουν τον υπερβατικό χαρακτήρα ενός χώρου;

Με ποιους τρόπους η αρχιτεκτονική απόδοση νοημάτων συστήνει μια

βιωματική εμπειρία, που ξεπερνά τα όρια της καθημερινότητας;

[Δ2] 9

Εισαγωγή.

Αφορμή για την εκπόνηση

της εργασίας αποτέλεσε το

ενδιαφέρον για την ατμόσφαιρα ενός εσωτερικού χώρου

που προκύπτει ως αποτέλεσμα

των διαφορετικών συνθηκών

(φυσικού) φωτισμού. Η ένταση

του φυσικού φωτός ενός τόπου, οι τρόποι που αυτό διατρυπά ένα

κέλυφος και δύναται να εξαϋλώνει

ακόμα και το σκληρότερο

υλικό, καθώς και η επίδραση

του στη βιωματική εμπειρία του

χρήστη είναι κάποια από τα ζητήματα που μας γοητεύουν.

Μία ιδιάζουσα συνθήκη

φωτισμού στην Αρχιτεκτονική

ενός εσωτερικού χώρου έχει τη δυνατότητα να συγκινεί

τον αποδέκτη προκαλώντας του έντονες συναισθηματικές

διακυμάνσεις. Οι ιεροί χώροι φέρνοντας στο προσκήνιο

έννοιες όπως είναι το «Υψηλό», το «Ιερό», το «Μεταφυσικό», το

«Άγνωστο», το «Θείο» έχουν το πλεονέκτημα να προκαλούν τις αισθήσεις του χρήστη στο μέγιστό τους - λόγω του υπερβατικού τους χαρακτήρα.

Καθώς το θέμα αφορά μεταξύ άλλων τη πολυαισθητηριακή εμπειρία του χρήστη η προσέγγιση του έγινε με ιδιαίτερη προσοχή, προς αποφυγήν αυθαίρετων γενικεύσεων και επιχειρηματολογίας μέσω προσωπικών βιωμάτων.

Βασικό στόχο αποτελεί η

διερεύνηση του Φωτός και της

Σκιάς ως βασικά συνθετικά

αρχιτεκτονικά εργαλεία για την

απόδοση του Υπερβατικού. Η

ύπαρξη ή μη του φωτός επιδρά

στη ψυχολογία του υποκειμένου

και στην απόδοση νοημάτων.

Βάση για το θεωρητικό πλαίσιο αποτελεί η φαινομενολογία

η οποία ορίζει τον τόπο με τη βοήθεια των εννοιών του

χώρου και του χαρακτήρα υποστηρίζοντας ότι τα ιδιαίτερα

φυσικά χαρακτηριστικά αυτού επηρεάζουν την αρχιτεκτονική δημιουργία. Με αφορμή το θεωρητικό πλαίσιο γίνεται μια προσπάθεια ανεύρεσης αρχιτεκτονικών «εργαλείων» που μπορούν να υιοθετηθούν κατά τον αρχιτεκτονικό σχεδιασμό για τη δημιουργία χώρων που θα διακρίνονται λόγω του

υπερβατικού τους χαρακτήρα. Ως βασικά αρχιτεκτονικά «εργαλεία» επιλέγονται το φως

και η σκιά ώστε να διερευνηθούν

σε αλληλοσυσχετισμό με την ύλη, την τομή και την κλίμακα. H έρευνα εστιάζει στην ανάλυση ιερών χώρων. Οι ιεροί χώροι, αν και δεν έχουν χρηστική αξία στη καθημερινότητα του χρήστη, απαντούν στην ανάγκη του ανθρώπου για πνευματικές αναζητήσεις, μεταβιβάζουν νοήματα και παράγουν συναισθήματα. Διακρίνονται για τον υπερβατικό τους χαρακτήρα μιας και πραγματεύονται έννοιες εκτός της κοσμικής πραγματικότητας. Από τη κατανόηση των χωρικών ποιοτή-

10

των των επιλεγμένων παραδειγ-

μάτων βάσει των προαναφερθέ-

ντων αρχιτεκτονικών «εργαλείων»

ή αλλιώς μηχανισμών σύνθεσης

επιδιώκεται η διεξαγωγή των συμπερασμάτων.

Τα ερευνητικά ερωτήματα

που τίθενται με αφετηρία τον

παραπάνω προβληματισμό

αφορούν τον αντίκτυπο που

έχουν οι σχεδιαστικές επιλογές

ενός αρχιτέκτονα στη σύνθεση

ενός εσωτερικού χώρου. Ο

άνθρωπος αποτελεί βασικό

στοιχείο για την εκάστοτε

σύνθεση μιας και είναι αυτός που

βιώνει το χωρικό αποτέλεσμα.

Ειδικότερα, γεννιούνται τα

παρακάτω ερωτήματα.

1. Ποιά είναι τα αποτελέσματα

των μηχανισμών σύνθεσης

και οργάνωσης του

κελύφους (κτιρίου) και των

εσωτερικών χώρων;

2. Τι ρόλο κατέχει η επιλογή και η επεξεργασία της

ύλης στις επιφάνειες

ενός εσωτερικού χώρου (δάπεδο, τοίχοι, οροφή);

3. Πώς εισχωρεί το φυσικό φως και αλληλεπιδρά με το σύνολο των υλικών ενός εσωτερικού χώρου;

4. Τι ρόλο κατέχει η σκιά στη βιωματική εμπειρία του χρήστη; 1. Rasmussen Steen Eiler. Experiencing Architecture,

5. Πώς η κλίμακα και οι αναλογίες ενός χώρου δημιουργούν συνθήκες για την απόδοση νοημάτων;

Ο βασικός λόγος για τον οποίο διερευνώνται τα παραπάνω

ζητήματα είναι η διεξαγωγή συμπερασμάτων τα οποία θα βοηθήσουν έναν αρχιτέκτονα

να κατανοήσει τις δυνατότητες

που δίνει η διαχείριση του φωτός για την απόδοση χωρικών ποιοτήτων Ο σχεδιαστής οφείλει να αντιλαμβάνεται ότι οι αποφάσεις που λαμβάνει κατά τη διαδικασία της Σύνθεσης, από τη σύλληψη μέχρι και τη διεκπεραίωση της ιδέας, έχουν αντίκτυπο τόσο στη βιωματική εμπειρία του χρήστη όσο και στην κοινωνία γενικότερα. Οι χώροι

και οι άνθρωποι αλληλεπιδρούν.

Είναι βασικό, λοιπόν, να αναγνωρίζει αν και πόσο επηρεάζει

ένας χώρος τον άνθρωπο, αλλά

και το κατά πόσον ο άνθρωπος

νιώθει οικεία ή όχι εντός του εκάστοτε χώρου. «Η αρχιτεκτονική

δεν παράγεται απλώς με την

προσθήκη σχεδίων, τομών και όψεων. Είναι κάτι άλλο, κάτι περισσότερο. Είναι αδύνατο να

εξηγήσει κανείς επακριβώς τι είναι

- τα όρια της είναι ασαφή. Στο

σύνολό της η τέχνη δεν πρέπει

να εξηγηθεί αλλά πρέπει να γίνει

βίωμα… 1» όπως αναφέρει ο

Rasmussen Steen Eiler.

Η μέθοδος που ακολουθείται

11
9, από: Απέργη Μ. Ιωάννα,Αρχιτεκτονική του συναισθήματος: Ο χειρισμός του φωτός σε δύο εκκλησίες του Alvaro Siza, σελ. 13.
σελ.

αποτελεί συνδυασμό βιβλιογραφικής έρευνας, αλλά και επεξεργασίας των επιλεγμένων παραδειγμάτων με τη χρήση φωτογραφικού υλικού, αρχιτεκτονικών σχεδίων, προσωπικών διαγραμμάτων επεξεργασίας και κατανόησης, κολάζ υλικότητας ως προς τα επιλεγμένα αρχιτεκτονικά «εργαλεία». Οι ενότητες της ερευνητικής δομούνται ως εξής.

Στη πρώτη ενότητα διερευνώνται

οι έννοιες του χώρου, του τόπου και του υπερβατικού. Για τη βέλτιστη οργάνωσή της διακρίνεται σε τρεις υποενότητες.

Στην πρώτη, ορίζεται η αντιληπτική διαδικασία -βάσει της

οποίας ο άνθρωπος αντιλαμ-

βάνεται το χώρο- καθώς και η βιωματική εμπειρία αυτού. Επιπλέον, διερευνώνται οι έννοιες

του (γεωμετρικού) χώρου και του

τόπου και θεωρείται σκόπιμη η

φαινομενολογική προσέγγιση

του χώρου μέσα από τις θεωρίες

του Christian Norberg-Schulz

και του Martin Heidegger. Ακολούθως η δεύτερη υποενότητα

με αφορμή τον υπερβατικό

χαρακτήρα της φύσης οδηγεί στην ερμηνεία της έννοιας του Υπερβατικού με τη χρήση του φυσικού φωτός και της σκιάς ως πρωταρχικά συνθετικά

«εργαλεία» για την απόδοσή

του. Τέλος, στη τρίτη υποενότητα γίνεται εκτενέστερη ανάλυση της

έννοιας του Υπερβατικού και

διερεύνηση του πώς αποδίδεται

μέσω ενός εσωτερικού χώρου

με τη χρήση του φωτός και της

σκιάς. Έτσι, κρίνεται η επιλογή

και ανάλυση των ιερών χώρων

ως η πλέον στοχευμένη επιλογή

για την ανάπτυξη της επόμενης

ενότητας.

Στη δεύτερη ενότητα, αρχικά

αιτιολογείται η επιλογή της ύλης, της τομής και της κλίμακας

ως «εργαλεία» τα οποία θα μελετηθούν σε αλληλεξάρτηση

με το φως και τη σκιά. Στη συνέχεια επιλέγονται τέσσερα

(4) παραδείγματα ιερών χώρων, βάσει ορισμένων κριτηρίων που αιτιολογούν την επιλογή τους. Ακολουθεί η διεξοδική ανάλυσή τους με γνώμονα τις τρεις κατηγορίες μηχανισμών σύνθεσης και τον βαθμό στον οποίο συναντούν τις απαιτήσεις μιας υπερβατικής χωρικής ποιότητας. Για την ανάπτυξη της ανάλυσης, επιχειρείται η ομαδοποίηση των

παραδειγμάτων σε δύο ζεύγη. Το ένα ζεύγος αποτελείται από δύο έντονα αντίθετες χωρικές φυσιογνωμίες, ενώ το άλλο από δύο εγγύτερες μεταξύ τους ατμόσφαιρες. Η ανάλυση των παραδειγμάτων περιλαμβάνει τη χρήση διαγραμμάτων επεξεργασίας, ώστε να επιτευχθεί η πλήρης κατανόηση αυτών. Η επιλογή αυτών των χώρων στοχεύει στην εξειδίκευση της ενότητας, ώστε να επιτευχθεί η

12

διεξαγωγή και τεκμηρίωση των

συμπερασμάτων.

Στη τρίτη ενότητα, τέλος, αναπτύσσονται τα

συμπεράσματα τα οποία

προκύπτουν από την ανάλυση

των παραδειγμάτων της

δεύτερης. Εδώ γίνεται μια

συνολική

παράθεσή τους

βάσει των εργαλείων, ώστε να

οργανωθούν οι επιλογές που

έχει ο αρχιτέκτονας ως προς τη

διαχείριση του φωτός και της

σκιάς για την απόδοση χωρικών

ποιοτήτων και ειδικότερα του

υπερβατικού χαρακτήρα.

13
[Δ3] 14
Α’
Ενότητα: Χώρος, Φως-Σκιά, Υπερβατικό.

I. Από τον Χώρο στον Τόπο.

Από την αίσθηση δημιουργείται μνήμη και από την μνήμη εμπειρία.

Η μνήμη δεν είναι τίποτα παρά διαδικασία ανάκλασης του παρελθόντος, με μέσο τις αισθήσεις. 2 - Αριστοτέλης.

1. Θεωρία Gestalt: Αισθήσεις και Αντίληψη.

«Η αρχιτεκτονική είναι η τέχνη της συμφιλίωσης μεταξύ των εαυτών

και αυτή η μεσολάβηση πραγματοποιείται μέσω

των αισθήσεων» 3 σύμφωνα με τον Juhani Pallasmaa. Οι αισθήσεις

είναι οι εσωτερικές εμπειρίες του οργανισμού οι οποίες προκύπτουν

από τη διαδικασία με την οποία τα αισθητήρια όργανα λαμβάνουν

και αναμεταδίδουν τα εξωτερικά ερεθίσματα. Όπως υποστηρίζει ο R.

Arnheim οι αισθήσεις αποτελούν «τη μόνη πρόσβαση που έχουμε

στην πραγματικότητα 4». Η όραση, η ακοή, η αφή, η όσφρηση και η γεύση είναι αυτές και παίζουν καθοριστικό ρόλο στην αλληλεπίδραση

του ανθρώπου με το περιβάλλον του. Τα μέσα ενεργοποίησης των

αισθήσεων είναι τόσο υλικά όσο και άυλα. Σχετικά με τα υλικά σώματα

μπορεί να γίνει αναφορά στην κλίμακα, στο σχήμα, στη μορφή, στο χρώμα, ενώ άυλα θεωρούνται ο τρόπος εισόδου του φωτός, η θερμοκρασία

του χώρου, η μυρωδιά, ο χρόνος. Βασικό αποδέκτη των εξωτερικών ερεθισμάτων αποτελεί το σώμα. Το ανθρώπινο σώμα μπορεί να θεωρηθεί ως το όριο μεταξύ του ανθρώπινου οργανισμού και του εξωτερικού περιβάλλοντος. Οι αισθήσεις οφείλονται σε ειδικεύσεις/περιοχές του δερματικού ιστού, οι οποίες δημιουργούν τις αισθητηριακές εμπειρίες.

«Ακόμη και η διαφανής μεμβράνη του ματιού, στην ουσία επικαλύπτεται

από ένα λεπτό στρώμα δέρματος διαφορετικό φυσικά από αυτό που έχουμε στα χέρια, ή κάπου αλλού στον οργανισμό» 5 . Ιδιαίτερη έμφαση

δίνεται στις μορφολογικές πλευρές των αισθήσεων μέσω των οποίων

προσλαμβάνεται η αρχιτεκτονική, καθώς και στις οπτικές αισθήσεις μέσω

των οποίων επηρεάζεται η ψυχολογική εντύπωση της αρχιτεκτονικής.

Με τον όρο «εντύπωση» εννοείται η αποτύπωση ενός ερεθίσματος ή γεγονότος στη συνείδηση. Κατά την αποτύπωση ενός γεγονότος στη συνείδηση (αντίληψη μιας εντύπωσης) συνεργάζονται όλες οι αισθήσεις.

Οι οπτικές αισθήσεις είναι ενσωματωμένες στην απτική συνέχεια του εαυτού [E2] δεδομένου ότι το σώμα «θυμάται». Μέσω της μνήμης το σώμα ανακαλεί παρελθοντικά ερεθίσματα με αποτέλεσμα παρελθοντικές

2. Μαλάμογλου Ευγενία, Το (αν) οικώ υπό το πρίσμα του Toyo Ito, σελ 11.

3. Pallasmaa Juhani στο Η έννοια της ατμόσφαιρας στο χώρο: Αντίληψη και βιωματική εμπειρία, Αποστολάκη, Χατζηβασιλείου, σελ 16.

4. Arnheim Rudolf, Visual Thinking, University California Press,1969.

5. Montagu Ashley, Touching: The Human Significance of the Skin, New York, Harper & Row, 1986, σελ 3 στο Η εμπειρία των αισθήσεων, Αρχιτεκτονική, Σώμα, Αντίληψη, Μπασούκος Ιωάννης, σελ. 8.

[Ε1] Giorgio de Chirico, Mystery and Melancholy of a Street.

«Μέσα από συνειρμούς και συσχετισμούς με το παρελθόν αναγνωρίζονται οι διαβαθμίσεις της οικειότητας των φαινομένων και εντοπίζονται σημεία αναφοράς που προσδιορίζουν ποιοτικά το χώρο σε σχέση με το υποκείμενο».

- M. Heidegger

[Ε2] Μπρούτζινη μορφή από τη Μογγολία, 15ος αι., Δημόσια Κρατική Βιβλιοθήκη, Ουλάν Μπάτορ, Μογγολία. Η βουδιστική θεά Τάρα έχει πέντε επιπλέον μάτια, στο μέτωπο, στα χέρια και στα πόδια. Θεωρούνται σημάδια φώτισης. «Στην όραση κρύβεται ένα απτικό συστατικό».

15
[E1]
μας
και του κόσμου

[Ε3] Διάγραμμα: Στάδια αντιληπτικής διαδικασίας

και νεότερες εντυπώσεις να ανασυντίθενται σε μία.

Αντίληψη σύμφωνα με τον ορισμό που έχει δοθεί από τον Thomas Reid (1785) είναι η γνωστική λειτουργία του ανθρώπου με την οποία επιτυγχάνεται η επεξεργασία των ερεθισμάτων του εξωτερικού περιβάλλοντος

το μάτι λόγω της ικανότητάς του να «βλέπει». Σε συνέχεια της οπτικής διαδικασίας ο νους λαμβάνει τα επιμέρους ερεθίσματα τα οποία συνθέτει με το δικό του τρόπο σχηματοποιώντας ένα αποτέλεσμα που είναι κάτι περισσότερο ή διαφορετικό από το άθροισμα των μερών του. Πρωταρχικό στάδιο της διαδικασίας της αντίληψης [E3] αποτελεί η προσοχή/παρατήρηση «Η εισαγωγή της κίνησης μέσα σε έναν οπτικό χώρο έχει την υψηλότερη επίδραση στην ανθρώπινη προσοχή. Καθώς ένα αντικείμενο κινείται μέσα σε ένα χώρο, βιώνουμε τον χρόνο, καθώς γίνεται αντιληπτή η κίνηση του αντικειμένου. Αλλά ο ίδιος ο χώρος, ή το στάδιο μέσα στο οποίο συμβαίνει η κίνηση παραμένει ακίνητο, “εκτός χρόνου”. Επομένως, ο νους είναι αυτός που αναθέτει τους ρόλους, είτε του κινούμενου αντικειμένου είτε του στατικού χωρικού πλαισίου, μέσα στην αντιληπτική του οπτική 7». Η οργάνωση των ερεθισμάτων αποτελεί το δεύτερο στάδιο της αντιληπτικής διαδικασίας. Ο εγκέφαλος οργανώνει και ερμηνεύει τις πληροφορίες σύμφωνα με τον κανόνα της ομοιότητας τείνοντας στην ομαδοποίηση και κατηγοριοποίηση των όμοιων ερεθισμάτων. Η αντίληψή μας προσλαμβάνει, συνδέει και συνθέτει τα πράγματα σαν σύνολα και όχι σαν μικρότερα τμήματα. Σύμφωνα με τον R. Arnheim το μυαλό δημιουργεί εικονικό γραφικό χώρο και αυτό οφείλεται κατά βάση στη ψυχολογική θεωρία της απλότητας. Αυτή αποτελεί και το τελευταίο στάδιο της αντιληπτικής διαδικασίας, ο λόγος για τον κανόνα της απλοποίησης των πληροφοριών και των ερεθισμάτων. Άξιο αναφοράς για την κατανόηση της διαφοράς των εννοιών αντίληψη και αίσθηση είναι το παρακάτω παράδειγμα: «Το οπτικό ερέθισμα δύο κινούμενων πηγών φωτός στο σκοτάδι αποτελεί αίσθηση, η κατανόηση όμως ότι αυτές οι δύο κινούμενες πηγές φωτός προέρχονται από ένα όχημα που κινείται τη νύχτα αποτελεί αντίληψη 8».

Η διαφορά, ωστόσο, των δύο παραπάνω εννοιών είναι λεπτή, ο T. Reid (1785) αναφέρει σχετικά:

«Οι εξωτερικές αισθήσεις έχουν ένα διπλό χαρακτήρα, να μας κάνουν να νιώθουμε και να μας κάνουν να αντιλαμβανόμαστε. Μπορούν να μας παρέχουν μια ποικιλία αισθήσεων, κάποιες

6. T. Reid (1785) στο Η έννοια της ατμόσφαιρας στο χώρο: Αντίληψη και βιωματική εμπειρία, Αποστολάκη Ευγενία, Χατζηβασιλείου Μαριαλένα, σελ 16.

7. Robbins &. Judge, Αντίληψη και στερεότυπα στον εργασιακό χώρο, κεφάλαιο 3, μεταφρασμένο, 2007, σελ. 105-106.

8. Λύκος Γιώργος, Εργασιακά Περιβάλλοντα και χρήστες: Οι δυναμικές χωρικές σχέσεις εργαζομένου-γραφείου και η εργασιακή εμπειρία, σελ 13.

16
και η σύνδεση αυτών με τη βιωματική εμπειρία 6. Βασικό όργανο για την πρόσληψη των εξωτερικών ερεθισμάτων αποτελεί

ευχάριστες, άλλες επώδυνες, και άλλες αδιάφορες. Ταυτόχρονα

μας δίνουν μια σύλληψη και μια ανίκητη πεποίθηση της ύπαρξης

των εξωτερικών αντικειμένων. Αυτή η αντίληψη των εξωτερικών αντικειμένων είναι το έργο της φύσης. Η πίστη της ύπαρξής

τους, που δίνουν οι αισθήσεις μας, είναι το έργο της φύσης, έτσι παρόμοια είναι και η αίσθηση που τη συνοδεύει. Αυτή η αντίληψη

και η πεποίθηση που η φύση παράγει με τη βοήθεια των αισθήσεων, ονομάζουμε αντίληψη. Αυτό που συνοδεύει την αντίληψη το ονομάζουμε αίσθηση. Η αντίληψη και οι αντίστοιχες αισθήσεις της, παράγονται ταυτόχρονα. Σύμφωνα με την εμπειρία μας, δεν μπορούμε να τις διαχωρίσουμε. Ως εκ τούτου, οδηγούμαστε να τις

θεωρούμε ως ένα πράγμα, να τους δίνουμε ένα όνομα, και να τις

χωρίζουμε στη σκέψη, ώστε να παρακολουθήσουμε κάθε μια ξεχωριστά, και για να μην αποδίδουν τίποτα που δεν ανήκει στην άλλη» 9 .

Η αντίληψη ενός χώρου, και ειδικότερα της ύλης αυτού, είναι εφικτή τόσο με την όραση (μάτι) όσο και την αφή (σώμα) «είναι δηλαδή μια διαλεκτική διαδικασία ανάμεσα στο υποκείμενο και το αντικείμενο 10».

Ο Μιχελής Παναγιώτης υποστηρίζει ότι: «Με μόνη την όραση θα είχε

το μάτι την εντύπωση από περιγράμματα επιφανειών, οι δε σκιές θα

αποτελούσαν απλά ένα μέσο διαχωρισμού των μερών του έργου, χωρίς να αποκαθιστούν το βάθος των πραγμάτων 11». Ο George Berkeley

«συσχέτισε την αφή με την όραση και υποστήριξε ότι η οπτική κατανόηση της υλικότητας, της απόστασης και του χωρικού βάθους δεν θα ήταν δυνατή χωρίς τη συνέργεια της απτικής μνήμης [...] Τα μάτια μας χαϊδεύουν μακρινές επιφάνειες, περιγράμματα και ακμές, και το ασυνείδητο απτικό αίσθημα καθορίζει αν η εμπειρία είναι ευχάριστη ή δυσάρεστη. Το μακρινό και το κοντινό βιώνονται με την ίδια ένταση και συγχωνεύονται σε μια μοναδική, συνεκτική εμπειρία 12». Ειδικότερα, το χέρι, κατά τον Heidegger, αποτελεί σκεπτόμενο όργανο του ανθρώπινου σώματος. «Το δέρμα

διαβάζει την υφή, την πυκνότητα και τη θερμοκρασία της ύλης 13» και μέσα από την αίσθηση αυτή το πόσο φιλόξενος ή ανοίκειος είναι ένας χώρος.

Η έννοια του ενεργού ανθρώπινου σώματος κατέχει θεμελιακό ρόλο σε όλο το φάσμα της αντιληπτικής διαδικασίας. Ο Merleau Ponty αναφέρει

σχετικά «Το σώμα δεν αποτελεί απλά μια μηχανή της οποίας η κινητήριος

δύναμη είναι ο νους, όπως στην καρτεσιανή προσέγγιση. Το σώμα είναι

μια ολότητα σε διαρκή συνδιαλλαγή με τον κόσμο μέσα από την οποία

προκύπτει και εξελίσσεται η ανθρώπινη ύπαρξη 14». Ο άνθρωπος αντιδρά

«ολιστικά» στις εμπειρίες χρησιμοποιώντας, ταυτόχρονα, νου και σώμα

9. Reid Thomas, Sir Hamilton William, (1850), Essays on the Intellectual Powers of Man,Cambridge,MA,Harvard College Library,σελ 17, στο Η εμπειρία των αισθήσεων, Αρχιτεκτονική, Σώμα, Αντίληψη, Μπασούκος Ιωάννης, σελ 13-14.

10 . Απέργη Μαρία Ιωάννα, Αρχιτεκτονική του συναισθήματος: Ο χειρισμός του φωτός σε δύο εκκλησίες του Alvaro Siza, σελ 18.

11 . Μιχελή Π., Η αρχιτεκτονική ως τέχνη,Αθήνα: Ίδρυμα Μιχελή στο Αναζητώντας το νόημα μετά το μοντέρνο, Χρίστος Σιακαλλής, σελ 24.

12. Pallasmaa Juhani, Τα μάτια του δέρματος : Η αρχιτεκτονική και οι αισθήσεις, σελ 69.

13 . Pallasmaa Juhani, Questions of Perception, σελ 31 στο Αντίληψη και βιωματική εμπειρία. Χρονοπούλου Ελένη, σελ 53.

14 . Κανελία Κουτσανδρέα, Ο ρόλος του σώματος και η έννοια της χωρικότητας κατά τον M. Merleau-Ponty, σελ 10.

Herbert Bayer: Lonely Metropolitan, 1932

[Ε4]
«Στην πραγματική βιωματική εμπειρία η όραση και η αίσθηση της αφής συγχωνεύονται» 17

και με αφορμή τα λεγόμενα του Herbert Bayer «Στην πραγματική βιωματική εμπειρία η όραση και η αίσθηση της αφής συγχωνεύονται 15» [E4].

Ειδικότερα, «το μάτι συνεργάζεται με το σώμα και τις άλλες αισθήσεις, με αποτέλεσμα την πολυφωνία των αισθήσεων 16». Εν κατακλείδι, η αντίληψη του χώρου εμπλέκει το σύνολο των αισθήσεων που μεσολαβούν για την επικοινωνία μεταξύ του σώματος και του χώρου, αλλά και άλλα στοιχεία όπως η κίνηση, η συνείδηση, οι ατομικές μνήμες και η εμπειρία. [E5]

Στις αρχές του 20ου αι. δημιουργείται το υπόβαθρο για την κατανόηση

της αντιληπτικής οργάνωσης των οπτικών σκηνών και διερευνώνται

εκτενέστερα οι διεργασίες της αντίληψης, της σκέψης και της μνήμης μέσω της θεωρίας της Gestalt (ή ψυχολογία της μορφής). Με τη θεωρία αυτή δίνεται βαρύτητα στην κιναισθητική αντίληψη με αποτέλεσμα η οπτική να χάνει την κυριαρχία της. Η κιναισθητική αντίληψη ορίζει ότι η παρουσία του ανθρώπινου σώματος στο χώρο είναι σημαντική και καθοριστική για τη βιωματική εμπειρία του χρήστη, όπως αναλύθηκε παραπάνω. Βάσει της Gestalt οι χωρικές ιδιότητες είναι τοπολογικού τύπου, δηλαδή η μορφή κάθε στοιχείου γίνεται αντιληπτή από τη θέση και τη λειτουργία του. [E6] Βασική άποψη που τη διακρίνει από προγενέστερες θεωρίες, που αφορούν την έννοια της αντίληψης, είναι ότι θεωρεί το όλον μεγαλύτερο από το άθροισμα των μερών του. Υποστηρίζει ότι τα μέρη αποκτούν τη φύση, το χαρακτήρα και το σκοπό τους από το σύνολο και δεν μπορούν να νοηθούν ξέχωρα από αυτό. Χαρακτηριστικό παράδειγμα αποτελούν

οι εικόνες οι οποίες προσλαμβάνονται σαν «όλον» ή σαν συνολικό σχήμα

και όχι ως άθροισμα των συστατικών μερών τους. Ο εγκέφαλος δεν

αποδομεί απλά μια εικόνα αλλά στην ουσία την ανασυνθέτει βασιζόμενος σε κάποιες βασικές αρχές αντιληπτικής ομαδοποίησης. Όπως αναφέρει και ο R. Arnheim «το μυαλό απλοποιεί το οπτικό περιβάλλον για να το κατανοήσει». Έτσι, διακρίνεται μια τριπλή ταυτόσημη οργάνωση σε τρία επίπεδα: βιολογικό, ψυχολογικό, εννοιολογικό. Η προσλαμβανόμενη εικόνα του αντικειμένου είναι αποτέλεσμα οργανωτικής, αυθόρμητης διαδικασίας των αισθήσεων σύμφωνα με ενδογενείς νόμους

οργάνωσης τόσο της εσωτερικής δομής του ανθρώπου όσο και των προσλαμβανόμενων μορφών και της σημασίας που τους αποδίδει το άτομο. Επομένως, ο χαρακτήρας ενός χωρικού περιβάλλοντος συνδέεται αμετάκλητα με τους μηχανισμούς αντίληψης του ατόμου και εν τέλει με την ίδια την νοητική και συναισθηματική του κατάσταση. Συμπεραίνεται, λοιπόν, ότι μεταξύ της ύλης (χώρος) και της νόησης (άνθρωπος) υπάρχει μια πολυσύνθετη σχέση.

[Ε6] 18
[Ε5] Μια αρχιτεκτονική μορφικής εγκράτειας με έναν σπάνιο αισθητικό πλούτο που απευθύνεται σε όλες τις αισθήσεις ταυτόχρονα. -Pallasmaa Juhani 15. Pallasmaa Juhani, Τα μάτια του δέρματος : Η αρχιτεκτονική και οι αισθήσεις, σελ 49. 16. ο.π., σελ 67.

2. Θεωρίες του (αρχιτεκτονικού) Χώρου.

“Οταν μιλάμε περί ανθρώπου και χώρου, τούτο ακούγεται

ως εάν ο άνθρωπος βρισκόταν στη μια μεριά και ο χώρος στην άλλη.

Ο χώρος δεν είναι κάτι αντίκρυ για τον άνθρωπο.

Δεν είναι ούτε ένα εξωτερικό αντικείμενο, ούτε ένα εσωτερικό βίωμα.

Δεν υπάρχουν άνθρωποι και έξω από αυτούς χώρος 17”

Ο

Χώρος έχει καταλάβει πρωτεύοντα ρόλο τόσο στη κατανόηση της

φύσης της αρχιτεκτονικής όσο και της τέχνης, ενώ παράλληλα έχουν

γίνει αναφορές στη φιλοσοφία, και στις θετικές επιστήμες. Η προσπάθεια

ορισμού του έγκειται στην ανάγκη του ανθρώπου να κατανοήσει

όχι μόνο τη δομή του περιβάλλοντος στο οποίο ζει, κινείται, υπάρχει

αλλά και την ίδια του την Ύπαρξη. Με την πάροδο των χρόνων έχουν

καταγραφεί ποικίλες ερμηνείες της έννοιας του χώρου. Πριν από το

δεύτερο παγκόσμιο πόλεμο δεν λαμβάνει καμία άλλη διάσταση πέρα

από αυτή του γεωμετρικού χώρου, που ορίζει την απόσταση μεταξύ των αντικειμένων. Στη σύγχρονη εποχή, όμως, η ερμηνεία του καθίσταται

ιδιαίτερα πολύπλοκη μιας και έννοιες όπως ο βιωματικός και υπαρξιακός χώρος προσδίδουν νέα δεδομένα για τον ορισμό του.

Άξιες αναφοράς θεωρούνται οι παρακάτω διαστάσεις/συλλήψεις του χώρου. Σύμφωνα με τη πρώτη σύλληψη ο χώρος περιγράφεται «ως αυτοτελής οντότητα, άπειρη ή πεπερασμένη, ως κενό όχημα, έτοιμο και ικανό να πληρούται με πράγματα 18». Ο χώρος θεωρείται ανεξάρτητος από τα φυσικά σώματα/αντικείμενα (εφεξής: αντικείμενα) που περιέχει και «βιώνεται ως ένα πάντοτε παρόν και αυτάρκες δεδομένο που προηγείται των αντικειμένων, ως το περιβάλλον εντός του οποίου το καθετί λαμβάνει

τη θέση του”. Σύμφωνα με τον Πλάτωνα, κατά την απουσία των

αντικειμένων ο χώρος περιγράφεται “ως κενός απέραντος υποδοχέας 19»

που υπάρχει στον εξωτερικό κόσμο όπως υπάρχουν και τα αντικείμενα.

Κατά την παρουσία των αντικειμένων ο χώρος περιγράφεται «ως μητέρα

και δοχείο όλων των δημιουργημάτων και των ορατών και με οποιοδήποτε

τρόπο αισθητών πραγμάτων 20» ενισχύοντας την άποψη περί αυτοτέλειάς

του. Η παραπάνω άποψη αντικατοπτρίζεται στη Νευτώνεια υπόθεση μιας απόλυτης βάσης αναφοράς (απόλυτος χώρος), ως προς την οποία όλες οι αποστάσεις, οι ταχύτητες ή τα μεγέθη έχουν εξίσου απόλυτες σχέσεις.

17. Λέφας Παύλος, Αρχιτεκτονική και Κατοίκηση: Από τον Heidegger στον Koolhaas, σελ. 151.

18. Arnheim Rudolf, Η δυναμική της αρχιτεκτονικής μορφής, σελ 25.

19. ο.π., σελ 25-26.

20. ο.π., σελ 25-26.

[Δ4] 19

Αυτό αντιστοιχεί γεωμετρικά σε ένα καρτεσιανό σύστημα συντεταγμένων

ως προς το οποίο μπορούν να συσχετιστούν όλες οι θέσεις, τα μεγέθη

ή οι κινήσεις σε ένα τρισδιάστατο χώρο. Για τη κατανόηση της άποψης

αυτής παρατίθεται ένα παράδειγμα από το βιβλίο «Η δυναμική της

αρχιτεκτονικής μορφής» του R. Arnheim «Εάν [...] δεν δοθεί τίποτε άλλο

παρά ένα μόνο σφαιρικού σχήματος αντικείμενο, η χωρική του θέση σε

σχέση με το σύστημα μπορεί να προσδιοριστεί δια τριών συντεταγμένων

που υποδεικνύουν τις αποστάσεις από το πλαίσιο αναφοράς 21». Η υπόθεση, λοιπόν, ότι ο χώρος αποτελεί αυτοτελή οντότητα (απόλυτος χώρος) και όχι δημιούργημα των αντικειμένων δίνει τη δυνατότητα προσδιορισμού των σχετικών θέσεων μεταξύ των αντικειμένων.

Η δεύτερη σύλληψη εστιάζει στην εμπειρία του χώρου η οποία δημιουργείται από τον αλληλοσυσχετισμό αντικειμένων. Είναι γεγονός ότι η εμπειρία προκύπτει από σύνθετες, έμφυτες και κεντρικά οργανωμένες διαδικασίες του εγκεφάλου. Ο αλληλοσυσχετισμός αντικειμένων ασκεί διαρκή επίδραση στην αντιληπτική εμπειρία. Σύμφωνα με τον Merleau-Ponty τα αντικείμενα γίνονται αντιληπτά μέσα από μια διαλεκτική διαδικασία μεταξύ υποκειμένου και αντικειμένου Θεωρεί ότι το σώμα είναι ένα αντικείμενο μεταξύ αντικειμένων

και την όραση ειδικότερα, όμως αντί του καρτεσιανού ματιού του εξωτερικού θεατή, η αίσθηση της όρασης είναι μια σωματική αίσθηση 22 η οποία σε συνδυασμό με τις υπόλοιπες αισθήσεις δίνει τη δυνατότητα στον άνθρωπο να βιώνει τον ίδιο του τον εαυτό ως συμμέτοχο στη “σάρκα του κόσμου”». Διακρίνει τον χώρο σε «γεωμετρικό» και «ανθρωπολογικό». «Ως ανθρωπολογικό χώρο ορίζει τον “ανθρώπινο, υπαρξιακό χώρο” τον χώρο της εμπειρίας ενός όντος που βρίσκεται κυριολεκτικά μέσα στον κόσμο». Υποστηρίζει, επιπλέον, ότι «...ο χώρος είναι υπαρξιακός […] η ύπαρξη είναι χωρική […] οι ανθρωπολογικοί [οι ανθρώπινοι] χώροι προσφέρονται ως δομημένοι στο φυσικό χώρο […] ο φυσικός και πρωταρχικός χώρος δεν είναι ο γεωμετρικός χώρος 23». Διευκρινίζεται ότι από φυσική άποψη, ο χώρος ορίζεται από την επέκταση υλικών σωμάτων ή πεδίων τα οποία γειτονεύουν. «Οι αμοιβαίες επιρροές των υλικών πραγμάτων είναι εκείνες που προσδιορίζουν τον χώρο μεταξύ τους: η απόσταση μπορεί να περιγραφεί από την ποσότητα της φωτεινής ενέργειας που φτάνει σε ένα αντικείμενο από μια φωτεινή πηγή 24». Η φυσική άποψη περί χώρου δεν αντικατοπτρίζεται στη πρώτη σύλληψη που ορίζει το γεωμετρικό χώρο.

21. ο.π., σελ 27.

22. Maurice Merleau Ponty, Το σύμπλεγμα και το χίασμα, στο Claude Lefort (επιμ.), The visible and the invisible, Northwestern University Press, 4η αναδιατύπωση,1992 στο Pallasmaa Juhani, Τα μάτια του δέρματος : Η αρχιτεκτονική και οι αισθήσεις, σελ 37.

23. Maurice Merleau-Ponty, Φαινομενολογία της Αντίληψης, Εκδοσεις Gallimard, συλλογή “Bibliothèque des Idées”, Παρίσι, 1945.

24. Arnheim Rudolf, Η δυναμική της αρχιτεκτονικής μορφής, σελ 25-26.

20
, και ότι έχει την ικανότητα να βλέπει και να αγγίζει τα υπόλοιπα αντικείμενα. «Ο ίδιος εστιάζει στην αντίληψη γενικότερα

« Η παραπάνω κατηγοριοποίηση στις δύο διαστάσεις του χώρου, ωστόσο, καθίστανται ελλιπής καθώς η καθεμία εξ αυτών αποτελεί αφαιρετική

σύλληψη της διαισθητικής τρισδιάστατης ολότητας της καθημερινής

εμπειρίας - μια κατάσταση που ορίζεται ως “συγκεκριμένος χώρος” 25 ».

Στο “Είναι και Χρόνος” ο M. Heidegger «ο συγκεκριμένος βιωμένος χώρος

ορίζει ως “πάνω” αυτό που είναι στην οροφή ή στον ουρανό, ως “κάτω”

αυτό που είναι στο πάτωμα ή στο έδαφος, ως “πίσω” αυτό που είναι

στην πόρτα από την οποία πραγματοποιείται η είσοδος στο δωμάτιο 26»

προσδίδοντας στο χώρο ποιοτικές διαφορές. Η ανάγκη μελέτης των σχέ-

σεων ανάμεσα στην εξωτερική υλική πραγματικότητα (γεωμετρία) και

την ανθρώπινη εσωτερικότητα (αντιληπτικό πεδίο) φέρει στο προσκήνιο

το χώρο ως υπαρξιακή διάσταση και όχι ως μαθηματική έννοια. Ο «υπαρξιακός» ή «ανθρώπινος»

χώρος ορίζεται ως «μια σύνθεση πολλών

χώρων με βάση την επιρροή του ανθρώπου στον χώρο 27». Ο N. Schulz, λοιπόν, ορίζει την ύπαρξη ενός πραγματιστικού χώρου στον οποίο ο άνθρωπος καλύπτει τις βιολογικές του ανάγκες, ενός αντιληπτικού χώρου

τον οποίο συλλαμβάνει με τις αισθήσεις του, ενός αφηρημένου χώρου

τον οποίο συλλαμβάνει με την λογική του, ενός πολιτιστικού χώρου ο οποίος διαμορφώνεται από τη συλλογική δραστηριότητα μιας ομάδας

ανθρώπων και ενός χώρου έκφρασης, προϊόν της τέχνης και πεδίο εκ-

δήλωσης των προθέσεών του να αλλάξει το περιβάλλον του 28». Ο χώρος

και η ανθρώπινη ύπαρξη, λοιπόν, βάσει του M. Heidegger συνδέονται

με μια σχέση αμοιβαίας αναφοράς. Όπως αναφέρει: «Ο άνθρωπος

αναδύεται ταυτόχρονα και εξαιτίας του χώρου, όπως ο χώρος αναδύεται

ταυτόχρονα και εξαιτίας του ανθρώπου», ενισχύοντας, έτσι, την άποψη ότι ο χώρος δεν είναι εφικτό να οριστεί ανεξάρτητα από την ανθρώπινη ύπαρξη, ή το αντίθετο.

Κλείνοντας, ένας χώρος που διατηρεί σταθερά μορφολογικά στοιχεία δε γίνεται αντιληπτός με τον ίδιο τρόπο από όλα τα υποκείμενα. Η εμπειρία του χώρου διαφοροποιείται ανάλογα με τις προσωπικές μνήμες, την κίνηση, τη συναισθηματική κατάσταση, καθώς και το βαθμό οικειότητας του υποκειμένου με το χώρο. «Συμπεραίνεται, λοιπόν, ότι τα περιεχόμενα (συναισθήματα) παράγονται από την αντίληψη του υποκειμένου μέσω της αρχιτεκτονικής εμπειρίας» 29 . Έτσι, τα υπαρξιακά σχήματα της αντίληψης καθίστανται ανθρωποκεντρικά και όχι μορφοκρατικά.

25. Schulz Christian-Norberg, Genius Loci: Το Πνεύμα του Τόπου, Για μια φαινομενολογία της αρχιτεκτονικής, σελ 14.

26. Λέφας Παύλος, Αρχιτεκτονική και Κατοίκηση-Από τον Heidegger στον Koolhaas, σελ. 163.

27. Norberg Schulz στο έργο του «Existence, Space and Architecture»

28. ο.π., στο Το (αν) οικώ υπό το πρίσμα του Toyo Ito, Μαλάμογλου Ευγενία, σελ 12.

29. Χατζησάββα Ν. Δήμητρα, Η έννοια του Τόπου στις αρχιτεκτονικές θεωρίες και πρακτικές-σχέσεις φιλοσοφίας και αρχιτεκτονικής

στον 20ο αι., σελ 37.

21

3. Φαινομενολογία : Τόπος = Χώρος + Χαρακτήρας.

Ο χώρος είναι μία πιο αφηρημένη έννοια από τον τόπο.

Όταν μιλούμε για χώρο τείνουμε να σκεφτούμε…τους χώρους της γεωμετρίας…

Όταν οι άνθρωποι επενδύουν ένα νόημα σε ένα τμήμα αυτού του χώρου

και συνδέονται με αυτό με κάποιο τρόπο, μετατρέπεται σε έναν τόπο. 30

-Tim Cresswell

Την τελευταία φάση του μοντερνισμού και τη θέση της έννοιας του χώρου διαδέχεται μια υπαρξιακή έννοια, αυτή του τόπου. Την περίοδο του μοντερνισμού ο χώρος λειτουργεί ως ένα ουδέτερο πεδίο το οποίο

σε συνδυασμό με την τότε νέα αφαιρετική γεωμετρία χρησιμεύουν για την απόρριψη παρελθοντικών μορφών και τοπικών δεσμεύσεων. Την κυριαρχία της αφαίρεσης και του λειτουργικού χώρου, διαδέχεται μια περίοδος που έχει ως στόχο την «επιστροφή στα πράγματα». Την επιστροφή, δηλαδή, «στον τρόπο και την ουσία με την οποία εμφανίζονται τα πράγματα στην ανθρώπινη συνείδηση και σε μία αδογμάτιστη και μηπροκατειλημμένη “περιγραφή” τους 31». Μια φάση που αναζητά απαντήσεις ως προς το εξιδανικευμένο νόημα της ταυτότητας του τόπου, τον τόπο ως συγκεκριμένο «εδώ», κάτι που αγνοούσε η προγενέστερη λειτουργική προσέγγιση.

Η φαινομενολογία θεμελιώνεται με τη φράση «επιστροφή στα πράγματα».

Η σχολή του Brentano και το έργο του φιλόσοφου Edmund Husserl (20ος αι) λειτουργούν ως αφετηρία για την ύπαρξή της. Στη παρούσα εργασία γίνεται νύξη για τη φαινομενολογία του καθημερινού περιβάλλοντος (περιβαλλοντική φαινομενολογία) όπως παρουσιάζεται στο έργο του Norberg Schulz. Ως σημείο εκκίνησης αυτής λειτουργεί ο διαχωρισμός ανάμεσα στο φυσικό και ανθρωπογενές περιβάλλον και αυτά με τη σειρά τους ορίζουν τη διάκριση μεταξύ τοπίου και εγκατάστασης. Οι χωρικές αυτές σημάνσεις επανεισάγουν το χώρο ως υπαρξιακή διάσταση και όχι ως μαθηματική έννοια 32. Επιπλέον, η έννοια του χαρακτήρα, το πως είναι τα πράγματα, είναι αυτή που συμπληρώνει και καθιστά δυνατή την σύλληψη του “Πνεύματος του Τόπου”. Με την εμπειρία των φαινομένων, των πραγμάτων που γίνονται αντιληπτά ενσυνείδητα μέσω των αισθήσεων, επιχειρείται η εξαγωγή των θεμελιωδών χαρακτηριστικών της αντιληπτικής διαδικασίας και της οντότητας των εμπειριών 33 . Τα δεδομένα αυτής δεν περιορίζονται στο πεδίο της αισθητηριακής εμπειρίας, αλλά δέχεται εξίσου και μη αισθητηριακά δεδομένα, όπως οι σχέσεις και οι αξίες, εφόσον αυτά παρουσιάζονται διαισθητικά. Μέσα από τις αισθητηριακές ποιότητες του

[Δ5] 22
30. Τερζόγλου Νικόλαος-Ίων, ΙΔΕΕΣ ΤΟΥ ΧΩΡΟΥ ΣΤΟΝ ΕΙΚΟΣΤΟ ΑΙΩΝΑ, σελ 50. 31 ο.π σελ 34. 32. Schulz Christian-Norberg, Genius Loci: Το Πνεύμα του Τόπου, Για μια φαινομενολογία της αρχιτεκτονικής, σελ 12. 33. ο.π., σελ, σελ 9.

φωτός, του ήχου, της υφής, του χρώματος και της προοπτικής συνδέεται

με τη βιωματική εμπειρία του χώρου 34 . Η γέννησή της είναι αποτέλεσμα

τόσο της προσπάθειας της θεωρίας της Gestalt να κατανοήσει τη

λειτουργία του σώματος στην αντιληπτική διαδικασία και να εντοπίσει

τις στοιχειώδεις δομές, όσο και της ενίσχυσης του υπαρξιακού τρόπου

σκέψης μέσα από το βαρύνοντα ρόλο του βιώματος και των εμπειρικών

δεδομένων.

Η ερμηνεία του Heidegger μετατόπισε το ερευνητικό πεδίο από την συνείδηση και την προθετικότητα του υποκειμένου, στη φύση της

ανθρώπινης ύπαρξης ως είναι-μες-στον-κόσμο 35. Ο ίδιος θεματοποιεί

με νέα οξύτητα τις έννοιες του τόπου και του χώρου. Στρέφεται στη

σημασία του βιωμένου τόπου μετασχηματίζοντας τη φαινομενολογία

σε μια ανάλυση των υπαρξιακών λειτουργιών και δοσοληψιών του

ανθρώπου στην καθημερινή συνδιαλλαγή του με τα αντικείμενα και τις

περιοχές της “κοσμικότητας του κόσμου”. «Εδώ έχουμε την κλασική και

παγιωμένη διάκριση ανάμεσα στον χώρο ως ουδέτερο υπόβαθρο και ως ποσοτικό πεδίο μέτρησης και υπολογισμού, έναν χώρο-αντικείμενο των φυσικών επιστημών και τον τόπο ως βιωμένο τμήμα του φυσικού χώρου από ένα υποκείμενο, ως δημιουργία ενός ανθρωπογενούς χώρου από μία κοινωνία, ως διαδικασία απόδοσης νοήματος και σκοπού σε έναν χώρο 36». Παρατηρείται ότι η ιδέα του χώρου, όπως γίνεται κατανοητή από τις κοινωνικές επιστήμες και τις επιστήμες του ανθρώπου, διακρίνει με σαφήνεια την έννοια του αφηρημένου γεωμετρικού χώρου από την

έννοια του συγκεκριμένου βιωμένου τόπου και φαίνεται να δίνει ιδιαίτερη

έμφαση στις νοηματικές, ψυχολογικές, συγκινησιακές, βιωματικές, πολιτικές και πρακτικές διαστάσεις και ιδιότητες του χώρου. Η θεώρηση

αυτή συγγενεύει με το έργο του Merleau-Ponty που αφορά τον ενεργό

ρόλο του ανθρώπινου σώματος στην ενσώματη αντίληψη και στην

συγκρότηση μίας προ-διασκεπτικής εμβίωσης του χώρου-κόσμου. Η

στροφή στον τόπο και την υλικότητα συντελείται και ολοκληρώνεται στο έργο του M. Heidegger.

Η λέξη τόπος είναι ένας συγκεκριμένος όρος που δηλώνει το «περιβάλλον» και κάτι περισσότερο από μία αφηρημένη τοποθεσία. Είναι ένα σύνολο το οποίο απαρτίζεται από συγκεκριμένα πράγματα με υλική υπόσταση, σχήμα, υφή και χρώμα. Τα πράγματα αυτά καθορίζουν τον «περιβαλλοντικό χαρακτήρα» ο οποίος καθιστά την ουσία ενός τόπου. Ορισμένοι τόποι είναι γνωστοί ως «χώρες», «περιοχές», «τοπία», «οικισμοί»

και «κτίρια». Κυριαρχεί η πεποίθηση ότι «το Πνεύμα του Τόπου» βρίσκεται

ήδη εκεί και η επαφή του ανθρώπου

23
με αυτό επιτυγχάνεται με όλες τις 34. Κανελία Κουτσανδρέα, Ο ρόλος του σώματος και η έννοια της χωρικότητας κατά τον M. Merleau-Ponty, σελ 5. 35. Τερζόγλου Νικόλαος-Ίων, ΙΔΕΕΣ ΤΟΥ ΧΩΡΟΥ ΣΤΟΝ ΕΙΚΟΣΤΟ ΑΙΩΝΑ, σελ 37. 36. ο.π., σελ 51-52.

αισθήσεις, την όσφρηση, την αφή, τη συγκινησιακή, τη σωματική μνήμη 37 και είναι εκεί όπου ένας άνθρωπος ταυτίζεται με το περιβάλλον του. Αποτελεί ένα ποιοτικό «ολικό» φαινόμενο, που δεν μπορεί να περιοριστεί σε κάποια από τις επιμέρους ιδιότητες του, όπως στις χωρικές σχέσεις που ενυπάρχουν σε αυτόν, διότι θα μας διαφύγει η συγκεκριμένη φύση του. Ως «φαινόμενο» ορίζεται οτιδήποτε υπάρχει στην καθημερινότητα. Οι άνθρωποι, τα δάση, η πέτρα, το ξύλο, τα παράθυρα, ο ήλιος, η νύχτα ακόμη και τα συναισθήματα (περιεχόμενα) είναι χαρακτηριστικά παραδείγματα φαινομένων. Ορισμένα φαινόμενα μπορεί να περιλαμβάνουν άλλα ή να αποτελούν ένα περιβάλλον για άλλα. Παραδείγματος χάρη, «το δάσος συγκροτείται από δέντρα, η πόλη συγκροτείται από σπίτια ακόμη και το “τοπίο” είναι ένα τέτοιο περιεκτικό φαινόμενο 38». Αρχικά, παρουσιάζεται σαν μια δεδομένη, αυθόρμητα βιωμένη ολότητα (βιωμένος χώρος) αλλά στο τέλος εμφανίζεται ως ένας δομημένος κόσμος, φωτισμένος από την ανάλυση του χώρου και του χαρακτήρα. «Ο χώρος δηλώνει την τρισδιάστατη οργάνωση των στοιχείων που συνθέτουν έναν τόπο, ενώ ο χαρακτήρας δηλώνει τη γενική ‹ατμόσφαιρα›, η οποία είναι και η πλέον καθοριστική ιδιότητα οποιουδήποτε τόπου 39». Ο χαρακτήρας γενικότερη, αλλά ταυτόχρονα πιο συγκεκριμένη έννοια από εκείνη του χώρου, από τη μια δηλώνει μια γενική συνολική ατμόσφαιρα από την άλλη παραπέμπει στη συγκεκριμένη μορφή και υλική υπόσταση των στοιχείων που προσδιορίζουν το χώρο. Η εκάστοτε δραστηριότητα απαιτεί τόπο με διαφορετικό χαρακτήρα. Παραδείγματος

χάρη, μία κατοικία είναι προστατευτική, μία αίθουσα χορού γιορτινή, μία εκκλησία ευλαβική. Ο χαρακτήρας εξαρτάται από το χρόνο και αλλάζει ανάλογα με τις εποχές, την ώρα της ημέρας, τις καιρικές συνθήκες. Κάθε αλλαγή από τις προηγούμενες ορίζεται από διαφορετικές συνθήκες φωτός. Ο χαρακτήρας και ο χώρος σμίγουν στο όριο και μπορούμε να συμφωνήσουμε με τον R. Venturi που ορίζει την αρχιτεκτονική ως τον «τοίχο μεταξύ του μέσα και του έξω». Ο χαρακτήρας εξαρτάται από το πώς είναι φτιαγμένα τα πράγματα και συνεπώς καθορίζεται από την τεχνική υλοποίηση (το κτίζειν) 40 . Το σώμα της αρχιτεκτονικής, η υλική αρμονία, τα επίπεδα οικειότητας (κλίμακα), το φως των πραγμάτων είναι ορισμένοι από τους άξονες που μελετά ο Zumthor για να κατανοήσει την ποιότητα ενός χώρου. Επηρεασμένος από τα παραπάνω, ορίζει ως «ατμόσφαιρα» το συναίσθημα που μας δημιουργείται όταν επισκεπτόμαστε

24
ένα χώρο για πρώτη φορά. 37. Schulz Christian-Norberg, Genius Loci: Το Πνεύμα του Τόπου, Για μια φαινομενολογία της αρχιτεκτονικής, σελ 23. 38. ο.π., σελ 9. 39. ο.π., σελ 13. 40. ο.π σελ 16-18,21.

II. Από τη Φύση στο Υπερβατικό διαμέσου του Φωτός.

Οι πλέον πρωτόγονοι από τους «ιερούς τόπους» που γνωρίζουμε συγκροτούσαν ένα μικρόκοσμο: ένα τοπίο από πέτρες, νερό και δέντρα. 41

- Mircea Eliade

1. Από τη Φύση στο Φυσικό Τόπο.

«

Η φύση είναι μη πεπερασμένη και απόλυτα μεγάλη, αποτελεί έκφραση του

Υψηλού είναι κατεξοχήν φορέας του Υψηλού λόγω της απεραντοσύνης

και της δύναμης ορισμένων φυσικών φαινομένων και μορφωμάτων

της καθώς και της αιωνιότητάς της. Ακατάλυτη, αλλά συγχρόνως σε

διαρκή μεταβλητότητα, εμφανίζεται ως μια απεικόνιση του χρόνου και

του φευγαλέου της ζωής 42». Η φύση λειτουργούσε για μεγάλο διάστημα

ως εγγύηση μιας εγκατεστημένης τάξης (ιδέες, αρμονία, υπερβατικό)

και συνιστούσε οδηγό της μορφολογικής μίμησης για τη δημιουργία αρχιτεκτονικής. Κατά τον 19ο αι. παύει να λειτουργεί ως εγγύηση βεβαιότητας, αμετάβλητο οικουμενικό πρότυπο και λαμβάνει το ρόλο του περιβάλλοντος της ανθρώπινης ύπαρξης και σε αυτή «εντάσσεται το κάθε έργο και πλαισιώνεται από τις μεταβολές του φωτός, της ατμόσφαιρας, του τοπίου 43».

Η φύση αποτελεί ένα εκτεταμένο σύνολο, έναν «τόπο», που ανάλογα με τις επιμέρους τοπικές συνθήκες έχει μια ιδιαίτερη ταυτότητα. «Τα

φυσικά στοιχεία είναι αναμφίβολα τα κύρια συστατικά του δοσμένου τόπου, και, οι τόποι συνήθως προσδιορίζονται με γεωγραφικούς όρους. Πρέπει, ωστόσο, να αναφερθεί ότι “τόπος” σημαίνει κάτι περισσότερο από τοποθεσία 44». Ο όρος «φυσικός τόπος» δηλώνει μία σειρά από

περιβαλλοντικά επίπεδα, από ηπείρους και χώρες μέχρι τη μικρή έκταση

που καταλαμβάνει η σκιά ενός δέντρου 45 . Ο Heidegger για να περιγράψει

τους «φυσικούς τόπους» εισάγει τις έννοιες «γη» και «ουρανός»

υποστηρίζοντας ότι η γη είναι ο φέρων οργανισμός και ο ουρανός είναι

η θολωτή διαδρομή του ήλιου 46. Σύμφωνα με τον πρώτο τρόπο ερμηνείας

της φύσης «η γη είναι ο φέρων οργανισμός από τον οποίο αναδύεται

η ζωή το ίδιο το θεμέλιο της ύπαρξης. Ο ουρανός, αντίθετα, είναι κάτι “υψηλό” και απρόσιτο. Το σχήμα του περιγράφεται από τη θολωτή διαδρομή του ήλιου, και τα χαρακτηριστικά του, γενικά, ερμηνεύονται

41. Schulz Christian-Norberg, Genius Loci: Το Πνεύμα

[Δ6] 25
του Τόπου, Για μια φαινομενολογία της
σελ 31. 42. Περράκης Γιώργος - Σκουτέλης Νίκος, Αναπαραστάσεις του Υπερβατικού, σελ 16 . 43. Schulz Christian-Norberg, Genius Loci: Το Πνεύμα του Τόπου, Για μια φαινομενολογία της αρχιτεκτονικής, σελ 37. 44. ο.π., σελ 12. 45. ο.π., σελ 38. 46. ο.π., σελ 38-39.
αρχιτεκτονικής,

ως υπερβατικότητα, τάξη και δημιουργική ενέργεια (βροχή). Ο ουρανός

έχει πρωτίστως κοσμικές ιδιότητες, ενώ η γη μπορεί να ικανοποιήσει τις

ανάγκες του ανθρώπου για προστασία και θαλπωρή 47». Πρωταρχικά, φυσικά «πράγματα» θεωρούνται οι βράχοι, η βλάστηση και το νερό και προσδίδουν σε ένα τόπο νόημα ή ιερότητα, Οι «ιεροί τόποι» μέσα στο περιβάλλον λειτουργούν ως «κέντρα» και χρησιμεύουν ως αντικείμενα

για τον προσανατολισμό και την ταύτιση των ανθρώπων συνιστώντας

ταυτόχρονα μια χωρική δομή. Έτσι, στην ανθρώπινη κατανόηση της φύσης οι καταβολές της έννοιας του χώρου γίνονται αντιληπτές ως ένα σύστημα τόπων.

Η φύση βάσει της φαινομενολογίας ερμηνεύεται με ποικίλους τρόπους. Ο πρώτος τρόπος ερμηνείας συνδέει τις φυσικές δυνάμεις με συγκεκριμένα στοιχεία ή «πράγματα». Η δημιουργία ερμηνεύεται συνήθως ως «γάμος» του ουρανού και της γης, ενώ παράλληλα άλλα είδη φυσικών «πραγμάτων» αποκαλύπτουν νοήματα. Το δέντρο, λόγου χάρη, είναι ένα στοιχείο με το οποίο ο ουρανός και η γη ενώνονται, όχι μόνο με τη χωρική έννοια, επειδή υψώνεται από το έδαφος, αλλά και γιατί μεγαλώνει και είναι «ζωντανό» 48. Ο δεύτερος τρόπος ερμηνείας της είναι μια αφαιρετική διαδικασία και οδηγεί στη συναγωγή μιας κοσμικής τάξης μέσα από τη ρευστότητα των φαινομένων. Αυτή η τάξη συνήθως βασίζεται στην τροχιά του ηλίου, που είναι το πιο σταθερό και εντυπωσιακό φυσικό φαινόμενο, καθώς και στα τέσσερα σημεία του ορίζοντα. Ο τρίτος τρόπος ερμηνείας της φύσης έγκειται στον προσδιορισμό του χαρακτήρα των φυσικών τόπων σε συσχετισμό με βασικά ανθρώπινα χαρακτηριστικά. Τέλος, η τέταρτη κατηγορία φαινομένων την οποία περιλαμβάνει η φύση είναι λιγότερο απτά. Το φως, σίγουρα, βιώνεται ανέκαθεν ως βασικό μέρος της πραγματικότητας, αλλά ο αρχαίος άνθρωπος αντιλαμβανόταν τον

ήλιο περισσότερο σαν «πράγμα», παρά σαν μια γενικότερη έννοια του «φωτός». 49

Κάνοντας μια γρήγορη αναφορά στις ερμηνείες του «φυσικού τόπου»

γίνεται αντιληπτό ότι λαμβάνει μεγάλη έκταση η φιλοσοφική της ερμηνεία.

Στεκόμενοι στη τέταρτη κατηγορία φαινομένων που αφορά “το φως”

αναγνωρίζεται ότι το άυλο αυτό στοιχείο δίνει ποικιλία παραλλαγών ανάλογα με τη διαμόρφωση το τοπικού αναγλύφου. Παραδείγματος χάρη, «σε περιοχές που δεν είναι πολύ απομακρυσμένες από την ακτή, οι ατμοσφαιρικές συνθήκες αλλάζουν διαρκώς και το φως γίνεται ένα ζωντανό και έντονα ποιητικό στοιχείο. Σε μια χώρα σαν την Ολλανδία, όπου το έδαφος είναι επίπεδο και διαιρεμένο σε μικρά τμήματα, το φως

47. ο.π., σελ 28.

48. ο.π., σελ 29.

49. Schulz Christian-Norberg, Genius Loci: Το Πνεύμα του Τόπου, Για μια φαινομενολογία της αρχιτεκτονικής, σελ 36.

26
[Ε28] Tadao Ando, Church on the water

αποτελεί μια χαρακτηριστικά τοπική και οικεία αξία. Στη βόρεια Γαλλία, αντίθετα, το τοπίο ανοίγεται και ο εκτεταμένος ουρανός γίνεται μια διευρυμένη “σκηνή” για τη διαρκώς μεταβαλλόμενη ποιότητα του φωτός». [...]

«Στη νότια Ευρώπη αυτές οι ποιητικές ιδιότητες του φωτός είναι μάλλον

απούσες. Ο δυνατός και ζεστός ήλιος “γεμίζει το χώρο” και αναδεικνύει

τις πλαστικές ιδιότητες των φυσικών μορφών και των “πραγμάτων” 50».

Με τη βοήθεια του φωτός έχει γίνει μια προσπάθεια απόδοσης της

υπερβατικότητας της φύσης ακόμη και μέσω της τέχνης. Ο λόγος για

τον Αγγλικό Ρομαντισμό (τοπιογραφία) μέσω του οποίου επιτυγχάνεται

η απόδοση του φωτός. Ένας από τους κύριους εκφραστές είναι ο John Constable, για τον οποίο το φως αποτελεί βασικό στοιχείο της εκφραστικής του γλώσσας. Με τα έργα του, προσπαθεί να παρουσιάσει την εναλλαγή του φωτός και της σκιάς στις διάφορες εποχές, τις χρωματικές μεταβολές του τοπίου ακόμη και μεταξύ των ωρών 51. Δυο από τα πιο χαρακτηριστικά του έργα είναι το “Κάρο του Σανού”,1821 [Ε25] το οποίο

εκφράζει το σύνολο με αυτοσυγκράτηση και απλότητα επιδιώκοντας να

αφήσει την ίδια την φύση να εντυπωσιάσει. Από την άλλη ο “Καθεδρικός

Ναός του Salisbury”,1829 [Ε26] αποδίδει τόσο τα φυσικά στοιχεία όσο

και τα ανθρώπινα δημιουργήματα δίνοντας ιδιαίτερη έμφαση όμως

στην αλήθεια του φυσικού κόσμου. Το δέντρο, όπως, φαίνεται δείχνει

να συνθλίβει το ναό ο οποίος αν και είναι τοποθετημένος κεντρικά στον πίνακα δείχνει να χάνεται από τα φυσικά στοιχεία που το περιβάλλουν (δέντρο, φωτεινός ουρανός).

Ύστερα από τα παραπάνω παρατηρείται ότι η φύση ως έκφραση του

Υπερβατικού οφείλεται σε μεγάλο βαθμό «στο φως», το άυλο αυτό στοιχείο το οποίο αν και αποτελεί βασικό μέρος της πραγματικότητας μπορεί να ερμηνευθεί ως φυσικός μηχανισμός σύνθεσης του Υπερβατικού.

50. Schulz Christian-Norberg, Genius Loci: Το Πνεύμα του Τόπου, Για μια φαινομενολογία της αρχιτεκτονικής,

Κυριάκος, Η Εξέλιξη της έννοιας του Υπερβατικού από το “τρομερό” στο ανοίκειο: Μεταγραφές της ποιητικής του μεταφυσικού στη σύγχρονη αρχιτεκτονική και στο έργο του Louis I. Kahn, σελ 12

[Ε25] «Κάρο του Σανού», 1821, Constable.
27
[Ε26] «Καθεδρικός Ναός του Salisbury», 1829, Constable.
σελ 46. 51. Χρυσάνθου Χρήστος, Η ευρωπαϊκή ζωγραφική του 19ου αιώνα, εκδόσεις Βανιας, Θεσσαλονίκη, 1993, σελ 166-173 στο Ναξάκης

Φως-Σκιά:

Χαρακτηριστικό

γνώρισμα του Τόπου.

“Ο χώρος παραμένει στην λήθη χωρίς το φώς...

Η σκιά και ο ίσκιος του φωτός, οι διαφορετικές πηγές του,

η αδιαφάνεια, η διαφάνεια, η διαύγεια, οι συνθήκες αντανάκλασης και διάθλασης συμπλέκονται

για να καθορίζουν ή να επανακαθορίσουν το χώρο. Το φώς υποβάλει το χώρο σε μια αβεβαιότητα, δημιουργώντας μια πειραματική γέφυρα μέσω της εμπειρίας.” 52

– Steven Holl

Παραπάνω έγινε μια προσπάθεια ερμηνείας του χώρου και του τόπου με βάση τη φαινομενολογική προσέγγιση. Είναι δεδομένο όμως, ότι ο κόσμος όπως τον γνωρίζουμε σήμερα, δεν θα γινόταν αντιληπτός

χωρίς την ύπαρξη του φωτός. Το φως είναι το άυλο στοιχείο της φύσης λόγω του οποίου ο χώρος, αλλά και οι ποιότητες αυτού, μπορούν να γίνουν αντιληπτές μιας και αποτελεί βασικό στοιχείο για τη πραγμάτωση της οπτικής διαδικασίας. Ο Arnheim δηλώνει ότι, «χωρίς φως τα μάτια δεν μπορούν να παρατηρήσουν κανένα σχήμα, κανένα χρώμα, κανένα χώρο ή κίνηση». Το φως είναι το θεμέλιο για κάθε αντίληψη. Μας βοηθά να δούμε διακριτικά αντικείμενα μέσα σε ένα χώρο, ενώ παράλληλα αυξάνει και μειωνει την οπτική προσοχή που δίνεται σε αντικείμενα εντός οποιουδήποτε οπτικού χώρου. Επιπλέον, αποτελεί το πιο γενικευμένο φυσικό φαινόμενο, είναι συνεχώς μεταβαλλόμενο και δεν έχει μια μορφή. Οι συνθήκες του φωτός αλλάζουν από τις πρώτες πρωινές ώρες μέχρι τη νύχτα η οποία καλύπτεται από σκοτάδι (το φώς του φεγγαριού).

Μάλιστα έχει την μεγαλύτερη ποικιλία σε φυσική και τεχνητή μορφή από

οποιοδήποτε άλλο αρχιτεκτονικό στοιχείο. Αυτές οι χρονικές αλλαγές

έχουν άμεση σύνδεση με τη φύση «μεταβάλλοντας την όψη των τόπων».

Οι διαφορετικές συνθήκες φωτός έχουν ως αποτέλεσμα τη διαμόρφωση

διαφορετικού χαρακτήρα από τόπο σε τόπο.

«Το φως φανερώνει τους όγκους. Οι όγκοι γεννούν τις σκιές. Και οι σκιές με τη σειρά τους αναδεικνύουν τους όγκους και ζωντανεύουν το φως.

Είναι ένα κυκλικό παιχνίδι ανάμεσα στο υλικό και άυλο αυτό που γεννάει

τον χώρο 53». Οι αντιθέσεις που δημιουργούν οι ακμές και οι γωνίες

εντείνονται λόγω αυτού και διαφοροποιείται η τονική αξία των επιπέδων που συνιστούν τους όγκους. Από τη μία έχουμε την απευθείας ακτίνα φωτός, από την άλλη το φώς από διάχυση ή ακόμη και την απουσία του. Στον αρχιτεκτονικό σχεδιασμό όλα

[Δ7] 28
2.
έχουν τα δικά τους χαρακτηριστικά, 52. Κεράνης Μιχαήλ Κάρολος, Ο ρόλος του φωτός στην αρχιτεκτονική δημιουργία, σελ 39. 53. Τσούτσος Σπύρος, Ο φυσικός φωτισμός στην ατμόσφαιρα του αρχιτεκτονικού χώρου, σελ 95-96

τις δικές τους ποιότητες και την δική τους χρήση. Όταν το φως είναι

άμεσο, μέσω του χρώματος και της λάμψης μπορεί να προκαλέσει

ζεστή, εορταστική διάθεση, ενώ όταν διαχέεται μπορεί να δημιουργήσει

μελαγχολική ατμόσφαιρα. Ωστόσο, «το ομοιογενές έντονο φως

παραλύει τη φαντασία κατά τον ίδιο τρόπο που η ομογενοποίηση του

χώρου εξασθενίζει την εμπειρία της ύπαρξης και εξαφανίζει την αίσθηση

του τόπου 54». Η υφή και το χρώμα των επιφανειών γίνονται ορατά και

η εικόνα τους διαρκώς υπόκειται σε απαλές μεταβολές στις διάφορες

ώρες της μέρας και στις διάφορες εποχές. Για να προσαρμοστεί ένα

σχέδιο στο φυσικό φώς οφειλει να ενσωματώσει την κίνηση των σκιών

που δημιουργούνται. Οι σκιές εξαρτώμενες από την πρόσπτωση του

φωτός μπορούν να κινηθούν, να μεταβάλλουν την έντασή τους ή

και να παράγουν διαφορετικές χρωματικές ποιότητες στα μάτια του

παρατηρητή. Ακόμη και η σκιά, έχει τις δικές τις ιδιότητες και μαζί το φως

και η σκιά αποτελούν δυνατά σχεδιαστικά εργαλεία.

Τι είναι όμως η σκιά; Μεταφορικά μιλώντας είναι «μια τρύπα στο φώς, κάτι το απόν». Ποικίλει ανάλογα με την θέση του ήλιου και την πορεία που αυτός ακολουθεί. Το φώς μοιάζει να απουσιάζει, αλλά η σκιά αποδεικνύει την ύπαρξή του ακολουθώντας και δείχνοντας, ταυτόχρονα, την

κατεύθυνσή του. Οι σκιές περιγράφουν την μορφή των αντικειμένων που τις δημιούργησαν, και καθώς το αντικείμενο μετακινείται, αυτή αλλάζει. Αν και παραμένουν παθητικές έχουν την ικανότητα να οδηγούν την αντιληψη και πέφτοντας πάνω στις επιφάνειες μπορούν να γίνουν μέρος ενός

χωρικού σκηνικού αν και είναι δισδιάστατες. Δεν έχουν προκαθορισμένη

κατεύθυνση ή σχήμα κάτι που τις καθιστά απολύτως εύκαμπτες με αποτέλεσμα να δημιουργούνται φευγαλέα και να μπορούν να αλλάξουν γρήγορα 55. Εάν ο χώρος πάνω σε ένα οριζόντιο επίπεδο δεν είναι επαρκής ή σκιά θα μεταφέρει την πληροφορία σε ένα κεκλιμένο ή κάθετο επίπεδο δίπλα. Αν πέσει πάνω σε διαφορετικά τοποθετημένες επιφάνειες, μια οριζόντια και μια κάθετη για παράδειγμα, δημιουργείται μια διαφορετική χωρική εντύπωση για κάθε περίπτωση. Οι σκιές των επισκεπτών ενός χώρου επικαλύπτονται με αυτές των αντικειμένων παράγοντας εν τέλει μια κοινή εικόνα. Χώροι οι οποίοι «ζωντανεύουν» από τις κινούμενες σκιές θα γίνουν εντελώς διαφορετικά αντιληπτοί από χώρους με στατικό φωτισμό.

«Η φαντασία και η ονειροπόληση διεγείρονται από τον χαμηλό φωτισμό

και τη σκιά. Προκειμένου να σκεφτούμε καθαρά, η αιχμηρότητα της

όρασης πρέπει να κατασταλεί, αφού οι σκέψεις ταξιδεύουν με μια ματιά

αφηρημένη και χωρίς προσήλωση 56».

54. Pallasmaa Juhani, Τα μάτια του δέρματος : Η αρχιτεκτονική και οι αισθήσεις, σελ 75. 55 Ulrike Brandi, Lighting Design, σελ. 52

29
56. ο.π., σελ 75.

[Ε7] Friedrich Caspar, Wanderer above the sea and of fog « Πρόκειται για μια

εποπτεία κλεισμένη στον εαυτό της, που

γίνεται αντιληπτή ως αυτάρκης ενότητα, κι ωστόσο διαπλέκεται με κάτι το οποίο

εκτείνεται απείρως περισσότερο και την υπερβαίνει,περικλειόμενη σε όρια τα

οποία δεν υπάρχουν για τη λανθάνουσα

ετερότροπη αίσθηση του θεϊκού Ενός, του όλου της φύσης.»

Τέλος, ποικίλα χωρικά αποτελέσματα μπορεί να παραχθούν από το φώς και το σκοτάδι. Μια ακτίνα φωτός που προσπίπτει άμεσα σε μια επιφάνεια

δημιουργεί έντονα περιγεγραμμένες σιλουέτες, ενώ το διαθλασμένο από τα σύννεφα και το περιβάλλον φώς δύσκολα παράγει έντονη σκιά. Οι

σκιές σε ένα δωμάτιο είναι το αποτέλεσμα του φυσικού φωτός που

διαπερνά την γυάλινη επιφάνεια των παραθύρων, περνά πάνω από τα

έπιπλα, τα χρώματα και τις επιφάνειες και «εισέρχεται» στο δωμάτιο. Όταν

το φώς του ήλιου «σβήνει», όμως, το ίδιο κάνουν και οι σκιές με αποτέλεσμα οι χώροι να μεταβάλλουν ή και να χάνουν τα περιγράμματά τους. Οι εναλλαγές ανάμεσα σε φωτεινά και σκοτεινά σημεία ενεργοποιούν και ενδυναμώνουν τις αισθήσεις του χρήστη. «Οι έντονες σκιές και το βαθύ σκοτάδι έχουν ουσιαστική σημασία, καθώς μετριάζουν την αιχμηρότητα της όρασης, δημιουργούν μια ασάφεια για το βάθος και την απόσταση, και ενεργοποιούν την ασύνειδη περιφερειακή όραση και την απτική φαντασία 57».

30
57. Pallasmaa Juhani, Τα μάτια του δέρματος : Η αρχιτεκτονική και οι αισθήσεις, σελ 75.

3. Ο Υπερβατικός χαρακτήρας της Φύσης μέσω του Σχεδιασμού.

«Όταν συναντάμε ένα τύμβο στο δάσος, έξι πόδια μήκος και τρία πόδια πλάτος, υψωμένο σε μια πυραμιδική μορφή μέσω ενός φτυαριού, σοβαρευόμαστε

και κάτι μέσα μας λέει: κάποιος βρίσκεται θαμμένος εδώ. Αυτό είναι η αρχιτεκτονική». 58

Η φύση αποτελούσε αναπόσπαστο στοιχείο της ανθρώπινης

καθημερινότητας. Ήδη από τη φιλοσοφική θεωρία των Ελλήνων και

μέχρι και το 19ο αι. η φύση και το θείο αντιμετωπίζονταν υπό ένα ενιαίο πρίσμα. Ο άνθρωπος ζούσε τόσο μέσα σε αυτή που δε μπορούσε να

την αντιληφθεί ως ξεχωριστή οντότητα ως κάτι το «ορατό», ως τοπίο.

Ένα πρώιμο ανάγνωσμα στο οποίο μπορεί να αναγνωριστεί η φύση ως «τοπίο», έστω και για λίγο, είναι η επιστολή του Φ. Πετράρχη που περιγράφει

την ανάβασή του στο όρος Βεντού. [E7] Ο Πετράρχης προσπαθώντας

να φτάσει στη κορυφή συναντά διάφορα εμπόδια στην πορεία του που

δυσκολεύουν αυτή του τη προσπάθεια. Μια στιγμή αρκεί για να σταθεί και

να ρεμβάσει το «τοπίο». Αυτή είναι η στιγμή που ο Πετράρχης υπερβαίνει

τον ίδιο του εαυτό και τα πιστεύω, έστω και στιγμιαία, αναγνωρίζοντας

το μεγαλείο της φύσης, ενώ το παρατηρεί από ψηλά. Ο Edmund Burke

αναφέρει «Το πιο μεγαλειώδες πράγμα είναι η ίδια η Φύση και το πάθος

που εφαρμόζεται από το σπουδαίο και το μεγαλειώδες στη φύση, όταν

ενεργούν στο μέγιστό τους, είναι η έκπληξη και η απόλαυση - είναι εκείνη η

κατάσταση της ψυχής κατά την οποία όλες οι δράσεις της αναστέλλονται, με κάποια κλιμάκωση τρόμου. Ουσιαστικά, έτσι εγείρεται η δύναμη του μεγαλειώδους που έχει την ικανότητα να προεξοφλεί τη λογική και να ωθεί στη βιαστική δράση μιας ακαταμάχητης δύναμης. Η έκπληξη είναι

η επίδραση του μεγαλειώδους στο ύψιστο σημείο του - οι μικρότερες

επιδράσεις είναι η εκτίμηση, ο σεβασμός και η ευλάβεια 59». Η φύση παρά

την ερμηνεία της ως μεγαλειώδης, όσον αφορά τον σχεδιασμό, κατείχε

δευτερεύοντα ρόλο για μεγάλο διάστημα. Παραδείγματος χάρη στα αστικά κέντρα η χρήση της περιοριζόταν είτε για τη διαμόρφωση ζωνών

πρασίνου, είτε για τον διακοσμητικό εξωραϊσμό όψεων και αστικών κενών. Παρακάτω επιδιώκεται η ανάδειξη της σημασίας της Φύσης, στην αρχιτεκτονική απόδοση της υπερβατικότητας, μέσω του φωτός και της σκιάς, με την αναφορά δύο ιερών χώρων της εποχής του Β’ Παγκοσμίου Πολέμου που διακρίνονται λόγω του τρόπου που την εντάσσουν στο σχεδιασμό τους.

58. Λούντζης Γεωργιος-Νικολαιδη Γαλήνη, Θεωρήσεις περί θανάτου και σύγχρονα σχεδιαστικά παραδείγματα χώρων ταφής, σελ. 4.

59. Ναξάκης Κυριάκος, Η Εξέλιξη της έννοιας του Υπερβατικού από το “τρομερό” στο ανοίκειο: Μεταγραφές της ποιητικής του

μεταφυσικού στη σύγχρονη αρχιτεκτονική και στο έργο του Louis I. Kahn, σελ 6-7.

[Δ8] 31

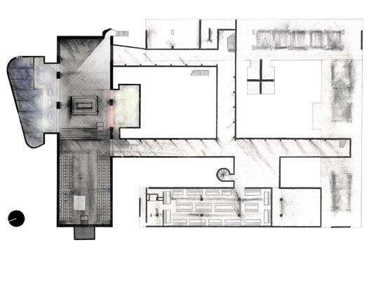
Ένα από τα πρώιμα παραδείγματα σύνθεσης που ενσωματώνει τη φύση και την αρχιτεκτονική σε ένα ενιαίο σώμα αποτελεί το Woodland Crematorium (1918-1940) στη Στοκχόλμη, των αρχιτεκτόνων Erik Gunnar Asplund και Sigurd Lewerentz. Πρόκειται για ένα νεκροταφείο, ενταγμένο σε ένα παρθένο φυσικό τοπίο, ανεπηρέαστο από οποιαδήποτε ανθρώπινη παρέμβαση, που συνδυάζει όλες τις κλίμακες πρασίνου. Βλάστηση και αρχιτεκτονικά στοιχεία συντίθεται στοχεύοντας στην πλήρη εκμετάλλευση του φυσικού αναγλύφου, επιτυγχάνοντας έτσι την ομαλή ένταξη και τη δημιουργία ενός αμοιβαίου διαλόγου μεταξύ των χώρων ταφής και των ναών. Όπως μπορεί να αναγνωσθεί και από την κάτοψη [E8], καθαρές γραμμικές χαράξεις ορίζουν τον χώρο της πεδιάδας που περιβάλλεται από το πράσινο της μεγαλύτερης κλίμακας. Ένα ξέφωτο που ακολουθεί την σταθερή πορεία της εισόδου καλεί τον επισκέπτη να αποφασίσει εάν θα κατευθυνθεί προς τον κεντρικό ναό ή απευθείας προς το αλσύλλιο που φιλοξενεί και τον χώρο της ταφής. Οι χαρακτηριστικές αυστηρές ευθείες λειτουργούν καταλυτικά στην δημιουργία υπερβατικής ατμόσφαιρας, αφού αναδεικνύουν την ιεροτελεστία της πορείας: ενώ το άτομο έχει την εποπτεία του τοπίου, αποφασίζει το ίδιο προς τα πού να κατευθυνθεί, χρειάζεται όμως χρόνο για να προσεγγίσει τον όποιο προορισμό του. Χρόνο που ασυνείδητα θα αρχίσει να παρατηρεί το περιβάλλον γύρω του, που θα αφουγκραστεί την ατμόσφαιρα του ησυχαστηρίου και θα προετοιμαστεί εσωτερικά για την επίσκεψή του στον εκάστοτε χώρο. [E9]

Το Woodland Crematorium θα μπορούσε μεταφορικά να αναγνωσθεί ως ένα σύστημα που αποτελείται από ημιυπαίθριους χώρους (χώροι ταφής) και από αποκλειστικά κλειστούς χώρους (ναοί). Η ποιητική αυτή προσέγγιση εξυπηρετεί στην καλύτερη κατανόηση της σημασίας

του φωτός και της σκιάς στην Αρχιτεκτονική του ιερού αυτού χώρου.

Ο υπερβατικός χαρακτήρας του εντείνεται ισχυρά από τη διαρκώς μεταβαλλόμενη σκίαση που το μαλακό πράσινο κέλυφος δημιουργεί άνωθεν των τάφων. Ένα “κέλυφος” που αποτελείται αποκλειστικά

από βλάστηση, από πράσινες δηλαδή μάζες που συμπληρώνουν ως

απολήξεις τους ψηλόλιγνους κορμούς των δέντρων. Οι φωτογραφίες [E10]

και [E11] αποτυπώνουν την ποιότητα αυτής της συνθετικής διαχείρισης, με το φυσικό φως να διαπερνά φανερά το «πράσινο στέγαστρο» και -σε συνδυασμό με τις έντονες σκιάσεις- να δημιουργεί έναν χώρο υψηλής έντασης, αλλά και συνάμα ένα τοπίο ησυχίας και γαλήνης, χάρη στην ίδια την παρουσία της φύσης. Όπως αναφέρουν οι Marcault και Therese Brosse: “Το δάσος ιδιαίτερα, με το μυστήριο του χώρου του που εκτείνεται ατέλειωτα πέρα από το παραπέτασμα των κορμών και των φύλλων, χώ-

[Ε9] [Ε10] [Ε11] 32

ρος κρυφός για τα μάτια αλλά, διάφανος για τη δράση, είναι πράγματι

ένα ψυχολογικό υπερβατικό 60”.

Μια δεκαετία, σχεδόν, αργότερα σχεδιάζεται ένας χώρος ταφής και

μνήμης, επίσης άξιος αναφοράς για την υπερβατική διάστασή του, χάρη

στην ενσωμάτωση της αρχιτεκτονικής του με την Φύση - αυτήν τη φορά

στον μεσογειακό χώρο. Το Mausoleo delle Fosse Ardeatine (1949) βρίσκεται στη νότια πλευρά της Ρώμης και αποτελεί φόρο τιμής στους 335 πεσόντες της σφαγής στις σπηλιές Ποζολάνα, κατά τη διάρκεια του Β’

Παγκοσμίου Πολέμου. Δύο ομάδες αρχιτεκτόνων και καλλιτεχνών επιμελήθηκαν της σύνθεσης, που απαρτίζεται από τρία μέρη: τις γλυπτικές Πύλες,

το Άγαλμα και τον Μονόλιθο [E12]. Όσον αφορά τον τελευταίο, πρόκειται

για έναν υπερμεγέθη όγκο που, τοποθετημένος πάνω από τους τάφους

των θυμάτων, προβάλλει ως αδιάτριτο και άτρωτο κέλυφος του χώρου

ταφής - ενώ μεταφορικά ερμηνεύεται και ως γιγάντια ταφόπλακα. Ένα σύνολο επιμέρους χώρων, αρχιτεκτονικών στοιχείων και καλλιτεχνικών γλυπτών συστήνει μία δραματική διαδρομή που αφηγείται την πορεία των θυμάτων προς την εκτέλεση. Εισερχόμενος κανείς εντός του σπηλαίου, συναντά ένα δίκτυο σηράγγων, υπόσκαφων πλέον, καθώς πρόκειται για παλαιό ορυχείο εντός του βράχου. Εκεί, επικρατεί η απουσία φυσικού

φωτός, εκτός από δύο σημεία όπου το σκοτάδι διατρυπάται απ΄τις ακτίνες

του ήλιου λόγω δύο μεγάλων οπών στο έδαφος, άνωθεν της κεφαλής.

[E13]

Η διαδρομή αυτή καταλήγει στο ιερό∙ έναν χώρο 25 x 50 και ύψους 3,5 μέτρων εντός του εδάφους, όπου βρίσκονται οι 336 τάφοι (335 νεκροί και 1 αφιερωμένος στα θύματα όλων των ναζιστικών επιθέσεων). Πρόκειται

για έναν χώρο φυσικά φωτιζόμενο, από μία σχισμή που διατρέχει ως

σκωτία την περιφέρεια του μονολιθικού όγκου που τον στεγάζει και

η οποία τον χωρίζει σε δύο μέρη. [E14] Η επικράτηση της σκιάς εντείνει

την ησυχία του χώρου, ενώ παράλληλα η ανοιχτή κάτοψη αφήνει

ανεμπόδιστη την οπτική άποψη της ολότητάς του - ενεργοποιώντας το

ένστικτο υποτέλειας του ατόμου, αφού η κλίμακά του είναι πολύ μικρότερη

σε σχέση με αυτή του ενιαίου χώρου. Στην τομή [E15] γίνεται αντιληπτή

μεταξύ αυτών και η οπτική εκλέπτυνση που θέλει την άνοψη ελαφρώς

καμπυλωμένη, με στόχο την ελαφριά αποσυμπίεση του χώρου και την

αποκατάσταση του υπερκείμενου αντιληπτικού βάρους. Το άμεσο φως

εδώ λειτουργεί επικουρικά και με δραματικό τρόπο υποδεικνύει σημειακά

στις χωρικές μεταβάσεις, όπως φαίνεται και στην [E16] όπου το κατώφλι

της εισόδου στην σήραγγα έρχεται να διακόψει απότομα το συνεχές

ημίφως που επικρατεί στους εκατέρωθεν χώρους. Ένας από τους πλέον

[Ε12] [Ε13] [Ε14] [Ε16] 33
60. Marcault και Therese Brosse. L’education de demain, σελ 255 στο Η Ποιητική του Χώρου Gaston Bachelard, σελ 210.

ενδιαφέροντες χειρισμούς κρύβεται πίσω από την τομή του μαυσωλείου.

Αν και ο χώρος αυτός, όπως ειπώθηκε, δεν φωτίζεται άμεσα αλλά

έμμεσα - χάρη στην αποκόλληση μεταξύ μονολίθου και κατακόρυφων

επιφανειών της περιμέτρου δύναται να διαπερνά το φυσικό φως εντός του χώρου. Η ποιότητα που δίνεται έτσι στον χώρο, εκπέμπει μία πολύ ηχηρή δυναμική, αποδίδοντας το νόημα του ιερού φωτός μέσα στο μνημείο. [E17] Παράλληλα, επιτυγχάνεται και το «καδράρισμα» του πρασίνου που βρίσκεται εξωτερικά - κάνοντας έτσι την φύση παρούσα στην οπτική του ανθρώπου, άρα και στο βίωμα του χώρου.

Η σχέση αμεσότητας των δύο παραπάνω αρχιτεκτονικών συνθέσεων

με την φύση και τον εκάστοτε τόπο, ενισχύει την απόδοση των υψηλών

εννοιών που πραγματεύονται, πάντα με αρχιτεκτονικό σύμβουλο το ίδιο το Φως. Στη μεν πρώτη περίπτωση η ιδέα της αιώνιας ανάπαυσης

έχει αποδοθεί σε έναν χώρο που εκτείνεται μέσα στην ίδια την φύση, στο αλσύλλιο, ενώ στη δεύτερη περίπτωση η αιώνια μνήμη προβάλλει απρόσβλητη αλλά και προστατευμένη, σε έναν χώρο που βρίσκεται εντός της Γης. Και στα δύο παραδείγματα το Φως με την παρουσία ή απουσία του δημιουργεί τις ανάλογες συνθήκες υποβολής του ανθρώπου στο εκάστοτε υπερβατικό νόημα.

[Ε17] [Ε8] [Ε15] 34

III. Υπερβατικό: η χωρική μετάφραση μέσω του Φωτός.

Η δημιουργία του κόσμου ερμηνεύεται ως το πάντρεμα του ουρανού και της γης. Η γη είναι το προστατευτικό θεμέλιο της ύπαρξης και ο ουρανός η ζωογόνος ενέργεια και το ‘υπερβατικό’. 61

1. Υπέρβαση, η - Υπερβατικό, το.

Υπέρβαση, η: όρος που χρησιμοποιείται ποικιλοτρόπως στην ελληνική

γλώσσα. Τα κύριά του ερμηνεύματα είναι το πέρασμα, η διάβαση πάνω

από κάτι, η διαδικασία του να φτάσει κανείς σε κάτι που βρίσκεται πέρα

και έξω από τα συνηθισμένα ή τα επιτρεπόμενα όρια, καθώς και το ξεπέρασμα, το προσπέρασμα πάνω και πέρα από ορισμένες καταστάσεις.

Από την σκοπιά της φιλοσοφικής ανάγνωσης όμως του όρου, δηλώνεται η δράση κατά την οποία καθώς το ατομικό εγώ αναλογίζεται για ή δοκιμάζεται με την ύπαρξή του, φτάνει σε επίπεδα πνευματικότητας ενός διαφορετικού από το ίδιο και μιας δύναμης ανώτερης από τη δική του. Αυτή η ερμηνεία, θεμελιώνεται και από την σκέψη που είχε εκφράσει ο Χάιντεγκερ στον στίχο 334 της Αντιγόνης του Σοφοκλή [...], κατά την οποία:

«… ο άνθρωπος αποτελεί το μόνο ον που έχει τη δυνατότητα

της Υπέρβασης, ακριβώς γιατί είναι το μόνο ον που έχει τη δυνατότητα να μην οικειώνεται με αυτό που είναι, να μην εφησυχάζει στην οριζόντια κατάσταση της ενύπαρξης, αλλά να δρασκελίζει τον εαυτό του, να τον ξεπερνά, να τον υπερβαίνει και να υψώνεται σε νέες σφαίρες δημιουργίας και αυτογνωσίας »

Προερχόμενος - ετυμολογικά - από το πρόθεμα υπερ- και την λέξη βαίνω, ο όρος Υπερβατικό καλείται να περιγράψει κάτι το οποίο δεν γίνεται

αντιληπτό μέσω των αισθήσεων, κάτι που βιώνεται μετά από την αντιληπτή κοσμική πραγματικότητα. Δηλώνει την υπερνίκηση των ατομικών ορίων και το πέρασμα στην πανανθρώπινη πραγματικότητα, τη διεύρυνση του πνεύματος και της συνείδησης που από το Εγώ περνάει στο Όλον.

Κάτι που έχει συνδεθεί και με τον μεταφυσικό κόσμο, το Υπεραισθητό, που έρχεται μετά την φύση και τις πέντε (5) αντιληπτικές αισθήσεις του ανθρώπου 62. Σύμφωνα με την ερμηνεία του γλωσσολόγου και ακαδημαϊκού Γ. Μπαμπινιώτη «Υπερβατικό είναι καθετί που υπερβαίνει τα όρια της εμπειρίας, είναι ανεξάρτητο από τη συνείδηση, απρόσιτο στη γνώση

61. Λούντζης Γεωργιος-Νικολαιδη Γαλήνη, Θεωρήσεις περί θανάτου και σύγχρονα σχεδιαστικά παραδείγματα χώρων ταφής, σελ 176.

62. Λεξικό Τριανταφυλλίδη, λήμμα «υπερβατικός, -ή, -ό».

[Δ9] 35

[Ε18] Salvador Dali - Η Εμμονή της Μνήμης, 1931. Τα εύκαμπτα ρολόγια, που λιώνουν, αντιπροσωπεύουν το χάσιμο της σημασίας του χρόνου. Τα μυρμήγκια πάνω στο ρολόι δείχνουν τη φθορά του. Όλα τελειώνουν κάποια στιγμή και η ζωή σταματά να υπάρχει. Ο χρόνος φαντάζει παγωμένος στην μέση

μιας ισπανικής ερήμου, ενώ ο ήλιος ετοιμαζόταν

είτε να ανατείλει είτε να δύσει. Μοναχικότητα, σιωπή

και αλαζονεία της εμμονής του μυαλού να αναζητά

καταφύγιο στις αναμνήσεις του.

οποίες υπερνικώνται φυσικές ανάγκες και πραγματικότητες. Θα μπορούσε κανείς να βοηθηθεί στην κατανόηση το όρου και από την παρατήρηση

της αγγλικής μετάφρασης: ο όρος transcendence ( <trans + scandare = beyond + “to climb” = πέρα από + να αναρριχηθεί ) περιγράφει την

ύπαρξη και την εμπειρία πέραν της νόρμας, πέραν του φυσικού επιπέδου.

Υπό την ανάγνωση του όρου από αρχιτεκτονικής σκοπιάς, ο δομημένος χώρος δύναται να εκπέμψει μηνύματα και να διεγείρει ένστικτα - και όχι απαραίτητα ως χώρος προσευχής ή έκφρασης πίστης. Ένστικτα που υποβάλλουν τον Άνθρωπο σε εμπειρίες και βιώματα έκστασης και που τον οδηγούν στην κατανόηση του κόσμου από την εκτός εαυτώ σκοπιά. Κι αυτό, καθώς όταν το άτομο αντιλαμβάνεται τα εγκόσμια ανεξαρτητοποιημένο από τις επιταγές κάποιας συγκεκριμένης θρησκείας (κάποιου προδιαγεγραμμένου τρόπου σκέψης), μπορεί να περνάει από την ατομική κλίμακα στην καθολική, από την τοπική στην απέραντη και από στιγμιαία στην άχρονη [E18]. Σαν όρος εμπεριέχει πολλές υποκατηγορίες, με μικρότερης κλίμακας σημασιολογικό φάσμα. Από αυτές, επιλέχθηκαν να αναφερθούν πέντε (5), ως κυριότερες και πιο στενά συνδεδεμένες με το Υπερβατικό: Το Υψηλό, το Ιερό, το Μεταφυσικό, το Άγνωστο και το Θείο.

Ελληνικής, λήμμα «υπερβατικό»

Περράκης Γ., Σκουτέλης Ν., Αναπαραστάσεις του Υπερβατικού, σελ. 12.

Εγκυκλοπαίδεια Πάπυρος Larousse, σελ 28 - 29.

36 και γίνεται κατανοητό μόνο με τη νόηση». Πρόκειται για μέγεθος που δεν εξορθολογίζεται, δεν αναλύεται με πραγματιστικά δεδομένα και δεν ερμηνεύεται με αντικειμενικά κριτήρια 63. Η λέξη έχει συνδεθεί ισχυρά με πνευματικές
ερμηνείες ή με ανθρώπινες καταστάσεις κατά τις
ή θρησκευτικές
63. Λεξικό Γ. Μπαμπινιώτη, Λεξικό της Νέας

2. Εκφράσεις του Υπερβατικού και Αρχιτεκτονική.

Οτιδήποτε διεγείρει την ψυχή, οτιδήποτε εκλύει ένα αίσθημα τρόμου και δέους οδηγεί στο Ύψιστο [...]

Οι ποιητές αναφέρονται συνέχεια στην αιωνιότητα, τα απύθμενα βάθη, τους σκοτεινιασμένους ουρανούς, τα άγρια δάση, τους βίαιους κεραυνούς που σχίζουν τα σύννεφα. Σε όλα αυτά υπάρχει κάτι τρομερό, υψηλό και μελαγχολικό. 64

-Diderot

Προχωρώντας στην έρευνα σχετικά με τις προαναφερθείσες

υποκατηγορίες της έννοιας του Υπερβατικού, συχνά συναντήθηκαν δύο

συγγενείς μεταξύ τους όροι, το Υψηλό και το Ιερό. Ο πρώτος ως κυριολεκτική ερμηνεία αναφέρεται σε κάτι που έχει μεγάλο ύψος - μεταφορικά

όμως επιδέχεται πολλών μεταφράσεων. Στην ανάγνωσή του συναρτήσει

του Υπερβατικού, μιλάει για κάτι που συνοδεύεται από ισχύ, κύρος ή από μεγαλοπρέπεια και ευγενική περηφάνια 65. Στα αντιληπτικά

αποτελέσματα

που μπορεί να έχει η πρόσληψη του Υψηλού, από ένα υποκείμενο, συμπεριλαμβάνονται συναισθήματα όπως ευλάβεια, φόβος, αναγνώριση της δύναμης και του μεγαλείου μίας «υπέρτερης δύναμης». Αποτέλεσμα είναι να υποβιβάζεται ασυνείδητα η ατομική κυριαρχία του παρατηρητή και έτσι το Υψηλό να επιδρά στο υποκείμενο οδηγώντας το σε υπερβατικές

εμπειρίες. Είναι ανεξάρτητο από την υλική και κοσμική πραγματικότητα και

δρα αποκλειστικά ως πνευματική διαδικασία και υπόσταση. Σε συνέχεια

αυτού, ένα υποκείμενο μπορεί να προσεγγίσει αισθήματα αγαλλίασης,

ανακούφισης, γαλήνης και χαράς. Εδώ συναντάται και ένας άξονας παραλληλίας με την έννοια του Ιερού. Κατά τη βίωση μιας ιερής χωρικής ατμόσφαιρας, η έμμεση επίκληση σε συναισθήματα όπως ο φόβος και το δέος, οδηγεί σε μία ισχυρή εσωτερική (αυτό)υποβιβαστική αναταραχή - παρακινώντας το υποκείμενο να αναζητήσει απαντήσεις από εξωγενείς πηγές, όπως η Θρησκεία. Αυτή είναι και η ειδοποιός διαφορά μεταξύ των

δύο εννοιών, αφού το Υψηλό δεν σχετίζεται με τη Θρησκεία -τουλάχιστον

όχι πλέον- αλλά μπορεί εξίσου να οδηγήσει το υποκείμενο στην υπέρβαση

του εαυτού του, όπως και το Ιερό, αλλά μέσω ερωτημάτων που αφορούν

την ίδια την Ύπαρξή του.

Ένας ακόμη όρος που τείνει να συγχέεται σημασιολογικά με το Υπερβατικό, αν και διαφέρει, είναι το Μεταφυσικό. Ό,τι έπεται της Φύσης, και εικάζεται πως υπάρχει εκτός της αντιληπτικής πραγματικότητας που η

[Δ10] 37
64. Λούντζης Γεωργιος-Νικολαιδη Γαλήνη, Θεωρήσεις περί θανάτου και σύγχρονα σχεδιαστικά παραδείγματα χώρων ταφής, σελ 104. 65. Τεγόπουλος - Φυτράκης, ελληνικό λεξικό σελ. 858.

[Ε19] Caravaggio - Η Μεταστροφή του Αγίου Παύλου, 1601. Ένα σκοτεινό τείχος περιβάλλει τα μοντέλα και το μόνο που μένει είναι ένα αβαθές προσκήνιο. Το εκτυφλωτικό φως πέφτει πάνω στα

σώματα με τρόπο τέτοιο που κάνει την κίνηση, τα

συναισθήματα και την υλική τους πραγματικότητα, να εντυπώνονται ισχυρά. Το σκοτάδι δημιουργεί αίσθηση τραγωδίας και κακών οιωνών, ενώ

υπάρχουν τάσεις ζόφου και βιαιότητας. Ο

Καραβάτζιο υπονοεί ότι το φως προέρχεται από τον

ίδιο τον Θεό, που βρίσκεται αριστερά του Ιησού και

έξω από τον πίνακα, ενώ αφήνει το πρόσωπο του

Ιησού σκοτεινό και με δυσδιάκριτα χαρακτηριστικά.

ίδια έχει συστήσει στον Άνθρωπο 66, καθώς και ό,τι δεν έχει πάρει εμπεριστατωμένη απάντηση από την Επιστήμη, απασχολεί το Μεταφυσικό. Ο

Άνθρωπος εκστασιάζεται από το Άγνωστο, πασχίζει να μάθει τα πάντα, γι’ αυτό και για οτιδήποτε δεν έχει καταφέρει να ανακαλύψει μέχρι τώρα αναπτύσσει θεωρίες και εικασίες. Ως άλλες δύο υποκατηγορίες του Υπερβατικού, το μεν Μεταφυσικό δύναται να διεγείρει ένα υποκείμενο, να το συναρπάσει και τελικά να το οδηγήσει σε βιώματα έκστασης, ενώ το δε Άγνωστο με την μετάφρασή του σε χωρικές ποιότητες κάνει επίκληση σ΄ οτιδήποτε ο Άνθρωπος δεν γνωρίζει, σε τομείς για τους οποίους επικρατεί άγνοια, πλήρης ή μερική και είναι το όχημα για την πρόκληση μυστηρίου, υποβολής και τρόμου. Χαρακτηριστικό παράδειγμα αποτελεί η ιδέα του θανάτου, την οποία και πολλές σχεδιαστικές προθέσεις έχουν επιχειρήσει να εκφράσουν ανά την υφήλιο, ανάλογα με το πολιτισμικό πλαίσιο κάθε φορά . Ο δομημένος χώρος λειτουργεί και στις δύο περιπτώσεις ως πομπός νοημάτων που ενεργοποιούν πρωτόγονα ένστικτα και που, αρχιτεκτονικά, βασίζεται ως επί το πλείστον στο (χωρικό) σκότος. Έτσι ενσαρκώνονται και οι δύο παραπάνω ιδέες του υπερβατικού, με το μυστήριο που δημιουργείται από την αδυναμία οπτικής αντίληψης και την ταυτόχρονη διέγερση της περιέργιας και του φόβου. [E19]

Το Θείο, από την άλλη πλευρά, χρησιμοποιείται κυρίως για να εκφράσει κάτι που έχει σχέση με το Θεό, ανήκει ή προέρχεται από αυτόν, κάτι που έχει σχέση με τη Θρησκεία ή με τη λατρεία. Παραλαμβάνει όμως και μία ακόμη ερμηνεία, με μεταφορική χροιά, αυτή που μιλάει για κάτι πολύ ανώτερο από το συνηθισμένο, για κάτι έξοχο και υπέροχο, για κάτι που το μεγαλείο του ξεπερνάει τα όρια της ανθρώπινης φύσης 67. Σαν εκφραστικό μέσο της Τέχνης έχει χρησιμοποιηθεί ως απόδοση θαυμασμού, σεβασμού ή και τιμής απέναντι σε κάτι που η λογική του ανθρώπου δεν έχει (ακόμα) εξηγήσει άρα και διαχειριστεί. Ακριβώς όπως προαναφέρθηκε και για την περίπτωση του μεταφυσικού δηλαδή, με τη διαφορά ότι εδώ δεν στοχεύεται η επίκληση σε συναισθήματα φόβου, αλλά ευφροσύνης και γαλήνης. Αυτό, όπως θα αποδειχθεί και παρακάτω στην ανάλυση των παραδειγμάτων, επιτυγχάνεται αρχιτεκτονικά -συνήθως- μέσω του φωτός.

Το Υπερβατικό στον χώρο, βιώνεται ως συνθήκη, ως εμπειρία μέσω των αντιληπτικών αισθήσεων. Είναι ο ίδιος ο χώρος που υπαινίσσεται νοήματα και συμβολισμούς, εκκινώντας μία διαδραστική επικοινωνία με το υποκείμενο που τον περιδιαβαίνει. Πρόκειται συνεπώς για μία καθαρά υποκειμενική διαδικασία, αφού ο τρόπος που κάποιος τα εισπράττει αυτά και βιώνει τα συναισθήματα που ένας χώρος τού υποβάλλει,

λήμμα «Θείο»

38
66. Τεγόπουλος - Φυτράκης, ελληνικό λεξικό σελ. 480. 67. Μπαμπινιώτη Γ., Λεξικό της Νέας Ελληνικής,

διαφέρει από άτομο σε άτομο. Όλα ξεκινούν από την ατμόσφαιρα του (αρχιτεκτονικού) Χώρου. Εστιάζοντας λοιπόν στον εσωτερικό χώρο, σ’ αυτόν που περιβάλλεται δηλαδή από καθορισμένο κέλυφος και που, συνεπώς, ελεγχόμενα εισέρχεται εντός του το φυσικό φως, δύναται να δημιουργηθούν ποιότητες πολύ ισχυρών υπερβατικών διαθέσεων. Το κύριο σχεδιαστικό εργαλείο που ο Αρχιτέκτονας διαθέτει στην φαρέτρα του, είναι το (φυσικό) Φως και η ρύθμισή του.

39

3. Οι υπαινιγμοί ενός (εσωτερικού) χώρου, απ’το Φως στο Σκοτάδι.

“Κάποιος μπορεί να πάει από το ένα μέρος στο άλλο σε ένα γνώριμο δωμάτιο, χωρίς φως, εμπιστευόμενος τις αρθρώσεις του, το εσωτερικό αυτί, και το δέρμα,

αλλά για να φτάσουμε σε ένα νέο μέρος χρειαζόμαστε να κατευθυνθούμε με την όραση.” 68

I. Ο εσωτερικός χώρος Ένας περίκλειστος, λοιπόν, από όλες τις πλευρές του χώρος ονομάζεται εσωτερικός. Μπορεί να εσωκλείεται σε κέλυφος σκληρό ή μαλακό, με ή χωρίς ανοίγματα, να είναι μεγάλης ή μικρής κλίμακας. Αρκεί να είναι χώρος μη εκτεθειμένος άμεσα στα καιρικά φαινόμενα, για να θεωρηθεί εσωτερικός. Τα όρια ανάμεσα σε ένα κτισμένο χώρο και στο εξωτερικό περιβάλλον του είναι γνωστά ως «δάπεδο», «τοίχος» και «οροφή». Όπως μάλιστα επεσήμαναν οι αρχαίοι Έλληνες «Το όριο δεν είναι εκεί όπου κάτι τελειώνει, αλλά, εκεί όπου κάτι αρχίζει την παρουσία του.» 69. Η ενδιάμεση κατάσταση μεταξύ έσω και έξω, συστήνεται ως ημιυπαίθριος χώρος. Ένα εσωτερικό μπορεί να αποτελείται από ποικίλες χωρικές αναλογίες, διατάξεις και μεγέθη, τα οποία προσδίδουν διαφορετικό χαρακτήρα αν και, ο άνθρωπος του σύγχρονου κόσμου είναι κατά κανόνα συνηθισμένος σε ορισμένες «σταθερές». Τέτοια χαρακτηριστικά παραδείγματα, είναι οι ελάχιστες αποστάσεις δωματίων που ως κανόνας αφομοιώνονται κατά την επίλυση μιας κάτοψης κατοικίας και ο διαμοιρασμός του διαθέσιμου εμβαδού σε δωμάτια πλήρως προσαρμοσμένα στην κλίμακα του Ανθρώπου. Περισσότερο σήμερα παρά ποτέ λοιπόν μπορούν να επιδρούν ισχυρά οι ιδιάζουσες χωρικές φυσιογνωμίες στην ψυχολογία του Ανθρώπου, μιας και η τυποποίηση των καθημερινών χώρων δεν αφήνει περιθώρια βίωσης ιδιαίτερων συναισθημάτων.

Ο περεταίρω προσδιορισμός ενός χώρου, ποικίλει ανάλογα με το χειρισμό των στοιχείων που τον απαρτίζουν: τα ανοίγματα, λόγου χάρη, δέχονται και μεταβιβάζουν φως 70, τα υλικά άρα και οι υφές που τον συνθέτουν πρωτοστατούν στις εντυπώσεις που δημιουργεί, ακόμα και η αναλογία μεταξύ μήκους, πλάτους και ύψους είναι καθοριστικής σημασίας παράγοντες επιρροής του χαρακτήρα του. Επιπλέον, μεγάλη ευθύνη φέρει και η τοποθέτηση του καθενός στοιχείου εκ των προαναφερθέντων στον χώρο. Χαρακτηριστικά, ένας χώρος

συγκεκριμένων διαστάσεων

68. Gibson James Jerone, The senses Considered as Perceptual System, Westport, Connecticut: Greenwood, 1996, σελ 38 στο Η εμπειρία των αισθήσεων, Αρχιτεκτονική, Σώμα, Αντίληψη, Μπασούκος Ιωάννης, σελ 35.

69. Schulz Christian-Norberg, Genius Loci: Το Πνεύμα του Τόπου, Για μια φαινομενολογία της αρχιτεκτονικής, σελ 16-17.

70. ο.π., σελ 75

[Δ11] 40
και

υφών παρουσιάζει πολύ διαφορετική συνθήκη όταν το φως εισέρχεται

από την γεωμετρική μέση του ύψους της μίας του πλευράς, συγκριτικά

με το αν εισέρχεται από την επάνω επιφάνεια. Αντίστοιχα, δύο δωμάτια

που μοιράζονται τις ακριβώς ίδιες διαστάσεις, άρα και εμβαδόν, απέχουν

παρασάγγας ως χωρικές ποιότητες άμα ο ένας είναι κατασκευασμένος

από σκληρά και ψυχρά υλικά (σκυρόδεμα) και ο άλλος από μαλακά και

θερμά (ξύλο). Ειδικά ως προς την πρώτη ύλη των κατασκευών, η καθεμία

ξεχωριστά αποτελεί κι από μία διαφορετική παρουσία που εκφράζει τον

τρόπο με τον οποίο ένας χώρος τοποθετείται είτε πάνω σε έναν άλλον είτε

απευθείας στη Γη 71 .

Μία κατηγορία που παραδοσιακά έχει απασχολήσει την Αρχιτεκτονική

στην απόδοση ηχηρών νοημάτων, είναι οι ιεροί χώροι. Μπορεί να είναι

από ένα μικρό χωρικό προσευχητάρι μέχρι έναν μεγάλο μητροπολιτικό

ναό - η χρηστική κλίμακα δεν έχει κάποια σημασία, αλλά οι τρόποι που

αρχιτεκτονικά έχει αποδοθεί το εννοιολογικό πλαίσιο. Τον ρόλο του χωρι-

κού αφηγητή συνηθίζει να παραλαμβάνει το Φως που, είτε με την παρου-

σία είτε με την απουσία του, επιχειρεί να φέρει το βάρος του νοήματος και

να παραδώσει στον χώρο την ποιότητα της ιδέας. Ο χώρος τότε αποκτά μία ιδιάζουσα αξία και έναν πνευματικό σκοπό, γι’ αυτό και καθίσταται

ιδιαίτερης σημασίας για τον εκάστοτε πολιτισμό. [E20]

ΙΙ. To Φως, το Ημίφως, το Σκοτάδι.

Παρά το γεγονός ότι παρέχεται δωρεάν, το φυσικό Φως αποτελεί

ανεκτίμητης αξίας εργαλείο στα χέρια του αρχιτέκτονα. Είναι αυτό που

γεμίζει το κενό μεταξύ ακίνητων και κινητών αντικειμένων, απλώνεται

μεταξύ άυλων και υλικών στοιχείων, γεφυρώνει την απόσταση μεταξύ της

Γης και του Ηλίου. Είναι η αόρατη και άυλη ηλεκτρομαγνητική ακτινοβολία

που πηγάζει απ’ την ίδια τη φωτιά και που ανιχνεύεται αυτόματα από τον

οφθαλμό του Ανθρώπου και χάρη στην οποία, όπως προαναφέρθηκε, υπάρχει η αίσθηση της όρασης. Ένα φυσικό στοιχείο αδύνατο να τιθασευτεί, ικανό να δώσει ζωή, να τη συντηρήσει ακόμα και να την τερματίσει. Η δύναμη του αρχιτέκτονα περιορίζεται στην ρύθμιση και οριοθέτησή του, με απώτερο σκοπό την ποσόστωση τελικά της ύπαρξής του σε έναν χώρο. Διακρίνεται για την πειθώ που φέρει ως στοιχείο, γι’

αυτό και έχει χρησιμοποιηθεί ως σύμβολο από πολλές μορφές Τέχνης, ειδικά της Ζωγραφικής και της Αρχιτεκτονικής που εκφράζει τη δύναμη, την ελπίδα, την αισιοδοξία, κλπ. Ακόμα και για την έκφραση ισχύος και στιβαρότητας έχει εργαλειοποιηθεί, από πολιτικά καθεστώτα.

[Ε29] Εξοχική κατοικία στην Ανάβυσσο, Νίκος Βαλσαμάκης, 1961. Ο εσωτερικός χώρος δύναται να μετατραπεί σε ημιυπαίθριο, μεταφέροντας το μεσογειακό τοπίο εντός της κατοικίας.

[Ε20] Adolphe Appia, σκηνή της παράστασης Ορφέας και Ευρυδίκη, Θέατρο Hellerau, 1913. Ελβετός αρχιτέκτονας, σκηνογράφος, διακοσμητής και θεωρητικός του θεατρικού φωτισμού.

41
Το Φως, ήταν ανέκαθεν συνδεδεμένο με το πνεύμα του Ανθρώπου, όπως 71. ο.π., σελ 75

του Ολοκαυτώματος (Axis of the Holocaust)

ανέκαθεν χρησιμοποιούνταν στις τέχνες και ως αναφορά στην ψυχή. Ως εκ τούτου, ήταν και μέσο έκφρασης δυνάμεων του Ιερού και του Θείου. Αξίζει να αναφερθεί και ένα απόσπασμα του M. Eliade, κατά το οποίο «…ακόμη και πριν αποδοθούν θρησκευτικές αξίες στον ουρανό, ήταν εμφανής η αίσθηση ανωτερότητας που απέπνεε. Ο ουρανός συμβολίζει την ανωτερότητα, τη δύναμη και την στασιμότητα απλά και μόνο με την επιβλητική παρουσία του πάνω από τη Γη. Το αίσθημα αυτό υπάρχει γιατί ο ουρανός βρίσκεται ψηλά, είναι άπειρος, ακίνητος, πανίσχυρος.» 72 Ο ουρανός είναι φαινομενικά για τον Άνθρωπο το συνδετήριο μέσο του με το Φως. Είναι το φυσικό Φως που διαρκεί όσο ο ήλιος βλέπει το περιβάλλον του υποκειμένου και που είναι ικανό να το οδηγήσει σε πνευματικές αναζητήσεις. Γι’ αυτό και στην Αρχιτεκτονική είναι άρρηκτα συνδεδεμένο με την χωρική απόδοση της Ιερότητας. Ειδικά όταν μέσα στο σκότος διακρίνεται το φως, ασυνείδητοι εγκεφαλικοί συνειρμοί οδηγούν στην βίωσή του ως θεία παρουσία. [Ε23] Ο Άνθρωπος αρχίζει να βλέπει, να αντιλαμβάνεται άρα και να προσανατολίζεται ξανά. Διαπερνάται από το αίσθημα της ασφάλειας που, στις συνθήκες πλήρους συσκότισης χάνει. Η φιλοσοφική σκέψη διδάσκει πως το υποκείμενο ενεργοποιείται και αρχίζει να αναζητά εντός του βαθύτερες προσωπικές αλήθειες, αρχίζει να διερωτάται για την θέση και τον ρόλο του ως μέρος ενός μεγαλύτερου συνόλου - τότε είναι που το Φως αποκτά την πνευματική του διάσταση και ο Χώρος τον υπερβατικό του χαρακτήρα 73 .

Οι αρχιτέκτονες που ασχολούνται με το φως ως δομικό στοιχείο εστιάζουν συνήθως σε μια ιδέα που υπερβαίνει την τυπική προσέγγιση της επαρκούς εξασφάλισης φωτός σ΄ έναν χώρο. Κύριος στόχος τους γίνεται η αρχιτεκτονική έκφραση ιδεών που αναφέρονται στο Υψηλό, στο Ιερό. Το θείο αυτό φως ποιητικά συμβολίζει την απόλυτη αλήθεια, υπάρχει για να υπενθυμίζει πως μία ανώτερη τάξη πραγμάτων προηγείται της ανθρώπινης Ύπαρξης και πιθανόν ευθύνεται γι’ αυτήν. [Ε27] Όπως κι αν την ενσαρκώσει ο κάθε πολιτισμός, δεν πρόκειται για παραπομπή σε συγκεκριμένη θρησκεία ή θεότητα ή τόπο λατρείας74.

[Ε24]

Εσωτερική άποψη ενός απ’ τους κενούς χώρους του Άξονα Συνέχειας (Axis of Continuity)

Ένα κτήριο είναι, προφανώς, ένας στατικός και μη ζωντανός οργανισμός. Η κίνηση του ήλιου όμως με το πέρασμα του χρόνου, δημιουργεί επιμέρους δυναμικές μεταβολές επάνω στις επιφάνειές του, γεγονός που του αποδίδει φαινομενικά σημάδια ζωής. Ειδικά όταν αυτό, διαπερνώντας τα ανοίγματά του, καταφέρνει να εισέρχεται στους χώρους του, να ολισθαίνει στις εσωτερικές του όψεις και να μετακινείται υπό σταθερή γωνία εντός του, τότε μπορεί και να αποκτά απτή παρουσία που

73. Marietta Millet, Light Revealing Architecture, σελ 148-155

74. Christian Norberg-Schulz, Architecture: Meaning and Place, σελ: 223 - 230.

42
72. M. Eliade, Patterns in Comparative Religion, σελ 38 στο Ο ρόλος του φωτός στην αρχιτεκτονική δημιουργία, Κεράνης Μιχαήλ Κάρολος,
σελ 59.
Πύργου
[Ε23] Daniel Libeskind, Εβραϊκό Μουσείο Βερολίνου.
Εσωτερική άποψη του
Daniel Libeskind, Εβραϊκό Μουσείο Βερολίνου.

συνοδεύει τον Άνθρωπο στις δραστηριότητές του, στον εκάστοτε χώρο.

Με αυτόν τον τρόπο αποδίδεται και κάποια συγκεκριμένη ατμόσφαιρα

ανάλογη της ώρας, του μήνα ή του καιρού που επικρατεί. Αποτέλεσμα

είναι ο ίδιος ο χώρος να ζωντανεύει και να μιμείται τον κύκλο της ζωής:

όσο υπάρχει Φως σ’ έναν χώρο, αυτός είναι ξύπνιος, όταν σκοτεινιάζει, δείχνει να αποκοιμιέται.

Το ημίφως είναι μία ενδιάμεση κατάσταση, που μπορεί να έχει διαβαθμίσεις, ανάλογα με την παρουσία ή την απουσία του φωτός. Για τον Pallasmaa αποτέλεσε καίρια πηγή μυστηρίου και ατμοσφαιρικότητας, αφού είναι μία

συνθήκη που απελευθερώνει το υποσυνείδητο του υποκειμένου, κάνοντας τη βίωση τού χώρου μυθική και γοητευτική. Η οπτική δεν εστιάζει σε κάποιο συγκεκριμένο σημείο, τουλάχιστον όχι αμέσως, αλλά δύναται να απλωθεί στο σύνολο ενός χώρου σε μία κατάσταση ηρεμίας και ησυχίας.

[Ε24] Είναι αυτό το «λυκόφως» που δημιουργεί μια γαλήνια εξισορρόπηση

στη χωρική ατμόσφαιρα, άρα και στην όραση. Τα περιγράμματα των

μορφών γίνονται ασαφή έως και συγκεχυμένα μεταξύ τους - ανάλογα

πάντα με την ποσόστωση του φωτός. Κοντά σ΄ αυτό, ενισχύεται και η λειτουργία των υπόλοιπων αισθήσεων, οδηγώντας σε μία πληρέστερη αντίληψη και πιο ολοκληρωμένη εμπειρία του χώρου. Χαρακτηριστικό

είναι το απόσπασμα που ο Pallasmaa γράφει για την αίσθηση της ακοής:

«Όποιος έχει μαγευτεί από τον ήχο που κάνουν οι σταγόνες

νερού μέσα στο σκοτάδι ενός ερειπίου, μπορεί να μας

βεβαιώσει για την εντυπωσιακή ικανότητα του αυτιού να

σμιλεύει την ενταση του ήχου μέσα στο κενό του σκοταδιού.

Ο χώρος που έχει χαραχτεί από το αυτί μέσα στο σκοτάδι γίνεται μια κοιλότητα που έχει σμιλευτεί απευθείας στο εσωτερικό του νου 75».

Πολλές φορές, αρχιτεκτονικά, μπορεί το φως να χρησιμοποιείται ως

καθοδηγητής μέσα στο σκοτάδι. Είτε ως στατικός φανός που δείχνει το κεντρικό σημείο της δράσης σε έναν χώρο είτε ως δυναμική πορεία που ακολουθεί την κίνηση της κάτοψης αυτού. Στην [Ε21] απεικονίζεται ένας

από τους χώρους λειτουργίας του σουηδικού κοιμητηρίου Woodland, στον οποίο είναι ξεκάθαρη η επικράτηση της συσκότισης έναντι του φωτός, με το δεύτερο όμως να εστιάζει σαφώς στο βάθρο τοποθέτησης της σωρού. Με το τέχνασμα αυτό, το βλέμμα παρατηρεί κατά προτεραιότητα την περιοχή εκείνη, χωρίς όμως να χάνεται η πραότητα του χώρου - αφού το φως φθίνει σταδιακά όσο απομακρύνεται από εκεί, μέχρι που σβή-

43
75. Pallasmaa Juhani, Τα μάτια του δέρματος : Η αρχιτεκτονική και οι αισθήσεις, σελ 80.
[Ε21]
[Ε27] Εκκλησία Saint Peter, Le Corbusier, Firminy, Γαλλία.

νει τελείως μέσα στο σκοτάδι. Τον άλλο πιθανό ρόλο του φωτός, που ως συνοδός της πορείας του χρήστη, τον ακολουθεί, μέσα σε έναν ή περισσότερους χώρους, πάλι όμως σε συνθήκες χωρικού ημι-φωτισμού - συναντά κανείς στα λουτρά Therme Vals, του Zumthor. [Ε22] Στην περίπτωση αυτή, γραμμικές χαράξεις στην άνοψη του χώρου επιτρέπουν

στο φυσικό φως να εισέλθει εντός του διατρέχοντας τους άξονες κίνησης και υποδεικνύοντας στον χρήστη τις διαθέσιμες κατευθύνσεις.

Το σκοτάδι, δεν είναι τίποτα περισσότερο από την πλήρη απουσία του φωτός. Αποτελεί απαραίτητο στοιχείο για την ύπαρξή του, αφού χωρίς το σκοτάδι δεν αποκαλύπτεται ούτε το φως. Είναι η συνθήκη στην οποία ο άνθρωπος παύει να αντιλαμβάνεται οπτικά και αντ΄αυτού λειτουργεί αποκλειστικά με τις υπόλοιπες τέσσερις αντιληπτικές αισθήσεις. Σε μία τέτοια χωρική κατάσταση πλήρους συσκότισης, αυτές ενεργοποιούνται και προσεγγίζουν το μέγιστο της ικανότητάς τους. Χρησιμοποιείται συνήθως για να προσδώσει την ιδέα του Αγνώστου και του Μυστηρίου, ενώ μπορεί να γεννά συναισθήματα φόβου και τρόμου σ’ όποιον βιώνει ανάλογη ατμόσφαιρα. Ο Peter Zumthor αποτελεί χαρακτηριστικό παράδειγμα αρχιτέκτονα που συνθέτει τις φωτεινές κοιλότητες του χώρου, μέσα στο στο μαύρο του σκοταδιού. Κοντά σ΄αυτό, δίνει ιδιαίτερη έμφαση και στην ύλη που πλαισιώνει τον χώρο, αφού οι ανακλάσεις του εισερχόμενου φωτός πρέπει να διατηρούν τις ισορροπίες που η εκάστοτε σύνθεση επιβάλει. Το σκότος είναι ένα στοιχείο που μέσα σ’ έναν χώρο ενσαρκώνει ηχηρές δυναμικές και αναπαριστά υπερβατικές έννοιες. Η ποικιλία των εναλλαγών μεταξύ φωτός και σκότους δύναται να δημιουργεί χωρικούς ρυθμούς και μοτίβα που διεγείρουν τον χρήστη ενεργοποιώντας ένστικτα και μεταδίδοντάς του μηνύματα.

44
[Ε22]
[Δ12] 45 B’ ενότητα: Μηχανισμοί Σύνθεσης, υπερβατική Αρχιτεκτονική, Εμπειρία του χώρου.

Ι. Η Σύνθεση, ένας συνδυασμός ύλης, τομής και κλίμακας.

« Ο χώρος δεν είναι κατά κανένα τρόπο δεδομένος από μόνος του. Δημιουργείται από ένα συγκεκριμένο σύμπλεγμα φυσικών και τεχνητών αντικειμένων, στο οποίο συνεισφέρει ο αρχιτέκτονας. »

Στην παρούσα ενότητα επιχειρείται η ανάλυση τεσσάρων (4) χώρων λατρείας, ως προς ορισμένους αρχιτεκτονικούς μηχανισμούς σύνθεσης. Από το παραπάνω θεωρητικό πλαίσιο αντιλαμβανόμαστε ότι το φως και η σκιά κατέχουν εξέχουσας σημασίας ρόλο στην αρχιτεκτονική δημιουργία. Έτσι, επιλέγονται ως βασικά συνθετικά εργαλεία τα οποία μελετώνται σε αλληλεξάρτηση με την ύλη, την τομή και τη κλίμακα. Προκύπτει λοιπόν, η παρακάτω κατηγοριοποίηση: α. φως-σκιά-ύλη, β. φως-σκιά-τομή και γ. φως-σκιά-κλίμακα. Είναι εμφανής ο συσχετισμός που επιδιώκεται μεταξύ των δύο άυλων αυτών στοιχείων με εκείνα που διαμορφώνουν το δομημένο περιβάλλον. Γιατί λοιπόν επιλέγονται τα εν λόγω σχεδιαστικά εργαλεία; Η ύλη η οποία προέρχεται από τον εκάστοτε τόπο -στον οποίο έχουν ενταχθεί οι επιλεγμένοι χώροι λατρείας- αποτελεί βασικό στοιχείο της αρχιτεκτονικής σύνθεσης. Επιπλέον, είναι αυτή που, όπως ήδη έχει αναφερθεί, ενεργοποιεί μια από τις βασικές ανθρώπινες αισθήσεις - αυτή της αφής. Η μνήμη της αφής είναι αυτή λόγω της οποίας επιτυγχάνεται η οπτική αντίληψη της ύλης, της απόστασης και του βάθους ενός χώρου. Τα φυσικά υλικά όπως η πέτρα, το τούβλο και το ξύλο συμβάλλουν

αποφασιστικά στον χαρακτήρα των χώρων. «Η καθημερινή εμπειρία κάνει διάκριση ανάμεσα στην αδιαπέραστη ύλη, όπως τα βουνά, οι κορμοί των δέντρων ή οι τοίχοι κτιρίων, και στα ανοίγματα μέσα από τα οποία μπορεί κανείς να περνά. Η διάκριση αυτή είναι θεμελιώδης για τον αρχιτέκτονα, ο οποίος επιζητά διαρκώς την αρμόζουσα αναλογία μεταξύ των δύο 76». Αυτό αποτελεί και το λόγο για τον οποίο επιλέγεται η τομή, μιας και αποτελεί το μηχανισμό σύνθεσης της κατακόρυφης διάστασης των κτιρίων. Το πλήρες και το κενό, η επιλογή της θέσης

του ανοίγματος ακόμη και το μέγεθος αυτού δίνει ποικίλες δυνατότητες στους αρχιτέκτονες για τη διαμόρφωση του χαρακτήρα του εκάστοτε χώρου. Μέσω της τομής, όμως, δεν επιδιώκεται μόνο αυτή η διερεύνηση. Εξετάζεται, επιπλέον, η σχέση μεταξύ του βλέμματος του υποκειμένου με την θέση, το σχήμα ακόμα και το μέγεθος του κάθε ανοίγματος, που επιχειρεί να εισαγάγει άμεσα ή έμμεσα φως στον χώρο. Δάπεδο, τοίχοι, οροφή είναι στοιχεία τα οποία μπορούν να δώσουν ποικίλες απαντήσεις σε ερωτήματα που τίθενται κατά τον αρχιτεκτονικό σχεδιασμό. Τέλος, η κλίμακα δύναται να λειτουργήσει ως ισχυρό εκφραστικό μέσο και ιδιαίτερα όταν συνδυάζεται με τα υπόλοιπα «εργαλεία», επιτυγχάνονται ιδιάζουσες

[Δ13] 46
76. Rudolf Arnheim, Η δυναμική της αρχιτεκτονικής μορφής, σελ 35.

χωρικές ατμόσφαιρες - οι οποίες θα διερευνηθούν παρακάτω. Το μέγεθος

του χώρου και οι αναλογίες ύψους, πλάτους, μήκους αποτελούν βασική

αρχιτεκτονική επιλογή. Στην παρούσα έρευνα λαμβάνεται ως δεδομένη

η κλίμακα του ανθρώπου και διερευνώνται οι τρόποι με τους οποίους

συνδιαλέγεται ο εκάστοτε χώρος με αυτή. Καθώς το θέμα αφορά την

βιωματική εμπειρία του χρήστη, η προσέγγιση γίνεται με αποφυγή τυχόν

αυθαίρετων γενικεύσεων και επιχειρηματολογίας μέσω προσωπικών

βιωμάτων. Το φωτογραφικό υλικό που χρησιμοποιείται, στοχεύει στην

βέλτιστη ανάγνωση των χωρικών ιδιωματισμών, από αρχιτεκτονική

σκοπιά και όχι από προσωπική ματιά. Για τον λόγο αυτό, κρίνεται πως

η μελέτη και η επεξεργασία του οπτικού υλικού υπό το πρίσμα των

συνθετικών μηχανισμών τομή-κλίμακα-ύλη εξυπηρετεί τον σκοπό αυτό.

« Χώρος και Φως και Τάξη. Αυτά είναι τα πράγματα που χρειάζονται οι Άνθρωποι, όσο χρειάζονται ψωμί ή ένα μέρος για να κοιμηθούν.»

- Le Corbusier

Τα παραδείγματα που επιλέγονται για ανάλυση έχουν ως κοινό γνώρισμα τον υπερβατικό τους χαρακτήρα. Επιλέγονται ιεροί χώροι οι οποίοι θεωρείται ότι έχουν έναν ιδιαίτερο συνδυασμό των μηχανισμών

σύνθεσης, με βάσει τους οποίους θα αναλυθούν στην πορεία. Η

τυπολογία των ιερών χώρων στην οποία εντάσσονται, διακρίνεται για τον υπερβατικό της χαρακτήρα μιας και συνδέεται άμεσα με το «θείο» και κάνει επίκληση σε συναισθηματικές καταστάσεις όπως η το δέος, η απορία

και η πνευματική αναζήτηση. Στόχος της ανάλυσης των παραδειγμάτων

είναι η κατανόηση του βιώματος που προξενούν στο υποκείμενο, μέσω

της αποδόμησης του χώρου στις επιμέρους ποιότητές του - με γνώμονα

πάντα τα προαναφερθέντα εργαλεία. Ειδικότερα, επιλέγονται δύο (2)

αρχιτεκτονικά έργα του Le Corbusier, ένα (1) του Peter Zumthor και ένα (1)

του Jørn Utzon. Γίνεται μια προσπάθεια ερμηνείας του πως αρχιτέκτονες με διαφορετικό φιλοσοφικό υπόβαθρο σχεδιάζουν με γνώμονα το φως και τη σκιά, ακολουθώντας μια φαινομενολογική προσέγγιση. Τέλος, κρίνεται ότι αποδίδουν τα βέλτιστα το θεωρητικό πλαίσιο της εργασίας, με την παραδοχή της εστίασης στην μεταπολεμική εποχή, οπότε και η ευρωπαϊκή Αρχιτεκτονική κλήθηκε να επαναπροσδιοριστεί.

Η Ronchamp ένα εκ των δύο παρουσιάζει μια συναισθηματική έλξη, που βασίζεται σε μια σκιασμένη αμυδρότητα που προσφέρει ποιοτικά το ημίφως, κατά την οποία οι μορφές σχηματίζονται κάπως αόριστα. Ο σχεδιασμός όλου του κτιρίου βασίζεται σε ιδέες και συναισθήματα τελείως

47
υπερβατικής
ΙΙ. Τέσσερις προτάσεις
Αρχιτεκτονικής.

διαφορετικά από αυτά που είχαν καθορίσει το έργο του προπολεμικά. Ο Pallasmaa αναφέρει ότι η αρχιτεκτονική του, ιδίως στην αρχή, είναι κυρίως αρχιτεκτονική της όρασης 77. Με αυτό το κτίριο λατρείας ο Le Corbusier, συνεισέφερε στην αρχιτεκτονική και έδειξε με πομπώδη τρόπο, τη σημασία του φωτός και της κατανομής του στο χώρο, ως μέσο έκφρασης του καλλιτέχνη που το επεξεργάζεται. Στη Sainte Marie de La Tourette κυριαρχεί η λακωνική αρχιτεκτονική γραφή, με πλήρη λιτότητα τόσο στη διαχείριση της ύλης όσο και της μορφής. Ο μη διακοσμημένος χώρος επιβάλει στο υποκείμενο τη συγκέντρωση και την περισυλλογή, παρακινώντας το στην ανάπτυξη σχέσης με το θείο μέσα του. Το φως εδώ υποδεικνύει, προετοιμάζει και επιβάλλεται. Αν και κατά βάση διατηρεί την ταυτότητα του ημιφωτισμένου χώρου, το φως παρουσιάζει πιο έντονες διαβαθμίζεις στην παρουσία του. Γενικότερα, ο αρχιτέκτονας επηρεάστηκε ιδιαίτερα

από τη φύση της οποίας τη δομή και τη λειτουργία προσπάθησε να

μιμηθεί, πιστεύοντας ότι με αυτό τον τρόπο θα πετύχει την αρμονία. Για τον ίδιο, το οπλισμένο σκυρόδεμα ισοδυναμεί με τα υλικά της φύσης, δηλαδή την πέτρα, το ξύλο, το χώμα και χρησιμοποιώντας το, θεωρεί ότι δημιουργεί στα έργα του μία ενότητα μεταξύ κτιρίου

σχετίζονται άμεσα με το περιβάλλον του. O ίδιος θέτει την εμπειρία και τα συναισθήματα σε πρώτο πλάνο στην αρχιτεκτονική του. Όπως αναφέρει χαρακτηριστικά, «Τα υλικά και η κατασκευή θα πρέπει να σχετίζονται με τον τόπο και καμιά φορά ακόμα και να προέρχονται από αυτόν. Διαφορετικά έχω την αίσθηση ότι το τοπίο δεν δέχεται το νέο κτίριο 78». Τα παραπάνω εντοπίζονται και στο παρεκκλήσι του Bruder Klaus

σε μεγάλο βαθμό και έτσι επιλέγεται να αναλυθεί.

Τέλος, ο Jørn Utzon στην εκκλησία Bagsværd με τη σύνθεση της εξωτερικής

μορφής δεν προμηνύει αυτό που συναντάει κανείς στο εσωτερικό του. Η ιδιαζουσα μορφή του εσωτερικού κελύφους σε συνδυασμό με την μεγάλη διάχυση του φωτός προσδίδει ιδιαίτερη βιωματική εμπειρία στον χρήστη. Εντοπίζονται αναφορές από την παραδοσιακή αρχιτεκτονική της Άπω Ανατολής κατά τη δεκαετία του 1960, αν και η κατασκευαστική αρχή της πρόσοψης συνδιαλέγεται ευθέως με τη σκανδιναβική οικοδομική κουλτούρα, στη οποία και εντάσσεται. Παρατηρείται, λοιπόν, ότι παρόλο που έχει πληθώρα αναφορών στο δυναμικό του

48
και φύσης. Ο Peter Zumthor θεωρεί ότι ο τόπος αποτελεί ένα ιδιαίτερο συνονθύλευμα φυσικών στοιχείων, φωτός, υλικών, θέας
το σχεδιασμό του. Τα υλικά και η ποιότητα κατασκευής
αλλά και μνήμης και ιστορίας, και αυτό επηρεάζει
του κτιρίου
εντάσσει το έργο στο τόπο για τον οποίο το δημιουργεί. 77. Pallasmaa Juhani στο Η έννοια της ατμόσφαιρας στο χώρο: Αντίληψη και βιωματική εμπειρία, Αποστολάκη, Χατζηβασιλείου, σελ 58-59 78. Zumthor Peter, Thinking Architecture, 3rd expanded edition, Birkhauser, Berlin, 2010, σελ 99 στο Carlo Scarpa: Παράλληλες προσεγγίσεις, Καποδίστρια Μαντώ-Σταθοπούλου Εφη, σελ 101

Συνοψίζοντας, τα κτίρια εμπίπτουν στην κατηγορία της αισθητηριακής

αρχιτεκτονικής, δεδομένου ότι επιτυγχάνεται ο υπερβατικός τους

χαρακτήρας, με τη χρήση των επιλεγμένων σχεδιαστικών εργαλείων. Οι

συνδυασμοί αυτοί προσδιορίζουν την «ατμόσφαιρα» του εκάστοτε χώρου.

Προκαλούν τον χρήστη να βιώσει το χώρο όχι μόνο με τις αισθήσεις αλλά

και με τη νόηση, τη μνήμη και το συναίσθημα, δηλαδή να κατανοήσει

το χώρο και τις επιμέρους ποιότητές του, μέσω μιας πολυαισθητηριακής

βιωματικής εμπειρίας. Τα 4 παραδείγματα αναλύονται σε δύο κατηγορίες

για να επιτευχθεί η σύγκριση τους. Στα παραδείγματα του Le Corbusier

όπου εντοπίζονται ήπιες αντιθέσεις φωτός - σκιάς και τεχνάσματα για

την επίτευξη αυτών τα οποία αφορούν σε μεγάλο βαθμό τη διαχείριση

της τομής (ανοιγμάτων) επιλέγεται να μελετηθούν στη πρώτη κατηγορία.

Από την άλλη, τα παραδείγματα του Zumthor και του Utzon επιλέγονται

λόγω των έντονων αντιθέσεών τους. Από τη μια η έντονη παρουσία

της σκιάς (που τείνει προς το σκοτάδι), από την άλλη η παρουσία του

έμμεσου φωτός με τις ήπιες σκιές του (όχι μεγάλες εναλλαγές φωτόςσκιάς στο χώρο). Μέσω της παράθεσης αυτών επιδιώκεται η διεξαγωγή

συμπερασμάτων που αφορά τη σχέση φωτός - σκιάς στους χώρους.

49

ΙΙΙ.

1. Le Corbusier: το ημίφως στη χωρική μυσταγωγία.

«Τα μάτια μας είναι φτιαγμένα να βλέπουν μορφές στο φως, κύβοι, κώνοι, σφαίρες, κύλινδροι ή πυραμίδες είναι οι σημαντικές πρωτόλειες μορφές

που το φως αποκαλύπτει επωφελώς, η εικόνα αυτών είναι σαφής και απτή μέσα μας, χωρίς ασάφειες.»

- Le Corbusier

Καθεδρικός ναός της Ronchamp, Notre Dame du Haut’.

Αρχιτέκτονας: Le Corbusier

Κατασκευή: 1950-1954

Τοποθεσία: κωμόπολη της Ronchamp, ανατολική Γαλλία, κεντρική

14μ.

Ένταξη και Προσέγγιση.

Στη θέση ενός ναού που βομβαρδίστηκε κατά τον Β’ Παγκόσμιο πόλεμο, ήρθε ως αρχιτεκτονικό

προοδευτικά κατά την ανοδική προσέγγιση. Ανηφορίζοντας κανείς - συνοδεία ισχυρής παρουσίας πρασίνου μεγάλης κλίμακαςαιφνιδιάζεται στην αποκάλυψη μιας πεδιάδας με ήπιο ανάγλυφο στην οποία και στέκει ο ναός. Παρουσία έντονη στο τοπίο, αλλά όχι ξένη προς

αυτό, υποβάλει τον επισκέπτη κατά την άφιξή του στην ετεροτοπία αυτή. [Ε Β1] Κυματοειδείς επιφάνειες και οργανικές φόρμες διαδέχονται η μία την

άλλη, ενώ σταδιακά γίνεται αντιληπτό πως πρόκειται για έναν μεγάλης κλίμακας χώρο λατρείας, ισχυρών μορφολογικών υπαινιγμών, που είναι προσανατολισμένος ακολουθώντας τους άξονες βορρά - νότου και ανατολής - δύσης. Ένας ναός εσωστρεφής και ογκοπλαστικά εκκεντρικός με περιορισμένη παρουσία ανοιγμάτων στις όψεις, αν και υπαρκτά - δεν επιτρέπουν την οπτική επικοινωνία του έξω με το έσω. Λευκές και αδρές επιφάνειες χωρίς κάποια άμεσα κατανοητή αλληλουχία, όλες ελαφρώς κεκλιμένες και κάποιες εμφανώς κυρτές δείχνουν να συνεργάζονται άψογα για την υποστήριξη μίας γλυπτικής μορφής που λειτουργεί ως στέψη. Ένας φαινομενικά πολύ βαρύς και ακαθόριστου σχήματος καμπυλοειδής όγκος προβάλει με χρώμα και υφή ανεπίχριστου σκυροδέματος να συμπληρώνει και να ολοκληρώνει την κορυφή του συνόλου. [Ε Β2]

50
Κατανόηση των μηχανισμών σύνθεσης
υπερβατικής Αρχιτεκτονικής, υπό το πρίσμα της Εμπειρίας.
Ευρώπη. Ύψος:
γλυπτό που συστήνει την απόληξη του λόφου στη γαλλική επαρχία της Ronchamp, ο καθολικός ναός που προβάλλει
[Ε Β1] [Ε Β2]

Κατασκευαστική λογική.

Η σύνθεση υψώνεται στα 14 μέτρα και δομείται εξ΄ ολοκλήρου από φορέα σκυροδέματος, με την μερική ενσωμάτωση λίθινων τοιχοποιιών που σώθηκαν από τον προηγούμενο ναό. Λεπτά υποστυλώματα, κρυμμένα μέσα στις τοιχοποιίες, αναλαμβάνουν τόσο να συγκρατήσουν

το κέλυφος της οροφής όσο και να στηρίξουν ως αντηρίδες τα κομμάτια

των σωζόμενων τοίχων. [Ε Β3] Η σημαντικότερη ίσως κατασκευαστική

ιδιομορφία εδώ, συναντάται στον όγκο της οροφής. Πρόκειται για

ένα κενό εσωτερικά κέλυφος που αποτελείται από δύο μεμβράνες

σκυροδέματος και ένα σύστημα δοκαριών, κάθετα τοποθετημένων

μεταξύ τους, με την μία πλευρά να στηρίζει την επιφάνεια του δώματος και

την άλλη να συγκρατεί την κάτω, αυτή της οροφής. [Ε Β4] Όσον αφορά

τη διαχείριση του φωτός, εντοπίζεται μία αρχιτεκτονική λεπτομέρεια που

συνοδεύει εξωτερικά τις γυάλινες επιφάνειες των τριών πύργων. Πρόκειται για λεπτές κατακόρυφες περσίδες, κατασκευασμένες από σκυρόδεμα και τοποθετημένες υπό γωνία μεταξύ τους. [Ε Β4α] Η δυνατότητά τους να

ελέγχουν το φως, χωρίς όμως να το μειώνουν, οφείλεται στην λειτουργία τους ως επιμέρους διαχυτές του. Η γωνία τους, ανοιγόμενη προς την εξωτερική πλευρά, ανακλά μέρος των ακτίνων του ήλιου, ενώ αφήνει την συνεπακόλουθη φωτεινή ενέργεια να διέλθει εντός του πύργου, μαζί με ποσοστό του άμεσου φωτός. Αποτέλεσμα είναι ακόμη και το άμεσο φως (ανατολής και δύσης) να διαπερνά φαινομενικά ως έμμεσο, άρα και να μη γεννά έντονες σκιές.

Αφήγηση του χωρικού βιώματος.

Στο κατώφλι της κύριας εισόδου, μία μεταλλική περιστρεφόμενη και βαριά

πόρτα καλωσορίζει τον επισκέπτη. Με το πέρασμά του στο εσωτερικό, ο χώρος ανοίγεται και προσανατολίζει το βλέμμα προς τα δεξιά, ενώ η μετάβαση γίνεται με έναν γρήγορο σχετικά ρυθμό, καθώς δεν μεσολαβεί κάποιος ενδιάμεσος χώρος. Αποτελεσματικά, η έντονη διαφοροποίηση

του εσωτερικού φωτός σε σχέση με του εξωτερικού περιβάλλοντος οδηγεί

σε μία στιγμιαία παύση της κίνησης και προσπάθεια εστίασης στις νέες

επικρατούσες συνθήκες. Η πρώτη εικόνα που έχει κάποιος από τον χώρο, ορίζεται ως το αποτέλεσμα ενός τεχνάσματος στη διαχείριση του άμεσου

από τον νότο φωτός. Με την περιστροφή του κορμού, αρχίζει να γίνεται

ορατή η συνθήκη του βαρέος νότιου τοίχου. [Ε Β5α] Ένα πολύ ισχυρό δομικό και αρχιτεκτονικό στοιχείο, μία σκιασμένη ανάγλυφη επιφάνεια μεταβαλλόμενης κλίσης και ύψους, εμφανίζεται ως «κόσκινο» του ήλιου. Θυρίδες φωτισμού φιλτράρουν το άμεσο φως του νότου, ενώ ταυτόχρονα

το κατευθύνουν μέσα στον χώρο και σκηνογραφούν με θεατρικότητα

την παρουσία του. Οι τραπέζιες διατομές των οπών αυτών δίνουν την

51
Β5α]
Β4]

[Ε Β5β]

αίσθηση του βάθους τους και συνεπώς μαρτυρούν το πάχος του εν λόγω τοίχου. Μία γυάλινη βιτρώ επιφάνεια διακόπτει την κάθε διατομή, σε άλλα σημεία έχει χρώμα, σε άλλα όχι, με άμεσο αποτέλεσμα η εσωτερική όψη να αποκτά σημειακές χρωματικές παρουσίες. [Ε Β5β,γ] Επιπλέον, το εισερχόμενο φως ενδύεται με διαφορετική θερμοκρασία, ανάλογη του χρώματος το οποίο διαπερνά. Η μεταξύ τους διαφοροποίηση, έγκειται τόσο στο μέγεθος που καταλαμβάνει η καθεμιά στην εσωτερική επιφάνεια του τοίχου όσο και στη διατομή της εξωτερικής οπής, που παραλαμβάνει το φως. Η σχεδιαστική διαχείρισή τους, στην κάτοψη και στην τομή, θυμίζουν το θεατρικό προβολέα κανονάκι, που ρόλο έχει να δώσει σαφή προσανατολισμό στην πηγή του φωτός. Χωρικό αποτέλεσμα, όπως δείχνουν και τα διαγράμματα τομής και κάτοψης, είναι τα ακτινωτά φάσματα του άμεσου φωτός να εμφανίζουν περιοχές που ταυτίζονται μεταξύ τους και συνεπώς να θαμπώνουν την αντίληψη του χρήστη. Όπως και στην περίπτωση του φωτεινού στύλου στο Πάνθεον [Δ9] , αντιστοίχως εδώ, το φως αποκτά σώμα μέσα στον χώρο, η ύπαρξή του σχηματοποιείται, γεγονός που το καθιστά επιβλητικό συνοδό της εμπειρίας. [Ε Β5β, ΕΒ15]

Η κοίλη επιφάνεια της οροφής, προβάλλει ως βαρύ και σκληρό σώμα, στην άνοψη του χώρου, που συγκλίνει προς το κέντρο του.

Β5γ]

Μία σχεδιαστική οπτική εκλέπτυνση που θέλει το κέλυφος της στέψης υπερυψωμένο κατά 10 εκ. από τους περιφερειακούς τοίχους, στοχεύει στη διακριτική αποσυμπίεση του χώρου από το υπερκείμενο αντιληπτικό βάρος του. Ταυτόχρονα, το διάκενο που προκύπτει από την ανασήκωση

αυτή, πληρώνεται με διαφάνεια, αφήνοντας το φως να εισέλθει και από

εκεί. Ως εκ τούτου, προκύπτει ένα φωτεινό γραμμικό σύνορο μεταξύ των κάθετων επιφανειών και της υπερκείμενης κοίλης. Όριο που ενισχύεται και

από την υλική διαφοροποίηση, με το βλέμμα να μεταπηδά από τις λευκές

ημισκιασμένες επιφάνειες στην πολύ σκοτεινή άνωθέν τους. [Ε Β5α] Τα εμφανή ίχνη που έχει αφήσει ο ξυλότυπος στο ανεπίχριστο σκυρόδεμα

ακολουθούν τον άξονα βορρά - νότου. Μία επιλογή που πηγάζει μάλλον περισσότερο από την πρόθεση του Le Corbusier να προσδώσει εμφατικά

την προοπτική φυγή προς την πηγή του φωτός, παρά να εξυπηρετήσει

το αίτημα για ειλικρίνεια της κατασκευής - όπως συνήθιζε ως αυστηρός μοντερνιστής, προπολεμικά. Αυτό μαρτυράται και από την παρατήρηση της νότιας εξωτερικής όψης: το φως αποτυπώνεται στην επιφάνεια του όγκου και δείχνει να ακολουθεί τη διεύθυνση των παράλληλων ιχνών της.

Περιδιαβαίνοντας κανείς εντός του ενιαίου κύριου χώρου, συναντά μικρότερους χωρικούς θύλακες - στην βορεινή και δυτική πλευρά της κάτοψης - κρυμμένους από αυτόν, που αναλαμβάνουν τόσο να φιλοξενήσουν κάποια δευτερεύουσα χρήση όσο και να διαχειριστούν επιμέρους ποιότητες φωτισμού. Επιπλέον, γίνονται αντιληπτές και

52

Διαγραμματική κάτοψη απόδοσης των χωρικών σχέσεων φωτός - σκιάς.

[ΕΒ3] Φέρων Οργανισμός του κελύφους.

Στρατηγική σχεδιασμού απόδοσης του ιερού φωτός.

[ΕΒ4a] Σχεδιαστική λεπτομέρεια περσίδων.

1. Κατακόρυφος Φεγγίτης

2. Πύργοι διάχυσης Φωτός

3. Κατευθυντήρια κανόνια νότιου Φωτός

53

[ΕΒ13]

οι διακριτικές κλίσεις του δαπέδου που, ακολουθώντας το φυσικό

ανάγλυφο του εδάφους, παρουσιάζει ήπιες εναλλαγές στο εμβαδόν του.

Παρατηρώντας την εσωτερική όψη του δυτικού τοίχου, το ενδιαφέρον

εστιάζει σε έναν μη ορατό άμεσα χώρο, που φωτίζεται από ψηλά. [Ε Β11] Πρόκειται για τον κεντρικό πύργο που φιλοξενεί μία απ’ τις τρεις αγίες τράπεζες. Ένας ψηλός κυλινδρικός αρνητικός χώρος, γεμίζει με άπλετο

φως στη γεωμετρική του μέση και με ελεγχόμενα σχηματοποιημένο

φως στην ανώτερη απόληξή του. Λόγω του καθαρού βορινού προσανατολισμού του, το φως που εισέρχεται, παραμένει σταθερό κατά τη διάρκεια της ημέρας. Με το αρχιτεκτονικό τέχνασμα των σταθερών περσίδων, τρεις μικρές οπές άνωθεν, αλλά κυρίως με την γενναία σχισμή της επιφάνειας, αποδίδεται με εικαστικό τρόπο όχι μόνο το βάθος, αλλά

και η ίδια η ιδέα του ιερού φωτός που εισέρχεται από ψηλά και διαχέεται σ΄ αυτόν τον θύλακα τέλεσης μυστηρίων. Εκεί το φως έμμεσα προσεγγίζει το επίπεδο δράσης του ανθρώπου, που βρίσκεται χαμηλότερα. Ομοίως λειτουργεί και στους άλλους δύο αντίστοιχους πύργους, οι οποίοι αν και μικρότερης κλίμακας, εμπεριέχουν επίσης από μία αγία τράπεζα. Ακόμα πιο κρυμμένοι, στην βορεινή πλευρά της κάτοψης, αιφνιδιάζουν όποιον -σχεδόν τυχαία- τους εντοπίσει. Προσανατολισμένοι αντιδιαμετρικά μεταξύ τους, ο ένας κοιτάζει τη δύση και ο άλλος την ανατολή. Ως εκ τούτου, το φως που παραλαμβάνουν μεταβάλλεται με την κίνηση του ηλίου, άρα και με την ώρα ή την εποχή. Η ειδοποιός διαφορά των δύο πύργων, είναι το κόκκινο χρώμα του ανατολικού. [Ε Β13]

Αγναντεύοντας την εσωτερική όψη του ανατολικού τοίχου, που προβάλλει πίσω από το κεντρικό ιερό, το ενδιαφέρον κεντρίζει μία λιτή δομή που φαίνεται να ξεπροβάλλει από την σκιερή επιφάνειά της. Πρόκειται για μία βιτρίνα, με πλαίσιο κατασκευασμένο από σκυρόδεμα που περιέχει ένα ξύλινο άγαλμα της Παναγίας με το θείο βρέφος - το οποίο και σώθηκε από τα συντρίμμια του προηγούμενου ναού. [Ε Β15] Αξίζει να σημειωθεί πως η προστατευτική αυτή δομή, φέρει την μοναδική πλήρως διαμπερή διαφάνεια του ναού - ακόμη κι αν λόγω του ύψους στο οποίο βρίσκεται, δεν δημιουργείται οπτική επαφή μεταξύ εσωτερικού και εξωτερικού. Γύρω της, εντοπίζονται μικρές τετράγωνες οπές στην επιφάνεια του τοίχου, οι οποίες και ευθύνονται για μια ιδιαίτερη συνθήκη. Το φως που τις διαπερνά, εντονότερο κατά τις πρωινές ώρες, αποτυπώνει στην επιφάνεια την ιδέα μικρών διάσπαρτων αστεριών. Από την άλλη πλευρά αυτού του τοίχου, υπάρχει ένας εξωτερικός χώρος - μερικώς στεγασμένος από το κέλυφος της οροφής και με μεγάλη απόσταση στον κατακόρυφο άξονα από αυτήν. Ρόλος αυτού, η φιλοξενία τέλεσης μυστηρίων σε άμεση επαφή με την Φύση, όπως μαρτυρά και η ύπαρξη ενός σταθερού ιερού που δεσπόζει.

[ΕΒ11] 54
Διαγραμματική τομή απόδοσης της εισχώρησης φωτός (άξονας Β-Ν) [ΕΒ15] 55

Μοναστήρι Sainte Marie de la Tourette.

Αρχιτέκτονας: Le Corbusier.

Κατασκευή: 1956-1960.

Τοποθεσία: κοινότητα της Éveux, Λυών, ανατολική Γαλλία, κεντρική Ευρώπη.

Ένταξη και Προσέγγιση.

Λίγο έξω από μία περιαστική ζώνη της γαλλικής κωμόπολης Éveux, σε

μία ημιορεινή περιοχή με ήπια εναλλασσόμενο ανάγλυφο βρίσκεται η μονή της La Tourette. Ένα τετράγωνο τεσσάρων ορθογωνίων παραλληλογράμμων ογκοπλασιών τοποθετείται ομαλά επάνω στην επιφάνεια του επικλινούς εδάφους, σε μία έκταση γης που συνδυάζει την πράσινη πεδιάδα με ένα δάσος μικρής έκτασης. Ακολουθώντας μία καθαρά πουριστική προσέγγιση, η μονή έχει αναπτύξει καθαρές σχέσεις με το περιβάλλον της. Μία ορθοκανονική γραφή επίπεδων επιφανειών και καθαρών γεωμετρικών σχημάτων που με πλήρως λιτό τρόπο εδράζεται στην πράσινη πλαγιά. [Ε Β16] Η σύνθεση βέβαια εδώ διαφοροποιείται από τις οργανικές φόρμες του φυσικού τοπίου. Το σκυρόδεμα, κατά τον Le Corbusier, είναι ένα υλικό που πηγάζει από την ίδια την φύση, οπότε και έρχεται σε συμφωνία με αυτήν. Προσεγγίζοντας την μονή, αντιλαμβάνεται κανείς οπτικά το βάρος της μάζας της, που επιμέρους χειρισμοί της τομής έχουν ελαττώσει. Χαρακτηριστικά είναι τα φέροντα τοιχία που εμφανίζονται σε ποικίλα ύψη δυτικά και νότια της κάτοψης και που μεσολαβούν μεταξύ ογκοπλασίας και εδάφους αφήνοντας ελεύθερο χώρο και οπτική επικοινωνία με το εσωτερικό αίθριο της μονής. [Ε Β16β, γ] Κατασκευαστική λογική.

Η κατασκευή του μοναστηριού στηρίζεται κατά βάση σε ένα υλικό, το σκυρόδεμα, ενώ ισχυρή είναι και η παρουσία υαλοστασίων σε αρκετές όψεις του. Η έλλειψη ποικιλίας υλικών αντιπροσωπεύει την ασκητική ζωή των μοναχών και τη συνειδητή στέρηση των υλικών αγαθών. Στο πλαίσιο αυτό, οι επιφάνειες στην πλειονότητά τους έχουν αφεθεί ανεπεξέργαστες, όπως μαρτυρούν και τα ίχνη του ξυλοτύπου που διακρίνονται στο σκυρόδεμα. [Ε Β17] Μία αξιοσημείωτη αρχιτεκτονική λεπτομέρεια εντοπίζεται στον ρυθμό των λεπτών καϊτιών, κατασκευασμένων επίσης από σκυρόδεμα που σχεδιαστικά έχει επιμεληθεί ο συνθέτης Ιάννης Ξενάκης. Το ορχηστρικό του έργο «Μεταστάσεις» αποδόθηκε μορφολογικά στην δομή ενός ασυνεχούς ορθοκανονικού κανάβου, που συνοδεύει τις διαφάνειες και συγκρατεί τα υαλοστάσια. Μία σύνθεση που αφήνει ισχυρό χωρικό αποτύπωμα, καθώς το φυσικό φως αποτυπώνει τη σκιά της, στους εσωτερικούς χώρους που άμεσα εισέρχεται. [Ε Β18]

[Ε Β16γ] [Ε Β16β] [Ε Β16] 56

1. Κατακόρυφος Φεγγίτης.

2. Κανόνια νότιου Φωτός.

3. Κανόνια βορινού Φωτός.

Διαγραμματική κάτοψη απόδοσης των
Στρατηγική σχεδιασμού απόδοσης του ιερού φωτός.
χωρικών σχέσεων φωτός - σκιάς.
[Ε Β17] [Ε Β18] 57

Αφήγηση του χωρικού βιώματος.

Εστιάζοντας στην εμπειρία του χρήστη στον πλέον μνημειακό χώρο του μοναστηριακού συγκροτήματος, αυτόν του ναού, παρατηρείται πως η χωρική μυσταγωγία εκκινεί από τον κύριο διάδρομο προσέγγισής του. Ένας άξονας κίνησης που συνοδεύεται από άπλετο φως, αφού η ανατολική του πλευρά, πλήρως διαμπερής, το αφήνει να εισέλθει εντός - μεταβαλλόμενο ανάλογα με την ώρα. [Ε Β19] Το βλέμμα αντικρίζει ένα

πολύ σκοτεινό σημείο φυγής, που δεν μαρτυρά τον τελικό προορισμό

του διαδρόμου. Συμπληρωματικά, μία ιδιαιτερότητα της τομής που θέλει τον άξονα αυτόν κατηφορικό προς τον ναό, διευκολύνει διακριτικά την κίνηση, με το βάρος του σώματος να τείνει να καθοδηγεί το άτομο προς τον ιερό χώρο. Η κλίμακα εδώ παρουσιάζει μία ελαφριά μεταβολή. Όσο η πορεία του χρήστη υποβαθμίζεται, η επιφάνεια της άνοψης παραμένει επίπεδη με τον χώρο να επεκτείνεται ελαφρώς στον κατακόρυφο άξονα, καθώς προσεγγίζεται η σκοτεινή είσοδος.

Με την άφιξη στο σημείο μετάβασης από τον φωτεινό διάδρομο στην μεγάλης κλίμακας σκοτεινή αίθουσα του ναού, χρειάζεται μία παύση

Ένας ορθογώνιος παραλληλεπίπεδος χώρος ανοίγεται εκατέρωθεν του οπτικού πεδίου του χρήστη, καθώς η είσοδος αυτή είναι τοποθετημένη στη γεωμετρική μέση της κάτοψης. Διαφοροποιείται βέβαια από τη δεξιά πλευρά του, καθώς το επίπεδο υψώνεται προοδευτικά με έξι (6) αναβαθμούς, προς την αγία τράπεζα και το ιερό. Από την ίδια πλευρά, το οπτικό πεδίο επεκτείνεται σε έναν πιο φωτεινό, μικρότερο σε κλίμακα χώρο, που βρίσκεται πίσω από την βορινή όψη. [Ε Β22] Πρόκειται για ένα πλευρικό, δευτερεύον ιερό, που φωτίζεται άμεσα από επάνω, μέσω τριών κυλινδρικών δομών που διατρυπούν την άνοψή του. Γυρίζοντας τον κορμό του ο χρήστης θα εντοπίσει και ένα άλλο ιδιάζον δομικό στοιχείο, επίσης κοντά στην κλίμακά του. [Ε Β23] Μία κόκκινη ημικλινής επίπεδη επιφάνεια, που ενώ στη βάση της προεξέχει του κατακόρυφου τοίχου, η ανώτερη ακμή της υποδεικνύει -καμπυλώνοντας προς τα πίσω- την ύπαρξη ενός ακόμη χώρου, αυτή τη φορά κρυμμένου. Είναι ένα ακόμα πλευρικό ιερό, πίσω από τον νότιο τοίχο, που φωτίζεται και αυτό αποκλειστικά από επάνω, μέσω επτά (7) όμοιων τραπεζοειδών δομών. Τα δύο αυτά μικρότερα ιερά που συνοδεύουν το κεντρικό, έχουν παραλάβει χρωματισμούς στις επιφάνειές

τους και λόγω της αντιδιαμετρικής τοποθέτησής τους -το πρώτο στον βορρά, το δεύτερο στον νότο- φέρουν έμμεσο φως στον κεντρικό χώρο, διαφορετικής έντασης ανάλογα με την εποχή.

Στρεφόμενος ο χρήστης από την άλλη πλευρά, εντοπίζει τέσσερις σειρές για τους καθήμενους προσκυνητές μοναχούς. Εκτεινόμενος στο ίδιο

[Ε Β19] [Ε Β21] 58
της κίνησης, μέχρι το βλέμμα να προσαρμοστεί στη νέα συνθήκη - ακριβώς όπως και στον καθεδρικό της Ronchamp. [Ε Β21]
Διαγραμματική τομή απόδοσης της εισχώρησης του φωτός (άξονας Β-Ν) [Ε Β23] [Ε Β22] 59

επίπεδο, ο χώρος φανερώνει την πραγματική του κλίμακα, ειδικά με την παρατήρηση της αναλογίας ύψους - πλάτους. [Ε Β24] Κάτι που ενισχύεται

και λόγω των πλευρικών του επιφανειών που εδώ, είναι ενιαίες. Την ήδη ισχυρή προοπτική του, έρχονται να ενδυναμώσουν τα οριζόντια γραμμικά

ανοίγματα εκατέρωθεν. Επίσης χρωματισμένες οι εσωτερικές επιφάνειες

των διατομών τους, λειτουργούν και αυτές ως πινελιές χρώματος, μέσα

σε μία κατά τ’ άλλα ουδέτερη και αυστηρή ατμόσφαιρα που επικρατεί τόσο λόγω της χωρικής μορφολογίας όσο και του ανεπίχριστου τραχέος σκυροδέματος. Μία λεπτή ευθεία γραμμή που διατρέχει τη δαπεδόστρωση, αναπτύσσεται ως άξονας συμμετρίας που διαχωρίζει τον χώρο και γεφυρώνει το κεντρικό ιερό με το σημείο που βρίσκεται το εκκλησιαστικό όργανο. Υψώνοντας το βλέμμα, εντοπίζεται μία ισχυρή οριζόντια σχισμή που διατρέχει την ακμή εφαρμογής του δυτικού τοίχου με την πλάκα της οροφής. Αυτή η αποκόλληση δύναται να αφήσει το φως να διέλθει εντός του χώρου, μόνο κατά τις ώρες δύσης του ηλίου, μετακινούμενο επάνω στις ακόμη πιο σκιασμένες επιφάνειές του, αποδίδοντας ένα πολύ δυναμικό χωρικό αποτέλεσμα. [Ε Β25] Η δύση του ηλίου αποτυπώνεται στον χώρο ως μία σύντομη τελετουργία λήξης της ημέρας. Μία ακόμη απόδοση της ιδέας του ιερού φωτός, από τον Le Corbusier. Όταν μετά

χάρη στο κατακόρυφο γραμμικό άνοιγμα στη δεξιά πλευρά του ανατολικού τοίχου. Το φυσικό φως τότε θα διατρυπήσει σχεδόν το ιδιόμορφο αυτό άνοιγμα - υποδοχέα, φωτίζοντας έντονα τον χώρο του ιερού, από την οπίσθια μεριά του. Τέλος, ένα ορθογώνιο άνοιγμα, στην άνω πλάκα, επιτρέπει στο άμεσο φως του ηλίου να εισέρχεται απευθείας εντός του χώρου, καθ’ όλη τη διάρκεια της ημέρας. Δύναται μάλιστα να αποτυπώνει εντός αυτού την κίνηση του ίδιου του ήλιου, αφού οι ακτίνες ακολουθούν την τροχιά του. Αποδίδεται

έτσι το νόημα της ανώτερης Αλήθειας, που πηγάζει από ψηλά.

Ο ιερός αυτός χώρος, παραλαμβάνει διαφορετικές ποιότητες φωτισμού

κατά τη διάρκεια μιας ημέρας. Ένα σταθερό του γνώρισμα, παρόλα αυτά, παραμένει το ημίφως. Η βασική συνθήκη για τη δημιουργία ενός χώρουησυχαστηρίου για περισυλλογή και απομόνωση από τα εγκόσμια. Ακόμη κι αν η ένταση του φυσικού φωτός που διέρχεται συναντά στιγμιαίες κορυφώσεις, η συνθήκη που επικρατεί στον χώρο προσκυνήματος είναι η σκιασμένη αμυδρότητα που λειτουργεί σαν ενθυμητής του πνευματικού σκοπού του: η προσευχή και όχι ο εντυπωσιασμός.

[Ε Β24] [Ε Β25] 60
την διάρκεια της νύχτας, ο ήλιος ανατείλει, και πάλι θα ακολουθήσει μία αντίστοιχη χωρική τελετουργία - αυτή τη φορά

2. Zumthor και Utzon: Αντιπαραθέσεις στην Ένταση.

«… Για μένα, τα κτίρια μπορούν να έχουν μια όμορφη σιωπή που τη συνδέω με χαρακτηριστικά όπως η ψυχραιμία, η αυτοπεποίθηση, η ανθεκτικότητα, η παρουσία και η ακεραιότητα και με ζεστασιά

και αισθησιασμό, ένα κτίριο που είναι ο εαυτός του, είναι ένα κτίριο, που δεν αντιπροσωπεύουν οτιδήποτε, είναι απλώς 79…»

- Peter Zumthor

Bruder Klaus

Αρχιτέκτονας: Peter Zumthor Κατασκευή: 2007

Τοποθεσία: Mechernich-Wachendorf, Γερμανία, Κεντρική Ευρώπη Ύψος: 12μ.

Το παρεκκλήσιο Bruder Klaus είναι ενταγμένο σε μια πεδιάδα και στέκει

στο τοπίο σαν πρωτόλειος “μονόλιθος”. [Ε Β27] Η πεντάπλευρη

ορθογωνικού σχήματος ογκοπλασία του δείχνει σαν να υπήρχε ανέκαθεν εκεί. Η τοποθέτησή του γίνεται με τρόπο ώστε να δεσπόζει στο τοπίο (επί της γης). Παράλληλα, οι έντονες γωνίες του υπογραμμίζουν τη δύναμη

της παρουσίας του σε αντιδιαστολή με τη μικρότητα των ανθρώπων. Η

χρήση της ερυθρόμορφης άμμου ως συστατικό του σκυροδέματος έχει ως οπτικό αποτέλεσμα το ελαφρώς ερυθρό χρωματισμό του, στοιχείο

που ενισχύει την ένταξή στο περιβάλλον λόγω των θερμών γήινων αποχρώσεων, παρά την επιβλητικότητα της εξωτερικής του μορφής.

Λόγω του ότι βρίσκεται απομονωμένο και μακριά από το αστικό περιβάλλον δεν έρχεται σε αντιπαράθεση με άλλες ανθρώπινες δομές, έτσι κεντρίζει τη προσοχή του περιπλανώμενου. Η παρουσία του ως

μεμονωμένο δημιούργημα εξιτάρει το ενδιαφέρον, ενισχύει την αίσθηση

του αγνώστου και το προβληματισμό για τη καταγωγή και το ρόλο του.

Η εσωστρεφής δομή του λόγω της μη ύπαρξης ανοιγμάτων πέραν

της πόρτας τριγωνικού σχήματος ενισχύει την αίσθηση μυστηρίου ενώ

ταυτόχρονα η άκαμπτη και αυστηρή μορφή του έρχεται σε αντιδιαστολή

με το κατώφλι τριγωνικού σχήματος. [Ε Β28] Αν και δεν υπάρχουν

ανοίγματα στις κάθετες επιφάνειες ενδιαφέρον προκαλούν οι οπές που

τρυπούν το κέλυφος. [Ε Β29] Ο Zumthor με το σχεδιασμό του επιτυγχάνει

τη συγχώνευση των εννοιών της ιστορίας, της μνήμης, του τόπου, του

79 https://en.wikiarquitectura.com/building/bruder-klaus-field-chapel/

[Ε Β27] [Ε Β28] [Ε Β29] 61
Παρεκκλήσιο
Ένταξη και Προσέγγιση.

πολιτισμού, των μεθόδων και των υλικών σε ένα κτίσμα που διακρίνεται

λόγω της κατασκευαστικής του ειλικρινείας. Ο προσανατολισμός του

ναού δεν επηρεάζει τόσο την εισχώρηση του φωτός λόγω του ότι το άνοιγμα είναι στην επιφάνεια που ορίζει την οροφή.

Κατασκευαστική λογική.

Το παρεκκλήσι διακρίνεται λόγω της καινοτόμας κατασκευαστικής λογικής του. Πρωταρχικό στάδιο για την κατασκευή αποτελεί η επιλογή κορμών δέντρων (χρήση 112 τοπικών πεύκων) τα οποία έπρεπε να είναι αρκετά ανθεκτικά για να μπορέσουν να χρησιμοποιηθούν ως ξυλότυπος, για τη χύτευση του οπλισμένου σκυροδέματος. Ο ξυλότυπος ικανοποιούσε το απαιτούμενο ύψος των 12 μέτρων της σύνθεσης. Ακολούθησε η σκυροδέτηση σε 24 στρώσεις (περίπου 50 εκ. έκαστη) και η καθεμία εξ αυτών γινόταν ανά ημέρα. [Ε Β32] Το μείγμα του σκυροδέματος εμπεριείχε τοπικά αδρανή υλικά. Μετά τη σταθεροποίηση του οπλισμένου σκυροδέματος, η αφαίρεση του εσωτερικού ξυλοτύπου έγινε με αργή καύση των κορμών, η οποία κράτησε 3 εβδομάδες. Τόσο η επιλογή των κορμών όσο και η συνεπακόλουθη καύση τους δεν αποτελεί τυχαία κατασκευαστική επιλογή. Βασική πρόθεση του αρχιτέκτονα μέσω αυτού του εγχειρήματος ήταν να απομείνει εσωτερικά μια μαυρισμένη κοιλότητα, που θα λάμβανε ως μορφή το αρνητικό σχήμα των κορμών αναδεικνύοντας ταυτόχρονα τις δυνατότητες του σκυροδέματος. [Ε Β33] Το δάπεδο από σκυρόδεμα είναι επικαλυμμένο από μίγμα λιωμένων μετάλλων, του οποίου η επεξεργασία

έγινε επί τόπου. Τέλος, το πάνω άνοιγμα του κελύφους με τη σειρά του αποτελεί τη βασικη πηγή φωτός αφήνοντας εκτεθειμένο το εσωτερικό του ιερού χώρου στις καιρικές συνθήκες. Το φως της ημέρας διακρίνεται, επιπλέον, μέσω μικρών οπών (350) που βρίσκονται στο κέλυφος από σκυρόδεμα. Αυτές φτιαγμένες με σωλήνες από χρωμιωμένο χάλυβα, χρησιμοποιήθηκαν για να περάσουν τα στοιχεία που συγκρατούσαν τον εσωτερικό ξυλότυπο στο εξωτερικό πριν καούν. Αργότερα, καλύφθηκαν με μικρά ημισφαίρια από φυσητό γυαλί που δίνουν μια ιδιαίτερη αίσθηση στο σημείο όπου εισέρχεται το φως και ήταν απαραίτητα λόγω των ρευμάτων αέρα που δημιουργούνταν μέσα στο παρεκκλήσι. [Ε Β34] Τέλος, οι λειτουργικές ανάγκες του χώρου δεν απαιτούσαν το σχεδιασμό ηλεκτρικών και υδραυλικών εγκαταστάσεων, έτσι η κατασκευαστική του λογική εστιάζει κυρίως στη βιωματική εμπειρία του χρήστη.

Αφήγηση του χωρικού βιώματος.

Η προσέγγιση του ιερού χώρου εξωτερικά δεν προμηνύει την χωρική εμπειρία που βιώνει ο χρήστης εισερχόμενος. Υπάρχει έντονη διαφοροποίηση μεταξύ του εξωτερικού περιβλήματος και του εσωτερικού χώρου πράγμα που προκαλεί έκπληξη. Πριν εισέλθει στο χώρο έρχεται

[Ε Β32] [Ε Β33] 62
63
[Ε Β34] [Ε Β26] Διαγραμματική κάτοψη απόδοσης των χωρικών σχέσεων φωτός - σκιάς.

επαφή του χρήστη με το πόμολο της εισόδου

για να την ανοίξει μεταφέρεται σε αυτόν η αίσθηση της θερμοκρασίας

του εξωτερικού περιβάλλοντος μέσω της αφής, ενεργοποιώντας, έτσι, τις αισθήσεις του. Στη πρώτη εντύπωση του χώρου κυριαρχεί το σκοτάδι και οι αδρές κοίλες επιφάνειες. Ο τρόπος επεξεργασίας της ύλης αναδεικνύει τη μορφή του εσωτερικού χώρου και τις επιφάνειες που τον ορίζουν. Εντός αυτού ο χρήστης όχι μόνο οσμίζεται την μυρωδιά του καμμένου, σε περιόδους έντονης υγρασίας, αλλά βιώνει έντονα και την οπτική αίσθηση της αφής των καμμένων κορμών που έχουν αποδοθεί με τη βοήθεια του σκυροδέματος. [Ε Β36] Η επαναλαμβανόμενη κάθετου προσανατολισμού κυρτότητα του απανθρακωμένου σκυροδέματος, που δημιουργείται με τη χρήση κορμών δέντρων ως καλούπι, ενισχύουν τη καθετότητα του χώρου. Ταυτόχρονα, η σύγκλιση των επιφανειών που ορίζουν τους τοίχους, προς “τον ουρανό” και η προοπτική των αρμών καθοδηγούν το βλέμμα προετοιμάζοντας για την αποκάλυψη της πηγής φωτός. Το εκτεθειμένο στα καιρικά φαινόμενα άνοιγμα της οροφής προκαλεί την αίσθηση ότι βρίσκεσαι, ταυτόχρονα, έξω και μέσα αν και δεν υπάρχει άμεση οπτική αντίληψη του εξωτερικού περιβάλλοντος. «Οταν δεν υπάρχει οροφή, ο ουρανός λειτουργεί ως το άνω όριο και ο χώρος είναι παρά τα πλευρικά του όρια, μέρος του ‹εξωτερικού χώρου› 80». Η σύγκλιση των επιφανειών που ορίζουν τους τοίχους του χώρου και η ελαφριά κλίση του δαπέδου προς το κεντρικό χώρο ενισχύει τη δυναμικότητα του κατακόρυφου άξονα μιας και ο χρήστης, αν και ελαφρώς, νιώθει να αποτραβιέται προς τα κάτω

λόγω της βαρύτητας της οποίας η αίσθηση ενισχύεται λόγω της ομαλής κατηφορικής κλίσης. Η αίσθηση μυστηρίου και έκπληξης εντείνεται λόγω

της στροφής στην οποία υπόκειται ο χρήστης, λόγω της κάτοψης του

χώρου. Ο χώρος ανοίγεται στον παρατηρητή κατευθύνοντας σταδιακά το βλέμμα του ώστε να ανακαλύψει το κεντρικό χώρο του ιερού ο οποίος φωτίζεται από “τον ουρανό” από το άνοιγμα σχήματος οφθαλμού. [Ε Β37] Εισέρχεται τελικά στον κεντρικό αυτό χώρο μεγαλύτερης κλίμακας, συγκριτικά με τη πορεία εισόδου που έχει ακολουθήσει για να φτάσει εκεί. [Ε Β38] Στο χώρο λόγω του ανοίγματος, διεισδύουν ο αέρας, η βροχή, το χιόνι, συμβάντα που ενεργοποιούν τις αισθήσεις και ενισχύουν τη βιωματική εμπειρία του χρήστη ο οποίος αισθάνεται ότι βρίσκεται ταυτόχρονα στο εξωτερικό περιβάλλον. Οι υδάτινες αντηχήσεις υπενθυμίζουν την υλικότητα του παρεκκλησίου και οι αισθήσεις ενισχύονται: τα απανθρακωμένα

υπολείμματα σκυροδέματος σκουραίνουν, καθώς ενισχύεται η μυρωδιά του μετάλλου και του καπνού. Φαινόμενα του περιβάλλοντος αφήνουν 80. Schulz Christian-Norberg, Genius Loci: Το Πνεύμα του Τόπου, Για μια φαινομενολογία της αρχιτεκτονικής, σελ 69-70.

[Ε Β36] [Ε Β39] 64 σε επαφή, οπτικά αλλά και μέσω της αφής, με μια κεντρική είσοδο τριγωνικού σχήματος από ανοξείδωτο χάλυβα (ύψους 3μ.), που δεν αποτελεί μια τυπική πόρτα όπως όλοι τη γνωρίζουν, η οποία τον περιορίζει να τοποθετηθεί κεντρικά αυτής για να μπορέσει να τη διαβεί. [Ε Β28] Σε μια ενδεχόμενη
Β37]
Β38]
65
Διαγραμματικές τομές απόδοσης της εισχώρησης του φωτός.

οροφή, αλλά κυρίως λόγω του οπτικού αποτελέσματος που έχει. Η αμεσότητα αυτού και η διάχυση εντός του ιερού ενισχύει την αναγλυφότητα των εσωτερικών επιφανειών όταν αυτά

δρουν σαν ένα. Η δημιουργία αυτού του αποτελέσματος διακρίνεται τόσο λόγω της κατασκευαστικής μεθόδου, όσο και λόγω της ποιότητας του χώρου που παράγει. Μια λεπτομέρεια του σχεδιασμού που γίνεται ορατή τόσο από το εξωτερικό κέλυφος, όσο και από τον εσωτερικό χώρο είναι τα ‘άστρα’ φωτός που προκύπτουν από τις οπές του σκυροδέματος. [Ε Β34] Αφού ο χρήστης εισαχθεί στο χώρο έχει τη δυνατότητα να καθίσει στο χώρο στάσης (παγκάκι) έχοντας το διάδρομο εισόδου πίσω του και τη δυνατότητα να ρεμβάσει “το φως του ουρανού” υψώνοντας το κεφάλι του ή το φως των κεριών που προέρχεται από τη κατασκευή μπροστά του. Υπάρχουν κι άλλες σχεδιαστικές λεπτομέρειες, συμπεριλαμβανομένου ενός γλυπτού το οποίο λέγεται ότι αναφέρεται σε ένα όραμα που βίωσε ο μοναχός Κλάους, να επιπλέει στη μήτρα της μητέρας του και να βλέπει μια τεράστια έκρηξη αστεριών

[Ε Β42] 66 το αποτύπωμα τους στον εσωτερικό χώρο όπως το νερό της βροχής που δημιουργεί μια λίμνη νερού στο δάπεδο η οποία καθρεφτίζει την αντανάκλαση
φωτός. [Ε Β39] Αποκορύφωμα της βιωματικής εμπειρίας
η εισχώρηση
φωτός, ίσως όχι τόσο λόγω του ότι αυτή πραγματοποιείται από την
του
αποτελεί
του
(έννοια μνήμης). Η εμπειρία αυτή κλείνει με την απόφαση του χρήστη να βγει εκτός αυτού του χώρου όπου γυρνώντας πίσω
είσοδος
ακολουθεί ένα σκοτεινό
ακολουθεί
οποί-
του
αν η κεντρικη
είναι κλειστή
διάδρομο/μονοπάτι αλλά αν είναι ανοιχτή
‘το φώς’ του
ου την πηγή δεν μπορεί να διακρίνει μέχρι να βγει εκτός της στροφής
διαδρόμου. [Ε Β42]

«Την έμπνευση που άντλησα από τα παρασυρόμενα σύννεφα

πάνω από τη θάλασσα και την ακτή [που σχηματίζουν] έναν θαυμαστό

χώρο στον οποίο το φως έπεφτε μέσα από την οροφή - τα σύννεφα - κάτω

στο πάτωμα που αντιπροσωπεύεται από την ακτή και τη θάλασσα.» - Jørn Utzon [Ε Β42α]

Εκκλησία Bagsværd.

Αρχιτέκτονας: Jørn Utzon Κατασκευή: 1969-1976

Τοποθεσία: Κοπεγχάγη, Δανία, Ευρωπαϊκός Βορράς

Ένταξη και Προσέγγιση.

Το κτίριο του Bagsværd βρίσκεται σε μια προαστιακή γειτονιά της Κοπεγχάγης ενταγμένο στο αστικό περιβάλλον. Η σχέση με την τοποθεσία, την οποία ο Utzon εκφράζει σε πολλά άλλα έργα μέσω μιας επίγειας

πλατφόρμας, εδώ έχει παραμεριστεί υπέρ ενός επίπεδου σχεδίου χωρίς παρόμοια αγκύρωση. Το δάπεδο λαμβάνει έναν αυτόνομο χαρακτήρα απελευθερωμένο από το περιβάλλον, και η μόνη σχέση του με το έδαφος εντοπίζεται στο κατώφλι μεταξύ του εσωτερικού και του εξωτερικού. [Ε Β43] Η εξωτερική βάση του κτιρίου κρύβεται από ένα διαμορφωμένο επικλινές

έδαφος ή διαπερνάται από ανοίγματα παραθύρων στην ανατολική όψη. [Ε Β43α] Αποτελεί μια κτιριακή δομή που πέρα από την εκκλησία

περιλαμβάνει και άλλες χρήσεις (παρεκκλήσι, αίθουσες, και διοικητικά γραφεία). Οι λειτουργίες διατάσσονται διαδοχικά με τη βοήθεια των εσωτερικών διαδρόμων, ώστε το εξωτερικό μορφολογικό αποτέλεσμα να είναι ένας ενιαίος κτιριακός όγκος. Ο ενιαίος αυτός όγκος διακρίνεται τόσο

λόγω της εξωστρέφειας που προσδίδει ο δημόσιος χώρος ο οποίος ορίζει

την κεντρική είσοδο της εκκλησίας, όσο και λόγω της εσωστρέφειας που

ορίζουν οι εσωτερικές αυλές που εξυπηρετούν τις υπόλοιπες λειτουργίες

της δομής. Η παρουσία της κτιριακής δομής στο χώρο εντείνεται λόγω

της λευκής επιφάνειας των όψεων, ειδικότερα λόγω της εναλλαγής

μεταξύ γυαλιστερών και αλαμπών επιφανειών (επένδυση). Με την

εναλλαγή αυτή του υλικού επιδιώκεται με αφαιρετικό τρόπο η επισήμανση

του περιγράμματος της εσωτερικής οροφής. [Ε Β44] Οι γυαλιστερές (εφυαλωμένες) επιφάνειες με τις κάθετες υποδιαιρέσεις τους επιτυγχάνουν

να δώσουν στο κτίριο οπτικό βάθος. Ταυτόχρονα, το παιχνίδι του φωτός και της σκιάς δίνει εντυπώσεις διάλυσης και βάθους στην ογκοπλασία. Έτσι, το αδιαπέραστο εξωτερικό της εκκλησίας αποϋλοποιείται και το κτίριο χειραφετείται από τον περίγυρό του. [Ε Β45, Β46] Τα φυσικά στοιχεία του εξωτερικού περιβάλλοντος, ειδικότερα τα τοποθετημένα δέντρα (σημύδες) «ρίχνουν» τη σκιά τους στις εξωτερικές επιφάνειες δημιουργώντας με τις εντάσεις τους μια αιθέρια ποιότητα. [Ε Β48] Η εμπειρία εντείνεται από την

[Ε Β42α] [Ε Β43] [Ε Β44] 67

αίσθηση που δίνεται από το εξωτερικό κέλυφος του κτιρίου είναι ότι πρόκειται για μια αγροτική αποθήκη, όπως γράφει και ο Norberg Schultz και δεν αποτελεί σύμβολο πίστης με την τυπική έννοια.

Κατασκευαστική λογική.

Η κατασκευή της μπορεί να θεωρηθεί ως συνένωση και επέκταση ποικίλων παραδόσεων, σε σχέση με άλλους οικοδομικούς πολιτισμούς, και ως έκφραση των μεθόδων δόμησης της εποχής. Στα αρχικά σχέδια της κατασκευής προβλεπόταν μεγαλύτερη σε ύψος οροφή από αυτή που κατασκευάστηκε. Λόγω κόστους δεν ήταν εφικτό να πραγματοποιηθεί έτσι, έγινε προσαρμογή των διαστάσεων των υψών στη τομή και του κανάβου, με κολώνες διατομής 25*25εκ., στη κάτοψη βάσει του modulor του Le Corbusier. Το στοιχεία της πρόσοψης του κτιρίου είναι προκατασκευασμένα και μπορούν να συναρμολογηθούν επί τόπου χωρίς την απαίτηση περαιτέρω επεξεργασίας. Η σύνδεση των στοιχείων αυτών γίνεται εξωτερικά. Τα υλικά της πρόσοψης (προκατασκευασμένα πάνελ) και της εσωτερικής στέγης (σκυρόδεμα που χυτεύεται επί τόπου) τονίζουν τον βιομηχανικό χαρακτήρα του κάτι που δε συνηθίζεται σε έναν θρησκευτικό ναό. Οι μικρότερες κεκλιμένες επιφάνειες της οροφής ακολουθούν την καμπυλότητα αυτής. Μια παρόμοια κλιμακωτή στέγη σχεδιάστηκε με το ξύλινο μοντέλο στους άλλους χώρους της εκκλησίας.

Τα ανοίγματα με τη σειρά τους κατά μήκος της πρόσοψης και του κτιρίου δημιουργούν στενές οριζόντιες ζώνες, οι οποίες στο εσωτερικό του ναού φανερώνουν τα πλάγια κλίτη, ενώ στα υπόλοιπα τμήματα λειτουργούν ως διάδρομοι. Είναι χαρακτηριστική, τέλος, η χρήση χειροποίητων τούβλων που χρησιμοποιούνται στις βόρειες χώρες. Εδώ επιλέγεται ο λευκός χρωματισμός τους θυμίζοντας έτσι την αρχιτεκτονική της μεσογείου. Τα στοιχεία αυτά και οι διαφορετικές υφές απλών υλικών αναδεικνύονται με ιδιαίτερη μελέτη τόσο του τεχνητού όσο και του φυσικού φωτισμού.

Αφήγηση του χωρικού βιώματος.

Κατά την άφιξη στην είσοδο της κτιριακής δομής κανείς δεν έχει παρά

μόνο ένα προαίσθημα της δομής που πρόκειται να αποκαλυφθεί με την εισχώρηση στον εσωτερικό χώρο. Ο χρήστης, αρχικά, εισέρχεται στον δημόσιο χώρο που σηματοδοτεί την κεντρική είσοδο της εκκλησίας. Αφού διαβεί τον ανοικτό αυτό χώρο συναντά μια ξύλινης κατασκευής πόρτα.

[Ε Β46] [Ε Β43α] 68 αλληλεπίδραση των επαναλαμβανόμενων στοιχείων και την αίσθηση της συνέχειας που προσδίδει ο αυστηρός ρυθμός των υποστυλωμάτων γκρι χρωματισμού και τραχιάς υφής στις όψεις. [Ε Β48] Ένα στοιχείο που εντείνει την αίσθηση αποϋλοποίησης του κτιρίου είναι οι γυάλινες δίριχτες στέγες οι οποίες, παράλληλα, σηματοδοτούν τον τρόπο που εισβάλει το φως στους εσωτερικούς διαδρόμους. Η
[Ε Β45] [Ε Β48] 69 Διαγραμματική κάτοψη απόδοσης των χωρικών σχέσεων φωτός - σκιάς. Διαγραμματική όψη επεξήγησης του διπλού κελύφους.

λόγω του χαμηλού ύψους της οροφής προσδίδοντας μια ποιότητα ήπιου φωτισμού και μια αίσθηση βάρους. [Ε Β54] Το τμήμα αυτό διατίθεται για τη στάση των πιστών για να παρακολουθήσουν τη λειτουργία. Στη συνέχεια, κατά τη προσέγγιση προς το ιερό η οροφή του χώρου κλιμακώνεται απότομα. Η απότομη αυτή εναλλαγή του ύψους προσδίδει ένταση στο χώρο μεταβάλλοντας, ταυτόχρονα, την εμπειρία του χρήστη. Το εισερχόμενο φως από το διαμήκες δυτικό άνοιγμα, το οποίο δεν είναι οπτικά αισθητό στο χρήστη, ενισχύει την εμπειρία αυτού. Η διάχυση του φωτός λόγω της λευκής επιφάνειας και της οργανικής μορφής της οροφής, με την ήπια υφή σκυροδέματος, εντείνει την αίσθηση του Υψηλού. Το τμήμα αυτό της οροφής χάνεται δίνοντας την εντύπωση μιας γεωμετρίας που τείνει προς το άπειρο. Ο χώρος εξαϋλώνεται οδηγώντας σε υπερβατικές αναζητήσεις μιας και ο τρόπος εισροής του φωτός μέσα από την κυματοειδή επιφάνεια δημιουργεί έναν αιθέριο χώρο μπροστά από το βωμό. [Ε Β55].

Η κτιριακή δομή, όμως, δίνει τη δυνατότητα πολλαπλών αφηγήσεων

μέχρι την άφιξη στο χώρο της εκκλησίας. Πέρα από τη κεντρική είσοδο

που οδηγεί σε αυτήν υπάρχουν και άλλες δευτερεύουσες που εισάγουν

το χρήστη από τους ενοποιητικούς διαδρόμους των υπολοίπων

λειτουργιών στα πλαϊνά κλίτη της εκκλησίας. Εφόσον ο χρήστης επιλέξει να προσεγγίσει την εκκλησία μέσω αυτών των εισόδων καλείται αρχικά να κινηθεί σε ένα σύστημα διαδρόμων. Οι διάδρομοι που οδηγούν στις υπόλοιπες λειτουργίες της κτιριακής δομής. [Ε Β57] φωτίζονται από την γυάλινη δίρριχτη στέγη η οποία έχει ήδη παρατηρηθεί από το εξωτερικό

και φωτίζει ομοιόμορφα όλη την έκταση της πορείας. Οι διάδρομοι

προσδίδουν μια τελετουργική πορεία στο χρήστη. Η πρώτη επαφή του με αυτόν επιτρέπει τη θέαση της εξωτερικής ογκοπλασίας των κλιτών τα οποία υψώνονται κλιμακωτά με μια ρυθμικότητα λόγω της διαφάνειας της στέγης. Στη συνέχεια, ο χρήστης έρχεται αντιμέτωπος με άλλες εισόδους οι οποίες οδηγούν στις άλλες λειτουργικές δομές. Θα έλεγε κανείς ότι πραγματοποιείται μια πορεία ιδιαίτερης κινητικότητας και αίσθησης ειδικά αν οι αίθουσες έχουν κόσμο και ακούγονται συνομιλίες ή προσευχές. Οι κατασκευαστικές αποφάσεις που ελήφθησαν για τη διαμόρφωση του διαδρόμου διακρίνονται λόγω της επανάληψης και της ρυθμικότητας που προσδίδουν στην πορεία. Οι κολώνες οπλισμένου σκυροδέματος, που αποτελούν το στατικό φορέα της κατασκευής, και έχουν παρατηρηθεί ήδη από έξω, οι αρμοί του σκυροδέματος στις επιφάνειες των τοίχων ακόμα και η γραμμικότητα της κατασκευαστικής λεπτομέρειας που

[Ε Β52] [Ε Β53] 70 Με το άνοιγμα
προσδίδεται
του ιερού της εκ-
και γαλήνης. [Ε Β53] Εισερχόμενος ο χρήστης στο χώρο της εκκλησίας αρχικά, εισάγεται σε ένα τμήμα αυτής που διακρίνεται
της εισόδου
άμεση οπτική
κλησίας. [Ε Β52] Πριν την εισχώρηση σε αυτή υπάρχει ένας μεταβατικός χώρος ο οποίος λόγω των κατακόρυφων ξύλινων διατομών της κεντρικής εισόδου προσδίδει μέσω του φωτός και της σκιάς μια αίσθηση ηρεμίας
[Ε Β54] [Ε Β55] Διαγραμματική τομή απόδοσης της εισχώρησης του φωτός. 71

παραλαμβάνει τον τεχνητό φωτισμό δημιουργούν έντονη προοπτική

και κατευθύνουν το χρήστη. Η πορεία είναι λουσμένη στο φως -φως

ανάλογο των εξωτερικών συνθηκών- το οποίο διαχέεται λόγω των

ανοιχτόχρωμων επιφανειών των τοίχων, προσδίδοντας έτσι στο χώρο μια ποιότητα ηρεμίας και αγαλλίασης - αν και λόγω της λειτουργίας του

εμφανίζει υψηλή κινητικότητα. [Ε Β58]

[Ε Β57] [Ε Β58] 72

Γ’ ενότητα: Συμπερασματικά, οι μηχανισμοί Σύνθεσης για την απόδοση Υπερβατικότητας.

[Δ14] 73

Η όραση, και κατ’ επέκτασιν η εικόνα (το αποτέλεσμα), για μεγάλο χρονικό διάστημα θεωρείται ότι υπερτερεί έναντι των υπόλοιπων αισθήσεων. Η συνειδητή επιλογή του αρχιτέκτονα να υπερτερεί το σκοτάδι έναντι του φωτός σε ένα χώρο μπορεί να μεταφραστεί σε προσπάθεια ενεργοποίησης

των αισθήσεων αυτών. Η δυσκολία ανάγνωσης του χώρου από τα οπτικά

ερεθίσματα ενεργοποιεί άλλους μηχανισμούς εξοικείωσης όπως λόγου

χάρη την ακοή, την αφή, την όσφρηση. Βασικό ρόλο στην αντιληπτική

διαδικασία για τη πραγμάτωση των παραπάνω αισθήσεων αποτελεί το ενεργό ανθρώπινο σώμα. Η συνδιαλλαγή του σώματος με έναν σκοτεινό χώρο, η ενεργοποίηση αισθήσεων πέραν της όρασης, καθώς και η επίδραση του νου στην όλη αντιληπτική διαδικασία μπορεί να οδηγήσει σε μια βιωματική εμπειρία. Βάσει του Merleau-Ponty «Ανάμεσα σε δύο υποκείμενα και ένα αντικείμενο υπάρχουν δύο ξεχωριστοί κόσμοι και μία κοινή γλώσσα επικοινωνίας που τους φέρνει κοντά 81». Έτσι, η παραπάνω αφήγηση της βιωματικής εμπειρίας θα μπορούσε είτε να δημιουργήσει κάποιο συναίσθημα στο χρήστη είτε να μην έχει κάποια ιδιαίτερη επίδραση σε αυτόν. Ακόμη, όμως, κι αν ο αρχιτέκτονας δεν επιτρέπει στο σκοτάδι να επιβληθεί στον χώρο η εμπειρία του διαφοροποιείται

και ο βαθμός οικειότητας του εκάστοτε υποκειμένου με το χώρο διαφέρουν. Στη παρούσα ερευνητική γίνεται μια προσπάθεια - με βάση τα παραδείγματα που αναλύθηκαν - αναγνώρισης του τρόπου με τον οποίο επετεύχθει η απόδοση του Υπερβατικού, σε ιδιάζουσας χρήσης χώρους. Η αναλογία του φωτός και της σκιάς, η επιλογή των υλικών και η μορφοποίησή τους σε τρισδιάστατες δομές αποτελούν πρωταρχικά συστατικά της Αρχιτεκτονικής και “τα περιεχόμενα (συναισθήματα)

παράγονται από την αντίληψη του υποκειμένου μέσω της αρχιτεκτονικής εμπειρίας 82”.

81. ibid, σελ 94/ Κανελία Κουτσανδρέα

74
από άνθρωπο σε άνθρωπο. Αυτό συμβαίνει διότι ακόμη κι αν ένας χώρος διατηρεί σταθερά μορφολογικά στοιχεία τα οποία είναι ορατά λόγω της ύπαρξης του φωτός οι προσωπικές
η συναισθηματική κατάσταση, καθώς
μνήμες, η κίνηση,
, 2011-2012. Ο ρόλος του σώματος και η έννοια της χωρικότητας κατά τον M. MerleauPonty 82. Χατζησάββα Ν. Δήμητρα, Η έννοια του Τόπου στις αρχιτεκτονικές θεωρίες και πρακτικές-σχέσεις φιλοσοφίας και αρχιτεκτονικής στον 20ο αι.

Ι. Φως και Σκιά, Ύλη.

«Κάθε πέτρα ακουγόταν σαν ένα μουσικό όργανο.

Ήξερα, προβλέψιμα, ότι διαφορετικά είδη πέτρας θα αντέχουν διαφορετικά

-όσο πιο μαλακή είναι η πέτρα, τόσο πιο βαθύς είναι ο τόνος.

Είναι παράδοξο, και επίσης λίγο κομψό, ότι ο πιο στερεός γρανίτης ψιθυρίζει; 83»

Η ύλη κατέχει κυρίαρχο ρόλο στη δημιουργία ενός αρχιτεκτονικού έργου.

Διαχωρίζεται στα φυσικά υλικά που είναι η πέτρα, το τούβλο, και το ξύλο, αλλά και στα τεχνητά που είναι το γυαλί, το μέταλλο, το πλαστικό. Μια

μεγάλη διαφορά μεταξύ φυσικών και τεχνητών υλικών είναι ότι τα πρώτα

έχουν τη δυνατότητα να φανερώνουν την ηλικία και την ιστορία τους, αλλά και να “εκφράσουν το πνεύμα του Τόπου”. Για τον Le Corbusier βέβαια, το σκυρόδεμα ισοδυναμεί με τα υλικά της φύσης, δηλαδή την πέτρα, το ξύλο, το χώμα - μια ενδιαφέρουσα προσέγγιση για την ερμηνεία των έργων του. Από την ανάλυση παρατηρήθηκε ότι και στα 4 αρχιτεκτονικά παραδείγματα χρησιμοποιήθηκε το σκυρόδεμα ως βασικό υλικό δόμησης. Αυτό, δίνει τη δυνατότητα κατασκευής τόσο οργανικών μορφών που αναδεικνύουν τις δυνατότητές του, όσο και πιο συμβατικών λύσεων, ενώ παράλληλα μπορεί να απαντήσει ταυτόχρονα και στις δύο απαιτήσεις (συνδυασμός οργανικότητας και μη: bruder klaus). Η επίδραση που έχει στις αντιληπτικές αισθήσεις του παρατηρητή, όταν έρθει

σε επαφή με το φώς, επηρεάζεται σε μεγάλο βαθμό από το τελικό οπτικό αποτέλεσμα που έχει η επιφάνεια, δηλαδή τον βαθμό επεξεργασίας.

Στα παραδείγματα του Le Corbusier παρατηρείται ότι το σκυρόδεμα δεν

υφίσταται περεταίρω επεξεργασία. Ο χρωματισμός, η υφή, τα ίχνη του ξυλοτύπου που διακρίνονται όλα είναι αποτέλεσμα της κατασκευαστικής λογικής που ακολουθείται. Η παρατήρηση αυτή επιβεβαιώνεται τόσο για τους τοίχους, όσο και για την οροφή. Σχετικά με τη Ronchamp, ένα από τα στοιχεία που ενισχύουν τον υπερβατικό της χαρακτήρα είναι το βαρύ

οπτικό αποτέλεσμα που δίνει η κοίλη οροφή η οποία, με την αποκόλλησή

της, δείχνει να αιωρείται επιτρέποντας παράλληλα και την εκ των άνωθεν εισχώρηση του φωτός. Την εντύπωση αυτή ενισχύει η σκουρόχρωμη

επιφάνειά της, η οποία έρχεται σε αντίθεση με τις λευκές αδρές επιφάνειες

των τοίχων που ενισχύουν τη διάχυση του φωτός. Παράλληλα, ενισχύεται

και το εισερχόμενο από τη σχισμή φως, με τα ίχνη του ξυλοτύπου να

δείχνουν ότι χάνονται όσο πλησιάζουν σ’ αυτήν. Ο ανατολικός πύργος, με τη σειρά του, αποδίδει πρωτοφανή αίσθηση λόγω του κόκκινου χρωματισμού του. Στη La Tourette αντιθέτως, το σκυρόδεμα τόσο στους τοίχους, όσο και στην οροφή έχει την ίδια σκούρα γκρι τονικότητα. 83. Λούντζης Γεωργιος-Νικολαιδη Γαλήνη, Θεωρήσεις περί θανάτου και σύγχρονα σχεδιαστικά παραδείγματα χώρων ταφής, σελ. 149.

[Ε Γ0] Ronchamp, λεπτομέρεια βιτρώ υαλοεπιφάνειας [Ε Γ1] Η χρήση του χρώματος, κατά τον Le Corbusier

75

Η διαφορά εδώ έγκειται στο γεγονός ότι τα ίχνη του ξυλοτύπου στους

τοίχους, σε σχέση με αυτά της οροφής δημιουργούν δύο διαφορετικής

κλίμακας κανάβους. Στους τοίχους εντείνει (ο κάναβος) με την βοήθεια και

των οριζόντιων γραμμικών ανοιγμάτων την προοπτική του χώρου. Από

την άλλη, τα ίχνη στην οροφή δίνουν την εντύπωση ότι η επιφάνειά της

έχει διαφορετικό από τους τοίχους βάρος. Εδώ δεν δίνεται η αίσθηση της

αποκόλλησης λόγω του ανοίγματος που διαχωρίζει τον δυτικό τοίχο από

την άνω πλάκα, αλλά δημιουργείται μια οριζόντια ακτίνα φωτός, κατά τις ώρες της δύσης. Τα ανοίγματα που ακολουθούν έχουν την ίδια φυγή με τα ίχνη του σκυροδέματος, εκτός από το άνοιγμα στον ανατολικό τοίχο, το οποίο είναι κατακόρυφο, με την επικρατούσα χωρική προοπτική να ενισχύει την ύπαρξή του. Η χωρική αυτή αυστηρότητα, στοχεύει στην απόδοση ενός κλίματος που απαντά στις ανάγκες για ατομική απομόνωση και εσωτερική αναζήτηση. Ο πιστός αφοσιώνεται στην ατομική του σφαίρα, η ύλη των επιφανειών, λιτή και μη διακοσμημένη, ακολουθεί τις επιταγές μιας ασκητικής ζωής. Με τη σειρά του στο παρεκκλήσι Bruder Klaus, που αναλύθηκε παραπάνω, οι ακμές του μαυρισμένου και τραχέος σκυροδέματος κυρτής μορφής προσανατολίζουν το βλέμμα στην οπή της απόληξης του κελύφους. Το φως εισέρχεται άμεσα από “τον ουρανό” και -δεδομένης της κλίσης των ακτίνων- εντείνει την οπτική αδρότητα της επιφάνειας, λόγω του έντονου αναγλύφου της. Εδώ ύλη και φως συνεργάζονται απόλυτα ενισχύοντας το ένα την ύπαρξη του άλλου. Ο χώρος κάνει επίκληση σε συναισθήματα τρόμου, προβληματισμού, ίσως και φόβου. Σε αντιδιαστολή με την εκκλησία Bagsværd, που αποτελεί το μόνο παράδειγμα στο οποίο η ύλη έχει κυρίως λευκή απόχρωση και ήπια υφή. Στο χώρο του ιερού, το απόλυτα λευκό σκυρόδεμα επιτρέπει τη

διάχυση του φωτός σε μεγαλύτερο βαθμό από ότι επιτρέπει ο σχεδιασμός

των προηγούμενων παραδειγμάτων. Ένα επιπλέον γνώρισμα της ύλης

είναι ότι τα ίχνη που έχει αφήσει ο ξυλότυπος έχουν δεχτεί επεξεργασία, με αποτέλεσμα να παρουσιάζουν ηπιότερο ανάγλυφο και άρα να είναι λιγότερο διακριτά. Η μειωμένη αυτή ποσότητα σκιών που παράγεται, δίνει αφενός την εντύπωση ενός πιο μαλακού κελύφους και αφετέρου ότι αυτό εξαϋλώνεται όπου απευθείας δέχεται τις ακτίνες του φωτός. Επισημαίνεται επιπλέον, ότι η εντύπωση αποϋλοποίησης του κελύφους διακρίνεται και σε μέρος των εξωτερικών επιφανειών, οι οποίες λόγω της ανακλαστικότητάς τους δίνουν την εντύπωση ότι οι απολήξεις της ογκοπλασίας χάνονται στον ουρανό ενώ ταυτόχρονα ο κανάβος τον αρμών τους και ο τρόπος τοποθέτησής τους υπονοεί τη οργανικότητα της εσωτερικής οροφής. Το αποτέλεσμα της διαχείρισης αυτής, είναι ο χώρος να αποδίδει συνθήκες αγαλλίασης και γαλήνης. Κάτι αντίστοιχο συμβαίνει και στον ιερό χώρο της Ronchamp, που όμως εκεί διαφοροποιείται τόσο από την τεχνητή απόδοση διαφορετικών θερμοκρασιών στο φως όσο και από την επιμέρους διακριτική ύπαρξη χρωμάτων. Η μελέτη ως προς την ύλη, λοιπόν, φέρει καταλυτική σημασία για την τελική

[Ε Γ2] La Tourette, υφή της επιφάνειας άνοψης
76
[Ε Γ3] Bagsværd, επεξεργασία του σκυροδέματος [Ε Γ4] Bagsværd - υφές περιμετρικών διαδρόμων

απόδοση των επιλεγμένων χωρικών ποιοτήτων. Αποτελεί το στοιχείο εκείνο που ενισχύει τις συνθετικές επιλογές του αρχιτέκτονα. Η αδρότητά της, αναδεικνύεται από το φως, με τη βοήθεια της σκιάς, αναλόγως την τοποθέτηση της πηγής του. Το φως διαχέεται ή απορροφάται και δημιουργεί

εντυπώσεις που ενισχύουν την εμπειρία του χρήστη. Μεταξύ ύλης, φωτός

και χώρου υπάρχει μια δυναμική αλληλεπίδραση, η αρμονική διαχείριση

της οποίας έχει ως αποτέλεσμα την σύνθεση αρχιτεκτονικής που δύναται

να αποδώσει ηχηρά νοήματα και να ξυπνήσει μνήμες και συναισθήματα.

II. Φως και Σκιά, Τομή.

«Η σχέση του ανθρώπου με το περιβάλλον συνίσταται από τη μια στην προσπάθεια

να το αφομοιώσει κατά τα προσωπικά του πρότυπα [αντίληψης]

και από την άλλη να μεταφράσει αυτά τα πρότυπα

σε συγκεκριμένες αρχιτεκτονικές δομές 84».

Η τομή ως ένα εκ των βασικών συνθετικών εργαλείων διαχείρισης του

φωτός και της σκιάς αποτελεί το μηχανισμό που δίνει μορφή στο χώρο.

Όπως αναφέρει ο Norberg-Schulz «μία φαινομενολογία του τόπου θα

πρέπει να εξετάσει τους βασικούς τρόπους κατασκευής και τη σχέση τους

με τη διάρθρωση της μορφής 85». Η τομή, ταυτόχρονα, επιτρέπει τη μελέτη

για το που θα εισαχθούν τα «ανοίγματα» και μέσω αυτής διερευνάται η

απόδοση του φωτός που εισάγεται στο χώρο. Οι διαφορετικές θέσεις των

ανοιγμάτων, οι διαστάσεις, το σχήμα, αλλά κυρίως ο προσανατολισμός

τους επιτρέπει το σχεδιασμό των διαφορετικών ποιοτήτων που

εντοπίστηκαν παραπάνω. Το άνοιγμα εκφράζει τον τρόπο με τον οποιο

ο χώρος συνδέεται με το φως. Μέσω αυτού «εντοπίζεται μια έκφραση

πολιτιστικής αντίληψης γύρω από το φώς, η οποία εκτείνεται πολύ

πέρα από τις πρακτικές ανάγκες αερισμού και φωτισμού 86». Αρχικά, σε δύο εκ των παραδειγμάτων παρατηρείται έντονη οργανικότητα της μορφής. Αυτή εντοπίζεται έντονα στη Ronchamp και στο Bagsværd με διαφορετική σαφώς διαχείριση. Στο πρώτο η οργανικότητα εντοπίζεται στις επιφάνειες που ορίζουν τους τοίχους και την οροφή, ενώ στο δεύτερο οργανική μορφή έχει μόνο η οροφή στην οποία παρατηρείται

και έντονη διαφοροποίηση στο ύψος. Άξιο αναφοράς είναι ότι στη Ronchamp οι οργανικές μορφές είναι εμφανείς και στο εξωτερικό κέλυφος, ενώ το Bagsværd εξωτερικά έχει ορθοκανονική προσέγγιση.

84. Schulz Norberg, Existence, Space and Architecture, σελ 37 στο Λέφας Παύλος, Αρχιτεκτονική και Κατοίκηση,σελ. 155

85. Schulz Christian-Norberg, Genius Loci: Το Πνεύμα του Τόπου, Για μια φαινομενολογία της αρχιτεκτονικής, σελ. 31. 86. Κεράνης Μιχαήλ Κάρολος, Ο ρόλος του φωτός στην αρχιτεκτονική δημιουργία, σελ. 27

[Ε Γ5] Bruder Klaus, η ανάγλυφη επιφάνεια εσωτερικά [Ε Γ6]

Άμεσο φως: έντονες σκιάσεις, απευθείας από τον ήλιο, αλλάζει γωνία κατά τη διάρκεια της ημέρας. Έμμεσο φως: ήπιες σκιάσεις, σταθερό κατά τη διάρκεια της ημέρας. * οι προσανατολισμοί ισχύουν για τις γεωγραφικές τοποθεσίες άνω της γραμμής Ισημερινού. Για τις όσες βρίσκονται κάτω αυτής, αντιστέφονται.

77

ιερότητας. Στο δεύτερο, η αίσθηση του απείρου της οροφής, η καθολικότητα του εδάφους σε συνδυασμό με την εισροή του φωτός από μια μη ορατή στο ανθρώπινο μάτι πηγή επιτρέπουν την εντύπωση αποϋλοποίησης του χώρου προσδίδοντας

μια αίσθηση γαλήνης στο χρήστη. Σε αυτή την εμπειρία συμβάλλουν

και οι πολλές αναφορές που πηγάζουν από το κτίριο. Από κοινού αυτά

δίνουν στην Εκκλησία Bagsværd έντονη παρουσία και την καθιστούν

έναν υπερβατικό χώρο. Στη συνέχεια, έντονα υπερβατική παρουσία προσδίδει στο Bruder Klaus η διαχείριση της τομής σε αλληλοσυσχετισμό με το φως και τη παραγόμενη σκιά. Οι συγκλίνουσες επιφάνειες που ορίζουν τους τοίχους, καθώς και η κατάληξή τους στο

δεδομένης της εμπειρίας την οποία μεταφέρει στο χρήστη. Τέλος, η La Tourette αν και αρχιτεκτονικό αποτέλεσμα του Le Corbusier όπως και η Ronchamp ακολουθεί άλλους τρόπους διαχείρισης της τομής. Εδώ η ορθοκανονικότητα του χώρου ενισχύεται από τις φωτεινές γραμμικές εκατέρωθεν διατομές. Τόσο η σχισμή του δυτικού τοίχου όσο και το κατακόρυφο άνοιγμα του ανατολικού, συστήνουν από μία διαφορετική τελετουργική συνθήκη, τόσο κατά τις

ώρες τέλεσης των πρωινών μυστηρίων όσο και των απογευματινών.

Το φως εισέρχεται στο χώρο κάνοντας έντονη τη παρουσία του και από

το κεντρικό άνοιγμα της οροφής, που σαν τέχνασμα μετατρέπει την πηγή σε προβολέα. Το τί βρίσκεται εκτός των ορίων αυτού του χώρου

παραμένει άγνωστο, με μοναδική εξαίρεση το φως, που ως δυναμική παρουσία μετακινείται κατά τη διάρκεια μίας ημέρας εντός του χώρου. Ο προσκυνητής συντροφεύεται από μία μόνο εξωγενή παρουσία, το φως. Αποτέλεσμα είναι αυτό να αποκτά σώμα, όπως και στη Ronchamp, με τη διαφορά ότι εδώ δείχνει να λάμπει περισσότερο μέσα στο επικρατές σκοτάδι. Γενικότερα, «Όταν τοποθετούμε ένα άνοιγμα σε ένα κτίριο και επιθυμούμε να σχετίζεται με το τόπο, για να γίνει μέρος του τόπου, θα πρέπει να υπολογίζει και να «σέβεται» τις ποιότητες φωτισμού του τόπου. Η αντίληψη μας γύρω από την ποιότητα του φωτός είναι συνυφασμένη τόσο με τον τρόπο με τον οποίο θα διαχειριστούμε τις τοπικές κλιματικές

[Ε Γ7] [Ε Γ8] 78 Η αίσθηση που προσδίδει το πρώτο βασίζεται σε μεγάλο βαθμό στην τοποθέτηση του ναού σε σχέση με τα σημεία του ορίζοντα και τους άξονες ανατολής-δύσης και βορρά-νότου. Ο νότιος τοίχος λόγω των ανοιγμάτων του και κατ’ επέκταση του τρόπου εισχώρησης του φωτός δημιουργεί μια αίσθηση αγαλλίασης και ιερότητας στο χώρο. Επιπλέον, στα σημεία των πύργων όπου ο χρήστης χάνει την οπτική επαφή με την επιφάνεια της οροφής και βλέπει την απόδοση του φωτός στην αδρή επιφάνεια, εντείνεται η αίσθηση
άνοιγμα προς τον ουρανό
έντονη δυναμική στο χώρο ενισχύοντας την αίσθηση του
φαινομενικά διαχείριση αλλά ο συνδυασμός αυτής με όσα αναφέρθηκαν παραπάνω σχετικά με την ύλη καθιστούν το χώρο αξιομνημόνευτο
προσδίδει
αγνώστου. Μια απλή

συνθήκες, καθώς και με το έργο το οποίο έχουμε να αντιμετωπίσουμε 87».

Η επιτυχία, λοιπόν, στην απόδοση του υπερβατικού εγκειται και στην

συνειδητή διαχείριση του προσανατολισμού, σε μεγάλο βαθμό. Αξίζει

να γίνει μία ευθεία αντιπαραβολή στην διαχείριση του διαδρόμου

προσέγγισης του ναού, μεταξύ της μονής La Tourette και της Scala

Regia, στο Βατικανό. [Ε@] Εκεί, το επίπεδο ανεβαίνει προς την κατοικία του

Πάπα, ακολουθώντας την κλίμακα, ενώ η άνοψη δεν ταυτίζεται με αυτήν

την κλίση - γι’ αυτό και αντιληπτικά, ο διάδρομος μικραίνει χωρικά κατά την άνοδο. Αίσθηση που οξύνεται και λόγω της σταδιακής στένωσης της κάτοψης. Η ανάβαση, εννοιολογικά μεταφέρει την ιδέα της εξύψωσης, της απελευθέρωσης από το σωματικό (εγκόσμιο) βάρος. Σε πνευματικό επίπεδο, συμβολίζει την λύτρωση και την ανύψωση προς το θείο φως. Εν αντιθέσει, η κατάβαση, που παραλαμβάνει συμβολισμούς όπως η κάθοδος προς ένα χαμηλότερο επίπεδο, μεταφέρει τον άνθρωπο πιο κοντά στο σκοτάδι. Επιπλέον, η καθοδική εισχώρηση εντός του εδάφους,

μπορεί να αποδώσει την ιδέα της εμβάθυνσης, της εξερεύνησης δηλαδή

του τί υπάρχει πέρα από το το επίπεδο της επιφάνειας. Ο Le Corbusier

αναδιατύπωσε την ιδέα της ίδιας της προσέγγισης ενός ιερού χώρου.

Αν και ο ναός, χώρος φώτισης και πνευματικής λύτρωσης, στη μονή La Tourette προσεγγίζεται από μία καθοδική πορεία, μεταφέροντας δηλαδή

τον προσκυνητή πιο κοντά στο επίπεδο της Γης, ενισχύει την χωρική

δυναμική του ιερού Φωτός, που μέσα στο απόλυτο σκοτάδι, λάμπει πιο δυνατά. Αποδίδει επιπλέον, εννοιολογικά, την ιδέα της αναζήτησης πέραν των εγκόσμιων πραγμάτων, εισερχόμενος κανείς σε βαθύτερο επίπεδο εσωτερικής εξερεύνησης. ΙΙΙ. Φως και Σκιά, Κλίμακα

«Αλλά εξίσου ενδιαφέρων είναι ο τρόπος με τον οποίο το φώς

«κατασκευάζει» ένα χωρικό περιβάλλον, φέρνοντας τον ουρανό στα δωμάτια και ζωγραφίζοντας την απόμακρη παρουσία του στους τοίχους 88».

Τέλος, ένας ακόμη μηχανισμός σύνθεσης που ελέγχει την απόδοση του υπερβατικού και την εμπειρία του χρήστη είναι η κλίμακα, η οποία όπως

και πριν διερευνάται σε αλληλοσυσχετισμό με το φως και τη σκιά. Μιας

και οι χώροι μελετώνται με αφορμή τον άνθρωπο και για τον άνθρωπο, λαμβάνεται σοβαρά υπόψη η κλίμακά του «Το σώμα, αποτελεί την κλίμακα μέτρησης του χώρου, καθώς ενώ εμείς κινούμαστε και κυκλοφορούμε

87. Κεράνης Μιχαήλ Κάρολος, Ο ρόλος του φωτός στην αρχιτεκτονική δημιουργία,σελ. 30 88. H. Plummer, The architecture of Natural Light, σελ.18

[Ε Γ9] 79

σε ένα περιβάλλον τα αποτυπώματα των θέσεών μας διαμορφώνουν

σημεία – τα οποία γίνονται όρια και αυτά με την σειρά τους ορίζουν τον

τόπο – χώρο του ανθρώπου 89». Αρχικά, όσον αφορά τη μονή La Tourette, το βίωμα του κάθε χώρου συνδέεται άμεσα με το μέγεθός του. Αξίζει να σημειωθεί πως είναι εξ’ ολοκλήρου σχεδιασμένη με βάση τις επιταγές του Modulor, ως προς την ατομική κλίμακα. Οι διαστάσεις στα κελιά των μοναχών, ελαχιστοποιούνται κατά το δυνατό στις επιτρεπόμενες, οι χώροι κοινής διαβίωσης με τη σειρά τους, αναπτύσσονται στο εμβαδόν που χρειάζεται έκαστος για την ομαλή λειτουργία του. Η συνθήκη αλλάζει άρδην στον ναό της μονής, ο οποίος αναπτύσσεται σε μεγαλύτερη κλίμακα, με την αναλογία μήκους - ύψους και πλάτους να δίνει προτεραιότητα στα πρώτα δύο. Η σημασία του χώρου τέλεσης μυστηρίων γίνεται έτσι μη αμφισβητήσιμη, η κλίμακα μεγιστοποιείται και ενεργοποιεί στο άτομο ένστικτα κατωτερότητας. Ο άνθρωπος είναι πολύ μικρός μπροστά στο μήκος και το ύψος του χώρου, όπως είναι και μπροστά ανάγκη για Πίστη. Η συστολή και η συγκράτηση είναι δύο αντανακλαστικές αντιδράσεις μπροστά στο δέος που δημιουργεί ο χώρος στον χρήστη, με την είσοδό του. Γεγονός που - συνδυαστικά με την εκφραστική διαχείριση του φωτός - τον μυεί άμεσα σε μία υπερβατική χωρική εμπειρία. Από την άλλη πλευρά, στην περίπτωση του πιο φωτεινού ιερού χώρου της Ronchamp εντοπίζεται μία διαφορετική αντιμετώπιση της κλίμακας. Αφενός είναι αρκετά μεγάλο το ύψος, ώστε ο χώρος να επιβάλλεται στην κλίμακα του ανθρώπου, αφετέρου η αναλογία των δύο διαστάσεων της κάτοψης, ισορροπεί τις εσωτερικές αποστάσεις, θέτοντάς τις ισοδύναμες. Συνεπώς ο χώρος δεν αναπτύσσει δραματικές προοπτικές φυγές - όπως στη La Tourette. Το άμεσο νότιο φως, είναι εδώ ο χωρικός πρωταγωνιστής, που ακόμα και το κέλυφος της στέψης δείχνει να ανοίγει προς την πηγή του, όπως φανερώνει και το σχέδιο της τομής, κάνοντας έτσι τον χώρο να

αυξάνει σε όγκο προς την ίδια κατεύθυνση. Η ιδιαιτερότητα στην κλίμακα

του ναού αυτού εντοπίζεται στα τρία δευτερεύοντα ιερά (τρεις αγίες τράπεζες). Χώροι πολύ μικρού εμβαδού, μόλις δύο με τρία άτομα μπορούν

να συνυπάρξουν γύρω από αυτήν, που εκτείνονται σε ύψος λόγω της πυργοειδούς δομής τους. Η άποψη του ατόμου όταν υψώνει το βλέμμα του αναζητώντας το τέρμα αυτής της φυγής, του ενεργοποιεί το αίσθημα της κατώτερης φύσης του, για άλλη μία φορά. Και στους τρεις πύργους, το φυσικό φως εισέρχεται από την μία πλευρά της απόληξής τους, με σαφή πάντα προσανατολισμό. Με αυτόν τον τρόπο, του αποδίδεται η αξίωση της ιερότητας. Η κλίμακα είναι ένας μηχανισμός που από την εξωτερική όψη του κτιρίου δίνει καθοριστική εντύπωση στο χρήστη. Ωστόσο, παρατηρούνται και οι περιπτώσεις όπου η εξωτερική κλίμακα της ογκοπλασίας δε συνδέεται με τον εσωτερικό χώρο που ο χρήστης βιώνει με την είσοδό του στο ναό. Ο λόγος για τα παραδείγματα του Bruder 89. Norberg Schulz, Existence, Space and Architecture στο Μαλάμογλου Ευγενία, Το (αν)οικώ υπό το πρίσμα του Toyo Ito, σελ. 12

80

Klaus και του Bagsværd τα οποία όπως έχει ειπωθεί παρουσιάζουν πολύ

διαφορετική εικόνα στο εξωτερικό από ότι στο εσωτερικό τους. Όσον

αφορά το Bruder Klaus η εξωτερική του ογκοπλασία δίνει την εντύπωση

ενός μεγαλύτερης κλίμακας ναού, συγκριτικά τουλάχιστον, με αυτό που

βιώνει τελικά ο χρήστης. Αρχικά, ο άνθρωπος εισέρχεται σε έναν χώρο

περιορισμένου ύψους και πολύ σκοτεινό, που δημιουργεί αιφνιδιασμό

και δέος ταυτόχρονα. Η στενή και χαμηλή πορεία εισόδου ακολουθείται

από ένα χώρο που φωτίζεται έντονα από το μοναδικό άνοιγμα της

κορυφής του κελύφους. Η ιερότητα εδώ αποδίδεται απ’ το γεγονός πως

αν και η κλίμακα του χώρου είναι περιορισμένη και φθίνουσα προς το

σημείο φυγής της άνοψης, η επιλογή της τοποθέτησης του μοναδιαίου

ανοίγματος εκεί, καθιστά τον χώρο συνεχιζόμενο ως το άπειρο. Με

αυτόν τον τρόπο εντείνεται και η αίσθηση του αγνώστου, αφού το φως επιβλητικό ως είναι θαμπώνει την άποψη του χρήστη δυσκολεύοντας

συνεπακόλουθα και την όρασή του να επανεστιάσει, όταν την επαναφέρει στο επίπεδο των ματιών. Αντίστοιχες εναλλαγές της χωρικής κλίμακας κατά την είσοδο, παρατηρούνται και στην εκκλησία Bagsværd.

Ο χρήστης αρχικά εισάγεται σε ένα τμήμα όπου η οροφή αναπτύσσεται σε χαμηλότερο επίπεδο, δίνοντας έτσι την αίσθηση ότι ο χώρος είναι εγγύτερα στην ατομική του κλίμακα. Ωστόσο, η συνεπακόλουθη πορεία

προς το κεντροβαρικό μέρος της κάτοψης, μεταβάλλει τη βιωματική

εμπειρία, αφού η κλίμακα του χώρου απελευθερώνεται και ανοίγεται προς

τα επάνω. Φυσικά, συμβάλει εδώ και ισχυρή λάμψη του φωτός που δείχνει σχεδόν να εξαϋλώνει το καμπυλόμορφο κέλυφος.

[Ε Γ10]

81

IV. Φως και Σκιά, ο επίλογος.

« Κάθε συγκινησιακή εμπειρία της αρχιτεκτονικής είναι πολυαισθητηριακή

οι ιδιότητες του χώρου, της ύλης και της κλίμακας μετρώνται εξίσου από

το μάτι, το αυτί, τη μύτη, το δέρμα, τη γλώσσα, τον σκελετό και τους μυς.90 »

- J. Pallasmaa

Το συνθετικό απότελεσμα ορίζεται από το συνδυασμό των παραπάνω

μηχανισμών σύνθεσης. Η εκάστοτε συνεργασία των εργαλείων μπορεί

να δημιουργήσει διαφορετικό χωρικό αποτέλεσμα και κατ΄επέκταση διαφορετική εμπειρία του Υπερβατικού. Ο τρόπος με τον οποίο εισέρχεται και «εγκαθίσταται» σε ένα χώρο το φως εξαρτάται σε μεγάλο βαθμό από τα ανοίγματα, άρα από την τομή. Μέσα από το κενό, μέσα από τους διαφορετικούς τύπους γυαλιού, μέσα από την ίδια την μάζα που διαπερνά το φώς, εισάγει στον σχεδιασμένο χώρο τις επιθυμητές, από τον αρχιτέκτονα και όχι μόνο, ποιότητες. Η φαινομενικά απλή τυπολογία των ανοιγμάτων κατευθύνει, οριοθετεί και εγκλωβίζει το φως. Σε πολλά από τα παραδείγματα παρατηρήθηκε ότι, η σκιά πλάθει το εσωτερικό δημιουργώντας ένα βάθος στο οποίο όλα τα περιγράμματα διευρύνονται, δημιουργώντας μια ατμόσφαιρα ηρεμίας. Όπως στη Ronchamp ο τρόπος με τον οποίο συντίθεται τα μεγάλα κενά και τα ανοίγματα, στο ογκώδες γλυπτικό κέλυφος, προσδίδει υπερβατική αίσθηση, εφόσον ο αέρας και το φως έχουν τον απαραίτητο χώρο για να γίνουν πρωταγωνιστές. Φως όμως, σημαίνει επίσης χρώμα και ύλη. Αυτά αποτελούν εξίσου σημαντικούς παράγοντες στον χαρακτήρα και την ατμόσφαιρα ενός χώρου. 91 Τι αποτέλεσμα θα είχε για παράδειγμα

το Bruder Klaus αν αντί για τη μαυρισμένη κοιλότητα υπήρχε ένα υλικό

ήπιας αναγλυφότητας και λευκού χρωματισμού, όπως στο Bagsværd;

Στα κτίρια που αναλύθηκαν, παρατηρήθηκε πως το πλήρες υπερτερεί

του κενού (στην τομή). Σημαντικό συμπέρασμα πως με τον περιορισμό

της διαφάνειας στις διατομές ενός κελύφους, μπορεί ο αρχιτέκτονας να

ελέγξει και χειραγωγήσει το φυσικό φως. Έτσι, γίνεται παρούσα στο χώρο

η σκιά και η εναλλασσόμενη συνύπαρξή της με το φως, κάτι που δε θα παρατηρούνταν σε ένα χώρο με μεγάλες επιφάνειες υαλοστασίων. Εν κατακλείδι τόσο το φως -ως φορέας δύναμης και πομπός νοημάτων, ως ενθυμητής της ύπαρξης μιας υπέρτερης αλήθειας- όσο και η σκιά -που εμφανίζεται ως αντικαταστάτης στην απουσία του- αναπτύσσουν έναν ιδιάζοντα χωρικό διάλογο, υποβάλλοντας το βίωμα και δημιουργώντας εμπειρίες, που είτε θα αφυπνίσουν αναμνήσεις είτε θα τις δημιουργήσουν.

90. Pallasmaa Juhani, Τα μάτια του δέρματος : Η αρχιτεκτονική και οι αισθήσεις, σελ 68..

91. Καποδίστρια Μαντώ,Σταθοπούλου Εφη, Carlo Scarpa: Παράλληλες Προσεγγίσεις, σελ 67.

82
[Δ15] 83
Δ’ ενότητα: Βιβλιογραφία.

Ι. Συγγράμματα

ΑΝΔΡΙΩΤΗΣ Π. ΝΙΚΟΛΑΟΣ, ΕΤΥΜΟΛΟΓΙΚΟ ΛΕΞΙΚΟ ΤΗΣ ΚΟΙΝΗΣ ΝΕΟΕΛΛΗΝΙΚΗΣ, γ’ έκδοση, Ινστιτούτο Νεοελληνικών Σπουδών

ίδρυμα Μανόλη Τριανταφυλλίδη, Αθήνα, 1992.

Γιακουμάτος Ανδρέας, Ελληνική Αρχιτεκτονική στον 20ο και 21ο αιώνα, εκδότης Gutenberg, Αθήνα, 2016.

Εγκυκλοπαίδεια Πάπυρος Larousse Britannica, τόμος πεντηκοστός ένατος (59), σελίδες 28 & 120, λήμματα «υπέρβαση»«υπερβατικός» - «Φαινομενολογία» , εκδόσεις ΠΑΠΥΡΟΣ ΓΡΑΦΙΚΑΙ ΤΕΧΝΑΙ ΑΕ, Αθήνα, 2000.

Εγκυκλοπαίδεια Πάπυρος Larousse Britannica, τόμος εξηκοστός πρώτος (61) , σελίδα 394, λήμμα «χώρος», εκδόσεις

ΓΡΑΦΙΚΑΙ ΤΕΧΝΑΙ ΑΕ, Αθήνα, 1996.

Λέφας Παύλος, Αρχιτεκτονική και Κατοίκηση: Από τον Heidegger στον Koolhaas, εκδόσεις Πλέθρον, Αθήνα, 2008.

ΜΠΑΜΠΙΝΙΩΤΗ Γ., ΛΕΞΙΚΟ ΤΗΣ ΝΕΑΣ ΕΛΛΗΝΙΚΗΣ ΓΛΩΣΣΑΣ, β’ έκδοση, Κέντρο Λεξικολογίας Ε.Π.Ε., Αθήνα, 2005.

Περράκης Γιώργος - Σκουτέλης Νίκος, Αναπαραστάσεις του Υπερβατικού, εκδόσεις ΚΑΠΟΝ, Αθήνα, 2016.

Πετράρχης, Η ανάβαση στο όρος Βεντού, μετάφραση Φραγκίσκη, εκδόσεις Αγρα Α.Ε, Αθήνα, 2008.

Τανιζάκι, Το εγκώμιο της σκιάς, μετάφραση Ευαγγελίδης Παναγιώτης, εκδόσεις Αγρα Α.Ε, Αθήνα, 2021.

Τεγόπουλος - Φυτράκης, Ελληνικό Λεξικό (ορθογραφικό, ερμηνευτικό, ετυμολογικό, αντιθέτων, κύριων ονομάτων), Αθήνα, 1989.

Τερκενλή Ν. Θεανώ, Το πολιτισμικό τοπίο: Γεωγραφικές Προσεγγίσεις, εκδόσεις Παπαζήση, Αθήνα, 1996.

Τερζόγλου Νικόλαος-Ίων, ΙΔΕΕΣ ΤΟΥ ΧΩΡΟΥ ΣΤΟΝ ΕΙΚΟΣΤΟ ΑΙΩΝΑ, εκδόσεις Νήσος, Αθήνα, 2009.

Arnheim Rudolf, Η δυναμική της αρχιτεκτονικής μορφής, μετάφραση Ποταμιανού Ιακώβου, επιμέλεια Ποταμιανού Ιακώβου και Βρυώνη Γιώτα, εκδόσεις University Studio Press Α.Ε., Θεσσαλονίκη, 2003.

Arnheim Rudolf, Τέχνη και Οπτική αντίληψη-Η ψυχολογία της δημιουργικής όρασης, μετάφραση Ποταμιανού Ιακώβου, ΄γ έκδοση, εκδόσεις Θεμέλιο, Αθήνα, 2005.

Arnheim Rudolf, Visual Thinking, University California Press,1969.

Bachelard Gaston, Η Ποιητική του Χώρου, μετάφραση Ελένη Βελτσου- Ιωάννα Δ. Χατζηνικολή, εκδόσεις Χατζηνικολή, 6η έκδοση, Αθήνα, 1982.

Daniele Pauly, Les Corbusier: The chapel at Ronchamp,μετάφραση Sarah Parsons, Fondation Le Corbusier, Paris, Birkhauser Basel-Boston-Berlin, 2008

Francis D.K. Ching, Αρχιτεκτονική: Μορφή, Χώρος & Διάταξη, μετάφραση Δωρίς Φακίρη, επιμέλεια Β. Γεωργιάννης, εκδόσεις ίων, Περιστέρι, 2006

Georg Simmel, Joachim Ritter, Ernst H. Gombrich, Το Τοπίο, μετάφραση Σαγκριώτης Γιώργος, Αναγνώστου Λευτέρης, Δασκαλοθανάσης Νίκος, επιμέλεια Καββαθάς Διονύσης, εκδόσεις Ποταμός, Αθήνα, 2004.

Heidegger Martin, Η ΕΝΝΟΙΑ ΤΟΥ ΧΡΟΝΟΥ, μετάφραση Υφαντής Δημήτρης, εκδόσεις Ροές - Φιλοσοφική Βιβλιοθήκη, Αθήνα, 2009.

84
ΠΑΠΥΡΟΣ

Le Corbusier, ΓΙΑ ΜΙΑ ΑΡΧΙΤΕΚΤΟΝΙΚΗ, μετάφραση Τουρνικιώτης Παναγιώτης, εκδόσεις ΕΚΚΡΕΜΕΣ, Αθήνα, 2004.

Millet S. Marietta, Light Revealing Architecture, 1η έκδοση, Wiley publishing, Νέα Υόρκη, 1996.

Pallasmaa Juhani, Τα μάτια του δέρματος : Η αρχιτεκτονική και οι αισθήσεις, μετάφραση Τουρνικιώτης Γιάννης και

Τουρνικιώτης Παναγιώτης, Πανεπιστημιακές εκδόσεις Κρήτης, Ηράκλειο, 2022.

Plummer Henry, Cosmos of Light: The Sacred Architecture of Le Corbusier, Indiana University Press, Printed in China, 2013.

Schulz Christian - Norberg, Genius Loci: Το Πνεύμα του Τόπου, Για μια φαινομενολογία της αρχιτεκτονικής, μετάφραση

Φραγκόπουλος Μίλτος, Πανεπιστημιακές εκδόσεις Ε.Μ.Π., 2009.

Schulz Christian - Norberg, Existence, Space & Architecture, Praeger Publishers, Λονδίνο, 1971.

Schulz Christian - Norberg, Architecture: Meaning and Place - Selected Essays, Rizzoli International Publications, Νέα Υόρκη, 1988.

Zumthor Peter, Atmospheres, εκδόσεις Birkhäuser, Βασιλεία, 2020.

Zumthor Peter, Thinking Architecture, Birkhäuser, Βασιλεία, 2010.

Διδακτορικά.

Ν. Δήμητρα, Η έννοια του Τόπου στις αρχιτεκτονικές θεωρίες και πρακτικές-σχέσεις φιλοσοφίας και αρχιτεκτονικής

στον 20ο αι., Διδακτορική Διατριβή, Τμήμα Αρχιτεκτόνων, ΑΠΘ, 2009.

Ερευνητικές.

Άντρεα Πηλαβάκη, Περπατώντας: Χωρική Εμπειρία και αντίληψη εν κινήση, Ε.Μ.Π, Σχολή Αρχιτεκτόνων Μηχανικών, 2017.

Απέργη Μαρία Ιωάννα, Αρχιτεκτονική του συναισθήματος: Ο χειρισμός του φωτός σε δύο εκκλησίες του Alvaro Siza, Ε.Μ.Π, Σχολή Αρχιτεκτόνων Μηχανικών, 2018.

Αποστολάκη Ευγενία, Χατζηβασιλείου Μαριαλένα, Η έννοια της ατμόσφαιρας στο χώρο: Αντίληψη και βιωματική εμπειρία, Πολυτεχνείο Κρήτης, Τμήμα Αρχιτεκτόνων Μηχανικών, 2016.

Γράπας Ηλίας, Πουλάκος Θεόδωρος, Το φυσικό φως ως συνθετικό εργαλείο, Ε.Μ.Π, Σχολή Αρχιτεκτόνων Μηχανικών, 2013-14.

Καποδίστρια Μαντώ,Σταθοπούλου Εφη, Carlo Scarpa: Παράλληλες Προσεγγίσεις, Πολυτεχνείο Κρήτης, Τμήμα Αρχιτεκτόνων Μηχανικών, 2016.

Κεράνης Μιχαήλ Κάρολος, Ο ρόλος του φωτός στην αρχιτεκτονική δημιουργία, Πανεπιστήμιο Πατρών, Σχολή Αρχιτεκτόνων Μηχανικών, 2010.

Λούντζης Γεωργιος-Νικολαιδη Γαλήνη, Θεωρήσεις περί θανάτου και σύγχρονα σχεδιαστικά παραδείγματα χώρων ταφής, Πολυτεχνείο Κρήτης, Τμήμα Αρχιτεκτόνων Μηχανικών, 2020.

Λύκος Γιώργος, Εργασιακά Περιβάλλοντα και χρήστες: Οι δυναμικές χωρικές σχέσεις εργαζομένου-γραφείου και η εργασιακή εμπειρία, Πολυτεχνείο Κρήτης, Τμήμα Αρχιτεκτόνων Μηχανικών, 2018.

Μαλάμογλου Ευγενία, ΄Το (αν) οικώ υπό το πρίσμα του Toyo Ito. ΑΠΘ Τμήμα Αρχιτεκτόνων Μηχανικών, 2022.

Μπασούκος Ιωάννης, “Η εμπειρία των αισθήσεων, Αρχιτεκτονική, Σώμα, Αντίληψη”, Πανεπιστήμιο Θεσσαλίας, Τμήμα

Αρχιτεκτόνων Μηχανικών, 2014.

85
Χατζησάββα

Ναξάκης Κυριάκος, Η Εξέλιξη της έννοιας του Υπερβατικού από το “τρομερό” στο ανοίκειο: Μεταγραφές της ποιητικής του μεταφυσικού στη σύγχρονη αρχιτεκτονική και στο έργο του Louis I. Kahn, Πολυτεχνείο Κρήτης, Τμήμα Αρχιτεκτόνων Μηχανικών, 2021.

Σαραντοπούλου Χριστίνα, Ανθρωπος-Χώρος: Ερμηνεύοντας την διαδικασία αντίληψης και την επιρροή της στην χωρική συμπεριφορά,, Πολυτεχνείο Κρήτης, Τμήμα Αρχιτεκτόνων Μηχανικών, 2015.

Σιακαλλής Χρίστος, AGH/Αναζητώντας το νόημα μετά το μοντέρνο: Μέσα από το έργο των Arakawa & Gins και του Steven Holl, Ε.Μ.Π, Σχολή Αρχιτεκτόνων Μηχανικών, 2018.

Τσούτσος Σπύρος, Ο φυσικός φωτισμός στην ατμόσφαιρα του αρχιτεκτονικού χώρου, Πολυτεχνείο Κρήτης, Τμήμα Αρχιτεκτόνων Μηχανικών, 2015.

Χρονοπούλου Ελένη, Αντίληψη και βιωματική εμπειρία. Από τη χωρικότητα του σώματος στη σωματικότητα της πόλης, Πολυτεχνείο Κρήτης, Τμήμα Αρχιτεκτόνων Μηχανικών, 2014.

Μεταπτυχιακά.

Κανελία Κουτσανδρέα, Ο ρόλος του σώματος και η έννοια της χωρικότητας κατά τον M. Merleau-Ponty, ΕΜΠ, Σχολή Αρχιτεκτόνων Μηχανικών, 2011-2012.

Υπερηφάνου Θεοδώρα, “Για μια αρχιτεκτονική από φώς..στο δρόμο που χάραξε ο Le Corbusier.”.ΕΜΠ, Σχολή Αρχιτεκτόνων Μηχανικών, 2014.

Χρυσοχόου Ισμήνη, Χωρικές Πυκνώσεις μέσα από το φως, ΕΑΠ, Σχολή Εφ. Τεχνών Σχεδιασμός

Φωτισμού & Πολυμέσα, 2019.

Robbins &. Judge, Αντίληψη και στερεότυπα στον εργασιακό χώρο, κεφάλαιο 3, μεταφρασμένο, 2007.

https://www.rosili.gr/Samples/9786185131593/sample.pdf

Sacred Concrete. The Churches of Le Corbusier - https://issuu.com/birkhauser.ch/docs/sacred-concrete

https://www.archdaily.com/597598/light-matters-le-corbusier-and-the-trinity-of-light

https://www.archdaily.com/108054/ad-classics-church-at-firminy-le-corbusier

https://www.greek-language.gr/greekLang/modern_greek/tools/lexica/triantafyllides/search.html?lq=θείο&dq=

https://archeyes.com/woodland-cemetery-in-stockholm-erik-gunnar-asplund-sigurd-lewerentz/ https://www.mausoleofosseardeatine.it/mausoleo/the-mausoleum/

Ronchamp, Le Corbusier, A walk through in 4k, video https://www.youtube.com/watch?v=hEkQvR-el3M

Kendra Cherry, Νόμοι Gestalt της Αντιληπτικής Οργάνωσης, Απρίλιος 2021 https://www.verywellmind.com/gestalt-laws-of-perceptual-organization-2795835

Kendra Cherry, Figure Ground Perception in Psychology, Απρίλιος 2020 https://www.verywellmind.com/what-is-figure-ground-perception-2795195

Πληροφορίες για Bruder Klaus Kapelle, Peter Zumthor, 2007 https://en.wikiarquitectura.com/building/bruder-klaus-field-chapel/ https://www.linkedin.com/pulse/atmospheric-monk-peter-zumthors-bruder-klaus-field-chapel-pearson/ https://www.archdaily.com/798340/peter-zumthors-bruder-klaus-field-chapel-through-the-lens-of-aldo-amoret-

86
ΙΙ. Ηλεκτρονική Βιβλιογραφία.

ti/58136a36e58ece967800029e-peter-zumthors-bruder-klaus-field-chapel-through-the-lens-of-aldo-amoretti-photo?next_project=no

Πληροφορίες για Bagsværd Church, Jørn Utzon, 1976

https://arquitecturaviva.com/works/iglesia-de-bagsvrd-8

Μανώλης Ηλιάκης, Εκκλησία της Bagsværd, Jørn Utzon,Κοπεγχάγη-Δανία, 1973, video https://www.doma.archi/conferences/presentations/bagsvaerd-church

Sainte Marie de La Tourette, Le Corbusier.

https://www.yumpu.com/en/document/read/12281835/case-study-couvent-sainte-marie-de-la-tourette

ΙΙΙ. Κατάλογος Εικόνων

[Ε 1] Giorgio de Chirico - Mystery and Melancholy of a Street

“Μέσα από συνειρμούς και συσχετισμούς με το παρελθόν αναγνωρίζονται οι διαβαθμίσεις της οικειότητας των φαινομένων και εντοπίζονται

σημεία αναφοράς που προσδιορίζουν ποιοτικά το χώρο σε σχέση με το υποκείμενο”. - M. Heidegger

[Ε 2] Pallasmaa Juhani, Τα μάτια του δέρματος: Η αρχιτεκτονική και οι αισθήσεις, μετάφραση Τουρνικιώτης Γιάννης και Τουρνικιώτης Παναγιώτης, πανεπιστημιακές εκδόσεις Κρήτης, Ηράκλειο, 2022, σελ. 96 - Στην όραση κρύβεται ένα απτικό συστατικό. Μπρούτζινη μορφή από τη Μογγολία, 15ος αιώνας, Δημόσια Κρατική Βιβλιοθήκη, Ουλάν Μπάτορ, Μογγολία. Η βουδιστική θεά Τάρα έχει πέντε επιπλέον μάτια, στο μέτωπο, στα χέρια και στα πόδια. Θεωρούνται σημάδια φώτισης.

[Ε 3] Διάγραμμα: Στάδια αντιληπτικής διαδικασίας, Άντρεα Πηλαβάκη, Περπατώντας: Χωρική Εμπειρία και αντίληψη εν κινήση, Ε.Μ.Π, Σχολή

[Ε 4] Herbert Bayer: Lonely Metropolitan, 1932

https://www.artnet.com/artists/herbert-bayer/the-lonely-metropolitan-5XMwNfXrhFzmctRapBtjZA2

η όραση και η αίσθηση της αφής συγχωνεύονται.

[Ε 5] Peter Zumthor, Therme Valls, Graubünden, Ελβετία από:https://www.metalocus.es/en/news/helene-binet-awarded-2015-julius-shulman-institute-photography

[πηγή σχολίου εικόνας] Pallasmaa Juhani, Τα μάτια του δέρματος : Η αρχιτεκτονική και οι αισθήσεις, μετάφραση Τουρνικιώτης Γιάννης και

Τουρνικιώτης Παναγιώτης, πανεπιστημιακές εκδόσεις Κρήτης, Ηράκλειο, 2022, σελ. 106.

[Ε 6] https://psychografimata.com/wp-content/uploads/2012/01/Gestalt.jpg

[Ε 7] https://images.search.yahoo.com/search/images;_ylt=AwrNaWyjSeFjEl4O_pNXNyoA;_ylu=Y29sbwNiZjEEcG9zAzEEdnRpZAMEc2VjA3BpdnM-?p=friedrich+caspar+wanderer&fr2=piv-web&type=E211GR1316G0&fr=mcafee_uninternational

[Ε 8] Woodland Crematorium κάτοψη

https://www.cca.qc.ca/en/search/details/collection/object/277861

[Ε 9α] Woodland Crematorium

https://archeyes.com/woodland-cemetery-in-stockholm-erik-gunnar-asplund-sigurd-lewerentz/ [Ε 9β] Woodland Crematorium

https://samvanoosten.com/skogskyrkogarden/

[Ε 10] Woodland Crematorium

https://divisare.com/projects/347973-sigurd-lewerentz-gunnar-asplund-chen-hao-woodland-cemetery [Ε 11] Woodland Crematorium

https://archeyes.com/woodland-cemetery-in-stockholm-erik-gunnar-asplund-sigurd-lewerentz/

[Ε 12] Mausoleo delle Fosse Ardeatine

https://jemolo.com/it/lavori-selezionati/16-mausoleo-delle-fosse-ardeatine

[Ε 13] Mausoleo delle Fosse Ardeatine

https://www.romaslowtour.com/attivita/visite-guidate/fosse-ardeatine/

[Ε 14] Mausoleo delle Fosse Ardeatine

https://divisare.com/projects/289439-nello-aprile-cino-calcaprina-aldo-cardelli-mario-fiorentino-giuseppe-perugini-xavier-de-jaureguiberry-mausoleo-delle-fosse-ardeatine

[Ε 15] Mausoleo delle Fosse Ardeatine Τομή

87
Αρχιτεκτόνων Μηχανικών, 2017
Στην πραγματική βιωματική εμπειρία

https://www.mausoleofosseardeatine.it/mausoleo/the-mausoleum/

[Ε 16] Mausoleo delle Fosse Ardeatine

https://www.atlantearchitetture.beniculturali.it/mausoleo-delle-fosse-ardeatine/ [Ε 17] Mausoleo delle Fosse Ardeatine

https://jemolo.com/it/lavori-selezionati/16-mausoleo-delle-fosse-ardeatine

[Ε 18] Salvador Dali - Η Εμμονή της Μνήμης / The Persistence of Memory, 1931

https://www.thehourglass.com/au/cultural-perspectives/salvador-dali/

[Ε 19] Caravaggio - Η Μεταστροφή του Αγίου Παύλου / The Conversion of Saint Paul, 1601

https://cityculture.gr/i-metastrofi-tou-agiou-pavlou-caravaggio-1601/

[Ε 20] Adolphe Appia - 1913 https://rickowensonline.tumblr.com/post/163948096951/orpheus-hellerau-1913-by-adolphe-appia

[Ε 21] Resurrection Chapel, Lewerentz, 1921-25; 1952

https://archeyes.com/woodland-cemetery-in-stockholm-erik-gunnar-asplund-sigurd-lewerentz/

[Ε 22] Peter Zumthor’s Therme Vals Through the Lens of Fernando Guerra

https://www.archdaily.com/798360/peter-zumthors-therme-vals-through-the-lens-of-fernando-guerra/580fb450e58ecefd67000091-peterzumthors-therme-vals-through-the-lens-of-fernando-guerra-photo?next_project=no

[Ε 23] Daniel Libeskind, νέο Εβραϊκό Μουσείο του Βερολίνου.

Εσωτερική άποψη του Πύργου του Ολοκαυτώματος (Axis of the Holocaust)

αρχείο λήψεων Αριστοφάνη Ζαχαριάδη

[Ε 24] Daniel Libeskind, νέο Εβραϊκό Μουσείο του Βερολίνου.

Εσωτερική άποψη ενός απ’ τους κενούς χώρους του Άξονα Συνέχειας (Axis of Continuity)

αρχείο λήψεων Αριστοφάνη Ζαχαριάδη

[Ε 25] το “Κάρο του Σανού”,1821, Constable

https://tse3.mm.bing.net/th?id=OIP.N7ovpAn-ejcysYP3VPF_EAHaEo&pid=Api&P=0

[Ε 26] “Καθεδρικός Ναός του Salisbury”,1829 Constable

https://tse1.mm.bing.net/th?id=OIP.xGrXQT2Bb6YfKRSDFqhFAgHaF7&pid=Api&P=0

[Ε 27] Saint Peter church, Firminy, France.

https://www.archdaily.com/108054/ad-classics-church-at-firminy-le-corbusier

[E28] Tadao Ando, church on the water

https://www.deviantart.com/phonginterior/art/Church-on-the-water-Tadao-Ando-278645204

[Ε29] https://www.doma.archi/index/projects/katoikia-sthn-anabysso

[Ε Β1] https://www.youtube.com/watch?v=hEkQvR-el3M&t=555s - 09:10

[Ε Β2] https://divisare.com/projects/429510-le-corbusier-hiepler-brunier-chapelle-notre-dame-du-haut-by-le-corbusier

[Ε Β3] https://www.slideshare.net/uzrman/ronchamp-by-le-corbusier

[Ε Β4] https://www.semanticscholar.org/paper/338%3A-The-Poetics-of-Sacred-Light-a-comparative-of-Lau/908e6d35a8f0e82789bd1c1c0e5dcfe624557c46

[Ε Β5] https://www.thewoodhouseny.com/journal/2018/6/20/the-chapel-at-ronchamp

[Ε Β8] https://www.archdaily.com/84988/ad-classics-ronchamp-le-corbusier

[Ε Β9] https://divisare.com/projects/197373-le-corbusier-cemal-emden-chapelle-notre-dame-du-haut

[Ε Β11] https://divisare.com/projects/429510-le-corbusier-hiepler-brunier-chapelle-notre-dame-du-haut-by-le-corbusier

[Ε Β12] https://divisare.com/projects/429510-le-corbusier-hiepler-brunier-chapelle-notre-dame-du-haut-by-le-corbusier

[Ε Β13] https://www.thewoodhouseny.com/journal/2018/6/20/the-chapel-at-ronchamp

[Ε Β14] https://divisare.com/projects/197373-le-corbusier-cemal-emden-chapelle-notre-dame-du-haut

[Ε Β15] https://www.thewoodhouseny.com/journal/2018/6/20/the-chapel-at-ronchamp

[Ε Β16] https://architecturalvisits.com/en/la-tourette-le-corbusier/

[Ε Β17] https://divisare.com/projects/197436-le-corbusier-cemal-emden-couvent-sainte-marie-de-la-tourette [Ε Β18] https://architecturalvisits.com/en/la-tourette-le-corbusier/

[Ε Β19] https://www.archdaily.com/96824/ad-classics-convent-of-la-tourette-le-corbuiser [Ε Β20] https://divisare.com/projects/447884-le-corbusier-thilo-rohlander-couvent-sainte-marie-de-la-tourette [Ε Β21] https://www.inexhibit.com/mymuseum/le-corbusier-monastery-of-sainte-marie-de-la-tourette-eveux-france/ [Ε Β22] https://architecturalvisits.com/en/la-tourette-le-corbusier/ [Ε Β23] https://divisare.com/projects/197436-le-corbusier-cemal-emden-couvent-sainte-marie-de-la-tourette [Ε Β24] https://archeyes.com/sainte-marie-de-la-tourette-le-corbusier/

88

[Ε Β25] https://divisare.com/projects/447884-le-corbusier-thilo-rohlander-couvent-sainte-marie-de-la-tourette

[Ε Β26] https://architecturalvisits.com/en/la-tourette-le-corbusier/

[Ε Β27] https://www.linkedin.com/pulse/atmospheric-monk-peter-zumthors-bruder-klaus-field-chapel-pearson/ [Ε Β28] https://www.linkedin.com/pulse/atmospheric-monk-peter-zumthors-bruder-klaus-field-chapel-pearson/

[Ε Β29] https://www.thisispaper.com/mag/bruder-klaus-field-chapel-by-peter-zumthor

[Ε Β31] https://www.madera21.cl/blog/2022/07/25/la-obra-en-madera-de-peter-zumthor-el-uso-del-material-en-armonia-con-el-espacio-y-laatmosfera/

[Ε Β32]

https://www.madera21.cl/blog/2022/07/25/la-obra-en-madera-de-peter-zumthor-el-uso-del-material-en-armonia-con-el-espacio-y-laatmosfera/

[Ε Β33] https://divisare.com/projects/349303-peter-zumthor-rasmus-hjortshoj-bruder-klaus-feldkapelle

[Ε Β34] https://divisare.com/projects/349303-peter-zumthor-rasmus-hjortshoj-bruder-klaus-feldkapelle

[Ε Β35] https://divisare.com/projects/349303-peter-zumthor-rasmus-hjortshoj-bruder-klaus-feldkapelle

[Ε Β36] https://www.thisispaper.com/mag/bruder-klaus-field-chapel-by-peter-zumthor

[Ε Β37] https://www.thisispaper.com/mag/bruder-klaus-field-chapel-by-peter-zumthor

[Ε Β38] https://www.linkedin.com/pulse/atmospheric-monk-peter-zumthors-bruder-klaus-field-chapel-pearson/ [Ε Β39] https://www.linkedin.com/pulse/atmospheric-monk-peter-zumthors-bruder-klaus-field-chapel-pearson/ [Ε Β40] https://divisare.com/projects/349303-peter-zumthor-rasmus-hjortshoj-bruder-klaus-feldkapelle

[Ε Β41] https://divisare.com/projects/349303-peter-zumthor-rasmus-hjortshoj-bruder-klaus-feldkapelle

[Ε Β42] https://dressyourwall.net/bruder-klaus-sapeli/

[Ε Β42β] https://stepienybarno.es/blog/2012/11/29/cuatro-anos-sin-utzon/

[Ε Β43α] https://www.archdaily.com/160390/ad-classics-bagsvaerd-church-jorn-utzon/50381ab228ba0d599b000ec0-ad-classics-bagsvaerdchurch-jorn-utzon-photo-by-seier-plus-seier-http-wwlickom-photos-seier

[Ε Β43β] https://www.archiweb.cz/en/b/komunitni-kostel-bagsv-rd-bagsv-rd-kirke

[Ε Β43γ] https://arquitecturaviva.com/works/iglesia-de-bagsvrd-8

[Ε Β44] https://gr.pinterest.com/pin/329114685249049028/

[Ε Β45] https://www.archdaily.com/160390/ad-classics-bagsvaerd-church-jorn-utzon/50381ad128ba0d599b000ec5-ad-classics-bagsvaerdchurch-jorn-utzon-photo-by-dvmoc-http-wwlickom-photos-davoxt?next_project=no

[Ε Β46] https://arquitecturaviva.com/works/iglesia-de-bagsvrd-8

[Ε Β47] https://www.archdaily.com/160390/ad-classics-bagsvaerd-church-jorn-utzon/50381ad128ba0d599b000ec5-ad-classics-bagsvaerdchurch-jorn-utzon-photo-by-dvmoc-http-wwlickom-photos-davoxt?next_project=no

[Ε Β48] https://www.archdaily.com/160390/ad-classics-bagsvaerd-church-jorn-utzon/50381ad128ba0d599b000ec5-ad-classics-bagsvaerdchurch-jorn-utzon-photo-by-dvmoc-http-wwlickom-photos-davoxt?next_project=no

[Ε Β52] https://www.archdaily.com/160390/ad-classics-bagsvaerd-church-jorn-utzon/50381ab228ba0d599b000ec0-ad-classics-bagsvaerdchurch-jorn-utzon-photo-by-seier-plus-seier-http-wwlickom-photos-seier

[Ε Β53] https://issuu.com/yushengfan/docs/alvar_aalto_seminar_final_documenta/42?fbclid=IwAR2deVEqIn7aivY4zX8T7m3IjTYCoCqKYz_t6GTVkU3T0ykJxY-6eKY72E

[Ε Β54] http://www.mottimes.com/cht/article_detail.php?serial=823&type=1

[Ε Β55] https://www.archdaily.com/160390/ad-classics-bagsvaerd-church-jorn-utzon/50381ab228ba0d599b000ec0-ad-classics-bagsvaerdchurch-jorn-utzon-photo-by-seier-plus-seier-http-wwlickom-photos-seier

[Ε Β57] https://www.doma.archi/conferences/presentations/bagsvaerd-church

[Ε Β58] https://stepienybarno.es/blog/2012/11/29/cuatro-anos-sin-utzon/

[Ε Β59] http://www.utzonphotos.com/guide-to-utzon/projects/church-bagsvaerd/

Διαγραμματική κάτοψη La Tourette, εργασία της ομάδας - βασίστηκε (συνδυαστικά) σε σκίτσα και σχέδια από: https://www.behance.net/gallery/57506391/La-Tourette-Le-Corbusier-Reconstruction-of-Reality https://vtechworks.lib.vt.edu/bitstream/handle/10919/34437/02Study.pdf?sequence=2&isAllowed=y

Διαγραμματική τομή La Tourette, εργασία της ομάδας - βασίστηκε (συνδυαστικά) σε σκίτσα και σχέδια από: https://pin.it/1LTzWUl

https://archeyes.com/sainte-marie-de-la-tourette-le-corbusier/

Διαγραμματική κάτοψη Ronchamp, εργασία της ομάδας - βασίστηκε (συνδυαστικά) σε σκίτσα και σχέδια από: https://docplayer.net/64715366-The-luminous-environment-at-ronchamp.html

https://www.slideshare.net/uzrman/ronchamp-by-le-corbusier

Διαγραμματική τομή Ronchamp, εργασία της ομάδας - βασίστηκε (συνδυαστικά) σε σκίτσα και σχέδια από: https://www.youtube.com/watch?v=mzRhymzGxS4 3:44 https://www.slideshare.net/uzrman/ronchamp-by-le-corbusier

Διαγραμματική τομή Bruder Klaus, εργασία της ομάδας - βασίστηκε (συνδυαστικά) σε σκίτσα και σχέδια από: https://archiscapes.wordpress.com/2014/10/10/zumthor-field-chapel/zumthor-field-chapel-drawings-sections/ http://sacrark.altervista.org/peter-zumthor-bruder-klaus-kapelle/

89

Διαγραμματική τομή Bagsværd, εργασία της ομάδας - βασίστηκε (συνδυαστικά) σε σκίτσα και σχέδια από: https://www.scandinaviastandard.com/six-important-buildings-to-know-by-danish-architect-jorn-utzon/

[Ε Γ0] https://www.thewoodhouseny.com/journal/2018/6/20/the-chapel-at-ronchamp

[Ε Γ1] https://www.yumpu.com/en/document/read/12281835/case-study-couvent-sainte-marie-de-la-tourette

[Ε Γ2] https://archeyes.com/sainte-marie-de-la-tourette-le-corbusier/

[Ε Γ3] https://www.archdaily.com/162741/foster-partners-chosen-for-thames-estuary-airport/te02?ad_medium=widget&ad_name=navigation-next&next_project=yes

[Ε Γ4] http://www.utzonphotos.com/guide-to-utzon/projects/church-bagsvaerd/

[Ε Γ5] https://www.thisispaper.com/mag/bruder-klaus-field-chapel-by-peter-zumthor

[Ε Γ6] Francis D.K. Ching, Αρχιτεκτονική: Μορφή, Χώρος & Διάταξη, μετάφραση Δωρίς Φακίρη, επιμέλεια Β. Γεωργιάννης, εκδόσεις ίων, Περιστέρι, 2006, σελ 172-173

[Ε Γ7]

https://www.yumpu.com/en/document/read/12281835/case-study-couvent-sainte-marie-de-la-tourette

[Ε Γ8] https://www.yumpu.com/en/document/read/12281835/case-study-couvent-sainte-marie-de-la-tourette

[Ε Γ9] Francis D.K. Ching, Αρχιτεκτονική: Μορφή, Χώρος & Διάταξη, μετάφραση Δωρίς Φακίρη, επιμέλεια Β. Γεωργιάννης, εκδόσεις ίων, Περιστέρι, 2006, σελ 172-173

[Ε Γ10] Κλίμακα και Αναλογία - διάγραμμα ομάδας

[Δ0] Saint Benedict Chapel, Peter Zumthor, 1988

https://www.anniversary-magazine.com/all/2016/11/5/architectural-polysensoriality-for-expanded-oculocentric-considerations

[Δ1] Serpentine Gallery Pavilion, Peter Zumthor, 2011

https://www.archdaily.com/146392/serpentine-gallery-pavilion-2011-peter-zumthor/wh_img_0090-press-page

[Δ2] Thermal Baths in Vals, Peter Zumthor,1996

https://www.archdaily.com/13358/the-therme-vals

[Δ3] Thermal Baths in Vals, Peter Zumthor,1996

https://www.archdaily.com/13358/the-therme-vals

[Δ4] Salk Institute in La Jolla, California, Louis Kahn, 1965

https://www.architecturaldigest.com/story/louis-kahn-salk-institute

[Δ5] (unbuilt) Domino de Pingus Winery, Peter Zumthor, 2005

https://www.dezeen.com/2018/10/25/architectural-renderings-defending-visualisers-troy-hodgson-darcstudio-opinion/

[Δ6] Woodland Crematorium

https://archeyes.com/woodland-cemetery-in-stockholm-erik-gunnar-asplund-sigurd-lewerentz/

[Δ7] Serpentine Gallery Pavilion, Peter Zumthor, 2011

https://www.archdaily.com/146392/serpentine-gallery-pavilion-2011-peter-zumthor/wh_img_0090-press-page

[Δ8] Walter Benjamin Memorial

https://www.atlasobscura.com/places/walter-benjamin-memorial

[Δ9] Roman Pantheon / Emperor Hadrian

https://www.archdaily.com/802201/ad-classics-roman-pantheon-emperor-hadrian

[Δ10] Scala Regia, 1540, Vatican, Rome, Bernini, Gian Lorenzo (1598-1680), Sangallo, Antonio da, il Giovane (1484-1546) https://www.ribapix. com/scala-regia-vatican-rome_riba61065

[Δ11] New Jewish Museum, Daniel Libeskind, 2001- Προσωπικό

[Δ12] Church of the Light / Tadao Ando Architect & Associates, 1999

https://www.archdaily.com/101260/ad-classics-church-of-the-light-tadao-ando

[Δ13] MIT Chapel / Eero Saarinen, 1955

https://www.archdaily.com/112682/ad-classics-mit-chapel-eero-saarinen

[Δ14] Riola Parish Church / Alvar Aalto, 1978

https://www.archdaily.com/161448/ad-classics-riola-parish-church-alvar-aalto

[Δ15] Santa Maria Goretti Church / Mario Cucinella Architects, 2015

https://www.archdaily.com/974124/santa-maria-goretti-church-mario-cucinella-architects

90
Αρχείο λήψεων Ζαχαριάδη Αριστοφάνη
*
Όλες οι εικόνες έχουν δεχτεί μερική επεξεργασία.

Turn static files into dynamic content formats.

Create a flipbook
Issuu converts static files into: digital portfolios, online yearbooks, online catalogs, digital photo albums and more. Sign up and create your flipbook.