

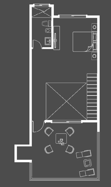
Tipología de 162.9 m2
2 habitaciones, 2 niveles
Luke dresser
Base Cama KING LUKA
Colchón Cama KING
Lencería Cama KING
Cortina + Blackout - Master
Tapete Rectangular 1.2 x 1.7Mt GRACE
Mesa de Nochero HIRO
Lámpara Nochero ALCALÁ
Banca Auxiliar
Luke dresser
Base Cama Twin
Colchón Cama Twin
Lencería Cama Twin
Cortina + Blackout - Habitación
Mesa de Nochero HIRO
Lámpara Nochero ALCALÁ
Matero amatista 70
Emmilie Butaca
Luke Ottoman
Hiro Side Table
Lampara Adorno Mechudo
Comoda Bar LUKE
Sofá Cama 2.5 Puestos
Mesa de Centro Interior HIRO SET
Mesa Auxiliar Interior HIRO SIDE
Tapete Circular D=1.6Mt ESSENZA
Cortina + Blackout - Sala
Lámpara Accesorio Interior
Matero pequeño 70 amatista
Mesa Comedor Interior VILLA
Silla Comedor Interior VILLA
Lámpara Comedor IRACA
Mesa de Centro Exterior BASALTO
Matero Pequeño 50 AMATISTA
Farol Terraza FIQUE
Silla Exterior AMITHA
Mesa Exterior LOL
Poltrona exterior vento
Sofa exterior dos puestos
Tumbona exterior timo
Lencería - Baño
Lencería - Baño Master
US$ 27,200
Al colocar la orden
En 3 pagos parciales
Instalado y entregado