













www.heritagebuildersinc.com
Kristi Reins
Phone: 402-580-4791 kristi.reins@nestne.com
7235 NW 10th Street
$550,000-$600,000 | With Lot | Professionally Staged 4 Bedrooms | 3 Bathrooms | 2,332 Finished Square Feet
From Hwy. 34 and Fallbrook Blvd., go north on Fallbrook Blvd. Take the second exit in the roundabout onto Tallgrass Pkwy. Turn left on Heritage Falls Dr. Turn right on Accolade Ln. Turn left on NW 10th Street.
Welcome to The Patrick, a luxurious quality-built, four-bedroom, threebathroom townhome by Heritage Builders tucked away in Heritage Falls in the Fallbrook neighborhood. Soaring ceilings, high-end finishes, stunning chef’s kitchen, main-floor laundry and three-stall side-entry garage are just a few of the many features. Enjoy the feeling of living in the country with the amenities of the city. Located within walking distance to Fallbrook’s Town Center which features restaurants, shopping and miles of walking paths, as well as easy access to downtown Lincoln and the Interstate.
Additional features of this wonderful townhome include:
• Stone and brick exterior
• Zero-entry from both the front door and garage
• Kitchen opens to the great room with gas fireplace
• Primary suite offers dual vanities, walk-in tiled shower and walk-in closet
• Homeowners association covers lawn care, fertilization and snow removal
• Walk-in pantry
• Two-toned kitchen cabinetry
• Quartz countertops in kitchen and bathrooms
• Finished basement
• Sprinklers and sod
• Covered back patio
• Three-stall garage finished and insulated
• Professionally designed by Geri True of Geri True Design
• Staging courtesy of Barnwood and Leather
Heritage Builders has been building custom homes and luxury townhomes in Lincoln for over 40 years. Their reputation for craftmanship and attention to detail is outstanding. The Patrick is just one of many options in Heritage Falls. Additional lots available and waiting for you to design and build your dream home.
BLAKE PITTACK
www.buildwithblake.com
LISTED BY
Holly Buss
Phone: 402-217-0692
holly.buss@woodsbros.com
Jodi Reimers
Phone: 402-984-0169
jodi.reimers@woodsbros.com
811 Penrose Drive
$450,000-$500,000 | With Lot | Professionally Staged 3 Bedrooms | 3 Bathrooms | 2,168 Finished Square Feet
From Hwy. 34 and N. 1st St., go west on Hwy. 34. Turn right on Fallbrook Blvd. At the roundabout take the second exit onto Tallgrass Pkwy. Turn right on Penrose Drive.
This unique cottage on Penrose Drive combines the quality and design you would expect with Fallbrook. The home boasts an open floor plan with vaulted ceilings in the living room, quartz countertops in the kitchen and a spacious first-floor primary suite with a walk-in tiled shower and laundry area. Two additional bedrooms can be found upstairs and there is space to finish out a fourth bedroom in the basement. Outside you will find a large patio area to relax on as you enjoy the community and its beautiful landscape. This home is in the townhome association, so leave the lawn and snow removal up to them and enjoy life in Lincoln’s most unique community! Mere minutes from downtown Lincoln and surrounded by many great amenities.
In Fallbrook , each home is unique. Here, neighboring homes are built to compliment one another—not replicate.
Offering various lots, Fallbrook provides the perfect setting for your custom build.
• Neighborhood dinning, shopping & services conveniently close.
• Only 5 minutes from downtown.
• 90+ lots now open & READY! STARTING AT $70,000
• Open to all builder inquiries.
SCAN
BLAKE PITTACK
www.buildwithblake.com
LISTED BY
Holly Buss
Phone: 402-217-0692
holly.buss@woodsbros.com
Jodi Reimers
Phone: 402-984-0169
jodi.reimers@woodsbros.com
7110 NW 5th Street
$700,000-$750,000 | With Lot | Professionally Staged 5 Bedrooms | 3 Bathrooms | 2,805 Finished Square Feet
From Hwy. 34 and N. 1st St., go north on N. 1st St. Turn left on Bittersweet Dr. Turn left on NW 3rd St. Turn right on Lilac Dr. which turns into NW 5th Street.
This new construction Craftsman-style home is situated on a quiet street in Fallbrook and has so much to offer. On the main level you will find a spacious primary bedroom with ensuite, laundry area, a nice-sized kitchen with high-end finishes and an office space. Upstairs there is room for everyone thanks to four bedrooms and a bonus study/loft space that could be used as a playroom or reading nook. Enjoy the outside of the home by relaxing on one of the two covered porch areas. The third stall deep garage has a door leading out into the backyard for easy access. The basement could be finished for a sixth bedroom and additional living space. Enjoy Fallbrook’s small town atmosphere, its natural landscape and nearby amenities that make this development one of Lincoln’s best!
Phone: 402-910-4591
www.destinyhomesne.com
6930 NW 2nd Street
Over $1,000,000 | Without Lot | Professionally Staged 3 Bedrooms | 4 Bathrooms | 4,300 Finished Square Feet
Kimberly RempelPhone: 402-202-3754
From Hwy. 34, go north on N. 1st St. Turn left on Humphrey Ave. Turn right on 2nd Street.
Fika is Swedish for the time when you slow life down and enjoy family and friends, perhaps with a cup of hot coffee. Built for a family with Swedish roots, this amazing home will provide plenty of space for family, friends and great fellowship. Built by Destiny Homes, we can’t wait for you to see this Modern Prairie home in the delightful Fallbrook community.
Features include:
• The modern details and functionality combine with the timeless design for which Fallbrook is known
• Three bedrooms and four bathrooms, 4,300 finished square feet
• Approach from the stamped concrete front courtyard, past the customfabricated pergola, and enter through the large double doors as the stone exterior continues indoors, creating continuity of design
• Sixteen-foot ceilings with a floor-to-ceiling stone fireplace highlight the open concept great room with its vast east and west facing windows, creating tons of natural light
• Jenn-Air commercial-grade appliances, large central island and walk-in pantry with baking center make the kitchen an entertainer’s delight. Check out the three-cylinder range hood—you’ve never seen one like it!
• In the primary suite you’ll find a large soaking tub, walk-in rain shower and body jets and an expansive walk-in closet with laundry and island
• A custom-built glass, wood and steel staircase leads to the walkout lower level. There you’ll find a wet bar with a quartz island, full refrigerator and dishwasher. Heated floors and another fireplace create a wonderful entertaining space. The additional lower-level garage and shop space provide plenty of room for hobbies and storage
• Step outside to the large lounging and dining deck with full retractable screen. From there, enjoy the grilling deck and sun deck while you overlook the landscaped backyard. Below, you’ll find a large firepit and additional seating areas
• The extra-deep two-car tandem garage creates plenty of space for a hobby car or watercraft
• Geothermal HVAC units provide high-efficiency heating and cooling
• Exterior finishes include extensive stonework and James Hardie siding
Thank you for visiting our Parade home! Every home we build is custom crafted for our clients and we love helping make dreams come true. We would love to hear your dreams and help you live them in a home we build especially for you— Kimberly Rempel at 402-202-3754.
Phone: 402-476-6599
www.prairiehomeslincoln.com
Phone: 402-432-8472
linda.wagner@woodsbros.com
2746 Kinzie Circle
$500,000-$550,000 | With Lot | Professionally Staged 5 Bedrooms | 3 Bathrooms | 2,764 Finished Square Feet
From 84th and Adams Streets, go east to 90th St. and turn south. Follow 90th St. to 91st St. and turn right. Turn right on Kinzie St. and proceed to Kinzie Circle.
Prairie Home Builders welcomes you to the “Tahoe,” a 1,598 square-foot ranch with split bedrooms and a three-car garage. The “Tahoe” features an open floor plan, sunny dinette that opens to a covered deck and vaulted great room and kitchen ceilings. In the kitchen you will find Silestone quartz countertops, full tile backsplash, stainless steel appliances, birch cabinets with crown molding, a diagonal island with breakfast bar and luxury vinyl plank flooring. Off the kitchen is the walk-in pantry and laundry. The primary bedroom has a separate entrance with a walk-in closet, bath with a tile shower, double sinks and vanities and a linen closet. The finished basement includes two additional bedrooms, full bath with linen and large rec room. This home features economical natural gas comfort by Black Hills Energy. We welcome the opportunity to visit with you about building your dream home, and we will be happy to customize your plan to meet your unique and individual needs.
Features:
• Separate entrance to primary bedroom
• Silestone quartz kitchen counters with quartz undermount sink
• Onyx bathroom vanity tops
• Birch Mission cabinets with crown molding
• Walk-in pantry
• 5� x 3� tiled primary bath shower
• Luxury vinyl plank floors
• Black door hardware
• Covered rear deck
• 2� x 6� with 16� on center wall construction
• BIB’s insulation
• Maintenance-free exterior
• Sod and underground sprinklers
• Basement finished with two bedrooms, bath and rec room
• Three-stall garage
• 92% energy-efficient gas furnace
• Stainless steel appliances
When it comes to energy, you’d imagine there are some tradeoffs. You want a home that’s truly warm. But can it heat up quickly? You want to cook your food more thoroughly and evenly. But don’t want to burn through your savings. Well, thankfully, you don’t have to make a choice. It’s Natural Gas.
For more information on how natural gas can add value to your home. Request a service by calling 888-890-5554 or visiting blackhillsenergy.com/service-request.
www.smettertownhomes.com
Phone: 402-770-6624
jenilynnmeyer@gmail.com
341 Deep Water Drive
$309,999-$399,999 | With Lot
3 Bedrooms | 3 Bathrooms | 2,171 Finished Square Feet
From O St., go north on N. 98th St. Turn right on Boathouse Rd. which turns into Shore Front Dr. Turn south on Deep Water Drive to the development.
Gorgeous Lake Community - the ideal place to live and relax! You don’t want to miss out on the second (and last) addition of the Smetter Luxury Townhomes in Waterford Estates. This development offers daylight and flat lots, with some of them backing up to a waterway. These beautiful townhomes feature two or three bedrooms, three bathrooms, finished basements and zero entry from the garage. You’ll also find a spacious primary suite, convenient first-floor laundry and a large kitchen pantry.
Superior products are used inside and out, including a maintenance-free natural stone and vinyl exterior, exceptional sound-proofing between the units and an energy-efficient all-electric heat pump. The interior features gorgeous granite countertops throughout, recessed lighting, soft-close kitchen cabinetry, white subway tile kitchen backsplash and stainless steel appliances (refrigerator included).
The monthly HOA dues cover snow removal, lawn care, trash/recycling and common area maintenance. Residents can bring paddle boats, sailboats, kayaks and canoes to use on the lake. This location offers great access to amenities like the MoPac Trail, Gateway Mall, a variety of restaurants, parks and Interstate 80. You can also reserve a lot for your future dream townhome!
www.schneidercustom.com
515 S. 88th Street
$450,000-$500,000 | With Lot | Professionally Staged 4 Bedrooms | 3 Bathrooms | 2,701 Finished Square Feet
Phone: 402-429-9300
andreaschneider@remax.net
From 84th and O Streets, go east. Turn south on 90th St. Turn west on Emma Dr. Turn south on 88th Street.
Schneider Custom Homes is proud to be part of one of Lincoln’s newest neighborhoods: Hidden Hills. Come out and discover this “hidden gem” located near the MoPac Trail. This niche neighborhood provides quick access to both “O” and 84th Streets while maintaining a private and secluded feel.
The Grace Plan is a spacious yet efficient four-bedroom, three-bath home with 10� ceilings in the entry and living room. The split bedroom configuration allows access to the primary suite from the mudroom and creates a seamless flow through the home. In the kitchen you’ll find a large island overlooking the living room and a nice-sized double-door pantry providing full access to your additional storage. The basement of this home is rounded out with bedrooms three and four as well as a large rec room and third bathroom. Whether you are upsizing, downsizing or just looking to maximize your living space, the Grace Plan is worth checking out!
The rate lock you choose when building a new home can be consequential. What if interest rates rise before the home is finished, and your monthly payments become out of reach? Or rates drop — and you’d like to take advantage of the lower rate?
Window Option Specialists is your local window & door supplier. Our services include both contractor supply and Installation of leading brand products such as Andersen Windows, Gerkin Windows, & Therma-Tru Entry Doors. Our comprehensive market knowledge and craftsmanship expertise puts you in good hands with each and every associate
4900 Vine Street | Lincoln, NE 402-466-2777
windowoptionspecialists.com
Phone: 402-610-0095
8900 Ranch Gate Road
$700,000-$750,000 | With Lot
5 Bedrooms | 3 Bathrooms | 3,499 Finished Square Feet
From the roundabout at 89th and A Streets, go north on 89th St. to Ranch Gate Road.
Beth ScholzPhone: 402-432-0668
beth.scholz@nebraskarealty.com
Welcome to the “Camarillo” by D.C. Design & Build. As you enter through the eight-foot front Therma Tru door with a tri-point locking system, you are greeted with an expansive open concept great room, 11� ceilings, gas fireplace with natural stone surround and large Gerkin windows across the back of the home showcasing abundant natural light. The Andersen sliding glass door opens with ease leading you to the oversized covered deck with future provisions for cable TV and exterior ceiling fan.
Entering from the garage leads you into the drop zone area with main-floor laundry. The kitchen has an oversized quartz island, tall upper cabinets, walk-in pantry, gas cooktop, vented hood to match the cabinets with built-in microwave and oven.
The primary bedroom features a boxed ceiling, zero-entry master shower, oversized walk-in closet, dual sinks and a separate water closet. All doors on the main floor are eight foot.
The basement features a large family room with a wet bar and a second fireplace. The fourth and fifth bedrooms are equipped with ceiling fans and walk-in closets. Additionally, a large storage room with two water heaters and recessed sump pit with an extra floor drain round out the basement.
The garage is 4 1/2-stalls, fully insulated and prewired for both future gas heat and cable TV outlets. Provisions for future electric car plug are included. The exterior features cement board siding, natural stone veneer, impact shingles, sod and sprinklers with custom front landscape design.
Phone: 402-890-8606
SALES BY
Jayson Becker
Phone: 402-610-1013
jbecker@bancwise.com
9147 Hillcrest Trail
$500,000-$550,000 | With Lot
4 Bedrooms | 3 Bathrooms | 2,793 Finished Square Feet
From 93rd and A Streets, go north on 93rd St. Take the third exit in the roundabout on Hillcrest Trail.
Welcome to 9147 Hillcrest Trail located in the Hillcrest Country Club area next to the MoPac Trail. This ranch-style townhome features four bedrooms and three baths in an exceptional open concept floor plan with just under 3,000 square feet of finished living space. A large kitchen comes complete with a full stainless steel appliance package, large pantry, granite countertops throughout and factory custom cabinets. The kitchen opens into an informal dining room and living area with gas fireplace and tons of natural light. You will enjoy the main level primary bedroom, wonderful 12� x 12� fully covered composite deck and laundry room as you enter from the garage. The lower level has two additional bedrooms, one full bath and a large family rec area. A large utility room provides space for your storage needs. Natural thin cut stone, painted James Hardie cement siding, Marvin windows and doors, and a full service homeowners association will help provide a worry-free exterior.
SAM SWARTZ
Phone: 402-617-6536
sam@truenorthlincoln.com
www.truenorthlincoln.com
1540 S. 93rd Street
$600,000-$650,000 | With Lot | Professionally Staged
4 Bedrooms | 3 Bathrooms | 3,055 Finished Square Feet
From 93rd and A Streets, take the first exit from the roundabout on 93rd St. and proceed south on 93rd Street.
This luxurious four-bedroom, three-bath, 3,055 square-foot townhome just blocks from the Hillcrest Country Club is a design you can only find with True North Custom Homes, Inc. This means the home is filled with uncompromising details, top-quality finishes and plenty of space that will make you wonder if you’ll ever need more in a home.
Features include:
• Zero-entry home
• Oversized statement front door (36� wide and 8� tall)
• Maintenance-free exterior
• Homeowners association covers snow removal, mowing, trash removal and common area maintenance
• Zero-entry shower with heated tile flooring
• Custom interior metal railing
• 12� sliding door to large composite deck
• Upgraded appliances with gas cooktop and combination wall oven
• Upgraded maple cabinets
• 8� tall doors throughout the first floor
• Coffered ceilings in the primary bedroom, dining and great room
• Fully-finished garage
• Future-proof for wheelchairs and medical beds
This townhome is truly a vision with a welcoming curb appeal, plenty of opportunities for entertainment and fun in the backyard, plus a private courtyard! This modern design features a spacious two-car garage, a walk-in kitchen pantry, a floor-to-ceiling tile fireplace in the great room, a main-level laundry room and a primary suite with a walk-in closet. It has it all! Whether you are in the market for a family home, your very first home or your forever home, this space couldn’t be more ideal.
DAN VODICKA
Phone: 402-435-1846
www.vchomesinc.com
1624 S. 93rd Street
$550,000-$600,000 | With Lot
4 Bedrooms | 3 Bathrooms | 3,076 Finished Square Feet
Welcome to this gorgeous new townhome in the Preserve at Hillcrest. This four-bedroom, three-bathroom, two-stall-garage townhome features 3,076 finished square feet. This home is ADA accessible with zero entry and features an open concept main level that includes luxury engineered wood flooring, lovely white quartz countertops and stainless steel appliances in the kitchen, quartz vanities with zero-entry tile shower in the primary bathroom suite, walk-in closet and so much more. The finished basement includes quartz-topped wet bar, large family room, two more legal bedrooms, full bathroom and another finished craft/exercise room. This home has several large windows and a composite deck to enjoy the beautiful, treed lot. Take advantage of the homeowners association amenities that cover lawn care, snow removal, garbage service and common area maintenance.
Features:
• Zero-entry home
• Custom cabinetry throughout
• Quartz countertops
• Coffered ceilings in primary bedroom and great room
• Wood beams and custom wood railing
• Upgraded appliances
• Finished garage
• Wide doorways for wheelchair accessibility
• Tall 8� doors in main living area
• Beautiful, treed lot with large composite deck
• Homeowners association amenities that cover lawn care, snow removal and garbage service
Whether you’re buying or building a home, you’ll find great rates and a loan that’s right for you at Frontier Bank. From construction, lot and bridge loans to jumbo, FHA/VA and rural development loans, we’ve got you covered—with 24-hour pre-approval in most cases. Apply online at frontbank.com.
VP, Residential Lending Office: 402-817-7056
Cell: 402-310-0667
NMLS #9775
Phone: 402-499-3496 info@synergyhomesne.com
SALES BY Bryan Trost
Phone: 402-730-0453 bryan.trost@bancwise.com
1648 S. 93rd Street
$525,000-$550,000 | With Lot | Professionally Staged
4 Bedrooms | 3 Bathrooms | 2,666 Finished Square Feet
From 93rd and A Streets, take the first exit from the roundabout onto 93rd St. Continue south for two blocks. Townhome is located on the corner of 93rd St. and Tradition Drive.
Gorgeous, luxury townhome by Synergy Homes located in The Preserve at Hillcrest new construction community. This four-bedroom, three-bath, twostall garage townhome features over 2,600 finished square feet.
Beautiful finishes on the open concept main level include 10� ceilings, doublesided fireplace on the deck, stainless steel appliances, zero-entry primary shower and so much more. The finished basement includes wet bar, large family room with second fireplace, two more legal bedrooms and a full bathroom. You won’t want to miss the treed private setting as you relax under your covered deck, or watch the sun set from your front courtyard while you allow the homeowners association to take care of the lawn, snow removal, garbage service and common area maintenance.
Thank you for touring this fine townhome constructed by Synergy Homes Inc. If you are in the market for a new custom-built home, either in town or acreage property, contact Maria at 402-499-3496 or info@synergyhomesne.com
Phone: 402-580-7955
roger@elementlincoln.com www.elementlincoln.com
9114 Rattlesnake Road
$600,000-$650,000 | Without Lot | Professionally Staged 5 Bedrooms | 4 Bathrooms | 3,690 Finished Square Feet
Located in the very popular Wandering Creek neighborhood, this beautifully finished home features five total bedrooms, four bathrooms and an oversized three-stall garage. With nearly 3,700 square feet, this home is full of custom features.
Element Homes was created in 2018 by Joe Steinbach and Roger Bumgarner. Joe and Roger also currently own and operate Ironwood Builders which was created in 2006. Before getting to know more about Element Homes, it is important to find out more about Ironwood Builders. Ironwood Builders has grown into one of Lincoln’s premier fully custom homebuilders. Ironwood has built nearly 300 homes in and around the Lincoln community. More importantly, each home was built the right way with top-of-the-line materials, first-rate subcontractors and an enjoyable custom-home building experience for the homeowner.
Over the years, Ironwood has attained a reputation as a trustworthy, professional and very high-quality custom homebuilder. It is this track-record of success and integrity that earned Ironwood Builders first-place in Lincoln Journal Star’s annual voting of top new construction builders for 10 years in a row.
Over the past few years, Ironwood Builders has been mostly building in the $800,000 and up price range (without lot) with an average price over $1,000,000. However, Joe and Roger continue to have a high demand for homes under $800,000. Element Homes was created to meet this demand and give homeowners an option to have a highly reputable homebuilder build them a high-quality home at a great value.
Please stop by this Parade home to see how Element Homes can help build the home of your dreams.
Phone: 402-430-6699
ken@recne.net
Jared Nielsen
Phone: 402-202-1857
jared.nielsen@remax.net
8820 Calamus River Road
$450,000-$500,000 | Without Lot | Professionally Staged 5 Bedrooms | 3 Bathrooms | 2,793 Finished Square Feet
From 84th and Van Dorn Streets, go east on Van Dorn St. Turn left on S. 88th St. Turn left on Big Timber Rd. Turn right on Calamus River Road.
Looking for the perfect combination of efficient design, quality finish and livability? Buhr Homes invites you to view our popular California ranch plan which features a split layout delivering a truly private primary suite. This spacious home includes four bedrooms along with a main-level den with French doors.
Main level features:
• 1,625 square feet with two bedrooms and a den/third bedroom
• Open kitchen with painted wall cabinets, soft-close drawers, contrasting extra wide island, stainless steel hood vent and built-in microwave
• Great room with 11� ceiling with hardwood floors which extend to much of the main level
• A statement floor-to-ceiling corner gas fireplace creates a beautiful focal point
• Primary suite features a tray ceiling, dual vanity bath with custom tiled shower with cathedral ceiling and separate water closet. Pass through walkin closet for easy access to the laundry room
• Laundry room with upper cabinet, base cabinet and countertop which serves as a convenient drop-area with a built-in bench and hook area
• Full hall bath with wide vanity and linen closet
Basement features:
• U-Shape stairway allows for an effective basement design
• Large rec/family room with 9� foot ceiling and transom window
• Two spacious, conforming bedrooms with walk-in closets which are split opposite of each other
• Full bathroom with granite countertops and tall linen cabinet
Exterior features:
• Hardie Plank and board front with vertical and peak trim detail
• Stone along beltline and full stone on third stall of the garage
• Front porch has entry with dual sidelights
• Extra deep three-stall garage
• Extended patio with 14� x 12� covered area
At Erickson Homes your vision becomes our blueprint. We welcome you to discuss elevated living in a custom home that is the best reflection of you.
Because unique design and cohesive elements are our passion, we love to create personalized design schemes to give you the opportunity to craft and curate a one-of-a-kind home in collaboration with us.
Erickson Homes offers distinctive plan configurations and schemes, both custom and pre-designed concepts. You have the freedom to select options that best suit your design preference while achieving the functionality and joy of a home you will love to live in.
We invite you to contact Erickson Homes to learn more about available lots or identify new locations together. We want to cultivate a design forward aesthetic for your new home. Let’s connect!
Phone: 402-580-7955 roger@elementlincoln.com www.elementlincoln.com
9220 Calamus River Road
$500,000-$550,000 | Without Lot | Professionally Staged 4 Bedrooms | 3 Bathrooms | 2,963 Finished Square Feet
Go south on 91st St. from Van Dorn St. Take the first exit in the roundabout onto Milrose Branch Rd. Turn left on Calamus River Road.
Located in the very popular Wandering Creek neighborhood, this beautifully finished home features four total bedrooms, three bathrooms and a three-stall garage. With nearly 3,000 square feet, this home is full of custom features.
Element Homes was created in 2018 by Joe Steinbach and Roger Bumgarner. Joe and Roger also currently own and operate Ironwood Builders which was created in 2006. Before getting to know more about Element Homes, it is important to find out more about Ironwood Builders. Ironwood Builders has grown into one of Lincoln’s premier fully custom homebuilders. Ironwood has built nearly 300 homes in and around the Lincoln community. More importantly, each home was built the right way with top-of-the-line materials, first-rate subcontractors and an enjoyable custom-home building experience for the homeowner.
Over the years, Ironwood has attained a reputation as a trustworthy, professional and very high-quality custom homebuilder. It is this track-record of success and integrity that earned Ironwood Builders first-place in Lincoln Journal Star’s annual voting of top new construction builders for 10 years in a row.
Over the past few years, Ironwood Builders has been mostly building in the $800,000 and up price range (without lot) with an average price over $1,000,000. However, Joe and Roger continue to have a high demand for homes under $800,000. Element Homes was created to meet this demand and give homeowners an option to have a highly reputable homebuilder build them a high-quality home at a great value.
Please stop by this Parade home to see how Element Homes can help build the home of your dreams.
Phone: 402-580-7955
roger@ironwoodlincoln.com
www.ironwoodlincoln.com
9310 Calamus River Circle
$900,000-$1,000,000 | Without Lot | Professionally Staged 4 Bedrooms | 3 Bathrooms | 4,069 Finished Square Feet
Go south on 91st St. from Van Dorn St. Take the first exit in the roundabout onto Milrose Branch Rd. Turn right on Calamus River Circle.
Located in the beautifully designed Wandering Creek neighborhood, this exquisitely finished custom home features four total bedrooms, two offices, a large walk-in pantry and three bathrooms. With nearly 4,100 finished square feet, this home is full of custom finishes and combines all the quality and craftsmanship you are used to with an Ironwood home with many new and exciting features.
Joe Steinbach and Roger Bumgarner created Ironwood Builders and began building homes in 2006. After only a few spec homes, they quickly realized their focus was building custom homes. In addition to building a very highquality home, it became apparent that a specialty of theirs was working with people to find lots, develop floorplans and customize finishes. Since 2006, nearly every home built was a custom home, from the drawing board to final product, and that continues to this day. They view the pre-building and building experience for the homeowner to be just as important as the actual home, with both aspects receiving extreme care and attention to detail. Over the years, Joe and Roger have not only loved the building process but have also enjoyed developing long-standing relationships with homeowners. Please stop by this Parade home to visit with Joe and Roger to see how they can help build the home of your dreams.
Phone: 402-610-3201
scott@lincolncustomhomebuilders.com www.lincolncustomhomebuilders.com
Professional Realty Group
Ben Bleicher
Phone: 402-419-6309
ben.bleicher@bhhsamb.com
3517 Kilkee Road
$800,000-$900,000 | With Lot
5 Bedrooms | 3 Bathrooms | 4,106 Finished Square Feet
From 84th St. and Firethorn Ln., go east. Turn right on Kilkee Road.
Welcome to the newest project from Lincoln Custom Home Builders, located in Firethorn and just a cart ride from both restaurants, 27 holes of golf and the resort (pool, gym, bar and short course)! This spectacular ranch is designed with a modern aesthetic, high-end everything and all the extras you want in a custom home! The main floor enters a grand foyer, beautiful wood flooring, tall ceilings and windows, plus the large living room has a double-sided fireplace shared with the outdoor covered patio. The eat-in chef’s kitchen has informal dining, boasts commercial appliances, large pantry and counter space/cabinets galore! There are two guest bedrooms (one’s perfect for an office) that share a full bath, plus main-floor laundry/ mudroom. The primary en suite is its own oasis with huge walk-in closet and a spectacular bathroom. Downstairs are two more legal bedrooms, a full-size wet bar, theater, tons of entertaining space and ample storage. Outdoors is a huge, covered patio with fireplace, oversized three-car garage and a private backyard. Everything about this house is a “10” and we would love to chat about it being your new Home! Come see it today!
The Wilderness Hills Neighborhood is located east of South 27th and south of Yankee Hill Road. Lot Pricing is available at lincolnfed.com. You could be eligible for impact fee reimbursement with our complete loan package. This is a limited-time promotion subject to change without notice.
Phone: 402-802-7021 matt@murraycustomhomes.com
Ferris Realty Group | RE/MAX Concepts
Susan Ferris, REALTOR® 402-730-4669 susanferris@remax.net
8516 Tralee Road
Starting at $1,250,000 | With Lot | Professionally Staged 5 bedrooms | 5 bathrooms | 4,909 Finished Square Feet
From 84th St. and Pioneers Blvd., go north on 84th St. Go east on Firethorn Ln. and south on Kilkee Rd. Go west on Tralee Road.
Murray Custom Homes can’t wait to walk you through our contemporary, walkout ranch at 8516 Tralee Road in Firethorn. Murray Custom Homes is known for building completely custom homes that highlight distinct architectural features, bespoke designs and unique aspects not found anywhere else. This home follows suit, with not one detail missing. Some characteristics include:
• Perfectly situated on nearly half an acre in the Firethorn neighborhood, this home features five bedrooms and four baths
• One of the bedrooms has been designed as flex space which could double as an office if desired
• The kitchen is adjacent to the spacious living room and dining room, which are separated by a one-of-a-kind feature accent wall housing a see-through fireplace
• The main living area features 18� ceilings and towering windows that flood the home with natural light
• A 12� sliding door off the living room and an 8� sliding door off the dining room flow onto the covered deck, ideal for indoor and outdoor living
• A culinary-inspired kitchen with quartz countertops, upgraded JennAir® appliances including the coveted built-in refrigerator and freezer columns, a 48� gas range, double oven, drawer microwave and custom-designed hood
• Expansive walk-in pantry with quartz countertops on top of custom-made cabinetry keeps kitchen clutter-free. The pantry also features adjustable open shelving for quick and easy access
• The primary suite features an oversized bedroom and reading nook, complemented by a spa-inspired bathroom with a soaking tub, glassenclosed wet room, dual vanities, heated floors and an attached spacious closet
• Laundry room with sink and faucet, expansive cabinetry and countertop space, as well as a drop zone for coats and bags, is located right off the three-car garage entrance
• A spacious lower-level features 9� ceilings throughout, a family room fit for entertaining with a wet bar and large island, built-ins, custom ceiling details and large daylight windows. There are two bedrooms, as well as a full and half bath and a large flex room off the family room
This is an entertaining masterpiece comprised of 4,909 square feet of luxurious, custom styling from top to bottom. The completely custom floor plan provides a truly stunning experience for those who live and visit here. We know you’ll love what you see. For more information, email Susan Ferris susanferris@remax.net or call 402-730-4669.
Phone: 402-617-6536 sam@truenorthlincoln.com www.truenorthlincoln.com
Marcy Teply
Phone: 402-781-2992
Jessica McEwen
Phone: 402-617-7359 luxe@woodsbrosrealty.com
8820 Bunker Court
$825,000-$875,000 | With Lot | Professionally Staged 5 Bedrooms | 3 Bathrooms | 3,532 Square Feet
From 84th St., go east on Augusta Dr. At the roundabout, take the second exit to stay on Augusta Dr. At the next roundabout, take the first exit to stay on Augusta Dr. Turn left on 89th St. Turn left on Bunker Court and follow to the last house on the right.
Breathtaking Scandinavian-inspired design with a modern twist makes this innovative home by True North Custom Homes one-of-a-kind. This home features over 3,500 square feet, including five bedrooms, three bathrooms, two fireplaces and an indoor slide! The spacious living room, beautiful kitchen, lower-level family room with wet bar and fabulous patio will allow for high-level entertaining and everyday living! The grand entry, vaulted ceilings and oversized windows are a show stopper and create an abundance of natural light. You’ll also find creative design, incredible quality and high-end finishes throughout. You will be blown away by the stunning details of this True North Custom Home, which is tucked away on a quiet cul-de-sac in HiMark Estates, within walking distance to the NuMark Golf Course.
Features Include:
• Oversized deck with vaulted ceiling and outdoor fireplace
• Integrated smart home including cameras, thermostat, doorbell and networked audio
• Maintenance-free exterior featuring Nichiha panels and James Hardie siding
• Hidden pantry
• Kitchen island and custom woodwork in great room in white oak
• Zero-entry tile shower in primary bath
• Zero-depth basin sink in main level guest bath
• Main floor office with ample built-in shelving
• Upgraded appliances including induction cooktop and custom wood hood vent
• Indoor tube slide
NICK FOWLER
Phone: 402-419-4341
www.402customs.com
6527 S. 90th Street
Brandon Fowler
Phone: 402-440-6696
brandon.fowler@nebraskarealty.com
$750,000-$800,000 | With Lot | Professionally Staged 4 Bedrooms | 3 1/2 Bathrooms | 3,270 Finished Square Feet
From 84th St., go east on Pine Lake Rd. Turn north on 88th St. which becomes Truchard Rd. Turn north on 90th Street.
Welcome to 6527 S. 90th Street! This mid-century modern ranch is the perfect place to call home. Step inside and be amazed by the open floor plan and custom features throughout. The kitchen is a chef’s dream with quartz countertops, Bluestar custom-colored appliances including a 36� gas range, large island, walk-in pantry and designer fixtures throughout. The dining room features dividing slat walls and custom cabinetry while remaining accessible for entertaining. Enjoy cozy nights in front of the living room’s gas fireplace with custom tile surround or entertain in the basement with a three-sided electric fireplace and custom wet bar.
You’ll love all the extra storage space in the oversized garage and the convenience of having two laundry rooms – one in the primary bedroom closet and one in the basement. Step out to your dual access covered patio from either the kitchen or dining room and enjoy a beautiful Nebraska evening outside. With four bedrooms and 3 1/2 bathrooms, this 3,270 square-foot home has it all!
Phone: 402-499-8297
donna@RandDCustomHomes.com www.RandDCustomHomes.com
6310 S. 90th Street
$900,000-$1,000,000 | With Lot | Professionally Staged 5 Bedrooms | 4 Bathrooms | 4,000 Finished Square Feet
From Old Cheney Rd. and 84th St., go south 1/2 mile to Barclay Dr. and turn east. Turn left on Rim Rock Rd. Turn right on Gold Dust Rd. Turn right on 90th Street.
Phone: 402-730-6788
amy.birkholz@homerealestate.com
Welcome to The Logan! This gorgeous, warm modern home is custom designed for our wonderful buyers. In over 43 years we’ve never built the exact house twice. We enjoy working to develop what suits your lifestyle and makes a house your HOME.
Some of the features to notice in this Parade home:
• 2,142 square feet on main level with approximately 1,900 finished in the walkout lower level
• Large 70� x 169� x 187� x 80� lot, equal to .29 acres
• Iron fenced yard
• Cathedral ceilings in great room and deck
• Three fireplaces: deck, great room and family room
• Heated tile in primary bathroom
• Walk-in tiled shower
• Tiled guest bath
• Tiled dog wash
• Pantry with cabinets and extra outlets
• Custom closet design
• Stone and stucco exterior
• In-house custom color and material selection and design
• Coffered ceilings
• Wet bar
• Full smart home package
Contact us for a free consultation! We would love to help build the home of your dreams!
Phone: 402-476-6599
www.prairiehomeslincoln.com
SALES BY
Terry Lindstrom
Phone: 402-730-6005 tlindstrom@exitrealty professionalsne.com
Josh Jackson
Phone: 402-540-2525 jjackson@exitrealty professionalsne.com
6118 S. 87th Street
$350,000-$400,000 | With Lot | Professionally Staged 2 Bedrooms | 3 Bathrooms | 1,929 Finished Square Feet
From 84th St. and Old Cheney Rd., go south on 84th St. to Foxtail Dr. Go east to 87th Street and turn right.
Prairie Home Builders welcomes you to the “Briarwood,” a furnished two-bedroom ranch townhome. The “Briarwood” offers 1,271 square feet of living space and features an open floor plan, nine-foot ceilings, firstfloor laundry and primary bedroom with large bath and walk-in closet. The kitchen features quartz countertops, galley island, luxury vinyl plank floors, quartz sink with single handle pull-out faucet and stainless steel appliances including refrigerator. The walkout basement includes an additional bedroom with a walk-in closet, full bath and large rec room in the 658 square feet of finish. This home features economical natural gas comfort by Black Hills Energy. We welcome the opportunity to visit with you about our other plans and townhome locations.
Features:
• Quartz kitchen countertops with quartz undermount sink
• Large primary bath and full hall and basement baths
• Onyx bathroom vanity tops with double primary bath sinks
• Birch cabinets
• Luxury vinyl plank floors
• Black lever door hardware
• BIB’s insulation
• Maintenance-free exterior
• Sod and underground sprinklers
• 92% energy-efficient gas furnace
• 50-gallon gas water heater
• Stainless steel appliances including the refrigerator
• Nine-foot flat ceilings throughout
C h o o s e y o u r o w n b u i l d e r !
e v e r g r e e n d e v e l o p m e n t n e . c o m
l o t p r i c i n g
E V E R G R E E N P L A C E
a c r e r e a l t y g r o u p Y o u r N e w C o n s t r u c t i o n E x p e r t s ! W i t h o u r b a c k g r o u n d s a s H o m e D e s i g n e r s , w e b r i n g a n e x p e r i e n c e d s k i l l s e t t o c l i e n t s w h o a r e l o o k i n g t o b u i l d a n e w h o m e W i t h o v e r 5 0 y e a r s o f c o m b i n e d e x p e r i e n c e i n t h e c o n s t r u c t i o n i n d u s t r y , w e c a n e n s u r e y o u r v i s i o n f o r y o u r d r e a m h o m e i s m e t ! C o n t a c t u s t o d a y !
c o n t a c t u s !
4 0 2 - 4 4 3 - 8 6 7 2
i n f o @ a c r e - r e a l t y g r o u p . c o m
w w w . a c r e - r e a l t y g r o u p . c o m
Phone: 402-937-7009
8245 S. 97th Street
$650,000-$700,000 | With Lot | Professionally Staged 5 Bedrooms | 3 Bathrooms | 3,265 Finished Square Feet
Gary TharnishPhone: 402-419-3354
gary.tharnish@homerealestate.com
https://garytharnish.homerealestate. com/NuHaven-Builders
From 98th St. and Pine Lake Rd., go south. Turn right on Andermatt Dr. Turn left on 97th Street.
Welcome to “The Rainier.” Midwestern coastal living with a fresh look at textures. Focusing on Midwestern comfort with a functional floor plan, the color palette is fresh and airy, you’ll feel like you brought the outdoors in. Exterior stone in the light colors of the sea, combined with stucco and Hardie board adding low maintenance to your Midwestern coastal look. Enter to a functional open concept including a mudroom off the garage with first-floor laundry. Coffered ceiling in the great room accented with beams. This room features a large format sleek tile fireplace accented with a coastal modern mantel that ties in the beams used in the ceiling. The primary bedroom located on the first floor is a haven, featuring a board and batten design accented with pendant lights, en suite with double sinks, large walk-in closet and spacious shower. Kitchen features a stone backsplash accenting the countertops, no grout lines and a pantry.
Proceed downstairs and let the fun begin with another fireplace and cozy hearth. Both carpet and luxury vinyl plank in the recreation room perfectly blend comfort with practicality. Enjoy the wet bar complete with an island and wine rack. Two more bedrooms are in the basement along with another bathroom. And of course, your outdoor experience includes a covered deck. When you choose NuHAVEN Builders you’ll live your life and love your home. Features include:
• Hardie board siding, stone and stucco
• Three-stall garage
• Covered deck
• Mudroom and first-floor laundry
• Pantry
• Luxury vinyl plank throughout the home except in the four bedrooms and a feature area in the rec room
• Large recreation room with fireplace, wet bar, wine rack and island
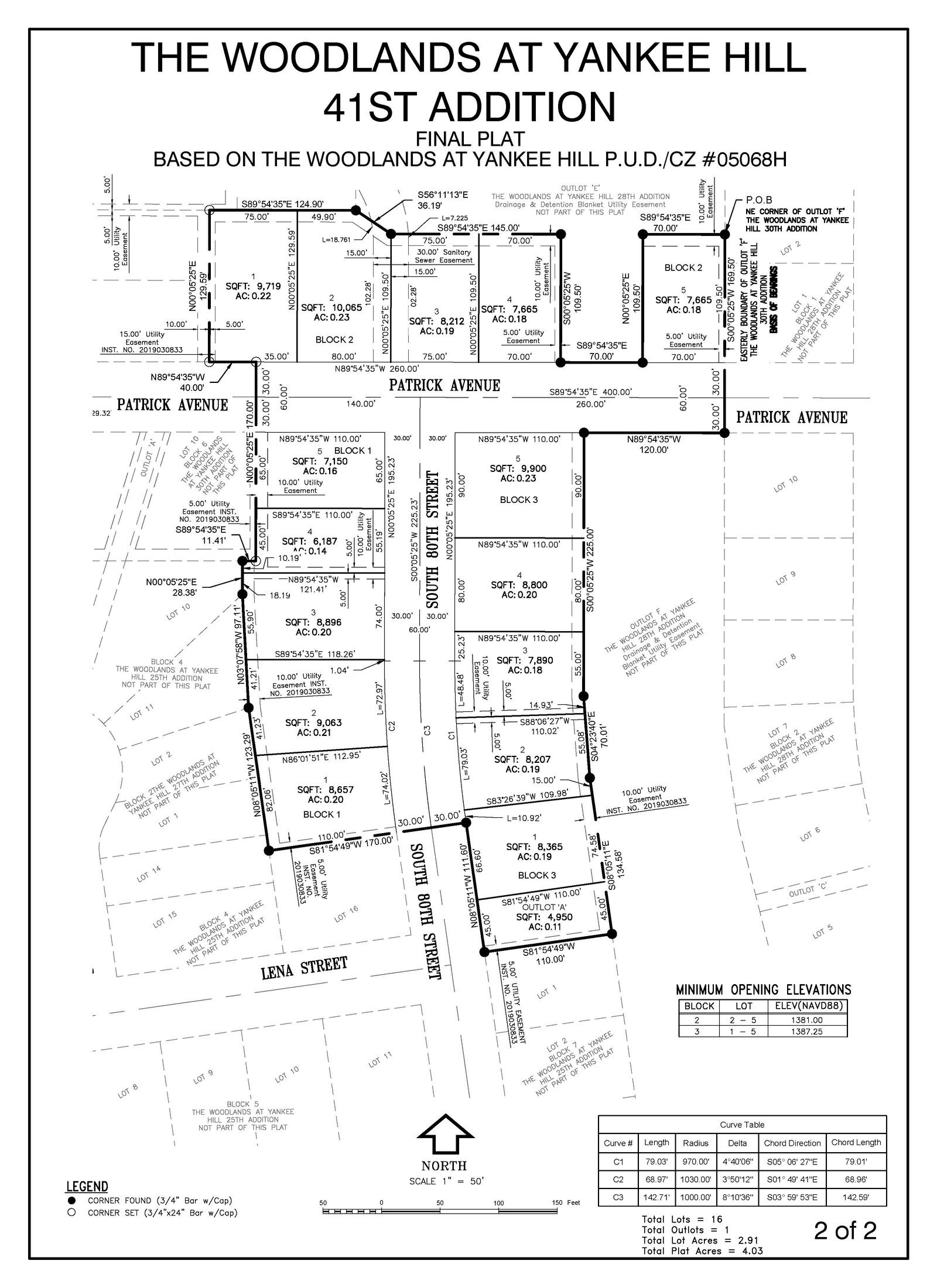
L o c a t e d i n s o u t h e a s t L i n c o l n a t 8 4 t h a n d Y a n k e e H i l l R o a d ,
T h e W o o d l a n d s a t Y a n k e e H i l l i s a n i d e a l " g o o d l i f e " n e i g h b o r h o o d .
L o c a t e d n e a r W y s o n g E l e m e n t a r y , M o o r e M i d d l e a n d S t a n d i n g B e a r H i g h
S c h o o l s , S t . M i c h a e l ’ s C a t h o l i c C h u r c h , C h r i s t L i n c o l n C h u r c h , a n d t h e
C o p p l e F a m i l y Y M C A .
T h e d e v e l o p m e n t i s o p e n t o a l l b u i l d e r s a n d i n d i v i d u a l s .
C a l l o r e m a i l f o r c u r r e n t a v a i l a b i l i t y a n d p r i c i n g .
+123-456-7890
402-423-7377
www.buildrichland.net
Phone: 402-525-1171
cody@nebraskarealty.com
7930 Maxine Drive
$475,000-$525,000 | With Lot | Professionally Staged 5 Bedrooms | 3 1/2 Bathrooms | 3,046 Finished Square Feet
From 84th St. and Yankee Hill Rd., go south to Yankee Woods Dr. and turn west. Turn right on 80th St. The home is on the corner of 80th St. and Maxine Drive.
Welcome to THE WOODLANDS AT YANKEE HILL - Home of the QUARTZ Model Home by Richland Homes.
This remarkable location features lots available by Richland Homes, just minutes from Nebraska Pkwy. and the new south beltway, schools, restaurants, shopping, parks and recreation areas. This Quartz floor plan is part of the Richland Homes Aspire Collection, featuring two ranch plans and four two-story plans, ranging from 1,473 to 2,428 square feet. Richland Homes offers fantastic options for each individual plan to help homeowners create their dream home. Models are listed at current base and lot prices according to Richland Homes standard features. Models will show a variation of included features and options available and can be viewed by visiting during our regular model hours – Thursday-Sundays 12-4 pm.
Use
Scan the QR code to download the Mobile Mortgage app and start your loan application today, or visit mobilemortgage.westgate.bank!
LENDERS (L-R)
Wayne Kreikemeier
402.323.6521
wkreikemeier@westgate.bank
NMLS: 644161
Matt Swanson
531.289.3835
mswanson@westgate.bank
NMLS: 959594
Matt Melichar
402.323.8900
mmelichar@westgate.bank
NMLS: 1926242
Taylor Ashburn 402.323.8953
tashburn@westgate.bank
NMLS: 422479
Jordan Moehlenhoff
402.853.7212
jmoehlenhoff@westgate.bank
NMLS: 1487726
Brett Sundberg
402.323.8968
bsundberg@westgate.bank
NMLS: 1102480
Kiann Ridgeway
402.323.7253
kridgeway@westgate.bank
NMLS: 493975
14100 Ritter Place
Bennet, NE 68317
Phone: 402-450-1448
www.homesbytimberridge.com
7730 Jimmie Avenue
$500,000 - $550,000 | With Lot
5 Bedrooms | 3 Bathrooms | 2,609 Finished Square Feet
From 84th St. and Yankee Hill Rd., go south to Yankee Woods Dr. and turn west. Take the first exit in the roundabout on 78th St. going north. The home is on the corner of S. 78th St. and Jimmie Avenue.
Tyler Loontjer
Phone: 402-759-2219
tyler@cb-nhs.com
Timber Ridge Homes welcomes you to “The Nebraska.” Mike McGill has designed this home providing the space everyone desires. An open floor plan and stunning details make this home a must see. The split bedroom concept along with the open great room, dining room and kitchen area fit today’s way of life. The rec room makes entertaining guests and family a breeze. This home is a beautiful display of quality products and craftsmanship representing Timber Ridge Homes.
Features include:
• 1,474 square-foot ranch with 1,135 square feet of finished living space in the lower level with an oversized three-stall garage on a corner flat lot
• Three finished bedrooms on main floor and two on lower level
• Nine-foot poured foundation walls and 9� main floor ceilings
• Andersen 100 Series windows
• Covered patio and front porch area
• Kitchen features painted birch cabinets with soft-close drawers, granite countertops and Whirlpool appliances
• Primary bath areas include tile floor and granite countertop
• Primary bath includes walk-in shower with two shower heads
• Luxury vinyl tile flooring in the entry, great room, kitchen, dining room, laundry, bathrooms and hallways on the main floor
• Painted woodwork
• Large laundry/mudroom with locker system
• Basement has a corner fireplace and a wet bar
• BIBS insulation in all exterior walls, R-50 in the attic and rim board is foam sprayed
• Energy-efficient American Standard 95% gas furnace
• Fescue sod and underground sprinklers
• Reverse osmosis, radon rough-in and electric car charger rough-in
• 85-gallon electric lifetime tank warranty on the water heater
We at Timber Ridge Homes strive for making the building process enjoyable and stress free. You deserve a builder who is easy to communicate with and will guide you through the building process. Feel free to call Mike McGill at 402-450-1448 or Tyler Loontjer at 402-759-2219 to discuss your home building needs or questions about the building process.
The experts at Ferguson Bath, Kitchen & Lighting Gallery are here to help create a home that’s as extraordinary as you are. Any project, any style, any dream—bring your inspiration to Ferguson Bath, Kitchen & Lighting Gallery. Visit build.com/ferguson to schedule your personalized showroom experience today.
14100 Ritter Place
Bennet, NE 68317
Phone: 402-450-1448
www.homesbytimberridge.com
1033 Annabel Avenue
$500,000 - $550,000 | With Lot | Professionally Staged 4 Bedrooms | 3 Bathrooms | 2,572 Finished Square Feet
Take 68th St. south into Hickman to Hickman Rd. Go east to the Terrace View Development on the north side of Hickman Rd. Go north on Terrace View Dr. to E. 9th St. and east to Annabel Avenue.
Tyler Loontjer
Phone: 402-759-2219
tyler@cb-nhs.com
Timber Ridge Homes welcomes you to “The Amanda.” Mike McGill has designed this home providing the space everyone desires. An open floor plan and stunning details make this home a must see. The split bedroom concept along with the open great room, dining room and kitchen area fit today’s way of life. The rec room makes entertaining guests and family a breeze. This home is a beautiful display of quality products and craftsmanship representing Timber Ridge Homes.
Features include:
• 1,495 square-foot ranch with 1,077 square feet of finished living space in the lower level with an oversized three-stall garage
• Two finished bedrooms on main floor and two on lower level
• Nine-foot poured foundation walls and 9� main floor ceilings
• Andersen 100 Series windows
• Covered deck and front porch area
• Kitchen features painted birch cabinets with soft-close drawers, granite countertops and Whirlpool appliances
• Large custom-made walk-in pantry
• Primary bath areas include tile floor and granite countertop
• Primary bath includes walk-in shower with two shower heads
• Luxury vinyl tile flooring in the entry, great room, kitchen, dining room, laundry, bathrooms and hallways on the main floor
• Painted woodwork
• Large laundry/mudroom with locker system that ties into the primary closet
• BIBS insulation in all exterior walls, R-50 in the attic and rim board is foam sprayed
• Energy-efficient American Standard 95% gas furnace
• Fescue sod and underground sprinklers
• Reverse osmosis, radon rough-in and electric car charger rough-in
• 85-gallon electric lifetime tank warranty on the water heater
We at Timber Ridge Homes strive for making the building process enjoyable and stress free. You deserve a builder who is easy to communicate with and will guide you through the building process. Feel free to call Mike McGill at 402-450-1448 or Tyler Loontjer at 402-759-2219 to discuss your home building needs or questions about the building process.
We’re here to help you achieve your dream of homeownership. Whether
looking to buy or build, we have
options to make it happen.
Memories at home include more than time indoors. Extend the boundaries of your home to create an outdoor space more comfortable than you ever thought possible with all the essentials you need in one place.
Upgrade your home with ALLSET Kitchens and Bathscabinets, expert installation, and unmatched service
ALLSET Kitchens and Baths is the premier destination for homeowners who want to transform their kitchen or bathroom with high-quality cabinets.
Our team of experienced designers and skilled craftsmen are dedicated to delivering the best possible results for every projects, from the initial design consultation to the final installation.
Phone: 402-476-6599
www.prairiehomeslincoln.com
Phone: 402-429-3747
abowers@locationlincoln.com
3201 Morritt Street
$550,000-$600,000 | With Lot
5 Bedrooms | 4 Bathrooms | 3,162 Finished Square Feet
From 27th St. and Rokeby Rd., go east. Turn south on 31st St. Follow 31st St. to Morritt Street.
Prairie Home Builders welcomes you to the “Camden 4,” a four-bedroom, 1 1/2-story plan with 3,162 square feet of finished space. The primary suite is on the first floor, and three bedrooms and bathroom are on the second floor. The main floor has 9� ceilings with a coffer. The kitchen has quartz countertops, an island, luxury vinyl plank flooring, stainless appliances and a walk-in pantry. This plan has a separate first-floor laundry, mudroom with bench and hooks, three-stall garage, half bath and deck. The primary bath has double sinks, linen cabinet, tile shower, separate water closet and walk-in closet. The basement is finished with another bedroom and bath. The exterior has a covered front porch with two stone columns and a partially covered rear deck. This home features economical natural gas comfort by Black Hills Energy. We welcome the opportunity to visit with you about our other floor plans and townhome locations. Features:
• Primary bedroom suite is on the first floor
• Second floor has three bedrooms and a bath with double vanities, separate water closet and bathing room
• Two-stall garage is standard with 480 square feet of space (three-stall is an available option upgrade with 777 square feet)
• Nine-foot ceilings on first floor with optional coffer
• Covered patio off the dining room and great room
• 87� kitchen island
• Walk-in pantry
• First floor half bath
• Mudroom off garage with bench and hooks for coats
• First-floor laundry room
• Onyx bath countertops
• Basement finish of 1,014 square feet with bedroom and bath
• R-23 BIBS insulation
• 2� x 6� walls 16� on center with OSB sheathing
• Modern exterior features
• Covered front porch with two stone columns
• Exterior stone
• 92% energy efficient gas furnace
• 50-gallon gas water heater
At Liberty First Credit Union we know financing your dream can seem overwhelming. We can make the home loan process a lot easier. Our loan professionals will give you the personalized care and flexible service you need to make your dreams a reality
• Free pre-qualifications
• Local decision making
• Competitive rates and low fees
Get More Than A Mortgage. Get Your Dream. Apply Today.
5825 S. 14th Street
Lincoln, NE 68512
Phone: 402-434-5450
www.sampson-residential.com
Phone: 402-430-5540
ssanford@bancwise.com
4011 Primrose Place
$500,000-$550,000 | With Lot | Professionally Staged
3 Bedrooms | 3 Bathrooms | 2,523 Finished Square Feet
From Yankee Hill Rd., go south on 42nd St. Turn Left on Hohensee Dr. Take the first exit in the roundabout onto Greystone Rd. Turn Right on Wilderness Hills Blvd. Turn left on Prairie Wind Rd. Primrose Place is the next left.
Introducing the Meadowlark by Sampson Residential Properties! This Grandale Villas patio home sets the standard for high-end finishes, zero entry and carefree living. Generous homeowners association amenities include lawn care, snow removal, trash/recycle removal, exterior lawn irrigation, exterior window washing and common area maintenance.
With three bedrooms and three bathrooms, this ranch-style patio home features a main-floor laundry room with sink, coffered ceilings, main floor gas fireplace, Hardie Plank siding, covered patio and three-car garage. The exquisitely designed kitchen displays a large island and includes matching GE stainless steel kitchen appliances, walk-in pantry and informal dining. Enjoy the primary bedroom with 3/4 bathroom en suite, dual vanities, separate commode with pocket door and walk-in closet.
This home comes complete with a finished basement which includes a spacious rec room, wet bar, third bedroom with walk-in closet, 3/4 bathroom and an enormous storage room. Full sod, landscaping and underground sprinklers are included. Buy this home now or choose your lot and select from one of our six customizable floor plans.
www.smettertownhomes.com
Phone: 402-770-6624
jenilynnmeyer@gmail.com
2904 Kings Corner Drive
$309,999-$379,999 | With Lot
3 Bedrooms | 3 Bathrooms | 2,171 Finished Square Feet
From Rokeby Rd., go north on 29th Street to the development.
Location, location, location! Welcome to Smetter Homes’ Wilderness Hills Luxury Townhome development. This desirable location offers walkout, daylight and flat lots, with some of them backing up to trees. These beautiful townhomes feature two to three bedrooms, three bathrooms, finished basements and zero entry from the garage. You’ll also find a spacious primary suite, convenient first-floor laundry and a large kitchen pantry.
Top-notch products are used inside and out, including a maintenance-free natural stone and vinyl exterior, exceptional soundproofing between the units and an energy-efficient, all-electric heat pump. The interior features gorgeous granite countertops throughout, recessed lighting, soft-close kitchen cabinetry, white subway tile kitchen backsplash and stainless steel appliances (refrigerator included). HUGE bonus: fences are allowed in this development - such a rare find!
The monthly HOA dues cover snow removal, lawn care, trash/recycling and common area maintenance. This location provides great access to bike/walking trails, parks, restaurants, exclusive shopping, as well as Highway 77 and the South Beltway. You can also reserve a lot for your future dream townhome!
https://vladimir.woodsbros.com/ JD-Builders-Inc www.3465TreeLine.info
Phone: 402-890-0535
vladimir@woodsbros.com
3465 Tree Line Drive
$631,000-$660,000 | Without Lot | Professionally Staged 6 Bedrooms | 3 Bathrooms | 3,350 Finished Square Feet
From Yankee Hill Rd., go south on 33rd St. Turn left (east) on Wilderness Hills Blvd. Turn right (south) on Castle Pine Dr. Turn right (southwest) on Tree Line Dr.
This spectacular home by JD Builders, Inc. is designed for a growing family. It has 3,350 finished square feet, six bedrooms and a supersized 4 1/2-stall garage. It sits on a walkout lot overlooking commons with lots of mature trees. The space on the main level is efficiently maximized by an open kitchen/living/dining concept and 10�-11� coffered ceilings and a cozy fireplace. The kitchen boasts a center island, solid-surface countertops with tile backsplash, taller cabinets with crown molding, stainless steel appliances and a walk-in pantry. The primary suite offers a coffered ceiling, double sink vanity in the bathroom along with a large (4 1/2� x 8�) walk-in tile shower and a walk-in closet. The spacious, finished walkout basement has a rec room with lots of windows for natural light, a wet bar, and three additional bedrooms. Supersized (extra deep and extra wide) 4 1/2-stall garage is finished and is up to 48� deep with room for “big boy toys” like a boat, a jet-ski and ATVs. Two extra wide decks (14� and 17� wide) overlook the commons with lots of mature trees and are the perfect places to barbecue and enjoy outdoor activities. A rich stone and board and batten siding front with covered porch gives the house great street appeal.
Wilderness Hills is close to newer schools, the YMCA, library and SouthPointe Pavilions with all the shopping, dining and entertainment you desire. The Wilderness Hills development will encompass more than 500 acres of homes and 130 acres of commercial properties. Wilderness Hills provides a wonderful atmosphere in a welcoming neighborhood. You’ll discover everything you want in a place to call home.
bryce.morganconstruction@gmail.com
Phone: 402-499-6585
tbeckius@theinagroup.com
3645 Wilderness Hills Blvd.
$650,000-$700,000 | With Lot | Professionally Staged 5 Bedrooms | 3 Bathrooms | 3,460 Finished Square Feet
From Yankee Hill Rd, go south on 33rd St. Turn left on Wilderness Hills Blvd. Take the first exit in the roundabout to stay on Wilderness Hills Blvd. going south.
Morgan Construction invites you to their new 2023 Spring Parade of Homes design! Located in the popular Wilderness Hills neighborhood, “The Daisy” is professionally designed and staged to highlight 3,460 square feet of beautifully finished space.
This new layout features more than enough room for everyone with five bedrooms, three bathrooms and a four-stall garage. The main level open concept living room, dining room, kitchen and outdoor patio create a casual indoor/outdoor living opportunity. The gourmet kitchen features quartz countertops, tile backsplashes, upgraded stainless steel appliances including a separate refrigerator/freezer and a large walk-in pantry. The spacious primary bedroom features a spa-like bathroom with a spacious walk-in shower, double sinks, private water closet and a large walk-in closet. Two more bedrooms, a bathroom and a spacious laundry area complete the main floor.
The finished basement with lofty 9� ceilings includes a large family room and wet bar ready for Husker game days, along with two more bedrooms, a home office and tons of storage.
SouthPointe Pavilions, Super Target and Wilderness Ridge Golf Course are only minutes away with several restaurants within walking distance. The property backs to land owned by Lincoln Public Schools.
www.schneidercustom.com
5820 SW 8th Street
$450,000-$500,000 | With Lot | Professionally Staged 4 Bedrooms | 3 Bathrooms | 2,701 Finished Square Feet
Phone: 402-429-9300
andreaschneider@remax.net
From S. Folsom St. and Old Cheney Rd., go south to the roundabout at W. Palm Canyon Dr. Go west on W. Palm Canyon Dr. Turn right on SW 8th Street.
Schneider Custom Homes has been an integral part of Southwest Village Heights from its start. Gracing the southwest corner of Lincoln, Southwest Village Heights has experienced rapid growth over the last three years with future phases coming this summer. Visit with a Schneider Custom Homes representative to find out about additional opportunities in this popular neighborhood.
The Grace Plan is a spacious yet efficient four-bedroom, three-bath home with 10� ceilings in the entry and living room. The split bedroom configuration allows access to the primary suite from the mudroom and creates a seamless flow through the home. In the kitchen you’ll find a large island overlooking the living room and a nice-sized double-door pantry providing full access to your additional storage. The basement of this home is rounded out with bedrooms three and four as well as a large rec room and third bathroom. Whether you are upsizing, downsizing or just looking to maximize your living space, the Grace Plan is worth checking out!
Phone: 402-817-3523
www.donjohnsonhomes.com
800 W. Avondale Street
$400,000-$450,000 | With Lot
3 Bedrooms | 1 3/4 Bathrooms | 1,505 Finished Square Feet
Julie JohnsonPhone: 402-304-2686
julie@donjohnsonhomes.com
From W. Denton Rd., go north on S. Folsom St. Turn left on W. Cardwell Ridge Dr. Turn right on Las Verdes Ln. Turn left on W. Palm Canyon Dr. Turn right on SW Sierra Madre Dr. Turn right on W. Avondale Street.
The “Peoria” plan by Don Johnson Homes is one of the most popular plans built today by the company and it’s easy to see why. With its three-car garage and light-filled welcoming entry, you are drawn into an open concept floor plan that offers modern cabinetry with hardware, stunning vinyl plank flooring and expansive windows that connect you to your backyard living. Quartz countertops throughout the kitchen and bathrooms add to the overall elegance of this home.
There is a mudroom off the garage entry, full hall bathroom and a total of three bedrooms on the main level.
The primary bedroom boasts a tiled shower, double sinks and large walk-in closet all located in the back of the home for additional privacy.
The unfinished basement is ready for you to design with an added egress window for a future fourth bedroom. Rough-ins for a future basement bathroom have been included.
If living life in comfort and style is what you desire, then this home is your next move!
BLAKE PITTACK
www.buildwithblake.com
3500 Anaheim Court
$350,000-$400,000 | Without Lot | Professionally Staged 3 Bedrooms | 3 Bathrooms | 2,581 Finished Square feet
From South St., turn north on 35th St., which is just past Jim Ager Memorial Golf Course. Anaheim Ct. is the next right. Proceed to the first unit on the left.
Josh PoppPhone: 402-984-0544
joshpopp@remax.net
Wow! These elegant luxury townhomes located in the heart of the city offer over 2,500 square feet of unparalleled craftsmanship and exceptional views! Step inside the units and you will instantly notice the natural light beaming in from large windows showcasing the established trees and golf course. The large corner kitchen with stainless steel appliances, large quartz countertops, gas range, under-cabinet lighting, tiled back splash, soft-close doors/drawers and large pantry is perfect for any chef. The oversized dining space with large windows opens to a spacious deck and is perfect for anyone who loves to entertain. In colder months, you can enjoy the view from your living room while snuggled up with a good book next to the gorgeous stone fireplace. Every night, drift off to sleep in the large primary suite equipped with a primary bath that has a zero-entry tiled shower with an attached seat, dual sink vanity with a tall linen cabinet and direct access to the primary closet and main-floor laundry. With a fully finished basement complete with an additional bedroom and bathroom, no functional detail was left out of this floor plan.
Exterior features include stone and fiber cement board siding coverings with an attached two-stall garage. The homeowners association covers trash, recycling, mowing, water, snow removal and exterior insurance! All of this situated in a convenient, friendly neighborhood near outstanding schools, dining and entertainment.
Make your dream of homeownership come true with a bank that specializes in personal service. Visit lincolnfed.com or scan the QR Code to learn more or to contact our lending team.