SHAPING TOMORROW TOGETHER
Research Bulletin No.7 April 2023 Research Bulletin No.7-April 2023
EDINBURGH DUBAI MALAYSIA
Wellbeing Sustainability Performance and Productivity HEC Rating 2022 5
Editorial
Dr Mustafa Batikha
Topic of Focus: The Road to (and beyond) COP28
Prof. Lynne Jack
3D Concrete Printing: Bus Station Case Study
Olivier Cremens, Apoorva Doctor and Mikhail Samoilov
3D Concrete Printing at Dubai Municipality: Achievements, Responsibilities, and Future Agenda
Waleed Mosad Abdulghafar, Abdellatif Badr Masoud and Marwan Aljanaahi
How To Make Cement Greener: Misconceptions and the Reality
Prof. Karen Scrivener and Jeremy Packham
Materials & Waste Management for Decarbonisation of the Cement Industry in the UAE
Dr Mustafa Batikha, Warren McKenzie, and Dr Olisanwendu Ogwuda
How Artificial Intelligence is Improving Safety on Construction Sites
Dr Rodaina Aboul Hosn
Major Design Challenges for Improving the Transportation Networks in UAE
Islam Badawi and Dr Noor Zainab Habib
Cooling Systems in the Arab Gulf Region Using Energy Geostructures
Prof. Lyesse Lalou, Dr Elena Ravera, Dr Ahmed Badr Mabrouk, Dr Alessandro Rotta Loria, and Sofie Elaine Ten Bosch
Metal Additive Manufacturing in Construction: Review of Current State, Challenges and Opportunities
Dr George Vasdravellis
Accelerating System Solutions for a Just Transition to Net-Zero
Prof. Mercedes Maroto-Valer and Dr Phil Renforth
Counting Down To COP 28: As construction emissions continue to rise, what’s preventing meaningful change in the industry?
Prof. Gabriela Medero
The Impact of Urban Heat Island (UHI) on Health and Well-being of Urban Residents
Dr Ashley Hong and Ying Jia Low
History of Bridges and How It Influenced Human Mobility
Prof. Sabih G Khisaf
Table of contents Research Bulletin No.7 April 2023
54 2 3 5 18 27 33 23 31 15 7 11 40 43
News & Events, Partner News
46 49
About us
About Us
Centre of Excellence in Smart Construction (CESC)
Heriot-Watt University’s Centre of Excellence in Smart Construction (CESC) is committed to advancing industry-led innovations in construction that will revolutionise the way we develop, manage and operate smarter cities.CESC partners with like-minded organisations and government entities to lead the transformation of the Built Environment and development of next generation professionals for the benefit of the economy. CESC is a global hub for disruptive thinking, a platform for collaborative research and a model for solutions development and stakeholder engagement. More details about CESC can be found in the following link: https://www.hw.ac.uk/dubai/research/centre-excellence-smart-construction.htm
CESC non-executive board
CESC’s non-executive board, chaired by His Excellency Dr Abdullah Belhaif Al Nuaimi, Former UAE Minister of Climate Change & Environment, brings together a group of expert opinions and leading voices across academia, industry and government.
Profiles of each CESC board member can be found using the following link: https://www.hw.ac.uk/dubai/research/cesc/non-executive-board.htm
CESC core team
Prof. Lynne Jack, Interim Director
Dr Olisanwendu Ogwuda, Manager
Charlotte Turner, Strategic Marketing Manager
Judy Aneiny, Executive Assistant
CESC committee (Heriot-Watt)
Dr. Hassam Chaudhry, Director of Studies Representative
Linsey Thomson, Academic Lead for Student Engagement
Matthew Smith, EGIS Representative
Dr. Mustafa Batikha, Academic Lead for Publications
Dr. Karima Hamani, Academic Lead for Knowledge Exchange
Dr. Yasemin Nielsen, EngD Programme Leader
Dr. Taha Elhag. Academic Lead for Proposals
CESC Industy Partners
How to become a CESC partner
Would your organisation like to become an esteemed industry partner of CESC? We work with our partners with the shared goal of transforming the future of construction by driving research and innovation in the sector.
Sharing information, skills and knowledge is key to advancing industry adoption of innovative solutions. Collaboration between industry and academia offer the opportunity to shape the challenges facing the Built Environment and preparing the next generation of construction professionals with the skills and knowledge to make a step change.
For more information about partnership benefits and working collaboratively with The Centre of Excellence in Smart Construction please contact S.Bushnell@hw.ac.uk
Research Bulletin No.7 April 2023
About Us 2
Bulletin Editor & Contact
Mustafa Batikha E-mail: m.batikha@hw.ac.uk Contact Us E-mail: cescdubai@hw.ac.uk
Media:
Dr
Social
Editorial
Dr Mustafa Batikha Associate Director of Research
School of Energy, Geoscience, Infrastructure and Society
Heriot-Watt University-Dubai Campus Dubai, UAE m.batikha@hw.ac.uk
The seventh issue of the CESC Research Bulletin “Topic of Focus” article by Professor Lynne Jack, Associate Principal (International Research) Director, Institute of Sustainable Built Environment and Interim Director of CESC, confirms how the CESC is committed to encouraging innovative solutions for meeting the UAE sustainability agenda. Jack also brings the long journey of sustainable challenges, which requires continuous progress beyond COP28 in December 2023. For faster achievements, the “Topic of Focus” asks for working collaboratively, such as the aim that the CESC exists to form knowledge partnerships among the academia, industry and government.
This seventh issue also presents the worthy experience of well-practised authors toward the CESC core themes: Performance &Productivity, Sustainability and Wellbeing.
The editorial highlights in brief twelve new topics as follows:
Performance and Productivity
Under this theme, Lyesse Laloui, Elena Ravera, Ahmed Badr Mabrouk, Alessandro Rotta Loria and Sofie Elaine Ten Bosch discuss how the CO2 emissions per capita have doubled in the Gulf region because of a significant increase in energy consumption due to population rise, development and construction growth. Since AC cooling contributes 60% to 85% of the total energy consumption, the authors propose geothermal energy as an alternative to achieve the Net-Zero Energy (NZE) target. It is to use the ground’s natural energy to heat and cool the structures, producing hot water. The proposed system proved environmentally friendly, covering about 40% of a building’s cooling with significant financial feasibility. In the article, the installation of the geostructure system is explored. Also, a case study in Dubai is discussed as an efficient application of such a system in an arid climate.
The second article is by Olivier Cremens, Apoorva Doctor and Mikhail Samoilov from BESIX, the well-respected 3D concrete printing company in Dubai. The authors present full technical, construction process and structural analysis details for a 3D-printed bus station project. The article highlights some lessons learned from this project to make 3DCP technology successful such as discussion between all the stakeholders from the early beginning. Also, the paper points out that although 3DCP is a powerful, flexible tool, it still has some limitations, such as the absence of standardised codes. Thus, it depends on the engineering judgement during the execution process.
George Vasdravellis, in the third article, explores 3D metal printing and its advantages in reducing material waste, making complex shapes such as connections at low cost and on-site implementation. The author discusses two metal printing methods with each technique’s advantages and disadvantages. Vasdravellis encourages going with hybrid construction because the cost is high when full-scale elements are printed. Therefore, the steel connections can only be printed. Some examples showed that printing nodes reduced their weight by 75%. However, the paper addresses that the current use of 3D metal printing may harm sustainability as it is an energy-intensive process. Its future spread depends on using clean electrical energy.
The fourth paper by Waleed Mosad Abdulghafar, Abdellatif Badr Masoud and Marwan Aljanaahi from Dubai Municipality (DM) presents the vital role the DM plays in monitoring the building process according to rules and regulations. Later, the authors introduce 3D Concrete Printing (3DCP). Then, they went through the process of building the largest printed building worldwide through massive lab trials, which reached 200 to confirm the 3DCP buildability, especially in the hot weather of the UAE. The article pointed out that DM aims to make Dubai an international hub for 3D printing activities, which pushes a lot of responsibilities on the DM to achieve this aim and put the 3DCP on the right track.
Sustainability
In the first paper under this theme, Mercedes Maroto-Valer and Phil Renforth introduce the UK Industrial Decarbonisation Research and Innovation Centre (IDRIC) as a centre to accelerate the green industrial revolution via the collaboration of 250 partners from academia, industry, policymakers and society representatives with a fund of up to £261 million from the industry. The IDRIC supports 63 projects about the challenges facing industrial decarbonisation to find cost-efficient green solutions for the industrial sectors, which contribute to 50% of CO2 emissions. The article focuses on the role of the cities, which produce 70% of humaninduced greenhouse gas emissions because of population growth, such as the UAE example. However, it is encouraging that the article records that the UAE is the first Arab country to set voluntary clean energy targets. For instance, DEWA launched the Dubai Green Fund of $27bn to support clean energy. Also, the Dubai Master plan 2040 will double the green area of Dubai, besides using sustainable technology in the construction, green building facades, and launching the region’s first green hydrogen plant.
The second paper is by Karen Scrivener and Jeremy Packham, who start with the fact that, due to the growth of construction because of the increase in the population, we can’t reduce cement production but reduce GHG emissions that come from it. The article describes cement as a miracle material that its use can’t be simply avoided because the cement components are similar to the earth’s geological composition of limestone. Any other materials to replace limestone are very limited or much more expensive. Instead, the authors suggest using Limestone Calcined Clay Cement (LC3) which is much available in the Global South and requires little changes to existing cement plants. The article confirms
Research Bulletin No.7 April 2023
Editorial 3
that using LC3 can save up to 40% of CO2 emissions. It is most interesting that the paper argues six current misconceptions about reducing the CO2 emissions from cement production.
Gabriela Medero, in the third article, requests the urgent need for an action plan to start meaningful change through COP 28. Medero confirms that, via COP 28, she will push for recycling the vast quantities of construction and demolition waste for reuse. It is the only way to save our natural earth. The author brings bricks as an example, where the UK alone used more than 2.6 billion bricks in 2019. Making bricks requires an incredible amount of energy, with a burning temperature reaching 1,300 degrees Celsius adding further pollution to our atmosphere. Therefore, the author and her team have acted to produce a unique brick called K-Briq from 90% demolition and construction waste. Moreover, no firing and cement are required to bind the ingredients, resulting in less than 10% of the energy used with traditional bricks. More about the properties of the K-Briq product are detailed in the article. It is so interesting that the author shares the story of how her research has been taken from the lab to the market by forming a company (Kenoteq).
The final article under this theme is by Mustafa Batikha, Warren McKenzie and Olisanwendu Ogwuda, who present a report submitted during a workshop held by The Centre of Excellence in Smart Construction (CESC) at Heriot-Watt University to decarbonise the cement industry in the UAE. Through discussing valuable collected data, the report brings conclusions and recommendations as a roadmap for decarbonising the cement industry.
Wellbeing
Under this theme, Ashley Hong and Ying Jia Low address the increase in the urban outdoor temperature because of population growth, which influences human activities and causes more climate problems by making people stay indoors, releasing more non-renewable energy into the atmosphere through massive uses of the AC, besides the injuries and deaths coming from the high temperature. Long-term exposure to hot temperatures causes a decreasing social life, lower motivation, skipping work, and depression which may lead to suicide in some cases. The high temperature more influences vulnerable groups: the elderly, children, and women. In addition, this situation will add extra medical costs for the lower income categories. To avoid that, the article emphasizes the importance of having an urban planning strategy to reduce outdoor heat by increasing green areas and proposing cooler surface materials for roads and pavement.
The second article by Rodaina Aboul Hosn records how the construction sector has registered the highest rate of workers’ injuries. For example, in 2017, a fifth of the US workers’ deaths was from the construction industry. As a solution, the author asks to get AI involved to secure more workplace safety. The article brings examples of how AI (e.g., cameras, drones and sensors) can monitor the construction site and detect any abnormal activities or less safety behaviour and report that to the safety managers. Moreover, the article highlights some work that researchers in academia have conducted to feed AI with massive data about possible injuries on
site. The paper also points out the positive impact of the prefabrication off-site or the robotics on the site (e.g., 3D concrete printing) in securing a safer workplace.
Sabih G Khisaf, in the third article, describes how massive immigration has been initiated since the 15th century because of many influencing factors such as the industrial revolution, politics, wars, etc., where the aim behind immigration is to find better living conditions. With this immigration, bridges have played a vital role in facilitating human mobility due to the massive congestion in cities. The paper takes us through the history of bridges, and it is believed that human flourishing hasn’t been achieved without them. The author also highlights the classifications of bridges besides their types and structural systems used. He also brings examples of today’s sustainability practice in the construction and design of bridges.
The final article under this theme is by Islam Badawi and Noor Zainab Habib. The authors explore the challenges facing improving transportation networks in the UAE, such as the fast development of new communities and its influence on the traffic demand, which requires design, sustainability, schedule and finance challenges. The paper suggests potential solutions for the traffic congestion in the UAE, such as applying the paid carpooling service, which is still illegal in UAE.
Acknowledgements
The Editor would like to sincerely appreciate Charlotte Turner, Monika Toth and Judy Aneiny for their continuous and invaluable help in producing and designing the CESC research bulletin.
Research Bulletin No.7 April 2023
Editorial 4
Topic of Focus The Road to (and beyond) COP28
Prof. Lynne Jack Interim Director – Centre of Excellence in Smart Construction Associate Principal (International Research) Director, Institute of Sustainable Built Environment School of Energy, Geoscience, Infrastructure and Society
Heriot-Watt
University Edinburgh, UK
L.B.Jack@hw.ac.uk
There is a real sense of excitement and anticipation across the UAE as Dubai prepares to welcome COP28 later in the year. These conference events provide a tangible marker in our journey to Net Zero and our pursuit of solutions to address climate change.
We know that buildings and construction account for almost 40% of all CO2 energy-related emissions, thus underscoring the importance of effecting change across the sector as delegates at COP28 aspire to commit to ambitious solutions to limit climate change.
At the Centre of Excellence in Smart Construction (CESC), we are also fully committed to helping deliver against the aspirations of COP28. We too are ambitious, with our main purpose being to stimulate industry-led innovations and research driven solutions to address sector challenges. In doing so, we are guided by the UAE’s growth, climate change and sustainability strategies such as the Dubai 2040 Master Plan, the National Climate Change Plan of the UAE 2017-2050 and the UAE NetZero 2050 strategic initiative.
Recognising the significant role the construction sector plays, and in particular that of cement production, at CESC, we also continue with our work on Cement Decarbonisation. Readers of previous editions of the CESC Bulletin may recall that we have split this work into four themes: (i) Materials and Waste Management, (ii) Technology, (iii) Standards, Procedures and Policies, (iv) Education and Awareness. The first of these themes is already complete and the cluster one report is available upon request. These themed workstreams link to a wider roadmap that outlines a progressive approach linking low, then net-zero, carbon processes and their corresponding milestones. This roadmap not only serves a practical purpose in terms of its underpinning of this work, it also acts as an important reminder that we must be prepared for the longer journey; one that must be sustainable. This message applies equally to COP28. As critically important as the conference event is, there is a need to recognise the importance of sustained progress beyond December 2023.
With the continued growth of the construction sector, both within the UAE and globally, it is clear that research and innovation have a crucial
role to play in advancing knowledge and contributing to this longer-term goal. Collaboration is also key; especially international collaboration. We know that by working together we can deliver change and impact much faster than we could by working independently. At CESC, we operate using a triple helix model where we bring academia, industry and government together, forming a formidable partnership with multiple benefits for the sector. Such partnerships provide an exciting way to work and at CESC, we are keen to expand the scope and depth of our partnership agreements such that we can continue to strengthen our collective knowledge base.
Reducing carbon emissions across the construction sector remains an imperative. Examples of where this can be achieved include, but are not limited to, the use of sustainable construction materials, deploying modular construction methods, adopting the use of advanced technologies and smart construction, and introducing a focus on building performance. Across both CESC and Heriot-Watt University, we are committed to delivering new knowledge in support of each of these themes. As the COP conference events set the roadmap for transformational change in addressing climate change, at CESC we stand ready to respond to industry-led challenges in support of this endeavour.
If you would like to know more about the research and innovation work we undertake at Heriot-Watt University or the collaborative opportunities afforded by partnering with CESC, please feel free to get in touch.
Research Bulletin No.7 April 2023
The Road to (and beyond) COP28 5
Performance and Productivity
Cooling Systems in the Arab Gulf Region Using Energy Geostructures
École Polytechnique Fédérale de Lausanne (EPFL), Switzerland lyesse.laloui@epfl.ch
Soil Mechanics Laboratory
École Polytechnique Fédérale de Lausanne (EPFL), Switzerland elena.ravera@epfl.ch
Northwestern University Evanston, Illinois, USA af-rottaloria@northwestern.edu
Soil Mechanics Laboratory
École Polytechnique Fédérale de Lausanne (EPFL), Switzerland sofie.tenbosch@epfl.ch
The Arab Gulf region is amongst the top regions of the world in energy consumption directed to cooling. Reduction in air conditioning reliance on fossil energy would significantly reduce carbon emissions and would heavily contribute to achieving the region’s environmental goals. Energy geostructures represent a feasible clean alternative to conventional cooling systems, where the underground structures are transformed into thermal exchange units to harvest the soil’s cooling energy. The article presents a numerical analysis of a building in Dubai, UAE, and shows the effectiveness of energy geostructures in providing the cooling needs in hot-dominated climates while reducing carbon emissions.
Keywords: Energy Geostructures; Geothermal; Carbon Dioxide Emmissions; Sustainability; Energy Efficiency.
Introduction
The Arab gulf region of the middle east has experienced a surge in development and construction in the past few decades, which resulted in a significant increase in energy consumption (e.g., UAE electricity consumption in 2020,130 TWh, is almost eight multiples that of the consumption in 1990 [1]). Currently, the region is amongst the highest globally in energy consumption per capita (Bahrain, Qatar, Kuwait and UAE are among the top ten countries) [2], which is expected to grow further with the population growth and the expected future developments.
Consequently, carbon dioxide (CO2) emissions are significantly increasing in the region (UAE and KSA more than doubled their emissions in 2020 compared to 1990) [1]. In 2006, UAE was declared to have the largest ecological footprint per capita [3], which called for radical measures to closely monitor the environmental impact of the ongoing developments and to introduce legislations and incentives to improve the region’s environmental performance.
There are many local and global moves to reduce carbon emissions including “Net Zero Emissions (NZE)”, to bring energy-related CO2 emissions to net zero by 2050. Similarly, many Arab gulf countries adopted local initiatives to fulfil the same target among which is the “UAE Net Zero 2050”. For the buildings sector, this means that mandatory zero-carbon building energy standards will be introduced for new structures. Hence, it is crucial to introduce green energy alternatives to conventional systems relying on fossil energy.
2. Shallow Geothermal Energy
On average, 30% of the total energy consumption is attributed to the residential sector. From 60% to 85% of that energy is directed to air conditioning (AC) (predominantly cooling in the middle east) and to hot water production. Furthermore, air conditioning is anticipated to be tripled by 2050, which makes it among the top energy demand drivers [4].
The Arabic gulf region has an arid climate and is one of the hottest and most humid regions of the world. Hence, KSA and UAE are among the top countries with the highest AC share in household electricity consumption [5]
Research Bulletin No.7 April 2023
Prof. Lyesse Laloui
Director of EPFL Soil Mechanics Laboratory
Dr Ahmed Badr Mabrouk Assistant Professor of Civil Engineering American University in Dubai Dubai, UAE amabrouk@aud.edu
Sofie Elaine Ten Bosch Scientific Assistant
Dr Elena Ravera
Postdoctoral Researcher
Dr Alessandro Rotta Loria Assistant Professor of Civil and Environmental Engineering
Research No.7 April 2023 Cooling Systems in the Arab Gulf Region Using Energy Geostructures 7
1.
that mainly relies on fossil fuels (natural gas and oil). Thus, improving the AC’s cooling efficiency and reducing its reliance on fossil energy is crucial to achieving the NZE targets. This mandates the need to tap into new energy sources, such as geothermal energy.
Shallow geothermal energy technologies harness the approximately constant temperature of the ground throughout the year beyond 4–6 m of depth, depending on the soil profile (Figure 1). The ground’s relatively stable temperature can be used for the structure’s cooling or heating by injecting the extra heat into the soil (or extracting heat from the soil in case of heating). This can be achieved by utilizing the already existing geostructures, with minor modifications, as explained in the next section, as a thermal exchange unit, along with their original structural function.
The use of shallow geothermal energy technology has been vastly growing in the last three decades (since the 90’s). There are remarkable examples worldwide of structures completely relying on that system to cover their heating and cooling energy needs. The system proves to be environmentally friendly (compared to conventional fossil fuel applications) with significant financial feasibility in most cases and short payback time.
In arid regions, where the main interest is to cool buildings, it is possible to inject heat and extract cooling energy. This technology harnesses constant and moderate ground temperature that is used to assist in the air conditioning of buildings allowing less conventional energy to be consumed for operation, which in turn results in lower CO2 emissions.
The construction of such geostructures requires the installation of polyethylene exchange tubes to exchange energy with the surrounding soil. These tubes are usually attached to the reinforcement cage of the structure before the concrete is poured or can be integrated into the drainage paths in the presence, for example, of external insulation of walls or slabs (Figure 2). The dimensions of the energy exchanger tubes and their arrangement in the geostructure are adapted to the geostructure to minimise the impact on the execution process. If installed expertly and on the basis of plans and execution recommendations, the fitting of geostructures represents an execution activity that is not on the critical path of the construction site.
3. Energy Geo-structures: An Environmentally Friendly Solution to the Problem and their Concept
Energy geostructures involve adding a geothermal energy exchanger function to any concrete structure in contact with the ground, in addition to its original role as a structural element. Like other shallow geothermal systems, energy geostructures use the low-enthalpy thermal energy present in the shallow earth’s surface and exploit the relatively constant temperature field in the shallow subsurface throughout the year for their heat exchange role [8].
The integration of energy exchangers can be done on various types of foundations and infrastructures (piles, walls, slabs, tunnels, - Figure 1) and allows to exploit of the renewable thermal energy naturally present in the ground for heating and/or cooling of buildings as well as for domestic hot water production and seasonal thermal storage.
4. Performance in Hot-Dominated Climates: A Case Study in Dubai
The simulations of energy piles performed in this work are run with the software COMSOL Multiphysics (v. 5.5) [9]. This software is used to run 3-D time-dependent thermo-hydro-mechanical simulations. Such simulations reproduce the energy piles, the ground, and the pipes embedded within them. The mathematical formulation employed for these analyses has already been presented in other studies (e.g., Batini et al. 2015 [10]; Rotta Loria 2021 [11]) and is not reported here for concision. This modelling approach showed to be effective in evaluating long-term aspects.
For this case study, it was targeted to provide 40% of the cooling demand of the building through its energy foundation. The daily energy demand implemented in the model for different months is shown in Figure 3.
Research Bulletin No.7 April 2023 Cooling Systems in the Arab Gulf Region Using Energy Geostructures 8
Fig. 1 Principle of energy geostructures (source image: GEOEG [7]).
Fig. 2 Installation of heat exchanger tubes on the reinforcement cages of foundation structures before the concrete is poured (source image: GEOEG [7]).
A numerical case study explores the performance of an energy pile foundation that has the specificity of providing structural support and renewable cooling energy to a building located in Dubai.
The numerical simulations represent the energy dynamics of the energy geostructure over 50 years (Figure 4) and account for all the key physical phenomena governing the actual heat exchange process within and around the designed energy system. The simulations also include the ON/OFF operation of the geothermal system, considering its interactions with the heat pump.
5. Conclusions and Perspectives
The Arab gulf region of the middle east is amongst the highest in energy consumption and, subsequently, in CO2 emissions. Air conditioning has a significant share of the energy consumption of buildings, and thus, relying on green sources for cooling would heavily contribute to achieving the NZE goals of the region.
Cooling, or heating, of structures using energy geostructures represents a clean energy alternative that can have a significant impact on CO2 emissions reduction. The existing geostructures can be turned into thermal exchange units that can harvest the ground’s cooling\heating energy. The system has been applied and tested with success in many regions all over the world, that have similar climate conditions as in the Arab gulf.
The article presents a numerical analysis of a case study in Dubai, UAE. The analysis shows the energy geostructures system performance to cover 40% of the cooling needs of a building. The study indicated a sound longterm performance of the system. Thus, it can be deduced that energy geostructures system, when properly designed, have great potential as a clean energy source alternative in hot-dominated climates in arid and semi-arid regions.
Acknowledgements
Some of the used data inputs were inspired for measurements made available by econstruct.ae
The long-term behaviour showed that the increase in temperature is largest in the first years and shows stabilization behaviour after. The maximum outlet temperature limit of the applied heat pump was respected for a time of 50 years, which shows the potential of energy piles in arid regions to cool the buildings when these systems are properly designed.
The obtained results provide a sound knowledge base on the performance of energy geostructures in hot-dominated climates and highlight markedly their effectiveness to decarbonize energy supply in buildings via the use of renewable energy sources.
This innovative technology can help reduce CO2 emissions for space cooling purposes in arid and semi-arid regions, where cooling demands are high.
Research Bulletin No.7 April 2023 Cooling Systems in the Arab Gulf Region Using Energy Geostructures 9
Fig. 3 Daily energy demand per pile [12]
Fig. 4 Long-term performance (50 years) of energy geostructures in hot-dominated climates [12]
https://www.iea.org/countries/united-arab-emirates
https://en.wikipedia.org/wiki/List_of_countries_by_electricity_ consumption
Laloui, L., and A. F. Rotta Loria. 2019. Analysis and Design of Energy Geostructures: Theoretical Essentials and Practical Application. Academic Press.
COMSOL. 2019. COMSOL Multiphysics version 5.5: user’s guide and reference manual. Burlington, Massachusetts, United States: COMSOL.
https://www.iea.org/news/air-conditioning-use-emerges-as-oneof-the-key-drivers-of-global-electricity-demand-growth
https://data.footprintnetwork.org/ https://www.enerdata.net/
https://www.eia.gov/international/data/world
https://www.geoeg.net
Batini, N., A. F. Rotta Loria, P. Conti, D. Testi, W. Grassi, and L. Laloui. 2015. “Energy and geotechnical behaviour of energy piles for different design solutions.” Appl. Therm. Eng., 86 (1): 199–213.
Rotta Loria, A. F. 2021. “The thermal energy storage potential of underground tunnels used as heat exchangers.” Renew. Energy, 176: 214–227. https://doi.org/10.1016/j.renene.2021.05.076.
Ten Bosch, S. E., E. Ravera, and L. Laloui. “Performance of energy pile foundations in hot-dominated climate: a case study in Dubai” (in preparation).
Research Bulletin No.7 April 2023 [1] [3] [5] [7] [9] [11] [2] [4] [6] [8] [10] [12]
References Cooling Systems in the Arab Gulf Region Using Energy Geostructures 10
3D Concrete Printing: Bus Station Case Study
BESIX3D, DED
BESIX Construct LLC
Dubai, UAE ocremens@sixco.ae
Structural Engineer
BESIX3D, DED
BESIX Construct LLC
Dubai, UAE apoorvasd@sixco.ae
BESIX Construct LLC Dubai, UAE msamoilov@sixco.ae
3D Construction Printing or Additive Construction is an additive technology that uses different materials suitable to produce structural elements, parts of the buildings, formwork, architectural elements, etc. Thanks to its well-known technology and good structural properties, concrete is widely used for structural applications.
There is no doubt that 3D concrete printing technology will be more and more used within the construction industry for applications related to structural and non-structural components, be they for temporary or permanent applications. With benefits such as high speed, repeatability, direct link to BIM and other computer-aided technology used by the various construction stakeholders, 3D concrete printing technology process can significantly improve actual construction operations with routine activities such as masonry, concrete works and formwork while offering the possibility to architects and designers to free themselves from current execution and material limits.
This article will present an application of 3D printed concrete used to construct a bus station in the UAE. Starting from the architectural concept, BESIX 3D printing division developed a design considering the various requirements of all the involved disciplines.
Keywords: Structure; 3D printing; Procurement; Logistic; Execution.
1. Introduction
As a main contractor operating in the Middle East region since 1965, BESIX Construct is directly concerned with today’s market modifications. Through its Dubai-based subsidiary, Besix3D, BESIX Construct invested from 2018 in 3D-printing technology, focusing on practical applications with the goal to diversify its operations and acquire/build knowledge of the technology that will shape the future of the construction sector.
For almost 5 years, BESIX 3D was involved in different projects with 3D concrete printing applications ranging from large architectural flowerpots for EXPO 2020, art sculptures in DIFC, the first and last in the world concrete printed facade for BESIX Dubai Head Office or a halfway house with load bearing printed walls in Abu-Dhabi which are capable of resisting all design forces without the need of reinforced concrete structure.
This paper will describe the last project BESIX 3D was involved in, which consists of an interestingly shaped bus station. The project was different from others as it pushed 3D printed material beyond its limits due to a
large cantilever and a short base. For the execution BESIX 3D, based on its experience, selected a combination of 3D printed concrete forming the exterior outline of the bus station used as a lost formwork with concrete and reinforcement added in the most stressed areas.
2. BESIX 3D
2.1 BESIX 3D Printing Set-Up
The main piece of equipment is the KUKA robotic arm, mounted on a fixed base in the middle of BESIX3D dedicated production hall. It is connected to the plastering mixing pump connected to a silo for a direct and uninterrupted supply of material.
The choice of using a fixed 3D-printer versus a mobile 3D-printer was driven by the complexity of developing a mortar mix that would meet the printing requirements (consistency and setting time), structural properties (strength) and aesthetical aspects.
Research Bulletin No.7 April 2023
Olivier Cremens Sr. Project Manager
Apoorva Doctor
Mikhail Samoilov 3D Printing Manager
BESIX3D, DED
Research No.7 April 2023 3D Concrete Printing: Bus Station Case Study 11
The mortar mix can be printed in layers of 5 to 20mm thick with a path width ranging between 30 to 80mm. Generally, a layer thickness of 10mm is found to be the best compromise between printing speed and aesthetical render when printing organic shapes.
3.2 Geometry
The outer boundary of the bus-station section is 3D printed. A reinforcement truss composed of 8mm diameter rebars is placed between printed layers at 100mm centre to centre. These reinforcement trusses are prefabricated by welding the rebars to each other at connection nodes.
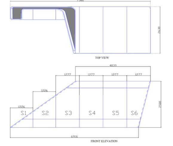
The bus station will be made of 6nos 3D printed segments placed side by side and securely connected to each other using 3nos longitudinal rods.
To enhance stability against overturning and sliding, the bench area and the wall of the bus station are filled with concrete. A single row of anchors spaced at 540mm centre to centre secures the connection between the existing foundation and the station. An individual roof pocket is also filled with concrete for installation purposes. Refer to Figure 3 for a better understanding.
2.2 3D Printing Compound
The mortar mix is based on Sikacrete®-752 3D product (High-Performance Shrinkage Compensated Micro-concrete for 3D printing). It is a mixture of Portland cement and graded aggregates produced by SIKA and locally sourced in Dubai, which is a significant advantage in terms of sustainability.
Sikacrete®-752 has been partially developed based on the return on experience from BESIX 3D and is specifically used for the 3D printing of new structures.
It is designed to allow for easy mixing, easy pumping, and excellent interlayer adhesion. A detailed study of the mix and material properties can be found in BESIX 3D article published for the IABSE Congress [1].
3. Bus Station project
3.1 Concept and Challenges
The bus station concept design integrates a waiting bench and a long cantilever providing shade with a dynamic shape (Figure 2). It makes the bus station looks unique and futuristic. Such design freedom can now be pushed to execution thanks to the advantages of 3DCP.
3.3 Material Properties
Concrete Material Properties
3D Printed Compound, fcu = 34 MPa
Concrete, fcu = 40 MPa
Reinforcement Steel Properties
8mm dia. Rebars and 20mm dia. Tie rods, fy =500 MPa
Steel Anchors.
Hilti Chemical Anchors, HIT-HY 200 + HAS-U 8.8 HDG M20 with 6mm thick steel plate (S275)
3.4 Loadings
The following loads were considered in the design,
Self-Weight
Water-proofing Load of 0.1 kPa on entire station
Pedestrian Load on the bench – 2.0 kPa
Load on the roof – 0.6 kPa (with Pedestrian bench load)
Load on the tip of roof – 1.0 kN (Independent action)
Research Bulletin No.7 April 2023 12
Fig. 2 Bus Station Geometry.
Fig. 3 Bus Station Details
Fig. 1 KUKA 3D Printer and 3D Printer Output.
3D Concrete Printing: Bus Station Case Study
Wind Loads – Based on 30m/s wind speed
All the above loads were combined as per combinations provided in ASCE 7-05 for Ultimate and Service Limit States Design.
Software
3.5 Handling and Sequence
The complete bus station was subdivided into 6 parts due to the KUKA robot limitation and installation procedure. The following steps briefly explain the handling process, which is also summarized in Figure 5.
Printing of 3D elements with a maximum height of 1.28m and installation of the pre-assembled reinforcement trusses between layers.
Saw cut of relevant segments on the same day to match the architectural concept shape.
3 nos. longitudinal sleeves installed at various locations for tie rods placing. Additional sleeves are provided in the bench for the anchor connection to the existing foundation.
Concrete casting in relevant areas (See Fig. 3 & 5)
Installation of anchors in existing slab
At 7 days strength, each element is lifted and transported to the bus station mockup location.
Each of the bus station elements is flipped and placed on the foundation slab so that each anchor rod slides into the sleeves prepared in the bench of each segment.
Once all the elements are placed on the foundation slab, each of these elements is pulled close to each other with the help of the longitudinal tie rods passing through the sleeves present in the wall, roof, and bench of each bus station element. These tie rods are tightened at each end.
Finally, grouting of the anchors and tie rods sleeves are done. This is followed by polishing and spraying waterproofing agent all over the bus station.
3.6 Design Results
3DCP being a new technology there is no set of standardized codes. Therefore, traditional design codes (ACI 318-08) and basic engineering principles are followed. The analysis is performed with FEM software – Scia Engineer.
ULS stress contour results are studied under all the loads and load combinations. These show that, as expected, the maximum tension (0.8 MPa) is found in the top face of the cantilever roof, and the maximum compression stresses are observed within the wall and bench of the bus station (Figure 6).
As the maximum 3D printed layer width is 35mm, the induced tensile force is 0.8 x 35 = 28 kN/m. The provided T8-100mm mesh has a tensile force capacity of 226 kN/m which is far greater than the exerted tensile force, but in order to limit the risk of cracks formation, it was decided to limit the stress in the rebars to a fraction of its yield stress.
The free-standing height of the wall is approximately 2.5m and therefore, it is also checked for biaxial buckling effect. In all cases, the provided reinforcement is found to be sufficient.
Anchor rods are designed to resist the tension forces due to the self-weight combined with the extreme wind effect. These forces are resisted by 2 nos. Hilti Chemical anchors, HIT-HY 200 per segment, are post-drilled into the existing foundation.
3.7 Lessons Learned
To ensure smooth delivery up to the required expectation, it is crucial that continuous discussions are held with the Client/Architect from the very beginning creating a synergy between all the stakeholders. Indeed, 3DCP is a strong technology with huge potential, but it still has some limitations, and projects need to account for these limitations.
Research Bulletin No.7 April 2023 3D Concrete Printing: Bus Station Case Study 13
Fig. 5 Handling and Sequence
Fig. 4 Loads Applied in FEM
This project proved that 3DCP is a flexible tool which is as reliable as traditional methods and is even better at certain stages, but it also has limitations with regard to complex sizes and shapes. Since there are not many references or standardized codes, most of the time, the structure design is heavily dependent on engineering judgement and on-site testing of mock-ups, which directly impacts the cost of the project. Execution methods, logistics, manutention and transportation need to be sufficiently detailed when pricing such projects as they substantially affect the cost.
Conclusion
Since its creation, BESIX 3D has been very active in the 3DCP industry in UAE. It is continuously working towards the development of 3DCP technology by investing in selected partnerships with suppliers and Universities and experimenting with several new ways where 3DCP can be utilized in combination with traditional construction projects.
The Bus station project was a good opportunity for BESIX 3D team as it uncovered new 3DCP advantages while overcoming unexpected challenges. Further developments are planned as the technology is rapidly evolving, more equipment options are available, and a new generation of materials is becoming accessible.
Acknowledgements
BESIX 3D would like to thank SIKA for the support and collaboration in the 3D compound development and printing activities.
References
[1] [3]
Olivier C. (BESIX3D), Benoit M. (BESIX3D), Luai A.K. (BESIX3D), Sami B. (AECOM). First Operational Ground Floor Building using load bearing 3D Printed Elements, IABSE Congress – Resilient Technologies for sustainable infrastructure September 2-4, Christchurch, New Zealand.
[2]
https://en.wikipedia.org/wiki/List_of_countries_by_electricity_ consumption
ACI 318M-08, 2008. Building Code Requirements for Structural Concrete and Commentary. An American Concrete Institution, United States of America.
[4]
ASCE 7-05, 2005. Minimum Design Loads for Buildings and Other Structures. An American Society of Civil Engineers, United States of America.
Research Bulletin No.7 April 2023
14 3D Concrete Printing: Bus Station Case Study
Fig. 6 Max/Min ULS Envelope Stress Contours (+ve Tension)
Fig. 7 Complete Erected Bus Station
Metal additive Manufacturing in Construction: Review of Current State, Challenges and Opportunities
Dr George Vasdravellis Associate Professor Institute of Sustainable Built Environment Heriot-Watt University Edinburgh, UK g.vasdravellis@hw.ac.uk
This paper presents an overview of the current state of metal additive manufacturing with an emphasis on applications relevant to the construction sector. Metal additive manufacturing presents some unique opportunities in the market of steel construction. Major challenges that should be overcome to allow wider use of additive manufacturing are presented. Some recent case studies and potential applications are discussed.
Keywords: Additive manufacturing; 3D printing; steel construction; sustainability; material efficiency.
Introduction
Metal Additive Manufacturing (AM), also referred to as 3D printing, is a rapidly growing field that has seen significant advancements in recent years. AM uses a layer-by-layer material deposition method to fabricate a part in a controlled environment, e.g. a machine chamber, or using a robotic arm. In contrast, traditional manufacturing is usually subtractive, i.e. the fabrication of a steel part will start from a bigger geometrical entity, and material is removed through cutting or drilling to form the final parts. These parts will often be welded or assembled together to the final desired component. This method requires substantial man-hours and energy consumption and results in large amounts of material waste (scrap material) and waste by-products that are sent to landfill.
Metal additive manufacturing, on the other hand, offers the following advantages: a) resource efficiency and reduced waste, as only the material needed for a specific steel component is used; b) geometric freedom, as AM techniques allow for the creation of parts of virtually unlimited complexity at no extra cost; c) creation of a complex part in one process, i.e. the actual 3D-printing, starting from a CAD model; d) optimisation of the geometry in terms of structural behaviour, which is particularly relevant to performancecritical components, such as connections or energy-dissipation elements in a structure. Another advantage of metal 3D printing in construction is the potential for on-site printing using mobile 3D printing robots. This would allow for the construction of structures in remote or inaccessible locations, as well as the reduction of transportation costs and emissions.
Overall, metal additive manufacturing has the potential to revolutionize the construction industry by enabling the creation of more efficient, sustainable, and customizable structures.
2. Additive manufacturing techniques
The two AM techniques that are most relevant to the construction of steel parts are Powder Bed Fusion (PBF) and Directed Energy Deposition (DED).
PBF processes (Figure 1) use the material in the form of a powder that is initially spread on the base of a chamber, and then the material is fused to the final shape using a laser or electron beam (Herzog et al. 2016). PBF can produce parts of great geometric complexity, and the final surface is relatively smooth. However, a drawback of this technique is that the production times are long (current deposition rate is around 50 g/hr) and that the parts are limited to relatively small sizes (max size is currently approximately 250 x 250 x 250 mm3).
Research Bulletin No.7 April 2023
Metal Additive Manufacturing in Construction: Review of Current State, Challenges and Opportunities 15
Fig. 1 Process of Powder Bed Fusion (PBF) 3D printing (https://www.twiglobal.com/technical-knowledge/faqs/what-is-powder-bed-fusion)
1.
Research Bulletin No.7 April 2023
DED uses an electron beam, an electron or a plasma arc to melt material powder that is fed on the surface of the printed structure (Evans et al. 2022). The wire arc AM, or WAAM, uses an electron beam and metal wire to directly weld steel in layers using a robotic arm (Figure 2). The WAAM is most suited for large-scale construction components, as the deposition rate is high (approximately 5-9 kg/hr), and there is no need to use a controlled environment (chamber), thus allowing the printing to take place in any site. The drawbacks of WAAM are that it results in printed components with relatively high surface roughness, which usually needs considerable postprint treatment, and the process results in residual stresses and distortions that should be taken into account.
has been tested and extensively analyzed using a digital twin (Gardner et al. 2020; Kyvelou et al. 2022). MX3D has also produced a steel node for timber structures, which was designed in collaboration with engineers of Takenaka, an engineering firm in Japan (https://mx3d.com). The node was printed using duplex stainless steel. Tests and numerical analysis have shown satisfactory results. The MX3D bridge and the Takenaka connector show the potential of WAAM in producing optimized bespoke geometries for large-scale construction.
Overall AM offers tremendous opportunities for a more resource-efficient and sustainable construction sector (Gardner 2023). As the cost of producing full-scale members such as girders and columns is still prohibitively high, the most promising solution appears to be the combination of AM with traditional manufacturing to produce hybrid structures, i.e. structures in which the members will be traditionally manufactured but the connections, various connectors, and/or other intricate performance-critical elements will be optimized and 3d printed. As the technology evolves and the costs are reduced, production of full-scale optimized structures may be possible in the near future, especially if the deposition times and control of printed parts are improved. AM will enable greater automation in construction, with the off-site fabrication of components, rapid plug-and-play assembly of structures on site, and improved health and safety working conditions. The use of functionally graded materials, novel material grades, and the automatic inclusion of stiffeners in elements are all promising possibilities that AM offers.
4. Major challenges
There is a fast-growing body of research on the mechanical properties of 3d printed steel of various grades [e.g. Chen et al. 2017; Buchanan et al. 2017). The results show that the material exhibits an evident anisotropy, with the properties such as Young’s modulus and yield strength varying according to the direction of printing. Most studies show that the mechanical properties of 3d printed stainless steel are comparable to those of conventional stainless steel. Further research is needed to fully understand the fundamental behaviour of 3d printed steel in terms of constitutive relationships; more so for the fatigue and fracture behaviour for which data is currently limited.
3. Available research and opportunities in the construction sector
Steel tubes of circular (CHS) or rectangular (SHS or RHS) cross sections have been printed using the PBF technique and tested under monotonic loading up to failure ( Buchanan et al. 2017; Yan et al. 2019; Zhang et al. 2021). Test data at member level for CHS short columns that have been printed using the WAAM technique have also been reported (Kyvelou et al. 2021; Laghi et al. 2020). The results have shown that the strength is not far from the one predicted using familiar design approaches, e.g., Eurocode 3, and the failure modes were not unusual. The tests highlighted, however, the higher geometric variability and imperfections of the 3d printed members as compared to conventionally produced ones.
Arup engineers have used AM to optimize nodes used in a tensegrity structure and achieved a 75% weight reduction per node while maintaining the same load-carrying capacity (www.arup.com/projects/additive-manufacturing). The nodes have been printed using the PBF technique. The first large-scale 3d-printed structure is notably the pedestrian bridge that was constructed by MX3D using robotic WAAM in Amsterdam (https://mx3d.com). The bridge
Despite the promising research conducted so far on additive-manufactured metallic components, there are still limitations that should be overcome in order to allow for the wider practical application of AM in construction. The current limitations of AM are mainly the lack of standardized processes and procedures to produce parts, lack of certification of 3d printed material, and lack of codified provisions for the design of 3d printed components and structures. Additionally, the cost of metal 3D printing equipment and materials can be high, and the process is relatively slow compared to traditional manufacturing methods.
The sustainability aspects involved with the AM process are mainly attributed to the savings in material and transportation impact, which translate into waste reduction, preservation of natural resources and transportation-related carbon emission savings. In terms of the actual manufacturing process, AM is energy intensive and requires substantial electricity to operate. Recent research has highlighted that there is no clear advantage of AM compared to traditional manufacturing of a metallic component in terms of environmental footprint (Kanyilmaz et al. 2022; Nagarajan et al. 2018), considering the whole life production of the component. The main contributor to the environmental impact of AM is the electrical energy use; therefore, it is crucial to adopt future solutions that generate clean electrical energy and reduce the postprocessing demands of an AM part, which are currently high, in order to justify the use of AM in terms of environmental impact.
Research Bulletin No.7 April 2023 Metal Additive Manufacturing in Construction: Review of Current State, Challenges and Opportunities 16
Fig. 2 Process of Directed Energy Deposition (DED 3D printing (https:// www.metal-am.com/articles/additive-manufacturing-of-aluminium-partsby-directed-energy-deposition-possibilities-and-challenges/)
Conclusion
Overall, there is an exponential increase in research on additive manufacturing of metallic components in recent years, and the research results are expected to increase even more. Research has been done at the material level, fatigue and fracture behaviour, component level and member level. The data provide promising results in terms of structural behaviour of printed steel parts. It is expected that when the body of research data will be adequately reliable, it will unlock the road to the adoption of AM in construction practice, initially in the form of hybrid structures, and once certified procedures and codified design rules are implemented in official documents. Additive manufacturing has the potential to open a new era in the construction sector, with structures that are architecturally pleasing, and at the same time robust and safe with minimum material use. Design concepts such as design for deconstruction and reuse, offsite fabrication, digital fabrication, and design for manufacturing will most probably be mainstream in the near future and will enable the realization of a more sustainable construction sector.
References
Buchanan C, Matilainen VP, Salminen A, Gardner L. (2017). Structural performance of additive manufactured metallic material and cross-sections. J Constr Steel Res 2017;136:35–48.
Chen X, Li J, Cheng X, He B, Wang H, Huang Z. (2017). Microstructure and mechanical properties of the austenitic stainless steel 316L fabricated by gas metal arc additive manufacturing. Mater Sci Eng A, 703:567–77.
Evans et al. (2022) ‘A review of WAAM for steel construction –Manufacturing, material and geometric properties, design, and future directions’, Structures, 44, pp. 1506–1522. doi: 10.1016/j. istruc.2022.08.084.
Gardner, L. (2023) ‘Metal additive manufacturing in structural engineering: Review, advances opportunities and outlook’. Structures, 47, pp. 3–4. doi: 10.1201/9781003348450-1.
Gardner L, Kyvelou P, Herbert G, Buchanan C. (2020). Testing and initial verification of the world’s first metal 3D printed bridge. J Constr Steel Res 2020;172:106233.
Herzog D., V. Seyda, E. Wycisk, C. Emmelmann (2016). Additive manufacturing of metals. Acta Mater, 117 371–392, https://doi. org/10.1016/j.actamat.2016.07.019
Kanyilmaz, A. et al. (2022) ‘Role of metal 3D printing to increase quality and resource-efficiency in the construction sector’, Additive Manufacturing, 50. doi: 10.1016/j.addma.2021.102541.
Kyvelou P, Buchanan C, Gardner L. Numerical simulation and evaluation of the world’s first metal additively manufactured bridge. Structures 2022;42:405–16.
Kyvelou P, Huang C, Gardner L, Buchanan C. Structural testing and design of wire arc metal additively manufactured square hollow sections. J Struct Eng ASCE 2021;147(12):04021218.
Laghi V, Palermo M, Gasparini G, Girelli VA, Trombetti T. Experimental results for structural design of wire-and-arc additive manufactured stainless steel members. J Constr Steel Res 2020;167:105858.
Nagarajan, H. P. N. and Haapala, K. R. (2018) ‘Characterizing the influence of resource-energy-exergy factors on the environmental performance of additive manufacturing systems’, Journal of Manufacturing Systems, 48, pp. 87–96. doi: 10.1016/j. jmsy.2018.06.005.
Shah, I. H. et al. (2023) ‘Life cycle assessment of wire arc additively manufactured steel structural components.’, Journal of Cleaner Production, 389, p. 136071. doi: 10.1016/j. jclepro.2023.136071.
Yan J-J, Chen M-T, Quach W-M, Yan M, Young B. Mechanical properties and cross-sectional behavior of additively manufactured high strength steel tubular sections. Thin-Walled Structures 2019;144:106158.
Zhang R, Gardner L, Buchanan C, Matilainen VP, Piili H, Salminen A. Testing and analysis of additively manufactured stainless steel CHS in compression. Thin-Walled Structures 2021;159:107270..
Research Bulletin No.7 April 2023
17 Metal Additive Manufacturing in Construction: Review of Current State, Challenges and Opportunities [1] [9] [5] [13] [3] [11] [7] [2] [10] [6] [14] [4] [12] [8]
3D Concrete Printing at Dubai Municipality: Achievements, Responsibilities, and Future Agenda
R&D at Dubai Municipality
Dubai Municipality Dubai, UAE eng.waleeed.wm@gmail.com
Al Ghurair Construction Readymix Dubai, UAE Abdellatif.badr@al-ghurair.com
Dubai, UAE maljanahi91@gmail.com
3DCP is the future of the smart construction system due to its advantage towards green and sustainable buildings by reducing waste and site accidents. Dubai 2030 vision of achieving 25% of Dubai buildings to be 3D printed will make Dubai as a hub of 3D printing worldwide. As a government employee, our main target currently is making 3DCP technology easier and regulating the usage of the technology together with our strategic partners and market specialists in order to attract industry leaders from everywhere in the world to Dubai to reduce the high current cost of machinery and supporting our local manufactures with the latest researches and information to produce the 3D concrete locally. We aim to reach a stage where machinery and material are produced 100% locally. Therefore, we designed and built the largest 3D building in the world as a model for the construction market and to have a full study of the technology in order to be able to regulate it. The main goal of this paper is to show the case study of the largest 3D printed building in the world and how the 3D concrete has been designed, as well as the next step of regulating the technology and making Dubai a hub of 3D printing technology.
Keywords: 3DCP, Concrete, Sustainability, Regulation, 3D Hub, Smart construction.
As workers in the government sector, our job is to facilitate and regulate all work in the emirate of Dubai, which is more preventive when it comes to building. As employees in the building and supervision department at Dubai Municipality, our roles are more supervisory in nature, we create rules and regulations depending on the latest information that spans from work processes to new technologies.
Here comes 3D printing technology and especially 3D Concrete Printing (3DCP). The reason for adopting this technology and going to the challenge of making the biggest 3d printed construction in the world as a pilot came out of necessity and obligation to find a solution for a series of challenges and to open the stage for new opportunities to be adopted in the building and construction fields.
Dubai Municipality undertakes to develop and implement an integrated system to plan, design and implement construction work using the 3D printing technology as per the approved engineering standards and specifications, the civic body said today. “This is an important step towards strengthening Dubai’s leading position as the first city in the world to adopt a 3D printing strategy and regulate the usage of this advanced technology in the construction sector”.
Fig. 1 As a government strategy, 25% of Dubai buildings will be 3D printed by 2030.
2. What is 3DCP?
3D printing technology is used to build product parts or the first model in layers, drawing the required model with AutoCAD software and then dividing the design (so that each shape converts it to a digital data sheet, the Algorithm array). It is a whole process from the material selected with details of each layer.
3DCP is the digital fabrication of cementations materials in the form of layers on top of each other.
Research Bulletin No.7 April 2023
Waleed Mosad Abdulghafar Construction Technology Specialist
Abdellatif Badr Masoud Technical Manager
Marwan Aljanaahi Senior Structural Engineer Building permit and supervision Agency Dubai Municipality
Research Bulletin No.7 April 2023 3D Concrete Printing at Dubai Municipality 18
1. Introduction
Many advantages 3DCP offers are as follows: 1. Reduction in projects cost by:
Decreasing number of labors
Reduce the need of concrete forms (typically accounts for 30 to 60% of total construction cost)
Reducing construction time.
2. More sustainable by utilizing material more efficiently and by creating very less waste.
3. Reduction in site accidents.
4. Freedom to create very complex shapes.
The planning stage considered selecting the best 3D printing machinery for the outdoor environment through negotiations with different companies.
3.2 Designing of 3D-printed concrete mix
3D concrete is a mixing of materials that consist of cement, fibers, supplementary cementitious materials, fine and/or coarse aggregate and additives such as (rheology modifiers, accelerators, and retarders).
Designing 3D-printed concrete was a very challenging topic back to 2018 as Dubai municipality decided to design it with 100% local materials, more than 200 lab trials were done trying many Cementitious and SCM with many types of additives such as (rheology modifiers, Accelerators, Retarders, and Fibers) in order to achieve the required Strength and setting time. The targeted strength was 25 MPA with 30 to 35 minutes targeted initial setting time and 45 to 60 minutes targeted final setting time, the approved mix as of lab trials was with the following performance:
Strength 30 MPa
Initial setting time 35 Minutes
Final setting time 48 minutes
The second step was site trials with the printer to check the concrete mix buildability & bond strength between the layers.
On the other hand, some disadvantages face using 3DCP technology:
1. Currant high cost of the printer.
2. Non-availability of the material.
3. Lack of standards and regulations.
3. Case Study (biggest 3D printed building in the world)
3.1 Planning stage
Figure 3 shows the architectural plan of the 3D concrete-printed building, which is a 2-story building of 9.5m in height and 640 m2 area with architectural challenges such as curves, openings, etc.
Buildability is the ability of the printed 3D concrete layer to retain its dimensions under increasing load, while bond strength is the strength of the bond between layers; both Buildability and Bond strength are mainly related to the interval printing time between layers and setting time of 3D printed concrete, especially in hot weather concreting.
So many on-site printing trials were done to align the interval time between layers with the setting time of 3D printed concrete in order to achieve the optimum buildability and bond strength, the shear bond strength was tested with different interval printing times between the layers in order to find the best interval time which assures the highest bond strength. Trials show that as interval time between layers reduces as the bond strength increase. The results of the shear bond strength were:
1- 5 minutes interval 5.3 MPa
2- 15 minutes interval 4.1 MPa
3- 25 Minutes interval 2.6 MPa
4- 35 minutes interval 1.1 MPa
One of the challenges was the ability to control the 3D-printed concrete shrinkage. The study was done using several types of fibers and shrinkagereducing additives. The results show that, with fibers, shrinkage, and volume change test of the concrete as per ASTM C157 was as low as 0.065%.
The size of aggregate was designed based on the printer nozzle dimensions, many sizes of aggregate were tested in the lab trails and site trials ranging from 1 to 5 mm, and the layer diminutions were 4 cm in Hight and 3 cm in width, which gave us an opportunity to try an aggregate size up to 5 mm.
3.3 Project challenges
Project challenges with solutions during the printing process are summarized in Table 1:
Research Bulletin No.7 April 2023 19 3D Concrete Printing at Dubai Municipality
Fig. 3 The architectural plan of the printed 2-story building.
Fig. 2 Waste per each activity in regular construction site.
4. What is Next?
4.1 Dubai as a hub of 3D printing
Dawood Al-Hajri, director general of Dubai Municipality, said: “Dubai Municipality aims to regulate the use of the 3D printing technology by organizing and promoting it and providing support and consultation to startups in the field. This will be in addition to inviting international companies to enter this field in Dubai, as part of our directives to make Dubai an international hub for 3D printing activities.”
“3D printing is an advanced technology, which has been advancing rapidly in many sectors around the world, which is supposed to contribute to reducing
cost and time. We aim to enhance the use of this technology through the new activities launched by Dubai Municipality for contractors and consultants,” he added.
4.2 Dubai Municipality responsibilities
Dubai Municipality is responsible for regulating this technology, issuing licenses and monitoring construction works. This will be done by developing and implementing an integrated system to plan, design and execute construction and structural work using 3D printing technology and ensuring its use in accordance with approved engineering standards and specifications, as well as qualifying, registering, and classifying engineers and contractors who use 3D printing technology in their work.
The municipality will also conduct technical studies and experiments and cooperate with research, scientific and engineering entities specialized in this field to develop this technology. It will also prepare templates for the contracts related to the 3D printing technology and enter partnerships with international establishments and specialized consultancy to promote the use of this technology and derive the maximum benefit from it.
Research Bulletin No.7 April 2023
3D Concrete Printing at Dubai Municipality 20
Fig. 4 Printing trials performed to the guard’s room.
Fig. 5 Building construction during printing
Fig. 6 Guinness World Records certificate about the achievement of DM printed building.
Table 1 Printing challenges and solutions
Acknowledgements
Eng. Layali Al Mulla: Director permits, Head of 3D printing Team at Dubai Municipality
Eng.Aisha AlMulla: Director of Research & Development at Dubai Municipality
Eng.Ahmad Alsalami: Head of Research and development at Dubai Municipality
References
Kajaste R., Hurme M., 2016. Cement Industry Greenhouse Gas Emissions – Management Options and Abatement Cost, Journal of Cleaner Production, 112, 4041-4052. http://dx.doi.org/10.1016/j. jclepro.2015.07.055.
Ali S.T.M., Batikha M., 2018. Producing green concrete by using recycled materials in UAE, 2nd American University in the Emirates International Research Conference (AUEIRC’18), Sustainable Development and Social Responsibility, Dubai, UAE, November 13-15 November, 10p.
De Brito, J., Saikia, N, 2013. Recycled Aggregate in Concrete: Use of Industrial, Construction and Demolition Waste. Green Energy and Technology, Springer-Verlag, London. http://doi. org/10.1007/978-1-4471-4540-0.
Zhang K., 2013. Recycled glass concrete, in: Pacheco-Torgal F., Jalali S., Labrincha J., John V.M. (Eds), Eco-efficient concrete, Woodhead Publishing Limited, Cambridge, 241-270. https://doi.or g/10.1533/9780857098993.2.241.
Abaqus 6.12, 2012. Abaqus 6.12 documentation. Simulia, Dassault Systemes, Providence, Rhode Island, USA.
[CISION, 2015. Cement Market in the UAE 2015-2019, available at: https://www.prnewswire.com/news-releases/cement-marketin-the-uae-2015-2019-300113860.html (accessed: 31 July 2019).
BS EN 196-1:2005, 2005. Methods of testing cement - Part 1: Determination of strength, British Standards Institution, London.
ASTM E518/E418M-10, Standard test methods for flexural bond strength of masonry
BS 1881 Part 114 and 116:1983, Compressive strength and density of hardened concrete.
ASTM C109/C109M-02, Compressive strength of hydraulic cement mortar
ASTM C78 – 02, Standard test method for flexural strength of concrete
ASTM C157, Standard test method for length change of Hardened hydraulic cement mortar and concrete.
Ingemar Lofgren (M.Sc. in civil engineering) and Kent Gylltoft (professor. Dr. department of structural engineering, Chalmers university of technology, Sweden.) Dr. Tomas Kutti – Head of research of Thomas concrete group.
Decree No. (24) of 2021 regulating the use of three-dimensional printing in construction works in the emirate of Dubai.
Research Bulletin No.7 April 2023
21 3D Concrete Printing at Dubai Municipality [1] [5] [11] [3] [9] [7] [13] [2] [6] [12] [4] [10] [8] [14]
Sustainability
Accelerating System Solutions for a Just Transition to Net-Zero
Prof. Mercedes Maroto-Valer Champion and Director, UK Industrial Decarbonisation Research and Innovation Centre (IDRIC)
Deputy Principal for Global Sustainability and Director of the Research Centre for Carbon Solutions (RCCS)
Heriot-Watt University
Edinburgh, UK m.maroto-valer@hw.ac.uk
Dr Phil Renforth Associate Director Research Centre for Carbon Solutions (RCCS) Heriot-Watt University
Edinburgh, UK p.renforth@hw.ac.uk
This article presents the role and impact of the UK Industrial Decarbonisation Research and Innovation Centre (IDRIC) and its unique approach to co-creating solutions that are accelerating the decarbonisation of UK industrial clusters. IDRIC works on a wide range of solutions, including Negative Emission Technologies (NETs), and a brief description of an IDRIC NET project relevant to the cement and steel sectors is included here.
Keywords: Decarbonisation; Net Emmisions Technologies; Emissions; Urbanisation; Industry; Clusters
1. Introduction
Our net zero and collective energy transition must accelerate across the world, encompassing all regions and including industry as well as urban and rural areas. Employing a whole systems approach is key. It is only through co-creation and co-delivery of whole systems initiatives that solutions can be deployed at scale and pace.
The exciting news is that we have the tools to do this, and innovation and practical solutions are progressing fast due to a huge collaborative effort between industry and academia. However, our systematic approach must accelerate further, so that we can effectively green our industries at the same time as making our cities and regions across the world more sustainable and resilient.
2. The Industrial Decarbonisation Research and Innovation Centre (IDRIC)
Based in the UK and launched in 2021, IDRIC is a key player in pioneering decarbonisation solutions. It is doing this by accelerating the green industrial revolution through collaboration with over 250 partners and stakeholders and bringing together the research and innovation ecosystem. These include academic institutions, industry, community representatives and policymakers, who are all working together to address urgent innovation priorities.
IDRIC is funded by the UK government through the Industrial Decarbonisation Challenge (IDC). With an investment of £210 million (matched by funding of £261 million from industry), the IDC supports the development of lowcarbon technologies and infrastructure in order to reduce the carbon emissions from energy intensive industries and lay the foundations for the world’s first net-zero industrial cluster by 2040. Consequently, it will boost the competitiveness of key industrial regions and drive inward investment, creating and protecting jobs for a low-carbon global economy with growing low-carbon export markets.
3. Whole System Approach to Challenging Industrial Emissions
The four areas of activity are briefly described below:
Policy and Engagement: informing the development of effective policy and regulatory frameworks.
Research and Innovation: creating a programme of whole systems solutions, integrating technology, policy and business models.
Skills and Leadership: creating and supporting collaborations at scale and pace across the innovation ecosystem.
Knowledge Exchange: supporting and initiating cross-learning, evidence-gathering and independent advice.
As part of its role in enabling transformation and innovation, IDRIC’s research portfolio currently consists of 63 projects and adopts whole systems thinking,
Research Bulletin No.7 April 2023
Accelerating System Solutions for a Just Transition to Net-Zero 23
IDRIC’s programme of activity is organised broadly into four areas, as presented in Figure 1.
Fig. 1 IDRIC’s programme of activities.
Research Bulletin No.7 April 2023
whilst addressing key cross-cutting challenges of industrial decarbonisation, as shown in Figure 2 [1].
Bringing together insights from a year of this extensive stakeholder engagement, IDRIC recently published the Policy Synthesis Report 2022 [2], which discusses seven priority areas for industrial decarbonisation policy, as follows:
Working across a wide range of low-carbon technologies, IDRIC funds research in areas such as carbon capture, utilisation and storage (CCUS), hydrogen, fuel switching, energy storage and Negative Emissions Technologies (NETs). Crucially, it also focuses on systems and scale-up. An example of this is in the development of innovative planning and decision-making tools for infrastructure and supply chains which can then also inform the design of business models and regulatory frameworks. Moreover, in addition to covering technical aspects of decarbonisation, IDRIC also addresses key social, economic and policy aspects in order to have a UK-wide impact.
4. Accelerating impact to decarbonise industrial clusters
Building on this whole systems approach, IDRIC’s work focuses on industrial clusters. This is because much of the UK’s industry takes place in clusters which are characterised by a concentration of related industries or several industrial sites grouped within proximity to one another. These clusters consist of large-scale energy-intensive industries, such as iron and steel, cement, refining and chemicals, which have developed near ports and estuaries.
Whilst industrial clusters are major economic contributors to both their local economy and their communities, they also contribute significantly to CO2 emissions, accounting for over 50% of UK industrial emissions. Therefore, decarbonisation of the clusters seeks to harness their scale to find costeffective solutions, while remaining competitive on a global scale. IDRIC’s areas of activity are summarised under the following sections
4.1 Policy
By supporting the development of effective policy and regulatory frameworks for industrial decarbonisation, IDRIC:
Supports key policy and regulatory initiatives through reliable and impartial expertise and analysis.
Briefs on relevant technologies, innovations and research developments.
Convenes stakeholders for ongoing dialogue between industry, academia and policymakers.
Enabling fuel switching and electrification.
Supporting Infrastructure for transport and storage of electricity, hydrogen and CO2.
Business model support for scaling up low-carbon technologies. Timely planning, consenting, and permitting processes.
Comprehensive carbon accounting and standards.
Resilient low-carbon supply chains.
Net zero skills and workforce.
4.2 Skills
Decarbonising industrial clusters requires a shift in education and workforce training. As demand grows for skills, it is essential to understand where skill gaps exist now and in the future, what mechanisms are in place to address these gaps, and the timescales required to do so. For example, a recent IDRIC-funded report has estimated that over 350,000 new jobs are needed to ensure the delivery of the current planned decarbonisation projects in seven identified industrial clusters. Of these jobs, 72% are technical, which highlights the need for an increase in the number of career pathways for engineering construction roles [3].
IDRIC, therefore, acts as a conduit between policy-makers, industry and training providers to support the development of an optimised and consistent UK-wide skills base, sharing best practices and lessons learned between national, devolved and local bodies.
Within IDRIC’s research portfolio, there are currently four dedicated projects focused on better understanding and quantifying the workforce capacity:
Development of competence, skills and training for the transition to hydrogen.
Enabling skills for the industrial decarbonisation supply chain.
Diversity to decarbonise: Promoting EDI in the future workforce.
Labour market and other wider economic challenges in decarbonising the UK’s industry clusters.
4.3 Knowledge Exchange
IDRIC has built a comprehensive and growing Knowledge Hub thanks to our researchers, partners and stakeholders across every sector [1]. By sharing this knowledge across the research and innovation ecosystem, solutions can be implemented at pace due to the creative partnerships that are formed. This, in turn, improves the resilience of the industry and fosters further innovation and growth.
In this way, IDRIC’s research is driven by real-world need and challenges with research solutions harnessing synergies that go beyond one emitter or one technology and require more systematic thinking. Our approach links up different users and producers of energy by joining up the supply and demand chain, as well as transcending sectors and applications
Research Bulletin No.7 April 2023
Accelerating System Solutions for a Just Transition to Net-Zero 24
Fig. 2 Integrating engineering, environmental and technical solutions with economic, behavioural and policy interactions.
5. Challenging Emissions from Urbanisation
The decarbonisation of industrial sectors has a significant role to play in changing how we build and develop our cities in a more sustainable way, both in terms of emissions related to construction and also the materials used. Whether we are talking about the clustering of urbanisation or the clustering of industry, both offer opportunities for creative solutions working across defined areas of dense activity [4].
Cities produce as much as 70% of human-induced greenhouse gas emissions whilst contributing to approximately 80% of the global gross domestic product. Currently, over half of our world’s population lives in cities, and in the next 30 years the urban population will reach two-thirds globally [5].
According to World Bank Data, between 1960 and 2017, the world’s urban population quadrupled. In the UAE, urbanisation was at a much higher rate and over a similar time period the population of Dubai grew over 80 times [6]. Despite this growth, the UAE has taken a lead in promoting sustainable practices and environmental conservation in the Middle East. UAE was the first Gulf country to sign and ratify the Paris agreement and the first Arab country to set voluntary clean energy targets.
To mitigate this dramatic growth in urbanisation, the government of Dubai has been actively promoting sustainable practices and green initiatives through the development of policies and regulations that support sustainable urban development and provide incentives to businesses to adopt sustainable practices. For example, The Dubai Green Building Regulation requires new buildings in Dubai to meet certain energy efficiency and environmental standards and encourage initiatives such as the use of energy-efficient materials and systems or rainwater harvesting. Recently, the Dubai Electricity and Water Authority (DEWA) launched the Dubai Green Fund (Dhs100bn, equivalent to $27bn) to facilitate the financing of clean energy and green projects. Initiatives such as the Dubai 2040 Urban Master Plan aim to double the area of green spaces in the city, and the older Dubai Green Roofs Initiative encourages the installation of green roofs on buildings. Such initiatives provide several benefits, including reducing energy use, improving air quality, and providing habitat for wildlife.
6. New technologies to overcome obstacles
Some of the key obstacles to overcome the environmental challenges created by urbanisation are embedded in the technologies we employ to build our cities, with the construction and operation of the buildings in them being responsible for around 30% of emissions [7]. New low-carbon technologies must be adopted as soon as possible if this is to change. Industrial decarbonisation has an important role to play and can provide a range of solutions, such as the production of low-carbon cement and steel that will be required in huge quantities to develop sustainable urban landscapes.
Many cities, including Dubai, are now increasing their use of green building materials in its construction industry as part of efforts to reduce the environmental impact of its rapid urbanisation. For example, building materials such as recycled steel, cross-laminated timber (CLT) made from renewable wood resources, recycled glass, low-emission paint and recycled plastic, are all increasingly being used. Energy-efficient buildings with incorporated green roofs, high-performing glass or smart grids can lead to
additional benefits, such as lowering costs for consumers or improving the overall quality of life.
The production of low-carbon hydrogen in industrial clusters for transport and heating in our cities is likely to become widespread. Dubai, for example, launched the region’s ‘first industrial scale’ green hydrogen plant in 2021. The pilot project, a collaboration with the Dubai Electricity and Water Authority and Expo 2020 Dubai, should have a capacity of 5,000 megawatts by 2030. Hydrogen has a diverse range of applications and can be deployed in sectors such as industry, heating and transport. Although hydrogen has been used around the world for years, its deployment at scale and in a cost-effective way as well as linking the supply and demand chain still requires high levels of research and innovation. It demonstrates aptly how without a continuous pipeline of funded innovation, wide deployment of technologies will stall.
Transition requires innovation; however, around 35% of the cumulative CO2 emissions reductions required for net zero come from technologies that are currently at the prototype or demonstration phase and will not become available at scale without further R&D [8]. This is why research and innovation centres like IDRIC are playing a pivotal role in our global ambition to reach net zero.
It is also clear that the implementation of large-scale solutions for industry, buildings or mobility does not rely exclusively on one technology. Moreover, even when technology can provide solutions, finance, political will, and leadership will be crucial in managing transitions, securing private sector buyin and facilitating behavioural changes needed for a sustainable transition to net zero. Concurrently, the positive synergy of adopting new technologies needs to be widely understood. All this requires a whole systems approach, as the one developed by IDRIC to accelerate the decarbonisation of industry.
7. IDRIC Innovation Case Study: Developing Negative Emission Technologies (NETs) for the construction industry
To achieve net-zero emissions targets, it will be necessary to remove CO2 from the atmosphere to offset residual emissions. IDRIC is therefore exploring NETs that could be deployed by industrial clusters.
This IDRIC project is developing geochemical NETs, which use alkaline minerals, such as natural magnesium- and calcium-rich rocks, to remove CO2 from the air and store it as carbonate minerals or ocean bicarbonate. This project is led by Dr Phil Renforth - an engineer and geochemist- at the Research Centre for Carbon Solutions (RCCS), Heriot-Watt University.
Alkaline materials are produced from a range of industries either as products (e.g. cement) or by-products (e.g. slag). As part of this project, IDRIC researchers are developing an inventory for alkaline materials in the UK, building on previous global assessment exercises. As a result, we will be able to quantify for the first time the scale of alkaline materials in the UK for reaction with CO2 and identify where this resource is located. The project will then assess how this resource might impact industrial clusters.
This project is also part of Frontier: Carbon removal knowledge gaps - a global academic and industrial programme of activity to explore, develop, assess and incentivise NETs [9]. The UK is already world-leading in this space from previously funded UK Government programmes such as the Greenhouse Gas
Research Bulletin No.7 April 2023
25 Accelerating System Solutions for a Just Transition to Net-Zero
Research Programme and CO2RE. However, this agenda has, until now, been considered in isolation from industrial decarbonisation. The co-development of NETs with the industry is essential for their scalable deployment, and for meeting net-zero emission targets.
This IDRIC’s NET project is specifically:
Investigating key fundamental chemical processes that underpin the reaction of these materials with CO2, which will enable the design and optimisation of chemically engineered systems.
Mapping the production of these materials across the UK, assess their CO2 capture potential, and their possible benefit and enabling activities for industrial clusters (See Figure 3).
Exploring how alkaline materials may be purposefully made for reaction with atmospheric CO2.
While models continue to be developed, an interesting early result suggests that under deep emission reduction scenarios within the steel industry, incentivised CO2 removal using steel slag may create more opportunities in the quality of ore used in the blast furnace. Under these scenarios, atmospheric CO2 capture using steel slag has the potential to offset residual emissions within the industry, and in some cases, results in net-negative CO2 steel production.
8. Summary
IDRIC’s whole systems thinking and collaborative team approach are key to provide research and innovation solutions to tackling industrial decarbonisation at pace and scale. It is only by working across industry, research, policymakers, business, finance and local communities, that it will be possible to co-develop innovative and just transition solutions to reaching together net zero targets by 2050.
Acknowledgements
References
[1]
[2] [3]
IDRIC Knowledge Hub, available at: https://idric.org/resources/ (accessed: 27 March 2023)
IDRIC Policy Synthesis Report 2022 - Next steps for decarbonising UK industry, available at: https://idric.org/resources/report-nextsteps-for-decarbonising-uk-industry-idric-policy-synthesisreport-2022/ (accessed: 27 March 2023)
IDRIC Report - Enabling Skills for the Industrial Decarbonisation Supply Chain Pg 8, available at: https://idric.org/wp-content/ uploads/9.5_Enabling-Skills-for-Industrial-DecarbonisationSupply-Chain.pdf (accessed: 27 March 2023)
[4] [5]
M. Maroto-Valer, The net zero journey of industrial heartlands, cities and regions, available at: https://www.ukri.org/blog/thenet-zero-journey-of-industrial-heartlands-cities-and-regions/ (accessed: 27 March 2023)
UN Habitat - The strategic plan - 2020-2023 Pgs 7-8, available at: https://unhabitat.org/sites/default/files/documents/2019-09/ strategic_plan_2020-2023.pdf (accessed: 27 March 2023)
Dubai 2040 Urban Master Plan, available at: https://u.ae/en/ about-the-uae/strategies-initiatives-and-awards/strategies-plansand-visions/transport-and-infrastructure/dubai-2040-urbanmaster-plan (accessed: 27 March 2023)
World Energy Outlook 2021, International Energy Agency Pg 146, available at: https://iea.blob.core.windows.net/assets/4ed140c1c3f3-4fd9-acae-789a4e14a23c/WorldEnergyOutlook2021.pdf (accessed: 27 March 2023)
Energy Technology Perspectives Executive Summary Special Report on Clean Energy Innovation Pg 13, available at: https:// iea.blob.core.windows.net/assets/04dc5d08-4e45-447d-a0c1d76b5ac43987/Energy_Technology_Perspectives_2020_-_ Special_Report_on_Clean_Energy_Innovation.pdf (accessed: 27 March 2023)
Frontier: Carbon removal knowledge gaps , available at: https:// frontierclimate.com/writing/cdr-gap-database (accessed: 27 March 2023)
Research Bulletin No.7 April 2023 Accelerating System Solutions for a Just Transition to Net-Zero 26
[7] [9] [6] [8]
Fig. 3 The location of alkaline material resources in the UK available for reaction with CO2 (courtesy of Dr Mohammad Madankan, Heriot-Watt University).
This work was supported by the UKRI ISCF Industrial Challenge, through the UK Industrial Decarbonisation Research and Innovation Centre (IDRIC) award number: EP/V027050/1, under the Industrial Decarbonisation Challenge (IDC)
How To Make Cement Greener: Misconceptions and the Reality
Prof. Karen Scrivener Director
Construction Materials Laboratory
Ecole polytechnique fédérale de Lausanne (EPFL)
Lausanne, Switzerland
karen.scrivener@epfl.ch
Jeremy Packham Communications Manager
Construction Materials Laboratory
Ecole polytechnique fédérale de Lausanne (EPFL) Lausanne, Switzerland
jeremy.packham@epfl.ch
To avoid the catastrophic effects of climate change, we must urgently find ways to reduce the amount of CO2 we emit. We are not adequately addressing around 20% of global greenhouse gas (GHG) emissions originating from the process of construction. Producing cement alone represents 7% of all humanmade GHG emissions (GCCA, 2021).
The need for construction will increase due to urbanization and population growth in the coming decades, especially in the Global South. We must find ways to build houses and infrastructure while lowering GHG emissions.
Concrete is held together by cement, and the main component of cement is clinker, the main culprit of GHG emissions. There are ways to use a lot less clinker in the cement we produce, though, by replacing some of it with other components that emit little or no CO2. But a number of widespread misconceptions are detracting efforts to bring real, pragmatic and immediately implementable solutions to the light of day.
Firstly, cement-based materials have an intrinsically low carbon footprint, it is simply due to the very large volumes of cement we use that cement accounts for such a large percentage of worldwide CO2 emissions. Secondly, there is no “miracle” alternative to cement ready to surface from a research lab somewhere: The geological composition of the earth means that we simply cannot do without cement. Thirdly, renewable energy cannot solve the problem of cement in itself, as most of the CO2 released when making clinker comes from the chemical decomposition of limestone. Fourthly, we cannot replace limestone to any significant extent because there is very little calcium available on earth which is not already in the form of limestone or is very expensive to extract. Fifthly, quantities of slag available worldwide are extremely limited, and supplies are nowhere near enough to be used at high substitution levels for cement worldwide. Lastly, carbon capture and storage cannot solve the problem alone either, as it is an extremely costly solution that cannot be scaled to the size of the construction sector.
Then there is LC3, Limestone Calcined Clay Cement. This blended cement type emits around 40% less CO2 than conventional cement as it is produced with clay that needs heating to a much lower temperature than needed to make clinker and therefore not only consumes less thermal energy but also avoids emitting all the CO2 that comes from the chemical decomposition of limestone altogether, as it is added unheated subsequently. Deposits of clay needed to make LC3 are abundantly available in the Global South. LC3 is cost-effective as its production only requires minimal changes to existing cement plants. LC3 is already in production in some plants and can be used to build houses and infrastructure needed tomorrow.
Keywords: Cement; concrete; Construction; emissions; CO2; energy.
1. Introduction
With ever more frequent and intense floods, forest fires, heat waves and droughts, climate change is manifesting in alarming and devastating events. At the current rate human activities are emitting greenhouse gases (GHG), we only have seven years to go before we exceed the amount of CO2 in the atmosphere likely to lead to 1.5° of global warming, as agreed at the COP21 in Paris in 2015 as the limit to avoid catastrophic climate change.
Buildings and infrastructure account for nearly 50% of all global, humangenerated GHG emissions (Architecture2030, 2023), of which around half originates from the process of construction, often referred to as ‘embodied carbon’. While attention to energy efficiency is critical, it is increasingly important and urgent to turn our attention to this embodied carbon as it occurs almost all at the beginning of a building’s life rather than spread over several decades.
2. Worldwide demand for cement on the rise
Construction worldwide can be measured by the volume of cement produced. The graph in Figure 1 shows how the global demand for cement has dramatically increased over the past 30 years and is not slowing down.
Production has dramatically shifted from the Global North to the Global South since 1990, with China increasing its production to over 2 billion tonnes, more than half the world’s total. This trend will accelerate due to the enormous needs in emerging countries in Asia and even more so in Africa, where it is expected that the population will grow by a billion people by 2050 (Statista, 2023). Further growth in population will require new construction to house people adequately and to build up infrastructure such as roads, buildings, dams and ports.
Research Bulletin No.7 April 2023
How To Make Cement Greener: Misconceptions and the Reality 27
Research Bulletin No.7 April 2023
The production of cement represents today about 8% of all GHG emissions. Increasing the volume of cement we produce with current practices will amplify the amount of carbon dioxide emitted, countering our efforts to mitigate climate change. But with these projections, we need to not only avoid an increase but to reduce the volume of GHG emissions resulting from construction. We need to find ways of producing more with less and reducing
Most of the GHG emitted when producing cement comes from making clinker which involves decomposing limestone and heating clay and limestone in a rotary kiln. Clinker is then ground and mixed with gypsum to form cement. But there are ways to use a lot less clinker in the cement we produce by replacing it with other components that emit little or no CO2.
The problem we are collectively facing is that there are a lot of voices and opinions about how to reduce clinker and a number of misleading concepts that are detracting realistic, cost-effective and scalable solutions that are implementable in a reasonable timeframe to make cement in a more climatefriendly way.
In this paper, we will look at 6 major misconceptions when it comes to cement. These misconceptions have been in the limelight for too long.
3. Misconceptions detracting real impact
3.1 Misconception 1: “Cement based materials have an intrinsically high carbon footprint”
Concrete is, in fact, an intrinsically low-impact material with much lower emissions of CO2 and energy per tonne than other materials like iron, steel and bricks (Figure 2). However, because of the huge volumes of production of cement and concrete for the construction sector, approximately 8% of the total anthropogenic emissions of CO2 are related to concrete manufacture; 85% of these emissions are produced during the manufacture of cement, that is, approximately 7% of the world’s CO2 emissions. (Habert et al. 2010).
3.2 Misconception 2: “There has to be an alternative to cement”
Concrete is an essential material. We need it to house people, and to build infrastructure such as buildings, roads, bridges, dams and ports. Concrete is held together by cement, the most efficient material.
Just eight elements make up more than 98% of the earth’s crust. This limits the range of materials that can be used in the quantities required for construction. Two of the most widely available minerals, limestone and clay, form the basis of “Portland” cement which is used to produce around 30 billion tonnes of construction materials a year.
Despite the media interest they attract, many niche technologies entering the market – such as alkali-activated materials, cement from algae, etc. –are impractical, costly, unscalable, or will take too long to mature, and so have little to no possibility of delivering any significant impact. Bio-based materials, such as timber and bamboo, may have lower emissions than concrete if produced sustainably but can only supply a small fraction of the materials needed for construction. For example, replacing just one-quarter of the concrete we use today with timber would require planting new forests one and a half times the size of India and waiting 30 years for them to grow.
Replacing cement altogether is therefore not an option and there are no “miracle” solutions. The good news is that we can considerably reduce emissions if we use blended cement such as LC3, and limestone calcined clay cement, which reduces the amount of clinker that would be found in Ordinary Portland Cement (OPC) by about 50%.
3.3 Misconception 3: “Renewable energy will solve the problem”
Producing clinker requires heating limestone and clay together to 1450°C. This thermal process has a twofold impact on GHG emissions: About 40% of carbon dioxide emitted comes from burning fuel such as coal to reach the desired temperature. The remaining 60% of CO2 comes from the breakdown of limestone (OECD, 2019).
Limestone breakdown: CaCO3 > CaO + CO2
Replacing fossil fuels with alternative fuels could only help reduce the CO2 that originates from the heating, but does not solve the problem of the majority of carbon dioxide released as a result of simple chemistry. Additionally, even with an accelerated energy transition, it would be very difficult to reach such high temperatures with renewable sources.
LC3 on the other hand is composed of clay that only needs heating to 800°C (instead of 1450°C), saving fossil fuel consumption and emissions, but more importantly, the limestone added subsequently in the production process isn’t heated at all, meaning that there are no chemical emissions released in the production process. Depending on the type of cement that is replaced, LC3 can save up to 40% CO2.
Research Bulletin No.7 April 2023
How To Make Cement Greener: Misconceptions and the Reality 28
Fig. 2 CO2 and Energy per tonne, by material type. (ICE database, 2023)
Fig. 1 Cement production by region. (UNEP, 2017)
3.4 Misconception 4: “There is calcium available which is not already in the form of limestone”
Given that 60% of emissions come from the breakdown of limestone. There are attempts to find uncarbonated calcium from other sources, but there is very little calcium available on earth which is not already carbonated (in the form of limestone) or otherwise very expensive to extract. For example, the concentration of calcium in seawater is only about 400 parts per million (not much higher than tap water in a hard water area), so you would have to process at least 2,500 tonnes of seawater to extract 1 tonne of calcium. By comparison with the cost to desalinate water (a similar process), it can be estimated that the cost of making cement with calcium extracted this way would be 100 times the cost of making cement today.
3.5 Misconception 5: “Ground Granulated Blast furnace slag is the solution to reduce clinker”
The use of blended cement, where clinker is partially substituted by Supplementary Cementitious Materials (SCM) is an attractive alternative to reduce CO2 emissions in cement. The main sources of SCMs used today are wastes from industrial processes, among others, granulated blast furnace slag, pulverized fly ash, natural pozzolans (including agriculture ashes and silica fume), artificial pozzolans and limestone. The use of SCMs has proven to impact on the cost of cement, due to the substitution of clinker in cement production. Further, blended cement generally features improved durability in concrete applications compared to pure cement, as well as CO2 reductions (WBCSD 2009b).
However, the use of SCMs has limitations: The most widely used SCMs – slag and fly ash – are available only in limited volumes (Figure 3). The amount of slag available is only around 8% of cement demand today, and 95% of this is already used in cement and concrete. Specifying high levels of slag replacement in one part of the world will only take it away from somewhere else, with no further net global emission reductions.
Fly ash is industrial waste from burning coal and the energy transition underway will result in a phase-out of coal plants operating in the coming years, availability of fly ash is going to decrease. Fly ash will therefore not be an alternative in the years to come to help reduce the amount of clinker in cement.
There are however huge quantities of clay and limestone available on earth. In Africa, where there will be a significant demand for cement in the coming years, importing clinker is expensive, yet there is the right type of clay abundantly available (Figure 4 below shows available kaolinite clay in yellow).
Having the raw material for calcining clay locally available makes LC3 a logical solution for building houses and infrastructure. Not only is it sensible from an operational perspective, but it is a cost-effective and climate-friendly solution to produce cement for growing demography.
3.6 Misconception 6: “Carbon Capture, Usage and Storage (CCUS) can solve the problem”
While it will be difficult to reach net zero in cement without some measures of CCUS, we cannot rely entirely on this technology to solve all emissions that come from producing cement. CCUS is very expensive (Figure 5) and cannot be scaled to the needs of construction, as capturing millions of tons of CO2
Research Bulletin No.7 April 2023
Fig. 3 Availability of SCMs. (UNEP, 2017)
29 How To Make Cement Greener: Misconceptions and the Reality
Fig. 4 Distribution of kaolinitic clays. (Ito & Wagai, 2017)
Fig. 5 The cost of CCUS in relation to CO2 savings. Source: GCCA (2021), Roadmap and ECRA experts.
is neither operationally nor financially viable. This is even more relevant in developing countries, where most of the demand for cement will be in the coming decades (Figure 1).
Before we use CCUS to help in the last stretch in reaching net zero in construction, we need to first and foremost reduce the CO2 that is emitted in producing cement with blended cement types such as LC3. Then, by looking more closely at how builders use cement in making concrete and helping them increase efficiency. Finally, by looking at elements of design, recycling and reuse of waste, we can adopt a circular approach to construction that takes a holistic view of the entire construction chain.
References
GCCA. (2021, oct. 12). Retrieved from Global Cement & Concrete Association: https://gccassociation.org/news/global-cementand-concrete-industry-announces-roadmap-to-achievegroundbreaking-net-zero-co2-emissions-by-2050/
(2023). Retrieved from Statista: https://www.statista.com/ statistics/1224205/forecast-of-the-total-population-of-africa/
Architecture2030. (2023). Retrieved from https:// architecture2030.org/why-the-building-sector/#:~:text=The%20 built%20environment%20generates%2040,for%20an%20 additional%2013%25%20annually.
[4]
OECD. (2019). Retrieved from Low and zero emissions in the steel and cement industries Barriers, technologies and policies: https://www.oecd.org/greengrowth/GGSD2019_IssuePaper_ CementSteel.pdf
Ito, A., & Wagai, R. (2017, Aug 22). Global distribution of clay-size minerals on land surface for biogeochemical and climatological studies. Scientific Data.
UNEP. (2017). Eco-efficient Cements: Potential Economically Viable Solutions for a Low-CO2 Cement-based Materials Industry. United Nations Environment Programme.
ICE database. (2023). The Inventory of Carbon and Energy (ICE). Retrieved from https://circularecology.com/embodied-carbonfootprint-database.html#.VN4yPmdyZYc
Research Bulletin No.7 April 2023 [6] [5] [7]
How To Make Cement Greener: Misconceptions and the Reality 30
[1] [2] [3]
Prof. Gabriela Medero
Co-Founder of Kenoteq Associate Principal (Enterprise) Professor of Geotechnical and Geo-environmental Engineering Heriot-Watt University Edinburgh, UK
G.Medero@hw.ac.uk
As the world counts down to COP 28, Professor Gabriela Medero from Heriot-Watt University’s Edinburgh campus explores the barriers and opportunities facing the construction industry in its drive to decarbonise. As the creator of the K-Briq, a brick made from over 90% recycled construction and demolition waste, Medero questions what researchers and innovators can do now to push the boundaries of traditional practices in the industry globally. Using this year’s COP as a platform to appeal for the eradication of single use building practices in the construction industry, Medero also outlines the benefits of embracing the circular economy. An approach which has been embodied in her spinout company’s success, she appeals for legislation to support circular economy practices so it can keep pace with innovation in the drive to net zero. If we are to relegate carbon damaging practices in the construction industry to the history books, innovations like the K-Briq are a logical first step, says Medero.
Nine months and counting
As carbon emissions from the built environment reach new highs, as reported by the recent UN Global Alliance of Buildings and Construction, it’s clear that our industry needs radical change if it’s to meet its decarbonisation targets by 2050. It’s a story we hear time and time again in reports, conferences and global meetings of minds, yet is the picture as gloomy as the stats might suggest?
As we look ahead to COP 28, taking place in the United Arab Emirates at the end of this year, policy intervention and the need for incentives to kick start meaningful change will be central to the agenda. While few can argue that these are essential and long overdue, for the industry there are already encouraging signs. Progress is being made on several fronts as the recent report by global professional body RICS outlines.
For years, those working in the sector have lamented a lack of guidance and practical tools to support their decarbonisation efforts. A recent sustainability report published by RICS in 2022, revealed that 72% of the 4,000 property professionals surveyed didn’t measure operational carbon across the lifecycle of their projects. Identifying what’s preventing this essential data from being captured ranged from a lack of tools, databases and guidance to the ongoing skills shortage that has touched every part of our industry.
Policy, incentives and leadership are absolutely essential but so too are the practical tools to make change happen. In the UK, the Built Environment Carbon Database (BECD) aims to become an essential benchmark, instrument and database for UK construction, allowing carbon estimating while also helping professionals to log essential carbon data for buildings and infrastructure assets.
The Importance of Minimising Waste
So if governments can deliver on the policies and professional bodies can provide the tools we need, what can we do as researchers and innovators to push the boundaries of traditional practices? How can we support the work of essential groups like the Net Zero Carbon Building Standard coalition, a cross-industry collaboration that is working to standardise the definition and methodology that defines a net zero carbon building. We need to inform the change that will enable the industry to build net zero carbon buildings as standard. At this year’s COP, I will be appealing for circular economy principles to be applied. As the European Commission highlights, construction and demolition waste is out of control, with many finding it more cost efficient to tear down and start again than repurpose, recycle and reuse. Like David Attenborough who has used his platforms to shine a light on the damaging impact of single use plastics on the ocean and the environment globally, so too must we eradicate single use building practices from the construction industry. We must make these constructions the exception rather than the norm.
But where should we start in making those changes possible? Too often as academics, we are encouraged to find answers through future gazing, but we don’t always need new technologies to push boundaries and innovate. Sometimes, the inspiration we need is right in front of us in our history books and art galleries. Antoni Gaudi famously used waste ceramic pieces to create elaborate and stunning mosaics. He understood that just because something had been used before, it didn’t mean it couldn’t be used beautifully and effectively again.
In the UK alone, more than a third of our waste comes from construction and demolition, yet year after year, we extract precious natural materials to
Research Bulletin No.7 April 2023
Counting Down to COP 28: As construction emissions continue to rise, what’s preventing meaningful change in the industry?
Counting Down to COP 28 31
Research Bulletin No.7 April 2023
meet the demand for new buildings. European Union legislation, which was incorporated into UK law before Brexit, now requires 70% of all construction and demolition waste to be recycled.
So like Gaudi, what if we could turn our waste into new materials, lower our emissions and reduce our energy use - all at the same time? Not only would this reduce our reliance on finite raw materials, but it would address supply and demand issues. The UK is the largest brick market in Europe, using more than 2.6 billion bricks in 2019 alone. More than 500 million of those bricks had to be imported due to shortages in our domestic supply.
With the past providing inspiration and the present presenting the challenges, this is where academia can change the future for the better. Working with a team of engineers, architects, chemists, designers, and geologists, we questioned whether some of this mountain of waste could be productively re-used, and this proved to be the catalyst for change.
Transforming construction, brick by humble brick
It requires an incredible amount of energy to produce a single clay brick, the staple of many construction projects particularly here in the UK. Fossil fuels are burned so kilns can reach temperatures up to 1,300 degrees Celsius. In turn, the process generates both carbon monoxide and sulphur oxides, as well as fine dust, which adds a further layer of pollution to our air.
Carbon emissions from fossil fuels are soaring, reaching a record high in 2022 according to figures released by the Global Carbon Project. With countries failing to reach an agreement about fossil fuels during COP 27, this year’s event is under even more pressure to deliver on its objectives.
For nearly 15 years, my team and I have been applying circular economy principles to the creation of a new building material for the construction industry. We’ve worked with engineers, architects, chemists and geologists to develop an eco-friendly alternative to traditional bricks.
Ensuring circularity in the manufacturing process has been essential. We started our research at the end of the lifecycle of construction, examining the landfill created by the industry and exploring how these precious materials can be given another life and purpose.
The result – the K-Briq® (Figure 1)– is made from more than 90% demolition and construction waste, including concrete, rubble, old bricks and plasterboard. All ingredients are carefully bound together without firing or cement. The manufacturing process requires less than a tenth of the energy used during the creation of traditional fired clay brick and produces less than 5 percent of the CO2 emissions.
Since we created our first K-Briq in 2011, thousands of bricks have been tested to fully understand their properties, performance and durability in detail. The result of this in-depth R&D is a brick which has a high thermal mass, which retains heat in the winter and keeps buildings cool in the warmer summer months. Completing the circular economy pathway, our bricks are manufactured onsite at a waste handling facility, so transport miles are reduced, and the amount of CO2 used in production is further limited. Trucks can collect K-Briqs when they drop off the waste material, cutting the number of journeys made.
K-Briqs aren’t boring, either. Ensuring sustainability sits comfortably alongside beauty and design, our bricks have been exhibited in the prestigious Design
Museum in London and they are part of early demonstrator projects. From repurposing more than half a tonne of construction waste into a stunning new statement bar in a restaurant in Edinburgh to inspiring self-build projects in the South of England, our reputation is growing alongside with our production capabilities.
Taking research from lab to market
In 2019, we spun out our research and together with my co-founder Dr Sam Chapman, we formed Kenoteq Ltd. As a company, we’re dreaming big. Using funding from Zero Waste Scotland alongside private investment, our first commercial production facility will officially open later this year, producing several million bricks annually. This may be a tiny portion of the market (globally, 1,500 billion bricks are produced every year and laid end-to-end, they would stretch to the moon and back 390 times), but it is a good starting point.
In the UK, all brick production takes place near clay extraction, as opposed to areas where the bricks are needed most, such as in the South-East of England. We plan to produce K-Briqs as close to the point of construction as possible, in areas of demand for bricks and next to waste recycling centres across the country.
But creating a revolution in any industry isn’t easy. We all agree that more support from governments globally is essential for success. Too often, legislation lags far behind innovation, so we know that construction companies need to be better incentivised to adopt sustainable practices and materials.
In design, legislation needs to make the integration of environmentally sustainable practices and materials as fundamental as fire prevention measures. Until they are enshrined in law, green building practices remain at the whim of the developer or designer. Fortunately, a growing number of developers, architects and interior designers are embracing sustainable alternatives in an effort to curb climate change.
For our part, projects are in progress and there are several companies and organisations planning to use our bricks, with a number of large projects in the pipeline. Of course, developing greener bricks is just one way to decarbonise the construction and design industries but buildings always start from the ground up and that’s where we can, in academia, create meaningful change.
I’d like to think that Gaudi would approve of our efforts and that the scientists and engineers in the future will take inspiration from what we’ve been able to achieve so far. Let’s relegate carbon damaging practices to the history books.
Research Bulletin No.7 April 2023
32 Counting Down to COP 28
Fig. 1 K-Briq product.
Materials & Waste Management for Decarbonisation of the Cement Industry in the UAE
Dr Mustafa Batikha Associate Director of Research School of Energy, Geoscience, Infrastructure and Society
Heriot-Watt University-Dubai Campus
Dubai, UAE m.batikha@hw.ac.uk
Dr Olisanwendu Ogwuda Manager – Centre of Excellence in Smart Construction
Heriot-Watt University-Dubai Campus
Dubai, UAE o.i.ogwuda@hw.ac.uk
Warren McKenzie, MSc, ACT, MICT, MICE Technical Manager – Gulf Countries and Nigeria
Operational Excellence Manager – AMEAP (Africa, Middle East & Asia Pacific)
Master Builders Solutions Construction Chemicals LLC. Dubai, United Arab Emirates
warren.mckenzie@mbcc-group.com
This paper presents a preliminary report submitted to the UAE Cement Decarbonisation Delivery Group (CDDG) by Cluster 1 of the Group. Cluster 1, whose focus was on materials & waste management, is the first of four clusters. The other 3 Clusters’ focus are (i) Technology (ii) Standards, Procedures, and Policies; and (iii) Education and Awareness). This work has been undertaken under the auspices of the UAE Ministry of Climate Change and Environment and led by the Centre of Excellence in Smart Construction (CESC) at Heriot-Watt University to decarbonise the cement industry in line with the UAE strategy and commitment to become a net-zero carbon country by 2050. The report highlights data related to concrete and waste materials production. It also reviews the methods and challenges of decarbonisation of the cement industry. In addition, it highlights studies about recycled concrete mechanical properties and durability. In closing, the report provides conclusions and short/medium/long-term recommendations as a roadmap for decarbonising the cement industry. Some of the recommendations require further discussion and consideration in the other clusters.
Keywords: Net-Zero; Cement Decarbonisation; Waste Management; Recycled Concrete; Sustainability.
1. Benchmark Data
Research shows that the CO2 emissions from buildings are about four times the carbon emissions from transport infrastructure construction. Figure 1 is a case study in Sweden.
From Figure 1, it can be seen that concrete and cement-based products contribute the highest CO2 emissions in both types of construction. Figure 1 also indicates that the challenges of CO2 emissions in the construction industry cannot be discussed without considering building construction. Therefore, for reducing CO2 emissions, concrete in buildings must be of high attention through design, standards, optimization, and knowledge transfer.
Research Bulletin No.7 April 2023
Materials & Waste Management for Decarbonisation of the Cement Industry in the UAE 33
Fig. 1 Carbon emissions per year between building construction vs. transport infrastructure construction [1].
Research Bulletin No.7 April 2023
1.1 CO2 emissions corresponding to the construction type
1.2 Data related to concrete
Table 1 compares the global and UAE production-size of concrete and its constituents.
It is well known that cement production is the primary producer of CO2 emissions compared to other concrete components. The CO2 emissions from cement production were estimated to be between 580 to 1000 kg CO2/t cement, depending on the country of production. In the Middle East (e.g., UAE), it was recorded that a ton of cement production emits 709 kg of CO2 [12].
Figure 2 compares the production of cementitious materials globally with the UAE. It can be seen that the production of SCMs makes a significantly low contribution to world market demands compared to cement production, which counts for 80% globally and 95% in the UAE. Furthermore, some SCMs (e.g., Fly Ash) are waste products and may have a limited future supply due to decommissioning of coal fired power stations. In addition, Table 1 shows that GGBS and Fly Ash are produced in a few countries (e.g., China, India, Japan, and USA), while others are much behind in production these two materials. This fact brings the necessity of using these supplementary materials for the local market of those countries, besides the expensive import of these materials.
needs considerable focus to produce a sustainable concrete that reduces the dependence on the natural resources and waste to landfills.
Table 2 The production size of construction-related waste materials (million tons per annum (mta))
1.3 Data related to waste material
Table 2 compares the global and UAE production of construction-related waste. Figure 3 shows the relative percentage of each waste (UAE compared to the global size).
Figure 3 shows that Glass, Ceramic, CWP and C&D wastes can be used to replace aggregate in concrete. However, C&D contributes to most of the waste. This suggests that the Recycled Aggregate (RA) from C&D waste
CWP can be used to replace cement in concrete. In the UAE (an exporter of ceramics), CWP represents a relatively high quantity of 2.5 mta (33% of the total waste (Figure 3)).
From Table 2, Municipal Solid Waste and Biomass used to produce alternative fuels have a high volume in production globally and the UAE.
2. Decarbonisation of the cement
Many pathways have been suggested for decarbonisation of the cement industry, some of which are summarised in the following sections.
2.1 Novel cement approach
Many novel types of cement were produced to considerably reduce cement in concrete and, in some cases, may reach zero cement (e.g., geopolymer concrete).
Challenges
Low availability of SCMs (e.g., Fly ash, GGBS) required for some novel cements meet the market demand (Table 1; Figure 2). Therefore, it is expected that novel cements may not replace more than 5% and 10% of the existing cement by 2030 and 2050, respectively [11]. Figure 4 by the Institution of Civil Engineers (ICE) confirms this fact [16]. The calcined clay and limestone powder (filler) have a high potential to substitute cement in full as their volumes are greater than cement quantity (Figure 4). Regarding the calcined clay, no more than 35% cement replacement by this material was applied worldwide. Most of the research literature suggests not exceeding 30% of replacement as this percentage demonstrates similar performance to 100% OPC [17]. However, it requires high temperatures for calcination, which reduces the potential decrease in thermal emissions, but is still less than
Research Bulletin No.7 April 2023
Materials & Waste Management for Decarbonisation of the Cement Industry in the UAE 34
Fig. 2 production percentage of cementitious materials
Fig. 3 Construction-related waste materials in percentage
Table 1 The production size of concrete and its constituents
industry
the emissions from the OPC production (350kg CO2 emissions/t cement for calcined clay compared to 860 kg CO2 emissions/t cement for OPC). Some research refers to the cost-saving gained from using calcined clay. Still, more research is required to implement it in the industry in the medium and long term and for less reliance on GGBS because of its existence locally. It is worth mentioning that some standards have started to be produced globally for this purpose [16].
2.4 Energy efficiency
This involves replacing older wet clinker-kilns with more modern dry clinkerkilns to reduce the thermal energy demand.
Challenges
This approach results in greater electrical energy consumption, which goes against the decarbonisation roadmap [11].
2.2 Decreasing the clinker to cement ratio
Decreasing clinker to cement ratio saves the energy required for the calcination process at 1450°C to produce clinker. The clinker to cement ratio is typically 0.95 for OPC. In Europe, the ratio is lower at 0.74, while it is 0.65 in China.
Challenges
The low availability of SCMs presents a major challenge for this strategy to reduce the clinker to cement ratio effectively [11]. The same challenges facing the novel cement approach in Section 3.1 can be raised again here.
2.3 Utilisation of alternative fuels for combustion and electricity
Alternative fuels include biomass and Refuse Derived Fuel (RDF) from the Municipal Solid Waste (MSW) instead of fossil fuels like coal, oil, or natural gas.
Challenges
It is recorded that producing a ton of clinker requires 4.5 GJ of energy. A ton of fossil oil produces about 42 GJ, while a ton of biomass and RDF produces 11 GJ and 15 GJ, respectively. This leads to a ton of clinker requiring 0.1 tons of fossil oil, 0.4 tons of biomass, and 0.3 tons of RDF, respectively. Mapping these values in Table 2, the relative production of biomass and RDF to fossil oil required for producing clinker can be obtained (Figure 5).
Although Figure 5 indicates the availability of alternative fuels, this approach is relatively expensive compared to fossil oil. Also, biomass availability is limited to specific regions. Nevertheless, policies have been initiated to increase the usage of this approach by 2050 [11].
2.5 Carbon capture and reuse
In this approach, carbon is captured under the facility to be used to produce other chemicals or to cure concrete.
Challenges
This approach requires a high electricity demand, and it is currently too expensive. However, it is expected to be more developed and more efficient to implement by 2050 to reach the zero carbon emissions in the cement industry [11].
2.6 Low carbon concrete
Replacing the cement partially with waste materials or SCMs. It is recommended to use cementitious materials other than GGBS and fly ash where possible as they are not locally produced. Ceramic Waste Powder is a local waste material in the UAE counting 6.25% of the cement produced (Table 2). Calcined clay and limestone filler can play an important role locally.
Another approach is to design a high-performance concrete mix with less cement (e.g., 150 kg cement/m3 in Denmark). In an ICE publication [16], a rating for a concrete mix in terms of the embodied CO2 was introduced, as seen in Figure 6. The ICE has pointed out green concrete where the CO2 emissions don’t exceed ranking B in Figure 6 [16].
Research Bulletin No.7 April 2023
35 Materials & Waste Management for Decarbonisation of the Cement Industry in the UAE
Fig. 5 Estimated required biomass and RDF production compared to fossil oil for producing clinker.
Fig. 4 Global availability of binder mat erials for concrete [16].
Challenges
Implementing this approach requires local authorized standards and
Waste materials have widely been used in concrete [12]. Recycled Aggregate (RA) in concrete has resulted in variation in mechanical properties and durability according to the quality of the RA. However, adding SCMs can significantly improve the durability of Recycled Aggregate Concrete (RAC) [13]. Research shows that 30% of RA has a negligible influence on the RAC [12]. The properties of RA for structural work were addressed in many standards [13]. For example, properties of RA from BEEAH meet the standards’ requirements [13].
Ceramic Waste (CW) as fine aggregate up to 20% does not affect the mechanical properties but considerably enhances the durability of concrete [12]. Also, CWP up to 20% shows noticeable durability to concrete [12]. On the other hand, it significantly reduces the cost and the CO2 emissions of concrete. Research shows that a concrete mix with 20% CWP, 100% RA, and 20% ceramic fine aggregate reduces cost and the CO2 emissions by 22% and 23%, respectively [12].
Conclusions
2.7 Carbon pricing
Applying carbon tax to reduce the cement use and incentivise the industry to invest in research, innovation and development. In Europe, the carbon tax is currently 20 EURO/tCO2 with a target value of 60 to 100 EURO/tCO2 by 2050.
Challenges
The tax would make the cost of cement production very high. However, tax investment in R&D can incentivise effective methods to reduce the cement in the long term.
2.8 Sustainable construction methods
Reducing the concrete waste and, subsequently, the cement material. Some construction techniques such as modular precast and 3DCP can play an important role in reducing waste.
Challenges
Some new techniques are still not implemented at a wide rate because of the absence of standards (e.g., 3DCP). However, it is expected that more inventions will lead to more application of these techniques in the mid and long term.
2.9 Design optimization
Using less volume of concrete by the optimization in the selection of the structural system, applied load, and element configurations.
Challenges
This approach requires practice optimizing the design to standards and knowledge transfer to the concrete designers and industry.
3. Research on Waste Materials in Concrete
Cement-based products contribute the highest CO2 emissions share of infrastructure in construction.
Buildings construction accounts for the highest source of carbon emissions in the construction industry.
SCMs production alone cannot meet the world market demands compared to cement production. SCMs production can only make a very little contribution to demand.
Recycled Aggregate (RA) from C&D waste needs great focus to produce sustainable concrete to reduce the dependence on natural resources and reduce waste to landfills. Although part of RA can be used in roads base, the remaining can be employed in buildings as the last is more frequently constructed and much higher in volume.
Using Recycled Coarse Aggregate (RCA) up to 30% has a negligible influence on the RAC mechanical properties.
Using CW as a fine aggregate for up to 20% considerably enhances the durability of concrete.
Due to relatively high local availability, there is potential for using CWP in the UAE as a partial replacement for cement.
Replacing the cement partially with CWP reduces the cost of the concrete.
Calcined clay and limestone filler have higher potential than SCMs as a replacement for cement because their volume is over the cement demand, and they can be produced locally.
Replacing the cement partially with SCMs or CWP enhances the durability of concrete and reduces CO2 emissions.
Biomass and RDF fuels can be a potential alternative to fossil fuels because of their local availability for making clinker.
Carbon capture is a need in the long term for the zero-emissions cement industry.
Research Bulletin No.7 April 2023 Materials & Waste Management for Decarbonisation of the Cement Industry in the UAE 36
Fig. 6 Concrete rating in terms of embodied carbon [16].
There is a need to rank the produced concrete in the construction in terms of carbon emissions. It is a way to encourage making lowcarbon concrete.
Applying carbon tax will support the R&D toward the net-carbon cement industry.
There is a need to implement sustainable construction technologies in the mid and long term to reduce the waste in concrete.
There is a need for awareness and Knowledge transfer to designers and the concrete industry toward ways of making low-carbon concrete.
5. Recommendations
To decarbonise the cement industry in the UAE, actions must be taken, which can be divided into short-term, mid-term, and long-term actions.
5.1 Short-term (ministry and industry) actions by 2025
1. Starting to issue local standards based on the previous research to minimize the use of cement in concrete. These standard needs to consider the local availability of replacement materials. This task can be discussed further in Cluster 3 (Standards, Procedures, and Policies).
2. Starting knowledge transfer and awareness toward the methods of reducing low-carbon concrete. This task can be discussed further in Cluster 4 (Education and Awareness).
3. Starting to rank the designed concrete mix in terms of carbon emissions. As the ICE proposed, the ranks can range from A++ to G (Figure 6). This will encourage the concrete mix industry to produce sustainable rank concrete mix. Also, it will help estimate the carbon emissions of the concrete material in buildings.
4. Finding a way to rank the concrete structural system in buildings to achieve optimization in design helps reduce the cement’s carbon emissions.
5. Allowing using Recycled Coarse Aggregate (RCA) by 10% to reduce the demolition waste. It was evident that the influence on the mechanical properties is negligible by 30% usage of RCA. However, the 10% is more than enough to go with the local availability of the RCA.
6. Using ceramic waste as fine aggregate and CWP as cementitious material with a range from 5 to 10% to reduce the cost and CO2 emissions and enhance the durability of concrete. It was evident that the influence on the mechanical properties is negligible by this range.
7. Partially replacing cement with SCMs to improve the durability of recycled aggregate concrete and reduces CO2 emissions. Due to the low availability of SCMs locally, materials such as calcined clay and limestone filler need to be produced locally to take place in the future instead of the SCMs.
8. Starting to plan in implementing a carbon tax on cement to incentivise the industry to engage in research, innovation, and development to reduce CO2 emissions.
5.2 Mid-term actions (ministry, industry and academia) - 2025-2035
1. Undertaking R&D on using calcined clay and limestone filler in concrete at a high percentage of cement replacement. The results of the research need to be embedded in standards. Further discussion can be conducted in Cluster 3 (Standards, Procedures, and Policies).
2. Undertaking R&D on replacing fossil fuels with Biomass and RDF to reach a range from 40% to 60%. Cost and efficiency are essential parts of the research to encourage the cement industry to take this action.
3. Undertaking R&D on new construction techniques for achieving a reduction in concrete waste and optimization in design. Further discussion can be conducted in Cluster 2 (Technology).
4. Undertaking R&D on capture and reuse of carbon to reduce the cost of this technique.
5. Undertaking R&D on capture and reuse of carbon to reduce the cost of this technique.
5.3 Long-term actions (industry and academia) - 2035-2050
1. Updating standards to allow utilization of locally produced materials to replace cement at a high range.
2. Implementing knowledge transfer and awareness toward the findings of the mid-term actions to reduce carbon emissions.
3. Increasing the carbon tax on the cement industry to encourage them to consider the findings of the mid-term actions.
4. Implementing carbon capture and reuse to reach net carbon emissions from the cement industry by 2050.
Acknowledgements
The authors highly appreciate the invaluable feedback and comments from the members of the Cluster 1 Workshop, which helped finalise this report.
References
[1] Karlsson I. et al., (2020). Roadmap for Decarbonization of the Building and Construction Industry—A Supply Chain Analysis Including Primary Production of Steel and Cement, Energies, 13, 4136. https://doi.org/10.3390/en13164136
Research Bulletin No.7 April 2023 Materials & Waste Management for Decarbonisation of the Cement Industry in the UAE 37
Bendixen M. et al., (2021). Sand, gravel, and UN Sustainable Development Goals: Conflicts, synergies, and pathways forward, One Earth, 4(8), 1095-1111. https://doi.org/10.1016/j. oneear.2021.07.008
Global Aggregate Information Network, Newsletter #4 (2019). https://static1.squarespace.com/ static/5b73e2591137a6b2386b6aca/t/5c4b35442b6a2874091 0e878/1548432745763/GAIN_Newsletter_Jan19.pdf (accessed July 3, 2022).
Mouna Y. et al., (2021). Low Carbon Recycled Aggregate Concrete: Roles of Slag and Silica Fume, Proc. Of ZEMCH 2021 conference, 26-28 October, Dubai, UAE. https://www. researchgate.net/publication/359069021_Low_Carbon_ Recycled_Aggregate_Concrete_Roles_of_Slag_and_Silica_Fume (accessed July 3, 2022).
[10]
Saqan E.I., (2008). Use of Concrete, Cement, and Supplementary Cementing Materials in the UAE from 2005 to 2007. http:// ecosmartconcrete.com/docs/AUD_Study_ECOSMART_Report_ Final.pdf (accessed July 3, 2022).
[4] [16]
Gollakota A. R.K. et al., (2019). Progressive utilisation prospects of coal fly ash: A review, Science of The Total Environment, 672, 951-989. https://doi.org/10.1016/j.scitotenv.2019.03.337
Türköz M. et al., (2021). Effect of Silica Fume as a Waste Material for Sustainable Environment on the Stabilization and Dynamic Behavior of Dispersive Soil, Sustainability, 13(8), 4321; https://doi. org/10.3390/su13084321
ACI 234R-06 (2006). Guide for the Use of Silica Fume in Concrete, American Concrete Institute, http://dl.mycivil.ir/ dozanani/ACI/ACI%20234R-06%20Guide%20for%20the%20 Use%20of%20Silica%20Fume%20in%20Concrete_MyCivil.ir.pdf
(accessed July 3, 2022).
Letcher T. M. and Vallero D.A. (2019). Waste: A Handbook for Management, Elsevier, https://www.sciencedirect.com/ book/9780128150603/waste
UN Environment Programme (2009). Converting Waste Agricultural Biomass into a Resource-Compendium of Technologies https:// wedocs.unep.org/handle/20.500.11822/7614 (accessed July 3, 2022).
Ashraf M.T. et al., (2017). ESTIMATION OF BIOENERGY POTENTIAL FOR LOCAL BIOMASS IN THE UNITED ARAB EMIRATES, Emirates Journal of Food and Agriculture, 28(2), 9906, https://doi.org/10.9755/ejfa.2015-04-060
Jotangia R. and Batikha M. (2021). Decarbonisation of the Cement Industry: Methods and Challenges, CESC Research Bulletin, CESC, No. 4, 31-35. https://issuu.com/heriot-watt_university_dubai/ docs/cesc_bulletin_4_september_2021
Batikha et al., (2021). Using recycled coarse aggregate and ceramic waste to produce sustainable economic concrete, International Journal of Sustainable Engineering, 14(4), 785-799. https://doi.org/10.1080/19397038.2020.1862353
[The World Bank. Trends in Solid Waste Management, https:// datatopics.worldbank.org/what-a-waste/trends_in_solid_waste_ management.html#:~:text=The%20world%20generates%20 2.01%20billion,from%200.11%20to%204.54%20kilograms. (accessed July 3, 2022).
Ministry of Climate Change and Environment. Waste and Chemicals. https://www.moccae.gov.ae/en/knowledge-andstatistics/wastes-and-chemicals.aspx (accessed July 3, 2022).
Mullholland A. et al. (2022). Low Carbon Concrete Routemap, ICE. https://www.ice.org.uk/media/q12jkljj/low-carbon-concreteroutemap.pdf (accessed July 3, 2022).
Ayati B. et al., (2022). Low-carbon cements: Potential for low-grade calcined clays to form supplementary cementitious materials, Cleaner Materials, 5, 100099 https://doi.org/10.1016/j. clema.2022.100099
Research Bulletin No.7 April 2023 [6] [12] [5] [17] [11] [7] [13]
Materials & Waste Management for Decarbonisation of the Cement Industry in the UAE 38
[2]
[8] [3] [15] [9]
[14]
Wellbeing
The Impact of Urban Heat Island (UHI) on Health and Well-being of Urban Residents
Dr Ashley Hong Assistant Professor School of Energy, Geoscience, Infrastructure and Society
Heriot-Watt
University
Putrajaya, Malaysia
wh12@hw.ac.uk
Ying Jia Low
B.Sc. Quantity Surveying graduates
School of Energy, Geoscience, Infrastructure and Society
Heriot-Watt University
Putrajaya, Malaysia
yl195@hw.ac.uk
The acceleration of global urbanization has significantly escalated the Urban Heat Island (UHI) effect. Many regions in south-east Asia are experiencing its effects in the form of extreme weather, heatwaves, and microclimate change which have significant impacts on the urban residents’ general health and quality of life. It is realized that most external built environments in Kuala Lumpur, Malaysia, are not effectively designed for the improvement of outdoor thermal comfort. Research studies focusing on health and well-being issues due to the deterioration of the urban climate and deficiency in urban design are so far limited in this region. This article aims to evaluate the heat-related illness experienced by urban residents due to the UHI effects. A total of 400 online survey responses were collected in Kuala Lumpur, Malaysia. The results revealed that KL urban residents frequently experience fatigue or weakness, rapid heart/ breathing rate, sleep deprivation and heavy sweating while spending time for outdoor activities. Most respondents perceive high temperature, strong sun sensation and high humidity levels in the outdoor environment. The extreme heat level on tarmac roads and pavement is perceived as the main factor people spend less time on outdoor activities. This has established an important relationship between the UHI effects, urban built surfaces, and human health and wellbeing. In conclusion, enhancing the existing urban design strategies is the key to improving human thermal comfort, health, and wellbeing. This is because without controlling the external indoor thermal, comfort cannot be compromised.
Keywords: Health, Heat-illness, Outdoor Thermal Comfort, Urban Design, Urban Heat Island, Well-being.
Urban residents tend to spend most time indoors, only venturing outdoors for commuting and commercial purposes when necessary. The experience of outdoor activities such as jogging, sightseeing and walking has become less favourable due to extreme weather (Elnabawi & Hamza, 2020). In fact, staying indoors consumes a large amount of nonrenewable energy for cooling, which in turn generates more heat in the outdoor environment. This is supported by Arifwidodo & Chandrasiri (2020), claiming that using air-conditioning is less effective in relieving heat stress in general. Besides, poor urban designs also decrease outdoor thermal comfort, which brings negative impacts on human wellbeing and serious health issues. There have been very limited studies focusing on outdoor thermal comfort and heat mitigation strategies. Kyodo News (2019) reported at least 57 deaths and 18,347 hospitalisations in Japan due to heat-related illness in the 2019 summer at above 40 degree Celsius. This scenario is like the Kuala Lumpur (KL) highest temperature record, but yet there is no related research conducted to assess the severity of heat-related illness happened in KL. This research aims to provide a deeper understanding of the impacts of UHI on general human health and wellbeing and suggests mitigation measures to improve the current situation. The study is significant in the area of urban planning and design, promising a more resilient built environment and healthier society by supporting the United Nations Sustainable Development Goals (SDG) 13: Climate Action and SDG 3: Good Health and Wellbeing.
UHI is a climatic phenomenon where the urban temperature is higher than the surrounding suburban as a result of population growth, urban development, energy use and generation of waste heat. KL is a city currently experiencing high population density with large-scale activities and transportation. This evidently increases urban heat stress twice compared to surrounding rural areas. As the main hub for commercial and economic activities, KL’s surface temperature experienced an increase of 1.64°C between 1989 and 2019 (Solhi, 2021). This was high due to the massive urban development followed by high usage of air-conditioning inside the buildings. Although air-conditioning can reduce indoor thermal discomfort, but reliance on air-conditioning leads to increased energy consumption and emissions of greenhouse gases which releases heat energy and intensifies UHI effect (Heaviside, et al., 2017). This can increase the temperature up to 0.7°C at mid-day with a daily average increase of 0.5°C (Giridharan & Emmanuel, 2018). Although passive design strategies such as green technology facades have been largely employed in green building development to enhance indoor temperature, the outdoor heat issues remained unresolved. The rapid urbanization in KL in recent years has transformed vast areas of the natural environment into dense concentrations of engineered structures such as buildings and pavements which have significantly expanded the outdoor thermal storage capacity
Research Bulletin No.7 April 2023 Research Bulletin No.2 December 2020
1. Introduction
The Impact of Urban Heat Island (UHI) on Health and Well-being of Urban Residents 40 Research Bulletin No.7 April 2023
2. The UHI Phenomena & Health Conditions
(Njoku & Daramola, 2019). Numerous compact high-rise buildings and infrastructure works are being observed as the heat-absorbing materials are still in use today.
The UHI effects such as high ambient temperature, lack of heat discharge during night-time, absence of surface moisture and limited vegetation have significantly increased the risks of heat-related diseases, morbidity, or deaths of urban inhabitants. Long-term exposure to hot temperatures or heat waves will increase the likelihood of serious heat-related illnesses such as hyperthermia and hypothermia. Besides, Arifwidodo and Chandrasiri (2020) suggested that UHI impacts on well-being are worse than physical health because heat stress problems lead to lower life satisfaction, lower energy level and more frequent emotional problems. The impacts on humans’ social health including reduced outdoor activities, decreased social life, reduced work productivity, sleep deprivation, lower motivation and skipping work or school are huge. Moreover, extreme heat causes mental health issues, including increases in irritability, depression, behavioural disorders and even suicide. The vulnerable categories such as elderly people, children, and women are at special risk’ under high temperature ambient. The poor health population such as disabilities, psychiatric diseases, aggravated asthma or other lung diseases, are more sensitive to excessive heat events. Prolonged exposure to heat strain may increase their vulnerabilities and severities of pre-existing conditions, further deteriorating their health status.
3. Questionnaire Survey
Questionnaires were distributed using online survey tool to investigate the satisfaction level of outdoor thermal sensation, and likelihood to spend time on outdoor activities and assess the impacts of UHI on the health and wellbeing of urban residents in KL. Screening questions were used to ensure the respondents are qualified to complete the surveys for getting the right and representative samples. The survey filtered unfit respondents and kept only those who are (1) staying within Kuala Lumpur and, (2) spending at least 15 minutes outdoors daily. The collected data was then analysed using the Statistical Package of Social Sciences (SPSS). On top of statistical presentation and descriptive analyses, statistical tests are performed to establish significant relationships between individual characteristics and outdoor thermal sensation.
4. Survey Findings and Discussions
The survey collected 400 responses. 59% of the respondents were males, while 41% were females. Most were adults aged 25-44, and the majority (60%) were employed for wages. 61% have a normal Body Mass Index (BMI), followed by 27.25% of overweight, 6% of obese, and 5.75% of underweight people.
4.1 Outdoor Thermal Sensation
Firstly, the respondents’ Thermal Sensation Votes (TSV), Wind Sensation Votes (WSV), Sun Sensation Votes (SSV) and Humidity Sensation Votes (HSV) were compiled based on the ASHRAE 7-point thermal sensation scale to understand their perceptions of the KL thermal environments. Figure 1 shows that 54% voted hot, 21% voted warm, while 10% voted slightly warm for the KL outdoor temperature. The majority (53%) experienced strong sun, and 22% experienced very strong sun sensations. Most respondents observed the wind conditions within KL were a little breezy (31%) to neutral (32%), while 36% of the respondents experienced normal humidity levels
outdoors. The overall results implied that the KL climate is getting hotter, with 85% dissatisfaction with the outdoor environment. This has far exceeded an acceptable comfort level as a thermally acceptable environment is where at least 80% of respondents do not express any thermal dissatisfaction (ASHRAE 55, 1992). The results also proved a worsened climate in KL based on the study by Fong et al. (2020), with 51% of respondents voting ‘hot’ for KL outdoor environment. Mann-Whitney U test and Kruskal-Wallis H test were conducted. The results proved the respondents’ perceptions of TSV, SSV, WSV & HSV are true, and not affected by individual factors such as gender, age and BMI.
4.2 Health & Well-being Issues
UHI is a climatic phenomenon where the urban temperature is higher during the daytime while the nighttime cooling is reduced. Its effect is evident when the results demonstrated more than half of the KL residents experienced and received treatments for heat-related illness when spending time for outdoor activities. This is supported by 59.5% votes for heat rash, 55.25% for heat cramps and 54.75% for sunburn in the past 12 months. Besides, 45.25% of them experienced heat exhaustion, while 34.5% of them experienced heat stroke within the same duration. The findings suggested that more preventive measures shall be strategized from the urban design perspective to enhance the thermal condition in KL.
Research Bulletin No.7 April 2023
41 The Impact of Urban Heat Island (UHI) on Health and Well-being of Urban Residents
Fig. 1 Distribution of TSV, SSV, WSV and HSV of respondents in Kuala Lumpur.
Table 1 The impacts of high outdoor temperature on general health and well-being.
Besides the heat-related illness, Table 1 shows most of the KL residents preferred to reduce time spent on outdoor activities due to high outdoor temperatures. They also tend to reduce social interactions and feel irritability from time to time due to the hot climate. The worsened UHI effect also proved to reduce work productivity, causing sleep deprivation and fatigue. This is due to the solar heat rerouting blood flow to the skin surfaces to cool down and regulate body temperature, which depletes energy and exhaustion. On top of the above impacts, respondents also occasionally experienced symptoms such as rapid heart/ breathing rate, heavy sweating, depression, etc., while having outdoor activities. The severity of these impacts on human well-being deserves a rapid solution, especially to cure vulnerable groups: children, women, and those with pre-existing medical records. As the swift urbanization process in KL expected further escalation of urban temperature, the medical expenses due to hot weather could be an additional burden to the lower income categories
4.3 The Heat level of Outdoor Built Surfaces
Figure 2 shows the perceived heat level on different outdoor built surfaces in urban areas. The survey results prove that the outdoor built environment, particularly the tarmac road (mean rank 4.14), walking pavement (mean rank 4.03) and street furniture (mean rank 3.76) absorbed a large amount of heat during the daytime. The heat is trapped at ground level for long hours, in turn, warmer urban temperatures and hence discouraging the urban residents to carry out outdoor activities frequently. The traffic roads, highways, walking lanes and parking areas made up of low albedo materials such as tarmac and asphalt (absorb almost 95% of heat) have contributed significant impacts to the UHI effects. This is an equally important issue in urban design which requires urgent attention compared to green building development for reducing air-conditioning usage.
Acknowledgements
References
Arifwidodo, S. & Chandrasiri, O. (2020) ‘Urban heat stress and human health in Bangkok, Thailand’, Environmental Research, 185, 109398
Elnabawi, M.H. & Hamza, N. (2020). ‘Behavioural Perspectives of Outdoor Thermal Comfort in Urban Areas: A Critical Review’, Atmosphere, 11 (1), 51
Fong, C. S., Aghamohammadi, N., Ramakreshnan, L., & Sulaiman, N. M. (2020). Evaluation of secondary school student’s outdoor thermal comfort during peak urban heating hours in Greater Kuala Lumpur. Journal of Health and Translational Medicine (JUMMEC), 3-11.
Giridharan, R. & Emmanuel, R. (2018) ‘The impact of urban compactness, comfort strategies and energy consumption on tropical urban heat island intensity: A review’, Sustainable Cities and Society, 40, pp. 677-687
Heaviside, C., Macintyre, H. & Vardoulakis, S. (2017) ‘The Urban Heat Island: Implications for Health in a Changing Environment’, Current environmental health reports 4, pp. 296-305.
Kyodo News (2019) ‘57 dead, 18,000 taken to hospitals in week in Japan heat wave’, [online], available at: https://english. kyodonews.net (accessed 18th November 2022).
Solhi, F. (2021). ‘Malaysian cities are getting hotter: Study’, New Straits Times, [online], available at: https://www.nst.com.my (accessed 8th March 2023).
4. Conclusion
UHI effects indeed contributed significant impacts on the urban residents’ general health and wellbeing. The deterioration of outdoor thermal comfort in KL has a strong relationship with inefficient urban planning and design. The rapid urbanization process has vastly transformed the natural environment into buildings and infrastructure development, but lack of planning for green areas. The KL urban design shall highly focus on UHI mitigation strategies, proposes more greens as natural shading devices, and suggests cooler urban surface materials for road, pavement and street furniture other than the building envelopes. Effective urban planning must comprise climatesensitive strategies to improve outdoor thermal comfort, consequently, the health and quality of life in urban spaces.
Research Bulletin No.7 April 2023 [1] [3] [7] [5] [2] [6] [4]
42 The Impact of Urban Heat Island (UHI) on Health and Well-being of Urban Residents
Fig. 2 Heat level perceived for outdoor built surfaces.
This study was funded by the EGIS EmPOWER Research Grant Scheme from Heriot-Watt University Malaysia (project no. EGIS/EmRGS/2021/07).
How Artificial Intelligence is Improving Safety on Construction Sites
Dr Rodaina Aboul Hosn Associate Professor ESTP-Paris, Troyes Campus Troyes, France raboulhosn@estp-paris.eu
Construction is one of the most dangerous job sectors, and many injuries and deaths are reported annually around the world, not only causing suffering to workers and their families but also delays in the project schedule and increased construction costs. Therefore, safety issues detection has become critical throughout the construction industry, and there is a growing necessity for developing innovative methods to automatically monitor the safety of the workers in order to allow construction companies to reduce injuries and provide a safe work environment in their construction sites. Thus, exploring new tools and strategies for mitigating risks is essential. With the current developments of new technologies, traditional engineering safety management is undergoing a profound change. Introducing new technologies such as Artificial Intelligence (AI) is becoming increasingly widespread, allowing for safer sites. In this article, we’ll explore these advancements in AI and how they are revolutionizing the safety and security of construction sites to create a more desirable working environment for all workers.
Keywords: Safety Management; Construction Sites; Artificial Intelligence; Machine Learning.
1. Introduction
The construction sector remains the highest contributor to workplace fatalities despite numerous industrial and regulatory efforts. In 2015, there were 815 fatal accidents in the European Union and almost 400,000 non-fatal accidents resulting in at least four days of absence from work [1]. In 2017, 971 construction workers lost their lives in the United States. This is a fifth of all worker deaths in the US that year [2]. In 2018, 14 workers lost their lives in Singapore[3]. Among all fatal construction accidents, the most reported ones are due to falls from height, being struck by a falling or moving object, being crushed or trapped, and electrocution [4]. Human expertise has, until now, been the main weapon to fight accidents. But humans are limited in their ability to process large amounts of data. No matter how experienced they may be, it is nearly impossible for humans to recognize hazards, correctly estimate risks, and avoid the occurrence of accidents.
With the 4th industrial revolution, technologies such as Big data, artificial intelligence, robotics, the Internet of Things (IoT) and 3D printing are being widely applied in a variety of fields [5]. Accordingly, the construction industry is also striving to shift to a new paradigm that involves these new technologies. In particular, the integration of artificial intelligence and machine learning can help contractors identify workplace hazards faster, thus preventing potential accidents. Therefore, the main objective of this article is to present a review of how construction safety management is improving in the era of new technologies as artificial intelligence and machine learning.
2. Overview of Artificial Intelligence
Artificial Intelligence (AI) is the ability of machines to mimic human intelligence. It refers to machines that can sense their environment, think and learn [6]. There are different AI techniques or algorithms that can be used. The most
widespread technique is Machine Learning in which machines learn to effectively perform a specific task or follow certain patterns without using explicit instructions. Their performance increases with experience; in other words, with data. Within Machine Learning, Deep Learning is an algorithm learning mode using Artificial Neural Networks loosely inspired by the way the human brain functions. Deep Learning accounts for many of the extraordinary achievements of AI in recent years. Although still facing many challenges, AI has started exhibiting formidable results. More specifically, much of the recent developments come from the combination of algorithmic progress, increase in computing power and massive availability of data. Construction firms generate a lot of data, from supplier contracts and inspection records to field reports and job-site photos. Using that data, predictive algorithms can be designed to mitigate site risks and improve compliance management. By combining data from thousands of projects with relevant external circumstances, AI applications can quickly predict hazards.
3. How AI is improving construction site safety
With all the risks inherent to a construction site, eliminating danger is not just a necessity for cost-saving solutions but for workers’ well-being. AI is changing the dangerous aspects of construction work to make it a more compelling field.
By mitigating risks, communicating hazards, and streamlining on-site transparency, AI is playing a vital role in improving construction site safety.
Han et al. [7] proposed an architecture for the safety management of construction workers based on AI as shown in Figure 1.
Research Bulletin No.7 April 2023
Research Bulletin No.2 December 2020
43 How Artificial Intelligence is Improving Safety on Construction Sites
Research Bulletin No.7 April 2023
This system consists of various data collection devices (sensors, cameras, …) that are responsible for transmitting and feeding back information to the management big data platform to analyze and make decisions once combined with various intelligent applications. Different kinds of inspections are then possible: Personnel inspection, Fatigue state detection, Posture recognition and Work environment inspection.
Different tools and techniques once equipped with AI can be used on construction sites to improve safety. Some examples of applications are the following:
Using on-site data to predict accidents and risky behavior
AI systems are able to observe, assess and communicate on-site construction hazards with levels of speed and efficiency that no human can achieve. AI achieves this by gathering data from real-time footage and assessing that constant information for warning signs. IoT monitors, cameras, drones and sensors constitute different sources of data. From there, construction managers can assess all the elements of their site’s safety to more easily catch problems.
For example, in situations where a construction site needs to be left unattended, a remote video surveillance system running AI analytics can detect intruders, alert site managers to items being taken, and continually monitor the construction site for other activities with no need for rest, allowing for better protection and much faster responses. These techniques can also be used for other safety-related issues in construction sites [9], such as to identify workers wearing or not wearing their helmets or being properly attached or not to safety harnesses (Figure 2). Computer vision could also identify the presence or the absence of safety rail guards and, more generally, the existence of fall-protection systems or the presence of risky open edges. In addition to that, it is possible to recognize the physiological condition of workers. If abnormal behavior is detected, it means that the worker is not suitable for the present construction operation, and an alarm is given to realize prior control. [8]
3D Printing and Robotics
Other applications are based on data collected from safety reports on different construction sites. For instance, at the University of Colorado[11], researchers used a list of nearly 5,300 injury reports gathered from 470 contractors and representing millions of work hours. They were able to skillfully predict, based on 80 input variables, the type of injury and the body part affected in construction incidents. In another study conducted in Singapore[12], a large contractor provided data from 27 construction projects, including 785 monthly safety inspection records. Based on 13 input variables, the algorithm was able to predict with high accuracy the occurrence and severity of accidents. AI and robotics help take risks, physical demands and hard labor out of the construction site, leaving the less dangerous aspects of the job to workers. Prefabrication and 3D printing [13,14] are increasingly becoming elements of construction work. Therefore, builders can control the production in a factory and then transport parts of the work to the site with less labor involved. Moreover, on-site robotics can handle all the heavy lifting loads off the shoulders of workers and make a safer workplace [15,16].
5. Conclusion
With the growth of new technologies, construction sites can take advantage of these tools to improve the health and safety of their workers. In the modern era, the construction industry needs all the benefits it can get to overcome safety issues while innovating more cost-effective solutions. Safety powered by AI allows for all of these benefits and more. By evolving the safety measures on construction sites with the help of AI, it becomes possible to make a life-saving difference in the world.
Research Bulletin No.7 April 2023
Fig. 1 Big data system architecture of safety management for construction workers based on AI. [8]
How Artificial Intelligence is Improving Safety on Construction Sites 44
Fig. 2 Video surveillance with AI analytics to monitor safety on construction sites [10]
References
Global Data, “Safety in Construction, a review of latest statistics”. CN0054WP, July 2018.
United States Department of Labor, OSHA Commonly Used Statistics, https://www.osha.gov/data/commonstats, retrieved 11 Aug 2019.
Government Technology Agency of Singapore, “Annual workplace injuries”, data.gov.sg
United States Department of Labor, OSHA Commonly Used Statistics, https://www.osha.gov/data/commonstats, retrieved 11 Aug 2019.
Gledson, B.J.; Greenwood, D. The adoption of 4D BIM in the UK construction industry: An innovation diffusion approach. Eng. Constr. Archit. Manag. 2017, 24, 950–967.
World Economic Forum (WEF) and PWC, “Harnessing Artificial Intelligence for the Earth”, Fourth Industrial Revolution for the Earth series, 2018.
Han, Y., Sun, H., Li, Y H., & You, S. D. (2018). Architecture and Implementation of Smart Site System. Science & Technology Progress and Policy, 35, 107-111.https://doi. org/10.1201/9780429429934-6
Yi. X., Wu, J. Research on Safety Management of Construction Engineering Personnel under « Big Data + Artificial Intelligence ». Open Journal of Business and Management, 2020, 8, 10591075. DOI: 10.4236/ojbm.2020.83067
Mohan, M. and Varghese, S. Artificial intelligence enabled safety for construction sites. International Research Journal of Engineering and Technology, 2019, 6:6, 681-685
Novade.net, whitepaper. How Ai will Revolutionise Construction Site Management.
Antoine J.-P. Tixier et al, “Application of machine learning to construction injury prediction”, Automation in Construction Volume 69, June 2016.
Clive Q. X. Poh et al, “Safety leading indicators for construction sites: A machine learning approach”, Automation in Construction, Volume 93, September 2018
Kaya, A., Alkayis, M., Onur, M. 3D printing technology in construction sector: A short review. In the proceeding of the 2nd International Conference on Applied Engineering and Natural Sciences. 2022.
Pandit, A., Kumari, A. Effectiveness of 3D printing in construction industry over the old conventional method regarding time and cost: A review. International Journal of Innovative Science and Research Technology, 2021. 6:6, 983-987
Carra, G., Argiolas, A., Bellissima, A., Niccolini, M., Ragaglia, M. Robotics in the construction industry: state of the art and future opportunities. In the proceedings of the 35th International Symposium on Automation and Robotics in Construction, 2018
Kathe, S., Lunawat, D., Mane, H., Wadhonkar, M., Shaikh,S. Applications of Automation and Robotics in Construction Work. Journl of Civil and Environmental Engineering. 2022, 12:5. DOI: 10.37421/2165-784X.2022.12.451.
Research Bulletin No.7 April 2023 45 How Artificial Intelligence is Improving Safety on Construction Sites [1] [8] [12] [16] [3] [10] [14] [7] [11] [15] [5] [2] [9] [13] [6] [4]
History of Bridges and How It Influenced Human Mobility
Prof. Sabih G Khisaf, MSc PhD Eur Ing CEng FICE FCIHT FCMI Infrastructure Lead MENA Engineering
Hyperloop Transportation Technologies
Los Anglos, USA
Sabih.khisaf@hyperlooptt.com
Since the beginning of civilisation, humans have become mobile in search of a better life, knowledge and trade and commerce. Bridges played a fundamental role in facilitating human mobility. Bridges’ construction dates to ancient times and spans across many different civilisations and countries. In the 15th and 16th centuries and during the industrial revolution humans become more mobile and at a faster speed, the building of roads and railways necessitate the need to develop new technologies in bridges construction and in the last hundred year show huge developments in the design, construction technologies and advanced materials. Large-span bridges have become more and more common around the globe, and high-strength and composite materials enabled bridge designers and contractors to innovate in the field of bridge construction.
Keywords: Human mobility, bridges, design, Roman bridges, construction, concrete, steel, construction materials, sustainability.
1. Introduction
Human mobility dates to ancient times when the first humans started moving out of Africa in search of food, water, and better grazing land for their herds. Since then, humans have travelled all over the globe in pursuit of trade, knowledge, and opportunities.
The Age of Exploration in the 15th and 16th centuries marked a major age of mobility for the European population, who sailed across the Atlantic to the Americas. This period also saw the establishment of new trade routes between Asia, Europe, and the Americas.
More recently and in the 19th century, the industrial revolution helped many people to move away from rural areas to cities, leading to massive urbanisation. This also caused major migrations of people from Europe to the United States, Canada, and Australia.
In the 20th century, technological advancements in transportation, communication, and global trade led to increased global migration.
Today, human mobility is driven largely by economic and political factors. Millions of people migrate yearly in search of better living conditions, while others move to different parts of the world to pursue educational opportunities or reunite with family and friends.
Bridges played a fundamental role in facilitating human mobility. Bridges’ construction dates to ancient times and spans across many different civilisations and countries. The earliest known bridge was built by the Ancient Egyptians in the 2nd century BC, and the oldest existing bridges today are in Rome and China. Throughout history, bridges have evolved from simple timber structures to sophisticated modern engineering marvels.
The first bridges ever made were constructed from unprocessed natural materials, starting from simple wooden logs that were placed across small rivers or ditches to the large rope-tied bridges that were constructed over large canyons and mountain ranges in inhospitable areas of Asia.
The ancient Greeks also had a hand in bridge engineering. Greek mathematician, Archimedes, is credited with developing an early form of the truss bridge.
With the advent of the Roman Empire, bridge engineering advanced even further. The Romans were renowned for their use of the arch in bridge design and construction. They employed the semi-circular arch to construct a variety of bridges including the famous Pont du Gard aqueduct in France.
Research Bulletin No.7 April 2023 Research Bulletin No.2 December 2020
46 History of Bridges and How It Influenced Human Mobility
Research Bulletin No.7 April 2023
Fig. 1 Pont du Gard bridge (https://www.historyhit.com/locations/ pont-du-gard/).
One other Roman bridge Trajan’s Bridge, also called the Bridge of Apollodorus over the Danube, was a Roman segmental arch bridge, the first bridge to be built over the lower Danube and one of the greatest achievements in Roman architecture. Though it was only functional for 165 years, it is often considered to be the longest arch bridge in both total and span length for more than 1,000 years.
Truss bridges: Very popular bridge design that uses a diagonal mesh of posts above the bridge. The two most common designs are the king posts (two diagonal posts supported by a single vertical post in the centre) and queen posts (two diagonal posts, two vertical pots and a horizontal post that connect two vertical posts at the top).
Cantilever bridges: Similar in appearance to arch bridges, but they support their load not through vertical bracing but through diagonal bracing. They often use truss formation both below and above the bridge. An example of a cantilever bridge is Queensboro Bridge in New York City.
Tied arch bridges: Similar to arch bridges, but they transfer the weight of the bridge and traffic load to the top chord that is connected to the bottom cords in the bridge foundation. They are often called bowstring arches or bowstring bridges.
In the Middle Ages, the stone was the preferred material for bridge construction, allowing for longer and more complex structures. The iconic London Bridge, for instance, was built in 1176 and is one of the most important bridges ever constructed.
The emergence of the automobile in the late 19th century led to an increase in bridge-building activities to accommodate the growing number of vehicles. This allowed people to easily cross natural divides, as well as get from place to place faster than ever before. As bridges became more advanced, they also provided new opportunities for access to different parts of the world.
The construction of bridges has been a cornerstone of human development, connecting distant lands and enabling people to move freely between them. From the earliest days of civilizations forming, these structures have allowed humanity to thrive in ways that wouldn’t have been possible without them.
2. Bridges classifications
Bridges can be classified based on construction materials, spans, and bridge function. Based on construction materials, bridges can be classified as reinforced concrete bridges, these could be reinforced or prestressed concrete, steel bridges, timber bridges, masonry bridges and composite bridges. The bridges by structure can be categorised as follows:
Arch bridges: These bridges use an arch as a main structural component (the arch is always located below the bridge, never above it). They are made with one or more hinges, depending on what kind of load and stress forces they must endure. Examples of arch bridges are the “Old Bridge” in Mostar, Bosnia and Herzegovina and The Hell Gate Bridge in New York.
Beam bridges: Very basic type of bridges that are supported by several beams of various shapes and sizes. They can be inclined or V-shaped. An example of a beam bridge is Lake Pontchartrain Causeway in southern Louisiana.
Suspension bridges: Bridges that use ropes or cables from the vertical suspender to hold the weight of the bridge deck and traffic. An example of a suspension bridge is Golden Gate Bridge in San Francisco.
Cable-stayed bridges: Bridge that uses deck cables that are directly connected to one or more vertical columns. Cables are usually connected to columns in two ways – harp design (each cable is attached to a different point of the column, creating a harp-like design of “strings” and fan design (all cables connect to one point at the top of the column).
Based on span lengths, bridges can be classified as culverts, minor bridges, major bridges, and long-span bridges. Based on bridge function, bridges can be classified as pedestrian bridges, highway bridges, railway bridges, aqueduct bridges, and combined road and railway bridges (multi-purpose bridges). Also, bridges can be classified as temporary bridges or permanent bridges.
Pedestrian bridges are the oldest form of bridges ever made and were designed to facilitate passenger travel over small bodies of water or unfriendly terrain.
Multi-purpose bridges are designed to provide an enhanced flow of traffic across bodies of water or rough terrain. Most often, they have a mutable number of traffic lanes and sometimes have dedicated areas for train tracks. For example, in addition to multiple traffic lanes on the main decking, the famous Brooklyn Bridge in NYC features an isolated bicycle path.
The structural components of the bridge determine how it distributes the applied loads, such as tension, compression, torsion, bending, and sheer forces. While all bridges always need to handle all those forces, different types of bridges will dedicate more of their capacity to handle specific types of forces better. The handling of those forces can be centralised in only a few notable structure members (such as with cable or cable-stayed bridge where forces are distributed in a distinct shape or placement) or be distributed via truss across almost the entire structure of the bridge.
Research Bulletin No.7 April 2023 47 History of Bridges and How It Influenced Human Mobility
Fig. 2 Trajan’s Bridge (https://en.wikipedia.org/wiki/Trajan%27s_Bridge).
3. Sustainability in bridges construction
As society becomes more conscious of environmental challenges, the construction of bridges has been increasingly aimed towards sustainability. Sustainable bridge construction is a complex process that requires the integration of the most current technologies, materials, and engineering practices.
One of the most important aspects of sustainable bridge construction is the use of advanced materials. Recycled materials such as steel, wood, and concrete are now widely used in bridge construction. Another aspect of sustainability is designing and building integral bridges, which reduce bridge components such as bearing and expansion joints and reduce future maintenance costs, which reduces the whole-life carbon footprint of the structure. One such example is the Entry and Exit Ramps bridges of Terminal 5 at Heathrow Airport.
In addition to materials, sustainable bridge construction is also focused on the design of the structure. Advanced technologies allow engineers to design bridges that are even more efficient and reduce the total amount of energy needed to construct, maintain and operate the bridge. Designers are also considering the needs of pedestrians, cyclists, and vehicles when designing bridges, ensuring that the bridge meets the needs of all users.
Research Bulletin No.7 April 2023 48 History of Bridges and How It Influenced Human Mobility
Fig. 3 Vasco da Gama Bridge Portuguese (cable-stayed bridge).
Fig. 5 Heathrow Airport Terminal 5: a) Entry Ramp Integral Abutment; b) Exit Ramp Integral Column.
Fig. 4 The Çanakkale Strait, south of the Sea of Marmara connecting Europe and Asia (Suspension bridge).
Major Design Challenges for Improving the Transportation Networks in UAE
Islam Badawi MSc. student
School of Energy, geoscience, infrastructure, and Society.
Heriot-Watt university
Dubai, United Arab Emirates
Ib31@hw.ac.uk
Dr Noor Zainab Habib Assistant Professor Civil Engineering School of Energy, geoscience, infrastructure, and Society.
Heriot-Watt university
Dubai, United Arab Emirates
n.habib@hw.ac.uk
The increase in population and urbanization overshadows the entire infrastructure networks, especially the transportation networks, due to the increase in traffic demand. In developing countries where a high economic growth rate, foggy city plans, less developed infrastructure networks, reliance on private cars rather than public transportation, and high car ownership, transportation challenges become more critical. The purpose of the research is to identify the major design challenges for improving the transportation networks in the UAE and the impact of the traffic challenges on the transportation system.
Keywords: Transportaion; Challanges; Traffic Congestion; UAE.
1. Introduction
The dynamic and rapid changes in cities’ demography due to the increase in population, urbanization rate, and economic growth have created new challenges for the governments to accommodate the current and future traffic demand. The increase in traffic demand appended extra loads to the entire transportation system, leading to traffic congestion, car accidents, environmental impact, and ultimately reducing the quality of life. Transportation challenges are considered a critical problem all over the world. However, in developing countries where a high economic growth rate, foggy city plans, less developed infrastructure networks, reliance on private cars rather than public transportation, and high car ownership, transportation challenges become more critical.
UAE has a reputation as a fundamental air transport and trade centre, and it is considered a global hub for business and service industries. Dubai and the entire country have rapidly emerged as a leader in transport network and logistics innovation. In addition, the population and urbanization have increased to unprecedented levels in UAE over the past two decades. Hence, extra stress on the transportation networks has been added and has harmed the residents’ ecological, economic, and social well-being. This research aims to identify the major design challenges for improving the transportation networks in the UAE and explore the potential design solutions for the identified design challenges, along with determining the role of the government and other stakeholders in reducing the challenges.
2. The Transportation Challenges
The improvement of transportation networks in the UAE is facing many challenges. Those challenges are not segregated; rather, they are interrelated to each other. For instance, developing new communities will provide additional traffic demand, creating a socioeconomic issue by increasing traffic congestion, road accidents, etc. Solving this issue might face design challenges due to the complexity of design, land availability, and the risk of collapse for existing infrastructure. In addition, the latest regulations emphasize applying sustainable technologies for design and construction, which add more complexity to improve the networks. Moreover, due to the sensitivity of the infrastructure projects, many stakeholders have interests that influence the projects, especially if the project’s schedule must comply with individual visions, such as access to a new residential community, which provides more pressure on the schedule. In addition, most transportation projects are facing financial challenges in funding and cash flow.
The challenges are categorized as design challenges, which include:
Research Bulletin No.7 April 2023 Research No.2 December 2020
Major Design Challenges for Improving the Transportation Networks in UAE 49 Research Bulletin No.7 April 2023
Increase in population and urbanization lead to high demand for traffic: The population is increasing rapidly worldwide, with an anticipation to reach 9.7 billion in 2050 (United Nations, 2019). As the population increases, the percentage of urbanized areas will increase. In addition, the improvement of the economic situation is encouraging people to immigrate to the urban areas where more opportunities for jobs, education, and health facilities. This problem will not be relieved soon; instead, it will be exacerbated. For instance, the mega-cities with more than 10 million citizens will increase from 33 cities in 2018 to 43 cities worldwide by 2030 (DESA, 2018). In parallel, The UAE population has increased by 12.5 % from 8.25 million in 2010 to 9.3 million in 2020 (Federal Competitiveness and Statistics Centre, 2020). In the case of Dubai, there is a high number of people coming from other parts of the country as well as from other parts of the world (Blair and Sharif, 2012). Dubai has become an attraction site for many people worldwide, hence increasing the demand for the transport network. Also, As Dubai achieves significant development growth, there is pressure on the transport networks, which need to be improved to match the development growth. The high and growing population and urbanization in Dubai are a good indication of the travel demand in the city.
Increase in traffic congestion: Traffic congestion is presumably to increase due to the increase in population and the high rate of car ownership which has been attributed to economic growth in the country. The residents of UAE have a high disposable income. Hence, they have limited financial or economic challenges when purchasing vehicles, which has exerted pressure on the existing transport network. Also, the low oil prices in UAE have encouraged people to own a car. In Dubai only, the total registered cars in 2019 were 1.63 million cars (RTA Annual Report 2019, 2020); hence, the car ownership rate is 479 cars per 1000 capita. This rate is higher than the other developed metropolitan cities such as London and New York, with 300 and 240 cars per 1000 capita, respectively (Camden Cyclists Campaign, 2019; Timmons, 2021). As the number of cars on the road increase, there is increased congestion because the roads are not improved at the same rate, hence longer driving time which causes a negative impact mentally and physically Bao, et al. (2020). Furthermore, traffic congestion due to the high rate of car ownership is linked to road accidents, as increasing the number of cars is providing more opportunities for car accidents.
The improper design issues: Major design issues include design errors, unacceptable sub-standard values, and limited opportunity for future extension: The improper designs of road transport have been mentioned as a challenge to the transportation network. The improper design of the roads includes substandard values for road features, poor geometry design, poor road safety arrangements, limited opportunities for future extensions, etc. Improper designs are increasingly causing car accidents and other unsafe behaviour of motorists. Most road designers and constructors use manuals of specifications and standards that do not clearly indicate the proper mechanics for road safety. It has a negative effect on the project performance either during design/construction periods or in the post-construction period. Further, improper designs make it hard for roads to be expanded in order to reduce traffic congestion, and in some cases, the cost of expansion is very high.
Lack of available land for improvement: As the demand for transportation networks increases in urban areas, there is a need for available land to construct new roads or expand the existing ones. The available land for expansion is very costly in terms of acquiring it and there is no land in some sections, hence the roads cannot be expanded. Also, due to some improper designs for not considering future requirements, it has become tough to get available land for road construction and expansion. The land-use of the development areas is forming the traffic pattern. Hence, effective land-use planning and policy have to change to avoid the overcapacity of existing transportation in the city centre and control the city sprawls Wachs (1989).
In addition to the design challenges, the management challenges have an impact on the transportation systems. Management challenges include stakeholders’ influences and tight schedules. The stakeholders such as car owners, policymakers, pedestrians, and developers play a key role. Hence, there should be an agreement between all parties. the development firms are the main engine of the city’s extensions in the UAE. For instance, many new communities are planned and constructed in Dubai. Hence, high-level coordination and collaboration between the public and private sectors are compulsory in order to balance between constructing new communities and providing the required infrastructure networks. Otherwise, the transportation challenges will be magnified.
Based on the above, the contrast in the point of view and interests between the main stakeholders is the main management challenge for the project’s success, even though establishing a solid communication loop. City-wide masterplan authorities might be established to ensure a common vision for integrating different authorities and stakeholders regarding the new communities’ location and land use and re-distributing the high-density population areas. In some cities, some stakeholders hinder the process of transportation network improvement because of their selfish interests, as they fear that any change in the sector would affect their business Nugmanova, et al. (2019).
On the other hand, there are tight schedules to the extent that there is not adequate time for the development of the transportation network (Stathopoulos and Karlaftis, 2002).
3. Potential Solutions for Traffic Congesting Challenges
The research has identified several potential solutions to traffic congestion and accidents. Those solutions are varied from the traditional way, such increase the capacity of the highway network or construction of aerial roads around the major cities which would help to reduce the traffic demand and decongest roads as it will give alternative routes to public and private vehicles. However, new studies suggest the development of public transport and discourage private transport in order to reduce the number of cars on the road. Also, a shared mobility solution could enhance traffic congestion and reduce CO2 emissions. For instance, in San Francisco, fuel consumption can be reduced by 1.7-3.5 million litres annually when using carpooling mode. Hence, less energy will be conserved (Bachmann, et al. 2018). Although there is no published data regarding the contribution of shared mobility in the transportation system in the UAE, it is recognized that most of the cars are running at their full capacity. In addition, the paid carpooling service is illegal in UAE.
Research Bulletin No.7 April 2023
Major Design Challenges for Improving the Transportation Networks in UAE 50
Although the traditional way is fruitful in mitigating traffic congestion and traffic demand at most of the required locations, it is still the most familiar way and presents the major solutions that have been applied worldwide. Nevertheless, the traditional way is considered a costly and unsustainable way to accommodate the traffic demand. The transportation capacity is negatively impacting the environment by increasing pollution, and noise and reducing air quality along with the pernicious health effect due to vehicle exhausts (Venkatram and Schulte, 2018). In addition, the growth rate of urbanization by developing new communities that include providing new roads, parking lots, mall entrances, sidewalks, etc. will increase the opportunity for flood due to the increase of impervious surfaces hence reducing the nature infiltration rate Sohn, et al. (2020).
In order to meet the traffic demand in a more sustainable way, the Travel Demand Management (TDM) suggested strategies that increase transportation system efficiency rather than increase road capacity. Travel demand management began in the USA in the early 1980s (Malić, et al., 2000) to mitigate the increased traffic congestion problems regarding technical, environmental, and financial issues. According to the Overview of Travel Demand Management Measures: Final Report (1994) provided by the Federal Highway Administration and the Federal Transit Administration, the main target of applying TDM strategies is to provide different mobility alternatives for travellers, hence reducing private cars’ usage. The TDM strategies rely on influencing travel behaviour to attract public/shared mobility alternatives. Applying the TDM strategies positively impacts many aspects, such as the environment, public safety, and the thriving of urban developments (Huan, et al., 2021). In addition, the increase of the road capacity is less cost-effective than the TDM strategies (Chadchan, and Shankar, 2012).
Connected Vehicles (CV) and Autonomous Vehicles (AV) can play an integral role in the transport network. Connected and Autonomous Vehicles (CAVs) are vehicles that could obtain various information regarding the surrounding environment, either road features or other vehicles, through multi-sensors. Vehicle’s computer analysis that information, hence the vehicle can make decisions, share information with other vehicles, and move driverless (Campisi, et al., 2021).
With optimized driving speeds, acceleration, braking, and platooning technologies, there are opportunities to ensure congestion levels remain low at all times. Connected and Autonomous Vehicles (CAVs) have the potential to change the way we deal with the entire transportation system, and it is about time to financially compare the CAVs with manually driven vehicles (Cohen, and Hopkins, 2019).
Conclusion
The research finds that traffic congestion and land availability are the main design challenges that face the improvement of the transportation network in the UAE. On the other hand, the main management challenges are presented by the involvement of many stakeholders.
Traffic congestion in UAE is a serious problem. The traffic congestion in Dubai is high compared to most GCC cities, such as Jeddah and Kuwait. However, it is less than the congestion in Doha. The research found that the UAE has a higher population growth rate than developed countries such as the United Kingdom. However, due to the less developed infrastructure networks in UAE, the UAE situation requires more improvement in the transport network. Also, dependency on public transportation, especially the middle-class people in
the UAE, is less than in other developed countries due to the high income, low fuel price, low-interest rates on bank’s loan, limited public transportation networks, and the hot weather. Hence more congested roads.
The article’s recommendation is to increase the road capacity to relieve traffic congestion and increase the road Level Of Service (LOS) in certain places where urgent improvement is required. Also, providing grade separation access eliminates the conflict points. Hence, reducing the opportunities for car accidents and providing a free flow of movement.
On the other hand, establishing a solid communication loop is essential to frame a shared vision that satisfies all stakeholders’ needs. In addition, the construction plan of the internal roads of the communities and the construction plan of the external access and roads must be compatible. Otherwise, will end up with a constructed community without access or constructed roads that serve traffic volume less than the expected numbers.
References
[1] United Nations, 2019. Growing at a slower pace, world population is expected to reach 9.7 billion in 2050 and could peak at nearly 11 billion around 2100. United Nations, [Online], available: https:// www.un.org/development/desa/en/news/population/worldpopulation-prospects-2019.html [accessed 20 August 2021].
DESA, U., 2018. The World’s Cities in 2018 (ST/ESA/SER. A/417). United Nations, Department of Economic and Social Affairs (UN DESA). Population Division, New York, NY, USA.
Federal Competitiveness and Statistics Centre, 2021. UAE Populations. , [Online] available: https://fcsa. gov.ae/en-us/Pages/Statistics/Statistics-by-Subject. aspx#/%3Fsubject=Demography%20and%20 Social&folder=Demography%20and%20Social/Population/ Population [accessed 28 September 2021].
Blair, I. and Sharif, A.A., 2012. Population structure and the burden of disease in the United Arab Emirates. Journal of epidemiology and global health, 2(2), pp.61-71.
[5] RTA Annual Report 2019, 2020. Open Data, [Online], available: https://www.rta.ae/wps/portal/rta/ae/home/open-data [accessed 25 August 202].
Camden Cyclists Capaign, 2019. How many cars are there in London?. [Online] available: https://camdencyclists.org. uk/2019/03/tfl-how-many-cars-are-there-in-london/ [accessed 22 August 2021].
Timmons, T., 2021. ‘Car Ownership Statistics: How Many People Own a Car in the US?’, Value Penguin, [Online] available: https:// www.valuepenguin.com/auto-insurance/car-ownership-statistics [accessed 22 August 2021].
Research Bulletin No.7 April 2023 Major Design Challenges for Improving the Transportation Networks in UAE 51
[3] [2] [4]
[7] [6]
Bao, Y., Xu, M., Dogterom, N. and Ettema, D., 2020. Effectiveness investigation of travel demand management measures in Beijing: Existing measures and a potential measure–tradable driving credit. Transportation Research Part F: Traffic Psychology and Behaviour, 72, pp.47-61.
Wachs, M., 1989. Regulating traffic by controlling land use The Southern California experience. Transportation, 16(3), pp.241256.
Nugmanova, A., Arndt, W.H., Hossain, M.A. and Kim, J.R., 2019. Effectiveness of ring roads in reducing traffic congestion in cities for long run: big almaty ring road case study. Sustainability, 11(18), p.4973.
Stathopoulos, A. and Karlaftis, M.G., 2002. Modeling duration of urban traffic congestion. Journal of Transportation Engineering, 128(6), pp.587-590.
Bachmann, F., Hanimann, A., Artho, J. and Jonas, K., 2018. What drives people to carpool? Explaining carpooling intention from the perspectives of carpooling passengers and drivers. Transportation research part F: traffic psychology and behaviour, 59, pp.260268.
Venkatram, A. and Schulte, N., 2018. Urban transportation and air pollution. Elsevier.
[15]
Sohn, W., Kim, J.H., Li, M.H., Brown, R.D. and Jaber, F.H., 2020. How does increasing impervious surfaces affect urban flooding in response to climate variability?. Ecological Indicators, 118, p.106774.
Malic, A., Brcic, D. and Krasic, D., 2000. Parking measures in travel demand management. Promet-Traffic&Transportation, 12(56), pp.301-309.
[16]
Huan, N., Hess, S. and Yao, E., 2021. Understanding the effects of travel demand management on metro commuters’ behavioural loyalty: a hybrid choice modelling approach. Transportation, pp.130.
Chadchan, J. and Shankar, R., 2012. An analysis of urban growth trends in the post-economic reforms period in India. International Journal of Sustainable Built Environment, 1(1), pp.36-49.
Campisi, T., Severino, A., Al-Rashid, M.A. and Pau, G., 2021. The development of the smart cities in the connected and autonomous vehicles (CAVs) era: From mobility patterns to scaling in cities. Infrastructures, 6(7), p.100.
[19]
Cohen, S.A. and Hopkins, D., 2019. Autonomous vehicles and the future of urban tourism. Annals of Tourism Research, 74, pp.3342.
Research Bulletin No.7 April 2023 Major Design Challenges for Improving the Transportation Networks in UAE 52
[13]
[9]
[8]
[10]
[14]
[11]
[12]
[17]
[18]
News and Events
News and Events
News September 2022 - April 2023
Autodesk Industry Spectrum
Summary:
Decarbonisation Cluster Meeting
• 4th October 2022
CESC was featured in an episode of the Autodesk Industy Spectrum. The interview focused on the CESC success story paying particular attention to our triple helix approach.
https://lnkd.in/dgzE_ahr
• 11th November 2022
Summary:
Dr Olisanwendu Ogwuda hosted the second workshop of our decarbonisation clusters who focus on ‘Standards, Procedures and Policies’ . The cluster is chaired by Koen Meert, EMAAR and cochaired by Dr Taha Elhag, Associate Professor, Heriot-Watt University.
https://www.linkedin.com/feed/update/urn:li:activity:6995665413237846016
CESC wins Partnership of the Year at The Big 5 Impact Awards
To watch the interview in full please visit: LinkedIn: LinkedIn:
• 5th December 2022
Summary:
CESC was awarded Partnership of the Year at the The Big 5 Impact Awards, which recognised the centre’s contribution to the Built Environment through our consistent triple helix approach.
https://www.thebig5.ae/the-big-5-impact-awards/#winners
Research Bulletin No.7 April 2023
54 News & Events, Partner News Research Bulletin No.7 April 2023
• 8th December 2022
Launch
Summary: In collaboration with The Big 5 and UN Women, CESC launched our Women in Construction initiative, starting with two expertly moderated panels, by Dr Hagir Hakim, Associate Professor, Heriot-Watt University, which took a deep dive in removing barriers to gender equality and identifying leades of tomorrow.
LinkedIn:
https://www.linkedin.com/feed/update/urn:li:activity:7006233588757110784
• 9th December 2022
Summary:
His Excellency shared his thoughts on the importance of continued collaboration between industry, government, and academia to continue the shared goal of a smarter, safer and more sustainable Built Environment and thanked our industry partners for their contribution throughout 2022.
LinkedIn:
https://www.linkedin.com/feed/update/urn:li:activity:7008395534390456322
• 15th January 2023
Summary:
CESC was pleased to announce a new affiliation with VisiLean Ltd. VisiLean is an award-winning cloud-based Construction Management Software that offers real-time solutions to real-time construction problems.
LinkedIn:
https://www.linkedin.com/feed/update/urn:li:activity:7031150608745152512
Research Bulletin No.7 April 2023 News & Events, Partner News 55
of Women in Construction Initiative
CESC welcomes HE Dr Abdullah Belhaif Al Nuaimi to Dubai Campus
CESC Signs New Affiliate
Research Bulletin No.7 April 2023
• 20th March 2023
CESC Hosts Non-Executive Board Meeting
Summary: CESC welcomed our Non-Executive Board to our Dubai Campus to discuss continued collaboration between industry, academia and government along with plans for COP28 and beyond.
• 21th March 2023
Summary: CESC was pleased to host our ‘cluster four’ decarbonisation workshop which brought together industry and academic professionals who discussed the importance of Education & Awareness of the project.
Research Bulletin No.7 April 2023
‘Cluster Four’ decarbonisation workshop Decarbonisation is the reduction of carbon dioxide emissions through the use of low carbon power sources, achieving a lower output of greenhouse gasses into the atmosphere. The cement industry accounts for 7% of the total anthropogenic gases released in the atmosphere. These mainly result from the calcination process in which raw materials, including limestone, are combusted at high temperatures. Considering the high dependence on cement as a construction material, measures must be put into place to decarbonise the cement industry. Heriot-Watt University’s Centre of Excellence in Smart Construction (CESC) is committed to advancing industry-led innovations in construction that will revolutionise the way we develop, manage and operate smarter cities. Challenges CollaborationEducation NZC Definition System Thinking Emissions Materials Funding Energy Waste Management Operational Efficiency Policy Technology Economic Modelling Regulations Contracts Research & Development Life Cycle Analysis Codes & Specifications Carbon Strategy Incentivisation Novel Cement Approach Energy Efficiency Decreasing The Clinker to Cement Ratio Utilisation of Alternative Fuels Performance & Productivity Roadmap - UAE Cement Decarbonisation Centre of Excellence in Smart Construction National low carbon cement industry National net-zero carbon cement industry First net-zero carbon process Define Programme themes, create impact and design long/short term plans Explore Themes & Priorities Focused approach, prioritise research and innovation themes Primary Research Workshops, interviews, extensive research, meetings with “industrial clusters” Integrated approach established 2021 (Phase-1) 2025 (Phase-2) 2030 (Phase-3) 2035 (Phase-4) 2040 (Phase-5) At least one low carbon cement process Market Research Policies Industry Engagement Methodology Our Recommendations Working Towards a Decarbonised Cement Industry LinkedIn: 56 News & Events, Partner News Research Bulletin No.7 April 2023
https://www.linkedin.com/feed/update/urn:li:activity:7044168190448349184 CESC hosts
Published articles September 2022 – April 2023
• 30th September 2022
Summary: Bulletin Link:
CESC published issue five of its bi-annual Research Bulletin.
The bulletin included research articles focusing on the most recent trends in the Built Environment and was structured as per CESC’s three innovation themes: Performance & Productivity, Sustainability, and Wellbeing.
https://issuu.com/heriot-watt_university_dubai/docs/cesc_bulletin_6_september_2022_v3
• 4th October 2022
Summary:
Dr Hassam Chaudhry shares his thoughts on practices in facility management to support sustainability.
Full Article:
https://alwatan.ae/?p=1026411
• 5th November 2022
Summary:
Full Article:
CESC shares thoughts on the top sustainable construction trends in 2022 and beyond to ensure the UAE reaches its 2050 net zero targets.
Click Here
Construction Week
Summary: CESC shares thoughts on COP27 and sustainable collaboration
Full Article:
• 7th December 2022 https://www.constructionweekonline.com/events/conferences/the-big-5-dr-anasbataw-on-cop27-and-sustainable-collaboration
Research Bulletin No.7 April 2023 News & Events, Partner News 57
Research Bulletin Six Research Bulletin No.6-September 2022 EDINBURGH DUBAI MALAYSIA SHAPING TOMORROW TOGETHER Wellbeing Sustainability HEC Rating 2020 5
CESC
Al Khaleej.ae
Research Bulletin No.7 April 2023
Al Watan.ae
• 7th December 2022
Dubai World Trade Centre Insights
Summary:
Full Article:
CESC sheds light on the latest trends in construction focusing on the usage of drones in construction sites
https://www.dwtc.com/en/industry-insights/sustainable-construction-whycollaboration-is-key/
• 15TH March 2023
The Tripe Helix approach for Sustainable Construction in the Middle East
Summary: Dr Hassam Chaudhry talks about how academia can help create a dynamic and thriving innovation ecosystem.
Full Article:
https://economymiddleeast.com/news/the-triple-helix-approach-for-sustainableconstruction-in-the-middle-east/
Research Bulletin No.7 April 2023
58 News & Events, Partner News
Events
CESC
September 2022 – April 2023
co-hosts China State Construction Middle East Annual Technical Conference
Summary:
The audience enjoyed a number of keynote presentations including two by Heriot-Watt University, Dubai Campus faculty colleagues Dr Olisanwendu Ogwuda, Associate Professor & Centre Manager and Dr Yasemin Nielsen, Associate Professor & EngD Programme Director.
For More Information:
Saudi Contractors Authority International Contracting Conference
Summary:
CESC was delighted to attend the Saudi Contractors Authority International Contracting Conference in Riyadh. The conference brought together over 35 international industry speakers who addressed several key topics, including urban construction smart citiies, sustainability and building techniques.
For More Information:
CIOB ‘Night of Employability and Networking’
Summary:
CESC were delighted to host The Chartered Institute of Building (CIOB) ‘A Night of Employability and Networking’ at our Heriot-Watt University, Dubai Campus which brought together students and industry professionals for fascinating presentations and networking opportunities.
For More Information:
Research Bulletin No.7 April 2023 News & Events, Partner News 59
• 10th November 2022 • 23rd November 2022 • 15th and 16th November 2022 https://www.linkedin.com/feed/update/urn:li:activity:6998176009124478976 https://www.linkedin.com/feed/update/urn:li:activity:6999274484096491520 https://www.linkedin.com/feed/update/urn:li:activity:7001445419108962304
Research Bulletin No.7 April 2023
• 5th December 2022
Global Construction Leaders Summit
CESC Judges Start Up City
CESC joined a panel discussion at the Global Construction Leaders Summit which focused on ‘Creating a construction playbook for the future’.
For More Information:
https://www.linkedin.com/feed/update/urn:li:activity:7007960308002525184
• 6th December 2022
Summary:
Summary: CESC moderated a panel discussion at te FutureTech Construction Summit continuing our role as supporting partners at The Big 5 International Building & Construction Show.
For More Information:
https://www.linkedin.com/feed/update/urn:li:activity:7007960308002525184
• 7th December 2022
Summary: CESC were part of an esteemed judging panel at The Big 5 Start Up City event, which is designed to bridge the gap between supply and demand of the newest technologies and products in the market.
For More Information:
https://www.linkedin.com/feed/update/urn:li:activity:7005447886125576193
Research Bulletin No.7 April 2023 60 News & Events, Partner News
Research Bulletin No.7 April 2023
FutureTech Construction Summit
• 16th - 18th January 2023
World Energy Summit
Summary:
CESC Centre Manager, Dr Olisanwendu Ogwuda was part of an expert panel which was moderated Heriot-Watt Deputy Vice Principal, Professor Tadhg O’Donovan. The panel took a deep dive into the road to industrial decarbonisation.
For More Information:
https://www.linkedin.com/feed/update/urn:li:activity:7021704712500449280
• 26th January 2023
Sustainability Symposium
Summary:
CESC were delighted to play an integral part in Heriot-Watt University, Dubai 2023 Sustainability Symposium. The Symposium brought together key industry, government and academic experts, all with a vested interest in sustainability.
For More Information:
https://www.linkedin.com/feed/update/urn:li:activity:7028611711226019840
• 2nd March 2023
Accuracy/Zero Event
Summary: CESC were pleased to host a unique event on behalf of ZERO, a nonprofit organisation forucsed on reducing embodied carbon in the construction industry.
For More Information:
https://www.linkedin.com/feed/update/urn:li:activity:7039466898668892160
Research Bulletin No.7 April 2023 61 News & Events, Partner News
Research Bulletin No.7 April 2023
• 3rd March 2023
World Green Building Council
CESC were delighted to welcome World Green Building Council and host their MENA regional network’s net-zero readiness framework kick –off workshop which brought together key personnel from regional Green Building Councils from the UAE, Jordan, Palestine, Lebanon, Egypt, Bahrain, Tunisia.
For More Information:
https://www.linkedin.com/feed/update/urn:li:activity:7036994518507757569
Construction Week Middle East Technology Summit
Non-Executive Board Meeting
Summary: Dr Hassam Chaudhry shared his thoughts on sustainable technology at the Constuction Week Middle East Technology Summit.
Summary:
For More Information:
• 16th March 2023 https://www.linkedin.com/feed/update/urn:li:activity:7042035311723347968
• 20th March 2023
Summary: CESC welcomed its Non-Executive Board, chaired by His Excellency Dr Abdullah Belhaif Al Nuaimi to campus to continue conversations around the importance of collaboration between industry, academic research and government.
For More Information:
Research Bulletin No.7 April 2023 News & Events, Partner News 62
https://www.linkedin.com/feed/update/urn:li:activity:7044168190448349184
Research Bulletin No.7 April 2023
CESC Partners’ News
Summary:
Aldar and MoCCaE launch real-estate climate pledge at NDCA meeting.
For More Information:
https://www.aldar.com/en/news-and-media/aldar-andmoccae-launch-real-estate-climate-pledge
Summary:
iBuild Construction, part of the Innovo group, is rapidly increasing its market share in the UAE construction industry. Three noteworthy projects are Six Senses The Palm, Majestic Vistas and Beach Mansion.
For More Information:
https://www.linkedin.com/company/asgcuae/
Summary: Jacobs have recently announced that they are one of three official delivery partners on NEOM THE LINE.
For More Information:
https://www.jacobs.com/newsroom/press-release/jacobs-selected-urbandevelopment-project-saudi-arabia
Research Bulletin No.7 April 2023
Aldar
ASGC
Jacobs
Research Bulletin No.7 April 2023 63 News & Events, Partner News
Keep
Summary: JLL publishes UAE Construction Market Intelligence Q1 2023.
For More Information:
https://www.jll-mena.com/en/trends-and-insights/ research/uae-construction-market-intelligence-q1-2023
Summary:
Mott Macdonald Appoints Rick Hopper as Managing Director for Saudi Arabia.
For More Information:
https://meconstructionnews.com/56328/mottmacdonald-appoints-rick-hopper-as-md-for-saudiarabia
Summary:
Polypipe publishes several case studies which focus on UAE Exchange Metro Station, Museum of The Future and Atlantis The Royal.
For More Information:
https://www.linkedin.com/company/polypipemiddleeast/
Research Bulletin No.7 April 2023
to
with
the forthcoming
To keep up
date
all
events follow our social media channels
updated via social media
Mott Macdonald
Polypipe
JLL
Research Bulletin No.7 April 2023 News & Events, Partner News 64
Thank you for reading. The next Centre of Excellence in Smart Construction bulletin will be published in September 2023.
To have a research paper considered for inclusion please contact Dr. Mustafa Batikha on m.batikha@hw.ac.uk
Research Bulletin No.7 April 2023