

Experience the rare opportunity to own a piece of history with the stunning Breezemore estate located in Greenwich, Connecticut. Built in 1909, this magnificent property offers 10,000 square feet of architectural splendor, oldworld charm, and modern conveniences.
Set high on 3.2 private, park-like acres within walking distance of downtown Greenwich, this property stands proudly in one of the town’s most prestigious neighborhoods of Rock Ridge Association, once home to the Rockefellers.
The estate welcomes you with an elegant porte-cochere, circular drive and sweeping lawn. Inside, the impressive foyer reveals a majestic 3-story staircase and showcases the home’s rich heritage through exquisite architectural details. Each room features soaring ceilings, stunning millwork, and abundant natural light. Many of the bedrooms, including the primary bedroom, offer panoramic views of the sky, century-old trees, and the expansive property.
The next steward will embrace the benefits of many quality renovations, especially the newly expanded custom chef's kitchen, butler's pantry, and spacious mudroom—perfect for modern living while preserving the classic elegance of this estate.
Breezemore is replete with beautiful details and rooms that make it a unique and captivating home, ideal for gatherings and celebrations.
Don't miss the rare opportunity to experience timeless elegance and luxury living in this exclusive, in-town historic setting.
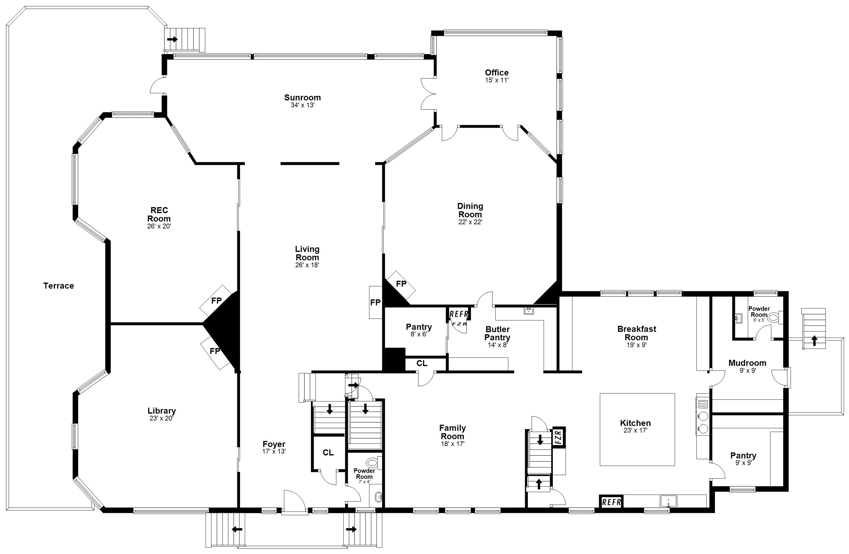
The floor plans of Breezemore, a 1909 Queen Anne-style estate, offer a fascinating glimpse into its historical and architectural significance. Designed with meticulous attention to detail, the layout showcases the home’s expansive 10,000 square feet, featuring spacious rooms with large windows and soaring ceilings, perfect for large gatherings and entertaining. Each element of Breezemore has been thoughtfully curated to celebrate and preserve its historic character while providing contemporary comfort.
RYAN HOFFMAN
Real Estate Salesperson
203.554.7772
RHoffman@houlihanlawrence.com
RyanHoffman.houlihanlawrence.com
With an intricate understanding of luxury living and a passion for service, Ryan leverages his 15-year track record of success for clients. For 23 years, he built a successful career in the fitness industry, specializing in high-end gym design for luxury homes. He brings a wealth of experience, a client-centric approach, and an unwavering commitment to excellence to every transaction.
Real Estate Salesperson
203.820.5524
LMattson@houlihanlawrence.com
LibbyMattson.houlihanlawrence.com
Libby Mattson is one of the industry’s top performers, consistently ranking in the top 1.5% of realtors nationally, an eight-year consecutive Platinum Award recipient, and a top-producing broker for Houlihan Lawrence. Clients place their trust in Libby, knowing they are aligning themselves with the ultimate professional, reputed for her exceptional management and execution of the home buying and selling process.