Helena Langlois Portfolio

Page 1

PORTFOLIO - HLB

PORTFOLIO - HLB

Helena Langlois Bescosstudent

ABOUT ME

Born and raised in Paris, I then moved to London and finally decided to pursue my studies in Barcelona. Being interested in all fields of design, I graduated in Global Design before deciding to deep my knownledge into what was for me the most complete and interesting field : interior design. The mix of cultures I carry helped developing a sense of curiosity and openess to different references around the world, and a passion for travelling. I am attentive to details, always opened to learn from others and ready to enjoy the process.

hlbportfolioabout me 01

WORK EXPERIENCES

- Graduated in GLOBAL DESIGN (IED diploma) in 2022

- Participation to BARCELONA DESIGN WEEK 2022 representing IED

- Global Design thesis presented to the mayor of the town targeted, Pals (Girona) in 2022

- Participation to LLUM BARCELONA 2022 with the instalation slow light

-Participation to SONAR+D 2023 with the instalation slow light, previously exposed in LLUM BCN.

- Participation to LLUM DE NADAL 2023 for the shop Fran

- Participation to FÊTES DES LUMIÈRES DE LYON 2023 with the instalation slow light, previously exposed in LLUM BCN.

EDUCATION

- Lycée Saint Jean de Passy, PARIS

- Lycée int. Winston Churchill LONDON

- IED university, BARCELONA

SKILLS

AUTOCAD

RHINO

INDESIGN

PHOTOSHOP

D5

LANGUAGES

PERSONAL EXPERIENCES

- Building of a biogas tank in a small village in Nepal (2019)

- gold medal in national French waterpolo competition with regional team (2017 and 2018)

02 cv and experiences Helena Langlois Bescós +34 608 457 814 +33 06 16 89 09 89 hlangloisbescos@gmail.com
SPANISH ENGLISH CATALAN
FRENCH
TIME MANAGEMENT PUNCTUALITY COMMUNICATION RESPECT FAST LEARNING ENGAGING PASSION POLYVALENCE TEAM WORK SOCIAL
hlbportfoliocv
hlbportfoliocontent 03 1. 2. 3. 5. 6. 7. 4.
CONTENT

SLOW LIGHT

extracurriclar project (2022-2023)

Ephimeral arquitecture for lighting festival

After going through a selection process within my university, I started working with a team from all fields of design to create an instalation for LLUM BCN 2021. Our challenge was hard : create an instalation for a lighting festival without using any electricity. We decided reusing materials we had from an older instalation and using rented tripods and panels to create this structure. We placed filters made out of resin and paper sheet to difract the light and get a nice effect. The instalation only comes to life when the users brings the light with their phone, making them conscious about lighting pollution and teaching them about the life cycle of a star.

04 process hlbportfoliowork n*1 Llum bcn

SLOW LIGHT

extracurriclar project (2022-2023)

day vs night

This work was really apreciated as the user was part of the instalation, and the project got selected for two other festivals : Sonar+D, a festival of creators showing their work during the music festival Sonar in Barcelona and the most famous light festival in Europe and probably in the world, Lyon’s light festival in France. Being confronted to a real project and its problems was a challenge that I really enjoyed.

Llum bcn Sonar +D Fêtes des lumières

05 hlbportfoliowork n*1

A MEDITERRANEAN HUB

global design final project (2022)

Touristic instalation for Pals, Costa Brava

During my last year of global design we had the chance to develop a project that meant something for us and I decided to target the town I’ve been calling home since I was a child : Pals in Costa Brava. The main problems that were identified were the concentration of tourism in only one main street, resulting in not being able to walk throught it in the summer, the lack of public bathrooms, and the lack of visibility given to local products and art. This is why I created the Mediterranean hub : located in the mirador de Josep Plà, the hub is a stop to relax, enjoy the view, while learning about Costa Brava’s history and products.

The instalation is modular: with a wood curtain we are able to modify the space for an exhibition, a workshop, a talk or a normal day. I incorporated chemical bathrooms in a more discreet way and re designed the graphic identity of the village. This project was presented to the major of Pals.

top view (1:50)

opened half closed (workshop, discussion) opened (art exhibition) closed (during the night)

06 hlbportfoliowork n*2
render

CORNER

branding specialisation (2023)

Graphic identity aplied to a space

During my second year I had the oportunity to specialise in branding and create a brand as a final work : corner. The client was asking for a bar with atractive prices that would be placed in Poblenou next to the famous clubs of Barcelona, attracting young adults. This exercise has helped me understand the codes and semiotics of brands, as well as applying them to different spaces and objects. I loved working with a client and understanding them to create something that represents them applying their esssence to a space.

07 hlbportfoliowork n*3
interior of the bar graphic identity logo

AN EASY LIFE

house renovation (2024)

Renovation for Gio Ponti

For this exercise we had the chance to visit a space that actually needed a renovation, and we had to do it for a special client, in my case, Gio Ponti. My concept was to do a space easily adaptable, where his family and him could live in a calm way. This is inspired by the concept of “dolce vita”, giving us easy life.

final distribucion+ living planta

floor plan (1:100)

render

final distribucion+ living planta

sections (1:100)

08 hlbportfoliowork n*4
-
--

AN EASY LIFE

house renovation (2024)

The important aspect of the project was the slidding doors : adapting the space to the user, they also permit movement. This way, Gio and his family can choose how they use the space : if they open them up, close them a little bit or close them completly the space changes and so does the feeling.

isometric view

door detail

09 hlbportfoliowork n*4

AMIXEM’S STUDIO

workspace (2023)

Creation of a workspace for a youtuber

Proposing a space for a specifical client like in the case of “easy life” is what I like the most as I try to capture their essence and respond to their necessities. Here we had a French youtuber, “Amixem”, who creates content with a team of aproximetly 20 people, and is constantly moving from a place to another because of the lack of modularity. To answer this, I created this workspace with modular cubes that permit to work and rest and that are movable for videos that would need it. There is also a small studio for the face camera videos.

plan view

seccions and isometric view of the cube

10 hlbportfoliowork n*5

AMIXEM’S STUDIO

workspace

We also studied the important aspects of a workspace, the mobility, the air flow, an outside space and more. This is why my space counts 2 outside spaces, a relaxing zone, a bar along the window to work on and high tables to work on them.

On a graphic level, I used the colors of his olders studios that I found through research: red, yellow, and blue and applied them to the space. The small studio is painted in red. Each of the cubes has a letter paint on them that joined together makes “Amixem”, as his name is Maxime, making him able to play again with his name not only on his computer but in his workspace by mixing the order of this cubes or moving them around.

11 hlbportfoliowork n*5
isometric view of the workspace design of the cubes

LEVELS

product design (2022)

Designing a piece of furniture with cardboard

Being able to experiment with furniture design is something I really appreciated. Our goal was to create a piece of furniture that would allow us to do 2 actions: cooking and reading. After a lot of research and a first approach to ergonomics, we created this table with a bench, a step and a little cave for kids to interract with their parents. This allows them to read and play in the cave and get out using the step to get to the parent level while they are cooking to ask questions or participate in the task.

top, front and side view

separated pieces

final pictures

12 hlbportfoliowork n*6

EYE TO EYE

personal development project (2023)

Creating an experience

Personal development has been one of the best experience for me: to be able to make a project that teaches me about space and myself. The first aproach was creating a mindmap about who we are. The most highlighted parts of me are my duality and the fact that I feel my best when I am surrounded by people. Then, I wrote a story in relation to a space that made me feel something. I talked about a room with paintings that maintained eye contact and that became the purpose of my instalation.

mindmap of who I am

inspiration and portraits

isometric view

hlbportfoliowork n*7 13
story

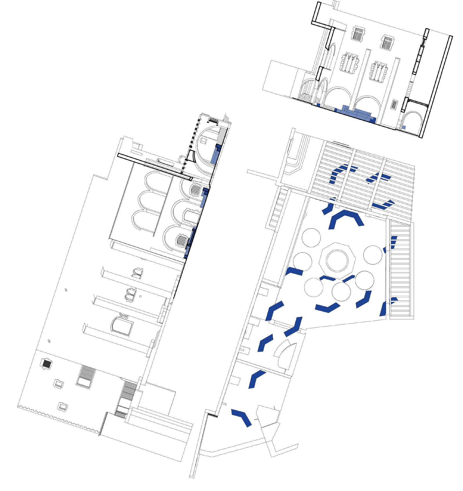
EYE TO EYE

personal development project (2023)

plan and seccions

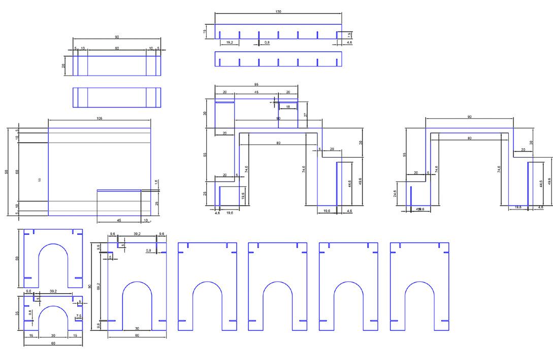
This project was made after Covid and I tried to create something that would encourage people to talk and maintain eye contact, this is why the installation is called eye to eye. Located in the patio of Frederic Mares’ Museum, I decided to replicate the hexagonal shape that existed around the fountain and apply it to all the space creating this benches that would adapt to the surroundings. This created a perfect meeting and rest space.

site

14 hlbportfoliowork n*7
picture and collage

THANK YOU FOR YOUR ATTENTION

Helena Langlois Bescós +34 608 457 814 +33 06 16 89 09 89 hlangloisbescos@gmail.com

Turn static files into dynamic content formats.

Create a flipbook
Issuu converts static files into: digital portfolios, online yearbooks, online catalogs, digital photo albums and more. Sign up and create your flipbook.