port folio
louise rundgrenabout me

Email: louiserundgren@me.com
Telephone: +34 652 66 56 85
Instagram: louiserundgrenprojects
about me
Email: louiserundgren@me.com
Telephone: +34 652 66 56 85
Instagram: louiserundgrenprojects
My academic career started in 2017 when moved to Los Angeles to study Interior architectural design. As the year abroad came to an end, wanted to try something different and pursue a career in criminology. In the end, interior design is the career path that suits me best and am happy to have experience in various fields as I am now sure that made the right decision.
have always been comfortable with having a lot going on in my life. For many years combined studying and working. started my first job when I was 16 and have a lot of experience in many different fields including retail, hospitality and administration. I know how to act as a professional and I take pride in being a hard working person. I take my work and studies very serious and I always do my best in all aspects. I easily adapt to different groups and people and have no problem to collaborate and work as a team.
Among my interests are - in addition to design and architecture - photography, drawing, film, cooking and being active.
Worldline/Bambora
IT-support.
Assisting customers through calls and emails and administrating cases related to payment terminals. Bachelor in interior design.
IED - Istituto Europeo di Design Stockholm university
Covid-19 PCR-testing assistant
July 2021 September 2021 - Host at vaccination stations in Östergötlands län. January 2021 - July 2021 - working with PCR-testing at Linköping University hospital as well as working at the laboratory where Covid-19 tests where analyzed and stored for future research.
September 2020 - December 2020 - Host at a self-testing station in Älsvjö, Stockholm.
Santa Monica College
Procivitas private High School
Sales associate/Bra fit specialist Assisting customers in the fitting room and acting as a sales associate on the floor.
Store manager
Managing the store in Gallerian, Stockholm. Keeping the team inspired, keeping track of orders and managing the store and staff in general.
Sales associate
Cashier and sales associate at the decoration and home department.
Conmodo AB
Insurance Agent/Customer service
Answered calls by addressing customer inquiries, solving insurance related issues and providing new product information.
Sales associate Assisting customers on the floor and in the fitting rooms.
CarrerdeBetlem CarrerdelTopazi CarrerdeVerdi
CarrerdelRobí
This project was meant to give us a deeper understanding and knowledge about workspace design and what is required to create a comfortable office. The client is a fashion brand focusing on designing and manufacturing athletic costumes for gymnastics and ice skating.
Costumes made by the client are all hand and custom made Moving between different areas of the space is part of the work process and should not be restricted by the space or furniture. As a result, the decision to avoid having sharp corners or restricting areas was made. The flow of the workspace is crucial. The color palette is inspired by the method of airbrushing fabric, as is often included in the client’s work. Dark brown colors together with beige tones will create a feeling of a gradient, flowing space
The concept originated from this shape - a common design feature in most of the client’s work. The client’s designs are mainly based on organic and natural shapes, which is what inspired this project. The furniture used in this space are curvy and rounded bringing a sense of fluidity to the space as well as bringing efficiency to the work flow.
This short video is meant to show the creative process and inspiration behind the client’s work. Every costume is made by hand and designed by the client. The use of organic shapes and flowy fabrics is reccurent in all the designs and is reflected in the floor plan as well as in this short video.
This video shows a number of different sources of inspiration Most of the footage is taken from nature but shots of sheer textures and flowy curtains are seen. Hands represent the craftmanship behind every design, but it also enhances the softness Footage of inspirational sources together with small snippets of thework process shows the connection between inspiration and design process
Still photo from the video.Plaça de Sant Miquel
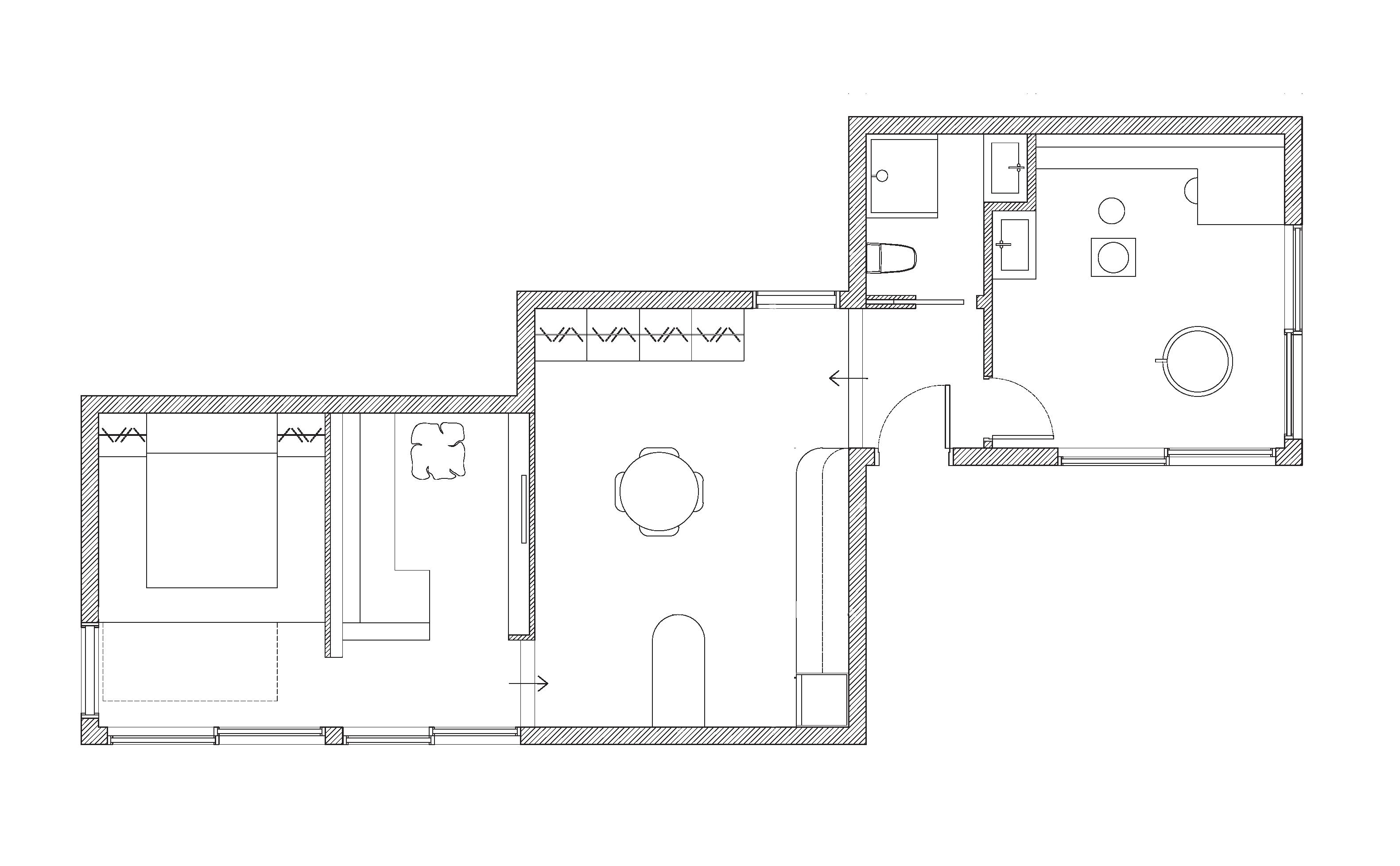
Biomorphic transition is my final project for the House renovation module. We were given the opportunity to refurbish an existing apartment in Barcelona based on the needs and style of a specific client. In order to finalize this project we had to investigate and understand how the project would be managed and planned in reality. In order to do so we developed a Book of measurements and a Gantt chart as part of the project management.
Neri Oxman acted as the client for this project. Her background in both science and art is what inspired the concept. As will be presented in the next slides, the layout of the apartment is meant to represent the transition from a clinical laboratory (Oxman’s background in science) to a more organic and natural environment as you move across the space. The golden ratio, another representation of science and art combined, is the foundation of the floor plan.
Neri Oxman is well-known for her innovative work in ”material ecology.” MIT’s Mediated Matter research group was founded by Oxman, where they carefully combines science, art, and technology to investigate the complex interrelationships between materials and their effects on the environment
Oxman pushes the limits of sustainability and her creations are influenced by biomimicry Oxman’s interdisciplinary approach challenges conventional design and promotes conversations about the future of environmentally friendly practices in architecture and design. Her background in both science and art is what gave inspiration to this project.
Transition diagram going from clinical laboratory to a blend between science and organic (golden ratio) to finally end in the outside patio, the ultimate natural space.
The arrangement of the floor plan is based on the golden ratio. Oxman’s scientific background combined with her vision of integrating organic and natural systems into design is what sparked the idea of incorporating the golden ratio into the concept and floor plan.
The golden ratio served as the foundation for designing the furnishings in this apartment as well, enhancing the overall harmony of the space.
The concept is centered on the ideas of growth, transition, and biomimicry The intention is to create a home that transitions from a clinical laboratory to a natural, organic space. The progression starts on the left side of the room, encompassing the kitchen and bathroom areas, and goes through the living and bedroom sections before ending with the outdoor patio. The apartment will incorporate more and more biomimetic materials and shapes during this shift.
Furniture designed for the space.
Pupan (the icelandic word for cocoon) is a bus stop designed for Habitacola - a urban design competition held in Barcelona. We were asked to pick a location and develop a shelter for public transportation that accommodates the current issues found at the location. Me and my colleague Melkorka Yrr chose Akureyri a small town in Iceland, as the location for this project.
Today, Akureyri features traditional bus stops that are typically single poles containing simple bus route information or a simple metal structure with glass walls. This design is considered unwelcoming, providing no protection from harsh weather conditions
We wanted to design an innovative and eye catching bus stop that provides shelter from wind, snow and rain During winter Iceland has no sunlight hence the bus stop is equipped with interactive LED-strips in the ceiling in order to keep users safe.
With its long, bright summers and dark, windy winters, the Akureyri bus stop is designed to survive the weather while offering passengers a place to feel warm and secure In a town of just 18,000 residents, including families, students, and adventurers, our bus stop serves as a vital link for locals and tourists navigating the dynamic weather conditions of this northern outpost. The idea is that each individual traveler will have their own cocoon that can be rotated in order to achieve ultimate protection from wind, rain and snow.
Aluminium profile.
Aluminium structure.
Drift wood panels.
1. Screw attaced to aluminium structure.
2. Aluminium plate attached to structure. 3. Bearing.
Rotating aluminium tube.
Bolt for pressure.
Top glass point fixture.
Base glass point fixture. Rotating point fixture
During this project we studied the process of building a home We were asked to build a singular living area that combines all the necessary components of a house by combining three modular volumes measuring 3.60 x 4.80 x 2.40 meters.
The focus of this project centers around catering to the 24/7 domestic needs of a person, while also incorporating an additional function tailored to the client. The client, a clay sculptor, envisions her home as a space where she can both live and host clients in her connected studio
The consistent color and texture of the walls, floors, and furnishings are inspired by the texture of clay. Curves and rounded edges reflect the softness of clay while adding to a seamless atmosphere. Natural wood doors and counters are used to add warmth to the space. Large windows allows for natural light to enter the space.
Sunlight is carefully considered, with the studio facing north to avoid direct sunlight. Large east-facing windows maximize sunlight exposure, while fewer west-facing windows maintain optimal conditions for the studio, balancing natural light and workspace needs.
One of the conditions for this assignment was to lay out the floor plan with the help of three boxes with an interior measuring 480 x 360 x 240 cm. We were free to place the boxes however we wanted, as long as they were connected to each other.
I focused on finding a solution where the pottery studio was as far away from the sleeping area as possible, since the kiln used when firing ceramics emits some
Good ventilation is crucial if you want to have a kiln in your home. The combustion of organic matter found in clay is very toxic and should not be inhaled for a longer period of time since it can lead to oxygen starvation.
toxic fumes that can be harmful for the client to inhale for a longer period of time as would be the case when going to bed after using the kiln. I chose not to have a second floor to be able to take full advantage of the fulll length of the boxes.
Good ventilation is crucial if you want to have a kiln in your home. The combustion of organic matter found in clay is very toxic and should not be inhaled for a longer period of time since it can lead to oxygen starvation.
in order to reduce the risk of the fumes going back inside the space. The larger windows have sliding doors as well, in order to cross ventilate the whole space if needed.
in order to reduce the risk of the fumes going back inside the space. The larger windows have sliding doors as well, in order to cross ventilate the whole space if needed.
I chose to have two large windows with sliding doors in the studio, to be able to fully ventilate the studio. The kiln is placed as close to the doors as possible, following the recommendation of at least 45 cm clearance around it. Due to the toxic fumes I decided to put large windows as far awat from te studio as possible,
I chose to have two large windows with sliding doors in the studio, to be able to fully ventilate the studio. The kiln is placed as close to the doors as possible, following the recommendation of at least 45 cm clearance around it. Due to the toxic fumes I decided to put large windows as far awat from te studio as possible,
In order to seperate the studio from the rest of the living area I decided to incoporate different levels. By raising the kitchen two steps above the workshop and bedroom/ living room, more privacy is added to the space where the client is living.
The interior space is designed to be as open as possible by not putting up any walls between living room and kitchen and not having a door for the bedroom so that air can flow freely.
The interior space is designed be as open as possible by not putting up any walls between living room and kitchen and not having a door for the bedroom so that air can flow freely.
In order to accommodate both purposes of the living area and the pottery studio strategic spatial organization becomes essential. The studio and sleeping are are intentionally separated due to the potential hazards caused by harmful fumes from the kiln used in ceramics firing. The decision to not include a second story was made to be able to make the most of the modular boxes’ whole length
Guiding lights was initially developed as an academic project for a course in lighting design We had the opportunity to design and develop a Christmas window set up for Toni Pons, a traditional Spanish shoe company. We participated in a design competition held by the municipal council of Barcelona and Guiding lights was picked as the winner, meaning we would develop and build the project and display it in the Toni Pons Barcelona store for the whole month of December.
The concept aims to guide costumers and people passing by the store to discover Toni Pons shoes through the magic of light. We chose to replace the conventional shoebox with a festive open christmas box The warm and inviting glow acts as a guiding light, guiding your eyes towards the product. The burlap fabric covering the box represens the traditional espadrille sole that Toni Pons is known for.
In addition to the christmas shoebox, we created a large Christmas tree using pieces of fabric covered in plaster. A hidden LED strip creates a grazing light effect on the surface. The tree is designed to represent the textures and materials reminiscent of the Mediterranean region and culture.
This assignment was an opportunity for us to practice our creativity and to think of furniture as multifunctional pieces. We were given two actions, eating and exercising that we had to analyse in order to build a piece of furniture in cardboard that met the ergonomical needs of both actions.
While investigating the ergonomics for each action we found that the conventional workout bench is the most multifunctional work out equipment. We also discovered that sitting down is the recommended posture while eating preferrably on the floor.
By creating a stable workout bench with an incline of 15 degrees, it has a variety of areas of use. We wanted to encourage the user to get creative with the bench and not only using it as a bench press. The two smaller platforms on both sides of the bench can be used as seating areas but also for doing bodyweight exercises such as push ups, dips and step ups We added a removable piece that acts as a table, but it is also possible to turn the bench upside down in order to use it as a bench for a regular dining table.