PROYECTO FINAL - ANTEPROYECTO DISEÑO DE VIVIENDA



UBICACIÓN
UBICACIÓN
Este proyecto es una vivienda existente ubicada en el centro de Madrid, Calle del Marqués de Cubas 6.
La planta se encuentra en el ático del edificio con orientación este. El año de construcción del edificio es de aprox. 1900.
El objetivo de este proyecto es crear espacios tranquilos pero con mucha personalidad para los usuarios. El piso objeto ha sido recientemente adquirido, y será vivienda habitual del cliente.
• Matrimonio de Javier (42 años) y Lourdes (43 años), con dos hijos, niño (6 años) y niña (9 años).
• Javier es informático, especializado en seguridad. Trabaja en el Museo Thyssen de Madrid. Le encanta la lectura y el cine, y es un acumulador insaciable de libros, discos, películas y objetos curiosos de toda índole comprados en mercadillos de todo el mundo.
• Lourdes es abogada, y trabaja en su propio bufete en Madrid. Amante también de la lectura y el cine, es una obsesa del orden y la limpieza. Le cuesta mucho convivir con los objetos que Javier acumula por todos los rincones de la casa.
• Instalaciones comunes de la finca: ascensor, portero físico, trasteros, patios de instalaciones.
• Estructura de muros de carga de ladrillo y entramado de madera. Forjados de vigas de madera.
• Altura libre entre suelo terminado y forjado superior: 3.00 m
• Relleno de arena + mortero de nivelación + baldosa de terrazo; 15 cm
• Bajantes a través del patio
APORTADO POR EL CLIENTE
Espacios muy abiertos, pero identificados - no todo junto, no todo diáfano.
SALÓN
• Zona de asientos con 6 / 8 plazas
• Zona de TV y audio/video/videoconsola/multimedia
• Mesa de centro que sirva también para cenar de forma desenfadada en familia, viendo la tele.
• Zona de lectura/biblioteca/juego con los niños - área lúdica para disfrutar todos.
• Exposición de piezas recuperadas de mercadillos
COMEDOR
• Para 6 personas, cerca de la zona de cocina.
• Almacenamiento de mantelería, vajilla y cristalería en el mismo comedor.
COCINA
• Con posibilidad de abrirla o cerrarla hacia el comedor.
• Placa de 4 fuegos, inducción
• Horno + Microondas en columna
• Fregadero de 1 seno + escurridor
• Encimera de preparación en isla o península.
DORMITORIO PRINCIPAL
• Con vestidor y baño completo:
• Dispondrá de cama de 1500x2000, mesillas, cómoda, y zona de trabajo (sólo para un portátil, en un rincón)
• Vestidor con todos los accesorios (2/3 para ella, 1/3 para él). Espejos de cuerpo entero.
• Baño con ducha, sin bañera. Inodoro en cabina. No bidet.
OTROS BAÑOS Y ASEOS
• Baño de planta (niños), con inodoro, lavabo y ducha.
• Aseo en zona de día, solo inodoro y lavabo. No más de 3 m².
2 DORMITORIOS INFANTILES
• Niño: con cama nido de 1900x900 y zona de juegos, escritorio. Color verde.
• Niña: con cama normal (no nido) de 1900x900 y mucho almacenamiento. Escritorio, espejo de cuerpo entero. Colores pastel y blanco. Le gusta el malva.
CUARTO DE LAVADO
• Muy pequeño, para lavadora y secadora, cerca de la zona de noche y del baño principal. Puede contener también los productos y útiles de limpieza.
ASPECTOS DESEABLES
• ESTILO MODERNO
• CÁLIDA Y HOGAREÑA
• LÍNEAS RECTAS Y MUCHO BLANCO
• MÁS AMANTES DEL DISEÑO QUE LA DECORACIÓN
• USO DE PIEZAS EXCLUSIVAS E ICÓNICAS, CON OBJETOS RECUPERADOS Y DE MERCADILLO
• ARTE CONTEMPORÁNEO
• POSIBILIDAD USO DE MADERAS RECICLADOS
• METALES, HORMIGÓN, MICROCEMENTO Y VIDRIO
• PAPEL PINTADO Y FOTOMURALES
• EXPOSICIÓN DE TODA CLASE DE CACHIVACHES, PERO UNO A UNO
• LA TENDENCIA DE RECICLAJE
• USO DE TELAS PARA AMBIENTE HOGAREÑA Y MEJORAR ACÚSTICA
• ILUMINACIÓN INDIRECTA Y PARA PUNTOS DE INTERÉS
ASPECTOS NO DESEABLES
• ACUMULACIÓN DE OBJETOS
• USO DE PALETS
• MUEBLE COLONIAL
• ESTILO RÚSTICO + -
Comedor
Sala de estar
Salón
Cocina
Baño completo principal
Vestidor
Dormitorio principal
1/2 Baño
Dormitorio infantil 1 (niño)
Dormitorio infantil 2 (niña)
Cuarto de lavado
Baño completo secundario
Distribuidor
Dormitorio infantil 1 (niño)
Dormitorio infantil 2 (niña)
Baño completo secundario
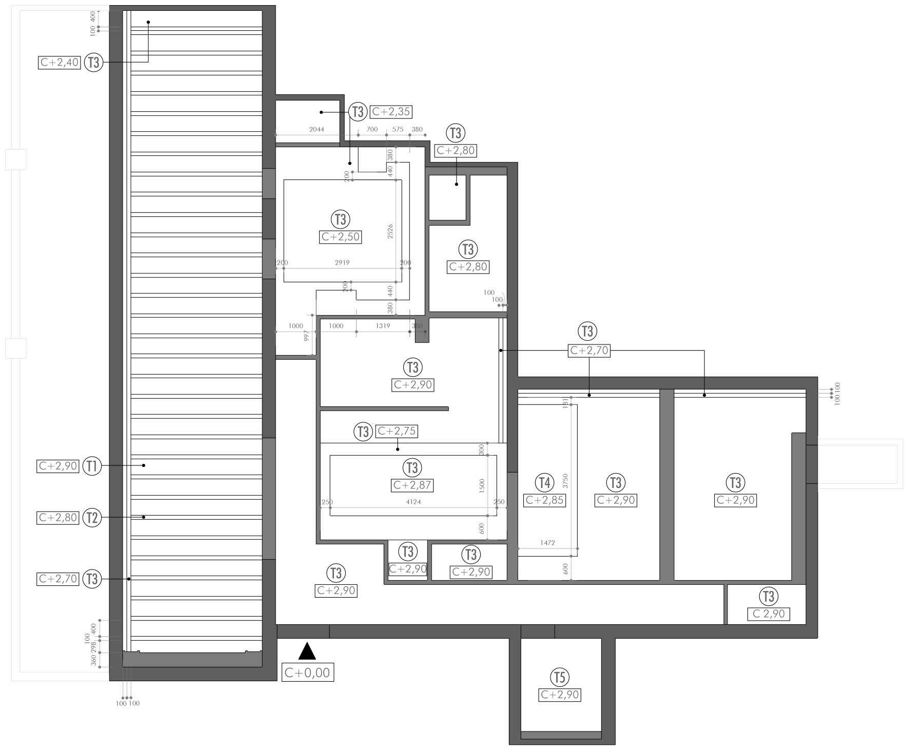
E 1:75
*Medidas en mm
S1 Suelo de madera original de roble colocado en espiga
S2 Suelo de hormigón con acabado de microcemento liso color nácar
S3 Terrazo continuo en resina epoxi gris claro grano pequeño
S4 Laminado Quick-step classic
S5 Terrazo continuo en resina epoxi multicolor grano medio
S6 Suelo de parquet Joka de madera de roble
Suelo de madera original de roble colocado en espiga
Recuperado tras un proceso de lijado tratamiento con protector nutriente de aceite de linaza puro
Acabado semi mate
Ref. BL000PM
PROA
Suelo de hormigón con acabado de microcemento liso color nácar
Sellador transparente monocomponente en base agua
Acabado mate
Ref. SikaDecor-690 Micro
Terrazo continuo en resina epoxi gris claro grano pequeño
Grosor 3 mm sobre piso existente
Resina epoxi 100% sólidos coloreada 7035
Acabado semi mate
Colocación in-situ (sin juntas)
Ref. weberfloor PX TERRAZO
Laminado Quick-step classic 1200 190 8 mm
Colocación juntas libres
Acabado color roble crudo arena semi mate
Ref. CLM5791
Terrazo continuo en resina epoxi multicolor grano medio
Grosor 3 mm sobre piso existente
Resina epoxi 100% sólidos coloreada 7035
Acabado semi mate
Colocación in-situ (sin juntas)
Ref. weberfloor PX TERRAZO
Suelo de parquet Joka de madera de roble
2200 206 13,5 mm
Colocación junta regular
Sellado con aceite natural, acabado semi mate
Ref. Joka 435 SB Kingston "E3803 Roble"
T1 Techo existente con pintura plástica interior blanca
T2 Vigas de madera existentes
T3 Falso techo de yeso laminado con pintura plástica blanca
T4 Falso techo de yeso laminado con pintura plástica beige
T5 Falso techo de yeso laminado con pintura plástica color azul-lavanda
T6 Listón de madera roble cepillado
Techo existente con pintura plástica interior blanca
3 manos de pintura
Acabado mate
Color NCS 1001-Y
Vigas de madera existentes
Recuperado tras un proceso de lijado tratamiento con tinte
blanco al agua para madera
Acabado mate
Ref. WBTBL-05
La casa de pinturas
Falso techo de yeso laminado con pintura plástica blanca
3 manos de pintura
Acabado mate
Color NCS 1001-Y
Falso techo de yeso laminado con pintura plástica beige
3 manos de pintura
Acabado semi mate
Color NCS 0804-Y10R
Falso techo de yeso laminado con pintura plástica color azul-lavanda
3 manos de pintura
Acabado semi mate
Color NCS 1030-R70B
Listón de madera roble cepillado
Color natural
Secciones cuadradas rectangulares de 25 mm de grosor
Acabado barniz transparente mate
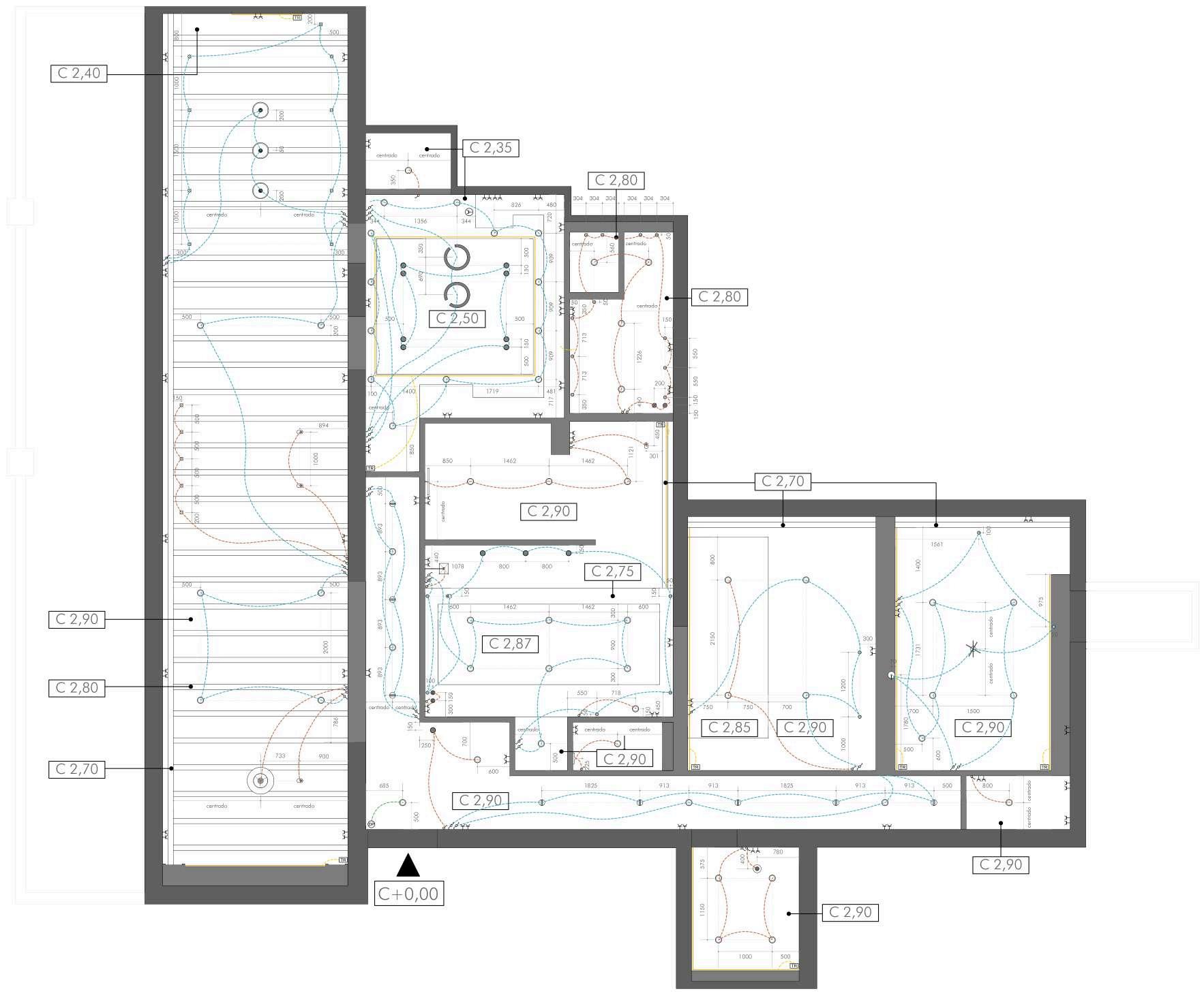
CONEXIONES LUMINARIAS
L1 Foco empotrado extrafino circular
L2 Luminaria colgante boho Candil Balché
L3 Foco LED de techo direccional moderno Falo
Enchufe encimera
L4 Foco empotrado LED Mini, basculante
L5 Luminaria colgante Mid Century
Detector de presencia
Conexión interruptor
Conexión conmutador
Conexión transformador
Conexión detector de presencia
L6 Foco cilíndrico de techo Jupiter
L7 Foco cilíndrico de techo basculante 90º
L8 Lámpara Anillo colgante Led moderna Alberte
L9 Lámpara colgante LED Varas
L10 Aplique Curtisson orientable
L11 Aplique Arum orientable
L12 Aplique circular Rang
L13 Luminaria de techo Spectra
L14 Foco tubular colgante Tura
L15 Luminaria colgante Arge 6 luces
L16 Lámpara de techo Linorayle
L17 Luminaria colgante Iconic
L18 Tiras LED monocromática
Foco LED empotrado extrafino circular Ø 120 mm
Acabado blanco
Lámpara 7 W - 540 Lm - 6000 K (Luz blanca día)
Ref. 226-1-033 _ Il.lumina 56 Uds.
Foco cilíndrico de techo basculante 90º Ø 78, alto 120 mm
Metálico, acabado negro mate
Lámpara casquillo 8 W 800 Lm cálida
Ref. 142-2193370 _ Il.lumina 19 Uds.
Luminaria colgante boho Candil Balché
Ø 500, alto 550 mm (pieza hecha a medida, 2 semanas de producción)
Yute natural
Lámpara Filamento LED Globo ámber regulable 4 W 280 Lm 2400 K (Luz cálida)
Ref. Anaho Studio 1 Uds.
Foco LED de techo direccional moderno Falo
Ø 156 mm, alto 135 mm
Aluminio acabado blanco
Lámpara 50 W - 230 V (color cálido) regulable
Ref. EAN 08718881113246 Qazqa 5 Uds.
Lámpara Anillo colgante Led moderna Alberte Ø 40, alto 120 mm
Aluminio, acabado negro mate
Luz LED 260 V color 4000 K neutra
Ref. Spingar 2 Uds.
Lámpara colgante LED Varas
Ø 30, alto 120 mm
Metal, acabado dorado oscuro cromo
Luz LED 5 W 450 Lm color 3000 K (cálido)
Ref. 8582469 _ SchullerValencia 2 Uds.
Foco empotrado LED Mini, basculante
Ø 53 mm
Aluminio acabado blanco
Lámpara 3 W - 200 Lm 5500 K (blanco cálido)
Ref. 2100-3W-30 _ EcoLuzLED 14 Uds.
Aplique Curtisson orientable
750 160 55 mm
Metal bronce envejecido
Luz LED 13 W Color 2700 K (cálido)
Ref. LN1523-BR-BC 1 Uds.
Luminaria colgante Mid Century
Ø 210, alto 110 mm
Piedra natural madera
Lámpara E27 60 W 200 Lm blanco cálido
Ref. B0CN3DW65B GGBBJJ 3 Uds.
Foco cilíndrico de techo Jupiter
Ø 98, alto 120 mm
Metálico acabado negro mate
Bombilla con casquillo E27 - 20 W - 230 V color cálida
Ref. SA1042 Polux 11 Uds.
Aplique Arum orientable
440 470 260 mm
Aluminio con recubrimiento en polvo dorado oscuro
Bombilla LED E14 12 W cálida
Ref. 1104266830 Ferm Living 1 Uds.
Luminaria colgante Arge 6 luces
750 x 750 x 400 mm
Metal dorado vidrio
Luz E14 - 40 W - 2700 K
Ref. 942FLG2509 _ Casa Árabe Uds.
Lámpara de techo Linorayle Ø 140 218 mm
Acero inoxidable acabado dorado semi mate
Placa Led 7 W 3000
Ref. 162276-362532 1 Uds.
Aplique circular Rang
Ø 300 850 mm
Acero acabado latón mate resina cuadros blancos
Led 9 W – 2700 K
Ref. A1093/50 _ Aromasdelcampo 2 Uds.
REVESTIMIENTOS VERTICALES
R1 Pintura plástica interior color hueso
R2 Pintura plástica interior color turquesa-gris
R3 Gres porcelánico imitación travertino
R4 Paneles de cartón yeso 13 mm con pintura a cal color Arena oscuro
R5 Panel rechapado roble natural listado
R6 Mosaico de mármol Eames pulido
R7 Panel rechapado roble natural mallado
R8 Pintura la cal color Gris caliza
R9 Pintura la cal color Verde orgánico
R10 Paneles de cartón yeso 13 mm con pintura plástica greige
R11 Pintura la cal color Arena oscuro
R12 Pintura la cal color Tierra
R13 Baldosa porcelánica Indiana 10 blanco
R14 Piezas de hormigón color azul oscuro
R15 Baldosa porcelánica Blu
R16 Terrazo continuo en resina epoxi gris claro grano pequeño
R17 Espuma con tapicería chenilla color crema
R18 Panel de MDF 13 mm con pintura plástica beige
R19 Fotomural animales
R20 Papel pintado vinílico verde
R21 Fotomural Bosque rosa
R22 Pintura la cal color Marfil
R23 Terrazo continuo en resina epoxi multicolor grano medio
R24 Baldosa porcelánica imitación madera roble
R25 Azulejo cerámico rectangular blanco
R26 Pintura plástica interior color azul-lavanda
R27 Revestimiento de microcemento liso color nácar
R28 Listón de madera roble cepillado
ALZADO 1 ALZADO 2
Sección de alzado
Sección de alzado
ALZADO 3
Sección
R7
Mueble estantería
3450 400 2850 mm
Travertino madera roble 1 Uds.
Mampara rectangular con patas
600 50 2900 mm (altura patas: 150 mm)
Bordes de madera roble macizo
Con ratán color natural
Patas metálicas acabado de bronce oscuro semimate 4 Uds.
Lavamanos doble
A: 1400 x 500 x 150 mm
B: 1400 500 200 mm
Encimera de terrazo gris claro
Gaveta de chapa de roble claro natural 1 Uds.
Armario de niño A: 2000 x 650 x 2850 mm
B: 2500 650 x 560 mm
Cristalería
1080 400 2850 mm
Chapa de roble claro natural 1 Uds.
Cabecero con mesas de noche con gabinete
A: 3190 x 350 x 800 mm
B: 750 250 280 mm
Cabecero de hapa de roble claro natural mallado
Mesas de noche con gaveta de madera roble con barniz 1 Uds.
Mesa de pared con gavetas
1965 450 7300 mm
Tabla de travertino
Chapa de roble claro natural 1 Uds.
Despensa
1575 1045 300 mm
Chapa de roble claro natural
Laterales de madera roble macizo 1 Uds.
Armario de 3 piezas
2340 650 x 2850 mm
Piezas 780 mm largo
Chapa de madera natural 1 Uds.
Armario de 4 piezas
3200 650 2850 mm
Piezas 780 mm largo
Chapa de madera natural 1 Uds.
Mesa de dormitorio flotante
A: 1600 450 220 mm
B: A: 1600 600 220 mm
Mueble de cocina con isla
A: 4160 2700 mm
Altura gabinete superior: 800 mm. Altura encimera: 900 mm
B: 2430 850 x900 mm
Encimera de cuarzo color beige
Gabinetes de chapa de roble claro natural
laminado con chapa vinílico greige color NCS 1505-Y10R
Manijas metálicas acabado bronce oscuro
1 Uds.
De madera roble con barniz 1 Uds. Mueble doble altura dormitorio niño
A: 600 1450 1400 mm
B: 2200 1450 (a 1400 mm de altura)
C: 1600 x 1450 (a 1750 mm de altura)
Chapa de madera natural
Chapa de madera natural con pintura color NCS S 5020-G10Y
Estructura metálica con pintura color NCS S 0804-Y10R
Cuerdas de yute color natural 1 Uds.
Mesa de cóctel rectangular contemporánea
1219 762 457 mm
Base de madera mini acabado semimate
Tablero de vidrio templado
Ref. T4527-43 Magnussen Home
1 Uds.
Aparador de madera Larsen
2000 400 x 420 mm
Madera de roble lacada en marrón oscuro
Ref. Colección Westwing Westwing 1 Uds.
Sofá modular Lennon 3 plazas
3270 1190 6800 mm (alto asiento: 430)
Tapizado de pana (92% poliéster, 8% poliamida) color beige
claro
Patas plástico negro
Ref. Colección Ala Oeste _ Westwing 1 Uds.
Sillón decorativo industrial Declan
787 883 851 mm (alto respaldar)
Base de madera pino, acabado roble con esmalte gris claro
Estructura de hierro forjado en acero, acabado negro mate
Tapizado mezcla de lino neutro tienen un borde con reborde están rellenos de plumas de ganso, color gris claro
Ref. 23475_ Uttermost 2 Uds.
Cuadro La metamorfosis 1
2000 1500 mm
Pintura acrílica sobre lienzo
Enmarcado color champán
Ref. La metamorfosis 1 _ Klinecollective 1 Uds.
Sofá rinconera Cucita 3 plazas
2620 1630 (Esquina izquierda) x 810 mm (alto asiento: 420)
Tapizado 100% poliéster beige claro
Patas metal lacado negro
Ref. Colección Ala Oeste _ Westwing 1 Uds.
Mesa de centro Nibru
Ø 800 330 mm
Concreto color crema
Patas metálicas acabado negro semimate
Ref. 104NIBE080033B0401 _ Kalif 1 Uds.
Taburete Pauline
360 x 360 x 650 mm
Estructura metálica negro
Asiento de madera roble ahumado aceitado cuero color espectro, Brandy-30155
Ref. Brdr. Krüger _ Byflou Uds.
Inodoro suspendido
Cuadro abstracto 3D
900 x 1600 mm (hecho a medida)
Yeso blanquecino sobre lienzo
Ref. Plastart Etsy 2 Uds.
Cerámica acabado blanco mate
Asiento amortiguación
Ref. PAR0001 Todobaño Uds.
Mesa de comedor danesa ovalada Clairz
2700 1000 760 mm (hecho a medida)
Madera roble, espesor de hoja 50 mm
Ref. Table du sud 1 Uds.
Silla Cesca MB_01
470 560 790 mm (alto asiento 460 mm)
Borde en haya natural
Estructura metálica
Asiento con caña Vienesa
Ref. Arte diseño _ Italiandesigncontract 6 Uds.
Cuadro 3D máscara
355 1168 mm (hecho a medida)
De madera acabado pintura PU
Ref. WM-15 _ Themaskstudio 1 Uds.
Espejo rectangular Cato
600 1600 mm
Montura: dorada
Ref. Colección Ala Oeste _ Westwing 4 Uds.
Lavamanos mínimo
400 x 220 x 110 mm
Mármol fundido blanco mate
Ref. SK48503 _ Sanigoods
- Gabinete bajo Fuente de roble Dakota
400 x 215 x 360 mm
Ref: SK48494 Uds.
Cuadro Danés abstracto
920 1200 mm
Lona de algodón con pintura en tonos beige grises
Marco de roble pintado de negro
Ref. Colección Ala Oeste _ Westwing 1 Uds.
Silla alta para niños
300 x 300 x 670 mm
Plástico color sólido 5 naranja
Ref. 5023102 _ Aliexpress 1 Uds.
Sillón Harvink
710 800 750 mm (alto asiento: 430 mm)
Madera roble macizo
Tapizado en tela Panamá Plus
Ref. El Fraai van Harvink 1 Uds.
Cama nido Sonia
1960 970 790 mm
Melamina color blanco natural claro
Ref. 716457 _ Vente-unique 1 Uds.
Cuadro Capas laterales
508 x 1270 mm
Acrílico, tinta dibujo tallado sobre paneles de madera unidos
Ref. Capas laterales _ 2015 Barbara Gihooly 1 Uds.
Escritorio Tonstad
1200 470 750 mm
Lámina de roble con barniz acrílico incoloro
Patas de madera roble maciza con barniz acrílico incoloro
Ref. 605.382.05 Ikea 1 Uds.
Escalada sueca de madera
1900 500 mm
Contrachapado ecológico con cola para madera natural
Ref. 6 en 1 para niños Goodevas 1 Uds.
Cama Canapé Kvytsoy 1900 900 x 330 mm
Tapizado con tela poliéster 100% color Bomstad blanco
Ref. 804.486.71 _ Ikea 1 Uds.
Mesita de noche doble gaveta
450 400 500 mm
Madera acabado color crema
Ref. B0BZS2SDPB _ BNNP 1 Uds.
Ottoman Olm DK
570 x 450 x 450 mm
Estructura interna de madera
Tapizado en tela poliéster color turquesa claro
Ref. De Addison _ Deviconcept 1 Uds.
Cama de madera Sato con cajones
1660 x 2060 x 370 mm De aglomerado chapado en roble Ref. Colección Ala Oeste Westwing 1 Uds.
Silla auxiliar creativa
Ø 370 406 mm
Plástico color verde oliva
Ref. WW0701 _ Qyong 1 Uds.
Escritorio Micke
1050 500 750 mm
Tablero de fibras acabado pintura acrílica blanca
Pata de acero acabado de poliéster en polvo blanco
Ref. 802.130.74 Ikea 1 Uds.
Taburete pequeño de plástico
Ø 300 300 mm
Plástico color sólido naranja
Ref. 911959271 Aliexpress 1 Uds.
Taburete redondo
Ø 400 450 mm
Estructura de madera
Con funda protectora color fucsia elástica
Ref. ZZ-SM-J2169 _ My furniture 1 Uds.
Madera de construcción de abeto cepillado 38 mm
Maceta de acero inoxidable negro mate
Gres porcelánico imitación travertino, color Trevi Ivory 6 mm
Gres porcelánico imitación travertino, color Trevi Ivory 6 mm
Lamela de chapa de roble 7 mm
MDF 19 mm con chapado de roble
Anclaje de pared a medida placas metálicas 8 mm pieza 480 150 100 mm
Grifo para lavabo bronce oscuro 160 mm alto
Ref: Atranti _ OstiumHome
Encimera de terrazzo gris claro
Superior inferior MDF 19 mm con chapado de roble
Tornillos estructurales
Posterior madera de construcción de abeto cepillado 19 mm
Panel en melamina 19 mm laca blanca
Contrachapado curvado chapa cruzada 7 mm
Guías de gaveta Tip-on Tandembox Antaro (o similar)
MDF 19 mm con chapado de roble
Encimera de lamela de chapa de roble mm
Madera de construcción de abeto cepillado 38 mm
Gancho soporte de montaje enrasado de acero inoxidable
Laterales de lamela de chapa de roble mm
Contrachapado curvado chapa cruzada 7 mm
Encimera, laterales frontales de cajones en MDF 19 mm con chapado de roble
Panel en melamina laca blanca
Guias de gaveta Tandembox Antaro (o similar)
Huellas de escalera MDF 18 mm con chapado de roble
Laterales base MDF 22 mm con chapado de roble
Frontales de gavetas MDF 19 mm lacado color NCS 5020-G10Y
Guías de gaveta Tip-on Tandembox Antaro (o similar)
Zócalo de MDF 22 mm chapado en roble, cuñas de aglomerado
Estructura metálica soldada lacado color NCS S 0804-Y10R
Tubos metálicos cuadrados
50 50 mm, grosor 1,5 mm
Tubos metálicos cuadrados
20 20 mm, grosor 1,5 mm
Cuerdas de yute color natural
Laterales de placa metálica grosor 8 mm
Tapa inferior cartón yeso grosor 13 mm con pintura plástica color NCS 0804-Y10R
Moqueta verde pastel
Base de plataformas MDF 22 mm con chapado de roble
Laterales frontales MDF 19 mm con chapado de roble
Posterior de armario chapa de roble pintado en blanco
Laterales horizontales MDF 19 mm con chapado de roble canteado frontal lacado en pintura plástica
NCS S 0804-Y10R
Laterales tapa superior MDF 19 mm lacado en pintura plástica
NCS S 0804-Y10R
Horizontales de MDF 19 mm con lacado en pintura blanca
Barra para colgar de acero inoxidable Ø 25 mm
Bisagras invisibles para armarios Standers
Base armario de MDF 22 mm con lacado en pintura blanca
Puertas de melamina 19 mm lacado en color
NCS S 0804-Y10R
Manijas de MDF 22 mm con lacado en pintura
NCS S 2020-R10B
Zócalo de MDF 22 mm lacado en color 0804-Y10R
cuñas de aglomerado