ALBERTO HERNANDEZ
Architecture and Design Portfolio


TECHNICAL SKILLS
• AutoCAD
• ArchiCAD
• Corel Draw
• Revit
• 3DMax
• Lightroom
SOFT SKILLS
• Customer Service
• Photoshop
• InDesign
• Illustrator
• SketchUp
• Power Point
• Twinmotion
• Flexibility/Adaptability
• Team Player
• Problem-Solving Skills
• Positive Attitude
• Strong Work Ethic
• Ability to learn new procedures quickly and efficiently
PERSONAL INTERESTS
• Graphic Design
• Art
• Photography
• Handicrafts
• Folk Dance
• Typography
• Multiculturalism
• World Music
• Voluntarism
• Children Education
PERSONAL INFORMATION
betoher@live.com
M:613.715.1769
H:613.736.7076
linkedin.com/in/albertoid @albertoidesign www.albertoidesign.com
EDUCATION
• Bachelor of Architecture
Autonomous University of San Luis Potosi, Mexico. 2005
• Bachelor of Interior Design (Honours)
Algonquin College, Ottawa, ON. 2017
EDUCATION
• Ontario Building Code
• BIM (Revit)
• Materials and Methods
Ryerson University, Toronto, ON. 2017
• IPLAN: Immigrant Professionals Leveraging New Opportunities in Architecture (Post-graduate training program funded by the governments of Canada and Ontario to assist internationally educated architects to integrate into the architectural workplace in Canada.)
JVS Toronto/Ryerson University, Toronto, ON. 2017
• Photography - Advanced Photography
School of Photographic Arts. Ottawa, ON. 2015
• Graphics Arts
Art Centre of San Luis Potosi, Mexico. 2011
“Passion
is one great force that unleashes creativity, because if you are passionate about something, then you are more willing to take risks”.
Yo-Yo Ma
1. VISITOR CENTRE PROTOTYPE FOR TOURISTIC AREAS IN CANADA. ALGONQUIN COLLEGE
2. JORGENSON HALL BUILDING. COMPREHENSIVE AND INTEGRATED BUILDING ANALYSIS. RYERSON UNIVERSITY
“Give me hope, I will build you a world”.
This research project discusses a framework for identifying, evaluating, promoting, and supporting cultural and heritage tourism opportunities in Canada by giving the basis to design a Visitor Centre prototype.
The Visitor Centre maximises the opportunity for the main touristic landmarks in a specific place to add touristic value, to support local economies, and to raise awareness for historic places, as well as welcoming, orientating and giving a full range of new touristic experiences throughout the year.
This project examines how Visitor Centres, in medium to small cultural landscapes can improve tourism, enhance local economy, and help communities to be proud of their local history. The visitor centre proves that by having an excellent infrastructure, being culturally sensitive, and landscape friendly, can improve the sustainability of the industry, and can give meaningful experiences to travellers and visitors.
Utilizing a simple barn silhouette the building presents a clear and recognizable marker at the scale of the Canadian landscape. The simplicity of the barn form will give identity to the places where the visitor centre would be located. Built with wood as a main material, this project intents to play with the plasticity of timber, evocating the rural vernacular architecture.
The research focussed on the following main topics.
1.Sustainability
2.Cultural and Heritage Awareness
3. Adaptability
4.Environmental Psychology
5.Marketing
6.Generational Issues
Passive Solar techniques is using sunlight both to heat the interior of a building and to encourage airflow through the structure.
Since this prototype is planed to be set in different zones in Canada, the best solutions was to locate the building following the Sun path in accord of any geographical area in Canada. In that case, the prototype will have the same sustainable advantage.
North of Canada Location
Canadian Prairies Location
This project report is a final research for the I-PLAN program offered by JVS and Ryerson University. The group was divided in teams to collaborate on a comprehensive and integrated architectural analysis of an existing building from the campus, bringing together three architectural courses at Ryerson: Building Code and Regulations, Material and Methods, and Building Information modeling (REVIT). Our team was assigned the Jorgenson Building for architectural analysis. The group was composed of four members and we submitted a written report and oral presentation based on our previous knowledge and skills learned in the three courses.
Building: Jorgenson Hall Building
Name: Fred Jorgenson was the second president of Ryerson University
Address: 380 Victoria Street, between Gerrard Street East and O’Keefe Line. Toronto.
Year: 1971
Designer: WZMH Architects
Type: Mid-Rise
Designation: Offices for educational services
Floors Above-Ground: 13
Total levels: 14
Architectural Style: Brutalist Area: 1100 sq. m.
After the team agreed on the roles each member took, my role in the team was the project manager to oversee the research and the project development. In addition to creating work schedules, I ensured that the project complied with regulations, which includes reviewing the project design as necessary to achieve the team satisfaction. Moreover, I coordinated the development of the final document and the project presentation.
We aimed to demonstrate the basic building components, the building internal partitions and finishes, the building envelope, and structural and mechanical systems. As well as to evaluate the performance of internal finishes and building envelope.
In addition, we proposed an upgrade to the building envelope towards having an energy efficient building.
• A rough and dark environment.
• Interior finishes created psychological effects not good for a working/learning environment.
• No air circulation.
• No natural light in circulations and artificial light is not enough.
• No AR value in windows.
• Walls are not insulated.
• The balconies did not justify maintenance costs.
• Greenhouse effect that increases the temperature in the bridge.
We provided a general understanding of the Ontario Building Code applied to the Jorgenson Hall Building. In addition, we analyzed how the Ontario Building Code was applied and influenced the building design on spatial planning, construction materials, operational issues, as well as the building response to important aspects such as fire safety, safety in floor areas, exits and accessibility. In our conclusions we identified and proposed the necessary upgrades to improve the building performance and habitability.
To work in collaboration to visualize the building in 2D and 3D model, to extract information to apply it in our research on Building envelope and Ontario Building Code analysis.
1. Insert of Auto CAD drawings
2. Create a new REVIT file
3. Create work sets
4. Phasing of work
5. Create work sets
6. Create building levels
7. Discussion of scoop of work
8. Trace floor plans and internal partitions
9. Share the REVIT Model for collaboration
10. Team work put all the parts together
11. Incorporate Material and Methods
12. Review Building Code analysis in the REVIT model
13. Harmonize team input and final review
The most important part to achieve on the Revit project was to communicate effectively to avoid conflicts while working on the model. This integrated way of collaboration is time saving for the team members involved with this highly collaborative software.
Jorgenson Hall was a perfect product to show the qualities of the Brutalist movement. In the Jorgenson Hall building many of the brutalist innovations did not work in practice.
The challenge was to carry all these issues, take them as challenges, and propose practical modifications to maximize energy and the spaces functions. Taking in consideration OBC and Materials and methods and aided by Revit.
In this section we proposed to upgrading the building envelope and systems towards having an efficient building with less energy consuming and a better indoor environment quality, which has a direct relation with work efficiency.
1. Replace the existing single glass with a high performance double glass units.
2. Change the façade system of strip windows zone between level 3 & roof to a double skin ventilated façade system by adding curtain wall system parallel to strip windows with 60 cm, a clear distance between the double skin. Both existing and proposed façade will work as a ventilated double skin façade system, the items often associated with double-skin facadesenergy performance and thermal comfort -. The outer skin consists of a double glass as specified above. In the cold climate, the cavity space acts as a buffer zone that is warmer than the exterior, thus reducing the rate of heat transfer at the exterior skin. The main benefit of double-skin facades is their ability to use the solar heat gain. The air located between the two skins inside the air cavity
3. Change roof systems at level 2, 3, 4, 13 & 14 to a green roof extensive system to have a better insulation and rain water management. This system is light weight, and requires six inches or less in height to grow and support small to medium native vegetation.
4. Install roof photo-voltaic solar panels to generate green power energy.
The combination of the three courses brought our architectural knowledge and skills to new levels to compete with any designer in the Canadian professional environment.
“Architecture
is about well-being. People want to feel good in a space … On the one hand it's about shelter, but it's also about pleasure”.
Project Function: Sports equipment (2007)
Member of a multidisciplinary team that facilitated the design and construction process of these sports facilities project. The goal was to revitalize an urban area by redeveloping an abandoned soccer stadium, transforming this into a high performances athletic centre in San Luis Potosi.
Project start-up included preliminary master plan competition, the interiors finishes and the field track among other areas.
Key responsibilities included working drawings, design of the work-out areas and final project presentation.
Location: Historic district of San Luis Potosí city, Mexico
Status: Built
Due to the cultural heritage designation by the UNESCO and the National institute of Anthropology and History in Mexico, the historic center of San Luis Potosí is protected with many regulatory guidelines which had to be met in order to carry out the full project.
The concept of the house is the vernacular Mexican house that emphasizes the use of a central patio to adapt the house to environmental climatic factors.
The main owner requirements were: a patio, a storage area, gardening area, an art studio and a guest room. The regulation rules require the respect of the historic context of the neighbourhood, however, on a second level of the house, it is permitted to have a second façade without boundaries to the street. The design of a pergola over the roof creates a peaceful area where the owner can rest and take care of his plants.
As the architectural designer, I was responsible for facilitating design, presenting concept, corresponding with the clients, executing construction documents to satisfy the National Institute regulations.
RED CROSS DESIGN COMPETITION
Location
San Luis Potosi, Mexico
Status
Design Competition Finalist
The Mexican Red Cross is a humanitarian organization that provides emergency assistance, disaster relief, public education and technical training, as well as providing human health services.
The design competition was to propose a provincial base of operations and facilities to train technicians in different skills needed in national emergencies, public health and safety and disasters. In addition, the base of operations needed a space to run the red national ambulance service.
Key Concepts
• Exterior areas strongly connected with the public space.
• Build elements protect exterior activities from natural environment, public view, etc.
Two-Way Concrete Slabs Details in Administration and Concrete Pergolas in Entry Area
Two-Way Concrete Slabs Details and Finishes in Clasrooms
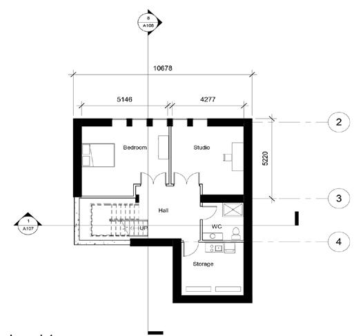
The intent of this project was to design a small live/work house for a creative client in a hill.
Requirements Program: Roughly 60sqm (650sqft) of floor area (footprint) with a total of two stories with the minimum inclusion of:
• Entrance
• Living Area
• Bedroom with Storage
• Washroom
• Kitchen
• Storage Area
• Driveway
• Landscaped Area
• Work Studio
1. MEN’S CLOTHING STORE. RETAIL DESIGN
2. RESPITE RETREAT CENTRE FOR PEOPLE WITH SENILE DEMENTIA IN GATINEAU, QC. HEALTH CARE DESIGN
3. SCHOOL OF ART AND DESIGN. PROPOSAL TO RE-PURPOSING THE HORTICULTURE BUILDING IN LANSDOWNE PARK , OTTAWA. ON. ADAPTIVE REUSE OF HISTORICAL BUILDINGS
“Design is not making beauty, beauty emerges from selection, affinities, integration, and love”. Louis
Project Function: Commercial Design
The store will be for the London-based designer Paul Smith. The brand is known for putting a twist on classic schoolboy and girl looks, in the form of bright stripes, loud prints, contrasting colours, and extra-sharp tailoring.
The interiors of the store aims to surprise the customer when they enter the store, and complement the playfulness of the designer creations, giving to the clients an adventurous place, where the shopping experience is entertaining and relaxed.
The extensive use of translucent panels encompasses the clothes, enhancing their vibrant colours and textures, contrasting with dark wood of the floors and natural wood colours of some fixtures. The use of fabrics are very important for Paul Smith’s brand. Therefore, the textiles play an key role in the design of the store.
The recognizable coloured stripes logo is re-interpreted in the spaces, using light and vibrant colours to divide the different areas in the store.
Project Function: Health Care. Universal Design, Ontario Building Code.
The purpose of the respite care centre is to provide residential care for adults with various categories of disability living in the Ottawa-Gatineau urban area. The respite centre is located in the Jacques-Cartier Park in Hull with the best views to the Ottawa River.
Respite care is offered on a short term basis with many visitors returning regularly for short respite stays. Experienced and dedicated staff are available 24 hours a day to offer whatever support visitors require.
Key themes
• Views and access to landscape and green areas as a means of therapy, encouraging the clients to collaborate in vegetable, flower and aromatic herbs areas.
• ADA compliant spaces
• Compliant with OBC regulations for universal design
• Design of rooms as home
• Domestic and familiar spaces not institutional
• Colour, natural and artificial light coming trough the clerestory or perforated walls, and tactile doors as a means of way finding
• Use of green walls to create inside natural ecosystems
• Design to keep residents active and interested
• Encouraged to “meet the neighbour” for mutual support
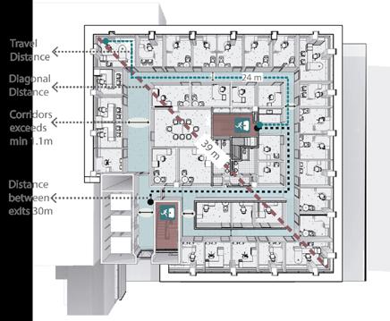
Project Function: Adaptive reuse of historical buildings.
This project is in the newly developed Lansdowne Park place on Bank St. The design attempts to optimize the interaction between commercial, sports, exhibition, recreation, and cultural spaces in the Horticulture Building by taking advantage of the rough structure.
The design project will offer workshops for people involved in graphic and performance arts. The school contains two big multi-use spaces for performing arts, classroom, exhibitions, and other events. In addition, it contains classrooms with computers and the necessary tools to learn photography, digital arts, drawing, etc., and a lounge area on the two levels.
One feature of the project is the flexibility of the spaces. The qualities of the furniture and movable walls are designed to gain multi flexible areas to serve for different activities. The resiliency gained from repeating the furniture pieces and changing the arrangement of the movable walls, adds an aesthetic value and functional efficiency of the space.
1. Main Entry
Final Products Store
Cafeteria
Atrium 5. Washroom M
Washroom W
Classroom
8. Classroom
9. Classroom
10. Principal’s Office
11. Administration Office
12. Machines Room
13. Universal Washroom
14. Universal Washroom
15. Secondary Entrance
16. Registrar Office
17. Students Storage
18. Multi-use Storage Area
19. Multi-use Area
20. Movable Panels
21. Movable Panels
22. Universal Washroom W
23. Universal Washroom M
24. Info Kiosk
1. Photography Lab
Computer Lab
Students Lounge
Universal Washroom W
Universal Washroom M
Work Area
Work Area
Work Area
Auditorium
Teacher’s Lounge/Meeting 11. Universal Washroom Teachers
Universal Washroom General
Teacher Cubicle
Teacher Cubicle
Teacher Cubicle
1. VISUAL IDENTITY FOR THE BACHELOR OF INTERIOR DESIGN GRAD SHOW 2017. MARKETING, WEBSITE, PHOTOGRAPHY AND GRAPHICS
2. SKETCHING. ARCHITECTURAL VISUALIZATION
3. ART. DANCE AND PROPS
4. PHOTOGRAPHY. SKINS
At the end of the school program, the students have to organize themselves to promote their graduation show to exhibit their thesis project.
Key responsibilities included the coordination of two teams, graphics and photography, to originatewith an idea that identifies the student best.
The first idea was to represent ourselves as individuals with different qualities, beliefs, personalities, looks and expressions that distinguish or identify a person from another one (the creative side). However, despite our differences, the group is a new entity to support each other and grow upon the design practice. (The analytical side).
The photos were taken to showcase the different identities that each student has as individual and as a part of the group. The logotype was set in a three dimensional cube to represent the nature of the design profession. The design included the fifty-two number in perfect mirrored symmetry portraying the two different designer identities in perfect harmony. An alternative logo was utilized for other media such as printed sweaters and t-shirts.
For the promotional campaign, we designed a letterpress-printed invitation, print and digital advertisements, social media share graphics, buttons, and postcards. We also designed marquee wall vinyl graphics, print catalogue, wayfinding posters, and the website.
“It was the drawing that led me to architecture, the search for light and astonishing forms.” Oscar Niemeyer
The Aztlán Ballet of Ottawa-Gatineau promotes the Mexican culture in Canada. As a dancer and part of the creative team, I have contributed in designing scenarios and props, using a variety of materials and techniques such as paper, cardboard, acrylic on wood, etc. for the ballet performances.
“The body knows and remembers. Architectural meaning derives from archaic responses and reactions remembered by the body and the senses.” Juhani Pallasmaa, The Eyes of the Skin: Architecture and the Senses.