Tropical Contemporary House 90m2 - Mitra 10 Competition 2019

Page 1

R U M A H S E - R I N G (Sejuk Kering Serong Miring) KELAPA GADING

Kata si Tropis: “Kamu beruntung punya aku, kamu tak perlu penghangat karana ada matahari selalu menyinari, dan kamu beruntung juga karena tak perlu pendingin karena ada sang hujan.”

Kata si Kontemporer: “kamu beruntung punya aku, karena tak perlu khawatir aku hilang, warna bilang aku tak lekang oleh waktu, dan kamu beruntung juga karena material bilang aku begitu sederhana dan serba bisa.”

ALAMAT SITE : “Kelapa Gading Jakarta” “Jl. Raya Kelapa Hybrida, No.2, RT.3/RW.12, Kelapa Gading, Jakarta Utara, DKI Jakarta 14240” SITE Timur: Belokan Jalan masuk perumahan. Barat: Tetangga dengan rumah toko Utara: Jalan raya, dan sungai perumahan Selatan: Bagian Belakang Rumah 2 Lantai DATA PERGERAKAN ANGIN DATA PERGERAKAN LINTASAN MATAHARI KONDISI TAPAK / SITE 7.5 m x 12 m = 90m2 DATA SITE & AKLIMATISASI
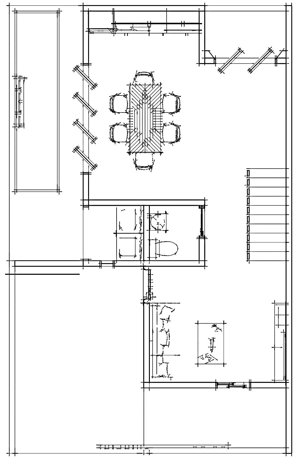
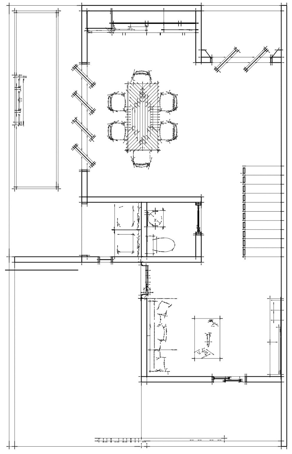
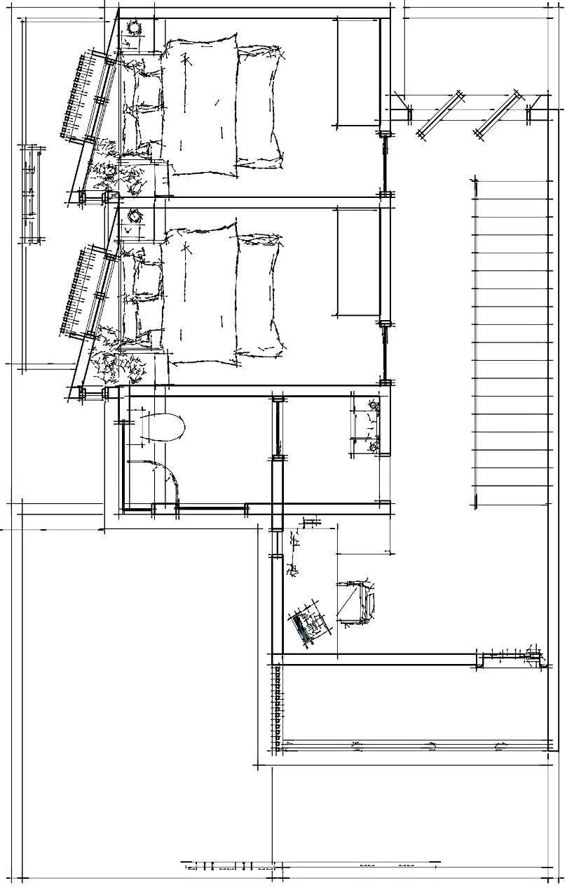
SEMI PRIVAT PRIVAT SERVIS PUBLIK ZONASI AREA LANTAI 1 ZONASI AREA LANTAI 2 ZONASI DALAM TINGGI LANTAI ZONASI AREA LANTAI 1 TAMU MAKAN TOILET, CUCI DAPUR ZONASI AREA LANTAI 2 TOILET / K.M SERBAGUNA, RUANG KERJA KAMAR KONSEP: GUBAHAN MASSA DAN ZONASI
RESPON ANGIN LANTAI 1 RESPON ANGIN LANTAI 2 RESPON MATAHARI LANTAI 1 RESPON MATAHARI LANTAI 2 KONSEP: STRATEGI PENCAHAYAAN DAN PENGHAWAAN RESPON IKLIM – VIEW KIRI RESPON IKLIM VIEW KANAN
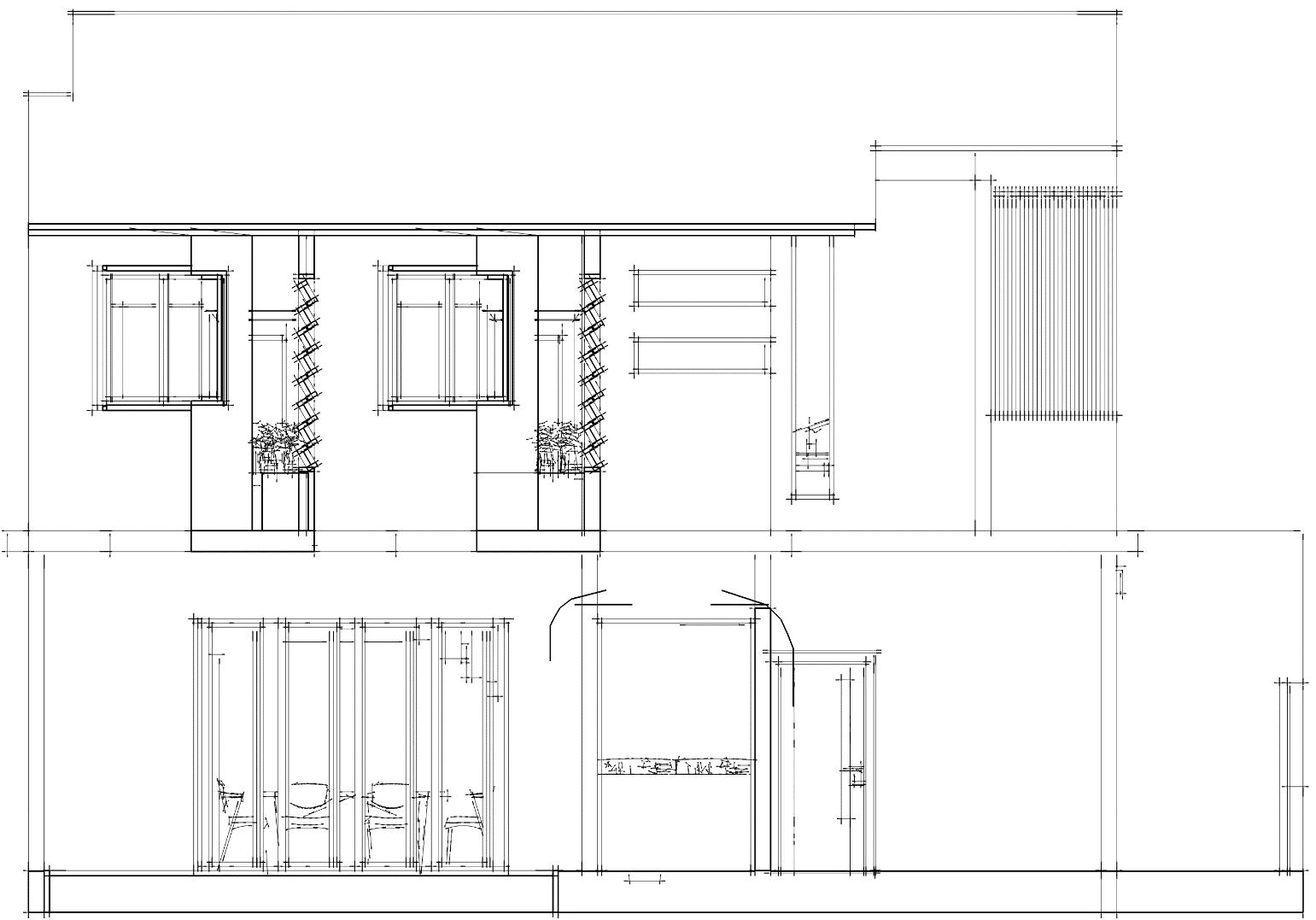
Genteng Tanah Liat / Keramik Papan Fiber Semen / Woodplank Gypsum Board Dinding Acian Putih / Cat Putih Kisi Kisi Kayu Pintu Panel Kayu + Kaca Railing Besi + Cat Pelapis Concrete Wood Floor Concrete Floor Tangga Baja & Concrete Wood Dinding Acian Plester Beton Jendela Alumunium Black Batu Kerikil Sekitar Kolam Paving Block Carport Rooster Bata Batu Alam + Pelapis Pagar Besi Hollow + Pelapis Railing Kaca T A M P A K D E P A N T A M P A K B E L A K A N G T A M P A K K I R I T A M P A K K A N A N L A N T A I 1 L A N T A I 2 PROGRAM RUANG: 1. R. TAMU = 7.155 m2 2. TOILET LT. 1 = 2.475 m2 3. CUCI JEMUR = 6 m2 4. R. MAKAN = 12.10 m2 5. DAPUR = 4.48 m2 6. KAMAR 1 & 2 = 8.5 m2 + 8.5 m2 7. TOILET LT. 2 = 5.9 m2 8. R. KERJA = 8 m2 9. AREA TANGGA = 12.95 m2 10. R. TERBUKA = 42.30 m2

TROPIS:

RUMAH MENGHADAP UTARA, HALAMAN SISI KIRI RUMAH MENGHADAP

TIMUR DENGAN BUKAAN YANG BESAR PADA BAGIAN BAWAH LANTAI 1,

SEDANGKAN PADA BAGIAN LANTAI 2 BUKAAN DIBERI KISI – KISI UNTUK

MEMFILTER INTESITAS PANAS CAHAYA YANG MASUK KEDALAM RUANG.

RUMAH SE-RING MEMILIKI RUANG TERBUKA HIJAU DIBAGIAN BARAT

SELATAN, SEHINGGA MEMUNGKINKAN CAHAYA DAN UDARA TETAP MASUK

KEDALAM RUANGAN. DAN BAGIAN DEPAN ADALAH RUANG TERBUKA HIJAU

EKSTERIOR KONTEMPORER: PEGGUNAAN MATERIAL YANG DITERAPKAN RUMAH SE RING, CUKUP SEDERHANA, YAITU PADA BAGIAN BAWAH DINDING MASIF DENGAN BETON EKSPOS TUJUANNYA ADALAH SELAIN YANG SIFATNYA TIMELESS. JUGA UNTUK MEREDAM PANAS LEBIH MAKSIMAL. DAN CEPAT KERING JIKA TERJADI HUJAN JUGA. PADA BAGIAN ATAS, WARNA PUTIH DIMAKSUDKAN DENGAN TUJUAN AGAR PANAS MEMANTUL & HANYA CAHAYA SAJA YANG MASUK KE RUANG.

LUAR

AREA

KONTEMPORER:

RUANG KONTEMPORER YANG DIDESAIN MERUPAKAN PADU PADAN WARNA

KALEM / NETRAL, SEHINGGA KONTEMPORER SECARA DESAIN MEMILIKI

GAYA YANG TIMELESS. DALAM HAL FUNGSI, RUANGAN BERGAYA

KONTEMPORER PADA DESAIN INI DIUPAYAKAN LEGA TANPA BANYAK PARTISI,

RUANG PADA TOILET DIBUAT SATU SHAF, DAN PADA RUANG MAKAN PUN

BISA MULTIFUNGSI DAPAT DIGUNAKAN SEBAGAI RUANG YOGA, BACA, DLL.

INTERIOR TROPIS: KEUNGGULAN RUANG DISINI ADALAH INTERAKSI DENGAN BEBERAPA RUANG
YANG MAKSIMAL, TERUTAMA INTERAKSI RUANG MAKAN, DENGAN
KOLAM IKAN, DILANTAI ATAS PUN DIMAKSIMALKAN BUKAAN PADA SISI BARAT SELATAN SEHINGGA UDARA MASUK DARI ATAS PUN BISA BERHEMBUS KEBAWAH RUANG MELALUI RUANG TANGGA. RUANG DIRUMAH SE RING DIUPAYAKAN MAKSIMAL PENCAHAYAAN DAN PENGHAWAAN ALAMI.

POTONGANB-B

POTONGANAA

NAIK CARPORT -0.05 TAMANHIJAU -0.10 RUANG TAMU TOILET -0.05 RUANG MAKAN -0.03 DAPUR-0.03 JEMUR -0.05 CUCI -0.03 KOLAM IKAN TAMANHIJAU -0.10 DENAHLANTAI1 A A B B TURUN TOILET +3.20 KAMARTIDUR1 +3.24 KAMARTIDUR2 +3.24 RUANG BELAJARKERJA +3.24 BALKON +3.20 DENAHLANTAI2 A A B B TAMPAKDEPAN TAMPAKBELAKANGTAMPAKKANAN TAMPAKKIRI RUANGTAMU TAMAN HIJAU -0.10 TAMAN HIJAU -0.10 BALKON +3.20 AREA KERJA +3.24 CEILING +2.90 CEILING +5.97 -2.37 +8.41 +7.59 +6.28 +6.03 +3.25 +3.21 +2.960 -1.40 -0.40 -0.10 +1.69
CEILING +5.97 CEILING +2.90 AREA KERJA +3.24 TOILET +3.20 AREA JEMUR -0.05 AREA CUCI -0.03 TOILET -0.05 RUANG TAMU -2.37 +8.41 +7.59 +6.28 +6.03 +3.25 +3.21 +2.960 -1.40 -0.40 -0.10 +1.69
TROPICALCONTEMPORARYHOUSE90m2 DENAH,TAMPAK,POTONGAN KADELI kadeli122@gmail.comEMAIL 087782521771NOMAHASISWA

LAYOUTTANGGA

DETAILDINDINGSERONGMIRING

DETAILTANGGA1

DETAILTANGGA2

DETAILTANGGA3

TURUNNAIK
POTONGANTANGGA SKALA1:40 SKALA1:40
SKALA1:20 SKALA1:20 SKALA1:20
SKALA1:30 TROPICALCONTEMPORARYHOUSE90m2 DETAIL KADELI kadeli122@gmail.comEMAIL 087782521771NOMAHASISWA

Turn static files into dynamic content formats.

Create a flipbook
Issuu converts static files into: digital portfolios, online yearbooks, online catalogs, digital photo albums and more. Sign up and create your flipbook.