Architecture & Interior Portfolio
Hello!

17 Juni 1999
Villa Nusa Indah 2 S6.21 Bekasi
I am an Interior Architect who likes to explore spaces’ possibilities with a twist of fun to create a design with personality.
2017 - 2020
Universitas Indonesia
Interior Architecture
2015 - 2017 SMAN 5 Bekasi High School
2013 - 2015 SMPIT Al-Fajar Junior High School
2021 - Now
FFFAAARRR
Junior Architect
2020 - 2021 Seniman Ruang Architect Intern
2019 PT. Dewata Joso Property Architect Intern
2019 - 2020
AFAIR UI 2020
Vice Head of Documentation Team
2020 Architectural Design Week Competition Participant
2019 Critical Context 2019 JKT 02 - Collaborator 085775179004 kanzariza@gmail.com @kanzariza issuu.com/kanzariza
Senopati, Jakarta
Year 2022
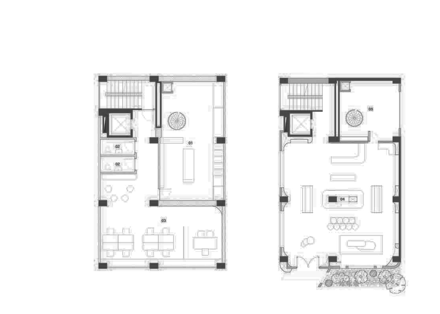
FFFAAARRR Project Team Azalia MaritzaScarlett’s Cafe is a cake and pastry shop with a rustic yet homey concept. Their previous store’s problem was lack of space, yet the existing space on the Senopati itself is limited. The main task here is to maximize the seating and create the warm and photogenic space.
Taking inspirations from cafes in Korea, where they keep the old building’s material and add their own branding touch. The keyword here is random yet ordered. This can be seen by the material placement on the wall and on the floor. Each column grid have a different materials, limitting it to 5 materials.
To maximize the seating, the furniture is located near the perimeter, giving the main hall enough space for people to come and go.
Rooftop Plan1. Enterance
2. Indoor seating
Bar
Rooftop seating
Kitschy as a brand brings their own uniqueness. They want to pour their quirkiness on their of fice studio. Lead by a couple young enterpre neur, they visioned a kitsch space, with their signature green colour as the main palette.
The existing space is a empty rectangular room with visible column. The owner want to keep the wooden floor, but everyhting else can be modi fied. Starting from the idea that they can do ins tagram live in every corner of the room, we add a twist of angles in it.
The column act as the main point that con nects and create the angles. Those angles and corner create space for the owner to shoot products, do live video, and other so cial media stuff.
01. Interior view (left)
02. Details (right)
Year 2021
FFFAAARRR Project Team Andro Kaliandicompact; growing; open
Ernest and mega is a young married couple who wants to build their house gradually, starting from zero. This growing house accomodate 2 people with the ability to extend to another new mass of building that can fit up to 4 people. In this first stage of the build they want to focus to build a cozy, bright house with an open plan.
The idea is to maximize the opening while giving the family a privacy. The slanted landscape on the front give the sense of privacy, while the big opening let the lights come in.
The massing start by adding the wall as a divider between private and non private space. Adding slanted ladscape as a divider between the neighbour and the family.
1. Living, dining, kitchen
2. Bathroom
3. Service area
4. Bedroom
Sentul, Bogor
Year 2021
Design Proposal Team Mohammad Irvansyahhidden; leveling; bold
From biking to staycation, Sentul has become one of the weekend destination. Looking at the opportunity on that, the owner wants to create a restaurant/cafe that can accomodate bikers and family.
Playing with the contour, we create some axis to divide upper and lower level. Diagonal axis is created as a site response. Those axis captured the vista surround the site.
The initial moodboard concrete ; wood ; stone ; andesite
1 2 3 4
Site Plan
1. Upper seating
2. Lower seating
3. Toilet
4. BOH
SCBD, Jakarta Selatan
Year 2019
effective; one-stop; contrast
Zero is a bulk store, restaurant, retail, and office located in SCBD, Jakarta. Zero comes from a response to people wasting habit, This 6-story building provides one stop shopping solution with no waste concept.
The all white building contrasted the surround ings which makes the building stand out. The arc windows become the signature of the build ing, The big openings let the light comes in, re ducing the needs of extensive lights on the day.
Interior Architect Design Studio 5 Supervisor Coriesta Subadinah1. Basement : Office
2. First Floor : Bulk store
3. Second Floor : Bulk store
4. Third Floor : Restaurant
Fourth Floor : Retail store
Sixth Floor : Retail Store