Betoni 2 2024

Page 1

2
2024

Kuormaa kantava lämpökatko ulokeparvekkeille

• Ehkäisee tehokkaasti kylmäsiltoja ja lämpöhäviöitä

• Palosuojaus REI120 saakka

• Jopa 21 dB:n melunvaimennus

• Monipuolinen mallivalikoima

• Yli 5000 toimitettua projektia

EBEA®

Betoni 94. vuosikerta – volume

Ilmestyy 4 kertaa vuodessa

Tilaushinta 56 euroa (+ alv 10%)

Irtonumero 15 euroa (+ alv 10%)

Painos 14 000 kpl

ISSN-L 1235-2136

ISSN 1235-2136 (painettu)

ISSN 2323-1262 (verkkojulkaisu)

Aikakausmedia ry:n jäsen

Toimitus – Editorial Staff

Päätoimittaja – Editor in chief

Maritta Koivisto, arkkitehti SAFA

Taitto – Layout

Cleo Bade

Maritta Koivisto

Käännökset – Translations

Tiina Hiljanen

Osa käännöksistä yliopistojen ja erikoistutkijoiden kautta

Tilaukset, osoitteenmuutokset: betoni@betoni.com

BY-, BLY-, RIA-, RIL-, RKL-, SAFA-, VYRA-, Ornamo, MARK-, MAS-, -jäsenet omiin järjestöihinsä

Julkaisija ja kustantaja – Publisher

Betoniteollisuus ry –

Association of Concrete Industry in Finland

PL 381, Eteläranta 10, 10 krs. 00130 Helsinki, Finland tel. +358 (0)9 12 991 www.betoni.com

Toimitusneuvosto – Editorial board

RI Petri Kähkönen

DI Ari Mantila

TkT Jussi Mattila

EMBA Kirsi Mettälä

TkT, arkkitehti SAFA Hannu Tikka

DI Juha Valjus

DI Mirva Vuori

DI Pekka Vuorinen

Ilmoitukset – Advertising Manager

Nina Loisalo tel. +358 50 368 9072 nina.loisalo@rakennusteollisuus.fi Ilmoitukset: betoni@betoni.com

Kirjapaino – Printers Punamusta, Joensuu

Kansi – Cover

Asunto Oy Panorama. Espoo. Kuva: Lifehood Homes Oy. 2023.

Dakota Lavento

Tarja Nurmi

Tapio Vehmas

Paikallavalutekniikka ohjasi suunnittelua espoolaisessa pilottikohteessa Ajatonta asuntoarkkitehtuuria paikallavalamalla Timeless cast-in-place

Näyttävä toiminta- ja oppimiskeskus Berliinin Neuköllnissä – Spore

Spore initiative – a multifunctional building & cultural center in Berlin Neukölln

Carbonaide-teknologia kaupallistumisvaiheessa

Nopeaa skaalautumista selittää betoniteollisuuden hyvä ekosysteemi

– Tavoitteena puolittaa betonin hiilidioksidipäästöt

– Halving

Auli Lastunen & Torbjörn Brusas

Sami Niemi

Betonilattiarakenteiden kosteudenhallinta ja päällystäminen By76

TakalaKarppanen

1 2 2024 Sisältö | Contents 2 2024
8 Asunto Oy Panorama 22 Spore Berliinin Neuköllnissä 54
Pääkirjoitus
Preface – Climate anxiety 7
Betonilattiarakenteiden kosteudenhallinta Mirva Vuori
– Ilmastoahdistusta
housing architecture 8
22
36 Dakota Lavento CO2 on otettu Hollolassa hyötykäyttöön 40 Jouni
LOIKKA
emissions of
44
Punkki
LOIKKA
CO2
concrete
Teräskuitubetonirakenteiden
New guidelines for
fibre-reinforced concrete 50
mitoitus uudistuu
steel
An update completed to
Association’s 2007 publication Concrete Floor Moisture Management and Coating 54 Jouni
Round-robin tests of concrete testing laboratories
62 Riina
Arkkitehtiopiskelijoilta ideoita lähiötalokorjaamiseen 72
Paaluinfo 1-2024 – Järjestöyhteistyö pitää paalutuksen puolia 74 Auli Lastunen Kolumni – Sääntelyllä vai ilman? 77 Dakota Lavento Henkilökuvassa Kyösti
78
Betonialan
82 Betoniteollisuus ry:n jäsenyritysten tuote- ja valmistajatietoja 86
Concrete
Punkki Testauslaboratorioiden tasokokeet 2023
in 2023
Vesa Tompuri
Ratia
Betoni-toimitus
uutisia, julkaisuja, kursseja

Tukemassa CO2-päästöjen vähentämistä rakennushankkeissa.

Teräskuitumme mahdollistavat

Rakennusbetoni- ja Elementti Oy on vuonna 1966 perustettu suomalainen perheyritys ja Suomen johtava elementtiväestönsuoja-valmistaja.

Yrityksen tavoitteena on olla rohkea suunnannäyttäjä vastuullisissa erikoisbetonituotteissa ja niihin liittyvissä palveluissa.

www.rakennusbetoni.fi

Elementtiväestönsuojat - ja kylpyhuoneet

AKOwall väliseinät

AKObase perustustuotteet

AKOhouses harkkotuotteet

AKOgarden pihatuotteet

AKOroof kasvikatot

2 2 2024

MaxBe Oy

• Betonilattiat, puhdasvalupinnat, mosaiikkibetonit, arkkitehtoniset betonirakenteet, kiiltohionnat.

• Betonipatsaat, betonialtaat jne.

• Kauttamme myös huoltokäsittelyt ja laadukkaat betonin suoja-aineet asennettuna.

Max Vuorio, puh. 0400 841 158

Email: max.vuorio@maxbe.fi https://betoni.guru

Laadukkaat ja ympäristöystävälliset sementit

SCHWENK Suomi Oy / www.schwenk.fi

3 2 2024
Kuva: Ratamestarinkatu 9, Helsinki

Näytämme suuntaa kiihtyvässä muutoksessa

Olemme vahvasti mukana tukemassa asiakkaidemme vähähiilisyystavoitteita ja rakentavassa yhteistyössä matkalla kohti hiilineutraaleja infrarakentamisen ratkaisuja, rakennuksia ja koteja – Jos emme me, niin ketkä sitten?

Tarinamme on pitkäjänteinen vastuullisuustyö, jossa kunnianhimo, tinkimätön sitoutumisemme ja investointimme vievät meitä eteenpäin.

Tuotteidemme CO₂-päästöt ovat parhaimmillaan jopa 70 % referenssituotetta pienemmät.

Yli 20 vuotta kierrätysratkaisuja ja rakentamisen uusiomateriaaleja.

Ensimmäisenä Suomessa kansainvälisen betonialan CSC-vastuullisuussertifikaatit.

Työturvallisuus on jatkuvaa tekemistä –tavoitteena Suomen turvallisin yhtiö.

Ensimmäinen työturvallisuuden harjoittelurata Euroopassa – Rudus-turvapuisto.

Tieteeseen perustuvia luontotavoitteita arvoketjun kokoisesti.

Yli 10 vuotta käytännön tekoja luonnon monimuotoisuuden edistämiseksi.

Pitämällä yhtä uudistamme tapaa, jolla maailmaamme rakennetaan. rudus.fi/vastuullisesti

https://betoni.com/lehti/

Laaduntekijä elementissään 50v

4 2 2024
Tutustu Betoni -lehden uusiin kotisivuihin!
PAREMPAA HUOMISTA
RAKENTAMASSA

– ammattilaisten tarpeisiin ja toiveisiin

Tutustu ja tilaa: lammi.fi/harkko

a

Ajantasaista tietoa julkisivumarkkinoista - liity jäseneksi ja hanki jäsenetuhintaan

Julkisivuyhdistyksen vuosittain teettämä

Julkisivujen markkinat Suomessa 2024 -tutkimusraportti valmistuu elokuussa. Hanki tärkeä ja hyödyllinen tietopohja liiketoimintojen kehittämiseen. Jäsenenä edullisemmalla hinnalla.

Raportin sisältö:

• Rakennus- ja julkisivukanta Suomessa • Rakentaminen Suomessa - rakentamisen arvo • Uudisrakentamisen julkisivumateriaalijakauma ja talotyyppikohtaiset jakaumat • Julkisivujen korjausrakentaminen, uusimistarve ja säilyvyysmallit • Julkisivujen maalaus ja pinnoitus • Julkisivumateriaalien osuudet koko rakentamisessa • Parvekekanta, rakentaminen sekä uusimis- ja korjaustarve • Liiketoimintabarometri

- laadukkaan julkisivurakentamisen puolesta

Meiltä saat betonielementit ja valmisbetonit kaiken kokoisiin rakennuskohteisiin.

Kymmenen tehdastamme takaavat aina nopean ja varman toimituksen.

Varmistetaan yhdessä projektillesi onnistunut lopputulos!

myynti@betset.fi 040 3434 300 www.betset.fi

Lisätietoja ja tilaukset

www.julkisivuyhdistys.fi

Parhaat betoniset ratkaisut

Vuoden 2023 Betonijulkisivu Namika Areena

5 2 2024

POHJOLAN PARHAITA

www.betoniluoma.com ASKELEEN EDELLÄ RAKENTAMISESSA
BETONIELEMENTTEJÄ

Pääkirjoitus

Ilmastoahdistusta

Tuttavani WhatsApp ryhmässä viestitti tehneensä Sitran Elämäntapatestillä laskelman omasta hiilijalanjäljestään. Ilmastoasioissa valveutuneena hän saikin todella pienen päästöarvon tuloksekseen. Muutkin ryhmässä tekivät laskelmansa, mutta tulokset olivat selvästi huonompia, kuten myös oma tulokseni. Tietoja täytellessäni panin merkille, että kysymyksiä voi tulkita monella tavalla ja vastauksen voi valita useammasta osittain totuudenmukaisesta vaihtoehdosta. Laskurin kattavuus eri elämänalueiden suhteen oli kuitenkin yllättävän hyvä. Samoin se, että tuloksen saatua sai myös vinkit, miten omaa hiilijalanjälkeään voisi pienentää. Tieto lisää tuskaa ja ilmastoahdistusta. Vinkkejä lukiessa vastausten monitulkintaisuus vahvistui. Laskenta sisälsi selvästi epävarmuuksia, yleistyksiä ja keskiarvoistuksia, vaikka tulos ilmaistaan 1 CO2 kg:n tarkkuudella. Jos esimerkiksi valitsee, että käytössä on kesämökki, vähennysvinkiksi saa, että vapaa-ajan asunnon lämmitystä poissa-oloaikana kannattaa vähentää. Keskimäärin varmaan näin onkin. Jos kyseessä on pääosin kylmillään oleva mökki, ei todellista vähennyspotentiaalia kuitenkaan ole. No, aina on helppo löytää juuri ne kohdat, joiden naurettavuuteen vetoamalla voi koettaa vesittää itselle ikävien faktojen paljastumisen ja lievittää omaa heräilevää ilmastoahdistustaan. Laskuria ylläpitävän Sitran sivuilta käy ilmi, että suomalaisten keskimääräinen hiilijalanjälki on noin 10 000 kg CO2 e/vuosi. Jotta päästäisiin kansainvälisiin tavoitteisiin, joihin Suomikin on sitoutunut, pitäisi kaikkien kansalaisten pystyä painamaan päästönsä vuoteen 2030 mennessä tasolle 2500 kg CO2 e/v. Se on iso pudotus. Ei voi vielä paukutella henkseleitään sillä, jos mökki ei kuluta talvella energiaa. 75 % pudotus päästöissä tarkoittaa radikaalien muutosten tekoa jokapäiväisessä elämässä. Kieltämättä alkaa ahdistaa, kun tuota tavoitetta ja omia tapojaan miettii.

Omaa hiilijalanjälkilaskelmaani tehdessäni en voinut olla ajattelematta betonia ja BY-Vähähiilisyysluokitusta ja siihen liittyvää laskuria. Onhan siinäkin yksinkertaistuksia ja keskiarvoja. Raja-arvot on sentään annettu vain 5 CO2 kg:n tarkkuudella. Laskurista on kuitenkin yritetty tehdä mahdollisimman luotettava ja avoin. Kaikki laskennassa käytettävät ominaisarvot ja laskentakaavat ovat kaikille laskijoille samat ja ne on esitetty julkisilta internetsivuilta löytyvässä taustaraportissa. Kaikkien on käytettävä raaka-aineille samoja rahtimatkoja ulkomailta terminaaleihin. Laskelmia tekevät henkilöt, jotka ymmärtävät betoniteknologiaa ja betonireseptien kehittelyn käytännön rajoitteet. Laskelmia myös valvotaan ja GWP-luokan käyttö vaatii tehtaan sertifioinnin. Tämä on tärkeää luokiteltujen betonien päästöarvojen uskottavuuden kannalta. Tämän tärkeys kirkastui minulle entistäkin selvemmin tuttavieni laskelmien teon tuoksinassa. Kävi nimittäin ilmi, että pienen päästöarvon saanut, elämäntavoillaan vähähiilisyyteen pyrkivä tuttavani oli tehnyt tahattoman virheen kotinsa lämmitysmuotoa valitessaan. BY:n luokitus ja laskuri ovat luotettavia, ammattilaisten käyttöön tehtyjä työkaluja, joilla ala pystyy tekemään huomattavia ilmastotekoja. BY-Vähähiilisyysluokituksella halutaan kannustaa valitsemaan sopivin vähäpäästöinen betoni rakennuskohteeseen. Esimerkiksi vaihtamalla huokostamaton C30/37 betoni GWP.REF-luokasta luokkaan GWP.85 saadaan aikaan 40 kg päästövähennys betonikuutiolle. Jo 250 m3 valulla, jossa käytetään GWP.85 betonia voidaan siis saavuttaa yhden keskimääräisen suomalaisen vuosipäästöä vastaava CO2 -päästövähennys. Tämä muutos ei ole betoniteknisesti vielä kovin radikaali, GWP.85-betonilaatua on jo nyt hyvin saatavilla ja sen ominaisuudet eivät merkittävästi poikkea nykyisten betonien ominaisuuksista.

Tuntuu hienolta, että on saanut olla mukana luomassa järjestelmää, jonka avulla betonialan toimijat voivat halutessaan parhaimmillaan yhden työpäivänsä aikana tehdä tavallisen siviilielämän mittakaavan mahdollisuuksiin verrattuna valtavia ilmastotekoja. Se lievittää omaa ilmastoahdistustani. Pelkkä BY-Vähähiilisyysluokituksen olemassaolo ei kuitenkaan riitä, sitä pitää myös käyttää! Kannustan jokaista Betoni-lehden lukijaa tekemään oman Elämäntapatestinsä ja tutustumaan myös BY-Vähähiilisyysluokitukseen. Jos asemansa puolesta voi työssään ohjata betonin valintaa kohti pienempiä päästöluokkia, voi myös verrata sitä, kummalla saralla (siviilissä vai töissä) pystyy tekemään merkittävämpiä ilmastotekoja.

Lisää tietoa löytyy täältä: https://www.sitra.fi/hankkeet/elamantapatesti/ www.vahahiilinenbetoni.fi

Mirva Vuori, toimitusjohtaja, Suomen Betoniyhdistys ry, mirva.vuori@betoniyhdistys.fi

Climate anxiety

The Finnish Innovation Fund Sitra has posted on its website a lifestyle test you can take to calculate your own carbon footprint. When completing the test, I noticed it is possible to interpret the questions in different ways and choose between several options that are partly true. However, the coverage of the test with respect to the different areas of life was surprisingly good. The more you know, the greater your pain and climate anxiety.

The website of Sitra that provides the test also tells that the average carbon footprint of Finnish people is about 10,000 kg CO2 e/year. In order to reach the international carbon targets, to which Finland has also committed, every citizen should reduce their emissions to the 2,500 kg CO2 e/year level by the year 2030. That is a massive reduction.

As I took the test to determine my own carbon footprint, I could not help thinking about concrete and the BY Low Carbon Classification with the associated calculator which defines limit values with an accuracy as high as 5 CO2 kg. The aim has been to make the calculator as reliable and transparent as possible. All the specific values and calculation formulae used are the same for every user and presented in the background report posted on the public website. The calculations are performed by individuals with an understanding of concrete technology and the practical limitations of the development of concrete mixes. The calculations are also controlled and plants that wish to use the GWP classification need to undergo a certification process. This is important to ascertain the credibility of the emission values of classified concrete.

The Classification and the Calculator provided by the Concrete Association are reliable tools designed for professionals to help the industry to take great climate actions. The idea of BY Low Carbon Classification is to encourage the use of the most suitable low carbon concrete in each building project. For example, a switch with non-air-entrained C30/37 concrete from the GWP.REF class to the GWP.85 class brings a reduction of 40 kg in emissions per one cubic metre of concrete. In other words, in a concreting job of just 250 m3, the use of the GWP.85 concrete can reduce CO2 emissions to an amount equalling the annual emissions of one average Finnish person. In terms of concrete technology, this is not a very radical change, as GWP.85 class concrete is already widely available and has properties that do not significantly differ from those of existing concrete types.

It feels great to have contributed to the development of a system that will help operators in the concrete industry to opt to take huge climate actions, in some cases during a single working day. People who can impact decisions, either as private persons or as part of their job, on choosing concrete types of lower emission classes can also compare which role (private or professional) produces more significant climate actions.

For more information, please visit: https://www.sitra.fi/en/topics/lifestyle-0/ https://vahahiilinenbetoni.fi/in-english/

Mirva Vuori, Managing Director, Concrete Association of Finland, mirva.vuori@betoniyhdistys.fi

7 2 2024
1 Mirva Vuori
Preface

Paikallavalutekniikka ohjasi suunnittelua espoolaisessa pilottikohteessa

Ajatonta asuntoarkkitehtuuria paikallavalamalla

Espoon Kauklahteen valmistuneessa paikallavalutalossa Asunto Oy Panoramassa on kolme samanlaista, mutta hieman eri tavoin varusteltua asuntoa. Jokaisessa asunnossa on 113 neliötä: olohuone ja avokeittiö, kolme makuuhuonetta, saunaosasto, kodinhoitohuone sekä työtila. Suurilta parvekkeilta avautuu näkymä Kauklahden luonnonkauniiseen maisemaan. Etupihan niin ikään paikallavaletussa autokatoksessa on viisi latauspistein varustettua autopaikkaa.

Asunto Oy Panoraman tumma rakennusmassa istuu pienelle rinnetontille luontevasti. Suurten lasipintojen ja parvekkeiden keventämä pääjulkisivu on avoin ja kutsuva. Wienerbergerin musta sileä savikattotiili on ratkaisuna hieman erikoisempi ja tuo julkisivuun vivahteikkuutta. Rakennuksen hienostunutta, hillittyä arkkitehtuuria katselee mielikseen.

Sisältä asunnot ovat valoisia ja tiloiltaan toimivia ja yllättävänkin avaria. Tekniikka- ja sisustusratkaisut ovat laadukkaita, moderneja ja ajattomia.

Kunnianhimoiset tavoitteet

Asunto Oy Panorama oli rakennus- ja kiinteistöalalla toimineiden miesten unelmasta syntynyt pilottikohde. Kohteen rakennutti toimitusjohtajaksi ryhtyneen Bo Priesterin ja myyntijohtaja Tomi Sarlinin yritys Lifehood Homes Oy. Arkkitehtuurista vastasi arkkitehti

SAFA Juha Klemetti

Miehet halusivat rakentaa Kauklahdessa sijaitsevalle, kaupungin puistoon rajautuvalle rinnetontille tulevaisuuden maamerkin, jonka korkealuokkainen arkkitehtuuri nostaisi myös ympäröivän alueen arvoa.

Priester sanoo, että paikallavalu oli kohteeseen luonteva valinta. ”Paikallavalurunko ei ole helpoin eikä halvin rakennustapa, mutta se on ikuinen, mihin yrityksen nimikin viittaa.

Ekologisinhan on talo, joka rakennetaan vain kerran”, hän huomauttaa.

”Paikallavalamalla voidaan tehdä vapaasti erilaista saumatonta muotoa ja tyylikästä arkkitehtuuria”, Priester jatkaa.

Tavoitteena oli integroida runkoon mahdollisimman paljon tekniikkaa nykyisiä ja talon elinkaaren aikaisia tarpeita varten. ”Runkoon integroitiin lämmitys-, viemäri-, käyttövesi-, sadevesi- ja ilmanvaihtoputket sekä monipuolinen äänentoisto ja valaistus. Piiloverhoratkaisu on Lifehood:in itse kehittämä ja voitiin toteuttaa käytännössä vain holvit paikallavalamalla.

Hallittua ja hillittyä

Toteutustavaksi valittu paikallavalu ohjasi kohteen pääsuunnittelijan Juha Klemetin mukaan myös suunnittelua.

”Suunnittelun lähtökohtana ja tavoitteena oli ajattomuus, selkeys ja konstailemattomuus ja sitähän paikallavalutekniikka tukee. Mahdollisimman selkeä ja suoralinjainen arkkitehtuuri sujuvoittaa myös muotittamista”, hän sanoo.

Klemetti tunnetaan rauhallisesta, niukasta muotokielestään. Hänestä usein vähemmän on enemmän. ”Minusta asuinrakennukset ovat harvoin liian yksinkertaisia.”

Asunto Oy Panoraman tunnistaa Klemetin suunnittelemaksi. Muotokieli on harkittua ja

hienostunutta, väripaletti koostuu betonin harmaasta, mustasta ja valkoisesta. Yksityiskohdat ovat hiottuja. Kaikki tekniikka on luonnollisesti tiukasti piilossa.

Klemetti sanoo, että pyrkimys visuaaliseen ja toiminnalliseen selkeyteen kulkee arkkitehtuurissa usein käsi kädessä. Selkeällä ja rauhallisella konseptilla tiloista tulee luontevasti toimivia ja samalla tilankäytöltään tehokkaita. ”Se on toki tärkeää etenkin myyntiin rakennettavissa kohteissa. Rakennusoikeutta on rajallinen määrä ja jokainen neliö on pyrittävä käyttämään tehokkaasti.”

Selkeät ja toimivat tilat taipuvat myös monenlaisten käyttäjien tarpeisiin.

Asunnoissa on paljon puhdasvalupintoja. Klemetin mukaan ne olivat tietoinen valinta ja hienoinen riski. ”Olimme tietoisia, että ne eivät

1 Tilavilta parvekkeilta avautuu näkymä Espoon Kauklahden maisemaan. 1

8 2 2024
Dakota Lavento, toimittaja Lifehood Homes Oy / Juha Klemetti
9 2 2024
10 2 2024 2 3 4 Lifehood Homes Oy
Homes
Lifehood
Oy / Juha
Klemetti

2 Yläpohjan, viistosti ulospäin johtavan viisteen ansiosta rakenne näyttää hoikalta, vaikka on paksuimmasta päästään yli puoli metriä paksu.

3 Autokatos vaati louhimista. Valaistuna näyttävä kallioseinä toteutettiin irtiporaamalla.

4 Musta sileä savikattotiili tuo julkisivuun vivahteikkuutta.

5 Mallinnuskuva.

6 Mallinnuskuva.

puhuttele kaikkia ostajia, mutta halusimme toteuttaa valittua tyylilajia mahdollisimman tinkimättömästi. Luonteikkaat betonipinnat antavat rakennukselle vahvan oman leiman.”

”Se oli visuaalinen valinta”, Priester vahvistaa. ”Elävä betonipinta rajautuu hienosti viimeisteltyihin pintoihin, kuten ikkunoiden karmeihin.”

Paikallavaluseinät mahdollistavat listattomuuden, sillä betoniseinä jatkuu suoraan betonilattiasta.

Klemetti kertoo, että lähtökohtana oli luoda asumiselle tyylikkäät, luonteikkaat ja vähäeleiset puitteet, joihin jokainen asukas voi tuoda omannäköisensä elämän ja tunnelman.

Kodikkuuden tunne asunnoissa syntyy muun muassa rauhallisesta äänimaisemasta. Asuntojen akustisiin olosuhteisiin paneuduttiinkin huolella jo suunnitteluvaiheessa niin sisäisen ja ulkoisen äänieristyksen kuin jälkikaiunta-ajan osalta. Kellarikerroksessa kokolattiamatto toimi pehmentävänä elementtinä vastinparina paikallavaletulle kattopinnalle.

Oleskelutiloissa betonilattian vastinparina on piiloakustoitu katto. Katon betoniholviin liimattiin Ewonan Acustica-levy. Se pinnoitettiin Ston huokoisella akustisella tasoitteella, jolla saatiin saumatonta sileää pintaa. Märkätiloissa piiloakustointi toteutettiin alaslaskuihin. Asunnon jokainen tila on äänieristetty ulkovaippa mukaan lukien.

Harkittuja rakenneratkaisuja

Asunto Oy Panoraman tontille oli suunniteltu aikanaan kolme erillistaloa, joista vain yksi oli toteutunut. Rakennuspaikka ei ollut ideaalinen. Rinne oli huomattavan jyrkkä ja tontti montussa suhteessa naapurirakennuksiin. Maanpintaa jouduttiin nostamaan luontevan lopputuloksen saavuttamiseksi.

Osin maavarainen ja osin louhittava tontti sopi kuitenkin hyvin paikallavalamalla toteutettavalle rinneratkaisulle. ”Alempi kerros on osittain kellaria. Paikallavalamalla saimme maapaineet hyvin hallittua”, kohteen rakennesuunnittelija Henri Huoso kertoo.

Huoso oli hankkeessa mukana aivan alusta alkaen. ”Useinhan rakennesuunnittelijat vain saavat arkkitehdin tekemät valmiit kuvat eteensä”, hän sanoo. Asunto Oy Panoraman suunnittelussa oli hyvä keskusteluyhteys arkkitehdin ja rakennesuunnittelijan välillä alusta alkaen. Kaikki ratkaisut on tehty tarkkaan harkiten.

Panoramaan harkittiin myös väli- ja yläpohjiin jälkijännitettyjä rakenteita, mutta niistä luovuttiin rakenteen sisään sijoittuvan talotekniikan vuoksi. ”Laskimme, että pääsemme valitulla rakenteella kahdeksan metrin maksimijänneväliin ja se sopi hyvin myös ajateltuihin asuntopohjiin”, kertoo Huoso.

Huoso sanoo, että yhteistyössä hiottiin haastaviakin toiveita ja lopulta löydettiin

näihin alkuperäistä visiota tukevat piiloon jäävät rakenneratkaisut.

”Kantavaan välipohjaan ja yläpohjaan tekniikkaa varten tehdyt 85 mm syvät poikittaiset epäsuorat valourat heikentävät rakenteen kapasiteettia. Laatan sisään saatiin upotettua 90 mm:n iv-kanavat, viemärit, sähkövedot, epäsuora valaistus, verhokotelot, lattialämmitys ja äänentoisto ja lopputuloshan näyttää aivan mielettömän hienolta.”

”Jatkossa pitää miettiä talotekniikkasuunnittelijoiden kanssa yhteensovittamista huolellisemmin jo suunnitteluvaiheessa, että myös betonia saadaan paremmin mahtumaan muotteihin”, Huoso naurahtaa.

Lopputuloksessa on paljon hienoja detaljeja, joista osaa Huoso ei sanojensa mukaan vielä suunnitteluvaiheessa edes osannut pitää kovin merkityksellisinä. Esimerkiksi portaikossa laatan vahvuus näyttää viisteen ansiosta olevan vain 60 mm, vaikka laatan todellinen paksuus onkin 300 mm.

Toisena erityisen hyvin onnistuneena detaljina Huoso haluaa nostaa esiin pääjulkisivun yläpohjan, viistosti ulospäin johtavan viisteen. ”Sen ansiosta rakenne näyttää hyvinkin hoikalta, vaikka on paksuimmasta päästään yli puoli metriä paksu. Myös päädyn julkisivupielissä on viiste, joten seinä kapenee ulospäin mentäessä”, Huoso sanoo.

Viisteet tuovat julkisivuun siroutta.

11 2 2024
Ajatonta asuntoarkkitehtuuria paikallavalamalla 5 6
Kuva RakenneStudio Oy
Lifehood Homes Oy
Kuva RakenneStudio Oy

Yksi kohteen näyttävistä visuaalisista ratkaisuista menee Huoson piikkiin. Paikallavalamalla toteutettu autokatos vaati louhimista. Huoso ehdotti, että kalliopinta jätetään suoraan seinäksi, jotta anturaa ja seinää ei tarvitsisi tehdä. Upea, valaistuna taideteokselta näyttävä kallioseinä toteutettiin irtiporaamalla. ”Vaikka tekniikka mielletään kalliiksi, se tulee käytännöksi seinän rakentamista edullisemmaksi”, hän kertoo.

Futuristiset muotit

Runkovaluvaiheessa kohteen auringossa hohtavat alumiiniset muotit herättivät ohikulkijoiden huomiota. Priester sanoo, että työmaa näytti varsin futuristiselta.

Valut toteutettiin Mivan- alumiinimuottijärjestelmällä. ”Arvioimme, että pienissä kohteissa ja ahtailla kaupunkitonteilla isompaa volyymiä ja nostokalustoa edellyttävät suurmuotit eivät olisi toimivin valinta. Meidän piti löytää muottijärjestelmä, jota pystytään liikuttelemaan myös lihasvoimin tontilla ja muottien saumat ovat mahdollisimman huomaamattomat.”

Maanjäristysherkillä alueilla korkeiden rakennusten nopeaan rakentamiseen käytetyn järjestelmän painavin muottikasetti painaa vain 37 kg. Täysalumiiniset muotit on kehitetty paikallavalurunkojen valamiseen nopealla tahdilla. Lifehood laivasi neljä merikontillista muotteja kahdelta eri toimittajalta voidakseen verrata niitä toisiinsa.

Priesterrin mukaan kiinalaiset muottitoimittajat tarjoavat käytännössä pelkkää valmis-

tuskapasiteettia. Normaali Mivan -muotti on 40 cm leveä ja 2,5 tai 2,7 m korkea. Lifehood halusi rauhallisen puhdasvalupinnan aikaansaamiseksi 60 cm leveitä ja 3,3 m korkeita muotteja, joten yrityksen piti omilla lujuuslaskelmillaan osoittaa, että räätälöidyt muotit kestäisivät valupaineen. ”Se tarkoittaa, että pullistuma jää valussa alle 2 mm, jos muottisiteiden väli on 1,2 m”, Priester tarkentaa.

Ensimmäisenä valupäivänä kolme metriä korkeaa seinää valettaessa jännitti, mutta lujuuslaskelmat pitivät kutinsa. Priester sanoo, että muottimateriaalina karkaistu alumiini on varsin lujaa. ”Se ei ole kaukana rakenneteräksen lujuudesta.”

Suulakepursotetusta alumiinista valmistetut muotit ovat myös mittatarkkoja. Varsinaiseen aihioon hitsataan erilaisia vaakajäykistäjiä.

Haastavat valut

Asunto Oy Panoraman betonirunko valettiin vuosi sitten. Ensimmäisen seinän valu oli huhtikuussa 2023 ja viimeinen syyskuun lopussa 2023. Runkoa ja autokatosta nostettiin puoli vuotta.

”Valaminen oli haastavaa, sillä suoraa seinää oli aika vähän, oli käännettyjä kattoja ja talotekniikan sijoittaminen valujen sisään vei aikaa. Myös kaikille uusi muottijärjestelmä piti koeponnistaa.”, Priester sanoo.

Valussa käytettiin 16 mm betonia enimmäkseen notkeusluokkaa S3 ja jonkin verran S4.

Seuraavan kohteen kohdalla Priester haluaa kokeilla itsetiivistyvällä betonilla valamista. ”Suurempi valupaine tietysti jännittää,

mutta toisaalta täryytimme tässä perinteistä, vähän jäykempää betonia, joka sekin aiheuttaa paineiskuja ja valupainetta. Itsetiivistyvällä betonilla yläpinta tasoittuisi itsekseen ja syntyisi vähemmän sotkua, joten muotitkin kestäisivät pitempään siistinä.”

Muotit kestivät valua hyvin, kunhan ne oli kasattu ohjeiden mukaisesti. ”Jos vaakakoolaus ei esimerkiksi osu tuelle oikein vaan jää vajaaksi, siihen kohdistuu suuri voima ja muotti alkaa pullistua”, Priester huomauttaa. ”Vinotuenta on tärkeä. On varmistettava, että muotit pysyvät suorassa eivätkä pääse heilumaan. Muottien suoruus pitää jaksaa varmistaa rankankin valupäivän jälkeen.”

Onnistuneiden puhdasvalupintojen saaminen oli kaikille oppimisprosessi. Orgaanisen muottiöljyn kokeilu oli erehdys, sillä se keräsi hyönteisiä. Paksumman kerroksen jättävä muottivaha tuotti parhaan pinnan. ”Pinnan laatuun vaikuttaa moni muukin tekijä, kuten ulkolämpötila ja miten valusuihku oli osattu kohdistaa, ettei se ole huuhtonut muottiöljyä pois”, Priester sanoo.

Kuumalla riskinä oli nahkottuminen, varsinkin alkuvaiheessa, kun valettiin hitaasti, muottipaineen kasvua varoen. Priester sanoo, että mitä nopeammin valaa, sitä homogeenisempi ja parempi pinnasta tulee. ”Kun meillä alkoi tulla kokemusperäistä uskallusta täyttää muottia nopeammin, nostimme 3,3 metriä vartissa. Sillä me saimme itse asiassa parhaan lopputuloksen.”

Tärkeimmät seinät valettiin viimeisenä, kun taustalla oli eniten kokemusta.

12 2 2024
Ajatonta asuntoarkkitehtuuria paikallavalamalla 1 2 3 4 A B C 1 1 2 2 3 3 23800 7900 8000 7900 10100 2700 7400 120 200 4450 7001200 157090 4460 7001200 155090 4460 7001200 1450200 1470 1460 7200 810 7200 800 7200 810120 18020 VS1 180 9090 US1 180 VS1 180 180 150170 2580 25070 1480 180 7830 180 7820 180 7830 180 20 20 280 155 180 180 2580 120 200 120 2580 2580 120 U S 1 180 7440 U S 1 180 132 132 2787 2787 2787 132 132 132 150 250 PV- PARVEKELAATTA YP4 PV- LAATTA hL 300mm YP1 SYVENNYS 420x330 ARKKITEHTISUUNNITELMIEN MUKAAN SYVENNYS 20 mm SYVENNYS 20 mm SYVENNYS 20 mm SYVENNYS 85 mm SYVENNYS 85 mm SYVENNYS 85 mm MUOTIN ESIKOROTUS 10 mm MUOTIN ESIKOROTUS 10 mm LAATAN AP. +17.600 LAATAN YP. +17.900 LAATAN YP. +17.800 1:80 LAATAN AP. +17.900 LAATAN AP. +17.500 REIKÄ D110 YP.+17.915 REIKÄ D110 YP.+17.915 1:80 1:80 1:80 1:80 +18.020 +18.020 YP.+17.955 STALA 100X100X5 PUTKI, + POIKITTAISTANKO T16 STALA 100X100X5 PUTKI, + POIKITTAISTANKO T16 700 600 700 600 120630 4533 120620 SYVENNYS 85 mm 4533 132630 132 SYVENNYS 85 mm SYVENNYS 85 mm
7
Oy
Kuva RakenneStudio

7 Rakennekuva.

8 Alumiinimuottijärjestelmä.

9 Kuva työmaalta.

10 Rakenneleikkauksia.

13 2 2024 Perustus 11000 1.krs 11400 2.krs 14300 1 2 3 4 2 2 Vesikatto 17500 3 3 +14.300 7900 8000 7900 +14.000 132 132 3360 850 3600 3360 850 3610 3370 850 3610 +10.800 132 85 VP1 300 AP1 YP1 KS1/KS2 200 2540 VS2 1601750 VS2 160 3200 VS1 180 2550 VS2 1601750 VS2 160 3200 VS1 180 2550 VS2 1601750 VS2 160 3190 KS1/KS2 200 US1 180 7830 VS1 180 7820 VS1 180 7830 US1 180 132 132 132 132 132 132 +11.400 85 SYVENNYS D430 ARKKITEHTISUUNNITELMIEN MUKAAN SYVENNYS 420x330 ARKKITEHTISUUNNITELMIEN MUKAAN 120 630 132 630 20 120 620 Perustus 11000 1.krs 11400 2.krs 14300 A B C 1 1 Vesikatto 17500 120 +17.600 1170630 370 VP1 300 200 7400 200 AP1 Y P 1 YP2 600 2700 VP1 300 3000 3500 2700 200 7400 2700 +17.500 +17.900 120 320 VP2 275 VP2 276 +13.930 +14.300 +14.000 +13.900 +13.630 2630 SYVENNYS 420x330 ARKKITEHTISUUNNITELMIEN MUKAAN SYVENNYS 156 mm ARKKITEHTISUUNNITELMIEN MUKAAN SYVENNYS 151 mm ARKKITEHTISUUNNITELMIEN MUKAAN 100 910 2590 490 2510 2110 Perustus 11000 1.krs 11400 2.krs 14300 A B C 1 1 Vesikatto 17500 300 2730 550170 US1 180 7440 US1 180 KS1 200 7400 KS2 200 910 2590 VP1 300 AP1 Y P 1 120 2580 2700 200 3000 300 3300 300 7400 2700 VP2 276 VP2 275 120 +14.025 +14.000 +14.325 +14.300 3950 SYVENNYS 156 mm ARKKITEHTISUUNNITELMIEN MUKAAN +14.240 +17.900 +10.800 300 100 +14.000 +14.300 2510 490 2110 LEIKKAUS 1 1 : 50 LEIKKAUS 2 1 : 50 LEIKKAUS 3 1 : 50 REV.B REV.B
Ajatonta asuntoarkkitehtuuria paikallavalamalla 10 9 8 Mivan Formwork Lifehood Homes Oy Kuva RakenneStudio Oy

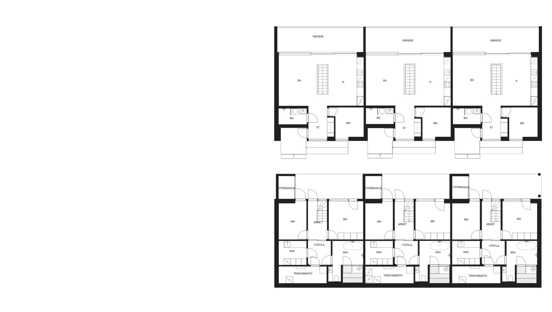
Pohjapiirros suuntaa-antava, ei mittakaavassa.

11 Keittiö-olohuone.

12 Pohjapiirrokset.

13 Betonilattioita on käytetty sekä keittiö- että olohuonetiloissa.

14 Valoisasta keittiöstä avautuu pitkälle näkymät ympäristöön.

2 2024
YLÄKERTA B1 B2 B3 ALAKERTA B1 B2
11 12
B3
15 2 2024 13 14 Ajatonta asuntoarkkitehtuuria paikallavalamalla Lifehood Homes Oy Lifehood Homes Oy Lifehood Homes Oy

Rakennusaikainen suojaus

Kaunis puhdasvalupinta ei synny sattumalta. Työmaalla jokaisen pitää ymmärtää, että pinta jää näkyviin, eikä sitä tasoiteta tai maalata myöhemmin. Priester sanoo, että se aiheuttaa paineita. ”Loppupintahan on näkyvissä jo yhdeksän kuukautta ennen kuin talo on luovutuskunnossa. On kyettävä varmistamaan, että pintaan ei tule naarmuja tai tahroja.”

Runkoporukalle on selitettävä, että kaikki teräkset ja surrilangat on kerättävä pois holvin päältä, jotta ne eivät ruostu ja värjää pintaa. ”Jos työmies ei ole sisätyövaiheessa mukana, hän ei ongelmaa tietenkään näe.”

Kohti taivasta sojottavat sateessa seuraavan holvin valua odottavat tartuntateräkset valuttavat ruostevettä alaspäin. Hakaset voisivat olla kriittisillä paikoilla ruostumatonta terästä tai ne voisi maalata. Helpoin keino estää tahriintuminen on kuitenkin valaa runko mahdollisimman nopeasti.

Se toteutettiin sisä - ja ulkoseinissä sävyttämällä pölynsidontaan käytetty lasuuripintakäsittely: Keim Base Concretal -lasuuri ja sävyte 9497 seossuhteessa 6:1.

”Teimme kellarikerroksessa piiloon jäävälle pinnalle 32 sävyn matriisin, jossa kokeilimme erilaisia sävyjä, seossuhteita, happokäsittelyjä ja laimennusasteita sekä pinnoitusjärjestystä. Valitsimme sitten parhaan lopputuloksen. Hennon vaaleaa sävytystä ei välttämättä edes huomaa, ja betonin luontainen rouheus säilyy. ”

15 Oleskelutiloissa betonilattian vastinparina on piiloakustoitu katto.

16 Lähtökohtana oli luoda asumiselle tyylikkäät, luonteikkaat ja vähäeleiset puitteet, joihin jokainen asukas voi tuoda omannäköisensä elämän ja tunnelman.

Betonierien ja siten puhdasvalupinnoissa betonin väri voi vaihdella kiviaineksesta riippuen todella paljon. Priester sanoo, että se ei sinänsä haittaa, jos massat sekoittuvat eikä muodostu selkeää rajapintaa. Yhteistyössä Klemetin kanssa päädyttiin tasaamaan mahdolliset sävyerot valkaisemalla sementin luontainen hiukan mudan kaltainen väri.

Asuntojen lattioihin on valuvaiheessa hierretty vaalentava MasterTop -kuivasirote ja sisätöiden valmistuttua tehtiin korjaus- ja silikaattikäsittely. Hionnan yhteydessä lattiaan ruiskutettiin pore & crack -filleri, joka hiontapölyn kanssa täyttää halkeamat ja huokoset. Kelluvalle pintalaatalle tyypillisiltä suurilta halkeamilta on vältytty, sillä paksun holvin terästys on järeä. Suoja-aineena lattialle käytettiin litiumsilikaattia, joka betonilattiassa reagoi vapaan kalsiumin kanssa, jolloin muodostuu liukenematonta kalsiumsilikahydraattia. Se tekee betonista paremmin vettä ja tahroja hylkivää.

Viimeinen pinta on käsitelty Kiilto ProSilk -puolikiiltävällä lattiavahalla. •

17 2 2024
Ajatonta asuntoarkkitehtuuria paikallavalamalla 15 16
Lifehood Homes Oy Lifehood Homes Oy
18 2 2024
LAATAN PIELIRAUDOITUS REUNOILLA
Ajatonta asuntoarkkitehtuuria paikallavalamalla 17 18 19 Lifehood Homes Oy Lifehood Homes Oy
R1202-6 Kuva RakenneStudio Oy

17 Betonirakenteiden sisälle integrointiin talotekniikka; ilmanvaihtokanavia, lämmitystä, valaistusta, kaiuttimia, verhokoteloita ja paljon muuta.

18 Runkoon integroitiin lämmitys-, viemäri-, käyttövesi-, sadevesi- ja ilmanvaihtoputket sekä monipuolinen äänentoisto ja valaistus. Piiloverhoratkaisu voitiin toteuttaa holvit paikallavalamalla.

19 Rakennedetalji.

20 Kaunis puhdasvalupinta ei synny sattumalta.

Työmaalla jokaisen pitää ymmärtää, että pinta jää näkyviin, eikä sitä tasoiteta tai maalata myöhemmin.

21 Betoni luo kontrastia muille materiaaleille.

Asunto Oy Panorama, Espoo

Osoite: Räävelintie 7B, 02780 Espoo

Rakennuttaja: Lifehood Homes Oy

Pääsuunnittelija/arkkitehti: Arkkitehtitoimisto Juha Klemetti Oy / Juha Klemetti

Rakennesuunnittelu: RakenneStudio Oy / Anna Abakumova ja Henri Huoso

LVI-suunnittelu: LVI-Insinööritoimisto Meskanen Oy Sähkösuunnittelu: Sähkö Tuominiemi Oy / Tapio Tuominiemi

Akustiikkasuunnittelu: Promethor Oy / Kalle Lehtonen

Valaistussuunnittelu: Otherwise Oy / Esa Pietilä

Sisustussuunnittelu: Arkkitehtitoimisto Juha Klemetti Oy / Pauliina ja Juha Klemetti

Äänentoistosuunnittelu: HifiStudio Oy / Tomi Hyvärinen

Pihasuunnittelu: Arkkitehtitoimisto Juha Klemetti Oy / Juha Klemetti

Urakoitsija: Pääurakoitsija (työnjohto, suunnitelmat, koulutus) Lifehood Homes Oy, alihankintatyönä betonirunkourakassa työporukoita mm. Express Housing Oy

Betonityöt: P.Carlsson Oy ja Express Housing Oy

Betonimuottitoimittaja: Adto Construction Material Group Company ja Geto Alu Formwork System

Valmisbetonin toimittaja: Ruskon Betoni Oy, Kivenlahti

Lattiaurakointi: P.Carlsson Oy ja Bekason Oy

Lattiabetonit alapohja: Bekason Oy, maakostea betoni

Lattiabetonit holvit: Ruskon Betoni Oy, Kivenlahti

Julkisivuverhous: Wienerberger Oy, musta sileä savikattotiili, Datura sileä mattamusta

19 2 2024 Ajatonta asuntoarkkitehtuuria paikallavalamalla
20 21 Lifehood
Homes Oy
Oy
Lifehood Homes
20 2 2024 Ajatonta asuntoarkkitehtuuria paikallavalamalla 22 23 24 Lifehood Homes Oy Lifehood Homes Oy Lifehood Homes Oy

25

22 Makuuhuoneista avautuvat valoisat näkymät ympäristöön.

23 Kylpyhuone.

24 Paikallavaletutu betonipinnat ovat näkyvissä myös kylpyhuone- ja kodinhoitotiloissa.

25 Asuntojen lattioihin on valuvaiheessa hierretty vaalentava MasterTop -kuivasirote. Paikallavaluseinät mahdollistavat listattomuuden, sillä betoniseinä jatkuu suoraan betonilattiasta.

Timeless cast-in-place housing architecture

Cast-in-place housing cooperative Panorama completed in Kauklahti area of Espoo comprises three similar apartments with slightly different facilities. Each apartment is 113 square metres in size, consisting of a living room and a kitchen, three bedrooms, a sauna and washing facilities, a utility room as well as a work space. The large balconies open into the Kauklahti vista of great natural beauty. The carport in the front yard is designed for five cars and equipped with charging stations.

The dark building mass of housing cooperative Panorama fits naturally on the small inclined plot. The main facade, made lighter by the large glass surfaces and balconies, gives an open and inviting impression. The black, smooth clay roofing tile adds nuances to the facade.

A cast-in-place building frame is not the easiest or the cheapest building method, but it is forever, points out the developer of the project.

With the cast-in-place method, concrete can be built into different jointless forms and elegant architecture without restrictions. The aim was to integrate as much building services technology into the building frame as possible to cater for both current and future needs during the building’s lifecycle.

The apartments feature plenty of fairface surfaces. The end result is rich with wonderful details, such as the staircase floor which only appears to be 60 mm thick although the true thickness of the intermediate floor slab is 300 mm. Another successfully implemented detail is the chamfer between the roof and the eaves on the main facade. It gives the structure a slim appearance despite being more than half a metre at its thickest.

A beautiful fairface surface is not obtained accidentally. Each worker on the site needs to understand that the finished concrete surface will remain visible and will not be levelled or coated later.

After casting, the concrete floors of the apartments were finished with MasterTop dry shake to give them a lighter colour, and a protective silicate coating.

21 2 2024
Ajatonta asuntoarkkitehtuuria paikallavalamalla
Lifehood Homes Oy

Näyttävä toiminta- ja oppimiskeskus Berliinin Neuköllnissä

SPORE

Tarja Nurmi, arkkitehti SAFA arkkivahti@gmail.com

Berliinin Neuköllnin kaupunginosaa halkoo pohjois-eteläsuunnassa yksi merkittävä pääkatu Hermannstrasse. Sen mukaan nimetyn paikallisjunan ja metron eli S- ja U-Bahnien yhdistetyn aseman pohjoispuolella on suuria vanhoja hautausmaita.

Pyhän Tuomaan hautausmaa II:n kyljestä kadun viereltä on luterilainen seurakunta myynyt tontin vauraalle filantroopille nimeltään Hans Schöpflin sekä tämän nimeä kantavalle säätiölle. Paikalle on säätiön toimesta rakennettu arkkitehtuurinsa ansiosta paljon kiitosta saaneet kaksi rakennusta.

Toisessa niistä toimii Spore Initiative -niminen organisaatio ja toinen rakennus on viimeistelyvaiheessa. Yhdessä ne muodostavat arkkitehtonisen kokonaisuuden, jossa on jopa viitteitä Alvar Aallon toimiston arkkitehtuuriin. Sen havaitsee parhaiten lännen puolella sijaitsevalta puistomaiselta hautausmaalta käsin.

Spore-talon taustalla oleva säätiö omistautuu taiteelle ja ihmisten kasvattamiselle ja kouluttamiselle ymmärtämään nykyistä paremmin sitä, miten elää luonnon kanssa paremmassa tasapainossa ja kuinka oppia erityisesti alkuperäiskansoilta. Kokonaisuuden etelänpuoleinen rakennus tulee omistautumaan uhanalaiseksi koetulle riippumattomalle journalismille ja sananvapaudelle. Niiden väliin tullaan sijoittamaan ja toteuttamaan entinen hautausmaan porttirakennelma.

Yhteisötilana ja kulttuurikeskuksena toimiva monitoimirakennus avautuu näyttävästi ympäristöönsä. Spore-rakennuksen katutason julkisivut ovat lasia ja muurattu kierrätystiilistä sekä punertavasta puhtaaksi valetusta betonista.

1 Asemapiirros.

2 Spore-rakennuksen katutason julkisivut ovat lasia sekä punertavaa puhtaaksi valettua betonia. Ylempänä seinämuurin julkisivu on muurattu osin kierrätetyistä tiilistä.

22 2 2024
GSPublisherVersion 6.98.99.36 Hermannstrasse IV VI III Jonasstrasse Thomasstrasse 12 25 Spore Initiative Lageplan
1 2 Tjark Spille
23 2 2024

Lasia, betonia ja kierrätettyjä tiiliä – ja loistavaa puusepäntyötä Kadun puolella rakennukset erottuvat muusta ympäristöstä ja rakennuskannasta sekä olemuksensa että julkisivujensa puolesta. Spore-rakennuksen katutason julkisivut ovat lasia sekä punertavaa puhtaaksi valettua betonia. Ylempänä seinämuurin julkisivun pinta on kierrätettyä tiiltä. Tiilet ovat peräisin mm. paikalta puretusta hautausmaan muuriaidasta. Rakennukset on suunnitellut sekä Saksassa että Sveitsissä toimiva arkkitehtitoimisto AFF Architekten, joka voitti niistä vuonna 2018 järjestetyn kutsukilpailun. Toimisto on ehtinyt saada jo valmiista ja keskeneräisestä rakennuksesta paljon kiitoksia ja tunnustusta. Myös Neuköllnin asukkaat ja satunnaiset ohikulkijat noteeraavat hyväksyvin nyökkäyksin nuo molemmat nykyarkkitehtuuria edustavat rakennukset. Joku ehti toki käyttää niistä ohimennen ja tarkoitushakuisesti myös sanaa ”gentrifikaatio”. Se määritelmä menee kuitenkin siinä mielessä metsään, että talojen toiminnalla ja olemuksella ei ole mitään tekemistä Berliinissä joka puolella eteen tulevien uusien ja kalliiden asuintalojen sekä entisten hyvin tavallisten ja jopa työväenluokkaisten ihmisten kaupunginosien vähittäisen aivan liian kalliiksi muuttumisen kanssa.

Arkkitehtitoimistolle tilaaja on sikäli ollut unelma-asiakas ja toimeksiantaja, että

4 Julkisivu pohjoiseen

5 Julkisivu länteen 3 Tjark

3 Vanhan Tempelhofin lentokentän kiitoradan betoniset valkoisiksi maalatut valopylväät on jätetty paikoilleen ja ne ovat osa katu- ja ympäristötilaa.

24 2 2024
GSPublisherVersion 6.98.100.36 0 1 5 10 Spore Initiative Ansicht Nord Näyttävä toiminta- ja oppimiskeskus Berliinin Neuköllnissä – SPORE
Spille

6 Kattoterassin sisäänkäynti.

7 Kierrätystiilien käyttöä julkisivuissa.

8 Osa vanhoista tiilistä on peräisin paikalta puretusta hautausmaan muuriaidasta.

25 2 2024
6 7 8
Spille
Tjark
Tjark Spille AFF

Näyttävä toiminta- ja oppimiskeskus Berliinin Neuköllnissä

säätiön tarkoitus ja toimintaperiaatteet ovat suorastaan kannustaneet hyvin kekseliäisiin ja ympäristön kannalta tavanomaista parempiin ratkaisuihin. Ajatuksena oli jopa sekin, että kalustustakaan ei hankittu vaikkapa Vitran tai vastaavien tyylisiltä saati halvempaa tavaraa myyviltä huonekaluyrityksiltä. Sen sijaan rakennukset päätettiin kalustaa sekä korkeatasoisin kiintein kalustein että valitsemalla jossain muualla aikaisemmin käytettyjä ja huolella kunnostetuilla tekstiilejä, mattoja ja huonekaluja. Niiden etsimisessä ja valikoimisessa mukana on ollut näistä asioista vastannut ammattilainen. Hän on hankkinut myös pari käytöstä poistettua suomalaisen muotoilija Eero Aarnion ”Pastilli” -tuolia. Lännen suuntaan avautuvan suuren ikkunan tuntumassa ja suoraan sisäänkäyntiä vastapäätä ne toimivat värikkäinä aulatiloja piristävinä katseenvangitsijoina.

Kun tulee sisälle katutason aulakerrokseen, on betoni vahvasti läsnä. Toinen merkittävä asia ovat näkymät sekä kadulle että puutarhan ja suuren hautausmaan suuntaan. Kalustus on ilmavaa ja miellyttävää ja aulan takaosassa sijaitseva kahvila on kookkaine hyvin hoidettuine viherkasveineen harvinaisen viehättävä. Sisääntulokerroksessa on myös pienempi suo-

raan kadulle avautuva näyttelygalleria sekä puutarhan ja hautausmaan puolella alaspäin portaittain laskeutuva auditorio kierrätettyine vanerisine kuppimaisine istuimineen –nekin kierrätystavaraa – ja kauniine terrazzo -lattioineen. Auditorio on erotettavissa aulatiloista metallisen taitteisen taustaseinän avulla.

Näyttelyjä ja näköalaikkunoita

Toisessa kerroksessa on myös suuri näyttelygalleria. Sillä on tietenkin laajoja yhtenäisiä seinäpintoja, mutta myös suuria sekä yllättäviä näkymiä ympäristöön avaavia ikkunoita: tiedämme koko ajan, missä olemme eli Berliinissä. Ylimmässä kerroksessa kadun puolella on upeata puusepäntyötä käsittävä korkealaatuisella tammella verhoiltu lämmintunnelmainen kirjasto sekä neuvottelutila sekä puiston suuntaan avautuva avara kokoontumistila, josta on pääsy kauniille kattoterassille. Sieltä johtaa suoraan puutarhan puolelle tiilisen muurin taakse kätketty ulkoporras. Rakennuksessa on myös taiteilijaresidenssiasuntoja ihmisille, jotka tekevät Sporen kanssa yhteityössä projekteja tai näyttelyitä.

Käsittelemätön betoni on sisätiloissa paljolti läsnä, seinissä, portaikoissa, kasetoidussa katossa, lattiassa jne. Siitä huolimatta

9 Sisäätuloaula, josta näkymä kabinettitilaan. Eero Aarnion suunnittelemat ”Pastilli” tuolit toimivat värikkäinä aulatiloja piristävinä katseenvangitsijoina.

10 Näkymä aulan kahvilasta.

26 2 2024
– SPORE
9 10
Hans-Christian
Schink Tjark Spille

Näyttävä toiminta- ja oppimiskeskus

Berliinin Neuköllnissä – SPORE

27 2 2024

Näyttävä toiminta- ja oppimiskeskus

11 Auditorion sisustusta ilmentävät betoniset pinnat ja suuret ikkunat.

12 Auditorion istuimet ovat kierrätettyjä ja ne voidaan siirtää uudelleen.

13 Keskusporras.

28 2 2024
– SPORE
Berliinin Neuköllnissä
11 12
Hans-Christian Schink Tjark Spille

Erikoinen ulokekatto, hauskoja yksityiskohtia

Varsinaisena erikoisuutena on aulatilan aitoa insinööriosaamista vaatinut ulokekatto, jonka lujuuslaskelmiin ja hahmottamiseen löytyi taitava konstruktööri Sveitsistä. Kunnianhimoiseen ratkaisuun päädyttiin, koska kadulle avautuvia lasipintoja ei haluttu rikkoa vertikaalisilla pilareilla tai muurirakenteilla.

Paikan olemusta ja betonia on sikälikin kunnioitettu, että historiastaan kuuluisan Tempelhofin lentokentän kiitorataa jatkavat betoniset valkoisiksi maalatut valopylväät on jätetty sijoillensa.

Sisääntulokerroksen betonisen katon kasetointi on jännittävän ja eloisan muotoinen. Myös akustiikka toimii hyvin. Alakaton kasettikuvio ei ole tarkan säännöllinen. Se onkin tarkkaan mitoitettu myös sen ulokefunktiota ajatellen.

Pohjakerroksessa yleisön saniteettitiloissa on eläinsairaalan ja -vastaanottotilojen entisiä posliinialtaita, joita on arkkitehtitoimiston ideoimina korotettu betonisina 3D-tulosteiden avulla. Wc-osastojen metalliset ovet ja väliseinäkkeet ovat nekin kierrätystavaraa.

Samanlaisia uudelleenkäyttö- ja kierrätysratkaisuja löytyy talosta muualtakin sekä ideoita käyttää hyvinkin tavanomaisia teollisia ratkaisuja oivaltavalla tavalla. Tällainen on esimerkiksi betonisten portaikkojen porrassyöksyjen väliin taiteiltu tanakka muutaman sentin paksuinen metalliverkko.

eurooppalaisen kahvilakulttuurin klassikkoja. Viihtyisäksi kahvilan tekevät näkymät sekä viherkasvien taakse puistoon ja puutarhaan että ulos kadulle ja aulaan. Kahvilan keittiökin avautuu yrttejä ja hyötykasveja kasvavaan puutarhaan, jonka hoidosta ja opetuskäytöstäkin vastaavat samat puutarhataiteen ja kaupunkiviljelyn ammattilaiset, jotka olivat luomassa Berliinin Moritzplatziin kuuluisaa Prinzessinengartenia.

”Betonivoita”

Yksi arkkitehtitoimiston keksintö on ns. "betonivoi". Betonipumppuihin työmaavaiheen aikana jäänyt ylimääräinen punertava betoni keksittiin kaataa paksusta muovista tehtyihin säkkimäisiin muotteihin.

Yksi niistä onkin katutilan katseenvangitsija, jota rakennuksen sisäänvedetyt maksimaalisen läpinäkyvien seinäpintojen linjat sekä betoniset ja tiilipintaiset seinät ylempänä ympäröivät. Valopylväiden lentokentän suuntaan vähittäin madaltuva rivistö jatkuu tietenkin myös puutarhan ja hautausmaan puolella.

Näin syntyikin kuin vahingossa möhkälemäisiä esineitä, jotka hämmästyttivät muodollaan ja olemuksellaan. Samoin kuin voipaperi tekee pehmeälle voille, paksut mustat ja sileät kalvot jättivät ryppyjä ja jälkiä betoniin. Tämä antoi erittäin yksilöllisen ulkonäön jokaiselle kappaleelle. Kiinnostavan näköisistä tuotteista keksittiin tehdä tammipuisiin jalustoihin rakennuksen kokonaistunnelma on kutsuva ja lämmin. Huolimatta siitä, että ulospäin rakennus saattaa kadun puolella antaa muurimaisen vaikutelman, on se – kiitos taitavan arkkitehtisuunnittelun – myös sisältä todella hienolla tavalla ympäristöön avautuva.

Kokonaisuus on erinomaisesti viimeistelty, aina kasveja varten valittuja suuria lasitettuja terrakottaruukkuja myöten. Kahvilan kalusteet ovat kunnostettuja perinteisiä ja korkeatasoisia

29 2 2024
toiminta- ja oppimiskeskus Berliinin Neuköllnissä – SPORE 13 Hans-Christian Schink
Näyttävä
30 2 2024 Näyttävä toiminta- ja oppimiskeskus Berliinin Neuköllnissä – SPORE 10 10 10 Detailschnitt 1 1 38 8 10 17 5 56 18 15 1 Ortbeton Randunterzug 2 Ortbeton Unterzug 3 integrierte Holzbetonabsorber, trapezförmig
integrierte Beleuchtung 5 Schalkörper Holz, CNC hergestellt, mit Bohrung für Leerrohre 4 OK Fertigfußboden UK Unterzug OK Rohdecke 2 1 3 5 0 1 5 10 Spore Initiative Deckenuntersicht Erdgeschoss 10 10 10 Detailschnitt 1 1 38 8 10 17 56 18 15 1 Ortbeton Randunterzug 2 Ortbeton Unterzug 3 integrierte Holzbetonabsorber, trapezförmig 4 integrierte Beleuchtung 5 Schalkörper Holz, CNC hergestellt, mit Bohrung für Leerrohre 4 OK Fertigfußboden UK Unterzug OK Rohdecke 2 1 3 5 0 1 5 10 Spore Initiative Deckenuntersicht Erdgeschoss 14 15 16 Katon poikkileikkaus 17 AFF Tjark Spille
4

Näyttävä toiminta- ja oppimiskeskus Berliinin Neuköllnissä – SPORE

14 Betoninen hunajakennomainen kasettikatto.

15 Kasettikaton piirros.

17 Kattorakenteen betonivalu käynnissä.

18 Ylijäämäbetoni valettiin muovisiin säkkimäisiin muotteihin. Syntyneille tuotteille ja kappaleille annettiin nimeksi "betonivoi".

19 Ylijäämäbetonista valetuista kappaleista rakennettiin muun muassa yksilöllisiä istuimia pääsisäänkäynnin edustalle ja pihalle.

tukeutuvia rakennelmia, jotka toimivat mainiosti istuimina Spore-rakennuksen ympäristössä.

Suuren näyttelyhallin päällä sijaitsevan katon ja kattoterassin betonivaluissa käytettiin muoteissa puuosia ja -palkkeja. Auditorion betonikaton valujen kovettumisen jälkeen puuosat poistettiin, puhdistettiin ja varastoitiin kuivumaan. Sen jälkeen puutavara tarkastettiin, lajiteltiin ja numeroitiin huolellisesti. Palkkien erilaisista pituuksista johtuen niitä yhdistettiin puusepänliitoksella, jotta saavutettaisiin terassille rakennettavaan katokseen tarvittavat mitat. Lopuksi jatkokäsitellyt palkit asennettiin terassin ulkokatoksen rakenteeksi.

Saniteettikalusteet

Kierrätetyt pesuallaskalusteet olivat uutta käyttöä ja erkonomiaa ajatellen liian matalat, vaikka muuten moitteettomat. Arkkitehti keksi valmistaa niille eräänlaiset proteesit eli lisäjalat. Ne on digitaalisesti mallinnettu, 3D-tulostettu ja valmistettu betonista. Näin on voitu käyttää alkuperäisiä tuotteita niiden omiin mittoihin kajoamatta.

Julkisivujen tiilipinta

Berliinissäon jo aiemmin käytetty poltettuja tiiliä uudelleen. Kierrätetyt tiilet ovat houkuttelevia paitsi ekologiselta, kiertotalouden, mutta myös esteettiseltä kannalta. Julkisivuissa on leikitelty vanhan eli kertaalleen käytetyn ja uuden sekä samalla karkean ja sileän pinnan välillä ja näin saatu aikaiseksi mielenkiintoinen kontrasti.

Spore-rakennuksen julkisivua koristavat sekä uudet että toisaalla aiemmin käytetyt Rheinbrohlin tiilet. Ne pelaavat hyvin yhteen myös paikalla valetun betonisen maantasokerroksen värityksen kanssa.

Optimoituja betonirakenteista

Betoninen hunajakennomainen kasettikatto pylväsvapaiden aulatilojen poikki pohjakerroksessa optimoi materiaalin käytön ja muodostaa samalla osan rakennuksen identiteettiä.

"Spore-katto" on paikallavalettu uritettu laatta, jonka jänneväli on jopa 12 m. Laatan keskipaksuus on 14 cm (18/10) ja ohuet rivat ovat 15 cm leveitä ja 38 cm korkeita. Monoliittiset, betoniset porras- ja sisätilojen seinärakenteet tukevat samalla kattorakenteita. •

31 2 2024
AFF AFF
18 19
32 2 2024 Näyttävä toiminta- ja oppimiskeskus Berliinin Neuköllnissä – SPORE 20 21 22
Tjark Spille Tjark Spille Tjark Spille

Näyttävä toiminta- ja oppimiskeskus Berliinin Neuköllnissä – SPORE

ab. öffentlich befinden sich die Waschbrunnen und einem frühen

20 Näkymä yläkerran kirjastosta.

21 Yäkerran kirjaston yksityiskohtia sisustuksesta.

Metallische Stahl sind spannenden hergestellten

22 Kirjaston sisustuksen rakennettua kalustusta.

Gebäudeteil

Lagerflächen für dienenden, internen

Raumkontinuum mit Raumbereiche wie werden durch die Stadtraum zur Jerusalem-Friedhofs außen nach fließenden zoniert das

geometrisch den überspannt den Kräfteverlauf lastabtragenden eigenständiger kleiner Garderobe und dem

Struktur einer »Sporedecke«. und erzeugt

Spore Initiative

Textur der und durch Bedämpfung.

Location: Berlin, Germany

Year completed: 2023 (Year began 2019)

23 Kellarikerros

24 Sisääntulokerros ja sen kattopalkit

2023 »Spore Initiative« Grundriss Untergeschoss

konzipiert und der »Spore sich zwei große als sogenannte

Einbauten

Materialkontrast zum repräsentative Obergeschoss und Entlang des Rollgittertor und südlichen

Studios: AFF Architekten

Collaborators:

Building technology: W33 Ingenieurgesellschaft mbH

Ausstellungsbesucher den Hermannstraße und Konzentration durch die

Structural engineering: Schnetzer Puskas

International Landscape architect: POLA

Landschaftsarchitekten GmbH

Construction manager: Sedeño Bauplanung

OBERGESCHOSS

Vorhang zum bildet ein Eichenholzdielen

GmbH Interiors: Ilja Oelschlägel

Lighting: Licht Kunst Licht AG

Others: Heike Laser

dient ein 3.Obergeschoss. Eine ergänzen die im Künstler-Apartments

Project management: SMV Bauprojektsteuerung

Fire consulting: Peter Stanek

Building physics: BBS INGENIEURBÜRO

fort und ist in streifenartig durch Treppe führt über der und die Dickicht, welches Wetterschutzdach in liegenden

Total area: 1.156 m2

Usable floor area: 4.116,57 m2

Client: Schöpflin Stiftung

More information: www.aff-architekten.com

Initiative« Grundriss Erdgeschoss

33 2 2024 GSPublisherVersion 6.98.100.36 0 1 5 10 Spore Initiative Grundriss Untergeschoss
0 1 5 10 Spore Initiative Grundriss 1.Obergeschoss Ausstellungsgeschoss
GSPublisherVersion 6.98.100.36 0 1 5 10 Spore Initiative Grundriss Erdgeschoss 2023
25 2. kerros: näyttelytilat 26 3. kerros: kirjasto, työpajatilat ja kattoterassi
»Spore

Näyttävä toiminta- ja oppimiskeskus

27 Pohjakerroksessa yleisön saniteettitiloissa on muun muassa eläinsairaalan ja -vastaanottotilojen entisiä posliinialtaita, joita on korotettu betonisin jalustoin. Wc-osastojen metalliset ovet ja väliseinäkkeet ovat nekin kierrätystavaraa.

28 Kierrätetyt pesuallaskalusteet olivat uutta käyttöä ja erkonomiaa ajatellen liian matalat. Näille kalusteille rakennettiin betoniset lisäjalat.

29 Näyttelygalleriassa on laajoja yhtenäisiä seinäpintoja, mutta myös avaria näkymiä ympäristöön.

34 2 2024
Berliinin Neuköllnissä – SPORE
27 28
Tjark Spille Tjark Spille

Näyttävä

Spore initiative – a multifunctional building & cultural center in Berlin Neukölln

The ‘Spore Initiative’ was completed in 2023, designed for the non-profit foundation Spore Initiative and is located in the bustling urban neighborhood of Hermannstraße in BerlinNeukölln.

Serving as a community space and cultural center, the multifunctional building orients its ground floor towards public use with an interplay of open, flowing spatial areas and spatially separated cores zones including a foyer, an auditorium, several spaces for workshops, conference and social interaction, as well as a café.

A semi-public library, rooms for workshops and lectures as well as more private offices space and two apartments for in-house artists compose the second and third floors, along with, a semi-public roof terrace offering impressive views to the lively urban neighborhood and peaceful former cemetery.

Together with the neighboring ‘Publix: House for Non-Profit Journalism’ the Spore Initiative creates an urban building ensemble.

An ”Ort des Zusammenkommens”, meaning a place of gathering, structures the core idea of the building typology, formulated through differentiated open spaces in conjunction with its spatial functions.

The facade reflects the stacking of various functions, from the generous structural glazing on the ground floor visually connecting the urban space with the interior, the layering of reused clinker bricks that shape the exhibition floor and the crowning of the upper two floors with new-fired brick to highlight the tapering of the building. The different materials were sensitively matched to each other in their feel and color and combine in their respective monolithic joining to form a continuous façade cladding.

An exposed concrete ribbed ceiling cantilevers across the column free foyer spaces on the ground floor generating a honeycomb-like structure, coined as the ‘spore ceiling’, that opti mizes the use of material while forms part of the building’s identity.

The ‘spore ceiling’ was developed in conjunction with the structural engineers with the aim to create the greatest possible spatial coherence.

As a result, an extremely material-optimized exposed concrete ribbed slab was implemented, which spans of up to 12 m. The material-reduced flat slab with an average thickness of 14 cm (18/10) and the slim ribs that are only 15 wide and 38 cm high were made possible by large reinforcement diameters.

Monolithic cores made of reinforced concrete support the ceilings load’s and include features such as a café, cloakroom and an additional exhibition space.

The interior is defined by the two main materials, oak wood and exposed concrete. Galvanized steel components complement the material concept on load bearing structures.

In addition to the re-used bricks of the façade, part of the formwork elements of the spore ceiling could be used as structural timber for the roof pavilion. The entire interior of the Spore was furnished by the ‘Spore initiative’ itself with lovingly selected objects and collected, reused furniture.

35 2 2024
toiminta- ja oppimiskeskus
Neuköllnissä – SPORE 29 Hans-Christian Schink
Berliinin

Carbonaide-teknologia kaupallistumisvaiheessa

Nopeaa skaalautumista selittää

betoniteollisuuden hyvä ekosysteemi.

Tapio Vehmas, toimitusjohtaja Carbonaide Oy tapio.vehmas@carbonaide.com

Carbonaide -teknologia on alun perin Teknologian tutkimuskeskus VTT:n laboratorioissa kehitetty prosessi. Ensimmäisissä kokeissa karbonisoimme muutamia grammoja laastia VTT:n laboratorioissa.

Vuoden 2023 alussa käynnistimme jo teknologian teollisen mittakaavan pilotointiin tähtäävän projektin yhteistyössä Rakennusbetonija Elementin kanssa. Rakennusvaihe valmistui elokuussa 2023 ja tuotantoon laitteisto siirtyi vuoden 2024 alkupuoliskolla.

Nykyinen tuotantolaitteisto kykenee teolliseen tuotantoon ja sitomaan tonneja hiilidioksidia vuorokaudessa. Muutaman laasti gramman karbonatisoinnista olemme edenneet pitkälle.

On erittäin harvinaista, että tutkimuslähtöinen syväteknologiayritys kykenee skaalaamaan teknologian teolliseen tuotantoon alle vuodessa. VTT:n spinoff -yrityksillä kestää yleensä useita vuosia ja monia rahoituskierroksia, ennen kuin yritys aloittaa teollisen pilotoinnin.

Selittävä tekijä nopealle kehitykselle on Suomen betoniteollisuuden hyvä ekosysteemi. Meidät on otettu joka puolella todella hyvin vastaan. Kaikki ovat olleet kiinnostuneita teknologiasta ja pyrkineet auttamaan meitä mahdollisuuksien mukaan. Ilman muilta toimijoilta saamaamme merkittävää apua ja VTT:n projekteissa kehittynyttä erittäin hyvä alihankkijaverkostoa emme olisi saaneet tällaista vauhtia aikaiseksi.

Carbonaide -teknologia on betonin jälkihoitomenetelmä, jossa betonituotteet jälkihoidetaan hiilidioksidiatmosfäärissä. Hiilidioksidi reagoi kovettuvan betonin kanssa, parantaa tuotteen ominaisuuksia ja tuo samalla merkittäviä kustannussäästöjä. Hiilidioksidi muuttuu prosessissa erilaisiksi mineraaleiksi ja varastoituu betoniin pysyvästi.

Hollolan projektissa oli merkittävä rooli betonituotekoneita valmistavalla joensuulaisella yritys Mecmetal Oyllä. Suunnittelimme ja toteutimme sen asiantuntemuksella Hollolaan soveltuvan kaasutiiviin kuivaamoratkaisun.

Carbonaiden seuraava haaste on rakentaa teknologiasta kaupallisesti menestyvä tuote. Hollolan koetuotannon perusteella on määritetty prosessin kustannusvaikutus betonituotteiden valmistukseen. Meillä on erittäin hyvä käsitys budjettihaarukasta, jolla teknologiamme on järkevä investointi.

Carbonaidella on käynnissä tuotekehitysprojekti, jonka lopputuloksena on teknologian

1 Carbonaiden operatiivinen johtaja Jonne Hirvonen ja toimitusjohtaja Tapio Vehmas sekä Rakennusbetoni- ja Elementti Oy:n toimitusjohtaja Teemu Teno.

2 Carbonaide-teknologialla tuotettiin ensin koe-erä pihalaattoja. Laatat valmistettiin Rakennusbetonija Elementti Oy:n tehtaassa, ja ne ovat nyt käytössä Skanskan rakennuskohteessa.

36 2 2024
1
Rakennusbetonija Elementti Oy
37 2 2024 2 VTT
38 2 2024 3 Carbonaide-teknologia kaupallistumisvaiheessa
ja Elementti Oy
Rakennusbetoni-

4

3 Ensimmäinen Carbonaiden teknologiaan perustuva kaupallinen tuote – väliseinäelementti – on nyt jatkuvassa tuotannossa ja kaupallisesti saatavilla.

4 Hiilensidontamenetelmä soveltuu hyvin myös pihakivituotantoon.

kaupallisesti toimiva versio. Tavoitteenamme on kattaa teknologiaan tarvittava investointi kustannussäästöillä ja tuotannon nopeutumisella. Emme laske betonin vihreälle siirtymälle rahallista arvoa.

Carbonaiden jälkihoitoteknologia tarvitsee toimiakseen hiilidioksidia. Olemmekin joutuneet rakentamaan oman hiilidioksidiarvoketjumme.

Kun aloittelimme teknologian kaupallistamista, meille ei tullut ensimmäisenä tullut mieleen, että hiilidioksidin saatavuudessa voisi olla haasteita. Ilmastomuutoksesta ja hiilidioksidin talteenottoon liittyvistä hankkeista uutisoidaan säännöllisesti. Tulikin puskista, että teollista hiilidioksidia ei ole saatavilla ja kun sitä on, hinta moninkertainen sementtiin verrattuna. On ironista, että tällä hetkellä yksi suurimmista hiilidioksidilähteistä on edullisempaa kuin itse hiilidioksidi.

Ratkaisun tarjoaa vapaaehtoinen päästökauppa, jossa suuret yritykset kompensoivat päästöjään ostamalla sitoutunutta hiilidioksidia Carbonaiden kaltaisilta toimijoilta. Yhdistämällä vapaaehtoinen päästökauppa hiilidioksidiarvoketjuun, pystymme tarjoamaan hiilidioksidin jälkihoitoprosessiin erittäin kilpailukykyiseen hintaan eikä hiilidioksidi muodostu esteeksi kannattavalle toiminnalle.

Hiilidioksidi voidaan myös jättää osaksi betonituotetta, jolloin sitoutunutta hiilidioksidia ei hyödynnetä vapaaehtoisessa päästökaupassa. Rakennusbetoni on lähtenyt rohkeasti testaamaan markkinoita tällaisilla tuotteilla. Nyt nähdään kysyntää tuotteilla, joissa maksetaan hiilensidonnan todellisia kustannuksia •.

Carbonaide Oy on Teknologian tutkimuskeskus VTT:ltä peräisin oleva startup -yritys. Yrityksen tavoitteena on kaupallistaa VTT:n kehittämää Carbonaide -teknologiaa. Carbonaide Oy:tä vetää menetelmän kehittäjä Tapio Vehmas.

39 2 2024
Carbonaide-teknologia kaupallistumisvaiheessa Vilho Visuals

CO2 on otettu Hollolassa hyötykäyttöön

Dakota Lavento, toimittaja

Rakennusbetoni- ja Elementti Oy:n tuotantolinjalta valmistuivat keväällä ensimmäiset kaupalliset Carbonaide-menetelmällä valmistetut betonituotteet – maailman ensimmäiset CO2-mineralisoidut väliseinäkivet. Uudessa vähähiilisessä Väliseinäkivi 88:ssa on tuotteen painosta 2,6 prosenttia hiilidioksidia ja normaalikiveen verrattuna 40 prosenttia vähemmän sementtiä.

Väliseinäkivi 88:n lisäksi tehtaalla voidaan Carbonaide-menetelmällä valmistaa myös pihakiviä, joista ensimmäiset menevät Uudenajan rakentamisen festivaaleille 2024 Keski-Uusimaan koulutusyhtymä Keudan oppilaiden toteuttamaan Uniikki hirsitalo -kohteeseen.

Vastuu yhteisestä ympäristöstä Hollolalainen Rakennusbetoni- ja Elementti Oy perustettiin vuonna 1966 yhden Suomen merkittävimmän pohjavesiesiintymän päällä. Niinpä yrityksessä on paneuduttu ympäristön kestävyyteen ja ympäristöstä huolehtimiseen tavanomaistakin perusteellisemmin jo alusta lähtien. Vastuullisuudesta ja suunnannäyttä-

Rakennusbetoni- ja Elementti Oy:n Hollolan tehtaalla tuotteisiin sitoutettu hiilidioksidi laskee hiilijalanjälkeä, parantaa tuoteominaisuuksia ja säästää tuotantokustannuksissa.

jänä toimimisesta on tullut luontevasti osa yrityksen arkea, strategiaa ja imagoa.

”Pitkään keskityimme toki pitämään erityisesti oman tontin puhtaana ja toimimaan siinä suhteessa vastuullisesti. Rakentamisessa suuntaus vie kohti ympäristöystävällisempiä ja vähäpäästöisempiä rakennusmateriaaleja. Noin kahdeksan prosenttia maailman hiilidioksidipäästöistä johtuu sementin tuotannosta. Meillekin on viimeisen kymmenen vuoden kuluessa muodostunut yhä tärkeämmäksi kyetä valmistamaan mahdollisimman vähäpäästöisiä tuotteita. Siinä tuotantoprosessilla ja raaka-aineilla on suurin merkitys”, toimitusjohtaja Teemu Teno sanoo.

Kun Tapio Vehmas otti yhteyttä yritykseen kesällä 2020 etsiessään yhteistyökumppania, Tenon mukaan asiaa ei pitkään tarvinnut miettiä.

”Betoniteollisuudelle hiilidioksidin sitouttaminen tuotteisiin olisi hieno juttu, sillä tuotamme kuitenkin merkittävän osan maailman hiilidioksidipäästöistä. Tekniikka tuntui lupaavalta. Ajattelimme, että tällä toimintamallilla

voidaan oikeasti päästä tekemään vähäpäästöisiä betonituotteita.”

”Meitä kiinnosti, miten menetelmä voisi auttaa paitsi Rakennusbetoni- ja Elementti Oy:tä yrityksenä, mutta ennen kaikkea asiakkaitamme, kuluttajia ja rakennusliikkeitä matkalla kohti vähähiilisempää rakentamista.”

Pilottitehtaaksi joustavana ja dynaamisena yrityksenä tunnettu Rakennusbetoni- ja Elementti puolestaan oli nappivalinta, sillä se on aina painottanut voimakkaasti tuotekehitystä. Sen laajassa tuoterepertuaarissa menetelmää oli helppo testata.

Testeistä tuotantoon

Pilottikontti saapui tehtaalle syksyllä 2021 ja heti sen jälkeen alkoivat myös ensimmäiset testiajot. Teno sanoo, että alkuvaiheessa hanke ei vaatinut tehtaalta suuria panostuksia, sen enempää rahassa kuin työajassakaan. ”Toki testaukset häiritsivät hieman tuotantoa.”

Tuotantomittakaavan laitos tehtaalle rakennettiin keväällä 2023. Prosessilaitteisto on pystytetty kahteen merikonttiin ja neste -

40 2 2024
5 Carbonaide-teknologia kaupallistumisvaiheessa VTT

6

5 Carbonaiden pilotoinnin tuotanto-ympäristö betoniharkkojen valmistuksessa tehtaalla.

6 Tuotantomittakaavan laitos Hollolan tehtaalle rakennettiin keväällä 2023. Prosessilaitteisto on pystytetty kahteen merikonttiin ja nestemäinen hiilidioksidi tuodaan paikalle säiliössä.

7 Pilottikontti saapui tehtaalle syksyllä 2021 ja heti sen jälkeen alkoivat myös ensimmäiset testiajot. Kuvassa Tapio Vehmas esittelemässä prosessin toimintaa syksyllä 2023.

41 2 2024
7
kaupallistumisvaiheessa
Carbonaide-teknologia
Maritta Koivisto Maritta Koivisto

mäinen hiilidioksidi tuodaan paikalle säiliössä. Kovetustilojen on oltava kaasutiiviit. Ensimmäinen tuotantolinjasto valmistui elokuussa 2023 ja sen jälkeen menetelmää testattiin ja vaikutusta tuotteisiin ja tuotantoon selvitettiin puolisen vuotta. Kaupallisen tuotannon valmistelu aloitettiin vuoden alussa 2024.

Ensimmäisissä uudella linjalla valmistuneissa tuotteissa tavoitteena on ollut minimoida niiden hiilijalanjälki tavanomaista sementtiä käyttämällä (CEM I). Kokeiden jälkeen sementtiä korvattiin inertillä fillerillä 40 prosenttia.

Seuraavaksi tuotantoon on tarkoitus ryhtyä optimoimaan seossementtejä (CEM II/B ja CEM III/A) ja korvata inertti filleri hiilidioksidia sitovalla karbonatisoituvalla tuhkalla. Näin päästään jo todella alhaiseen hiilijalanjälkeen.

Carbonaide-menetelmällä valmistetun betonin laskennallinen hiilijalanjälki on –60 kiloa hiilidioksidia betonikuutiota kohden. Tavanomaisen betonin hiilijalanjälki on noin 250–300 kiloa hiilidioksidia kuutiota kohti.

Monenlaisia hyötyjä

Hiilidioksidin sitouttamisesta betonituotteeseen saadaan toki laskennallista hyötyä, mutta tuotannossakin hiilidioksidista on selvästi ollut etua. Kun tuotannossa hyödynnetään sementin sijaan vaihtoehtoisia sideaineita, teollisuuden sivuvirtoja, saadaan samalla sementtikin reagoimaan tehokkaammin.

Euromääräisesti suuri hyöty saadaan kuitenkin siitä, että karbonatisoitu betonituote kovettuu verrokkiaan nopeammin. ”Jos tuote on aikaisemmin ollut pari päivää kuivatusvarastossa, nyt riittää alle vuorokausi”, Teno huomauttaa.

Se merkitsee nopeampaa varaston kiertoa tai tarvetta pienemmälle kuivamisvarastolle.

Pihakivissä plussana on tuotteen visuaalisen ilmeen parantuminen, sillä kaiken sementin sitoutuessa kalkkihärmeongelmasta päästään lähes kokonaan.

Asiakkaan kannalta vähähiilisemmät betonituotteet ovat tietysti selvä etu. ”Uusi rakentamislaki astuu voimaan vuodenvaihteessa 2025. Vähitellen tiukentuviin päästökattoihin kannattaa jo varautua. Vähähiiliset ja kiertotaloutta edistävät ratkaisut ovat oiva mahdollisuus erottua markkinoilla”, Teno painottaa.

Tuotanto laajenee

Rakennusbetoni- ja Elementti Oy kasvattaa vähähiilistä tuotevalikoimaansa lähitulevaisuudessa ja tuo ratkaisuja kaikille tuotesektoreille.

”Haluamme tarjota tulevaisuudessa kattavat ratkaisut vähähiiliseen rakentamiseen niin ammattilaisille kuin kuluttajille.”

Teno sanoo, että jo neljäsosa pihakivi- ja harkkotuotannosta voisi olla vähähiilisiä, jos asiakkaat näin haluavat.

42 2 2024
8 Carbonaide-teknologia kaupallistumisvaiheessa VTT

8 Väliseinäkivi 88:n lisäksi tehtaalla voidaan Carbonaide-menetelmällä valmistaa myös pihakiviä. Pihakivissä plussana on tuotteen visuaalisen ilmeen parantuminen, sillä kaiken sementin sitoutuessa kalkkihärmeongelma myös vähenee.

Rakennusbetonija Elementti Oy

9 Carbonaiden menetelmä ei ainoastaan sido hiilidioksidia tehokkaasti, vaan myös vähentää sementin käyttöä, mikä on merkittävä askel kohti kestävämpää betonin tuotantoa. Lisäksi menetelmällä mahdollistuu entistä laadukkaampien tuotteiden valmistus. 9

Seuraavaksi tuotantoon saadaan muut kuivavaletut tuotteet, kunhan tuotantolinjaan ja varastoinvestointiin liittyvät kysymykset saadaan ratkaistua.

Nykyiset hiilidioksidin sitouttamiseen liittyvät, Hollolan tehtaalla olevat laitteet omistaa Carbonade. Varaston järjestelmän Carbonade sekä Rakennusbetoni- ja Elementti ovat tehneet yhteistyössä.

Teno huomauttaa, että vastaavaan laitteistoon investointikustannukset yltävät satoihin tuhansiin, jopa miljoonaan euroon.

”Olemme silti jo miettineet investointia AKOWALL-tuotelinjaamme. Se olisi kannattavaa, sillä vähähiiliselle AKOWALL-väliseinälle on selvästi jo ennakkokysyntää ja tuote on laajalti rakennusliikkeillä käytössä.”

Erään suuremman rakennusliikkeen tuotekehitysosasto on jo useampaan otteeseen käynyt Ruotsista asti Hollolassa tutustumassa Carbonade-jälkihoitomenetelmään ja keskustelemassa mahdollisesta koekohteesta.

Jo tuotannossa olevia vähähiilisiä Väliseinäkiviä ei toistaiseksi ole työmaille päätynyt. Johtunee ehkä siitä, että kohteita käynnistyy tänä vuonna kovin vähän.

Rakennusbetoni- ja Elementti Oy:llä on kunnianhimoiset tavoitteet vähähiiliseen ja lopulta hiilineutraaliin tuotantoon siirtymiselle. Teno kertoo, että vuonna 2030 koko tehtaan tuotekonetuotanto, siis pihakivet, harkot

ja AKOwall -väliseinät, voisi olla hiilineutraalia – edellyttäen, että hiilidioksidia on tarjolla riittävästi ja tuotteille markkinoilla on myös riittävästi kysyntää.

Laajat mahdollisuudet

Betonin hiilijälkeä pyritään pienentämään monellakin tapaa, ja Teno sanoo, että kaikki keinot ovat tarpeen. ”Carbonaiden tekniikka on merkittävä juuri siksi, että se ei kilpaile minkään toisen yksittäisen päästönvähennyskeinon kanssa. Sementtiä voidaan siis esimerkiksi korvata vähäpäästöisillä sideaineilla ja Carbonaide-menetelmä tuo lopputuotteeseen vielä lisähyötyä.”

”Jos menetelmä otettaisiin betonitehtailla laajalti käyttöön, rakentamisen hiilidioksidipäästöjä saataisiin vähennettyä merkittävästi. Tehtaitahan riittää jo Suomessa Euroopasta nyt puhumattakaan.”

Kun eurooppalaiset hankkeet hiilidioksidin talteen ottamiseksi savukaasuista enenevät, sitä alkaa olla markkinoilla edullisesti saatavilla.

”Meillä on tässä ensimmäinen kaupallinen menetelmä, jossa hiilidioksidia voidaan laittaa suoraan tuotteeseen. Betoniin hiilidioksidi sitoutuu pysyvästi. Kun voimme sen myös hyödyntää laskennallisesti, lopputuotteen päästöt saadaan hyvin alhaiseksi.”

”Ihanteellista tietysti olisi, jos hiilidioksidi otettaisiin talteen piipusta sementtiä valmistet-

taessa ja sitoutettaisiin betonia valmistettaessa takaisin. Päästöähän ei silloin syntyisi.”

Hinta laskee

Toistaiseksi hiilidioksidi on sementtiä kalliimpaa, joten myös Rakennustuote- ja Elementti Oy:n markkinoille tuomat tuotteet ovat noin parikymmentä prosenttia verrokkeja kalliimpia. Kun hiilidioksidia on tulevaisuudessa paremmin saatavilla, sen hinta laskee ja tuotteiden kilpailukyky paranee.

”Kun saamme tuotantokustannuksia laskettua, vähähiilisestä betonituotteesta voi tulla jopa normaalia edullisempi. •”

Lisätietoja: Rakennusbetoni-ja Elementti Oy, Teemu Teno, toimitusjohtaja teemu.teno@rakennusbetoni.fi puh. +358 40 755 6977

Tietoja Carbonaidesta:

VTT:n spinoff-yhtiö Carbonaide tarjoaa hiilidioksidin (CO2) hyödyntämis- ja varastointiteknologiaa (CCUS) betonielementtiteollisuudelle. Carbonaiden teknologia auttaa betonituotteiden valmistajia vähentämään tuotteissaan käyttämänsä sementin määrää ja hyödyntämään samalla betonituotteiden tarjoamaa pysyvää hiilidioksidivarastoa. Lisätietoja verkkosivuilta: www.carbonaide.com

43 2 2024
Carbonaide-teknologia kaupallistumisvaiheessa

LOIKKA – Tavoitteena puolittaa betonin hiilidioksidipäästöt

Jouni Punkki

Professori (POP), Betonitekniikka

Aalto-yliopisto

jouni.punkki@aalto.fi

Helmikuun 2024 lopussa päättyi betonialan yhteinen LOIKKA-hanke, jonka tavoitteena oli betonin hiilidioksidipäästöjen puolittaminen.

Päästöjen näin merkittävä vähentäminen tulee viemään aikaa ja siten tavoitteena on saavuttaa tämä 50% vähennys vuoteen 2028 mennessä. Tavoitteen saavuttaminen tälläkin aikataululla on haasteellista, tarkoittaahan se noin 600 000 tn vuosittaista päästövähennystä.

Koska LOIKKA-hankkeen tavoitteena oli saavuttaa merkittäviä päästövähennyksiä varsin nopeasti, tarvitaan toimenpiteitä, jotka voidaan ottaa nopealla aikataululla käyttöön ja lisäksi toimenpiteitä on voitava hyödyntää hyvin laajalti betonialalla. Siten katsottiin, että selvästi potentiaalisin vaihtoehto merkittäviin päästövähennyksiin on masuunikuonan laajamittainen hyödyntäminen. Muilla vaihtoehdoilla ei saavutettaisi riittävän suurta päästövähennystä ja esimerkiksi uusien sideaineiden käyttöönotossa menisi vuosia.

Perinteisen portlandklinkkerin valmistus aiheuttaa valtaosan betonin aiheuttamista päästöistä. Masuunikuonalla voidaan korvata portlandklikkeriä ja näin vähentää betonin päästöjä. Masuunikuonaa on verrattain hyvin saatavilla, sillä voidaan saavuttaa merkittäviä päästövähennyksiä ja lisäksi masuunikuonan käyttö on nykyisten betoni- ja sementtistandardien mukaista. Eurooppalaiset standardit sallivat korvata jopa 95% portlandklinkkeristä masuunikuonalla. Masuunikuonaa on käytetty betonissa jo kymmeniä vuosia, Keski-Euroopassa 100 vuotta. Toisaalta masuunikuonan

Loikka on Aalto-yliopiston ja teollisuuden yhteishanke betonin CO2 -päästöjen vähentämiseksi. Tavoitteena hankkeessa on ollut puolittaa betonin valmistuksesta aiheutuvat CO2 -päästöt.

Nopein ja tehokkain tapa vähentää betonin päästöjä on sideaineen päästöjen vähentäminen.

käyttömäärät ja -tavat eivät ole olleet vastaavat kuin mitä vähähiilinen betoni edellyttää. Siten masuunikuonan käyttö vähähiilisessä betonissa vaikuttaa betonin ominaisuuksiin, erityisesti betonin alkulujuuden kehitykseen. Lisäksi masuunikuonalla on vaikutuksia betonin säilyvyysominaisuuksiin, erityisesti betonin pakkassuolakestävyyteen. LOIKKA-hankkeen keskeisenä tavoitteena olikin ratkaista edellä mainittuja masuunikuonan tuomia haasteita ja siten helpottaa kuonabetonien laajamittaista käyttöä rakentamisessa.

LOIKKA-hanke koostui Aalto-yliopiston julkisesta tutkimushankkeesta sekä viidestä yrityshankkeesta. Osallistuneet yritykset olivat:

• Betolar Oyj

• Elematic Oy

• Finnsementti Oy

• Lammin Betoni Oy

• Joutsenon Elementti Oy

Aalto-yliopiston tutkimushanke ja yrityshankkeet muodostivat yhteisen Business Finland Co-innovation hankkeen, yrityshankkeiden tarkempi sisältö on yritysten sisäistä, luottamuksellista tietoa.

Hankkeen päärahoittaja oli Business Finland RRF ja hanketta rahoitettiin Vähähiilinen rakennettu ympäristö-ohjelman kautta. RRF-rahoitus tulee EU:n elpymisvälineestä. Hanketta rahoittivat myös osallistuivat yritykset ja Aalto-yliopiston tutkimushanketta rahoittivat myös Betoniteollisuus ry, Talonrakennusteollisuus ry sekä Väylävirasto. Hank-

keen kokonaiskustannukset olivat 3,4 milj. € ja hanke kesti 2 vuotta.

Viisi osaprojektia

Aalto-yliopiston tutkimushanke jakautui viiteen osaprojektiin:

1. Vähähiilisten betonien lujuudenkehitys

2. Vähähiilisten betonien säilyvyysominaisuudet

3. Betonien optimointi CO2-päästöjen kannalta

4. Vähähiilisten betonien tuotantotekniikka

5. Tulevaisuuden ratkaisut betonin CO2-päästöjen vähentämiseksi

Kahdessa ensimmäisessä osaprojektissa keskityttiin masuunikuonan käytön aiheuttamiin käytännön haasteisiin. Miten kuonabetonin lujuudenkehitys saataisiin vastaamaan nykyisten rakentamistapojen vaatimuksia. Mikäli vähähiilisen betonin käyttö olennaisesti hidastaa rakentamisprosesseja, vähähiilistä betonin voidaan käyttää vain joissakin käyttökohteissa ja siten vähähiilisen betonin käyttö ei tule

1 LOIKKA-hankkeessa tavoitteena on vähentää betonin CO2-päästöjä eri betonialan valmistajilla. Kuvassa Lammin Betoni Oy:n harkkojen valmistusta, jossa on tehty toimia vähähiilisyyden edistämiseksi.

44 2 2024
45 2 2024
Oy 1
Lammin Betoni

LOIKKA – Tavoitteena puolittaa betonin hiilidioksidipäästöt

2 Periaatteellinen kuva LOIKKA-hankkeessa tutkittujen sementtien alkulujuuden kehityksestä. CEM II/B edustaa vertailutasoa ja CEM III/A ja CEM III/B tutkittavia vähähiilisiä kuonasementtejä.

saavuttamaan tavoitetasoa. Myös kuonabetonien säilyvyysominaisuuksien tuntemisen on tärkeää. On tiedossa, että masuunikuonalla on positiivisia vaikutuksia tiettyihin säilyvyysominaisuuksiin, mutta masuunikuona tunnetusti heikentää betonin pakkassuolakestävyyttä, mikä on tärkeä ominaisuus erityisesti infra-rakenteissa. Onkin tärkeää tietää esimerkiksi maksimikuonamäärä, jota voidaan käyttää infra-rakenteissa.

Muissa osaprojekteissa keskityttiin enemmänkin muihin mahdollisiin toimenpiteisiin betonin hiilidioksidipäästöjen vähentämisesti. Osaprojektissa 5 kartoitettiin kattavasti eri vaihtoehtoja pidemmällä aikavälillä päästöjen vähentämiseksi.

Vähähiilisten betonien lujuudenkehitys Masuunikuonan osuuden noustessa korkeammaksi lujuudenkehitys muodostuu helposti haasteelliseksi. Normaalitilanteessa masuunikuona ei juurikaan anna lujuutta ensimmäisten vuorokausien aikana, lujuudenkehitys on lähes yksinomaan portlandklinkkerin varassa. Ja esimerkiksi CEM III/B-tyypin sementissä on klinkkeriä vain noin 30% sideaineen määrästä. Myöhemmin masuunikuonalla on positiivinen vaikutus betonin lujuuteen, loppulujuudessa kuonasementti ylittää usein portlandsementin lujuuden.

LOIKKA-hankkeessa tavoitetasoksi asetettiin Finnsementin Oiva-sementin (CEM II/B) lujuudenkehitys. Kyseinen sementti ei ole lujuudenkehitykseltään nopein sementti, mutta nähtiin epärealistiselta tavoitella nopeasti kovettuvien sementtien tasoa. Tavoitteena oli että CEM III/A- (kuonaa noin 40%) ja CEM III/B-tyypin (kuonaa noin 70%) semen-

3 Tutkittujen sementtien hiilidioksidipäästöt. Lähde: BY-Vähähiilisyysluokitus www.vahahiilinenbetoni.fi

teillä voitaisiin saavuttaa vastaava lujuudenkehitys kahden ensimmäisen vuorokauden aikana kuin valitulla vertailusementillä. Koska masuunikuona hidastaa merkittävästi betonin lujuudenkehitystä, tarvitaan muita toimenpiteitä, joilla masuunikuonan lujuudenkehitystä voidaan nopeuttaa. Tällaisia toimenpiteitä ovat erityisesti terminen ja kemiallinen aktivointi. Myös perinteisiä kiihdyttimiä voidaan hyödyntää. Termisellä aktivoinnilla tarkoitetaan betonin lämpökäsittelyä. Lämpö nopeuttaa sementin reaktioita ja masuunikuonan tiedetään reagoivat voimakkaasti lämpöön. Kemiallisessa aktivoinnissa betoniin lisätään sellaisia kemikaaleja, jotka lisäävät masuunikuonan liukenemista alkuvaiheessa ja toisaalta edesauttavat masuunikuona partikkelien pinnalla tapahtuvaa kiteytymistä. Lujuuden kehityksen nopeuttaminen vaatii sekä liukenemisen että kiteytymisen nopeuttamista ja siten tarvitaan yleensä useampia kemikaaleja halutun vaikutuksen aikaan saamiseksi.

Aalto-yliopiston kokeissa havaittiin, että CEM III/A-tyypin nopeuttaminen vertailusementin (CEM II/B) tasolle onnistuu varsin helposti. Laboratoriokokeissa siihen riitti noin 15 kWh/m3 suuruinen lisälämpö ensimmäisen 10 tunnin aikana. Myös kemiallisella aktivoinnilla päästiin varsin helposti vertailusementin tasolla, esimerkiksi 1% Na2SO4:a riitti kiihdyttämään CEM III/A sementin vertailusementin tasolle. Toisaalta on huomattava, että CEM III/ A-sementti on lujuuden kehitykseltään varsin lähellä vertailusementin tasoa.

Sementin CEM III/B osalta tilanne onkin sitten selvästi haastavampi. Sementti sisältää noin 70% masuunikuonaa ja siten vain

30% portlandklinkkeriä. Laboratoriokokeissa tavoitteeseen ei päästy lämpökäsittelyn eikä myöskään termisen aktivoinnin avulla. Kuitenkin kun yhdistettiin terminen ja kemiallinen aktivointi, tavoitetaso saavutettiin. Erityisesti kemiallinen aktivointi kaipaa vielä lisätutkimuksia ja myös kaupallisia toimijoita, betonissa käytettävät lisäaineet pitää olla hyväksyttyjä. Osaprojektin tutkimuksista ovat vastanneet post-doc tutkija Anna Antonova ja väitöskirjatutkija Ekaterina Illarionova, Osaprojektiin liittyen on lisäksi tehty kolme diplomityötä.

Vähähiilisten betonien säilyvyysominaisuudet

Säilyvyysominaisuuksiin osalta LOIKKAhanke keskittyi kuonabetonien pakkasenkestävyyteen. Pakkasenkestävyyden tiedetään olevan haasteellinen kuonabetoneilla, varsinkin kun kuonan osuus nousee korkeammaksi. Tutkimusten tuloksia on esitelty jo aikaisemmin Betoni-lehdessä 04/2022, Ahsan Iqbal teki diplomityönsä aiheesta.

Hankkeessa tutkittiin masuunikuonan vaikutuksia betonin pakkasenkestävyyteen (XF1 ja XF3), pakkassuolakestävyyteen (XF2 ja XF4) sekä karbonatisoitumiseen. Lisäksi tutkittiin testausajankohdan sekä karbonatisoitumisen vaikutuksia laattakokeen tuloksiin.

Kriittisen kuonamäärän osalta koetulokset tukevat vallitsevaa käsitystä, yli 50% kuonamäärät heikentävät merkittävästi betonin pakkassuolakestävyyttä. 50% raja on Suomessakin käytössä, eikä sen suhteen nähdä muutostarpeita. Pakkaskestävyyteen ilman klorideja kuonalla ei ole juurikaan vaikutusta ja siten kuonabetoneita voidaan käyttää rasitusluokissa XF1 ja XF3. Kuona kasvattaa betonin

46 2 2024

LOIKKA – Tavoitteena puolittaa betonin hiilidioksidipäästöt

4 Periaatekuva portlandklinkkerin ja masuunikuonan reaktioista. CEM I-tyypin sementti koostuu portlandklinkkeristä, CEM III/A sisältää noin 60% portlandklikkeriä ja 40% kuonaa ja CEM III/B-tyypin sementti 30% klinkkeriä ja 70% kuonaa. 15 min kohdalla veden lisäämisestä klinkkeripartikkelit liukenevat nopeasti, mutta kuonapartikkelit hyvin hitaasti. Noin 3 tunnin kohdalla alkaa tapahtua kiteytymistä klinkkeripartikkelien pinnalla, mutta kuonan pinnalle kertyy ioneita, jotka entisestään hidastavat kuonan liukenemista. 24 tunnin kohdalla klinkkeripartikkelien pinnalla tapahtuu voimakasta kiteytymistä, kun taas kuonapartikkelien pinnalla tapahtuu vain hidasta kiteytymistä. Myöhemmin myös kuonapartikkelien pinnalla tapahtuu voimakasta kiteytymistä. Malli: Dr. Anna Antonova, Aalto-yliopisto.

47 2 2024

karbonatisoitumisnopeutta ja tämä on huomioitava terästen korroosion osalta.

Nykyvaatimusten (CEN/TS 12390-9) mukaisesti, laattakoe aloitetaan 28 vuorokauden ikäisenä riippumatta esimerkiksi betonin laadunvarmistusiästä. Hankkeessa tutkittiin testausajankohdan sekä myös koekappaleiden olosuhteiden vaikutuksia laattakokeen rapauma-arvoon. CEM III-tyypin sementeillä testausajakohdan siirtäminen 91 vuorokauden kohdalle vaikutti merkittävästi rapauma-arvoon. Mikäli koekappaleet pääsivät karbonatisoitumaan 28 ja 91 vrk välillä, rapauma-arvo kaksinkertaistui. Vastaavasti mikäli koekappaleen säilytettiin vedessä vastaava ajanjakso, rapauma-arvo puolittui. Vuoden jälkeen karbonatisoituneiden koekappaleiden rapauma on noin 10-kertainen verrattuna vedessä säilytettyihin koekappaleisiin. Voidaankin todeta, että kuonabetonit ovat erittäin herkkiä olosuhteille ennen varsinaista testausta ja asia vaatii lisätutkimuksia. Pakkasenkestävyystutkimukset jatkuvat uudessa kansallisessa Pakkas-projektissa ja lisäksi Ahsan Iqbal on aloittanut väitöskirjatutkimuksensa liittyen betonin pakkasenkestävyyteen.

Betonien optimointi CO2-päästöjen kannalta

Masuunikuonan käytön lisäksi päästövähennyksiä voidaan saavuttaa, mikäli betonin sementtimäärää voidaan vähentää. Betonin sementtimäärään vaikuttaa olennaisesti kiviainesten vedentarve, koska vesi-sideainesuhde määrää betonin ominaisuudet. Esimerkiksi jos kiviainesten vedentarvetta pystyttäisiin alentamaan 10 dm3/m3, voitaisiin sementtimäärää alentaa noin 20 kg/m3 ja saavutettaisiin noin 15 kg-CO2 eq/m3 päästövähennys.

Hankkeessa tutkittiin 12 eri kiviaineslaatua. Erityisesti analysoitiin kiviainesten veden-

tarpeeseen vaikuttavia tekijöitä kuten partikkelikokojakaumaa, mineraalikoostumusta, kiillemineraalien määrää, hienoaineksen ominaispinta-alaa sekä partikkelien muotoa. Vaikutuksia työstettävyysominaisuuksiin arvioitiin NZ Flow Cone-testimenetelmällä sekä laastikokeella. Tärkeimmiksi ominaisuuksiksi veden tarpeen kannalta tunnistettiin hienoaineksen määrä ja sen ominaispinta-ala. Hienoainesten määrään ja ominaispinta-alaan vaikuttaa erityisesti kiillemineraalien määrä sekä kivien metamorfoosioaste.

Kiviaineksen vedentarvetta pystytään varsin tehokkaasti mittaamaan Uuden-Seelannin suppilokokeen avulla (NZ Flow Cone), mutta jo pelkkä hienoaineksen määrä (< 63 mikronia) antaa kohtalaisen arvion.

Kiviaineksia tulisi jatkojalostaa niin, että vedentarvetta saataisiin alhaisemmaksi. Louhinnalla ja murskausprosessilla voidaan jonkin verran vaikuttaa hienoaineksen määrää, mutta merkittävämpiä muutoksia saadaan aikaiseksi hienoaineksen mekaanisella poistolla. Lisähaasteita vedentarpeen osalta tuo murskattuihin kiviaineksiin siirtyminen myös hienojen lajikkeiden osalta. Tutkimuksessa olleiden murskattujen kiviainesten vedentarpeen olivat selvästi korkeampia kuin luonnonmuovaamien kiviainesten.

Osaprojektissa ei päästy varsinaiseen reseptioptimointiin, mutta reseptioptimoinnin uskotaan antavan merkittäviä päästövähennyksiä. Osaprojektin tutkijana toimi väitöskirjatutkija Ville Repo

Vähähiilisten betonien tuotantotekniikka Osaprojektin alkuperäisenä tavoitteena oli kehittää tuotantotekniikka vähähiiliselle betonille. Painopiste oli vähähiilisten betonien lujuudenkehityksessä työmaaolosuhteissa ja lisäksi nähtiin tärkeäksi huomioida

LOIKKA – Tavoitteena puolittaa betonin hiilidioksidipäästöt

5 Karbonatisoitumisen sekä testausajan vaikutus kuonabetonin (v/s = 0,45) rapauma-arvoon laattakokeessa (väliaineena 3% NaCl-liuos). Normaaliin alkusäilytyksen jälkeen koekappaleita on säilytetty joko ilmassa (+20°C, 65% RH = Karbonatisoitunut) tai vedessä. Testauksia on tehty normaalin 28 vrk lisäksi 91, 183 ja 365 vuorokauden ikäisinä.

vähähiilisen betonin aiheuttamat muutokset myös elementti- ja betonituotteiden valmistuksessa. Aleksi Rantala teki diplomityönsä liittyen vähähiilisten betonien hyvistä käytännöistä sekä haasteista työmaaolosuhteissa. Työ korosti alkulujuudenkehityksen merkitykstä, hitaampi alkulujuudenkehitys vaikuttaa merkittävästi työmaan aikataulun hallintaan ja siten vähähiilisen betonin lujuudenkehitykseen pitää panostaa.

Tulevaisuuden ratkaisut betonin CO2-päästöjen vähentämiseksi LOIKKA-hanke tukeutui voimakkaasti masuunikuonan hyödyntämiseen. Kuitenkin on yleisesti tiedossa, että masuunikuona saatavuus tulee hiipumaan. Lisäksi masuunikuonan määrä ei ole riittävä, mikäli masuunikuonan käyttö kasvaa merkittävästi. Globaalisti seosaineiden saatavuus on noin 20% sementin tuotantomäärästä. Tässä vaiheessa masuunikuona on kuitenkin selvästi kilpailukykyisin vaihtoehto vähähiilisen betonin valmistamiseksi, mutta tulevaisuudessa tarvitaan muitakin vaihtoehtoja vähähiilisen betonin valmistamiseksi.

Osaprojektissa tutkittiin tulevaisuuden mahdollisuuksia betonin hiilidioksidipäästöjen vähentämiseksi. Tutkimus toteutettiin kirjallisuustutkimuksena ja sen teki post-doc tutkija Tuomas Alapieti. Tutkimuksessa käytiin kattavasti läpi erilaisia vaihtoehtoja kuten erilaisten seosaineiden ja vaihtoehtoisia sideaineiden hyödyntämistä sekä hiilidioksidin talteenottoa, varastointia ja hyötykäyttöä. Seosaineiden ja vaihtoehtoisten sideaineiden osalta tärkeässä roolissa on raaka-aineiden riittävä saatavuus ja tasalaatuisuus, samoin uusilta seosaineilta vaaditaan riittävän suurta reaktiivisuutta sekä vähäpäästöisyyttä. Lisäksi määräysten mukaisuus on tärkeä asia. Mikäli uusi side- tai

48 2 2024

LOIKKA – Tavoitteena puolittaa betonin

seosaine ei täytä nykyisiä määräyksiä, markkinoille tuleminen voi kestää vuosia tai jopa kymmeniä vuosia.

Selvityksen perusteella arvioitiin, että tullaan tarvititsemaan useiden eri vaihtoehtojen yhdistelmää, lyhyellä aikavälillä ei ole näköpiirissä sellaista vaihtoehtoa, joka yksinään ratkaisisi ongelman. Pidemmällä aikavälillä hiilidioksidin talteenotto sementtitehtaalla nousee hyvin merkittävään rooliin. Suomessa ollaan tämän suhteen hieman takamatkalla naapurimaihin verrattuna, Norjassa ollaan jo lähes valmiina ja Ruotsissakin suunnitelmat ovat jo pitkällä.

Vähähiilisen betonin tutkimustarpeet LOIKKA-hanke voidaan nähdä ensimmäisenä pomppuna vähähiilisen betonin kehityksessä, mutta edelleenkin tehtävää riittää. Tärkeimmiksi tarpeiksi nähdään:

6

1. Alkulujuuden kehitys

2. Säilyvyysominaisuudet

3. Tulevaisuuden vähähiiliset betonit ilman masuunikuonaa

Alkulujuutta tutkittiin paljon LOIKKA-hankkeessa, mutta edelleenkin tarvitaan tutkimustyötä. Alkulujuuden kehitys on myös hyvin kriittinen ominaisuus vähähiilisen betonin käytettävyyden kannalta. Aalto-yliopistossa aiheen tutkiminen jatkuu mm. Ekaterina Illarionovan väitöskirjaprojektissa ja myös betoniteoliisuus tekee jatkuvaa kehitystyötä vähähiilisen betonin alkulujuuden osalta. Lisäaineet, erityisesti aktivaattorit, tulevat olemaan merkittävässä roolissa alkulujuuden kehityksen osalta. Aktivaattorien markkinoille tulo vaatii kaupallisia toimijoita.

Myös kuonabetonin pakkassuolakestävyys edellyttää lisätutkimuksia. Suomessa käynnis-

tellään laajempaa kansallista pakkasprojektia, missä vähähiiliset betonit ovat luonnostaan mukana. Lisäksi Ahsan Iqbalin väitöskirjaprojekti liittyen vähähiilisten betonien pakkasenkestävyyteen on juuri käynnistynyt Aalto-yliopistossa.

Tärkeää on varautua myös tilanteeseen, jossa masuunikuonan saatavuus vähenee tai loppuu kokonaan. Tämän osalta vielä on aikaa, mutta ei loputtomasti, LOIKKA-hankkeen jälkeen onkin käynnistynyt pienempi hanke, jossa kartoitetaan eri vaihtoehdot betonin päästöjen vähentämiseksi: Vähähiilisen betonin tiekartta. Projektissa on tunnistettu yhteensä 10 eri vaihtoehtoa betonin päästöjen vähentämiseksi. Projektia rahoittavat SBK-Säätiö ry, BY-Koulutus Oy, Finnsementti Oy ja Aalto-yliopisto ja se valmistuu vuoden -24 aikana. •

LOIKKA – Halving CO2 emissions of concrete LOIKKA was research & development project aiming at 50% reduction of CO2-emissions of concrete. According to the targets, the reduction should be achieved in year 2028. The project consisted of a research project at Aalto University and 5 industrial projects. The project was financed mainly by Business Finland through RRF funding of EU.

As the CO2-reduction will be needed in short period, extensive utilization of blast furnace slag was seen as the most potential possibility. Blast furnace slag is well available, there are lot of experiences from the use of it and slag fulfills requirements of the European cement ja concrete standards. Even though slag has been commonly used in concrete, the use of slag in low-carbon concrete will affect the properties of

concrete, especially early strength development and durability properties of concrete. Aim of LOIKKA-project was to solve challenges related to slag cement and thereby ease to use of slag cements.

The main challenge is related to early strength development of slag cement. Slag is reacting rather slowly during the first days and possibilities of thermal and chemical activation to boost strength development were investigated. With CEM III/A-type cement (40% slag) it was rather simple to achieve the same early strength level as with the reference cement. However, with CEM III/B-type this more challenging, the target was achieved only with combination of thermal and chemical activation, but more research will be needed. Salt freeze-

thaw resistance is critical for slag concrete. It was ensured that the existing limit value for the slag content (50%) is correct. It was also observed that the scaling in the slab test is very sensitive for the condition before the testing. The carbonated samples show app. 10 times bigger scaling values compared with water stored specimens (testing at 1 year).

After LOIKKA-project, the major needs for the further research are early strength development and durability properties of slag concretes. In addition, it is very important to find alternative methods for producing low carbon concretes in larger volumes. In the longer term carbon capture at cement factories is seen very important.

49 2 2024
hiilidioksidipäästöt
Jari Härkönen 6 Useilla paikallavaletuilla työmailla on jo käytetty vähähiilistä betonia.

Teräskuitubetonirakenteiden mitoitus uudistuu

Auli Lastunen, DI, eurokoodiasiantuntija Rakennustuoteteollisuus ry auli.lastunen@rt.fi

Torbjörn Brusas, ins. AMK, myyntipäällikkö Pohjoismaat ja Baltia ArcelorMittal Fibres torbjorn.brusas@arcelormittal.com

Teräskuitubetonirakenteiden mitoitus on ollut Suomessa sekavaa. Betoniyhdistys on julkaissut ensimmäisen ohjeen jo vuonna 2011 (Teräskuitubetonirakenteet by 56). Sen soveltamisala oli rajattu lattioihin ja paalulaattoihin. Betoniyhdistys julkaisi ensimmäisen varsinaisen suunnitteluohjeen vuonna 2018 (Teräskuitubetonirakenteiden suunnitteluohje by 66). Se oli laadittu täydentämään ensimmäisen sukupolven betonieurokoodia ja perustui ruotsalaiseen standardiin SS 812310:2014.

Toisen sukupolven betonieurokoodi SFS-EN 1992-1-1:2023:en sisältää liitteen L, joka antaa mitoitusperusteet myös teräskuitubetonirakenteille.

Teräskuitubetoni materiaalina

Teräskuitubetoni on komposiittimateriaali, johon on betonin heikon vetolujuuden vuoksi lisätty teräskuituja tankoraudoituksen sijaan tai ohella. Teräskuidut ovat korkealujuusterästä ja ne CE-merkitään SFS-EN 14889-1 mukaan. Kuitujen vetolujuus vaihtelee 1150…2500 MPa välillä. Tyypillisesti kuitujen päissä on jonkinlainen muotoilu tartunnan parantamiseksi. Kuidut annostellaan massaan joko ”käsin” tai automatisoidusti betoniasemalla. Kuitujen asema (sijainti ja suunta) rakenteessa on periaatteessa satunnainen, mutta siihen vaikuttaa myös valumenetelmä ja -järjestys.

Suomeen on tulossa vihdoin viralliset mitoitusohjeet teräskuitubetonirakenteille. Toisen sukupolven Eurokoodi kattaa myös teräskuitubetonirakenteiden mitoituksen.

Betoniyhdistyksen ohje

Betoniyhdistyksen julkaisema ohje Teräskuitubetonirakenteiden suunnitteluohje by 66 on ollut sinällään hyvä ja ansiokas, mutta sen käyttö on jäänyt vähiin, vaikka se oli tarkoitettu nimenomaan täydentämään eurokoodia. Rakennusvalvontaviranomaiset eivät ole voineet edellyttää ohjeen käyttöä ja ala on päätynyt villiin tilanteeseen, jossa eri toimijat ovat käyttäneet omia mitoitusohjeitaan. Päätökset teräskuitubetonirakenteen hyväksymiseksi on tehty tapaus- ja rakennusvalvontakohtaisesti. Osin tästä syystä teräskuitubetonirakenteiden käyttö on jäänyt vain lattioihin ja paalulaattoihin.

Eurokoodin asema

Toisen sukupolven betonieurokoodi SFS-EN 1992-1-1:2023:en on julkaistu viime vuonna. Se sisältää informatiivisen liitteen L teräskuitubetonirakenteiden mitoituksesta. EN-standardin informatiivinen liite voidaan ottaa käyttöön sellaisenaan, se voidaan jättää kokonaan ottamatta käyttöön tai se voidaan ottaa käyttöön muokattuna. Suomessa päädyttäneen kolmanteen vaihtoehtoon. Betonieurokoodin standardointiryhmä on perustanut alaryhmän työstämään liitteen L kansallista liitettä. Tarkoituksena on, että lopulta ympäristöministeriö julkaisee sen osana uuden betonieurokoodin kansallista liitettä. Lopullisen mitoitusohjeen muodostaa siis eurokoodi SFS-EN 1992-1-1:2023:en yhdessä ympäristöministeriön kansallisen liitteen kanssa.

1 Kuitubetonin tyypillisiä käyttökohteita ovat maanvaraiset laatat ja lattiat, ruiskubetonoinnit sekä paalulaatat. Kuitubetonia käytetään myös erilaisissa tunneli- ja laiturirakenteissa.

Kuvassa valetaan Porin satamassa Bolidenin rikastevaraston kantavaa pohjalaattaa. Kohteessa käytettiin 7 000 kuutiota Rudus Oy:n ja ArcelorMittalin kuitubetonia.

50 2 2024
Creative 1
Rudus
Oy/Inspiroiva

Teräskuitubetonirakenteiden

Suomessa käytetään kantavien rakenteiden suunnittelussa ainoastaan eurokoodia ja sen kansallista liitettä, vaikka materiaalikohtaiset kansalliset liitteet eivät olekaan asetustasoisia vaan ohjeita.

Soveltamisala

Uudessa mitoitusohjeessa otetaan kantaa sen soveltamisalaan, ts. määritellään ne rakenteet, joissa teräskuitubetonia voidaan hyödyntää.

Jatkossakaan ei ole näköpiirissä ainoastaan teräskuiduilla raudoitettuja kantavia rakenteita (esim. välipohjat). Ainoastaan sellaisia rakenteita voitaisiin jatkossa raudoittaa pelkillä teräskuiduilla, joiden vaurioista ei aiheudu vaaraa ihmisille, esim. paalulaatat. Sen sijaan välipohjissa voisi tulla kyseeseen teräskuitujen ja tankoraudoituksen yhdistelmä.

Kuitubetonirakenteen määrittely

Toistaiseksi teräskuitubetonirakenteiden suunnittelu on ollut vain harvojen suunnittelijoiden ja teräskuitutoimittajien käsissä. Tarkoitus

on, että uuden mitoitusohjeen myötä kuka tahansa, riittävän kokenut, rakennesuunnittelija voisi suunnitella teräskuitubetonirakenteita. Suunnittelijan ei tarvitsisi ottaa kantaa kuidun määrään vaan riittäisi, että suunnittelija määrittäisi vaadittavan betonin lujuuden arvon, jäännösvetolujuuden arvon ja teräskuitubetonin sitkeyden. Valmisbetonitehdas huolehtisi lopusta yhdessä kuitutoimittajan kanssa ja määrittelisi käytettävän kuitutyypin ja -määrän siten, että toimitettava betoni täyttää em. ominaisuuksille asetetut vaatimukset.

Valmistuksen laadunvalvonta

Teräskuitubetonirakenteet herättävät viranomaisissa kysymyksiä laadunvalvonnasta. Mitoitusohje ei ole välttämättä oikea paikka ottaa kantaa laadunvalvontaan. Missään muussa standardissa tai ohjeessa ei kuitenkaan vielä esitetä vaatimuksia laadunvalvonnalle tehtaassa tai työmaalla. Mitoitusohjetta laativa ryhmä pitää laadunvalvonnan määrittelyä niin tärkeänä, että ohjeeseen tulee myös vaa-

2 SFS-EN 14721 mukaisesta näytteestä ”pestyjen” kuitujen kuivattelua punnitsemista ja kuitupitoisuuden määritystä varten. Betoniaseman laboratoriossa tutkitaan kuidun hajontaa ja punnitaan betonista pestyt kuidut.

3 Kuituja on mahdollista toimittaa valmisbetoniasemalle monessa eri pakkausmuodossa. Kuvassa ns. ”suursäkit” automaattiannostelijaa varten.

4 Betonitehtaaseen voidaan integroida erityinen kuitupata, jossa kuidut kietoutuvat toisiinsa paakkuuntumatta. Kuvassa kuituja valmisbetoniaseman automaattiannostelijassa eli kuitupadassa.

5 Kuituja valmiina annosteltavaksi SFS-EN 14651 mukaista ”palkkikoetta” varten.

6 Liiketilan alapohjan valutyöt käynnissä teräskuitubetonilla. Rudus Oy

timukset laadunvalvonnalle, jotta mitoitusohjetta voi ylipäätään käyttää. Asiaa voisi verrata vaikka rakennesuunnittelijan tekemään raudoitustarkastukseen tankoraudoitteille. Tässä tapauksessa tarkastus tehtäisiin työmaalla määrittämällä kuidun määrä betoninäytteestä pesemällä näyte. Näin rakennusvalvontaviranomaisen ei enää tarvitse huolehtia kuitujen määrästä. Toteutuksessa epävarmuutta aiheuttavat tekijät (kuitujen määrä ja orientaation) on huomioitu mitoituksessa erilaisina laskennallista kestävyyttä heikentävinä kertoimina. Myöhemmin standardit SFS-EN 206 ja SFS-EN 13670 tulevat ottamaan kantaa myös teräskuitubetonirakenteiden laadunvalvontaan.

Tulevaisuuden käyttökohteet Uuden ohjeen myötä teräskuitubetonirakenteiden käyttöä voidaan tulevaisuudessa laajentaa entistä enemmän kaikenlaisiin laattarakenteisiin ja muihinkin massiivisiin betonirakenteisiin. Teräskuitubetonia käyttämällä

52 2 2024
mitoitus uudistuu
2 3 4
5
ArcelorMittal Fibres
Fibres ArcelorMittal Fibres
ArcelorMittal

on mahdollista lyhentää rakentamisaikaa, pienentää materiaalimenekkiä sekä toteuttaa monimuotoisempia ja ohuempia rakenteita. Materiaalisäästöillä taas voidaan päästä suoraan pienempiin ilmastovaikutuksiin.

Teräskuitubetoni ei sovellu joka paikkaan tai kaikkiin rakenteisiin. Yhdistämällä teräskuidut tankoraudoitukseen voidaan teräskuidun ominaisuuksia hyödyntää myös sellaisissa käyttökohteissa, joissa se ei ole sopiva ratkaisu ainoaksi raudoitukseksi. Uuden ohjeen myötä myös tällaiselle hybridirakenteelle saadaan suunnitteluperusteet. •

New guidelines for steel fibrereinforced concrete

The existing guidelines for the design of steel fibre-reinforced structures in Finland need to be clarified. However, the official design guidelines are now on the way! The second-generation Eurocode (SFS-EN 1992-1-1:2023) includes an informative annexe (Annex L) specifically addressing the design of steel fibre-reinforced structures.

Steel fibre-reinforced concrete is a composite material in which steel fibres are added to the concrete mix to enhance its tensile strength. These high-strength steel fibres vary in tensile strength and are typically shaped to improve bonding with the concrete. Unlike traditional reinforcement (rebar), steel fibres are randomly distributed within the concrete matrix.

The new guidelines aim to clarify the use of steel fibre-reinforced structures, expanding beyond just floors and slab-on-grade applications. The Eurocode's role is not just crucial; it's a beacon of assurance and a national annexe

will likely be published by the Finnish Ministry of the Environment. Designers will benefit from clearer rules, allowing them to confidently incorporate steel fibre-reinforced structures into their projects.

53 2 2024 Teräskuitubetonirakenteiden mitoitus uudistuu
6
ArcelorMittal Fibres

Betonilattiarakenteiden kosteudenhallinta ja päällystäminen By76

Sami Niemi, DI, Kehityspäällikkö Rakennusfysiikka, AFRY Finland Oy sami.niemi@afry.com

Kosteudenhallinnan historiaa

90-luvulla tapahtunut rakentamisen nopeuttaminen johti vakaviinkin kosteusongelmiin, kun rakennuksia viimeisteltiin liian kosteina sisäilma- ym. ongelmia synnyttäen. Vuonna 1997 käynnistettiin 1. kosteudenhallintaan suunnattu TEKES-hanke urakointi- ja suunnittelualan voimin. Mukana oli myös mittalaitevalmistaja, koska käytössä olevat laitteet olivat työmaan mittauksiin sopimattomia. Ideoita syntyi, mutta yleistä kohentumista ei aikaansaatu. Kosteudenhallinta sanana alkoi kuitenkin vakiintumaan.

2000-luvun alussa alkoi Ratekolla sertifioitujen rakenteiden kosteuden mittaajien koulutus ja Betonitieto julkaisi Betonirakenteiden kosteusmittaus- ja kuivumisen arviointi- julkaisun vuonna 2002. Lattioiden päällystettävyyttä osattiin nyt arvioida ja mitata tarkemmin, kuin vuoden 1998 betonin kosteusmittauksen RT-kortti ohjeisti. Lisävauhtia kosteudenhallinnan kehittämiseen haettiin toisella TEKES-hankkeella, minkä jälkeen kosteudenhallinnassa ymmärrettiin jo enemmän.

Kehityksestä huolimatta sisäilmaongelmat tuntuivat jopa pahentuvan, joten asiaan tartuttiin vuosina 2005–2007 Betonirakenteiden päällystämisen ohjeistus (BePo) TEKES-hank-

Rakentamisen kosteudenhallintaa on kehitetty pitkäjänteisesti jo yli 25 vuotta. Hyvä niin, sillä rakentamista ollaan jälleen nopeuttamassa niin tehokkuuden parantamisen kuin hiilijalanjäljen pienentämisenkin nimissä. Myös viranomaisvaatimukset asian huomioon ottamiseksi ovat tiukentuneet. Kosteudenhallintaan vaikuttavat ilmiöt tunnetaan nykyään entistä paremmin ja asiaan kiinnitetään paljon huomiota. Kehitystä on tapahtunut, mutta silti ongelmia esiintyy ajoittain edelleen. Tietoa todellakin tarvitaan ja nyt se on koottu yksiin kansiin By76:een.

keella, jonka päätteeksi betoniteollisuus ja lattianpäällystysala julkaisivat betonirakenteiden päällystämisen ohjeet ja oppikirjan lattiarakenteiden kosteudenhallinnalle. Valtakuntaan saatiin kattava ohjeistus, joka sisälsi paljon hyviä edelleenkin käytössä olevia soveltamis- ja käytännön ohjeita.

Kuitenkin vasta RIL:in vuoden 2011 julkaisu Kosteudenhallinta ja homevaurion estäminen käynnisti laajan kehityksen kohti nykytilaa. Koko rakentamisprosessin kosteudenhallintaan pureutuvan yleisteoksen opeilla ruvettiin siirtymään sanoista tekoihin, kun julkaisu esitti mm. mallin kosteudenhallinnan työn- ja vastuunjaolle sekä hankkeiden kosteudenhallinnan vaativuuden määrittelylle.

Maankäyttö- ja rakennuslain tarkennuttua kosteusteknistä toimintaa määrittelevään asetukseen sisällytettiin paljon uutta kosteudenhallintaan liittyvää vuonna 2017. Mm. rakennusvalvontojen masinoimana synnytettiin kuivaketju toimintatapa, joka vuonna 2018 ristittiin Kuivaketju 10:ksi ja Rala otti asian huomiinsa. Kosteusasetuksen soveltamisohjeeseen vuonna 2019 sisällytettiin lisää kosteudenhallintaa ohjaavia seikkoja ja 2020-luvulla rakennusvalvontojen Topten ohjeistukset vaikuttavat positiivisesti käytännössä lähes kaikessa rakentamisessa ja kosteudenhallinnassa.

BETONILATTIARAKENTEIDEN KOSTEUDENHALLINTA JA PÄÄLLYSTÄMINEN 2024

2a–d Kuvissa näytepala- ja kosteusmittausta. Kosteudenhallinnassa tulee kiinnittää erityistä huomiota betonin riittävään kuivumiseen ennen päällystys- tai pinnoitustyöhön ryhtymistä. Kuvan 2d epoksipinnoitettu lattia ei liity tutkimushankkeeseen. 1

1 Betonilattiarakenteiden kosteudenhallinta ja päällystäminen By 76-2024 julkaisuun on koottu laajasti oleellisimmat betonilattiarakenteiden kosteudenhallintaan liittyvät tekijät: betonin kosteuskäyttäytymistä eri rakenteissa, kosteuden mittaamista, eri päällyste- ja pinnoitevaihtoehtojen toimivuutta sekä korjaustarpeen arviointia ja elinkaariasiaa.

54 2 2024
76
SUOMEN BETONIYHDISTYS
55 2 2024
2b 2d
2a 2c Jere Hyppönen Jere Hyppönen Jere Hyppönen Betoniteollisuus ry

Betonilattiarakenteiden kosteudenhallinta ja päällystäminen

Lattia – osa kokonaisuutta –katse tulevaisuuteen

Betonilattiarakenteiden kosteudenhallinta kuuluu oleellisena osana koko rakennushankkeen kosteudenhallintaan. Lattiarakenteiden kosteudenhallinnalla pyritään erityisesti varmistamaan, ettei betonissa oleva kosteus pääse vaurioittamaan betonirakenteen pintaan asennettavia materiaaleja. Kosteudenhallinnassa tulee kiinnittää erityistä huomiota betonin riittävään kuivumiseen ennen päällystys- tai pinnoitustyöhön ryhtymistä. Lattiarakenteen riittävän kuivumisen varmistaminen ennen päällystämistä ja pinnoittamista vaikuttaa niin suunnitteluratkaisuihin ja työmaan toimenpiteisiin kuin hankkeen aikatauluun ja kustannuksiinkin.

By:n juuri valmistunut oppikirja Betonilattiarakenteiden kosteudenhallinta ja päällystäminen – By76 on päivitetty ja laajennettu versio Betonikeskus ry:n vuonna 2007 julkaisemasta oppikirjasta Betonilattiarakenteiden kosteudenhallinta ja päällystäminen. Päivitys sisältää paljon havainnollisia valokuvia sekä käytännön esimerkkejä ja ohjeita. Julkaisussa on edeltäjäänsä paljon enemmän myös pinnoitteisiin liittyvää asiaa. Käsikirjoitus oli vuonna 2023 laajalla suunnatulla kommenttikierroksella.

Julkaisu kannustaa eri tahoja kehittämään päällystettävyyden arviointia lähemmäksi rakenteiden todellista toimintaa ja siten pohjustaa By:n osin EU-rahoitteiseen KIRA-ympäristö hankekokonaisuuteen kuuluvaa vähähiiliset toimivat betonilattiat YM-VHTBL hanketta (2023–2024). By76:n kirjoittajat Sami Niemi (AFRY Rakennusfysiikka) ja Tarja Merikallio (Vision Oy) vastasivat myös 2007 oppikirjasta. Päivityksen ohjausryhmä koostuu Betoniyhdistyksen, Betoniteollisuuden, Lattian- ja Seinänpäällysteliiton, Talonrakennusteolli-

suuden ja Ympäristöministeriön edustajista. Päivitystä varten haastateltiin eri aihealueiden asiantuntijoita. Päivitystä on tehty yhtä aikaa Betonilattiayhdistyksen Betonilattioiden pinnoitusohjeiden päivityksen By77/BLY20 kanssa ja julkaisut on synkronoitu siten, että ne tukevat toisiaan.

Uuden julkaisun pääsisältö ja täsmävinkki Julkaisuun By76 on koottu oleellisimmat betonilattiarakenteiden kosteudenhallintaan liittyvät tekijät sisältäen mm. betonin kosteuskäyttäytymistä eri rakenteissa, eri betonilaaduilla ja eri olosuhteissa kastuminen ja lattialämmitys huomioiden, sekä kosteudenhallinnan optimointia, kosteuden mittaamista, tulosten tulkintaa, eri päällysteja pinnoitevaihtoehtojen toimivuutta ja vaurioitumista sekä korjaustarpeen arviointia, korjaamista ja elinkaariasiaakin. Tavoitteena on antaa päällystettävien ja pinnoitettavien betonilattioiden kosteudenhallintaan liittyviä käytännöllisiä ohjeita ottaen huomioon koko rakentamisprosessi ja rakennuksen elinkaari kaikkine ohjeineen ja säädöksineen. Julkaisun pääkohdat ovat:

• Betonilattiarakenteen kosteus

• Betonilattiarakenteen kuivattamisen tavoitteet rakennusaikana

• Betonilattiarakenteiden kosteudenhallintatoimenpiteet

• Yleisimpien betonilattiarakenteiden kosteudenhallinta

• Betonilattiarakenteiden kosteudenhallintaan liittyvät kosteusmittaukset

• Betonilattiarakenteen valmistelu päällystettäväksi tai pinnoitettavaksi

• Tasoittamisen vaikutus betonilattiarakenteen kosteuteen ja päällystämiseen

3 Alapohjan kosteusjakauman kehittyminen EPS-lämmöneristetyssä 200 mm paksussa alapohjassa, kun koneellinen radontuuletus on aloitettu pian alapohjavalun jälkeen.

• Betonilattiarakenteiden päällystäminen ja pinnoittaminen

• Betonilattiarakenteiden kosteusvauriot

• Betonilattian korjaustarpeen arviointi

• Lattiapäällysteiden elinkaari ja kiertotalous Yksityiskohtaisista asioista esimerkiksi maanvaraisten lattioiden kosteudenhallintaa tehostamaan suositellaan radontuuletuksen käyttöä jo rakennusaikana. Mikäli betonilaatan alla ei ole vesihöyryntiivistä ainekerrosta, on mahdollista saada betoni kuivumaan merkittävästi kahteen suuntaan yllä olevan esimerkin mukaisesti. Tehokkaamman kuivumisen lisäksi hyvä alaspäin kuivuminen ehkäisee betonilaatan nurkannousua tehokkaasti. Välipohjista käsitellään kaikki yleisimmät rakennetyypit. Konkreettisia ohjeita annetaan betonivalinnasta lähtien mm. hyvin paksuille rakenteille, joihin liittyy myös betoni-teräsliittopalkkien kosteudenhallinta.

Systemaattisuutta kosteudenhallintaan Kosteudenhallintaprosessilla hallitaan rakennuksen kosteusteknistä suunnittelua sekä rakennusaikaista kosteusrasitusta. Kosteudenhallintaprosessi on katkeamaton ja tietoa kumuloiva alkaen lähtötietojen ja tavoitteiden määrittämisestä jatkuen kosteudenhallintaan ja kosteustekniseen toimintaan liittyvien ratkaisujen valintaan, suunnitteluun, toteuttamiseen, varmistamiseen ja ylläpitoon. Maankäyttö- ja rakennuslain 117 c §:n mukaan rakennushankkeeseen ryhtyvän on huolehdittava siitä, että rakennus suunnitellaan ja rakennetaan siten, että on käyttäjälleen terveellinen ja turvallinen.

Jo hankkeen alkuvaiheessa rakennushankkeeseen ryhtyvällä (tilaajalla, rakennuttajalla) tulee olla käsitys siitä, kuinka hankkeen kos-

56 2 2024
By76

Betonilattiarakenteiden kosteudenhallinta ja päällystäminen By76

Eräässä

rakennuskohteessa menestyksekkäästi sovelletut kosteusraja-arvot

teudenhallinta toteutetaan onnistuneesti. Ympäristöministeriön asetuksen 782/2017 12 §:n mukaan rakennushankkeeseen ryhtyvän on muun muassa huolehdittava rakennushankkeen kosteudenhallintaselvityksen laatimisesta. Se sisältää rakennushankkeeseen ryhtyvän vaatimuksia liittyen kosteudenhallintaan hankkeen eri vaiheissa, toimenpiteitä ja menettelyjä vaatimusten varmistamiseksi sekä kosteudenhallinnan henkilöresurssit. Selvityksen pääkohtia ovat mm.:

• hankkeen organisaatioon ja hallintoon

• kosteusriskeihin ja niiden hallintaan sekä laadunvarmistukseen

• sääsuojausten suunnitteluun sekä toteutukseen ja valvontaan

• kuivumisaikoihin ja kuivatusolosuhteisiin

• kuivumisen todentamiseen.

Sovellusymmärrystä päällystettävyyden arviointiin Julkaisu antaa paljon ohjeita, miten pitkään käytössä olevia varsin paljon yleistäviä kosteusmittaussyvyyksiä ja kosteusraja-arvoja on mahdollista soveltaa tapauskohtaisesti, kuten betonirakenteiden kosteusmittauksen vuoden 2021 RT-kortti 103333 ja By:n betonirakenteiden kuivumisen arviointiohjelma By2020 sekä siihen kuuluva päällystämisen riskiarviotoiminto mahdollistavat.

Riittävän kuivumisen varmistaminen ei ole yksiselitteistä, koska eri pintarakennejärjestelmien kosteudensietokyvyissä ja siten kriittisen suhteellisen kosteuden arvoissa on huomattavia eroja. Tarkkoja kriittisen kosteuden arvoja ei ole tieteellisesti määritetty. Kriittisen suhteellisen kosteuden arvoon vaikuttaa päällystemateriaalin ja koko pintarakennejärjestelmän ominaisuudet. Lisäksi myös betonin ominaisuudet ja rakennetta ympäröivän tilan

olosuhteet vaikuttavat siihen, miten kosteus rakenteessa käyttäytyy päällystämisen jälkeen. Useimmilla pintarakennejärjestelmillä kriittisen suhteellisen kosteuden arvon ajatellaan olevan 80…90 %RH, mutta joillakin materiaaleilla se voi olla huomattavasti korkeampi ja joillakin alhaisempi.

Päällystämisen kosteusraja-arvot eivät suoraan tarkoita samaa kuin pintarakennejärjestelmän kriittinen suhteellinen kosteus. Kosteusraja-arvot ovat valmistajien ilmoittamia tai yleisiä tuotekohtaisia suhteellisen kosteuden arvoja, joihin rakenne suositellaan kuivatettavan ennen päällystystyöhön ryhtymistä. Kuivattamalla betonilattiarakennetta niin kauan, että raja-arvot tietyllä syvyydellä alitetaan, pyritään varmistamaan, ettei kosteus pintarakennejärjestelmän välittömässä läheisyydessä nouse myöhemmin vaurioitumisen kannalta kriittisen korkeaksi. Raja-arvoissa on yleensä varmuusmarginaalia. Jos päällysteen kosteusraja-arvo on esimerkiksi 85 % RH, päällysteen alta myöhemmin mitattu yli 85 % RH ei suoraan tarkoita kosteusvaurioita. Tämä tulee muistaa, kun päätetään hankkeiden kosteustavoitteita sekä sitä, minkälaisella marginaalilla (mittausepävarmuus) raja-arvon tulee alittua, kun riittävän alhaista päällystyskosteustasoa arvioidaan.

Urakka-asiakirjoissa ja kosteudenhallintasuunnitelmassa on syytä määrittää, perustuuko riittävän kuivumisen määrittäminen yleisiin ohjeisiin vai tarkempiin rakennusfysikaalisiin selvityksiin. Tarkemmalla rakennusfysikaalisella tarkastelulla voidaan määrittää kohdekohtaiset kosteusmittaussyvyydet ja kosteusraja-arvot. Tarkastelussa otetaan rakenteen lisäksi huomioon betonin kosteudensiirto-ominaisuudet sekä päällysteen vesihöyrynvastus.

Betonilaatu ja pintarakenne kokonaisuutena huomioiden on käytettävissä paljon tietoa, miten rakenteen turvallisen päällystettävyyden voi määritellä usein varmemmin kuin vain kaavamaisesti aina samoilta mittaussyvyyksiltä ja samoja kosteusarvoja käyttäen. Ks. taulukko sivun yläreunassa. Aihetta selventämään julkaisussa on esimerkkejä erilaisista kosteusjakumista, ks. seuraavan sivun kuva. Pintarakenteiden vesihöyrynläpäisevyyksistä on vähitellen saatu tietoa käyttöön ja YM-VHTBL-hankkeella selvitetään nimenomaan eri betonilaatujen kosteudensiirto-ominaisuuksia, jotta kuivumisen arviointi voidaan viedä niin tarkaksi, että kosteudenhallinnan suunnittelussa on mahdollista määritellä miten pitkään rakenteen pitää olla tietyissä olosuhteissa, jotta rakenne voidaan päällystää. Tavoitteena on mahdollistaa siirtyminen rakennekosteusmittauksista enemmän olosuhteiden mittaamisen.

Uudessa By76 julkaisussa on esimerkkinä edellä mainittu liimattavan homogeenisen muovimaton ja alustaan liimatun parketin kohdekohtaiset merkittävässä hankkeessa noin 10 vuotta sitten onnistuneesti käytetyt rakennusfysikaaliseen analysointiin perustuvat kosteusraja-arvot. Sivun yläosan taulukossa on esitetty vertailuna yleiset ns. perusraja-arvot eripaksuisille alapohjarakenteille. Perusperiaatteena on, että arvostelumittaussyvyydellä A (40 % betonin paksuudesta, max 7 cm) kosteus voi olla sitä korkeampi, mitä läpäisevämpi pintarakenne on ja mitä syvemmällä mittaussyvyys A on. Analyysiin perustuvat raja-arvot saavuttamalla lähtökohtana on, että pintarakennejärjestelmän alle tasaantuu alhaisempi kosteuspitoisuus kuin samalla marginaalilla yleiset raja-arvot

57 2 2024

1 kk ilman kosteudessa

6 kk ilman kosteudessa 60 %

5 v ilman kosteudessa

alittamalla. Syy tarkemmalle analysoinnille on nopeampi ja turvallisempi päällystäminen.

Edellä kuvattu aihekokonaisuus kosteusvaatimuksista on yksi esimerkki, jonka kanssa hankkeiden osapuolet rakennusvalvonta mukaan lukien joskus keskustelevat hyvinkin vääristä lähtökohdista. Esimerkki osoittaa hyvin miten oikeita ratkaisuja voi olla muitakin kuin vakiintuneimmat. By76 päällystevaihtoehdot on päivitetty nykypäivään ottamalla monipuolisesti mukaan mm. tekstiilipäällysteet, vinyylilankut ja alustaan liimatut lautaparketit. Mittaussyvyyksien ja raja-arvojen soveltaminen vaatii ymmärrystä kosteusjakautuman kehittymisestä eri tilanteissa, mistä on esimerkkejä kuvassa 4. Yhtä lailla usein polemisoidaan kosteusmittauskohtien määrää ja sitä, miten kohdat valitaan. Ei ole olemassa yleispätevää ohjetta. Mitä paremmin rakentamisen kosteustapahtumia (kastumiset, sateelta suojaan saantihetket ja kuivumisolosuhteet) dokumentoidaan, sitä paremmin mittauskohdat osataan kohdistaa oikein ja yhden mittauskohdan edustama samaa rakennetta oleva alue voi olla hyvinkin iso. Samoin tulee tarkoin miettiä, mihin rakenteisiin ja mille pintarakenneratkaisuille kosteusmittausresurssit kohdistetaan, jotta ei tehdä turhia mittauksia. Joka tapauksessa tulisi aina tarkastella kosteutta vähintään kahdelta syvyydeltä, jotta saadaan käsitys kosteusjakaumasta ja opitaan tulevaisuudessa määrittelemään kosteuskriteerit ja mittaussyvyydet

6 kk kastui juuri 2 h

5 v kastui 3 kk ja tehokuivatettiin 2 vk

Runkovalu ensin 5 kk ilman kosteudessa 60 % RH ennen pintavalua ja koko rakenne 2 kk lisää ilman kosteudessa 60 % RH

Koko rakenne 4 kk lisää ilman kosteudessa 40 % RH

Koko vanha rakenne 10 v ilman kosteudessa 40 % RH

Kuva 2.9. Periaatteellisia kuvia betonilattiarakenteen kosteusjakautumista: a) Ylä- ja alapinnastaan jo kuivunut kahteen suuntaan kuivuva rakenne tasoittamisen jälkeen. Tasoite nostaa jo kuivuneen betonirakenteen pintaosan kosteuspitoisuutta. b) Yhteen suuntaan kuivuvan rakenteen kosteusjakauma kastumisen jälkeen; kun 6 kk kuivumisen jälkeen laatta kastui kahden tunnin ajan ja 5 vuoden kuluttua, kun laatta on kastunut 3 kk, minkä jälkeen sitä tehokuivattiin 2 viikon ajan. c) Yhteen suuntaan kuivuvan laatan kosteusjakautumia eri iässä ja eri olosuhteissa. d) Kahdessa osassa (runkovalu ja pintavalu) valetun rakenteen kosteusjakaumia.

mahdollisimman tarkoituksenmukaisesti by76 ja YM-VHTBL opein.

Betonivalmistajat paremmin mukaan kosteudenhallinnan suunnitteluun

Betonilattiarakenteen kuivumisnopeuteen vaikuttavat erityisesti betonin ominaisuudet, rakenneratkaisu, rakenteen lämpötila sekä ympäröivän tilan suhteellinen kosteus ja lämpötila (kuva 2.10). Kuvissa 2.11…2.13 on esimerkkejä eri tekijöiden vaikutuksesta rakenteiden kuivumiseen (RH:n muuttumiseen ajan funktiona).

Olosuhteet

Rakenne

Rakenteen paksuus ja kuivumissuunta vaikuttavat siihen, miten pitkän matkan kosteus joutuu siirtymään ennen kuin se haihtuu.

Betonin kuivumisnopeustietoja edellytetään joskus betonivalmistajilta. Valmistaja ei tietenkään voi tietää mihin olosuhteisin betonit työmaalla joutuvat, mutta jonkinlainen käsitys kosteuskriittisissä valuissa käytettävien betoniensa kosteuskäyttäytymisestä valmistajilla olisi hyvä olla. YM-VHTBL-hankkeessa pyritään kehittämään yksinkertainen määritystapa betonin kosteudensiirto-ominaisuuksille, mikä on oleellista päällystettävyyden arvioinnin lisäksi kuivumisnopeuden arvioinnissa. Kuvassa 6a on kolmella eri sementtikoostumuksella ja kahdella eri vesi-sementtisuhteella valmistettujen vähähiilisten betonin kuivumisnopeuksia 5 mm, 20 mm:n ja 50 mm:n tarkastelusyvyyksillä olosuhteissa +20 °C ja 50 % RH. Tuoreen opinnäytetyön tuloskuvaaja osoittaa miten paljon eri betonilaatujen kuivumisominaisuudet vaihtelevat.

4 Periaatteellisia kuvia betonilattiarakenteen kosteusjakautumista: a) Ylä- ja alapinnastaan jo kuivunut kahteen suuntaan kuivuva rakenne tasoittamisen jälkeen. Tasoite nostaa jo kuivuneen betonirakenteen pintaosan kosteuspitoisuutta (ks. myös seuraava kuvaaja). b) Yhteen suuntaan kuivuvan rakenteen kosteusjakauma kastumisen jälkeen; kun 6 kk kuivumisen jälkeen laatta kastui kahden tunnin ajan ja 5 vuoden kuluttua, kun laatta on kastunut 3 kk, minkä jälkeen sitä tehokuivattiin 2 viikon ajan. c) Yhteen suuntaan kuivuvan laatan kosteusjakautumia eri iässä ja eri olosuhteissa. d) Kahdessa osassa (runkovalu ja pintavalu) valetun rakenteen kosteusjakaumia.

5 Terveet Tilat-julkaisu.

Sisäilman kosteus vaikuttaa sen kykyyn ottaa vastaan betonista haihtuvaa kosteutta. Lämpötila vaikuttaa betonissa olevan kosteuden siirtymiseen ja ilman kykyyn sitoa kosteutta.

Betonin ominaisuudet

Betonin alkuperäinen vesi- ja sideainemäärät vaikuttavat kemiallisesti sitoutuneen ja haihdutettavan veden määrään sekä betonin tiiviyteen. Tiiviys vaikuttaa betonin kosteudensiirto-ominaisuuksiin ja vedenimukykyyn.

Kuva 2.10. Betonirakenteen kuivumisnopeuteen vaikuttavat muun muassa betonin ominaisuudet, rakenneratkaisu ja kuivumisolosuhteet /1/.

Muovimattoja voi edelleen käyttää Varsinkin alustaan liimattaviin muovipäällysteisiin liittyy paljon väärääkin tietoa, minkä takia By76 julkaisuhanke synnytti vuonna 2022 oheistuotteena terveet tilat 2028 ohjelmajulkaisun Muovimatolla päällystetyt betonilattiat – Vauriot, korjaustarpeen arviointi ja korjaaminen.

58 2 2024
Betonilattiarakenteiden kosteudenhallinta ja päällystäminen By76 5 4 B E ton IL att I a R a KE nt EE n Ko S t EUS a) 50 60 70 80 90 100% RH % RH % RH % RH b) syv./cm
2 4 6 8 10 20 40 60 80 100 20 40 60 80 100 d) 8 16 24 32 syv./cm
8 16 24 32 syv./cm pintavalu runkovalu
c) syv./cm
80 % RH
RH
50 % RH 2 4 6 8 10 20 40 60 80 100

Eri vähähiililuokkiin kuuluvien betonien kuivumisnopeuksia hyvissä olosuhteissa

Tarkoituksenmukainen tasoitus päällysteille ja pinnoitteille

Aihepiiriin liittyy tiiviisti tasoitteen käyttö alentamassa liimaan ja mattoon kohdistuvaa pH:ta. Terveiden tilojen julkaisussa on paljon hyviä ohjeita muovimattolattioiden kosteudenhallintaan ja mm. tuoreen diplomityön tulos, että käytännössä kaikki Suomessa käytettävät tasoitteet voidaan luokitella matala-alkalisiksi. By76:ssa aihetta täydennetään mm. kertomalla, että ylipaksulla tasoituksella voidaan kastella hyvin kuivunut betoni pahastikin, joten julkaisussa on mm. esitetty kuvassa 7 periaatteellinen kuvaaja hillitsemään tarpeettoman paksuja tasoituksia ja ohjeistamaan tasoittamisen ajoitusta.

Tasoitteiden kosteudenhallinnan merkitys on kasvanut sitä mukaa, kun niiden käyttöalue on laajentunut myös pinnoitteiden alla käytettäväksi. Raskaasti kuormitetuissa lattioissa lujuus ja eri kerrosten hyvä tartunta toisiinsa on ensiarvoisen tärkeää, kuten keraamisten laattojen tapauksessa niin kuivissa kuin märkätiloissakin. Yhtenä oleellisena onnistumistekijänä on tuotteiden yhteensopivuus ja oikean tuotteen valinta oikeaan paikkaan. Kaiken lähtökohta on aina oikea tuote oikeassa paikassa. Siksi julkaisu kertoo eri pinnoitetyyppien käyttökohteet ja tärkeimmät pinnoittamisen onnistumiseen vaikuttavat tekijät kuten keraamisten laattojenkin tapauksessa.

Pinnoittamisen erikoistapaus –haitta-ainepitoinen betonilattia Vanhoissa betonilattiarakenteissa voi olla käytetty nykysäädösten mittapuulla katsottuna haitallisia aineita kuten PAH-yhdisteitä, tai rakenteisiin on voinut rakenteen käyttöhistorian aikana imeytyä haitallisia aineita kuten esimerkiksi öljyjä. Aina kyseisiä lattiarakenteita ei voida tai haluta purkaa, jolloin tarvitaan haitta-aineiden hallintaa. Yhtenä hallintakeinona on rakenteen peittäminen tiiviillä ainekerroksella, jolloin puhutaan haitta-aineiden kapseloinnista. Vastaavalla periaatteella voidaan tehdä myös kosteusvaurioituneiden muovimattolattioiden korjauksia, jos betoniin on absorboitunut suuria määriä VOC-yhdisteitä eikä yhdisteiden haihduttamiseen esimerkiksi ole riittävästi aikaa.

Haitta-ainekapseloinnissa käytetään hallittavalle haitta-aineelle riittävän diffuusiotiiviitä esim. epoksipohjusteita tai polyuretaaneja. Tuotteen valinnassa on oleellisinta tietää, mitä haitta-ainetta hallitaan ja mikä on valittavan kapselointituotteen diffuusiotiiviys kulloinkin hallittavalle haitta-aineelle. Kapselointityössä tulee noudattaa tuotevalmistajan ohjeita.

Hyvin tehtyjen haitta-ainetutkimusten (Haitalliset aineet rakennuksissa tutkijan ohje RT 103501 ja tilaajan ohje RT 103500) perusteella on mahdollista tietää, miten paljon minkälaisia haitta-aineita rakenteissa on. Korjaustapaa valittaessa tulee lisäksi tietää miten haitta-aine tai sen emissio pyrkii rakenteesta poistumaan.

6b Kuvassa kosteusmittausta Yleisimpiä syitä lattiapäällysteen tai pinnoitteen irtoamiseen alustastaan ovat muun muassa betonipinnan tai tasoitteen huono laatu, huolimattomasti tehty kiinnitystyö, alustan korkeasta kosteudesta johtuva kiinnitysaineen vaurioituminen, alustabetonin muodonmuutokset päällystämisen jälkeen sekä ilman kosteuden aiheuttamat päällystemateriaalin muodonmuutokset.

59 2 2024
By76
Betonilattiarakenteiden kosteudenhallinta ja päällystäminen
6b Jere Hyppönen 6a

Betonilattiarakenteiden

7 Sinisellä viivalla 10 mm tasoitekerroksen kuivumisnopeus yksinään hyvissä olosuhteissa imemättömällä alustalla (vastaa tasoitevalmistajan ilmoittamaa kuivumisnopeutta). Vertailuksi tehtiin samoihin olosuhteisiin vastaava tasoitus primeroidulle betonilaatalle, jonka kosteus ennen primerointia oli 50 % RH aivan pinnassa, 70 % RH 12 mm syvyydellä ja 85 % RH 30 mm syvyydellä. Betonilaatta kostuu tasoituksesta voimakkaasti: pinnassa RH nousee noin 50 RH-yksikköä, 12 mm:ssä noin 20 RH-yksikköä ja 30 mm:ssä noin 5 RH-yksikköä. Laatan kuivuminen ennen tasoitusta vallinneeseen kosteusjakaumaan kestää hyvissä olosuhteissa useita viikkoja: pinnassa noin 2 viikkoa, 12 mm:ssä noin 4 viikkoa ja 30 mm:ssä noin 6 viikkoa. Lähde: Vahanen Rakennusfysiikka Oy:n arkisto.

Kapselointikorjaukset ovat vaativia, koska on arvioitava, miten tiivis ainekerros vaikuttaa lattiarakenteen kosteustekniseen toimivuuteen. Tämä on erityisen tärkeää maanvastaisissa rakenteissa. Vaikka lattiapinnoite kestäisi kosteuden ja haitta-aineiden aiheuttamat rasitukset, kosteus ja haitta-aineet voivat siirtyä esimerkiksi seiniin. Toinen huomioitava seikka on kapselointiaineen pysyminen kiinni vanhassa haitta-ainepitoisessa materiaalissa. Esimerkiksi öljyiseen pintaan on hyvin haastavaa saada tarttumaan materiaaleja muuten kuin mekaanisesti. Ongelman voi myös aiheuttaa pintaan tulevan materiaalin huono tartunta kapselointikerrokseen. Valittavan tuotteen toimivuus pitää siksi aina etukäteen tarkoin selvittää kosteudenkeston, haitta-aineiden keston, materiaalien yhteensopivuuksien sekä tartunnan ja kiinnipysyvyyden näkökulmasta.

Hyvä tutkiminen auttaa oppimaan ja takaa onnistuneen korjauksen Yleisimpiä syitä lattiapäällysteen tai pinnoitteen irtoamiseen alustastaan ovat betonipinnan tai tasoitteen huono laatu, huolimattomasti tehty kiinnitystyö, alustan korkeasta kosteudesta johtuva kiinnitysaineen vaurioituminen, alustabetonin muodonmuutokset päällystämisen jälkeen sekä ilman kosteuden aiheuttamat päällystemateriaalin muodonmuutokset. Ks. muutama vaurioesimerkki seuraavalta sivulta. Yleensä irtoaminen tapahtuu useamman tekijän yhtäaikaisen esiintymisen seurauksena. Esimerkiksi mitä huonompi betonin pinnan laatu on, sitä huonompi on

kiinnitysaineen tartunta ja sitä herkemmin kosteuden aiheuttamat muodonmuutokset johtavat tartunnan pettämiseen.

Yksiselitteistä syytä vaurion syntyyn ei aina löydy. Syyn ja vaurion laajuuden selvittäminen on kuitenkin ensiarvoisen tärkeää, kun suunnitellaan korjauksia sekä arvioidaan korjauskustannuksia ja sitä, kenen vastuulla korjaaminen on. Syyn selvittäminen vaatii vauriotutkijalta rakennusten lämpö- ja kosteusfysiikan hyvää osaamista, vauriomekanismien ymmärtämystä, rakennusmateriaalien tuntemusta sekä tutkimusmenetelmien, kuten kosteusmittauksen, hyvää hallintaa.

Rakenteesta eri syvyyksiltä tehtävillä suhteellisen kosteuden mittauksilla saadaan määritettyä rakenteen kosteus- ja lämpötilajakauma. Näiden avulla voidaan arvioida kosteuden kulkusuuntaa ja alkuperää sekä mahdollisesti vaadittavaa korjausten edellyttämää kuivaustarvetta.

Useimmissa tapauksissa päällysteen paikallinen avaaminen auttaa ongelman syyn selvittämisessä. Avaus voi olla esimerkiksi pieni kosteusmittauskohdan laajennus, mutta se voi olla myös osa lattiaa tai jopa kokonaisen tilan lattian laajuinen. Alustaan kiinnitetystä päällysteestä tai pinnoitteesta tulee avauksen yhteydessä tarkastaa murtopinta. Onko murtopinta esimerkiksi heikossa sementtiliimakerroksessa, jonka poistamattomuus on tyypillinen irtoamisen syy. Avauksen yhteydessä voidaan myös todeta rakennekerrokset, kuten esimerkiksi märkätilan vedeneristeen tai tasoitekerroksen paksuudet. Irrotettuja pin-

tarakennekappaleita voi tarkastella paljaan silmän lisäksi esimerkiksi luupilla ja mikroskoopilla (ohuthie).

Elinkaari- ja kiertotalousajattelua myös lattioille

Kiertotalouden keskeisenä ulottuvuutena lattiapintamateriaalien osalta on tuotteiden käyttö mahdollisimman tehokkaasti mahdollisimman pitkään. Kiertotalouden toimintamalleihin kuuluvat muun muassa jätteen ja hukan minimointiin tähtäävä tuote- ja palvelusuunnittelu, korjaaminen ja kunnostaminen, uudelleenkäyttö sekä kierrätys.

Käytännössä suurin osa käytetyistä lattiapäällysteistä poltetaan purkamisen jälkeen energiaksi ja osa menee kaatopaikalle sijoitettavaan jätteeseen. Keraamiset materiaalit useimmiten murskataan korvaamaan neitseellistä kiviainesta maarakentamisessa. Jätteenkäsittelyssä ja loppusijoituksessa voi vapautua hiilidioksidia jopa enemmän kuin lattiapäällysteen valmistusvaiheessa.

Lattiapäällysteitä on alettu purkamisen jälkeen jauhaa rakeiksi, joita käytetään uusien lattiapäällysteiden valmistamiseen. Irtoasennettujen päällysteiden ohella myös alustaan liimattuja päällysteitä voidaan uudelleen käyttää poistamalla liimat ja tasoitteet pesumenetelmällä. Kierrättämällä lattiapäällysteiden ilmastopäästöjä pystytään vähentämään, koska uusien neitseellisten raaka-aineiden osuutta tuotteissa saadaan vähennettyä. Tuotetta voidaan parhaiten hyödyntää uuden tuotteen raaka-aineena, kun materiaali on homogeeninen

60 2 2024
kosteudenhallinta
ja päällystäminen By76

Betonilattiarakenteiden kosteudenhallinta ja päällystäminen By76

8a ja b Vasemmalla parketin kosteusliikkeet ovat olleet liian voimakkaita ja tasoite on murtunut aiheuttaen parketin irtoamisen. Oikealla epoksin kutistuminen (kädessä oleva pinnoitteen irtopala on selvästi kaareutunut) on irrottanut tasoitteen betonipinnasta, koska sementtiliimaa ei ole poistettu kunnolla. Pinnoite on hajonnut palasiksi.

eikä sisällä nykyisin kiellettyjä tai haitallisina tunnistettuja kemiallisia aineita

Rakennusmateriaalin kiertotalouden näkökulmasta on keskeistä, että eri materiaalit voidaan erotella purkamisen yhteydessä ja toimittaa jatkohyödyntämiseen syntypaikkalajiteltuna. Mikäli päällystettä ei liimata kauttaaltaan tai kiinnitetä mekaanisesti alustaan, on erotteleva purku selkeästi helpompi toteuttaa. Tällöin myös esimerkiksi tasoitekerros voi säilyä purkamisen yhteydessä vahingoittumattomana ja uusi päällyste voidaan mahdollisesti asentaa suoraan vanhan tasoitteen päälle.

Kun lattiapäällysteen tekninen käyttöikä on umpeutunut, eikä sitä saada enää kunnostettua käyttökelpoiseksi, lattiapäällyste uusitaan. Uusimiskustannukset koostuvat vanhan

lattiapäällysteen poistamisesta, alustan kunnostamisesta ja uuden lattiapäällysteen asentamisesta sekä työhön liittyvistä aloittavista, ylläpitävistä ja lopettavista töistä. Uusimiskustannukset ovat yleensä hankintakustannuksia suuremmat.

Julkaisu esittelee muutaman vuoden takaisessa opinnäytetyössä kehitetyn Excel-laskentatyökalun eri materiaalien elinkaarikustannusten vertailuun. Työkaluun valittavat muuttujat ja määriteltävät asiat ovat päällystemateriaali, tilan kulutusaste, likaisuus, kalustusaste, siivoustaajuus, pinta-ala, laskentakorkokanta sekä tarkastelujakson pituus. Elinkaarikustannukset lasketaan nykyarvomenetelmällä, jossa tulevaisuuden kustannukset diskontataan nykyhetkeen. Mikäli kustannukset eivät

kerry säännöllisesti, eli ovat kertaluontoisia tai niiden määrä vaihtelee, käytetään yksittäisen suorituksen nykyarvotekijää. Vuosittain samanlaisina toistuvat kustannukset lasketaan jaksollisten suoritusten nykyarvotekijällä. Kunnostus- ja uusimiskustannukset lasketaan yksittäisen suorituksen nykyarvotekijällä ja vuosittaiset siivouskustannukset jaksollisten suoritusten nykyarvotekijällä.

Oppikirja on tarkoitettu kaikille, jotka ovat tekemisissä betonilattioiden toteuttamisen ja siihen usein oleellisesti liittyvän kosteudenhallinnan kanssa.

Käytännöllistä ja konkreettisia esimerkkejä sekä selkeitä ohjeita sisältävää tietoa on tarjolla niin suunnittelijoille, urakoitsijoille kuin hankkeeseen ryhtyvillekin. •

An update completed to Concrete Association’s 2007 publication Concrete Floor Moisture Management and Coating   Moisture management of concrete floor structures has been under development in Finland since the 1990s. Further development is needed to improve the productivity of construction and this guidebook brings together the existing knowledge, incorporating also the latest trends, practices and developments.

The publication contains basic information on the moisture behaviour of concrete and the factors affecting it before and after coating. Structures and surface structures are discussed

in detail to enable the use of the correct moisture measurements for assessing coverability in the most appropriate way. Also included are damages, condition studies and life cycle and circular economy aspects.

The guidebook is only published in electronic format at this stage, as the Concrete Association is running a partly EU-funded development project (Low Carbon Well-Performing Concrete Floors), the results of which are aimed at developing an even closer assessment of the covering

performance taking into account the actual moisture transfer properties of concrete. The project ends this year, so more is on the way.

The guidebook is intended for all those involved in the construction of concrete floors and moisture management which is often intrinsically linked to it. It provides practical and concrete examples and clear guidance for designers, contractors, and project promoters alike.

61 2 2024

Testauslaboratorioiden tasokokeet 2023

Jouni Punkki

Professori (POP), Betonitekniikka

Aalto-yliopisto jouni.punkki@aalto.fi

Taustaa

Betonin testauslaitoksille järjestetään vuosittain tasotestauksia. Kokeissa on aina mukana betonin puristuslujuus ja lisäksi jokin muu testaus. Vuonna 2023 tasokokeissa testattiin betonin puristuslujuutta sekä huokosanalyysia. Tasokokeet organisoi Aalto-yliopisto yhteistyössä Insinööritoimisto KJ Oy:n kanssa. Insinööritoimisto KJ Oy hoiti koekappaleiden valun ja niiden lähetyksen osallistujille, ja Aalto-yliopisto on hoitanut tulosten analysoinnin ja raportoinnin. Tasokokeisiin osallistui yhteensä 12 eri testauslaitosta ja joidenkin tahojen osalta kokeisiin osallistui eri toimipisteitä tai useampi puristuskoneita. Puristuslujuuden osalta eri testausyksiköitä oli yhteensä 15 kpl. Yksi osallistujista, Aalto-yliopisto, ei ole akkreditoitu testauslaboratorio.

Huokosanalyysitestauksiin osallistui yhteensä 8 testausyksikköä. Huokosanalyysi jaettiin kahteen osaan. Testausyksiköille lähettiin kiertävä ohuthie ja siten 7 testausyksikköä analysoivat samat ohuthieet. Testausyksiköille lähettiin myös betoninäytteet kahdesta eri betonista ja testausyksiköt valmistivat ohutja/tai pintahienäytteet ja analysoivat ne. Betonit valittiin niin, että ne olisivat huokostukseltaan lähellä huokosjaon vaatimustasoa.

Koejärjestelyt

Puristuslujuuskoekappaleet valmistettiin Pielisen Betoni Oy:n toimittamasta valmisbetonista, jonka lujuusluokka oli C40/50, raekoko #18 mm ja notkeusluokka S2. Sideaineena beto-

Betonin testauslaitoksille järjestetään vuosittain tasotestauksia. Vuonna 2023 vuorossa oli puristuslujuus sekä huokosanalyysi ohut- tai pintahieellä. Puristuslujuuden osalta hajonta oli vähäistä, mutta huokosanalyysien tuloksissa havaittiin runsaasti hajontaa. Huokosanalyysien hajontaa tulee vähentää ja tämä edellyttää toimenpiteitä huokosanalyysien tekijöiltä.

nissa käytettiin CEM I 52,5 N tyypin sementtiä. Koekappaleet valettiin muovisiin lieriömuotteihin ja ne tiivistettiin tärypöydällä. Koekappaleet merkittiin valujärjestyksen mukaisesti tunnuksilla (A1…A90). Koekappaleet purettiin muoteista 1 vrk ikäisinä ja laitettiin vesisäilytykseen +20 ± 2°C. Koekappaleet otettiin pois vesialtaista 14 vrk ikäisinä ja lähettiin osallistujille. Koekappaleet jaettiin testauslaitoksille niin, että jokainen testauslaitos testasi järjestysnumeroiltaan vaihtelevia koekappaleita.

Koekappaleiden puristus ohjeistettiin tapahtuvan 28 vrk iässä. Lisäksi ohjeistettiin, että koekappalepaketit säilytetään avaamattomana huoneenlämmössä, kunnes paketit avattiin 6 tuntia ennen puristuskoetta. Puristuskoe tehtiin standardin SFS-EN 12390-3 mukaisesti ja ennen puristuskoetta määritettiin koekappaleiden tiheys. Standardista poiketen tiheys pyydettiin ilmoittamaan 1 kg/m3 tarkkuudella. Puristuspinnat voitiin hioa tai rikittää ja tämä raportoitiin tulosten ilmoittamisen yhteydessä. Puristuslujuustulokset on analysoitu lieriölujuuksina, koska koekappaleet ovat lieriöitä. Puristuslujuuskokeissa testattiin kaikkiaan 90 koekappaletta. Puristuslujuuden tasokokeeseen osallistuivat seuraavat testauslaitokset:

• Sweco Finland Oy, 2 toimipistettä

• Insinööritoimisto KJ Oy

• Jyväskylän ammattikorkeakoulu Oy, 2 puristinta

• Kaakkois-Suomen ammattikorkeakoulu Oy / KymiLabs, 2 puristinta

• Karelia-ammattikorkeakoulu Oy

• Labroc Oy, 3 toimipistettä

• Pohjois-Suomen Betoni- ja Maalaboratorio Oy

• Seinäjoen ammattikorkeakoulu Oy

• AFRY Buildings Finland Oy

• Aalto-yliopisto, Rakennustekniikan laitos (ei-akkreditoitu testauslaboratorio)

Yksittäisiä testausyksiköitä oli siten kaikkiaan 15 kpl. Koetulosten osalta testausyksiköt on esitetty anonyymisti kirjaimilla A…O, jotka ovat eri järjestyksessä kuin ylläesitetyssä listauksessa. Huokosanalyysin osalta valettiin kolme betonia eri ilmamäärillä. Kaikkien betonien osalta lujuusluokka oli C30/37, notkeusluokka S2, kiviaineksen maksimiraekoko 18 mm ja vesi-sideainesuhde 0,52. Betonin toimitti Pielisen Betoni Oy. Betonin ilmamäärää säädettiin sekoitusaikaa muuttamalla. Kaikki kolme

1 Lieriön puristuskoe.

62 2 2024
Artikkelin valokuvat: Sweco Finland Oy
63 2 2024 1 Taisto Huovinen

Taulukko 1

Testibetonien tuoreen betonin ilmamäärät sekä huokosjaot ohuthienalalyysissa.

Betonit 1 ja 2 valittiin tasokokeisiin.

Betoni

Tuoreen betonin ilmamäärä Huokosjako, mm

Betoni 1 4,5% 0,29

Betoni 2 5,2% 0,23

Betoni 3 6,0% 0,20

betonia lähettiin yhdelle testausyksikölle, joka valmisti ohuthieet ja teki ohuthieanalyysit kaikille kolmelle betonille. Betonien mitatut ilmamäärät sekä huokosjaot on esitetty taulukossa 1.

Tulosten perusteella valittiin tasokokeeseen betonit 1 ja 2, koska haluttiin testata betoneita, joiden huokosjaot ovat mahdollisimman lähellä vaatimustasoja. Betoneista 1 ja 2 lähetettiin betonilieriöt testausyksiköille, koekappaleet merkittiin A (=Betoni 2) ja B (= Betoni 1). Testausyksiköt valmistivat betoninäytteistä ohut- ja/tai pintahieet sekä tekivät huokosanalyysit. Lisäksi betonista 1 valmistettu ohuthiepari lähetettiin kiertämään yhteensä seitsemään testausyksikköön. Kaksi testausyksikköä analysoi betoninäytteet sekä ohut- että pintahieellä, yksi testausyksikkö vain pintahieellä ja loput ohuthieellä. Ohut- ja pintahieet on eritelty tulosten analysoinnissa. Molemmista betoninäytteistä saatiin yhteensä 12 tulosta. Näytteiden valmistus ja ohuthieanalyysit pyydettiin tekemään BY72 mukaisesti lukuun ottamatta pintahieitä.

Huokosanalyysin tasokoe oli käytännössä kolmiosainen:

a) Kiertävän ohuthieen analysointi

b) Kahden betoninäytteen analysointi (ohuttai pintahieen valmistus + analysointi)

c) Neljän aikaisemmin valmistetun näytteen ristiintestaus

Huokosanalyysin tasokokeeseen osallistuivat seuraavat kahdeksan testauslaitosta:

• Sweco Finland Oy

• Betonialan ohuthiekeskus FCM Oy

• Labroc Oy

• AFRY Buildings Finland Oy

• Jyväskylän ammattikorkeakoulu Oy

• Kaakkois-Suomen ammattikorkeakoulu Oy / KymiLabs

• Mitta Oy

• Pohjois-Suomen Betoni- ja Maalaboratorio Oy

Näistä kiertävän ohuthieen analysointiin osallistui 7 tahoa, koska yksi testausyksikkö ei tehnyt ohuthieanalyyseja.

Kiertävän ohuthienäytteen osalta testausyksiköt on esitetty anonyymisti roomalaisilla numeroilla I…VII, jotka ovat eri järjestyksessä kuin ylläesitetyssä listauksessa. Betoninäytteiden osalta tulokset on esitetty anonyymisti kirjaimilla a…h.

Puristuslujuus

Kaikkien koekappaleiden (90 kpl) keskimääräinen puristuslujuus (lieriölujuus) oli 48,6 MPa ja vastaava keskihajonta 1,26 MPa. Variaatiokertoimena tämä tarkoittaa 2,6% (vuonna -22: 2,7%). Hajontaa voidaan pitää alhaisena. Alhaisin yksittäinen lujuustulos oli 43,9 MPa ja korkein 52,3 MPa. Testausyksiköiden N ja O testaukset tehtiin 36 vrk ikäisenä 28 vrk sijaan. Tämä johtui laiteongelmista testausyksikössä.

Koska koekappaleita oli varsin suuri määrä, potentiaalisena riskinä on, että koekappaleiden valmistuksesta aiheutuu hajontaa esimerkiksi niin, että viimeisenä valmistetut koekappaleet poikkeavat alkuvaiheen koekappaleista. Kuvassa 2 on esitetty puristuslujuus koekappaleen järjestysnumeron funktiona. Hajonta on varsin tasaista järjestysnumeron suhteen lukuun ottamatta yhtä alhaisempaa lujuustulosta (puristuslujuus 43,9 MPa). Samoin yksi lujuustulos (52,3 MPa) vaikuttaisi olevan muita korkeampi. Syitä näihin poikkeaviin lujuustuloksiin ei voida tietää, poikkeama voi johtua koekappaleesta tai testauksesta. Kokonaisuutena voidaan arvioida, että koekappaleet olivat riittävän tasalaatuisia tasokoetta varten.

Tasokokeessa on olennaista arvioida testausyksiköiden keskinäisiä eroja. Eri testausyksiköiden koetulokset on koottu taulukkoon 2. Suurin yksittäinen testauslaitoksen keskihajonta oli 2,03 MPa ja tämä oli testauslaitoksessa L, jossa oli mukana yksittäinen alhaisempi lujuustulos (43,9 MPa). Mikäli kyseinen yksittäinen lujuustulos poistettaisiin aineistosta, kyseisen testausyksikön keskihajonta olisi 0,36 MPa.

Eri testausyksiköiden mittaustulosten keskiarvojen 95% luottamusvälit on esitetty kuvassa 3. Luottamusvälien laskennassa huomioidaan testausyksikön tulosten keskihajonta sekä koekappaleiden lukumäärä. Kuvan 3 perusteella voidaan arvioida, että ainakin testausyksikön N tulos poikkeaa tilastollisesti merkittävästi joidenkin muiden

64 2 2024
Testauslaboratorioiden tasokokeet 2023

Testauslaboratorioiden

Kuva 2 Yksittäisten koekappaleinen lieriöpuristuslujuus järjestysnumeron funktiona.

Puristuslujuus

Koekappaleen järjestysnumeron vaikutus

PURISTUSLUJUUS

Koekappleen järjestysnumeron vaikutus

Puristuslujuus, MPa

Taulukko 2

Testausyksiköiden puristuslujuustulosten keskiarvot, keskihajonnat sekä variaatiokertoimet.

Koekappaleen järjestysnumero

Puristuslujuus

Testausyksikkö

65 2 2024 y = -0,0099x + 49,066 R² = 0,042 40 42 44 46 48 50 52 54 56 58 60 0 10 20 30 40 50 60 70 80 90
Keskiarvo (MPa) Keskihajonta (MPa) Variaatiokerroin A 48,4 0,8 1,6 % B 49,4 1,0 2,0 % C 47,9 1,1 2,2 % D 48,2 0,5 1,0 % E 48,6 0,8 1,6 % F 49,2 1,0 2,0 % G 48,5 1,0 2,1 % H 48,4 0,9 1,8 % I 49,0 0,7 1,5 % J 47,9 0,2 0,5 % K 48,4 0,9 1,8 % L 48,0 2,0 4,2 % M 47,3 0,8 1,7 % N 50,6 1,1 2,1 % O 49,7 1,7 3,4 % Kaikki 48,6 1,26 2,6%
tasokokeet 2023

Puristuslujuus Keskiarvojen luottamusvälit, 95%

PURISTUSLUJUUS

Keskiarvojen luottamusvälit, 95%

Kuva 3 Testausyksiköiden keskiarvot sekä keskiarvon luottamusvälit 95%:n varmuustasolla.

Punainen viiva esittää aineiston keskimääräistä puristuslujuutta = 48,6 MPa. Testausyksiköt N ja O testasivat koekappaleet 36 vrk ikäisenä.

Kuva 4 Testausyksiköiden puristuslujuuksien keskiarvot sekä yksittäisten tulosten vaihteluvälit.

Punainen viiva esittää aineiston keskimääräistä puristuslujuutta = 48,6 MPa.

Puristuslujuus, MPa

Testausyksikkö

Puristuslujuus Yksittäiset tulokset

PURISTUSLUJUUS Yksittäiset tulokset

Puristuslujuus, MPa

A B C D E F G H i J K L M N O

Testausyksikkö

testausyksiköiden tuloksista. Toisaalta kyseinen testausyksikkö suoritti testaukset 8 vrk myöhemmin verrattuna muihin testausyksiköihin (myös testausyksikkö O teki testaukset 8 vrk myöhässä). Mikäli koetuloksia korjattaisiin InfraRYL:in ikäkorjaustermin mukaisesti, korjattu tulos (O) ei enää poikkeaisi merkittävästi muiden testausyksiköiden tuloksista.

Yksittäisten tulosten vaihtelut tutkimusyksiköiden kesken on esitetty kuvassa 4. Yksittäisiä tuloksia tarkasteltaessa on huomioitava, että vaihtelua aiheutuu myös koekappaleiden sisältämästä hajonnasta. Siten yksittäisien tulosten perusteella on vaikea arvioida testauslaitosten tarkkuutta. Yksittäisissä tuloksissa havaitaan selvästi yhden alhaisemman koekappaleen vaikutus testausyksikön L tuloksiin. Mikäli kyseinen yksittäinen koetulos poistettaisiin virheellisenä, testausyksikön L keskimääräinen lujuus nousisi arvoon 48,8 MPa ja minimiarvo olisi 48,3 MPa.

Tasokokeessa oli mahdollisuus joko hioa puristuspinnat tai rikittää ne. Kaksi testausyk-

Taulukko 3

Puristuspintojen käsittely vaikutus puristuslujuustuloksiin.

Puristuslujuus

Käsittelytapa

Testausyksiköiden lukumäärä

Keskiarvo (MPa)

Keskihajonta (MPa) Variaatiokerroin

66 2 2024
40 42 44 46 48 50 52 54 A
F G H i J K L
B C D E
M N O
40 42 44 46 48 50 52 54
Rikitys 2 48,5 0,80 1,7% Hionta 13 48,6 1,32 2,7%
Testauslaboratorioiden tasokokeet 2023

sikköä ilmoitti käyttäneensä rikitystä ja loput 13 hiontaa. Puristuslujuustulokset eriteltynä käsittelytavan mukaan on esitetty taulukossa

3. Kuten taulukosta havaitaan, pintojen käsittelytavalla ei ollut merkittävää vaikutusta puristuslujuuden keskiarvoon tai hajontaan. Tätä ei voi kuitenkaan yleistää koskemaan kaikkia puristuslujuustestauksia.

Tiheys

Kaikkien koekappaleiden keskimääräinen tiheys oli 2392 kg/m3 ja vastaava keskihajonta 8,1 kg/m3. Variaatiokertoimeksi tulee näin 0,3% (vuonna -22: 0,5%). Testausyksiköiden keskimääräiset koetulokset on esitetty taulukossa 4. Keskimääräiset tulokset sekä yksittäisten tulosten vaihteluvälit on esitetty kuvassa 5. Tiheyden osalta havaitaan, että testausyksiköt C ja H saivat hieman muista poikkeavia tiheysarvoja. Poikkeamat keskiarvosta olivat 14 ja -12 kg/m3. Kokonaisuutena tiheyserot olivat kuitenkin varsin pieniä.

Taulukko 4

Testausyksiköiden tiheystulosten keskiarvot sekä keskihajonnat.

Testausyksikkö

Tiheys (kg/m3) Keskiarvo Keski-hajonta

A 2390 5,5 B 2387 8,3 C 2406 8,5 D 2390 7,5 E 2392 7,0 F 2399 3,7 G 2396 2,8 H 2380 9,1 I 2393 7,0 J 2391 5,5 K 2393 8,3 L 2388 6,4 M 2388 3,9 N 2397 5,6 O 2395 6,4

Kaikki 2392 8,1

Tiheys

Yksittäiset tulokset

TIHEYS

Yksittäiset tulokset

Testausyksikkö

Kuva 5 Testausyksiköiden tiheyksien keskiarvot sekä yksittäisten tulosten vaihteluvälit. Punainen viiva esittää aineiston keskimääräistä tiheyttä = 2392 kg/m3

67 2 2024 Testauslaboratorioiden tasokokeet 2023
2360 2370 2380 2390 2400 2410 2420 2430 2440 A B C D E F G H i J K L
M N O Tiheys, kg/m3

Kuva 6 Kiertävän ohuthienäytteen huokosjaot. Yksi testausyksikkö analysoi näytteen normaalin optisen analyysin lisäksi myös kuva-analyysin avulla, nämä on eroteltu tunnuksilla I-1 ja I-2. Yhden testausyksikön osalta analyysin teki 2 henkilöä, nämä on eritelty tunnuksilla VII-1 ja VII-2.

Huokosjako, mm

Kuva 7 Betonien A ja B huokosjaot. b-1 ja b-2: sama testausyksikkö, mutta eri operaattorit, f-2 ja g: kuva-analyysiin perustuva analysointi.

Huokosjako, mm

Huokosjako, mm

Huokosjako Kiertävä näyte

Huokosjako

Kiertävä näyte

Testausyksikkö

Huokosjako

Huokosjako

Betoni A

Betoni A

Huokosjako

Betoni A

Pintahie

Ohuthie

Pintahie

Ohuthie

Testausyksikkö

Huokosjako

Testausyksikkö

Huokosjako

Huokosjako

Betoni B

Betoni B

Betoni B Pintahie Ohuthie

Pintahie

Ohuthie

Testausyksikkö

Testausyksikkö

68 2 2024 0,20 0,22 0,24 0,26 0,28 0,30 0,32 0,34 0,36 0,38 0,40 I-1 I-2 II III IV V VI VII-1 VII-2
0,14 0,16 0,18 0,20 0,22 0,24 0,26 0,28 0,30 a b-1 b-2 c-1 c-2 d e f-1 f-2 g h-1 h-2
Huokosjako, mm
0,14 0,16 0,18 0,20 0,22 0,24 0,26 0,28 0,30 0,32 0,34 a b-1 b-2 c-1 c-2 d e f-1 f-2 g h-1 h-2
mm
Huokosjako,
0,14 0,16 0,18 0,20 0,22 0,24 0,26 0,28 0,30 a b-1 b-2 c-1 c-2 d e f-1 f-2 g h-1 h-2
0,14 0,16 0,18 0,20 0,22 0,24 0,26 0,28 0,30 0,32 0,34 a b-1 b-2 c-1 c-2 d e f-1 f-2 g h-1 h-2
Testauslaboratorioiden tasokokeet 2023

Huokosanalyysi

Kiertävä ohuthienäyte

Yksi testausyksikkö valmisti ohuthieet ja samat ohuthieet kierrätettiin yhteensä seitsemässä testausyksikössä. Kuvassa 6 on esitetty tulokset huokosjaon osalta.

Tuloksissa havaitaan varsin suurta hajontaa. Tässä tapauksessa tutkittiin samaa näytettä ja kuitenkin hajonta oli varsin suuri.

Käytännön tilanteessa hajonnan lähteitä on vielä enemmän, mm. näytteenotto rakenteesta / koekappaleesta, ohuthieen valmistus jne. Mitattu hajonta on laadunvarmistusmenetelmäksi liian suuri. Hajontaa kasvatti selvästi yksi selvästi korkeampi tulos (VI: 0,38 mm).

Mikäli suurin ja pienin tulos poistettaisiin joukosta, jäljelle jäävien seitsemän testausyksikön keskiarvo olisi 0,28 mm, keskihajonta 0,016 mm ja variaatiokerroin 6%. Tämä osoittaa, että suurin osa testausyksiköistä sai varsin saman tasoisia arvoja. Kiertävät ohuthienäytteet eivät olleet laadultaan täydellisiä. Kolme testausyksikköä raportoi puutteista, todettiin että ohuthieet oli hiottu osin puhki.

Huokosanalyysit betoninäytteistä Tasokokeeseen osallistui yhteensä 8 testausyksikköä. Näistä kaksi teki sekä ohut- että pintahieanalyysit, yksi teki vain pintahieanalyysin ja loput 5 teki ohuthieanalyysit. Koetulokset on esitetty huokosjaon osalta kuvassa 7.

Betoninäytteiden huokosanalyysien osalta havaitaan aika lailla samat ilmiöt kuin kiertävän ohuthienäytteen osalta, huokosjakotuloksissa on runsaasti hajontaa. Kuten kiertävälläkin näytteellä, vaihtelua aiheuttaa muutamat yksittäiset tulokset, erityisesti testausyksiköi-

Taulukko 5

Kiertävän ohuthienäytteen sekä betoninäytteiden keskimääräiset huokosjaot.

Analyysi

Huokosjako, mm Keskiarvo Keskihajonta Variaatiokerroin

Kiertävä ohuthie 0,29 0,038 13%

Betoni A 0,21 0,027 13%

Betoni A, ohuthie 0,22 0,022 9%

Betoni A, pintahie 0,20 0,040 20%

Betoni B 0,26 0,040 15%

Betoni B, ohuthie 0,27 0,029 11%

Betoni B, pintahie 0,25 0,070 28%

den c-2 ja e tulokset poikkeavat muista tuloksista. Taulukkoon 5 on koottu sekä kiertävän näytteen että betoninäytteiden huokosjakomittausten keskimääräiset tulokset. Variaatiokertoimet vaihtelivat ohuthieen osalta välillä 9...13%, kun taas pintahieellä variaatiokerroin oli 20…28%. Pintahietuloksia oli lukumääräisesti selvästi vähemmän ja siten yksi poikkeava tulos vaikuttaa selvästi enemmän hajontaan. Sekä betonilla A ja B pienin huokosjako saatiin pintahieanalyysissa. Kokonaisuutena voidaan arvioida, että menetelmän tyypillinen hajonta tutkituilla näytteillä oli luokkaa 0,040 mm.

Ristiintestaus

Edellisissä testauksissa havaittujen suurien hajontojen vuoksi päätettiin tehdä vielä ylimääräinen ristiintestaus-kierros, jossa 4 aikaisemmin analysoitua näytettä lähettiin kahteen muuhun testausyksikköön testattavaksi. Näytteet valittiin betonista A niin, että kahden näytteen (R1 (b-1) ja R2 (e)) huokosjaot olivat aikaisemmassa testauksessa alhaisimmat ja vastaavasti kahden näytteen (R3 (c-2) ja R4 (h-2)) olivat korkeimmat. Ristiintestauksen tulokset on esitetty kuvassa 8.

Ristiintestaus vahvisti pitkälti aikaisemmin tehtyjä havaintoja. Erityisesti pintahienäytteiden R2 osalta huokosjaon vaihtelu oli suurta (0,05 mm). Ohuthieiden osalta tulosten erot olivat pienempiä 0,02…0,03 mm. Toisella pintahienäytteellä (R4) vaihtelu oli myös pientä, mutta kyseisen näytteen osalta toinen lisäkoe jäi tekemättä.

Näytteet R1 ja R2 valittiin ristiintestaukseen niiden alhaisen huokosjakotuloksen vuoksi.

Molempien näytteiden osalta kaksi muuta testausyksikköä sai korkeampia huokosjakoarvoja. Siten tulosten perusteella voidaan arvioida, että alkuperäinen arvo oli liian pieni. Toisaalta näytteet R3 ja R4 valittiin korkeiden huokosjakoarvojen perusteella. Näytteen R3 osalta yksi testausyksikkö sai vieläkin korkeamman huokosjakoarvon, erot tosin olivat pieniä. Näytteen R4 osalta ristiintestaus jäi puutteelliseksi, mutta lisämittauksessa saatiin alkuperäistä hieman pienempi huokosjako. Ristiintestauksen perusteella voidaan arvioida, että jotkut yksittäiset tulokset varsinaisessa testauksessa olivat poikkeavia, esimerkiksi R1 (b-1) ja R2 (e) näytteiden alkuperäiset tulokset. Ristiintestauksen tulosten perusteella avulla ei kuitenkaan pystytä määrittään tarkemmin tuloshajonnan lähteitä/syitä.

Yhteenveto

Tasokokeessa 2023 testattiin betonin puristuslujuutta sekä huokosanalyysia. Tasokokeisiin osallistui kaikkiaan yhteensä 12 eri tahoa. Joillakin osallistujille kokeisiin osallistui useampia toimipisteitä tai useampia puristuskoneita. Puristuslujuuden osalta eri testausyksiköitä oli yhteensä 15 kpl. Huokosanalyysikokeeseen osallistui yhteensä 8 testausyksikköä. Huokosanalyysitestaukset jaettiin kolmeen osaan. Testausyksiköille lähettiin kiertävä ohuthiepari ja siten 7 testausyksikköä analysoivat samat ohuthieet. Lisäksi testausyksiköille lähettiin betoninäytteet kahdesta eri betonista ja testausyksiköt valmistivat ohut- ja/tai pintahienäytteet ja analysoivat ne. Loppuvaiheessa tehtiin lisäksi ylimääräinen ristiintestaus neljälle aikaisemmin testatulle näytteelle.

69 2 2024
Testauslaboratorioiden tasokokeet 2023

Kuva 8 Huokosjakotulokset ristiintestauksessa.

Huokosjako R1

Testauslaboratorioiden

9 Huokosjakokokeen pintahie- ja ohuthienäytteet.

10 Huokosjakokokeessa ohuthienäyte stereomikroskooppikuvassa.

Huokosjako R2

11 Huokosjakokokeessa ohuthienäyte polarisaatiomikroskooppikuvassa.

Huokosjako, mm

Alkuperäinen

Alkuperäinen Kierros 1 Kierros

Huokosjako, mm

Huokosjako, mm

Huokosjako, mm

Huokosjako, mm

Alkuperäinen

Alkuperäinen

Huokosjako R3

Alkuperäinen

Huokosjako R2

Huokosjako R2

Huokosjako R1

Alkuperäinen Kierros 1 Kierros 2

Huokosjako R4

Huokosjako R2

Alkuperäinen Kierros 1 Kierros Huokosjako, mm

Alkuperäinen Kierros 1 Kierros Huokosjako, mm

Huokosjako R3

Huokosjako R3

Huokosjako, mm

Huokosjako R4

Huokosjako R4

Puristuslujuustulosten analysoinnin perusteella todettiin, että testattavat koekappaleet olivat riittävän tasalaatuisia ja myös testausyksiköiden väliset erot olivat pieniä. Keskimääräinen puristuslujuus (lieriölujuus) oli 48,6 MPa ja vastaava keskihajonta 1,26 MPa. Variaatiokertoimena tämä on 2,6%. Vastaavissa tasokokeissa vuonna 2022 puristuslujuuskokeiden keskiarvo oli 44,9 MPa ja keskihajonta 1,22 MPa (2,7%) eli tulokset ovat hyvin samalla tasolla. Puristuslujuuskokeissa havaittiin yksi selvästi muita huonompi koetulos. Ei voida varmuudella tietää, johtuuko poikkeama koekappaleen laadusta vai testauksesta. Siten tulosta ei poistettu aineistosta. Mikäli tulos poistettaisiin, kyseisen testausyksikön hajonta pienenisi merkittävästi ja myös koko aineiston hajonta pienenisi jonkin verran. Puristuslujuuden osalta tasokokeet eivät edellytä lisätoimenpiteitä.

Alkuperäinen Kierros 1 Kierros

Puristuslujuuskokeessa tiheyden osalta keskihajonta oli pieni 8,1 kg/m3, mutta kuitenkin kahden testausyksikön tulokset näyttäisivät hieman poikkeavan muiden testausyksiköiden tuloksista.

Huokosanalyysien hajonnat olivat korkeita. Kiertävän näytteen yksittäiset huokosjakotulokset vaihtelivat välillä 0,25…0,38 mm ja keskihajonta oli 0,038 mm. Betonin A huokosjaot vaihtelivat välillä 0,16…0,26 mm (keskihajonta = 0,027) ja betonin B vastaavasti välillä 0,17…0,33 mm (keskihajonta = 0,040). Pintahieet antoivat keskimäärin 0,02 mm pienempiä huokosjakoja kuin ohuthieet, mutta toisaalta hajonta oli suurempaa.

70 2 2024
0,25 0,26 0,27 0,28 0,29 0,30
0,22 0,23 0,24
0,16 0,17 0,18 0,19 0,20 0,21 0,22 0,23 0,24
Kierros
Kierros 2
1
Huokosjako, mm
0,15 0,16 0,17 0,18 0,19 0,20 0,21 0,22 0,23
Huokosjako R1
0,18 0,19 0,20 0,21 0,22 0,23 0,24 0,25 0,26
Kierros 2 Kierros 2 0,15 0,16 0,17 0,18 0,19 0,20 0,21 0,22 0,23
Kierros
Kierros 2
1
0,18 0,19 0,20 0,21 0,22 0,23 0,24 0,25 0,26 Alkuperäinen Kierros 1 Kierros 2 Huokosjako, mm
Kierros 2 Kierros 2 0,15 0,16 0,17 0,18 0,19 0,20 0,21 0,22 0,23 Alkuperäinen Kierros 1 Kierros 2 Huokosjako, mm Huokosjako R2 0,18 0,19 0,20 0,21 0,22 0,23 0,24 0,25 0,26 Alkuperäinen Kierros 1 Kierros 2 Huokosjako, mm Huokosjako R4 0,22 0,23 0,24 0,25 0,26 0,27 0,28 0,29 0,30
Huokosjako R4
Kierros 1 Kierros 2
0,16 0,17 0,18 0,19 0,20 0,21 0,22 0,23 0,24
Kierros
Kierros
1
2
0,15 0,16 0,17 0,18 0,19 0,20 0,21 0,22 0,23
0,18 0,19 0,20 0,21 0,22 0,23 0,24 0,25 0,26
tasokokeet 2023

Hajontaa aiheutti erityisesti 1…2 poikkeavaa testitulosta. Hajontoja pyrittiin analysoimaan tarkemmin järjestämällä ylimääräinen ristiintestaus neljälle näytteelle. Ristiintestauksen perusteella voidaan arvioida, että jotkut yksittäiset testitulokset olivat todennäköisesti poikkeavia.

Kokonaisuutena voidaan todeta, että huokosanalyysien hajonnat ovat liian korkealla tasolla erityisesti, kun huomioidaan menetelmän käyttö osana betonin laadunvarmistusta. Hajonnan lähteitä ei kuitenkaan näiden tulosten perusteella voida yksiselitteisesti eritellä. Jatkossa huokosanalyysien hajontaa tulee pystyä vähentämään. Tähän tavoitteeseen pääsemiseksi suositellaan seuraavia toimenpiteitä:

Round-robin tests of concrete testing laboratories in 2023

Round-robin tests have been organized annually for accredited concrete testing laboratories. In 2023, compressive strength and protective pore analysis with thin and polished section were tested. Totally 15 testing units participated in the compressive strength testing and 8 testing units in the pore analyses.

In the concrete strength testing, ready-mix concrete having the strength class of C40/50 having the maximum aggregate size of 18 mm and slump class S2 was used. The average compressive strength of totally 90 test specimens was 48,6 MPa (cylinder strength) and the stand-

1. Huokosanalyysien menettelyjä tulee yhtenäistää ja ohjeistaa tarkemmin. Erityisesti puutteita on pintahieiden osalta. Kuitenkin myös ohuthieiden osalta ohjeistusta tulisi tarkentaa hajonnan vähentämiseksi.

2. Ohje BY72 tulee päivittää pintahieiden mutta myös ohuthieiden osalta.

3. Tarvittaessa tulee määritellä omat huokosjaon vaatimustasot ohut- ja pintahieanalyyseille.

4. Testausyksiköiden tulee järjestää yhteisiä koulutustilaisuuksia menetelmien yhtenäistämiseksi.

5. Tasotestauksia tulee järjestää säännöllisin väliajoin kehityksen seuraamiseksi, esimerkiksi joka toinen vuosi.

Tavoitetasona yhdestä betonista tehtäville analyyseille (esim. tasotestaukset) olisi keskihajonta korkeintaan 0,020 mm. Tällä hetkellä keskihajonta on keskimäärin luokkaa 0,040 mm.

Huokosanalyysien kehitystyön koordinointi soveltuu hyvin Betoniyhdistyksen Laadunvarmistus-toimikunnalle ja sen työryhmälle: Huokosanalyysit.

Vuosikokouksessa 2023 sovittiin että vuonna 2024 testataan betonin puristuslujuuden lisäksi laattakoe rasitusluokissa XF2 ja XF4, väliaineena 3% NaCl-liuos.

ard deviation was 1,26 MPa. The coefficient of variation was 2,6%. The lowest individual test result was 43,9 MPa and the highest 52,3 MPa. Two laboratories were needed to test 8 days later as required and those results slightly differed from the other results. Generally, the variation was small, and it was on the same level as in the previous years. The average density of the test specimens was 2392 kg/m3 and the standard deviation was 8,1 kg/m3. The variation was low and slightly lower compared to the previous year.

The thin and polished section analyses divided into three parts. Pair of thin sections circulated in seven laboratories (totally 9 analyses were carried out). In addition, two concrete samples were sent to the laboratories. Finally 2 thin sections and 2 polished sections were tested in two another laboratories. Generally, the variations were high. Typically the standard variation was app. 0,040 mm and the high variation was caused by some different results. Recommendations were given to reduce the variation of the test results.

71 2 2024 Testauslaboratorioiden tasokokeet 2023
9 10 11
Kirsi Larjamo Kirsi Larjamo Kirsi Larjamo

Arkkitehtiopiskelijoilta ideoita lähiötalokorjaamiseen

Riina Takala-Karppanen

Julkisivuyhdistys – JSY ry sihteeri@julkisivuyhdistys.fi

Julkisivuyhdistys JSY ry on järjestänyt avoimen kilpailun vuodesta 2002 alkaen Tampereen, Oulun ja Aalto-yliopistojen arkkitehtiopiskelijoille yhteistyössä taloyhtiöiden sekä rakennusalan asiantuntijoiden ja -viranomaisten kanssa.

Syksyllä vuonna 2023 järjestetty kilpailu oli järjestyksessään 16. Kilpailun järjestelyistä vastasi Oulun yliopiston Arkkitehtuurin yksikkö ja tulokset julkistettiin maaliskuun 2024 lopulla Oulussa. ”Oppilaitoksen näkökulmasta tämän tyyppinen yhteistyömahdollisuus Julkisivuyhdistyksen ja alan toimijoiden kanssa on jo pitkään ollut hyvin arvokas lisä nimenomaan koulutuksen työelämälähtöisyyden vahvistamisen näkökulmasta”, kiittelee palkintolautakunnan puheenjohtaja, professori Janne Pihlajaniemi

Ensimmäinen kilpailu jo vuonna 2002

Historian ensimmäiseen kilpailuun vuonna 2002 saapui 28 ehdotusta. Sen voitti ehdotus "Retro", tekijöinä Kirsti Ek ja Niina Kilpelä, avustajana Samu Virkki. Toisen palkinnon sai ehdotus "Kuusikko!", tekijöinä Katri Kangasniemi ja Riku Rönkä sekä kolmannen palkinnon ehdotus "Poksi", tekijänä Laura Vara Voittajat julkistettiin Julkisivumessujen yhteydessä Helsingin Wanhassa Satamassa tammikuussa 2003.

Voittajat on julkistettu erilaisissa kiinteistöja rakennusalan messu- ja seminaaritapahtumissa julkisen näkyvyyden ja taloyhtiöiden

Arkkitehtiopiskelijoille suunnatulla Kerrostalon korjauksen ideakilpailulla pyritään löytämään korkeatasoisia, monipuolisia ja toteuttamiskelpoisia ideoita 1960–1980- luvuilla rakennettujen lähiökerrostalojen julkisivujen energiakorjaukseen, parvekkeiden uudistamiseen, toiminnalliseen kehittämiseen ja lisäkerrosten rakentamiseen sekä pihamiljöön parantamiseen.

kiinnostuksen herättämiseksi taloyhtiötalojen korjaamiseen.

Ensimmäinen kilpailu toteutettiin yritysten ja yhteisöjen taloudellisella tuella. Kilpailua tukivat Julkisivuyhdistyksen ohella Kahelinin Rahasto, Vuorisen Rahasto, BestSeller Oy, LTM Company Oy, Rautaruukki Oy, Steni Finland Oy, Tremco Ltd ja Wood Focus Oy.

Kiinnostusta korjausrakentamiseen Arkkitehtiopiskelijat ovat osallistuneet kilpailuun aktiivisesti ja ehdotusten määrä on vaihdellut 20 ja 40 ehdotuksen välillä.

Vuonna 2013 kilpailuun saatiin ennätysmäiset 47 ehdotusta, jolloin suunnittelukohteena oli oppilasasuntola soluasuntoineen. Opiskelijoiden tehtävänä oli ideoida Forssan Ammatti-instituutin 3-kerroksisen, hissittömän, harjakattoisen ja ns. kahitiilipintaisen oppilasasuntolan korjaus.

Tämän jälkeen opiskelijat ovat ideoineet julkisivujen ja rakennusten korjaamista mm. Helsingin Lauttasaaressa ja Espoon Soukassa sijainneille asunto-osakeyhtiöille sekä vuonna 2014 ensimmäisen kerran VTS-kotien vuokratalokohteeseen ja vuonna 2019 Hämeenkyrön Asuntohankinta Oy:n omistamaan asuinkerrostaloon.

Vuoden 2023 voittajat suunnittelivat Oulussa Syyslukukauden aikana 2023 järjestetyssä kilpailussa opiskelijoiden tehtävänä oli suunnitella Oulussa sijaitsevan, vuonna 1959 val-

mistuneen kolmikerroksisen asuin- ja liiketalo Asunto Oy Laitakulman korjaamista.

Kerrostalon korjauksen ideakilpailussa palkittiin seuraavat ehdotukset ja tekijät: 1. palkinto (2500,- €) nimimerkki "Fokka", tekijöinä Catarina Kukkonen ja Riku Miettusvaara. 2. palkinto (1500,- €) nimimerkki "Yhdistelmä", tekijänä Lauri Antila. 3. palkinto (1000,- €) nimimerkki "Keidas", tekijöinä Suvi Raski ja Sarianna Vuorinen. Kaikki ovat Oulun yliopiston arkkitehtuurin yksikön opiskelijoita.

Kaikissa ehdotuksissa oli esitetty yhdestä kolmeen kerroksista lisäkerrosrakentamista vanhan rakennuksen päälle. Lisäkerrosrakentaminen oli suunniteltu pääosin puurakenteisena, mikä on kevyt rakenneratkaisu. Lisäkerrosten uusilla asunnoilla voidaan kattaa taloyhtiön korjauskustannuksia, mikä voi olla taloyhtiölle korjaushankkeen toteuttamisen edellytys.

Arkkitehtonisesti ehdotuksissa oli käytetty kahdenlaista lähestymistapaa: toisissa ratkaisuissa oli pyritty säilyttämään vanhan rakennuksen julkisivuarkkitehtuuri osana vanhaa kokonaisuutta ja toisissa ratkaisuissa julkisivua oli jäsennelty kokonaisvaltaisesti uudenlaiseksi, jolloin vanha julkisivu jää uuden julkisivun sisään.

Ehdotuksessa ”Fokka” tuomaristo piti onnistuneena ja mielenkiintoisena puistonpuoleista julkisivua. Parvekevyöhyke toi julkisivulle kokonaan uuden ilmeen, mutta vanhan julkisivun hahmo säilyi hivenen taustalla. Nauhamaisen ikkuna-aukotuksen säilyt-

72 2 2024

1 Kuvassa vuoden 2023 kilpailun voittajaehdotus "Fokka".

2 Palkitut opiskelijat potretissa vasemmalta lukien eturivissä 3. palkinto Suvi Raski ja Sarianna Vuorinen, 2. palkinto Lauri Antila ja 1. palkinto Riku Miettusvaara. Kuvasta puuttuu Carita Kukkonen.

tämistä pidettiin hyvänä ja arkkitehtonisesti raikkaana ratkaisuna.

Toisen palkinnon saaneessa ehdotuksessa ”Yhdistelmä” tuomaristo piti julkisivun sommittelua ja materiaalimaailmaa tasapainoisena ja rauhallisena sekä kaupunkikuvaan liittymistä onnistuneena.

Kolmannessa palkittavassa ehdotuksessa ”Keidas” oli kaksi lisäkerrosta, jotka oli ratkaistu julkisivussa mansardikattoaiheella. Julkisivujen käsittely toi tuomariston mielestä rakennukselle uuden ilmeen ja tiilien uudelleenkäyttöä pidettiin raikkaana ideana.

Tuomaristo painotti arviossaan, että ympäristön huomiointi ja ratkaisun liittyminen kaupunkikuvaan ovat keskeisiä tavoitteita julkisivujen korjaamisessa ja uudistamisessa.

Kestävää korjaamista yhteistyössä ”Korjausrakentamisen tarve kasvaa vuosi vuodelta, kun rakennuskantamme ikääntyy. Rakennus on aina kokonaisuus, estetiikan lisäksi eri materiaaleja ja toimintoja. Kestävä korjausrakentaminen ylläpitää ja jatkaa rakennusten käyttöikää, mahdollistaa muuntojoustavia ratkaisuja niin toiminnallisuuden kuin rakenteidenkin osalta. Rakenteiden ja niissä

käytettyjen materiaalien luotettava pitkäaikaiskestävyys on tarpeen, jotta rakennukselle luvatut ominaisuudet säilyvät koko tavoitellun käyttöiän ajan. Kestävään rakentamiseen tulee käyttää kestäviä ja toimivia materiaaleja, joita on osattava yhdistää oikein”, arkkitehti SAFA Maritta Koivisto totesi Rakennustuoteteollisuuden edustajana kilpailun tuomaristossa. "Myös asuintalot – tulee rakentaa kestämään peruskorjaukset ja toiminnan muutokset. Täydennysrakentaminen ja korjaaminen ovat kestävän rakentamisen keinoja saavuttaa rakennuskannalle pitkä elinkaari,” Koivisto painotti.

”Perinteeksi muodostunut vuosittainen kilpailu edustaa Julkisivuyhdistyksen kannalta merkityksellistä ja käytännönläheistä yhteistyötä, jota on tehty pitkään niin arkkitehtiopiskelijoiden kuin yliopistojen sekä asuinkiinteistörakennuttajien ja -omistajien kanssa,” Julkisivuyhdistyksen hallituksen puheenjohtaja Stina Hyyrynen korosti.

Kerrostalon korjauksen ideakilpailusta lisää: www.julkisivuyhdistys.fi/uutishuone ja www. betoni.com/lehti/ajankohtaista/kerrostalon-korjauksen-ideakilpailu-2023-ratkennut/

73 2 2024
1 2

Järjestöyhteistyö pitää paalutuksen puolia

Vesa Tompuri, toimittaja

Paalutuksella Suomessa ja muissa Pohjoismaissa on näiden maiden geologiasta johtuvia piirteitä, jotka poikkeavat ratkaisevasti paalutuksesta muualla Euroopassa. Täällä on totuttu kivisyyteen ja siihen, että maakerrokset vaihtelevat tiheästi sekä syvyyssuunnassa että maanpinnan tasossa. Lisäksi täkäläisissä oloissa on totuttu siihen, että kantava moreeni- tai kalliopohja on tavoitettavalla syvyydellä.

Tästä syystä tukipaalu ja etenkin lyöntipaalut ovat markkinoilla hallitseva paalutyyppi. Paalutuskoneet ovat tulleet markkinoille pääasiassa tätä paalutustapaa palvelemaan, mutta sittemmin ne ovat kehittyneet myös toisenlaisille paaluille soveltuviksi.

Lyöntipaalu siirtää suurimman osan kuormastaan paalun kärjen kautta kovaan pohjaan, mutta myös vaippakitka otetaan huomioon.

”Lyöntipaalutuksen idea on se, että kallio tai muu riittävän kova pohja löytyy kohtuulliselta syvyydeltä. Esimerkiksi Keski-Euroopassa on toisin: samat, usein kitkamaakerrokset saattavat ulottua niin

Paalutuksen tärkeys heikosti kantavassa maaperässä on jokaiselle rakentamisen ammattilaiselle itsestään selvyys. Tiukoiksi puristettujen aikataulujen paineessa paalutus ei silti aina suju niin kuin pitäisi. Suomen geoteknillinen yhdistys SGY ja Rakennusteollisuus RT ry ovat tehneet yhteistyötä paalutusprosessin kehittämiseksi 1990-luvulta asti, ja työsarkaa riittää yhä.

syvälle, että kitkapaalu on mielekäs ratkaisu”, toteaa SGY:n paalutustoimikunnan puheenjohtaja Teemu Riihimäki

A-Insinööreillä suunnittelutehtävissä työskentelevä Riihimäki on projekteissaan usein tekemisissä myös Eurokoodien kanssa. Pohjoismaisesta näkökulmasta ne sisältävät Riihimäen mukaan myös sellaisia kohtia, joita ei voi Pohjoismaissa soveltaa. Yksi esimerkki tästä on paikallavalettu paalu, joka Pohjoismaiden ulkopuolella on varsin yleinen. Se sopii käytettäväksi vähäkivisissä ja paksuissa tasalaatuisissa kitka- tai koheesiomaapohjissa. Yleensä tällaisia kaivinpaaluja kokonaistaloudellisempi ratkaisu on käyttää esivalmistettuja paaluja. Paikallavalettuja paaluja asennettiin hiljattain Kemin biotuotetehtaan koepaalutuksissa, mutta lopullisessa pohjarakennusratkaisussa päädyttiin esivalmistettuihin paaluihin.

”Koepaalutus ei tässä kohteessa antanut erityisen lupaavia tuloksia. Sen sijaan toinen kohde, Lappeenrannan Iso Kristiina -kauppakeskus oli tässä suhteessa onnistuneempi”, Riihimäki kertoo.

Mainitut kohteet ovat – lyöntipaalutuksessa tehtävän jatkuvan parantamisen lisäksi

- esimerkkejä siitä, että paalutusalalla haetaan ennakkoluulottomasti uusia ratkaisuja vanhojen hyviksi havaittujen täydennykseksi. Tällaisessa kehittämisessä tarvitaan tavanomaisesta kilpailusta erillään olevaa paalutusammattilaisten keskinäistä yhteistyötä, mille SGY:n ja RT:n yhteistyö luo hyvän perustan.

Uutta suunnitteluun

Suomen geoteknillisen yhdistyksen merkitys ensimmäisten paalutusohjeiden laadinnassa oli aikanaan keskeinen. SGY:n paalutustoimikunta julkaisi ensimmäiset lyöntipaalutusohjeet vuonna 1972, ja niitä on sittemmin päivitetty säännöllisesti. Viimeisin paalutusohje on vuodelta 2016, jolloin myös eurooppalaiset paalutuksen toteutusstandardit uudistuivat. Nykyinen paalutustoimikunta koostuu kattavasti ja tasapuolisesti suunnittelijoiden, urakoitsijoiden, viranomaisten ja tutkimuslaitosten sekä paaluvalmistajien edustajista. Toimikunta tekee myös tiivistä kansainvälistä yhteistyötä sekä tekee paalutukseen liittyvää tutkimus- ja kehittämistyötä. Tällä hetkellä yhtenä ajankohtaisena aiheena on tietomallinnuksen käyttö paalutuksen suunnittelussa

1 2024
74 2 2024

1

1 Huolellisilla pohjatutkimuksilla turhat "paalukannot" saadaan minimoitua suunnitteluvaiheessa..

ja myös työmailla. Se on hyvä esimerkki puhtaasti teknisestä kehittämiskohteesta, joka on yhteinen koko alalle.

”Koko alaa koskevassa yhteisessä kehittämistyössä on tärkeää siirtää kilpailuasetelmat sivuun. Kun tekniikka kehittyy, sitä hyötyvät lopulta kaikki”, Betoniteollisuus ry:n paaluvaliokunnan puheenjohtaja Reijo Mustonen pohtii.

Tietomallinnus on oleellinen osa nykyaikaista suunnitteluprosessia, myös paalutusta suunniteltaessa. Itse mitoitus on ennallaan, se kun perustuu kauan sitten kehitettyihin mitoituskaavoihin. Ja vaikka jokainen tontti tai tienpätkä on erilainen, paalutuksen suunnittelua helpottamaan on betoni.com -sivustolla tarjolla maksuttomia paaluperustusten suunnittelutyökaluja ja mitoitustaulukoita. Niiden luvut puolestaan perustuvat laajoihin tutkimuksiin ja niiden tuloksiin. Konkreettisia esimerkkejä tästä ovat hiljattain toteutetut kehityshankkeet, joissa selvitettiin keinoja mitoituksen tarkentamisesta entisestään.

”Laskennallinen kantavuus on parantunut tarkemmalla mitoitustavalla noin kymmenen prosenttia”, Reijo Mustonen kiteyttää.

Parempaan paalutusprosessiin

Niin kauan kuin paalutustöitä on Suomessa tehty, lähes jokaisessa hankkeessa pohjatutkimusten tarpeellisesta laajuudesta on keskusteltu kriittisesti. Ammattitaitoinen rakennuttaja on tässä asiassa avainasemassa: jos hankkeeseen ryhtyvä ymmärtää riittävien pohjatutkimusten ja maaperäanalyysien välttämättömyyden, geotekninen suunnittelija ja pohjarakenteiden suunnittelija saavat oikeat lähtötiedot ajoissa. Näin pystytään laatimaan tarkemmat suunnitelmat, jolloin toteutustyö tehostuu ja paaluhukka pienenee, minkä tuloksena kustannukset alenevat ja hiilidioksidipäästöt pienenevät. Silti näin ei läheskään aina tapahdu.

”On myös huonoa kulttuuria rakennusalalla. Suomessa on vallalla käytäntö, että paaluttajat ja perustusten tekijät ovat työmaalla yhtaikaa, koska aikataulu on puristettu niin tiukalle. Ruotsissa ja kaikkialla muuallakin paaluttaja saa tehdä työnsä rauhassa ja vasta sen jälkeen muut rakentajat tulevat työmaalle”, Reijo Mustonen kertoo.

75 2 2024
Reijo Mustonen

2 Koepaalutukset ovat tärkeä perusta paalujen mitoitusmenetelmien kehittämisessä.

Liian tiukka aikataulu on omiaan lisäämään myös turvallisuusriskejä. Mitä enemmän on toimijoita kohteessa yhtaikaa, sitä todennäköisempiä ovat tapaturmat. Keskeistä on myös se, että paalutuskalusto on kunnossa. Betoniteollisuus ry:n jaospäällikkö Ari Mantila viittaa myös paalutusalustan suunnittelun tärkeyteen. Alustan on toisin sanoen oltava sellainen, että se on mitoitettu kestämään lähes sadan tonnin painoisen koneen.

”Myös paalutuskoneiden valmistajien panos on merkittävä tässä asiassa suunnitteluohjeita kehitettäessä. Heiltä saadaan painekaaviot, jotka kuvaavat maapohjaan kohdistuvaa kuormitusta koneiden erilaisissa työskentelyasennoissa”, Teemu Riihimäki kertoo.

SGY:n paalutustoimikunta:

• Teemu Riihimäki, A-Insinöörit Oy, puheenjohtaja

• Jukka Haavisto, Tampereen yliopisto, sihteeri

• Juha Auvinen, WSP Finland Oy

• Ossi Hakanen, KFS Finland Oy

• Hannu Jokiniemi, Scandia Steel

• Jussi Kinnunen, Pirkan Rakentajapalvelu, SGY:n hallituksen edustaja

• Ari Kivistö, KFS Finland Oy

• Petri Koivunen, Emeca Oy

• Reijo Mustonen, HTM Yhtiöt Oy

• Antti Perälä, SSAB Europe Oy

• Tarmo Tarkkio, Skanska Infra Oy

• Veli-Matti Uotinen, Väylä

• Hannu Uusitalo, Sweco Rakennetekniikka Oy

• Hannu Vesamäki, Kankareen Paalutus Oy

2

Myös paalutusalan koulutuksen kehittäminen on oleellista sekä tekniikan että työturvallisuuden kehittämisessä. Tässä SGY:n paalutustoimikunta on ollut keskeisenä aloitteentekijänä ja toimijana. Koulutusta on järjestetty muun muassa paalutuskoneen kuljettajille, mutta myös paalutuksen työnjohdolle ja suunnittelijoille. Tiedonvälityksessä moni kokee tärkeäksi myös Betoniteollisuus ry:n perinteisen Paaluseminaarin.

Suunnittelijoille on ollut erityisen tärkeää perehtyä eurokoodien käyttöön, koska Väylävirasto, rakennuttajista keskeisin, on määrännyt Eurokoodi-suunnittelujärjestelmän ainoaksi suunnittelujärjestelmäksi. Eurokoodien päivitys on parhaillaan menossa, ja uudet versiot tulevat voimaan vuonna 2027.

Betoniteollisuus ry:n Paaluseminaari 2024 järjestetään Tampereella Nokian Areenan yhteydessä Lapland Hotels Arenan kokoustiloissa 12.9.2024.

Mikäli et ole saanut ennakkokutsua seminaariin, voit tilata sen osoitteesta nina.loisalo@rt.fi.

Varajäsenet

• Tommi Hakanen, KFS Finland Oy

• Anssi Hyvärinen, SSAB Europe Oy

• Jorma Ilkka, Lujabetoni Oy

• Heikki Kangas, Vantaan kaupunki

• Teemu Repo, Junttan Oy

• Ari Savolainen, SITO Oy

Betoniteollisuus ry:n paaluvaliokunta

• Reijo Mustonen, HTM Yhtiöt Oy, puheenjohtaja

• Jorma Ilkka, Lujabetoni Oy, varapuheenjohtaja

• Ari Mantila, Betoniteollisuus ry, sihteeri

• Jukka Haavisto, Tampereen yliopisto

• Heikki Haho, Siikajoen Betonitukku Oy

• Kimmo Ikkala, Emeca Oy

• Petri Koivunen, Emeca Oy

• Antti Leino, Leimet Oy

• Joni Loikala, HTM Yhtiöt Oy

• Taneli Murtoperä, Lujabetoni Oy

• Teemu Tupala, Leimet Oy

• Tuomas Vähä-Jaakkola, Kokemäen TB-Paalu Oy

76 2 2024 Paaluinfo
Reijo Mustonen

Sääntelyllä vai ilman?

Rakennusala on yksi eniten säännellyistä toimialoista Suomessa. Liika sääntely estää käyttämästä luovuutta ja tappaa innovoinnin.

Rakentamisen lisäksi on muitakin toimialoja, joita säännellään voimakkaasti. Esimerkiksi ydinvoimalat ovat niin tarkan sääntelyn ja jatkuvan tarkastamisen alla, että rakentamisen sääntely ei tunnu oikein miltään sen rinnalla. Sääntelyn taso ja tarkkuus onkin suoraan verrannollinen mahdollisen vaurion seurausten vakavuuteen nähden.

Sääntelyn tarkoitus on hyvä. Tiukalla sääntelyllä saavutetaan turvallisempia rakennuksia. Kukapa haluaisi asua talossa, joka sortuisi ensimmäisen talven aikana lumikuorman painosta tai jossa tulipalo etenisi nopeammin kuin talosta ehtii poistumaan.

Ostaessaan talon tai asunnon, ihmisellä on valtavasti odotuksia turvallisuuden ja terveellisyyden suhteen. Jos taas talon rakennuttaa itse, miettii aina jossain hankkeen vaiheessa, täytyykö tosiaan kaikkia Rakentamismääräyskokoelman sääntöjä noudattaa. Melkoinen dilemma!

Sääntelykään ei aina toimi. Puuttuvat palokatkot ovat siitä hyvä esimerkki. Viime aikoina on kerrottu monesta rivi- ja kerrostalopalosta, jossa palokatkot ovat olleet puutteellisesti toteutettu tai puuttuivat jopa kokonaan. Niiden osalta sääntely ei selvästikään ole riittävää.

Julkisia hankkeita näyttää vaivaavan kustannusten karkaaminen käsistä. Osaksi tähänkin ilmiöön liittyy tiukka sääntely.

Esim. luontokohteen tulipaikan esteettömyys on toteutettava tavalla tai toisella, eikä kumpikaan niistä ole halpa tapa. Julkisissa hankkeissa tarkastellaan myös usein laajempaa kokonaisuutta, kuin vain tuota yhtä tulipaikkaa. Sen lisäksi pitää rakentaa parkkipaikka, vessat ja lasten leikkialue.

On meillä kovaltakin tuntuvaa sääntelyä: ryhmäperhepäiväkotia ei voi perustaa, jos asunnossa ei ole kahta poistumistietä. Harvassa asunnossa on. Toisaalta, jos samassa tilassa on lähemmäs 10 lasta ja jotain sattuu sen ainoan poistumistien läheisyydessä, niin miten niin suuri lapsijoukko saadaan turvaan ajoissa. Eli tässäkään tapauksessa sääntely ei ole liian tiukkaa vaan ihan vaan tarpeellista.

Ala sääntelee myös itse itseään. Rakenteiden standardoidut mitat ja erilaiset moduulijärjestelmät estävät uudenlaisten tuotteiden tulon markkinoille. Samalla moduulijärjestelmät mahdollistavat valinnanvapauden tuotteen valinnassa sen sijaan, että suunnittelija määrittelisi tuotteen valmistajaa myöten suun-

nitelmiinsa. Ei moduulijärjestelmien käyttö silti mikään onnela ole. Aivan varmasti jää hyviä tuotteita keksimättä tai ainakin tuomatta maahan, koska tuotteen käyttö olisi hankalampaa kuin moduulimittaisten vastaavien.

Ajatusleikkinä voisi kuvitella millaista olisi, jos rakentamista ei säädeltäisi lainkaan. Omakotitaloa ostaessa ei voisi luottaa siihen, että katto kestää lumen painon tai takkaa voi polttaa turvallisesti. Rakentaminen olisi sillisalaattia eikä alueilla olisi esteettistä omaleimaisuutta. Kerrostaloasuntojen yhteydessä ei olisi autopaikkoja tai tiloja liikehuoneistoille. Hurjan kuuloinen utopia!

Sääntelyn pitää olla aina hyvää. Ei pitäisi määritellä miten joku asia tulisi toteuttaa vaan sääntelyn pitäisi kohdistua lopputuotteen ominaisuuksiin. Suurelta osin Suomessa onkin näin, mutta on monenlaisia asioita, joissa puututaan myös toteutukseen.

Auli Lastunen Eurokoodiasiantuntija Rakennustuoteteollisuus RTT auli.lastunen@rakennusteollisuus.fi

2 2024
Kolumni

Henkilökuvassa

Kyösti Ratia

Betoni-lehden henkilögalleriassa on haastateltavana infrarakentamisen laajaalaisena erikoisasiantuntijana YIT Infra Oy:ssä työskentelevä DI Kyösti Ratia (s. 1973 Turengissa).

Haastattelijana ja toimittajana: Dakota Lavento

Kyösti Ratia on armoitettu esiintyjä. Hän hallitsee asiansa ja pursuaa yksityiskohtaisilla faktoilla terästettyjä tarinoita. Kun Raide-Jokeri palkittiin Vuoden Betonirakenne 2023 -kilpailun voittajana, Ratia hankkeen tekniikkapäällikkönä toden teolla otti yleisönsä. Kyöstin kanssa on hirmuisen mukava jutella. Aikaa tosin pitää varata, sillä sitä totisesti kuluu.

Mies naurahtaa: ”Puhun paljon ja tiedän sen. Erään työkaverini sanoin: Kyösti, sinä se olet kova poika puhumaan.”

Ratia käyttää puhujanlahjojaan. Hänen kalenterissaan on muutaman viikon ajalla Aalto-yliopiston Rakennusinsinöörikillan vuosijuhlassa pidetty juhlapuhe, kokemusasiantuntijapuheenvuoro Autismiliiton webinaarissa, Hämeen AMK:n liikennetekniikan ratikkakurssilla pidetty luento sähköturvallisuusasioista ratikkahankkeissa ja toinen kokemusasiantuntijapuheenvuoro lasten omaishoitajille. Matkasaarnaajaksi Ratiaa ei silti voi mieltää, sillä hänellähän on toki päivätyönsäkin. YIT on mukana allianssimallilla toteutettavassa Kupittaan Kärki -hankkeessa Turussa ja Ratia työskentelee siinä infran ja allianssitoiminnan erityisasiantuntijana.

Jäätelötehtaan varjossa Kyöstin lapsuudenkodin sijainti oli erinomainen. Hän asui Turengissa vastapäätä jätskitehdasta. Perheeseen kuuluivat toimittajana työskentelevä isä, perhepäivähoitajaksi Kyöstin syntymän jälkeen ryhtynyt äiti ja kaksi vanhempaa veljeä äidin aiemmasta avioliitosta.

Perheeseen syntyi vielä tytär neljä vuotta Kyöstin jälkeen.

”Meillä oli uusioperhe, vaikka sanaa ei silloin vielä käytetty”, Ratia huomauttaa.

Isä kustansi pientä paikallislehteä ja pikku-Kyösti kulki usein painotalossa mukana. Hän oli sanavalmis kersa. ”Kerrotaan, että olen kolmivuotiaana istunut lehtipunttien päällä ja plärännyt uunituoreen lehden läpi todeten, että lehti on ihan huono, kun siinä ei ole yhtään Kekkosen kuvaa!”

Kun Kyösti oli viisivuotias, perhe muutti Jokelaan. Siellä hän kävi koulunsa.

Koulunkäynti oli helppoa, uuden oppiminen hauskaa ja tiedonjano kova. Jälkikäteen Ratia on ymmärtänyt, että hänen oppimisensa perustui läsnäolemiseen, kuullun ymmärtämiseen, tehtävien tekemiseen ja hyvään muistiin.

Tieto tarttui koulussa päähän liiankin helposti, vaivaa näkemättä. Kokeisiin ei juuri tarvinnut lukea.

”Englanti ensimmäisenä vieraana kielenä olikin jo hankalampi asia, sillä tietyssä vaiheessa edistyminen olisi edellyttänyt sanaston opiskelemista ulkoa.”

Lukio kotipaikkakunnalla oli mukavuudenhaluisen nuorukaisen valinta. ”Sisko lähtikin sitten Kallion ilmaisutaidon lukioon.”

Lukion läpi Ratia muistelee luistelleensa entiseen tapaan eikä hän kirjoituksiinkaan varsinaisesti suuremmin panostanut. Pitkän matikan ylioppilaskokeessa hän jätti viimeisen tehtävän tekemättä, sillä se ei lähtenyt välittömästi avautumaan. ”Laskin saavani joka tapauksessa ällän.”

Aikaa pohtimiseen olisi kuitenkin ollut vielä puolitoista tuntia.

Samalla rutiinilla sujuivat myös Otaniemeen Teknillisen korkeakouluun pääsykokeet. Matematiikka, erityisesti monimutkaiset laskutehtävät, ovat Ratiasta edelleen todella mielenkiintoisia.

Vaiherikas opintopolku

Nähtävästi Kyösti Ratia ei ollut niitä nuoria, jotka yötä myöten ahdistuneena pohtivat tulevaisuudensuunnitelmiaan. Ainakaan hän ei sitä nykyään myönnä.

Taipumukset taisivat ohjata matemaattisteknilliseen suuntaan. Rakentaminen tuntui luontevalta, sillä Kyösti oli jo ala-asteikäisenä alkanut tienata rakentamalla.

Arkkitehtia hänestä ei olisi voinut tulla, sillä omien sanojensa mukaan hän ei ollut riittävän hyvä piirtäjä.

Pääainetta valitessa talonrakentaminen ei lopulta kuitenkaan houkutellut riittävästi ja tuohon aikaan kovasti suosittu tuotantotalous tuntui lähinnä nimikekikkailulta ja matemaattinen haaste oli hyvin matala.

Sillat sen sijaan olivat Kyöstistä kerta kaikkiaan upeita rakennelmia. Kyösti oli ihaillut Tukholman siltoja työskennellessään kesätöissä pyörätuolikuljetuksessa. Myös silloisen professorin Aarne Jutilan persoonalla oli suuri vaikutus. Ratia valitsi pääaineekseen sillanrakennustekniikan ja sivuaineeksi pohjarakentamisen ja maamekaniikan.

Ratian opinnot eivät edenneet tehokkaasti, vaan venyivät ja vanuivat. Hän valmistui vasta

78 2 2024

1 Infrarakentamisen laaja-alaisena erikoisasiantuntijana työskenteleminen edellyttää intoa oppia uutta, hyvää muistia ja kykyä hallita monimutkaisia asiakokonaisuuksia. DI Kyösti Ratia on ollut myös huikean työteliäs ja energinen pikkupojasta lähtien.

vuonna 2003. Työt hidastivat tuohon aikaan monen, varsinkin rakennuspuolen teekkarin ja arkkitehdinkin valmistumista.

Mutta oli siinä muutakin. Ratia huomasi, että urheilulliselle teekkarille oli Otaniemessä tarjolla kaikenlaista kivaa, kuten pallopelejä vaikka vuorokauden ympäri.

Kiltatoimintakin vei aikaa ja pääsihän Kyösti myös ylioppilaskunnan hallitukseen vuoden kuuluneen vaimon siivellä ylioppilaskunnan toiminnan syövereihin.

Lopulta Ratia huomasi, että opinnot ja kokopäivätyö LT-Konsultit Oy:ssä eivät olleet oikein toimiva yhdistelmä. Oli pakko ottaa opintovapaita ja pusertaa viimeiset kurssit sekä diplomityö valmiiksi.

Hirsisiä meluseiniä ja suihkulähde Työuransa alkuvaiheessa Ratia teki suunnittelutöitä, joita monet eivät ehkä osaisi häneen yhdistääkään. Itselleen merkityksellisenä hän nostaa esiin Tuusulantien varressa kohoavat, betonielementtiperustusten varaan pystytetyt

ainutlaatuiset hirsiset meluseinät. Tuusulantietä parannettiin Tuusulan Nummenharjun Asuntomessuja varten ja meluseinät syntyivät kahden nuoren suunnittelijan, rakennesuunnittelija Kyösti Ratia ja muotoilija Pia Salmen yhteistyönä.

”Olin työskennellyt hirsimökkityömailla, joten minulla oli jonkinlainen ymmärrys hirsirakenteista”, Ratia kertoo.

Meluseinät ilahduttavat Ratiaa edelleen ohiajaessa. ”Tien puolelta meluseinät ovat kyllä hieman tylsät, mutta toiselta puolelta näkymä on vaihtelevampi. Ja pystyhirsiset kaarevat meluseinät ovat hienoin osa kokonaisuutta.” Ratia on ollut suunnittelemassa myös suihkulähdettä. Lanunaukio on kuvanveistäjä Olavi Lanun kunniaksi kävelykaduksi muutettu Vapaudenkadun ja Aleksanterinkadun välinen osa Lahden Rautatienkatua kaupungin ydinkeskustassa. Suihkulähde sijaitsee aukion Aleksanterinkadun puoleisessa päässä. Ratia päätyi vesiaiheen betonirakennesuunnittelijaksi, kun hänen työnantajansa voitti suun-

79 2 2024
Tero Pajukallio

nittelutarjouskilpailun. Kenelläkään ei kyllä ollut vastaavasta projektista vielä kokemusta.

”Altaan muoto oli kyllä selkeä, mutta piti selvittää, miten se toteutetaan kivestä ja vedeneristys hoidetaan – vesitekniikasta, kuituvalaistuksesta ja valoprojektorista nyt puhumattakaan. Konehuone tuli naapurikiinteistön kellariin.”

Joitakin vuosia sitten lahtelaiset teekkarit juhlivat altaalla, mikä kovasti lämmitti Ratian mieltä.

Haastavia infrakohteita

Urakointipuolelta Ratialla on erityisesti jäänyt mieleen vuoden lopulla 2014 liikenteelle avautunut, Skanskan toteuttama Sepänkylän ohikulkutien rakentaminen VT8:lla Vaasan ja Mustasaaren alueella. Tieosuuden pituus oli noin yhdeksän kilometriä ja siihen sisältyi 13 liittymää ja kymmenen siltaa. ”Muutimme melkein kaikkien siltojen muotoa ja mallia. Teimme paljon pohjavahvistuksia ja monenlaisia paalulaattoja. Roolini hankkeessa oli suunnittelupäällikkö, mutta koska ohjasimme niin paljon suunnittelua, olin oikeastaan pääsuunnittelijankin tehtävässä.”

Jotta haasteet eivät siihen olisi loppuneet, Sepänkylän ohikulkutien rakentaminen oli

Ratian perhealbumi

myös tietomallinnuksen INFRA-FINBIMin suurin pilottihanke.

Kuusi vuotta kestäneessä Raide-Jokeri-allianssissa Ratia työskenteli tekniikkapäällikkönä allianssin projektiryhmässä kesäkuusta 2018 joulukuun loppuun 2022. Hänen vastuullaan oli koko hankkeen suunnittelun johtaminen, tekniikkaryhmien yhteensovitus sekä sähköturvallisuuden yhteensovitus. KAS-vaiheessa hän oli mm. teknisten sidosryhmien ja geotekniikan tuotannon sekä päätepysäkkialueiden kehittämisen vastuuhenkilö ja hengästyttävän paljon muuta.

Ratialle Raide-Jokeri oli runsaasti aikaa ja energiaa nielevä projekti, mutta myös hyvin mieluinen. Hän sanoo, että vaikkakin rooli oli raskas, se oli kuin hänelle räätälöity, vartalonmyötäinen puku.

Ratian mukaan hänen ympärilleen Raide-Jokerissa osui sattumalta hyvin samanhenkisiä ihmisiä.

”Lähimmistä työkavereista voin sanoa, että löysin ystäviä isolla Y:llä.”

Suuressa ja monimutkaisessa hankkeessa tekniikkapäällikölle tulee ratkottavaksi kaikenlaisia ongelmia. Sellaista se on eikä siltä voi välttyä. ”Jouduin tekemään rajujakin päätöksiä

2 Kyösti pääsi pikkupoikana usein toimittajaisän mukana juttukeikoille. Varhaislapsuutensa hän asui Turengissa jäätelötehdasta vastapäätä.

ja jälkikäteen ajatellen, ehkä olisi pitänyt olla vieläkin röyhkeämpi.”

Toisaalta Ratia kyllä huomasi, että häneen luotettiin ja että häntä arvostettiin. Se kantoi. ”Toivottavasti minäkin pystyin näyttämään, että luottamus ja arvostus oli molemminpuolista,” hän sanoo.

Kyöstin oma ratikka

Syksyllä 2023 Ratia täytti 50 vuotta ja päätti järjestää juhlat. Hän osti Raide-Jokerivaunun yksityisajoon ja kutsui juhla-ajelulle lapsikaverinsa perheineen, sukulaisia ja naapureita juhla-ajelulle. Juhlavaunu matkasi Itäkeskuksesta Keilaniemeen ja takaisin Huopalahteen asti. Matkan aikana Ratia kertoi, mitä hän oli vuosien kuluessa hankkeessa tehnyt ja vastasi kysymyksiin.

Yksi serkuista kertoi pikkutyttönä haaveilleensa omasta junaradasta. Nyt hän kateellisena totesi, että Kyöstillä olikin ratikka!

Syntymäpäivän sankari leijui ratikka-ajelun jälkeen niin onnensa kukkuloilla, ettei oikein saanut edes nukuttua. Oli niin hienoa saada kertoa elämän tärkeimmille ihmisille, mitä on saanut aikaan.

Perhe on Ratialle hyvin tärkeä. Hänen CV:ssään komeilee ikäluokkansa miespuoliselle

80 2 2024
Henkilökuvassa Kyösti
Ratia

Henkilökuvassa Kyösti Ratia

3 Kyösti Ratia perheen Luna-sheltien kanssa ulkoilemassa.

diplomi-insinöörille harvinainen merkintä: Erityistehtävät: vanhempain- ja hoitovapaa sekä isäkuukausi 1-8/2008 ja 3-5/2011.

Ratia sanoo, että hänelle täyden vanhempain- ja hoitovapaan käyttäminen oli itsestäänselvyys jo vuosia ennen kuin lapsista oli tietoakaan. ”Sehän on osa lapsien kanssa olemista ja touhuamista”, hän puuskahtaa.

Perhe, kestävän kehityksen aihepiirissä asiantuntijatehtävissä työskentelevä vaimo, kaksi lasta, sheltie-koira sekä toisen lapsen marsut asuvat omakotitalossa Maununnevalla Helsingissä.

Tasapainoa kirjolla

Kun autismikirjo, ADHD sekä ADD tulivat joitakin vuosia sitten Ratialle tutuiksi termeiksi, hän alkoi miettiä tarkemmin myös itseään ja omaa jaksamistaan. ”Kirjodiagnoosihan usein peritään jälkikasvulta”, hän hymähtää.

Vihjeitä olisi kyllä matkan varrella ollut, jos niitä olisi älynnyt tarkastella.

Ratia oppi nuorena poikana tekemään justiinsa niin paljon töitä kuin sitä oli tarjolla, eikä oikein päässyt tavasta pois. Se johti väliin raskaampiinkin aikoihin.

”Olin alkanut pohtia, olikohan pääni hyperaktiivinen. Sitä esiintyy suvussa.”

Ratian perhealbumi

Sitten olivat ne oppimisvaikeudet tai pikemminkin opiskeluvaikeudet. Ratia ei oppinut aikanaan opiskelemaan, koska tieto tarttui ilmankin.

Monella kirjolla olevalla on voimakkaita erityiskiinnostuksenkohteita. ”Kyöstillä se on erityisesti tieto”, Ratia sanoo.

Kaikki tämä selittää, miksi Ratia on, kuka hän on. ”Se on rikkaus. Siksi minulla on niin paljon tietoa niin monesta asiasta. Ja koska minulla on hyvä muisti, tieto pysyy tallessa. Pystyn myös jalostamaan sitä. Pää on käynyt kyllä kovilla, mutta kaikki tieto on muokkautunut ja olen sitä moneen kyennyt hyödyntämään.”

Ylikierroksilla käyminen on vaatinut elämän rauhoittamista. Kevyempää työtahtia. ADHD-diagnoosin ja lääkityksen Ratia sai vähän yli vuosi sitten. Läheiset ovat muutoksen jo voineet nähdä. ”Vaimo sanoo, että kerron tarinoita yhtä paljon kuin ennenkin, mutta lopetan edellisen ennen uuden aloittamista.”

Työ Autismiliitossa kokemusasiantuntijana on nykyisin Ratialle tärkeä ja rakas harrastus. Hän haluaa auttaa autisteja sekä autististen lasten vanhempia ja puhua erilaisuuden hyväksymisestä.

Pallopelit ovat edelleen lähellä Ratian sydäntä. Aktiivisemmin hän harrastaa tosin vain salibandya. Hän käy lenkillä koiran kanssa ja nikkaroi kotosalla ja mökillä.

Kupittaan Kärki-kumppanuushankkeen kanssa Ratialla riittää puuhaa vuoteen 2027. YIT:n lisäksi hankkeessa ovat mukana Lundén Architecture, Renell Käppi Arkkitehdit sekä nimettyinä alihankkijoina COBE, WSP Finland ja AFRY. Turkuun rakennetaan 300 000 kerrosneliömetriä toimistotilaa ja asuntoja, mm. Turun ammatti-instituutin Taito-kampuksen opetustiloja noin 25 000 m2.

Kumppanuushankkeen tilaajat ovat Turun kaupunki ja Turun Teknologiakiinteistöt Oy. Hankkeen infra-osuuteen kuuluu Helsinginkadun ja radan ylittävä kansi sekä pysäköintilaitokset 1500 autolle. Taito-kampuksen rakentaminen alkaa kaavan valmistuttua ensi vuoden 2025 alussa ja infran keväällä vuoden päästä.

Haastavia ja innostavia infrahankkeita Ratian työelämään kuuluu myös siis jatkossa.

81 2 2024

BETONIN LAADUNVARMISTUS Osa 2 - Ohje talonrakennuksen betonirakennevalujen työmaalaadunvalvonnan toteutukselle 2024

by 72 Betonin laadunvarmistus – Osa 2 – Ohje talonrakennuksen betonirakennevalujen työmaalaadunvalvonnan toteutukselle 2024

Betonin laadunvarmistus Osa 2 - Ohje talonrakennuksen betonirakennevalujen työmaalaadunvalvonnan toteutukselle -julkaisussa opastetaan, kuinka työmaalaadunvalvonta tulee toteuttaa sekä selvennetään standardien vaatimuksia työmaatestauksille.

Ohje on tarkoitettu rakennesuunnittelijoille, betonin valmistajille sekä työmaan henkilöstölle.

Ilmainen verkkojulkaisu: https://issuu.com/betoniyhdistys/docs/by_72_ betonin_laadunvarmistus_osa2

Ostettava e-kirja:

Hinta 25€, sis. alv 10% https://www.ellibs.com/fi/book/9789527314463/ by72-betonin-laadunvarmistus-osa-2-ohje-talonrakennuksen-betonirakennevalujen-tyomaalaadunvalvonnan-toteutukselle-2024

SUOMEN BETONIYHDISTYS

BETONILATTIARAKENTEIDEN KOSTEUDENHALLINTA JA PÄÄLLYSTÄMINEN 2024

By 76

Betonilattiarakenteiden kosteudenhallinta ja päällystäminen 2024

Materiaalikehityksen, kiristyneiden kosteudenhallinta- ja sisäilmavaatimusten sekä uusimpien tutkimustulosten selviämisen myötä todettiin tarve voimassa olevien ohjeiden päivittämiselle ja tarkentamiselle. Tämän julkaisun by76 Betonilattiarakenteiden kosteudenhallinta ja päällystäminen lähtöaineistona on käytetty Betonikeskus ry:n vuonna 2007 julkaisemaa saman nimistä ohjetta, jonka koko sisältö on tähän uuteen julkaisuun käyty läpi, päivitetty ja laajennettu.

Tähän julkaisuun on koottu laajasti oleellisimmat betonilattiarakenteiden kosteudenhallintaan liittyvät tekijät sisältäen mm. betonin kosteuskäyttäytymistä eri rakenteissa, kosteudenhallinnan optimointia, betonin kosteuden mittaamista, tulosten tulkintaa, eri päällysteja pinnoitevaihtoehtojen toimivuutta ja vaurioitumista sekä korjaustarpeen arviointia ja elinkaariasiaakin. Tavoitteena on antaa päällystettävien ja pinnoitettavien betonilattioiden kosteudenhallintaan liittyviä käytännöllisiä ohjeita ottaen huomioon koko rakentamisprosessi kaikkine ohjeineen ja säädöksineen.

Kirjan ovat kirjoittaneet Sami Niemi (AFRY Finland Oy) ja Tarja Merikallio (Vision Oy), jotka vastasivat myös vuoden 2007 julkaisusta. Käsikirjoitusta kommentoi laaja joukko alan asiantuntijoita ja lisäksi kirjoittajat haastattelivat eri aihepiirien asiantuntijoita.

Tämä by 76 -julkaisun ensimmäinen versio julkaistaan vain e-kirjana. By 76 on tehty yhtä aikaa by 77/BLY 20 Betonilattioiden pinnoitusohjeiden -julkaisun päivityksen kanssa ja julkaisut on synkronoitu siten, että ne tukevat toisiaan.

Kirja on saatavana e-kirjana Ellibsin verkkokaupasta: https://www.ellibs.com/fi/books/publisher/0/ suomen-betoniyhdistys-ry-by-koulutus

BETONILATTIOIDEN PINNOITUSOHJEET 2024

By 77/BLY 20 Betonilattioiden pinnoitusohjeet 2024

Uudet Betonilattioiden pinnoitusohjeet ilmestyvät kesällä 2024. Pinnoitusten osalta on moni asia muuttunut runsaan 10 vuoden aikana edellisen ohjeen valmistumisen jälkeen.

Uuteen ohjeeseen päivitettiin mm. seuraavat asiat vastaamaan tämän hetken tilannetta:

• materiaalityypit ja pinnoitusten luokitukset päivitettiin

• lukujen järjestystä on muutettu niin, että pyritään käsittelemään asioita siinä järjestyksessä, kuin ne tulevat esiin pinnoitusprojekteissa

• vuoden 2010 jälkeen tulleet muutokset yleisissä ohjeissa ja standardeissa on päivitetty

• pinnoitteille asetettavia vaatimuksia on lisätty

• kosteusasiat ja sähkönjohtavuus on käsitelty aiempaa laajemmin

• pinnoitusten hoito ja ylläpito on otettu mukaan uutena lukuna

• turvallisuutta sekä kuljetusta ja käsittelyä koskevat luvut on laajennettu vastaamaan nykyisiä ohjeita

Ohje on tilaajille, suunnittelijoille ja urakoitsijoille tärkeä tietolähde, joka tulisi ottaa käyttöön mahdollisimman laajasti.

Lisätietoja: Suomen Betoniyhdistys ry https://www.betoniyhdistys.fi/julkaisut

Uutiset 7
2
76
SUOMEN BETONIYHDISTYS BY 77 SUOMEN BETONILATTIAYHDISTYS BLY 20 7720 BLY
82 2 2024

BY-Vähähiilisyysluokitus on vapaaehtoinen, kansallinen luokitus betonin CO2-päästöjen ilmoittamiseksi. Luokituksen tarkoituksena on luoda alalle tuotemerkeistä riippumaton, yhtenäinen tapa kuvata erilaisia vähähiilisempiä betonilaatuja. Betonin lujuusluokkien kanssa analoginen päästöluokitus helpottaa vähähiilisten betonien määrittelyä rakennusten suunnitteluvaiheessa. Luokituksen perimmäisenä tavoitteena on vähentää betonin valmistuksen aiheuttamia hiilidioksidipäästöjä.

BY-Vähähiilisyysluokituksessa betonilaadut jaotellaan luokkiin hiilidioksidipäästöjen perusteella. Luokitus käsittää yhteensä 16 eri betonilaatua ja yhteensä 5 eri vähähiilisyysluokkaa. Luokitus on betoniresepti- ja betoniasemakohtainen. Betonin valmistaja voi luokitella haluamansa betonireseptit vähähiilisyysluokkiin edellyttäen, että reseptin päästöarvo täyttää luokituksen vaatimukset.

BY-Vähähiilisyysluokituksesta vastaa Suomen Betoniyhdistys ry (BY). Luokitus on tehty vuosien 2021 ja 2022 aikana ja luokituksen tekemiseen ovat osallistuneet Suomen Betoniyhdistys ry, Betoniteollisuus ry sekä Aalto-yliopisto. Luokitustyötä on ohjannut laaja-alainen BY:n hallituksen nimeämä työryhmä.

BY-Vähähiilisyysluokitukseen liittyvä materiaali on koottu internet-sivuille.

Sivuilta löytyvät maksuttomat käyttöohjeet suunnittelijalle ja tilaajalle sekä betonin valmistajalle. Sivuilta löytyvässä vuosittain päivittyvässä taustaraportissa esitetään luokituksen periaatteet sekä laskelmissa käytettävät raaka-aineiden, kuljetusten sekä energian ominaispäästöt. Sivun oikeasta ylälaidasta pääsee betonivalmistajien käyttöön tehtyyn maksulliseen BY-Vähähiilisyyslaskuriin.

Lisätietoa BY-Vähähiilisyysluokituksesta:  https://vahahiilinenbetoni.fi

Arkkitehtuurimatka Kööpenhaminaan 12.– 14 (15).9.2024

Betoni järjestää vuosittaisen arkkitehtuuri- ja ympäristörakentamisen matkan Kööpenhaminaan. Tutustumme uusimpiin ja mielenkiintoisiin rakennus- ja ympäristökohteisiin – unohtamatta klassikkoja. Kohteina mm. kulttuurirakennuksia, liike- ja toimistorakentamista, sekä uutta asumista. Myös päiväkoteja ja kouluja sekä infra- ja ympäristörakentamisen kohteita. Hinnat alkaen 1250,-2-hh. Hinta sisältää: lennot turistiluokassa, lentokenttäverot ja matkustajamaksut, tiedossa olevat polttoainelisämaksut, majoitus em. hotelleissa valitussa huonetyypissä, aamiainen päivittäin, lounaat ja illalliset, bussikuljetukset ohjelman mukaisesti, opastukset ja sisäänpääsyt (museot jne.).

Matkaohjelma päivittyy www.betoni.com -sivuilla.

Voit ilmoittautua jo nyt: www.betoni.com/tapahtumat/arkkitehtimatka Pidätämme oikeuden muutoksiin. Tervetuloa !

Lisätietoja: Maritta Koivisto, päätoimittaja, Betoni-lehti, arkkitehti SAFA  puh. 040 900 3577, maritta.koivisto@rakennusteollisuus.fi

Sementistä selvää -videosarjat 1 ja 2

Finnsementti Oy on julkaisssut YouTube-kanavalla ensimmäisen Sementistä selvää -videosarjan osat 1 ja 2.

Sementistä selvää -videosarjassa tehdään tutuksi sementin valmistusta, sen ympäristövaikutuksia sekä erilaisia keinoja vähentää sementin päästöjä nyt ja tulevaisuudessa. Videoissa syvennytään aina yhteen sementin valmistukseen liittyvään teemaan - otetaan yhdessä sementistä selvää!

Katso videot: www.youtube.com/watch?v=Ni_T5pGbCaE

Lisätietoja: Finnsementti Oy, Ulla Leveelahti, vastuullisuusjohtaja puh. 0201 206 346 ulla.leveelahti@finnsementti.fi

Uutiset
83 2 2024

Torni-LUX on kehitetty pilvenpiirtäjien rakentamiseen

Ruduksen uusi Torni-LUX-betoni sopii tornirakentamiseen, jossa betonilta vaaditaan äärimmäisiä ominaisuuksia.

Rudus on toimittanut Kalasataman 111-metriseen Horisontti-pilvenpiirtäjään useamman tuhat kuutiometriä betonia, josta suurin osa on Torni-LUXia.

Horisontin poikkeuksellisen sileät betonivalut valmistuivat jouluksi 2023. Pilarit näyttävät harmaan ja mustan sävyiseltä kiiltävältä graniitilta.

”Ruduksen teknikot tietävät, miten betoni saadaan sellaiseksi, että sitä voidaan työstää korkearakentamisessa kaikissa olosuhteissa.

Jatkuvasta yhdessä kehittämisestä on tullut meille osa arkea”, SRV:n vastaava mestari Mika Kuukkanen sanoo.

Torni-LUXin koostumus on kehitetty vuosia hyödyntämällä eri sementtilaatujen ja lisäaineiden ominaisuuksia sekä valitsemalla betoniin siihen sopivaa kiviainesta. Näin siihen on saatu optimi lujuudenkehitys, korkeassa rakentamisessa vaadittava työstettävyys ja soveltuvuus tornipumppauksiin.

Torni-LUXin kehitystyön tärkeänä tavoitteena on ollut se, että betonia voidaan käyttää ongelmitta kiinteissä pumppurakenteissa, jotka nousevat jopa 130 metrin korkeuteen.

”Torni-LUXissa on optimi raaka-aineet, joiden ansiosta se soveltuu kiinteisiin pumppuratkaisuihin korkearakentamisessa”, Ruduksen betonituotteiden Etelä-Suomen alueen myyntijohtaja Antti Mönkkönen sanoo.

Koska Torni-LUXin lujuus kehittyy perusbetoneita nopeammin, voi rakentaminen edetä joutuisammin kuin perusbetoneita käytettäessä. Lujuuden kehittymistä voidaan räätälöidä niin että se soveltuu Suomen vaihteleviin olosuhteisiin. Ruduksen betoniasemien laadunvalvonta varmistaa, että Torni-LUX on sovittujen speksien mukaista.

Torni-LUX:

• Sopii korkearakentamiseen kiinteissä pumppurakenteissa

• Käytetään kaikkiin valuihin, kuten holvi-, kuilu- ja pilarivaluihin

• Voidaan räätälöidä vähähiilinen versio, Torni-LUX GWP

• Käytetty ensimmäisen kerran Helsingin Kalasataman Horisontti-tornissa.

Lisätietoja:

Rudus Oy

Anna Silventoinen, kehityspäällikkö 020 447 4045

anna.silventoinen(at)rudus.fi

Antti Mönkkönen, myyntijohtaja 020 447 7451

antti.monkkonen(at)rudus.fi

Betonielementtikerrostalon rakentaminen -animaatio

Uusi animaatio on julkaistu ja se näyttää kuinka betonielementtikerrostalo rakentuu. Animaatio on tarkoitettu ensikädessä alan opiskelijoille ja lisäksi muille rakentamista vain vähän tunteville, mutta sitä voi hyödyntää luonnollisesti myös kaikki aiheesta kiinnostuneet.

Animaatiossa ei ole tavoiteltu kovin suurta yksityiskohtaisuutta ja detaljointia, jotta animaation pituus ei kasvaisi tolkuttoman pitkäksi. Tästä syystä animaatiosta on myös osin jouduttu karsimaan todellisuudessa tehtäviä työvaiheita sekä yksinkertaistamaan monia esitettyjä työvaiheita. Animaatiosta saa kuitenkin erittäin hyvän kokonaiskuvan, kuinka betonielementtikerrostalo rakentuu.

Animaatio on vapaasti katsottavissa Betoni. com ja elementtisuunnittelu.fi -sivustoilla. https://betoni.com/rakentaminen/elementtirakentaminen/

Animaatio on tehty Betoniteollisuus ry:n rahoituksella, ja työtä on tukenut Rakennustuotteiden Laatu -säätiö. Seuraavaksi työn alle tulee paikallavaletun kerrostalon jo olemassa olevan vastaavan animaation uudistaminen.

Lisätietoja:

Betoniteollisuus ry Janne Kihula, jaospäällillö puh. 040 514 6510 janne.kihula@rt.fi

Uutiset
84 2 2024
Juho Kuva

Uusi LC-Ykkössementti vastaa asiakkaan tarpeeseen

Finnsementti toi toukokuussa markkinoille uuden kalkkikivellä seostetun LC-Ykkössementin. LC-Ykkössementti on Ykkössementin vähähiilisempi versio. LC etuliite on lyhenne sanoista Low Carbon (vähähiilinen). LC-Ykkössementin CO2-päästöt tulevat olemaan n. 13 % pienemmät kuin nykyisen Ykkössementin, jonka GWP on 768 kg CO2 / ton.

Ykkössementti on Finnsementin erikoissementti, jota on käytetty esimerkiksi kuivatuotteissa ja erikoissovelluksissa. LC-Ykkössementti on kehitetty yhteistyössä asiakkaiden kanssa. Tuotekehityksen tarkoituksena on ollut pienentää asiakkaan tuotteiden hiilijalanjälkeä, johon sementin hiilijalanjäljellä on suuri vaikutus. Lisäksi uusi tuote vastaa asiakkaiden tuotteiden ja tuotantoprosessin tarpeita.

Sementtien hiilijalanjälkeä voidaan pienentää mm. lisäämällä sementtien seostusta ja laskemalla klinkkerin valmistuksen hiilidioksidipäästöjä. Finnsementti on tuonut ennen LC-Ykkössementtiä markkinoille Kolmossementin ja KolmosBertan, jotka ovat erittäin vähähiilisiä, kuonalla seostettuja sementtejä. Yhtiössä on käynnissä useita projekteja liittyen klinkkerin päästöjen vähentämiseen. Näistä esimerkkinä keväällä 2024 käyttöön otettu ja edelleen kehittyvä Paraisten tehtaan arina-jäähdytinprojekti, joka tulee laskemaan Paraisilla valmistettavan klinkkerin päästöjä merkittävästi.

LC-Ykkössementin tuotetiedot löytyvät: https://finnsementti.fi/tuotteet/sementit/ lc-ykkossementti/

Lisätietoja: Finnsementti Oy https://finnsementti.fi/yhteys/tekninen-tuki/ Iiro Aro - 050 4211 500, myynnin tiimipäällikkö

Sini Ruokonen - 050 4153 311, kehityspäällikkö

Satu Kosomaa - 0201 206 339, asiakastukipäällikkö etunimi.sukunimi@finnsementti.fi

Betonin yhteystiedot 2023 – osoite: Eteläranta 10

PL 381 (Eteläranta 10, 10. krs) 00131 Helsinki etunimi.sukunimi@betoni.com etunimi.sukunimi@rakennusteollisuus.fi vaihde: (09) 12 991

Betoniteollisuus ry:

Toimitusjohtaja Jussi Mattila 0400 637 224 etunimi.sukunimi@rakennusteollisuus.fi

Jaospäällikkö Janne Kihula 040 514 65 10 etunimi.sukunimi@rakennusteollisuus.fi

Jaospäällikkö Ari Mantila 0400 201 507 etunimi.sukunimi@rakennusteollisuus.fi

Jaospäällikkö Tiina Kaskiaro 050 4660 297 etunimi.sukunimi@rakennusteollisuus.fi

Päätoimittaja, arkkitehti SAFA Maritta Koivisto 040 900 3577 etunimi.sukunimi@betoni.com

Projektipäällikkö Tommi Kekkonen 050 350 8820 etunimi.sukunimi@betoni.com

Viestintäassistentti Nina Loisalo 050 368 9072 etunimi.sukunimi@rakennusteollisuus.fi

Betoniyhdistys ry: etunimi.sukunimi@betoniyhdistys.fi

Toimitusjohtaja Mirva Vuori 040 765 7672

Erityisasiantuntija Johanna Tikkanen 040 518 1641

Erityisasiantuntija Kim Johansson 050 550 6556

Koulutuskoordinaattori Anu Kurkela 0400 228414

Ilmoittajaluettelo 2 2024

ja Elementti Oy

Betoninäyttely ja opastus on avoinna Eteläranta 10:ssa ja 10. kerroksessa

Betoniyhdistys ry ja Betoniteollisuus ry muuttivat Rakennustuoteteollisuus RTT:n mukana 1.2.2018 Eteläranta 10:een ja 10. kerrokseen. Yhteisissä tiloissa toimii betonipintanäyttely, joka esittelee mm. erilaisia betonin väri- ja pintakäsittelytapoja. Näyttely on avoinna toimiston aukioloaikoina klo 8.15–16.00. Esittelystä voi sopia etukäteen arkkitehti Maritta Koiviston kanssa, gsm 040–9003577 tai maritta. koivisto@betoni.com. www.betoni.com

Uutiset
85 2 2024
.com
Ilmoittaja Sivu ArcelorMittal 2 ART-Betoni Oy IV kansi Betoniluoma Oy 6 Betset Oy 5 Finnsementti
III kansi Julkisivuyhdistys
5 Lammin Betoni Oy 5 MaxBe Oy 3 Peikko Oy II kansi Pielisen Betoni
4 Rakennusbetoni-
2 Rudus Oy 4 Seroc Oy / Ulma Ltd 3 Schwenk Suomi Oy
Swerock Oy 3
Oy
JSY r.y.
Oy
3

hakemisto

Betoniteollisuus ry:n jäsenyritykset ja tuotteet

Betoniharkot

Betonin pumppaus

Elementtien asennus

Erikoiselementit

Eristeharkot

Hissikuiluelementit

Hormielementit

Hulevesituotteet

Jännebetonipalkit

Kalusteet, istutusastiat yms.

Kanavaelementit ja kourut

Kattotiilet

Kevytsoraharkot

Kuitubetonielementit

Kuivalaastit ja kuivabetonit

Kylpyhuone-elementit

Maakellarit

Maatalouselementit

Meluseinät, törmäyskaiteet

Muurikivet

Ontelolaatat, kuorilaatat

Paalut

Parvekepielet

Parvekkeet, massiivilaatat

Perustuselementit

Pilarit ja palkit

Porraskivet ja -elementit

Portaat

Putket, kaivot ja hulevesijärjestelmät

Päällystekivet ja -laatat

Rappauselementit

Ratapölkyt

Reunatuet

Sandwich-elementit

Siilot ja säiliöt

Sillat, laiturit ja tukimuurit

Sisäkuoret

TT- ja HTT-laatat

Valmisbetoni

Valuharkot

Väestönsuojat

Väliseinäharkot

Väliseinät

Alavuden Betoni Oy Ansion Sementtivalimo Oy Arkta Laatuseinä Oy Betonilaatta Oy Betoniluoma Oy Betroc Oy Betset-yhtiöt HTM Yhtiöt Oy JA-KO Betoni Oy Joutsenon Elementti Oy Kankaanpään Betoni ja Elementti Oy Lakan Betoni Oy Lammin Betoni Oy Lipa-Betoni Oy Lujabetoni Oy

86 2 2024
• •
• • • •
• • • • • •
• •
• •
• •
• •
• •
• • •
• •
• •
• • • • • • •
• • • • • • • • •
• •
• • •
• • • • •
• • • • • • • • •
• •
• • •
• • • • • •
• • • •
• •
• • • • •

Betoniharkot

Betonin pumppaus

Elementtien asennus

Erikoiselementit

Eristeharkot

Hissikuiluelementit

Hormielementit

Hulevesituotteet

Jännebetonipalkit

Kalusteet, istutusastiat yms.

Kanavaelementit ja kourut

Kattotiilet

Kevytsoraharkot

Kuitubetonielementit

Kuivalaastit ja kuivabetonit

Kylpyhuone-elementit

Maakellarit

Maatalouselementit

Meluseinät, törmäyskaiteet

Ontelolaatat, kuorilaatat

Parvekepielet

Parvekkeet, massiivilaatat

Perustuselementit

Pilarit ja palkit

Porraskivet ja -elementit

Portaat

Putket, kaivot ja hulevesijärjestelmät

Päällystekivet ja -laatat

Rappauselementit

Ratapölkyt

Reunatuet

Sandwich-elementit

Siilot ja säiliöt

Sillat, laiturit ja tukimuurit

Sisäkuoret

ja HTT-laatat

Valmisbetoni

Valuharkot

Väliseinäharkot

MH-Betoni Oy Napapiirin Betoni Oy Parma Oy Pielisen Betoni Oy Potius Oy / Lahden Kestobetoni Oy

Rakennusbetonija Elementti Oy

Rudus Oy Ruskon Betoni Oy Suomen Kovabetoni Oy Suutarinen Yhtiöt/ SBS Betoni Oy Swerock Oy

TB-Paalu Oy VaBe Oy YBT Oy

87 2 2024
• • • • •
• • • • •
• • •
• •
• •
Muurikivet
• • •
Paalut
• • • • • •
• • • • • • •
• •
• • • • • • •
• •
• • •
• •
• • • •
• • • • • • • •
• • • • •
• • •
TT-
• • • • • •
• • •
Väestönsuojat
• • • • • • • •
Väliseinät

Betoniteollisuus ry:n jäsenyritysten tuotteet, palvelut ja toimipisteet

aAlavuden Betoni Oy

Peräseinäjoentie 210, 63300 Alavus Puh 050 453 1520 www.alavudenbetoni.fi timo.asunmaa@alavudenbetoni.fi

Ansion Sementtivalimo Oy

Lohipurontie 2 (PL 48), 21530 Paimio Puh 02 4770 100 www.asv.fi ari-p.ansio@asv.fi

Arkta Laatuseinä Oy

Kiuaskatu 1, 18100 Heinola Puh 0500 442 810 www.lslaatuseina.fi pekka.kuurne@lslaatuseina.fi

b

Betonilaatta Oy

Sorvarinkatu 3, 20360 Turku Puh 02 511 8800 www.betonilaatta.fi myynti@betonilaatta.fi etunimi.sukunimi@betonilaatta.fi

Betoniluoma Oy

Horontie 176, 64700 Teuva Puh 010 8410 140 www.betoniluoma.com info@betoniluoma.com

Betroc Oy

Valimontie 1, 99600 Sodankylä

Puh 020 7579 080 www.betroc.fi betroc@betroc.fi

Betset-yhtiöt

Ilvestie 2, 01900 Nurmijärvi

Puh 040 3434 300 www.betset.fi

Myynti:

Elementtimyynti ja laskenta https://betset.fi/yhteystiedot/myynti myynti@betset.fi

Valmisbetonimyynti ja pumppaus https://betset.fi/yhteystiedot/valmisbetoni vbmyynti@betset.fi

Tehtaat:

Espoo

Helsinki

Hämeenlinna

Kyyjärvi

Mikkeli

Nummela

Nurmijärvi

Parainen

Turku

Vierumäki

cConsolis Parma (Parma Oy)

Yhteystiedot: ks. www.parma.fi

Consolis Parma on Suomen johtava betonielementtien valmistaja ja elinkaariviisaan betonirakentamisen suunnannäyttäjä. Yhtiöllä on toimintaa 13 paikkakunnalla ja se työllistää noin 650 henkilöä.

Consolis on Euroopan johtava teollisuuskonserni, joka tarjoaa kestäviä ja älykkäitä betonielementtirakenteita rakennusteollisuuden tarpeisiin. Consolis työllistää noin 9 000 työntekijää 17 maassa eri puolilla maailmaa.

jJA-KO Betoni Oy

Vaasantie (PL 202), 67100 Kokkola

Puh 06 824 2700

www.jakobetoni.fi

jaakko.eloranta@jakobetoni.fi

Muut toimipisteet:

Valmisbetonitehdas, Kokkola

Hiekkapurontie 5, 67100 Kokkola

Puh 040 6782 730

Valmisbetonitehdas, Mustasaari

Sudenpolku 8, 65480 Vikby

Puh 040 6782 750

Valmisbetonitehdas, Närpiö

Teuvavägen 131, 64200 Närpiö

Puh 040 6782 760

Valmisbetonitehdas, Pietarsaari

Vaunusepäntie 2, 68660 Pietarsaari

Puh 040 6782 720

Valmisbetonitehdas, Seinäjoki

Routakalliontie, 60200 Seinäjoki

Puh 040 6782 740

Joutsenon Elementti Oy

Puusementintie 2, 54100 Joutseno

Puh 0207 659 880 www.joutsenonelementti.fi etunimi.sukunimi@joutsenonelementti.fi myynti@joutsenonelementti.fi

Tehtaat:

Joutseno

Kotka

Kouvola k

Kankaanpään Betoni ja Elementti Oy

Kuusikonkatu 4 (PL 96), 38700 Kankaanpää

Puh 050 300 4197 www.elementti.fi juha.kuusniemi@elementti.fi

lLakan Betoni Oy konserni

Muuntamontie 2, 80100 Joensuu

Puh 0207 481 200 www.lakka.fi myynti@lakka.fi

Lakan Betoni Oy on kotimainen vuonna 1965 perustettu perheyritys. Tuotamme kiviainespohjaisia rakennustarvikkeita ja niihin liittyviä palveluita asiakkaittemme tarpeisiin.

Vuoden 2021 alussa yritys järjesteli eri liiketoimintansa omiksi, Lakan Betoni Oy:n täysin omistamiksi tytäryhtiöikseen. Yrityksen betonija kuivatuoteliiketoiminta siirtyivät Lakka Rakennustuotteet Oy:lle, ja elementti- ja valmisbetoniliiketoiminta siirtyivät Lakka Elementti ja valmisbetoni Oy:lle.

Tuotantolaitoksemme sijaitsevat ympäri Suomea neljällä paikkakunnalla: Joensuussa, Lopella, Jalasjärvellä ja Varkaudessa. Lakka-tuotteita myyvät jälleenmyyjät kautta maan.

Lakka tuoteperheeseen kuuluvat kivitalot, harkot, pihakivet, laastit, tasoitteet, elementit ja valmisbetoni.

Ilmoitathan mahdollisista tietojen muutoksista tai korjauksista osoitteeseen betoni@betoni.com

88 2 2024
hakemisto

Lammin Betoni Oy

Paarmamäentie 8, 16900 Lammi

Puh 020 753 0400 www.lammi.fi etunimi.sukunimi@lammi.fi

Muut toimipisteet:

Lammi-Kivitalot

Katso kaikki toimipisteet www.lammi.fi/kivitalo

Lammin Betoni on Suomen vanhin ja suurin betoniharkkojen valmistaja. Meidät tunnetaan erityisesti tinkimättömyydestämme tuotteiden laadun suhteen. Tuotteiden laadun, asiantuntevan palvelun ja yli 60 vuoden kokemuksen avulla olemme raivanneet tiemme suomalaisen kivirakentamisen suunnannäyttäjäksi.

Olemme erikoistuneet laadukkaiden betoniharkkojen, valmisanturamuottien ja muurikivien valmistamiseen. Innovatiiviset tuotteet ja tarkoin mietityt kokonaisratkaisumme on kehitetty helpottamaan rakentamista. Laadukkaiden tuotteiden lisäksi haluamme osaltamme olla varmistamassa hankkeiden onnistumisen ensiluokkaisella palvelulla ja toimitusvarmuudella sekä toimimalla alamme edelläkävijänä.

mMH-Betoni Oy

Läsäntie 3, 41660 Toivakka Puh 040 727 1760 www.mh-betoni.fi henri.sahlman@mh-betoni.fi

nNapapiirin Betoni Oy

Jämytie 2, 96910 Rovaniemi

Puh 020 7933 200 www.napapiirinbetoni.fi

pLipa-Betoni Oy

Lipatie 1, 76850 Naarajärvi

Puh 040 300 0530 www.lipa-betoni.fi satu.lipsanen@lipa-betoni.fi

Lujabetoni Oy

Harjamäentie 1, 71800 Siilinjärvi

Puh 020 7895 500 www.lujabetoni.fi etunimi.sukunimi@luja.fi

Lujabetoni Oy Suomen suurimpia betoniteollisuusyrityksiä Suomessa. Palvelemme kestävässä betonirakentamisessa niin ammatti- kuin omakotirakentajiakin. Olemme puhtaasti kotimainen perheyritys jo kolmannessa polvessa. Lujabetonilla  on 27 elementti-, betonituote- ja valmisbetonitehdasta Suomessa ja Ruotsissa. Suurimmat tehtaamme sijaitsevat Hämeenlinnassa, Taavetissa, Siilinjärvellä, Järvenpäässä ja Kärsämäellä. Tuotevalikoimaamme kuuluvat elementit, valmisbetonit, paalut sekä lukuisa määrä infratuotteita, kuten ratapölkkyjä, pylväsjalustoja, Luja-moduleita ja muita erikoistuotteita.

Viimeisimpiä tuoteuutuuksiamme ovat LujaSuperlaatta, Luja-Superkylpyhuone, vähähiiliset betoniratkaisut ja tuulivoimalaelementit.

Pielisen Betoni Oy

www.pielisenbetoni.fi/yhteystiedot/ Keskus 044 3400 800 myynti@pielisenbetoni.fi

Elementtimyynti: 040 3400 130

Ontelolaattamyynti: 040 3400 125

Pielisen Betoni – 50 vuotta laatua ja toimitusvarmuutta.

Tuotevalikoimaamme kuuluu mm. teräsbetoni- ja jännebetonipalkit, pilarit, ontelolaatat, seinät, HTT-ja TT-laatat sekä valmisbetoni. Tehtaamme viidellä eri paikkakunnalla, palvelevat asiakkaitamme valtakunnallisesti. Meidät tunnetaan hyvästä kotimaisesta laadusta sekä toimitusvarmuudesta. Haluamme osaltamme edistää asiakkaiden rakennusprojektien sujuvuutta, kannattavasti ja laadukkaasti. Olemme vahva yhteistyökumppani hiilineutraalin yhteiskunnan rakentamisessa.

Teemme sen, minkä lupaamme.

Potius Oy / Lahden Kestobetoni Oy

Koskelontie 14 A 3, 02920 Espoo

Lakkilantie 2, 15150 Lahti

Puh 050 438 6874

www.potius.fi

www.kestobetoni.fi

myynti@kestobetoni.fi

Tarjoamme:

• Betonielementit

• Rakenne- ja elementtisuunnittelu

• Asennus

rRakennusbetoni- ja Elementti Oy

Kukonkankaantie 8 (PL 102), 15870 Hollola

Puh 03 877 200 www.rakennusbetoni.fi shop.rakennusbetoni.fi

Rudus Oy

Karvaamokuja 2a (PL 42), 00380 Helsinki

Puh 020 447 711 www.rudus.fi etunimi.sukunimi@rudus.fi

Rudus Oy on kestävien ja laadukkaiden kivipohjaisten rakennusmateriaalien kehittäjä ja toimittaja. Rakentaja saa Rudukselta kaiken tarvitsemansa saman katon alta: betonit, betonituotteet, kiviainekset, Betoroc-murskeen ja betonin kierrätyksen. Useat tuotteet voidaan suunnitella yksilöllisesti asiakkaiden tarpeita vastaaviksi Ruduksen ammattitaitoisen henkilökunnan ja asiakkaan kanssa yhteistyössä.

Tuotevalikoimaamme kuuluu kattava valikoima talo- sekä infrarakentamisen betonituotteita ja -ratkaisuja: julkisivut, portaat, elpo-hormit, tie-, rata-, energia- ja telerakentamisen elementit. Lisäksi valikoimasta löytyy kunnallistekniset putki- ja kaivotuotteet mm. hule- ja jätevesien hallintaan sekä laaja valikoima maisematuotteita: pihakivet ja -laatat, betoniset reunakivet, luonnonkivet, porras- ja muurikivet sekä istutuslaatikot.

Rudus Ämmän Betoni Oy on vahvistanut Ruduksen talonrakentamisen elementtituotantoa vuodesta 2020 alkaen tuotteinaan mm. parvekepielet, parvekkeet, massiivilaatat, sisäkuoret ja väliseinät.

Ruskon Betoni Oy

Piuhatie 15, 90620 Oulu Puh 020 7933 400 www.ruskonbetoni.fi etunimi.sukunimi@ruskonbetoni.fi

Ruskon Betoni Oy on valmisbetonin valmistamiseen ja siihen liittyviin palveluihin erikoistunut kotimainen perheyritys ja konserni, joka toimii usealla paikkakunnalla ympäri Suomea. Tytäryhtiömme Ruskon Betoni Etelä Oy tarjoaa valmisbetonia ja siihen liittyviä palveluja Etelä-Suomen, Kaakkois-Suomen ja Varsinais-Suomen alueilla. Ruskon Betoni Etelän Hollolan tuotetehdas on puolestaan erikoistunut betoniputkien ja -kaivojen valmistamiseen.

Vastuullinen kumppanuutemme perustuu suoraviivaiseen ja läpinäkyvään toimintatapaan, lupausten lunastamiseen sekä korkeaan laatuun. Laatu ja toimitusvarmuus ovat koko toimintamme peruspilareita. Ymmärrämme aidosti asiakkaan tarpeen. Toimintamme on kestävää ja kehittävää nyt ja tulevaisuudessa.

Tutustu meihin lisää osoitteissa www.ruskonbetoni.fi, www.ruskonbetonietela.fi ja www.rbinfra.fi

89 2 2024

Suomen Kovabetoni Oy

www.kovabetoni.fi

myynti@kovabetoni.fi

Tiemestarinkatu 7, 20360 Turku

Elementintie 10, 15550 Nastola

Suutarinen Yhtiöt

SBS Betoni Oy

Sora ja Betoni V. Suutarinen Oy

Vuorilahdentie 7, 52700 Mäntyharju

Puh 0207 940 640 www.suutarinen.fi etunimi.sukunimi@suutarinen.fi

Elementti- ja valmisbetonitehtaat:

Sora ja Betoni V. Suutarinen Oy Kangaslammenraitti, 52700 Mäntyharju

SBS Betoni Oy

Tikkalantie 8, 50600 Mikkeli

Sora ja Betoni V. Suutarinen Oy

SBS Betoni Oy, toimitusjohtaja

Juho Suutarinen, juho.suutarinen@suutarinen.fi

Puh 040 740 1532

Tehtaanjohtaja:

Janne Vilve janne.vilve@suutarinen.fi, 040 531 99 35

Valmistamme myös VSS-elementtejä (Puh 0400653701) ja KIVITASKU-pientaloja.

Swerock Oy

Karvaamokuja, 00380 Helsinki

Puh 0440 111 008

www.swerock.fi

info@swerock.fi

Liedon toimisto

Hyvättyläntie 10 B 5, 21420 Lieto

Puh 02 4845 600

www.swerock.fi

Valmisbetonitehtaita ja toimipisteitä:

Kirkkonummen betonitehdas

Ojangontie 20, 02400 Kirkkonummi

Puh 0290 091 093

Liedon betonitehdas

Pääskyntie 5, 21420 Lieto

Puh 0290 091 092

Lohjan betonitehdas

Pysäkkitie 12, 08680 Muijala

Puh 0290 091 093

Naantalin betonitehdas

Prosessikatu 17, 21100 Naantali

Puh 0290 091 092

Salon betonitehdas

Uitonnummentie 82, 24260 Salo

Puh 0290 091 092

Tampereen betonitehdas

Jalkaharpinkatu 7, 33840 Tampere

Puh 0290 091 094

Voutilan betonitehdas

Tikkurilantie 161, 01740 Vantaa

Puh 0290 091 093

TTB-Paalu Oy

Betonitie 14, 32830 Riste

Puh 02 5502 300 http://www.jvb.fi jvb@jvb.fi

YBT Oy

Valimotie 1, 95600 Ylitornio

Puh 0400 93 0400 www.ybt.fi ybt@ybt.fi

Toimitusjohtaja:

Juha Alapuranen 0400 696 695, juha@ybt.fi

Tuotantopäällikkö:

Pertti Pirttikoski 0400 562 914, pertti@ybt.fi

Elementtiasennus:

Mika Ylitalo 044 3310 163, mika.ylitalo@ybt.fi

Ylitornion toimipisteen lisäksi:

Kuhmon Betoni Oy

Valimontie 11, 88900 Kuhmo

Sirpa Huttunen

Puh 044 2872 801 sirpa@kuhmonbetoni.fi

Ylitornion tehdas: ylitornio@ybt.fi

Kuhmon tehdas: sirpa@kuhmonbetoni.fi

aBetoniteollisuus ry:n kannatusjäsenyritysten tuotteet, palvelut ja toimipisteet hakemisto

Anstar Oy

Erstantie 2, 15540 Villähde

Puh 03 872 200 www.anstar.fi anstar@anstar.fi

BAU-MET Oy

Kärsämäentie 72, 20360 Turku

Puh 0207 433 700 www.bau-met.fi myynti@bau-met.com

cCelsa Steel Service Oy

Valssaamontie 171, 10410 Åminnefors

Puh 019 22 131 www.celsa-steelservice.com info.betoniterakset@celsa-steelservice.com

Muut toimipisteet: Espoo

Juvan teollisuuskatu 19 ( PL 24), 02920 Espoo

Puh 019 22 131

Kaarina

Autoilijankatu 30, 20780 Kaarina

Puh. 0400 811 833

Pälkäne

Kankaanmaantie 25, 36600 Pälkäne

Puh 019 221 31

90 2 2024 s
y
SMART STEEL.
b

Doka Finland Oy

Selintie 542, 03320 Selki

Puh 09 224 2640 www.doka.com finland@doka.com

Oulun toimipiste

Vesuritie 8, 90820 Haukipudas

Puh 0400 696 425

Finnsementti Oy

Skräbbölentie 18, 21600 Parainen

Puh 0201 206 200 www.finnsementti.fi info@finnsementti.fi etunimi.sukunimi@finnsementti.fi

Lappeenrannan tehdas

Poikkitie 105, 53500 Lappeenranta

Puh 0201 206 200

Finnsementti on suomalainen sementinvalmistaja. Meillä finnsementtiläisillä on 110-vuoden kokemus sementin valmistuksesta. Olemme jatkuvasti kehittyvä, laajan tuotevalikoiman omaava sementin valmistaja, teollisuudenalan kotimainen työllistäjä ja vaikuttaja. Merkittävä osa Suomen sementintarjonnasta tuotetaan Paraisilla ja Lappeenrannassa sijaitsevilla sementtitehtaillamme. Lisäksi meillä on kuonajauhetehdas ja terminaali Raahessa. Terminaalejamme sijaitsee myös Kirkkonummella, Koverharissa, Maarianhaminassa, Oulussa, Pietarsaaressa, Porissa ja Vaasassa.

Finnsementti on Suomalaisen Työn Liiton jäsenyritys. Sementtimme kotimaisuusaste on noin 90 prosenttia. Valikoimaamme kuuluvat sementin lisäksi myös kuonajauhe, betonin seosaineet ja kivirouheet.

Kuulumme kansainväliseen CRH-konserniin, joka on yksi maailman suurimmista rakennusmateriaaliyrityksistä. m

Master Builders Solutions

Finland Oy

Lyhtytie 3, 11710 Riihimäki

PL 17, 11101 Riihimäki

Puh 010 830 2000

www.master-builders-solutions.fi tilaukset-riihimaki@masterbuilders.com

Master Chemicals Oy

Kauppiaskatu 9b A6

20100 TURKU

Puh. 020 730 8600 www.master-chemicals.fi

Tarjoamme laadukkaat ja kestävän kehityksen mukaiset pinnoitteet kaikkiin tarpeisiin, sekä betonin suoja-aineet että laadun parantajat.

pPeikko Finland Oy

Voimakatu 3, 15100 Lahti

Puh 020 707 511

www.peikko.fi myynti@peikko.fi

Peikko on vuonna 1965 perustettu perheyritys, jonka pääkonttori sijaitsee Lahdessa.

Peikko valmistaa monentyyppisiä betoniliitoksia ja liittopalkkeja elementti- ja paikallavalurakentamiseen. Innovatiiviset ratkaisut tekevät rakentamisesta nopeampaa, tehokkaampaa ja turvallisempaa.

Peikon tavoitteena on tarjota asiakkailleen alan johtavia ratkaisuja, ja siksi Peikko investoi alallaan laajimmin tutkimukseen ja tuotekehitykseen.

Peikko työllistää maailmanlaajuisesti yli 2 000 henkilöä yli 30 maassa.

PERI Suomi Ltd Oy

Hakakalliontie 5, 05460 Hyvinkää

Puh 010 8370 700 info@peri.fi www.peri.fi

Raudoitteet | Tarvikkeet | Kiinnikkeet Pintos Oy

Pysäkintie 12, 27510 Eura www.pintos.fi pintos@pintos.fi

Muut tehtaat ja toimipisteet: Rauma Yrittäjäntie 9, 27230 Lappi

Turku

Jonkankatu 4, 20360 Turku

Espoon tarvikevarasto Juvan teollisuuskatu 23, 02920 Espoo

sSalon Tukituote Oy

Kaskiahonkatu 8, 24280 Salo

Puh 02 731 2415 www.tukituote.fi tukituote@tukituote.fi

SCHWENK Suomi Oy

Fiskarsinkatu 7 A 2. krs, 20750 Turku

Puh 020 7121 433 www.schwenk.fi

Fabianinkatu 5 LH 40, 00130 Helsinki Puh 020 7121 430 jussi.thureson@schwenk.fi www.schwenk.fi

Terminaalit: Naantali, Satamatie 14, 21100 Naantali Loviisa, Valkon satama, 07910 Valko Raahen terminaali, Lapaluoto, FI-92100 Raahe Tuotteet: sementti, lentotuhka

Semtu Oy

Martinkyläntie 586, 04240 Talma Puh 09 2747 950 www.semtu.fi mailbox@semtu.fi

Suomen Betonilattiayhdistys ry Kuhatie, 02170 Espoo www.bly.fi toiminnanjohtaja@bly.fi

Puh. +358(0)400 493 445

Tuote- & palveluosio webissä

www.betoni.com www.betoniteollisuus.fi/yritykset www.betoniteollisuus.fi/tuotteet

91 2 2024
D
f

Kuvituskuva. Kymenlaakson Ammattikorkeakoulu Pajan betonilattiat on pinnoitettu polyuretaanipinnoitteella. Massapinnoitteita käytetään myös korjausrakentamisen kohteissa silloin kun esimerkiksi vanhan betonilattian maakosteusongelmat tuottavat haasteita. Arkkitehdit NRT Oy.

92 2 2024
Tuomas Uusheimo

Vaikuta rakentamisen päästöihin!

Ympäristöystävällinen Kolmossementti on askel vihreämpään rakentamiseen.

Kolmossementin vähähiilisyyden takana on yhtenä raaka-aineena käytetty masuunikuona, joka nostaa loppulujuutta ja parantaa betonin tiiveyttä.

Kolmossementtiin perustuvien betonireseptien hiilidioksidipäästöt ovat jopa 40 prosenttia alhaisempia kuin CEM I -sementtiin perustuvien betonien.

Valitsemalla Kolmossementin valitset fiksusti. Lue lisää finnsementti.fi.

KOLMOSSEMENTTI LYHYESTI: korkean 52,5-lujuusluokan CEM III -masuunikuonasementti sisältää masuunikuonaa 40–46 % 2 vuorokauden lujuus noin 21 MPa, 28 vuorokauden keskimäärin 59 MPa soveltuu käytettäväksi AKR I- ja II-luokan kiviaineksen kanssa hiilidioksidipäästö jopa 40 % pienempi kuin portlandsementtien

UMBRA

enemmän kuin väri

Ainoa betonin kemiallinen värjäysmenetelmä. Ei peitä maalin tavoin betonin materiaalisuutta. Vähäinen huoltotarve ja pitkä käyttöikä.

Käsittelyt toteuttaa:

ART BETONI

ART BETONI

ART BETONI ART BETONI

Raide-Jokeri, Helsinki / Espoo Vuoden betonirakenne 2023

Rakennuttaja: Helsingin kaupunki, Espoon kaupunki, Pääkaupunkiseudun kaupunkiliikenne Oy

Suunnittelijat: Ramboll Finland Oy, Sitowise Oy, Sweco Finland Oy

Urakoitsijat: YIT Infra Oy, NRC Group Finland Oy

Kuva: Aarni Salomaa

Turn static files into dynamic content formats.

Create a flipbook
Issuu converts static files into: digital portfolios, online yearbooks, online catalogs, digital photo albums and more. Sign up and create your flipbook.