


Beautiful single-level country home on over an acre of irrigated land! Enjoy acozy living room with wood floorsand awood-burning insert,plusan open kitchen with slab granite counters,stainlesssteel appliances,and Hickory cabinets. Featuresinclude an oversized laundry room,spaciousfamily room,and tiled bathroomswith luxury-height vanitiesand asoaking tub in the guest bath. Outside,relax in the fully fenced backyard with apaver patio,pergola,raised garden beds,and fire pit while taking in stunning Cascade and farmland views.
The detached,insulated shop offers15?and 12?roll-up doors,an additional 1-bay workshop/storage area. Located in aquiet subdivision backing to open fields,this home deliverspeaceful country living just minutesfrom town.
INTERIOR FEATURES:
- Beautiful Updated Kitchen w/ Hickory Cabinets & Eating Bar
- Slab Granite Countertops
- Stainless Steel Appliances
- Pantry w/ Pull outs
- Hardwood Floors
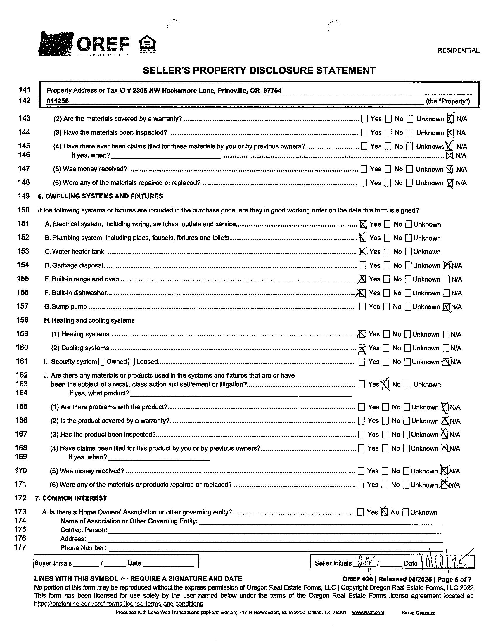
- Great Room w/ Wood Burning Fireplace. Installed in 2020
Pre-plumbed for propane,but no Propane tank is installed
- Main Bath w/ Updated Extra Deep Tub and Tile Surround
- All Bedrooms w/ Ceiling Fans
- 2019- New Forced Air Electric Furnace w/ Heat Pump
- 2019- New Electric Water Heater w/ Recirc Pump
- Inline Water Filter w/ Stainless Steel filter
- Surge Protector Installed on the Electrical Panel
EXTERIOR
FEATURES:
- Attached Carport
- Detached 48x36 Insulated Shop w/ Garage 15' and 12'doors. Additional Storage Bay/ Workshop included on backside.
- Surge Protector Installed on the Electrical Panel in Shop
- 220 Power in Shop
- 15 AMP RV Plug-in
- Fully Fenced Yard
- Seperate Fenced Pasture
- Sprinkler System w/ Timer in Front and Rear Yard (Pulling from Irrigation Water)
- Outdoor Faucet w/ Well Water for Stock Tank
- 12X12 Loafing Shed in Pasture
- Pasture has Hotwire
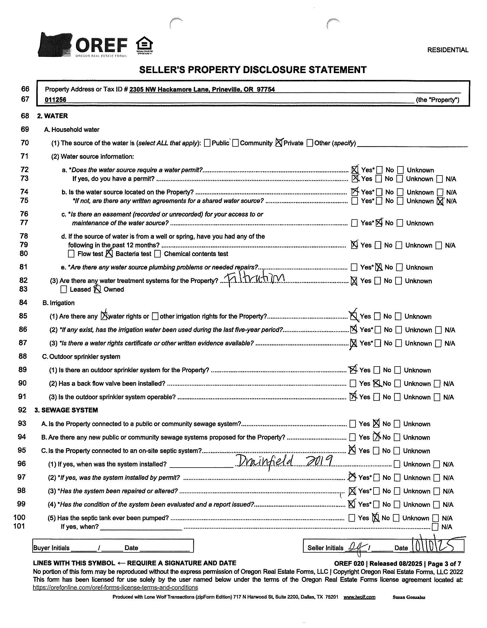
- New Well Drilled in 2023, Lined in 2024
- New Septic Drainfield in 2019
UTILITIES:
- PP&L
- Private Well
- Septic
- Republic Services