
PRODUCER
TUTORS
4M2H: Muddy and Motley Mass Housing for the Millions of Homes Studio
K TH School of Architecture SE-100 44 Stockholm Sweden
Erik Stenberg, Associate Professor Frida Rosenberg, Adjunct Teacher

4M2H: Muddy and Motley Mass Housing for the Millions of Homes Studio
K TH School of Architecture SE-100 44 Stockholm Sweden
Erik Stenberg, Associate Professor Frida Rosenberg, Adjunct Teacher
STUDENTS
INTRO CONTEMPORARY CO-ARCHITECTURE
PROTOTYPES
THEMES CO-HOUSING
HOUSING TYPES
STUCTURALISM FLEXIBILIT Y
APPENDICES
SOURCE REFERENCES
COURSE LECTURES
4–5 6–9 10–11 12–13
68–69
122–123
14–15 156–157 196–205 206–209
Erik Sandsten
Kamil Kowalski
Stellan Gulde
Tina Franc
Alice Nilsson
Anton Valek
Julia Thiem
Rei Mark Seares
Stina Edlund
CO-HOUSING
Carl Ludovic Petersen
Elin Lennartsson
Adrian Andersson Martvall Bisrat Assefa Erik Karlsson
Hedvig Aaro
Frida Wollberg
Mattias Månsson
Nada El Kateb
Fredrik Skyllbäck Rebecca Wahlström
In what ways does architecture make it possible to live together and how has this been tested in a variet y of housing formats throughout histor y from the early 18th centur y to the recent past? In front of you is an investigation into the range and depth of “co” in mass housing
architecture hasn’t been used more frequently in describing how architecture, beyond its t ypological limits, has formed spaces, places, and processes serving the communities we inhabit.
In Webster’s (unabridged) Twentieth Centur y Dictionar y of the English Language (New York 1938) “co-” is a
most commonly used is based on the idea of combining and the second, from mathematics, based on the action of complementing
When applied to architecture, “co” has historically been channeled into the concepts of communit y, commune, or common. These are all words that
together, in conjunction, jointly” but with different connotations. One way to distinguish between these intertwined words is to see the latin word communis (common) as the base, out of which communitas (community, fellowship) grows and subsequently commune (district or members) emerges. These concepts of “co” have been formed into a number of rich and diverse architectural t ypologies from the nineteenth centur y communities such as Godin’s familistère and the Shakers, to early twentieth centur y cooperative co-housing experiments, and reemerging in contemporar y discourse as co-living and co-working trends.
Both terms, combining and complementing, are useful in analyzing, understanding, and designing mass housing architecture where many individuals live together and by choice or default form social relations.
We have tried to take an ever more inclusive and broad perspective on coarchitecture as that component in mass housing which makes architecture social and in the service of communis. In doing so, we have gathered an even longer list of coarchitecture words (some with a greater and some with a looser connection to architecture) which we list for you:
In order to understand such a vast territor y of common living terms, we have
solutions as well as more conventional and norm based social organizations implemented through architecture. The idea has been to locate, map and analyze protot ypes in a Swedish and international context shaping a foundation for future project proposals, re-formulating ideas of co-housing, collective housing, and urban conditions in which the collective, common, communit y is prioritized
This seven-week course was structured around weekly assignments—as a guide to documenting and communicating research—in order to construct a critical understanding of the case studies and an overall view of concepts such as collective housing and communit y. Emphasizing the architectural qualities by confronting issues of dwelling, domesticity, culture, as well as tectonics and construction, this catalogue has become a mapping of architecture in service of communit y.
We were interested in looking at construction, material, and details. Complementing tectonics with looking at the living conditions. How have architects and communities made or furnished spaces and how did they plan the housing; for what kind of family life? Thus, exploring both the dimensions of the rooms in the plan layout, but also more sof t value analysis of the general culture, context and life of the town, cit y or suburb. One of the important aspects
of the project was to understand the possibilities that rests in the construction system of mass housing as well as questioning space related to function, outdated norms and family constellations, which can allow for design maneuvers that can improve the home environment With pressing issues such as climate change, altering social and urban living conditions because of the pandemic, these case studies can be a tool in rethinking contemporar y living patterns giving focus to how we can live collectively
With a deeper understanding on how living patterns transform and change across time, we can better plan for future changes. Today, forms of lease constitute a limitation for sharing space and of ten entail great risks for those who want to test new forms of housing. Despite a growing interest in sharing, there is still a lack of a functioning infrastructure for a sharing economy, especially with regard to housing issues. So far, discussions about sustainabilit y in the housing sector have largely focused on materials during the construction phase and on energy consumption.
Today, in many cities there is a desire to make greater use of space and functionsa desire to increase the sharing potential Even if there is a will to share, there is a lack of experience and practical solutions to turn these ideas into realit y. How is it possible to scale up social values in the cit y?
This research turned to four foundational texts, which also has given structure to the catalogue. The four perspectives on Co-Architecture are: Housing types, Co
In her book, Redesigning the American Dream Dolores Hayden highlights three main housing strategies based on their programming of home, housework and their relationship in between various households: the Haven strategy,y the Industrial strategy andy the Neighborhood strategy. The neighborhood strategyy usually encourages frequent interactions and the formation of close relationships between their members. Neighbors are encouraged to cooperate within the communit y and to care for the neighbors.
Understanding Dolores Hayden’s discussion on the histor y of “three alternative models of home” was a way to analyze communit y. Hayden argues that in the 20th centur y, alongside the working environment, the built form of the household became one of the most important factors in order to organize notions of productivit y, leisure, collective, individual, traditional values, progressive communities and feminism were the
Redesigning the American Dream: the future of housing, work and family life
In the book Living together - cohousing ideas and realities around the world, Dick Urban Vestbro suggests a model to describe different t ypes of cohousing, originally proposed by Dolores Hayden. The model consists of three different categories, which are: Ideal life, Rational society andy Ecological. While these concepts are not per fectly distinctive, some of the cases that we have studied have features from all three categories; these have been a tool to distinguish the
catalogue have of ten started as a reaction to contemporar y societ y and consequently tell us about the development of cohousing through histor y. From the ideas of utopian communities as a reaction to the industrial revolution and the rational service houses that enabled women to work , to the birth of the environmental movement that combined collaboration and communit y with ecological ideals. These new ideas about living and dwelling have pushed societ y forward by challenging its conventions
Living together - cohous ing ideas and realities around the world
Using the book Utvecklingen mot strukturalism i arkitekturen edited by Anders Ekholm, some of the main ideas approach Structuralism from a perspective of the collective/communit y The initiators of the movement can be considered to be “Team 10” who were an international group of young architects, including J.B. Bakema and Aldo van Eyck from the Netherlands, Alison and Peter Smithson and John Voelecker from England as well as Ralph Erskine as a Swedish representative of the group only to name a few. This group formed af ter the 1953 CIAM Congress in Aix-en-Provence, engaging in critical discussions and discourse on the then prevalent ideas of functionalism in architecture and urban planning. In order to deal with perspectives on communit y, we formulated concepts that derives from the Team 10 primer, which deal with the reoccurring themes of the movement: Perpetual Mobilit y/ Adaptabilit y, Patterns and Relations/ Living in the Urban Fabric and Part and Whole/Individual in Community y
By looking into projects that we consider as protot ypes of this movement, we hope to understand how different aspects of coarchitecture deals with these concepts of Structuralism.
Flexible housing has developed enormously in connection with politics, economics, social demography, and technology. One important book is Flexible Housing by Tatjana Schneider and Jeremy Till The development of dates back to the 20th centur y
Af ter the First World War, the need for housing on a mass scale lead Le Corbusier to propose the industrialized Dom-Ino system in 1914, which is a concrete frame structure that consists of slabs and reinforced columns. By separating the interior from structure, the system created a free-plan thus
Ino highlighted the possibilities for mass production and challenged how the free plan could enable housing development. During the 20th centur y, we could distinguish three important movements
1920s, space standards dramatically reduced in response to urbanization and the housing shortage. Less space meant there was an increased interest in the to offer more shared communal space to compensate for the reduced sized of home. A byproduct of this is that the shared spaces provided facilitated coliving by creating a place for communities to meet
Utvecklingen mot struktural ism i arkitekturen
Flexible Hous ing.
This catalogue offers a number of cases— protot ypes—of co-architecture that serves as an insight to historical development relating to the four themes Housing t ypes, Co-Housing,
analysis and research the Housing Studio investigated possibilities to update, develop and change aspects of co-architecture in these studied protot ypes. This stage in the research is not included in the catalogue. However, we have included the continued investigation into contemporar y co-architecture by listing relevant books, websites, housing projects and research investigations
Grip, Elsa, Kärnekull, Kerstin & Sillén, Ingrid (red.), Gemenskap och samarbete: i kollektivhus och bogemenskap, 2019
Alternativ.nu www.alternativ.nu/index.php Boföreningen Framtiden www.boframtiden.se Bo i Gemenskap www.boigemenskap.se Cohousing Association of the United States www.cohousing.org/default.aspx
Cohousing Resources www.cohousingresources.com
Eurotopia, Director y of Intentional Communities and Ecovillages in Europé h ttps://eurotopia.director y/ about-eurotopia/ Föreningen för byggemenskaper www.byggemenskap.se Handbok för vardagsekologi, www.a l ternativ.nu /h an d b o k/b o / kollektivhus.html
Intentional Communities, www.ic.org Kollektivkontakten http://move.to/kollektiv Kollektivhus NU, www.kollektivhusnu.se Seniorhusföreningen i Karlskrona www.seniorhus.se Wikipedia, http://sv.wikipedia.org/wiki/Kollektivhus
Lind, Diana. Brave New Home: Our Future in Smarter, Simpler, Happier Housing, 2020:
Common, NY, Boston, DC, and Atlanta, spawned Noah Apartments in May 2020 ShareNYC – 3 pilots announced in 2018 (Ascendant Neighborhood Development, Common, PadSplit)
WeLive, ex NYC and Arlington (connected to WeWork)
Ollie – ex Carmel Place NY, ALTA+, Long Osland (four C’s – convenience, comfort, cost savings, community)
X Social Communities, ex Miami, Fort Lauderdale, Chicago Archive (SF )
Embassy Network Hacienda (Brooklyn)
Lightning Society (Bushwick) Outside (Lisbon)
Co-Liv Lab (network org) Starcity (CA)
The Collective (London) PodShare (LA) PadSplit Thrive (https://thrivecolivingcommunities.org)
Las Abuelitas ( Tuscon AZ)
Nesterly, founder Noelle Marcus
Making Room: Housing for a changing America (exhibit Nat Building Museum 2017)
Minka Homes (from Japan)
Harvest by Hillwood (agri-hood) TX Eco Village in Ithaca, NY Serenbe in Atlanta GA
Co-Housing books, papers, masters theses, and handbooks:
CoHousing Cultures, Handbook for selforganized, communit y -oriented and sustainable housing (2012) https:// w ww.jovis.de/en/books/details/product/ cohousingcultures.html
CoHousing Inclusive, Self-organized, community-led housing for all (2017) https://www.jovis.d e/en/ b oo ks/d etails/ product/cohousing _inclusive.html
Design for gender equality - the histor y of cohousing ideas and realities (2012)
h tt p s://core.ac.u k / d own l oa d / pdf/80716121.pdf
Living together – Cohousing ideas and realities around the world (2010)
h tt p ://kollektivhus.se/w p -content/ uploads/2017/06/Livingtogetherwebb-1.pdf
Social, Affordable & Co-operative Housing in Europe (2020) http://www.housingagency.ie/publications/ social-affordable-co-operative-housingeurope
Living Alone Together: Individualized Collectivism in Swedish Communal Housing (2019)
https://www.diva-portal.org/smash/get/ diva2:1302073/FULLTEXT01.pdf
Co- living Real Estate in Sweden: A new investment opportunity (2020) https://www.diva-portal.org/smash/get/ diva2:1439971/FULLTEXT01.pdf
Bringing people together through housing and combatting loneliness(2019) https://www.diva-portal.org/smash/get/ diva2:1377500/FULLTEXT01.pdf
Coliving: an emerging term without a
https://www.diva-portal.org/smash/get/ diva2:1371948/FULLTEXT01.pdf
Cohousing and resource use A case study of the Färdknäppen cohouse (2014) https://www.diva-portal.org/smash/get/ diva2:762639/FULLTEXT01.pdf
Recently completed Swedish research projects:
Max 4 Lax by Theor y into Practice
( Vinnova UDI stage 1)
https://www.theoryintopractice.se/max-4-lax Elastiska Hem by Kod arkitekter ( Vinnova UDI stage 2)
https://kodarkitekter.se/projekt/elastiska-hem/ Framtidens delade boende by Akademiska Hus h tt p s://www.akademiskahus. se/aktuellt/n y heter/2020/11/ coliving-kan-halveraklimatavtr ycketper- person/
Contemporar y Co-Housing in Europe by Hagbert, Larsen, Thörn, and Wasshede http://kth.diva-portal.org /smash/record. jsf ?pid=diva2%3A1380580&dswid=-2398
- Divercit y by Föreningen för byggemenskaper and Theor y into Practice ( Vinnova) https://www.divcit y.se/omprojektet
Contemporar y Swedish Co-architecture
- Allihoop https://www.allihoop.se/
- Co- live https://colive.se/index-en.html
- Convendum https://convendum.se/sv/ coliving/stockholm/
- Hus 24 https://hus24.org/
-LifeX https://www.joinlifex.com/stockholm/ coliving-apartments
- Stena fastigheter https://www. stena f asti g heter.se/stena- f asti g heter/ nyheter-ochpress/co-living-i-gaffelseglet/
- Sällbo https://www.helsingborgshem. se/nyheter/sallbo-ett-ny tt-satt-att-bo
- Tech-Farm K9 Co-living https://www.k9coliving.com/
HOUSING TYPES CO-HOUSING
24–29 30–35 40–4 5 4 6–51
SHAKERS 1806-1910
ONEIDA 1851-1879
KIBUTZ 1910 90–95ELFVINGGÅRDEN 194 0 36–39
AFFLECK HOUSE 194 0 52–57
DÄCKSHUS 1960
OVERVECHT-NOORD 1960 58–61
ÅLSTENSGATAN 1933 DUGGREGNET 5 1957 WANDELMEENT 1977
PRUITT IGOE 195 4 61–67
HÄSSELBY FAMILJEHOTELL 1956 96–103
78–8 3 84–89 104–109 110–115
WALDORF SEMINAR 1962 116–221
SEA RANCH 196 4
UNDERSTENSHÖJDEN 1995
BURGERWEESHUIS 1960
ROBIN HOOD GARDENS 1972 - 17
WALDEN 7 1975
DE ZONNETRAP 1980
132–137 138–14 3 144–149 150–155
KOLLEKTIVHUSET 1935 164–169 170–175 176–181 182–187 188–193
E XPERIMENTHUSET 195 3
UNITÉ D’HABITATION 1952 SUPER ADOBE EMERGENCY SHELTERS 1995-1997
VÄSTRA ORMINGE 1971
At the turn of the 20th centur y many intellectuals, theorists and politicians started generating schematic models of how home life should be developed in the industrial societ y. The industrial revolution not only brought big alterations to the working industr y and economy, but also to the societ y at large. The opinion that an universal architecture could either promote or oppose certain social behaviors began developing. New societal movements and ideals started shaping, no aspect of life was too small to be considered, and the qualities of the new ideal household were elaborated clinically. Starting from the most basic of elements to then expand to a larger perspective; from the interests of the individual to the family unit, the collective, the communit y and then societ y.
Alongside the working environment, the built form of the household became one of the most important factors in order to organise the new rational societ y
collective, individual, traditional values, progressive communities and feminism modern housing ideas.
In her book “Redesigning the American Dream” Dolores Hayden highlights three main housing strategies based on their programming of home, housework and their relationship in between various households: Haven strategy, Industrial strategy and the Neighbourhood strategy These three strategies, and their strong relationship to certain architectural st yles, became the starting point for our research into the communal aspects of var ying housing t ypes.
The haven strategy is a social living structure initiated at the start of the industrial revolution. As the pursuit of work led people from the countr yside to the cities, the housing crisis that emerged made strangers live tightly together in the same apartments. Many people did not even have a permanent living space and were instead forced to rent a spot in different apartments ever y night. Because of the health and moral problems with this cramped living, especially because of the rise in children born outside of relationships, many ideas and ideals started to emerge about how to organise people in relation to the new urban societ y. One natural way was to look at the living habits of the higher classes, which invariably have been idealised and imitated throughout histor y
The way the bourgeois upper class lived in the cit y differed a lot from the former life of the new urban working class, mostly because of the upper class’s high emphasis on the privacy of the immediate family. For people who were brought up on a pre-industrial farm, the idea of individual privacy practically did not exist, as ever yone on the farm lived as one large extended family, sometimes upwards of 50 people. Now the home instead became a refuge for the working man where he can spend time with his wife and biological children, and where
the woman can serve the family and be protected from the tough capitalist societ y. This strategy of social structure was coined the haven strategy by the author Dolores Hayden.
The focus of this strategy is ver y much the privacy and isolation of the nuclear family in their unit, without any features which encourage communal social activities. Social life outside of the family still exists but naturally gets more of a formal character, which means planned meetings instead of chance encounters.
The t ypology is usually, but not all the time, freestanding units, and it is generally as well equipped as possible when it comes to the functional amenities. Despite of this it can be pointed out that this strategy is the most dependent on exterior societ y out of the three strategies, both regarding work and income, housework, but also leisure and social life. These aspects are not intended in the haven strategy, and are expected to function independently of this living ideal. These different factors also make it possible to divide this strategy into subcategories, such as whether you are supposed to work from home, or whether you have external servants.
To understand the concept of the industrial strategy that D. Hayden points out you have to grasp the fascination of that time for the machine aesthetics
International modernists found through architecture a certain fondness in suggesting something machine-made, acknowledging industrialization, mass production, and engineering, or that used elements of metal structures (ships, aeroplanes, motorcars, etc.) in an eclectic fashion as a proof of honest y and authenicit y. And most importantly,
societal questions that arose during austere times.
It was an assured method but became more a matter of arriving at an appearance than of actually being what it seemed, a fact that contradicted demands for honest y and truth in architecture, and denied the logic of structural principles
consumption of space from becoming too privatized, the special social needs of families headed by women, the elderly, and single people had to be highlighted. Central to the idea of the social condenser is the premise that architecture has the
intention of the social condenser was to
a goal of breaking down perceived social hierarchies in an effort to create socially equitable spaces. Another important factor of the industrial strategy is the strive towards an universal coherence in terms of the build form. No longer should the context be desisive of how we build our lives around the architecture, but intertwined and equal. Through rational means we would come up with sollutions and material that could be implemented and duplicated any where on the planet.
Ingenious schemes for communit y participation cannot correct the wrong program,
the tracts of scared huts. Modern family patterns and housing needs are too com-
- Dolores HaydenThe neighbourhood strategy is usually structured to encourage frequent interactions and the formation of close relationships between their members. Neighbors are encouraged to cooperate within the communit y and to care for the neighbors.
Neighborhood communities are t ypically formed by a group of people who are consciously committed to living as a communit y. The communities comprise private units and communal facilities, and they are planned based on social contract design principles that reportedly encourage more social interaction, helping to build more cohesive communities. The neighborhood strategy offers people to access and share the ownership in a communal place, to support cohouser members, to have a greater social responsibilit y and to enjoy the meaning of being a communit y.
In the book Redesigning the american dream (1984), Dolores Hayden described that “The neighborhood strategy produced the program for low rise, multifamily housing treated as a village with shared common, court yards, arcades and kitchens The models for the neighborhood strategy were the cloister and the village. The designers who favoured this approach believed that in the terms of housing, the whole must be more than the sum of its parts. For private space to become home, it must be joined to a range of semiprivate, semi-public, and public spaces, and linked to appropriate social and economic institutions assuring the continuit y of human activit y in these spaces. The neighbourhood strategy not only involved thinking about the reorganisation of home in industrial at ever y spatial level – from the house, to the neighbourhood, the town, the homeland, the planet.”
UnboundUnsupported DispersedRestrained
Social controlSupported ConcentratedNovelty
How is the social interests of the individual expressed/considered in this protot ype? Is it free/liberal/unbound or is the individual bound to a certain social control of other inhabitants or to the public due to mechanics of surveillance, human presence or transparency?
How is the family life supported or constructed within the protot ype? Does it get support through aid/service/ maintenance?
Where does the communal activities take place? Or is communit y evident through other aspects? Are these common grounds usually concentrated or dispersed?
As for the societal aspect its more in terms of its time established (the prototype). Is it innovative/groundbreaking in its context (novelty) or is it conservative/restrictive/ perhaps tr ying to preserve status quo or deep time (Restrained)? What is societ y gaining from this protot ype?
1.Vanna Venturi House, Chestnut Hill, USA, (Robert Venturi, 1964)
Wright, 1940)
3.Hälsingegård Jon-Lars, Sweden (Anders and Olof Andersson, 1857 )
4 Ålstensgatan, Stockholm, Sweden (Paul Hedqvist, 1933)
5.Däckshus in Kallebäck , Gothenburg, Sweden (Erik Friberger, 1960)
6.Llewellyn Park, New Jersey, USA (Alexander J. Davis et al., 1853)
7.High-rise of Homes, New York, US (James Wines, 1981)
8.Catalogue-houses, Egna-Hem (Sweden, 1900 - )
9.Elfvinggården, Bromma, Sweden (Backström & Reinius, 1940)
10. Wandelmeent, Hilversum, Netherlands (L. de Jong, 1977 )
11.Trudeslund, Birkerod, Denmark ( Vandkunsten Architects, 1981)
12.Stacken, Göteborg, Sweden (Lars Ågren, 1980)
13.WSM Zoliborz, Warsaw, Poland (Barbara
14.Habitat 67, Montreal, Canada (Moshe Safdie, 1967 )
15.Pruitt-Igoe, St.Louis, US (Minoru Yamasaki, 1954)
16.Duggregnet 5, Stockholm, Sweden (Georg Varhelyi, 1957 )
17.Panopticon, origin from the parallelogram by Robert Owen and phalanster y of Charles Fourier (Jeremy Bentham, 1790)
Group, 1930)
19.Cité Radieuse, Marseille, France (Le Corbusier, 1952)
24 PR OT OTYPE S O F CO -AR C HITE C T U R E Erik Sandsten
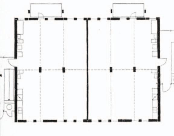
Community Strategy: Haven Lifespan: 1933 - today Architect: Paul Hedqvist Place: Ålsten, Stockholm
The Ålsten area was converted from farmland into a district of suburban single-family housing as a part of the expansion plan for the cit y of Stockholm in the early 20th centur y. The broad and straight main street was planned by Albert Lilienberg and Thure Bergentz and was initially meant to feel like a monumental and cit y -like boulevard, crowned with a never constructed citizen’s building at the end
As a result of protests from the neighbouring suburban areas, the goal for the architect Paul Hedqvist instead became to design terraced buildings along the street which reduced the perceived scale and monumentalit y of the already built road. This he achieved by rotating each housing unit away from being parallel to the street, and then placing the adjacent volumes with the front facades offset from each other. This breaks the typically long and straight facade of joined housing units, and it also gives the housing units a better view towards south and the water Qualitative Diagram
The st yle is functionalism, with its simple white cubic volumes and few ornaments. Paul Hedqvist was interested in how affordable family housing could be created with this st yle, and a way the idea of affordabilit y is evident in the plan is how many rooms each of the 94 constructed housing units have on an area of about 120 square meters (84 sqm above ground). Each unit has its laundr y room, boiler-room food storage, and spare room, all in the cellar. The two
kitchen, dining room, living room, WC and three bedrooms. The plan got some critique for its lack of storage space
An important aspect in Hedqvists idea of affordable family housing is shown to be the privacy of each family member, and the goal was to create the feeling of a freestanding house in a tight terraced t ypology. It was also important that ever y family had the necessar y daily household amenities under their own roof, a level of comfort, and privacy, rare just a few decades before
The social exchange in this project is always of a more hierarchical t ype. Because of the closed and privately owned nature of each unit, the social life is inevitably taking place on the terms of the owner and his/her family In the plans to the lef t the rooms of a
darker for the rooms which more exclusively are used by the family, and a lighter hue for the rooms which also may be relevant in the case of external social interaction
It is interesting to note that, because the upper bath is the only WC in the house, it is to be used even by guests
The hall is designed to be portioned off with a curtain, which creates an even more private living room for the family.
The semi-shielded area in the front exterior of each unit is created by the offset relationship between the building volumes, and together with the greener y it is in a sense helping to bring the perceived scale of the street down
There are two rooms in the house with a clear adaptabilit y, one ver y dark in the cellar and one next to the entrance. The ver y narrow one on the ground
in many later renovations the wall to the living room has been torn down, to create a more open and bright living room
The functional rooms in the cellar, including the spare room, is what gives this unit a high level of autonomy It makes a communal laundr y, heating facilit y, guest room, food storage, workshops and shared work-areas, which can be found in co-housing projects, obsolete
The terraced buildings on Ålstensgatan were created as isolated refuges packed into a tight building t ypology. As a result of the intent of making these units as
where communal exchange can take place is the exterior. The vastness of this straight road without any real common areas or features of interest makes it ver y anonymous, and it almost becomes more of a space in relation the urban scale than to a potential communit y Shielded from this road is a semi- public zone, framed by the front facades and by hedges towards the street, but with no borders between the neighbours. The
trees and bushes help to create cover from the street, which helps to create a more private or maybe even communal feeling in this semi-public zone. Without the greener y, this street would have similar dimensions to a streetcar road in than the varied street width of a t ypical suburb. But these intermediate spaces bring the scale down to something familiar. A sign of a possible communal life in this semi- public area, despite of the privacy of the housing units, is the paved paths between the front doors of some neighbours.
Ålstensgatan is a private t ypology, with a similar idea of communal life as the freestanding houses around it, even though it is a mass housing project which achieves this in a cheaper and more dense way. The plan is ver y complete for the number of square meters, and the architect has added the cellar with amenities to avoid the need for shared rooms in the neighbourhood. Privacy was seen as more desirable and luxurious than the potential assets of communal life in this case.
Each unit has its own heating facilit y and its own laundr y room, and even a
took space from the living areas, for example the kitchen and the dining room, to give the families these amenities. At the time of construction, the terraced house typology was new to Sweden, and the design decisions is clearly a way to establish it as a more private t ypology, as opposed to a communal one which it may have potential to be.
The exterior semi-public area may be seen as an attempt to create a closer communit y, both between immediate neighbours but also through the visual connection to the street. The spatial dimensions of this space is at
2.Aerial overview least creating a possibility for more social encounters than with a front door right at the sidewalk, but there are many factors which decide to which extent; where people choose to park their car and how they travel, the age and season of the organic elements for example
A low level of greener y, like at the time of construction, creates a ver y vast and anonymous space, and a high level of greener y, like what has happened at some instances in the last few years, creates secluded spaces even in front of the buildings. The level of greener y can because of this not be counted as part of the architectonic plan, but is rather a way to give the inhabitants a choice together with their neighbours about the desired level of privacy or openness. Another reason for classifying it as the haven strategy is because a well developed communit y can appear even if the architect has the opposite vision, which may be true in these historical buildings available only for high-income people who are proud of their area. This is relevant if you expect to get the same result if you would replicate or mass produce this t ypology in a new context
2. Aerial overviewHousing types Strategy: Haven Lifespan: 1940 - today (donated in 1978 to LTU)
Architect: Frank Lloyd Wright Place:
designed for the ground it is standing on and served as a protecting, single family
making it a per fect example of a home within the Haven Strategy
familiar with Wright’s work, especially liking his house Fallingwater and therefor contacted him when they were to build their per fect home. Wright answered with
of land to build on, and af ter that the work on the plans started Wright had a focus on giving his clients satisfying homes to a low cost, aiming to solve according to him a problem in the housing architecture of America, the “small house problem”. He was also especially interested in making homes modern in both st yle and technology to serve as a functional home for a long time.
challenging site, the house had to take care of a fort y feet ravine and a small stream of water running through their plot. You enter the building from the north end on the top of the ravine which enhances the feeling of a modest one story house. The north façade is keeping the secret of the plan from the viewer being completely closed with windows carefully placed at the top of the brick wall. It is not until you turn lef t and enter the big, air y living space and walk to the south corner of the living room you can feel the light and the height difference of the site. Something quite radical at the
time is its open plan in the living space with a lot of daylight and large windows. Also placed in the south corner is a big balcony that runs along the sides of the open living space. If you would have instead turned right entering the hallway you would have found yourself walking up a few steps and through a long corridor with bedrooms appearing one by one on your lef t and a thick, long wall without windows on your right
Elizabeth and Gregor y lived in the home till they passed, and then the family donated the house to Lawrence Technological Universit y in 1978.
Shown in the picture above is what you see entering upon the site. The main entrance is in the center of the picture and to the right you can see a closed façade with top placed windows. The picture to the right is of the balcony. The two pictures together show you the start and the end of the journey for a guest
In the perspective you can see guests waiting to be let in to the home to the right and the others who are just exploring the home. The cut of the perspective is stairs leading down to the basement.
Open plan living space and balcony
Single family home
Social gatherings in the home
With this I’m tr ying to focus on the hidden life of the house, meant to be invisible to guests and the common spaces. In the bottom right you can see what is called “The maid’s room”, letting us know the house is also built for staff working for the family. This is an interesting aspect looking at communit y within architecture, in this private “Haven” home the family was not meant to live alone. The architect is also actively hiding this other life in the house, by placing the only interior staircase in a room the guests will never enter, the kitchen
The family never had staff living there and these rooms were slowly transformed into teenage bedrooms and workshops
Perspective
The building is mainly built of masonr y
of load bearing brick walls, some of them
has been replaced with leaning cypress walls. The south façade opens up with glass windows and doors, creating a
The roof tretches horizontally outside of the brick walls creating an overhang to rest under during rainy days. The roof too has been opened up with windows,
giving the view to the sk y from within the building. For the roof on the outside those openings are lef t as holes without the protecting glass. Entering the building you are drawn forward by the guiding roof windows and the glass wall in front of you. Following the yellow line in the axonometric you can see how the glass keeps dragging the visitor in to the social space, in contrast
entering the site
Frank Lloyd Wright Foundation Brick, cypress, glass, concrete, copper, asphalt Load-bearing masonry Usonian, Single family dwelling Brick Cypress Concrete 34 PR OT OTYPE S O F CO -AR C HITE C T U R E Glass CopperA housing complex for unmarried women - “single educated ladies, who have lived
lives and whose annual income does not exceed SEK 6,000 and who are under 60 years of age” (Statens Offentliga Utrednigar), built by Systarna Elfvings Foundation and Olle Engk vist in 19391940, designed by Sven Backstrom and Leif Reinius.
The complex constisted of nine buildings. As apartments were intended for people without families, rooms were relatively compact, although they included
Housing types Strategy: Neighbourhood Lifespan: 1940- today
Architect: Sven Backstrom / Leif Reinius
Place: Stockholm, Sweden
kitchenettes and toilets. All the buildings were connected with covered arcades to the main building in which communal spaces, such as cantine and shared ‘ living room’ were located.
The building was operated by the foundation, providing residents not only with meals, but also services such as cleaning and laundr y conducted by a household staff. It was intended that the residents would have to do as little housework as possible. A grocer y store was located next to the main entrance.
Communal space
Individualityunbound
Familysupported
Communityconcentrated
Societynovelty
Societyrestrained
Familyunsupported Individualitysocial control
Communitydispearsed
Stellan Gulde
The Pruitt-Igoe housing project in St. Louis became most famous at the moment of its demise. The iconic picture taken in the moment of demolishon has been aclaimed to depicture the ver y essence of failed architecture ever since. I quickly learned, this statement is a
whole situation.
The thirt y -three high -rise towers built in the 1950’s were supposed to solve the impending population crisis in inner cit y St. Louis. It was supposed to save the urban poor from the indignities of the downtown slums that lacked natural light, water and fresh air. And for a short while, it worked. It was a housing marvel
But soon enough things went bad, and as they did the situation escalated rather fast. The integration of the Pruitt and Igoe apartments resulted in most of the white residents leaving en masse, along with those black residents who could afford single-family dwellings elsewhere. The only tenants lef t were those who literally could not afford to go any where else
Pruitt-Igoe’s fall from grace began almost immediately. There was little money to keep up the 33 towers, and they subsequently fell into disrepair
The combination of unfortunate design choices, deepseated racism, and poorlystructure housing policy could be said to be the reasoning for the twent y year
Housing types Strategy: Industrial Lifespan: 1954 - Demolished in 1972
Architect: Minoru Yamasaki Place: Saint Louis, US
The reasons for the decline were manifold, far too complex to deal with in full here, but at a simple level, St. Louis was a declining city well before residents moved into Pruitt-Igoe. The majorit y of residents came from the Afro-American communit y and were disproportionately affected by the cit y ’s rising unemployment. Unemployed residents could not pay rent and therefore rental income reduced. At the same time, the St. Louis Housing Authority had, for ideological reasons, decided that the entire maintenance programme was to be funded by rental income alone. This combination of events ensured there was little or no money available for essential maintenance work. The infrastructure deteriorated and in a spiral of decline, crime rose, vandalism increased, leading to greater deterioration of the fabric: a true vicious circle
At its peak occupancy in 1957, 9% of the complex remained vacant; by 1960,
skyrocketed to 65% by 1970. With the apartments occupied almost exclusively by a dwindling number of low-income residents, a number of whom subsisted on welfare.
Charles Jenks, architectural critic, stated that the modern movement in architecture died at exactly the hour when the public housing complex was demolished: July 15, 1972, 3, 32 P.M. “Boom, boom, boom”
Fictive perspective based on the sto ries told by former tenants
The vandalism that led the housing authorit y to install a bunch of unbreakable designs in the tower...Instead of tr ying to enhance their exsistance, we’ll just make things so they can’t be destroyed Ever y thing had to be protected, light around them with mesh metall, protecting
a great deal about this. They even had their PR department brought out to witness the new installation
Shared outside spaces and interior corridors
haviour of a stigmitazied place
The urban p oor
Several outdoors activities and gathering spots
The only human reaction to be presented with an unbreakable object is to tr y and break it.
The fact it was unbreakable made you want to tr y and destroy things. There was a screen around the lightbulb that kept you from breaking it. But you know, kids
We just put water in it, throw it up, and the light would get hot and as it gets hotter it
Site plan and connections to buildings, only 40 % of the planned lighting was maintained
4. Tenant family overlooking the complex
The apartments were deliberately small, with undersized kitchen appliances. “Skip-stop” elevators stopped only at
an attempt to lessen congestion. The with large communal corri- dors, laundr y rooms, communal rooms and garbage chutes. Pruitt–Igoe was initially seen as a break through in urban renewal. Residents considered it to be “an oasis in the desert” compared to the extremely poor qualit y of housing they had occupied previously, and considered it to be safe. Some referred to the apartments as “poor man ’ s penthouses
Residents cite a lack of maintenance almost from the ver y beginning, including the regular breakdown of elevators, as being a primar y cause of the deterioration of the project. Local authorities cited a lack of funding to pay for the work force necessar y for proper upkeep of the buildings. In addition, ventilation was poor, and centralized air conditioning nonexistent. The stairwells and corridors attracted muggers. The project’s parking and recreation facilities were inadequate; playgrounds were added only af ter tenants petitioned for their installation
Mainly concrete
Slab structure 1949 Multistory-houses. 33 11-story apartment buildings consisting of 2,870 apartments
1 Structure
Average load bearing columns in concrete Normal stair system
2 Interior support spaces
3 Circulation
Line of circulation Means of going up or down One way in - one way out
4 Layers of building system
Standard puncture windows Pods divided by insulation and concrete walls
5 Collective space (section)
Degree of public (intense yellow) to collective (bleak yellow) spaces
1 2
in
Stellan Gulde
The house was built as a residence “ from the cradle to the grave” with larger family apartments higher up, small youth
restaurant, pharmacy and laundr y on be studios, a restaurant and a garage with a petrol station in the basement. At the time, there was a severe housing shortage in Stockholm and a youth hotel with many small apartments would solve the housing issue for young people who moved to Stockholm af ter the Second World War. There were 115 available beds for the adolescents. The intention from
from all socioeconomic stages of life could live in Duggregnet 5. A small village in minature for 400 people
Housing types Strategy: Industrial Lifespan: 1957 - today Architect: Georg Varhelyi Place: Björkhagen, Stockholm
preschool and infant ward as the parental insurance was not invented at the time. If you needed to repair yourself, there were doctors and dentists in the house next door. As a crown jewel, a funeral home was also planned. A house for all needs. Built in durable and reinforced concrete
Strongly resembling Le Corbusier ’ s famous Unite d’Habitation projects, the building was designed for a highly diverse program and with extraordinar y apartments, comprising up to four stories. For the interior design, the architect
upper parts of the house, which resulted in apartment entrances from corridors
A majorit y of these apartments are vertically zigzagged around central corridors. It provided large apartments
windows in two directions that let in a lot of light. Some rooms had double ceilings and tall windows. According to Varhelyi,
what he succeeded best with
All facades are different. To the west, it is the windows that stand out. To the east, the balconies dominate the perspective with like small birdhouses. To the north you understand that it is a staircase inside the small concrete glass windows and on the south side you can see how the corridors appear behind recessed balconies. In this way, the architect wanted the house’s functions to be visible on the facade. Big but at least honest.
previously youth appartments, are genomgångslägenheter or passager apartments. These are destined for new arrivals, which, according to the Settlement Act from 1 March 2016, all municipalities in Sweden are obliged to receive and arrange temporal housing for. This is administrated by the Swedish Migration Board.
Community
Family
Individuality
Community
– In 1957, the highrise building that Georg designed was compleated. It breathed modernism in a way that no other building could measure up to. Was
– Yes, he probably thought it was hisY masterpiece, the house in Björkhagen. There he combines what he think is most important: the social qualities, the light, the form...There are sections there he was really happy with the result, where the sun shines through the whole thick house. He would have liked to move there
with his family, but his wife did not think it would be appropriate to live there with children.
generations under one roof, creating that one house to stay in for a lifetime
Inhabitants of New Sweden
Neccessary facilities downstairs
... But a week earlier, I had been assigned a student room.
– Björkhagens Residential Hotel...It does not sound so fantastic. But how bad can it be?
– Ouch...
The room was furnished, but it felt more like a prison cell ...
– Well, at least I can smoke indoors without feeling ashamed. And it probably feels better as soon school starts ...
3. Comic stripBetween 2001 and 2004 the programe changed, what former was the youth hostel and hotel rooms became
- 8th. This also included a renovation of the canopy and balconies.
As I visited the building and transcended upwards in the stairwell hall I reached the point were the former youth hostel ceased and was faced with a gate. Prior equipped with survailence cameras.
Svenska Bostäder - a municipal housing company fully owned by Stockholm Municipality
view, possible to take part in from the as you would think, but instead rather exclusive.
This started an investigation of how the building changed over time, both ideologically and in term of maintencene
Svenska Bostäder, land lease
Multistory housing. 108 apartments. 20x one roomers
47x 3 rooms and a kitchen 40 % of total are rental appartments today.
Building
1 Interior walls
bones. A spine of a load bearing 500mm wall that seemingly goes through all the way down supports the pre casted concrete panelwalls distributing the loads sideways
2 Structure Rational structure system with a variation in zig zag slabs.
3 Exterior walls All facades have different outlooks, in order to highlight the function behind them - a sign of honesty.
4 Windows enables daylight to shine through appartments from two sides
Landscape
A Centrum Georg Varhelyi not only designed this building, but also the centrum around it trying to create a holistic sense.
B Statue and allotment gardens
In front of the house stands The fountain of Björkhagen, a sculpture and fountain created by Email Näsvall in 1963, showing working people in different professions and stages of the day. Ini tially the tenants were intended to get access to allotment gardens in connection to the building
In connection to the house lays the citizens house, meant to provide an open and protected space for cultural and political activities for all citizens of Björkhagen and surroundings. This particular space changed its function in 2002 from a public meeting room into a restaurant and independent school programme for primary and middle school use
Exploaded axonometric view of Duggregnet 5
Axonometric view of type etage apart ment
Erik Friberger was an architect in the functionalist and structuralist movement, and this project is a protot ype where he wanted to show how to construct prefabricated and inexpensive housing, in a tenant- governed process. The question of how to utilise prefabricated systems was important at this time in Sweden, as a potential way to solve the housing crisis in the early 20th centur y
The main idea with the tenant- governed design process was to let people plan a house of a size within their budget, on a designated lot on the multi-storey t ypology which meant a lower cost per unit. The given lot, constrained by the concrete structure, would still be to their disposal for future additions. This would give the working class the same
disturbance from neighbours and a better ventilation in comparison to standard apar tments.
The building is a system of 18 freestanding single-family units evenly placed on a three-storey concrete structure. The units and the structure
Community Strategy: Haven strategy
Lifespan: 1960 - today
Architect: Erik Friberger Place: Kallebäck, Gothenburg
are clearly separated and with different
supported by a system of columns and cantilevered beams, with a span of 10 meters between the columns. Because of this structure, it was only possible to extend the housing units to the columns and not to the edge of the cantilevered
plan as it created almost two meter wide balconies all around the units on each
these balconies was never realised due to structural limitations
staircases, which means six units are reached by each stair. Installations originates next to the stairs which made it necessar y to place kitchens and WC close to the stairs inside of the units. The tenant- governed process led to a large variation in colour and window placement in the housing units, but all ended up about the same size, about 120sqm each, and because of the dense building this led to, the project was partly seen as a failure by Friberger himself.
This includes three exterior staircases, garage, long -term storage for each unit, bike and stroller room, central heating room, laundr y, association assembly room and other utilit y rooms
All the rooms except the assembly room are without insulation, and the amount of daylight in these rooms is ver y low. It is
is to help the tenants to get to and from their unit, and the front of the building is dominated by carports and parking lots
The two shadowed perspectives, both taken on a summer day at noon from opposite sides of one of the shared entrances, show the most frequently used space in the building. These communication areas can be described as spaces solely for circulation, and together with the rest of the buildings
as the laundr y, the parking garage and a green slope southeast of the building, it is merely a byproduct of the main concept of privacy for each family
The space, with its low ceiling height in relation to its length, together with the way little daylight gets into the space, makes it quite uninviting and therefore less attractive as a space for any thing more than circulation. The fact that this space is without climate barriers and doors complicates the privacy aspect, as it makes the space reasonably accessible
the other hand this is also making it more anonymous and thereby less attractive as a collective space for the tenants
Another interesting aspect is the hierarchy between the ceiling height of
as this is shown to be reversed from the standard, with a lower ceiling height on
or a cellar, and not of an entrance. The conclusion is that this is a building where the tenants share certain amenities, but in no way are encouraged to maintain a communit y in the social sense.
haven strategy because of the total independence of each unit. The large housing units, with a great view of central Gothenburg, have good chances of hosting the more formal meetings ver y much associated with the haven strategy. The large private balconies take focus from a potential collective garden, and each of the three staircases are used by just a few households. The few necessar y semi-public spaces are not enabling chance encounters between neighbours, and the lack of a climate
shell around these shared spaces do not encourage such activities in the cold climate of Gothenburg. Even though efforts seems to have been made to brighten up the shared spaces, such as light coloured paving materials and white walls, it still fails in being a good place to meet your neighbours. Lastly, while the most economical and rational energy preservation method is a shared climate shell, the concept of the project leads to the opposite, which means the driving force for this project is shown to be freedom and individualit y.
58 PR OT OTYPE S O F CO -AR C HITE C T U RE Housing types Strategy: Neighbourhood Lifespan: 1971- today Architect: H.W.M. Janssen Place: Utrecht
Completed in 1971 in Utrecht, planned and realized by architect H.W.M. Janssen and funded by the Cit y of Utrecht Administration via the Department of Building and Housing Services (Schmid), Overrecht Noord consists of 10 four- and seven-storey buildings based on the same plan.
On each storey four three- and four
the current standard of nuclear family
communal space connecting them to a staircase, supposed to be managed and inhabited by the residents themselves in a way which best suits their needs, serving as a threshold between family and communit y. A number of different
Individualityunbound
uses for the spaces were found by the residents, such as common living areas, cafes and workshops - some of them focused mainly on the families
while others were concerned with the a cloackroom with a tolilet served as a threshold space between the communal area and private spaces
When the building was built this approach to shared spaces, governed by the was a novelt y. As the cit y administration expressed a concern regardnig interest
a public campaign and informational events were conducted (Schmid)
Familysupported
Communityconcentrated
Societynovelty
Societyrestrained Familyunsupported
Individualitysocial control
Communitydispearsed
Housing types/Community Strategy: Neighborhood strategy Lifespan: 1977 - today Architect: Place: Hilversum, Netherlands
The idea behind Centraal Wonen Hilversumse Meent aka. Wandelmeent dates from the 1970. The project, which comprises 50 houses and
the governement-subsidized rented housing sector. In 1977 133 people moved in. Each household rents a house with private facilities (kitchen, bathroom) and the use of common facilities. The houses var y in size from 41-107 m2. There are communal areas at two levels: the cluster and the group. There are ten clusters and almost all houses (44) belong to a cluster. A cluster is an intentionally created social and spatial unit. Each cluster consists
houses, a common dining room and kitchen, terrace, washing machines, and a garden. This means that socially a
households, about 10-12 people. The composition of clusters is the result ofthe result of a careful process of acquaaintance and choice/selection.
“Outsiders often think it’s a borderless party here, but if I do not want contact, I close the door behind me. We have our privacy here, just like everyone else.
Each front door can be locked ”
/ Margriet Jobse
https://www.trouw.nl/nieuws/elke-voordeur-kan-gewoon-op-slot~b8b6ba0f/
T he foundatio n
The Centraal Wonen Foundation was created from a private initiative to develop a living communit y. This movement was ideologically motivated. They wanted to live in groups
People no longer wanted to isolate themselves in the fortress of their own home or withdraw from social inequalit y Architect De Jonge offered to make the design on a “no cure, no pay ” basis. This district was developed in the early 1970s on the former communal pastures of Hilversum, as an enclave next to Bussum.
Fifty houses is just the right scale.
With more houses, it becomes too anonymous, with less you are too de pendent on each other.”
/ Margriet Jobse
https://www.trouw.nl/nieuws/elke-voordeur-kan-gewoon-op-slot~b8b6ba0f/
Tina FrancDispersed - Each cluster of 4–5 units shares a garden, kitchen/dining/living room and a laundry room. The whole community shares a common house, li brary, sauna, workshop, gym, guestrooms, youth centre and garden.
private houses 41-107 m2 common dining room and kitchen 33 m2 social activitiy/meeting house 95 m2 day care 41 m2 youth club 41 m2 hobby building 21 m2 pottery 6 m2 repairs, guest room and sauna 30 m2
In Wandelmeent you always choose your neighbors. If a house becomes available, people within the cluster can register for
only then someone from the so-called candidate list from outside. It’s different from a waiting list. The cluster
which candidate best meets it. Some
newspaper.
50 homes plus common areas
133 people moved in 1977: one and two-parent families couples and singles 38 men 41 women 54 children
Eating together Design
Having dinner in the shared kitchen varies week. Every dwelling also have their own fully equipped kitchen
The development was co-designed by ar chitects and future residents, which allowed for a level of cus tomisation of the dwellings and created a diversity of sizes and internal layouts.
Since the project is located at the intersec tion between two walkways, the local res idents will cross the project, on their way to, for example, the bus stop or the shop ping center across the street. In this way, they can get in touch with the inhabitants of Wandelmeent
Every weekday morning at ten o’clock there is coffee in the meeting room, an nounced by a resident who walks on the street with a bell. There is always coffee at half past six on Wednesday, Friday and Saturday nights. Everyone is responsible for the coffee every ten weeks and ac cording to a rolling schedule, you are also responsible for keeping the common ar eas clean
The houses are characterized by an arc shaped roof made of precast concrete elements.The woodfacade above the masonr y is stained bright red. The doors and windows with 15 cm wide window wood all around are brightly colored, yellow, orange, blue, green, red. All kinds of details have been developed with residents.
Pieter Weeda, the architect who designed the complex in consultation with the future residents, was ver y clear. All facades and window frames must be red. His idea was approved and the wooden facades were painted in the color Wandelmeent Red.
Ever yone could choose the color of the windows in their own house from blue, yellow, green or orange. The cluster had to decide the color of the windows in the common kitchen. All the doors to the clusters were painted red. Pieter reserved blue for the doors of the common buildings to separate the appearance from the clusters.
Since the project were codesigned by the architect and the future residents it led to a great diversit y in the layout of the plans as well.
The interior walls were delivered untreated and could be wallpapered or painted as desired.
1 Roof
prrecast concrete. Copper on top.
2 Interior Thhe project were code signed by the architect and thhe future residents and that led to a great diversity in the layout of the plans.
3 Structure Cooncrete
4 Exterior walls Bricks and wood
5 Windows
15 cm wide window frame in bright colours
Co-Housing: a brief Introduction relation to conventional housing. The be collective, communal, collaborative or co operation (Vestbro), but implies that this type of housing offers more of these as pects than ordinary housing. In this publi cation, we will explore what has constitut ed cohousing through history by studying some examples from different eras With the book ”Living together” edited by Dick Urban Vestbro as a starting point, we have examined ten prototypes that inter pret cohousing differently. Vestbro sug gests a model to describe different types of cohousing, originally proposed by Do lores Hayden. The model consists of three different categories, which are:
However, the concepts are not perfectly distinctive, some of the prototypes have features from all three categories. But they have been a tool to distinguish their
These prototypes have often started as a reaction to contemporary society and consequently tell us about the develop
ment of cohousing through histor y. From the ideas of utopian communities as a reaction to the industrial revolution, and the rational servicehouses that enabled women to work, to the birth of the envi ronmental movement that combined col laboration and community with ecological ideals. These new ideas about living and dwelling have pushed society forward by challenging its conventions. The outcome of the prototypes that we have examined
since the beginning, some never got fur ther than paper architecture and some lasted for a limited time. Therefore, the prototypes do not only tell us about their contemporary society, but also about its development. For each prototype, we will discuss what made them successful or not, the reasons behind it, and what this tells us about society. We will also look at the architecture that enabled or hindered their development. What do the organi zation of buildings or rooms, the materi als and the construction tell us about the ideas of cohousing?
End of the industrial revolution
Shakers OneidaMonasteries
Robert Owen Charles Fourier
World War IThe first car
Kibbutzim
The gr
70 CO N C EPT S O F CO -AR C HITE C T U RE Collective housing (C
Godins familistère
T. Jeffeson’s Student housing
Apartment hotels (USA) Central kitchenCollec F
18001820184018601880190019101920
World War II
reat depressionFall of the Berlin wallApollo 11
Smaller Communes
The Sea Ranch
CCP)
Cohousing communities
Eco- Villages
Oneida
Shakers
Kibbutz Understenshöjden Bofaelleskab (DK)
Self-work model 2nd half of life m.
ctive housing (SE)
Family hotels
Service housing (elderly)
19301940195019601970198019902000
The Sea Ranch
Ytterjärna Seminar
Kensal House Hässelby familjehotell
Ideal life Ecological or other goals
The idea life movement within collective housing encompasses different types of communal living which all feature very
these different communities share. The central aspect about the ideal life mou vement is the focus of each community, on creating an environment to facilitate
by each group. In this way they all share the pursuit of different ideals, or common goals, than the rest of society surrounding them.
This leads to a common rejection of the social norms that were in costum at the time. Partly through having these distinct ideals, the communities are often forced to isolate themselves from the society they are surrounded with and create their very own, fully functioning community We traced back the ideal life movement within collective housing and found its
one being, also being the oldest, would be the religious one, leading us back to mon asteries and later to Thomas More. The other stream is a secular, utopian social ist movement with its starting point going back to thinkers like Charles Fourier, Rob
of course overlaps with the ideal of a ratio nal society
Examples that qualify themselves as “Ideal Life” communities can be found throughout histor y, although the concen tration of communities, present in the western part of the world, showed a de cline since through the 20th centur y to
this day. Therefore we have chosen three examples active in the 18th, 19th and 20th century respectively. We try to give a fair example of how an ideal life community can look like. The chosen examples dif fer on some important points but also
the section of ideal life mouvement is that indeed the prototypes chosen belong all to a larger mouvement which had differ ent communities. Therefore we always confront in one part the movement as a
are the Shakers, active between 1747 until ~1900, The Oneida, active between 1840 until 1880, and the Kibbutz which was founded around 1905 and still active to this day
the religious and the secular part of the ideal life mouvement we had to recognise that the pursuit of an ideal life through a community almost always goes hand in hand with spiritual thoughts and beliefs. Moving towards the more secular part of the ideal life we noticed a crossover, a transition with the Rational Society as well as the Ecological Movement
Rational societ y regarding collective housing in architecture is an orientation concerned with technology to make the household more effective. Throughout histor y, it persuades a modern way of living in line with the political conditions at that time. Early examples of collaborative
product.
The orientation aimed to improve the standard for the large population concerned dwelling standards, leisure time and working conditions. The residents were not necessarily involved in the design process of the cohousing, they were rather seen as the users. Utopian ideals are the foundation of a rational societ y. The book Utopia written by Thomas More, challenging existing societal ideas in the 1500s, gave birth to what would later develop to collective housing. His vision deals with people coming together contributing to an
people so that they would have equal living conditions. And later also developed to the idea of production in connection with facilities.
During the 1930’s the question about the situation for women was raised. The domestic work was a restraint for women
to get a professional career. Through a collective organization of domestic work women should be able to prioritise their career. A new t ype of collective housing was introduced that consisted of individual apartments with some shared facilities and spaces. There was of ten a large supply of services in the building, such as kindergarten, shops, a manned laundry room and a restaurant ( Vestbro 1968)
The collective housings that are created within the ideas of a rational societ y of ten share common architectural elements. The projects we have studied within this theme share the idea of an indoor connection between the apartments and the most important facilities in the building. In some of the projects these connections were corridors that connected the different building volumes with each other. Another common denominator is the court yards, the intention was to create a large room for gatherings and a safe space for the children to play. All the projects also share the architectural idea of a composition of different volumes. Even though the expression of the buildings is rational the different volumes within the same block consists of different building heights, geometries, and sizes
Construction
Repetitions
Standardized measurements
Minimalism Separation of functions Symmetrical Clear facades
Feminism
Form Socialism
Efficiency Standardization
Collective organization of the household Enable women to focus on their career
Improved living conditions
Health
Light Ventilation
75 Shared spaces
Common kitchen Shared facilities Indoor connections Courtyard Balconies
Activities
Green structure Hässelby Familjehotell Kensal House
Workshop Gymnastics Committee
The term ecology is described as the study of the relationship between living beings and their environment. It is a relatively new branch of biology and has inspired the more ideological term “ecological”. The ecological approach to cohousing focuses on creating sustainable communities with low impact on the natural environment. Most ecological communities have been a reaction against contemporar y societ y and sought to provide an alternative way of living
Vestbro(årtal) does not consider these communities cohousing. According to
phenomena because the incentive is not primarily collective. The common goal is generally more important than the social communit y, but the shared facilities and resources are used as means to reach sustainabilit y. It is perceived as a goal that can only be achieved by coming together as a communit y. However, many communities include both social and economic sustainabilit y as well as
environmental. Although Vestbro does cohousing aspects in these protot ypes
The three prototypes listed have interpreted the term ecological differently. However, they possess some similarities. They all contain an interesting balance between conservatism and progressiveness. On one hand, they are inherently skeptical about modernit y, consumerism and exploitation of resources. On the other hand, these communities of ten offer ver y progressive ways of solving these issues. The technical and organizational solutions are of ten radical compared to overall societ y, whether they are high tech or low tech
All three protot ypes have strong ideas about form, design and scale. They are interested in how buildings affect the mental wellbeing, which is also considered part of the ecological ideology. Materials, in what they are tr ying to achieve.
Low carbon emission and ”non-toxic” Local material Coherent appearence Unconventional Low -tech High tech Traditional / local building techniques
Regulated / curated Random by demand Minimal impact Optimization Terrain adaptation
Waste water treatment Reuse / recycle Agriculture Land maintenance
Physical and mental health
Common activities
Shared spaces Sea Ranch Understenshöjden Waldorf seminar
Emission free/organic material Color palette Access to nature Light
Physical activities Communal facilities Gardens / outdoor spaces Shared private spaces Sports Cooking / eating Gardening
ConstructuonThe Shakers or initially the Shaking Quakers got their name from their ecstatic and euphoric dances during their worship services. The movement
leader Ann Lee who joined the small communit y in 1758. The Shakers saw in her the second coming of Jesus Christ, in a female form and therefore also called her Mother Ann. She believed that sex was Adam’s and Eve’s sin and ther fore an act of impurit y. For this reason the Shakers lived a life in celibacy and man and woman were neither allowed to cross each other on the stairs nor to have any t ype of physical contact like giving each other a hand. The renunciation of
aspect of their beliefs and their daily life. Hence the buildings had two different entrances and two different stairs. One for men and the other one for the woman. However the worship services were ecstatic and combined with what many outsiders didn’t understand and therefore were mocked for. (Frederick W. Evans)
The Shakers became famous for their skilled craf tsmanship. They also
Collective-housing Concept: Ideal life Lifespan: 1806-1910
Architect: Micajah Burnett Place: Pleasant Hill, Kentucky
expressed their faith in adherence to Calvinist economic principles: Hands to work and Hearts to God (Rufus Bishop, Seth Y Wells). As competent carpenters following the beliefs of Mother Ann Lee, not to do any thing that is not useful, they created minimalist furniture that became well known. The most famous Shaker rocking chair was in the White House. In Goessmann)
Af ter having had a peak of 491 members in 1932 the population at Pleasant Hill began to shrink . 1910 only twelve members were lef t. They dicided to sell the buildings and the land since they couldn’t take care of the huge propert y anymore. What started as succesfull project came to an end. Since they lived in celibacy and procreation was forbidden the only new members the societ y would get were through the conversion of adults or through the adoption of children. The Shakers would taken in foundlings, orphans or homeless which converted, formed the next generation of Shakers. Once they reached theirs full age members were free to choose to stay within the communit y or to leave it. Many couldn’t imagine a life in celibacy and therefore lef t the communit y. Due to the abandonment of young members and the spread of state orphan welfare, the communities lost a large part of their potential offspring. Over time the lack of new members brought them to a decline and they main problem seems to be the celibacy. But would they have succeded living together in they communit y without celibacy and would their children have agreed living such a religious live? What would the Shaker be without celibacy ?
(Beth Mueller)The 3rd familly dwelling is a threebay, two-and-a-half stor y limestone building using wooden elements for the horizontal structure. The center faily dwelling manifests a shif t within the Shaker communit y reinforcing Pleasant Hill as center for the Shakers in Kentuck y while dissociating from the governor body of the Shakers in New Lebanon, New York which was the center for the Shakers on America. This changes show the importance of a strong or weak leadership in a communal societ y
architectural st yle of communit y a hole (Dolores Hayden)
The Shaker themself
Linestone and Wood
Timber frame construction
The Shaker community
three-bay, two-and-a-half story
The Shaker but aspecially their master builder Micajah Burnett inspired himself using builders handbock that were common at the time around Lexington were he would occasionally travel to. These handbooks and the expirience he gained from the different commercial trips he made to Lexington had a big
impact on the architecture of the Center Family house. The center family house shows a couple of particularities which is unusal for the Shakers. The balustrade on the roof which is a decorative element and ther fore ver y unsual for the Shakers since they would avoid any t ype of unuseful decoration. The lanterns on the roof which represent a type of cuppola. Most lickely an inpiration from the Principal Building of Transylvania Universit y, Lexington, Kentuck y. The free standing and engagig Tuscan columns in the dinning hal. (Mary Rae Chemotti)
these details underline the detachement of the Pleasant Hill Shakers from the central colony in New Lebanon.
“The classical columns in the dining hall of the Centre Family House and the Palladian- derived elements at Pleasant Chemotti)
Drawing of the dining hall with the colums supporti
The family dwelling with the dining roon in the cent
ing the the beam ter
5. Floor plan of the Shaker houseThe family dwelling of the Shakeres is devided into two different parts. The easter side was reserved for the woman while the westen part was reserved fo men. The central corridors and rooms where used for both sexes. A remakable aspect of the house is the two staircases situated just af ter the entrance. Having the Shaker brothers using the staircase on the right side of the building while entering it and the shaker sisters the lef t one, one could prevent unpleasant incounters at the staircase which was important to the communit y since all members lived in celibacy. This dualit y paired with this clear symetrie of the building which also considers the stairs as different doors makes it’s architecture unique ans works as an charactiristic proper to the Shakers. The central part of the building works as communal space for woman as for man. Of course ever ybody will still stay on his side. The dinning hall an the center of the building with the two Tuscan columns gives the room a, for the Shaker unfamiliar, important element.
All spaces were collective
Worshiping god through work and celibacy
Everybody ready to follow their beliefes
Handicraft and agricultural work
for meetings and for worship ceremonies. It’s a central element of the house and of the communit y. In the back side of the
roo and different workshop room. Work playing such an important element in their life, aspecially in relatioship to their belive the workshop rooms are in the central part of the house. Most of them in the northern part of the house. Members of the shaker family would sleep together in different sleeping rooms all situated to the southern side of the house and therefore wouldn’t have any t ype of privacy. (Mary Rae Chemotti)
Living in the Shaker communit y would also means to live in the Shaker family Ther fore they had no indivudal privacy but however a more communal privacy from the people outisde of the communit y The communit y lived quite isolated and had ver y little contanct to others people outside off their communit y. The main builder of the shakers Micajah Burnett was one of few shakers who we know about travelled a few times to Lexington for economical reasons. He also had acces to builders manuals and books about architecture which show us how the came to their knowledge. (Mary Rae Chemotti)
6. A sleeping room of the Shakers in their main buildingCollective-housing Concept: Ideal life Lifespan: 1840-1879
Architect: Erastus Hamilton among others
Founder: Erastus Hamilton among others
Place: Oneida, New York, USA
The Oneida communit y was a, so called, bible-communist communit y founded by John Humphrey Noyes, based on ideals from both religion and communism active between ca. 1840 and 1880. Their ideological base was in stark contrast to that of the similiar utopian communit y of the Shakers, where strong celibacy was practiced, and separation of the genders was a core part of the communit y The basis of the Oneida ideal on the other hand was something they called ”complex marriages” where ever y man was married to ever y woman in the communit y and ever y woman to ever y man
The Oneida held, at the beginning, a strong belief in the effect of communal
early architecture, where the common areas are the most central, easily accesible, and largest in general. The private areas in relation, are smaller, and not as important, which can be noticed by the structure of the initial so called
The tent room is a sitting room, intended for collective activities in the household, surrounded with bedrooms on the sides partioned only by curtains, hung on wires, which could be pushed back to enlargen the communal area. This shows ver y much the high priorit y of the communal spaces, in relation to the private ones, in the early days of the Oneida architecture. If you on the other hand look further to the addition of the new Oneida mansion, built in 1861 one can see how the big sitting room, which in this proposal is called ”the hall” has moved from being adjacent, and in direct connection to, the bedrooms, to being a distinct part of the house on it’s own. The Oneidans though, realising this shif t from a smaller to a bigger meeting room, created smaller sitting rooms in direct connection to the bedrooms, presumably to better facilitate human interaction, realising what key feutures made the old mansion great. Lastly, looking at the 1878 proposal, one can notice that the most emphasized addition is that of many bedrooms, to house new members
A very big emphasis on the collective rather than private spaces
Living life according to their own religious princi ples, i.e. The idea of complex marriage
Livelihood for themselves
Agricultural/industrial communal labour
This makes sense, since the Oneida communit y, ever since it’s creation, had grown substantially, and the old house
members. One notices though that in this plan, the idea of the sitting room, in connection to the private bedrooms is completely gone. The public spaces are wierdly separate from the bedrooms in this drawing, where almost all efforts seems to have been made to create more private areas. What is the end was built, of the new addition, emphasizes this even further with the complete removal of the public spaces. One could guess this is either indicative of a change in direction, or leadership, but it could also be a sign of the communit y members loosing faith in the communit y ideology, and designing in relation to that. It might
Oneida communit y since The Oneida communit y disintegrated soon af ter constructing the last addition to the new mansion in 1879. This could however be due to external factors of course, such as communit y backlash, which was heav y, during the years the Oneida were active
Wood, brick and shingles
First mansion: Wooden frame construction Second mansion: load bearing brick construction
Large, multistory, multifamily home
The Oneida communit y built mainly 2 communal houses during the time they
was built to house around 50 members of the communit y, and was a framed wood construction. The second house
made to house around 200 members of the communit y instead. The second mansion was also constructed out of brick , instead of wood. Since I believe
ideology that the Oneidas represent, that is the the one i have chosen to depict to the right
As one can see from the diagram, the Oneidas were ver y good at keeping a lot of functions inside one main building. In addition to this building the Onenidas also had a few minor buildings, in close proximity, that served singular functions, such as the childrens house
This diagram also showcases the proportion of private and public spaces, that was mentioned earlier, as the only solely private rooms in the entire building
which of there are only 3
A Kibutz is a t ype of jewish communal and also communistic, agricultural communit y, emminating from Palestine around year 1910. Still present in todays Israel, the Kibutz’ have played a large role in Israels modern histor y, and are still ver y relevant today. Life in a traditional Kibutz was a ver y strict form of communal living, although unlike similiar t ypes of communal living historically, not ver y religious. It was although based on certain ideological concepts that its inhabitants had to adhere to ver y strictly
The most important one of these concepts was a complete equalit y that
1910-today
Arieh Sharon, among others
Co-living
Ideal Life
encapsulated both an economic equality - the inhabitants were all asked to work the their maximum ability, and received a ”sallar y ” only based upon what his or her household needed, not the work that was achieved - but also an equality of the sexes. Woman were encouraged to work in other areas than domestic duties and child care, even agricultural work and in the industrial sector. To better liberate woman from the duties of child care ”children houses” were created in the Kibutz, where children would spend the majorit y of the day. This structuring of day care for children, and equality for women is ver y similiar to The Oneidas, where equalit y between sexes was also heavily emphasised
Israel/PalestineThe general life in a Kibutz in early 20th
where the needs of the many far outweighed the needs of the few. The members were asked to completely give up the sense of private propert y, even the right to private housing - one could suddenly get asked to house another member, in the already ver y small chambers given to oneself, without any say in the matter. Thus, the members were encouraged not to keep private propert y, as to make this process, for example, much simpler ( This extreme emphasis on communal living has subsided from the Kibutz’ of today.)
This ver y communal way of living, is
where the abolishment of private propert y can be seen by observing that the private chambers are ver y, ver y small, having seeminly only the goal to house sleeping members
If one zooms out, and looks at the planning of whole villages, the communal aspect of the village lifest yle Is also ver y much noticeable, seeing
as the housing units are all lined up around the communal areas in the center. The ver y physical core of the village represents the core in the ideology as well - the commune. Over time the private spaces evolved, from ver y simple and completely lacking any kind of features for comfortable living in the begining, to being able to accommodate more and more commodities, such as toilets, showers etc, when different functions were moved from public to private spaces This shif t to moving functions to the private sphere from the public one, is identical to the one that can be seen in the Oneida communit y, where the emphasis on the private bedroom grew over time. Today, the still active Kibutzes are not at all as communal, and communistic as they were in the early to mid 20th centur y. This gradual
they create the public and private spaces, as can be seen from the examples. Just by looking at the plans, you can analyse and maybe even predict the state of the communit y and its inhabitants, through different stages in the Kibutz histor y.
Most of the houses built in the early Kibutz´ were built by the same people living in the Kibutz. They did most of the work themselves in general, and this extended to house construction
Partly because of this, the majorit y of houses does not var y ver y much in design. The buildings consist mostly of load bearing brick walls, with wooden beams, and wooden truss roofs. Some of the buildings were also clad in stuco
The design was ver y minimalistic and functionalistic
The general layout of a Kibutz consists of the communal spaces being centered in the middle of the ”town” and the dwellings spread around it
C onstruction:
Load bearing brick walls with wooden truss roof
Builders:
The inhabitants of the Kibutz Material:
Locally sourced stone, wood, bricks Ty polog y :
Simple one stor y, single room dwellings with larger communal spaces
Since they were separate from other built environments, they of ten had a lot of freedom in where they could place the buildings, which is why there is numerous ver y detailed plans depicting different Kibutz layouts, they designed it how the wished. The early Kibutz dwellings were ver y simple, as mentioned previously, and their main purpose was just to house sleeping members of the Kibutz, not to really serve as a ”home”
This can be seen in the image to the right, when observing how ver y packed certain early dwellings were planned, in relation to the amount of beds available
There was hardly room for any thing else in the form of personal belongings
Varying modules
Varying constellations of modules
Frame structure
Change of modules over time (structure)
City within a city
Programmed "In-Between Spaces"
Unprogrammed "In-Between Spaces"
Connection to Outdoor Spaces
Change of Modules over time (program)
Individual within cell
Module for communal space
Architect cites vernacular architecture
Co- housing & Structuralism
Concept: Rational society & Part and Whole/Individual in Community Lifespan: 1954 - today
Architect: Carl Axel Acking Place: Hässelby gård, Stockholm
During the 30s the issue of gender equalit y was raised and discussed. Reforms were developed to improve the situation for women, it was a structural issue that women took the largest responsibilit y for domestic work in the households. One solution to enable women to be gainfully employed was through a collective organization of domestic work. A new t ype of living was induced, a collective living with service such as kindergarten, restaurant, cleaning and laundr y Hässelby Familjehotell is an example of such a building ( Vestbro 1968).
The building complex consists of four high rise buildings and ten low
rise buildings that surrounds four gardens. The association contains 320 apartments in total. The focus during the process was to make it suitable for people in different ages, work situations and household constellations. Therefor
contain apartments in different sizes. The idea was that the residents should be able to move within the house depending on their life situation. The buildings are connected by corridors to enable an indoor movement within the building complex. To encourage the tenants to hang out in the corridors they were from the beginning furnished with benches and plants (Blomberg 1985)
complex lacked a kindergarten. It was shown that Nockebyhov Familjehotell that was constructed before Hässelby Familjehotell got a narrow age range without a kindergarten, therefore, it was added to Hässelby Familjehotell. The corridor system was also added in the late process. The architect was unsure if the corridors would be necessar y, but the constructor stressed that they were important to encourage people to use the services. Since the corridors were drawn af ter the other building volumes the form of them became a result of how the other buildings looked like (Blomberg 1985)
A. Apartments
B. Apartments and service
C. Garage
D. The dining area
E. Gymnastics hall
F. Kinder garte n
The building complex was designed in the style of functionalism. It was a large focus on the rationalization of space and program. The complex was designed to contribute to a larger variation of aes thetics in the area. The lower buildings were constructed with vaulted ceilings to give the complex a more dynamic expression. It was also constructed with a large variation of different building materials such as concrete and brick
The loadbearing elements in the building are the parallel brick walls, the concrete pillars and the concrete beams.
stone.
Olle EngkvistApartments of different sizes
Axonometric drawing of the corridor
The large window parts create a connec tion with the outdoor context such as the courtyards. The window frames are constructed of wood and have a repeti tive pattern.
The corridors are partly narrow and par t ly wider; the larger parts are intended for social gatherings
The interior is varied and consists of dif ferent material such as wood, concrete, and brick. Some of the parts in concrete are painted white. The corridors are furnished with tilted benches placed over the elements. The benches are con structed in wood.
The corridor system and the dining area
A rational and collective organization of the lifestyle
People with intrerests of collective services
Activities in the common gymnastics hall
The most distinctive collective spaces in Hässelby Familjehotell are the common dining area, the corridor system, and the kindergarten. To encourage the tenants to use the corridors they were furnished with benches and plants. The corridors have not been used as they were thought to be in the long run. It became a popular spot for teenagers and many of the tenants thought the corridors became an unpleasant area to pass by. To solve
prevent the teenagers from staying in the corridors. The corridors are only used as a passage today (Blomberg 1985)
The restaurant and the reception were seen to be the most important parts of the common spaces and were placed in the centre of the building complex. The dining area consists of a kitchen, a foyer, and a restaurant. From the beginning the restaurant was driven by external actors and the tenants could both eat in the restaurant or bring the food to their apartments. In the 70s the economic growth decreased in societ y and the tenants could not afford to pay for the services in the building anymore. The manned restaurant had to be closed. In 1976 the tenants started their own cooperative and started to work themselves with the common cooking. The cooperative contributed to
a collaboration between the tenants. The cooperative is still active but only consists of 50 people. Hässelby Familjehotell is still inhabited but many of the collective spaces are today unused (Blomberg 1985).
When the project was completed and all the tenants had moved in, it turned out that there were three different categories of tenants that had chosen to live there. One group consisted of people that were only interested in a place to live and not necessarily of the collective services in the building. The second group were wealthy couples and families who were interested to live in a building with a large supply of services. The third group of tenants were young people that either studied or worked a lot, they were of ten interested in the common facilities and the kindergarten. The different groups of tenants did not get on ver y well and
housing worked as it was planned (Blomberg 1985)
The origin of the center is traced back
propert y of the painter Bruno Liljefors was bought and the idea from Arne Klingborg was to create a space for the anthroposophy philosophy of Rudolf Steiner in Sweden. In the beginning the idea was to educate teachers, caregivers for children and to start a school. This idea expanded over time and additions like biodynamic farming, a culture house and a center for alternative medicine made this the center for the anthroposophy movement in Sweden.
The center was supposed to give an alternative to current prevailing standards regarding pedagogy, medicine, farming and packaged in its own t ype of architecture.
The origin of these thoughts stems from when Rudolf Steiners as a young man got the task to compile Goethes research
these ideas lay the foundation of the anthroposophy movement.
Arne Klingborg, who is both a painter and landscape architect, has for a long time worked together to create an artistically expressive, ecological and energy-
97).
It seems like the allure of the
over the years and now seems to be on a down turn even though the ideas themselves seem to be more relevant and mainstream than ever. The debate of sustainabilit y is growing within the
whole regarding both buildings and food production. Even some voices are raised regarding the concern of over-reliance on numbers and statistics and opting for a more human approach (see Jonna Bornemark). Regarding these questions
interesting approaches but this might also be the reason for the decreasing interest in the seminar. As many of the ideas become more mainstream and others more dated, the communit y struggles to stay relevant and interesting as people with some of these interests have more options to choose from. Today the seminar has decreased numbers of applicants for their teachings and the biggest housing unit for students is transformed into a hotel for tourists to visit and experience the architecture, gardens and culture of the seminar.
The center grew and provided in 1997 space for at least 150 students for Waldor f teaching, curative education,
art courses in painting, sculpture and architecture.
At this time the center contained (or later contained) functions like library, music rooms, dance studio, farmers market, organic farming, school, shops, restaurant, medicine clinic, biological ponds, an architectural practice, culture house, collective housing, art installations and a hotel etc.
In order to integrate the buildings into the landscape the buildings were placed on or around the granite mounds that were formed during the ice age on a north south axis, the same direction as the granite formations. The one exception is the cultural house which is orientated on an east west axis. To integrate the buildings like this enabled the areas with
for farming. Working with the masterplan
functionalism” and therefore decided that all the buildings should have a unique form that expresses its function and place in the landscape. To establish a connection to its context t ypical local materials or building techniques like timber frames, cement covered bearing
Shared outside spaces and community facilities
Rudolf Steier anthroposophy
Anthroposophy enthusiasts and tourists
Painting, music, dance, canteen, culture experienc es and food production
brick walls and wood facades were used.
As an architect Asmussen was in a buildings for the seminar because he also lived there and participated in collective events and eating at least once a day at the collective dining hall “Robygge”. In this way he was deeply immersed in the collective and was also exposed to but also held accountable for his work ever y day, something that is rare for architects in general
The buildings stand out within its context not only because of the expression of the houses and color schemes but also because of the unique division of spaces. Asmusen found a new way of organizing the spaces, making a low horizontal mass containing private residences and placing a higher more articulated volume on top housing a public function. In this
day not only making the building more
also creates a sense of liveliness and an asurement of human presence during
used these principals Asmussen would continue to per fect this t ypology in years to come. (Coats. 97)
Perspective from the dance studio during an erythmy session
The public access of the building is in an orange accent color for where the private regressed in to the facade
The house is one of the houses built on Asmussens own idea of organizing
main apartment underneath the painting studio for a teacher / donor living at the seminar, two student dorm rooms and changing rooms for the dance studio. To two tower-like structures houses the painting studio and dance studio, both of these are reached through a separate entrance on each side separating the public and private function.
Mainly wood with brick and concrete elements
Timber frame construction.
Arne Klingborg
Low rise mixed uese buildings.
Steiner ’ s design approach which he calls “organic functionalism”. According to Steiner ever y building should have a unique form that makes the essence of the buildings use perceptible and is organized in a way that supports the intended function. (Coats. 97)
In a way of establishing a connection with the local context Asmussen wanted to use material and construction methods t ypical for this region. Timber framing, cement covered load bearing walls and vertical wood facades the main materials and methods used in the seminar. The colors are also carefully selected for exterior and interior according to Goethes color ideas.
1 Roof
The roof is covered with strip metal.
The interior of the dance studio is simple chip board painted in a red/pinkish color.
The structure of the building is a simple timperfrai construction that is very common in these area of Sweden. The exterior walls is cladded with a verti cal wood panel and painted in a blue color
The big windows of the dance studio and the paint ing studio is facing north-east.
that houses one big apartment for a teacher/dona tor and two students dorm rooms
6 Dance studio
7 Painting studio
8 Garden
Private garden for the residence of the big apar t ment
Public entrances to studios
Private entrances to apartment
Dance studio and two stu dent dormitory rooms Scale 1:300
Eurythmy House Scale 1:600
Collective-housing Concept: Ecological Lifespan: 1964 - today Architect: Lawrence Halprin, MLTW Place: Sonoma County, Califonia
1964 The Sea Ranch project started and during this time there was a sense of optimism, a belief that architecture and planning could save the environment. Al Boeke had bought an old sheep farm and gave a group of young architects the task to develop the site. The idea was to preserve what is ecologically valuable on the site and make it livable without destroying its beaut y, in this way the planning of the project was not only in tune with nature but also driven by it. Planting over 100.000 trees to reinforce the existing sheltered areas like hedgerows, making thorough examination of the site
buildings and leaving 50 percent of the land allocated for communal use. The landscape architect Lawrence Halprin calls this “dynamic conservation” or as the slogan of the project says “live lightly on the land”
The Sea Ranch should have a variet y of residential sites for divergent interests and income to serve the needs of people in any family constellation at any time of their life. Common areas for swimming,
as well as enable more solitar y activities
small scale farming etc.
The residents of the ranch should also take care of the surrounding nature with, for example, controlled burning of the land in order to enrich the soil, germinating seeds and remove dead material. This way exploiting a building site was in great contrast to the maximization associated with suburban developments at time.
The Sea Ranch has gradually changed over time and the houses are now covering up to 80 percent of land, the living standard and sizes of the homes is getting closer to our current norms and ideals. Even when new materials are introduced the image of the Sea Ranch is in some way intact and increasingly popular. The ideals of the creators for the ranch were communal and inconspicuous, these ideals are tested when popularity for both tourism and housing demands is
resulted in tourists being excluded from some of the open land (mainly on the older south side) that only allows for residence of the ranch. Maybe the commercial success of the ranch was a disadvantage for the original ideal? In any way the Sea Ranch has changed a lot over time, some say it’s for the better and some it’s for the worst but the ideas might be even more interesting now than ever.
Erik KarlssonThe communal spaces are mainly the shared meadows, forest and coastline that houses hiking trails and enables various activities all of which could be explored with the guidebooks made for residents and tourists. The ranch also contains a collection of recreational centers with different sport facilities, a librar y, playgrounds, hot-spots for barbecues and a church. Some buildings has their own more intimate common spaces for the residents like the courtyard in condominium #1. This building is one of
Shared outside spaces and community facilities
Nature freindly, mans adaptation to nature
Environmental / nature enthusiasts and tourists
Several sportscenters and outdoors activities
Sea Ranch with its characteristic design. The condominium has a monaster y like layout with the central court yard in the middle from where the dwelling units can be reached. This court yard provides a central meeting node for the dwellers, protected from the harsh oceanic winds. The original idea was to build ten of these condominium complexes on the rocks close to the sea but this became the only one and single family homes replaced the original plans.
4. Summer workshop of 1966 “drift wood city“In order to realize their vision Al Boeke and Halprin consulted a wide range of experts like hydrologists, climatologists, geologists, geographers and demographers to best understand how to develop the site. This led to key design principles to minimize the buildings footprint and contrast with the land but also planted tree rows in order to break the strong winds creating more hospitable microclimates. The houses were primarily to be placed on hedgerows or in the woods in order to leave the meadows open and to maximize the common space. The facade of the houses should be in red wood that turns gray over the years and blending in with the context. The houses have sloping roofs facing the strong
fences or lawns only native plant species were allowed in order to not introduce an of a communal space. All the houses should have the same design aesthetics
in taking views, wind, nature etc. into consideration.
examples and acted like a reference for the design principles at Sea Ranch. Over time both new use of material and techniques where allowed, the condominium is still a good example of the original idea for the buildings on the ranch.
Mainly wood
Timber frame construction
Al Broke, Oceanic properties
A mix of single family houses and condominiums
1 Roof
Simple coherent roof-structure with minimal overhang to avoid a “hat” look. Dark earthy colors in asphalt shingles, sod or metal roofs are allowed.
allowed.
2 Interior
The interior built up as a free standing structure creating an airy atmosphere. The idea of a modest lifestyle is present in many buildings
3 Structure Exposed internal wooden beam structure.
4 Exterior walls
Redwood or cedar vertical boards and wood shin gles with minimal trim and corner boards.
The placement of the windows should be made in order to extend spaces beyond the wall, allow
A Plant selection
Variety of plant selection and sizes can maintain visual diversity in the natural environment but non-indigenous plants are in general not allowed
Fences are in general used for parking areas, trash/ private courtyards.
C Tree maintenance
Trees in proximity to buildings should be inspected so that they are in good condition and mainte regulations.
D Meadow grass Management of the meadow grass is required for
Unit
1:300
Condominium
1:600
Understenshöjden in Björkhagen outside of Stockholm is a housing cooperative and experimental eco village focusing on environmentally friendly materials, democratic design process and some shared spaces. There are 44 apartments and row houses, one communit y house, recycle and reuse rooms and a woodshop. The residents had formed an organization for eco building that initiated the project of an eco village in Björkhagen and were involved during the whole process. Together with the architect and entrepreneurs they developed the technical systems, building structures and materials. The idea of the eco village in Björkhagen was to create a sustainable communit y built on ecological building principles.
”Ekobyn”, as it is called, was built as a reaction to both the contemporar y building industr y but also the consumerist
“Natural” and plastic-free materials were used to ensure the residents’ wellbeing and lower the environmental impact. Intentional design solutions enabled more sustainable choices. The goal was to create a well functioning local system that would promote a modern sustainable lifest yle
Communit y in Understenshöjden is largely based on the relationships established during the building process, but also a common interest in ecology and sustainabilit y. The communal house and hosts different events. The housing cooperative is divided into groups with different responsibilities.
Cohousing Concept: Ecological Lifespan: 1994 - today
Architect: Bengt Bilén Place: Björkhagen, Stockholm
Understenshöjdens aspiration to create an eco village with communit y solutions that enables the residents to reduce their environmental impact and increase their wellbeing has been quite succesful. Relocation from the area is low, and Understenshöjden seems to have maintained a sense of communit y, through meetings, responsibilities and activities as well as in ever yday life. There is an amicable atmosphere in the area.
happen when the original inhabitants are gradually replaced by new ones. Will the communit y continue because of the established culture, or will it subside if new inhabitants see this area not as their forever home but rather a step in the ladder on the housing market?
There have been proposals from within the communit y to further exploit the site.
The project is called Understenshöjden 2.0 and suggests apartment blocks with several communal functions within the building. This kind of development will most certainly affect the existing communit y
The democratic design process of Understenshöjden is one of the fundamentals. Communal effort and a shared vision helped to form a common identit y amongst the inhabitants. The architecture generated from the collective design process is of generally higher qualit y than conventional housing. The wood facades blend well with the surrounding nature. Because of the adaptation to the landscape, the site is experienced bit by bit. It gives the visitor a feeling of intimacy and curiosit y. Nature and topography create the framework for the footpaths and distribution of buildings. These qualities create a feeling of being at home already when entering the area.
It is interesting to compare Understenshöjden to other examples of cohousing, for example Hässelby familjehotell. Though established at different time periods and with different goals, they still share some features
Shared outside spaces and community facilities
Ecological
Environmental / nature enthusiasts
Communal house, outdoor spaces
The goal of Understenshöjden is to facilitate a lifest yle that reduces the households environmental impact, compared to Hässelby familjehotell, whose goal was to offer services that enabled women to work outside of home. It is interesting to imagine Understenshöjden as a service building. Instead of corridors, there are footpaths leading to your home and the different services offered; the playground, the communit y house, the communal woodshop or the recycle and reuse rooms. The most important motive for this organization of the site is, however,
cohousing communit y, but rather to reduce impact on the natural environment by adapting to the landscape and create relevant infrastructure. The combination
footpaths and the strong identit y of the inhabitants create a type of modern village with a well-functioning local communit y
The democratic design process has resulted in a communit y where little feels haphazard. Decisions have been weighed against each other and ultimately the most important things were prioritised. One of the essential aspects that were considered part of the ecological ideology were the aesthetics: proportions, materials, nature and light
The project used unconventional and “natural” materials, described as emission and plastic free, as well as high qualit y materials that were durable and could be easily maintained. Both the external and bathroom walls were made without vapour barrier which let the construction “breathe”. High quality building materials were generally prioritised, but cheaper alternatives were also chosen when necessar y. The framework, for example, was factor y - made and assembled on site. It was inspired by traditional building techniques, but reinterpreted with modern solutions. Instead of traditional
Platzer // The community
Mainly wood
Wood frame construction
HSB // Småa
Rowhouses and apartments.
timber or wood frame construction, a new system was used, called Masonite beams.
Proportions of rooms and design elements, high qualit y materials and light were believed to be important aspects of a comfortable home. Light was prioritised over energy saving, which resulted in big windows in all directions. A lot of the rooms have slanted niches, which distribute the light more sof tly. The apartments came in a standard design, with the possibilit y to add features for an extra cost. The residents were given the opportunit y to customise their plans, which led to a great variation in apartment layouts.
The materials and construction are more connected to the collaborative design process than the actual spaces of coarchitecture. This design process was what made people come together, and still impacts the communit y today.
ROOF
INTERIOR WALLS
BAS E
Structuralism was a movement in the architecture and urban planning scene from the mid 1950’s through the 1970’s and into the early 1980’s that aimed to look into social aspects in contrast to its functionalist predecessors
linguistics but regarding to architecture was coined in retrospect of the movement. Until this day it has var ying
describes the “st yle” of structuralism as “megastructures” (1976), whereas Wim van Heuvel and Arnulf Lüchinger for example make a clear division between a primar y structure with a long life cycle and inserted secondar y, less permanent
members of team 10, began critical discussions and discourse on the then prevalent ideas of functionalism in architecture and urban planning.
Where Functionalism could be seen as a static system, dividing the cit y into different zones and functions such
Structuralism in turn could be considered to have a more dynamic approach, where the cit y is understood as an organism and growing and accommodating for these needs on both an urban and small scale, in the in- between spaces like streets. Team 10’s name derives from their goal to organise the 10th CIAM Congress to show their thoughts and ideas on how urban planning and architecture should change. They gathered their ideas and principles in the Team 10 primer to state clearly their new ideas.
The initiators of the of the movement can be considered to be “Team 10” who were an international group of young architects, including J.B. Bakema and Aldo van Eyck from the Netherlands, Alison and Peter Smithson and John Voelecker from England as well as Ralph Erskine as a Swedish representative of the group only to name a few. This group formed af ter af ter the 1953 CIAM Congress in Aix-en-Provence the
The 10th CIAM Congress then took place in 1959 in Otterlo, Holland. 47 Participants had the main topic of “structural” growth
environment through reciprocit y of human action with the environment. Van Eyck introduced the term “aesthetics of number” during this Congress. Due to diverging views of its members, CIAM disbanded af ter this Congress.
Team 10 however persisted until 1981, when dissolution was agreed upon af ter Jakob Bakema passed away
1955-1960
Ralph Erskine (SV)
Erik Friberger (SV)
123 state that urban planning
Kurokawa:
Technical
Jakob Bakema Wim van Heuve
John Habraken
Supporter of
"Support and Infill"
Orphanage
Aldo van Eyck Kenzo Tange
Noriaki Kurokawa Fumihiko Maki Kiyonori Kikutake Kisho Kurokawa
Moshe Safdie
Berlin City Project
Great
Rapid
Peter Cook Warren Chalk Ron Herron
for London
Indeterminate Architecture Inter-Action Centre
A City is not a Tree
Centre Pompidou Stem"
Web "Human Association"
Worked with open form
Worked with open form
Worked with open form
Archigram
A & P Smithson Abercrombie John Weeks Cedric Price
Christopher A exander Helmut C Schulitz
Architecture Critic and Theorist
Yona Friedman Renzo Piano
Richard Rogers Shadrach Woods
Jean Prouve
Georges Cand l s Josic Oskar Hansen Eckhard Schu ze-Fie itz
Arnulf Lüchinger Ferdinand de Saussures Lingiustic Field Claude Levi-Strauss Anthropo ogy Ludvig van Bertallanffy Biology K yonori Kikutake
Functionalism
Many
Organised
Not divided into distinctive parts Term "Habitat"
Not
CIAM Congress in Aix-en-Provence
Mobility Cluster, Growth and Change, Urbanism and Habitat"
Discussion for need of new theory in rapidly changing world
Approach Supporter of super structures Reciprocity
open system Influence
Organized by Team 10 Dissolution of CIAM after Topic of "structural" growth
Book about the conference by Oscar Newman "CIAM '59 in Otterlo
Technology existed, but under which rules/theory to use it?
A & P Smithson
Year
Linear structure of urban "AlexanderpolderBroek & Bakema Orphanage comp etedAldo Van Eyck
Kenzo Tange
Evolution of the term Structuralism from van Eyck’s 1959: aesethetics of number to Arnaud Beerends "Structural form can be recognized by the uniformity and autonomy of the elements"
Definition/ Variation Main only be determined by functional conclusions
London Motorway Unit, London Noriaki Kurokawa
Contrast to "two-components"-view: only the structure is autonomous while the elements are exchangeable and modifiable"
Now focus on quality not so much quantity like before in 60's as period of ongoing growth
Bauen +Wohnen "Structuralism - A New Trend in Architecture Rayner Benham: Megastructure. Urban Futures of the Recent Past
Arnulf Lüchinger: "Structuralism in Architecture and Urban P anning" (stuttgart,1980)
Structure and Coincidence" or two-components-approach
International Design Conference Tokyo 1960
Air Quality Nature
Freedom of Individua
Liveability
Cultural Need
Concepts Part and Whole/ Individua and Community Perpetua Mob lity/ Adaptability Patterns and Relations/ Living in the Urban Fabric “We declare that “habitat” is not passive but that between itself and its occupants there exist a perpetual play of actions and reactions – the people reacting to the “Habitat” reacting to the peop e – contributing to their conditioning and with consequence making them what they are. ” “We declare that “Habitat” is not divided into distinctive parts, but is an organised structure of which the modification of each part modifies the whole.” Module for Communal Space Architect Cites Vernacular Architecture Individual within Cell Change of Moduls Over Time Frame Structure Modularity Connection/Community to In/Outdoor In-Between Spaces “City Within a CIty Streets P azas Squares Programmed Unprogrammed Varying Modules Varying Constellations Structure Program “We declare that “Habitat” is not “static” but in perpetual mobility of people and society Its organisation is always being renewed.” 1928 1960 1969 1976 1980 1981 Team 10 disso ution 1953 Post World War II Scandinavia Netherlands Japan Canada England Mainly USA France Poland Germany Switzerland Other Fields Architecture Jørn Utzon (DK)Kingohusen Enfamiljhusen, Göteborg Dankse Arkitkter Landsforbund 1973 Members that are later to found "Team 10" begin critical discussions of architecture and urban planning
Actors Historical Timeline Peter Herman Hertzberger Tokyo Bay Plan CIAM Congress declaration of rationalistIn the following some main ideas of structuralism have been divided into 3 concepts that approach Structuralism from a perspective of the collective/ communit y. Each of the concepts is
10 primer and deal with the reoccurring themes of the movement:
1 Perpetual Mobilit y/Adaptabilit y
2 Patterns and Relations/Living in the Urban Fabric
3 Part and Whole/Individual in Communit y
By looking into projects that we consider to be protot ypes of this movement, we hope to understand how different aspects of co-architecture are dealt with within these concepts of Structuralism. These protot ypes include: Aldo van Eyck’s Burgerweeshuis
Hässelby Familjhotell by Carl Axel Acking Alison and Peter Smithson’s Robin Hood Gardens De Zonnetrap by Luzia Hartsuyker-Curjel and Enrico Hartsuyker
Living in the Urban Fabric Adaptability Individual & Community Patterns & Relations Perpetual Mobility Parts & Whole STRUCTURALISM“We declare that ”Habitat” is not passive but that between itself and its occupants there exists a perpetual play of actions and reactions - the people reacting to the “Habitat” reacting to the people - contributing to their conditioning and with consequence making them what they are.”
City Within a City Programmed Unprogrammed
Connection to Outdoor Spaces
“We declare that ”Habitat” is not “static” but in perpetual mobility of people and society. Its organisation is always being renewed.”
“We declare that ”Habitat” is not divided into distinctive parts, but is an organised structure of which the modification of each part modifies the whole.”
Varying Constellations of Modules
Varying Modules Structure
Frame Structure Program
Individual Within Cell
Module for Communal Space
Architect Cites Vernacular Architecture
“We declare that “Habitat” is not divided into distinctive parts, but is an organised
This concept relates to how the relationship between the individual and the communit y is seen in structuralism How much power of change does the individual have? Does the individual receive an own module or is the addition of modules what gives them a individual identit y ? Can a sense of unity create a sense of communit y through common identit y ? Does Modularit y create sense of communit y or does it promote individualism?
missing a sense of place and urbanit y as well as destroying the countr yside. Architects like Van Eyck and Hertzberger as well as members of the metabolist movement and Team 10 looked at vernacular settlements to understand the relationship between the individual and the communit y as well as the place and its belonging in time. Eyck wrote: “Whatevere space and time mean, place and occasion mean more. For space in the image of man is place, and time in the image of man is occasion.”1
The idea of searching the vernacular to in part as a reaction to the economic order that, at the time was described as lacking humanism and sense of identit y The rapid economic and technological systems produced architecture that was
Searching the vernacular is in other words not a nostalgic endavour, as one clearly sees in the projects produced, but a will to understand a culture and place in terms of their relationship to a larger, overarching system or structure: or in other words the wish to create a viable public realm that would draw upon the layers of memor y and social custom inherent in particular places. Different vernaculars that were explored were the Northwest African Dogon villages, the pueblos of New Mexico, Tulou settlements in China, to name a few.
“We declare that “habitat” is not passive but that between itself and its occupants there exist a perpetual play of actions and reactions – the people reacting to the “Habitat” reacting to the people –contributing to their conditioning and with consequence making them what they are. ”
Many actors of the structuralist movement had the idea of connecting this concept to the urban scale of thinking, relating to Christopher Alexander ’s ideas, and how he looked at vernacular architecture to understand a larger scale approach to community (Eyck Dogon villages) The in between spaces, and the cit y within a cit y How does the cit y in the cit y create a communit y ? Do the individual cities connect to each other?
seeking an environment wich would give “ form to our generation’s idea of order ”. In projects like the Robin Hood Gardens, Habitat 67 by Safdie or Walden
In the post war era of rapid re- production of cities and a likewise rapid increase of population, younger architects, for example members of the Team X, were reacting against what they called “Rational Architecture”. The scale of the buildings produced and the separation of dwelling, working, recreation and circulation created, was something that they strongly questioned. Alison and Peter Smithson said that they were
made to create a city within a cit y with common spaces, stores, streets and other different in+between spaces as mediators between public and private life. The streets were an especially strong characteristic of tr ying to create a new urbanit y by identifying and mimicking street life and the different aspects of it as it presents a common ground with different intensities for people to meet. The architectural response has many faces and presents different interpretations of in-betweens such as cavities, thresholds and widths of streets to create different intensities. In Eyck’s orphanage the streets meander through the project, connecting the different functions whilst in the Robin Hood Gardens the “streets in the sk y ” are linear but with cavities to allow individuals to claim space.
Still, in search of structuring the comminit y at an urban level, William J.R Curtis describes the Unité d´Habitation as an unavoidable protot ype for collective housing and this new urbanit y and by that saying that the break from certain functionalist ideas was moreso an evolution of prior ideas
“We declare that “Habitat” is not “static” but in perpetual mobilit y of people and societ y. Its organisation is always being renewed.”
driven by the idea that architecture should be susceptible to change, development, and growth without compromising the integrit y of the whole. Furthermore, by recognising the importance of the role of individualit y in the communit y, the need for the individual to be able to grow and develop must also be catered in the built environment. The architecture should therefore allow the individual to put their mark by shaping their space to their
of human and societ y that is perpetual change and progress.
structuralist demand on adaptabilit y through the concepts of architectural “changeabilit y ” and “generality ”. Changeability means the ability (of the building) to adapt and change its functions to the needs of its occupants. Generalit y on the other hand, is the capability of its function and features to remain unchanged despite different occupants. This, however, do not mean that general
As the industrialised production methods developed towards prefabrication to meet the rapidly growing demand for housing, architects connected to
ways to create individual identit y within a repetitive modular system; either through the combination of different modules or by allowing a repetitive module to be combined in different ways. In Eyck’s orphanage, different sized modules with
functions of spaces, and through this allowing a sense of identit y and belonging within the structure whilst maintaining an overall common concept of the building structure. In Habitat 67 or Walden 7, the single module or cell is instead allowed to be combined in different ways to allow
the overall structure. Both approaches aim to create structures that mediate between the individual and communit y, and by this creating a common identit y In some projects this is more successful than others. It seems that modularit y can also create a sense of seclusion and anonymit y
Varying modules
Varying constellations of modules
Frame structure
Change of modules over time (structure)
City within a city programmed "In-Between Spaces" unprogrammed "In-Between Spaces"
Connection to Outdoor Spaces
Change of Modules over time (program)
Individual within cell
Module for communal space
Architect cites vernacular architecture
Structuralism Concept: Patterns and Relations - Living in the Urban Fabric Lifespan: 1955-today Architect: Aldo van Eyck Place: IJsbaanpad, Amsterdam
Aldo Van Eyck is of ten spoken about as having a humanistic approach to architecture. He, like many protagonists of the structuralist movement also looked at vernacular settlements in order to understand how architecture interacts with communit y. In the 1950‘s and 1960‘s he traveled to both the WestAfrican Dogon Villages and later the Taos Pueblos in New Mexico to experience this
The commission for the orphanage resulted from his work as an urban planner, having created over 700 playgrounds for the cit y of Amsterdam.
Due to his work in urban planning, Aldo van Eyck was already familiar with human scale and activit y of children. The orphanage is of ten described as the protot ype of Structrualism as it is one of the earlierst works considered to be part of this era. Aldo van Eyck himself describes it as „a particular house ( ) within the framework of a certain generalit y.“1 It consists of a series of differently sized modules and courtyards rowed along an internal street. The smallest module measures 3, 36 x 3, 36m. It was a home to about 120 children and 25 staff. The children’s dormitories were organised by age groups and each had areas with outdoor and shared semi- public common space that connects to the street
1 Basel: Birkhäuser Verlag, p. 88, l.1-2
Julia ThiemTwo Storey
Dormitor y girls 10-14
Including sleeping common area, exterior court yard
Festive Hall/ Part y Room
Common Room children 4- 6
1. sleeping
2. exterior court yard
Concrete
Pre-Cast and In-Situ
Concrete Elements
Orphanage
concrete plinthe upon which concrete pillars support a concrete architrave as well as a domed roof structure. These elements act as a more permanent „frame“. The continuous architrave and plinthe zone create a „horizon“ that connects all elements with each other. Less permanent infills are placed within this „frame“ according to levels of privacy: the „public“ spaces are marked with large glass facades, whereas semi public spaces of ten have glass
bricks and private spaces solid bricks
This seperation of a permanent modular structure with less permanent infills is considered t ypical within Structuralism.
The repetition of elements allows for a high level of prefabrication.
The domed roof structure could be considered as loosely derived from the Dogon villages van Eyck studied.
A C Bin-situ concrete domes
concrete suppor t grid for domes pre fab concrete wall elements
pre fab reinforced concrete architraves
exposed aggregate concrete pillars in-situ plinth
glass facade infill brick infill
Aldo van Eyck believed strongly that architecture and urban scale have a non geotiable interdependent relationship; that one cannot go without the other. He is aware that this comes with a challenge of negotiating different scales and contradictions but describes confidently that the „inherent ambivalences“ are essential to consider when planning a building. He speaks of „twin-phenomena“1 like part-whole, unity diversity, large-small, open-closed, mass-space, individualcollective, to name a few. It is clear that with the orphanage he considers and mediates between these. Aldo van Eyck himself describes the orphanage as „both ‚house‘ and ‚city‘; a city-like house and a house like city.“2 The street meanders within the orphanage, encouraging a more graspable scale, connecting many different smaller centers, and creating a slower pace. This leads to de-centralized communal spaces. The streets‘ meandering form clearly indicates that it is not just a place for circulation, but a social space to remain within.
The meandering communal streets connect to the eight different dormitories that are divided by age groups. This connection to the „street“ invites the children to mix and mingle, thereby creating a low hierarchy of spaces resulting in an informal setting
Thresholds in form of materiality change or change in elevation in internal and/ or external landscape indicate a change amplify a change in programming
2
(between public and private) and mark a clear transition. This can be seen for example in the steps down to the festive hall or within the communal spaces. Aldo van Eyck‘s self-designed furniture programs the communal spaces of the dormitories.
Changes of scale, light and geometry bring focus to central spaces.Roof lights amplify the center of the semi-public communal spaces in the dormitories. Spatial centers are also defined through the geometry of circles, for example in the courtyards or by a change of elevation
There are planned „public“ spaces such as a theatre and festive hall, but the street acts more as a social center than these rooms that are used only in specific times, whereas shifting the social space to the circulation space gives it a continuous presence
1 Basel: Birkhäuser Verlag, P. 89, l.10 ff.
The use of the building as an orphanage remained until 1986. The same year, a plan for demolition led to international architects, including Herman Hertzberger to advocate for the protection the building, ultimately leading to a renovation and re use in form of Herman Hertzberger’s Berlage Institute, a post- grad architecture laborator y in South wing from 1990-2000. Followed by 15 years of changing use, the building was made a heritage monument in the year 2014. Af ter more renovations between 2015-2017 it is currently being used for office spaces
Dormitory Common Rooms and “Street” a house-like City and a city-like house children without families and home, care staff indoor and outdoor play, festivities
Perpetual Mobilit y/Adaptabilit y
Varying modules
Varying constellations of modules
Frame structure
Change of modules over time (structure)
Pattern and Relation/Living in the Urban
Fabric
City within a city
Programmed "In-Between Spaces"
Unprogrammed "In-Between Spaces"
Connection to Outdoor Spaces
Part and Whole/Individual in Communit y
Change of Modules over time (program)
Individual within cell
Module for communal space
Architect cites vernacular architecture
Structuralism Concept: Patterns and relations
Lifespan: 1972 - 2017
Architect:
Place: Poplar, London
Robin Hood Gardens is a social housing complex in the residential area of Poplar in East London. Built in 1972 and designed by the architects Alison and Peter Smithson.
Alison and Peter Smithson where active members of Team 10 and addressed important social issues regarding individual and group identit y, among other things. A lot of their work evolved around social living and human association, and they aimed for a more collective dimension of architecture and urban planning. The architects were among
modernist approach to design, and they were pioneers in the st yle that would become brutalism. The building in Poplar stands as an example of the Smithson’s theories in practice and was seen as their chance to prove their vision for progressive social housing
Robin Hood Gardens, consists of two long blocks which are slightly curved, hugging a central green urban space in the center. The building contains of 213
storeys. The apartments run through the entire width of the building, giving them a view towards both the inner court yard and the surrounding cit y. The Smithson’s implemented their idea of an elevated street deck in this project, as the main access rout to the individual housing units. By doing so, they kept the access points on ever y third level and instead offered internal access to the lower and upper levels. Since the corridors were mainly intended for circulation
and social interaction, the Smithson’s pushed the entrances into a small niche, offering an intermediate space in front of the doorway, where they allowed the residents to claim a part of the “street”
Since the site in Poplar is surrounded by on the site was carefully considered in their design. They put the bedrooms facing inwards to protect inhabitants
the walkways facing the busy street. The exterior facades also feature concrete
The Smithsons were concerned about which structural principals to use when realizing their design and they needed a structural idea to work with their multi level dwellings. Their initial scheme was a concrete box-frame construction, which used cross walls as cantilvers over the corridors and light weight plastered concrete for the internal walls. But during the building process, the Smitsons where convinced to use prefabricated cast concrete elements instead, that would
implementation. Therefore, they chose to work with the Swedish SUNDH casting construction system.
The Smithsons created a series of public spaces, in line with their ideas around social housing, that were intended to create interconnectedness between the residents. The estates most characteristic features were the elevated walkways, known as ‘the streets in the sk y ’. The streets were aimed to foster interactions between the residents and provide wide spaces for children to play and neighbors to meet.
Stress free zone and streets in the sky
Create communal, pedestrian based, stress-free places in the dense city fabric
142 PR OT OTYPE S O F CO -AR C HITE C T U RE The residentsThe idea of a street like walkways or streets in the sky as they called it were conceptualized by the Smithsons and was implemented in a lot of other housing complex from this time. The idea came originally from collective housing with deck access from the 1920s and 30s. But the Smithsons tried to create a more complex idea of a street like access deck. They wanted to provide horizontal access
pedestrian network which were detached
they wanted the deck to be a collective space for the residents.
The green communal space is another essential social aspect of the Robin Hood Gardens, the site is carefully designed to be a ”stress free zone” in the middle of a ver y busy grey neighborhood. The Smithsons had foreseen that stress
would be a result of rapid urbanization and were investigating ways to offer comfort in a dense industrial part of the cit y. This greenspace was an attempt to improve people’s lives through design. It was created in respect to the communal life of the residents but also as a unique natural element within the cit y fabric.
Unfortunately, by the time the estate was open in 1972 it was already out of date and the high-rise, brutalistic, streets in the sky movement had come to an end Robin Hood Gardens would never be the urban utopia that the Smithson’s had envisioned, instead it attracted vandalism and crime. Due to terrible maintenance, the apartment units became undesirable to live in and the building aged ver y badly
Despite numerous attempts to protect it, it was denied a listed status by the English Heritage and in 2015 and it was decided that it would be demolished to give way for a larger regeneration project named Black wall Reach
hood gardens embodies Alison and Peter Smithson’s vision for a new form
modern architecture and further ideas regarding collective living
Varying modules
Varying constellations of modules
Frame structure
Change of modules over time (structure)
Pattern & Relation/Living in the Urban Fabric City within a city programmed "In-Between Spaces" unprogrammed "In-Between Spaces" Connection to Outdoor Spaces
Part and Whole/Individual in Communit y
Change of Modules over time (program)
Individual within cell
Module for communal space
Architect cites vernacular architecture
Walden 7
Walden 7 was intended as an urban mixed-use development on the site of a former concrete factor y outside in Sant Just Desvern, Barcelona, Spain. Three gigantic structures were originally planned, in the shape of a virtual triangle that enclosed part of the industrial facilities, though only one structure was ever built. The program includes 446 dwellings, public spaces, meeting rooms, bars and shops on ground floor, and two swimming pools on the flat roof. The original plan had even greater communal area but it was reduced to allow the increase of apartments, though no material exist to show this proposal It is a 16-storey building whose shape is reminiscent of several oval bodies squashed together vertically. As one gets closer, these oval shapes reveal a similarit y with the structure of a
Structuralism Concept: Mix
Lifespan: 1975 - today Architect: Place: Sant Just Desvern, Barcelona
honeycomb design, something members of Bofills office, Taller de Arquitectura, have termed stacking of cells The project was named af ter Henr y David Thoreau’s book Walden; or, Life in the Woods. Thoreau lived next to Walden Pond for two years, immersing himself in nature; he carried out an experiment in individual, absolute self-sufficiency. In addition, Walden 2 is an utopian novel written by behavioural psychologist B. F. Skinner, in 1948. It is a direct reference to Thoreau‘s book Walden, 1854, but as the book says, ‚Walden for two‘— meaning a place for achieving personal self-actualization, but within a vibrant communit y, rather than in a place of solitude. In the book there are six utopian Walden communities why RBTA probably named their utopian vision Walden 7
The building is comprised of 1,100 modules of 5.3 x 5.3 x 2.50 meters and
cell of the building is a 5.30 x 5.30 x 5.30 meter cube, through one side of which all the installations networks pass. Each basic cell comprises two housing modules, and the dwellings have one, two, three or four modules, depending on the occupants requirements. The program includes 446 dwellings, public spaces, meeting rooms, bars and
had even greater communal area but it was reduced to allow the increase of
to show this proposal.
The building is composed of 18 towers which are displaced from their base, forming a curve and coming into contact with the neighbouring towers. The
interconnecting courtyards.
It is as a slab structure with load-bearing concrete columns. The different cells are then constructed out of concrete blocks and load bearing brick for balconies that are later tiled. Originally the entire completion they started falling of and a decision was made to render the walls
Hollow concrete blocks and bricks are forming the different cells and semicircular extrusions
3 Structure Slab structure with load bearing concrete columns
A Semicircular entrance & balconies
break the rigidity of the cells and walkways giving a clear indication of an in-between. On one level the geometry forms a balcony, marking the entrance of
becomes a balcony and below that it becomes the semi private entrance.
Slim load bearing brick columns help the residents with privacy and sunshade
Concrete plinths highlight entrances and help in the mediation between individual and community
be streets in the sky where individuals could meet neighbours and over time develope a sense of community
Scale 1:300
Gestures of materiality Scale 1:50
In the book GA Architect 4,1985, J.M Carandell describe the concept of individual cells and stacking as a will to create an architecture responding to the needs of its time. A time where she sees a rise of the individualisation within the nucleus family as well as societ y, together with increased mobilit y. She reads the architectural response in Walden 7 both through the cell and its originally de-compartmentalized floor plan as well as the relation between them.
„ Each cell must answer to the particular need of the individual occupant. If a family wishes to live here the combined cells respond to a new form of family constellations, defined not as an orange from which one takes a segment but rather a cluster of individual grapes which together form a bunch.“
Her reading is that the cells are made for „transient individuals“, with changing needs and requirements. If combined, they act as mediation within the family whilst the offset aggregation of cells forming interconnected court yards, at the same time having individual entrances, act as a mediation between the individual and the communit y
Carandell concludes her reading of Walden 7 by saying that „it is not a communit y of neighbours, even if one day such a communit y does develop. It is not a utopia, although Walden 7 shows a clear path to that point on the horizon, more or less distant, where in a capitalist countr y, the realit y of the individual may encounter the utopia of the communit y No one can be unaware, when they see the admirable innovations in this work , of what could be if neither propert y speculation nor any of the economic and legal shackles which hinder the free development of life and art existed.“
Whilst Carandell states the unrealized potential of the building in -85, Emily King writes for Frieze in 2016 and concludes
that „the Taller Bofill didn’t ignite a social revolution, but, over the last 40 years, societ y has come round to the way of living that they proposed“. It is hard to evaluate the success of a project without spending time in it but from the material available there are a few architectural details that should be emphasized in relation to Co-Architecture In this case they are primarily situated both on ground level with the several courtyards and on the rooftop with its terraces and swimming pools. The intermediate space of walkways express a will to mediate between the individual and community. The success of this mediation seems to be related to the hierarchy of access to light as the top
garden furniture, while those lower down are neglected by comparison.
The semicircular extrusions stretching
and walkways giving a clear indication of an in-between. On one level the geometry forms a balcony, marking the entrance
same geometry becomes a balcony and below that it becomes the semi-private entrance.
The use of colour seems like a tool to enhance the contrast between in and outside and from a virtual viewers perspective create a clear indication of entering into a uniform, a community of individuals.
The vertical connections within the building allows the inhabitants a visual communication and a steppingstone towards community in contrast to regular apartment buildings where you can live years without seeing your neighbour.
Theme: Structuralism Concept: Mix
Lifespan: 1980 - today
Architect: Luzia Hartsuyker-Curjel & Enrico Hartsuyker
Place: Rotterdam, Netherlands
Varying modules
Varying constellations of modules
Frame structure
Change of modules over time (structure)
City within a city programmed "In-Between Spaces" unprogrammed "In-Between Spaces"
Connection to Outdoor Spaces
Change of Modules over time (program)
Individual within cell
Module for communal space
Architect cites vernacular architecture
As a reaction to the urban planning practice since 1945, architects and urban planners started asking new questions about the characteristics of a cit y. In the Netherlands, the growing urbanisation led to the criticism on zoning urban spaces by function (living, work, and recreation) Furthermore, the relationship between the cit y, the house, and the building became more interesting for architects and urban planners alike.
In 1965, architects Luzia Hartsuyker Curjel and her husband Enrico Hartsujker introduced the idea of a Biopolis. A rejection of CIAM urban design ideas, the Biopolis was a protot ype designed to integrate and house all functions that a cit y has in one megastructure: work places, dwellings, infrastructure, shops, despite its static appearance. Dwellings that are adaptable to the needs of the scale which can var y from a building, to even a whole metropolis.
Another megastructure based on the Biopolis was the Hydrobiopolis - a proposal for the expansion of the Hague to be situated in the water by the coastline. Although both projects never concluded into any thing more than drawings, the ideas and concepts that the architects developed became the core to a new project in Rotterdam: the Zonnetrap
In situ concrete
Load-bearing walls
Woningstichting Lombardijen
Mix of home for the elderly and urban amenities
Winning a competition in 1967 organised by the Lombardijen Housing Association, the Hartsuykers proposed a building similar to its two predecessors, but much smaller in scale. The Zonnetrap represents an alternative typology of urbanisation in the Netherlands since 1945, an opposition to the modern urban design principles of zoning functions.
As a contrast to this, the idea behind the Zonnetrap was to integrate different urban functions in one building - a cit y within a cit y. Residence to independent elderly people, it also contains spaces for work, business, social gatherings, and culture.
Essentially a miniature city in itself, the Zonnetrap has around 179 residential units with terraces and access to shared facilities such as workshops, playground, daycare, lounge, and recreation areas such as billiard room, hobby rooms, and
a service centre for the elderly residents in the area, 400 sq. m. of spaces designed to be artist studios, and a covered square accessible by the residents and people from the rest of the cit y.
The design process began in 1967 but the
This was due mainly to the administrative struggle on the management strategies for the rented spaces. Despite that, the building today still functions as was imagined by the architects back then.
The vertical structure of the whole building is composed mainly by concrete load-bearing walls, perpendicular to the long side of each wing. These in situ reinforced concrete walls also serve as the division between units. On the ground
is located, adjacent to the entrance, the with the use of concrete pillars. The walls and pillars support the concrete storey elements.
Another feature of the Zonnetrap is the adaptability of the apartment units. Light Gibo blocks are used for the partition walls and placed centrally so they do not touch the load-bearing walls. This created what is described as a “walk-around” plan or atrium house which is common among Hartsuyker-Curjel’s works. The light materialit y of the partition walls gives its users the opportunit y to reshape their habitat to their needs and show their individualit y
The use of concrete load-bearing walls with regular rhy thm along the whole building contribute much to the structural
above. This made the terraced stacking strategy simultaneously, created a sheltered square in the space between the structures.
The square, which is in the middle, extending along the whole length of the north and the middle wing, serves
as the main social space where the communit y in the building meets the communit y outside. Through the extensive application of mixed programs in different spaces in the building, the square, though indoor and housed inside
cit y squares. Here, people can access
reside in the building, and brightened up by the sk ylight running along the length of the space.
Upon closer investigation of the project, another communal space that is almost hidden are the corridors and the balconies. Acting as thresholds from the private space of the home to the public square, this loft corridor system protects the residents’ privacy by not opening the doors directly to the public space.
The balconies also serve as social spaces as there is no explicit division between the units. A small gap created by the loadbearing wall not extending fully to the edge of the balcony serves as opening for a neighbor to meet another neighbor. Comparable to backyard gardens of the suburban typology, this small gesture of elemental dimensions contributes to the development of strong communities in the building
Changes in our world are happening all such as new technology, climate change, to the private sphere which includes changes such as age and family, demands on ever yday life are ever-changing. The need for adaptation lives with us in both our existence. Flexible housing responds to adapting the various demands placed on societ y ’s technological and social progression.
Flexible housing has developed enormously in connection with politics, economics, social demography, and
housing dates back to the 20th centur y
for housing on a mass scale lead Le Corbusier to propose the industrialized Dom-Ino system in 1914. It was a concrete frame structure that consists of slabs and reinforced columns. By separating the interior from structure, the system created a free-plan thus
Ino highlighted the possibilities for mass production and challenged how the free plan could enable housing development
During the 20th centur y, we could distinguish three important movements
1920s space standards were dramatically reduced in response to urbanization and the housing shortage. Less space meant
manner and so there was an increased
response was to offer more shared communal space to compensate for the reduced sized of home. A byproduct of this is that the shared spaces provided facilitated co-living by creating a place for communities to meet. In the 1930s
housing becoming mainly focused on prefabrication and mass production. Units that would suit the average
in production and have economic sustainabilit y for the developer and users. Flexibilit y in prefabricated systems dealt with both the customization of the initial house (modules which could be arranged in numerous ways), as well as the accommodation of inhabitants changing future needs (customization
residents to change their homes as their life situation changed (so they could stay in the same home longer) thus keeping the resident communit y stable. This
architecture as resident stabilit y helps build and maintain communit y ties in an area. Moving into the second part of the 20th centur y, in the 1960s there was a move towards co-living and user
in choice and simultaneously facilitates co-living by providing a common activit y that connects residents. A shared goal or purpose can build communit y ties between residents before they even move in. Flexibility and co-architecture share overlapping concepts which bring the two themes together
The link between the industrial was about developing new technical systems that made housing cheaper.
it became possible to mass- produce. After the free plan (Dom-ino, 1914) was introduced, and housing standardization and prefabrication began, architects were given new opportunities to work
Several prominent modernist architects saw standardization and prefabrication as a framework for a new way of working with architecture. Modular design led In the book Flexible Housing (2007), Tatjana Schneider and Jeremy Till
architect has made the choices for how the spatial connections and construction
uncertaint y in design and construction, where the architect leaves room for the user to choose
In the histor y of practicing architecture treating the user as the developer and valuing their opinions on the design was for a long time the norm. The highly industrialized and rational process of mass housing has to a large extent discarded this participation treating the users as a homogeneous group with the same way of living and needs in housing.
The concept of participation and user choice describe how the user can
achieved in several ways and stages of making architecture. At an early stage of planning, pre- production, participation is about letting in the user in the design process, asking about in what ways they want to live and designing af ter that. Another version can be self-building, DIY,Y were the user apart from planning also in some extent participates in the building process. These strategies of collaborating with the user can be effective in creating a sense of communit y around the architecture.
Participation and user choice can also be achieved af ter the architecture is built, post- production, in the form of preAs this is done post- production it has to do with construction and physical changes. In the case of , the architect stays in the background giving the user a framework in which they choose their own design. This could for example be achieved through movable walls in a dwelling with few load bearing elements.
means the architect stays in the foreground pre
and building these into the design. This strategy offers less user choice then the and user choice is an essential part of achieving a good and working outcome
i hand. When studying housing projects that focus on one of the two concepts it becomes clear they gain from including the other. For instance, building small solutions within the apartments, it also in construction and functionalit y of the spaces to function well for all users.
mind when designing housing might therefore result in a feedback loop that
Co-living can be divided in different sub -concepts:
is when the design of
For instance, including a child daycare liberates the residents to organize their lives in new ways
It’s also interesting to look at the shared spaces of a building. They can either be for private use: collective areas used by the residents individually (eg. laundry room.) Or they can be for collective use: collective areas are used by the residents collectively (eg. Shared garden.) How
the shared areas of a building are used affects the communit y of the housing. At the collective housing of Tinggaarden in Denmark there are additional rooms that connect to two apartments providing space when needed
Shared ownership refers to cooperative housing. This of ten results in building unity among the residents. Sharing the responsibilt y and the costs can also give the owners possibilties to add shared
to expensive or unnecessar y.
Residents can be connected by more than the building itself, what we call shared interest/lifestyle. This refers to when residents share the same values, life situation or lifest yle. Examples of this are student housing, eco-village, political collectives or refugee camps. This of course of ten correlate with a strong communit y within the housing, but also
living spaces for the housing to be able to adapt to new circumstances
Flexibility Concept: Co-living Lifespan: 1935 - today Architect: Sven Markelius Place: Stockholm, Sweden
Kollek tivhuset on Kungsholmen in Stockholm captures the spirit of the radical functionalistic ideas of the swedish architecture of the 1930’s. It is also an ebodiment of the political climate of the time; an architect’s attempt to build the societ y advocated by the progressive movement led by social democratic icons Alva and Gunnar Myrdal
The Stockholm exhibition in 1930, led by Gunnar Asplund, was the starting point of the modernist movement in Sweden. Among other prominent architects participating in the event was Sven Markelius, who also was one of the writers behind the radical debate book ‘Acceptera’ from the following year. Markelius had come in contact with the european modernism in 1927 on a trip to Germany where he met Walter Gropius who showed him the Bauhaus School in Dessau. He was also a good friend of Alva and Gunnar Myrdal, and their ideas of a social democratic welfare
the functionalist ideas of the Bauhaus movement with societ y and family politics
The result is a micro sociat y in form of a building. Social spaces and institutions
apartments and communal areas are connected by the modern infrastructure of it’s time: stairs, corridors, shaf ts, elevators and telephone lines
Kindergarten, restaurant, roof terrace, courtyard/ garden
Progressive social democracy
Working middle class academics Public restaurant dining, kindergarten
Kollektivhuset is a social experiment developed by Markelius in close collaboration with Alva Myrdal. Myrdal
USA and then in Geneva, and returned to Sweden with an interest in children and family issues. The idea behind Kollek tivhuset was to emancipate working women from homemaking and housework using collective housing This is achieved by making the private dwellings small and compact with direct access to different service facilities, and collective areas for recreation. The
for children, a restaurant and a laundr y service. There is also a roof terrace with access for all the residents
The idea behind the building was not foremost to build a communit y in the house, but to use collectivism to give the residents more individual freedom.
aspects of the architecture, not in the construction of adaptable modules or moveable elements within the apartments. Kollek tivhuset worked as a cooperative housing with paid staff that took care of the ever y day chores. To give women the freedom to work or cultivate interests beyond homemaking the kindergarten was open 24 hours a day, and the laundr y was washed by the staff. Instead of kichens the apartments had small kitchenettes with access to the restaurant kitchen via dumbwaiters; an attempt to replace the private family cooking with food ordering.
Even though the system of pillars and slabs make way for a free plan the small and compact apartments are hard to rearrange with time, and the spaces of
constructions are there as functional tools to liberate the residents from ever y day chores, creating space for social
Steel, glass, reinforced concrete and plaster Freestanding supporting pillars
The housing cooperative Fågelbärsträdet
Small family dwellings and single households
There are four dumbwaiters connecting leaves only the two smallest dweelings
the restaurant kitchen. Oddly enough, these are the only apartments without kitchenettes, but at the time it was not uncommon to make more sparse living spaces for students or day workers. The private kitchenettes have a direct telephone line to the restaurant kitchen, making it easy to order food.
The stairs and elevator is placed as a hub in the middle of the building. Two shaf ts are placed right by the stairs, one for garbage disposal and the other for laundr y. The residents put their laundr y in marked bags and sent them down the shaf t to be washed by the staff of the house.
Also worth mentioning is the way Markelius programmed the building to create interaction between the residents and the public. On one hand, the apartments are ver y private. The slanted windows of the west facade does not only provide view and sunshine to the dwellings, it effectivly cuts the view from neighbouring apartments and houses.
On the other hand, Markelius arranged the movement outside the private dwellings so the users would meet each other and the public. The entrence hall is reached from the side, which connects the residents to the public restaurant, and all the facilities are reached from the street instead of letting the residents access them from corridors within the building.
Kollektivhuset is ver y much a product of its time. Cooperative housing is today standard in Stockholm, but not in the way Myrdal and Markelius imagened it. They never considered housework could be divided within the family, and instead proposed a system where many residents would share the costs of paid staff to manage the daily chores. Myrdals concept of daycare would be picked up by the state on a larger scale which made the ideas of making it part of a smaller collective house obsolete.
Gumpel & BengtssonThe Kindergarten, or childcare center, is placed on the north side from the street but there is also a path from staircase mostly used by
The kitchenettes of the personal dwellings are very small and linked to the restaurant by dumb ELEVATOR
There are two shafts next to the the other for laundry that is packed in personal bags and cleaned by the
There are four dumbwaiters reaches two apartments on every without direct connection to the
The kitchen does not only connect directly to the restaurant, it also has direct access to the
The grocery store, located in the middle, is divided in two parts: the food store on the left, and a milk
ENTRANCE dents of the building with the public
On the south side there is a restaurant open for the public as well as the residents of the Outside of the bar there is space for
170 PR OT OTYPE S O F CO -AR C HITE C T U RE Rebecca Wahlström
Flexibility Concept: Construction Lifespan: 1952 - today
Architect: Le Corbusier Place: Marseille, France
Unité d’ habitation is designed by Le Corbusier and built between 1947 and 1952. Unité d’ habitation is a form of experimental building and was a protot ype for a new t ype of social housing; four other houses have since been built in Nantes-Rezé (1953), Berlin (1957), Briey en forêt (1959), and Firminy (1965). The Unité d’ habitation was groundbreaking in its construction, scale, and ideas about how individual and collective dimensions interact in a house. The project has inspired many architects and is seen as both a milestone in modernism and brutalism.
Af ter World War II, the shortage of housing was widespread Europe was still feeling World War II’s effects when Le Corbusier was commissioned to design a multi-family housing project for Marseille people who moved out af ter the bombings against France. The building would be affordable and give the city a new life with its creativit y. For Le Corbusier, this project could test his ideas and ideals about how the building is like a “machine”. The project had an open budget, there were no planning restrictions, and the cit y was behind a creative project with new solutions. Originally the building is intended as a rental building, but it changed it to a condominium in May 1954
Kindergarten, restaurant, roof terrace, shops, hotel, the “street”, gym
Progressive social housing
Working middle class
Public restaurant, shops, cafes, roof terrace, gym
At the beginning of 1926, Le Corbusier developed in his writings and sketches an architectural concept for his future
in Unité d’ habitation, the free plan, bay windows (optimizing sunshine), concrete pillars that release buildings from the ground, the roof terrace that offers activity, and the building’s verticalit y that promotes lighting conditions in the cit y
Le Corbusier’s idea of the “vertical garden cit y ” was based on bringing the villa to a larger volume that allowed the inhabitants to have their own private spaces, family intimacy, and the cell’s autonomy. But outside the private sector, they shopped, ate, exercised, and gathered together. Unités d’ habitation has 1,600 inhabitants that correspond to a communit y that one would meet in a neighborhood within a mixed-use, modernist, residential high -rise.
The project’s scale was groundbreaking for its time, and with 337 apartments arranged over 18 stories, suspended on massive pillars, the design requires an innovative approach towards the spatial organization to accommodate the living spaces as the public, communal areas
Marseille city
Reinforced concrete
Reinforced concrete, column based structure, prefabricated elements
Marseille city
Family dwellings
The building is 165 meters and 56 meters high, and each apartment has a deep of 24 meters. The main structure is based on a basic 4.19 m × 4.19 m lattice of reinforced concrete. The vertical system is a mixture of pillars and walls, and the horizontal structure is a mixture of beam supported tiles and individual beams that
Le Corbusier combines three primar y modules that enable several combinations, from single-cell single to t ype “E” for families of four to eight children. Le Corbusier designed the units to extend from each side of the building and have a double- height that reduces the number of necessar y corridors to ever y
enabling a space with double heights, Corbusier can effectively place more apartments in the building and create an interconnected living volume.
The apartments, divided into pairs into connected to a staircase. The living room with a height of 4.80 m extends over two 4.80 m provides full views of the beautiful surrounding landscape
Unité has varied in its functions regarding co-living aspects. The so-called streets in the buildings with local shops and cafes did not work from the start as it was not enough with the residents’ trade, and the
ground did not attract visitors. The hotel and restaurant are still in operation due to the popular tourist destinations Unité has become. The most successful gathering place in the house is the roof, where there are several different facilities. The roof has become a common area where the inhabitants of Unité meet. It can almost be described as a park in its function free plan, domino structure gives le Corbusier the freedom to organize the module system’s design. The condos have been criticized for being too small, and over time, the condos do not give the owner any user choice
Af ter it was built, the project was criticized for its size and rough-textured. The building is a protot ype for mass construction that began in the 1950s due to the housing shortage. This project shows what a pioneer Le Corbusier was and how intensely modern man’s belief drove him
Flexibility
Concept: Construction & User choice
Lifespan: 1953 - today Architect: William-Olsson Place: Järnbrott, Gothenburg
Experimenthuset is a multi-storey residential building from 1953, located in Järnbrott, Gothenburg. The building is situated as a solitary volume and ac comodates 20 apartments (with varying sizes from 42 to 87 m2) as well as a basement which holds a laundry room, one shared common area and various storage rooms
The apartment block was the result of an idea competition arranged by the City of Gothenburg Housing Authority. Thier aim was to discover new ideas around hous ing construction since most households at the time could not afford an apar t ment larger than 50 square meters.
To solve this problem, the winning archi tects (Tage and Anders William-Olsson)
ducing demountable wall panels. These allowed for the tenants to adapt their living space by themselves, based on their current needs
To make this system possible, the construction of the building had to support for an open plan. With only one load bearing pillar inside each apartment as well as the bathroom walls, an open plan was achieved with the construction of a concreate framework. The building was completed with pre-fabricated concrete elements in the facade
Both the interior demountable walls as well as the construction method was cutting edge at this point in time in Sweden.
The demountable wall panels were made never standardized even though that was what the architects initially hoped for.
Instead the panels had a specialized construction that had the base of an wall-or cabinet elements in a factory These were then delivered to the building where the tenants could easily make partition walls by installing them onto
The elements were being stored in the basement as an easy access for the tenants to use whenever they wanted to add more rooms in the apartment. It only took a few hours to create a whole new room, making this solution very user friendly
The movable partition walls offered a before in Sweden, however it was limited within the apartment and supported coliving only within the growing family.
As if this innovation was not enough, a bar-kitchen was also placed in each of the apartments as a way of saving space but also to integrate the kitchen into the living room. This idea was inspired by similar concepts used in the U.S and was well recieved by the residents.
9. Construction of wall elements
Perspective showing hypothetical apartment layouts through time
Concrete framework cast in place.& concrete pre fabricated elements
The buidling has a cast in place concrete framework which is load bearing. The framework is made up of slabs and pillars which have insulation on the outside, made out of lightweight concrete blocks that have been plastered
In between the pillars, prefabricated concrete elements have been placed These have in turn been covered with a wooden panel. Internaly the structure is upheld by the bathroom walls (concrete) and one pillar in each of the apartments. The use of prefabricated elements led to the building being completed within a year
The framework of the building was however maybe the most important part of the construction since it made
alllowed for the partition walls to be the main feature within the apartmentsand it also opened up for user partitipation
Finally the house has a low pitched saddle roof without eaves. This feature, accompanied by the projecting staircases and the sur face-mounted balconies, gives the building a modern rational pattern in the exterior which also contributes to this house being one of a kind
Flexible dwellings for the growing family view[User choice]
[Shared spaces]
[Shared spaces]
[Shared]
[Shared]
Concept: Ecological self building Lifespan: 1995 - 1997 or longer Architect: Nader Khalili Place: Khuzestan, Iran
Super Adobe is a construction technique originally developed in 1984 by architect Nader Khalili in response to a NASA call for housing designs for future human settlements on the Moon and Mars. This simple yet highly effective self-build construction method can be used to build shelters quickly and without the need for specialist building skills. In 1995 Khalili partnered with the UNDP and the UNHCR to apply his researches to providing emergency shelter for Iraqi refugees at the Baninajar camp in Khuzestan, Iran.
Refugees built 15 domed shelters using the Super Adobe system. Each shelter measures about 14 square metres and costs only $35.1/m2 to construct. On site, the shelters were arranged in a chequered layout and between them were wood/fabric shading structures added by residents to give semi-outdoor living spaces
1. 14 domed sandbag shelters, exterior view
2. Small house,
The Super Adobe construction system requires only barbed wire and sandbags.
and laid to construct a domed structure. Barbed wire connects the bags, and stabilizer such lime or cement may be added to the earth
The arch -shaped shelters are seismically safe and impervious to weather conditions. Due to the insulation properties of the thick walls, the temperature inside the Sandbag Shelters remains stable throughout the year.
The structures can be adapted both in system can either be used temporarily or made permanent with a waterproof
to convert a temporary structure into a permanent shelter is especially useful in disaster relief situations and in refugee camps where host countries may not prefer permanent structures but the situation can demand otherwise.
The system does not require skilled labour and is built entirely from readily available, local and environmentally friendly material. The systems’ low-cost, minimal material requirements and opportunity for self-building makes it possible for a wider range of people to use the system.
So far, SuperAdobe structures have
been built in around 50 countries on 6 continents. Ranging from backyard landscaping to eco-resorts, SuperAdobe construction can be applied to a variety of constructions. The technology even has the potential to be used to build on Mars and the Moon.
The simple method of construction is easily grasped, and requires no training. Super adobe construction enables the whole family to be able to build together, from grandparents to the youngest child The refugees constructed the structures
to nine days per dome. Residents also built simple shading structures in the areas between the shelters which acted as social space. Time spent together while building connects the residents and builds community ties between them.
A community’s well being is dependent on the quality of relationships among the citizens of that community. A shared purpose such as self-building develops such relationships.
The refugees support structures and communities are often very fragile because they are uprooted from their previous homes. Although not the primary motivation of this project, the community building effect resulting from self-build construction is very relevant to the project.
Shared outside spaces Refugees Building construction2
Pre-
DIY
Flexibility Concept: Flexible/Highly industrialized Lifespan: 1971 - today Architect: Curman Arkitektkontor AB Place: Nacka, Sweden
Västra Orminge is a large housing project built between 1967-71 in Nacka. The project accommodating 2600 apartments is an example of highly
building system with prefabricated concrete elements. Built during the million-program era the project differs in its dynamic site approach featuring both low linear blocks and higher point blocks that adapts to the terrain. The building
the apartments where inhabitants can alter the plan by ready-made modular elements to their own needs and liking.
Both the developer, architect and builder enabled variation of the building volumes while at the same time being rational, economic, and fast to build. It was also important that the system could adapt to the terrain so that nature qualities could be preserved. This was a reaction against monotonous large-scale mass housing projects built around the time.
The solution became the use of the prefabricated system Skarne 66. The system had been tried out earlier in an experimental house with good results. Västra Orminge took the development of Skarne 66 one step further testing building typologies.
Shared outside spaces
Rational, Adaptable to terrain, User-Choice
The growing family
Daycare, school, shopping center
By arranging the prefabricated elements in different ways different sizes of apartments could be made as well as buildings that varied in length, width, and
key feature in adapting the buildings to the site and program
The apartments with their few load bearing elements enable for the inhabitants to arrange the apartment as
apartment to change over time as the needs of the family would change. It also makes it possible to create more unconventional plan solutions
The low scale and adaptation to the terrain of the project is a way of creating a more intimate feeling in the area. Even though the buildings are rational and simple in their design, effort were put into placing them in the terrain so that varying and interesting spaces between and around them were created. In these spaces the inhabitants would meet and a sense of community could be created.
Even though the apartments in Västra Orminge were designed with the individual family as its main target group
suitable for different kinds of collective living. The only constraints being the borders of the apartment.
The building system Skarne 66 was developed by Ohlsson & Skarne AB. Skarne 66 consists of prefabricated concrete element and the core of the
from installations. Together with load bearing outer walls and a few columns the slabs form apartment modules. All installations are gathered in a hollow wall that creates a shaft throughout the building. The apartment modules are combined with stairway modules to form buildings.
The apartments could be seen as empty concrete shells where kitchen and
functions placed against the installation
made wall elements and cabinets by the inhabitant to form the plan of the apartment
Ohlsson & Skarne ABPrefabricated concrete elements
Load bearing columns and exterior walls
HSB, AB Familjebostäder
Linear blocks and point blocks in 2-5 storys
A system based on modules always poses constraints. Although the modular system made it easy for the inhabitants to themselves make changes it also restricted them in the number of ways these changes could be made
The system with ready-made elements requires new modules to be made and kept in stock for the inhabitants to keep changing the apartments over time. This poses economic, warehousing and ownership related issues for the property management. Therefore, it is unclear
however it is still possible for inhabitants to make changes in their apartments
The system with ready-made modular elements had some technical issues. Sound transfer within the apartment caused a questionable living milieu. Issues with ventilation and electrical installations made it harder for the inhabitants to take full advantage of the
1 Slab
The core of the construction is the prefab concrete installations
2 Exterior wall
Prefab load bearing concrete elements in different widths. The concrete is exposed on the facade with visible joints between the elements.
3 Column
Load bearing columns in the middle of the building measures 350x600 mm.
4 Installation wall
All electrical- plumbing- and ventilation installations is placed in one hollow wall creating a shaft throughout the building.
5 Fixed functions
Placed against the installation wall is the only laundry.
5 Interior walls/cabinets
Constructed by ready-made wall elements in three standard widths: 3, 6 or 12 M (1M = 100 mm). Cabinets in 6x6M
52-58 112-156 9-5
1-6 7-8 9-5
1-6 7-8 9-5 1-6 7-8 9-5 1-6 7-8 9-5 9-5 1-6 1-6 2-8 7-8 9-5 1-6 7-8 9-5 1-6
Shakers 1806-1910
Oneida 1851-1879
Kibbutz 1910-today
Terraces on Ålstengatan 1933-today
Kollektivhuset 1935-today
The Kensal House 1936-today
The Affleck House 1940-today
Elfbinggården 1940-today
Unité d’habitation 1947-today
Experimenthuset i Järnbrott 1953-today
Pruitt Igoe 1954-1972
Hässelby familjehotell 1956-today
Duggregnet 5 1957-today
Däckshus Kallebäck 1960-today
Burgerweeshuis 1960-today
Waldorf seminar 1962-today
Sea Ranch 1964-today
Robin Hood Garden 1971-2017
Västra Orminge 1971-today
Overrecht Noord 1971-today
Walden 7 1975-today
Wandelmeent 1977-today
De Zonnetrap 1980-today
Super Adobe Construction 1984-today
Understandshöjden 1995-today
Image: Sketch, Umeåhus 25, Östermalm, Umeå, Ralph Erskine, http://trasnidaren.nu/omradets historia/ (Accessed 2020-10-22)
Authors: Erik Sandsten, Kamil
Literature: Hayden, Dolores. 2002 Edition, 1984. Redesigning the American Dream W.W. Norton & Company. Ch. 4 & 6, p. 81119,141-189 Murawski, Michal. 2017. Revolution and the Social Condenser. Strelka Mag. [Online article] h ttps://strelkama g .com/en/article/ architecturerevolutionsocial-condenser(Accessed 2020-10 22)
Eberle, Dietmar, Schmid, Susanne & Hugentobler, Margrit. 2019. A History of Collective Living. Basel/Berlin/Boston: Birkhauser Verlag GmbH. p. 11 42
Images:
1. Plan of Trudeslund, Vandkunsten Architects, h ttps://vandkunsten.com/pro j ects/trudeslundbyggefaellesskab (Accessed 2020-10-23)
2. Cronquist, Gustaf W:son. 1936. Flygbild över Ålsten [Photography]. Stockholmskällan [Online]. https://stockholmskallan.stockholm.se/post/6394 (Accessed 2020-10-21)
3. FLC. 1957. [Photography] Berlin Archiv [Online] www.lescouleurs.ch/en/journal/posts/ lecorbusiersresidential-unit-type-berlin-a-dialoguebetweenbuilding-people-and-colour/ (Accessed 2020-10-22)
4. Andersson,Yngve, 1962,[Photography] Elfvingården Exteriör, Digitalmusem Ark Des https://digitaltmuseum.se/011015009371/ elfvinggarden-exterior/media?slide=0 (Accessed 2020-10-23)
Authors: Adrian Andersson Martvall, Bisrat Assefa, Carl Petersen, Elin Lennartsson, Erik Karlsson, Hedvig Aaro
Literature: Vestbro, Dick Urban (ed). 2010. Living together - Cohousing ideas and realities around the world. Stockholm: Universitetspress US AB Larsson, Reidar. Ekologism. Nationalencyklopedin. https://www-nese. focus.lib.kth.se/uppslagsverk/encyklopedi/ l%C3%A5ng/ekologism (Accessed 2020-10-08) Ekologi. Nationalencyklopedin. https://www-nese. focus.lib.kth.se/uppslagsverk/encyklopedi/ l%C3%A5ng/ekologi (Accessed 2020-10-08)
White, Janet R. “Designed for Perfection: Intersections between Architecture and Social Program at the Oneida Community ” Utopian Studies 7, no. 2 (1996): 113-38. Accessed September 20, 2020. http://www.jstor.org/stable/ 20719513.
Sharon, Arieh. “Collective Settlements in Israel.” The Town Planning Review 25, no. 4 (1955): 255-70. Accessed September 20, 2020. http:// www.jstor.org/stable/40101570. Chemotti, Mary Rae.1981. Outside Sources for Shaker Building at Pleasant Hill. Vol. 2, Diagram (original): Vestbro, Dick Urban (ed) 2010. Living together - Cohousing ideas and realities around the world. Stockholm: Universitetspress US AB.
Images: 1. Hallén, Lars. Kitchen in Understenshöjden [Photography]. In Berg, P G; Cras-Saar, M and Saar, M. Living dreams: om ekobyggande - en hållbar livsstil. Nyköping: Scapa förlag, 23. Lantz, Gunnar. 1959. Hässelby Gårds centrum invigs. Barn med pappersvippor i folkvimlet Stockholmskällan [Online]. https:// stockholmskallan.stockholm.se/post/17027 (Accessed 2020-10-22)
Authors:, Alice Nilsson, Anton Valek, Julia Thiem, Rei Mark Seares, Stina Edlund Literature: Ekholm, A., 1980. Utvecklingen mot strukturalism i arkitekturen, Stockholm: Byggforskningsrådet: Sv. byggtjänst (distr.): Almqvist & Wiksell international (distr.)
Smithson, A. 1968. Team 10 primer. London: Studio Vista
Valena, T.F., Avermaete, T. & Vrachliotis, G., 2011 Structuralism reloaded : rule-based design in architecture and urbanism, Stuttgart: Edition A. Menges
Curtis, William J.R. 1996. Modern architecture since 1900. Third edition Phaidon Press Limited Images:
1. Eyck, A.van, 1982. Niet om het even... wel evenwaardig : van en over Aldo van Eyck, Amsterdam: Van Gennep., P 79
2. Bigmat International Architecture Agenda BMIAAA, Inner Space Dogon, 20.10.2019, https:// www.bmiaa.com/wp-content uploads/2019/10/ Inner-space-dogon.jpg [10.09.2020]
3. Valena, T.F., Avermaete, T. & Vrachliotis, G., ibid, P. 12
4. Eyck, A.van, ibid, P. 5
5. Tatyan, Structuralism in the Architecture of Herman Hertzberger, 27.05.2013, https:// outformat.wordpress.com/2013/05/27/ structuralism-in-the-architecture-o f hermanhertzberger/ [05.10.2020]
6. Arch Eyes, Skyhouse / Kiyonori Kikutake, 20.01.2016, https://archeyes.com/skyhousekiyonorikikutake/, [16.09.2020]
7. Safdie, M., 1970. Beyond Habitat, Cambridge, Mass., P.20
Authors: Fredrik Skyllbäck, Frida Wollberg, Mattias Månsson, Nada El Kateb, Rebecca Wahlström Literature: Schneider, Tatjana; Till, Jeremy. 2007. Flexible Housing. Architectural press
Images:
1. Le Corbusier. 1914. [Perspective view of the Dom-ino system] Image from Le Corbusier & Pierre Jeanneret, OEuvre Complète Volume 1, 1910–1929, Les Editions d’Architecture Artemis, Zürich, 19645
2. Unknown, Västra Orminge [Photography] ArkDes, [Online] https://digitaltmuseum.org/ 021016402152 /b osta d somra d e-vastraormingeexterior (accessed 2020-10-23)
3. Unknown, Le Corbusier Unitè d’habitation Marseille [Online]. https:// lecorbuinbn.tumblr.com/post/97129590205 (accessed 2020-10-22)
4. Unknown, Mies Van der Rohe: Weissenhofsiedlung, 1927 [Online]. http:// www.polpettas.com/polpettasgoes-stuttgarttravelstories/ (accessed 2020-10-22)
5. Unknown, Super Adobe Emergency Shelter [Online] https://www.calearth.org/tour (accessed 2020-10-23)
6. Unknown, Maison Loucheur [Online] https:// i.pinimg.com/originals/df/20/14/ df201406dd845fa8ab821e4df4294195.png (accessed 2020-10-23)
7 Unknown. Isometric drawing illustrating the variation in room and apartment types, image brochure Dansk almennyttigt Boligselskab [Online]. https://www.arkitekturbilleder.dk/ bygning/tinggaarden-i/ (accessed 2020-10-22)
8. Eva Rudberg. 1989. Sven Markelius, arkitekt. Stockholm: Arkitektur Förlag, 82
stockholmsgestaltare 1895-1977, Stockholm: Stockholmia. s.90-93 Söderström, G. et al., 2003. Stockholm utanför tullarna : nittiosju stadsdelar i ytterstaden, Stockholm: Stockholmia. s.464-468 Bostadsrättsföreningen Fotbollen 1. Föreningens historia: En arkitekt, en byggare och en statsminister htt p s:// f otbollen1.bostadsratterna.se/ foreningenshistoria
Images: 1. Visit Stockholm. Year unknown. Per [Photography]. Visit Stockholm [Online]. https:// www.visitstockholm.com/sv/se--gora/sevardheter/ peralbin
2. Cronquist, Gustaf W:son. 1936. Flygbild över Ålsten [Photography]. Stockholmskällan [Online]. https:// s toc kh o l ms k a ll an.stoc kh o l m.se/ p ost/6394
Text: Lawrence Technological University, 2020. Places: John Henke, 1999. Living Wright. http://www.da 1022)
Michigan Modern, 2020. Gregor S. and Elizabeth B
19356 04_o. j pg?_nc_cat=108&ccb=2&_nc_sid=cdbe9c&_ nc ohc
1.xx&oh=5dceee5eff4d16f4996a
22)
Text: Socialdepartementet. 1954. Kollektivhus Bostadskollektiva Kommittens Betänkande II
Images: 1. Unknown Situationsplan över Elfvinggården
elfvinggc3a5rdens-mc3b6bler.pdf (accessed 2020 1014)
2. Kidder Smith Elfvinggården Exteriör https:// digitaltmuseum.se/011015010387/elfvinggarden exterior (accessed 2020-10-14)
3. Unknown Broderande damer https:// e l f vinggc3a5rden- f rc3a5n-tema-arkitekter.pd f (accessed 2020-10-14)
4. Unknown Det ursprungliga restaurangköket år 1940 e l f vinggc3a5rden- f rc3a5n-tema-arkitekter.pd f (accessed 2020-10-14)
Text: Marshall, Colin. 2015. Pruitt-Igoe: the troubled Guardian. [Online article] https://www.theguardian com/ cities/2015/apr/22/pruitt-igoe- h ig h -rise-ur b an americahistory-
Images: 1. Huntington Woods Parks & Recreation, 2017. View of entrance of building [Photography] https://scontent-ams4-1.xx.fbcdn.net/v/t31.0 8/19092917_10155459201222082_760322226485
39837
62_o. j pg?_nc_cat=104&cc b =2&_nc_si d =c db e9c&_ nc ohc
1.xx&oh=48eec4e682eab2665c18
22)
2. Huntington Woods Parks & Recreation, 2017. View of south corner balcony [Photography]. https:// scontentams4 1.xx.fbcdn.net/v/t31.0 8/19055868_10155459208962082_851697910660
Mars, Roman. 2012. The Pruitt Igoe Myth. 99% Invisible [Online podcast]https://99percentinvisible.org/ episode/ 10-22)
Fiederer, Luke. 2017. Pruitt-Igoe Housing Project
Frishberg, Hannah. 2013. The Failed Paradise: Pruitt w ww.at l aso b scura.com/artic l es/pruitt-igoe 2020-10-22)
Images: 1. Wikimedia user Cadastral. 1972 www.archdaily.com/870685 https:// tacity.co.uk/2012/01/16/pruitt-igoe/
3. Freidrichs, Chad. 2011. [Photography] Courtesy of The Pruitt Igoe Myth. [Movie]
4. Unknown. 1950’s. [Photography] Kolumn Magazine [Online]http://www.kolumnma g azine com/2017/09/19/
remembering-black-women-st-louiss-pruitt-igoe housingprojects black-perspectives/
5. Lozano, Carlos. 2016. [Illustrative layout]https:// www.carloslozano.w
Trema Förlag.
Lind, Jakob. 2005. Det är ok att vara stolt. Du bor i ett unikt hus! Vita huset. Utgivare Lokala Hyresgästföreningen Sockerbiten Eriksson, Olle. 2007. Bladet. Utgivare Lokala Hyresgästföreningen Sockerbiten. Swedish National Heritage Board. 1954-2004. Riksantikvarieämbetet [Online] http://www.bebyggelseregistret.raa.se/bbr2/
Images: 1. Unknown. 1958. [Photography] Lokala Hyresgästföreningen Sockerbiten [Online]https:// husetsockerbiten.se/historia-1/index.htmlSvohljott 2018. [Photography] Instagram [Online]https:// www.instagram.com/svohljott/
2. Jonsson, Mats. 2002. Hey Princess. Galago Förlag.
3. Unknown. [Day light study] Lokala Hyresgästföreningen Sockerbiten [Online]https:// husetsockerbiten.se/historia-1/index.html
Byggnadsminnesutredning
2011-02-21 Erik Fribergers däckshus, Kallebäck. https:// docplayer.se/15869851-Byggnadsminnesutredning2011-02-21-erik-fribergers-dackshus-kalleback.html
för arkitektur, 1989. Funktionalisten Erik Friberger, arkitekturens teori och historia
Experimenthus, enfamiljshus på betongdäck [Photography]. Göteborgs Stadsmuseum [Online]. http:// www.kringla.nu/kringla/objekt?referens=GSM/
[Photography]. In Byggnadsminnesutredning 2011 02-21
[Online]. https://docplayer.se/15869851
B ygg nadsminnesutrednin g -2011-02-21-erik fribergersdackshus
3. Friberger, Erik. 1959. [Section Drawing]. In Byggnadsminnesutredning 2011-02-21 Erik Fribergers
https:// docplayer.se/15869851-Byggnadsminnesutredning2011-02-21-erik-fribergers-dackshus-kalleback.html
byggnaden [Photography]. In Byggnadsminnesutredning 2011 02-21
[Online]. https://docplayer.se/15869851
B ygg nadsminnesutrednin g -2011-02-21-erik 09-03)
5. Unknown. Year Unknown. Genomgående vardagsrum [Photography]. In Krus, L. & Chalmers tekniska
Funktionalisten Erik Friberger, Göteborg: Chalmers historia
[Photography]. In Byggnadsminnesutredning 2011 02-21
[Online]. https://docplayer.se/15869851
B ygg nadsminnesutrednin g -2011-02-21-erik fribergersdackshus
1. h ttps:// b au bl og.warm b aec hl i.c h / k ategorie/ geschichte-des-gemeinschaftlichen-wohnen/?fbcli
Collective Living: Models of Shared Living. Birkhäuser
Text: McCamant, Kathryn; Durett, Charles. 1988
Housing Ourselves. Ten Speed Press, California: https://wandelmeent.nl/ https://www.experimentelewoningbouw.nl/ p ort f olio/ex-73-183-hilversumse meentwandelmeent/ https://www.dearchitect.nl/architectuur/blog/ 2020/01/blog-gemeenschappelijk-wonencentraal wonen-in-de-hilversumse-wandelmeent 101234862
Images: 1. Van de Biezen, Maarten. Luchtfoto Wandelmeent. Holland Luchtfoto. https:// www.hollandluchtfoto.nl/media/02294160-f2e5 4d84-b9ea-bcdc8677ad46?hit num=1&hits=2 &next=3b7d2734-62cc-4f28-a160-a7ce388cd
ssed 2020-10-22)
2. Unknown https://www.experimentelewoningb ouw.nl/wp-content/uploads/2016/11/73183
3. Burghout, Manou. https://wandelmeent.nl/
22)
4. Krabbendam, Philip https://www.dearchitec t.nl/architectuur/blog/2020/01/blog-gemeenscha ppe l i jk -wonen-centraa l -wonen-in- d e hilversumsewandelmeent
5. Unknown https://www.dearchitect.nl/architectu ur/ bl og/2020/01/ bl og-gemeensc h appe l i jkwonencentraalwonen-in-de-hilversumse-wandelmeent 101234862?_ga=2.242319682.1101973445.1582
Text: Bishop, Rufus, and Seth Youngs Wells. 1816 Testimonies of the Life, Character, Revelations, and
Her: Through Whom the Word of Eternal Life Was Opened
Chemotti, Mary Rae.1981. Outside Sources for Shaker Building at Pleasant Hill. Vol. 2, Evans, Frederick William. Shakers: Compendium of the
Origin, History, Principles, Rules and Regulations, Government, and Doctrines of the United Society of
Goessmann, David. 2007. “Die letzten Shaker,” Welt online edition
The 1975 Cambridge, Mass: MIT Press, Mueller, Beth. 2011. “The Shakers Of Pleasant Hill,” Wergland, Glendyne R., ed. 2007. Visiting the Shakers, 1778-1849: Watervliet, Hancock, Tyringham, New
1 Clinton, N.Y: Richard W. Couper Press, Images: 1. Unknown. before 1923 The Shakers Harvesting Their Famous Herbs [Illustration] http:// www.shakerhistoricalsociety.org/learn/the-shakers/
2. Unknown. Main Facade of Center family dwelling [Photography] https://www.kentuckytourism.com/ harrodsburg/history-heritage/historic-districts-sites/
[Illustration] https://shakervillage.wordpress.com/
4. Unknown. before 1923 Shakers during worship [Illustration] http://www.shakerhistoricalsociety.org/
5. Unknown. Floorplan of Shaker house [Floorplan] http://blog.shakervillageky.org/tag/villagework/
6. Unknown. Shaker sleeping rooms [Photography] h ttps://www.sout h unions h a k ervi ll age.com/ 2020-10-29)
Shaker [Photography] https://www.design-mkt.com/66255 vintage-american-rocking-chair-by-shaker.html
8. Regina Cole. Shaker house inside [Photography] h tt p s://www.o ldh ouseon l ine.com/ h ouse-tours/ shakerspleasant
Text and images 5,6: White, Janet R. “Designed for Social Program at the Oneida Community ” Utopian 20, 2020. http://www.jstor.org/stable/20719513 The Editors of Encyclopaedia Britannica, Oneida Community, Encyclopædia Britannica, Encyclopædia 20, 2020. https://www.britannica.com/topic/Oneida Community Images: 1, 4, 7, 8. Department of Special Collections, Syracuse University Library, 2000. Images scanned by
Department of Information Systems and Peter Verheyen, Text encoded by Peter Verheyen, First edition, 1997. ca. 19K
2. The scandalous story behind a popular silverware brand: free love, religion and eugenics , Susan Bell, JUNE 15, 2016 https://news.usc.edu/100871/ thescandalous story-behind-a-popular-silverware-brand-freelove religion-and-eugenics/ accessed 5/10/20203
3. Unknown, The Rich, Sexy History Of Oneida WBUR, [Online]https://www.wbur.org/ hereandnow/2016/05/20/ oneida-silverware (accessed 05/10/2020)
Wachman (2005) The Kibbutz Dwelling: Ideology and Design, Housing, Theory and Society, 22:3, 147-165
Town Planning Review 25, no. 4 (1955): 255-70 stable/40101570 women’s work, Sep 7 2013
Planning 1930s-1940s/Ein-Hashofet/i-PD2ND3q (accessed
5/10/2020)
3. Children of the sun 2007 DVD Lama Films Israel Directed by Ron Tal [online]https://www.ariehsharon.org/ KibbutzPlanning/ Types-of-Rural-Settlements/i-fbf3bMw (accessed 5/10/2020)
(2005) The Kibbutz Dwelling: Ideology and Design, Housing, Theory and Society, 22:3, 147-165
Kibbutz
Images: 1. Petersens,Lennart af. 1955. Hässelby familjehotell byggs. En kvinna med barnvagn passerar [Photography]. Stockholmskällan [Online]. https:// s toc kh o l ms k a ll an.stoc kh o l m.se/ p ost/23579 2020-09-18).
2. Olson, Lennart.1956. Hässelby Familjehotell, Hässelby strand, daghemmet [Photography]. Wikipedia [Online]. https://sv.wikipedia.org/wiki/
w ww.n y times.com/2019/06/11/arts/design/sea ranchcalifornia
Reggev, Kate. 2019. The Legacy of Sea Ranch, a Utopian Community in Northern California. https:// w ww.dwell.com / article / sea-ranch-architecture 7f30ea15
Images: 1. Unknown. 2018. Condominium one [Photography] https://www.dezeen com/2018/09/25/ interview-sea-ranc h -arc h itecture-environment idealismjennifer
2. Lawrence Halprin Collection. 1965. Journey to Sea ranch http://searanch.ced berkeley.edu/s/sea ranch/ item/1444#?c=0&m=0&s=0&cv=0&xyw h= 598%2C
3. Turnbull, William Jr./MLTW Collection. n.d. Journey to Sea ranch http://searanch.ced ber keley.edu/s/ searanch/ item/609#?c= 0&m=0&s=0 &cv=0&xywh= 20)
4. Lawrence Halprin Collection. 1965. Journey to Sea ranch http://searanch.ced berkeley.edu/s/ sea-ranch/item/1796#?c=0&m=0&s=0&cv=0&
Stockholm, SE: Byggförlaget Svensson, Johan. Teacher and color expert at Umeå Waldorfskola. 2020. Interview,october 1 Karlsson, Gunilla and Rolf. Former teacher at Umeå Waldorfskola. 2020. Interview, october 1
Images: 1. Plunger, Max. 2007. [Photography]. in
Stockholm, SE: Byggförlaget
2. Plunger, Max. 2007. [Photography]. in Coates, Gary
ByggförlagetDesign. 2017 Journey to Sea ranch. http:// searanch.ced.berkeley.edu/s/sea-ranch/page/home
Community Born of ’60s Idealism. https:// w ww.n y times.com/2 0 15/ 0 7/19/t-magazine/sea ranchcalifornia
Ketcham Diana 2019. Sea Ranch California’s Modernist Utopia, Gets an Update. https://
Text: Berg, Per G; Cras-Saar, Margaretha and Saar, Mats. 2002. Living dreams: om ekobyggande - en hållbar livsstil. Nyköping: Scapa förlag
Correspondence 2020-10-10 Bostadsrättsföreningen Understenshöjden. 2020 understenshojden.se/om-understenshojden/ Bostadsrättsföreningen Understenshöjden. 2020 Hur kom området till?. https:// understenshojden.se/hur-kom-omradet-till/
ekoby https://www.snidare.se/bostder#/warten/
Understenshöjden [Photography]. In Berg, P G; Cras-Saar, M and Saar, M. Living dreams: om ekobyggande - en hållbar livsstil. Nyköping: Scapa förlag, 23
2. Åslund, Marie. 1993. Illustrationsplan [Drawing]. Stadsbyggnadskontoret [online] https://etjanster.stockholm.se/ Byggochplantjansten/arenden/arende/1993-938
3. Torpe, Mia. Bathrooms [Photography]. In Berg, P G; Cras-Saar, M and Saar, M. Living dreams: om ekobyggande - en hållbar livsstil. Nyköping: Scapa förlag, 34
Text: Coleman, N., 2017. Burgerweeshuis Orphanage:
Inc, pp. 1–13 evenwaardig Publishers
Basel: Birkhäuser Verlag Burgerweeshuis, 1960, Foto J J van der Meyden,
Structuralism reloaded : rule-based design in Menges., P. 129
Basel: Birkhäuser Verlag. P. 94
Text: Kasimidi, Marialena. Robin Hood Gardens The past, present and future of a much debated housing estate (2013) [online]https://issuu.com/ mkasimidi/docs/robin_hood_gardens_thesis
www.archdaily.com/220448/robin-hood-gardensto be-demolished
The Smithsons on Housing. (1970) BBC [online] https://www.youtube.com/watch?v=UH5thwHTY Nk
The disappearance of robin hood (2018) Urban Think Tank [online] https://vimeo.com/ondema nd/rhg
and Peter Smithson (1970) [online]https:// www.ft.com/content/b9d4bf88-ca2a-11e7-8536
2. Sandra Lousada, The Smithson Family Collection (1972) [online]https://municipald
2020-10-22)
3. Sandra Lousada, The Smithson Family Collection (1972) [online]https://municipaldre a ms. f iles.word p ress.com/2013/12/ p 14305
robinhood10-22)
4. The Smithson Family Collection, 1972 https:// ar.pinterest.com/pin/565131453224755687/
5. Smithson Family Collection (1968) [Online]https://www.archdail y .com/150629/ adclassics
robin-hood-gardens-alison-and-petersmithson/ 50380d8028ba0d599b000b6a-adclassics robin-hood-gardens-alison-and-petersmithson
archive, Workers on scaffholding during constructrion, Robin Hood Gardens Re-visions (2010)
Gómez-Collado, M. 2017. Rivera Herráez, R. & 19, 239–254 https://doi.org/10.1007/s00004 Marzá, Fernando; Moyano, Neus. 2004. «Walden d’arquitectura i urbanisme, [en línia], Núm. 244, p. 18-53, https://www.raco.cat/index.php/
Images: 1.Unknown. 2016. West Entrance [Photography]https://www.frieze.com/article/
3. Márton Mogyorósy. 2019. Drone photo [Photography]https://www.dezeen.com/ 2019/03/13/marton-mogyorosy dronephotography2020-10-22)
Concept of stepped units [Illustration]https://
5. Yukio Futagawa.1985. Rooftop terrace
6. Salva Lopez. 2014. Couple on balcony [Photography] https://salvalopez.com/walden-7/
Rotterdam, Pay-Bas. (1982). Techniques et architecture. No. 340, 1982 Feb.-Mar., p. 69.73
l/collection/view_the_collection/item/_rp_kolom2
https://www.ad.nl/rotterdam/lekker-rondjesrennen bij-oma-in-de-zonnetrap~a40dad3b/
3. Markelius, Sven. 1934. [Plan Drawing] Stockholmskällan [Online]. https:// s tockholmskallan.stockholm.se/ p ost/33048
images/uploads/d71a7b478556e1aecb56
Rotterdam-Lombardijen. (1980). Bouw. Vol. 35,
Images: 1. Unknown Photographer. 1971 Panorama Magazine. Enrico and Luzia Hartsuyker. http://archive.nai.nl/collection/ view_the_collection/item/_rp_kolom2
www.ad.nl/rotterdam/lekker-rondjes-rennen-bijoma 2020-10-22).
Drawing by Rudolf Das for Trouw newspaper http://archive.nai.nl/collection/ view_the_collection/item/_rp_kolom2
Drawing of the Biopolis by E. and L. Hartsuyker Ibid.
5. Rotterdam Woont. 2011. 4.1979.4
https://rotterdamwoont.nl/images/uploads/ d71a7b478556e1aecb563e8f497ff4fe.pdf
6. Rotterdam Woont. 2011. 4.1979.4 https://rotterdamwoont.nl/images/uploads/ d71a7b478556e1aecb563e8f497ff4fe.pdf
hall. [Photography]. http://rotterdam70.nl/ 20).
Text: Eva Rudberg. 1989. Sven Markelius, arkitekt
Images: 1. Markelius, Sven. 1934. [Plan Drawing] Stockholmskällan [Online]. https:// s tockholmskallan.stockholm.se/ p ost/33048 2020-10-20)
2. Markelius, Sven. 1934. [Elevation Drawing] Stockholmskällan [Online]. https:// s tockholmskallan.stockholm.se/ p ost/33048 2020-10-20)
Text: Shriglin,2004, Le Corbusier - L’Unite d habitation de Marseille / The Unite d Habitation in Marseilles: et les aut, Birkhauser Images: 1. Unknown. [Photography] Published in Du Sud-Ouest . [online]. https://lecorbusier worldheritage.or
2. Le Corbusier [Photography].[Online]. https://rabdo blo g/2017/06/12/abitare-collettivo/ vgbil
3. Unknown. [Photography] Published in Du Sud Ouest [online]. https://lecorbusier-worldheritage.org/en/ unitehabitation/
Sören 1988. Experimenthuset i Järnbrott : erfarenheter från course
TECHNOLOGY, 2019 3. Byggmästaren: tidskrift för arkitektur och byggnadsteknik. 1954: 51-60. Stockholm : Bröderna Lagerströms förlag
UNIVERSITY OF TECHNOLOGY, 2019 s. 78 2, 4, 8, 9. Byggmästaren : tidskrift för arkitektur och byggnadsteknik. 1954: 51-60. Stockholm : Bröderna Lagerströms förlag
Sören. 1988. Experimenthuset i Järnbrott : erfarenheter
Spångberg. s. 24, 16, 27, 84 10. Sundahl, Sune. 1955. Exteriör från Experimenthus [online]
Cal-Earth Institude, 2004. Sandbag Shelter Prototypes. Hesperia, United States CalEarth. 2020. Worldwide — Calearth. [online] alumniprojects2>
Images: 1. UDNP Tehran., 1995. [14 domed sandbag shelters, exterior view] rooms.]
3. El Kateb, Nada. 2020. [Perspective drawing]
4. Cal-earth. 1995 [Upgraded shelter dome with
5. El Kateb, Nada. 2020. [Isometric drawing showing community and construction]
Text: Gillberg, Ulf, 1971, Västra Orminge, Curman, Jöran, 1966, Orminge i Boo kommun,
Images: 1. Plan showing construction principle [Plan Drawing] p. 8, In Gillberg, Ulf, 1971, Västra
2. Unknown. Exterior view of courtyard museum.se /0 21 0 164 0 2139 / vastra ormingebostadsomrade
useum.se / 021016402152 /b osta d somra d e vastraorminge
4. Östman, Åke, 1980, Exterior view of nature between buildings [Photography]. Nacka Kommu n [Online]. https://nacka.imagevault .media/ publishedmedia/jz04nsmugbegm7zq5g v7/Vstra_
Collective Living: Forms of Shared Housing Basel: Birkhäuser
Images: 1. Erwin Mühlestein. https:// baublog.warmbaechli.ch/kategorie/geschichtedes
2020-10-14)
2. Erwin Mühlestein. https:// baublog.warmbaechli.ch/kategorie/geschichtedes
2020-10-14)
Pernilla Hagbert –Contemporar y Co-housing
Claes Caldenby –Contemporar y Co-Housing
Staffan Schartner, Architect Baugemeinschaf t and Wood housing
Solmaz Beik & Johan Hällgård, KOD Arkitek ter, Elastiska hem + Utvecklingsbara trähus