KTIRIO I ARCHITECTURE & HOTELS

Page 1

ΣΥΝΕΝΤΕΥΞΕΙΣ K-STUDIO Ι. ΠΑΠΑΓΡΗΓΟΡΑΚΗΣ / JEPA ΞΕΝΟΔΟΧΕΙΑ ΑΡΧΙΤΕΚΤΟΝΙΚΗ | ΤΕΧΝΟΛΟΓΙΑ | ΕΦΑΡΜΟΓΕΣ | ΥΛΙΚΑ | "CORA HOTEL & SPA RESORT" ΣΤΗΝ ΑΦΥΤΟ "HOMA VAGIA" ΣΤΗ ΣΕΡΙΦΟ "THEROS ALL SUITE HOTEL" ΣΤΗΝ ΚΩ "THE SOCIAL ATHENS HOTEL" ΣΤΟ ΚΟΛΩΝΑΚΙ ROOF GARDEN ΣΤΑ ΑΣΤΙΚΑ ΞΕΝΟΔΟΧΕΙΑ ΑΥΤΟΜΑΤΙΣΜΟΙ ΓΙΑ ΕΞΟΙΚΟΝΟΜΗΣΗ ΕΝΕΡΓΕΙΑΣ ΤΕΥΧΟΣ 9 / ΟΚΤΩΒΡΙΟΣ 2023 / 15,00€

Ενημερώσεις

22 Δωμάτιο "Βιόσφαιρα" στο Treehotel BIG

30 Boutique hotel "MONA",

σε πρώην εργοστάσιο

Απόψεις

Συνεντεύξεις

34 Η ηλεκτρομηχανολογική μελέτη των ξενοδοχείων Γιάννης Παπαγρηγοράκης | JEPA

40 Ο "τόπος" ως σημείο εκκίνησης

του σχεδιασμού ξενοδοχείων Δημήτρης & Κωνσταντίνος Καραμπατάκης | K-STUDIO

Πρώτες Σελίδες

Έργο

46 "Batu Luxury Apartments"

Κατάλυμα σύμμεικτης κατασκευής στον Μύτικα Πρέβεζας Praxis Constructions Α.Ε.

50 "Soho Exclusive Suites"

Τουριστικό συγκρότημα στη Θάσο 40.22 Architects

Ξενοδοχεία

Θέματα

58 Οικολογικά καταλύματα Πρακτικές κατασκευής και διαχείρισης

68 Αυτοματισμοί στα ξενοδοχεία για εξοικονόμηση ενέργειας

78 Roof garden

στα αστικά ξενοδοχεία

Αρχιτεκτονικό

Έργο

90 "Homa Vagia"

Τουριστική μονάδα σε περιοχή παλαιών μεταλλείων στη Σέριφο Mold Architects

100 "Cora Hotel & Spa Resort"

Ανακαίνιση ξενοδοχειακού συγκροτήματος του '80 στην Άφυτο schema 4 architects

110 "The Social"

Ξενοδοχείο 4* σε κτίριο του 1960

στο Κολωνάκι

OOAK Architects

118 "Theros All Suite Hotel"

Μια ολιστική εμπειρία βασισμένη στο "ευ ζην"

Mastrominas Architecture

128 "The Fold"

Μεταλλική όψη στο αστικό ξενοδοχείο

"The Newel Metaxourgeio"

JC Architects

136 "Isla Brown Chania"

Ανακαίνιση ξενοδοχειακού συγκροτήματος στην Κρήτη Liakos Associates Architects

Το βήμα των εταιρειών

144 Δελτία τύπου - Σύγχρονες τεχνολογίεςΥλικά και εφαρμογές τους

9/2023 ΟΚΤΩΒΡΙΟΣ Εξώφυλλο: "Cora Hotel & Spa Resort", schema 4 architects / Ελένη Σπάρτση Φωτογραφία εξωφύλλου: Αναστασία Αδαμάκη Απαγορεύεται η αναδημοσίευση κειμένων & φωτογραφιών, χωρίς τη γραπτή άδεια του εκδότη. Το περιεχόμενο των άρθρων εκφράζει τον συντάκτη και όχι απαραίτητα τη διεύθυνση του περιοδικού.
ΠΕΡΙΕΧΟΜΕΝΑ...

Η ΓΝΩΣΗ ΑΠΕΝΑΝΤΙ ΚΑΙ ΣΤΑ ΠΡΟΒΛΗΜΑΤΑ ΤΗΣ ΚΛΙΜΑΤΙΚΗΣ ΑΛΛΑΓΗΣ

Είναι πλέον κατανοητό ότι η ποιότητα στα κτίρια είναι έργο

κάποιων επαγγελματιών και κάποιων εταιρειών, οι οποίες

πράγματι προσφέρουν ποιοτικές υπηρεσίες και ποιοτικά

υλικά. Το ΚΤΙΡΙΟ, επί 37 χρόνια, για αυτούς τους επαγγελματίες δουλεύει, αυτούς αναδεικνύει και ρίχνει "φως

στον δρόμο" της επαγγελματικής τους ανάπτυξης!

Δημοσιεύει κτίρια με κριτήριο την ποιότητά τους, αλλά

και την προσφορά ιδεών και τεχνογνωσίας, που δίνουν στον αναγνώστη. Δημοσιεύει παράλληλα τεχνικά άρθρα

και τεχνικές πληροφορίες για όσους ενδιαφέρονται να

κάνουν σωστά τη δουλειά τους, ώστε να μην εμφανίζονται κακοτεχνίες, που απαξιώνουν τους δημιουργούς

και τα υλικά του κτιρίου.

Πιστεύουμε ότι αυτές οι δημοσιεύσεις διαμορφώνουν

ένα γνωστικό περιβάλλον, το οποίο τελικά αναδεικνύει

τους σωστούς επαγγελματίες, τις ποιοτικές εταιρείες και

τα ποιοτικά υλικά!

Υπάρχει βέβαια και η οικονομική πλευρά στον χώρο των

κατασκευών. Υπάρχει η οικονομικότερη τιμή στις μελέτες

και στον αρχιτεκτονικό σχεδιασμό ή στην αγορά και στην

εφαρμογή του υλικού ή στη συνολική κατασκευή του κτιρίου, που συνήθως αντιμάχεται την ποιότητα.

Άλλωστε ζούμε στην εποχή που το χρήμα έχει υπερβο-

λική αξία στη ζωή μας.

Πάντα όμως θα έχουμε ανάγκη τον σωστό αρχιτέκτονα ή

τον πολιτικό μηχανικό ή τον μηχανολόγο και τους άλλους

μελετητές ή τον σωστό κατασκευαστή του έργου για την

ασφαλή και ποιοτική μας διαβίωση.

Αυτό πιστεύουμε βρίσκει απήχηση και στα προβλήματα, που βιώσαμε πρόσφατα με τις μεγάλες φωτιές, που έκαψαν τεράστιες εκτάσεις δάσους στον Έβρο και τις καταστροφικές πλημμύρες στη Θεσσαλία. Οι σωστές μελέτες

των ειδικών επιστημόνων και των έμπειρων ελεγκτών τους, όπως και τα ποιοτικά υλικά και οι εξοπλισμοί σε συνδυα-

σμό με τους κατάλληλους έμπειρους κατασκευαστές, είναι

τα μόνα "όπλα" που διαθέτουμε για την πρόληψη και αντιμετώπιση τέτοιων φαινομένων. Έχει μεγαλύτερο κόστος

η ποιότητα των έργων και ιδιαίτερα η πρόληψη, αλλά αν

αναλογιστούμε το κόστος που θα κληθούμε να πληρώσουμε για την αποκατάσταση των ζημιών, θα αναγνωρίσουμε το λάθος των προηγούμενων επιλογών μας, σε αυτές τις περιοχές!

Οι ποιοτικοί δημιουργοί, οι ποιοτικές μελέτες, οι ποιοτικοί κατασκευαστές και τα ποιοτικά υλικά και εξοπλισμοί, μακροχρόνια αποδεικνύονται οικονομικότερες επιλογές!

Αυτούς τους επαγγελματίες και τις ποιοτικές εταιρείες

έχουμε στο μυαλό μας όταν δημιουργούμε τα τεύχη ΚΤΙΡΙΟ

και με αυτά τα τεύχη τους υποστηρίζουμε με τον τρόπο μας. Άλλωστε τέτοιοι επαγγελματίες μας ανοίγουν τον δρόμο προς το καλύτερο, γίνονται πρότυπα στην κοινωνία και με τη δουλειά τους κάνουν τη ζωή μας καλύτερη!

Αυτό το τεύχος είναι αφιερωμένο στα ξενοδοχεία. Δημοσιεύονται 8 ενδιαφέρουσες τουριστικές μονάδες, που κατασκευάστηκαν τελευταία στη χώρα μας. Καλύπτουν

διάφορα είδη και μεγέθη, όπως αστικά ξενοδοχεία και resort και η καθεμία έχει τις δικές της ιδιαιτερότητες και

δίνει τις δικές της ιδέες ως προς τον σχεδιασμό και τα υλικά που χρησιμοποιήθηκαν.

Επίσης, δύο επώνυμα μελετητικά γραφεία, το ένα αρχιτεκτονικό και το άλλο μηχανολογικό, σε συνεντεύξεις που μας έδωσαν, καταθέτουν ενδιαφέρουσες απόψεις και τεχνικές πληροφορίες για τον σχεδιασμό και τον μηχανολογικό εξοπλισμό των ξενοδοχείων.

Το τεύχος ολοκληρώνεται με χρήσιμα τεχνικά άρθρα και το κεφάλαιο ΒΗΜΑ ΤΩΝ ΕΤΑΙΡΕΙΩΝ με ειδήσεις και υλικά από την ελληνική αγορά.

Ελπίζουμε να το βρείτε χρήσιμο και ενδιαφέρον.

Πέτρος Παπαϊωάννου

Εκδότης - Πολιτικός μηχανικός

21 ΟΚΤΩΒΡΙΟΣ 2023
•ΕΚΔΟΤΙΚΟ

Ο Γιάννης Παπαγρηγοράκης γεννήθηκε το 1955 στον Πειραιά. Είναι διπλωματούχος μηχανολόγος μηχανικός Strathclyde University και κάτοχος MSc in Thermal Power Cranfield Institute of Technology, με 42 έτη εμπειρίας. Το 1981 ίδρυσε την εταιρεία JEPA - Ι. ΠΑΠΑΓΡΗΓΟΡΑΚΗΣ & ΣΥΝΕΡΓΑΤΕΣ. Η εμπειρία του καλύπτει ένα ευρύ φάσμα τεχνικών έργων τόσο στην Ελλάδα, όσο και στο εξωτερικό, με σημαντική εμπειρία στη μελέτη, στον σχεδιασμό, στην αξιολόγηση, στην επίβλεψη, στη διαχείριση και στον συντονισμό τους. Είναι επίσης ιδρυτικό μέλος του ελληνικού παραρτήματος της ASHRAE (American Society of Heating Refrigeration and Airconditioning Engineers) και έχει διατελέσει πρόεδρος το 2003 - 2004 και αντιπρόεδρος το 2005 - 2006.

Συνέντευξη με τον ΓΙΑΝΝΗ ΠΑΠΑΓΡΗΓΟΡΑΚΗ, ιδρυτή της εταιρείας JEPA

Κ: Μέσα στην πολυετή εμπειρία σας έχετε αναλάβει τις μελέτες μεγάλου αριθμού ξενοδοχείων. Τι περιλαμβάνει η ολοκληρωμένη ηλεκτρομηχανολογική μελέτη τους; Η ολοκληρωμένη ηλεκτρομηχανολογική μελέτη ενός ξενοδοχείου περιλαμβάνει τον σχεδιασμό, τον προγραμματισμό και τη βελτιστοποίηση όλων των μηχανολογικών και ηλεκτρολογικών εγκαταστάσεων που αφορούν στο κτίριο αλλά και στη λειτουργία του ξενοδοχείου. Αυτή περιλαμβάνει, αλλά δεν περιορίζεται, στα εξής: • Ηλεκτρική εγκατάσταση: Σχεδίαση του ηλεκτρολογικού συστήματος του ξενοδοχείου, περιλαμβανομένων των βασικών υποδομών, όπως του υποσταθμού, της γεννήτριας, της εγκατάστασης φωτισμού και κίνησης και των ασθενών ρευμάτων, όπως δομημένη καλωδίωση, συστήματα ελέγχου, audio visual κτλ. Επίσης περιλαμβάνει την εγκατάσταση φωτοβολταϊκών συστημάτων και των συστημάτων ενεργειακής διαχείρισης και εξοικονόμησης.

• Ενεργειακό σύστημα: Μελέτη για την αποδοτική χρήση ενέργειας στο ξενοδοχείο, συμπεριλαμβανομένων των συστημάτων θέρμανσης, ψύξης, κλιματισμού και αερισμού.

• Ανελκυστήρες - ανυψωτικά.

• Υδραυλικές εγκαταστάσεις: Ύδρευση, αποχέτευση, όμβρια, επεξεργασία νερού και αποβλήτων.

• Πυρασφάλεια: Ενεργητική πυροπροστασία.

• Συστήματα ασφαλείας.

• Μηχανήματα και εξοπλισμός.

• Υδάτινα στοιχεία.

Η ολοκληρωμένη ηλεκτρομηχανολογική μελέτη επιδιώκει να βελτιστοποιήσει τη λειτουργία του ξενοδοχείου από άποψη αποδοτικότητας, ασφάλειας και άνεσης για τους επισκέπτες και το προσωπικό του ξενοδοχείου, με γνώμονα την εξοικονόμηση ενέργειας και πόρων, την απλή και εύκολη συντήρηση και τη συνολική επιτήρηση όλων των εγκαταστάσεων από κεντρικό σύστημα ελέγχου.

Κ: Ποιες είναι οι διαφορές στη μελέτη ενεργειακής απόδοσης ενός υφιστάμενου κτιρίου σε σχέση με ένα νέο κτίριο; Η μελέτη ενεργειακής απόδοσης ενός υφιστάμενου κτιρίου (ανακαίνιση) και ενός νέου κτιρίου έχει διάφορες πτυχές που πρέπει να ληφθούν υπόψη. Αυτές είναι οι κύριες διαφορές:

• Υφιστάμενες δομικές προϋποθέσεις: Στην ανακαίνιση ενός υφιστάμενου κτιρίου πρέπει να ληφθούν υπόψη οι υφιστάμενες δομικές προϋποθέσεις και περιορισμοί. Αυτό σημαίνει ότι οι επιλογές για τις βελτιώσεις και τις αλλαγές στα συστήματα μπορεί να είναι περιορισμένες σε σχέση με ένα νέο κτίριο, όπου μπορούν να ενσωματωθούν τα πιο σύγχρονα ενεργειακά συστήματα και υλικά από την αρχή. • Ανάλυση υφιστάμενης κατανάλωσης: Στην ανακαίνιση, πρέπει να γίνει λεπτομερής ανάλυση της υφιστάμενης κατανάλωσης

- Ι. ΠΑΠΑΓΡΗΓΟΡΑΚΗΣ & ΣΥΝΕΡΓΑΤΕΣ 34 ΟΚΤΩΒΡΙΟΣ 2023 •ΑΠΟΨΕΙΣ | ΣΥΝΕΝΤΕΥΞΕΙΣ |
I. ΠΑΠΑΓΡΗΓΟΡΑΚΗΣ
Η ηλεκτρομηχανολογική μελέτη των
ξενοδοχείων

K-STUDIO

Το K-STUDIO είναι ένα γραφείο design με τις ρίζες

του στην αρχιτεκτονική. Είναι μια ομάδα από περίπου 90 αρχιτέκτονες και σχεδιαστές εσωτερικών χώρων, με έδρα στην Αθήνα.

Βασικό στοιχείο στην επιτυχία του σχεδιασμού τους είναι η απόλαυση του χρήστη, μέσα από εξοχικές κατοικίες, εστιατόρια, μπαρ, ξενοδοχεία και resorts. Δουλεύουν συνεργατικά με ένα υψηλού επιπέδου δίκτυο ομάδων, προκειμένου να εμπλουτίζουν και να αλληλοσυμπληρώνουν τα εργαλεία, τις υπηρεσίες και τα αποτελέσματά τους. Έχουν εργαστεί και μαθητεύσει στο πλευρό ιδιαίτερα πεπειραμένων ομάδων πελατών, όπως της Four Seasons, της One & Only στην Αθήνα και της TEMES στην Πελοπόννησο. Επίσης έχουν κληθεί να εφαρμόσουν την προσέγγισή τους σε διεθνούς εμβέλειας έργα, σε προορισμούς όπως το Ισραήλ, το Κατάρ, ο Παναμάς και η Κουάλα Λουμπούρ.

Συνέντευξη με τους ΔΗΜΗΤΡΗ και ΚΩΝΣΤΑΝΤΙΝΟ ΚΑΡΑΜΠΑΤΑΚΗ, ιδρυτές του αρχιτεκτονικού γραφείου K-STUDIO

Κ: Ποια είναι η βιωματική εμπειρία που θέλετε να προσφέρει ένας χώρος φιλοξενίας στον επισκέπτη; Πώς την επιτυγχάνετε μέσα από τον σχεδιασμό σας; Η προσέγγιση που ακολουθούμε σε κάθε νέα σχεδιαστική πρόκληση είναι contextual. Εκκινούμε, δηλαδή, μιλώντας για τον "τόπο", τόσο στη φυσική του υπόσταση, όπως τη συναντάμε στη φυσική ομορφιά και στους υλικούς πόρους που διατίθενται στην κάθε περίπτωση, όσο και στην εννοιολογική, στην άυλη διάσταση που περιλαμβάνει την πολιτιστική κληρονομιά, την κουλτούρα και την ιστορία των πρακτικών στη μέχρι τώρα κατοίκηση του τόπου. Έχουμε έτσι στη διάθεσή μας μια πλούσια εργαλειοθήκη, που δοκιμασμένη στον χρόνο αντιδρά με επιτυχία στα καιρικά φαινόμενα, στις ελλείψεις αλλά και στην αποτελεσματική αξιοποίηση διαθέσιμων πόρων, εκφράζει αξίες και χαρακτηριστικά του ντόπιου λαού με ιδιαίτερη συνήθως ευφυία. Ειδικά για ένα ξενοδοχείο, που επιδιώκει να προσφέρει στους επισκέπτες του μια αυθεντική εμπειρία του τόπου, είναι ιδιαίτερα σημαντικό να είναι ριζωμένο στο μέρος και να μιλά εν τέλει για

40 ΟΚΤΩΒΡΙΟΣ 2023 •ΑΠΟΨΕΙΣ | ΣΥΝΕΝΤΕΥΞΕΙΣ |
"NOS Hotel" στη Σίφνο. ©Marco Petrini.
Ο "τόπος" ως σημείο εκκίνησης του σχεδιασμού
ξενοδοχείων

1. Το κτίριο μεταμορφώνεται κατά τη διάρκεια της ημέρας, ανάλογα με το φως του ήλιου.

2. Η σύμμεικτη κατασκευή απελευθερώνει τον σχεδιασμό και διαμορφώνονται "καθαροί" χώροι.

3. Τα κλιμακοστάσια από εμφανές σκυρόδεμα που οδηγούν στον 1ο όροφο ξεχωρίζουν στις πέτρινες όψεις.

4, 5. Ο ενιαίος χώρος και τα μεγάλα ανοίγματα επιτρέπουν

στον περιβάλλοντα χώρο να "εισέλθει" στο εσωτερικό των δωματίων.

6. Σύγχρονες και παραδοσιακές μορφές συνθέτουν

ένα περιβάλλον ήρεμης πολυτέλειας.

"

Batu Luxury Apartments"

Κατάλυμα σύμμεικτης κατασκευής

στον Μύτικα Πρέβεζας

Τα 12 δωμάτια του "Batu Luxury Apartments" αναπτύσσονται σε 2 επίπεδα, ενώ ο άξονας που χωρίζει το οικόπεδο αποτελεί το ισχυρότερο στοιχείο της αρχιτεκτονικής μελέτης. Σε σχέση μ’ αυτόν διαμορφώνονται σε απόλυτη συμμετρία οι δομημένοι χώροι, αλλά και ο περιβάλλων χώρος, με τις δύο κοινόχρηστες πισίνες να ξεχωρίζουν. Τα δωμάτια τοποθετούνται στο κέντρο του οικοπέδου, στρέφοντας τα βλέμματα των επισκεπτών στο τοπίο, στο οποίο βρίσκεται το κτίσμα. Η περιήγηση στο οικόπεδο, γίνεται μέσω των διαδρόμων περιμετρικά του κτιρίου, ενώ η πρόσβαση στον 1ο όροφο γίνεται με εξωτερικά κλιμακοστάσια, τα οποία ξεχωρίζουν στις αντίστοιχες όψεις. Η πέτρα, η διαχρονικότητά της και η ποιότητα που προσδίδει στην αρχιτεκτονική μορφή πρωταγωνιστούν και αναδεικνύονται. Η αντίθεση των αψίδων σε γήινα χρώματα και του εμφανούς σκυροδέματος των κλιμακοστασίων, εκτός από την έμφαση που δίνει στη δυναμική της πέτρας ως υλικού, δημιουργεί έναν σύγχρονο "διάλογο" μεταξύ παρόντος, παρελθόντος, σύγχρονων και παραδοσιακών μορφών αρχιτεκτονικής. Οι γήινοι τόνοι επιλέγονται στο σύνολο του έργου: από την απόχρωση της πέτρας και τα φυτά, μέχρι τον εξοπλισμό και ιματισμό του κάθε δωματίου. Το αποτέλεσμα είναι ένα σύνολο, που προσκαλεί τον επισκέπτη να ζήσει την αίσθηση της πολυτέλειας, που προκύπτει από την αρμονική αλληλεπίδραση μεταξύ τοπίου και αρχιτεκτονικών εκφράσεων.

Η δυναμική της συνύπαρξης δομημένου και φυσικού περιβάλλοντος γίνεται εμφανής κατά τη διάρκεια της ημέρας. Σαν ζωντανός οργανισμός, το κτίριο μεταμορφώνεται ανάλογα με το φως του ήλιου και τη θερμότητά του, η πέτρα αλλάζει χρώμα, η αντανάκλαση της πισίνας γίνεται γαλαζοπράσινη, οι σκιές που αποτυπώνονται στο εσωτερικό του δωματίου δίνουν νέα πνοή στον χώρο, ο οποίος ενώνεται με το φυσικό περιβάλλον. Η σύμμεικτη κατασκευή είναι η απάντηση στα σύγχρονα κατασκευαστικά ζητήματα. Η αρχιτεκτονική μελέτη απελευθερώνεται, δίνεται η δυνατό-

1
1 2 46
•ΠΡΩΤΕΣ ΣΕΛΙΔΕΣ | ΕΡΓΑ |
ΚΑΤΟΨΗ ΙΣΟΓΕΙΟΥ
ΟΚΤΩΒΡΙΟΣ 2023

τητα διαμόρφωσης ενιαίων χώρων αλλά και μεγάλων ανοιγμάτων, που δεν συναντώνται στις παραδοσιακές εφαρμογές των υλικών, δίνοντας

Αρχιτεκτονική μελέτη: Τατιάνα Δήμου

Στατική μελέτη: Απόστολος Κανιώρης

Η/Μ μελέτη: Αχιλλέας Τέφας

Επίβλεψη: Απόστολος Κανιώρης

Τεχνική εταιρεία κατασκευής: Praxis Constructions Α.Ε.

Ιδιοκτήτης: Batu O.E.

Τοποθεσία: Μύτικας Πρέβεζας

νέα πνοή στις μορφές και τις αναλογίες. Επιπλέον, χρησιμοποιήθηκαν οι πλέον σύγχρονες μηχανολογικές τεχνολογίες για τη λειτουργία των δωματίων, που συμβάλλουν στην εξοικονόμηση ενέργειας και στο ενεργειακό αποτύπωμα του κτιρίου. Το έργο αποτελεί ζωντανό οργανισμό, ο οποίος συμβαδίζει με τις προκλήσεις της εποχής, αρχιτεκτονικά και κατασκευαστικά, φέρνοντας σε πρώτη θέση τον χρήστη, το περιβάλλον και την εξέλιξή τους. 6 5

Συνολικό εμβαδό κτιρίου: 468 m²

Χρόνος κατασκευής: 2019 - 2022

Παρουσίαση: Δήμητρα Παπανίκα / Praxis Constructions A.E.

Φωτογραφίες: Θωμάς Ζήκος

ΟΙ ΠΑΡΑΚΑΤΩ ΕΤΑΙΡΕΙΕΣ ΔΙΑΘΕΤΟΥΝ ΠΡΟΪΟΝΤΑ

ΚΑΙ ΥΠΗΡΕΣΙΕΣ ΣΤΟ ΕΡΓΟ ΚΑΙ ΣΥΜΜΕΤΕΧΟΥΝ

ΜΕ ΔΙΑΦΗΜΙΣΗ Σ' ΑΥΤΟ ΤΟ ΤΕΥΧΟΣ:

ELVIAL ΣΕΛ. 4

ISOMAT ΣΕΛ. 2

ΧΑΛΚΙΣ ΣΕΛ. 20

ΚΑΤΟΨΗ ΟΡΟΦΟΥ

ΟΚΤΩΒΡΙΟΣ

4 3
47
2023

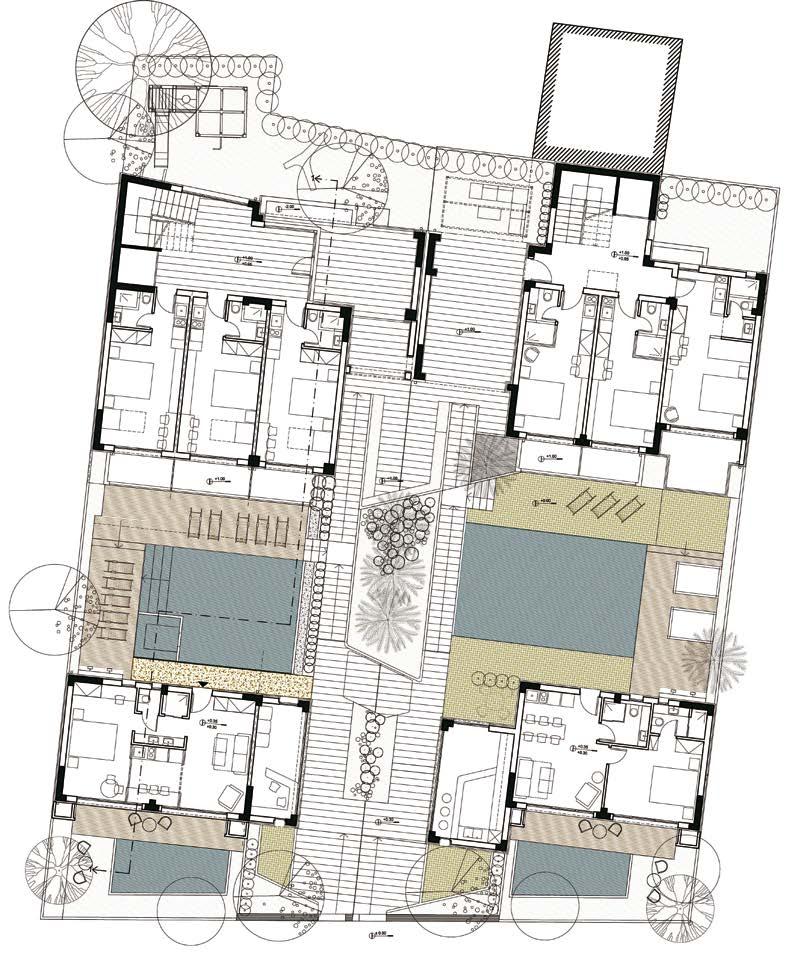
Soho Exclusive Suites"

Τουριστικό συγκρότημα

στη Θάσο

Το συγκρότημα βρίσκεται στη Σκάλα Ποταμιάς, σε απόσταση 200 m από τη θάλασσα, σε γεωτεμάχιο εντός σχεδίου και οικισμού.

Μέσα σε ένα ήδη ασφυκτικά δομημένο περιβάλλον, με υψηλό συντελεστή δόμησης και κάλυψης, οι αρχιτέκτονες επέλεξαν να διαφυλάξουν τον ακάλυπτο υπαίθριο χώρο του οικοπέδου και να αξιοποιήσουν τα περιβαλλοντικά χαρακτηριστικά της περιοχής. Δημιούργησαν ένα ενιαίο, εσωστρεφές σύνολο, με τους χώρους διημέρευσης να στρέφονται

στον κατάλληλο προσανατολισμό βορρά - νότου, εξασφαλίζοντας έτσι τον διαμπερή αερισμό τους και την απρόσκοπτη θέα προς το καταπράσινο βουνό. Στο οικόπεδο προβλέπονται συνολικά 18 δωμάτια με 54 κλίνες. Η ενότητα Α είναι διώροφη με στέγη, υπόγειο, ισόγειο και σοφίτες. Φιλοξενεί 14 διαμερίσματα, στα οποία η πρόσβαση γίνεται μέσω δύο κεντρικών

"
2 1 •ΠΡΩΤΕΣ ΣΕΛΙΔΕΣ
| ΕΡΓΑ |

κλιμακοστασίων με ανελκυστήρα. Η ενότητα Β είναι μονώροφη με στέγη και φιλοξενεί 2 μεγαλύτερα διαμερίσματα.

Το συγκρότημα αποτελείται από δύο παράλληλα εξελισσόμενες κτιρι-

ακές ενότητες που προσαρμόζονται στο σχήμα του οικοπέδου, στην

κλίση του εδάφους και στα επιτρεπόμενα στοιχεία δόμησης.

Στην καρδιά του συγκροτήματος δημιουργείται μια πράσινη όαση, στην οποία οργανώνονται οι κοινόχρηστοι χώροι και οι προσβάσεις στις διαφορετικές χρήσεις. Εκατέρωθεν του άξονα συμμετρίας του συνόλου διαμορφώνονται οι δύο κολυμβητικές δεξαμενές για την εξυπηρέτηση των διαμερισμάτων στην κτιριακή ενότητα Α, ενώ ατομικές δεξαμενές και μικροί ιδιωτικοί κήποι εξυπηρετούν την κτιριακή ενότητα Β.

Οι αρχιτεκτονικές προεξοχές στις όψεις και οι εξώστες δημιουργούν "οθόνες", που πλαισιώνουν τη θέα με εκτεταμένα ανοίγματα προς τον νότο. Τα κτίρια είναι κατασκευασμένα από οπλισμένο σκυρόδεμα. Τα υλικά που προτείνονται στις όψεις ακολουθούν μια ενιαία λογική, με επένδυση από πέτρα Λακκώματος, αδρό γκρίζο επίχρισμα και λείο επίχρισμα ανοικτού γκρίζου και λευκού χρώματος. Στοιχεία εμφανούς σκυροδέματος προτείνονται στους εξώστες της ενότητας Α. Στην κτιριακή ενότητα Β προτείνονται αντίστοιχες επενδύσεις. Τα κτίρια και των δύο ενοτήτων, με εξαίρεση τον χώρο της υποδοχής και του μπουφέ εξυπηρέτησης, που επικαλύπτονται από φυτεμένο δώμα, φέρουν τετράκλινη κεραμοσκεπή με παλαιωμένα κεραμίδια.

Οι ξηροί ιστοί μπαμπού αποτελούν ένα μερικώς επεξεργασμένο στοιχείο πλήρωσης, το οποίο εντοπίζεται σε ποικίλες διατομές και διαστάσεις σε διαφορετικά σημεία της πρότασης. Εφαρμόζονται σε γκρίζα μεταλλικά πλαίσια, που λειτουργούν ως διαχωριστικά μεταξύ των διαμερισμάτων στους εξώστες, ως στέγαστρα ή ως κατακόρυφα στοιχεία επένδυσης,

1. Δημιουργήθηκε ένα εσωστρεφές συγκρότημα με πισίνες και φύτευση στο κέντρο του. ©Νικόλαος Παππάς.

2. Οι αρχιτεκτονικές προεξοχές και οι εξώστες δημιουργούν κάδρα που πλαισιώνουν τη θέα. ©Νικόλαος Παππάς.

3. Λεπτομέρεια της κοινόχρηστης πισίνας. ©Νικόλαος Παππάς.

4. Οι ξηροί ιστοί μπαμπού εντοπίζονται σε διαφορετικά σημεία, ως διαχωριστικά, στέγαστρα και στοιχεία επένδυσης. ©Νικόλαος Παππάς.

3 4 51 ΟΚΤΩΒΡΙΟΣ 2023
ΙΣΟΓΕΙΟΥ
ΚΑΤΟΨΗ

ΚΑΤΑΛΥΜΑΤΑ

Παρουσίαση: ΑΓΓΕΛΙΚΗ ΠΑΪΠΑΗ, αρχιτέκτονας μηχ. Α.Π.Θ., MSc

Η υψηλή ζήτηση ηλεκτρικής ενέργειας, η αυξημένη επιβάρυνση στη διαχείριση στερεών αποβλήτων και η μόλυνση των υδάτων, του εδάφους και του αέρα αποτελούν τις πιο καίριες αρνητικές περιβαλλοντικές συνέπειες της τουριστικής βιομηχανίας και ειδικά του τομέα της φιλοξενίας. Σύμφωνα με πρόσφατες μελέτες, ο

τουρισμός στο σύνολό του ευθύνεται για το 5% περίπου των παγκόσμιων εκπομπών αερίων του θερμοκηπίου, ποσοστό που υπολογίζεται ότι θα αυξηθεί κατά 130% έως το 2035. Σύμφωνα με εκτιμήσεις ειδικών ένα μέσο ξενοδοχείο εκπέμπει ετησίως 160 - 200 kg CO2 ανά m2 δωματίου, η ημερήσια κατανάλωση νερού ανά

επισκέπτη κυμαίνεται μεταξύ 170 και 440 l και η παραγωγή απορριμμάτων ανέρχεται στο 1 kg ανά επισκέπτη ημερησίως. Ειδικότερα στην Ελλάδα, τα ξενοδοχεία, αν και αποτελούν μόλις το 0,26% του συνόλου των ελληνικών κτιρίων, είναι υπεύθυνα για το 29% της κατανάλωσης

ενέργειας στον ιδιωτικό τομέα. Αυτό το υψηλό

1. Το πολυτελές συγκρότημα "Whitepod" στις ελβετικές

Άλπεις αποτελείται από διάσπαρτες αυτοφερόμενες

κατασκευές από τοπικό ξύλο και ύφασμα

για την ελαχιστοποίηση των δομικών υλικών.

2. Το "Camp Glenorchy" στη Νέα Ζηλανδία αποτελεί

ένα τουριστικό κατάλυμα με θετικό ενεργειακό

ισοζύγιο, εξοικονομώντας κατά 50% σε ενέργεια

και νερό συγκριτικά με αντίστοιχα καταλύματα.

58 ΟΚΤΩΒΡΙΟΣ 2023 •ΞΕΝΟΔΟΧΕΙΑ | ΘΕΜΑΤΑ |
ΟΙΚΟΛΟΓΙΚΑ
ΠΡΑΚΤΙΚΕΣ ΣΧΕΔΙΑΣΜΟΥ ΚΑΙ ΔΙΑΧΕΙΡΙΣΗΣ
1 2

ποσοστό οφείλεται στις υψηλές ανάγκες θέρμανσης και ψύξης των χώρων, στις απαιτήσεις

για ζεστό νερό χρήσης, στις εγκαταστάσεις

και στις υπηρεσίες που προσφέρονται κατά τη διάρκεια λειτουργίας των ξενοδοχείων.

Με δεδομένα τις αρνητικές περιβαλλοντικές

επιπτώσεις του ξενοδοχειακού τομέα και την αυξανόμενη ευαισθητοποίηση των κρατών, των

παγκόσμιων οργανισμών και των μεμονωμένων

ταξιδιωτών σε θέματα προστασίας του περιβάλλοντος, παρατηρείται μια έντονη τάση προς τη

βιώσιμη φιλοξενία τόσο σε επίπεδο κατασκευής, όσο και διαχείρισης των ξενοδοχείων. Τα κίνητρα για μια ξενοδοχειακή επιχείρηση, ώστε να στραφεί προς την οικολογική φιλοξενία, συνοψίζονται στο εξής τρίπτυχο: οικονομικό κέρδος, κοινωνική υπευθυνότητα και προστασία του περιβάλλοντος. Πολλαπλές μελέτες έχουν αποδείξει ότι το πιο βαρύνον κίνητρο για τους ξενοδόχους είναι η εξοικονόμηση κόστους λειτουργίας με τη συνακόλουθη αύξηση των

κερδών. Ένα πολύ ισχυρό κίνητρο, που θα πρέπει να λάβουν υπόψη τους οι επενδυτές, είναι και ο δυναμικά αυξανόμενος αριθμός

περιβαλλοντικά και κοινωνικά ευαισθητοποιημένων ταξιδιωτών. Από μελέτες που έγιναν σε παγκόσμιο επίπεδο προέκυψε ότι το 66% της γενιάς των "millenials", οι οποίοι ταξιδεύουν πολύ και καθορίζουν σε πολύ μεγάλο ποσοστό τις τάσεις της τουριστικής βιομηχανίας, είναι διατεθειμένο να πληρώσει περισσότερο για προϊόντα και υπηρεσίες από εταιρείες που δεσμεύονται να συμβάλουν θετικά στην κοινωνία και στο περιβάλλον. Στο ίδιο πνεύμα, άλλη παγκόσμια έρευνα έδειξε ότι τα δύο τρίτα των παραθεριστών είναι πρόθυμοι να κάνουν υποχωρήσεις, προκειμένου να ωφελήσουν το περιβάλλον.

Κριτήρια οικολογικών ξενοδοχείων

Με τον όρο οικολογικά ή πράσινα ξενοδοχεία χαρακτηρίζονται εκείνα τα καταλύματα, που

είτε κατασκευάστηκαν έτσι εξαρχής είτε έκαναν σημαντικές τροποποιήσεις στη δομή και λειτουργία τους, ώστε να εντάσσονται αρμονικά στο φυσικό τους περιβάλλον, ελαχιστοποιώντας την επίδρασή τους σ’ αυτό. Παράλληλα, θα πρέπει να συμβάλλουν στη βελτίωση και στην εξέλιξη της τοπικής κοινωνίας και στη βιώσιμη ανάπτυξη της τουριστικής βιομηχανίας.

Ένα οικολογικό ξενοδοχείο συνήθως πρέπει να πληροί κάποια βασικά κριτήρια, τα οποία συνοψίζονται στα εξής:

• Εξάρτηση από το φυσικό περιβάλλον.

• Οικολογική βιωσιμότητα.

• Αποδεδειγμένη συμβολή στην εξοικονόμηση ενέργειας.

• Παροχή προγραμμάτων περιβαλλοντικής εκπαίδευσης.

• Ενσωμάτωση των τοπικών πολιτιστικών χαρακτηριστικών.

• Οικονομική ανταποδοτικότητα για την τοπική κοινωνία.

3. Το σύγχρονο τουριστικό κατάλυμα "Cheetah Plains" βρίσκεται στο Εθνικό Πάρκο Kruger στη Νότια Αφρική, ένα από τα πιο δημοφιλή πάρκα της αφρικανικής ηπείρου, λόγω της μεγάλης του βιοποικιλότητας. Ο σχεδιασμός του συνδυάζει τη βιώσιμη αρχιτεκτονική και τη σύγχρονη μινιμαλιστική αισθητική, μέσω μιας πρωτοπόρας προσέγγισης της αφρικάνικης παράδοσης. Αρχιτεκτονική μελέτη: ARRCC, Φωτογραφία: Adam Letch.

59 ΟΚΤΩΒΡΙΟΣ 2023
3

Παρουσίαση: ΝΙΚΟΣ ΜΙΧΑΛΟΠΟΥΛΟΣ, διπλ. ηλεκτρολόγος μηχανικός & μηχανικός υπολογιστών

Όταν οι τεχνολογίες αυτοματισμού προσαρμόζονται σε ξενοδοχειακές εγκαταστάσεις, μπορούν να δημιουργήσουν ένα περιβάλλον ιδιαίτερα ελκυστικό για τον πελάτη και να αναδείξουν μία ξενοδοχειακή μονάδα σε πόλο έλξης για το κοινό. Σημαντικός παράγοντας είναι επίσης και οι δαπάνες που σχετίζονται με

τις ενεργειακές καταναλώσεις των συγκροτημάτων, οι οποίες είναι πολύ υψηλές, καθώς τα απαιτούμενα επίπεδα άνεσης και πολυτέλειας επιβάλλουν μεγάλα ποσά ενέργειας για την επίτευξή τους.

Σε ένα περιβάλλον, στο οποίο οι τιμές της ενέργειας έχουν πολλαπλασιαστεί, η κακή

ή –ακόμη χειρότερα– η ελλιπής διαχείριση μπορεί να οδηγήσει σε απώλεια πόρων ζωτικής σημασίας για την επιβίωση των ξενοδοχειακών μονάδων. Παράλληλα, πολλές είναι οι εταιρείες εστίασης στον χώρο της φιλοξενίας, που έχουν δεσμευτεί για τον περιορισμό των εκπομπών ρύπων, θέτοντας

1. Ένα πλήρες σύστημα ελέγχου και διαχείρισης μικρομεσαίων εγκαταστάσεων προσφέρει όλα τα προϊόντα και τα εργαλεία για ολοκληρωμένες λύσεις.

Περιλαμβάνει πρωτογενή έλεγχο εγκατάστασης, αυτοματισμούς δωματίου (τόσο HVAC, όσο και ηλεκτρικούς) πολλαπλών θέσεων, απομακρυσμένη λειτουργία και διαχείριση, καθώς και απομακρυσμένη παρακολούθηση και χρέωση ενέργειας. Πηγή: Siemens.

ΟΚΤΩΒΡΙΟΣ 2023

68
•ΞΕΝΟΔΟΧΕΙΑ | ΘΕΜΑΤΑ |
ΑΥΤΟΜΑΤΙΣΜΟΙ ΣΤΑ ΞΕΝΟΔΟΧΕΙΑ
1
ΓΙΑ ΕΞΟΙΚΟΝΟΜΗΣΗ ΕΝΕΡΓΕΙΑΣ & ΑΝΕΣΗ

στόχους αφενός για τη μείωση των εκπομπών ρύπων και αφετέρου για την ουδετεροποίηση

του ανθρακικού τους αποτυπώματος.

Τι σημαίνει αυτοματισμός

σε ένα ξενοδοχείο

Όλα τα ξενοδοχεία έχουν πάρει την κα -

τεύθυνση της μέγιστης ικανοποίησης των

πελατών τους μέσω παροχών άνεσης και πολυτέλειας για να επιβιώσουν του ανταγωνισμού. Τέτοιου είδους παροχές απαιτούν

ένα σύνολο αυτοματισμών, δηλαδή μια σειρά από αντιδράσεις υλικού και λογισμού με ή χωρίς εξωτερικές παρεμβάσεις, οι οποίες βελτιώνουν σημαντικά τις συνθήκες διαμονής, αυξάνουν τη λειτουργικότητα του ξενοδοχείου και του δίνουν προστιθέμενη αξία. Τα περισσότερο διαδεδομένα συστήματα αυτοματισμού αφορούν κυρίως σε:

• έλεγχο φωτισμού μέσω της σταδιακής

μείωσης ή αύξησης της ισχύος των φωτιστικών (dimming),

• έναυση ή σβέση των φωτιστικών σωμάτων σε διαδρόμους, δωμάτια, χώρους υποδοχής ή και στον περιβάλλοντα χώρο μέσω αισθητήρων κίνησης ή παρουσίας,

• έλεγχο συστημάτων θέρμανσης ψύξης

και αερισμού (θερμοστάτες, μαγνητικές επαφές),

• έλεγχο συστημάτων σκίασης,

• έλεγχο ποιότητας αέρα και επικίνδυνων αερίων,

• ανιχνευτές παρουσίας τόξου σε ηλεκτρικούς πίνακες. Υπάρχουν όμως και νέες τεχνολογίες που θα αναφερθούν στις επόμενες παραγράφους.

Η κεντρική ιδέα βρίσκεται στον ολιστικό έλεγχο και αυτοματισμό των λειτουργιών στη βάση ενός ολοκληρωμένου ελέγχου μιας

σύγχρονης εγκατάστασης με τον συνδυασμό δικτύων ισχυρών και ασθενών ρευμάτων.

Τα στοιχεία που απαρτίζουν

ένα σύγχρονο σύστημα αυτοματισμού

Κάθε σύστημα αυτοματισμού χρειάζεται πέραν των απαραίτητων ρυθμίσεων του χρήστη και ερεθίσματα από εξωτερικούς παράγοντες. Τα περισσότερα συστήματα διαχείρισης ενέργειας (building energy management systems, BEMS), που ενσωματώνουν και συστήματα αυτοματισμού πέραν των απεικονίσεων και καταγραφών, συντίθενται από μία κατάσταση ελεγχόμενων σημείων.

Αναλύοντας ένα σύστημα αυτοματισμού, θα μπορούσε να διαχωριστεί σε δύο βασικές κατηγορίες, εκ των οποίων ο ένοικος ενός ξενοδοχείου συνήθως δεν έχει καμία επαφή με κανένα εκ των δύο, μπορεί όμως να παρεμβαίνει μέσω συσκευών εισαγωγής

2. Ειδικά διαμορφωμένο περίπτερο εισόδου, το οποίο αντικαθιστά τη ρεσεψιόν, περιλαμβάνοντας έναν

συνδυασμό οθόνης αφής και σημείου πληρωμής με κάρτα. Ο επισκέπτης μπορεί να πραγματοποιήσει ανεξάρτητα check-in και check-out, να μάθει πληροφορίες για το ξενοδοχείο και να πληρώσει για επιπλέον υπηρεσίες. Πηγή: imageholders.

3. Έξυπνη ενεργειακή διαχείριση ξενοδοχείου, κατά την οποία η φιλοξενία συναντά την τεχνολογία

του αύριο, με πρωταρχικούς στόχους την άνεση, την ποιότητα και την πολυτέλεια υψηλής τεχνολογίας των χρηστών. Πηγή: Iotomatic.

69 ΟΚΤΩΒΡΙΟΣ 2023
2 3

ROOF GARDEN

Παρουσίαση: ΕΛΕΥΘΕΡΙΑ ΤΙΤΟΝΗ, διπλ. αρχιτέκτονας μηχανικός, MSc

Με τον κατάλληλο σχεδιασμό και τις απαραίτητες προσαρμογές ο ωφέλιμος χώρος του δώματος πολλών αστικών ξενοδοχείων, που διαφορετικά θα έμενε ανεκμετάλλευτος ή θα χρησιμοποιούνταν μόνο για βοηθητικές χρήσεις, μετατρέπεται σε ένα "ζωντανό" στοιχείο του

κτιρίου. Ένα roof garden μπορεί να περιλαμβάνει ένα σύνολο ανέσεων, από καθιστικά και εστιατόρια έως πισίνες και κινηματογράφους, ενώ συμπληρώνεται σχεδόν πάντα με στοιχεία πρασίνου, αναβαθμίζοντας αισθητικά το κτίριο και προσελκύοντας περισσότερους πελάτες.

Τεχνικές απαιτήσεις

Ο σχεδιασμός ενός roof garden τόσο σε νέα, όσο και σε υφιστάμενα κτίρια κρύβει μια σειρά προκλήσεων, που σχετίζονται με τη χωροθέτηση των λειτουργιών σε μεγάλο ύψος και σε ανοικτό χώρο. Κατά τον σχεδιασμό πρέπει να

1. Με τον κατάλληλο σχεδιασμό ο χώρος του δώματος

μπορεί να μετατραπεί σε ένα "ζωντανό" στοιχείο

του κτιρίου, προσελκύοντας περισσότερους πελάτες

και αναβαθμίζοντας την εικόνα του ξενοδοχείου.

Ξενοδοχείο "Aman New York". ©Robert Rieger.

78 ΟΚΤΩΒΡΙΟΣ 2023 •ΞΕΝΟΔΟΧΕΙΑ | ΘΕΜΑΤΑ |
1
ΣΤΑ ΑΣΤΙΚΑ ΞΕΝΟΔΟΧΕΙΑ

ληφθεί υπόψη μια σειρά τεχνικών απαιτήσεων που σχετίζονται τόσο με τη λειτουργικότητα, όσο και με την ασφάλεια του χώρου. Παρά τις τεχνικές δυσκολίες και το αυξημένο αρχικό κόστος, η επένδυση συνήθως αποδίδει σύντομα, με αποτέλεσμα η τάση να επεκτείνεται συνεχώς. Τοποθεσία και κλιματικές συνθήκες

Οι κλιματικοί παράγοντες διαφέρουν ανάλογα με τη γεωγραφική θέση ενός κτιρίου, τον προσανατολισμό, το ύψος του, ακόμη και τον περιβάλλοντα χώρο. Η μελέτη των κλιματικών συνθηκών (ανέμου, ηλιοφάνειας, ακραίων θερμοκρασιών, περιόδων ξηρασίας ή βροχοπτώσεων, φορτίων

χιονιού και πάγου) πρέπει να προηγείται του σχεδιασμού και της χωροθέτησης των διαφορετικών λειτουργιών και της επιλογής πρασίνου

στην ταράτσα ενός κτιρίου. Ιδιαίτερη προσοχή πρέπει να δοθεί στα ακόλουθα:

• Άνεμος: Είναι σημαντικό ο σχεδιαστής να γνωρίζει τα συνήθη ρεύματα του αέρα γύρω από το κτίριο, τη συχνότητα και την ταχύτητά τους, ώστε να κατανεμηθούν σωστά οι λειτουργίες στην οροφή και να μειωθεί ο κίνδυνος ατυχήματος και η δυσαρέσκεια

των χρηστών. Η χρήση ανεμοφρακτών με φυτεύσεις ή άλλα υλικά μπορεί να αποδειχθεί

πολύ αποτελεσματική για την προστασία των πιο επιβαρυμένων περιοχών. • Ηλιακή ακτινοβολία: Η έντονη ηλιοφάνεια

και οι υψηλές θερμοκρασίες, που επικρατούν στα μεσογειακά κλίματα κατά τους θερινούς μήνες, μπορούν να καταστήσουν τη χρήση ενός roof garden ακατάλληλη για

πολλές ώρες κατά τη διάρκεια της ημέρας, εάν δεν προβλεφθούν τα κατάλληλα μέτρα. Φυτεύσεις, πέργκολες καλυμμένες με φυτά

ή άλλα υλικά, στέγαστρα, ομπρέλες και άλλα

μέσα προστασίας θα προσφέρουν σκίαση και μείωση της επιφανειακής θερμοκρασίας, μεγιστοποιώντας την άνεση των χρηστών.

Μέτρα πρέπει να ληφθούν και για τη μείωση

του φαινομένου της θάμβωσης, όπως η αποφυγή χρήσης ανοικτόχρωμων ή ανακλαστικών υλικών, η επιλογή υλικών επιστρώσεων που απορροφούν το φως και η χρήση χλοοτάπητα ή φυτών εδαφοκάλυψης.

• Βροχή και υγρασία: Τα επίπεδα βροχόπτωσης και υγρασίας θα καθορίσουν την ανάγκη ύπαρξης στεγασμένων χώρων και θα παίξουν καταλυτικό ρόλο στην επιλογή του συστήματος άρδευσης και στο είδος των φυτεύσεων. Ακόμη και σε μέρη με χαμηλά επίπεδα βροχής, ο εξοπλισμός θα πρέπει να μπορεί να προφυλάσσεται τόσο από την υγρασία, όσο και από το κρύο.

2, 3. Πέργκολες, στέγαστρα και άλλα μέσα προστασίας προσφέρουν σκίαση κατά τους καλοκαιρινούς μήνες, καθιστώντας τον χώρο ευχάριστα βιώσιμο για τους επισκέπτες. Ξενοδοχείο "ONOMA", Θεσσαλονίκη. Αρχιτεκτονική μελέτη: Κουλουκούρης & Συνεργάτες Ε.Ε., Φωτογραφίες: Κώστας Ευαγγελίδης.

79 ΟΚΤΩΒΡΙΟΣ 2023
2 3

| ΕΡΓΑ |

"HOMA VAGIA"

Τουριστική μονάδα σε περιοχή παλαιών μεταλλείων στη Σέριφο

Αρχιτεκτονική μελέτη: Mold architects / Ηλιάνα Κερεστετζή

Ομάδα μελέτης: Ηλιάνα Κερεστετζή, Κωνσταντίνος Βλαχούλης, Μαρία Βρεττού

Στατική μελέτη: Technodynamics

Η/Μ μελέτη: Agapakis consultants

Μελέτη φωτισμού: IFI group

Κατασκευή: Κώστας Φαμελιάρης

Τοποθεσία: Βαγιά, Σέριφος

Εμβαδό οικοπέδου: 5.500 m²

Εμβαδό κτιρίου: 180 m²

Έτος κατασκευής: 2022

Παρουσίαση: Mold architects / Ηλιάνα Κερεστετζή

Φωτογραφίες: Παναγιώτης Βουμβάκης

•ΞΕΝΟΔΟΧΕΙΑ
•ΞΕΝΟΔΟΧΕΙΑ | ΕΡΓΑ |

"CORA HOTEL & SPA RESORT"

Ανακαίνιση ξενοδοχειακού συγκροτήματος του '80 στην Άφυτο

Αρχιτεκτονική μελέτη: schema 4 architects / Ελένη Σπάρτση Επικεφαλής ομάδας μελέτης: Ελένη Κωνσταντίνου Στατική μελέτη: Γ. Παπαργύρης - Α. Καρδούλα Ο.Ε. Η/Μ μελέτη: Αγαπάκης Μελετητική & Συνεργάτες Μελέτη φωτισμού: AD LIGHT / Άννα Γερασίμου - Δούφου Φυτοτεχνική μελέτη: Νάσια Κικίδου Landscape Architecture Τεχνική εταιρεία κατασκευής: ΑΡΚΕΤΙΠΟ Ι.Κ.Ε., STATCON - STAT A.T.E.

Project manager: Focal PM

Operator: Zeus International Hotels & Resorts Τοποθεσία: Άφυτος Χαλκιδικής Συνολικό εμβαδό κτιρίου:

9.500 m² Χρόνος μελέτης: 2021 - 2022 Χρόνος κατασκευής: 2022 - 2023 Παρουσίαση: schema 4 architects Φωτογραφίες: Αναστασία Αδαμάκη
101 ΟΚΤΩΒΡΙΟΣ 2023
•ΞΕΝΟΔΟΧΕΙΑ | ΕΡΓΑ | 110 ΟΚΤΩΒΡΙΟΣ 2023

THE SOCIAL"

Ξενοδοχείο 4 αστέρων

σε κτίριο του 1960

στο Κολωνάκι

Αρχιτεκτονική μελέτη: ΟΟΑΚ architects

Στατική μελέτη: Mancon Development

Η/Μ μελέτη: Αλέξανδρος Καμαρινός

Επίβλεψη: Κώστας Χονδρογιάννης, Johan Annerhed

Συνεργάτες: Johan Annerhed, Μαρία Παπαφίγκου, Τζωρτζίνα Ερωτοκρίτου

Μελέτη φωτισμού: IFI Architectural Lighting

Project managment: Solidframe

Τεχνική εταιρεία κατασκευής: BC Perigramma

Ιδιοκτήτης: Member of Radisson Ιndividuals

Τοποθεσία: Κολωνάκι Αττικής

Συνολικό εμβαδό κτιρίου: 1.370 m²

Χρόνος μελέτης: 2020 - 2021

Χρόνος κατασκευής: 2022 - 2023

Παρουσίαση: ΟΟΑΚ architects

Φωτογραφίες: Γιώργος Κορδάκης, Δημήτρης Χαχλάς

"
111 ΟΚΤΩΒΡΙΟΣ 2023
© Γιώργος Κορδάκης © Γιώργος Κορδάκης

"THEROS" ALL SUITE HOTEL

Μια ολιστική εμπειρία, βασισμένη στο "ευ ζην"

Αρχιτεκτονική μελέτη, master plan, μελέτη εσωτερικών χώρων:

Mastrominas architecture

Σχεδιασμός τοπίου:

Mastrominas architecture - Κατερίνα Συρράκου

Στατική μελέτη:

Δημήτρης Θεοδοσίου, Stemeka IKE, Παναγιώτης Βαλής

Η/Μ μελέτη:

Πέτρος Χατζηπέτρος

Κατασκευή:

Lambi Hospitality SA

Χρόνος κατασκευής:

2022

Παρουσίαση:

Mastrominas architecture

Φωτογραφίες:

Claus Brechenmacher - Reiner Baumann, Γιώργος Παπαποστόλου

Παπαποστόλου

•ΞΕΝΟΔΟΧΕΙΑ | ΕΡΓΑ | 118 ΟΚΤΩΒΡΙΟΣ 2023
©Brechenmacher - Baumann ©Γιώργος
119 ΟΚΤΩΒΡΙΟΣ 2023

"THE FOLD"

Μεταλλική όψη

στο αστικό ξενοδοχείο "The Newel Metaxourgeio"

Αρχιτεκτονική μελέτη: JC Architects

Ομάδα σχεδιασμού: Ιωάννα Φακίρη, Γιούλη Σπυροπούλου, Ιάσων Βωβός

Interior design: JC Architects

Στατική μελέτη: Αθανάσιος Κοντιζάς

Η/Μ μελέτη: Χαράλαμπος Διμήδης

Επίβλεψη: JC Architects

Μελέτη φωτισμού: Site Specific

Τεχνική εταιρεία κατασκευής: JC Architects & Construction

Ιδιοκτήτης: The Newel Collection

Τοποθεσία: Μεταξουργείο, Αθήνα

Εμβαδό κτιρίου: 800 m²

Χρόνος κατασκευής: 2022

Παρουσίαση: JC Architects

Φωτογραφίες: Χρήστος Δράζος

•ΞΕΝΟΔΟΧΕΙΑ | ΕΡΓΑ | 128 ΟΚΤΩΒΡΙΟΣ 2023
129 ΟΚΤΩΒΡΙΟΣ 2023

Αρχιτεκτονική μελέτη: Liakos Associates Architects (LAA)

Interior design: Liakos Associates Architects

Η/Μ μελέτη: Dase Engineering

Μελέτη φωτισμού: IFI

Κατασκευή:

Μελάκης & Συνεργάτες Α.Ε., APAX Construction

Έτος ολοκλήρωσης:

2023

Τοποθεσία:

Ακρωτήρι Χανίων

Παρουσίαση: Liakos Associates Architects (LAA)

Φωτογραφίες:

Πυγμαλίων Καρατζάς

136 ΟΚΤΩΒΡΙΟΣ 2023 •ΞΕΝΟΔΟΧΕΙΑ | ΕΡΓΑ |
137 ΟΚΤΩΒΡΙΟΣ 2023
Ανακαίνιση ξενοδοχειακού συγκροτήματος στην Κρήτη
"ISLA BROWN CHANIA"

ΜΗΝΙΑΙO TEXNIKO ΠEPIOΔIKO EDITIONS

Νο 348 • ΟΚΤΩΒΡΙΟΣ '23 Κωδικός ΕΛ.ΤΑ.: 2554

EKΔOTHΣ - ΔIEYΘYNTHΣ

Πέτρος X. Παπαϊωάννου

πολιτικός μηχ.

ΔΙΕΥΘΥΝΣΗ ΣΥΝΤΑΞΗΣ

Δήμητρα Tσιώρα - Παπαϊωάννου

αρχιτέκτονας μηχ.

ΕΠΙΣΤΗΜΟΝΙΚΗ ΕΠΙΜΕΛΕΙΑ

Δημήτρης Αραβαντινός

δρ. πολιτικός μηχ., καθ. Εργ. Οικοδομικής & Φυσικής των Κτιρίων Α.Π.Θ.

ΕΠΙΣΤΗΜΟΝΙΚΟI ΣΥΝΕΡΓΑΤΕΣ

Αναστάσιος Κωτσιόπουλος

δρ. αρχιτέκτονας μηχ., ομότ. καθ.

Aρχιτεκτονικού Σχεδιασμού Α.Π.Θ. Άγις Μ. Παπαδόπουλος

δρ. μηχανολόγος μηχ.,

καθ. Εργ. Κατασκευής Συσκευών

Διεργασιών Α.Π.Θ.

Κλειώ Αξαρλή

δρ. αρχιτέκτονας μηχ., ομότ. καθ. Εργ. Αρχιτεκτονικής & Τεχνολογίας Α.Π.Θ.

Γεώργιος Πενέλης

δρ. πολιτικός μηχ., ομότ. καθ. Εργ.

Κατασκευών Οπλισμένου Σκυροδέματος

και Φέρουσας Τοιχοποιίας Α.Π.Θ.

Δημήτρης Μπίκας

δρ. αρχιτέκτονας μηχ., ομότ. καθ. Εργ. Οικοδομικής & Φυσικής των Κτιρίων Α.Π.Θ.

Νικόλαος Μουσιόπουλος

δρ. μηχανολόγος μηχ., καθ. Εργ. Μετάδοσης Θερμότητας και Περιβαλλοντικής Μηχανικής Α.Π.Θ.

Χάρης Δημουλιάς

δρ. ηλεκτρολόγος μηχ.,

καθ. Εργ. Ηλεκτρικών Μηχανών Α.Π.Θ.

Μαρία Στεφανίδου

γεωλόγος, δρ. πολιτικός μηχ., καθ. Εργ. Δομικών Υλικών Α.Π.Θ.

Γεώργιος Ι. Μαντάνης επιστήμων ξύλου, καθ. Εργ. Επιστήμης & Τεχνολογίας Ξύλου, Παν. Θεσσαλίας

ΤΜΗΜΑ ΣΥΝΤΑΞΗΣ

Τέτη Λάλου

πολιτικός μηχ. Τ.Ε.

Ιωάννα Καραμιχαηλίδου

αρχιτέκτονας μηχ., MSc.

Πωλίνα Ροῒδη μηχανολόγος μηχ. MSc.

ΣΥΝΕΡΓΑΤΕΣ ΣΥΝΤΑΞΗΣ

Ελευθερία Τιτόνη

αρχιτέκτονας μηχ., MSc.

Μαρτσέλα Ανθρακοπούλου

αρχιτέκτονας μηχ., μηχανικός πολεοδομίας, χωροταξίας & περιφερειακής ανάπτυξης

Αθανασία Χάρη

πολιτικός μηχ., MSc. Αγγέλα Παϊπάη αρχιτέκτονας μηχ., MSc. Γιώργος Χατζηγεωργίου πολιτικός μηχ., B.eng (Hons), MSc., σύμβουλος αρχιτεκτονικής ακουστικής - κτιριακής ηχομόνωσης Παναγιώτης Βεργούλης πολιτικός μηχ. & μεταλλειολόγος μηχ. Ε.Μ.Π. MSc. περιβάλλοντος και ανάπτυξης

GRAPHIC DESIGN

Κυριακή Παυλίδου

ΦΩTOΓPAΦIEΣ

M. Παππούς - K. Eυαγγελίδης O.E. Ιωάννα Νικολαρεῒζη

https://www.facebook.com/ktirio.gr/

https://linkedin.com/company/-κτιριο-εκδοσεις-ktirio-editions-

https://www.instagram.com/ktirio_editions/ https://www.youtube.com/user/KTIRIOeditions

ΤΜΗΜΑ ΔΙΑΦΗΜΙΣΗΣ

Χρήστος Παπαϊωάννου mechanical engineer, MSc.

Λευτέρης Παχής

μηχανολόγος μηχ., Α.Π.Θ.

Αριάν Αναστούλη

Νίκος Τσάμης

TMHMA EΞYΠHPETHΣHΣ

ΣYNΔPOMHTΩN

Iωάννης Κωνσταντινίδης

Παναγιώτης Χάιδας

Έλμα Πιστοφίδου

ΟΙΚΟΝΟΜΙΚΟ ΤΜΗΜΑ

Νίκος Παπαϊωάννου

πολιτικός μηχ. MSc.

Αντώνης Χατζόγλου

Ιάκωβος Μαζαράκης

EKTYΠΩΣH - ΒΙΒΛΙΟΔΕΣΙΑ ThessPrint A.E.

ΔIANOMΗ ΑΡΓΟΣ Α.Ε.

KTIΡΙΟ ΕΚΔΟΣΕΙΣ Ι.Κ.E.

ΘΕΣΣΑΛΟΝΙΚΗ: Γ. Κρανιδιώτη 2, Τ.Κ. 555 35, Πυλαία, Τ.Θ. 8136 - Τ.Κ. 570 01 Έκδοση - Σύνταξη: τηλ.: 2310 480356, e-mail: ktirio@ktirio.gr

Πωλήσεις - Συνδρομές: τηλ.: 2310 480340, e-mail: sales@ktirio.gr, φαξ: 2311 826819

Διαφήμιση: τηλ.: 2310 480540, e-mail: adv@ktirio.gr

AΘΗΝΑ: Λεωφ. Κηφισίας 125 - 127, Cosmos Center Τ.Κ. 115 24, τηλ.: 210 7234591

ΕΓΓΡΑΦΗ ΣΥΝΔΡΟΜΗΤΩΝ

Τηλεφωνήστε στο: 2310 480340 ή μέσω διαδικτύου: www.ktirio.gr

EΞΥΠΗΡΕΤΗΣΗ ΣΥΝΔΡΟΜΗΤΩΝ

Για αλλαγές διευθύνσεων, παραγγελίες προηγούμενων τευχών και λοιπών εκδόσεων, προβλήματα στην παραλαβή των τευχών κτλ., τηλεφωνήστε στο: 2310 480340 ή στείλτε e-mail στο: sales@ktirio.gr

οργανισμό, μέχρι τις επικαλύψεις και τις επενδύσεις ενός κτιρίου. Αναλύονται τα είδη και οι ιδιότητες των μετάλλων, η μορφή και η σύνθεση των μεταλλικών φορέων, τα ευπαθή σημεία τους αλλά και οι συνδέσεις τους και οι δυνατότητες που μας δίνουν, συμβάλλοντας στην καλύτερη κατανόηση της συνθετικής προσέγγισης του αρχιτεκτονικού σχεδιασμού των μεταλλικών κατασκευών.

ONLINE: ΤΗΛΕΦΩΝΙΚΑ: www.ktirio.gr 2310 480 340 ΠΑΡΑΓΓΕΛΙΕΣ:
216 Στα κεφάλαια του βιβλίου περιγράφονται όλα όσα πρέπει να γνωρίζει ο μελετητής για μια μεταλλική κατασκευή, από τον φέροντα
Διαστάσεις: 20,7 x 27,5 (cm) Σελίδες:

Turn static files into dynamic content formats.

Create a flipbook
Issuu converts static files into: digital portfolios, online yearbooks, online catalogs, digital photo albums and more. Sign up and create your flipbook.