Normandie Reimagined

Page 1

-An investment in the future of St. Louis-

The transformation of the famous 122 year old Normandie Golf Course into a renowned Jack Nicklaus Signature public facility, to become the hub of community and youth-related programming in the North St. Louis Region.

2022 Urban Golf Graduation Day @ Normandie

A not for profit venture by the Metropolitan Amateur Golf Association, through its philanthropic arm, the Metropolitan Golf Foundation, and in connection with Beyond Housing.

“The appeal of this project to me was to be involved in an effort that could serve as a catalyst to change needed in our country today, beginning with parts of St. Louis. Restoring Normandie for a community in need will have a long-lasting positive impact on the lives of youth in St. Louis.

“This isn’t about restoring a historic course to it’s former glory or recreating the past. This is about moving our world forward. To an under-served, predominantly black community, and the greatest golfer of all time.

CONTENTS

WHO Stakeholders WHAT Campaign Effort WHY Community Pillars WHEN Timeline

WHERE

Nicklaus Signature Design

Clubhouse + Caddie Facilities

HOW

Program Metrics

Budget

Pro Forma

SUPPORT

Notable Sponsors

Donate Today

EXHIBITS

CORE LEADERSHIP

Tom O’Toole Jr.

USGA President (2014-2016)

Founder, Metropolitan Amateur Golf

Partner, Mickes O’Toole, LLC

Chris Kreymeyer

President & CEO, Beyond Housing

Jeff Smith

Principal & Managing Partner, Walters Golf Management

Richard Ryffel

Fundraising Cabinet Chair, Executive Vice President, First Bank

Curt Rohe

Executive Director, Metropolitan Amateur Golf Association

STAKEHOLDERS

WHO: Normandie Reimagined

Metropolitan Golf Foundation (MGF), Beyond Housing, and the world renowned Jack Nicklaus w/ Nicklaus Design are excited to partner together to bring you Normandie Reimagined: a world-class public golf facility with value-driven programming targeted specifically at youth in under-resourced communities.

WHO: Metropolitan Golf Foundation

The Metropolitan Golf Foundation (MGF) is the philanthropic arm of the Metropolitan Amateur Golf Association (MAGA). MAGA is THE USGA licensed golf association that provides services to golfers and 145+ clubs in the region.

WHO: Beyond Housing

Beyond Housing is a nationally recognized community development organization serving the 24:1 footprint. Beyond Housing has invested more than $160 million in asset driven programming, all within a short distance of the Normandie Golf Course.

WHO: Jack Nicklaus + Nicklaus Design

Jack Nicklaus, the greatest golfer of all time, along with his professional golf course design company, Nicklaus Design, are bringing world-renowned expertise to the St. Louis region. Mr. Nicklaus has waived his substantial fee and is assisting in fundraising due to his own personal interest and commitment to social change.

CAMPAIGN

$20,000,000+

FUNDRAISING EFFORT

COMPLETE RENOVATION OF THE EXISTING 18HOLE GOLF COURSE

CONSTRUCT A NEW CLUBHOUSE & MAINTENANCE FACILITY

ESTABLISH A CADDIE HOUSE/TEEN TECH FACILITY W/ EDUCATION AND MENTORSHIP PROGRAMMING

REMAIN A FINANCIALLY VIABLE PUBLIC GOLF COURSE

PROVIDE A DESTINATION FOR COMMUNITY GATHERINGS AND ENGAGEMENTS

PROGRAM PILLARS

I Youth Empowerment

Caddie Program, by The Western Golf Association and it’s Evan’s Scholars program will train and fund caddie positions. The WGA will pay the $50 fee for each caddie round, meaning players will only be responsible for gratuity and mentoring interaction. The Evans Scholar collegiate scholarship opportunity will be available at University of Missouri-Columbia and serveral other colleges for qualifying youth in the program.

100+ seasonal jobs for high school and college youth, with training spanning the range of operations, maintenance, hospitality, club and course operations, administration, accounting, event planning, etc.

Normandy High School Golf Team: plans to launch after a decades-long hiatus. Free to participating students. Coach(s), uniforms, equipment, and instruction will be included, with the goal to be playing by Spring 2025.

II STEM Preparedness

Teen Tech Center AKA Caddie House is planned for erection adjacent to the Club House. Normandie Reimagined envisions and is seeking a partner with experience developing, equipping, and providing STEM focusedprogramming to the youth employees and caddies. Multiple naming opportunities are available in connection with these programs.

150+ NEW JOBS

25,000+ PAID USERS PER YEAR

30,000 SPONSORED PROGRAMMATIC USERS PER YEAR

III Cultural Engagement

Because the course is a non-profit, the facility will remain an accessible, affordable, and community-focused.

Increase awareness and economic viability of the Normandie area. Along with Incarnate Word Academy and UMSL’s major development expansions plans, the St. Charles Rock Road corridor improvements, and the Normandie Reimagined initiative, the area has and will continue to see investment and energy being funneled into the community.

All Beyond Housing participants (over 2000/yr) will have access to the course and anyone who plays at the course will be invite to participate in Beyond Housing’s wide array of programming.

IV Support for HEROES

Since 2015 Greens fee and special event discounts have been and will continue to be extended to veterans and area first responders.

COMMITED PARTNERS

Western Golf Association

Evans Scholar Caddie Program

First Tee Greater St. Louis

Founders Club

Support of Heroes

Normandy High School Golf Teams

LPGA/USGA Girls Golf

Youth on Course

PGA Junior League

Metropolitan Junior Amateur Championship

Boys and Girls Club of Greater St. Louis

Golf Foundation of Missouri

Urban Golf of Greater St. Louis

Gene Slay’s Girls and Boys Club

Tee Masters of STL

Cadre 19

Royal Vagabonds

$4 BIL DONATIONS PER YEAR BY THE GOLF INDUSTRY

REIMAGINED

URBAN REVITALIZATION

NORMANDIE

URBAN REVITILIZATION

Transforming a 122 year old public golf course, into a signature Jack Nicklaus public course in North St. Louis County, will not alone transform the area. Thankfully, several significant initiatives nearby will collectively bring sustainable Urban Renewal & Revitalization to this historic part of the St. Louis.

At present, a wide variety of positive & negative changes are impacting the area. These demographic and societal shifts, along with the adjoining public and private initiatives/projects described herein – have been in various levels of evolution for decades.

Normandie Reimagined is a small, yet high profile, component in this everchanging urban landscape; providing world class golf recreation with unique social programming in a public club environment. The following map shows the most significant of our North County neighbor’s initiatives. Together, this collaboration of exciting initiatives, will bring positive change to North St. Louis County for another 120 years.

LEGEND
1. Beyond Housing
2. North St. Louis County & Workforce District
3. Lambert Airport Expansion 4. Northpark Development Area 5. Incarnate Word Academy 6. Emerson Electric Headquarters 7. River Des Peres Regional Stormwater Relief 8. Norwood Hills & Glen Echo Country Club 9. St. Charles Rock Rd. & Natural Bridge Rd Commercial/Residential Corridors 10. St. Vincent Greenway - Pedestrian/Biking Path 11. Metrolink - Public Transportation 12. Boys & Girls Club Ferguson Teen Center of Excellence

Normandie Golf Course becomes a public course

Normandie GC is closed, prompting Sports Illustrated to feature an article about the “oldest public golf course still in operation in its original location West of the Mississippi”. To quote Sports Illustrated, “To explain, it’s still that old and it’s still in that original location... its just no longer in operation”. A sobering day for STL golf.

Thru the Years: As St. Louis grew, Normandie GC saw frequent visits from the likes of Babe Ruth, Bob Hope, Stan Musial and Dizzy Dean.

UMSL purchases Normandie Golf Course and agrees to lease the property to Walters Golf Management. A later proposal to renovate was rejected.

1985
2019
2015
The Normandie GC, designed by Robert & Jim Foulis, opened as a private club.

November: Jack Nicklaus & Nicklaus Design agree to donate services & lead the renovation effort ultimately making the course a Jack Nicklaus Signature Golf Course

Fall: Course will close for renovation work

April

MFG enters into a lease agreement with an option to purchase.

MGF Purchases the course

Course design and community impact finalized

Fundraising Begins! Fu

Spring 2025:

March - Construction completed

April - Course Grand Opening

Formal Programming and Community Impact to Begin

2022 2020 2021

JACK NICKLAUS SIGNATURE DESIGN

-JACK NICKLAUS STORY-

Jack Nicklaus is known around the world for his skills and accolades on the golf course. His advocacy for the game has changed the approach and popularity of golf, giving it a world-wide platform. A platform he uses to discuss diversity, inclusivity, growth, character, community, and accessibility. The Normandie Golf Course redesign is one of a select few philanthropic endeavors, and for good reason. The existing course, one of the oldest on the West side of the Mississippi, has the ability to elevate and grow the surrounding 24:1 communities. Nicklaus believes in diversifying the sport of golf, creating accessible jobs within the profession, and importantly, in investing in our communities and future generations.

The support and recognition Nicklaus and his design team, Nicklaus Design, brings to Normandie Reimagined is irreplaceable. The Metropolitan Golf Foundation and Beyond Housing are thrilled his involvement has brought a buzz back to the Normandie Golf Course.

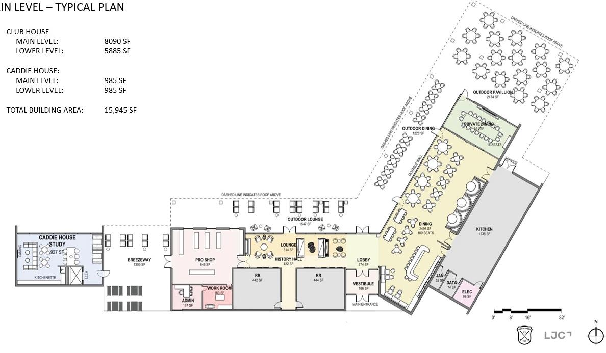
CLUBHOUSE + CADDIE FACILITIES

CLUBHOUSE PROGRAMMING

The clubhouse, has been reimagined by the Lamar Johnson Collaborative as a community space, which will host public, private, and philanthropic events. The structure is ~14,000sf with an indoor dining facility, Pro Shop, Lounge, cart storage, and an expansive, covered outdoor pavilion The 2-story Caddie House is ~2,000sf with hands-on learning zone, workshop, and support spaces. LJC’s integrated services are such that the landscape and planning, interior design and architecture teams are all working together to create a cohesive, impactful, and well-excuted beacon for the Normandie community.

“A BEACON FOR THE NORMANDIE COMMUNITY”

CLUBHOUSE MAIN FLOOR PLAN

CADDIE PROGRAM GOALS

Western Golf Association(WGA)

trained and funded caddie positions

Evans Scholarship opportunities for caddies. Includes tuition & room + board at University of Missouri-Columbia or 22 participating universities

Teen Tech Center providing STEM focused learning, and a space for developing & equipping youth w/ new skillsets.

1/3 rounds played at the club with a caddie will be WGA sponsored

Normandie Reimagined will soon become the hub of golf philanthropic and associated youth-related programming efforts in the region, by the additon of several new/proven partners Our 16 current partnerships will be enhanced greatly with the renovated golf course, driving range and new clubhouse facilities, benefiting thousands of youth and area residents annually

To demonstrate the claim, the following summary of current “daily” participation figures, and their conservative growth in the first full year of operation - results in a 15-fold increase from current Normandie users. In the future, these metrics will be validated annually in the “Normandie ReimaginedOutcomes Report”, prepared by our Program Director and staff. The following list are our program commitments in place today, that are expected to grow significantly.

CURRENT VS. PROJECT PARTICIPATION

Due to the significant uncertainties inherent in any prediction of future events, the inclusion of forward-looking statements should be regarded as illustrations only and should not be treated as a representation by Normandie Reimagined Leadership of future results based on their experience over the past 40 plus years.

Due to the significant uncertainties inherent in any prediction of future events, the inclusion of forwardlooking statements should be regarded as illustrations only and should not be treated as a representation by Normandie Reimagined Leadership of future results based on their experience over the past 40 plus years.

" # $ % & ' ( ) * ' + , - . /... 0 + 1 2 , /.. . . ... 3 4 1 . /... * 5 6 2 /.. / . 7.. ! & , 8 " 9 * 2 7.. ... ,'2: % . / ... , 4 ;.. ... 4 , + ' . 7.(5 . /7.. -%+1 <,+1 + + !. !.. 8 6 .. !.. + %+1 = - ' . ... : 1 = % . 7.. 3 + 6 + , - . !.. + * : /. .. < + + , - 7. 7.. + , 5 + 5 9 3 6 . /.. ' : 5 , - !. /.. 6 > . /.. ? /. /.. !!! "! !!!

BUDGET

Total Project Budget

Land Purchase

Golf Course Renovation

Maintenance Building

Clubhouse/Parking/Landscape

Clubhouse Furniture, Art, History

$400,000 FF&E (Clayco Estimate)

Owner Contingency

$425,000 D&C (Clayco Estimate)

Architectural + Engineering/Testing Fees - Clubhouse

Construction Interest Expense

TOTAL

$1,500,000 8,000,000 1,000,000 9,900,000 300,000 500,000 100,000 60,000 $21,360,000

Total does not include the In-Kind commitment of Jack Nicklaus and his design work on a “Jack Nicklaus Signature” Golf Course. This commitment is valued in today’s market at $3,000,000.

Contemplates Maintenance Equipment if not donated In-Kind to be on a capital lease and if carts not donated In Kind on a true lease and will be part of the annual operating budget

Along with the project budget a significant endowment will be raised to ensure ongoing sustainability.

PRO FORMA

Summary Income Statement

5yr Pro-Forma Model

Assumptions:

- Annual Increase in Revenue projected at 6%

- Annual Increse in Expense projected at 4%

- Projects a $42.50/GF and an $80 Tournament Rate (25,000/2,500 rounds)

- Projects 100 Founding Members at $1,000 annually.

- Renovation Years project Tournmanet activity which has been limited the past, producing significant revenue while utilizing limited days/tee sheet inventory

- Food & beverage Income + Expense contemplates Tournmanet Activity and Wedding/Banquet function revenue

- Property is capable of more rounds and revenue, but this Pro Forma takes into accout a Philanthropic Mission

Comparison:

- Gateway National plays 40,000 - 42,000 rounds with ~$2,500,000 in revenue

- Gateway National is on 165 acres (bent grass) with a maintenance budget of $600,000, while Normandie is on 117 acres (warm season grassing. Bent grass is more expensive to maintain

- Normandie presently entertains ~27,500 rounds of golf

Projected Employee Counts: FT/PT:

Pro Shop: 3/6

Carts: 1/20

Grounds & Greens: 5/20

Food & Beverage: 4/25

Office: 1/2

Caddie Program: 2/75

Total: 16/148

NOTABLE SPONSORS

*as of April 2023

DONATE TODAY

SCAN THE QR CODE TO LEARN MORE ABOUT THE NORMANDIE REIMAGINED PROGRAM OR TO MAKE A DONATION

Turn static files into dynamic content formats.

Create a flipbook
Issuu converts static files into: digital portfolios, online yearbooks, online catalogs, digital photo albums and more. Sign up and create your flipbook.