


















AZURE FLOORPLAN
6876
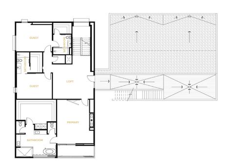
MOONGLOW FLOORPLAN
LEVEL 1
LEVEL 2
6851
6869
LEVEL 1
LEVEL 2
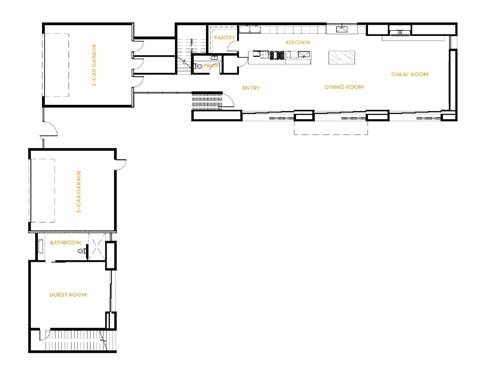
6892 MILOS ROAD
LEVEL 1
LEVEL 2
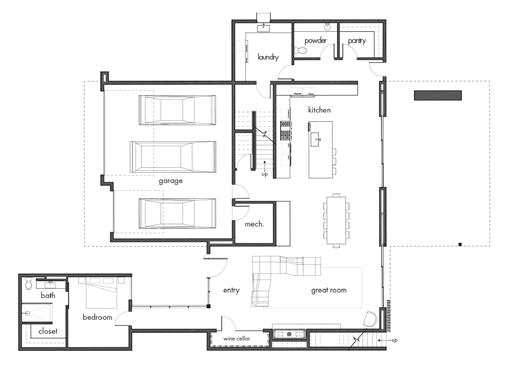
LEVEL 1
6860
• Materials and construction techniques to maximize organic beauty and function
• Professionally designed front landscaping
• Bespoke pivot front door
• Stylish courtyard gate
• Architectural details in Thermory wood, ideal for placement in the desert heat
• Aluminum windows and exterior doors
• Smooth stucco exterior walls
• Extensive use of raw and organic materials and hand-placed stonework
• Wood trim in walnut, reclaimed Indonesian teak and other species from around the world
• Architectural details such as bespoke bathroom vanities, custom-built mirrors with steel frames and unique shower materials
• 9’ sliding glass pocket doors in main living area
• 10’ ceilings
• 8’ solid core interior doors
“CHEF’S
DREAM” KITCHEN
• Flat-panel contemporary cabinetry
• Soft-close drawers and doors
• Large kitchen island
• Expert craftsmanship and impeccable quality
• Fire sprinklers throughout main home
• Dual pane low-e glass
• Superior “cocoon” attic insulation
• R-21 cellulose wall spray at exterior walls
• Flat roof
• Slump block walls
• Exposed aggregate drive and walkways
• Custom steel window boxes
• Thoughtfully-positioned windows that capitalize on views of the natural surroundings while maximizing privacy between neighbors
• Smooth level 5 drywall finish
• Square, contemporary corners
• Linear air diffusers
• Cat 6 wiring
• Square LED can lights
• Oversized laundry room
• Finished oversized 4-car garage with air conditioning and electric car charging station
• Polished concrete floors
• Granite slab countertops
• Sub-Zero and Wolf appliances
• Brizo faucet and workstation sink
• (2) Tankless water heaters
• Recirculation hot water pump
• Pre-plumbed for water softener
• 600-amp electrical service
• Prewired for home automation, surround sound, window coverings and solar
• RWC home warranty
Jewel Homes is a true custom home builder; if you want it, Jewel Homes will add it! Some ideas:
• Detached casita
• Jewel Homes signature decorative wood/ steel exterior shutters
• Additional fireplaces
• Home automation
• Climate-controlled wine rooms
• Real stone and wood veneers.