LN FREELANCER SERVICES

Page 1

LAURA

NAVIA ARCHITECTURE AND INTERIOR DESIGN

Skills/Experience Illustrations Architecture Design Rendering Interior Design 01 02 03 04 05

I am an architect graduated from the Universidad de la Costa, my working life began in 2012 as a receptionist in a Real Estate Developer, from that experience born my interest in architecture and design so I began the Bachelor of Architecture, I have experience in developing projects in 2D and 3D, using digital graphic tools as SketchUp, V-ray, Revit (BIM), Autocad, Photoshop, 3D Max.

My interests include architectural design, interior design and urban planning. I work with Imperial and Metric Systems.

01

EXPERIENCE

LN ARCHITECTURE

Freelancer Architect Jul 2021 Worldwide

CAD/REVIT drafting and conversion, Design, (Schematic Design, Concept, Construction Documents), 3D rendering and visualization

Support in the architectural design area

Sketch up Microsoft Project Photoshop S K I L L S

Novalar S.L Junior Architect (practice) nov. 2021 - abr. 2022 Logroño, España

Provide service to the requirements of the chief architect on the processes of reform files, budgets and forms.

-Site Visits Visits to suppliers

3D Max

LANGUAGES

Academic Term 2017 - 2021

Universidad de la Costa Barranquilla Colombia

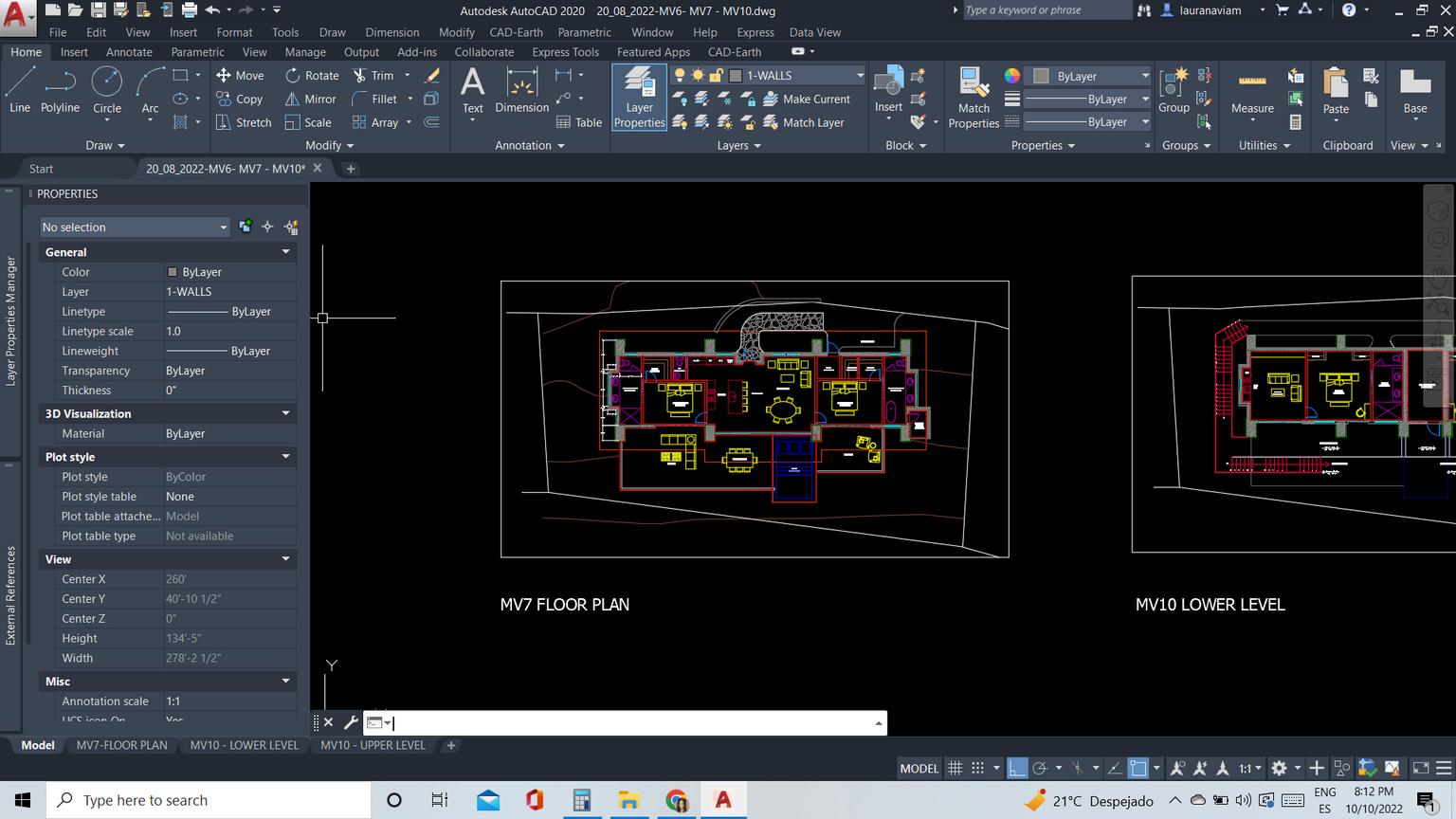
Autocad
Revit
Spanish English Native C1
01

02 Illustrations

FLOOR PLAN ILLUSTRATIONS 2d floor plan illustrations using photoshop for marketing or real states $30-$50 Per Layout
INTERIOR DESIGN ILLUSTRATIONS Illustration for proposal Interior Design $150 $500 Per project
SITE/MAP $20-$150 Per Floor Plan
3D PLAN Depends if the 3D model is provided. $50 $400 Per Project. *Large Scale Projects should be consulted

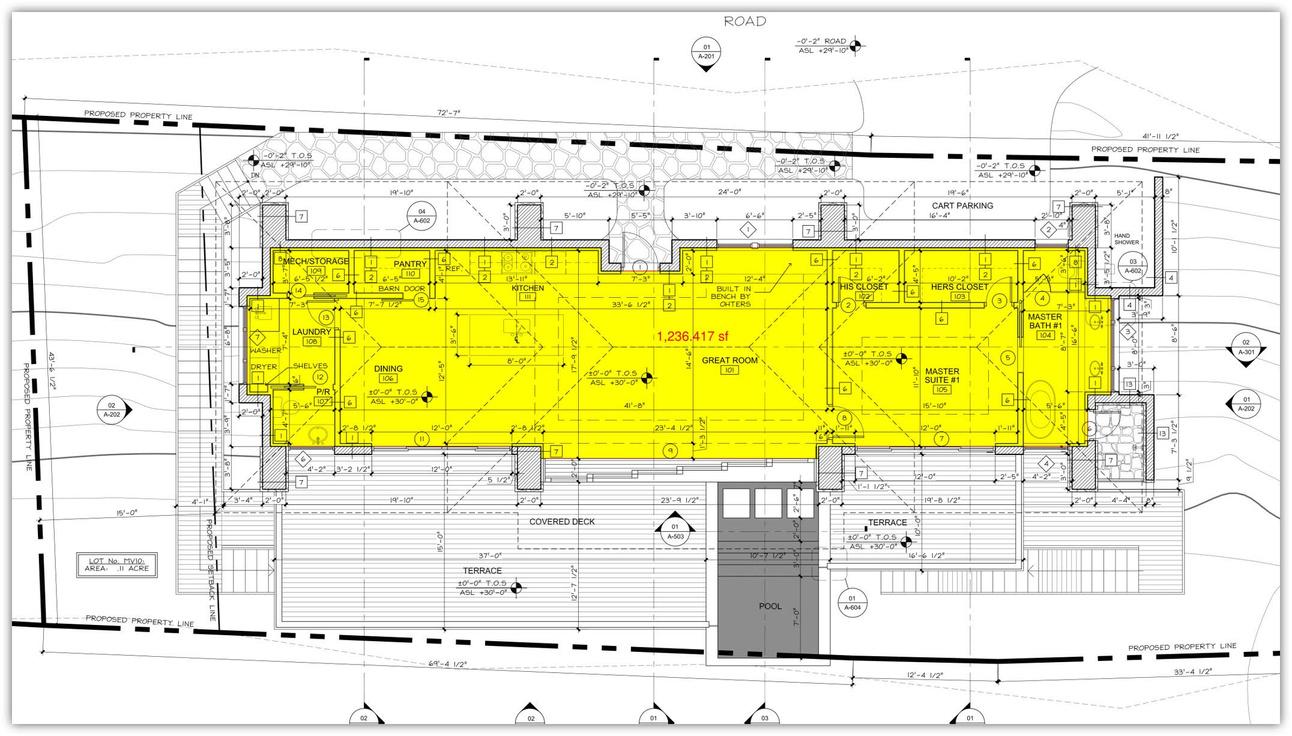
03 Architecture Design

RESTAURANT FLOOR PLAN (CONCEPT)
PAINTBALL FIELD (SCHEMATIC)
SMALL HOUSE 120M2
DIGITAL CAD/REVIT From JPG - PDF- Handmade to Autocad File or Revit File $25- $100 Per Layout

04 Rendering

$30-$65 Per Image RENDER INTERIOR Depends if the 3D model is provided. *Per Project should be consulted
$50-$75 Per Image RENDER EXTERIOR Depends if the 3D model is provided. *Per Project should be consulted
$80-$120 Per Image RENDER URBAN Depends if the 3D model is provided. *Per Project should be consulted
$50-$200 Per Project RENDER COMERCIAL/STAND Depends if the 3D model is provided.

05 Interior Design

OFFICE MOODBOARD/MODEL 3D
Contact MEDELLÍN,
@LAURANAVIAA LAURANAVIAM@GMAIL.COM
COLOMBIA

Turn static files into dynamic content formats.

Create a flipbook
Issuu converts static files into: digital portfolios, online yearbooks, online catalogs, digital photo albums and more. Sign up and create your flipbook.