HSLU: Re-Sourcing Icons_Component Catalogue_MAA_Focus Energy_HS22

Page 1

Lucerne University of Applied Sciences and Arts

Master in Architecture

HS22 Focus Architecture & Energy: Re-Sourcing Icons

Teaching Team: Annika Seitert, Axel Humpert, Anthony Frank

I Bürgenstock-Bazaar

II Safa-Pavillon

III Centre Le Corbusier

LB Load-bearing structure

E Building Envelope / Exterior

I Component in the interior

SC Special component

Component catalogue: Bürgenstock-Bazaar

Student Group: Component catalogue I

LB Lindon Bytyqi

DG Dugald Gardner

IJ Ichrake Jabbouri

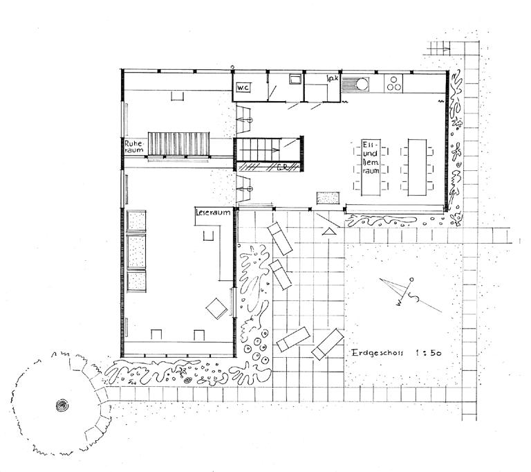
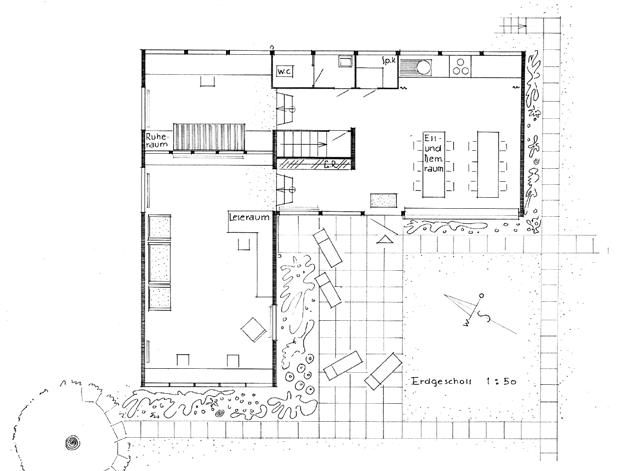
I. Bürgenstock-Bazaar

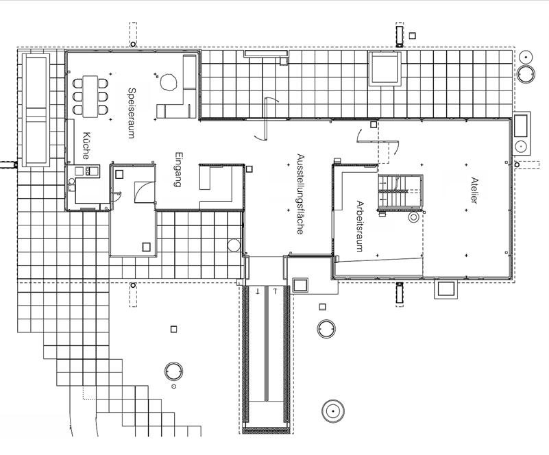
The Bürgenstock Resort is a hotel complex that overlooks Lake Lucerne. Attractions such as the Hammetschwand lift were valuable additions to the resort already in the early 20th century. Inspired by a trip to the United States, Fritz Frey, the hotel owner, gave new freshness to the Belle-Époque hotel complex in the 1950s. Frey supplemented the range of attractions with various pavilion buildings, such as the Waldpark Ost, a garden complex with a kidney-shaped swimming pool and an underwater bar, thus catering to the spirit of the times and the younger generation in Hollywood.

The Bürgenstock Bazaar is one of these structural additions. It was designed by the Lucerne architect August Boyer in collaboration with Frey. The salesroom provided shop space for the Gübelin jewellery and watch company and for a fashion house. The two-storey bazaar is enclosed on three sides by a solid natural stone wall, accentuated by a few window openings. The restaurant opens all the more impressively onto the piazza with an attractive shop-window front. While the balcony on this side separates the single-storey part of the salesroom on the ground foor – generously ftted out with windows – from the upper foor, a vertical glass-block wall with an embedded jewellery showcase on the ground foor in front of the two-storey part of the salesroom visually reunites the building. Behind the architectural design is the endeavour to fnd a modern design language that blends harmoniously with local materials such as natural stone into the historically impressive surroundings, a design that also appealed to the architectural spirit of the times in the United States.1

The Bürgenstock Bazaar was modifed in spring 1965 and, among other things, the glass-block wall was replaced by frameless glazing. Thanks to Nidwalden’s preservation of historical monuments programme, the Bürgenstock Bazaar was restored to its original state in 2017 as part of the resort renovations.2

1 See: Meret Speisser, ‘Bürgenstock-Bazaar / Gübelin-Bazaar (1955)’ in Der Traum von Amerika: 50er-Jahre-Bauten in den Alpen (Marcel Just / Meret Speisser eds., Nidwaldner Museum 2016).

2 See: Gerold Kunz, ‘Alt und Neu, Gross und Klein im Wechselspiel: Ortsbildschutz am Bürgenstock’, Tec21, 11 Feb. 2018, https://www.espazium.ch/de/aktuelles/alt-und-neu-gross-und-klein-im-wechselspiel

Bürgenstock-Bazaar, 1955. Architekt August Boyer. Photo: Otto Pfeifer. Photo source: Private archive Frey family, Lucerne Lucerne

I Bürgenstock-Bazaar

II Safa-Pavillon

III Centre Le Corbusier

LB Load-bearing structure

E Building Envelope / Exterior

I Component in the interior

SC Special component

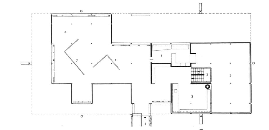
I. List of Building Components

I Bürgenstock-Bazaar

LB Load-bearing structure

E Building Envelope / Exterior

I Component in the interior

SC Special component

Hochschule Luzern Component catalogue HS22 Architecture Energy: Re-Sourcing Dimension Material 1 Criteria (1=high - 10=low) Inventory Quantity I. Type / Location Name/Title Element type Height Wide Depth Global Warm Potential GWPMaterial 1 Material 2 Material 3 Surface Color Origin Assembly DateArchitectural Value Reusability Condition Date Name Comment cm cm cm kg CO2 eq / m3 framing infill 294 I.E.001 Exterior Glass Brick Window 19 19 8 415.6 Multi-Layered Glass Cross RibbedTransparent Bürgenstock-Bazaar 2014 4 4 9 23.09.22 Lindon 1pcs I.E.002 Exterior Concrete Window Encasing squareWindow Encasing 133 162.5 50 202.3 Lightweight Concrete Smooth White Bürgenstock-Bazaar 1955 8 9 9 23.09.22 Dugald 1pcs I.E.003 Exterior Concrete Window Encasing roundWindow Encasing 140 140 77 202.3 Lightweight Concrete Smooth White Bürgenstock-Bazaar 1955 10 10 8 23.09.22 Lindon round ∅ 4pcs I.E.004 Exterior Wood / Aluminium Framed WindowWindow 210 98 12 762.6 Wood Aluminium Glass Smooth Light Yellow Bürgenstock-Bazaar 2014 4 9 10 23.09.22 Dugald 3pcs I.E.005 Exterior Aluminium Framed Window Window 205 305 8 1172.7 Aluminium Glass Smooth Silver Bürgenstock-Bazaar 1955 8 9 8 24.09.22 Dugald 2pcs I.E.006 Exterior Aluminium Framed Window Window 205 76.5 8 1172.7 Aluminium Glass Smooth Silver Bürgenstock-Bazaar 2014 8 9 10 25.09.22 Dugald 1pcs I.E.007 Exterior Aluminium Framed Glass Door Door 245 152 8 1172.7 Aluminium Glass Smooth Silver Bürgenstock-Bazaar 2014 8 9 10 26.09.22 Dugald 45.4m3 I.E.008 Exterior Natural Stone Facade - - - 244.8 Stone AmorphousMulti-color Bürgenstock-Bazaar 1955 10 4 9 14.10.22 Lindon 10.8m I.E.009 Exterior Gutters Gutter - - - 26578 Tin Smooth Metallic Bürgenstock-Bazaar 2014 2 10 10 16.10.22 Lindon 12.8m I.E.010 Exterior Railing Balcony Railing 90 1280 4 8831.2 Steel Smooth White Bürgenstock-Bazaar 1955 8 10 8 17.10.22 Lindon 1pcs I.I.011 Interior Sink Bathroom Appliances 45 30 25 58.2 Porcelain Smooth White Bürgenstock-Bazaar 2014 3 10 10 18.10.22 Lindon 1pcs I.SC.012 Interior Fresco on the celing Midfloor 730 570 18 1746.5 Concrete Lime render Rough Multi-color Bürgenstock-Bazaar 1955 10 3 9 19.10.22 Lindon 4pcs I.E.013 Exterior Wood Window Shutters Shutters 210 98 5 -519,0 Wood Paint Smooth Beige Bürgenstock-Bazaar 1955 5 9 9 16.10.22 Dugald 19 m3 I.LB.014 Interior Brick Wall Wall - - - 565.2 Fired Clay Mortar Plaster Smooth White Bürgenstock-Bazaar 1955 2 2 9 16.10.22 Dugald 50pcs I.I.015 Inetrior Lighting System Lighting 37.5 5 var. 28242 Aluminium Paint Smooth Beige Bürgenstock-Bazaar 2014 2 9 9 16.10.22 Dugald 1pcs I.I.016 Inetrior Toilet Sanitary Installation 70 43 63 1725.3 Ceramics Glossy White Bürgenstock-Bazaar 2014 1 10 9 16.10.22 Dugald 18pcs I.I.017 Interior Cupboard Fixed Furniture 245 60 60 -182.9 MDF Paint Smooth White Bürgenstock-Bazaar 2014 3 6 8 16.10.22 Dugald 1pcs I.SC.018 Inetrior Stairs Stairs 270 390 90 22923,1 Steel Wood Smooth Light Brown Bürgenstock-Bazaar 2014 10 9 10 29.09.22 Ichrake 1pcs I.I.019 Interior Kitchen Fixed Furniture 230 180 235 2 332.0 Marble Wood Smooth Grey/Black Bürgenstock-Bazaar 2014 5 10 10 12.10.22 Ichrake 5pcs I.I.020 Interior Door Door 245 81 4 -519,0 Wood Paint Smooth White Bürgenstock-Bazaar 2014 5 9 9 ######## Ichrake 5pcs I.I.021 Interior Bose Speakers Soundsystem 41 41 25.5 28242 Aluminium Plastic Smooth White Bürgenstock-Bazaar 2014 6 9 9 ######## Ichrake 25 m3 I.LB.022 Interior/Exterior Concrete Floor/Wall - - - 7 200 Concrete Plaster Smooth White Bürgenstock-Bazaar1955/2014 7 6 9 20.10.22 Ichrake 25 m I.I.023 Interior Ventilation Pipes Ventilation 40 60 - 28242 Aluminium Smooth Silver Bürgenstock-Bazaar 2014 6 9 9 12.10.22 Ichrake 9 m2 I.E.024 Exterior Wood Cladding Facade - - - -519,0 Wood Paint Smooth Brown Bürgenstock-Bazaar 1955 8 9 9 ######## Ichrake 4pcs I.E.025 Exterior Steel Column Column 245 40 25.2 22923,1 Steel Smooth Silver Bürgenstock-Bazaar 1955 8 9 9 ######## Ichrake 105 m2 I.I.026 Interior Wood Floor Floor - - - -519,0 Wood Smooth Light Brown Bürgenstock-Bazaar 2014 8 9 9 ######## Ichrake

I Bürgenstock-Bazaar

II Safa-Pavillon

III Centre Le Corbusier

LB Load-bearing structure

E Building Envelope / Exterior

I Component in the interior

SC Special component I.LB

I.LB.01 - Brick Wall

Isometry

I Bürgenstock-Bazaar

II Safa-Pavillon

III Centre Le Corbusier

Plans

LB Load-bearing structure

E Building Envelope / Exterior

I Component in the interior

SC Special component

Component

Profle scale 1:10

Elevation front

Elevation side

Location

Origin/ Building Bürgenstock-Bazaar

Quantity ca. 19 m3

Dimension 9 x 29 x 14 h x w x d (cm)

Date 1955

T itle Brick Wall

Element type Wall

GWP 565.2 kg CO2 eq / m3

Material Fired Clay

Surface Smooth

Color White Criteria

(1=high - 10=low)

Architectural Value 2

Reusability 2

Condition 9

scale 1:20

Inventory 16.10.2022

date/name dg

HS22 Architecture & Energy: Re-Sourcing Icons

I.LB.0 - Concrete

Isometry

Floor covering

Concrete

Sand cushion

Base

Subgrade soil

I Bürgenstock-Bazaar

II Safa-Pavillon

III Centre Le Corbusier

Plans

LB Load-bearing structure

E Building Envelope / Exterior

I Component in the interior

SC Special component

Component

Location

Origin/ Building

Quantity

Dimension h x w x d (cm)

Date Title

Element type

GWP

Material

Surface Color

Criteria (10=high - 1=low)

Bürgenstock-Bazaar

25m39 2014

Concrete

7200 kg CO2 eq / 3

Concrete Smooth White

Architectural Value 7

Reusability 6

Condition 9

Inventory 20-10-2022

date/name IJ

1:50 Elevation side P o scale 1:10
scale
HS22 Architecture & Energy: Re-Sourcing Icons

I Bürgenstock-Bazaar

II Safa-Pavillon

III Centre Le Corbusier

LB Load-bearing structure

E Building Envelope / Exterior

I Component in the interior

SC Special component

I.E

HS22 Architecture & Energy: Re-Sourcing Icons

I.E.001 - Glass Brick

Isometry

Plans

I Bürgenstock-Bazaar

II Sa a-Pavillon

III Centre Le Corbusier

LB Load-bearing structure

E Building Envelope / Exterior

I Component in the interior

SC Special component

Origin/ Building

Component

Location

h x w x d (cm) Date

Bürgenstock-Bazaar

276

19 x 19 x 8

Element type GWP

2014 Glass Brick Wall

266.1 kg CO2 eq / m3

Glass Cross Ribbed Transparent

=high - 1=low)

Architectural Value

4 9

I nventory

date/name 24.09.2022/ Lindon Bytyqi

Elevation side Elevation front Pro le
19cm
19cm 8cm 19cm

I.E.002 - Concrete Window Encasing

Isometry

I Bürgenstock-Bazaar

II Safa-Pavillon

III Centre Le Corbusier

Plans

LB Load-bearing structure

E Building Envelope / Exterior

I Component in the interior

SC Special component

Location

Origin/ Building

Quantity

Dimension h x w x d (cm)

Date

Title

Element type

GWP

Material Surface

Color

Criteria (1 =high - 1=low)

133 x 162.5 x 50

Concrete Window Encasing Window Encasing

202.3 kg CO2 eq / m3

Lightweight Concrete

Smooth White

Architectural Value 8

Reusability 9

Condition 9

Inventory 23.09.2022

date/name dg

scale 1:20 Elevation side Elevation front Profle scale 1:10
HS22 Architecture & Energy: Re-Sourcing Icons

I.E.008 - Stone wall

I Bürgenstock-Bazaar

II Sa a-Pavillon

III Centre Le Corbusier

LB Load-bearing structure

E Building Envelope / Exterior

I Component in the interior

SC Special component

Isometr y

Location

Origin/ Building

Quantity

Dimension Variety

h x w x d (cm) Variety

Date 1955

Title Stone Wall

Element type Wall

GWP 244.8 kg CO2 eq / m3

Material Stone

Surface Irregular

Color Multi-color

Criteria

(1=high - 10=low)

Architectural Value 10

Reusability 4

Condition 9

I

nventory

date/name 24.09.2022/ Lindon Bytyqi

Pro le
HS22 Architecture & Energy: Re-Sourcing Icons

I.E.0 - Round Window

Isometry

Plans

I Bürgenstock-Bazaar

II Sa a-Pavillon

III Centre Le Corbusier

LB Load-bearing structure

E Building Envelope / Ex terior

I Component in the interior

SC Special component

HS22 Architecture & Energy: Re-Sourcing Icons Location

Origin/ Building

Quantity

Dimension D=140cm

h x w x d (cm)D=140cm, W=95cm

Date 1955

Title Round Window

Element type Window

GWP 474.1 (Frame) + 266.1 (Glass Pane) kg CO2 eq / m3

Material Wood and glass

Surface Flat

Color

Criteria (1=high - 10=low)

Architectural Value 10

Reusability 10

Condition 8

Inventory

date/name 24.09.2022/

Elevation side
front Pro le
Elevation
Lindon Bytyqi
140cm 95cm

I.E.02 - Wood Cladding

Isometry

I Bürgenstock-Bazaar

II Safa-Pavillon

III Centre Le Corbusier

Plans

LB Load-bearing structure

E Building Envelope / Exterior

I Component in the interior

SC Special component

Component

Location

Origin/ Building Quantity Dimension h x w x d (cm)

Date Title

Element type GWP Material Surface Color

Bürgenstock-Bazaar 9 2 2014 Wood Cladding -519,0 kg CO2 eq / m3 Wood Smooth Brown Criteria

(10=high - 1=low)

Architectural Value 8

Reusability 9 Condition 9

Inventory 10.10.2022

date/name IJ

scale
Elevation side P o scale 1:10
1:20
HS22 Architecture & Energy: Re-Sourcing Icons
1000cm 35cm 230cm

I.E.004 - Wood / Alu. Window

Isometry

I Bürgenstock-Bazaar

II Safa-Pavillon

III Centre Le Corbusier

Plans

LB Load-bearing structure

E Building Envelope / Exterior

I Component in the interior

SC Special component

Component

Elevation side

Location

Origin/ Building Bürgenstock-Bazaar

Quantity 4

Dimension 210 x 98 x 12 h x w x d (cm)

Date 2014

Title Wood / Alu. Window

Element type W indow

GWP 762.6 kg CO2 eq / m3

Material Aluminium / Wood / Glass

Surface Smooth Color Light Yellow

Criteria

(1=high - 10=low)

Architectural Value 4

Reusability 9

Condition 10

scale 1:20

Inventory 23.09.2022

date/name dg

Elevation front Profle scale 1:10
HS22 Architecture & Energy: Re-Sourcing Icons

I.E.005 - Aluminium Window

Isometry

I Bürgenstock-Bazaar

II Safa-Pavillon

III Centre Le Corbusier

Plans

LB Load-bearing structure

E Building Envelope / Exterior

I Component in the interior

SC Special component

Component

Elevation front

Elevation side

Location

Origin/ Building Bürgenstock-Bazaar

Quantity 3

Dimension 205 x 305 x 6 h x w x d (cm)

Date 1955

Title Aluminium W indow

Element type W indow

GWP 1172.7 kg CO2 eq / m3

Material Aluminium / Glass

Surface Smooth Color Silver

Criteria

(1=high - 10=low)

Architectural Value 8

Reusability 9

Condition 8

scale 1:20

Inventory 23.09.2022

date/name dg

Profle scale 1:10
HS22 Architecture & Energy: Re-Sourcing Icons

I.E.006 - Aluminium Window

Isometry

I Bürgenstock-Bazaar

II Safa-Pavillon

III Centre Le Corbusier

Plans

LB Load-bearing structure

E Building Envelope / Exterior

I Component in the interior

SC Special component

Component

Elevation side

Location

Origin/ Building Bürgenstock-Bazaar

Quantity 2

Dimension 205 x 76.5 x 6 h x w x d (cm)

Date 2014

Title Aluminium W indow

Element type W indow

GWP 1172.7 kg CO2 eq / m3

Material Aluminium / Glass

Surface Smooth

Color Silver

Criteria

(1=high - 10=low)

Architectural Value 8

Reusability 9

Condition 10

Profle scale 1:10

scale 1:20

Inventory 23.09.2022

date/name dg

Elevation front
HS22 Architecture & Energy: Re-Sourcing Icons

I.E.007 - Aluminium Door

Isometry

I Bürgenstock-Bazaar

II Safa-Pavillon

III Centre Le Corbusier

Plans

LB Load-bearing structure

E Building Envelope / Exterior

I Component in the interior

SC Special component

Component

scale 1:20

Location

Origin/ Building Bürgenstock-Bazaar

Quantity 1

Dimension 245 x 152 x 6 h x w x d (cm)

Date 2014

Title Aluminium Door

Element type Door

GWP 1172.7 kg CO2 eq / m3

Material Aluminium / Glass

Surface Smooth

Color Silver

Criteria

(1=high - 10=low)

Architectural Value 8

Reusability 9

Condition 10

Inventory 23.09.2022

date/name dg

Elevation side Elevation front Profle scale 1:10
HS22 Architecture & Energy: Re-Sourcing Icons

I.E.013 - Wood Window Shutters

Isometry

I Bürgenstock-Bazaar

II Safa-Pavillon

III Centre Le Corbusier

Plans

LB Load-bearing structure

E Building Envelope / Exterior

I Component in the interior

SC Special component

Component

Origin/ Building

Quantity Dimension h x w x d (cm)

Date T itle

Element type

GWP

Material Surface Color

Location

Bürgenstock-Bazaar

4 210 x 98 x 12

Wood Window Shutters Shutters

-519.0 kg CO2 eq / m3

Wood Smooth Beige

Elevation side

Criteria

(1=high - 10=low)

Architectural Value

Reusability 9

Condition 9

scale 1:20

Inventory 16.10.2022

date/name dg

Elevation front Profle scale 1:10
HS22 Architecture & Energy: Re-Sourcing Icons

I.E.02 - Steel column

Isometry 25,5cm

Plans

I Bürgenstock-Bazaar

II Safa-Pavillon

III Centre Le Corbusier

LB Load-bearing structure

E Building Envelope / Exterior

I Component in the interior

SC Special component

Component

Origin/ Building

Quantity

Dimension h x w x d (cm)

Date

Title

Element type

GWP

Material

Surface Color

Criteria (10=high - 1=low)

Bürgenstock-Bazaar

4 240x 25,5x40

2014 Steel column

22 923,1 kg CO2 eq / m3 Steel Smooth

Architectural Value 8

Reusability 9

Condition 9

Inventory 10.10.2022

date/name IJ

scale
Elevation side Elevation front P o scale 1:10
1:20
HS22 Architecture & Energy: Re-Sourcing Icons
Location 40cm

I.E.0 - Gutters

Pro le
er Vertical
26578.0 kg CO2 eq / m3 Metallic HS22 Architecture & Energy: Re-Sourcing Icons scale 1:5 scale 1:5 scale 1:5

I.E.0 - Railing Balcony

Pro le
90cm x 1280cm x 4 cm O2 eq / m3 24.09.2022/ Lindon Bytyqi HS22 Architecture & Energy: Re-Sourcing Icons scale 1:20 scale 1:20 scale 1:20

I Bürgenstock-Bazaar

II Safa-Pavillon

III Centre Le Corbusier

LB Load-bearing structure

E Building Envelope / Exterior

I Component in the interior

SC Special component

I.I

I.I.0 - Wood Floor

I Bürgenstock-Bazaar

II Safa-Pavillon

III Centre Le Corbusier

LB Load-bearing structure

E Building Envelope / Exterior

I Component in the interior

SC Special component

Isometry Component

Plans

Origin/ Building Quantity Dimension h x w x d (cm) Date Title Element type GWP Material Surface Color

Criteria

(10=high - 1=low)

Bürgenstock-Bazaar 104,37 m3

2014 Wood Floor -55 837,9 kg CO2 eq / m3 Wood Smooth Light Brown

Architectural Value 8

Reusability 9 Condition 9

scale 1:20

scale 1:60

Inventory 10.10.2022

date/name IJ

P o
HS22 Architecture & Energy: Re-Sourcing Icons
35cm 400cm 710cm
Location

I.I.0 - Door

Isometry

I Bürgenstock-Bazaar

II Safa-Pavillon

III Centre Le Corbusier

Plans

LB Load-bearing structure

E Building Envelope / Exterior

I Component in the interior

SC Special component

Component scale 1:20
side Elevation front scale 1:10 Origin/ Building Quantity Dimension h x w x d (cm) Date Title Element type GWP Material Surface Color Bürgenstock-Bazaar 5 2 x x 2014 oor -519,0 kg CO2 eq / m3 Wood Smooth White
Condition
HS22 Architecture & Energy: Re-Sourcing Icons Location 81 cm 250 cm
Elevation
Criteria (1=high - 10=low) Architectural Value 5 Reusability 9
9 Inventory 10.10.2022 date/name IJ

I.I.0 3 - Ventilation pipes

I Bürgenstock-Bazaar

II Safa-Pavillon

III Centre Le Corbusier

Plans

LB Load-bearing structure

E Building Envelope / Exterior

I Component in the interior

SC Special component

Component

Origin/ Building

Quantity

Dimension h x w x d (cm)

Date

Title

Element type

GWP

Material Surface Color

Criteria

(10=high - 1=low)

Bürgenstock-Bazaar

2 60x40

2014

Ventilation pipes Interior element

22 923,1 kg CO2 eq / 3 Steel Smooth Silver Grey

Architectural Value 6

Reusability 9

Condition 9

Inventory 12-10-2022

date/name IJ

scale 1:5 Elevation side P o scale 1:10
HS22 Architecture & Energy: Re-Sourcing Icons
Isometry 40 cm scale 1:5 60 cm
Location

I.I.01 - Kitchen

I Bürgenstock-Bazaar

II Safa-Pavillon

III Centre Le Corbusier

LB Load-bearing structure

E Building Envelope / Exterior

I Component in the interior

Criteria

(10=high - 1=low)

Architectural Value 5

Reusability 10

10

12-10-2022

Isometry Component scale 1:50 Elevation side P o scale 1:10 Origin/ Building Quantity Dimension h x w x d (cm) Date Title Element type GWP Material Bürgenstock-Bazaar 1 230x 0x23 2014 itchen 9 0 kg CO2 eq / 3 Marble Smooth Grey/Black Surface Color
Condition
HS22 Architecture & Energy: Re-Sourcing Icons Location 235cm 230cm 185cm Plans
Inventory
date/name IJ
Pro le
I.I.01 - Sink 45 cm x 30 cm x 25 cm throom appliances O2 eq / m3 24.09.2022/ Lindon Bytyqi HS22 Architecture & Energy: Re-Sourcing Icons Scale 1:10 Scale 1:10
Scale 1:10 30cm

I.I.01 - Toilet

Isometry

I Bürgenstock-Bazaar

II Safa-Pavillon

III Centre Le Corbusier

Plans

LB Load-bearing structure

E Building Envelope / Exterior

I Component in the interior

SC Special component

Component

Origin/ Building Quantity

Dimension h x w x d (cm)

Date T itle

Element type

GWP

Material

Surface Color

Criteria

Location

Bürgenstock-Bazaar

1 70 x 43 x 64

Toilet

Sanitary Installation

1725.3 kg CO2 eq / m3

Ceramic

Glossy

White

(1=high - 10=low)

Architectural Value 1

Reusability

Condition

Inventory date/name

16.10.2022 dg

1:10
scale 1:20 Profle scale
HS22 Architecture & Energy: Re-Sourcing Icons
Elevation front Elevation side

I.I.01 - Lighting System

Isometry

I Bürgenstock-Bazaar

II Safa-Pavillon

III Centre Le Corbusier

Plans

LB Load-bearing structure

E Building Envelope / Exterior

I Component in the interior

SC Special component

Component

scale 1:20

Location

Origin/ Building Bürgenstock-Bazaar

Quantity 50

Dimension 37.5 x 5 x var. h x w x d (cm)

Date 2014

Title Lighting System

Element type Lighting

GWP 28242.0 kg CO2 eq / m3

Material Wood

Surface Smooth Color Beige

Criteria

(1=high - 10=low)

Architectural Value 2

Reusability 9

Condition 9

Inventory 16.10.2022

date/name dg

1:10
Profle scale
HS22 Architecture & Energy: Re-Sourcing Icons
Elevation front Elevation side

I.I.0 - Cupboard

Isometry

I Bürgenstock-Bazaar

II Safa-Pavillon

III Centre Le Corbusier

Plans

LB Load-bearing structure

E Building Envelope / Exterior

I Component in the interior

SC Special component

Component

Elevation front

Elevation side

Location

Origin/ Building Bürgenstock-Bazaar

Quantity 1

Dimension 245 x 60 x 60 h x w x d (cm)

Date 2014

T itle Cupboard

Element type Fixed Furniture

GWP -182.9 kg CO2 eq / m3

Material Painted MDF

Surface Smooth Color White

Criteria

(1=high - 10=low)

Architectural Value 3

Reusability 6

Condition 8

scale 1:20 Profle scale 1:10

Inventory 16.10.2022

date/name dg

HS22 Architecture & Energy: Re-Sourcing Icons

I.I.02 - Bose Speakers

I Bürgenstock-Bazaar

II Safa-Pavillon

III Centre Le Corbusier

LB Load-bearing structure

E Building Envelope / Exterior

I Component in the interior

SC Special component

Building 40,9cm scale 1:10

Bürgenstock-Bazaar

40,9x 25,5

h x w x d (cm)

Origin/ HS22 Architecture & Energy: Re-Sourcing Icons Location 40,9cm

type

2014 Bose Speakers

scale 1:20 Elevation side Elevation front P o scale 1:10
Plans Isometry Component
Quantity Dimension
Date Title Element
GWP Material Surface Color Criteria (10=high
1=low) Architectural Value 6 Reusability 9 Condition 9 Inventory
2 2 2 0 kg CO2 eq / m3 Aluminum Smooth White IJ
-
10.10.2022 date/name

I Bürgenstock-Bazaar

II Safa-Pavillon

III Centre Le Corbusier

LB Load-bearing structure

E Building Envelope / Exterior

I Component in the interior

SC Special component

I.SC

I.S .01 - Fresco on the celing

Pro le
570 cm x 730 cm x 18 cm esco on the celing 1746.5 kg CO2 eq / m3 ete and Lime render 24.09.2022/ Lindon Bytyqi HS22 Architecture & Energy: Re-Sourcing Icons
18cm
Location Scale 1:75 Scale 1:75

I Bürgenstock-Bazaar

II Safa-Pavillon

III Centre Le Corbusier

LB Load-bearing structure

E Building Envelope / Exterior

I Component in the interior

SC Special component

Plans

Isometry 90 cm 390 cm 390 cm scale

Component

1:50

Origin/ Building

Quantity

Dimension h x w x d (cm)

Date

Title

Element type

GWP

Material Surface Color

Criteria (10=high - 1=low)

Bürgenstock-Bazaar

1

270 x 390 x 90

2014 Circular Staircase Staircase

22923, kg CO2 eq / 3 Wood Steel Smooth Light Brown

1:30

9 10 24-09-2022

I.SC.0
scale
Elevation side P o scale 1:10
Architectural Value 10 Reusability Condition Inventory HS22 Architecture & Energy: Re-Sourcing Icons
Location

Lucerne University of Applied Sciences and Arts

Master in Architecture

HS22 Focus Architecture & Energy: Re-Sourcing Icons

Teaching Team: Annika Seitert, Axel Humpert, Anthony Frank

I Bürgenstock-Bazaar

II Safa-Pavillon

III Centre Le Corbusier

LB Load-bearing structure

E Building Envelope / Exterior

I Component in the interior

SC Special component

Component catalogue:

Safa1958-Pavillon

Student Group: Component catalogue II

NB Nathan Boder

AD Anamée Delauche

HE Herolind Elezei

AG Anders Gjesdal

II. Safa1958-Pavillon

The second Safa exhibition, the Swiss Exhibition of Women’s Work, took place in 1958 on the Landiwiese in Zurich and showed the position and achievements of women in society at the time. For economic reasons, the tents and pavilions erected were to be reused after the exhibition.3

Architectural trailblazer Berta Rahm was entrusted with the installation of a clubhouse designed by Carlo Pagani for Safa 58. Rahm designed an additional small pavilion as an annex to the clubhouse.4

This small, carefully thought through pavilion adopted, as an annex, the structure and formal language of the main building on a reduced scale.7 Rahm resorted to using innovative materials for her timber frame construction, such as full-surface Scobalit windows made of fbreglass-reinforced plastic. The building was clad with a profled aluminium Fural façade that could be rolled and clicked onto the substructure.5 The interior ofered a reading room in addition to cloakrooms for the press and was characterised by a special softly lit atmosphere through the translucent façade. After the exhibition, entrepreneur Erika Hauser acquired the pavilion in 1958 for her mushroom farm in Gossau. Rahm in fact extended the pavilion in the same year by adding a lounge with kitchen as a canteen.

Over time, the pavilion was used by others until it was to be demolished in 2020.

«The ProSafa1958 Pavillon»6 association was responsible for saving the pavilion from demolition, using donations to dismantle the small building layer by layer and at the same time documenting it with a 3-D laser scanner. The pavilion, on display in 2021, is stored away in individual parts and awaits a new use.

3 See: Lina Giusto, ‘1958 bauten sich Frauen an der Safa ihre Insel im Zürichsee’, Limmattaler Zeitung, 6 Aug. 2018, https://www.limmattalerzeitung.ch/limmattal/zuerich/1958-bauten-sich-frauen-an-der-safa-ihre-insel-imzurichsee-ld.1521509

4 See: Wagner Leonie Charlotte, ‘Blinde Flecken der Architekturgeschichte’, Archithese, 28 Apr. 2020), https:// archithese.ch/ansicht/blinde-fecken-in-der-architekturgeschichte.html

5 See: the call for donations of the ProSafa1958-Pavillon association to save the Safa 1958-Pavillon by Berta Rahm. Verein ProSafa1958-Pavillon. https://www.prosafa1958-pavillon.ch/berta-rahm

6 See: Tina Cieslik, ‘Verschollener Schatz, wiederentdeckt: Berta-Rahm-Pavillon’, Tec21, 8 July 2021, https:// www.espazium.ch/de/aktuelles/berta-rahm-pavillon. Print: TEC21 21/2021: «Spurensuche: frühe Architektinnen und ihre Bauten heute».

7 See: https://www.prosafa1958-pavillon.ch

Berta Rahm’s pavillon for the Safa (1958) rebuilt it in Gossau (1959). Images: Berta Rahm Architectural Collection. Plan of Berta Rahm‘s pavilion for the Re-use in Gossau (1959). Image showing the extension in the foreground. Berta Rahm Architectural Collection. Original reading room at the Safa 1958. Images: Berta Rahm Architectural Collection. Berta Rahm’s pavillon rebuilt it in Gossau (1959) The

I Bürgenstock-Bazaar

II Safa-Pavillon

III Centre Le Corbusier

LB Load-bearing structure

E Building Envelope / Exterior

I Component in the interior

SC Special component

II. List of Building Components

II Safa-Pavillon

LB Load-bearing structure

E Building Envelope / Exterior

I Component in the interior SC Special component

Hochschule Luzern Component catalogue Dimension Material 1 Criteria (1=high 10=low) Inventory Quantity Component Code Type / Location Name/Title Element type Height Wide Depth Global Warm Potential GWP Material 1 Material 2 Material 3 Surface Color Origin Assembly Date Architectural Value Reusability Condition Date Name Comment / Description 1 pcs II.LB.001 Load bearing Frame A Structural wall 269 738 9 -680 Construction Timber Raw wood Saffa-Pavillon 1958 1 9 7 19/10/2022 nb 1 pcs II.LB.002 Load bearing Frame B Structural wall 275 482 9 -680 Construction Timber Raw wood Saffa-Pavillon 1958 1 9 7 19/10/2022 nb 1 pcs II.LB.003 Load bearing Frame C Structural wall 253 763 9 -680 Construction Timber Raw wood Saffa-Pavillon 1958 1 9 7 19/10/2022 nb 1 pcs II.LB.004 Load bearing Frame Structural wall 229 375 9 -680 Construction Timber Raw wood Saffa-Pavillon 1958 1 9 7 19/10/2022 nb 1 pcs II.LB.005 Load bearing Frame K Structural wall 243 284 9 -680 Construction Timber Raw wood Saffa-Pavillon 1958 1 9 7 19/10/2022 nb 1 pcs II.LB.006 Load bearing Frame R Structural wall 350 701 9 -680 Construction Timber Raw wood Saffa-Pavillon 1958 1 9 7 19/10/2022 nb 1 pcs II.LB.007 Load bearing Frame S Structural wall 9 382 9 -680 Construction Timber Raw wood Saffa-Pavillon 1958 1 9 7 19/10/2022 nb 1 pcs II.LB.008 Load bearing Frame P Structural wall 350 701 9 -680 Construction Timber Raw wood Saffa-Pavillon 1958 1 9 7 19/10/2022 nb 1 pcs II.LB.009 Load bearing Frame O Structural wall 294 223 9 -680 Construction Timber Raw wood Saffa-Pavillon 1958 1 9 7 19/10/2022 nb 1 pcs II.LB.010 Load bearing Frame Structural wall 246 284 9 -680 Construction Timber Raw wood Saffa-Pavillon 1958 1 9 7 19/10/2022 nb 1 pcs II.LB.011 Load bearing Frame Q Structural wall 350 382 9 -680 Construction Timber Raw wood Saffa-Pavillon 1958 1 9 7 19/10/2022 nb 1 pcs II.LB.012 Load bearing Roof and base structure Structural element 400 993 1139 -680 Construction Timber Raw wood Saffa-Pavillon 1958 1 9 7 19/10/2022 nb 1 pcs II.LB.013 Load bearing Brick wall Wall 284.0 128.0 11.0 362 Brick Mortar Rough Brick red Saffa-Pavillon 1958-1970 7 5 6 19/10/2022 ag Added at second loaction 159m 87m2 II.E.001 Building Envelope / Exterior Fural Roofing Roofing 50.0 - 2.0 28242 Flural Aluminium Brushed Silvery Light Gray Saffa-Pavillon 1958 8 10 8 19/10/2022 ag 152m 80m2 II.E.002 Building Envelope / Exterior Fural Cladding Cladding 50.0 - 2.0 28242 Flural Aluminium Brushed Silvery Light Gray Saffa-Pavillon 1958 8 10 8 19/10/2022 ag 15pcs 11m2 II.E.003 Building Envelope / Exterior Scobalit Cladding 290.0 24.0 0.2 280 Scobalit Metal Matt Translucent Saffa-Pavillon 1958 10 9 5 19/10/2022 ag 1 pcs II.E.004 Building Envelope / Exterior Square window Window 112.0 109.0 9.0 2.3 Wood Glass Smooth White Saffa-Pavillon 1958 5 7 5 19/10/2022 he 2 pcs II.E.005 Building Envelope / Exterior Square window 2 Window 127.0 124.0 11.5 2.7 Wood Glass Rough Black Saffa-Pavillon 1958 5 5 4 19/10/2022 he 2 pcs II.E.006 Building Envelope / Exterior Entrance window Window 38.0 92.0 6.5 0.9 Wood Glass Rough Black Saffa-Pavillon 1958 5 5 4 19/10/2022 he 2 pcs II.E.007 Building Envelope / Exterior Front window Window 162.0 169.0 15.0 6.4 Wood Glass Smooth White Saffa-Pavillon 1958 5 7 7 19/10/2022 he 8 pcs II.E.008 Building Envelope / Exterior Back window Window 44.5 117.0 8.0 1.3 Wood Glass Rough Black Saffa-Pavillon 1958 5 5 4 19/10/2022 he 5 pcs II.E.009 Building Envelope / Exterior Static window Window 60.0 67.0 8.0 0.8 Wood Rough Black Saffa-Pavillon 1958 5 5 5 19/10/2022 he 1 pcs II.E.010 Building Envelope / Exterior Entrance door Door 247.0 100.0 20.0 6.4 Wood Glass Smooth White Saffa-Pavillon 1958 5 6 4 19/10/2022 he 1 pcs II.I.001 Component in the interior Glassframe Window 243.0 376.0 10.0 17.5 Wood Glass Hard Light brown Saffa-Pavillon 1958-1970 6 8 7 19/10/2022 ag Added at second loaction 1 pcs II.I.002 Component in the interior Kitchen Built-in furniture 336.0 188.0 80.0 Wood (Appliances) Smooth White Saffa-Pavillon 1958 4 5 4 19/10/2022 he 1 pcs II.I.003 Component in the interior Interior door Door 174.0 60.0 5.0 Wood Smooth White Saffa-Pavillon 1958 5 6 5 19/10/2022 he 1 pcs II.I.004 Component in the interior Interior door 2 Door 174.0 60.0 5.0 Wood Smooth White Saffa-Pavillon 1958 5 6 5 19/10/2022 he 2 pcs II.SC.001 Special component Staircase Special component 138.0 127.0 62.0 22243 Steel Wood Paint Black and grey Saffa-Pavillon 1958 6 7 6 19/10/2022 ad 1 pcs II.SC.002 Special component Coat rack Special component 220.0 37.0 4.0 762.6 Wood Metal Smooth Wood and metallic grey Saffa-Pavillon 1958 8 10 8 19/10/2022 ad

I Bürgenstock-Bazaar

II Saffa-Pavillon

LB Load-bearing structure

E Building Envelope / Exterior

III Centre Le Corbusier II.LB

I Component in the interior

SC Special component

II.LB.001 - Frame A

I Bürgenstock-Bazaar

II Saffa-Pavillon

III Centre Le Corbusier

LB Load-bearing structure

E Building Envelope / Exterior

I Component in the interior

SC Special component

Origin/ Building Saffa-Pavillon

Quantity 1

Dimension 269 x 738 x 9 h x w x d (cm)

Date 1958

Title Frame A

Element type Structural wall

GWP -680 kg CO2 eq / m3

Material Construction Timber

Surface Raw

Color Wood Criteria

(1=low - 10=high)

Architectural Value 2

Reusability 9

Condition 7

Inventory 19.10.2022

date/name nb

1x 16 9cm 230cm Quan i y Sect on Length 1x 15 9cm 372cm 2x 15 9cm 256cm 1x 12 9cm 256cm 2x 12 9cm 168cm 2x 12 9cm 53cm 2x 12 9cm 70cm 1x 9/9cm 738cm 2x 9/9cm 256cm 2x 9/9cm 233cm 4x 9/9cm 101cm 1x 7/7cm 198cm 1x 4/7cm 398cm 1x 4/7cm 234cm 2 6 9 2 4 5 1 1 9 4 3 2 1 6 9 6 8 2 6 9 9 101 9 101 15 106 24 168 16 168 21 234 106 381 738 eve ±0 00
Component scale 1:50
HS22 Architecture & Energy: Re-Sourcing Icons Location Elevation & elements

II.LB.002 - Frame B

I Bürgenstock-Bazaar

II Saffa-Pavillon

III Centre Le Corbusier

LB Load-bearing structure

E Building Envelope / Exterior

I Component in the interior

SC Special component

Origin/ Building Saffa-Pavillon

Quantity 1

Dimension 275 x 482 x 9 h x w x d (cm)

Date 1958

Title Frame B

Element type Structural wall

GWP -680 kg CO2 eq / m3

Material Construction Timber

Surface Raw Color Wood

Criteria

(1=low - 10=high)

Architectural Value 2

Reusability 9

Condition 7

Inventory 19.10.2022

date/name nb

2 1 2 5 4 2 7 5 174 102 206 482 1x 15/9cm 271cm Quant y Sec on Leng h 1x 15/9cm 182cm 1x 15/9cm 165cm 2x 12/9cm 87cm 1x 12/9cm 50cm 1x 9 9cm 268cm 1x 9 9cm 260cm 1x 9 9cm 252cm 3x 9 9cm 241cm 1x 9 9cm 111cm 2x 9 9cm 83cm 1x 4 7cm 482cm leve ±0 00
Component scale 1:50
HS22 Architecture & Energy: Re-Sourcing Icons Location Elevation & elements

II.LB.003 - Frame C

I Bürgenstock-Bazaar

II Saffa-Pavillon

III Centre Le Corbusier

LB Load-bearing structure

E Building Envelope / Exterior

I Component in the interior

SC Special component

scale 1:50

Origin/ Building Saffa-Pavillon

Quantity 1

Dimension 253 x 763 x 9 h x w x d (cm)

Date 1958

Title Frame C

Element type Structural wall

GWP -680 kg CO2 eq / m3

Material Construction Timber

Surface Raw

Color Wood Criteria

(1=low - 10=high)

Architectural Value 2

Reusability 9

Condition 7

Inventory 19.10.2022

date/name nb

1x 9/9cm 736cm Quan ty Sec ion Length 7x 9/9cm 240cm 7x 7/9cm 183cm 5x 7/9cm 117cm 1x 7/9cm 115cm 1x 7/9cm 98cm 4x 7/9cm 81cm 1x 4/7cm 385cm 1x 4/7cm 378cm 1x 4/9cm 117cm 1x 4/9cm 25cm 5 9 1 9 4 2 5 3 9 117 9 117 9 117 9 117 9 115 9 87 8 38 2 763 eve ±0 00
Component
HS22 Architecture & Energy: Re-Sourcing Icons Location Elevation & elements

II.LB.004 - Frame J

I Bürgenstock-Bazaar

II Saffa-Pavillon

III Centre Le Corbusier

LB Load-bearing structure

E Building Envelope / Exterior

I Component in the interior

SC Special component

Location

Origin/ Building Saffa-Pavillon

Quantity 1

Dimension 229 x 375 x 9 h x w x d (cm)

Date 1958

Title Frame J

Element type Structural wall

GWP -680 kg CO2 eq / m3

Material Construction Timber

Surface Raw

Color Wood Criteria (1=low - 10=high)

Architectural Value 2

Reusability 9

Condition 7

Inventory 19.10.2022

date/name nb

1x 23 9cm 374cm Quan y Sect on Length 9 5 0 1 7 0 2 2 9 116 9 116 9 116 9 375 1x 9/9cm 375cm 3x 9/9cm 197cm 1x 7/7cm 163cm 2x 7/9cm 140cm 3x 7/9cm 116cm 2x 7/9cm 103cm eve ±0 00
scale
Component
1:50
HS22 Architecture & Energy: Re-Sourcing Icons
Elevation & elements

II.LB.005 - Frame K

I Bürgenstock-Bazaar

II Saffa-Pavillon

III Centre Le Corbusier

LB Load-bearing structure

E Building Envelope / Exterior

I Component in the interior

SC Special component

Origin/ Building Saffa-Pavillon

Quantity 1

Dimension 243 x 284 x 9 h x w x d (cm)

Date 1958

Title Frame K

Element type Structural wall

GWP -680 kg CO2 eq / m3

Material Construction Timber

Surface Raw

Color Wood Criteria

(1=low - 10=high)

Architectural Value 2

Reusability 9

Condition 7

Inventory 19.10.2022

date/name nb

105 5 115 63 1x 9/9cm 284cm Quan ty Sec ion Length 1x 9/9cm 234cm 1x 9/9cm 215cm 1x 9/9cm 213cm 2x 9/9cm 115cm 1x 7/7cm 219cm 2 4 3 284 4 3 1 1 7 8 3 leve ±0 00
Component scale
1:50
HS22 Architecture & Energy: Re-Sourcing Icons Location Elevation & elements

II.LB.006 - Frame R

I Bürgenstock-Bazaar

II Saffa-Pavillon

III Centre Le Corbusier

LB Load-bearing structure

E Building Envelope / Exterior

I Component in the interior

SC Special component

scale 1:50

Origin/ Building Saffa-Pavillon

Quantity 1

Dimension 350 x 701 x 9 h x w x d (cm)

Date 1958

Title Frame R

Element type Structural wall

GWP -680 kg CO2 eq / m3

Material Construction Timber

Surface Raw

Color Wood Criteria

(1=low - 10=high)

Architectural Value 2

Reusability 9

Condition 7

Inventory 19.10.2022

date/name nb

1x 9 9cm 701cm Quant y Sec on Leng h 1x 9 9cm 230cm Quant y Sect on Leng h 1x 9 9cm 692cm 1x 9 9cm 350cm 1x 9 9cm 325cm 1x 9 9cm 323cm 1x 9 9cm 305cm 1x 9 9cm 305cm 1x 9 9cm 304cm 1x 9 9cm 300cm 1x 9 9cm 285cm 1x 9 9cm 271cm 1x 9 9cm 262cm 1x 9 9cm 256cm 2x 9 9cm 115cm 1x 7 9cm 95cm 1x 7 9cm 84cm 1x 7 9cm 84cm 1x 7 9cm 68cm 1x 4 9cm 93cm 1x 4 9cm 91cm 1x 4 9cm 60cm 1 5 0 1 1 7 8 3 3 5 0 66 115 520 701 2 4 7 evel ±0 00
Component
HS22 Architecture & Energy: Re-Sourcing Icons Location Elevation & elements

II.LB.007 - Frame S

I Bürgenstock-Bazaar

II Saffa-Pavillon

III Centre Le Corbusier

LB Load-bearing structure

E Building Envelope / Exterior

I Component in the interior

SC Special component

Origin/ Building Saffa-Pavillon

Quantity 1

Dimension 9 x 382 x 9 h x w x d (cm)

Date 1958

Title Frame S

Element type Structural wall

GWP -680 kg CO2 eq / m3

Material Construction Timber

Surface Raw

Color Wood Criteria

(1=low - 10=high)

Architectural Value 2

Reusability 9

Condition 7

Inventory 19.10.2022

date/name nb

1x 9 9cm 382cm Quant y Sec on Leng h 382 9 eve ±0 00
Component
scale 1:50
HS22 Architecture & Energy: Re-Sourcing Icons
Elevation & elements
Location

II.LB.008 - Frame P

I Bürgenstock-Bazaar

II Saffa-Pavillon

III Centre Le Corbusier

LB Load-bearing structure

E Building Envelope / Exterior

I Component in the interior

SC Special component

scale 1:50

Origin/ Building Saffa-Pavillon

Quantity 1

Dimension 350 x 701 x 9 h x w x d (cm)

Date 1958

Title Frame P

Element type Structural wall

GWP -680 kg CO2 eq / m3

Material Construction Timber

Surface Raw

Color Wood

Criteria

(1=low - 10=high)

Architectural Value 2

Reusability 9

Condition 7

Inventory 19.10.2022

date/name nb

1x 9/9cm 692cm Quant y Sect on Leng h 1x 9/9cm 496cm 1x 9/9cm 350cm 1x 9/9cm 326cm 1x 9/9cm 313cm 1x 9/9cm 306cm 1x 9/9cm 300cm 1x 9/9cm 285cm 1x 9/9cm 271cm 1x 9/9cm 267cm 1x 9/9cm 256cm 1x 9/9cm 250cm 1x 9/9cm 43cm 1x 7/9cm 230cm 2x 9/9cm 103cm 1x 7/9cm 137cm 150 103 261 135 52 514 135 52 701 6 9 1 0 4 7 5 2 4 8 1 0 1 1 9 2 3 0 3 5 0 eve ±0 00
Component
HS22 Architecture & Energy: Re-Sourcing Icons Location Elevation & elements

II.LB.009 - Frame O

I Bürgenstock-Bazaar

II Saffa-Pavillon

III Centre Le Corbusier

LB Load-bearing structure

E Building Envelope / Exterior

I Component in the interior

SC Special component

Origin/ Building Saffa-Pavillon

Quantity 1

Dimension 294 x 223 x 9 h x w x d (cm)

Date 1958

Title Frame O

Element type Structural wall

GWP -680 kg CO2 eq / m3

Material Construction Timber

Surface Raw

Color Wood Criteria

(1=low - 10=high)

Architectural Value 2

Reusability 9

Condition 7

Inventory 19.10.2022

date/name nb

1x 9 9cm 276cm Quan ty Sec on Leng h 2x 9 9cm 294cm 1x 9 9cm 205cm 2 9 4 223 eve ±0 00
Component scale 1:50
HS22 Architecture & Energy: Re-Sourcing Icons
Elevation & elements
Location

II.LB.010 - Frame I

I Bürgenstock-Bazaar

II Saffa-Pavillon

III Centre Le Corbusier

LB Load-bearing structure

E Building Envelope / Exterior

I Component in the interior

SC Special component

Location

Origin/ Building Saffa-Pavillon

Quantity 1

Dimension 246 x 284 x 9 h x w x d (cm)

Date 1958

Title Frame I

Element type Structural wall

GWP -680 kg CO2 eq / m3

Material Construction Timber

Surface Raw

Color Wood Criteria

(1=low - 10=high)

Architectural Value 2

Reusability 9

Condition 7

Inventory 19.10.2022

date/name nb

1x 9 9cm 236cm Quant y Sec on Leng h 1x 9 9cm 240cm 1x 9 9cm 226cm 2 4 6 3 4 2 1 2 75 89 120 284 1x 9 9cm 111cm 1x 9 9cm 88cm 1x 9 9cm 66cm evel ±0 00
Component scale 1:50
HS22 Architecture & Energy: Re-Sourcing Icons
Elevation & elements

II.LB.011 - Frame Q

I Bürgenstock-Bazaar

II Saffa-Pavillon

III Centre Le Corbusier

LB Load-bearing structure

E Building Envelope / Exterior

I Component in the interior

SC Special component

Origin/ Building Saffa-Pavillon

Quantity 1

Dimension 350 x 382 x 9 h x w x d (cm)

Date 1958

Title Frame Q

Element type Structural wall

GWP -680 kg CO2 eq / m3

Material Construction Timber

Surface Raw

Color Wood Criteria

(1=low - 10=high)

Architectural Value 2

Reusability 9

Condition 7

Inventory 19.10.2022

date/name nb

4x 9 9cm 341cm Quant y Sect on Leng h 1x 9 9cm 382cm 2x 9 9cm 69cm 4x 7 7cm 65cm 3 5 0 382 eve ±0 00
scale 1:50
Component
HS22 Architecture & Energy: Re-Sourcing Icons Location Elevation & elements

II.LB.012 - Roof and base structure

I Bürgenstock-Bazaar

II Saffa-Pavillon

III Centre Le Corbusier

LB Load-bearing structure

E Building Envelope / Exterior

I Component in the interior

SC Special component

Origin/ Building Saffa-Pavillon

Quantity 1

Dimension 400 x 993 x 1139

h x w x d (cm)

Date 1958

Title Roof and base structure

Element type Structural wall

GWP -680 kg CO2 eq / m3

Material Construction Timber

Surface Raw

Color Wood Criteria

(1=low - 10=high)

Architectural Value 2

Reusability 9

Condition 7

Inventory 19.10.2022

date/name nb

28x 13 9cm 296cm Quan ty Sec on Leng h 25x 13 9cm 400cm 1x 23 4cm 740cm 1x 23 9cm 740cm level±000
Component scale 1:50
HS22 Architecture & Energy: Re-Sourcing Icons
Location
Axonometry & elements

II.LB.013 - Brick wall

Bürgenstock-Bazaar

Centre Le Corbusier

Component

Origin/ Building Saffa-Pavillon

Quantity 3.6m2 / approx 200 pcs

Dimension 65mm x240mm x112mm h x w x d (mm)

Date 1958-1970

Title Brick wall

Element type Wall

GWP 362,2kg CO2 eq

Material Brick Surface Rough Color Brick red

Criteria

(1=high - 10=low)

Architectural Value 7

Reusability 5

Condition 6

Inventory 19.10.2022

date/name AG

Isometry of the wall piece
65 240 112 HS22 Architecture & Energy: Re-Sourcing Icons
41 106 40
Location
112mm 2840mm
Isometry of a brick
1277mm

I Bürgenstock-Bazaar

II Saffa-Pavillon

III Centre Le Corbusier

II.E

LB Load-bearing structure

E Building Envelope / Exterior

I Component in the interior

SC Special component

II.E.001 - Fural Roofing

I Bürgenstock-Bazaar

II Saffa-Pavillon

III Centre Le Corbusier

LB Load-bearing structure

E Building Envelope / Exterior

I Component in the interior

SC Special component

Origin/ Building Saffa-Pavillon

Quantity 159m / 87 m2

Dimension 500mm x (varies) x 2mm h x w x d (mm)

Date 1958

Title Fural Roofing

Element type Roof

GWP 28242 kg CO2 eq / m3

Material Flural Aluminium

Surface Brushed

Color Silvery Light Gray

Criteria

(1=high - 10=low)

Architectural Value 8

Reusability 10

Condition 8

Inventory 28.09.2022

date/name AG

Elevation front
Isometry Component scale 1:10
HS22 Architecture & Energy: Re-Sourcing Icons Location 500 146 Plan 41 106 40

II.E.002 - Fural Cladding

I Bürgenstock-Bazaar

II Saffa-Pavillon

III Centre Le Corbusier

Isometry

LB Load-bearing structure

E Building Envelope / Exterior

I Component in the interior

SC Special component

Origin/ Building Saffa-Pavillon

Quantity 152m / 80 m2

Dimension 500mm x (varies) x 2mm h x w x d (mm)

Date 1958

Title Fural cladding

Element type Cladding

GWP 28242 kg CO2 eq / m3

Material Flural Aluminium

Surface Brushed

Color Silvery Light Gray

Criteria

(1=high - 10=low)

Architectural Value 8

Reusability 10

Condition 8

Inventory 28.09.2022

date/name AG

scale
Elevation front
Component
1:10
HS22 Architecture & Energy: Re-Sourcing Icons Location 41 106 40 500 146 Plan 41 106 40

II.E.003 - Scobalit

I Bürgenstock-Bazaar

II Saffa-Pavillon

III Centre Le Corbusier

LB Load-bearing structure

E Building Envelope / Exterior

I Component in the interior

SC Special component

Isometry Component

Elevation front

1:10

Origin/ Building Saffa-Pavillon

Quantity 15pcs / 11 m2

Dimension 2900 x 240 x 2 h x w x d (mm)

Date 1958

Title Scobalit

Element type Cladding

GWP 280 kg CO2 eq / m3

Material Scobalit

Surface Matt

Color Translucent/ Aged yellow

Criteria

(1=high - 10=low)

Architectural Value 10

Reusability 9

Condition 5

Inventory 28.09.2022

1:5

date/name AG

scale
scale
HS22 Architecture & Energy: Re-Sourcing Icons Location 2 00 Plan 240 25

II.E.004 - Square Window

Isometry

I Bürgenstock-Bazaar

II Saffa-Pavillon

III Centre Le Corbusier

Plans

LB Load-bearing structure

E Building Envelope / Exterior

I Component in the interior

SC Special component

Component

Location

Origin/ Building Saffa-Pavillon

Quantity 1

Dimension 112 x 109 x 9 h x w x d (cm)

Date 1958

Title Square Window

Element type Window

GWP Glass: 1,7kg CO2 eq

Wood: 0,6kg CO2 eq

Material Glass + Wood

Surface Smooth

Color White

Criteria

(1=low- 10=high)

Architectural Value 5

Reusability 7

Condition 5

Inventory 20.10.2022

date/name he

side Elevation front Profile scale 1:10
scale 1:20/1:20 Elevation
HS22 Architecture & Energy: Re-Sourcing Icons

II.E.005 - Square Window 2

Isometry

I Bürgenstock-Bazaar

II Saffa-Pavillon

III Centre Le Corbusier

Plans

LB Load-bearing structure

E Building Envelope / Exterior

I Component in the interior

SC Special component

Component

Location

Origin/ Building Saffa-Pavillon

Quantity 2

Dimension 127 x 124 x 11,5 h x w x d (cm)

Date 1958

Title Square Window

Element type Window

GWP Glass: 2kg CO2 eq

Wood: 0,7kg CO2 eq

Material Wood

Surface Rough

Color Black

Criteria (1=low - 10=high)

Architectural Value 5

Reusability 5

Condition 4

Inventory 20.10.2022

date/name he

scale 1:20/1:20 Elevation side Elevation front Profile scale 1:10
HS22 Architecture & Energy: Re-Sourcing Icons

II.E.006 - Entrance Window

Isometry

I Bürgenstock-Bazaar

II Saffa-Pavillon

III Centre Le Corbusier

Plans

LB Load-bearing structure

E Building Envelope / Exterior

I Component in the interior

SC Special component

Component

Location

Origin/ Building Saffa-Pavillon

Quantity 2

Dimension 38 x 92 x 6,5 h x w x d (cm)

Date 1958

Title Square Window

Element type Window

GWP 0,9kg CO2 eq

Material Wood

Surface Rough Color Black

Criteria

(1=low - 10=high)

Architectural Value 5

Reusability 5

Condition 4

Inventory 20.10.2022

date/name he

Elevation side Elevation front Profile scale 1:10
scale 1:20/1:20
HS22 Architecture & Energy: Re-Sourcing Icons

II.E.007 -Front Window

Isometry

I Bürgenstock-Bazaar

II Saffa-Pavillon

III Centre Le Corbusier

Plans

LB Load-bearing structure

E Building Envelope / Exterior

I Component in the interior

SC Special component

Location

Origin/ Building Saffa-Pavillon

Quantity 2

Dimension 162 x 169x 15 h x w x d (cm)

Date 1958

Title Square Window

Element type Window

GWP 6,4 kg CO2 eq

Material Wood

Surface Smooth Color White

Criteria

(1=low - 10=high)

Component scale 1:20/1:20 Elevation

Architectural Value 5

Reusability 7

Condition 7

Inventory 20.10.2022

date/name he

side Elevation front
scale 1:10
Profile
HS22 Architecture & Energy: Re-Sourcing Icons

II.E.008 - Back Window

Isometry

I Bürgenstock-Bazaar

II Saffa-Pavillon

III Centre Le Corbusier

Plans

LB Load-bearing structure

E Building Envelope / Exterior

I Component in the interior

SC Special component

Location

Origin/ Building Saffa-Pavillon

Quantity 8

Dimension 44,5 x 117 x 8 h x w x d (cm)

Date 1958

Title Square Window

Element type Window

GWP 1,3 kg CO2 eq

Material Wood

Surface Rough Color Black

Criteria

(1=low - 10=high)

Component scale 1:20/1:20 Elevation

Architectural Value 5

Reusability 5

Condition 4

Inventory 20.10 .2022

date/name he

Elevation front
side
Profile scale 1:10
HS22 Architecture & Energy: Re-Sourcing Icons

II.E.009 - Static Window

Isometry

I Bürgenstock-Bazaar

II Saffa-Pavillon

III Centre Le Corbusier

Plans

LB Load-bearing structure

E Building Envelope / Exterior

I Component in the interior

SC Special component

Component

Location

Origin/ Building Saffa-Pavillon

Quantity 5

Dimension 60x 67 x 8 h x w x d (cm)

Date 1958

Title Square Window

Element type Window

GWP 0,8 kg CO2 eq

Material Wood

Surface Rough Color Black

Criteria

(1=low - 10=high)

Architectural Value 5

Reusability 5

Condition 5

Inventory 20.10.2022

date/name he

scale 1:20/1:20 Elevation side Elevation front Profile scale 1:10
HS22 Architecture & Energy: Re-Sourcing Icons

II.E.010 - Entrance Door

Isometry

I Bürgenstock-Bazaar

II Saffa-Pavillon

III Centre Le Corbusier

Plans

LB Load-bearing structure

E Building Envelope / Exterior

I Component in the interior

SC Special component

Component

Location

Origin/ Building Saffa-Pavillon

Quantity 1

Dimension 247 x 100 x 20 h x w x d (cm)

Date 1958

Title Square Window

Element type Window

GWP 6,4 kg CO2 eq

Material Wood

Surface Smooth Color White

Criteria

(1=low - 10=high )

Architectural Value 5

Reusability 6

Condition 5

Inventory 20.10.2022

date/name he

side Elevation front Profile scale 1:10
scale 1:20/1:20 Elevation
HS22 Architecture & Energy: Re-Sourcing Icons

I Bürgenstock-Bazaar

II Saffa-Pavillon

III Centre Le Corbusier

LB Load-bearing structure

E Building Envelope / Exterior

I Component in the interior

SC Special component

II.I

II.I.001 - Glassframe

I Bürgenstock-Bazaar

II Saffa-Pavillon

III Centre Le Corbusier

LB Load-bearing structure

E Building Envelope / Exterior

I Component in the interior

SC Special component

Component

Location

Origin/ Building Saffa-Pavillon

Quantity 1

Dimension 243cm x 376cm x 10cm h x w x d (cm)

Date 1958

Title Glassframe

Element type Window

GWP Glass: 10,2 kg CO2 eq

Frame: 7,3 kg CO2 eq

Material Glass and wood Hard Light brown

Horizontal section

(1=high - 10=low)

Architectural Value 6 8 7 20.10.2022

5 0 6 24 4
AG HS22 Architecture & Energy: Re-Sourcing Icons
Elevation 100 52

II.I.002 - Kitchen

I Bürgenstock-Bazaar

II Saffa-Pavillon

III Centre Le Corbusier

LB Load-bearing structure

E Building Envelope / Exterior

I Component in the interior

SC Special component

Component

1:20/1:20

Location

Origin/ Building Saffa-Pavillon

Quantity 1

Dimension 336 x 188x 80 h x w x d (cm)

Date 1958

Title Square Window

Element type Window

GWP kg CO2 eq / m3

Material Wood

Surface Smooth Color White

Criteria

(1=low - 10=high )

Architectural Value 4

Reusability 5

Condition 4

Inventory 20.10.2022

date/name he

scale
Elevation side Elevation front scale 1:20
HS22 Architecture & Energy: Re-Sourcing Icons

II.I.003 - Interior Door

Isometry

I Bürgenstock-Bazaar

II Saffa-Pavillon

III Centre Le Corbusier

Plans

LB Load-bearing structure

E Building Envelope / Exterior

I Component in the interior

SC Special component

Component

scale 1:20/1:20

Location

Origin/ Building Saffa-Pavillon

Quantity 1

Dimension 174 x 60x 5 h x w x d (cm)

Date 1958

Title Square Window

Element type Window

GWP kg CO2 eq

Material Wood

Surface Smooth Color White

Criteria

(1=low - 10=high )

Architectural Value 5

Reusability 6

Condition 5

Inventory 20.10.2022

date/name he

Elevation side Elevation front Profile scale 1:10
HS22 Architecture & Energy: Re-Sourcing Icons

II.I.004 - Interior Door 2

Isometry

I Bürgenstock-Bazaar

II Saffa-Pavillon

III Centre Le Corbusier

Plans

LB Load-bearing structure

E Building Envelope / Exterior

I Component in the interior

SC Special component

Location

Origin/ Building Saffa-Pavillon

Quantity 1

Dimension 174 x 60x 5 h x w x d (cm)

Date 1958

Title Square Window

Element type Window

GWP kg CO2 eq

Material Wood

Surface Smooth Color White

Criteria

(1=low - 10=high )

Component scale

Architectural Value 5

Reusability 6

Condition 5

Inventory 20.10.2022

date/name he

Elevation side Elevation front Profile scale 1:10
1:20/1:20
HS22 Architecture & Energy: Re-Sourcing Icons

I Bürgenstock-Bazaar

II Saffa-Pavillon

III Centre Le Corbusier

LB Load-bearing structure

E Building Envelope / Exterior

I Component in the interior

SC Special component

II.SC

HS22 Architecture & Energy: Re-Sourcing Icons

II.SC.001 - Staircase

I Bürgenstock-Bazaar

II Saffa-Pavillon

III Centre Le Corbusier

LB Load-bearing structure

E Building Envelope / Exterior

I Component in the interior

SC Special component

Isometry

Plans

Component

Location

Origin/ Building Saffa-Pavillon

Quantity 2

Dimension 138 x 127 x 62 h x w x d (cm)

Date 1958

Title Staircaise

Element type Special component

GWP Steel 22923.1 kg CO2 eq/m3

GWP Wood -680.0 kg CO2 eq/m3

Surface paint

Color black and grey

Criteria

(1=low - 10=hight)

Architectural Value 6

Reusability 7

Condition 6

Inventory 19.10.2022

date/name AD

1.38 0.62 1.27
Elevation side Elevation front Profile scale 1:20
scale 1:20

II.SC.002 - Coat rack

I Bürgenstock-Bazaar

II Saffa-Pavillon

III Centre Le Corbusier

LB Load-bearing structure

E Building Envelope / Exterior

I Component in the interior

SC Special component

Origin/ Building Saffa-Pavillon

Quantity 1

Dimension 220 x 37 x 4 h x w x d (cm)

Date 1958

Title Coat rack

Element type Special component

GWP 762.6 kg CO2eq/m

Material wood and metal

Surface smooth

Color wood and metallic grey

Criteria

(10=high - 1=low)

Architectural Value 8

Reusability 10

Condition 8

Inventory 19.10.2022

date/name AD

2.20 0.37 0.04
Plan
Elevation side
Isometry Component scale 1:10
Location 2.20 0.37 0.04 Profile 2.20 0.37 0.04
HS22 Architecture & Energy: Re-Sourcing Icons

Lucerne University of Applied Sciences and Arts

Master in Architecture

HS22 Focus Architecture & Energy: Re-Sourcing Icons

Teaching Team: Annika Seitert, Axel Humpert, Anthony Frank

I Bürgenstock-Bazaar

II Safa-Pavillon

III Centre Le Corbusier

LB Load-bearing structure

E Building Envelope / Exterior

I Component in the interior

SC Special component

Component catalogue: Centre Le Corbusier

Student Group: Component catalogue III

EB Elion Bytyqi

IJ Simon Albrecht

HK Hanna-Sophie Knipping

AY Alp-Can Yildiz

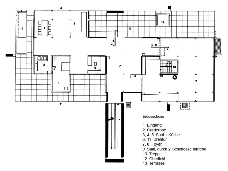
III. Centre Le Corbusier Pavillon Le Corbusier

Heidi Weber, interior designer and art collector, was able to convince Le Corbusier to design a museum for her in Zurich in 1960. After an initial proposal to construct the building in concrete, Le Corbusier’s second design in 1962 presented a steel construction with glazed elements. The Centre Le Corbusier pavilion opened in 1967 and is the last design of the architect that was realised. On display are paintings, writings and furniture by Le Corbusier as a «Gesamtkunstwerk».

The exhibition building represents another shift in Charles-Édouard Jeanneret’s infuence.10 The new style experimented with lightweight construction technology using colourful enamel façade panels and fully glazed elements.Le Corbusier had Jean Prouvé as an assistant for the planning of the façade construction.8

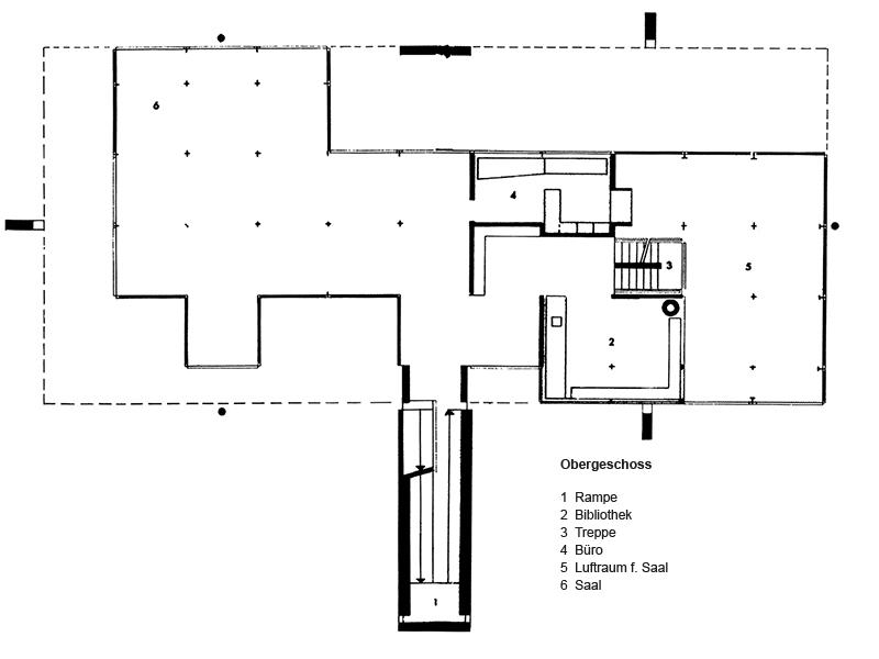
Le Corbusier also attached importance to the appearance of the free-foating roof in the shape of a double umbrella. He accommodated the two-storey museum rooms separate from the sculptural steel roof. The structural logic is based on Le Corbusier’s Modulor proportion system with 2.26 metres on either side in the axial plan.9 The central ramp is also distinctive, independent as it is of the exhibition spaces and leading up to the terrace under the protective roof.

The Centre Le Corbusier museum, run by Heidi Weber, became the property of the City of Zurich in 2014. However, Heidi Weber soon withdrew her collection as a result of a dispute. The building has been run since 2019 by the Museum für Gestaltung Zürich under the name Pavillon Le Corbusier.

8 On the construction see: Museum für Gestaltung Zürich – Pavillon Le Corbusier eGuide, https://eguide.pavillonle-corbusier.ch/de/

9 See: Juan Calatrava, Maison d’Homme Heidi Weber Museum – Centre Le Corbusier Zurich (Edition Heidi Weber, Zurich 2011), 50-52.

Cross section for building application (1961). Image: © Fondation Le Corbusier, Paris Exhibiton room on the frst foor. Image: Museum für Gestaltung Zürich / ZHdK Steel screens shortly before beeing erected. Centre Le Corbusier. Image: © 2011, Edition Heidi Weber, Zurich All rigts reserved Photographs: © Center Le Corbusier, Archiv

I Bürgenstock-Bazaar

II Safa-Pavillon

III Centre Le Corbusier

LB Load-bearing structure

E Building Envelope / Exterior

I Component in the interior

SC Special component

III. List of Building Components

HS22 Architecture Energy: Re-Sourcing Icons

III Centre Le Corbusier

LB Load-bearing structure

E Building Envelope / Exterior

I Component in the interior

SC Special component

I Bürgenstock-Bazaar

II Safa-Pavillon

III Centre Le Corbusier

LB Load-bearing structure

E Building Envelope / Exterior

I Component in the interior

SC Special component

III.LB

LB Load-bearing structure

E Building Envelope / Exterior

I Component in the interior

SC Special component

HS22 Architecture & Energy: Re-Sourcing Icons

III.LB.002 - Ceiling Steel Frame

I Bürgenstock-Bazaar

II Safa-Pavillon

III Centre Le Corbusier

LB Load-bearing structure

E Building Envelope / Exterior

I Component in the interior

SC Special component

Isometry

Plans

Elevation top

Component

scale 1:20

Location

Origin/ Building Le Corbusier Pavillon

Quantity 62 pece

Dimension 238 x 238 x 10 h x w x d (cm)

Date 1967

Title Ceiling Steel Frame

Element type Ceiling

GWP 8831,2kg CO2 eq / m3

Material Steel

Surface Smooth

Color White

Criteria

Architectural Value 8

Reusability 9

Condition 9

Inventory date/name 18.10/Hanna

Elevation side P o

III.LB.008 - column 1 roof

Isometry

I Bürgenstock-Bazaar

II Sa a-Pavillon

III Centre Le Corbusier

Plans

LB Load-bearing structure

E Building Envelope / Exterior

I Component in the interior

SC Special component

Location and Component

Component

scale 1:100

Location

Origin/ Building C entre Le Corbusier

Quantity 1

Dimension 25 x 234 x 756 h x w x d (cm)

Date 1967

Title column 1 roof

Element type column

GWP 8831.2kg CO2 eq / m3

Material steel

Surface smooth, glossy

Color grey

Criteria

(10=high - 1=low)

Architectural Value 7

Reusability 9

Condition 9

Inventory date/name 18.10.22 / Alp-Can

HS22 Architecture & Energy: Re-Sourcing Icons

III.LB.009 - column 2 roof

Isometry

I Bürgenstock-Bazaar

II Sa a-Pavillon

III Centre Le Corbusier

Plans

LB Load-bearing structure

E Building Envelope / Exterior

I Component in the interior

SC Special component

Component

scale 1:100

Location

Origin/ Building C entre Le Corbusier

Quantity 2

Dimension 25 x 130 x 756 h x w x d (cm)

Date 1967

Title column 2 roof

Element type column

GWP 8831.2kg CO2 eq / m3

Material steel

Surface smooth, glossy

Color grey

Criteria

(1=high - 10=low)

Architectural Value 7

Reusability 9

Condition 9

Inventory date/name 18.10.22 / Alp-Can

HS22 Architecture & Energy: Re-Sourcing Icons

III.LB.010 - column 3 roof

Isometry

I Bürgenstock-Bazaar

II Sa a-Pavillon

III Centre Le Corbusier

Plans

LB Load-bearing structure

E Building Envelope / Exterior

I Component in the interior

SC Special component

Component

scale 1:150

Location

Origin/ Building C entre Le Corbusier

Quantity 3

Dimension 30 x 90 x 786 h x w x d (cm)

Date 1967

Title column 3 roof

Element type column

GWP 8831.2kg CO2 eq / m3

Material steel

Surface smooth, glossy

Color grey

Criteria

(1=high - 10=low)

Architectural Value 7

Reusability 9

Condition 9

Inventory date/name 18.10.22 / Alp-Can

HS22 Architecture & Energy: Re-Sourcing Icons

III.LB.011 - column 4 roof

Isometry

I Bürgenstock-Bazaar

II Sa a-Pavillon

III Centre Le Corbusier

Plans

LB Load-bearing structure

E Building Envelope / Exterior

I Component in the interior

SC Special component

Component

scale 1:100

Location

Origin/ Building C entre Le Corbusier

Quantity 3

Dimension ø 24 x 786 h x w x d (cm)

Date 1967

Title column 4 roof

Element type column

GWP 8831.2kg CO2 eq / m3

Material steel

Surface smooth, glossy

Color grey

Criteria

(1=high - 10=low)

Architectural Value 7

Reusability 9

Condition 9

Inventory date/name 18.10.22 / Alp-Can

HS22 Architecture & Energy: Re-Sourcing Icons

I Bürgenstock-Bazaar

II Safa-Pavillon

III Centre Le Corbusier

LB Load-bearing structure

E Building Envelope / Exterior

I Component in the interior

SC Special component

III.E

III.E.005 - steel roof green

Isometry

uilding Envelope / Exterior

Component

Location

Centre Le Corbusier

1

20,5 x 600 x 600

1967 steel roof roof 8831.2kg CO2 eq / m3

Material steel smooth, glossy grey (top & sides), green (bottom)

(10=high - 1=low)

Architectural Value 7 7 9 29.09./Alp-Can, Simon

HS22 Architecture & Energy: Re-Sourcing Icons

III.E.006 - steel roof red

Isometry

Component

Location

C entre Le Corbusier 1

20,5 x 600 x 600 1967 steel roof roof 8831.2kg CO2 eq / m3

Material steel smooth, glossy grey (top & sides), red (bottom)

(10=high - 1=low)

Architectural Value 6 7 9 29.09./Alp-Can, Simon

Building Envelope / Exterior
HS22 Architecture & Energy: Re-Sourcing Icons

III.E.007 - steel roof white

Isometry

Component

Location

C entre Le Corbusier 6

20,5 x 600 x 600 1967 steel roof roof 8831.2kg CO2 eq / m3

Material steel smooth, glossy grey (top & sides), white (bottom)

(1=high - 10=low)

Architectural Value 5 7 9 29.09./Alp-Can, Simon

Building Envelope / Exterior
HS22 Architecture & Energy: Re-Sourcing Icons

III.E.012 - side walls roof

Isometry

I Bürgenstock-Bazaar

II Sa a-Pavillon

III Centre Le Corbusier

Plans

LB Load-bearing structure

E Building Envelope / Exterior

I Component in the interior

SC Special component

Component

Location

Origin/ Building C entre Le Corbusier

Quantity 8

Dimension 1200 x 170 x 6 h x w x d (cm)

Date 1967

Title side walls roof

Element type roof

GWP 8831.2kg CO2 eq / m3

Material steel

Surface smooth, glossy

Color grey

(10=high - 1=low)

Architectural Value 7

Reusability 9

Condition 9

roof fascade

scale 1:100

Inventory date/name 18.10./Alp-Can

HS22 Architecture & Energy: Re-Sourcing Icons

III.E.013 - skylight elements outside

Isometry

I Bürgenstock-Bazaar

II Sa a-Pavillon

III Centre Le Corbusier

Plans

LB Load-bearing structure

E Building Envelope / Exterior

I Component in the interior

SC Special component

Component Location

Origin/ Building C entre Le Corbusier

Quantity 2

Dimension 169 x 72 x (190 & 573.5) h x w x d (cm)

Date 1967

Title skylight elements

Element type sourroundings (light)

GWP 202.3 kg CO2 eq / m3

Material conrete and glas

Surface smooth

Color grey concrete, glas (above)

Criteria

(10=high - 1=low)

Architectural Value 7

Reusability 7

Condition 9

scale 1:100

Inventory

date/name 18.10.22 / Alp-Can

HS22 Architecture & Energy: Re-Sourcing Icons

III.E.018 - Small Glass Panel

I Bürgenstock-Bazaar

II Safa-Pavillon

III Centre Le Corbusier

LB Load-bearing structure

E Building Envelope / Exterior

I Component in the interior

SC Special component

Isometry

Component

Origin/ Building Le Corbusier Pavillon

Quantity 36

Dimension 226 x 68 x 5 h x w x d (cm)

Date 1967

Title Big Glass Paneel

Element type Window

GWP 2661kg CO2 eq / m3

Material Glass

Surface Smooth

Color Transperent

Criteria

Architectural Value 9

Reusability 10

Condition 10

Inventory date/name 18.10/Hanna

scale 1:20 Elevation side Elevation front P o l ^
HS22 Architecture & Energy: Re-Sourcing Icons
Plans
Location Detail

HS22 Architecture & Energy: Re-Sourcing Icons

III.E.019 - Big Glass Panel

I Bürgenstock-Bazaar II Safa-Pavillon

III Centre Le Corbusier

LB Load-bearing structure

E Building Envelope / Exterior

I Component in the interior

SC Special component

Isometry

Plans

Elevation front

Elevation side

scale 1:20

Component

Location

Origin/ Building Le Corbusier Pavillon

Quantity 36

Dimension 226 x 136 x 5 h x w x d (cm)

Date 1967

Title Big Glass Paneel

Element type Window

GWP 2661kg CO2 eq / m3

Material Glass

Surface Smooth

Color Transperent

Criteria

Architectural Value 9

Reusability 10

Condition 10

Inventory date/name 18.10/Hanna

P o ^
Detail

HS22 Architecture & Energy: Re-Sourcing Icons

III.E.020 - Ventilation Panel

I Bürgenstock-Bazaar II Safa-Pavillon

Centre Le Corbusier

LB Load-bearing structure

E Building Envelope / Exterior Component in the interior

Origin/ Building Le Corbusier Pavillon

Quantity 36

Dimension 226 x 20x x 5 h x w x d (cm)

Date 1967

Title Ventilation panel

Element type Vntilation element

GWP 11482.2kg CO2 eq / m3

Material Metal, Paint

Surface Smooth/rough

Color white/Transperent

Criteria

Architectural Value 8

Reusability 10

Condition 10

Inventory date/name 18.10/Hanna

Location
scale 1:10 Elevation interior Elevation exterior Detail va ion o l scale 1:5
Component
^

HS22 Architecture & Energy: Re-Sourcing Icons

III.E.021 - Metal Panel

I Bürgenstock-Bazaar

II Safa-Pavillon

III Centre Le Corbusier

LB Load-bearing structure

E Building Envelope / Exterior

I Component in the interior

SC Special component

Origin/ Building Le Corbusier Pavillon

Quantity 6

Dimension 226 x 113 x 5 h x w x d (cm)

Date 1967

Title Metal panel green

Element type Veneer

GWP 11578,5kg CO2 eq / m3

Material Metal/Paint/XPS

Surface Smooth

Color green

Criteria

Architectural Value 9

Reusability 10

Condition 10

Inventory date/name 28.09/Hanna

Component Location ^ Plans scale 1:20 Elevation side
front P o l
Detail
Elevation
Isometry

HS22

III.E.022 - Metal Panel Red

Isometry

I Bürgenstock-Bazaar

II Safa-Pavillon

III Centre Le Corbusier

Plans

LB Load-bearing structure

E Building Envelope / Exterior

I Component in the interior

SC Special component

Component

scale 1:20

Location

Origin/ Building Le Corbusier Pavillon

Quantity 6

Dimension 226 x 113 x 5 h x w x d (cm)

Date 1967

Title Metal Panel Red

Element type Veneer

GWP 11578,5kg CO2 eq / m3

Material Metal/Paint/XPS

Surface Smooth

Color red

Criteria

Architectural Value 9

Reusability 10

Condition 10

Inventory date/name 28.09/Hanna

Architecture & Energy: Re-Sourcing Icons Elevation side Elevation front
^ P o l

III.E.023 - Metal Panel Yel-

Isometry

I Bürgenstock-Bazaar

II Safa-Pavillon

III Centre Le Corbusier

Plans

LB Load-bearing structure

E Building Envelope / Exterior

I Component in the interior

SC Special component

Component

Location

Origin/ Building Le Corbusier Pavillon

Quantity 8

Dimension 226 x 113 x 5 h x w x d (cm)

Date 1967

Title Metal Panel Yellow

Element type Veneer

GWP 11578,5kg CO2 eq / m3

Material Metal/Paint/XPS

Surface Smooth

Color Yellow

Criteria

Architectural Value 9

Reusability 10

Condition 10

Inventory date/name 28.09/Hanna

HS22 Architecture & Energy: Re-Sourcing Icons scale 1:20 Elevation side Elevation front
^ P o l

HS22 Architecture & Energy: Re-Sourcing Icons

III.E.024 - Metal Panel White

Isometry

I Bürgenstock-Bazaar

II Safa-Pavillon

III Centre Le Corbusier

Plans

LB Load-bearing structure

E Building Envelope / Exterior

I Component in the interior

SC Special component

Location

Origin/ Building Le Corbusier Pavillon

Quantity 35

Dimension 226 x 113 x 5 h x w x d (cm)

Date 1967

Title Metal Panel White

Element type Veneer

GWP 11578,5kg CO2 eq / m3

Material Metal/Paint/XPS

Surface Smooth

Color White Criteria

Architectural Value 9

Reusability 10

Condition 10

Inventory date/name 28.09/Hanna

scale 1:20 Elevation side Elevation front
^ P o l

III.E.025 - Metal Panel Black

I Bürgenstock-Bazaar

II Safa-Pavillon

III Centre Le Corbusier

Plans

LB Load-bearing structure

E Building Envelope / Exterior

I Component in the interior

SC Special component

Component

Location

Origin/ Building Le Corbusier Pavillon

Quantity 35

Dimension 226 x 113 x 5 h x w x d (cm)

Date 1967

Title Metal Panel Black

Element type Veneer

GWP 11578,5kg CO2 eq / m3

Material Metal/Paint/XPS

Surface Smooth

Color Black

Criteria

Architectural Value 9

Reusability 10

Condition 10

Inventory date/name 28.09/Hanna

HS22 Architecture & Energy: Re-Sourcing Icons
scale 1:20 Elevation side Elevation front
^ P o l Detail
Isometry

HS22 Architecture & Energy: Re-Sourcing Icons

III.E/I.031- Bolt

I Bürgenstock-Bazaar

II Safa-Pavillon

III Centre Le Corbusier

LB Load-bearing structure

E Building Envelope / Exterior

I Component in the interior

SC Special component

Origin/ Building Le Corbusier Pavillon

Quantity 22000

Dimension 9 x 4 x 4 h x w x d (cm)

Date 1967

Title Bolt

Element type Screw

GWP 8831.2 kg CO2 eq / m3

Material Steel

Surface Rough/smooth

Color Grey

Criteria

Architectural Value 1

Reusability 10

Condition 9

Inventory date/name 28.09/Hanna

Plans scale 1:1 Elevation side Elevation front
Location Isometry Elevation back
Component

HS22 Architecture & Energy: Re-Sourcing Icons

III.E.028 - Roof Gravel

Isometry

I Bürgenstock-Bazaar

II Safa-Pavillon

III Centre Le Corbusier

LB Load-bearing structure

E Building Envelope / Exterior

I Component in the interior

SC Special component

Component

Location

Origin/ Building Le Corbusier Pavillon

Quantity 137,5qm

Dimension Grain size aprox. 2-4 h x w x d (cm)

Date 1967

Title Roof Gravel

Element type Roof

GWP 1200 kg CO2 eq / m3

Material Stone

Surface Rough

Color Grey/red/orange

Criteria

Architectural Value 2

Reusability 10

Condition 8

Inventory date/name 28.09/Hanna

HS22 Architecture & Energy: Re-Sourcing Icons

III.E.029- Slab Outdoor

I Bürgenstock-Bazaar

II Safa-Pavillon

III Centre Le Corbusier

LB Load-bearing structure

E Building Envelope / Exterior

I Component in the interior

SC Special component

Component

Plans

Location

Origin/ Building Le Corbusier Pavillon

Quantity 170qm

Dimension 70 x 70 x 4 h x w x d (cm)

Date 1967

Title Slab Outdoor

Element type Floor

GWP 1694 kg CO2 eq / m3

Material Cement bondet paticel

Surface Rough

Color Grey

Criteria

Architectural Value 2

Reusability 10

Condition 8

Inventory date/name 28.09/Hanna

scale 1:10 Elevation side Elevation front P o

I Bürgenstock-Bazaar

II Safa-Pavillon

III Centre Le Corbusier

III.I

LB Load-bearing structure

E Building Envelope / Exterior

I Component in the interior

SC Special component

lll.l.004 - Door

I Bürgenstock-Bazaar

II Sa a-Pavillon

III Centre Le Corbusier

Isometry

LB Load-bearing structure

E Building Envelope / Exterior

I Component in the interior

SC Special component

Plans

Elevation front

scale 1:20

Component

Top View

scale 1:10

Location

Origin/ Building Center Le Corbusier

Quantity

Dimension 70 x 209 x 7 h x w x d (cm)

Date 1967

Title GWP -1063 kg CO2 eq / m3

Material Oak Tree

Surface Textured

Color Oak Texture

Criteria

(1=low - 10=high)

Architectural Value 4

Reusability 10

Condition 8

Inventory 10/15/2022 Elion Bytyqi

Pro le
HS22 Architecture & Energy: Re-Sourcing Icons

III.I.014 - Ventilation pipe red indoor

Isometry

I Bürgenstock-Bazaar

II Sa a-Pavillon

III Centre Le Corbusier

Plans

LB Load-bearing structure

E Building Envelope / Exterior

I Component in the interior

SC Special component

Component

scale 1:100

Location

Origin/ Building C entre Le Corbusier

Quantity 1

Dimension ø 60 x 883.5 h x w x d (cm)

Date 1967

Title Ventilation pipe red

Element type building technology

GWP 8831.2kg CO2 eq / m3

Material steel

Surface smooth, glossy

Color red

Criteria

(10=high - 1=low)

Architectural Value 7

Reusability 8

Condition 9

Inventory date/name 18.10.22 / Alp-Can

HS22 Architecture & Energy: Re-Sourcing Icons

III.I.015 - staircase 1

Isometry

I Bürgenstock-Bazaar

II Safa-Pavillon

III Centre Le Corbusier

Elevation side

LB Load-bearing structure

E Building Envelope / Exterior

I Component in the interior

SC Special component

Component

Location

Origin/ Building Centre Le Corbusier

Quantity 2

Dimension 226 x 226 x 166 h x w x d (cm)

Date 1967

Title staircase

Element type stairs

GWP 229kg CO2 eq / m3

Material concrete

Surface rough, cold

Color grey

Criteria

(10=high - 1=low)

Architectural Value 8

Reusability 7

Condition 9

Inventory date/name 20.10./Simon

HS22 Architecture & Energy: Re-Sourcing Icons
scale 1:33 scale 1:33 scale 1:33 scale 1:33 oo lan Elevation front

III.I.016 - staircase 2

Isometry

I Bürgenstock-Bazaar

II Safa-Pavillon

III Centre Le Corbusier

Elevation side

LB Load-bearing structure

E Building Envelope / Exterior

I Component in the interior

SC Special component

Component

Location

Origin/ Building Centre Le Corbusier

Quantity 1

Dimension 226 x 226 x 166 h x w x d (cm)

Date 1967

Title staircase

Element type stairs

GWP 229kg CO2 eq / m3

Material concrete

Surface rough, cold

Color grey

Criteria

(10=high - 1=low)

Architectural Value 8

Reusability 7

Condition 9

Inventory date/name 20.10./Simon

HS22 Architecture & Energy: Re-Sourcing Icons
scale 1:33 scale 1:33 scale 1:33 oo lan Elevation front

HS22 Architecture & Energy: Re-Sourcing Icons

III.I.026 - Wooden Panel

Plans

I Bürgenstock-Bazaar

II Safa-Pavillon

III Centre Le Corbusier

LB Load-bearing structure

E Building Envelope / Exterior

I Component in the interior

SC Special component

Component

Location

Origin/ Building Le Corbusier Pavillon

Quantity 59

Dimension 226 x 113 x 3 h x w x d (cm)

Date 1967

Title Wooden Panel

Element type Wall cover GWP -1063 kg CO2 eq / m3

Material Oak three

Surface Smooth Color Brown Criteria

(1=high - 10=low)

Architectural Value 10

Reusability 10

Condition 10

Inventory date/name 28.09/Hanna

scale 1:10 Elevation side Elevation front P o Detail

HS22 Architecture & Energy: Re-Sourcing Icons

III.I.027- Slab Groundfoor

I Bürgenstock-Bazaar

II Safa-Pavillon

III Centre Le Corbusier

LB Load-bearing structure

E Building Envelope / Exterior

I Component in the interior

SC Special component

Plans

Component Location

Origin/ Building Le Corbusier Pavillon

Quantity 190,35qm

Dimension 50 x 80 x 2 h x w x d (cm)

Date 1967

i l Sla o n oo

Element type Floor

GWP 1367,2 kg CO2 eq / m3

Material Slate

Surface Smooth

Color Grey

Criteria

Architectural Value 6

Reusability 7

Condition 9

Inventory date/name 28.09/Hanna

scale 1:10 Elevation side Elevation front P o

I Bürgenstock-Bazaar

II Safa-Pavillon

III Centre Le Corbusier

LB Load-bearing structure

E Building Envelope / Exterior

I Component in the interior

SC Special component

III.SC

III.SC.017 - door

Isometry

I Bürgenstock-Bazaar

II Safa-Pavillon

III Centre Le Corbusier

Elevation side

LB Load-bearing structure

E Building Envelope / Exterior

I Component in the interior

SC Special component

Component

scale 1:33

Elevation side

scale 1:33

Origin/ Building Centre Le Corbusier

Quantity 1

Dimension 226 x 226 x 12 h x w x d (cm)

Date 1967

Title door

Element type door

GWP 8834,kg CO2 eq / m3

Material steel

Surface smooth, glossy

Color mostly white

Criteria

(10=high - 1=low)

Architectural Value 9

Reusability 8

Condition 9

scale 1:33

Inventory date/name 20.10./Simon

scale 1:33

HS22 Architecture & Energy: Re-Sourcing Icons
oo lan

III.SP.030- Wooden Door

Plans

I Bürgenstock-Bazaar

II Safa-Pavillon

III Centre Le Corbusier

LB Load-bearing structure

E Building Envelope / Exterior

I Component in the interior

SC Special component

Component

Location

Origin/ Building Le Corbusier Pavillon

Quantity 1

Dimension 226 x 226 x 10 h x w x d (cm)

Date 1967

Title Wooden Door

Element type Door

GWP -1063kg CO2 eq / m3

Material Oak Three

Surface Smooth

Color Brown Criteria

Architectural Value 10

Reusability 10

Condition 9

Inventory date/name 28.09/Hanna

HS22 Architecture & Energy: Re-Sourcing Icons
scale 1:20 Elevation side Elevation front P o
Detail

III.SC.032 - Corbusier deckchair

Isometry

I Bürgenstock-Bazaar

II Sa a-Pavillon

III Centre Le Corbusier

Plans

LB Load-bearing structure

E Building Envelope / Exterior

I Component in the interior

SC Special component

Component

scale 1:20

Location

Origin/ Building C entre Le Corbusier

Quantity 1

Dimension 63 x 158 x 50 h x w x d (cm)

Date 1967

Title C orbusier deckchair

Element type Furniture

GWP 762.6 kg CO2 eq / m3

Material steel and leather

Surface rough, glossy

Color brown and silver

Criteria

(10=high - 1=low)

Architectural Value 9

Reusability 10

Condition 9

Inventory date/name 04.11.22 / Alp-Can

HS22 Architecture & Energy: Re-Sourcing Icons

III.SC.033 - Corbusier couch

Isometry

I Bürgenstock-Bazaar

II Sa a-Pavillon

III Centre Le Corbusier

Plans

LB Load-bearing structure

E Building Envelope / Exterior

I Component in the interior

SC Special component

Component

scale 1:20

Location

Origin/ Building C entre Le Corbusier

Quantity 2

Dimension 80 x 90 x 90 h x w x d (cm)

Date 1967

Title C orbusier couch

Element type Furniture

GWP 762.6 kg CO2 eq / m3

Material steel and leather

Surface rough, glossy

Color black and sliver

Criteria

(10=high - 1=low)

Architectural Value 9

Reusability 10

Condition 9

Inventory date/name 04.11.22 / Alp-Can

HS22 Architecture & Energy: Re-Sourcing Icons

III.SC.034 - Corbusier chair

Isometry

I Bürgenstock-Bazaar

II Sa a-Pavillon

III Centre Le Corbusier

Plans

LB Load-bearing structure

E Building Envelope / Exterior

I Component in the interior

SC Special component

Component

scale 1:20

Location

Origin/ Building C entre Le Corbusier

Quantity 4

Dimension 54 x 75 x 54 h x w x d (cm)

1967

Title C orbusier chair

Element type building technology

GWP -519.0kg CO2 eq / m3

Material wood

Surface rough

Color brown Criteria

(10=high - 1=low)

Architectural Value 9

Reusability 10

Condition 9

Inventory date/name 04.11.22 / Alp-Can

HS22 Architecture & Energy: Re-Sourcing Icons

III.SC.035 - Corbusier table

Isometry

I Bürgenstock-Bazaar

II Sa a-Pavillon

III Centre Le Corbusier

Plans

LB Load-bearing structure

E Building Envelope / Exterior

I Component in the interior

SC Special component

Component

scale 1:20

Location

Origin/ Building C entre Le Corbusier

Quantity 1

Dimension 72 x 200 x 100 h x w x d (cm)

Date 1967

Title C orbusier table

Element type Furniture

GWP 762.6 kg CO2 eq / m3

Material steel and wood

Surface rough, glossy

Color gris and black

Criteria

(10=high - 1=low)

Architectural Value 9

Reusability 10

Condition 9

Inventory date/name 04.11.22 / Alp-Can

HS22 Architecture & Energy: Re-Sourcing Icons
90 50 1,76 2,26
60 25 10 8 2,20 10 40 1,20 10 40
30 70 30 2 5 40 2 5 45 25 65 25

Turn static files into dynamic content formats.

Create a flipbook
Issuu converts static files into: digital portfolios, online yearbooks, online catalogs, digital photo albums and more. Sign up and create your flipbook.