MALTZ JUPITER THEATRE

VOLUME 1 – ISSUE 1 FALL/WINTER 2021

VOLUME 1 – ISSUE 1 FALL/WINTER 2021
No one can argue the impact that COVID-19 has had on the arts. Theatres on Broadway, in regional houses and performing arts centers across the country have been shuttered for almost two years leaving their followers spiritually isolated. We have learned through these darker times that theatre productions offer the ultimate four-dimensional encounter allowing us to participate in an evening with a group of people. In the span of our shared experience, we laugh or cry together.
That is why I am so grateful that circumstances have changed enough that we can come together once again. Our staff has taken huge steps to ensure our Grand Reopening Season will happen and, more importantly, that it will be both safe and fun!
In this issue of Marquee Magazine, we will share with you the many events we will be celebrating including our plans to take two of our productions, Jersey Boys and I Hate Hamlet, off-site with “Maltz Without Walls.” We’ll also give you insight from the design talents that have dreamed up our new state-of the-art building. Tony Award©-winning sound designer/composer, Fitz Patton, will share with you the process of how he is scoring our hit comedy.
Thanks to all of our supporters who stood by us as we navigated the toughest waters in the Maltz Jupiter Theatre’s history. Your heartfelt donations, letters of support and phone calls cheering us on meant the world to us.
The dark days are almost over. Let’s not forget what we’ve just endured. But now it’s time to rejoice, sing, dance and celebrate.
Looking forward to seeing you soon (in person)!
Andrew Kato PRODUCING ARTISTIC DIRECTOR/ CHIEF EXECUTIVE
Creative Direction - Jamil Jiron
Editor - Kelsey Peterson
Contributing Writers - Linnea Bailey, Andrew Kato, Nora Minichino, Kelly Morgan, Kelsey Peterson, Jess Sowards
Photography - Jason Nuttle, Richard Graulich
Styling - Tux Shop/Susan Damon
Hair - Kacey Murphy
Makeup - Michelle Winters
Production - Brittani Seach
Printing - Preferred Printing & Graphics
Andrew Kato, Producing Artistic Director/Chief Executive
Maltz Jupiter Theatre Board of Directors
W. Scott Seeley, Chair | Robin B. Smith, Vice Chair
Milton Maltz, Chair Emeritus
Doug Brown, J. Philip Clark, Eileen Daly, Janene Edlin, Debra A. Elmore, Jack Farber, Maxine Poole Farrell, Paul A. Goldner, Roberta E. Golub, Roe Green, Rodger H. Hess
Jeffrey R. Hoops, Martha Ingram, Richard J Katz, Jr. , Brett Langbert, James M. Li
Tamar Maltz, Karen T. Marcus, Hans Mautner, William I. Morton, Sally B. Neff
Alceste T. Pappas, Ph.D., Amit Rastogi, MD, Janis Ruan, Robert Sachs
Avery Sommers, Susan Namm Spencer, John A. Stevens, Jay M. Wilson
Ines and Oscar Garcia, residents of Palm Beach Gardens, are the talented and charismatic duo among the creative forces behind the Maltz Jupiter Theatre’s new facilities. They’re also husband and wife. Ines is the project’s interior designer and Oscar, in tandem with architectural firm Currie Sowards Aguila Architects, is the building’s visionary designer.
Ines graduated from the Art Institute of Fort Lauderdale and started out designing country clubs and restaurants in Delray Beach. She moved on to a new position as interior designer for an architectural firm specializing in hotels. That is where she met Oscar. According to Ines, she knew she was going to be married to him “the second I first laid eyes on him.” Oscar was the Director of Design and her supervisor.
In 1994, they opened Ferrari Interiors and have worked on flagship hotels such as Marriott International, Crowne Plaza, Embassy Suites, as well as privately owned hotels such as The Inn on Fifth in Naples and The S Hotel in Jamaica.
Married for 26 years, they initially discovered the Maltz Jupiter Theatre one summer when they were looking for an alternate activity for their daughter, Carmen, who was struggling as a competitive figure skater. They signed her up for Palm Beach Idol at the Maltz Jupiter Theatre and had such a strong experience they decided to enroll her in the Goldner Conservatory in 2008. Carmen is now 21 and is pursuing a successful career in the music industry.
We sat down with the dynamic duo to learn more about their work together on the Maltz Jupiter Theatre’s $36 million renovation and build out.
What was your inspiration when conceptualizing your design?
Oscar: I was looking at a photo of a lighted stage and noticed the interplay of the lights and color in the image. I then tried to incorporate this into the major facade elements of the building - especially in three locations: the stage house stair, the large glass curtain “picture window” and the entrance porte cochere.
Ines: I wanted to expand on Oscar’s concept of the “ray of lights” and bring that movement into the interiors.
What benefits does a project such as this one receive with both designers living under the same roof?
Ines: We actually live with the project 24/7. We don’t go home and leave our work at the office, it stays with us. We talk about it constantly.
Oscar: We get to more closely collaborate on every detail and contribute to each others work. Ines also gets to better understand the genesis of the basic concepts and incorporate them into the interior details.
Are there any downfalls?
Ines: Yes - we’re constantly arguing. We like to call it “creative friction.”
What is the greatest professional quality you see in your other “half”?
Ines: My husband is the most talented designer I’ve ever known. That’s saying a lot as my father was also a designer. He’s also a very good space planner.
Oscar: Ines’ persistence and drive is in every aspect of what she does. She also wants to make the client happy and be as responsive to their needs as possible.
What has been your greatest challenge in getting this project completed?
Oscar: Budget is usually an obstacle, but also an opportunity to focus on how best to incorporate the design concept. We had to focus our efforts on the most impactful locations that would communicate the design intent.
Ines: And time…there is never enough time.
How does your collaboration together make a design project stronger?
Ines: All good design is a process and a collaboration, and in our case we tend to be brutally honest with each other. He is constantly pushing me to be better. He challenges me to justify every design decision, thereby making me rethink and redesign… not settle for just okay.
Oscar: We get to have fun with the work and I think that comes through in the end result. We also try to not take each other too seriously. Because we have to collaborate as husband and wife, the project takes on the aspects of raising a child…from birth through maturity.
If you could change anything on the Maltz Jupiter Theatre project and money were no object, what would that be?
Ines: I would recover the seats in the house in royal blue. Maybe next year?
Oscar: I really wouldn’t change a thing...except that UGLY chandelier in the lobby.
BY: JESS SOWARDS
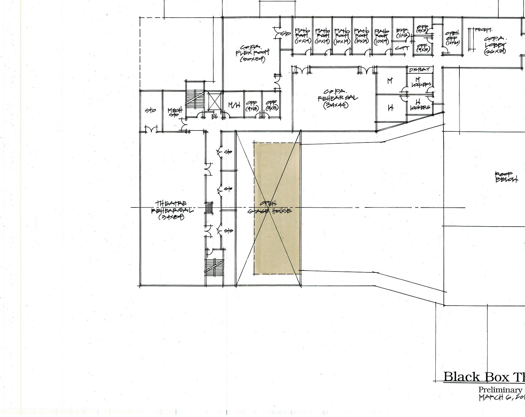
Of the five stairs in the Theatre (4 new and 1 existing), Staircase #2 is one that will be the most interesting. It is a steel stair that will connect the orchestra pit to the roof and grid iron. The stair soars nearly 60’ from the orchestra pit and will be a sculptural feature that can be seen from the outside. This stair is the only stair that connects to all floors. All the new stairs are constructed of steel and fabricated off site and erected in the field.
The new exterior walls will be stucco finish on steel framing exoskeleton and the finish will match the latest addition. Another feature is the creative use of stucco reveals that will create a subtle pattern similar to the new monument signs reinforcing the ‘theatrical stage lights’ theme. The entire building will be repainted with a fresh new coat of 2 different shades of grey.
While angled or sloping walls create an intriguing design, they are challenging to construct when they go multiple floors. Each floor must connect to the wall to brace the wall from lateral wind loads imposed on it. Adding to the complexity, the walls not only vertically slope away from the building but are also angled. There is no room for error as field conditions can vary during construction as fractions of inches must be considered and accounted for when offsite fabrication of steel and glazing systems are underway.
One of the most exciting elements of the project is the glass sections in the stage tower. There will be vertical metal elements that are on varied angles that reinforce the ‘theatrical stage lights’ theme. This glass will be mostly clear to be able to see inside the building and have a Low E coating that will protect the inside from harmful solar heat. We are also providing color changing lighting at the glass areas that will change based on the color theme for the building.
BY: KELSEY PETERSON
E. Haynes Jr.
The Maltz Jupiter Theatre’s Grand Reopening Season underwent a few rewrites in the early planning stages. Since closing down in spring of 2020, the path towards reopening the Maltz Jupiter Theatre and bringing back live performances has not always been clear. In order to balance multiple unknowns with COVID-19 and construction schedules, the Maltz Jupiter Theatre staff had to think outside of box—in this case, outside the walls.
Maltz Without Walls is an exciting new concept allowing the Maltz Jupiter Theatre to bring Broadway-quality theatre productions into the community. For the Grand Reopening Season, the Maltz Jupiter Theatre has partnered with Roger Dean Chevrolet Stadium and The Benjamin School to present the first two productions in the season lineup.
Roger Dean Chevrolet Stadium, home to the Jupiter Hammerheads and spring training for the Miami Marlins and St. Louis Cardinals, will
host the Broadway smash-hit Jersey Boys in January 2022. Musicals typically aren’t performed at home plate, but that’s exactly why this was a match made in heaven.
Mike Bauer, General Manager of Roger Dean Chevrolet Stadium, states that the stadium is proud to partner with the Maltz Jupiter Theatre. He says, “We feel that Jersey Boys is the perfect event for an outside venue, as it brings a concert type experience. We also love the idea of bringing sports fans and the theatre audience together.”
In February 2022, I Hate Hamlet will come to life in the state-of-the-art, 800-seat Benjamin Hall of The Benjamin School. According to Fletcher Carr, Upper School Head, the choice to host the Maltz Jupiter Theatre’s second production was an easy one for the school.
“It did not take long for the key stakeholders at The Benjamin School to say ‘yes’ to the collaboration with the Maltz Jupiter Theatre,” Carr says. “As much as the education and arts communities in Jupiter and Palm Beach Gardens cast a broad shadow, the communities are not that large and, more importantly, are closely linked in their goals and missions.”
The average theatre-goer may not feel out of place in the intimate and stylish Benjamin Hall, but the impact will be felt deeply in the bond formed between the two organizations.
Carr explains, “Our Upper School students will be able to get a close-up look at all aspects of a professional production, while the [Maltz Jupiter Theatre] will get to better know another local professional venue—and
the many talented students and faculty who call Benjamin Hall home. Ultimately, we are confident that this experience will continue to strengthen the cultural bonds between the two institutions.”
Whereas Maltz Without Walls may have started as a practical solution to a number of obstacles, the project has proved to be much more. The Grand Reopening Season not only brings the Maltz Jupiter Theatre into new spaces, but it will bring new people together and introduce new audiences to a cultural institution living in their backyard.
“The Maltz Jupiter Theatre is a gem within our community,” says Mike Bauer. “For years they have brought tremendous theatrical events, culture, and entertainment to Palm Beach County. The [Maltz Jupiter Theatre] enhances our quality of life in many unique ways.”
And for the Maltz Jupiter Theatre, the chance to support local arts-loving organizations is priceless. A challenging year has created unique opportunities for not only the Maltz Jupiter Theatre, but for arts to thrive and our community to grow together.
BY: NORA MINICHINO
Even if you are not overly familiar with the story of Frankie Valli and the Four Seasons, it is guaranteed that Jersey Boys will have you saying “Oh, I know that song!” throughout the entire performance. Among the best-selling recording artists of the early and mid-1960s, the Four Seasons are known for lead singer Frankie Valli’s soaring falsetto and the group’s close-knit vocal harmonies.
Their volcanic success began in August 1962 with the release of “Sherry,” written by group member Bob Gaudio. The song made full use of Frankie’s remarkable range, from baritone to falsetto, and while most doo wop groups at that time were using falsetto as part of the background harmonies, the Four Seasons stood out because they made Frankie’s impressive high notes the lead. When the unknown Four Seasons sang “Sherry” on Dick Clark’s American Bandstand, they suddenly became the hottest band in the land, and after nine years as a recording artist, Frankie Valli became an “overnight” sensation with a No. 1 record.
In the next six months, the Four Seasons would earn two more #1 hits with “Big Girls Don’t Cry” and “Walk Like A Man,” making them the only American group ever to earn three consecutive #1 hits. In 1964 the cultural phenomenon of The British Invasion began but that didn’t stand in the way of the Four Seasons. The group released one smash after another: “Dawn (Go Away),”
“Ronnie,” “Rag Doll,” “Save It For Me,” “Big Man in Town” and, in early 1965, “Bye Bye Baby (Baby, Goodbye).” In the subsequent years the Four Seasons had many other Top 40 hits before making a triumphant return to the top of the pop charts with their #1 hit “December, 1963 (Oh, What A Night)” in March 1976. For the past few decades, Frankie Valli and the Four Seasons have continued to draw in large crowds at concerts, and radio stations still play the Rock and Roll Hall of Fame legend’s music regularly. What’s truly exciting is that their music still lives on, reaching younger generations through new remixes and, of course, performances of Jersey Boys in theatres around the world. Oh what a story!
BY: LINNEA BAILEY
When Broadway director Bill Fennelly first started to dream up his expansive vision for the Maltz Jupiter Theatre’s spring production of the comedy I Hate Hamlet, there was one artist that he sought out immediately: legendary Tony Award®-winning sound designer and composer Fitz Patton.
The pair previously worked together on a wild 2013 production of A Midsummer Night’s Dream (for which Patton composed a sweeping original orchestral score), and ever since, Fennelly had looked for the perfect opportunity to utilize Patton’s strengths. “This was it,” he said.
“Fitz is phenomenally talented. He is a masterful storyteller with the ability to perfectly match the rhythm and momentum of the piece,” he said. “He is inventive, stylish and smart — with a wicked sense of humor. He is a perfect match for this script, which is a total comic delight.”
The plan for I Hate Hamlet is an ambitious one: compose a muscular, theatrical score for a full orchestra in the grand ‘30s tradition, reminiscent of the films of that period. But Patton is up to the task, and said he feels honored to be asked to create a riveting, large-scale score that is specifically designed to serve as a key character in the play and strongly influence how audience members experience the show.
“It’s always liberating to work on a project where you are encouraged to be as expansive as you can be,” Patton said. “This feels much more like a commission than a play. It’s super challenging, but very exciting.”
Working off an initial plot of four sections of music (written for the play’s opening sequence) and style references from the era, Patton said he will start by composing the initial four-part music sequence and then build a total of 19 pieces of music for the play from there. Everything will be dependent on what is written for those first four musical themes, and he’ll keep perfecting them until he gets them right, he said.
BY:
“What I write initially will be generative,” Patton said. “These four pieces of music will establish the key that the score is largely in, and the themes need to be malleable enough to expand and extend and develop. If you start with the right musical idea, the rest of the score’s music will follow.”
Tasked with creating the bold aural experience of an 85-piece symphony orchestra, Patton will compose the music using Musical Instrument Digital Interface software, an industry standard music technology protocol that will allow him to write the score and then assign instruments to different parts and adjust tempo, scale and sound. Once the large-scale orchestrations are complete, Patton will work with three local musicians in Jupiter to record the music’s delicate solo work, then mix their performances in with the grand philharmonic sound to complete the work.
Patton credited the Maltz Jupiter Theatre’s producing artistic director and chief executive Andrew Kato with supporting Fennelly’s daring vision for the play and granting the team the resources necessary to achieve it.
“It’s thrilling to feel supported,” he said. “It’s rare for a producer to invest in music the way Andrew has with this play. He sees the value of original new work and we are so grateful for that.”
BY: KELLY MORGAN
Education has always been a tenet of the Maltz Jupiter Theatre’s mission that began with the organization’s formation. For over a decade, our troupe of artists, administrators and supporters have been passionate about the role they play in bringing performing arts instruction to our community. Theatre as an industry, and those that appreciate its inherent gifts, have long been proponents of passing the creative torch to new generations. For artist’s, it’s in their DNA to pay it forward.
Though the pandemic initially forced its closure, the New Goldner Conservatory at the Maltz Jupiter Theatre reopened in the fall proving that the “show must go on” even if only in the classroom. With construction underway, the Maltz Jupiter Theatre’s renovation and buildout, classes are currently running in a temporary studio space in Juno Beach. However, when the full expansion of
the building is complete, the Conservatory will also return to the new space with stunning redesigned facilities that will include multiple dance studios, a theatre library and locker rooms.
As one of the largest and most respected regional destinations in South Florida, the Maltz Jupiter Theatre will continue to support the Conservatory’s exciting new class offerings and student productions, including master classes featuring established Broadway guest instructors and upcoming summer camps such as Grease and Willie Wonka Jr
There is nothing more gratifying than watching a young person experience live theatre either as an audience member or a performer on stage . We are proud to be able to keep theatre alive for students of all ages at the New Goldner Conservatory at the Maltz Jupiter Theatre.
A well run event relies on the perfect caterer to ensure that their guests have a beautiful meal served quickly. If all goes well, attendees have no idea that hundreds of meals are being plated and presented in the span of an hour. After a competitive interview process, the Maltz Jupiter Theatre hired respected caterer SandyJames Fine Food & Productions, Inc. to take on the important role of catering their upcoming Grand Reopening Celebration to mark the Theatre’s new building and all those that made it possible. This will be a very important audition. So, how do they make their presentation magic look so effortless? According to SandyJames, “Plenty of practice! Organization is the most important component in our industry. Everyone has a specific role when it comes to plating multiple course dinners. We work together as a team.”
For a large scale cocktail event they staff 3 coordinators, 22 servers, 10 bartenders and 6 culinary staff. If you add dinner to that, it’s an even bigger staff. SandyJames, who has been in business for over 20 years and operates out of The National Croquet Center in West Palm Beach, puts forth tremendous talent and creativity behind each of their projects. “SandyJames has a huge heart. We genuinely care about our community, staff, and clients.”
With an impressive resume of clients including Cleveland Clinic Hospital, Loggerhead Marinelife Center, Martin Health System, and the Historical Society, SandyJames leadership is passionate about their new partnership adding “Working with Maltz Maltz Theatre is an honor for SandyJames. We are humbled by the acquisition and are most enthusiastic about collaborating our creativity with their brilliance.”
The Maltz Jupiter Theatre is one of Florida’s preeminent not-for-profit professional theatres, whose mission is to entertain, educate, and inspire our community. Currently the state’s largest award-winning regional theatre, the Maltz Jupiter Theatre draws nearly 100,000 patrons annually, serves a subscription base of more than 8,000, and offers world-class arts education to youth and adults in the Goldner Conservatory. The Theatre is a member of the League of Resident Theatres and has earned numerous Carbonell Awards, South Florida’s highest honor for artistic excellence, and the prestigious Bill Von Mauer Award for Theatrical Excellence.
FEBRUARY 8 – 20, 2022