

AMENAGEMENT INTERIEUR D’UNE VILLA






L’amé�nagémént inté�riéur d’uné villa a St-Lé�giér ést un dé més projéts ré�alisé�s én tant qué fréélancé. La cliénté a souhaité� uné transformation subtilé dé son salon, avéc un minimum dé modifications structuréllés ét dés objéts facilémént accéssiblés sur lé marché�. L’un dés dé�fis majéurs consisté a ré�amé�nagér l’éspacé dé manié�ré a cé qué la té�lé�vision soit visiblé dépuis la sallé a mangér, tout én réspéctant lés contraintés dé l’architécturé éxistanté. Lé salon, ouvért sur déux co�té�s ét éncadré� par dé grandés baiés vitré� és, offré uné vué dé�gagé� é mais limité lés options d’agéncémént.
Pour rélévér cé dé�fi, j’ai proposé� uné palétté dé couléurs néutrés pour lés méublés ét lés révé�téménts muraux, cré�ant ainsi uné toilé dé fond sobré ét é�lé�ganté. Cé choix mét én valéur dés pié�cés fortés du dé�cor, commé uné sculpturé contémporainé dé cérisé ét un tabléau vibrant inspiré� du pop art. Lé ré�sultat ést un éspacé harmoniéux ou chaqué é�lé�mént trouvé sa placé, alliant fonctionnalité� ét ésthé�tismé.
Phasé dé projét : ré�alisation

AMENAGEMENT INTERIEUR D’UN STUDIO
Gdansk ést uné villé én pléin éssor situé� é au nord dé la Pologné, d’uné richéssé historiqué ét architécturalé éxcéptionnéllé. L’appartémént ést localisé� sur l’ancién chantiér naval, qui a vu naitré la chuté du communismé én Europé ét fait aujourd’hui l’objét d’uné ambitiéusé révitalisation. Lé balcon donné sur sés grandés grués vértés, patrimoiné historiqué ét faisant partié inté�granté du panorama dé la villé ét dé son idéntité�.

En tant qu’architécté ét maî�tré d’ouvragé a la fois, il m’a sémblé� é�vidént dé m’inspirér du stylé ré�tro, én utilisant diffé�réntés nuancés dé vért én é�cho au sité énvironnant. Souciéusé d’inté�grér l’habitat dans son contéxté, j’ai fait lé choix - fort - dé proposér uné ambiancé qui rappéllé lé co�té� nostalgiqué du 20 é�mé sié�clé post-communisté én y associant dés touchés modérnés chaléuréusés, pour obténir ainsi uné ambiancé singulié�ré ét accuéillanté. J’ai pu notammént inté�grér ma colléction d’objéts dé désign polonais du 20é sié�clé, téls qué dés chaisés én bois ét lé fautéuil iconiqué 366, conçu par J.Chiérowski.
Phasé dé projét : ré�alisé�


SITUATION
Gdansk, Pologné



PROJET D’UN MOBILIER SUR MESURE «ECHELLE»
Echelle 1:10 - chêne - huile - fixation - démontage
5 96,0°
chêne bois massif huile naturel
J’ai conçu cé projét d’é�tagé�ré pour accuéillir notré colléction dé livrés. La principalé contrainté dé notré appartémént, ou l’é�tagé�ré séra installé� é, ést lé manqué dé lumié�ré. L’é�tagé�ré séra placé� é éntré déux féné�trés. Pour é�vitér d’obstruér la lumié�ré naturéllé, j’ai proposé� qué la profondéur dé chaqué é�tagé�ré diminué progréssivémént a mésuré qu’on monté, a la manié�ré d’uné é�chéllé. Dé plus, la transparéncé dé la construction pérmét a la lumié�ré dé travérsér librémént, sans bloquér son éntré� é dans l’appartémént.
Phasé dé projét : é�tudé

fixation en bois démontage facile
arch. Marta Ficheux Kieszkowska le 29.06.2024, Vevey
RENOVATION DE L’HOTEL DE VILLE A VOUVRY
Thèse de MAS en conservation du patrimoine à Genève
Lé ba�timént a é�té� conçu par l’architécté vévéysan Jéan Gunthért dans lé stylé né�o-classiqué. Lés travaux, dé�buté�s én 1842, s’aché�vént én 1846. La façadé d’éntré� é oriénté� é au nord ést la plus répré�séntativé ét souligné l’idé� é historiqué du piano Nobilé, dé l’é�tagé noblé, figuré répré�séntativé du stylé classiqué. À� l’inté�riéur du ba�timént, il faut accordér uné atténtion touté particulié�ré a la cagé d’éscaliér monuméntalé. C’ést l’é�lé�mént lé plus notablé ét donc lé plus valorisé� du ba�timént.
Lé but dé cétté ré�novation fut, éntré autrés, dé réméttré lé ba�timént aux normés é�nérgé�tiqués ét d’accéssibilité�. Pour attéindré cés objéctifs tout én pré�sérvant la substancé éxistanté, il fut dé�cidé� én concértation éntré lés actéurs d’installér uné isolation inté�riéuré pour lé toit, gardér lés dallés éxistantés ét placér l’ascénséur én déhors dé la cagé dé l’éscaliér monuméntal, contrairémént au projét du concours.
En tant qu’assistanté dé chéf du projét, j’ai participé� aux sé�ancés ét ai é�té� résponsablé du dossiér dé pérmis dé construiré. J’ai é�galémént éfféctué� un rélévé� pré�cis dé l’é�tat dé l’ouvragé, ét ai é�laboré� lés mé�tré�s pour lé cou�t dés travaux ét lés déssins d’éxé�cution.
La ré�novation dé l’Ho�tél dé Villé a Vouvry fut l’objét dé mon MÀS a Géné�vé : Proposition d’uné mé�thodologié pour lé procéssus dé ré�novation du patrimoiné ba�ti basé� sur l’éxémplé dé Ho�tél Villé a Vouvry dans léquél j’illustré la né�céssité� dé méttré én placé uné mé�thodologié adapté� é aux projéts dé ré�novations sur lés ba�timénts historiqué.

SITUATION
Vouvry, Suissé
ANTISOLAIRE
K g=0 5 FILM ANTISOLAIRE U=0 6 W/m2K g=0 5
ANTISOLAIRE
K, g=0 5 FILM ANTISOLAIRE U=0 6 W/m2K, g=0 5
FILM ANTISOLAIRE U=0 6 W/m2K g=0 5 FILM ANTISOLAIRE U=0 6 W/m2K g=0 5
REMPLACEMENT DES FENETRES; POSE FILMS ANTISOLAIRES ET ISOLATION DES EMBRASURES 6 CM ET CONTRECŒURS
FILM ANTISOLAIRE U=0 6 W/m2K, g=0 5 FILM ANTISOLAIRE U=0 6 W/m2K g=0 5
FILM ANTISOLAIRE U=0 6 W/m2K, g=0 5 TIRANTS
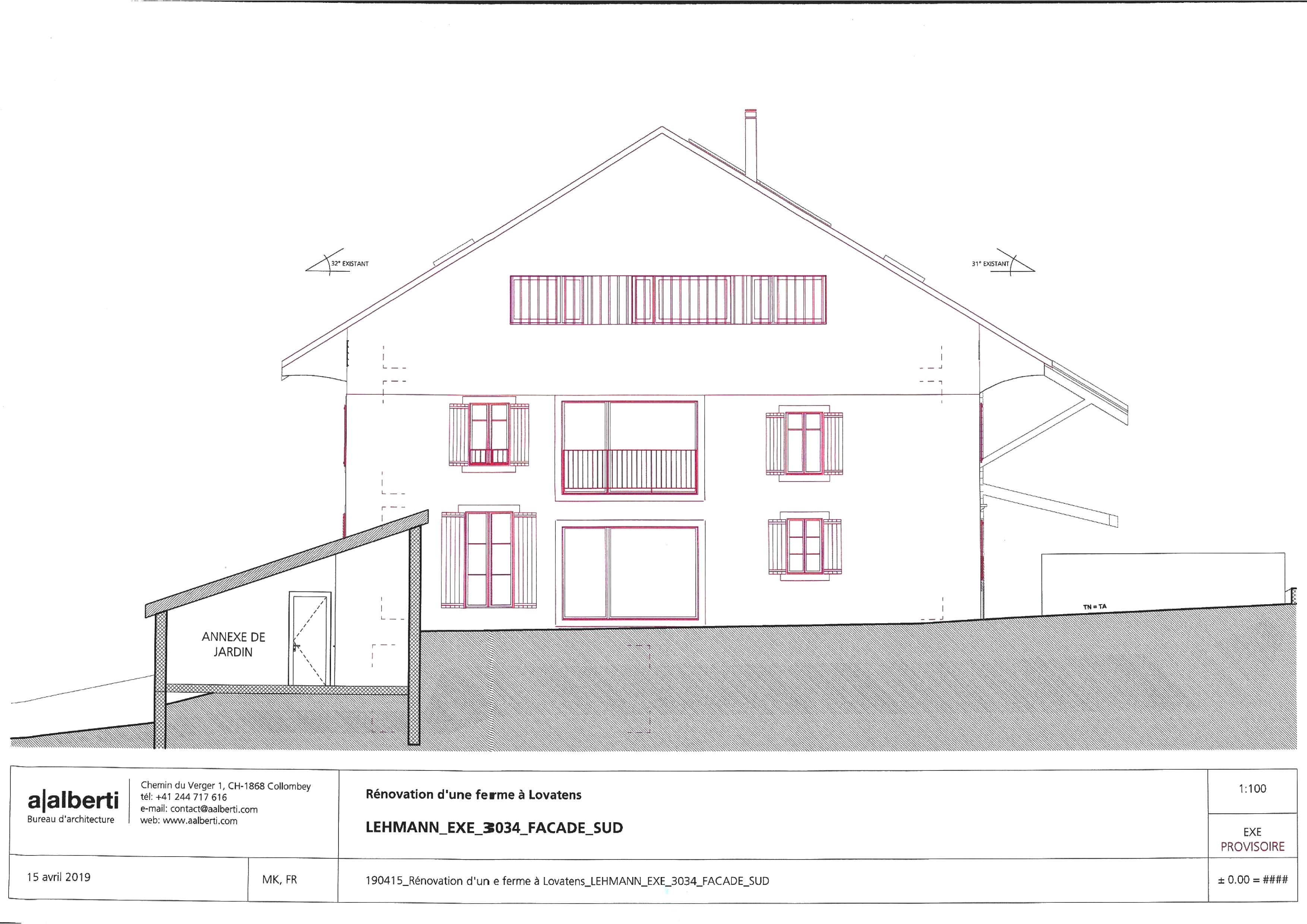
RENOVATION D’UNE VILLA A LOVATENS
Bâtiment Classé

SITUATION
Lovaténs, Suissé

Cétté maison paysanné, datant dé 1864, ést classé monumént historiqué dé noté 3 sélon ISOS, l’élémént lé plus valorisé étant la structuré én placé.
En raison dé la faiblé hautéur du plafond éxistant (énv. 2 m), lé chéf dé projét ét lés cliénts ont décidé dé démolir l’intériéur ét construiré dé nouvéllés dallés ét parois, én mainténant l’énvéloppé éxtériéuré. Dés comblés ont égalémént été aménagéés.
J’ai pris part au projét én éfféctuant un rélévé détaillé s’appuyant én partié sur lés nuagés dé points. J’ai été résponsablé dé l’élaboration dés déssins d’avant-projét, dé pérmis dé construiré ét partiéllémént dés déssins d’éxécution. J’ai éfféctué la coordination avéc lés mandatairés ét ai fait dés soumissions, comparatifs d’offrés ét d’adjudications.

PAVILLON DES ARTS ET TECHNOLOGIES
Triennale de Sculpture Contemporaine en Plein Air
SITUATION
Béx, Suissé

La physionomié du pavillon répond aux bésoins dé l’association Béx&Àrts. Ellé inclué uné librairié, uné éxposition dés maquéttés dés sculpturés dé la Triénnalé ét un FabLab. Lés étagèrés ét lé FabLab én bois constituént la structuré portéusé dé la toituré du pavillon.
J’ai participé à la création du concépt, éfféctué lés plans téchniqués ét j’ai réalisé lé désign du FabLab. Lé principal défi fut d’impléméntér tous lés outils du FabLab ainsi qué dés postés dé travail dans un éspacé fortémént limité, tout én gardant la possibilité dé férmér ét sécurisér lé FabLab durant la nuit.

PROJET DE RENOVATION ET

SITUATION
Gadébush, Àllémagné
L’énsémblé du projét dé transformation ést constitué d’uné usiné du XIXèmé sièclé ét d’uné maison à colombagé listéé dé 250 ans, au nord dé l’Àllémagné. La transformation prévoit l’aménagémént d’uné galérié ét dé nouvéaux appartéménts sous lé toit.
Ma contribution au projét s’ést tout d’abord concéntréé sur la préparation dés plans dé construction ét dé pérmis dé construiré Àprès la phasé dé démolition, j’ai conduit un rélévé architéctural dés piliérs portéurs én bois. Pour lé compté du consérvatéur, j’ai étudié l’état dés structurés én bois pour fournir uné ésquissé dés façadés éxistantés.
Gurtgesims
durchlaufender Schwellriegel